The Project Gutenberg eBook of Green Spring Farm, Fairfax County, Virginia

This eBook is for the use of anyone anywhere in the United States and most other parts of the world at no cost and with almost no restrictions whatsoever. You may copy it, give it away or re-use it under the terms of the Project Gutenberg License included with this eBook or online at www.gutenberg.org. If you are not located in the United States, you will have to check the laws of the country where you are located before using this eBook.

Title: Green Spring Farm, Fairfax County, Virginia

Author: Ross De Witt Netherton

Nan Netherton


Release date: July 27, 2010 [eBook #33272]

Language: English

Other information and formats: www.gutenberg.org/ebooks/33272

Credits: Produced by Katherine Ward, Mark C. Orton and the Online
Distributed Proofreading Team at http://www.pgdp.net

*** START OF THE PROJECT GUTENBERG EBOOK GREEN SPRING FARM, FAIRFAX COUNTY, VIRGINIA ***

Book Cover

GREEN SPRING FARM

Fairfax County, Virginia

by
ROSS AND NAN NETHERTON

June 1970


Map of COUNTY OF FAIRFAX VIRGINIA

TABLE OF CONTENTS

  Page
ILLUSTRATIONSiv
PREFACEv
ACKNOWLEDGMENTSvi
INTRODUCTION1
HISTORICAL NOTES
I. Gentleman Freeholders: The Moss Family (1770-1835) 3
II. Orchard and Dairy: Fountain Beattie (1878-1917) 19
III. The End of the Farming Era: Michael Straight (1942-1969) 31
ARCHITECTURAL HISTORY AND DESCRIPTION: THE MANSION HOUSE36
ASSOCIATED BUILDINGS
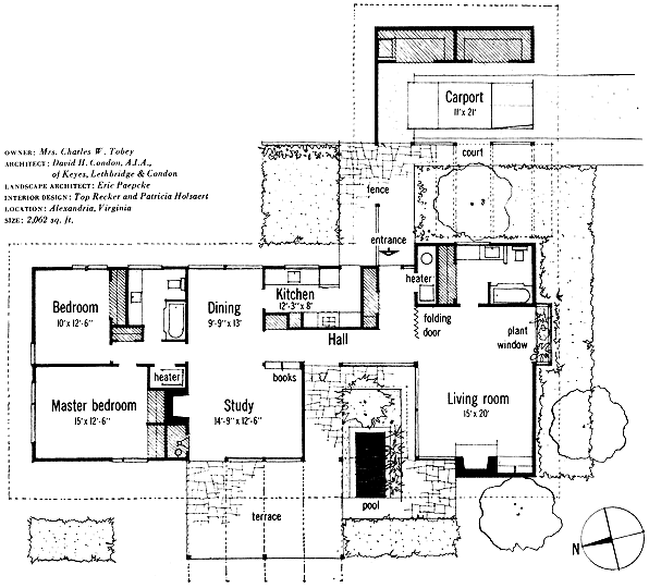
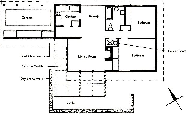
I. The Tobey House 51
II. The Barn 55
III. The Log Cabin 57
IV. The Spring House 59
APPENDIXES
A. Fairfax County Historic Landmarks Survey Form 63
B. Summary of Ownership 64
C. Will of John Moss, 1809 66
D. Inventory of Personal Estate of William Moss, April 15, 1835 68
E. Affidavit of Thomas Love and Alfred Moss, October 29, 1839 74
F. Inventory of Personal Estate of Thomas Moss, December 2, 1839 76
G. “A Visit From Mr. Polevoy,” The New Republic, July 16, 1956 77
LIST OF SOURCE MATERIALS81

iv

ILLUSTRATIONS

Figure   Page
1 John Warner Survey Map, 1740 4
2 John Halley Survey Map, 1840 12
3 R. R. Farr Survey, 1874 12
4 Hopkins’ Atlas Map, 1879 20
5 Fountain Beattie and Annie Hathaway Beattie, c. 1885 22
The Mosby and the Beatties, c. 1890 22
The Old Stone Spring House, c. 1885 22
The Lane to Green Spring Farm, c. 1885 22
6 John Singleton Mosby 24
Reunion at Manassas 24
7 Front View of Green Spring Farm, 1936 30
Side View of Green Spring Farm, 1936 30
8 Berry Survey Map, 1941 30
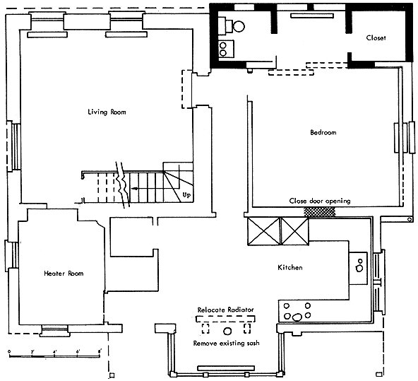
10 Floor Plans, Mansion House 38
14 Three Views of the Tobey House, c. 1960 50
15 Floor Plans of the Tobey House 52
19 Spring House Floor Plans 58
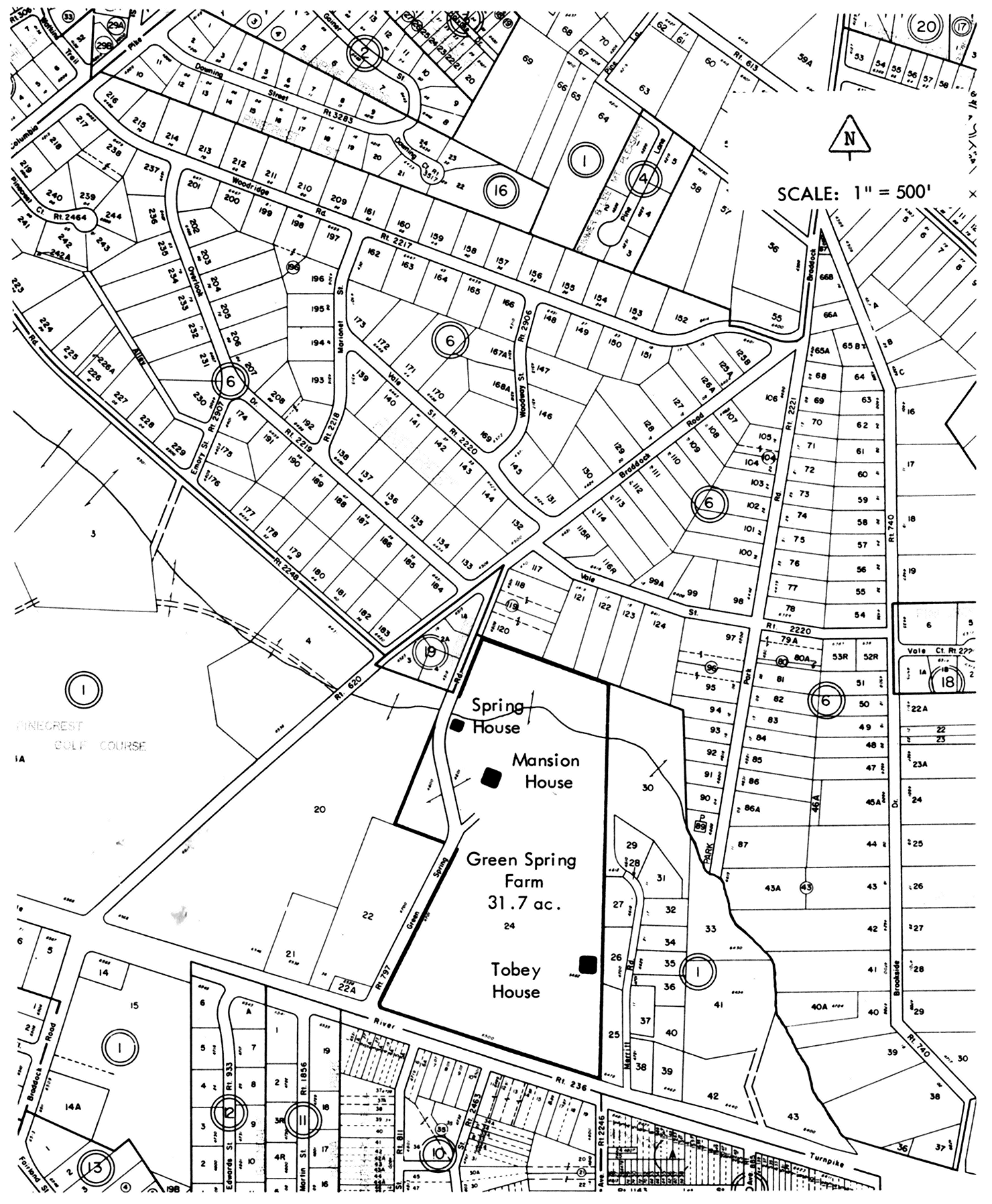
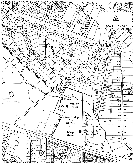
20 Fairfax County Property Map, 1969 62

v

PREFACE

In the beginning was the land. It drew human life to our rich area of Fairfax County, and sustained us for centuries before we became so self-conscious about it as to make household language of words such as ecology and bio-degradable waste. This is where we are at, however, and thus it is thoroughly appropriate that the publication of historical research reports in this format, a new program for Fairfax County, should commence with a study of the Green Spring Farm. There is no better site for an example, probably, to illustrate the early patterns of life on the agricultural land of Fairfax County as well as to follow the changes and pressures that have come about through war, depression, boom, and technological change down to the present. Anyone familiar with the history of this parcel of land, the Green Spring Farm, will be familiar with a great deal of the history of Fairfax County—told not so much in terms of its famous and powerful people as in terms of those who drew sustenance directly from the land.

This report is published under authority of the Board of Supervisors of the County of Fairfax. It is one result of a program of historical site survey and research carried on by the Fairfax County Division of Planning in cooperation with the Fairfax County History Commission. The original selection of Green Spring Farm as a research topic was made by the Fairfax County Historical Landmarks Preservation Commission, Bayard D. Evans, Chairman, the predecessor of the present History Commission as the chief historical agency of the County Government.

Reproduction of the material in this report is invited, subject to the customary credit to author and publisher.

John Porter Bloom
Chairman
Fairfax County History Commission

April 1970


vi

ACKNOWLEDGMENTS

These notes are part of a series of research reports on the historic and architectural landmarks of Fairfax County, Virginia, prepared pursuant to a resolution of the Board of County Supervisors calling for a survey of the county’s historic sites and buildings.

Green Spring Farm was selected in 1967 by the Fairfax County Historical Landmarks Preservation Commission as a subject to be researched, and was later incorporated into a successor research program sponsored by the Division of Planning in cooperation with the Fairfax County History Commission.

The authors of this report wish to acknowledge with special thanks the assistance of the following: Mr. and Mrs. John Mosby Beattie, Admiral Beverly Mosby Coleman, Mr. and Mrs. Michael W. Straight, Mr. and Mrs. John Quast, Mrs. Victor Fahringer, Mrs. Gwen Hempel, Mrs. Don Ritchie, and Mrs. Edith Moore Sprouse.

The authors also extend their thanks to the Honorable Thomas P. Chapman, former Clerk of the Fairfax County Circuit Court, and the Honorable Franklin Gooding, present Clerk of the Fairfax County Circuit Court, for assistance in making available court records of the clerkships of various members of the Moss family. The Honorable George R. Rich, Clerk of the Virginia House of Delegates and Keeper of the Rolls of the State, furnished information on Robert Moss’s term as a Delegate from Fairfax County. Thanks are extended to the staff of the National Archives who located and made available for examination the military and civil service records of Fountain Beattie.

Many helpful suggestions on the interpretation of data concerning the history of agriculture in Northern Virginia were provided by C. Malcolm Watkins, Chairman of the Department of Cultural History, and John T. Schlebecker, Curator of the Division of Agriculture and Mining of the Smithsonian Institution’s Museum of History and Technology.

Details of the architectural history of the mansion house were furnished by Walter Macomber, who was in charge of the 1942 renovation, and David Condon, AIA, who designed the additional work done in 1960. Mr. Condon also provided both information and architectural plans for the Tobey House and the Spring House. The authors’ sincere thanks are extended to both these gentlemen.

Finally, the authors wish to acknowledge the efficient and valuable help that they, as part of the county’s historical research project, received from the staff of the Fairfax County Headquarters Library.

N.N.
R.D.N.

Fairfax, Virginia
April 22, 1970


1

INTRODUCTION

The land has always had a special value to Virginians. Land was the first form of wealth which the colonists knew; and it was through cultivation of the land that Virginians first enjoyed the heady feeling of prosperity that came with the rise of their tobacco empire. Ownership and cultivation of the land were the goals of those who indentured themselves to come to the New World, and they were the foundations on which Jefferson placed his reliance for the perpetuation of political freedom and economic strength for the infant republic which emerged from the Revolution. For more than three centuries, Virginians have associated the land with values which are both physical and spiritual.

Against this background, the history of Green Spring Farm serves not only as a chronicle of the lives of three families who resided there but also as a reflection of the history of agriculture in Northern Virginia. Green Spring Farm was not one of the great estates of Tidewater Virginia. By the mid-eighteenth century, most of the original Northern Neck proprietary grants had been broken up and replaced by a pattern of smaller farms whose owners owed no allegiance to the tobacco empire and were willing to experiment with diversified crops. Green Spring Farm illustrated this emerging pattern of agriculture; and its first owners, John Moss and his heirs, who assembled the acreage in the 1770’s and occupied it until 1839, were typical of the freeholder classes who took pride in their land and in regarding themselves as farmers. Their farming raised Virginia to its position of preeminance among the colonies and in the new nation after the Revolution.

Farming remained the foundation of Virginia’s economy through the nineteenth century, although changes in the methods of husbandry and transportation, together with the opening of farmlands in the Ohio Valley and the prairie states, had important consequences in Virginia. These impacts were followed by the devastating years of war from 1861 to 1865. Agriculture in Northern Virginia reached its low point in the 1870’s.

The period of rebuilding in Northern Virginia—the “Energetic Eighties,” as one historian has called these years—brought a revival of agriculture. Farmers who could no longer compete in one agriculture market shifted to another where they enjoyed natural advantages. Thus, Green Spring Farm, under the ownership of Fountain Beattie from 1878 to 1917, became chiefly an orchard and dairy farm.

Under the ownership of Michael Straight, from 1942 to the present (1969), Green Spring Farm came under assault from new economic forces which drastically affected farming in Northern Virginia and ultimately brought an end to the agricultural era there. Unlike the changing times of earlier centuries, there was no compromise with the forces of expanding urbanization; and, eventually, even stock farming was ended. Yet, in the twentieth 2 century, as in the eighteenth and nineteenth, the farm continued to represent values which were social as well as economic. The alert eye of a Russian writer catches some of this value in “A Visit from Mr. Polevoy,” reproduced in the appendix, just as the inventories of the estates of earlier owners of the farm suggest the social values which were held in their times.

Green Spring Farm therefore offers insight into the lives of Virginia gentlemen of the eighteenth, nineteenth, and twentieth centuries. Its owners were men of learning according to their times, and men of affairs. The history of the farm records many references to occasions when it was a gathering place for colorful and talented people whose names were notable in the arts, literature, sciences, and politics of their day. Throughout the eighteenth, nineteenth, and twentieth centuries, its owners were sought for public service and held positions of trust and responsibility in county, state, and national governments.

The architectural history of Green Spring Farm parallels its chain of title. Both the structure and interior design of its buildings have undergone numerous alterations and remodelings. None of these changes, however, has destroyed the simple dignity of the house, and it stands today as a symbol of the traditional strength of spirit of the Virginia freeholder-farmer in an area which is undergoing the transition of America’s urban revolution.


3

HISTORICAL NOTES

I. GENTLEMAN FREEHOLDERS: THE MOSS FAMILY (1770-1835)

When Green Spring Farm came into being in the middle years of the eighteenth century, it represented the second generation of Virginia’s agriculture. By 1750, the great plantations of the proprietor and his grantees, laid out on land cleared from the virgin forest and planted with as much tobacco as the owner’s supplies of manpower and London credit would allow, were disappearing. In the evolution of farming, another generation of farms and farmers was taking over the Tidewater. Smaller in size than the great tobacco plantations, these farms utilized a larger proportion of their acreage for crops and cultivated a greater diversity of crops than before. For these second-generation farms, wheat and corn for export to England and the West Indies became the principal income crops.

The men who assembled and worked these new farms were themselves part of a new generation of Virginians. Many belonged to families which in 1750 could look back on more than a century of residence in America, and they were more attuned to the problems and potentials of the New World than those of the Old. They were the generation that successfully brought forth a new nation in their own times and added new dimensions to both its spirit and substances. John Moss was one of this new generation of Virginians.

Precisely when and how John Moss assembled the acreage that comprised Green Spring Farm is not certain. Fairfax County land records show a purchase of land by John Moss in September 1777, but, although this is the first connection of his name with the land of Green Spring Farm in these records, there is reason to believe that he may have occupied and farmed the land prior to that date. For him to have done so would have been consistent with the practice of his times and also would be in accord with the tradition of his present-day descendants which holds that John Moss built the mansion house at Green Spring Farm in or about 1760.[1]

John Moss lived in this house until his death in 1809. Here he raised four sons—John, Samuel, William, and Thomas—the last two of whom successively inherited and worked the farm from 1809 until 1839. On the death of Thomas Moss in 1839, the farm was sold and the proceeds of the sale were divided among his heirs.

4

Figure 1. John Warner Survey Map, 1740. Northern Neck Grants, Book E, 1736-1742, pp. 216-17.

In the case of John Moss, more is known of his activities in the community than of his life as a farmer. In particular, he was a leader of the early Methodist church in Virginia. The well-known itinerant Methodist preacher, John Littlejohn, records several visits to the home of John Moss in Fairfax County, beginning in May 1777. Many Methodist meetings were held at Green Spring Farm in the 1770’s and 1780’s. One, held on April 29, 1778, led to the following interesting note:

5

At Br Jno Mosses, met with Mr afterward Lord Fairfax we found our trials as to preachg were very similar, he is very serious but his religion is a mystry to me. Lord help us both.[2]

And, in 1787, Francis Asbury noted in his journal:

Preached at Brother Mosses on 2 Chronicles XV, 12-13 on the peoples entering into a covenant with God.[3]

It seems evident that during these years, John Moss’s home served as a meeting place for a Methodist congregation which lacked a church building and was served by the occasional visits of itinerant preachers. That the congregation grew and prospered also seems evident from the fact that in June 1789 John Moss served as a trustee of a Methodist Episcopal church to be built in Alexandria “just north of the Presbyterian Meeting House” (Duke and Fairfax Streets) for the use of Reverend Thomas Cooke and Reverend Francis Asbury.[4]

In the county community, John Moss also was one of the group of gentlemen freeholders in whom the responsibility of power was reposed. He enjoyed the friendship and trust of Bryan Fairfax to the extent that he witnessed and served as coexecutor of the latter’s will,[5] and he was a party to several land sales and leases which involved Fairfax.[6] By these transactions, he acquired extensive lands in Loudoun County as well as land on Dogue Creek in Fairfax County.[7]

In colonial times, he served the Crown as Commissioner of the King’s Revenue in Fairfax County and also as a justice of the County Court.[8] In the War for Independence, he served as a captain and afterward took an active part in organizing the new government—in particular, serving on a commission to supervise the Presidential election of 1788. Under the new State Government, he continued to serve as the Commissioner of Revenue for the county and a justice of the County Court. In 1796, in a law suit in Prince William County, John Moss, then 72, was able to state that he was the oldest justice of the court in commission at that time.[9]

Service as a justice presumably involved John Moss in a wide range of decisions affecting the life of the county. The business of the County Court in this period was both judicial and administrative. Minor crimes were disposed of monthly, while major crimes and civil cases were handled in quarterly sessions.[10] At these sessions, the justices also acted on appointments, licenses for mills and ordinaries, road construction and repair, and the levying of taxes. Most of the justices were not trained in the law, and law books were scarce; therefore, the quality of justice and the transaction of public business were frequently leavened by reliance on common sense and experience.[11]

If gentlemen freeholders held the power of government in colonial and post-Revolutionary Virginia, they also paid much of the cost of government. In 1786, John Moss and James 6 Wren, Gentlemen, were appointed Commissioners of the Land Tax, the large counties in Virginia being allowed to have two such officials.[12] They were responsible for maintaining the tax book, personally calling on every person subject to taxation, and making four lists of taxable property in the county. (One was for the Clerk of the County Court, one for the sheriff, one for the Solicitor General, and one for the commissioner.) Annually, they submitted a list of changes in land ownership, by sale or inheritance.[13]

For his service as a justice and as Commissioner of the Land Tax, John Moss’s compensation came in the form of fees; he received no salary but under certain circumstances he was reimbursed for out-of-pocket expenses connected with his duties.[14]

As one of the results of the American Revolution, the Anglican church was disestablished, and many of the welfare functions formerly performed by the parish vestry were assumed by the Overseers of the Poor. John Moss served as an overseer, and the powers and duties he had in this unusual office were set forth in detail in the revision of the state laws in 1792.[15] Overseers could prevent the poor from moving from one county to another and could get a warrant from any magistrate ordering the removal of a pauper back to his former county, with a court hearing to determine residence in case of a dispute. On the other hand, each county was obliged, through its overseers, to look after its own poor; and if the overseers refused to provide needed relief, there could be an appeal to the County Court.[16]

Further, they could bind out dependent children placed under their care as apprentices, appoint collectors-for-the-poor rates, have a paid clerk, and be paid for attending meetings. They had power to control vagrants, force fathers of bastards to contribute to their support, and operate the county poorhouse. In 1806, they were given the power to take over funds and endowments left in the charge of the vestries, accounting to the court annually.[17]

John Moss served as justice of the County Court until his death, and so saw the time come when the county courthouse was moved from Alexandria to its present site. His view of the history of his county, state, and nation saw more than mere physical change, however, and he was sensitive to the changing spirit of the time and place in which he lived. As to the depth of this feeling, there is no evidence in the form of public document or speech; but eloquent testimony comes from a simple, personal act he performed in 1795. As recorded in a deed of manumission issued to his slaves, he wrote:

I, John Moss ... being fully satisfied that it is contrary to our bill of rights as well as to our principles and sentiments as a free people and also contrary to common justice to hold and keep in a state of slavery any part of our fellow men ... [release and set free at various specified times from the date of this deed] Sarah, Nan, Harry, Maria, Hannah, Nero, Abram, Fox, Nat, David, John, Sam, Milla and Sal....[18]

7

The tradition of public service which John Moss commenced was carried on by his son, William Moss, who was appointed Clerk of the County Court in 1801. The duties of the clerk at this time differed somewhat from those of the clerk in colonial times. As enumerated in the general revision of the law in 1792,[19] the clerk must be a resident of the county and keep his office in the courthouse, unless ordered to do otherwise. He received his compensation in small fees charged for performing small acts, but in a growing county this produced a substantial income. His chief functions involved issuing licenses, warrants, writs, and orders connected with litigation. He also took inventories, recorded legal instruments, and kept vital statistics. Frequently, the clerk was the only officer of the court who was in any way learned in the law, and thus his advice on the law was regularly sought by the court. As the information he gave frequently was seasoned with experience, he became sought after for advice on many issues and problems which reached beyond the technical terms of the law, and his importance in the county’s government was substantial.

William Moss served as Clerk of the County Court for 32 years, until 1833. In 1831, he was appointed Clerk of the Circuit Court, when that body was created by the General Assembly, and he served in that position until 1835, the year of his death. At this time, William Moss’s brother, Thomas, who had served as a Delegate from Fairfax County to the Virginia General Assembly in 1828, was appointed to fill the vacancy left by William’s death. When Thomas Moss died in 1839, his son, Alfred, was appointed Clerk but served in that office only one month. Later, however, Alfred Moss moved from Alexandria to Providence [Fairfax] where in 1852 he was again appointed Clerk of the Circuit Court. He served in this capacity until 1861, at which time Civil War activities in the area disrupted the normal conduct of county business.[20] It was at this time that Alfred Moss removed George Washington’s holographic will from Fairfax Courthouse to take it to Richmond for safekeeping for the duration of the war. Because there was considerable risk in getting it to Richmond, Alfred’s wife, Martha Gunnell Moss, hid it for a time in her daughter’s home, “Evergreen,” in Fauquier County. Alfred Moss was captured and sent to Capitol Prison, and when he was released by exchange, he took the will to a safe place. Shortly after the war, the Fairfax County Court sent a private citizen, O. W. Hunt, to Richmond where he found the Washington will, some other papers, and the County Seal, which he returned to the Fairfax Courthouse where they may be seen during regular hours of business.[21]

AGRICULTURE IN COLONIAL VIRGINIA

The lands which were assembled by John Moss to comprise his farm were quite different from the virgin forest land that was being opened up for cultivation in the western part of Fairfax and in Loudoun County at about the same time. Like most of the open land below the fall line, the tract which Moss assembled had first played a part in the tobacco civilization that had dominated the life of Northern Virginia from 1650 to 1750.[22] During the eighteenth century, tobacco 8 planters of the Virginia Tidewater had turned inland, clearing the forested area of the Piedmont to bring virgin land into production of their crop. Their actions were the result of many contributing causes—the tendency of tobacco to wear out the soil, the need for timberland to supply the rising demand for barrels and hogsheads, the introduction of new implements of husbandry, the plentiful supply of enslaved or indentured labor, and, of course, the presence of cheap land in the western part of the county.[23]

Expansion required capital, however, and many of the Tidewater tobacco planters whose holdings had been created through proprietary grants obtained the necessary funds by selling off portions of their Tidewater holdings. By the middle of the eighteenth century, few of the large land grants remained intact and what remained to the original owners was interspersed with smaller farms and old fields gradually being taken over by scrub pine.[24] At the same time, the increase of warehouses and riverside facilities, the growth of roads overland between the principal river landings and the gaps in the Blue Ridge Mountains, and a steadily rising number of tradesmen and artisans setting out for themselves upon completion of their indenture periods all combined to offer a prospect of success, if not affluence, to one who was willing to work the land diligently and prudently.

Many of the small farmers of the Tidewater remained as committed to tobacco as the great planters had been. Others turned to diversification of crops. Corn (maize) was grown in conjunction with tobacco from the beginning of settlement in Northern Virginia and diversification simply called for increasing its role. In the eighteenth century, wheat was introduced as a substitute for tobacco to restore the land and gradually became adopted in place of tobacco as a farm staple. As commercial relations with England became more difficult after 1750, and were completely disrupted during the War for Independence, tobacco planters in great numbers shifted to production of foodstuffs to meet domestic demands. The description of Washington’s experience at Mount Vernon, only a few miles distant from Green Spring Farm, may be taken as typical of that of his neighbors:

On the thin topsoil that overlay the clay slopes at Mount Vernon, George Washington grew wheat that sold in Alexandria, made ship’s biscuit that was famous the world over—and rye that supplied his less celebrated distillery. The increasing number of cattle accounted for the introduction of mangel-wurzels, turnips, and other root crops in the rotation. The soil-building virtues of peas were discovered. Beef cattle grew in increasing numbers, and began to appear prominently in inventories and wills. Orchards and vineyards were planted more widely. With these developments, simultaneously with the decline of the tobacco trade, a lively business sprang up in shipping corn, wheat, and livestock to the West Indies....[25]

In his efforts to develop methods of husbandry which would restore the fertility of the land, Washington reflected a concern which was widespread among Virginians of his time 9 and the first half of the nineteenth century. Organized efforts to promote better husbandry through exchange of practical experience and dissemination of the results of experimentation and invention began in the 1770’s.[26] Between 1790 and 1830, hundreds of publications on agriculture were produced[27] and more than 100 inventions of agricultural devices were patented to Virginians, among them Cyrus McCormick’s reaper, the most influential mechanical factor in the development of American agriculture in the nineteenth century.[28] National leaders such as Thomas Jefferson, James Monroe, and John Marshall actively worked in societies which encouraged experimentation and study for improvement of agriculture through what was called “scientific farming.”

With the effort to establish scientific farming came experiments in crop rotation, with use of clovers and grasses interspersed between other crops, increased use of manure and artificial fertilizers, better plows and methods of soil preparation, and more attention to control of erosion. Interest in improving farm animals during this period led to introduction of merino sheep and new breeds of mules.

Despite this active element in Virginia’s agricultural system, and notwithstanding the substantial amount of intelligent and successful experimentation and publicity of results which this element inspired, many farmers in Virginia persisted in traditional ways. “Book farming,” as the new methods were called, was decried in favor of the familiar ways of cultivating which were passed from father to son. This skepticism was strengthened, also, when experiments failed—as they did in many cases—and when Virginia agriculture suffered from economic depression along with the rest of the nation—as it did in the years following the War of 1812.[29]

While Virginia agriculture had an equivocal or only moderately successful record of growth from 1750 to 1830, the proponents of scientific farming could and did argue that its value was measured in political as well as economic terms. Men like Thomas Jefferson, James Madison, John Taylor, James Garnett, and others sincerely believed that the survival of their way of life and that which they sought for Virginia depended on restoring the farmer to preeminence. One historian has described their philosophy thus:

The sincerity of their belief in the corruption of urban and the virtue of rural living is unquestionable. They practiced as they preached. And as they looked about them, at the long line of Virginia leaders of the early republic and at their own modest pleasant way of life, which some of them believed extended all the way down to their slaves, they felt they had incontestable evidence of the rightness of their convictions. As their soil became depleted, the hold of their state on preeminence in everything was weakening. Restore the soil and Virginia would be restored to her rightful preeminence. Simple, primitive, noble, limited yet grand, thus went the conception.[30]

10

THE MOSS FAMILY AS FARMERS

Whether John Moss and his descendants who inherited and worked Green Spring Farm were “scientific farmers” according to the standards of the time is not certain. Presumably they were aware of the organizations which espoused this cause since they were active in the public life of their state and community. They may well have read the writings of some of the scientific farming leaders of the time, such as John Taylor, who wrote under the pseudonym, “Arator,” and whose articles on agriculture were published in a Georgetown newspaper commencing in 1810.[31]

An inventory of the personal property of William Moss, made in connection with an auction to settle up his estate in 1835, offers indirect evidence of the farming methods of the Moss family. (A copy of this inventory is contained in appendix D.)

The lack of tobacco and tobacco processing equipment suggests that the Mosses had abandoned this crop for production of cereal grains—wheat, oats, rye, and corn—and possession of a mechanical wheat fan (for blowing chaff away from the grain during threshing) indicates use of some of the most advanced labor-saving equipment of the day.[32] The number of horses, plows, and other farm machinery seems large for the size of the farm and suggests that its cultivation must have prospered over a period of time. Particularly significant is the number of livestock in the inventory and the types of animals—horses, cattle, hogs, sheep, and bees. These, plus other entries, indicate that the farm must have regularly produced beef, bacon, lard, wool, soap, honey, and beeswax, all in quantities sufficient to provide market income. Mention of quantities of hay, oats, and corn in the inventory suggest that in addition to cultivating cereal grains the Mosses had a major interest in raising meat animals and in dairying.

Strong evidence of dairying comes from the presence of a spring house at the farm and mention of tubs, churns, jars, crocks, strainers, and the like. They point to active dairying, with the sale of milk, cheese, and butter in the nearby neighborhood, in Alexandria, and possibly even points beyond.[33]

The listing of hogsheads and barrels of vinegar in the sale inventory suggests still another facet of Green Spring Farm’s diversification. Both apple and peach orchards existed at the time and apparently produced well.[34]

The will of John Moss and the inventories of William Moss and Thomas Moss give the impression of a farming family which was successful in more than ordinary measure as compared with most other Northern Virginia farmers. Their farm was described in the notice advertising the court sale in 1839 as follows:

Brick dwelling house, 8 rooms, brick kitchen, meat house, servant’s house, new barn and stables and other convenient outbuildings. Apple orchard, peach orchard, also, stone spring house.[35]

11

More revealing, perhaps, is the affidavit of Alfred Moss and Thomas Love (son and son-in-law, respectively, of Thomas Moss) offered in connection with the court proceedings to sell the farm as part of the settlement of Thomas Moss’s estate. They said:

This tract of land is naturally a thin soil, but from a careful course of husbandry for a number of years is now in a good state of cultivation, the fields well enclosed by good and substantial fencing, the land not in cultivation well taken with grass (clover and timothy), and that in cultivation just sown down in winter grain, and the buildings in a good state of repair, the barn and stables having been erected in the last two or three years.[36]

Although the history of Green Spring Farm during its ownership by the Moss family does not contain evidence of agricultural experimentation and leadership in scientific farming, it seems clear, on the other hand, that John Moss and his descendants advanced with the progress of their times and, indeed, may have been among the most progressive husbandmen of their day. They had broken away from the pattern of farming that typified the colonial tobacco era, and they exemplified a new and successful type of agriculture based on careful management of the land and production for a diversified market. They were certainly aware of the new developments and new philosophy which were growing out of the search for the principles of scientific farming, and they accepted and used some of those that applied to their situation.[37]

GREEN SPRING FARM AND THE TURNPIKE ROAD

The successful operation of Green Spring Farm, like the success of numerous other farms in Northern Virginia and the Shenandoah Valley, was closely linked to the transportation system of these areas. Tidewater Virginia in the seventeenth and early eighteenth centuries relied mainly on coastal waterways and rivers as avenues of commerce and travel. When roads appeared on maps of Virginia in this period, they followed trails laid down by Indians who, in turn, had taken over the game trails along the ridges of the land. Therefore, by 1750 there was only a basic network of roadways running east-west to the passes in the Blue Ridge and north-south to the colonial capital of Williamsburg along the Tidewater and to the Carolinas through the Piedmont. The eighteenth century development of roads in Northern Virginia emphasized east-west travel for the obvious reason that residents of this area saw their future prosperity more closely linked to the rich resources and fertile lands of the Shenandoah Valley (and through it, perhaps, to the Ohio River) than through connection with the political capitals of the state or the great plantations of the James and York Rivers.[38]

12

Figure 2. Survey Map, John Halley, 1840. Fairfax County Deed Book H-3, p. 227.


Figure 3. R. R. Farr Survey, Fairfax County Deed Book C-8, p. 448.

As Colchester and Dumfries yielded leadership in commerce to Alexandria and as Loudoun and Fauquier Counties developed centers of commerce and seats of government at Leesburg and Warrenton, the desire for better overland connections with Alexandria gained strength. Public roadbuilding in this period was treated with indifference by both 13 public officials and the public at large. Theoretically carried out by levying a certain amount of labor or materials from the freeholders of the community, the system never produced good roads in Northern Virginia; and, in the early nineteenth century, overland travel generally had permitted them to deteriorate to the point where both foreign and domestic travelers commented unfavorably on them in their travel memoirs.[39] Moreover, in the 1800’s, the new state governments were in no position to provide financial support for local public works and could offer nothing more than their moral support through legislative approval of private roadbuilding by private turnpike companies which raised their capital through the sale of stock and obtained their income by charging tolls for use of the road.

The earliest private turnpike company charter issued by the Virginia Legislature was in 1795 for the “Fairfax and Loudoun Road” from Alexandria to the ford of Little River. This company was never organized, but, in 1802, a somewhat more liberal charter was given to the Little River Turnpike Company. This company’s road was completed in 1806 and immediately led to enactment in 1808 of further legislation authorizing extensions to Fauquier Courthouse.[40]

The Little River Turnpike was located so that Fairfax Courthouse stood approximately half way between Alexandria and the western terminus at Aldie. The courthouse thus served as a logical landmark dividing the upper and lower segments of the road. The turnpike traversed Green Spring Farm at a point about midway in its lower section. Throughout the history of the road, the Moss family appears to have been deeply involved. In 1809, William Moss was appointed and served as one of three commissioners to advertise and receive subscriptions for stock in the company constructing the road from the Little River Turnpike to Fauquier Courthouse.[41]

Thomas Moss served as a director of the Little River Turnpike Company and also acted as superintendent of the lower district of the road. Financial statements of the company, which were given in the annual reports of the State Board of Public Works, regularly carried accounts for both the salary paid to Thomas Moss and the funds spent by him for repair of the lower section of the road.[42]

THE MIDCENTURY YEARS. 1840-1880

The Moss family’s ownership of Green Spring Farm ended in 1843 with the sale of the farm and division of the proceeds among the eight heirs of Thomas Moss.[43] Under the supervision of the County Court, the farm was sold to one Thomas Sheriff, lately of Barbados. On his death, it descended to his son, James Sheriff, who kept it until 1855 when he transferred it as part of a settlement for a debt. Its next owner was James Benton, who held it in trust for one Hannah O’Brien of Baltimore. 14 In the first half of this period the times were generally good. Virginia agriculture grew to new levels of prosperity, aided by the introduction of new labor-saving machinery through inventions and the opening up of new markets for farm produce through improvements in transportation. In such circumstances, James Sheriff’s loss of Green Spring Farm for debts in 1855 seems likely to have been due to exceptional misfortunes or else exceptional neglect and waste on the part of the owner. Although records of the County Court during this period suggest that Thomas Sheriff and his son, James, were before the Bar of Justice on numerous occasions, these references do not suffice to explain all that occurred.

During the second half of this period, when title to the farm was in James Benton for the use of Hannah O’Brien, the fortunes of its owners were dictated mainly by the fortunes of war. During the four years of hostilities, Green Spring Farm stood in the disputed ground outside the perimeter of permanent defenses of the capital where patrols from both sides ranged regularly by day and night. While the records of the war do not report any major engagements at the farm, they indicate that military activity in the neighborhood frequently placed its safety in jeopardy and obviously prevented any regular farming operations.

The ultimate loss of the farm in 1878—again to be sold for debt—appears to have been the result of imprudence in business dealings (according to local tradition, Hannah’s husband, Matthew O’Brien, was a gambler), and inability to bring the farm back from the low state to which it was reduced during the war years.

Hannah O’Brien’s interest in the farm enjoyed the special protection of a deed which specified that the land should be free from debts, liabilities, and control of her husband, Matthew O’Brien, and that she had power to dispose of the property by deed in her own right.[44] Subsequently, however, through ignorance or bad advice, she signed as guarantor of a note issued by her husband; and, when default on the note occurred, she lost the farm through court proceedings which ordered it sold for the debt.[45] Thus, in 1878 the farm was bought by Fountain Beattie.


15

I. GENTLEMEN FREEHOLDERS: THE MOSS FAMILY (1770-1835)

[1]

Mrs. Don Ritchie, Arlington, Virginia, Moss family genealogist; Vernon Lynch, Annandale, Virginia, a lifelong resident of Fairfax County, now in his eighties; interviews.

Walter Macomber, interview on July 16, 1968, at Green Spring Farm. In the opinion of Mr. Macomber of Washington, D.C., who planned and supervised the 1942 renovation of the mansion house, the original part of the house was built between 1750 and 1775.

[2]

The Journal of John Littlejohn, MS., Louisville, Kentucky, April 29, 1778.

[3]

Elmer T. Clark, J. Manning Potts, and Jacob S. Payton (eds.), The Journal and Letters of Francis Asbury (Nashville: Abington Press, 1958), I, p. 531.

[4]

Fairfax County Deed Book R-1, p. 413, contains a deed in 1789 from William and Mary Bushby to John Moss, William Adams, William Waters, Samuel Adams, James Morrison, William Rhodes, and William Hickman, and their survivors, in trust, conveying a lot in the town of Alexandria, northward from the Presbyterian meeting house, westward parallel with Duke Street, southward parallel with Fairfax Street, and eastward parallel with Duke Street to Chapple Alley “to build and forever keep in good repair a house for the worship of God for the use of the Reverend Thomas Cooke and the Reverend Francis Asbury for the time being of the Methodist Episcopal Church....”

[5]

Fairfax County Will Book I, p. 150.

[6]

Fairfax County Deed Book AA-2, p. 29, a lease for three lives to John Moss, dated May 29, 1798.

[7]

Fairfax County Deed Book R-1, p. 397.

[8]

Mrs. Don C. Ritchie, letter dated October 17, 1969.

[9]

Ibid.

[10]

William W. Hening (ed.), [Virginia] Statutes at Large, 1823, reprint edition (Charlottesville: University Press of Virginia, 1969), VII, p. 32.

[11]

Albert Porter, County Government in Virginia (New York: Columbia University Press, 1947), p. 186.

[12]

Fairfax County Court Minute Book, March 23, 1786, p. 191. Subsequently John Moss was reappointed Commissioner of the Land Tax in 1787, 1792, and 1793.

[13]

Hening, Statutes, XII, p. 243.

[14]

Fairfax County Court Order Book, 1787 (February 20 and October 15, 1787): “John Moss, Gent., Commissioner for Fairfax district produced on oath an account against the Commonwealth for his service in that capacity amounting to Twenty-five pounds thirteen shillings and six pence, which being examined by the court is allowed and ordered to be certified.”

[15]

Shepherd, Code, I, p. 114.

[16]

Porter, County Government, p. 211.

[17]

Shepherd, Code, III, p. 262.

16
[18]

Fairfax County Deed Book Y-1, p. 69.

[19]

Shepherd, Code, I, p. 11.

[20]

F. Johnston, Memorials of Old Virginia Clerks (Lynchburg: J. P. Bell, 1880), p. 172.

Alexandria Gazette, October 4, 1839. The obituary notice for Thomas Moss states that he died on October 2 after a long illness, having been a Justice of the Peace for many years, and also having served as a member of the State Legislature and as county court clerk.

The Archives of the Virginia House of Delegates show that Thomas Moss was a Delegate from Fairfax County for the 1828-1829 biennium. (Honorable George Rich, January 2, 1970; personal communication.)

[21]

K. M. Willis, “Old Fairfax Homes Give Up A Secret,” American Motorist, May 1932, p. 16; Johnston, Clerks, p. 174.

[22]

M. Herndon, Tobacco in Colonial Virginia (Williamsburg: Virginia 350th Celebration Corp., 1957), pp. 7-8, indicates that tobacco was introduced into Northern Virginia by the settlers who moved into the Rappahannock and Potomac areas around 1650. By the end of the seventeenth century, Herndon states, tobacco farming dominated the lowlands all along the Rappahannock and Potomac Rivers below the fall line.

F. Harrison, Landmarks of Old Prince William (Berryville: Chesapeake Book Co., 1964), pp. 148-150. Also to be noted is the fact that settlement above the fall line was not permitted prior to 1722 because of treaty provisions with the Iroquois. By the Treaty of Albany in 1722, the Iroquois withdrew west of the Blue Ridge.

[23]

Herndon, Tobacco, pp. 14-16, cites introduction of plant bedding practices, use of animal-drawn plows instead of hand hoes, and improved methods of curing tobacco as responsible for increasing the yield of the tobacco farm.

[24]

Ibid., p. 10.

[25]

Frederick Gutheim. The Potomac (New York: Grosset & Dunlap, 1968), p. 98.

[26]

R. B. Davis, Intellectual Life in Jefferson’s Virginia (Chapel Hill: University of North Carolina Press, 1964), p. 167, notes that in 1773 the Society for the Advancement of Useful Knowledge was formed in Williamsburg, followed by the Philadelphia Agricultural Society in 1780, and the Richmond Society for Promoting Agriculture in 1810, all dedicated to working for the improvement of farming.

[27]

A list of these writings on agriculture was compiled by E. G. Swern in 1913 and published by the Virginia State Library.

[28]

Davis, Intellectual Life, pp. 159-160, 167. Among the inventions of the McCormick family were threshing machines, hydraulic machines, a hemp-brake, blacksmith’s bellows, and self-stoppers for grist mills. Other patents issued to Virginians dealt with plows, grain screens, rice hullers, hemp and flax breakers, corn shellers, beehives, clover seed cleaners and gatherers, tobacco presses, and corn grinders.

[29]

Ibid., p. 156. See also “Status of Virginia Agriculture in 1870” in Report of the Commissioner of Agriculture, 1870 (Washington, D.C.: Government Printing Office, 1871), pp. 267-268.

[30]

Davis, Intellectual Life, p. 151.

[31]

Ibid., pp. 154-156.

17
[32]

Dr. John Schlebecker, Curator, Division of Agriculture and Mining, Museum of History and Technology, Smithsonian Institution, Washington, D.C., interview. Dr. Schlebecker was of the opinion that the price which this blower brought suggested it might be animal-powered by a treadmill or overhead sweep. Wheat fans were relatively new types of equipment in 1835, but not uncommon among successful farmers.

[33]

Ibid. Schlebecker discussed the possibility of dairying as follows: “It’s very likely he was in the business. Now whether it was butter or cheese—butter would pay better, and he is pretty close to Alexandria and Washington, and, for that matter, by sea to Baltimore. Butter would have been the more attractive of the commodities; cheese would keep better, could be shipped farther and find a greater variety of markets, but wouldn’t pay quite as well. But I don’t see evidence he was in the cheese business, and I’d be happier if I saw more churns on the list, or if the churn were better described. One churn would be enough if it were big enough. And it could very well be run by a sheep or a dog. You see, he’s certainty got enough cows to be in the dairy business, willy nilly.” (Transcription of tape-recorded interview with John Schlebecker, February 26, 1969, p. 6.)

[34]

Ibid. See also inventory in appendix B.

[35]

Alexandria Gazette, November 6, 1839, notice of sale.

[36]

Alfred Moss and Thomas Love, affidavit of October 29, 1839, in proceedings to sell the farm owned by Thomas Moss, deceased.

[37]

The wills and property inventories of members of the Moss family reveal much information that helps reconstruct the activity on their farm. Considering the equipment used, the products grown and processed, and the number of slaves reported, it is possible that between the 1820’s and 1850’s the farm was also engaged in breeding slaves for export to the rice and indigo plantations of South Carolina and the cotton plantations of Alabama and Mississippi. A certain amount of this traffic was also carried on locally.

U.S. Census population records compiled from 1810 through 1850 show that slaveholding continued at a high level relative to other changing circumstances in agriculture and in the Moss family. See census records for Fairfax County in National Archives, Microfilm Division, Microcopy Roll 68 (1810), 137 (1820), 201 (1830), 558 (1840), 942 (1850).

[38]

These roads were the Dumfries and Falmouth Roads via Ashby’s Gap, the Colchester Road via Williams’ Gap, and the Alexandria Road via Vestal’s Gap. Their origins and early history are given in Harrison, Landmarks, pp. 466-484.

[39]

Davis, Intellectual Life, p. 152, and A. Hulbert, The Paths of Inland Commerce (New Haven: Yale University, 1921), pp. 44-55. The situation appeared to improve little during the nineteenth century, for in 1894 the Virginia Good Roads Convention called the American rural roads “far below the average” and “certainly are among the worst in the civilized world and always have been largely as a result of permitting local circumstances to determine the location with little or no regard for any general system, and haste and waste and ignorance in building.” Virginia Good Roads Convention, Programme (Richmond: Stone Printing Co., 1894), p. 24.

18
[40]

The act incorporating the Fairfax and Loudoun Turnpike Road Company authorized construction and operation of an “artificial road from Alexandria to the Little River.” Laws, 1795, c. 31 (December 26, 1795). Shepherd’s Statutes (Richmond: Shepherd, 1836), I, p. 378. The successor company, known as the Little River Turnpike Company, was incorporated by legislation enacted in 1802 and 1803. Laws, 1801, c. 83 (January 28, 1802) and Laws, 1802, c. 52 (January 19, 1803), Shepherd’s Statutes, II, p. 383, 452. The extension into Fauquier County was authorized by the incorporation of the Fauquier and Alexandria Turnpike Company, designed to build “an artificial turnpike road from Fauquier Court House to Buckland farm, or Buckland town, and thence to the Little River Turnpike road, at the most suitable point for affording a convenient way from Fauquier Court House to Alexandria.” Laws, 1807, c. 27 (January 27, 1808), Shepherd’s Statutes, III, p. 379.

[41]

Alexandria Gazette, May 23, 1809. The extension was built by the Fauquier and Alexandria Turnpike Road Company, and was constructed from the Little River Turnpike at Fairfax Courthouse, through Centreville and Buckland, to Fauquier County Courthouse (Warrenton).

[42]

Annual Report of the President and Directors of the Board of Public Works to the General Assembly of Virginia, Richmond, 1818, p. 34; 1819, p. 33; 1820, p. 76.

[43]

Fairfax County Deed Book H-3, p. 226, May 28, 1843.

[44]

Fairfax County Deed Book W-3, pp. 424-425, September 10, 1855.

[45]

Hannah C. O’Brien v. John W. Green, et. al., Fairfax County, Virginia County Court, Suspended File No. 10, 1878.


19

II. ORCHARD AND DAIRY: FOUNTAIN BEATTIE (1878-1917)

NORTHERN VIRGINIA’S AGRICULTURE IN THE 1870’S

By 1870, Virginia farmers were beginning to recover from the recent war which had completely disrupted normal agricultural activity. The effects of the war had been felt keenly in Northern Virginia where the conflict had not been marked by many of the major battles but had nevertheless afflicted the area with four years of constant raiding and skirmishing. The resultant toll of horses, mules, cattle, and livestock and the dearth of farm machinery were major handicaps facing the farmer, as were his lack of capital with which to purchase supplies and equipment from outside his area and the general shortage of labor.[46] These shortages were overcome slowly. Some materials for beginning to rebuild the war damage were readily available from military supplies immediately after the close of hostilities; and, in this respect, Northern Virginia was fortunate to be within a few miles of the Union Army supply depots in Alexandria and Washington, D.C. But, as the confused era of reconstruction set in, the farmer was thrown mainly on his own resources of land and labor to rebuild his fortunes.

Poor as his prospects might seem to be, the Northern Virginia farmer had certain advantages that farmers in other parts of the state lacked. The farmland was by no means barren or exhausted, although it had been worked steadily during the previous decade when all efforts turned to producing the maximum amount of food for subsistence and no thought could be given to maintaining or enhancing the fertility of the soil.[47] Also, Fairfax County farmers had relatively easy access to the produce markets of Washington and Baltimore, both by water and overland transportation.[48]

20

Figure 4. Hopkins’ Atlas Map, 1879.

Moreover, agriculture in Northern Virginia had not been dominated by the plantation system since the mid-eighteenth century. By 1870, even the great landholdings which had been carved out of the original proprietary grants had given way to a third generation of farms, still smaller in size and more diversified. While the owners of these Northern Virginia farms had, in many instances, owned slaves before the war, their dependence on this source of labor was not as critical as in other parts of Virginia—notably, the regions where tobacco was king. Thus, when the “great political convulsion which culminated in the disruption of the labor system of the State”[49] compelled Southern farmers generally to rebuild their system with different forms of labor and land tenure, Fairfax County farmers found themselves able to adjust to the new circumstances with relative ease once they were able to acquire tools and livestock. At this time, as before the war, they benefited greatly from the presence among them of a group of thrifty and industrious farm families who migrated from New York and New Jersey, bringing with them new energy, 21 new capital, and new methods of farming from the diversified agricultural regions of the North.[50]

In addition, there was abroad in Virginia in 1870 a strong spirit for revival of its agriculture, looking not only to securing the advantages which scientific husbandry could bring through restored fertility of the soil but also to realization of the Jeffersonian dream of a strong, stable, and independent class of American yeomanry owning and working its own land.[51] Soon after the commencement of reconstruction, organizations patterned after the various scientific farming societies of the 1830’s began to appear and agricultural newspapers, such as The Southern Farmer, resumed publication and circulation in Northern Virginia. These two sources called strongly for Virginia farmers to change their traditional ways of farming for modern methods and modern farm implements.[52] As the 1870’s advanced, these sources were joined by the State Government, which provided a certain amount of assistance for modernization of Virginia agriculture.[53]

MOSBY’S LIEUTENANT

It was in this setting that Fountain Beattie became the owner of Green Spring Farm in June 1878 when he purchased the 339-acre tract through a commissioner’s deed approved by the County Court.[54]

Fountain Beattie was the son of Colonel Robert Beattie and Pauline White Beattie of Chilhowie in Washington County, Virginia. In 1861, he enlisted in the First Virginia Cavalry at Abingdon and there made the acquaintance of John S. Mosby. They became good friends, and when Mosby received his separate command, he took Beattie with him.[55] During the next three years, Beattie rode with Mosby in campaigns that crossed and recrossed Northern Virginia.[56]

22

Figure 5. c. 1885, Fountain Beattie and Annie Hathaway Beattie.


The Mosby and Beattie Families, c. 1890


The Old Stone Spring House


The Lane to Green Spring Farm

Whether Fountain Beattie saw or visited Green Spring Farm during these rides with Mosby’s battalion is not certain. There is reason to think he may have been in the neighborhood because of references to engagements at such places as “Billy Gooding’s tavern on the Little River Turnpike, 10 miles from Alexandria.”[57] Moreover, he may have heard of the farm from one of the descendants of its owners, since on one occasion he escaped imminent disaster only through the intervention of one Thomas Moss of Alexandria.[58]

Be that as it may, the region must have made a strong impression on him because, after moving several times in the years following the war, it was in Fairfax County that Fountain Beattie and his family finally settled. Money for the purchase of Green Spring Farm in 1878 came from Mrs. Beattie’s inheritance following the sale of “Western View,” the homestead of her deceased parents, located in Fauquier County.[59] At that time, Green Spring Farm was available for purchase through the County Court, which had ordered it sold to satisfy the judgment for debt against Matthew O’Brien.[60]

23

ORCHARD AND DAIRY.

Fountain Beattie’s selection of Green Spring Farm appears to have been made with an eye to its proximity to the Little River Turnpike and the old Columbia Turnpike (now Route 712). Increasingly, the farmers of the Piedmont region of Virginia were feeling the competition of farmers in the Shenandoah Valley and outside the state in the production of wheat and corn. This competition was made possible when railroads connected the Valley of Virginia and the farmlands of the great midwestern prairie states with the markets of the eastern cities. Farmers in the middle and Northern Virginia no longer enjoyed the advantages they once had in shipping wheat and corn to these markets.[61] More and more in the last quarter of the nineteenth century, Northern Virginia farmers planted corn, wheat, and other grains for use as livestock feed rather than sale in the grain market.

24

Figure 6. John Singleton Mosby.

Like many other Fairfax County farmers, Fountain Beattie found that he was better off to abandon diversified farming in favor of crops with respect to which he still enjoyed natural advantages. Thus, during the last quarter of the nineteenth century, Green Spring Farm is identified with dairy products and orchard and garden produce—all commodities which had to be marketed the same day they were produced or picked or which could be made into derivative products which could be easily transported to market and sold at prices which reflected value added by processing. Transportation, however, was a key factor. Virginia’s country roads were publicly acknowledged to be in a “lamentable condition,” and over even the best of them travel often was impossible in wet seasons of the year.[62] In this respect, the Little River Turnpike was one of the best of Virginia’s rural roads, having been laid out and constructed by professional engineers and maintained by hired labor with even more care and regularity than the public roads. In Beattie’s day, as in Moss’s time, the turnpike was the main road between Alexandria and Fairfax, the county seat, and thence to the Valley.

All these considerations led Fountain Beattie to direct his main effort to expansion of the orchards and herd of dairy cattle as rapidly as it was feasible. Year around, the farm was a busy place, with work enough for all of the Beatties’ 12 children—six boys and six girls—as well as their parents and hired hands. Daily chores, including milking and churning, went on all year, for the farm generally had numerous cows, horses, and mules. There was also a certain amount of grain to be raised each year for livestock feed, and a large vegetable garden. Fruit trees included pears, cherries, and apples in two 25-acre orchards—one located on each side of the Turnpike—which provided the principal produce of the farm. Farm produce was regularly marketed in Washington, Alexandria, and local grocery stores, as well as at a roadside stand during the harvest season.[63]


Reunion at Manassas: Colonel John S. Mosby visits Bull Run for the first time since the war. Pictured are (left to right) Fountain Beattie, Lycurgus Hutchison, John Mosby, and George Turberville.

The markets of Washington were only about nine miles from Green Spring Farm, but on market days it was customary for the farm wagons of the neighborhood to be loaded and on the road well before dawn. The Washington city wholesale market opened at 3 A.M. 25 each weekday, and farmers who came there sold directly from their wagons or from stalls to a milling crowd of brokers, wholesalers, retail grocers, hotelmen, and boardinghouse keepers. Most produce was sold by 7 A.M. and the farmer who did not sell out by that time generally had to sell at a sacrifice price or else remain in the market throughout the day, selling at retail to customers who attended the market later in the day.[64] With luck, therefore, the market produce farmer from Northern Virginia might expect to be on his way home by noon.

Not all of Fountain Beattie’s orchard produce, however, went to the market in this way. The spring house on the farm contained presses, storage facilities, and other equipment needed to make apple cider, applejack, and apple and peach brandy. Apples picked in the ripening season were stored in large barrels until the fall and winter months, at which time they were made into fermented or distilled beverages. According to his descendants, Beattie operated a licensed distillery and made brandies at the farm.

Beattie’s livestock operations at the farm ended in tragedy one day when he returned home to find that his barn had caught fire and been completely destroyed. The contents of the barn, which included all of his livestock and much of the farm equipment, were also lost. Only the horse he was riding at the time remained to start rebuilding the farm. As matters turned out, too much had been lost; Fountain Beattie never did more than acquire a few horses to perform the most necessary tasks. The dairy herds and field crops were never developed to the thriving level of activity which typified the 1880’s and 1890’s.[65]

POLITICS AND PUBLIC SERVICE

The close association of Fountain Beattie and John S. Mosby during the war years (1861-65) lasted through the years of peace that followed. The two men apparently thought alike in political matters; and, in the election of 1872, they campaigned for General Grant. Shortly afterward, Beattie was appointed Deputy Collector of Internal Revenue for the Sixth District of Virginia. Following Hayes’ election as President, Mosby received an appointment as Consul in Hong Kong where he served until 1885.[66]

Fountain Beattie’s record with the Internal Revenue Service shows that he served from 1875 to 1914 and suggests that he settled in or near Alexandria several years before he purchased Green Spring Farm.[67] He was reappointed in 1885 following the brief return of the Democratic Party to power under Grover Cleveland’s administration. Beattie’s official file in the Treasury Department’s personnel records is a resume of basic statistics—dates of appointments, promotions, oaths of office, and salaries.

Although Northern Virginia seemed to be little affected by events on the national and world stage at this time, it was on the move in its own way. In Beattie’s time this region became linked to other major regions by the coming of the Southern Railway system; and 26 the advent of the high-speed electric commuter train and its network of tracks commenced the inexorable process of creating the interdependent economic unity of Northern Virginia and Washington, D.C. These were also the years of “Jackson City” in Arlington, and the crusade of law enforcement aimed at cleaning up this center of gambling, drinking, and general sinfulness.[68]

For Fountain Beattie, these years of Federal service must have brought back memories of his war years with Mosby. Although he carried on his duties as tax collector from an office in the Alexandria Post Office, he continued to live at Green Spring Farm and he regularly traversed roads and places he had visited as a soldier. When Mosby returned from his tour as Consul in Hong Kong and became an attorney for the Justice Department, he and Beattie apparently saw a great deal of each other and their friendship extended to their families who also frequently exchanged visits. Beattie named one of his sons after his friend, and John Mosby Beattie recalls these times with feelings of fondness.

GREEN SPRING FARM AND ANNANDALE

When Beattie purchased Green Spring Farm, the activity on the farm was oriented toward the markets of Georgetown, Alexandria, Washington, and Baltimore. The community of Annandale, a little over two miles up the Little River Turnpike to the west, had not yet become a center of commerce. In 1879, the map showed a post office, a toll gate, a store, a Methodist church, and a few residences clustered at a crossroads.[69] This crossroads location became increasingly important during the last quarter of the nineteenth century; and, like other perceptive people of the area, Fountain Beattie and his family began to swing the orientation of their activities around from an exclusive focus on Alexandria and Washington to take part in the growth of Fairfax County.

At the turn of the century, Annandale had a population of 50 people. In addition to the toll house, church, post office, and store, the community now could list a hardware store, lumberyard, blacksmith, farm machinery store, and sawmill.[70] The sawmill was owned by Beattie’s son and namesake, Fountain Beattie, and presumably was operated as a family enterprise in the same manner as the farm.


27

II. ORCHARD AND DAIRY: FOUNTAIN BEATTIE (1878-1917)

[46]

A. W. Moger, The Rebuilding of the Old Dominion (New York: Columbia University, 1940), p. 46. Citing census data, the thesis notes that “the value of farm implements and machinery on farms in Virginia and West Virginia combined was only two-thirds of what it was in Virginia in 1860, while the value of livestock in the two states was only four-fifths of that in Virginia in 1860. Not until 1880 did the number of cattle and not until after the turn of the century did the number of swine in Virginia and West Virginia equal the number in the Old Dominion before the war.”

[47]

“Status of Virginia Agriculture in 1870,” in Report of the Commissioner of Agriculture, 1870 (Washington, D.C.: Government Printing Office, 1871), pp. 267-291, 273, 291.

[48]

Virginia Good Roads Convention, Programme (Richmond: Stone Printing Co., 1894). While railroad and water transportation were available from Alexandria to major metropolitan markets for farm products, the farmer faced the obstacles of traversing Virginia’s notoriously poor farm-to-market roads.

[49]

Report of the Commissioner of Agriculture, 1870, p. 268.

[50]

R. H. Abbott, “Yankee Farmers in Northern Virginia: 1840-1860,” Virginia Magazine of History and Biography, v. 76, No. 1, pp. 56-66 (January 1968).

See also the Report of the Commissioner of Agriculture, 1870, p. 291, which states “a striking mark of progress is the change of the policy of the planters toward the outside world. Formerly they were indisposed to encourage immigration from other States. There was, therefore, no accession to the population of the rural district from abroad. The same traditions and habits descended from father to son through successive generations. Now all this is altered. Strangers from every State and every country are cordially welcomed whenever they show any disposition to become permanent settlers and industrious citizens. The consequence is that in many counties a strong tide of immigration is setting in, bearing with it improved stock and better implements, which cannot fail to impart a healthy impulse to improvement.”

[51]

Moger, Rebuilding, p. 45. See remarks of Governor Henry Wise in 1867 and A. H. H. Stuart in 1866, cited therein.

[52]

W. Fullerton, Address to Piedmont Agricultural Society, October 18, 1876. Speaking to the Society in 1867, William Fullerton of New York chided Virginians by asserting that “there is no other calling in life in which there is manifested such an indifference to new discoveries, as is seen among the tillers of the soil. If a mechanic or manufacturer should in like manner fail to avail himself of improved implements or machinery, he would be compelled to relinquish his business. It is the farmer alone who resists anything new appertaining to his calling. This arises mainly from a deep-seated prejudice to what is called scientific or book farming.”

See also Moger, Rebuilding, p. 54, citing the fact that farmers in the area of diversified agriculture, such as Northern Virginia, had the highest number of agricultural clubs, farm newspaper subscriptions, etc., of all areas in Virginia.

[53]

Main steps to assist agriculture taken by the state in the 1870’s are summarized in Moger, Rebuilding, p. 54.

[54]

Fairfax County Deed Book W-4, p. 271.

28
[55]

J. S. Mosby, Mosby’s War Memoirs and Stuart’s Cavalry Campaigns (New York: Pageant Book Co., 1958), p. 10. Mosby records in his memoirs that in Richmond, before being sent to the Shenandoah Valley, the men were issued uniforms of very rough quality from the state penitentiary. There was almost a mutiny as the men piled them up in front of the captain’s tent and refused to wear them—all except Mosby and Beattie. Mosby then states, “I do not think any clothes I ever wore did me more service than these. When I became a commander, I made Beattie a lieutenant.”

This story is corroborated in Charles W. Russell (ed.), The Memoirs of Colonel John S. Mosby (Boston: Little Brown, 1917), p. 30.

[56]

Beattie is mentioned frequently in histories of Mosby’s campaigns. In addition to the references noted above, see V. C. Jones, Ranger Mosby (Chapel Hill, 1944), and James Williamson (ed.), Mosby’s Rangers (New York: Sturgis & Walton, 1909).

From 1861 to July 1864, Beattie served as an enlisted man. In July 1864, a new company was organized, and Beattie was elected first lieutenant. Such regards as still exist regarding Beattie’s service with Mosby relate to this period. See Compiled Service Records of Confederate Soldiers Who Served in Organizations from Virginia. Microcopy 324, Roll 207 (National Archives, Washington, D.C.).

[57]

Williamson, Mosby’s Rangers, p. 87.

[58]

Ibid., pp. 242-3. Reprints a letter from Thomas Moss to Captain Walter Frankland describing a fight near Front Royal as follows: “We charged and routed the guards, and I was fortunate in saving Beattie’s life by shooting a man who had a pistol within 12 inches of Beattie. I then caught a horse ... [and] Beattie and I ran down the road a short distance and went up into a piece of pine woods.”

[59]

John Mosby Beattie, August 22, 1968, interview. Fountain Beattie’s wife, Annie Elizabeth Hathaway, was the daughter of James Henry Hathaway of “Western View” in Zula, Virginia, between Rectortown and Middleburg in Fauquier County. Annie Hathaway was born and married at this home place. Her son, John Mosby Beattie, states that his father bought Green Spring Farm with money realized from the sale of “Western View” on the death of Mrs. Beattie’s parents.

[60]

Fairfax County Deed Book W-4, p. 271. Also see Hannah C. O’Brien v. John W. Green, Fairfax County Circuit Court, 1878, Suspended File No. 10.

[61]

Moger, Rebuilding, p. 51.

[62]

Virginia Good Roads Convention, Programme, p. 8.

[63]

John Mosby Beattie, August 22, 1968, interview. John Beattie recalls that his father, Fountain Beattie, sold garden produce to the local grocery store of one John Carter, located on the Little River Turnpike (Route 236) approximately where it now crosses Shirley Highway (I-95).

[64]

W. C. Funk, “An Economic History of Small Farms near Washington, D.C.”, U.S. Department of Agriculture Bulletin 848 (Washington, D.C.: Government Printing Office, 1920), pp. 16-17.

[65]

John Mosby Beattie, August 22, 1968, interview. Mr. Beattie does not recall the date of this fire, but remembers the event vividly from his boyhood days.

[66]

Mosby served as Consul in Hong Kong from 1878 to 1885. He was an attorney in the U.S. Department of Justice from 1904 to 1910.

[67]

Official Register of Officers and Employees of the Civil, Military and Navy Service, issued biennially, lists Fountain Beattie as an employee of the Internal Revenue Service in the registers issued during the years 1875 to 1913, inclusive. Beattie’s Service Record Card (Treasury Form 426) shows the first employment record date as 1872. His appointment was discontinued in 1914.

29
[68]

E. L. Templeman, Arlington Heritage (Arlington, 1959), p. 74.

[69]

Atlas of Fifteen Miles Around Washington, 1879.

[70]

“Fairfax County as Portrayed by the Virginia Business Directory and Gazetteer—1906. Published by the Hill Directory Company, Richmond, Virginia,” Yearbook of the Historical Society of Fairfax County, Virginia, v. 10 (1969), pp. 92-104.


30

Front View


Side View (West)

Figure 7. Green Spring Farm, 1936. Photos by Delos Smith, HABS.


Figure 8. Berry Survey Map, 1941. Deed Book P-15, p. 147.

31

III. THE END OF THE FARMING ERA: MICHAEL STRAIGHT (1942-1969)

Fountain Beattie sold Green Spring Farm in 1917. Annie Hathaway Beattie had died the year before, after they had moved from the farm to a house in Alexandria.[71] Beattie’s deed to George R. Sims of Florida is dated January 23, 1917, and conveyed the entire tract of 339 acres.[72] Ownership changed again in 1922, 1924, and 1931,[73] and ultimately led to the subdivision of the tract into smaller parcels. In 1942, one of these parcels, containing the farmhouse and the principal related buildings, was purchased by Michael and Belinda Straight.[74]

The Straights did not occupy the main farmhouse immediately but set about having certain changes made in the interior design and structure. These were completed late in 1942, and the family moved from the cottage to the main house.[75] A few months later, in January 1943, their occupancy was interrupted as Michael Straight was called to service in the U.S. Army Air Force; and, during World War II, the house was occupied by tenants. The Straights returned to Northern Virginia in 1948 and took up residence at the farmhouse from that time until they moved to Georgetown in 1965.

Upon their return to the farm in 1948, they also began to restore and redesign the grounds surrounding the farmhouse. During the 1920’s, when the farm was owned by Frederick Segesserman, a great many boxwoods had been planted. They had been raised for sale, and in 1948 the pattern of their location on the grounds was erratic. Therefore, in 1948, a new landscape plan was worked out by Mrs. Max Farrand, a friend of the Straights and the designer of the gardens at Dumbarton Oaks in Georgetown. Under her supervision, the boxwoods were transplanted into a great semicircle behind the house, the level of the lawn was raised, and retaining walls were placed at several points. This area comprised the farm’s only formal garden; but, in addition, extensive plantings of white pine were placed as a screen between the house and the road, and the grounds surrounding the house were planted with a variety of trees and shrubs, including hemlocks, cherries, and crabapples, and later, lilacs, azaleas, and rhododendron.

During the years the Straights lived at the farm, farming operations consisted of the raising of Hereford cattle. Purchasing yearlings in the markets of the lower Shenandoah Valley near Winchester, they kept this stock at the farm for fattening and resale as two-year-old beef cattle.[76]

A variety of other animals were kept on the farm, but these were mainly pets of the children.[77] In addition to their horses and dogs, certain of the Straights’ animals acquired reputations of extraordinary extent. In particular were a goat which was presented to the 33 Straights by the author and journalist Eric Sevareid,[78] a mule acquired from the Alexandria SPCA, and a flock of Canada geese which eventually became the subject of a special bulletin by the Audubon Society to prevent local naturalists from erroneously reporting them as migrants.[79]

During these years of residence at Green Spring Farm, Michael Straight served as editor and publisher of The New Republic magazine, wrote three books, and served on the governing boards of several organizations active in international affairs.[80] These activities brought to the farm many visitors whose accomplishments in politics, literature, science, and the arts were nationally and internationally recognized. Some of the distinguished visitors to Green Spring Farm during these years included scientists Julian Huxley and Leo Szilard, authors Aldous Huxley and Saul Bellow, poet Dylan Thomas, Supreme Court Justice Hugo Black, and political leader Hubert Humphrey. The farm also was a visiting place for distinguished journalists from all parts of the United States and many foreign countries, including Soviet Russia, when they came to Washington. An account of one of these visits, written by one of the foreign journalists, is set forth in appendix G.[81]

The farm became well known in the community of which it was a part as it was the scene of numerous festive community gatherings when the neighbors from the immediate area joined the Straights and their guests to celebrate such special events and holidays as the Fourth of July and to enjoy dinner, games, and discussions under the trees.

With the departure of the Straights, active farming operations ceased. During their occupancy, fundamental changes in the character of Northern Virginia’s development brought the era of farming to an end and ushered in an era in which this region became part of the social and economic system centered in Washington. Intensive subdivision and establishment of commercial service facilities became the highest and best uses of the land as population growth in the National Capital area rose at a rate which led other parts of the United States. Outsiders moving into Northern Virginia and Washington residents seeking to move from the central city into the outskirts filled up the open spaces of Fairfax County at a rate of over 1,000 new residents per month.[82]

Along with the temptation of high land prices, rising taxes added to the pressure on the farmer to “sell out” to the land developer. It was said, with much truth, that one could not afford to be a farmer in Fairfax County as the 1950’s ended and the 1960’s began. For the 33 acres and buildings on Green Spring Farm, as for many other residences, taxes rose sharply. In 1943, the farm was evaluated at $7,819, and the tax bill was $194.69; by 1960, the evaluation was $36,050, and the taxes $1,351.88.[83]

So, gradually, Green Spring Farm became an island of open space in a sea of houses and highways. The Little River Turnpike (Route 236) was widened and modernized in 1959. 34 In 1948, this road had been an 18-foot-wide, two lane black-top roadway. Twenty years later, it had been transformed into a 106-foot-wide, four-lane dual highway, much of which was lined with concrete curbs and gutters to accommodate roadside commercial or residential development. The old turnpike had been redesigned and, in the late 1960’s, carried over 26,000 vehicles per day.[84] Its function as a major interregional artery of transportation had been taken over by others, leaving to it a new role as a major connector in the network of roads and streets serving primarily local traffic. In contrast to earlier times when proximity to the road was to be desired, the attractiveness of the farmhouse in the 1960’s was enhanced by its surrounding space which furnished a shield from the highway and a setting for its activity.


35

III. THE END OF THE FARMING ERA: MICHAEL STRAIGHT (1942-1969)

[71]

John Mosby Beattie, March 1969 interview. Annie Beattie, afflicted with arthritis, died in 1916, after she and family had moved into Alexandria to a house on Peyton Street owned by her husband, Fountain Beattie, and Walton Moore.

[72]

Fairfax County Deed Book C-8, p. 446.

[73]

Fairfax County Deed Book Y-8, p. 50; J-9, p. 23; X-10, p. 413; V-11, p. 586; C-12, p. 509.

[74]

Fairfax County Deed Book P-15, p. 145.

[75]

Michael and Belinda Straight, interview December 8, 1968. During the remodeling, the Straights lived in the spring house, which they called “The Cottage.”

[76]

Ibid. Aberdeens were also brought to the farm, but did not thrive as well as Herefords. The Straights’ herd ranged from 15 to 25 at any one time. Bought at weights of about 500 pounds, these cattle were held until they weighed 1,100 to 1,200 pounds and then were sold for beef.

[77]

Ibid. The fondness of the Straight children for animals drew pets from field and pond, including rabbits, birds, snakes, spiders, and the like. These were housed mainly in the enclosed side porch.

[78]

Ibid. The gift goat was the subject of one of Mr. Sevareid’s columns entitled “It is More Blessed to Give Than to Receive.” During his stay at Green Spring Farm, the goat established a reputation for eating various valuable articles (such as a canvas automobile top) and ringing a number of the fruit trees.

[79]

Ibid. The flock of Canada geese started from a pair that was attracted to one of the farm ponds, which in earlier times had been used to furnish ice for the farm. As the flock of geese grew, it ceased to migrate, and frequented the Straights’ pond and nearby Lake Barcroft.

[80]

Who’s Who in America, 1966-1967, contains the following information on Mr. Straight: In 1943, he wrote Make This the Last War; in 1954, Trial by Television; in 1960, Carrington; and in 1963, A Very Small Remnant. In 1943, he also served as Vice President of the Fight for Freedom; and in 1946-1947 as Secretary of the Emergency Committee of Atomic Scientists.

[81]

Michael and Belinda Straight, interview December 8, 1968. This visit occurred when Mr. Straight was actively engaged in editing and publishing The New Republic and had occasion, from time to time, for journalistic contacts in the Soviet Embassy. From one of these contacts the suggestion was made that a group of Soviet Russian journalists touring the United States might be interested in visiting Green Spring Farm.

[82]

Fairfax County Division of Planning, August 1969.

[83]

Fairfax County Tax Books, 1943, 1960. The 1968 evaluation, at 40 percent of market value, was $93,415, and the total tax was $4,016.85. In 1923, when the property consisted of 332 acres and was owned by J. M. Duncan, it was valued at $8,240, and the taxes were $20.60.

[84]

Resident Engineer, Virginia Department of Highways, Fairfax, Virginia. August 1969.


36

ARCHITECTURAL HISTORY AND DESCRIPTION: THE MANSION HOUSE

GENERAL SETTING

Green Spring Farm is located in Mason Magisterial District, approximately one-eighth mile north of Little River Turnpike and one-eighth mile east of Braddock Road. Via the Little River Turnpike, the farm is approximately six miles west of Alexandria and approximately two miles east of Annandale.

The terrain in the vicinity of the farm is mainly flat, with some very gentle rolling areas. It is well watered, being crossed by Turkey Cock Run. During 1946-50, three ponds were dug in back of the house. They are spring-fed, and their runoff drains into Turkey Cock Run. With the original forest cover cleared off at least 200 years ago, the present clusters of pine and oak, and the incidence of hemlock, cherry, crabapple, and other flowering species, represent a reforestation several generations removed from the original, and, in other instances, the landscaping done by the Straights in the late 1940’s.

HOUSE SITE

The mansion house faces south and is connected with the Little River Turnpike by a black-top (asphalt-surfaced) road which passes on the west side of the house and runs north to Braddock Road. Inside the post and rail fence, alongside this road, the driveway up to the house is lined with trees, and the yard in front of the house is open and flat. Between the lawn and the road, a line of cedars in the fence row serves as a screen.

The back (north side) of the house faces a semicircular open grass lawn, bordered with hedges which provide both a screen for the lawn and a background for several stone carvings and cement castings which decorate a lawn approximately 1,500 square feet in size. At the northeast corner of this open space is located the log cabin; beyond the log cabin, approximately 110 feet in a northeasterly direction, is the barn, which is converted into living quarters.[85]

Northwest of the main house, facing on Green Spring Road, is the spring house. Originally built over a series of natural springs in order to have water for cooling dairy products, this stone house was converted into a small dwelling house by the Straights in 1942.

GENERAL ARCHITECTURAL DESIGN AND HISTORY

In its present condition, the mansion house at Green Spring Farm cannot be considered to represent any particular period of American architecture. The original core of the building illustrates a design which was typical of the colonial era in Tidewater Virginia. This portion of the house is of brick construction, two stories plus attic and cellar, with the rooms in each end of the house separated by a center hallway. Large chimneys at each end of the house made possible heating by fireplaces in each room.

37

It seems probable that this structure formed the core of the mansion house when it was occupied by the Moss family (1770’s to 1835). To this core, various outbuildings and dependencies were added; a separate cookhouse or kitchen annex to the main house was one of these related structures, as were the family’s sanitary facilities. Clothes washing, churning, candlemaking, and various other household tasks were also performed in separate buildings. No direct evidence of the appearance of the main house or the various related outbuildings has been discovered; some inferences about these matters may be drawn from the inventory of personal property sold from the farm at auction in 1835 and a drawing of the house on an 1840 survey (figure 2).

Photographs of the south side of the house show the building as it appeared in 1885 (figure 5). At this time, a one-story porch had been built across the entire length of the front. The entry into the house across this porch was open, but on each side of the front door the porch was enclosed, making small rooms approximately 9 by 12 feet in size. From each room a door opened out onto the porch. The porch was roofed with sheet metal, and carved wooden brackets were in the corners of the center section (figure 5). A sidewalk led from the entrance in the center of the ivy-covered front porch straight across the spacious, shaded lawn.

Photographs in 1936 show the front porch removed but with clear signs of its recent presence showing in the whitewash on the front wall of the house (figure 7). At this time, the roof of the main house was sheet metal in place of the earlier use of shingles. However, shingles still constituted the roofing of the dependency on the east end of the house.

The 1885 photographs show a one-story brick addition on the east end of the house. This was a kitchen, built sometime after the main portion of the house but still probably in the first half of the nineteenth century. The notice of sale of the farm following Thomas Moss’s death in 1835 speaks of “a Brick Dwelling, containing eight rooms, Brick Kitchen, Meat House, Servants’ House, ...” and other farm and outbuildings.[86] Of all the buildings mentioned in this notice, the kitchen appears to be the most logical and appropriate use for this addition. Later occupants of the house (1880-1917) used this wing for a kitchen and describe it as not only the center for preparation of food but for numerous other household activities, such as candlemaking.[87]

The arrangement of rooms during the nineteenth century is not known with certainty. The 1839 reference to eight rooms suggests that as originally built the house had four rooms on each floor, with perhaps no effort to use the attic as living space, at least until the time of Fountain Beattie who added dormers to the attic and used this top floor to help accommodate his large family. This inference is strengthened by the fact that prior to the 1940’s the central core of the house was laid out in this manner.

38


Figure 10. GREEN SPRING FARM MANSION HOUSE

Floor Plans, 1969

39

The major renovation of the house in the early 1940’s was planned and carried out by Walter Macomber and resulted in the addition of a wing on the west end of the central block (in which a new kitchen was installed), conversion of the old kitchen wing on the east end of the central core into a living room with a small sunporch attached, rearrangement of the stairways and central hallway, and certain other interior changes. This involved removal of substantial amounts of the original materials in the house and replacement by material considered to be suitable in terms of age and texture. These changes are reflected in the exterior appearance and interior room arrangement of the house at the present time.

Further structural changes were made in 1960. At this time it was discovered that the second floor was sagging because of the removal of bearing walls in 1942 when the first floor was converted from four rooms into two.[88] This situation was corrected by pouring concrete footings in the basement and setting in them a series of steel columns. These columns ran up through the wall on the west side of the central hallway and were topped by a steel beam running the width of the house. The joists for the second floor were anchored in this new beam.[89]

At the same time this structural reinforcement was being added, several closets, cabinets, and bookcases were built into the rooms on the second floor and attic, making use of space under the eaves.

The remodeling done in 1960 was designed and supervised by Keyes, Lethbridge & Condon, Washington architects.

At the present time, the exterior fabric appears to be sound and well maintained. On the interior, a certain amount of deterioration is evidenced in the looseness of the joints in the flooring and stairs and in the uneven settling of door frames in the original portion of the house. The grounds adjacent to the house are in good condition and appear to be well maintained.

TECHNICAL DESCRIPTION—EXTERIOR.

Overall Dimensions. Width: 78 feet by 25 feet in central section, and 20 feet in wings. Height: central section, two and one-half stories; wings, one and one-half stories; sunporch, one story.

Foundations. The central section of the house stands on brick foundations which are carried up through the basement walls.

A brick wall extending upward to the second floor divides the basement into two sections and served as part of the original foundations. In the basement, a series of arches in this wall permitted passage between the two sections. In 1960, the upper portions of this wall 40 were found to have deteriorated to the point that it was necessary to pour concrete footings in the basement and erect a series of steel columns up through the wall to relieve it from bearing the weight of the second-floor beams and floor joists.

The east wing (present living room, former kitchen) rests on brick foundations, with the present wooden flooring laid over the original cobblestone floor of the old kitchen. The west wing (present kitchen) rests on concrete footings and slab at grade.

Wall Construction. Walls are constructed of medium red brick (3 by 9 by 12 inches), using the following bonds: central block front—Flemish bond; central block rear—English bond; central block end walls—English bond; east wing—American or common bond, with seven courses of stretchers to each course of headers; west wing—American or common bond, with six courses of stretchers to each course of headers.

Chimneys. Interior brick chimneys are located in the center of the east and west ends of the central block. These chimneys have separate flues for four fireplaces (two each on the first and second floors) and measure 5 feet by 2 feet 8 inches. Three courses of brick are corbelled to make the capping of the chimneys.

The end walls of the east and west wings of the house also each have an interior chimney centered in the wall. The chimney in the east wing, measuring 3 feet by 1 foot 8 inches and having three courses of brick corbelled for a capping, was used for the fireplace in the old kitchen which occupied that part of the house prior to 1942.

Doors and Doorways. The front doorway is inset (1 foot 8 inches) in an entrance faced with white painted wooden panels. The entrance is framed by a plain triangular pediment and pilasters without decorations on either shafts or capitals. The front door is a six-panel door, designed to harmonize with the interior doors which are originals. Over the door is a four-light rectangular transom.

The rear entrance is a 6 by 8-foot portico, built up three steps from ground level. Along the sides of the portico are 3-foot railings, inside of which are wooden boxes which serve both as storage boxes and as seats. The portico roof is supported by wooden Doric columns set at its outer edges, and the front end of the roof is a plain triangular pediment. The rear doorway has a transom and door similar to the front doorway.

The kitchen door opens onto a 4 by 4-foot wooden porch with railing and three steps to ground level.

The sunporch door has interchangeable screen and glass panels for winter and summer use and opens on the front of the house at ground level.

Windows and Shutters. In the central block, the front doorway is flanked by French windows, with 12-over-9 lights in double-hung wooden sash. The rear windows on the 41 first floor are 9-over-9 lights in double-hung wooden sash. Windows on the second floor front and rear sides are 6-over-6 lights in double-hung wooden sash, as are the dormer windows and gable end windows. The windows on the first and second floors of the central block have 2-foot 10-inch wooden sills and full-length louvered shutters hung on pintles (two on each side of the window frame). Window frames, sills, and muntins are painted dark green.

In the east and west wings of the house, the front windows are 6-over-6 lights in double-hung wooden sash. The rear window in the east wing (living room) has a dead-light picture window (6 by 4 feet) flanked by windows with 6-over-9 lights in double-hung wooden sash. Window frames, sills, and muntins are white, and full-length wooden shutters are dark green.

In the brickwork of the house, flat arches have been laid over all of the windows on the first floor, except over the windows on the rear of the central block.

The sunporch on the east end of the house is of frame construction and has nine windows (2½ by 5 feet) on three sides.

Roof. Photographs taken about 1900 show the house with an enclosed porch across the front and a sheet metal roof on the porch. In contrast, the central block of the house and the kitchen (east) wing have shingled roofs (figure 5). Photographs in 1936 show the central portion of the house with a sheet metal roof (figure 7). In 1942, the roofing on all parts of the house was replaced with specially made concrete shingles, which are still in place.[90]

The roof is a simple medium-pitched roof with plain gable ends. Interior chimneys are centered in each end of the center section and in the east end of the living room (former kitchen) wing.

Full-length copper gutters are incorporated into the eaves and project approximately six inches above and beyond the cornice.

Cornices on the front and rear of the center section of the house are composed of dentils, running approximately three segments per foot. Identical plain wooden cornices are used on the front and rear of the two wings of the house.

Each wing has one dormer centered in the front and two on the rear sides of the roof. The center section of the house has three dormers on the front side of the roof. All dormers have a single window, consisting of 6-over-6 lights, set vertically in the front face. All dormers have beaded ship-lap siding laid parallel to the pitched roof. This latter feature appears to be a change made in 1942 since photographs of the house in 1885 and 1936 show the siding on the dormers laid parallel to the ground.

43

Enclosures. A post and rail fence stands at the edge of the front lawn and, together with a line of hemlocks growing immediately inside the fence, forms a screen between the house and the entrance road leading in from the Little River Turnpike. In the rear, a semicircular screen of boxwood frames the lawn.

TECHNICAL DESCRIPTION—INTERIOR.

Central Block. The central block of the house, comprising the portion which was built first (possibly as early as 1760), is laid out on the traditional pattern used by many colonial Virginia homes—a central hallway with one or two rooms on each side, with chimneys at each end serving fireplaces in each room. In the case of Green Spring Farm, a narrow (4-foot 6-inch-wide) central hallway runs straight through from the front door to an opposing rear door. Floor boards are of random width (5 to 6 inches), and walls are paneled 3 feet 6 inches up from the floor, with wallpaper above. Doorways open off the central hallway into a library (east side) and a dining room (west side).

Prior to 1942, the rear portion of the center hallway contained stairways to the second floor and to the basement, while still allowing access to the rear door. In 1942, however, the stairway to the basement was shifted to the west (new kitchen) wing, which was built at that time; and the stairway to the second floor was shifted into the library.[91]

In the library, at the rear of the room a narrow (2-foot 6-inch-wide) stairway rises from the corner nearest the hallway to the second floor hallway above (figure 13). This stairway extends over the hall doorway and, together with a panel-and-spindle partition, forms a covered entryway into the room. A small closet utilizes the space underneath the stairs.

The present library is a designed room, created in 1942 by Walter Macomber. The design utilizes the full width of the house and thus replaces two rooms (approximately 12 by 12 feet) which originally had comprised the first area east of the central hallway. This original room design had had a fireplace in each of these two rooms, and in 1942 both were replaced. The one serving the rear room was taken out entirely as the doorway into the living room wing was cut through at that point. The one in the former front room was replaced by another fireplace, specially designed by Mr. Macomber, and built of materials from a late eighteenth century tavern near Peace Cross, Maryland.[92]

Built into the east wall of the library on each side of the fireplace are identical cabinets, the lower parts of which are enclosed and the upper parts are open shelves. The overmantel area is wallpapered, as are the portions of the room’s wall occupied by the window facing the front yard and the wall between the library and central hallway. Open shelving for books occupies part of this latter wall, to a height of eight feet.

The entire room has a cornice molding of stained wood, matching the paneling used for the stairs, the fireplace, and the built-in cabinets flanking the fireplace. 45 Across the central hallway, the present dining room was designed and created in 1942. As in the case of the library, brick interior walls separating two smaller rooms (approximately 12 by 12 feet) were removed to allow the dining room to utilize the full width (25 feet) of the house. The fireplace serving the rear of the original rooms was replaced by a doorway into the new kitchen wing through a butler’s pantry. The fireplace serving the front of the original rooms was retained in the present dining room. Beside this fireplace and extending to the front wall is a butterfly cupboard specially designed for that location. Chair rail, baseboard, and door trim in the room are thought to be original; but the ceiling cornice was added in 1942 and consists of double-ogee design over beaded plasterboard which is typical of the period of the house.[93] A cupboard by the doorway to the butler’s pantry is of modern design and was installed as an added convenience in the dining room.

The doors to the central hallway and to the butler’s pantry are thought to have been originally on the second floor of the house.[94] The hallway door has six panels, with beaded edges and quarter-round molding in the panels. A fillet molding (4½ inches) surrounds the doorway frame. The door has been drastically trimmed to fit the frame. The door to the butler’s pantry has four panels but with a flat raised panel and no quarter-round molding at the panel edges—a style typical of the later nineteenth century.

The second floor of the central block of the house originally was laid out identically with the first floor—that is, two rooms on each side of a central hallway. In the 1942 renovation, this same room arrangement was retained for the west side of the central hall (above the dining room), while on the east side of the hall a single bedroom (12 by 25 feet) was created using the full depth of the house. In this bedroom, cabinets with louvered double doors were installed on each side of the fireplace and painted white to match the fireplace mantel. This fireplace is one of the features retained from the original house and has a mantel which is plain except for a denticulated molding. Chair rail, also thought to be original, is installed on all exposed areas of wall in the room.

Across the central hallway, the two bedrooms retain the same basic design of the original house. Both are approximately 11 by 11 feet and have random-width flooring and chair rail on two sides of the room. The original fireplaces have been retained in these rooms. In the front room, the fireplace mantel is entirely plain; in the rear room, the mantel has two supporting columns and has three diamond shapes carved in the wood. Both rooms have built-in cabinets, shelves, and closets, some of which were installed in 1942 and some which were added in 1960. Also added in 1942 is the door connecting the front bedroom with the staircase from the first floor of the west wing. Through the passageway at the head of these stairs, there is access to the second floor of the west wing.

The third floor (or attic) is entered by a stairway in the central staircase. At the head of this stairway is a hallway connecting bedrooms in the east and west ends of the house and 46 providing access to closets at the rear of the house and a small bathroom (7 by 7 feet) at the front of the house. The bathroom has a dormer window to the front of the house, and each of the bedrooms has a dormer window to the front and a window in the gable end wall. The gable end windows are set in plaster arches, flanked in each case by a 4-foot-high candle shelf. Both bedrooms have built-in closets, cupboards, and shelves. Bedroom walls have plain plaster finish and plain wooden baseboards, no cornices, and no chair rail.

East Wing. The east wing of the house presently includes the living room and a sunporch. The floor level of this wing is 1 foot 8 inches lower than the floor level of the central block; and the connecting doorway has three steps, with double doors at the top step.

The date when the east wing was built is not certain, but it is probable that the basic structure comprising the wing was constructed around 1840 and thereafter used as a kitchen or combination kitchen-dining room until the renovation of the house in 1942. Photographs taken about 1900 and in 1936 show this wing with a door opening to the front of the house at ground level. The floor of the old kitchen was laid with cobblestones, and the east end of the room had a great hearth and Dutch oven. Food was cooked here and taken up the stairs into the main part of the house. Many other household chores (such as soapmaking) were performed here.[95]

When the house was renovated in 1942, the cobblestone floor of the room was overlaid with wooden flooring and pine wainscotting was added to the walls. On the north side, looking out onto the semicircular lawn, a picture window was installed. On the south side of the room, the outside door was replaced with a window similar to the one already in that side (figure 9). The large hearth and fireplace were replaced with a smaller one similar to what had been installed in the library (with the unusual wooden lintel).

According to the renovator, the paneling for the doorway connecting the living room and library came from Lancaster, Pennsylvania. The overmantel and paneling around the living room fireplace and over the doorway connecting the living room and sunporch came from a tavern near Peace Cross, Maryland, where it had been used as shuttering.[96] The architraves around the fireplace and pilasters were designed by the renovator from materials obtained in Pennsylvania.[97] The cornice in the living room is of cypress wood.

Entrance to the sunporch from the living room is through a doorway trimmed in material from an old building in Pennsylvania.

Wrought iron H hinges are used on the built-in cabinets in the east wall (next to the fireplace). The sunporch door has wrought iron hinges and a brass box lock.

The sunporch, added to the east wing in 1942, is frame construction on a concrete slab floor. When built, it was a screened porch, but later was converted to glass window panels to accommodate plants and pet animals in all seasons.

47

On the second floor of the east wing is a bedroom and bathroom suite, entered from the central block of the house on the second floor level. Dormer windows are on the north (rear) and south (front) sides of the bedroom, and the bathroom has a dormer window on the north side. The bedroom has built-in closets, shelves, and cupboards, the hardware of which is wrought iron. Doors have box locks and small brass door knobs. Two steps are built into the doorway connecting the east wing with the central block of the house on the second floor level.

West Wing. The west wing of the house was added in 1942, and was designed by the renovator, Walter Macomber.

The first floor contains a modern kitchen, a butler’s pantry, and a staircase containing stairways to the basement and to the second floor, together with storage closets. An exterior door in the end wall provides direct access to the outside.

The second floor of the west wing contains a bedroom and bathroom suite similar in layout to the suite on the second floor of the east wing. The bedroom contains built-in closets, shelves, and cupboards, and wrought iron hardware (thumb latches and H and L hinges).

Basement. The basement is beneath the central block of the house, and its design is basically unchanged from the original except for the concrete footings and steel columns placed there in 1960 to strengthen the deteriorating brick interior wall. The basement was not extended underneath either of the two wings of the house when they were constructed.

Entrance to the basement originally was by a stairway located at the end of the central hallway, where also was located the stairway to the second floor and attic. In 1942, however, the stairway to the basement was shifted to a new staircase located in the new west wing of the house, where it is at the present time. The basement currently contains gas heating equipment for the house, a water heater, and storage space.


48

ARCHITECTURAL HISTORY AND DESCRIPTION: THE MANSION HOUSE

[85]

Mrs. Michael Straight, interview December 1969. Certain pieces of the garden sculpture are from Peking, China. Others include “Frog Girl” by Willi Soukop.

[86]

Alexandria Gazette, November 6, 1839.

[87]

John Mosby Beattie, interview April 17, 1969.

[88]

David Condon, AIA; interview December 11, 1969. The earlier room layout of the central block of the house had two rooms, each about 12 by 12 feet, on each side of the central hallway which ran through the house widthwise. Each of these four rooms had its own fireplace located in the end wall. This pattern was duplicated in the four rooms on the second floor.

A somewhat unusual feature of this building was that the joists for the first and second floors ran lengthwise rather than across the house. They were anchored in the brick outer wall and in a brick bearing wall running the width of the house in the basement and extending up to the second floor. In 1960, it was found that this wall was crumbling and in danger of allowing the second-floor joists to pull out of their sockets. The installation of a series of steel columns holding up a steel beam had the effect of taking all bearing weight off this original segment of brick wall.

[89]

Ibid. The location of this masonry wall in the basement and its extension upward to the second floor made it possible for the original house to have the floor joists set lengthwise with the house instead of front-to-back. The joists were thus anchored in the outside walls at each end of the house and in the center wall running midway through the house.

[90]

Walter Macomber, interview held July 16, 1968, at Green Spring Farm. Mr. Macomber’s description of these shingles is as follows: “This shingle is something I helped develop for Williamsburg. We never did use it extensively, but it was made ... in Richmond [by] a man named Hendricks.... It’s made of concrete reinforced with two or three wires to the length of it.”

[91]

Ibid. This stairway was also reversed when it was moved into the library. As it originally stood in the hallway, the stairway ran upward from front to rear of the house, and a stairway to the basement was constructed underneath so as to run down to the basement from the rear to the front of the house.

A second stairway between the first and second floors was also installed in a new staircase constructed in the new kitchen (west) wing built in 1942.

49
[92]

Ibid. Transcript of Mr. Macomber’s description of the library is as follows:

Mr. Macomber: Now this room—the library—is a designed room.

Mr. Netherton: By you, do you mean?

Mr. Macomber: Yes.

Mrs. Netherton: Do you know what the room was before?

Mr. Macomber: Well, it was really plain.

Mrs. Netherton: Is this an Adam mantelpiece?

Mr. Macomber: You could call this an Adam mantel, although it’s not truly. It’s a mantel of about 1790.... This wood came from an old tavern near Peace Cross in Maryland. The building was torn down to make way for a large shopping center. This is all designed. This is a design of my own with the little dovetails which are a little affectation of mine. [Pointing to the entryway between the library and central hall.] At least part of this stair was original. The newel post and the balusters and the paneling under the first run of the stair are original, and the sheathing from that point up into the hall is a design, and was made right on the job by our carpenters.

Mrs. Netherton: Did you lengthen these windows to the floor?

Mr. Macomber: They were this way when we got the house, but they had been changed some time prior to 1942.


Mrs. Netherton: The cupboard was part of the design, was it not?

Mr. Macomber: Yes, it was, and I think this is one of the panels that came from Pennsylvania.... [Also] the paneled jamb from the library down into the living room came from this old building in Lancaster County [Pennsylvania]. And also the trim around the opening.

The renovator’s description of the dining room included the following comments:

Mr. Macomber: The mantel is a mantel of the period, and I’m quite sure it was in this room. The butterfly cupboard beside it is a design that was added to the room, and designed and built and installed for this particular location. The dining room, being a small room, we planned the recess beside the fireplace for the sideboard and also to give a little more space in the room and in the pantry. The chair rail I’m sure is original and the door trim, but the cornice I installed. The base is original, in most cases, I believe the doors are original, although the bottom rail has been cut off on this to such a degree, it looks as though it might have been for another opening. And that’s true on the door into the library.

[93]

Ibid.

[94]

Ibid. Mr. Macomber’s recollection is that “I’m quite sure it came from the second floor because it’s the same as the door into the nursery room....” As to the door into the hallway, he notes that it originally had been painted dark blue-green.

[95]

Michael and Belinda Straight, interview of December 8, 1968. John Mosby Beattie recalls when animal fat was cooked in the fireplace of the old kitchen to make soap.

[96]

Walter Macomber, interview July 16, 1969.

[97]

Ibid. According to local tradition, the tavern near Peace Cross originally was a residence, then a tavern, a gambling house, and a bawdy house. While a gambling house, it was robbed, and shots were fired after the fleeing burglar. One of the shots went into the shutters, and the hole made by this shot is still visible in the portion of the shutter used as paneling in the living room.


50

Tobey House Approach, Green Spring Farm


Tobey House, Patio and Fountain


Tobey House, Interior

Figure 14. Photos by Robert Lautman, c. 1960

51

ASSOCIATED BUILDINGS

I. THE TOBEY HOUSE

HISTORY

The Tobey House is located approximately one-quarter mile east-southeast of the main house on Green Spring Farm. It was built in 1954 as a residence for Mrs. Charles W. Tobey, the mother of Mrs. Michael Straight and widow of the late distinguished United States Senator from New Hampshire. Prior to that time, Mrs. Tobey had resided part of the time in Washington and part of the time in Concord, New Hampshire, where she owned a spacious, gabled New England mansion built about 1750. In order for her to be nearer her daughter and grandchildren, arrangements were made by Michael Straight to have a small, modern, open-design house built for Mrs. Tobey on Green Spring Farm.[98]

Architectural plans were completed in the fall of 1953, and construction was completed in 1954. Here Mrs. Tobey lived with her housekeeper, Miss Frances McFall, from 1954 to 1968.[99]

The house originally was comprised of a living-dining room, kitchen, two bedrooms, bath, and utility (heater) room. In 1957, however, it was expanded by the addition of another living room, bathroom, and utility room. At this time, also, the carport was relocated, and terraces were created on the east and west sides of the house. The result was to enlarge the living space within the house and to create an arrangement whereby a living room, bath, and utility room could be partitioned off (by a folding door) to make a guest suite. The addition of the semienclosed areas adjacent to the house, with their flagstone terraces and fountain pool, made for the enjoyment of outdoor activities.

Inside the house, the design and decor encouraged the feeling of closeness to the outdoors by the location of window space and the use of floor-to-ceiling glass walls at points where the landscaped surroundings of the house could be seen from the inside; and paneled walls provided a neutral yet sympathetic background for many fine pieces of antique furniture and other artifacts which Mrs. Tobey brought from New Hampshire. Also, use of horizontal ship-lap siding for the exterior gives a suggestion of New England clapboards.

Following her residence in the house from 1954 to 1968, Mrs. Tobey moved to Washington, D.C., and the house was occupied by tenants.

52

Figure 15. Tobey House Floor Plans, 1957


First Section, 1954

GENERAL SETTING AND SITE OF THE HOUSE

Located in the southeast corner of Green Spring Farm, the Tobey House enjoys a setting of generally open, slightly rolling countryside.[100] This setting is preserved on the land which comprises the farm. Beyond these limits, however, the neighborhood of the farm has experienced a rapid and drastic 53 transition in the 1950’s and 1960’s. As a result, its predominantly rural character has been largely replaced by tracts of subdivisions composed of single-family dwellings on lots ranging from one-fifth to one-half acre of land. At the same time, the Little River Turnpike (Route 236) has attracted extensive roadside commercial development, resulting in increased highway traffic generated by the intensified density of land use. This has accentuated the importance of the farm’s buffer space in preserving the tranquility and natural beauty which the owner and architect sought for the Tobey House.

The site of the house is set back from the Little River Turnpike approximately one-eighth mile and is connected with the pike by its own driveway. The driveway approaches the house from the southwest where the view first is of the carport and the 1957 addition. The immediate vicinity of the house has been left relatively open to provide a feeling of spaciousness when viewed from inside the house. Landscaped trees and shrubs located around the house preserve this feeling of an open natural setting while providing cover for the house and terraces.

ARCHITECTURAL DESIGN

Since it was Mrs. Tobey’s desire to enjoy the site as well as the house, the general design of the house contains features specifically aimed to permit this. On the east side, the flagstone terrace and fountain pool are partially covered by the overhang of the flat roof and a trellis. On the west side of the house, a covered flagstone walkway from house to the carport runs between a hedge and fence on one side and a small courtyard with flower beds and trees on the other. In the living room added in 1957, the only opening is a large picture window set in a bay which contains a planter box with living plants.

Architecturally, the house is of particular interest because its basic objective of facilitating an indoor-outdoor style of living is achieved with simple, open lines and harmonious materials.[101] Set upon a concrete slab, the wooden walls of the house are overlaid with wooden beams placed so as to intersect and create the appearance of squares and rectangular modules on the ceiling. A flat wooden deck roof rests on these beams. No prefabricated units were utilized in the construction of the house, and all pieces were individually specified, cut, and fitted together.

The architect for the Tobey House was David Condon, AIA, of Keyes, Lethbridge & Condon, Washington, D.C. The landscape architect was Eric Paepcke of Washington, D.C. Interior design was done by Top Recker and Patricia Holsaert. Construction was performed by Hayes Brothers of Herndon, Virginia (figures 14 and 15).

EXTERIOR FEATURES

The overall dimensions of the house are 70 by 25 feet; the carport measures 11 by 21 feet. 54 Exterior walls are gray stained cypress, laid on horizontally in ship-lap style, with white trim. Full-length glass panels serve as walls in the section of the house called “the gallery,” facing the terrace on the east side of the house.

The fountain pool in the east side terrace measures 6 by 13 feet. The pool water does not recirculate but is piped from the house water supply and can be controlled by a faucet.

ENCLOSURES

A wooden post and rail ranch fence encloses the field where the house is located.

LANDSCAPING

Pine and plane trees are planted for shade near the house and screening from the highway on the west side. Wisteria is planted for the trellis over the terrace on the west side of the house to shield it from the afternoon sun. In the immediate vicinity of the house, vinca minor (periwinkle) is used as ground cover.

INTERIOR FEATURES

The Tobey House contains 2,062 square feet of floor space.

Room arrangements for the original structure and following the addition in 1957 are shown in figure 15.

Interior walls are of vertical cypress paneling, and floors are wooden parquet. Ceilings have exposed beam and plank construction.

Interior features when Mrs. Tobey was in residence included wood carvings from a Scandinavian sailing ship salvaged when it sank off the New England Coast.

Woodburning fireplaces are located in the living room of the original portion of the house (now used as a study) and the living room of the 1957 addition.

The house is centrally heated with radiant heat from the floor. No central air conditioning was provided in the original portion; but, when the addition was built in 1957, central air conditioning was provided for it and ducts were extended into the living room of the original portion. Window air-conditioning units were installed in the bedrooms.

55

II. THE BARN

Located approximately 200 feet northeast of the main house is a two-story frame barn. Its date of construction is not certain, but it is known to have been present when the Straights acquired the farm in 1942. During the occupancy of the farm by the Straights, the barn was converted into a laundry and a maid’s apartment. As renovated for this purpose, the first floor of the barn contained space and equipment for the laundry, a kitchen, and a bathroom. The second floor contained living quarters and a bathroom. Access to the second floor was by an exterior stairway (figure 17).

Overall dimensions of the barn are 14½ by 24½ feet. Its construction is frame with eight-inch siding laid on vertically and two-inch battens used to cover and seal the joints. The exterior is stained brown with no trim. The exterior stairway is constructed of wood and leads to a second floor entrance in the center of the east end of the building. The stairway is in two segments. One, on the south side, reaches from the ground to a landing at the corner of the building; the other, on the east side, reaches from the landing to the entrance door. The peak of the roof is approximately 17½ feet from the ground.

57

III. THE LOG CABIN

Located approximately 90 feet northeast of the main house is a small one-story house of log construction. Its date of construction is uncertain, although it is possible that this building is the “Servants’ House” referred to in the notice of the commissioner’s sale of the farm following the death of William Moss in 1835.[102]

During the Straights’ occupancy of the farm, the cabin was renovated and converted into a guest house. During the later years, their son, David, lived in the cabin.

The renovation carried out by the Straights resulted in enlargement and reframing of the windows, reconstruction of the existing door on the west side, and reconstruction of the brick chimney at the north end of the building. At the same time, another doorway was added on the east side (figure 18).

58

Figure 19. Spring House Floor Plans, 1960

59

IV. THE SPRING HOUSE

HISTORY

References to a spring house appear frequently in descriptions of Green Spring Farm during the nineteenth century.[103] The well watered character of the farm, possessing springs of its own and traversed by Turkey Cock Run, was an advantage of great value to all its owners. Quite possibly the presence of the springs was decisive in enabling both the Mosses and Fountain Beattie to make dairying a substantial part of the farm’s operations. In the 1830’s, many of the types of equipment and utensils typically used in making and preserving butter, cheese, and fresh milk were listed in inventories of personal property at the farm. During this period and later, the presence of the Little River Turnpike would have made it feasible to sell dairy products regularly in Alexandria, six miles away, and in the District of Columbia, nine miles away.[104] It is equally likely that a spring house was also one of the focal points of the farm’s cider and brandy-making activities at those times when the orchards flourished.

After the sale of the farm by Fountain Beattie in 1917, the level of its operations gradually decreased. By 1940, the spring house stood unused, as neither dairying nor orchard activities were carried on. Therefore, when the Straights ordered the renovation of the main house in 1942, it was suggested that the spring house be converted into a residence for the farm’s caretaker.

Conversion of the spring house into a residence was carried out under the direction of Walter Macomber of Washington, D.C., who also had been in charge of remodeling the main house. Using the basic stone shell of the house, which was structurally sound, a two-story house was designed with living room, bedroom, kitchen, and utility (heater) room on the first floor and a bedroom, bathroom, and storage area on the second floor.[105] (See figure 19.) In this work, new materials were used, except that slate shingles taken from the main house (where the roof was being replaced) were used for roofing the spring house.

In 1961, the second major remodeling of the house enlarged it and attempted to reduce the dampness due to its location in the midst of the springs. The architects for this work were Keyes, Lethbridge & Condon of Washington, D.C. As a result of this work, the roof was raised to permit construction of a new bedroom and storage room on the second floor. On the first floor, enclosure of a porch permitted the addition of a bathroom and closet to the downstairs bedroom. Substantial remodeling of the kitchen was also undertaken, in which a closet was converted into cabinets, new flooring was laid, and new kitchen fixtures were installed.

60

EXTERIOR

The original portion of the spring house is constructed of stone, with stucco exterior finish. The frame addition is covered with rough-sawn redwood lap siding over half-inch vapor-sealed sheathing. The roofing for this portion of the house is slate shingles, matching the slate roof of the original portion which used shingles taken from the mansion house when it was renovated in 1942. Copper gutters and downspouts were installed in 1961, as was copper flashing at the base of the chimney.


61

ASSOCIATED BUILDINGS

I. THE TOBEY HOUSE

[98]

Title to the property on which the house was built remained in Michael and Belinda Straight.

[99]

“A New House with Young Ideas,” House and Garden, December 1958.

[100]

David Condon, AIA, interview December 12, 1969. Initially it was proposed to locate the house with its back to a line of trees separating the upper and lower portions of the pasture west of the main farm house. This would have taken advantage of the view to the west of the house, considered to be its best view. Ultimately, however, the house was located in the lower pasture, closer to the Little River Turnpike but screened from the highway by a line of trees planted for that purpose.

[101]

Ibid. This is the opinion of David Condon, who served as architect for both the original building and its subsequent addition. He notes that the building’s style was rare in the Eastern United States, although it had appeared and was popular on the West Coast.

III. THE LOG CABIN

[102]

Alexandria Gazette, November 6, 1839, advertisement.

IV. THE SPRING HOUSE

[103]

Alexandria Gazette, November 6, 1839, advertisement; John Mosby Beattie, interview April 17, 1969.

[104]

John Schlebecker, Curator, Division of Agriculture and Mining, Museum of History and Technology, Smithsonian Institution, Washington, D.C. Interview held February 26, 1969.

[105]

Walter Macomber, interview July 16, 1968. It appears that no drawings were made of the spring house as it appeared before its conversion into a caretaker’s residence, and no plans have been preserved to show the construction undertaken for the conversion.

62

Figure 20. Fairfax County Property Identification Map, 1969, Green Spring Farm, Quadrant 72-1.


County of Fairfax, Virginia Seal
63

APPENDIX A

COMMONWEALTH OF VIRGINIA
County of Fairfax
HISTORIC LANDMARKS SURVEY

Name of Property:Green Spring Farm (Moss House)
Owner:Michael W. Straight et ux.
Location (Street Address):4601 Green Spring Road, Alexandria, Va.
Mailing Address:c/o Mudge, Stern, Baldwin & Todd, 20 Broad Street,
New York, New York 10005
Other Locational Data:One block east of Braddock Road, on Little River Turnpike.
Acreage:31.688
Property Identification Number:72-1-001-24
Deed Book Reference:Deed Book P 15, page 145.
Location of Title:Fairfax County Courthouse
Assessed Value:$93,415 ($17,365 buildings) January 1969 listing.
Zoning Status:RE-0.5
Present Use:Residence
Restrictions:——
Magisterial District:Mason
Planning District:Annandale
Open to Public:No
Setting:House itself is well screened from the road, and the garden in back has been well designed.
Additional Material Available:See Virginiana Collection files, Fairfax County Public Library: HABSI form 1969; photographs; color slides; clippings; research notes.
Nan and Ross Netherton, Green Spring Farm, manuscript, 1969.
F. Johnston, Memorials of Old Virginia Clerks, Lynchburg, Va., 1888
Date: 10/13/69Recorder: Mrs. Ross D. Netherton
Division of Planning

64

APPENDIX B

GREEN SPRING FARM HISTORY OF OWNERSHIP

1706 Grant from the Proprietors, LADY MARGARET CULPEPER, THOMAS (5th) LORD FAIRFAX and CATHERINE his wife, to JOHN WEST, WILLIAM HARRISON, THOMAS PEARSON and THOMAS HARRISON. For 4,639 acres on Great Hunting Creek and Indian Branch.
Northern Neck Grants 3, December 23, 1706, p. 153.
1739 Survey by John Warner for GEORGE HARRISON and JOHN SUMMERS ordered by William Fairfax, Agent for THOMAS (6th) LORD FAIRFAX for about 500 acres of waste land joining on West, Pearson and Harrison’s land and Summers’ land.
Northern Neck Grants Book E, November 21, 1739, p. 72.
1740 Grant from the PROPRIETOR’S OFFICE to GEORGE HARRISON and JOHN SUMMERS, of 834 acres surveyed by John Warner, located on Indian and Turkey Cock Runs. (George Harrison was the brother-in-law of Hugh West, the elder.)
Northern Neck Grants Book E, May 10, 1740, p. 216.
1777 Conveyance from JOHN WEST (son of Hugh West, the elder) deceased, to HUGH WEST (his son and grandson of Hugh West, the elder), of about 400 acres adjoining John Summers.
Fairfax County Will Book D, February 7, 1777, p. 4.
Deed from DANIEL and REBECCA SUMMERS to JOHN MOSS, a parcel of land for 300 pounds. (Two pages have been torn out of the deed book here.)
Fairfax County Deed Book M, September 11, 1777, p. 324.
1788 Deed from BALDWIN and CATHERINE DADE to JOHN MOSS for 310 pounds current money of Virginia, for part of the Turkey Cock tract on Indian and Turkey Cock Branches, being the land Baldwin Dade purchased from a certain Hugh West relation. (Note: George Harrison, uncle of John West, willed all his property to John after the decease of his wife Martha.)
Fairfax County Deed Book R, October 20, 1788, p. 256.
1789 Lease from BRYAN FAIRFAX to JOHN MOSS for 7,000 acres on the west side of Difficult Run, and Towlston.
Fairfax County Deed Book R, April 2, 1789, p. 397.
1794 Deed from WILLIAM HENRY and AMELIA TERRETT and MARGARET WEST to JOHN MOSS for 180 acres, 1 road and 14 perches for 421 pounds 10 pence, current money of Virginia. Property on both sides of the Turnpike road, abutting Summers, Norris, Scott, and West, Pearson and Harrison.
Fairfax County Deed Book Y, December 2, 1794, p. 198.
1795 Survey by John Moss, 3 acres on Indian Branch, involved in a dispute over boundary line with neighbor Hepborn.
Fairfax County Deed Book X, April 24, 1795, p. 488.
1809 Conveyance of will from JOHN MOSS: to sons WILLIAM and THOMAS the residue of the lands purchased from Summers and Dade to be divided between them; to son JOHN the plantation whereon he lived which was leased by John Moss from the late Bryan Fairfax; to daughters PATTY, MARY and ANNE, all of the lands he bought from William H. Terrett and houses; the last third of his property to be divided by sons ROBERT, WILLIAM and 65 Thomas after the decease of his wife ANN. Also mentioned in his will are his daughter FRANCES MIDDLETON and grandchildren GIDION and ELIZABETH. (See appendix C.)
Fairfax County Superior Court Will Book I, p. 1, October 25, 1809.
Gift by JOHN MOSS to WILLIAM MOSS and ROBERT MOSS, sons, of 1/3 of two tracts purchased from Baldwin Dade and Daniel Summers.
Fairfax County Deed Book J-2, April 14, 1809, p. 272.
1835 Public sale for infant heirs of WILLIAM MOSS, deceased. Advertised in Alexandria Gazette, June 12, 1835. Inventory and sale account.
Fairfax County Will Book R, March Court, 1835, p. 353; Will Book S, pp. 7, 298.
1843 Sale by THOMAS R. LOVE and ALFRED MOSS, parties of the one part, to THOMAS SHERIFF, party of the other part, formerly of Barbados but now of Fairfax County, 341 acres, one road and 25 poles. From estate of Thomas Moss who died intestate; Final 62, Chancery Court Proceedings. (See figure 2.)
Fairfax County Deed Book H-3, p. 226, May 28, 1843.
1855 H. W. Thomas, Commissioner, gives grants, bargains and sells as a settlement on an unpaid debt land owned by JAMES SHERIFF known as Green Spring purchased by Thomas Sheriff from Thomas Love and Alfred Moss in 1843, to JAMES BENTON to have and to hold in trust for sole and separate use of HANNAH O’BRIEN, of Baltimore, free from debts, liabilities and control of husband Matthew O’Brien and power on her part to dispose of same by deed or will as though she were a femme sole.
Fairfax County Deed Book W-3, p. 424, September 10, 1855.
1878 Sale by H. O. Claughton, Commissioner, for SARAH GREEN and L. M. SAUNDERS, parties of the first part, and FOUNTAIN BEATTIE, party of the second part, of the land formerly owned by Hannah O’Brien concerned in a Chancery Court case. (See Suspended File 10, with O’Brien plaintiff and Green, defendant.) Acreage—339. (See figure 3.)
Fairfax County Deed Book W-4, p. 271, June 25, 1878.
1917 Sale by CAPTAIN FOUNTAIN BEATTIE, widower, to GEORGE SIMS of Florida, 339 acres.
Fairfax County Deed Book C-8, p. 446, January 23, 1917.
1922 Sale of 339 acres by GEORGE R. SIMS and WALTER KAHN to JAMES M. DUNCAN of Alexandria.
Fairfax County Deed Book Y-8, p. 50, June 12, 1922. (See figure 3.)
1924 Sale of 332 acres divided into 48 parcels by MARY V. DUNCAN and CARROLL PIERCE to FREDERICK SEGESSERMAN.
Fairfax County Deed Book J-9, p. 23, June 23, 1924.
1931 Sale of 28 acres “on State Highway 6, a new concrete road from Alexandria to Virginia” by CAROLINE and FREDERICK SEGESSERMAN to MINNIE WHITESELL.
1942 Sale of 33.128 acres by MINNIE WHITESELL to MICHAEL and BELINDA STRAIGHT. (See figure 8.)
Fairfax County Deed Book P-15, p. 147.

66

APPENDIX C

WILL OF JOHN MOSS, 1809

Fairfax County Superior Court Willbook No. 1, pp. 1-3.

“In the name of God Amen I John Moss of the County of Fairfax and State of Virginia do hereby make and Ordain this my last will and testament in manner and form following to wit I give to my son John Moss the plantation whereon he now lives which was leased by me of the late Revd Bryan Fairfax and the service of my Negro man Nat until the period arrives when he is to go out free agreeable to a Deed of Manumition Recorded in Fairfax County Court upon his paying his sister Frances Middleton Fifty Dollars which with what I have heretofore given him I consider as his full part of my estate. Item having already given my daughter Frances Middleton a lease I held under the said Bryan Fairfax Deceased known as Buck Spring and a negro woman by the name of Maria as long as she has to serve under the before mentioned Deed of Manumition I now give and bequeath unto her as her full part of my estate the sum of Fifty Dollars to be paid her by her brother John Moss in twelve months after my Decease provided the said negro man Nat given him shall survive me and come to the actual possession of my son John Moss. Item I give and bequeath unto my son Robert Moss and his heirs forever the plantation whereon he now lives so as to include one third part of the lands I purchased of Daniel Summers and Baldwin Dade agreeable to the deed I have made him also two acres on the south side of the Turnpike to be laid off along the line of West and to join the land I have before given him. In order to afford an outlet to the Turnpike Road, and as the word (also) may be understood to imply my Intention is to give him those two acres more than his third part before-mentioned I declare it is not but that they are to be included in the same. Item I give and bequeath unto my grandson Gideon Moss and my grand Daughter Elizabeth K. Moss two hundred Dollars each to be paid them or their heirs in eighteen months after my Decease which with what I gave their father in his lifetime I consider and hereby declare to be their full part of my Estate. Item I give to wife Ann Moss during her natural life the use of all the rest and residue of my Estate real, personal and mixed for the support of her and such of my daughters as may be at the time of my Death unmarried and after her decease I give and bequeath unto my Sons William Moss and Thomas Moss and their heirs forever the residue of the lands purchased by me of the aforementioned Summers and Dade to be divided between them as follows: Beginning on the Turnpike road adjoining the two acres given my son Robert Moss for an Outlet thence down the said road opposite to my gate thence a southerly course to a small Drain about fifteen poles from the Turnpike road by the name of Crumps Branch thence down the said Branch and bending therewith to the intersection of the Dividing line of the lands purchased by me of the before-mentioned Summers and Dade thence with the said line eastwardly to where it crosses the Turkey Branch thence up the said branch with the Several Courses of my deed from the said Summers to the Intersection of West’s line thence with the line to the beginning which several courses include that part of my land I wish my son Thomas to enjoy all but the houses where John Powell now lives with four acres adjoining it I add to the lands I intended for my daughters Patsy, Mary and Anne and in case it should exceed one third part of my purchase from the said Summers and Dade then I direct that my son Thomas Moss do pay to his brother William Moss at the rate of Twenty five Dollars for every acre that may be included in his said lott over and above one third part of the said two purchases of Summers and Dade. Item I give and bequeath to my three daughters Patty Moss, Mary Moss and Anne Moss and their heirs forever after my wife’s Decease the whole of the lands I purchased of William H. Terrett to be equally divided including the homes and four acres adjoining (as mentioned before) between them and two thirds parts of the whole of my personal estate be divided between them and their heirs forever. Item the rest and residue or the One third part of my personal 67 estate after my wife’s decease I give and bequeath unto my three sons Robert Moss, William Moss and Thomas Moss to be equally Divided between them and their heirs & lastly I appoint my wife Ann Moss executrix and my sons Robert Moss, William Moss and Thomas Moss executors of my last will and testament hereby revoking all other and former wills by me heretofore made In witness whereof I have hereunto set my hand and affixed my seal this fourteenth day of November Anno 1808 Present

John Moss    SEAL    ”

The will was presented by William Moss on October 25, 1809. William Moss, George Mason, Joseph Powell and Reezen Wilcoxen set a bond of $22,000 to guarantee that William Moss make a true and perfect inventory of all goods, chattles, and credits of the deceased and do well and truly pay and deliver all legacies specified in the will.


68

APPENDIX D

SALES ACCOUNT OF THE PERSONAL ESTATE OF WILLIAM MOSS—1835

The following list contains the items comprising the personal estate of William Moss, entered at a sale at auction held April 15 and 16, 1835.

The original list appears in Fairfax County Will Book S-1, pages 7-18, and shows the name of the purchaser for each item. In listing the items here, the names of the purchasers have been omitted and the items listed by categories for convenience.

FURNITURE

1 pine Table.50
2 Washstands, Bowl & pitchers2.25
1 Bed weighing 70 lbs at 34 cts23.80
1 ditto—58 lbs at 39 cts22.62
1 ditto—78 lbs at 27 cts27.06
1 ditto—58 lbs at 26 cts15.08
1 ditto—70 lbs at 32 cts22.40
1 ditto—58 lbs at 29 cts16.82
1 Pair Card Tables10.50
1 Set Dining Tables10.50
1 Breakfast Table4.00
1 Portable Writing Desk4.00
1 Mantle Clock26.00
1 Stool.37
1 Tester Bedstead2.50
1 Mahogeny Bedstead3.30
1 Bedstead2.00
1 Bedstead4.00
1 Mahogeny Bedstead5.65
1 Maple Bedstead12.00
1 Mahogeny Bedstead6.25
1 striped carpet3.40
1 striped carpet4.10
1 striped carpet1.55
1 figured carpet3.25
1 large carpet17.00
1 striped ditto (new)28.00
1 piece stair carpet5.50
1 Striped Carpet8.75
1 Striped Carpet (small)5.00
1 passage carpet1.00
1 arm chair1.00
1 Dozen red chairs1.25
½ Dozen cream coloured chairs4.00
½ Dozen cream coloured chairs4.00
½ Dozen rush seat chairs9.00
½ Dozen rush seat chairs8.75
½ Dozen Black Chairs4.25
½ Dozen Black Chairs2.00
1 Side Board21.00
2 waiters.37½
1 Breakfast table2.25
1 Walnut Safe6.25
1 Book Case16.00
1 Pair Andirons Shovel & Tongs1.75
1 Safe & contents2.25
1 Pair And Irons & Fender.75
1 Bureau4.80
1 Dressing Glass3.50
1 Pair And Irons brush &c1.30
1 Dressing Glass1.37½
1 Bureau7.50
1 bureau5.10
1 dressing glass1.50
1 gilt looking glass3.50
1 pair andirons2.85
1 bed weighing 80 lbs at 24 cts19.20
69

HOUSEHOLD FURNISHINGS

1 Pair Decanters4.00
2 Glass Pitchers.87
2 Latts1.00
22 Wine Glasses3.87
10 Gelly Glasses.75
1 Dozen Jelly Glasses1.15
9 Glass Caps1.37½
1 Celery Glass1.00
3 Bottles & 1 Decanter1.50
1 Mire Filler.25
1 Glass Stand2.00
1 toaster.50
1 Waiter, tea Pot &c.25
1 Cork Screw.25
1 Pair Waiters2.00
1 Waiter and contents2.80
1 Large Bowl4.00
2 Pair Brass Candlesticks & Snuffers1.50
1 Waiter & 4 Glasses.50
1 pair Tureens1.00
11 Small Plates.87½
6 Soup plates.75
7 dishes1.50
1 bowl and Mustard Pot.25
1 Pitcher.25
2 Plated Baskets9.50
1 Pair Plated Candlesticks8.75
1 Pair Plated Snuffers & Tray6.25
1 Lot dishes & crocks.95
1 Kettle.76
1 bag of Corks.15
2 casks & contents1.50
a parcel tins.25
1 Oven, Kettle & Hooks.62½
1 Cake Moulds & pot.50
1 Strainer, print & Bowl.55
1 Pewter Basin, Tin &c.55
1 Gun & apparatus7.75
1 Fire Sett (complete)16.00
1 Fire Set (in Dining Room)4.90
1 Bucket, tub & Griddle.50
1 Shovel & Tongs & sifter.50
1 old safe and contents.40
1 tin safe and basin2.00
2 Jugs, 4 Crocks & 1 jar1.25
5 Large stone crocks1.35
3 earthen and stone jar.30
½ Dozen jars1.00
½ Dozen old crocks1.15
2 pewter basins1.00
1 China diner set11.25
5 Large Dishes3.00
5 pieces Brittania Ware5.00
½ Dozen silver spoons5.00
½ Dozen silver spoons5.12½
5 Silver Spoons2.25
½ Dozen Silver Table Spoons16.00
4 Silver Table Spoons8.50
2 Salt Spoons & toddy ladle5.00
1 Pair sugar tongs1.75
1 Soup ladle9.00
2 Silver tumblers9.50
1 Sett Tea ware.50
1 Large bowl.60
1 Sett Castors6.00
1 Lot Wood ware1.50
1 Lage pots & hooks & 1 Lage oven2.00
1 Large oven.76
1 oven and Pot1.80
1 Frying pan & Grid Iron.75
3 pots.62½
1 Furnace, Kettle & pot.25
1 Spice Mortar & Pestle.75
1 Brass Kettle3.00
1 Reel &c 2 Spinning Wheels Basket & Contents5.85
2 Smoothing Irons.87½
1 Quilting frame.12½
4 pairs Cards.55
1 Lot frames & Brushes.75
2 Dozen Knives & forks13.00
1 chest.37½
1 pair Round Tables & Bellows2.00
1 Writing Desk, Slate & Inkstand1.25
1 basket of Chambey1.12½
1 Table, Desk & five mp & contents1.45
1 pair pillow cases.80
3 pair pillow cases1.55
1 pillowcase.35
3 pair cotton pillow cases.84
1 Table Cloth1.30
1 ditto ditto.35
1 Table Cloth.63
1 ditto.50
1 ditto.70
1 ditto1.75
1 ditto2.00
1 Pair Diaper towels.42½
1 Ditto Ditto.30
1 Ditto Ditto.28
1 Ditto Ditto.28
1 Ditto Ditto.26
1 Ditto Ditto.15
1 Ditto Ditto.26
1 Ditto Ditto.28
3 Toilet Covers1.43
1 Toilet Cover1.37½
1 Toilet Cover.16
1 Box, Boot Jack & old Stool.30
1 Lot Cake Moulds.15
1 Shovel & Tongs & Warfel Irons.31
1 Driping Table
1 ditto—3 fire screnes & Lot old tin1.25
1 Pair Blankets4.05
5 pair Blankets10.62½
1 ditto Ditto2.75
1 White Counterpane2.55
1 striped ditto.75
1 pair Blankets3.12½
1 white Counterpane4.55
1 calico Ditto1.68
1 ditto Comfort2.00
1 Ditto Ditto1.55
1 White Counterpane10.00
1 Figured Ditto1.91
1 White Counterpane1.75
1 ditto ditto2.80
ditto ditto3.50
ditto ditto1.50
ditto ditto2.75
2 Counterpanes2.25
2 tablecloths9.00
8 pair Sheets22.30
2 pair sheets3.80
4 ditto ditto9.12½
2 ditto ditto6.87½
1 Pair Blankets $4.25—1 ditto $37.25
1 clothes brush.31
71

PICTURES, BOOKS AND PAPERS

2 Maps U. States8.80
1 Print of Thomas Jefferson.25
5 volumes Washington life5.00
1 Vol. Gordons Digest.25
1 Vol. Guthries Geography2.25
1 Vol. biography dictionary1.75
6 Vol. paper work at 25 cts1.50
1 Vol. Life of Napoleon.62½
1 Vol. Olive Branch.51
1 Vol. Memoirs of Napoleon.35
1 Vol. Tuckers History.26
4 Vol. Modern Europe2.00
10 Vol. Encyclopedia3.00
1 Vol. Burns Work.16
1 Vol. Christianity1.10
1 Vol. Classes Cookery.14
1 Vol. Haies Pleas.40
1 dictionary1.00
1 Book on Farriery.30
1 lot old Books1.30
1 lot old books.51
1 vol. History of Rome.37
1 vol. Dridens Tour.20
1 vol. Strong Bow.17
1 vol. Political Enquiries.50
1 vol. Ewells Discourses.37
2 vol. Sydney on Government1.75
5 vol. Shakespeare.95
1 vol. Montagues Reflections.42
1 vol. Gambler.15
1 vol. History U. States.85
1 vol. Snodens America.26
1 vol. Astronomy.22

NEGROES

NegroIsaac800.00
Jacob800.00
Aaron660.00
Cornelius, Betsey & Child800.00
Edward550.00
Maria528.00
Mary Ann600.00
Kitty620.00
Ann630.00
Cornelia500.00
Jane240.00
Ellen205.00
Daniel175.00
Massa131.00
Jenny40.00
Emanuel40.00
Chloe.50
Charles250.00

FARM PRODUCE

1 Stack Hay29.50
1 pacel of Hay8.65
1Stack ofOats35.00
143.00
1 lot Wheat Straw1.25
1Beehive1stchoice1.25
12nd.75
5BarrelsCornat$4.1020.50
10at$4.1241.20
5BarrelsCornat4.0520.25
54.10½20.50
44.12½16.50
34.12½12.37½
1 Hogshead of Vinegar2.62½
1 Beehive 3rd choice.62½
5 empty Bee gums.12½
1 barrel soap1.60
105lbsBaconat12½per lbs13.12
1031313.39
10013½13.50
10013½13.50
2571332.60
61106.10
1Barrelvinegar1.65
11.55
11.90
1 barrel vinegar3.30
1 barrel vinegar3.30
1 Hogshead of Vinegar5.00
1 bag Wool45 lbsat3214.40
1 ditto25½at258.92
1 ditto5at261.30
1 bag yarn35 lbsat54 cts18.90
72

ANIMALS

1 Dun mare52.50
1 Sorrel Horse78.00
1 Bay Horse40.00
1 ditto do48.50
1 Sorrel Horse57.00
1 Bay Horse88.00
1 Stud Colt62.50
1 ditto (Sir James 6 years old)111.00
10 and 10 lambs (Jno Washington 1st choice)42.00
73 Ewes & Lambs at $2. each (Jno Washington)146.00
1 cow10.12½
1 White and Red Cow15.00
1 cow and Bell10.00
1 Black Cow17.12½
1 Red Heifer7.06½
1 White and Red Cow17.50
1 ditto ditto14.50
1 Black and White Cow18.00
1 Buffalo Cow18.25
2 Breeding Sows6.00
5 shoats 1st choice7.50
4  do  2nd ditto5.00
1 Black Cow14.00
1 cow14.00
1  ”  heifer13.00
1 Red Steer6.00
1 Dark Steer13.00
73

TOOLS, FARM EQUIPMENT AND IMPLEMENTS OF HUSBANDRY

1 Lot old gear2.70
1 Lot old plough gear2.55
Cart gear Harness &c2.40
1 Lot old Carriage irons &c4.50
5 Mowing Scythes2.10
2 Scythes & Cradles2.35
1 Grind Stone3.25
4 Sacking Bags1.00
12 old tubs 25 cts—1 cutting box 3.253.50
1 pair saddle bags3.50
3 tubs, barrel &c.35
2 old pots oven &c.25
1 large iron kettle and soap5.00
2 empty barrels and 1 barrels soap1.67
3 old tubs.15
1 Light Cart30.50
1 Broad Tread Cart11.70
1 Wagon & 2 extra Bodys34.50
1 Sand Sifter.50
1 Wheat fan9.00
A pacel Rye and Oat Straw18.00
2 old grain hogsheads.50
1 augur crank &c.75
old harness.12½
1 box and some glass.50
3 barrels & some salt.60
1 old Saddle.25
9 old barrels.62
4 empty stands or Hogsheads2.37½
3 empty Hogsheads & 2 barrels2.12½
2 pair Shears and Keg White Lead1.37½
1 Sett Scales & Weights & Jugs.51
1 pair Stirrup.35
1 parcel Shvel and Spades1.75
2 Forks and Rake.50
1 Lot Swingletrees1.80
2 Wheel Barrows1.12
1 old Cart Body, Shafts, &c3.55
1 Carriage & harness35.00
1 Saddle and Bridle8.00
1 rope.26
1 Sett Blacksmith’s Tools20.75
1 bucket & old iron.31
3 Halter Chains.75
1 Jack Screw2.00
1 old boring machine1.00
1 chain and old plough share.55
1 Crow bar and Bar of Iron1.37½
1 Barshear plough7.50
1 Dutch plough.87½
3 Chopping Axes1.15
1 Lot Carpenters tools $2.25—1 Log Chain $13.25
2 axes2.25
1 Small Bar Shear plough7.50
1 Large Bar Shear plough7.25
1 Large ditto-old1.00
3 old ploughs.12½
1 pair Steelyards1.00
5 Hilling Hoes & fork1.25
1 Harrow5.00

74

APPENDIX E

Transcript of part of an affidavit from Thomas R. Love and Alfred Moss to Judge John Scott of the Circuit Superior Court.

To the Honble John Scott Judge of the Circuit Superior Court of Law and Chancery of the County of Fairfax. Respectfully Complaining Herewith unto your Honor, your Orators Thomas R. Love guardian of Charles R. and Armistead T. Moss, and Alfred Moss guardian of Edgar and John Thomas Moss, the three first infant Children of Thomas Moss decd & the last named the infant son of Jno Moss decd son of Thomas Moss—

That Thomas Moss died intestate on the ____ day of October, 1839, leaving Seven Children and One grand Child in all his Heirs at Law—viz. Anna R. Love the wife of your Orator Thomas R. Love, Robert Moss, Alfred Moss, Thomas Moss & the four infant Children just named—Edgar the Eldest of these infant Children will be 20 years old in November of the present year. Charles R. will be 18 years old in the month of March 1840, Armistead 16 in the month of December in the present year and John Thomas Moss will ____ years old in the month of ____ 18__.

The real Estate of which Thomas Moss died seized in ____ was the tract of land on which he resided at the time of his death situated on both sides of the Little River Turnpike Road about Six miles from Alexandria containing about 320 Acres. This tract of land is the only real Estate to which the Heirs at Law of said Thomas Moss are entitled in the said County of Fairfax or Elsewhere—This tract of land is naturally a thin soil but from a careful course of husbandry for a number of years, is now in a good state of cultivation, the fields well enclosed by good and substantial fencing, the land not in cultivation well taken with grass (clover and timothy) and that in cultivation just sown down in winter grass, and the buildings in a good state of repair, the barn and stables having been Erected in the last two or three years—

Your orators have been advised by persons in the neighbourhood with whom they have conversed, with the view of getting the best advice and information on the subject that the tract of land would not now rent for more than ____ per annum, which would give to each of the Heirs in the shape of rent Twenty five or Thirty dollars annually—while on the other hand owing as your Orators believe to the Convenient distance thence to Alexandria, George Town and Washington and the improved state of the farm in other respects, it would sell upon the usual terms of Sales of land for Twenty five dollars per Acre and thus afford an interest on the sale nearly double the annual rent—In addition to the fact that the rent would greatly fall short of the interest on the sale your orators have been advised that the property in the hands of tenants would in the course of a few years be excessively injured and lessened in value, the soil impoverished, the buildings and fencing neglected and suffered to delapidate perhaps destroyed.

It is obvious that the land cannot be advantageously divided among the heirs Eight in number it would give about forty acres to each heir, and this without regard to improvements—And the consideration deeply affecting the interests of the infant is that this farm must be rented out all the shares together manifestly—if therefore those now of age and those that soon will be of age should sell their shares each share thus sold off, will not only proportionally lessen in value the shares of the other remaining unsold, but will place the younger children as they come of age in the power and at the mercy of the person who shall have purchased the other shares of the co-terminus neighbour. In the End the consequence will be that the two or three younger children will not only be forced to sell, being hemmed in on all sides, and not able to add to their Inheritance but must sell at any price they are offered. 75 Your orators further state that besides the real Estate before mentioned in which their wards have as interest One Eighth each, after the payment of the debts of Thomas Moss deceased so far as it is practicable to make an Estimate at this time, it is believed that a surplus will be left for distribution of about fifteen or sixteen thousand dollars, which will give to each child say two thousand—

Viewing the present interest as well as the future interests of their wards your orators are of the opinion from the facts hereinbefore stated, that the interests of their wards manifestly require a sale of the real Estate herein before mentioned and that the rights of others will not be thereby violated. And to that end and in pursuance of the Acts of the Gen’l Assembly in such cases made and provided, they pray that said Anna R. Love late Anna R. Moss, Alfred Moss, Robert, Thomas Edgar, Charles R., Armistead and John Thomas Moss be made parties defendants to this bill—that the said Anna R. Love the wife of your orator and Alfred Moss who would be two of the Heirs of either of said infants if they are dead and that said Anna R. be permitted to answer for herself as if feme sole. That the said Anna R. Love, Robert Moss, Alfred Moss, Thomas Moss and all the other infants herein before mentioned who are over fourteen years of age may be compelled to answer this bill in proper person or oath—That a Guardian Ad Litem may be appointed according to Law to defend and answer for those infants as well those over fourteen years, as those under fourteen years of age.—That your orators may have a Decree of the Ct authorizing the sale of the said land in such manner and upon such terms of credit as to your Honor may seem right—And your orators pray for all other & further action by your Honor in the premises as may be right & proper according to the Act of assembly made and provided in such cases—May it please your honor &c.

(Certified by J. B. Hunter, a Justice of the Peace, 29 October 1839)


76

Appendix F

Fairfax County (Va.) Will Book T-1, page 223:

December 2, 1839 Thomas Moss’ slaves divided among the several heirs.

Lot 1—To Robert Moss—Jim $75.00, Winney $75.00, Teuton $300 and, to pay Lot 7 $30 $420.
Lot 2—To John T. Moss—Dominick $425, and, to pay Lot 7 $5 420.
Lot 3—To Armistead Moss—Sarah $450, and, to pay Lot 7 $85 and Lot 6 $45 420.
Lot 4—To Charles Moss—Martha $450, and, to pay Lot 7 $30 420.
Lot 5—To Thomas Moss Anzau (?)—Laura $350, Frances $450, and, pay Lot 7 $30 420.
Lot 6—To Alfred Moss—Carolina $200, Harriet $175, and payment from Lot 3 $45. 420.
Lot 7—To Edgar Moss—Susan $200, T. R. Love $280, plus others by amount of keeping Louisa, an insane negro $240 420.
We have valued the advancement made to T. R. Love in negro Henry $700, plus bond of a Moss daughter, and to pay to Lot 7 $280 420.

77

APPENDIX G

A Visit from Mr. Polevoy

THE NEW REPUBLIC

Soviet newspapers are bitter about the insincerity of American visitors to their country. While in the USSR, they say, Americans are lavish with their praise, but on returning home, they speak quite differently of Russia to their fellow Americans. Our newspapers in turn maintain that Soviet delegations to this country wear a mask of friendliness but once back in Russia present a hostile and unrecognizable picture of the United States.

Do visiting Soviet delegations present a true picture of their travels here to their own people? The editors of The NR have been given an opportunity to test this question. A delegation of leading Soviet writers visited the United States in October, 1955, under the chairmanship of Boris Kampov-Polevoy, a Soviet novelist and Secretary of the Union of Soviet Writers. Mr. Polevoy and four members of his delegation spent one evening at the house of the NR editor-at-large. In the third of his articles on his journeys through the US published in the March issue of the Soviet monthly, Oktyabr, Mr. Polevoy describes the occasion as he remembers it. A translation of his article, and our comments follow.

In the evening we were invited to be the guests of Mr. Michael Straight, editor of the magazine The New Republic, at his out-of-town villa bearing the poetic name of “Green Spring Farm.” This tiny villa was in no way different from the small suburban houses of well-to-do members of the “intelligentsia” which we already had the opportunity of visiting. Alone the huge agglomeration of books on long shelves—quite unusual for an American home—and the beautiful pictures on the walls revealed that the owners of this house had a passion for literature and an artistic taste which could enable them to discriminate between works of genuine art and the militant flatness, which under the mask of innovationism has impertinently seized the key positions in American art. There were canvasses and drawings which not only prompted one to wonder on passing by, but which induced a desire to stop, to admire and to think.

The people who had gathered at the house were interesting too—journalists who had traveled a great deal, who had witnessed many events, who were able to think. A unionist leader was also present—an observing, aggressive, skeptical man.

At the outset—as it is the custom in the United States—the host showed us around his house. The five of us were jammed in for quite a while on the second floor in the tiny bedrooms of his two sons. David, the eldest, a fair-haired, healthy looking youngster, had his little room in a state of complete disorder. The radio was roaring, the gay green parakeets were screaming. Some radio parts together with books, screwdrivers, tubes of glue, bookbinders and knives were heaped on the table. The little occupant, apparently ready to go to bed, was sitting on his bed without his shirt and was reading something. At the sight of strangers he felt bashful, grabbed his shirt, started putting it on and when his head eventually emerged through its collar, his face and his ears were flushed and his brow pearled with sweat. However, having dressed, he immediately regained his composure and, as though nothing had happened, stretched out his hand with earnest poise. David—he introduced himself.

His younger brother, Mikey, had an artistic temperament. His table was all smeared with water-colors and pictures were hanging on the walls—fantastic tanks, ships, sinister profiles of Indians, noble-featured cowboys wearing hats of incredible dimensions. Mikey was evidently successful in this hobby of his and, after looking at his drawings, one could tell him without false flattery that he was an artist of the realist school and that many of his pictures were more accurate and perfect as to form than whatever is being exhibited by quite adult “uncles” at the opening of exhibitions of the so-called “new art.”

Mikey dressed, too, and we came down in a group to the living room where Gribatchov was having an argument with our American colleagues. The topic was familiar, I should even say a classical one—the freedom of the press. In the heat of the dispute the NR publisher proposed to Gribatchov an exchange of articles on important international topics under reciprocal terms—once a week the editor of The New Republic would 78 publish an article in the Literary Gazette presenting the American viewpoint on some specific problem and once a week a representative of the Literary Gazette would give the Soviet point of view in an article in The New Republic. Apparently this idea seemed very attractive to our American colleague, and he was attacking Gribatchov with quite a lot of energy.

I did not have a chance to hear the argument to its end. The fair-haired David, with whom I had become quite friendly, dragged me away to the next room. We conversed in the manner of cavemen, using dramatic gesticulations and incoherent sounds, and yet we somehow managed to understand each other. David even managed to convey that he had built that radio himself, and that he likes to listen to Russian music. In proof of this he even sang, with boyish diligence and with a broken juvenile “basso,” a melody taken out of Swan Lake. However, he rendered it with a foxtrot rhythm.

I really liked that lively American youngster with his tall build, his curly fair hair, his rooster-like voice and his absent-minded disposition which strongly reminded me of my eldest son.

David showed me his favorite books, and then he suddenly produced a peculiar-looking magazine printed with a multigraph. He prodded his chest in a self-satisfied manner to demonstrate to me that this was his own magazine. He showed me a caricature drawing with his finger and then pointed his finger at Mikey, thus making clear that his brother was the artist.

Then the children ran back to the living room and came back dragging their father with them and M. M. Lopuchin, whom they had literally abducted out of an interesting conversation with the ladies. It was then that I came to hear the story of the magazine, which bore the romantic name The Green Spring-Menemsha Gazette.


Michael senior, the children’s father, evidently liked their undertaking. He sat down on the carpet next to us and as he was turning the pages of the magazine, he told us that out of a wish to imitate their father, the children had decided to start a publication. They wrote articles and other items, prepared illustrations and caricatures and arranged the whole material inside a copybook. They kept quiet so long that their parents wondered what their rowdy boys were doing. The parents went upstairs and found the boys busy over a heap of papers; the Gazette was already being “paged up.”

David, the editor of the publication, knew from his father’s experience that every printed organ must have readers. The children begged their father to give them a typewriter and when they got it, began to type patiently, with one finger, one page after the other, learning the art of typing in the process of their work.

Seeing that the children’s interest did not abate, the father gave them a present—a cheap toy “Shapirograph”—to print their magazine. Having secured production equipment, the editorial staff began to work with renewed energy. David, who up to that time was sharing his interest among many pursuits, forsook his former preferences. Even the little green parakeets, whom he loved dearly, were left without food quite often and sadly chattered in their cage. David had the jobs of editor, author of articles and typographer. The sturdy Mikey was the publisher, artist and supplier of funny stories. A neighbor’s little girl, Xandra Babel, was responsible for the news and special events—indispensable departments of every American editorial unit worthy of this name.

At any rate, no matter how, the magazine eventually appeared. It was even printed in 75 copies, diligently bound and, the following year when the family left for the beach during the hot season, to the mother’s great dismay, the whole issue and even the typographic equipment consisting of the typewriter and the multigraph as well as the paper stocks were taken along.


Boris Kampov-Polevoy

During the summer the children made friends with a certain Mr. Zur, an original character and owner of the Menemsha store. The old man liked children and whenever they came to his shop to buy candy, salted nuts or a bag of popcorn, they always used to stay there for a while and discuss the weather, politics and all sorts of events with him. Mr. Zur used to talk to children as though they were grownups, and this contributed a lot to his popularity. When they arrived at the summer resort, the first thing the children did was to run to their old friend’s shop and there, as they were eating fresh cracking popcorn, they told him the staggering news—they had published a magazine.

“A magazine? And how much costs one copy of your magazine, gentlemen?” inquired Mr. Zur in a businesslike manner.

The children exchanged quick glances. Somehow they had not arrived at the thought that their magazine could be sold.

“It costs nothing, sir,” David started saying.

“No, no, it costs one dollar,” the quick-witted Mikey interrupted his brother as this new aspect of their hobby began to dawn upon him. “One dollar.”

“It’s rather expensive, gentlemen. However, I enjoy reading, and so I will buy one copy,” replied the old shopkeeper and handed over a dirty green bill to the journalists. They were left quite speechless by this development.

The business was continued. Realizing that there 79 were quite a few funny people among the dwellers in that summer resort and wishing to please his little friends, old Zur took over the newsstand sale of their publication on a commission basis. He even displayed the magazine in his shop window. To his astonishment, the whole of the first issue was sold out. Four more followed. By the end of the summer, the boys’ income, after deduction of expenses and commissions, amounted to roughly $50. The children gave this money—not without some regret, to be truthful—to the local fishermen whose boats had been shattered against the rocks of the coast by a passing hurricane.

Inspired by the unexpected success of their first year’s operations, the editorial staff resumed publication in the following summer at that same resort. It proved even more interesting. It contained interviews with fishermen and lobstermen and a story told by an old captain of a fishing schooner, who was spending his declining years in a dilapidated shack by the seashore. That huge, hoarse, bearded giant was always drunk. But in his rare moments of sobriety he was kind, used to give candy to the children and nobody could tell fascinating sea adventure stories better than he did. Mikey managed to catch him in such a mood and the magazine was adorned, as a result, with a powerful story by the old captain about a hurricane that threw ships around like bits of paper and about the rescue of a beautiful lady passenger who had been thrown into the ocean by the roaring gale, by the captain himself, who saved her out of the waves at the risk of his own life.


The children’s hobby, which so clearly demonstrated their propensity toward journalism, greatly interested us. During our visits with various American families our attention had been drawn more than once to this good trait—if indeed it is not a tradition—which makes the children familiarize themselves with the profession of their father, or their grandfather, or some close relative. In the apartment of an auto-mechanic we saw a small lathe and a block on which a little fellow was filing something. In the family of a musician, little girls played on the violin. The little son of a well-known Hollywood scenario-creator told us excitedly how he and his little brothers and sisters were making a film. A child’s game gradually develops into an absorbing interest, and maybe in these games which are treated seriously, not only by the children but as a rule by the adults too, the seed of his future profession is planted in the child’s brain.

I expressed the wish to become a subscriber to the Green Spring-Menemsha Gazette for a full year and took out a $5 bill. The editor and the publisher exchanged glances. They obviously wished to get a foreign subscriber. But what if this should create trouble of some kind? Were they entitled to mail their magazine abroad, and moreover, to a country like the USSR? What would their father and mother say? And how would Mr. John Foster Dulles react?

Green Spring-Menemsha Gazette

David carefully pushed the bill away, back to my end of the table. I, of course, felt offended. Could it be that I had no right to subscribe to an American magazine? Why such discrimination? The editor whispered something to the publisher who ran out of the room and came back dragging Michael senior in once more. The father laughed. He apparently had no objection to the mailing abroad of the magazine which was being published under his sponsorship. All the periodical publications of good standing always have foreign subscribers. However, Michael senior had objections against any monetary transaction with countries abroad. It was agreed that the subscription would be handled on a clearing basis: the Green Spring-Menemsha Gazette would be mailed to the USSR in exchange for our children’s magazine The Pioneer. We shook hands on this transaction, concluded to the mutual satisfaction of the “high contracting parties.”

When we returned to the living room, the debate about the freedom of the press was still continuing. But the two sides had exchanged places. Gribatchov was the one who led the attack now; the idea of exchanging articles with The New Republic had gradually excited him. Publisher Harrison, on the contrary, was taking a defensive stand: he was already foreseeing numerous difficulties obstructing the materialization of his project. The unionist leader was sitting on the sofa next to them. He was a tall man with a pale face with an ironical expression, and he was gently mocking the discomfited publisher. “Really, why shouldn’t there be an exchange of articles with a Russian paper?”

So finally they came to no conclusion at all.

We were taking our seats in the car when David manfully shook hands with me and suddenly asked: “Maybe you will write from Moscow a contribution for publication in The Green Spring-Menemsha Gazette? Our magazine will gladly publish it, I can promise you.”

My negotiations with the editors of the Gazette appeared to be more fruitful than the ones Gribatchov had had with The New Republic.

80

JULY 16, 1956

Editors’ Note:

There are, of course, some errors in Mr. Polevoy’s story. Many are due, as he notes, to the fact that parts of the conversation were conducted through dramatic gesticulations and incoherent sounds. Bill Seward, the youthful proprietor of Menemsha’s post office and store, for example, may not recognize himself as the ancient Mr. Zur, and the author of Cassandra Bobble, a fictional caricature of society columnists, will be surprised to see her creation re-emerge in Russian as Xandra Babel the neighbor’s girl reporter. More substantial, in the editor’s opinion, is his view that it was Mr. Gribatchov and not Mr. Harrison who doubted the practicality of an exchange of articles. And yet as many errors of detail and interpretation would no doubt be found were we to describe an evening spent in Mr. Polevoy’s villa outside Moscow. As far as the general tone of Mr. Polevoy’s account is concerned we cannot complain.

Mr. Polevoy, after all, is describing an evening in the home of an opponent of the political administration in power. Soviet readers learn that it is a comfortable place, lived in by a family substantially free from fear. The author refers in a mocking way to the shadow of John Foster Dulles and mentions the reluctance of the boys to take his $5 (the reason, lost in translation, was that they would not be publishing their paper in 1956). But just as Mr. Polevoy seems about to conclude with a political moral, he demolishes this traditional ending in favor of the truth. For the discussion which Mr. Polevoy describes ended with a whispered aside which the host found startling. “We will put you on the subscriber’s list to The Pioneer!” Mr. Polevoy had roared to the boys; then he drew their father aside: “That is, if it will not hurt you,” he whispered. The host laughed and explained that he and his sons were free citizens, able to read whatever they pleased and happy to receive literature from other lands. It seems gratifying to us that this small but memorable incident has found its way into the Soviet press.

Michael Straight


81

LIST OF SOURCE MATERIALS

BOOKS

Clarke, E.; Potts, J. M.; and Payton, J. S., eds. The Journal and Letters of Francis Asbury. Nashville: Abingdon Press, 1958.

Davis, R. B. Intellectual Life in Jefferson’s Virginia. Chapel Hill: University of North Carolina Press, 1964.

Gutheim, Frederick. The Potomac. New York: Rinehart, 1949.

Harrison, Fairfax. Landmarks of Old Prince William. Berryville, Va.: Chesapeake Book Co., 1964.

Herndon, M. Tobacco in Colonial Virginia. Williamsburg: Virginia 350th Anniversary Celebration Corporation, 1957.

Hulbert, A. Paths of Inland Commerce. New Haven: Yale University Press, 1921.

Johnston, Frederick. Memorials of Old Virginia Clerks. Lynchburg: Bell Co., 1888.

Jones, Virgil C. Ranger Mosby. Chapel Hill: University of North Carolina Press, 1944.

Moger, A. W. The Rebuilding of the Old Dominion (PhD thesis). New York: Columbia University, 1940.

Mosby, J. S. Mosby’s War Memoirs and Stuart’s Cavalry Campaigns. New York: Pageant Book Company, 1958.

Porter. A. O. Country Government in Virginia. New York: Columbia University Press, 1947.

Russell, C. W., ed. The Memoirs of Colonel John S. Mosby. Boston: Little Brown, 1917.

Virginia Good Roads Convention. Programme. Richmond: Stone Printing Co., October 18, 1894.

Who’s Who in America. 1966-1967. Volume XXXIV. Chicago: A. N. Marquis Company.

Williamson, James. Mosby’s Rangers. New York: Sturgis & Walton, 1909.

ARTICLES

Abbott, R. H. “Yankee Farmers in Northern Virginia: 1840-1860.” Virginia Magazine of History and Biography, v. 76, No. 1 (January 1968), pp. 56-66.

Funk, W. C. “An Economic History of Small Farms near Washington, D.C.” U.S. Department of Agriculture Bulletin 848. Washington, D.C.: Government Printing Office, 1920.

“A New House with Young Ideas.” House and Garden. December 1958.

Straight, Michael. “A Visit from Mr. Polevoy.” The New Republic, v. 135, No. 3 (July 16, 1956), pp. 12-15.

Willis, K. M. “Old Fairfax Homes Give Up a Secret.” The American Motorist Magazine, v. 7, No. 2 (May 1932), p. 16.

82

OFFICIAL GOVERNMENT RECORDS AND REPORTS

Annual Report of the President and Directors of the Board of Public Works to the General Assembly of Virginia. 1818, 1819, 1820.

Fairfax County, Virginia. Deedbooks.

______. Minute Books.

______. Order Books.

______. Will Books.

Hening, William W., ed. Statutes at Large, 1823. Reprint ed., Charlottesville: University of Virginia, 1969.

National Archives, Military Records Division, Washington, D.C. Compiled Service Records of Confederate Soldiers who Served in Organizations from Virginia. Microcopy 324, Roll 207, “Hounshell’s Bat. Cav. Partisan Rangers, M-Z and Mosby’s Bat. Cav. Partisian Rangers A-D.”

Official Records of the War of the Rebellion. Washington, D.C.: Government Printing Office, 1888.

Official Registers of Officers and Employees of the Civil, Military and Naval Service of the United States. (Issued Biennially.) Washington, D.C.: Government Printing Office.

Shepherd. Statutes.

“Status of Virginia Agriculture in 1870” in Report of the Commissioner of Agriculture. 1870. Washington, D.C.: Government Printing Office, 1871, p. 267-291.

U.S. Treasury Department. Service Record (Form 426), “Beattie, Fountain.” (File in custody of Federal Records Center (GSA), St. Louis, Mo.)

NEWSPAPER

The Alexandria Gazette

MANUSCRIPTS

The Journal of John Littlejohn, MS. Methodist Churches, Louisville, Kentucky, April 29, 1778. (Copy courtesy of Reverend Melvin Steadman.)

Truro Parish Vestry Book, 1732-1803, MS. Library of Congress.

MISCELLANEOUS

Fullerton, W. Address to Piedmont Agricultural Society, October 1876.

Macomber, Walter; Schlebecker, John; and Straight, Michael and Belinda. Tape-recorded interviews.


Transcriber’s Notes

Original, sometimes very archaic spellings retained.

Photographs still under copyright on pages 32, 42, 44, and 56 (Figures 9, 11-13, and 16-18) excluded.