The Project Gutenberg eBook of Transactions of the American Society of Civil Engineers, vol. LXVIII, Sept. 1910

This eBook is for the use of anyone anywhere in the United States and most other parts of the world at no cost and with almost no restrictions whatsoever. You may copy it, give it away or re-use it under the terms of the Project Gutenberg License included with this eBook or online at www.gutenberg.org. If you are not located in the United States, you will have to check the laws of the country where you are located before using this eBook.

Title: Transactions of the American Society of Civil Engineers, vol. LXVIII, Sept. 1910

Author: Benjamin Franklin Cresson


Release date: December 13, 2005 [eBook #17302]
Most recently updated: December 13, 2020

Language: English

Other information and formats: www.gutenberg.org/ebooks/17302

Credits: Produced by Juliet Sutherland, Sigal Alon and the Online
Distributed Proofreading Team at https://www.pgdp.net

*** START OF THE PROJECT GUTENBERG EBOOK TRANSACTIONS OF THE AMERICAN SOCIETY OF CIVIL ENGINEERS, VOL. LXVIII, SEPT. 1910 ***

[303]

AMERICAN SOCIETY OF CIVIL ENGINEERS

INSTITUTED 1852


TRANSACTIONS


Paper No. 1156


THE NEW YORK TUNNEL EXTENSION OF THE PENNSYLVANIA RAILROAD.

THE TERMINAL STATION-WEST.[A]

By B.F. Cresson, Jr., M. Am. Soc. C.E.


Location of Work.—The area covered by the work of the Terminal Station-West is bounded as follows: By the east line of Ninth Avenue; by the south side of 31st Street to a point about 200 ft. west of Ninth Avenue; by a line running parallel to Ninth Avenue and about 200 ft. therefrom, from the south side of 31st Street to the boundary line between the 31st and 32d Street properties; by this line to the east line of Tenth Avenue; by the east line of Tenth Avenue to the boundary line between the 32d and 33d Street properties; by this line to the east line of Ninth Avenue. The area is approximately 6.3 acres.

House-Wrecking.—The property between Ninth and Tenth Avenues was covered with buildings, 94 in number, used as dwelling and apartment houses and church properties, and it was necessary to remove these before starting the construction. Most of the property was bought outright by the Railroad Company, but in some cases condemnation proceedings had to be instituted in order to acquire possession. In the case of the property of the Church of St. Michael, fronting on Ninth Avenue, 31st and 32d Streets, the Railroad Company agreed to purchase a plot of land on the south side of 34th Street, west of Ninth[304] Avenue, and to erect thereon a church, rectory, convent, and school, to the satisfaction of the Church of St. Michael, to hand over these buildings in a completed condition, and to pay the cost of moving from the old to the new buildings, before the old properties would be turned over to the Railroad Company.

The house-wrecking was done by well-known companies under contract with the Railroad Company. These companies took down the buildings and removed all the materials as far as to the level of the adjacent sidewalks. The building materials became the property of the contractors, who usually paid the Railroad Company for the privilege of doing the house-wrecking. The work was done between April and August, 1906, but the buildings of the Church of St. Michael were torn down between June and August, 1907.

The bricks were cleaned and sold directly from the site, as were practically all the fixtures in the buildings. The stone fronts were broken up and left on the premises. Some of the beams were sold on the premises, but most of them were sent to the storage yards. Some of the lath and smaller timber was sold for firewood, but most of it was given away or burned on the premises.

Contracts and Agreements.—The main contract, awarded to the New York Contracting Company-Pennsylvania Terminal on April 28th, 1906, included about 502,000 cu. yd. of excavation (about 90% being rock), 17,820 cu. yd. of concrete walls, 1,320,000 lb. of structural steel, 638,000 ft., B.M., of framed timber, etc., etc.

This contract was divided into two parts: "Work In and Under Ninth Avenue" and "Work Between Ninth and Tenth Avenues," and unit prices were quoted for the various classes of work in each of these divisions. The prices quoted for excavation included placing the material on scows supplied by the Railroad Company at the pier at the foot of West 32d Street, on the North River; there was a clause in the contract, however, by which the contractor could be required to make complete disposal of all excavated material at an additional unit price, and this clause was enforced on January 1st, 1909, when about 94% of the excavation had been done.

For the purpose of disposing of the excavated material in the easterly portion of the Terminal, the New York Contracting Company-Pennsylvania Terminal had excavated under Ninth Avenue a cut which came to the grade of 32d Street about midway between Ninth and[305] Tenth Avenues, and a trestle was constructed from this point over Tenth Avenue and thence to the disposal pier at the foot of West 32d Street.

On May 11th, 1906, the work of excavation was commenced on the east side of Ninth Avenue, and on July 9th, 1906, on the south side of 31st Street, between Ninth and Tenth Avenues. From the beginning, the excavation was carried on by day and night shifts, except on Sundays and holidays, until January, 1909, except that during the period from November, 1907, to October, 1908, the night shift was discontinued.

Geology.—The rock encountered may be classed as "gneiss"; its character varied from granite to mica schist. It was made up of quartz, feldspar, and mica, and there were also some isolated specimens of pyrites, hornblend, tourmaline, and serpentine. On the south side of the work, just west of Ninth Avenue, there were excellent examples of "contortions" of veins of quartz in the darker rock. On the east side of Ninth Avenue, near the north end of the work, glacial marks were found on the rock surface. The general direction of the stratification was north 5° west, and the general incline about 60° with the horizontal. As a rule, the rock broke sharply along the line of stratification. On the south side it broke better than on the north side, where it was usually softer and more likely to slide; and this, together with the fact that in winter it was subject to alternate freezing and thawing and in summer to the direct rays of the sun, made it rather difficult to get a good foundation for the retaining walls.

Work In and Under Ninth Avenue.

General Description.—The work involved the excavation of about 375 ft. of the full width of Ninth Avenue to an average depth of about 58 ft., and the construction over this area of a steel viaduct, the deck of which was about 24 ft. below the surface, for the ultimate support of the Ninth Avenue structures.

The following estimated quantities appear in the contract: Excavation of rock, 72,600 cu. yd.; excavation of all materials except rock, 9,300 cu. yd.; concrete (1:3:6) in abutments, etc., 1,680 cu. yd.; timber, 504,000 ft., B.M.; structural steel, 1,320,000 lb., etc.

While this excavation was being done it was necessary to support and maintain the three-track elevated railway structure of the Interborough[306] Rapid Transit Company, of which 18 columns, or a length of about 340 ft., were affected, the two-track surface railway structure of the New York City Railway Company, and various pipes, sewers, and conduits, and to maintain all surface vehicular and pedestrian traffic. All structures were left in place with the exception of the pipes, most of which were temporarily cut out. The 48-in. brick sewer in the center of Ninth Avenue was broken, and the sewage was pumped across the excavation through a smaller pipe.

The general method adopted was as follows: The east and west sides of the avenue were closed, vehicular traffic was turned into the center, and a trestle for pedestrians was constructed west of the westerly elevated railway columns. All structures were then supported on transverse girders, running across the avenue, below the surface, and these rested on concrete piers on the central rock core. The sides of the avenue were then excavated to sub-grade, and the permanent steel viaduct was erected on both sides of the avenue as close as possible to the central rock core. The weight of all structures was then transferred to the permanent steel viaduct, erected on the sides of the avenue, by timber bents under the transverse girders resting on the permanent steel viaduct, and all weight was thus taken off the central rock core. This core was then excavated to sub-grade, the permanent viaduct was completed, and all structures were placed on its deck, using concrete piers and timber bents.

The design and erection of the permanent steel viaduct and the permanent foundations on its deck were done under another contract, apart from the North River Division work, and are not described in this paper.

Elevated Railway Structure of the Interborough Rapid Transit Company.—The Ninth Avenue Elevated Railway was built between 1877 and 1880 as a two-track structure, the design being such as to permit a third or central track to be added later, and this was built in 1894. It is supported on columns under the outside tracks, about 43 ft. from center to center longitudinally and 22 ft. 3 in. from center to center transversely, the central track being carried by transverse girders between the columns.

The columns carrying the structure are of fan top design, with the points of bearing near the extremities at the top; each of the outside tracks is supported on two longitudinal latticed girders and the central [307]track on two plate girders; between the columns, transverse girders are spliced to the outside track cross-frames, and carry the central track system. It was not thought desirable to put brackets on the columns near the street level to support the structure temporarily, and, as there is an expansion joint at each column, and as the transverse girders carrying the central track system are not rigidly attached to the longitudinal girders carrying the outside tracks, the central track could not be supported by supporting the outside tracks; therefore, independent supports for each track, in the form of overhead girders, had to be provided. The columns rest on brick piers, each having four 2-in. anchor-bolts. The brick foundations on the west side are wide in order to allow a 24-in. water main to pass directly beneath the columns. The foundations are usually on rock.

Plate XLVII, Fig. 1.— TW 4, P.N.Y. & L.I.R.R. Terminal Station West. View of 9th Ave. looking Northwest from 32nd Street, prior to commencement of work. April 23, 06. Plate XLVII, Fig. 1.— TW 4, P.N.Y. & L.I.R.R. Terminal Station West. View of 9th Ave. looking Northwest from 32nd Street, prior to commencement of work. April 23, 06.
Plate XLVII, Fig. 2.— TW 17, P.N.Y. & L.I.R.R. Terminal Station West. View of East side of 9th Ave. looking North from a point 100 feet south of 33rd St. showing condition of work. July 23, 06. Plate XLVII, Fig. 2.— TW 17, P.N.Y. & L.I.R.R. Terminal Station West. View of East side of 9th Ave. looking North from a point 100 feet south of 33rd St. showing condition of work. July 23, 06.
Plate XLVII, Fig. 3.— TW 25, P.N.Y. & L.I.R.R. Terminal Station West. View showing permanent and temporary supports of 9th Ave. Structures, looking Northwest from 31st. St. April 24, 07. Plate XLVII, Fig. 3.— TW 25, P.N.Y. & L.I.R.R. Terminal Station West. View showing permanent and temporary supports of 9th Ave. Structures, looking Northwest from 31st. St. April 24, 07.
Plate XLVII, Fig. 4.— TW 28, P.T. & T.R.R. Co. Terminal Station West. East side of 9th Avenue, North of 32nd St. looking West, showing rock excavation and supports of 9th Avenue structures. Aug. 17, 07. Plate XLVII, Fig. 4.— TW 28, P.T. & T.R.R. Co. Terminal Station West. East side of 9th Avenue, North of 32nd St. looking West, showing rock excavation and supports of 9th Avenue structures. Aug. 17, 07.

Fig. 1, Plate XLVII, shows the elevated railway structure and the street surface prior to the commencement of the work.

The east track is used for north-bound local trains, the west track for south-bound local trains, and the central track for south-bound express trains between 7 and 9.30 a.m. and for north-bound express trains between 2.30 and 7 p.m. It is said that an average of 90,000 passengers are carried over this structure every 24 hours.

Surface Railway Structure of the New York City Railway Company.—This is an electric surface railway of the ordinary type, the rail and slot being bedded in concrete, with cast-iron yokes every 5 ft. There are manholes every 100 ft., and cleaning-out holes every 15 ft. Power conduits are bedded in the concrete on the east side of the east track.

Forty-eight-Inch Brick Sewer.—This sewer was in the center of Ninth Avenue, with the invert about 12 ft. below the surface, and manholes about 100 ft. apart, and had to be abandoned in this position to allow the transverse girders to be put in place to carry all structures while the excavation was being done.

Twenty-four-Inch Cast-Iron Water Main.—This water main was laid under the west elevated railway columns, with its top about 3 ft. below the surface, a space being left for it in the brick foundations, and a large column base casting being used to span it. Valves were installed, one north of 33d Street and one south of 31st Street, prior to excavating near the pipe, so that if it was broken the water could be shut off promptly.

[308]

Street Surface.—It was the original intention to close and excavate the east side of the avenue and to erect there a street-traffic trestle before closing the west side, but, at the contractor's request, both sides were closed, and all vehicular traffic was turned into the center. A light trestle on the west side of the avenue provided for pedestrian traffic.

Other Sub-surface Structures.—There were various gas mains, water mains, electric conduits, manholes, hydrants, etc., in the avenue, and most of these were cut out temporarily, at the contractor's request, to be replaced subsequently.

Supports for Elevated Railway Structure.—As stated previously, the central track had to be supported independently.

The overhead girders, known as girders "B", were therefore designed as shown on Fig. 1, and put in place as shown on Figs. 2 and 3. The outside tracks were blocked directly on these girders, and the central track was supported by blocking up the transverse girders on I-beams placed between the girders "B"; and no blocking was placed between the girders "B" and the longitudinal girders carrying the central track. The weight on each column was assumed to be 172,000 lb.

DETAILS OF STEEL GIRDERS, ETC. SUPPORTING NINTH AVENUE STRUCTURES Fig. 1. (full page image)
DETAILS OF STEEL GIRDERS, ETC. SUPPORTING NINTH AVENUE STRUCTURES

Supports for Surface Railway Structure.—A uniform load of 3,000 lb. per lin. ft. of single track, with the weight of a car at 39,000 lb., was assumed. Several feet of earth, between the structure and the rock, were mined out, and the structure was supported on I-beams and posts, and ultimately on the transverse girders by using timber bents under the I-beams, as shown on Fig. 3.

Water Mains and Sewer.—Cradles were designed for the support of the 48-in. and 24-in. water mains, resting on the transverse girders, and the 48-in. cast-iron sewer on the east side of the avenue was carried on I-beams bracketed to the ends of the transverse girders, as shown on Figs. 1 and 2.

METHOD OF SUPPORTING ELEVATED RAILWAY STRUCTURE Fig. 2. (full page image)
METHOD OF SUPPORTING ELEVATED RAILWAY STRUCTURE
METHOD OF SUPPORTING TRACKS OF NEW YORK CITY RAILWAY CO. Fig. 3. (full page image)
METHOD OF SUPPORTING TRACKS OF NEW YORK CITY RAILWAY CO.

Girders "C."—The transverse girders below the street surface, referred to above, were known as girders "C," and they were put in place at first resting on concrete piers on the central core; the weight of all structures was placed on them while the sides of the avenue were being excavated, and the sides of the viaduct were being built. The ends of these girders were then picked up on the sides of the viaduct, and, spanning the central rock core, carried all structures [310]while the core was being excavated and the viaduct completed. New foundations were then placed on the deck of the viaduct to carry all structures.

Fifty-four of these girders were required, each weighing about 19,000 lb. The bents carrying the ends of these girders on the sides of the viaduct are shown on Fig. 2. They were of long-leaf yellow pine. These girders were located so that a cradle could be laid on them east of the elevated railway structure to carry a proposed 48-in. cast-iron water main.

Girders "B."—Eighteen of these girders were required, each weighing about 6,000 lb. The timber bents supporting these girders, shown on Fig. 2, were of long-leaf yellow pine.

The total weight, including the elevated railway structure, surface railway structure, pipes, etc., supported during the work, amounted to about 5,000 tons.

Details of the Work.—The method in general is shown on Figs. 4 and 5. At first the east side of the avenue was closed and excavated down to rock, the earth was mined out under alternate yokes of the surface railway structure, and temporary posts were placed under the yokes to support the structure while the remainder of the earth was being removed. Then needle-beams and posts were placed under each yoke. The concrete forming the track structure was then enclosed with planking to prevent it from cracking and falling. I-beams were then placed under the needle-beams carrying the structures, and these were carried on posts; they were changed alternately until the excavation had been taken out to a depth of about 16 ft. below the surface. In placing these I-beams, heavier blocking was used in the center of the span than at the ends where the bents would come, to prevent the subsidence of the track owing to the sag in the I-beams. As much excavation, to a depth of about 20 ft., was taken out adjoining the elevated railway foundations as could be done with safety. Fig. 2, Plate XLVII, shows this condition of the work. The 48-in. brick sewer was broken, and the sewage was pumped across the excavation.

The overhead girders "B" were then put in place, and two of the girders "C" were used as temporary shoring girders at each column. These, as shown by Fig. 3, Plate XLVII, were placed parallel to the elevated railway, with blocking between them and the girders "B."[315] Double bents, independent of each other, were placed under the ends of these temporary shoring girders, and these were braced securely to prevent possible dislodgment during the removal of the rock. The weight of the structure was then taken by jacking up the girders near the bents until the column was lifted off the old foundation; blocking was put in between the girders and the bents during the jacking, so that when the jacks were released the base of the column was still clear of the old foundation. One 80-ton jack was used for this purpose, and the general method is shown by Fig. 1, Plate LII.

METHOD OF EXCAVATING NINTH AVENUE PLAN AND ELEVATION SHOWING VARIOUS STAGES OF THE WORK Fig. 4. (full page image)
METHOD OF EXCAVATING NINTH AVENUE PLAN AND ELEVATION SHOWING VARIOUS STAGES OF THE WORK
METHOD OF EXCAVATING NINTH AVENUE SECTIONS SHOWING VARIOUS STAGES OF WORK Fig. 5. (full page image)
METHOD OF EXCAVATING NINTH AVENUE SECTIONS SHOWING VARIOUS STAGES OF WORK

Temporary raker braces were placed against the structure to prevent lateral movement. Four sets of these temporary shoring girders were used in this manner, two sets starting at the north end and two sets at about the middle of the work, and these sets were moved south as they were released.

The columns being thus supported on temporary shoring girders, the old foundations were removed and the excavation was taken down to a level about 16 ft. below the surface.

Two sets of three of the girders "C" were then put in place under the avenue at each column, each set being placed on four concrete piers 6 ft. square with spaces of 4 ft. between them, so that the outside of the outside pier would be 18 ft. from the center of the avenue and 32 ft. from the house line. This is shown on Fig. 5 and on Fig. 3, Plate XLVII. Four small piers were used, as they could be more easily removed than one continuous pier. The girders "C" were set to line and grade, and the piers were built under them, great care being taken to get the concrete well under the girders so as to give a firm bearing.

After these girders "C" were in place it was necessary to remove the temporary shoring girders before the bents could be erected on girders "C" to support girders "B," being in the same plane; and provision had to be made to support the structure while this was being done. Therefore, double bents were erected directly beneath the columns, as shown by Figs. 2, 4, and 5, and by Fig. 3, Plate XLVII. These were built with their sills resting on the girders "C," and blocking was put in between the sills and the rock to carry the full weight of the structure. Later, when the weight of the structure was carried on the permanent bents, this blocking was knocked out, but the bents were left in to carry the weight of the column itself, which was swinging [316]more or less from the structure above. The weight of the structure was placed on these bents directly beneath the columns by jacking up the temporary girders again, putting blocking between the bents and the base of the columns, and taking out the blocking which had been put in previously under the temporary shoring girders. The 24-in. water main was carried over the excavation on cables from the temporary shoring girders, except when they were being jacked up, at which time posts were placed beneath it.

Anchor-bolts were put in place between the column bases and the bents directly beneath, in order to increase the lateral stiffness, and raker braces were also used. This having been done, the temporary shoring girders were moved south to the next column, where the process was repeated. The timber bents, shown in detail by Fig. 2, were then put in place as shown by Figs. 4 and 5, and by Fig. 3, Plate XLVII. These bents were framed as tightly as possible, using generally a 20-ton jack, and they were erected simultaneously at each pair of columns. The weight was taken on these columns by jacking up directly beneath the column base and taking out the blocking between this base and the bent directly beneath the column. On releasing the jack the weight was transferred to the permanent timber bents, and the east and west columns of each pair were transferred on the same day. One 80-ton jack was used on the easterly columns and two were necessary on the westerly columns, one on each side of the 24-in. water main. The raker braces of these permanent bents were not framed as tightly as the main posts, in order that the main post should carry the entire weight and the raker braces merely steady the structure.

Timber bents were erected on girders "C" to carry the I-beams under the surface railway structure, as shown on Fig. 3, and all temporary posts under these I-beams were removed. The bents were framed with a jack, as tightly as possible, and very little settlement of the track occurred.

A cradle was then built under the 24-in. water main and placed on girders "C," and, as a temporary footwalk had been constructed on the west side of the avenue, it will be seen that all structures were thus carried on girders "C."

All structures were put on the girders "C" before continuing the excavation on the sides of the avenue because, in case of a slide of rock, there would be less danger than to individual structures. The [317]outside piers, on which the girders "C" rested, might even be lost, without affecting the stability of the structure, and posting could readily be done beneath these girders in case of necessity.

A very careful record of levels, taken on the elevated railway columns, was kept, observations being made during each jacking up and at least twice a week during the progress of the work. The columns were usually kept about ½ in. high so as to allow for compression in the timber bents.

As a rule, no jacking of the elevated railway structure was done while trains were passing over, and trains were flagged during the operation. There was generally very little delay, as all jacking was done between 10.30 a.m. and 2.30 p.m., when the traffic was lightest, and frequently the jacking was done between trains, causing no delay whatever. Steel clamps were placed, three on the top and three on the bottom of each set of the girders "C," to bind them together and cause them to act as a unit.

All structures then being supported on girders "C," which were carried on four concrete piers resting on the central rock core, the excavation on the sides of the avenue was continued down to sub-grade and the east and west portions of the concrete north abutment were constructed. The central rock core was about 36 ft. wide on the top and 45 ft. wide on the bottom, and at the center of 32d Street it was about 42 ft. high.

It was the original intention to excavate a sufficient width of the sides of the avenue to erect six rows of the permanent steel viaduct, 5 ft. from center to center, and this was done on the south portion of the work. On the north portion, however, the rock was of poor quality, and it was thought best to excavate for only five rows at first, to erect the five rows of permanent steel and put the timber bents in place under the ends of the girders "C," in order to give them some support while the outside concrete piers were being removed and the excavation was being widened out to permit the erection of the sixth row. Additional raker braces were put in these bents temporarily, and were removed when the sixth row of steel had been erected. This is shown on Figs. 4 and 5.

Plate XLVIII, Fig. 1.— TW 33, P.T. & T.R.R. Co. Terminal Station West. East side of 9th Ave. looking North from 31st St., showing rock excavation and supports of 9th Ave. structures. Dec. 28, 07. Plate XLVIII, Fig. 1.— TW 33, P.T. & T.R.R. Co. Terminal Station West. East side of 9th Ave. looking North from 31st St., showing rock excavation and supports of 9th Ave. structures. Dec. 28, 07.
Plate XLVIII, Fig. 2.— TW 39, P.T. & T.R.R. Co. Terminal Station West. East side of 9th Ave. looking North from 31st Street, showing rock excavation and permanent steel work. March 24, 08. Plate XLVIII, Fig. 2.— TW 39, P.T. & T.R.R. Co. Terminal Station West. East side of 9th Ave. looking North from 31st Street, showing rock excavation and permanent steel work. March 24, 08.
Plate XLVIII, Fig. 3.— TW 73, P.T. & T.R.R. Co. Terminal Station West. West side of Ninth Ave. Jacking up girders "C" at Elevated Railroad Column 491, showing method of taking weight on permanent viaduct girders. Nov. 14, 08. Plate XLVIII, Fig. 3.— TW 73, P.T. & T.R.R. Co. Terminal Station West. West side of Ninth Ave. Jacking up girders "C" at Elevated Railroad Column 491, showing method of taking weight on permanent viaduct girders. Nov. 14, 08.
Plate XLVIII, Fig. 4.— TW 58, P.T. & T.R.R. Co. Terminal Station West. East side of Ninth Ave. looking North from 31st St., showing underpinning of Ninth Ave. Structures. Aug. 10, 08. Plate XLVIII, Fig. 4.— TW 58, P.T. & T.R.R. Co. Terminal Station West. East side of Ninth Ave. looking North from 31st St., showing underpinning of Ninth Ave. Structures. Aug. 10, 08.

Fig. 4, Plate XLVII, and Fig. 1, Plate XLVIII, show the structures supported on the central rock core and the excavation on the east side to permit of the erection of the permanent viaduct girders.[318] Fig. 1, Plate XLVIII, shows also the easterly portion of the concrete north abutment. Fig. 2, Plate XLVIII, shows five rows of the permanent viaduct girders erected on the east side of the work.

The excavation of the sides of the avenue having been completed, and six rows of permanent viaduct girders erected on both sides, timber bents, as shown on Figs. 2, 4, 5, and 6, were erected on this steel to support the ends of the girders "C" and carry the structure while the rock core was being excavated. Fig. 3, Plate XLVIII, shows the method of taking the weight on these bents. Four 80-ton jacks were used, and oak blocks were placed on the top of each jack to transmit pressure to a temporary oak cap under the girders "C" independent of the bents; all four of these jacks were operated simultaneously, and the girders "C" were lifted off the bents and clear of the concrete piers. Oak filling pieces were then inserted between the bents and the girders "C," so that when the jacks were released the girders "C" were clear of the concrete piers. Fig. 3, Plate XLVIII, shows that the girders have been lifted off the piers. Elevations were taken on each set of girders during each operation, and careful observations were made on the elevated railway columns. Where the rock was very close to these bents, the open space between the posts was filled with blocking so that there would be less danger of the bent shifting if struck by blasted materials. Fig. 3, Plate XLVIII, shows one of these bents filled with blocking.

All structures being carried on girders "C," which, in turn, were carried on the sides of the permanent viaduct, the central core was excavated. Fig. 4, Plate XLVIII, and Figs. 1, 2, 3, and 4, Plate XLIX, show various views of the work at this stage.

The central portion of the viaduct was then erected, and, using concrete piers and timber bents, all structures were placed on its deck. Fig. 3, Plate XLIX, shows the piers under the elevated railway columns prior to the removal of girders "C."

GENERAL ARRANGEMENT OF TEMPORARY AND PERMANENT STRUCTURES Fig. 6. (full page image)
GENERAL ARRANGEMENT OF TEMPORARY AND PERMANENT STRUCTURES

During the latter part of 1908 a 48-in. cast-iron water main was laid by the city on a cradle built by the Railroad Company on girders "C" on the east side of the avenue. This is part of the high-pressure system, and the location and elevation of this water main were taken into consideration when the underpinning was designed. This main, and the 48-in. cast-iron sewer bracketed to girders "C," are shown on Fig. 4, Plate XLVIII.

[320]

Elevations had been taken on marks on the elevated railway columns between 30th and 34th Streets at the time the original surveys were made, in 1902, and these marks were used to test the level of the structure during the progress of the excavation.

At the extreme south end of the work the procedure was changed. The east side was excavated down to sub-grade, the east portion of the south abutment was constructed, and six rows of the permanent steel viaduct were erected. Very little excavation had been done on the west side of the avenue at the south end of the work, and it would have delayed the completion of the work to have waited for the excavation for and the construction of the west portion of the south abutment and the erection of the steel; therefore, instead of supporting the girders "C" on the central rock core, the east ends were taken up on the permanent viaduct girders, and the west ends were supported on a concrete pier on the rock. The central portion of the avenue was excavated in advance of the west portion. The permanent viaduct girders were put in place from east to west across the avenue, and the girders "C" were supported on the deck of the permanent viaduct approximately under the west elevated railway columns before the west portion of the avenue was excavated, the central portion of the south abutment having been constructed before the west portion. This procedure was adopted only at the north girders "C" at elevated railway column No. 488, the south set of girders "C" being on the rock immediately south of the south abutment. Figs. 2 and 4, Plate XLIX, and Fig. 2, Plate LII, show various stages of the work at the south end.

Plate XLIX, Fig. 1.— TW 60, P.T. & T.R.R. Co. Terminal Station West. Under Ninth Ave., looking South from North abutment, showing underpinning and excavation of rock core. Aug. 13, 08. Plate XLIX, Fig. 1.— TW 60, P.T. & T.R.R. Co. Terminal Station West. Under Ninth Ave., looking South from North abutment, showing underpinning and excavation of rock core. Aug. 13, 08.
Plate XLIX, Fig. 2.— TW 84, P.T. & T.R.R. Co. Terminal Station West. View looking toward Ninth Ave. from South side of 31st St., 200 feet West of Ninth Ave. Jan. 28, 09. Plate XLIX, Fig. 2.— TW 84, P.T. & T.R.R. Co. Terminal Station West. View looking toward Ninth Ave. from South side of 31st St., 200 feet West of Ninth Ave. Jan. 28, 09.
Plate XLIX, Fig. 3.— TW 88, P.T. & T.R.R. Co. N.R. Div. Terminal Station West. Center line of 32nd St., looking East from Sta. 183+50, showing excavation under Ninth Avenue, permanent concrete piers under Elevated Railway Columns and removal of temporary shoring girders "C". April 8, 09. Plate XLIX, Fig. 3.— TW 88, P.T. & T.R.R. Co. N.R. Div. Terminal Station West. Center line of 32nd St., looking East from Sta. 183+50, showing excavation under Ninth Avenue, permanent concrete piers under Elevated Railway Columns and removal of temporary shoring girders "C". April 8, 09.
Plate XLIX, Fig. 4.— TW 95, P.T. & T.R.R. Co. N.R. Div. Terminal Station West. View under Ninth Avenue looking Southward from 100 feet South of center line, showing underpinning of Ninth Avenue structure taken at sub-grade. May 25, 09. Plate XLIX, Fig. 4.— TW 95, P.T. & T.R.R. Co. N.R. Div. Terminal Station West. View under Ninth Avenue looking Southward from 100 feet South of center line, showing underpinning of Ninth Avenue structure taken at sub-grade. May 25, 09.

It was made a practice all through the work to transfer the weight of the structures very positively from one support to another by lifting them bodily by jacks, and putting in filler pieces before releasing the jacks, not trusting to wedging to transfer the loads. In fact, apart from the boxing-in of the surface railway concrete, no wedges whatever were used. This appears to have been a decided advantage, for, with the constant pounding of trains on the elevated railway and the jarring due to heavy trucks on the pavement blocks, it is very likely that wedging would have become loosened and displaced, whereas, with blocking, there was little or no tendency toward displacement due to vibration. Although the vibration of the structure, when a long length was supported on girders "C" resting on the permanent viaduct [321]girders on the sides of the avenue, appeared to be considerable, not only vertically but transversely, very careful observation showed that the sag in the girder "C" due a live load of three elevated railway trains, one surface railway car, and one heavy truck, amounted to 1/8; in. The sideway vibration did not amount to more than 1/32 in. on either side of the normal position. More vibration was caused by heavy trucks and wagons going over the stone pavement than by the elevated railway trains or surface cars.

No blasting was done near the supports of the elevated railway structure while trains were passing over it, and occasionally trains were stopped during a heavy or uncertain blast. A watchman on the surface, day and night, and at first one and later two flagmen on the elevated railway structure, were on duty at all times, reporting to the Interborough Rapid Transit Company, by whom they were employed. Log mats and timber protection for the girders and the columns of the permanent viaduct were used, as shown by Figs. 1 and 4, Plate XLIX, during the excavation of the rock core, and timber was also used to protect the face of the completed portions of the concrete abutments.

In excavating the sides of the avenue, the rock broke better on the east than on the west side, where large seams developed and some slides occurred.

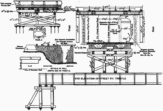
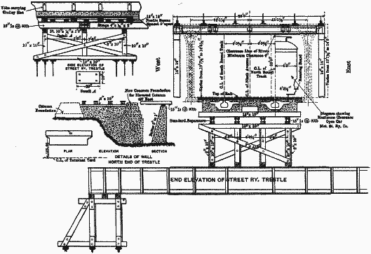
Abutments.—As shown on Fig. 7, the face of the north abutment has a batter of 2 in. to the foot, and the face of the south abutment has a variable batter, the base being on a grade and the bridge seat being level, and both maintaining a uniform distance from the center of the Terminal Yard. The back walls of the abutments were not built until the steel had been put in place.

No attempt was made to water-proof these abutments, but, in the rear of the wall, open spaces were left, about 6 ft. from center to center, which were connected with drain pipes at the base of and extending through the wall, for the purpose of carrying off any water that might develop in the rock. These drains were formed by building wooden boxes with the side toward the rock open and the joints in the boxes and against the rock plastered with mortar in advance of the wall. A hose was used to run water through these drains during the placing of the concrete, for the purpose of washing out any grout which might run into them. Each box was washed out at frequent [322]intervals, and there was no clogging of the drains whatever. This method of keeping the drains open was adopted and used successfully for the entire work. The abutments were built of concrete, and the mixture was 1 part of cement, 3 parts of sand, and 6 parts of broken stone.

The concrete was mixed in a No. 3 Ransome mixer, and was placed very wet. No facing mixture or facing diaphragms were used, but the stone was spaded away from the face of the wall as the concrete was laid. Chutes were used inside the form, if the concrete had to drop some distance. Work was continued day and night, without any intermission, from the time of commencement to the time of completion of each section.

The face of the concrete wall was rubbed and finished in a manner similar to that used on the walls between Ninth and Tenth Avenues, as described later.

Fig. 2, Plate LII, shows the east and central portions of the south abutment, completed and carrying the permanent viaduct, and the excavation completed for the west portion.

Work Between Ninth and Tenth Avenues.

General Description.—The work involved the excavation of about 5.4 acres, between the west house line of Ninth Avenue and the east house line of Tenth Avenue, to an average depth of about 50 ft., the construction of a stone masonry portal at Tenth Avenue leading to the River Tunnels, and the construction around the site of the concrete retaining and face walls.

The following estimated quantities appear in the contract: Excavation of rock in trenches, 3,400 cu. yd.; excavation of rock in pit, 377,000 cu. yd.; excavation of all materials except rock in trenches, 6,500 cu. yd.; excavation of all materials except rock in pit, 34,000 cu. yd.; concrete, 1:3:6, in retaining walls, 4,580 cu. yd.; concrete, 1:3:6, in face walls, 7,460 cu. yd.; concrete, 1:2:3, with ¾-in. stone, in face walls, 4,100 cu. yd.; stone masonry in portal, 247 cu. yd., etc., etc.

NINTH AVE. ABUTMENTS & KEY PLAN Fig. 7. (full page image)
NINTH AVE. ABUTMENTS & KEY PLAN

As previously stated, the contract price included the placing of all excavated material on scows at Pier 62, North River. Prior to this contract this pier had been used by the New York Contracting Company-Pennsylvania Terminal, for the disposal of excavated material [324]from east of Ninth Avenue. In order to get the material to the pier, the contractor had excavated a cut under Ninth Avenue which came to the grade of 32d Street about midway between Ninth and Tenth Avenues, and a trestle was constructed from this point over Tenth Avenue and thence to the pier. Fig. 2, Plate XLVII, shows the east end of this cut, and Fig. 1, Plate L, shows the trestle, looking east from Tenth Avenue.

A 30-ton steam shovel was brought to the south side of the work, and commenced operating on July 9th, 1906. After working there about a month, the earth had been practically stripped off the rock, and the shovel was moved over to the north side where it excavated both earth and rock until August 10th, 1907.

At three points south of 32d Street and at one point north of 32d Street near Tenth Avenue, cuts were made in the rock to sub-grade, and from these cuts, together with the cuts on the west side of Ninth Avenue, all widening out was done and the excavation was completed. Fig. 1, Plate L, shows the excavation of the three cuts on the south side of 32d Street, the steam shovel operating on the north side of that street, and the material-disposal tracks and trestle. Fig. 3, Plate LII, shows the cuts joined up and the excavation along the south side practically completed.

On the north side of the work, between Stations 182 + 90 and 183 + 65, the rock was low, and provision had to be made for maintaining the yards to the north of the site. Therefore a rubble-masonry retaining wall was built, with the face about 2 ft. north of the face of the proposed concrete wall which was to be put in later. On the same side of the work, between Stations 188 + 24 and 188 + 46, the rock was exceedingly poor, and as a small frame house on the adjoining lot was considered to be in an unsafe condition, a rubble masonry retaining wall was built. As the building adjoining the south side of the work at Tenth Avenue was on an earth foundation, it was necessary to underpin it before the excavation could be done. The building was supported on needles, and rubble masonry was put in from the bottom of the old foundation to the rock. The foundation of 413 West 31st Street, immediately west of the Express Building site, was of very poor masonry, and it was necessary to rebuild it prior to taking out the adjoining excavation.

Plate L, Fig. 1.— TW 23, P.N.Y. & L.I.R.R. Terminal Station West. View looking Eastward from Tenth Ave., showing work between Ninth & Tenth Avenues. Dec. 26, 06. Plate L, Fig. 1.— TW 23, P.N.Y. & L.I.R.R. Terminal Station West. View looking Eastward from Tenth Ave., showing work between Ninth & Tenth Avenues. Dec. 26, 06.
Plate L, Fig. 2.— TW 35, P.T. & T.R.R. Co. Terminal Station West. View looking Northwest from Sta. 184, 120 feet South of center line. Dec. 31, 07. Plate L, Fig. 2.— TW 35, P.T. & T.R.R. Co. Terminal Station West. View looking Northwest from Sta. 184, 120 feet South of center line. Dec. 31, 07.
Plate L, Fig. 3.— TW 96, P.T. & T.R.R. Co. N.R. Div. Terminal Station West. View looking West from Ninth Avenue Elevated Railway, showing condition of work. May 26, 09. Plate L, Fig. 3.— TW 96, P.T. & T.R.R. Co. N.R. Div. Terminal Station West. View looking West from Ninth Avenue Elevated Railway, showing condition of work. May 26, 09.
Plate L, Fig. 4.— TW 104, P.N.Y. & L.I.R.R. Terminal Station West. View from Tenth Avenue looking East, showing progress of concrete walls. Aug. 7, 09. Plate L, Fig. 4.— TW 104, P.N.Y. & L.I.R.R. Terminal Station West. View from Tenth Avenue looking East, showing progress of concrete walls. Aug. 7, 09.

[325]

Along the north side, between Stations 186 + 50 and 187 + 50, the walls supporting the adjoining back yards were of poor quality and had to be renewed by the contractor before excavation could be done.

The excavated material was loaded by derricks on cars at the top of the excavation, these cars being on tracks having a direct connection with the disposal trestle, as shown by Fig. 1, Plate L. As soon as it could be done, derricks were placed at the bottom of the excavation; tracks were then laid out there, and the excavated material was loaded on cars at the bottom and hoisted by derricks to cars on the disposal trestle. A locomotive was lowered to the bottom of the excavation on August 25th, 1907, and a derrick started operating at the bottom on August 27th, 1907. The commencement of this work by derricks at the bottom is shown by Fig. 3, Plate LII. In general, the disposal tracks were maintained about on the center line of 31st Street until the excavation had been carried as close to them as possible, and on October 16th, 1907, they were shifted to the extreme north side of the work, as shown by Fig. 2, Plate L. A portion of the old trestle was left in place near Tenth Avenue, a derrick was erected thereon, and the tracks were used for cars to receive the excavated material hoisted from sub-grade. The disposal trestle was maintained in this position until such time as it would interfere with the excavation, and then the tracks were abandoned. This was done on November 11th, 1908. Fig. 3, Plate L, shows the finishing of the excavation on the north side of the work. On August 30th, 1908, a cut was made under Ninth Avenue at sub-grade, and cars could then be run from Seventh to Tenth Avenue at sub-grade. On October 24th, 1908, the connection with the disposal trestle east of Ninth Avenue was abandoned, and all excavated material was hoisted from sub-grade at Tenth Avenue by derricks.

As previously stated, the contractor was required to make complete disposal of all excavated material after January 1st, 1909, but was allowed the use of the pier until January 20th, 1909, after which date the materials were hoisted by derricks at Tenth Avenue, loaded on 2-horse trucks, and transported to the 30th Street pier, North River, where it was loaded on scows by two electric derricks. A considerable amount of the rock excavation was broken up and used for back-fill.

[326]

Earth Excavation.—Practically all the earth excavation, amounting to about 57,000 cu, yd., was done with steam shovels. The average quantity of earth excavated by a steam shovel per 10-hour shift was 180 cu. yd. This material was loaded on side-dump cars and taken to the disposal pier where it was dumped through chutes to the decks of scows. Inasmuch as the quantity of earth excavation was small, as compared with the rock, the earth was used principally for the first layer on the scows for padding, so that small stones might be dumped through the chutes without injuring the decks.

Rock Excavation.—As previously stated, the rock broke better on the south than on the north side, where there were several slides, and considerable excavation had to be taken out beyond the neat line required in the specifications. The worst slide occurred at midnight on July 3d, 1909, at about Station 188 + 50. The last blast, to complete the excavation to sub-grade at this point, had been fired in the afternoon of the same day, and the mucking was practically completed. Great care had been taken in excavating near this point, as it was evident that the rock was not of a very stable character, but, when the excavation had been completed, it was thought that the rock remaining in place would stand. The volume of material brought down by this slide amounted to about 200 cu. yd. The rock on the south side broke very well, and there were no slides of any consequence.

The drill holes were laid out by the blaster, and the general method of drilling for different classes of work was as follows: In breaking down, the holes were started about 8 ft. apart, on a slight batter, so that at the bottom they would be considerably less than 8 ft. apart. They were drilled about 10 ft. deep, and blasting logs were used, as it was necessary to load quite heavily in order to lift the material and start the cut. After the cut had been made, side holes were shot to widen out sufficiently to start another cut.

After a side cut about 20 ft. deep had been made, the side holes were drilled 20 ft. deep, and the holes were loaded and tamped for the full 20-ft. cut. Under the terms of the specifications, the contractor was required to complete the excavation on the sides by drilling broaching holes.

The maximum length of drill steel was about 20 ft., and, where the excavation plane of broaching was more than 20 ft. in depth, the contractor was permitted to start the holes back of the broaching line, in [327]order to allow for setting up the drills on the second lift. A distance of about 8 in. was usually allowed for setting up a drill. The broaching line was painted on the surface of the rock in advance of the drilling, and the batter of the drill was tested with a specially designed hand-level in which the bubble came to a central position when the face of the level was on the required batter. Holes were also drilled in front of this broaching line, and, when the excavation had been taken out to within about 6 ft. in front of it, the holes immediately in front were loaded, and also about every third one of the broaching holes, and, unless the rock was very bad, it usually broke sharply at the broaching line. Occasionally, the broaching holes which were not loaded were filled with sand, which gave rather better results than leaving them open.

In the steam-shovel work on the east side of Ninth Avenue, spring holes were used. They were formed by drilling a 20-ft. hole and exploding at the bottom of it, without tamping, two or three sticks of dynamite, and repeating this process with heavier charges until there had been formed at the bottom of the hole a large cavity which would hold from 100 to 200 lb. of dynamite. Face holes and breast holes were also drilled, and it was possible by this method to drill and break up a cut 20 ft. deep and 15 ft. thick. The only place where spring holes were used on this work was on the east side of Ninth Avenue where the heavy cutting was sometimes extended beyond the east house line.

From the best records obtainable, the average progress in drilling was about 33 lin. ft. per 8-hour shift. The average number of cubic yards of excavation per drill shift was 13.9, and the average amount of drilling per cubic yard of excavation was 2.4 ft.; this covered more than 27,000 drill shifts.

The dynamite was practically all 60%, and the average excavation per pound of dynamite was 2.2 cu. yd. The contractor employed an inspector of batteries and fuses, who, using an instrument for that purpose, tested the wiring of each blast prior to firing, in order to discover any short circuits, and thus prevent the danger of leaving unexploded dynamite in the holes.

The average quantity of excavation per derrick shift of 10 hours, covering 7,400 shifts, 87% of the excavation being rock, was 50 cu. yd., and the average force per shift, including only foreman and laborers, was 13 men. It was found that a derrick operating at the top of a[328] 20-ft. cut would handle about 40 cu. yd. per shift, whereas, if operating at the bottom of the cut, it would handle about 60 cu. yd. per shift. The elevator derricks at Tenth Avenue were very efficient, and each could take care of the material from four derricks at the bottom, hoisting 250 cu. yd. per shift a height of 60 ft.

Concrete Retaining and Face Walls.—It was essential to have the greatest space possible at the bottom of the excavation, and, inasmuch as the yard was to be left open, it was necessary to provide some facing for the rock on the sides in order to prevent disintegration, due to exposure, and give a finished appearance to the work. Above the rock surface a retaining wall of gravity section was designed, the top being slightly higher than the yards of the adjoining properties. The face wall was designed to be as thin as possible, in order to allow the maximum space for tracks.

The excavation, therefore, was laid out so that the back of the retaining wall would not encroach on the adjoining property, but would practically coincide with the property line at positions of maximum depth.

The batter on the face of the wall was 2 in. per ft., and a bridge seat 3½ ft. wide was formed at an elevation of 22 ft., minimum clearance, above the top of the rail. This bridge seat was made level. The maximum height of the south wall is 49 ft., and of the north wall 65 ft.

The face walls were classed as "Upper Face Walls," extending from the base of the retaining wall to the bridge seat, and as "Lower Face Walls," extending from the bridge seat to the base of the wall. The general design is shown on Fig. 8.

In considering the design of the face wall it was felt that, the wall being so thin, ample provision should be made to prevent any accumulation of water and consequent pressure back of the wall; therefore, no attempt was made to water-proof it, but provision was made to carry off any water which might appear in the rock. Box drains, 2 ft. wide and 6 ft. from center to center, were placed against the rock, so that, there being but 4 ft. between the drains, and the wall having a minimum thickness of 2 ft., any water in the rock would not have to go more than 2 ft. to reach a drain, and would probably pass along the face of the rock to a drain rather than through 2 ft. of concrete. These drains were connected with pipes leading through the wall at its base.

[329]

RETAINING AND FACE WALLS NORTH SIDE Fig. 8. (full page image)
RETAINING AND FACE WALLS NORTH SIDE

[330]

These box drains occurred so frequently, and decreased the section of the wall so materially, that it was thought desirable to tie the wall to the rock. This was done by drilling into the rock holes from 6 to 15 ft. in depth, and grouting into each hole a 1½-in. rod having a split end and a steel wedge. The outer end of each rod was fitted with a 12 by 12 by ½-in. plate and a nut, and extended into the wall, thus tying the concrete securely to the rock. The drains being 6 ft. from center to center, the tie-rods were placed midway between them, and 6 ft., from center to center, vertically and horizontally. Fig. 8 shows the arrangement of these rods and drains. Around the Express Building site, just west of Ninth Avenue, on the south side of the work, the bridge seat was omitted, and the face wall was designed 2 ft. thick from top to bottom. The batter on the 31st Street wall was made variable, the top and bottom being constant distances from the center line and on different grades.

The retaining walls were water-proofed with three layers of felt and coal-tar pitch, which was protected by 4 in. of brick masonry. A 6-in. vitrified drain pipe was laid along the back of the wall, with the joints open on the lower half, and this was covered with 1 ft. of broken stone and sand before any back-fill was placed on it.

The arrangement of the drains was as follows: The 6-in. drain back of the retaining wall was connected with one of the box drains in the rear of the face wall by a cast-iron pipe or wooden box every 24 ft., and this ran through the base of the retaining wall. Midway between these pipes, a connection was made at the bridge seat between the drain in the rear of the face wall and the gutter formed at the rear of the bridge seat to carry off rain-water coming down the face of the wall above. All the box drains, except those connected with the drains back of the retaining wall, were sealed at the elevation of the base of the retaining wall, as noted previously.

The specifications required vitrified pipe to be laid through the retaining wall, but, owing to the difficulty of holding the short lengths of pipe in place during the laying of wet concrete, they were dispensed with, and either iron pipes or wooden boxes were used.

Tie-Rods.—When the excavation on the sides had been completed, movable drilling platforms were erected, as shown by Fig. 4, Plate L. The holes were drilled on a pitch of 2 in. per ft. with the horizontal. The depths of the holes were decided by the engineer, and [331]were on the basis of a minimum depth of 5 ft. in perfect rock; the character of the rock, therefore, and the presence of seams, determined the depths of the holes. Each hole was partly filled with grout, and the rod, with the steel wedge in the split end, was inserted and driven with a sledge so that the wedge, striking the bottom of the hole first, would cause the split end of the rod to open. Each hole was then entirely filled with neat cement grout.

Box Drains.—Various methods of forming the box drains were considered, such as using half-tile drains, or a metal form, or a collapsible form which could be withdrawn, but it was finally decided to build boxes in which the side toward the rock was open and the joints in the boxes and against the rock were plastered with cement mortar. These boxes were left in place. Fig. 1, Plate LI, shows the tie-rods and box drains in place, and holes being cut near the bottom of the drains for the pipes leading through the wall.

Forms.Fig. 1, Plate LI, shows the form used on the south side of the work. The materials were of good quality, and the form, which was about 50 ft. long, was used to build twelve sections, or about 600 ft. of wall. The form was tied in at the top and bottom by cables attached to rods drilled into the rock, and it was thought that, with the trusses to stiffen the middle section of the form, it would not be necessary to use raker braces against it. This would have been desirable, as the placing of the raker braces took considerable time. It was found, however, that the form was not sufficiently rigid, as it bulged at the middle section and could not be held by the trusses. Two or three sets of raker braces, about 12 ft. apart, were used, and in addition, rods with turnbuckles were placed through the form and fastened to the tie-rods, and thus the form was held in place successfully. On the forms built later, the trusses were omitted, and raker braces, about every 6 ft., were used. The rods which screwed into the turnbuckles were removed before the form was moved. The photograph, Fig. 4, Plate LII, was taken inside the concrete form for the lower face wall on the north side, and shows the drains leading through the wall, the turnbuckles attached to the tie-rods, the cables attached to rods in the rock, and the braces to keep the form from coming in; these braces, of course, were removed as the concrete came up. The form was built low and wedged up into position. After a section of concrete had set sufficiently, the wedges were knocked out, the form was lowered and [332]moved from the wall, and was then moved along the lowest waling piece by block and tackle to its new position.

Fig. 4, Plate L, shows the forms used on the north side of the work.

A section, 1 ft. square, at the top of the bridge seat of the lower face wall, was left out, so that the bottom of the form for the upper face wall could be braced against it. The top of this form was tied by cables attached to rods in the rock and by rods with turnbuckles running from back to front of the form; braces were also put in from the back of the retaining wall form to the walls of buildings along the property lines, when this could be done. The middle section of the form was held by rods with turnbuckles which passed through the form and were fastened to each of the tie-rods drilled into the rock, as was also done in the case of the lower face wall. It was generally possible to hold the form to true position in this manner, but occasionally it had a tendency to bulge; when this occurred, the rods leading through the form and fastened to the tie-rods were tightened up, the placing of the concrete was slowed up, and no serious bulging occurred.

Bulkheads at the ends of the sections were built of rough planking securely braced to the rock, except that a planed board was laid up against the face of the form to make a straight joint. At the end of each section a V was formed, as shown by Fig. 1, Plate LI. At all corners, a "return," or portion of the wall running at right angles, was built, and no section of wall was stopped at a corner.

Filling Forms of Lower Face Walls.—A temporary trestle was erected above the elevation of the bridge seat, and a track, leading from the mixer to the form to be filled, was laid on it. At the commencement of each section a layer of mortar (1 part of cement to 2½ parts of sand) was deposited on the bottom. A 1:3:6 mixture of concrete was used; it was run from the mixer into dump-cars and deposited in the form through chutes, three of which were provided for each 50-ft. section, the average length. The concrete was mixed wet, and was not rammed; the stone was spaded back from the face, and no facing mixture or facing diaphragms were used. Work on each section was continued day and night without any intermission from the time of commencement to the time of completion. At frequent intervals the box drains were washed out thoroughly with a hose, in order to prevent them from clogging up with grout.

Plate LI, Fig. 1.— TW 66, P.N.Y. & L.I.R.R. Terminal Station West. Box drains and tie rods, South side, Sta. 184+80 to 185+14. Sept. 17, 08. Plate LI, Fig. 1.— TW 66, P.N.Y. & L.I.R.R. Terminal Station West. Box drains and tie rods, South side, Sta. 184+80 to 185+14. Sept. 17, 08.
Plate LI, Fig. 2. Plate LI, Fig. 2.
Plate LI, Fig. 3.— P 46. P.R.R. Tunnels, N.R. Div. Sect. Gy. West. Disposal trestle just before demolition. View of South side showing chutes. Jan. 21, 09. Plate LI, Fig. 3.— P 46. P.R.R. Tunnels, N.R. Div. Sect. Gy. West. Disposal trestle just before demolition. View of South side showing chutes. Jan. 21, 09.
Plate LI, Fig. 4.— A 54. P.R.R. Tunnels, N.R. Div. Sect. Gy. West & Oj. View across North River on line of Tunnels, looking from New York to New Jersey. Feb. 9, 07. Plate LI, Fig. 4.— A 54. P.R.R. Tunnels, N.R. Div. Sect. Gy. West & Oj. View across North River on line of Tunnels, looking from New York to New Jersey. Feb. 9, 07.

[333]

In the first few sections of wall, the form was filled to within 1 in. of the top of the bridge seat and allowed to set for about 2 hours; it was then finished to the proper elevation with a plaster of 1 part of cement to 1 part of sand. This did not prove satisfactory, as there were indications of checking and cracking, and, later, the form was filled to the required elevation and the surface floated. The form was allowed to remain in place for from 18 to 24 hours, depending on the weather. In most cases, immediately after the form had been moved, a scaffold was erected against the face of the wall, and the face was wet and thoroughly rubbed, first with a wooden float and then with a cement brick, until the surface was smooth and uniform.

The section 1 ft. square at the top of the bridge seat, which was left out in order to brace the bottom of the form for the upper face wall, was filled in after the walls had been completed. The old concrete was very thoroughly cleaned before the new concrete was placed on it, and a gutter was formed at the rear connecting with the box drains back of the wall to carry off rain-water coming down the face of the upper walls.

In hot weather the walls were thoroughly wetted down several times a day for several days after the form had been removed.

Upper Face and Retaining Wall.—In cases where the top of the retaining wall was at a higher elevation than the mixer, it was necessary to raise the concrete in a bucket with a derrick, and dump it into cars on the trestle above the top of the coping. Concrete was deposited through chutes, as in the lower face wall, continuously from the bottom of the face wall to the top of the retaining wall. At the commencement of each section of the retaining wall a layer of mortar was put on the rock. A 1:2:3 mixture of concrete was used in the face wall, and a 1:3:6 mixture in the retaining wall.

As the face walls were so thin, the number of batches of concrete per hour was reduced, for the form filled so rapidly that the concrete, before it set, exerted an excessive pressure against the form, and this tended to make it bulge. The proper rate at which to place the concrete behind a form 50 ft. long, with a wall 2 ft. thick, was found to be about fifteen ½-yd. batches per hour.

Cracks in Walls and Longitudinal Reinforcement.—Before the concrete walls were started, the contractor suggested using forms 100 ft.[334] long and building the walls in sections of that length; it was decided, however, to limit the length to 50 ft.

The south walls, in sections approximately 50 ft. long, were built first, starting at Tenth Avenue and extending for about 500 ft. Soon after the forms were removed, irregular cracks appeared in the walls between the joints in practically every section. It was thought that these cracks might be due to the wall being very thin and being held at the back by the tie-rods; there was also quite a material change in the section of the wall at each drainage box. Although it was admitted that these cracks would have no effect on the stability of the wall, it was thought that, for appearance sake, it would be desirable to prevent or control them, if possible. The first method suggested was to shorten the sections to 25 ft., which would give an expansion and contraction joint every 25 ft., it being thought that sections of this length would not crack between the joints. This, however, was not considered desirable. An effort was then made to prevent cracks in a section of wall, about 46 ft. long, on the south side, by using longitudinal reinforcement. In the lower and upper face walls, ¾-in. square twisted steel rods were placed longitudinally about 4 in. in from the face and about 1 ft. 4 in. apart vertically. The sections of these walls were finished on April 10th, and May 5th, 1909, respectively. At present there are no indications of cracks in these sections, and they are practically the only ones in the south walls which do not show irregular cracks.

It was decided, however, that, inasmuch as the cracks did not affect the stability of the walls, the increased cost of thus reinforcing the remaining walls was not warranted. An effort to control the cracks was made by placing corrugated-iron diaphragms in the form, dividing each 50-ft. section into three parts. The diaphragms were 1 ft. wide, and were placed with the outer edge 1 in. in from the face of the wall, but in the copings they were omitted. The purpose of these diaphragms was to provide weak sections in the walls, so that if there was any tendency to crack it would occur along the line of the diaphragms. Corrugated iron was used for the diaphragms instead of sheet iron as it was more easily maintained in a vertical position. The general arrangement of the diaphragms is shown on Fig. 4, Plate LII. The results obtained by using diaphragms have been quite satisfactory, and cracks approximately straight and vertical have usually appeared [335]opposite the diaphragms soon after the forms were removed. Diaphragms were used on all the remaining walls, with the exception of those between Stations 187 + 07 and 188 + 83 on the north side, where the rock was of poor character and bad slides had occurred. Between these points, in order to strengthen the wall, twisted steel rods, 1 in. square, were placed longitudinally, 6 in. in from the face of the wall and 2 ft. apart vertically, between Elevations 295 and 335.

Plate LII, Fig. 1.—Girders Under 9th Avenue Elevated Railroad. Plate LII, Fig. 1.—Girders Under 9th Avenue Elevated Railroad.
Plate LII, Fig. 2.— TW 100. P.T. & T.R.R. Co. Terminal Station West. Showing excavation of completion of South abutment 9th Ave. and method of Supporting Elevated Railway Column 488. July 21, 09. Plate LII, Fig. 2.— TW 100. P.T. & T.R.R. Co. Terminal Station West. Showing excavation of completion of South abutment 9th Ave. and method of Supporting Elevated Railway Column 488. July 21, 09.
Plate LII, Fig. 3.— TW 31. P.T. & T.R.R. Co. Terminal Station West. View showing excavation 9th and 10th Avenues South of 32nd St. looking West from Sta. 184. Aug. 17, 07. Plate LII, Fig. 3.— TW 31. P.T. & T.R.R. Co. Terminal Station West. View showing excavation 9th and 10th Avenues South of 32nd St. looking West from Sta. 184. Aug. 17, 07.
Plate LII, Fig. 4.— TW 101. P.T. & T.R.R. Co. Terminal Station West. Inside of concrete form for lower-face wall, showing drains, tie rods, diaphragms and methods employed for tying in the form in addition to braces outside. July 21, 09. Plate LII, Fig. 4.— TW 101. P.T. & T.R.R. Co. Terminal Station West. Inside of concrete form for lower-face wall, showing drains, tie rods, diaphragms and methods employed for tying in the form in addition to braces outside. July 21, 09.

Tenth Avenue Portal.—The design of the Tenth Avenue Portal is shown on Fig. 9. The stone selected came from the Millstone Granite Company's Quarries, Millstone Point, Conn., and is a close-grained granite. Fig. 2, Plate LI, shows the completed portal.

Practically all the stone cutting was done at the quarry, but certain stones in each course were sent long and were cut on the ground, in order to make proper closures. Drains were left behind the portal around the back of each arch, leading down to the bottom, and through the concrete base at each side of the portal and in the central core-wall; all these drains have been discharging water.

Power-House.—The old church at No. 236 West 34th Street, between Seventh and Eighth Avenues, was turned over to the New York Contracting Company-Pennsylvania Terminal for a power-house to supply compressed air for use on the Terminal Station work between Seventh and Ninth Avenues and the work below sub-grade as well as that on the Terminal Station-West. Four straight-line compressors and one cross-compound Corliss compressor were installed, the steam being supplied by three Stirling boilers. Three electrically-driven air compressors, using current at 6,600 volts, were also installed, and the total capacity of the power-house was about 19,000 cu. ft. of free air per minute compressed to 90 lb. per sq. in.

Disposal Pier.—The disposal pier (old No. 62 and new No. 72), at the foot of West 32d Street, North River, was leased by the Pennsylvania Railroad Company. The entire pier, with the exception of the piles, was taken down, and the piles which would be in the path of the proposed tunnel were withdrawn prior to the building of the tunnels and the construction of the pier for disposal purposes. Subsequent to the driving of the tunnels there was a considerable settlement in the pier, especially noticeable at the telphers, and finally these had to be abandoned on this account. Fig. 3, Plate LI, shows the chutes through which the earth was dumped on the decks of the scows [337] to form a padding on which to dump the heavier rock. Fig. 4, Plate LI, shows the derricks at the end of the pier. These were used, not only for loading heavy stones and skips, but also with a clam-shell bucket for bringing in broken stone and sand for use in the work. Large quantities of pipe, conduits, brick, etc., were also brought to this pier for use on the work.

PORTAL, RETAINING AND FACE WALLS, TENTH AVENUE Fig. 9. (full page image)
PORTAL, RETAINING AND FACE WALLS, TENTH AVENUE

Organization of Engineering Force in Field.

The design and execution of the work were under the direction of Charles M. Jacobs, M. Am. Soc. C.E., Chief Engineer, and James Forgie, M. Am. Soc. C.E., Chief Assistant Engineer. The writer acted as Resident Engineer.

Fig. 10 Fig. 10

The general organization of the engineering force in the field is shown by the diagram, Fig. 10.

The position of Assistant Engineer, in responsible charge of Construction and Records, has been filled in turn by Messrs. A.W. Gill, N.C. McNeil, Jun. Am. Soc. C.E., and W.S. Greene, Assoc. M. Am. Soc. C.E.

Messrs. A.P. Combes and T.B. Brogan have acted as Chief Inspector and Night Inspector, respectively, in charge of outside work during the entire carrying out of the contract.

Base lines had been established on Ninth and Tenth Avenues for the Terminal work east of Ninth Avenue and for the Tunnel work [338]west of Tenth Avenue, and these lines, together with bench-marks similarly established, were used in laying out the Terminal Station-West work.

Prior to the commencement of the work, elevations were taken on the surface at 10-ft. intervals, and elevations of the rock surface were taken on these points as the rock was uncovered. Cross-sections were made and used in computing the progress and final estimates.

Very careful records were kept of labor, materials, derrick performances, steam-shovel performances, quantity of dynamite used, etc., and, in addition, a diary was kept giving a description of the work and materials used each day; various tables and diagrams were also prepared.

A daily report was sent to the Chief Office showing the quantities of excavation removed and concrete built, the force in the field, the plant at work, etc., during the previous day. At the end of each month a description of the work done during that month, with quantities, force of men employed, percentages of work done, etc., was sent to the Chief Office. Two diagrams, showing cross-sections and contours of the excavation done and the progress of the concrete walls, were also sent.

Cost Account.

From the records of labor and material obtained in the field, and from estimated charges for administration and power, an estimate was made of the cost to the contractor for doing various classes of work. It was necessary to estimate the administration and power charges, as the contractor's organization and power-house were also controlling and supplying power to the Terminal Station work east of Ninth Avenue and also the work below sub-grade. The labor and material charges in the field were placed directly against the class of work on which they were used and the administration and general charges (which included superintendence, lighting, etc.) were apportioned to the various classes of work in proportion to the value of the labor done.

Statistics.

The total weight of the structural steel used during the underpinning of Ninth Avenue was 1,475,000 lb.

The total weight supported during the work under Ninth Avenue was about 5,000 tons.

[339]

The average daily traffic over the Ninth Avenue Elevated Railway was 90,000 passengers, and, during the progress of the excavation and underpinning, about 100,000,000 passengers were carried over that structure.

The total excavation was 521,000 cu. yd., of which 87% was solid rock.

The average drill performance was about 33 lin. ft. per 8-hour shift.

The average number of cubic yards of excavation per drill shift was 13.9.

The average number of feet of drilling per cubic yard of excavation was about 2.4.

The average excavation per pound of dynamite was 2.2 cu. yd.

The average amount of excavation per derrick shift of ten hours, 87% of the excavation being rock, was 50 cu. yd.

The average derrick force per shift, including only foreman and laborers, was 13 men.

The salaries of the engineering staff in the field and the expenses of equipping and maintaining the field office amounted to 2.8% of the cost of the work executed, 2.7% being for engineering salaries alone.

FOOTNOTES:

[A] Presented at the meeting of April 6th, 1910.