The Project Gutenberg eBook of Correlated courses in woodwork and mechanical drawing, by Ira. S. Griffith, A.B.

This eBook is for the use of anyone anywhere in the United States and most other parts of the world at no cost and with almost no restrictions whatsoever. You may copy it, give it away or re-use it under the terms of the Project Gutenberg License included with this eBook or online at www.gutenberg.org. If you are not located in the United States, you will have to check the laws of the country where you are located before using this eBook.

Title: Correlated courses in woodwork and mechanical drawing

Author: Ira. S. Griffith, A.B.

Release Date: May 18, 2022 [eBook #68118]

Language: English

Produced by: Charlene Taylor, Harry Lamé and the Online Distributed Proofreading Team at https://www.pgdp.net (This file was produced from images generously made available by The Internet Archive/American Libraries.)

*** START OF THE PROJECT GUTENBERG EBOOK CORRELATED COURSES IN WOODWORK AND MECHANICAL DRAWING ***

Please see the Transcriber’s Notes at the end of this text.


Cover image

Frontispiece

Correlated Courses
IN
Woodwork
AND
Mechanical Drawing

By Ira S. Griffith, A. B.

Assistant Professor of Manual Arts, Bradley Polytechnic Institute, Peoria, Illinois.
Author of “Essentials of Woodworking,” “Woodwork for Amateur
Craftsmen,” “Projects for Beginning Woodwork and
Mechanical Drawing,” and “Advanced
Projects in Woodwork.”

Logo

The Manual Arts Press
Peoria, Illinois


Copyright
Ira S. Griffith

1912


[1]

PREFACE.

The author wishes to state that the basis of the following courses rests more upon the art or practice of teaching manual training than upon the theory. It is the result of carefully prepared plans executed under public school conditions by the author himself, covering a period of some nine years of experimentation. Wherever plans, or theory, were found producing results which common sense indicated plainly were not for the pupils’ highest good, practical expediency supplanted theory.

If manual training practice in the two upper grammar grades has merited criticism it has been because school men have not taken its subject matter seriously enough.

It is too much to hope that results can be achieved that are truly educative, when a shop, however well equipped, is turned over to a teacher but slightly experienced in, and appreciative of, the “finer points” of the subject matter to be dealt with. Loose and unorganized efforts in any line of work cannot become educative, it matters not what fine spun theories may be offered as proof to the contrary. Indeed, much positive injury may be done.

If the present demand for vocational training teaches manual training anything, it is that the subject matter of manual training must receive more serious attention. The aims of manual training and vocational training, in one sense, are not so very different; both seek, or should, to assist the boy to become a “thinking doer.” The distinction is mainly a matter of “direction” and of allotment of time, with possibly a slight difference in the placing of the emphasis on one or the other of the words “thinking doer.”

We do not mean to imply that manual training and vocational training are the same, but we do mean to say that the educative value of any shop training, whether given from the point of view of general culture or of special preparation for life’s work, is evidenced in the attitude which pupils are allowed to assume toward their work. Incorrect and slovenly habits of thinking and doing have no more place in manual[2] training than in vocational training. Organization of subject matter is as essential in manual training as in any other line of endeavor.

Among other things, it is the author’s hope that the book may offer some suggestions that will help to bring about a better understanding of the relation of the high school and grade school manual training. The arrangement and division of the subject matter and the grouping of the problems represent one method of attack.

The employment of skilled instructors in both grade and high school and the making of the work of the upper grammar grades serious mechanically rather than merely “expressional” will wait in many communities upon the initiative of the school authorities.

Normal school students will find the outline representative of a manual training practice that is being carried on in some schools that are reputed to be progressive.

Finally, it is expected that the book will prove helpful to young instructors in their first year of teaching, assisting them over many of the petty details which spell success or failure in varying degree, which otherwise would not be foreseen.

Ira S. Griffith

Oak Park, Ill., June, 1912.

For the convenience of the teachers, the drawings used in “Projects for Beginning Woodwork and Mechanical Drawing” and “Advance Projects in Woodwork” are printed in this book. The notes and working directions, however, are not included. The inking of the drawings and the making of the perspectives in both of these books is the work of Mr. George Gordon Kellar.


[3]

CONTENTS

PART I—Organization 5
Chapter IForeword—Aims 7
Chapter IIClassification and Arrangement of Tool Operations, for Grades 7, 8, 9, 10; Discussion 12
Chapter IIIClassification and Arrangement of Elements of Mechanical Drawing, for Grades 7, 8, 9; Discussion 22
Chapter IVShop Organization—Location of Shops; Division and Allotment of Time; Informational and Related Matter Pertaining to Woodwork and Mechanical Drawing; Structural and Decorative Design; Shop Excursions; Stock Bills; Estimating Cost of Material; Standardizing Materials and Tools; Records, Forms of Reports, Grading Work; Shop Conduct; The Lesson; Maintenance 29
Chapter VEquipment—Size of Classes; Lockers; Bench and Tool Equipment for Grade Center; Individual Tools; Equipment for Mechanical Drawing, Grade Center; High School Joinery Shop; High School Bench and Tool Equipment 73
PART II—Lesson Outlines 89
Chapter VILesson Outlines for Grade VII 91
Chapter VIILesson Outlines for Grade VIII 110
Chapter VIIILesson Outlines for Grade IX 130
PART III—Working Drawings 133
Chapter IXDrawings of Projects, for use in Grades VII and VIII. Group I—Squaring up stock surfaced on two sides to thickness. Group II—Squaring up stock surfaced on two sides, continued. Group III—Squaring up Rough Stock. Group IV—Working Curves. Group V—Duplicate Parts. Group VI—Design. Group VII—Groove Joints—Applications. Group VIII—Cross-lap Joints—Applications 135
Chapter XDrawings of Projects, for use in High Schools. Group IX—Mortise-and-tenon Joints, Miter Joint, Glue Joint, Modeling Exercise—Applications. Group X—Dovetail Joints, Rabbeted and Grooved Joints—Applications 187

[4-
5]

PART I.
ORGANIZATION.


[6-
7]

CHAPTER I.
FOREWORD—AIMS

Foreword.

It is assumed that woodworking and mechanical drawing have subject matter and that it is desirable to have an orderly arrangement. Such an assumption may seem unwarranted to some—to those who labor in private institutions where the instruction is individual or nearly so. It is believed, however, that to teachers of these subjects in the public schools, where for economic reasons, classes of considerable numbers must be cared for, the necessity for a careful selection and arrangement of subject matter is very evident.

It has taken some years for the manual training movement to recover from the extremes into which the late psychology and child study movement had led it. The exaltation of the “individual” and the reign of the “self-expressionist,” it would seem, is about over. Not that this latter movement was an evil—far from it. Its influence was needed and came none too soon. Like other great movements, however, it led some teachers to extremes, causing them to overlook the good in the old with the result that the new alone has proven no more desirable than the old alone. The pendulum of opinion is returning and in not a few important places, is already swinging to the other extreme. It is for manual training teachers to try to determine by an exchange of ideas where the sanest position lies.

In this discussion, we should ever keep in mind that the American public school system is maintained mainly to prepare boys and girls for good and useful citizenship; that this is a democracy in which neither individual nor class is to be exalted unduly and that our system of education must result neither in the chaos of anarchy nor in the dull formalism of a despotism. To the writer it appears that manual training as practiced before the psychologist took possession was quite typical of the countries from which its influence came, Russia and Sweden-formalism. Under the influence of the most radical of the psychologists, manual training became synonymous with educational anarchy.

[8]

The best American citizenship cannot be developed by means of either the new alone or the old alone. There must be due attention paid to the development of the individual but that same individual must learn that he is but one of many and that he must do some things because they make it possible for all to enjoy equal rights and privileges. With this thought in mind, irrespective of any consideration of economic advantages, orderly arrangement of subject matter and class instruction, made necessary in large schools, must be looked upon as helpful rather than harmful in the preparation of the individual for citizenship.

Superintendent L. D. Harvey has said:

Members of society may be roughly classed into four groups: those who think without doing; those who do without thinking; those who neither think nor do; and those who think and do because of their thinking. This fourth class comprise the productive, constructive, organizing element of society. It is the function of the public schools to produce members of this fourth class. It must be evident to all that for the production of a thinking and doing individual the two forms of activity should be carried on side by side; the doing growing out of the thinking, and the thinking made clear and definite thru the doing.

In this statement the writer sees the proper relation of those two essential elements that make manual training valuable as a school subject—the thought element and the element of skill. Manual training suffered by having the one—skill—unduly emphasized when our European importations were made. Recently, it has suffered by having the other—the thought side—unduly magnified. Both of these elements are important.

In the author’s experience the practical application of a system that would make the most of each of these elements has been a source of no little disappointment. Effort in one direction seemed always to result in a sacrifice in the other. That is, when the thought side was emphasized there was a falling off in the accuracy of the results. When skill was magnified it was attained only with a sacrifice of the thought element. With many misgivings the conclusion was reached that the introduction of original thinking on the part of the pupil must mean somewhat of a sacrifice on the skill side. Concerning this phase of the subject Professor Richards writes:

In order to develop in the highest degree independence of thought and power of initiative the pupil must be given opportunities for determining ends and working out means. Only in this way is the natural cycle of mental activities—thinking, feeling and doing—fully realized and made effective. The practical[9] realization of this principle means, of course, a distinct problem of instruction. The problem is essentially one of proportion and balance between freedom of expression on the one side and skill and mastery of process on the other. Extreme emphasis on the one leads inevitably to a class of crude and ill-considered products while attention restricted to the other results in mere drill and formalism.

Further, in “The Manual Training Teacher,” Charles L. Binns, an Englishman just returned from a trip thru the United States, writes of manual training in the grades as follows:

The lack of exactness is the main defect of American manual training. But there are many compensations to be balanced against this, and these arise chiefly, in my opinion, from the fact that the teacher is allowed more liberty to follow his own judgment in teaching the subject than is the case here. He has more scope for exercising his initiative, with the result that he retains the freshness of interest and enthusiasm for his work that our own stereotyped and restricted schemes do much to quell. There is a fine spirit of free activity, eager interest, and industry permeating most of the manual training classrooms. Even the inferior work is done with a happy glow of achievement that half excuses it. * * * To emphasize unduly the aim of rigid mechanical accuracy generally means a sacrifice of the thought side of the work. Those qualities which lead eventually to the realization of the pupil’s highest powers—such qualities as intelligent self direction; an alert resourceful attitude of mind; and power to plan means to an end—are too valuable to lose for such an aim. * * * At the same time a system of handwork that ignores a reasonable standard of accuracy does not count for much. In the course of my visits I found more than once not only an almost entire disregard for exactness in the work of the boys, but also an almost entire neglect on the teacher’s part to strive for it. Something may be said for a method which grants the pupils liberty to express themselves freely in their work, if the results are critically examined and the errors pointed out, but to accept and pass complacently work manifestly inferior is quite inexcusable. There is an element of haste about some of the work which may account for some of this.

More recently Dr. Georg Kerschensteiner the eminent German authority of Munich while on a tour of the United States is quoted by the “Manual Training Magazine” as criticising our manual training strongly, saying:

He could not see why children are encouraged to make big pieces of furniture before they can square up a piece of wood properly or make a single joint of the type that must be multiplied many times in the piece of furniture, if it is properly constructed. From this statement it must not be concluded that his pedagogy is of the dried out kind. On the contrary he stated with marked emphasis that the first requisite in training for skill is to cultivate joy in work. “It is in that way that we appeal to the heart,” and “it is only when the feelings are brought into action that we can most truly educate.”

[10]

We may conclude from this brief statement of the situation that it is desirable to organize and have courses in our manual training and mechanical drawing and that whatever system is adopted it must make allowance for emphasis upon both the thought element and upon skill.

What System Shall We Use.

It is pretty generally conceded that manual training as exemplified by the Russian system of joint making and the Swedish system of model making fails to lead forth the powers of the child to the fullest extent. The educational theory, now generally accepted, that interest is the indispensable basis of every method of education is sufficient to condemn the Russian system so far as its application in non-technical schools is concerned, while Swedish Sloyd, unmodified, is weak in that it fails to take into account the reflective phase of interest, namely, the power of self-initiative. Extreme “educational manual training’s” greatest weakness lies in its undue emphasis upon the thought element resulting in too great sacrifice of that other equally important element, skill or accuracy. The manual training movement is to be congratulated in that all signs now seem to point to its speedy delivery from the hands of these latter extremists. Is it too much to hope that out of our past experiences with the joint making Russian system with its admitted disciplinary value, the Swedish model making with its effort to utilize the energy of the worker toward useful products, and the self expression of the pedagogical movement with its attendant elements of interest and initiative there may come a manual training practice that shall be marked by a combination of the best of these elements with a consequent elimination of the weaknesses of each?

The outline of study suggested in the Illinois State Course of Study, credit for which is due mainly to Professor Charles A. Bennett, the chairman of the committee on manual training in woodwork, has proven a source of very great help to the writer in his efforts to properly present the subject matter of woodwork to his pupils. The introduction to this course is well worth repeating and is in substance as follows:

Any course in woodworking worthy of a place in the eighth and ninth grades of public school work should meet the following requirements:

1. It should arouse and hold the interest of the pupils.

2. Correct methods of handling tools should be taught so that good technique may be acquired by the pupils.

3. Tool work should be accompanied by a study of materials and tools used[11] in their relations to industry. Special attention should be given to the study of trees—their growth, classification, characteristics and use.

4. Drawing should be studied in its relation to the work done.

5. The principles of construction in wood should be taught thru observation, illustration and experience.

6. At least a few problems should be given which involve invention or design or both, thereby stimulating individual initiative on the part of the pupils.

The course is arranged in groups, each group representing a type of work. These groups are given in the order of procedure. The teacher is expected to provide problems of the greatest value educationally. This means that the things to be made should be worth making and that the process of making them should be interesting to the student.

From this it follows that the things to be made must come to the pupil in an order which gives reasonable consideration to the difficulties to be encountered in making them.

Our outline will aim to present the work so as to meet the conditions specified above. It has been thoroly tested over a period of years in public school work. It follows the group plan. The advantages of the group system are distinct. It permits class instruction and therefore minimizes the amount of demonstrating and talking that the instructor must do by preventing needless repetition. By grouping a number of projects having similar tool operations it permits a boy to satisfy his individual needs without interfering with the orderly presentation of the subject matter. It provides work for the fast worker of an interesting and profitable nature until the slow worker completes the minimum requirement. It provides for the “repeater,” who often has to repeat, not because of poor work in manual training but because of poor work in academic studies, by giving him choice of different models upon which to work. In general, the group plan possesses the manifest advantages of class instruction at the same time making allowance for the individuality of the worker.


[12]

CHAPTER II.
CLASSIFICATION AND ARRANGEMENT OF TOOL OPERATIONS FOR GRADES 7, 8, 9, AND 10.

WOODWORK. GRADE VII.

Time: 212 hours per week.

GROUP I. Squaring up Mill-planed Stock. (No definite dimensions but to be square and as large as the stock will allow.)

Time: 1 week.

Stock Processes Tools Projects
Soft wood
S-2-S
34″ × 6″ × 12″
Edge planing
Testing for uniformity of width
End planing
Jack-plane
Try-square
(Block-plane?)
Cutting-board

GROUP II. Squaring up Mill-planed Stock. (Definite dimensions.)

Time: 3 weeks.

Soft wood
S-2-S
34″ × 414″ × 1012
34″ × 234″ × 1812
Surface smoothing
Gaging
Measuring
Lining
Back-sawing (parallel to line)
Boring
Chamfering
(Smooth plane?)
Marking-gage
Rule
Knife
Back-saw
Brace and bits
Pencil-gage
Counting-board
Hat-rack
Key-rack

GROUP III. Squaring up Rough Stock.

Time: 4 weeks.

Soft wood
Rough
1″ × 8″ × 8″
Surface leveling, etc.
Crosscut-sawing
Rip-sawing
Sandpapering
Straight-edge
Winding sticks
Crosscut-saw
Rip-saw
Ring-toss
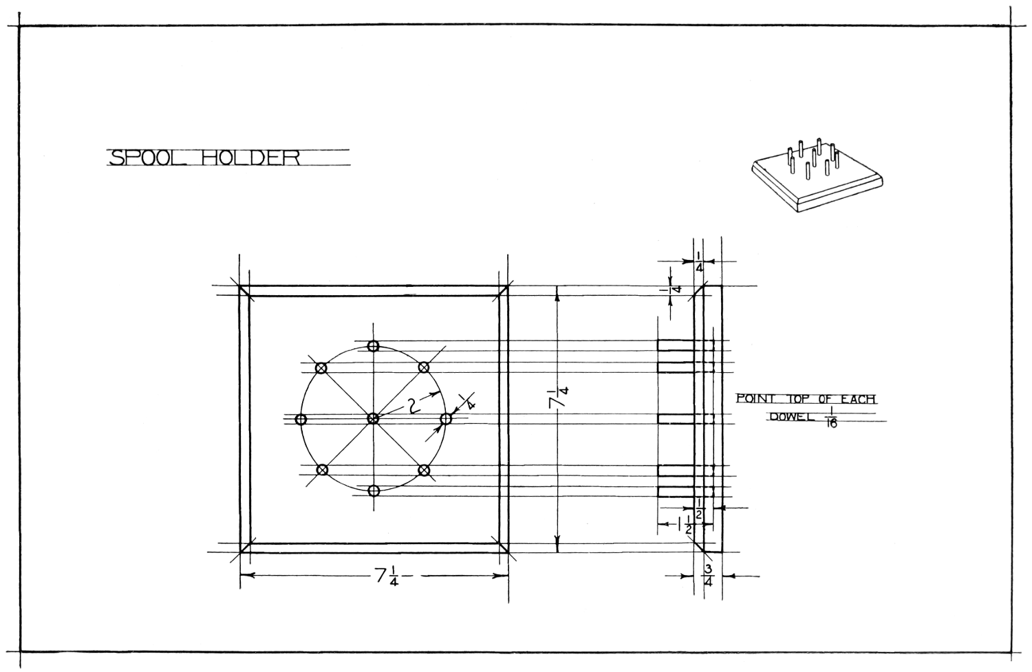
Spool-holder
Game-board
Laundry-register

[13]

GROUP IV. Working Curves.

Time: 3 weeks.

Soft wood
S-2-S
34
Getting out stock
Curve sawing
First use of chisel?
Spokeshaving
Steel square
Turning-saw
Chisel?
Spokeshave
Sleeve-board
Bread-board
Cake-board
Scouring-board
Coat-hanger

GROUP V. Fastening with Nails and Screws. Duplicate Parts.

Time: 6 weeks.

Soft wood
S-2-S
38″, 12″, 34
Duplicate parts
Nailing
Setting nails
Fastening with screws
Hammer
Nailset
Screwdriver
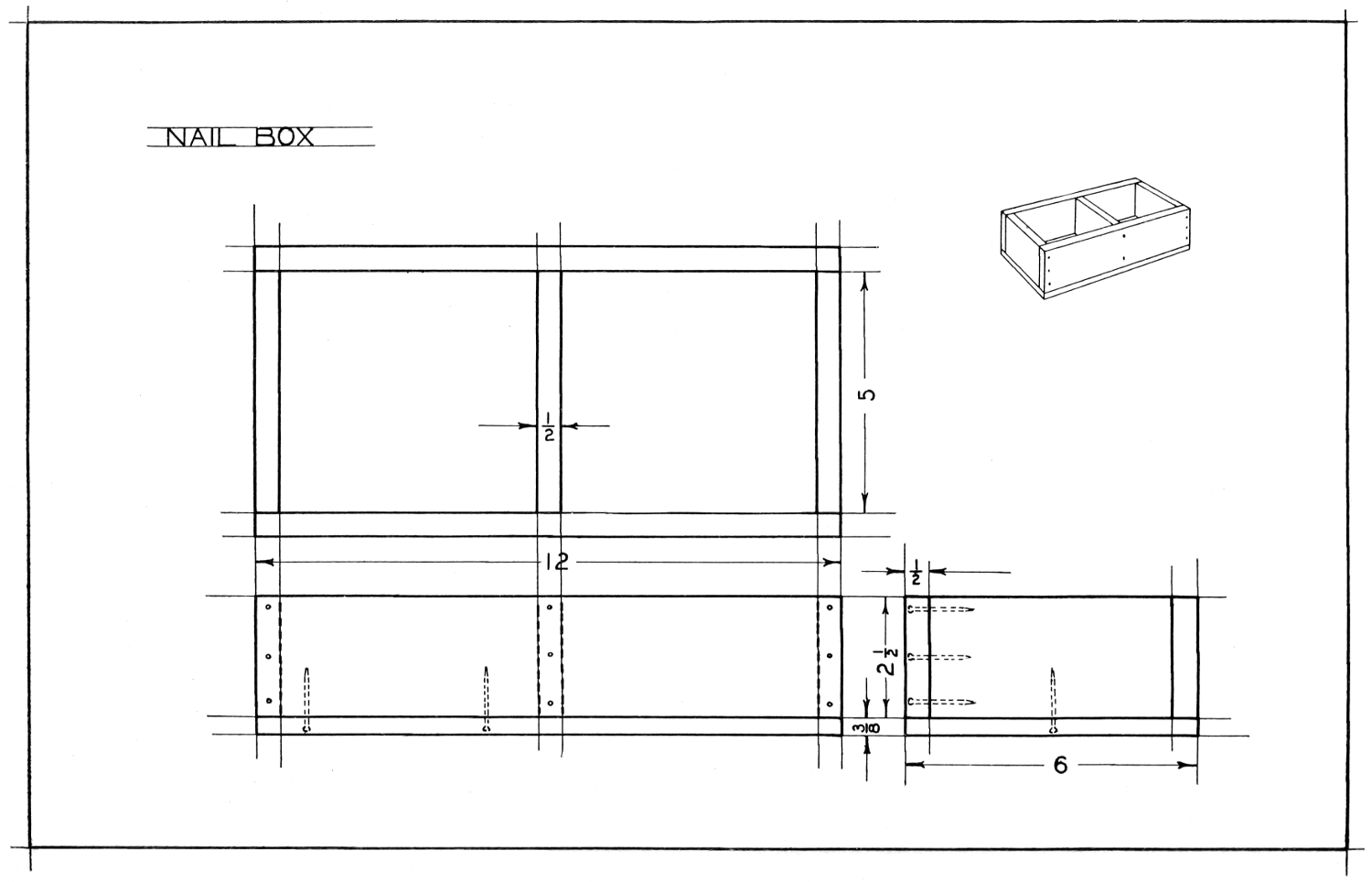
Nail-box
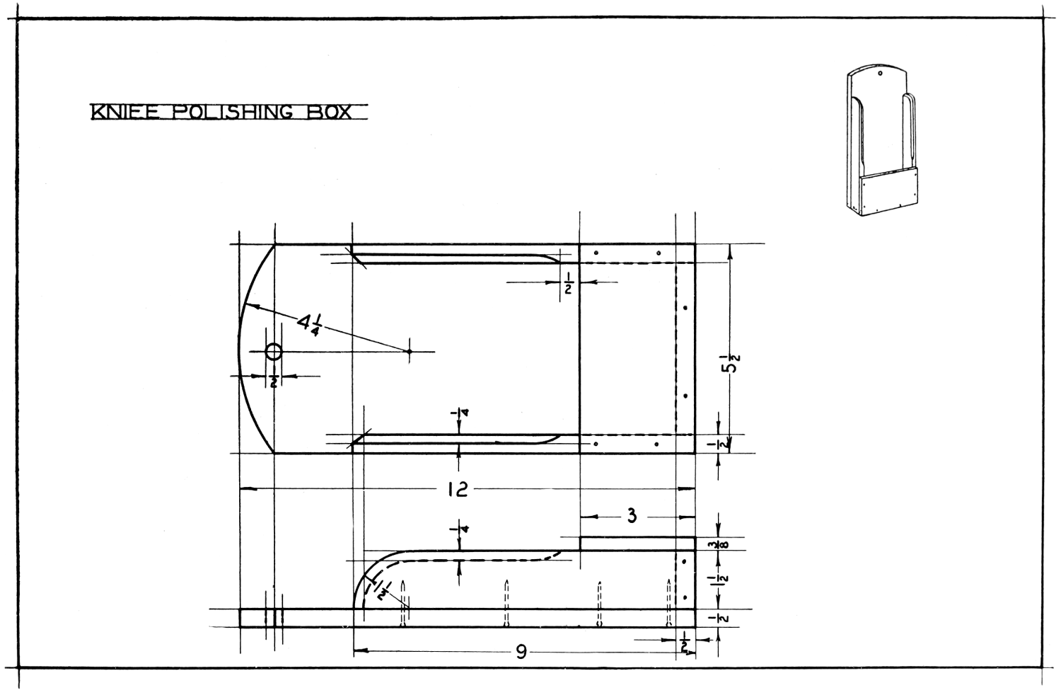
Polishing-box
Knife-box
Bird-box
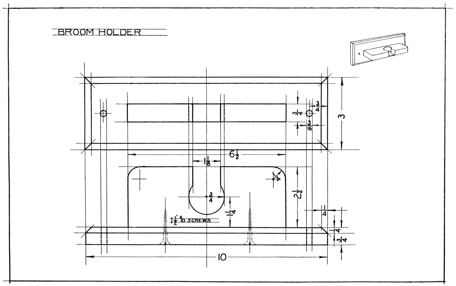
Broom-holder
Bench-hook

GROUP VI. Appreciation in Design. Structural, Decorative.

Time: Remainder of school year.

Soft wood
S-2-S
38″, 12
Structural design
Decorative design
Outlining
Staining
Waxing
Stains
Brushes
Wax
Table-mats
Thermometer-back
Calendar-back
Letter-holder
Bill-file
Handkerchief-box
Glove-box

[14]

GRADE VIII.

Time: 212 hours per week.

GROUP VII. Groove Joints. Woodfinishing.

Time: 12 weeks.

Stock Processes Tools Projects
Exercise piece
Soft wood
close grained
314″ × 1012
Any thickness to reduce to 34″.
Application—
Chestnut, S-2-S
38″, 34″, 1″.
Exercise—
Chiseling grooves
Sawing to fit
Fitting parts
Applications—
Chisel
Mallet
Exercise piece
Book-rack
Necktie-rack
Magazine-rack
Foot-stool
Wall-rack
Wall-shelf
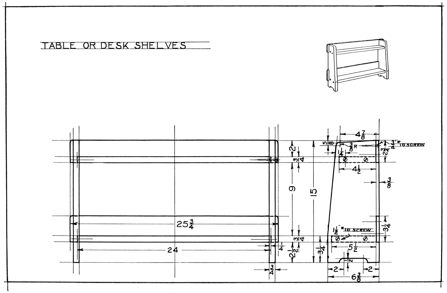
Desk-shelves
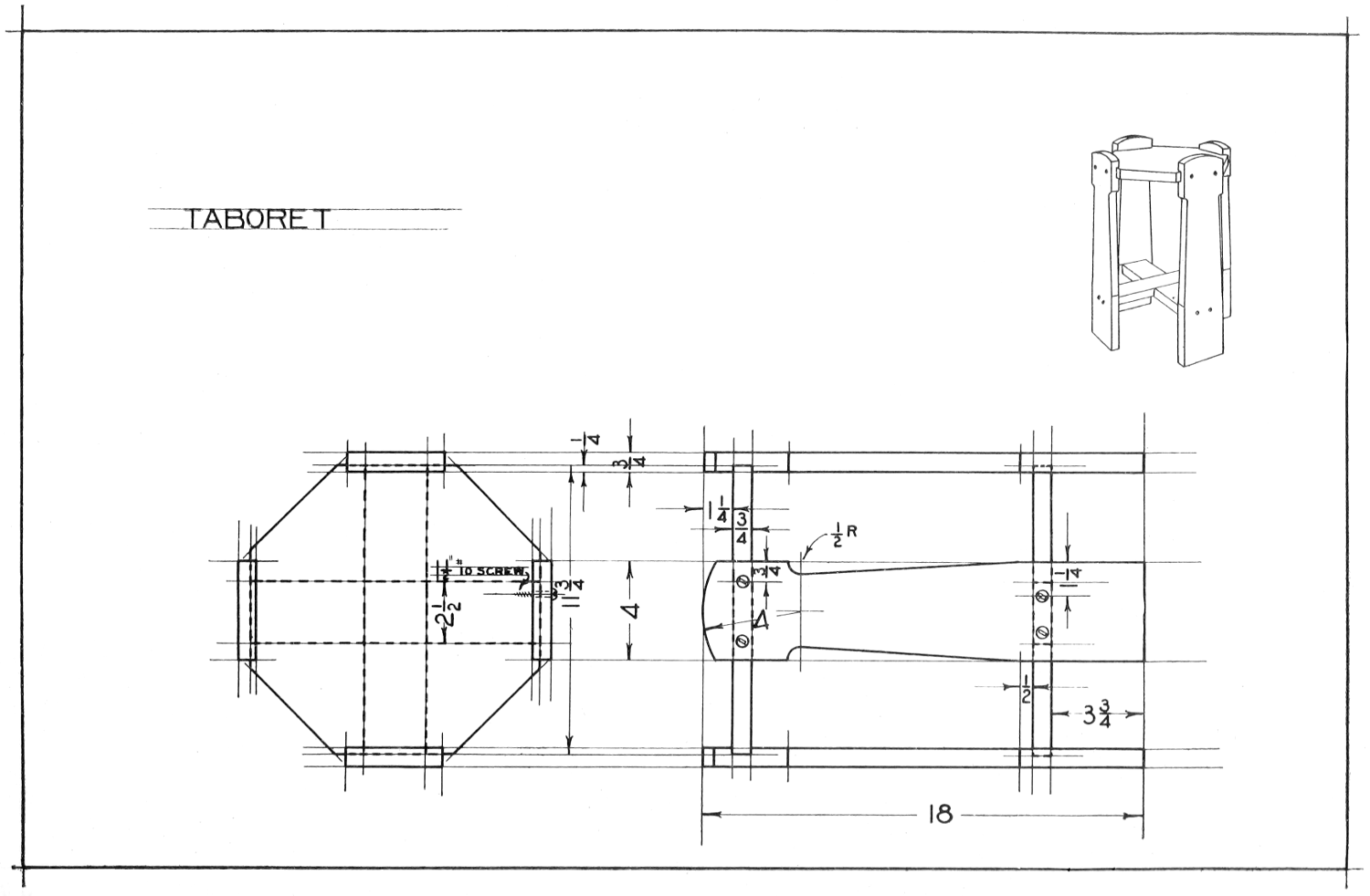
Square taboret
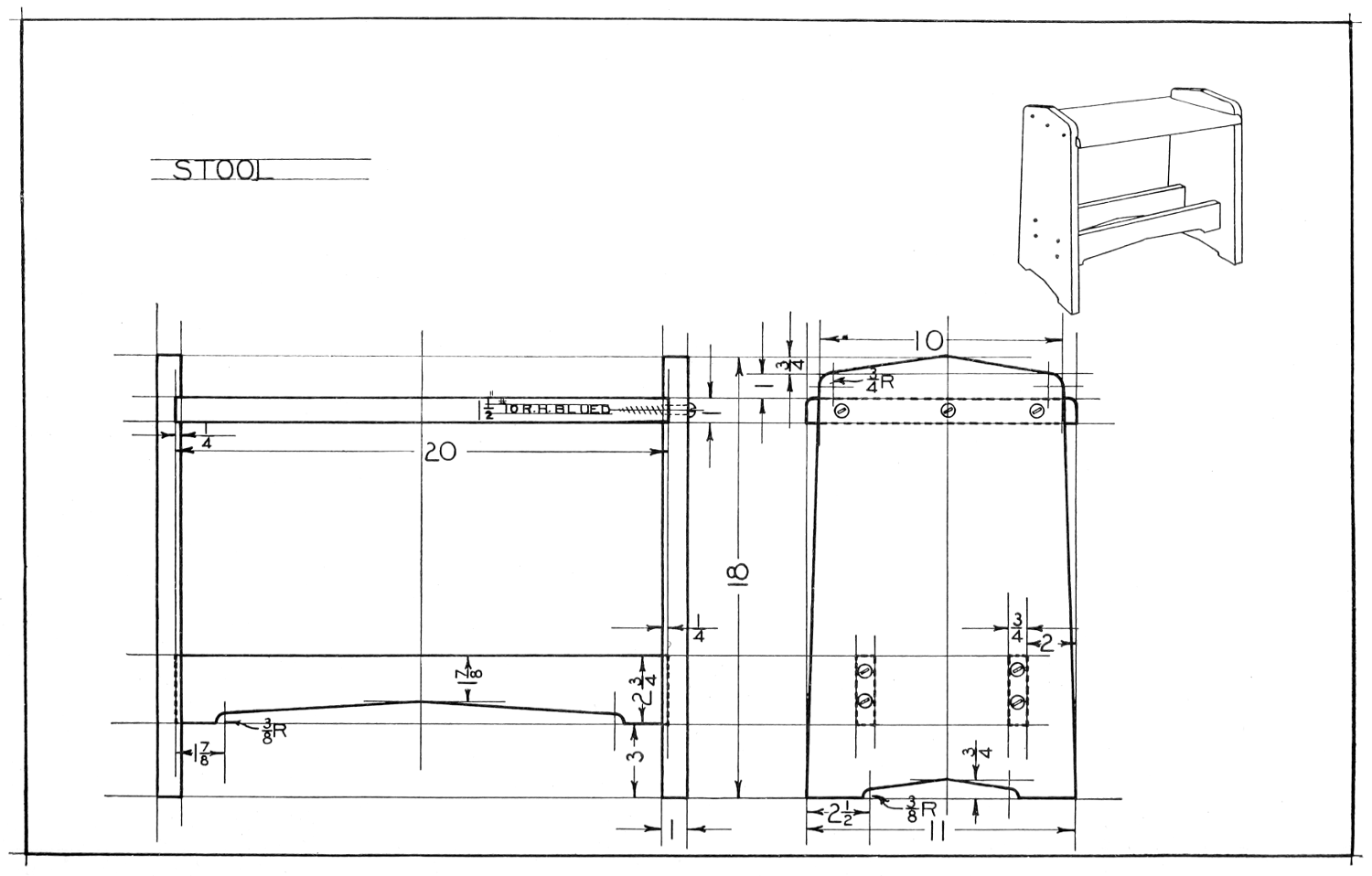
Stool

GROUP VIII. Cross-lap Joint.

Time: 12 weeks.

Exercise piece—
Soft wood, close grained
134″ × 1012
Any thickness to reduce to 34″.
Application—
Chestnut, S-2-S
38″, 34″, 1″.
Exercise—Cross-lap joint
Applications
Glue
Hand clamps
Exercise piece
Book-trough
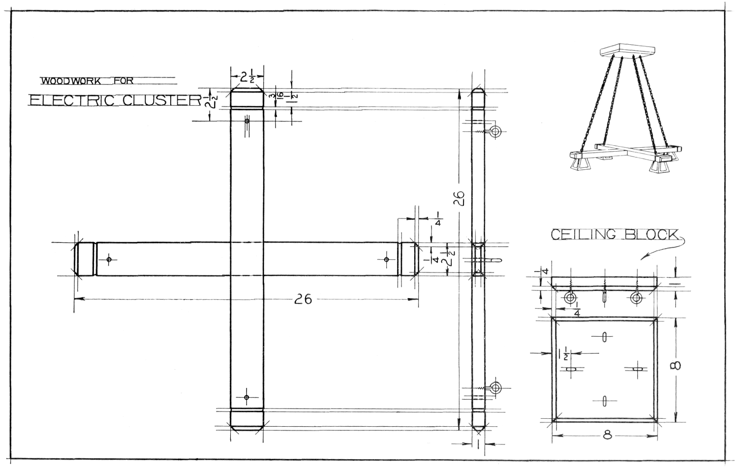
Cluster drop-light
Desk-light
Calendar-mount
Hall-rack
Picture-frame
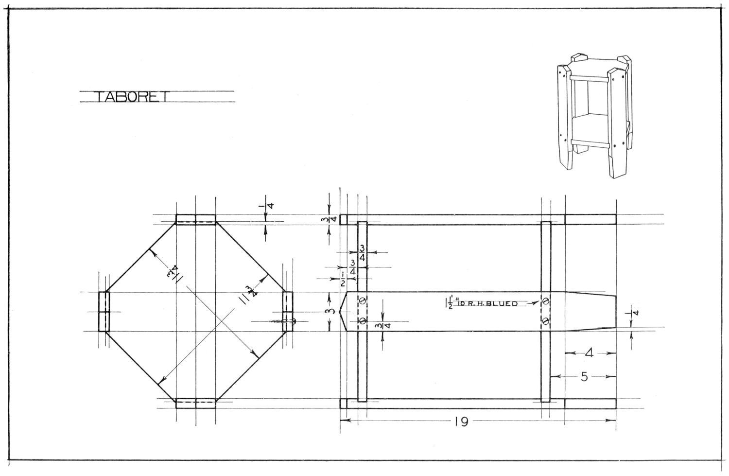
Octagonal taboret
Plate-rack
Pedestal

[15]

HIGH SCHOOL.

GROUP IX. Joinery. Board and Framed Structures. (Accompanied by Mechanical Drawing 34 hour per day.)

(Time: 112 hours per day.) (18 weeks.)

Stock Processes Tools Projects
Close grained wood
Rough or Mill-planed
14 sawed
White oak
S-2-S
Exercises—
Mortise-and-tenon, keyed, blind
Miter
Modeling
Glue joint
Applications—
Jointer
Smooth-plane and full tool set.
Individual edge tools, irons and chisels, if possible
Band-saw
Jig-saw
India stool
Umbrella-stand
Taborets
Arm-chair, (simplified)
Side-chair, (simplified)
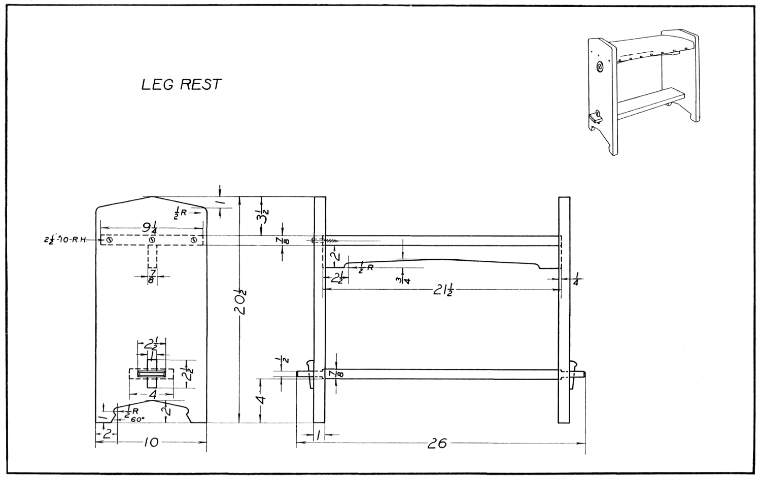
Leg-rest
Magazine-stand
Small tables
Book-trough
Piano-bench
Foot-stools
Telephone-stand and seat, etc. etc.

(Benchwork in Metal 18 weeks.) (Accompanied by Freehand Drawing and Design 34 hour per week.)

GROUP X. Cabinet-Making. Paneled Structures. (Optional and on a par with other advanced courses in shopwork.) (36 weeks.)

Various woods Exercises—
Drawer construction
Door construction
Hinging
Locking
Applications—
Combination plane
Band-saw
Circular saw
Jointer, machine
Planer, machine
Mortise machine
Shaper
Jig-saw
Music-cabinet
Chafing-dish stand
Desks, Tables
Book-cases
Chests, Screens
Clocks
Shaving-stand
Beds, Settee
Porch-swing
Mission chairs
Medicine-case
Dressers, etc. etc.

Note—Freshmen boys will be divided into two divisions. The first will take Joinery the first semester, and second division will take Metalwork. The second semester these divisions will exchange shops.

[16]

Discussion of Woodwork Course.

Column one describes the condition of the stock when given the pupil. Column two names the new principles involved in the construction of the articles.

In Group I. stock mill-planed upon two surfaces to the thickness wanted is given the pupil and he is required to square it up. No definite dimensions are demanded but the class is given to understand that the best workman is he who can square up his piece with the fewest shavings removed. The gage is not used on this piece. The uniformity of width is determined by the sliding try-square test. The broad surfaces are not worked by the pupil at all in making this piece. In the first place, the use to which the piece is to be put demands no fine surface treatment. In the second place, experience shows that it is advisable to make this first piece as simple as possible and pupils, at least grammar school pupils, learn to handle the plane better on edge planing than on surface planing.

An examination of the headings of the groups suggested for seventh grade, and the directions given in connection with the problems will show that each of these groups introduces a new method of squaring up stock. For illustration, Group I is typical, as to the surface treatment, of the method used by carpenters and others in preparing outside finishing material such as cornice and window and door casings, corner boards, etc. Here mill-marks are not considered objectionable so that neither broad surface is worked. Group II is typical, as to the surface treatment, of the method of preparing interior wood trim. One surface is planed smooth, and straight as to its width, but no effort is made to take out the wind, nor is the back surface treated at all. Again, certain kinds of shelving and box construction require that both broad surfaces be smoothed of their machine or mill-marks but do not require either surface to be true, depending upon the manner of fastening the parts together to take out any unevenness. Group V typifies this method of treatment. Of course, if the stock is badly curled or cupped no attempt is made to use it for the thickness for which it was originally intended, tho it is possible to “nail out” pretty badly warped boards on certain kinds of carpentry work. In furniture making this is hardly ever possible or advisable. A sleeve pressing board does not require a face edge or square ends, etc., Group IV. Group III typifies the standard treatment of which these others are modifications.

In the third column tools necessary for performing the process are named. In elementary woodwork the block-plane and smooth-plane may be omitted, the jack-plane doing the work just as well.

[17]

In the Lesson Outlines, section numbers of a text on woodworking to which the student is referred are given. The text to which the numbers refer is “Essentials of Woodworking.” The necessity for a text to accompany but not to take the place of the demonstration is well appreciated by most teachers of manual training. With a text in the hands of each pupil a lesson may be assigned and the pupil required to familiarize himself with the text and the illustrations relating to the subject matter. The use of a text removes most effectually the necessity for a constant repetition of oral instruction. With a text there is never any excuse for the pupil bothering the instructor with the otherwise semi-valid excuse of “I forgot” or “I was absent when the demonstration was given,” etc., etc.

In Groups VIII and IX will be found exercise pieces. One of the advantages claimed for the group system is that it permits class instruction at stated intervals, thus reducing individual instruction to a minimum. For illustration, a class beginning Group II would continue to work upon the problems of that group until all but the few acknowledged failures had completed the work required in that group. After this the class is to be instructed in the new things of Group III. This plan to continue thruout the whole course.

The work of the groups will of necessity overlap each other. For, as soon as a pupil finishes one problem in a group, he begins another problem in the same group, unless he is the slowest in the class. When the class is ready to begin a new group we are confronted with the question of whether to give the instruction belonging to the new group and allow the boys to proceed with the unfinished work of the old group, or to start them on problems of the new group. To proceed with the old is objectionable in that the worker forgets his new instruction before he has opportunity to apply it. To start new work before finishing the old is bad in that the pupil will have lost interest in the old when asked to complete it after finishing the new work. Not to complete the old at all would be a practice too vicious to be tolerated for a moment.

In the seventh grade this overlapping is not a serious problem, for the objects being small and quickly finished allow all to finish the old group before the instruction of the new has faded. In the eighth grade and high school, however, where the objects are larger, this objection is a serious one.

As stated before, the aim of the group arrangement is to permit class[18] instruction at the beginning of each group. To make this effective the practice and application must follow within a reasonably short time. Here the “exercise” offers aid.

If ever an exercise piece has a legitimate use, it has it here. The great objection to exercise pieces lies in their inability to create a vital interest on the part of the pupil. The writer has made it a practice to talk over the applications of each exercise and to state briefly the need for the exercise before beginning it. First, that the class because of numbers must be instructed all at the same time; second, that the joints, unlike the simple one-piece objects previously made cannot be remedied or patched up by reducing the size, as in the bread board, when lack of knowledge or skill causes errors; third, that postponing the practice any length of time would be unwise. As the time required for making the exercises, as arranged in the course outlined above, is short there has never been a lack of interest either in the exercise or in the unfinished objects of the old group to which some must return after completing the exercise.

High school boys begin to take on a different attitude toward exercises and technique. Their increased knowledge and skill permit applications requiring considerable time for completing. For this reason all the exercises are grouped in the fore part of their year.

To the writer it seems unnecessary to apologize for this use of exercises. He has felt free to utilize parts of any system which seemed to serve his purpose. He does feel, however, that a long continued series of exercises in elementary woodworking without application would be fatal. American school methods have been criticised by Europeans as being superficial and lacking in thoroness. It may be that in our eagerness to develop the individual we have made ourselves subjects for such criticism to a certain extent. We need not fear the introduction of this small amount of drill and formalism, especially when there is no loss of interest or incentive. It is impossible to teach a pupil a thing that is entirely new to him unless he has in his possession a fund of “known” thru which the unknown may be made known. For this reason drawings and sketches are plentifully provided.

Experience has shown that better results are obtained, both in the development of ability to think and ability to do, if the ability to “do” is given a maximum of attention at the beginning of the course, opportunities for original thinking being introduced gradually as the pupils’ knowledge, appreciation, and skill increase. In the beginning groups the[19] sizes or dimensions are fixed, no variation being permitted except as poor work necessitates. Requiring all to make the same pieces in the beginning groups permits comparison of results and the establishing of standards of accuracy as well as making it possible to give definite instruction with the minimum of talking.

Another reason for emphasizing technique and processes at the beginning is that interest is so easily directed. A beginner is interested in anything. In fact, a few exercises—not more than two or three—might be introduced at the very beginning without in any way violating the principle relating to interest previously mentioned. The writer does not make use of exercises in this way but can understand some of the advantages secured by so doing.

Having taught the pupil to respect a “working line,” which experience shows takes the greater part of the seventh year, it will be time to begin to encourage original thinking on the part of the pupil. This, because of the pupil’s ignorance of the subject matter, will come slowly, if satisfactorily. Modifications of the dimensions of the projects should be the first step. While originality is to be encouraged in every way it should never be forced at the expense of appreciation. Appreciation must be developed first. Better a chair of good design and proportion made after another’s design with appreciation than an absurdity made after one’s own design and its weaknesses not seen. The greatest value of design in public school education is expressed well by Professor Sargent when he says, “For one who will produce a design, a thousand must know how to select it.”

Pupils possessed of exceptional originality and ability will find ample opportunity for expression in the group system without hindrance upon the part of the slower neighbors and without requiring all the instructor’s time at a sacrifice of the time which the slower pupils have a right to. The slow pupil has a right to an equal share of the instructor’s time, and this is not always easy to give when the brilliant pupil is to be given individual and advanced instruction as the systems other than the group system necessitate.

In general, it will be found advisable to hold seventh grade pupils quite rigidly to the execution of the projects offered. In the eighth grade pupils should be encouraged to modify existing projects, while in high school they should be encouraged to “work up” original ideas. By this time they should have acquired a fair fund of information and some judgment and appreciation.

[20]

A glance at the outline on woodworking will show that the projects in eighth grade and in high school are most all of such a nature as to demand considerable repetition of processes. For illustration, in the making of the taboret there are eight dado joints. We have heard so much of the non-educational value of repeated processes that one may be inclined to question the arrangement of a course which introduces but two joints in the course of a year’s work, as is done in the eighth grade of this outline. In view of the fact that very many courses introduce the glue joint, mortise-and-tenon, etc., in the eighth grade it may be well for the writer to state his point of view. It is this: The highest educational value comes not from many joints put to the pupil in such rapid succession that he has not time for the acquirement of a fair degree of proficiency, but rather from the mastery of a few by repetition so planned as to maintain a keen interest in each joint made. As a recent writer has said, “There is need for more investigation on the point that repeated processes are non-educational. Doing certain things until the process becomes automatic sometimes leads one to take the first step toward a higher freedom.” This, in view of the present demands of industrial education, is the excuse for offering a few joints well made rather than many joints with the consequent mechanical indigestion that usually follows. As soon as the process has become fairly automatic, or when the joint has been fairly well mastered, then are we ready to proceed to new fields. In the seventh grade outline the introduction of new processes is more frequent. This is due to the fact that the operations are simple and of such a nature, planing for example, that future work necessitates their frequent repetition.

The accurate use of the chisel is kept until the eighth grade, as is also accurate sawing to a knife line with the back-saw. It has taken us a long time to come to a realization that, while the chisel and saw are simple tools, their proper handling is not simple. A general survey of the groups for grade seven will show that each is concerned with one of the various type processes used in squaring up stock, both mill-planed and rough. In eighth grade the groups are concerned with the accurate use of the chisel and back-saw in chiseling, or paring, and sawing to fit.

In Group IX, which is the first year high school work, the pupil may be expected to give most of his attention to the principles of simple joinery of board and framed structures with the necessary joints. A full set of individual edged tools should give the instructor excuse for demanding a much higher degree of technique than is to be found in the[21] grades. The pupils will not be perfected in the use of the chisel, saw, and other tools but they should have acquired enough skill to enable them to proceed with the work of the mortise and tenon.

Exercise pieces in mortise-and-tenons, miter, modeling and glue joint belong here. It is possible to arrange the work so that the modeling and glue joint exercise pieces may be considered under Application. The modeling exercise may well be a hammer handle, the metal part of which is to be worked in the metal class the other half of the first year. The glue joint may well be made upon wood of sufficient size that it may be used later, such as the taboret top. The mortise-and-tenon and miter, however, will be most profitable as exercises pure and simple. A moment’s thought will indicate the reason for making the distinction.

Many courses give modeling in the grades. Modeling to be of value requires judgment and experience. This a grade pupil has not. The first year high school is sufficiently early for this kind of work. To place it earlier is to give the pupil a wrong impression of the requirements of good modeling, and his later work, in pattern-making for example, suffers accordingly.

Two machines should be made use of in the first year high school work, the band-saw and scroll or jig-saw. Both, when properly safeguarded, are well suited to give the pupil his first acquaintance with machinery. There is little educational value in further excessive ripping by hand at this stage of the course.

The cabinet-making course is not to be considered as manual training per se. It is best to make it optional and more purely a trade course, tho the work may still be individual in its nature. An exercise in making a small door and one in the making of a drawer will introduce the student to the use of most of the machinery specified. These exercises should be detailed so as to involve stock of the same size for each boy. In this way the machines may be set and all the parts of similar kind run thru. Classes of considerable size may be taught with the use of the minimum of machinery. Each boy should, of course, be taught the setting of the various machines.

After these two exercises, with hinging and locking, the pupils may be allowed to work out pieces of their own choosing involving these elements, preparing their own stock, setting their machines, etc. In this way the “shop” practice, quantity or piece work, is obtained in the making of the exercises while the application later allows for the individuality of the pupil.


[22]

CHAPTER III.
CLASSIFICATION AND ARRANGEMENT OF ELEMENTS OF MECHANICAL DRAWING FOR GRADES 7, 8, AND 9.

MECHANICAL DRAWING

GRADE VII.

Time: 212 hours per week for 12 weeks.

Lesson I.
Principles Applications
Straight lines (Use of instruments)
Angles
Lettering
Introductory Sheet
Lesson II.
Order of Procedure
Relation of Views
Blocking out
Simple Dimensioning
Scale
Woodwork Group I.
Lesson III.
Foreshortening Woodwork Group II.
Lesson IV.
Geometric Construction—
Circles, Hexagon, Octagon
Ellipse
Geometric Construction Sheet
Lesson V.
Hidden edges Woodwork Group III.
Lesson VI. [23]
Center lines
Tangents
Points of tangency
Cross-sections
Woodwork Group IV.
Lesson VII.
Working Drawings
Representing screws and nails
Broken views
Woodwork Group V.
Lesson VIII.
Working Drawings (continued)
Representing screws and nails
Broken views
Woodwork Group V.
Lesson IX.
Stock Bills Woodwork Group V.
Lesson X.
Figuring costs Woodwork Groups I-V.
Lesson XI.
Appreciation in Design
Structural, Decorative
Woodwork Group VI.
Lesson XII.
Templet or patterns Woodwork Group VI.
GRADE VIII.

(Time: 212 hours per week for 12 weeks.)

Lesson I.
Principles reviewed Projects or Problems
Straight lines Bennett’s “Problems in Mechanical Drawing
(Freehand sketches followed by mechanical drawings.) Group I.
Lesson II. [24]
Circles Problems in Mechanical Drawing
Group II.
Lesson III.
Tangents Problems in Mechanical Drawing
Group III.
Lesson IV.
Planes of projection Problems in Mechanical Drawing
Group IV.
Lesson V.
Review
Test problems
Problems in Mechanical Drawing
Lesson VI.
Working Drawings Woodwork Group VII.
Lesson VII.
Working Drawings Woodwork Group VIII.
Lesson VIII.
Working Drawings Woodwork Groups VII and VIII.
Lesson IX.
Stock Bills Woodwork Groups VII and VIII.
Lesson X.
Figuring costs Woodwork Groups VII and VIII.
Lesson XI.
Design—Structural, Decorative Woodwork Groups VII or VIII. (one piece)
Lesson XII.
Templet or patterns, Working drawing, stock bill and cost. Based on Lesson XI above.

[25]

HIGH SCHOOL

(Time: 34 hour per day for 18 weeks. Freehand Drawing and Design, 34 hour per day, 18 weeks.)

Lesson I.
(334 hours.)
Lettering Problems in Mechanical Drawing
Group IX.
Lesson II.
Working drawings India stool, etc. See Woodwork
Group IX.
Lesson III.
Working drawings continued As above.
Lesson IV.
Stock bills
Material costs figured
As above.
Lesson V.
Inking
Straight lines
Problems in Mechanical Drawing
Group I.
Lesson VI.
Inking, continued, Circles Problems in Mechanical Drawing
Group II.
Lesson VII.
Inking, continued, Tangents Problems in Mechanical Drawing
Group III.
Lesson VIII.
Inking, continued, Views Problems in Mechanical Drawing
Group IV.
Lessons IX and X.
Revolution of solids Problems in Mechanical Drawing
Group V.
Lessons XI and XII.[26]
Development of prisms and pyramids Problems in Mechanical Drawing
Group VI.
Lessons XIII and XIV.
Development of cylinders and cones Problems in Mechanical Drawing
Group VII.
Lessons XV and XVI.
Intersections Problems in Mechanical Drawing
Group VIII.
Lessons XVII and XVIII.
Isometric Problems in Mechanical Drawing
Group XI.

Discussion of Drawing Course.

The course in mechanical drawing, like that in woodworking, is arranged in groups according to the principles to be developed. The arguments for the group system in woodworking apply equally to the group system in mechanical drawing.

There has been an aim to correlate the woodworking and mechanical drawing just as far as the logical presentation of each would allow. From the concrete and near by to the more general has been the guiding principle in laying out the course in mechanical drawing as well as in woodwork. For this reason the seventh grade problems in woodwork have been utilized to introduce the elementary principles in mechanical drawing. Even as the pupils of our primary schools learn to read without being conscious of the “dry bones” of language and spelling back of it, so, in the teaching of mechanical drawing, the aim is to arouse in the beginner an interest in the ability to draw and to read drawings, as an accomplishment, and to inspire him to work, because he sees that there is something he needs, wants, and must have.

Little or no effort is made in seventh grade drawing to develop originality. Almost all effort is spent in developing a drawing technique and a good style. Most all of the pupils’ drawings are made with plates before them. These they copy, using a different scale, however. To encourage the pupils to establish a high standard these drawings have been inked by a draftsman selected because of his excellence in this line of work.

[27]

The drawing of the grammar schools in most places is best taught by the instructor in woodwork. Extreme care should be taken to see that the pupils are given the correct method of attack in making a drawing. They should be made to follow this instruction just as conscientiously as they are required to attempt correct execution in woodwork. In drawing, as in woodwork, slovenly habits come handier to some pupils, and, if allowed to become fixed, they will cause sorrow to the pupil and misunderstanding later on. In the very first drawing, for example, and all others, insist on having lightly penciled blocking out lines of indefinite length—lines that are just visible, that is all. Do not allow the pupil to form the habit of drawing a heavy line between two points previously located. It is needless to say that the pencil must be of good lead, properly sharpened, and kept sharp. It is an excellent plan to insist that all construction or blocking out lines be left just as originally drawn, no eraser being used at all. If lightly made, as they should be, they will be inconspicuous in the finished drawing. They will be proof positive that the method of procedure has been the correct one, will save the pupil’s time, and give him a lightness of touch that will come in to excellent advantage later on. After the drawing has been laid out in light lines and inspected by the teacher, the lines that represent outlines of the object can be gone over a second time and made to stand out.

By the close of the seventh grade a boy ought to be able to read and to construct simple working drawings of three views properly related. He will have had all of the simple conventions and should know them by name with their meanings. While inking is not given a place in either seventh or eighth grade, the drawings should show a good finish in penciling and there should be no habits formed that will have to be overcome later.

In eighth grade mechanical drawing, the first four groups review the principles introduced in the seventh grade. They are in the form of problems to be solved, however, and thus necessitate thought on the part of the pupil.

In the solving of these problems a carefully made freehand, dimensioned working drawing is first required. This, when correct, is followed with a mechanical drawing, full size and without dimensions. It will be noted that no attempt has been made heretofore to have the pupils make freehand working drawings or sketches. It has been the author’s experience that better results are obtained by introducing the[28] freehand drawings after the pupil has been taught and has had experience in the exactness of the mechanical drawing.

The working drawings of this grade introduce no new principles but give opportunity for practice in more difficult combinations of elements. They provide opportunity for acquiring greater facility in handling the instruments which results in drawings that are to be used in the shops. While the drawings are copied from plates, as in the seventh grade, the pupil is permitted to modify the designs within certain limitations, with one problem in original design, structural and decorative.

In high school drawing more time is allowed and the drawing becomes more of a subject in itself, requiring more and deeper thought on the part of the pupil. The high school drawing course is complete in itself. The first four groups are given mainly as problems in inking but they furnish a review of that part of the eighth grade drawing incidentally. They also furnish a familiar starting point for the high school work and make of the high school course a complete whole. High school drawing is best given by a specialist.

As in the eighth grade, these problems are to be solved and drawn freehand with dimensions. Afterward they are drawn mechanically and inked. The inking of problems is specified in only the first four groups in the outline for drawing. The amount of inking to be done thereafter will best be determined by the instructor. Too much inking has a tendency to result in careless penciling. It is for the instructor to determine when his class is doing its best in both penciling and inking. The problems of these latter groups are well calculated to necessitate thought and study and the instructor will do well to make much of this part of the subject.

The making of high school working drawings is placed early in the course that they may be ready to use in the shop by the time the exercises in joint work preparatory to their application, are completed. These working drawings are to be original as far as possible. Plates of suitable projects are to be provided to give the necessary starting points.


[29]

CHAPTER IV.
SHOP ORGANIZATION

1. Location of Shops.

Shops for high school pupils will be located in or near the high school building. A special effort should be made to have both wood shop and drawing room placed in suitable environment. Where manual training has been introduced into high schools with buildings planned for academic work only, it has been the custom to place manual training in the basement and drawing in the attic, these being the only places available for subjects that had yet to prove their worth. Even today, when it is a well established fact that handwork as a part of our educational course has not only proven its worth but is prophesied a greater place in our educational scheme in the form of industrial training, some school authorities not only place shops in basements of old buildings but plan new buildings with basement shops. This is an economy with nothing to justify it but tradition.

In many cities the custom of building basements high out of the ground serves to mitigate some of the evils, by giving a fair degree of light and ventilation. Any basement, however, that is formed with a cement floor directly on the ground will be damp in the spring and fall when the heating apparatus ceases to force warm air thru the rooms. The result upon tools, upon wood, and upon the health of those who must spend their time in such surroundings is not a matter of speculation.

Any subject to be taught to the best advantage must not only be a subject that will win the respect of the pupils but it must be given surroundings that will not tend to degrade it in the eyes of the immature student. Excellent work has been done in basement rooms and excellent discipline maintained under very adverse conditions but it has been in spite of these conditions and not because they do not influence the student unfavorably. In spite of the instructor’s best efforts to create a feeling of respect toward the basement shopwork similar to that entertained toward the academic work, pupils in going from the comfortably furnished rooms above, in which the decorator’s art has helped to make everything agreeable to the eye, unconsciously assume an attitude in their first conduct and deportment that places the shop instructor at a disadvantage.

[30]

Fig. 1.
ARRANGEMENT OF HIGH SCHOOL SHOP WITH REFERENCE TO MAIN BUILDING.

School building

From the June, 1908 Manual Training Magazine

Ground Floor Plan of Polytechnic High School

Los Angeles Cal. Franklin P. Burnham Arch’t

[31]

The chief objection, aside from cost, to placing shops above ground is the noise. This objection has been met, and can easily be met by any competent architect. The accompanying floor plans are indicative. Fig. 1.

In some high schools, the shops are entirely separated from the main or academic classrooms. This is unsatisfactory, as any one familiar with high school organization knows. The frequent change of classes after short periods makes the going from one building to another a matter of serious moment, especially in our northern winter climate.

Shopwork has won its place fairly in our school courses and it is encouraging to note an increasing tendency on the part of progressive communities to place shop and drafting-room in environment calculated to create a feeling of respect, to give dignity equal to that of other school subjects, and to provide favorable conditions for the best working of materials.

In the grammar schools the problem is but slightly different. In a city of any size, shopwork will need to be given in centers. The alternative of a shop in each school with an instructor going from shop to shop on different days of the week is hardly practicable. The equipment of a shop is a matter of too great cost to have it lying idle part of the school time. There is added disadvantage in that a peripatetic shop instructor cannot “keep up” his several shops with divided interest as well as he can keep up one in which he works constantly.

The best plan is to have a center or shop located favorably for several neighboring schools and install an instructor in this center. The pupils are to be sent to him from a sufficient number of schools to occupy his entire time at this shop.

Here again the basement makes its appeal to school authorities first, the basement of some one of the grammar schools being utilized for a shop center. Since almost all of the pupils come from other schools, there is no excuse, other than economy, in placing grammar school manual training shops in basements of schools already established. If the high school shopwork suffers a disadvantage by being placed in basement rooms, grammar school shopwork suffers more, and with less excuse.

Since domestic science cannot well be taught in basements, and is objectionable on main floors because of noise and odors, and since there is no reason for having the laboratories directly connected with any grammar school building, the best plan is to erect a special building to house both manual training and domestic science. The cost need not be great and the building may be erected upon grounds of some one of the grammar schools. Evanston, Illinois, public schools offer a good illustration. Figs. 2 and 3.

[32]

FIG. 2. EXTERIOR GRAMMAR SCHOOL BUILDING FOR MANUAL TRAINING AND DOMESTIC SCIENCE, EVANSTON, ILLINOIS.

FIG. 3. FLOOR PLANS OF BUILDING, EVANSTON, ILLINOIS.

[33]

The proper placing of centers in a community will depend upon the number of pupils to be cared for, the distance they must travel to get to the center, and the site available.

2. Division or Allotment of Time.

Two divisions of time are common in grammar school shopwork, the one-fourth and the one-half day period once a week. In some cities manual training is given in sixth, seventh and eighth grades of the grammar schools. In others it is given in seventh and eighth grades only. In the former case, to the best of the author’s information, the period never exceeds one-fourth day each week. In the latter it very frequently occupies one-half day a week. The outline for drawing and manual training as given in this book presupposes the one-half day period. In favor of this period of time are the following: The pupils go and come to manual training on time out of school hours. This is a very decided gain and permits the placing of centers so as to accommodate schools of widely differing locations. Second, more and better work is accomplished in a one-half day period of one year than in a one-fourth day period for two years. In the one-fourth day period the pupil hardly gets his tools set and adjusted when the bell signals him to begin to “clean up,” resulting in much unprofitable effort. Our college administrators, who are responsible for originating the short and infrequent period spread over a long period of months or years, have long since found that better work and more of it is obtained where the study is given a more intensive view, the total number of hours for the course remaining the same but being condensed into less calendar time.

The chief objection offered against the one-half day period is that the pupil becomes tired, exhausted, and therefore disinterested and troublesome before the close of the period. Where the full two hours and a half are devoted entirely to shopwork, especially if the shopwork is of such a nature as to make little appeal to the interest of the pupil, this argument is valid. If, however, each period has its recitation on assigned study and its demonstration on the new work to be presented there remains but two hours of work requiring the student to be on his feet and, if the interest is what it should be, very few boys will complain of fatigue.[34] The writer makes it a custom to give, in the place of the conventional recess, a short five minute rest period. Boys are permitted to talk and move about the shop but he has found that as many boys prefer to continue their woodwork as prefer to rest.

If the one-fourth day period is to be used, it will be necessary to give recitations and demonstrations on alternate days, and will necessitate introducing the work lower than the seventh grade. It is hardly profitable to begin serious, systematic work lower than the seventh grade, and when it is begun in seventh grade it is hardly possible to make it serious with a time allotment of less than one-half day each week.

There is not the same need for recess in shopwork as in academic work. A five minute rest period is sufficient to permit pupils to make known to each other their wishes or information. In this way it is possible to dismiss the pupils ten minutes earlier than they otherwise would be, thus allowing the morning class extra time for reaching home.

In the high school the time allotment is generally permitted to be governed by the periods arranged for the academic subjects. The common arrangement is to give two consecutive periods equal to two of the recitation periods of the academic subjects for shopwork and another for drawing each day thruout the week. If the periods are one hour each, which is unusual in high schools tho common in colleges, but one period is given to the shop.

Where manual training has been given serious consideration in the seventh and eighth grades of the grammar schools under competent instructors it ought to be possible to cover the necessary benchwork in wood in the first half of the freshman year of the high school. This will leave the second half for turning or for benchwork in metal, preferably the latter.

To mechanical drawing the first half of the freshman year of one period each day should be devoted, followed in the second half by freehand drawing, perspective and design.

The mechanical drawing of the grammar schools, it will be noted in the lesson outlines, takes the first twelve weeks or lessons of each year. Mechanical drawing in grammar schools is usually presented in one of three ways. First, by having the pupil make his drawing then immediately make the object drawn in wood, carrying on woodwork and drawing side by side thruout the year. Second, by having the pupil make the object in wood first, followed by the drawing. Third, by taking the first ten or twelve weeks of the year for making up all the[35] drawings of that year, following this with a continuous application in wood.

After experimenting thru a number of years the writer finds the third practice possesses many marked advantages. Among other things that make it more satisfactory are the following: It permits concentration of the pupil’s attention upon one thing at a time. Where woodwork and drawing are carried on side by side or even where they alternate the pupil’s attention and interest are divided. So much more interesting do the pupils find the woodwork with its freer activity that the drawing suffers immeasurably, it being almost impossible to get anything like the proper attitude toward the technique of drawing when the young pupil is allowed to see the immediate application in wood all around him. The instructor’s struggles for neatness and accuracy in the drawings are no match for the barbarous haste of the beginner in his desire to get thru with the drawing and get at the woodwork. It is impossible to get concentration on drawing in a woodshop with tools all about and the knowledge on the part of the pupil that only the drawing separates him from the tools.

The ideal way would be to have a separate drawing-room and equipment as in high school. This, however, is impracticable in most grammar schools. The woodworking teacher being the drawing teacher makes it impossible to utilize both shop and separate drawing-room to advantage. The fitting up and heating of rooms that are to be used only part of the school time makes a separate drawing-room an unwarranted expense in grade schools. A satisfactory substitute is to utilize the woodshop benches for drawing benches but to remove all tools, having it distinctly understood that ten or twelve weeks are for drawing, and that, no matter how many drawings are produced by a pupil, he will begin no woodwork until the time allotted to drawing is up. It becomes possible to secure the right attitude toward the drawing. By this concentration of attention both drawing and woodwork are the gainers.

Second, it enables the shop instructor to tell what supplies are going to be needed for the woodwork and to get them delivered in time without returning from his summer’s vacation several weeks before school begins. In the twelve weeks of drawing the woodworking tools and equipment can be looked over and put in order in plenty of time without breaking into the summer months that belong to the instructor. Where the woodwork begins at the beginning of school in September the instructor must either take the fore part of his vacation at the close of school to[36] put his tools in shape or, if he has them simply cleaned and vaselined by the pupils and stores them for the summer, he must come back several weeks before school. This is true whether he does his own sharpening or has it done, and the advantage in having woodwork begin some weeks later than school is very manifest.

Third, this latter arrangement gives the pupil an intelligent preview of the whole year’s work in wood thru the drawings he makes in the first ten or twelve weeks.

Mechanical drawing, even in the grades, has a right to a clean, quiet, well lighted room without unnecessary distractions either to the eye or ear. This, with a definite understanding on the pupil’s part that drawing technique is the major and the utility of the drawing the minor consideration, should put the pupil in the right attitude toward his drawing work and make it possible to secure the best drawings he is capable of producing. No one, not even a finished draftsman, could produce good drawings surrounded by the noise and dust of neighboring woodworkers. Under the alternating system there are always slow pupils who, if they finish their drawings before they make the application, must do it while the others are working in wood. Add to the noise and dust this pupil’s feeling that he too ought to be at his woodwork and the limit of unfavorable conditions for producing a drawing are reached. Making the year’s drawings the first twelve weeks of the year enables one to avoid these unfavorable conditions.

Fourth, this arrangement makes possible a graduated transition from the quietness and restrictedness of the academic class room to the noise and greater freedom of the woodshop.

When beginning pupils come to the grammar school manual training shop for the first time at the beginning of school in September, it is with an overplus of energy and noise. To reduce these sufficiently to permit of getting anything like satisfactory results in shopwork, the instructor is placed at once squarely before a large problem in discipline. This problem is very greatly simplified by introducing the pupil to ten or twelve weeks or lessons in mechanical drawing before beginning the woodwork.

Conditions surrounding a pupil in mechanical drawing classes are very similar to those he finds in his regular academic classes and he can readily be brought to understand that quietness, and orderliness with seriousness of purpose are as necessary a part of his manual training as of his academic work. After this attitude has been fixed in the pupil’s[37] mind in connection with his manual training thru the mechanical drawing when the transition to woodwork is made, where more freedom must be allowed, the pupil will be better able to distinguish between legitimate noise and noise that is entirely unnecessary, and between freedom and license.

3. Informational and Related Matter Pertaining to Woodwork and Mechanical Drawing.

Closely related to any subject is a vast fund of informational matter. If the student is to have an intelligent understanding of the subject matter, he must be given opportunity to become acquainted with at least the most important of this related information.

In the seventh grade the necessary study of tools and processes occupies the pupil’s time fully. In the eighth grade opportunity offers itself for introducing such subjects as wood structure, tree growth, lumbering, and milling. In high school, the pupil should be made familiar with the most common woods, their classification, characteristics, and uses.

High school pupils should be assigned outside readings on forestry. They should secure and classify specimens of the more common woods and should be able to recognize the tree by leaf, fruit, bark, wood and tree form. See Figs. 4, 5, and 6.

In the grammar grades, mounted specimens should be prepared illustrative of tree structure, shrinkage, defects, etc. As in the high school, pupils should be encouraged to seek and prepare specimens illustrative of the subjects under consideration.

It is now possible to rent or purchase very excellent lantern slides on forestry, lumbering, milling, etc. Add the use of these to that of the mounted specimens if at all possible.

The detailed lesson outlines indicate definitely where these subjects are to be given attention in the course. The pages of the text are also indicated. The high school library should be provided with the very excellent bulletins of the United States Department of Agriculture, Division of Forestry, most of which are for free distribution.

4. Woodfinishing.

The subject of woodfinishing is treated in a manner quite similar to that of woodworking. No pieces of woodwork that should have a finish are ever sent from the shop until they have been treated to a finish calculated to make them fit for immediate placing in their future surroundings.

While the general outline of the course in woodwork makes no mention of woodfinishing, the lesson outline indicates the gradual introduction[38] of the subject, beginning with the simplest finishes first and terminating in high school in the rubbed copal varnishes.

FIG. 4. CHART ILLUSTRATING WOOD STRUCTURE.

By T. B. Kidner, October, 1908 Manual Training Magazine

In woodfinishing, as in woodworking, the aim has been to have the pupil treat the subject in a serious and workmanlike manner. In seventh grade little woodfinishing is done. The woodworking processes need the centering of the pupil’s attention, in the first place. Second,[39] the simple pieces which the beginner is able to make require no finish as a rule. In one group stain and wax is used. This is the group in which decorative design is emphasized. In the eighth grade the woodfinishing problem becomes important. Almost all of the pieces require a finish.

FIG. 5. CHART ILLUSTRATING TIMBER DEFECTS.

By T. B. Kidner, October, 1908 Manual Training Magazine

[40]

FIG. 6. CHART ILLUSTRATING PROPERTIES OF TREES.

By T. B. Kidner, October, 1908 Manual Training Magazine

The greatest obstacle to proper woodfinishing lies in the desire of the pupil to take his piece home as soon as the woodwork is completed. Unless a definite understanding is had with the class beforehand, proper woodfinishing is difficult to obtain. Most boys are subject to reason, so that it is not at all necessary to have woodfinishing slighted or to resort to makeshifts. The writer makes it a practice to take plenty of time[41] when the subject of woodfinishing comes up for its first discussion to explain in detail the commercial methods of finishing fine furniture, a piano for illustration, counting the different operations and coatings it will receive and the labor and time expended upon the finish. A comparison is then made between a finely rubbed finish and the cheap, sticky, unrubbed finishes of cheap furniture.

Having established in the minds of the pupils the fact that woodfinishing is an art second to none and that it requires time to do it well, there is not that impatience that breeds sullen looks when the woodfinishing is to be begun after the woodwork has been completed. The pupil will take the woodfinishing as a matter of course and goes about it in a cheerful and manly spirit.

In grammar schools, woodfinishing has been made as simple as is consistent with good work. Coming as the boys do but once a week and each finishing application requiring over night for drying or hardening, the total time is quite long even with the simple finish of filler, shellac, and wax. If the pupil wishes a very dark finish, a stain which requires one or more periods must precede his filler.

In high school, pupils come every day thus permitting the application of rubbed varnish finishes, either shellac or copal, without unnecessary loss of time. Here special finishing rooms are necessary.

5. Structural and Decorative Design.

Among other requirements for a course in woodwork and drawing as stated in the foreword is this: “At least a few problems should be given which involve invention or design or both, thereby stimulating individual initiative on the part of the pupils.” The present outlines in woodwork and drawing have been planned with this in mind. In the seventh grade the pupil is given little opportunity to exercise his initiative in either woodwork or drawing. The reason for this, as has been previously stated, is a firm belief that initiative in any subject to be of value must be based upon a fair knowledge of the subject matter dealt with, its limitations and its possibilities. In other words, that appreciation must precede invention or initiative.

With the limited time allowed manual training, at most one-half day each week in the general educational scheme, a seventh grade beginner has about all he can well manage in becoming familiar with his subject matter, with learning to handle his tools and work his material.

But one group in the seventh grade will admit of decorative design. These problems, Group VI, have purposely been made simple as to[42] woodwork that the pupil may give most of his attention to the design. In eighth grade, modifications of outline and dimensions of any project are permitted where a fair degree of merit is shown. Modifications of joints or fastenings are not to be made, however, unless a pupil wishes to transfer a project from some other group into the group in which the class is working.

In high school the pupil is expected to “work up” in his drawing class projects original in so far as his ability will permit, subject to limitations mentioned hereafter.

Eighth grade boys are expected to make at least one application of decorative design to the pieces of woodwork made. The projects made by the high school boys are, as a rule, not so well calculated to take decorative design. Their efforts at decorative design will come later in connection with the metalwork of the first year.

In high school the design is to be taught by special drawing teachers who have informed themselves of the limitations of the shop methods when it comes to applying these designs. It is for the shop instructor to specify the kind of joint or joints that are to be used and the material, also the limitations as to decoration. Present methods of organization in high schools hardly permit of the teaching of shopwork and design and by the same instructor, which is the ideal way providing, of course, that the instructor is expert in both. This is a combination difficult to find. It is gratifying, however, to know that some schools are insisting that their shop men become informed in design as well as shopwork.

While these drawings are being worked up in the drafting room the pupil’s shop periods are given over to the making of the exercise joints and mastering the principles involved in their making. By the time these exercises are completed, the working drawing will be completed ready for use in the shop.

The proper correlation of design and shopwork is not a problem beyond solution, because of the direct relation of the two departments, providing there is a strong administrative head able to secure proper esprit de corps. In the grammar schools, however, the problem becomes less satisfactory of solution by correlation.

The first objection lies in the fact that the regular grade teacher has both boys and girls to teach and the problems must therefore be the same for the whole room. The second objection lies in the fact that the problem in design has to pass thru too many hands before it reaches the boy. If design is to be taught to the best advantage, it must have the[43] interest of the teacher and she must have an intelligent understanding not only of the subject of design but of the particular problem that is to be presented. The difficulties in the way are not insurmountable where the drawing supervisor herself presents the problem to the pupils. Even here, however, one frequently finds the drawing supervisor so much more interested in the freehand drawing that her dislike for the design makes her unfitted for such correlation work.

When, however, as is the case in cities, the drawing supervisor must reach the pupils thru the regular teacher, correlation becomes in most every instance a farce. The teaching of design is another imposition on an already overburdened grade teacher. Very seldom does she understand the problem and it becomes a distasteful subject to be got over in the easiest way possible. Department teaching in the upper grammar grades would do much to aid in the correlation of drawing and shop. Until this is made possible, we can hope for little in the way of results from grammar school correlation, unless it be in a small system where the supervisor teaches the children directly.

The whole subject of design as it relates to woodworking is a constant source of discussion among manual training shop men. Many good teachers insist that design has no place at all in a course in woodworking. Others admit that it ought to have a place but feel that the results obtained do not justify the time spent upon it. Still others approach the whole field of woodworking from the side of design, tool processes and organized woodworking subject matter being mere incidents to the problem in design.

Like every extreme position each of these points of view has good in it, but there is sufficient error accompanying each to impair the validity of the conclusions and to make the resulting applications unhappy as related to ordinary public school conditions.

The whole subject of design as it relates to the manual training shop is one that has demanded thought on the part of the author. It is one of those places where teaching theory failed to bring efficiency either in the results obtained in design or in the reaction upon the boy. He has been forced to the opinion, from his own experience and from his observation of the efforts of others to teach design to grammar school pupils, that the cause for dissatisfaction and discouragement is due to our insistence upon one and only one method of presentation—the inductive or synthetic.

[44]

In judging results we must consider the results obtained from every member of a class and the good each boy has got out of his experience. This efficiency test most effectively excludes the exhibition of a few “accidentals” as evidence that our method is the correct one. There is no reason why design should seek justification on any ground other than that offered by other subjects.

Inductive or synthetic teaching of design has its place; so also has the deductive or analytic. Happily those educators who insist on the use of one method or the other only are becoming few. In other subjects we are finding that the teaching results which demand the respect and approval of educators of safe and sane judgment are obtained by the use of both methods interchangeably. There is no formal notice when one is to be used or the other—whichever method fits the occasion is used without apology. This is right; to do otherwise is to sacrifice the boy or girl for the sake of the method. We are all agreed that the child is the more important consideration. In fact, some psychologists tell us that induction and deduction are one and the same process, the difference being merely a matter of emphasis. It is this difference in placing the emphasis that we seek to discuss.

Our methods in the high school have made much of the inductive. This is right. Pupils of high school and college age are ready for this method, tho our high school pupils often would profit by having a little less of this with more of the deductive.

However, when it comes to grammar school teaching, the maximum of use has to be made of the deductive or analytic method. This is acknowledged in the academic subjects. Woodworking when taught so as to meet the efficiency test that is applied to academic teaching also makes use of this method mostly. Our design, however, has always been taught by the inductive or synthetic method, no one seeming to have the temerity to make use of any other. As a result we find the views of design in the grammar school as stated above. Those who advocate it urge the “accidentals” as sufficient justification. Those who reject it base their argument on the fact that results based on a few accidentals will not satisfy the same efficiency test that is applied to other subjects.

Experience has shown, at least to the author’s satisfaction, that the deductive or analytic method when given maximum emphasis with beginners in design is all that is needed to bring the results up to a standard equal to that of other subjects. It is the rational method of presenting any subject to beginners.

[45]

The terms deductive and inductive have such wide application that it may be well to specify more particularly just what we mean. A concrete illustration will suffice to show the distinction we seek to make between what we choose to designate the deductive or analytic and the inductive or synthetic methods.

Suppose we wish to have a class, with little or no information about the subject, design a booklet to meet certain specified conditions. Three distinct stages of progress manifest themselves in what we shall call the complete method. First, the pupils must be given information bearing upon the problem. Second, they must be given experience in handling problems of that type. Third, they will utilize this information and experience in designing the booklet to meet given conditions.

The first step will be the taking of a type form and analyzing it. Either the instructor will demonstrate or, better, each pupil may be given a booklet of type form and required to take it apart and put it together again. Any way to give the pupil the information in a form that will cause it “to stick.” In woodwork, it would be done by means of the traditional shop demonstration—a wise practice, since psychology teaches us that sight percepts are among the strongest.

Second, the pupils must acquire experience. Let them make a booklet according to definite specifications provided them by the instructor.

The process thus far is mainly deductive or analytic. So far there has been no invention or design, but the pupils are now prepared for it. Using the information and experience now available, let them design a booklet to meet certain conditions. This latter part we would call the inductive or synthetic process.

We should have two aims in our teaching of design: (1) Appreciation, (2) Development of the creative faculty. Since all must be able to appreciate good line and good form when they get out into life while only a few will ever become designers in a creative sense, it is essential, as it is also rational, that attention should be paid first to appreciation. Past efforts show how hopeless is the problem when we strive to give to the pupils appreciation of and feeling for line and form by demanding original forms in the very beginning. The beginner’s efforts at creation are abortive and the appreciation that he derives is nil. By our insistence on this method we have given to our pupils the idea that design means making something out of nothing. He is not far wrong if we demand of him original designs before we have given him anything tangible upon which to work. We say tangible as distinguished from academic principles[46] or rules of design. If nothing tangible is given the pupil he must get it outside of his school experience. This explains the superabundance of “wienerwurst” forms, bouquets tied with ribbons, circles, etc., etc.

It is possible to create unknown out of what is seemingly unknown. When we stop to analyze the process, however, we find that we have made use of information, appreciation, and feeling that are known. Sometimes we make ourselves believe that our pupils are creating unknown out of unknown without these requisites. Analysis will show that our continued suggestions to him, drawn from our own fund of known are the causes, and not the pupil’s faculty. This method of teaching is the kind we have been used to in design. It works pretty well with small classes and individual instruction. Try it on large classes of beginners and it is not possible to bring results that stand for class efficiency.

And why should this particular method be insisted upon exclusively with beginners? Why should not design, like mechanical drawing and woodwork and other subjects be developed upon a substructure consisting of information and appreciation secured by allowing or even insisting that the boy handle good design until he becomes saturated with a feeling for good line and good form? Of course, if any pupil comes to a beginning class with this information and feeling, due allowance should and can readily be made. It is highly probable that there would be less inclination on the part of our pupils to insist that designers are born not made were more use made of the deductive method. When the boys no longer see their efforts result in crudities and are enabled to acquire the necessary feeling and information as their work proceeds, then you find a happy and interested class that as a whole takes design as a matter of course and not as something intended only for the few.

Whatever the method of teaching design in the regular classroom, lack of time demands the most direct treatment of shop design. A grammar school boy is not inclined to listen very patiently to anything that smacks of the academic. (1) Give the boy something definite with which to work and (2) keep him working, or “playing,” as one has fittingly designated it, until he has made a conscientious effort to “make it a part of himself,” that is, until he succeeds in changing the form until it no longer resembles the original but still possesses the pleasing appearance of the original.

If he succeeds in doing this, he is well on the way to creative effort. Not all boys are of equal ability in other lines of endeavor, neither are[47] they in this. By this method of attack, however, even the stupidest—usually stupid only in the matter of design—is not without compensation for his effort. He has learned somewhat of the principles that govern good design by hearing them explained and seeing them illustrated in a piece of good design. He will have developed some feeling for line and form thru having played with good line and form. He can at the very least fit the form given him to an outline made by himself after suggestions of good line placed upon the board. To this extent, at least, you have benefited him, whereas, by the usual method he—and there are many like him—would have simply sat idle in discouragement—if he were not more mischievously occupied.

If our old art schools were to be criticised because they made too much use of the imitative method when they strove to give to their students information and appreciation and feeling for form and line thru copying historic ornament, it would seem, from results obtained, both tangible and in the effect upon the pupils, that our modern schools are open to criticism when they seek to force originality upon immature minds before they have given these minds any information or feeling.

Of course grammar school boys are not interested in historic ornament, at least not in America. This is the weakness of the imitative method and helped to bring in the movement which now seems to have swung to the opposite extreme—it lacks vitality for young pupils. Instead of giving the boy historic fragments, give him a form that is vitally interesting to him because he sees its immediate application in the thing that is to be made in wood. Let him play with this form combining imitation and modification and creation just as far as he is able.

Make the problem concrete, stating the principles you have to state in a language the boy can understand. There will not be time to bring out every principle that might be involved in design. There must be time to bring out those involved in the particular problem under discussion. Balance and symmetry, for illustration, are pretty well understood by the boy in the simple form in which he will have occasion to use them.

Take as an illustration the bookrack, Fig. 7. To present such a problem we would place upon the blackboard the blank forms as shown, also the decorative form as shown.

The lesson immediately divides itself into two parts for consideration: (1) The Construction, (2) The Decoration. Under the subject of Construction our normal school notes would suggest the following points to be brought up: Use, Construction, Decoration; Requirements of Utility; Limitations of Materials and Processes; Proportions of Parts and Details; Harmony of Parts and Details; Points of Force; Construction as Decoration. (According to Payne.) Under Decoration: Supporting Outline; Center of Interest; Symmetry; Repetition; Radiation; Rhythm; Contrast; Proportion in Curves; Proportion in Spaces; Unity; Subordinate Centers of Interest; Balance.

[48]

FIG. 7. TEACHING DESIGN IN THE PROBLEM OF THE BOOK-RACK.

CONSTRUCTION
DECORATION
OUTLINES  
  MOTIVE GIVEN ADAPTATION
APPLICATION—
BY A PUPIL
 

[49]

Taking these in their natural order, but without making much ado about the “framework,” the shop man who has made some study of the principles involved can call the boys’ attention to the most important points:

(1) The construction. Since the shopwork is to be carried on by class instruction and not individually, it will be necessary to limit the joint or joints used to those specified for the Group in which the project is to be worked out. Joints of previous Groups may be used also. The book rack will be made in Group VII. Some form of the groove joint is to be used, none other.

Here we call attention to the difference between the designer and the shop man in their handling of the problem. The discussion of construction gives the designer an opportunity to display the possibilities of his subject. He enumerates all the joints that may be used with propriety in making such a piece as the bookrack, and the pupils are encouraged to make use of as many varieties as possible. He is totally oblivious of the fact that, while this is good teaching in design, it is making the applications impossible except with individual instruction—a method of instruction that may be used in small school systems but not in cities.

(2) The manner of placing the members and the use to which the rack is to be put will together determine the proportions of the members.

(3) For decoration, we might depend entirely upon the good form of the outline and the stain and grain of the wood. With this particular piece, however, we shall make use of a decorative form which will be outlined or incised and colored with a dye.

(4) Since the design is to be made in wood and wood splits easily along the grain, we must be careful in making an outline not to get sharp points. Also, in making a decorative design we must avoid thin parts that will bring incised lines close together. Also, we must take into account in planning the members the facts of shrinkage or swelling and the strength of the wood. The grain on the vertical members must extend vertically and that of the horizontal member must extend from[50] vertical member to vertical member. This to be illustrated by referring to some similar construction.

(5) In striving for pleasing outlines, or decorative forms either, strive to avoid a sameness made by using many lines or forms of the same size. “Large, medium and small” is a key that unlocks many a puzzle as to what causes unpleasant feelings in both outline and decoration. Long sweeping curves with short snappy ones, rather than a series made with a compass. Make a special point of the fact, which almost every boy overlooks, that the simple forms of outline are invariably the more pleasing. To the beginner design means making something unlike anything that was ever seen on the earth below or heaven above—hence the freakish, fussy forms that are usually offered. Try telling the class you are going to place an excellent form on the board then draw a well proportioned oblong and watch the expressions on their faces. Yet a well proportioned oblong with appropriate decorative form is one of the most pleasing of forms. There will be no need to urge them to make “unique” forms. Their inexperience and their zeal will produce a sufficient number. Rather urge, or insist that they postpone search for “unique” form until they have more information.

Illustrate with blackboard sketches as you go along each of these points. Keep the boys “playing” with outline forms until you have assured yourself they have done their best. With them, pick out three of the best and place these in permanent form for keeping—put them on another sheet of paper. Next, start them on the decoration. The development of a decorative form will come much harder than the outline. Here again the beginner will want to exhibit “unique” forms—unique only in that they are founded upon his ignorance. Unless the boy is not a beginner, it will be necessary in about twenty-four out of every twenty-five cases to insist that he start with the form you have placed upon the board for his use. If you were dealing with a few pupils, you might take his “original” form and step by step get him to work it into a good form. With large classes this is not possible, nor is it necessary. Simply insist that he place the form given him in his outline and in so doing he will acquire enough feeling for line and form to enable him to proceed of his own accord.

(6) Have the boy put on a supporting outline, that is, tell him to draw a line around his outline and parallel to it. Show the class on the blackboard how this is to be done.

[51]

(7) Put in the main mass and break it up explaining as you do so that you are seeking to get large, medium and small forms-proportion of parts. Call attention to the efforts made to keep the lines in harmony.

(8) Call attention to the center of interest you have created. It is unfortunate that lack of time forbids the boy’s placing colors on these designs. Very frequently a touch of color is used to create a center of interest, the form for this in black and white not giving the proper significance at all. A design which in outline seems to be fussy because of too many parts will, by a proper selection and placing of colors, be made most pleasing. On the other hand, a design in outline that seems agreeable may, when in color, not be agreeable because the colors make certain parts stand out too prominently. A study of the color plate in Projects in Beginning Woodwork and Mechanical Drawing will make this clear.

(9) If the form proposed happens to illustrate repetition, radiation, symmetry, or if some boy develops a form that does, take time to say a word about them. While you will not have time to “teach design” in the few lessons, a word here and there may serve to awaken further interest on the part of some boy.

After all is said, we recognize that the time is short, that not much can be done. On the other hand, what little can be done is worth doing and doing well; its possible significance can not be overestimated.

6. Shop Excursions.

In the grammar schools, and more especially in the high schools, plans should be made for several excursions to near by shops in which the pupils may get an insight into the workings of related industries. The saw-mill, lumber yards, planing mills, furniture factories, architectural or drafting-rooms and, in fact, anything relating to the industrial employment of men and machinery may be visited.

That the trip may be one of profit the instructor should see to it that the pupils are prepared for the trip by previous talks on what is to be seen and by after talks on the meaning of what they saw.

In every case it will be necessary, or at least advisable, to have a time arranged with the superintendent of the factory to be visited. Pupils should be given to understand that they are being privileged and must act the part of gentlemen, refraining from asking needless questions of the workmen or handling the equipment. In many factories no talking to the men at all is desired. The questions of young pupils are often impertinent and embarassing without their intending them so to be. The[52] better plan is, as has just been suggested, to have the pupils prepared by preliminary talks then take them thru the shop with eyes and ears only open, clinching the lessons of observation afterward.

Pupils should keep together in solid lines and, should any accident occur, the instructor should see that any loss to the factory owner or workmen is “made good.” Usually the class will voluntarily make recompense. It is safer and less likely to cause embarassment if it is understood beforehand that all members of the class who go will be expected to help repay the instructor for any money so expended.

One might think the company well able to stand such loss. It is, but it is not always the company’s loss. Even if it were, their courtesy ought not to be abused. We have in mind a mold for an intricate piece of casting representing a day’s labor for two men ruined by a student’s accidentally brushing against it with his overcoat. As the men were on “piece work” it meant no loss to the company, except delay in getting out the finished article. It did mean a loss to the two men, who could ill afford it. The instructor quietly settled for the damage or loss and the pupils reimbursed him upon reaching school. This probably prevented the factory from excluding succeeding classes as undesirables. In woodworking shops there is little chance for such accidents. Nevertheless workmen there do not wish their tools or work handled. Each class should bear constantly in mind, while on the shop excursions, that it is making succeeding classes welcome or unwelcome in that shop.

7. Stock Bills.

Every piece of woodwork made by a pupil consisting of more than one member should have in addition to the working drawing a carefully made stock bill. The reason is two-fold: It not only prevents the pupil’s cutting out stock wrongly thru misreading the drawing, but it saves time for the pupil. It is a practice that he will have to master later in life if he follows any of the mechanical trades and is just as essential a part of his shopwork as is the drawing or woodwork. Where the drawings are made by referring to plates, experience has shown that many a boy will be able to make a good drawing without fully interpreting its meaning. The making of the stock bill will show him his weakness, also it will show the instructor. No boy can make out his stock bill without being able to read his drawing. After the drawing has been made and then its stock bill, the boy will have become so conversant with the plans of the thing he is to make that few mistakes are made in working the wood, that is, mistakes due to ignorance of the drawing.

[53]

STOCK BILL

(Form)

Name ________________________ Article ________________________
Grade ________________________ Kind of Wood ________________________
                           
Finished Sizes Cutting Sizes
Pieces Thickness Width Length Pieces Thickness Width Length
1   38 3   5 12 1   38 1 34 6  
1   12 1 12 4 12 1   12 1 34 5  
2   12 1 12 9   2   12 3 14 9 12
1   12 5 12 12   1   12 5 34 12 12

INSTRUCTIONS

All articles in seventh grade will be made of White Pine or Yellow Poplar; those in eighth grade of Chestnut.

Stock bills are not needed for articles composed of one piece of material only.

Finished sizes are the sizes to which the pieces are to be planed. Your drawing will tell you these sizes.

Pieces of irregular shape are to be figured at their widest and longest dimensions.

Cutting sizes are obtained from the finished sizes by adding 14″ to the width and 12″ to the length. Cutting sizes are the sizes to which you work in sawing out the stock preparatory to planing it.

All stock will be mill-planed on two surfaces to the correct thickness except that for the ring toss, spool holder, game-board, and laundry register. Thickness of mill-planed stock will be the same whether for finished sizes or cutting sizes. On rough stock, or stock that has not been mill-planed, if the finished size is 34″ thick the cutting size will be 1″ thick.

Sometimes it is possible to save material by combining two irregular pieces. The finished stock sizes will indicate the number of pieces while the cutting size will indicate the size of the single piece from which they are to be cut.

Remember that length always means “along the grain of the wood,” and that a piece may be wider than long. Under the word “Pieces” put the number of pieces that are of the same size.

[54]

In the elementary schools the form of stock bill used should be as simple and explicit as is possible. The appended form is one that has proven satisfactory. That it may be in convenient form for student use, it has been included with “Projects in Beginning Woodwork and Mechanical Drawing,” as also is the Form for Price List and Estimate of Cost.

8. Estimating Cost of Material.

The accompanying form indicates clearly what is expected of the boys in figuring their cost of material. Since these costs are figured before the articles are made in wood, no account is taken of material wasted. With a carefully planned course of projects and an instructor who knows the possibilities of requiring a boy to reduce the size of his piece when one member has been reduced under size there is very little use for extra stock. As a rule what stock is so returned can be used for other smaller parts. If a boy is unnecessarily wasteful, he should be required to figure extra stock. This is to be done only in justice to the other boys, not as a check to the wasteful boy. Such boys, as a rule rather glory in their wastefulness. The best check for such a boy is to require him to use his original stock, reducing the sizes of all affected pieces as may be necessary.

As this is, in all probability, the first problem in which the boys deal with approximate rather than mathematically exact results, the instructor should not become discouraged with their first attempts. No better opportunity exists for introducing the boys to problems such as will confront them after they leave school. The instructor will do well to check the boys’ results by means of his own previously figured results after the boys are all thru their figuring. There is a difference between figuring for an answer previously given and figuring as they must after leaving school.

In order for the boy to figure his bills he must have a Price List. A form for a price list such as is needed for the materials that are to be used in “Projects in Beginning Woodwork and Mechanical Drawing” is appended. The prices given are neither retail nor wholesale but about midway between what the boy would have to pay for his stock bought in the limited quantity he needs and the cost to the school in quantity lots. Only the best of lumber is used. Money might be saved by buying short lengths but none is saved by buying “cull” stock with the expectation of cutting out the defects. The prices are for Chicago, 1911-1912, and are inserted for comparison only. On lumber, 15 to 25 per cent has been added for waste in cutting up. Since all of the stock used in the grades is in board form, wood finish is figured only for the two broad surfaces. The price will be found sufficient to cover the material used on edges. The price will also cover such waste as ordinarily comes thru the inexperienced handling on the part of the boys—they will not “spread out” the materials to as good advantage as will a mechanic, of course.

[55]

(Form, reverse side of a Stock Bill)

ESTIMATE OF COST OF MATERIAL

2 square feet of 34 inch stock @ 7c $ .14
310 square ft. of 38 inch stock @ 5c   .02
4 1 inch, No. 10, flat head, bright screws @ 14c .01
5 square feet of finish @ 1c .05
    $ .22

INSTRUCTIONS

Base your lumber estimate on the Cutting Sizes. All prices of lumber in your Price List are per square foot, therefore your stock should be figured by surface measure, only width, length, and number of pieces being considered.

Fractions of an inch and fractions of a cent are not considered, except in the price per foot, and in the number of feet as noted in the next paragraph. If the fraction is 12 or over, use the next higher whole number; thus, 212 or 234 becomes 3. If the fraction is less than 12, drop it; thus, 214 becomes 2.

In figuring, find the number of square inches in all pieces that are the same in price per foot. Reduce this to square feet by dividing by 144. Reduce it decimally and do not carry the result beyond tenths place. Dispose of any fractional figures beyond tenths as directed above. Always write your decimal as a fractional form in the bill—otherwise a decimal point might be overlooked and the result be greatly changed. In the form above note that .3 is written 310.

In figuring finish, both surfaces of the stock are to be covered so that the easiest way to find the number of square feet of finish is simply to double the number of square feet of lumber. Edges are not considered. Only Groups VI, VII, and VIII have finish applied.

[56]

PRICE LIST 1911-1912.

LUMBER—
Chestnut, 1st grade, clear, kiln-dried:
S-2-S to 38″, per square foot 512c
S-2-S to 34″, per square foot 712c
S-2-S to 1″, per square foot 912c
Yellow Poplar or White Pine, clear, kiln-dried:
S-2-S to 38″, per square foot 5c
S-2-S to 12″, per square foot 6c
S-2-S to 34″, per square foot 7c
Rough, 1″, per square foot 612c
HARDWARE—
Screws:
1″ No. 10, flat head, bright, each 14c
114 No. 10, flat head, bright, each 14c
112 No. 10, flat head, bright, each 14c
212 No. 10, flat head, bright, each 12c
3″ No. 10, flat head, bright, each 12c
58 No. 10, round head, blued, each 14c
112 No. 10, round head, blued, each 14c
Nails:
6d, common wire (used with, and price included in Mission nail)  
114 No. 17 wire brads (used in Groups V and VI with 38″ stock) enough nails for nailing one box 1c
112 No. 16 wire finishing nails (used in Groups VII and VIII) enough nails for nailing one project 2c
No. 1617 and 1618 Mission nails, each 1c
MISCELLANEOUS—
  No. 81, 34″ brass shoulder hooks for key rack, each 1c
No. 81, 1″ brass shoulder hooks for plate rack, each 1c
212″ black Japanned wire coat hooks, each 1c
Wire hook for coat hanger, each 1c
No. 121412 brass screw-eye and No. 1614 hook (calendar mount) per pair, 1c
Fixtures for electric lights and hooks for hall mirror are to be purchased by the individual—prices and tastes vary so greatly.  
Wood Finish:
Stain, filler, shellac, wax or filler, shellac, wax or stain and wax, per square foot of surface 1c

[57]

9. Lumber and Material Bill for High School.

In the grammar schools the lumber is figured by surface measure per square foot and the form of bill is made as simple as is possible. A high school boy should be able to handle a problem somewhat more in keeping with commercial practice. In addition to the material cost he should keep account of the time expended in making his piece of woodwork so that he may figure the labor cost as well. The small size of the stock used does not admit of the full commercial practice. This, however, ought to be explained to the class at this time. The following form is for High School use:

PRICE LIST, 19—— 19——

LUMBER—Quality, 1st, clear, and kiln-dried.
Kind of Wood  Per 1000 feet when surfaced on two sides
Thickness in the Rough 58 34 1″ 114 112 2″
Yellow Poplar            
White Pine            
14 Sawed White Oak            
Mahogany            
14 Sawed Red Sycamore            
Black Walnut            
Plain Sawed Red Oak            

HARDWARE—

For prices on hardware consult Hardware Catalog provided for you.

Figure retail price, that is, figure screws at price per dozen, not price per gross.

WOODFINISH—

Per square foot of surface covered.

LABOR—

Per hour.

[58]

(Form for high school use)

BILL OF MATERIAL

Name________________________   Date Begun________________
Class________________________ Date Finished______________
Article_______________________ Extra Hours_______________
Pieces Size Description Price Feet Cost
2   12 × 3 14 × 12 12 Walnut Slats S-2-S to   38 in.     .10   510   .05    
1 1   × 8 14 × 14 12 Stretcher 78 in.   -   .10 03 910 .39
6 1   × 3 14 × 12 12 Rails
1 1   × 14 14 × 14 12 Top
4 1 12 × 1 12 × 24 12 Posts 1 14 in.     .11 02   .22 .66
8 2 inch No. 10 Flat Head Brt. Screws   .0012   .04  
4 112 inch No. 10 Flat Head Brt. Screws   .0014   .01 .05
  13 sq. feet Wood Finish   .01     .13
    Material Cost           .84
  30 hrs. Labor   .15       4 .50
Total Cost $5 .34

[59]

INSTRUCTIONS

Under “pieces” put the number of parts that are alike.

Under “size” put the various dimensions of pieces. In finding the sizes of the various pieces of lumber, examine the working drawings for finished dimensions, making due additions for tenons, then add 14″ to the width and 12″ to the length to allow for cutting out and squaring up. Tho you are to make use of stock mill-planed to thickness, you are to specify the thicknesses from which this mill-planed stock is got. Allow 18″ for mill-planing.

Remember that length always means along the grain.

Fractions of an inch in width and length are not considered. Neither are fractions of a cent in the final results. If the fraction is 12 or over, take the next higher whole number. If it is less than 12, drop it. Fractions of an inch in thicknesses that are over 1″ and fractions of a cent in the price per foot are to be figured as they are.

Lumber is measured by the superficial foot which is 1″ × 12″ × 12″. Boards that are less than 1″ thick are sold by surface measure. In other words, boards less than 1″ thick are figured for quantity as 1″ thick.

Standard sawed thicknesses are 1″, 114″, 112″, 2″, 212″, 3″, 312″, 4″. Thicknesses less than 1″ necessitate re-sawing these sizes. In some communities the price per square foot for re-sawed stock varies for each difference of 14″ in thickness.

In figuring, multiply the length by the width by the thickness, by the number of pieces. If any piece is less than 1″ thick figure it as 1″. Combine all results that are the same in price per foot. Reduce to square feet by dividing by 144. Reduce decimally and do not carry the result beyond tenths place. Dispose of any fractional part beyond tenths as directed above. Write your result in fractional form that the decimal point may not be overlooked and be the cause of trouble.

The price list gives the price of lumber per 1,000 feet. The price per foot is readily obtainable.

In figuring finish for these cabinet pieces, double the number of feet of stock as given by the stock bill to get the number of feet of finish. This is only an approximate method but is sufficiently accurate for such pieces as are to be made in first year high school, as specified in “Advanced Projects in Woodwork,” Group IX.

10. Standardizing Materials and Tools.

Standardization in the manual training shop is just as desirable and as profitable as in commercial shops. Not infrequently young teachers begin their work with the idea that the greater variety of tools and materials they can introduce into their course the richer is its content. To a certain extent this is true but experience will soon prove that there is a limit beyond which it is not profitable to go. In grammar schools, with classes of twenty, it is inadvisable to have more than one plane on a bench—or even in the general tool equipment, if the courses[60] outlined herewith are followed. By planning the joint work carefully beforehand, or requiring the pupils to plan their joints according to certain standards as to size, no more than two chisels need be placed at the disposal of each boy and none in the general equipment. The same may be said of bits, etc. Make use of certain screw sizes, as few as can be used to advantage, and equip in auger bits accordingly. This practice not only is less expensive but it enables the instructor to keep the equipment well in hand both as to sharpening and accounting.

Except with individual oversight, in small classes, it is not advisable to plan projects for grammar schools in which holes smaller than 316″ diameter are to be bored. The expense of maintaining or replacing bits of smaller size that get broken is unwarranted.

Of course, it is not to be inferred from the foregoing that any necessary tool is to be omitted, or that any tool is to be made to do a work that will cause it to be injured thereby.

There is educational value in the way of imparting information in providing pupils with a different kind of wood for each project. This used to be specified in some of the very best courses some years ago. Today the tendency is not only to standardize the kinds of wood but to standardize the thickness. The economic problems arising from the handling of many kinds and sizes of lumber more than offset the informational value that pertains to the practice. A study of samples of wood that are placed within easy reach of the pupils will compensate somewhat for the loss occasioned by standardizing the kinds of stock. After all, the presentation of three or four type woods is about all that can be expected, as the work is now presented.

Wood finishes can be standardized in a manner similar to that of lumber and hardware. There is undoubtedly educational value in a boy’s making his own stains. Under ordinary school conditions, however, it is not possible to have him do so. Nor is it advisable for the instructor himself to mix his own finishing materials. Even the most expert woodfinishers find it taxing their ability to mix a fresh lot of stain that will exactly match that of a previous lot. There is nearly always some boy, or boys, with pieces but partly covered when the stain in any given lot is exhausted. The best way, everything considered, is to make use of some standard color of finish in stain and filler. When a given quantity is exhausted it is an easy matter to order more of the same color with the assurance that the color of the new lot will match[61] that of the old. It is not possible to teach everything in the short time allowed and there are excellent reasons for omitting these.

The price list and the list of equipment given herein show to what extent the author has standardized his material and tools.

11. Records, Forms of Reports, Grading Work.

The following forms have proven satisfactory.

(Form for front cover)

CLASS BOOK

Manual Training Center___________________

Instructor_____________________

(Form for pages)

School_____________ Grade________________ Teacher_______________
Names At-
ten-
dance
Grade Acct. De-
port-
ment
 
  September October, Etc.
1          
2          
3          
Etc.          

The foregoing form is for use in grammar school centers. One book for each center will suffice. On the cover, the instructor will fill in the name of the school at which the center is located, also his own name.

There should be placed after “school” on the inner page the name of the school from which any class of boys come. Their grade and the name of their academic teacher is to be filled in.

[62]

In marking attendance in the class book, use a short straight line for absence. If a boy is marked absent and later comes in, a straight horizontal line thru the vertical line made to indicate absence will indicate tardiness. By arranging these marks in the square in some definite order the particular time of absence or tardiness can be told. For example, if a class comes to manual training once a week, a mark in the upper left hand corner may indicate absence or tardiness the first week of that month; if in the upper right hand corner, for the second week, etc.

In the column marked “Grade” will be recorded the teacher’s estimate of the boy’s work. In some schools boys are required to pay for material used. The column marked “Acct.” is to be used in keeping record of money paid by the pupil.

The column marked for deportment is not to be filled unless a boy insists in calling the instructor’s attention to himself because of his misconduct. On such occasions a check is recorded after his name at the time reproof is given.

These books will be taken up by the supervisor of manual training at the close of the year and will be kept by him.

Boys who enter or leave at times other than the beginning or close of the regular school period should have the fact and date indicated in connection with their names.

Where money is collected from students, the supervisor should insist that the instructor keep a separate purse for this purpose in addition to keeping a record in his class book. The class book record will be of service in checking the purse account and in aiding in settling any dispute between instructor and boy and in giving the supervisor a check in case any parent asks for information. It is not an unusual thing, however, for the instructor to find his purse account in excess of his book account. This is due to the fact that he has forgotten in the stress of other shop duties to make a record. In such a case the purse account, not the book account is to be turned in. Since the instructor is not a purchasing agent there will never be occasion for his book account to exceed his cash account.

The directions given for the grammar school class book apply equally to this high school form, except that the week is the unit instead of the month. If a class comes five days in the week, a mark in each of the four corners of the square for Attendance and one in the center will indicate that the boy was absent or tardy five times that week. Always placing the marks in definite places for definite days will indicate what day of the week a boy was absent or tardy.

[63]

(Form for High School)
(Outer cover)

CLASS BOOK

School_____________________________
Shop_______________________________
Instructor_________________________

(Form for pages)

Class____________________   Section____________________
Names At-
ten-
dance
Grade Acct. De-
port-
ment
 
  First Week Second Week, Etc.
1          
2          
3          
Etc.          

At the end of each month there will need to be sent to the regular grade teacher information suggested in the following form. This form, when the teacher takes off the data contained thereon, is to be returned to the manual training center. The information contained upon this form is to be used by the regular teacher in making up her monthly report for the boys whose names are recorded. Deportment and attendance will be combined with similar marks in the regular work while the manual training grade will be recorded in the space so indicated on the regular monthly report.

As for the form of the monthly report for the high school, most high schools have their marking systems so arranged that the different instructors can transfer their markings directly from the class book to the card. If a form is desired, the grammar school monthly report will answer as well for the high school by changing the words “School” and “Grade” to “Shop” and “Section.”

[64]

MONTHLY MANUAL TRAINING REPORT

School_____________ Grade_____________ Teacher_____________
Names Times
Tardy
Times
Ab-
sent
Grade De-
port-
ment
 
  September October, Etc.
1          
2          
3          
4          
5          
6          
7          
8          
Etc.          

To the Teacher—Deportment is satisfactory unless checked. A boy with two or more checks needs a word of caution and advice.

Excuses for absence or tardiness are to be given the regular teacher except where a boy is absent from manual training but is in attendance at the regular school the same day. In such a case the excuse is to be given the shop instructor.

In addition to this the teacher will appoint a monitor who will telephone to her the class attendance at the beginning of each manual training period. Unwarranted absentees are to be attended to by her.

This record is to be returned at the very earliest opportunity to the manual training shop. Otherwise, it may be the cause of delay in your getting your class report from manual training the following month.

[65]

In grading work the tendency today is not to try to make fine distinctions such as 83 per cent, etc. “Excellent” for work that is equal to that of a mechanic, “Good” for work that is above average, “Passed” for average work and “Poor” for work that is not acceptable will be sufficiently exact. If the system of marking is by numbers, mark by tens, as 90, 80, 70, and 60, seventy being “Passed.”

12. Shop Conduct.

In conduct, a boy at the manual training center should be governed by the same rules that obtain in the regular school, with slight exception.

It is sometimes argued that shopwork provides an opportunity for free and natural or unrestricted action on the part of the pupils. This they argue is a distinct advantage of manual training over the restraint of the academic classroom and results in greater development educationally. Theoretically this seems reasonable. Practically, it soon becomes evident that young pupils, such as our manual training boys, are lacking sadly in judgment in the power to discriminate between liberty and license in shop conduct. Allow them the privilege of talking to one another about necessary matters without asking permission of the instructor and you must be a strong teacher to prevent abuse of the privilege. To allow unrestricted conversation, however, is decidedly bad. Even with grown men and women working in shops, only restricted conversation is allowed. The reason is evident. If with men and women of supposed judgment there must be insistence on order and system, how much more so with immature boys.

Have definite signals and insist upon their being heeded promptly. The three bells used in the regular school work serve well to open the school. One, the opening of the doors; two, the call to order; three, the tardy bell.

Some instructors do not allow the pupils to enter the shop—do not open the shop—until the second bell rings. Other instructors allow the boys to enter the shop at the first bell and begin work as soon as they like. The first method is used mainly in large cities where large classes have to be cared for and where the boys are morally inacute. The second is preferable in some ways. It allows the pupil to make the most of his time. It has the disadvantage in that it requires the instructor’s immediate supervision after the first bell, or else allows the pupil to commit errors because of no supervision. As a rule it is the boy who most needs the extra time who does not make use of the privilege.

[66]

Of course, where pupils are not admitted to the shop before the second bell, provision must be made for taking care of them inside the building in inclement weather.

To fully appreciate the merits of either practice it should be explained that each boy is to be held responsible for the tools at his bench and the class as a whole for all other tools. Each boy is expected to look over his tools upon coming into the shop that he may report any tool that is missing or damaged. Should he fail to make a report until late in the period, or not at all he should be made to feel the responsibility. Broken or lost tools should be paid for as the case merits.

At the close of the period, all tools are to be in their places ready for the instructor’s inspection. It should be explained to the pupils that this inspection is not to relieve them of responsibility but merely to assist them in avoiding an oversight.

Unnecessary damage to the bench is to be reported and the responsibility fixed as is that concerning tools.

At the ring of the tardy bell every boy should be in his place with his material, ready for work. Since the recitation generally follows the tardy bell, that should be the signal for quietness and attention such as is demanded in the regular schoolroom. The instructor will have marked his attendance by the time the pupils have got in order and the recitation may begin at once.

Insist upon continued attention during the recitation and demonstration. The author has made it a point to call upon any boy showing signs of inattention to recite. No boy likes to be considered a dullard and usually he will confess to inattention after which the proper note can be made of it.

Where the full half-day is given to shopwork, a five minute rest period is advisable. This allows the boys to relax and to make known to one another their ideas. Where possible, they should be allowed to move about and converse freely. Under no circumstances, however, should there be allowed scuffling or loud talk, either at rest or before the tardy bell. Aside from the damage that might be done themselves and the equipment, there should be instilled a feeling of respect for the shop environment.

The instructor should aim to have on each bench as many of the tools as will be in great demand. The general tools will be kept in a wall case. Permission should be given to boys to go after any such tool whenever he needs it without asking for it. Likewise it is advisable[67] to allow boys standing permission to go to the drinking fountain, if it be in the same room, or to the wash basin or the finishing tables. It should be understood that there is to be no congregating at these places. Permission to leave the room should be required.

At the close of the period a tap of the bell will be the signal for the boys to put away their tools and work, get their wraps, brush off the shavings from the bench top and from under the bench into the aisle. When all are ready and the tools have been inspected, the teacher’s signal to rise, and then to pass may be given. Have the rows instructed to pass out in a definite order.

A few schools require the boys of the last class of the day to clean up the entire shop. In many communities this is not advisable for there is some justice in their complaints that they are not janitors. There will be no objection by boys in any community, however, to brushing out from under and around their own benches. This practice makes the janitor’s work comparatively light and does not offend the boy’s sense of justice or fitness. They do not object to the cleaning of the room so much as to the idea of doing what another is paid for doing.

The discussion of ways and means of maintaining discipline is not appropriate in a book of such brevity as this. Sufficient to say that a manual training teacher to do his best work should be a teacher well trained in methods of teaching and the psychological bases back of them. He should at least understand the art if not the science of good teaching.

Where an instructor is engaged in teaching his entire time it is not just that he should be required to attend to formal disciplining of pupils. In most schools, therefore, an instructor, like the regular grade teacher, conducts his shop as best he knows how. When a boy insists in being unruly in spite of all the instructor can do, then that boy should be sent to the principal of the building in which he belongs for further treatment. The shop instructor will be expected to make use of the many little devices for maintaining order that are required of other teachers. Otherwise he will find himself wanting to send boys to the principals more frequently than he should. His maintenance of order will be a much easier task than is that of the regular teacher.

While these restrictions may occasionally work a hardship, they effectually prevent such injustices as the boy who is inattentive during the demonstration bothering the boy who was attentive, when it comes to doing the work. Our American boy is not in much danger of being[68] injured by our school requirements of order and discipline. In fact, he would be benefited by a little more strictness than is now the custom, both at school and at home.

The high school shop bells will of necessity be those for other classes with the exception of the double period. There will be no necessity for a rest period, of course.

13. The Lesson.

An examination of the Lesson Outlines of Part II will make clear the component parts of the lesson. These parts are: Recitation, Preparation for Demonstration, Demonstration, Work.

In making an analysis of the lesson, let us begin with “Preparation for Demonstration.” The recitation really belongs to the preceding lesson, and will be discussed last. The preparation for demonstration consists in having a pupil read aloud sections of a text which bear directly upon the demonstration which is to follow. The purpose of this is primarily to assist in preparing the minds of the pupils for the demonstration. Of course this preparation could be made orally by the instructor. In centers where the classes repeat the work day after day for the full week, the instructor finds himself enthusiastic in giving the beginning classes their lessons but, in spite of good intentions, slighting the lessons of the classes that come the latter part of the week. The reading from the text insures every class equal attention. Of course, the instructor will enliven the text by the addition of information from his own experience. There are other uses for the text, such as a reference book in case the worker finds as he works that he has forgotten some point. Also it enables the instructor to formulate definite questions on the work with some assurance that the student can answer them the week following. The preparation must not be too elaborate. This is a common fault of beginners in teaching. It is a means, not an end.

Some instructors object to reading before the demonstration on the ground that it detracts from the demonstration. When one thinks only of the exercise of observation this seems reasonable. It must be remembered, however, that young pupils are not skilled in making observations as are grown people. It is wise therefore to give them some aid in making their observations by giving them preliminary hints. In fact, those instructors who object to the preliminary reading frequently do precisely the same thing, that is prepare the boys for the demonstration, when they talk during the demonstration—they usually[69] explain each step just before taking it. With the preliminary reading of the text very little talking need interrupt the demonstration, which may proceed rather rapidly.

Here one sees the necessity for a well organized course. Each lesson must have its subject matter connected with previous knowledge of the class.

A successful demonstration demands an equipment such that each boy may see what is being done by the instructor. The closest of attention should be demanded. The matter to be demonstrated should be unfolded step by step. It is not necessary that all the steps be given. Any steps that have been given in a previous demonstration may be presupposed. Little time should be lost between the demonstration and its application.

The remainder of the lesson, the recitation, is to be given at the beginning of the next period or session. If shopwork has been lacking in one thing more than another it has been in the failure of the instructor to “clinch” his instruction. “The best test that a person has understood a thing is, that he can reproduce it in his own way in his own words.”

The woodshop instructor has a right and, in justice to the boys and his work, should insist that they stand squarely upon both feet and express the information asked for in good, plain, correct English. A boy who says he “knows but cannot tell it” only half knows. Unless he learns the lesson well enough to express it well, that lesson will soon fade so that when the instructor attempts to build upon that knowledge later, as he must, there will be trouble for both teacher and boy.

In written tests insist upon a definite form and neat papers. For example, on one line have the date and name, one to the left side of the paper and the other to the right. In the middle of the paper on the line just below this, have the name of the subject. Insist upon marginal spaces at either side of the paper. Do not have the questions copied upon the boys’ papers, but insist that their answers shall be in the form of complete statements, a subject and predicate—so complete that the instructor need not refer to the question to mark the answers.

At all times use good English, never rough language if you expect the boys to respect you and the surroundings. Quietly correct their grammatical errors. These things cost little in effort and assist in overcoming the slovenly tendencies so characteristic of boys at this age.

[70]

In the Lesson Outlines will be found questioning hints under Recitation. Some fifteen or twenty years ago our text books in geography, grammar, history, etc., had suggestive questions after each lesson. These questions were very helpful but like many another good thing they were abused. Weak teachers found it easier to conduct a recitation by putting these questions to the students in routine order, instead of using them merely as hints to enable them to present to the pupils all the matter of the lesson. To conduct a recitation by asking routine questions like conducting a recitation with a text open before the teacher when pupils are required to recite without the text, is not the sign of the highest type of teaching and is bound to result in more or less formalism and lack of vital interest.

Of recent years, texts have gone to the other extreme and not a few educators are wishing texts would give some hint as to the points of importance in the lesson. This the present book aims to do in the hints by questions under Recitation. These questions are purposely put in an incomplete form so that the instructor must needs formulate them before putting them to the pupil. They are intended, as are any public speaker’s notes, merely to enable him to carry on the discussion or recitation in a systematic and logical manner, missing none of the important facts to be brought out.

The whole time taken in any one lesson for recitation, preparation for demonstration and demonstration should not exceed, ordinarily, twenty-five or thirty minutes.

It is a skilled teacher who can present a lesson to the best advantage. The best possible presentation is a subject that manual training men can investigate with profit. Asking questions and getting answers and giving demonstrations may mean much or may mean little in the way of developing the boys—nor can you tell always by the material results obtained—it all depends upon how these things are done.

14. Maintenance.

By maintenance we refer to the cost of keeping a center running after it has once been fully equipped, exclusive of teachers’ salaries. This will be found to have several variable factors entering. A careless instructor can very quickly run the cost of maintenance to a point almost prohibitive. The loss of tools by theft, waste of lumber in getting out stock, etc., the careless planning of the work so that articles are made, requiring much lumber and little work, quickly makes inroads upon the appropriation for manual training purposes.

[71]

An allowance of ten per cent. for depreciation in equipment should be sufficient under all ordinary conditions. An allowance of one dollar per pupil per year should be ample where all material used is provided free. In fact, observation covering a period of several years shows that boys coming one-half day a week for the school year of ten months and making models similar to those in “Projects in Beginning Woodwork and Mechanical Drawing” cost the Board approximately seventy-six cents per pupil for maintenance. This center had very close supervision, however, and waste and breakage was reduced to a minimum.

The most prolific source of monetary outlay is caused by planning projects—it makes no difference whether they are small or large, a boy uses just as much lumber in a given amount of time,—that require little effort in their construction. For illustration, a boy may make a taboret with four solid sides and with butt joints where he should be making a taboret with grooved joints. The former construction has its place, but should not monopolize the whole scheme as it is so often allowed to do. A course properly planned will show that the cost of eighth grade work, such as taborets, etc., is no greater than that of the seventh grade which is composed of much smaller but more numerous projects.

Again, it is a mistake to plan many small projects consisting of small parts in the hope of effecting economy. The awkwardness of the average grammar school boy will make it necessary to discard much of such stock. Where the parts are of some size, it is possible in most every instance to give him a new but smaller set of dimensions and require him to continue to work on the piece originally given.

A scrap box for holding small pieces that remain after cutting out stock from the board, closely supervised so that the boys shall look over the pieces it contains before cutting a full board, is another source of economy. There should be comparatively little “kindling” for the janitor, if due care is taken by the instructor. Above all things, it should be understood and enforced that no boy is to discard a piece once he has worked upon it without the instructor’s permission. This he seldom needs to give for he can usually show the boy how to make further use of the piece in question by reducing its size.

While most schools provide the materials free, some do not, but require the pupils to pay the actual cost of the material used should they care to take the article home. There is something to be said in favor of each practice. The latter is not unjust as it provides the[72] necessary training. It tends to make class distinction, however, in communities where pupils are not able to purchase their pieces. On the other hand, it discourages the taking of things that are not really wanted and permits a most economical administration—provided the supervisor uses judgment in the selection of his projects. It tends to make him resourceful in providing projects of interest, which is an advantage provided the projects selected are in harmony with the general plans of the course, which is supposed to provide for the orderly introduction of processes.

High school pupils, according to the course outlined herein, will have about the same amount of time in the half-year allotted to benchwork in wood as do the grammar school boys in the full school year. The cost of maintenance will therefore be approximately the same for the half year as is that of the grades for the year.

In purchasing supplies it is possible, where the courses are organized and the materials standardized as indicated herein, to save by ordering in quantity lots. The lumber can be purchased by the 1,000 feet of the various thicknesses wanted. Likewise the hardware can be got in quantity lots, with the assurance that next year’s work will call for any stock that may not be used the present year.

Short lengths in lumber are just as good as long for manual training purposes and are cheaper.

Whatever is to be purchased by open quotations should be definitely specified so that one and only one quality can be delivered.

The printed catalogs of the various dealers with their retail prices are helpful, tho these prices are always “shaded” when quantity quotations are asked.


[73]

CHAPTER V.
EQUIPMENT.

15. Equipment.

In the following discussion, effort is made to suggest type forms of equipment rather than to offer a complete treatise. The equipment offered may be added to or reduced as the exigencies warrant. While it is complete enough to do the work planned in the outline of the course in woodworking as given herein, and lists everything necessary to do the work in a most approved manner, it does not go to the extreme of listing every tool that might be used in a cabinet shop. It lists every tool that must be used for the work outlined.

While it lists an equipment for grammar school and another for high school, the grammar school equipment with slight additions can be made to serve the purpose of high school work just as well in communities where the same equipment must serve for both.

THE GRADE SHOP. The best arrangement of benches and other equipment, so far as completeness and convenience is concerned is that shown in Fig. 8. This is a floor plan of a grade school center. Montclair, N. J. An extended teaching experience does not indicate any way in which this arrangement could be improved.

We quote from a description of this shop which appeared in the April, 1911, Manual Training Magazine.

The shop shown in the accompanying illustration is one of six in the town of Montclair, N. J., and what is said of equipment holds true of the others. It is unique in that it is housed in a structure especially built for the purpose. This shop measures 29 by 54 feet, and, having windows on all sides, allows the arrangement of equipment with but little reference to space or light. The equipment consists of twenty-four single benches with the usual tools, and a few essentials for simple metalwork. The benches are partially equipped with rapid-acting vises, the old wooden ones being replaced as they wear out.

The demonstration theater was designed for a class of twenty, but larger classes have made twenty-five seats necessary. The demonstration bench has both woodworking and machinist’s vises. It is used also by students for such metalwork as comes in connection with the shop projects. This bench is provided with drawers for tools and compartments for sheet metals, etc.

[74]

The lumber rack was made by bolting five pieces of 4 × 4-inch chestnut to the side wall, and inserting six 21-inch lengths of 134-inch gas pipe in each upright. Such a rack is convenient, serviceable and inexpensive.

Bellevue Ave. Shop—Montclair, New Jersey

School
T TEACHER’S ROOM
D DEMONSTRATION THEATRE
L LUMBER RACK
S SINK
F FINISHING BENCH
G GLUE BENCH
1 CASE FOR UNFINISHED WORK
2 EXHIBITION CASE
3 TEACHER’S DESK
4 SUPPLY CASES
5 OPEN SHELVES
6 GENERAL TOOL CASE
7 DEMONSTRATION BENCH
8 GRINDSTONE

Fig. 8

The glue and finishing tables, not shown in the pictures, have zinc tops, and are provided with drawers and compartments for keeping the materials used. They provide the means for doing with cleanliness and order what sometimes is a rather troublesome part of shopwork.

[75]

Fig. 9. INTERIOR OF GRAMMAR SCHOOL SHOP, MONTCLAIR, NEW JERSEY.

Fig. 10. LOCKERS FOR STORAGE OF UNFINISHED WORK, GRAMMAR SCHOOL SHOP, MONTCLAIR, NEW JERSEY.

[76]

The permanent exhibit case measures 20 inches by 5 feet 6 inches by 12 feet. It has adjustable shelves, glass doors, and is provided with the same style of lock as are the general tool case, supply cases and demonstration bench.

The cabinets for pupils’ unfinished work have been planned to meet the problem of providing a satisfactory place in which a pupil can keep his work from lesson to lesson. The first requirement of the shop seemed a standard size locker; secondly, it must be adjustable to provide for various sizes of projects; and lastly, local conditions demanded a system which could be moved without difficulty. The idea has developed into what is the most satisfactory system with which the writer (Albert F. Siepert) has had experience, either as student or teacher. A sectional case was designed which meets equally the needs of all classes in the art and handwork department, whether they be bookbinding, woodwork or sewing. Each section measures 20 in. by 24 in. by 36 in. The open case in the illustration shows the maximum number of compartments, eight pupils to the section, each pupil having a space 814 in. by 1058 in. by 1812 in. for his work. By removing four or six of the upright partitions, the space may be given to four or even to two pupils. Thus any piece of work up to 11 in. by 1812 in. by 34 in. can be kept out of the way and under lock and key. Alternate sections are assigned to a class to avoid congestion and confusion.

The cost of the building several years ago was $3,500. Local carpenters built the demonstration theater, lumber rack, cabinets, etc. The demonstration bench cost $27; the stain and glue tables approximately $4.50 per running foot; and the cabinets for unfinished work $12 per section.

16. Size of Classes.

It should be noted that the building was planned originally for twenty benches and that it now contains twenty-four. Twenty benches ought to be the maximum number so far as the giving of proper instruction is concerned. When more are given the instructor the conditions for the most efficient work are not good. This problem of accommodating twenty-four boys will have to be met, and may as well be planned for just so long as school directors insist upon crowding fifty pupils in the regular classroom when the teacher ought to have but thirty-five or forty to do her best work. Then, too, it frequently happens that a room contains more boys than girls. Some of these boys might be sent to another and adjoining center. It is best to plan to care for twenty-four boys, however, where the regular room enrolment runs above average. In this case the dimensions of the building as given in the preceding text should be changed. Enlarge the width of the building by six feet. This will permit the placing of the extra demonstration seats upon the platform and also allow sufficient floor space near the lumber rack for cutting out stock, and about the finishing table, etc.

[77]

In placing benches, plan to have the light enter over the back and the left end of the bench. That is, when standing at his bench, the light should strike the pupil in the front and left.

An amphitheater is very desirable both in the high school and the grade school shop. In large classes it is a necessity. With small classes it is possible to make use of desk stools arranged about a bench. Many manual training centers, in fact, most manual training centers, do not have the amphitheater. This is no argument against its desirability. It simply means that the boys get but an imperfect understanding of the demonstration and that their work must suffer accordingly.

17. Lockers.

The locker problem is one that has been a source of trouble. The arrangement described in connection with the description of the Montclair shop is by far the best solution of this problem that has come to the author’s attention. The extreme length of pieces that can be accommodated is 34″. A few pieces will be longer than this. These can be accommodated outside the locker or the locker sections may be planned large, say 40″ in the clear.

The grindstone is best suited for pupils’ use in sharpening edge tools. Where a small motor is used for power, it is very desirable to have a small dry emery grinder for the use of the instructor. Ten dollars will cover its cost and it will pay for itself quickly. It can be placed near the grindstone.

Unless the centers have frequent delivery of lumber supplies, or if there is no central cutting-up station, it may be found advisable to add to the building described a small room for the storage of quantity lumber with, possibly, a power saw in it.

18. Bench and Tool Equipment for Grade Center.

The individual bench is to be preferred to the two- and four-pupil bench. Aside from the fact that the double benches are not conducive to good order and system, it is next to impossible to get such benches to remain rigid without going to an initial expense that would be sufficient to purchase the individual bench. Unless they are rigid, it is an injustice to ask a boy to return accurate work. The effect that violent work at one side of a double bench will have upon fine or accurate laying out by some boy on the other side of that bench is not difficult to imagine. The only argument in favor of a double bench is economy of space. If space must be economized, it is better to place the individual benches back to back with just enough space between them to keep them from touching and thus shaking each other.

[78]

The rapid-acting vise is desirable, if it is a good one. Some rapid-acting vises now on the market are not as desirable as the old fashioned continuous metal screw vise. A vise is in almost constant use and should be most carefully investigated before being specified.

INDIVIDUAL EQUIPMENT.
  Bench, open frame without drawer, glued up top 23 in. by 52 in. tool rack, rapid-acting vise, approximate cost $ 10.00
Jack-plane, Stanley or Bailey No. 5, each 2.09
Wooden mallet, Stanley No. 1 .13
Rule, Stanley No. 34 .17
Hammer, Maydole bell-faced claw, 13 oz. .50
Wing Dividers, P. S. W., 6″ .23
Chisels, socket firmer, Buck Bros., 38″ and 34″ both .83
Marking-gage, Stanley No. 62 .12
Try-square, Stanley No. 20, 6″ .21
Saw, Bishop Handy Saw, 12″, No. 9 .75
Swedish Sloyd Knife No. 7 .40
Bench Brush, No. 2A, Orr & Lockett .30
Bench-Hook .25
Chisel-Board .00
Total $ 5.89
GENERAL TOOLS FOR 24 PUPILS.
6 Nailsets, cup pointed, assorted sizes, @ 10c. $ .60
6 Try-squares, Stanley No. 20, 12″, @ 36c. 2.16
3 Turning-Saws and Frames, 18″, @ $1.00 3.00
6 Spokeshaves, Bradshaw and Field or Stanley No. 84, 212″, nut adjusted @ 59c. 3.54
3 Gouges, 1″, No. 8, outside bevel, Buck Bros., @ 43c. 1.29
2 Ratchet Braces, Barber No. 33, 8″ sweep, @ $1.45 2.90
2 Plain Braces, Barber No. 13, 8″ sweep, @ $1.08 2.16
3 Crosscut-saws, Bishop No. 89, 22″, 10 pt., @ $1.55 4.65
3 Rip-saws, Bishop No. 89, 24″, 8 pt., @ $1.65 4.95
2 Planes, Jointer 22″, Bailey No. 7 or Stanley, @ $3.03 6.06
2 Rose head Countersinks, Buck Bros., @ 23c. .46
2 Screwdriver bits, Buck Bros., @ 17c. .34
4 Screwdrivers, 4″ blade, fluted handle, @ 25c. 1.00
2 Auger-bits, 114″, R. J., @ 80c. 1.60
4 Auger-bits, 1″, R. J., @ 60c. 2.40
2 Auger-bits, 34″, R. J., @ 50c. 1.00
4 Auger-bits, 12″, R. J., @ 35c. 1.40
4 Dowel-bits, 38″, R. J., @ 27c. 1.08
4 Dowel-bits, 14″, R. J., @ 27c. 1.08
4 Dowel-bits, 316″, Morse, @ 12c. .48
1 T-bevel, Stanley No. 18, 8″, @ 44c.[79] .44
1 Monkey Wrench, Coes, 8″, @ 50c. .50
1 Pair Combination Pliers, 6″, @ 40c. .40
2 Combination India Oilstones, 6″ × 2″ × 1″, in iron boxes, @ $1.00 2.20
1 Oil-can, 14 pt., @ 18c. .18
6 Handscrews, No. 812, @ 40c. 2.40
2 Steel Bar Carpenter Clamps, 212 ft., @ $1.69 3.38
1 Set Steel Figures, 316″, @ $1.88 1.88
1 Shellac Can, 1-qt. .78
1 Kerosene Glue Heater, 2-pts. 1.50
1 Steel Framing-Square 1.00
200 Individual plane-irons, @ 25c. 50.00
6 Coping-saws with Blades, @ 25c. 1.50
2 Brad-awls, @ 15c. .30
2 Scribe-awls, @ 15c. .30
List price $108.83
SUMMARY.
24 Benches, @ $10.00 $240.00
1 Demonstration Bench 27.00
25 Sets of Tools, @ $5.89 147.25
General Tools 108.83
List price $523.08
Less 10% $470.68

This estimate does not include lockers, shelving, machinery, etc. The cost of lockers, shelving, etc., can be roughly estimated by noting the price per foot as given in the description of the Montclair shop. A grindstone with motor power can be purchased for $30.00 for stone and $60.00 for motor.

Where the instructor must do much grinding, a No. 101 Cortland Corundum Wheel Co. Grinder, cost with tool rest and two grinding wheels complete ready to belt $10.00, will be found an extremely satisfactory investment.

Where power is not obtainable a Pyko Peerless Dry Emery Grinder, cost $6.00 with tool rest attachment, will give excellent service. It cuts much more rapidly than a grindstone and is therefore not so tiring on the one who turns it.

In justice to other makers of tools it must be explained that the mentioning of the firm names is due to the fact that indefinite specifications are worthless. There are other tools as good as those named,[80] some of which are preferred by some manual training men to those mentioned. Those mentioned are first class in every respect and will serve to give the dealer an idea of the class of goods you want. It will be for the purchaser to see that he gets equal quality. By all means, avoid the poor grade tool whatever its price. Were it not for limited space the author would like to list other makers of first class tools. If one is not conversant with the different brands let him consult some of his mechanic friends.

The prices given are list price for 1911-12, Chicago. A discount of at least 10 per cent. will be allowed for quantity purchase.

19. Individual Tools.

The individual plane-iron is not absolutely necessary. It is very desirable since the plane is in constant use. To make use of the same irons class after class is unjust to the good worker. He will spend a good part of the period getting his iron in condition only to find when he comes again the next week that it all has to be done over again. It puts a premium on slovenliness. True, the same argument holds for the chisels, and it would be well if individual chisels could be provided. The chisel is not used nearly so much as the plane-iron and can, therefore, be used in common much better than the plane-iron.

No machinery for cutting up stock, is included in the estimate. In most cities the high school machinery can be used for this purpose. According to the course outlined, there will be little stock cutting by machinery required. What little there is might well be done as “busy work” by the more rapid workers thruout the year. Such stock could be stored away until needed.

20. Equipment for Mechanical Drawing, Grade Center.

Since the teacher of woodworking must also be the teacher of mechanical drawing in the grade center, no special room for drawing is advisable. With the first twelve weeks devoted to drawing, the woodworking benches can be used as drawing tables, the woodworking tools not being placed until all the drawing work is completed. When the shop is properly cleaned during the summer vacation there is no reason for its not being kept as clean as any special drawing room during the drawing period of twelve weeks. The benches should be scraped clean and shellaced.

A blackboard is needed for both drawing and woodwork and may as well be placed in the woodworking shop.

[81]

For the most efficient presentation of drawing there will need to be plenty of blueprints or plates from which the student may work. These must be so well executed, as to technique, that the pupil will have before him only the best as models. No one would think of placing before the writing class other than the best models of style and execution in penmanship, yet it is not infrequent to find mechanical drawing students copying from blueprints that are far below standard as to excellence.

In presenting the problems, models will be found of very great help to the student in his efforts to interpret the conditions. Too much dependence should not be placed upon models in the work of older pupils.

INDIVIDUAL EQUIPMENT.
Drawing-boards, 16″ × 22″, basswood, each $ .70
T-squares, 22″, plain blade, fixed head, each .20
45° Triangle, 8″ each .16
30°-60° Triangle, 10″, each .15
Desk Stool, 24″, rubber tipped, each 1.25
Total $ 2.46
Total for 25 sets, less 10% $55.45

There will be needed in addition to the above a knife, scale, compass, and sandpaper block. The knife and rule used in the woodwork will serve equally well in the drawing. The sandpaper blocks or pencil sharpening blocks can be made in the shop.

In connection with these blocks, it will be found expedient to have them so fastened to the bench that pupils cannot get them on top of the bench in sandpapering a point on the pencil. This can be done by fastening the block to the bench with a screw in such a way that it can be revolved from under the top of the bench when wanted. Otherwise beginners will have the bench top and then drawings covered with the fine lead of the pencil.

In getting equipment avoid “baby” sets. A taboret drawing, to be well made, must be on a scale of 14″. This, with marginal lines will mean a paper of 12″ by 18″.

PERSONAL EQUIPMENT.

Excelsior or Eagle Pencil Compass.
Pencil, Dixon Manual Training, 2H.
Eraser, Ruby Pencil.
Envelope for holding drawings.
Thumbtacks, two.

[82]

The personal equipment to be uniform should be purchased by the school and sold to the pupils.

While this personal equipment may be kept in the woodworking lockers, some instructors prefer to have a special case of drawers to hold the drawing envelopes, and blocks of wood with suitable holes for holding the pencils, erasers, and tacks, monitors being appointed to look after them.

The paper used need not be as expensive as that of the high school where problems are to be inked. A manilla paper such as is used in the regular or freehand drawing classes will answer admirably and can then be provided by the school. Such paper is usually purchased in sizes 12″ by 18″ and 9″ by 12″. The former is the desired size for the eighth grade work and the latter for the seventh grade. A 6″ by 9″ size will be found suitable for stock bills, where printed blanks are not to be provided.

In the matter of paper, it is possible to practice economy without detracting from the drawing. All that are not wanted at the close of the year should be kept and the reverse sides made use of where experimental penciling is required.

Drawing equipment will be stored when woodwork is begun.

21. High School Joinery Shop.

The general plan of the wood shop for the high school will depend so greatly upon its relation to other shops in which wood is worked that the most that can be hoped by discussing it is that the plan offered may offer a starting point from which to work. In some communities the one shop will be all that is needed both for cabinet work, first year joinery, and pattern-making with, possibly, wood-turning. In other communities the number of students taking the work may warrant separate shops with full machine equipment for each. In still others it may be advisable to have adjoining shops but still necessary to make use of the same machinery. Some schools plan to have all the classes in one big room, sometimes having as many as seventy boys with three instructors. If this latter plan is followed, tho it is not advised, there should certainly be provided an adjoining demonstration room where the instructors may talk to the boys without the competing noises of other classes.

Fig. 11 is a suggestive sketch. It provides for lockers similar in make-up to those discussed in connection with the grammar school.

[83]

 1. GLUE TABLE
 2. GRINDSTONE
 3. BAND SAW
 4. JIG SAW
 5. LOCKERS FOR UNFINISHED WORK
 6. WALL RACKS
 7. FINISHING TABLES
 8. TEACHER’S DESK
 9. TOOL AND SUPPLY CASES
10. EXHIBIT CASE
11. LUMBER RACKS
12. CUT-OFF SAW AND TABLE
13. CIRCULAR SAW
14. PLANER
15. JOINTER
16. INDIVIDUAL LOCKERS
17. GRINDER

Fig. 11. SUGGESTED FLOOR PLAN FOR HIGH SCHOOL SHOP.

[84]

General tools are to be kept in a tool room which may be placed in charge of a student assistant. Each boy is then to be provided with metal checks. When a tool is asked for the assistant will hang the student’s check in the place of the tool taken out. Upon the return of the tool the check will be returned.

First year students may be safely taught to use the band-saw and jig-saw, with proper safe guards about the former. Other machines are best kept in a separate room.

Since high school pupils ought to be taught how to apply more difficult finishes, such as rubbed varnish, than those taught in the grammar schools, a special room will be necessary in order to avoid the shop dust. This room should be made fire proof, if possible, and should have racks about the walls upon which to place work being finished.

22. High School Bench and Tool Equipment.

The benches for the use of high school pupils are best when of the cabinet type having drawers below in which each student may keep his individual edged tools. Such a bench with drawers enough to accommodate all the boys that will be able to make use of the bench during the day, with a hinged or revolving board upon which may be fastened the general tools that belong to that bench will cost approximately thirty dollars. This includes a first class rapid-acting vise. The individual bench in the high school is as desirable as it is in the grades.

Where a high standard of technique is to be demanded of the pupils, the following tools should be added to those specified for the grammar school bench equipment:

INDIVIDUAL TOOLS.
Smooth-Plane, 134″ cutter, 8″ long, Stanley $1.66
Jointer-Plane, 238″ cutter, 22″ long, Stanley 3.03
Screwdriver, 6″, Stanley .35
T-Bevel, 6″, Stanley .40
Combination India Oilstone, 1″ × 2″ × 6″ 1.10
Oil-Can .18
Crosscut-saw, 20″, 10 pt., Bishop No. 89 1.40
Rip-saw, 22″, 8 pt., Bishop No. 89 1.55
Spokeshave, 212″ blade, Bradshaw and Field .57
In place of the Bishop Handy Saw specified in the grammar school list, substitute Bishop No. 8 Backsaw, 10″, cost 94c.
Provide for each drawer, that is, provide each boy with the following:
Chisel, 1″, bevel edged, firmer socket, Buck Bros. $ .57
Chisel, 14″, bevel edged, firmer socket, Buck Bros. .41
Chisel, 38″, socket mortise, Buck Bros.[85] .40
Plane-iron for Jointer .29
Plane-iron for Jack-plane .25
Plane-iron for Smooth-plane .23
Spokeshave-iron .15
Sloyd knife, 258 .40

This list presupposes that the mortising of the first year will be done by chisel alone, no boring. If mortises are to be bored first, it will be advisable to equip each bench with a Barber’s 8″ ball bearing brace, cost $1.45.

In addition to the general tools specified for the grammar school, make the following changes and additions:

GENERAL TOOLS.

Omit the rip- and crosscut-saws.

Omit the plain braces in case the bench is so equipped.

Omit handscrews and clamps, and glue heater.

Add 1 doz. Handscrews, No. 812, cost each 40c.

Add 2 doz. Carpenters’ Clamps, wood bar, 2-ft., @ 85c.

Add 1 doz. Carpenters’ Clamps, wood bar, 4-ft., @ 95c.

Add 1 Set Steel Letters, 316″, @ $1.88.

Add 1 Steam Glue Heater, O. & L. No. 9, @ $9.50.

Add 2 Draw-Knives, 8″, L. & I. J. White, @ 65c.

Add 12 doz. Steel Cabinet Scrapers, @ 10c.

Add 1 Set Auger-Bits in box, R. J. @ $4.00.

MACHINERY.

For the highest type of work the following machines should be placed at the disposal of the first year high school classes:

Grindstone.

Scroll or Jig-saw.

Band-Saw.

These machines should have proper safety devices and should be placed where they will be under the immediate observation of the instructor. Machines for woodworking vary so greatly in price and desirability that it is not thought wise to specify any particular make. Only the experienced man will be called upon to equip with machinery and such an one will have the information necessary to make the purchase.

[86]

For the second year, or optional cabinet work, there should be placed at the disposal of the students, and they should be taught their use, the following machines in addition to those specified for the first year work:

Circular-Saw.

Machine Jointer.

Planer.

Boring Machine and Mortiser.

Trimmer.

It is possible so to arrange these machines that the circular-saw and planer may be used in getting out stock for other classes. The floor plan given contemplates such use.

EQUIPMENT FOR HIGH SCHOOL MECHANICAL DRAWING.

A special room should be provided for the teaching of high school mechanical drawing.

A north light is best and the tables should be so placed that the light may come upon the board from in front and the left. If artificial light must be used, employ the inverted system.

Fig. 12. TABLE FOR MECHANICAL DRAWING.

Tables have much to commend them over the pedestal. They are easily swept around and keep a room looking orderly. Fig. 12 shows a type of table that is commendable. On the left are drawers for keeping the students’ instruments. On the right is a drawer for keeping general equipment that is used by the boys in common. Below this[87] drawer is the cabinet for holding the drawing-boards. These boards are so locked that only the board belonging to the boy with the key can be released. Such a table with a top 24″ by 48″ and 41″ high will cost $30, list price. Estimate for individual equipment will be as follows:

TABLE EQUIPMENT .
1 Table $30.00
1 Stool 3.50
5 Boards, of size to fit cabinet, @ $1.50 7.50
5 Sets Instruments, German Silver, @ $5.00 25.00
1 Scale, @ 38c .38
1 T-square, 24″, celluloid lined 1.50
1 45° Triangle, 8″, celluloid .48
1 30°-60° Triangle, 10″, celluloid .48
1 French Curve, .20
1 Bottle Ink .25
Total $69.29
PERSONAL EQUIPMENT.
  Sheets Paper.
Heavy Manilla Envelope for holding drawings.
Thumbtacks.
Eraser.
Pencil, hard, 4H.
Pencil, soft, H.
GENERAL EQUIPMENT.
1 Roll Blueprint Paper, (not to be purchased until ready to be used).
1 Blueprinting Frame, 18″ by 24″.
1 Roll Tracing Cloth.
  Blackboard Triangles, Straight-edge, Compass.

There will also need to be cases in which to file the envelopes in which the students keep their completed drawings. If much blueprinting is to be done, there should be a suitable room with sink and running water. Where models are used, there should be a case for storing them when not in use.

Practice varies greatly as to the amount of material provided by the school. Some schools require the pupils to furnish their own instruments, as well as paper and other supplies. The advisability of requiring much or little will have to be determined by the social conditions of the community it is intended to serve.


[88-
89]

PART II.
LESSON OUTLINES.


[90-
91]

CHAPTER VI.
LESSON OUTLINES FOR GRADE VII.

GRADE VII.
(Mechanical Drawing)

Lesson 1.

Introductory Talk

The purpose of manual training.

Explanation of signal bells—beginning, five minute rest, closing.

Regulations concerning drinking fount, lavatory, toilet.

Responsibility for tools; care of bench top.

Shop deportment. To and from shop.

Ownership of finished work.

Preparation for Demonstration; Assignment for Lesson 2

Essentials of Woodworking, Appendix III, Sections 1 and 4.

Demonstration

The essential points in making Introductory Drawing.

Instruments, lines, angles, lettering.

Sharpening pencil—sandpaper.

Work

All pupils begin Introductory Drawing.

Note:—Copies of drawings from which pupils are to work should be in the hands of the pupils while demonstration is being given.

GRADE VII.
(Mechanical Drawing)

Lesson 2.

Recitation

Working vs. perspective drawings?

Drawing instruments (T-square, etc.) How held?

Kind of lines (vertical, oblique, etc.) How drawn?

Angle defined. How measured? Does extending the sides change the value?

The angles of the triangles? How avoid inaccuracies at the vertex in drawing?

[92]

How many degrees in a circle? In the sum of the angles about a point?

How would you draw an angle of 75 degrees?

The order of procedure in putting on border and cutting lines?

Why have a cutting line?

Letters and figures, how proportioned? (Test pupils at black board.)

After the proportions are once learned, how lay out for lettering?

Preparation for Demonstration; Assignment for Lesson 3

Essentials, Appendix III, Sections 2 (relating to scale), 3, and 6.

Demonstration

The essential points in making Drawing for Woodwork Group I. (Cutting-board.)

Order of procedure; scale; blocking out; placing and spacing views; simple dimensioning.

Work

Complete Introductory Drawing.

Make drawing for Woodwork Group I.

Rapid workers measure, draw, and dimension three views from a rectangular block. (Blocks used in the study of woods.)

GRADE VII.
(Mechanical Drawing)

Lesson 3.

Recitation

Scale? Figures on the drawing vs. size of the drawing.

Projection and relation of views—The four principles developed.

Order of procedure—Determining the size and spacing; blocking out vertically; horizontally; dimensioning; lettering; inking; if not to be inked?

Preparation for Demonstration; Assignment for Lesson 4

Essentials, Appendix III, Section 2. (That part relating to lines, etc.)

Demonstration

The essential points in making Drawing for Woodwork Group II.

(Counting-board, key-rack, hat-rack.)

Foreshortening.

[93]

Work

Complete drawing for Woodwork Group I.

Make drawing for Woodwork Group II. Counting-board.

Rapid workers make another drawing in Group II.

GRADE VII.
(Mechanical Drawing)

Lesson 4.

Recitation

The conventions—Seven kinds of lines—how made and their meanings?

What part of a mechanical drawing is made freehand?

A broken view? Why used?

Section drawing? Cross-hatching?

Preparation for Demonstration; Assignment for Lesson 5

Essentials, Appendix III, Section 5.

Demonstration

The essential points in making Geometric Sheet.

Circles.

Work

Make the geometric drawing first.

Complete unfinished drawings for Woodwork Group II.

Rapid workers make other drawings for this latter group.

GRADE VII.
(Mechanical Drawing)

Lesson 5.

Recitation

The hexagon? How made?

The six point star?

The octagon?

The ellipse?

Assignment for Lesson 6

Review Essentials, Sections 1, 2, 3, 4, 5, 6 in Appendix III.

Demonstration

The essential points in making drawings for Woodwork Group III. (Ring toss, game-board, laundry-register, spool-holder.)

Hidden edges.

[94]

Work

Complete drawings for Woodwork Group II.

Make drawings for Woodwork Group III.

Rapid workers make other drawings in Group III.

GRADE VII.
(Mechanical Drawing)

Lesson 6.

Recitation

Perspective vs. working drawing?

Instruments, their uses?

Scale drawing?

Seven kinds of lines? Their meanings?

The freehand part of a mechanical drawing?

Broken view?

Cross-section? Cross-hatching?

Four principles of projection?

Spacings of letters and figures?

Hexagon? Octagon? Six point star? Ellipse?

Order of procedure in making mechanical drawing?

Assignment for Lesson 7

Essentials, Introduction, and Section 25.

Demonstration

The essential points in making drawings for Woodwork Group IV. (Sleeve-board, bread-board, cake-board, scouring-board, coat-hanger.)

Center and section lines, cross-sections, tangents, points of tangency, dimensioning circles.

Work

Complete drawings for Woodwork Group III.

Make drawings for Woodwork Group IV.

Rapid workers make other drawings in Group IV.

GRADE VII.
(Mechanical Drawing)

Lesson 7.

Recitation

Sharp, clean tools, why?

Care of bench top?

Care of tools not in immediate use?

[95]

Some of the more important results in manual training?

Take a rectangular block and name the terms used, length, etc.

Grain? “Against the grain?”

Face side, face edge? Other names? How and where marked? Why?

Preparation for Demonstration; Assignment for Lesson 8

Essentials, Sections 52, 53.

Demonstration

The essential points in grinding plane-iron.

The essential points in making drawings for Woodwork Group V. (Polish-box, knife-box, bird-box, nail-box, broom-holder, bench-hook.)

Work

Complete drawings for Woodwork Group IV.

Make drawings for Woodwork Group V.

GRADE VII.
(Mechanical Drawing)

Lesson 8.

Recitation

Grinding tools? Why?

How is chisel held? Angle depends upon what? How much?

Why move tool across the stone?

The effect of frequent change of angle?

Why turn the stone toward the tool?

Why use water on the stone?

Preparation for Demonstration; Assignment for Lesson 9

Essentials, Sections 54, 55.

Demonstration

The essential points in whetting plane-iron or chisel.

Work

Complete drawings for Woodwork Group V.

Make other drawings for Woodwork Group V.

GRADE VII.
(Mechanical Drawing)

Lesson 9.

Recitation

Two kinds of oilstones? Advantages of manufactured stones?

Advantages and disadvantages of coarse and fine stones?

[96]

Why use oil on stones?

How avoid wearing a stone uneven? How level an uneven stone?

Explain fully how to sharpen a chisel?

How tell when tool is at the correct angle?

The movement, and caution?

Explain fully cause and removal of wire edge?

How get a still keener edge?

Whetting a gouge? Use of slipstone?

Preparation for Demonstration; Assignment for Lesson 10

Essentials, Sections 56, 57.

Demonstration

Testing chisel or plane-iron for sharpness.

The essential points in making out stock bills.

Work

Complete unfinished drawings for Woodwork Group V.

Make out stock bills for drawings made of Woodwork Group V.

Rapid workers make out bills for other groups.

GRADE VII.
(Mechanical Drawing)

Lesson 10.

Recitation

How is a plane-iron sharpened? Why round the corners? How shape the iron for general use?

Explain fully how to tell whether a tool is sharp or not?

Caution in making the test?

Preparation for Demonstration; Assignment for Lesson 11

Essentials, Sections 20, 21, 22, 23.

Demonstration

The essential points in figuring stock bills.

Work

Complete making out of stock bills for Woodwork Group V.

Figure stock bills for Group V.

Rapid workers figure other bills.

GRADE VII.
(Mechanical Drawing)

Lesson 11.

Recitation

Jack-plane; its length, shape of cutting edge, use? How remove the hollows? Shape of blade for manual training use?

[97]

Smooth-plane; length, use, shape of blade? Setting of the cap iron for fine work?

Jointer; its use? Advantage over short plane for this purpose?

Fore-plane; use, shape of iron?

Block-plane; its length, use? How do its adjustments differ from those of the ordinary plane?

Is the block-plane always necessary for planing ends? When not?

Preparation for Demonstration; Assignment for Lesson 12Essentials, Sections 1, 2.

Demonstration

The essential points in using try-square and marking faces.

The essential points in modifying outline and designing decoration for some one of the following: Letter-holder, thermometer-back, calendar-back, bill-file, handkerchief-box, glove-box or any other simple piece involving no new processes.

Work

Instructor assign one of the above projects and pupils modify the outline and decorate. Each pupil make at least three sketches carefully and submit to instructor.

Rapid workers will finish any past work that is unfinished.

GRADE VII.
(Mechanical Drawing)

Lesson 12.

Recitation

The unit of measure in woodwork?

Rules and their markings?

How placed on the material? Consecutive measurements?

Finding the middle of a piece without computation?

Dividing a piece into any number of equal parts?

Try-square? Name the parts. Rough usage?

Three uses? Illustrate.

Sliding or scraping with try-square?

Preparation for Demonstration; Assignment for Lesson 13

Essentials, Sections 18, 19.

Demonstration

The essential points in putting plane parts together, adjusting.

Work

[98]

Finish any unfinished work of last lesson.

Make full size pattern of designed part of last lesson and fill in decorative design.

Finish any unfinished stock bills.

GRADE VII.
(Woodworking Group I.)

Lesson 13.

Recitation

Planes? Four kinds? Material of which made?

Name and point to the 16 parts of the iron plane.

Plane-iron and cap-iron fastened together how?

Purpose of cap-iron?

Fastening the irons in the throat of the plane?

Adjustment of irons?

Preparation for Demonstration; Assignment for Lesson 14

Essentials, Sections 26, 28, 31.

Demonstration

The essential points in squaring up mill-planed stock.

No definite dimensions but to be square and as large as stock given will make.

Face marks; edge planing; end planing; tests.

Work

Set and adjust planes.

Square up Cutting-Board stock, Woodwork Group I.

GRADE VII.
(Woodworking Group II.)

Lesson 14.

Recitation

Planing?

Selection of faces? Planing against grain? Kind of shavings? When planes are not in use?

Position at bench?

Starting stroke? Finishing? Feathering shaving? Backward stroke?

Edge planing?

Preliminary sighting with eye?

Plane to be used? Effect of not keeping full length on edge?

How to remove a high arris?

Tests for an edge?

[99]

End planing?

Explain fully.

Tests?

Preparation for Demonstration; Assignment for Lesson 15

Essentials, Sections 5, 14, 29, 32.

Demonstration

The essential points in squaring up mill-planed stock to definite dimensions. Gaging, measuring length, etc.

Work

Finish cutting-board.

Begin Group II. Counting-board.

Note:—Chamfering comes after laying out and boring and will be demonstrated later.

GRADE VII.
(Woodworking Group II.)

Lesson 15.

Recitation

Marking-gage? Four parts named? Its use?

The spur? How sharpened? How far project?

Setting the gage? Illustrate.

Position of hand in gaging wide and narrow boards? Kind of lines?

Back-saw? Name the parts.

Explain the position of the hands and the motions in sawing.

Location of the kerf with reference to the line?

Finishing second edge? Tests?

Finishing second end. where definite length is to be obtained? (Measuring, lining, etc.)

Preparation for Demonstration; Assignment for Lesson 16

Essentials, Sections 36, 38, 43, 44, 45.

Demonstration

The essential points in laying out counting-board and finishing it. Dividing the piece into four equal parts, gaging, measuring, lining. The size of bits, inserting bits, sighting, thru boring. Numbering the holes. Chamfering.

Shaping the pegs.

Work

Continue the counting-board, laying out, boring, chamfering, numbering, making pegs.

Rapid workers begin hat-rack or key-rack.

[100]

GRADE VII.
(Woodworking Group II.)

Lesson 16.

Recitation

Brace or bitstock? Name the parts.

Ratchet brace? Special uses?

Inserting a bit?

Auger-bit? Six parts and their uses?

Bit sets? Sizes and number?

How tell the size of a bit?

How tell when a bit is boring properly?

Thru boring?

How lay out a chamfer?

How work a chamfer?

Preparation for Demonstration; Assignment for Lesson 17

Essentials, Sections 37, 39, 42.

Demonstration

The essential points in laying out and working hat-rack and key-rack. Locating and attaching hooks, etc.

Work

Finish unfinished work and then begin either coat and hat-rack or key-rack.

GRADE VII.
(Woodworking Group III.)

Lesson 17.

Recitation

Center-bit?

Drill-bit? Used for what? Caution? Why and how make a seat?

Gimlet-bit? Its use?

Brad-awl? Used for what and how?

The advantages of patent spiral screwdrivers and automatic drills?

Preparation for Demonstration; Assignment for Lesson 18

Essentials, Sections 27, 30, 34. Memorize 34.

Demonstration

The essential points in squaring up rough stock.

Surface leveling, winding-sticks, their use, gaging to thickness, etc.

Work

Complete unfinished counting-boards.

Begin either ring-toss or game-board.

[101]

GRADE VII.
(Woodworking Group III.)

Lesson 18.

Recitation

Planing first broad surface level or true? What is a true surface? Which side is to be selected?

Three preliminary tests with eye and try-square?

Caution when a definite thickness is to be obtained?

The manner of testing a surface for trueness with straight-edge only?

The manner of testing a surface for trueness with winding-sticks and straightedge? Of what advantage are the sticks?

Explain fully how you would proceed to level a surface which has two corners diagonally opposite high with reference to the center and the other two low with reference to the center.

Finishing the second side? What indicates the proper stopping place in planing the second side? What is the test? Why no other tests as in first surface?

State the six steps taken in squaring up rough stock.

What ones of these are modified in planing mill-planed stock? Why?

Preparation for Demonstration; Assignment for Lesson 19

Essentials, Sections 11, 12, 13.

Demonstration

The essential points in ripping and crosscut-sawing at the bench, explaining the reasons for the two kinds of saws.

Work

Continue the work of Group III.

GRADE VII.
(Woodworking Group III.)

Lesson 19.

Recitation

Name two kinds of saws and five parts to each.

Meaning of the number on the blade at the heel?

Set? Why, and how? Amount for dry and wet lumber?

Rake or pitch? What is meant and upon what does the amount depend?

[102]

Sawing? Holding saw, index finger? Angle of cutting edge? Starting stroke? Position of thumb of left hand? Kind of strokes and pressure?

Guiding the saw? How? Caution? Sawing in vise, how get angle?

How and why oil sides of saw?

Crosscut-saw? Cutting edges of teeth where and why? Pitch?

Rip-saw? Shape of teeth? Why?

How tell a rip-saw from a crosscut-saw?

Preparation for Demonstration; Assignment for Lesson 20

Essentials, Sections 40, 45, 64.

Demonstration

The essential points in laying out ring-toss and marble-board, boring to depth, countersinking, making or cutting dowel to length and shaping top end, sandpapering with block, use eraser for pencil work. Put waste sandpaper in the box for future use in wood-finishing, grade 8. Never sand without permission. Glueing and fitting dowel.

Work

Continue ring-toss and game-board.

GRADE VII.
(Woodworking Group III.)

Lesson 20.

Recitation

Countersink-bit? Its use?

Boring to depth? Fully. Where many holes of the same depth are to be bored?

Sandpapering? When and when not?

Purpose of sandpaper block? How place the paper on it?

When are arrises sanded and why?

Curved surface sanding?

Numbers on the back of a sheet of sandpaper?

Sanding joints? Why not?

What is to be done with worn sandpaper?

Preparation for Demonstration; Assignment for Lesson 21

Essentials, Sections 3, 9, 10.

Demonstration

The essential points in cutting out stock.

[103]

Work

Continue Group III.

Beginning at this point, pupils are to cut out their own stock from boards S-2-S.

GRADE VII.
(Woodworking Group IV.)

Lesson 21.

Recitation

Framing-square? Two parts named? Its uses? What tables on blade and tongue?

Name five parts to the dividers.

Three uses for dividers?

Explain fully how you would set dividers? To a radius of 2″.

How are the points sharpened and why lean the top forward in marking?

Where are pencil lines better than knife lines? Why? How are they best removed?

Laying out rough stock if the edge of the board is fairly straight?

If not straight, how?

Preparation for Demonstration; Assignment for Lesson 22

Essentials, Sections 6, 15, 59, 60.

Demonstration

The essential points in laying out and working sleeve-board and bread-board. Stock is S-2-S. Caution about smoothing broad surfaces only, not leveling, thickness being more important here than true plane surface.

Work

Complete any unfinished work, then begin Group IV.

GRADE VII.
(Woodworking Group IV.)

Lesson 22.

Recitation

Pencil-gage? How made? When and where used?

Illustrate another way of pencil-gaging.

Turning-saw? Its use? Name three parts.

Why two handles? Caution about setting them?

Illustrate manner of holding the saw. Caution about holding the blade with reference to the surface of the wood.

[104]

How cut enclosed curves with this saw?

Why not saw accurately to the line? How remove the waste?

Spokeshave? Five parts?

For what and how used? Kind of shavings?

How adjusted?

Explain how to lay out for a curved edge? How to work it?

Sandpapering curved edges?

Assignment for Lesson 23

Essentials, Sections 16, 17, 24. (Informational).

Demonstration

The essential points in laying out and working the scouring board and coat-hanger.

Work

Continue Group IV.

GRADE VII.
(Woodworking Group IV.)

Lesson 23.

Recitation

Compass-saw? Especial use? Caution?

Saw-filing? Four steps? Reasons for each? The parts of the saw-set?

The old wooden planes? Why have they been displaced?

How are they adjusted? How are the wedges withdrawn in jack-plane and smooth-plane?

Assignment for Lesson 24. (Informational)—

Essential, Sections, 4, 7, 8.

Demonstration

None.

Work

Continue Group IV.

GRADE VII.
(Woodworking Group V.)

Lesson 24.

Recitation

Bevel? Name the three parts.

To what angles can it be set?

How set to 45 degrees? Three ways.

How set to 30 and 60 degrees?

Slitting-gage? Mortise-gage?

[105]

Preparation for Demonstration; Assignment for Lesson 25

Essentials, Sections 62, 65, 66.

Demonstration

Explain the manner of working duplicate parts. Gaging like widths, Marking off like lengths, Testing different parts in relation to one another.

Work

Begin Group V after completing Group IV.

GRADE VII.
(Woodworking Group V.)

Lesson 25.

Recitation

How proceed where there are two or more like parts?

The aim in handling the different tools in duplicate work?

Illustrate.

Hammers? Two kinds? Advantages and disadvantages? Three parts?

How hold the hammer? Illustrate.

Nails? How made originally? Forged and cut?

How are wire nails made?

Two classes, three kinds of nails? Differences?

History and meaning of 10-penny, etc.?

How else are nails sold?

Preparation for Demonstration; Assignment for Lesson 26

Essentials, Sections 67, 68, 69.

Demonstration

Nailing position, and withdrawing nails; setting nails.

Work

Group V.

GRADE VII.
(Woodworking Group V.)

Lesson 26.

Recitation

What caution is necessary in starting cut nails?

Explain position in nailing and give reasons?

Why not set nails with the hammer in cabinet work? How use the nailset? Illustrate the position.

Withdrawing nails?

[106]

Preparation for Demonstration; Assignment for Lesson 27

Essentials, Sections 41, 70, 71, 72.

Demonstration

Explain boring for screws, countersinking, use of screwdriver-bit.

Work

Group V.

GRADE VII.
(Woodworking Group V.)

Lesson 27.

Recitation

Screwdriver-bit? Its advantage over screwdriver? How is it kept from jumping out of groove in screw head?

What about the old style screwdriver?

Screws? How made and sold?

Size is designated how?

The difference between gage for wire for screws and nails?

Two kinds of screws? Blued screws are how colored?

How are the parts prepared for fastening in hard wood? In soft wood?

Assignment for Lesson 28

Essentials, Review Chapter I.

Demonstration

Order of procedure in assembling the various boxes. Placing the bottom and truing the frame.

Work

Group V.

GRADE VII.
(Woodworking Group V.)

Lesson 28.

Recitation

Instructor will place six questions on the blackboard, selected from Chapter I Essentials of Woodworking. Pupils answer five in writing.

Assignment for Lesson 29

Essentials, Review Chapter II.

Demonstration

None.

Work

Group V.

[107]

GRADE VII.
(Woodworking Group V.)

Lesson 29.

Recitation

Instructor will place six questions on the board, selected from Chapter II, Essentials of Woodworking. Pupils will answer five in writing.

Assignment for Lesson 30

Essentials, Review Chapter III.

Demonstration

None.

Work

Group V.

GRADE VII.
(Woodworking Group VI.)

Lesson 30.

Recitation

Instructor will place six questions on the board, selected from Chapter III, Essentials of Woodworking. Pupils will answer five in writing.

Assignment for Lesson 31

Essentials, Section 152.

Demonstration

The essential points in laying out and working woodwork for the design problem of Group VI.

Work

Complete Group V, then begin VI.

GRADE VII.
(Woodworking Group VI.)

Lesson 31.

Recitation

Name three kinds of stain.

Advantages and disadvantages of water stain?

Advantages and disadvantages of oil stain?

Advantages and disadvantages of spirit stain?

How apply water stain? How thin it?

How apply oil stain? How thin it?

How apply spirit stain? How thin it?

Fumed oak?

[108]

Preparation for Demonstration; Assignment for Lesson 32

Essentials, Section 153.

Demonstration

1. Applying design. 2. Outlining. 3. Applying color. 4. Waxing.

Work

Continue Group VI.

GRADE VII.
(Woodworking Group VI.)

Lesson 32.

Recitation

Is waxing an old or a new finish? How made formerly?

Advantages and disadvantages of a wax finish?

Caution about applying a rapid hardening wax?

Five steps in producing a wax finish?

Assignment for Lesson 33

Essentials, Review Chapter IV. (Those parts that have been previously studied.)

Demonstration

None.

Work

Group VI.

GRADE VII.
(Woodworking Group VI.)

Lesson 33.

Recitation

Instructor will give oral test from Chapter IV, Essentials of Woodworking.

Assignment for Lesson 34

Essentials, Review Chapter V. (Parts that have been previously studied.)

Demonstration

None.

Work

Group VI.

[109]

GRADE VII.
(Woodworking Group VI.)

Lesson 34.

Recitation

Instructor will give oral test from Chapter V, Essentials of Woodworking.

Assignment for Lesson 35

Essentials, Review Chapters VI, VII. (Parts that have been previously studied.)

Demonstration

None.

Work

Group VI.

GRADE VII.
(Woodworking Group VI.)

Lesson 35.

Review

Instructor will give oral test from Chapters VI, VII (parts only that have been previously studied in regular work), Essentials of Woodworking.

Assignment for Lesson 36

This closes the text work for the year.

Demonstration

None.

Work

Those finishing projects will assist slower pupils or do necessary work about the shop. All pupils are to be kept busy at some work until the last day they come. The last day each class will polish tools.

Lessons 36 and 37. For finishing up woodwork. Boys helping one another. Cleaning bench tops.

Lesson 38. For cleaning tools. Each class assigned certain tools to clean. Final class applies vaseline.


[110]

CHAPTER VII.
LESSON OUTLINES FOR GRADE VIII.

GRADE VIII.
(Mechanical Drawing)

Lesson 1.

Introductory Talk

The plan of the year’s work.

(Mechanical Drawing 12 weeks—Group 1, Straight Lines; 2, Circles; 3, Tangents; 4, Planes of Projections; 5, Review; 6, First choice Dado Group of Woodwork—Working Drawing; 7, First choice Cross-lap Group of Woodwork—Working Drawing; 8, Second choice Cross-lap or Dado Group of Woodwork—Working Drawing; 9, Completion of any unfinished drawings and Making stock bills; 10, Figuring stock bills; 11, Structural Design; 12, Decorative Design. (Woodwork the rest of the year—Two Groups, exercises and applications using drawings just made.) (Along with this, information concerning lumbering, etc.)

Preparation for Demonstration; Assignment for Lesson 2

Essentials of Woodworking, Appendix III, Sections 3, 4, and 6.

Demonstration

The essential points in making Drawings I. (Group I, Problems in Mechanical Drawing.)

(Copies of the different problems of Group I—One each—should be in the hands of the pupils that they may refer to them as the demonstration is being given.)

Border and cutting lines, spacing the views, blocking-out, dimensions, letters, final lines. Projection and relation of views. Visible and invisible edges.

Work

Each pupil solve his problem, freehand carefully on scratch paper first, putting on dimensions. Then carefully to full scale with border and cutting lines but no lettering or dimensions, only sheet number and pupil’s name.

Rapid workers exchange problems and solve as time allows.

[111]

GRADE VIII.
(Mechanical Drawing)

Lesson 2.

Recitation

The names and relative positions of the three views most used in mechanical drawing?

Send a pupil to the blackboard to make three views of a rectangular block having chamfered edges on one side.

Develop the four principles of projection and relation of views.

Letters and figures, how proportioned? Test pupils at the blackboard.

How does a freehand working drawing differ from a mechanical drawing?

Give fully the order of procedure in making a mechanical drawing.

How do you go about determining the placing and spacing of your drawing?

Preparation for Demonstration; Assignment for Lesson 3

Essentials, Appendix III, Sections 2 and 5.

Demonstration

The essential points in making Drawing II. (Group II, Problems in Mechanical Drawing.)

Center-lines; circles; cross-sections and cross-hatching; dimensioning circles.

Work

Solution of problems in Group II.

Complete any unfinished problems in I.

Rapids workers exchange problems in Group II and solve as time allows.

GRADE VIII.
(Mechanical Drawing)

Lesson 3.

Recitation

The conventions—Scale drawings, why? Figures on the drawing vs. the size of the object?

Seven kinds of lines—their meanings and how made?

When figures cannot be placed between the arrows, what?

What part of a mechanical drawing is to be made freehand?

A broken view? Why used?

[112]

Section drawing? Cross-hatching?

Hexagon, octagon, ellipse; how made?

Assignment for Lesson 4

Essentials, Review Sections 34 and 36.

Demonstration

The essential points in making Drawing III. (Group III, Problems in Mechanical Drawing.)

Tangents—Locating centers of arcs and points of tangency.

Work

Solution of problems in Group III.

Complete any unfinished problems in previous groups.

Rapid workers exchange problems in Group III.

GRADE VIII.
(Mechanical Drawing)

Lesson 4.

Recitation

The steps in squaring rough stock to dimensions?

The steps when the stock is mill-planed on two surfaces?

A true surface? Selection of first surface? When several parts are to be fitted?

Preliminary tests before beginning to plane?

Planing—Many or few shavings? Roughened grain? Planes used?

Protecting the cutting edge?

Position of the body? Long or short strokes? Starting and stopping the stroke? Feathering the shaving?

Testing broad surfaces with a straightedge?

Testing narrow surfaces with winding-sticks?

Explain precisely how to proceed in removing wind.

Assignment for Lesson 5

Essentials, Review Sections 27, 28, 29, 30, 31, 32.

Demonstration

The essential points in making Drawing IV. (Group IV, Problems in Mechanical Drawing.)

Planes of projection. Number and prove the solutions.

Work

Solution of problems in Group IV.

Complete any unfinished problems in previous groups.

Rapid workers exchange problems in Group IV.

[113]

GRADE VIII.
(Mechanical Drawing)

Lesson 5.

Recitation

Face side, face edge? Why? How marked?

Planing first edge? Choice? Two preliminary tests?

How place plane to remove high arris? Planes used? Tests?

Finishing second edge? What determines amount to be removed?

Tests?

Finishing second side? Gaging? Testing?

Planing first end? Tests? Caution about length?

Finishing second end? What limits amount to be planed? Tests?

Assignment for Lesson 6

Essentials, Sections 46, 47.

Demonstration

Numbering and lettering the points in the two views of the test problems preparatory to their solution.

Work

Complete unfinished “Problems.”

Solve test Problems.

Rapid workers may begin drawings for Woodwork Group VII.

GRADE VIII.
(Mechanical Drawing)

Lesson 6.

Recitation

Two classes of chisels? Their uses?

Four parts to each class?

Three parts to a mallet? The rule in selecting a pounding tool?

The size of a chisel indicated how?

Caution about holding chisel?

Explain fully the cutting action of a chisel. How it wedges, how this is overcome?

Explain fully horizontal paring.

Assignment for Lesson 7

Essentials, Sections 48, 49, 50, 51.

The essential points in making the working drawings for Woodwork Group VII.

[114]

Work

Make a drawing from Woodwork Group VII.

Rapid workers make drawing of second choice Woodwork Group VII.

GRADE VIII.
(Mechanical Drawing)

Lesson 7.

Recitation

Vertical paring? How? Position of hands? Amount to be cut at each stroke? Position of worker relative to the line to be cut?

Oblique and curved line paring? Direction of the cut with reference to the grain?

Paring chamfers? Paring along the grain? Across the grain?

Firmer gouge? Bevel inside or outside? How is its size determined?

Position of the hands in roughing out? In finishing stroke? How produce shearing cut?

Assignment for Lesson 8

Essentials, Review Sections 52, 53, 54, 55, 56, 57.

Demonstration

The essential points in making working drawings for Woodwork Group VIII.

Work

Complete unfinished drawings of Group VII.

Make a drawing from Woodwork Group VIII.

Rapid workers make another selection from Group VIII.

GRADE VIII.
(Mechanical Drawing)

Lesson 8.

Recitation

Why grind tools?

How much angle? How determined?

Why move the tool across the stone?

The effect of frequent change of angle?

In which directions should the stone turn with reference to the tool? Why?

[115]

Why use water on a stone?

Two kinds of oilstone?

Advantages of coarse and of fine?

Advantages of manufactured stones?

Why use oil on stones?

How avoid wearing stone uneven? How level an uneven stone?

Explain fully steps in whetting plane-iron or chisel.

Holding tool? Angle in whetting as compared to angle in grinding? How get tool at correct angle? The movement? Wire edge? How removed? If a still keener edge is desired?

How is a gouge whetted?

Explain fully how to tell when a tool is sharp.

Preparation for Demonstration; Assignment for Lesson 9

Essentials, Read Sections 62, 63.

Demonstration

Sharpening scraper.

Work

Complete any unfinished drawings.

Make other selections in either Groups VII or VIII.

GRADE VIII.
(Mechanical Drawing)

Lesson 9.

Recitation

Order of procedure in laying out duplicate parts?

Advantages of this method over that of laying out each part singly? Illustrate?

Why use a scraper? Common mistake of beginners about mill-planed stock?

Position of the hands in scraping?

The steps in sharpening a scraper?

Assignment for Lesson 10

Essentials, Sections 76, 77.

Demonstration

The essential points in making stock bills.

Work

Finish any unfinished drawings and make out stock bills for working drawings made.

[116]

GRADE VIII.
(Mechanical Drawing)

Lesson 10.

Recitation

Joinery? What is meant by the term?

Illustrate how direction of grain affects the planning of the relation of the parts.

Why join faces together rather than other surfaces?

What about consecutive measurements? Gaging, lining, etc.?

What is meant by superposition?

In fitting parts together how tell where the different parts belong?

What is visualizing? How may one make it easier to visualize?

Knife vs. pencil in laying out?

Sawing joints in hard wood? In soft wood?

Assignment for Lesson 11

Essentials, Review Sections 14, 64.

Demonstration

The essential points in figuring costs from stock bills made in last lesson.

Work—

Finish any unfinished stock bills and figure costs.

GRADE VIII.
(Mechanical Drawing)

Lesson 11.

Recitation

Back-saw? Purpose? Crosscut-saw or rip-saw? Set?

Explain fully how to hold, start, cut, stop cutting across the grain.

Explain fully when cutting along the grain. (Cutting tenons.)

Accurate sawing to a line? Explain?

How saw when paring is to be done?

Sandpapering, when? Why?

Sandpaper block? Its purpose? Size as compared to paper?

Sanding arrises? When? How?

Sanding curved surfaces?

Sanding parts that go to make up joints? Why not?

Numbers on the back of sandpaper sheet?

[117]

Assignment for Lesson 12

Essentials, Sections 58, 61.

Demonstration

The essential points in structural and decorative design of some project involving groove or cross-lap joint or both, elected by the class, (book-rack, etc.) or assigned by instructor.

Work

Each boy make at least three modifications in outline and decoration of project elected by class, or assigned by instructor.

Rapid workers will finish any unfinished work.

GRADE VIII.
(Mechanical Drawing)

Lesson 12.

Recitation

Explain fully the manner of laying out and working a cylinder.

How does a carpenter lay out a cylinder with the steel square?

What is meant by modeling in woodwork?

State the steps in laying out and working a hammer-handle.

Assignment for Lesson 13

Essentials, Review Sections 71, 72.

Demonstration

None.

Work

Finish any unfinished work.

Rapid workers make a full sized pattern of designed part and fill in decorative design.

Make a dimensioned working drawing of the project designed last lesson.

Make out stock bill for the same and figure estimate of cost on the reverse side.

GRADE VIII.
(Woodworking Group VII.)

Lesson 13.

Recitation

Screws—How made and sold?

How is the size designated?

How are blued screws made? What are the two kinds of screws?

[118]

How are the wood parts prepared for wood-screws? In soft wood? In hard wood?

Preparation for Demonstration; Assignment for Lesson 14

Essentials, Read Sections 78, 79.

Demonstration

The essential points in making Dado Exercise.

Work

All pupils square up exercise piece and begin making the joints.

Note:—No definite size is required for exercise piece but it must be square and true.

GRADE VIII.
(Woodworking Group VII.)

Lesson 14.

Recitation

Dado? What is this joint used for? Grooves?

Develop fully the steps taken in making the dado.

Develop fully the steps taken in making the stub tenon and mortise.

Assignment for Lesson 15

Essentials, Sections 73, 74, 75.

Demonstration

Talk on getting out stock. Look over small pieces first.

Use narrowest boards that will do; 12″ boards are scarce; keep them for taboret tops, never use them for legs.

Use try-square and straight-edge and saw to the lines carefully ripping first then crosscutting to the ripped part only. Leave on the board all but just what you need. Use your stock bill. If others are waiting for stock, saw only one piece and work on that while they are getting a piece. Watch your thicknesses. Never discard a piece that has been partly worked, without permission. Bevels or chamfers are made after joints. Mill-marks must come off before parts to joints are fitted; why?

Work

Finish the exercise pieces, leave them on instructor’s desk to be graded and begin on Group VII—first choice.

Instructor will want to see the pieces after the various steps.

[119]

GRADE VIII.
(Woodworking Group VII.)

Lesson 15.

Recitation

Glue? Of what and how made?

Glue-pots? Describe. Why two pots?

How prepare glue for use? Why soak it?

How apply the glue? Thick or thin? Why warm the wood?

Cold glues? Advantages and disadvantages? Why do they thicken and how thinned? In cold weather?

Clamps? Why used? Two kinds?

Names of four parts to hand clamp? How adjust?

How could a good substitute be made for cabinet clamp?

Why glue size end grain? What is glue size?

Rubbed glue joint is how made?

Assignment for Lesson 16

Essentials, Sections 147, 148.

Demonstration

None.

Work

Continue with Group VII Woodwork.

GRADE VIII.
(Woodworking Group VII.)

Lesson 16.

Recitation

Two reasons for putting finish on wood?

Six kinds of materials used?

Brushes? Of what made?

Dusters? The edges of tracing brushes?

Cleaning shellac brushes? Varnish brushes?

Care of brushes from day to day?

The best alcohol or shellac cans? Cans for delicate woods?

Cleaning wire?

Preparation for Demonstration; Assignment for Lesson 17

Essentials, Section 149.

Demonstration

[120]

The essential points in using brush. Section 149.

(That no point may be omitted have one boy with open book enumerate the steps, Section 149.)

Work

Continue Group VII, Woodwork.

GRADE VIII.
(Woodworking Group VII.)

Lesson 17.

Recitation

State the seven steps in using a brush.

Feathering strokes? What? How taken?

Edges or surfaces first? Working out over edges?

Picking up surplus liquid?

What is the order in working finish on internal corner, panels, stiles, rails?

Horizontal or vertical position preferred?

Tracing? What?

Preparation for Demonstration; Assignment for Lesson 18

Essentials, Sections 150, 151.

Demonstration

The essential points in applying filler.

Work

Continue Group VII, Woodwork.

GRADE VIII.
(Woodworking Group VII.)

Lesson 18.

Recitation

Fillers? Two kinds and their uses?

Are fillers absolutely necessary? Explain.

Liquid filler? How applied and where used mostly?

Why is shellac used on close grained woods in fine cabinet work for first coat instead of filler or varnish?

Paste filler? Of what made? The cause of contrasts in the grain of filled wood?

Four steps in filling a coarse grained surface?

How long ought filler to stand before applying other coatings?

Caution about excelsior and rags used in filling?

Assignment for Lesson 19

Essentials, Review Sections 152, 153.

[121]

Demonstration

None.

Work

Continue Group VII, Woodwork applying finish as needed.

GRADE VIII.
(Woodworking Group VII.)

Lesson 19.

Recitation

Three kinds of stains?

Advantages and disadvantages of water stain?

Advantages and disadvantages of oil stain?

Advantages and disadvantages of spirit stain?

How is water stain applied? How thinned?

How is oil stain applied? How thinned?

How is spirit stain applied? How thinned?

Fumed oak? What is it and how obtained?

Is waxing an old or new finish? How made by our ancestors?

Advantages and disadvantages of wax finishes?

State five steps in applying a waxed finish.

Preparation for Demonstration; Assignment for Lesson 20

Essentials, Sections 154, 155, 156.

Demonstration

The essential points in shellacing preparatory to waxing.

The order in producing a waxed finish with and without shellac; with and without water stain.

Work

Continue Group VII.

GRADE VIII.
(Woodworking Group VII.)

Lesson 20.

Recitation

The two kinds of varnish?

Why do varnishes vary in price?

What are rubbing varnishes?

Necessary conditions for good varnishing? Why these conditions?

Shellac? Where found? What is it? How prepared?

Two kinds of shellac?

[122]

White shellac, how made and where used especially?

Orange shellac, advantages and disadvantages?

Caution about applying shellac?

Why is shellac sometimes used before varnish and wax?

Describe method of producing egg-shell gloss shellac finish.

Assignment for Lesson 21

Essentials, Section 113. Instructor explain the mounted specimens of wood illustrating tree structure.

Demonstration

None.

Work

Continue Group VII.

GRADE VIII.
(Woodworking Group VII.)

Lesson 21.

Recitation

Tree structure? A tree is cut in three directions for study, what are they? How does each section lie?

If a young sprout should be cut across what three layers of tissue?

If tissue is magnified how would it appear to be composed?

If the end of a log is examined how will it have changed from that of the sprout?

Name six divisions of tissue of the log beginning at the center.

What makes the rings and why are some light and some dark?

Is a year’s growth composed of the dark or the light rings or both? Why are the centers of the rings sometimes out of the log’s center?

General divisions of tissue are Pith, Wood, Bark.

How is heart-wood formed? Its purpose?

How is sap-wood formed? Its purpose?

Where does the actual growing take place?

What layers of tissue are on either side of the cambium?

What is the inner side of the bark called?

What is cortex?

Medullary rays? Of what composed? Purpose?

What makes grain in sawed lumber?

Knots?

[123]

Assignment for Lesson 22

Essentials, Section 114.

Demonstration

None.

Work

Continue Group VII.

GRADE VIII.
(Woodworking Group VII.)

Lesson 22.

Recitation

What is the life blood of a tree called?

Beginning with the tree in early spring, explain the movement or lack of movement of the sap.

The effect upon the tree of the sap’s movement in the spring?

What part do the leaves perform in the digestive process?

Chlorophyll? Assimilation?

The sap circulation from mid-summer to the end of summer?

Effect upon the leaves?

What becomes of the descending sap?

Does the upward movement of the sap and the downward movement of the changed sap take place at the same time?

Do the leaves drop because the sap descends or does the sap descend because the leaves drop off?

Assignment for Lesson 23

Essentials, Sections 115, 116, 117. Instructor explain mounted specimens illustrating shrinkage.

Demonstration

None.

Work

Continue Group VII.

Pupils, finishing projects in Group VII now, may get out stock and begin squaring it up for Group VIII.

GRADE VIII.
(Woodworking Group VII.)

Lesson 23.

Recitation

Respiration is another name for breathing. How does it apply to plants?

[124]

Animals breath in oxygen and breath out carbonic acid gas.

How about plants?

Carbonic acid gas is poisonous. Is it harmful to have plants in the house? Explain.

How do trees breathe?

Transpiration? What is it and where and why does it take place?

What per cent. of living cell is water? Where is the water contained?

Which has more water sap-wood or heart-wood?

Which is stronger green or seasoned wood?

Shrinkage? What makes a plank cut from a tree shrink?

Could a plank shrink without having water in the interior of the cells?

Explain why a plank shrinks across the grain but not along as the eye can see.

Two reasons a log shrinks more along the rings than along the radii.

The effect of this greater shrinkage along the rings?

Which shrinks more, sap-wood or heart-wood? Effect on a plain sawed board? (On a quarter-sawed board?)

Which shrinks more soft or hard wood?

Assignment for Lesson 24

Essentials, Sections 118, 119, 120. Instructor explain mounted specimens illustrating grain formations—straight, curled, bird’s eye.

Demonstration

None.

Work

Continue Group VII.

Pupils, finishing projects in Group VII now, may get out stock and begin squaring it up for Group VIII.

GRADE VIII.
(Woodworking Group VIII.)

Lesson 24.

Recitation

What is the weight or specific gravity of wood? Oak or pine?

Why does wood float then?

Upon what two things does the weight of any given piece of wood depend? Does it ever vary? Why?

[125]

Why are some kinds of wood heavier than others similarly seasoned?

Is a heavy piece stronger than a light piece of the same size?

What is meant by strength, elasticity, hardness, toughness, cleavability?

What is meant by straight grain? Cross-grained? Twisted?

Causes?

What makes bird’s eyes in some woods?

Preparation for Demonstration; Assignment for Lesson 25

Essentials, Sections 80, 81, 82.

Demonstration

Recall steps in squaring up rough stock, use of winding sticks and other tests.

The essential points in laying out and working cross-lap joint by first method.

Work

All pupils lay aside present work and square up stock for, and make, cross-lap exercise piece.

When joint is completed finish any unfinished work of Group VII, then begin Group VIII.

GRADE VIII.
(Woodworking Group VIII.)

Lesson 25.

Recitation

Cross-lap joint? Why plane stock for the two parts in one piece?

What about the face marks in case this is done? Why?

The difference in the two methods given?

State the ten steps in making the joint by the first method.

In the second method how are the grooves and their widths determined?

What about the location of the grooves with reference to the faces?

What about the faces in gaging for depth of groove? Why?

Assignment for Lesson 26

Essentials, Sections 121, 122 to the bottom of page 130.

Demonstration

None.

Work

Finish exercise piece and continue as in lesson 24.

[126]

GRADE VIII.
(Woodworking Group VIII.)

Lesson 26.

Recitation

Lumbering? Two kinds and their differences?

The camp; selecting trees; felling; trimming; cutting to length?

Skidding?

Transportation of logs to mill?

By cars, splash dam, rafts, river driving.

Milling? Location; log-booms; soaking logs in mill-pond?

Three kinds of saws? Advantages and disadvantages of each?

Timbers, planks, and boards?

Assignment for Lesson 27

Essentials, Sections 122 continued, 123, 124.

Demonstration

None.

Work

Continue Group VIII.

GRADE VIII.
(Woodworking Group VIII.)

Lesson 27.

Recitation

Lumbering? At the mill? The log-slide, inspection, measuring, kicking logs out of slip on log-deck.

Sawing process in detail? 1. Log placed on carriage and dogged and slab with a few boards taken off. 2. A half turn and slab and few boards taken. 3. A quarter turn and nearly all sawed up. 4. Half turn and all sawed up.

The live rolls? Edgers? Trimmers or jump saws? Butting saws?

Slasher? It is used on slabs. What becomes of slabs?

Quarter-sawing? Why and how?

Why do quarter-sawed boards not warp like plain sawed?

Uses for waste wood? Burners?

Assignment for Lesson 28

Essentials, Sections 125, 126, 127.

Demonstration

None.

Work

Continue Group VIII.

[127]

GRADE VIII.
(Woodworking Group VIII.)

Lesson 28.

Recitation

How is sawed lumber transported?

Two methods of seasoning? Why and how stick lumber?

Air seasoning? Time required? Depends upon what?

Kiln drying? Why? Temperature of kiln?

How do soft and hard woods differ as to methods of seasoning? Time required for each?

Checks in hard wood? Why? How prevented?

Case hardening? Why? How prevented?

Clear lumber? Dressed lumber? Abbreviation for dressed lumber?

How is lumber computed and sold? Shingles, lath, and moldings?

How would you specify lumber in an order?

Assignment for Lesson 29

Essentials, Review Appendix III, Sections 2, 3, 4, 5, 6, and Sections 26, 27, 28, 29, 30, 31, 32, 34.

Demonstration

None.

Work

Group VIII.

GRADE VIII.
(Woodworking Group VIII.)

Lesson 29.

Review

Instructor will place six questions on the blackboard, selected from Assignment for this Lesson.

Pupils will write the answers to five of these, making complete statements in each case so that the instructor will know what is being discussed without referring to the question list. Instructor will insist upon full sentences—subject and predicate—that the pupil may not form bad habits in his English. Have uniform headings. Insist on neatness.

Assignment for Lesson 30

Essentials, Review Sections 46, 47, 48, 49, 50, 51, 52, 53, 54, 55, 56, 57, 62, 63.

[128]

Demonstration

None.

Work

Group VIII.

GRADE VIII.
(Woodworking Group VIII.)

Lesson 30.

Review

Instructor will place six questions on the blackboard, selected from Assignment for this Lesson.

Assignment for Lesson 31

Essentials, Review Sections 76, 77, 14, 64, 58, 61, 71, 72.

Demonstration

None.

Work

Group VIII.

GRADE VIII.
(Woodworking Group VIII.)

Lesson 31.

Review

Instructor will place six questions on the blackboard, selected from Assignment for this Lesson.

Assignment for Lesson 32

Essentials, Review Sections 78, 79, 73, 74, 75, 147, 148, 149.

Demonstration

None.

Work

Group VIII.

GRADE VIII.
(Woodworking Group VIII.)

Lesson 32.

Review

Instructor will give each pupil one question, for oral answer, selected from Assignment for this Lesson.

Assignment for Lesson 33

Essentials, Review Sections 150, 151, 152, 153, 154, 155, 156, 113.

Demonstration

None.

Work

Group VIII.

[129]

GRADE VIII.
(Woodworking Group VIII.)

Lesson 33.

Review

Instructor will give each pupil one question for oral answer, selected from Assignment for this Lesson.

Assignment for Lesson 34

Essentials, Review Sections 113, 114, 115, 116, 117, 118, 119, 120, 80, 81, 82.

Demonstration

None.

Work

Group VIII.

GRADE VIII.
(Woodworking Group VIII.)

Lesson 34.

Review

Oral test from Assignment for this Lesson.

Assignment for Lesson 35

Essentials, Review Sections 121, 122, 123, 124, 125, 126, 127.

Demonstration

None.

Work

Group VIII.

GRADE VIII.
(Woodworking Group VIII.)

Lesson 35.

Review

Oral test from Assignment for this Lesson.

Assignment for Lesson 36

This closes the text work for the year.

Demonstration

None.

Work

Those finishing projects will assist slower pupils or do any necessary work about the shop such as making bench-hooks, scraping bench tops, etc. All pupils are to be kept busy at some work until the last day. The last week, each class will polish tools.


[130]

CHAPTER VIII.
LESSON OUTLINES FOR GRADE IX.

From the detailed outlines of the grammar school the high school instructor will be enabled to detail his lessons to suit his time allotment and periods of work.

GROUP IX.

First Week:

Review “Squaring up of Stock.” Rough and mill-planed. Essentials of Woodworking, Chapter III.

Square up stock for joint exercises.

Demonstrate mortise and tenon, keyed. Essentials, Sections 87, 88, 89, 90, 91.

Pupils make mortise and tenon, keyed.

Recitation on same.

Second Week:

Square up stock for exercise in mortise and tenon, blind, and miter joint.

Demonstrate mortise and tenon, blind. Essentials, Sections 92, 93, 94, 95, 96, 97, 98.

Pupils make mortise and tenon, blind, and miter joint.

Recitation.

Third Week:

Prepare stock for modeling exercise.

Demonstrate modeling—hammer-handle. Essentials, Section 61.

Pupils make hammer-handle.

Recitation.

Fourth Week:

Saw stock for glue joint. (Consult working drawings.)

Demonstration of glue joint. Essentials, Sections 83, 84, 85, 86.

Pupils make glue joints.

Recitation.

[131]

Fifth Week:

Review getting out stock in quantity.

Demonstrate use of Band-saw.

Pupils get out stock for projects.

Recitation.

Sixth Week:

Review “Laying out and Working Duplicate Parts.” Essentials, Sections 62, 77.

Demonstrate Laying out and Working Duplicate Parts.

Pupils proceed as their work allows.

Recitation.

Seventh Week:

Demonstrate use of Jig-saw.

Pupils use Jig-saw as their work necessitates.

Recitation.

Eighth Week:

Demonstrate clamping framed structures.

Pupils clamp as their work allows.

Recitation.

Ninth Week:

Preparation for “Finishing.” Essentials, Review Sections 147, 148, 149, 150, 151.

Demonstrate Preparation of surfaces for finish.

Recitation.

Tenth Week:

Demonstration of application first coats. Essentials, Sections 154, 155, 156, 157, 158.

Pupils apply finish as work allows.

Recitation.

Eleventh Week:

Demonstrate other finishing coats. Essentials, Section 159.

Pupils proceed as work allows.

Recitation.

Twelfth Week:

Demonstrate patching. Essentials, Section 160.

Recitation.

[132]

Thirteenth Week:

Study of Woods. Essentials, Sections 128, 129.

Recitation.

Fourteenth Week:

Study of Woods. Essentials, Sections 130, 131, 132.

Recitation.

Fifteenth Week:

Study of Woods. Essentials, Sections 133, 134, 135, 136.

Recitation.

Sixteenth Week:

Study of Woods. Essentials, Sections 137, 138, 139, 140, 141.

Recitation.

Seventeenth Week:

Study of Woods. Essentials, Sections 142, 143, 144, 145, 146.

Recitation.

Eighteenth Week:

Finish up.


[133]

PART III.
WORKING DRAWINGS.


[134-
135]

PROJECTS FOR BEGINNING WOODWORK AND MECHANICAL DRAWING.

LIST OF PLATES.


[136]

Cutting board

Group I.

Plate 1.

CUTTING BOARD


[137]

Group II.

Plate 2.

COUNTING BOARD

THRU BORE 38″ HOLES AT +
FROM 38″ DOWEL STOCK SAW 3 PIECES EACH 114″ LONG
POINT THE ENDS 116″ EACH


[138]

Group II.

Plate 3.

COAT AND HAT RACK

316″ HOLES FOR SCREWS AT ×
212″ WIRE COAT HOOKS AT +


[139]

Group II.

Plate 4.

KEY RACK

316″ HOLES FOR SCREWS AT ×
34″ BRASS CUP HOOKS AT +


[140]

Group III.

Plate 5.

RING TOSS


[141]

Group III.

Plate 6.

GAME BOARD

FROM 38″ DOWEL STOCK MAKE 32 PEGS
POINT ENDS 116″ EACH

SOLITAIRE—PLACE ALL PEGS IN THE BOARD—JUMP PEGS ONE OVER ANOTHER ALONG STRAIGHT LINES, HORIZONTALLY, VERTICALLY OR DIAGONALLY—PLAN THE PLAYS SO THAT THE FINAL PEG TO BE REMOVED WILL LAND JUMPER IN CENTRAL HOLE.


[142]

Group III.

Plate 7.

SPOOL HOLDER

POINT TOP OF EACH
DOWEL 116


[143]

Group III.

Plate 8.

LAUNDRY REGISTER

SHIRTS
COLLARS
CUFFS
U-SHIRTS
DRAWERS
HANDK’FS
SOCKS
UNION-S’T
PAJAMAS
EXTRAE

AT EACH + BORE A 316″ HOLE 18″ DEEP

FROM 316″ DOWEL STOCK SAW 10 PEGS 1″ LONG POINT THE ENDS 116

 


[144]

Group IV.

Plate 9.

SLEEVE BOARD

SECTION AT A-B


[145]

Group IV.

Plate 10.

BREAD BOARD

SECTION
AT A-B


[146]

Group IV.

Plate 11.

CAKE BOARD OR
CROCK COVER

SECTION AT A-B


[147]

Group IV.

Plate 12.

SCOURING BOARD

CROSS SECTION AT C-D

TO LOCATE F1 AND F2
1. LOCATE POINT “D”.
2. TAKE “R” = “O-B” AND
DRAW. F1E + EF2 = AB


[148]

Group IV.

Plate 13.

COAT HANGER

SECTION
AT A-B

SWEEP ARCS = 1678″ AND 2718


[149]

Group V.

Plate 14.

NAIL BOX


[150]

Group V.

Plate 15.

KNIFE POLISHING BOX


[151]

Group V.

Plate 16.

KNIFE AND FORK BOX


[152]

Group V.

Plate 17.

BIRD HOUSE


[153]

Group V.

Plate 18.

BROOM HOLDER


[154]

Group V.

Plate 19.

BENCH HOOK
RIGHT AND LEFT HAND


[155]

Group VI.

Plate 20.

TEAPOT BLOCKS (BLANK MODEL—TO BE MODIFIED)

SUGGESTIONS

STOCK—34″ THICK


[156]

Group VI.

Plate 21.

THERMOMETER BACK (BLANK MODEL—TO BE MODIFIED)


[157]

Group VI.

Plate 22.

CALENDAR MOUNT (BLANK MODEL—TO BE MODIFIED)

DESIGNED BY GORDON KELLAR


[158]

Group VI.

Plate 23.

CARD HOLDER (BLANK MODEL—TO BE MODIFIED)

SUGGESTIONS


[159]

Group VI.

Plate 24.

BILL FILE (BLANK MODEL—TO BE MODIFIED)

30d WIRE BOX NAIL

GLUE


[160]

Group VI.

Plate 25.

HANDKERCHIEF BOX (BLANK MODEL—TO BE MODIFIED)

MODIFIED EDGES

TOP-BOTTOM TOP-BOTTOM TOP


[161]

Group VI.

Plate 26.

GLOVE BOX (BLANK MODEL—TO BE MODIFIED)

MODIFIED EDGES
TOP-BOTTOM
TOP-BOTTOM
TOP
TOP-BOTTOM


[162]

Group VII.

Plate 27.

GROOVE JOINT (PREPARATORY TO GROUP VII)

GAGE SETTING

GAGE SETTING SAW HERE DADO JOINT GAGE SETTING


[163]

Group VII.

Plate 28.

BOOK RACK

ENDS HOUSED INTO BASE 14

TO SCREW


[164]

Group VII.

Plate 29.

NECKTIE RACK


[165]

Group VII.

Plate 30.

MAGAZINE RACK

ENDS HOUSED IN BASE


[166]

Group VII.

Plate 31.

FOOT STOOL


[167]

Group VII.

Plate 32.

PAPER OR MAGAZINE WALL RACK

DETAIL
OF SHELF


[168]

Group VII.

Plate 33.

WALL SHELF


[169]

Group VII.

Plate 34.

TABLE OR DESK SHELVES


[170]

Group VII.

Plate 35.

TABORET


[171]

Group VII.

Plate 36.

STOOL


[172]

Group VIII.

Plate 37.

CROSS-LAP JOINT (PREPARATORY TO GROUP VIII)

SAW KERF

GAGE SETTING GAGE SETTING


[173]

Group VIII.

Plate 38.

BOOK TROUGH


[174]

Group VIII.

Plate 39.

WOODWORK FOR
ELECTRIC CLUSTER

CEILING BLOCK


[175]

Group VIII.

Plate 40.

ELECTRIC TABLE OR DESK LIGHT


[176]

Group VIII.

Plate 41.

CALENDAR MOUNT OR MEMO BOARD


[177]

Group VIII.

Plate 42.

HALL RACK OR
MIRROR FRAME

10 × 18 MIRROR OR POSTER PICTURE

14 STOCK FOR BACKING

HOOKS AT × FOR
HALL RACK


[178]

Group VIII.

Plate 43.

PICTURE FRAME

PERRY PICTURES
# 756 AND 757
SUGGESTED


[179]

Group VIII.

Plate 44.

TABORET


[180]

Group VIII.

Plate 45.

CHINA WALL RACK


[181]

Group VIII.

Plate 46.

PEDESTAL


[182]

Supplementary.

Plate 47.

SUGGESTIVE TREATMENTS FOR STOOL


[183]

Supplementary.

Plate 48.

SUGGESTIVE TREATMENTS FOR NECKTIE RACK

HOUSED JOINT

DADO JOINT


[184]

Supplementary.

Plate 49.

SUGGESTIVE TREATMENTS FOR BOOK RACK

HOUSED JOINT HOUSED

DESIGN BY CLEVELAND ELEMENTARY IND. SCHOOL.

DADO DADO


[185]

Introductory Sheet, Drawing.

Plate 50.

ABCDEFGHIJKLMN

OPQRSTUVWXYZ

123456789

90°30° 60°45°

ABC

0123

ABC

0123


[186]

Geometric Sheet, Drawing.

Plate 51.

HEXAGON

SIX-POINT STAR

OCTAGON

ELLIPSE

 


[187]

ADVANCED PROJECTS IN WOODWORK.

LIST OF PLATES.


[188]

Group IX.

Plate 1.

EXERCISE (PREPARATORY TO GROUP IX)

KEYED TENON

BLIND MORTISE AND TENON


[189]

Group IX.

Plate 2.

EXERCISE (PREPARATORY TO GROUP IX)

GLUE JOINT-DOWELING

MITER JOINT


[190]

Group IX.

Plate 3.

EXERCISE PREPARATORY TO GROUP IX
(CHOOSE ONE)

HANDLE FOR BALL PEEN HAMMER

HANDLE FOR CLAW HAMMER


[191]

Group IX.

Plate 4.

NECKTIE RACK


[192]

Group IX.

Plate 5.

FOOT STOOL


[193]

Group IX.

Plate 6.

BOOK RACK


[194]

Group IX.

Plate 7.

UPHOLSTERED STOOL


[195]

Group IX.

Plate 8.

LEG REST


[196]

Group IX.

Plate 9.

CRICKET


[197]

Group IX.

Plate 10.

WALL SHELVES


[198]

Group IX.

Plate 11.

STOOL


[199]

Group IX.

Plate 12.

TABORET


[200]

Group IX.

Plate 13.

TABORET


[201]

Group IX.

Plate 14.

SMALL TABLE


[202]

Group IX.

Plate 15.

TABORET


[203]

Group IX.

Plate 16.

PIANO BENCH


[204]

Group IX.

Plate 17.

PIANO BENCH

DETAIL OF
JOINT AT A-B
ENLARGED


[205]

Group IX.

Plate 18.

BOOK STAND

END OF
LOWER SHELF

END OF
MIDDLE SHELVES

DETAIL OF JOINT
AT A-B


[206]

Group IX.

Plate 19.

UMBRELLA STAND

COPPER
DRIP PAN


[207]

Group IX.

Plate 20.

UMBRELLA STAND


[208]

Group IX.

Plate 21.

JARDINIERE STAND


[209]

Group IX.

Plate 22.

MAGAZINE STAND


[210]

Group IX.

Plate 23.

ROMAN SEAT


[211]

Plate 24.

LIGHT STAND


[212]

Group IX.

Plate 25.

STOOL

DETAIL
OF CORNER


[213]

Group IX.

Plate 26.

BOOK TROUGH

DETAIL OF TROUGH BACK


[214]

Group IX.

Plate 27.

SCREEN


[215]

Group IX.

Plate 28.

TEA TABLE


[216]

Group IX.

Plate 29.

HALL RACK

MIRROR


[217]

Group IX.

Plate 30.

WALL CHINA RACK

DETAIL OF A-B


[218]

Group IX.

Plate 31.

SIDE CHAIR


[219]

Group IX.

Plate 32.

ARM CHAIR


[220]

Group IX.

Plate 33.

MORRIS CHAIR


[221]

Group IX.

Plate 34.

ELECTRIC READING LAMP

SECTION AT A-B


[222]

Group IX.

Plate 35.

PEDESTAL

EGG AND DART

SECTION AT A-B


[223]

Group IX.

Plate 36.

OCCASIONAL ROCKER


[224]

Group IX.

Plate 37.

MISSION CHAIR


[225]

Group IX.

Plate 38.

DROP LEAF TABLE

DETAIL OF
JOINT AT A-B


[226]

Group X.

Plate 39.

EXERCISE—PREPARATORY TO GROUP X

MORTISE AND TENON-RABBETED HAUNCHED MORTISE AND TENON-GROOVED

SAW KERF SAW KERF


[227]

Group X.

Plate 40.

EXERCISE—PREPARATORY TO GROUP X

THRU MULTIPLE DOVETAIL HALF-BLIND DOVETAIL


[228]

Group X.

Plate 41.

WASTE PAPER BOX


[229]

Group X.

Plate 42.

WALL CABINET

DETAIL OF SHELF
AT A-B


[230]

Group X.

Plate 43.

TELEPHONE TABLE


[231]

Group X.

Plate 44.

SEWING CABINET


[232]

Group X.

Plate 45.

WRITING TABLE


[233]

Group X.

Plate 46.

CHAFING DISH STAND


[234]

Group X.

Plate 47.

CABINET


[235]

Group X.

Plate 48.

LIBRARY TABLE


[236]

Group X.

Plate 49.

WRITING DESK

COMMERCIAL DESIGN


[237]

Group X.

Plate 50.

DRESSING TABLE


[238]

Group X.

Plate 51.

LINEN CHEST

SECTION AT A-B



Transcriber’s Notes

Depending on the hard- and software used and their settings, not all elements may display as intended. Some forms, tables and illustrations may not display properly in a narrow window or on a narrow screen.

Except as mentioned under Changes made below, the language used in the source document has been retained, including unusual, archaic and inconsistent spelling, hyphenation, capitalisation, etc. Errors, discrepancies and ambiguities in (cost) calculations have not been corrected unless mentioned below.

Page 74, Fig. 8: the scale at the top of the drawing represents 3′.

Page 78-79, price calculations: The source document gives .00 for the price of the chisel-board.

Page 110, (Mechanical Drawing 12 weeks ...: there is no closing bracket in the source document.

Page 211, Plate 24: the Group number is not included in the caption.

Changes made:

Illustrations, forms, tables etc. have been moved out of text paragraphs.

Some obvious minor punctuation and typographical errors have been corrected silently. × and x in multiplications and dimensions have been standardised to ×. In several forms and tables some of the ditto marks (“) have been replaced with the dittoed text.

Part III: project names, project part names and construction instructions from the drawings have been transcribed for the sake of clarity and legibility; measurements and descriptions of minor constructive elements such as screws and nails have only been transcribed when needed. The most important text elements from the illustrations in the text chapters have been transcribed as well in a dashed box.

Page 38, caption with Fig. 4: October 1808 changed to October, 1908

Page 97, paragraph starting Instructor assigns ...: indented like similar paragraphs.

Page 128-129, Heading Woodworking Group VIII considered to be part of heading Grade VIII as on previous pages.

Page 155: STOCK--34′ THICK changed to STOCK--34″ THICK

*** END OF THE PROJECT GUTENBERG EBOOK CORRELATED COURSES IN WOODWORK AND MECHANICAL DRAWING ***
Updated editions will replace the previous one—the old editions will be renamed.
Creating the works from print editions not protected by U.S. copyright law means that no one owns a United States copyright in these works, so the Foundation (and you!) can copy and distribute it in the United States without permission and without paying copyright royalties. Special rules, set forth in the General Terms of Use part of this license, apply to copying and distributing Project Gutenberg™ electronic works to protect the PROJECT GUTENBERG™ concept and trademark. Project Gutenberg is a registered trademark, and may not be used if you charge for an eBook, except by following the terms of the trademark license, including paying royalties for use of the Project Gutenberg trademark. If you do not charge anything for copies of this eBook, complying with the trademark license is very easy. You may use this eBook for nearly any purpose such as creation of derivative works, reports, performances and research. Project Gutenberg eBooks may be modified and printed and given away—you may do practically ANYTHING in the United States with eBooks not protected by U.S. copyright law. Redistribution is subject to the trademark license, especially commercial redistribution.
START: FULL LICENSE
THE FULL PROJECT GUTENBERG LICENSE
PLEASE READ THIS BEFORE YOU DISTRIBUTE OR USE THIS WORK
To protect the Project Gutenberg™ mission of promoting the free distribution of electronic works, by using or distributing this work (or any other work associated in any way with the phrase “Project Gutenberg”), you agree to comply with all the terms of the Full Project Gutenberg™ License available with this file or online at www.gutenberg.org/license.
Section 1. General Terms of Use and Redistributing Project Gutenberg™ electronic works
1.A. By reading or using any part of this Project Gutenberg™ electronic work, you indicate that you have read, understand, agree to and accept all the terms of this license and intellectual property (trademark/copyright) agreement. If you do not agree to abide by all the terms of this agreement, you must cease using and return or destroy all copies of Project Gutenberg™ electronic works in your possession. If you paid a fee for obtaining a copy of or access to a Project Gutenberg™ electronic work and you do not agree to be bound by the terms of this agreement, you may obtain a refund from the person or entity to whom you paid the fee as set forth in paragraph 1.E.8.
1.B. “Project Gutenberg” is a registered trademark. It may only be used on or associated in any way with an electronic work by people who agree to be bound by the terms of this agreement. There are a few things that you can do with most Project Gutenberg™ electronic works even without complying with the full terms of this agreement. See paragraph 1.C below. There are a lot of things you can do with Project Gutenberg™ electronic works if you follow the terms of this agreement and help preserve free future access to Project Gutenberg™ electronic works. See paragraph 1.E below.
1.C. The Project Gutenberg Literary Archive Foundation (“the Foundation” or PGLAF), owns a compilation copyright in the collection of Project Gutenberg™ electronic works. Nearly all the individual works in the collection are in the public domain in the United States. If an individual work is unprotected by copyright law in the United States and you are located in the United States, we do not claim a right to prevent you from copying, distributing, performing, displaying or creating derivative works based on the work as long as all references to Project Gutenberg are removed. Of course, we hope that you will support the Project Gutenberg™ mission of promoting free access to electronic works by freely sharing Project Gutenberg™ works in compliance with the terms of this agreement for keeping the Project Gutenberg™ name associated with the work. You can easily comply with the terms of this agreement by keeping this work in the same format with its attached full Project Gutenberg™ License when you share it without charge with others.
1.D. The copyright laws of the place where you are located also govern what you can do with this work. Copyright laws in most countries are in a constant state of change. If you are outside the United States, check the laws of your country in addition to the terms of this agreement before downloading, copying, displaying, performing, distributing or creating derivative works based on this work or any other Project Gutenberg™ work. The Foundation makes no representations concerning the copyright status of any work in any country other than the United States.
1.E. Unless you have removed all references to Project Gutenberg:
1.E.1. The following sentence, with active links to, or other immediate access to, the full Project Gutenberg™ License must appear prominently whenever any copy of a Project Gutenberg™ work (any work on which the phrase “Project Gutenberg” appears, or with which the phrase “Project Gutenberg” is associated) is accessed, displayed, performed, viewed, copied or distributed:
This eBook is for the use of anyone anywhere in the United States and most other parts of the world at no cost and with almost no restrictions whatsoever. You may copy it, give it away or re-use it under the terms of the Project Gutenberg License included with this eBook or online at www.gutenberg.org. If you are not located in the United States, you will have to check the laws of the country where you are located before using this eBook.
1.E.2. If an individual Project Gutenberg™ electronic work is derived from texts not protected by U.S. copyright law (does not contain a notice indicating that it is posted with permission of the copyright holder), the work can be copied and distributed to anyone in the United States without paying any fees or charges. If you are redistributing or providing access to a work with the phrase “Project Gutenberg” associated with or appearing on the work, you must comply either with the requirements of paragraphs 1.E.1 through 1.E.7 or obtain permission for the use of the work and the Project Gutenberg™ trademark as set forth in paragraphs 1.E.8 or 1.E.9.
1.E.3. If an individual Project Gutenberg™ electronic work is posted with the permission of the copyright holder, your use and distribution must comply with both paragraphs 1.E.1 through 1.E.7 and any additional terms imposed by the copyright holder. Additional terms will be linked to the Project Gutenberg™ License for all works posted with the permission of the copyright holder found at the beginning of this work.
1.E.4. Do not unlink or detach or remove the full Project Gutenberg™ License terms from this work, or any files containing a part of this work or any other work associated with Project Gutenberg™.
1.E.5. Do not copy, display, perform, distribute or redistribute this electronic work, or any part of this electronic work, without prominently displaying the sentence set forth in paragraph 1.E.1 with active links or immediate access to the full terms of the Project Gutenberg™ License.
1.E.6. You may convert to and distribute this work in any binary, compressed, marked up, nonproprietary or proprietary form, including any word processing or hypertext form. However, if you provide access to or distribute copies of a Project Gutenberg™ work in a format other than “Plain Vanilla ASCII” or other format used in the official version posted on the official Project Gutenberg™ website (www.gutenberg.org), you must, at no additional cost, fee or expense to the user, provide a copy, a means of exporting a copy, or a means of obtaining a copy upon request, of the work in its original “Plain Vanilla ASCII” or other form. Any alternate format must include the full Project Gutenberg™ License as specified in paragraph 1.E.1.
1.E.7. Do not charge a fee for access to, viewing, displaying, performing, copying or distributing any Project Gutenberg™ works unless you comply with paragraph 1.E.8 or 1.E.9.
1.E.8. You may charge a reasonable fee for copies of or providing access to or distributing Project Gutenberg™ electronic works provided that:
• You pay a royalty fee of 20% of the gross profits you derive from the use of Project Gutenberg™ works calculated using the method you already use to calculate your applicable taxes. The fee is owed to the owner of the Project Gutenberg™ trademark, but he has agreed to donate royalties under this paragraph to the Project Gutenberg Literary Archive Foundation. Royalty payments must be paid within 60 days following each date on which you prepare (or are legally required to prepare) your periodic tax returns. Royalty payments should be clearly marked as such and sent to the Project Gutenberg Literary Archive Foundation at the address specified in Section 4, “Information about donations to the Project Gutenberg Literary Archive Foundation.”
• You provide a full refund of any money paid by a user who notifies you in writing (or by e-mail) within 30 days of receipt that s/he does not agree to the terms of the full Project Gutenberg™ License. You must require such a user to return or destroy all copies of the works possessed in a physical medium and discontinue all use of and all access to other copies of Project Gutenberg™ works.
• You provide, in accordance with paragraph 1.F.3, a full refund of any money paid for a work or a replacement copy, if a defect in the electronic work is discovered and reported to you within 90 days of receipt of the work.
• You comply with all other terms of this agreement for free distribution of Project Gutenberg™ works.
1.E.9. If you wish to charge a fee or distribute a Project Gutenberg™ electronic work or group of works on different terms than are set forth in this agreement, you must obtain permission in writing from the Project Gutenberg Literary Archive Foundation, the manager of the Project Gutenberg™ trademark. Contact the Foundation as set forth in Section 3 below.
1.F.
1.F.1. Project Gutenberg volunteers and employees expend considerable effort to identify, do copyright research on, transcribe and proofread works not protected by U.S. copyright law in creating the Project Gutenberg™ collection. Despite these efforts, Project Gutenberg™ electronic works, and the medium on which they may be stored, may contain “Defects,” such as, but not limited to, incomplete, inaccurate or corrupt data, transcription errors, a copyright or other intellectual property infringement, a defective or damaged disk or other medium, a computer virus, or computer codes that damage or cannot be read by your equipment.
1.F.2. LIMITED WARRANTY, DISCLAIMER OF DAMAGES - Except for the “Right of Replacement or Refund” described in paragraph 1.F.3, the Project Gutenberg Literary Archive Foundation, the owner of the Project Gutenberg™ trademark, and any other party distributing a Project Gutenberg™ electronic work under this agreement, disclaim all liability to you for damages, costs and expenses, including legal fees. YOU AGREE THAT YOU HAVE NO REMEDIES FOR NEGLIGENCE, STRICT LIABILITY, BREACH OF WARRANTY OR BREACH OF CONTRACT EXCEPT THOSE PROVIDED IN PARAGRAPH 1.F.3. YOU AGREE THAT THE FOUNDATION, THE TRADEMARK OWNER, AND ANY DISTRIBUTOR UNDER THIS AGREEMENT WILL NOT BE LIABLE TO YOU FOR ACTUAL, DIRECT, INDIRECT, CONSEQUENTIAL, PUNITIVE OR INCIDENTAL DAMAGES EVEN IF YOU GIVE NOTICE OF THE POSSIBILITY OF SUCH DAMAGE.
1.F.3. LIMITED RIGHT OF REPLACEMENT OR REFUND - If you discover a defect in this electronic work within 90 days of receiving it, you can receive a refund of the money (if any) you paid for it by sending a written explanation to the person you received the work from. If you received the work on a physical medium, you must return the medium with your written explanation. The person or entity that provided you with the defective work may elect to provide a replacement copy in lieu of a refund. If you received the work electronically, the person or entity providing it to you may choose to give you a second opportunity to receive the work electronically in lieu of a refund. If the second copy is also defective, you may demand a refund in writing without further opportunities to fix the problem.
1.F.4. Except for the limited right of replacement or refund set forth in paragraph 1.F.3, this work is provided to you ‘AS-IS’, WITH NO OTHER WARRANTIES OF ANY KIND, EXPRESS OR IMPLIED, INCLUDING BUT NOT LIMITED TO WARRANTIES OF MERCHANTABILITY OR FITNESS FOR ANY PURPOSE.
1.F.5. Some states do not allow disclaimers of certain implied warranties or the exclusion or limitation of certain types of damages. If any disclaimer or limitation set forth in this agreement violates the law of the state applicable to this agreement, the agreement shall be interpreted to make the maximum disclaimer or limitation permitted by the applicable state law. The invalidity or unenforceability of any provision of this agreement shall not void the remaining provisions.
1.F.6. INDEMNITY - You agree to indemnify and hold the Foundation, the trademark owner, any agent or employee of the Foundation, anyone providing copies of Project Gutenberg™ electronic works in accordance with this agreement, and any volunteers associated with the production, promotion and distribution of Project Gutenberg™ electronic works, harmless from all liability, costs and expenses, including legal fees, that arise directly or indirectly from any of the following which you do or cause to occur: (a) distribution of this or any Project Gutenberg™ work, (b) alteration, modification, or additions or deletions to any Project Gutenberg™ work, and (c) any Defect you cause.
Section 2. Information about the Mission of Project Gutenberg™
Project Gutenberg™ is synonymous with the free distribution of electronic works in formats readable by the widest variety of computers including obsolete, old, middle-aged and new computers. It exists because of the efforts of hundreds of volunteers and donations from people in all walks of life.
Volunteers and financial support to provide volunteers with the assistance they need are critical to reaching Project Gutenberg™’s goals and ensuring that the Project Gutenberg™ collection will remain freely available for generations to come. In 2001, the Project Gutenberg Literary Archive Foundation was created to provide a secure and permanent future for Project Gutenberg™ and future generations. To learn more about the Project Gutenberg Literary Archive Foundation and how your efforts and donations can help, see Sections 3 and 4 and the Foundation information page at www.gutenberg.org.
Section 3. Information about the Project Gutenberg Literary Archive Foundation
The Project Gutenberg Literary Archive Foundation is a non-profit 501(c)(3) educational corporation organized under the laws of the state of Mississippi and granted tax exempt status by the Internal Revenue Service. The Foundation’s EIN or federal tax identification number is 64-6221541. Contributions to the Project Gutenberg Literary Archive Foundation are tax deductible to the full extent permitted by U.S. federal laws and your state’s laws.
The Foundation’s business office is located at 809 North 1500 West, Salt Lake City, UT 84116, (801) 596-1887. Email contact links and up to date contact information can be found at the Foundation’s website and official page at www.gutenberg.org/contact
Section 4. Information about Donations to the Project Gutenberg Literary Archive Foundation
Project Gutenberg™ depends upon and cannot survive without widespread public support and donations to carry out its mission of increasing the number of public domain and licensed works that can be freely distributed in machine-readable form accessible by the widest array of equipment including outdated equipment. Many small donations ($1 to $5,000) are particularly important to maintaining tax exempt status with the IRS.
The Foundation is committed to complying with the laws regulating charities and charitable donations in all 50 states of the United States. Compliance requirements are not uniform and it takes a considerable effort, much paperwork and many fees to meet and keep up with these requirements. We do not solicit donations in locations where we have not received written confirmation of compliance. To SEND DONATIONS or determine the status of compliance for any particular state visit www.gutenberg.org/donate.
While we cannot and do not solicit contributions from states where we have not met the solicitation requirements, we know of no prohibition against accepting unsolicited donations from donors in such states who approach us with offers to donate.
International donations are gratefully accepted, but we cannot make any statements concerning tax treatment of donations received from outside the United States. U.S. laws alone swamp our small staff.
Please check the Project Gutenberg web pages for current donation methods and addresses. Donations are accepted in a number of other ways including checks, online payments and credit card donations. To donate, please visit: www.gutenberg.org/donate
Section 5. General Information About Project Gutenberg™ electronic works
Professor Michael S. Hart was the originator of the Project Gutenberg™ concept of a library of electronic works that could be freely shared with anyone. For forty years, he produced and distributed Project Gutenberg™ eBooks with only a loose network of volunteer support.
Project Gutenberg™ eBooks are often created from several printed editions, all of which are confirmed as not protected by copyright in the U.S. unless a copyright notice is included. Thus, we do not necessarily keep eBooks in compliance with any particular paper edition.
Most people start at our website which has the main PG search facility: www.gutenberg.org.
This website includes information about Project Gutenberg™, including how to make donations to the Project Gutenberg Literary Archive Foundation, how to help produce our new eBooks, and how to subscribe to our email newsletter to hear about new eBooks.