The Project Gutenberg EBook of Guida per la costituzione e per l'impianto
di latterie sociali cooperative, by Carlo Besana

This eBook is for the use of anyone anywhere in the United States and most
other parts of the world at no cost and with almost no restrictions
whatsoever.  You may copy it, give it away or re-use it under the terms of
the Project Gutenberg License included with this eBook or online at
www.gutenberg.org.  If you are not located in the United States, you'll have
to check the laws of the country where you are located before using this ebook.



Title: Guida per la costituzione e per l'impianto di latterie sociali cooperative

Author: Carlo Besana

Release Date: February 27, 2018 [EBook #56655]

Language: Italian

Character set encoding: UTF-8

*** START OF THIS PROJECT GUTENBERG EBOOK GUIDA PER LA COSTITUZIONE ***




Produced by Rosemarie della Scala and Barbara Magni
(original images from Biblioteca Scolastica - Istituto
Tecnico Agrario "G. Garibaldi", Roma)






Guida per la costituzione e per l'impianto
di latterie sociali cooperative


Prof. CARLO BESANA

DIRETTORE DELLA R. STAZIONE SPERIMENTALE DI CASEIFICIO
DI LODI

GUIDA
PER LA COSTITUZIONE E PER L'IMPIANTO
DI
LATTERIE SOCIALI COOPERATIVE

CASALE MONFERRATO
TIPOGRAFIA E LITOGRAFIA CARLO CASSONE

1902.


Proprietà letteraria


[iii]

INDICE

Proemio Pag. 1
 
Cap. I. — Il caseificio domestico 5
» II. — Un po' di storia delle latterie sociali 10
» III. — Vantaggi e benefici arrecati dalle latterie cooperative 19
    a) Nell'ordine finanziario ivi
    b) Nell'ordine morale 28
» IV. — Come si procede per costituire una latteria sociale cooperativa 30
» V. — Questione di danaro 40
» VI. — Lo Statuto sociale ed il Regolamento interno 47
» VII. — Modello di Statuto per una latteria sociale cooperativa 51
    Titolo I. — Costituzione, sede, durata e scopo della Società ivi
    Titolo II. — Capitale sociale 52
    Titolo III. — Soci, loro ammissione, diritti, doveri, recesso 53
    Titolo IV. — Ordinamento sociale 55
    Titolo V. — Bilancio. Ripartizione degli utili. Fondo di riserva 63
    Titolo VI. — Scioglimento della Società 65
    Titolo VII. — Disposizioni diverse 66
[iv]
» VIII. — Modello di Regolamento interno per una latteria sociale cooperativa. 67
» IX. — Impianto ed indirizzo tecnico della latteria 73
» X. — I locali per la latteria 79
» XI. — Attrezzi 89
» XII. — Forza motrice 130
» XIII. — Scelta del casaro e sottocasaro 134
» XIV. — Questioni di amministrazione e di contabilità 137
» XV. — Insuccessi di latterie sociali e conclusioni 142

[v]

INDICE DELLE FIGURE

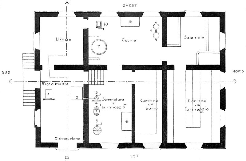
Fig. 1 e 2 — Prospetto e pianta del fabbricato per una latteria sociale Pag. 83
» 3 — Tav. I. Prospetto-facciata a sud (V. in fine volume)
» 4 — Tav. II. Prospetto-fianco ad est (V. in fine volume)
» 5 — Tav. III. Pianta (V. in fine volume)
» 6 — Tav. IV. Sezione trasversale — Spaccato secondo la linea A B (v. Tav. III) (V. in fine volume)
» 7 — Tav. V. Sezione longitudinale — Spaccato secondo la linea C D (v. Tav. III) (V. in fine volume)
» 8 — Cremometro Pag. 91
» 9 — Termometro a mercurio ivi
» 10 — Lattedensimetro ivi
» 11 e 12 — Lattozimoscopio 92
» 13 — Acidobutirrometro 93
» 14 — Provette graduate ivi
» 15 — Bidoni 94
» 16 — Bidoni a zaino ivi
» 17 — Secchione tronco-conico 95
» 18 — Secchielli cilindrici a becco ivi
» 19 — Secchielli a becco e maniglia 96
» 20 — Vasca in bandone con robinetto ivi
» 21 — Vasca-serbatoio ivi
» 22 — Secchi graduati 97
» 23 — Carretto con secchione ivi
» 24 — Stacci a rete di ottone 98
[vi]
» 25 — Stacci a imbuto a rete metallica. 98
» 26 — Stacci a imbuto a doppia rete metallica, mobile 99
» 27 — Bacinelle di lamiera stagnata ivi
» 28 — Pannaruola tonda ivi
» 29 — Mestolo di acero con manico 100
» 30 — Mestolo tondo ivi
» 31 — Bascule ivi
» 32 — Bascule con recipiente tarato 101
» 33 — Refrigerante per latte. (Sezione) 102
» 33bis » » (Prospettiva) ivi
» 34 — Refrigerante cilindrico 103
» 35 — Riscaldatore del latte 104
» 36 — Pastorizzatore 105
» 37 — Riscaldatore ed elevatore Triumph 106
» 38 — Scrematrice Laval alfa a motore 107
» 39 — Scrematrice Laval alfa a mano 108
» 40 — Pompa a stantuffo 109
» 41 — Apparecchio per la coltivazione dei fermenti selezionati 110
» 42 — Vasca per l'acidificazione della panna 111
» 43 — Sostegno per bacinelle ivi
» 44 — Zangola a botte orizzontale 112
» 45 — Zangola Vittoria 113
» 46 — Impastatrice meccanica per burro 114
» 47 — Impastatrice uso gramola per burro ivi
» 48 — Spatole di legno 115
» 49 — Stampo di legno per burro 116
» 50 — Stampo ovale 117
» 51 — Caldaia di rame per formaggio di grana ivi
» 52 e 53 — Caldaia di rame forma svizzera 118
» 54 — Spino per formaggio di grana 119
» 55 — Spino per formaggi svizzeri ivi
» 56 — Lira 120
» 57 — Rotella di legno ivi
» 58 — Fascere di legno ivi
» 59 — Torchio metallico 121
[vii]
» 60 — Torchio metallico doppio 121
» 61 — Forme cilindriche bucherate di lamiera stagnata 122
» 62 — Torchio a leva sistema svizzero 123
» 63 — Frangicagliata 124
» 64 — Spazzolone di crine vegetale ivi
» 65 — Sonda o trivella ivi
» 66 e 67 — Spazzole 126
» 68 — Poppatoio per vitelli ivi
» 69 — Malserini 127
» 70 — Oliatore ivi
» 71 — Scaloni o scalere ivi

[1]

PROEMIO

Sappiate, o cortesi lettori, che, come tutte le cose di questo mondo, anche le latterie sociali si dividono in grandi, piccole e mezzane[1].

[2]

Chiamo grandi le latterie che dispongono di oltre 50 quintali di latte al giorno e vanno sino ai 200 e più quintali; i soci possedono una bergamina, o piccola o grande, e sono o proprietari di fondi, oppure fittabili. Queste grandi latterie si vedono nella bassa Lombardia, dove esistono latifondi, con coltura intensiva foraggera e dove il latte è il profitto principale dell'azienda agraria. L'ambiente in cui si svolgono offre tutte le risorse dell'odierna civiltà; esse vi trovano uomini e istituzioni, capitali e credito, strade e rapidi mezzi di trasporto, consumatori numerosi sul luogo e commercianti pronti ad esportare la produzione loro. Insomma le grandi latterie sono fortunate; la loro costituzione ed il loro impianto si fanno speditamente; l'esempio di una si propaga rapidamente da comune a comune, da provincia a provincia; la loro forma è prettamente cooperativa.

All'impianto di taluna di esse ho avuto il piacere di portare anch'io più di un granello di sabbia. Ed ora intendo che quel granello di sabbia, che è questo scritto, sia dedicato alle piccole latterie sociali e vorrei che insieme a molti altri granelli provenienti da altre parti, formasse macigno e giovasse ad istituire nuove latterie, precisamente in quelle località e fra quella classe di umili per i quali la latteria cooperativa non è soltanto industria del latte, ma è mezzo di rigenerazione morale e materiale.

Per piccole latterie intendo quelle che raccolgono da tre a cinque quintali, o poco più, di latte al giorno e constano di molti soci, che sono piccoli proprietari oppure contadini, provveduti di qualche [3] vaccherella. Queste latterie si contano a centinaia anche in Italia ed hanno fatto un mondo di bene; si trovano nelle prealpi; ma c'è posto per molte altre ancora nelle Alpi, e poi c'è l'Appennino che è quasi tutto da coltivare in fatto di latterie sociali, e c'è la Sardegna che non ne ha affatto.

Alle latterie grandi dirò che per prosperare hanno bisogno di centinaia di mille lire e di molta concordia; alle latterie piccole dirò quello che ora sto per scrivere; in quanto alle latterie mezzane dirò nulla, perchè, siccome stanno di posto tra il molto e il poco, provvederà loro la perspicacia dell'amico lettore.

[5]

Cap. I. Il caseificio domestico.

Andiamo a visitare un villaggio abitato da piccoli proprietari che hanno qualche vacca da latte, ma non possedono la latteria sociale. Ivi vedremo in funzione il caseificio domestico.

La cucina della famiglia è anche la cucina del caseificio. La caldaia del formaggio è quella che serve anche per la polenta o pel bucato. I minuscoli formaggi preparati si vedono sparsi dappertutto, in cucina, in camera da letto, persino sotto il letto. Le bacinelle che contengono il latte in affioramento sono vasi di ogni forma e composizione; si vedono in cucina sopra una panca, o sopra una sedia ed anche per terra, a disposizione dei bimbi, del fedele cane, del gatto di casa e dei suoi amici.

Ci vogliono alcuni giorni per radunare tanto latte da poter fare una lavorazione, cioè poter raccogliere una certa quantità di panna da far burro e adoperare il latte spannato a fare formaggio magro. Ma intanto il latte in riposo diventa acido e talora si [6] rappiglia; la panna che fornisce, sbattuta in quella zangola imperfetta che è la zangola a pistone, dà un burro infelice, inzuppato di latticello che, messo a friggere in padella, scoppietta maledettamente.

Il formaggio, tirato fuori alla meglio dalla caldaia, stenta a stare insieme; bistrattato nella sua fabbricazione e poscia durante la stagionatura, diventa trastullo dei topi quando non è preda di vermi[2].

Chi si occupa della lavorazione del latte nel caseificio domestico è di solito la massaia; le sue mansioni cominciano colla nutrizione delle vacche e vanno sino alla vendita dei latticini.

La sua arte casearia è basata semplicemente sulla massima: «così faceva mio padre». E del resto, sopraffatta dalle molte faccende domestiche, non potrebbe fare di più e meglio.

Se quel burro che essa prepara vien messo in mercato, è dispregiatissimo, perchè acido, non lavato, non spurgato, carico di latticello. E quando si tratta di vendere la collezione dei formaggi, il compratore osserva che non ve ne sono due di egual forma e di egual cera, trova che l'uno è troppo piccolo, che l'altro è troppo alto, che questo è tarlato, che quell'altro è marcio e che quasi tutti sono deformi, guasti, o prossimi ad andare in malora. In conclusione, bisogna venderli per un prezzo meschinissimo, altrimenti vanno a finire sul letamaio.

Però molte famiglie non vendono i prodotti del [7] loro caseificio minuscolo e primitivo; dal latte quotidiano delle loro vacche prelevano quello che serve pel consumo diretto della famiglia, e col resto fanno burro e formaggio da consumarsi in casa, comunque sia. Di conti non se ne fanno, e quando non bastano il burro ed il formaggio prodotto in casa, si comperano fuori se vi sono i quattrini per pagarli, altrimenti si risparmia di condire la polenta col burro e col formaggio.

Mi pare d'aver detto abbastanza, per dimostrare che il caseificio domestico è il caseificio esercitato alla spicciolata, senza locali, senza attrezzi, senza arte; non ha carattere commerciale, perchè dà prodotti scadenti, non basta ai bisogni della famiglia, perchè trascurato e considerato come un ripiego anzichè un provento dell'agricoltura. È un errore economico, perchè se si valutasse il tempo che si spende a lavorare quei pochi litri di latte e si ripartisse il valore sui meschini latticinii ottenuti si troverebbe che questi non meritano tanta fatica e che quel tempo potrebbesi spendere molto meglio.

Il piccolo proprietario non considera il caseificio domestico come una parte della sua industria rurale, non ne vede il profitto in denaro e quindi trascura il bestiame, il foraggio, la stalla. Non si studia di trovare ed allevare vacche più lattifere di quelle che ha, le nutre cogli scarti del suo campo, somministra loro un mangime che appena sarebbe buono per lettiera, le manda a pascolare tra gli sterpi e sulle rupi, fiaccandole con lunghi viaggi di andata-ritorno [8] in montagna, poi le relega in un bugigattolo buio e senza aerazione, che vorrebbe essere una stalla; infine nessun stimolo sente ad aumentare la produzione dei formaggi, nè il numero delle sue vacche.

Molti villaggi della zona alpina, dove appunto la proprietà è assai suddivisa e le vacche da latte sono da tutti possedute, come strumenti connessi alla piccola azienda rurale, avevano, prima dell'istituzione della latteria sociale, tutti e tre i flagelli che percuotono le popolazioni rurali, cioè la miseria, l'emigrazione, l'usura.

Essi avevano del latte e non lo sapevano sfruttare, avevano delle vacche e le nutrivano male, avevano dei campi e dei pascoli e non s'industriavano di trarne maggior foraggio per poter alimentare maggior numero di bestie lattifere.

La latteria sociale aperse gli occhi a quei poveri agricoltori; fu dessa che combattè e scacciò i tre flagelli sunnominati. Mentre prima del suo impianto, gli abitanti compravano formaggio al di fuori, adesso ne fabbricano più del bisogno locale e ne vendono invece; le persone che prima pasticciavano il latte in casa, per fare poco burro e cattivo formaggio, ora spendono meglio il loro tempo a governare il bestiame e a coltivare il loro terreno. Il bestiame nel comune è aumentato di numero e migliorato di qualità. In quanto al terreno, esso è ancora quello di prima nell'estensione, ma il lavoro dell'uomo lo ha reso più produttivo; dunque nello stesso spazio si nutre maggior quantità di persone. Ed ecco il [9] progresso agricolo, associato al progresso economico ed igienico di una popolazione rurale.

Il caseificio domestico è stato dunque eliminato dalla cooperazione. E così sia.

Auguriamoci che faccia la stessa fine anche laddove vive ancora.

[10]

Cap. II. Un po' di storia delle latterie sociali.

Lungi da me ogni idea di fare dell'erudizione, perchè parlo di storia. No; sono persuaso che al lettore poco importa il sapere se le latterie sociali siano sorte in un certo secolo piuttosto che in un altro.

Quando ben avessi detto che una latteria sociale a Bormio esisteva già nel 1500 e che nelle Alpi svizzere e francesi funzionavano latterie sociali nel secolo XIV ed anche nel secolo XII, un altro autore più diligente potrebbe, frugando nelle biblioteche, scoprire documenti che provano l'esistenza di latterie sociali in epoche ancora più remote, se non nelle Alpi, in altre catene di montagne, se non in Europa, almeno nell'Asia, che è da tutti ritenuta la culla dell'umanità e della più antica civiltà.

La consociazione dei latti per lavorarli in comune è cosa troppo ovvia e naturale perchè non sia stata praticata dai popoli primitivi, che erano indubbiamente [11] pastori, allevatori di bestiame e sfruttatori di latte.

Abbandoniamo le questioni di storia agli eruditi, ma esaminiamo l'origine delle latterie sociali in rapporto alle condizioni naturali dell'uomo e dell'agricoltura ed allora ci troveremo nel caso di ricavare non pochi insegnamenti pratici che non devono essere ignorati da coloro che intendono dedicarsi alla istituzione delle latterie sociali.

Se la consociazione dei latti è cosa naturale ed istintiva fra i popoli pastori, la forma di questa consociazione ha presentato diverso grado di perfezione a norma dei tempi e dei luoghi, od in altre parole, a norma del grado di civiltà dei diversi popoli.

Infatti la consociazione dei latti comincia con una forma semplicissima, che è la prestazione reciproca del latte. Si tratta di diversi piccoli produttori, i quali invece di lavorare ogni giorno il loro piccolo latte in casa, per fare dei piccoli formaggi, convengono di prestare il latte successivamente ad ognuno di essi. In tal modo a ciascuno viene la volta della lavorazione, ed in quella tal giornata uno esercita il caseificio domestico alla meglio che può, raccogliendo il latte dei produttori consociati.

Per esempio: A, B e C sono tre individui che convengono di prestarsi il latte a vicenda; oggi A riceve e lavora il latte di B e di C; domani è B che riceve e lavora il latte di A e di C; il terzo giorno il latte di A e di B spetta a C. Al quarto giorno ricominciasi da capo il turno col socio A.

[12]

In fondo, questa prestazione reciproca di latte, piuttosto che una consociazione, potrebbesi chiamare uno scambio di latte, o per meglio dire una compera di latte pagato con altro latte.

Questo sistema ha tutti gli inconvenienti del caseificio domestico, col solo vantaggio apprezzabile, che ogni socio ha la tribolazione del lavorare il latte appena ogni tanti giorni, cioè quando viene il suo turno, e non tutti i giorni. Essendo un caseificio domestico temperato e non l'esercizio di una industria proficua, si capisce come questa forma rudimentale di consociazione dei latti non abbia intento commerciale e quindi sia adatta soltanto alla preparazione dei latticini occorrenti ai bisogni della casa, ossia della famiglia.

Dalla prestazione reciproca del latte si passa con poche modificazioni alla latteria turnaria, forma di consociazione di latte della quale si hanno non pochi esempi nelle nostre Prealpi anche oggidì. Il latte è ancora lavorato per turno, per conto dei diversi soci successivamente, ma però è lavorato in un locale apposito, con attrezzi prescelti, e non dai singoli soci, che sono dal più al meno inesperti, ma da un casaro scelto di comune accordo.

Nel giorno in cui il latte spetta ad un tal socio, questo è tenuto a fornire la legna occorrente alla lavorazione del latte, inoltre ha l'onere di pagare il casaro e talora di prestargli aiuto di persona nella fabbricazione dei latticini. Questi ultimi vengono ritirati dal socio di solito subito, in certe latterie invece dopo qualche tempo, ossia si lascia il [13] formaggio in custodia al casaro sinchè sia maturato.

La latteria turnaria è consociazione di latti piuttosto che di persone; esonera il socio dal fare il caseificio domestico, ma lo obbliga a tenersi in casa i formaggi di sua spettanza; concentra il lavoro più difficile nelle mani di una persona tecnica, che è il casaro; e quindi la produzione della latteria segna un notevole miglioramento in confronto al caseificio domestico, ma tuttavia i prodotti non presentano quella uniformità e quella costanza di tipo, che vuole il commercio, essendo in generale dessi fatti per uso e consumo dei singoli soci e talora a norma dei desideri o dei capricci di questi.

Nella latteria turnaria non esiste la cooperazione, perchè non c'è cointeressenza. Ogni socio vede il proprio interesse soltanto nel giorno in cui si lavora il latte per lui, non ne ha affatto negli altri giorni.

Egli può essere immeritatamente favorito se s'imbatte in giornate di buon latte e di regolare fabbricazione, come pure può essere senza sua colpa danneggiato se gli tocca il turno in giornate di cattivo prodotto. Il casaro, anzichè lavorare per una società, lavora per una serie di padroni, che si rinnovano e si succedono e pertanto non sa resistere alle sue preferenze e parzialità verso quei soci che meglio sanno farsi valere o coll'autorità morale o coi regali.

Se poi i singoli soci vogliono far commercio dei loro latticini, si trovano in grande imbarazzo, perchè mancano di cognizioni e di esperienza commerciale e perchè non hanno merce di tipo uniforme; essi [14] finiscono a cadere nelle mani degli intermediari ed a vendere la loro merce a vilissimo prezzo.

La latteria turnaria è dunque un caseificio di ripiego, che non desta nei soci nessun stimolo di miglioramento del proprio latte, nè di reciproco affiatamento e di progresso.

Piuttosto che niente, si accetti anche la latteria turnaria come primo passo per trasformarla poi in cooperativa; dico questo perchè in taluni luoghi si è fatta la questione del carattere da darsi alla latteria, ed i produttori di latte dissero: o latteria turnaria o niente. Anzi si è verificato anche qualche caso di latteria cooperativa, che per ragioni diverse si è cangiata in turnaria. Più frequenti sono le trasformazioni delle latterie turnarie in private, subentrando il casaro stesso ai soci tutti come compratore del latte e come speculatore per suo conto. Questo è accaduto, ad esempio, nell'Emilia e nel Mantovano, ove funzionano oggidì buon numero di latterie private, che erano anticamente turnarie.

Nella latteria cooperativa od in compartecipazione abbiamo questi caratteri essenziali, che il latte è lavorato dal casaro per conto dei soci tutti, che i prodotti sono venduti in comune e gli utili sono ripartiti fra i soci in proporzione del latte da ciascuno consegnato alla latteria.

Il casello e gli utensili ad esso inerenti sono proprietà sociale; comuni sono i profitti e comuni sono le spese di esercizio della latteria, fra le quali notiamo la retribuzione al casaro ed ai suoi aiutanti, la legna da ardere, il sale, i reagenti del caseificio, ecc.

[15]

Un consiglio di amministrazione, eletto dai soci, presiede e vigila tutte le funzioni dell'azienda, compila e presenta ogni anno il rendiconto dell'esercizio caseario e lo stato patrimoniale.

Come si vede da questi pochi caratteri, la funzione cooperativa in queste latterie è completa; non si tratta di industriali che riuniscono dei capitali per cavarne un lucro, ma bensì di produttori di latte che riuniscono il loro latte in un corpo solo per lavorarlo in comune, a fine di trarne il maggior profitto colla minor spesa possibile.

Una latteria così fatta è dunque una cooperativa appartenente alla categoria delle cooperative di produzione; come tale è considerata dal Codice di commercio ed anche dal fisco, il quale giustamente esonera le latterie sociali dalla tassa di ricchezza mobile, perchè non sono stabilimenti industriali a base di nuovi capitali, ma sono una trasformazione di materia prima prodotta dai singoli soci.

Lo sviluppo delle latterie sociali cooperative in Italia è proprio della seconda metà del secolo XIX; esse crebbero numerose dal 1870 al 1880 in tutta la zona prealpina, che comprende la valle d'Aosta, l'alto Novarese, la Valtellina, il Bellunese, il Friuli.

Parecchie pubblicazioni e concorsi a premi in danaro fece il Ministero di agricoltura dal 1872 in poi per promuovere la costituzione di latterie sociali. Nei concorsi banditi dopo il 1880 ebbi l'onore di far parte della commissione giudicatrice nominata dal Ministero, il che mi procurò il piacere di visitare molte latterie delle prealpi e di fare la conoscenza con [16] egregie persone che si dedicavano con intelletto d'amore al progresso delle latterie sociali.

Molte latterie nacquero in seguito ai predetti concorsi governativi, altre si trasformarono e si perfezionarono.

Più volte esse richiamarono su di loro l'attenzione del pubblico. A Milano nel 1874 ebbe luogo presso la Scuola superiore d'agricoltura un congresso di direttori di latterie ed inoltre una mostra di prodotti e di utensili di caseificio.

Analogamente si fece ad Udine nel 1885 ed a Treviso nel 1888. Le relazioni di questi congressi vennero pubblicate per le stampe e dimostrarono largamente i grandi benefici che avevano recato e dovevano recare le latterie sociali nel nostro paese, nonchè la somma considerevole di energia fisica ed intellettuale che spendevasi per il loro incremento e miglioramento. Sia dunque lode a tutti quei benemeriti italiani che, sia come promotori, sia come fautori, sia come direttori o presidenti di latterie sociali, lavorarono a così nobile scopo. Chiedo venia al lettore se non cito nomi di persone, perchè se dovessi darne la lista sarebbe troppo lunga e commetterei di certo qualche involontaria sì, ma deplorevole dimenticanza. Fra i corpi morali benemeriti vuol essere ricordato il Ministero di agricoltura che, all'infuori dei concorsi sopranominati, conferì sussidii in denaro ed in attrezzi a molte povere latterie di montagna, all'inizio della loro costituzione, sussidi che mentre contribuirono alle necessarie spese d'impianto, ebbero altresì l'effetto di incoraggiamento [17] morale alla cooperazione in epoca in cui l'idea cooperativa era poco nota e meno praticata.

Anche le latterie hanno fatto progressi e come organismi e come tecnica. Nei primordi del loro sviluppo la diffidenza naturale e la povertà di mezzi e di cognizioni dei piccoli produttori di latte ne rendeva laboriosa la nascita, meschino l'impianto e stentata la vita.

Ma poco a poco l'idea cooperativa si propagò, e istruiti dall'esperienza delle prime latterie, si venne alla costituzione legale dell'associazione, alla compilazione di completi e razionali statuti, all'impianto moderno con fabbricato apposito ed all'applicazione dei metodi e degli apparecchi perfezionati di lavorazione del latte, tanto che molte latterie sociali presentarono risultati tecnici ed economici così buoni da superare quelli delle grosse latterie private esistenti in plaghe dove il caseificio era radicato fin da tempi remoti.

Si videro splendidi esempi di mutualità e solidarietà nell'impianto delle latterie sociali. Per esempio: nel Bellunese si costrussero i locali di certe latterie dai soci stessi, contribuendo ognuno di essi colla mano d'opera, oppure con somministrazione di legnami od altri materiali da costruzione.

Le difficoltà finanziarie, ossia quelle dipendenti dal trovare il denaro occorrente alle spese d'impianto sono assai ridotte oggi in confronto ad una volta.

Il credito viene in aiuto alle latterie di solida e savia costituzione; ed il credito sotto una qualsiasi forma non manca mai alle persone ed alle istituzioni [18] che sanno essere ad un tempo oneste, abili e coraggiose.

Le primitive latterie sociali avevano pochi soci e poco latte; quelle che radunavano 4 quintali di latte al giorno erano rarissime e considerate come latterie fortunate; ma poi vennero le latterie di 10 e di 20 quintali, come per es. quella di Soligo, dopo quelle di 50 e di 100 e recentemente anche quelle di 150 e di 200 quintali di latte al giorno, come è la latteria di Casalpusterlengo, appartenente alla Società lodigiana di latterie cooperative.

Si è veduto anche una federazione di latterie sociali: è quella delle Latterie Agordine, in provincia di Belluno.

Una statistica recente, completa ed esatta delle latterie sociali italiane non esiste; sono queste certamente parecchie centinaia, e contando anche le latterie turnarie si arriva vicino al migliaio.

Abbondano le latterie sociali anche nella Francia, nella Svizzera, nella Germania, nella Danimarca, nel Belgio e negli Stati Uniti d'America. Dove il movimento cooperativo è più recente le latterie sorgono più fitte e più robuste. In Germania e anche nella piccola Danimarca se ne contano alcune migliaia.

E dovunque le latterie sociali sono propugnacolo di progresso caseario, di benessere, di civiltà e di modernità.

Vivano dunque le latterie sociali e viva la cooperazione.

[19]

Cap. III. Vantaggi e benefici arrecati dalle latterie cooperative.

Le latterie sociali cooperative raggiungono due intenti: l'uno finanziario e l'altro morale.

Bisogna analizzarli entrambi.

a) Nell'ordine finanziario.

Risparmio di spesa d'esercizio. — Supponiamo di avere in un villaggio 50 produttori di latte, con una media di 2 vacche per ciascuno di essi e un totale di 400-500 litri di latte al giorno. Avremo dunque 50 piccoli caseifici domestici, preadamitici ed incompleti, con 50 persone che vi lavorano, consumando almeno tre ore di tempo al giorno; vi saranno 50 piccole caldaie ed altrettanti focolari per scaldare il latte e cuocere il formaggio con relativo consumo di legna. Se i latticini vengono venduti al mercato, bisogna calcolare anche il tempo necessario a portarveli da tante persone diverse.

[20]

Orbene, nella latteria sociale bastano due persone a lavorare 500 litri di latte, ed il consumo di legna si riduce a circa il 15 per 100. Fate il conto dell'economia realizzata sulla mano d'opera e sul combustibile e arrivate facilmente ad un risparmio di parecchie migliaia di lire all'anno.

Si può obbiettare che la latteria sociale esige una spesa d'impianto, che non ha il caseificio domestico: alludesi alla costruzione, oppure all'adattamento dei locali occorrenti alla lavorazione del latte e conservazione dei prodotti. Allora rispondiamo che questa spesa è largamente compensata dal maggior valore dei latticini prodotti nella latteria e del risparmio che si fa nella concentrazione degli utensili; di fatti ognuno vede che riunendo il costo delle molte piccole caldaie, delle piccole zangole e di tutti gli altri utensili del caseificio domestico, si ha una somma molto maggiore di quella che occorre per l'acquisto di una sola caldaia grande, di una sola zangola grande, ecc.


Prodotti migliori per qualità e quantità. — Sostituendo l'arte d'un casaro all'empirismo delle massaie, è evidente che il burro ed il formaggio si ottengono di miglior qualità perchè lavorati con attrezzi moderni e colle regole dell'arte.

Certi formaggi di perfido odore e sapore, che i contadini mangiavano contro voglia prima dell'impianto della latteria sociale, sparirono dalla faccia del mondo dopo che la latteria entrò in funzione. Ed è giusto ripetere che a questo risultato contribuisce [21] oltre alla abilità del casaro, anche la disposizione felice della latteria, in quanto che questa si presta alla conservazione del latte e dei formaggi mediante appositi locali, e tutto ciò non è possibile nel caseificio domestico.

Per la stessa ragione aumenta anche il rendimento del latte in burro e formaggio, potendo la latteria disporre di buoni attrezzi, come refrigeranti, scrematrici, ecc., cosicchè non c'è più alcun latte che va a male per soverchia acidità, nè formaggio che bisogna gettare nel letame perchè caduto in decomposizione in causa del latte troppo acido, o perchè tenuto in ambienti esposti a tutte le eventualità del clima ed a tutte le aggressioni dei parassiti.

Ma c'è ancora di più; una volta fatta la latteria sociale, ecco che aumenta la quantità del latte effettivamente lavorato, perchè ogni socio si prende cura di evitare dispersione e sciupìo di latte, come troppo facilmente avviene nel caseificio domestico per opera di uomini e di bestie diverse. I soci diventano pertanto economizzatori del proprio latte e procurano di portarne alla latteria la maggiore quantità possibile.

Ed ecco spiegato come molti comuni che possedevano caseifici domestici non producevano abbastanza formaggio per il consumo delle famiglie, e ne importavano, mentre che dopo l'impianto ed il funzionamento della latteria sociale, si produsse tanto formaggio da bastare al consumo locale e da mandarne fuori del comune.

[22]

E ciò senza che il bestiame lattifero sia neppure aumentato.

Inoltre, se la latteria fabbrica formaggi più grossi di quelli che fanno i piccoli produttori privati, i primi vanno soggetti a minor calo di peso nella stagionatura; ed ecco altra causa di maggior rendimento a vantaggio della latteria sociale.


Maggior profitto pecuniario fornito dal latte. — Fabbricando prodotti di miglior qualità e in maggiore quantità, è evidente che il incavo in denaro nella vendita sarà più alto. Non basta; la latteria sociale si trova in condizione di vendere i suoi prodotti in partita e di fare contratti vantaggiosi a tempo e luogo opportuno, poichè ha un consiglio di amministrazione che può e deve occuparsi anche delle vicende commerciali, stare alla giornata e vedere lontano, il che non fanno i piccoli produttori alla spicciolata, la cui vista commerciale non va oltre un palmo dal loro naso.

Altro vantaggio ottiene la latteria sociale con un razionale sfruttamento dei cascami del latte, cioè latticello e siero, poichè la latteria può dedicarsi alla fabbricazione ed alla vendita della ricotta ed all'allevamento dei maiali per conto sociale, oppure può vendere i sopradetti residui all'ingrosso od al minuto a prezzi convenienti.

L'importanza di una savia utilizzazione dei cascami del latte riesce evidente, se si riflette alla massima, generalmente accettata e dimostrata dall'esperienza, che i cascami devono pagare le spese [23] d'esercizio della latteria, cioè: il personale, il combustibile, il caglio, il sale, ecc.

Come la latteria sociale è in grado di vendere a miglior patto, così è in grado di comperare a prezzi più vantaggiosi gli articoli occorrenti all'esercizio della latteria, perchè provvede all'ingrosso, ricorre alle fonti, elimina gli intermediari, ecc.

Dunque, in confronto alle frazionate piccole lavorazioni del latte, la latteria sociale mediante la fabbricazione e la vendita in comune ricava maggior profitto con minore spesa per una stessa quantità di latte.

Vediamo un po' di numeri. Persone che tengono o che tenevano il caseificio domestico nei loro villaggi di montagna, dicono che il ricavo lordo del loro latte non va oltre i 7 centesimi al litro, a tirarla coi denti. Io ho veduto molti conti consuntivi di latterie sociali che dànno invece un rendimento netto di 12, di 15 e perfino di 16 centesimi per litro di latte.

Ecco una dimostrazione teorica di questi risultati. Facciamo il conto di una latteria che fabbrica formaggio grasso e burro di siero. Il ricavo per ogni quintale di latte si può calcolare in media come segue:

Kg. 9,0 formaggio grasso a L. 1,30 = L. 11,70
Kg. 0,3 burro di siero a L. 1,80 = L. 0,54
        Totale L. 12,24

Supponendo che la latteria fabbrichi burro e [24] formaggio magro, il rendimento riesce all'incirca come segue:

Kg. 4 burro di 1ª qualità a L. 2,40 = L. 9,60
Kg. 5 formaggio magro L. 0,50 = L. 2,50
        Totale L. 12,10

Ho detto dimostrazione teorica, perchè queste cifre non devono essere prese come articoli di legge; la pratica ci dice che bisogna modificarle a norma dei luoghi e dei tempi. Quei rendimenti in denaro di L. 12,24 e 12,10 per quintale di latte sono netti, perchè non vi ho aggiunto il valore dei cascami del latte, ed ho ritenuto, come ho detto più sopra, che questo valore compensi le spese di esercizio della latteria, come realmente succede in una latteria ben organizzata e ben amministrata.


Miglioramento ed aumento del bestiame e dei formaggi. — Il contadino quando vede che il latte lavorato alla latteria sociale rende fior di denaro, procura di produrre più latte possibile, coltiva meglio i suoi campi, produce maggior quantità di foraggio, migliora il suo bestiame, scarta i cattivi soggetti e provvedesi di buone vacche lattaie, le mantiene meglio che può, ne sorveglia l'alimentazione e l'igiene.

Applicando il savio principio della divisione del lavoro, si è liberato da quel fastidio che è il caseificio domestico ed ha ridotto il suo còmpito a quello di produrre molto latte e di buona qualità.

[25]

Dopo l'impianto della latteria sociale, i pascoli comunali vendono tenuti e sfruttati con maggior riguardo; nel comune è aumentato di numero il bestiame lattifero e quindi è aumentata la quantità del latte e dei latticini. Ma i terreni sono ancora della medesima estensione; dunque se adesso rendono di più, è segno che loro mancava null'altro che l'attività dell'uomo, e questa venne soltanto dopo l'apertura della latteria sociale.

Moltiplicate questo maggior profitto pecuniario per le centinaia di latterie sociali che abbiamo in Italia e vedrete come esse abbiano cagionato aumento della ricchezza nazionale ed abbiano diffuso larghi beneficii proprio tra le popolazioni più povere che abitano le nostre montagne.

Si tratta di parecchi milioni di lire che annualmente versano le latterie sociali nel torrente della circolazione nazionale; ed a questi chiari di luna, via, non c'è male.


Miglioramento economico ed igienico dei contadini. — La latteria sociale è una specie di salvadanaro, perchè il socio riceve ogni anno gli utili che gli spettano e si trova con un gruzzolo di soldi che mette sopra una cassa di risparmio, oppure adopera per soddisfare i suoi impegni o per comperare bestiame o per fare migliorie ai suoi terreni o per pagare le imposte, ecc.

Invece quando non c'era la latteria sociale, se il suo latte non era tutto consumato in famiglia ma veniva trasformato in burro e formaggio, quando pure [26] il produttore arrivava a fare tanta merce da venderla, i pochi soldi che ricavava alla spicciolata da tante mani, sparivano, consumati in minuscole spese, troppo di frequente futili ed improduttive.

Il socio della latteria ha ritirato da questa, come anticipazione degli utili spettantigli, formaggio, burro e ricotta, che ha consumato in famiglia, e tutto quanto di ottima qualità ed a prezzo di convenienza. Anche dal lato dell'igiene egli è soddisfatto.

Si è verificato che in molti poverissimi villaggi delle prealpi l'apertura della latteria sociale ha fatto diminuire o scomparire l'emigrazione e che le rate d'imposta affluiscono regolarmente all'esattore, il che non accadeva prima.

Come saggio dei vantaggi materiali indirettamente recati dalle latterie sociali, citerò questo fatto, oltremodo chiaro e persuasivo, che mi è occorso di accertare recentemente. Ho visitato una latteria sociale in un comunello della provincia di Treviso, impiantata da una decina d'anni, e con mia sorpresa ho trovato in questo comune due macellerie; mi hanno detto che prima dell'apertura della latteria non esistevano macellerie in paese, e nessuno mangiava carne, anzi il contadino era assai misero e mal nutrito, ma la latteria sociale fece affluire denaro in paese, per cui tutti quanti oggidì comperano e mangiano carne, così da mantenere due spacci di carne, di cui uno, giova il saperlo, è cooperativo, anzi è una propaggine della latteria sociale, il che dimostra sempre più che la cooperazione è un campo sconfinato e che le istituzioni cooperative si allacciano [27] tra di loro in modo che, a guisa delle ciliegie, l'una attira l'altra. È questione di cominciare colla prima.


Altre manifestazioni del principio cooperativo in conseguenza della latteria sociale. — Una volta aperta la breccia della cooperazione per mezzo della latteria sociale, i contadini si avviano facilmente alla istituzione di altre cooperative, sia fuse amministrativamente colla latteria, sia indipendenti.

Basterà citarne il nome, risparmiando ogni commento che facilmente risalterà alla mente del lettore, per poco che abbia cognizione di queste faccende.

Esse sono:

L'assicurazione contro la mortalità del bestiame.

Il consorzio o sindacato agrario per l'acquisto di concimi, macchine, bestiame, foraggi e quanto altro occorra per l'industria agricola.

La cooperativa di consumo; quindi, specializzando questo ramo si possono avere le macellerie sociali, i magazzini sociali di vendita dei generi alimentari, ecc.

La cooperativa di produzione; per es. le cantine sociali, i trappeti sociali, i mulini sociali, ecc.

La cassa rurale.

L'istruzione agraria e professionale in genere.

Qualunque industria che abbia scopo di speculazione e di risparmio, sempre che abbia le sue basi nelle condizioni naturali della località e nell'indole degli abitanti.

[28]

b) Nell'ordine morale.

La latteria sociale cooperativa obbliga a tenere frequenti relazioni fra di loro persone che vivono di solito nell'isolamento, con tutte le conseguenze dannose del medesimo, come l'invidia, la sfiducia, il pettegolezzo, la maldicenza, ecc.

Quindi la latteria combatte tutti questi vizi nei piccoli paesi, mette in evidenza le persone dotate di capacità, di operosità, di cuore e di probità, additandole così alla pubblica stima e rendendole utili al progresso dell'umanità. Molte inimicizie private, molti rancori personali, molti dissidi politici furono assopiti o cancellati dalla latteria sociale. Dalla mutualità e dalla solidarietà deriva la stima reciproca e la tendenza al ben operare pel vantaggio comune. L'educazione, la moralità, l'istruzione, in una parola tutto quanto è civilizzazione e progresso dell'umanità non ha che a guadagnare dall'istituzione delle latterie sociali cooperative.

La latteria sociale induce il contadino a fare i conti, ad interessarsi dell'azienda comune, a controllarne l'andamento ed a scoprirne gli eventuali difetti. La cooperazione gli apre la mente ad un orizzonte nuovo ed esteso, tanto da non vederne i confini, e lo incita a studiare il grande problema e ad istruirsi, ad apprezzare l'istruzione e coloro che la impartiscono e la propagano. Egli vede in funzione gli amministratori della latteria ed impara a pesare giustamente quelli che lavorano con sagacia e lealtà [29] in confronto a quelli che parlano per la sola ragione che hanno la bocca, a quelli che predicano bene e razzolano male, a quelli che hanno tanta facilità nel dire quanto hanno difficoltà nel fare.

La latteria sociale è una vera scuola dove s'impara ad amministrare rettamente. La sua amministrazione è aperta a tutti i soci di buona volontà, i quali nel modesto ambiente dell'azienda casearia si preparano a diventare consiglieri comunali e provinciali, consiglieri di opere pie ed anche (perchè no?) deputati al Parlamento.

Abbiamo veduto più di un'onorevole che deve la sua elezione alla latteria sociale, perchè nel suo stato di servizio c'è in modo principale la sua prestazione alla latteria sociale, e vorremmo vederne molti di deputati come questi al Parlamento.

[30]

Cap. IV. Come si procede per costituire una latteria sociale cooperativa.

Si sono vedute latterie costituirsi rapidamente ed altre richiedere un assai lungo periodo d'incubazione. Nell'un caso come nell'altro è tutta questione di ambiente, ossia di preparazione morale.

In una data plaga la fondazione della prima latteria esige di solito un lavoro improbo ed incontra difficoltà d'ogni sorta; ma fatta la prima, le altre sorgono con sorprendente celerità, direi quasi, per istinto d'imitazione, a guisa di una malattia contagiosa, che si diffonde imponendosi ai volenti ed ai nolenti.

Una dozzina d'anni fa trovandomi in una amena e fertile vallata delle prealpi lombarde, sostenevo, parlando con alcuni proprietari di bestiame, che quello era territorio adatto per alimentare una latteria sociale. A sentire quella buona gente, pareva che avessi detta un'eresia, ed essi tentavano di confutare le mie ragioni, che io esponeva, del resto, a loro vantaggio [31] e non per altro scopo. Ma il buon seme germoglia a tempo e luogo, ed il tempo che è galantuomo e paga sempre i suoi debiti, mi diede ragione molto prima di quello che io lo credessi, perchè in quella vallata un paio di anni dopo quella disputa sorse una latteria sociale, ed oggidì quasi tutti i comuni di quella valle possiedono una latteria sociale.

Ho citato questo fatto molto comune e molto naturale, per dedurre questa conseguenza: che i promotori della latteria non devono scoraggiarsi alle prime ripulse, alle prime opposizioni che incontrano; la loro perseveranza e la loro fermezza di propositi sarà per i titubanti e per gli indifferenti la miglior dimostrazione della bontà della causa che sostengono, e trascinerà presto o tardi tutti gli interessati nell'orbita della cooperazione.

In ogni comune ove vuolsi fondare una latteria sociale occorrono alcuni uomini di buona volontà, che se ne facciano promotori. Basta anche un uomo solo, che abbia i necessari requisiti di abilità, di onestà e di operosità; egli sarà l'apostolo, il pioniere della latteria, e formerà centro di attrazione per coloro che sono i più disposti ad entrare nell'associazione.

Un uomo di questo stampo è stato trovato quà nel sindaco, là nel parroco, altrove nel medico od in altro dei proprietari del comune. Se non c'è quest'uomo che per la sua intelligenza ed integrità del carattere goda la fiducia dei suoi compaesani, è impossibile fondare la latteria sociale e bisogna aspettare che l'uomo sorga.

[32]

Ma una volta trovatolo, ecco cosa devesi fare per arrivare alla costituzione della latteria sociale.


Fare indagini sulla produzione del latte nel comune e sul numero dei futuri possibili soci. — Nei piccoli comuni si conoscono facilmente gli interessi di tutti e può sembrare superfluo l'indagare quante vacche da latte hanno i diversi proprietari e quanti sarebbero i presumibili soci. Ma per contrapposto sarebbe un grave errore il fare una latteria sociale, quando non si possa radunare una certa quantità di latte. E questo caso si è anche verificato, poichè si sa di latterie sociali che nacquero morte o morirono poco dopo la nascita, perchè mancava loro niente meno che il latte.

Dunque bisogna avvertire che al di sotto di un certo quantitativo di latte giornalmente disponibile non conviene istituire la latteria, perchè le spese generali indispensabili ripartite sopra una quantità di latte troppo piccola, scemerebbero fortemente gli utili, così da scuotere e demolire le basi economiche della latteria. La minima quantità giornaliera del latte per rendere vitale una latteria sociale può e deve variare da paese a paese: affermando che essa deve aggirarsi sui quattro quintali, mi pare di comprendere il maggior numero dei casi e di stare nei termini insegnati dall'esperienza.

Le indagini devono spingersi altresì nel campo del futuro, poichè può esservi probabilità, oppure certezza, di aumento di latte nell'avvenire, ed allora ciò pesa ragionevolmente in favore della latteria [33] ed è elemento incoraggiante a promoverla ed a costituirla.

Verificato che c'è il latte, che vi sono le vacche lattaie e che vi sono i produttori di latte che potrebbero entrare nell'associazione, perchè avrebbero tutto da guadagnare e nulla da perdere, passiamo avanti.


Studiare l'organismo delle latterie sociali. — I promotori della latteria si procurino qualche statuto di latterie sociali, o qualche libro che tratta di latterie sociali[3], di caseificio e simili, lo leggano e lo meditino.

Se la sorte loro ha posto fra le mani questo mio libro e se dessi lo hanno letto sino a questo punto, abbiano la pazienza di seguirlo sino alla fine.

Dopo di che quella brava gente sentirà il desiderio di visitare qualche buona latteria sociale che goda buona fama, che sia non lontana dal loro paese, vorrà vedere come funziona la latteria, quali risultati questa dà, quale ne è l'organizzazione amministrativa e tecnica, quale la spesa d'impianto e d'esercizio. La visita sarà molto utile, perchè si copierà quello che c'è di buono e si eviteranno gli errori che gli altri hanno commesso, due vantaggi questi che compenseranno largamente il tempo ed il denaro speso nella escursione fatta da una o più persone.

[34]

Sarà bene procurarsi lo statuto delle latterie che si visitano e possibilmente anche l'ultimo bilancio od il rendiconto annuale. Molte latterie hanno lo statuto stampato ed hanno altresì la savia abitudine di pubblicare per le stampe anche il rendiconto annuale. I promotori della latteria in progetto faranno tesoro di questi documenti, che sono la fotografia di cose viventi, che essi devono alla loro volta riprodurre.

Se dovessi citare il nome delle latterie che meritano di essere visitate, perchè atte a servire di modello o quanto meno ad offrire utili insegnamenti, sarei imbarazzato, perchè fortunatamente sono molte e perchè la inevitabile omissione di qualcuna potrebbe essere interpretata in un senso contrario alle mie intenzioni. Basti il dire che latterie meritevoli di osservazione si trovano nella valle d'Aosta, come in quella della Sesia, come nella Valtellina, nelle provincie di Treviso, di Belluno, di Udine, ecc.


Riunione dei produttori di latte ad una conferenza. — Nel frattempo in cui i promotori indagano, girano e studiano, circola la voce di tutto quanto nel comune, e la gente comincia a discutere dell'opportunità o meno di fare una latteria: così gli animi si vanno preparando e coltivando per diventare accessibili alla latteria sociale.

Viene il giorno in cui l'ambiente è diventato maturo per poter radunare i produttori di latte ad una proficua discussione, la quale vuol essere preceduta da una conferenza dimostrativa sull'utilità [35] delle latterie sociali cooperative e sull'opportunità di farne una nel comune.

Questa conferenza può essere fatta da qualcuno dei promotori, se si trova fra questi la persona idonea, oppure si può chiamare persona competente dal di fuori. Non occorrono squarci di eloquenza, nè volate rettoriche, bisogna invece fornire dati numerici e nozioni pratiche, essendo che gli uditori non sono filosofi, nè scienziati, bensì persone di idee semplici e positive, che soltanto con mezzi semplici e positivi possono essere convinte e conquistate.

La conferenza, tenuta in giorno, ora e località adatta e consentanea alle abitudini del paese, desterà interessamento fra i produttori di latte convenuti all'adunanza. Se qualcuno degli uditori avrà obbiezioni a fare o schiarimenti o domandare, meglio così, ne nascerà una discussione che metterà in maggior luce la verità ed animerà i diffidenti e gli indifferenti, i quali formano di solito la maggioranza di un pubblico consimile.

In molti comuni di montagna sono le donne che si occupano delle vaccherelle e del relativo latte; sono desse che lo raccolgono, che lo sfruttano, quando pure lo sanno fare, e che trattengono i proventi della vendita del latte e de' suoi prodotti, quando la loro abilità e parsimonia arriva a tanto da conseguire dei proventi in denaro. Quelle donne devono dunque far parte dell'adunanza in discorso, perchè senza il loro consenso neanche il capo della famiglia si arrischierà ad impegnare il suo latte nella nuova latteria.

[36]

La conclusione dell'adunanza dove essere la nomina di un comitato che s'incarichi di compilare lo statuto della costituenda latteria, da presentarsi ad una prossima assemblea, e l'apposizione della firma d'adesione al programma di massima, per parte di quei produttori di latte che lo accettano. Questo programma scritto può limitarsi ad affermare la volontà degli aderenti di costituire la latteria sociale cooperativa, secondo i concetti fondamentali concordati ed ammessi nell'adunanza.

Il verbale della conferenza, la nomina del comitato preparatore e le firme di adesione formano un documento storico, pel quale si può dire che la latteria passa dal regno delle ciarle a quello dei fatti.

Il comitato può essere composto di tre od al più di cinque persone, fra le quali si troveranno i promotori ed i fautori della latteria. È desiderabile che vi siano rappresentati i diversi interessi dei produttori di latte e le diverse competenze legali, tecniche, ecc., ma tuttavia, in mancanza di queste persone competenti, si fa quello che si può, e d'altra parte abbiamo veduto uomini di limitata coltura ma dotati di buon senso e di buona volontà cavarsi d'impaccio benissimo in simili faccende, senza essere diplomati in qualsiasi cosa, perchè il buon senso suggerisce che quando non si possiede la sapienza si va a prenderla dove c'è.


Atto costitutivo dell'associazione. — Il comitato dopo aver esaminato diligentemente gli statuti che si è procurato da diverse latterie, ne compila [37] uno che reputa il più adatto alle condizioni locali, discutendone uno per uno i singoli articoli, allo scopo di penetrarne profondamente lo spirito e di prevederne le conseguenze pratiche, una volta che lo statuto sia applicato e che la latteria sia in funzione.

Lo statuto sociale è il contratto fondamentale che i soci stipulano per regolare i loro reciproci rapporti; la firma di accettazione stabilisce per il socio un vincolo che deve durare un certo numero d'anni, d'ordinario non meno di un ventennio.

L'elaborazione di questo statuto è dunque cosa della massima importanza, ed i membri del comitato preparatore sentiranno certamente la serietà del loro mandato, tanto più riflettendo che di solito l'assemblea approva lo statuto senza modificarlo o tutt'al più con qualche piccola variante, poichè dessa ripone fiducia completa nella brava gente che compone il comitato.

Lo scoglio di tutti gli statuti di tutte le cooperative è sempre la questione finanziaria. Almeno un articolo dello statuto deve indicare nettamente il modo con cui radunare il capitale occorrente all'impianto della latteria; sul qual argomento mi riserbo di ritornare più avanti. Superato anche questo scoglio, e messisi d'accordo i membri del comitato, si dirama il progetto di statuto in iscritto od a stampa a tutti coloro che si conoscono avere i requisiti per diventare soci della latteria e si invitano ad apposita assemblea per la discussione ed approvazione dello statuto e costituzione definitiva della latteria sociale cooperativa.

[38]

Intendiamo per costituzione legale della latteria la costituzione fatta per atto pubblico, secondo le norme del Codice di commercio, vigente in Italia dal 1882.

Nei tempi remoti le consociazioni di latte si facevano colle minori formalità possibili, cioè senza patti scritti, senza firme di persone, senza registri di sorta; nelle mutue prestazioni di latte non si adoperava nè penna, nè carta per registrarne la quantità, ma s'indicava il numero delle secchie piene di latte mediante tacche fatte sopra un bastone di legno.

Ma dai tempi remoti a quelli d'oggi molta strada s'è fatta; l'istruzione ha progredito anche nelle nostre campagne, la cooperazione si è imposta anche ai nostri legislatori, il codice di commercio non è più espressione cabalistica, e la protezione che accordano le leggi dello Stato, come pure il rispetto alle leggi stesse, sono ritenute da tutte le persone assennate come indizio di civiltà e di progresso.

Il lettore ha capito che io consiglio la costituzione legale della latteria, secondo le norme segnate dal codice di commercio; precisamente queste norme si leggono all'art. 220 e seguenti, art. 91 e seguenti.

L'atto costitutivo deve essere steso da un notaio presente all'assemblea dei soci o per meglio dire di quegli individui che intendono diventare soci e che colla loro firma affermeranno questa loro volontà.

Il notaio, che sa il fatto suo, farà un rogito, nel quale sarà registrata l'approvazione dello statuto e quanto altro ha relazione colla costituzione della [39] nuova cooperativa. Siccome anche i componenti del consiglio d'amministrazione devono essere eletti in forma legale ed i loro nomi devono essere comunicati al Tribunale od alla Pretura, così, a risparmio di tempo e di denaro, conviene che i soci facciano nella stessa adunanza di costituzione l'elezione dei consiglieri della latteria, i quali devono essere scelti fra coloro che hanno firmato l'atto costitutivo. In tal modo il notaio registra in seguito all'atto costitutivo anche i nomi dei consiglieri d'amministrazione liberamente eletti dai soci.

La costituzione legale obbliga l'amministrazione della latteria a seguire certe norme riguardo le assemblee, i bilanci, la tenuta dei libri amministrativi. Queste norme, volute dal codice di commercio, sembrano a molti niente altro che superfluità, seccature, vessazioni, non compensate da equivalenti vantaggi. In vero se tutti i vantaggi offerti dal codice di commercio alle cooperative si riducessero all'esenzione delle tasse di registro e bollo dell'atto costitutivo (art. 228) e dei loro documenti o registri entro certi limiti di tempo e di capitale (legge 13 settembre 1874 n. 2077, serie II, sulle tasse di bollo), non ci sarebbe a rallegrarsi gran fatto dall'aver seguìto il codice di commercio, piuttosto che il sistema patriarcale antico, a base di buona fede reciproca e di parola detta piuttosto che di parola scritta.

Ma i soci devono considerare che i vantaggi materiali derivano dai vantaggi morali, che solo si ottengono mediante la costituzione legale dell'associazione, [40] la quale dà valore di legge ai diritti ed ai doveri dei soci e dei relativi amministratori; affinchè ciò avvenga occorre che l'atto costitutivo, recante lo statuto sociale, sia approvato dal R.º Tribunale, il quale può del resto respingerlo o modificarlo, se non trova lo statuto conforme alle disposizioni del codice di commercio ed alle leggi dello Stato in genere.

Mercè la costituzione legale, gli amministratori sostituiscono la responsabilità del sodalizio a quella della loro persona, il che è di particolare importanza in tutte le operazioni finanziarie che cagionano onere all'associazione; e quando si tratta di ricorrere al credito non v'ha dubbio che le cooperative legalmente riconosciute siano favorite in confronto a quelle di carattere semplicemente confidenziale.


Non intendo sviluppare vieppiù questo argomento, perchè soverchia il mio compito. Molto ci sarebbe a dire prò e contro il principio della costituzione legale; ma venendo ai casi pratici, si osserva che le latterie che sorgono oggidì si regolano a norma dell'ambiente, ossia delle attitudini morali ed intellettuali delle persone che vi agiscono.

Del resto, chi volesse studiare la questione a fondo ricorra ai buoni libri pubblicati in questi ultimi anni in merito alle cooperative.[4]

[41]

Cap. V. Questione di danaro.

Non si fondano latterie sociali senza danaro sul tavolo. Bisogna spendere per fare l'impianto della latteria, cioè preparare locali ed attrezzi; bisogna avere un gruzzolo alla mano per supplire alle spese d'esercizio almeno nei primi mesi, sinchè vengano riscossi i denari della vendita dei formaggi e sia avviata la circolazione di cassa; se lo statuto concede un determinato prezzo al latte, bisogna assicurarsi anche la somma occorrente a pagare il latte ai singoli soci. Prudenza vuole che sia preveduto il modo di colmare le eventuali lacune che si manifestassero in caso di cattivi affari della latteria. Occorre dunque il cosidetto capitale sociale.

Il comitato promotore deve stabilire il modo di radunarlo e questo deve essere sanzionato in apposito articolo dello statuto sociale, come ho già detto. Siccome la spesa grossa è quella richiesta dall'impianto, è naturale che il comitato stesso prima di presentare lo statuto all'assemblea debba fare studi [42] e preventivi in proposito, pur evitando di limitare l'orizzonte della latteria in quanto riguarda l'indirizzo tecnico da dare alla stessa.

Ho detto spesa grossa quella dell'impianto. Ma qualcuno potrà opporre che certe latterie si sono fondate con qualche centinaio di lire appena, racimolate o qua o là sotto forma di donazione per parte del comune o di qualche altro corpo morale; esse spesero poco o nulla pei locali, che ebbero in affitto anche gratuitamente; da qualche benefattore ebbero gli attrezzi principali, come bacinelle, zangola, ecc. dagli stessi soci, che già li possedevano, tutt'al più comperarono la caldaia di rame. Sono encomiabili i corpi morali ed i privati che conferiscono sussidî per la fondazione di latterie sociali, sono ammirabili gli ingegnosi contributi di attrezzi e di materiali e di lavoro manuale che si videro applicati in certe latterie sociali, ma è bene affermare che queste sono le vie di ripiego e che se fossero le sole vie capaci di dar vita a latterie sociali, la parte maggiore e migliore delle latterie cooperative italiane oggidì non esisterebbe.

Insomma l'esperienza insegna che il capitale sociale occorrente per una latteria, atta a lavorare da 4 a 10 quintali di latte al giorno, varia da quattromila a dodicimila lire, secondo l'importanza dell'impianto e secondo che occupansi locali già esistenti oppure che si fabbrichino locali appositi.

Per procurarsi un capitale di parecchie migliaia di lire, il modo più equo e più razionale è certamente quello di cotizzare tutti i soci indistintamente, [43] facendo loro versare una somma proporzionale al numero delle vaccine che possedono, somma che si può anche concretare sotto forma di azioni fruttifere o no, rimborsabili o no, per quanto lo permettono le risultanze dei futuri bilanci.

Per esempio, una latteria che abbia 250 vaccine inscritte potrà avere circa 10 quintali di latte al giorno, ritenendo una consegna media di 4 kg. di latte per ogni vaccina e dedotto il latte che ogni socio trattiene pel consumo della famiglia.

Per radunare un capitale di 10,000 lire bisogna imporre un azione di 40 lire per ogni vaccina; se però i soci escludono la costruzione del caseggiato, riducono l'acquisto degli attrezzi al minimo possibile ed approfittano di qualche facilitazione o donazione, allora il capitale occorrente può essere ridotto a circa 2500 lire, per cui basta l'obbligazione di 10 lire per ogni vaccina a raggiungerlo.

Questo sistema di reclutamento del denaro cammina speditamente finchè si tratta di proprietari che hanno qualche diecina di capi lattiferi, e che unitamente ad un certo grado d'istruzione hanno anche un gruzzoletto di soldi deposto sopra un libretto di risparmio, oppure nascosto in fondo del cassettone.

Ma quando si tratta di povera gente, che possiede una o due meschine vaccherelle, che a mala pena vive alla giornata, tirandola coi denti e forse con qualche arretrato da pagare, il sistema di reclutamento del capitale sociale in discorso incontrerebbe difficoltà gravissime. Se poi al vuoto della borsa si combina la scarsa preparazione degli animali [44] e la debole fiducia nell'esito della latteria, si può essere certi che neppure un soldo anticiperanno codesti presunti soci.

Ed allora bisogna ricorrere ad altro espediente e cioè al prestito presso qualche istituto di credito o presso un privato. Non poche latterie furono sovvenute da Banche popolari, anzi talune si possono chiamare emanazioni di una qualche Banca popolare. Dunque i soci assumono un capitale a prestito, con obbligazione collettiva, a mite interesse, capitale da restituirsi a rate annuali entro un decennio, aumentate dei corrispondenti interessi maturati.

Con qual denaro si pagano le rate annuali? Col profitto della latteria. Infatti mettendo a parte soltanto un centesimo per ogni chilog. di latte lavorato, una latteria, per esempio, che dispone anche di soli 4 quintali di latte al giorno, mediante la trattenuta sugli utili spettanti ai soci di un centesimo per chilog. di latte, raccoglie 4 lire al giorno e quindi 1440 lire all'anno. Si vede dunque che così facendo, in dieci anni si pagano dei grossi debiti. I soci non si accorgono del centesimo loro trattenuto ed alla fine dell'opera si trovano comproprietari della latteria senza aver cavato colle loro mani un soldo di tasca.

Ma non tutti gli affari in cui entra quel coefficiente morale che è la fiducia procedono a rigor di logica e sopra una falsariga comune; fra le altre cose può darsi il caso che non tutti i soci si dichiarino solidali circa il prestito che intendono contrarre, ed allora bisogna che firmino il contratto i più fiduciosi, i più audaci ed i più danarosi, sostituendo [45] così la loro responsabilità personale a quella della totalità dei soci.

I due sistemi di reclutamento esposti si possono anche associare, ossia si può stabilire che i soci paghino una piccola tassa di compartecipazione per ciascuna vaccina inscritta nella latteria, tassa che può essere di qualche lira ed anche meno di una lira per ogni vaccina, poi procurare la parte più grossa del capitale mediante un prestito.

Il far contribuire i soci alla fondazione della latteria con un po' di denaro, sia pure pochissimo quando non possono darne molto, ha un alto significato morale, poichè è indubitato che l'interessamento dei soci pel buon andamento della latteria è più grande quando essi sanno che la latteria loro costa denaro spillato dalle loro tasche. Il concetto della solidarietà e della cooperazione trova in tal caso una più verace ed intima estrinsecazione.

Il sistema delle azioni fruttifere è il migliore di tutti; ed i promotori della latteria non rinuncieranno a questo razionale mezzo di radunamento del capitale sociale senza aver tentato tutte le vie per applicarlo e farlo entrare nella convinzione dei presumibili soci.

Tra gli altri vantaggi che offre, esso permette di estendere l'ingresso all'associazione anche a persone che non siano produttori di latte; costoro diventano dunque azionisti interessati a far prosperare la latteria, così l'associazione attrae nel suo seno maggior numero di persone, prendendole nel ceto dei proprietari, dei professionisti, dei reddituari, ecc., tutta gente che oltre a fornir danaro, fornisce anche un [46] elemento prezioso per occupare le diverse cariche sociali, poichè la loro media istruzione e la competenza negli affari amministrativi è di solito superiore a quella dei semplici coltivatori e poi possono più facilmente di questi trovare nella loro giornata quel tempo che occorre per eseguire le mansioni inerenti alla carica sociale loro affidata.

[47]

Cap. VI. Lo Statuto sociale ed il Regolamento interno.

Ho detto che lo Statuto sociale è il contratto fondamentale che regola i reciproci rapporti dei soci. Esso viene intercalato in totalità od in parte nell'atto notarile di costituzione della Società e viene depositato presso il R. Tribunale. Una volta omologato da questo Tribunale, lo Statuto sociale ha forza di legge, e quindi tutti i soci sono obbligati ad osservarlo ed a farlo osservare.

Non sarà dunque eccessiva la ponderazione sia nel compilare questo documento, sia nell'esaminarlo, interpretarlo e modificarlo prima della sua approvazione ufficiale.

Di solito le latterie in via di costituzione si procurano lo Statuto di qualche altra latteria e lo adottano dopo avervi introdotto quelle modificazioni che sono richieste dai particolari casi.

A facilitare il compito delle costituende latterie espongo anch'io un modello o saggio di Statuto per una latteria sociale cooperativa. È impossibile che [48] desso risponda a tutte le esigenze di tutte le latterie, perchè ogni latteria ha la sua fisonomia particolare, ma c'è una quantità di articoli che possono e devono essere comuni a tutte quante le latterie.

Se il lettore avrà letto un certo numero di statuti di latterie sociali, ne avrà trovati di quelli assai lunghi e di quelli invece assai corti. Secondo me, questi estremi sono entrambi da evitarsi.

Infatti gli statuti troppo lunghi dicono molte cose di secondaria importanza, od anche inutili, perchè appartengono alle regole del buon senso, che tutti sono obbligati a conoscere ed a praticare; oppure sono troppo lunghi perchè si ripetono od amplificano cose già dette, quando pure non si contraddicono e non si confondono. Questi statuti imbarazzano la gente di campagna, che non ha l'abitudine del leggere e finiscono col non essere letti affatto.

Gli statuti troppo corti sono difettosi per questa ragione, che non considerando tutte le questioni caratteristiche di un'amministrazione a base industriale, lasciano adito all'arbitrio degli amministratori, come dei soci, quindi al disordine, alle parzialità, ai dissensi, alle lotte intestine, che portano quasi sempre alla morte della latteria.

Nel compilare il saggio di statuto che presento, mi sono tenuto lontano dai due estremi; vi ho contemplato le questioni essenziali al funzionamento della latteria, rimettendo le questioni secondarie al Regolamento interno; ho procurato di tenerlo in armonia alle prescrizioni del Codice di commercio, gli articoli che desso contiene li ho spigolati negli statuti [49] di varie latterie sociali e di altre società cooperative. Piuttosto che roba mia, è dunque materia passata pel vaglio dell'esperienza di molte persone, e perciò spero che il lettore le faccia buon viso.

Il carattere sostanziale di uno statuto è dato dalla questione finanziaria, cioè dal metodo adottato per raccogliere il capitale necessario all'impianto della latteria. Nel mio saggio di Statuto ho adottato il metodo delle azioni, perchè parmi quello più logico, più facile ad essere capito ed applicato. Ma tutte le volte che le condizioni locali, ovverosia l'ambiente economico-sociale non ne consente l'adozione, vorranno i promotori della latteria fare al Titolo II «Capitale sociale» quelle varianti che saranno del caso prima di presentare lo Statuto.

A taluni sembrerà forse troppo minuzioso il contenuto del Titolo IV «Ordinamento sociale». Le norme che contiene non sono pedanterie, nè semplici formalità; anzi io sono convinto che più i soci si atterranno ad esse, più chiaro, speditivo e semplice sarà l'andamento della Società. Non seguendo quelle norme, si cade nei così detti sistemi patriarcali, ammirabili fin che volete quando sono a base di buona fede reciproca, ma che troppo facilmente generano arbitrii, confusioni e diffidenze.

È vivamente a consigliarsi che lo Statuto sociale venga stampato e poscia distribuito ai soci. Se questa massima viene accettata, è bene che nella adunanza destinata alla costituzione legale della Società ed all'approvazione del relativo Statuto, questo venga presentato all'assemblea in forma di bozza col nome di [50] progetto di statuto, e che ogni persona facente parte dell'assemblea ne abbia un esemplare. Sarà anzi cura dei promotori di recapitare le dette bozze qualche giorno prima dell'assemblea a quelle persone che si conoscono o si presumono aderenti alla costituzione della latteria cooperativa.

Espongo anche un modello o saggio di Regolamento interno per una latteria sociale cooperativa, che sembrami adottabile ed applicabile nel maggior numero di latterie.

Il Regolamento riferisce quelle norme di secondo ordine, che sono più facilmente mutabili e che si possono anche modificare quando le circostanze lo richiedono. Mentre lo Statuto determina e scolpisce la fisonomia economico-morale della Società, il Regolamento considera le operazioni interne della latteria nei loro rapporti coi singoli soci e precisa le mansioni del personale assunto con retribuzione.

Mentre che non si deve chiedere all'assemblea dei soci modificazioni allo Statuto se non in casi di alta importanza, e colle volute garanzie di forma, il Regolamento essendo materia più plastica e più pedestre, può e deve essere ritoccato tutte le volte che il Consiglio d'amministrazione lo creda utile: questo però sempre col consenso dell'assemblea.

Nel saggio di Regolamento che espongo dedico un lungo articolo alle mansioni del casaro, argomento di una certa importanza, e di solito poco o nulla curato dalla generalità delle latterie.

[51]

Cap. VII. Modello di Statuto per una latteria sociale cooperativa.

TITOLO I. Costituzione, sede, durata e scopo della Società.

Art. 1. — È costituita con sede nel comune di... prov. di... un'associazione cooperativa (Società anonima a capitale illimitato) col titolo di «Latteria cooperativa di....»

Art. 2. — Essa avrà la durata di anni 30 dal giorno.... con facoltà di prorogarsi, salvo i casi previsti dal Codice di Commercio e dal presente Statuto.

Art. 3. — Essa ha per iscopo di radunare il latte dei soci per lavorarlo con metodi perfezionati, vendendo i prodotti del latte per conto sociale ed utilizzando i relativi cascami, affinchè si tragga dal latte il maggior profitto possibile a vantaggio dei produttori.

Curerà il miglioramento delle razze bovine, dei pascoli, delle stalle, nell'intento di produrre latte in maggior quantità e di buona qualità.

[52]

TITOLO II. Capitale sociale.

Art. 4. — Il capitale sociale è costituito:

a) da azioni di L..... cadauna. Le azioni sono fruttifere se ed in quanto lo permettono le risultanze dei bilanci annuali.

b) dalle tasse d'ammissione dei nuovi soci;

c) dal fondo di riserva, formato con una parte degli utili netti annuali;

d) dai proventi eventuali.

Art. 5. — Le azioni sono nominative. La proprietà delle azioni è stabilita mediante inscrizione nel libro dei soci a termini degli art. 140 e 223 del Codice di Commercio.

Il trapasso delle azioni deve essere approvato dal Consiglio d'amministrazione e registrato sul libro dei soci.

Le azioni sono vincolate a favore della Società per tutti gli obblighi di qualsiasi natura contratti dal socio verso la medesima.

Art. 6 — Il pagamento delle azioni è fatto per regola in una sol volta. Però l'assemblea dei soci ha facoltà di ammettere e stabilire il pagamento rateale delle azioni per un determinato periodo di tempo. Le azioni diventano fruttifere soltanto quando sono completate.

Art. 7. — La tassa d'ammissione viene determinata dall'assemblea dei soci di anno in anno, dietro proposta del Consiglio d'amministrazione.

[53]

TITOLO III. Soci, loro ammissione, diritti, doveri, recesso.

Art. 8. — Si acquista la qualità di socio mediante la sottoscrizione od il possesso di almeno una azione.

Art. 9. — Dopo la costituzione della Società coloro che vogliono farne parte devono presentare domanda scritta al Consiglio d'amministrazione, firmata dal richiedente e da due soci. Nella domanda verrà indicato il numero delle vaccine possedute, la località ove si trovano ed il numero delle azioni che il richiedente desidera acquistare.

Il Consiglio d'amministrazione delibera sull'accettazione della domanda. Nel caso di rifiuto non è obbligato a darne i motivi.

Art. 10. — Col fatto di aver chiesto ed ottenuto la qualità di socio, questi accetta gli obblighi portati dal presente Statuto e dai regolamenti sociali debitamente approvati e risponde sino alla concorrenza delle azioni da lui possedute per tutti gli obblighi assunti dalla Società.

Art. 11. — Possono far parte della Società le persone giuridicamente capaci ed anche i Corpi morali, le associazioni, i minori, gli interdetti, a mezzo dei loro legali rappresentanti.

Ne sono escluse le persone aventi interessi contrari alla Società, nonchè le persone di riprovevole condotta morale e sociale.

Art. 12. — Ogni socio ha il dovere di consegnare alla Latteria ogni giorno, secondo gli orari ed i modi [54] che verranno stabiliti dal Consiglio d'amministrazione, il latte genuino prodotto dalle sue vaccine, eccettuato quello occorrente ai bisogni giornalieri della sua famiglia ed all'allevamento dei vitelli.

Art. 13. — Ogni socio ha il diritto:

a) di partecipare al patrimonio ed agli utili netti della Società in proporzione delle proprie azioni e del latte da lui consegnato;

b) di acquistare anche al minuto i prodotti della latteria, nella misura ed al prezzo che verrà fissato dal Consiglio d'amministrazione;

c) di votare nelle assemblee sociali e di essere eletto alle cariche sociali, purchè abbia versato alla Società l'intero importo delle azioni da lui sottoscritte;

d) di vigilare l'andamento della Società, la fabbricazione dei latticini e di presentare le sue eventuali obbiezioni al Consiglio d'amministrazione.

Art. 14. — Il Consiglio d'amministrazione ha facoltà di escludere dalla Società il socio:

a) che abbia, a scopo di frode, consegnato latte adulterato o falsificato o guasto od altrimenti anormale.

b) che abbia subito condanne infamanti o commesse azioni riputate disonorevoli dal Consiglio stesso.

c) che abbia in qualsiasi modo recato danno alla Società.

Contro le deliberazioni del Consiglio il socio può appellarsi al Comitato degli arbitri.

Art. 15. — Nel caso di esclusione del socio, la Società gli rimborsa l'importo delle sue azioni al prezzo [55] corrente, salvo sempre il diritto di compensarsi pei danni eventualmente subiti coll'importo stesso.

TITOLO IV. Ordinamento sociale.

Art. 16 — Al regolare funzionamento della Società si provvede:

a) coll'assemblea generale dei soci;

b) col Consiglio d'amministrazione, composto di sette membri;

c) con un Comitato di tre sindaci effettivi e due supplenti;

d) con un Comitato di tre arbitri o probiviri;

e) con quel personale che si crederà necessario assumere in servizio.

Tutte le cariche sociali, di cui alla lettera b, c, d sono gratuite.

Art. 17. — L'assemblea generale dei soci è il potere costituente della Società, ed una volta radunata colle norme prescritte, essa delibera validamente su tutti gli affari demandatile dal presente Statuto.

Le assemblee sono ordinarie o straordinarie.

Assemblea generale dei soci.

Art. 18. — L'assemblea ordinaria ha luogo ogni anno nel primo trimestre allo scopo:

a) di esaminare ed approvare il conto consuntivo dell'esercizio ultimo, sentita la relazione dei sindaci;

[56]

b) nominare le cariche sociali;

c) deliberare sugli articoli posti all'ordine del giorno.

Art. 19. — Le assemblee straordinarie vengono convocate quando il Consiglio d'amministrazione lo crede necessario, quando sono chieste dal Comitato dei sindaci, o da almeno un terzo dei soci mediante domanda in iscritto firmata da questi.

Art. 20. — Il Comitato dei sindaci ed anche i soci hanno facoltà di proporre oggetti da mettersi nell'ordine del giorno da trattarsi all'assemblea. Le relative proposte scritte e firmate devono essere presentate al Consiglio almeno un mese prima della convocazione dell'assemblea, e quelle d'iniziativa dei soci devono essere firmate da almeno un decimo dei soci.

Art. 21. — Il Consiglio convocherà le assemblee mediante avviso affisso alla porta esterna della latteria e pubblicazione sul giornale degli annunzi legali della rispettiva provincia, almeno quindici giorni prima dell'adunanza. Inoltre farà tenere ai soci, almeno otto giorni prima dell'adunanza, l'invito all'assemblea.

Art. 22. — Nell'avviso di convocazione saranno indicati il giorno, l'ora ed il luogo dell'adunanza, nonchè gli oggetti posti all'ordine del giorno.

Art. 23. — L'assemblea è validamente costituita quando intervenga almeno un terzo dei soci.

Se non si raggiunge questo numero si procederà ad una seconda convocazione, che avrà luogo nel settimo giorno successivo, salvo i casi di assoluta urgenza, pei quali basterà l'intervallo di un giorno

[57]

In seconda convocazione l'assemblea è valida qualunque sia il numero dei soci presenti.

Art. 24. — Aperta la seduta ed accertata la validità dell'assemblea dal presidente della Società o da chi ne fa le veci, l'assemblea nomina il presidente della stessa, quale incaricato di dirigere la discussione; ed il presidente nomina il segretario e gli scrutatori tra i soci presenti.

Possono fungere da presidente e da segretario dell'assemblea il presidente della Società ed il segretario del Consiglio d'amministrazione.

Art. 25. — Le deliberazioni sono prese a maggioranza assoluta di voti. Trattandosi di persone oppure quando almeno la metà dei soci presenti lo richiedono, si procede a scrutinio segreto.

Nel caso di parità di voti, la proposta si intende respinta.

Nell'approvazione del conto consuntivo si astengono dal votare i membri del Consiglio d'amministrazione.

Art. 26. — L'assemblea non può deliberare su altri oggetti all'infuori di quelli posti all'ordine del giorno.

Art. 27. — Ogni socio ha facoltà di farsi rappresentare all'assemblea da altro socio o da persona estranea alla Società, mediante delegazione scritta in calce alla lettera d'invito o mediante semplice lettera, da prodursi al principio della seduta all'ufficio di presidenza.

Ogni persona non può avere più di una rappresentanza. Il socio delegato da altro socio dispone di due voti, compreso il proprio.

[58]

I membri del Consiglio d'amministrazione non possono essere mandatari.

Art. 28. — Le deliberazioni delle assemblee sono constatate da processo verbale, firmato dal presidente, dal segretario e dagli scrutatori se questi intervennero.

Elezioni alle cariche sociali.

Art. 29. — Le elezioni di sette consiglieri, di tre sindaci effettivi e due supplenti, di tre arbitri, sono fatte dall'assemblea mediante votazione a schede segrete.

I candidati che ottengono maggior numero di voti vengono proclamati eletti. Nel caso di parità di voti, la nomina spetta al maggiore d'età.

Art. 30. — Ognuno degli eletti farà constare colla propria firma l'accettazione della carica.

Nel caso di rifiuto resterà eletto quello dei candidati che nello scrutinio avrà ottenuto maggior numero di voti dopo l'ultimo nominato.

Art. 31. — Allorchè per qualsiasi motivo si rendono vacanti dei posti nel Consiglio d'amministrazione, i consiglieri che rimangono quando siano almeno in quattro, possono in unione ai sindaci chiamare altri soci a sostituire i mancanti; ma quando i posti vacanti siano più di tre, devesi convocare l'assemblea affinchè proceda alle elezioni suppletorie.

I consiglieri scelti dal Consiglio in unione ai sindaci scadono il giorno della prossima assemblea ordinaria, alla quale spetta la nomina definitiva.

[59]

Consiglio d'Amministrazione — Presidente — Segretario.

Art. 32. — La rappresentanza e la gestione della Società è devoluta ad un Consiglio di amministrazione, composto di sette soci, che vengono eletti dall'assemblea generale.

Art. 33. — I membri del Consiglio durano in carica due anni, ma un anno dopo le elezioni generali quattro consiglieri scadono per sorteggio; negli anni successivi la scadenza è determinata dall'anzianità.

Tutti sono rieleggibili.

Colla perdita della qualità di socio cessa di diritto anche la qualità di membro del Consiglio.

Art. 34. — Le funzioni dei membri del Consiglio sono gratuite. Questi sono esonerati dal prestare cauzione e non contraggono per effetto della loro gestione, di fronte ai terzi, altra responsabilità che quella determinata dal Codice di commercio.

Art. 35. — Il Consiglio di amministrazione sceglie nel proprio seno il presidente, il vice-presidente ed il segretario.

In assenza dei due primi fa le veci di presidente il consigliere più anziano per nomina ed a parità di anzianità quello che ebbe maggiori voti nelle elezioni.

Art. 36. — Il Consiglio esercita tutti gli atti di ordinaria e straordinaria amministrazione, che per il presente Statuto non siano esclusivamente riservati all'assemblea dei soci e particolarmente:

a) delibera sulla compera e sulla vendita di beni mobili e stabili;

[60]

b) stabilisce la pianta del personale retribuito, fa la nomina ed il licenziamento di questo, oppure la sospensione dello stipendio, secondo le circostanze;

c) sorveglia l'andamento dell'azienda ed impartisce le necessarie disposizioni;

d) fa eseguire lo Statuto e le deliberazioni dell'assemblea;

e) delibera sull'ammissione e l'esclusione dei soci;

f) stabilisce la misura della tassa d'ingresso pei nuovi soci ed i prezzi di vendita dei generi ottenuti nel casello sociale;

g) provvede alla compilazione dei bilanci annuali e propone riparto degli utili;

h) determina ed applica le multe ai soci che consegnano latte alterato od anormale;

i) manda alla decisione degli arbitri quelle contestazioni di cui non vuol assumere la responsabilità del giudizio prima di sentire l'avviso di quelli;

l) compila il Regolamento interno della Latteria, nel quale sono stabilite le mansioni del personale retribuito, gli orari, le modalità del funzionamento, sia in rapporto al personale stesso, sia in rapporto ai soci. Il Regolamento dovrà essere approvato dall'assemblea generale.

Art. 37. — Il Consiglio stabilisce l'epoca delle proprie riunioni periodiche e può altresì essere convocato in via straordinaria dal presidente o da chi ne fa le veci.

Alla legalità delle sue deliberazioni si richiede la presenza di almeno quattro consiglieri.

[61]

Le deliberazioni sono prese a maggioranza assoluta di voti, ed in caso di parità di voti prevale il voto di chi presiede il Consiglio.

La votazione segreta si adotta quando trattasi di persone o quando venga domandata anche da uno solo dei consiglieri.

Gli atti del Consiglio, registrati sul Libro dei verbali, vengono firmati da tutti i consiglieri presenti alla seduta.

Art. 38. — Il presidente o chi ne fa le veci rappresenta legalmente la Società in confronto dei terzi ed in giudizio, fa eseguire le deliberazioni dell'assemblea e del Consiglio d'amministrazione, firma la corrispondenza in unione al segretario, firma i mandati di pagamento e le reversali di cassa, convoca il Consiglio quando lo crede opportuno.

Art. 39. — Il consigliere segretario tiene e controfirma la corrispondenza, stende i verbali delle sedute del Consiglio ed eventualmente delle assemblee, tiene la contabilità dell'azienda, oppure la sorveglia nel caso che questa sia affidata ad altra persona.

Sindaci — Arbitri.

Art. 40. — Il Comitato dei sindaci è composto di tre membri effettivi e due supplenti, scelti dall'assemblea generale fra i soci; durano in carica un anno e sono rieleggibili.

Art. 41. — I Sindaci adempiono a tutti gli obblighi loro demandati dall'art. 184 del Codice di commercio. Essi vigilano l'andamento della Società: controllano la cassa, i registri, la contabilità, riferiscono sul bilancio [62] annuale con apposita relazione all'assemblea generale ordinaria, hanno diritto di promuovere la convocazione dell'assemblea generale e di assistere alle sedute del Consiglio d'amministrazione, con facoltà di fare proposte ed osservazioni, senza però partecipare alla votazione; in ogni tempo hanno diritto di ottenere dal Consiglio notizie e schiarimenti sulle diverse operazioni sociali.

Art. 42. — Il Comitato dogli arbitri o probiviri è composto di tre membri nominati dall'assemblea generale, i quali durano in carica due anni e sono rieleggibili. Essi possono essere scelti anche fra i non soci.

Art. 43. — Gli arbitri decidono tutte le controversie che insorgono tra soci e soci, tra soci ed amministratori, tra questi e gli impiegati della Società, purchè siano inerenti a questioni contemplate dallo Statuto o dal Regolamento sociale.

Il loro giudizio può essere chiesto dal Consiglio d'amministrazione, come dalle altre parti interessate.

Personale retribuito.

Art. 44. — Il personale assunto in servizio con retribuzione dipende direttamente dal Consiglio d'amministrazione, al quale è devoluta la facoltà di nomina e di revoca, nonchè di fissarne lo stipendio e le mansioni.

Esso deve ottemperare a tutte le prescrizioni e norme indicate dallo Statuto sociale e dal Regolamento.

Art. 45. — Il personale tecnico retribuito consterà [63] di almeno un casaro ed un sotto-casaro. È in facoltà del Consiglio di aumentare il numero di questi lavoranti, nonchè di assumere altri operai ed anche un direttore quando lo esiga l'importanza e lo sviluppo della latteria.

Qualora non sia possibile trovare fra i membri del Consiglio chi faccia le funzioni di contabile e di cassiere gratuitamente, il Consiglio stesso è autorizzato ad affidare queste mansioni a persone estranee, fissandone la relativa retribuzione.

Al cassiere può farsi obbligo di prestare cauzione.

TITOLO V. Bilancio — Ripartizione degli utili — Fondo di riserva.

Art. 46. — Alla fine di ogni anno il Consiglio di amministrazione eseguisce l'inventario delle attività e delle passività coi rispettivi valori e compila il conto consuntivo della gestione annuale, mettendo in evidenza:

a) il capitale sociale, colla indicazione del numero delle azioni versate e di quelle sottoscritte;

b) l'ammontare delle attività e delle passività;

c) gli utili realmente conseguiti e le perdite sofferte;

d) la ripartizione degli utili.

Tutti questi conti verranno consegnati ai sindaci almeno trenta giorni prima del giorno fissato per l'assemblea generale e poscia presentati all'assemblea generale nel primo trimestre successivo alla fine di ciascuna gestione sociale (art. 18).

[64]

La gestione sociale decorre del giorno..... al giorno.....

Art. 47. — Dal prodotto attivo della gestione per avere gli utili netti si dovrà dedurre:

a) l'importo di tutte le spese d'esercizio, compresi stipendi, salari, fitto, imposte, riparazioni, interessi passivi dei terzi;

b) l'ammortamento del capitale immobilizzato;

c) nel primo anno d'esercizio anche le spese richieste per la preparazione e costituzione della Società.

Gli utili netti accertati verranno ripartiti nella misura seguente:

il 20% al fondo di riserva;

il 65% come dividendo ai soci in ragione del latte da essi consegnato alla latteria;

il 10% alle azioni; però qualora questa proporzione portasse l'interesse sulle azioni a più del 5 per 100 del loro valore in corso, l'eccedenza passerà al fondo di riserva;

il 5% a disposizione del Consiglio d'amministrazione perchè lo eroghi a qualcuno di questi scopi: a) spese di propaganda; b) premi al personale tecnico; c) aumento del fondo di riserva.

Art. 48. — Il fondo di riserva è costituito:

a) col prelevamento annuo sugli utili dell'esercizio di cui all'articolo precedente;

b) colle tasse di ammissione dei soci;

c) col prodotto delle multe;

d) coi risparmi od interessi abbandonati;

e) coi proventi eventuali.

[65]

Art. 49. — Allorchè la riserva avrà raggiunto la metà del capitale sociale, la quota di utili ad essa spettante verrà ripartita fra i soci ad aumento del profitto loro spettante in ragione del latte consegnato.

In caso però che la riserva venisse successivamente a diminuire, le sarà devoluta nuovamente la quota degli utili di cui all'articolo precedente, e ciò sino a che abbia raggiunto la metà del capitale sociale.

TITOLO VI. Scioglimento della Società.

Art. 50. — La Società potrà sciogliersi anche prima del termine prefisso quando si verificasse la perdita di almeno metà del capitale sociale, oppure quando lo scioglimento fosse deliberato da una assemblea generale dei soci, espressamente convocata a tale scopo, colla maggioranza di almeno tre quarti dei membri della Società.

Art. 51. — A scioglimento deliberato, l'assemblea nomina i liquidatori, che possono essere scelti anche fuori dei soci e determina le norme riguardanti la liquidazione e l'erogazione dell'attività residua.

L'attività residua può essere ripartita fra i soci in ragione della rispettiva quota d'azioni.

[66]

TITOLO VII. Disposizioni diverse.

Art. 52. — Ogni modificazione al presente Statuto non può essere fatta che dall'assemblea generale dei soci, in seguito a convocazione e deliberazione eseguite secondo le norme indicate al titolo IV.

[67]

Cap. VIII Modello di Regolamento interno per una latteria sociale cooperativa.

Art. 1. — I soci devono notificare all'amministrazione il numero delle vacche che possedono e qualunque variazione accada nel numero stesso, nonchè la manifestazione di qualche malattia di natura infettiva.

Art. 2. — Il Consiglio d'amministrazione ha facoltà di visitare o di far visitare da persona idonea il bestiame e le stalle dei soci, senza alcun preavviso ed in qualunque epoca, nonchè di assistere alla mungitura, di assicurarsi dello stato sanitario del bestiame, dell'esecuzione delle norme riferentisi alla pulizia dei recipienti ed all'alimentazione del bestiame lattifero.

Art. 3. — La mungitura si farà colla maggior pulizia possibile, raccogliendo il latte entro recipienti metallici stagnati e perfettamente puliti.

Art. 4. — Ogni socio deve portare alla Latteria e consegnare al casaro od a chi per esso, il latte appena munto, due volte al giorno negli orari stabiliti [68] dal Consiglio, che saranno indicati per iscritto sopra foglio affisso nella Latteria.

I soci dovranno eseguire la mungitura ad ora opportuna affinchè la consegna del latte avvenga appena finita quella.

Verrà rifiutato il latte portato alla Latteria fuori degli orari stabiliti.

Il latte sarà contenuto entro recipienti metallici stagnati e puliti, muniti di coperchio.

Art. 5. — Il latte da consegnare dovrà essere puro, genuino e di caratteri normali.

Non si dovrà consegnare alla Latteria che latte di vacca, escluso:

a) il latte di vacche ammalate;

b) il latte di vacche sgravate da meno di otto giorni;

c) il latte anormale od alterato per qualsiasi ragione;

d) il latte residuato nei secchi dopo l'abbeveramento di vitelli.

È altresì vietato mescolare il latte di una mungitura con quello di un'altra.

Il casaro, o chi per esso, ha facoltà di rifiutare il latte che si trovasse nelle sopradette condizioni, ed il socio fornitore è passibile delle penalità stabilite nel presente Regolamento.

Art. 6. — Ogni socio non può consegnare sotto il proprio nome latte prodotto da terzi, senza speciale permesso del Consiglio d'amministrazione.

Art. 7. — I soci sono obbligati a consegnare alla Latteria tutto il latte prodotto dalle loro vaccine, [69] eccettuato quello necessario al consumo delle rispettive famiglie ed all'allevamento dei vitelli nei limiti della consuetudine locale.

È loro vietato il vendere latte ad altri od a lavorarne anche una piccola quantità per conto individuale.

Art. 8. — Allorchè il casaro, o chi per esso, farà sul latte dei singoli soci le indagini per accertarsi della qualità del latte stesso, i soci interessati avranno facoltà di assistervi e di controllarne i risultati.

Art. 9. — Il Consiglio d'amministrazione, d'accordo col casaro, ha facoltà di applicare ai soci le seguenti penalità:

a) multa di una lira a chi consegna latte sporco od in recipienti non puliti;

b) multa da lire cinque a dieci a chi consegnerà latte annacquato o spannato od alterato ed anormale per le ragioni contemplate dall'art. 5. Pei recidivi la multa sarà da lire undici a cinquanta. Alla terza infrazione il socio può essere espulso ed obbligato ad indennizzare la Società del danno da lui cagionato;

c) multa equivalente a circa la metà del valore del latte a chi abitualmente ritarda la consegna del latte, in modo da nuocere al regolare andamento della Latteria.

In tutti i casi, il latte può essere rifiutato, tutto od in parte, a giudizio del casaro o di chi per esso.

I soci colpiti dalle dette penalità possono interporre ricorso al Comitato degli arbitri, i quali giudicano inappellabilmente.

[70]

Art. 10. — I soci hanno facoltà di prelevare dalla Latteria senza pagamento immediato latticini e cascami del latte, per loro uso, a quel prezzo che verrà stabilito dal Consiglio d'amministrazione, e sino all'ammontare di metà del valore approssimativo del latte stesso, quale verrà deliberato, in via preventiva, dal Consiglio d'accordo coi sindaci.

Per la distribuzione delle merci verrà stabilito un orario, che sarà affisso nella Latteria.

È vietato ai soci il far commercio dei generi prelevati.

Art. 11. — L'acconto in denaro che possono prelevare i soci, quando il Consiglio lo concede, non supererà la metà del valore del latte accreditato agli stessi, computando anche i generi eventualmente prelevati.

Art. 12. — Ogni socio riceve un libretto annuale, recante il suo nome ed il numero di matricola, sul quale libretto viene registrato da chi riceve il latte alla Latteria, la quantità di latte portata ogni giorno ed ogni volta, nonchè la quantità, la qualità ed il prezzo dei generi ritirati e gli acconti in denaro eventualmente prelevati.

Tutto questo movimento viene altresì consegnato nei registri tenuti dal Consiglio di amministrazione, i quali sono ostensibili ai soci che desiderano esaminarli.

Art. 13. — Sono mansioni del casaro:

a) il ricevere il latte portato dai soci, pesarlo e scriverne tosto la quantità sia sul libretto del socio, sia sul registro della Latteria;

[71]

b) vigilare che il latte sia genuino e rispondente alle disposizioni degli articoli 4 e 5. All'uopo eseguirà opportuni assaggi mediante gli strumenti messi a sua disposizione. Riferirà al Consiglio nel più breve tempo possibile ogni infrazione che egli verificasse alle dette disposizioni;

c) fabbricare i diversi prodotti del latte, che saranno stabiliti dal Consiglio, e curarne la stagionatura e la conservazione.

d) tenere in corrente il registro della lavorazione giornaliera del latte;

e) vendere i prodotti della Latteria ai prezzi e colle norme che verranno determinate dal Consiglio;

f) curare l'allevamento dei maiali e dei vitelli che la Società credesse di tenere per proprio conto;

g) custodire e tenere in buono stato tutto il materiale contenuto od annesso alla Latteria;

h) visitare le stalle, le vaccine dei soci, assistere alla mungitura, quando egli lo crede opportuno, per riconoscere qualche inconveniente o quando sia invitato dal Consiglio, al quale egli dovrà riferire il risultato delle sue indagini;

i) proporre al Consiglio quei provvedimenti e quelle disposizioni che egli reputa utili al miglior funzionamento della Latteria ed agli interessi della associazione.

Art. 14. — Il sottocasaro coadiuva il casaro in tutte le sue mansioni e sta agli ordini di questo.

Art. 15. — Il contabile assiste al ricevimento del latte, registra le quantità consegnate dai singoli soci, tiene in corrente tutti i registri inerenti all'amministrazione, [72] compila i rendiconti richiesti dal Consiglio e coadiuva questo nella compilazione dei bilanci.

Art. 16. — Il cassiere custodisce il numerario ed i titoli di credito dell'associazione, fa gli incassi ed i pagamenti ordinati dal Consiglio, tiene in corrente il registro di cassa ed è responsabile di tutto il movimento di cassa sociale.

Art. 17. — Ogni salariato è responsabile verso l'associazione degli errori, negligenze e perdite provenienti dal suo operato. Dovendo assentarsi dal Comune od essendo impedito dal prestare regolarmente l'opera sua per qualsiasi ragione, esso informerà in tempo utile il Consiglio d'amministrazione affinchè questo possa provvedere alla supplenza od alla sostituzione definitiva.

[73]

Cap. IX. Impianto ed indirizzo tecnico della latteria.

L'impianto materiale della latteria consta di due parti, cioè il fabbricato, ossia i locali, e gli attrezzi.

Prima di concretare un progetto ed un preventivo della spesa occorrente a tutto quanto, il comitato promotore della costituenda latteria, oppure il Consiglio d'amministrazione della latteria costituita, deve studiare e determinare l'indirizzo tecnico ed economico della latteria, perchè a questo indirizzo è subordinato tutto l'impianto.

Se tutti questi signori non si sentono competenti ad affrontare la questione tecnica almeno nelle sue linee generali, ricorrano al parere di persone capaci, fra le quali può essere anche lo stesso casaro che intendesi assumere al servizio pel funzionamento della latteria.

La questione tecnica che devono risolvere è questa: quale modo di sfruttamento del latte conviene adottare e quale tipo di formaggio produrre?

Per rispondere a questa domanda bisogna indagare [74] quali sono i tipi di formaggio più largamente consumati nella plaga ove ha sede la latteria e quali formaggi sono fabbricati nella plaga stessa, seppure vi esistono latterie in funzione.

Considerati i prezzi che realizzano i diversi tipi di formaggio sul luogo e fuori del luogo, considerate le spese d'impianto e di esercizio inerenti ai diversi tipi di formaggio, si deciderà il modo di sfruttamento del latte che sarà adottato dalla latteria.

Questa decisione è della massima importanza e sarà bene spesso causa di non pochi imbarazzi e di vivaci dispute fra i soci. M'imagino che taluno di questi consulti il mio libro e dopo aver letto questo capitolo trovi che il mio dire non è abbastanza esplicito e che non gli insegno quanto occorre per dissipare i suoi dubbi e per mostrargli la via giusta e retta da seguire. Ma pensate, o cari lettori, che io non scrivo per una data latteria di una data località, ma scrivo per tutte le latterie e per tutte le provincie d'Italia; perciò non potendo entrare nelle innumerevoli condizioni locali delle singole latterie, devo limitarmi ad indicare le norme generali atte a risolvere il problema; ma la risoluzione di questo è proprio compito delle singole latterie e vuol essere fatta sul posto dalle persone stesse che vi sono interessate.

Infatti guardiamo attorno per l'Italia: vediamo latterie che fabbricano formaggi magri e burro e vi trovano il loro tornaconto, vediamo altre latterie che fabbricano invece formaggi grassi e si trovano altrettanto bene nei riguardi del tornaconto. Il che [75] vuol dire che un metodo che conviene in un luogo non conviene in un altro.

Ogni plaga ha le sue predilezioni e le sue tradizioni in fatto di formaggio, tutte cose da non trascurare, perchè rappresentano sempre una somma di esperienza dovuta al volgere degli anni, che nessuna sapienza d'uomo potrebbe nè improvvisare, nè sostituire.

La prima domanda che si fanno i promotori o gli amministratori di una latteria è certamente questa: dobbiamo lavorare pel consumo locale oppure pel grande commercio?

Il lavorare pel consumo locale è certamente compito più facile poichè si tratta di adattare la produzione ad abitudini ed a gusti conosciuti. Il fabbricare i tipi di formaggio che sono acclimati già da tempo nel territorio della latteria è cosa più facile che l'introdurre la fabbricazione di tipi nuovi, pei quali bene spesso occorre un periodo di tentativi prima di acclimarli e che in ogni modo espongono la latteria all'alea inerente ad una produzione nuova e ad un commercio nuovo.

Riassumendo, vi sono tre diversi indirizzi tecnici, contraddistinti da diverso grado di difficoltà e d'impegno per la latteria, così per l'impianto come per l'esecuzione; i quali, messi in graduatoria nell'ordine crescente, sono:

1º fabbricazione di latticini abituali ed acclimati nella plaga, destinati al solo consumo locale.

2º fabbricazione di latticini acclimati nella plaga, destinati al grande commercio.

[76]

3º fabbricazione di latticini nuovi alla plaga ad imitazione di tipi nazionali ed esteri, destinati al grande commercio.

Alla sagacia dei soci il scegliere quell'indirizzo che più si adatta all'ambiente materiale e morale della latteria. Soggiungo che l'uno non esclude l'altro e che tutti e tre si possono associare in una sola latteria; è questione di sapere e di volere. Anzi troppo spesso mutano le vicende commerciali anche in fatto di burro e di formaggio, sicchè succede che una certa lavorazione diventi talvolta meno rimunerativa per ragioni commerciali improvvise, come ribasso di prezzi, diminuito consumo, sovraproduzione della merce, ecc. Un'amministrazione oculata deve dunque prevedere anche questi eventi e tenersi preparata ad introdurre nella latteria quelle riforme che l'interesse dell'associazione richiede. Di ciò va tenuto conto nel preventivo d'impianto e nell'eseguire l'impianto stesso.

Non è compito di questo libro l'indagare i diversi modi di lavorazione del latte, la qual cosa spetta propriamente ai trattati di caseificio.[5] Tuttavia, sempre restando nell'argomento dell'indirizzo tecnico, non posso a meno di rammentare ai fondatori della latteria che lo sfruttamento del latte può essere fatto a base di burro od a base di formaggio e che devono pronunciarsi per l'uno o per l'altro modo, poichè ciò ha intima relazione colla qualità dell'impianto.

[77]

Se la latteria basa il suo principale profitto sul burro, avrà il latte magro ridotto alle condizioni di un quasi cascame; potrà cavarne formaggio magro, oppure utilizzarlo in altro modo.

La produzione intensiva del burro di prima qualità non può essere fatta che a mezzo delle scrematrici centrifughe; ed è evidente che in tal caso il progetto d'impianto deve essere specializzato in armonia al funzionamento di queste macchine.

Se invece la latteria basa il suo principale profitto sul formaggio, allora può dedicarsi alla fabbricazione di qualche buon tipo di formaggio, mentre il burro diventerà prodotto secondario, sia per quantità sia per qualità.

Il fare tanto e buon burro insieme a tanto e buon formaggio è cosa estremamente difficile; anzi sono due risultati praticamente incompatibili, che si escludono a vicenda.

Riassumo in un prospetto i diversi modi di sfruttamento del latte di vacca ed i prodotti commerciali più importanti che se ne possono ricavare, lusingandomi che desso contempli i bisogni della generalità delle latterie italiane e sia applicabile a tutte le provincie d'Italia.

[78]

Sfruttamento del latte a base di:

burro formaggio
   
ARTICOLI PRODOTTI
   
Burro di panna   formaggio grasso Emmenthal
e
latte magro utilizzato per
formag. magro (svedese) caciocavallo
formag. margarinato fontina
caseina per uso industriale montasio
allevamento di vitelli o di maiali stracchini
    provole
    e
    burro di siero
    oppure
    formag. mezzo grasso
o quasi magro
Gruyère
    grana
    Bra
    tome
    e
    burro di panna

All'elenco delle utilizzazioni del latte magro, come pure a quello dei diversi formaggi grassi e mezzo grassi aggiungo un eccetera, che è di prammatica, ma credo di aver detto abbastanza perchè i promotori della latteria possano scegliere a loro talento la via più giusta e più confacente agli interessi dell'associazione.

[79]

Cap. X. I locali per la latteria.

Si costruiscono le chiese sul tipo delle chiese, i teatri coll'ossatura dei teatri, le stalle sul modello delle stalle, ed anche le latterie devono essere costrutte a guisa di latterie, perchè così lo esige la specialissima industria che in esse vien esercitata. Questa massima non si può capire intimamente se non si conosce alquanto la lavorazione del latte e quanto delicata ed esigente essa sia.

Si vedono molte latterie allogate in locali di ripiego, preesistenti alla loro istituzione, adattati alla meglio od alla peggio. Ma se ne vedono anche molte altre, sistemate invece entro locali appositamente costrutti, per la qual cosa i soci hanno fatto qualche sforzo pecuniario, sorretti dalla persuasione che il danaro che spendevano nel nuovo fabbricato avrebbe dato sotto diverse forme il suo frutto.

I consiglieri della latteria, che da bravi amministratori vorranno avere un buon impianto, spendendo meno denaro possibile, faranno bene a ricorrere all'opera o quanto meno all'aiuto di persone competenti. [80] Dico questo perchè non poche latterie hanno pagata cara l'inesperienza dei rispettivi soci, avendo costrutto locali irrazionali e in luoghi inadatti. Io ho veduto latterie funzionare entro locali aventi gravissimi difetti, che recavano danno ai formaggi e tribolazioni al casaro, difetti che sarebbero stati evitati se il progetto fosse stato redatto, oppure esaminato e controllato, da persona competente nel ramo caseificio.

Si rifletta che non è sempre possibile correggere gli errori di costruzione, e che quando ciò è possibile la spesa che s'incontra è sempre grave e dolorosa, perchè poteva e doveva essere risparmiata se il progetto d'impianto fosse stato fatto colla voluta ponderazione e cognizione di causa.

Dunque l'amministrazione raccolga tutti i dati di fatto che devono influire sulla natura dell'impianto e che sono necessari a preparare il relativo progetto e li presenti alla persona od alle persone idonee, incaricate d'istituire il progetto della latteria. I dati indispensabili sono:

a) l'indirizzo tecnico della latteria, cioè il metodo di sfruttamento del latte che intendesi adottare;

b) la quantità di latte che si dovrà giornalmente lavorare.

c) l'entità del capitale disponibile per l'impianto.

Ciò fatto, è d'uopo scegliere il posto adatto per la costruzione della latteria. Questa scelta è della massima importanza; gli amministratori lo studino bene questo problema, e se hanno qualche dubbio a [81] chiarire, domandino il sopraluogo di un tecnico per sentire anche l'avviso di questo, prima di decidere. Guai a sbagliare quel primo passo che è la scelta del terreno; l'errore è irrimediabile e le conseguenze funeste.

Perchè la posizione sia adatta alla costruzione della latteria, deve rispondere alle seguenti condizioni:

1º Essere possibilmente centrale rispetto ai diversi fornitori di latte.

2º Avere comode strade di accesso.

3º Avere sul posto acqua buona ed in grande abbondanza, sia dessa estratta dal sottosuolo mediante pompa, sia condotta da sorgente più o meno lontana.

4º Avere la facilità e la rapidità di smaltimento delle acque lorde, cosicchè sia per la pendenza che incontrano nel deflusso, sia pei canali in cui penetrano, sia per le proprietà che devono attraversare, nessun ostacolo per parte del terreno e nessuna opposizione per parte degli uomini debbano giammai incontrare.

5º Essere il terreno sano, non umido, possibilmente elevato in confronto ai terreni confinanti.

6º Non avere vicinanza di officine o di case che tramandano odori o fumo, che producono scosse, non di strade ferrate, non di acque stagnanti, di letamai, di porcili, di strade polverose molto frequentate dai carri.

7º Essere difesa dai venti impetuosi.

8º Avere possibilmente una difesa contro i raggi [82] solari dal lato di mezzogiorno, sia per mezzo di alberatura, sia per mezzo di edifizii già esistenti o da costruirsi, sia per naturale dislivello del terreno, il che facilmente si verifica in montagna.

9º A parità di condizioni si preferisca la vicinanza di una forza motrice già fatta (forza idraulica, energia elettrica; ecc.), e di una stazione ferroviaria. La forza motrice potrà essere utilizzata per azionare le diverse macchine della latteria. La stazione ferroviaria, seconda, è evidentemente utile per il commercio degli articoli che la latteria spedisce come di quelli che essa riceve.

Una volta trovato il terreno adatto, cioè rispondente alle esigenze di una latteria, bisogna avvertire che il fabbricato abbia i diversi locali comunicanti comodamente fra di loro, inoltre suscettibili di pulizia, mediante acqua, e di ventilazione, e che l'orientazione dei medesimi sia tale da difendere contro i calori estivi il latte ed il formaggio.

Non posso entrare in particolari sopra questo importante argomento, che appartiene alla tecnica casearia e che si trova sviluppato sui trattati di caseificio. Piuttosto che dilungarmi con parole, presenterò due progetti di latteria, i quali se non hanno la pretesa di essere applicabili a tutti i casi pratici, senza eccezione, certamente risolvono molti di questi casi e soddisfano alle esigenze del caseificio razionale.

Nelle figure 1 e 2 espongo un mio progetto di caseggiato per una latteria sociale lavorante circa cinque quintali di latte al giorno, con fabbricazione di formaggio grasso, oppure mezzo grasso o magro, a volontà.

[83]

Fig. 1. Prospetto: — Fabbricato per una latteria sociale — Scala 1 : 200.

Fig. 2. Pianta: 1. Vestibolo. — 2. Cucina. — 3. Salatoio — 4. Casera — 5. Deposito latte.

N.B. — La facciata del fabbricato guarda a mezzogiorno.

[84]

Questa latteria è di modeste proporzioni: consta di soli cinque vani, disposti colla maggior semplicità ed economia possibile, dei quali i più grandi misurano circa 43 metri quadrati di superficie.

Il vestibolo (fig. 2, N. 1) è destinato al ricevimento del latte, nonchè alle operazioni di registrazione e contabilità, eventualmente alla vendita dei latticini, alle riunioni del Consiglio d'amministrazione, ecc. Le latterie anche di mediocre importanza lo devono avere; il risparmiarlo è un errore.

La casera o magazzino di formaggio può avere il pavimento alquanto disotto del piano di terra; ciò si può e conviene fare quando la natura del terreno lo permette e particolarmente quando il sottosuolo non è acquitrinoso, nè soggetto ad infiltrazioni acquee.

Il costo di questo fabbricato stimo su per giù 5000 lire, ritenuto che vi siano condizioni locali favorevoli, come si verificano per l'appunto in montagna, ove la muratura si fa con pietra cavata sul luogo, il legname per l'armatura del tetto costa poco e la mano d'opera in certi periodi dell'anno si può avere a miti condizioni.

Alla detta somma bisogna aggiungere il costo dell'area, poi alcune centinaia, ed in certi luoghi alcune migliaia di lire, di spese accessorie al fabbricato, come adattamenti di strade, movimenti di terra, impianto di siepi o di muri di cinta, provvisione [85] dell'acqua, fognatura, latrina, fornello, vasca per salamoia, ecc.

Se vuolsi fabbricare la ghiacciaia, la legnaia, la porcilaia, si spendono altre 2 o 3 migliaia di lire.

È utile che il casaro abbia la sua abitazione a contatto della latteria; allora bisogna costruire a primo piano almeno due camere. Occorre in tal caso qualche altro migliaio di lire da sommare alle precedenti.

Il progetto di latteria funzionante con scrematrice centrifuga, rappresentata dalle tavole I, II, III, IV e V, allegate al libro, (fig. 3, 4, 5, 6, 7), devesi all'ing. Bassano Folli, che ebbe la compiacenza di redigerlo dietro mio invito.

Desso serve per una lavorazione di otto e più quintali di latte al giorno, con fabbricazione di burro e formaggio magro. Il disegno è abbastanza esplicativo e parmi non abbia bisogno di commenti. Solo dirò che le macchine 3, 4 e 5, nella tavola III, rappresentanti la scrematrice, la zangola e l'impastatrice del burro, sono state collocate sopra una stessa linea retta, perchè sia possibile metterle in funzione mediante una forza motrice generale, qualora la latteria voglia impiantarla; nel qual caso le tre suddette macchine saranno collegate mediante pulegge all'albero motore disposto parallelamente alla linea delle stesse macchine.

Ho detto che questa latteria può lavorare anche più di otto quintali di latte al giorno, perchè la sua potenzialità dipende dalla scrematrice e dalla forza motrice che possiede. Con una scrematrice a mano, [86] il lavoro procede bene finchè la quantità di latte è piccola, ma se si impianta una scrematrice di grande modello, cioè da 2000 litri di latte all'ora, azionata da una macchina motrice, o idraulica, o da vapore, o elettrica, può spingere la sua potenzialità anche a 40 quintali di latte al giorno; nel qual caso però occorre qualche ritocco ed ampliamento nel progetto sopra esposto, oltre allo speciale edificio richiesto dal motore.

Notisi che l'ampliamento dei diversi vani è fattibile lungo la linea nord-sud, senza alterare le altre dimensioni, nè l'ordine degli ambienti stessi.

Il costo di questo caseggiato si può stimare da 8000 a 10000 lire.

Nell'impianto delle latterie si commette di frequente un errore, sia in causa della scarsità di mezzi, sia in causa di poca previdenza da parte dei fondatori, ed è quello di provvedere soltanto ai bisogni dell'oggi, senza occuparsi dei bisogni del domani.

Invece è un fatto che le latterie aventi base vitale, se incominciano con poco latte, vanno poscia aumentando di latte e di soci. Bisogna dunque che la latteria sia impiantata in modo da poter servire al maggior quantitativo di latte presumibile, o quanto meno che ne sia reso possibile l'ampliamento, quando occorra, senza disfare il già fatto, senza dar di cozzo a gravi difficoltà edilizie e senza incontrare spese sproporzionate all'entità del lavoro.

In ultima analisi, non si dimentichi questa massima, che nel grande sta anche il piccolo, ma nel piccolo non istà il grande.

[87]

I preventivi di spesa fatti per costruzioni di una certa importanza hanno troppo spesso quel maledetto vizio organico di essere sbagliati, ossia di trovarsi poscia largamente superati dal consuntivo. Ciò è causa di recriminazioni, di litigi e di grossi guai fra le persone interessate. Quel vizio sarà evitato quando si verificheranno le seguenti condizioni:

1º che il progetto d'impianto sia studiato e compilato colla massima ponderazione da persone competenti;

2º che non s'impongano agli assuntori dei lavori prezzi soverchiamente ristretti, sì da obbligarli a lavorare senza un ragionevole guadagno;

3º che la massima lealtà ed onestà presieda a tutte le operazioni, così di preparazione come di esecuzione e collaudo.

Nel trattare l'argomento costruzione della latteria ho supposto di partire dal nulla, e di dovere quindi far tutto di sana pianta, cominciando dal scegliere il terreno.

Fortunate quelle latterie che sorgono su questa base, con piena libertà di azione; dico fortunate, perchè possono impiantarsi senza vincoli di sorta e con carattere affatto razionale e moderno. Il problema è vasto, ma in fondo è facile a risolvere nel riguardo tecnico.

Ma l'esperienza insegna che molte latterie, sopratutto le piccole latterie, non possono sempre disporre di mezzi pecuniari e di libero arbitrio, così da fabbricare di sana pianta dove e come pare e piace, ma che bene spesso bisogna invece allogare la latteria [88] entro caseggiati già esistenti, con facoltà di fare soltanto quelle riforme e quelle correzioni che si credono indispensabili al funzionamento della latteria stessa. In tal caso il problema diventa meno facile e vuol essere risolto caso per caso, procurando di avvicinarsi più che sia possibile alle norme generali esposte più sopra.

[89]

Cap. XI. Attrezzi.

L'altra parte dell'impianto della latteria consiste nella provvista del macchinario, degli utensili e del mobilio occorrente.

Sarà bene che l'amministrazione prima di fare il preventivo di spesa e di procedere all'acquisto dei detti articoli senta il parere di persona dell'arte e possibilmente anche quello del casaro designato ad effettuare la lavorazione del latte.

Il mobilio, gli scaloni e gli attrezzi d'uso generico, come bilancie, coltelli, scope, ecc., si potranno provvedere sul luogo o da qualsiasi ditta. Ma per gli attrezzi speciali di caseificio conviene ricorrere alle grosse ditte che trattano gli articoli di caseificio.

Queste sono in grado di fornire tutti gli attrezzi occorrenti e armonizzanti fra di loro, a prezzi di catalogo e di concedere anche certe facilitazioni che i piccoli esercenti non usano. Di più le grosse ditte si tengono in corrente delle novità e dei progressi che va facendo la tecnica casearia e pubblicano un catalogo illustrato e particolareggiato, che è [90] istruttivo e può essere capito anche dalle persone mediocremente versate nell'arte casearia.

In quanto al costo degli attrezzi necessari ad una latteria di circa 5 quintali di latte al giorno, dirò che desso sta da 2000 a 3000 lire e che la spesa più grossa è quella della caldaia col relativo fornello.

Credo opportuno far seguire un elenco dei principali attrezzi occorrenti alle latterie, corredato dai relativi prezzi approssimativi[6].

Strumenti d'assaggio del latte e vetri graduati.

Cremometro (fig. 8) pel dosamento approssimativo della panna nel latte: L. 2,25.

Termometro ad alcool in armatura metallica, scala sino a 68° C. pel lavoro del latte e formaggio in caldaia: L. 2,25.

Termometro a mercurio (fig. 9) in armatura di legno, per la cottura del siero, scala sino a 100° C.: L. 2,50.

Termometro ad alcool, scala smalto, sino a 50° C., per l'assaggio del latte: L. 1,75.

Termometro ad alcool su tavoletta per appendere al muro, servibile a riconoscere la temperatura dell'ambiente: da L. 0,40 a 1,25.

[91]

Lattedensimetro (fig. 10) per determinare il peso specifico del latte, con unite tavole di correzione ed istruzione stampata: L. 2,50.

Lattedensimetro con termometro fissato in alto. È di uso più pronto e più comodo del precedente, ma è più costoso del lattedensimetro e del termometro presi separatamente: da L. 6,50 a 8,50.

Fig. 8, 9, 10

NB. — I predetti strumenti, essendo di vetro e quindi fragili, si comperano di solito in doppio esemplare dalle latterie che si trovano lontane dai depositi di vendita.

I prezzi esposti riguardano strumenti dozzinali, che non sono sempre corretti. Consiglio le latterie di richiedere che gli strumenti importanti, come il lattedensimetro ed il termometro, siano controllati, cioè [92] verificati da persona idonea. Si spende qualche cosa di più, ma si ha il vantaggio di potersi fidare pienamente delle indicazioni fornite dagli strumenti e di evitare errori o contestazioni, specialmente nello apprezzamento della purezza del latte.

Fig. 11 e 12

[93]

Lattozimoscopio (fig. 11 e 12) apparecchio del prof. Walter per riconoscere il latte guasto:

N. 1 con 15 provette L. 22
N. 2 con 25 provette L. 25
Fig. 13 e 14

Acidobutirrometro del dott. Gerber (fig. 13) per dosare rapidamente il grasso nel latte e nella panna, tipo Rapid, cogli accessori:

per 4 prove L. 125
per 8 prove L. 170

Provette graduate (fig. 14) per misurare caglio liquido, coloranti, ecc.

Capacità 10 cent. cubi L. 0,50
Capacità 50 cent. cubi L. 1,25
Capacità 100 cent. cubi L. 1,50
Capacità 500 cent. cubi L. 2,50

[94]

Recipienti per latte ed accessori.

Bidoni (fig. 15) ossia secchi di lamiera stagnata a tripla stagnatura, chiusura ermetica con gomma, destinati al trasporto del latte.

Capacità litri 10 L. 10,50
Capacità litri 20 L. 16 —
Capacità litri 40 L. 27,50
Capacità litri 50 L. 32,50
Fig. 15 e 16

Bidoni a zaino (fig. 16) per trasportare il latte a dorso d'uomo. Lamiera stagnata, con chiusura ermetica.

Capacità litri 10 L. 10 —
Capacità litri 15 L. 12 —
Capacità litri 20 L. 15 —
Capacità litri 25 L. 17,50

[95]

Secchione tronco-conico (fig. 17) di lamiera stagnata, bollato.

Capacità litri 50 L. 26
Capacità litri 100 L. 38
Capacità litri 200 L. 50
Fig. 17 e 18

Secchielli cilindrici a becco (fig. 18) di lamiera stagnata, con manico.

Capacità litri 20 L. 8,50
Capacità litri 26 L. 10 —
Capacità litri 30 L. 12,50

Secchielli a becco e maniglia (fig. 19) di lamiera stagnata, per travasare latte, siero, ecc.

Capacità litri 7 L. 5 —
Capacità litri 9 L. 6,50
Capacità litri 11 L. 7 —

[96]

Vasca in bandone con robinetto (fig. 20) per distribuire il latte alla scrematrice, al refrigerante, ecc.

Capacità litri 60 L. 20

Fig. 19, 20 e 21

Vasca-serbatoio (fig. 21) di lamiera stagnata, guarnita di ferro a T, per alimentazione delle scrematrici. Capacità da litri 100 a 1000 e più. Prezzi variabili secondo le dimensioni; per norma si calcola da L. 1,80 a 2 al chilog.

[97]

Secchi graduati (fig. 22) con scala incisa sul vetro

Capacità litri 10 L. 8,50
Capacità litri 15 L. 10,50
Capacità litri 20 L. 12,40
Fig. 22 e 23

Carretto con secchione (fig. 23) pel trasporto del latte. Le ruote sono di ferro, in un sol pezzo; [98] il secchione è di lamiera stagnata ed è munito di coperchio. Si fanno della capacità da 50 a 300 litri; i più pratici sono i seguenti

Capacità litri 100 L. 100
Capacità litri 150 L. 125
Capacità litri 200 L. 165
Fig. 24 e 25

Stacci a rete di ottone (fig. 24) per filtrare il latte, la crema, ecc.

Dimensioni cm. 22 L. 5,50
Dimensioni cm. 24 L. 6 —
Dimensioni cm. 30 L. 7,50

Stacci a imbuto a rete metallica (fig. 25) per filtrare il latte quando si versa nei bidoni, o la crema quando si versa nella zangola

Dimensioni cm. 26 sopra, cm. 11 sotto, L. 6

Stacci a imbuto a doppia rete metallica, mobile (fig. 26) per filtrare il latte quando si versa nei bidoni. Sono utilissimi quando il latte esce dalla stalla carico di sozzure grossolane, che otturano facilmente [99] lo staccio. Ciò accadendo, si tolgono le due reti, si puliscono e si rimettono a posto. Prezzo L. 8,50.

Bacinelle di lamiera stagnata (fig. 27) a triplice stagnatura, di un sol pezzo, per contenere il latte durante l'affioramento.

Capacità litri 14 L. 6,50
Capacità litri 26 L. 8,50
Capacità litri 32 L. 10 —
Capacità litri 42 L. 13 —
Capacità litri 55 L. 15 —
Capacità litri 60 L. 17,50
Fig. 26, 27 e 28

Pannaruola tonda (fig. 28) di legno acero, all'uso lombardo, per togliere la panna sul latte. Da L. 1,50 a 3,50, secondo la grandezza.

Mestolo di acero con manico (fig. 29) per muovere e voltare la cagliata, tipo svizzero. Da L. 4,50 a 10,50.

[100]

Mestolo tondo (fig. 30) di lamiera stagnata con manico, per diversi usi.

Diametro cent. 20 L. 4
Diametro cent. 24 L. 5
Fig. 29, 30 e 31

Bascule (fig. 31) con fronte e tavolato ferrato.

Portata kg. 200 L. 55
Portata kg. 500 L. 75
Portata kg. 1000 L. 130

[101]

Bascule con recipiente tarato (fig. 32) per pesare il latte al ricevimento nella latteria.

Capacità litri 100 L. 140
Capacità litri 200 L. 160
Capacità litri 300 L. 180

Stadera a recipiente per pesare il latte in piccole quantità, adatta per le latterie che ricevono pochi litri di latte per volta da ciascun tornitore. Da litri 30, L. 35, compreso il cavalletto di legno.

Fig. 32

Refrigeranti e riscaldatori.

Refrigerante per latte (fig. 33) con tubi a sezione di cuore, mediante i quali si aumenta assai la superficie di raffreddamento, ed i tubi si possono aprire e pulire.

[102]

Fig. 33 e 33bis

[103]

Raffreddamento per ora litri 150 L. 150
Raffreddamento per ora litri 300 L. 200
Raffreddamento per ora litri 500 L. 300
Raffreddamento per ora litri 700 L. 380
Raffreddamento per ora litri 1000 L. 450
Raffreddamento per ora litri 1400 L. 500
Raffreddamento per ora litri 2000 L. 725
Raffreddamento per ora litri 2400 L. 900

Sono compresi nel prezzo la vasca di alimentazione ed il cavalletto di ferro per supporto.

Fig. 34

Refrigerante cilindrico (fig. 34) sistema Schmidt, pel latte e per la panna.

Raffreddamento per ora litri 80 L. 90
Raffreddamento per ora litri 100 L. 100
Raffreddamento per ora litri 180 L. 120
Raffreddamento per ora litri 300 L. 165
Raffreddamento per ora litri 500 L. 195
Raffreddamento per ora litri 800 L. 255
Raffreddamento per ora litri 1200 L. 340

compreso il cavalletto di legno per supporto.

[104]

Riscaldatore del latte (fig. 35) a vapore, con regolatore automatico per l'applicazione alle scrematrici centrifughe.

Scaldamento per ora litri 500 L. 140
Scaldamento per ora litri 800 L. 185
Scaldamento per ora litri 1100 L. 230
Scaldamento per ora litri 2000 L. 340
Fig. 35

Pastorizzatore (fig. 36) a vapore applicabile al latte intero, come al latte magro, mediante il quale si porta rapidamente il latte a 75° C.

Scaldamento per ora litri 1400 L. 2000
Scaldamento per ora litri 2300 L. 2375

[105]

Fig. 36

[106]

Riscaldatore ed elevatore Triumph (fig. 37) applicabile al latte intiero ed alla panna nelle latterie impiantate sul principio della centrifugazione del latte.

Scaldamento per ora litri 1000 L. 430
Scaldamento per ora litri 2000 L. 500
Fig. 37

Scrematrici centrifughe.

Scrematrice Laval alfa a motore (fig. 38).

Marca Lavoro all'ora Prezzo
Alfa A II litri 2100 2350
Alfa A I 1500 1825
Alfa Pony 700 1270

[107]

Fig. 38

[108]

Scrematrice Laval alfa a mano (fig. 39).

Marca Lavoro all'ora Prezzo
Alfa B litri 450 900
Alfa S H 300 570
Alfa S 250 475
Alfa L D 200 375
Alfa S C 125 275
Alfa Liliput 40 175
Fig. 39

[109]

Pompa a stantuffo (fig. 40) per sollevare latte, panna, siero, ecc. Funziona mediante un motore ed è utile nelle grandi latterie per mandare rapidamente i liquidi da un locale all'altro.

Portata per ora litri 2500 L. 390
Portata per ora litri 3500 L. 420
Fig. 40

[110]

Attrezzi per la fabbricazione del burro.

Apparecchio per la coltivazione dei fermenti selezionati (fig. 41).

Capacità litri 5 L. 17 con accessori
Capacità litri 12 L. 25 con accessori
Fig. 41

Vasca per l'acidificazione della panna (fig. 42), a doppia parete metallica, mediante la quale si può [111] riscaldare o raffreddare la panna, facendo uso di vapore oppure di acqua fredda.

Capacità litri 300 L. 400
Capacità litri 500 L. 600
Capacità litri 1000 L. 800
Fig. 42 e 43

Sostegno per bacinelle (fig. 43), formato da un telaio di regoli di ferro, sostenuto da mensole, pure di ferro, fissate al muro.

Prezzo per kg. da L. 0,85 a L. 1
Prezzo per metro quadrato circa L. 20

[112]

Zangola a botte orizzontale (fig. 44) con cuscinetti a ruote girevoli, fatta di legno rovere, montata sopra robusto cavalletto.

Capacità totale
al massimo
  Panna da
lavorarsi
  Prezzo
litri 25   litri 8 a 10   L. 38
litri 40   litri 12 a 15   L. 42
litri 75   litri 20 a 25   L. 70
litri 100   litri 30 a 45   L. 85
litri 150   litri 50 a 60   L. 110
litri 200   litri 65 a 70   L. 125
litri 300   litri 100 a 120   L. 210
litri 400   litri 130 a 140   L. 250
Fig. 44

NB. — Sino a 200 litri di capacità le zangole vengono mosse a mano. Le altre vengono azionate da un motore.

[113]

Zangola Vittoria (fig. 45) a botte verticale, adatta per piccole quantità di panna; possiede un disco mobile di legno internamente.

Capacità   Panna   Prezzo
litri 25   litri 10   40
litri 40   litri 15   50
litri 75   litri 25   80
Fig. 45

[114]

Fig. 46 e 47

[115]

Impastatrice meccanica per burro (fig. 46), con inalzamento della tavola, munita di secchio metallico a robinetto.

Diametro   Burro che lavora per volta   Prezzo
cm. 72   chilog. 8 a 10   110
cm. 90   chilog. 10 a 15   130
cm. 120   chilog. 20 a 25   180

Queste macchine funzionano a mano; volendo azionarle a mezzo di un motore hanno bisogno di puleggie, ed allora il prezzo cresce di circa il 20 per cento.

Impastatrice uso gramola per burro (fig. 47) per lavorare da 6 a 8 kg. di burro per volta: L. 30. Secchio metallico con robinetto L. 6,50.

Spatole di legno (fig. 48) per muovere il burro senza toccarlo colle mani. Da L. 1 a 2.

Fig. 48

Segnarola di legno, sistema lombardo per rigare i pani di burro: L. 2,20.

[116]

Stampo di legno per burro (fig. 49) forma lombarda, con disegno a rilievo, chiusura a vite di pressione, fatto con legno duro.

Peso del pane
di burro
Prezzo
kg. 2   L. 14,50
kg. 4   L. 19,50
kg. 6   L. 30 —
Fig. 49

Volendo apposita iscrizione nello stampo, il prezzo aumenta di circa il 20%.

Stampo ovale (fig. 50) a cerniera per piccoli pani di burro, sistema svizzero.

Peso del pane   Prezzo
Kg. ¼   4,50
Kg. ½   5 —
Kg. 1   5,50
Kg. 2   6,50

[117]

Fig. 50

Attrezzi per la fabbricazione dei formaggi.

Caldaia di rame per formaggio di grana (fig. 51), munita di chiudenda in lamiera e di gru girevole di ferro.

Fig. 51

Si fabbricano della capacità da 300 a 800 litri. Il prezzo varia a norma del prezzo corrente del rame e del ferro.

[118]

Fig. 52
Fig. 53

[119]

Al compratore conviene stabilire col fornitore della caldaia un prezzo per kg. di rame e per kg. di ferro.

Per es. una caldaia della capacità di 500 litri coi suoi annessi, cioè chiudenda e gru, costa circa L. 750.

Caldaia di rame forma svizzera fig. 52 prospetto, fig. 53 spaccato, munita di chiudenda in lamiera e di gru girevole di ferro. Capacità e prezzi vengono regolati nel modo indicato per la caldaia precedente. La caldaia a forma svizzera costa però circa il 15% meno di quella a forma lombarda, perchè la sua costruzione è meno laboriosa.

Spino per formaggio di grana (fig. 54) a filo di ottone, modello lombardo, L. 2,50.

Fig. 54

Spino per formaggi svizzeri (fig. 55) di fil di ferro galvanizzato, L. 5.

Fig. 55

Lira (fig. 56) o taglia cagliata a filo di ottone. Da L. 7,50 a L. 10 secondo le dimensioni.

[120]

Rotella di legno (fig. 57) per mantenere la cagliata in agitazione L. 2,50.

Fig. 56

Fascere di legno (fig. 58). Vi sono diverse forme e dimensioni, a norma dei formaggi pei quali devono servire.

Fig. 57

Bisogna dunque indicare al fornitore il tipo di formaggio che si vuol fabbricare e le dimensioni od almeno il peso approssimativo di questo formaggio.

Fig. 58

Si fanno fascere con diverse specie di legno e cioè faggio, noce, salice, pioppo. I prezzi sono i seguenti: per Gorgonzola (salice) da L. 1 a 2; per grana reggiano (salice) da L. 1 a 1,50; id. id. (noce) da L. 3 a 5,50; per grana lodigiano (salice) da L. 2,25 a 4,50; per Gruyère (noce) da L. 6,50 a 9; per Emmenthal (faggio) da L. 10 a 18.

[121]

Fig. 59 e 60

[122]

Spersòle di legno larice o rovere per deporre il formaggio appena fatto a sgocciolare. Da L. 40 a 150.

Torchio metallico (fig. 59) a doppia leva, sistema inglese.

Diametro del piatto   Pressione   Prezzo
Cm. 40   kg. 500   L. 65
Cm. 60   kg. 1000   L. 130
Cm. 75   kg. 1500   L. 150

Torchio metallico doppio (fig. 60). Sono due torchi abbinati per economia, consigliabili nella fabbricazione del formaggio svedese.

Diametro del piatto   Pressione   Prezzo
Cm. 50   Kg. 650   L. 150
Cm. 60   Kg. 1000   L. 180
Fig. 61

Forme cilindriche bucherate di lamiera stagnata (fig. 61) per formaggio svedese, con disco metallico. Prezzo L. 2,50 al kg.

[123]

Torchio a leva sistema svizzero (fig. 62) con trasmettitore, applicabile ai formaggi Emmenthal, Gruyère e simili. Un torchio capace di esercitare la pressione di 2000 kg. circa costa circa L. 175.

Fig. 62

Tondelli o dischi di legno per supporto dei formaggi. Da L. 1 a 5, secondo le dimensioni.

[124]

Frangicagliata (fig. 63) adoperata nella fabbricazione del formaggio svedese.

Fig. 63

Modello a mano L. 55.

Spazzolone di crine vegetale (fig. 64) per strofinare i formaggi Emmenthal; L. 8,50.

Fig. 64

Sonda o trivella (fig. 65) di ferro stagnato per esplorare i formaggi internamente; da L. 1,25 a 1,50.

Fig. 65

[125]

Martelletto di ferro per battere i formaggi di grana; L. 1,50.

Raschia con manico per raschiare i formaggi; L. 0,70.

Piroforo od eolipila ad alcool od a benzina per cauterizzare i formaggi; L. 6.

Numeri di zinco per marcare i formaggi. Serie da 1 a 10; L. 3.

Molla d'acciaio per levare la cagliata dalla caldaia; L. 2 a 2,50.

Tele da formaggi. Sono tessuti di canapa di varie altezze. Quelle per formaggio di grana, Gorgonzola, Gruyère si vendono ad un tanto il metro lineare ed hanno altezza da m. 0,80 a 1,40; il prezzo varia proporzionatamente all'altezza da L. 0,70 a 1,35 al metro.

Per i formaggi Emmenthal le tele si vendono a pezzi aventi dimensioni convenienti pel loro uso. Le dimensioni sono da m. 1,15 × 1,15 sino a m. 2 × 2, ed il prezzo sta da L. 1,40 a 3,20, in proporzione della grandezza della tela.

Articoli diversi.

Spazzole di crine vegetale (fig. 66 e 67) per la pulizia dei recipienti. Da L. 1,50 a 2, secondo la grandezza.

[126]

Fig. 66 e 67

Poppatoio per vitelli (fig. 68), sistema Bozzi. L. 13,50.

Fig. 68

Si fanno in legno od in bandone stagnato, senza differenza di prezzo.

[127]

Malserini di trebbia (fig. 69) per la pulizia in genere. Da L. 7,50 a 9 la dozzina, secondo la grandezza.

Fig. 69 e 70

Oliatore di metallo (fig. 70). Da L. 1,50 a 2,50.

Legname e mobilio.

Nel magazzino del formaggio o casera bisogna impiantare i così detti scaloni o scalere (fig. 71),

Fig. 71

cioè un'impalcatura di legno portante tavole pure di legno, sulle quali si tengono i formaggi. Ogni paese adopera quel legname che trova più comodo e più economico; serve bene anche il legno dolce, particolarmente per fare le tavole. Il costo di questi scaloni varia molto da luogo a luogo.

[128]

Per fare un preventivo attendibile bisogna conoscere dapprima di quanti formaggi è capace il magazzino, poi in relazione alla quantità ed alle dimensioni loro, calcolare l'estensione superficiale totale, da suddividersi in diversi piani. Stimasi la costruzione degli scaloni da L. 3 a 4 per metro quadrato di tavole, poste in opera.

Nel salatoio, per uso del formaggio di grana, degli stracchini e simili, consiglio l'uso di tavole di legno forte, preferibilmente rovere, di grosso spessore e così larghe da bastare un pezzo solo nel senso della larghezza ed evitare le giunture.

Si preventiva la quantità occorrente, partendo dalla base della produzione giornaliera di formaggio e dal tempo che i formaggi devono durare in salatoio. Per esempio, il formaggio di grana sta circa quaranta giorni in salatoio; non occorre però che si preparino quaranta posti superficiali, perchè questi formaggi si usa di sovrapporli due a due quando sono inoltrati nel periodo di salatura.

Anche il prezzo delle tavole di rovere varia da paese a paese. Per quelle dello spessore da 40 a 50 mill. il prezzo varia da L. 5 a 6 per metro quadrato.

Occorrono alcuni tini o botti di legno per contenere siero, o latticello, o salamoia, ecc.; possono anche essere botti usate, ed allora è questione di poche lire di spesa.

Un truogolo di legno è necessario per ricevere il latticello che vien spillato dalla zangola dopo la burrificazione. Un altro truogolo è necessario, se [129] fabbricasi formaggio svedese, a mescolare la cagliata ridotta in briciole col sale.

Questi truogoli possono essere fatti da qualunque falegname sul luogo ed importano una spesa da 5 a 10 lire cadauno.

Non parlerò del mobiglio usuale, come tavoli, armadi, sedie, ecc., perchè ciò non appartiene alla tecnica casearia ed è del resto affare molto semplice, devoluto al buon senso degli organizzatori della latteria. Bisogna però tenerlo presente nel preventivo di spesa.

Codesti organizzatori se saranno abili ed aiutati da persone pratiche dell'industria e dell'arte casearia sceglieranno e determineranno fra gli attrezzi che io ho elencato quelli adatti e necessari al funzionamento della latteria e pienamente rispondenti all'indirizzo tecnico che questa deve avere.

Il preventivo del fabbisogno sia redatto colla maggior sincerità e con una certa larghezza di vedute, affinchè non s'incontrino poscia delusioni e recriminazioni.

Buon senso e competenza degli organizzatori sono i due requisiti che porteranno a questa conseguenza di spender bene il denaro e di far funzionare rettamente la latteria, con soddisfazione generale. Buon senso e competenza colmeranno altresì quelle lacune che io non ho potuto o saputo evitare in questo capitolo degli attrezzi occorrenti alla latteria.

[130]

Cap. XII. Forza motrice.

Le operazioni che si compiono in una latteria sono intellettuali e materiali o meccaniche ad un tempo; l'intelligenza guida e la mano eseguisce. Una parte del lavoro spetta dunque alla mano, ovverosia viene compiuto mediante consumo di forza motrice; tal'è il funzionamento della scrematrice centrifuga, della zangola, della impastatrice del burro.

Ogni forza motrice costa danaro. Bisogna dunque sin dall'impianto della latteria occuparsi di questa faccenda, scegliere la forza occorrente e proporzionarla alla entità della latteria ed alle esigenze di questa.

Le forze motrici applicabili alle latterie sono:

[131]

L'analisi tecnica ed economica di queste diverse forze motrici appartiene alla meccanica e quindi supera i confini del mio modesto libro. Solo dirò che ognuna delle nominate forze motrici ha i suoi vantaggi ed inconvenienti, ma che il valutare giustamente gli uni e gli altri è cosa che vuol essere fatta caso per caso e luogo per luogo. Talchè consegue dopo un diligente esame delle condizioni locali che a certe latterie conviene adottare una data forza e ad altre latterie ne conviene invece un altra.

Per le piccole latterie la forza dell'uomo è la più comoda, la più sbrigativa, la più naturale. Ma allorchè la latteria supera una certa quantità di latte, per esempio otto o dieci quintali al giorno e se lavora colla scrematrice centrifuga, la forza dell'uomo diventa costosa, irregolare ed incomoda; bisogna dunque cercare la forza motrice altrove ed impiantare un macchinario. Quale?

Guardiamoci in giro ed osserviamo come si regolano le diverse latterie.

Il maneggio a cavallo è adoperato in molte latterie private della bassa Lombardia per azionare la zangola, che è piuttosto pesante e voluminosa.

La macchina a vapore trovasi nelle grandi latterie cooperative oppure private. È l'anima della grande industria, è la caratteristica dello stabilimento industriale che lavora 50 come 300 quintali di latte al giorno.

La forza idraulica vien adoperata da parecchie latterie delle prealpi, con grandissimo vantaggio economico. È una forza che esiste già fatta in natura, [132] quindi la spesa d'impianto limitasi alla sola utilizzazione e trasformazione. Ma siccome non conviene trasmetterla direttamente a distanza e bisogna utilizzarla sul posto, così per trarne profitto è d'uopo che la latteria sia costrutta sul luogo della forza idraulica. Inoltre bisogna che questa sia permanente e regolarizzabile.

L'applicazione di una forza idraulica nelle migliori condizioni è per una latteria una vera fortuna.

Il motore a gas è di uso comodissimo e facilissimo, economico per una piccola latteria che si trova in città od in vicinanza ad una officina di gas luce. Ma pochissime latterie sono in grado di trarne profitto, causa l'ubicazione loro. Oggidì sono raccomandati anche i motori a gas povero, la cui convenienza economica è però realizzabile soltanto per una forza alta e quindi per una grande latteria.

L'energia elettrica è il vero ideale della forza motrice per le latterie. La sua applicazione e diffusione dipende dal famoso problema del carbone bianco, cioè l'utilizzazione delle cadute d'acqua. Ognuno sa che l'energia elettrica è convertibile in forza motrice, in luce ed in calore.

Io ho fede che l'energia elettrica sia per buona parte dell'Italia settentrionale la forza motrice più economica dell'avvenire e quindi destinata a rendere grandi servigi anche alle latterie prealpine ed alpine.

I motori a petrolio, a benzina e liquidi analoghi incontrano da noi il grave inconveniente dell'alto prezzo della materia prima, il che porta un alto [133] prezzo della forza motrice in confronto ad altri mezzi di produzione della forza. Nel resto sarebbero assai comodi e suscettibili di applicazione generale.

Non posso chiudere questo breve capitolo senza una importante considerazione, che si connette col problema della forza motrice. Nelle latterie occorre anche la produzione del calore, che è necessario per diversi usi, come lo scaldamento del latte, la cottura del formaggio, del siero, lo scaldamento della casera, la pastorizzazione del latte o della panna, ecc. L'importanza di una produzione di calore a buon mercato è tanto più sentita quanto più grande è la quantità di latte che la latteria lavora.

In una grande latteria è fuori di dubbio che lo scaldamento a vapore si presenta come più economico e più speditivo. Ed allora ecco come l'adozione di una motrice a vapore risolve ambedue i problemi, cioè la produzione della forza motrice e quella del calore, poichè il generatore del vapore è unico e serve così ad alimentare la macchina a vapore, come a fornire il vapore per lo scaldamento di liquidi e di ambienti.

[134]

Cap. XIII. Scelta del casaro e sottocasaro.

Affare delicato e della massima importanza, spettante al Consiglio d'amministrazione della latteria, è la nomina del personale tecnico, cioè del casaro e del sottocasaro.

Anche in Italia si è fatto un grandissimo progresso circa la qualità della mano d'opera occorrente alle latterie. Agli antichi casari empirici, rozzi, sudici, bene spesso analfabeti, appena capaci di fabbricare un sol tipo di formaggio si vennero mano mano sostituendo i casari moderni, istruiti dalle scuole speciali di caseificio oppure praticanti in qualche buona latteria provveduta di abile personale.

Un casaro moderno deve saper fabbricare diversi tipi di formaggio, lavorare bene il burro, adoperare le scrematrici centrifughe, esaminare la ricchezza del latte coi metodi speditivi, tenere il registro di ricevimento del latte, il registro di fabbricazione, ecc.

Le scuole di caseificio di Reggio Emilia, di Lodi e di Orzivecchi (Brescia) forniscono di questi casari [135] moderni; moltissimi sono i casari provenienti dalle dette scuole che si trovano impiegati presso le varie latterie, o sociali o private.

Prima di assumere un casaro al servizio dovrà il Consiglio d'amministrazione presentargli il regolamento che ne determina le mansioni ed ottenere dallo stesso casaro dichiarazione scritta di accettazione dei rispettivi obblighi. Ciò a scanso di malintesi e di recriminazioni tardive.

Pel vantaggio della latteria conviene dare al casaro l'alloggio possibilmente nel caseggiato stesso della latteria. Nel convenire la sua retribuzione si dovrà precisare quello che esso può prelevare in generi appartenenti alla latteria, come latte, burro, formaggio, legna, ecc., di modo che non accadano abusi da una parte e spiacevoli sorprese dall'altra.

Dopo un certo tempo di esercizio, quando i soci si saranno accorti di aver trovato l'uomo che per abilità, operosità ed onestà, sia loro confacente, troveranno il modo di farlo partecipe agli utili pecuniari della latteria.

In quanto al sottocasaro, non c'è difficoltà a trovarlo, perchè non occorre che esso conosca il mestiere; lo imparerà poi se avrà volontà ed attitudine. Un qualche giovanotto del paese può servire all'ufficio di sottocasaro, che è quanto dire di aiuto al casaro.

Con queste due persone si possono lavorare 5 quintali e più di latte al giorno. Se aumentando di molto il latte, si trova che il lavoro diventa troppo grave pel casaro e pel sotto casaro e che questi [136] uomini non fanno a tempo a soddisfare tutte le mansioni di loro spettanza, conviene dispensare il casaro dai lavori di penna ed affidarli ad altra persona capace.

Il ricevimento del latte è un lavoro, che mentre occupa a lungo il casaro, può altresì essere eseguito da persona non tecnica, che è pertanto facile trovare nel paese ove ha sede la latteria.

Questa persona non tecnica, che chiameremo il contabile, se ha tempo disponibile ed attitudine può anche assumere le funzioni di segretario. Sono adatti a questo ufficio il segretario comunale, il maestro di scuola, un impiegato postale, ecc.; cito questi personaggi perchè si trovano in tutti i comuni e perchè effettivamente molte latterie si servono di loro.

[137]

Cap. XIV. Questioni di amministrazione e di contabilità.

Provveduto all'impianto materiale della latteria, bisogna provvedere anche all'impianto della contabilità, che deve essere la cronaca finanziaria ed amministrativa della latteria stessa.

Si può dire che ogni latteria vede la contabilità da un suo proprio punto di vista. Questa libertà di azione e di idee è anche entro certi limiti giustificata dalla diversa natura dell'ambiente in cui si svolgono le singole latterie. Alludo così all'ambiente materiale, come a quello morale, il quale porta nell'andamento dell'azienda un coefficiente che non si può stimare giustamente se non sul posto.

Dunque sebbene le norme generali di contabilità delle aziende industriali e delle cooperative di produzione siano applicabili anche alle latterie cooperative, la forma, lo sviluppo, l'estensione di questa contabilità deve e può variare da latteria a latteria.

In fatto di registri e di registrazione bisogna saper trovare la giusta strada, schivando i due vizi estremi, cioè la pletora e la penuria.

Una contabilità pletorica, ossia a base di registri [138] numerosi e complicati, oltre ad esigere molto tempo e spesa non può essere seguita dalla generalità dei soci. Per contrapposto la scarsità dei libri e delle registrazioni, oltre al non garantire l'amministrazione contro le possibili infedeltà e malversazioni del personale stipendiato, genera incertezza e disordine finanziario, che conduce presto o tardi alla sfiducia, alla discordia fra i soci, al dissesto, allo scioglimento dell'associazione.

La contabilità di una latteria sociale deve essere semplice, chiara, sincera, esatta e persuasiva per tutti coloro che la vedono od hanno interesse a vederla. Perchè raggiunga questi requisiti, essa deve essere impiantata secondo queste norme:

1) rappresentare tutto il movimento dell'azienda, così che i diversi registri si colleghino, si completino e si controllino reciprocamente;

2) permettere che ogni socio possa vedere in qualunque momento la situazione propria in quanto al dare ed all'avere;

3) tenere alla giornata quei registri che devono mettere in evidenza la fedeltà del personale stipendiato, nonchè la probità e vigilanza degli amministratori.

Venendo dalle norme generali alle particolari, ecco quali sono i libri o registri consigliabili alle latterie sociali cooperative:

I primi quattro libri possono essere tenuti in corrente dal casaro; sta bene che siano a lui confidati perchè riguardano operazioni strettamente connesse al suo ufficio e delle quali deve pur rendere conto. Gli altri libri devono essere tenuti dal Consiglio d'amministrazione, particolarmente rappresentato dalle persone del presidente e del segretario, i quali appongono la loro firma laddove occorre appunto la loro azione diretta, come succede, per esempio, col libro dei mandati e delle reversali.

Se nessun membro del Consiglio si assume la tenuta dei libri in discorso, si affida questo compito ad un contabile, che può essere anche persona estranea alla latteria ed al quale si conferisce una congrua retribuzione. Ciò però non esonera l'amministrazione dalla responsabilità che le spetta, nè esonera il presidente ed il segretario, o coloro che ne fanno le veci, di controfirmare quei documenti che s'intendono emanati da loro, perchè sono atti amministrativi che lo Statuto sociale ed il Codice di commercio affidano alla loro iniziativa ed alla loro autorità.

Leggendo il surriferito elenco dai registri di contabilità, alcuni lettori troveranno che c'è troppa roba e qualche altro lettore troverà invece che manca [140] qualche altro libro. Ma a prevenire il troppo degli uni ed il poco degli altri ho già dichiarato in principio di questo capitolo che ogni latteria vede la contabilità da un suo proprio punto di vista. Quindi io ammetto che si possa risolvere bene la questione coll'uso di tanti registri come di pochi.

Sotto questo riguardo io credo che gli amministratori faranno bene prima di impiantare la contabilità della nuova latteria ad esaminare la contabilità, ossia la tenuta dei registri, di qualche buona latteria, d'importanza paragonabile alla loro. Vedendo la contabilità in azione, essi prenderanno dall'esempio che hanno sotto gli occhi tutto quanto fa pel caso loro particolare, poi apprezzeranno giustamente l'entità del lavoro che occorre per tenere in corrente i registri di contabilità e di amministrazione e si distribuiranno le mansioni tra loro, oppure sceglieranno le persone idonee a ben eseguirle.

Del resto gli amministratori hanno il dovere di vigilare e di controllare la contabilità, la quale è paragonabile ad una macchina, che s'irruginisce ed indurisce quando rimane inoperosa, mentre che con poco olio e con poco lavoro di pulizia si mantiene lungamente quando il suo funzionamento è continuato in modo regolare e metodico.

Riguardo alla qualità dei registri da tenere in corrente, devesi notare che le latterie sociali costituite legalmente, ossia sulle basi del Codice di commercio, sono obbligate per legge a tenere, oltre ai registri che credono opportuno, i seguenti: il libro [141] dei soci, il giornale, il libro dei verbali delle adunanze, il libro inventario.

L'omissione di questi registri è, più che un errore, un dolo, che può essere causa di seccature, di contravvenzioni e peggio, poichè la magistratura esercita sulle cooperative costituite legalmente un controllo, che a tempo e luogo può tradursi in ispezioni, in esami, in richiami, ecc. Dunque tenendo i sopradetti registri in regola, gli amministratori della latteria possono dire la loro ragione a chiunque ed in qualunque evenienza, particolarmente quando le sorti della latteria volgessero a male o che si manifestasse qualche questione critica ed imbarazzante.

Dei quattro libri sopra citati il più importante è il giornale, il quale è destinato ad esprimere in qualunque momento tutta la situazione economica e finanziaria della latteria. Ottimo modello è il così detto giornale sistema americano, il quale ha molte finche ed è eminentemente e completamente descrittivo. Tenuto alla giornata, come esige il nome stesso, questo libro riassume e compenetra i registri di contabilità più necessari. Sembra a prima vista complicato e grandioso, ma con un po' di pratica che si fa con esso, anche le persone di non grande coltura lo possono adoperare od interpretare senza difficoltà. In fatto di contabilità il giornale americano si può dunque chiamare il libro dei libri, ossia il superlibro, secondo lo stile oggi di moda[7].

[142]

Cap. XV. Insuccessi di latterie sociali e conclusioni.

Fra la moltitudine delle latterie sociali sorte in Italia non tutte hanno avuto buon esito, non tutte prosperano oggidì. Buon numero di latterie sociali sono morte, e fra le viventi non è difficile trovarmi di quelle inferme, che campano a mala pena fra stenti e languori.

Perchè ciò?

L'indagare le cause di questi insuccessi è certamente cosa istruttiva per coloro che si accingono a promuovere latterie sociali, per la stessa ragione che giova all'uomo il conoscere le vie per le quali gli giungono le malattie, affinchè egli sappia difendersi e conservarsi in salute.

Le molte cause di morte o di marasmo delle latterie si possono concentrare nelle tre seguenti, che si riscontrano ora isolate, ora associate fra di loro, cioè; «l'insufficienza del latte, l'inabilità degli amministratori, la discordia e la mancanza di solidarietà tra i soci».

[143]

Non occorrono commenti per illustrare i concetti riassunti in queste tre cause: la prima è una questione di fatto, sulla quale ho già detto in altro capitolo la mia opinione; le altre due sono di carattere psicologico e danno luogo ad una sequela di questioni tra uomo e uomo, ognuno procurando di caricare i propri errori sulle spalle degli altri; ognuno cercando negli occhi degli altri quella tal pagliuzza senza pensare se nel proprio non siavi una trave.

Un vecchio assioma dice che ogni popolo ha il governo che si merita.

L'espressione è perfettamente applicabile alla cooperazione e per conseguenza alle latterie sociali, che del principio cooperativo sono una manifestazione.

L'esito di una cooperativa è la risultante delle forze materiali e morali, positive e negative, dei singoli cooperatori. Queste istituzioni hanno una vera potenza civilizzatrice quando siano intese e praticate nel loro giusto senso, che è il contributo di tutte le piccole forze e al bene comune.

Sono gli uomini che fanno le istituzioni e non viceversa; agli uomini spetta il merito della buona riescita, come il demerito in caso d'insuccesso.

Questi principi sono pienamente applicabili anche alle latterie sociali, e perciò dico non costituite la latteria se non quando gli animi sono ben preparati, l'ambiente è maturo e quando avete trovato gli uomini adatti a sopportare l'onere dell'amministrazione.

[144]

Infine permettetemi di parafrasare il sopradetto assioma e di dire, a guisa di conclusione, ai soci delle latterie passate, presenti e future, grandi e piccole che siano, che i soci hanno la latteria sociale che si meritano.

FINE


Tavola I.
Fig. 3 — Prospetto — Facciata a sud. (Scala 1:100).
Ing. B. Folli, dis.

Tavola II.
Fig. 4 — Prospetto — Fianco ad est. (Scala 1:100).
Ing. B. Folli dis.

Tavola III.
Fig. 5 — Pianta di una Latteria funzionante con scrematrice centrifuga.
Indicazioni: 1. Bascule; 2. Vasca serbatoio per latte; 3. Scrematrice; 4. Zangola; 5. Impastatrice; 6. Spersole per burro; 7. Caldaia; 8. Spersole per formaggio; 9. Torchio Inglese; 10. Frangicagliata. (Scala 1:100).
Ing. B. Folli, dis.

Tavola IV.
Fig. 6 — Sezione trasversale — Spaccato secondo la linea A B (v. Tav. III). (Scala 1:100).
Ing. B. Folli, dis.

Tavola V.
Fig. 7 — Sezione longitudinale — Spaccato secondo la linea C D (v. Tav. III). (Scala 1:100).
Ing. B. Folli, dis.

NOTE:

1.  Le espressioni latteria sociale e latteria cooperativa si equivalgono, hanno cioè lo stesso significato? A me pare di no: e infatti vediamo che esistono delle latterie che pur si chiamano sociali, ma che non hanno la vera forma cooperativa, quale è contemplata dal codice di commercio.

Dunque una latteria cooperativa è necessariamente anche sociale, ma una latteria sociale può non essere cooperativa. In Italia si usano indifferentemente le due denominazioni come fossero equivalenti: all'estero invece le latterie sociali cooperative si chiamano latterie cooperative, avendo esse adottato la cooperazione come la forma più perfetta della consociazione dei latti. In quanto ai risultati pratici, la differenza tra l'una e l'altra qualifica è così piccola, che ciò spiega come nelle masse campagnole esse vengano usate indifferentemente come fossero sinonime. E se così farò anch'io in questo lavoruccio, che ha la singolare pretesa di essere scritto per il popolo dei campi, spero che nessuno vorrà mettermi in contravvenzione per così piccolo arbitrio.

2.  Alludesi a quei piccoli vermi bianchi, agili saltatori, che sono larve della mosca del formaggio.

3.  Per esempio: Bassi: Le latterie sociali in ItaliaBonsignori: Utilità e facilità d'impianto delle latterie sociali.De Gobbis: Le latterie sociali, studio ammin.

4.  Vedasi per es. Cogliolo e Rodino: Codice delle Società cooperative.

5.  Per es. Besana: Compendio teorico-pratico di caseificio. Edit. U. Hoepli, Milano. L. 12 — anche presso Casa Ottavi — Casale.

6.  Questi prezzi mi vennero comunicati dalla ditta Melchiorre Sordi di Lodi, e si devono intendere senza impegno perchè vanno soggetti ad oscillazioni in più od in meno a norma delle vicende dei mercati. — Del resto le grosse ditte usano concedere un sensibile ribasso sopra le commissioni di una certa entità.

7.  Il lettore che desiderasse studiare l'argomento della contabilità delle latterie sociali può consultare: Bassi «Le latterie sociali in Italia» e De Gobbis «Le latterie sociali».

Nota del Trascrittore

Ortografia e punteggiatura originali sono state mantenute, correggendo senza annotazione minimi errori tipografici.






End of the Project Gutenberg EBook of Guida per la costituzione e per
l'impianto di latterie sociali , by Carlo Besana

*** END OF THIS PROJECT GUTENBERG EBOOK GUIDA PER LA COSTITUZIONE ***

***** This file should be named 56655-h.htm or 56655-h.zip *****
This and all associated files of various formats will be found in:
        http://www.gutenberg.org/5/6/6/5/56655/

Produced by Rosemarie della Scala and Barbara Magni
(original images from Biblioteca Scolastica - Istituto
Tecnico Agrario "G. Garibaldi", Roma)


Updated editions will replace the previous one--the old editions will
be renamed.

Creating the works from print editions not protected by U.S. copyright
law means that no one owns a United States copyright in these works,
so the Foundation (and you!) can copy and distribute it in the United
States without permission and without paying copyright
royalties. Special rules, set forth in the General Terms of Use part
of this license, apply to copying and distributing Project
Gutenberg-tm electronic works to protect the PROJECT GUTENBERG-tm
concept and trademark. Project Gutenberg is a registered trademark,
and may not be used if you charge for the eBooks, unless you receive
specific permission. If you do not charge anything for copies of this
eBook, complying with the rules is very easy. You may use this eBook
for nearly any purpose such as creation of derivative works, reports,
performances and research. They may be modified and printed and given
away--you may do practically ANYTHING in the United States with eBooks
not protected by U.S. copyright law. Redistribution is subject to the
trademark license, especially commercial redistribution.

START: FULL LICENSE

THE FULL PROJECT GUTENBERG LICENSE
PLEASE READ THIS BEFORE YOU DISTRIBUTE OR USE THIS WORK

To protect the Project Gutenberg-tm mission of promoting the free
distribution of electronic works, by using or distributing this work
(or any other work associated in any way with the phrase "Project
Gutenberg"), you agree to comply with all the terms of the Full
Project Gutenberg-tm License available with this file or online at
www.gutenberg.org/license.

Section 1. General Terms of Use and Redistributing Project
Gutenberg-tm electronic works

1.A. By reading or using any part of this Project Gutenberg-tm
electronic work, you indicate that you have read, understand, agree to
and accept all the terms of this license and intellectual property
(trademark/copyright) agreement. If you do not agree to abide by all
the terms of this agreement, you must cease using and return or
destroy all copies of Project Gutenberg-tm electronic works in your
possession. If you paid a fee for obtaining a copy of or access to a
Project Gutenberg-tm electronic work and you do not agree to be bound
by the terms of this agreement, you may obtain a refund from the
person or entity to whom you paid the fee as set forth in paragraph
1.E.8.

1.B. "Project Gutenberg" is a registered trademark. It may only be
used on or associated in any way with an electronic work by people who
agree to be bound by the terms of this agreement. There are a few
things that you can do with most Project Gutenberg-tm electronic works
even without complying with the full terms of this agreement. See
paragraph 1.C below. There are a lot of things you can do with Project
Gutenberg-tm electronic works if you follow the terms of this
agreement and help preserve free future access to Project Gutenberg-tm
electronic works. See paragraph 1.E below.

1.C. The Project Gutenberg Literary Archive Foundation ("the
Foundation" or PGLAF), owns a compilation copyright in the collection
of Project Gutenberg-tm electronic works. Nearly all the individual
works in the collection are in the public domain in the United
States. If an individual work is unprotected by copyright law in the
United States and you are located in the United States, we do not
claim a right to prevent you from copying, distributing, performing,
displaying or creating derivative works based on the work as long as
all references to Project Gutenberg are removed. Of course, we hope
that you will support the Project Gutenberg-tm mission of promoting
free access to electronic works by freely sharing Project Gutenberg-tm
works in compliance with the terms of this agreement for keeping the
Project Gutenberg-tm name associated with the work. You can easily
comply with the terms of this agreement by keeping this work in the
same format with its attached full Project Gutenberg-tm License when
you share it without charge with others.

1.D. The copyright laws of the place where you are located also govern
what you can do with this work. Copyright laws in most countries are
in a constant state of change. If you are outside the United States,
check the laws of your country in addition to the terms of this
agreement before downloading, copying, displaying, performing,
distributing or creating derivative works based on this work or any
other Project Gutenberg-tm work. The Foundation makes no
representations concerning the copyright status of any work in any
country outside the United States.

1.E. Unless you have removed all references to Project Gutenberg:

1.E.1. The following sentence, with active links to, or other
immediate access to, the full Project Gutenberg-tm License must appear
prominently whenever any copy of a Project Gutenberg-tm work (any work
on which the phrase "Project Gutenberg" appears, or with which the
phrase "Project Gutenberg" is associated) is accessed, displayed,
performed, viewed, copied or distributed:

  This eBook is for the use of anyone anywhere in the United States and
  most other parts of the world at no cost and with almost no
  restrictions whatsoever. You may copy it, give it away or re-use it
  under the terms of the Project Gutenberg License included with this
  eBook or online at www.gutenberg.org. If you are not located in the
  United States, you'll have to check the laws of the country where you
  are located before using this ebook.

1.E.2. If an individual Project Gutenberg-tm electronic work is
derived from texts not protected by U.S. copyright law (does not
contain a notice indicating that it is posted with permission of the
copyright holder), the work can be copied and distributed to anyone in
the United States without paying any fees or charges. If you are
redistributing or providing access to a work with the phrase "Project
Gutenberg" associated with or appearing on the work, you must comply
either with the requirements of paragraphs 1.E.1 through 1.E.7 or
obtain permission for the use of the work and the Project Gutenberg-tm
trademark as set forth in paragraphs 1.E.8 or 1.E.9.

1.E.3. If an individual Project Gutenberg-tm electronic work is posted
with the permission of the copyright holder, your use and distribution
must comply with both paragraphs 1.E.1 through 1.E.7 and any
additional terms imposed by the copyright holder. Additional terms
will be linked to the Project Gutenberg-tm License for all works
posted with the permission of the copyright holder found at the
beginning of this work.

1.E.4. Do not unlink or detach or remove the full Project Gutenberg-tm
License terms from this work, or any files containing a part of this
work or any other work associated with Project Gutenberg-tm.

1.E.5. Do not copy, display, perform, distribute or redistribute this
electronic work, or any part of this electronic work, without
prominently displaying the sentence set forth in paragraph 1.E.1 with
active links or immediate access to the full terms of the Project
Gutenberg-tm License.

1.E.6. You may convert to and distribute this work in any binary,
compressed, marked up, nonproprietary or proprietary form, including
any word processing or hypertext form. However, if you provide access
to or distribute copies of a Project Gutenberg-tm work in a format
other than "Plain Vanilla ASCII" or other format used in the official
version posted on the official Project Gutenberg-tm web site
(www.gutenberg.org), you must, at no additional cost, fee or expense
to the user, provide a copy, a means of exporting a copy, or a means
of obtaining a copy upon request, of the work in its original "Plain
Vanilla ASCII" or other form. Any alternate format must include the
full Project Gutenberg-tm License as specified in paragraph 1.E.1.

1.E.7. Do not charge a fee for access to, viewing, displaying,
performing, copying or distributing any Project Gutenberg-tm works
unless you comply with paragraph 1.E.8 or 1.E.9.

1.E.8. You may charge a reasonable fee for copies of or providing
access to or distributing Project Gutenberg-tm electronic works
provided that

* You pay a royalty fee of 20% of the gross profits you derive from
  the use of Project Gutenberg-tm works calculated using the method
  you already use to calculate your applicable taxes. The fee is owed
  to the owner of the Project Gutenberg-tm trademark, but he has
  agreed to donate royalties under this paragraph to the Project
  Gutenberg Literary Archive Foundation. Royalty payments must be paid
  within 60 days following each date on which you prepare (or are
  legally required to prepare) your periodic tax returns. Royalty
  payments should be clearly marked as such and sent to the Project
  Gutenberg Literary Archive Foundation at the address specified in
  Section 4, "Information about donations to the Project Gutenberg
  Literary Archive Foundation."

* You provide a full refund of any money paid by a user who notifies
  you in writing (or by e-mail) within 30 days of receipt that s/he
  does not agree to the terms of the full Project Gutenberg-tm
  License. You must require such a user to return or destroy all
  copies of the works possessed in a physical medium and discontinue
  all use of and all access to other copies of Project Gutenberg-tm
  works.

* You provide, in accordance with paragraph 1.F.3, a full refund of
  any money paid for a work or a replacement copy, if a defect in the
  electronic work is discovered and reported to you within 90 days of
  receipt of the work.

* You comply with all other terms of this agreement for free
  distribution of Project Gutenberg-tm works.

1.E.9. If you wish to charge a fee or distribute a Project
Gutenberg-tm electronic work or group of works on different terms than
are set forth in this agreement, you must obtain permission in writing
from both the Project Gutenberg Literary Archive Foundation and The
Project Gutenberg Trademark LLC, the owner of the Project Gutenberg-tm
trademark. Contact the Foundation as set forth in Section 3 below.

1.F.

1.F.1. Project Gutenberg volunteers and employees expend considerable
effort to identify, do copyright research on, transcribe and proofread
works not protected by U.S. copyright law in creating the Project
Gutenberg-tm collection. Despite these efforts, Project Gutenberg-tm
electronic works, and the medium on which they may be stored, may
contain "Defects," such as, but not limited to, incomplete, inaccurate
or corrupt data, transcription errors, a copyright or other
intellectual property infringement, a defective or damaged disk or
other medium, a computer virus, or computer codes that damage or
cannot be read by your equipment.

1.F.2. LIMITED WARRANTY, DISCLAIMER OF DAMAGES - Except for the "Right
of Replacement or Refund" described in paragraph 1.F.3, the Project
Gutenberg Literary Archive Foundation, the owner of the Project
Gutenberg-tm trademark, and any other party distributing a Project
Gutenberg-tm electronic work under this agreement, disclaim all
liability to you for damages, costs and expenses, including legal
fees. YOU AGREE THAT YOU HAVE NO REMEDIES FOR NEGLIGENCE, STRICT
LIABILITY, BREACH OF WARRANTY OR BREACH OF CONTRACT EXCEPT THOSE
PROVIDED IN PARAGRAPH 1.F.3. YOU AGREE THAT THE FOUNDATION, THE
TRADEMARK OWNER, AND ANY DISTRIBUTOR UNDER THIS AGREEMENT WILL NOT BE
LIABLE TO YOU FOR ACTUAL, DIRECT, INDIRECT, CONSEQUENTIAL, PUNITIVE OR
INCIDENTAL DAMAGES EVEN IF YOU GIVE NOTICE OF THE POSSIBILITY OF SUCH
DAMAGE.

1.F.3. LIMITED RIGHT OF REPLACEMENT OR REFUND - If you discover a
defect in this electronic work within 90 days of receiving it, you can
receive a refund of the money (if any) you paid for it by sending a
written explanation to the person you received the work from. If you
received the work on a physical medium, you must return the medium
with your written explanation. The person or entity that provided you
with the defective work may elect to provide a replacement copy in
lieu of a refund. If you received the work electronically, the person
or entity providing it to you may choose to give you a second
opportunity to receive the work electronically in lieu of a refund. If
the second copy is also defective, you may demand a refund in writing
without further opportunities to fix the problem.

1.F.4. Except for the limited right of replacement or refund set forth
in paragraph 1.F.3, this work is provided to you 'AS-IS', WITH NO
OTHER WARRANTIES OF ANY KIND, EXPRESS OR IMPLIED, INCLUDING BUT NOT
LIMITED TO WARRANTIES OF MERCHANTABILITY OR FITNESS FOR ANY PURPOSE.

1.F.5. Some states do not allow disclaimers of certain implied
warranties or the exclusion or limitation of certain types of
damages. If any disclaimer or limitation set forth in this agreement
violates the law of the state applicable to this agreement, the
agreement shall be interpreted to make the maximum disclaimer or
limitation permitted by the applicable state law. The invalidity or
unenforceability of any provision of this agreement shall not void the
remaining provisions.

1.F.6. INDEMNITY - You agree to indemnify and hold the Foundation, the
trademark owner, any agent or employee of the Foundation, anyone
providing copies of Project Gutenberg-tm electronic works in
accordance with this agreement, and any volunteers associated with the
production, promotion and distribution of Project Gutenberg-tm
electronic works, harmless from all liability, costs and expenses,
including legal fees, that arise directly or indirectly from any of
the following which you do or cause to occur: (a) distribution of this
or any Project Gutenberg-tm work, (b) alteration, modification, or
additions or deletions to any Project Gutenberg-tm work, and (c) any
Defect you cause.

Section 2. Information about the Mission of Project Gutenberg-tm

Project Gutenberg-tm is synonymous with the free distribution of
electronic works in formats readable by the widest variety of
computers including obsolete, old, middle-aged and new computers. It
exists because of the efforts of hundreds of volunteers and donations
from people in all walks of life.

Volunteers and financial support to provide volunteers with the
assistance they need are critical to reaching Project Gutenberg-tm's
goals and ensuring that the Project Gutenberg-tm collection will
remain freely available for generations to come. In 2001, the Project
Gutenberg Literary Archive Foundation was created to provide a secure
and permanent future for Project Gutenberg-tm and future
generations. To learn more about the Project Gutenberg Literary
Archive Foundation and how your efforts and donations can help, see
Sections 3 and 4 and the Foundation information page at
www.gutenberg.org Section 3. Information about the Project Gutenberg
Literary Archive Foundation

The Project Gutenberg Literary Archive Foundation is a non profit
501(c)(3) educational corporation organized under the laws of the
state of Mississippi and granted tax exempt status by the Internal
Revenue Service. The Foundation's EIN or federal tax identification
number is 64-6221541. Contributions to the Project Gutenberg Literary
Archive Foundation are tax deductible to the full extent permitted by
U.S. federal laws and your state's laws.

The Foundation's principal office is in Fairbanks, Alaska, with the
mailing address: PO Box 750175, Fairbanks, AK 99775, but its
volunteers and employees are scattered throughout numerous
locations. Its business office is located at 809 North 1500 West, Salt
Lake City, UT 84116, (801) 596-1887. Email contact links and up to
date contact information can be found at the Foundation's web site and
official page at www.gutenberg.org/contact

For additional contact information:

    Dr. Gregory B. Newby
    Chief Executive and Director
    gbnewby@pglaf.org

Section 4. Information about Donations to the Project Gutenberg
Literary Archive Foundation

Project Gutenberg-tm depends upon and cannot survive without wide
spread public support and donations to carry out its mission of
increasing the number of public domain and licensed works that can be
freely distributed in machine readable form accessible by the widest
array of equipment including outdated equipment. Many small donations
($1 to $5,000) are particularly important to maintaining tax exempt
status with the IRS.

The Foundation is committed to complying with the laws regulating
charities and charitable donations in all 50 states of the United
States. Compliance requirements are not uniform and it takes a
considerable effort, much paperwork and many fees to meet and keep up
with these requirements. We do not solicit donations in locations
where we have not received written confirmation of compliance. To SEND
DONATIONS or determine the status of compliance for any particular
state visit www.gutenberg.org/donate

While we cannot and do not solicit contributions from states where we
have not met the solicitation requirements, we know of no prohibition
against accepting unsolicited donations from donors in such states who
approach us with offers to donate.

International donations are gratefully accepted, but we cannot make
any statements concerning tax treatment of donations received from
outside the United States. U.S. laws alone swamp our small staff.

Please check the Project Gutenberg Web pages for current donation
methods and addresses. Donations are accepted in a number of other
ways including checks, online payments and credit card donations. To
donate, please visit: www.gutenberg.org/donate

Section 5. General Information About Project Gutenberg-tm electronic works.

Professor Michael S. Hart was the originator of the Project
Gutenberg-tm concept of a library of electronic works that could be
freely shared with anyone. For forty years, he produced and
distributed Project Gutenberg-tm eBooks with only a loose network of
volunteer support.

Project Gutenberg-tm eBooks are often created from several printed
editions, all of which are confirmed as not protected by copyright in
the U.S. unless a copyright notice is included. Thus, we do not
necessarily keep eBooks in compliance with any particular paper
edition.

Most people start at our Web site which has the main PG search
facility: www.gutenberg.org

This Web site includes information about Project Gutenberg-tm,
including how to make donations to the Project Gutenberg Literary
Archive Foundation, how to help produce our new eBooks, and how to
subscribe to our email newsletter to hear about new eBooks.