| Megjegyzés: | Az eredeti képek elérhetők innen: http://archive.org/details/magyarnpmvsz01malo |
| Facebook oldalunk: http://www.facebook.com/PGHungarianTeam |


ELSŐ KÖTET
A KALOTASZEGI MAGYAR NÉP MŰVÉSZETE
SZÁMOS SZAKÉRTŐ ÉS MŰVÉSZ KÖZREMŰKÖDÉSÉVEL
IRTA
MALONYAY DEZSŐ
BUDAPEST
FRANKLIN-TÁRSULAT
MAGYAR IROD. INTÉZET ÉS KÖNYVNYOMDA
1907
Minden jog fentartva
Franklin-Társulat nyomdája.
A magyar politikai életben, társadalmi, irodalmi és művészeti téren oly hatalmasan, olyan tudatosan s reméljük, annyira termékenyítően talán még soha sem lüktetett a nemzeti érzés, mint manapság. Politikai és mívelődési törekvéseink mindinkább gazdagodnak nemzeti tartalomban s kultúrmunkánkat egyre erősebben jellemzi a nemzeti büszkeség, amelyhez jogot az a meggyőződésünk ád, hogy a magyar az ő erkölcsi és szellemi gazdagságával – miután a multban már tanúbizonyságot tett történelmi jelentőségéről – nagy jövendőre hivatott.
E hivatást betölteni: ez a mi nemzeti törekvéseink célja, ez vezet bennünket, amikor a magyar népben szunnyadó erőt ébresztgetjük, szorgalmazva annak fokozatos fejlesztését is.
A természettudományi gondolkozás – állítólag az emberi haladás e nagy diadala – eleinte szívósan tiltakozott a nemzeti eszme ellen, még pedig az úgynevezett egyetemes emberi boldogság érdekében; apránkint azonban, az elméletek gyakorlati csődje után, megértettük, hogy az emberiség magasabb céljai mégis csak leghamarább és legbiztosabban valósíthatók meg az egyes nemzetek keretein belül. Ma már átalánosan valljuk, hogy amint a természet különböző tehetséggel látta el az egyes embert s e tehetségek a különböző viszonyokhoz mérten különbözően fejlődnek, úgy az egyes népek, az egyes nemzetek is különböző tehetségekkel vannak felruházva s e tehetségek, különböző viszonyaik szerint, különbözően fejlődnek. Valamint egyenlő joga van minden egyes embernek, hogy erejét s tehetségét szabadon fejlessze mindaddig, amíg embertársa erejének és tehetségének szabad fejlődését nem akadályozza, úgy hasonló jog illet meg minden egyes nemzetet. Ennyi, és ez a nemzet jogosultsága. Az az ezerféle sajátosság ugyanis, – amelyeknek végtelen és végtelenül jellemző sorozata a fajok kiválása folytán, az éghajlat s az állami berendezkedések különfélesége révén, minden népnél más és más módon fejlődve ki, más és másfélekép is érvényesül, – sokkal határozottabb és önállóbb egyéniséget ád az egyes nemzeteknek, semhogy az egyetemes emberi boldogságért közösen küzdő haladás nélkülözhetné azt az erőt, amelyet a nemzeti eszme rejt magában. Hogyan nélkülözhetné tehát azt az erőt, – mely részint a biztató mult emlékeiből, részint az igérkező jövő reménységéből táplálkozva, legszilajabban s legtermékenyítőbben ragadja meg a néplélek alkotó kedvét, – hogyan nélkülözhetné maga a nemzet? Hiszen a nemzet csupán a népben -8- szunnyadó erkölcsi és szellemi gazdagsággal, csakis e gazdagság fejlesztésével és értékesítésével szolgálhatja a haladást, – elismerést biztosítva ezáltal úgy az ő nemzeti léte jogosultságának, valamint jövendőkre szóló történelmi hivatásának is.
Nem elfogult, nem önös, vagy fenhéjázó sovénség, ha így okoskodik a magyar. Élni akarunk, igazi életet, a magunk magyar életét akarjuk élni, természet szerint, jog szerint.
Nem mintha áltatnók magunkat, hogy csak egy pillanatra is kiléphetnénk a kor s az emberiség haladásának közösségéből, – de az emberi fejlődés átalános törvényeinek való meghódolás mellett minket a mi államjogi és politikai helyzetünk parancsoló erővel kényszerít, hogy mennél teljesebben megkeressük és megtaláljuk önmagunkat. Mert másra kire számíthatunk? Testvéreink nincsenek s hol vannak barátaink? Szorongattatásaink s élethalál-harcaink közepette ki törődött valaha a mi megmentésünkkel? Ki hordta szivén érvényesülésünket, boldogulásunkat? És itt vagyunk mégis. A magunk erejéből, a magunk böcsületéből, – ami csalhatatlan záloga annak is, hogy itt is leszünk, – annál erősebbek, életteljesebbek, a nagy míveltségnek, az egyetemes emberi boldogságnak annál fegyverzettebb harcosai és annál méltóbb osztályosai, mennél inkább magyarok tudunk lenni, igaz, öntudatos, kemény magyarok.
Kis tüzet elolt minden szellő, a nagy tüzet a vihar is csak éleszti. Az izzó, a lobogó nemzeti érzést szítja a veszedelem, de ha gyatrán pislákol csak, elhamvad a szellőtől is. Pedig, ma aligha van még Európában nép, amelynek nemzeti életét sajátságos államjogi helyzete oly veszedelmesen fenyegetné, mint fenyegeti a magyarét. Fenyeget ez a veszedelem állandóan. Szerencsénkre: a nemzeti hevület nálunk elemi erővel tüzelte a lelkeket akkor is, amikor az, látszólag, egész Európában szinte kihamvadt a népek érzéséből. A fokozatos népesedéssel karöltve járó vándormozgalmak s a törvényes házasság lehetősége valamennyi keresztény nép között, csaknem végkép nivellálták Európában a fajkülönbséget; a kereszténység, mint vallás, nem támogatta a nemzeti különállást, mert – eltekintve az «egy akol, egy pásztor» egyenesen nemzetköziességet hirdető parancsától – a kereszténység sehol sem vehette föl azokat a nemzeti sajátosságokat, amelyeket az ókori vallások mindenütt megőriztek s amelyek azokat a pogány vallásokat szinte az állami intézmény alkotó részéve avatták. Megszünt az egyes népek elszigeteltsége is; a vasút, a kereskedés, a sajtó mind közelebb hozták egymáshoz a népeket, a folytonos és egyre közvetetlenebb érintkezés még inkább megnehezítette a nemzeti sajátosságok megőrzését. A jellemző nemzeti erkölcsök és szokások rohamosan tünnek el, mindinkább hasonlítunk egymáshoz, a nyelvkülönbségen kívül hova-tovább alig marad a nemzeti jellegnek egyéb dokumentuma, mint a mult emlékei s a művészi alkotások, illetőleg ez alkotásokon a művészi sajátosság.
Ne feledjük: a mi önálló nemzeti egyéniségünket veszélyezteti még az is, hogy itt több fajta nép szorult össze egy államba. Már pedig az ilyen összezártság -9- nem igen válik a nemzeti jelleg erősbödésének javára; a közös éghajlat, a közös intézmények s a társadalmi élet és érintkezés ezer befolyása révén a nemzetiségek közelebb jutnak ugyan egymáshoz és közelebb mihozzánk, de viszont mi is ugyanily mértékben vagyunk kitéve a kölcsönös hatásnak s a nemzeti jelleg tisztasága megsínyli ezt. Az eszmék és nézetek sajátos és egyéni alakulásának egyik alapoka már ott van magában a nyelvkülönbségben, – nemzeti tulajdonságaink megőrzése és fejlesztése tehát már csak annál inkább szükséges. Külön jogot nyilván csak külön egyéniség követelhet és teremthet magának. A nemzeti jogosultság fogalmának gyakorlati megvalósítására tehát elengedhetetlen, hogy az, aminek számára nemzet név alatt jogosultságot követelünk, az mindenekelőtt határozott, sajátos egyéniség legyen és ilyenül meg is maradjon.
Nemzeti egyéniségünket, a mi helyzetünkben, a multak emléke – ha ez a mult még oly dicső volt is – a kegyelet mélabús emlékezetével meg nem védelmezi. Nem ment meg bennünket, bármint óvjuk, maga a nyelvbéli különbözőség sem, jóllehet a nyelv hatalmas bástyája a nemzeti különállásnak s huzamosan megbir a legádázabb pusztító szándékkal is. Történelmünk szolgál erre példákkal. De a nemzet nyelve se győzhetetlen. Nemzeti jellegünkben meg nem véd, magyar voltunkban meg nem tart, csak maga az alkotásokban nyilvánuló eleven élet, csak a saját erős kulturánk, csak a haladó és fejlődő magyar műveltség.
A nemzeti kultúrák remekei közül való a művészet, s azt mernők állítani: igazán művészi remekkel csak a nemzeti erejök teljességében lévő kultúrák szolgáltak. És milyen hálás nemzetének a művészet!… Eötvös József báró, aki pedig államférfiú is volt, nemcsak művész, meggyőződéssel hirdette, hogy egy-egy népdal olykor nagyobb befolyással volt az állam sorsára, mint a legpompásabb államtudományi elméletek.
A művészet gyakorlati értékének bizonyítására szót vesztegetni ma már talán fölösleges, – de minthogy mi a magyar nép művészetét és kizárólag a képzőművészet keretei közt megnyilatkozó művészetét óhajtjuk e munka folyamán bemutatni: eleve hangsúlyozni kivánjuk, mi értéke van nemzeti szempontból ennek a népi művészetnek.
Meg kell állapítanunk, hogy mint minden művészetnek, a képzőművészetnek nemzeti értéke is kizárólag csak attól függ, hogy a művész mily gazdagon és milyen tökéletességgel tudja szóhoz juttatni alkotó temperamentumát, mely része ama nép alkotó temperamentumának, amelyből ő származik.
E megállapításra szükség van, nemcsak azért, mert hatásában a képzőművészet, természeténél fogva, sokkal kevésbé közvetetlen, mint az irodalom, vagy a zene, hanem azért is, mert éppen a magyar képzőművészet még fiatalabb, semhogy nemzeti formái idáig egységes stilussá tömörülhettek volna, semhogy a nemzetinek minősíthető művészeti őselemek tudományosan megállapítva, vagy csak összegyűjtve is volnának.
Ez a bizonytalanság, vagyis inkább ez a tájékozatlanság adott módot s -10- ád módot még ma is arra a sok visszaélésre, amit főleg a magyar képzőművészet terén a nemzeti művészet oly népszerű lobogója alatt elkövetnek azok a könnyelműek és szélhámosok, akik minden reformkorszakban pazarul burjánzanak. A művészet valódi céljával homlokegyenest ellenkező és a művészet értékét csökkentő ama megalkuvást, mely a hazai témáknak még kontár kézzel való érintését is magyar érzésnek és egyben művészi erénynek tudja be, saját üzleti céljaikra kihasználták nálunk is az élelmes félművészek, felcifrázva munkájukat magyaros sallanggal. Pedig éppen a magyarság művészi tartalmának és művészi értékének megőrzése szempontjából, éppen mert fajtánknak, a magyar életnek és viseletnek, a hazai vidéknek eleddig jóformán parlagon hevert festőiségét is ki kell aknáznunk nemzeti művészetünk érdekében, – utasítsuk vissza ridegen ezt a szélhámosságot. Nem esik sem a jogos nemzeti önérzet, sem a komoly néprajzi tudomány rovására, ha kimondjuk, hogy a magyar paraszt holmija, háza, temploma, a magyar parasztélet környezete és jelenetei lehetnek igen érdekes és becses dokumentumok tudományos néprajzi szempontból, de művészi értéke csak annak a népi alkotásnak van, amelyben festői, plasztikai, szerkesztésbeli, vagy diszítési szépségekben nyilvánul meg a nép alkotó temperamentuma; művészi hasznát csak annak a népi holminak vesszük, amelyet ösztönszerű, naiv, de annál egészségesebb szépérzékkel alkot és diszít a mi csudálatosan művész parasztunk. Kissé erőszakosan ugyan, de éppen ennek folytán és erre a célra kérjük ki e munka során a népművészetet az etnografiától.
Különbség egyes művészek között csak a művészi értékben lehet s ez az érték aszerint emelkedik, amint a művész saját kora művészi áramlatainak az élén halad, vagy ha éppen korát is megelőzi; – nemzeti érzésben, ezt akarjuk hinni, egyenlők mindannyian. Hiszen a művészben, aki magyar, úgy-e, nem is lehet más hit, más érzés, csak magyar? Nem is lehet. Nem, ha ugyan időközben el nem idegenedik utánzott idegen külsőségek révén. Mert ez a veszedelem, éppen mint magát a nemzetet, megnyomoríthatja a művészt is. Ezért szükséges, hogy a művész mindaddig itthon maradjon, amíg művészi egyénisége fejletlen, ezért szorgalmazzuk, hogy a magyar művész, mielőtt megismerkednék az idegen művészetekkel, megtanulna saját nemzetének jellemző kifejezéseit.
De ha – amint magunk is bevalljuk – a magyar képzőművészet nemzeti formái nemcsak hogy egységes stilussá tömörítve, de tudományosan megállapítva, sőt még csak összegyűjtve sincsenek, hol veszi a magyar művész a kifejezési módokat, amelyek nemzeti jellemünknek a jegyei? Hogyan keressük ki az eddig oly sok osztrák, német, bajor, olasz, francia és angol hatás alatt fejlődött hazai képzőművészetből, az idegen utánzás folytán annyira meghamisított és elkorcsosított formák közül azokat az elemeket, amelyek eredeti mivoltukban nem fejezhettek volna ki egyebet, mint a magyar művészi alkotó hevületnek egyéni megnyilatkozásait? Mert ha van nemzeti jelleme a magyarnak – mint ahogyan van minden nemzetnek – benne kell annak lennie, látnunk, éreznünk kell azt a vonalak lendületében, a szinek harmóniáiban, -11- a plasztikai formák változatában csakúgy, mint ahogyan kicsendül az a magyar népdal ritmusából; benne kell annak lennie a kompozicióban, a szerkezetben, a fölépítésben csakúgy, mint ahogyan benne van a magyar prozódiában, a magyar nóta belső ritmusában, dallamának jellemző felépítésében.
És benne is van.
Ott kell keresni, ahol még megtalálhatjuk: a nép művészetében. Ott, ahol költészetünk is rátalált zamatos és eredeti magyarságára.
Keressük a magyar paraszt építkezésében, házának berendezésében, templomának diszítésében, viseletének színösszetételeiben, faragcsalásában, szövésében, fonásában, varrogatásaiban, üde, dévaj, mindig arányos és anyaghoz alkalmazkodó diszítő kedvének, szín- és formaérzésének megnyilvánulásaiban, – bízvást kereshetjük s megtaláljuk ezerféle művészi kezemunkájában. Művészet, – mert hiszen egészséges alkotó kedvének, ösztönszerű szépérzésének eredménye, – művészet mindaz, ami ily módon a magyar paraszt keze alól kikerül, kezdve kerítésének fonásától magafaragta sírkövéig; művészet, s annál becsesebb, mert aránylag szűk körre szorulva, életének oly kicsinyke keretei között, háza, földje, temploma és temetője körében adja ki mindazt, ami alkotó kedvétől és tehetségétől telik s e kicsiny keretek közt művészetének tartalmassága az idők, nagy idők folyamán úgy meggyarapodott, egyszerűsége annyira áttisztult, hogy a maga nemességében helyenkint megközelíti a klasszikus kulturák alkotásait. Olyan a művészete, mint ő maga, ahol még érintetlenül maga tudott maradni a magyar paraszt. Nem ismerünk egyszerűségében nemesebb, egységesebb, arányosabb életet. Tiszteletet gerjesztő békés egységben telik le az egész, egy hivatása van és azt betölti a végső célig arkaikus méltósággal; egész lényében, egyetlen mozdulatában sincs egy parányi hazugság s a legteljesebb harmóniában van önmagával és környezetével, bölcsőtől a sírig.
Ezt az egyszerű, szűzi tisztaságában megbecsülhetetlen, mert nemzeti természetünkre és mivoltunkra egyedül jellemző művészetet gyűjtögetjük össze s mutatjuk be e munka folyamán.
Az eredet és a kialakulások kérdésének ezerösvényű útvesztőjét kerüljük; nem avatkozunk a fajok keveredése, az idegen szomszédság és egyéb kölcsönhatások folytán támadható vitákba sem, – sőt óvakodunk akármilyen tudományos rendszernek eleve való fölállításától is, nehogy a mi igénytelen anyaggyűjtő munkánk elé magunk vessünk gátakat.
Ha úgy tetszik, csak egyszerű képeskönyv ez, a magyar nép művészkedéséről beszámoló képeskönyv.
Ahogy Kriza János a «Vadrózsák»-at szedegette örök-üde bokrétába, amint népköltészetünk gyűjtői böngésznek a rég leszedett, már-már ugarba vesző tőkéken, – mi is úgy cselekszünk, csak annyit akarunk s bár annyira vihetnők. Kutatjuk azt, ami már kallódik, összekeresgéljük ami még van, mentjük a pusztulástól, hogy megőrizhessük, hogy bemutassuk, megismertessük és meg is szerettessük minél több magyar emberrel: népünk művészetének azokat a termékeit, amelyek, hitünk szerint, a magyar művészetben, iparban, minden munkánkban hasznosíthatók lennének s amit össze kell szedni, föl kell dolgozni, mielőtt pótolhatatlanul és végleg el nem pusztulnak a pótolhatatlan magyar paraszttal együtt.
Amit itt nyújtunk, az még nem a magyar stilus. Lelkesít azonban bennünket az a tudat, hogy nehány szekér hasznavehető matériát mi is hozunk. A magyar művészek föladata, hogy kikeressék az így gyűjtött anyagból az értékes és fejlesztésre alkalmas részt, azt fölhasználva s nyomukon ők maguk is átkutatva a népi művészet kincstárát, végre is biztosabban szolgálják és segítsék elő azt a természetes evoluciót, amelynek során – s csakis így – eljuthatunk a sovárogva várt nemzeti stilushoz, a nemzeti kifejeződés módjaihoz.
Vállalkozásunk tehát a következő: keresünk hazánkban, a nép körében, lehetőleg mennél többet abból, amiben fajunk szépérzéke – a meséiben, dalaiban, szokásaiban, sőt babonájában is kifejeződő költői érzését kiegészítőleg – a legjellemzőbben nyilvánul. Célunk: fölkutatni a magyar művészi alkotókedv ösztönszerű érvényesülésének kezdetleges próbálkozásaitól kezdve, el a már fejlettebb motivumokig lehetőleg mennél többet; menteni az elkallódástól azt, amink van és így a nemzeti jelleg megőrzésében erősíteni, irányítani, fejleszteni fajunk alkotókedvét; megmutatni, bizonyítani és igazolni fajunk művészeti érzékének, rátermettségének és készségének sajátosságát, erejét, becsét s ezzel közvetve és közvetetlenül segíteni a nemzeti elem érvényesülését izlésünkben, művészetünkben és iparunkban; gyarapítani a nemzeti önbizalmat, tanítani a magunk többrebecsülését, valamint megbecsülését annak, ami a miénk, gátat vetni az idegenből özönlő művészeti és iparművészeti nivelláció elé, – ez vállalkozásunknak erkölcsi tartalma és ez a célunk.
Sorra vesszük hazánk magyarlakta részeit, annál tüzetesebben, mennél exponáltabb az illető vidék, s röviden ismertetve, jellemezve az ott lakó népet: leírjuk és képekben bemutatjuk templomát, temetőjét, házát, otthonát, kertjét, őt magát, ruhaviseletét, házi és munkaeszközeit, megkeresve mindezeken azt, amivel ösztönszerűleg és tudva szépérzékét elégíti ki. Megkeressük, legalább is -13- nyomozzuk népünk izlésének eredetét; kutatjuk szín- és formaérzésének természetét s irányát; sorraszedjük a magyar építés mintáit és a magyar diszítési elemeket. Különösen foglalkozunk a művészkedő népi ipar magyar termékeivel, vizsgálva kitűzött célunkhoz mérten a szövést, az agyag-, a fa-, csont-, bőr- és fémművességet, ahogy azt a nép még míveli. És tőle magától, a néptől kérjük magyarázását annak, hogy amit csinál, miért csinálja úgy, ahogy csinálja, s e közvetetlen forrásból szerzett, de minden naivságuk mellett is jellemző adatokat egészítjük ki a saját magyarázatainkkal. Törekvésünk, hogy e munkát túlságos elmélet ne terhelje, de minden részében személyesen megkeresett és ellenőrzött, szigorúan hű, pontos, a tudós számára is föltétlenül megbízható, becsületes adatok felhasználásával készüljön az egész. Olyan könyvet akarunk csinálni, hogy építőink, képfaragóink, festőink, műiparosaink közvetetlenül is hasznát vehessék, egyben pedig szolgálja, közvetve, iparunkat és kereskedelmünket; segítsen a megismerés által magán a népen, segítsen azzal is, hogy ismertetvén az egyes vidékek háziipari tevékenységét, amiben művészetük leginkább nyer kifejezést, érdeklődésünk révén fokozzuk az ő öntudatos működésüket, hogy nemzeti alapon megindult közgazdasági törekvéseinkbe kapcsolhassuk népfajunk különböző sajátos tehetségeit.
Az a törekvésünk, hogy vigye ez a mű is, minden betűjével, a magyar zamatot, a magyar szellemet, a magyar lelket kultúránkba. Nincs olyan porcikája a magyar eredetiségnek, aminek elveszése, aminek parlagon hagyása és meg nem őrzése pótolhatatlan vesztesége ne lenne mívelődésünk nemzeti jellegének, így tehát egész kulturánknak. Mennyi veszett már el!… Mentsük, a mi még megmenthető.
Vállalt munkánkat öt év alatt óhajtanók befejezni, adván az öt év folyamán öt ilyen kötetet, mint ez az első.
Ennek az első kötetnek az anyagát Erdélyben, a kalotaszegi falvakban gyűjtöttük; az erdélyi székelység és Torockó művészetével foglalkozunk a második kötetben; a harmadik kötetünkben a dunántúli magyarság művészetéről lesz szó, a negyedik és ötödik kötetben kerül sor a nagy Alföldre, a Felvidékre s az északkeleti Hegyaljára. -14-
Nemzeti közérdeket óhajtván szolgálni a magunk kis cselekvésével is, kötelességünk ismételten számon adni, mely ideák irányítottak bennünket, e dolog elvégzésére vállalkozván.
A művészetek történetében világosan kifejeződésre jut az a jelenség, hogy a művészetek megujhodása és föllendülése mindig akkor vette kezdetét, amikor a nemzeti sajátosságok fölismerése, azoknak megbecsülése és érvényesítése révén a fajbéli elemek ősformái, illetve, érintetlenül megőrzött népi elemei vegyültek a magukat túlélt iskolai hagyományok közé. A nemzeti nyelv, poézis, egész irodalmunk, zenénk, ott kezdi új és nagy jövőre hivatott életét, amikor a néphez fordult fölfrissülésért, meggazdagodásért. Képzőművészetünk és ipari művészetünk a külföldi nemzetek versenyre buzdító hatása alatt sokáig a külföldről vette ihletét és formanyelvét, ebben pedig már eleve ott volt az a biztos veszedelem, hogy mi a versenyben csak vesztesek lehetünk: művészetünkben hijja lesz az éltető eredetiségnek. Ma már maga a külföld követeli tőlünk, hogy szellemi termelésünkben ne csak azt adogassuk szüntelen, amit tőle vettünk a kezdéshez kölcsön, de bizonyítsuk életképességünket, ha van, a magunk teremtő ösztönének, saját tudásunknak érvényesítésével. Az egészséges fejlesztés alapja adva vagyon. Népünk, sok viszontagsága között és a gyorsan nivelláló modern kor sodrában sem veszítette még el művészeti őserejét, ha a viszonyok súlya alatt vergődve is, de alkot folyton: kincsei, a nemzeti művészet alapelemei és művészetünk nagy jövőjének forrásai megvannak, csak meg kell keresni, csak sürgősen kell megkeresni (mert veszti már a nép boldog jó kedvét, kénytelen szükségleteit és naiv fényűzését a gyáripar olcsóbb termékeivel kielégíteni) és be kell vinni minden művészi magyar holmit a nemzet közismeretébe és oda kell adni valamennyit a művészeteknek még idejekorán, hogy vegyék hasznát. És ha arról van szó, hogy idegen hatásokat hogyan kell a mi magyarságunkban felolvasztani, hát azt is jó lesz a mi népművészetünktől megtanulni.
Ebből iparunk és kereskedelmünk húz közvetett hasznot: termelésünk lesz eredetibb, tehát keresettebb, tehát jövedelmezőbb.
Összekapcsolódik ez a nép erkölcsi és anyagi jólétének gyarapításával; mert ha a nép tudatára ébred a háziiparában kifejeződő művészet elismert szépségének és hasznosságának, korcsmai züllés helyett csakhamar szívesebben fordul a kedvét is szolgáló munkához, ami, jól tudhatjuk, természetében van. Bizzunk talán abban is, hogy a magyar föld népe a saját kisgazdaságát a kifejlődő háziiparhoz szükséges nyerstermékek mívelése révén intenzivebbé tehetné, sok elkallódó munkaerőt hasznosíthatna; a munkája révén feléje irányuló figyelem és érdeklődés folytán pedig önérzetében, a vagyonos elem iránt való bizalmában erősbödik, nemesbedik és boldogabbá lesz.
Nem hihet s nem hisz boldogulásunkban, aki erre, lemosolyogván, azt mondja: ábrándozás!
Nem ábrándozás ez.
Aminthogy az sem ábrándozás, hogy hasonló munkákkal, közvetetve, nemzeterősítő politikánkat is szolgálhatjuk. Szolgáljuk már azzal is, ami -15- hasznot a magyar kulturának, a magyar faj munkaképességének, faji öntudatra ébredésünknek hajtunk véle. Szolgálhatjuk az államalkotó magyar faj közé ékelődött nemzetiségek előtt kialakuló kulturális tekintély szervezésével; szolgálhatjuk a fajbéli ellentálló erő jelentékeny fokozása által; végül – hogy egyebekre ki ne terjeszkedjünk, bár igen közvetetlenül érdekelheti a nemzetiségi politika különböző irányú vonatkozásait – hasonló munkák segíthetik megőrizni, védeni, erősíteni éppen azt, ami magyarságunknak minden mástól különböző sajátossága lévén, vesztével éppen magyarságunk gyöngül meg és veszhet el.
Itt az első kötet.
Erdélylyel, a legexponáltabb hazarészszel kezdtük, lévén az eredeti sajátosság pusztulásának veszedelme ott a legfenyegetőbb.
Munkám elején kedves kötelességem köszönetet mondani nagyrabecsült érdemes barátomnak, Berczik Árpádnak; ő buzdított, hogy munkához lássak, karonfogott s ő kopogtatott vélem a minden nemzeti ügy szolgálatában áldozatkész Franklin-Társulatnál.
A programot, a munkatervet K. Lippich Elekkel együtt készítettük; a vezető eszméket együtt állapítottuk meg; nincs egy lépésünk, amelyet nélküle tettünk, kezdve a legelsőtől s ha Isten éltet bennünket, vélünk marad az utolsóig. A magyar kultusz-kormány gondosan megmérvén vállalkozásunk fajsúlyát, kiemelendő áldozatkészséggel fordult ügyünk felé, s hogy a munka erkölcsi biztosítékait fokozza, a minisztérium művészeti szakreferensét, Koronghi Lippich Elek dr. tanácsost, megbízta dolgunk ellenőrzésével.
A kereskedelemügyi m. kir. minisztérium is gondjaiba vette ügyünket, mit hálásan kiemelvén, köszönetünket nem hallgathatjuk el Szterényi József kereskedelemügyi államtitkár úrral szemben; a földmívelésügyi minisztérium körében Bartóky József miniszteri tanácsos úr volt ügyünk pártfogója.
Ehez az első kötethez javamunkájukkal járultak dolgozótársaim: Edvi-Illés Aladár, Juhász Árpád, Kriesch Aladár festőművészek, Medgyaszay István építőművész, Telegdy Árpád bánffi-hunyadi rajztanár, Groó István, az Orsz. Iparművészeti iskola tanára, és Rózsa Miklós dr. író; föstöttek, rajzoltak, vélünk együtt fényképeztek és gyűjtöttek, segítettek a megírásban és a szerkesztésben.
Együtt hiszünk a dolgunkban.
Budapest, 1906 január 1.
A művészetek eredetének rejtelmeit máig se oldatták meg, bár a tudomány sokat foglalkozik feszegetésükkel. Több okoskodás áll előtérben. Igen érdekes a Darwiné. Ő a szépérzést s e réven a művészetek fogamzását nemi alapon magyarázza: a nőstény hajlandóságáért küzdvén, az állatvilágban is rendesen a legszebb, a legformásabb, a fürgébb és ügyesebb hím a győztes. Ebből az alapfelfogásból indult ki Grant Allen is, az ember esztétikai érzésének fejlődéséről írott munkájában, – szerinte is, a nemek vonzalmán és viszonyán alapul az eredendő, az ősi szépérzés. Ez az elmélet azonban sokszorosan adósunk marad a művészetek keletkezésének megmagyarázásával; nem tudja, például, okát adni annak sem, hogy mi az összefüggés a nemi-kiválás és ama nem vitatható tény között, hogy a magánosan élő ősember is rajzolgat már, amikor alakokat karcol kőbe, fába, a rénszarvas agancsának lapjára. Hogy a magánosan élő ősember is ismerte a szerelmet?… Iromba állatalakjaival aligha gondolhatott szerelmi hódításra.
A német Lazarus a pihenési és a szórakozási elemet minősíti alapvetőnek a művészetek keletkezésében. Ugyanezt az elméletet szőtték tovább, változatosan tarkítva, Spencer is, meg Groos is, – de azt az esetet, például, hogy eme úgynevezett játékot, a művészetet, nem egyszer végkimerülésig űzi a pihenésében szórakozó ember, nemcsak hogy a játékelmélet meg nem magyarázza, de még Spencer «erőfölöslege» sem. Schiller föltevése szerint is, a gyermek játékából fejlődött az ember művészkedése; Conrad Lange az illúzió szükségletéből, Ribot a képzelet alkotnivágyó ős erejéből, Taine a környezetsugallta utánzási szükségletből magyarázza a fejlődést.
A legújabb elmélet – amelyet talán biológiai, vagy hasznossági elméletnek nevezhetnénk – a színérzéket és formaérzéket, legelemibb ténykedésében, valamely ősrégi hasznosság folytán legteljesebben kifejlett idegpálya üzemének tekinti, mely eredeti hasznosságát a fejlődés folyamán elveszítvén, egyre szélesebbkörű és mind újabb örömökkel társult s ezek az örömérzetek már esztétikai gyönyörűségek voltak. Ennek az elméletnek meg van legalább is az az érdeme, hogy megmagyarázza azt az örömet, amelyet bizonyos geometriai formák és a részarányosság keltenek az emberben; merthogy ezek csakugyan «szépséghatások», az nyilvánvaló, hiszen diszítéseiben ezeket az elemi motivumokat a legkezdetlegesebb nép is alkalmazza.
A népművészet tanulmányozása közben, mind elfogadhatóbbnak találjuk azt a föltevést, hogy a geometriai diszítésekben nyilvánuló örömérzet bizonyos olyan ősrégi jelek és ábrázolások megszokásában leli magyarázatát, amelyek valaha hasznossági okokból keletkezve és évezredeken át alkalmazva, annyira befészkelték magukat az emberek lelkébe, hogy látásuk, ismerős voltuk örömet szerzett akkor is, amikor hasznossági rendeltetésök már régen megszünt; a kezdetleges házieszközök eredeti formáit s vonaldiszítéseit ma is alkalmazza a nép, a primitiv ízlésű ember égetendő agyagedényeire is rákarcolja, rányomkodja azokat a mintákat, amelyeket fonott kosárba s kasba helyezett agyagedényein évezredeken át megszokott. E kérdéssel behatóan és érdekesen foglalkozik Jászi -20- Oszkár, «Művészet és Erkölcs» című munkájában. Idézzük, nem azért, hogy véle a fejlődési folyamat messzire elvezető útjára térjünk, de mert szükségünk van annak a megállapítására, hogy a kezdetleges ember, tehát a kezdetleges diszítő művészet is, legszívesebben azokat a formákat alkalmazza, amelyek legeredendőbb szükségleteivel vannak összefüggésben s amelyekben, ennélfogva, legősibb örömét is lelte. A falusi ember, az öntudatlanul s ösztönszerűen művészkedő nép elsősorban azokat a díszítési elemeket alkalmazza, amelyek valamelyes vonatkozásban vannak az ő foglalkozásával és az őt körülvevő természettel. E kezdetleges szépérzésbe – amely már nemesebb, mint az, mely csak a táplálkozás és a nemi vonzódás örömeiből fakad – a fejlődés folyamán egyre szövevényesebb elemek vegyülnek: szóhoz jut a fajszeretet, érvényesül a vallás szentsége, a hazafiúi érzéssel együtt nyilvánul meg, s talán ez a legerősebben, a kenyéradó föld szeretete.
A fejlődés folyamán azonban, marad minden nép művészetében mégis valami sajátosan közös vonás, ami bizonyos egységes jelleget ád minden egyes nép művészetének. Ez az egységesség az illető nép nemzeti jellegében gyökeredzik; hogy ez a nemzeti jelleg micsoda és miként kerül a művészetbe, arról már szólottunk, – a kérdés most az: hogy az egységes nemzeti jelleg keretében mint jut önálló és külön jelleghez egy-egy vidék művészete?
Az egyéni alkotó szabadság, a föltaláló, képzelő és teremtő erő, vagy akár a csapongó szeszély, nemcsak hogy egyebünnen nem fakadhat, mint az illető egyén környezetéből és a környezethez fűződő, a környezet költötte eszmetársulásokból, – de ami mindezt irányítván, egyszersmind korlátozza is, az szintén csak a környezet. A falu pedig, – annak az egyszerű művésznek, a népművésznek környezete, – már elszigetelt helyzete folytán is, sokkal maradibb, lassabban haladó, régihez ragaszkodóbb, semhogy az egyéni szabadságot korlátok közé ne fogná, korlátok közé fogván így a közös termelést is. Ez ád olyan önálló és külön jelleget egyes falvak s az egymásra utaltabb vidékek munkájára, de viszont, ez akadályozza meg olyan szerencsésen, hogy egyesek hitbuzgósága, vagy korlátozottsága eredeti jellegétől végképp megfoszthassa a népművészetet. A célszerűségi elem is tetemesen hozzájárult, hogy a népművészeti alkotások, bizonyos kedvezően elszigetelt területeken, eredeti és közös jellegükben mind máig megmaradhattak; a művészileg tökéletlenebb munkát se löki suttba a falu, ha valamelyes hasznát veheti. Megóvja a parasztot a művészi kicsapongásoktól a szokás is, a falu könyörtelen közízlése. Hiszen művészetről, művészkedésről, műalkotásról szó sincs a faluban, mesterségről van szó s az első kérdés, az első föltétel: érti-e mesterségét az atyafi? A többi, ami nékünk -21- művészet, az nékik már csak a ráadás, az a hasznavehető, a jó, a célszerű holminak csak a cifrája. A fő, hogy az iga föl ne törje a bivaly nyakát, azután következik, hogy milyen színes, mennyire hímes az az iga; a fő, hogy a sulyok helyesen marokra álljon a mosóasszony kezében, – hogy milyen díszes, az már a szerelmes legény szíveskedése, téli időtöltés, amikor a földmíves embernek nincs egyéb okosabb dolga, hát öli az időt, faricskál.
A falu egységes jellegű művészetét a közös munkálkodás teremtette s így formálódtak azok a helyi különlegességek, amelyek azután falunkint önállóan, szinte függetlenül fejlődtek tovább. Egy-egy házban, egy-egy udvaron találkozunk egyénibb ízléssel, találunk változásokat, eltéréseket, de összeütközésbe ez sem kerül soha a közös helyi felfogással. A falvak festői voltát nyilván abban leljük, hogy jóformán mindenik falu más- és másmilyen, ha van is rajtuk helyi jelleg; annak a falusi embernek eszeágában sincs, hogy szépíteni akarja a természetet, viszont, szabad fejlődésében sem akadályozza s csak azt irtja, ami valamely gazdasági szempontból akadálylyá válik. Soha paraszt ember, például, fát nem ültet esztétikai célból, – de fáit, szabad, természetes kifejlődésükben nem is zavarja, nem idomítja.
Meg kell értenünk a nép alkotási ösztönének indító erőit, ha művészetét meg akarjuk érteni. Érzéseinek a paraszt, kivált a szűkszavú, a nyugodt természetű, a nemesen zárkózott magyar paraszt nehezen ád kifejezést, nem is igen tud hozzá, de meg, mintha a férfiasság rovására menne, ugyancsak módjával árulja el azt, ami a szivében van. Ez a bájosan naiv esetlenség nyilatkozik meg művészi, soha ne feledjük, öntudatlanul művészi munkájában is. Nincs meghatóbb, mint amikor a szerelmes parasztlegény egy-egy magafaragta hímes sulykon, egy-egy díszes kapatisztítón, egy-egy cifrázott gereblyenyélen vallja kezdetleges művészkedésével a választott hajadonnak, hogy «szeretlek»… És éppen az ilyen szeretettel, az ilyen érzéssel készült holmi a legbecsesebb művészi szempontból is.
Az idők folyamán sokat és nagyot változik a falu s a falu művészete is. A templom, a kastély, a szomszédos város, fejleszt a nép művészetén, de aztán annál többet árt is neki. Vegyük Kalotaszeget. Elszomorító, siralmas az, hogy amint a falvak során közeledünk Jegenyén, Egeresen át Kolozsvár felé, mennyire szürkül s minden részében, házaiban, utcaajtóiban, holmijában, viseletében, mennyire eltucatosodik a szép színes, az a művészi világ. Öli a város, öli a nép művészetét az olcsó, a rikító, a kófic gyáripar; szokásait, erkölcsét, gyönyörűséges viseletét eszi a város; a kolozsvári határban már halottjait is csak olyan tucatmódra temeti s nyoma sincs a bokrétás, lobogó pántlikás fejfának a temetőben.
A városi művészet ugyan eredetileg a falutól tanul formanyelvet, teknikát, de csakhamar a saját szükségletei, saját ízlése szerint módosítja s vezet a város, – a falu a városba jár tanulni. Szerencse, hogy számos anyagi, hasznossági külső ok mellett, a paraszt már természeténél, életmódjánál fogva is, oly konzervativ hajlandóságú, hogy mégsem veszett ki teljesen a nép művészetéből minden jellegzetes sajátosság. A paraszt nem szivesen válik meg kipróbált holmijától, házi s gazdasági eszközeit nem szivesen cseréli. A város egyre új és újabb formákat vesz át s eszel ki, – a falu hű az egyszer már elfogadotthoz, a megszokotthoz, és legföljebb csak azt módositja, ha ferdítve is. Érdekes példák vannak erre az épületdíszítésben; Brassó vidékéről ágazva, a Székelyföldön, Lövétén, Homoród-Almáson, Karácsonyfalván, Oklándon, Ujfalun, Zsomboron, Mirkvásáron át, a vasúti állomásig, Homoród-Kőhalomig, valóságos parasztbarokk fejlődött ki. Befolyással voltak a politikai és vallási ellentétek; egy-egy szabadabb, önállóbb szellemű faluban feltünik valami erősebb tehetség s elárasztja virágzásával az egész környéket; általában, ahol teljesebb a politikai szabadság, ahol gazdasági függetlenség, vallási béke van s a falu elég távol esik a várostól, ott önérzetes a paraszt, ott megbecsüli, szereti otthonát, földjét és ott bizonyosan találunk önálló, eredeti, ma is virágzó népművészetre. Hogy az eléggé független, olykor dúsgazdag alföldi falvakban miért oly kevés a művészet, – erre a kellő helyen keressük meg a választ. -22-
Végzetesen nagyot változtatott a falvak jellegén és jellemén, tehát művészetükön is, a vasút. A XIX. század közepe óta rohamosan satnyul a nép művészete, veszíti eredetiségét, üdeségét, bájos közvetetlenségét, annyira, hogy ma már jóformán csak a vasúttól messzire eső helyeken lehet szó egészséges népművészetről, de teljesen érintetlenül talán seholsem maradt minálunk. Az összehasonlító, mívelt ízlés híjján, de meg a kinálkozó olcsóbbság révén is, a paraszt nem a szépet, nem a jobbat, tehát nem a drágábbat választja a városi holmiból, hanem az olcsóbbat, a cifrát, a feltünőt, a mutatósat, tehát a mindenféleképp hitványabbat. Az is baj volt, hogy a mult században akkor, amikor a falu annyira közelebb jutott a városhoz, a városi iparművészet is satnya, cifra s hazug külsőség volt, kopott hagyomány, minden eredetiség nélkül. A városi módihajhászat, az idegen portéka után való mohó kapkodás, a parvenű ízlés állhatatlansága mételyezte meg a falu tiszta levegőjét is, – az igazi paraszt, művészetével együtt, szinte elpusztult tőle.
Ami aránylag épen maradt, vagy megmaradt belőle: a népművészet fejlődése különböző vidékek szerint különböző. Vannak vidékek, ahol a falvakban ugyanazt a stilusfejlődést találjuk, mint az illető vidék városaiban; viszont, vannak olyan vidékek, ahol máinapig is egészen kezdetleges, valósággal ősrégi az építkezés, régi minden szerszám, minden holmi, sőt találunk minden ismert stilustól különböző, eredeti formákat. Az egyéni találékonyság az újabb és újabb tapasztalatokkal karöltve, hol gyorsabban, hol lassabban, de változtattak a népművészet jellegén mindenütt. Bizonyos azonban, – s ez általános törvény a népművészetben – hogy a falu művészete mérhetetlenül konzervativebb a városénál. Jellemző erre az a századosan lassú, az a tempós átalakulás, amelynek folytán a hajdan egyetlen helyiségű parasztház több helyiségűvé gyarapszik, – vannak viszont diszítési elemek, amelyek, mint a burján, olyan pazarul lepnek el egyes vidékeket. A renaissanceot, például, nálunk egyes helyeken megkedvelték s helyesen is alkalmazták, másutt viszont a felismerhetetlenségig eltorzították; jellemző azonban a nép teremtő kedvének egészséges voltára, hogy a parasztművészet renaissanceában mindenütt valami sajátságos vidámság nyilatkozik meg, ahol szineket alkalmaz, ott valósággal tobzódik a meleg szinekben s formáinak ötletes, merész, friss fordulataival túltesz a hamar sablonosodó polgári renaissanceon. De hiszen a tiszta, naivul romlatlan néplélek, lehetetlen is, hogy menten ki ne érezte volna a renaissanceból éppen a derűs karaktert; tudjuk, különben, hogy Európa összes államai között, elsőnek mi fogadtuk magunkévá az olasz renaissance-művészetet s az, a kastélyokból, diadalmasan vonult le a magyar nép művészetébe, a pogány és keresztény, az ősrégi és középkori elemek békésen keveredett, egymással pittoreszken megférő társaságába. Ha nem csalódunk, éppen a renaissance elemek jelentkezésével egyidejűleg kezdődik a paraszt-otthon átalakulása, akkor lesz világosabb, kényelmesebb az otthon, akkor kezdenek a külső díszítéssel is többet törődni; cifrábbra faragják a gerendákat, csipkézik, formásítják a zsindelyt, szépítik a ház homlokát, a kezdetlegesen pontozott és mereven vonalozott rajzok tökéletesebb ornamentummá képződnek; a nyers és merev régi szinek között halovány és tört szinek jelentkeznek; diszítenek bévül a házban is, festik a falat, rajzosabb lesz a bútor, formásabb a házieszköz, szabad tere nyilik a paraszt ösztönszerű díszítő kedvének. A változatosságot tetézi a művészkedési kedvvel együtt járó versengési hajlam, mely a közvetetlen szomszédságban élő, a maga szűk kis világára utalt parasztban természetszerűleg még erősebben jelentkezik, mint a városi emberben; egy-egy vidék népművészetét tanulmányozva, azt hihetnők, hogy egyes családok, szomszédos telkek, sőt egyes testvérfalvak szinte vetekednek a művészi feladatok legbonyolultabb, legkülönfélébb -23- megoldásában, garmadával eszelik ki a diszítőelemek új meg új csoportosítását, kifogyhatatlanok a formaújításban s a színpazarlásban, a virtuskodásban, néha egészen a lehetetlen túlzásokig. Ezért, de még amiatt is, mert a parasztművészet minden látható következetesség és megokolható sorrend nélkül változtatta formanyelvét, meglehetősen bajos a régibb emlékek korát megállapítani; a tizennyolcadik s tizenkilencedik század még, néhol, oly tisztán alkalmazza a román és gót elemeket, hogy az illető korra esküdnék az ember. Különben, épp ebben is meglátszik az a különbség, amely a nép érzés- és gondolatvilágát annyira megkülönbözteti a városiak érzés- és gondolatvilágától. A városban gyorsan múlik, hamar hal a szokás, a hazai hagyomány – s a divat pedig nem kiméli a nemzeti érzést sem; város és város között csekély a különbség a falvak között lévő roppant ellentétekhez képest, s mindez megérzik a városi művészeten és meg a falu művészkedésén. A városban, úgyszólván, az ellentétek összeolvadása jellemzi az iparművészetet, a falu művészetében az ellentétek fentartására fejtenek ki szívós erőmegfeszítést.
De még a faluban nincs is akkora hatalma a korszellemnek. Szinte észrevétlenül suhan el fölöttük az idő, legkülönfélébb áramlataival, – viszont, annál erősebben kötik őket a faji s a hazai sajátságok. Megesik, hogy két falu közvetetlenül egymás mellett, mint például Daróc és Bogártelke, két egészen külön világ, erkölcsben, szokásban, művészetében – és viszont, egymástól távol eső falvakban meglepően sok hasonlatosságra bukkanunk, ugyancsak Kalotaszegben. Falun, a művészi kedv, a szépérzék kielégítésében nincs akkora szerepe az anyagi helyzetnek, mint a városban, sőt inkább azt tapasztaljuk, hogy a szegény ember több gondot fordít háza és holmija diszítésére, mint a gazdagabb. Talán mert inkább megbecsüli, inkább dédelgeti azt, ami az övé. Egy-egy vidéknek, mondhatnók, meg van a maga művészi stilusa s mégis akadunk, közben-közben, olyan helységekre, ahol vagy semmi művészet nincsen, vagy pedig merőben eltérő; vannak vidékek, ahol csupa zagyvalék, valóságos zsibvásár a ház és a berendezés; egyes helyeken a legtürelmetlenebb kegyelettel őrzik a régit, holott a szomszédban a legmodernebb kófic holmit szerették meg.
Az építkezést, mondanunk is fölösleges, erősen irányítják s módosítják a topografiai viszonyok, a hegyes, dombos vagy lapályos talaj, völgy, mocsár, folyam, patak mind változtat nemcsak az elhelyezkedésen, de természetesen a stiluson is. Ház s udvar kényelmesen terjeszkedik szét az Alföldön; a szűk völgyben be kell érni kicsinyke telekkel s egy-egy kalotaszegi «trunkus telek» (például Nyárszon) telistele épül, mert szépapa, nagyapa, fiú, unoka, négy nemzedék akar megférni rajta, lehetőleg valamennyi külön, a saját födele alatt; aztán mily furfanggal kucorog a ház a sziklás hegyoldalban! Alkalmazkodni kell az éghajlati viszonyokhoz. Nedves vidéken, például Lövétén, szint’ az egész utcasor lábasház; ahol erős szelek garázdálkodnak, ott alacsonyabbra kell építeni a házat; hegyoldalban a gördülő kövek, az olvadás árja ellen kell védekezni s aszerint húzzák a tetőt; a havas Erdélyben magas süvegtető kell, hogy könnyebben csúszszék le róla a hó; a zord klima ellen vastag fal, kis ablak, viszont nyitott, szellős az építkezés, ahol szelid s enyhébb az éghajlat.
A falu foglalkozását is a vidék jellege irányítja s eszerint alakult a nép művészete. Más képe van a szántóvető emberek falvának, más, ahol inkább állattenyésztéssel, erdőmíveléssel foglalkoznak; más a halászfalu, más a bányatelep képe s karaktere. A fás vidéken a fát dolgozzák föl, ahol inkább nád terem, ott a fonott holmival művészkednek. Az építőanyag is, természetesen, a vidék minősége szerint fa, kő, agyag, sár s az illető anyag más-más megművelést, más-más művészi kitalálást követel. -24-
A paraszt nagy gyakorlati érzéke is meglátszik művészetén. Az élet sok apró-cseprő nyomorúsága tanítja hasznos ügyeskedésre, nem is igen akad művészetében olyasmi, aminek gyakorlati hasznos volta hiányoznék. Innen van sokszor a népi dolgokon az a példás nagy harmónia a szerkezet és az ornamentális kiképzés között. Hajlékot építvén, gondja van családjára, jószágaira, termésére s miután minden hasznossági célnak eleget tett, akkor s eszerint diszít csak; a kontytető dísze elsősorban füstlyuk, csak azután tetődísz, – az útszélre állított Krisztuskép elsősorban a vallási szükséglet kielégítése s csak ezután kedvtelése a művészi ösztönnek, illetve együtt a kettő: a hasznosságra és a szépségre törekvés. A paraszt erősen konzervativ természetét is ezzel a gyakorlati hajlandósággal magyaráznók; gyakorlati tapasztalatai alapján ragaszkodik a kipróbált, alkalmasnak bizonyult holmihoz, – tévedéseit, ízléstelenségét is ez okozza, amikor a városi holmin a saját gyakorlati szüksége szerint olykor ferdít, ormótlanul változtat. De viszont, van eset rá, hogy a városi tucatholmit úgy átformálja a saját ízlése szerint, hogy csupa gyönyörűség, – mint például a városi köntöst a kalotaszegi fehérnép, egy-egy butordarabot, például a faliórát, a kalotaszegi festő-ember.
A gyakorlatiasság, a hasznosság ily arányú érvényesülése mellett, mi hát a népművészet bája? Szépsége, igazán művészies volta és becse miben rejlik?
Abban, hogy a nép művészete hű kifejeződése a nép legbensőbb érzésének, igaz tükröződése jellemének, kedvének, egész életfelfogásának s amig érintetlen, addig föltétlenül uralkodik minden egyes alkotásán a nemzeti jelleg és megőriz e jellegből igen sokat a legkülönfélébb hatások ellenében is. De mennyi báj rejlik naiv őszinteségében, közvetetlenségében, keresetlenségében, abban, hogy nincs semmi mesterkélt sem a kitalálásban, sem a szerkezetben, sem a kivitelben; abban, hogy az az ösztönszerűleg, öntudatlanul művészkedő paraszt önmagához hű, egyénien eredeti tud lenni még akkor is, amikor már utánoz és bámulatos egyszerűséggel, szinte játszva, mert természetesen oldja meg a nehéz, a bonyolult föladatokat is. E mesterkéletlenség mellett csudálatos egyes magyar vidék népében a dús formaérzék s a szín tobzódó, kielégíthetetlen szeretete, – és mindez a romlatlan, teljes egészség jegyében. Nem riad vissza a rikítóan szines, nem a túldiszített holmitól; ezt megokolja az az erős nagy világítás, ami szines holmijára, köntösére, háza falára, gazdasági eszközeire a szabadban, a napsütéses mezőn, a napfényben fürdő faluban árad – s megokolja otthonában, többnyire kis ablakos házában, a félhomály; künt a nagy világosság enyhít az erős szineken, bent a félhomály követeli meg a szinek gazdagságát. Lám, a parasztszobában oly harmonikus föstött butor mennyire rikító a városi házban! A népművészet túlzásaiban is ritkán lesz bántóvá, – valami kacagó vidámság, együgyűségében is üde kedvesség árad belőlük. Változatossága is megnyerő, a párosat kedveli, de három egyformát már nem szivesen csinál.
Talán mégis, legjellemzőbb: szinekben tobzódó öröme, az a túláradó gyönyörűség, amit az őszinte, tiszta, határozott és vidám szinekben lel. Valamennyi szinük világít, harsad s oly élesen elütnek egymástól, mint kedves virágjaik a kis kertben, mint a mák, a liliom, a tulipán, a muskátli. De a szűz, a határozottan tiszta szinek illő megválasztásában és szomszédosításában mester a parasztművész; példa erre viselete, a vasárnapi, köznapi, a lakodalmi vagy temetési köntös. A kalotaszegi nép például, szines fejkendőkkel teríti le a ravatalt, virágot szór a halottra, csupa szín, szín és szín… és mégis, ki tudja fejezni a gyászt, még szomorúbban, mintha minden fekete volna. Szines a temetői fejfa, olyik helyt szines pántlika, szines keszkenő lobog a sír fölött – és mennyivel hangulatosabb, mennyivel temetőbb ez a temető a mi városi sírkertjeinknél!
Kedve, mondjuk hangulata, teljes mértékben érvényesül munkáján,
a vallásos érzés révén nyilvánuló erkölcsi tartalmával együtt. A
ház homlokára, a kapu fölé, a ládára, a cserépedényekre került
jámbor mondás szívből, hitből s meggyőződésből fakad; templomát nem
a parádé kedvéért diszesíti. Teremtőjének hálálkodik, hitet vall
véle, nem pusztán imádkozó hely az, igazán Isten házának tekinti.
Lelkének nemes egyszerűsége azonban -25-
-26- semmi botránkoztatót sem talál abban hogy
keresztény vallási szimbolumokkal keverjen régi pogány jelvényeket,
meg hazafias és historiai jelvényeket, – hisz a milyen gyakran s
kedvtelve alkalmazza a nemzeti címert, ép úgy megtűri kancsóin,
varrottas kendőin a kétfejű sast. Nyilván valami régi
susztertalléron, a négykrajcároson látta, – hiszen az forgott
parasztkézen legtöbbet, – s megtetszett néki a kétfejű madár, mert
formásnak, alkalmas díszítési motivumnak találta. Mennyi
kölcsönzött elem van a régi «mézes pogácsa» mintákon, – de lám azt
is a magáévá teszi, megtoldja valami magyarossal, ha ugyan az
egészet nem maga eszeli ki, mint a régi bánffy-hunyadi pogácsások
(1).
Az életből, közvetetlen környezetéből legszivesebben azt válogatja, ami eleven, friss és derüs. Kedvtelve foglalkozik önmagával, hétköznapi dolgát végezvén, vagy ünneplőben. Az asszonyt magyarosan megbecsüli művészetében is. Ősi nagy témái: a születés, a szerelem, a házasság és a halál, – képzeletét legkivált a szerelem foglalkoztatja s leleményessége kifogyhatatlan az erre vonatkozó diszítési motivumok kitalálásában. Diszítési elemekkel szolgálnak néki meséi, mondái, sőt babonája is, de a legtöbbet mégis magától a természettől kapja. A tájkép iránt semmi érzéke nincsen, vagy legalább is igen kevés, akár csak a régi klasszikus művészetnek, de szereti a növényzetet, az állatot, ezeket jól megértve, ügyesen, a legnemesebb egyszerűsítésig, stilizálja is. Szereti az írást, a bötűt, az ötvenes években még falapocskára vésett, úgynevezett ábécés tábláról tanult bötűt a gyerek nép s e táblákat egy-egy értelmes földmíves faragta (2). A kivitelben nyers, durva, de ez, nem ritkán, hozzájárul alkotása monumentális voltához s erő van munkájában akkor is, amikor meglepően finom és könnyű.
Különben, aki szeretettel keresi a nép művészetét s igazán meg is akarja érteni, az ne méregessen az ismert művészi mértékekkel és ne akarjon művészet histórai szabályok szerint eligazodni. A népművészetben hasztalan keresgélünk olyan műemlékek után, amelyekből rendszeresen korszakokat állapíthatnánk meg, hasztalan nyomozunk olyan műalkotásokat, amelyek paragrafusozható széptani törvényekkel szolgálnának; itt, esetleg, a legkezdetlegesebb teknikával alkotott valaki igazán művészit s viszont, éppen az a haszontalan, ami képzett eljárással és tudatos műgonddal készült. Példa erre akárhány fafaragó iskolában elrontott, kaptára szoktatott paraszttehetség.
Tehát, hogyan keressük a népművészetet, hol és mit keressünk?
Nem képet, nem szobrot s nem díszépületeket keresünk, – aki így fogja föl a dolgot -27- akár elindulna az erdőbe, hogy valamelyik faágon például egy Velasquez-képet leljen. Nem így. Először is, ez a szó, művészet, ismeretlen a faluban; ahol már művészetet emlegetnek, oda be se menjünk, ott már a városi hatás garázdálkodik. A lassan őrlő sárvásári öreg molnár, például, igazán istenadta művész, ládát, diszesebbet, senki sem pingált, ő iskolát alapított, tanítványai vannak a vidéken, – de azért ő csak az öreg molnár, aki csupán akkor szedi elé a föstéket, akkor babrál efélével, amikor nincs víz a malom kerekére. Megbántaná, aki művésznek nevezné, mert néki meg van a maga böcsületes mestersége.
Tipus az öreg s bizonyosra vehetjük, ahány igazi magyar parasztművész, szakasztott ilyen az, valamennyi.
A bánffy-hunyadi országúton, két-három nyíllövésnyire onnét, ahol a nyárszói forduló a sárvásári alszegbe torkollik, a szelídzöld tehénhajtó aljában a vén malom, a lassan örlő öreg molnár, Barta bácsi malma. Szemközt véle, ott messze, a zordományos Vlegyásza, amelyen a kis harmat már nagy hó még akkor is, amikor a völgyben hathetes az aszály; a malom mögött hullámos, nagy kopasz hát húzódik, itt-ott nehány begyógyult apróbb halom, pázsitos szőnyeg a horpácsos oldalakon s a malom előtt sejmikes, rogyinás kis lapály, csak akkora, hogy elnyújtózhassék egy csöppet a malom gátja mögé az a kis víz, amelyik minden langyosabb szellőcske elől a rögök alá búvik – és olyankor áll a malom. Sokszor áll a malom. A malom szegelleténél, a’tájt, ahonnét a víz csordul a kerékre: nehány kőris, nehány fűz és egész berek kökénybokor, meg sok acsalapu, sok keserűlapu, mindenféle terebélyes lapu és sás és hanga, meg sujom, meg részegvirág – egy maroknyi paradicsom az ott, olyan vad és olyan szép és úgy el lehet bújni benne, hogy szinte keresi az ember a fát, amelyről olyan kivánatos gránátpómával kinálta Ádámot az aszszony, Éva. Soha művésznek valóbb környezet!
Amikor odakerültünk, hetek óta jártunk már akkor messzeföldön, ismeretlen világban, annál messzebb lévőben, annál ismeretlenebb földön, mert hisz’ idehaza van, – népművészetet kerestünk. És találtunk, úton-útfélen; taposnak rajta. Alig győztük összeszedni, kivált azon a vidéken. És amint szedegettük: mindenfele, minduntalan -28- az öreg molnárt emlegette a nép nékünk. Már vagy öt-hat szomszédos faluban, ami legszebbet találtunk, azt az öreg molnár «tsinálta». Az apró fatemplomokba a «sótárkirakó»-ra, katédra koszorújára, a pap székére, kórus elejére, az úrasztalára, a «menyegzet»-re bokrétát az öreg molnár föstött – «amikor még pápaszemre nem szorult». A leghelyesebb menyasszonyládákat ő pingálta «gyöngyszín fődre sárga meg piros gyorgyinával», padszéket, szegellet-tékát, cifra szuszinkot tőle vitt új fészkébe az új pár, tulipántos rengő bölcsőt is ő tselekedett az újszülött kis kalotai tatárnak.
Ahány szerelmes legény a vidéken, félszázad óta a malomba ballag le:
– Mónár bácsi, a jó Atya is megáldja kigyelmedet, sulyok kéne nékem, erősen hímes! Úgyis áll a malom.
– Ki a szeretőd, te? – kérdezte az öreg molnár, mert aszondják, örökké olyan élemedett volt.
– Péntek Gyugyi György lánya, a Kisó, – vallotta a legény.
– No, az!… Járt ü is már errefele. Tudom, a kéket kedveli.
– Azt a’, a kéket! A páváskéket. De egy szív is légyen a sulykon, mónár bácsi, drágám!
– Lesz. Madár is lesz. Páros galamb. Szombat estére idenézhetsz. Ha addig meg nem indul a malom.
– Adhatna már a jó Atya egy kicsiny esőt, – sóhajt a legény s halad, dolgára.
Szombat estére, – mert hogy mindig az égen volt az «áldott» (így hívják a kalotaszegiek a napot) s eső nem hullván, a malom se indult meg, – kész a sulyok, gyönyörű hímes, szív is van rajta, páros galamb is. Őrzi is majd Kisó, a Péntek Gyugyi György leánya, csak husvéti gúnyát sulykol véle; és őrzi majdan a leánya is, ha egyszer odáig segélte őket a jó Atya.
Így készül a hímes vetélő, így a cifra vászonfeszítő, a csillagos csüllő, a példás orsófogó, a díszes karikó és így a szépséges kapatisztító, aminél nem gyönyörűbb a fecskefarkú pillangó se. Valamennyi az öreg molnár kitalálása és ő tselekvé mindet, mialatt állott a malom. Jó félszázad óta, nem fakadt szerelem azon a környéken, hogy ne az ő munkája révén történt volna a szerelmi vallomás. Kezenyomát hány leány csókolgatta titokban! Hánynak a könyűje perdült a mónár bácsi páros galambjára! -29-
Csak ő neki nem akadt, egy jó félszázadon át, párja. Néki nem vallotta be soha egyetlen hajadon se, hogy milyen színt szeret. Öreg lett, pápaszemre szorult. Akkor történt, – most négy esztendeje – hogy valahonnan a Vlegyásza aljából egy formás fehérnép került a malomba, egy oláh leány; az mosott az öreg művészre, az almás húst, az egreses levet az főzte néki és amikor egy kis leánykájuk lett, feleségül vette őt az öreg molnár.
Nyárszón mesélték nékünk:
– Lassan őrölt az öreg, de már most csordultig a boldogsága. Az országutra kiállana a gyerekit mutogatni! A falat kenyeret is megmézeli annak a kis cselédnek… Mán pingálja a menyasszonyi ládát is néki. Még nincs három esztendős, mán szedegeti össze néki a négynyüstös lepedőket, varrottas hajtással. Az asszonynak is patyolat sora van nála…
Mindezt tudtuk már az öregről, amikor beállítottunk hozzá a malomba.
Görnyedt, ősz ember, gatyaszárban; lisztes «bújbelé» a hátán, az is csupa kopott, foltozatlan ahol rongyos. Ott üldögélt a malom kőpadszemöldökén, nézte, hogy matat előtte a földön egy tömzsi kis leány. Mint a nagyidős vén fűz, amelyet megviselt száz tél, száz nyár s csak a háncsa maradt a törzséből, úgy görnyedt az öreg művész a föld felé. A berekből behallatszott a menyecske kacagása.
Semmi, de egy csorba kancsó se volt a malomházban, ami művészi lett volna. Egy faszilánk se hímes, a rúd mezítelenül nyujtózott a mennyegzet alatt, «ágyfűtül-való» nem lógott a nyoszolya végén, «rúdra-való» kendők nem vidámították a füstös falat. Az asztalon künt hentergett a megszegett kenyér s egy tányér túró körül tenger légy gazdálkodott.
Hát ez annak a művésznek az otthona, akit hat falu minden szép holmija emleget?
– Nincs énnékem semmim, – mondotta az öreg – csak ez a kis cselédem! Ez az enyim! – és a kis leány fejét simogatta.
– De valami hímes holmi csak akad? Valami föstött? Kigyelmed, a ki annyi szépet csinált?!
Vállat vont. – Nincs semmim.
– No öreg, álljon ki a malom elé. Itt a fotografáló masina, levesszük.
– Képet is kapok? – kérdezte egészen nekifiatalodva.
– Hogyne!
Sietett a szuszinkhoz s nyomban öltöztetni kezdte a kis leányt. Magával nem törődött.
– Úgy vegyenek le, könyörgöm, hogy ez a gyerek az ölemben legyen.
– Hát az asszonyt, a feleségit?
– Ne bántsuk, más dolga van annak. Talán nincs is itthon.
Kiült a malom elé. Mintha az özönvízből mentené, úgy ölelte azt a gyereket. -30-
– Aztán, könyörgöm, lássék azon a képen jól, hogy az enyém ez az apróság.
– A kendé biz’ az, mónár bácsi, a kendé! – szólt egy legény, mert hírünkre odaszállingóztak a malom elé többen s csudálták a fényes masinát, akiben egy picurka plajbász van és az egyszeribe lerajzolja azt, aki a masina szeme elé áll.
Egy tempós szavú öregebb gazda is biztatta a mónár bácsit:
– A kigyelmedé!… Há’szen a nagy tűz után is, a cinteremben, szinte karácsonytájt hányt virágot a kurátor barackfája. Csuda vót, de hát kigyelmeddel szintúgy eshete csuda, amilyen jó vén fa kigyelmed, mónár bácsi.
Az öreg molnár bólintott, s nékem mondta, még egyre ölelve a gyereket:
– Hej, uram! Gyönyörű mesterség is ez a magiké. Képet csinálnak, rajzolnak, meg írnak. Meg az is ilyen csudálatos szép, aki épít… De jó is volt régen, a mikor én is ilyenformát próbálgattam. A jó Atya bocsássa meg, szint’ örültem, amikor álla a malom, hogy akkor a föstékkel, meg a nyiszoróval foglalatoskodhattam. Elmult… Hej, csak én még egy csöppet megifjodhatnék, uram!
– Pingálni szeretne, öregem, ugy-e?
Csöndesen csóválta fejét: nem a’! dehogy pingálna!
– Csak addig szeretnék még itt lenni, amíg ez a gyerek konty alá kerül…
Ismét hallatszott a berekből a menyecske kacagása. És az öreg molnár kézenfogta a kis leányt, mintha attól tartott volna, hogy elszalad mellőle.
A malom előtt, a tornácon lógott a laskanyújtó, meg egy kis dagasztóteknő. A teknő kampóján lógott egy pápaszem. Mosolyogva kérdeztem:
– No bizony, öregem, nem igen szorul még kigyelmed pápaszemre, ha így künt szárogatja a tornácon?
– Jó helyt van az ott, mert nem jó mindent meglátni nékem. De képet azért küldjön majd a tekintetes úrfi!
Kisért bennünket az országútig, kézen vezetve a leánykát. Aztán így búcsúzott:
– Szerencsés találkozást adjon a jó Atya!
Ölbe vette a gyereket s úgy ballagott vissza a malomba, az öreg művész. Mi pedig haladtunk tovább, népművészetet keresni.
Úgy, ahogy együtt haladunk olvasóinkkal ezután.
Szemügyre vesszük a falu fekvését, kazlat, boglyát, a kalangyákat a falu határában, a külső kertelést; szóba állunk itt-ott egy-egy tipikus alakkal, megismerkedünk természetével, eszejárásával, kikérdezgetjük a dolga felől, aztán sorra járunk a faluban templomot, házat, temetőt, megnézünk minden apróságot, ami mind arravaló, hogy szeretetét, szépérzését, ösztönszerű diszítő és alkotó kedvét töltse rajtuk a magyar ember, anélkül, hogy a művészet eszeágában is volna.
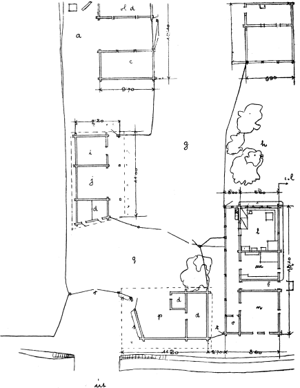
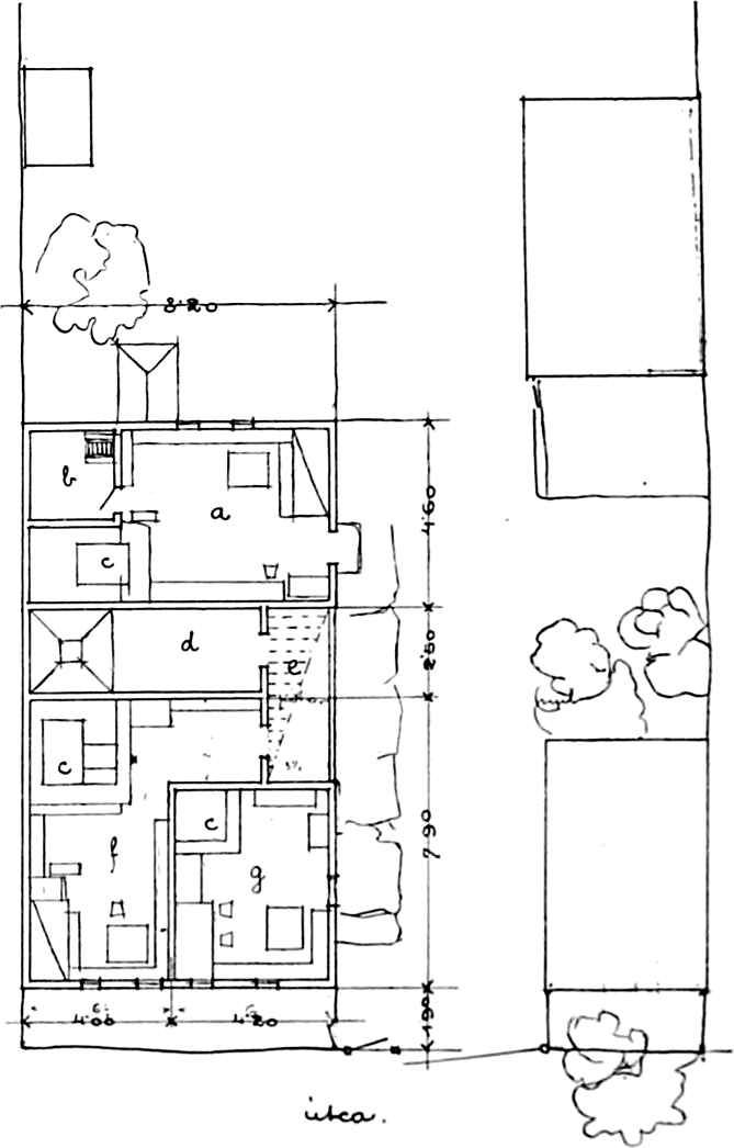
A Kalota és a Körös völgyében, a gyalui havasok, a Vlegyásza és a Meszes hegység között fekszik: Bánffy-Hunyad (nagyközség, de a nép városnak hívja), Sárvásár, Nyárszó, Kalota Szent Király, Zentelke, Magyaró Kereke, Ketesd, Magyar Bikal, Körösfő, Damos, Jákótelke, Zsobok, Daróc, Bogártelke, Magyar Valkó, Sztána (Esztána), Kis Petri, Nagy Petri, Kis Kapus, Nagy Kapus, Magyar Gyerő Vásárhely, Farnos, Nagy Almás, Bábony, Magyar Gyerő Monostor, Inaktelke, Türe, Vista, Méra, Szucsák, Mákó, Bács, Magyar Nádas (ahol már egy szem magyar sincsen), Egeres, Jegenye, – harmincnégy falu, a melyeket a végzett kutatás sorrendjében soroltunk elé, s ezt hívják Kalotaszegnek. Itt él, sok bajjal, sok küzködéssel, dolgozik ernyedetlenül s magyarságához hű vagy tizenkilenc-huszezer magyar.
A falvak, festői szép kis falvak, többnyire patak mellett, hegy lábánál, a mélyebb völgykatlanok lapályán fekszenek. Mert a magyarság nem vonul föl állatjaival a hegyi legelőkre, de kikeresi a völgyben a legmélyebb, legtermőbb lapályt s ott él, földmívelésből. A falvak nincsenek távol egymástól s a nép egységes magyar sziget a környező oláh tengerben; a tenger erős, fenyegető hullámverése szüntelen ostromolja a szigetet, eddig nem birt véle, de ha nem gondoskodunk kalotaszegi véreinkről, ha anyagi szorongattatásukban segítségükre nem sietünk, majd segít rajtuk, mert rászorulnak, a szorgalmasan szervezkedő oláh tőke – és annak mi adjuk meg az árát, keservesen. Bár nemzeti érzésük épségében kételkedni egyelőre nincs okunk, de azt mernők állítani, hogy magyar voltukban, ilyen épen, főleg csak külőn, jellemző, őket minden mástól megkülönböztető művészetük segítségével maradhattak meg, s bizony már satnyul, romlik, vész a nép művészete kincses Kalotaszegben is.
Hogy honnan s mint került ide ez a maroknyi magyar, ez az istenáldott, tehetséges, kedves, gyönyörű nép, kik voltak az első telepedők, s helyükbe, vagy hozzájuk, kik kerültek azután, – írás, okmány, históriai bizonyosság hiján nem tudjuk. Beszélik, szóhagyomány hogy elébb román, majd szász telepek voltak itt s maradt is nyoma ilyesminek, imitt amott; a magyar ajkú lakosság eredetéről hármas a vélemény: magyar, székely és tatár származást emlegetnek. Néhai Jankó János dr., – a magyar néprajzi tudomány egyik első mestere, akinek alapvető becses munkája (Kalotaszeg Magyar Népe) nyomán igazodtunk e vidéken, – egyet bizonyosan megállapított, azt, hogy ujabb érkezésű tatár elem csakugyan keverődött a törzslakosságba, de hogy az a törzslakosság mi volt, magyar vagy székely, az bizonytalan. A népéletben, szokásokban, hagyományokban s a nép művészetében is erős székely és magyar nyomokra bukkanhatunk.
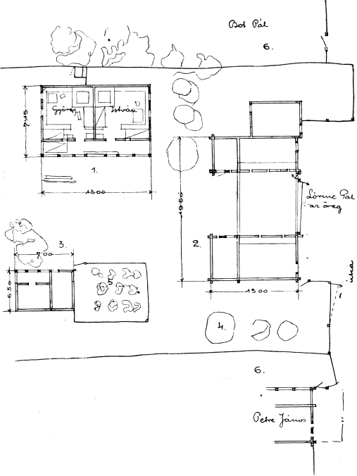
A kalotaszegi magyarság földmiveléssel foglalkozik; amikor a munka dandárja vagyon, ember, asszony, künt serénykedik a földön. A magasabb fekvés, a zordabb éghajlat miatt -34- a gabona itt később érik, mint az Alföldön, a nép hát kimegyen a Királyhágón túli Magyarországba is, nyári munkára, ahogy ők mondják, «takarni». A földmívelés mellett a férfinép javarésze mesterséghez is ért; Inaktelkén a fél falu varga s van sok darócvarró is, Jákótelkén sok jó szalma-kalap készül, a magyar-gyerőmonostori gyontáros ládáknak nagy a híre, Magyar-Valkón a diszített cserépedényhez értenek, a bánffyhunyadi szűcsök s fazekasok ma is ügyesen dolgoznak, de harminc-negyven évvel ezelőtt még nagyon híresek voltak Erdélyben. Ritka az olyan kalotaszegi gazda, aki ne maga készítené gazdasági eszközeit, a diszítő faragáshoz meg a legtöbb ember tud. Antal István János, Magyar-Bikalon, mint hallám, majd meg láttam is, maga eszelt ki egy ekét. (8., 9.)
– Sokat küzködtem, – beszélte, – az ódalos fődemen, mindegyre eltaszigált a rendes eke, nem birtam fölvágni. Tusakodtam, hogy találjak ki valami helyeset. Ehun e’! Ennek kormánya, kődöke, szarva, gerendéje fábul vagyon, de azér’ azóta, amióta evvel járom a fődet, négyszer annyit terem. Egy barázdán jár, két kormánya van s három szarva, nem kettő, mint a kerülő ekének. Lapis vas is kettő benne, hosszú vas is kettő. Egyik fele mindig hever. De bezzeg a hangadülőn, a berekai dülőn, meg a csügeti dülőben, nincs ennek párja!
Antal István János csüllőt is talált ki, kerekeset, olyat, hogy a fonalat maga viszi föl a vetőkaróra. Csinált kicsi hordót is, olyat, hogy háromféle ital megyen beléje. Butorát, asztalát, székeit, fali tékáját maga csinálja, – «amikor ráérő ideje van» –, házán a díszes oromfal, a szép kisajtó az ő munkája s mivel hogy a kék színt kedveli, ajtaját, ablakát kékre föstötte s a szokásos minium piros helyett kékkel vannak szegélyezve kályha csempéi is.
– Nagy mester kigyelmed!
– Nem is nyugszom addig, amíg egy dúdoló masinát nem csinálok! – fogadkozott az öreg magyar, mosolyogva. Mert hogy fonograffal is jártak már a faluban az urak, nótát szedtek s az a masina nem hágy néki nyugtot azóta.
Ugyancsak magyar-bikali földmíves ember Kozma Kis György (10, 11). Ő faragja, ő fösti a temetőbe a fejfákat, tud, ha kell, száz fajtát is, csak ráérjen; himes széket is tud.
– Hát a templomot meg tudná csinálni, kigyelmed, kicsiben? Úgy, hogy magamnak elvihessem?
– Csak ráérjek.
– Hát egy bikali házat, csűrrel, óllal?
– Kerítés, meg leveles kapu, meg ucc’ajtó is lesz hozzá, csak ráérjek.
Meg is csinálta.
Hát a ketesdi ezermester (12), Kis Lőrinc Ferkő! Házukat apja, Kis István Ferkő építette, ő pedig tud mindenhez. Fiatal legénykorában becsukták, mert féktelen ügyességében hamis pénzt is próbált csinálni, de amióta kiszabadult s hazakerült, nincs a faluban -35- munkásabb, böcsületesebb ember. (A tiszteletes úrtól tudom, Elek Lajostól, akinél nemesebb, áldottabb népapját képzelni sem lehet.) Ácsmunkát még apjától tanult s aztán a többit: asztalosságot, esztergályosságot, lakatos mesterséget, gépkovácsságot, órás mesterséget. Csupa ügyesség, ötlet és furfang; kezdve a magakieszelte körfürészelő masinától, kezdve a hátultöltő puskától a muzsikáló óráig, csinál ő mindent; a télen kerekes mesterséget tanult hat hétig, Hunyadon, ott egy vándorszinésztől cserélt egy szopós malacért egy rozoga vén eisensstatti Weltz-féle órát, csinált rá mutatót marhacsontból, a szerkezetét is úgy kigyógyította, hogy vígan jár és muzsikál a régi óra. Most egy fotografáló masinát szerkeszt magának. Házán is diszít, javít szüntelen; verset a kapu félfájára. («Édes rózsám Ha it jársz Engem tám Szivedbe zársz Én is mikor Ara járok Veled szívből Diskurállok»), hónapmutatót a falra (Ezen Hónap mutatót Építette Kis Lőrinc, Ketesden), okos kilincset; haragudott, hogy a tornácajtót mindegyre nyitva hagyogatják, hát két ócska kaszavasból olyan rugót cselekedett hozzá, hogy már most nem marad nyitva, becsukódik magától; butorát ő készíti, kályhát is maga rak magának, – műhelye a házvégében, valóságos csudakamra. Hogy ízlésén ront a tudákosság, a sok imitt-amott ellesett s összekevert forma sem válik hasznára annak, amit még szebbnek akar, az bizonyos, de jellemző példája ő a kalotaszegi magyar iparművészi készségének, sokszerű genialitásának.
Vagy Körösfőn (13), mennyi művészi készség Péntek Gyugyi Györgyben! Faragó földmíves, ő is, amikor ráér. Ez a család példája a kalotaszegi fajmagyarnak, a böcsületességnek, józanságnak, szorgalomnak. Anyja, (a bonya, a nagyanya) 78 éves, de ma nincs itthon, oda van aratni, apja, Péntek Ferenc Gyugyi (a bopa, a nagyapa) 85 éves, – mialatt fiát várjuk haza a mezőről, ő beszéli, a napon üldögélve:
– Nem nékem, tekintetes úrfi lelkem, soha se pipa, se szivar nem volt a számban, részeg se voltam én soha. Szegény fiú voltam, de nem aféle torha. Ami kaszáló, szántó, magam szereztem. Hát úgy, hogy húsz-harminc ökröt hajtottam Váradra, Gyulára, Debrecenbe, hála a jó Atyának, jól ment a kereset. Negyvennyolcban vettem az asszonyt, jól jártam véle is. Egyik szemével mindig pislantott rám az Isten. Elég a’! A templom menyegzeten is csukva van a nap félszeme, mert ha mind a kettőt kinyitná, elperzselné a világot. Napszámra, istállom, so’se voltam… Ilyen deckapádimentumos ház nincs is több a faluban. Volt egy pap testvérünk, attól is maradt egy szekrény, de a fösték lekopott róla nyolcvan esztendő alatt. Az asszony ládája, szép körtés. Negyvennyolcban készült az is… Nagy baj e’ nékem, tekintetes úrfi lelkem, hogy nem hallok. A nyolcvanöt esztendő sok lármája maradt csak meg a fülemben. Meg az is nagy baj, hogy nem mehetek már én kévekötni. Megyen a fiam. Hanem azér’ erősen jó kut ez itt ni, ebből nem fogy el a víz. Az ember nem ilyen.
A fia, hazakerülvén, megmutogatta, mivel foglalatoskodik télen, amikor ráér. Csinál díszes osztovátát bükkfából, hímes guzsalyszéket s fonókereket; gereblyét, kaszanyelet, kaszakőtokot iharfából, karosszéket, zsámolyt, ostornyelet, sulykot, vetélőt, gyertyatartót, pakulár poharat, mind hímeset s mind másmilyet; tud a járomhoz, amin a rúdfő, a bélfák, még a járomszög is gazdagon hímes és föstve is van.
Hires nagy faragó volt Kis-Petriben a biró apja: Tulogdi István Tasnádi, ábécés táblát (2) is ő faragott az oskolás gyerekeknek a negyvenes években, mert akkor még nem könyvből tanulták a bötűt, – zsótárszorítót (285) is ő csinált a templomnak.
– Bíz ő kifaragott volna akar egy embert is, – magyarázza a fia, – de azt nem merte.
– Miért?
– Azér’, – mondja a csizmadia, Simon János Tódás, – mer’ akit leképelnek, meghal az abban az esztendőben. Lám a magyaró-kereki országúton a kovács, Böndi Andris Kormos házára, a ház homlokára odacselekedte a kovács képit a sógora, Ijjefalvi János az ács, amint a vasat veri. De nem is adok egy esztendőt a Kormosnak!
A magyar-gyerővásárhelyi faragó földmíves, Kaló Pisti Fogadós, nevezetes kaszanyeleket tud, csak éppen hogy a két kaszamankó jó kézbeillően sima rajta, a többi, bámulatos, szinte monumentális összhangban, hímes.
Dicsérjük, hogy szép! -37-
– Hogy szép-e?!… Az, uram, hogy példásabb vágású kasza nincs a világon. Erre áldomást lehet inni!
Egy formás karosszéket is láttunk nála.
– Pendelyes gyerekkoromban, a mikor marha után jártam (legeltetni), akkor hajlítottam hozzá egy ágat az erdő aljában; úgy nőtt az az ág tizenhat esztendeig. Most négy esztendeje vágtam le, görbe székhátának.
Batisz Bandi Feri, szintén Vásárhelyt, mestere a kalántartóknak s ha nagyon kérik, fejfát is farag a temetőbe, – a jó embereinek ingyen, Isten megáldjáért. Az apja jeles építő volt, régen, amikor még fűrész nem volt a faluban s csak úgy fejszével készült az egész ház.
– Szebb is volt az! Nem olyan egyenes, mint ma. A gerenda formásabb, itt is görbe, ott is, ahogy az Isten cifrázta.
Akad a hímes uc’ajtónak is mestere, rendesen minden faluban, vagy jön a sógor, koma, segíteni, kalákába, akár a tizedik faluból.
Darócon gyönyörűen farag a legénység, de Bogártelkén mégis legtöbb a hímes orsónehezítő karikó, a gyönyörű kapatisztító, a példás sulyok; mester az ilyen munkában Nagy Marci István, meg Albert János Marci, aki a Kovács János kapuzábéjára kifaragott egy legényt, meg egy leányt is. Ezermester, Nagy-Almáson, Varga Márton Mihók is, még pedig a javából.
Sárvásárt ház alig akad, hogy valami művészit ne lelnénk benne; a hímes uc’ajtók, a hímes vetélők és vászonfeszítők hazája ez. Van ilyen kincse minden fehérnépnek, vagy legalább is volt, «míg el nem mismásolta valaki». A kurátor, Balázs Ferenc Mátyás, esős időben, amikor bészorul a házba a földmíves, szeret föstögetni s takaros vetélőket, meg vászonfeszítőket farag bükkfából; gyűrűtartót, kincses szuszékot (265), meg tükörrámát is csinált a lányoknak, amikor fiatal volt; a tornácláb fagombját – s ez talán az ősi bálványfának visszajáró emléke (182), – kifaragta emberfejnek, «ki is föstöttem fájnul, piros volt az orcája, bajsza, szeme fekete, a haja szőke, de eccer szénát csinálni voltunk, a gyerekek nekiálltak itthon bicsokkal, lefaragták.» Formás a házában minden; a tornáckarfa ki van csipkézve, a butora hímes, díszes a villatartó, a kanáltartó, a kis pad szélire tornácot húzott, hogy le ne kivánkozzék a vizes kancsó. Nem is titkolja: «Nincs a házban semmi, amit ne magam csináltam vón’!» -38-
Így járhatunk faluról falura, majd mindenütt találunk művészkedő földmívest; a kézvonópad s valami kis faragóműhely-féle künt a csűrben és a gazda télvízidején, vagy amikor sokat pityereg az ég, nyiszoróval foglalatoskodik, kicifrázza még a faragó szerszámjai nyelét is, a kantahordó rúdat is, mint például Lukács János Pese, Hunyadon (296).
Szerelmesek a színbe, férfi s asszony egyaránt. Vasárnap: templomozás idején, mintha túlipános virágerdő vonulna ki a templomajtón. Amilyen színtelen, szinte komor viseletében például a székelynép, olyan friss, üde, szines a kalotaszegi és ilyen a karaktere is. A kék, a piros, a sárga, a zöld csak úgy virít a falukban, az első háztól a temetőig, de maga a temető is. A városból került, tucatmódra, csúf piszkossárga színre mázolt butort meg nem tűri, mihelyt hazavitte, élénkít rajta, ha egyébként nem, besávozza feketével, hogy «tigrises» legyen. Például Kelemen István, a hunyadi földmíves, a bikali erdőn járt a minap, lábát csúnyán feltörte a csizma; a sebre mokányszurkot (fenyőgyantát) rakott s most, amíg a lába gyógyul, idehaza pingálgat tulipánt, meg nemzeti címert a tornáckarfára.
A virágos tornácon a leány alig látszik, olyan színes, olyan virág ő is, a virágok közt. Piros a csizmája is, de még arra is tulipán van varrva, zöld selyemmel. Színes, vidám a házban bévül is, minden; piros vagy zöld a kis ablak függönye, miniumos a zöld kályha minden eresztéke, színes diszítésű kancsók a fogason, piros és kék varrású kendők a rúdon, piros és kék varrású a párnahajtás. Hogy a viselet mily szépségesen színes, azt leírni nem lehet, azt csak a föstött kép sejteti. Ahány forduló, megannyi színes kép a vidék is; távolban a hegyek tengerkék párázatába olvadnak a meleg zöldek, közelben a kalászossárga táblák, a ház ablakokban, a kis kertekben a száz színváltozatban virító janistor (borsóvirág, szagos bükköny), fekete, lila, piros, sárga mályva, patkonca-virág, szalmarózsa, bazsarózsa, szekfű, viola, liliom, engemnefelejts, gyorgyina, rezeda, isziók, kabós, német szekfű, nevendula, bécsi cifrus, csikos fű, felfujó… Gere György Csepe, a köszvényes magyarókereki csizmadia tanított a virágnevekre.
– Mer’ elkeresztel ez a nép, uram, mindent. Lám magam is, hogy jutottam a Csepe névhez? Apósom, Tamás János, künt vala a mezőn. Egy kótya, afajta féleszű, elkajátja: «Siessenek haza kigyelmetek, mer’ csepe az esső!» Jót kacagtak a csepe szón s rajtunk maradt, nem a kótyán, de Tamás Jánosékon. Hogy aztán én, Gere György, elvevém Tamás János Csepe leányát, véle kaptam a Csepe nevet.
A fakult színt nem szeretik. Például az ingvállon, amikor a téglapiros fejtő a mosások után színt vált s lilásba játszva, a nyakon lévő gránáttal modernül szép harmóniába jut, azt ők már nem kedvelik, bár nem vetik el, mert ragaszkodnak a sérült, használt holmihoz, megbecsülik, mint a kiszolgált állatot.
Damoson föst Vince János Ferkő, butort, jármot, nagy szeretettel magyar címert, mert azt kivánja a falu teljesen átmagyarosodott oláhsága is.
– Itt születtünk, itt halunk Magyarországon, magyarok vagyunk! – vallja Vurkovits Leontin s magyar címer van a kályha csempéin is.
A porig égett, szegény s eladósodott jákótelki új templom olyan szomorúan dísztelen, de koszorúban valami narancssárga diszítés mégis lóg le a menyezetről. Megnézzük közelebbről, mi az? Néhány száz hídvámcédula, Biharvármegyéből («Apró lábas jószág, 1 fillér») – valaki arrajárt, hazahozta a templomba, mert hogy olyan szép narancssárga…
Híres butorföstő s ládadiszítő-mester a mákói kántor, Csákány Károly; a mákói színes holmit különben dicséri egész Kalotaszeg. Ötletes a nyárszói Viskán Laci is, az öreg sárvásári molnár, Barta János tanítványa.
Nem hallgathatjuk el, hogy a föstött butoron van itt-ott oláhos szín és diszítés, habár hogy a magyartól mit vett át a román s a romántól, szásztól mit a magyar, olyan kérdés, amelyre határozott választ sohasem fogunk adhatni. Egy-egy bogártelki föstött holmi romános voltának tudjuk a magyarázatát: Oláh-Köblösön lakik egy román ezermester, Tyivoram Máté, annak a műhelyéből hirmondó kerül erre a vidékre. De a képekkel teliföstött kis román templomokból is kerül a falu ízlésébe oláhos elem, viszont, jócskán van magyar munka a kis oláh bezerikákban is (84). Nevezetes a magyar-valkói kis román fatemplom; akadunk e templomocskában magyar fölirásokra, magyar karosszékekre, de két jellemző kép is van benne. Az egyik: Ábrahám föláldozza fiát és sarkantyús csizma, zsinóros kuruc dolmány van Ábrahámon. A másik: Jézust ostorozzák a zsidók és ahány zsidó, bajuszos kuruc hajdunak van föstve valamennyi. A régi nyugtalanabb világból maradtak e képek, – csittit bennünket a valkói érdemes tiszteletes, Mihálcz Elek, aki maga is művészkedik, szereti, megböcsüli, mert megértette népe művészetének erkölcsi és nemzeti jelentőségét. Sok oláhos mintájú föstött butor maradt Valkón a nehány év előtt elhunyt András Pista Gabora után. Hangsúlyozni kívánjuk azonban, hogy azon nyersen azt sem alkalmazza a magyar, ami esetleg oláh, vagy szász holmin tetszett meg néki, ád hozzá a magáéból bőven, mielőtt felhasználná.
A dekorativ föstésnek becses maradványait szedtük össze Kis-Petriben (76), meg a ketesdi és a magyar-gyerő-monostori templomban s a daróci templomban a XVII., XVIII. századból. Egyáltalában, ahol a régi templom még le nem égett, agyon nem korhadt, össze nem dült, vagy le nem hordták, hogy helyébe valami ormótlan tucatépületet emeljenek, ott még találunk a kolozsvári mesterek, Umlingék nyomán fogant falusi dekorativ művészkedést.
Hanem a város és a város műveszetgyilkoló gyáriparának hatása talán sehol sem siralmasabb, mint ezen a kincses vidéken, mert itt látjuk naponta, nyomon kisérhetjük a pusztulást. Elég egy országos vásárt végigjárnunk, például Bánffy-Hunyadon. Végig a nagy utcán s a templom környékén, hol áll, hol megyen a kirakó vásár; ott vannak hagyományos sorrendben, a páncél-csehi, zilahi és hidalmási timárok, – a zilahi és kolozsvári csizmadiák, – a helyi, zilahi, vármezei és tordai fazekasok s az apátfalvi, hollóházi és murányi ízléstelen gyári edények, – a nagyváradi és kolozsvári takácsok s ruhakereskedők, – a kalotaszegi gyapjúárusok, – a helyi szűcsök, – a kolozsvári fésüsök, – pántlikások és rőfösök Kolozsvárról, – a tordai pecsenyesütők, – a helyi kenyérsütők, – zilahi és helyi szíjgyártók, – nagyváradi kötélverők, – a havasokról, a Maguráról s az Albákról az oláh tekenősök és csebresek, – a nagyváradi s helyi kalaposok, – Kolozsvárról a kefekötők, – Magyar-Fenesről s Kalota-Szent-Királyról a zöldséges szászok, – -40- Gyaluból s tudj’ Isten honnan, a tót rőfösök és bicskóárulók, meg a bosnyák késesek, – Tordáról a szitakötők, – Kolozsvárról s Nagyváradról a vas- és cserépkonyhaedényesek, – Bedecsről a román szuszéngosok és hombárosok, – a helyi szappanyosok és kaszaárusok, – az alsó-, felső- és középfüldi román favellások, lapátosok, – a vidék gabonakínálói, – a bécsi zsidók, fejkeszkenővel s ilyet árul helyben Kubászek, Pálfi és Páskuj, ilyet a gyalui örmény, – Hódosról, járommal, oláhok, – a deszkapiacon albáki, magurai s mariseli oláhok, meg mokányok, – hunyadi, kolozsvári s tordai mézeskalácsosok és pogácsások, – szalonnások helyből s Kolozsvárról, – ócska vasat kínálnak a helybéli s kolozsvári cigányok.
Semmit se hagytunk ki s hasztalan keressük azt a helyi ipart, amiben a mi kalotaszegi népünk művészetére lelhetnénk. Valaha volt, ma már nincsen. Az egyetlen fodorvászonból kínál még egy-egy keveset nehány arraszorult kalotaszegi, bogártelki, inaktelki, daróci s mákói nénike; szépet hasztalan keresünk, nincs, semmi sincs az országos sokadalom piacán, csak még a nép, a maga gyönyörű, de már-már pusztuló viseletében. Varrottast nem árulnak, nem kell az itt senkinek, akinek még van s még be nem hordta, az viszi be a kolozsvári hetivásárokra a művészi írásután való varrottast s maholnap nyoma se marad Kalotaszögében; ősi butor, vagy valami szép föstött, nincsen, mert aki be nem éri a gyárilag tákolt holmival, az manapság már csak «mondvacsináltathatja», alkura, Nyárszón, Sárvásárt, Magyar-Valkón vagy Mákón, piacra nem hozzák, mert nem érdemes, nemsokára már majd olyan se lesz, aki alkura bár, csinálja… Nemsokára olyan se akad már, aki vággyék utána, hanem lesz minden házban egyforma asztal, egyforma szék s a világ legnemesebb munkása, a földmíves helyett, lesz földüzemmel foglalkozó falusi proletár. Amióta a faeke «kiméne divatból», bótban vesznek vasekét; rokkát s guzsalyt (vajjon meddig lesz még rá szükség) szép himeset tudnak még csinálni, s csinálnak alkura, Kőrösfőn és Inaktelkén, de a vásárra minek, – elegendő ami az «ősökről marad», maholnap rájő a nép, hogy szaporátlan munka az is; harisnyaposztó kerül még, ha éppen kell, Magyar-Gyerő-Monostorról s Nagy-Kalotáról is, de azt se érdemes vásárra cepelni, a bótosé olcsóbb, ki venné? Amióta a -41- páncélcsehi timár «Tótországból» kerített szekeret – jó erős és kékre van pingálva és csak száz pengő – kapós a tót szekér. Ami cifrálkodáshoz való apróság, a gyöngyös, pillangós párta, a kontyoló kendő, a «dulandlé» (tulle-anglaise), a kaláris, mind tartja már a zsidó, aki olyan sebesen árul, miközben árad belőle a szó. A viselet!?… «Kezd hagyulni mán a piros csizma szine is», – az ingváll helyett városi rékli, a muszuj, bagazia helyett bolti szoknya. Egy-egy régi öreg sajnálja az ősit, de a mái nép tágít a fenyegető szegénység elől. Kudor Marci Huszár, a cucilista, vasárnap, a templom előtt elégedetlenkedett:
– Hej, tekintetes úrfi, ne csudálja őket! Ezek, felöltöznek ezek cifrába, selyembe, otthon meg nincs mit egyék. Ha maga fáradna véle, mint az anyja!… De bótbúl veszi a fonalat, a vásznat is, verje meg az áldott Isten! Majd oszt húzzák ránk a cifrátok során az adót… Még képet csinálnak róluk az urak!… De nincs egyéb bajuk!… Azt vegye le a tekintetes úrfi avval a masinával, amikor ilyen pántlikás bársonyban koplalnak odahaza!
Van azonban a népművészet s ezzel a nemzeti jelleg veszedelmének egyéb oka is ezen a vidéken.
Nem jár senki a nép kezére s aki irgalmaskodik vélük valamely titulus alatt, az is inkább csak ront a nép ízlésén, mert művészetét meg nem érti. Az úri osztály, mondjuk az intelligens osztály, egyáltalában nem törődik a népművészettel. Mintha nem látná, vagy talán nem is látja, mert úgy megszokta maga körül, mert annyira nem érti, se fejlesztésére, se megmentésére, csekély kivétellel, nem cselekszik semmit. Aki esetleg óvja, az is inkább ront rajta, mert lényegében félreismeri, eredetiségét gyöngíti s istápoló munkájában csak azzal törődik, hogy e réven is jusson egy-két garassal több a szükölködő népnek. Általában, a polgári osztály lekicsinyli, lenézi a «parasztosat» s így, közvetve azt a szépet, amit sablonos polgári ízlése annyira föl sem ér, hogy esztétikai, erkölcsi s nemzeti tartalmában meg sem sejdíthet. Jellemző a sivárság az egyszer-egyszer leégett falvakban, ahol a régi szép holmi elpusztult s ahol az úri osztály könyörületes segedelmével szedte össze magát a lakosság.
A kapzsi kereskedői szellem, sajnos, szintén elég fogékony talajra talált, e különben is szivesen piacos természetű népnél, bár menti őket a szükség, a megélhetés nehézsége. Kivált az asszonynép – ha leánya nincsen, akire -42- testálja – könnyen válik meg ősi szép holmijától, nehány garas haszonért, alkuszik ügyesen, de a ládafenekéről is elékeresi a régi varrottast, mihelyt vevő jelentkezik; van olyan «kereskedőasszony», kivált Körösfőn, aki a Balaton vidékére, sőt Pozsonyig, sőt német földre is eljár házalni kalotaszegi varrottassal, nem is szólva azokról, akik esztendőnkint kétszer megfordulnak a falu fehér népének modernebb munkájával Budapesten. Van akárhány földmíves, akinek a felesége többet megkeres tűvel, mint amennyit a kis földből elő tud teremteni. Megdöbbenve értesültünk, hogy a legszebb régi varrottas külföldre vándorolt; egy bánffyhunyadi kereskedő közvetítésével, Budapesten át, évekig rendes exportja volt e pótolhatatlan holminak. Eladták a régit, holott amit oly szorgalmasan varrnak manapság, amivel országszerte házalnak, az kézimunkának kézimunka, de művészi szempontból nyomába sem léphet a régi, írás után való varrottasnak. Amit maga a nép nem hord piacra, viszi a szemfüles zsidó, ha egy kis haszna kerülhet rajta. Amikor Bogártelkén a szép hímes orsónehezítő-karikókat és kapatisztítókat gyüjtöttük, a zsidó boltos ferde szemmel nézte munkánkat, végre is kitört belőle a méltatlankodás, németül panaszolta, hogy mit rontjuk mi az ő üzletét. «Ha én azt tudom, – mondá – hogy az ilyen parasztszemétnek is van valami keletje Pesten!… Egyezzünk meg. Az urakat meghúzzák érte, én, felehaszonra, nehány krajcárért összeszedek tavaszkor mindent, ami a faluban van. Tavaszkor lehet ezekkel beszélni. Olyankor nincs ötven krajcár az egész faluban!…»
Általában jellemezve a kalotaszegi nép művészetét, már többször emlegettük a varrottast, mint legérdekesebbet, legtipikusabbat. Ez pedig – bár akad a férfiak között is egy-egy «cihere», aki tud a tűvel bánni – a fehér nép művészete. Csudálatos, bár ismeri s tapasztalja hasznát, mennyire lenézi ezt a munkát a férfi! A kenderhez, például, hozzá se nyúlna, – a vékás vagy félvékás földet csak megugoralja, megforgatja a kender alá, de egyebet semmit, legföljebb, hogy még a szekérrel behordja a termést. A többi az asszony munkája, végig, míg csak a szép fodorvászon lészen belőle, amire olyan gyönyörűen tudtak «írni» a régi asszonyok, lúdtollal meg varjútollal, koromlével, szebbnél szebb hagyományos mintákat, amiknek ma már a nevét is alig ismeri az új nemzedék. (352–361). -43- Mondják, él még két-három öregasszony, aki tud az ilyesmihez, – mi csak egyet találtunk Bánffy-Hunyadon, Czucza Istvánné Szőcsöt (15). A hetven fele jár a nénike, beteges («Gyün a baj rám, mint az árvíz»), nem igen ír már («Tiszta fej kell az íráshoz, úrfi drágám, nem lehet azt már, ilyen ingóban»), de azért apránkint mégis írt nékünk nehány ősi mintát. Csudálva néztük, hogy kezd a munkához, minden előzetes beosztás, minden méregetés nélkül; kezdi a nagy árkus elején, mintha levelet írna és a sercegő penna alól csakúgy ömlik a kalandosnál kalandosabb fordulatú diszítő vonal, a csuszamlásokból, az eltérésekből, a véletlenségekből is összhangzatosan egyéni és eredeti diszítés lesz, bár az egész alapjában az anyától, a nagyanyától valaha eltanult hagyomány medrében készül. Mintha nem is ő írna, mintha valami láthatatlan kéz vezetné reszkető öreg kezét.
– Tudott hozzá, – magyarázza az ura, aki valaha szűcs volt, de «hogy béjött a vasút, elhagyta a mesterséget», – volt is sok cifra rúdravaló a házban. Éppen hogy két párnahéjj maradt. A’ kell, amikor meghalunk. Eladnók, de a pénz elmegyen s aztán majd az se lesz, amire fektessenek.
Szelíden megveregette öreg párja hátát s mókás mosolylyal mondta: «Külső országban az ilyen vén asszonyt mán viszi piacra az ura s adja el. Fátyolt az orcájára, valami bolond talán megveszi. Én mán nem adom, ha ennyi időt együtt valánk! Ne félj öreg, az enyim maradsz.»
Bólint, az öreg néni s ő is szeliden feleli: «Fátyolt bizony, azt tesz kigyelmed az orcámra s viszen a piacra… Szent Mihály lován.»
Elmés, barátságos, kedves nép, – külső megjelenésében, mozgásában, gesztusaiban nemes a férfi, az asszony pedig előkelően kecses. Ruházatuk, viseletük, teljes összeállításában a legszínesebb, legművészibb magyar viseletek közül való; keveri a régit az újabb módival, de a szép összhangot megtalálja mindig s ízléssel alkalmazkodik viseletében, annak komorabb vagy derűsebb jellegével az évszakokhoz, a dolognaphoz, a gyászhoz és ünnepléshez. Egy-egy ruhadarabjuk párját hasztalan keresnők egyebütt, de amelyik meg is van másutt, itt hatásosabb, merész színösszetételei, ízléses alkalmazása folytán eredetibb és festőibb. Színekben pompázó, feledhetetlen kép, amikor vasárnap, ünnepi díszben, istentisztelet után, elácsorognak egy kicsit a templom előtt, a fák alatt s a ragyogó nap szórja le reájuk arany tallérait a fák lombja között, – ahány asszony, ahány leány, egy-egy mosolygás és kacag, boldogan, derűsen, színekben káprázva az egész kép; virít a zöld selyemmel kivarrott piros csizma, ragyog a gyöngyös párta, az arany pillangós fejkötő csillog, suhog a villogó törésű rojtos selyemkendő, libbennek a száz színű selyem hajfonó pántlikák, tarkán pompázik a «muszuj» (felhajtott elejű szoknya), a rózsás sarkú kötény, a himzett szögletű fátyol, (a dulandlé) – bokréta a legények kalapján s hímes mejjrevaló rajtuk; a meglett ember szép komoly szűre, méltóságosan nyugodt megállása rendezi, tagolja a hasonlíthatatlan képet. -48-
Lássuk elébb a férfiviseletet. (V. tb.)
Az ing ma rövid, köldökig ér, – egy emberöltő előtt, mondják az öregek, még lobogós újju inget hordtak. A régi lobogós ingújjon, a kézelőn, vagdalásos fehér varrással, gazdagon változatos volt a dísz; a mai ing kézelője csupasz. Az ing behasított nyakát a nyakravaló tartja össze, ami hajdan egyszerű, széles fekete kendő volt, aféle «fátyol kravátli», újabban, kivált Mákón s Vistán, színes, piros, kék, zöld zsinórvarrásos nyakkendőt hordanak a legények; Vistán (VI. tb.) arasznyi széles, szép darázsolt diszítésű kendők is akadnak. Nyári viselet a rövid gatya, -49- téli a zsebetlen fehér daróc harisnya (combhoz feszülő, székelyes csizma-nadrág), amelynek szélén piros posztó a diszítés.
A férfi legdíszesebb ruhaneműje a «mejjrevaló», (IX. tb.) mely falvak szerint változik. A régi világban egyszerűbb volt a mejjrevaló, kevesebb rajta a selyem kivarrás, ma már, – kivált Bánffy-Hunyadon – olyan sűrűn telicifrázzák selyemmel, hogy semmi parasztja, semmi diszítetlen része sem marad, eredeti anyagjából, a báránybőrből semmi sem látszik. Az ilyen agyoncifrázottnál bezzeg szebbek azok a módjával varrottak, amilyeneket például még Monostoron, Valkón, Mákón s Vistán viselnek. A mejjrevaló téli ruhadarab, de nyáron is fölveszik templomozásra, temetésre. Télen s hüvös időben, a mejjrevaló alatt kék flanel bujkát, mint ők mondják, bujbelét hordanak. A mejjrevaló (IX. tb.) diszítésének java, a selyemhimzés a hátra kerül, – eleje, a gomblyukak s gombok tájéka vörös, zöld s fekete lakk bőrrel van szegélyezve, ez az «almásolás», amely ismétlődő ívekből s pántokból áll; hasonló bőrszegély veszi körül a «háticifrát» is, de már gazdagabb kiképzésű, tulipán-szívalakú, sőt olykor az egész háticifra bőrből van, némi selyemvarrású levél- és indadíszszel. A diszítendő mező, a mejjrevaló szabásának megfelelően, alul szélesebb, mint felül, mert a két hónaljkivágás íve keskenyebbé szeli felső részét. A hát középvonala két arányos részre osztja az egész díszt s felező vonala az alsó és a felső cifrának. Az egyszerű vagy többszörös alsó bőrszegély közepéből, amelyen szintén lehet folyó leveles, rózsás himzés, indul ki az alsó himzett ornamentika, többnyire egy egyenesen felszökő, leveles ágon ülő, két oldalra hajló tulipán s ezek alatt két georgina, ahogy ők mondják, «gyorgyina». A levelek felváltva pirosak és zöldek; a középső s két oldalsó tulipánok közeit kisebb rózsák töltik ki; ugyanily -50- dísz jő a gyorgyina fölé is. Ez egyike az egyszerűbb alakításoknak; rendesen egész egymás mellé simuló, minden tért betöltő a dísz, vagy legföljebb annyi üres hely marad, hogy még a felső rész az alsó résztől valamelyest megkülönböztethető. Rendesen felismerhető a középső tulipán, rózsa vagy pávaszem, a két oldalsó ág, különféle rózsákkal, levelekkel és a jobbról meg balról eső georgina. A szár a tulipánból indul ki, a georginák fölött rózsák vannak, a hosszukás középtulipán két oldalán újra két nagyobb rózsa, fölöttük madáralak, melynek fejéből indul ki lehajlólag a leveles ág, végén négy pávaszemes virággal; ilyen virágféle van a középtulipán fölött is; a megmaradt közöket kisebb pontokkal, rózsákkal, szívidomokkal töltik ki. E diszítés különben nagyon változatos; néha a gyorgyina és rózsa közül több ág indul, levelekkel s rózsákkal. Néha oldalvást indul el alulról az ág, körülveszi a gyorgyinát és a tulipán bimbaját s a középen tulipánnal, egy kisebb tulipánnal végződik. Egyszerűbbek a bőrrel diszítettek: három egymás mellett álló piros virág, mindenik egy közép rózsával, kétoldalt mellé simuló levéllel és alattuk a georgináknak megfelelően egy-egy virággal. Van minta, mely két-két oldalt georginából, s közülök kiinduló leveles rózsából áll; a két oldalsó virág itt is feltalálható a nagy tulipán alatt, amelyből újra ágak s rajta rózsák nőnek ki. Más változatban mutatja be ezt az ötös tagozást egy mejrevalónk: a bőrből vágott közép-tulipán (már alig hasonlít tulipánhoz) négy georgina közé esik, a tulipánból két oldalt nőnek ki a szárak, nagyobb, piros bőrből vágott és kisebb, selyemből himzett levelekkel. A mejjrevalók hátának felső dísze néha hasonló az alsóhoz, de meg van fordítva, virágai lefelé csüngenek, vagy egymás mellett van tulipán, rózsa, pávaszem, vagy a közép-tulipánból két oldalra nyuló ágon fent is, lent is virágok; vagy csak két rózsa közt a tulipán. Néha fönt sincs ilyen bokréta s csak bőrből készül a hátcifra és alatta kis bimbó füzér, közepén nagy körmös bimbóval.
Téli bunda helyett hordják a festett kozsókot, így hivják
ugyanis azt a mejjrevalót, amelynek újja is van (IX. tb.); festettnek azért nevezik, mert a fehér
birkabőr, -51-
-52- amiből készül, kávébarnára van színezve; kivált
Vistán s Monostoron viselik, fekete prémgallérral s prémkézelős
újjakkal; kevéske selyemvarrású diszítés is van rajta, a háton,
fölül a tarkó alatt s a hát alján. Panyókára vetve hordják a
«csonkát», a «darócot».
A szürt, (20. 23. és V. tb.) Jankó János szerint, régente nem viselték a kalotaszegiek, de ma már általános; Kolozsvárról, Nagyváradról hozzák a vásárra. Diszítése fekete vagy sötétzöld s e vidéken nem olyan gazdag és változatos, mint hazánkban egyebütt. Fődísze (24.) a hátra csüngő gallér; van diszítés elül, a két alsó csücskén, oldalt az újjak alatt s szegélyezve van a két újja. (25.) A gallér szegése egyszerű széles sáv; a négyszögletes mező közepén, felülről, a tarkó alól indultan, levél formába foglalható diszítés van: vastag szár, két oldalán rózsák s levelek; az egész tömötten tartva és úgy, hogy a külső végződések mintegy körvonalát adják egy hegyes levélnek. A gallér két alsó sarkában, ferdén befelé, ugyanilyen alakú, de nagyobb díszek foglalnak helyet alul egy-egy hozzájuk simuló levélfüzérrel. Elül szintén két fekete, összefutó, széles sáv közt van a szür szélének dísze, épúgy lefelé keskenyedve. Helyes ízlésre vall ez a megoldás, amennyiben nem kisebbíti véges-végig az adott motivumot, hanem előbb egyszerűsíti, azután egy kisebb, egyszerűbb alakba megy át, hogy a végén ékben végződjék. Néhol, így Vistán, látni olyan szűröket, amelyek különböző piros színnel vannak diszítve, de csak a két oldalon, a zseb táján.
Általában csizmát viselnek. Hetyke legények – Mákón látni gyakorta – a csizma szárának felső részét kifordítják, úgy, hogy a csizma fülei is kilógnak. (V. tb.)
A kalap nyáron karimás, fekete pörge, jobb oldalán bokrétával. Munkában csurgóra gyürt karimájú szalmakalapot hordanak; a szalmakalapon tarka selyempántlika van, Mákón tenyérnyi széles. Télen fekete báránybőr sipkát viselnek.
Nézzük a női viseletet. (V. VIII. tb.)
Bánffy-Hunyadot kivéve, egész Kalotaszegen úgynevezett vállfűs, a vállon kivarrott inget hord a fehérnép; Kolozsvár környékén kötéses inget viselnek, Bogártelkén szép pókos kötéssel, Monostoron finom recekötéssel. Ki van varrva az ing gallérja s kézelői, – legdíszesebben a vállfű, két újjnyitól tenyérnyi szélességig; legszélesebb a mákói. A vállfű varrása írás után való s ennek szép példányait a varrottasról szóló fejezetben mutatjuk be. A hónalj alatt két betoldás van: felül a pálha, alul a csók. A varrás az ingen piros vagy fekete fejtő. A gallért s a kézelőket két-két hosszan lecsüngő hárász bojttal kötik össze; Mákón s a környékbeli falvakban -53- négy, sőt hat bojt is kerül a nyakra. Az ingre, legalul – különösen Hunyadon – a kurta szoknya következik s erre kötik a fehér fodorvászonból készült alsószoknyát, a pengyelt. A pengyelre jön a muszuj, – Kolozsvár környékén bagazia a neve, – a kalotaszegi viselet e legjellemzőbb darabja, amelyet a leány, pártával együtt, a konfirmációtól kezdve visel. (27., 28.)
A muszuj vagy muszuly, fél szoknya (ez úgy értendő, hogy elejéből egy kötényre való hiányzik; eredetileg egész szoknya volt, csak utóbb hagyhattak el belőle, miután az a rész, a fölibe kötött köténytől úgy sem látszik), amelynek alsó szegélyére belül arasznyi széles színes (piros, sárga, zöld) posztót varrnak, azután a szoknyát elől felhajtják, úgy, hogy a szoknya belső oldalán a színes posztó és a pengyel egy része is látható; elől köténynyel takarják el a pengyelt. A muszuj színe sötét, fekete vagy kék (Hunyadon), az ővnél sűrű ráncba van szedve s a ráncok a muszuj ővkötőjében egyesülnek; az ővkötő Bánffy-Hunyadon zöld, vidékén piros. A kötő alatt, körülbelül két ujjnyira, a ráncokat kockázás, szedés vagy darázsolás fogja össze. Leányok, menyecskék muszujszegő posztója piros vagy sárga, az idősebb asszonyoké zöld, az öreg asszonyoké fekete. Ujabban, Bánffy-Hunyadon, divatos a mintás plüs (bársony) muszujszegély, de ez nem olyan szép, mint a posztó. A posztó szélessége változó, néhol keskenyebb, másutt husz centiméternél is szélesebb. A posztót ki is szokták himezni; -54- leggyakoribb hogy rávarrják a tulajdonos nevét és a készítés évszámát. Mákón a kis tíz-tizenkét éves leányok is hordanak muszujt, ami nagyon kedves.
A kötény vagy kötő (VI. tb.) rendesen olyan színű és olyan anyagú, mint a muszuj, de voltak ezelőtt nagyon szép zöld posztókötények, piros torockói csipkével diszítve. (29.) Ma már, sajnos, ilyeneket nem csinálnak. A kötény is sűrű ráncba van szedve s ezeket a ráncokat is darázsolás, szedés vagy kötés tartja össze. A kötény szélét színes pántlika futja körül három oldalt; vagy egyszínű (piros, sárga, kék vagy zöld) vagy virágokkal díszes. A kötény két alsó sarkába egy-egy nagy rózsa kerül, rendesen ugyanolyan a pántlikából, mint amilyen az oldalán van, de néha csipkéből (torockói csipke), néha gyöngyökkel diszítve s középen hárász bojttal. A rózsát néha még két szalaggal varrják körül, úgy, hogy a rózsa mintegy keretben van; Mákón e keret fölé, néha kisebb keretben egy másik rózsát is tesznek.
Ünneplő a gyócsfersing, a sűrű ráncba szedett, a vizelt (mert nedvesen redőzik) fehér szoknya. (30., 31.)
Ma már ritka a váll vagy füzős váll, a piros posztóból készült kis mellény fekete csipkedíszszel, mely elül piros szalaggal volt összefüzve; ennek a mellébe és hátába fa vagy vas volt bevarrva, halcsont helyett. (32.)
A kalotaszegi viseletről írja munkatársunk, Kriesch Aladár: «A kalotaszegi viselet, különösen a női viselet, nemcsak a közönséges értelemben vett festői, – hanem, hogy úgy mondjam: arhitektonikus. Az ország sok egyéb táján van még népviselet, mely úgy rajzbeli karakterénél, valamint színeinek eleven akkordjainál fogva erőteljes, ép stílust mutat. De a kalotaszegin kívül egy sincsen (s ebben a tekintetben még az oláh is messze mögötte marad), amelynek alapprincipiumát az képezné, hogy vonalaiban, szabásában az emberi test tagolásához, annak vonalaihoz alkalmazkodjék! Ezt a costume-öt még az antik görög sem találta volna barbárnak. Figyeljük meg, mint símúl az ing a törzs idomaihoz, s miképpen vannak az újjak beillesztve, jelezve a karok különállását a testtől! Mily gyönyörű lesz ennek következtében a karnak minden mozdulata. Az elül felhajtott szoknya, a «muszuj», lendületes vonalában miképpen adja meg a medence rajzát, a szoknyák sokasága -55- nem csinál felfordított tölcsért a nőből, hanem a lábak mentén leomolva, harmonikusan zárja be a silhouette-t, míg a piros csizma megadja a keleties nuance-ot az egész viseletnek.»
A fehérnépnek is van mejjrevalója, (34 és VII. tb.) még pedig hosszú és kurta. A hosszút manapság már nem is készítik, a még meglévőket hordják, de csak öreg asszonyok, vasárnapi templomozáskor. A kurta mejjrevaló csaknem olyan, mint a férfiaké, diszítésében sincs különbség. Sajnos, a szép formás, csipkés mejjrevaló (35. 36.) már kiment divatból; ez zöld vagy fekete posztóból készült, piros vagy sárga csipkedíszszel, körülprémezve feketén. Darócot vagy condrát is használnak a nők. A leányok karácsonykor fehér daróccal, pártásan mennek a templomba. Ugy az asszonyok, mint a leányok csizmája piros, csak Hunyadon kezdenek újabban a városi szolgálatból hazakerült leányok fekete csizmát viselni. A csizma zöld selyemmel van kivarrva. (37).
Templomozáskor leányok és fiatal menyecskék szélesen kibontott tarka virágos keszkenőt -56- viselnek jobb kezükben, legjobban szeretik a rojtos szélű kendőket. Bal hónuk alá is szorítanak egy rojtos selyemkendőt, amit nem szabad lehullatni, – így őrzik mozdulataik illedelmes voltát.
Fejükre szintén szines, virágos kendőt kötnek; templomozáskor elül kötik meg, máskülönben hátrakötve viselik s ez sokkal szebb, mert szabadon hagyja a nyakat. Leányok, a konfirmációtól kezdve a lakodalomig, pártát tesznek vasárnaponkint. (38 és VII. tb.) A párta két-négy ujjnyi széles vasabroncs, sürűn kirakva arany pillangós üveggyöngygyel, gyöngyház csigával; a párta hátulsó részéről különböző színű sallangok, pántlikák, gyöngyöskötők s bojtok («boszintó») lógnak le. A pártát Hunyadon vízszintes állásban viselik, egészen a homlokon; a falvakban hátradülő rézsutosan helyezik a fejre.
A mennyasszony (IV. VIII. tb.) dulandlét visel s ezt viseli mindaddig, míg keresztelőre nem viszik első magzatát; finom fehér patyolat fátyol, két sarkában (az egymással átellenben lévő sarokban) kivarrott diszítéssel. A dulandlé («tulle anglaise») díszítő szegését színes pamutból az úgynevezett «berliner»-ből vagy mint ők mondják hárászból varrják; köröskörül többnyire egyszerű, ritka kockás vagy háromszöges dísz fut végig a fátylon s a sarkokat a mejjrevaló hátsó részének középső díszéhez sok tekintetben hasonló himzés tölti ki. Itt is van egy nagyobb rózsa- vagy tulipánalakú középdísz, mely a sarokból indul s leveles száron ül két oldalt rózsákkal és georginával; a rózsából levélfüzérek nőnek ki, két oldalt lecsüngve s fent egy másik kisebb rózsa. A diszítés uralkodó színe a vörös; rajza széles nagy formájú, többnyire tulipán, amelybe sokszor országcimer van varrva. Egyéb virágdísz is előfordul; például a két alsó tulipán csak az ágak kiindulási helyét jelöli s az ág felett is, alatta is, van egy-egy rózsa; vagy csupán egy rózsa felső részéből indul ki az ág, amelyen különböző színű kis rózsák váltakoznak. A gömbölyű vonalas minták mellett előfordul a szögletes forma is; ez a «szál után varrott» varrottasokra emlékeztet egyenes vonalú tört konturjaival, meg van ezen is az egy főágon és a két mellékágon ülő öt virág, mellékágakkal; színe majdnem egészen vörös, csak a szárak zöldek. A színösszetétel s a foltelosztás általában ügyes; egy világos és egy sötétebb szín egymás mellett, ez a jellemző. Majd a tengely emelkedik ki sötét foltjával, majd a sötétzöld kelyhű nagy rózsa, világosvörös külső része, két oldalt ugyanolyan világosszínű rózsával, ád világos foltot az alatta s fölötte lévő levelek sötét tömegétől körítve. Egy kendőn a nagy középrózsa az alatta lévő két tulipánnal és két rózsával simul össze egységes színfolttá, körülvéve levelek sötét foltjával s az egész körül ismét világos foltot képeznek a virágok és lent ismét sötét folt van a tulipánok alatt. Mindez fejlett izlésre vall.
A dulandlé alá jő a gyöngyös csipkével lekötött, színes staniol-lemezekkel és piros hárászdíszszel ellátott főkötő, amely alighogy keresztül tetszik a fátylon. A fátyollal, a dulandléval körül kötik a fejet, a nyakon egyszer körülcsavarják s hátul úgy omlik le sarokig (VII. tb.)
Nincs a világon nép, akinek festőibb lenne a viselete.
B.-HUNYADI ZÖLDSELYEM VARRÁSÚ PIROS CSIZMA. (37)
a) b) diszítés a lábfején; – c) diszítés a csizma kérgén.
A «mejjrevalók» kapcsán emlékezzünk meg egy tipikusan magyar, a gyáripar elül szintén tágító, rohamosan pusztuló mesterségről, a szűcsmesterségről. Hat-hét régi szűcscsel találkoztunk Kalotaszegen, abbahagyták mesterségüket, «nem győzzük, amióta begyütt a vasút!» Akinek még aránylag jól menne, akinek meg volna a kellő kis anyagi tehetsége, mint ők mondják, a «kitartása» hozzá, gondolkozik már az is, – mint például Kati Márton, az értelmes, ügyes bánffy-hunyadi szűcs, – hogy holmi egyéb, jövedelmezőbb, versenyképesebb kenyérkereset után nézzen. Lám, Kati Márton azon tanakodik, hogy valami kis szatócsüzletet nyisson, mert a gyáriparral nem győzi a versenyt a «mesterség». Milyen is hát az a mesterség?
Ugyancsak Kati Márton oktatott ki bennünket, mint lesz a berbécs bőrből a mejjrevaló.
A szűcsmesterség egyszerű szerszámai a következők: rámaláb s rajta a félkézvas; kaszaszék (kaszapad, láb, járom, kés); olló, csipkéző kalapács, csipőfogó, szabókés, török vagy törkővas, lyukasztó, csipkéző, horgosvas (kákó, bőrtörő vas); a hammas (hamvas) kád, áztató kád, korpatartó. (39)
Már most halljuk magát a mestert.
A berbécsről lehúzza a mészáros – tömlőre nyúzva (amikor kifordítja bőréből az állatot) vagy hasítva – a bőrt s azon nyersen átvesszük tőle. Első sorban lefejtjük (kifejjük) róla a zsírt, kaszával, a rámán, aztán árnyékos helyen, a színben, kiterítjük rúdra; amit tömlőre nyúztak, azt pálcikókkal peckeljük ki s úgy kerül rúdra (pálcikát dugunk a fejbe, mellbe, farba s a két lábba). A szárítás négy-öt napig tart, aszerint, milyen zsíros a bőr. Kiszárítás után, amikor a bőr «meg van tömegesedve», a mester szakmányokba osztja a földolgozandó anyagot s kikészítés végett átadja a segédnek. (Egy szakmány huszonöt darab bőr s ennyivel egy nap végez egy ügyes ember).
A SZŰCS MESTER SZERSZÁMAI B.-HUNYADON. (39)
a) Kaszaszék. – b) Kaszakés. – c) Horgas vas. – d) Törkő vas. – e) Csipkéző. – f) Lyukasztó. – g) Csipő-fogó. – h) Szabókés.
A segéd az áztató-kádban, tiszta hideg vízben, tizenkét óra hosszat áztatja a bőrt, – azután kimossa először ugyanabban a vízben, majd újított vízben áztatja ismét, másnap reggelig. Másnap reggel kihányja a kádból, csorogni, a bakra; miután kicsorgott, tajigába dobja s elhúzza a «húsoló helyre», a színbe. Egyes darabonként, – mintha ostort pattintana, – kicsapja belőle a vizet, rámára szorítja, keresztbe s hosszába «behusolja» és amelyikkel végez, azt, ismét árnyékos helyen, rúdra veti.
A napi szakmány, a huszonöt darab behúsolása után, a mester vizet melegít, sót, timsót, vitriololajat, hamuzsírt s dercét előkészítvén, csávát (pác) kever és evvel a csávával, az áztató-kád borítódeszkáján, a segéd, az inas segítségével, bedörzsöli a bőröket keresztbe hosszába s meghintvén dercével, összehajtogatván, egy üres kádba veti. (Egy szakmány csávájához kell: tizenöt kupa víz, vagy tíz krajcár ára só, háromfertály kiló timsó, három borivópohár vitriololaj, öt krajcárra hamuzsír s jó négy kiló derce.) Bekészítés után, a megmaradt csávát ráöntjük a kádba helyezett bőrökre.
Másnap, ha jó idő van, a bőröket, szőrire, kiteregetjük sorjába az udvaron a földre, hogy a «főd zsírján száradjon»; amikor «testet fog a bőr», amikor nem ugrik már össze, az inas megforgatja s már most szőrivel vannak fölül.
Rendes iparos, «akinek kitartása van», pihenteti az így bekészült bőröket, mert jobb, tartósabb s kidolgozásra alkalmasabb a pihent bőr. A hiuban, száraz helyen pihen, csomóba rakva, ötvenivel, százával.
Már most, ha szükség van bőrre, megyek a hiúba, kiválasztom s ledobom, «bekenésre». Ez is a segéd dolga; szakmányonkint (egy szakmány: berbécsbőr tíz darab, báránybőr tizennégy) bekeni tiszta vízzel, – a kenést csepüvel vagy a rongyból kötött «mosóval» végzi, – s elteszi pihenni negyvennyolc órára, hogy megpuhuljon. Amikor puha, «kisarkalja» (sarkával ráhág s úgy húzza, nyújtja, kézzel); sarkalás után darabonkint felhurkolja kötélre s horgos vassal kihorgolja, – azután kikaszálja, hogy egyenlő puha legyen, se «acintos», se «doblott» ne maradjon. (A kérges bőr az «acintos»; amelyik hámlik, az a «doblott».) Kikaszálás után egyenkint nyújtjuk ki a rámán s kipattogtatjuk a széleket kézi kaszával. Kinyújtás után tiszta buzakorpával vegyített fehérkővel (alabástrom) bedörzsöljük s egyenkint kiszíneljük a rámán, először hosszában, azután keresztben s harmadszor is, hogy szép szabályos legyen, hosszában. Végül kiporoljuk s kész. Számbaveszi a mester.
Szakmányonkint, a segéd fizetése egy forint húsz krajcár, ehez húsz krajcár borpénz és két-három pohár szilvapálinka.
Már most megyen a bőr szabás alá. A mester, «belátás szerint», szín után válogat a bőrök közül. Kozsóknak, paraszt (üres, nem kivarrott) munkának valót piros bőrrel, egyszerű szironyozással; jobb bőrt butorbőrrel – s a legjobb, a legszebb színű bőrből készül a «dufla elejű mejjrevaló» karmazsinttal s lakkal díszítve «hunyadi-paraszt»-nak, – mert ezek nincsenek «selymezve». Selymezettett csak leánynép s legényember visel. Gyöngébb juh- és báránybőrből készül a «selymes»: a bimbós, a körmösbimbós, az egy rend csillagos, két rend csillagos, gyorgyinás, meg a koszorús. Legparádésabb az «egészcifra», azon még «paradicsommadár» is van. (34).
Irhának, zöld szironynak, zsebrevalónak a döglött juh bőrét használjuk, mert a zöld szironyt s az irhát, azt magunk készítettük régente. Ma már… azt se érdemes.
Hogy az irha mint készül?
A bőr béáztatódik, aztán nyolc napra a «hammasba» tesszük («hammas» egy földbe ásott hordó s benne víz, oltott mész és szitált cser-, gyertyán-, tölgy- vagy bükk-hamu; egyszer megtöltve, elszolgál egy esztendeig) s naponta kétszer a kanálrúddal megforgatjuk. A hammasból rúdrahányjuk, úgy, hogy leve a kádba visszacsuroghasson; aztán rámára feszítjük, egyik oldaláról, félkézvassal, lehúzzuk a szőrt, másik oldalát meghúsoljuk, – tiszta vízben kimossuk, detto behúsoljuk, aztán, hogy tisztuljon, tyúkganés vízben (ami a mésztartalmat választja ki a bőrből) áztatjuk egy félórát, detto behúsoljuk, – mert az irha három húsolást kiván, – s huszonnégy órára begyúrjuk a rendes csávába. Ha ez megvan, kiteregetjük s beszárad. Aztán nyirkos helyen, teszem a pincében, «megnyirkol» s «hajnalosan a harmat is megnyirkítja». Aztán, csak mint a többivel. De ennek fehérítés nem kell, mert színének a volt gyapjas részét hagyjuk.
Hogy mire kell az irha? Öreg emberek bundáját s mejjrevalóját irhával ékítjük, a bunda varrásait véle födjük bé az újjasbundán, meg a juhászbundán.
A szirony pedig? Az a szép zöld?
Éppen mint az irha: koppad a hammasban nyolc napig s az első behúsolásnál mogyorófából hasított abroncsra húzzuk spárgával, «málészem köré kötve hurokra», – a vizet kifejjük belőle félkézvassal. Kifejés után béöntjük tiszta vízzel és sebesen bedörzsöljük szalámiasóval, aztán «tiszta eredeti rézről reszelt porral behintjük, amit Váradról, a harangöntőtől hoztak»; letesszük, úgy az abroncson, a pincébe, egy kád víz fölé, mint a födőt. Másnap reggel kitesszük a napra, száradni vagy egy órahosszára. Amikor az óra letelt, félkézvassal lekotorjuk róla a rézport, – kész a szirony.
Így volt régen. Ma már megcsinálja külországban a német, gyárban, firnájszos zöld föstékkel. De olyan is az!… Hanem hát olcsóbb, annyi szent.
Kalotaszeg népe, csekély kivétellel, «magyar» hiten van; a reformáció hódító győzelmei után a katolikus templomot tették meg magyar templomnak s utóbb épült templomaikon is részben megmaradt a régi katolikus építkezés stilusa.
Kalotaszeg reformja, – írja Jankó János, akinek már idézett néprajzi munkáját citáljuk s egészítjük ki a következőkben, – Szilágyi Sándor szerint, végre volt hajtva már 1541–42-ben; már 1561-ben Bánffy-Hunyadnak is református papja volt. A tűzként terjedő reformációnak a kis Jegenye és Bács tudtak csak ellentállani és katolikus voltukban megmaradni. A reformáció szelleme, természetesen, a templomokban elpusztította mindazt, ami katolikus volt. Magyar-Valkón, például, a klastromot lerombolták, a templomból a festett és faragott szentképeket a templom mellé ásott gödörbe hányták és betemették. Ami szentet ábrázoló faragványt a templom falából ki nem vehettek, lefaragták a felismerhetetlenségig. És ezt megtették nemcsak Magyar-Valkón, de az egész Kalotaszegen mindenütt. A reformáció első viharos, csaknem erőszakos bevonulása után azonban a megnyugvás kora következett, amikor az egyházaknak a nép ízlése szerinti való díszítését látjuk kivirágzani. A katolikus templom falai megmaradtak; a gót szabású ablakokon nem változtattak, legföljebb egy ajtót befalaztak, egy másik újat vágtak, mely többé nem csúcsívben végződött, hanem kerekívben borult össze; az ajtó elé cintermet s bejárót építettek, amelyet néha fatornác kötött össze a templomot körülvevő kőkerítés ajtajával. A külsőn aztán egyebet alig változtattak, legföljebb a felégetett régi födél helyett raktak újat s diszítésül minden egyes zsindely alsó szélét kicsipkézték. A legtöbb templomnál a tornyot harangláb helyettesítette, fából, de ennek sajátos építési módja volt: a favázon fölül, ahol a harangok lógtak, a harangkamarát deszkapárkány vette körül, a deszkák hosszukban állottak s alsó végük szintén ki volt csipkézve; a legalább is méter magas párkány négy szegletéből egy-egy oszlop nyúlik ki s a négy oszlopon nyugszik a harangláb kúpja, mely szélesen indulva, elkeskenyedik; a kúp zsindelyeit szintén kicsipkézte a nép. Ezt az építési módot követték ott is, ahol a haranglábat lebontották s kőtornyot ragasztottak a templomhoz; a toronygula négy szegletébe négy tornyocskát emeltek, mint a nép mondja, a négy evangélista, Máté, Márkus, Lukács és János tiszteletére.1) A torony csúcsáról s a templom tetejéről eltűnt a kereszt, helyébe gomb, kakas vagy egy kis vaszászló került, a zászlón az építés kivágott évszámával. A torony e helyes régi formája is vész már az ormótlan újabb építkezések során, de annál szivesebben diszítették a templom -66- belsejét. A szószék párkányát kifaragták, oldallapjait kiföstötték, koronáján pedig remekelt a falusi művész, élére állítván az önkebléből táplálkozó főnixmadarat s körülvéve az egészet síkfaragásos párkánynyal, amelyen a magyar díszítés főformáit: a tulipánt, a rozmarinlevelet, rózsát, szekfűt és a szőlőfürtöt kapcsolta egybe. A templommenyezet közepéről függő lámpát galyakkal, virágfűzérekkel diszítették; a buza elsőtermésű kalászaiból koszorút fontak s a lámpára akasztván, a gabnaáldás elmondása után, ott hagyták a következő év első terméséig. A szószék alatt áll az Urasztala, mely rendesen kerek s négy lába egy közös szárban fut össze; az asztallapon egy belső és egy külső kör van, amaz csak csekély távolságban az asztal közepétől az ajándékozó nevével s az ajándékozás dátumával, a másik az asztal pereméhez közel, valamely zsoltári vagy bibliai mondással. A templom kincsei közé tartoznak a régi varrottasok, aranynyal, ezüsttel s az akkoriban még csakolyan drága selyemmel varrva; gyönyörű ősi formák maradtak reánk így. A díszítések között legérdekesebbek a festmények. A menyezet kockákra van osztva s ahány kocka, megannyi önálló kép. E képeket négy csoportba oszthatjuk: mértani diszítések; növénymotivumok, a szokásos virágokból; állatábrázolások, többször az illető állat megnevezésével; kezdetleges ábrázolású bibliai jelenetek. Az első két csoportból kerül ki a menyezetdíszítések java, például a bikali. A daróci templom öt padjának festése (1687–1701) a legsikerültebbek közé tartozik, a tulipán, a rózsa és a szekfű színeinek összeválogatása szelid, csoportosításuk ízléses, a munka nemes és tiszta. (40) Egyátalában, azt mondhatnók, a népies templomi festés nálunk a XVII. században virágzott s a következő században korcsosul el, túlzásokba esvén. A kalotaszegi templommenyezetek javarészét a XVII. században renoválták s festegették újra a szász származású Umlingok – apa és fia, – de ők már csak inkább utánozták, művészi érzékük a magyar formák iránt nem volt, azokat nyilván egyhangúaknak találták s azoknak kimeríthetlen formagazdagságából ők meríteni nem tudván, otromba bizarságokkal mételyezték meg a tiszta magyar ízlést. Az apa, Kolozsvári Asztalos Umling Lőrinc (41) eleinte beérte az egyszerű utánzással s első művein csakis mértani díszítéseket és virágmotivumokat alkalmazott, – később állatokat is föstött s megpróbálkozott bibliai jelenetekkel is; a tizennyolcadik század -67- negyvenes éveiben a régi tiszta tulipános motivumokat utánozta, az ötvenes években föstötte gyatra állatképeit s azok a torzított bibliai jelenetek a hatvanas évekből valók. A két Umling dolgozott Bánffy-Hunyadon, Magyaró-Kerekén, Damoson, Jákótelkén, Magyar-Gyerő-Vásárhelyen, Kis-Kapuson, Darócon, Magyar-Bikalon, Farnoson (42), Nagy-Petriben, Kis-Petriben (75, 76) s Sztánán; kortársaik közül egyet sem találunk, – egyetlen elődjük nevét, aki a XVII. század végén dolgozott, nem ismerjük; követőjük Simon György, aki 1794-ben a bogártelki templomban föstött. A tizennyolcadik század végén, mintha divatja múlnék a templommenyezet díszítésének.
Hogy Kalotaszegen melyik a legelső, a legrégibb, talán eredetében is református templom tipusa, azt bajos megállapítani. Mi a magyaró-kereki régi református templomot vesszük tipusnak [lebontása előtt lerajzolta Telegdy Árpád: (45).]
Négyszögletes helyiség, középen, a templomterem piacán, az úrasztalával; szószék s a padok az úrasztala felé fordulnak. Szegletein az épület meg van erősítve egy-egy támasztópillérrel s egyszerű tető födi az egészet. A tető kötőgerendái alatt volt a kockásföstött famenyezet, amely 1903-ban a Nemzeti Muzeumba került. E tipusnál jellemző, hogy falazott tornya nincsen, csak fából ácsolt harangláb állott mellette, szabadon; ilyen a magyar-bikali templom és harangláb. Hogy milyen formátlan tucatépületet húzott a helyébe egy kolozsvári építő, 1897-ben!2)
A MAGYARÓ-KEREKEI RÉGI EV. REF. TEMPLOM. (45)
(Telegdy Árpád festménye után; az eredeti menyezet 1904-ben került a Nemzeti Múzeumba.)
Valamivel összetettebb a fatornyos ketesdi templom. Keskenyebb része, – a templom hajója, – az a régebbi s utóbb, hogy a hívek megsokasodtak, bővítették ki, nemcsak hosszában, de az új hajó szélességében is (46). E bővítés már a református korban történt; elhagyják a támasztó pillért a templom végében, nem is a szegletre teszik, hanem -69- a hosszabbik oldal irányába, ami arra vall, hogy beboltozni nem is volt szándékuk. Féloldalt egy kis portikust is építettek a templomhoz, alacsony, zömök pillérekre, széles ereszszel. A templomban elfér vagy százhúsz hivő. Tornya talán a legnagyobb a vidéken az ilyennemű fatornyok között, van akkora, mint egy városi négyemeletes ház a főpárkányáig. Szétágazó, hatalmas gerendákra van alapozva, amelyek erősen közrefogják s ducolják minden oldalról a torony oszlopait. Közöttük vezet föl a kis rozoga falépcső a harangházba; a harangházon kereken menő kicsi tornác van s négy szegletén a jellemző kalotaszegi kis tornyok, amelyek közül karcsún, magasra szökik fel a torony sisakja, szélforgóval és csillaggal tetejében. Ügyes a templom bejárója – az úgynevezett «kendőigazító», mert hogy templombalépés előtt fejkendőjén ott igazít a fehérnép, – a torony alatt. A tető szélesen benyúlik a dúcgerendák fölött s az utcán álló kis oszlopokra könyököl. Alája kőlépcső vezet föl, ebből a tornácból lépünk a torony alá s azután be a templomba. A templom kertje, a cinterem, takarosan be van kerítve kőfallal és léces rácscsal.
Hogy a régi katolikus templomból mint lett református templom,
azt jól szemügyre vehetjük Magyar-Valkón.3) A
templom (X. tb. és 51.)
hátsó része a reformáció előtti időből való; a gótikus szentély
nyomai, keskeny magas ablakaival, csúcsíves boltozásával,
megmaradtak. -70-
-71- A boltozat bordái durván faragott vállrózsákból
indulnak ki s csúcsban metsződnek az egymásmellé vakolt «emelt
keresztboltozatok» közepén; az egyik kis falfülke kerete (nyilván
valami ereklye helye), az ablakokban a halhólyag kőből faragott
motivumai, mind erre a korra vallanak. E gótikus szentélyt később
kibővítették hosszában és valószínű, hogy akkor rakták a széles,
erős toronyfalat is. Boltozni már vagy nem tudtak, vagy nem
érkeztek a református kor kőművesei, mert látszik, hogy szándékuk
sem volt: elhagytak minden támasztó pillért. A középen álló
egyetlen pillért 1903-ban falazták föl – a régi szentély gót
mintájára – a süppedő alapok miatt. A templom belseje igen
egyszerű, jó világos, levegős, mert van elegendő ablak s a fal
fehérre van meszelve. Az első portikusból, a torony alatt, egyenest
a templom piacára lépünk be s ott kétoldalt vannak elhelyezve a
padsorok. Ahol a régi szentély egy erősebb pillérben végződik, ott
vezet föl a kis lépcső a szószékbe (52). Régi
építmény a szószék is, vakolt kőből. A szószék fölött a cifrán
föstött, aranyozott «koszorú», a barokkstilusú, baldahinszerű
menyezet. Lent, a szószék mögött, a papiszék s mellette a
presbiterek helye. Énekes karzat kettő van a templomban: tágasabb a
torony alatt, keskenyebb – az orgonával – a szentély végében, ahová
ugyancsak 1903-ban vágtak egy kis ablakot is, mivelhogy a kántor
meg a diákjai nem látták jól az énekes könyvet. A szentély gótikus
boltozata erős boltívben végződik; ezen túl csak deszkázott a
templom menyezete, mint a vidék legtöbb református templomáé; ilyen
a bikali, ilyen a sztánai s a daróci (56.
57. 58. 59).4) -72-
A valkói templom külső képe, fekvése is, talán a legfestőibb,
egész Kalotaszegen, bár szépen van elhelyezve a körösfői templom
is. A régi szentély gótikus támasztó pillérei elaprózzák, könnyűvé
teszik a hajótestét s így a torony széles, tagozatlan síma fala
csak annál erősebbnek és monumentálisabbnak látszik. Könnyű
faalkotmány üli meg a hatalmas falakat: a harangház, meg a sisak. A
harangház íves tornáca, leeresztett karfadeszkái, alatta a gyámok a
szegleteken, meg a négy kis torony, amint közre fogják a
-73-
-74-
-75-
-76- magas sisakot: ez dicséri a kalotaszegi magyar
népművészetet. A lombos cinterem hatalmas fái némely oldalról
elfedik, annál érdekesebbé teszik a templomot. A cintermet sűrűn
állított pillérekkel alaposan megtámogatott vaskos, lőréses kőfal
övezi, oldalt s elül, a toronynál, várkapuszerű kis bejárás van;
ennek is erős, méteres falai vannak, kettőskapuja s a kapu mögött
még ott a lyuk, ahová az eltorlaszoló gerendát erősítették, hogy
megvédjék az ellenség elől idemenekült lakosságot; a kapu fölé is
nyilván a puskás védelmezők számára emelték a tornácot.
A kalotaszegi templomok harmadik tipusát jellemzi a bánffy-hunyadi (61).
«Bánffy-Hunyadon a református templom hajója, a hátulsó karon lévő felirat szerint, 1698-ban, a déli rész 1772-ben épült; a régibb rész menyezete 1705-ben, az újabbé 1780-ban készült, még pedig az utóbbinak mestere Kolozsvári Asztalos Lőrinc, amint ezekről a menyezetek közepén levő feliratos kockák tanuskodnak. Tornyának négy kis tornyocskája van. A cinterem felüli bejárót a mostani pap készíttette. A torony harangjai a mult század második feléből valók, az orgona és a toronyóra a XIX. századból. Úrasztali edényei közül egy ezüstkehely (Hunyadi Mathias Mártontól) és egy ezüsttányér 1681-ből, két ónkanna és két óntányér 1705- és 1745-ből valók. Különben ez a templom is a katolikus templom helyén, sőt alapja annak köveiből épült. A csonttemető a cinterem mellett van a mai bejárónál. A menyezet képei mindhárom fajtából valók.» J. J.
A régi katolikus átmeneti stilusban épült szentély magasan emelkedik az újabb keletű hosszú templomhajó fölé s fedele is egészen külön áll, – a református ács nem is akarta tagadni, hogy csak toldás; az újabb rész arányai különben nem szerencsések; lomha, igen széles a tornya is. Meglehet, hogy a torony egykorú a hátsó szentélylyel; a karzatföljárás és az ablakok kőkeretei erre vallanak, – nyilván külön álló kampanile volt s csak később kötötték össze a szentéllyel, közbülépítvén a hosszhajót. A sunyi, alacsony, tornácos harangház és a zömökebb sisak illik a nagy tömegekhez. Elmés szerkezete van a templom toronyórájának s még csak Magyar-Valkón van ilyen: óraütés előtt csönget; látszik is a sisakon, a két kis szeglettorony között, a csengetyű teteje. Oldalról vagy hátulról nézve tetsző képet mutat a templom; a lombos cintermet takaros léckerítés veszi körül.
Egészében réginek maradt meg a templom Magyar-Gyerő-Monostoron
(67); megvan a románkori katolikus szentély,
a tágas hajó s a templom egyik felén a torony. Különös -77-
-78- érdekesség van abban, s nagyon festői, hogy erre az
időmegviselt, sokszáz éves romra fölépítették a magyaros új
toronytetőt, zöldre föstött harangházzal, piros cserepes
sisakkal.
«Magyar-Gyerő-Monostoron a katolikus egyháznak volt egy apátsága; ennek klastromát 1241-ben dulták szét. Templomát Mihálcz Elek, a valkói pap, így írja le: «Mai temploma hihetőleg az apátság régi templomából alakíttatott át. Boltívezete ugyan le van szedve, de annak egykori létezését a külső oldaltámok és a konzolok felismerhető helyei határozottan bizonyítják. A szentély jobb oldalán megvan ma is a sekrestye, megvan a fekirányos vak fülke is, hol a katholikus korban a szent olajokat és krizmát tartalmazó szekrények állottak. A déli oldalon teljes épségben állanak a csúcsíves ablakok. A templom délnyugati végén, a régi időkben, két torony állott, amelyek közül azonban ma csak egyik áll fenn. Figyelmet érdemelnek ezen toronynak két rendbéli ablakai, melyek a csúcsíves gót építésnek megannyi remekei. Díszművészetük a csúcsívbe helyezett köridomok kombinációjából alakult, alul korintusi oszlopocskákkal osztályozott két köríves nyilattal, amelyek fölött szívidomú, előbb csak kajácsosan, vak alakítással jelölt, de közepén egészen áttört ablakrése fordul elő, mely körül a támadó hézagokat fölül csúcsív záródásába helyezett négyszögű, képoldalán pedig háromszögű bemetszés vagy áttörés tölti ki. A templom falának magasságáig leszedett egyik torony délfelé néző oldalát egy a falba illesztett szobor-csoportozat ékíti; a balfelőli részen egy női alak szoptat két kigyót, a jobbfelőli részen csakugyan egy női alak lándzsával megöli a kigyót; mindkét szobor fekvő helyzetben levő oroszlánon áll. A templom belseje, úgy látszik, több rendbéli alakításon ment keresztül. Így pl. a hátulsó kőkar egészen leszedetett és helyébe fából új építtetett. Az első kar 1758-ban, az urak széke 1753-ban, a faragott kőből való szószék 1752-ben csináltattak. Orgonája az egész egyházmegyében a legrégibb, 1787-ben csináltatott. A nagy harang 1778-ból, -79- kisebb harangja 1784-ből való. Volt még ezeken kívül két harang, melyek közül egyik 1849-ben ágyúnak adatott, a másik a jelen század elején alakult ó-fenesi eklézsiának ajándékoztatott. A toronyban jó szerkezetű óra is van. Clenodiumai között az innen származott Kabos, Kemény és Gerőfy családok semminemű ajándékaival sem találkozunk. Az úrasztali kehely 1765-ben készült; ezüst kannáját 1797-ben Sombori Frusianna, kis ezüst tányérját egy közember, Ignácz Ferencz, 1806-ban, ónkannáját 1776-ban Rettegi Anna, egy óntányért 1710-ben Németi Márta ajándékoztak. A menyezet kockái nincsenek kifestve.»
Részben alapjuktól fogva reformátusnak épültek az idevázolt templomok (68. 69. 70. 71. 73). Nyárszón, Sztanán, Kis-Petriben, Jákótelkén, Bogártelkén s Jegenyén, s ezeken már keservesen meglátszik a városi hatás. Kedvetlenítő példái ezek a meg nem értett s már a városban elrontott olasz-, barokk- vagy német renaissance formáinak. Szerencsére, tud még a kalotaszegi nép a magyaros ízlésű templomépítéshez, mint azt a damosi (74.) templom bizonyítja, de még inkább a körösfői, amelyet méltán nevezhetünk Kalotaszeg gyöngyének.
«Nyárszón a templom teljesen új és nincsenek
képei. A sárvári szintén új; 1834-ben égett le és azután 1835-ben
építették újra; mondják, hogy amikor a leégett templomot
újraépítették, a régi vakolat alatt föstött szenteket találtak s a
festmények alatt görög-cyrill irások voltak, tehát hihetőleg görög
templom volt. Mindkét egyházban haranglábon függő, két-két 1847-en
innen öntött harang hivja imára a hiveket. A klenodiumok a XVIII.
századból valók.» «Jákótelkén a templom nyugati része igen régi
lehet, mert először, amint a szószék mögötti falról kitünik,
1685-ben, másodszor 1747-ben renoválták. A keleti rész újra épült
1804-ben. A két részt nagy gótív választja el egymástól. A régi
menyezet kockákban festve van, a festő megint Umling és fia, akik
ezt, a legénykarral együtt, 1768-ban festették; a képek tulipánosok
és állatokat ábrázolók, bibliaiak nélkül. A szószék koronáját
1842-ben festették újra. Orgonát 1853-ban kapott és került 948
ezüst huszasba. Egyik harangját 1813-ban, a másikat 1768-ban
öntötték. A templom tornya csipkés zsindellyel van fedve és négy
tornyocskája van. A bort az Úrasztalához egy nagy fakulacsban
viszik. Az egyházi láda 1783-ból való, a kehely 1746-ból, az egyik
óntányér 1710-ből, a másik 1735-ből, a nagy kehely 1845-ből; nem
értékesek és nem érdekesek.» J. J. -80-
-81-
-82-
«Damos templomáról a legrégibb adat 1701, (a szószék mögött) amikor t. i. renoválták. Festményei nem egy időből, de egy mestertől, Umling Lőrinctől és fiától származnak; a képek mindhárom tipusból valók. A szószék és a kálvinista főnix-madár 1746-ból való; egyidejű vele a négyágú lábbal biró Úrasztala, mely motivumai szerint már Umling műve; a legénykarfa a rajta levő felírás szerint 1752-ből való és ezt már biztonsággal állíthatjuk Umling művének. A menyezet kockaképei 1774-ből valók. Az orgonát és a hozzá tartozó kart a templom 1813-ban kapta. Harangjai közül a nagyobbik 1803-ban, a kisebbik 1795-ben csináltatott. A persely itt nem áll külön, hanem az első padba illesztett fiók alakjában van meg. A toronynak négy kis tornyocskája van. A tornyot fedő zsindelyek alsó széle csipkés. Az Úrasztalán, a Koltsár Erzsébet Sebe Jánosné által 1826-ban ajándékozott varrottas alatt, valóságos keleti szőnyeget találtunk, amelyet a margó-himzés szerint M. N. Flóris Mártonné, Gáspár Kata ajándékozott a damosi eklézsiának 1800-ban.» «Kis Kapus temploma a késő gót kornak csinos emléke; szentélye nyolc szegű, három oldallal záródik, diadalíve és boltívezete csucsos; paizsalakú zárköveinek egyikére a Gerőffy család címere van domborúan kifaragva. A szentélykülsőrész körül lévő gyámoszlopok egyikén az 1441-es évszám árulja el a templom korát. A templomban van két régi sírkő: az egyiket Bornemissza Anna emelte Gyerőffy Jánosnak 1691-ben, a másik alatt Gyerőffy János és Zsigmond tetemei nyugosznak, 1613 óta. Tornya nincs; benn a faluban azonban, egy fatoronyban, két harang van: az egyik 1527-ből, a másik 1651-ből. A templommenyezet Umling műve 1743-ból, tiszta tulipános motivum valamennyi. A templom régi perselye 1743-ból való, vasabroncsú hordócska. Torony tornyocskák nélkül.» «A farmosi templom régi lehet; tornyának egyik harangja 1419-ből való, a másik 1806-ból. A menyezet tiszta tulipános festményei (egyetlen kétfejű sas van köztük) 1750-ből valók, Umlingtól, de renoválta, ugyancsak ő, 1790-ben. A cinteremben egy szfinx csonka képét és lábát találtuk meg. Tornyán nincs négy kis tornyocska.» «Nagy-Petri templomának menyezetkockái 1713-ból valók, de régi értékük elveszett, mert 1760–70-ben Umling renoválta.» «Nagy-Kapus régi temploma a közelebbi időkben egészen újra épült és a régiből csak egy szép faragványú portálé, – melyből a templom régiségére bizton következtethetni, – maradt meg a nyugati falba vakolva. Az új templomban a szószék feletti koronát Szöts Lajos és neje Szász Rozália, 1863-ban csináltatták. Torony tornyocskák nélkül. A menyezet régi festményeit egyszínű kékre mázolták be; a régi festett holmiból csak egy 1742-ben készült pad, valószinűleg Umlingtól maradt meg. Egyik harangja 1750-ből, a másik 1806-ból való.» «Mákó temploma új; a régi templom kőfalának egyetlen maradványa egy tábla, mely szerint a körfalat Magyari építette 1712-ben. Négy tornyocskája nincs, menyezetfestése sincs. Az új fal 1868-ban készült.» «A bogártelki templom újabb; tornya négy tornyocska nélkül. Menyezete 1794-ből való, bibliai képek nélkül, Umling modorában, Simon György készítette.» «Az inaktelki templom szinténúj, 1767-ben épült; a régi templom egyetlen maradványa a szószék koronája, 1783-ból. A pap udvarán álló szenteltvíz-tartó a katholikus idők -83- emléke. A klenodium egy óntányérja 1714-ből való.» «Magyar-Gyerő-Vásárhely temploma a legújabbak közül való; a régit 1831-ben bontották le és építették újra, de oly rozogán, hogy összeomlással fenyegette a hiveket, míg végre Kerekes Márton kolozsvári építőmester, Isten iránt való kegyeletből, ingyen kijavította 1868-ban s egy évvel azután a torony került bádogfedél alá. A régi templom menyezetét felhasználták. Az is Umling műve 1752-ből. Négy tornyocskája nincs.» «Kalota-Szent-Király és Zentelkének egy temploma van, mely azonban egészen új, mivel az 1848–49-iki forradalom vihara a két falut akkor csaknem teljesen elsöpörte a föld szinéről. Tornyának négy tornyocskája van.» «A türei templom is új, annak nincs négy tornyocskája, ellenben van a falunak egy kis oláh fatemploma, melyen a négy tornyocska megvan.» «Nagy-Almás temploma teljesen új.» J. J. -84-
A harangház ívei. – Ugyanannak metszete. – Gyám, a harangház könyöklője alatt. – A templom alaprajzának vázlata, a cinterem körítő falával.
A torony ablaka. – A harangház alatt: átmenet a vakolt toronyfalból a harangház és a toronysisak famotivumaiba. – A harangház könyöklője. – Tagozatok vakolatból: a gerendázat a harangház alatt, gerendázat és a választó párkány.
A KÖRÖSFŐI MAGYAR TEMPLOM RÉSZLETEI. (79–80)
Emlékezetnek okáért jegyezzük föl, hogy Kis-Petriben a XV. század elején épűlt, dongakupolás, lebontott s nagyrészt tűzre került régi templom föstött menyezet-tábláiból (Umling Lőrinc 1745) megmentettünk nehányat s megtaláltuk a tiszteletes úr, Antal Géza csűrében a föstött szószéket (1715-ből) s a kerek Úrasztalát is (1698), a kórus dátumos peremével együtt; a régi papszéket Bot János földmíves háza előtt, az utcán veri az eső. (75. 76. 77. 78.) De bezzeg a hombárszerű új templom elég ormótlan; Lukács István bánffy-hunyadi építőmester és földmíves cselekedte 1903-ban.
Befejezésül szóljunk a körösfői (79.
80. 81. 82. 83.) szépséges kis
templomról. A templomot 1833-ban bővítették, a hátulsó rész
1764-ben készült. Pompásan van elhelyezve. A dombtetőn gyönyörűen
emelkedik ki az ívesen ácsolt, kiugró harangházból a finom, karcsú
torony s helyes arányban van a sarkokra helyezve a négy
melléktornyocska. A könnyű faalkotmány fehérre meszelt síma falon
nyugszik, komoly, egyszerű, templomhoz illő síma falon. Csak a
szögletein vannak pillérféle sávok s felettük, alattok összefogja,
körülövezi a torony falait egy párkány, egy barázdált lap, valami
igen sajátságos, egészen eredeti és teljesen ide illő díszítés.
Minden oly könnyed, egy-két újjnyi vastagságú, – csak vakolat.
Böcsületes, igaz érzésű művész-ember munkája ez; nem tukmált
embereire kölcsönszedegetett idegen formákat, az egyszerű magyar
templomon nem hazudott fából s vakolatból követ és kőfaragást, –
dolgozott józanul, őszintén, fával és vakolással úgy, ahogy azt a
fa és a vakolás anyaga s természete megkivánja. Őszinteségének s
egyszerűségének jutalma az épület bájos finomsága, az egésznek
szinte meg sem magyarázható harmóniája: befejezett, egész,
körvonalaiban természetesen összesimuló; az egyszerű egyenes
vonalakban sehol semmi bántóan meg nem törik, nehézkesség nincsen.
Csak ha egészen a templom közelébe megyünk, akkor vesszük észre,
hogy az a primitiv falusi építő ösztönszerűleg tudta a Parthenon
építésének egyik titkát s azok az egyszerű egyenesek nem is
egyenesek, hanem -85-
-86- görbék: a torony teste s pillérei, alig
észrevehetően, de következetesen, befelé görbülnek, összehajolnak.
Szerkezete, beosztása: célszerűen, józanul, nemes egyszerűséggel
magyaros. Bévül nagy négyszögletű terem, a két végén karzattal;
elül bejárás a papnak s az asszonynépnek, oldalt a férfiaknak s a
legényeknek. A toronyfal jó erős, hogy megbirja a harangzúgást.
Födése egyszerű. Fajtánk kedvének s lelkének fiatalsága az a
zamatos magyar cifraság, ami módjával jutott a toronyablak, meg az
ajtó köré, – egyszerűen csak vakolatból az is.
Vasárnap délután, Magyarókerekén, kitelepedtünk a szérüskertbe, a vén ács, Szűcs András Öreg szérüskertjébe, a szilvafa alá s ő mesélte, mint építettek házat a régi világban, amikor még jobbágy volt a paraszt, amikor még nem tették utcafelül az ablakot, ne leselkedhessék be az ispán, hogy nyomban úrmunkájára zavarja azt, aki odahaza rostokolt.
… Hát csak annyi, hogy biz’ urat szógáltunk mi régen, nem magunkat. A régi ember fakilincshez volt szokva, az ajtóra nem tettünk bélést, az ablakra meg csak döglött juh-böndőt, kilyuggattuk s megvolt. Hogy a ház? Megválasztották néki a helyet, nem tették utca felül, hanem bétették egy hajitásnyira az utcától, a kert derekába. Ördögös helytől féltek. A Tericáéké ma is úgy van, nem utcasorra. Hozzáfogás előtt szóltunk a jó embereknek, segítsenek; másnak nem. Hatóságnak semmi szava belé. Fát, segítséggel, kalákával, meghoztuk a Havasról; az oláh vágott hatvan fát hat véka buzáért; a kalákának járt egy vacsora s pálinka. A vacsora? Egy kis tészta-leves, borsós tokány, savanyu étel egressel, aféle jó füstölt hús tejfölösen, meg friss sütésű kenyér. Az ételt felszólotta valami rendes tudós ember, mondván, mire gyülekeztek, kinek a segedelmire, ilyenformán:
Az emberek fönnállva hallgatták. No, most szabad az étel! Részt vevének minden tálból s a végén a megválasztott szószólló mondta a gazda nevében:
Aztán, míg a szőllő el nem pusztult, borra mentek a falusi korcsmároshoz, aki az uraság borát mérte, mert itt zsidó nem volt akkor még. Nyolc kupa volt egy veder, megittak nehány vedret; két garas járt egy kupáért. Főd iccével, afajta hólyag csuporral ittuk.
Fát, mondám, hatvanat hordtak egy házhoz. Fűrész nem volt, hát fejszével neki s elrótták, ügyesen, gerezdbe. A faluban Peti Palinak vót csak fűrésze, ő hozzá jártak deckát vágatni, ő csinált fakó kereket is, meg egy-egy rongyos koporsót. -90-
Küvet se tettek alája s lerakták a talpfákat. Kamara esett utca felül, ablak a kertnek,hogy ne lássa az ispán, mit dolgozik a jobbágy. A fákat (gerendákat) mind kieresztettük a szegelleten, nem csaptuk le falmentin. A talpat nem fecskefarokra róttuk, mint ma, hanem gerezdre (a) mindig az alsót. (Fecskefarkot nem is lehet, csak négyszögletes fára). A többi fa gömbölyű maradt, héjját se nyúztuk le. Forgattuk a fát, vékonyt vastagra raktunk és megest, különben felment vón’ vagy alatt maradt volna. (A gerenda vékony végére a másik gerenda vastag végét, és viszont). Igy lett meg sorra: tornác talp, ajtótalp, hátulsó talp, kamaratalp, pitvarajtótalp, házajtótalp és az első ablak talpa (b). A boronafa adta ki a falat (c); rakták egy öl, vagy egy öl és egy sukk magasságra. A küszöböt kiadták a talpfák. Jó hatalmas tölgyfák kerültek még akkor a Havasról. Ablaknak s ajtónak sasfákat raktak; a talpfába sast csak az ajtónak róttunk. A sas- lyukba bétettük a sas makkját, ami megvolt vagy három coll. A sas vésésibe (csatornaszerüleg a sas egyik oldalán) raktuk a behegyezett gömbölyü boronákat, tiz tizenkét darabot raktunk egy oldalba (d). Ablakszemődök már kitelt a hosszú boronából, a könyöklő is kitelt, amibe a béhegyezett kis sasok adták a két ablaksast. A béhegyezett sasokat olyik ember be is fúrta és kőrisfa-szeggel szegezte be. A boronákat fenyűfából vagy bikkfából szerettük. Az ajtószemöldök fölött még két rend hosszú boronával megkerültük az egész épületet. Régen volt fa bőven, nem kellett cédula, nem igen tódtak, de ha tódtak, a’ vót a boronatódás: két erős faszeggel eresztették össze, úgy, hogy még az alsó hosszú boronába is ment szög, jó egy sukkos (e).
A tornác?… Hát négy-öt lábfa, egyformán elosztva, úgy, hogy lábfa a bejáró ajtó iránt ne legyen. A lábfákra ment, felül, egy lábfagerenda, ügyesen megkézvonózva, megszegelletezve.
De még a házon munka van. A borona tetejébe jött a mestergerenda, a ház közepin végig, jó öt öles; ha nem vót elegendő hosszú gerendánk, tódtuk, de csak falközön (f). -91- Mer’ e’ mán gerenda volt, megfaragva fejszével, négy szegelletre megsimítva kézvonóval. Erre raktuk, keresztbe, a folyógerendákat, szalmásházon ritkásabban, csak vagy hatot; most félölenkint szokás, mer’ a decka most két öles. Nem mondtam még: a folyógerendák kimentek a lábfagerendára (g). A folyógerendák fölébe, az oldalfalakra, meg az első falra, meg a hátulsó falra, jött egy sor koszorugerenda, akit megtódni nem volt szabad sohase. Igy lett két hosszú koszorúfa, meg két kurta koszorúfa, összeróva négy végin, bészegezve a gerezdbe is, négy szöggel. Most fészket csináltunk a koszorújába, úgy, hogy a szarufa álla a fészekbe üljön; a szarufa vége meg van ügyesítve (h). A szarufa három-négy öles, olyan magasra mégyen föl, mint amilyen széles a ház tornáccal együtt. Egy bokor (pár) szarufa két szarufából vagyon, összeköti üket a kakasüllő. Öt öles házra öt bokor jár, minden ölre egy. A két szarufa egybetámasztott felső végit összevésik, egyik a villa, másik a nyelv, erre mifelénk úgy mondják: koca meg bak. A kakasüllő a szarubokor felső fertály részébe van róva (i).
A munka java, amikor a szarufákat húzzuk föl. A ház farától egy ölre, befele állítjuk az első bokor szarufát s ódalkötéssel marasztjuk meg. A ház farára jő a középső hegyes szarufa, a kicsi kakasüllőbe, aki félölre kinyúlik a szarufa csúcsa fölött; a ház farának két sarkára húzunk, nékitámasztva a kis kakasüllőnek, két szegellet-szarufát, – a középső hegyes szarufa és a két szegellet-szarufa közé jő még egy-egy farszarufa, ezek is a kicsi kakasüllőre támaszkodnak (j). Eppeg így megyen a munka a ház másik farán is. Aztán beléceljük, egy-egy léc közibe eltér a lábunk, térdig; legalulra faragott lécet szegezünk, a legtetőre is jut ilyen léc. Az alsó léc a gyakatartóléc, mer’ aztán meggyakázzuk kereken a ház körül, két-két hüvelyknyire; a gyakákat a koszorú gerenda alá eresztgetjük (k). Aztán béfödjük. Merekével adogatnak föl jó bodros, összekapaszkodó borsószalmát, az jő alulra, meg is gázoljuk böcsületesen, aztán arra a búzaszalma. Béfödés után póznát teszünk rá, hogy a szél le ne hordja, károgót, mert arra pihennek a varjak (l).
Már most bé is van födve, de se padlásolva nincsen, se tapasztva.
Hát bépadlásoljuk: a folyógerendákra lapítjuk a deckát. Mert régen a deckát is csak fejszével csináltuk, mind csupa fejszével. Hasítottuk. -92- A régi decka ma megjárja pallónak a patakon, amikor szénát hordunk haza. Erős jószág volt… A padlás tetejit bétapasztják. Sárt, lágy sárt nyomnak, megkeverik szalmával is. A borona-fákba vésővel hasadást csinálnak, abba osztég pockokat (kis ékek fából) vernek, megpockolják a házat. A sár meg van már tapodva, törekkel (apró szalmás pelyva), azt csapják a tapasztó emberek, mostanában cigányok. Jól oda kell verni a sarat, kűvül kezdve, – bévül a házban csak akkor, amikor kűvül megszárad. Aztán simítják, simítózsende (zsendely) élivel; aztán, amikor jól megszáradva meghasadozott a sár, akkor megsikárolják lóganéval összetapodott sárgafőddel. Kézzel sikárolják, tenyérrel, az asszonyok. Fehér agyagot, olyan kékesgyöngy szinű fehér agyagot oláhnék hordanak le a hegyből, Bocsból s adják pityókáér’, törökbuzáér, akkorákat, mint egy cipó, – avval fehérítjük a házfalat, söprűvel. Mer’ vót fene, meszelő, a régi világba!… A bocsi cipót megtörik, cseberbe, aztán elkeverik, míg olyan lesz, mint a mész, aztán verik, seprüvel, a ház ódalához.
Hogy mibe került?… Manapság, szegény ember négy-öt esztendeig épít egy kétszázötven pengős házat. Nem hogy tempóznék véle, de csak akkor nyúlhat hozzá, amikor elád egy-egy kis malacot, vagy egy kicsi szénát. Hogy régen, miből álltuk?… Kiszámítsuk. Vagy negyven kézinapszám rámegyen. A födéshez is kell, teszem, husz-huszonöt ember. Tapasztásra rámegyen nyolc napszám, sikállásra vagy négy; a beverést, körülbelől egy nap egy asszony maga megteszi. Az ácsnapszám ma egy pöngő, az összerovás megvan hát harminc-negyven pöngő, de akkor egy öt öles házat négy ezüst pengő forintér’ vállalt föl egy ács. Igaz, adott mellé egy napszámost is a gazda, meg maga is segített, meg ételt is adott. Tizbül kiállottuk minden bajunkat. Igaz, akkor egy tehén tiz-tizenöt pengő volt, egy véka pityóka négy garas; egy rosz huszas volt egy férfinapszám, mert hogy egy rosz forint (váltó forint, 80 fillér mai értékben) három rosz huszasból állott ki.
Mikor elvégeztük, adtak egy áldomást. Oláhéknál a pap csinál e’ kicsi könyörgést, amikor belémennek a házba.
Amint összeróttuk a talpat, egy piculát tett alája Jószeg Veszelika, meg hét gerezd fokhagymát, – de el is égett, a háza! Nem vettem észre, hogy magyar ilyet tett vón’! Az egy Péter Bandi Pali, 48 után…
A csűr? Az is csak ilyenformán, mindenféle módon. (85).
Talpat leteszik, felrójják gerezdbe a boronákat, olyan magasra, hogy az ember eltérjen alatta, egyenesen állva, a marhája körül. Keresztgerendákat is teszünk rája, jó vastagot, hogy a gabonát megbirja a csűrpadláson. Ujra ró tovább, egy ölnyi nincs éppen, de jó öt sukkot, – mikor ezt eléri, akkor állít túl afelül harmadfél ölre vagy egy másik pajtát, s így lesz egész a csűr; vagy csak talpat állít s lábfákat rá, olyan magasra, mint az egész pajta, héjjával (hiú, padlás) együtt, e’ meg a félcsűr. Félcsűrön a lábfakötéses lábfára jön a vállgerenda. A vállgerendára, úgy, hogy átnyulik az ólhéjja (pajtahéjja, a pajta padlása) fölé, jön négy vastag koszorúgerenda úgy, hogy a két hosszú koszorúgerenda keresztülmegyen a csűr földje (a csűr nyitott része) s az ólhéjja fölött. A pajtaablak, a marhaetető, a csűr földjére nyilik. Egy böcsületes egész csűr megvan, hosszában, hat öles; a félcsűr négy-öt öles, ebbül a pajta legalább másfél öl a szélességiben. A tető pedig olyan magas, amilyen hosszú a csűr. A pajta kieresztett gerendáin áll a szekérszerszám, a gereblye, villa, meg mi egyéb. A gyaka alatt van az eszterha, (eresz, kieresztés) háznál csöpögőnek mondják.
A szalmatető?… Az a finom, csak! Házon elszolgál száz-százötven esztendeig, tartja a füst, fejszével se győzzük szétvagdosni, amikor bontunk. Csűrön is eltart, de csak negyven-ötven esztendőt, mer’ hogy a csűrhéjjában nincs füst, aki aszalja. -93-
Így oktatott bennünket Magyaró Kerekén a vén ács, Szűcs András Öreg.
Munkatársunk, az építőművész, Medgyaszay Istán kivallatta Mákón a vidék legügyesebb ácsmesterét, Pete Ferkő földmívest. Ez már újabb módi épitkezés. (86).
… Hát elsőben is, azon kezdem, akinek kicsi a módja. Az pince nélkül épít: pitart s házat amibe laknak, meg kamrát; a ház elibe tornácot, hogy esőben künn üldögélhessünk, meg nyárba künn hálhassunk.
A munka azzal kezdődik, hogy lerakjuk a talpgerendákat; jó erőset keresünk, tölgyfából, szegletesre ácsoljuk; mindenik fal alá gyün egy-egy, ahogyan a fal éppeg van. -94- Ezeket már most összevágjuk ott, ahun összetanálkoznak. Akkor már látni, milyen nagy lesz a ház, a pitar, meg a többi. Ezekre a talpfákra rakjuk a falat, boronákból. A boronákat fiatalabb fából válogatják, mer’ gyöngébbek is lehetnek; nem is ácsoljuk szegletesre, megmaradnak ahogy vannak, gömbölyüek. Ilyet rakunk a talpfára, egyiket a másikára fel, addig, míg azt nem gondoljuk, hogy, no most már elég is lesz. A felső, utolsó boronafára gyün a padlás.
Igen, de hogy állanak meg az egymásra fektetett boronafák? Ippeg azt akartam mondani, hogy a szegelleten összevágják, de nem úgy nímet módra, hogy csak a szegelletig hagyják, hanem úgy, hogy mindenik fa túl ér a másikán: egyik békapaszkodik a másik vágásába, annak a vágásába megest a felette való. Úgy mondjuk ezt, instállom, hogy keresztbe rójjuk. Ha minden falat így csinálnánk, ugyan megjárnók, mer’ nem volna se ablak, se ajtó a házon. Azér’ ott, ahonnat ajtó lészen, kétoldalt ajtófélfát vagy úgy is mondják, hogy sast álligatunk. Ennek a sasnak két végire csapot hagyunk, a talpgerendába meg bevéssük a csaplyukat, oszt abba béültetjük a két ajtófélfát; a két félfára meg ültetjük rá az ajtó szemöldökfáját. Addig van felfele az ajtó. Mámost, hogy a boronafák az ajtófélfátul el ne szabadúljanak, az ajtófélfát hosszában bevéssük, oszt a vésetibe bésasoljuk a boronafákat. Így aztán jól bészorúl a boronafa lecsapott vége és olyan akurátus, hogy meg se mozgathassuk. Az ablakoknál csakis ilyenformán megy, csakhogy az ablakfélfát nem a talpgerendába csapoljuk bé, hanem várunk, amíg annyi boronafát rakunk, hogy már gondoljuk, no ez elég -95- magos is lesz könyöklőnek. Ezt a felső boronafát az ablak helyén oszt megácsoljuk, hogy az ablak bélése jól bétanáljon; vésünk rá kétfelül csaplyukat, az ablakfélfát béültetjük, oszt rakjuk tovább a boronafákat. Ahonnat ablak van, oda mámost nem kell olyan hosszú boronafa, hanem csak a darabjából veszünk és megest bésasoljuk az ablakfélfa vésetébe; ha meg elértük a félfa felső csapját, bé ültetjük a boronafát. Ez az ablak szemöldökfája is. Mikor mán elég magasan vagyunk, rátesszük az utolsó gerendát külül, környöskörül a falakra. Ezzel oszt meg is van.
– De bátyó, a leppentyüs lyukat a Kisó macskájának (kis csapóajtós nyílás) mikor vágták ki?
– Mikor? Igaz-a, ezt el is feledtem. Hát akkor, amikor fektetjük a boronákat. De a leppentőt utóbb akasztjuk bé.
– Aztán, még egyet. Azokat a gerendákat, ugy-e bár, nem teszik le csak úgy a fűre? Azt mondja el bátyó, amint legislegelül kezdik, amikor még csak a házhely van meg?
– Elmondom én azt is jó szívvel, csak előbb tömjem meg a pipámat. Jóképű kicsi pipa ez, – forgatja, szemléli – már nem vónék el nélküle. Hát, hogy tovább mondjam a mondókámat, elsőben is azon kezdem… hogy is no?… Hát ahogy mondá, hogy ippeg csak a házhely van meg. Hát ezt má mi úgy szoktuk, hogy körülszemléljük az egész telket. Hol leszen jó helye a csűrnek? A gabonásnak? Hogy ne kellessék kapaszkodni a szekérrel, ha takarodáskor hozzák haza a gabnát, szalmát, szénát s mi egymást. Ha nem nagyon kapaszkodó a telek, legügyesebb mégis az utca felé építeni a házat, de olyanformán, hogy közbül legyen még a kis kert. Mikor már most kiszemeltük a házhelyet: meglépjük, hogy elég tágas legyen a bentájék, a szegelletjire cöveket verünk, oszt kisinorozzuk. Akkor mán gyühetnek az emberek, áshatnak. A kő falnak egy lábnyira kiássuk a földet, oszt rakjuk bé a követ a helyibe, sárral. Akinek nagy a módja, az mészbe, meg porondba (homok) rakatja, egyelesen (keverve). Így falazunk tovább, egészen addig, amíg gondoljuk, hogy no most már elég is lesz. Ha menedékes a házhely többet rakunk, ha igenyes, csak úgy derékig. Az egyik szegeletre, úgy könnyü (alkalmas) helyt, odafalazzuk a katlant is -96- szilvaíznek. (A szilva lekvárt hivják Erdélyben szilvaíznek.) Azután rakunk lépcsőt a pitarajtó elé. Mikor már ez mind megvan, szépen elegyengetjük a fal tetejit, külül s bévül bévakoljuk, csak úgy a hézagokat, aztán felűtetjük rá a talpgerendákat, ezekre meg felűtetjük a boronafákat, egyiket a másikára fel, addig, míg azt nem gondoljuk, hogy no most mán elég is lesz. Így rakjuk a falat.
– Jól van jól, bátyám, ezt elmagyarázta, meg is értettem, hanem másvalamit szeretnék tudni. Azokat a lejtős gerendákat, amire a zsuppot vagy zsendelyt rakják, azt szarufának hijják. Sok iskolát jártam, de azért máig se tudom, mért hijják a szarufát szarufának, mikor az nem szaru, hanem fa?
– Hm, – mosolygott az ács, csak úgy a bajusza alá s megcsóválta tisztes ősz fejét. – Öreg rendü ember vagyok, de ilyet még nem kérdtek tűlem se. Mos mán látom, hogy csak olyan városi ács a tekéntetes úrfi. Hát ügyeljen, mondjam el ezt is. Ott hagytuk el, hogy a kész falra sárgerendát rakunk külül, környöskörül. Ezt meg azér híjják sárgerendának, mert ezt a fedélgerendát még bétapasztjuk sárral, a többit mán nem. Hát erre a sárgerendára rójjuk a folyógerendát, aki átfeküszik a tulsó falra is, oszt a padlást tartja. Azér’ bé is deckázzuk föjül, meg bé is tapasztjuk, de csak utóbb. A ház ezzel meg is van. Most gyün a fedél. Elsőben is, környöskörül, a külülső falak arányában, koszorut rakunk. A koszorúfákat ügyesen befészkeljük a szarufáknak. Zsupp alá meredekebbek a szaruk, zsendely alá lankásabbak, mert télviz idején a hó meg se akad ott. Az olyan pár szarut, aki egyik falról a tulsóra ér és magába is megáll, egy bokor szarunak mondjuk. Ezeknek a vége a tető gerincén túl kinyulik, úgy állanak ott sorjába, mint a fehérmarha szarva. Hát lássa, úrfi, ezér mondjuk, hogy szarvazzuk a házat, ezér hijjuk a szarufát szarufának!… Azontúl van még falszaru, a szegelleten; meg fattyúszaru, aki csak ehez szegeződik, csak darabja, csak a rövidje. A szarvakat fejül, ahun keresztbe vannak, összevésik, az alsó végüket pedig lekerekítik, ha nincs ippeg nagy dologidő, a kupás vésüvel vagy a fülessel ki is cifráljuk, oszt az egészet lécezik meg, oszt ezt zsendelyezik be. Hej, amikor még legény vótam, – és elmerült az öreg tekintete az üszkös parázsba, – akkor vigan ment az ilyes. Akkor kalákába dógoztunk.
– Hát az hogy volt? -97-
– Akkor jobbak vótak az emberek. Az élet is könnyebb vót. Ha falubéli legényember menyecskét hozott a házhoz, oszt hogy jobban megtérjenek, új hajlékot akart építeni: elment a menyecske vagy egyik huga, megjárta a falubéli nyámságot (rokonságot), hogy gyüjjenek segélni, házat építeni. Megmondták, hogy szeredán, vagy akkor, amikor, oszt összegyüttek. Hordták a küvet, a fát, rakták a falat, ácsoltak, faragtak, oszt hogy esteledett, gyülőre hivá üket a menyecske az apai házhoz, estebédre. Dalloztunk, táncoltunk, másnap újrakezdtük. De más világ is vót az akkor! Fiatal házas vótam, azt tartották, ügyes legény vótam, meg a menyecske is szép piros vót, mint a nyiló rózsa. Ügyes fehér nép vót mindig. Olyan szaporán adogatta a merekével a zsuppot, amikor ezt -98- a fészkünket raktuk, hogy alig hogy győztem a tetőre szórni? No lelkem, Katókám, igaz-e vagy se?
LŐRINC PÁL HÁZATELKE, MAGYAR-VALKÓN. (98)
1. A két megkülönödött fiú háza. 2. A csűr, és pajták. 3. A gabonás, és pajta. 4. Ösztörű. 5. Veteményes. 6. Két félszomszéd, balra van még az öregek háza.
– Hogy igaz-e, mán hogy ne vóna igaz, úgy emlékszem, mintha most látnám – éled föl az ángyó. – Nem is vót akkoriba olyan ács, mint kend! Most is látom, hogy villogott a szalu a kezében, akivel azokat a karókat, a gyakákat hegyezte! Hogy verte bé -99- üket, milyen szaporán haladt a munka a keze alatt, egy szempillantás alatt környül vót verve véle az egész koszorú. Oszt a Bot Kelemen Ferkó, meg a Gyurka kománk felment kenddel a tetőre, igazgatták a zsuppot, a fehérnép meg adogatta, ki merekével, ki hosszú vellával. Csakugyan hogy arra gondoltam, hogy rakjuk a fészkünket. Alig tölt belé egy óra, felhánytuk a sok zsuppot. Kendtek meg tapodták, verték, oszt hogy a két póznát is felkötötték a gerincre, hogy a szél meg ne bolygassa a munkánkat – úgy tetszik, mintha most látnám – felült Andris bátyó «a legöregebbik», a tetőre és ott ivott áldomást az új házra, a bennlakókra meg a ki s bémenőkre… Hej, de nagy idő haladt el azóta!
– El a’ – sóhajt az öreg. – Hogy vége vót a kalákának, haza ment a nyámság. Akkor kezdődött csak az aprólékos munka, a bentájék (belső része a háznak). Elsőben is bétapasztottuk a házat külül belül. A boronafák nem tartják a sarat, hát léceket szegezünk azok ódalára úgy keresztbe, félen (ferdén) menőt. Bétapasztottuk a padlás deckáit is fejül, hogy fogja a meleget, meg hogy ne zakatoljon, ha jár valaki a hiuban, amikor törökbuzát, fuszujkát, meg más egyebet takarítunk bé. Itt tartjuk a szalonnát, a kolbászt is, hadd füstölődjék. Mer mi felénk nincsenek kémények, csak úgy a hiuba, a fedél alá, száll a füst a kemencékből, megjárja jól a hiú felső részit, oszt a zsupp között, a füstlyukakon kitakarodik. Azután megtapasztottuk a pitart, meg az elsőház fődjét is; bészegeztük bendővel, marhahólyaggal az ablakokat, csak úgy félfához, alul-fejül meg a boronafához, azontúl még meglyuggattuk árral a bendőt, hogy kiláthassunk. Akkoriba nem vót még mifelénk üveg. Manapság rakják bé a kész ablakokat, csak nyitogatni kell. Azér ha eltörik az ablakszem, nem veszünk újat, mer azért Kolozsvárra kell bémenni, hanem ahány darabba törik, annyi új bordát teszünk az ablakszárnyra, oszt azokkal közrefogjuk az üvegcserepeket. Az ajtót úgy csinátuk, hogy a vizifürésztől hoztunk deckákat, faszeggel összeszegeztük, oszt úgy akasztottuk bé. Ide a pitarba dufla ajtót tettünk s ez az innenső deckábul van, a külülfelül való csak léces. Úgy híjjuk, hogy cserint, olyik helyt cserény. Ez csak attul jó, hogy ha főznek, oszt erőssen meleg van, ki lehessen nyittani, de az aprójószág ne gyühessen bé. Mer akad olyan gúnár, aki olyan kiváncsi az eleség után, hogy kicsipkedi a kenyeret az asztalfiábul, ha nem veszik észre. Ugy-a! No mikor ez mán mind megvót, akkor csinálódott a kemence.
Elsőben is alapítottunk tűszelyt (tűzhelyt) kőbül, osztán kijebb tűszelyfát tettünk két oldalt, ahogy itt van e, a szegeletjit összeróttuk, alája meg lábat faragtam. Az ilyen kemence, úgy mint itt is, elfogja a fél pitart, azér az alaptyát sem raktuk telistele, hanem a közit földdel tömtük meg, erre meg jó fajta kalotai kőbül kemence-boltot raktunk. Ez a falrakás -100- ezzel a tüszelyfával, akin most ülök e, szinest van, hogy itt bécsusztassuk a cipókat. Ezt a kemencét e – és jól megböködte a boglyaformát, annak bizonyságául, hogy még erősen áll – ezt én fontam sövénybül, megtapasztottam pejvás sárral külül belül, de száját is hagytam, ahun a kenyeret vetik bé. Itt a szája előttjit, ahun az anyjuk az estebédet főzte, ezt meg szabad kemencének híjjuk. A tűz fölé, erre a vasrámára, plakten (platten) vasat tettem, oszt a sütőt kályhafiókkal (csempével) körül építettem. Ebbe sütik ünnepnapkor, meg ha egyéb vigasság vagyon a házba, a fonottas kalácsot, a bélest, a mézeslepényt, meg -101- tudj’ isten mi mindenféle fehérnépnek való eleséget… Hát mit is hagytam el még, no? Hát amint mondám, bétapasztottunk mindent külül belül, alant, meg föjül a hiuba, oszt a menyecske néki kapott, oszt meszetelte ki csinosan, hogy olyan vót az egész ház, mint a patyolat; tul meg a padmalyt, a fal tövit és a tornác födjit vörös agyaggal békente, oszt meg is vót az egész.
A) KOLOZSI ISTVÁN HÁZATELKE, KETESDEN, 1842-BŐL.
a) Törökbúza föld; b) káposztás, rózsapityókás kert; c) gyümölcsös; d) pityókaverem; e) kalangya; f) ösztörű; g) legelő; h) veteményes és virágos kert; i) csűr; j) kecskepajta; k) disznópajta; l) udvar; m) kút, a szomszédnak is szolgál; n) kis kert; o) hátsó ház; p) füstház, itt járnak a hiuba; r) tornác; s) első ház.
(101)
B) AZ ÖREG MIKLÓS KATA HÁZA, «PÁR SZÁZ ÉVES, AMIÓTA A FALU ÁLL», MAGYARÓ-KEREKÉN.
a) Veteményes; b) út a csűrös kertbe; c) ösztörű; d) méhszin; e) eresz; f) a koma háza; g) kamara; h) pitar «úri módon», nyári konyha «hágóval», a hiuban meg «langfogóval»; i) kemence; j) vízpad; k) bölcső; l) ágy; m) asztal; n) szék, kispad; o) pad; p) padláda; r) ágy, a tornácon; s) kiskert, virágos; t) kút.
Így magyarázta meg a házépítést a két tapasztalt öreg ács, – már most járjuk a falut, mit látunk a magunk szemével?
Látjuk, érezzük, megértjük a magyar nép lelkét, háza külső képén is. Amilyen értelmes, amilyen józan és őszinte, olyan az alkotása: nem hazudik a falusi ház. Harmonikus minden részében, míg idegen elemek betolakodása meg nem rontja összhangzatos voltát. Amit a primitiv ember készít, az természetesen, szükségszerüen folyik a szándék sugallta érzésből, keze ügyességéből, a rendelkezésére álló anyagból és eszközökből. Ez magyarázza azt, hogy a parasztmunka szerkezete és díszei között rendesen megvan a szerves összefüggés; ott diszít, ahol diszíteni erőltetés nélkül lehet, ahol diszítésre önként kinálkozik az alkalom. Az idegen elemekkel azonban nem igen bír a tanulatlan művész, mihelyt utánoz, elveszti a talajt lába alól, az idegen elemmel szemben tehetetlen, kritikátlan. Figyeljük meg csak a vidéki városi házakat: mennyi meg nem értett, esetlenül másolt építési forma, milyen otromba, bántó ellenmondásai az anyagnak és diszítésének a célnak, az illető motivum rendeltetésének mily csúnya félreértése! Malterrel, gipszszel, stukkóval hazudnak követ s e kőanyagból termelt diszítést – és hogy rikít az ilyen hazugság! Igy hazudik maga a diszítés is, – mert hisz az olyan dísz, amelynek szerkezeti alapja nincsen, legföljebb csak üres, tehát léha cicoma. És most képzeljük el, hogy ezek a kisvárosi hazugságok kikerülnek a még primitivebb falura!… Micsoda rombolás, mily métely!
Ott van mindjárt a városi mintára szegezett kerítés. Mennyivel szebb akár az egyszerű gyepü-kerítés is! Mennyivel szebb, amit a maga egyszerű eszközeivel készít: faoszlopokra faragott fejü faszegekkel erősített deszkákból, amelyen látható, kifejezett, sőt mindjárt diszítés az összetartó erő is, holott az eldugott, nem látható drótszeggel tákolt kerítés amahhoz képest semmit mondó, művészietlen. Kalotaszegen van mindenféle kerítés. (92. 93. 94. 95.) Fás vidéken fából, -102- a kőbányás Zsobok vidékén kőből s vegyesen; jellemző, hogy az eső ellen alkalmazott keritéstető, e hasznossági elem, mily dekorativ változatokra nyújt módot. Érdekes, bár nem tipikus, a vízlevezető ablak, amelyet egy-egy helyt kőkerítésen alkalmaznak, az oldalos helyen lefutó esővíz levezetésére (96).
BÁLINT KELEMEN HÁZATELKE, MAGYAR-VALKÓN. (105)
a) Csűrös kert; b) öreg csűr; c) sátor, takarmánynak; d) ól; e) pajta; f) uj csür; g) belső udvar; h) veteményes; i) gabonás; j) eresz; k) kis téka, tejföl, meg téjnek; l) öreg ház; m) kamara; n) uj ház; o) kamara; ő) sikátor, hágóval a hiúba; p) eresz; q) külső udvar; r) galambbúgos kapú; s) pad; t) kis kert.
A kerítés mögött a telek tágas, jobbára hosszukás. Nem úgy mint régen, ma már közel a kapuhoz, oldalt áll a ház; a ház végiben a gabonás, az ólak s a telek végiben szembe a kapuval, a csűr. Ha a telek kaptatós, meredek, első sorban arra ügyelnek, hogy «takarás»-kor kényelmesen eljuthasson a szekér a csűr alá, így tehát a telek alsó végébe, a völgybe kerül a kapu, meg a csűr (98.) Ez azonban kivételes. Rendesen a csűr választja el az -103- udvart a kerttől, elsőbben is a csűröskerttől, ahol a széna, meg a szalma áll ösztörübe vagy kalangyába rakva, a gazda módja szerint; a csűröskertben szárad a kender s a törek, a kender hehelést is, amiről lesz még szó, itt végzik. A csűröskert sövénynyel van bekerítve az aprómarha elöl. Ezután következik a gyümölcsös, amely néha egyenest kivezet az egész háznépet tápláló fertály földecskére.
A régi öregeknek más rendjük volt: külső udvaruk is volt, meg belső is. Ilyen régi módi (107) a Bálint Bandikó András házatelke, 1763-ból; bőteleknek hívják, meg is van vagy ezerhatszáz öl; kaptatós telek ez is, a csűrt tehát a telek lábjába építették, közel a kapuhoz. Az utca felé kőfal tartja a töltést, hogy a ház meg a csűr egyenes helyt legyen. A kőfal előtt víz csurog az árokban, rajta hid: ez vezet a kapuhoz. Így jutunk a külső udvarba. Jobbra a csür, balra a ház, de csak háttal, egy kis leső ablakkal, hogy az utcaajtón ki s béjárót szemmel tarthassák.
A csűr maga egy tágas üres szin, földje ki van tapasztva vagy padolva, mert errefelé nem a szérün nyomtatnak, hanem a csűrben (k). A valóságos csűrhöz számít még két oldalt a pajta, a bivalynak, meg fehér marhának. Van egy-faros, meg két-faros pajta, (fél vagy egész) ahogy állanak benne a marhák, a szerint. Ezen a régi telken ügyes még a külső udvar végében az erősen kiugró eresz a vendégszekereknek, meg egyéb alkalmatosságnak (n). A csűr mellett jutunk a tágas belső udvarra. Van itt minden, ami a földmives embernek kell, még a szekér vendégoldalának felkötéséhez való füzfavesszőt is megnevelik itt az átfutó patakban, hogy azért se kellessék a szomszédba menni. A belső kaputól jobbra eső kerekes szinnel (m) szemben áll a kézi gabonás (f), mellette a malacól, tovább, a telek felső végében, a nagyobb gabonás, tornácán a sörmény (az örlő, kézimalom, 301.) meg cefrének a hordó, tovább a pince, bornak, pityókának, meg egyéb veteménynek (e). Ennek is jól kiugró eresze van, hogy nyárba az ajtó előtt árnyékot fogjon. Itt van a bodon kut is (d). Balra a négy szegelletre épített méhszin (e), tovább a káposztás kert (b), külön bekertelve, azután a gyümölcsös (a).
Legügyesebb mégis csak a ház. A szabad oszlopos tornác az egész alkotmány közepe. Innen lépünk a valóságos «házba», a lakószobába. Az utca felé eső szögletben a sarokra állított asztal, falmentin a padládákkal; a szemközti sarokban a cserepes kemence. A kemence elülső része szabad, ha nem sütnek, a tűz is szabadon ég rajta, csak épen hogy áthuzza a kemence a füstöt. A szabad tüzhely egyik végében van a «plakten», a -104- karikás vaslap; a tüzhely vagy «tüszely», jól előre nyúlik, kiszélesedik a kemence körül, hogy télen odaülhessenek, beszélgetni, a tűz köré (padka). A harmadik szögletben van az inkább parádénak való «vetett ágy», utána a háló ágy; jut néha a kemence mellé is ágy, vagy legalább is egy bölcső. Szék egy-kettő ha van a házban: csak az emberek, (meglett, házas férfi) meg a legények ülnek rajt’, a menyecskék nem igen, a leányoknak meg épenséggel nem való. Az ajtó mellett van még a vízpad a «kártyá»-nak, (faedény 250) közbe a falmentén egy pár láda; az asztal fölött, a sarokban a téka.
BÁLINT BANDIKÓ ANDRÁS HÁZATELKE, MAGYAR-VALKÓN. (107)
Zsellértelek 1763-ból; «bőtelek», 1600 □ öl; a) gyümölcsös, följebb legelő; b) káposztás kert; c) méhszin; d) bodonkút; e) pince, pityókának, meg bornak; f) gabonás; g) kád, abban áll a cefrének való szilva; h) sörmény; i) malac ól; k) csűr, kétoldalt pajtával a bihalynak; l) csűrös kert, a végiben füzes; m) kerekes szin; n) eresz a vendégkocsiknak; o) komara; p) Bálint Bandikó András háza; r) tornác; s) hombár; t) töltés pad; u) kis kert, virágos; v) külső udvar.
MARCIKÓ GYURI TELKÉRŐL, MAGYAR-VALKÓN. (109)
1. Tornác, a pitarból tekintve, kis vízpad az ajtó mellett; 2. galambbugos kutágas; 3. deszkából való karfa.
A «házból» ritkán nyilik egyéb helyiség, hamarább a tornácról, külön. A legegyszerűbb házban is van még egy kamra, ha kettő, akkor az egyik szalonnás, a másik «csak amolyan elegyes». Künn a tornácon áll a szuszéng, meg a hombár, gúnyának, gabnának és mi egy s másnak. A ház végében van a «kis kert», az utca fele. A tornác árnyékos ivei alá futnak föl futóka virágok, ott nyílik a piros szegfű, ott virít a mályva, a karfán cserépben az «engem nefelejts». A tornácról látni a galambbugos kutágast is.
Ha együtt marad három-négy nemzedék – apa, fiak és unokák, nem ritkán velük a szépapa is, – kibővül a ház is. (111) Elsőben is a nagyobbik fiu különködik el, amikor menyecskét hoz a házhoz. Külön «házat» csinálnak a fiataloknak, de csakarra a tornácra, az öregekére. Ilyenkor az öregek az első házat rendesen átadják a fiataloknak, ők meg a tornác végében, a tágas gabonást alakítják át háznak s abban laknak.
A legtöbb ház ilyen elrendezésü; van még a telken nyári konyha is, (129) amiben csak egy sütőkemence, szabad tüzhely van, fölötte «langfogóval,» hogy a nyárára való kolbászt, sonkát abban füstöljék meg.
Igen ügyesen kitoldott ház a Vörös Márton és János háza
(113). Hogy férjhez ment testvérhugukkal
együtt maradhassanak, az új házaspárnak is szorítottak helyet, még
pedig az utca felül. Amikor a harmadik nemzedék, az unoka is nősül
már, akkor különködnek el teljesen; a szülők s nagyszülők maradnak
az öreg házban, az unoka épít magának ujat a telek másik oldalán,
-106-
-107- talán szebbet is, mint az öreg ház. Ilyen az öreg
Lőrinc Pál háza (114), aki fönt lakik a
gyümölcsös mellett, – házas fiai, György meg István, lent vannak,
közel a kapuhoz meg a csürhöz, mert ott a dolguk. A Kolozsvárhoz
közelebb eső vidéken a boronás házak közé mind sűrűbben vegyül már
a kőház is; mint például a Balázs Samu, meg Balázs Gyárfás háza
(112); kőből épített nagy ablakokkal, városi
módra. A két végén egy-egy ház, közbül a nyári tüzelővel, a füstölő
kamrával. Hosszu, szép tornácuk van, lejáró is a pincébe, de azért
mégis csak szebb a szemben lévő öreg boronás ház, sok apró
muskátlis ablakával, előtte a paddal, amire kiülnek az öregek
«gondolkodni».
MEGSOKASODOTT «CSALÁRD» (CSALÁD)
a) Fás szin; b) az első ház gabonása; c) a hátsó ház gabonása; d) hátsó ház, Varga István háza; e) füstház; f) tornác, kétfele kerítve; g) első ház, Varga Feri és Varga Feri Jó háza; h) kamora; i) kis kert, virágos; k) fa hely; l) disznó pajta; m) kamora; n) uccaajtó; o) kapu.
ÉS BOKOR ISTVÁN HÁZA, B.-HUNYADON. (111)
a) Hátulsó ház; b) sütőház; c) első ház; d) tornác, alatta pincelejáró; e) hombár.
BÁLINT PALKÓ PÁL HÁZA, ZENTELKÉN.
a) eresz; b c) sütőkemence és üst a füstházban; d) pad; d e) padláda; e) asztal; f) ágy; g) ágy a tornácon; h) kemence; i) szalonnás; k) rácsos tornác; l) lépcső.
(112)
BALÁZS GYÁRFÁS «KŰHÁZA» BÁCSOTT.
a) a ház; b) a szuszinkja; c) a sütője; cz) a «spór»ja (takaréktűzhely; d) hágó a hiuba; e) Balázs Samu háza; f) pincelejáró; g) langfogó; h) Márton Kecel Marci «boronás» háza; i) hátsóház; k) szuszink; l) vízpad; m) ól; n) favágó; o) cserepes virág; p) töltés, («nyárba kiülünk rája gondókonni.»)
HÁROM CSALÁD HÁZA («TRUNKUS TELEK») B.-HUNYADON. (113)
a) Vörös Márton háza; b) kamarája, hágóval a pincébe; c) kemencéje; d) füstház; e) tornác, alatti a lépcső a pincébe; f) Vörös János háza; g) Kuruc István sógor háza.
Általában, a kalotaszegi udvar meglehetősen tágas, kivéve Bánffy-Hunyadon, ahol bizony erősen városiasodik már az udvar is. Jellemző a kövezett, mint ők mondják a «kirakott udvar» s tipikus a kőlépcsőföljárás a tornácra. (115)
Az udvaron s összes épületein, legszembetünőbb, – a legrégiebbeken is, – a gyakorlatias jelleg; a gazdasági épületek formája hagyományosan régi, a különbség alig egyébb, mint az, hogy a régebbiek zsuppal vannak födve, az ujabbak zsendelylyel, cseréppel.
Egy zentelki udvaron (122) sajátságos beosztású félszert találtunk; a hiú ereszszerűleg ugrik ki az épület végén s vakolva van az istálló. Az aprómarhának a ház végibe ragasztanak ólat, vagy külön cölöpre kerül a tyukól. (123. 124. 125. 126.) Nevezetes része az udvarnak a kút, amely ha ágas, hol galambduc kerül az ágasára, hol meg tulipántos, vagy -108- egyéb diszítés; sekélyebb kút fölé ágast nem emelnek, csak úgy, hosszú rudra erősített vederrel merik a vizet. (128)
Amilyen egyszerű s mégis elmés az a merő veder, olyan leleményes, olyan furfangos a nép számtalan kis holmija, ahogy ők mondják «kieszelése». Például a nyári konyha, meg az aszaló, ahol a gyümölcsöt aszalják télire, (89); az elmés szerkezetű szélmutató, az eresz alá dugott kacattartó, az egérfogó, a vályú, a seprű; se szeri, se száma a kilincs készségnek, – rugós a szobaajtóra, egyszerűbb az ólra; elmés az «ajtóbakasztó» – hát az elromlott zár rugóját hogy helyettesítik faabroncscsal! (130–140)
LŐRINC PÁL HÁZATELKÉRŐL, MAGYAR-VALKÓN. (114)
1. Az öregek házatornáca a kis unokával; 2. a gabonás tornáca; 3. az uj ház tornáca, meg az uj ház télen bélelt ablaka; 4. az ablakfél metszete.
A fölületes szemlélő mindezt olyan egyformának látja, éppen mint a falu összes házát. Pedig dehogy egyforma, – külön karaktere van minden holminak, aminthogy külön-külön jelleget találunk az egyes házakon is, ha figyelmesebben vesszük szemügyre.
A házak külső képe kivált a tornác s a tető különfélesége folytán változik. Legáltalánosabb az az egyszerű házforma, amelyet kétereszesnek nevezhetünk: a tető két vége túlér a ház homlokán, a változatosan diszített oromfalon; a fal szintjében lévő és felnyúló deszkák ki vannak lyuggatva, a kiálló ereszszel színest meg «rostélyos» vagy pedig erősen ki van cifrázva, a fedél mentén és az alsó eresznél háromszöglet szerint deszkák vannak szögezve. Aki ügyesebb vagy akinek több volt az érkezése, leveles kacskaringókat, galambot, meg virágot fürészelt ki rókafarkú fürészivel a deckákból és úgy szegezte azokat föl. Az újabb házak oromfala előtt (145–6) még könnyű karfát is találunk. (Lehet, hogy régebben az eresz alá helyezett galambbug miatt kellett, de valószinűbb, hogy az éretlen városi befolyás hatása már ez). Az oromfal deszkáiról ritkán hiányzik az évszám. Ha nem magyar valláson vannak a benlakók, azaz, ha nem ev. reformátusok, hanem görög keletiek vagy róm. katolikusok, keresztet vágnak a deszkába. A ház külső diszítéséről szólunk még részletesebben.
Néha, az udvar felé, középen kiszélesedik a tornác s a fölibe eresztett fióktető éppen olyan függőleges oromban végződik, mint a ház teteje – és galambbug (148) is kerül az eresz alá.
A tető tagolás a gazdagabb a bogárhátú tetőnél. A gerinc vége le van csapva (konty -109- tető) s lent, az eresz megkerüli a ház végét is. Ez a régebbi forma. Máskülönben a deszkás oromfal itt is éppen úgy ki van vagdosva cifrára. Hogy a legrégibb rendű tetőt se hagyjuk el, felvettük Máté János Jánoska házát, Ketesden. Zsuppos a teteje, mind a négy oldalra egyaránt hajlik s kémény sincsen rajta, ott megyen ki a füst, ahol nyilást talál. (150)
Hogy mennyi gyakorlatias találékonysággal eszelik ki építkezésüket: tekintsünk meg egy kis mákói házat (151). A bogárhátú tető elülső kis eresze, meg a házhosszanti fedél, össze ér az utcaajtó fedelével. Hisz közel estek egymáshoz, csak az eresz szarufáit kell egy keveset meghosszabbítani s mindjárt be is fedhetik véle az utcaajtót is. Ez az a csudálatos valami, az a bájos naivitás, ami nyomban megkapja a városi unott kedvű embert. Természetes, egészséges és mégis eredetien festői. Az erősen hímes utcaajtó kijebb áll a ház végétől. Agyagból rakott pad van a fal mentén, éppen a kapu szintjéig. A fehérre meszelt falon igen jó helyt áll az a két kis ablak is. Szándék-e vagy véletlen, de magasságuk aránya a házpadtól meg a bogárhátú tető ereszétől olyan szerencsés, hogy a különben is igen művészi csoportosítást szinte tökéletessé teszi. A ház külső képén, ismételjük, változtat a tető különböző alakulása és a tornác. A régi öreg házak előtt nem is volt tornác. A pitar fala beljebb állott az eresz alatt, mint a ház fala és a kamra fala, – így -110- több hely jutott, hogy esőben állongáljanak alatta, vagy hogy egyet-mást künn tarthassanak, levegősebb helyen. Későbben építették a ház hosszában a tornácot az udvar felé. Innen be lehet tekinteni az egész udvart, a gazda vagy egyik legény fia künn is hál nyárban a hombár mellett. Itt a gabonás szuszénk, itt tartják rakásba hányva ősszel a törökbúzát, a répát, meg a pityókát is addig, amíg el nem takaríthatják. A törökbúzát meghántják, a javát, szépit meg felaggatják a tornác mentén az eresz alá, magnak. A tornác végében van a téjpóc (tejpolc) is. Magasan és külön lóg le a folyó gerendáról, hogy a macska ne veszedelmezzen, mert a tejet teszik oda keseredni (megaludni).
Az ilyen egyenes tornác mindhárom oldala szabad, lábfatartói – oszlopai – igen sokféleképpen vannak megfaragva s a karfa kivágásaival sok ötletre szolgáltatnak módot a diszítőnek. (153–5) Van rostélyos karfa (157), van teli deckás, meg cifrázott, van kivágott és van falazott is, olyan, hogy a zsendelylyel lefedett fal fölött éppen hogy kiér még a decka (158).
A lábfatartó vagy négyszegletes, vagy pedig élei le vannak simítva, fölfelé erősebben. Van egészen gömbölyű, hasas oszlop is. Ez a gömbölyű tagja, a láb, hol hosszú s a karfától elér a lábfáig, mint az előbbeni rostélyos tornácnál, hol meg rövidebb, csak az oszlop alsó feléig ér, sőt még annál is kurtább. Meglepő, hogy Bánffy-Hunyadtól haladva Kolozsvár felé, az oszlopnak ez a gömbölyű része mind rövidebb lesz; már Darócon és környékén csak a feléig ér (161), Bácsott már egészen rövid, de még mindig helyes (162). Igen ügyesek a nyeregfák is a vízszintes lábfa és az oszlop között; az a rendeltetésük, hogy a lábfa jobban elosztva, hosszabb darabon vegye át az oszlop alátámasztását. És ezt a szerepét, -111- csodálatosan finom érzékkel, bele is vitték a nyeregfa körvonalaiba. Amint az oszloptól jobbra-balra homorúan ki van vágva, azután meg zömök formákban elvégződik: bámulatos szabatossággal fejezi ki azt a rugalmas ellenállást, amelyet a vízszintes lábfatartó gerenda behajlása ellen fejt ki. E formaőszinteség szempontjából legsikerültebb talán a daróci és szucsáki tornác nyeregfája, (161. 164.) kevésbé vallja be rendeltetését az esztánai. Ahol nincsen nyeregfa, ott «kötéssel» van az oszlop a lábfához erősítve. Ily módon kapjuk meg az átmenetet a függőleges oszlopból a vízszintes lábfához. Az ívek nyomottak, kerülékesek, de mindig finom vonalúak. (164) A kötés rendeltetése különben még az is, hogy az egész faalkotmányt megkösse, esetleges oldalt való elmozdulásban megakadályozza. A karfa fölött szabad a tornác, (156) egy kis rács ha van, hogy a tyúk ne reppenjen föl. Egészen az ereszig zárt a tornác akkor, ha egyik vége az utcára szolgál, mint Petre János házánál, ahol a karfa fölött rostély van. Itt tekintenek ki, ha valaki bekivánkozik az utcaajtón. Az utcaajtó a ház hoszanti irányában van a lépcső miatt, a kapu meg keresztbe. Ez által is igen helyes és festői a megoldás. Az ablakokon domborodó farács.
Van szegelletre menő, van kiugró tornác is, sőt a leggazdagabb elrendezés szerint körül tornácos, vagy ahogy ők mondják, kereken tornácos ház is van.
Körültornácos az olyan ház, amelyiknek három oldala is tornácos. Ritkán fordul elő, inkább csak a teljesen szabadon álló háznál, ahol a szomszéd felé eső oldal marad csak tornác nélkül.
Szegelletre menő tornáca van Bálint Palkó Pál házának, Zentelkén
(165). A tornác végig halad a ház hosszában
és fordul előre. A fa mögött, a végiben van a szalonnás kamara, a
ház hosszabbik oldalán meg, a karfától kijebb, áll a póc s bé van
lécelve, egészen fel, az ereszig; elül, a bejárónál pedig, ajtaja
van: afféle levegős kamra. A tornác tulajdonképpen kettős, alatta
is van egy sor, a pince előtt, hogy árnyékot fogjon, meg legyen,
hogy hová rakják el a fát. Ügyes az eresz alatt lógó kivésett
fatörzs, amely az esővizet gyűjti a lépcső mellé, a cseberbe.
-112-
-113-
-114-
-115-
Végül, van még egy módja a tornác elhelyezésének, amilyent Magyar-Gyerő-Monostoron, egy érdekes régi kúrján találtunk. Nem egészen népies már, de közelebb áll a falusi építkezéshez. Az udvar felé kiugró épületrész közepén van a pincelejárás, erős tölgyajtóval elzárva; két oldalt vezet föl a pitar lépcsője és mindkettő félfedeles tornácban végződik. (166)
E tornácok feltöltött földdel, kőből rakott alapon nyugodnak. Ha menedékes a házhely, jó magasan – kukra – állanak; akad olyan is, hogy éppen csak kiemelkedik egy keveset az udvar földjéből.
Sok mindenre jó a kiugró tornác, mint a valkói kántor házán, mely különben körül tornácos is. (167) Az alsó sorban van a pince, a kamra, meg a nyári konyha, a felsőben a ház, a pitar s ha kell, hát még egy ház. Ha már most a pince falával egyszint állítanák a tornác oszlopait, úgy a felső háznak sokkal kisebb volna a belterjessége, pedig éppen fordítva kell annak lennie, – tehát a pince lehetne kisebb. Úgy segítenek ezen, hogy a pince feletti padolás folyó gerendáit kieresztik a falon túl s arra állítják föl a tornác oszlopait, lábfatartóit. (168) Bepadolják, karfát szegeznek rá s járhatnak körül a szegelleteken, nézhetik az utcát is. És még másról is jó ez így! Ha a pince fala nem kőből épült, hanem vályogból vagy földből van verve, akkor jó, ha az eső nem veri, ha megvédi az időjárás ellen a kiugró padolás.
A ház külső képéhez tartozik még a telek bekertelése. Ebben is nagy a változatosság, aszerint, amint kőben szegényebb vagy bővebb a vidék. Az egészen nyers, fejszével hasogatott palánktól a teli, a lyuggatott, a cifra decka és lécpalánkig, sok mindenféle fajtája van ennek, aszerint, kinek milyen a módja. A kőben bővebb vidéken egészen teli kőfallal kertelik be a házhelyet, felül kis zsendelytetőt adnak rá, vagy ágas-bogas, tüskés galylyal rakják be. Így Esztánán, meg Vistán. Leghelyesebbek a felemás bekertelések: alul kő, fejül léc vagy decka. Itt ismét megnyilatkozik a nép nemes arányérzéke. A zsoboki nagyobb kövekből összerakott falba beállítgatják a kerítés oszlopfáit s befalazzák félig, felső fele meg kiáll magára s ehez szegezik a léces kerítést. A léces kerítés könnyebb, kisebbszerű, hiszen az anyaga, a fa is gyöngébb. Ez hát sokkal alacsonyabbra, igénytelenebbre van tartva, mint a magas vaskos kőfal. Egypár a tetejébe oda vetett galy megadja a módját is. A kis utcaajtók, meg a velük egybekötött kapuk – a szekereknek – ezek is sok leleményességgel ügyességgel vannak a többihez építve vagy odaállítva. Majd mindeniken ott a kis eresz, a félkörös vagy laposabb köríves szemöldökfán, ez meg a himes ajtófélfán, amiről sok a mondanivalónk még. Itt csak két különös utcaajtóról emlékezzünk meg ezek kivételek.
Egyik a zsoboki (169). A küszöb, az
ajtófél, a szemöldök – mind kőből van, simán, egyszerűen, amint
illik is a monumentális anyaghoz ha mellette könnyebb anyag is van,
-116-
-117- a fából való ajtószárny. Bezzeg ez csupa tagozás,
apró, kicsi kockás az eleje, csak éppen hogy a váza, a kerete sima,
mert ez a szerkezethez tartozik. Látja az ember azt is, hogy áll a
kis eresz a szemöldök kövön, hogy van odaerősítve. Talán
csavarokkal? Dehogy is. Az a keresztben álló két kis kötőgerenda,
tölgyfából csinosan kifaragva, olyan akkurátosan van a kő szemöldök
gerenda horonyába belészabva és beleékelve, hogy nem mozdúl se
jobbra, se balra, ha még úgy fúj is a szél. Erre a két kis
gerendára vannak azután rászegezve a kis szarúfák, szóval az egész
eresz. Az ajtószárny forgópántja természetesen csavarral van
átkötve a kő ajtófélen. Így a kapuzábén is. Egyszerű, világos,
természetes az egész kis alkotmány és csodálatos, mennyivel
előkelőbb, mint a mi városi bérházaink elcsépelt, idegen sallangos
kapui. A maga nemében ilyen műremek egy vistai utcaajtó is.
(170) Mennyire szépen, tisztán van ez is
összeépítve és az összeépítés természetéből s formáiból milyen
őszinteséggel alakul ki a diszítése! Egy szempillantás alatt
láthatjuk s megértjük, hogy építenők fel. Elsőben is pár nagyobb
kőből alapot rakunk alája; azután a felső köveket megnagyoljuk,
összeillesztjük, hogy jól feküdjék fel rája a küszöbfa, meg a két
keresztben álló talpfa; emezeket össze is csapoljuk. A talpfa
csaplyukaiba béültetjük az egybekötött ajtót. Jó, hogy vastagabb
alúl, jobban megáll. Fölfelé már ügyetlen, esetlen volna, ha ilyen
vastag maradna, hát ott van alúl a cifrázatja, tömött, gazdag,
keleties formáival s azon túl karcsúbban halad fölfelé. Hogy
egészen erősen álljon, sast – talpkötőt – teszünk eléje és mögéje,
zömök, erős, vaskos darabot és odaszegezzük tölgyfa szegekkel.
Oldalt sem dülhet, meg se mozdúlhat, mert a szemöldökfa csapja jól
belenyúlik kétoldalt a félfába, be van szegelve, – de leginkább
megfogják a kötők. A két ferde kötő cifra vége épp olyanképpen ki
is van vésve a szemöldök – meg félfából s bele van szorítva, verve.
Az ív fele, a közepe, hímes s amint az ív vonalán ott van az a bog
rajta, olyan, mintha egy pillangó ülne a szemöldökfa szegelletében
s nézne lefele, be az ajtóra. Az ajtószárny, sima deszkából, három
hevederre van szegezve, – a három sor, cifrázott fejű faszeg
egyszersmind a diszítés. A szem megnyugszik e sima felületen s csak
annál több figyelem jut a hímes kapufélfának, az ugynevezett
kapuzábénak. Semmi fölösleges nincsen és nem hiányzik semmi, –
remek a maga nemében.
BEREC BANDI MÁRTON ÖNMŰKÖDŐ AJTÓ «BAKASZTÓ»-JA SZTÁNÁN. (138)
(A kinyitásnál lábával lenyomja, visszahull s nyitva tartja az ajtót.)
Általában, a kalotaszegi magyar pazarul diszíti háza külsejét s a legszegényebbnél is ritkán marad parasztja a tetőnek, az oromfalnak, illetve a ház homlokának, az ablaknak, a tornácnak, – de diszítésében leggazdagabb a nagy és a kis kapu, ahogy ők mondják, a leveles kapu és az utcaajtó.
Az alapjában fából épült kalotaszegi ház oromfala, az úgynevezett tűzfal is fából van, deszkából. A deszkázásba formás kivágásokat fürészelnek, részint, hogy a konyha nyilt tűzhelyéről a hiuba tóduló füst ott kijuthasson (mert kémény nincs), részint, hogy világosság szürődhessék be a padlásra. E kettős szükség révén termett azután az oromfal diszítés, amiben kétféleképp járnak el: a deszkák fúgáit szélesítik ki dekorativ elemmé, a diszítő nyilásnak egyik fele az egyik deszkából, másik a szomszédos másik deszkából kerül ki s ez a helyesebb eljárás, mert így a deszka erősebb marad, – de vannak falvak, ahol a deszka közepéből vágják ki a formákat. Az első esetben szélesebb, nagyobb motivumokat alkalmaznak; az utóbbi esetben – mert, ők is gondolnak a deszka tartósságával, – szűkebb, keskenyebb lesz a díszesen vágott nyilás. Jut azonban még egyéb diszítés is a ház homlokára. A tető csúcsvégződésén egy vízszintes, két alsó részén pedig függélyes osztással háromszögű mezőket szerkesztenek (173 d.), ezeket bedeszkázzák s a deszkázást formás kifürészeléssel diszítik. Jellemzi harmónia érzésüket, hogy míg az oromfalon negativ formákat alkalmaznak, e mezőkre rendesen pozitiv formák kerülnek. A csúcsnál lévő mezőt a felező vonallal két részre szokták osztani; a tetőt beszegő deszka felső szélét ritmikusan ismétlődő kimetszésekkel diszítik s e csipkés motivumot megismétlik a -120- belső szélen s az alsón is. Egy bikali ház homlokán a csúcs alatt félkör vonal metszi le a két alsó mezőt s ezek alatt még két kisebb kör van kitöltve figurális diszítéssel. A háromszögű mezők diszítésének népies jellege nem megbízható, számos idegen, svejcies forma akad közöttük; az elterjedt lombfürészelési minták, a nép kezén forgó városi képes árjegyzékek sok idegen motivumot csempésznek a faluba. Ilyen idegen formával van kitöltve a 174. ábrán fent a középső háromszög s a felső középső és a tőle jobbra eső is.
Általánosságban megállapíthatjuk, hogy a háromszög belső csúcsából kiinduló szárakon -121- ülő levelek és virágok képezik a leggyakrabban ismétlődő ornamentumot; a házhomlok diszítés egyszerűbb és ismétlődő formái közé tartozik: a szívalakú kimetszés, a rózsácska, a csillag, a körkimetszés, a hullámvonal. Akad számos igazán művészi csoportosítás és beosztás: üde, csipkeszerűen könnyed annak a bikali háznak a homloka (173) amelyen a fúgákat kifürészelték, de jut kivágás a deszkák közepére is, úgy hogy egyben igenleges és nemleges formák képződnek.
A ház peremszegő deszkáit egyenes és görbe vonalak összetételeiből szerkesztett formákkal diszítik; a 176. 177. ábrákon láthatjuk e különféle, fogrovásszerű diszítéseket; a 178 ábrán van egy sikerült csúcsdiszítés is.
Sajátos diszítésre találunk a zsindelyes háztetőn is; a tetőgerinc két végén – néhol csak az utcára tekintő végén – ott kapjuk a «református cserepet», a bádogkakast, vagy a fából faragott, gombon ülő tulipánt, ami a legmagyarosabb s a legelterjedtebb. (179).
A tornác kerítésének diszítése hasonlít a ház homlokának diszítéséhez. A függélyesen elhelyezett deszkalapokat s a lapok közeit fürészelik ki egyszerű szív és más, rendesen hegyesedő formákban, leginkább tulipánosan (181). Említettük már azt a sárvásári tornácajtót, amelynek oszlopát emberfővel diszítették; megjegyezzük, hogy az efajta diszítés csak elvétve fordul elő s mindig nagyon kezdetleges. -122- (182). Diszítik a tornácról a konyhába nyiló ajtót is, amely elé cserényt, illetve verőcét alkalmaznak. (183–4). Az ajtóra, a világítás végett, inkább nemleges formákat alkalmaznak. Ha a tornáckerítés deszkái nincsenek mintásan fürészelve, úgy sárgásbarnára szokták bemázolni s fekete föstékkel «tigriselik».
Különösebb kiképzésű ablakra nem igen akadunk; rendesen a ház utcára tekintő oldalán van s falait ugyan kifestik kígyózó vonalra rakott, gyorgyinát, rózsát, szegfűt ábrázoló diszítéssel, vagy pedig egyszerűen bemázolják miniummal pirosra, vagy kékre, zöldre, téglavörösre, – de nagyobb változatosságra az ablakdiszítésben nem lelünk. Akad, elvétve egy oromdísz az ablak fölött vagy némi diszítés a keresztfán.
Érdekesebbek az ablakrácsok (185). Meleg nyári időben leszedik az üveges, (hajdan bendő hólyagos, lantornás) ablakszárnyat s finom lécből, vesszőből csinnal és szeszélylyel font rácsot alkalmaznak az ablaknyilásra, hogy a baromfi a szobába ne tolakodjék. Ezt -123- a rácsot egy-egy helyt cinoberpirosra vagy kékre mázolják. A második ábrán logikus főre vall, hogy a rács legutolsó pálcikája, mint nem szerkezeti, hanem tisztán diszítő rész, esztergálva van.
A KURÁTOR HÁZA TORNÁCA, M.-VALKÓN; MÁS HÁZBÓL VALÓ CSERÉNY (RÁCSOS AJTÓ) ÉS KARFA, MAGYAR-VALKÓN. (157)
A kalotaszegi magyarságot jellemző diszítő kedv és képesség
valósággal tobzódik az utcaajtókon. Itt nyilatkozik meg művészetük,
olykor monumentálisan. Az utcaajtóról bízvást következtethetünk a
belső berendezés csinosabb voltára is. Ahol díszes, ahol himes a
kapu, ott rendesen helyes a szoba is; ott a fogason s a tálasokon
lesz bőven győri kancsó s győri tál, díszesen ki van pingálva a
téka, a láda, a padláda, meg a «komarás -124-
-125- asztal» (248.), ott lelünk
varrottasokat a rúdon, varrottas a lepedőhajtás, a párnacsup, meg
az «ágyfűtől való», ott himes az osztováta, a kis szék s akad a
mestergerendán himes súlyok, vetélő, vászonfeszítő és himes
kapatisztító.
HÁZRÉSZLETEK MAGYAR-VALKÓRÓL. (160)
1. Tornáclábfa tartó (oszlop). 2. Bálványfa. 3. Ágyfűtül való fa. 4. Tök a tetőn.
HOSZÚ JÁNOS HÁZA, SZTÁNÁN. (159)
«Erősen szép» tornác, himes lábfával, meg eresz gerendával; himes utcaajtó.
Gonddal, szeretettel készíti és faragja, vagy faragtatja kis kapuját a kalotaszegi nép még ma is, hajdan pedig, majd egy porta elül se hiányzott a himes utcaajtó. Lehet, mert akkor könnyebb volt még az élet; mentegetőznek, hogy a régi világban idő is olcsóbban jutott a faricskálásra… Igaz, cserfa, tölgyfa is bővebben volt még akkor, – ma már nagy ára van az alkalmatos fának, nem telik rá, csak a jobb módunak, a szegény ember ma már beéri leveles kapuval, csupasz kapuzábéval.
A kis kapun (amit ők következetesen ucc’ajtónak hívnak) az emberek kilincselnek, a széttárható díszes «zábéra» akasztott nagy kapun, a «leveles kapun» (mert deszkalevelekből, lécekből készül) a szekér jár be az udvarra, de mivelhogy ennek a kitárása kissé körülményesebb, ha nem szekérrel érkeznek, a jószág is a kis kapun kerül haza.
A kis kapu nyilása embernagysághoz van szabva: két hatalmas gerendából a két ajtófélfa, ezeken nyugszik, illetve ezekbe van róva elmésen a szemöldökfa s a szemöldökfára -126- csúpos vagy gerinces tetőfedél van rakva, hogy naptól, esőtől védje valamelyest a kiskaput. Egy-egy helyt galambduc is kerül a tetőfedél alá, a székely búgos kapu kicsinyitett mintájára. A kiskapu aljában van a küszöbgerenda. «H» alakban, két más rövidebb gerenda is eresztékbe van róva, hogy egyenesen álló helyzetben tartsák a küszöbgerendába ékelt ajtófélfákat s így a kapuszárnyat is; idővel, amikor a fa megkorhad s a csapágyak tágulnak, ráklábra kerülnek az ajtófélfák, – kis gyámokkal vagy kis derékszögű, esetleg háromszögű ékekkel támogatják meg, elfödve így gyakran a diszítést is. Mert a két ajtófélfa rendesen díszes, ahogy ők mondják: «himes», – de jut diszítés a szemöldökfára s az ajtó szilárdságát biztosító gyámfákra is; himes a kapuzábé is. Olykor az alsó gerendák felső lapját is diszítik. (172 b). Az építtető neve, az építés dátuma, olykor valami jámbor mondás, a szemöldökfán szokott lenni, megesik azonban, hogy kerül az ajtófélfára is.
Az ajtófélfák alsó végén vagy párkányosan vagy pálcikákkal vagy egyéb ornamentummal jelzik a lábat, illetve az alapot, hogy föléje adják az oszloptörzset, rajta két egymástól ugyan különböző, de rendesen részarányos diszítéssel, amely diszítés – a gyámfák (kötőgerendák) közvetítésével – átmegyen a szemöldökfára is (173 b), befejeződvén a szemöldökfa közepének diszítésében. Bizonyos diszítő szerep jut, még pedig magának a szerkezetnek e célra való érvényesítése és fölhasználása révén, azoknak a gyámfáknak is, amelyek az ajtófélfákat kötik össze, helyes vonalakba s szögekbe róva, a szemöldökfával (174–175 b). Van rá eset, hogy az egész utcaajtó diszítése csak ilyen szerkezetbeli s éppen ezeken találtunk bizonyos komoly monumentalitást.
Magát a diszítést vizsgálván, kétféle osztályozásra nyilnék alkalmunk: mértanira és szabadabb ornamentikaira, – bár, mint már említettük, elvétve figurális diszítés is akad a kis kapukon; Bogártelkén, egy utcaajtó két félfáján zsandár és baka áll, egy másik ajtón, szintén Bogártelkén, kalotaszegi asszony és férfi; Inaktelkén is van ilyen, még pedig színes. A kétféle diszítési mód keverten is előfordul, sőt a mértani formák összhatását kedvezően lágyítja a közéjük rótt kevéske vonal- vagy virágdísz, összekötvén a különben nagyon is mereven elkülönített rózsácskákat (176 b).
A mértani formák a körből s a kör osztásából kerülnek ki; kisebb szerep jut a négyszögnek és osztásának, – a négyszög inkább egyébb diszítés keretbefogására szolgál. A mértani formák közé sorozhatnók azt a vonalas diszítést is, amely a (177 b) ajtón látható, -127- – inkább csak térkitöltő szerepe van s fába karcolt vékonyka vonal lévén, így képen sikerültebb, még a valóságban erőtlen, elmosódó.
KALOTASZEGI UTCAAJTÓK DAMOSRÓL, ZSOBOKRÓL, EGY KAPUZÁBÉ NYÁRSZÓN S EGY SZÉKELYES KAPU MAGYARVALKÓN. (XIV. tb.)
A körből alakítják a rózsácskákat s a csillagformákat,
több-kevesebb részre osztván a kört, részint sugaraival, részint
saját köríveivel; de ha gazdagabb kiképzésű a rózsácska, a kört
rendesen a természetes hat részre osztják. Tagadhatatlan, bizonyos
formák gyakran ismétlődnek a primitiv faragó kés alatt s
legjellemzőbbek a könnyen faragható, csúcsban végződő, mélyítve
vésett formációk. Dombor faragású a szabadabb virág – tulipán – s
levéldísz; domborúan faragják a homorú ívecskékkel csonkított
négyszögű mezőket (táblákat) is (179
b). A kör osztásából származó ékítményeket megkapjuk az apró
holmin is, az orsó nehezítő karikókon pazar változatosságban, a
sulykokon, a kapatisztítókon. Legtöbbször ismétlődik az a
rózsácska, amely a (180 b) utcaajtón
látható: a hat részre osztott körbe hatsugarú csillagot vésnek,
úgy, hogy az ismert hat körlencse képezi a sugarakat; a sugarak
végződését új körlencse köti össze s a lencsék között lévő részt a
konturok mentén kivésik, úgy, hogy a három metszés egy csúcsban
találkozik. Hasonlóan ki van vésve a csillagban lévő s az azon
kívül eső összes lencsék belső területe is, de valamennyinek a
közepén meghagynak egy-egy hidacskát. A mély bemetszések szép
árnyékrajzot adnak napsütéskor. A kisebb köröket kevesebb bemetszés
diszíti s az egész kicsinyeknek csak bevésett sugarak jutnak. E
nagyságuk szerint különbözően diszített csillagok és rózsácskák a
legkülönfélébb csoportosításban kerülnek egymás mellé és egymás
alá. Két-két egymás fölött lévő négy rózsácska közé, például, két
kisebbet tesznek egymás mellé s a megmaradt kisebb körökbe még
kisebb köröket vésnek (180 b) – négy
kisebb közé vésnek egy nagyobbat, kettesével egymás alá, csillagot
rózsácskával vegyesen (177 b). Hogy a
diszítést összefoglalják s a szabadon maradt tér is himes legyen,
indaszerű vonalat vésnek közéjük (181–182 b). Ez az
összefoglalás olykor maga is széles diszítéssé válik (183 b), olykor pedig egyszerű vonalban vésett
tulipán vagy valami kis virág ül az indákon. Egy zsoboki utcaajtó
csupa részarányosan csoportosított, kivájt körlencsével van
diszítve s a köztük maradt sima térre apró félköröket vájtak
(185 b), hornyolták. Általában, a
kalotaszegiek kedvtelve használnak ki minden diszíthető terecskét s
így olykor bizony túlrakott a munkájuk; ugyanezt tapasztaljuk
gyönyörű, elmés és eredeti munkájuk, az írás után való varrottason
is, ahol túlgazdagságukban néha teljesen összefolynak a diszítő
elemek. Ez a túlrakottság az egyszerű ember ízlésének a gyöngéje:
mennél egyszerűbb valami, annál kevésbé kedveli s a gazdag fogalmát
nem ritkán összetéveszti a szép fogalmával. De viszont: «Volo
ubertatem in juventute…» Az utcaajtókra is jut az ízlés eme
hibájából. Valóságos ráadás a keresztvonal, vagy egyéb keresztezett
egyenes és ilyen ráadás-motivum az a gótikus halhólyag forma
(186.), amit ott helyez el, ahol az egymás
mellett futó indák nem töltötték ki teljesen a simán maradt teret.
Egy-egy ujabban készült utcaajtón csupa érintkező diszítések
vannak, semmi parasztja nem marad a két ajtófélfának; ugyancsak e
kis kapu mellett, Zsobokon, a nagy kapu zábéján bálványfej is van,
bévül pedig, a kis ajtó fölött citera, úgy, hogy minden
ajtónyitásra megszólal. -132-
-133-
-134-
-135-
Az egyes diszítő motivumok szegélyezve vannak, leggyakrabban egymás mellé vagy egymás alá sorozott négyszögekkel, meghúzott keresztező átlókkal s az átlók közé vésett kis tetraeder-alakkal (187.); olykor a négyszög párhuzamos vonalakkal van osztva, például a (188.) ábrán két tulipánsort választ el egymástól a váltakozó négyszögdísz motivum. -136- Van egyéb fűzött vagy egymás alá helyezett kis idom is, például az, amelynek két függélyes oldala egyenes, felsője domboru, alsója homoru; ezt a vésett formát szívesen alkalmazzák boton, kapa s kasza nyélen is. Szeretik a csúcsaikkal érintkező négyszögeket s a vonalacskákkal osztott félköröket.
A kis kapuk másik csoportja a virágdiszítéses, elvétve némi figurális elemmel vegyesen. A mértani diszítés azonban ezekről sem hiányzik teljesen, ha egyebütt nem, találunk a szegélyeken s még gyakrabban az ajtófélfa alján. Az ilyen kis kapukon részint homoru, részint domboru a vésett diszítés. A domborut – a teknikai feldolgozás természetéhez híven – vaskos, erőteljesebb formák jellemzik; a homoru forma inkább vonalas, vékony s a szélesebb hatást vonalszaporítás révén érik el. A domboru formák nem igen gazdagok motivumokban: ismétlődnek az egyes ágból induló tulipánok, levelek s kacsok. Legegyszerűbb ebből a fajtából a Ketesden ismétlődő tipus (189.): az ajtófélfa alsó részének közepére vésett különös alakú edényből indul a domboru egyenes inda, amelyen, jobboldalt s baloldalt, tulipán és levél váltakozik; az inda, kisérve a kis ajtó formáját, átvonul a szemöldökfára is. Egy nyárszói kis ajtón (173b.) az inda hullámvonalasan kúszik fölfelé s egyszerű levelek, kacsok, virágfélék vannak rajta, madár is ül az ágon, sőt egy kezdetlegesen ábrázolt emberi alak is látható, baltával kezében, a jobboldali ajtófélfán. Egy még a mult század elején hatalmas tölgytömbökből faragott csupos fedelű sztánai utcaajtón (179b.) is ott a levél és a tulipán, de metszett csúcsú négyszögek is vannak az ajtófélfákra faragva s mintegy bolthajtásszerűleg diszítik a félkörben végződő ajtónyilást. Hasonló, négyszögekből összetett diszítés választja el néha (188.) a hullámos ágon ülő, váltakozó tulipándíszt, amelyet a már ismert kis háromszög motivummal is megtoldanak. Ritkább az a diszítés, amit egy mákói kis kapun találtunk (191.): egy-egy karikákba fonódott kígyó van domboruan a félfákra faragva, – az egyik kígyó szájában virág, a másiknak a fején pedig valami sasféle. Ehez a fajtához sorozhatjuk azt a másfélszázados, elég épen megmaradt kaput is, amely a nagy-kapusi cinterem bejárását őrzi s amelyről a temetők kapcsán lesz szó. (432.)
ABLAKRÁCSOK. (185)
1. Magyar-Valkó; 2., 9. Magyaró-Kereke; 3. Sárvásár, vörösre föstve; 4., 5. Körösfő; 6. Daróc; 7. Magyar-falkó, kékre föstve; 8. Bogártelke; 10., 11., 12. Zsobok.
A vonalas diszitésű kis kapukon is találkozunk az edényből induló vagy szabadon álló hullámvonalas ággal, amelynek homoru oldalára kerül a levél és virágdísz; ebből a fajtából a legegyszerűbbet, lecsüngő tulipánokkal, Sárvásárott találtuk (192.); apró levelekkel, különös virágokkal van cifrázva a ketesdi ezermester kis kapuja (172 b); edényből nő ki -139- az ág, tömött levél-, virág- és szőlőfürt diszítéssel, azon a magyarbikali kis kapun, amelyet maga a gazda, Kudor András faragott, tisztán, gondosan, sok eredetiséggel, alul s fölül rózsácskát is vésve a kiugró fölületekre (193.). Magyar ember munkája, Ignác Ferencé, a román templom bejárásának elhanyagolt ajtaja, Nagy-Petriben (194.), – diszítésnek kettős kereszt is került a virág fölé, igaz, minden összefüggés nélkül.
Szép és érdekes egy daróci kapu (186.): több, egymással párhuzamosan kanyarodó s följebb-följebb mind kevesbedő száron ülnek a tulipánok; jó masszásan hat az egész s nem zavar a már említett gótikus eredetű halhólyag diszítés sem; vaskos levél és tulipán motivum van domboruan faragva, alatta rózsácskával, az alsó részre. Lényegében ehez hasonlít a (197–8.) ajtó és zábéi is. Eltérő diszítés van egy (199.) ajtón: két sorban fölfutó hullámvonalon egy levél s kacs, a vonal mentén pontok, tulipán s egy mélyen vésett levélforma közepén kiemelkedő ponttal; az ajtó mellett álló zábén a szárat kígyó helyettesíti, különben a diszítés hasonló.
Szokatlan a gyerővásárhelyi ajtón lévő kezdetleges diszítés (201.), ilyenféle a (202.) is.
Van még egy igen érdekes fajtája a kis kapunak: faragott diszítés nincsen rajtuk, -140- de a szerkezet maga van hangsúlyozva, olyan erősen, hogy hatásuk valóban monumentális. Két damosi utcaajtón (203–4.) a hatalmas faszegeket használták föl diszítésnek. Van olyan is, amelyet csak domboruan faragott szegély diszít (207.); egy nagy-kapusi utcaajtón (209.) a kettős kötél formára faragott szegély közé apró virágdiszítést is «himeztek». Szóval, diszítés van még a legegyszerűbb utcaajtón is, ha egyéb nem, jelzik a félfákon a lábat (211.).
Leveles kapu (210.) ritka ház elől hiányzik, bár újabban, szórványosan, az ujonnan építkező nagyobb falvakban kettétárható kapu is akad.
A leveles kapu két végére jut egy-egy kapufélfa, a kapuzábé, a melynek feje csigavonalszerűen faragott diszítésben végződik; maga a kapuszárny rendesen öt, olykor hat, egymástól három-négy ujjnyi távolságra vízszintesen helyezett deszkalevélből van szerkesztve, úgy hogy a leveleket a kapuszárny közepén egy függélyesen állított léc, illetve oszlop fogja össze, amelyből még négy rézsutosan helyezett léc nyúlik le a legalsó levél alsó széleig. A középléc felső végén van a gombfa, a kalotaszegi diszítés e gyakran ismétlődő, jellegzetes formája: gömb, a gömbön csillag s a csillagon tulipán, – a három közül el-el is marad egy vagy kettő (212–13–14.). Ezt a gombfát megkapjuk a ház tetején, az utcaajtó csupján, megkapjuk a temetőben, meg a gazdasági eszközökön, a járomszegtől elkezdve a kis mogyorótörőig.
BÁLINT ANDRÁS ANDRIS UTCAAJTAJA, KALOTA-SZENT-KIRÁLYT. (182 b)
A szabadságharc idején leégtek a hímes utcaajtók, azóta itt ujat a helybeliek nem csinálnak, ezt a körösfői Korpos György faragta, «jó barátságból.»
A kis kapun maga a nyilás, fölül vagy egyenes, vagy íves, nyomottabb vagy magasodóbb félkörű, olykor vízszintesen álló körhenger alakú pálcatag diszítéssel;5) az ajtószárny néha minden diszítés nélkül összerótt deszkákból áll, néha összefutó irányú a deszkázás, – van azonban gazdagabb tagozásu s az ilyenen diszít a szegezés is. Elvétve, ritkább lécezésű ajtószárnyra is akadhatunk. A kis kapu födele, itt-ott, ereszesen nyúlik előre s ilyenkor az ereszt egy-egy oszlop tartja; ilyen Sztánán a cinterembejárás ajtaja (431.) s Nagy-Petriben a román templomé, amit magyar ember csinált. (194.)
A kis kapu rendesen három-négy sor csipkés fazsendelylyel van födve, olykor – ez a régibb módi – gömbölyűre, csúposan, a csücskin gombfával (179.) Ilyen már kevés van, még Zentelkén akad a legtöbb. A régi kapukon és szegényebb porta előtt, zsindely helyett zsuppfödésre is találunk.
Említettük már, hogy nehány galambbúgos székely nagy kapu is (215. XIV. tb.) tévedt Kalotaszegre, de inkább a legazdálkodott s elhanyagolt néhai uri portákon találunk ilyet.
Foglalkozzunk részletesebben a ház belső berendezésével. Vegyük a legegyszerűbbet, például Zentelkén, Benki Luki Istvánékét, ahol jó régiesen meg van még a pitar, a szoba s a kamara, vagyis a szalonnás, amelynek ajtóretesze a «vakzár», a «komarabot», a szobából záródik s menten észreveheti az asszony, hazáratlanul feledte künt a szalonnást.
A pitar nincs bepadlásolva, de hogy a tűzhelyről a láng föl ne
csapjon a hiuba, a tűzhely fölé fenyőboronafák vannak boltozatosan
összeróva s ezek képezik a «langfogót»-t. A boronafák tapasztva is
vannak. A tűzhely mellső része s a tüzelőhely környéke barnábbra
van mázolva, hogy a füstrakódás ne csúfítsa. A padláson, a tűzhely
előtt vonul végig a mestergerenda, be a házba, illetve a szobába. A
sommásabb konyha holmi künt lóg a pitarban; itt a mosószék s a
háromlábú szapullószék is. -144-
-145-
AZ OLÁH TEMPLOM BEJÁRÁSA NAGY-PETRIBEN. (194)
Magyar fölirással, 1855-ből; annak a magyar faragó földmívesnek a munkája, akitől a farnosiak is tanultak.
Bent a házban, az utcára tekintő ablak alatt, szembe a bejáróajtóval, ott az első pad, amelynek folytatása, sarok fordulóval, a bal pad, a ház udvar felé eső fala mentén; a vendéget, akit meg akarnak becsülni, oda ültetik. A pad földbe ásott sason és cölöpökön áll. Itt az asztal. A bejáróajtótól jobbra, sarokban, a kemence; a kemence eleje «plattenes» – a kemence mellett a «pucik-pad» (gyerek alszik a pucikban). A harmadik sarokban, a kemence és az első pad között: az ágy; az ágy előtt két, módosabb helyen négy «egyes szék», olykor karosszék (a támlás padot nevezik széknek, maga a szék «egyes szék»). A bejáróajtótól balra a negyedik sarokban, a keskeny «vízpad». Az ágy végiben az esztováta, a szövőszék. Az első pad és bal pad sarokérintkezése fölött az «öveges téka», – módosabb helyen jut, az ágy mellé is «fali téka». A padok fölött a fogas és tálas; «első és bal fogas», teli kancsóval s ott a keretes kis tükör is. A bejáróajtótól jobbra: fogas és polc a főzőedényeknek s «fazokak»-nak. A mestergerendára van erősítve, «bakasztó»-val, «járom»-mal, a «hosszú póc», – ott áll a gyújtó (hogy a gyerek hozzá ne jusson), ott a beretva, biblia, tükör s mi egyéb megbecsülni -146- való apróholmi, nyáron az ablak is odakerül a mestergerendára, mert itt nem sarkos az ablak, csak úgy faszeggel van az ablakbélésbe erősítve. A mestergerendába van verve a «fonalrángató» erős faszeg», szapulás után azon rángatják a fonalat, hogy fodrából kinyúljék; vannak ott apróbb faszegek is, kukoricakötni; ott a «vetőkaró tartó» is, abba jő a vetőkaró tengelye (a vetőkarón vagy hatvan-nyolcvan sing fonál fér meg s onnan szedik le láncba, úgy megyen az esztovátára). Az ágy rendesen 130 cm magas, úgy, hogy alatta 70–75 cm magas az ür s ott elfér a láda vagy a kihúzható «karikáságy» a gyereknek, az ágy végiben meg a szuszénk; jellemző: az ágyba úgy feküsznek, hogy szembe kapják az ablakot, mert jó látni, hogy mi történik odakünt. Az ágy fölött, körül a sarokban s el a kemencéig, a «rúd»; ünnepen legalább egy «rúd fenn lóg», módosabb helyen pedig minden üres falra jut «rakott rúd», – mert a sok szép varrottast odarakták ki hajdan s rakják ma is még, ahol maradt. De azt mondja Benki Luki Istvánné, hogy nincs már a faluban varrottas, – «kiszedték mán piacra, a koporsóból is».
A butorzat, mint látjuk, nem sok s nem igen változatos: asztal, pad, padláda vagy fakanapé, fiasláda, szék, ágy, láda, szekrény, fogas, tálas. Formában legváltozatosabb a szék s diszítésében is sok az eredetiség, bár a városi formákat is utánozzák; diszítik a támlás padot is. Tipikus régi formája van Kalotaszegen az asztalnak s az úgynevezett «komarás asztal»-nak; szerkezetileg is elmés. A ládák többnyire föstve vannak, a menyasszony kapja s a régi ládák közt, a negyvenes évekből, remek diszítésü példányok akadnak még. Általában, míg künt, a szabadban, teljes világításban álló holmi diszítése vésett s faragott, – a butor diszítése inkább föstött s ez jobban is érvényesül a gyérebb világítású szobában. Föstött diszítés kerül a székre, padokra, ládára, a polcra, a tékákra s egy-egy helyt az ágyra is; az ágyon inkább a varrottas a dísz, maga a varrottas-hajtásos lepedő, a párnák varrottas csúpja s a szintén kivarrott úgynevezett «ágyfűtöl való». Föstik a kis széket is, de több a faragott; szerelmes legény ajándéka, aki maga vesződött véle; ezt viszi magával a leányzó a fonóba is. Elmés, díszes holmi volt a régi világban az asztal fölé lógó, fából faragott gyertyatartó, – ma már a padláson hentereg, ahol még tűzre nem került, kiszorította a fotogén (petroleum) lámpa; ezek között is volt föstött, de inkább -150- faragással diszítették s helyesen, mert az égő gyertya világításában jól látszott rajtuk a himzés, a faragás; különben is, egészséges érzékkel, szinezésük rendesen a kifaragott részt hangsúlyozza.
Becsesebb apró holmiját, gunyáját (a fehérneműt) s ruháit ládában őrzi a kalotaszegi. A gabonás láda, a fedéllel nyíló szuszink inkább havasi oláh munka, vásári portéka, nincsen föstve, faragott diszítése is nagyon sommás; szegényebb háznál a gunya is ilyen szuszinkba kerül. A láda kisebb; módosabb háznál – már ekkor az ágy végében – kettő, három is áll egymáson.
Nézzük már most egyenként a paraszt-butor szerkezetét és diszítési módját.
A kalotaszegi szék (240–43) háta rendesen egyetlen darab deszkából készül; szerkezetileg a hátnak az a föladata, hogy támaszul szolgáljon az ülésnél, tehát jó szélesnek s laposnak kell lennie a váll magasságában és erősen be kell ékelni a szék ülőkéjébe, hogy meg ne kotyogósodjék, – a deszka tehát rendesen megmarad egész szélességében a beékelésnél s a váll magasságában is; a diszítő bemetszésekkel azonban mégis bizonyos karcsú -151- formát adnak az egésznek. A székhát néha hegedűalakra van vágva a profil két domboru vonala közé iktatott homoru bemetszésekkel, de olykor, kis legömbölyítéssel, megtartják a négyszögletes alapformát is; vannak barokkosan asszimetrikus formák, majd félkör vagy több körrész képezi a székhát felső részét. Általában, az egyenesekkel itt-ott elválasztott domborodó és homoru vonalakból kombinálják szép természetes motivumaikat. Nem akarjuk azt állítani, hogy e székformák tipikusan magyarok, van ilyen a németnek, a franciának, a svejcinek s általános a szék hátán az a szív- vagy egyéb formájú kimetszés is, ahová a kéz négy ujja befér, a szék odébb emelése végett; gyakran találkozunk székháton is a református cseréppel, az urnából s vázából kinövő virágdiszítéssel, vésnek ilyet az ülőkére is, ágon váltakozó levelet, tulipánt, rózsát. A szék ülőkéje kevésbé alkalmas a változatos alakításra, nem is igen diszítik, csak egy kis elgömbölyítéssel vagy sarklemetszéssel, peremét hullámos rovátkolással a deszka szélességében. A székláb ritkán esztergályozott (az esztergapad is ellensége a népművészetnek s hogy a városi hatás általában mennyit ront a népies butoron, annak elijesztő példájával találkozunk, – ilyen korcs a ketesdi ezermester kasztenje (244) is), amelyen felül ott vannak az idegen formák, míg alsó berendezése, a rácsos vízpad tiszta kalotaszegi; többnyire nyolcszögletű, vagy pedig meg van hagyva, némi simitással, a maga természetes gömbölyűségében.
A kalotaszegi berendezés elengedhetetlen darabja a (245) pad; a magasra vetett ágyat meg se igen bontják, – csak télvíz idején, – inkább a padon hálnak; régente az újabb módi szekrényt (kaszten) is a padláda helyettesítette. Mindig falmentén van állítva. Háta vagy egész deszka s ilyenkor föstött dísz van rajta, vagy csak a támaszkodásra alkalmas magasságban van egy hátléc, amelyet az ülőkével kis oszlopocskák, vagy hátlécek kötnek össze ballusztrádszerűleg; a hátlécek formája váltakozó, keskenyebb és szélesebb lapok sorakoznak; a szélesebb gyakran tulipánformára van vágva. Diszítésükről szólunk a föstött butor során.
Szerkezetében egyszerű, célnak megfelelően szép a kalotaszegi
asztal (246). Két talpba van két széles
deszkaláb beróva s ezeken fekszik az asztallap, alatt az asztalfia,
a fiók; a lábakat széles, erős lécek kötik össze s csapokkal vannak
megerősítve; a talpakon léc van keresztül fektetve, «lábító»-nak.
«Komarás» az asztal, ha a két láb közé, az asztalfiók alá, kis
ajtós szekrényke van helyezve (247–8). A
régi asztalok nem voltak föstve, ma már a jobbmódúak díszítik
asztalukat is, nem mindig szerencsés izléssel (249). -154-
-155-
Kis padon, a vízpadon (251) áll, korsóban, cseberben, facsuporban («kártya») az ivóvíz (250); a vízpadon néha korlát is van, hogy a kicsi gyerek magára ne ránthassa a vizet.
Jellegzetesen kalotaszegi butordarab (252–5) a téka: falon függő, polcos, fiókos, ajtós kis szekrény, amely néha tálassal van kombinálva. Legszokásosabb formája a sarokba készített «szegellettéka», amelynek homloklapja két falat érint. Díszítésükről a föstött butorok kapcsán szólunk s ugyanott a menyasszonyi ládákról is.
Elmaradhatatlan kis butordarab, – hisz még leánykorában kapta az asszony s meg nem válnék tőle öreg bonya korában sem, – a hímes vagy föstött, de mindig szeretettel díszített «kicsi szék» (256). Ezen remekel a szerelmes legény! Néha fiók is van a kicsi széken s himes nemcsak a négy lába, de még az ülőke alsó lapja is. A négyzetes ülőke lapját hibátlan térbeosztással díszítik, jelezve a középrészt, a négy sarkot s a tengelyeket; középre rendesen nagyobb rózsácska, nemzeti címer vagy tulipán jut, a sarkokra kisebb, – középről, a tengelyek mentén, szintén tulipán indul, ágakkal körűlvéve. Érdekes példányt találtunk Körösfőn, 1876 BA fölírással; hangsúlyozva van a közép- s a négy sarok, a többi rész pedig apró rovátkolással van díszítve, tarkítva keretezett ólomrózsácskákkal; érdekes az a kis szék is, amelynek ülőkéje valaha valami kékfestő nyomó mintája lehetett, mert az ülőke mindkét lapján régi eredetű faragás van, még pedig olyan, amelyen a rajz nemleges része, a háttér van kivésve, – a himes deszka megtetszett valamelyik kalotaszegi magyarnak s négy lábat dugván beléje, kész volt a kicsi szék.
Egy-egy faluban találunk olyan földmívesre, aki az esztendő felében, szinte mesterségszerűen, butorkészítéssel foglalkozik s bizonyos stilust ád az egész vidék holmijának. Ilyenek, például Nyárszón, az öreg molnár, Barta Sámuel tanítványa, a fiatal Viskán Laci, ilyen, -156- Körösfőn, Péntek Gyugyi György; Viskán a föstött butor mestere, Péntek himes asztalkákat és székeket készít, ládikókat, tálcákat, sötétre politirozott alapba vésett, kissé kemény, tirolias ornamentációval, amelyen meglátszik az állami fafaragó iskola sablonos, tucatoktatásának a hatása (257). Hogy mily keveset törődtek azokban az iskolákban a magyar elemekkel! Faragó szobrász Magyar-Gyerő-Monostoron, Bertha, apró, színesre föstött kalotaszegi leány- s legényszobrai, e siralmasan gyári munkák, el vannak terjedve országszerte; kár, hogy a különben tehetséges ember teljesen e tucatmunkára adta magát. Mennyivel becsesebb a bogártelki, daróci, a zsoboki faragó földmívesek dolga! Egy-egy népét szerető s megértő pap, így például a magyar-valkói fiatal tiszteletes, Miháltz Ákos, maga jár jó példával hívei előtt: butora javarészét maga készíti, maga díszíti jó régi népies motivumokkal (258).
«Butoruk főérdeme – írja munkatársunk, Kriesch Aladár, – a legnagyobb minden egyébnél, hogy szépségük szerkezetükben rejlik, nincs rajtuk fölösleges; de föladatukat, kötelességüket hiven betöltik s mindamellett mennyi leleményesség, a vonalaknak milyen gazdag harmóniája!» Ugyanez a leleményesség, a harmónia ösztönszerű érvényesitése jellemzi művészetüket, amikor föstenek, szineznek. «A teli, viruló szinekbe való belemerülés jellemzi általánosságban is Kalotaszeg művészetét; diadalmas zászlóként lobogó ismertető jele ez különben, minden élő, igaz művészetnek.» Szinezik, föstik az asztalt, a széket, a ládát, ágyat, fogast, tálast, kis székeket, a fonó kereket, guzsalyt, a sulykot, gazdasági eszközeiket, a jármot, gazdagon a kapuzábékat s az utcaajtókat.
FESTETT DÍSZÍTÉSŰ SZÉK: MÁKÓRÓL, MAGYAR-BIKALRÓL ÉS VISTÁRÓL.
FESTETT DÍSZÍTÉSŰ FONÓKERÉK, MÁKÓRÓL. (XV. tb. a.)
FESTETT DÍSZÍTÉSŰ KANÁLTARTÓ MÁKÓRÓL.
FESTETT DÍSZÍTÉSŰ FOGAS, MÁKÓRÓL ÉS MAGYAR-BIKALRÓL.
FESTETT DÍSZÍTÉSŰ SZÉK MAGYAR-GYERŐ-MONOSTORRÓL ÉS MÉRÁBÓL. (XV. tb. b.)
FESTETT DÍSZÍTÉSŰ FALITÉKA, B.-HUNYADRÓL.
FESTETT DÍSZÍTÉSŰ «ÖVEGES», MÁKÓRÓL ÉS MAGYARÓKEREKÉRŐL.
FESTETT DÍSZÍTÉSŰ LÁDA B.-HUNYADRÓL. (XV. tb. c.)
Ime néhány példa a föstött holmi közül:
A széket szeretik kék alapszínnel bevonni s erre föstik a díszt, piros, zöld, sárga, fekete s fehér színben. Legtöbbször csak a szék hátát diszítik így s ha néha az ülőkére is jut diszítés, az csakhamar lekopik onnan, bizonyítva, hogy oda bizony föstött diszítés nem való. A székhát aljának közepéről, a szokásos cserépből, vázából indul fölfelé a leveleket s virágokat hordó inda, kétfelé válván a szívalaku székhátkivágás körül; a székhát tetején tulipánokban végződik. Egy (XV. tb.) vistai, asszimetrikus formáju, némileg barokkos szék közepén vörös a rózsácska, két oldalt fehér s ezek fölött van a szokásos virágcserép, a melyből vörös és zöld levelek hajlanak lefelé, az inda két széles zöld levél közt fölfelé halad s a hát közepét kissé nagyra szabott vörös rózsa foglalja el; belőle lehajló két ág tölti ki mellette a megmaradt helyet s fehér szárnyu, fekete-vörös-vonalas, fehér pettyes galamb áll rajta, elfoglalva az asszimetrikus bevégződő részt, mely fogásra alkalmassá teszi, pótolva így a hiányzó szivalaku kivágást. Ilyenforma egy mákói (XV. tb.) szék felső része is, – megvan ugyan a szivalaku kimetszés, de az ujjak számára nem ád helyet az a benyuló rész, ami a sziv felső bemélyedésének mintegy továbbképzése; rojtos, piros zsinórral megkötött, zöld szárból piros és fehér tulipánok s vörös szegély kiséri az erősen bemetszett körvonalakat. Hasonlóan, rojtos zsinórosan kezdődik egy szintén mákói (XV. tb.) szék, amelynek formája annyiban tér el a szokásostól, hogy hátának alsó része rövid s konturájának bevájt két oldalrésze elnyult és fent két csücske van, közepén pedig szivalakkal végződik; a szár s vele két piros gyöngyvirág megkerüli a nagy szivalaku kivágást; a három felső motivum mindegyikét piros tulipán tölti ki.
Egy bikali szék (XV. tb.) hátának felső köralaku részét rózsakoszoruk foglalják el a kis sziv-kimetszés körül; e koszoruk alatt nagy piros-sárga tulipán, lejebb, vékony száron, középből kinőve, két szivalakú virág helyezkedik el.
Még jobban érvényesül a hát köralakja egy monostori széken (XV. tb.): a diszítésre szánt mező sárga, a vörös cserépből kiinduló sűrű leveles indák a szivkivágást veszik körül s végükön három vörös tulipán van. Nagyon különös, szokatlan alakja van (XV. tb.) egy mérai széknek; háta valószinűleg a tulipánalak továbbképzése; széles vonalu a tulipán két oldalkonturája s fölül visszakunkorodva, köralaku nyilásokat képez; e között az ollóra emlékeztető két rész között van a tulipán belső, szintén széles vonalu középvonala, változatos konturjával s fölül a két oldallal összekötve; a szék alapszine vörös, fekete erezettel, világos vörös konturokkal.
Gyakori a színes fonókerék is. Kivált Mákón készül az ilyesmi (XV. tb.); egyes részeit különböző szinűre mázolják, csak a szélesebb tagokon van némi dísz, például felfutó inda, két oldalt bogyókkal.
A tálason a fogak szerint tagolódik a diszítés; a fogak közé eső rész van kitöltve rózsácskákkal egy (XV. tb.) bikali kék tálason, a rózsácskákat levélfüzér köti össze s két végén lefelé forduló tulipánnal végződik. A fölötte lévő mákói kék tálason hullámosan halad a levélfüzér a fogak fölött, alatta gyöngyvirág, tulipán tölti ki a köröket és az a -158- különös, Mákót jellemző, lefelé fordított virágalakzat. Egy mákói kék kanáltartó lapját a kanáltartó rés tagolja, a diszítésre szánt mező közepén vörös tulipán áll s onnan erednek, jobbra-balra el, a hullámosan menő szárak s rajtuk gyöngyvirágok, rózsák, tulipánok. (XV. tb.)
Nagyon gazdag diszítésü egy vásárhelyi (XVI. tb.) polc; kissé különös módon fekvő piros cserépből nő ki a fekete, vastag, hullámos szár, a szár alatt és fölött rózsa, bogyó, tulipán, szegfű s levelek sorakoznak sűrűn egymás mellé, egészen betöltve a teret; az alapszin sárgás-zöld, a különben hosszu polcon, kifejező az erőteljes sötés inda, az egyirányba való kiterjedést hangsulyozván. -159-
A ládának három látható oldalát s tetejét, a födelét diszítik,
de jut diszítés a tető belső részére is. Leggazdagabb diszítés a
láda elülső, hosszu oldalára kerül, mivel ez az oldal látszik
legjobban, egyszerűbb a tető dísze s még kevesebb kerül a két
kisebb oldalra. A hosszu oldalon és a tetőn a középvonaltól jobbra
és balra, rendesen két négyzetes mezőt alapoznak más színnel, e
mezőkbe jő a fődísz, a megmaradt részen inkább keretezés, vagy
térkitöltésü szerepe van a dísznek. -160-
-161-
Kissé cifra, elaprózott szinfoltu egy hunyadi (XVI. tb.) kék láda dísze; valószinüleg csak aféle vásári holmi, mint fölirása is mutatja: «Készült 1893-ba, Birja békével e ládát a míg él a kijé». (Külön megrendelésre készült ládán a tulajdonos neve a födél belső lapján van.) Az elülső oldal két négyzetes sárga mezején kehely-formából nőnek ki a szárak, lenyulnak lefelé a sarokba, a sarkokat kitöltő fehér s vörös tulipán három ága fölfelé tör, kék s fehér rózsákkal, szekfűvel; a leveles középágat nagy kék rózsa fejezi be. Túlságosan cifra e ládán minden diszítés; magán a kehelyalakú edényen is virágok vannak; a kulcslyuk alatt is rózsa, összeköttetésben a kulcslyuk-vasalás virágával; a láda két oldalsó részén levelek s cifra rózsák, két szélén, a láda lábaira is lenyúlva, szintén levelekkel tarkázott cifra rózsák.
Sikerültebb, izlésesebb, szinben is kellemesebb ennél egy
sárvásári láda (XVI. tb.) a sötét alapra
föstött tömörebb vörös dísz bizonyos nyugodt jelleget ád az
egésznek. A szokásos virágcserép nem hiányzik erről sem; a
cserépből jó vastag leveles szár nő elé s terjedelmes négylevelü
rózsa van a szár végén; a két cserép peremén, vékonyka zöld indán,
rózsák piros karikákból s a kulcslyuk alatt, szintén rózsából
kinövő ágon, bogyók, a láda két szélén sárga-piros fonatos rózsából
tulipánok nőnek föl. -162-
-163-
-164-
VÍZPADOK. (251)
1. Magyarókereke; 2. Gyerővásárhely; 3. Nyárszó; 4. Sárvásár, bévül kenyértartó; 5. Zentelke, tojástartóval; 6., 8., 9. Kis-Petri; 7. Kalota-Szent-Király, födéltartóval.
Az idő is diszített azon a szépen fakult hunyadi ládán (XVI. tb.), amelynek sötétbarna az eleje s a teteje, sárga a két négyzetes mező s a sárga mezőben fekete cserépből fekete száron két fekete levél hajt ki, kisebb-nagyobb vörös rózsákkal. (Nem lehetetlen, hogy sötét zöld volt egykor az, ami ma fekete); a mezőket, vörös-fekete-sárga szegély veszi körül s hullámos indákon fekete-sárga keskeny levélkék töltik ki a többi teret; a szögletekbe vörös-fehér tulipánok nyúlnak le.
Régi butordarab az a bánffy-hunyadi láda is (XV. tb.), amelynek elején kékesszürke alapon sárga négyzetes mezőben piros kehelyalakból nő ki a négy, félig vörös, félig fehér tulipán, a négy sarokba illeszkedve: középen nagy vörös, két oldalt fehér, összetett rózsa-alakzat van; a kulcslyuk alatt és a láda két szélén piros, fehér s fekete levélcsomók; teteje az előbbihez hasonló; a belső sarkokból kinyuló száron, tulipán és rózsa tölti ki a szegleteket; a láda oldalán nagy összetett rózsa van, körülötte levélkoszoru s kisebb csillagrózsák.
A téka alapszine rendesen sötét s világos a rá föstött dísz; a hosszu keskeny ajtóra és a téka két széles szegélyére külön dísz jő. Az ajtó maga, két vagy három részre osztva, kisebb mezőkké lesz, ahova ismétlődő motivumok kerülnek (XV. tb.). A két szegélyen felfutó szárakról, rendesen igen tömötten, tulipán, rózsák és levelek nőnek ki, betöltve egészen a tért; a felső részre néha kivágott diszítés kerül, hogy világosság jusson a szekrényke belsejébe is. Egy mákói kék téka (XV. tb.) felső része tálasszerű; ajtaján rojtos zsinórral összefűzött szárakon vannak a virágok, középen a tipikus mákói, sajátságosan lecsüngő fehér virág, két oldalt piros tulipán s két apróvirágos ág; a téka két oldalán, kunkorodó vörös száron, nagy dupla tulipán.
A két föstött kis szék Nyárszóról való, újabb holmi (XVI. tb.) mind a kettő. Becsesebb a gyerő-monostori régibb kis szék (XVI. tb.): sötétkék alapon, sikerült nagy rózsából, a négy sarok felé, ágak nyúlnak s végükön tulipán; az oldalak közepén a mákói lecsüngő virág; a többi teret kisebb rózsák és pontok töltik be; kis fiók is van a székecskén, nyilván a varróeszköz számára; a fölirás («1884. Kató Ferkő Erzsóké») is bizonyítja, hogy ajándékholmi.
A szines sulyok ritkább, – hisz nem is való föstött diszítés a mosófára. De azért akad (XVI. tb.), egy-egy szerelmes legény készít ilyet emlékbe, kipingálva a sulyok «himes» diszítését, pirosra, kékre, sárgára, hogy annál emlékezetesebb legyen.
Annál gyakoribb a szines járom (XVI. tb.) amivel kivált Damos látja el Kalotaszeget.
Élénk, összhangzatos szinezést találunk a kapuzábékon s utcaajtókon (XVI. tb.) főleg Sárvásárt és Zsobok vidékén, de egyebütt is, például Nyárszón, Körösfőn. Nem mázolják be az egészet, a szinezés csak a vésett diszítés, a «him» hangsulyozására szorítkozik s így a dísz szembetünőbb, távolabbról is látható. Alig négy-öt szint alkalmaznak: vörös, kék, zöld, sárga, itt-ott fehér s fekete; kevert, tört szineket alig használ a nép, úgyis megfakítja az idő s akkor lesz még szebb. Lám, az új butor, ha föstött, kiabáló és kemény a -165- mi szemünknek, olyan nyersen kerülnek egymás mellé a szűz szinek, – a nép így szereti, erőteljes, egészséges idegrendszerük megkivánja a határozottat, a teljesen, nyersen akár brutálisan őszintét s nem leli kedvét a határozatlan, a félénk, az elmosódó jellegűben. Nem hangulat kell ő nékik, – ami kék, az legyen kék mint az ég azurja, a zöld olyan mint a smaragdos pázsit, a piros pedig harsadjon, mint a sárga kalásztengerben virító pipacs. Nézzük csak a zsoboki utcaajtókat (XIV. tb.) vagy a damosiakat! A gazdagon szinezett táblás diszítésű damosi kapun zöld a tábla, kék a kör s vörös vagy fehér a dísz. De azért valóságos keleti ügyesség nyilvánul színcsoportosításukban: a csillagok két-két sugarát egy szinben tartják s így őrzik meg a csillagmotivum jellegét, így érik el, hogy a csillagforma nem folyik össze a távolból néző szem előtt sem. A csillagjelleget hangsulyozzák azok a fehér foltocskák is, amelyeket a csillagsugarak vége pöttyent a kör mentén; ilyen izléses takarékossággal alkalmazott fehérrel emelik ki a csillagközéppontot is.
MIHÁLTZ ÁKOS, MAGYAR-VALKÓI TISZTELETES TÉKÁJÁNAK S LÁDÁJÁNAK FÖSTÖTT DÍSZÍTÉSEI; RÉGI PÉLDÁK UTÁN FÖSTÖTTE Ő MAGA. (258)
FESTETT DÍSZÍTÉSŰ POLC, MAGYAR-GYERŐ VÁSÁRHELYRŐL;
LÁDA, B.-HUNYADRÓL, SÁRVÁSÁRRÓL; «ÖVEGES», MÁKÓRÓL. (XVI. tb. a.)
EGY DARÓCI HIMES LÁDIKÓ; EGY NYÁRSZÓI FÖSTÖTT DÍSZITÉSŰ RÉGI LÁDIKÓ; MODERN FARAGÁSÚ LÁDIKÓ ÉS TÁLCA. (257)
Péntek Gyugyi György faragása, Körősfőről.
Önkéntelenül csúszott ki az imént pennánk alól: «keleti ügyesség»… A kairói arab muzeumban s a keleti temetőkben járva, meg-megállottunk magunk is: lám milyen magyaros ez vagy amaz a diszítés, azon a cserépen, azon a síremléken, vonalaiban, szinében, egész -168- motivumában!… Hasonló meglepődésre lehet okunk a szláv népek néprajzi gyűjteményeinek vizsgálása közben is, hasonló meglepődések érhetnek a német gyűjtemények vagy a szélső északi népek etnoszának tanulmányozása folyamán, – de megfelel erre a többek közt Kriesch Aladár munkatársunk: hogy Kalotaszeg művészete mennyire magyar őseredetére nézve s mennyire táplálkozott idegen elemekből, az a művészt, aki annak csak jelen organikus és spontán megnyilatkozását látja és érzi, csak másodsorban érdekelheti. Ez, úgy hiszem, soha teljesen tisztázható kérdés nem lesz s így az etnografusoknak még sok örömteli vitát és küzdelmet igér. Mert hisz tudományos kutatásunkban a harcteret Erdélyből bátran áttehetjük Ázsiába s nyugodtan kérdhetjük, vajjon hány árjáktól vett impresszióval és művészi szimbolummal telítve jöhettek már ide is magyarjaink? De épp oly nyugodtan meg is fordíthatjuk a tételt s kereshetjük az árják, az indogermánok művészetében a turániak már Ázsiából áthozott befolyását. Ez tehát igen érdekes fülemüle-perré fejlődhetik, amelybe mi járatlan művészek világért sem akarnánk beleszólani. Itt áll előttünk a tény, a kalotaszegi művészet ragyogó ténye. Egy minden izében kiforrott, harmonikus művészet, amely mégis lényegében egész határozott különbségeket mutat fel az őt körülvevő népfajokéval szemben. Hogy ezek voltak-e ő reája hatással – valamint ő is amazokra? Valószinű, sőt bizonyos. De hát egy nép nyelve is, nem táplálkozik-e az őt körülvevő népek nyelvéből? Azért mégis mindent saját törvényei szerint átformál. És vajjon egy nép művészete nem azonos-e a nép nyelvével, csakhogy éppen más anyagon keresztül beszél s közvetíti fogalmait és érzéseit? Vajjon nem az-e egy nép művészetében a stilus, ami nyelvében élő szó és mondatkonstruáló törvény? Vagyis az az eleven erő, amely által minden kívülről jövő megnyilatkozást a maga képére, felfogására alakít át? Lényeges-e ilyen körülmények között egy adott művészi stilusban az idegen elemeket keresni, midőn maga a stilus mindent beolvasztó erejével önmagában bizonyítja saját létezését? Miért nem kétkedünk a magyar nyelv létezésében? Mert ezt mindnyájan értjük és érezzük. De a magyar nép másik, alaki beszédjétől, parasztos művészetének stilusától bizony messze estünk. Ezt kevesen értjük, kevesen érezzük.
KALÁNTARTÓK. (259)
1. Batiz Bandi Ferenc kalántartója a mestergerendán, Magyar-Gyerő-Vásárhelyt; 2. 4. Balás Ferenc Mátyásé, Sárvásárt; 3. Tál és kalántartó, Magyar-Gyerő-Monostorról; 5. Szőke Istváné, Sztánán; 6. Szűcs Pistáé, Magyaró-Kerekén; 7. Benki-Luki István kalántartója és «öveges»-e, Zentelkén; 8. Varga Mihók föstött kalántartója Nagy-Almáson; 9. Bogdán Istvánné, Magyar-Gyerő-Monostoron.
1. Himes járomszeg, Nagy-Almásról; 2., 3., 4., 5. Himes ostornyelek, Damosról; 6., 7. Csüllő, sőllő, Jegenyéről; 8., 9. Sotartók, Nyárszóról; 10. Kilincskészség, Nagy-Almásról; 11. Gyujtótartó, Darócról; 12. Iskátulya, Nyárszóról; 13. Vaskilincs, Sárvásárról; 14. Kis fiók, Magyar-Bikalról. (261)
Itt kerítünk sort a diszített apró holmira is, amelyek bennünket nem néprajzi, de művészi szempontból érdekelnek.
A szoba falán s a mestergerenda oldalán vannak a cifra kanáltartók (259), különféle megoldásban. Néha csak egyszerű léc a kanáltartó, megfelelő lyukakkal, nyilásokkal a kanál nyelének; van azután áttört ornamentikájú s van föstött díszítésű is; utánozzák a jászol fölé akasztott széna-lajtorja formáját is, amelynek díszítése a szerkezet pálcikáiból kerül ki.
CSIZMATAKARÍTÓ A JEGENYEI TEMPLOM ELŐTT.
A bérmáló úton járó püspök tiszteletére csinálták 1903-ban. (264)
Az apró holmi kieszelésében s díszítésében kifogyhatatlan a nép elméssége; resü idejében faricskál a földmíves, egy-egy jeles hajlású ág, egy-egy fagöcs szolgáltat ideát munkájához. Így készülnek a sótartók, szelencék, kis ládák, kacattartók, a játékszerek. A jegenyei templom előtt láttunk egy furcsa holmit, – hát ez mi?… A csizmáról azon takarítják le a sarat, – mert amikor a püspök itt járt, sáros idő volt s nem illett volna bekeverni a templomot. (260–64).
Említettük már a régi gyertyatartókat. (265–66) Különös alakú holmi, első pillantásra alig tudja az ember, hogy micsoda, – inkább íjjnak tartaná. Vékony faragott léc, amelynek közepe tájára a tulajdonképpeni gyertyatartó karja van erősítve és pedig, vagy a kar megy a lécen keresztül, vagy megfordítva; a karok vége kiszélesedik és gyertyavastagságú lyukkal van áttörve, ide helyezik be a gyertyát, amit félköralakban meghajlított egy vagy két faabroncs tart egyenes helyzetben, aszerint, amint kétkarú vagy négykarú a gyertyatartó; -172- e rugó a léc alsó végén megy keresztül s beléér a kar gyertyanyilásába, oda szorítva a belédugott gyertyát. A gyertyatartón leginkább a középső függő rész van díszítve; szokott alakja négyszögű hasáb, melynek éleit rövidebben vagy hosszabban bemetszik és vagy a bemetszéseket festik be különféle színűre, vagy magát a lécet s ez esetben a bemetszés nyomán látszik a fa természetes színe; néha egész hosszában is lesimítják az éleket s így nyolcoldalú hasábot kapnak, közbül csillagidomokat is formálva; e díszítést megismétlik a gyertyatartó karjain is. Különös esztergapadon romlott formát mutat egyik példány: a lécen karok helyett korong van s ezen nyugszanak a fakupaalakú gyertyatartók. (266)
GYERTYATARTÓK ÉS KINCSES SZUSZÉK.
a) Damosról, b) Sárvásárról, c) Bánffy-Hunyadról, d) Kincses szuszék, Sárvásárról. (265)
(Négyszeres kissebbítés.)
A szeretettel díszített apró holmi közé tartozik, valóságos ékszere a kalotaszegi fehérnépnek, -173- a vőlegényétől, kedvesétől kapott vászonfeszítő, vetélő, orsófogó, a cifra mosósulyok, a kézi mángorló, a díszes guzsaly és a himes rokka, a szépséges kis kapatisztító.
GYERTYATARTÓK.
1–6. Magyar-Bikalról. 7. Darócról. 8. Damosról. 9–10. Nyárszóról. 11. Magyar-Gyerő-Monostorról. (266)
(Körülbelül nyolcszoros kissebbítés.)
A vászonfeszítőnek a szövőszéken, az esztovátán (268) veszi hasznát a leány- és asszonynép, ezzel
feszíti ki a már megszőtt, de még föl nem tekert vásznat s a
szövőszálakat. A vászonfeszítő két villásan egymásba szoruló
részből áll, egyik fele a villa s ennek ágai közé csúszik a másik
fele úgy, hogy tetszésszerint hosszabbítható. A feszítő két végén
szögecskék vannak, azok nyomulnak kifeszítéskor a vászonba. A
diszíthető mező keskeny rajtuk, de éppen alkalmas valami folyó
láncdíszítésre s ezt meg is cselekszi a díszítő, ritka dekorativ
érzéssel alkalmazkodva a díszítendő tér arányaihoz; ahol a
szerkezet megbontása nélkül szélesíthet a szerszámon, ott szélesíti
és a díszítésen is aszerint módosít. Néhány sikerült példányt
mutatunk be itt. Hasonlóan bánnak a vetélővel, vagy mint ők
mondják, a sikkantyúval. Az orsófogó szinte lantalakú, de sajnos,
ez a holmi már megyen ki a szokásból, egy-egy régi példány még
akad, elvétve. (267–272) -174-
-175-
Helyes holmi a sulyok, a mosófa is, amivel a kut mellett,
patakparton télvíz idején is mezítláb, paskolják a mosásba került
gúnyát. (273–74). Lapátalakú, rendeltetése
szerint súlyos és jól kézbeillő, marokra fogható; a nyele síma,
gömbölyded s a nyelén nincs is díszítés, csak kivételesen, csak a
nem használatra, inkább emlékbe készült példányokon és jellemző,
hogy éppen az ilyeneken, a díszítés nem olyan ügyes, nem olyan
magyaros, mint a többieken. Hogy mennyire helyes, tárgyhoz, célhoz,
anyaghoz alkalmazkodó a díszítő érzés e népben, azt láthatjuk,
összehasonlítván a sulykokat a kapatisztítókkal. (275–76–77). Nagyjából hasonlít egymáshoz a két
lapátformájú holmi, de mivel használat alkalmával az egyiket
marokra kell fogni, míg a másikat csak az ujjak közt tartják, ezt
tekintetbe veszik a díszítés alkalmával, ezért síma a sulyok nyele,
viszont himes a kapatisztítóé; a diszítésének elhelyezése és iránya
is alkalmazkodik a tárgy jellegéhez: az övre akasztva hordott
kapatisztítónál fölül van, látszik a nyél, tehát ezt is díszítik és
eszerint, – a marokra fogott sulyoknál a lapátrész esik fölül, csak
az látszik és a marok alatt a nyél vége, ezt fejezi ki a nyélből
fölfelé induló virágdísz vagy az országcímer elhelyezésének iránya
s ezt a nyél díszített vége. -176-
-177-
-178-
-179-
-180-
a) Csü. b) Vetélő. c) Vászonfeszítő. d) Négy nyüstű csiga. e) Feszítő esztovátán. f) A csiga alkalmazása az esztovátán. g) Lábító az esztovátán. h) Feszítő az esztovátán. (269)
(B.-HUNYAD.)
ORSÓTARTÓK ÉS SERÍTŐ.
1. Kis-Petriből. 2. Jegenyéről. 3. Nagy-Almásról. 4. Magyar-Valkóról. 5. Sztánáról. 6. Serítő. Bogártelkéről (272)
(Háromszoros kissebbítés.)
A díszítési centrum a sulykokon, – a kapatisztítókon is – a lapát közepére esik s ezt hangsúlyozzák csillaggal, rózsácskákkal; e középpont köré sugarasan helyezkedik, az átlók s tengelyek irányában, a többi ornamentum. A sulyoklapát jobb- s baloldalát egyenes vonal határolja, míg a felső- és alsó rész többnyire íves, vagy legalább is tompaszöget képez a két félrész, úgy, mint a kapatisztítóknál, de a sulykokon nem megy át kunkorodó száracskákba. A lapát felső oldalának kiképzése hasonlít az alsó oldal kiképzéséhez, de a középvonal, mintegy a nyélnek folytatásaképp, kis gombbal vagy tulipánvonallal van jelezve, eltérőleg a kapatisztítók díszítésétől, ahol ez az inkább alsónak mondható oldal rendesen egész egyenes vonalú. A sulykok s a kapatisztítók is, rendesen mindkét oldalukon különbözőleg vannak diszítve. A diszítési motivumok hasonlítanak az utcaajtókon alkalmazott motivumokhoz, finom kicsinyítésben; legtöbbször a körosztásából származó csillagok jól véshető formái ismétlődnek. Jellemzően pontos, tiszta faragásuak dicsekedhetnék velük akármely ügyes műfaragó, pedig súlyos kezű parasztlegények munkája valamennyi. Olykor a faragó neve s a faragás dátuma is ott a sulyok élén és ott a leányzó neve is, aki ajándékba kapta. Akadunk olyanokra, amelyeket ugyan egészen föd a díszítés, de az átlók és tengelyek mentén egy-egy nagyobb rózsácska vagy egyéb virág hangsúlyozásával ügyesen, valóságos műízléssel van osztva a tér; naivul buja, szinte telhetetlen díszítési kedvet látunk egyes példányokon. A mélyebb és sekélyebb ornamentumok ízléses váltakozásának példája 1. ábra, – kezdetlegesebb a 3., 5., 9., 12. Több a mértani díszítés, ritkább a tisztán virágdíszes; mindkét oldalán egyforma, például: a 18. Van vegyesen díszített is. A nyél végződése, mint már említettük, gomb, vagy virág; a gombon gyakori a rózsácska. Egy-egy sulyok nyele sípban végződik, hogy sípszóval jelt adhasson az asszony, ha teszem hazulról meleg vízre, vagy egyéb segítségre van szüksége.
Külön szólunk egyik legeredetibb kalotaszegi kis holmiról, a kapatisztítóról. (275–76–77). Apró kis lapátocskák ezek, a surcra, a kötényre akasztva hordja, a köténydarázsolás fölött a fehérnép, amikor mezei munkára megyen kapával, – az ásóra, kapára ragadt földet és sarat ezzel kotorja le, munkaközben. A használati eszközből azonban, éppen mint az orsónehezítő karikóból, amiről ezután lesz szó, apránkint valóságos dísztárgy, ékszer, szerelmi emlék lett, ezt is inkább a szerelmes legény faragja s kedveskedik véle választottjának. Látszik is a munkán a szeretet, hogy a legjavát, legszebbjét adja rajta annak, ami tőle telik. Hát tud is, telik is! Mily gazdag változatosság formai gondolatokban, formaérzékben. És jellemző a népművészet elhagyatottságára, hogy e remek kis holmit eddig jóformán senki sem ismerte, csak éppen a nép, aki nem parádézott vele. A falvakban maga a pap sem tudta, amikor megmutattuk néki, hogy mire való kicsi jószág lehet az. Egyszerű formájában (275) ismeretes szerszám ez más vidékeken is, de Kalotaszeg kellett hozzá, hogy ilyen díszes holmi legyen belőle; a kis lapát is, a nyele is díszes, még pedig mindkét felén másmilyen, – dísztelen alig akad Kalotaszegen. Pedig nemcsak cifraság ez, használják munkára, amint azt kopott, csorbult, azon földes példányaink bizonyítják.
Az egészben nyolc-tíz centiméter hosszú szerszám lapátjának éle ferdén van lefaragva, hogy a sár eltávolítására alkalmas legyen; rövidke nyele van, a fogásra szükséges hosszaságban. Egy darabból készül a lapát és a nyele is, az utóbbit gombbal vagy lyukkal látják el, hogy zsinegre fűzve hordhassák. A kapatisztítók faragást biró, tömött puha fából készülnek rendesen, csak elvétve csinálják vasból. (275). A sok közül csak egy-kettő (276) van föstve. Ólombeöntésű dísz van némelyiken, bizonyosan hogy súlyosabb is legyen; az egyik vasból levőnek (275) a nyele csavart, lapátja félkörű, a másikon egyszerű pont és karikadísz. Rendes alakja a hosszabb vagy rövidebb négyszög; egyenes vonalú a négyszög három oldala; legalsó vonala, a lapát éle, föltétlenül egyenes, a két oldala is, bár néha görbe vonal határolja, de a nyéllel érintkező oldal -187- (a legegyszerűbb dísznélkülieket kivéve) mindig két kis ívecskéből áll, mely a nyél felé kunkorodó kis szarvacskákban végződik. Nagyjából, az egész bizonyos nyílalakot ölt ez által, jól kifejezve használatának célját, de másrészt, az egyszerű ívecskék támaszul is szolgálnak az ujjaknak. A nyíl, legtöbbször, közepe felé fogásra alkalmas módon vagy megvastagodik, vagy köralakú gombot visel; ilyen gomb van a nyél felső végén is, hogy zsinegre fűzhető, vagy megköthető legyen. E célra gyakran át is van lyukasztva ez a rész, vagy maga a dísz képez ily lyukat. Az egyenes nyilformájú mellett, néha az ívalakú is előfordul. A lapátrész közepét rendesen valami rózsácska hangsúlyozza, vagy a négy csúcs van kiemelve ilyenfélével, vagy pedig egyesítve van mind a kettő. E rózsácska köré, mely lehet áttört is, csoportosul a többi dísz, egészen kitöltve a teret. Ritkábban indul ki virág a nyélből vagy más dísz; elvétve a szerszám hosszát hangsúlyozó vonalas is előfordul. A rózsácska négy-hat-nyolcszögű csillagalak, teljesen azonos a kapukon látottakkal; a középső díszt könnyen véshető apró háromszögek veszik körül, áthúzódva a nyélre is. Néha nincs is egyéb dísz, olykor rózsácskák is vannak vagy pedig a nyél szélesbített középrészét foglalja el ilyen; vannak áttört nyelűek, de némelyik már a túlzásig ki van cifrázva s hasznavehetetlen volta ront szépségén. Egy-egy példányon évszámra is bukkanunk.
A sulyok mintájára készül a lapicka, (278) a kézi mángorló fa, – lapátja jóval hosszabb szabású, rendeltetése szerint sokkal súlyosabb a sulyoknál s alsó oldala, mely a gúnyát mángorolja, természetesen, síma. Felső lapja, ahol a gazdag díszítés van, kissé domború, így formásabb és súlyosabb. A hosszukás lapátalak formájához jól megértetten alkalmazkodik a himes díszítés; a hosszúkás alak középponti kiképzésre alkalmas nem lévén, a nyélből nő elé a díszítés: az indaszerű szár, amelyen, két oldalt, levelek, virágok, csillagmotivumok ülnek, betöltvén szint’ az egész fölületet; a díszítés mögé mintegy háttérrel szolgál az apró háromszögvéset; a nyél vége kiszélesedő szívforma, két oldalán a szokásos csillaggal.
Kedves kis holmija a kalotaszegi fehérnépnek az orsónehezítő «karikó» is, (279–283) amit az orsó aljára illesztenek a fonás megkezdésekor, amikor nem lévén még elég fonál az orsópálcikán, az orsó magában nem elég súlyos a pörgetésre. Az orsóra illeszthetés végett van a karikán az áttört lyuk s ha gömbalakú, ha buzogányformájú, a bemélyedő nyilás. -188- A karikó rendes alakja az aránylag nem vastag korong, amelyből kereket, csillagot formálnak; vannak hengerkeszerűek, vannak teljes gömbök s vannak díszes buzogányfej-formájúak. Készül fából, márványból, kőből, alabástromból s öntik ólomból is, (285) fából készült öntő mintába.
Az Egeres-menti falvakban és Zsobok vidékén, ahol alabástromot s
márványt bányásznak, remek kőpéldányokat találtunk, valóságos
ékszer, olyan csinosak, ügyesek. Csudálatos, hogy e kis holmi
alakjának kieszelésében, a csekélyke fölület díszítésében mennyi az
elmésség, az ízlés, az ötvöshöz méltó díszítési érzék.
Legegyszerűbbek az öntött példányok s nincs is rajtuk nagy
változatosság. Annál változatosabb a fából faragott karikó.
Köralakja mintegy magától kinálkozik a rózsácskadísz kialakítására
s valóban, mindazok a rózsácskaformák, amelyeket kapukon,
kapatisztítókon, sulykokon láttunk, mind meg vannak a karikókon is,
sőt sokkal nagyobb a változatosság. Új meg új megoldását eszelik
-189-
-190- ki a kör kitöltésének, természetesen mindig
mértani formákkal; a tárgy kicsinysége alig engedne meg a
rendelkezésükre álló egyszerű faragó eszközökkel egyéb szabadabb
díszt. A fából készült karikók csak alacsony, keskeny
hengeralakúak, ritkán áttört kerékformák. A kőkarikók legnagyobb
része szintén ilyen s ez esetben ugyanolyan a dísz rajtuk, mint a
fakarikón, de a kő anyagának megfelelőleg vastagabb henger
oldalfelülete is díszítve van, olykor írással s évszámmal. A kör
középpontjából, az orsólyukból sugarasan kiinduló csillagalak
mellett kisebb csillagidomokat és rózsácskákat helyeznek a lyuk
köré, gondosan kitöltve minden megmaradt helyecskét kisebb-nagyobb
háromszöggel. Míg a kő és fakarikóknál jellemző a vésett homorú
rajz: az ólomból öntötteknél domború a rajz s ez természetes is,
mert nemleges alakját, az öntő mintáját faragják ki. Az egyszerű,
megfordított alakok mellett sokszor a teknikának jól megfelelő
formákat találunk, ami ismét csak a kalotaszegiek helyes ízlésére
és pompás formaérzékére vall.
A szépen diszített apró holmi közé tartozik, ennek az ékszert
nem viselő gazdag ízlésű népnek fényűzése még a himes diótörő,
mogyorótörő, az almapotyoló, a templomban használt zsótárszorító
(284–285). A
mogyorótörők díszes példányait mutatjuk be itt, olyikon rajt van a
temetői fejfák csillaggombja is. Furfangosabb kitalálás az a
csavarra járó diótörő, amelyet a ketesdi ezermester eszelt ki: a
házikóba szorított diót a csavarral roppintja össze; de milyen
ügyes annak a házikónak a díszítése, milyen formás, milyen újjak
közé illő a csavar fogantyúja is. Aféle kis almacsép az
almapotyoló, – inkább gyermekszerszám ez, a nehezen érő savanyú
almát potyolják puhára, levesesre a kis nyélen csuklóra járó
gömbalakú hadaróval. Díszes, ismétlődő tulipánalakokból formált
villa a zsótárszorító, – ma már nem igen használnak ilyesmit, a
régi világból valók ezek a Kis-Petriben lelt példányok is.
-191-
-192-
-193-
-194-
-195-
DARÓCI, BOGÁRTELKI S EGYÉB KALOTASZEGI KARIKÓK (ALABÁSTROM, ÓLOM, FA). (283)
(Körülbelül felenagyság.)
HIMES MOGYORÓTÖRŐK (KÖRÖSFŐ, KETESD, MÁKÓ, NYÁRSZÓ) CSAVARRAJÁRÓ DIÓTÖRŐ (KETESD) ALMAPOTYOLÓ (KIS-PETRI.) (284)
(Körülbelül felenagyság.)
ZSÓTÁRFOGÓK (KIS-PETRI.) – KARIKAÖNTŐ MINTA (ZSOBOK.) – FARAGÓ BICSKA (B.-HUNYAD.) – CIRKALOM (M. GY.-MONOSTOR.) – FÜRÉSZ (B.-HUNYAD.) – KANTAHORDÓ FA (B.-HUNYAD.) (285)
BIVALYSZEKÉRRE VALÓ SARAGLYA, ABBÓL AZ IDŐBŐL, AMIKOR MÉG VASUT NEM JÁRT; MIKLÓS MÁRTONNÁL, NYÁRSZÓN. (289)
Külön szóljunk a gazdasági eszközökről, mert diszíti a kalotaszegi magyar, hogyne díszítené, az ő kedves kenyérkereső szerszámait.
Alig akad eszköz a gazdaságban, ami ha gyakran kézben jár, faragott, himes, vagy föstött ne lenne. Ezzel becsüli meg a maga holmiját, szeretetét így mutatja. Himes a faragó szerszám nyele, a fűrész fogantyútól a szekercenyélig, a kaszanyél s a kaszakőtartó, himes a kapanyél, himes a járom, az ostornyél, himes a szekér fája, de még a vasára is jut cifra (288) Tudni kell, hogy a kalotaszegi földmíves, ha csak lehet, összes gazdasági eszközeit maga cselekszi télidején, a nyáron eltett szerszámfából. Legnevezetesebb szerszáma ehez a «kézvonó», két fafogantyúval ellátott ivesen hajlított éles vas, amivel a kézvonószékbe lábítóval maga elé szorított nyers fát simítja; ilyen kézvonóval vájja a kis teknőt is. Nevezetes szerszámja a «furu», a csaperesztő-, a légyszegeresztő- és gereblyeszegeresztő furu (ilyennel készül a «lyukas fa», (286) a csirkeitató). Munkálkodik már gyermekkorában, akkor végzi a fonási munkát; gyerekmunka volt hajdan a «kerekkas», a venyigéből font, «küllül-belül» sárral tapasztott kosár, amiben a gabonát tartották; gyermek fonja ma is a juhlászát, a lészát; a legénynép ügyesen bánik a fürészszel (amelynek négy részét rámának, köznek, csattolónak és fognak nevezik) s a hornyolóvassal, a kis horgas favésővel, amivel egy-egy gyönyörűen rajzol a fába.
Hogy szekerük (287–90) díszes, az természetes. A szekér vasrészeire, a marokvasas rúdfűre, a hatlóra, a fojtóvasra (ami a simejt fogja le a tengelyhez) a kovács kalapál cifraságot; a farészeket, a hosszú vagy kurta lajtorjafákat, a lajtorjafogakat (a hét zápot), de még a kerékküllőket is, maga a gazda vési csillagosan, tulipánosan cifrára.
Díszes a járom, himes vagy föstött, de gyakran jár együtt a két mód: ki is föstik a faragott díszt pirosra, kékre, zöldre, nemzeti színűre. (292–93) A járom ornamentumai között legszokásosabb a magyar címer, két galamb között s ilyenkor a többi rész, az egész «készség» (a járom felső része), a bélfák és a két járomszeg (261.) is, holdacskákkal, rózsácskákkal, ágas, tulipános motivumokkal van borítva; a bélfákra edényből felfutó ágon virágot, gyümölcsöt s tulipánt vésnek. A készségre kerül a faragó neve és a dátum s két végén fejfamotivumok vannak. Egy-egy jármon, például a damosi Vince Ferkő munkáján, megmarad a fa természetes színében a himes rész s a többi kékre van mázolva (294).
A gereblyék közt, – a fehérnép holmija s ezzel is a szerelmes
legény kedveskedik választottjának, – sok a himes (295–96); a díszítés szabad, csillag, rózsácska a
gereblyefogak fölött s végig hornyolva a többi, föl a nyélen is,
mintegy középig, hogy a kézbe kerülő rész síma maradjon. A
kaszanyélre apró -196-
-197- homorú, félholdszerű bemetszések kerülnek, így a
kaszakőtartóra is, amelyet néha színeznek is, zöldre, kékre
(293). A csép, motolla, kapanyél, ostornyél
(261) s bot is himes, olykor föstött, helyes
beosztással; a «strázsabot», amit a falu soros éjjeli őre hord,
gondosan van díszítve, ez is faricskál rajta, amaz is, amig «példa»
lesz belőle. (296, 297, 298) A vízhordó-, a
kantahordó fák közt, amivel a leány megyen kutra, sok ügyes példány
akad (285, 296).
1., 2. KASZAKŐTARTÓ, KÖRÖSFŐRŐL, AZ 1. ZÖLD ALAPRA FARAGVA. 3. KASZAKŐTARTÓ, JEGENYÉRŐL. 4. DAMOSI JÁROM, VILÁGOSKÉK ALAPON PIROS FEHÉR ZÖLD FÖSTÉSSEL A FARAGÁSON. 5., 6. HIMES KASZANYELEK MAGYAR-GYERŐ-VÁSÁRHELYRŐL. (293)
A könnyű, puhafából készült fapoharakra, (299) az úgynevezett pásztorkalánra is jut a díszből. Fogásra és tarisznyához függesztésre alkalmas fülük szokott lenni, a fül néha egész nyéllé növekszik s az ilyen pohár már inkább kanálalakú. E két részt díszíti a pásztor unalmában egyszerű motivumokkal; a fogantyú állatfejben is végződik, leggyakrabban azonban kis háromszögek, pontok, körök, vonalak, kis virág s a sűrűn előforduló kigyó kerülnek díszül a pásztorpoharakra.
Térjünk át a házban található cserépholmira. Egy értelmes faragó ember, Istók Pista Szemes, bikali földmíves szedegette elé a füstös mestergerendáról, sok noszogatás után a «míveket», a miket a télen cselekedett. Mert csak télen nyúlhat a faragó késhez, a «nyiszoró»-hoz, – amikor a bihaly dolgától jut hozzá érkezése. Volt ott sok holmi: sulyok, csüllő, serítő, borotvás iskátula, sikkantyú, kis tükör, készen vagy megkezdve, – hát ez mi? kérdem, egy félig himzett iharfa táblácskára mutatva. A fatáblára valami mácsonyavirág forma volt vájva, olyan stilizáló érzéssel, a tér dekorativ kitöltésének annyi ösztönszerű ízlésre valló gazdagságával, olyan gyönyörű arányosan, hogy elcsodálkoztunk rajta.
– Ez? Hát csempe nyomtató, Topónak – válaszolt Istók Pisti Szemes. – Az a gaz, amit ráfaragtam, az künt terem a gyepű alatt. Mondok, valami haszna kerüljön… Mer’ hogy olyan formás, az aszály pusztítaná el!
Így lesz a mácsonyából diszítő motivum. Arra is megtanított Istók Pisti Szemes, hogy mi az a csempe? A csempét «kályhá»-nak hívják Kalotaszegen, a «kályha» pedig «kályhafiókot» jelent s ilyen kályhafiókokból rakja össze furfangosan kemencéjét a kalotaszegi magyar, beföstvén a cseréplapok eresztékjeit miniumos pirosra, vagy kékre, vagy zöldre, – de inkább pirosra, mert a piros, az a kedves színe ennek a derűs lelkű népnek.
– Ki az a Topó?
KALOTASZEGI HIMES HOLMI. (296) (DAMOS, B.-HUNYAD, M.-BIKAL, KÖRÖSFŐ, DAMOS.)
(Strázsabot, kantahordó, guzsaly, csép, vetőkaró.)
1., 2. HIMES STRÁZSABOT. 3. HIMES GUZSALY. 4. HIMES CSÉP. 5. HIMES VETŐKARÓ. (DAMOS, KÖRÖSFŐ.) (297)
– A Nagy János Topó? Fazekas… osztán! (Az «osztán» csudálkozást jelent, hogy annyit se tud az urifajta.)
– Hol lakik?
– Hogy hol? Hunyadon lakott annak a hetvenhetedik bopája is (bopa: nagyapa, bonya: nagyanya), mer’ hogy fazekas volt az egész nyámság (rokonság) örökké.
Egy reggel, Hunyadon, betelepedtem Topóhoz. Mintha hazaérkeznék itt az ember, minden házba s alig hogy szóba ereszkedett a háznépével, mintha mindig ismerte volna őket.
Csurgott az ég, a házban erősen félhomály volt. Mert külön műhely nincsen, arra nem telik; a kis ház egyetlen szobájában, az utcasorra nyíló ablak előtt, az «első padon», a ház oldalfalába vágott, tenyérnyi «tekintőlyuk» mellett ült Topó mester s előtte a «korong». Keze alá, munkájához, a tekintőlyukon át adódik bé a világosság. Felesége, formás derekú eladó leánya és az inasa is ott dolgozott véle.
– No, gazd’ uram, meg akarom tanulni a mesterséget én is, – mondék, helyet foglalván a «balpadon», az inas korongja mellett. És akarom forgatni a korongot, – zökken egyet-egyet, de bíz az nem forog.
– Hm! – bólint Topó, egyet sunyítván, – mer’ hogy az a paripa nem mindenkit ismér! Nem türi az magán a cipellős úrfit.
Hát levetjük a cipellőt. Csakugyan: ahogy mezítláb támaszkodtam a koronglábítóhoz s meztelen lábbal lökdöstem a korongaljat, nyomban engedelmeskedett az ősegyszerű masina és forgott a korongtál helyesen. Topó elémcsapta a korongtálra a marék agyagot s nézte egy darabig kedvtelve, mint kínlódom vele; aztán megsajnált:
– No! abból se lészen ma csatlós kancsó, elhiszem, – és oktatott türelmesen, jósággal, a fazekas tudományra. Ezalatt leánya «írta» a tálakat «szalú»-val, felesége a sörményen (örlő) a gelétet örményezte.
– Az a’, – kezdte, mialatt ügyes újjai nyomán szédítő gyorsan formálódott a síkos agyag s mutatta, mit csináljak, – persze hogy a’ vót, agyaggal mocskolódék az egész nemzetségem. Vélem az esett, hogy apám elhótt, mielőtt engem ráoktatott volna. Az öreg Miklós Ferenc keze alá kerültem… Szerettem, biztos, hogy szeretem ezt a lucskos mesterséget. Ha apád az vót, mondok, légy té is az, ne vesszen a mesterség… Miklós Ferenc gazdám eleénte kicsig ütögeté az újjamat, de Isten azér’ áldja meg. Másként lettem vón’ -200- tekergő. Aszondják, egy tűt aki tud csinálni, az is jó!
– Hány éves kigyelmed, Topó?
– Köszönöm, egészséges vagyok.
– De mégis?
– Hászen, én csak ötvenkettő.
– Meddig tanult kigyelmed Miklós Ferencnél?
– A tanulás öt esztendő. Aztán akinek ha addig nincs esze, mehet a vízzel verset. Apám ebbe a helybe lakott, iparkodék biz’én ide magam is. Biz az, úrfi, lelkem! száz esztendeje is mult, hogy az a verem ott az ágy mellett a sarokban s itt löcsölik vízzel benne az agyagot! Az ajtó mellett meg a sörmény. Bo-bonyám (szépanya) sörlésközben ahajt szoptatta apámat. Most is csak azon a lyukon köpik egyet-egyet a kű.
Künt zuhant valami. Az inas matatott a hiúban, lepotyantott egy csempét.
– Egy kályha lecsepege a hiuból, – mondotta nyugodtan Topó, és feleségéhez: – Mán kettő e héten! Ha még egy, a gyereket megtaslizod.
Kértem, mondaná el, legelejétől kezdve, hogy lesz a fazék?
– A fazék?
És minden irányítgatás nélkül, apróra, így tanított:
– Már mi csak a határunkból való agyaggal dógozunk. A Hados ódala a mi jogunkban van. Az ember szekeret kerít, hárman-négyen bémegyünk a fődbe s kihányjuk fődszinire. Isten ügyel, hogy nyakunkba ne szakadjék a főd, mer’ a bíz’ ott nyomná az embert, pedig még előbb kontyoló alá szeretném adni a jányomat.
FÖLDMIVES- ÉS PÁSZTOR IVÓKÉSZSÉG. (299)
1. Magyaró-Kereke. 2., 3., 5. Magyar-Bikal. 4. Ketesd. 6., 7., 8. Körösfő. 9., 10. Nagy-Almás.
SZARKALÁBAS, KIS-BABÓS, NAGY-BABÓS, KOSZORÚS, BUZAFŰS, TULIPÁNTOS, SÚNYOROS DISZÍTÉSŰ EDÉNY, B.-HUNYADRÓL.
A FAZEKAS SZERSZÁMAI. (304)
1. Butyóka, amivel fölverik az agyagot a verőszékre. 2. Szelő, amivel vékony forgácsokban leszelik az agyagot, hogy a kavicsok előkerüljenek belőle; könnyű kéz kell hozzá, többnyire az asszony csinálja. 3. Agyagrögök. 4–5. Fakés, amivel az agyagot alakitják a padon; zsendelylapát, amivel a kész nyers edényt a szárító polczra helyezik. 6–7. Ecset s a festék csurrantó tülök.
HOGY KÉSZÜL A FAZÉK? (302)
1. Összatapsolja az agyagot. 2. Húzza föl. 3. Lenyomja. 4. Lyukasztja. 5., 6., 7. Csűbe húzza. 8. Fogja a szájat. 9. Húzza föl megest. 10., 11. Szájjat csücsörít. 12. Fakéssel kerekíti. 13. 14. Hasat csinál. 15. Csinálja ismég, a szája szélit. 16. Fenekszegélyt kerít neki. 17. Feneket bévül takarítja kézzel. 18. Most csinálja készre a szájat körömmel meg csipővel (bőrdarabka). 19. Levágja a padról dróttal. 20. Leveszi készen. (302)
1. AGYAGTAPOSÁS. AGYAGVERŐSZÉK A BUTYÓKÁVAL. 2. AGYAGTERITÉS. 3. AGYAGRÖGÖZÉS. 4. A FAZEKAS KORONG. 5. ÉGETŐ KEMENCE. (306)
Itthon a fődet béhányjuk verembe, oda né, az ágy mellé. Kis-kapával összevagdaljuk, béáztatjuk. Mikor beázik, beverjük a tőkén, butyókával; aztán szelővel leszeljük. Így lesz a forgács. Az a’, lucskos mesterség e’! Lám a forgácsot megest csak áztatjuk, majd letakarjuk zsákkal s megtapodjuk háromszor. Most gyűn a padra. Itt begyurjuk háromszor. Aztán szabjuk, amennyi köll belőle egy fazakhoz.
Mán itt a markomban!… Verem belőle a szelet kifele, a tenyeremben, – most csapom a korongra!… Ehun e! Most csücsörítem… most húzom csőbe… vájom a fakéssel, hogy szélesedjék… mind csak szélesítem… Megvan!… Húzok néki egy degyeget az újjommal, hogy így kerüljék elé a szájja… Most fakéssel húzom föl utána újból… csinálunk néki hasát… Most fenékszeget vetünk néki… gömbölyítjük a hast szaporán… Eztán kifogjuk csípni a csípőbőrrel… közbe lehetne az embernek pipálni is, de az agyagtól elnehezedik a pipa… Aztán simítunk… Így… Már most csak megjegyezzük… az újjambögyivel öt karikát a nyakára, egyet a hasára… Lám!… Már most csak levágjuk a korongról a dróttal… Avval osztán kész van a csupor.
És gyöngéden, mintha pihés fecskefiókát emelne ki fészkéből, serény újjai közt emelte át az asztalra a még puha edényt (302).
– Tovább is van még, úrfi lelkem. Hacsak ennyi vón’! E’ majd
aztán, ha szikkad, kap fület. Egyet, mer’ csupor, kettőt, ha rátó
(amiben a mezőre hordják az ételt) lenne. Aztán még kicsit ha
beszikkad, fehér főddel beöntjük. Fődet, a fehéret, Révről hozzák.
Abból készül a lugmelegítő, abból a vízmerő fehér kanta is. A
csuprot csak kűlül öntjük -205-
-206- bé fehér főddel, bévül csak a szájjánál. Aztán, ha
egyszer kiszárad, bérakjuk a csűrben, kemencébe, péntek reggel. Ha
megégett, más reggel kiszedjük. Mert a kemencében kétfelül ég a
tűz, kilenc-tíz óra formáig, akkor utóbb béfojtjuk és hülni
hagyjuk. Úgy! Reggel szedjük ki, szombat reggel. Akkor sorba rakjuk
s bévül, egyszer, megöntjük sárga mázzal.
A sárga mázat? Az a sárga gelét. Nagy-Bányáról hozzák, az asszony vesződik véle a sörményen, amíg liszt lesz belőle. Ha a sárga egyszer megvan bévül, a szájjat zöld mázzal kenjük.
A zöld máz? Hát úrfi lelkem, az úgy van, hogy megveszünk egy-egy mihaszna rézüstöt a cigány kolompártól, megégetjük, megtörjük, megszitáljuk és az is az asszony dolga a sörményen. Mán most gelét, egy kicsi szitált porond s a vizes rézliszt, összekeverem, az a zöld máz. Mint az eperfa levele!
Hogy a sörmény?! Az drága kő. Afajta hosszú fekete darócos oláh hozza Páncsicsóról (értsd: Páncélcsehiből, Szolnok-Dobokából). Minden esztendőben két-három versben felvágjuk a küvet rovátosan a kővágóval, szép sorjába, egy irányba.
No, de a csupor! Még egy csöpp munka esik véle is! Az, hogy mikor a szájja már zöld, megcsíkozzuk a hasát is, végig zölddel, húzunk közibe egy-egy feketét is, fekete borostyánliszttel: újra bétesszük kemencébe, – vasárnapra parádéban a csupor! Mer’ mán kész. Cifra, úgy-e, úrfi? Az urak munkája nem ilyen ceremóniás? Hej, csak könnyű annak, akinek két bőr van a kezén!
– Micsoda két bőr?
– Hát a keztyű… Az én dógom a csupor. Van olyan is, akit megírunk. Azt béöntjük vörös föstékkel, mihelyt kiszárad; a leány írja rá a barkaságot fehér főddel, a szalúból. Aztán kiégetjük zsengélve, aztán béöntjük fehér gelétmázzal (aranysalak), visszatesszük kemencébe ütet újra, égni, két napra s kész. Mehet vásárra. Mi csak itt járunk hetipiacra, meg olykor Feketehalomra. Egy nap, ha jól megpöködöm a markom, elkészül vagy ötven darab; abból eltörik a kemencében, vagy romlik husz is. Gelétre, bikkfára, mer csak annak a szene (parázs) igazán jó, a’ nem ád sok hamut, mind köll a pénz, – de hát egy pöngőt mégis csak megkeresünk így naponta. Abból rámhúztak jövödelemadót -207- hat pengőt, taksadíjjat iparjogba két pengőt. Fizetek. Nem jó szívvel, de meg köll fizetni. Ami marad, abból élünk. Csakis ebbül! Ebbül bizony, mert nékünk künlévő nincs semmi. Más, vet-arat, abból jut nékünk is picula csuporér’!
Szeretik, amit a jányom ír! Tud ő szarkalábast, kis babósat, nagy babósat, csillagosat, koszorúsat, tulipántost, búzafűst, eresztett sinyórost, szőlőfürtöst, minden csudát. (303, 305, 309) Ami a szalúból telik. Hanem egyre megy a’! Azér’ a gelét kilója mégis csak harminc krajcár marad, a porcellánfődet se adja Csoma, a bótos, tizenötön alul. Nekünk meg csak az az egy pengő, akihez négyen vagyunk szájjal.
Így beszélt Topó, de azért mosolygott hozzá hamiskásan. És mosolygott a leánya is. Az asszony is, mintha dúdolt volna, mialatt a padlás folyógerendájába horgolt sörménybotját forgatta. Talán éppen azt az ezeresztendős verset dalolta, amit Szent-Gellért püspök hallott a kézimalmot forgató leányzó szájából? Mert nem igaz, nem mulik az idő! Itt száz év előtt is így volt és így lesz, ha egy kicsit vigyázunk Topóékra. A magunk, a magyarságunk érdekében.
– Hát télen?
– Télen? Agyagot inkább őszszel hozunk, két-három szekérrel. Télbe nem esik jól ez a mesterség, itt lucskolódni. Télen? Megyek az udvarba, vágok fát, vakarom a bihalyt, béjövök, eszek, ha ád az asszony, palacsintát, rétest. Ha az nincs, hagymát. Sokszor meg, ha jól megpirongat az asszony, nem eszek semmit, hanem iszok e’ kis pálinkát s haladok el. Hébe-hóba dógozunk. Meg a kitekintőn nézem a menyecskéket is, mikor jőnek a kútra.
Rászólt a felesége:
– Elhallgat kigyelmed!… Hogy a jánya előtt nem sül ki a szeme az ilyen embernek!
Ezt tanultuk Nagy János Topónál s így magyarázta a mesterségit ő. Már most hozzátehetjük – s ez munkatársunk, a jeles szakértő Gróo István vélekedése is a következők folyamán, – hogy bizony az az agyagművesség, ami ma is éldegél Kalotaszegen, úgy teknika, mint diszítő művészet dolgában bizony elsatnyult; kevesen foglalkoznak vele, mindössze nehány Topó fajta fazekas mester készít olcsó piaci edényt. A piacra szánt holmit pedig a népes készíti azzal a gonddal, azzal a szeretettel, amivel a maga holmiját. A korongozott edények diszítése szegényes, egyoldalú, színtelen, csak fehérrel cifra a barnás edényen s ritka a barnával diszített fehér edény. De van azért még szép munka is Kalotaszegen: a csempék; ezeket régi jó mustrák után nyomják ma is.
A fazekas mesterség maga a legérdekesebb falusi mesterségek közül való (306).
A bányából hazahordott agyagot a fazekas elteríti az udvaron, jó
sokat egyszerre, mert porhanyóbb lesz az agyag, ha soká áll;
javítja a fagy is. Amikor arra kerül a sor, hogy munkába vegyék,
gondosan megtisztogatják csigától, kövecskétől; különösen a
csigahéj és a mészkődarabkák veszedelmei a fazekasnak. Az ilyen
észre nem vett, benne maradt darabok oltott mésszé égnek ki a
kemencében, az ujonnan készült edényt ugyan nem bántják azonnal, a
munka épnek látszik, – de a legelső nedvesebb napon megszívják
magukat vízzel s kipattantják az edény oldalát. Ahonnan pedig
lepattan az engobe réteg és a máz, ott átszivárog a víz is. Olyan
helyt, ahol sok ilyen meszes edény áll egy rakáson, egy-egy
borusabb napon állandó a percegés. Ezért ül neki a fazekas a nyers
agyagnak és két kézre fogva görbe kését, vékony szeleteket vág az
agyagból, hogy megtisztítsa. -208- Erre való szerszámja a
szelő. Következik az agyag meggyúrása. A kövecskétől, csigától,
ágacskától megtisztított agyag felkerül a verőszékre (butyókával
verik fel), de hogy formálhatóbb legyen, előbb jól meg kell gyúrni.
A bánffy-hunyadi fazekas lábbal tapodja az agyagot; a rakásnak,
amit a földre terít, előbb a szélét tapossa, úgy halad beljebb,
-209-
-210- a rakás közepe felé; azután asztalon gyúrja
tovább, úgy, mint a tésztát. Neki feszíti tenyerét, öklét s lapos
lepénynyé túrja szerte az agyagot, majd összehengeríti s addig
sodorja, amíg hosszúra nem nyúlik, akár a fonatos kalács tésztája;
akkor aztán összehajtja kétrét vagy négyrét s újra kezdi a sodrást.
Amikor már jó egyenletes az agyag, aszerint, hogy mekkora edényt
akar készíteni, kiméri, kiporciózza az egészet, csak úgy szemmérték
után, de elég pontosan. Mert ha egyszer beléfog, jóideig ugyanazt
az edény fajtát csinálja; ha váltogatná, nem menne a munka oly
szaporán.
«GYŐRI KANCSÓ» DÍSZÍTÉSE. (GYARMATHY ZSIGMONDNÉ GYŰJTEMÉNYÉBŐL, B.-HUNYADRÓL);
«GYŐRI KANCSÓ» DÍSZÍTÉSE, MAGYARÓKEREKÉRŐL. (314)
Koronghoz ül, bal lábát, amire támaszkodik s mely a tartást adja, felteszi az arra való lécre (a lábítóra) és jobb lábával hajtani kezdi a korongot; innen nyul az agyag után, azt még egyszer szerte szaggatja s jól összetapsolja, mielőtt a korongra tenné.
Nagyon ügyes, gyakorlott embernek kell lennie a korongosnak és sok időbe telik, míg belétanul ebbe a mesterségbe. Mert vannak nehéz fogásai, hogy jól és gyorsan menjen a munka. (302) Első törekvése, hogy az agyagtömeg pontosan a korong közepére, a tengely vonalába jusson; ügyes kézzel csapja kellő helyére s azután két tenyerével befogva az agyagot, szinte ránehezkedik az agyagra (2–3), a korongot meg, közben, erősen hajtja. Érzi a forgáson, mikor válik keze alatt az agyag olyan meredek kis dombbá, mely aztán egészen centrális helyzetű. Azután belémélyeszti jobb hüvelykujját erősebben a balt kevésbé és lyukasztja (4.). Ezt a lyukat tágítva öblösíti, nyújtja felfelé a falát, «csűbehúzza», lassan vigyázva, hogy az edény fala egyenletesen vékonyodjék. (5., 6., 7.) Igen kell vigyázni a sebesen pergő, lágy jószágra, hogy szerte ne fusson. A szájnál mindig valamivel vastagabbra fogja az agyagot (8.), mert ott szakad ki legkönnyebben; többi részét bátrabban húzza föl (9.). A munka további menete azután ez: szájat csücsörít (10–11.), fakéssel kerekíti (12.), hasat csinál (13–14.), csinálja ismét a szája szélit (15.), fenékszeget kerít neki (16.), fenekét bévül takarítja, olyan háromszegletű, de nem hegyes fakéssel, aminek közepébe hüvelykujját dugja a lyukba s úgy forgatja (17.), végkép megadja a szája formáját körömmel, vagy egy bőrdarabkával, amelynek csípő a neve (19.). Ha azután a munka eddig sikerült, ha nem «srófos», ha elegendő erős a feneke, levágja a korongról vékony zsineggel vagy dróttal, ráállítja a zsendelylapátra és szikkadni teszi, csak úgy fületlenül. Csak amikor megszikkad valamennyire, akkor veszi le és körömmel bevagdalván, megvizezvén azt a helyet, ahová a fület illeszteni kivánja, a fület tapasztja -211- hozzá. Amikor a nyers edény elég száraz, következik a leöntés (focskolás, engobálás). Finom agyagréteggel, festett iszappal öntik le a szikkadt agyagot s ez a színes iszapréteg ád színt és simaságot az edénynek. Bánffy-Hunyadon a leöntés agyagjának festőanyaga a barnakő (manganhiperoxid) s az ilyennel leöntött edény, ha sikerül az égetés, szép fényes barnásfekete lesz. A fehér agyag engobe is divatos náluk. A fekete edényt fehérrel cifrázzák, a fehéret feketével. Manapság egyetlen diszítő szerszámjuk a festékcsurrantótülök (304.), a gurgulyának egy fajtája, a «szalu». Ökörszarvnak a vége ez, amelynek csúcsát kifurják és lúdtollából vágott csapot illesztenek beléje. Ha fekete edényt akarnak cifrázni, a tülökbe fehér festéket (agyagot) öntenek s ezt csurgatják belőle, úgy, hogy mindenféle mustra keletkezzék. Ha meg fehér edényt díszítenek, fekete barnaköves festék kerül a tülökbe. Sebesen jár a cifrázó keze, mert a tülökből folyton csöpög a festék s nincs idő «irásközben» a tétovázásra. A cifrázás kis kerek pettyeit is a tülökből cseppentik; a nagyobb pettyeket pedig úgy csinálja a fazekas, hogy egy ujját a festékbe mártja s úgy cseppent az edényre, helyes kerek petty marad az ujja nyomán. Ecsettel már alig cifráznak Bánffy-Hunyadon; a kaparás, vágás (sgrafitto) pedig soha nem is volt divatban. A cifrázott edény ismét szárad s pihen egy ideig, csak a teljesen száraz munkát rakják a kemencébe, hogy először is kizsengéljék.
A bánffy-hunyadiak tapasztott kemencéje nyilt katlankemence. Kerek, felül nyilt, fala domborodik, felfelé szükül s fölül, a pereme, kissé kihajló. Legalul, egymással általellenbe, két nyilás szolgál a tüzelésre. (306)
A zsengéléshez nem szükséges olyan vigyázva rakni be a munkát, mint a második égetéshez, nem kell attól félni, hogy az edényeket összetapasztja a megolvadó máz. De azért gondosan rakja a fazekas, kisebb edényt a nagyobba, hogy mennél több férjen a kemencébe, mert költséges a tüzelés. Az első, a szárító tűz lassú, majd szítják addig, amíg elég keményre ég az agyag. Az égetés idejét a kemence nagyságához szabják. A jól kiégett mázatlan cserépnek olyannak kell lennie, hogy a hegyes kés ne igen fogja.
Végin jön, de nem utolsó dolog, az edény megmázolása és a máz kiégetése. A fazekasmáz egyszerű ólommáz. Főalkotórésze az ólomgelét; ehez vesznek körülbelül félannyi súlyú kvarczot (kavicsot, békasót), igen kevés borokalcitot és kaolint. Mindezt, hogy egyenletes legyen, gondosan, lassan megőrlik kézimalmon, őrlés közben vízzel föleresztve s ha a lecsurgó máz nem elég finom, ha még szemcséit érezni az ujjak közt, át «örményezik» még egyszer. Ez hosszú, időemésztő, fáradságos munka s a fazekasok legfőbb vágya, hogy valami tökéletesebb őrlőszerszámot szerezhessenek be. Vastagon megmázolva kerül az edény másodszor a kemencébe. Most már igen vigyázva rakják, nehogy összetapadjanak, amikor a tűzben megolvad a máz. Amikor megtelik a kemence, tetejét megrakják cserépdarabokkal, mert azok áteresztik ugyan a levegőt, de a meleget valamennyire mégis megmarasztják. Az égetéshez is érteni kell. Némely kemence oldalán kis üveges kukucsáló lyuk van, azon ügyeli a mester, megolvadt-e eléggé a tűzben a máz s eszerint igazítja a tüzet. Csak jóval a tűz elalvása után, a kissé már kihült kemencéből szedik azután ki az edényt. -212-
A bánffy-hunyadi korongolt edények (309) ornamentikája, mint már említettük, nem gazdag, kevés motivummal írják. Diszítő formáik nagyobb része geometrikus. A legékesebb tálat, például, középen egyetlen tőből kinövő három nagy kelyhes tulipán, néhány kisebb inda és virág diszíti (a.). A nagy kelyhek szélét pettyek veszik körül s az indákat tüskeforma, szaluval csöppentett diszítés borítja. Ennek egyszerűsített változata az, amelynek közepét egyetlen virág foglalja el (mintha letépték volna) s a csonkaságért kárpótol a félköríves, kunkorodó vonallal töltött gyűrűs fríz, mely a tálon körülfut (b.). Csinálnak Bánffy-Hunyadon olyan tálat is, amelyeknek közepét fenyügaly- (csetenye) forma diszítés tölti ki, vagy úgy, hogy egymás mellett (c.) állanak a galyak, vagy egy középpontból -213- ágaznak négyfelé (d.). Az ilyen csetenyés diszítést úgyszólván megteremti maga a szalu; varrásban, faragásban nem is fordul elő ilyen motivum. Így teremnek a tálon körülfutó körök és hullámos vonalak is, – csak oda kell tartani a csurgatót a korongon pergő edényre s ha ügyel a fazekas, a folyton ömlő kis tülök nyomán szabályos vonal keletkezik. A kört s a hullámvonalat szeretik; akad azonban egyenes vonalakból szerkesztett sakktáblaszerű diszítés is (e.), amelyen minden második mezőt kipontoznak; van olyan, amelyen egy nagy csigavonal alkotja a diszítés magvát, ebből küllők erednek, közben nagyobb és kisebb pontokkal (f.). A tányér peremén, mint a legtöbbön, itt is hullámvonal fut végig. Arra is van példa, hogy a tál közepére meghajlított vesszőt rajzolnak (g.) s erre bogyókat; olykor a tányér egész fenekét egyetlen sűrűen sodrott csigás vonal foglalja el. A födőket is egészen úgy diszítik, mint a tálakat.
A fazekak diszítésében is találunk egynehány típust. Kedves cifrájuk, például, a félkörives fríz; a félköröket pettyek, megkunkorodó vonalak (h.) és fenyügalyforma figurák élénkítik; megvastagított, hullámvonalas indával is szívesen díszítik a fazekat (i. j.). Azokat a sajátságos alakú, ételhordásra készült fazekakat («rátó»), amelyeknek fogantyúját a perem diametrális pontjairól áthajló íves abroncsféle képezi, rendesen függőleges osztású ornamentika díszíti; mintha dongákra szelnék a felületet a pontsorok s az így kapott mezőkbe illeszkedik a fenyügalyacska, vagy valami színes virág (k. l.). Eredeti kalotaszegi fazekasmunka a vőfélykulacs és a tojástartó. (310–11). A vőfélykulacsot hat egymásra helyezett kis kulacs, illetve hordócska képezi, amelyek azonban közlekednek egymással; ugy van készítve, hogy szíjra akasztva hordhassák. Testvére ennek elmésség és újság dolgában, a fantasztikus koronának épített tojástartó; alsó része széles abroncs, ezen áll két egymást derékszögben metsző ív, úgy az alsó tartó rész, mint az ívek, meg vannak rakva kisebb csészékkel és madáralakokkal. Mindkettőt zöld máz borítja, írott cifrázás nincs rajtuk.
A kalotaszegi fogasok és tálasok legfőbb, legbecsesebbnek tartott ékessége azonban nem a kalotaszegi edény, hanem azok a régibb színes, ónzománcos edények, amelyeket ők győri kancsóknak, győri edénynek hivnak; kivitelük csinosabb, színesebbek, rajzosabbak, hogyne kedvelnék! E győri kancsók a kereskedelem révén jutottak Kalotaszegre s nem lehetetlen, hogy az első példányok éppen győri műhelyekből kerültek a vásárokra, bár az sem lehetetlen, hogy a régi gyerővásárhelyi műhelyek is gyártottak ilyesmit s a győri elnevezés a gyerői elnevezésből származik; a nép ma széltében azt tartja, hogy elsülyedt már az a bánya, ahonnan e kancsók agyagját ásták. Annyi bizonyos, hogy hasonló holmival, a mult század közepe táján, még telve volt az egész Felvidék és a Dunántul. Legjobban megbecsülték Kalotaszegen s itt maradt belőlük legtöbb. Annak a virágzó agyagiparnak a termékei ezek, amit a céhbeli, ónzománchoz értő fazekasok míveltek az egész Felvidéken, kezdve Pozsonytól egész Sárospatakig. Kevesebb került Kalotaszegre azokból az erdélyi szász kancsókból, amelyek teknika és rajztudás dolgában felette állván az előbbieknek, könnyen felismerhetők.
Az agyagipari tevékenység, mely a kalotaszegi házakat is ellátta parádés cserépedénnyel, a XVIII. század elején már igen élénk; sokat nemesített rajtok a Habánok bevándorlott törzsének tudása, de ornamentika dolgában teljesen helyi jellegű, népies ízű maradt mindvégig. A XVIII. század hetvenes és nyolcvanas éveire esik e fazekasság fénykora. -214- Ornamentikája dús, az egész edényt elborítja, de eredeti, nem érzik rajta túlságosan a barokk hatás; a rajz gondos, elég finom, egyenletes, bár nem oly tökéletes, mint az első habán fazekasok munkáján. A XIX. század elején azonban – úgy látszik, a külföldi gyárak versenyének hatása alatt, amely kiszorította fazekasaink munkáit az úri házakból, – erősen hanyatlik a teknika, sőt az ornamentika is módosul, silányodik. Az ónzománc már nem oly fehér, hanem fakó s likacsos; a rajzon látszik, hogy sebbel-lobbal van odavetve, – de maguk az ornamentális formák népiesebbek, eredetiebbek lesznek. Még a XVIII. század második felének diszítményeiben sok a közösség a morva és cseh fazekasmunkák ornamentikájával, de a következő században már megszakad ez a kötelék. Látszik, hogy a céhbeli fazekas nem vándorol el messzire, hanem otthon tanul, kevesebbet tud ugyan, -215- de cifrája eredetibb lesz s inkább a népies szűr és subahimzések felé húz. A mult század közepéig haldoklik nálunk ez a teknika, végre is elpusztul, hogy helyet adjon az engobbal dolgozó fazekasságnak. Innen datálódik agyagiparunk elparasztosodása. Azok a képeink, amelyek ilyen Kalotaszegen talált győri kancsókról készültek, módot nyújtanak, hogy az ónzománcos fazekasság fejlődésének fokait megfigyeljük, már amennyiben ez a módosulás az ornamentikán is meglátszik. Színes táblánkon (XVII. tb.) például, mellképpel díszített szász kancsó van; a szász fazekas munkája a XVIII. század második felében igen gondos, – ornamentikája nem népies, de a rokokó figurákat ép úgy, mint a szenteket, elég jól rajzolja meg. Szász ember munkájának látszik még ugyanezen a lapon két kancsó amelyek az arcképesnél valamivel később készülhettek. A többi edény azon a lapon, -216- magyarországi készítés; háromnak kiterített rajza 1780 tájáról való és jó mutató azokból a gonddal, szeretettel cifrázott edényekből, amelyek abban a korban kapósak voltak; a felület beosztása elég szigorú mind a három darabon, vízszintes ővek futnak körül a kancsó testén s ezek az abroncsok, ha keskenyek, egészen geometrikusak, ha szélesebbek, egyszersmind szabadabbak is; napraforgó rózsája, levélfüzér- vagy hullámvonal alakú figurákat adnak. A kancsó hasán maradt legszélesebb övbe jönnek a legjelentékenyebb díszítések. Színes lapunk e három kiborításain a díszítéseket, edényből kinövő bokor, vagy egyes nagyobb letépett virágok képezik, erősen körülhatárolt mezőben, – de van szabadabb kitöltés is. Így egy Gyarmathy Zsigmondné gyűjteményéből való kancsón (314), két ővben egymás fölött, tornyos házakat, jegenyéket s a jegenyében óriás madarakat látunk. Divatos -217- a kockás minta is a XVIII. század vége felé (XVII. tb.). Ékesek a mesterségkancsók, olyanok amelyen egy-egy mesterség szerszámai vannak megrajzolva. Legkedvesebb állatja ez időben fazekasainknak a szarvas (313); a madár és a nyul később lesz divatossá (317) s az a két kancsó, amelyeket ezek az állatok díszítenek, már a hanyatlás korából, a XIX. század legelejéről való.
a) b) c) KIS LŐRINC EZERMESTER KÁLYHACSEMPÉI, KETESDEN. (319)
(A csempék körülbelül háromszoros kissebbitésben.)
A lassú hanyatlással az ornamentika módosulását követhetjük tányérjaink rajzain (XVII. tb.). A két külön álló tányér 1800 tájáról való (315) s egykorú velük a színes lap két tányérja. A színes lap másik két tányérja 1830 felé készülhetett s díszítésük már igen messze áll a József császár korabeliektől. Apróbb, pávatollra emlékeztető szálak nőnek ki sűrűn a szárból, a rózsa, vagy margitvirág újabb, apró leveles ágat hajt s a nagy rózsából fakadó hajtások ágain kisebb virágok ülnek, egészen a mi népies ornamentikánk felfogása szerint. Sűrű levéllel benőtt hullámos menetű indák is divatosak, olyanok, amilyent szűcseink szoktak kivarrni; a szines lap egy kancsóján meg épenséggel ki vannak rajzolva a nagy rózsákban a himzett szálak vonalai. E korból, az ónzománcos fazekasság haldoklásának korából való a színes lap négy kancsója. Szövegábráink között, kiborításban, látható két M.-Bikalról és két Zsobokról való kancsó; köztük legrégibb a sárgazománcos zsoboki (1810–20 tájáról), (312. 316).
Bezzeg más a kalotaszegi agyagművesség gyöngyének, a kályhacsempéknek diszítése! Annak a gazdagságnak, eredetiségnek, annak diszítő erőnek láttára, igaz gyönyörűséget érezhetünk.
A régi erdélyi kályhacsempékből a Kolozsvári Erdélyi Muzeumnak, Budapesten az Iparművészeti Muzeumnak igen becses példányai vannak, de a kalotaszegi kályhák, bár atyafiságban állanak vélük, sokkalta becsesebbek számunkra, mint azok, mert motivumaik eredetében magyarabbak. A XVII. és a XVIII. századbeli városi kályhásmesterek munkáján, minden magyarságuk mellett, érezzük a renaissance és a barokk hatást, hol gyengébben, hol erősebben, – a kalotaszegi csempék diszítése tiszta, zavartalan megnyilatkozása a népies felfogásnak és képzeleterőnek. E csempék régiek, vagy legalább is régi, egy-két száz éves minták utánzatai. A régi minták utánzása sohsem történt s nem történik némi módosítás nélkül. A lágy hársfa, amibe a csempék cifrájának viszáját faragják, megengedi könnyen a változtatást s a faragó ember, ha egyebet nem változtat nagyapái mintáin, hát megtoldja a saját esztendeje számával; bizonyos, hogy az idők folyamán másolás közben történt apróbb változtatás magán a diszítésen is. A régi városi, céhbéli kályhások munkája befolyással volt a kalotaszegi fazekasokra is, mint ahogy viszont a céhbeli mesterek népiesen magyaros felfogása érvényesült a renaissance és a barokk-stilus korában. Ami idegen stilusbéli elemet átvett a XVII. és következő századok folyamán a kalotaszegi kályhadíszítés, azt a minták utánzói, vagy mondjuk inkább szaporítói s megújítói szépen kiküszöbölték onnan, úgy, hogy most alig ismerünk rajtuk idegen stilus hatásának nyomaira. Felötlőbb az, hogy idegen teknika díszítő elemeit keverték a cifrázásba; legtermészetesebb, hogy olyan vésett, geometrikus tagolású rózsákra is akadunk, amilyent az utcaajtó félfáira is vésnek, mert hisz a kályhacsempe mustráját is vésik; sok a régi varrottasi motivum is. Akad, itt-ott, egy-egy kellően meg nem értett renaissance elem is, például kagylóforma (amely apránkint szekfűvé vált), olyan oszloppár szélről mely a barokkban ívet tartott, már egész népies elváltoztatással. Legszokásosabb díszítés az egy tőből eredő hatalmas bokor, amelynek lombjai s virágai, több-kevesebb szabadsággal, olykor egész -218- szigorú tengelyes szimmetriával töltik be a csempe hosszúkás négyszögű mezejét. Hogy ez az ideális lombozat mennyire változó, mennyire különböző művészi jelleg dolgában, azt a rajzokból is látni, pedig ezek nem mutatják a domborodást. Egyiken, amit gyerőmonostori Debreczeni János gondolt ki s Undi Mariska fedezett föl, laza, vékony indák nőnek ki egy edényből s a gyöngéd, hajladozó ágak rózsái, tulipánjai, gyöngyvirágjai is könnyűek, oly finomak (322/2), hogy még aki nem hivatásos ornamentikus is, át kell, hogy érezze ennek az ideális virágzatnak az üdeségét. Másutt (319 c.) egy jókora kosár az ornamentális szerkezet súlypontja s ebből nőnek ki a laza virágos és leveles ágak, amelyek között csak egy, a középső virág (a régi erdélyi himzésekről ismerős) erőteljesebb s ez -219- végzi be, fölfelé a kompoziciót. Páros tömegelosztást, mondhatni két súlypontot látunk a 323. ábra 3. rajzán, melyen a befoglaló idom elliptikus, a díszítés töve szívforma s ebből ered a két nagy rózsa. Néhol az edény, amelyből a bokor kinő, aránytalanul kicsiny, mint egy Mákóról való csempén (324/2) pedig a belőle eredő hatalmas kehely, mely uralkodik az egész mezőben s mintegy második tövét képezi a többi kinövő ágnak és virágnak, igen súlyos. Hogy elvész alatta a két kis madár! Ez a díszítés különben, különös, szokatlan felépítésének ellenére vagy talán épp ezért, egyike a legbájosabbaknak. Éppenséggel nem organikus egy Magyar Valkóról való kályhacsempe ornamentikája (324/3): tövét hatalmas virágkehely képezné, de a kehely kicsiny edényt fog körül s ebből erednek a keresztforma merev szárak, amelyek igen régi, XVII. századi szabású virágokat hordanak; úgy látszik, ez esetben két különböző csempedíszítésnek nem sikerült összeházasításával van dolgunk. Azok közül, amelyeknek elosztása hossztengelyes, említsünk meg még kettőt; az egyiknek (323/1) középső virágja a XVI. század legelejének díszítményeivel rokon, a másiknak (325/3) egész felépítése, sőt motivumai is a gótikára emlékeztetnek. Mindkettő Magyar-Valkóról való. Történeti nevezetességű az a csempe, amelyet ugyancsak Undi Mariska talált és rajzolt le Gyerőmonostoron (321/1); mintáját Debreczeni Pál, Debreczeni Pál, a «Kiovi csata» szerzőjének, Debreczeni Mártonnak testvére gondolta ki. Érdekes benne, mint ölt a kehely, melyből a bokor ered, virágformát. Centrálisan arányos minta, tehát olyan, amelyik alulról s felülről egyaránt nézhető, kevés van Kalotaszegen. Egyet mutatunk be ilyent. (324/1) ugyancsak egy igen régi formájút; rajza a XVI. század elejéről eredhet, abból a korból, amikor Erdélyben a haldokló gótika ornamentikája keveredni kezd a magyar népies elemekkel, aminthogy ez a dályai templom festett menyezetén és az őralljaboldogfalvi templom ablakbélletein is látszik.
A férfiember dolgával s a közösen végzett munkával foglalkoztunk eddig, – szóljunk most arról, ami javarészt a fehérnép munkája, amit a nők végeznek. (326–351.)
Szabó Pali Püspök felesége, Léti Annus asszony oktatott bennünket Magyar-Bikalon, mint készül az a pompás vászon, a kalotaszegi híres fodorvászon, amire «írás-után» varr a fehérnép. Beszélt Annus asszony szaporán s eközben még szaporábban kapkodta egyik «fűkender»-t a másik után a «hehelő»-re.
… Hogy van-e munkánk véle? Elhiszem! Kilencvenkilenc munkája vagyon a kendernek, drágám!
– Épen kilencvenkilenc?
Jórészt. Mert mán a főd is! Válogatni kell azt. Csak az a helyes
néki, aki torha, jó puha, meg egyenes, az az ügyes kenderes főd.
Azt oszt’ télbe marhaganéval jó vastagon megganézzák az emberek,
márciusba megugarolják, májusba keverik újból, megszántják mag alá,
elvetik s beléboronálják. Mer’ minden rendes háznak szokott lenni
kenderes fődje, olyan egy vékárul vetett, de soknak csak félvékás.
Hogy mennyi terem? Egy vékáról megterem négy kalangya, egy kalangya
pedig huszonnyolc fű. Hogy mennyi vászon telik belőle? Telik vastag
is, meg vékony is, vagy száz sing; egy sing négy fertály, éppeg
négy arasz, mert mi csak úgy mérjük. A vastag vászon? A’ négy
nyüstös, a vékony csak kettő. -220-
-221-
Jó. A mag hát künn van, a fődbe. Ha esőt ád a jó Atya, akkor
lesz szép a kender. Nem gyomlálunk. A mag tizenhárom hétig ül a
fődben. Aratástájt lesz csak véle dógunk: akkor nyűjjük ki a
virágost, rá három hétre (szeptember) meg, nyűjjük a magoskendert.
E mán asszonymunka, ebbe az ember nem elegyedik. A nyűvés? Három
markot nyüvünk egy fűbe, békötjük s odaállogatjuk csomóba, – ott
«megüvödik» s negyednapra kiterítjük, ott a fődjin. Ott is marad,
amíg megszárad. Akkor szekérre teszik s hazahozzák az emberek;
itthon a csürbe leteszik s elcsépelik. A magot is még az emberek
szórják föl. Az asszonyok újból felkötözik, tizennégy fűbe egy-egy
csomót s kirakjuk üket az ereszhéjjára, telelni. Tavaszszal, Szent
György nap után, elvisszük a tóba, eláztatjuk. Ha tó nincs, –
-222-
-223- mer’ nékünk sincs, – ahol vizet kapunk, oda, a
réten a göbölydékekbe, ahol a hóvíz megmaradt. Kövekkel lenyomjuk.
Ázik vagy két hétig. Aztán kivetjük, szétterítjük s megszárad.
Itthon elcsapjuk, tillóval. Elcsapás után megheheljük; először
levevődik róla a jobbik szösz, a tövi szösz (abból kerül az
osztovátára a nyújtó-szál), aztán a hegyi szösz, ami a behelen
megmarad (abból adják a beverő szálat), – ehun e’, ami a karomon
marad föltekerve, e’ pedig a fűkender. Eztán letesszük a pincébe,
hogy pihenjen. Amint és az eső, akkor ecseljük, – tövirül jön a
pátyaszösz, fejirül az ecselszösz. Hogy miért akkor, amikor és az
eső? Mer’ akkor nem kopik úgy, nem fullasztja a szegény asszonyt
annyira.
Hogy aztán? Van még véle munka, van, aranyom úrfi, elég. Fűkendert, hét fűt, feltépünk egy guzsalyra, aztán azt fonjuk «nyújtani» orsóval, vagy guzsalyról a kerekre (a rokkára), ha akinek a keze fárad. Így készül a vékony fonál. Annak a sárga fodorvászonnak, akit úgy szeret az úrfi, annak, édes, ilyen vékony fonál a nyújtószála is, meg a verőszála is. A fonalat aztán felmatoláljuk az orsóról a matolára. Mikor tíz pászma egy darab (negyven «íge» egy pászma; egy íge négy szál), levesszük a matolláról s vetjük rá a többit.
Mikor minden asszony elvégzi, lesz a szapulás. Ki milyen ügyes gazdasszony, de mán Szent Pál nap után nem soká hagyhatjuk. A szapulóba kereken, jó lucskosan, belérázzuk, husz-harmincat, egy szapulóba, – béterítjük lepedővel, a «hammassal», ráteszünk két véka rostált cserfahamut s egy nap mind szapuljuk, főzzük, öntjük, mellőle egy asszony sehá nem mehet. Tüzesített kővel forraljuk éjfélig is. Megforgatjuk, ha fótos, úgy pállózzuk (párában melegítés) újra, hajnalig is. Egy nap s éjjel asszonynak nyugodalma nincsen, hogy fekete ne maradjon. Régente, még reggel egyszer kirázták s kezdték újból. No!… Mikor fehér, kimossuk tiszta hideg vízben a kútnál; itt, Bikalon, ki van erre nevezve a Fűzkut, ott mossuk, – kicsavarjuk, kirángatjuk, spárgára, itthon az udvaron, kiteregetjük. Megszárad, mikor milyen idő van, két nap alatt is, három nap alatt is, akkor kirángatjuk. Szegény asszony! csoda, hogy meg van a lelke!… Feltesszük a tekerőre s a tekerőről gombolyégba szedjük, osztég a nyújtót megvetjük a vetőkaróra s leszedjük, – most kerül az esztovátára…
Így a munka a szöszszel is, akiből a verőszál lesz. De a szöszt nem lehet kerekkel fonni, csak orsóval.
Hogy mitől lesz fodros a vászon, amikor lekerül az esztovátáról?… Az asszony munkájától, csak. A mi verejtékünktől, úrfi aranyom! Belényomjuk a vásznat egy csöbör vízbe s verjük a kis székhez, szaporán, sokáig. Ha jó súlyosan fontuk az orsóval, girengyezik (göröngyösödik), megfodrodik, – a’ lesz a fodorvászon. Mert, hej, szép is a’! Koporsómban is jobban pihenek meg, elhiszem, ha a’ lesz párna a fejem alatt…
Erre a szépséges fodorvászonra került hajdan – kerül még ma is, de már ritkábban, – a varrás, az írás után való varrás. Mert ez a szép, ez a művészi, nem pedig az az emésztő tucatmunka, ami «kalotaszegi varrottas» néven kerül ma piacra s ami kenyérkeresetnek kenyérkereset, de a művészetnek semmi köze hozzá.
«Beszéljek a kalotaszegi varrottasról is? – írja munkatársunk, Kriesch Aladár. Arról a szegény varrottasról, mely a legelevenebb intőpéldája annak, hogy mint tünik el a semmiségbe a művészet géniusza, amint valami dolog tisztán pénzért, kereskedelmi célokra készül! Mi az a mai, világoskék vagy rózsaszín selyembe hímzett, idegenbe olcsó pénzért készülő terítő ahhoz az őserejű, régi varrottashoz képest, amit pusztán csak a maguk örömére, ünnepjeik és köznapjaik szebbé tételére készítettek! Emitt a teknikák alkalmazkodása az élet szükségletéhez, a feladathoz s a virágként mindenfelé fakadó motivumok tengernyi sokasága.6) Amott egyetlenegy tehnikának az unalomig való ismétlése két-három elsorvadt motivummal».
A régi kalotaszegi varrottas nagyjából háromféle volt: 1) Az írás után varrott, – melynek öltése rendkívül egyszerű és érdekes. Ez úgy készült, hogy minden egyéb próbálgatás nélkül – koromlébe mártott lúd- vagy sastollal felrajzolták a diszítményt (352–360) s utána kivarrták. (363) Most már nagy ritka öreg asszony ért az írásához. 2) A szálán varrott, – midőn minden előrajzolás nélkül, a vászon szálait olvasva öltöttek s használták az e tehnikánál dívó összes öltéseket, úgymint pl. a keresztöltést, száröltést, stb. (362, 378) 3) A vagdalásos, – amidőn a vászonból, közzel-közzel belévágva, szálait kihúzkodták s az ornamentet helyenként fonállal kitöltötték, körülszegték. (380. 381)
Eme harmadikból fejlődött aztán a modern kalotaszegi varrottas, amely fölött most apraja-nagyja naphosszat görnyed, pár garast keresve s elmúló művészetük morzsáit széjjelszórva a világ minden tája felé.
Az írásos és szálán varrott mindig színes volt, fehéres vásznon színes fonal. A vagdalásos régebben soha szines nem volt, szürke alapon fehér fonállal dolgoztak.
Ma már, nehány gyakrabban ismétlődő mintát leszámítva, nagyon
bajos az egyes minták elnevezését megállapítani; számtalan régi
minta divatját multa, a legszebbeket nem is igen varrják ma már s
aki varrja, elnevezését az sem ismeri, hisz régente is, az
elnevezés faluk szerint változott, sőt egyazon faluban
három-négyféle ugyanannak a formának az elnevezése. Faluról falura
gondosan nyomoztuk s gyűjtöttük a már-már végképp pusztuló régi
mintákat, – munkatársunk, Juhász Árpád is sokat vesződött az
elnevezések kutatásával, amiben segítségére volt Edvi Illés Aladár
munkatársunk is. Magával a formakincscsel szakszerűen eddig kevesen
foglalkoztak, nagyobb gyűjtemény csak egy jelent -231-
-232-
-233- meg (Pentsy-Szentgyörgyi: Kalotaszegi Varottas
Album), ennek is csak az első kötete, amiből hiányzik éppen az
igazán művészi, az írás után való varrottas ismertetése; lehet, a
második kötetben készültek véle foglalkozni. A megjelent gyüjtemény
elmélete hemzseg a tévedésektől s alaptévedése, hogy a
varrottasokat a nép az uri osztálytól vette át… Kutatásaink
folyamán számtalanszor meggyőződtünk, hogy ez az elmélet meg nem
állhat. Föltéve, hogy az erdélyi fejedelmi udvarokból került minták
után dolgozott a nép, – mi bizonyítja, hogy e mintákat az uri
osztály eszelte ki s nem éppen népies hagyomány juttatta föl a
kastélyba? Ellene mond a nép konzervativ természete, nem egykönnyen
vesz át a nép valamit s ha vesz, kevés abban a köszönet; ami nem az
ő lelkének talaján fakadt, az satnya marad, az nem tud fejlődni,
annak nincs gyökere, – már pedig, milyen gazdagság volt itt valaha
éppen varrottasokban! Okoskodásunkat igazolják azok a félig, vagy
rosszul értett formák, amelyekkel ma már lépten-nyomon találkozunk
s amelyek a modern tehnika révén kaptak lábra. Ne kételkedjünk:
azok a régi varrottasok a nép művészi érezésének ép s egészséges
alkotásai, – bár közkincse Kalotaszegnek, mindenki a magáénak
tartotta s tartja még ma is, változtat rajta, hozzá ád, elvesz
belőle, új kombinációkat próbál, sőt ugyanazt a mintát néha annyira
elváltoztatja, hogy csak nagy figyelemmel akadhatunk az eredeti
rokonságra. Kívülről tudták a mintákat a régiek; még most is
akadnak, akik ismernek sokat s ha jó kedvük van, csakis ilyenkor,
csodálatos könnyűséggel és olyan kéz gyakorlattal vetik vászonra,
papirosra, hogy a gyakorlott rajzolót is bámulatba ejtik (352–360).
Más sora van a modern, többnyire sárga vagy halvány rózsaszín, vagy világos kék selyemmel varrott kézi munkának! Azon bezzeg nem változtatnak, nem is igen alkalmas rá az a szabályos, mértanilag, szemekre kiszámított minta; ezt bizony, valamint a jobbmódúaknál divatos horgolt vánkosbetéteket, kétségkívül az uraktól tanulta el a nép, – de nem is fejlődésképes ez, az ő kezűkön halott marad, nem nékik való, ki is rí a falusi szoba környezetéből, ha ugyan maradt még valami igazán népies abban a szobában. De hát ez a nép az uraktól tanulta volna a kapuk faragását, hímes kapatisztítóit, a súlykot, a színes jármot!? Vagy csak éppen a varrottasoknál szorult volna másra, ott ne tudta volna megtalálni forma nyelvén azt a mondandóját, amelylyel egyéb holmiján oly szépen beszél hozzánk!
Mindig a nép volt a művészetek anyja, teremtője, nevelője Homérosztól kezdve minden művésznek; és a néphez tér vissza ismét minden művészet új anyagért, ha a néptől kapott régit már agyon csépelte. Ez a természetes folyamat; a nép a természettel folyton érintkezésben áll s a természetnek képekben, formákban gazdag tüneményei, jelenségei folyton hatnak rá, gazdagítják képzeletvilágát, megtermékenyítik s be is vetik gondolkozásuk talaját a művészi érzék magjával, amikből oly szép virágok teremnek; sokszor tapasztalhatja, például a városi ember, ha megfigyelő képességet tud vinni magával a városból, hogy nyelve, az a tanult nyelv, milyen csinált papirvirág a nép nyelvének élő virágaihoz képest.
De szükség van ilyen ép megfigyelő képességre a nép művészetének méltatásánál is. A varrottas, kivált a tömött mintájú írás után készült, valósággal összefolyik eleinte szemünk előtt, de megismerkedvén, megbarátkozván vele, mintegy érezzük, látjuk kisugározni belőle a ráfordított munkát, kedvet és szeretetet. Mert valóban kedvvel, szeretettel készülnek, vagyis inkább készültek e régi varrottasok, nem pénzért megrendelésre másoknak, hanem maguknak varrták, diszítvén vele magukat és hajlékukat.
A leggyakoribb diszített fehérnemű Kalotaszegen, a kis kendő, a nászkendő, a nagyobb kendők, a törülközők, a rúdra valók, meg a párnahaj (párnacsúpnak is nevezik) vége.
A kis kendők hosszú, másfél méter keskeny (35–40 cm.) fodorvászonból készülnek s két végükön 30–40 cm. hosszú, egyforma vagy néha különböző diszítéssel, és pedig oly módon, hogy keskeny diszített szegély van a két végén, melytől a tulajdonképpeni nagy díszt egy kis keskeny üresen hagyott hézag választja el; lehet keskenyebb, lehet szélesebb a szegély, meg a hézag is, de úgyszólván egyetlen kis kendőn se hiányzik ez a tagozás. -234- Hasonló a nagy kendők vagy törülközők beosztása is, – hasonlóan hosszúkásak, de kétszer-háromszor szélesebbek, nagyobbak.
Más fajta a párnahaj ornamentuma, amelyet sokszor egyenes vonallal vagy valamely dísz tengelyével, illetve középvonalával két szimmetrikus részre osztott díszítés képez. Magát a lényeges díszt, mely jobbra és balra újra szimmetrikus, (tehát az egésznek két keresztben álló szimmetralis tengelye van, amitől a nevét is kapja a varrottas) egyenes vonal keríti kétfelől, s erre következik a szegély dísze, mely folyton változik és külön önálló formájú; a szimmetrikus két részre osztó vonal a vánkosról levéve éppen a szélére esik, úgy, hogy csak az egyik fele látszik a dísznek, a másik a túlsó oldalra kerül (legnagyobbrészt így is vannak bemutatva e könyvben). Az írás utáni varrottas szabadon van rajzolva; szabályos merev részarányosságot egyen se találunk, de éppen ez a szabadság különbözteti meg minden gyári és gyári módon készített kézimunkától; akad azonban olyan is, mint például a kapusi forma, amelyen csak a szegély és csak a jobb- és baloldali rész szimmetrikus. A varrásra használt fonál, ahogy ők nevezik, a fejtő színe rendesen vörös, vagy kék, van fekete s elvétve akad zöld is: mosás után szépen fakul a vörös és a kék.
Hasonló tagozásúak a lepedők is; tulajdonképp ágyterítők ezek s az ágy oldalára lecsüngő rész, a «hajtás» van szélesen (30–40 cm.) kivarrva. Maga a vászon nem elég széles terítőnek, tehát kettőt, hármat toldanak össze, szintén házi készítésű csomózott csipkével, mint ők mondják, recével (379); újabban már bolti csipkét használnak. A terítőnek azt a részét, amely az ágy tetejére kerül, vagdalásos rózsákkal, csillagokkal diszítik, kivált a gyerőmonostoriak.
Hasonló, de méreteiben kisebb az úgynevezett ágyfűtől-való.
Szép az abrosz is, amelynek sajátságos külön diszítési módja van, s ezt az ornamentumot más varrottason is alkalmazzák, abroszformának nevezve: körformát betöltő, elszórt nagyobb-kisebb diszek ezek s a toldások kiemelése széles fogazatos varrással vagy csipkével történik. Még ide tartoznak a női ingek gallérjai, vállfüi s oldalvarratai is.
Formai szempontból vizsgálva a varrottasokat, legfontosabb a formai alapgondolat, amely mintegy váza az egész diszítésnek. Ezt a rendesen egyszerű, vonalakkal kifejezhető alakot ruházzák fel a varrási tehnikának megfelelő szerkezeti és formai elemekkel s változatokkal, olykor annyira dúsan, hogy maga az alapgondolat, a váz, csak figyelmes vizsgálat után ismerhető fel; vannak oly sűrűen bevarrottak, hogy így, képen, be sem mutathatjuk, bár eredetiben, minden túltömöttségük mellett is, elég jól hatnak. Maga a formai alapgondolat nem túlságosan sok, de feldolgozása annál változatosabb; úgyszólván fel van használva minden lehetőség, amit a varrottasok különben egyszerű varrási tehnikája nyújt.
A kis és nagy kendők fő motivumai képviselik az egyik leggyakoribb alakot s mint mellékdíszek, szegélyek, előfordulnak lepedőkön, párnacsupokon is.
Leggyakrabban az egy tövön nőtt öt-virágos motivum ismétlődik;
ismerős alakítás ez a magyar népművészetben egyebütt is, előfordul
kapukon, butoron, gazdasági eszközökön, elő a szűrökön is. A kendő
szélességének közepéből indul ki a szár, tetején van az egyik
virág, mellette két oldalt vagy kissé lejebb egy-egy virág s
legalul ismét kettő. Magából a tőből indulhatnak a mellékvirágok,
átlósan, vagy pedig a szárból, valamivel följebb; az alsók pedig a
tőből vagy cserépből felfelé fakadnak vagy lefelé hajlanak,
kunkorodott száron. Rendesen öt virág van e száron, de előfordulhat
hét is, amikor újabb két száron ülő virág van beiktatva a közepén.
Többnyire egy-egy ilyen virágzat képezi, vagy kettő egymás mellett,
úgy az írás utáni, mint a szál utáni varrottasok egyetlen
alapmotivumát; alattuk kis szegély, hézag s a szélén ismét szegély.
E forma pompásan belé illik a hosszú, keskeny kendőkbe, jól
hangsúlyozván a felfelé menő irányt. A párnacsupoknál már többféle
a formai alapgondolat. Két – olykor csak egy – részarányos tengely
körül helyezkedik el e dísz, a párna élét a vonal képezi, amely
alatt és amely fölött a -235-
-236- duzzadóra tömött vánkoson látható a varrás. E
szimmetrális egy pontjában, mint egy négyzet közepében, átlók
kereszteződnek, akár egyszerű egyenes vonallal kifejezve, vagy néha
csak alig vehető ki e vonal a reá halmozott formák sokasága miatt;
ez az úgynevezett «selyemkeszkenő forma». Ritkább a «kapusi forma»;
ennél nem a középvonalból, hanem az egyik szélsőből indul egy virág
a másik vonalig terjedő nyulványokkal s mellettük ferdén felfelé
haladó széles vonal; egy-egy ilyen motivum mellé, megfordítva,
sorakozik egy másik vagy több is. A «pápaszemes» vagy «jármos»
valóban szemüvegre emlékeztet hullámvonalával és ebbe helyezett
virág díszével, – a középvonal alatt és fölött egymásfelé fordított
alakzatok vannak. Ilyen forma a «hintókerekes» is. Az
«abroszformánál» egy csigavonalú vagy köralakú száron nőnek ki a
virágok, befelé és kifelé, – az első esetben egy nagyobb virággal
végződnek a középen, ha pedig körbe van fogva a szár, a diszítés
közepét külön álló rózsa foglalja el. Virágból és levélből
váltakozva, párhuzamos, függélyesen álló, külön felismerhető
oszlopok adják a «dorombos» formát. Van sok egyéb elnevezésű, de a
formai gondolat alapjában csakilyen.
Az írás utáni varrottas öltésformája a «sinyór», mely, mint neve mutatja, a zsinór fonását tünteti föl: a két, felülről befelé menő szálak közepütt hegyes szögben találkoznak; ugyanennek az öltésnek szélesebb fajtája, amikor középen még egy keresztben fekvő rövid szál is látszik, – az írás utáni varrottasok javarészén ilyen az öltés. Egyszerű, párhuzamos, egymás mellé simuló öltéseket is használnak, ezek alkalmasak különösen a szélesebb formák és közök kitöltésére. Beszegésre, toldások összevarrására valami különös, fogazatos, fürészes varrásmódjuk van, hogy ezzel is szélesebbé, gazdagabbá tegyék e vékony diszítési elemet.
Szerkezetileg is nagy a szerepe az egyszerű sinyóröltésű vonalnak; ez tünteti fel gyakran a formai alapgondolatot, ez adja a virágszárakat, s a virágokat befoglaló körvonalakat; egyenes mivoltában mint elválasztó rész szerepel; a szegélyeknek ez képezi alapját s ugyancsak a fődísznek is; egyenes vonalak közé kerül a párnacsupok, az ágyfűtől valók, valamint a lepedők főornamentuma is.
A diszítési elemek magából a tehnikai, a varrási módokból könnyen adódó egyszerű alakulásokat mutatnak; nyugodt s kellően síkhatású az egész kézimunka, az erősen stilizált növényi részek s virágok kifejlett, helyes szépérzékre vallanak. Soha a varrási tehnika határait túl nem lépik s amit csinálnak, az könnyen, mintegy játszva folyik munkájuk természetes jellegéből; ismerik jól a maguk egyszerű eszközeit s derüs kedvük, szépet áhító lelkük látszik meg munkájukon, – aminthogy meglátszik a városi nők kézimunkáján, a hajszálvarrásokon, a tűfestéseken az unalom, a görnyedő fáradság, a karaktertelen nemzetközi mintákba posványosodott stílus érzéketlenség.
Térjünk vissza a legművésziebb, az írás utáni varrottas elemzéséhez.
Az egyenes szárból vagy konturból kiinduló és oda újra visszatérő zsinór kisebb-nagyobb láncokat, csipkéket, zeg-zugokat képez, ha pedig az oda- és visszatérő rész egymás mellé szorul, kis leveleket, kinyúló nyelvecskéket formál, amelyek hosszúra elnyulva, bizonyos konturák közti részt egészen betöltve, annak sujtásszerű hatást kölcsönöznek. Van olyan alakítás, hogy a sinyór a szárból indul ki, de nem tér vissza, hanem bekunkorodva, csigaszerűen végződik; az ilyet horgasnak nevezik. Előfordul a sinyórnak kis köröcskévé alakulása, amit «tyúkszem»-nek neveznek; ilyesmivel a tömör ornamentikát kedvelő kalotaszegiek a hézagokat, a varrás közt maradt közöket töltik ki. Egészen telivarott kis pontokat is használnak ilyen célra, de egyszersmind konturák körül is alkalmazzák finom csipkézetnek, sőt a nagyobb tyúkszem köré is elhelyezik. Ugyanily szerepe van annak a kérdőjel (?) kacskaringónak, amire sok varrottason rá találhatunk. Az egymásmellé fektetett párhuzamos öltések sora a konturák közti tér masszás kitöltésének egy másik módja. Ilyen öltésekből nagyobb pontokat és karikákat is képeznek.
Az írás utáni varrottasok diszítése rendesen növényi formák stilizálása.
Szár, virág, levél, kacs, gyümölcs, – ezek a főbb motívumok, ehhez járul még itt-ott -237- az ismert cserép, amiből a virág kinő s előfordul a pávaszem, a csillag, a «lapicka», – ez utóbbi csak egy elszegletesedett rózsaalak külső hasonlóságától vette nevét, amint a «tyúkszem» elnevezés is így került a növényi nevek közé a sinyórból alkotott apró karikából közepén maradt kis lyuk miatt.
A virágok közül a rózsa, félrózsa, tulipán, a bimbó, majoranna, a gyöngyvirág, – gyümölcsök közül, a mák s a körte az, amit a leggyakrabban stilizálnak.
Hogy ez említett elemekből mint szerkesztik meg a formákat s mikép változtatják, ez legtanulságosabb része a varrottasoknak. A vékony, sovány alapformákból mint lesz ennek szinte a fölismerhetlenségig tömött s gazdag kialakítása, a gömbölyű növényi részek miként lesznek sarkos, négyszegletes alakúvá, miként hangsúlyozzák itt az indát, a szárt, amott pedig a virágot, a levelet, mint hangsúlyozzák a szerkezetet vagy a formai alapgondolatot vagy mint nyomják el más motivumokkal: mindezekre szép példákkal szolgál az írás utáni varrottas.
Ismételjük, legelterjedtebb az a forma, amit «öt virágos»-nak lehetne nevezni, a kalotaszegiek «félágú»-nak, «rózsás»-nak is nevezik, hiányzik azonban olyan összefoglaló elnevezés, amely e határozott formát jól kifejezné. Kis és nagy kendők vannak ezzel diszítve, párnacsupokon s lepedőkön is előfordul. Igaz, hogy nem mindig öt virág van rajta, akad, gyakran még a szárakon, s elszórva az üres közökön is virág, – de mégis határozottan felismerhető öt főbb s a többinél nagyobb virágalak.7)
Összehasonlítva sok ilyen varrottast, bizonyos változatok tipikus ismétlődése új felosztásra ád alkalmat. Több ily csoportot találunk, bár lesznek olyanok is, amelyek vagy teljesen egyéniek, vagy nagyon ritkák, annyira, hogy egy második egészen hasonlóra már nem akadunk.
Az első ilyen csoportba lehetne osztani azokat, amelyeknél a két alsó virág szára fölfelé indulva csigásan vissza kunkorodik s e csigavonal zárja magába a két alsó virágot (I. 15). Egy nagy nyárszói törülköző dísze ez; a már említett elválasztó egyenes vonal közepén kis kacskaringós vonal van, fölötte egy ívvel elzárt részben csillag; e csillag felett indul ki a középső és a két oldalág, végükön nagy rózsával; a csillag mellől a két csigavonal nő ki. E csigavonalon jól felismerhető az az egyik jellemző mód, amivel a vékony szárakat kiszélesítik: kis csigavonalak s hasonló nagyságú levelek váltakozva simulnak itt szorosan egymáshoz, mintegy a növényi szárak levelét és kacsait utánozva; a virág, amiben e csigavonal végződik, tulajdonkép körbe helyezett s «majorannás»-nak nevezett elem; ugyanez az elem képezi, egymásnak szembe fordítva, a szokásos szegély alsó és felső részét. Gyakran megismétlődik ez a majoránna; bizonyos szögben kiinduló két kis levélből áll, melynek nyilásába egy szögalakban meghajtott egész kis sinyór-darabka van szögével felfelé beillesztve; többnyire más elemekkel van gazdagítva ez az egyszerű kis virágalakzat, jelen esetben a szegély felső részén az egymás mellé sorakozók közé, kis háromszögecske tölti ki a megmaradt közt, lent pedig, a majoránna alatt, két csigavonal van, – ez az, amit «majoránna-horgassal» néven ismernek. A felső virág szárain csak egy-egy levélke és csiga van (az egész varrottas a kevésbé tömöttekhez tartozik), a szárak végén pedig virágok; a négyszög vagy levél felé közeledő konturvonalak külsején csipkeszerűen csatlakozik a sinyór, belül a dupla középvonallal két részre osztott teret vízszintesen fekvő és egymáshoz simuló levelek töltik ki, paszomántszerűleg. A virágok, fölül, az ismert majoránna-motivummal végződnek, mintegy a gyümölcs (alma vagy körte) virágos végét stilizálva; a középső virág alján a két levél és «horgas», a rózsa csészéjére emlékeztetnek; a két oldalvirág alatt két kis csillag a túlsoknak tartott hézagot tölti be s baloldalt -238- még tyúkszem is van; a középső és baloldali közt lévő kérdőjel-forma kacskaringó, felfelé törekvő nyúlványával, szintén csak hézagtöltő, – a baloldali virág, ugyanis, alul hegyesebben esvén ki, nagyobb tér maradt s ezt sokalta aki varrta. Jegyezzük meg különben, hogy a varrottas készítése mindig bizonyos tömöttséggel indul meg s készítője ezt az arányt igyekszik betartani mindvégig; ezért használja e kis töltelékeket, mert, mint említettük, e varrottasok rajzát minden méregetés, törülés, javítás nélkűl, koromlével egyszerre írják a vászonra s nem csoda, ha nem teljesen pontos; ilyen utólagos kis pótlásokkal érik el a kivánt egyensúlyt s valóban első pillanatra fel sem tünik, például e varrottason, ez a kis rajzhiba.
Hosszasabban foglalkoztunk e példánynyal, de néhánynak ily részletes taglalása a többit is könnyen érthetővé, áttekinthetővé teszi s megértjük csakhamar a legzsufoltabbakat is.
A III. 9. magyarbikali kendőn kevés változtatással ugyanezt látjuk, – már az I. 2, damosi törülközőn a három felső virág végződésen két-három «majoránna» van egymás fölött s így e virágzat alakja az ananászra emlékeztet; baloldalt, a felső részen, ismét tértöltő szerep jut a majoránnának, de formáját újítják a fölfelé kunkorodó horgasok; ezzel az ollóformájú alakkal gyakran találkozunk még.
A I. 5. kalota-szt.-királyi varrottason ismét más formájú kitöltését látjuk a nagy virágoknak, a körvonalon belül párhuzamos öltésekkel van kitöltve, úgy, hogy magát a tömeget két keskeny hézag választja ketté; a középső virág három mezőre van osztva, épúgy kitöltve, szintén hézaggal tagozva; a két alsó virág közepén kis üres kör van hagyva. Az eddig említett hézagtöltőkhöz újabb alak járul: balról lent egymásra rakott levelek.
A I. 6. varrottas két felső oldalának virágjai a konturával párhuzamosan vannak kitöltve. Hasonló a I. 16. nagy törülköző fél rajza s mégis, a ritkásan tartott virágok szinte másmilyennek tüntetik föl. A I. 11. középrózsájában két csillagalak van; az oldalvirágok elnyúltak, tojásdad alakúak, száraikon pedig egy-egy dupla majoránna ül, horgassal.
A daróci III. 15. kis kendő virágai négyszögletű edényféléből indulnak ki, amelyen négy majoránna van; a középrózsa belső elválasztó vonala két sinyórból s köztük párhuzamos öltéssel készített fogasos varrásból áll, felső két oldalán két-két majoránna; az oldalsó virágok keskeny levélalakúak, belső részük vonalakkal s pontokkal van kitöltve; az alsó csigákon levő virágzat közepén csillag s körülötte hézagos levelek. Éppen ilyen, csak kissé tömöttebb, a I. 13.
A I. 14-en a két alsó virág belseje csillag, köröskörül majoránnákkal, fönt pedig sujtásos kitöltésű rózsákat látunk. A zentelkei I. 14. varrottason hálósan diszített edényből nőnek ki a virágok; a középső virág közepének kicsiny hézagában keresztvonalat látunk, a két alsó s két oldalsó közepe üres; a szegély majoránnái két tömött csigát képeznek. Egészen tömött a I. 4.; két oldalsó virágából indul ki a majoránnás virág szára. Zentelkén leltük a III. 3.-at is; két oldalsó virágának közepén rózsaalakot látunk. A XIII. 1. oldalvirága szilvamagalakú, körül csipkeszerű sinyór, fönt majoranna horgassal (képünkön a varrottasnak csak az egyik fele látszik; hasonló a III. 7., I. 12., XIII. 11., XIII 5., de azért mindeniken van némi változat).
A I. 3. zentelkei nagy törülközőn két alakzat kerül egymás mellé s érdekesek az aránybéli változatok, amelyek világosan mutatják, hogy a tér egyenletes betöltése volt a cél s ezt különféle járulékokkal el is érték. Egészen eltérő külső alakulása van a III. 8.-nak: az alsó tömött két csigából emelkedik magasra, keskenyen, a két oldalvirág, négy sor sinyórral bélelve. A I. 7.-nél aprók a felső virágok, de meg leljük bennök mégis a jellegzetes elemeket; a vezető szerep két csigavonalé. Egy inaktelki (III. 2.) kis kendőn a három egymás mellé helyezett virágformának oldalvirága dupla majoránna; egy zentelkei kendő (I. 10.) oldalvirágának közepén fekvő keresztet látunk s az így képzett négy mezőcskében egy-egy tyúkszemet. Elnyúlik a csigavonal szára a III. 14.-en, úgy, hogy még egy csillagalak elfér a -239- rendes alsó virág mellé; e szárak fölött két rövidebb szár van mint térkitöltő, folytatásában pedig, két oldalt, egy-egy majoránnás rózsa; ez az átmeneti alakítás a nyolc virágos alakhoz. Kis ablakszerű formából nőnek ki a virágok egy zsoboki (I. 1.) varrottason; hosszú, keskeny levélalakú az oldalvirág, vaskos majoránnákkal. Egy magyarvalkói varrottason (III. 13.) rácsozva van a virágcserép s a középvirág belső része is.
Nagyon ritkás varrású a (I. 8.) kendő; közép- és két alsó virága majoránna, oldalsó virágai keskenyek; viszont, mennyire túltömött a I. 9., – középső virága hozzásimuló keskeny mellékvirággal, erősen kidomborodó töltelék van a felső virágok belsejében, ami a különben tömött diszítést némileg érthetőbbé teszi.
Az eddigiektől különbözik az ötvirágos alakzatúak egy másik csoportja annyiban hogy az alsó virágok nincsenek mintegy csigavonalba begöngyölgetve, mint ezt idáig láttuk, hanem a tőből egyenesen nőnek ki vagy pedig lefelé csüngenek.
A II. 12. és II. 13. zsoboki és magyarvalkói varrottas mutatja ezt a különbséget; az alsó virágok tojásdad alakúak, bévül párhuzamos öltésekkel kitöltve s ugyanígy varrott nagy pontok vannak körülöttök; e kettő teljesen hasonlít egymáshoz, csak a szegélyük különböző.
Különös a diszítés a XIII. 12.-en, de ez is a majoranna változata, két lecsüngő alsó virággal. A II. 20. zsoboki varrottason a hosszú két oldalszárból csüng le a két alsó rózsa; a II. 6. alsó virága egészen az alapvonalra fekszik lecsüngő felső részével s két oldalt hullámvonal tölti ki a megmaradt teret. Alulról kunkorodik föl egy damosi varrottas (II. 11.) csillagalakú alsó virága, a szárakon levélerezetszerűen befelé összefutó öltésekkel, hegyesedő véggel. Széles vaskos formái vannak a II. 19.-nek; a II. 5. magyarbikali varrottason a középvirág komplikált, többszörös virágzattá lesz; a II. 18. zsoboki varrottas keskeny oldalvirágjai alatt csillagalak is ül a száron s az alsó virágok száraiból az előbbiekhez hasonlók nőnek ki; a szegély felső részén mákformákkal találkozunk. Nagy csigavonalai vannak az oldalvirágnak a XII. 14.-en s az alsó diszítés csillag. Tömött, vaskos formákat látunk a XII. 10-en; középvirága mellől nagy horgasvonal nő ki; az oldalsók fölé vízszintesen fekszenek az alsók. E csoporthoz tartoznak még azok az alakítások is, amelyeknek alsó virágai kifejezetten majoránnák, nagyok, vízszintesek (III. 4., III. 5., III. 19., III. 12., III. 11., XII. 8.) vagy lecsüngők (III. 18., III. 17., XII. 19.); további változata e csoportnak a III. 16. s a kissé tömött III. 6. A III. 10. két oldalvirága rácsos, hosszú, lecsüngő szára van az alsó virágnak s rózsákkal vannak kitöltve az üresen maradt közök; a 364. ábra három felső virágának szárába csillagok vannak szorítva.
E csoportba sorozhatjuk még azokat a varrottasokat is, amelyek hasonlítanak ugyan az elébb ismertetettekhez, de a két oldalvirág a két leveles szár oldalából nő ki, nem pedig végéből; ilyeneket leltünk Zsobokon (II. 3., II. 10.), Nyárszón (II. 17.), Zentelkén (II. 15.) és Magyar-Bikalon (II. 2., XII. 4.). Ugyancsak egy bikali kendőn (II. 4.) két-két csillag van az alsó száron s ebből lefelé kis ágacska kanyarodik az alsóbb alá. E két újabb virágalak valószinűleg csak térkitöltő volt s a szár folytatásába jutván, bevonták magába a szerkezetbe, épúgy, mint azt azon a kalota-szt.-királyi varrottason (II. 8.) látjuk, ahol az oldalvirágok szárai alatt lévő csillag jutott ilyen helyzetbe.
Különösek a II. 7. 365. 366. bikali varrottasok: a három felső virág nagy mákalakú, az alsók majorannák csigavonalban vannak, – az oldalsókból, a szerkezetbe nem is illesztve, két-két többszörösen ismétlődő majoranna nő ki.
Magyar-valkói a II. 16. melyen a főszár egymásra helyezett apró karikákból áll, erre rózsa következik és föléje ismét egy nagy rózsa; kétoldalt s lennt, nagy mákok vannak lefelé fordítva. Egy bikali (II. 1.), egy szentkirályi (II. 9.), s egy zentelkei (II. 14.) varrottason a főszár kimaradt és a felső virágok vízszintes vonalon ülnek, – nyilván csak az előbbiek változatai.
Az eddig ismertetett varrottasok diszítésének bizonyos egyöntetű jelleget adott az ötös fővirág, – egy újabb, harmadik csoportba sorozhatjuk azokat, amelyeken ötnél több a fővirág. Azzal is megszaporodik egygyel az ötös szám, hogy már a kiindulás pontjában -240- levő kis virágzat- vagy edényféle lesz határozottan virágalakúvá (IV. 9.) s ezt feltünően tapasztalhatjuk egy magyar-gyerővásárhelyi varrottason (IV. 19.): egy pontból sugarasan nő ki a hat virág; a IV. 9. különösen szép, gondos munkájú példány, csomózott szélcsipkével. Az utóbbihoz hasonló a kissé sovány IV. 13. érdekesen központi megszerkesztésével a diszítésnek.
Sok varrottasnál a főszárból három oldalszár nő ki, amelyek közül többnyire a két középső vízszintes irányú s a felsők fölfelé, az alsók lefelé kunkorodnak. Ilyen például a IV. 13., – szép ritkás varrásu, két középső virágja mák; hasonló, bár kissé fölületesebb munka egy zentelkei (V. 13.), s kisebb eltérésekkel hasonlókat leltünk Szentkirályott (IV. 5. V. 11. V. 2.).
Szép s új alakításokat mutat a XIII. 2.; a tőnek mintegy gumója gömbölyűaljú edényfélében van, az egyenes szár közepe mákalakú virágon halad keresztül s fent nagy rózsában végződik, a hosszúkás oldalbimbók hullámosan vannak két sor sinyórral bekerítve, az oldalsó középbimbók mintegy virágcsészébe vannak foglalva s félig kinyílt bimbóhoz hasonlítanak, míg a felsők egészen zártak; az alsó rózsák is szokatlan formájúak; hullámvonal tölti ki a teret oldalt s a szegély alsó része apró csészés rózsákból áll. Egy mákói (IV. 8.) varrottas fő középvirága kicsiny, jelentéktelen s két oldalt, középen, körtealakú, mácsonyaszerű ornamentum van kiemelve, széles, tömött, domború belsővel. Kissé zavaros egy zsoboki (IV. 3.) varrottas; csillagtőből párhuzamos vonalak indulnak ki, közük hullámvonallal vannak betöltve, – fönt tölcséresen szélesül ki, különös virágot alkot, úgy, hogy az egész hosszúkás virágzathoz hasonlít; oldalából két-két széles száron, nehezen kivehetőleg, túlhalmozott tulipán nő elé. Egyszerű a IV. 14., – kis virágban végződő, széles szárak képezik díszét. Szintén túlhalmozott a XII. 18.; fönt is, oldalvást is, tulipán van rajta, alul rózsák, a szegély felső része ismét tulipános; különben hasonlít a IV. 9-hez, kissé tömöttebb s főtörzse meg van vastagítva.
Az első csoportba sorozhatnók a IV. 1-et, de az alsó csigavonalas virág fölé a törzs közepéből kiinduló oldalvirág szárából, vízszintesen, még egy rózsa is nő ki, beilleszkedve a megmaradt közbe. A IV. 10. nagy törülköző, különös terjedelmes tulipánjával, kerékre emlékeztető oldalvirágaival, lecsüngő alsó rózsáival szintén ide tartozik, – épígy a IV. 6. is. -241-
Tömött nagyvirágú a XII. 12., – kicsiny a törzs tetején levő majoránna, oldalt, egymás alatt nagy tulipán van lent széles száron kis csillagok. Egészen középpontos kialakulás a XII. 12. neve: «ágatlan virág lapickával», középen köralakban körülvevő majoránnák s csillagok teszik még nagyobbá, ebből indul szét, sugarasan, a sok szár; fölfelé s lefelé, egy-egy rövid száron, négyszögletes virágalak; két szár tartja a két oldalsó szintén négyszögletes virágot, a szegletekbe, középről, tulipánok, majoránnák nyulnak ki. Ez és a következők kétszer megismétlik ornamentumukat, – párnacsúpok, ágyfűtől valók és lepedőhajtások. Ilyen a 367., gömbölyű rózsáival. A magyar-gyerő-vásárhelyi IV. 18., szintén «lapickás», alatta párhuzamos szárak haladnak el oldalt s végükre cifra tulipán jut, – lent két elmetszett lapicka s benne virág. A IV. 15. is ehez hasonló, sok szárral; a felső lapicka és tulipán közé, ismét virág van szorosan beillesztve.
A IV. 17., V. 4., V. 8, varrottasok hasonlítanak egymáshoz; a hosszan elnyuló oldalvirágok jó nagyok; a varrottas alsó fele a képen le van metszve, de ha tükörben nézzük, megkapjuk az összhatást. A IV. 17-en tömött a varrás, a fekvő oldalvirágok négyszögletesek.
Ritkásan van tartva a V. 10. lepedő «ágatlan rózsa» nevű dísze, nagy oldalsó rózsákkal; hasonló a V. 3., de tömöttebb; a V. 6. lapickás, az oldallapickák levélerezetesek; kissé zavaros a varrottas a sok apró virág és a sok vékony ág miatt; a V. 9. és V. 12. masszásabbak és érthetőbbek is. E csoport igen gazdag, sikerült példái a magyarókerekei V. 2. V. 7. V. 5. V. 1. amelyeken az eddigi formai elemek változatai föltalálhatók. Masszás megoldású a IV. 4. V. 14.; ez utóbbi sűrűn tartott varrottason csak annyi hézag van hagyva, amennyi a tömegek külön választására szükséges. Középponti elrendezésű a IV. 11. párnacsúp dísze; egy nagy komplikált majoránna a középvirág, mellette az alapvonalból nő ki a nagy oldalrózsa s úgyanannak szárából az alsó mák; ez ismétlődik az elválasztó vonal alatt; hasonló 368 és 369. de az elrendezés nem egészen középponti, az elválasztó vonal alatt a szegély van nagy lefelé csüngő rózsákból.
A 370. IV. 12. IV. 7. egyenes, szegletes alakítások, sűrűn bevarrva nehezen kivehető rajzzal; különösen a IV. 7. elszórt közeivel valósággal szövethez hasonlít.
Szabadabb, egyénibb s a szokottól eltérő alakításokat mutatunk be a bikali VI. 14. és VI. 7. varrottasokon; tömött majoránnasorból indul ki, mereven, a VI. 14-en az egyetlen sinyórból álló törzs s belőle nagy, merev, vízszintesen álló hosszúkás rózsák, «körték» nőnek ki; fölül majoránna; ehez hasonlít a VI. 7., de inkább levélfűzér, mint virág az, ami két oldalt van rajta. A törzsnek nagy köralakú kiszélesedését mutatja a nyárszói 371 példány; rózsa van a vaskos kör belsejében, külső részéből, fönt és lent, két kis levélszerű forma nő elé, a felső közt kis csenevész majoránna tölti ki. Hasonló a kalotaszentkirályi VI. 3. példány, de fölül három virágzattal, lennt horgassal, a kör belsejében majoránnával. Ilyen megoldású, de gazdagabb, a daróci V. 15. példány; a nagy kör könnyebb s csipkés, csak a belseje tömött, körül majoránnák, csigák, levelek s fönt három majoránnás virágzat. Némileg hasonló ugyan, de sokban eltér e kettőtől a kalotaszentkirályi VI. 18. varrás, – túlgazdagon van díszítve s a formai alapgondolat nehezen ismerhető föl rajta; két vonal indul ki az alapvonal közepéről, csigásan görbülve, két oldalt majoránnás rózsában végződik; középen egy csipkésen kitöltött tojásdad alak a tő kezdete s egy másik, kisebb, tojásdad alak köti össze a nagy csipkés körrel, amely körül majoránnák vannak, fölötte pedig nagy virág fejezi be a törzset; a csigavonalból, két oldalt, az előbbihez hasonló alakítású törzs nő ki s két oldalt kisebb virágok nyúlnak elé belőle, egészen betöltve a teret. Ezekhez hasonló a XII. 2., – a törzs kezdete rózsa, ebből nő ki a nagy kör s mellőle, hozzá símulva az alsó ívoldal virágokat hordó vastag szár, felső részén nagy majoránnával. Kissé soványabb de hasonló megoldású a XIII. 7. A VI. 1-esnél a törzsből kehelyszerűleg szétválik a két oldal virágszára s benne foglal helyet a nagy tulipán; a törzs mellett kisebb csillagok vannak. Érdekes a magyarókerekei 372., melynél az öt virágzat annyira megnövekszik, hogy egymással érintkezve teljesen betölti a teret; – a XII. 17-nél a két -242- alsó csillag kiemelése jellemző, vékony szárakon van a két kis oldalrózsa s a nagy középvirág, alatta vízszintes csipkézett vonal; hasonló csipkézett vonal van a magyar-bikali VI. 5. varrottason is, a vonal alatt az alsó virágot magában fogadó csigavonalú szár s fölötte a két oldalmajoránnát viselő vastag szár; a szár közepéből nő ki a középvirág. A csigavonalas csoporthoz tartozik a VI. 2. is, – maga a vonal csipkézett, a virágok nagy tömött horgasokkal vannak kivarrva. Ezekhez tartozna a kalota-szentkirályi 373. is, mely érthetlen szerkezetével és izléstelen, durványos megoldásával igazi korcspéldány a szép varrottasok között. A sok melléktulipánnal terhelt nyárszói VI. 19-en is csigavonalba vannak elhelyezve az alsó virágok, a fő- és oldalszárak közét nagy tulipánok töltik ki. Különös a daróci VI. 6. -243- tömöttsége miatt alig kivehető vízszintes levélfűzér nyugszik a szegély alapvonalán s belőle négy hosszúkás, egész végig egyforma vastag virág nőtt ki, köztük keskeny, vékony hézag. Szokatlan alakítás a XIII. 6., homályos szerkezettel.
Valamennyi eddig bemutatott példány között a leggazdagabb, talán legegyénibb a VI. 16.; kis rózsából nő ki a két hosszú nagy oldalvirág s a két alsó virág; a középső nagy virágmajoránnának a tovább képzése; alul, két oldalt, a két nagy rózsa csak térkitöltő s nincs szervi összeköttetésben a többivel; hasonló szerepük van a mellettük lévő szokatlan háromszögű alakzatoknak is; a nagy gazdagságnak megfelelőleg a szegély felső része is nagy rózsákból áll, kissé elnyomva a szegély alsó keskeny, majoránnás részét.
Egészen szabad, könnyed, nem részarányos, nagyon ritka megoldása az öt virágzatnak a VI. 4.; kis horgassal nő ki az alapvonalból, ívalakban, a főszár, belőle lent egy leveles ágacskás virág tör elé, mellőle egy másik szár, amelyen kerek rózsa ül s ennek szárából egy másik virág szára indul és keresztezi a fő szárat, amelynek végén majoránnaféle ornamentumot látunk; lent térkitöltő rózsák, oldalt horgasos hullámvonal. A szárak keresztezése oly motivum, amely egyedül csak ezen a varrottason fordul elő.
E legutóbbi és a következők, nagyon elütők, mondhatni idegenszerűleg hatnak a többi varrottas mellett, egyik-másik emlékeztet székely varratosakra, – a csipkézett akantusos levelek idegen befolyásra mutatnak s egészben oly ritkásan vannak tartva, hogy ez által is kirínak a többiek közül. Ilyen a zentelkei VI. 12. példány, egy nagy törülköző dísze, rózsából nő ki a középszár, csipkés, szokatlan levelekkel, horgasos majoránákkal s fent nagy rózsa; különös a két oldalvirág szárán levő ágazat; a virág alatt az alsó rózsák alulról fölfelé kunkorodó száron csüngnek. Ehez hasonló a VI. 11.; a kidolgozás kissé hanyagabb, – két oldalt térkitöltő egyenes leveles száron álló mákkal. Ilyenféle a VI. 13. nagy törülköző varrása; ez különben egészen székelyes, nincs is sinyórral varrva, de vannak kalotaszegi elemek is rajta. A VI. 17. nagy törülköző ritkás díszén a virágok már díszesebb füles vázából nőnek elé, középen nagy tulipán van, két oldalt különös rózsák; az alsó virágok hiányzanak s helyüket két kétfejű sas foglalja el; e motivum elég gyakori Kalotaszegen, különösen a templomok mennyezetén, de kancsókon s kályhacsempéken is. A VI. 8. egészen elüt a kalotaszegi formáktól; a csipkés levelek idegenszerűek, virágai a varrottasokon nem fordulnak elő, csak az egésznek elrendezésében marad meg valami kalotaszegi jelleg. Kezdetleges, sovány alakítás a VI. 9. végig egyforma részei nagy szegénységre vallanak, erős ellentétben a varrottasokon szokott díszítéssel. Még soványabb, még ügyetlenebb a XII. 13.; annyira felületes, hogy inkább ecsettel odacsapkodottnak, mint himzettnek látszik. Hasonló a XII. 1. ágyfűtől valónak szegélye; maga a dísz egy rózsából mint tőből indul ki, vékony száron van a széles ívbe foglalt rózsa vagyis inkább mák; a tőből két oldalra nő ki az oldalszáron három kis virág s azután visszafelé kunkorodva, nagy rózsában végződik; alulról is össze van kötve e virág a tővel; két, a középső elemhez hasonló virágzat van jobbról s balról. Ágyfűtől való a XII. 3. is; nagy tulipán van lent a középen, aljából nő ki a különös hoszszúkás virágzat s belőle, oldalt, fölfelé s lefelé egy-egy mák; a középvirág ismétlődik jobbról-balról s a XII. 13. már látott egyszerű motivumok formálják a szegélyt; – ehez hasonlít, kissé elütő szegélylyel, a XII. 5. A VI. 10. ágyfűtől való formai alapgondolata egy hullámvonal («fojó»-nak nevezik e vonalat) s belőle tulipán és egyéb alakú virágzatok nőnek ki váltakozva fölfelé, lefelé pedig fordítva; a szegélyen mák van. E nehány vékonyvonalú varrottasnak formailag rokona a VII. 6. «fojó tulipántos»; főmotivuma, a tulipán világosan van tartva, de a mellékrózsák masszások; a hullámvonal domború felén van a tulipán fölfelé és lefelé fordítva; homorú felében ritka majoránna. A hullámvonal gazdagabb kialakítása látható a «kapusi formában». A VII. 5. lepedőhajtás kissé egyszerűen kidolgozott ornamentumán jól felismerhető a «kapusi forma» lényege. Az egyenes vonalok közé szorított díszen hullámvonal, az egyenes által képezett trapezalakú mezőben ennek a keskenyebb részéből fejlődik ki a virágzat, betöltve a teret, itt szegletes keretben levő rózsa van s e keret, fölül, nehezen -244- felismerhető majoránnában végződik; a megmaradt helyet hullámvonalból kinövő rózsák és horgasok töltik ki; a szegély alul is, felül is, hármas ágú virág, köztük majoránna; magán a lepedőn meg nagy fehér rózsák vannak, és szinte empiros hatású ez a díszítés.
A hullámvonal rendesen nem oly egyszerű, mint ezen a példányon, hanem különféle, már ismert módon, vastagabbá fejlesztve, két különálló egyenes, vagy csak kevéssé meghajtott vonalból áll, amelyek ferdén állva s csigavonalakban végződve érintkeznek egymással. E csigavonalak érintkezése pontjából nő ki a nagy komplikált virág, amelynek rendesen majoránnákból képzett három nyúlványa, fölfelé kiszélesedve, tölti be a teret; -245- ilyen a VII. 2. párnacsúp, ahol két rózsa is van egymás fölött s rajtuk két nagy majoránna, oldalt pedig két virágból képezett nyúlvány nő ki s fölnyulik a felső vonalig; az egész, megfordítva, lefelé ismétlődik; tömött, különálló négyszögeket képező, ötös virágzatok képezik az alsó és felső szegély díszét. Hasonló a XIII. 9. párnacsúp, de kissé ritkább, egyszerűbb rózsával. A VII. 11. 3. 9. 4. 8. 10. párnacsúpok díszének túlsó fele nem látszik (az előbbi kettő fel van fejtve és szétterítve); lefelé mindig a szomszéd motivum fele kerül mindegyik alá. Egymáshoz többé-kevésbé hasonlók ezek, csak a VII. 10. tér el némileg a többitől. A XII. 6. kiterítve, egész mivoltában megmutatja a VII. 1. és VII. 7. párnacsúp díszét is; ezeken láncból áll a hullámvonal, s nem nagy rózsából indulnak ki az ágak, amelyek a tért betöltik.
Egy nyárszói (VIII. 2.) kiterített párnacsúp dísze mintegy átmenet a középponti formából a «pápaszemes» vagy «jármos» mintához; ilyenféle a VIII. 5. is. A láncos hullámvonalnak csak egyik oldalán nő ki egy kis majoránna s a nagy, élén álló négyszög közepét egy közömbös rózsa foglalja el, jelezve az egész dísz középvonalát, tengelyét; ugyanilyen rózsák vannak a két egymásfelé keskenyebb véggel fordított trapézekben is; a XII. 11. XIII. 3. már felismerhetőbb módon «jármas»; a hullámvonalnak a tengelytől számított domború és homorú része nincs egyenlően betöltve; a megkeskenyedő homorú részbe, jól beillő, fölfelé szélesedő majoránnaalak jut, a domborúakba, részben összefüggve a hullámvonallal s körrel bekerítve, rózsaalak; vagy egész külön állva (X. 8. X. 10.) vagy ritka rózsás (VIII. 9. és X. 9.) ritkábban előforduló szegéllyel. Az inaktelki X. 12. tömött varrottasban csak két elem van: egy rózsa és egy majoránna, köztük a hullám – a két szimmetrikus részt erősen hangsúlyozott díszített tengely választja el. A hullámvonal a többieken három részből álló tagozatokban szakad meg. Még jobban felismerhető ez az alakítás a körösfői «Tamás Erzsóké» felirású párnacsúpokon (VIII. 1. VIII. 3.) míg egy zentelkei (X. 1.) varrottason a hullámvonal domború részei visszakunkorodva végződnek rózsákban, s ez a tipikusan jellemző formája a «pápaszemes»-nek, – a szegély dísze csak bizonyos változata az «ötvirágú» dísznek, az alsó virágok egyszerű alakja az előbbeni kettőnél kissé gazdagabb kiképzésű. A VIII. 11. és VIII. 7. ritkább rózsáival és a tömött VIII. 4. az egyszerűbb pápaszemesekhez tartozik széles szegéllyel. A X. 5. magyar-gyerő-vásárhelyi párnacsúp is az egyszerűbbek közé tartozik e csoportban. A szintén magyar-gyerő-vásárhelyi VIII. 6. és X. 4. párnacsúpokon hiányzik a szegély s ezt helyettesíti az egyes motivumok fölé varrott rózsák sora; ehez hasonló a VIII. 8. de tömöttebb és gazdagabb. A magyar-bikali X. 11. párnacsúp szintén szegélytelen, a szegélyt a szegletesen megtört hullámvonal homorú részéből kinövő virágzat kiemelkedő és összeérő ágai pótolják; a bekunkorodó csigavonalból különös ágszerű toldalék borúl az ágakra. A X. 6. varrottason toldalékos ágról majoránna csüng le egyik oldalán, a másikon csipkés levél. A X. 7.-en egészen fölfelé igyekvő ág nyúlik ki a magasra kiszökő rózsa mellé. A VIII. 10. szinte a kivehetetlenségig gazdag alakulása e formának; a X. 3. egyszerűbb, de ide tartozó. A VIII. 10. szokatlan forma e csoportban, – a rendesen erősen kiképzett tengelyvonal hiányzik, az alsó rész alárendelt kiegészítése része lett a felső virággá alakított hullámvonalnak.
A «pápaszemes» formával rokon a «selyemkeszkenős»: két egymás felé fordított hullámvonal ágai meghosszabbítva kereszteződnek, – e két kereszteződő átlós vonal és a középpont kidomborítása s a tengely elhagyása jellemzi e formát, amelyet egyszerű alakjában a XIII. 4. példány mutat be. Az átlók láncszerű továbbképzése s a középnek négy majoránnával való hangsúlyozása látszik a IX. 8. párnacsúpon, épúgy a IX. 4.-en; tömött példányai ennek az alakításnak a IX. 3. 14. 12. és 15.; az átlók közei rózsákkal vannak kitöltve, maguk az átlók virágalakban végződnek. Szép példányok a IX. 5. és XII. 7. átlátszó tiszta szerkezettel s jól elosztott pontokkal.
Mint már említettük, van a varrottasoknak egy «abroszformá»-nak nevezett csoportja, így nevezik, mert kiváltképp abroszra alkalmazták, de előfordul párnacsúpokon is. -246- Formai alapgondolatuk egy csigavonal, amely magába zár egy rózsaféle virágot s ugyanilyen öt-hat virág nő ki belőle, az egész pedig köralakúan zárt s külön álló díszítményt képez; jól kivehető példánya ennek az alakításnak a negyedrészében ábrázolt XI. 7. abrosz; ismétlődő, elszórt kisebb rózsák és ágas virágzatok váltakoznak a fődísszel. Nagyon egyszerű, szegényes a XI. 8. közepütt nagyobb virág van s körül kisebb a XI. 7. abroszon; a kalotaszentkirályi XI. 5. abroszra körvonalon vannak varrva a tömött rózsák vagy inkább körték, belül csillag a dísze. Párnacsúp a XIII. 8. abroszforma, különös szegélylyel. Hasonló a X. 11. és 374. abrosz dísze, s a jákótelki régi XI. 3. párnacsúp. Jól kivehető ez az ornamentum a zentelkei varrottason is, ritka hármasvirágzatú szegélylyel, hasonlóan a XII. 16. párnacsúpon; a kalotaszentkirályi (XI. 10.) magyar-gyerő-vásárhelyi (XI. 4. XI. 9. XI. 1.) és zentelkei (XI. 2.) példányokon olyan tömött a varrás, hogy a minta szinte belévész; a XII. 9-en a formai alapgondolat érthetőbb, bár elég tömött ennek a varrása is.
Egyik ritkábban előforduló minta az úgynevezett «dorombos». Eme elnevezésében homályos eredetű dísz elemei: egy majoránna vagy rózsa, körülkerítve s fölül szokott módon kisebb majoránnaszerű bevégzéssel, mellette hosszú «körte»-alak, – e kettő váltakozik egymással oszlopszerűen, ami a tengely alatt lévő másik szimmetrikus rész révén még feltünőbb: tömöttebbek, s ritkábbak, egymástól vagy jobban el vannak különítve vagy pedig egymásba olvadva képezik az oszlopszerű ismétlődő díszt. Jól kivehető ez az alakítás a IX. 8. párnacsúpon, szintúgy a IX. 11-en, ahol a rózsa mellett inkább levélfűzérnek, «cserelevélnek» megfelelő alakzat foglal helyet. Kis változattal ismétlődik ez a XI. 7. 13. és IX. 1. párnacsúpokon; a IX. 1-en széles szegély is van. A IX. 9-en gazdagabb a minta de viszont kevésbé kivehető az oszlopos elrendezés; a 375. szintén ide tartozik, bár a tengely alatti rész nem azonos a felső részszel, – a cserelevél ugyanis alul kétfelé válik s háromszögletű teret képeznek a szétvált részek; a köztük levő tér egyszerűbb elemekkel van kitöltve. Új alakítás a XIII. 10. és IX. 2., – félholdalakú mezőkben kerékre emlékeztető körbe foglalt rózsák s oldalt, rajta majoránnák; vastag a tengely s a tengely alatt ismétlődik ez az elem.
Szóljunk a szál után, amint ők mondják, a szálánvarrottakról, a
szedettesekről. A gazdagságról, ami az irásutáni varrottast
jellemzi, lemondhatunk. A varrás, illetve a díszítés, alkalmazkodik
a varrás módjához.8) -247-
-248-
A keresztöltés természetéhez képest, amivel e varrottasok készülnek, szegletesek a formák; a vízszintes, a függélyes és a negyvenötfokos irányban való kiterjedés a túlnyomó s e három iránynak folytonos ismétlődése bizonyos egyhangu formaalakulást okoz és ez jellemzi a szál után varrottast. Stilizált növényi formák mellett az egyenes vonalú mértani alakítások is szerepelnek, sőt magukat a virág- s növényi formákat is, gyakran egész mértani motivumokká változtatja az erős, a kénytelen stilizálás. Varrási módjuk az általánosan ösmert keresztöltés, mely a vászonhoz aránylag vastag szál alkalmazása által sűrűvé lesz és némileg a sinyórhoz hasonlóvá. Ezzel töltik ki a formákat úgy, hogy csak a vékony negyvenötfokú szárakon és a kis pontokon látszik meg jól a keresztöltés.
Maga a tehnika befolyásolja a formai gondolatot és a díszítési elemeket, amelyek közül sok magából a tehnikából folyik; mindamellett gyakran tapasztalhatjuk a törekvést, hogy az irás utáni varrottas formáját mintegy e kötöttebb tehnika nyelvébe vigyék át. Ily módon is, kis és nagy törülközőket, lepedőt, abroszt, ágyfűtől valót, párnacsúpot díszítenek leginkább; a szín szintén vörös, kék, fekete, néha fehér. De bizony, ma már ezt a szép munkát se mívelik, régi holmi az mind, amit bemutatunk, a leány hordja piacra anyja, néhai öreganyja munkáját. Más a divat, ezt már nem is kedvelik.
Formailag e varrottasok tekintélyes része, épp úgy mint az írás utániak, egyetlen ágból kinövő öt virágzatos mintával van díszítve. Lehet a virág több is, levelek, levélfűzérek, kisebb virágok is kerülhetnek közéjük – de a jellemző ág a rajta levő virágokkal megmarad; rózsa, tulipán, majoránna, mák, különféle levél, szár, makkok, többé-kevésbé stilizálva, adják a formai elemeket, akadnak négy- és sokszögek, hullámvonal, sőt itt-ott madarak is. A legegyszerűbb alakításuak közül való a bábonyi XIV. 21. – öt egyforma virág van a szárakon s üresen hagyott terecskék sora adja a vonalat a virágok tagozásához, érthetőbbé tévén azokat; az üresen maradt helyeknek, e nemleges formáknak, különben nagy szerepük jut a szál után varrottaknál, nemcsak mint szétválasztó, de mint díszítő elemnek is. Már valamivel gazdagabb a XIV. 16. és XIV. 8. inaktelki kis kendők mintája, a szárakon kisebb-nagyobb levelek is vannak. A XIV. 9. «kerekes tulipán»-nak nevezett példányon a nemleges formák könnyűvé teszik a díszt, tömöttebb a XIV. 24. bikali «szegfűs», lefelé fordított, madaras szegéllyel; a zentelkei XIV. 14. kis kendőn, valamint a XIV. 10-en tömött masszás formájú, míg a XIV. 15-ön a «szegfűs ág» ritka csipkeszerű megoldás, két különös tömöttebb levéllel; a XIV. 4. nyárszói példányon hat egyforma rózsa van, a hatodik a törzsön tör keresztül; a nagyalmási XIV. 11. «makkos» dísze kisebb alakban megismétlődik a szegélyen is. Erősen stilizált alakítás a XIV. 5. 19. 6. 13. – a három utolsó, valószinűleg az írás utáni majoránnás minta utánzása; ilyen a XIV. 2. párnacsúp és a XIV. 3. is, amelyen élére állított négyszöggé szélesedett ki a szár, belül virággal. A XIV. 12. példányon váltakozik a levélfűzér és virág, sok lecsüngő virág is van rajta. A nagyon régi (1752-ből való) XIV. 22. párnacsúp ritkás díszén szintén levelek vannak a virágzatok mellett. A «mákos»-nak nevezett XIV. 7. példánynak törzse ferdén áll az alapvonalra s több ilyen motivum ismétlődése adja ki az egész ornamentumot.
Az ágas virágos dísz mellett vannak, mint az írás utáni varrottasoknál, egyéb formai alapgondolatú díszek is; ilyenek a (XVI. 10.) «fojó», (XV. 4.) a «körte», (XV. 7. és 6.) a «patkós» párnacsúpok, amelyeknek váza a hullámvonal, stilizálva.
Az írás utáni varrottasok «selyemkeszkenős» mintájának szintén megtaláljuk itt is a párját, meg a «rózsabimbós»-t (XVI. 7.), a «vitorlás»-t vagy «szarufás»-t (XVI. 15.), meg a «pünkösdirózsás»-t (XVI. 6.) s ilyen a XV. 14. XVI. 6. és 13., XV, 1. 3. 11. 12. 13. 14., XVI. 3. és 1–8-ig valamennyi: egy központból kiinduló átlók és átmérő vonalak megoldásai.
Hatszögekből képzett alakok, amelyekben rózsák s csillagok vannak, adják motivumait a XV. 10. XV. 2. és 378. és XV. 9. párnacsúpoknak; a XV. 16. és XV. 8. abroszokon az írás utáni «abroszforma» változik át központi sugaras alakítássá.
Vegyes alak a «mákos» (XVI. 2.) szokatlan a XV. 5. úgyszintén a «pávadíszes» XV. 15 és XV. 18. A XV. 17. a szőttes, nagyon egyszerűsített formákkal. -249-
A XVII. és XVIII. táblákon mutatjuk be a még szokásos mintákat.
A 352–360 ábrákon mutattuk be a kalotaszegi asszonyok írását; a 361. ábra két felső rajza «mejjrevaló» minta s a két alsó dulandlé sarok; az elnevezéseket maguk az asszonyok írták a rajzok alá.
A 379. ábrán néhány szép régi csomózott recemintát mutatunk be, amilyenekkel régente a lepedőket toldották össze; a 380 és 381 ábrákon régi és újabb vagdalásos minták vannak.
A rece nem régi eredetű, de például Gyerő-Monostoron nagyon el van terjedve és pedig nemcsak inggallérkötésekre, hanem rúdravalókon és párnahéjjakra is használják. A recét (a hálóját) lencérnával «kötik» és azután «tőttik», – mint Monostort mondják, – «miszerrel», gyöngébb cérnával; a nagyobb recét teljesen miszerből kötik s tőttik. A kötéseken alkalmazott gyakoribb receelnevezések: körmös rózsás, inos (inas), kerek gerezdes; a kerek gerezdesnek öt motivuma van: rózsa, cserelevél, másféle rózsa, gerezd, rózsa és tulipán. Kézelőre alkalmazzák, Körösfőn, a szép «butykós»-at.
Térjünk vissza, néhány szóval, a varrottas harmadik, manapság egész Kalotaszegen legelterjedtebb formájához, a vagdalásos- vagy fehéreshez. Elnevezése, említettük, onnan ered, hogy kis ollóval arányosan kivagdalják a vásznat, a szálakat kihúzzák s a lyukat körülvarrják. A «fehéres» elnevezésnek nyilván az a magyarázata, hogy többnyire fehérnéműn alkalmazták a varrásnak ezt a módját, még pedig – régente – csak fehérrel. Hajdan, vagdalásos varrással díszítették a férfiingen az ingújjat, – de ez már divatját múlta, ma már nem viselik, az elnevezéseket azonban, még tudják az öregek. Edvi-Illés Aladár munkatársunk gyűjtötte Zentelkén a következő «fehéres» ingújjminta elnevezéseket: nagy könyökös, nagy paripás, kis paripás, nagy rózsás, félen rózsás, szembe rózsás, foglalós, öt máku, három máku, két máku, egy máku, gatyás bokrétás, cifra bokrétás, szénvonós, fecskefarkas, macskanyomos, asztallábas kis rózsával, félen töltéses barack, maggal, rostélyos félen töltéssel, nagy abrudi, kis abrudi, Pál Bandiné formája, alattomos. Ime, csak egy faluban, még tudnak ma ennyiről, – holnap már hírmondója se lesz! Egyetlen ilyen kézelőmintán pedig, például a «nagy könyökös»-mintán, a következő részeket nevezik meg: fog, karima, sujta, akasztalat, cérnázás, töltés, bimbó, inasfog, csipafog, hányás, fél macskanyom, szénvonó, könyök.
Szép volt a vagdalásos varrás a sárgásszürke fodor vászon-lepedőkön; láttunk is még ilyet, de csak kettőt, Körösfőn, Korpos György Páléknál. De hogy mivé nem nyomorodott ez a szép ősi munka, amióta piaci árucikk lett belőle, amióta urimunkára biztatta a népet a városi kereslet s a falusi szükség! Mert ma bizony ezt a varrást készíti a kalotaszegi nép, lélek nélkül, kedv nélkül, a nevét se ismerve az egyes mintáknak, amiket szintén elnyomorít a tudáskodó városi beavatkozás. Szerencse, hogy még Gyarmathy Zsigmondné foglalkozik az ősi mintákkal s némileg irányítja a népet, bár ő is sok elemet kölcsönöz a kastély művészetéből s kevesebb ügyet vet a népies jellegre. A varrogató falvak egynehány banális, munkaemésztő, gyilkosan unalmas mintát ismételgetnek, nem adva belé (amit különben ez a varrási mód meg sem enged) azokat az egyéni változtatásokat, azokat a művésziesen naiv eltéréseket és véletlenségeket, amelyek az írás után való varratosnak annyi zamatos eredetiséget kölcsönöznek. A gyönyörű fodorvászon helyét lassankint elfoglalja a sokkal silányabb lenvászon s a fejtő, a cérna helyett selymet húznak a tűbe, lehetetlenül színes selymet, sárga, kék, rózsaszinű s rikító piros selymet, – mert az jó az uraknak!… Akárha gombolós lakkcipőt húzna piros csizma helyett a muszuj alá a kalotaszegi leányzó.
Jellemző különben, hogy ez a holmi csak piacra készül, az úgynevezett «iparosasszony» bódorog vele országszerte, – nincs Kalotaszegen ház, ahol ilyesmi volna kiakasztva rúdra vagy ágyra terítve, pedig posványosodik már a nép ízlése is.
Itt, a varrottasok kapcsán emlékezzünk meg arról a változatos,
sokféle varrási módról is, amivel a női ingek gallérjai, kézelői és
az ingújjak kötései (az a varrás, amivel -250-
-251-
-252- összekötik az ingújjat képező vászon két szélét)
készülnek. A recéről már szólottunk; mellette talán legszebb a
Bogártelkén divatos «pókos» kötés, amelyen, fölülről lefelé,
következők az elnevezések: szinelés, békaláb, elhányás, pók; a
békalábat egyszer elhányják, kétszer beszinelik, egyszer
összehúzzák.
DARÁZSOLÁS. (XVIII. tb.)
1. Horgas, Kőrösfőről; 2. Rózsás, – leszedve, kockázva, darázsolva B.-Hunyadról; 3. Kétfelől fecskefarkas, közbül nagy foglalós, Mákóról; 4. Összefordított foglalós, Mákóról; 5. Asztallábos, gyászosan, Mákóról; 6. Tulipántos, Bogártelkéről; 7. Jármos, B.-Hunyadról; 8. Négy rózsás, B.-Hunyadról; 9. Szélin rózsás, közbül kis foglalós, Mákóról; 10. Tulipántos, Mákóról; 11. Kétfelül kis rózsa, Mákóról.
Ide tartozik még Kalotaszegnek egy sajátságos díszítővarrása, a kötényeken alkalmazott, úgynevezett «darázsolás». (XVIII. tb.) Ezt legtöbb helyütt hárászszal (pamut), de az inkább városiaskodó Hunyadon selyemmel is varrják, ami tagadhatatlanul szép, mintha csupa gyöngyszemet fűztek volna korcba. Megértjük a darázsolás készítési módját (a XVIII. tábláról) lapról, ahol a varrás három fázisát láthatjuk: ráncba szedik, mint ők mondják, leszedik a kötényt, azután hosszában mindegyik ráncát kétszer átöltik hárászszal; miután ezt végig az egészen elvégezték, következik a kockázás, kockákra való beosztása az egésznek, – és végül a kockák kitöltése, a «tőttés» (mint a recénél a hálószemek kitöltése), a tulajdonképpeni darázsolás. Teknikájában, a darázsolás legváltozatosabb mintáira Mákón találtunk, de vannak ügyes minták Bogártelkén, Zsobokon, Bánffy-Hunyadon is. Az elnevezések kölönbözőek nagyon, egyazon mintának falvak szerint más és más elnevezését kapjuk. Zsobokon: mákos, soros, lajtornyás, macskanyomos, asztallábas, egenyes, barackmagos, madaras, Szalainé-forma, két rózsás, négy rózsájú, cifra rózsás, kis rózsás, loptás (labda) rózsás keresztes, mézespogácsás, kulacsos, korniceres, foglalós, kigyós, csillagos, fékenmenős, nagy foglalós; Mákón: kétfelül kis rózsás, közbül barackmagos, új módi, szőllőgerezdes, nagy rózsás, sok rózsás, kétfelül kis foglalós, közbül pápaszemes, szélin kis rózsás, közbül nagy foglalós egyeles (elegyesen) asztallábbal, asztallábas, szíves új módi, tulipántos, szélin rózsás, közbül kis foglalós, barackmagos nagy rózsával, kétfelül kis rózsa, közbül horgas rózsa, kétfelül fecskefarkos, közbül nagy foglalós, összefordított foglalós; Bánffy-Hunyadon: jármos, nagy rózsás; Körösfőn: horgas. Bogártelkén láttuk egyikét a legszebbeknek, a tulipántost. (XVIII. tb.)
I. TÁBLA.
1. Zsobok. – 2. Damos. – 3–4. Zentelke. – 5. Kalota-Szt.-Király. – 6. Ketesd. – 7–9. B.-Hunyad. – 10–12. Zentelke. – 13–15. M.-Bikal. – 16. Daróc.
II. TÁBLA.
1–2. M.-Bikal. – 3. Zsobok. – 4–5. M.-Bikal. – 6–7. B.-Hunyad. – 8–9. Kalota-Szt.-Király. – 10. Zsobok. – 11. Damos. – 12–13. Zsobok. – 14–15. Zentelke. – 16. M.-Valkó. – 17–19. Nyárszó. – 20. Zsobok.
III. TÁBLA.
1. Zentelke. – 2. Inaktelke. – 3–5. Zentelke. – 6. Zsobok. – 7–8. Zentelke. – 9. M.-Valkó. – 10–11. B.-Hunyad. – 12–13. Jákótelke. – 14. K.-Szt.-Király. – 15–16. Daróc. – 17–19. M.-Valkó.
IV. TÁBLA.
1–2. Kalota-Szt.-Király. – 3–4. Zsobok. – 5–6. K.-Szt.-Király. – 7. Daróc. – 8. Mákó. – 9–10. M.-Bikal. – 11–12. Inaktelke. – 13–15. Zentelke. – 16–17. M.-Gyerő-Vásárhely. – 18–19. Bánffy-Hunyad.
V. TÁBLA.
1–3. Magyarókereke. – 4–5. B.-Hunyad. – 6. Zsobok. – 7. Magyarókereke. – 8–9. Sztána. – 10. Nagy-Petri. – 11–12. K.-Szt.-Király. – 13–14. Zentelke.
VI. TÁBLA.
1–3. Kalota-Szt.-Király. – 4–5. M.-Bikal. – 6. Daróc. – 7–8. M.-Bikal. – 9–10. Daróc. – 11–13. Zentelke. – 14. M.-Bikal. – 15. Daróc. – 16–17. M.-Bikal. – 18. K.-Szt.-Király. – 19. Nyárszó.
VII. TÁBLA.
1. Nyárszó. – 2–3. Sárvásár. – 4–5. M.-Bikal. – 6. Zentelke. – 7–8. Kis-Petri. – 9–10. M.-Bikal. – 11. Bogártelke.
VIII. TÁBLA.
1. Körösfő. – 2. Nyárszó. – 3–5. Körösfő. – 6–7. M.-Gyerő-Vásárhely. – 8. M.-Bikal. – 9. Sztána. – 10–11. Zentelke.
IX. TÁBLA.
1. M.-Bikal. – 2. Ketesd. – 3. M.-Valkó. – 4–5. Zentelke. – 6. Mákó. – 7–9. Inaktelke. – 10–11. M.-Bikal. – 12–13. Zentelke. – 14–15. K.-Szt.-Király.
X. TÁBLA.
1–3. Zentelke. – 4–6. M.-Bikal. – 7–8. Nyárszó. – 9–10. Zentelke. – 11. B.-Hunyad. – 12. Inaktelke. – 13. M.-Bikal.
XI. TÁBLA.
1. M.-Gyerő-Vásárhely. – 2. Zentelke. – 3. Jákótelke. – 4. M.-Gyerő-Vásárhely. – 5–6. K.-Szt.-Király. – 7–8. Mákó. – 9. M.-Gyerő-Vásárhely. – 10–11. Szt.-Király. – 12. B.-Hunyad.
XII. TÁBLA.
1–3. M.-Gyerő-Monostor. – 1–5. M.-Bikal. – 6–7. Körösfő. – 8–9. Mákó. – 10. B.-Hunyad. – 11–12. Körösfő. – 13–16. Nyárszó.
XIII. TÁBLA.
1–2. Körösfő. – 3–5. Magyarókereke. – 6. Zentelke. – 7–8. M.-Bikal. – 9. Daróc. – 10–12. M.-Gyerő-Monostor.
XIV. TÁBLA.
1–2. Körösfő. – 3–4. Nyárszó. – 5. Zentelke. – 6. Nagy-Almás. – 7. Kis-Petri. – 8–10. Inaktelke. – 11–12. Nagy-Almás. – 13–15. Zentelke. – 16–18. Inaktelke. – 19–20. Nyárszó. – 21. Bábony. – 22–23. B.Hunyad. – 24–25. M.-Bikal.
XV. TÁBLA.
1–2. Zentelke. – 3–6. B.-Hunyad. – 7. M.-Bikal. – 8. Zentelke. – 9. K.-Szt.-Király. – 10–11. Inaktelke. – 12–13. B.-Hunyad. – 14–15. M.-Bikal. – 16–18. Nyárszó.
XVI. TÁBLA.
1. Bogártelke. – 2. Daróc. – 3–5. Kis-Petri. – 6–7. B.-Hunyad. – 8–9. M.-Bikal. – 10–12. Zentelke. – 13. B.-Hunyad. – 14–16. Nyárszó.
XVII. TÁBLA.
1–2. B.-Hunyad. – 3–4. Zentelke. – 5. K.-Szt.-Király. – 6. Magyarókereke. – 7–9. Jákótelke. – 10–14. M.-Bikal. – 15–16. Inaktelke.
XVIII. TÁBLA.
1–2. B.-Hunyad. – 3–4. Nyárszó. – 5–7. M.-Bikal. – 8–9. Zentelke. – 10. Mákó. – 11–12. Körösfő. – 13–14. K.-Szt.-Király.
Kalotaszegen, a mult század elején még, a temető békésen megfért a templom körül s az volt a cinterem, a «cintrum»; régi sirok ma is vannak még a templom körül az egyházfinak termő gyümölcsfák közt, a hatvanas években oda temették még a papot s a presbitereket, de a temető – nyilván a modern egészségügyi rendszabályok folytán – lassankint kiszorult a falu alá a lejtőkbe vagy a falu fölé, a szelid hajlású domboldalokra s nem szomorú hely az. Oh, dehogy szomorú! A magyar paraszt nem fél a haláltól. Bölcs józansággal tudja: az a vége az életnek s bizony, sokszor még jutalom, mert megpihenés a tenger fáradalom után. Ezt bizonyítják a sírföliratok, ezt bizonyítja, hogy akárhány helyt ott a házban, a pitarban a sírkő vagy a fejfa, amire majd szükség lészen.
Egy erdélyi öreg paraszt oktatott bennünket, ilyenformán:
– A halál!… Nem baj az, instállom. Dehogy baj! Apránkint szokik abba az ember. Elsőbb a foga potyog ki az embernek, aztán a szeme romlik, utóbb az inaink roskadnak meg, oda lesz a gyomrunk, mint az elnyűtt bocskor, szertemállunk, mire elérkezünk odáig. A halálig. A végin már áldás, olyan jól esik meghalni. Mintha aludni mennénk. Lám, a gyerek, az bezzeg nem szeret lefeküdni esténkint. Inkább rí, mer’ a’ még mindegyre élni akar. De aztán, amikor munka alá kerül, a napi robot után jól esik az esti megpihenés. Ötven-hatvan esztendős korunkban, nincs más, csak az ágy!… Úgy gondolom én azt, instállom, mindig, hogy amíg élünk, mind csak a halálhoz szokunk. Este, amikor lefekszünk, meghalunk egy-egy kicsit, minden áldott nap. Egyszer aztán, a legvégin, amikor úgyis nehéz már a fölkelés reggel: elkövetkezik a nagy lefekvés, megpihenünk mindenkorra, -256- a jó Isten áldott földjiben. Ebbe a jó földbe, aki a verejtékünkért kenyérrel szógál, amíg élünk…
Nem szomorú Kalotaszegen, színes, festői a temető is. Elköltözött kedveseik kertje, ahol az elhunyt leányzó sírján ott leng a színes fejkeszkenő, ott lobognak a hajfonat színes pántlikái (Keleten, a leánysírokon az egész hajfonatot márványba, kőbe faragja a mohamedán) s a fejfába bokréta van dugva, virágból, tollúból; piros, kék föstés a gombfákon – és a jóságos természet betakargatja pázsittal, behinti mezei virággal hazatért hű gyermekei kertjét. És ahány sír, a kelő nap felé tekint valamennyi, hogy a hajnali sugár első csókja a halott orcáját érje. És együtt vannak a sírokban, ketten, hárman, négyen is, együtt a halálban is, akik az életben egymáséi voltak. Az eltemetett feleség sírkövén s viszont, ott a férj neve, születési dátuma, csak az évszámot kell utána róni, amikor béteszik majd elköltözött párja mellé a földbe.
A temetés közügy, felebaráti kötelesség, böcsület és vallás.
Három rúd és két temetési tábla (385.) évente másnál, az utca elüljárónál áll. Temetéskor, jó reggel, elindítják a két táblát, egyet a jobb-, mást a balszomszédságba s adják tovább, házról házra, a hagyományos üzenettel: «Pengő forint bírsággal mindenki harangszóra hallgasson, a temetkezésre menjen, X. y. házához.» Harangszóra, tartozó kötelessége szerint asszony s ember, a halottasházhoz bégyűl az utca, – a tanító énekel s viszik a koporsót a cinterembe. A pap elbúcsuztatja, imádkoznak s az utcabéliek, a szomszédok viszik, lebocsátják a sírba. Sírhantolása után a szószólló mond köszöntőt. (Híres szószólló volt a hunyadi harangozó, Juhász András Gyi Bandi.) Temetés után torozás, a sírásóknak egy kis kolláció a legszegényebb helyről is dukál. Fiatal leányt, fiatal legényt -257- bandaszóval temetnek, – a leányok rúdra kötik gyöngyös pártáikat, pántlikáikat, legszebb színes kendőiket s úgy kisérik utolsó útján társukat.
Népművészeti szempontból nagyon érdekes, mert ősi, a máig is alkalmazott fejfa, a «fából való gombfa», a «fűtül való fa», amit így hívnak, még ha kőből van is («fűtül való fa kőbül»). A jobbára református kalotaszegi nép nem állít keresztet a sír fölibe (csak a bácsi és jegenyei katolikusok (386.) s a románok), hanem fatönköt, amelyeknek faragott diszítése gazdag és változatos. Bár a mult századból maradt síremlékek kőből vannak, az ősibb forma a fa, csakhogy a régiek elkorhadtak, míg a kő jobban állja az időt. Bánffy-Hunyadon már múlik a régi fejfa állítás szokása, kivált amióta temetkezési vállalat is megtelepedett az erősen városiasodó nagy faluban, – temetőjében nincsen már egyetlen ősi formájú ép fejfa se, a síremlék gyárilag készül. A többi falvakban maga a nép készíti a fejfákat, hagyományos régi formákhoz alkalmazkodva.
Szerkezetileg öt részt lehet megkülönböztetnünk a fejfákon (a fejfák formáit utánzó sírköveken ez az öt nincs ilyen határozottan hangsúlyozva): a felfelé végződés kifejezése a legfelső faragott rész; a fejfa homloka, ahová a díszítés kerül; az eresz, valami párkány módra kiugró rész, mely esőtől védi a fejfa fölírását; a törzs, amelyen a fölírás foglal helyet és a földbe ásott láb.
A négy felső rész közül el-el marad egyik vagy másik, de az eresz nem hiányzik a fejfáról soha, sőt a legegyszerűbbeken éppen az eresz képezi az egyedüli tagozást (388., 389.) A felső faragott rész elemei: a tulipán, a csillag (két egymást átható tetræder) s a gomb, mely a kocka négy vízszintes élének legömbölyítéséből keletkezik úgy, hogy a függélyes élek többé-kevésbé megmaradnak s megmarad a függélyes lapok középső része is, mint keskeny szegély vagy él; lesimítják azonban e függélyes éleket is, így új lapot kapva, keletkezik a sokszögű gomb. Ha a lemetszések fönt s alant találkoznak, két alsó lapjukkal egymás felé fordított csonka gula jő létre, amely néha egész vékony lappá változik. Szerepelnek a hasábkocka s a kimetszésök révén megmaradt mértani formák is. Ezeket az elemeket kombinálják a fejfákon, illetve, ezek az elemek egymással váltakozva sorakoznak egymás fölé, csak a tulipán marad érintetlenül a fejfa csúcsán, de kerülhet csillag vagy gomb is a helyébe. Homlokán egész szélességében marad meg a fejfa és a díszités felvételére alkalmas frizszerű tagozást nyer. Az eresz ugyan gyakran kiugrik párkányszerűleg a homlok síkjából (389.), de az írást mégis védelmezi.
Ezektől eltérő, érdekes formája a fejfának, az «S»-alakú lófejre emlékeztető bevégződés, amely néha az előbbiekkel kombinálva is előfordul, de egészen (390.) egyszerű alakjában a leggyakoribb.
Előfordul, bár ritkábban, a törzs jobb és bal oldala
vonaldíszesen is, míg a kevésbbé művészies, esztergált formák
gyérek. (391., 392.)
-258-
-259-
-260-
-261-
1. Nagy-Almási fejfa, beégetett díszítéssel. 2–3. Nagy-Almási fejfák. 4–5. Magyar-Gyerő-Vásárhelyi fejfák. 6. Nagy-Petrii fejfa. 7. Kalota-Szent-Királyi fejfa. 8. Nagy-Kapusi fejfa. 9. Sztánai fejfa. 10. Körösfői fejfa. 11–12. Inaktelki sirkövek. (388)
Változatos a felső végződés tulipánja; rendesen négyágú és mértani szegletes alakú vagy elgömbölyített, de lehet lapos háromágú is. Érdekes az az ereszre épült, nagy, tulipánféle végződés, amiből a négy ág további osztásával lesz nyolc aljtő. (393–406.)
A gomb végződés is több változatot mutat; néha fenyő tobozra emlékeztet néha pedig kockából legömbölyített négyszögű gombot mutat. (407.) -262-
Gyakoribb a csillag végződés (két tetræder áthúzásából képzett
idom), amit kockából faragnak ki oly módon, hogy a kocka szabadon
álló lapjain meghúzzák a keresztező átlókat s az éleket bemetszik
mindaddig, míg az átlók felezési pontjait összeköthetik egy
egyenessel, mely oly két háromszög közös alapját képezi, amelynek
másik két oldalát az átlók fele része alkotja. E könnyű teknikai
megoldás magyarázza, hogy e dísz alkalmazása -263-
-264-
-265-
-266-
-267- oly gyakori; gazdag lévén sík felületekben, saját
és vésett árnyékával igen hatásos diszítés.
Érdekesek a török síremlékekhez hasonló turbános fejfák (408–9.); a gombokon többszörös vízszintes vonaltagozás van s a gomb tetején egy kisebb gomb ül.
E néhány elemnek egymásra építése s változtatása sokféle kiképzésre ád alkalmat, mint azt képeink mutatják; e tulipán-gomb-csillagdísznek kettős-hármas halmozása is gyakran előfordul. A laposabb fejfákon néha ívekből összetett profilokra is akadunk s találunk csupa egymás alá helyezett laposabb és magasabb csillag alakokat is, de akadunk egészen különös alakuakra is, amelyen csillagokból áttört formák vannak. (410–16).
A fejfa homlokán sokszor megtaláljuk a már többször említett református virágvázát gazdag, színes változatokban. (406)
A fejfa diszítések mértani változatai az utcaajtókról ismert körosztásból származnak. A homlokra felvésik az elhunyt foglalkozását jellemző szerszámokat is, a csizmadia dikicsét, az ács szekercéjét, fürészt, baltát, a földmíves ekevasát, a cigány hegedűvonóját, -268- az asszonyok orsóját, vetélőjét s egyéb szimbolumokat; leány nyugszik a sírban, ha alul nyílott koszorú van a fejfa homlokára vésve. (387)
Az eresz rendesen két tagozású, szélén fürészes, rovátkos a dísz; e diszítés különben egyebütt is szokásos, szívesen alkalmazzák ott, ahol egyenes vonalakat kell lágyabbá, változatosabbá tenni. Az eresz síkjára kerül legtöbbször a dátum is.
Az eresz alatt kezdődik a fejfa törzse s ezen a megható naivsággal fogalmazott felírás tipikus rímekbe szedve; hol magát az elhunytat beszéltetik első személyben, hol harmadik személyé a mondóka, vagy vegyesen.
Ime néhány jellemző formája a Kalotaszegen szokásos
sírfelírásoknak: -269-
-270-
-271-
-272-
-273-
-274-
(Bokor János és Zsiga Kata még él s majd ide temetkezik.)
Egy nemzet címeres sírkövön:
A sírfelírások betűinek rajza korántsem olyan ügyes, mint a diszítések faragása; a betük kezdetlegesek s gyakran, régi módisan, egymásba vannak helyezve.
A férfi fejfák egy része színes, főleg a gyermekfejfák gombját szokták kiszinezni s előszeretettel használják az erős kék, vörös és zöld színeket. Néha váltakozva jelennek meg e színben a csillagok és gombok, máskor a csillagok belső síkjai vannak egyenlő színnel mázolva, míg a többi részre egyéb szín kerül; néha csak az éleket színezik.
Említettük, hogy a fejfának és a sírkőnek élesen elválasztható karaktere van; a kettő közt mutatkozó eltérést a kő megmunkálásának teknikai természete magyarázza; míg ugyanis a fejfáknál a fa anyaga, mély bemetszésekkel, vékony keskeny formákra utal, kősíremlék ilyen megmunkálása ritkább, inkább a gömbölyű összefüggő formák uralkodnak s helyesen, mert ez kőszerűbb és időbíróbb. Az a parasztművész érzi a -279- két anyag karakterében rejlő különbséget és nem utánozza értelem nélkül a fához oly jól illő csillag, tulipán s gombdíszt a kövön is; bármily gyakori és jellemző ezeknek egymásra építése, változtatgatása a fejfáknál, a kősíremlékeken nem igen találunk ilyesmit. Ahol a nép át is vesz valamit a fejfákról, ott is erőteljes, vaskosabb formában cselekszi, megmaradván a kő megmunkálhatás keretén belül. Inkább előfordul, itt-ott, hogy a fejfa utánozza a sírkövek formáját és díszét (427).
A kőfaragó leginkább az eresz kiképzésére szorítkozik, mely a felírást védi s fölfelé keskenyedő alakjaival fejezi ki a bevégződést, amit különböző ívekből szerkeszt össze. Tanulságosak a sírkövek profiljai. Barokra emlékeztető, rendesen egy domború és két homorú ívből összetett végződés képezi magát az ereszt is, valamivel előre szökvén a felírás síkjától. Néha futó diszítés van rajta, néha kettős tagozású itt is az eresz és az alsó tagozást apró lapos gombformák töltik ki (429). Az eresz íve alá kerül a dísz, koszorú, levélfüzér, mértani formák s egyebek. Ez alatt van a fölírásra szánt hely, amit többnyire egész hosszában két egyenlő részre oszt egy fölfelé tulipán vagy levéllel végződő plasztikus vonal. E tér olykor csak részben van kitöltve, hely marad, mint a fejfákon, újabb fölírásnak; nem ritka, hogy még életében elkészítteti egyik-másik jobb módú ember a sírkövét s nevét is rávéseti, helyet hagyván a halálozás dátumának. Föstik, színezik a sírköveket is, erőteljes tiszta színekkel. Sajnos, a városi tucatmunka hatása, éppen a sírkövek révén, meglátszik már a temetőben is. Empire hatás, barokk hatás látszik itt-ott; az inaktelki sírköveken leggazdagabb a tagolás. -280-
A fejfákra három ágú «engem ne felejts»-nek is nevezett bokrétát illesztenek, télen pedig fehér tollbokrétát libegő szalagdíszszel; legény sírokon, sok helyt kedvesük kendője lobog a fejfa mellett magas lécre szegezve, átlyuggatva a gyász jeléül. (383., 388., 408., 425.) Eredeti a koszorút helyettesítő három ágú fa, a villa, amelyet a sírlábához szúrnak le vagy a gombfa hegyébe tűznek; leány síron a fejfát a leány kedves fejkeszkenőjével takarják le. (387.)
A temető előtt, kivált ha templomudvaron van a temető, szép kapu áll, így Sztánán (431) s Nagy-Kapuson (432.). Ez utóbbi igen régi (1755-ből) jól megmaradt fakapu, szép és eredeti rajta a csigagombból kiinduló ág s az ágon a levelek és a tulipán.
1) «Nálunk a képzőművészetek közt csakis az építészet birt nemzeti iskolával, mely a XII. század végén és a XIII. elején külön sajátságot mutatott; az először született Szent István fejérvári bazilikájában és elég hosszú álom után feléledt azon nagyobb négytornyú erődféle templomokban, melyek egyik példája a pécsi székesegyházban ránk maradt. A Királyhágón túl az erődféle templomoknak más kifejlését látjuk a templomokhoz képest aránytalanul kifejlett tornyokban, mikhez még magának az egyháznak védsikátorai, «Mordgänge» is ide s tova járultak». Henszlmann Imre: A Képzőművészetek Fejlődése.
2) «Magyaró-Kerekének temploma – írja Jankó János a régi templomról, – a régiek közül való. Temploma, abban lévő fölszerelései, papi háza, az eklézsia ládájában lévő klenódumai, – kivéve az egyik óntányért 1670-ből, mely csudálatosan megmaradt, – Mária Terézia idejében porrá égtek. Legrégibb keletű a torony, melyen 1690 az évszám. A templom egyik fele 1728-ban már megvolt, de a másikat csak 1746-ban építették ki, s ekkor renoválták a régi részt is. Ez időből származik a menyezet is, amelynek kockafestményeit Kolozsvári Asztalos Umling Lőrinc készítette; kizárólag magyar tulipános formák, állat- és bibliai képek nélkül. A padok mind fehérre vannak festve, tulipános díszítéssel. A szószék körül álló középpadokon 1786-ból való allegorikus képek láthatók; az asszonyok padján az ártatlanságot szimbolizálja egy asszony, jobb oldalán egy fán csókolózó galambpárral, baloldalán kiterjesztett szárnyú pávával; a pap padján a kép az élet fáját ábrázolja, a fán a kigyó, balra Éva, jobbra az oroszlán, amint a sárkány fejére hág. A kerek magyarstilusú úrasztalának négyágú lába van; lapjában a csináltató neve, K. B. Benedek és a csináltatás éve, 1791: körirata a zsoltárok 23-ik verse. A legénykórus 1786-ból való. A hátsó kórus alatt, mindjárt a bejárattól balra, foglal helyet Zámbó Borbála külön széke, leterítve egy valódi perzsa szőnyeg szélével, amely szakadozott ugyan és százados benne a por, de színe még most is oly üde, mintha csak az imént terítették volna oda. Harangjai 1759-ből valók. Tornya ugyan egészen kalotaszegi formájú, de a négy melléktornyocska elmaradt. A szószék koronáján a főnix.»
3) «A magyar-valkói levéltár legrégibb okmánya 1427-ből való s ebből tudjuk, hogy a felkelő keresztesek itt is garázdálkodtak, a valkói várat, amelynek ma semmi nyoma sincs, felégették; majd Kolozsvárra mentek, ahol Tordai János szétverte őket. 1548-ban, Báthory Zsigmond alatt, az ország rendeinek határozata értelmében a jezsuiták pusztulván innét, a hatalmas Valkai család befolyása alatt, a falu népe is felvette a reformált hitet. A jezsuiták ugyan a német császárok alatt az egyház földjeit még egyszer visszakapták, de amikor végkép kivonultak az országból, azok a cath. stud. fundushoz csatoltattak. A jobbágyok felszabadulása után a birtok csak az antiqua sessiókhoz mért közös havas jövedelme osztalékából áll. A templomot azonban még vagy háromszor égették föl: Básta idejében a németek, 1661-ben a törökök, az utolsó Rákóczy-forradalom alatt a labancok. Az egyház klenodiumai újabb keletüek. Tornya négy kis tornyocskával. A menyezet Umling műve volt.» J. J.
4) «A magyar-bikali négytornyocskás templom már szintén egyike az érdekeseknek. Menyezetén kétféle munka látható: a régibb 1697-ből, tiszta nemes ornamentika, azonban minden növény-, állat- és bibliai motivum nélkül, (XI. tb.) – az újabb rész, 1794-ből, Umling műve, a vegyes tipusból. A magyar asztal 1697-ből való; a szószék 1797-ben készült, de koronája 1790-ből maradt; kél 1790-ből való padon címer van, egyik a Biró-, másik a Gyarmathy-család címere.» «Sztána templomának menyezete Umling 1742-ki műve; 1836-ban renoválták. Harangja 1541-ből. Tornyocskák nélkül.» «A daróci, toronytalan templom egyike a legérdekesebbeknek; a templom szintén katolikus volt. Menyezete Umling műve, 1750-ből, de ennél sokkal érdekesebb az az öt pad, mely 1678-ból és 1701-ből való. A legtisztább, a legnemesebb magyar ornamentika maradványai ezek, Umlingék soha meg sem közelítették ezt a művészetet, párja az egész Kalotaszegen nincs; a diszítő kizárólag virágokat használt föl: rózsát, szegfüvet, nefelejcset és tulipánt. A menyezet festményei a vegyes tipusokból valók. A szószék 1680-ban készült.» J. J.
5) E diszítés eredetét érdekesen magyarázza, a székely kapukon, Huszka József (Székely Ház): «… A kapuív síma vonalát a lelógó csigák mellett még többnyire vízszintesen álló körhenger alakú pálcatagok is élénkítik, nagy ritkán szerves összefüggésbe hozva a kaput borító növényi diszítményekket… e pálcikák nem ornamentális eredetűek, hanem valódi szerkezeti alakok. Jelen alkalmazásukban ugyan semmi szerkezeti hasznuk nincs, de azért nagyon valószinűnek látszik konstruktiv eredetük, kivált ha szemügyre vesszük az egyedüli analogiát, a Bombay-vidéki indiai sziklatemplomok kapuíveit… az élő-szikla formái faszerkezetet utánoznak. A bhajai kolostor ívei és a karlii templom façadívei, meg a kocsisátor gyékénynyel vagy ponyvával leborított favázának íves nyilása között oly szembeszökő a hasonlóság, hogy a karlii homlokzatban egy nomád kocsitábor megörökítését látni nem képzelődés.»
6) Írás után varrott minták nevei: rózsás sujtásos, félrózsás majoránnával, Valkai forma, söprűs, szegfűs, majoránnás, ágfél majoránnával, tulipántos folyó, rózsás folyó, félfolyó, dorombos, kapusi forma, almásos, körtés, táblás forma, féltarajos, kocsikerekes, taréjos horgassal, félágú, poharas, gyócsiny forma, majoránna folyó karikával, gyöngyvirágos, abroszforma, csillagos tulipánnal, selyemkeszkenőforma, körmös, ecetfás, jegenyés, gerezdes, stb.
Szálán varrottak nevei: cifrakockás, szénvonós, kockás ág, fedeles, hegyes tulipán, fonott, kis szarúfás, bordás, patkós, ritkaság, kis bimbó, kis fonott, körtvés, szegfűs, nagyágas tulipán, kézelős, pillangós, lószemű, rózsás, mákos, barackmagos, farkasnyom, stb.
Vagdalásosak (vagyis áttörtek) nevei: paripás, három mákú, törökös, abrudi, kisfoglalás, kisbokrétás, könyökös, leveles mák, stb.
7) Az itt bemutatott varrottasokat, könnyebb áttekinthetés végett tizennyolc táblán (I-XVIII) csoportosítottuk, – a XVI. sz. tábla, csak fél tábla, – külön számozva (1, 2, 3, stb.) minden tábla egyes ábráit; szöveg közben az utalás e számozás szerint történik. Azokat a varrottasokat, amelyeket e tizennyolc táblán elhelyezni nem lehetett, rendes ábraszámozásunk sorrendjében, külön képeken mutatjuk be.
8) A minták elnevezései, ahogy ma még összegyűjthető: makkos, heges csillag, kockás ág, jegenyés, rózsabimbós, mákos, szegfűs, szarufás, kis szarufás, fogasos, csereleveles, rózsás, színes, ágas tulipán, ablakos, szarvas, rózsaágas (különösen ágyfűtölvalókra alkalmazzák), nagy tulipános, fonottas (párnahéjjakon) stb.
Az eredeti szöveg helyesírásán nem változtattunk.
A nyomdai hibákat javítottuk. Ezek listája:
| 4 | nyomdaja | nyomdája |
| 23 | De meg a faluban | De még a faluban |
| 23 | havas Erdély ben | havas Erdélyben |
| 24 | diszesíti, Teremtőjének | diszesíti. Teremtőjének |
| 35 | lakatos mesterségét | lakatos mesterséget |
| 39 | romános vol.ának | romános voltának |
| 42 | megforgtaja a kender | megforgatja a kender |
| 43 | megveszi Én | megveszi. Én |
| 50 | piros vriág | piros virág |
| 55 | szolgálatból kazakerült | szolgálatból hazakerült |
| 79 | JEGENYÉN. (72.) | JEGENYÉN. (72) |
| 82 | a a kisebbik 1795-ben | a kisebbik 1795-ben |
| 82 | der enoválta | de renoválta |
| 84 | csak vakolat, Böcsületes | csak vakolat. Böcsületes |
| 89 | Vasárnap delután | Vasárnap délután |
| 90 | négy–öt lábfa | négy-öt lábfa |
| 91 | Ot öles házra öt | Öt öles házra öt |
| 95 | ablak szemöl dökfája | ablak szemöldökfája |
| 95 | Mikor? Igaz-a | – Mikor? Igaz-a |
| 96 | bévül bévakol juk | bévül bévakoljuk |
| 99 | El a’ | – El a’ |
| 100 | l) ágy | l) ágy; |
| 145 | fer tályföldecskére | fertály földecskére |
| 103 | a csűrben (K) | a csűrben (k) |
| 110 | elosztva. hosszabb darabon | elosztva, hosszabb darabon |
| 111 | finom érzekkel | finom érzékkel |
| 115 | konyha a, felsőben a | konyha, a felsőben a |
| 117 | olyan akku rátosan | olyan akkurátosan |
| 117 | azután rászegezev | azután rászegezve |
| 137 | 6. Daróc | 6. Daróc; |
| 137 | 8. Bogártelke, | 8. Bogártelke; |
| 143 | FARAGÁSSAL. (189.) | FARAGÁSSAL. (189) |
| 151 | felső részet | felső részét |
| 159 | 7. B.-Hunyad | 7. B.-Hunyad; |
| 159 | egy hunyadi (XVI tb.) | egy hunyadi (XVI. tb.) |
| 163 | 1. Magyarókereke | 1. Magyarókereke; |
| 164 | még szebb, Lám | még szebb. Lám |
| 175 | HIMES ESZTOVATA | HIMES ESZTOVÁTA |
| 178 | HIMES VETŐLÉK. (127) | HIMES VETÉLŐK. (271) |
| 187 | kunkorod kis szarvacskákban | kunkorodó kis szarvacskákban |
| 187 | végződik Nagyjából | végződik. Nagyjából |
| 187 | nyílalakotó ölt | nyílalakot ölt |
| 219 | Eppenséggel nem | Éppenséggel nem |
| 230 | midőnminden | midőn minden |
| 238 | virágánakközepén | virágának közepén |
| 238 | (képünkön… némi változat. | (képünkön… némi változat). |
| 239 | Zentelkén (I.I 15.) | Zentelkén (II. 15.) |
| 239 | csillag juttot | csillag jutott |
| 243 | XII, 13. már látott | XII. 13. már látott |
| 245 | egyszerűbbek közé, tartozik | egyszerűbbek közé tartozik |
| 246 | XI. 4, XI. 9 | XI. 4. XI. 9 |
| 248 | XIV. 7, példánynak | XIV. 7. példánynak |
| 249 | cifra bokrétás-szénvonós | cifra bokrétás, szénvonós |
| 257 | kendőikets úgy | kendőiket s úgy |
| 257 | lappa változik | lappá változik |
| 281 | Abécés tábla | Ábécés tábla |
| 281 | Kalotaszeg-Szent-Király | Kalota-Szent-Király |
| 283 | Hinces kútágas | Himes kútágas |
| 283 | Magyar-Gyergyóvásárhelyt | Magyar-Gyerővásárhelyt |
| 283 | Peter János háza | Petre János háza |
| 283 | Kis Lőrinc ezermester utccaajtaja | Kis Lőrinc ezermester utcaajtaja |
| 284 | Kador Pál András | Kudor Pál András |
| 285 | himes vetőlék | himes vetélők |
| 286 | Mákón és Inatelkén | Mákón és Inaktelkén |
| 286 | Foaás a guzsalyról | Fonás a guzsalyról |