The Project Gutenberg EBook of A Terminal Market System, by Mrs. Elmer Black

This eBook is for the use of anyone anywhere at no cost and with
almost no restrictions whatsoever.  You may copy it, give it away or
re-use it under the terms of the Project Gutenberg License included
with this eBook or online at www.gutenberg.org


Title: A Terminal Market System
       New York's Most Urgent Need; Some Observations, Comments,
              and Comparisons of European Markets

Author: Mrs. Elmer Black

Release Date: April 22, 2009 [EBook #28575]

Language: English

Character set encoding: ISO-8859-1

*** START OF THIS PROJECT GUTENBERG EBOOK A TERMINAL MARKET SYSTEM ***




Produced by Diane Monico and The Online Distributed
Proofreading Team at https://www.pgdp.net (This file was
produced from images generously made available by The
Internet Archive/American Libraries.)






Copyright, 1912, by Mrs. Elmer Black

A Terminal Market
System


New York's
Most Urgent Need

Some Observations, Comments
and Comparisons
of European Markets



By
Mrs. ELMER BLACK

Member of the Advisory Board of the New York
Terminal Market Commission


Contents


Illustrations


[Pg 3]

Foreword

In the belief that the establishment of a first-class Terminal Market system, worthy of twentieth century requirements, is a matter of vital importance to every family in New York, I have spent considerable time during the past few months investigating markets on both sides of the Atlantic.

As a result I am more than ever conscious of the need for an enlightened public opinion to support the efforts of the Terminal Market Commission to secure this benefit for our community. I am convinced that our fellow-citizens will approve the requisite expenditure once they are roused to a realization of the inadequacy of our food-distributing centers.

In the hope that my investigations may aid in the accomplishment of this reform, I have prepared these observations, comments and comparisons.

It is true that the problem of the high cost of living is afflicting the old lands of Europe, the newer countries like New Zealand, as well as our own wide territories of the United States. The causes vary, according to local conditions; but everywhere it is agreed that a potent force for the amelioration of the condition of the consumers is found in the establishment of efficient Terminal Markets under municipal control for all progressive cities. With wise administration, stringent[Pg 4] inspection and sound safeguards, these municipal markets benefit both producers and consumers. They eliminate considerable intermediate expense, delay and confusion. Last but not least they return a profit to the city treasury.

It is because our New York markets achieve none of these beneficent results that I issue this plea for the establishment of an adequate Terminal Market system. I appeal to all who have the welfare of their city at heart to add the force of their opinion to the accomplishment of this civic improvement.

Madeleine Black (signature)
(MRS. ELMER BLACK) (MRS. ELMER BLACK)


[Pg 5]

United States

New York, with over 5,000,000 inhabitants, has no effective market system. The buildings are out of repair, there is little or no organization, and the superintendent has testified before the New York Food Investigation Commission (March 12, 1912) that on their administration last year there was a loss to the city treasury of $80,000. To that must be added due consideration of the inconvenience to the consumers, producers and dealers, and the extra cost of handling entailed by the lack of modern market methods. The city has almost quadrupled its population in a generation, but the markets remain about as they were. Many other cities in the United States not only testify to the value of municipal markets as a means for lowering prices to the consumer, but so guard their interests as to provide a very different balance sheet.

Boston has a profit on its markets of $60,000, Baltimore $50,000, New Orleans $79,000, Buffalo $44,000, Cleveland (Ohio) $27,507, Washington (D. C.) $7,000, Nashville (Tenn.) $8,200, Indianapolis $17,220, Rochester (N. Y.) $4,721, and St. Paul (Minn.) $4,085.

If the following facts concerning municipal markets are studied, also, it will be seen that no city in any way comparable to New York fails to make the municipal markets yield advantages both to the community and the city treasury.


The British Isles

London naturally serves as a starting point for a tour of European investigation. The British capital has, indeed, features that render it comparable in a peculiar degree with New York. The population of both, including their outer ring of suburbs, is over five millions. In each case there is access to the open sea by means of a noble waterway over which passes the commerce of the seven seas. Railroads supplement the water-borne cargoes with home-grown produce, fresh from the farms for the use of urban kitchens.

London's markets do not afford the unbroken example of municipal control that they would if a new system were to be created at the present day. Precedent looms large in British administration and even now there are only two ways of establishing a market—by Parliamentary authority and Royal Charter. King Henry III covenanted by charter with the City of London not to grant permission to anyone else to set up a market within a radius of seven miles of the Guildhall, and this privilege was subsequently confirmed by a charter granted by Edward III in 1326. But of late years the City Corporation has waived its rights and allowed markets to be established in various districts wherever a real necessity has been shown to exist. In fact the markets of London have grown with the city, keeping pace with its requirements.

[Pg 6]

COVENT GARDEN MARKET

The Morning Rush of Farm and Garden Produce for London Consumers. COVENT GARDEN MARKET
The Morning Rush of Farm and Garden Produce for London Consumers.

[Pg 7]

There remains, however, the fact that certain Corporation markets and Covent Garden market serve as great wholesale terminals, connected more or less unofficially with the numerous local markets in the outlying districts.

Chief among the Corporation markets is Smithfield, covering about eight acres, and costing altogether $1,940,000. There are to be found wholesale meat, poultry and provision markets, with sections for the sale, wholesale and retail, of vegetables and fish. In the last twenty years the development of cold storage processes has lowered the quantity of home-killed meat and remarkably increased the importation of refrigerated supplies. Last year the wholesale market disposed of 433,723 tons of meat, of which 77.2 per cent came from overseas.

Ten years ago the United States supplied 41 per cent of the Smithfield meat, but now these supplies have fallen off enormously and the last report of the Markets Committee says: "The United States, in particular for domestic needs, is within measurable distance of becoming a competitor with England for the output of South America." South America and Australasia are, indeed, the chief producers today for the British market.

This has developed a great cold storage business in London. All told London can accommodate 3,032,000 carcases of mutton, reckoning each carcase at 36 pounds. Over 41 per cent of England's imported meat passes through Smithfield, and railroad access is arranged to the heart of the market. The Great Northern Railway Company has a lease from the corporation on 100,000 feet of basement works under the meat market, with hydraulic lifts to the level of the market hall, and inclined roadways for vehicular traffic.

Most of the tenants at Smithfield are commission salesmen, who pay weekly rents for their shops and stalls at space rates, all the fittings being supplied. Last year these rents brought in $427,920. There is a toll of a farthing on every 21 pounds of meat sold, which together with cold storage, weighing and other charges amounted in the same period to $241,635. The meat sales are entirely wholesale, except on Saturday afternoons, when there is a retail "People's Market," where thousands of the very poor buy cheap joints.

[Pg 8]

SMITHFIELD IN THE OLDEN DAYS

From an Old Print Dated 1810. SMITHFIELD IN THE OLDEN DAYS
From an Old Print Dated 1810.


DELIVERING MEAT AT SMITHFIELD TODAY

There is an inclined road by the tree in the center of the picture, leading
to the special railroad freight depot. Cars are also run directly under the
market and their cargoes are delivered by hydraulic lifts to the stands above. DELIVERING MEAT AT SMITHFIELD TODAY
There is an inclined road by the tree in the center of the picture, leading to the special railroad freight depot. Cars are also run directly under the market and their cargoes are delivered by hydraulic lifts to the stands above.

[Pg 9]

The inspection is very strict, every precaution is taken to ensure cleanliness, and breaches of the regulations are punished by fines or imprisonment. All condemned carcases are sent to a patent Podewill destructor to be reduced by steam pressure and rolling to a powder, which is disposed of as an agricultural fertilizer.

On these central meat markets there is a profit of about $100,000.

The Corporation also controls a great live cattle market at Islington, covering seventy-five acres. Over $2,500,000 have been spent on this market and the modern slaughterhouses attached thereto. These slaughterhouses are not regarded as a remunerative concern, but are provided because they afford hygienic methods, and private slaughterhouses in London are decreasing rapidly. Last year 37,670 cattle, 101,646 sheep, 11,722 calves and 34,981 swine were slaughtered there, the charges being 36 cents a head for cattle, 4 cents for sheep, 8 cents for calves, and 12 cents for hogs. Mainly on account of the extensions and improvements, this market is not being run at a profit at present, but its public utility is held to justify the outlay. Nor does the Deptford Cattle market, of thirty acres, maintained on the banks of the Thames to deal with live cattle imported from abroad, pay its way. But there has been a serious decline in imported stock in late years, especially from America. At this market extreme precautions are taken to prevent the entry of cattle disease that might spread infection to British flocks and herds. All animals landed there must be slaughtered within ten days and submitted to rigid inspection. All hides and offal are immediately disinfected. Five hundred cattle can be unloaded from vessels at Deptford in twenty minutes. Last year 104,351 animals were killed, the meat being sent for sale to Smithfield and Whitechapel.

Billingsgate, the famous fish market of London, is also administered by the Corporation. Its records cover over six hundred years. It is hampered by narrow street approaches, but a very expeditious system of direct delivery of fish from the Thames side of the market building enables the licensed auctioneers to dispose of supplies very quickly. Steam carriers collect the fish from the fleets around the coast and deliver them packed in ice at Billingsgate every night. Billingsgate market has cost the city $1,600,000. Stand prices are high, but there is keen competition whenever a vacancy occurs. Last year the receipts amounted to $182,455. The auctioneers dealt with 194,477 tons of fish, of which 120,905 were water-borne and 73,572 land-borne. The City profited to the extent of over $40,000 on this fish trade.

[Pg 10]

INSIDE SMITHFIELD MARKET

The City of London Corporation's $1,940,000 Terminal—one of the Aisles with Wholesale Stands on each side. INSIDE SMITHFIELD MARKET
The City of London Corporation's $1,940,000 Terminal—one of the Aisles with Wholesale Stands on each side.

[Pg 11]

On the wholesale and retail meat, fruit, vegetable and fish market at Leadenhall there is also a profit of over $5,000.

On the entire municipal market enterprises of the city there is a profit of $156,000. The markets are regarded with especial interest by the Corporation and the Committee which regulates them is considered one of the most important in the whole administration of the city. In order to keep abreast of the times most of the profit is expended on improvements and extensions.

Covent Garden, London's great fruit, flower and vegetable market, is owned by the Duke of Bedford, whose family have held it for hundreds of years. In the past century they have spent $730,000 on extensions and improvements. Of the present modern buildings, the fruit hall cost $170,000 and the flower building $243,000. Formerly the producers were chiefly concerned in the market, holding their stands at a yearly rental. But with the expansion of London the growers have gradually given place to dealers and commission men, who pay twenty-five cents a day per square foot of space, and on the produce, at a regular scale, according to its nature. On flowers there is no toll, but each stand holder pays a fixed rental. Though this market has direct access neither to river nor railroad, it still retains its premier position among the wholesale markets of England. As the approaches are extremely narrow, most of the produce has to be carried on the heads of hundreds of porters from the wagons outside into the market buildings. As it is under private ownership, no figures are issued, but there is known to be a huge profit on the market. For outer London there are fruit and vegetable markets at Stratford, in the east, Kew in the west, the Borough in the south and two railroad markets in the north.

Birmingham, England's chief midland city, has owned its markets since 1824, administering them through a markets and fairs committee. Since 1908 the profits have been somewhat reduced, owing to outlay on improvements and extensions; but although the city has expended $2,156,362 on the markets, the profits have paid off more than half of that indebtedness, besides relieving taxation in other directions.

Not far away is the small city of KIDDERMINSTER, that may be mentioned as affording a demonstration of provincial municipal enterprise, under more restricted conditions. On its vegetable market it makes a profit of $1,000, and on its butter market a profit of $1,500. The population of the city is only 25,000. Another midland city, WOLVERHAMPTON, makes a profit of nearly $20,000.

[Pg 12]

BILLINGSGATE FISH MARKET, LONDON

The Thames Side of the Market, Showing the Steam Carriers Unloading their Cargoes Direct into the Sale Room. BILLINGSGATE FISH MARKET, LONDON
The Thames Side of the Market, Showing the Steam Carriers Unloading their Cargoes Direct into the Sale Room.

[Pg 13]

Liverpool, the great northern port on the Mersey, has spent $1,242,534 on six municipal markets. The only market to lose money is the cattle market, which shows a deficit of $8,000. Liverpool has a cold storage capacity for 2,176,000 carcases. On the whole municipal market enterprise, in this city of 700,000 people, there is an average annual profit of $80,000.

Manchester serves not only its own area but surrounding industrial centers, with a total population of nearly 8,000,000. There are twelve markets and four slaughterhouses. Since 1868 the city has benefited by their administration to the extent of $3,250,000 profit.

Next to that of London, the fish market here is the largest in England. Its annual profit is well over $10,000, in addition to heavy extension payments in late years.

Dublin, the capital of what is often called 'the distressful isle,' makes a profit of $14,000 on the food market and $12,000 more on the cattle market, while EDINBURGH, Scotland's chief city, makes about $15,000 a year on municipal markets.

Statistics are available of something like 150 other British towns and cities, ranging from a population of 5,000 upwards, where there is the conviction born of experience that municipal markets pay not merely in profits, but in convenience to the community, and they have a powerful influence in keeping prices down.


Germany

Perhaps more than any other country in the world Germany places reliance on municipal markets, because of the peculiar pressure of the problem of the high cost of living in the cities of the Fatherland. On several occasions, during the last twelve months, the butchers' stalls have been raided by women in protest against the ten per cent increase in one year on the price of meat. And when, to meet the clamor, the government reduced the hitherto prohibitive import duties on meat by one-half and the inland railroad charges by one-third, it was on condition that the meat brought in should be for delivery to municipal markets or co-operative societies only. The result has been an immediate fall in retail prices ranging up to fifty per cent.

[Pg 14]

BERLIN'S TERMINAL MARKET

An Outside View of One Section of the $7,250,000 Central Market that
Caters for the Needs of Consumers in the German Capital. BERLIN'S TERMINAL MARKET
An Outside View of One Section of the $7,250,000 Central Market that Caters for the Needs of Consumers in the German Capital.

[Pg 15]

Berlin's two million people since 1886 have had a splendid terminal market on the Alexanderplatz, consisting of two great adjoining halls, with direct access to the city railroad. One of these halls is entirely wholesale, while the other is partly wholesale and partly retail. Meat, fish, fruit and vegetables are dealt with under the same roof by upwards of 2,000 producers and dealers.

The whole market cost $7,250,000, of which $1,920,711 was for the main market and $4,852,862 was for the slaughterhouses, which are most elaborately equipped to ensure sanitation and cleanliness. Great as the market is, the pressure of business has grown so much that a project is on foot to construct more accommodation at a cost of $15,000,000. The market is maintained by stand rentals and administrative charges and by a fund established for the improvement and extension of the system. On the entire enterprise, when all charges have been met and interest paid, there is a profit of over $135,000 a year.

A committee of eleven, partly city councillors and partly selected representatives of the public, administer the markets with ninety-three officials to ensure the carrying out of their orders. The regulations are most elaborate, especially as regards the inspection of foods, which is conducted by a department having a staff of six hundred.

A healthy competition is created by the system of sales, which may be conducted by the producer himself, or through an approved wholesale dealer, or through one of the six municipal sales commissioners. These municipal sales commissioners have to give bonds on appointment and are not allowed to have any interest in the trade of the market beyond a small percentage on sales. Producers living at a distance can have their business carried through by them under conditions so well understood and respected as to ensure confidence. Though the municipal sales commissioners handle less than a quarter of the sales, they nevertheless act as a check on the private dealers, especially as they issue a regular report on the average wholesale prices. Moreover the purchasers benefit by these market arrangements, for if they buy from a regularly authorized dealer they can file a claim with the administration if the supplies delivered are faulty and if their case is proved the account will be rectified.

About fifty railroad car loads can be handled at once at the market, but when extended accommodation is provided it is intended to deal with two hundred carloads simultaneously. On supplies thus delivered a railroad tax is collected from the receivers for maintaining rail connections, and this yields an annual profit of $11,000.

[Pg 16]

INTERIOR OF THE BERLIN CENTRAL MARKET

The Fish Section of the Great Municipal Market of the German Capital. INTERIOR OF THE BERLIN CENTRAL MARKET
The Fish Section of the Great Municipal Market of the German Capital.

[Pg 17]

Of the stand holders, nine-tenths are monthly tenants, and the remainder pay by the day. The highest charge is 9.5 cents per square meter a day for meat stalls. The fish sold comes mainly from Geestemunde, at the mouth of the Weser, and is sold under the strictest conditions, only a small commission being allowed to be added by the dealers.

The slaughterhouses deal with 800 wagons daily and for the use of the butchers and the market generally 2,000 square meters of distilled water are produced every day, valued at four cents the square meter. Eight thousand pipes conduct the water to every part of the market. To ensure cleanliness, bathrooms and rooms for drying clothes are established for the use of the butchers, who are charged two and a half cents a bath. In inspecting the carcases the veterinaries take the most minute precautions. From every animal four samples are taken, at different parts of the body, and each of these samples is submitted to tests for twenty minutes.

In an average year 14,000 carcases are condemned and destroyed, as well as 400,000 diseased parts. Whenever possible the inspectors cut away diseased portions, and the remainder of the carcase, after being sterilized, is sent to the markets known as the Freibank, for sale to the very poor. This proportion is not so startling when it is considered that something like two million animals are slaughtered every year, of which more than half are pigs. Until recently Germany used to export a large number of prime animals to the London market, but the demands of home consumers now prevent this and the export trade has practically ceased. In fact Germany, in common with the rest of Europe, is now competing for the world's refrigerated supplies.

Storm doors and windbreaks are provided at the entrances to the markets and wagons are only allowed inside at certain hours and through specified doorways. Thus there is an absence of dust, and a carefully arranged series of windows ensure ample ventilation. All dealers have to unpack their stock at least once every seven days, for the destruction of unsound articles. All supplies of unripe fruit, horseflesh and artificial butter have to carry labels disclosing their real nature. Attached to the market is a hospital with skilled attendance, for cases of sickness or injury happening on the market premises.

As in most other centers, the establishment of the market led to the peddlers entering into outside competition. They bought their supplies wholesale inside, and then offered them cheaply outside, free from stand rentals and other charges. This menace to the prosperity of the market grew so great that the peddlers' traffic in adjacent streets was prohibited and strictly limited elsewhere. This measure, in fact, is deemed essential in every city where municipal markets are conducted successfully.

[Pg 18]

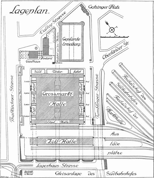
GROUND PLAN OF THE MUNICH MARKET

In front is seen the toll-house and receiving station, then the great
market hall and, in the upper part of the picture, the restaurant and
administration offices. The sidetracks on the right facilitate the rapid
distribution of produce sold at the market. Under the great market hall
are large refrigeration chambers connected directly with the railroad. GROUND PLAN OF THE MUNICH MARKET
In front is seen the toll-house and receiving station, then the great market hall and, in the upper part of the picture, the restaurant and administration offices. The sidetracks on the right facilitate the rapid distribution of produce sold at the market. Under the great market hall are large refrigeration chambers connected directly with the railroad.

[Click on image for larger view.]

[Pg 19]

Cologne completed a million dollar market in 1904, with a cold storage plant and connections with the state and narrow gauge railways. Nearly half the space is taken up by wholesale dealers in fruit and vegetables.

The chief fault of the market is the remoteness from the center of the town. At first it had a great success but, on this account, it has not been entirely maintained. Encouraged by that initial prosperity, the city authorities bought a nearer site, but the subsequent decrease in the market's popularity has caused the postponement of extensions. Though the market does not pay the five per cent on capital that is required, the present administration, even with its drawbacks, does succeed in making a profit of about three per cent on the capital invested, last year's income amounting to $535,200.

Hamburg is peculiarly situated as to its market conditions. The market halls of Hamburg and Altona adjoin, but while the former is under the control of the Hamburg senate, the latter is subject to the laws of the Prussian government and administered by the Altona city authorities. Each has a large hall, with a considerable portion of the space used for auctions. The senate of Hamburg appoints two auctioneers and Altona one; but, while the latter is a salaried official, the former are two Hamburg auctioneers approved by the government for the special market business, on undertaking not to trade on their own account. The trade of the chief market is in fish. With the Altona market, the Hamburg market and the Geestemunde market, the sales in this section of Germany are the most important in the Fatherland for fresh sea fish, and salted herrings. About a fourth comes in fishing cutters or steam trawlers direct alongside the market halls, while the remaining three-fourths come from Denmark by rail or by ships from England, Scotland and Norway. Often there are three or four special fish trains from the north in a day, while twenty-five to thirty steamers bring the regular supply of imported fish.

The auctioneers derive their revenue from a four per cent charge on sales of the cargoes of German fishing vessels and five per cent on imported supplies. Out of this they pay half of one per cent to the government on the German and one per cent on the foreign sales. No fees are charged to importers and dealers using the auction section of the fish market. Out of the percentage paid to the government by the auctioneers is provided light and water, the cleansing of the halls and the carting away of refuse for destruction. Strict regulations govern the inspection of the fish and to ensure the destruction of those that have deteriorated they are sprinkled with petroleum immediately on detection.

[Pg 20]

MUNICH TERMINAL MARKET

The World's Most Modern Distribution Center for Foodstuffs. MUNICH TERMINAL MARKET
The World's Most Modern Distribution Center for Foodstuffs.

[Pg 21]

Steam fishing boats using the market quays pay 48 cents for 24 hours' use, seagoing sailing cutters 24 cents, river sailing cutters 6 cents, and small boats 3 cents, in which charges the use of electric and other hoists is included.

From these markets almost the whole of Germany receives its sea fish supplies, for the distribution of which most of the leading dealers have branch houses in the principal cities.

There are also two markets—one in Hamburg and one in Altona—for the sale of farm produce, mostly transported thither by boats. Besides these, there is a big auction for imported fruit, conducted by private firms. All these Hamburg markets are prosperous, and their utility to the community is universally acknowledged.

Frankfort's market system dates back to 1879, when the first hall was erected at a cost of $375,000. It has 548 stands on the main floor renting at $1.08 per two square meters a month, payable in advance, while there is space for 347 more in the galleries at 84 cents per two square meters a month. Nearby is a second hall, built in 1883 at a cost of $143,750. A third hall followed in 1899 at a cost of $38,500, while in 1911 further extensions were determined on and there are fresh projects now under consideration. Besides these covered markets the city has a paved and fenced square that has been used since 1907 as an open market, where stands are rented at 5 cents a day.

Sixty per cent of the stands in the market halls are rented by the month and forty per cent by the day. Tuesdays and Fridays are reserved for wholesale trading. A market commission rules the markets and the police enforce their regulations, the violation of which is liable to cost the offender $7.20 in fines or imprisonment up to eight days.

Munich, with a population of half a million, has the most modern of all the European municipal markets. It was opened in February, 1912, and embodies the improvements suggested by experience of market administration in other cities.[Pg 22]

The total cost was $797,000, of which $510,000 was spent on four communicating iron market halls, with their cellar accommodation underneath, $190,000 on a receiving and toll department, $52,000 on a group of adjacent buildings, including a post-office, restaurant and beer-garden, and $45,000 on roadways. The whole establishment covers 46,500 square meters, of which the market halls occupy 37,100 square meters.

At the northern extremity of the buildings is the toll and receiving department, where produce is delivered at special sidings connected with the south railway station of the city. Next comes a succession of lofty halls, with covered connections, terminating in a small retail section and the administration offices. At the northern end of the great market is a section where express delivery traffic is dealt with, while the western side is occupied with sidings for loading produce sold to buyers from other German centers.

Below the toll house and the market generally are vast cold storage cellars and refrigerating plants for the preservation of surplus supplies till the demand in the market above calls for their delivery. Each market hall is devoted to a separate section of produce, and the cellars below are correspondingly distinct, so that there is an absence of confusion, orderliness is ensured, and rapid deliveries facilitated. Across this underground space from north to south run three roadways, while down the center, from east to west, a further broad aisle is provided, with an equipment of great hydraulic lifts. There are nine of these lifts altogether for heavy consignments, while each stand-owner in the market has, in addition, a small lift connecting his stand and storage cellar.

Both market halls and underground cellars are so constructed as to facilitate ventilation and complete cleanliness. The floors are of concrete and every stand is fitted with running water, with which all the fittings have to be scoured every day. There is both roof and side light, and ample ventilation, while the entrances are wind-screened, to prevent dust. Electric light is used underground, and the cellars are inspected as strictly as the upper halls, to ensure due attention to hygiene. In the center of each market hall there are offices and writing rooms for those using the markets. In the restaurant 150 can be served with meals at one time, or they can be accommodated with seats in the beer-garden.

Associated with this market establishment is a great cattle market and range of slaughterhouses on a neighboring site. The live cattle market dates back for centuries, but the present accommodation[Pg 23] was only completed in May, 1904, at a total cost of $1,600,000.

Last year 809,508 animals were sold, including 432,159 swine and 234,457 calves. In the slaughterhouses 713,228 of these were killed, besides 2,619 horses and 97 dogs. About twenty-five per cent of the animals reach the market by road from neighboring farms, while seventy-five per cent come by rail. For the inspection of all flesh foods there are very strict rules, enforced by the chief veterinary surgeon, Dr. Müller, and a staff of specially trained assistants. As in Berlin, extensive bathrooms are provided for the slaughterhouse staff, and baths are available at nominal charges. Though the new market halls have not been established long enough to provide a definite financial statement, the live-cattle market and slaughterhouses do afford an indication of the success of municipal administration in Munich. Last year the income was $416,500 and the expenditure $410,100, thus showing a profit of $6,400. The new produce halls are certainly the best equipped in the world, and the only element of doubt as to their success arises from the fact that three old-fashioned open markets are nearer the center of the city and for that reason are even now preferred by many retailers. This fact emphasises the importance of selecting a central position in establishing a municipal terminal market.


France

Paris has one of the most skilfully organized municipal market systems in Europe. The chief food distribution center for the 3,000,000 Parisians is established at the Halles Centrales, a series of ten pavilions covering twenty-two acres of ground and intervening streets. Altogether this great terminal market has cost the city more than $10,000,000.

Most of the pavilions are entirely for the wholesale trade, but some are used as retail markets to a limited extent. Retail traders are being decreased gradually, so that whereas in 1904 there were 1,164 retail stands there are now only 856.

The total receipts of the Halles Centrales and thirty local markets amount to $2,100,000, of which about $1,000,000 is profit. There is a general advance in the wholesale trade, but the local covered markets or marchés de quartier, are not progressing in the same way, so the city does not quite maintain a steady level of market profit.

[Pg 24]

THE HALLES CENTRALES, PARIS

An Outside View, Showing How the Supplies Overflow into the Adjacent Streets, Notwithstanding the
Provision of Twenty-two Acres of Covered Pavilions. THE HALLES CENTRALES, PARIS
An Outside View, Showing How the Supplies Overflow into the Adjacent Streets, Notwithstanding the Provision of Twenty-two Acres of Covered Pavilions.

[Pg 25]

The reasons given for the falling off of the retail trade are various, but the principal causes appear to be (1) the growth of big stores, with local branches, that deliver the goods at the door, thus relieving the purchaser of the necessity of taking home market supplies; (2) the number of perambulating produce salesmen, who sell from carts in the street at low rates, having neither store rent nor market tolls to pay, and (3) the growth of co-operative societies.

A complicated and severe code of regulations governs the markets. Commission salesmen at the Halles Centrales must be French citizens of unblemished record and must give a bond of not less than $1,000 in proof of solvency. Producers may have their supplies sold either at auction or by private treaty, as they prefer, and as none of the agents are allowed to do business for themselves the distant growers have confidence in the market methods.

In the retail markets each dealer in fresh meat pays just under $6.00 a week in all, while dealers in salted meats, fish, game and vegetables pay a much lower rate. All, however, in the covered markets pay three taxes—one for the right to occupy a stand, one for the cleaning and arranging of the markets, and one for the maintenance of guardians and officials. In the open markets the stands are rented by the day, week, or year, the rate for the day ranging from ten to thirty cents, according to space. Several of these local markets have charters dating back to pre-revolution days, that cannot now be annulled.

It would be difficult to devise a more thorough system of inspection. An average year's seizures include half a million pounds of meat, 17,000 pounds of fruit and vegetables and half a million pounds of salt water fish.

Thus the Paris market arrangements provide an admirable central clearing house, where supplies are inspected and sold under such conditions as to prevent the artificial raising of prices. It also acts as a feeder to the marchés de quartier, to the great convenience of local consumers. Moreover the producer is safeguarded, for on his supplies a small fixed percentage only can be charged by the salesman, and the current market prices are made public by agents especially detailed for that purpose.

Havre, the well-known French seaport, with a population of 130,000, has a profit of over six per cent on the Halles Centrales and ten per cent on the fish market. All told there is a profit of $27,000 on the twelve municipal markets.

[Pg 26]

KEEN MORNING BUYERS

In the Game Section of the Paris Halles Centrales. KEEN MORNING BUYERS
In the Game Section of the Paris Halles Centrales.

[Pg 27]

The Halles Centrales occupy an entire square in the center of the city and cost $75,000, exclusive of the site. Gardeners and farmers are not permitted to sell their produce on the way to the market and are only allowed to deliver to storekeepers after the wholesale markets are closed. Here, as elsewhere where the markets are successful, every precaution is taken to avoid the prosperity of the market being dissipated by sales in the surrounding neighborhood. The annual rents for butchers are very moderate, ranging from $57.90 to $154.40, vegetable dealers $42.85 to $92.64; dairy produce dealers $52.11 to $85.11, fishmongers $23.16 to $86.85. In the wholesale markets there is an annual trade turnover worth well above $1,000,000, of which fish represents $280,000. So far from the fishermen finding the fish market detrimental to their interests, they welcome it and cheerfully observe the rule forbidding sales on the quays or transit sheds except under special permits.

Lyons, with a population of half a million, may be taken as the best example of a flourishing French provincial city at a considerable distance from the sea. The principal market, La Halle, is known all over France for its public auctions. Accommodation is provided for 276 stalls, rented at 14 cents a day per square meter for fruit, vegetables and cheese, while other stalls for meat and fish are rented at 33 cents per square meter.

At the morning auctions, held at the rear of the hall, are sold immense quantities of fish, oysters, lobsters, game, poultry, butter, cheese, eggs, fruit and vegetables. There is a rule that all supplies must come from outside Lyons, so that local store men cannot there dispose of surplus stocks, but dealers in other French cities often thus relieve themselves when overloaded. These auctions not only enable local dealers to distribute supplies at cheap rates to the small stores all over the city, but wide awake housewives can frequently tell just what the stores gave wholesale for the produce offered to them retail later in the day, so a check can be kept on overcharges.

The auctioneers are given a monopoly of selling for ten years, on binding themselves to pay to the city a sum equal to two per cent on the total annual sales. The minimum is fixed at $1,930 for one stand or $5,650 for four stands, to be paid to the municipal treasury. Two per cent is added to the purchase price of every payment made by buyers at auction, and if this does not amount to $1,930 per stand for the year, the auctioneer has to make up the difference. The poorer classes benefit largely by these sales, banding together to buy wholesale and then dividing their purchases.

[Pg 28]

A DRASTIC INSPECTION

Of Refrigerated Chinese Pork at the Port of Liverpool. A DRASTIC INSPECTION
Of Refrigerated Chinese Pork at the Port of Liverpool.

[Pg 29]

There are also seventeen markets for general retail trade in Lyons. The Terminal Market of La Halle cost the city $886,980. The company which built it was given a concession for fifty years, on a division of profits arrangement, but within sixteen months the utility of the market as an advantageous enterprise for the city was so clearly demonstrated that the municipality bought the company out.


Austria-Hungary

Vienna, with 1,700,000 people to supply, has a magnificently managed system of forty-five markets, seven of which are located in large, well-ventilated halls, all kept spotlessly clean.

Market commissioners appointed by the municipality conduct the business of the markets according to strict regulations, enforcing a rigid inspection of all products as well as weights and measures. Violations of these rules are punishable by fines of about $2.00, imprisonment for 24 hours or exclusion from the markets. Such penalties are enforced when buyers are defrauded, dealers oppose the market authority, or exceed the charges that are posted in the market.

Not merely land and water produce, but general farm and household requisites, are sold at these markets. Outside buying is strictly controlled, owners of boats on the Danube or wagons on the public streets paying toll to the municipality on any sales.

Over $60,000 profit is the average annual yield of the markets to the city treasury, and it is generally agreed that the market system tends to keep down the price of foodstuffs to normal levels.

Buda-pesth has 715,000 people and a very complete market system, under which, though only nominal rentals are charged, there is a profit of over $100,000.

There is one large wholesale terminal market, while six local markets cater for the retail requirements of all quarters of the city. All salesmen are carefully selected; criminals and diseased persons being rigidly excluded. Though a wide variety of articles are sold in the smaller markets besides farm produce, storekeepers are not allowed to rent stalls, so the market men and farmers alone have the use of the buildings. The regulations under which they trade were drawn up by a market commission and confirmed by ministerial decrees. These regulations are regarded in Europe as a model of comprehensiveness and their observance ensures close attention to hygiene. Among the rules is one insisting on the placing of all waste paper in the[Pg 30] public refuse receptacles, while another compels the use of new, clean paper only in wrapping up food products.

Stalls are rented from four to ten cents a day, according to the accommodation. Supplies come by boat, rail and wagon, and when there is pressure on the interior market space sales are allowed from the boats and wagons at a toll of ten cents a day. Otherwise only merchandise is allowed to be sold outside the market halls. Not only must no fish, game, meat or poultry be sold without first being passed by the veterinary inspectors, but none of these articles of diet must be brought to market packed in straw, cloth or paper. Unripe fruit must not be sold to children.

Every day a bulletin issued by the market commission sets out the wholesale prices, while a weekly list gives the retail prices, but in the latter case the note is added that the market commission will not be responsible for any controversy that may arise. All the stocks held by the market traders are insured by the municipality, though not to their full value.

Not only have these markets proved beneficial to the consumers generally, but the market men are unanimous as to their advantage, for they afford a ready and inexpensive means of doing a large business.


Holland

Amsterdam, with a population of 510,000, has all the local markets under the control of the municipality. They are divided into five districts, each managed by a director or market master, responsible to the city council.

Two of the markets are covered, but the remainder are open and are situated by the side of the canals, along which the produce is brought in boats from the farms around. On the administration of the markets in an average year there is a profit of $36,000, but there is a law against making a profit on municipal enterprises, so the surplus is spent on local improvements.

Rotterdam, another great Dutch seaport, operates its markets under similar conditions and makes a profit of $34,000, of which $23,000 comes from the cattle and meat markets.


Belgium

Brussels, possessing a population of half a million, reaps considerable advantage from its picturesque municipal markets, four of which are covered, while several are in the open air.[Pg 31]

The renting of space to standholders at the central market is according to the highest bidder, provided the price is not below $11.58 per month for meat, $9.65 for poultry and game, $5.79 for fruit, vegetables, butter and cheese.

Both producers and dealers sell at these markets, all their supplies being subjected to drastic inspection regulations. All meats are tested by the municipal veterinary surgeon and his staff, while a communal chemist regulates the milk, butter and general dairy produce. The cleansing of the markets is done by the department of public cleanliness. Some of the public markets are managed by a contractor, who receives $250.90 a year for setting up the stalls and keeping them in good order. He deposits a security on undertaking his contract and in default of a satisfactory performance of his work the commune does it and charges him with it.


Comments

It has been testified that New York's annual food supply costs, at the railroad and steamer terminals, $350,000,000. But the consumers pay $500,000,000 for it. The balance of $150,000,000 does not necessarily indicate that any particular section of middle-men have been exacting excessive profits. It merely demonstrates that too many people handle the produce between the farm and the fireside. The provision of an adequate Terminal Market system for New York would apply the remedy.

New York stands alone, for a city of its importance, in having to face an annual deficit on its markets. The results elsewhere prove that the deficit could be turned into a profit by the creation of a Terminal Market system, equipped and administered on twentieth century lines.

America is exporting less foodstuffs than formerly. The annual value has fallen $126,000,000 in eleven years. The growth of the manufacturing population and the relative decrease of the agricultural population, together with the gradual impoverishment of much of our farm land, will soon make conditions worse unless we organize our food distribution.

The first step for New York is the establishment of a Terminal Market system. It is estimated that New York's population will continue to grow at the rate of fully 100,000 a year, so this problem admits of no further procrastination.

In natural resources America is the richest country in the world. Other nations have to import vast quantities of produce because of the restricted area of their territory, the comparative[Pg 32] unfruitfulness of their soil, or their adverse climatic conditions. We have a wide land of boundless fertility, never wholly in the grip of winter's cold. Yet we no more escape the high cost of living than these less favored peoples overseas. They have partially compensated for their disadvantages by organizing their markets, while we have neglected that important branch of civic enterprise.

Everywhere in Europe, the provision of adequate terminal markets under municipal control is pointed to as a powerful aid in keeping food prices down. There is a lesson in that for New York and other American cities.

There is a lesson also for growers in up-state districts, for experience shows that with adequate markets, supplying produce at lower rates, there comes a demand for more farm and garden stuff and a greater variety of it. This directly aids in developing rural prosperity and enhances the value of agricultural land.

I believe a marked improvement will be shown if a bureau is maintained to inform farmers as to the demands of the market and the best method of packing, preparing and despatching their produce so as to reach the market in prime condition. Not only will that aid the market, but it will have a powerful influence in arresting "the drift from the land" to the cities.

The municipality should select central positions for its markets, with rail and river access. It should have effective control not only over the markets but the adjacent streets, wharves, and railroad sidings, so as to obviate evasion of the market tolls. The rentals should not be high, and no sub-letting should be allowed under any circumstances.

Under such conditions, with wise administration, New York's Terminal Market system could be made a model that would be studied by other cities in an age when economic questions absorb the attention of all our public-spirited men and women.

In the interests of the people's health and happiness, no less than in consideration of the municipal finances, all should rally to the support of those who are seeking to secure the consummation of this urgent reform at the earliest possible moment consistent with a full consideration of all its aspects.

The Willett Press, New York


Transcriber's Notes

Moved illustrations to paragraph breaks.

Removed period from "per cent" for consistency.

Removed hyphen from "to-day" for consistency.






End of Project Gutenberg's A Terminal Market System, by Mrs. Elmer Black

*** END OF THIS PROJECT GUTENBERG EBOOK A TERMINAL MARKET SYSTEM ***

***** This file should be named 28575-h.htm or 28575-h.zip *****
This and all associated files of various formats will be found in:
        https://www.gutenberg.org/2/8/5/7/28575/

Produced by Diane Monico and The Online Distributed
Proofreading Team at https://www.pgdp.net (This file was
produced from images generously made available by The
Internet Archive/American Libraries.)


Updated editions will replace the previous one--the old editions
will be renamed.

Creating the works from public domain print editions means that no
one owns a United States copyright in these works, so the Foundation
(and you!) can copy and distribute it in the United States without
permission and without paying copyright royalties.  Special rules,
set forth in the General Terms of Use part of this license, apply to
copying and distributing Project Gutenberg-tm electronic works to
protect the PROJECT GUTENBERG-tm concept and trademark.  Project
Gutenberg is a registered trademark, and may not be used if you
charge for the eBooks, unless you receive specific permission.  If you
do not charge anything for copies of this eBook, complying with the
rules is very easy.  You may use this eBook for nearly any purpose
such as creation of derivative works, reports, performances and
research.  They may be modified and printed and given away--you may do
practically ANYTHING with public domain eBooks.  Redistribution is
subject to the trademark license, especially commercial
redistribution.



*** START: FULL LICENSE ***

THE FULL PROJECT GUTENBERG LICENSE
PLEASE READ THIS BEFORE YOU DISTRIBUTE OR USE THIS WORK

To protect the Project Gutenberg-tm mission of promoting the free
distribution of electronic works, by using or distributing this work
(or any other work associated in any way with the phrase "Project
Gutenberg"), you agree to comply with all the terms of the Full Project
Gutenberg-tm License (available with this file or online at
https://gutenberg.org/license).


Section 1.  General Terms of Use and Redistributing Project Gutenberg-tm
electronic works

1.A.  By reading or using any part of this Project Gutenberg-tm
electronic work, you indicate that you have read, understand, agree to
and accept all the terms of this license and intellectual property
(trademark/copyright) agreement.  If you do not agree to abide by all
the terms of this agreement, you must cease using and return or destroy
all copies of Project Gutenberg-tm electronic works in your possession.
If you paid a fee for obtaining a copy of or access to a Project
Gutenberg-tm electronic work and you do not agree to be bound by the
terms of this agreement, you may obtain a refund from the person or
entity to whom you paid the fee as set forth in paragraph 1.E.8.

1.B.  "Project Gutenberg" is a registered trademark.  It may only be
used on or associated in any way with an electronic work by people who
agree to be bound by the terms of this agreement.  There are a few
things that you can do with most Project Gutenberg-tm electronic works
even without complying with the full terms of this agreement.  See
paragraph 1.C below.  There are a lot of things you can do with Project
Gutenberg-tm electronic works if you follow the terms of this agreement
and help preserve free future access to Project Gutenberg-tm electronic
works.  See paragraph 1.E below.

1.C.  The Project Gutenberg Literary Archive Foundation ("the Foundation"
or PGLAF), owns a compilation copyright in the collection of Project
Gutenberg-tm electronic works.  Nearly all the individual works in the
collection are in the public domain in the United States.  If an
individual work is in the public domain in the United States and you are
located in the United States, we do not claim a right to prevent you from
copying, distributing, performing, displaying or creating derivative
works based on the work as long as all references to Project Gutenberg
are removed.  Of course, we hope that you will support the Project
Gutenberg-tm mission of promoting free access to electronic works by
freely sharing Project Gutenberg-tm works in compliance with the terms of
this agreement for keeping the Project Gutenberg-tm name associated with
the work.  You can easily comply with the terms of this agreement by
keeping this work in the same format with its attached full Project
Gutenberg-tm License when you share it without charge with others.

1.D.  The copyright laws of the place where you are located also govern
what you can do with this work.  Copyright laws in most countries are in
a constant state of change.  If you are outside the United States, check
the laws of your country in addition to the terms of this agreement
before downloading, copying, displaying, performing, distributing or
creating derivative works based on this work or any other Project
Gutenberg-tm work.  The Foundation makes no representations concerning
the copyright status of any work in any country outside the United
States.

1.E.  Unless you have removed all references to Project Gutenberg:

1.E.1.  The following sentence, with active links to, or other immediate
access to, the full Project Gutenberg-tm License must appear prominently
whenever any copy of a Project Gutenberg-tm work (any work on which the
phrase "Project Gutenberg" appears, or with which the phrase "Project
Gutenberg" is associated) is accessed, displayed, performed, viewed,
copied or distributed:

This eBook is for the use of anyone anywhere at no cost and with
almost no restrictions whatsoever.  You may copy it, give it away or
re-use it under the terms of the Project Gutenberg License included
with this eBook or online at www.gutenberg.org

1.E.2.  If an individual Project Gutenberg-tm electronic work is derived
from the public domain (does not contain a notice indicating that it is
posted with permission of the copyright holder), the work can be copied
and distributed to anyone in the United States without paying any fees
or charges.  If you are redistributing or providing access to a work
with the phrase "Project Gutenberg" associated with or appearing on the
work, you must comply either with the requirements of paragraphs 1.E.1
through 1.E.7 or obtain permission for the use of the work and the
Project Gutenberg-tm trademark as set forth in paragraphs 1.E.8 or
1.E.9.

1.E.3.  If an individual Project Gutenberg-tm electronic work is posted
with the permission of the copyright holder, your use and distribution
must comply with both paragraphs 1.E.1 through 1.E.7 and any additional
terms imposed by the copyright holder.  Additional terms will be linked
to the Project Gutenberg-tm License for all works posted with the
permission of the copyright holder found at the beginning of this work.

1.E.4.  Do not unlink or detach or remove the full Project Gutenberg-tm
License terms from this work, or any files containing a part of this
work or any other work associated with Project Gutenberg-tm.

1.E.5.  Do not copy, display, perform, distribute or redistribute this
electronic work, or any part of this electronic work, without
prominently displaying the sentence set forth in paragraph 1.E.1 with
active links or immediate access to the full terms of the Project
Gutenberg-tm License.

1.E.6.  You may convert to and distribute this work in any binary,
compressed, marked up, nonproprietary or proprietary form, including any
word processing or hypertext form.  However, if you provide access to or
distribute copies of a Project Gutenberg-tm work in a format other than
"Plain Vanilla ASCII" or other format used in the official version
posted on the official Project Gutenberg-tm web site (www.gutenberg.org),
you must, at no additional cost, fee or expense to the user, provide a
copy, a means of exporting a copy, or a means of obtaining a copy upon
request, of the work in its original "Plain Vanilla ASCII" or other
form.  Any alternate format must include the full Project Gutenberg-tm
License as specified in paragraph 1.E.1.

1.E.7.  Do not charge a fee for access to, viewing, displaying,
performing, copying or distributing any Project Gutenberg-tm works
unless you comply with paragraph 1.E.8 or 1.E.9.

1.E.8.  You may charge a reasonable fee for copies of or providing
access to or distributing Project Gutenberg-tm electronic works provided
that

- You pay a royalty fee of 20% of the gross profits you derive from
     the use of Project Gutenberg-tm works calculated using the method
     you already use to calculate your applicable taxes.  The fee is
     owed to the owner of the Project Gutenberg-tm trademark, but he
     has agreed to donate royalties under this paragraph to the
     Project Gutenberg Literary Archive Foundation.  Royalty payments
     must be paid within 60 days following each date on which you
     prepare (or are legally required to prepare) your periodic tax
     returns.  Royalty payments should be clearly marked as such and
     sent to the Project Gutenberg Literary Archive Foundation at the
     address specified in Section 4, "Information about donations to
     the Project Gutenberg Literary Archive Foundation."

- You provide a full refund of any money paid by a user who notifies
     you in writing (or by e-mail) within 30 days of receipt that s/he
     does not agree to the terms of the full Project Gutenberg-tm
     License.  You must require such a user to return or
     destroy all copies of the works possessed in a physical medium
     and discontinue all use of and all access to other copies of
     Project Gutenberg-tm works.

- You provide, in accordance with paragraph 1.F.3, a full refund of any
     money paid for a work or a replacement copy, if a defect in the
     electronic work is discovered and reported to you within 90 days
     of receipt of the work.

- You comply with all other terms of this agreement for free
     distribution of Project Gutenberg-tm works.

1.E.9.  If you wish to charge a fee or distribute a Project Gutenberg-tm
electronic work or group of works on different terms than are set
forth in this agreement, you must obtain permission in writing from
both the Project Gutenberg Literary Archive Foundation and Michael
Hart, the owner of the Project Gutenberg-tm trademark.  Contact the
Foundation as set forth in Section 3 below.

1.F.

1.F.1.  Project Gutenberg volunteers and employees expend considerable
effort to identify, do copyright research on, transcribe and proofread
public domain works in creating the Project Gutenberg-tm
collection.  Despite these efforts, Project Gutenberg-tm electronic
works, and the medium on which they may be stored, may contain
"Defects," such as, but not limited to, incomplete, inaccurate or
corrupt data, transcription errors, a copyright or other intellectual
property infringement, a defective or damaged disk or other medium, a
computer virus, or computer codes that damage or cannot be read by
your equipment.

1.F.2.  LIMITED WARRANTY, DISCLAIMER OF DAMAGES - Except for the "Right
of Replacement or Refund" described in paragraph 1.F.3, the Project
Gutenberg Literary Archive Foundation, the owner of the Project
Gutenberg-tm trademark, and any other party distributing a Project
Gutenberg-tm electronic work under this agreement, disclaim all
liability to you for damages, costs and expenses, including legal
fees.  YOU AGREE THAT YOU HAVE NO REMEDIES FOR NEGLIGENCE, STRICT
LIABILITY, BREACH OF WARRANTY OR BREACH OF CONTRACT EXCEPT THOSE
PROVIDED IN PARAGRAPH F3.  YOU AGREE THAT THE FOUNDATION, THE
TRADEMARK OWNER, AND ANY DISTRIBUTOR UNDER THIS AGREEMENT WILL NOT BE
LIABLE TO YOU FOR ACTUAL, DIRECT, INDIRECT, CONSEQUENTIAL, PUNITIVE OR
INCIDENTAL DAMAGES EVEN IF YOU GIVE NOTICE OF THE POSSIBILITY OF SUCH
DAMAGE.

1.F.3.  LIMITED RIGHT OF REPLACEMENT OR REFUND - If you discover a
defect in this electronic work within 90 days of receiving it, you can
receive a refund of the money (if any) you paid for it by sending a
written explanation to the person you received the work from.  If you
received the work on a physical medium, you must return the medium with
your written explanation.  The person or entity that provided you with
the defective work may elect to provide a replacement copy in lieu of a
refund.  If you received the work electronically, the person or entity
providing it to you may choose to give you a second opportunity to
receive the work electronically in lieu of a refund.  If the second copy
is also defective, you may demand a refund in writing without further
opportunities to fix the problem.

1.F.4.  Except for the limited right of replacement or refund set forth
in paragraph 1.F.3, this work is provided to you 'AS-IS' WITH NO OTHER
WARRANTIES OF ANY KIND, EXPRESS OR IMPLIED, INCLUDING BUT NOT LIMITED TO
WARRANTIES OF MERCHANTIBILITY OR FITNESS FOR ANY PURPOSE.

1.F.5.  Some states do not allow disclaimers of certain implied
warranties or the exclusion or limitation of certain types of damages.
If any disclaimer or limitation set forth in this agreement violates the
law of the state applicable to this agreement, the agreement shall be
interpreted to make the maximum disclaimer or limitation permitted by
the applicable state law.  The invalidity or unenforceability of any
provision of this agreement shall not void the remaining provisions.

1.F.6.  INDEMNITY - You agree to indemnify and hold the Foundation, the
trademark owner, any agent or employee of the Foundation, anyone
providing copies of Project Gutenberg-tm electronic works in accordance
with this agreement, and any volunteers associated with the production,
promotion and distribution of Project Gutenberg-tm electronic works,
harmless from all liability, costs and expenses, including legal fees,
that arise directly or indirectly from any of the following which you do
or cause to occur: (a) distribution of this or any Project Gutenberg-tm
work, (b) alteration, modification, or additions or deletions to any
Project Gutenberg-tm work, and (c) any Defect you cause.


Section  2.  Information about the Mission of Project Gutenberg-tm

Project Gutenberg-tm is synonymous with the free distribution of
electronic works in formats readable by the widest variety of computers
including obsolete, old, middle-aged and new computers.  It exists
because of the efforts of hundreds of volunteers and donations from
people in all walks of life.

Volunteers and financial support to provide volunteers with the
assistance they need are critical to reaching Project Gutenberg-tm's
goals and ensuring that the Project Gutenberg-tm collection will
remain freely available for generations to come.  In 2001, the Project
Gutenberg Literary Archive Foundation was created to provide a secure
and permanent future for Project Gutenberg-tm and future generations.
To learn more about the Project Gutenberg Literary Archive Foundation
and how your efforts and donations can help, see Sections 3 and 4
and the Foundation web page at https://www.pglaf.org.


Section 3.  Information about the Project Gutenberg Literary Archive
Foundation

The Project Gutenberg Literary Archive Foundation is a non profit
501(c)(3) educational corporation organized under the laws of the
state of Mississippi and granted tax exempt status by the Internal
Revenue Service.  The Foundation's EIN or federal tax identification
number is 64-6221541.  Its 501(c)(3) letter is posted at
https://pglaf.org/fundraising.  Contributions to the Project Gutenberg
Literary Archive Foundation are tax deductible to the full extent
permitted by U.S. federal laws and your state's laws.

The Foundation's principal office is located at 4557 Melan Dr. S.
Fairbanks, AK, 99712., but its volunteers and employees are scattered
throughout numerous locations.  Its business office is located at
809 North 1500 West, Salt Lake City, UT 84116, (801) 596-1887, email
business@pglaf.org.  Email contact links and up to date contact
information can be found at the Foundation's web site and official
page at https://pglaf.org

For additional contact information:
     Dr. Gregory B. Newby
     Chief Executive and Director
     gbnewby@pglaf.org


Section 4.  Information about Donations to the Project Gutenberg
Literary Archive Foundation

Project Gutenberg-tm depends upon and cannot survive without wide
spread public support and donations to carry out its mission of
increasing the number of public domain and licensed works that can be
freely distributed in machine readable form accessible by the widest
array of equipment including outdated equipment.  Many small donations
($1 to $5,000) are particularly important to maintaining tax exempt
status with the IRS.

The Foundation is committed to complying with the laws regulating
charities and charitable donations in all 50 states of the United
States.  Compliance requirements are not uniform and it takes a
considerable effort, much paperwork and many fees to meet and keep up
with these requirements.  We do not solicit donations in locations
where we have not received written confirmation of compliance.  To
SEND DONATIONS or determine the status of compliance for any
particular state visit https://pglaf.org

While we cannot and do not solicit contributions from states where we
have not met the solicitation requirements, we know of no prohibition
against accepting unsolicited donations from donors in such states who
approach us with offers to donate.

International donations are gratefully accepted, but we cannot make
any statements concerning tax treatment of donations received from
outside the United States.  U.S. laws alone swamp our small staff.

Please check the Project Gutenberg Web pages for current donation
methods and addresses.  Donations are accepted in a number of other
ways including including checks, online payments and credit card
donations.  To donate, please visit: https://pglaf.org/donate


Section 5.  General Information About Project Gutenberg-tm electronic
works.

Professor Michael S. Hart was the originator of the Project Gutenberg-tm
concept of a library of electronic works that could be freely shared
with anyone.  For thirty years, he produced and distributed Project
Gutenberg-tm eBooks with only a loose network of volunteer support.


Project Gutenberg-tm eBooks are often created from several printed
editions, all of which are confirmed as Public Domain in the U.S.
unless a copyright notice is included.  Thus, we do not necessarily
keep eBooks in compliance with any particular paper edition.


Most people start at our Web site which has the main PG search facility:

     https://www.gutenberg.org

This Web site includes information about Project Gutenberg-tm,
including how to make donations to the Project Gutenberg Literary
Archive Foundation, how to help produce our new eBooks, and how to
subscribe to our email newsletter to hear about new eBooks.