The Project Gutenberg EBook of Transactions of the American Society of
Civil Engineers, vol. LXX, Dec. 1910, by Eugene Klapp

This eBook is for the use of anyone anywhere at no cost and with
almost no restrictions whatsoever.  You may copy it, give it away or
re-use it under the terms of the Project Gutenberg License included
with this eBook or online at www.gutenberg.org


Title: Transactions of the American Society of Civil Engineers, vol. LXX, Dec. 1910
       Reinforced Concrete Pier Construction

Author: Eugene Klapp

Release Date: February 16, 2006 [EBook #17777]

Language: English

Character set encoding: ISO-8859-1

*** START OF THIS PROJECT GUTENBERG EBOOK CIVIL ENGINEERS ***




Produced by Juliet Sutherland, Sigal Alon and the Online
Distributed Proofreading Team at http://www.pgdp.net






[448]

AMERICAN SOCIETY OF CIVIL ENGINEERS

INSTITUTED 1852


TRANSACTIONS


Paper No. 1176


REINFORCED CONCRETE PIER CONSTRUCTION.

By Eugene Klapp, M. Am. Soc. C.E.


With Discussion by Messrs. William Arthur Payne, and Eugene Klapp.


A private yacht pier, built near Glen Cove, Long Island, has brought out a few points which may be of interest. It is an example of a small engineering structure, which, though of no great moment in itself, illustrates the adoption of means to an end that may be capable of very great extension.

The problem, as submitted to the writer, was to construct a yacht landing at East Island, on the exposed south shore of Long Island Sound, in connection with the construction at that point of an elaborate country residence. The slope of the beach at this point is very gradual, and it was specified that there should be a depth of at least 4 ft. of water at low tide. Soundings indicated that this necessitated a pier 300 ft. long. It was further specified that the pier should be to some extent in keeping with the scale of the place being created there, and that a wooden pile structure would not be acceptable. Besides these esthetic conditions, wooden piles were rejected because the teredo, in this part of the Sound, is very active. At the same time, the owner did not care to incur the expense of a masonry pier of the size involved. Also, it was desired to unload on the pier all material for the house and grounds during construction, and coal and other supplies thereafter, thus necessitating a pier wide enough to allow access for a cart and horse and to provide room for turning at the pier head.

Plate XXX.—Yacht Pier Near Glen Cove, N. Y. Plate XXX.—Yacht Pier Near Glen Cove, N. Y.

[449]

Comparative designs and estimates were prepared for (a) a pier of ordinary construction, but with creosoted piles; (b) a concrete pier on concrete piles; and (c) for a series of concrete piers with wooden bridge connections. The latter plan was very much the best in appearance, and the calculated cost was less than that of the pier of concrete piles, and only slightly more than that of creosoted piles, the latter being only of a temporary nature in any case, as it has been found that the protection afforded by creosote against the teredo is not permanent.

At this point on the Sound the mean range of the tide is about 8 ft., and it was determined that at least 5 ft. above mean high water would be required to make the underside of the dock safe from wave action. There is a northeast exposure, with a long reach across the Sound, and the seas at times become quite heavy. These considerations, together with 4 ft. of water at low tide and from 2 to 3 ft. of toe-hold in the beach, required the outer caissons to be at least 20 ft. high.

To construct such piers in the ordinary manner behind coffer-dams, and in such an exposed location, was to involve expenditure far beyond that which the owner cared to incur. The writer's attention had shortly before been called to the successful use of reinforced concrete caissons on the Great Lakes for breakwater construction, by Major W.V. Judson, M. Am. Soc. C.E., and under patents held by that officer. It seemed that here was a solution of the problem. These caissons are constructed on the shore, preferably immediately adjoining the work. After thorough inspection and seasoning, they are usually launched in a manner somewhat similar to a boat, are towed into position, sunk in place, and then filled with rip-rap.

In this case what was needed was a structure that could be constructed safely and cheaply in the air, could then be allowed to harden thoroughly, and could finally be placed in accurate position. The weights to be supported were not great, the beach was good gravel and sand, fairly level, and, under favorable circumstances of good weather, the placing of the caissons promised to be a simple matter. Therefore, detailed plans were prepared for this structure.

An effort was made to preserve some element of the yachting idea in the design, and bow-string trusses, being merely enlarged gang planks, were used to connect the caissons.

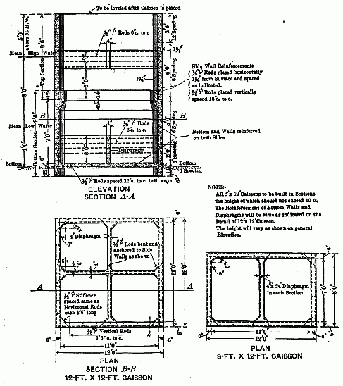
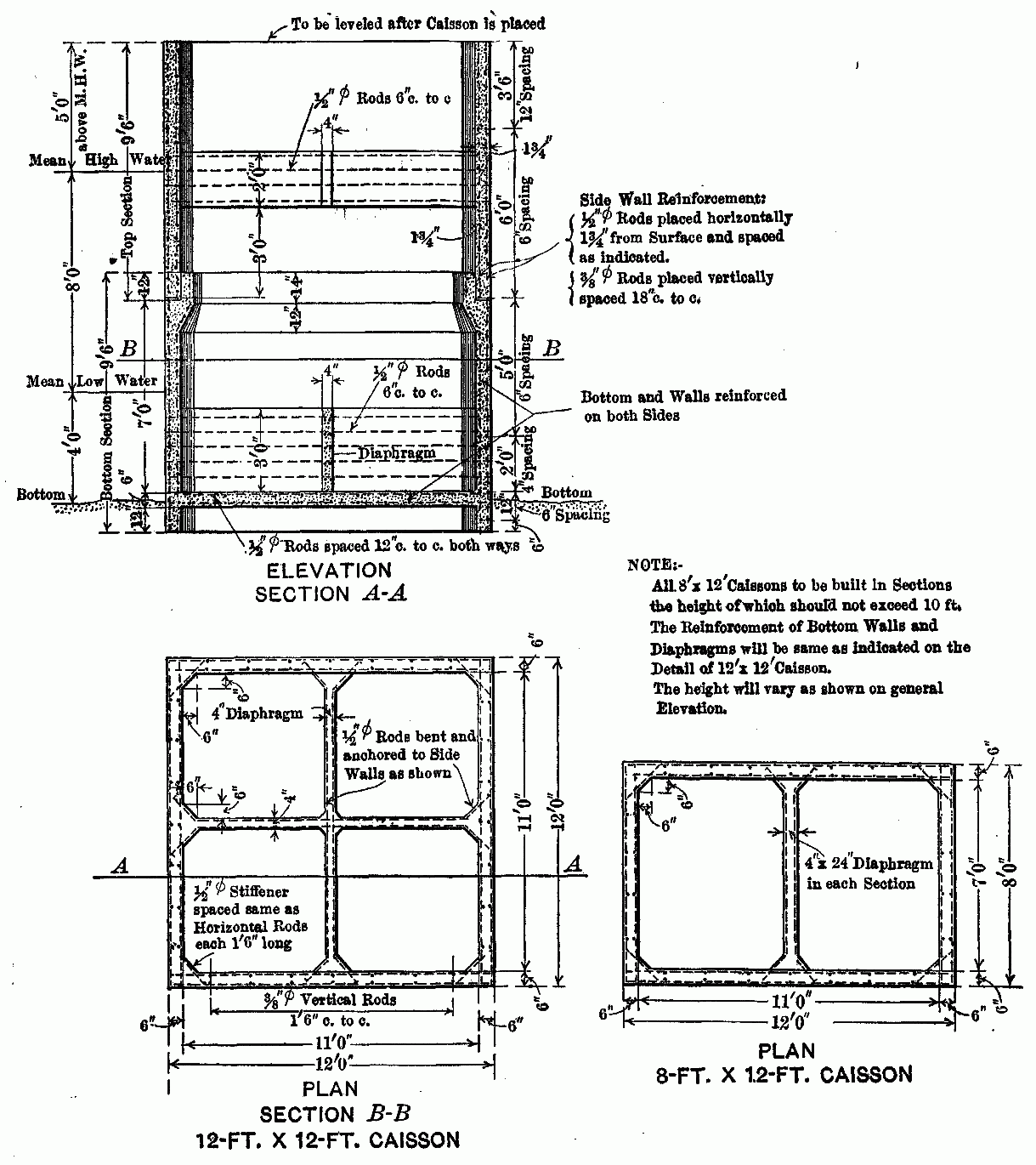
The pier was originally laid out as a letter "L," with a main leg[450] of 300 ft. and a short leg of 36 ft. The pier head consisted of eight caissons in close contact, and was intended to form a breakwater, in the angle of which, and protected from the wave action, was to be moored the float and boat landing. After the first bids were received, the owner wished to reduce the cost, and every other caisson in the pier head was omitted, so that, as built, the pier contains eight caissons and five 53-ft. trusses. The caissons supporting the trusses are 8 ft. wide and 12 ft. long, and those in the pier head are 12 by 12 ft. On account of the shoal water and the great height of the outer caissons in comparison with their cross-section, it seemed advisable to mould them in two sections. The reinforcement in the side walls consisted of round 1/2-in. rods horizontally, and 3/8-in. rods vertically, spaced as shown on Fig. 1, together with cross-diaphragms as indicated.

The caissons were reinforced for exterior pressures, which were to be expected during the launching and towing into position, and also for interior pressures, which were to be expected at low tide, when the water pressure would be nothing, but the filling of the caissons would be effective. The corners were reinforced and enlarged. In order to secure a proper bedding into the sand foundation, a 12-in. lip was allowed to project all around the caisson below the bottom. In the bottom there was cast a 3-in. hole, and this was closed by a plug while the lower section was being towed into place.

The question of the effect of sea water on the concrete was given much thought. The writer is unable to find any authoritative opinions on this subject which are not directly controverted by equally authoritative opinions of a diametrically opposite nature. He thinks it is a question that this Society might well undertake to investigate promptly and thoroughly. There can be no question that there are many distressing instances of failures due to the action of sea water and frost on concrete, and that many able and experienced engineers in charge of the engineering departments of the great transportation companies have simply crossed concrete off their list of available materials when it comes to marine construction. It is a subject too large in itself to be discussed as subsidiary to a minor structure like the one herein described, and though many have rejected concrete under these conditions, other engineers equally conservative are using it freely and without fear.[451]

The writer consulted with his partner and others at some length, and, considering all the advantages to accrue by the use of these concrete caissons, decided to do so after taking all known precautions.

Fig. 1. Fig. 1.

These precautions consisted in:

First, the use of cement in which the chemical constituents were limited as follows:

It was specified that the cement should not contain more than 1.75% of anhydrous sulphuric acid (SO3) nor more than 3% of magnesia (MgO); also that no addition greater than 3% should have been made to the ingredients making up the cement subsequent to calcination.[452]

Secondly, to secure by careful inspection the most completely homogeneous mixture possible, with especial care in the density of the outer skin of the caissons.

Thirdly, a prolonged seasoning process before the new concrete should be immersed in the sea water.

In addition to these well-known precautions, it was decided to try the addition to the cement of a chemical element that should make with the free lime in the cement a more stable and indissoluble chemical combination than is offered by the ordinary form of Portland cement. This was furnished by the patent compound known as "Toxement," which is claimed by the inventor to be a resinate of calcium and silicate of alumina, which generates a resinate of lime and a silicate of alumina in crystalline form. It is further claimed that each of these materials is insoluble in sodium chloride and sodium sulphate, 3% solution. It was used in all the caissons, excepting Nos. 1 and 2, in the proportions of 2 lb. of Toxement to each 100 lb. of cement. The first two caissons were not thus treated, and will be held under close observation and comparison with the others, which were treated with this compound.

The mixture used was one of cement (Pennsylvania brand), two of sand, and four of gravel. The sand and gravel were from the nearby Cow Bay supply, and screened and washed. None of the gravel was larger than 1/2 in., grading down from that to very coarse sand. The sand was also run-of-bank, and very well graded.

The caissons, after being placed, were filled with sand and gravel from the adjoining beach up to about mean high-water mark, and the edges outside all around were protected from tidal and wave scour by rip-rap of "one man" stone.

The trusses were constructed on a radius of 34 ft., with 8 by 8-in. chords, 6 by 6-in. posts, and 1-in. rods. The loading was figured as a loaded coal cart plus 100 lb. per ft. All lumber was clear yellow pine, except the floor, which was clear white oak. The pipe rail and all bolts below the roadway level, and thus subject to frequent wettings by salt water, were of galvanized iron. The trusses were set 9 ft. 9 in. apart on centers, giving a clear opening of 8 ft. between the wheel guards under the hand-rails. The fender piles were creosoted. The float was 18 ft. long and 12 ft. wide.

A contract was let to the Snare and Triest Company, and work[453] was commenced early in August, 1909. The first caisson was poured early in September, and the last about the beginning of October.

The caissons were all cast standing on parallel skids at about mean high water. It was first intended to construct a small marine railroad and launch the caissons in that manner, rolling them along the skids to the head of the marine railway. This plan was abandoned, however, and by sending in at high tide a powerful derrick scow, many of the caissons were lifted bodily from their position and set down in the water, towed to place and sunk in position, while the others, mostly the upper sections, were lifted to the deck of the scow and placed directly from there in their final position. There was not much difficulty in getting them to settle down to a proper bearing. Provision had been made for jetting, if necessary, but it was not used. In setting Caisson No. 2 a nest of boulders was encountered, and a diver was employed to clear away and level up the foundation. The spacing was accomplished by a float consisting of two 12 by 12-in. timbers, latticed apart, and of just sufficient length to cover the clear distance between the caissons. The first caissons being properly set inshore, the float was sent out, guyed back to the shore, and brought up against the outer edge of the set caisson. The next caisson was then towed out, set against the floating spacer, and sunk in position. There was some little trouble in plumbing the caissons, but, by excavating with an orange-peel bucket close to the high side and depositing the material against the low side, they were all readily brought to a sufficiently vertical and level position to be unnoticed by sighting along the edge from the shore.

The trusses were all constructed in the contractor's yard at Bridgeport, and were towed across the Sound on a scow. They were set up and braced temporarily by the derrick boat, and then the floor and deck were constructed in place.

On December 26th, 1909, a storm of unusual violence—unequaled in fact for many years—swept over the Sound from the northeast; the waves beat over the pier and broke loose some floor planks which had been only tacked in position, but otherwise did no damage, and did not shift the caissons in the least. The same storm partly destroyed a pier of substantial construction less than a mile from the one in question.

Unfortunately, the work was let so late in the summer, and the[454] restrictions as to seasoning the concrete were enforced so rigidly, that the work of setting the caissons could not be commenced until November 11th, thus the entire construction was forced into the very bad weather of the late fall and early winter. As this involved very rough water and much snow and wind, the work was greatly delayed, and was not completed until the middle of January. The cost of the entire dock was about $14,000.

The writer believes that the cost was much less than for masonry piers by any other method of construction, under the existing circumstances of wind, tide, and exposure.

It would seem that for many highway bridges of short span, causeways, and similar structures, the use of similar caissons would prove economical and permanent, and that they might be used very largely to the exclusion of cribwork, which, after a decade or so, becomes a source of constant maintenance charges, besides never presenting an attractive appearance. Finally, in bridges requiring the most rigid foundations, these caissons might readily be used as substitutes for open wooden caissons, sunk on a prepared foundation of whatever nature, and still be capable of incorporation into the finished structure.


[455]

DISCUSSION

William Arthur Payne, M. Am. Soc. C. E. (by letter).—On the arrival of the first barge load of brick, to be used in building a residence on the estate to which this pier belongs, a severe northwest wind blew for two days, after the boat was moored alongside, directly against the head of the pier and the side of the boat. The effect on the pier was to crush the fender piles and cause a settlement of one of the caissons at the pier head on the west end. The caisson was knocked slightly out of alignment, and a settlement toward the west was observable.

The writer believes that this was caused by the pounding of the brick barge on the sand bottom on which the caissons rest, during half tide, the boat being raised from the bottom on a roller, and striking when the roller had passed. In order to protect the pier and avoid the bumping of barges against it, three groups of piles were driven about 8 ft. beyond the end, a secondary platform was built between these and the stringer of the pier, and arranged so that it would slide on the stringer in case of movement of the piles. This secondary platform is particularly advantageous in the handling of material, as the height of the dock was found to be excessive for passing up brick and cement. For handling material after it is deposited on the dock, an industrial railroad has been built. At the shore end of this railroad, brick and cement are dumped into wagons, in which they are carried up the hill to the house.

Eugene Klapp, M. Am. Soc. C. E. (by letter).—The injury done to the piers, as reported by Mr. Payne, is not to be wondered at. The pier was primarily built for a yacht landing, and, on account of the shoal water conditions, excepting at extreme high tide, it was mostly to be used by tenders and launches from larger yachts. It was thought that at high water the large steam yachts might be able to come alongside.

Provision was not made for tying up to the dock a heavily loaded brick scow and allowing it to remain there through rough weather.

The building of the secondary fender piles, during the temporary use of the dock for unloading building material, will doubtless prevent further damage.






End of the Project Gutenberg EBook of Transactions of the American Society
of Civil Engineers, vol. LXX, Dec. 1910, by Eugene Klapp

*** END OF THIS PROJECT GUTENBERG EBOOK CIVIL ENGINEERS ***

***** This file should be named 17777-h.htm or 17777-h.zip *****
This and all associated files of various formats will be found in:
        http://www.gutenberg.org/1/7/7/7/17777/

Produced by Juliet Sutherland, Sigal Alon and the Online
Distributed Proofreading Team at http://www.pgdp.net


Updated editions will replace the previous one--the old editions
will be renamed.

Creating the works from public domain print editions means that no
one owns a United States copyright in these works, so the Foundation
(and you!) can copy and distribute it in the United States without
permission and without paying copyright royalties.  Special rules,
set forth in the General Terms of Use part of this license, apply to
copying and distributing Project Gutenberg-tm electronic works to
protect the PROJECT GUTENBERG-tm concept and trademark.  Project
Gutenberg is a registered trademark, and may not be used if you
charge for the eBooks, unless you receive specific permission.  If you
do not charge anything for copies of this eBook, complying with the
rules is very easy.  You may use this eBook for nearly any purpose
such as creation of derivative works, reports, performances and
research.  They may be modified and printed and given away--you may do
practically ANYTHING with public domain eBooks.  Redistribution is
subject to the trademark license, especially commercial
redistribution.



*** START: FULL LICENSE ***

THE FULL PROJECT GUTENBERG LICENSE
PLEASE READ THIS BEFORE YOU DISTRIBUTE OR USE THIS WORK

To protect the Project Gutenberg-tm mission of promoting the free
distribution of electronic works, by using or distributing this work
(or any other work associated in any way with the phrase "Project
Gutenberg"), you agree to comply with all the terms of the Full Project
Gutenberg-tm License (available with this file or online at
http://gutenberg.org/license).


Section 1.  General Terms of Use and Redistributing Project Gutenberg-tm
electronic works

1.A.  By reading or using any part of this Project Gutenberg-tm
electronic work, you indicate that you have read, understand, agree to
and accept all the terms of this license and intellectual property
(trademark/copyright) agreement.  If you do not agree to abide by all
the terms of this agreement, you must cease using and return or destroy
all copies of Project Gutenberg-tm electronic works in your possession.
If you paid a fee for obtaining a copy of or access to a Project
Gutenberg-tm electronic work and you do not agree to be bound by the
terms of this agreement, you may obtain a refund from the person or
entity to whom you paid the fee as set forth in paragraph 1.E.8.

1.B.  "Project Gutenberg" is a registered trademark.  It may only be
used on or associated in any way with an electronic work by people who
agree to be bound by the terms of this agreement.  There are a few
things that you can do with most Project Gutenberg-tm electronic works
even without complying with the full terms of this agreement.  See
paragraph 1.C below.  There are a lot of things you can do with Project
Gutenberg-tm electronic works if you follow the terms of this agreement
and help preserve free future access to Project Gutenberg-tm electronic
works.  See paragraph 1.E below.

1.C.  The Project Gutenberg Literary Archive Foundation ("the Foundation"
or PGLAF), owns a compilation copyright in the collection of Project
Gutenberg-tm electronic works.  Nearly all the individual works in the
collection are in the public domain in the United States.  If an
individual work is in the public domain in the United States and you are
located in the United States, we do not claim a right to prevent you from
copying, distributing, performing, displaying or creating derivative
works based on the work as long as all references to Project Gutenberg
are removed.  Of course, we hope that you will support the Project
Gutenberg-tm mission of promoting free access to electronic works by
freely sharing Project Gutenberg-tm works in compliance with the terms of
this agreement for keeping the Project Gutenberg-tm name associated with
the work.  You can easily comply with the terms of this agreement by
keeping this work in the same format with its attached full Project
Gutenberg-tm License when you share it without charge with others.

1.D.  The copyright laws of the place where you are located also govern
what you can do with this work.  Copyright laws in most countries are in
a constant state of change.  If you are outside the United States, check
the laws of your country in addition to the terms of this agreement
before downloading, copying, displaying, performing, distributing or
creating derivative works based on this work or any other Project
Gutenberg-tm work.  The Foundation makes no representations concerning
the copyright status of any work in any country outside the United
States.

1.E.  Unless you have removed all references to Project Gutenberg:

1.E.1.  The following sentence, with active links to, or other immediate
access to, the full Project Gutenberg-tm License must appear prominently
whenever any copy of a Project Gutenberg-tm work (any work on which the
phrase "Project Gutenberg" appears, or with which the phrase "Project
Gutenberg" is associated) is accessed, displayed, performed, viewed,
copied or distributed:

This eBook is for the use of anyone anywhere at no cost and with
almost no restrictions whatsoever.  You may copy it, give it away or
re-use it under the terms of the Project Gutenberg License included
with this eBook or online at www.gutenberg.org

1.E.2.  If an individual Project Gutenberg-tm electronic work is derived
from the public domain (does not contain a notice indicating that it is
posted with permission of the copyright holder), the work can be copied
and distributed to anyone in the United States without paying any fees
or charges.  If you are redistributing or providing access to a work
with the phrase "Project Gutenberg" associated with or appearing on the
work, you must comply either with the requirements of paragraphs 1.E.1
through 1.E.7 or obtain permission for the use of the work and the
Project Gutenberg-tm trademark as set forth in paragraphs 1.E.8 or
1.E.9.

1.E.3.  If an individual Project Gutenberg-tm electronic work is posted
with the permission of the copyright holder, your use and distribution
must comply with both paragraphs 1.E.1 through 1.E.7 and any additional
terms imposed by the copyright holder.  Additional terms will be linked
to the Project Gutenberg-tm License for all works posted with the
permission of the copyright holder found at the beginning of this work.

1.E.4.  Do not unlink or detach or remove the full Project Gutenberg-tm
License terms from this work, or any files containing a part of this
work or any other work associated with Project Gutenberg-tm.

1.E.5.  Do not copy, display, perform, distribute or redistribute this
electronic work, or any part of this electronic work, without
prominently displaying the sentence set forth in paragraph 1.E.1 with
active links or immediate access to the full terms of the Project
Gutenberg-tm License.

1.E.6.  You may convert to and distribute this work in any binary,
compressed, marked up, nonproprietary or proprietary form, including any
word processing or hypertext form.  However, if you provide access to or
distribute copies of a Project Gutenberg-tm work in a format other than
"Plain Vanilla ASCII" or other format used in the official version
posted on the official Project Gutenberg-tm web site (www.gutenberg.org),
you must, at no additional cost, fee or expense to the user, provide a
copy, a means of exporting a copy, or a means of obtaining a copy upon
request, of the work in its original "Plain Vanilla ASCII" or other
form.  Any alternate format must include the full Project Gutenberg-tm
License as specified in paragraph 1.E.1.

1.E.7.  Do not charge a fee for access to, viewing, displaying,
performing, copying or distributing any Project Gutenberg-tm works
unless you comply with paragraph 1.E.8 or 1.E.9.

1.E.8.  You may charge a reasonable fee for copies of or providing
access to or distributing Project Gutenberg-tm electronic works provided
that

- You pay a royalty fee of 20% of the gross profits you derive from
     the use of Project Gutenberg-tm works calculated using the method
     you already use to calculate your applicable taxes.  The fee is
     owed to the owner of the Project Gutenberg-tm trademark, but he
     has agreed to donate royalties under this paragraph to the
     Project Gutenberg Literary Archive Foundation.  Royalty payments
     must be paid within 60 days following each date on which you
     prepare (or are legally required to prepare) your periodic tax
     returns.  Royalty payments should be clearly marked as such and
     sent to the Project Gutenberg Literary Archive Foundation at the
     address specified in Section 4, "Information about donations to
     the Project Gutenberg Literary Archive Foundation."

- You provide a full refund of any money paid by a user who notifies
     you in writing (or by e-mail) within 30 days of receipt that s/he
     does not agree to the terms of the full Project Gutenberg-tm
     License.  You must require such a user to return or
     destroy all copies of the works possessed in a physical medium
     and discontinue all use of and all access to other copies of
     Project Gutenberg-tm works.

- You provide, in accordance with paragraph 1.F.3, a full refund of any
     money paid for a work or a replacement copy, if a defect in the
     electronic work is discovered and reported to you within 90 days
     of receipt of the work.

- You comply with all other terms of this agreement for free
     distribution of Project Gutenberg-tm works.

1.E.9.  If you wish to charge a fee or distribute a Project Gutenberg-tm
electronic work or group of works on different terms than are set
forth in this agreement, you must obtain permission in writing from
both the Project Gutenberg Literary Archive Foundation and Michael
Hart, the owner of the Project Gutenberg-tm trademark.  Contact the
Foundation as set forth in Section 3 below.

1.F.

1.F.1.  Project Gutenberg volunteers and employees expend considerable
effort to identify, do copyright research on, transcribe and proofread
public domain works in creating the Project Gutenberg-tm
collection.  Despite these efforts, Project Gutenberg-tm electronic
works, and the medium on which they may be stored, may contain
"Defects," such as, but not limited to, incomplete, inaccurate or
corrupt data, transcription errors, a copyright or other intellectual
property infringement, a defective or damaged disk or other medium, a
computer virus, or computer codes that damage or cannot be read by
your equipment.

1.F.2.  LIMITED WARRANTY, DISCLAIMER OF DAMAGES - Except for the "Right
of Replacement or Refund" described in paragraph 1.F.3, the Project
Gutenberg Literary Archive Foundation, the owner of the Project
Gutenberg-tm trademark, and any other party distributing a Project
Gutenberg-tm electronic work under this agreement, disclaim all
liability to you for damages, costs and expenses, including legal
fees.  YOU AGREE THAT YOU HAVE NO REMEDIES FOR NEGLIGENCE, STRICT
LIABILITY, BREACH OF WARRANTY OR BREACH OF CONTRACT EXCEPT THOSE
PROVIDED IN PARAGRAPH F3.  YOU AGREE THAT THE FOUNDATION, THE
TRADEMARK OWNER, AND ANY DISTRIBUTOR UNDER THIS AGREEMENT WILL NOT BE
LIABLE TO YOU FOR ACTUAL, DIRECT, INDIRECT, CONSEQUENTIAL, PUNITIVE OR
INCIDENTAL DAMAGES EVEN IF YOU GIVE NOTICE OF THE POSSIBILITY OF SUCH
DAMAGE.

1.F.3.  LIMITED RIGHT OF REPLACEMENT OR REFUND - If you discover a
defect in this electronic work within 90 days of receiving it, you can
receive a refund of the money (if any) you paid for it by sending a
written explanation to the person you received the work from.  If you
received the work on a physical medium, you must return the medium with
your written explanation.  The person or entity that provided you with
the defective work may elect to provide a replacement copy in lieu of a
refund.  If you received the work electronically, the person or entity
providing it to you may choose to give you a second opportunity to
receive the work electronically in lieu of a refund.  If the second copy
is also defective, you may demand a refund in writing without further
opportunities to fix the problem.

1.F.4.  Except for the limited right of replacement or refund set forth
in paragraph 1.F.3, this work is provided to you 'AS-IS' WITH NO OTHER
WARRANTIES OF ANY KIND, EXPRESS OR IMPLIED, INCLUDING BUT NOT LIMITED TO
WARRANTIES OF MERCHANTIBILITY OR FITNESS FOR ANY PURPOSE.

1.F.5.  Some states do not allow disclaimers of certain implied
warranties or the exclusion or limitation of certain types of damages.
If any disclaimer or limitation set forth in this agreement violates the
law of the state applicable to this agreement, the agreement shall be
interpreted to make the maximum disclaimer or limitation permitted by
the applicable state law.  The invalidity or unenforceability of any
provision of this agreement shall not void the remaining provisions.

1.F.6.  INDEMNITY - You agree to indemnify and hold the Foundation, the
trademark owner, any agent or employee of the Foundation, anyone
providing copies of Project Gutenberg-tm electronic works in accordance
with this agreement, and any volunteers associated with the production,
promotion and distribution of Project Gutenberg-tm electronic works,
harmless from all liability, costs and expenses, including legal fees,
that arise directly or indirectly from any of the following which you do
or cause to occur: (a) distribution of this or any Project Gutenberg-tm
work, (b) alteration, modification, or additions or deletions to any
Project Gutenberg-tm work, and (c) any Defect you cause.


Section  2.  Information about the Mission of Project Gutenberg-tm

Project Gutenberg-tm is synonymous with the free distribution of
electronic works in formats readable by the widest variety of computers
including obsolete, old, middle-aged and new computers.  It exists
because of the efforts of hundreds of volunteers and donations from
people in all walks of life.

Volunteers and financial support to provide volunteers with the
assistance they need, is critical to reaching Project Gutenberg-tm's
goals and ensuring that the Project Gutenberg-tm collection will
remain freely available for generations to come.  In 2001, the Project
Gutenberg Literary Archive Foundation was created to provide a secure
and permanent future for Project Gutenberg-tm and future generations.
To learn more about the Project Gutenberg Literary Archive Foundation
and how your efforts and donations can help, see Sections 3 and 4
and the Foundation web page at http://www.pglaf.org.


Section 3.  Information about the Project Gutenberg Literary Archive
Foundation

The Project Gutenberg Literary Archive Foundation is a non profit
501(c)(3) educational corporation organized under the laws of the
state of Mississippi and granted tax exempt status by the Internal
Revenue Service.  The Foundation's EIN or federal tax identification
number is 64-6221541.  Its 501(c)(3) letter is posted at
http://pglaf.org/fundraising.  Contributions to the Project Gutenberg
Literary Archive Foundation are tax deductible to the full extent
permitted by U.S. federal laws and your state's laws.

The Foundation's principal office is located at 4557 Melan Dr. S.
Fairbanks, AK, 99712., but its volunteers and employees are scattered
throughout numerous locations.  Its business office is located at
809 North 1500 West, Salt Lake City, UT 84116, (801) 596-1887, email
business@pglaf.org.  Email contact links and up to date contact
information can be found at the Foundation's web site and official
page at http://pglaf.org

For additional contact information:
     Dr. Gregory B. Newby
     Chief Executive and Director
     gbnewby@pglaf.org


Section 4.  Information about Donations to the Project Gutenberg
Literary Archive Foundation

Project Gutenberg-tm depends upon and cannot survive without wide
spread public support and donations to carry out its mission of
increasing the number of public domain and licensed works that can be
freely distributed in machine readable form accessible by the widest
array of equipment including outdated equipment.  Many small donations
($1 to $5,000) are particularly important to maintaining tax exempt
status with the IRS.

The Foundation is committed to complying with the laws regulating
charities and charitable donations in all 50 states of the United
States.  Compliance requirements are not uniform and it takes a
considerable effort, much paperwork and many fees to meet and keep up
with these requirements.  We do not solicit donations in locations
where we have not received written confirmation of compliance.  To
SEND DONATIONS or determine the status of compliance for any
particular state visit http://pglaf.org

While we cannot and do not solicit contributions from states where we
have not met the solicitation requirements, we know of no prohibition
against accepting unsolicited donations from donors in such states who
approach us with offers to donate.

International donations are gratefully accepted, but we cannot make
any statements concerning tax treatment of donations received from
outside the United States.  U.S. laws alone swamp our small staff.

Please check the Project Gutenberg Web pages for current donation
methods and addresses.  Donations are accepted in a number of other
ways including checks, online payments and credit card donations.
To donate, please visit: http://pglaf.org/donate


Section 5.  General Information About Project Gutenberg-tm electronic
works.

Professor Michael S. Hart is the originator of the Project Gutenberg-tm
concept of a library of electronic works that could be freely shared
with anyone.  For thirty years, he produced and distributed Project
Gutenberg-tm eBooks with only a loose network of volunteer support.


Project Gutenberg-tm eBooks are often created from several printed
editions, all of which are confirmed as Public Domain in the U.S.
unless a copyright notice is included.  Thus, we do not necessarily
keep eBooks in compliance with any particular paper edition.


Most people start at our Web site which has the main PG search facility:

     http://www.gutenberg.org

This Web site includes information about Project Gutenberg-tm,
including how to make donations to the Project Gutenberg Literary
Archive Foundation, how to help produce our new eBooks, and how to
subscribe to our email newsletter to hear about new eBooks.