The Project Gutenberg eBook of Sunset's Cabin Plan Book

This eBook is for the use of anyone anywhere in the United States and most other parts of the world at no cost and with almost no restrictions whatsoever. You may copy it, give it away or re-use it under the terms of the Project Gutenberg License included with this eBook or online at www.gutenberg.org. If you are not located in the United States, you will have to check the laws of the country where you are located before using this eBook.

Title: Sunset's Cabin Plan Book

Editor: Ralph P. Dillon

Illustrator: Clemens Friedell

Norman Gordon


Release date: May 23, 2021 [eBook #65429]
Most recently updated: October 18, 2024

Language: English

Other information and formats: www.gutenberg.org/ebooks/65429

Credits: Stephen Hutcheson and the Online Distributed Proofreading Team at https://www.pgdp.net

*** START OF THE PROJECT GUTENBERG EBOOK SUNSET'S CABIN PLAN BOOK ***
Sunset’s Cabin Plan Book

Sunset’s
CABIN PLAN BOOK

Cabin

Edited by
RALPH P. DILLON

Illustrations by
NORMAN GORDON

Cabin Renderings by
CLEMENS FRIEDELL

PUBLISHED BY SUNSET MAGAZINE
SAN FRANCISCO, CALIFORNIA

COPYRIGHT 1918, LANE PUBLISHING & CO.
FIRST EDITION PRINTED IN U. S. A.

2

FOREWORD

Every Westerner wants a “vacation home”! Perhaps it is the nearness to pioneer days that makes us so alive to mountain forests and ocean sands. Sunset’s Cabin Plan Book is primarily for those who are still in the “talking stage.” However, there is much valuable information in its pages for those who already are enjoying the pleasures of a “second home,” where they spend week-ends and vacation days, living comfortably though simply at any time of the year, while enjoying our Western heritage of the great outdoors.

The planning of a mountain cabin or beach cottage deserves just as careful and thoughtful consideration as the planning of a real home, though the actual construction is likely to be on a fairly simple scale.

The size of the cabin, whether it is built of logs, stone or finished lumber, depends upon what you intend to use it for—a week-end cottage for yourself and your family, a hunting lodge, a vacation home, or a little place where you can go off and examine the state of your soul in the quiet of the woods. You should consider the number in the family and the number of guests likely to be included, for “week-end cabin” should not be a synonym for active discomfort. Crowding may be jolly for a few hours or possibly for one night, but seldom longer than that.

The collection of cabin plans in this book is representative of what we believe to be the best in Western vacation-home designing. The floor plans embody features that may be shifted from one to another, since these are not necessarily working plans, but suggestions around which you and your architect or contractor-builder can create a cabin to fill your own needs. The same holds true of the cabin sketches themselves. You need not sheathe your cabin in bevel siding just because it’s that way in the picture. The same plan can be used for a shingle house or one of board and batten.

No attempt has been made to set down detailed instructions for building any particular cabin, since no two are exactly alike, but we have tried to present the information needed by an amateur who wants to build his own place or oversee the work of a crew of country laborers. In addition to the cabin plans and visualizations there are numerous pages of cabin lore gathered from many sources as well as from the practical experiences of the Sunset Staff.

Cost estimates have been omitted purposely, as there are so many factors affecting the price of materials, labor, and transportation in various localities. Figures based on one locality would not hold good in another. The distance from sources of supply is also an influence, because materials hauled only a few miles would cost far less than if they were shipped a hundred miles and then transported by truck to the cabin site. Really, the only satisfactory answer to the cost problem is to take your plans to a builder in the neighborhood of your locality and get his figures. Or if you plan to do some of the work yourself with local labor, your lumberman may be able to help you with cost estimates. If you want an individual and specialized design, the services of an architect should be seriously considered.

We hope the ideas in this Cabin Plan Book not only be inspiring but also so practical and usable.

Note: Working drawings of the cabin plans are not available. This is in keeping with the publisher’s policy to furnish ideas but not an architectural service.

CONTENTS

Page
Selecting the Site for Your Vacation Home 3
Your Water Supply and Sanitary Facilities 6
Cabin Foundations 8
Building the Cabin Fireplace 10
Building the Log Cabin 13
Building a Cabin of Stone 17
Frame Cabins and Beach Houses 19
Thirty Cabin Plans 21-48
Cabin Conveniences 49
Cabin Miscellany 51-63
Fireplace and Barbecue Ideas 51-55
Beds and Bunks 57-58
A Score and More of Cabin Ideas 59-63
Bibliography 64
3

SELECTING THE SITE FOR YOUR VACATION HOME

SELECTING THE SITE FOR YOUR VACATION HOME

Since you have decided to build a vacation home, your first problem is to find a location. The whole family will have something to say about this—half the fun of building a cabin or beach house is the planning of various details in family councils. No doubt, by the time you discover the region in which you would like to build, friends will have told you many of the important things to look for. However, here are a number that should help you.

If it is to be a summer vacation home and you have a car, the distance from home isn’t so important, because the Pacific Coast’s network of fine roads offers easy access to almost every area. On the other hand, if you are going to be a “week-ender,” don’t choose a site too far away. It isn’t fun to spend most of your weekend traveling to and from the cabin, and your friends will avoid you—but perhaps that’s your intention!

Cost of construction is important. It’s all very well to build a place out in the wilds, but the farther you go from civilization the more it costs to transport men and materials to your cabin site.

Watch the Distance

With the whole Pacific Coast to choose from it shouldn’t be too hard to find an area that suits all the family. You will be smart to pick a spot not more than an easy day’s drive from home. If it is only a few hours away, so much the better. Within less than one day’s drive from most points on the Pacific Coast you can lose yourself in a paradise of forests, lakes and mountains, or stand on the ocean shore and hear the breakers boom.

Naturally, you’ll want to invest most of your money in the cabin or beach house itself. That being the case the best place to go for low-cost mountain cabin sites is the United States Forest Service, which controls millions of acres of the finest timber and mountain country in the world. Beach property, on the other hand, is largely a commercial proposition, and you’ll more than likely have to consult your real estate dealer.

The National Forests offer cabin sites to suit every taste and every purse. However, certain areas are not open to settlement, and all cabins must conform to standards set by the Forest Service. You can’t buy the land, but you can occupy it under Special Use Permit. You get low cost, freedom from crowding and assurance that the area will not be ruined by commercialization.

The Forest Service opens new tracts for summer cabin sites when those opened in previous years are filled. Cabins are not crowded together as they are in some commercial tracts.

Many Sites Available

There are eighteen National Forests in California alone and dozens of others in the western states offering a diversity of climate and natural conditions. Of course, not all of the forests are available for cabin sites, but there is a large group from which to select. Most of the tracts available in National Forests are in groups of from six to one hundred lots or more, each lot averaging about ⅓ acre, depending upon topography and cover.

To obtain a cabin permit from the Forest Service, write or call on the Supervisor or nearest Ranger of the particular forest in which you think you’d like to live. Ask him what areas, if any, are open in his National Forest. If he has a forest officer available, he will arrange for him to visit the property with you. A personal visit is desirable but not absolutely necessary before applying for a permit.

Application for permit may be made in writing to the Forest Supervisor, or Forest Ranger, specifying the location of the property, the use to be made of it (summer cabin, hotel or resort) and the estimated cost of the improvements you intend to make.

Permits are granted strictly on a “first come—first served” basis. The cost—and this will amaze you—averages about $15 per year for 4 cabin sites, depending on the size and location of the property. Each permit is renewable annually. You may sell your cabin at any time, but the transaction must be approved by the Forest Service.

Map showing location of National Forests in the West

Don’t depend on your own knowledge of the outdoors when you pick a cabin site. The local forest officer knows more about his particular locality than anyone else, and he’ll be glad to help you.

When seeking information about a particular forest, be sure you write to the officer in charge of that forest, because he is the only one with a complete file of data on it. If you don’t know who your nearest forest supervisor is, write to the nearest regional forester. Here’s a list of offices:

Region No. 1 (Northern Idaho, Montana, South Dakota, Western Washington)—Federal Bldg., Missoula, Montana

Region No. 2 (Colorado, Nebraska, Oklahoma, South Dakota, Eastern Wyoming)—Post Office Bldg., Denver, Colorado

Region No. 3 (Arizona, New Mexico)—Federal Bldg., Albuquerque, N. M.

Region No. 4 (Colorado, Southern Idaho, Nevada, Utah, Western Wyoming)—Forest Service Bldg., Ogden, Utah

Region No. 5 (California and Western Nevada)—Phelan Bldg., San Francisco, Calif.

Region No. 6 (Oregon and Washington)—Post Office Bldg., Portland, Oregon

Region No. 7 (Kentucky, Maine, New Hampshire, Pennsylvania, Vermont, Virginia, West Virginia)—Victor Bldg., Washington, D. C.

Region No. 8 (Alabama, Arkansas, Florida, Georgia, Louisiana, Mississippi, North Carolina, South Carolina, Oklahoma, Tennessee, Texas, Puerto Rico)—Glenn Bldg., Atlanta, Ga.

Region No. 9 (Illinois, Indiana, Iowa, Michigan, Minnesota, Missouri, North Dakota, Ohio, Wisconsin)—Federal Bldg., Milwaukee, Wisconsin

Region No. 10 (Alaska)—Federal Territorial Bldg., Juneau, Alaska

When you apply for a permit, you must agree to install permanent improvements costing at least $500, including labor. Only one residence may be constructed on a lot, and in order to prevent the erection of unsightly “shacks”—some people’s ideas on cabins would surprise you—each permitee must submit his plans for approval before a permit will be issued.

All buildings and all roofs must be painted, oiled or stained. If paint is used, the color must harmonize with the forest background, and be approved by the Forest Supervisor. That does not mean that everything has to be brown and green, but the forest is no place for a pink stucco cottage.

Permanent construction must be completed by the end of the second season after the permit is issued.

Cabins built under “special use” permits must be occupied at least fifteen days each year by the permittee or his family, unless special arrangement is made with the Forest Service.

The principal requirements of the Forest Service regarding cabins are that they be built in a workmanlike manner with substantial roofs, floors, doors, windows, brick or masonry chimneys, toilets and garbage containers of a type approved by the Forest Supervisor. The general ensemble must be in harmony with the forest background. You don’t have to build your house just like your neighbor’s, but all cabins do have to be of an approved and attractive rustic style.

5

In large colonies you may be required to install a chemical toilet or septic tank, a piped water system, or other improvements to safeguard the general health of the community. Ask about these things.

If you build in a colony of summer homes, you must agree to abide by any rules and regulations agreed upon by a majority of the permit holders if they have or organize a cooperative public service group.

Choice of the actual site for a mountain cabin depends on drainage, view, shelter from storms, sunlight, ease of access, and so on. Probably the best location is one on a gentle slope, which assures that rain and snow will drain off, with the front of the cabin facing the center of interest and the principal windows placed to catch the prevailing breezes.

A slope is somewhat more difficult to build on than flat land, but in wet weather you won’t find puddles in front of the door and the floor won’t get damp. Remember, you don’t have tile sewers to carry off the water. Too steep a hillside makes building even more expensive, calling either for excavation or extra foundations. While a hillside site is attractive, it’s pretty tiresome lugging supplies up hill.

If you build on a slope or hillside, find out about the normal rainfall. You may need a watershed at the upper side of your lot to keep the run-off from trickling down into your cabin. A shallow ditch or a low wall is enough protection—but a necessary one. (See Fig. 1.)

Here are a few other details to think about: How near is the lot to a good road? It doesn’t have to be close to a main highway, but is it possible to reach your lot with a fair amount of convenience? Can you get supplies or help in case of emergency without too great effort? Next, how’s the water supply?

Water is one of the most important considerations. The forest officer can tell you what the stage of the water table is at your location, and you can decide what kind of well you will need. Above all, don’t plan to use the local trout stream or lake for drinking water. It may be a lovely lake, and the stream may ripple over pretty stones like tinkling bells, but pretty water isn’t necessarily pure water.

There are in the National Forests a number of associations of Special Use Permittees. These associations are formed partly for the advantages of collective bargaining and partly for the installation of certain facilities on a tract basis. Many of these associations have installed water systems, financed by assessments against the lot owners.

The winter climate is an important factor if you build in the snow country. In the mountains you may get snow ten feet or more in depth—and ten feet of snow weighs a lot. That requires extra sturdy construction of the cabin roof.

Actually, in a National Forest you’ll find that a good deal of the selection has been done by the Service for you. About all you have to do is to find the particular one that is most pleasing to the whole family and offers the greatest possibilities consistent with the money you have to spend. You can be absolutely sure that you will get the lot you pick out. Nor need you worry that after you get your pet cabin built someone else will build “Ye Olde Hot Dogge Shoppe” across the road.

In selecting a site for a beach house don’t be led into buying too close to the water. Remember that ocean storms often send the waves far up on land, so be sure to get expert advice on the safety of your location.

Fig. 1

RETAINING WALL
CABIN
MASONRY OR CONCRETE WALL, OR DUG DITCH TO DETOUR THE SURFACE WATER
6

YOUR WATER SUPPLY AND SANITARY FACILITIES

YOUR WATER SUPPLY AND SANITARY FACILITIES

One of the first major problems that confronts the city dweller starting the construction of a summer home is the water supply—or lack of it. Not only is water hard to get, comparatively speaking, but it is not always safe to use when obtained unless care is taken to see that its source is pure. Water cannot safely be declared fit for human consumption unless the surface of the well or spring remains permanently above the level of all nearby sources of pollution. Tight well platforms and casings, clean grounds and wide separation from probable channels of impure drainage are the best safeguards.

Power Pump Most Convenient

If you are content to pump your water by hand and do without a flush-type toilet and bath or shower, then a dug well with a bucket and windlass or one with a hand pump is sufficient. On the other hand, if you are wise you will install a small power pump—the cost is quite reasonable—and a storage tank, which can be either in the top of the house or on some nearby high ground. In estimating the amount of water you’ll need figure that the average bath takes 30 gallons, one flush of a toilet 4 to 6 gallons.

Government experts estimate the consumption of water per person in 24 hours is 4 to 8 gallons if only a hand pump is provided; if one faucet is installed, domestic uses require 7 to 15 gallons per person; if the house is equipped with hot and cold water in kitchen, bath and laundry, the consumption rises to 20-25 gallons, a family average of 100 gallons every 24 hours. That’s a lot of water to carry in pails or pump by hand.

If you build your cabin in the mountains, you may not have much success digging a well because bedrock may be close beneath the surface. If you build in or near some community of vacation homes, you can find out what method others employ in the neighborhood. In the more established communities you may find a co-operative water system in existence. Many of the privately developed summer home areas are served by local utility companies.

Test Your Water Frequently

If you are lucky enough to have a spring on your property, the water will probably be good—but test it first, and test it periodically thereafter—at least once a year. Then build a tight covering for the spring to keep out dirt and wandering animals and pipe the water to your house. (See illustration below.)

Cover your spring and fence it to keep out animals. The ditch helps prevent surface water from contaminating your house supply.

In some localities sub-surface conditions may be satisfactory for a dug well. It takes at least two men and a lot of work. One digs the earth out and the other raises it by a bucket and windlass. 7 Such a well should be lined with concrete or vitrified pipe and should have a tight covering. The best covering is a concrete well curb and a concrete or heavy wooden lid through which the pump pipe passes. A man-hole must be built, too, to allow entry for cleaning the well occasionally. (See Fig. 2.)

Fig. 2

MANHOLE COVER
HOLE FOR PIPE TO PUMP
CEMENTED JOINTS
CONCRETE OR CLAY
MANHOLE COVER

A driven well, which is successful in some locations, can be made by two men also, although it’s not an easy job. The point, a special length of pipe with a sharp steel point and screened openings to let the water in, is driven into the earth with a heavy maul or with a weight on a block and tackle. It is not practicable to sink such a well over 100 feet—a drilled well is easier and less trouble.

The ultimate source of your water supply should be definitely determined before you buy or lease a summer homesite. Before you start a well of any kind you would be wise to obtain the best available local advice.

Sanitation Important

The average city dweller is likely to overlook the important part sanitation plays in his daily life. Therefore, many summer homes are equipped with meager facilities for disposing of sewage. The old-fashioned “outhouse” which plays a rather comic part in song and story favored by such humorists as the late Chick Sale and James Whitcomb Riley, can hardly be considered an asset to the health and sanitation of a summer home community.

If such a building is necessary, at least follow the instructions given by the Department of Agriculture (see Farmer’s Bulletin No. 1227) so that it will be sanitary, fly-proof, easily cleaned, and as little of an “eye sore” as possible. A better type is the vault-privy with a watertight concrete vault, wide and shallow. It should have a trap at the rear to provide access for cleaning. A metal container may be substituted for the concrete work. This should have an airtight lid and must be removed frequently for cleaning.

There are a number of chemical septic tanks for sale, all of which dispose of waste matter by the action of bacteria and chemicals. They are not difficult to install. Further information may be obtained from the previously-mentioned Government bulletin.

Garbage Harbors Germs

Even though your cabin has running water and a regular flush toilet, the danger of waste disposal is not entirely eliminated. Garbage and refuse of all kinds are harbors for germs and flies can quickly spread disease germs gathered from such sources. The location of the water supply in relation to sewage disposal is of greatest importance, and it is not enough that the water source be above the distribution field of the sewer. It is a good idea to consult the nearest forest ranger, or some other person who is well acquainted with the locality, before making any such installations.

For sink drainage and kitchen waste a line of small sewer pipes, laid as shown in the accompanying diagram, is fairly adequate. Garbage and other refuse that cannot be drained away should be buried in a good-sized pit. This hole should be as nearly fly-proof as possible, and each fresh lot of refuse should be well covered with dirt or sand or sprinkled with a chloride of lime solution.

Proper relation of water supply and sewage disposal. But remember that underground water table may not slope the same as the surface. Ask your Forest Ranger.

CESSPOOL
WELL
WATER TABLE
ROCK
8

CABIN FOUNDATIONS

CABIN FOUNDATIONS

Foundations are the backbone of your cabin. From the structural standpoint they are probably the most important part of the building. So, just because they are going to be hidden, don’t skimp or hurry through with them because you want to get started quickly on the cabin itself. If the basic framework is out of line, the whole house will sag and tilt at odd angles. As one cabin expert says, “Wear out your spirit level and try-square—don’t save them for another job.”

One of the simplest foundations for the amateur builder is made by resting the sills on supports made of two large somewhat flat boulders. If your cabin site is on solid rock, then all that is necessary is to bed the bottom boulder securely on the rock. But if the terrain is ordinary earth, you should dig down past the “forest floor” of black humus until you reach rock, sand, gravel or other solid ground below the frost line. Then you pour concrete piers to the grade level and seat your boulders thereon, as shown in Fig. 3. Do not use any mortar between the two boulders. Dampness will creep up past the first boulder, but if it is not bonded to the top boulder with mortar, the dampness will stop there and not reach the post supports or sill timbers of your cabin. Of course the concrete piers themselves, if built above grade, are perfectly good supports for the sills. But the boulders have more of a cabin “look.”

Fig. 3

FLAT TOP BOULDERS
CONCRETE PIER
FOOTING

Fig. 4

WOODEN FORM FOR PIERS

The number of foundation supports or piers will be determined by the size of the house. “Not less than seven feet on centers” is a good rule of thumb.

Concrete piers are not hard to make. Their size will depend on how deep you must dig to reach solid earth or rock. First, build several tapered box forms of rough lumber. (Fig. 4.) These should be about 24 inches square at the bottom and taper to about 12 inches at the top. The taper makes it easier to get the forms off the finished concrete. Pour a footing of concrete at least 10 inches thick and six inches larger than the bottom of the pier on all sides. Then set the form for the pier on top of this footing.

A satisfactory mixture for foundation piers is one part Portland cement, two parts clean 9 sand, and three parts gravel—two-inch aggregate is about right. It is a good idea to add to the mixture hydrated lime—about 10 per cent of the bulk of the cement—to prevent the mass from setting too rapidly and to make it work more smoothly.

This type of foundation allows perfect ventilation under the cabin, but it will not keep out wandering rabbits and other night prowlers.

A boulder foundation is quite enough for the average semi-permanent summer cabin unless you plan to spend time there during the winter, in which case an all-around foundation is advisable to keep out the cold.

Full concrete or rock foundations are more expensive and more work to build but hard to beat for permanence. To construct them, dig a trench to the dimensions of your cabin but at least twice as wide as your finished foundation wall is to be and to solid ground below the frost line. Pour in a “footing” of concrete to a depth of 10 inches. This base will distribute the weight of the cabin. (Fig. 5.) On this footing build wooden form walls to the proper height—about one foot above ground level at the highest point of your grade is usual—and fill them up with the proper mixture of concrete. To prevent dry rot of the wood construction, air vents should be constructed at intervals in the concrete wall above grade. These should be covered with screening to keep small animals out. Thickness of foundation walls varies according to the weight of the building. A good rule is to make the top of the foundation two inches wider than the logs or timbers it is to support.

Fig. 5

BOLT FOR SILL LOG
METAL TERMITE GUARD
CROSS SECTION OF FOUNDATION WALL

The sill logs or timbers are laid on top of the foundation. If your cabin is to be of logs, select a number of the strongest and straightest and lay them so as to form the outside “frame” of the cabin. They should be bolted tightly to the concrete by means of long iron bolts previously buried in the foundation walls. If the sills are to rest on piers or boulders, spike them together. The weight of the cabin will hold the sills in place. The 2×6 floor joists are cut in or notched over the sills. They should be set with the 2-inch side uppermost and securely spiked.

The footing for the fireplace is made just like the concrete foundations—6 or 8 inches beyond the dimensions of the fireplace plus the hearth. Pour a slab of concrete about 10 inches deep, in which are buried ½ inch steel rods laid in both directions—checkerboard fashion—and wired at the intersections. This may seem like a lot of extra work but the steel rods prevent settling and cracking. On this slab build a wooden form to the height of the bottom of the floor joists and fill with a mixture of concrete, sand and plenty of small boulders. At this point block off the section to be used for the hearth and fill in the fireplace proper up to the floor level. This will leave a space to be filled in later with hearthstones, brick or whatever you decide to use for the hearth.

Reinforcing rods in fireplace base.

10

BUILDING THE CABIN FIREPLACE

BUILDING THE CABIN FIREPLACE

If the chapters in this book were arranged in the order of their importance from the standpoint of cabin features, this one, dealing with fireplaces and chimneys, would probably come first. No matter what other ideas you may have about a vacation cabin you will undoubtedly insist on a fireplace as a dominant feature. To most people a cabin without one just isn’t a cabin at all.

When it comes to building it you can have the work done a lot easier than you can do it yourself. On the other hand, you’ll probably do a lot of arguing with the mason because, strange as it seems, there appear to be comparatively few masons who can build a fireplace and a chimney that will work to perfection. The instructions here have been collected from people who do know how, and if you follow them, you should have a successful fireplace.

In the preceding chapter you have read about the fireplace foundation. By the time the rest of the house is pretty well along this should be in good condition for the next step.

A fireplace consists of four essential parts: the fire box itself, the throat, the smoke chamber, and the flue. The shape and relationship of these are very important. One simple relation to remember is that the area of the fireplace opening should not be more than 10 times the area of the flue. Some people say 12 times, but 10 is a better average.

Fig. 6. Construction of fireplace.

THROAT OPENING FULL WIDTH OF FIREPLACE
CHIMNEY FLUE
FLUE LINING
SMOKE CHAMBER
SMOKE SHELF
DAMPER
THROAT
8″
FIREPLACE

The over-all dimensions of the fireplace, including mantel, are matters of proportion and taste, governed by the size and shape of the room. In almost every case the width of the opening should exceed the height. The top of the opening should be at least 30 inches from the floor but not much more than 40 inches unless it is at least six feet wide—and not many cabins can stand a fireplace as big as that. For a six-foot opening plan for a depth of about 24 inches. No fireplace should have a depth of less than 18 inches. Remember, however, that the deeper your fire box the less efficient it will be for heating purposes. The hearth should extend at least a foot on either side of the opening and have a minimum depth of 20 inches.

You may have the opening flush with the hearth, or, as some builders prefer, lay a course of stone several inches high across the lower edge and curve the bottom of the fire chamber up to it. Or you may elevate the entire bottom of the fireplace. It is smart to plan the hearth flush with the floor so that trash may be swept into the fireplace without using a dustpan.

Rough native stone, of course, is the most interesting material for a cabin fireplace and chimney. Brick seems too refined for the woods. If you want the finished job to look as massive in appearance as possible, don’t use stones that are too small.

The walls of a stone fireplace and chimney should be at least one foot thick. But as a concession to safety, the entire fire box—back, sides and floor—should be lined with good quality firebrick. The space between the stone shell and firebrick lining is filled with concrete. Since the back and sides of the interior must reflect the heat into the room, the back must be slanted forward as it rises, running up straight about one-third of the height of the opening from the hearth floor and then slanting toward the front at an angle of from 23 to 30 degrees. The sides should slope inward, 11 as they approach the back at, roughly, an angle of 60 degrees.

Regardless of whether the top of the fireplace opening is flat or arched, you will need a strong support at this point. The best is an iron bar about one-half inch thick and two inches wide. Extend it across the width of the opening and set it firmly in the stonework at each side. Any blacksmith can make this bar for you, and the curve he puts in it will determine the arch of the opening. A “T” bar, set with the tail of the “T” upward, is even better, since it is stronger and requires less iron.

Behind the bar build a wooden form extending back several inches and sloped slightly upward. Then lay a course of stone on top of the iron and fill in between the stone and the form with a rich mixture of concrete reinforced with iron rods. This concrete should rise at such an angle as to come flush with the edge of the damper. The reinforcing rods should extend the full width of the arch and tie into the stone at the sides.

Buy a Good Damper

Since the fireplace is probably the most important feature of your cabin, don’t skimp on materials. Buy the best dome-type damper that you can afford. Some fireplace “experts” will say this is nonsense, but don’t let them fool you. The damper is to a fireplace what a mainspring is to a watch.

The dome damper is set on top of the fire brick lining where the throat enters the smoke chamber. The handle to control it may be set in the front or side as you wish (make sure of this when you buy it) and may project or be set in a recess in the masonry.

The throat, as can be seen in Fig. 6, is considerably narrower from front to rear than the fire box—5½ inches is maximum—and should come as near the front as possible. It should begin 6 to 8 inches above the top of the fireplace opening, extend the entire width of the fire box and slant downward toward the back. At the same time the back surface of the fire box has been slanting forward until it reaches the same height at the beginning of the throat. At this point construct the smoke shelf, which is literally a shelf set back to the vertical line of your masonry.

An arch like this helps prevent downdraft.

DIRECTION OF PREVAILING WIND
CHIMNEY CAP

Proper construction of the smoke chamber is often the factor that determines the success of your fireplace. The amount of taper may vary, but it is a good general rule to slope the walls inward one foot for every 18 inches of height. The smoke chamber walls must be as smooth as possible, the best finish being about ½ inch of mortar—or a commercial steel unit. This cuts down the amount of friction and makes it draw better. After the smoke chamber walls are tapered up to the desired dimensions, the flue is straight from here on up.

Use Special Mortar

Government specifications for fireplace mortar, which must be used in laying all work except the fire brick, are as follows: hydrated lime, nine pounds to each 94-lb. bag of Portland cement; mix this with three times its volume of clean sand and enough water to make a smooth workable mortar. Wet all stones before applying the mortar. Don’t use ordinary lime mortar for fireplaces and chimneys.

Construction of the flue is the next important matter. The flue is installed as the chimney is built and must be planned with a fairly close relationship to the fireplace itself. Fireplace experts estimate that the correct ratio is 14 to 16 square inches of flue area to each square foot of fireplace opening.

A round flue is the most satisfactory type. It offers less friction and is easier to clean. Square or oblong flues should be slightly larger than if a round one is used. The easiest method—and one that assures a tight flue—is to use fire clay flue lining, filling in between it and the stone shell with cement. Be sure that the flue is as straight as possible and uniform in size right up to the top. Don’t taper it. If turns must be made in it, make them gradual—never greater than an angle of 45 degrees.

Don’t try to use one flue for fireplace and kitchen stove or another fireplace. Make separate flues for each. They may go up the same chimney but the two or more flues should be separated by at least four inches of solid brick or concrete unless tile flue linings are used. When you have reached the top, test the flue for leaks by lighting a fire and covering the top of the chimney. Escaping smoke will reveal any leaks, which must be repaired at once.

12

Diagram of a patented fireplace form showing how it heats and circulates the air. The masonry is laid around the form.

SMOKE DOME
DAMPER
DOWN DRAFT SHELF
APRON—TO BE COVERED BY MASONRY
WARM AIR OUTLET
DAMPER CONTROL
HEATING CHAMBER
BOILER PLATE FIREBOX
COLD AIR INTAKE

Location of your house will affect the action of the chimney, since large objects such as trees or a hill nearby will cause a down draught. If this trouble is encountered, it may be corrected by building an arch over the chimney cap. The arch should be placed at right angles to the cause of the down draught.

The chimney cap itself, which is an important feature affecting the air currents that pull the smoke out, should be about 12 inches high. It can be made of cement and stone chips, modeled by hand. Reinforcing rods or wire mesh may be added if desired. The sides of the cap should curve from the outside edge of the masonry proper to the top of the cap.

A good type of flashing, which must be installed to prevent leaks between the chimney and the roof, is made of sheet lead, which is everlasting. Galvanized iron or copper is also satisfactory. The flashing should be cut to fit the chimney like a collar and is imbedded in the masonry. The roofing should overlap the upper edge several inches, and the flashing must overlap the roofing at the lower edge if set on a slanting roof. In case the chimney comes at the ridge, flashings are fastened over the roofing all around.

While you’re up on the roof finishing the chimney, it would be a good idea to take the measurements of the entire top. In your leisure time, make a fairly tight cover, shaped like a shallow box, that will fit on top of the chimney when you close the cabin for the season. It can be lashed down with wire or rope. The object of this will be well known to anyone who has left a cabin chimney open for several months, because it seems to have a great attraction for birds and squirrels—not to mention the fact that snow and rain get in and rust the flue lining if it’s made of metal.

In planning your cabin fireplace don’t fail at least to investigate the several so-called “patented” fireplace forms which circulate heated air. (See illustrations.) These are especially worth considering if you expect to rely upon your fireplace for heating the cabin during the colder months, and also greatly simplify the intricate job of fashioning a fireplace.

When using these forms the fireplace is constructed with an air chamber behind the fire box. Cold air is drawn off the floor and circulated back in the room as warm air. This gives you both direct radiated heat and warm air from absorbed heat. Various installations are possible, with the added heat being used in an adjoining room—or even upstairs.

Another patented fireplace design showing how warm air may be piped to adjoining rooms

WARM AIR OUTLET
COLD AIR INTAKE
13

BUILDING THE LOG CABIN

BUILDING THE LOG CABIN

Mention of a “cabin in the woods” brings a vision to the average man of one thing—a log cabin. And, although few people will ever build a real log cabin, most of us have inherited from our pioneer ancestors a romantic attachment to the sturdily constructed homes of our early settlers. The pioneers built of logs primarily because they had no other materials and also because they needed a shelter that would be a protection against Indians, wild animals and rough weather.

But just because a cabin is built of rough logs instead of finished lumber doesn’t mean that it will be less expensive in this day and age. According to such experts as C. D. Aldrich, who designs some of the finest cabins in the country, a log cabin costs about twice as much as a frame cottage of comparable size and design. A one-room-and-porch cabin that can be built of lumber for about $500 would cost roughly $1,000 if well built of logs.

There are two styles of log cabin construction—the traditional kind with the logs laid horizontally and the stockade type in which the logs or half logs are placed upright. The latter is easier to build since skilled axe work is not required to notch the log ends and the principal task is to hew down the sides to make them fit closely. On the other hand, a cabin built with horizontal logs is the favorite with most people—probably because it is the most familiar.

Logs for a stockade style cabin need not be particularly heavy since they are to be spiked to the horizontal members of a timber frame, but care should be taken to obtain pieces as straight as possible to avoid waste. Second growth timber is most frequently used. Chinks between the timbers are caulked with oakum, or, if the fit is very loose, combine oakum with willow wands or narrow battens. However, most people building a recreational home of logs will want the horizontal type of construction, so this chapter will be devoted to that subject.

One of the first things to decide after the rough plans are drawn and the list of materials estimated is whether the cabin is to be of peeled logs or logs with the bark left on. Logs that are to keep their bark must be cut in late October or November and stacked on skids until spring. Be sure they are piled so that plenty of air circulates. Logs to be peeled should also be cut in fall or winter and seasoned—preferably for six months or more. To prevent cracks when they begin to weather, have the logs scored down one side—a two or three inch strip of bark removed the entire length. Then if the logs crack a bit, they will do so along the scored lines and they can be laid so the cracks won’t show in the finished building.

The size of your cabin, or rather the dimensions of the various walls, is not necessarily limited by the length of the logs, because they can be spliced. (See Fig. 7 for the best method of splicing.) If you are counting on leaving a projection at each end beyond the wall, then you can figure that logs 20 feet long will give you a room with inside walls about 16 feet long. Logs between 20 and 30 feet long are most satisfactory unless you have a large crew to help. They should average about 10 inches at the top end with as little taper as possible. If you get smaller logs, it will require too many to gain the needed height, and logs much larger than that are unwieldy to handle.

Fig. 7. How to splice logs.

The best timber for a log cabin on the Pacific Coast is redwood or western cedar. Balsam, hemlock, pine, and, if you are lucky, tamarack also make good logs. The latter are especially fine. You may buy your logs from a lumber company, from a public utility company’s supply of power-line poles, or you can hire a good woodsman to cut them for you—if you can find the timber. Certain sections of the National 14 Forests are available for cutting logs and stumpage charge is very nominal.

There are several possible methods of fitting logs together. The choice depends entirely on how much time and labor you care to devote to it, but once a style has been adopted carry it throughout the whole house. Use similar logs or poles instead of dressed lumber wherever possible. They’re more “woodsy.” Speaking of style, all log ends that project should be finished off with an axe, not sawed.

After the sill logs are laid on the leveled boulder foundation, or in the case of a concrete or stone wall underpinning bolted to the foundation, the next step is to lay the floor joists. They should be not less than 2×6 material, spaced not over two feet on center. Notch them into the sill log and the first log above as shown in Fig. 8 and spike them in.

Use Spirit Level Frequently

You are now ready to start erection of the walls. Make frequent and careful use of the plumb line and spirit level in this work. Without constant checking the walls have a way of going off at odd tangents.

The simplest and least difficult style of fitting logs is the “saddle and notch,” in which the logs are given a rough notch and laid together without special fitting or trimming. The spaces are later caulked with oakum. While this is the simplest method, it is the poorest from the standpoint of weather tightness.

Four methods of notching logs.

Another and better method is the same as above except that the notches are so carefully cut that the logs fit closely and must be hewn down along two sides to provide neatly joined surfaces. This also will require some caulking but not as much. It is customary to lay a strip of oakum between all logs, regardless of the style of fitting.

Cupped Logs Fit Snugly

A third method is to use “cupped” logs. The same saddle and notch is used at the corners, but the upper log has a concaved channel cut its entire length, which makes it fit down snugly over the lower log. The cup may be cut with curved-blade adz or with a heavy gouge. This is more work but well worth it. Cut each cup to fit its individual lower log, marking the cup with a pair of dividers to insure a close fit. When you have a perfect cup (which means rolling the log into position several times to try its fit) lay a layer of heavy oakum along the lower log, roll the upper into its final position and spike it down.

The finest method of all is a further refinement of the cupped log style. The upper log is cupped as above but, instead of a simple notch at the end, the upper log is cut out exactly to fit down over the lower tightly, while the lower is not notched at all. Oakum is strung the same as for other methods and laid in at the corners. In the best work of this type no oakum should show. Although the pioneers put their cabins together without nails, they did so because they had no nails to use. To be safe, spike all logs together with 12-inch spikes—the largest size made.

Before you get the walls too high, give a thought to windows and doors. There are two ways of taking care of them. The extravagant way, much used by our forefathers, was to build with logs to the top line of the proposed opening and then cut out a hole the required size. An easier—and 15 less wasteful—way, if you are doing your own work, is to use short logs, leaving a more or less rectangular opening. Then nail a couple of straight boards where your frames should come and saw off the rough projecting log ends as illustrated above.

PLANKS NAILED AS GUIDE FOR CUTTING

LOWER LOG HEWN OUT

Incidentally, in planning your house remember to take into consideration that a log cabin’s interior absorbs a great deal of the light unless—God forbid—you intend to whitewash the walls. Therefore, plan for as many windows as your walls will allow without unduly weakening them or disrupting your interior plans.

Use timber at least two inches thick for window and door frames and wide enough to protrude slightly on the outside of the log wall. The bottom piece—or sill—of the window frames should have a pitch of about one inch to the outside and project two inches to allow for drainage of rainwater. Don’t try to build your own windows. Order them to size from a mill and set them in.

Roof Should be Sturdy

The pitch of the roof and the width of the eaves are largely matters of personal taste and the kind of cabin you are building. A low pitched or flat roof, however, must be thoroughly braced if it is to bear a heavy load of snow, and the additional materials may cost more than a steeply pitched roof. The most effective roof for many cabins is low pitched with wide eaves—not too wide, of course, but wider than you’d have on a city house. Build the gable ends to the height you finally decide on; then trim down the rough ends along a line marked to the pitch of the roof.

If you have been wise, you have a long, straight log of unquestioned strength saved for your ridge pole. This should rest in notches at the very peak of the gables, and since it forms the keystone of your house, be sure it is solid and well bedded in oakum. The auxiliary roof supports, called purlins, run parallel to the ridge log and should be set by notching out the gable log where the purlin end rests. Cope the log above it so that the two gable logs grip the purlin firmly. These purlins ought to project eight or ten inches beyond the roof itself to allow for axe-trimmed ends. (Fig. 9.)

Smaller Logs for Rafters

Rafters are the next problem. Choose smaller timbers, yet ones that are well proportioned to the purlins. For the average cabin, logs with four-inch butts are about right. They should be spaced not more than two feet on the centers. Saw a square cut into the plate log—the top logs of your walls—then square a place on your rafter to fit into this cut. Drive it well home. (Fig. 9.)

Fig. 8

FIRST LOG OF SIDE WALL, NOTCHED TO FIT OVER JOIST
JOIST FLATTENED VERY SLIGHTLY
SILL, HEWN FLAT ON TOP
FOUNDATION
GAIN
TENON

Each rafter should be cut in slightly to the purlins and spiked tightly to each purlin and to the ridge log. When setting in any of these pieces don’t forget to bed them well with oakum to make sure that they are weather tight. 16 Dressed siding is good material for the roof. On this nail the roofing you have selected.

The type of roofing used depends on how much you want to spend. Composition roofing is fire resistant and will last quite well, but it is not particularly attractive on a log cabin. Shingles laid in the customary way with the butt ends exposed for about one-third of the length make a good roof. Shakes probably make the most interesting as well as durable roofs for a cabin, although they are more expensive. Shakes come in various sizes and add a final distinctive touch to a house.

If you expect to use your cabin in very cold weather, a double roof would be the wise provision. After laying your sheathing, cover it with a layer of building paper or other insulating material. Then nail on a series of 2×2 timber strips parallel to the rafters beneath. Across these strips lay another layer of sheathing and then the shingles or shakes. This forms a dead air space that is effective in insulating the house against cold.

Use Planks for Cabin Doors

If you are going to keep the pioneer atmosphere in your log cabin, don’t spoil it by buying millwork doors. Good, honest plank doors—made of any dressed timber, with cross pieces firmly nailed and clinched—are more in the spirit of things. A little ingenuity will go a long way toward making a beautiful door out of humble materials. Have some country blacksmith make a set of strap hinges and an old fashioned latch. You’ll be well pleased with the effect. A good, strong snap lock is a necessity to keep out intruders in your absence, of course.

If you want a good floor with a cabin “look” to it, get a supply of planks in widths varying from 6 to 12 inches—and have them tongue-and-grooved at the mill. Instead of nailing them, bore ¾-inch holes half way through and fasten them down with screws. Into each hole drive a hardwood plug, gluing it for tightness; then cut it off and smooth it down flush with the floor with sandpaper. This gives the effect of a “pinned” floor, which was very popular with the pioneer cabin builders.

Tongue-and-grooved flooring in narrow widths should be “blind-nailed”—the nails driven in at a slant from the sides and set with a punch, but for wide planks it is perfectly all right, if you wish, to nail through the boards and let the heads show.

How to Prevent Pests

Log cabins, particularly those where the bark is left on, fall heir to many evils in the form of borers and beetles that make their homes in the bark. Winter-cut logs are less likely to have borers than others, and if they are to be peeled, peeling should be done in the spring before the first flight of the beetles. Cedar and redwood are almost entirely free from borers. Peeled logs are not likely to attract boring pests, but they may be the home of larvae previously laid there.

If you do not care if your logs are stained, they may be painted with a solution of liquid oil coal-tar creosote. This stains the bark a dark brown, if used straight, but diluted with three parts kerosene it stains only slightly. The odor is rather unpleasant, but if the treating is done several months before the logs are used, it will wear off.

Pyridine, a colorless liquid, is one of the best pest killers. It also has a strong, unpleasant odor. It should be applied on a windy day and in the open air. It burns the skin slightly, so be careful. Also, it is highly inflammable.

Paradichlorobenzene is a very effective control but is not permanent in effect. It will, however, rid your logs of existing pests by slowly liberating a gas which kills the insects. Dissolve three parts, by weight, in a gallon of kerosene and apply either with a spray gun or a brush. Small logs may be dipped in a trough filled with the solution. Two gallons will saturate about 100 square feet of wood surface.

For logs that are to retain their bark, it is also well to paint all cut places and knots with crude creosote soon after cutting and again before use.

Fig. 9. Gable end showing ridge pole and purlins with rafters notched over them.

17

BUILDING A CABIN OF STONE

BUILDING A CABIN OF STONE

Next to a log cabin one of the most effective in appearance is one built of stone—rough field stones and boulders that can be picked up on the shore of any lake or stream. Naturally, such a house is a pretty big task for an amateur builder—not that it requires much more technical knowledge but because stones have a way of getting pretty heavy when they have to be lifted 8 or 10 feet off the ground. However, the result is well worth the effort.

If you are ambitious enough to want to build a stone cabin, here are some simple directions about how to do it. They are the result of actual experience but, of course, cannot be taken as a practical course in masonry.

The first step is like the old recipe for rabbit stew—you get some rocks and a load or two of aggregate, clean sand and numerous sacks of cement. (Tell the cement dealer what you plan to do and he’ll advise how much of each you’ll need.) You’ll also need a quantity of rough lumber, 2×4’s, 1×6’s, and such, for the framework and a more or less water-tight mortar boat in which to mix your mortar.

A cabin of stone requires a full concrete or rock foundation. The walls will be extra heavy, so the footings as well as the foundation walls should be proportionately wider and thicker than those described for log and frame cabins.

FOUNDATION
MORTAR FILL
SMOOTH FORM OF PLANKS OR PLYWOOD
MORTAR
FOUNDATION

After the foundation is poured, erect a frame for your house to the height of your roof plate on the inner side of the foundation walls, putting rough boarding on the outside of 2×4 studs. This will give you something to work against to insure plumb walls.

Stone walls should be at least one and one-half feet thick at the bottom (remember this in building the foundation) and taper to eight inches or so at the top. The larger rocks, of course, should be used lower down, although, if the work is carefully done, an occasional large one may be set in higher up to lend effect.

Mix Mortar Thoroughly

Start the first course of stones about three inches from the board form and fill in the space between with mortar. The correct mixture for this mortar is six parts of clean sand to one part of cement. After a little experimentation you will find the correct consistency, but be sure that it is well mixed. As one expert says, “Mix the stuff with your hoe until your back is broken and then mix it some more.” Wet the stones thoroughly before setting in the mortar.

The end of each stone should be firmly bedded in the mortar, and as soon as several courses of rock have been laid, tamp the mortar well down. Small pieces of rock may be pushed into the mortar if you wish to make it go farther.

When you build your wooden form, of course you put up the door and window frames. They can’t be cut out of the walls afterward as with a log cabin. Drive numerous long spikes into the outer surfaces of these frames. This gives you something to “tie” to when you reach that height with your masonry.

Building a stone house is slow work, and since you’ll have to leave your work at times, remember that all mortar that has been laid the day before must be thoroughly wet before fresh mortal is applied on top of it. And the entire walls ought to be wet down at least twice daily for a week or more after completion.

18

When you have reached the top course of stones, set in a row of threaded iron bolts two feet apart and long enough to allow three inches of the threaded end to stick up. On these you must bolt 2×4’s, so that you have something to nail the rafters to.

Window and door frames are set into the masonry as it proceeds, with long spikes protruding to “tie” them firmly.

2″×6″ WINDOW FRAME
SPIKES TIE FRAME TO MASONRY

When the walls have set, remove the interior wooden forms and go over the inside walls to fill up any air holes. These are not important unless they are too large. The rest of the job is done just as in finishing any other house. You’ll probably want to cover the interior with some material, because concrete is pretty cold and might remind someone of the time he was arrested for speeding.

The cost of a stone house depends on the amount of material you can find lying around the neighborhood and the cost of labor. Some stone cabins, with most of the labor hired, have been built for approximately $2.50 per square foot of floor space. This includes labor, materials, built-ins, electrical wiring and fixtures, and plastered walls. If you find it necessary to hire skilled stone masons or to transport your material considerable distance, the cost will be higher. You can, of course, lower it by doing a larger amount of the work yourself.

Remember that stone work is slow work, so allow yourself plenty of time. The first course or so of stone will drop into place pretty fast, but don’t forget that Rome was not built in a day—and Rome was built of stone.

For making colored concrete, for floors, hearths, etc., a topping containing the color is put on over the previously-poured base. This topping consists of five gallons of water per sack of cement, one cubic foot of sand and 1½ cubic feet of coarse aggregate. You may use factory-colored cement, or mix it on the job by passing the dry cement and coloring matter through a screen with a ⅛-inch mesh until well mixed.

An excellent treatment for colored concrete is to rub the surface thoroughly with equal parts of paraffin oil and benzine. This closes the pores and brings out the color uniformly.

In considering such permanent types of construction as stone, the great advantage of concrete should not be overlooked. Walls of this material are poured between wood, plywood or metal forms in the manner previously described for foundation walls.

Perhaps you object because the finished structure would not be “in keeping” with a woods atmosphere. But one method is possible whereby a facing of natural stone backed by poured concrete combines the advantages of concrete with a stone house “look.” This is called a Flagg Masonry Wall after its originator, Ernest Flagg, New York architect. The illustration shows the method of pouring such a wall.

For a beach house the smooth, modern lines of the concrete walls are quite appropriate for the clean, clear atmosphere of a beach site.

Concrete is fireproof, termite proof, requires little or no maintenance, and is not subject to decay. In a house that is often not in use, like a beach or mountain retreat, the value of a material of these characteristics is obvious.

This is a detailed plan of the Flagg masonry wall, showing forms, concrete fill and outer covering of stonework.

FURRING STRIPS
LATH & PLASTER, OR ONE OF THE PLASTERBOARDS, OR PLYWOOD
FORM LUMBER OR PLYWOOD
CONCRETE
STONE
19

FRAME CABINS AND BEACH HOUSES

FRAME CABINS AND BEACH HOUSES

Frame-type cabins present no structural problems that are unfamiliar to anyone who knows the fundamentals of ordinary frame house construction. The essential details of building almost any sort of simple frame house are the same, the main difference being in your choice of exterior finish.

If your vacation home is a beach house, you may even find the regular type of stucco finish appropriate for your particular location. Or you may want to combine stucco finish with wood siding or with board and batten. The main objective is to keep the structure in harmony with its surroundings.

This is particularly true of simple cabins in the mountains. A brick bungalow, for example, would be splendid for warmth and strength for a hunting lodge, but it would be wholly out of place in the forest, as would ordinary concrete finish, stucco, or certain types of frame houses.

There are a number of western lumber companies that specialize in manufacturing novel types of siding designed primarily for cabins and other buildings with a forest background. Some of these cost only a little more than ordinary lumber and make a very attractive cabin.

Among the novelty sidings, you may buy rounded siding that gives the effect of smoothly finished half-logs, or “hewn” timbers that look exactly like hand-hewn logs. You can even get special end pieces which, when carefully attached, give the effect of projecting log ends. As you can see from the illustrations, this novelty siding can be applied by anyone who knows how to use a set of carpenter’s tools.

This is the proper way to apply half-round siding to the studs. The log ends add a very realistic touch.

If you are planning to build a frame cottage or summer home, the field of design is, of course, limited largely by the amount of money you have to spend. If you are not an old hand at carpentering it would be well to get the assistance of a builder or a lumber company in selecting your materials. A man with a knowledge of building can keep you from making mistakes that might not be discovered until the house was built.

One of the easiest and most effective cabins is built with a “board and batten” exterior. This consists of broad planks ... their width is a matter of your own judgment ... applied either horizontally or vertically. Between each pair of planks runs a strip of batten which may be nailed flat over the seam or, if you get the specially milled battens, there is a groove into which the wide boards fit. A combination of board and batten and stone construction makes an exceptionally attractive exterior if you use some artistic judgment in combining the two.

This is the effect obtained by use of hewn siding. It is applied like any other lumber, with extra end pieces to give illusion of a real log cabin.

20

If you are planning to use the house in the cold months, it is well to insulate the walls at least with heavy building paper. In very cold climates it is best to finish the walls on both the exterior and the interior, filling the spaces between the studs with one of the commercial insulating “wools,” made of wood fibre or asbestos. If you must save money, you can buy sawdust at the local mill and pack it in.

Hand-split shakes also make an attractive cabin finish. The rough pioneer effect of the crude shakes is quite in keeping with the wilderness atmosphere. These are applied in much the same manner as ordinary shingles.

Shakes, either hand-split or sawed, should be laid in a definite pattern.

RANDOM WIDTHS
SAW-TOOTHED
ANGLE BUTTS

Here is an example of charming effect obtained by using horizontal and vertical board and batten, combined with stone.

Any of the methods shown here is a satisfactory way to fit the corners when imitation log siding is used.

If you undertake the construction of a frame cabin without the assistance of an experienced carpenter or builder, you should keep in mind the minimum requirements set up by the Forest Service as standard specifications for cabins to be built in deep snow country:

All girders should be not less than 4×4 material spaced not more than 7 feet on centers.

All main posts supporting building should be not less than 4×4, spaced not more than 7 feet apart in any direction and should rest on rock or concrete base; this applies to open porches also.

All floor joists (including those under open porches) should be not less than 2×6 material, spaced not over 2 feet on center.

Studding in sidewalls, where siding runs vertically, should be spaced not more than 6 feet on center and should be not less than 2×4 material. At least one 2×4 should be placed around the building, horizontally, between the floor plate and ceiling plate, and the side boards should be securely nailed to this horizontal ribbon as well as the top and bottom plates.

On buildings where siding runs horizontally, studding should be placed not over 2 feet on center on outside walls and be not less than 2×4 material.

Double headers and proper bridging should be installed over all openings in outside walls. This is not necessary in partitions.

Rafters should be spaced not more than 2 feet on center and should be not less than 2×4 material on all spans up to 16 feet. All spans of more than 16 feet should use rafters of not less than 2×6 material and be spaced not more than 2 feet on center. Rafters and other members of the roof frame should be of selected, straight-grain lumber.

All ceiling joists should be good, straight-grained sticks not less than 2×4 material and spaced not more than 2 feet on center. Nail them securely to both rafters and plate. All buildings with a gable roof should contain ceiling joists. All spans of more than 14 feet should have collar beams to support the rafters.

21

THIRTY CABIN PLANS

a CABIN in the CLOUDS

Elevation
Floor plan

The ideal mountain cabin should be almost a part of the rugged landscape that surrounds it, with rough walls and stout roof that seem to hug the rocks. The very majesty and sweep of the hills dwarf any attempt by man to build himself a tall, imposing mountain home—it is better to build for simplicity and strength.

In this “cabin in the clouds,” resembling some of the mountaineers’ huts in the Alps, every effort has been made to keep the atmosphere as rustic and as rugged as possible, at the same time providing all the conveniences of a comfortable modern home.

The walls, the designer says, should be of stone, 16 inches thick. The roof should be of redwood shakes or slates, but remember that any roofing must stand storms and very high winds in the mountains. The railing of the car shelter is of stone, also, with roof supports of heavy hewn redwood timbers.

The living room centers around the massive fireplace, which should be of rough stone. It is flanked on one side by a built-in seat, and a wood box on the other, with an outside door. Walls should be finished in rough plaster or wood panelling, with ceiling beams exposed. All floors are of wood except the terrace, which is flagstones.

On the front a broad window overlooks the terrace and, presumably, a sweeping view of a valley. A big sliding door of glass opens on the terrace also.

Opposite the fireplace is space for two built-in bunks in an alcove, enclosed by a curtain hung from a ceiling track. The bunk room proper, with a dressing closet and clothes closet, contains two double-deck bunks.

The kitchen may seem a bit small, but it is larger than many found in modern city apartments, and much more convenient.

22

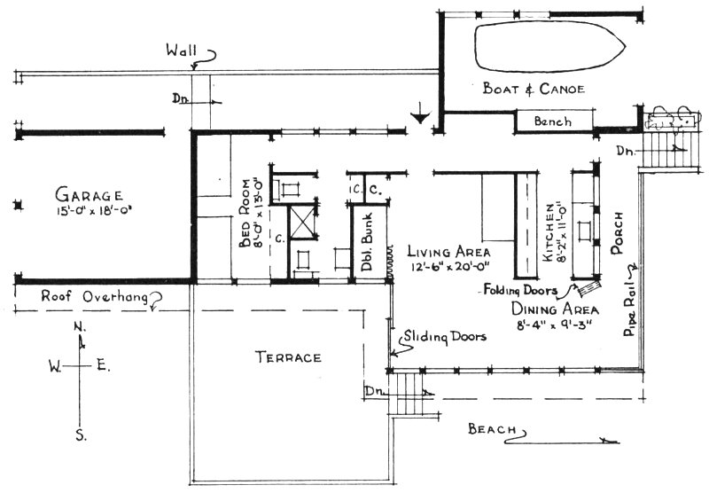
a BEACH HOUSE MODERN

Elevation
Floor plan

A broad beach, with lots of fine white sand, would be the ideal location for this ultra-modern beach house, with its clean, sweeping lines. As in the case of many of the new houses, there is a generous use of glass. In the outside walls are shown 22 windows, which should satisfy any fresh air addict.

Construction of this streamlined beach house calls for a concrete substructure and first floor with wood frame above. To insure a cool house, the most satisfying exterior would be dazzling white stucco, which is an excellent heat reflector. The floors should be of concrete flagstones or tiles, tinted and waxed.

The sun deck is a welcome feature on any beach house, because there are days when the ocean breezes are cool, and one may bask here behind the protection of glass screens.

Inside, the plan calls for a single room with high ceiling, and a series of sliding curtains which cut off the bunk room and a dining alcove if desired. There is a separate bunk room for guests. If double-deck bunks are used, eight persons may occupy the house.

The bathroom has the added convenience of an extra toilet, or the space may be used for another closet. As in all well-planned beach houses, there is an extra shower just inside the entry from the beach.

The whole interior may be done in plywood panels, either natural color or painted in a light-colored eggshell finish.

The broad open spaces beneath the house serve several purposes. They offer ample storage for beach umbrellas, chairs, ping-pong table and such, as well as a dressing room for bathers. By careful planning beforehand, a dumb-waiter could be installed to connect the kitchen with the beach, thus saving many steps when serving a barbecue meal or a cold snack on the sand. It will be noted that the fireplace chimney base has been utilized as a beach barbecue, so that food may be prepared without going up to the main kitchen.

23

a SKI LODGE in SNOW COUNTRY

Elevation
Floor plan
1st Floor
2nd Floor

Here’s a quaint little mountain hut that the Seven Dwarfs might like to live in. It’s a ski lodge, designed to withstand the roughest weather, yet its construction is simple and the cost extremely modest. The cabin consists of a 16-foot octagonal room on the ground floor for living quarters and a second floor bunk room. Five or six may be accommodated upstairs, since three beds just fit. A wall bed on the first floor sleeps two more.

Construction of this unusual cabin is all of wood, with concrete or flagstone floor. Built for use in cold weather, the walls should be of double sheathing packed with insulating wool, in addition to the shakes applied outside. Eight posts form the frame, with 3×4 rafters running to an octagonal block at the peak. Two 6×8 timbers support the second floor.

Tiny as it seems, this lodge offers a maximum of room for lovers of snow sports. The height is 14 feet from floor to peak.

Most unusual of its features is the door in the roof. At first glance this might seem odd, but the first time the main door is buried under ten feet of snow, you’ll be glad the roof door was put in.

There’s a fireplace on the ground floor, of course, and all the conveniences for a week-end stay. However, in such limited space as much of the furniture as possible should be of the folding type. It will be noted that no provision was made for bath or toilet. These features would have to be in a detached structure, which is preferable to addition of a side room, which would spoil the unique shape of the house.

A number of cabins of this type have been built on the Pacific coast in recent years. One of the first, and probably the original one, was constructed by Fred B. Stephen, Seattle architect, for his family’s use on a site in the Cascade mountains, 85 miles from Seattle.

24

a CLUB HOUSE for TWENTY

Elevation
Floor plan
Sun Terrace
Wood
Stove
Bench
Tack Rm.
Living Area
Seat
Wood
2 Beds
Bunk Dormitory—18 bunks
SH
Bath
Bath
SH
Kitchen
Dining Area
Car Shelter—6 Cars
Porch

Here’s a good answer to the problem of a low-cost club house for a hiking or snow-sports group. Since much of the work on such a cabin might be done by the members, construction is as simple as possible. The exterior may be anything from rough tongue-and-grooved boards, the cheapest, to real logs, the most expensive. Interior walls are sheathed with plywood, stained or painted, and the roof covered with composition roofing. The long bunk room, partitioned off for privacy, holds nine double-deck bunks, and has separate bathrooms adjoining for men and women. A stove should be included in this room, for extra warmth.

One may drive to the front door, unload passengers or supplies, and proceed to a stall in the car shelter conveniently. The kitchen is just inside the front door, making trips through or around the house with supplies unnecessary.

The living room, spacious enough to seat twenty for meals, contains two built-in bunks. Off it is a tack room for storing skis and other equipment, which can also be used as a work shop. A large dining table might be used for ping-pong and other games. Both the woodbox by the fireplace and in the bunkroom may be stocked from the outside, a great convenience in winter when fires burn constantly.

Note that the car shelter has space for six machines.

25

for BATHING and BASKING

Elevation
Floor plan

Just because a summer cabin is small and inexpensive is no reason why it cannot be smart and distinctive in appearance. The little house shown here could probably be built for less than $1000, yet it has many features worthy of a vacation home costing many times that.

Construction is entirely of wood, in a fashion reminiscent of Japanese houses, with wide doors and a broad, low roof. The easiest and most pleasing finish, both outside and inside would be plywood. The waterproof variety is durable and not costly, and it is so easy to apply that any amateur can turn out a pleasing job. Plywood is adaptable to any of the regulation wood-finish treatments from oiling or staining to painting, and will last indefinitely.

The roof would be attractive if covered with a brightly colored composition roofing, or with stained shingles or shakes.

The house consists of one large room, with alcoves for dining and sleeping. The Pullman-type kitchen, which means that everything is compact and within easy reach, connects both with the dining area and the barbecue patio at the rear of the house—a convenience if meals are to be served outside.

The same thoughtfulness has gone into planning of the bath. It has one door into the bunk-alcove and another opening on the pier, so that swimmers may go to the shower without tracking up the rest of the house.

A curtain shuts off the bunk alcove at night, and pulls back to make this part of the main room by day. Two double bunks provide beds for four persons.

Large folding doors at each end of the house open on the pier and the patio, giving an unusual sense of roominess.

The fireplace arrangement is also quite unusual, having a single chimney which serves three purposes. It carries flues from the fireplace, the kitchen stove and the barbecue grill in the patio. The woodbox is just inside the door for convenient filling.

26

for SUMMER or WINTER FUN

Elevation
Floor plan

One of the principal drawbacks to a real log cabin is the amount of work involved, as well as the expense. On the other hand, the cabin shown here is an example of what can be done with “imitation logs” that give the effect of real ones, while the task of building with them is no more difficult than with any finished lumber. In another part of this book will be found illustrations of the various ways this log siding may be applied to obtain rustic effects.

If this cabin is to be left unpainted, it would be wise to apply a coat of silver stain. This gives the illusion of weathering and does away with the “raw” look of a new house. The roof, of shakes, should be treated the same way.

To avoid cluttering up the living room, the designer has provided a separate room for bunks. This one holds two double-deckers and a large clothes closet. A short hall connects with the bathroom. A really novel feature is the pair of small windows which light the “upper” and “lower” of each set of bunks.

The kitchen is well lighted with three windows and a door, and has ample space for roomy cupboards and a work table. The stove can be placed so that the flue connects with the fireplace chimney.

The living room is large enough to hold a fairly large fireplace. It has windows on three sides, in addition to a pair of French doors opening on a rustic terrace.

One of the advantages of this kind of cabin over a real log one, is the ease with which the interior can be finished. Perhaps the most suitable finish would be natural-color oiled plywood panels. Knotty pine or redwood paneling would also be attractive.

27

CABIN for FOUR is EASY to BUILD

Elevation
Floor plan

For the amateur builder who wants to try his hand at a cabin, this attractive design presents a minimum of construction problems and calls for only a very modest outlay for materials. At the same time, if the work is well done, this cabin can be made as smart and attractive as one costing twice as much.

The most satisfactory, as well as the easiest way to build this cabin, would be with a frame of redwood timbers covered with half-round imitation log siding. Another finish that is not difficult to work out is with a combination of vertical and horizontal board and batten, running the boards vertically for the walls and horizontally at the gable ends.

Since this is first of all a rustic cabin, it should by all means have a roof of redwood shakes. The manner in which these are laid is responsible for lending interest and claim to an otherwise rather plain roof-line.

The front porch may be either flagstones or heavy planks, although the latter would, of course, call for a foundation. The two seats make an inviting place to rest, but as will be seen from an inspection of the floor plan, they serve for more than ordinary seats. They have corresponding seats inside the living room, and beneath them are concealed two roll-away double beds. Such construction for the beds is a great advantage in a small cabin, since they can be pulled out or put away as needed. This leaves the whole living room, which is 12½ × 20 feet, for any style of decoration you like.

The fireplace parallels the 20-foot dimensions of the room and may therefore be fairly large. A general rule is to make it one-third as wide as the longest dimension of the room.

The kitchen is very conveniently arranged. It has three windows, affording ample light. A dinette, which could be made with a drop table and folding seats if necessary, occupies one side of the room. The stove can be placed so that the flue can go up the fireplace chimney.

This plan was furnished through the courtesy of the California Redwood Association.

28

COUNTRY PLACE of CHARM

Elevation
Floor plan

Four walls, a roof and a floor, will make a cabin after a fashion. But a glance at the illustration above will show what a little thought, care and imagination on the part of a good architect will do to those same four walls.

This simple, inexpensive country cottage, sleeping four comfortably, has all the little touches that distinguish a house of real charm. Because of its simplicity, this cabin is adaptable to almost any site. The original was designed by Angelo Hewetson, San Francisco architect, to fit between four huge redwood trees, and to be in keeping with the natural beauty of the location.

The exterior is of heavy sawed siding, although board and batten would also be effective. The roof, stained a rich brown, is of shingles laid irregularly. The siding is stained pearl gray, for a weathered effect, with trim to match, and the doors are painted a soft rose. Inside, this cabin is equally charming. The living room is broad and comfortable, and features a massive fireplace. A “waterback” may be installed in the back of the fireplace, connected with a storage boiler to furnish hot water whenever the fireplace is in use. At other times a water heater, burning liquid gas or oil, would heat the same tank.

The interior finish used by Mr. Hewetson is about as attractive as can be devised, and it’s inexpensive, too. Walls and ceilings in the living room and alcoves are sheathed in knotty pine boards of random widths from 4 to 10 inches, and the doors are all of planks of similar material. All is stained driftwood gray with a touch of rose for warmth. The kitchen and bath are in cream with soft green trim.

The porch, open to the sky, offers an ideal place for basking in the sun without shutting off any light from the interior. In good weather it can be used as a sleeping porch to accommodate an extra guest.

29

PLANNED for LAZY COMFORT

Elevation
Floor plan
1st Floor
2nd Floor

Just at a glance, would you think it possible for eleven persons to be accommodated in the cabin illustrated here? It is only 20 × 28 feet in inside area, yet such a feat is possible by intelligent use of every bit of floor space. The real secret lies in utilization of the loft formed by the high roof. This is transformed into a balcony-bedroom, with space enough for two double beds and a single cot. Curtains or screens give the necessary privacy. That takes care of five persons.

Downstairs, the living room is furnished with a long refectory table and benches, several easy chairs and a day-bed that opens into a double bed at night. That’s two more. Then, in the alcove off the living room, are two double-deck bunks—and there’s your accommodations for a total of eleven!

As in the case of most of these cabins, this one is adaptable to a number of exterior treatments. Real logs or frame construction with siding and boards and batten are indicated in the drawing. The porches provide two more suitable rooms, where meals may be served in good weather.

John Rattray, of Marysville, built the original of this cabin at Lake Madrone, Butte County, California.

30

WEEK-END CABIN in the REDWOODS

Elevation
Floor plan

After the noise and confusion of city life, what more enjoyable change could one find than to spend a quiet week-end in a restful, unpretentious cabin such as this? Because it has such regular, unbroken walls, it would be a fairly easy job to build out of real logs, just as the designer has illustrated it. In many parts of the West, the entire structure could be erected from materials provided by Nature right on the site.

Since this is intended for week-end use, it is not quite such an elaborate cabin as some, but none of the conveniences have been omitted. The big fireplace, built on rugged lines, would provide ample heat for the whole house. Note that a second stone chimney serves the kitchen—don’t ruin the picture by sticking a metal stovepipe through the roof.

The interior walls would look well if the logs were stained or varnished, but for added warmth it might be wise to cover them with wallboard. Inexpensive tongue-and-grooved Oregon pine would be good for the floors, as they would not be subject to much foot traffic. If the floors are to be left unvarnished, rub them with linseed oil as a preservative.

The use of casement-type windows is another good idea, instead of the ordinary kind. They are much more decorative, and there’s none of the bother of stringing sash-cords and weights.

31

THREE PLANS for GUEST COTTAGES

Elevations and floor plans

This trio of little guest cabins will probably be welcomed by those families who have had the problem of entertaining frequent visitors in their vacation home, but who like to maintain a certain amount of privacy that is almost impossible when a group of people have to eat and sleep and play in a summer cabin of limited size.

The guest cabin at the top of the page is one made of real logs. Visitors will enjoy the chance to live in a log cabin, and this one is particularly attractive because its six windows provide what amounts to a sun room. Such a cabin would lend a rustic atmosphere to the grounds of any summer home, even if the main cabin is built of some other material.

The second cabin, at the right, is a simple affair built on a wooden frame with a covering of board and batten. The extension of the roof to include the porch makes this look like a much larger structure than it really is. Note also the treatment of the side windows which carries out this illusion.

The third little cabin is quite unique, since it is built of common, ordinary railroad ties! This is not such a far-fetched idea, either, because many railroads are willing to sell used ties, and sometimes even new ones—and they can be used to make a most effective log cabin with only about half the labor required to hew ordinary logs. Railroads ties are particularly well suited to a small house, since it is not so necessary to splice timbers to gain needed length.

All of these guest cabins consist of a living room containing either a bunk or double bed, and a bathroom. No kitchen is provided, since it is assumed that guests will take their meals at the main house. However, it is a gracious gesture—and one that will be appreciated—to provide a single-burner oil stove or an electric plate, so that breakfast or a late snack may be prepared without invading the main kitchen.

32

WHERE SKY and WATER MEET

Elevation
Floor plan

You’d expect to find just such a simple, homey kind of cabin out “back of beyond” where the sky and water meet, because it’s the sort of place just meant for the shores of some quiet lake or stream. It isn’t designed for show, but for comfort-loving people on vacation.

The artist has given us this cabin with an exterior finish of redwood boards and battens, combined with a small amount of stone for added interest, but the same plan would be adaptable to almost any treatment—logs, for example, laid up in stockade fashion, or milled redwood siding or even an all-over covering of hand-split shakes. The roof, by all means, should be of shakes, stained brown or just left to the weather.

A stone terrace and a landing stage for boats is shown in the illustration, but these features are, of course, optional.

Inside you’ll find a 12½ × 18½ foot living room, dominated by a fireplace that takes up most of one wall, but well lighted by windows and doors at each end. The fireplace chimney, incidentally, also serves the kitchen stove.

The two bunk rooms offer ample quarters for four persons even if twin beds are used, but in this, as in many modern cabins, it would be wise to conserve space by using double-deck bunks. There’s plenty of closet space, too—one of them even has a window in it.

There are a number of other points of convenience about this cabin that may not meet the eye, at first glance. Note the kitchen has its door opening onto the terrace, making meals outside much simpler to serve. The bathroom is far more convenient than some found in urban homes. Just to keep the whole family happy, the shower has been placed in a separate enclosure from the main bathroom.

33

VACATION HOME in SOUTHLAND

Elevation
Floor plan

Another of those rather streamlined summer homes which some people call “functional” style is shown here. Actually, the word simply means useful, and that is one of the aims of all good architecture. The effort here has been to get away from the frills and gingerbread that make “horrors” of so many older houses. Although this was designed for a beach house, it would do as well in almost any type of location except a forest site. Streamlines don’t seem quite suitable for a woods home. If built away from water, the boat shelter would make an ideal workshop, laundry or storehouse.

Construction is of stucco over wood frame, with a broad, flat roof extended several feet for added shade. Naturally, this flat roof would be unsuitable for snow country, but it is quite effective in other sections. The over-hang, by the way, might be stained green. Foundations should all be of reinforced concrete block, which is strong and cool. The porch rails may be either pipe or stained wood.

Inside, the arrangement is extremely simple, yet interesting. The living and dining areas, connected with the porch by sliding or folding doors, can be made into one very large room for entertaining. On the north side, a long hall connects the bedroom and bath with other parts of the house. A slight rearrangement of part of this hall would make the living room even larger.

The bedroom has accommodations for two single beds or bunks, and there are two built-in bunks or divans in the living room.

34

a CABIN for TWENTY GUESTS

Elevation
Floor plan

Not many families would require as spacious a cabin as this, but the plan can be altered in various ways to expand or eliminate the accommodations as needed. As it is, this would make a splendid club for an outdoor group, since it can be built for a fairly reasonable sum and is not a complicated construction problem.

The long bunk room, divided by a hall, has partitioned enclosures which will hold either a single bed, double bunk or even a two-deck double bunk, thus providing accommodations for either four, eight or sixteen persons. Beyond the bunk room are two dressing rooms and two baths, making it possible to care for guests of both sexes conveniently. If additional beds are necessary, several folding beds could be installed in the big living room.

The screened porch is a feature that is a good addition to any cabin. It gives an extra room—an ideal place for meals—and by the installation of inexpensive hinged windows, the porch can be used regardless of the weather.

Preparation of meals for as large a group as may occupy this cabin presents somewhat of a problem, so the designer has made the kitchen unusually spacious. Work-tables are shown along each wall, but these can be reduced to allow for a refrigerator, large range, etc.

As in the case of the other club house presented in this book, construction can be as simple or elaborate as the owners desire. If amateur labor is going to be used, the wisest choice of materials would be those requiring the least technical knowledge. As shown here, the cabin is wood frame, covered with imitation log siding combined with flush siding above the level of the porch railing. The roof is of shakes.

35

MOUNTAIN HOME at ARROWHEAD

Elevation
Floor plan
1st Floor
2nd Floor

Inspired by a Normandy-French house built on the shore of Lake Arrowhead, the plan illustrated here presents a spacious summer home for a large family or one which does much entertaining. An idea of the size is indicated by the fireplace, which has an opening of 9½ × 5½ feet, topped by a huge oak beam.

The exterior is pleasingly finished in board and batten with gable-ends of siding, and a slate or shake roof. The porch is flagstone with rustic rail.

The first floor, besides a magnificent living room, contains a master bedroom and bath, maid’s quarters and the kitchen. Upstairs are five minimum-size guest rooms and a bath. Four of the bedrooms are lighted by charming dormer windows.

An attractive way to finish the interior, to keep it in the provincial spirit, would be to use rough plaster walls with exposed ceiling beams and a plank floor in random widths pinned with wooden dowels. The furniture should be hand made, patterned after simple French peasant styles.

When the owners built the original of this home they salvaged old hand-wrought iron pieces from an abandoned construction camp to make much of the hardware, and for the rest, they used modern lacquered iron hardware, with the finish burned off. It was tempered in hot oil and then hand-hammered to give the proper look of age.

36

the BIGGEST LITTLE CABIN

Elevation
Floor plan
BIG ROOM 16′-0″ × 23′-6″
Kitch. 6′-5″ × 8′-6″
Ba.
C.
SH.

Some people would be cramped for space in a ten-room house, while others live with perfect freedom in a pup-tent. It’s all a matter of adapting oneself to the situation.

Here, for example, is a cabin that might be too small for two persons, while as a matter of fact it will sleep six without crowding at all. That’s not just a theory, because a similar cabin has been used for several years up in the Mt. Rainier country with great success. It’s just the easy-going, unpretentious sort of place a man would love, where he can wear old clothes and let his whiskers grow, and the odors of coffee and sizzling bacon are sweeter than the most exotic perfume.

As illustrated this cabin has an exterior of wide planks and a roof of shakes. It would make an ideal log cabin, or take any one of a number of finishes. If any kind of siding is used, a beautiful effect could be obtained by use of silver-gray stain. It makes a new cabin look as if it had stood through many winters. If shakes or shingles are used for roofing, be sure to include about 10 per cent of dark-stained ones with the lighter colors, to give a dappled look like sunshine through the trees.

The real secret of this little cabin lies in the use of three folding double beds instead of the regular kind or bunks. They are hinged at one end and can be put up out of the way, concealed behind curtains or cupboard doors. Built-in double-deck bunks are, of course, a fine addition to any cabin, but they do cut down the space even in a 23-foot living room.

The little flagstone entry may seem like a fancy addition to such a cabin, but it is decorative—and insures against mud puddles at the front door.

The kitchen is particularly well arranged, with lots of work table space and room for storage shelves above. The bath, although not large, contains all the comforts of home.

37

BEACH HOUSE on a BLUFF

Elevation
Floor plan

Any family fortunate enough to live near the ocean will find this house, although primarily a vacation home, is well suited to a year-round residence. Along the southern coast especially there are many such beach houses whose owners wouldn’t think of living in town.

A number of very pleasing ideas have been included here by the designer. Although this appears to be just a two-room house, there are features which make it as commodious as a four-room one at practically no additional cost. For example, the living room and bedroom are the principal parts of the house, but the terrace provides an ideal outdoor dining room, and the sun deck is just the place for sleeping out when the weather is clear.

Stucco on a wood frame sheathed with insulating board forms the outer walls, and plywood is used inside. These interior walls could be plastered, but this would cost slightly more. All windows, as well as the sliding and folding doors, have steel frames. Floors are of colored and polished concrete.

A good color combination would be white for the exterior, with all exposed woodwork, such as garage doors, stained tobacco brown. The terrace rail and the spiral stair should be tile red. Inside, the most restful finish would be flat paint in a pastel blue or green, which is easy on the eyes in a location where there is so much bright sunlight.

The owner’s bedroom, with dressing room and closet, and the bath adjoining, make a very convenient unit away from the rest of the house. A wide closet in the living room will hold one or more roll-away beds for extra guests. Also, note the spacious woodbox which can be stocked from the garage.

The dining terrace, with its decorative tree, is protected from the wind. From here the spiral staircase leads to the sun deck over the bedroom.

The fireplace is a rather necessary feature even in warm climates. It is of stucco over concrete blocks. The designer has suggested a novel idea in this connection: to insure a cool air space between the ceiling and roof in summer, a ventilator is run from the ceiling up the chimney stack.

38

a CABAÑA—MEXICAN TYPE

Elevation
Floor plan

The inspiration for this charming little house has come down through the years from designs used so well by the early Californians, many of whom brought with them the traditions of their Mexican and Spanish ancestry. While the architect, Arthur L. Herberger, of Los Angeles, specified this as a stucco dwelling, a favorite medium for this type of house, it would be an ideal design to work out in adobe, such as the builders of other days would have used. As in so many of these old houses, the front entrance has an air of welcome, but the patio for private gatherings is placed at the rear, away from general view.

Adobe clay can be found in many parts of the West, and if your property happens to have a bed of this earth, the house can be built for very little if you do all the work. When all labor is hired, however, adobe is frequently more expensive than some other types of construction. Properly cured adobe blocks last for centuries.

Two treatments can be suggested for the front entry. It might be framed with brightly colored Mexican tiles set into the stucco or adobe, or the lintel and sides might be made of heavy hewn timbers.

Whether adobe or stucco is used, the roof should be of shakes or sun-baked tiles.

Inside, the early day spirit can be carried out by the use of rather rough plank walls, whitewashed, or oiled cedar panels. The living room should extend to the roof, with the rafters stained brown or painted with a gay Mexican design. Attention to details, such as the fireplace, which may be of adobe or other handmade bricks, and the choice of hardware, will add much to the charm of such a house.

39

CABIN for FOUR in HIGH SIERRA

Elevation
Floor plan

Here is a big, comfortable cabin of no particular period of design—just a grand place to while away one’s leisure time in some secluded spot where the only sound is the music of the wind in the pines. The broad flagstone porch is just the spot to spend lazy afternoons, and the living room is large enough for entertaining but not so large that it would be hard to heat.

According to the original design, this cabin might be built with a board and batten exterior, finished with a preparation of linseed oil and rotten stone—or it would be beautiful covered, roof and all, with silver-weathered shakes or shingles. In either case, the trim should be in a bright color for contrast, and the chimney would be best if built of rough field stones.

Inside, the living room might be finished in knotty Western cedar vertical-channel boards, sanded until they feel like satin and rubbed with linseed oil. Here again, for contrast, the trim and doors might be painted some bright color. The designer suggested waxed vermillion lacquer for the floor, but if this sounds too bright, it could be left natural color, or perhaps covered with one of the tile patterns of inlaid linoleum.

The two bedrooms, just for variety, could be panelled in knotty pine, while the bathroom and kitchen would be nice in some gay color such as canary yellow.

The arrangement of the fireplace at the back of the house allows construction of a feature which is especially popular in southern California—an outdoor fireplace. A single chimney carries both flues. The inner fireplace may be used for heating purposes, while the outside one is ideal for barbecues on the terrace.

40

for BEACH or LAKESHORE

Elevation
Floor plan

Here’s a thoroughly modern little cabin with very trim lines. It will fit into almost any sort of sloping site. Shown here, it’s a mountain cabin with stone foundations forming the walls of a garage for two cars. However, with only a few minor changes, the same plan could be used for a beach house, and the garage could be transformed into a boat house.

Construction details are quite simple. The foundations, stairway and retaining walls are stone, which can often be had for nothing on the site. The upper structure is wood frame, covered outside with milled siding. The studding is so planned as to make application of wallboard or plywood very easy, for the interior.

If the cabin is to be built in snow country, such a flat roof would have to be supported with unusually strong beams. The simplest covering would be composition roofing. To provide a serviceable walking surface, a wood floor raised on slats should go over this built up rooting. Another excellent—and cheap—roofing for a deck that will have considerable foot traffic is made by applying canvas over the matched roof boarding, just like the deck of a boat. If kept painted, this type of roofing is entirely satisfactory.

This is essentially a one-room structure, but it includes in a compact space all the conveniences of a much larger house. At one end of the living area is a small but complete kitchen, screened by a cupboard. On the reverse side of this cupboard is a hinged table that swings down at meal times.

Sleeping quarters include two double-deck bunks against one wall, with closet room at one end and the bathroom at the other. This entire area can be screened off with sliding curtains hung from a ceiling track. There is also room for a couch or day bed on one side of the fireplace. Wood storage is outside, but the small closet by the fireplace could be used for this.

Another interesting feature is the barbecue on the roof deck. It is built into the chimney, but if such an item adds too much to the cost, a portable barbecue would do quite as well.

41

a CABIN in the SANTA CRUZ

Elevation
Floor plan

For anyone who wants to satisfy that inner urge to live in a real log cabin, no better guide could be followed than the plans shown here. A glance at the illustration really doesn’t give an idea of the roominess and comfort of the place that is apparent from a study of the floor plan. However, this cabin would be quite a task for an amateur builder to undertake.

The original of this cabin was built by the Hugo Eastmans on a knoll in the Santa Cruz mountains. The rustic idea is carried out in every detail, with real logs, a rough stone fireplace and rugged rafters, but inside are all the conveniences of a modern residence. A pergola of rustic poles shades the front entrance.

Because of the size of the cabin it is unnecessary to crowd the living room with beds. There is one, but it folds up and is concealed in a closet. There are two comfortable bedrooms, each with private bath. One of the baths opens into the kitchen also.

Since this is a real log cabin, every possible detail should be made of this material, including door and window trim, porch rail and possibly the living room furniture. The floor should be of random-width planks, pinned with wooden dowels.

Light is an important factor in a log cabin, so much care should go into planning the color scheme. If the cabin is of peeled logs, the most beautiful interior finish would be to give the walls a couple of coats of clear varnish. This brings out the whiteness of the logs and makes them easy to keep clean.

The bedrooms, for contrast, might be done in greenish blue and the kitchen in grey or tan.

42

here is a CABIN THAT GROWS

Elevation

1ST Stage

2ND Stage

The building of any sort of a vacation cabin represents quite an investment for the average family, and it is sometimes necessary to omit or hold back on certain features in order to make the budget work out. The plan illustrated here is a splendid example of a charming cabin that started as a modest little place with just the minimum amount of room.

In its first stage, the owner can erect the central frame, which includes the living room, a bunk-room, kitchen and bath. This all fits into a 19- × 20-foot structure, and may be sheathed on the outside with board and batten, as above, or any type of material that fits the budget. A feature adding a great deal of charm is the pair of casement windows at the front.

This much of the house could be built the first year, with perhaps a temporary shelter for the car at the rear. The following season, or as soon as needed, two real bedrooms could be added on one side, utilizing the space formerly taken by bunks for closets. It will be noted in the plan marked “Second Stage” that a stairway to a cellar is indicated, but the cellar, of course, is optional.

On the opposite side of the house, the garage may be constructed, either attached directly to the house, or as shown here, with a small porch and a breakfast room in between.

Following the style of many of the recent houses, this design uses a nice combination of board and batten and fitted masonry.

This plan was designed by Howard H. Riley, Seattle architect, and was furnished through the courtesy of the West Coast Lumbermen’s Association.

43

RUSTIC CABIN for TWO FAMILIES

Elevation
Floor plan

This plan of a two-family cabin is presented as a result of numerous requests from Pacific Coast families who want to enjoy their vacations together. The problem is somewhat more difficult than planning a single house, but the features illustrated here should make it possible to give two families a cabin at only slightly higher cost than an ordinary one.

The construction of such a cabin, in most cases, must be fairly reasonable. Therefore, the one here is built of wood frame covered with board and batten, on a low concrete foundation. Roofing may be of any type that meets the budget.

A large living room with a massive fireplace is the central feature inside. Here both families may gather, or they may find privacy on separate porches on either side.

Since meals would probably be eaten at the same time by both groups, the kitchen and dining alcove have been made common to both sides.

The most interesting feature, and one which should please everybody, is a separate suite of sleeping quarters, one at each end of the cabin, for each family. Two bunk rooms, holding either a double bed or a double-deck bunk, with necessary closet space, will accommodate four or eight persons in each suite. The bunk rooms open on a short hall connecting with the bathroom.

An interesting way to finish such a cabin would be to leave the rafters and beams exposed in the main living room, where a truly rustic atmosphere is most desirable. If these timbers are given a hewn surface and stained brown, they make a pleasing contrast to walls of natural-color knotty pine. The floor should be made of broad planks, to be in scale with the size of the room.

44

a CABIN on FOUR LEVELS

Elevation
Floor plan
1ST Floor
2ND Floor

In a vacation area where life is maintained on a more or less civilized plane, this vacation home, with its very modern lines, would be quite attractive. By “civilized,” we mean that you could hardly imagine anyone loafing on the terrace in dirty old canvas slacks and a week’s set of whiskers.

The plan is intended for a sloping site, with floors on four levels beginning with the garage at the highest point. The roof is flat and may be transformed into a sun deck. Foundations are concrete, with wood frame covered with flush siding above. Inside, the walls may be covered with wall board, left natural color except in kitchen and baths.

The living room is two stories high, with a balcony occupied by two double bunks. The master’s bedroom and private bath, as well as a guest bath, are on this balcony level also.

Down a short flight of stairs from the living room is a dining alcove and the kitchen. The dining alcove opens on a spacious terrace.

This same plan, with a few minor changes such as the addition of a shower at the first floor entry, would make a fine beach house.

45

SIMPLICITY is the KEYNOTE

Elevation
Floor plan

This quaint little cottage, with its low roof and wide porches, is another good example of what can be done with the simplest of floor plans. It really consists of just one big square room, with partitions jutting out to form the bathroom and kitchen. Anyone can go that far without the guidance of an architect or builder, but the added touches of an experienced hand, as evidenced in the porch rail, the little martin house on the roof and the stepped-back patio wall, are what give this cabin its distinctive charm.

As shown here, the walls are of board and batten, with hand-split shakes laid on the roof in an irregular pattern. The bird house is an attractive note frequently used on old-world houses. The quaint line of the chimney is achieved by extending the tile flues above the masonry and curving the concrete fill up against them.

Since this cabin has such inviting porches, we have shown only one double bunk inside. Most families will prefer to sleep outside, and since the porch is protected by the overhang of the roof on two sides, several beds could be put there and screened from view by sliding curtains. As a convenience for those who do sleep out, an outer door to the bathroom has been included.

The kitchen is unusually roomy for a place of this size. It has ample work room and a door opening on the patio for convenience when serving meals out of doors.

Another charming feature of this little cabin is the unusual treatment of the bathroom window. It is screened by small lattices.

46

SHELTER for TWO in high COUNTRY

Elevation
Floor plan

For the man who likes to go back to his favorite trout stream or hunting country each year, yet who doesn’t want to go to the trouble and expense of a permanent cabin, this little log and stone shelter is just about perfect. Two men can build the whole thing in a few days, using only materials that can be picked up right on the spot. Even the roof shakes can be home-made.

Since a hunting lodge is used in cold weather, it would be wise to have the floor raised off the earth a few inches, either with an all-around stone foundation as shown here, or with a series of flat boulders. The latter, however, do not keep out much of the cold.

Hunters don’t demand many luxuries when they’re out in the wilds, so only the barest comforts have been provided here. By installing an iron grill in the fireplace, most of the cooking could be done over the coals, thus saving the space occupied by the oil stove.

There is just room enough for two single bunks or folding cots. To save the trouble of packing in a lot of bedding, it would be a good idea to use sleeping bags and air-mattresses.

47

for VACATIONS by the SEA

Elevation
Floor plan

Proper construction is a most important point in a beach house such as the one above, because unless the house is well built, your vacation by the sea can be a pretty miserable affair. Cold damp winds have a way of finding chinks in the walls and sand will blow under the windows unless they’re properly fitted.

The board and batten walls of this beach house are as satisfactory as any you can select. Moisture-laden atmosphere is not as likely to affect this kind of material, especially if it is well painted. Incidentally, when buying paint for your beach house, be sure to get the best, because salt air is very hard on paint. Pay a little more at first and save the work of a paint job next season.

A shake roof would look nice on such a house, and would be satisfactory if the shakes were stained. Composition shingles, perhaps, would be a good idea, too, but they do not make such an interesting roof.

The interior plan of this house makes it a good one either for week-ends or for semi-permanent use. Indeed, if you like to commute, it could be occupied all year ’round, since it has all the comforts of a modern city home. There’s one master bedroom, connected directly with the bath, and a large bunk room for guests. If bunks are used here, be sure to build them along the lines of a ship’s berth, just for a nautical atmosphere.

As a matter of fact, a beach house is just the place where lots of imagination can be used. Door knobs and other hardware of bright brass, a colored ship’s lamp over the front door, and perhaps a couple of real portholes instead of the small windows in the bunk room and the bath, would lend a very salty air. Such items can be bought at any ship chandler’s. The living room, for example, might have a “deck” of scoured oak, with linoleum in the other rooms inlaid with anchors and other seagoing devices. Lengths of fish net, complete with leads and corks, make fine window drapes—and above all, get a small ship’s bell to call all hands to meals.

48

FIVE ROOMS in a ONE ROOM CABIN

Elevation
Floor plan

The amazing things that can be done in a limited space with a curtain or two and some careful planning with furniture, are nowhere better demonstrated than in this one-room cabin. The designer started with nothing but an 18 × 20-foot rectangle for a floor plan, yet he has evolved a comfortable week-end cabin for at least four persons.

The exterior walls of this cabin have been treated in an unusual manner which makes something quite unique out of what might have been just another cabin. The end walls, chimney and porch are constructed of rough-hewn stone, while the front and rear walls are board and batten. The roof could be shakes, shingles or slates. Of course, this same cabin could be built any one of a number of ways, using logs or shingles instead of the stone and wood combination. The front door, to carry out the atmosphere of simplicity, should be of planks.

The cabin, which was the inspiration for the one illustrated here, had an interior of cedar panels, uncolored except for a treatment with hot oil. This makes a good wall finish, although if you prefer them, plywood or wall board would be appropriate and not costly. Because of its limited size, perhaps a light interior of natural or tinted wall board would be most satisfactory.

Just inside the front door, at the left, is a kitchenette with two built-in seats and a drop-table to form a dinette such as many apartments have. Additional seats may be built on the other side of the kitchenette if desired.

At the far end of the room is a space for two double beds or bunks. The latter would be more pleasing, since they offer attractive lounging places during the day. Between the bunks is a washroom and two closets which form a partition and divide the space into two bedrooms. A sliding curtain conceals the bedroom end when desired.

Because this is intended simply as a week-end cabin, no provision is made for an inside toilet. However, it would be entirely feasible to add an adjoining room at the rear for a complete bathroom.

49

CABIN CONVENIENCES

CABIN CONVENIENCES

Make your vacation home as comfortable as you can for the amount of money you have to spend. Remember that the four major comforts in any house are light, heat, water, and cooking facilities.

Proper lighting is one of the most important comforts. You can get water from a stream and boil it, if you have to; you can cook and warm yourself with a fireplace, but you will find it harmful to your eyes to depend entirely upon candles or ordinary kerosene lamps for light. If you are building within range of power lines, by all means install electric lights, even if it costs a little more than you had planned to spend. If you want primitive effects, you can get them very effectively by a proper choice of fixtures without sacrificing good lighting.

Next best to public utility power is your own private electric plant, operated by a gasoline engine. Such an installation, consisting of engine, generator and storage battery, may be had for as little as $75.00, not including wiring the cabin itself. This minimum-priced outfit will light a small cabin and operate an electric iron and toaster. You can go as much higher as you want up to a $1500 installation, which will supply almost enough power for a small summer resort.

If you must get along without electricity, the best portable devices are gasoline lamps and lanterns. You should have several of them. They burn with a mantle like old-fashioned gas but give an intense white light and use ordinary gasoline. Be sure, though, not to use gasoline treated with tetra-ethyl lead. These lights are satisfactory for reading, and you can take a gasoline lantern out in a storm without danger of its blowing out.

In most cases, if you use your cabin only in summer, the fireplace will provide sufficient heat, especially if you have the air circulating kind so located that the warm air can be utilized in adjoining rooms. If more heat is required, and it will be if you use the cabin in winter, investigate the oil-burning heaters that combine directed heat with heat circulation and heat radiation. Portable oil or electric heaters are also handy at any time of the year. Central heating is generally not necessary unless your cabin is to be used as a year-round home.

Even though your cabin is beyond reach of gas and electricity, you need not be without modern kitchen conveniences. Oil burning ranges and refrigerators provide the same service as found in a modern city home.

If you are going in for real cabin comfort, you will naturally have running water in the 50 kitchen and bath. The next step in comfort is an adequate supply of hot water. Electric, gas- or oil-burning equipment will give you all the hot water you want.

With an insulated storage tank you can have automatic hot water with an electric heater. The cost will depend on your power rate and you must decide if it fits your purse. If you have one of the so-called “bottled gas” installations, you can use this fuel for your hot water. An oil burning water heater will provide an adequate supply of hot water at reasonable cost.

Water-heating coils in the back of the fireplace or in a wood burning stove provide inexpensive hot water, but not always timely or in adequate amounts. It is possible to connect these coils with a storage tank that is also heated by oil or gas appliances, so that you only use this fuel when the fireplace or stove does not supply enough hot water.

Probably one of the most neglected comforts in the average cabin is the kitchen in general and the cook stove in particular. If the cook is to have as good a time as the rest of the family, the cabin kitchen should be modern and conveniently arranged. A wood burning cook stove does not add to the pleasures of feeding the family and guests. But a possible point to consider: a kitchen range is an excellent added heater in a cabin that is to be used in cold weather.

Today’s cabinet type oil range, with burners and fuel reservoir concealed, is as attractive in appearance as the modern gas or electric range. Burners are quick in performance and adjustable to any degree of heat desired. “Bottled gas” installations are also practical if your cabin is located where it can be serviced by the sales representative. The gas, compressed to liquid form in a steel cylinder, is piped to your stove like ordinary city gas. However, burners must be especially adjusted for it, or if you are buying a new stove, get one made for this fuel.

Refrigeration adds to the comforts of cabin life as much as to city life. If you have electricity, you can use the conventional electric refrigerator. Also available are mechanical refrigerators that use gas. Modern oil burning refrigerators also give effective performance and are usable anywhere, requiring no outside connections. There are two types—one having a continuous flame and the other requiring the burners to be lit about two hours a day, the burners going out automatically when the required quantity of oil has been consumed.

While the space may of necessity be smaller, the kitchen of the vacation home deserves as much thought in planning as that in the city house. Apply the same principles of convenience and workable arrangement and provide plenty of storage space, for the family on vacation does not ordinarily go food shopping every day. On the following pages you will find a number of kitchen conveniences that with a little planning can be incorporated into your cabin kitchen.

This diagram shows how the hot water tank can be connected with heating coils in the back of the fireplace or in the firebox of a wood-burning stove. A stand-by gas or oil heater supplies additional hot water when needed.

TO FAUCET
KITCHEN STOVE
TANK
HEATER
FIREPLACE
INTAKE
51

CABIN MISCELLANY

CABIN MISCELLANY

Native Stone Lends Charm and Ruggedness to Cabin
Fireplaces and Barbecues

Native stone, gathered from near the site, seems to be the most popular material for the cabin fireplace or barbecue. Skillfully handled, it may be adapted to a variety of artistic treatments, and it lends to the cabin, inside and out, the atmosphere of ruggedness sought after by most cabin builders. Sometimes the stones are gathered one by one over a wide area for their appearance, beauty and other characteristics, so the fireplace itself becomes almost a collector’s item to those who have gathered far and wide the material for its construction. Where stones of the proper size are not available, they are frequently blasted from larger boulders.

The various ideas for indoor and outdoor fireplaces and barbecues shown here have been sketched from photographs of fireplaces actually built in Western cabins. They show some of the wide possibilities of design and of decorative treatment. Among them, or from a combination of their various features, you should be able to find the design of your ideal fireplace.

This attractive all-stone fireplace shows what a little ingenuity can do in arranging a mantel without the use of wood or set-back in the masonry. A carefully selected long flat stone, imbedded in the chimney wall and supported by three oblong stones, makes the mantel and adds a touch of master craftsmanship to the entire fireplace.

A metal hood gives a rustic effect to this small fireplace and adds to its efficiency as well.

For a large cabin room this massive fireplace lends an air of warmth and comfort. The large mantel area is obtained by building the fireplace out into the room and setting back the chimney. Suggested by the fireplace at Rainbow Gibson’s Weasku-Inn, Grants Pass, Ore.

52

Increased floor area in the smaller cabin is obtained by setting the fireplace back flush with the walls. The chimney could have been set back still farther and covered, but running the stone work to the roof breaks up a long wall.

Hand-picked boulders, skillfully arranged and tapered toward the ceiling, make this fireplace look as if it had been transplanted from a frontier cabin. It is an effective and interesting treatment where a mantel is not desired. From the W. B. Jones cottage at Kaweah, California.

A huge oak beam, hand hewn, tops off this large fireplace and gives a massive effect in keeping with a large cabin living room. The warming-ledge with its old-fashioned cast iron kettle adds a note of charm.

Here is an interesting treatment of massive stones that shows still another mantel arrangement. In this case the mantel is a quarter log supported by two heavy hewn beams imbedded in the masonry. It fits in charmingly with the atmosphere of a log cabin. The bar support for kettles is even more pioneerish than a pot and crane and in keeping with rugged charm of the fireplace itself.

53

Outdoor Cooking Awakens Primitive Impulses and Sharpens Vacation Appetites

All the world likes to return to the primitive at times. In most cases this return takes the form of cooking and eating a meal outdoors. There is something about a fire outdoors that awakens impulses lost in us ages ago. And a well cooked outdoor meal makes hearty vacation appetites even keener.

Since the purpose of your vacation home is to get closer to nature, you should plan to get the most out of it by providing facilities for cooking and eating at least some of your meals in the open. On the other hand, you will want to arrange to have greater convenience than the open fire on the surface of the ground that served your ancestors long ago. The outdoor grill, or an outdoor fireplace with a grill built in, provides the comfort and facilities that the modern generation demands.

This barbecue grill and fireplace built in the stump of a great redwood looks as if the tree had actually grown around it. From the E. D. Thompson summer home at Ben Lomond, California.

This barbecue layout consists of grill, oven, and separate fireplace. The oven is heated by the draft from the fireplace or barbecue, which passes around it, but it may also have a separate firebox. Note the handy adjustable grill, which is one of several types sold by Pacific Coast manufacturers.

An isolated area surrounded by trees and shrubbery makes an ideal setting for the outdoor fireplace. Be sure, however, that there is no dense growth overhead to interfere with the draft. Large logs make rustic seats, one on each side. Place the rough table about ten feet away with split logs for benches.

Outdoor grills range from the simplest form U-shaped brick cooking place, covered with a heavy steel screening, to huge affairs of brick 54 or stone with chimneys and dampers, Dutch ovens built into the sides, warming places for plates, and perhaps a roaring separate fireplace to soften the chill of the evening air. All of them are relatively easy to build and reasonably inexpensive. However, you must keep the fire hazards in mind, and in the National Forests, before you begin to build, have your forest officer approve your plan and location.

Construction of the outdoor fireplace is much the same as that of an indoor one except that the chimney and flue are not carried to such a height. Nor does the footing need to be as thick unless your fireplace is very heavy. A concrete base eight inches thick with four inches of this above ground is usually ample. You may use the chimney of your cabin fireplace for your outdoor fireplace or grill but be sure to provide a separate flue.

Here is a combination outdoor fireplace and grill large enough to cook for the neighborhood. After the steaks are broiled, large logs can be rolled in to provide a roaring fire for the evening. The grill can be supported by a three-sided frame of firebricks built up to the proper height.

The feature of this barbecue and oven is a sliding fire pan. The fire may be used to heat the oven until the coals are ready and then slid across under the grill, or with two pans both grill and oven may be heated at the same time.

To make this barbecue pit, a framework was built up of an old barrel and scrap lumber and then covered with concrete. A slow fire burned out the wood when the concrete had hardened. It is set on a platform of concrete and bricks against a rough chimney of rock.

This barbecue of stone is built with the firebox and grill at a convenient height. A chimney is desirable but not necessary. Note the device for raising and lowering the grill.

There are several methods of adapting the outdoor fireplace to cooking. The simplest is to provide yourself with a pair of rather high andirons and a grill to lay over the top of them. The grill may also be hinged to rear of the fireplace or you may install sliding adjustable grill as illustrated. A pot and crane adds to the appearance as well as the utility of the outdoor fireplace.

The design of the barbecue grill or outdoor stove is a matter for your own taste. For comfort’s sake you will want to have the grill top 55 about the height of your kitchen stove. Build up the firebox so that when the coals are glowing, they will be about eight inches below the grill, which should be made of ³/₁₆-inch steel rods spaced about one inch apart in a metal frame. A groove or seat for the grill may be made in the masonry, or you may provide supports by imbedding projecting pieces of iron in the firebox walls. A piece of sheet steel laid over the grill will provide a fry plate when one is needed.

A chimney is a good addition to a grill of this type. It not only adds some architectural character but it will draw off fumes and give a better draft to your fire. And if you want even more efficiency, you can include some sort of damper arrangement to control the draught.

This outdoor stove is simple to construct and may be used for cooking over flame or broiling over live coals. You can make it even simpler by omitting the chimney and the door on the front of the firebox.

For roasts over the coals a revolving spit is indispensable. A half-inch iron bar can be bent in the form of a crank at one end, sharpened at the other, and set in a pair of bearings or saddles designed to straddle the walls of the firepit.

You don’t have to wait for good outdoor weather to enjoy grilled steaks if your fireplace is equipped with a hinged grill that hooks up out of the way when the fireplace is not being used for cooking. For this type of grill use ¼-inch rods spaced about 1¼ inches apart. The andirons, or metal legs attached to the grill, keep it at the right height from the floor.

A pot and crane add interest to the cabin fireplace, whether it is indoors or out. Any wrought iron shop can make this crane. You might even get it done by the country blacksmith.

56

Another way to convert an ordinary fireplace into a barbecue is to install a sliding grill. By providing additional slides you may adjust the height from the coals. Two types of metal slides are shown. Don’t forget, when having the grill made, to adjust its shape to the side walls of the fireplace and to allow for heat expansion.

A barbecue belt is a great convenience in keeping important accessories handy when you are cooking in the open. You can make one of leather or oilcloth or several thicknesses of cotton material interlined with buckram. Make pockets to hold the salt and pepper shakers, provide clasps for your pot holders and loops to hold your fork and spoon. Now you are ready to cook. If you prefer, you can build these features into a chef’s apron.

Fireplace tools that stay up out of the way when not in use may be hand forged by any good blacksmith or wrought iron worker. A simple bracket with projecting prongs, as illustrated, is fastened to the fireplace wall and each tool hangs by a collar. Rough forged tools are more in keeping with the cabin effect than the factory-finished kind. If the maker is skillful enough, the heads may be made in various designs. Animal heads are popular.

Discarded railroad rails make excellent material for hand-forged andirons that are heavy enough and crude enough for any cabin. Simply have the blacksmith turn up one end of each piece of rail. If you want to be more original, you can have the end forged into some special design, as shown.

The old-fashioned California ranch-type dinner gong will round up the family from far and near when the meal is ready. Any blacksmith can forge one of octagonal tempered steel. Suspend it by a steel wire from a wrought iron bracket.

A handy supply of wood is a great convenience in the cabin. So, plan a woodbox when you plan the fireplace. Here is one built in the fireplace wall. You can put a door on it, if you wish, but the exposed wood does not look out of place in the cabin. Don’t overlook the possibility of a two-way woodbox that can be filled from the outside or from the garage or wherever the wood is stored.

57

Your Vacation Home Deserves the Right Kind of Furnishings

Many vacation homes are so obviously furnished with discarded town house furniture—odds and ends from different rooms—and with misfit draperies and scraps of old carpet. After a few seasons they are likely to look like a cross between a second-hand store and a rummage sale. Rooms containing such odds and ends can scarcely be called restful and yet a cabin home is supposed to exist for rest and relaxation.

The fold-away bed is popular in well-ordered cabins. You can buy the old-style apartment house beds or construct the folding arrangement yourself with hinges or braces and legs as shown. The shelf and curtain plan is the simplest way to conceal it, but if you want better appearance in the daytime, recess the bed into a closet to fit and enclose it with doors.

Four single bunks arranged Pullman style provide a lot of sleeping capacity in a small room. However, don’t overlook the problem of comfortable ventilation.

Imitation log siding made the framework and finish for these built-in bunks. Note that space between the bunks is sufficient for daytime lounging without striking a tall lounger’s head against the upper bunk.

If you are buying new furniture, give consideration to the newer so-called California style furniture, which retains the Spanish or Mission influence. It is now made by various manufacturers. It has simplicity and sturdiness, is not easily damaged, and does not need a great deal of care. It is perhaps the most distinctive kind of furniture for the purpose and, when set in an environment of rustic simplicity with gay fabrics and correct accessories, is admirably suited to informal living.

58

Here is a space saving arrangement—a bunk and trundle bunk. The bunk at the right slides through the living room wall and under the high bunk in the bedroom. A variation of this arrangement is a bed that slides through the living room wall to the sleeping porch so you can sleep indoors or out as fancy dictates. From the W. B. Fairweather beach home at Balboa Island, Calif.

TRUNDLE BUNK ROLLS UNDER

If old furniture must be used, try the magic of paint. It is wonderful what may be accomplished with some cans of paint and brushes. Then cover the old seating pieces with some gay cretonne slip covers, use the same fabrics at the windows, and a cheerful, colorful result is obtained.

When refinishing old furniture try remodeling it to fit its new surroundings. Chest and chairs and such, dating from the early days of the century, are likely to have a lot of gingerbread decoration. By removing as much of this as possible and getting down to the simple basic lines of the piece much improvement may be made.

These bunks, attractively curtained with cretonne, fit into the atmosphere of the cabin living room without detracting from its appearance. If the curtains are made to slide closed, Pullman fashion, they provide privacy for an early retirer.

Folding or sliding doors from the living room or bedroom to the sleeping porch help make the beds more accessible to the center of things in the cabin. If you have double-deck bunks on the porch, provide a second door and ladder to it. From an arrangement in the Walter Doty home, Los Altos, Calif.

Before painting any piece previously coated with shellac or varnish go over it with varnish remover or use a hook scraper and steel wool, cleaning down to the bare wood. Apply a coat of flat white and, when dry, at least two coats of one of the quick-drying enamels. Go over each coat with very fine sandpaper or steel wool 59 and brush off the resulting dust before applying the next coat.

If you are working with maple, walnut or cherry, the natural color of the wood is often more pleasing than a paint or stain. Remove all traces of enamel, stain or varnish and sand the surfaces smooth. Then apply a thin coat of clear shellac—orange if you prefer—and after sanding this once more polish with ordinary prepared wax.

Steamer style bunks are particularly effective in the beach house. The ladder provides safe and easy access to the upper one. Don’t overlook the possibility of providing drawers for storage space beneath the lower bunks. From the Seton I. Miller residence, Van Nuys, Calif.

A unique arrangement of fireside seats made from automobile seats, which may be bought at any wrecking yard. Special framework has been constructed to hold the seats at the correct height and angle. The upholstery may be covered with material to match the decorative scheme of the room.

SMALL TABLES

This rustic version of a four-poster bed is made of four-inch posts with a large pine cone on the top. The post may be with or without bark and the framework may also be of poles instead of finished lumber.

A Score and More of Cabin Ideas

Rustic furniture, of course, is attractive in most cabins, but it frequently takes considerable skill and ingenuity to make it comfortable.

Where considerable room is required to sleep weekend party guests, give a thought to furniture and fixtures that can be converted into comfortable beds on short notice. Studio couches provide lounging by day and sleeping by night. Double-deck bunks use a minimum of floor space and provide attractive and comfortable sleeping accommodations. Hinged wall beds that disappear under shelves and curtains or into closets are likewise popular.

60

A good cooler. Make a large box-shaped frame and cover with several thicknesses of burlap. Put it in shade under a water hydrant set to drip continuously but very slowly on the top of box.

These diagrams show the various steps in making a comfortable barrel chair. The seat, which may be the barrel head dropped down until it wedges tight, can be upholstered to suit your own taste or you may make a rope lacing for seat support as shown above.

1-INCH HOLES SPACED 4 INCHES APART and 1¼ INCHES BELOW LINE OF CUT
ROPE LACING FOR SEAT SUPPORT
FURNITURE WEBBING OVER ROPE SUPPORT FORMS GOOD UPHOLSTERY FOUNDATION

Here is a simple and sturdy cabin table that can be built in a few hours. Allow two linear feet of space for each person, and build the top of the table 29 inches from the floor.

2-INCH SLABS
HALF-ROUND SPLIT-POLE CLEAT
HALVED JOINT WHERE TABLE LEGS CROSS
SPREAD OF LEGS AT BOTTOM EQUALS WIDTH OF TOP

An extremely simple yet effective camp stool made from a smoothed half-log. Bore four holes at least two inches deep for the legs and be sure they are spread well apart.

This “dummy waiter” type of underground cooler consists of a hole or well about 10 feet deep lined with concrete or bricks, with a frame over it to hold a series of shelves hung on a pulley with a counterbalance.

A small skylight trapdoor above your cabin cook stove serves as a ventilator and an escape for smoke and hot air. The drawing shows how it should be rigged. The box keeps out rain and snow and should be flashed all around with drain holes on the lower side.

BOX
WIRE SCREEN
FLASHING

The simple two-way stool shown here is made by knocking out one side and one end of a fairly strong box. Round off the corners and fill the box with pillows or tack pads inside. It can be used as a low backrest on the floor, and when inverted makes an ordinary flat-topped seat.

61

A rope-wound keg with sponge rubber cushion makes an unusual stool. A similar keg may also be used as a table base. Tack rope to hold in place.

SPONGE RUBBER CUSHION
½-INCH ROPE
LINOLEUM COVERED TOP

Any home craftsman can make this hurricane candlestick. Vent holes should be drilled on the underside to provide air for combustion. An ordinary lamp chimney is used. It will not smoke the chimney nor blow out in the wind.

An old-fashioned, long-handled skillet, an electric clock and the skill of a manufacturing jeweler are the ingredients that go into the making of this unusual cabin timepiece.

Steps in making traditional backwoods chairs. Seat and back can be woven of rawhide or covered with plywood and padded. If bending is not done when wood is green, steam wood in very hot water in covered trough.

TWIST ROPE WITH STICK
WOOD BLOCK
BEND
WEDGE IN TENON TIGHTENS JOING WHEN DRIVEN UP
SLOPING SHOULDER
MORTISE & TENON JOINT

This wagon hub lamp is simple enough to make and carries out the farmyard motif.

A wagon wheel gate makes an interesting entrance to the cabin pathway.

This illustration shows how the guest-book may be given a permanent support. It might be placed in the living room or on a covered porch.

Guest Book

A chandelier made of an old wagon wheel and with the electric fixtures encased in old-fashioned lamps is an interesting and appropriate lighting fixture for the cabin living room.

A novel hatrack made of the mounted head of a buck and four legs that have been cured and tied to make a right angle and then inserted and securely fastened in holes bored into the back board.

62

Refinished shutters from old ranch houses make ideal and attractive screens for use in vacation homes. Put them together with small brass two-way hinges, patch up old cracks and holes with plastic wood, scrape and sandpaper all of the old finish until the wood is in fair condition. You can then give the shutters any type of finish that will fit in with your decorative scheme.

If your vacation home happens to be situated where you have R. F. D. mail service or a daily newspaper delivery, why not get away from the ugly and conventional mailbox? Your own cabin built in miniature will make a mailbox that is unusual. Your name on the side of the cabin or on the post below will help to guide the guests to your place.

The apartment idea of using cupboards to divide the kitchen and the dining alcove merits consideration when you are planning your cabin. These cupboards give you the effect of two separate rooms and, of course, supply a good deal of storage space without taking up valuable floor space.

Mountain Cabin Pictures

A mountain cabin scarcely requires the conventional kind of pictures on the walls. However, here are two kinds that fit the cabin picture. Have some extra large enlargements made of photographs of your choicest scenic spots. Mount these and frame them with strips of cedar bark. Geological survey maps or the forest service maps of your vicinity, similarly framed, are an appropriate cabin decoration.

Metal Lined Closets

It is a good idea in every mountain cabin to provide one metal lined closet with floor space the size of a single bed mattress and high enough to store your entire supply of mattresses and bedding, as well as other things you do not wish to go into chipmunks’ and packrats’ warehouses. Tin or zinc is a satisfactory lining. One or two metal lined food storage compartments should also be provided in the cabin kitchen.

This old-fashioned but rustic dining room table is easy to build. Four seasoned posts, some heavy plank, and a supply of nails complete the bill of materials. The table is particularly effective when rustic chairs are used with it.

63

Starting the Fireplace Fire

A cupful (not more) of Diesel oil over the laid hearth fire just before lighting is a safe starter with no flare such as kerosene gives. It allows a successful immediate fire with no paper, less kindling, and greater warmth. Diesel oil is efficient and cheap, and the small quantity used for this purpose seems to make no obvious increase of soot. Its safety and cheapness can lead to many adaptations of it as a fire starter in camp or lodge.

If members of your family are not familiar with lighting such fires, warn them against tossing gasoline or kerosene on the flames. It is positively dangerous.

Ordinarily there isn’t space for a bath tub in the average cabin, but a shower is usually acceptable to all but the very small members of the family. If you have young children, you can solve the problem by walling up the shower with cement to a height of two feet from the floor and providing for a stopper in the drain. This makes a small tub that young children will appreciate, and it is easy for adults to step over the wall.

This ox-yoke lighting fixture fits into the cabin atmosphere.

Any wrought iron worker can make this door knocker from an old horseshoe.

This interesting lighting fixture is made by suspending an old kerosene lamp on a hame from a discarded set of harness.

Horseshoe andirons give a ranch effect to the cabin fireplace. Branding irons also make good andirons.

These horseshoe hinges will add interest to the cabin door. The nails shown are ornamental, the necessary support being provided by strong screws countersunk in the iron.

A sheep bell hung from a strap iron spiral makes an interesting door bell. A pull at the bottom sets the bell to jingling gayly.

This portable and collapsible table is easy to make and a great convenience in the kitchen or at the side of the barbecue when you are entertaining outdoors. You can make it of rustic materials or of ordinary lumber. Cover the top with strong canvas or a good grade of oilcloth, or both.

64

BIBLIOGRAPHY

Ever since the first man came down out of a tree and set up housekeeping in a cave, he has been interested in making his dwelling more comfortable and more beautiful. Naturally, the amount of material that has been written on the subject has been enormous, because man is also interested in telling his neighbors all about it. As a prospective cabin builder, undoubtedly you will want to read more fully on the subject of houses and methods of construction. The various books listed below should prove helpful. They are among the most recent works published, and should be readily obtainable from any good book dealer. If you are building a vacation home, you will find them a source of knowledge as well as inspiration.

The Real Log Cabin, by Chilson D. Aldrich. (Macmillan.)

How to Build Log Cabins, Lodges & Bungalows, Popular Science Publishing Co.

More House for Your Money, by Elizabeth Gordon and Dorothy Ducas. (Morrow.)

Home Owner’s Handbook, by C. B. Smith. (Housing Publications, Inc., N. Y.)

The Householder’s Complete Handbook, by Hawthorne Daniel. (Little, Brown & Co.)

First Aid to the Ailing House, by Roger B. Whitman. (McGraw-Hill, N. Y.)

The editor wishes to acknowledge the co-operation extended by the West Coast Lumbermen’s Association, Seattle; the Red River Lumber Co., Westwood, Calif.; and the California Redwood Association, San Francisco. Readers desiring additional data on cabin building may secure it by writing these organizations.

Government Bulletins

For the amateur builder, one of the best sources of concise, authoritative information is the series of bulletins issued by the Government Printing Office at Washington for the Department of Agriculture. They are called “Farmers’ Bulletins” because they are intended for use on farms, but the material they contain is applicable to the cabin builder’s needs, since conditions on a farm and out in the woods, as regards plumbing, sanitation, water supply, etc., are identical. If you want copies of these pamphlets, write to the Superintendent of Documents, Government Printing Office, Washington, D. C., enclosing 5c for each one.

Sewage and Sewerage of Farm Homes Farmer’s Bulletin No. 1227
Farm Plumbing No. 1426
Farmstead Water Supply No. 1448
Painting on the Farm No. 1452
Protection of Log Cabins, etc., from Injurious Insects No. 1582
Construction of Chimneys and Fireplaces No. 1649
The Use of Logs and Poles in Farm Construction No. 1660

Transcriber’s Notes