The Project Gutenberg eBook of The Hermitage, Home of Old Hickory

This eBook is for the use of anyone anywhere in the United States and most other parts of the world at no cost and with almost no restrictions whatsoever. You may copy it, give it away or re-use it under the terms of the Project Gutenberg License included with this eBook or online at www.gutenberg.org. If you are not located in the United States, you will have to check the laws of the country where you are located before using this eBook.

Title: The Hermitage, Home of Old Hickory

Author: Stanley F. Horn


Release date: May 29, 2018 [eBook #57231]

Language: English

Other information and formats: www.gutenberg.org/ebooks/57231

Credits: Produced by Stephen Hutcheson, Brenda Lewis and the Online
Distributed Proofreading Team at http://www.pgdp.net

*** START OF THE PROJECT GUTENBERG EBOOK THE HERMITAGE, HOME OF OLD HICKORY ***

The Hermitage: Home of Old Hickory

Front view of the Hermitage, home of Old Hickory.

THE HERMITAGE
Home of Old Hickory

By
STANLEY F. HORN

Cameo bust of Andrew Jackson

New York
GREENBERG : PUBLISHER

Copyright, 1950, by Stanley F. Horn
MANUFACTURED IN THE UNITED STATES OF AMERICA

TO
MY WIFE
WITHOUT WHOSE INTEREST AND ENCOURAGEMENT THIS BOOK WOULD NOT HAVE BEEN WRITTEN

vii

CONTENTS

PAGE
I. The Pre-Hermitage Period 1
II. Original Building, Fire and Rebuilding 19
III. Rescue and Restoration 37
IV. Description of the House 58
V. The Garden and Grounds 73
VI. The Hermitage Household 97
VII. Guests at the Hermitage 137
VIII. The Tennessee Farmer 158
IX. Church and Religion, and Final Days 187
Appendices:
A: Chronology 207
B: Andrew Jackson’s Will 209
C: His Goings and Comings 213
D: Governing Boards 220
Index 223
ix

ILLUSTRATIONS

PAGE
Front View of the Hermitage, Frontispiece
Original Log House 2
The First Hermitage 3
Imaginary Picture of the Hermitage 10
The Hermitage in 1831 10
Plat of the Hermitage Plantation 11
Old Print Showing the Young Cedar Trees 11
Front View of the House 18
Close-up View of the Façade 19
The Front Door 26
Rear View of the House 26
General Jackson Greeting Lafayette 27
Original Slave Cabin 27
Uncle Alfred 34
Sunday Morning at the Hermitage Church 35
The Hermitage Church 42
Interior of the Old Hermitage Church 42
Epitaph on Mrs. Jackson’s Tomb 43
The Tomb of General and Mrs. Jackson 43
Earl’s Portrait of General Jackson 50
The Old Family Carriage 51
Passage from the Kitchen 58
The Hermitage Well 58
Front Gate and Entrance Driveway 59
The Garden 59
One of the Garden Walks 66
View of the Garden from the House 67
General Jackson’s Desk 82
General Jackson’s Office 83
General Jackson’s Bedroom 98
Entrance Hall 99
The Stairway 114
Guest Room 115
The Back Parlor 130
The Dining Room 131
The Front Parlor 146
Upstairs Hall 147
Old Kitchen 162
Original Silverware 163
General Jackson’s Liquor Chest 176
Advertisement of Truxton 177

DRAWINGS

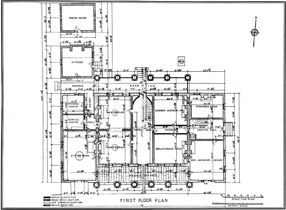
First Floor Plan 170a
Second Floor Plan 184a
Front Elevation, Front end sheet
Rear Elevation, Back end sheet
xi

ACKNOWLEDGMENT

The preservation of the Hermitage as one of America’s most cherished historic shrines is due to the vision and patriotic enthusiasm of the women composing the Ladies’ Hermitage Association, to whom all possible credit should be given for the work they have done.

Acknowledgment is made to the association for their permission to use the photographs of the interior of the Hermitage, to which they have the exclusive right. Other photographs are used by permission of Marvin Wiles, photographer, of Nashville, to whom the copyright belongs. The architectural drawings were furnished by the Library of Congress, Washington, having been prepared by the Historic American Buildings Survey.

The Author.

THE HERMITAGE: HOME OF OLD HICKORY

1

I: THE PRE-HERMITAGE PERIOD

“Put down in your book,” said one of Andrew Jackson’s old neighbors to James Parton when that eminent biographer was in Tennessee gathering material for his famous life of Jackson, “that the General was the prince of hospitality; not only because he entertained a great many people but because the poor, belated peddler was as welcome at the Hermitage as the President of the United States and made so much at his ease that he felt as though he had got home.”

And Parton put it down in his book, and so preserved to posterity that sincere and revealing tribute, eloquent in its simplicity, from a neighboring farmer. There spoke a man who knew Andrew Jackson not merely as the conqueror of the hostile Indians, the Hero of New Orleans or the President of the United States, but as the country gentleman who kept open house, who was known and admired by his fellow farmers and who was celebrated for his hospitality in a country where hospitality was a common virtue.

If an old house has emotions of its own, as some of the poets would have us believe, it is easy to think of the Hermitage blushing with pride at that tribute. There are many stately mansions, there are numerous great homes of famous men; but of how many of these may it be truthfully said that within its walls the poorest peddler with his pack found just as warm a welcome as the most distinguished visitor?

Fortunately for succeeding generations the Hermitage, that paragon of hospitality, is preserved just as it was in those early days when Old Hickory himself was there to greet the way-worn traveler—peddler or President—and make him feel at home. Serene and stately in its grove of trees, flanked by its formal garden and surrounded by its broad acres, it stands there a few miles out from Nashville in all its classic and simple beauty. Here is the home he built for himself and his beloved wife; the same old house to which he returned in 1837 after eight turbulent years in the White House; the place where he planted his cotton and raced 2 his horses, where he spent his last years, where he died and where he is buried.

The visitor’s first glimpse of the house is down through the same old winding driveway, shaded with the native cedar trees planted under Jackson’s personal direction; and its broad façade is seen through the trees, its graceful Corinthian columns gleaming in the sunlight, just as it looked to the old General when he drove up in his lumbering carriage drawn by his famous team of greys. Off to the right is seen the formal flower garden he had laid out for Mrs. Jackson in 1819; the garden where he laid her to rest when she died in 1828, and along whose paths he found pleasure and repose during the last year of his life. Inside the house are found things just as he left them when he died—the hand-painted wall paper, the massive mahogany furniture, the gleaming silver, the books in their shelves in the library.

* * * *

As a persisting result of the astonishingly violent politics of his day, the image of Andrew Jackson in the public mind today is often blurred and distorted. In his campaign for the Presidency he was the victim of such a torrent of cruel, personal vilification as never before nor since has blackened the annals of American politics. In newspapers, broadsides, and public addresses he was persistently and vigorously denounced as an uncouth, ignorant backwoods ruffian, a tipsy tavern brawler, a military despot, an adulterer and an assassin. The voters of these United States were urged to believe that, despite his spectacular achievements as a militia general and Indian fighter, he was morally, mentally and temperamentally unfit to sit in the President’s chair.

This barrage of malignant partisan propaganda did not succeed in barring Jackson’s way to the White House; but it did have the effect of indelibly impressing on the minds of many thousands of American citizens of those days the honest conviction that Andrew Jackson was what we today tersely style a “roughneck;” and that impression has persisted to a surprising extent through succeeding generations even down to the present time.

The log house on the right is one of the group constituting the original Hermitage residence from 1804 until the erection of the present building in 1819. The house on the left is the remains of the two-storied house which was the center of the original group.

The first Hermitage on the present site, as it appeared from the time it was built in 1819 until the wings were added in 1831.

3

But the Hermitage remains as an enduring and impressive challenge to that erroneous characterization of this many-sided and little understood statesman. This, it is plain to see, was the home of no mere backwoodsman or ruffian. A mansion when it was built more than a hundred years ago, it was obviously the seat of a man of genteel characteristics, of refined, though simple taste.

It is no uncommon thing today for visitors to the Hermitage to express surprise that such a house should have been built by Andrew Jackson; but such surprise grows out of a misconception of the man’s true nature and characteristics.

The usually accepted picture of Jackson in the public mind is largely the result of our American admiration of the primitive, a love for the so-called manly and rugged qualities which sometimes leads us into overdoing our humanizing of some of our early heroes. As a matter of fact, Jackson, though not a college graduate, was by no means a typical example of the popular conception of an illiterate frontiersman. He had had formal schooling, had studied law and had been admitted to the North Carolina bar when at the age of twenty-one years he crossed the mountains and came to the Cumberland settlements in what is now Tennessee. His standard of education was notably higher than the average of that day and locality. He came to the Cumberland country as the state’s attorney for the newly created Mero District, and we may be sure that an uneducated, uncouth man would never have been selected by the governor of North Carolina for this important post.

Furthermore, although he was born in comparative poverty—a posthumous child—his widowed mother, soon to die of yellow fever while nursing wounded Revolutionary soldiers, had relatives with whom to leave him. These relatives were people of substance, ranking sufficiently high to entertain George Washington on his visit to South Carolina in 1791, and they gave the 4 orphan Andrew the benefit of a boyhood spent amid the surroundings of a prosperous and cultured Southern family.

So, while the youthful Andrew Jackson engaged in cock-fighting, horse-racing and dueling, these were by no means unusual pastimes for the high-spirited youths of that time. He had the innate qualities of a gentleman; and those qualities find their truest manifestation in the home he built for the declining years of his wife and himself.

* * * *

The Hermitage, though it has gained world-wide fame as Andrew Jackson’s home, was not his dwelling place when he first settled in the Nashville community in 1788. At that time the danger of attacks by Indians had not yet entirely disappeared, and residents of the outlying districts still frequently lived in “stations”—groups of houses gathered about a central habitation, thus offering the opportunity for protection against attack. At such a station near Nashville lived the widow of John Donelson, who had been one of the founders of the original Nashborough, and it was in one of the cabins adjacent to her home that Andrew Jackson lived when he settled in the new country. With him lived his friend, John Overton, later his law partner and his lifelong confidant and advisor. The two young lawyers hung out their shingle together, with their office in the cabin where they lived, taking their meals with the widow Donelson.

Living with Mrs. Donelson at this time was her daughter Rachel, the estranged bride of a high-spirited and jealous Kentuckian named Lewis Robards. The young couple had gone to Kentucky to live when they married, but the jealous husband made life with him intolerable and Rachel soon returned to her mother’s house, where Jackson found her when he went there to live. Largely through the pacific efforts of John Overton, an old friend of the Robards family, and at the instigation of Lewis Robards’s mother whose sympathies were with Rachel in the affair, a reconciliation was patched up and Captain Robards came to the widow Donelson’s home late in 1788 to live again with his 5 wife. Soon, however, Robards created a new crisis by charging Jackson with undue attentions to his wife. The fiery young lawyer challenged Robards to a duel, but the challenge was declined and in the spring of 1790 Robards returned to Kentucky with the avowed intention of getting a divorce. In the fall of that year the news drifted down to Nashville that the divorce had been granted, and about a year later, in the latter part of 1791, Jackson married Rachel.

The wedding ceremony took place in Natchez, Mississippi, whither she had fled to escape from her husband’s threats. “I’m going to haunt you!” Robards told her when he left her; and she, not knowing exactly what that threat implied but well knowing her moody husband’s erratic disposition, feared bodily harm and thought it safest to get as far away from him as possible. The home of relatives in Natchez provided a pleasing asylum in this emergency; and so it was there that the marriage ceremony was performed.

But, alas, it developed that the news of the divorce was premature—the marriage with Jackson was consummated before the attenuated Kentucky divorce proceedings had been actually completed. Legally, therefore, Mrs. Robards-Jackson was technically guilty of bigamy; but the incensed Robards used a harsher term in discussing the young Tennessee lawyer’s relations with his erstwhile wife. Jackson patched the thing up as best he could by having another wedding ceremony promptly performed in January, 1794, after the Kentucky divorce was actually granted; but the irregularities attending his marriage rose to plague him again and again throughout his life, with his political enemies gleefully making capital of the unfortunate episode to the fullest possible extent.

Jackson at the time of his marriage, though still a young man, was in prosperous circumstances. His success as a lawyer in the new community had been almost instantaneous, due largely to an unusual state of affairs existing in the Cumberland settlements when he arrived there. Nashville was still a young and undeveloped 6 frontier town and up until the time of Jackson’s arrival boasted only one lawyer. This representative of the legal fraternity had been retained as counsel for a sort of combination of habitual debtors; and the result was that the merchants, as well as other creditors, found it well-nigh impossible to collect what was owing to them. When Jackson appeared on the scene and let it be known that he was a lawyer looking for clients, he was immediately offered these claims; and it was characteristic of him that he accepted with avidity a difficult class of litigation from which many other young lawyers might have shrunk. But Jackson’s physical and moral courage made him enjoy the kind of a fight against odds that most people would avoid; and he prosecuted his clients’ claims with such boldness and vim that he soon drove an irresistible wedge into the debt-paying strike. Naturally this immediately popularized him with the responsible elements in Nashville, and his law practice quickly flourished. Within seven years of his arrival in 1788 he had more cases on the docket in Davidson County than all the other Nashville lawyers combined. In the four terms of court in the county in 1794 there were 397 cases; Andrew Jackson appeared as counsel in 288 of them.

Although he had accepted his official appointment with a mental reservation and had really come out to Nashville on a sort of prospecting trip, he soon decided to stay and grow up with the new settlement. His position as attorney-general or public prosecutor of the Mero District gave him distinction and naturally strengthened his legal prestige, and his private law practice had quickly developed to such an extent that at the time of his marriage he enjoyed a comfortable income.

There is a persistent legend that Jackson quickly accumulated vast holdings of land by reason of his practice of taking land grants and acreage tracts in lieu of legal fees, and that when he married he had so much land he hardly knew the extent of his property. It is true that after he had been in Nashville several years he did begin to trade and traffic in land, and gradually blossomed into a land speculator on a grand scale whose holdings 7 ran into the thousands of acres. Contrary to tradition, however, at the time of his marriage he did not own an acre of ground anywhere; and he did not have a home to which to take his new bride.

The records are rather vague as to the first two or three years of the married life of Andrew and Rachel; but, from all the available facts, it appears that they spent at least a part of their honeymoon living at or near Natchez and then returned to Nashville and probably lived temporarily with Mrs. Donelson. But in February, 1792, the land transfer records show that Andrew Jackson bought from John Donelson (Rachel’s brother) a farm of 330 acres located in the foot of Jones Bend of the Cumberland River, just across the river from the home of old Mrs. Donelson on the Gallatin Road.

Here on this 330-acre river farm Jackson established his first home of his own. He called the place Poplar Grove—at least a letter written to John McKee on May 16, 1794, is so headed. Apparently, however, this name did not exactly suit him, for a letter to John Coffee written the next year is dated from Poplar Flat. All trace of his habitation on this farm has now disappeared, although there is a faint reminiscence of his tenancy in a “Jackson’s well” still to be found in that neighborhood.

It is interesting to note, that this Jones Bend (now called Hadley’s Bend) was the site chosen by the United States government for the location of its gigantic smokeless powder manufacturing plant in 1917, and the acreage of Poplar Flat was swallowed up in the consolidation of the farms that went to make up the great powder plant tract. In honor of the old hero who once tilled these acres, the operation was officially known as the Old Hickory Powder Plant; and the little industrial town that has grown up out of that development is now called Old Hickory.

Jackson’s personal affairs flourished while he was living at Poplar Flat, and the land records of Davidson County in 1793 begin to show the first evidences of his land trading. As he prospered he, as was natural, wanted a better and bigger place to live; and so on March 16, 1796, he bought from one John Shannon a 8 tract of 640 acres further up in the bend of the river, and here he set up his new home which he called Hunter’s Hill.

There was a strange element of romance connected with this selection of a place to live—perhaps by design, perhaps through coincidence. It appears that when young Captain Robards effected his reconciliation with Rachel in 1788 it was part of the agreement that they would set up a home in Tennessee. At any rate, Robards entered 640 acres, “on the south side of Cumberland River, beginning at an ash, thence south 234 poles, etc.” for which he paid the state of North Carolina at the rate of ten pounds for each hundred acres. After his divorce in 1794 Captain Robards—a little sadly, no doubt—sold his tract of land to John Shannon of Logan County, Kentucky, and it was this self-same piece of ground that Jackson bought from Shannon in 1796 and on which he established his new home.

It seems unlikely that it was a mere coincidence that led Jackson to take up his residence on the land originally selected for home-making purposes by his predecessor in Rachel’s affections. Did she herself guide Captain Robards’ selection of the location in the first place, and did she have some lingering sentimental attachment for it which caused her to influence Jackson to buy it for her after they were married? Who knows what was going on in Rachel’s head as her brilliant young husband began to clear the way for their new home on the site where a few years ago she had expected to live with her first mate?

The Hunter’s Hill house no longer exists, having been destroyed by fire long ago; but, from all accounts, it was a notable home for its day and time. For one thing, it was of frame construction when most of the frontier houses were built of logs; and it was looked upon then as one of the fine houses of the community. It had an elevated location and commanded an inspiring view of the winding river and the fertile bend. Few if any young married men in the Cumberland country had a better estate.

Andrew Jackson, the energetic young lawyer from the civilized side of the mountains, was now established as a man of affairs in 9 the new settlements. His legal attainments had attracted such attention outside of Nashville that in 1790 when the federal government established “The Territory South of the River Ohio” George Washington had appointed Jackson district attorney, an office he held until 1796 when he was elected to serve in the convention which in that year framed the constitution for the new state of Tennessee.

But Jackson’s great energy and great ambition made it impossible for him to be satisfied with the activities incident to the practice of law, holding public office and cultivating a farm. And so it was not long before he established a store at Hunter’s Hill, a store at which, according to tradition, both he and Rachel waited on the trade.

The business of the store was varied and extensive in its nature. Goods such as the settlers needed were brought on from the East, Philadelphia principally; and as the selling price in Nashville was about three times the cost in Philadelphia, there was a good margin of gross profit although the cost of transportation was high. A typical invoice from Jackson’s Philadelphia connections shows a shipment of dry goods—linen, calico, nankeen, cambrick, gingham, ribbons, buttons, thread, etc.—ivory combs, fancy silk handkerchiefs, “Spanish segars,” gloves, hats and kid shoes, as well as queensware, hand saws, screw augers, scissors, knives, etc. They also sold other such pioneer necessities as salt, sugar, coffee, grindstones, gunpowder, nails, bar iron and cow bells; not to mention rum, brandy, claret and whiskey, which latter beverage retailed at 75c per gallon and which Jackson made in his own licensed still-house.

Money was a scarce article around the Nashville settlements in those days and the store did much of its business on the primitive basis of barter, taking in the customers’ cotton, bear skins, oak staves, deer skins, feathers, beeswax, tallow or any other saleable commodity. There was a market for all these things in Natchez and New Orleans; and at intervals, whenever a boatload was accumulated, 10 it was floated down the river to those towns and there converted into cash.

When Tennessee was made into a state in 1796 Andrew Jackson was selected to serve as its lone member of the House of Representatives, and he entered into the deliberations of Congress with such spirit and distinction that in 1797, at the age of thirty-one, he was elected to the United States Senate to take the place of William Blount who had been impeached for alleged treasonable transactions. But the Senate suited Jackson but little, and early in 1798 he resigned to accept a seat on the Superior Court of Tennessee. In February, 1802, another honor was added to his lengthening scroll when he was made major-general of the state militia, and he held this office concurrently with his judgeship.

But Jackson suffered the traditional fate of the man who has too many irons in the fire.

While he was thus engaged in the public service, his personal fortunes were not prospering; and so in 1804 he resigned his place on the bench and gave his whole attention to the task of trying to straighten out the tangle into which his business affairs had drifted, partly because of the financial panic which swept the country in 1798 and 1799, and partly as a result of misplaced confidence. The business depression carried down a supposedly wealthy man in Philadelphia whose notes Jackson had accepted and endorsed. Before he knew what was happening to him, he found himself confronted with unexpected obligations; but it was characteristic of Jackson that he met this heart-breaking situation unflinchingly and paid every cent as it came due. It was a painful process, however, for it involved selling off much of his property and practically making a new start in life.

“Our A. Jackson has made sale of his possessions,” the firm of Jackson & Hutchings on July 31st, 1804, wrote to Boggs & Davidson, their New Orleans connection. “He is to receive two-thirds of the amount on Christmas day next. This, we flatter ourselves, will enable us to meet all our debts next spring.”

This entirely imaginary and erroneous picture of the Hermitage was used extensively and for a long time despite its inaccuracy. This and similar pictures were based on a view printed in The Jackson Wreath in 1829 which was admittedly drawn “from a description furnished by a friend at Washington.”

The Hermitage as it appeared after the wings and portico were added to the original house in 1831.

Plat of the 500 acres of the Hermitage plantation as acquired by the State from Andrew Jackson, Jr.

An old print (circa 1840) showing the young cedar trees planted by General Jackson. The artist has distorted the true lines of the guitar-shaped driveway. The house in the distance, on the right, is Tulip Grove, home of Andrew Jackson Donelson.

11

So the creditors of Jackson & Hutchings and of “our A. Jackson” were satisfied; but so the Hunter’s Hill estate, in which he and Rachel took so much pride, passed into other hands, being sold on July 6, 1804, to Colonel Edward Ward. “Necessity (as security for Thomas Watson and John Hutchings) compelled me to sell the Hunter’s Hill tract” Jackson wrote in after years, with just a trace of bitterness. The $10,000 received for the place helped put Jackson back on his feet; but there must have been a tear in Rachel’s eye as she looked back over her shoulder at the home where she had been so happy as the bride of the coming young man.

And even the financial relief did not come immediately, for Colonel Ward made the purchase on long and involved terms. He delivered to Jackson the bond of a Mr. Lew Jones for £1670, Virginia currency, (equivalent to $5,566.67 in Tennessee money), due on December 15, 1804. He paid $1,794.91 in cash in January, 1805; $463.71 in cash in February; and in March $666.67 in cash and 6,899 pounds of cotton, worth $1,000.35 at the then price of 14½ cents per pound. Payments then ceased, and on May 7th Jackson wrote Ward a strongly worded dunning letter insisting on the payment of the balance of $1,721.88 still due. “When you recollect,” he wrote to Colonel Ward, “that I turned myself out of house and home, by the sale of my possessions to you, purely to meet my engagements, you must know that the anxiety must be great in my mind to meet them, with the sacrifice of ease and comfort that I made upon that occasion. I need only to add that my creditors are growing clamorous and I must have money from some source.”

Ward, in response to this appeal, paid $278.22 on account, and then instituted a quibble on the ground that he should be permitted to pay the balance in negroes rather than in cash. Jackson vigorously refuted this suggestion, saying: “I can not believe that you are seriously impressed with the belief that you are now authorized to discharge a part of the debt in negroes. Had negroes been offered before Mr. Hutchings descended the river with negroes for sale they would have been received, notwithstanding 12 the lapse of time. Of his departure you were informed by me, with the express design that you might discharge part of the debt in negroes if you thought proper, which if you had I would have been in cash for them before this. As you did not have negroes then, and the time elapsed, I did (and with propriety) conclude that you had provided other means to meet your engagement; and negroes would not have been named after we had sent on to market and the time so far elapsed.” Jackson also refused Ward’s proffer of real estate in settlement of the balance due, pointing out that if his own creditors would accept real estate in payment of their claims he could dispose of all his debts “in four hours.” He then went on to say that he must have cash the following week and that if he did not receive it he would be obliged to offer Ward’s bond for sale (an extreme step to take in those days). “But,” said Jackson, “my engagements I must meet. This was the object of the sale of my possessions, and from that sale I must realize that object.”

Poor General Jackson! It is hard to imagine a worse plight than to sacrifice a dearly beloved house and home in order to get money to pay one’s debts—and then not get the money without a year’s unpleasant squabbling.

The Hunter’s Hill place was repurchased by Jackson, perhaps for sentimental reasons, during the more prosperous later days when he was President; but it was on the market again in 1840 when financial embarassment again made it necessary for the General to dispose of some of his property. The price at which it was then offered was $15,000, which he considered a very low price for it; “but,” he said, “a little imprudence (on the part of Andrew, junior,) has caused this necessity, and I would always rather sacrifice property than the credit of my adopted son or myself.” Fifteen thousand dollars may have been a bargain price, as the General said; but he was able to find no buyer at that figure and late in 1840 he sold it to Mrs. Elizabeth E. Donelson, widow of his wife’s brother John, for $12,000; and it is still in the hands of descendants of this branch of the family.

13

In 1804, after paying off his debts, practically all of Jackson’s remaining assets were embraced in his reduced land holdings, including the tract of 420 acres adjoining Hunter’s Hill which he bought from Nathaniel Harp when forced to sell his home place. It was to this plantation, the future Hermitage estate, that he repaired when forced to give up Hunter’s Hill.

Just when the removal was made is not accurately revealed by the records. In a letter written in 1844 he stated that he bought the Hermitage land “on the 5th of July, 1804.” His last recorded letter from Hunter’s Hill is dated August 25, 1804, and the first one from the Hermitage April 7, 1805. It seems probable, however, that the removal to the Hermitage plantation had been in contemplation even before adversity forced it; for in the Jackson papers is a receipt dated March 2, 1803, for 500 apple trees and 500 peach trees “for the Hermitage orchard;” and in a letter written to Rachel on March 22, 1803, while he was attending court in East Tennessee he inquires solicitously about the planting and care of these young trees. Apparently thus early he was getting the Hermitage tract ready for occupancy; although the county records show that the land was not transferred to him until July, 1804.

The sale of the Hunter’s Hill property necessarily forced the removal of the store, and led to the establishment of a much more pretentious business enterprise at Clover Bottom. Here he set up not only a store but a tavern and boatyard as well, and he encouraged the establishment of a race track and stables in which he took an interest. This made Clover Bottom a center of interest for the whole countryside and a favorite place for the assembling of the people. Clover Bottom is located on the Nashville-Lebanon Road, where it crosses Stone’s River, just above that stream’s confluence with the Cumberland, and it was therefore an unexcelled location for a man who operated a boatyard as well as a store and who also had blooded horses and liked to see them run.

Soon after the establishment of the store at Hunter’s Hill the mercantile business had grown to such proportions that Jackson could not handle it by himself, and he had taken in a partner 14 named Thomas Watson. This partnership did not work out satisfactorily, however, and was dissolved, after which he took in John Hutchings, whose father had married Mrs. Jackson’s sister. The firm of Jackson and Hutchings thrived and even showed itself an early disciple of the chain-store idea by establishing branch stores at Gallatin and Lebanon. When the business was moved to Clover Bottom, John Coffee, who was a brother-in-law of Mrs. Jackson’s was also taken into the partnership.

By dint of hard work and close application, Jackson at length managed to clear himself of his financial troubles; but it was a long, hard pull, and for several years he felt the pinch of reduced circumstances. In fact, so difficult was his situation that in 1810 the whole course of his life was near to being changed, and a slight turn of the balance in the other direction then would have found him selling out in Tennessee and removing elsewhere to begin life over again in a new field. At this time the Hermitage plantation was definitely on the market, and Jackson was actively seeking some appointment that would take him elsewhere.

It will be recalled that Jackson fought his duel with Charles Dickinson in 1806, and the death of Dickinson in this tragic affair shocked the sensibilities of even the hardy pioneer citizens of Nashville who were accustomed to duelling. A few days after the duel Jackson’s old friend and former law partner, John Overton, wrote him the following comforting, friendly letter:

Dear Genl:

Until yesterday evening, I must confess, my mind was not at ease. I was then relieved. To-day I have seen my brother who tells me of a little circumstance I did not know, that you were a little touched, but not to do any great damage. Pope in his Essay on Man says: “Whatever is, is right.” To this small inconvenience we must submit, which is not much more than the stumping of a toe, or the like.

It too frequently happens that the honest, unsuspecting part of society will be infested with reptiles, the heads of which must be sought after and bruised so as to be secure from their poison. God has so ordained it. You have been the instrument of doing so. Fear nothing. As soon as possible I will see you. Our mutual friend, Wm. P. Anderson, will come to see you, who makes my best wishes for you.

Apropos, aside, there is a few long faces in town, though but few, for it seems that this new-fangled Ajax had even went so far as to bet in town, before he went over, that he would kill Genl. Jackson. Yr friend, Jno. Overton Gen’l Jackson. Nashville, June 1806.

15

This consoling letter from his old friend must have laid unction to Jackson’s soul; but not all of the Nashville citizens accepted Dickinson’s tragic death with Judge Overton’s complacency. The unfortunate victim of the duel had some warm and influential friends in Nashville; and they spent their days and nights industriously giving circulation to an account of the duel which placed Jackson in the worst possible light. His popularity suffered accordingly. Then close on the heels of this tragedy came the embroglio with Aaron Burr into which he had permitted himself to become innocently entangled. Jackson’s popularity in Tennessee was never at a lower ebb—and he was not a man to regard such a state of affairs with resignation. On top of all this, he was worried about his financial affairs, and it is easy to understand how he might have been attracted by the idea of starting life over again in a new location—and with a government job carrying a comfortable salary.

Mississippi was a new country, the government of which was just being organized, and Jackson wrote to Jenkyn Whitesides, United States Senator from Tennessee, regarding the possibility of receiving a federal appointment as judge in the new territory. “From my pursuits for several years past,” he wrote in February, 1810, “from many unpleasant occurrences that took place during that time, it has given my mind such a turn of thought that I have labored to get clear of. I have found this impossible, and unless some new pursuit to employ my mind and thoughts, I find it impossible to divest myself of those habits of gloomy and peevish reflections that the wanton and flagitious conduct and unmerited reflections of base calumny heaped upon me has given rise to.” It had occurred to him, he said, that new scenes might serve to relieve him from this unpleasant tone of thought, and he was therefore 16 serving notice that he would accept the judgeship if it were offered him. As a further reason for his dissatisfaction he cited the “lethargy and temporizing conduct” of the government, and he expressed the fear that “as a military man I shall have no amusement or business, and indolence and inaction would shortly destroy me.”

One of Mrs. Jackson’s nephews in Natchez, Donelson Caffery, heard of his uncle’s plan to sell the Hermitage home place and remove to Mississippi, and he hastily wrote to dissuade him. “You have nearly got through all your embarrassments,” wrote young Caffery, “You have a delightful farm, from the products of which you will at least be able to live comfortably; by the respectable and well-informed part of the country you are highly esteemed; you are able to select a good society from your neighborhood.” And, concluding in a burst of eloquence: “You have been able there to read the characters of men in their actions; here another volume will be presented to your view in which human baseness will take up a considerable part.”

Jackson persisted, however, in his effort to sell the Hermitage, offering it among others to Colonel Wade Hampton of South Carolina, who later served on his staff at New Orleans. Colonel Hampton made a trip to Tennessee and looked the property over but did not buy it, although he wrote: “I am vastly partial to your elegant seat and fine tract of land.”

Perhaps the advice of young Caffery and his other friends persuaded him not to make the prospective changes; perhaps he was not able to get the desired appointment. At any rate, fortunately for Tennessee and for the country, Jackson remained at the Hermitage and was soon thereafter relieved of his melancholic frame of mind by the declaration of war against Great Britain in 1812. From then on until 1821 he found plenty of “amusement and business” in fighting the Indians and the British and the Spaniards in Florida; and for eight years he had no further cause for complaint on the score of indolence and inaction. He returned to the Hermitage the nation’s idol, and all thoughts of moving to Mississippi or anywhere else were permanently dismissed.

17

When Jackson moved to the Hermitage tract from Hunter’s Hill his financial condition did not permit of his building immediately another such home as he had left. But Jackson had the primitive virtue of cutting his suit to fit his cloth; and so he set himself up in a comfortable but crude establishment made up of a group of log houses—a large central building, two stories high, which constituted the principal living quarters, with three adjacent log houses which were used as sleeping quarters for guests or members of the family. The main building, which, according to tradition, had in earlier days been used as a block house for defense against the Indians, was 24 by 26 feet and on the first floor had only one large room, with a huge fireplace. At the back was a lean-to containing two rooms, a pantry and a bed-room. This big room on the first floor was a combination of parlor, living room, dining room and kitchen, with all the meals cooked at the big open fireplace. Here Jackson lived for fifteen years—fifteen of the most active years of his life, years when he was carving his name as one of the really big men of the young United States.

Here in this log house he entertained some of the most distinguished visitors who ever came to the Nashville settlements—President James Monroe and Aaron Burr, among others; here it was they brought him, well-nigh fatally wounded, from his duel with Charles Dickinson; and it was to this rude abode that he returned in 1815, following the Battle of New Orleans, with the plaudits of the world ringing in his ears. Also, it was while he was living here in the log Hermitage that he conducted his famous campaigns against the Indians, including his celebrated invasion of Florida which so nearly involved us in war with Spain.

Today there is still standing only one of the small log cabins of the original group. Alongside it is a larger log house, with a steeply sloping roof, built at a later date out of the logs taken from the original two-storied log house which had been permitted to fall into decay. These are located in the meadow a few hundred yards to the rear of the present Hermitage, on the original site, and are in a fair state of preservation. Although the original two-storied 18 house no longer stands, the remains of its stone foundation are still faintly to be seen.

But by 1819 Andrew Jackson—in personal taste, in fame and in social position—had outgrown the log-house mode of living. He had become a man of national, even international, distinction; he had been to Washington, to Philadelphia, New York and New Orleans. He knew how distinguished men were supposed to live. And so there gradually grew in his mind the determination to build a new home, one that would befit his present station in life and one that would permit Rachel to entertain with pride the grandest ladies of the land. Fortunately for his plans, there was a boom market in cotton from 1815 to 1818, following the treaty of peace with England, and the cotton planters of the South had three fat years. With cotton at 34c a pound, many of them waxed wealthy; and although there was a slump in 1819, it appears that Jackson must have been making financial hay while the sun was shining, for it was at this time that he started work on his new house.

The source from which Jackson got the name “The Hermitage” remains more or less of a mystery. The plantation was known by this name before he built a house on it; but nothing in his letters or papers reveals the reason why it was so-called. There is a tradition in the Donelson family that it was named in honor of the old Donelson home-place in Virginia; but this theory has no firmer foundation than tradition—it may be true, but there is no authentic substantiation of it. There is a theory (although it is nothing more than a theory) that he borrowed the name from Jeremy Bentham’s estate in England. Students of Jackson’s political beliefs feel that he was strongly influenced by the great English philosopher and jurist, whose home was called the Hermitage. He read Bentham’s works and corresponded with him; it is not unlikely that when it came to selecting a name for his new plantation he thought of Bentham’s home, the Hermitage, and adopted the name for his own use.

Front view of the house from dividing point in the entrance driveway.

Close-up view of the façade.

19

II: ORIGINAL BUILDING, FIRE AND REBUILDING

The Hermitage today is identically as it was when Andrew Jackson died in 1845. Nothing has been added to it; nothing has been taken away. But as it stands now, and as it stood in 1845, it is much more elaborate architecturally than the original house built in 1819. Additions were made to the first building in 1831, and some further elaboration was done in 1834 when the house was reconstructed after being damaged by fire. The fire at that time only partially destroyed the house; it did not seriously injure the stone foundations and the stout brick walls, and these are today practically the same as when they were built in 1819, except that to cover up the smoke stains the front wall was painted white—an idea perhaps borrowed from the painting of the White House in Washington in 1816 to conceal the evidence of its having been burned by the British.

Parton, who had the advantage of talking with Jackson’s contemporaries, is authority for the statement that the Hermitage was built in 1819, the work on it beginning in the summer of that year when the General had returned from the Seminole war in such bad health that he was doubtful whether he would live long. Parton says:

“Major Lewis tells me that he rode out to the Hermitage one day soon after General Jackson began to get about after his severe illness. With slow and faltering steps, leaning heavily on his stick, the General took him to the site selected for the new residence—a very level spot in a large flat field, near the old block-house. Major Lewis recommended another site slightly elevated above the almost prarie-like level of the farm. ‘No, Major,’ said the General, ‘Mrs. Jackson chose this spot, and she shall have her wish. I am going to build this house for her. I don’t expect to live in it myself.’ And there the house was built.”

That Mrs. Jackson had designated the spot where the house should stand was recalled by the General again in 1834 after the fire when it was suggested to him that it might be rebuilt in another location. Then he wrote to his adopted son: “Was it not on the site selected by my dear departed wife I would build it higher 20 up the hill;” but the fact that Rachel had originally selected it definitely settled in his mind any question as to whether the location of the house should be changed.

In the interest of strict accuracy it should be pointed out that the ground where the house stands is not quite so prairie-like level as Parton describes it. On the contrary, it is on the side of a gently sloping hill. The floor of the front portico is but one step off the ground, whereas a flight of several steps is needed to reach the back porch; and there is a quite perceptible rise of ground between the entrance gate and the house.

Detailed and reliable information about the actual construction of the original Hermitage on this site is peculiarly scarce. In all the published Jackson correspondence there is but one reference to the building operations, this being unfortunately without date and merely referring to some difficulties encountered in having the house painted. In a footnote in the published “Correspondence of Andrew Jackson” Doctor Bassett mentions having seen a receipted bill dated June 12, 1818, for $200 for china and silver plate. Doctor Bassett says that it seems fair to assume that this indicates an outlay for the new house, although this is manifestly nothing more than speculation on his part. Most of what we know today about the circumstances attending the construction of the original building is mere surmise, based on inferences and deductions. Jackson was a prolific letter writer; but for some strange reason he seems to have written little or nothing about the building of his new home. Also, unfortunately, there is no information available as to the identity of the original contractor or architect—if there was one.

It has been stated in published articles that the Hermitage was built by an architect named Joseph Reiff; but the only foundation for this seems to lie in the fact that he was the man in charge of the rebuilding after the fire. Mr. Reiff, by the way, did not pose as an architect at all. In the articles of agreement covering the rebuilding he refers to himself simply as a carpenter; and it seems likely that he was one of the class of men known in that time as 21 “journeyman builders”—practical carpenters who went about the country equipped with books of plans of basic architectural designs which they adapted to the needs of their clients. But, regardless of what was his correct technical designation, there is nothing whatever to connect Mr. Reiff with the original building operation in 1819.

Bearing in mind the custom of the times, it is most probable that the house was designed by Jackson himself and the actual construction work done by skilled slave labor, perhaps under the direction of some master builder. The design of the original Hermitage was severely simple and had little about it to suggest that its plans were drawn by a professional architect. It was not at all beyond the capacity of General Jackson. The foundation was of native limestone, quarried on the farm by slaves. The poplar structural lumber and timbers, and the wide red cedar boards for the porch floors, were cut nearby from local timber. The walls were built of brick, burned on the place as was the practice in those days. Brick making was still primitive in its processes. A bed of clay was located, the top soil was removed and lime sprinkled on the clay, and then a black boy on a mule had a good time treading the lime into the clay and thus preparing the raw material for the bricks, which were shaped in hand molds and baked in improvised kilns.

By combining all the available information, it appears certain that the original Hermitage was a simple two-storied, square brick building consisting of four rooms and a hall downstairs and the same arrangement upstairs. There was originally no portico at the back or front, nor did the two wings then grace its sides. It was just a square brick house, with no embellishments or architectural pretensions. From references in letters it seems that, as was common practice at the time, the house and its immediate yard were enclosed in a picket fence, and there is substantiation of this in one of the early prints of the Hermitage, but there are no signs of such a fence today.

It was in this plain house that Jackson and Rachel lived for 22 ten happy years. He was not away from home much in those days. He was elected to the Senate in 1823, but he soon resigned that office. While he was in Washington, chafing under the time-wasting deliberations of Congress, he wrote to John Coffee: “How often does my thoughts lead me back to the Hermitage. There in private life, surrounded by a few friends, would be a paradise compared to the best situation here; and if once more there it would take a writ of habeas corpus to remove me into public life again.” And he was sincere when he wrote that.

In 1831, after he had been inaugurated President, and while he was living in the White House, General Jackson contracted to have the Hermitage enlarged and elaborated in keeping with the increased prestige of its master. Andrew, junior, had just married, too, and the President probably wished to have the house improved for the benefit of his new daughter-in-law, of whom he was very fond. Accordingly, arrangements were made for the addition of the two wings—that containing the dining-room and pantry on the western side and the one embracing the library, or office, the side entrance and the overseer’s room on the garden side of the house. It was at this time also that front and back porticos were added; although, according to engravings made at the time, the front portico was not then two stories high. It merely extended across the front of the lower floor, with its roof below the level of the upstairs windows, except at the front door where it was two stories high with a pediment at the top. The contemporary pictures also show the wings with gables at the front and back, instead of with flat roofs as at present. This remodeling work was done by a contractor named D. Morrison, who had just finished building the stone tomb over Mrs. Jackson’s grave in the garden.

Mr. Morrison wrote to President Jackson on December 6, 1831, announcing the completion of the work on the house and giving some interesting details about the job. In this letter he said:

“The additions and improvements are completed. In addition 23 to the improvements as exhibited in the plan I showed you, I have erected a neat and appropriate portico on the back side of the central building which adds very much to the comfort and convenience of your dwelling. The Hermitage as improved presents a front of 104 feet. The wings project 9 feet in front of the central building and are connected by a collonade of the same breadth. The collonade consists of 10 lofty columns of the Doric order, the entablature carried through the whole line of front, and has wreaths of laurel leaves in the frieze. The upper story consists of a portico surmounted by a pediment which breaks the monotony of the composition in a very satisfactory manner. The materials employed in the improvements are all of the best quality the neighborhood affords. The colonnade is covered with the best copper, the sheets weighing from 12 to 14 pounds each sheet, and the gutters that convey the water from front to back are also of copper. The wing buildings and porticos are roofed with good cedar shingles. The dining room is large and will dine 100 persons at one time comfortably. The wing at the east end contains the library, a large and commodious room; an overseer’s room; and a covered way that protects the three doors leading to the library, overseer’s room and to the back parlor. The old kitchen is removed and the materials employed in the erection of a large and commodious smoke-house which is placed on a line with the new kitchen.”

The reference to the kitchen in Mr. Morrison’s letter, by the way, seems definitely to establish the fact that the present kitchen and smokehouse were built in 1831 and were not parts of the original establishment as built in 1819, as was for a long time supposed. Exactly where the old kitchen stood is not revealed in any records now available; but just to the east of the present kitchen there may be seen in the grass the outlines of a stone foundation which probably indicates its former location.

The total cost of the improvements made at this time was $2,488.50, not including $131.00 paid out at the same time for papering and painting the whole house. The itemized list of expenses was as follows:

24
Stone-cutters, masons and bricklayers, $491.00
Carpenters and joiners, 678.00
Painters and glazers, 187.00
Plasterers, 168.00
Coppersmith and tinner, 350.00
Lumber and shingles, 468.50
Hardware, glass, etc., 110.00
Turner’s bill, 25.00
Hauling lumber from Nashville, 11.00
$2,488.50

General Coffee, Jackson’s old friend and fellow veteran of the Battle of New Orleans and the Indian wars, drove over to the Hermitage from time to time while the remodeling work was in progress and kept an eye on it. On April 28, 1831, he wrote the President at Washington: “Your mechanics were at work on the improvements making on the mansion house. I took the liberty of suggesting some immaterial alterations in the addition, which was approved of by the projector of the building, who said he would consult you about it.” This alteration in the plan, it is revealed in one of Mr. Morrison’s letters to President Jackson, consisted in extending the eastern or library wing back twenty feet further than called for in the original plan, the additional space thus gained being used for the covered passage and overseer’s room. This overseer’s room, also called the steward’s room, was in later years used as the nursery for the children of Andrew, junior, and later the covered passage was bricked in and the side entrance hall thus created as it is today.

Accurate and dependable pictures of the brick Hermitage as it appeared in 1819 are singularly scarce, and the few available efforts at its picturization differ considerably in appearance.

In one of Earl’s early portraits of General Jackson the General is shown standing on a slight eminence, with the Hermitage at a distance in the background. This picture of the house, a veritable portrait from life, is doubtless a trustworthy representation 25 of the original brick house; and there is presented herewith a reproduction of this picture, obtained by successive enlargements of the background of the Earl portrait. It ought to give a reliable idea of the appearance of the place before the wings were added.

Similar in appearance is an undated engraving (“Drawn and engraved by H. B. Hall”) which was reproduced in Bassett’s Life of Andrew Jackson and also in Marquis James’ Border Captain. Presumably this was drawn by Mr. Hall on the spot, as it is quite similar to the Earl picture showing the gabled roof and double chimneys at each side of the house.

The most amusing and least accurate of all the available pictures of the early Hermitage is to be found in The Jackson Wreath, or National Souvenir, a laudatory book about Jackson, the President elect, published in Philadelphia in January, 1829. In this book is an attractive engraving of a suspiciously conventional house which bears the descriptive entitlement: “The Hermitage;” but faith in the accuracy of the picture is shaken by a naive footnote (in microscopic type) which says with engaging candor: “On the commencement of this work, proper steps were taken to procure a drawing of the Hermitage from the spot, by addressing a prominent establishment at Nashville; whether the several requests were ever received by them is not known, but the drawing never came to hand here. A gentleman at Washington, intimate with the grounds, politely furnished a description from which a drawing was made. Anyone who is acquainted with the difficulty of producing a correct drawing from description will overlook any difference that may appear in the likeness to the place it is intended to represent.”

This imaginative engraving shows a square house, with the gable end in front, and with two single chimneys—one at the left and one in the rear. There is also a neat little portico at the front door, and an out-house close by the left-hand side of the house. Despite its confessed inaccuracy it was obviously the source of at least two other popular engravings of that day which reproduced with fidelity its improperly placed gable and chimneys; and even 26 as late as 1855 as reliable a monthly magazine as Harper’s illustrated an article about Jackson with an alleged picture of the Hermitage which was plainly but a copy of the engraving in the “Jackson Wreath” with merely a few slight changes in the arrangement of the conventionalized trees and horses in the foreground.

Fortunately there is preserved a contemporaneous picture, reproduced in this book, which is generally accepted as a fairly accurate representation of the house as it appeared after the wings were added and before the fire. After the fire the front portico was rebuilt two stories high all the way across; and the six large columns as now seen replaced the smaller posts formerly used. This picture, judging from the location of the tomb so close to the house, is not free from the imaginative latitude the artists sometimes allow themselves; but it is said to give a good idea of the way the house looked before the fire.

In October, 1834, occurred the burning of the Hermitage, an event that attracted widespread attention. Jackson was at that time at the White House in Washington, but his adopted son and his wife were occupying the Hermitage.

An account of the fire in a Nashville newspaper of October 14th announced the event in the following words: “Yesterday evening about 4 o’clock the roof of the Hermitage was discovered to be on fire, and all attempts to arrest the progress of the flames proving unavailing, the entire edifice with the exception of the room attached to the northern end and used as a dining room was in a few hours consumed. The valuable furniture in the lower story was fortunately saved, though much broken and otherwise injured in getting it out. That in the second story, we understand, was chiefly destroyed. The fire is supposed to have been communicated to the roof by the falling of a spark from one of the chimneys, and there being at the time a light breeze from the northwest the progress of the flames was proportionately rapid. The numerous and valuable private papers of the President were probably all preserved. We need not add that the event has occasioned to this community deep and universal regret.”

The dignified simplicity of the Hermitage’s front door was typical of the Southern plantation houses of the early nineteenth century. Throughout Old Hickory’s lifetime this door was ever open to a stream of visitors from all walks of life, and all sure of a cordial welcome.

Rear view of the house, showing one of the original old maple trees.

An old print showing General Jackson’s greeting of Marquis Lafayette in the library of the Hermitage.

One of the original slave cabins. Occupied by Uncle Alfred until the time of his death.

27

President Jackson was promptly advised of the fire in letters from his adopted son; from Stockley Donelson, his nephew; and from Colonel Robert Armstrong, postmaster at Nashville and one of Jackson’s strongest personal and political friends.

Stockley Donelson thus explained the origin of the fire: “A fire was kindled in the old dining room and the chimney caught on fire, which not being observed immediately and the wind being from the northwest, the fire was communicated to the roof. The flame however had not spread very far before it was discovered by Squire and Charles and the alarm given. Cousin Sarah was at this moment in the house having just returned from a short ride and Andrew was in the field, but a short distance from the house. The fire was soon discovered by Wm. Donelson’s hands who were working near at hand, by A. J. Donelson’s workmen and hands, as well as by your own hands. They were all on the ground before the roof fell in, etc. Mr. Rife by his own exertions succeeded in getting on the dining room roof and extinguishing the flames, etc. Others were employed in getting out the furniture, etc., which was nearly all saved except some bedsteads upstairs. I have made inquiry. I interrogated Mr. Rife and Mr. Hume who were upstairs and in the old dining room where the fire was kindled first and they both say it was not an unreasonable large fire. The weather was very dry and windy. When the fire was first discovered by Charles and Squire they made every effort to get a ladder, but none could be found, and there was no other way to get to the roof, etc. Cousin Sarah acted with firmness and gave every necessary direction to save the furniture; and her and Andrew, though much hurt, I am happy to add bear the misfortune with fortitude.” Mr. Donelson went on to say that the walls of the house “being originally well built are not much damaged” and that there would be no difficulty in rebuilding.

Colonel Armstrong in his letter was careful to say that in his opinion the fire was “purely accidental;” and he estimated that the house could be rebuilt on the old site for $2,000 or $2,500. He recommended rebuilding on the old site (“for I know the walls 28 and foundation were good”), and volunteered to be of any possible assistance.

The news of the burning of his home must have been a crushing blow when it reached President Jackson in the White House. Following the particularly turbulent session of Congress which ended in June, 1834, the weary President had gone back to the Hermitage and spent the summer there in the pleasant process of recuperating from the debilitating effect of his long drawn out battle over the bank. All of the administration’s domestic problems were settled, in one way or another; and he spent the summer in riding about over the Hermitage plantation, visiting his friends and neighbors, and entertaining the customary flow of guests. Early in October he brought his vacation to an end and started on his return to Washington; and he had hardly arrived back at the White House before the letters reached him telling of the fire.

But Jackson accepted this blow of Fate with resignation and equanimity. His letter to Andrew, junior, is a model of calm fortitude under a sudden stroke of adversity:

“Dear Andrew: I have this moment received your letter of the 13th instant giving an account of the unfortunate occurrence of the burning of my dwelling. As no neglect is imputed to anyone and as it appears one of those accidental occurrences where there is no blame to attach to any one, we ought and I do meet it as an act of Providence and always reconciled to His will and prepared to say at all times and under all circumstances ‘The Lord’s will be done,’ it was He that gave me the means to build it and He has the right to destroy it, and blessed be his name. Tell Sarah to cease to mourn its loss. I will have it rebuilt. Was it not on the site selected by my dear departed wife I would build it higher up the hill, but I will have it repaired. You say the walls are uninjured. Let workmen be employed forthwith to repair it. Let scantling and brick be got and have it covered in before the hard frost with rain injures the walls. If tin can be got in Nashville have a tin roof put on it. If the walls can be repaired and the house covered in before winter the windows can be so closed as 29 to prevent the walls or scantling within from being injured. I write to Col. Armstrong, whose letter is before me, who will aid you in obtaining materials and workmen to cover in and repair the house. I write in haste. Say to Sarah not to grieve or repine about the loss. We will have it all repaired. I write to Mr. Toland this evening to send on by the ship Chandler Price via New Orleans as much tin as will cover a house 80 feet by 44 and hope it will reach you in due time. This will enable you to borrow the tin in Nashville from anyone who has it. I suppose all the wines in the cellar has been destroyed, with Mrs. Donelson’s box of China. Give me as accurate an account of the loss of furniture as you can at as early a period as possible. In all your bustle and improvement, my son, have your cotton picked out and housed. It becomes us now to act with economy and use industry to repair and regain the loss. Therefore, as the only fund to aid in paying for the land and repairing the building and other engagements are the cotton crop, I urge you to have it carefully taken in, ginned, baled and sent to market.” As soon as the news of the fire became known throughout the country there was set on foot in New Orleans a movement to rebuild the Hermitage by popular subscription; and a Nashville citizen, George C. Childress, wrote to Jackson to ask him if such an action would be agreeable to him.

“We see from the New Orleans papers,” wrote Mr. Childress, “that a proposition is made in that city to raise a fund to rebuild the mansion house at the Hermitage, every individual in the United States who may choose to contribute fifty cents and no more in order that it may be in the power of every man who may wish to join in tendering to you this complimentary mark of public gratitude and contributing to the repair and preservation of a residence which is almost looked upon as National property. There is no doubt that an ample fund would be raised in this manner to rebuild the house in the most elegant manner and I write, sir, to know if it would be agreeable to you to accept this complimentary token of gratitude at the hands of your admiring countrymen.”

30

This letter is found in Jackson’s correspondence file, and on the back of it is endorsed in the General’s firm handwriting: “Mr. Childress to be answered: I respect as I ought the feelings that dictated the generous feeling in the proposition, but can not accept the boon. I am able to rebuild it, and hope whatever generosity the good people of New Orleans intended to bestow on me as a memento of their regard for my public services may be applied to some charitable institution.”

Nothing more clearly reflects Jackson’s unquenchable spirit than the prompt and effective manner in which he set about arranging for the rebuilding of his home. His genius for organization—his talent for getting things done, even at a long distance from the scene of activity—here plainly manifested itself. “Let workmen be employed forthwith to repair it,” he wrote Andrew; and then he sat down and wrote to his friend, Colonel Armstrong, asking him to get in behind the making of a contract for the rebuilding. Apparently Colonel Armstrong called into consultation another of Jackson’s friends, Colonel Chas. J. Love, for in January, 1835, Colonel Love wrote to the President that “a contract has been made with Messrs. Rife and Hume for the rebuilding of the house at the Hermitage. Every care has been taken to have the contract made so full and plain that it can not be misunderstood. The materials are to be good and the work executed in the best possible style. Mr. Hume is now up the country to make engagements for the lumber that it may got down in time to have it well seasoned before the work is put together—then Colonel and myself will keep a strict lookout that the work is done agreeable to contract. Colonel Armstrong and myself understand the contract so well that it can not be misunderstood. It was talked over and over again and agreed on not only in writing but verbally, and all the alterations are to be made agreeable to our view of them. The house is large and we got the best bargain we could.”

The “Rife and Hume” referred to in Colonel Love’s letter were Joseph Reiff and William C. Hume, the carpenter-contractors 31 who were then employed in constructing the handsome home which General Jackson was having built near by, on the Tulip Grove Farm, for his wife’s nephew, Andrew Jackson Donelson. Messrs. Reiff and Hume are mentioned in Stockley Donelson’s letter telling the news of the fire as having been in the Hermitage at the time it started, and it is not improbable that they were living there while the new house at Tulip Grove was being built. It would have been characteristic of General Jackson to offer them the hospitality of his home while they were engaged in the nearby work.

The agreement for the rebuilding of the Hermitage was specifically made out in the name of Andrew Jackson, junior, in deference to the General’s strong desire to have Andrew assume a man’s responsibility in the management of the estate; but the fine Italian hands of Colonel Armstrong and Colonel Love are to be seen in the careful phraseology of the document and the prudent safeguards thrown about the carpenters’ performance. “Col. Armstrong and myself understand the contract,” wrote Colonel Love; and the published correspondence reveals how faithfully Colonel Armstrong kept in behind the matter, watching all the details of building and furnishing, and carrying the whole thing through to completion.

The rebuilding agreement provides an interesting reflection of the manner in which such activities were carried on a hundred years ago, and as such is worth reproducing in full:

January 1, 1835.

Memorandum of agreement made and concluded upon this first day of January, 1835, between Joseph Reiff and William C. Hume of the one part and Andrew Jackson, Jr., of the other part, all of the County of Davidson and State of Tennessee.

Article 1st. The said Reiff and Hume, (carpenters), have undertaken to rebuild the Hermitage house and east wing of said house, to do all the carpenters’ work of said house, and to find and furnish all the lumber, plank, scantling, and nails, brads, sprigs, hinges, bolts and in fact everything required to rebuild the same, except the glass, locks and 32 copper. The lumber, flooring, etc., etc., to be done of the best quality and all well seasoned. The carpenters’ work to be done in the best and most approved and workmanlike manner, for which the said Andrew Jackson, Jr., agrees to pay the said Reiff and Hume in cash the sum of $3,950, as the work progresses.

Article 2nd. The house to be rebuilt in the same order that it was before, with four rooms and passage below and four rooms and passage above. The garret rooms and the stairs from the garret to the walk on the top of the house to be finished in a plain way. The walk on the house to be the same mentioned in the plan and finished with a neat and appropriate banister or railing. The joists in all the different rooms to be bridged.

Article 3rd. Here follows an estimate of work and cost, and in case any of it should not be done or should be abandoned a deduction is to be made from the aforesaid sum of $3,800:

Bill of Carpenter’s Work
2 cellar doors and frames, at $3 each $ 6.00
40 lintels for doors and windows at 25c 10.00
Framing 76 sqr joists at 75c per square 57.00
830 feet of washboards at 11c per foot 85.00
53½ sqr of poplar flooring at $2.50 per square 133.75
8 chimney pieces at $10 each 80.00
13 doors, cased with pilasters, at $12 156.00
2 large folding doors, 10 or 12 feet, at $30 60.00
2 front doors at $30 60.00
8 windows, recessed pilasters to casing, at $10 80.00
9 not recessed, at $6 54.00
17 double boxed window frames at $4.50 76.50
17 pair of Venetian shutters at $6 102.00
408 lights of sash, 10×14 glass, at 10c 40.80
4 garret windows complete at $8 32.00
32 sqr of framing, sheeting and shingling at $2.50 80.00
128 feet of cornice, at $1 128.00
50 feet of verge boards, 12½c 6.25
Framing and laying open floor and ceiling and hand-rail and balustrading walk on house, 60×12 or 14 feet 140.00
Trap door, steps in garret and skylight 15.00
1 circular staircase, two stories high 260.00
1 private staircase 30.00
4 presses at $12 48.00
First story of front porch with 6 columns, etc. 256.00
Second 75.00
One back portico 40.00
Work on Wing
Framing 22 sqr of joists at 75c 16.50
15 sqr of shingling at $2.50 37.50
Laying 10 sqr of poplar flooring at $2.50 25.00
180 feet of washboard at 10c 18.00
2 chimney pieces at $10 20.00
3 doors cased with pilasters at $12 36.00
4 18-light windows with shutters at $16.50 66.00
1 Venetian window 16.00
100 feet of cornice at 50c 50.00
$2,396.30
Add one-fourth for boarding 599.07
$2,995.37
See estimate of lumber 804.63
$3,800.00
Add for pulleys, weights, cord, hinges and screws 150.00
$3,950.00

Article 4th. The main stairs to be circular, or geometrical, the work to be done in the best and most approved style. A private staircase from the room below called the steward’s room to the chambers above, a folding door in the rooms north as you enter the passage below, a door from the room to the President’s office, with a small passage spoken of by the said Andrew not yet determined on. The front and back porch to be finished as before, the columns of the former to be fluted and the cornice and so forth to correspond with the estimate annexed. The east wing, office, steward’s room and passage to the garden to be finished on the former plan. The said Andrew furnishing locks for the building, using such of the old ones as will answer for the upper story and furnishing new ones for the lower, Reiff and Hume putting on all the locks.

Article 5th. The said Reiff and Hume agree to take and put into the second story any of the old work saved that may be thought to serve to 34 answer and pay the value of the same. They also agree to take all the lumber, plank, etc., that the said Andrew has now on hand as cash paid in part of his contract.

Article 6th. It is hereby understood that the said Reiff and Hume bind themselves to make a complete finish of the carpenters’ work of the said building, pay all expenses of turning, using cedar timber where it is necessary, the contract to be fulfilled agreeable to the plan given, and to the express understanding made and agreed upon in the presence of Col. Love and Robert Armstrong.

Article 7th. The dimensions of the rooms, the size of the windows, and a minute description of work to be done is not mentioned in this article, but it is understood by the parties in the presence of the above named gentlemen.

Article 8th. It is agreed upon that when the lumber, plank, etc., is delivered the said Andrew will furnish the money to pay for the same and will continue to make payment as the work progresses.

Article 9th. The said Reiff and Hume are to purchase the lumber and commence the work immediately, and further agree that the carpenters’ work shall be so forwarded as to let the plasterers in to commence their job by the first or middle of September next, so that the house can be completely finished by 25 December, 1835.

As no contract has been made for the painting, the said Andrew will have the priming done as fast as the work goes on.

It is understood that there is to be the same number of large fluted columns in front as formerly if thought necessary, and it is further understood that the said Reiff and Hume will do all and everything in relation to the carpenters’ work of said building as though every item had been separately specified, making a complete finish of the carpenters’ and joiners’ work of said building, finding everything except the articles of locks and glass heretofore mentioned.

In witness we have hereunto set our hands and seals this 1st of January, 1835.

Joseph Reiff William C. Hume

Uncle Alfred, who served Old Hickory during his lifetime and now sleeps near his side in the Hermitage garden.

Sunday morning at the Hermitage Church in the early forties. General Jackson has just dismounted from his saddlehorse tied to the tree in the right foreground, which tree is still standing. (From an old print.)

35

The work was got under way at once, but the building was not declared completed until the summer of 1836—more than eighteen months after the reconstruction was started. “Hands can not be got,” Colonel Armstrong wrote Jackson during the summer of 1835, “still we are doing the best we can.” It was the era of inflation and easy money, and labor was scarce. So the work dragged along; and, as is not unusual in building operations, the cost of the finished job considerably exceeded the original estimate. Colonel Armstrong in his first letter expressed the opinion that the work could be done for $2,000 or $2,500; in a later letter he said “$2,500 or $3,000 will complete the whole work”; the contract with Reiff and Hume was at a figure of $3,950; and when the final settlement was made the total was $5,125—not including $900 for plastering and $400 for painting. To add to the General’s troubles at this time came a calamitous failure of the cotton crop and he wrote sadly to Andrew about the necessity for economizing. “Unless the farm produces enough to pay its own expenses, my means here will be fully exhausted in paying for the finishing of the house and restoring to it the furniture destroyed.”

There were a few minor changes in the plans as the work progressed including one suggested by Major William B. Lewis, Jackson’s closest political friend, who expressed the view that “the stories of the house should be made higher.” Colonel Armstrong wrote: “I think it would be an improvement and add very much to the appearance of the house.” On this subject General Jackson wrote to Andrew: “I would be satisfied to see it restored to what it was before it burnt, but as I know I shall not be long on earth to enjoy its comforts in retirement, I enclose his letter on this point to you that you may exercise your own discretion.” Major Lewis carried his point; the stories were made higher. Also during the course of the work, at the suggestion of the helpful Major, some changes were made in the size and arrangement of the windows. The new windows, he wrote Jackson, “are of very pretty size and proportions, and will look much better than the old ones.” He added that in his opinion the house as rebuilt would be a great improvement over the old one, both in interior arrangement and exterior appearance.

At last, on August 2, 1836, Colonel Armstrong rendered to General Jackson a final statement of the expense of rebuilding:

36

Estimate of bills of the Hermitage House, with the amount paid and balances due 1 June:

For amount of Reiff and Hume bill per agreement contract $3,950
For extra work done upon change of plan 239
For work done on west wing and new kitchen, finding everything 186
For the full-length two-story porch added, finding everything 750
$5,125
To cash paid Reiff and Hume at sundry times $2,285
ditto paid 25 April 1,000
ditto paid by A Jackson in work 513
ditto paid June 24 500 $4,298
$ 827
For Amt bill Higgins plastering $900
To cash paid Higgins in part $500
ditto ditto June 24 225 725 175
For Amt bill of painting, paints, oils, etc. $400
To cash paid Horn and Wells (Horn 100) $188
do paid Horn 50
do paid Wells 25 263 137
Do paid Horn 2nd of August 1836 pd by A. J. jr. 85
$ 52

“The house is well built and convenient and in appearance greatly improved upon the old one,” Colonel Armstrong wrote Jackson upon its completion; and so the old General found it when he returned to the Hermitage in June, 1836.

When the fire occurred Andrew, junior, and his family went to live temporarily at the nearby Hunter’s Hill place, but later took a house in Nashville. In November, 1834, Mrs. Jackson and the children went to Washington to spend the winter in the White House, with interspersed trips to Philadelphia to visit her family and buy furniture for the Hermitage, but Andrew stayed in Nashville to look after the rebuilding work. He joined Sarah and the children for a vacation with the President at the Rip Raps in July and August, 1835, but he came back to Nashville in September.

37

III: RESCUE AND RESTORATION

Those who believe in special dispensations of Fate affecting human affairs must feel that there has ever been watching over the Hermitage some kindly guardian angel to protect it from the wasting touch of time and especially to frustrate the numerous and varied efforts that have been made to utilize it for some purpose which would have made it impossible to maintain it as a national shrine for patriotic Americans.

Andrew Jackson had been dead hardly ten years before it was proposed to convert his old home into a military school. Immediately following the War Between the States, during the Reconstruction period, it was suggested that it would be an ideal location for a home for Federal soldiers. Later it was selected as the proper place for a Confederate veterans’ home. Then some misguided persons wanted to establish a reform school and penal farm there. Still later a movement was started to convert the plantation into a model farm for educational purposes. These were but a few of the plans advanced for making use of the Hermitage; but in every instance a benevolent Providence intervened and helped to preserve it as simply the home of the patriotic old pioneer Tennessean whose burning love for his country transcended every other emotion.

When General Jackson died in 1845 he left the entire Hermitage estate to his adopted son, Andrew Jackson, junior. When the old General made his last will in 1843 one of his closest friends, Major W. B. Lewis, who felt no restraint in volunteering his advice, offered the suggestion that for the protection of the interests of the adopted son’s wife and children it might be advisable to leave a part of the estate to them in some such way as to insure their continued comfort and security “in case his son’s speculations should continue to be unsuccessful.” But Jackson’s sense of loyalty to his adopted son was so great that he refused to entertain this suggestion. “No,” he said firmly, “that would show a lack of confidence in Andrew;” and, pointing to his wife’s tomb in the garden, he continued: “If she were alive she would wish him to have it, and to me her wish is law.” But the General’s 38 loyalty did not exceed his frankness, and in the preamble of his will he sets forth the lamentable fact that “my estate has become greatly involved by my liabilities for the debts of my well-beloved and adopted son, Andrew Jackson, Jun.”

The exact condition of Jackson’s estate at the time of his death was set forth in detail in a communication from a Nashville citizen which was printed in a daily paper in 1889: “At the death of General Jackson he owed but two debts of any magnitude, one of them $15,000 to Frank Blair of Washington, the other to General Planchin of New Orleans. His estate consisted of the Hermitage, then containing about 1,200 acres, on which he had about 100 negroes besides stock of all kinds. Besides this he owned his plantation in Mississippi which the adopted son and heir afterward sold with the negroes then on it for $40,000. This left the Hermitage, with the negroes and all else on it, clear and free after paying the $21,000 of debt, with a surplus of $19,000 in cash. So, to sum it all up, the estate at the General’s death was worth, clear of debt, somewhere near $150,000. This was well known by those near him and was generally believed by the community. It has been repeatedly stated by his opponents that the General was deep in debt when he died in 1845, if not insolvent. This is a great mistake, as I have endeavored to show from the facts here given, which are from my own knowledge received from my intimate business relations with the adopted son and heir, Andrew Jackson, Jr.”

Andrew Jackson, junior, in retrospect presents rather a pathetic picture. As the President’s adopted son he had every opportunity before him; but apparently the germ of success was simply not in him. General Jackson lavished affection and attention on him throughout his childhood and youth, and a real son could not have been reared more tenderly. “I have no doubt he will take care of us both in our declining years,” the General wrote Rachel in 1813. And in 1832 he wrote an old friend that “Andrew is now married and I mean to throw the care of the farm on him. I shall never more pester myself with this world’s wealth.” But, 39 somehow or other, something always seemed to be going wrong with the things to which Andrew gave his attention. All accounts agree in describing him as exceptionally amiable and engaging in his personality; he was well educated, being a graduate of the old University of Nashville; he was charming socially; he was beloved and venerated by his family—but he seemed unable to develop the rugged aggressiveness and forcefulness of his illustrious namesake, and gradually the estate bequeathed him by General Jackson slipped between his fingers. Cholera took off 26 of his slaves in one year; another year there was a calamitous crop failure; ill-advised kindness led him to endorse friends’ notes—with the usual result; and an unwise business venture cost him the $15,000 he had invested in it.

An estate of $150,000 was a notably large bequest back in 1845; but by 1853 the heir’s fortunes were so shrunken that he was reduced to the necessity of mortgaging the Hermitage to secure a $15,000 debt, and in 1856 he was forced to the sad extremity of placing the estate on the market—having already sold off all of the land except 500 acres.

Naturally, the first prospective purchaser to whom the historic property was offered was the State of Tennessee. In fact, General Jackson seems to have foreseen some such contingency and before he died had told his son that if ever it became necessary for him to sell the Hermitage he should first offer it to his native state. The offer was made, and the state General Assembly passed the following act authorizing its purchase:

Whereas, it is good policy in a republican government to encourage the habits of industry and to inculcate sentiments of veneration for those departed heroes who have rendered important services to their country in times of danger; and

Whereas, Tennessee acknowledges no superior in feelings of patriotism and devotion to the Union in whose cause the lamented Andrew Jackson acquired so much distinction; therefore

Be it enacted by the General Assembly of the State of Tennessee that the governor of the state be empowered and it is hereby made his duty to purchase for the State of Tennessee 500 acres of the late residence of 40 Andrew Jackson, deceased, including the mansion, tomb and other improvements, known as “The Hermitage.”

Be it further enacted that whenever the said purchase is made and the title to said property secured to the state that the governor is hereby authorized to cause the bonds of the state to be issued and to endorse the same in an amount not exceeding $48,000, the proceeds of which to be appropriated by him to carrying into effect the provisions of this act: Provided, that the governor and the secretary of state upon investigation shall be satisfied said price is not exhorbitant.

Be it further enacted that the governor of the state be authorized and required to tender the said property to the General Government of the United States upon the express condition that it be used as a site for a branch of the Military Academy at West Point; and in the event the General Government does not accept the tender thus made in two years from the expiration of this session of the General Assembly, then the governor shall be authorized and required to have fifty acres laid off, including the tomb, mansion and the spring and the spring houses, and expose the balance to public sale either as a whole or in lots, on time or for cash as to him may seem best, and make his report to the legislature of 1859-1860.

Andrew Johnson was governor of the state at this time and was the sponsor of the plan to tender the Hermitage mansion and grounds to the Federal government as a site for a branch of the military academy. In due season he made the tender as instructed, and in 1857 the Committee on Military Affairs of the United States Senate, through Tennessee’s Senator James C. Jones, accepted the offer. But the war clouds were gathering. There was mounting sentiment in the North against a federal military school in the South. Thus, Tennessee retained title to the historic property.

The price the state actually agreed to pay Andrew Jackson, junior, for the property was $50,000; but Mr. Jackson was to continue to occupy it for two years beyond the time of the sale, and so the state held out $2,000 in lieu of rent. Tennessee may not have been willing to recognize any superior in patriotism and devotion to General Jackson, as so eloquently expressed in the enabling act, but she was not above driving a hard bargain with 41 his adopted son. Mr. Jackson, in accordance with the terms of the trade, remained at the Hermitage until 1858 and then removed to Mississippi.

From 1858 to 1860 the Hermitage was without an occupant, and suffered as tenantless houses usually suffer. There was nothing further said about using it as a military school, nor was there any agitation of the plan to offer it for sale “as a whole or in lots.” Fortunately for coming generations of American citizens, the property remained intact; but the old house stood there vacant and decaying until 1860 when Isham G. Harris, the new governor of Tennessee, sent to Mississippi to request Mr. Jackson to return and be its custodian. Mr. Jackson had not been especially prosperous in his new home, and he was glad to return and reëstablish himself in the Hermitage as “tenant at will.” His household at this time consisted of himself and wife, his daughter Rachel, his two sons, Andrew and Samuel, his wife’s widowed sister Mrs. Adams and her three sons.

When Tennessee cast her lot with the Southern Confederacy in July, 1861, it did not take long for the young men of the Hermitage household to join the Confederate forces. Five brave-hearted young soldiers walked out the broad front door of the Hermitage, mounted their horses and rode off to the front. Only one returned. Andrew, III, who had been educated at West Point, was commissioned colonel of the First Tennessee Heavy Artillery, and he was the lone survivor after four years of war, more than half of which was spent in prison at Camp Chase. Samuel, a captain, was killed at Chickamauga and lies buried in the family burial plot in the Hermitage garden. None of the Adams boys survived the war. One was in the Confederate Navy, one was a casualty at the siege of Vicksburg, and the other died in Kentucky fighting with General John Morgan.

Andrew Jackson, junior, with his wife and daughter and Mrs. Adams remained at home in the Hermitage and watched the waves of the war roll back and forth around them. In 1862 after the fall of Fort Donelson (named, incidentally, for Daniel A. Donelson, 42 a general in the Confederate Army and a nephew of Mrs. Rachel Jackson), Nashville fell into the hands of the Federal troops and was never regained by the Confederates. During the Federal occupation of Nashville and the surrounding country, General George H. Thomas placed a cavalry guard over the Hermitage to protect it from damage or despoliation; and to this thoughtful foresight on General Thomas’s part may be attributed the fact that the old home of Andrew Jackson did not suffer the fate of so many other historic houses in the South during the four years of war.

In April, 1865, Andrew Jackson, junior, stepped finally from the stage where he had played such a sad and ineffectual rôle. Just a few days after the news of Lee’s surrender reached the Hermitage he accidentally shot himself while hunting, and died the next day. Perhaps the summons of death was not entirely unwelcome to this saddened and impoverished old man, who had spent his last days as a guest in the decaying old home amid whose pristine splendor he had been the petted and pampered son of its distinguished and honored master. Again the words of the funeral service were heard in the Hermitage parlors, and friends bore his remains to the little graveyard in the corner of the garden. Here he sleeps, with his sons at his side, close in the shadow of the monumental tomb of the great man who adopted him, who gave him his name and who strove so earnestly to make another Andrew Jackson of one in whose veins flowed none of the red Jackson blood.

Mrs. Sarah York Jackson, with her son Andrew, and her sister Mrs. Adams, remained at the Hermitage in the combined position of custodian and guest of the State. The daughter, Rachel, had married Dr. John M. Lawrence and removed to a nearby farm. The state, apparently, forgot that it owned the historic old mansion; and, as the occupants’ means were limited, it gradually deteriorated. Soon after her husband’s death Mrs. Jackson held an auction at which were sold the furnishings of the dining room. These were bought, for the most part, by neighbors and residents of Nashville; and when the Hermitage was rescued and reclaimed most of this furniture was restored to its original place either by purchase or by gift. Mrs. Jackson died in 1887 and she was succeeded as custodian by her son who, in the same year, married Miss Amy Rich, a native of Ohio who was teaching school in the neighborhood.

The Hermitage Church as it appears today.

Interior of the old Hermitage Church. The Jackson pew was near the front on the left-hand side.

View of Mrs. Jackson’s tomb with its eloquent epitaph.

The tomb of General Jackson and his wife in the Hermitage garden. Members of the adopted son’s family are buried in the plot in the background. In the lower right corner is the headstone of the grave of Uncle Alfred “faithful servant of Andrew Jackson.”

43

From time to time, as the years went by, various suggestions were advanced with reference to making some use of the Hermitage property, but none of them gained much support or aroused much interest. For two decades after 1865 most of the efforts of the state of Tennessee were in the direction of recuperating from the ravages of four years of war, and no serious consideration was given any plan for doing anything definite with the Hermitage. Things just drifted along, with the old mansion house gradually taking on an increased shabbiness, weeds and sprouts springing up in the once well-kept lawn, and other signs of deterioration increasing.

Finally, however, in 1888 affairs were brought to a head by a proposal that the house and farm be converted into a home for Confederate soldiers. This movement gained instant popularity, and so great was the appeal of the idea that it was generally considered that when the state’s General Assembly met in 1889 some action would be taken to convert the Hermitage into a soldiers’ home.

It was then, as a sort of emergency defensive measure, that the Ladies’ Hermitage Association was hastily organized; and too much can never be said in tribute to the work done by this association in saving Old Hickory’s home from misuse or destruction. The idea of an organization of women to preserve and beautify the old place seems to have originated in the mind of Mrs. Amy Jackson, wife of Colonel Andrew Jackson, III, inspired by the successful experience of the Mount Vernon Association in rescuing Washington’s home on the Potomac; and she quickly enlisted the aid of kindred spirits who worked with a fervor and tenacity worthy of Andrew Jackson himself until they had accomplished the desired end.

44

The people of Tennessee, naturally and justly, had a feeling of veneration and devotion for the Confederate veterans; and it required courage to appear before the public in the rôle of opposing the soldiers’ home movement. Colonel and Mrs. Jackson, however, had associated with them in their apparently hopeless task some tireless and enthusiastic workers. There was Mrs. D. R. Dorris of Nashville, whose husband was a newspaper man and who was herself an accomplished publicist; there were Mr. and Mrs. William Alexander Donelson, Mr. Donelson being a son of Andrew Jackson Donelson, General Jackson’s ward, secretary and friend. From the time of Mrs. Jackson’s conception of the idea of a memorial association, these zealots never relaxed their vigilance nor abated their efforts; and it is primarily due to them and their far-seeing vision and untiring enthusiasm that the Hermitage is today preserved for all the world as a historic shrine.

Mrs. Jackson was not a native of Tennessee, and after she got the ball started to rolling she took but little active part in the promotion work following an initial brush with a group of the Tennessee legislators whom she sharply charged with a lack of veneration for Old Hickory’s memory. They promptly retorted with mumbled but fervent invective against damned Yankees impeding a movement for a Confederate veteran’s home; and she was wise enough then to withdraw from the controversy, which bade fair to become heated. Colonel Jackson, himself a Confederate veteran, was invulnerable to any possible criticism as to a lack of love for the South, and he proved a tireless worker in the cause. Mrs. Dorris worked day and night and kept up a barrage of publicity in the newspapers which was of inestimable value in swaying public sentiment; and Mr. Donelson, with considerable of the diplomacy and political shrewdness inherited from his distinguished father, set himself to work at the task of pledging sufficient votes from the members of the Assembly to save the Hermitage.

Gradually the merit of the proposal gained for it new supporters among the prominent people of Nashville. Mass meetings 45 were held; the newspapers rallied to the cause. One by one, opponents in the Assembly were won over, until at last a majority was assured. But even then, the final result was a compromise. It was the original desire of the ladies to acquire the house and the entire estate, and the statement was boldly made that they were not looking for a gift, that they wanted to buy the property from the state—although they themselves were not quite sure just how they were going to buy anything when they didn’t have any money. At last, however, it was agreed—after long and sometimes stormy debate—that the state would retain the larger part of the farm (475 acres) and erect a special building on it for the soldiers’ home, granting to the women’s organization control of the Hermitage mansion house and twenty-five acres of ground, including the garden, with the injunction to “adorn, beautify and preserve” it.

It was a great disappointment to the ladies when they got only the relatively small tract of twenty-five acres immediately adjacent to the house; and through the following years the association never lost sight of its original aim. In 1923 its tenacity of purpose was first rewarded by having the General Assembly of the state convey to the board of trustees an additional 232½ acres of the original tract, to the end that the association “be permitted and encouraged to preserve and beautify same, so as to display the respect, love and affection which a grateful state and people cherish for their illustrious hero and statesman, Andrew Jackson.” It was stipulated at the time of this conveyance, however, that there should be no interference with or infringement on any of the rights or uses of the land then held and used by the Confederate soldiers’ home so long as the home should continue to exist. But in 1934 the number of inmates in the home had dwindled to eleven, so these few tottering old men were transferred to another state institution; and then all the remaining acres were turned over to the management of the Ladies’ Hermitage Association. Thus, at last, the association achieved its original aim to have the 46 whole property under its direction—the mansion house and the entire 500 acres.

The state in its conveyance of the property adopted the excessive precaution of providing for the creation of a board of nine trustees (male in gender), these to be commissioned by the governor upon the recommendation of the association. This, it will be recalled, was back in 1889 before the days of equal suffrage, when the activities of mere women were supposed to require the strong guiding hand of a masculine supervisory body; but, be it said to their everlasting credit, the trustees have tacitly taken the position that their powers and duties are purely nominal and honorary. The legal title to the property rests in them; but the administration and management are vested in the ladies’ organization, and whatever credit is due for the rescue and preservation of the Hermitage is distinctly to be attributed to the unflagging labors of the patriotic and devoted women who have constituted its membership and corps of officers since it was organized.

The Ladies’ Hermitage Association was formally organized on May 15, 1889, under a charter that had been granted on February 19th of that year. At the organization meeting directors were elected and the association was definitely launched as an active body with Mrs. Nathaniel Baxter as its first regent. Following the example of the Mount Vernon Association, it was planned to make the organization truly national in its scope by appointing vice-regents in every state of the union. Accordingly an impressive list of vice-regents was made up, including such distinguished women as Mrs. Grover Cleveland, Mrs. Potter Palmer, Mrs. A. K. McClure and others, who, it was hoped, would be interested in the movement. The hope that women in other states would join in the work, however, proved to be without foundation; and the women of Tennessee soon reconciled themselves to the realization that whatever was done would have to be done without outside assistance.

Although the promoters of the association were successful in their efforts to prevent such use of the Hermitage as would destroy 47 the possibility of maintaining it as an historic shrine, the state was strangely reluctant and niggardly in carrying out its part of the deal. In substance, the state transferred to the ladies’ association the responsibility of managing the property; but did not, at that time, appropriate one cent for its maintenance. In 1895 the state, in a burst of belated generosity, appropriated $50 per month for the upkeep of the Hermitage. This was increased to $1,200 per year in 1911, to $1,800 in 1915 and to $2,000 in 1919, at which later figure it now remains; but for its whole life the Ladies’ Hermitage Association has been to all intents and purposes entirely self-supporting, and in raising funds for the purchase of the original furniture and historic relics it had no financial aid whatever from the state.

Immediately after acquiring the property the association broadcast an appeal to the American public for funds; which appeal, printed in booklet form, was given the most widespread distribution. After reciting the fact that the association had been entrusted by the state with the management of the property, the booklet stated:

The association proposes to keep in continual repair the house, tomb and grounds; for many years nothing has been done in this regard. There is consequently great need for a repair fund, and the first money collected into the treasury will be devoted to restoring to its original beauty the grand old historic mansion, the tomb, and to adorning the grounds. The association also wishes to purchase the relics and furniture now at the Hermitage and owned by Colonel Andrew Jackson, and which have been pledged to said association. These relics are both valuable and interesting, and a large sum of money will be required to purchase them. It will be readily seen that to put the homestead in thorough repair, to purchase the relics, to create an endowment fund by which the association is to become self-sustaining, a large sum of money will be required. The association is national in its character, as Andrew Jackson was national in his reputation. He belonged to the people, and to them the association now appeals for assistance in this great work. The by-laws require a membership fee of one dollar; by this means the association hopes to realize at least $150,000, as it is the belief that there are fully that many citizens of the United States who 48 would gladly give that sum to the restoration of Old Hickory’s home. Contributions are invited of any sum from one dollar or less to any great sum a munificent benefactor may be willing to give. We hope that this appeal will strike the keynote of patriotism and that in a very few years the home of Andrew Jackson, the beautiful Hermitage, will be the Mecca of all true patriots in the United States, and of historic interest to the touring stranger.

Despite the eloquence of this fervent appeal and the sanguine expectations expressed, the effort to enlist financial support was signally ineffective and devoid of results. All the true patriots, so confidently invited to join in the movement, seemed fully willing to let somebody else pay for restoring of Old Hickory’s home. No munificent benefactor stepped forward to volunteer the donation of any great sum. To their pained surprise and chagrin, the ladies were forced to the conclusion that they themselves by their own efforts would have to raise the money needed. And so they fell to work at the proverbially hopeless task of pulling themselves up by their own bootstraps.

In 1889 the association must have viewed the task ahead of it with something akin to terror: A tumble-down house, a neglected and weed-grown lawn and garden, dilapidated fences and out-houses—and an empty treasury. Window-panes were broken out; the woodwork had not known the touch of a paint-brush for forty-five years; the stately columns were rotting and awry; window shutters were off their hinges, flapping in the wind; the roof leaked so badly that the plastering was falling off the walls and ceiling; the wallpaper was hanging in tatters; the old dining-room was used as a place for storing sacks of wheat, with space left for General Jackson’s old carriage; the rear lawn had been plowed up and cultivated. Here was a rehabilitation job of sickeningly great proportions—and the fledgling organization did not even have enough cash in hand to start grubbing up the young elm and mulberry sprouts that covered the front lawn.

But the ladies, buoyed up by their zeal and devotion, never lost heart. They would not permit themselves to be discouraged 49 at the magnitude of the task confronting them. By dint of holding entertainments and concerts and balls and resorting to other money-making expedients they slowly accumulated enough to begin the work of making the most immediately necessary repairs. It was an Herculean task, and the marvel is that they had the courage and pertinacity to attempt it and stick to it in those early days when financial help was so hard to get.

One of the earliest sources of revenue for the association was the staging of excursions to the Hermitage. This was before the days of good roads and automobiles and the place, located twelve miles from the center of Nashville, was distinctly inaccessible. There was a railroad station two miles from the house, and the plantation’s steamboat landing was located just back of the soldier’s home building three miles away.

The first excursion was made by way of both rail and steamboats from Nashville, and was given on the occasion of the annual meeting of the National Educational Association in that city in July, 1889. This was the very first activity of the new organization, and it was on this occasion that the Hermitage was first thrown open as a public institution. “Pleasure wagons” met the trains and steamboats and transported the visitors to the house; and during the four days’ session of the educational association more than a thousand people drove up the driveway, bordered with its towering cedars, and visited Old Hickory’s old home.

A noteworthy feature of this first official visitation of the Hermitage by the public was that just before the first wagon-load of pedagogical excursionists drove up to the front door of the mansion house there was born there the last of the Jackson name ever to be given birth within the walls of the Hermitage. The new arrival was named Albert Marble Jackson, in honor of the president of the educational association; and a committee of the visiting educators with a flourish presented the little fellow with a primer, placing his baby hands upon it when he was but a few hours old. All of the visiting ladies, of course, had to pick up 50 the new baby and cuddle it; and his old nurse never tired of recounting the fact that after the visitors had gone poor little Marble was “as red as a beet” from all the manhandling he had received during the day. Not until he had been given a sedative (in the form of a mild toddy) was he finally sung to sleep that night, after as strenuous a day as any new-born baby ever experienced. It was this baby, grown to be a handsome young man, who had the honor of unveiling Andrew Jackson’s bust in Statuary Hall in the Capitol at Washington in 1928.

Another promotional activity of the Ladies’ Hermitage Association, launched in 1890 and continued until recent years, was the brilliant ball given each year in celebration of Jackson Day—January 8th, the anniversary of the Battle of New Orleans. An interesting feature of this ball each year has been the lighting, for only a few seconds, of the historic candle found in Lord Cornwallis’s tent at the time of his surrender. The candle was presented to General Jackson during the height of his fame and was one of his most prized possessions. He made it a practice during his lifetime to light it briefly on every Eighth of January, and it was in honor of this ceremony of his that the practice was perpetuated in the Jackson Day balls. This old candle, brown with age, is one of the many interesting things to be seen now in the museum at the Hermitage.

When the Hermitage property was turned over to the association in 1889 it was in such a state of decay that it was hard to determine just where to start the work of repair. The roof was leaking, the woodwork needed painting, the wallpaper was hanging in shreds on the dampened and moldy walls. One of the first works of restoration involved the repair of the hand-painted scenic wall paper that adorned the lower hall. This paper was threatened with complete destruction when the ladies’ association took over the management of the property; and an expert wallpaper man spent two weeks repairing it and putting it back in place. At the same time the wall paper all over the house was restored and renovated, as it was considered a matter of primary desirability and importance to preserve the original paper which had been selected by General Jackson and sent to the Hermitage when it was rebuilt in 1835. An excellent job of restoration and repair was accomplished, this being particularly noticeable in one of the guest rooms on the second floor. The paper in this room, in the old-fashioned block design, showed recurring bunches of roses; but the dampness of the walls had caused large patches of it to fall away and be lost. An artist was employed who so skilfully reproduced the design in fresco on the wall that it is today hard to see where the paper ends and the painting begins.

Earl’s portrait of General Jackson mounted on Sam Patch.

The old family carriage.

51

Again in 1930 the scenic paper in the hall was the subject of preservative treatment at the hands of one of the world’s foremost experts in this kind of work. Skilfully the paper was removed from the walls, which were then lined with canvas. The canvas was then covered with plain white paper, on which was mounted the scenic paper. Due to the ravages of time and the petty vandalism of misguided souvenir hunters some small parts of the paper were missing, but these were carefully reproduced and the lower hall now presents the same gay appearance it did when President Jackson came home from Washington in 1836 to inspect his rebuilt and refurnished home.

During the early days limited funds necessarily restricted the work that could be done; but as the years went by the income gradually increased, and each succeeding regent of the association took pride in performing some necessary part of the work during her administration.

In 1907 the association received its greatest single gift of money from an outside source—an appropriation of $5,000 from the United States government. It was during this year that President Roosevelt visited the Hermitage, and he immediately became much interested in its attractiveness and importance as a national shrine.

President Roosevelt was a genuine admirer of Andrew Jackson. In his book about the War of 1812 he said that “Jackson is certainly by all odds the most prominent figure that appears during 52 this war;” and later in the same book he says that Andrew Jackson “with his cool head and clear eyes, his stout heart and strong hand, stands out in history as the ablest general the United States produced from the outbreak of the Revolution down to the beginning of the great Rebellion.”

In an informal address delivered on the occasion of his visit to the Hermitage, President Roosevelt complimented the ladies’ organization on what it had done to preserve it “as a place of national pilgrimage for all citizens who wish to learn, to study, who wish to quicken their patriotism in the present by visiting the abode, the living place of one of the great patriots of the nation’s past.” With his customary impulsiveness he then and there declared that he would see to it that the national government made a contribution to the expense of maintaining what he described as “the home of one of the three or four greatest public men that any nation has developed in the same length of time.”

In his very next message to Congress President Roosevelt said: “I solemnly recommend to the Congress to provide funds for keeping up the Hermitage, the home of Andrew Jackson, these funds to be used through the existing Hermitage Association for the preservation of the historic building which should be ever dear to America.” Honorable John Wesley Gaines, then a member of the board of trustees of the Hermitage was the representative in Washington of that Congressional district of Tennessee affectionately known as “the Hermitage District;” and he promptly introduced a bill following the recommendation of the President, which bill soon passed, granting $5,000 to the association. This money was utilized in making some highly desirable improvements about the place, foremost of which was the enlargement of the caretaker’s cottage so as to render unnecessary his occupation of any part of the house. The Hermitage then, for the first time, was open in its entirety to visitors.

The chief source of revenue of the association is the admission fee charged at the door of the house; and as thousands of visitors pass through the broad front door every month, the income from 53 this source is not inconsiderable. At first a fee of ten cents was charged, the amount being made small since there was really but little to see except the bare house and it in a sadly run-down condition. This fee, however, was increased to 25 cents in 1899, after some of the original furniture had been installed, and at this figure it has remained.

The funds derived from the admission fees are augmented by the sale of pictures, pamphlets and souvenirs. A few years ago an unusually severe storm blew down a number of century-old cedar trees that had been planted by General Jackson himself along the driveway; and from these fallen trees has been obtained a supply of wood from which may be supplied novelties for a long time to come.

Naturally one of the first aims of the association was to acquire from Colonel Andrew Jackson, III, the furniture and the personal relics of General Jackson which he had inherited and which he still had in the house. This furniture constituted the original furnishing of the old house, placed there by General Jackson himself, and included the bed on which he died and the appurtenances of his room just as he had left them. All these furnishings and relics had been left to Colonel Jackson by his mother, and it was the desire of the association to preserve them intact and keep them in their original place.

Colonel Jackson was agreeable to the sale, and gave the association a four-year option on them at a price of $17,500; but the finances of the organization were totally inadequate to handle a deal of such proportions at that time. Accordingly a compromise arrangement was made whereby Colonel Jackson and his wife were retained as custodians of the property, and the association agreed to pay them at the rate of 3% on the agreed value of the furniture and relics. The state had retained the tillable part of the farm, and Colonel Jackson could not look to that as a means of support; and although the struggling association could not keep up its payments to him with any degree of regularity, thereby working a hardship and inconvenience on him, he permitted the 54 option to remain in force until July, 1893, hoping that the organization would be able to raise the necessary funds. An effort was made to get the state to appropriate $15,000 for this purpose, and the governor sent a special message to the General Assembly recommending the appropriation. But the watchdogs of the state treasury could not see any political juice to be squeezed out of such a measure, and they proceeded to make spread-eagle orations about the folly of spending a small fortune for relics when there was so much “practical good” that could be done with the money. So the appropriation was defeated, and upon the expiration of the option Colonel Jackson and his wife removed from the Hermitage, taking with them all its furnishings and leaving only the bare walls.

With the Hermitage left bare and unoccupied, the ladies were confronted with the acute problem of what to do with the historic mansion they had worked so hard to get. Uncle Alfred, the ancient retainer of the Jackson family, remained in his cabin, the sole vestige of life on the place; but it was out of the question to expect this tottering old black octogenarian to care properly for so valuable a piece of property. For want of some more expedient means of immediately meeting the difficulty, the regent and secretary of the association planned temporarily to occupy the house themselves until suitable permanent arrangements could be made. A few simple pieces of furniture were installed, a cook was engaged to prepare their meals, and bravely the two ladies assumed occupancy of the deserted house.

The first day passed pleasantly enough, but the gathering shadows of night, when they were left alone in the house, suddenly brought home to the ladies a sharp realization of their lonely situation. They retired early and went to sleep, but they were awakened during the night by an unearthly din—from the pantry came the sound of crashing pans and dishes, there was a sound of chains being dragged across the upstairs hall, there was a noise like a war-horse being ridden headlong through the upper rooms. In short, there were all the standard evidences of a 55 real, old-fashioned ghost! The second night brought the same experience—and then, for some reason or other, the regent and the secretary officially decided that it would be wise to engage a regular caretaker to look after the property, and they discreetly returned to their homes in Nashville.

So a man was employed who was a combination carpenter and gardener and handy man, and for the next two years work was concentrated on improving the appearance of the place, especially in the garden. Then in 1895 a young farmer of the neighborhood, Mr. T. L. Baker, was engaged as caretaker, and he and his wife moved onto the premises and took charge. At this writing Mr. Baker is still the custodian, and the appearance of the Hermitage and grounds today is to a great extent a tribute to his faithful and efficient work.

Despite all its early discouragements, the association never lost sight of the fact that the most important thing before it was the restoration to the Hermitage of the original furniture and relics still in the possession of Colonel Jackson. Without them the house was just an empty shell. In 1897, while the Tennessee Centennial Exposition was being held in Nashville, Colonel Jackson wrote to the association suggesting that they buy and exhibit at the exposition the historic old Jackson family carriage. After some dickering the coach was purchased for $100 and put on display at the exposition, where it attracted much attention. It is now to be seen in the carriage house at the Hermitage, and constitutes one of the most interesting features of the display there. Visitors who drive to the Hermitage in their automobiles from all parts of the country seem fascinated by the clumsy-looking old coach with its high wheels, denoting muddy roads, but with its pink satin lining, indicating that it was a vehicle of quality.

The purchase of the old carriage served to reopen negotiations with Colonel Jackson, and from that time on the association continued to purchase the furnishings piecemeal until there had been acquired all the original furniture and most of the relics desired. With the aid of Mrs. Rachel Jackson Lawrence and Uncle Alfred, 56 both of whom were familiar with the arrangement of the furniture in the early days, every piece was put in its original and proper place. Today the Hermitage stands unique in being the country’s only national shrine which is fitted throughout with the original furnishings, which gives an authentic impression of the exact conditions under which its famous occupant lived his everyday life.

Wisely enough, the first purchase of furniture made by the association embraced the bedroom furnishings of General Jackson’s own room—the bed, dresser, washstand, couch, table, chairs, fender and andirons, all the portraits and the carpet. The price paid was $1,000. The furniture used in the downstairs hall was next purchased; and then, room by room, as the money became available, the purchases were continued until all the rooms were equipped with their original furnishings.

In 1894 one of the most important improvements was made when a modern heating plant was installed which eliminated the damage caused by excessive dampness within the house. The heating plant is now located at a safe distance from the building, for the purpose of reducing the fire hazard to a minimum. In fact, the most painstaking precautions have been employed to prevent fire. The house is not wired for electricity, and no artificial lighting of any kind is used. The place is closed to visitors when the light of the sun fades in the late afternoon. Danger from fire originating within the building seems to have been entirely eliminated; and as the caretaker’s home and outbuildings are at a safe distance from the house, the probability of fire being communicated from that source is remote.

By the narrowest of margins the Hermitage escaped from the blighting hand of those who would have made of it a military academy, a reform school or a state institution, or in some other way prevented its being maintained as a place where admiring American citizens may go and admire the memory of the man who lived there during the history-making days of his dramatic career in public life. But today, thanks to the diligence of a little handful 57 of far-seeing zealots of forty years ago whose patriotic devotion has been the inspiration of those who have so faithfully worked to bring their dream to fulfilment, the Hermitage is preserved in perpetuity as a shrine to which the footsteps of admiring thousands have beaten paths from all over the nation.

Andrew Jackson was a meteoric figure in the life of the country; he was the first to give actuality and realization to the theory that the most humbly born individual might aspire to and reach the President’s chair. Well did President Roosevelt say: “His career will stand evermore as a source of inspiration for boy and man in this republic,” and it is a priceless privilege that patriotic fathers may bring their sons to the stately old home of the grand old man who wore his patriotism as a flaming badge and who knew no motive more impelling than his passionate love for his country.

58

IV: DESCRIPTION OF THE HOUSE

When the wrought-iron gates swing back on the cut-stone pillars at the entrance to the driveway leading up to the Hermitage front door they leave an opening that is a tight fit for an entering automobile, although it was amply wide for the carriages in vogue a hundred years ago when it was built. Anyhow, this front entrance is not open to automobiles now—the ladies concluded that the trees were being jeopardized by the visitors’ cars—but, nevertheless, the Hermitage makes its most impressive appearance when approached from the front.

The house is situated back about a hundred yards from the county road, and is reached by a beautiful tree-lined driveway in the shape of a guitar. This driveway was built in 1837, when the Jacksons returned from the White House, and its design was suggested by Mrs. Sarah York Jackson. The ever-ready and versatile Earl drew the plans for it, and he and the General superintended the actual construction work. The General took particular interest in it and personally looked after the planting of the cedar trees on both sides of it. The driveway curves up to the step leading onto the portico, shaded by two splendid old holly trees, and here the visitor of today enters at the same place as did the guests of General Jackson in the early part of the Nineteenth Century.

The floor plan of the Hermitage, as will be seen from the accompanying sketch, was a convenient and commodious one.

Crossing the broad front portico, floored with flagstones quarried from the native limestone, and entering through the beautifully detailed double front door, the visitor finds himself in the wide central hall, running from front to back, a feature so much in favor in Southern architecture on account of the free ventilation thus afforded. The most immediately striking architectural feature of the hall is the superb circular staircase which sweeps in a perfect curve of beauty to the second floor. Whoever designed and built this stairway, craftsman though he may have been, had the soul of an artist combined with the brain of a mathematician, for every feature of it is so carefully planned and built that there is never a flaw in the flowing grace of its inspiring upward spiral sweep.

Passage from kitchen on left to entrance to butler’s pantry on right, with rear gallery in the background.

The Hermitage well, with primitive windlass and bucket.

The front gate and entrance driveway, bordered with native cedar trees planted by General Jackson in 1837.

The garden as seen from the window of one of the guest rooms, showing the east field beyond.

59

To the left of the hall are the double parlors, separated with folding doors, and each with its doorway into the hall. Each of the parlors has a handsome marble mantelpiece, the one in the front being made from marble quarried in Italy while that in the rear is made from native Tennessee marble. The crimson damask curtains at the windows were ordered by General Jackson in Philadelphia in 1836 when the Hermitage was refurnished, the color being specified because his wife had always preferred it. The piano in the back parlor is one bought by General Jackson for his little granddaughter, Rachel, soon after he retired from the Presidency. “Would my baby like to take music lessons?” he asked her one day; and when she answered in the affirmative he sent her mother to town to buy her a new piano—the old one wasn’t good enough for his little pet. The old piano was sold in 1865 when the adopted son’s widow disposed of some surplus furniture, the purchaser being a neighboring farmer who confided that he expected to use it to hive bees. There is also to be seen in the back parlor a handsome mahogany center table which has an interesting history. When General and Mrs. Jackson were entertained in New Orleans in 1815, following the battle, the handsome furnishings of the room where they were entertained were presented to them and shipped up the river to the Hermitage when they returned. Most of this presentation furniture was burned in 1834, but this old table survived. On the mantel in the back parlor is General Jackson’s favorite clock, with its hands stopped at the hour of his death. All the furnishings of the parlors—the chairs, mirrors, chandeliers, draperies, carpets, vases, divans, etc.—are part of the Hermitage’s original furnishings, and are in the places they occupied when General Jackson was alive. The crystal chandeliers are especially impressive. They seem to hang rather low—but they were placed there in the days when candles were used for lights, even before the later days when the primitive tapers were replaced with the modern sperm-oil lamps.

60

A doorway leads from the front parlor into the dining room wing, and there is also a door into the dining room from the broad front portico. To the rear of the dining room are the pantry and storeroom, with a passage leading to the semi-detached old-fashioned kitchen in the rear.

In the dining room is to be seen the massive mahogany sideboard purchased by Mrs. Jackson in New Orleans when she and the General were returning from Florida, together with the table, chairs and other original furnishings of this room. Here also is displayed most of the Hermitage silverware, including the silver formerly belonging to Commodore Decatur, engraved with his coat of arms, which was purchased from his widow by Jackson in 1833 when she was in reduced circumstances. The General bought from Mrs. Decatur for $350 her china and silverware, but he presented the china and two silver fruit baskets to Mrs. Emily Donelson, giving the remainder of the silver to “my daughter, Sarah Jackson.” When Commodore Decatur was killed in his duel with Captain Barron it left his wife in financial distress. One of her impatient creditors brought suit against her which, to use her own words, “frightened all the trades people with whom I have any little dealing and makes them more pressing for payment;” and the General’s check for $350 gave her very welcome relief.

The dining-room fireplace is featured by the celebrated Eighth of January mantelpiece, a rustic affair built of pieces of rough hickory by one of Jackson’s veterans of the Battle of New Orleans who made it as a monumental labor of love, working on it all by himself and working only on successive anniversaries of the battle until he got it finished on January 8, 1839. The General entered into the spirit of the thing and installed it in this room, with suitable ceremonies, on January 8, 1840. It is now in a rather dilapidated condition, thanks to the depradations of souvenir hunters in the early days before the present iron railing was built.

The floor in the dining room is a reproduction, the only floor in the house not original. This room, however, had been used for years as a storeroom when the association took over the property 61 and the flooring was ruined. An oak floor was laid to replace it; but in 1931 this was removed and a floor of wide poplar boards was built to correspond with the original. All the floors in the house are made of poplar, except the porch floors which are native Tennessee red cedar and which constitute a striking tribute to the durability of this wood.

In the broad central hall downstairs there is seen on the walls the celebrated pictorial wall paper, bought for the new house in 1836. Mrs. Rachel Jackson Lawrence, the General’s granddaughter, is authority for the statement that similar paper was used in the hall before the house was burned, and she was fond of recalling that the paper for this hall had to be bought three times: The first time from Paris, during Mrs. Rachel Jackson’s lifetime; and the two purchases that had to be made to get the paper on the walls in 1836. In the refurnishing of the new Hermitage most of the purchases were made in Philadelphia by Mrs. Sarah York Jackson; acting, of course, under the General’s suggestions when he had any to make. Accordingly in January, 1836, a shipment of furniture and furnishings was made from Philadelphia, the invoice covering which included the pictorial paper ordered from Paris: “3 sets of fine paper hanging, Views of Telemachus, @ $40, $120.” But the steamboat on which these furnishings were being transported, the John Randolph, was burned at the wharf at Nashville on March 16, 1836 (with the loss of three lives); and only a part of the boat’s cargo was saved. At a sale of the salvage, probably through error, the crate containing the paper, along with a lot of other stuff, was sold to Mr. W. G. M. Campbell who had just finished building a new home on his farm on the Lebanon Road near Nashville. Surviving members of Mr. Campbell’s family state that he did not know what was in the crate when he bought it, simply buying it “sight unseen” along with other salvage from the burned steamboat. The inescapable inference from the preserved correspondence is that Jackson’s Nashville factors, Yeatman and Company, who owned the John Randolph, tried to recover the paper after they discovered that 62 it had not been damaged by the fire so as to render it unfit for use; but, it seems, they were thwarted by Mr. Campbell who resorted to the expedient of pasting the paper on the walls of the parlor of his new house before starting to argue about it. The Campbell descendants today affirm that they never heard that there was any argument about it, and that all there was to it was that Mr. Campbell bought it at public sale, paid for it and used it—a strictly legitimate and above-board transaction. But on May 27, 1836, Colonel Armstrong wrote General Jackson in some heat as follows:

“I send you enclosed a note addressed to me by the Messrs. Yeatman after a conversation I had with them this morning. They have always been ready and willing to do all in their power to get back the paper from those who purchased it. When I called on Campbell I expected to get the paper; that night he cut it and put it on the walls. Williams is not at home. I saw Shelly, who will do nothing. He is not disposed to restore it. Williams dare not, as his wife claims it; so I called on the Messrs Yeatman and stated the facts, who willingly proposed to purchase another set. I did not present Andrew’s note to them enclosed to Colonel Love, but suggested in their letter to draw on them for the amount. My dear sir, when you have this whole matter explained it will give you a pain to find men so lost to all honorable feelings as to retain that which does not belong to them. It is a theft. The person who you got the other set from will draw on Messrs. Yeatman or myself on sight and the draft will be paid. Send it out as soon as possible, so that we may complete the house. Major Eaton will be with you in a few days and will explain this unpleasant affair and the treatment received. Yeatman will sue for the real value of the paper. He thinks he has been badly treated by Williams and Campbell. He offered them any profit in advance if that was their object. Let me request you to send out the other without delay, as I want to see the house complete before Mrs. Jackson and yourself get out.”

Colonel Armstrong’s letter is tantalizingly incomplete in details, 63 and there is no other written reference to this “unpleasant affair;” nor is there any inkling as to the identity of the Williams and Shelly mentioned.

Be that as it may, the paper was hung on the walls of the Campbell parlor and is there today, although it is now covered with two layers of modern wall paper put on to satisfy the taste of modern tenants of the old Campbell homestead who objected to the faded grandeur of the old hand-painted paper imported from Paris and wanted something bright and new.

Promptly upon receipt of news of the original paper’s fate, General Jackson wrote to his friend Henry Toland in Philadelphia and ordered a duplicate set. This paper, manufactured by Dufour in France and imported by Toland, is the paper that is on the walls of the downstairs hall today, attracting the admiring glances of all visitors.

This paper depicts the familiar story from mythology of the adventures of Telemachus on the island of Calypso while on his journey in search of Ulysses. There are four scenes in the paper: No. 1, the landing of Telemachus on the island, showing the queen advancing to meet him; No. 2, Telemachus, with Mentor beside him, relating to Calypso the story of his travels; No. 3, the fete given by Calypso in honor of the visitor; No. 4, Telemachus leaping from the cliff after the maidens of the island had burned his boat upon learning of his resolution to escape.

Midway of the downstairs hall, on the right-hand side, is the door to a cross-hall which leads to the side entrance on the east or garden side. On either side of this little hall are doorways leading to the downstairs bedrooms; and the entry hall at the side is flanked on the left by a small room formerly used, first as the overseer’s or steward’s room and later as a nursery, and now serving as the museum. On the right is General Jackson’s library or office which has a door leading to the front bedroom (which was the General’s) and another door opening on the front portico, corresponding to the similar door at the other end of the porch which affords entrance into the dining room.

64

Perhaps the most interesting room of all is that front bedroom, the old General’s room, just as it was the day he died. There is the high old four-poster bed, with its heavy canopy and with its little steps at its side, the bed on which he breathed his last. There is the couch by the window on which he spent so much of his time during the latter years of his life. There is his chair, his dressing gown, his tobacco box; and there above the mantel is the portrait of his much beloved Rachel, placed where his eyes could see it the first thing in the morning and the last thing at night while he lived and where the last flickering glance of his closing eyes rested the day he died. Two windows look out on the front porch, and it was by these windows that the plantation’s slaves gathered and waited weeping while he gasped out his last few breaths. Also it was through one of these windows that the old man leaped one night when he awoke suddenly and found his room filled with smoke. A spark had popped out of the fireplace and set fire to his big chair, but he thought that the house was afire and fled precipitately, calling for help. Here is a room redolent with memories of the old General; it is no wonder that visitors linger at its doorway longer than at any other spot in the whole house.

The room immediately across the side hall was originally known as “Mrs. Jackson’s room” and was used as a family sitting room, before the wings were added. At that time the present back parlor was used as the dining room, and the front parlor was known as the portrait parlor, being the room in which all the portraits were hung. In 1832 this back bedroom was refurbished to be used by Andrew Jackson, junior, and his wife as their room. “It will be more convenient than upstairs,” the General wrote Andrew when suggesting this use of the room—and perhaps he also looked ahead to the time when the adjoining little room would be useful as a nursery.

The office or library, adjoining General Jackson’s bedroom, might well be said to have been the center of political activity of the United States for thirty years. History was made in this room. Presidents were made and unmade, Cabinet officials and other 65 high dignitaries had their fate decided there. Here are the furnishings—the bookcases, desks and chairs—just as they were in those days. One feature that might strike the visitor is that there are not so many books in evidence as one might expect to find in the library of the President of the United States. Less than 1,000 volumes are in the cases. Andrew Jackson was a man of action rather than reading, but the books he possessed (many of them gifts of admirers and of proud authors) indicate that he had a widely diversified taste for good literature and that he was not a stranger to classical and studious reading.

The Hermitage bookshelves show a library of which nobody need feel ashamed. Here are Shakspeare’s works, the poems of Byron and Burns and Dryden, Pilgrim’s Progress and theological works alongside the novels of Smollett and Fielding. Here is Johnson’s Dictionary, and an early Encyclopedia Americana; the Spectator, the Rambler; early American novels, notably those of William Gilmore Simms and Charles Brockden Brown; here are Horace and Virgil in translation—and a burlesque Iliad. Memories of his war on the Bank are recalled by the numerous treatises on banking and currency; and one is reminded of his military days by a copy of the Infantry Regulations, dated 1812, along with a number of books referring to the War of 1812. There is a complete array of medical books for the home—necessary in those days before the telephone and automobile made doctors so immediately accessible; and his practical knowledge of stock breeding is indicated by the books on the veterinary science and the other aspects of animal husbandry. Here is young Andrew’s copy of Robinson Crusoe, also some of his schoolbooks; and a sentimental touch is provided by a calf-bound copy of Burns’ Poetical Works on the flyleaf of which is inscribed “To Rachel Jackson, from her beloved husband, And^w Jackson.” Also reminiscent of Rachel is a flower gardening guide, with quaint old illustrations. There are bound volumes of Niles’ Weekly Register, there are the Madison Papers and the American State Papers, some law books of the early days—in short, it is the library of a country gentleman and statesman of a century ago.

66

Here in his office, aside from his books, we find his old walnut desk, used throughout his life from the time he was a practicing attorney; the mahogany tables; candlesticks and lamps. It is the workshop of the statesman, just as he left it nearly a century ago.

In a cabinet on one side of the room are a number of bound volumes of newspapers of Jackson’s day, which recalls the fact that he was an omnivorous reader of the newspapers and periodicals current in his time. His postage account with the Nashville postoffice in 1825 shows that he received regularly the following papers: Washington City Gazette, Florence Gazette, American Farmer, Louisville Public Advertiser, National Journal, National Chronicle (daily), Niles Register, Columbian, Louisiana Gazette, Kentucky Gazette, Baltimore Morning Chronicle (daily), Jackson Gazette, Knoxville Enquirer, Allegheny Democrat, Mobile Commercial Register, National Republican, Knoxville Register and Florida Intelligencer—all these in addition to the Nashville papers. One wonders how he had any time at all for reading books!

The little room to the right of the side entrance was originally designed for an overseer’s room, but was later used as a nursery for the children of Andrew, junior. Now it provides an admirable place for the display of the many interesting Jackson relics accumulated by the Ladies Hermitage Association. Here is a wonderful array of historical and personal relics—the General’s swords and pistols (also his prayer book and silver communion cup); his gold spurs, epaulettes and stirrups, and his dress suit; Mrs. Jackson’s lace cap and veil; specimens of the White House silver, china and cut glass; the famous candle taken from the tent of Cornwallis; medals; jewelry; letters and documents—an intensely interesting collection of memorabilia pertaining to the vivid career of the Hermitage’s master. Literally hours may be spent in this room profitably and pleasantly.

One of the garden walks, with original boxwood and crape myrtle.

View of garden from the house, showing the tomb in the corner in the background.

67

The hall between the library and museum was originally an open entry, but was enclosed when the rebuilding was done. The closet on the right-hand side of the hall, under the stairway, was added after General Jackson’s death, but the left-hand closet was original. This was used in the old days to store the cotton goods made by the plantation spinners before it was doled out to the sewing women. Every year in the late fall the negroes were called up to the overseer’s room to be given their winter clothing, and this occasion was always seized upon by the negroes for a big celebration. A plantation slave orchestra, composed of fiddle, tambourine and bones, would make music while the negroes were coming and going and everybody—black and white—always had a big time on these occasions.

Going upstairs by way of the back stairway there is to be found on the right a bedroom that was used by the boys brought up on the place—Andrew Jackson, junior; Andrew Jackson Donelson and Andrew Jackson Hutchings. On the left is the bedroom occupied so long by Ralph E. W. Earl, the artist who married one of the nieces of Mrs. Jackson and who, upon his wife’s early death, was taken in as a permanent member of the Hermitage household.

The arrangement of rooms upstairs is similar to the downstairs of the central part of the house—a broad central hall, running the full length of the house, with two bedrooms on each side of it. This hall has doors at front and rear opening onto the upstairs back and front porticos; and its walls are covered with a hand-painted duplicate of the scenic paper downstairs. This duplicate paper was painted by Miss Jennings for use in the replica of the Hermitage which stood on the exposition grounds at the St. Louis World’s Fair in 1904. After the exposition closed it was brought back to Nashville and placed in its present location, where it provides a pleasing complement to the original paper in the lower hall.

On the western side of the upstairs hall the back bedroom was used as a guest room (and it was seldom empty); and the front bedroom is officially labeled “The Lafayette Room,” probably because it was in the corresponding room in the old Hermitage that the Marquis de Lafayette spent the day when he visited Jackson in 1825, ten years before the present Hermitage was constructed.

68

The fire in 1834 destroyed much of the furniture then in use in the house, and it was replaced with goods purchased in Philadelphia. Jackson left the selection of the furnishings to Mrs. Sarah York Jackson, his only suggestion in connection with the furniture being that she order beds with plain posts instead of carved ones as they would be easier to keep clean. This admonition accounts for the severely plain bedsteads to be seen throughout the Hermitage.

This new furniture was shipped in coastwise vessels to New Orleans, and thence by river steamboats to Nashville. There seems, for some reason, to be a strange conflict of erroneous opinions about the origin of the furniture used to furnish the new Hermitage. Some have stated that it was imported directly from France. At one time it was persistently reported that Jackson took the White House furniture to the Hermitage when he retired from office in 1837. The records clearly indicate, however, that the furniture was bought in Philadelphia through Jackson’s agent there, Henry Toland, and consigned by Toland to Maunsel White, Jackson’s New Orleans factor, with instruction to send it up the river to the Hermitage. The total value of the new furniture was $2,303.77, divided among seven Philadelphia merchants. A specimen bill for furniture from one house, showing the values prevailing at the time, was as follows:

Andrew Jackson, Jr., Esqr.,
to Barry & Krickbaum Dr
To 1 large wardrobe $ 75
2 dressing bureaus to match 110
2 wardrobes, French pattern 120
1 elliptic front bureau 45
1 secretary and bookcase, complete 50
2 pier tables, marble tops 120
1 work table, elegantly fitted up 50
1 work stand, marble tray top 35
2 ditto ditto 50
1 marble slab 10 $665
69

The detailed bill of lading for the principal consignment of the new furnishings gives a good idea of the original cost of much of the furniture now in the house:

Andrew Jackson, junior, Esqr.,
to George W. South, Dr.
For the following goods, shipped on board the ship Edward Bonaffe:
6 mahogany bedsteads, including the packing @ $40 $240
24 fancy chairs, cane seat, rich blue and gold @ $2.50 60
Matting to cover the chairs 2 $302
For the following goods shipped on board the Ship Milo:
4 curtains, crimson silk lined with white silk and full mounted, @ $75 300.00
Box 1.00 301
7 pair tongs and shovels, polished steel, @ $4.50 $ 31.50
1 pair Ditto large size 7.50
1 pair chamber candlesticks, plated 6.00
1 brass fender, Best 13.00
Box 1.00 59
1 wardrobe, black and ornamented 50.00
2 wash stands, marble tops, @ $18 36.00
2 ditto small, @ $5 10.00
2 large size bureaus @ $30 60.00
2 center tables @ $30 60.00
8 packing boxes 16.50 232.50
5 wire fenders with knobs @ $4.50 22.50
1 nursery fender 6.50
Box 1.75 30.75
2 pairs brass andirons @ $6 12.00
1 pair ditto 6.50
2 pairs ditto @ $7 14.00
32.50
Box 1.00 33.50
3 sets of fine paper hanging, Views of Telemachus @ $40 120.00
Shipped by Ship John Sergeant:
150 yards super Nankeen matting @ $.50 $75.00
20 yards Brussels 4/4 stair carpeting, crimson damask center with red border, @ $2.87½ 57.50
1 mahogany bedstead packed 40.00
1 very fine 60.00 232.50
1 blind, large size 10.00
1 pair blinds to match 10.00
1 dozen 40 inch stair rods 6.50
Box. 1.75 28.28
1,339.50
Insurance for Bonaffee at $400
Milo 900
Jno Sergeant 300
$1,600
@ 1½% $24
Policy 1 25.00
$1,364.50
Received payment, Geo. W. South, January 14, 1836.
70

All the goods mentioned in the above invoice arrived safely in New Orleans, but when they were reshipped on river steamboats to Nashville a large part of the goods was lost when the John Randolph burned at the wharf in Nashville on May 16, 1836. The John Randolph carried eighteen crates of the new Hermitage furniture, including the famous Telemachus paper, and this loss coming close on the heels of the loss of his house must have been sorely discouraging to the old man. But he promptly, upon 71 receipt of the bad news, wrote Andrew to check up the bills of lading and let him know just what parcels were burned so that he could reorder them in Philadelphia. His letter closes on a pathetic note: “This catastrophe will make it necessary that I should have more means, and in one of my letters I said to you to inquire whether the tract in the Western District, or part of it, could be sold and for what. You told me some time ago that there was a man would give five dollars per acre for 400 acres. If you can get that for it in cash I authorize you to sell it. You can say with truth that I had declined taking that offer for it because it was too low; but the burning of my house, and now my furniture, makes it necessary for me to sell.”

The General’s worst fears were realized insofar as he was perturbed about the inability of his resources to absorb the loss of his home and furniture. Soon after his return from Washington he wrote to a friend: “I returned home with just ninety dollars in money, having expended all my salary and most of the proceeds of my cotton crop; found everything out of repair, corn and everything else to buy for the use of my farm; having but one tract of land besides my homestead, which I sacrificed and which has enabled me to begin the new year clear of debt, relying on our industry and economy to yield us a support, trusting to a kind providence for good seasons and a prosperous crop.” To another friend he wrote, complaining that he had to buy bacon for his family and also corn and oats for the stock—an unforgivable thing to a practical farmer. Furthermore, upon his return he found “the new roof of my house, just rebuilt, leaking and to be repaired.” Continuing he said: “I carried $5,000 when I went to Washington—it took all of my cotton crop ($2,250) with my salary, to bring me home. The burning of my house and furniture has left me poor.” A few days after his return he said: “I find my blooded stock in bad order and too numerous for empty corn cribs and hay lofts. I have determined to sell out part to enable me to feed the balance better.” In the spring of 1838, anticipating a needed vacation at a health resort during the approaching summer, 72 he was trying to sell off some town lots he owned in Alabama, admitting frankly that unless he could sell the lots he would not have the means to make the desired trip to the springs. It was at this time that he wrote: “To wind up our debts since last spring we have paid upwards of $7,000. Andrew was inexperienced, and most men are likely to become swindlers when an opportunity offers, and he happened to fall into the hands of men who pretended to be friends and trusted too much to their honesty. But, thank God, we are not now in debt.”

But in the midst of his adversity we find him writing unselfishly to Andrew Jackson Donelson: “I heard you say that your means to buy corn was exhausted. Inclosed I send you half of my present means after paying for my corn, oats and fodder engaged. This half Eagle ought to buy you three barrels of corn. It will buy 20 bushels of oats, which will be better for your colts.”

73

V: THE GARDEN AND GROUNDS

Much of the sentimental interest attached to the Hermitage centers around the garden, that fenced-in acre to the east of the mansion house which was set aside by General Jackson for that purpose when the Hermitage was built in 1819. We know that the exact site of the house was carefully selected by his wife, and it is safe to assume that it was she also who picked out this particular spot for the garden.

A short time before the Hermitage was built the General, accompanied by Rachel, visited in Washington on official business; and on this occasion they made the pilgrimage to Mount Vernon. Jackson was obviously much impressed by his visit to the old home of George Washington, so much so that he left in his papers a written memorandum of his impressions aroused by his journey to what he described as “the venerable dwelling of the patriarch of our liberties.”

It is only a speculation, of course, but it is interesting to entertain the fancy that it was perhaps as a result of this visit that the old General, upon his return to Tennessee, decided to build for himself a home more in keeping with the dignity of the position he had attained as a national hero. Perhaps Rachel herself suggested it to him. She was proud of the General and the distinctions he had gained; maybe she put the thought in his head that the Hero of New Orleans ought not to be receiving his guests in a log house, that he should live in a little more style—something approaching the quiet dignity of Mount Vernon, which they both admired. A new house they should have—and, of course, by all means, a garden.

At any rate, we find in the old General’s memorandum of his Mount Vernon trip the following reference: “A neat little flower garden, laid out and trimmed with the utmost exactness, ornamented with green and hot houses in which flourish the most beautiful of the tropical plants, affords a happy relief to the solemn impressions produced by a view of the antique structure it adjoins, and leads you insensibly into the most delightful reverie, in which you review in imagination the manner in which 74 the greatest and the best of men, after the most busy and eventful life, retired into privacy and amused the evening of his days.” And so, when the Hermitage mansion house was built in 1819, we find close by its side “a neat little flower garden, laid out and trimmed with the utmost exactness;” and, although it is difficult to picture the tempestuous old warrior puttering about a flower garden, his correspondence reveals that thoughts of it occupied a part of his attention throughout his lifetime, and contemporaries have recalled that he had more than the average man’s interest in the flowers, particularly admiring the roses and the pinks.

That the garden was no mere afterthought or casual incidental to the building of the house is shown by the fact that in 1819 he engaged, evidently for the task of laying it out and planting it, an English professional gardener named William Frost, reputed at that time to be one of the best gardeners in the metropolis of Philadelphia. The best was none too good for Rachel in those days.

During his long absence from home during his two terms as President, Jackson’s correspondence is liberally sprinkled with references to his garden. In all the great difficulty he experienced in obtaining the services of competent or satisfactory overseers, one of his criticisms of them was that they were derelict in their care of the garden—Rachel’s garden. And in May, 1835, when his son wrote him relative to the good conduct of the new overseer most recently engaged he replied: “How I am delighted to hear that the garden has regained its former appearance that it always possessed whilst your dear mother was living, and that just attention is now paid to her monument. This is truly pleasing to me, and precisely as it ought to be.”

In May, 1832, in a letter to his son’s young wife General Jackson wrote: “I sincerely regret the ravages made by the frost in the garden, and particularly that the willow by the gate is destroyed. This I wish you to replace. The willows around the tomb I hope are living, and a branch from one of these might replace the dead one at the garden gate. It will grow if well watered and 75 planted on receipt of this.” But it didn’t grow—or else the youthful Sarah neglected to plant it; and it was not until 1925 that a member of the Ladies’ Hermitage Association ran across this letter of the General’s and decided that, better late than never, his wishes should be carried out. The willows at the tomb—the willows General Jackson had himself planted nearly a century before—are now dead and gone, probably crowded and shaded to death by the stately old magnolias that now guard the plot of graves. But a scion was taken from another willow on the place and today the young willow may be seen there at the garden gate, belatedly replacing the one destroyed by the late frost in the spring of 1832.

The garden plot occupies an acre of ground, surrounded by a high picket fence built of enduring Tennessee red cedar. The fence is of the old substantial type, constructed of pointed pickets mortised with precision into the horizontal sustaining members, and entrance is gained through an old-fashioned wooden gate, reached by a short brick walk from the door on the eastern side of the house.

Inside the garden, eight feet from the fence, the plot is encircled by a gravel walk about six feet wide, and similar bisecting walks cut the garden into four plots. In the center the walks converge on a geometrically designed system of concentric circular beds in which annuals bloom from year to year. Roses climb on the fence, and shrubbery is planted along the sides of the walks, the central portion of each of the four plots now being kept in grass. In the middle of the north side is the original brick tool house, the path to which is shaded by an old rustic rose arbor; and peeping out between the box bushes and crape myrtles may be seen an occasional moss rose or other old-fashioned plant.

We do not find here the hothouses with their tropical plants which the General and Rachel so much admired at Mount Vernon; but evidently an effort was made to introduce unusual shrubbery into the garden, for in addition to the customary plants found in a Southern garden of the period there are to be seen 76 some of the more rare and exotic shrubs—fig trees brought from the far South, a pink magnolia from Japan, etc.

The planning and arrangement of the planting is such that it provides attractions the whole year round. There are flowers throughout the blooming season from early spring to late fall; then there are the brightly colored leaves of the bushes and trees; and during the winter there is the glossy green foliage of magnolias and the faintly scented box bushes beside the garden paths, the barrenness of the flower beds at that season being relieved by the sweet-scented winter honeysuckle which defies the seasons and blooms in December and January as though it were mid-summer. The Hermitage garden is never without its attractive features.

In early spring there is first the brilliant bloom of the English hawthorn, then the narcissi and tulips and hyacinths making the air heavy with their fragrance, also the jonquils and old-fashioned blue-bottles and purple shades. Crocuses and butter-and-eggs and, later, iris and peonies all combine to make the garden a springtime riot of bloom. So spectacularly do the peonies bloom that they always attract large crowds of visitors while they are in full flower, more than a thousand visitors having gone to the Hermitage garden in one day to witness the rare floral spectacle.

Interspersed with all the conventional plants and shrubs are some of the native wild flowers that bloom in the fields and along the river banks near by; for when the Hermitage garden was first planted the florist’s art had not reached its present peak of perfection, and although the thoughtful General sent home flower seeds from Philadelphia and Washington, Rachel took pleasure in augmenting the garden’s finery by selections from the surrounding country. Visitors may still see in the beds there the nodding Jacob’s ladder, the columbine and other such homely blossoms. The wild yucca, with its semi-tropical appearance, was brought in from some of the near-by cedar glades, along with prickly pear cacti and rock roses; and a graceful fringe tree was planted near the entrance gate.

77

In the beds in the center of the garden there have always grown tulips in the springtime and then some kind of annuals to sustain the succession of blooms through the summer. Early in June the great collection of ascension lilies begin to bloom, filling the garden with their perfume; and throughout the summer there are the roses, both in bush and climbing form, mostly of the old-fashioned varieties—moss roses, the yellow briar, maiden’s blush, Louis Phillippe, macrophylla, pink musk, etc.

The shrubbery also contributes its share of blossoms, from the golden bells, bridal wreath, snowballs and calacanthus of the spring through the altheas or Rose of Sharon of the summer, to the pink and red crape myrtles of the late summer which cap off their showy mass of blooms with a brilliantly colored array of scarlet leaves in the fall months.

The Hermitage garden offers some form of attraction at any season of the year.

During the early days of the Ladies’ Hermitage Association the wealth of bloom in the garden was turned to good account, especially in the spring. Then cuttings of jonquils and peonies, literally by the wagonload, were sent into Nashville and sold on the street; and there were also sales of seeds and cuttings and surplus bulbs, so that visitors might take away with them living mementoes of the Hermitage garden. From this source the association was able to derive a considerable and much-needed revenue at a time when funds were scarce and every dollar of income was welcome.

During his lifetime Uncle Alfred, who acted as a guide to visitors, always took especial interest in the garden and beamed with proprietary pride when visitors gave expression to their appreciation of its beauties. “Please do not pluck the flowers” says a conspicuous sign by the side of the gate; but if a visitor really seemed interested in the garden’s attractions the old retainer would slyly say: “Now if you like dat rosebud, I won’t see you if you gets it.”

Some idea of what the Hermitage garden looked like in the 78 old days may be gathered from a description of it which was given in an interview printed in one of the Nashville papers several years ago with an old lady who had visited there with her father when she was a girl. Looking back down the vista of the years, she said:

The flower beds about the middle of the garden were there when the General lived there. He had an old negro, Alfred, to attend to the garden. They had a regular vegetable garden combined with the flower garden. The vegetable garden was not with the flower part of the garden, but you could see the vegetable garden when you stood in the flower garden or where the flowers were. They had cabbages, potatoes, beets, beans and squash and other vegetables in the vegetable part of the garden. They had sage and thyme around on the edge of the flower beds. They had in the flower beds hollyhocks, beds of pinks of all colors, rose bushes, tea roses, macrophylla and cinnamon roses, moss roses, white lilacs, tiger lilies, heliotrope (white and purple). Some of the beds were edged with sweet violets. There were poppies in some of the beds, and hyacinths and tulips. The Washington bower was on the side—on the fence and climbing up the trees in the garden—they were trees with long white flowers, locust trees I think. The garden was larger then than it is now—it was larger east and west than now and was fenced with a plank fence. There was a weeping willow there but I can’t locate it now. There was a large rope swing near the house and near to the entrance to the garden. It was tied to the limb of a hickory tree.

Continuing with her description of the garden this old lady spoke of two magnolia trees “about the middle of the garden near the tomb—good big trees” and in speaking further of the weeping willows stated that they were “just over the fence, near and opposite the tomb.” She also named more of the flowers that grew in the old garden: Several big bushes of crape myrtle; verbenas, all colors; sunflowers; all-colored flags—red, white and purple; snowballs; red, pink and white peonies; old-fashioned honeysuckle—coral, white and yellow, lilacs, white and purple. The “Washington bower” she describes as having a purple flower, so it was probably the large-flowering variety of clematis which was also known as the virgin bower. She also mentioned, in enumerating the shrubbery, “japonica bushes” which, she said, “has red 79 blossoms and comes early and late;” and this, we may presume, was the flowering shrub known now as the English hawthorn and also called the fire-bush.

The garden as it stands today is just about as it was in the days when it bloomed and blossomed under Rachel’s tender care, except that the flowering shrubs and bushes have now attained the size and beauty gained only with the passing of the years. But it was not in any such condition as this that the Ladies’ Hermitage Association found it when they took charge. During the wartime occupation of the premises by the guard of Federal troops the garden was almost obliterated. Being fenced in and convenient to the house, it appealed to the cavalrymen as an ideal corral for their horses, and it was so used during the three years the Federal troops remained on the grounds. It is easy to imagine the damage done—and it is also easy to imagine Old Hickory’s devastating wrath if he had known that his government’s troops were so heedlessly desecrating Rachel’s flower garden.

After the war but little was done to repair the damage done by the soldiers’ horses. The fence was restored, and this kept out wandering stock and permitted the hardy shrubs to grow again; but the paths were overgrown with weeds, washed by the recurring rains, and in 1889 little trace of the old walkways remained except for the marginal brick borders. (These bricks, by the way, were especially designed and made for the purpose, being longer and thicker than ordinary bricks and also beveled at the top. They were manufactured on the place when the bricks were burned for the building of the big house, the depression in the ground where the clay was dug out for all the bricks being still visible in the extreme northwestern corner of the big wooded lot directly across the road from the front entrance to the Hermitage.)

In spite of the discouraging aspect of affairs in the garden when the ladies took over the property, however, the work of restoring it to its original beauty was valiantly attacked, and one of their very first activities was to engage a man to clear away the weeds and blackberry bushes and the volunteer elms and hickories, rebuild 80 the paths and restore the garden to some semblance of its former appearance. The work of restoration has been carefully done, with a full appreciation of the importance of retaining the spirit and form of the original design and planting. A competent garden authority was retained to plan the work in later years, and there has been no effort to modernize or improve the garden—only a faithful determination to repair the ravages of time and present it to the visitor today just as it was when the General and Rachel were alive and wandered up and down its broad paths in admiration of its beauty.

The focal point of interest in the garden, of course, is the tomb in the southeast corner. When his beloved Rachel died in December, 1828, just on the eve of their departure for his first Presidential inauguration, the old General laid her away in the corner of the garden and, heavy-hearted, started off for Washington alone.

During the subsequent eight years, as the bitterly fought battles of partisan politics raged and surged about him in the nation’s capital, his heart remained buried in the garden at the Hermitage. In May, 1829, he wrote to the Rev. Hardy M. Cryer (that bizarre combination of devout Methodist preacher and horseman) saying: “In the day I am laboriously employed, and it is only when late in the night I retire to my chamber that I have time to think of or write to my friends. It is then that I feel the great weight of the late affliction of Providence in the bereavement I have been visited with in the loss of my dear wife; I find myself a solitary man, deprived of all hope of happiness this side the grave, and often with myself at the Hermitage, there to spend the remnant of my days and daily drop a tear on the tomb of my beloved wife and be prepared, when Providence wills it, to unite with her in the realm above.”

Due to the need for his immediate departure for Washington after the death of his wife, it was necessary that she be buried in a plain grave over which a temporary shelter was built. But it was never the General’s idea that her resting-place should go without 81 a more elaborate monument; and even before he left the Hermitage in January, 1829, he began negotiations looking to the design and construction of what he described as a “monumental tomb.” A contract for the building of the tomb was given a Nashville contractor, D. Morrison; and Mr. Morrison designed a simple but impressive structure of classic Greek lines. It is built of stone, its dome-like top being supported by fluted stone columns and covered with copper. The structure is surrounded by a simple iron fence.

The inscription on Mrs. Jackson’s tomb is popularly supposed to have been written by the General himself. Mrs. Rachel Jackson Lawrence stated that it was written by Major Henry Lee, the talented though scapegrace Virginian who was Jackson’s secretary and a resident of the Hermitage at the time of Mrs. Jackson’s death. It has even been attributed to Major John M. Eaton. Whoever wrote it, it is a beautiful and moving tribute to the pioneer woman who occupied the central place in Andrew Jackson’s heart throughout his life:

Here lie the remains of Mrs. Rachel Jackson, wife of President Jackson, who died the 22nd of December, 1828, aged sixty-one years. Her face was fair, her person pleasing, her temper amiable, her heart kind. She delighted in relieving the wants of her fellow creatures and cultivated that divine pleasure by the most liberal and unpretending methods. To the poor she was a benefactor; to the rich an example; to the wretched a comforter; to the prosperous an ornament. Her piety went hand in hand with her benevolence, and she thanked her Creator for being permitted to do good. A being so gentle and so virtuous slander might wound but could not dishonor; even death, when he bore her from the arms of her husband, could but transport her to the bosom of her God.

In strong contrast to this eloquent eulogy is the Spartan simplicity of the old General’s own epitaph, certainly written by himself:

82

GENERAL ANDREW JACKSON
Born March 15, 1767
Died June 8, 1845

There would have been no such simplicity as this about Old Hickory’s final resting place, however, if some of his admirers had had their way. Early in 1845, only a few months before Jackson died, Commodore J. D. Elliott of the United States Navy, commander of the old Constitution, brought home from Palestine the marble sarcophagus in which had rested the remains of the Roman emperor, Alexander Severus. Commodore Elliott wrote to General Jackson, advising him that he had brought home this handsome relic and deposited it with the National Institute with the suggestion that it be tendered Jackson for his own tomb. “I pray you, General,” wrote Elliott, “to live on in the fear of the Lord; dying the death of a Roman soldier, an emperor’s coffin awaits you.”

But General Jackson, as might have been expected, while courteously expressing his appreciation of the spirit of veneration that prompted the proffer, firmly declared that: “I can not consent that my mortal remains shall be laid in a repository prepared for an emperor or king.”

“My republican feelings and principles forbid it;” Jackson’s letter continues, “the simplicity of our system of government forbids it. Every monument erected to perpetuate the memory of our heroes and statesmen ought to bear evidence of the economy and simplicity of our republican institutions and of the plainness of our republican citizens, who are the sovereigns of our glorious Union and whose virtue is to perpetuate it. True virtue can not exist where pomp and parade are the governing passions. It can only dwell with the people—the great laboring and producing classes—that form the bone and sinew of our confederacy.... I have prepared an humble depository for my mortal body beside that wherein lies my beloved wife where, without any pomp or parade, I have requested, when my God calls me to sleep with my fathers, to be laid; for both of us there to remain until the last trumpet sounds to call the dead to judgment when we, I hope, shall rise together clothed with that heavenly body promised to all who believe in our glorious Redeemer who died for us that we might live, and by whose atonement I hope for a blessed immortality.”

Walnut desk used by General Jackson, with chair made from the wood of the frigate Constitution, presented to him by Levi Woodbury.

General Jackson’s office or library, showing his armchair, presented to him by Chief Justice Roger B. Taney, beside the candle-stand where he customarily opened his mail. For thirty years this room was the political center of the United States.

83

When the new Hermitage was built in 1819 and the garden was laid out, one of General Jackson’s first acts was to walk out into the garden with Rachel and select the spot where their remains would rest side by side when life had passed. At this time the General’s health was precarious, racked as he was by eight years of almost continuous campaigning while in a debilitated physical condition, and he frankly expressed the belief that he would not live long. At that time it seemed highly improbable that he would outlive the blooming Rachel by nearly seventeen years.

This burying ground in the corner of the garden is not, legally speaking, now a part of the Hermitage property. To insure its permanent care, General Jackson on September 17, 1832, executed a formal indenture with John H. Eaton, John Coffee, and Andrew Jackson, junior, “and their heirs forever,” whereby he “bargained, sold, conveyed and delivered” to them in trust “one-fourth part of an acre of ground, out of the Hermitage tract, to be laid off and run out so as to include the tomb or monument placed on the remains of his dear departed wife, Rachel Jackson, and designed as the deposit of the remains of the said Andrew Jackson when it pleases God to take him hence, and the family of Andrew Jackson, junior, and his heirs.” It is provided that the trustees and their heirs shall preserve the sacred deposit made upon said ground and let the tomb or monument remain undisturbed and “hold the ground subject to the use and purpose mentioned, forever.” This conveyance is duly registered in the courthouse at Nashville, and was taken into consideration when the Hermitage property was transferred to the state in 1857.

Here in this quiet corner, sheltered by the heavy green foliage of 84 the old magnolias that guard the tomb of the General and Rachel, are the graves of the adopted son and his family connections. Here lie Andrew Jackson, junior (the adopted son), and his wife, Sarah York Jackson; Colonel Andrew Jackson (the adopted son’s son), his wife Amy A. Jackson and his younger brother Captain Samuel Jackson, who was killed at Chickamauga; also the two other sons of Andrew Jackson, junior, who died in infancy; Rachel Jackson Lawrence, daughter of Andrew Jackson, junior, her husband, Dr. J. M. Lawrence and their son and daughter, John Marshall Lawrence and Sazie Lawrence Winn; Mrs. Marion Adams, sister of Sarah York Jackson; and R. E. W. Earle, the artist.

On the other side of the General’s monumental tomb, just across the graveled walk, is a single mound with a plain, low marble headstone on which is carved: “Uncle Alfred. Died September 4,1901, aged 98 years. Faithful servant of Andrew Jackson.” It was Uncle Alfred’s fondest wish in his old days that his mortal remains might be laid to rest as closely as possible by the side of his old master, the General; and the promise that he would be so buried lent solace to his declining years. So long as “the Gin’ral” lived, Alfred kept as closely by his side as possible; and close by his side he remains as master and servant sleep their long sleep in the dark magnolias’ shade.

When General Jackson in his letters spoke of returning to the Hermitage to cast a tear on the tomb of his departed wife it was no mere figure of speech. After his retirement from public life in 1837 he went back to the home place and spent the rest of his days on the farm in pleasant association with the family of his adopted son. Here a part of his daily routine consisted in a long walk in the afternoon which invariably wound up at the side of Rachel’s tomb, where he was wont to sit in contemplative reflection. His little granddaughter, Rachel, was his customary companion on these walks; but she soon learned that when his steps turned toward the tomb he wished to be alone, and when they reached the garden gate she always withdrew her hand from his 85 and ran away about her childish diversions, leaving him to his thoughts. Even after he became bedridden in the last year of his life, on pleasant days he required that his chair be carried to the garden and placed by the side of the tomb; and there he sat through the hours, dreaming of the stormy and pleasant days of the past.

Just to the east of the tomb the visitor to the garden today sees a group of hickory trees closely together in a straight row; and concerning these trees there is an interesting little story. On December 18, 1830, President Jackson received from an admirer in Ulster, New York, Colonel Charles E. Dudley, a parcel of hickory nuts (“nutts” in Jackson’s free-and-easy orthography) from a tree in Ulster said to be the only one of its kind known in New York. Colonel Dudley doubtless felt that he was the author of a delicate compliment in sending these unique hickory nuts to Old Hickory himself; and the President in his formal note of thanks, seemed duly appreciative of the honor intended. “To perpetuate this memento of the kind regard of Mr. and Mrs. Dudley,” he wrote in the formal official third person of the period, “he has sent one dozen of these nutts to be planted in his garden at the Hermitage, to encircle the tomb of his departed wife, and to have the following inscription engraved on the marble. ‘The Dudley hickory of Ulster, New York, presented by Mr. and Mrs. Dudley to the President.’”

Further reference to the nuts is seen in a letter written by President Jackson in the spring of 1831 to his adopted son, who was about to return to Tennessee: “I sent to Mr. Daniel Donelson some hickory nutts with a request that he would hand them to the overseer with a letter directing Steele to plant them around your mother’s tomb.” That they were duly planted is attested by the attention-attracting row of tall, straight trees seen there today; but there is no sign of the inscription mentioned in General Jackson’s letter to Colonel Dudley. No one now living remembers whether the trees were planted in strict accordance with the General’s expressed wish that they encircle the tomb, although one of 86 Jackson’s biographers does mention that “some fine hickory trees that grew in the garden” were at one time removed in a mistaken effort to improve the appearance of the place.

Despite the careful and painstaking preparations made by General Jackson to insure that the last resting place of his mortal remains would be by the side of his beloved wife in the tomb in the Hermitage garden, it was only by the interposition of the governor of the state that there was frustrated an effort to nullify this last wish of the old General.

When the state purchased the property in 1856 and then began to make plans to tender it to the Federal government as a suitable site for a military academy in the South, somebody had the bright idea of digging up the bodies of the General and Mrs. Jackson and removing them from the Hermitage to Capitol Hill in Nashville. Accordingly a bill was introduced in the General Assembly in 1860 providing for such removal, and it was promptly passed by the Senate. Before the lower house could act on it, however, Andrew Jackson, junior, heard of the plan and immediately raised a loud and well-justified protest. Directly to Governor Harris he went to remonstrate against the enactment of the bill, pointing out that upon his death-bed General Jackson had expressed the hope that the remains of himself and his wife should under no circumstances be removed from the Hermitage. Governor Harris thereupon sent a special message to the Senate and House of Representatives “respectfully recommending” that the bill be rejected and that Old Hickory’s wishes be respected. In those days a respectful recommendation from Governor Harris was just about equivalent to an edict, and nothing more was heard about disturbing the Jackson remains.

But, although this plan for the official removal of the remains was defeated, there was another mysterious and criminal attempt on General Jackson’s body several years later. It was late in the summer of 1894 that a visitor appeared at the Hermitage one morning and, as was the customary procedure with visitors, was courteously conducted through the house and about the grounds. 87 It was noted at the time that he displayed an unusual interest in the Jackson family and home life and talked with Uncle Alfred at great length about his old master. He showed particular interest in the tomb; although, at the time, no sinister intent was attached to his interest. After spending the morning on the place he went to a near-by country store for a bite to eat during the middle of the day and then returned and loitered about the premises throughout the afternoon until nearly dark. At length, to the relief of the custodian who was growing vaguely apprehensive, the stranger departed; and it was thought he had gone for good.

It is easy to imagine the custodian’s horrified astonishment, on visiting the garden next morning, to find a large and gaping hole in the ground on the west side of the tomb near the head of General Jackson’s grave. The hole was deep enough to expose the stone foundations of the tomb; but fortunately the burial vaults were enclosed in a solid wall of masonry, and the grave-robber’s felonious intentions were defeated. It developed, upon inquiry, that the mysterious stranger had borrowed a spade from the near-by Donelson home at Tulip Grove the preceding afternoon and that it had been carefully returned and left at the door of the house in the early morning hours. The ghoul had evidently, from the extent of his operations, worked all night in opening the big excavation; and he was doubtless exasperated to discover that the careful and substantial work of the builder of the tomb in 1831 had made the General’s last home impregnable to such assaults.

The Ladies’ Hermitage Association made every effort to ferret out the mystery; but, with the limited means at their disposal, they were able to learn nothing at the time. But several months later a man died in a hospital in New York who confessed that he was a professional body-snatcher (a practice not uncommon at that time) and that among other exploits of his infamous career he had made the ineffectual attempt on the Jackson tomb. Just what he intended to do with the body if his efforts had been successful was not revealed; and today it is hard to imagine how the 88 body of an ex-President would command any premium even in the grave-robbers’ underworld; but the fact remains that the attempt was made, and it was only because of the staunch construction of the tomb that the body of the General remained undisturbed.

The Grounds

The most attractive feature of the Hermitage grounds, aside from the mansion house itself and the garden, is the guitar-shaped driveway leading up to the front door from the entrance gate. All along both sides of the drive the General planted cedar seedlings, brought in from the near-by glades, and most of these original cedars, now grown into stately trees, still remain. The few that have succumbed to the stress of the years and the storms have been replaced with younger brothers, thus preserving the General’s original plan. The wood of the old trees uprooted by storms has been carefully preserved and is used for the manufacture of souvenirs and novelties which are sold to visitors.

Until very recently the front drive was still used as the visitors’ approach to the house; but it was feared that the continued every-day use of the drive might shorten the life of the old cedar trees, and so entrance and exit are now afforded by a modernly built driveway on the western edge of the front lawn. This drive is lined with young hardwood trees of historical significance, they having been transplanted from the historic battlefields of New Orleans and Alabama where Jackson made himself a world figure. There are thrifty young oaks here from Chalmette Plain, and from The Horseshoe, Fort Jackson, and Talladega—names indelibly associated in history with General Jackson’s ever-victorious combats with the British and with the Creek Indians. This step in the beautification of the grounds was made possible through the liberality of Mrs. B. F. Wilson of Nashville, when she was regent of the association.

Just to the rear of the dining-room wing of the house is the semi-detached brick kitchen, with its big open fireplace, where all the family’s meals were prepared during the years of the old house’s 89 occupancy. The kitchen separate from the house served to eliminate the noise and heat and odors of cooking, so far as the family and guests were concerned. It multiplied the task of serving the meals, but of what importance was that when labor was so plentiful? In the kitchen may be seen the cooking appliances used in the early days when there were fowls and huge roasts on the spits in front of the fire, potatoes boiling in the big pot on the crane, and doubtless hoecakes on the griddle and hot biscuits in the oven. Aunt Betty was the cook during the early days and up until the time she died in 1852; and in those days the cook ruled the kitchen with an iron hand. There were swarms of little black girls to keep the fire going and turn the spits and sweep the ashes and bring water from the springhouse and carry dishes to the dining room—and Aunt Betty was their boss. Housewives of today, accustomed to the culinary conveniences afforded by electric ranges and other modern trappings, wonder how Aunt Betty, cooking on an open fireplace, could prepare the food for a big family and a house generally full of guests. But those were the days of simple fare, simply prepared; and Aunt Betty was a master of that art.

Behind the kitchen is the big brick smokehouse—empty now, but a century ago filled with the great supply of hams and bacon needed for the feeding of a large household and a hundred slaves—not to mention the numerous guests. A normal supply of meat when hogs were killed and the hams and sides salted down and smoked was from 20,000 to 25,000 pounds. Today only its dark, smoke-stained rafters remain to tell of all the succulent country hams that once hung there, but there still clings about it an elusive and entrancing aroma reminiscent of the days when it was stocked with the plantation’s supply of meat. At hog-killing time—the first freezing weather in the early winter—a big fireplace in the cellar of the big house was used to heat water to scald the hogs and also for rendering the lard in the big black iron kettles.

The carriage house, to the rear of the smokehouse, is not the original building used for this purpose. It was put there during comparatively recent years for the purpose of conveniently displaying 90 the old Jackson family carriage. This old family carriage looks rusty and faded now, but a century ago it was the vehicular equivalent of the finest eight-cylindered limousine available today. Nothing but the best was good enough for General Jackson, whether he was buying a broadcloth suit or a horse or a carriage. Even before he was President he had an eye for style and a modest display of pomp. Old residents of Nashville used to tell of how the General would drive into town “in a carriage drawn by four handsome iron-gray horses, attended by servants in blue livery with brass buttons, glazed hats and silver bands.” These carriage horses were the apple of the old man’s eye, and whenever he referred to “my grays” it was with a note of real pride.

In the carriage house is also to be seen the framework, all that now remains of the handsome phaeton presented to General Jackson by the admiring citizens of New York. Unfortunately this vehicle was burned while Colonel Andrew Jackson, III, was living in Cincinnati, before he had sold all the family relics to the association. The wooden parts of this phaeton were made from timbers taken from the historic old ship Constitution, and it was very highly cherished by the General. It was in this phaeton that he and Martin Van Buren rode to the Capitol together for the inauguration March 4, 1837; and when he left Washington for Nashville he took the most elaborate pains to see that it was properly crated and shipped to him at home. It was carried across the river to Alexandria and thence by boat to Philadelphia. There it was shipped on a coastwise vessel to New Orleans, and thence by river boats to the Hermitage.

A good description of this historic vehicle is embraced in the account of the Van Buren inauguration written for the New York Mirror by Nathaniel P. Willis. Mr. Willis, who speaks of it as “the elegant phaeton made of the wood of the old frigate Constitution,” describes it in these words: “it has a seat for two, with a driver’s box, covered with a superb hammercloth, and set up rather high in front; the wheels and body are low, and there are bars for baggage behind; altogether, for lightness and elegance, 91 it would be a creditable turn-out for Long Acre. The material is excessively beautiful—a fine-grained oak, polished to a very high degree, with its colours delicately brought out by a coat of varnish. The wheels are very slender and light, but strong; and, with all its finish, it looks a vehicle capable of a great deal of service. A portrait of the Constitution, under full sail, is painted on the pannels.” In this article Mr. Willis refers to another vehicle presented to the retiring President by “an eccentrick mechanick”—a sulky made entirely of rough-cut hickory with the bark on, with some curiously twisted and gnarled branches ingeniously turned into handles and whip-box. It must have been a vehicular monstrosity. At any rate, Old Hickory avoided bringing such an outlandish rig back to the Hermitage by generously presenting it to his successor, Mr. Van Buren.

Behind the present carriage house is the brick house in which the caretaker lives, this also being of modern construction. The stable standing back of the caretaker’s house was built a few years ago when the log and frame stable burned. This building had replaced the original old brick stable which was built in 1832 and which stood much nearer to the house, about where the carriage house is now located. The old driveway leading back to the stable may still be seen in the lawn to the west of the mansion house. The brick house where souvenirs are now sold is a replica of the original carriage house, being built on its old foundations.

Just to the right of the back door of the house is a deep, rock-lined well, with an old-fashioned cedar windlass and oak bucket. In the early days, however, the water supply was obtained from a never-failing spring which is reached by the long brick walk now leading from the Hermitage’s back door. This gushing spring helped fix the location of the original log Hermitage near by, as a convenient water supply was a primary essential in the pioneer days. One of Jackson’s first acts, after building the log house to live in when he moved from Hunter’s Hill, was to enclose the spring in a stone springhouse which Mrs. Jackson could use for keeping her milk and butter cold. Mrs. Jackson, who took 92 a lively interest in the farm affairs, was especially proud of this spring which was and is an exceptionally good one.

The brick walk down to the springhouse is now shaded by a grove of trees; but originally this was the “colt lot,” the trees having been planted after the house was reclaimed. On the way down to the spring there may be seen close on the other side of the fence to the left the sole remaining relic of Hunter’s Hill—a log cabin which stood there after the old house was burned, and which was in recent years taken down and removed to this location on the Hermitage property where it might be preserved.

There are no slave quarters to be seen at the Hermitage, for in Jackson’s day the slaves who worked in the fields were scattered in their cabins about the plantation and did not all live in one long row of houses as was the prevailing custom in the South generally. There remains, however, a two-roomed log cabin just to the north of the garden which was the home of Uncle Alfred to the day of his death.

Uncle Alfred was born on the Hermitage plantation just about the time Jackson moved there from Hunter’s Hill and lived there all of his days. Living a long lifetime of almost a complete century, the span of his existence covered the years of Andrew Jackson’s whole life after his rise to distinction. He saw the building of the Hermitage, he saw it burned and rebuilt, he witnessed its decline and its rescue and its development into a magnet for visitors from all over the country. As a shiny-eyed boy of twelve he stood with the other slaves, young and old, at the big gate that never-to-be-forgotten day in 1815 when the General returned triumphant from his great victory at New Orleans; and thirty years later it was his strong arms that helped support the emaciated body of the old statesman as he sat up in his bed and gasped out his dying breath.

Born and living sixty years a slave, he was too old to change his ways when the state of Tennessee enacted the emancipation amendment to its Constitution in January, 1865. Freedom meant nothing to him then; he just went on living with the Jacksons 93 until he could get his bearings—and then, in a few weeks, his master died and he stayed on with his old mistress because he felt that she needed him. When the state turned the property over to the Ladies’ Hermitage Association and the next generation of Jacksons moved out, he still went on living there in his same old cabin. Nobody ever seemed to consider the possibility of his moving away. Through the years he seemed to have become an integral part of the property, just as much a fixture as the stout log cabin in which he lived.

Alfred’s mother was Betty the cook; and in his youth his duties were those of a hostler and attendant at the stables. In the caste system of slavery he was undeniably of a higher stratum than the field hands; but the house servants, the real elite, always referred to him contemptuously as being from “across the yard”—their aloof designation of the stable area. At times Alfred rode the General’s horses in some of their important races, drove teams on the farm when needed for that duty, and occasionally served as driver of the family carriage. In all these duties he was noted for the way he had with horses and for his careful manner of handling them. When little Andrew, the adopted son, grew too old to be tied to the apron strings of his black mammy-nurse, Aunt Hannah, he was turned over to the tender care of Alfred—six years his senior—who served him faithfully in the complex rôle of nurse, companion, bodyguard, mentor, valet, and chum—that indescribable relationship known now only as a memory lingering in the recollections of those old men whose youthful days were spent in the loving care and companionship of slaves who were not merely servants but guardians and tutors—and friends.

When Andrew reached young manhood and was old enough to travel about the country, Alfred sometimes was called upon to go with him as his body servant; and the members of the family for years enjoyed telling of how Alfred saw to it that the young master had the best of the available accommodations whenever they went together.

94

On the occasion of Alfred’s first service in the unfamiliar rôle of valet, young Andrew was setting out on a steamboat trip to New Orleans. His body servant was taken sick just on the eve of their departure, so Alfred was called in from the fields to take his place—not, however, without some misgiving on the master’s part. Alfred was given some superficial coaching in his new duties and off they started. The next morning young Jackson was aroused from his slumbers by the noise of a disturbance on deck, and emerged from his stateroom to find Alfred in bellicose possession of the washbasin, soap, and towels, defying the early-rising passengers who desired to make use of the steamboat’s primitive toilet facilities. “Can’t nobody wash hisself till Massa Andrew’s used these things,” he was declaring stoutly. “Reckon I knows my business better’n dat.”

When Andrew, junior, married in 1831 and brought his bride to the White House, President Jackson presented to his new daughter-in-law a young slave woman named Gracey to act as her personal maid. When the young couple came on to the Hermitage in the spring of 1832 Gracey came with them, and the young maid from Virginia soon attracted Alfred’s favorable attention. The master and mistress looked with favor on the match, and so they were married in the fall of 1837. Mrs. Jackson made a gala affair of the wedding, having the ceremony performed in the large central hall of the Hermitage and giving the couple a handsome wedding supper.

The story of the fidelity of Alfred and Gracey to their white folk is the familiar idyl of the Old South—the faithful slaves’ devotion to their former masters in the time of the latter’s adversities. Gracey and Alfred had been with the Jacksons when they were in the White House, the first family of the land, they had enjoyed the flush days of the old General’s successes and popularity. And when the evil days came—when Alfred’s young master, now no longer young, cast off the burden of life and was laid to rest in the corner of the garden, and Gracey’s mistress faced life lonely and impoverished, with no farm left to work and no 95 slaves left to work it—then Alfred and Gracey did not go off to set up homes of their own, in their new-found freedom, as did all of the other Hermitage black folks, but stayed there in their cabin to serve the mistress they loved as long as she lived.

Gracey died in 1887, shortly before the death of Mrs. Sarah York Jackson; but Alfred lived until 1901, and played no small part in making the Hermitage a place of interest to visitors. As long as he was physically able he served as a guide, and those who came from afar to visit the Jackson shrine deemed it a rare privilege—as indeed it was—to be shown through the house and garden by one who had been there when the spark of his old master’s vibrant personality made the Hermitage a place alive with his presence.

Alfred was fully conscious of the fact that he was a living connecting link between the departed great man and his living admirers, and he never tired of telling visitors stories illustrative of the greatness of the old General. To Uncle Alfred there was no flaw or blemish in his old master’s character or fame. His idolatrous veneration was well illustrated by his often quoted reply to a visitor who asked him if he thought General Jackson went to Heaven. “Co’se he went to Heaven,” Uncle Alfred answered with vigor, “if he want to. If he want to go dere, who gwine stop him?”

After he grew too feeble to act as a guide he kept to his cabin, and though the ills of his accumulating years bore heavily on him he always enjoyed chatting with visitors who stopped to talk with him as he sat on his doorstep in the summer or by the blazing logs in his big fireplace in the winter. Although never bedridden, his strength slowly faded away and at last he died quietly on September 4, 1901.

Not only was he given the boon of being buried in the garden, near the tomb of his deeply venerated old master, but the added honor was given him of having his funeral held in the hall of the Hermitage, his casket resting on the same spot where he and Gracey had stood to be married more than sixty years before. His 96 funeral was attended by large numbers of his friends, both black and white, and ministers of both races participated in the burial services. Both Alfred and Gracey had originally been members of the little Hermitage church, but after Gracey’s death, Alfred transferred his membership to a near-by church of his own people.

In typically weird cadences Uncle Alfred’s black-skinned friends raised their quavering voices to sing his old favorite:

On Jordan’s stormy banks I stand and cast a wistful eye;

On Canaan’s bright and happy shore where my possessions lie.

And so he was borne through the broad front door of the Hermitage and laid to rest in his long home in the garden. “Faithful servant of Andrew Jackson” it says on his modest tombstone; and all those who read the Scripture know of the reward in Heaven promised to the good and faithful servant.

97

VI: THE HERMITAGE HOUSEHOLD

The true character of a man in public life is often misjudged by the people when only his public acts are taken into consideration; but the facts about his real disposition and inclinations are invariably revealed clearly and infallibly in his home life. Andrew Jackson stands this test admirably; for visitors to the Hermitage were always impressed with the gentle and considerate conduct of the man at home. A contemporary wrote that the Jackson household “was the abode of native dignity, artless good cheer, instinctive courtesy and a hospitality which no adjective is adequate to describe.” And, making due allowance for the permissible hyperbole of a grateful guest, it is a compliment to any family to receive such a warm tribute.

Parton records that Jackson, “so irascible sometimes and sometimes so savage, was never so much as impatient with children, wife or servants. It used to astonish people who came for the first time to the Hermitage to find that its master, of whose fierce ways and words they had heard so much, was indeed the gentlest and tenderest of men.” And then he proceeds to tell of how an unexpected visitor to the Hermitage one evening found the old man seated in his big rocking chair “with a chubby boy wedged in on each side of him and a third, perhaps, in his lap” while he was trying to read his newspaper.

A similarly flattering picture of the domestic side of the General’s life is to be found in the published recollections of Thomas H. Benton. Benton knew all sides of Jackson’s character for he was first his admiring young henchman, then his bitter enemy and then his devoted friend again. He was with Jackson on the battlefield, he was with him in the political maelstrom of Washington, he visited him frequently in the quiet seclusion of the Hermitage; and of the latter aspect of the old chieftan’s life, Benton says that “He was gentle in his house and alive to the tenderest emotions.” As an instance of this—an instance, it should be observed, greatly at variance with the popular conception of his character but worth more than a long discourse in showing what that character really was, Colonel Benton tells of how he 98 arrived at the Hermitage one wet, chilly evening in February and came upon the General in the twilight sitting alone before the fire, a lamb and a child between his knees. “He started a little,” says Benton, “called a servant to remove the two innocents to another room, and explained to me how it was. The child had cried because his lamb was out in the cold and begged him to bring it in—which he had done to please the child, his adopted son, then not two years old. The ferocious man does not do that!” This incident made a deep impression on Colonel Benton, and he referred to it again in a eulogy on Jackson’s character delivered after the latter’s death.

Another early visitor at the Hermitage left this observation concerning Jackson, the host: “Had we not seen General Jackson before we would have taken him for a visitor, not the host of the mansion. He greeted us cordially and bade us feel at home, but gave us distinctly to understand that he took no trouble to look after any but his lady guests. As for the gentlemen, there were the parlor, the dining-room, the library, the sideboard and its refreshments, there were the servants; and if anything was wanting all that was necessary was to ring. He was as good as his word. He did not sit at the head of the table, but mingled with his guests, and always preferred a seat between two ladies, obviously seeking a chair between different ones at various times. He was very easy and graceful in his attentions; free and often playful, but always dignified and earnest, in his conversation. He was quick to perceive every point of word or manner, was gracious in approval, but did not hesitate to dissent with courtesy when he differed. He obviously had a hidden vein of humor, loved aphorism, and could politely convey a sense of polite travesty. If put upon his metal he was very positive but gravely respectful. He conversed freely and seemed to be absorbed in attention to what the ladies were saying; but if a word of note was uttered at any distance from him audibly he caught it by a quick and pertinent comment without losing or leaving the subject about which he was talking to another person—such was his ease of sociability without levity or lightness of activity, and without being oracular or heavy in his remarks.” And isn’t that a perfect picture of the gentlemanly host?

A corner of General Jackson’s bedroom. His favorite portrait of Mrs. Jackson still hangs over the mantel, as it hung during his lifetime, where his eyes could fall on it the first thing every morning.

The broad entrance hall, showing the famous scenic wall paper and the graceful spiral stairway.

99

As a specific and characteristic instance of Jackson’s attentiveness and courtliness to his guests one of the neighbors used to tell of how a homely young girl who had been taken by Mrs. Jackson to be raised at the Hermitage was acting the part of a wall-flower at an evening’s entertainment there one time. “When all the beautiful women and distinguished men had been introduced around,” she said, “General Jackson, seeing that she had been forgotten, caught her by the arm and introduced her with so much earnestness as to indelibly impress a pleasurable sensation with her until her death and was ever a green spot in her life.”

It is significant of the beneficent influence of Rachel Jackson on the Hermitage and its social life that no guest ever recorded his impressions of a visit there without pleasant mention of her gracious presence. Indeed, no account of the home life of the Hermitage could be complete without a deferential tribute to the spirit of this woman who occupied so large a place in Jackson’s life and whose lovable nature contributed so much to making the Hermitage a delightful place to be. “Her quiet, cheerful and admirable management of her household” made a lasting impression on Colonel Benton, and of her he says in his recollections: “She had the General’s own warm heart, frank manner and hospitable temper; and no two persons could have been better suited to each other, lived more happily together, or made a house more attractive to visitors. She had the faculty—a rare one—of retaining names and titles in a throng of visitors, addressing each one appropriately, and dispensing hospitality to all with a cordiality which enhanced its value. No bashful youth or plain old man whose modesty sat them down at the lower end of the table could escape her cordial attention any more than the titled gentlemen on her right and left. Young persons were her delight, and she always had her house filled with them—clever young women and clever young men—all calling her affectionately 100 ‘Aunt Rachel.’ I was young then and was one of that number. I owe it to early recollections and to cherished convictions to bear this faithful testimony to the memory of its long mistress, the loved and honored wife of a great man.”

Aunt Rachel, according to another contemporary, was “the childless mother of all the young people of the neighborhood;” and the old house probably didn’t seem much like a hermitage with the young folks making the rafters ring with their laughing and singing, the General gaily joining in the chorus when his old favorite tunes were raised.

The fine ladies of New Orleans, when Rachel went there in 1815 to join in the celebration of the general’s great victory, tittered at her homely appearance and her sun-tanned arms and face; latter-day biographers and magazine writers have written of her with slightly up-tilted noses, overemphasizing her alleged lack of formal education and dwelling unduly on her old-fashioned habit of smoking a pipe by her fireside at night—a practice suggested by her family doctor as a relief from asthma. But if ever a woman had a heart of gold it was Rachel Jackson; and none ever visited the Hermitage while she was alive but went away to sing her praises.

Contrary to the popular impression, perhaps, the Hermitage household was conducted on the lines of an old-fashioned Christian home, with a regular devotional hour in the evening which was attended by the whole family and also by the house servants. This practice was followed after Rachel’s death as well as before. After the son’s marriage his wife always conducted the musical part of the devotional exercises; but when she was not at home the old General himself would line the hymn (“Alas, and Did My Saviour Bleed” was one of his favorites) and lead in prayer.

Young Mrs. Jackson’s widowed sister, Mrs. Adams, was musically talented, and during the General’s declining years she gave him much pleasure with her playing of the piano and guitar and with her singing. The General’s favorite song was “Auld Lang Syne;” but when Mrs. Adams would take her guitar of an evening, 101 seated at the fireside, and would play and sing “Johnny Sands” or some of the other humorous songs of the day, Jackson showed his keen enjoyment even though he loved the old songs best.

Mrs. Adams, with her musical talent, was a valued and enlivening addition to the Hermitage family group, and after her coming she always provided the music for the many impromptu dances in the Hermitage parlors. Despite his advanced years the General took great delight in these affairs; and it was the customary thing for him to start off the festivities of the Virginia Reel by taking his daughter-in-law as a partner and dancing the first round with her.

It was one of the minor tragedies of Jackson’s life that he, who set such store by his home life, should have no family of his own; but to fill the vacant place in his heart left by the lack of children he legally adopted his wife’s nephew and bestowed on him the most sincere and lavish affection a father could give his own son.

It was on December 22, 1809, that the wife of Severn Donelson, Mrs. Jackson’s brother, gave birth to twin boys. The news reached the General and his wife as they sat at the breakfast table in the old Hermitage. Mrs. Jackson, upon receiving the message, looked across the table at the General and said: “I’m afraid brother’s wife will be unable to raise both the little fellows with all those other children—she isn’t very strong, you know. Suppose we take one of them.”

Rachel’s merest suggestion was law to the General; and so after breakfast the horses were brought to the door and away they went to brother Severn’s to see the new twins and suggest the adoption. The mother agreed to the proposal, the General promptly had the infant’s name officially changed to Andrew Jackson, junior; and from that day he treated him as his own son. Aunt Hannah, the most trusted of the house servants, was assigned to his special care; and it was in her strong arms that he was carried two miles through the woods from his birthplace to the Hermitage which was to be his future home. Hannah lived to be 101 years old, and never tired of telling of how she reared the young master. 102 Later she was assigned to the duty of looking after Mrs. Jackson; and then Alfred took charge of little Andrew and helped bring him up to the estate of young manhood. Those were gay days on the Hermitage farm when little Andrew was growing up, and the loyal and loving Alfred was taking him hunting and fishing, along with the little Donelson cousins.

The tender and patient devotion of the old General to his adopted son is one of the most touching chapters of his life. From the day old Hannah brought him in her arms across the threshold of the Hermitage, the General ever referred to him as “my son;” and had the boy actually been his own offspring he could not have treated him with more kindly and enduring affection. In his letters to his wife, while he was off fighting the Indians in Alabama, he never failed to mention little Andrew; and in one of these letters, following the bloody battle with the Creeks at Tallapoosa, he wrote: “Tell Andrew that I have for him a warrior’s bow and arrow.” The picture of the rough, turbulent, Indian-fighting frontiersman painted by conventional history does not tell us much of this side of the old soldier’s nature.

When the General returned from the Indian wars, Mrs. Jackson went to Huntsville to meet him and carried the little boy along; and when she went to New Orleans in 1815 to attend the popular celebration given there by the citizens in honor of her illustrious husband’s great victory over the British, little Andrew again went with her. A current account of visit of the General’s family to New Orleans brings out the fact that little Andrew was a pet at headquarters; and it is easy to believe the statement that the General could not deny him anything and spent every leisure moment in playing with him, often holding him in his arms while he transacted business. One evening, so the story goes, some companies of soldiers stopped beneath the windows of headquarters and the crowd began to cheer the General and call for his appearance. Little Andrew, asleep in the next room, was waked up by the commotion and began to cry. The General had already started to the window to answer the cheers of the people in the 103 street below, but when he heard the boy whimpering he went to his bedside, picked him up, soothed away his tears and carried him along to the balcony where he bowed to the people and, at the same time, amused little Andrew with the scene in the street.

When the General was made Governor of the Florida Territory in 1821, and went there with Mrs. Jackson to take up his residence, they took Andrew with them as Mrs. Jackson would not think of leaving him behind; but the country around Pensacola was not, with its heat and its mosquitoes, an ideal place for a child, and so in August he was sent home when one of Jackson’s staff officers returned to Tennessee.

As the boy grew older he was sent to college in Nashville and was given every opportunity available to the son of a prosperous and distinguished father; and it is easy to see, from what Jackson said and wrote, that he had the greatest ambitions for the boy he had chosen to be his son and to perpetuate his name.

When he went to Washington to be inaugurated President in 1828 he left young Andrew at the Hermitage to help wind up affairs there; but Andrew went on to Washington in a few months, as soon as his foster father had got settled in the White House. After a brief stay in Washington he returned to the Hermitage, however, chiefly because of a love affair with a young lady of the neighborhood, a ward of their neighbor Colonel Ward who lived at Hunter’s Hill and mentioned in one of Jackson’s letters as “the daughter of my deceased friend,” but now known only as “Miss Flora.”

Jackson’s solicitude for his son’s happiness and well-being was never more strongly revealed than in the benevolent letters of fatherly advice he wrote him from Washington during the late summer of 1829 when the young man was back at the Hermitage prosecuting his suit. It is a little amusing to find the President setting aside the affairs of state to dip his oar into the management of the courtship; but Jackson had a flair for match-making, and also his affection for Andrew was so great that he did not want to see him make any mistake. While the love affair was progressing 104 he made no direct objection to it, although he repeatedly expressed the firm conviction that Andrew should not permit the young lady to trifle with him but should press her for a positive answer one way or the other; and he was obviously relieved when his son wrote him at last to say that he had been rejected. The General wrote Andrew a kindly letter of consolation, venturing the sour-grapes comment that Miss Flora was “a fine girl, but a coquette;” and he begged the young man not to enter into any more love affairs without consulting him.

Young Andrew returned to the White House after the shattering of his Tennessee romance; but it wasn’t long before he again fell a victim. This time the object of his affections was Miss Sarah York of Philadelphia, one of three orphan sisters of good family and social standing. Miss Sarah was a spirited young lady and had declared her unwillingness to marry the ordinary run of suitors. Indeed, she was quoted as saying that she “wouldn’t marry less than a prince.” But the sons of kings were hard to find in this republican country, and so she evidently decided to lower her sights sufficiently to be satisfied with a mere President’s son. Jackson approved of the match when told of his son’s new flame, and the wedding took place in Philadelphia on November 24, 1831. Acting on the old General’s instructions, Andrew brought his bride to the White House at once; and, from the moment he clasped his new daughter in his arms at the front door of the White House, she had a place in his affections until the time of his death that was never disputed by anyone.

Andrew and his young wife remained with Jackson in Washington until the spring of 1832, setting out on April 12th to take up their residence in the Hermitage, which was to be their home all the remaining years of their lives. Accompanying them on the journey to Tennessee was Sarah’s cousin, Miss Emma Forbes, who came along to keep Sarah company while she was getting accustomed to her new home, and the General strictly enjoined Andrew to “give all your attention to Sarah and Emma. They are strangers in a strange land.” Evidently Andrew made the strangers feel 105 very much at home, so much so that Miss Emma soon fell in love and married Andrew’s own twin brother, Thomas Jefferson Donelson, and became a resident of the Hermitage community.

Young Andrew was at this time twenty-three years old; and although the General expressed the fullest confidence in him and made it clear to him that he wanted him to take charge of affairs at the Hermitage and run the place, he nevertheless took the precaution to write out for him before he left a memorandum which is a model of thoughtful and thorough suggestions for a young man about to assume the management of an extensive estate. In this memorandum he authorized the son to purchase from Samuel Donelson a tract of 100 acres adjoining the Hermitage for $1,500; instructed him to have a settlement with the contractor, Mr. Morrison, who had been making the additions to the Hermitage and building the tomb in the garden; instructed him to arrive at a settlement of the accounts of Steele, the overseer, giving him a detailed account of all the involved transactions in which that worthy had tangled himself; reminded him that he was expecting Steele to make enough brick to build a new stable for the riding and carriage horses, with suggestions as to the plan for the stable; gave careful instructions about the desired procedure in connection with the horses and other cattle. “When you reach home,” he wrote, “I hope you will find the supplies and furniture which I have sent on safe at the Hermitage. The pipe of Maderia wine you will have placed on its stand and one-half gallon of best French brandy put into it and after two or three days it will be fit for use. You will have the old dining room newly papered for Sarah’s and your bedroom as it will be more convenient than upstairs; but when she sees the house she can judge for herself. The carpet in the portrait room shall be taken for that, and the one in the parlor put in one of the rooms upstairs. Sarah will arrange the rooms and furniture. If the supplies I have sent on reach home in safety you will have an abundant supply of sugar, coffee, Maderia and Sherry wines, etc. Salt and flour will be the only articles to be laid in, but you will have now to begin to learn the 106 wants of a family and supply it. This will require economy and care, which you will have to learn and attend to if you expect to get through life well—by always knowing your means and living within them you will get well through life. This has been my rule and I recommend it to you.”

Sarah undoubtedly enjoyed her new rôle of mistress of the President’s home place, and she immediately set about giving the Hermitage that deft touch of feminine management which it had lacked since Rachel’s death. Within a few days she was writing to the General about the need for a carpet for the dining room, more table linen and some additional silverware for the table. Jackson promptly attended to these matters, doubtless greatly pleased at Sarah’s interest in household affairs.

Sarah’s interest in her new home, however, was apparently not shared to any great extent by her husband. Jackson in his parting memorandum had urged his son to write him fully about the state of affairs on the farm; but Andrew neglected to do so, and from that time forward Jackson’s published correspondence reveals clearly the difficulty he had in impressing on young Andrew the importance of attending strictly to business and the apprehension the absentee planter in Washington was caused by the slack management of the plantation by the young man.

There were forebodings of trouble on this score from the very first. As early as May 25, 1832, Overseer Steele wrote Jackson: “I have prest on Andrew to pay strict attention to the management and manner in which your affairs has been conductied during your absence but it appears that he don’t take the least pride or feel the least intrusted in the farm or aneything there pertaining.”

At this very time Jackson was writing his son: “I have no wish to acquire wealth for myself. If I can add to your and Sarah’s comforts whilst I live and leave you comfortable and independent of the world when I die, I am contented.” A few days later he wrote him: “The jewelry of your dear mother is under your care. Present to Sarah, with my affectionate regard, the pearl necklace, ear rings, etc.”

107

Andrew and Sarah were back in the East early in 1833 to visit Jackson in the White House and Sarah’s family in Philadelphia. In July they accompanied the President and his party to the Rip Raps in Hampton Roads for a summer vacation of six weeks, and then after another visit in Philadelphia they were back at the Hermitage in October. While in Philadelphia Andrew had instructed one of his friends there to order a chest of tools for use on the farm; and when the bill was presented to the President in November he paid it and wrote Andrew the following revelatory letter, one of the very few of his family letters in which the sardonic note intrudes:

My son: Inclosed you will find Mr. Toland’s receipt to Mr. Brown for the chest and tools laid in for you by your friend Mr. Hart, and Mr. Brown’s receipt for a check for $62.03 drew by me in his favor, being in full for that bill. You will find the chest (from the price charged, a nice piece of furniture for the parlour) not well suited to a negro’s workshop; and the tools very fine, such I suppose as cabinet-makers use. Be this as it may, bought wit is the best—when not bought too dear; and I could not permit either your feelings or character to suffer for the amount of the bill; but I think that it will henceforth admonish you to purchase your own tools for the farm and not entrust it to an agent. Remember my advice, my son: Never purchase any useless article. Those that are needed for your comfort or that of your dear little family purchase always as far as you have the means; and be always certain, if you wish to die independent, to keep your wants within your means; always, when you have the money, paying for them when bought. I have said before and now repeat: The world is not to be trusted. Many think you rich, and many you will find under false pretensions of friendship would involve you if they can, strip you of your last shilling and afterwards laugh at your folly and distress.

In the ensuing years there must have been many times when Andrew Jackson, junior, looked back on the sage advice embraced in that letter and wished that he had indeed learned a lesson from the injudicious purchase of the tool-chest suited for a parlor and the tools such as cabinet makers use. He had plenty of “bought wit” in the years to come; and most of it was, indeed, “bought too dear.”

Andrew also caused the old man considerable worry at this 108 time by having purchased a slave in Maryland before returning to the Hermitage, paying only a part of the purchase price in cash and leaving a balance due. He neglected to say anything to Jackson about the unpaid balance, and he learned of it only when the Maryland slavetrader dunned him for the money. This annoyed and embarrassed Jackson, but his chief concern was evidently not the money involved; he was worried about Andrew’s careless business habits. “Why will you not, my dear Andrew,” he wrote him, “attend to my admonition about money matters?” And, further, “My son, at all times and on all occasions state to your father things just as they are.”

Inattentive to these admonitions, however, Andrew gave further cause for annoyance during that summer when he repurchased the old Hunter’s Hill property adjoining the Hermitage. Jackson had consented that Andrew make the purchase if he thought it advisable, encouraging the young man to take the initiative and make the decision for himself; but he was particular to impress on Andrew that he wanted him to have the terms of the sale reduced to writing and a copy of the agreement forwarded to him. Nevertheless, his first knowledge of the purchase was a draft drawn on him for the first payment on the purchase price; and then began a long succession of letters from father to son unsuccessfully seeking to learn the exact details of the trade. Similarly, he was unable to get from Andrew information as to the number of pounds of cotton baled and shipped to New Orleans. “My son,” he wrote in May, “surely it is a duty that you would owe to an entire stranger, surely more imperious to me, to acknowledge the receipt of such business letters as these.” And again, despairingly, in June: “My son, why will you not learn to transact your affairs like a man of business?”

Andrew, apparently, was incorrigibly negligent about answering letters; for in October, when Jackson had returned to Washington after spending the summer at the Hermitage, he wrote him: “Thirty-one days have elapsed since we left the Hermitage, Sarah on a sick bed. I had your promise that you would write me 109 how they were; and I am now, even now, without one line from you.”

To add to the old General’s worries at this stage of young Andrew’s career, there is strong evidence that he had reason to be fearful of his son’s falling into intemperate habits. Perhaps the young wife conveyed the idea to the old man. At any rate, Sarah went on a visit to Philadelphia early in April, 1835, leaving Andrew at home, supposedly looking after the work of rebuilding the burned Hermitage; and on April 14,1835, Jackson wrote him a long and pointed fatherly letter concerning the evils of intemperance, in the course of which he said: “When I reflect on the fate of your cousin Savern, brought on him by intemperance, from being an honor to his friends reduced to the contempt of all by his brutal intemperance, I shudder when I see any appearance of it in any other branch of our connection. Your conduct, standing as my representative, the son of the President, draws upon you the eyes of the world, and the least deviation from the rules of strict decorum and propriety are observed and commented upon by all our enemies and those who envy you of your situation. Added to this, your charming little wife and sweet little ones’ respectability in society depends on your upright course in your walks of life. This, my son, ought always to be before your eyes, and I am sure must be; and your pledge to me on the point of intemperance assures me that you never will permit spirits to enter your lips again.”

A few weeks later, taking as his text the experience of a Washington friend who had been humiliated by public drunkenness, Jackson wrote Andrew another letter of warning against “intoxication, which reduces the human being below that of the brute,” concluding his letter with: “Oh, my son, if you were to be found in such condition it would destroy me.”

These letters apparently had the desired effect, for Major Lewis after visiting the Hermitage in May, 1835, wrote Jackson that he was much gratified at the fine and healthy appearance of the young man, that he looked like a different person; and, he concluded: 110 “I have no doubt he has faithfully complied with his promise to you to the letter.” Jackson, upon receipt of Major Lewis’s letter, wrote at once to Andrew telling him how delighted he was at the favorable report of his good conduct and healthful appearance and his good standing with everybody. “This, my son,” he said, “is more grateful to your dear father than all the wealth of Peru, and I have now the greatest confidence in your good conduct through life”—which confidence, the future revealed, was well placed.

Early in the summer of 1835 Andrew joined Sarah and the children at the White House and they went with the President for another vacation at the Rip Raps in July and August. They went on a visit to Philadelphia in September, and late in that month Andrew went back to the Hermitage, leaving Sarah to return to Tennessee later. They were there at the Hermitage in the summer of 1836 when Jackson came to look at his rebuilt home, but they went to Philadelphia again in October and then for a final visit to the White House. They left there with the worn-out ex-President in March, 1837, and all returned to the Hermitage together.

At this time the son’s little family consisted of his wife, Sarah, and a little son and daughter: Andrew, III, born April 4, 1834; and Rachel, born in 1832. Both the children were born at the Hermitage, and they were a never-failing source of pleasure and comfort to the old General in his declining years. Little Rachel was his especial pet from the time she was born, and she was one of those who stood by his bedside when he died.

Like every doting grandfather, he was inordinately proud of her cunning little ways; and he chuckled as he related to his friends how the little girl, upon her arrival at the White House with her mother following the burning of the Hermitage, greeted him with: “Grandpa, the great fire burned my bonnet; and a big owl tried to kill Poll, but Papa killed the owl.” Needless to say, Grandpa dropped all the affairs of State long enough to see that little Rachel was supplied with a new bonnet without delay. And he probably joined her in rejoicing over the narrow escape of old 111 Poll from the owl, for the old Hermitage parrot was a great pet of the General’s. In his letters home he inquired about her, and William Donelson in writing to him in December, 1829, said: “Poor Poll is doing well. She is as fat and saucy as ever. From her continued good health I think she will live to be an old bird. Elizabeth desires to be remembered affectionately to you, and says that she will insure Polly’s life till you return.” As a matter of fact, the old bird outlived the General himself; and she distinguished herself by introducing an element of the grotesque into the solemnity of the funeral services when she suddenly startled the assembled mourners by bursting into a loud torrent of profanity which made it necessary to suspend proceedings until her perch could be removed from the upper front portico to a more remote vantage point.

Second only to his adopted son in General Jackson’s affections was Andrew Jackson Donelson, son of Samuel Donelson, one of Mrs. Jackson’s brothers. Samuel had been Jackson’s law partner in his early days and he it was whose elopement Jackson had aided back in 1797 when Samuel romantically stole his bride, Polly Smith from the window of the “Rock Castle” home of her father, General Daniel Smith—the same Daniel Smith who helped survey the much disputed extension of the dividing line between Virginia and North Carolina. The eloping couple had fled to Jackson’s near-by home at Hunter’s Hill to have the wedding ceremony performed; and, strangely enough, it was at the Hermitage that Samuel died in 1802, death overtaking him there suddenly one evening when he had stopped by to pay a fraternal visit. He left three young sons—Andrew Jackson, Daniel and John—and General Jackson was made the guardian of the eldest of the three, his namesake. At first all three boys continued to live with their mother at the home of her father, General Smith; but one day when Jackson paid a visit to them, little Andrew returned to the Hermitage with him, riding behind the General on his horse. He came to spend a few days; but so firm a hold did he gain on Jackson’s affections that he was never sent home. From then on the 112 Hermitage was his home, and he was reared there with all the love and care that could be shown one’s own son.

Young Donelson was educated at Cumberland College (University of Nashville), Transylvania University at Lexington, and at West Point. Throughout his college life he was an outstanding student, and at the Military Academy he distinguished himself by finishing the four-year course in three years and graduating second in his class. Upon his graduation he was appointed an aide-de-camp to General Jackson, at the latter’s special request, and served with him in the Florida wars. After his return to Nashville he practiced law for a short while, but soon abandoned this and began to take an active and useful part in General Jackson’s political activities.

Jackson had a genuinely high regard for young Donelson. “I have reared and educated him as my son,” he wrote a friend on one occasion; and that the old General had the most unlimited ambitions for him is shown by a letter he wrote to him while he was at Transylvania College encouraging him to seek his associates and friends among the better class of students and concluding: “I look forward, if you live, to the time when you will be selected to preside over the destinies of America.” Donelson did not climb that high on the political ladder, but he did achieve distinction in his own right in public affairs; and there were many of his friends who thought that his star might have shone with greater brilliance had it not been dimmed by the too-close effulgence of his famous guardian and friend.

By the time Jackson was elected President in 1828 the young man had reached such a place in his confidence and affection that he was his spontaneous choice as private secretary, and he went with him to Washington in this capacity. The Jackson administration, however, had not been afloat very long before it ran on the rocks of the Peggy Eaton embroglio, that tempest in a teapot that threatened for a while to upset the government; and Major Donelson and his wife became the storm centers of this furious affair. Mrs. Donelson was a niece of Mrs. Jackson’s, the major having 113 married his own first cousin, Emily, daughter of Captain John Donelson; and Jackson felt for her a very real avuncular affection when he installed her as mistress of the White House. Red-headed Miss Emily, however, was a spunky individual with a spirit of her own; and, although she reluctantly consented to receive Peggy Eaton coldly but courteously as an official guest at the White House, she flatly refused to visit Mrs. Eaton or to have any other social contacts with her. This brought about strained relations in the White House family, but the affair was temporarily kept from coming to a head; and the President and the Donelsons returned in amity together to Tennessee to spend the summer of 1830. There had almost been a flare-up before leaving Washington. The Eatons had been invited to dine at the White House, and the petulant Peggy had refused to enter the house while the Donelsons were there, claiming that Emily had publicly snubbed her a short while previously. This naturally riled the General and he raised considerable of a rumpus. In his flurry of anger he threatened to take the Donelsons home and leave them there, and this threat got under the Donelsons’ skin. Accordingly, when they all got back to Tennessee in June, the Donelsons did not go to the Hermitage to stay but went to the home of Mrs. Donelson’s mother, then a widow. The Eatons made a rather showy and carefully pre-arranged visit to Tennessee during this summer, a feature of the trip being their entertainment at the Hermitage; and Major Donelson later explained that he and his wife went to Mrs. Donelson’s to stay because they did not want to put themselves in the way of the honors General Jackson intended to pay to the Eatons at the Hermitage. But the President’s feelings were hurt. “When I expected you and Emily to go to my house and remain with me as part of my family, it was declined,” he wrote in a letter to Major Donelson that fall when the two of them were back in Washington carrying on that childish interchange of formal letters within the walls of the White House which almost precipitated a crisis at that time.

Jackson smelt trouble brewing as early as July, when he mentioned 114 in a letter to Major Lewis from the Hermitage: “It may so happen that I shall return to the city in company with my son alone,” and asked the Major to be looking about for some eligible man to serve as his secretary. “My connections have acted very strangely here,” he wrote; adding, with characteristic fire: “but I know I can live as well without them as they can without me, and I will govern my own household or I will have none.” When the time came to return to Washington in October, Mrs. Donelson announced that she would spend the winter in Tennessee with her widowed mother; and it is not recorded that General Jackson interposed any violent objection to this program. Major Donelson, however, went along with him.

Hardly had they got back to Washington before General Jackson wrote back to Emily’s sister, Mary Eastin, saying that “Major Donelson has informed me that the house appears lonesome; and on his account it would give me great pleasure if you and Emily and the sweet little ones were here.” He went on to say, however: “Provided you will pursue my advice and assume that dignified course that ought to have been at first adopted, of treating every one with attention and extending the same comity and attention to all the heads of Departments and their families.” He told Miss Eastin to convey this qualified invitation to Emily and he himself told Major Donelson what he had written. Then ensued that absurd and pathetic intramural correspondence between these two strong-willed men who lived in the same house, worked together daily in the close and confidential relations of a President and his private secretary—but who fought out their private quarrel by means of long, formal letters.

Jackson had a deep and sincere affection for Major Donelson, but he felt that his honor was at stake; worse than that, he had tortured the shabby controversy into a “conspiracy” to strike at him through Eaton and through him at his departed Rachel. Donelson, on the other hand, while his letters breathed love and respect for his uncle, felt that his and his wife’s dignity and self-respect would not permit of any dictation as to their social contacts.

The stairway in the side hall, with its unusual architectural features. This is the stairway now used by the public in ascending to the second floor.

One of the four guest rooms, with original furnishings typical of all the bedrooms.

115

So matters rocked along, and in December Jackson wrote General Coffee that Donelson’s “demeanor toward Major Eaton is more free.” He kept up a friendly correspondence with Emily back in Tennessee, and wrote Coffee that he expected her to come on to Washington in March or April. Major Donelson wrote his wife in January, 1831, that he had had “a very satisfactory conversation with Uncle in relation to our social difficulty” and that “He has left to my own discretion the period of your return, without alluding to the influence which produced your stay in Tennessee.” The Major expressed great gratification at the prospect of getting things patched up, and on March 8th left Washington for Nashville to get his little family and take them back to the White House with him.

Late in March, however, the Eaton affair boiled over in Washington again, and some new developments there made the President furious. On March 24th he wrote a long letter to Major Donelson, couched in words of genuine affection but reflecting plainly his agitation. The partially healed sore was reopened and he candidly said: “As much as I desire you and your dear little family with me, unless you and yours can harmonize with Major Eaton and his family, I do not wish you here.”

This new crisis in the Eaton affair resulted in the resignations of Van Buren and Eaton from the Cabinet, and Jackson hastily wrote Donelson on April 19th telling him of these resignations and predicting that “you will find an entire new Cabinet when you arrive.”

But now the Donelsons were offended. Upset by the strong words of Jackson’s letter of March 24th they, as General Coffee expressed it, “fear that you require more than they can consistently comply with.” In reply to this letter Donelson wrote a reply which Jackson styled “a vindictive phillippic,” the general tenor of which was that he could not return with his wife under the terms set forth in Jackson’s communication. Jackson’s reply was firm, though tempered with expressions of his affection, and showed clearly the extent to which the controversy had upset him. 116 His letter concluded: “I am laboured almost to death, and have been a good deal afflicted; but will try amongst strangers to get a man who will aid me and who will think it no disgrace to associate with me and my friends.” This must have cut Donelson to the quick, but it did not alter his determination to sever his official relations with his godfather, the President. He went back to Washington—alone—to wind up his personal affairs there; and before leaving finally, on June 18th, he wrote an affectionate note to Jackson giving “assurance of my readiness to resume the relation which I have maintained near you for so many years, whenever you think that my services can be of any avail.” In a letter written home to his wife he told of a long conversation he had had with Jackson, and dropped the strange comment that “After what has now passed, while our duty remains the same, I am almost as well satisfied that the view which Uncle takes is correct.” Nevertheless, he went on home; and Jackson engaged as his private secretary Mr. Nicholas P. Trist (whose wife was a granddaughter of Thomas Jefferson), and he served until the reconciliation with the Donelsons.

The reconciliation, as might have been expected where there was so much mutual love and esteem, was not long in coming. Jackson kept up a friendly correspondence with Andrew and Emily as though nothing had happened, and in July two Nashville friends, John C. McLemore and John Bell, took it upon themselves to act to bring Jackson and Donelson back together. They talked to the Major, read all the letters the President had written to him, and then gave him the sensible advice to pack up his family and return to the White House “without further correspondence.” They wrote Jackson that they had given Donelson this advice and stated further that “we think there is no necessity for the specification of terms on one side or the other.” That this effort of the peacemakers was at length successful is shown by a single reference in one of Jackson’s letters to Coffee on September 6th: “Major Donelson and his little family reached here yesterday.”

117

Thus ended the spat between General Jackson and the Donelsons; and in all their future relations there was never anything to suggest that there had ever been the slightest asperity between them. Mischief-making Peggy Eaton drove them apart; but even she, with her genius for creating dissention, could not keep them apart.

In 1818 Major Donelson had inherited from his father a handsome plantation called Tulip Grove which lies directly across the Lebanon Road from the Hermitage; and in 1834 General Jackson, perhaps to seal the reconciliation, engaged Messrs. Reiff and Hume to build on it the handsome residence which still stands there. Emily, the innocent stormy petrel, died December, 1836, of tuberculosis. The disease wasted her strength rapidly and she died before her husband could get back from Washington where he had gone to help wind up the affairs of the Jackson administration under the impression that she was not dangerously ill. Major Donelson later married another of his cousins, herself the widow of Lewis Randolph of Virginia, who was a grandson of Thomas Jefferson.

Major Donelson, after Jackson’s administration closed went back to Tulip Grove and lived the life of a farmer for a few years, keeping in touch with Uncle Jackson across the road and helping him sometimes with his flood of correspondence. By President Tyler he was appointed charge de affairs to the Republic of Texas, and he played an active and able part in promoting the annexation of the Lone Star State. When James K. Polk was elected President he was made minister to Prussia, an office which he filled with ability and distinction. Following this service he became editor of the Washington Union; and in 1856 took his last fling at politics when he was a candidate for Vice President on the ticket with Millard Fillmore. He died on June 26, 1871.

Major Donelson ever stood high in the affections of Andrew Jackson, and when the old statesman made his will in 1843 he left to him the gorgeous gold-encrusted sword which had been presented to him on July 4, 1822, by the State of Tennessee in 118 honor of his services in the War of 1812. This priceless heirloom is still in the possession of Mrs. Bettie M. Donelson of Nashville, widow of Major Donelson’s son Alexander. There is a note of pathos in the apologetic explanatory clause embraced in the paragraph of the will in which this bequest is made: “This, from the great change in my worldly affairs of late, is, with my blessing, all I can bequeath him”; but, the dying General added: “This bequest is made as a memento of the high regard, affection and esteem I bear for him as a high-minded, honest and honorable man.” And, since a good name is rather to be chosen than great riches, what more precious bequest could anyone receive?

* * * *

Andrew Jackson Donelson was not by any means General Jackson’s only ward. Another namesake and relative of his wife’s who was bequeathed to him and who was brought up at the Hermitage was Andrew Jackson Hutchings, orphan son of his old partner in the mercantile business, John Hutchings, who died in Alabama in November, 1817. The elder Hutchings was then a widower, and when he knew that death was upon him he sent for his old partner and asked him to consent to act as guardian to the little five-year-old boy he was leaving behind him. Jackson took the boy (“little Hutchings” he generally called him in his letters about him), and carefully reared him at the Hermitage, giving him every possible attention and advantage.

When Jackson went to Florida in 1821 he did not take Hutchings with him, the reason assigned, in a letter to John Coffee, being a strange one: “I am aware if I did and an accident happen his grandfather would believe I had destroyed him that his estate should go to his father’s family.” So he engaged a combination nurse and tutor to take up her residence at the Hermitage during his absence and keep the boy at his studies; and in his letters home from Florida he never neglected to inquire about the lad’s health and send him messages. “Say to him his cousin Andrew will bring him a pretty present when he returns, and I will buy him a pony.”

Hutchings, as the years passed on, developed into a rather 119 difficult subject. Jackson had hardly arrived at the White House in March, 1829, heart-broken over his wife’s recent death and naturally worried over the tremendous burden of responsibility he was taking on his shoulders, when news reached him that the boy had been suspended from the University of Nashville. Much perturbed, he wrote to William Donelson asking him to send Hutchings to the school conducted by Mr. Otey at Franklin. “I wish him taught penmanship, arithmetic and bookkeeping, algebra and some of the other branches of mathematics, moral philosophy, belles letters and such other branches that may be profitable to him as a farmer and private gentleman. I have lost all hope of making him a classic scholar, and do not wish him to touch the languages except to review those books of Latin and Greek that he has read, but wish him to understand his grammar well.” He also wrote Hutchings directly that he wished him to enter the school at Franklin, but Hutchings was having too good a time back home at the Hermitage where there was no restraining hand save that of the overseer, and he began to parley about a choice of schools, claiming that he had an aversion to Mr. Otey’s school and would prefer to go to one conducted by Mr. Williford at Columbia. While all this was going on, Jackson’s friend Colonel Charles J. Love visited the Hermitage and wrote: “Young Hutchings is very much in the way at the Hermitage. He rode one of the brood mares away the other day and got her eyes put out. A letter from you might be of service. Mr. Steel is anxious he should leave the place.”

Hutchings finally went off to the Columbia school, but did not last long there. In July Jackson wrote General Coffee, who was helping him manage the boy’s estate: “His conduct has filled me with sincere regret. I can not think of letting him be lost, and have concluded to bring him here and place him at the college at George Town under the control of the Catholics. It is an excellent university and perhaps, under my own eye, I might be able to control him and convince him of the impropriety of his ways.” Accordingly he came on to Washington when Andrew, junior, returned 120 from a visit to the Hermitage a little later; but in April Jackson sent him back to Mr. Williford’s school at Columbia. “Hutchings has behaved well at college,” he wrote Coffee, “but he has such a great dislike to this place and his health not good that I have consented to let him return under a promise that he will abandon his extravagance.” But after he had left Washington Jackson found that he had left a lot of bills unpaid, and he instructed Coffee to “notify everyone that no accounts will be paid only those authorized by you. This will be necessary to preserve him from bankruptcy and ruin.”

Instead of going back to Columbia to school, however, Hutchings simply went back to the Hermitage and began to idle his time away again. Before long Jackson had a letter from Overseer Steele complaining of “a quarrel and fight” he had had with Hutchings over the youth’s desire to whip a slave who had offended him; and again the harrassed guardian had to write to Coffee asking him to use his influence to get the boy to go back to school. “At the Hermitage he is to have a home, but I expect he will aid in keeping peace rather than be its disturber,” Jackson wrote.

Hutchings apparently never did go back to school at Columbia, but in September turned up in Washington again and wheedled Jackson into sending him to the University of Virginia. “He says he is now determined to become a learned man,” the hopeful Jackson wrote Coffee; and for a brief time it appeared that there might be something to this hope, for the boy’s professors reported his good conduct early in October. In November Jackson wrote him reproving him for not fulfilling his promise to write to him every week, but inviting him to come and spend the Christmas holidays with him at the White House. Hutchings accordingly came, and the President rounded off the holidays by permitting him to go to Philadelphia to visit his cousin, Miss Mary McLemore of Nashville, who was in school there and with whom he thought he had fallen in love.

By February, 1832, the boy’s determination to become a learned 121 man had faded away. By absenting himself from his classes he laid himself liable to dismissal, and to escape this ignominy he withdrew from the school. Jackson was much chagrined and humiliated when notified of this state of affairs, but derived such consolation as he could from the fact that his ward was accused of no moral delinquency. He urged Hutchings to come to Washington; but the young man was evidently ashamed to face his guardian, and so wrote to General Coffee asking him to send him enough money to return to his farm in Alabama which had been left him by his father. Coffee sent the money, but instead of going to Alabama to take up the life of a farmer, Hutchings was back at the Hermitage again in April—and again causing trouble, this time in connection with the handling of some colts.

It was no doubt with a distinct feeling of relief that the harassed President was at last able to relinquish his guardianship in March, 1833, when Hutchings came of age. In writing to General Coffee, instructing him about turning over the young man’s patrimony to him, Jackson said: “I know I have performed my pledges to his father on his dying bed”; and in a letter to Hutchings he gave him some kindly and wholesome advice about the manner in which he should conduct himself.

Despite all the trouble he had had with him, however, Jackson seemed to have a real feeling of high regard for the orphan boy, son of his old partner and grandson of his wife’s sister Catherine; and he kept up a fatherly correspondence with him all the rest of his life. A significant sidelight on Jackson’s high principles in such matters is revealed by his response when Hutchings, checking over the accounting of his estate noticed that there was no charge made for administration and wrote Jackson notifying him of the supposed oversight. “I have no charge against your estate,” Jackson wrote him, “I never charged an orphan one cent for either time or expense, and I shall not now begin with you.”

Jackson took a particular interest in the progress of his ex-ward’s love affairs. His affection for his cousin Mary McLemore having cooled, Hutchings upon settling down on his farm in 122 Alabama fell in love with another cousin, General Coffee’s daughter Mary; and Jackson, obviously in favor of the match, helped it along with encouragement to the swain and an occasional adroit word of commendation for Hutchings when he was writing to Mary. They were married on November 14, 1833. Jackson wrote warm letters of congratulation to both of them; and, as early as June, 1834, he was writing Hutchings: “You have not even hinted whether a cradle will be necessary to compleat the furniture of your house. Do inform me.”

Andrew Jackson Hutchings, his harum-scarum young days behind him, developed into a responsible and respected citizen and planter. Jackson kept in touch with him through correspondence and occasional visits, and he enjoyed great gratification at Hutchings’s success in establishing himself as a substantial and respected man. When Hutchings, following the death of his wife in 1840, went to Cuba in an effort to restore his own health, Jackson wrote a letter of introduction in which he described him as “a gentleman of the highest principles of honor and honesty.” The trip to Cuba, however, was ineffectual, and Hutchings returned to Alabama to die in January, 1841.

* * * *

Donelson and Hutchings were but two of the numerous children Jackson took into the Hermitage and brought up as his own. A complete roster of them would be a long list. Apparently Jackson’s friends had a habit of dying and leaving their orphans to his care. His old friend Edward Butler, for instance, appointed the General guardian of his two sons and two daughters when he died in 1804, and there were other odd children left under his wing from time to time. But Rachel had a heart big enough to find room for them all; and Jackson, despite his engrossing responsibilities and his excruciating headaches, never objected to their noisy play as they tumbled about in the Hermitage while he was talking business and politics with his numerous visitors.

An exotic and pitiful member of the Hermitage household for a few years was Lyncoya, the young Indian whom General Jackson 123 rescued from the Creek battlefield of Tallushatches in November, 1813. When this bloody battle was over, this year-old infant boy was found at the breast of his dead mother, lying on the field. The baby was brought by John Coffee to the tent of General Jackson who sought to have some of the surviving Indian women take it and nurse it. With savage indifference they refused to make any effort to save the baby’s life; indeed, they sullenly suggested that the baby might as well be killed since its parents had already been slaughtered by the whites. General Jackson, however, determined to take it upon himself to see that the little waif survived. Accordingly he had it fed regularly on brown sugar and water and bread crumbs, and on this rude fare it survived until it could be sent back to civilization and given proper diet and attention. First the baby was sent to Huntsville, to be cared for there by Colonel LeRoy Pope; and it was his daughter, so tradition says, who conferred the name Lyncoya on the child. At last the little Indian reached the Hermitage, and under the kindly Rachel’s care soon bloomed with health again. General Jackson had written home that he was sending the little Indian as a present to little Andrew—much as one would speak of sending a puppy or lamb or some other form of pet. “I wish to know if little Andrew got his little Lyncoya and what he thinks of him,” the General wrote later to Rachel; and in all of his subsequent letters home he had something to say about the derelict Indian baby. “How is Lyncoya?” he wrote to Rachel from Mobile late in 1814. “Although he is a heathen he is an orphan, and I know you will extend a motherly care over him.” And Rachel did.

The exact status of Lyncoya in the Hermitage menage is now not entirely clear. General Jackson probably shared the frontier sentiment that an Indian was just barely a human being, and at first he seems to have looked upon him as little more than a novel sort of pet for little Andrew. But the young redskin must have grown in Old Hickory’s affections, for in subsequent letters he refers to “my little sons, including Lyncoya,” and as soon as he was old enough he went to school along with the white boys. 124 Lyncoya, according to tradition, soon showed signs of his racial origin: He decorated his head with turkey feathers, and with a bow and arrow that he made for himself he kept the chicken yard in an uproar. As he grew older, General Jackson’s plans for him grew more ambitious. In 1823 he wrote from Washington to Mrs. Jackson: “I would be delighted to receive a letter from our son, little Hutchings and even Lyncoya. The latter I would like to exhibit to Mr. Monroe and the Secretary of War, as I mean to have him received at the Military School as early as I can.” But by the time Lyncoya was old enough to enter the Military Academy the national administration had changed and Jackson’s enemies were in power. Accordingly, the General decided to have the young Indian learn a trade, and so took him to Nashville and carried him around town so that he could see with his own eyes men working in the various shops, and then let him decide which one was most attractive to him. Lyncoya for some reason (and by a strange coincidence, since Jackson himself had worked in his boyhood at the same trade) chose the shop of a saddler as the scene of his future labors. So he was apprenticed to a Nashville saddle maker in 1827; but it was his custom to spend his Sundays at the Hermitage, riding one of the General’s fine saddle horses to and from Nashville. The confinement of the shop, however, did not agree with him and within a year he fell ill with a heavy cold that settled on his lungs. He was given permission to go home to the Hermitage, where he was carefully nursed by Mrs. Jackson, but he grew gradually worse and died June 1, 1828—his being the first death to occur in the Hermitage. Just where he was buried nobody seems to know. At least one chronicle has stated that he was buried in the garden; but, if so, there is no sign of it. No stone there bears his name, and there is no unmarked grave in the family plot. It has also been suggested that he was probably buried in the slaves’ graveyard down in the thicket, back of the carriage house. But all this is mere conjecture.

Lyncoya must have been a problem to General Jackson who, in common with other pioneers, hated the Indians as a race, although 125 he apparently had nothing but affection and pity for the forlorn individual he had brought to live under his own roof. That he trusted him implicity is shown by a brief note in Jackson’s handwriting now in the possession of a Nashville connection: “Mr. John Summerville will please send me by Lyncoya, who will hand him this, fifty dollars in small notes. Please enclose it under cover to me and oblige your friend Andrew Jackson.” Mr. Summerville lived in Nashville, and if Jackson had not had the greatest confidence in him he would never have sent a thirteen-year-old boy on that long, lonesome horseback ride to Nashville and back to get that money.

* * * *

An almost lifelong resident of the Hermitage, described by General Jackson as “my friend and companion” was Ralph E. W. Earl, the artist who married Mrs. Jackson’s niece. He was born in 1788, the son of Ralph Earl, an artist of distinction; and, following his father’s example, took up the profession of artist himself. He came to Nashville in 1816, and through painting Jackson’s portrait established an acquaintance with the General which ripened into lifelong friendship. One of his friends in a contemporaneous letter described him as “the very soul of goodness and honor”; and that seems to have been the general opinion of him.

While in Natchez exhibiting a portrait of Jackson which he had painted, Earl met Miss Jane Caffery, a daughter of Mrs. Jackson’s sister Mary, whom he married after a short courtship. Upon their return to Nashville they were invited to live at the Hermitage, and when Mrs. Earl died a few months afterwards, Jackson insisted that Earl continue his residence there. From then until his death he was the intimate friend of General Jackson, going to Washington with him when he was elected President, and accompanying him as a companion on most of his travels.

During the latter part of his life Earl spent most of his time painting portraits of Jackson, and came to be known in a jesting way as the “court painter.” It was intimated around political circles in Washington that Earl’s influence on the President was such 126 that his friendship was a good thing to have; and it was hinted that Earl received many commissions to paint Jackson’s picture from practical men who were less interested in having a hand-painted portrait of the President than they were in currying favor with him. Be that as it may, Earl enjoyed painting the picture of his old friend and benefactor and Jackson enjoyed Earl’s companionship; so everybody was happy. Earl is described by his contemporaries as a man of quiet and gentle ways, and he must have been an excellent foil for the fiery old General.

That he was not without a streak of humor is shown by his skylarking when President Jackson left him in Washington when he returned to the Hermitage in the summer of 1836. He was entrusted with the duty, during Jackson’s absence, of opening the President’s mail and distributing the letters to the proper departments. Earl, with dry wit, remarked to Francis P. Blair that this would place on the Cabinet members the unusual responsibility of attending to their own duties; and there was a good deal of chaffing and carrying-on in the official family while the well-liked pseudo-President was occupying the chair in the White House office with mock gravity. Earl would joke the Cabinet members by seriously referring to them all of the incoherent letters of rattle-brained cranks, including an inventor of a perpetual motion machine who wrote him from the Philadelphia lunatic asylum; and when one of them jokingly objected to being so annoyed, Earl remarked that while he was sitting in the President’s chair he was tempted to go ahead and make some needed changes in the government and thus save Mr. Van Buren (the heir apparent) the trouble. Blair thought all of this great sport and wrote to Jackson back at the Hermitage telling him all about it. “He is thus playing the part of Sancho Panzo,” chuckled Blair, “with those whom he ventures to joke with, making some pretty good hits.” Jackson was never much of a hand for horse play and buffoonery; but if he had any objection to all this pranking of Colonel Earl’s he never voiced it.

Upon the expiration of Jackson’s term as President Earl returned 127 to the Hermitage with him, but did not live long. In addition to being an artist he was also a dabbler in the art of landscape gardening. He had designed the concentric flower beds in the middle of the garden; and when Jackson in the summer of 1837 started to build the guitar-shaped driveway from the gate to the front door of the Hermitage it was Earl who drew the plans and helped supervise the work. The sun shines fiercely in Tennessee in early September, and while engaged in this work Earl suffered a heat stroke which passed into a congestive chill from which he never recovered. He died on September 16, 1838, leaving uncompleted a portrait on which he was working of Jackson in his major-general’s uniform. In writing to his former secretary, Nicholas P. Trist, notifying him of Earl’s death Jackson said: “His death is a severe bereavement to me. He was my sincere friend and constant companion, and when I was able to travel always accompanied me. He was an invaluable friend, a most upright and honest man; but he is gone to happier climes than these ‘where the wicked cease to trouble and the weary are at rest.’” Earl was buried in the family plot in the corner of the garden, and Jackson made his little niche in history secure by directing that there be engraved on his headstone the words: “Friend and companion of General Andrew Jackson.”

In the journal of a Nashville citizen of that era, Mr. Matthew Delamere Cooper, the funeral of Colonel Earl is commemorated in a quaint and touching poem which he has entitled “The Burial,” in introducing which he says: “That the following lines may be understood it is necessary to mention that they were written on the occasion of the burial of Colonel Earl, a portrait painter of considerable eminence, for many years the intimate friend of General Jackson and long an inmate of the General’s house. He was followed to the grave by a few friends, amongst them the venerable hero, who did honor to his memory and consecrated the accumulating heap over his remains by a few tears that would not be represt. The man of iron soul, the hero of a hundred battles, wept over his departed friend! He was buried near a 128 weeping willow and within a few feet of the cenotaph destined to receive the mortal remains of Andrew Jackson. (May it long be an empty tomb!!)”

The Burial

There was no gloomy pomp to strike the eye;

There fell no toll of bell upon the ear.

To where a new made grave was opened nigh,

In silence slowly followed we the bier.

And was he little valued, little known,

Who reached obscurity thus life’s journey’s end?

No, Art had made a brilliant name his own

And him the hero honored as his friend.

Yet in the latest office due the dead,

To him without parade thus sadly done,

Was he not honored much for whom was shed

That old man’s tears, by veteran friendship won?

How touching is such grief; who does not sigh

To see the sorrow-stricken hero bend;

The tear that mocks restraint, big in his eye,

Falls on the gathering heap above his friend.

Not the deep tolling of the solemn bell

Or martial funeral pomp for fallen chief,

Pall, long procession, pageant, all that tell

The magnitude of a paraded grief;

Not all were worth that solitary tear.

One drop from such a fount would nerve the brave

To court the deadliest danger without fear,

So might such honor wait him at the grave.

129

Hidden forever now, calm be thy sleep.

The ground is hallowed where thy place is made.

A spot all aftertimes shall sacred keep

Sharer with it the weeping willow’s shade.

And when to see where he, the great man, lies

Hither hereafter pilgrim patriots come,

Remembered shalt thou be, and tearful eyes

Shall mark thy grave beside the hero’s tomb.

* * * *

One of history’s shadowy figures who lived at the Hermitage for the better part of two years was Major Henry Lee of Virginia, scapegrace son of General Henry (Lighthorse Harry) Lee by his first wife. As his father’s eldest son Major Lee had become the master of Stratford Hall, the seat of the Lee family in Virginia; but as the result of an amour with his wife’s sister he had been forced to leave Stratford and exile himself beyond the boundaries of his native state. Attracted by the rising star of General Jackson, under whom he had served in the War of 1812, he came to Nashville to seek a connection with him; and Jackson, despite the social stigma attached to the expatriated Virginian, gave him asylum and gave him secretarial employment.

Major Lee’s polished diction is to be seen in many of Jackson’s formal state papers of this period, notably his first inaugural; and during the campaign of 1828 he wrote copiously in behalf of the General’s candidacy. He was on Jackson’s staff at the time of Mrs. Jackson’s death; and tradition has it that he was the author of the gem-like epitaph inscribed on her tomb. When the Indian boy, Lyncoya, died in 1828 Lee wrote a tribute to him which appeared in one of the Nashville daily papers and was greatly admired at the time.

When President Jackson was inaugurated in 1829 Major Lee aspired to be the chief clerk in the Department of State, an office for which his talents and education eminently well fitted him; but 130 the black sheep son of Lighthorse Harry (“Black Harry” he was sometimes called) by reasons of his indiscretion in Virginia had made some powerful enemies there. They went to Washington and waged a vigorous and successful fight against his being elevated to such a high place in the Federal government, and so his ambition in this direction was thwarted. Jackson then appointed him to a diplomatic post in Algiers, and Lee went there to take over the duties of this office; but his Virginia enemies were relentless and succeeded in preventing the Senate’s confirmation of this appointment. Major Lee left Algiers and went to Paris, where he died a few years later. He planned to write a biography of Jackson and actually completed a part of the manuscript; but after his death this uncompleted manuscript could never be found.

It is of passing interest to observe that Robert E. Lee, the Confederate commander, was appointed to the Military Academy at West Point by President Jackson in 1829; and it is not improbable that this appointment was the direct result of his elder half-brother’s friendship with the President.

A charming impression of the Hermitage household is recorded in the book of recollections written in 1872 by Governor Henry A. Wise of Virginia who, as few people now recall, spent his honeymoon in the Jackson home. Henry Wise, a promising young barrister, in August, 1828 came to Nashville from his home in Virginia for the purpose of marrying the daughter of Dr. O. Jennings, pastor of the Presbyterian Church in Nashville attended by General Jackson and his wife when they were in the city. Dr. Jennings was not only their pastor but their close personal friend; and so, with characteristic hospitality, the Jacksons insisted that the young couple must spend their honeymoon at their country home.

The back parlor, with mantel of Tennessee marble and original furnishings. The center table is part of the furniture presented to General and Mrs. Jackson on the occasion of their visit to New Orleans.

The dining room, showing the ornate sideboard purchased in New Orleans by Mrs. Jackson, and some of the Decatur silver. At this banquet table have dined nine Presidents—Andrew Jackson, James Monroe, Martin Van Buren, Franklin Pierce, James Buchanan, James K. Polk, Millard Fillmore, Theodore Roosevelt, and Franklin D. Roosevelt.

131

“We arrived at the Hermitage to dinner,” writes Governor Wise, “and were shown to a bridal chamber magnificently furnished with articles which were the rich and costly presents of the city of New Orleans to its noble defender. The first or second evening of our stay, Mr. Lee had drawn about him his usual crowd of listeners; but we were the more special guests of Mrs. Jackson. She was a descendant of Colonel Charles Stockley, of our native county, Accomack, Virginia; and we had often seen his old mansion, an old Hanoverian hip-roofed house standing on the seaside not far from Metompkin; and she had often heard her mother talk of the old Assawaman Church, not far above Colonel Stockley’s house. Thus she was not only a good Presbyterian, whose pastor’s daughter was the bride, and she a Presbyterian too, but the groom was from the county of her ancestors in Virginia and could tell her something about traditions she had heard of the family from which she sprung. With pious devotion to her mother’s family she desired to have a talk with us particularly, and formed a cosy group of quiet chat in the northeast corner room leading to the garden. This room had a north window, diagonal from the door leading to the garden. At this door her group was formed, fronting in a semi-circle the north window of the room, the garden door on our right. First, on our right, next the window, was old Judge Overton, one of General Jackson’s earliest and best friends. He was a man who had made his mark in law and politics, but was not pious and was a queer-looking little old man. Small in stature and cut into sharp angles at every salient point; a round, prominent, gourd-like, bald cranium; a peaked Roman nose; a prominent, sharp but manly chin; and he had lost his teeth and swallowed his lips. Next to him, on his left, sat General Jackson, his hair always standing straight up and out, but he in his mildest mood of social suavity. On his left the Reverend Doctor Jennings, one of the sweetest men in society, very distinguished as a lawyer first and then as a divine, with a rare sense of humor which even his religious zeal could not always repress, and yet awfully earnest and severe against all levity. On his left was Mrs. Jackson, a lady who doubtless was once a form of rotund and rubicund beauty, but now was very plethoric and obese and seemingly suffered from what was called phthisis, and talked low but quick with a short and wheezing 132 breath, the very personification of affable kindness and of a welcome as sincere and truthful as it was simple and tender. On her left was ourself, responding to her every inquiry about things her mother had handed down concerning the Stockley family; and on our left sat Henry Baldwin, the son of Judge Baldwin of the Supreme Court of the United States, one of the groomsmen, a gentleman of fine culture, good sense and taste.”

Clearly the Jackson household was an attractive one and a pleasant one to visit. No wonder the Hermitage was always full of guests!

Henry Wise and his wife recalled with sadness that happy scene in the northeast room when they were back there from Nashville just a few months later to attend the funeral of Mrs. Jackson, held in that same room where they had all been so merry but a short time before.

The death of General Jackson’s deeply beloved wife was doubly tragic, coming as it did so closely in the wake of his triumphant campaign for the Presidency in 1828, and hastened as it unquestionably was by the heartless and slanderous attacks that were made on her character by Jackson’s political enemies in their desperate attempt to defeat his candidacy.

Her health had been increasingly bad for four or five years. She suffered from asthma and from palpitation of the heart, and the excitement and humiliation of the savage political campaign had aggravated her trouble, although she was not bedridden. Her final and fatal seizure came suddenly on December 17th while she was standing in her sitting room talking with Aunt Hannah concerning some of the household affairs. The General, who was in the fields, was hastily summoned, doctors were called, relatives and friends hurried in. For sixty hours she suffered intensely, and during all this time her adoring husband never left her bedside. At length she grew better; and her first thought was to reassure the General as to her improved condition and to urge him to get some sleep so that he would be in proper condition for the great banquet of triumph that was scheduled to be held in 133 Nashville by his political admirers in honor of his election to the Presidency. The General at first refused to leave her side, but on the evening of the 22nd she seemed so greatly improved and she begged him so earnestly to get some rest that he reluctantly relaxed his vigil and retired to the room across the hall. Hardly had he left the sick room when the end came suddenly and without warning. With only one spasmodic cry she died in the arms of the faithful Aunt Hannah who was close by her side.

General Jackson was almost paralyzed with grief. He refused to believe her dead, and persistently urged the doctors to try every known restorative. But the doctors knew that life had left her body and ordered her laid out on a table in the old-fashioned way. “Spread four blankets on the table,” the General thoughtfully admonished the servants, tears streaming down his face. “Then if she does come to, she won’t lie so hard on it.” All through the night he sat there by her side. At intervals he would feel of her heart and pulse and look hopefully into her face for some sign of life. And all through the next day he sat there, utterly inconsolable.

The death of Mrs. Jackson, of course, put an end to the gala preparations in Nashville for the banquet of triumph. Handbills announcing her passing were hastily printed and distributed throughout the town; resolutions of regret and sympathy were adopted by the city officials, and the committee on arrangements for the banquet recommended a cessation of all business activities in Nashville in deference to the bereaved President-elect. Army officers in the city arrayed in their dress uniforms to participate in the celebration laid aside their regalia of festivity and donned the badges of mourning.

On the day of the funeral, it is recorded, every vehicle in Nashville was pressed into service in conveying the residents of the city to the Hermitage. Church bells in the city tolled steadily from 1:00 to 2:00 o’clock P.M., the hour of the services. Parton quotes an attendant at the funeral as saying: “Such a scene I never wish to witness again. The poor old gentleman was supported to the 134 grave by General Coffee and Major Rutledge. I never pitied any person more in my life. The road to the Hermitage was almost impassable, and an immense number of persons attended the funeral. I never before saw so much affliction among servants on the death of a mistress. Some seemed completely stupefied by the event; others wrung their hands and shrieked aloud. The woman who waited on Mrs. Jackson had to be carried off the ground.” This was old Aunt Hannah who, between her sobs, said: “She was more than a mistis to us all; she was a mother.”

The day of the funeral was cold and damp and drizzly and the ground was muddy. The walkway leading from the house to the new grave in the garden was covered with cotton from the plantation gin-house to afford a firm footing to the pall-bearers and the funeral cortege. But in spite of the mud and the rain, the garden and yard were crowded with friends and neighbors. One of those at the funeral says: “More sincere homage was done to her dead than was ever done to any woman in our day and country living.”

General Jackson was heart-broken and stunned by his bereavement. Friends observed a complete change in his demeanor from that day forward. “He aged twenty years in a night,” said one observer; and all agreed that he was not only marked by a visible sadness but was from that time notably less violent in his nature and in his conversation. But, despite his feeling of desolation, the demands of the high office to which he had been elected did not permit him to sit at home and nurse his grief; and so in January, 1829, he left the Hermitage for Washington to be inaugurated President, accompanied by Andrew Jackson Donelson and Emily, Henry Lee, and Major W. B. Lewis.

After the trunks had been packed and the coach brought around to the front door, the heart-broken old General paid one last visit alone to the little mound in the corner of the garden. From a willow by the springhouse he cut four shoots and planted them at the four corners of the grave plot; then, after standing a moment with bared and bowed head, he turned and walked 135 slowly to the waiting coach. Before stepping up into the carriage, so old Alfred used to tell, he turned for a farewell look at the Hermitage. With tears in his eyes he took off his hat and made a courtly bow of farewell to the old house, “same as if it was a lady,” said Alfred; and then he entered the coach, coachman Charles cracked his whip over the four grays, and they were off to the Hermitage landing on the river where the steamboat Fairy awaited them. A stop was made at the wharf at Nashville for other passengers, and then the Fairy swung out in the current of the Cumberland and they were started on their way to Louisville, the first leg of their journey to the capital.

A lady then resident in Nashville wrote of the departure: “When the old man finally started for Washington, a crowd of ladies were assembled on the back piazza of the City Hotel, overlooking the Cumberland River, to ‘see the conquering hero go.’ I mingled with them, and distinctly remember hearing one lady say she had a good-bye kiss from the General and she would not wash it off for a month. Oh! what a noise there was! A parrot, which had been brought up a Democrat, was crying ‘Hurrah for Jackson;’ and the clapping, shouting and waving of handkerchiefs have seldom been equaled. When the steamboat passed out of sight and they realized that he was really gone, the city seemed to subside and settle down as if the object of its being was accomplished.”

So Andrew Jackson went away to accept America’s highest honor. But no President-elect ever approached his inauguration with less enthusiasm or with a heavier heart. Without his darling Rachel by his side, it was an empty honor. Writing to John Coffee a few weeks later he said: “My days have been days of labor and my nights have been nights of sorrow; but I look forward with hope once more to return to the Hermitage and spend some days near the tomb of my dear departed wife.” And throughout the eight years he spent in the White House, eight stormy years, his memory kept stealing back to that spot in the Hermitage garden where his heart lay buried by her side.

136

Thus closed one distinct era in the history of the Hermitage. Without Rachel’s presence the old house was never quite the same again. When Jackson came back there to live in 1837 it was to a new Hermitage, erected on the ruins of the one he had built for Rachel in 1819; and although it was a larger and a finer house, although he still entertained lavishly and took delight in the presence in the house of his little grandchildren, he was merely paying out the numbered days of his life, waiting to be laid at rest beside that lonesome grave in the corner of the garden.

137

VII: GUESTS AT THE HERMITAGE

Almost from the time it was built, the Hermitage held an attraction for visitors from all over the country; and since the death of General Jackson it has been a veritable Mecca. To enumerate all of its distinguished visitors would be to build up a bulky roster of the noted men of the past century; but mention may be made in passing of some of the more prominent people who have crossed the threshold of the Hermitage, either to be greeted by its famous master during his lifetime or to honor his memory since his old home has been established as a national shrine.

Despite its relatively isolated location and its inaccessibility during the early days, no less than eight Presidents of the United States have been formally entertained there, not to mention those who have visited it as an incident of a trip to Nashville. The first Presidential guest was James Monroe, who visited Nashville in June, 1819. This was before the present brick Hermitage was built—probably just about the time it was started—and President Monroe was perhaps the last famous guest to be entertained at the old log Hermitage. Mr. Monroe’s visit marked the first time that a President of the United States had ever been entertained in Nashville, and the proceedings were correspondingly elaborate. The President had proceeded from Washington to Charleston, South Carolina, and thence to Augusta, Georgia, and it was to the latter city that General Jackson went to meet him and escort him to the Hermitage. After spending two days there the party went on to Nashville. A few miles out from the city they were met by a committee of prominent citizens, with a company of soldiers, by whom they were accompanied into town with no little flourish and fanfare of trumpets. Upon arrival in Nashville a further formal welcome was officially extended; there was a big dinner at the old Nashville Inn, with a long list of patriotic toasts to be drunk by the diners, and the next evening there was a great ball in honor of the distinguished guest.

Other Presidents who have come to visit at the Jackson shrine have been Martin Van Buren, Franklin Pierce, James Buchanan, 138 James K. Polk, Millard Fillmore, Rutherford B. Hayes, William H. Taft, Theodore Roosevelt and Franklin D. Roosevelt. The visit of the earlier Roosevelt is particularly notable in the annals of the Hermitage, because it was he who obtained from Congress an appropriation of $5,000 to be devoted to the repair of the old house.

When Mr. Hayes visited the old home of his distinguished forerunner in the President’s chair the ladies who accompanied him were particularly careful to introduce him to old Uncle Alfred. After the introduction was over, and Alfred had shaken hands with Mr. Hayes, the ladies explained to the old servitor that the white gentleman had held the same high office as General Jackson. “Well, if you’d a been as great a man as he was,” said the candid old negro, “I’d a shuck your hand pretty near off!” President Taft on his subsequent visit to the Hermitage was told this anecdote, and the old halls reëchoed with his characteristic booming laughter.

Another man who bore the title of President and who was a close friend of Jackson and a constant visitor at his home was not, indeed, a President of the United States but the President of the Republic of Texas—Sam Houston, the distinguished and eccentric Tennesseean who mysteriously and suddenly resigned the governorship and went to live with the Indians and then ended his self-imposed exile and went to Texas to become that state’s most famous citizen.

Jackson was intensely interested in the annexation of Texas, and when that was finally accomplished and Houston was elected as the new state’s first Senator, Old Hickory looked forward with the keenest delight to the visit which Houston was planning to pay him on his way from Texas to Washington. But when the Texas hero reached Nashville he learned to his dismay that the old statesman, long in precarious health, was that day literally on his death bed; and although he hastened to the Hermitage with all speed, he was just a few minutes too late to give a farewell clasp of the hand to his old friend. Just before reaching the house he 139 met the carriage of Doctor Esselman on his way back to Nashville, and the doctor conveyed to him the sad intelligence of the General’s death; so Houston, instead of going on to the Hermitage, stopped by at Tulip Grove, but after the funeral he stayed over at the Hermitage for a brief visit with the family. In her reminiscences Mrs. Rachel Jackson Lawrence recalls this visit and how to her childish mind the sober black clothing he then wore contrasted so strongly with the brilliant military uniform in which he was arrayed when he had visited the Hermitage a few years before, soon after his history making victory over Santa Anna at San Jacinto. Mrs. Lawrence also told of a visit Houston paid to the Hermitage in 1836, when the work of rebuilding the house had not quite been completed. At that time the flagstones of the front portico had not yet been laid, and General Houston to the great amusement of the children got down in the sand and loose dirt and played “Doodle bug, doodle bug, come out of your hole.” There was no pose of false dignity about Sam Houston—maybe that was why so many people loved him.

The earliest distinguished visitor to the Hermitage—and the one whose visit had the most far-reaching implications—was Aaron Burr, the spectacular figure of the early nineteenth century whose strange adventures almost embroiled General Jackson in serious trouble.

Burr’s first visit to the Nashville settlements, and to the Hermitage, was in May, 1805. He had just stepped down from the vice-presidency and his farewell speech to the Senate had been greatly admired. His fatal duel with Alexander Hamilton, which had stigmatized him in the East, did not detract any from his popularity on the Tennessee frontier where killing a man in a duel was not regarded as a matter involving any serious moral turpitude. Upon his arrival in Nashville he was given a reception that amounted to an ovation, culminating in a sumptuous dinner with the usual round of toasts and speeches. Jackson rode in from the Hermitage to take part in the festivities, attended by a servant leading a milk-white horse; and when the dinner was over Colonel 140 Burr went back with him to the Hermitage as his guest. “I have been received with much hospitality and kindness, and could stay a month with pleasure,” Burr wrote his daughter, Theodosia. From Nashville Colonel Burr went to New Orleans; but on his return trip in August stopped at the Hermitage again for a visit of eight days. To Theodosia he wrote: “For a week I have been lounging at the house of General Jackson—once a lawyer, after a judge, now a planter; a man of intelligence, and one of those prompt, frank, ardent souls whom I love to meet.”

In September, 1806, Burr was back at the Hermitage, this time with his mind apparently fully made up as to his contemplated expedition to the Southwest. Theodosia he had brought along with him as far as Blennerhassett Island on the Ohio where he had left her; and in his frequent talks with the prominent citizens of Nashville during his stay there he discussed freely his plans to establish colonies “on the western waters.” There were not lacking even then suspicious persons who wanted to know more about the exact nature of the mysterious Colonel’s mysterious plans; but Jackson, at first at least, seemed to give full credence to Burr’s declarations of pacific intentions, and at the fete given in the visitor’s honor in Nashville he entered the ballroom accompanied by Jackson attired in his full uniform as a major general.

This third visit lasted only a few days, Colonel Burr hastening back to Kentucky; but in November Jackson, the merchant and boat-builder, received from him an order for the building of five large flatboats at his Clover Bottom boatyard and an accompanying order for enough provisions from his Clover Bottom store to stock them for their trip down the Mississippi. In the light of subsequent events it might have seemed significant that such a handsome piece of business was thrown in the lap of the frontier celebrity who happened to be major-general of the militia as well as a boat-builder and merchant, but if Burr counted on influencing Jackson’s judgment he reckoned without his man. Jackson, at the time he accepted the order, must have been convinced of the law-abiding nature of Burr’s intentions. There was no secrecy about 141 their negotiations. But friends, not of so trusting a nature, were insistent in urging him to watch his step; and so he wrote a candid letter to Burr, telling him of the stories being circulated about his alleged nefarious schemes, and asking him for the truth. He also wrote to Governor Claiborne of the Orleans Territory, telling him of the rumors, and to President Jefferson offering the services of himself and his militia in the event of any trouble. Meanwhile the work on the boats went right along. Burr had paid for them in advance, and Jackson felt honor-bound to complete them despite his growing suspicions; but he gave his partner, John Coffee, strict instructions to accept no more business from Burr.

In December Burr came back to Nashville from Kentucky. There the suspicions against his expedition had crystallized into charges that led to his arrest; but Henry Clay defended him and he was acquitted in triumph.

When Burr arrived at the Hermitage, for the fourth time, the customary warm welcome was conspicuously lacking. Jackson himself was not at home and Mrs. Jackson, so it is recorded, was “cool and constrained.” Burr took lodgings at the tavern at Clover Bottom; and when Jackson got home he immediately called on the Colonel there, in company with General Overton, and frankly told him of the rising tide of suspicion and distrust. Burr glibly protested the innocence of his intentions; but it is significant that he continued to lodge at the tavern and was not invited to stay at the Hermitage. When General Jackson permitted a friend to stay at a public house instead of insisting that he go home with him, it is a strong indication that the General was beginning to smell a mouse.

On December 22, 1806, Colonel Burr and a handful of adventurous young men recruited in the neighborhood embarked in the boats and pushed off from Clover Bottom. The denouement came swiftly. Burr had hardly left Nashville before President Jefferson’s proclamation denouncing him and his expedition reached town; and the populace which a few weeks before had been entertaining him with balls and banquets now burnt him in 142 effigy. Jackson, as commander of the troops in this section, was commanded by the Secretary of War to hold his forces in readiness to march; and he entered fully into the spirit of his instructions with a prompt display of energy and zeal. The militia was assembled, warnings were sent down the river against “all men engaged in any enterprise contrary to the laws or orders of our government;” but, upon receipt of news from the government forts down the river that the Burr flotilla had no warlike appearance, the near-panic subsided.

Despite his alacrity in carrying out the orders of the President and the Secretary of War, General Jackson clearly gave evidence that he did not understand clearly what was going on. He was obviously reluctant to suspect Burr of ulterior designs, and he felt strongly that there was something sinister behind all the furor. In the end, he himself was brought under suspicion and was summoned as a witness in the trial in Richmond when Burr was at length arrested and arraigned. Jackson never was put on the witness stand; but he did take occasion, while he was waiting in Richmond, to mount the courthouse steps and make a stump speech in favor of Burr who, he had finally come to believe, was being persecuted by Jefferson.

When he sat down and thought the matter over, Jackson doubtless regretted deeply the day that the hospitality of the Hermitage had been extended to the fascinating Burr.

A guest at the Hermitage whose visit demonstrated not only Jackson’s open-armed hospitality but also his winning way with children was a young boy whose name later filled a large place in history—Jefferson Davis.

In 1815 young Davis, then only seven years old, was sent from his home in southwestern Mississippi to the St. Thomas School in Washington County, Kentucky. This was at that time necessarily an overland trip, there being no steamboats, and the way lay through that part of Mississippi known as “The wilderness” before the civilized part of Tennessee was reached. Travelers 143 through this Choctaw and Chickasaw country followed the Natchez Trace and generally went in parties for safety and companionship. Young Jefferson Davis accompanied a party headed by his father’s friend, Major Hinds who had participated in the Battle of New Orleans, and Major Hinds’s son, Howell, was also a member of the party. The two boys were about the same age and, mounted on their ponies, greatly enjoyed the long overland trip up the romantic and dangerous Natchez Trace.

When the little cavalcade reached Nashville, the first thought of Major Hinds was to visit his old commander, General Jackson, under whom he had seen such stirring service just a few months before. Accordingly, the whole party went trooping out to the Hermitage, and there they were so cordially received that instead of staying for a few days they remained several weeks.

“General Jackson’s house at that time,” wrote Mr. Davis in later years, “was a roomy log house. In front of it was a grove of fine forest trees, and behind it were his cotton and grain fields. I have never forgotten the unaffected and well-bred courtesy which caused him to be remarked by court-trained diplomats when President of the United States, by reason of his very impressive bearing and manner.

“Notwithstanding the many reports that have been made of his profanity, I remember that he always said grace at his table, and I never heard him utter an oath. In this connection although he encouraged his adopted son, Howell Hinds and myself in all contests of activity, pony-riding included, he would not allow us to wrestle; for, he said, to allow hands to be put on one another might lead to a fight. He was always very gentle and considerate.

“Mrs. Jackson’s education, like that of many excellent women of her day, was deficient; but in all the hospitable and womanly functions of wife and hostess she certainly was excelled by none. A child is a keen observer of the characteristics of those under whom he is placed, and I found Mrs. Jackson amiable, unselfish and affectionate to her family and guests and just and mild toward her servants.

144

“Our stay with General Jackson was enlivened by the visits of his neighbors, and we left the Hermitage with great regret and pursued our journey. In me he inspired reverence and affection that has remained with me through my whole life.”

This account of his memorable visit to the Hermitage was dictated by Mr. Davis 75 years later, during the last year of his life; and the fact that his visit as a child left on his mind such a vivid impression is an eloquent tribute to the glowing personality of Jackson and the kindly manner of his wife.

It was at the old log Hermitage that Jackson received the first visit of Thomas H. Benton, the man who later became his close friend and then his enemy and then his friend again. Young Benton had been admitted to the Tennessee bar in 1804 and was practicing in Franklin, a few miles from Nashville. In 1805 he had a land title case in which were involved some legal points upon which Andrew Jackson had ruled while he was sitting on the Superior Court. These rulings had not been published, however, and so Benton saddled his horse and rode to the Hermitage to ask the ex-justice for an official report of the cases. Upon learning his errand, Jackson courteously offered to write out the opinions for him; so, with Jackson dictating and Benton transcribing, the opinion of the Superior Court was thus tardily reduced to written form. It was typical of the hospitality of the Hermitage that Benton, who had made an instantaneously good impression on Jackson, was prevailed upon to prolong his formal call to a two-days’ visit; and there was the beginning of a friendship which had a lasting and far-reaching effect upon the careers of both of them. For many years Benton was a frequenter of the Hermitage to such an extent as almost to be regarded as a member of the family; and, despite an intervening period of enmity growing out of a bloody, knock-down-and-drag-out fight, Benton’s eulogy of Jackson when he died showed the depth of his affection for the older man.

145

A visitor of world-wide distinction who was a guest at the Hermitage was the celebrated Marquis de Lafayette. General Jackson had long been an admirer of the patriotic Marquis. Mrs. Jackson herself is authority for the statement that Jackson first saw him at Charleston “on the battlefield” when he was a boy of twelve and the Marquis was at the zenith of his great Revolutionary popularity. When Jackson was in Washington in the latter part of 1824 as a Senator he met Lafayette, in fact lived at the same tavern with him while he was there, and it was probably at that time that the Marquis was invited to visit Nashville and the Hermitage. He had previously written Jackson, soon after his arrival in this country, saying “I will not leave the United States before I have seeked and found the opportunity to express in person my high regard and sincere friendship.”

The Marquis and his party steamed up to the wharf in Nashville on May 4, 1825, and were there greeted tumultuously by the Nashville populace, General Jackson foremost among them. The enthusiastic Nashvillians had prepared a rather elaborate entertainment for the celebrated French nobleman, including a big parade and a formal call on Governor Carroll. The next morning the Marquis reviewed the Tennessee militia (which had been encamped at Nashville a week patiently awaiting his belated arrival) and after the review the party boarded the steamboat again and proceeded up the river to the Hermitage to have dinner with General Jackson. Dinner in those days was a big meal served at about three o’clock in the afternoon.

Fortunately, a record of this visit is preserved in a book written by M. LeVasseur, Lafayette’s secretary, who, after telling of the entertainment in Nashville, says: “At one o’clock we embarked, with a numerous company, to proceed to dine with General Jackson, whose residence is a few miles up the river. We there found numbers of ladies and farmers from the neighborhood whom Mrs. Jackson had invited to partake of the entertainment she had prepared for General Lafayette. The first thing that struck me on arriving at the General’s was the extreme simplicity of his house. 146 Still somewhat influenced by my European habits, I asked myself if this could really be the dwelling of the most popular man in the United States, of him whom the country proclaimed one of her most illustrious defenders; of him, finally, who by the will of the people was on the point of becoming her Chief Magistrate. One of our fellow-passengers, a citizen of Nashville, witnessing my astonishment, asked me whether in France our public men, that is to say the servants of the people, lived very differently from other citizens. ‘Certainly,’ said I, ‘thus, for example, the majority of our generals, all our ministers, and even the greater part of our subaltern administrators, would think themselves dishonored and would not dare to receive anyone at their houses if they possessed such a residence as this of Jackson’s; and the modest dwellings of your illustrious chiefs of the Revolution—Washington, John Adams, Jefferson—would only inspire them with contempt and disgust.’”

Having thus tactfully ingratiated himself with the party, M. LeVasseur accompanied the other guests on a visit of inspection to the farm and garden, and then:

“On returning to the house, some friends of General Jackson who probably had not seen him for some time, begged him to show them the arms presented to him in honor of his achievements during the last war; he acceded to their request with great politeness and placed on a table a sword, a saber and a pair of pistols. The sword was presented to him by Congress; the saber, I believe, by the army which fought under his command at New Orleans. These two weapons, of American manufacture, were remarkable for their finish and still more so for the honorable inscriptions with which they were covered. But it was to the pistols that General Jackson wished more particularly to call our attention. He handed them to General Lafayette and asked him if he recognized them. The latter, after examining them attentively for a few minutes, replied that he fully recollected them to be a pair he had presented in 1778 to his paternal friend, Washington, and that he experienced a real satisfaction in finding them in the hands of one so worthy of possessing them. At these words the face of ‘Old Hickory’ was covered with a modest blush, and his eye sparkled as in a day of victory. ‘Yes, I believe myself worthy of them,’ exclaimed he, in pressing the pistols on Lafayette’s hands to his breast, ‘if not from what I have done, at least for what I wished to do for my country.’ All of the bystanders applauded this noble confidence of the patriot hero, and were convinced that the weapons of Washington could not be in better hands than those of Jackson.” (These pistols, it should be here interpolated, were presented to General Jackson by General George Washington’s nephew, Bushrod Washington; and were a part of the valued collection of trophies in the Hermitage until they were lost in the fire in 1834.)

The front parlor, with original furniture, carpet and damask silk hangings.

Front of upstairs hall, showing the linen closets flanking the wide doorway leading onto the upper front gallery.

147

Lafayette’s stay at the Hermitage was short. In the late afternoon his steamboat returned to Nashville where a grand banquet was given in his honor that evening, with General Jackson presiding. The Marquis left the next morning by steamboat for Louisville, and had a narrow escape from death when the boat struck a snag in the Ohio and sank within a few minutes. Fortunately, however, he escaped without injury.

Another distinguished visitor from France in the early days was the elder Michaux, the great naturalist, who tells in his journal how he “spent the night twelve miles from Nashville at the home of a Mr. Jackson.” Michaux, however, with his naturalist’s heart, was much less impressed by the reputation, then hardly more than local, of General Jackson than he was by the beauty of the yellow-wood trees he found “on land belonging to a Mr. Overton south of Nashville” in greater abundance than he had ever noticed the trees elsewhere. He sent home some seeds from these trees found on Judge Overton’s hills, and in two of the parks of Paris today may be seen specimens of this rather rare tree grown from the seeds sent from Nashville by this early visitor.

Still another celebrated Frenchman visited the Hermitage in 1843 and paid his respects to the old hero—Marshall Bertrand, one of Napoleon’s famous marshals, who came to Nashville in 148 the course of his travels in America and, as a matter of course, was entertained at dinner by Jackson, despite his debilitated health.

Perhaps the greatest strain ever placed upon the hospitality of the old house was when it was visited in August, 1830, by Major John H. Eaton and his bride, the erstwhile Peggy O’Neal, the storm center of the early days of the Jackson administration. This was a visit that required no little stage managing and window dressing; for the vivid Mrs. Eaton had not only disrupted the President’s Cabinet, she had brought discord into his own family; and it was in the midst of the strained relations existing between Jackson and the Donelsons that the Eatons made their visit to Tennessee.

Jackson was spending the summer of 1830 at home, and he was determined that the Eatons should be formally entertained at the Hermitage and that his connections, as he called Major Donelson and his wife, should assist in the reception. Here was a situation that called for all the keenest diplomacy of the most astute members of the Kitchen Cabinet; but the old reliable John Coffee, himself one of the “connections,” exercised his powers of persuasion on the Donelsons and at length it was arranged that they would help Old Hickory entertain his celebrated but slightly tarnished guests. Gleefully Jackson wrote to Eaton in August when Coffee had finished with his wire-pulling:

Private and for your own eye.

My dear Major: I send my son to meet you at Judge Overton’s and to conduct you and your lady with our other friends to the Hermitage, where you will receive that heartfelt welcome that you were ever wont to receive when my dear departed wife was living. Her absence makes everything here wear to me a gloomy and melancholy aspect, but the presence of her old and sincere friend will cheer me amidst the melancholy gloom with which I am surrounded.

My neighbors and connections will receive you and your lady with that good feeling that is due to you, and I request you and your lady will meet them with your usual courtesy, which is so well calculated to gain universal applause even from enemies and the united approbation of all friends. Our enemies calculate much upon injuring me by raising 149 the cry that I forced Mr. A. J. Donelson from me and compelled him to retire because he would not yield to my views, which they call improper. I mean to be able to shew that I only claimed to rule my household, that it should extend justice and common politeness to all and no more, and thus put my enemies in the wrong; and if any friends desert me, then it is theirs not my fault.

General Coffee has, since here, produced a visible and sensible change in my connections and they will all be here to receive you and your lady who I trust will receive them with her usual courtesy and if a perfect reconciliation can not take place that harmony may prevail and a link broken in the Nashville conspiracy. I trust you are aware that I will never abandon you or separate from you so long as you continue to practice those virtues that have always accompanied you, nor would I ask you or your friend to pursue a course to compromise or be degrading to themselves or feelings; but I am anxious that we pursue such a course as will break down the Nashville combination, which I view as the sprouts of the Washington conspiracy.

Under these more or less auspicious circumstances the Eatons came to the Hermitage, where nothing was left undone to make them feel that they were just as welcome as any other guest that ever crossed the threshold of the old house. The Donelsons were there, taking part in the reception of the guests, Mrs. Donelson the very essence of punctilious and cordial hospitality—although she probably had her enthusiasm well under control. Pretty Peggy Eaton was no fool; she must have known of the cajoling it had required to prepare the way for her reception at the Hermitage; and, although she was spiteful enough to relish the concealed discomfiture of the Donelsons, it was probably a relief to her and to everybody else (except perhaps Old Hickory himself) when the party was over and the Eatons had to go.

Mrs. Eaton in her old age sat down and wrote a rambling sort of autobiography, in the course of which she told of this visit to the Hermitage—although nowhere in her reminiscences does she mention the Donelsons, whom she so cordially hated. The dinner at the Hermitage in her honor, she relates, was a splendid occasion, with the General doing the honors with great gusto and making jokes with the guests over the carving of a barbecued 150 pig which was one of the features of the dinner. The General also distinguished himself as a host by passing the bread himself, which was his way of making everybody feel at home. After dinner, however, the master of the Hermitage disappeared; and then it was that Mrs. Eaton, sent by her husband to look for him, found him kneeling by Rachel’s grave in the garden with the tears streaming down his face. Recalling to him his duties as a host she persuaded him to return to the house, where he again donned his mask of gaiety and entered into the hilarity of the guests assembled there.

Writing of the Presidential campaign of 1824, Parton says: “The Hermitage was more like a hotel than a home during the summer, so numerous were the guests whom curiosity, friendship or political business brought to it.” And an old lady in Nashville told Parton that she had often been at the Hermitage in those simple old times when there was in each of the four available rooms not merely a guest but a family, while the young men and solitary travelers who chanced to drop in disposed of themselves on the piazza or any other half-shelter about the house.

“Never was the Hermitage without a guest,” says Buell in his Jackson biography, “and most of the time it was crowded. Jackson and his wife carried the old-fashioned Southern hospitality to an extreme. They did not wish their guests to be simply visitors, but made them temporary members of the family.”

It seems to be the unanimous and unchallenged opinion that a visitor at the Hermitage was always made to feel at home and led to believe that his visit conferred an especial pleasure on his hosts. All comers were welcome.

But Andrew Jackson did not wait for guests to come to the Hermitage. Nor were its broad doors open only to the distinguished and prosperous. A characteristic incident is told by one of his early acquaintances relative to the son of the famous Daniel Boone: “The young man had come to Nashville on his father’s business, to be detained some weeks, and had his lodgings at a small tavern towards the lower part of town. General Jackson 151 heard of it; sought him out; found him; took him home to remain as long as his business detained him in the country, saying: ‘Your father’s dog should not stay in a tavern while I have a house.’”

The hospitality of the Hermitage not only knew no limitation on the grounds of a visitor’s prosperity or prominence, it was extended alike to friend and foe.

A son of the notorious William G. (Parson) Brownlow, a rabid Whig and bitter anti-Jackson man, relates that on one occasion in 1845 a party of East Tennessee Whigs who had been attending a convention in Nashville and were on their way home decided to stop at the Hermitage and pay their respects to the ex-President. Parson Brownlow was one of the party, and when they reached the gate he expressed some doubt as to the propriety of his entering the home of the man whom he had so vigorously and consistently denounced, but he was prevailed upon to go along with his friends. He insisted, however, that when they got inside the house he would remain in the background so as to avoid the necessity of having his name called in the general introductions. But Jackson always knew what was going on about him, and he immediately noticed that there was one of the party who had not been introduced, whereupon Brownlow was presented. “I have heard of you before,” the old General said with dry wit; but he shook his hand cordially and treated him with particular courtesy during the remainder of the call, never giving any sign that one of his guests was a man who had waged bitter warfare on him during his days of political activity.

Another similar example was afforded by the visit of Mr. Leslie Combs, a former member of Congress from Kentucky, who came to the Hermitage as a messenger from one of the sons of General Isaac Shelby, bearing a letter relating to a controversy that had sprung up between the Shelbys and Jackson. Mr. Combs arrived at the Hermitage just before dinner time, was received with the greatest courtesy, invited into the dining room to join the family at dinner, and urged to stay at the house as a guest. When he left Old Hickory himself put some apples in his saddle-bags—but, 152 at the same time, he made an appointment with him to meet him at a certain hotel in Nashville, the next day, and when the appointment was kept General Jackson proceeded to denounce Mr. Combs for acting as his enemies’ messenger, and wound up by indulging himself in his favorite pastime of denouncing Henry Clay. As long as Mr. Combs was a guest at the Hermitage, Old Hickory’s code demanded that he be treated with punctilious politeness; but, on neutral ground, he wanted Mr. Combs to know exactly how he felt.

Stephen A. Douglas is now remembered in history principally on account of the series of political debates preceding his victorious contest with Abraham Lincoln for a seat in the United States Senate; but he also is recalled by Jacksonian students as the man who delivered the leading speech in the House of Representatives in 1834 on the resolution to refund the fine paid by General Jackson under the order of Judge Hall in New Orleans following his declaration of martial law there after his victory over Pakenham. Some time after the passage of this resolution there was a political convention in Nashville and the delegates visited the Hermitage to pay their respects to the venerable ex-President. When Judge Douglas was presented to Jackson, according to an account of the episode in Harper’s Weekly in 1857, the old General exclaimed:

“Are you the Mr. Douglas who delivered a speech in Congress showing that I did not violate the Constitution at New Orleans?”

“I did deliver a speech on that subject,” modestly replied Mr. Douglas.

“Then sit down here beside me,” said General Jackson with enthusiasm, “I desire to return you my thanks for that speech. You are the first man I know who has done me justice. You have relieved my mind from a weight that has lain upon it for thirty years. Let me thank you, sir.”

The account concludes: “Senator Douglas’s heart was too full to speak. He pressed the veteran’s hand, and withdrew from the room to conceal his emotions.”

153

In a diary kept by an old resident of Nashville, Mr. James M. Hamilton, there is displayed an evidence of the cordiality of the master of the Hermitage in receiving the kind of a visitor who generally is not a very welcome guest to the most hospitable of hosts.

Mr. Hamilton was a youth, working in a store in Nashville, and after General Jackson’s return from Washington in 1837 he was sent out to the Hermitage to collect an account amounting to more than $3,000 which Andrew, junior, had run up while the General was President. Mr. Hamilton had been brought up a Clay Whig, and he was admittedly terrified at the prospect of bearding the fire-eating General Jackson in his den and trying to collect a bill. But he swallowed his fears, mounted his horse and rode out to the Hermitage, entered the General’s office and proffered the bill to him. Colonel A. S. Colyar, in his Life and Times of Andrew Jackson quotes from the Hamilton diary:

“‘Let me see it, my son,’ said the General; and he reached forth his long slender hand. As his eyes rested on item after item, I eagerly watched the expression of his countenance. No frown of displeasure was there, but simply attention. Folding the paper, he slowly said: ‘This is a large bill. My son Andrew is a good man, but a very extravagant one. I see many things here he could have done without. But, my son, I will pay this bill on one condition. It is that your employers will correct mistakes, should there be any.’ I assured him that they would certainly do so, and he requested me to write a check on the Planters’ Bank, adding: ‘My son, I came home from Washington with but 75 cents of my salary left, and had it not been for the kindness of my friend, Francis Blair, in lending me money, I would not be able to meet these obligations.’ I had never written a check and had no form with me, but I did the best I could and he signed it. He then requested me to write a receipt. Again I was puzzled, but I did the best I could and he accepted it.

“I arose to go. He invited me most cordially to remain to dinner. I was too much delighted, too happy, too much relieved to 154 think of such a thing. I longed to get back to the store and show them my check and tell them of my success. I felt a wild, boyish admiration for the great man before me, and I wondered how anyone could be so wicked as to say aught disagreeable of him.

“‘If you will not stay, then you must see something of the Hermitage,’ he said, leading the way. I walked beside him about the grounds, the feeling of admiration and enthusiasm all the while in my heart for the great, tender-souled man whose guest I was. As we neared the tomb he raised his hand and, pointing, said: ‘My son, there lies the best woman that ever lived.’ A cloud of sadness spread over his face, and the expression was in keeping with the crepe on his hat—that crepe was worn the rest of his life.

“‘George,’ he called, ‘show Mr. Hamilton around and I will await him here.’ I was shown the old gray warhorse, well cared for in his stable—the steed hero of the battle of New Orleans—and also the carriage which was made from the timbers of the ship Constitution, and in which General Jackson rode at the side of Mr. Van Buren from the White House to the east wing of the Capitol on the occasion of the inauguration of the latter.

“Returning, I found the ex-President awaiting me at the door. As I took leave he warmly pressed my hand and invited me to visit him, saying that my short stay under his roof had given him a great deal of pleasure, that when he came to the city he would be very much gratified if I would seek him out and speak to him.”

In Jackson’s circumstances then a visitor seeking payment of a $3,000 account must have been about as unwelcome a guest as could well be imagined; but the affable manner in which he received that timid youth, shrinking from an unpleasant duty, showed the manner of man he was—and perhaps gives us a clue to the reason for the ardent admiration of his friends.

Long before the Hermitage was formally opened to the public as a national shrine, visitors to Nashville, despite the difficulties involved, were in the habit of making the pilgrimage to Jackson’s old home to see the house where he had lived and to stand by his tomb.

155

An interesting bit of human interest material is to be found in the visit, on the last day of March in 1851, of none other than the celebrated Mr. Phineas T. Barnum, accompanied by his current protégé, Jenny Lind. This was while Mr. Barnum was conducting the Swedish Nightingale on her history-making tour through the United States, during the course of which two concerts were given in Nashville. While there the immortal songstress, accompanied by Mr. Barnum, and his daughter, engaged a carriage and drove out the dusty road to the Hermitage.

“On that occasion,” relates Mr. Barnum in his reminiscences, “for the first time that season, we heard the wild mocking-bird singing in the trees. This gave Jenny Lind great delight, as she had never before heard them sing except in their wire-bound cages.”

That is all that Mr. Barnum says in his book about this incident, pregnant with beauty and romance. The Nightingale’s first encounter with her only rival, the Southern mocking-bird! What a subject there for a man with a poet’s imagination! But Mr. Barnum hurries on in his book to tell in great detail of an elaborate series of practical jokes he staged the next day—April Fool’s Day. But it is fascinating to let the mind play with the idea of the great Swedish singer standing there entranced that spring day beneath the hollies and cedars and magnolias of Old Hickory’s lawn, listening to the sad, sweet music of the native songbird. What wouldn’t history give for a motion picture, with sound effects, of that dramatic little episode on the Hermitage lawn touched on so briefly in his book by the voluble Mr. Barnum?

This, by the way, was not Barnum’s first visit to the Hermitage. Early in 1838, while touring the South with a tented theatrical company, he relates that “We exhibited at Nashville (where I visited General Jackson at the Hermitage).” How tantalizingly economical with words is the old showman! How entertaining and enlightening it would be to know more about the visit of Barnum to Jackson! Barnum admitted that he was a master of humbuggery; some of Old Hickory’s opponents charged that he 156 was a skilled practitioner of the same art. Did they admire each other? Why didn’t Barnum tell us more about his visits to the Hermitage?

On a hot July day in 1862 there clattered up the driveway of the Hermitage a distinguished and unexpected group of visitors—General Nathan Bedford Forrest and his men. This was before the guard of Federal troops was stationed at the old house; in fact, Nashville had only recently been surrendered by the Confederates and Forrest was making it his business to harass the city’s outposts to such an extent that the army of occupation was not yet entirely sure that it could hold the city.

On this occasion Forrest had just made a foray into Lebanon and was moving with his men down the Lebanon Road towards Nashville with the idea of seeing how close he could get to the city before stirring up a nest of bluecoats. But the Hermitage could not be passed by by any native Tennesseean, even General Forrest, without a visit; and so the famous “Wizard of the Saddle” and his lusty young troopers turned aside from the dusty road for a brief respite from their business of making war and to pay a tribute to Tennessee’s noblest warrior of all.

The day of Forrest’s visit happened to be the first anniversary of the First Battle of Manassas, the famous defeat of the Federals known by them as the Battle of Bull Run; and the ladies of the Hermitage neighborhood had gathered there for a picnic and celebration. The sudden appearance of the idolized Forrest and his men added just what was needed to make the affair a stupendous success; and the Confederate calvarymen partook of the picnic dinner under the trees, walked the garden paths with the young ladies and wandered through the halls of Old Hickory’s old home like typical sight-seers, temporarily oblivious of the fact that a detachment of Yankees was hot on their trail.

When the occasion demanded it, the hospitality of the Hermitage could function on a wholesale, large scale basis. For instance, 157 when a regiment of Texas volunteers paid a visit of respect to General Jackson just before his death they did not go away without entertainment or without refreshment. Only a day before their visit did Jackson learn of their impending descent on him and immediately all the plantation’s facilities were directed to the preparations for the visitors. Sheep, beeves and chickens were killed in large quantities, and every fireplace on the plantation was filled to capacity with meats of every description. A wagon was sent to Nashville and brought back a wagonload of bread, for the Hermitage’s ovens couldn’t bake that much bread on such short notice; and when the 900 Texans marched up the driveway the next morning everything was ready for them. The officers were entertained in the dining room while the rank and file were fed, picnic fashion, on the lawn. This occasion was enlivened, during the course of the proceedings, by the chance discovery by Aunt Hannah of one of the camp followers of the regiment making off with two of the Hermitage’s handsome silver pitchers. Cries of “Stop, thief! Stop, thief!” by the faithful old servant quickly attracted the attention of the soldier guests, the thief was promptly apprehended and the pitchers recovered. And while the soldiers were receiving Old Hickory’s congratulations for recovering his highly prized pitchers the thief quietly walked off in the confusion and thus escaped punishment.

Was there ever such a house for hospitality? Peddlers and Presidents, rich men and poor men, famous men and obscure youths, individuals and regiments of soldiers—all looked alike to the Hermitage. Is it any wonder that it was famous, far and wide, as a place where everybody—friend or foe—was always welcome?

158

VIII: THE TENNESSEE FARMER

Andrew Jackson is known to fame as a statesman and as a military leader who triumphed over the savage Indians and the trained British troops of Pakenham; but primarily Andrew Jackson was a farmer, a man whose livelihood depended on the outcome of his crops and whose prosperity waxed and waned with the fluctuations of the New Orleans cotton market.

After all, it should be remembered, Jackson’s active military career was concentrated in the eight years between 1813 and 1821, and his service as President extended only from 1829 to 1837; but he was a farmer and stock-breeder from the time he bought the Poplar Flat plantation in 1792 until he died at the Hermitage in 1845. Nothing ever gave him such pleasure as to walk about his farm with some visitor and show his growing crops, his stables and barns. The last day he was on his feet before his death he insisted, despite his enfeebled condition, on walking several hundred yards with a visiting friend to show him how well his cotton was doing.

During the eight years he was serving as a soldier he was away from home a large part of the time; but his wife was living then, and all authorities agree that she was thoroughly capable of managing the plantation and doing it well. Mrs. Jackson was not only a good housewife and a genial host, she was really a capable executive—and managing a big plantation in those days required genuine executive ability, for an establishment like the Hermitage was in reality an almost entirely self-contained little principality, capable of sustaining its owners and the slaves who supplied the labor. Not only did the plantation provide all the foodstuffs consumed, with the exception of sugar and coffee; but the slaves made practically everything used on the place. Wool gathered from the flock of 100 sheep was woven by the old slave women into bolts of cloth fifty yards in length, the weavers averaging about five yards a day. A tannery supplied leather for the shoes, there was a grist mill for grinding the wheat and corn into flour and meal, there was a blacksmith shop, a cotton gin, a 159 syrup mill, etc. The family, of course, bought clothing in Nashville, or in Philadelphia or Washington; but clothing and shoes for the slaves were made on the place by the slave seamstresses and cobblers and about the only article of wearing apparel that had to be bought for them was hats.

Managing an institution of this kind was no child’s play; but Mrs. Jackson had come to the Cumberland country with the original settlers and she possessed the indomitable, self-reliant spirit of the pioneer. She, to be sure, had the assistance of an overseer; but overseers were for the most part a shifty and unreliable lot, and in those days while Jackson was away fighting the Indians and the redcoats the real managerial ability had to rest on her. It is not recorded anywhere that Mrs. Jackson felt it at all out of the ordinary that she should take charge of the plantation in the General’s absence; and in none of her letters to him did she complain of the responsibilities resting on her shoulders. The General had written her quite candidly while at Fort Strother in January, 1814, in the midst of the campaign against the Creeks: “On the subject of my private and domestic concerns, you and Col. Hays and Mr. John Hutchings must regulate it. I have not time to spend many thoughts upon worldly pelf or gear. My station is arduous and my duty severe.”

In spite of this frank admonition, however, even as he rested before New Orleans on the eve of the battle there that was to make him a figure of world-wide fame, General Jackson had obtruded on him there some of the vexing problems of plantation management—not, it should be noted, by the self-contained Rachel but by her sister’s husband, Colonel Robert Hays, mentioned in Jackson’s letter. Colonel Hays, probably with good intentions but certainly with an atrocious lack of good sense, sat down and wrote him a tediously detailed letter to tell him about all the trouble being experienced in getting a good overseer and the demoralization of the slaves growing out of the inefficient overseer’s lack of capacity. “They did not tread out thirty bushels of oats in three days,” wrote Mr. Hayes of the trifling slaves; and then went 160 on to relate the harrowing experience of one of them who was sent to Nashville on an errand, was waylaid on his return and came home with “a large load of small shot in his back which is still in him.”

Was there ever in the history of the world another General commanding his nation’s troops on the eve of a decisive battle who had to drop his studies of tactical problems in order to consider the case of an overseer back home who “is a good honest man, but drinks too hard”?

Most of the time, however, General Jackson was at home to manage things for himself, and everybody agreed that when it came to running a farm and raising blooded stock he know what he was about. In 1824 the Hermitage was visited by Willie Blount, former governor of Tennessee, and in a letter written concerning this visit Governor Blount said:

“Although I have ever considered him to be among the most industrious men of my acquaintance, both in public and private life, I was really surprised to find his farm in such excellent order and so very productive, under all the circumstances relating to his great absence from home attending the public relations during the late war and since. His farming land is, as you know, very fertile, very beautiful, and eligibly situated for comfort. It is largely improved, handsomely arranged with gratifying appearance to the visitors at his most hospitable house, open to all who have the pleasure of his acquaintance and who travel through his neighborhood, none of whom pass that way without calling on him for social intercourse, viewing him to be the polite gentleman at home and abroad and the friend of man everywhere. His very arrangement for farming on an extensive scale delights the man of observation; his fields are extensive and nicely cultivated as a garden; his meadows and pastures are extensive and neatly kept; his stock of horses, cattle, sheep and hogs are of the best kind and all in excellent order; his domestics and hirelings are all contented and comfortably provided for, and their daily labor is a pleasure to them.”

161

When Lafayette visited the Hermitage his secretary, though frankly disappointed at the simplicity of the house itself, commented favorably on the appearance of the garden and farm. “We everywhere remarked the greatest order and most perfect neatness,” he wrote in his journal, “and we might have believed ourselves on the property of one of the richest and most skilful of the German farmers if, at every step, our eyes had not been afflicted by the sad spectacle of slavery.” To ameliorate his reference to the “peculiar institution,” however, the visiting Frenchman was careful to add that “Everybody told us that General Jackson’s slaves were treated with the greatest humanity.”

* * * *

One of the greatest problems encountered by Jackson in the management of the Hermitage plantation, and one that he never solved to his entire satisfaction, was that of obtaining the services of a thoroughly competent and industrious overseer. His correspondence is studded with letters complaining of their manifold shortcomings; and there was a steadily changing stream of men occupying this important and trying post.

When the General returned from his brief residence in Florida, he took hold of things at once, and one of the first things he did was to look for a new overseer. Alex Barksdale was hired at the beginning of the year 1823, and some idea of the limited agricultural equipment of even a big farm in the early days may be had from the following memorandum receipt for tools, stock, etc., which Barksdale gave Jackson under date of January 8, 1823:

“1 dagon plough, 5 single ploughs, 2 double ploughs, 1 colter plough, 3 pair of stretchers, 1 half-inch augur, 1 two-inch augur, 1 five-quarter augur, 1 chissel, 1 crosscut saw, 3 scythe and cradle, 1 stone augur, 1 augur and wheel, 1 rammer, 3 clevises, 1 two-foot rule, 1 foot adze, 7 singletrees, 6 pair of hames, 10 axes, 2 mattocks, 9 hoes, 1 plough hoe, 5 pair of traces, 1 handsaw, 1 crow-bar, 1 sledge hammer, 1 hand hammer, 1 pair of wedges, 1 mortising axe, 1 drawing knife, 2 pair lock chains. Horned cattle: 39 head grown and four oxen, 23 calves; 63 head grown sheep; 162 115 head of hogs. Received January 8th from Andrew Jackson as his overseer, to be carefully kept and superintended as such, the within farming utensils and above stock and plantation tools. (signed) Alex Barksdale.”

Barksdale came well recommended, but did not finish out the year, being succeeded by Benjamin B. Person. Person filled the job until the end of 1824, then he too passed on to make way for another new one.

All this constant change in overseers was bad enough as long as the General and Mrs. Jackson were able to give their personal supervision to what was going on; but when Jackson left the Hermitage early in 1829 to be inaugurated President, closely following Mrs. Jackson’s death in December, 1828, it was necessary to engage a thoroughly reliable man in whose charge to place the whole establishment. Andrew Jackson Donelson, who owned the adjoining plantation, was going along with Jackson as his private secretary; and so the two of them entered into a formal, written contract with one Graves W. Steele. This is an interesting document, as showing the conditions under which such arrangements were made at that time:

This memorandum of agreement between Andrew Jackson and Andrew J. Donelson of the one part and Graves Steele of the other part, both of the county of Davidson and State of Tennessee, Witnesseth, that the said Andrew Jackson and Andrew J. Donelson have employed the said Steele to oversee their negroes and manage the affairs of their plantations during the year 1829, and as such have placed him in possession of the working tools, the horses and stock of every description, and whatsoever else appertains to the land as necessary to its cultivation and protection, with obligations to bestow upon them the attention and care usually expected from the most faithful, diligent and industrious overseers. And further the said Steele is left in charge of their dwelling houses and the buildings attached to them, and is obligated to devote to them the care necessary to their preservation, and the furniture within them; and to do whatever else the said Andrew Jackson and Andrew J. Donelson may point out relating to the correct disposition and management of their interests on their plantations. And in consideration of these services the said Andrew Jackson and Andrew J. Donelson are obligated to pay to the said Graves Steele at the end of the year the just and lawful sum of six hundred dollars.

The old kitchen, with original utensils, etc.

Some of the original flatware from the Hermitage silver supply.

163

Within six months Jackson was writing to his adopted son expressing apprehension lest Steele was not giving the negroes proper attention; and before the year was out was again writing to the son at Nashville to investigate the cause for “the great loss of horses and oxen.” Evidently conditions did not improve, for in November the General wrote a sharp letter to Steele in which he took him severely to task for “the great losses in stock and negroes I have lost since I left my plantation under your charge and management.” In blunt terms he said: “I have been truly astonished to hear my bacon was nearly gone. This to me was unaccountable, because I stood by and saw a large supply as usual for my white and black family salted in my smoke house. In your statement I have asked you to forward I shall expect you to furnish me with an explanation of how this happened. I have been advised by some not to continue you, by others to try you another year. The latter I have concluded to do so, as I am aware the injury it would be to you to leave the business under present rumors. But when I say I have concluded to retain you another year, it is with the express condition that you treat my negroes with humanity and attention when sick and not work them too hard when well, that you feed and clothe them well, and that you carefully attend to my stock of all kinds. This I have a right to expect of you for the wages I give you. I have been offered here a first-rate overseer for $350 a year. I have been offered in Tennessee a well experienced and well recommended overseer for $400. I give you $500, which is equal to $1000 when cotton was at 14 cents a pound.”

Steele evidently did not accept this rebuke in very good spirit, for in January Colonel Love wrote Jackson that “Steele said he wrote you as he could not please you you had better look out for some other person.” Colonel Love volunteered the view, however, that “He in my opinion has not the least intention of going away. I am confident your last letter will make him the more 164 particular and attentive to your orders.” Colonel Love proved to be a good prophet, for Steele held on to his job through 1832; but at the beginning of 1833 he was succeeded by Burnard W. Holtzclaw. Holtzclaw was only a fairly satisfactory overseer, and gave frequent cause for complaint from his absentee employer; but the Jackson letter files reveal some communications from him which stamp him as one of the earliest converts to the cause of simplified spelling. On March 6, 1833, he wrote the General:

D’r Sir, I Recived you letter March 2d. I now inform you that your famley ar well at presenes and we ar doing well but Samson is ded, your mares and colts all looks well but the colte wich Andrew bought of Mr. Robson is ded. The caze I can not Tel. he live 9 days after he came Home. I Cut hym open and on his side I fond a not or a lompe and by looking I found Two of his Ribes Broke but wase well and on this not was a corde, went from his Harte to this corde as bige as his win pipe colte was solde to save his life. I Git alongue with you Negrows Verer will indeede. I hav not woold to giv all a sute. March 2d we had a snow and verry cold. I hav a bout one 100 and 50 acres of land plowg for corn and cotton. last year you made 36 Bales of Cotton but ship 41 Bales.

His brief and unadorned announcement of the death of Samson, one of the slaves, and his careful recital of all the gory details of his post-mortem dissection of the colt afford a very good index of Mr. Holtzclaw’s character and capacity for the position he held. Another example of his Chaucerian English is found in his letter of October 21, when he wrote to the General as follows:

I recived your Letter on the 20 of October. I am glade to Say we are all well at Presant. your Family are all in good Halth at this time and are gitting alongue as well as I can. you wish to know abought your crope of Cotton how moch I have Out. I will Tell you. I have One Hundred Thoson and I Think we have out in the field yet 60 or 70 Thosan or 90. I was plaged a gratele abought Our gin, I jist beginning to gin. dont be unesy I will do the best I Can.

Deare Sir your Mares and Colts and work Horses and Mules and cows and Ox and Hogs and Sheeps and Caffs and Stud all are well and fate. I have 86 hogs to kill only. I have 7 Beffes to kill. we have now wete and cold wether. This day we Hale and Snow cole. I have all of 165 my Shoes and Socks and Stockings made and Nit and making up the Winter Close. Andrew has not rich the Hermitage yet but I have all Things Redy to Recive him and are Looking for him daly and also will be glade to see him at Home.

Sur I have cut a new Rode on the Line betwin you and Warde and want to Turn the Rode arown on the Line and fence in all the woods. Next to woods I will feed my Hogs In hole and think I git water in this woods late. water Stands after a Rain for 2 weeks. by feding all winter on the Place can git water to Stand 6 or 8 month in the yeare. cut out all the under groth.

Mr. Holtzclaw’s performance as an overseer may have left something to be desired; but there must have been a spark of genius in one who could stumble upon “gratele” as the right way to spell “great deal.”

Holtzclaw was also shrewd enough to meet the complaints against the quality of his services with the suggestion of increased remuneration when his contract expired at the end of 1833; but General Jackson sternly wrote Andrew (his adopted son), then married and residing at the Hermitage, that he had written the ambitious overseer that he could not expect to receive more money—“that no farm in Davidson will justify it; that better to abandon farming than to keep it up for the benefit of an overseer, bringing me in debt, as it has for two years past.” Jackson, however, in line with his policy of encouraging Andrew to assume a man’s responsibility, told him that he could use his own judgment about reëngaging Holtzclaw.

The upshot of this matter was that Holtzclaw passed on and a new overseer, Williams, was engaged; but he lasted only one year. The General, writing to Andrew in November, 1834, said: “I knew, the moment I saw the cultivation of the farm, that Mr. Williams was of no account; that you would have been better off without him; that he was only a screen to the negroes; know nothing about cultivation and was beholden to the negroes for instruction what to do. I am happy you will soon be clear of him.” Further in his letter he grumbled about “the worthlessness of our overseers for the last three years” and urged that in engaging 166 a successor to Mr. Williams there be set down in writing an understanding of what the overseer should do. “Let him fully understand what he is to do, viz, to attend not only to the farm but to the spinning and weaving, to the feeding of the hands, to weighing out the meat, and to having them clothed in due season and the clothing well made by our own seamstresses; to attend to all the stock, and particularly to see that our blooded stock is taken good care of when you are absent. These things should all be enumerated in your agreement, or he may saye hereafter that nothing but what was enumerated was he bound to take the superintendence of. Remember the old adage: ‘Deal with all men as though they were rogues’; if honest you are safe, but if not then your written agreement speaks for itself.”

The next man to take up the overseer’s duties was Edward Hobbs, recommended by Colonel Love as “a first-rate man.” Jackson, however, was not entirely reassured by his recommendation for in April, 1935, he wrote his son: “I fear from the weather we experience here that Mr. Hobbs has run a great risque by planting his cotton so early, as he writes me he has planted the church field in cotton and on the 13th would begin to plant the balance.” But it was not long before the General was writing: “The progress Mr. Hobbs has made shows him to be a man of judgment; that he has reduced the hands to good subordination and in doing this he has gained their confidence and attachment. Say to him that I am thus far delighted with his course and proceedings.”

Overseer Hobbs seemed to have a very good grasp of conditions on the plantation, as evidenced by an intelligent, straight-forward letter he wrote to Andrew, junior, in August while the latter was spending the summer vacation with the General at the Rip Raps. This letter, reflecting the manifold and variegated duties of an overseer of that time, reads:

Yours and your father’s of the 6th and 7th was duly received last Sunday and your directions concerning the purchase of some mares shall be attended to. I will of course get them on as good terms as possible, and I will not purchase at all without I can get suitable ones. I will also 167 use my best exertions in selling your riding horses. I could of sold your grey horse long since had it not of been for his eye, as also the bay colt.

As respects the tap for the screw (of the gin), I have written you on the subject long since. I had the pattern made at home by Ned, with the assistance of Sharp 3 or 4 days to instruct him, and it is now at the furnace. Col. Armstrong and Col. Love were both here last Saturday and they informed me the casting would be ready in a few days. I have the timbers all ready, and so soon as I can get the casting I will put the press up again. I have the shingles nearly ready for the covering of the gin house. I shall put them on the side next the cotton scaffold this week, and should be detained by other jobs with the other side of the covering it will not interfere with the sunning of the cotton. We have a great many jobs to do, I fear more than we can possibly get through with, such as fixing our corn houses so they can be locked up, repairing lot fences, and one or two of the negro houses wants new shingles. Ned lost two or three weeks piddling at the pattern, which put us back at our jobs very much.

We have all our winter cloth for the negroes done but two pieces to weave. We will soon be done with that job. Our shoes I have not yet began. I have been trying my best to get the leather for three weeks and have not yet got it; however, I suppose it will be ready this week and I will then soon have them made.

I shall finish gathering of fodder this week and I think when I come to stack I shall have a fine chance. I hope you will not have to buy fodder, corn and oats next year.

Our neighbors are becoming a little alarmed about our cotton crops on account of the very cold rainy weather. All of our neighbors planted their cotton 3 foot and 3½ foot distance and it is now very thick, locked up very close. If this weather holds it is impossible it can make a crop. Most of our cotton is planted 4½ foot, and that is also locked but not so much. I do not think I have ever seen as cool weather in August as the past week. Two blankets was hardly sufficient to sleep under. However, I am glad to see it turning warm again.

I was at Mr. Pool’s a few days since and saw the colts gallop. They appear to be doing finely. Pool makes some considerable calculations on the black colt and Major Donelson’s horse Mombrino. He feels very confident of taking the four-mile day with him this fall. He has made a little brush with him and a horse of Squire Robertson’s that was trained with Anville last season and his heels is nothing to Mombrino. Robertson’s horse was faster a little ways than Anville’s.

168

As respects health, the people generally are sickly. Some sickness amongst us, but nothing serious I believe. Aaron the blacksmith and Tom Franklin was both taken sick yesterday; very hot fever all night. I gave them a large dose of calomel and jalap this morning and they are much better to-night.

I have nothing pleasing to write you about the house. Nothing much adoing. Two hands at work. I believe the brickwork to the wings not quite finished. The principal building is covered, and that is all I can say. Col. Armstrong and Col. Love is both doing their best with the firm I believe. I think Rieff needs an overseer.

Hobbs’s gloomy forebodings about the cotton crop were discounted by Colonel Armstrong in a letter to Jackson in which he said: “I expect that you have not had so large and so good a crop for several years”; but within a few weeks an unseasonably early frost had destroyed these sanguine expectations and in November Colonel Armstrong was writing sadly: “Some plantations will make half a crop, some a third. I am sorry to say that yours is very near a loss.”

This crop failure, coming right in the midst of the heavy expense occasioned by the burning of the Hermitage and most of its furniture, filled Jackson with misgivings, and he promptly wrote to Andrew urging him to exercise economy in the management of the farm and suggesting that one or two of the three-year-old stud colts might be bartered for work mares in order to avoid the necessity for a cash outlay for the mares.

At the end of the year Mr. Hobbs was reëngaged to serve during 1836, but it was not long before the reports received from the farm convinced the General that proper attention was not being given the livestock. His keen insight into what was going on a thousand miles away from him is strikingly shown in a letter he wrote Andrew in March:

My son: I inclose you a letter received to-day from Mr. Hobbs from which I infer he pays but little attention to the stock.

When I was at home, when I was engaged both in building, clearing and farming, I always kept my oxen in good order although I had them in their yokes daily; but this was done by always attending and seeing them regularly fed and watered. When I found the driver had neglected 169 feeding regularly, I ordered him upon small allowance as well as chastising him for it, and thus with attention Mr. Parsons kept his 12 oxen as fat as his horses; but when I see Mr. Hobbs say in his letters that the young colts look badly notwithstanding that they have enough of corn, oats and fodder and a dry stable to go into, I want no better proof of the want of regularity in feeding. They are overfed one day and starved the next. The hand that attends to them filled their troughs one morning and perhaps does not see them again in two. It is the overseer’s business to see all the stock daily in the winter season, sometimes in the morning and again sometimes in the evening; and when he finds the stock neglected at once punish the hand charged with their keeping. We lost a great many last year, and when I hear of their bad condition this, and a plenty to give them, why there must be sheer neglect of them. For this neglect the overseer is answerable, and I wish to enquire and tell him frankly that he will be held responsible. That oxen, where there is plenty of food, at this season of the year are poor and broke down shows that carelessness in an overseer for which he ought to be dismissed. We have lost more in stock than two such crops would pay for—this is truly pulling out the bung and driving in the spigot. If I live to get home I will shew you and all overseers how easy it is to keep oxen fat and doing more business than when neglected and broken down. We must make better crops and preserve our stock better or we will be soon in a state of want and poverty.

If there was any unforgivable sin with General Jackson it was neglecting his live stock. Mr. Hobb’s doom was sealed. A Mr. Holliday was engaged for the year 1837—and that was the year when Andrew Jackson stepped down from the President’s chair and came back to the Hermitage to live the rest of his days. Early in January, looking forward to his return home, he wrote Mr. Holliday instructing him to be sure and plant a good vegetable garden; and, he added, “I want to have my stock so that I can do something with them when I reach home.” And immediately following the inauguration of President Van Buren he set out for home and on March 25th he was back at the Hermitage he loved so well.

FIRST FLOOR PLAN

This plan illustrates the spacious simplicity characteristic of Southern plantation house plans. The later additions of wings seem so simple and naturally disposed that one would suspect that they were preconceived by a trained architect rather than having been worked out by the owner and itinerant carpenters.

170

During the latter months of his administration at Washington his health had been particularly bad, so bad in fact that when he started back to Nashville in March, President Van Buren insisted on sending his own personal physician, Dr. Lawson, to accompany him on the trip home. Back at the Hermitage he wrote his political protege and successor to thank him for this attention, and in the course of his letter he said: “I hope rest in due time may restore my health so as to be able to ride over my farm, and to visit my good neighbors. This will be a source of amusement and much pleasure to me.”

Gradually his health improved sufficiently for him to assume active charge of the operation of the farm; and this was a time when the ablest management was needed to make any enterprise successful. The country was in the throes of a financial panic, prices of farm products were depressed, and, as Jackson wrote in one of his letters early in 1837, negroes that had cost from $1,000 to $1,800 were being sold at sheriff’s sales for $300 for women and $500 for men.

“The rest of my life is retirement and ease” he wrote to a friend when he laid down his Presidential cares and went back to the Hermitage; but, unfortunately for his peace of mind, things did not work out that way. There was but little ease for the old General during his remaining eight years at home. The very first year he was there an unseasonably late spring delayed the germination of the cotton seed, and during the ensuing summer he was consumed with apprehension concerning the outcome of the crop.

* * * *

It is interesting to observe that in Jackson’s time the principal “money crop” of the Hermitage, as well as of the neighboring plantations, was cotton. Nashville at that time was a cotton market of major importance, and the number of gins in the county then shows that there was a large quantity of cotton grown every year in this vicinity. Today there is not a stalk of cotton grown in the county; and the nearest gin to Nashville is a small one located fifteen miles south of the city in an adjoining county where some of the agricultural die-hards still cultivate the old crop. The growing season between frosts is really too short in Davidson County to encourage cotton planting; but the first settlers got 171 started to growing it, and since farmers are traditionally opposed to change in their habits they continued to plant it even after experience demonstrated that it was not a profitable year-after-year crop. As early as 1838 Jackson sensed this fact and wrote to one of his friends: “I will soon have to quit making cotton here”—but he never did quit.

In spite of the difficulty of raising cotton in a climate not entirely suited to it, it is noticeable that the Hermitage plantation had the reputation of making good crops of high-grade staple. In 1832 there was an article in Niles’ Register commenting on the fact that fifty-four bales of the Hermitage cotton had sold in New Orleans at 11½ cents a pound, which was called “an extraordinary price;” and the article stated further that it was the best cotton that had come to New Orleans from Tennessee. In 1826 Jackson’s New Orleans factor, Maunsel White, wrote to him that he had sold the Hermitage cotton at “the very top of the market,” the net proceeds for the crop that year being $3,477.51.

Checking over the references to the sales of the cotton crops in the Jackson papers it is to be seen that there was a great fluctuation in the price obtained. The 1844 crop, for instance, brought only 4½ cents a pound, the price ranging from that low mark up to 15 cents for the crop of 1825 and even higher than that during the boom in cotton following the end of the War of 1812.

In Maunsel White, General Jackson had at New Orleans a factor who stood high in the cotton trade and who could be depended on to protect the Tennessee planter in marketing his crops to the best advantage. Captain White was not only Jackson’s factor but his friend and a former comrade at arms in the New Orleans campaign, and he took great pride in getting the highest possible price for the Hermitage crops.

In January, 1831, White wrote to Jackson, then in the White House, that the flatboats had arrived from the Hermitage with their cargo of fifty-nine bales and that the overseer was to be congratulated on its quality and condition as it was “without blemish.” The best offer he had got at that time, he wrote, was 9 cents; 172 but he expressed a determination to hold for 10 cents “which it is fully worth” he added, “unless we receive worse news from the unsettled state of politics.” He mentioned the popular belief that a general war in Europe was perhaps impending, and slyly added: “On this subject, however, you must be better advised than anyone else in these states; and if it were not asking too much, or what were improper for me to ask, I would ask your opinion on that subject.” An inside tip from the President on an impending war would be worth a fortune to a New Orleans cotton broker; but there is no evidence that Jackson gave Captain White any information on the subject. This was before the day of White House “leaks.”

The following year White wrote Jackson that he had sold part of his crop for 11½ cents in New Orleans and shipped part of it to Liverpool where it commanded 8½d sterling, stating that “your cotton this year has brought the highest price both at home and abroad.”

It was the custom of the Hermitage household, when shipping the cotton crop to Captain White each year, to send along a list of groceries needed for the year. When sending this year’s supply of groceries back to the Hermitage it was Captain White’s custom to send along some kind of a present to General Jackson—a barrel of oranges, or sugar or molasses. It was Captain White’s custom to say jokingly that the present was sent to sweeten General Jackson’s tooth; so in 1842 when the General had his sole remaining molar extracted he notified his New Orleans friend that it would no longer be necessary to sweeten his tooth as his last tooth was gone.

The passing of the Jacksonian teeth, by the way, had an amusing aftermath. Learning of his toothless condition, a celebrated dentist asked the privilege of making him a set of false teeth, seeing in it an opportunity to gain some publicity for himself. The General consented and the teeth were produced after careful measurements had been made. False teeth of that day were still of rather crude design, the upper and lower plates being hinged together 173 at the back and the opening and closing facilitated by means of a spring. General Jackson gave his new teeth their first try-out on the occasion of a public dinner in Nashville; but while partaking of the first course he had the misfortune to have the spring get stuck in such a way that he could not close his mouth. He managed to remove the offending apparatus behind the cover of his napkin, but he was much embarrassed by the episode and returned the teeth to the dentist who made them with the suggestion that they might be generously presented to some “poor widow woman in need of the like.”

Andrew Jackson was a progressive farmer and was prompt to adopt new methods and devices. The cotton gin was first introduced into Tennessee in 1803; and the state of Tennessee purchased from the inventor, Eli Whitney, the patent rights for the state, enacting legislation which placed a tax on all gins. There being some dispute about the legal title to the machine, the arrangement was not perfected until late in 1806, at which time a model gin was set up in Knoxville and one in Nashville, these models to serve as patterns for the citizens who wanted to build gins. Jackson was among the first to install a gin in his part of the state, and the minutes of the Davidson County court show that he made bond of $5,000 and subscribed to the following oath: “I, Andrew Jackson, do solemnly swear that I will well and truly inspect or cause to be inspected all bales of cotton that shall pass through my press, marking the bales according to the goodness thereof, agreeable to the directions of the act of the Assembly in such cases made and provided; so help me God.”

General Jackson had recurring bad luck with his cotton crop from time to time up to the very year of his death. On February 10th, 1845, just four months before he died, in a letter to A. J. Donelson, then United States Minister to the Republic of Texas, he mentioned that his current crop of cotton, amounting to 37,000 pounds, had been “forced into the market” (for what reason is not revealed) and that it netted only $1,312. This, he said, after paying the overseer and drafts on the cotton “left us 174 only $36 to pay our debts here.” To add to his discomfiture at this time, his overseer in Mississippi misappropriated the proceeds of that plantation’s crop and left the General in a temporary financial stringency. But Jackson immediately put hands to work cutting wood on the Mississippi plantation (wood was the fuel for the Mississippi River steamboats then), and stated that if this did not relieve him from debt he was determined to sell the lower plantation and enough of its slaves to put him square with the world again.

* * * *

Although cotton was looked upon as the principal and most important crop of the Hermitage farm, the General really derived the greatest personal pleasure (and a substantial part of his income) from the horses that were raised on the farm.

When he resigned from the Superior Court of Tennessee in 1804 and concentrated all his ability and energy on the rehabilitation of his private affairs, he wisely decided to go into stock-breeding on an ambitious scale. He was admirably suited to the business of breeding fine horses. In the first place, he admired and loved a fine piece of horseflesh. From his earliest youth he had been interested in racing, gaining his first taste of “the sport of kings” at the Charleston meets in his youthful days when he was living with the Crawfords. When he came to Tennessee he came riding one blooded horse and leading another, and he was always to be found among the foremost spectators or participants if there were a horse-race anywhere in his neighborhood. He loved horses and, in the words of one of his biographers, “he knew all about the noble animal from pedigree to pathology.” That is no idle use of words, either, for Andrew Jackson studied horses, their records and their breeding; and, in an emergency, he showed that he was skilled in the art of the veterinary surgeon. A goodly share of the books in his library are on the subject of horses and the turf.

It was characteristic of Jackson’s vision and good business sense that when he decided to go into the breeding of horses as a money-making venture he purchased to head his establishment the horse 175 that was then recognized as the very finest in the whole country. This horse, Truxton by name, was owned by a Virginia horseman, Major John Verrell. At just about the time that Jackson was casting about looking for a stallion worthy to head the thoroughbred nursery he was planning, Truxton was matched for a race at Hartsville, near Nashville, with a Tennessee horse called Greyhound, belonging to Lazarus Colton. Greyhound won the race, but Major Verrell, insisted that such an outcome of the contest could have been possible only because of Truxton’s being out of proper condition or improperly handled; and, to show the sincerity of his belief, he came to Nashville from Virginia for the purpose of arranging a return match between Greyhound and Truxton when the latter could have been given the personal attention of his proud owner.

Major Verrell must have had an eloquent and persuasive tongue, or else Truxton must have possessed the qualities of a top-notch thoroughbred that shone undimmed through defeat. At any rate, General Jackson became convinced that Truxton was really a better horse than Greyhound; and the General, who was the major domo of sport in Tennessee in those days, made arrangements for another race at Hartsville between Truxton and Greyhound for a purse of $5,000.

This race was a Titanic affair in turf history, and attracted tremendous interest. Mr. Douglas Anderson, in his Making the American Thoroughbred, says: “No contest on the soil of Tennessee has ever been so exciting or caused so much betting, considering the means of the people, as this race. Hundreds of horses and numerous 640-acre tracts of land were staked on the result. The old pioneers bet on Greyhound with the utmost confidence.” Imagine the consternation of the old pioneers, therefore, when Major Verrell’s stallion very handily defeated the Tennessee horse in straight heats. Many a Tennessee farmer walked home from that race carrying his saddle. General Jackson, in addition to his share of the purse in cash, stated that he won “$1,500 in wearing apparel,” although unfortunately he left behind him no details 176 of this interesting side bet. Foremost among the backers of Truxton was General Jackson’s racing crony, Patton Anderson, who was not content with betting his own horse and all his money but also with reckless daring wagered 15 other horses that did not actually belong to him. It must have been a relief to the super-confident Mr. Anderson when the race was over; and it is easy to understand the enthusiasm that led him, after the race, to “set ’em up” to a barrel of cider and a basketful of ginger snaps.

As a result of the showing Truxton made in this race, General Jackson bought the horse from Major Verrell; and the publicity given this great turf upset placed the racing spotlight on the Hermitage stud and made it an immediate success.

Writing about his famous horse in the American Farmer, as quoted in the Turf Register of December, 1833, General Jackson said: “Truxton is a beautiful bay, full of bone and muscle; was got by the imported old Diomed and came out of the thoroughbred mare, Nancy Coleman. His performances on the turf have surpassed those of any horse of his age that has ever been run in the western country; and indeed it might be said with confidence that he is equal if not superior to Mr. Ball’s Florizel who now stands unrivaled in Virginia as a race horse. Truxton by old sportsmen and judges is admitted to be amongst the best distance horses they ever run or ever had to train.” And the General concludes, with a touch of sardonic humor: “His speed is certainly known to all of those who have run against him.”

A historian of the turf records that while Truxton was alive and serviceable he “made more money for Andrew Jackson than any other single piece of property he ever owned.” This has the earmarks of exaggeration, but Truxton was really a remarkable animal. Not only did he hold the unusual record of never having been beaten in a two-mile heat while he was in his prime; but he was the sire of more than 400 colts whose victorious records on every track made turf history. During the relatively few years that Truxton lived his colts literally overshadowed all other horses on the tracks of the then Southwest, and Tennessee became the recognized headquarters of horse-breeding. Other breeders came to the Hermitage farm for young brood mares and stallions of the Truxton stock; and there is little doubt that the publicity that came to Andrew Jackson through these activities contributed very largely to the widespread friendships which were so valuable to him politically in the years ahead.

General Jackson’s liquor chest.

Advertisement of Truxton in the Nashville Whig in 1807.

177

Jackson truly loved all his horses, and was especially fond of Truxton; and, so tradition goes, Truxton returned his affection. Not a night went by that the General did not go himself to the stables before retiring for the night to see that Truxton was all right; and when Truxton grew old and unruly, there was never a time when Jackson could not control him, no matter how ugly his mood.

And, tragically enough, it was Truxton who was the indirect cause of placing the General in one of the most unfortunate crises of his life; for it was the race between Truxton and Ploughboy in 1805 which was the ostensible cause of the fatal duel in which Jackson killed young Charles Dickinson.

* * * *

In the Presidential campaign of 1828 General Jackson was referred to by the friendly press as “The Farmer of Tennessee;” but this phrase was not used in a spirit of praise by all the newspapers of the day. For instance, a typically partisan editorial in the New York American said:

Let us see what is the Farmer of Tennessee? Possessing a fine and extensive domain with a vast mansion, not a farm-house but The Hermitage, surrounded by a host of slaves—this farmer of Tennessee eats the bread of idleness and luxury. The whip of the overseer quickens the servile labors whereby he—one of those priviliged beings born to consume the fruits of the earth—is sustained; and men, immortal as himself, are daily “driven a-field” like oxen and their strength taxed to the uttermost, perhaps, that he, their master, may add another race-horse to his stud or stake an additional bet upon a favorite game-cock. Of personal labor the hands of this “farmer” are innocent; for, where slavery exists, labor is held to degrade the white man.

Andrew Jackson had his faults, and he was open to criticism 178 from many angles; but to hold him up as an example of the cruel and heartless type of Southern slaveholder was to confess an utter ignorance of his attitude towards his slaves. The records tell of a slave named Sam at the Hermitage whom Jackson freed in 1816 but who refused to leave the place.

Nowhere in his public writings or in his private correspondence does Jackson give any evidence of ever questioning the legitimacy of the institution of slavery; but throughout all his letters there are innumerable indications of his inflexible determination to see that his slaves were treated humanely and fairly. Upon learning of the death of one of them in 1829, for instance, he immediately wrote to Andrew instructing him “to examine minutely into this matter, and if the death was produced by the cruelty of Mr. Steel have him forthwith discharged.” Going on, he says: “When I employed Mr. Steel I charged him upon this subject and had expressed in our agreement that he was to treat them with great humanity, feed and clothe them well and work them in moderation. If he has deviated from this rule he must be discharged.” Later, following Andrew’s report of his investigation, the General wrote expressing great gratification that the death had not resulted from the overseer’s cruelty.

In 1833, while he was still in Washington, two more slaves died, and William Donelson wrote the General expressing the opinion that the deaths had grown out of lack of proper medical attention. Immediately Jackson was on the warpath again. He wrote Andrew strongly urging him to investigate the charges of neglect; and, to make doubly sure of getting the facts, he wrote to his old and trusted friend Major William B. Lewis, asking him to look into the matter and let him know what was going on. Major Lewis made a typically thorough and painstaking investigation and his letter, reporting conditions as he found them, gives such a clear and interesting detailed account of life on a Tennessee plantation of a century ago that it is worth preserving in its entirety:

I have this moment returned from a visit to the Hermitage. I left 179 home after an early breakfast and got up there between ten and eleven o’clock, where I remained until after breakfast this morning.

It is with pleasure I inform you that I found every individual, big and little, well, except Hannah, Sally’s eldest child, and she, I was told by the overseer and her mother, was getting better. I had her brought to the house so that I might see her myself and ascertain, if I could, the nature of her complaint. I was apprehensive from what Mr. Holtzclaw told me that she was afflicted with the hip complaint, such as Major Barry’s son had; but on interrogating her and her mother as to the origin of the disease I am inclined to think it is something else. Mr. Holtzclaw and some of the black people think it is the white swelling. Her mother told me when she first complained of a pain in the hip she examined her and found a large lump in her groin having the appearance of what is called a waxen kernel. She also told me she complained not only of pain in the hip but also in the thick or muscular part of the thigh, and particularly the knee. As I do not know how those who have the hip complaint are affected, I can not say whether these are synptoms of that disease or not. When she was first taken, Sally tells me, she could not walk at all and suffered much pain. She can now walk a little, and her pains are not so distressing. Indeed she told me she suffered little or no pain except of nights. I thought this was owing probably to her taking too much exercise in the day, and I told her she must walk very little on her leg until it got better. I also charged her mother to keep her from exercising too much. She is a very pretty little girl, and as she will no doubt make a valuable servant if she lives and gets well I have some thought of getting Dr. Hogg to ride up and see her, for I am apprehensive Dr. McCorkle does not understand the nature of her complaint. If she should require any personal attention afterwards she might be brought down (to Nashville) and left with her grandmother who lives on Parson’s lot, College Hill, and would take good care of her. The old woman (old Aunt Nanny, you know) was up to see her not long since, the overseer informed me, and was very anxious to take her down with her, but that he did not feel authorized to let her go. When next you write to me let me know your wishes with regard to this matter and Hannah will be treated in all respects as you may direct.

The farm is in pretty good order. The fences all look strong and good, and particularly the outer ones. I was told by the negroes that nearly all the fencing on the Donelson lands had been repaired—most of it, also, round the caney field. I did not see them but I have no 180 doubt it is so. Some of the fences around the lots and stables have also been repaired, as well as the outer fence north of your brick negro houses. I think there is no fault to be found with any portion of the fencing—some few of the fences about the lots which need it have not yet been repaired; but the overseer says he intends giving his attention to them the first wet spell. He has made you some ten or twelve new gates and hung them. They are well made and well hung.

The house looks, I presume, pretty much as it did when you were here last summer. I thought that perhaps it had not been sufficiently aired, and I directed Hannah, who seems to have charge of it, to open the doors and windows whenever the weather is dry and pleasant. The yard and garden look badly—neither is attended to as they should be. This, however, is more Dick’s fault than the overseer’s, as he has necessarily been much and constantly engaged in getting in his crop and withal I suspect he has very little taste for gardening. I told Dick he must put the garden in order forthwith and keep it so; that the walks, borders and squares must all be cleaned and kept so. The overseer promised me that in future he would pay more attention to Dick and the garden and yard.

Finding the yard pretty much grown up with weeds, indeed the back part of it entirely taken with the green plantain, I directed the overseer to take his hoes into it the first rain that fell and scrape the whole of it over, not leaving a weed or spear of grass inside of the paling in front or rear of the house, and to keep it so until the last of September when he must chop it over lightly and sow it down thickly with good blue grass seed unmixed with any other. These orders were given because I did not calculate on your visiting the Hermitage this summer; and by the next, if the blue grass seed comes up well, it will look much better than it now does or ever has done.

As you requested, I looked also at the monument in the garden. Its appearance is very good, but I do not think it is finished entirely as it should be. The circular stones which rest upon the columns should also be plastered in the interior as is the case with the dome above. This is necessary in order to hide the joints and rough appearance of the stonework. There are also many rough places and little holes in the columns themselves, owing to defects in the stones, which should be filled up and nicely painted over. In addition to this, I would suggest that neat little iron railing be thrown around it at the distance of four feet from the base of the monument and paved all around with nicely dressed flagstones similar to those which cover the tombs. This would not cost very much and would give a handsome finish to the monument, which I think quite tasty and appropriate.

181

I sent for old Aunt Hannah, who has charge of the poultry, and told her that you had been very mortified at finding on your return to the Hermitage no fowls or poultry of any kind for the use of the table, and that you wished me to say to her that you hoped it would never be the case again. She assured me that she would do her best to raise a plentiful supply, but said that her chickens and turkeys died very much with the gapes which, with everything she could do, she could not prevent. The overseer, she said, had built her a good house and she expected now she would be able to take better care of them. She has a very good stock of turkeys to raise from. I counted twelve hens and four gobblers; and, as I understood from her, she has a pretty good supply of chickens, etc.

I inquired of the overseer with regard to your horses, cattle, hogs and sheep. He told me his work horses were in very good order and were sufficient to tend his crop. He runs at this time 17 plows, but says that if necessary he can run 19. I sent also for Ben who, I was told, had charge of the plow horses, and inquired of him as to their condition. He said they all were in pretty good order and were thriving. He informed me that they had lost a young mule but did not seem to think that blame should attach to anyone. I saw some of the plow horses myself and if the balance are in as good order they will do very well. The overseer informed me that he had 60 grown cows and yearlings and 22 young calves, making altogether of all descriptions 82. The cattle look as well as is usual for this season of the year. He has about 300 head of hogs; of this number there will be, he thinks, about 80 or 90 large enough to kill next fall, which he hopes will be sufficient or nearly so for the use of the farm. He further informed me that of the 300 head, 100 of them were pigs not more than a month old. Your flock of sheep look very well. I inquired of Mr. Holtzclaw the number. He told me there were 92 old sheep and 59 lambs.

I paid Dunn a visit at his stables and looked at all his horses and colts, and I assure you that I was much pleased and gratified at their appearance. The horse Citizen is in fine order and condition; he is really a beautiful animal. The two three-year old fillies are also in fine condition. I think the one by Stockholder much the finest of the two, but the other is also a fine animal. His colts too (three in number) are in good order and very playful. Indeed, all of his horses are quite fat, as much so as there is any use for. One of your mares, the overseer informed me, was in Williamson (County) and as he would have soon to send for her he wishes me to say to you that he would want some money—$40 I think he said—to pay for her season and keeping.

182

Upon the whole, if Mr. Holtzclaw will hold out as he has begun I think he will make you a good crop, if he has a good stand of cotton and the season suits, and take very good care of your stock. He feels, however, considerable uneasiness with regard to his cotton crop—he is afraid his stand will not be a good one. His seed, he says, were not good, nor could he get those that were good anywhere. He finished planting yesterday, the 20th of April, while I was at the Hermitage. He says he could have planted a week earlier, but not having confidence in the soundness of his seed he did not like to risk them sooner. He will finish planting his corn tomorrow. He tells me he has 200 acres in cotton, considerably upwards of 300 acres in corn, and something like 120 or 130 acres in oats. He has his sweet potatoes planted, and in the piece of fresh land on the left hand of the gate as you approach the house. I enquired of him particularly about your meadows and timothy. He says no hay, he is afraid, can be made off them. Indeed, he says one piece (adjoining the lot Dunn’s stables are in) was so taken with weeds that he found it necessary to plow it up and put it in corn. He thinks that by tending it well this summer the weeds may be killed; and then, by sowing it down again in timothy, it might bring good grass. I looked at the ground, and by its appearance I have no doubt he done right in ploughing it up—it must have been very much taken by weeds. He has not ploughed up the other, but he is afraid it will not make hay. He say it was badly rooted up by the pigs and hogs last fall, and has now more weeds than grass in it. Your two fields of clover look very well, and a good deal of hay can be made off one of them (the one opposite the cotton gin) as Mr. Holtzclaw intends mowing it. The other, he says, he is obliged to pasture.

I enquired of Mr. Holtzclaw about the sickness on the place in the early part of the spring and the cause of so many negroes dying. He told me that he thought the cholera had visited that neighborhood, and that some of your negroes had died of that disease, particularly Titus, whose death he seemed very much to regret as he was a fine hand and a most valuable servant. He did not seem, however, to be satisfied in his own mind that either the girl or the two Samsons died of that disease. He says Dr. McCorkle saw Titus on the Sunday evening before his death and said he was well again and would be able to go to work on Monday morning. At 11 o’clock Sunday night he was a corpse. Now, my dear sir. I doubt very much whether the cholera has ever been at the Hermitage or its neighborhood. I heard of its being nowhere else, except a reported case on Major Donelson’s farm. Mr. Donelson’s negro, who 183 was supposed to be attacked with the cholera, recovered and is now well. I think Titus must have died of some other disease.

I had heard at Nashville that Mr. Holtzclaw was very severe with the negroes, but from my own observation and what the negroes themselves told me while there I think probably he is not more so than is necessary. Where there are so many negroes there must be a pretty rigid police. I told him that I had heard of his severity, but I hoped he had given no foundation for such reports about him. I added that you knew the necessity of keeping order on the place and among the negroes, but that I was sure that you did not wish nor would you permit your negroes knowingly to be treated with cruelty. I hoped therefore that he would not use towards them an unnecessary severity. He assured me that he had not and would not. I told him if an overseer would be constantly himself with his hands very little whipping would be required. The best way of managing negroes, according to my experience, was to treat them kindly when they done well, and to punish them reasonably when they misbehaved; but that he might be assured that no negroes would conduct themselves well who were left too much to themselves—that someone for whom they had either respect or fear should always be near at hand. He concurred with me in this opinion and said that he scarcely ever was off the place unless obliged by business.

Your negroes evidently are better clad than they were under Mr. Steele’s administration. They informed me that they all got their quantum of winter clothing, and most of them have already been furnished with their summer clothing. I did not see a single child even on the place that was not well clad, and Mr. Holtzclaw informed me that there were 58 of them. He keeps his wheel constantly going, and he informed me that it spins six or seven yards every day—besides the spinning ginney that he says he keeps constantly going.

I believe, my dear General, I have given you all the information I have with regard to the Hermitage, its culture and management. If there should be anything else you wish me to attend to, let me know and it shall be done.

The old General was mollified by Major Lewis’s painstaking report of conditions at the Hermitage, and wrote him thanking him for relieving him of the “great anxiety and pain” under which he had been laboring as a result of the reports he had been receiving of the overseer’s excessive severity. Regarding Hannah, the little girl with the sore hip, he wrote:

SECOND FLOOR PLAN

Allowing for the use of the then customary armoirs in place of the present-day closets and the fact that bathrooms were non-existent at the time, the most confirmed modernist could find no fault with this arrangement for living.

184

I will thank you to get Dr. Hogg to see Hannah. I would be sorry she would become a cripple. You may say to Dr. Hogg that her lameness was occasioned by a stroke from Betty, or jumping over a rope in which her feet became entangled and she fell and hurt her hip. I will thank you to say to the overseer to prevent Betty from beating or cruelly using the little negroes that are under her about the kitchen. A small switch only ought to be used, but sometimes she uses any weapon she can get, and chokes and abuses them and brings on disease. Give such directions about the negro girl as though she was your own.

This was not the first time he had had cause to complain to the conduct of Betty, the cook. Back in 1821, while he was in Florida at grips with the Spanish officials, word reached him from the Hermitage that this same Betty, then Mrs. Jackson’s maid, had been misbehaving; and he set aside his dispute with Señor Calava long enough to write to A. J. Donelson:

Mrs. Jackson informs me that her maid Betty has been putting on some airs and has been guilty of a great deal of impudence. On this subject I have wrote Dr. Brunaugh and Mr. Blair. I have said to Mr. Blair that I hold him responsible for the control of the servants, and I have directed that the first impertinence she uses or the first disobedience of orders that she is to be publicly whipped. It is humiliating to me to have to resort to this, but I have to request of you to observe her conduct and the first disobedience or impudence order Mr. Blair to give her fifty lashes. If he does not perform it, dismiss him, and as soon as I get possession I will order a corporal to give it to her publicly. I am determined to cure her.

This evidence of firmness on General Jackson’s part in the discipline of the slaves was very unusual, and indicates that the offending Betty must have worn out his patience with her incorrigibility. Seldom indeed was whipping resorted to on the Hermitage plantation. In fact, the principal criticism of Jackson around Nashville, regarding his treatment of his slaves, was that he was too lenient with them; and out of this leniency grew a tragedy in 1827 that became one of the minor controversial issues of the 1828 Presidential campaign.

One of Jackson’s slaves, a man named Gilbert, was a chronic and incurable runaway; but upon every such offense he was always 185 forgiven by the General upon his promise of better behavior. This went on until at length Jackson’s patience was exhausted and when Gilbert was recaptured after running away in 1827 the General ordered him taken to Nashville and sold, with the stipulation that he must be sold as a runaway so that any purchaser would know of that defect. The overseer, Ira Walton, however, gave it as his opinion that this would not do, inasmuch as it was the prevailing idea that the Hermitage negroes had been detrimentally affected by their master’s indulgence and that one of them would be correspondingly hard to sell. Walton further said that if some example were not made of an habitual offender like Gilbert he could not promise to keep the slaves under control, and that Gilbert was a fit subject for punishment inasmuch as he was the most insolent slave on the place.

Jackson, over-persuaded, reluctantly instructed Walton to take Gilbert away from the house to a near-by woods lot that adjoined a cotton field where other negroes were working and there to “whip him moderately with switches.” Arriving at the woods lot, Gilbert who was described as “a very stout, strong man, possessed of a most violent and ungovernable temper,” suddenly turned on the overseer and knocked him to the ground. Walton hastily drew a knife from his pocket, but it was only after a long and bloody struggle that he succeeded in stabbing the negro sufficiently to free himself. Jackson was quickly summoned from the house, and he ordered the wounded slave carried back there where he was given attention by the family doctor. In spite of this attention, however, he died the next day.

Jackson was very much upset by the tragic episode and, for some reason, did not believe the overseer’s story of the affray. He not only discharged the overseer summarily the next morning, but went to Nashville and swore out a warrant for his arrest on a charge of murder. The grand jury, however, after hearing all the evidence including the testimony of a negro eye-witness, discharged Walton on the grounds of self-defense.

It is characteristic of the nature of the Presidential campaign 186 of 1828 that this incident was taken up by Jackson’s political enemies and tortured into the charge that he had deliberately and heartlessly encouraged and condoned the murder of one of his defenseless slaves; but this charge was quickly exploded when Walton, who certainly had no reason to distort the facts in Jackson’s favor, made a sworn public statement telling just what took place.

Jackson’s benevolent attitude toward his slaves was strikingly illustrated early in 1839 when four of them, including his personal servant, George, were prosecuted for the alleged murder of another negro, a slave named Frank belonging to Stockley Donelson. Donelson had Jackson’s four negroes indicted for the murder, but the General rushed to their defense and successfully engineered their case. The best legal talent was employed and the General attended court in person every day while the trial lasted. The affair cost him $1,500 in money, in addition to his loss of time and injury to his then feeble health, but his negroes were acquitted and he felt amply repaid.

During Jackson’s lifetime, and long afterwards, in Tennessee his kindness and indulgence in his relations with his slaves were proverbial. It was a standing joke with the overseers during the days when he was active in politics and spending much of his time away from home that whenever he returned and spent much time at the Hermitage he spoiled the slaves by his leniency to such an extent that it took a good while to get them back into working shape after he had left. He would brook no imposition on any of them, and it is recorded that he one day made a special trip to Lebanon to seek out and thrash a man named Grayson who had had the temerity to strike with a whip Truxton’s black groom, Ephriam. No wonder the slaves all crowded around him and literally wept with joy when he returned to the Hermitage in the summer of 1830, his first visit home after his election to the Presidency.

187

IX: CHURCH AND RELIGION, AND FINAL DAYS

One of the most picturesque adjuncts to the Hermitage is the little Presbyterian church, known far and wide as the Hermitage Church, although in the formal Presbyterian records it was officially designated Ephesus. The visitor coming out from Nashville sees it in a grove of trees on the right-hand side of the present road just before he turns off to the left into the lane that leads down to the Hermitage. It is a severely plain and simple little brick structure, the homeliest sort of example of ecclesiastical architecture, without steeple or tower or portico. Inside there are stiff pews of sturdy oak (the one in which Jackson sat is marked with a silver plate) facing a plain and unadorned pulpit, and there is a fireplace at each end. It is floored with bricks, and originally the only lighting fixtures were candlesticks; but in late years Mrs. Sarah York Jackson presented the church with the handsome bronze lamps which are still in use.

There is a graveyard facing the road in front of the church, but this is not the familiar churchyard burying-ground so often seen in connection with country churches. It is the cemetery of the near-by Confederate Soldiers’ Home. The Hermitage church’s members all had family burying-grounds on their farms, and the church had no need for such facilities. It is said, as a matter of fact, that there was never but one funeral ceremony held at the church and this was in 1906 when the remains of Colonel Andrew Jackson, III, were brought from Knoxville where he died to be buried in the garden at the Hermitage. The Hermitage church had little to do with funerals, although it was draped in crepe for three years in honor of General Jackson when he died.

The traditional story is that General Jackson built this church for his wife, but this is hardly accurate, although the General himself customarily referred to it as “Mrs. Jackson’s church.” The fact is that the church was built in 1823 by popular subscription by the people of the neighborhood. The cost of the building was $800, but when the subscription paper was circulated it raised only $120. The remaining $680 was subscribed by seven men; and Jackson, being about the wealthiest and most prominent 188 resident of the community, naturally contributed most liberally. Active with him in promoting the church was Colonel Edward Ward, the neighbor who bought the Hunter’s Hill place from him; the various members of the Donelson family paid a share of the expense; and all the other neighbors contributed more or less. The money was not raised without difficulty, however; and in December, 1823, Jackson wrote to his wife asking how the work of building progressed and bidding her to see Colonel Ward and urge him to push the work along. “Tell him,” wrote the General, “that it must be finished, if him and myself pay for it.”

Earlier in the year Colonel Ward had written General Jackson at some length about the new church, particularly about the best method of raising the money for the minister’s salary. It had been proposed that they follow the plan of renting pews, but Colonel Ward expressed doubt as to the practicability of this plan. “I can not think of more than 12 or 15 persons that would purchase seats,” he wrote, “and from the very good neighborhood feelings that prevail with us there would be no competition excited in the sale of them. The consequence would be that the seats would sell for just as little as each person would think proper to bid for them. I am fearful that a plan of this sort is not well calculated for the country, particularly in a thinly populated neighborhood like ours; furthermore, I should fear that it would not be generally pleasing and might frequently operate against the attendance of persons not immediately interested in or connected with the church.” The Colonel closed by saying that he would “with promptitude” subscribe to whatever plan was decided on for the church’s support. General Jackson also evidently did not take to the idea of selling pews—it is easy to believe that he wouldn’t—and the record shows that this idea was dropped.

As originally built, the entrance to the church was on the eastern side of the building, facing the old Sanders Ferry Road, traces of which may still be seen today; but in 1838 when that road was abandoned and the Lebanon Turnpike was built, it was considered necessary to move the doors to their present location 189 in the south end so as to avoid having the church present its back to the new road. To defray the expense of this remodeling work another subscription list was passed among the congregation; and, as usual, General Jackson’s name headed the list. Jackson also instilled some of his characteristic energy into the remodeling work; and when it was suggested that a committee be appointed to look after it he promptly and vigorously dissented, emphatically voicing the view that responsibility for getting the work done should be vested in one man rather than in a committee. “When the Lord wanted the Ark built,” he told the astonished elders, “He gave the job to one man. If He had appointed a committee to attend to it, the Ark wouldn’t have been built yet.” Jackson at this time, it will be recalled, was just back from eight years in Washington with all its red tape and circumlocutionary delays.

Although a leading spirit in the building of the church and a strict attendant at its services, Jackson was not a regularly enrolled member until late in life. By the time the church was built he was deeply enmeshed in politics, and he feared that any formal religious declaration at that time would be misconstrued by his political enemies. But, although he remained outside the fold of the church, there is every evidence that he was deeply and sincerely religious. He attended services regularly in Washington while he was President, not infrequently walking alone on Sunday morning from the White House to the Presbyterian or Episcopal church to hear the morning sermon. He regularly paid pew rent during his Presidential terms to both the First Presbyterian and St. John’s churches.

His private letters are replete with references to the Deity and to the future life, and these pious references are so habitual and so unaffected that there seems to be no reason to doubt his utmost sincerity. In writing of his victory over Pakenham at New Orleans he humbly attributed his triumph to the interposition of God on his side; and while this alone might be dismissed as a mere conformity with what might be the currently popular idea of proper 190 modesty in such matters, his letters are too strongly characterized by expressions of his faith in an omnipotent God to leave room for questioning his expressed convictions.

For instance, while in Washington in January, 1825, awaiting the action of the House of Representatives in the election of the President, he wrote to John Coffee: “I am still in the habit of ascribing the lot of man to the will of an all-wise providence, and should I be brought into the Presidential chair it must be by His influence counteracting the intrigues of men and the union of interests here.” That was no mere pious pose. He was always frank with Coffee.

Nor was his religious faith of the fair-weather variety. In the summer of 1828, during an unprecedented drouth, he wrote in the contrite spirit of the psalmist who said: “Though He slay me, yet will I trust in Him:” “We have a very doleful prospect here. We have not had rain enough to wet the earth one inch for three months, every vegetable is burnt up, our cattle starving, the springs in many places dried up, and still no prospects of rain. The earth is so parched that we can sow no fall crop; no turnips, no potatoes, no cabbages. Our crops of cotton and corn are only a half crop. Still I trust in a kind Providence ‘who doeth all things well,’ that he will not scourge us with famine.” And when, later in the same year, that major tragedy of his life befell him in the death of his adored wife, he met his bereavement in a similar spirit of contrition and resignation. Writing John Coffee on January 18th, the day he left the Hermitage for Washington he said: “As rational beings it behooves us so to live as to be prepared for death when it comes, with a reasonable hope of happiness hereafter through the atonement of our blessed Saviour on the cross.” But later in this letter there is a poignant paragraph, where human grief breaks through the shell of resignation, and his soul cries out: “My mind is so disturbed and I am even now so perplexed with company that I can scarcely write. In short, my dear friend, my heart is nearly broke. I try to summon up my usual fortitude, but it is vain.”

191

A singular manifestation of Jackson’s deep-seated piety is to be found in his frequent inclination to volunteer religious admonitions to his close friends and relatives. Soon after the death of his wife he wrote to his brother-in-law, Captain John Donelson, telling him that “my dear wife had your future state much at heart” and urging him to “withdraw from the busy cares of this world and put your house in order for the next.” Early in 1828 he had written to John Coffee to say: “Mrs. Jackson has rejoiced greatly on hearing that Polly has joined the church. I rejoice also. It is what we all ought to do, but men in public business has too much on their minds to conform to the rules of the church, which has prevented me hitherto.” Similar evidences of his concern for the piety of his friends and connections continually crop up in his letters.

Rachel, who was profoundly—almost fanatically—religious, had the General’s spiritual well-being much at heart; and when the little meeting-house was built he gave her his solemn promise that as soon as he was out of politics he would make a public declaration of his faith and ally himself with the church. He was reminded of his promise in 1838, after he had returned to the Hermitage from Washington, at which time he said: “I would long since have made this solemn public dedication to Almighty God, but knowing the wretchedness of this world and how prone many are to evil, that the scoffer of religion would have cried out ‘Hypocrisy! he has joined the church for political effect,’ I thought it best to postpone this public act until my retirement to the shades of private life, when no false imputation could be made that might be injurious to religion.” The records of the church show, however, that promptly upon his return to private life in 1837 he took the step of public declaration of faith, following a “protracted meeting” at the Hermitage church. His son’s wife joined the church at the same time and Parton thus describes the scene:

“The Hermitage church was crowded to the utmost of its small capacity; the very windows were darkened with the eager faces of the servants. After the usual services, the General rose to make 192 the required public declaration of his concurrence with the doctrines, and his resolve to obey the precepts, of the church. He leaned heavily upon his stick with both hands; tears rolled down his cheeks. His daughter, the fair, young matron, stood beside him. Amid a silence the most profound, the General answered the questions proposed to him. When he was formally pronounced a member of the church, and the clergyman was about to continue the services, the long restrained feeling of the congregation burst forth in sobs and exclamations, which compelled him to pause for several minutes. The clergyman himself was speechless with emotion, and abandoned himself to the exultation of the hour.”

Joining the church is not usually an intricate or difficult process, but in General Jackson’s case an unexpected obstacle arose when Dr. Edgar (the minister in charge of the proceedings and, incidentally a pronounced Whig in his political views) asked the prospective church member: “Can you forgive all your enemies?” This unexpected question was a poser for a man like General Jackson, a strong personality who made staunch friends and violent enemies. We can picture his memory flashing back through the long roster of his antagonists: Dickinson and Clay and Adams and Calhoun—he had lived a long life and it was a sizable list. There must have been a painful pause before he answered the minister’s question. Jackson was a sincere man at heart and undoubtedly wanted to be honest with himself and with his God. At length he replied: “My political enemies I can freely forgive; but as for those who abused me when I was serving my country in the field, and those who attacked me for serving my country—Doctor, that is a different case.” Doctor Edgar, however, insisted that forgiveness of all enemies was a fundamental and indispensable condition of reception into the Christian faith. So the candidate for membership in the church gave himself over to another period of reflection and at length stated that “he thought he could forgive all who injured him,” even those who had criticised him while he was in the field; and upon this rather equivocal assurance the ceremonies proceeded.

193

The General’s conversion, in connection with the protracted meeting, served to breathe new breath into the little church at the Hermitage, which had been having a struggle for life after the death of Mrs. Jackson and the General’s absence of eight years in Washington. Now the church began actively to function again, and its new and distinguished convert was promptly nominated a “ruling elder.” But he declined the nomination. “My countrymen have given me high honors,” he said, “but I should esteem the office of ruling elder in the church of Christ a far higher honor than any I have ever received. But I am too young in the church for such an office. The Bible says ‘Be not hasty in laying on of hands.’” And then he nominated two elderly neighbors as elders.

Jackson, however, despite his unwillingness to hold office in the church, entered actively and whole-heartedly into its work. One of its pastors, reminiscing in later years, said that in the winter-time, when the ground was covered with snow, it was no unusual thing for him to arrive at the church and find no one there but the General and his man servant. Jackson would have the servant busy keeping up the fires in the two fireplaces and making preparations so that the rest of the congregation would be comfortable when they arrived. No matter how bad the weather, his attendance at services could be counted on; and he was particularly punctilious about attending on Communion Sundays, always advancing to the Communion table on the arm of his daughter-in-law.

The Hermitage church was dedicated by Dr. William Hume, one of the famous figures in the Presbyterian ministry in the South. Other distinguished divines have occupied the pulpit during the years since then; and on one occasion a “mysterious stranger” appeared and volunteered to preach and did so for three months before he disappeared as suddenly and mysteriously as he came, it being discovered later that he was a convict escaped from a Northern prison. Another volunteer preacher appeared one Sunday and delivered a sermon, a conspicuous feature of his performance being that he refused to preach from the pulpit, but 194 talked from behind a table placed in the aisle. A short while after he left Jesse James was killed in Missouri, and a tradition sprang up that the mysterious preacher was none other than the redoubtable outlaw, a color of plausibility being lent this legend by the fact that the James brothers used Nashville as a hide-out during their days of outlawry.

References to Jackson’s religious views and his church affiliations may seem discordant with the familiar picture of a swearing, gambling, brawling frontiersman; but the rough, free-and-easy side of Jackson’s life has been somewhat over-emphasized in popular history to the exclusion of the gentler side of his character.

General Jackson, despite popular beliefs to the contrary, had a deeply-rooted religious background and a strongly developed sense of reverence. He was taught the scripture by his mother when a boy, and was made familiar with the stern old Westminster Catechism before her death. At the time he was a judge in Tennessee, while still a young man, he was known to entertain strongly religious views. One who knew him then states that “Judge Jackson freely and frequently averred his full and unwavering confidence in the divine authority of the Bible and the truth of the gospel declaration that Jesus Christ is the only Saviour of lost men, and that we must repent of sin and obey the gospel of Christ or our souls can not be saved.” A 100% Fundamentalist! Jackson himself stated, in commenting on some of the unfounded criticism of him during the 1828 campaign, that for 35 years before his election to the Presidency he never failed to read at least three chapters of the Bible every day.

This side of Jackson’s character, however, it must be admitted, was not generally known; and when he joined the church it attracted attention all over the country. A prominent citizen of Missouri, writing about it at the time, said: “In my early days the palpable and notorious infidelity of Thomas Jefferson spread a desolation that was mournful over the entire face of the western 195 country. The enemies of religion took courage and threw up their blasphemy in the face of heaven. But now here is a man, raised up by the hand of God to the possession of an influence far beyond all that Jefferson ever possessed, for Jefferson never was able to wield public opinion in this great nation as General Jackson has done; and yet this man publicly prostrates himself before the cross and calls on the crucified Redeemer as his Lord and his God. The American church should not suffer this important testimony of General Jackson to be overlooked or forgotten.”

Jackson was a consistent church-goer all his life, even before he contributed so much of his influence and means to the establishment of the Hermitage church; and an amusing episode, and one typical of the times, took place in October, 1818, when the Reverend Peter Cartright, the famous backwoods preacher, was holding services in a Methodist church in Nashville, preaching on the text: “What shall it profit a man if he gain the whole world and lose his own soul?”

Parson Cartright, who was a sort of pioneer Billy Sunday, had hardly more than announced his text than General Jackson entered the church and stood for a moment in the aisle looking for a seat. The resident minister seated behind the Reverend Cartright pulled at his coat-tails and said in a stage whisper: “General Jackson has come in! General Jackson has come in!” This interruption aroused the indignation of the fiery parson and so he retorted in a voice loud enough to be heard by all: “Who is General Jackson? If he don’t get his soul converted, God will damn him as quick as he would a Guinea nigger!” General Jackson, so it is told, joined in the mirth aroused by this spirited retort (a near-blasphemy in those days of Jackson’s transcendent popularity), and the preaching proceeded without further untoward incident. But the pastor of the church was fearful that the General might have been offended by the outspoken visiting clergyman, and he set out early the next morning to make an apology for the incident. It happened, however, that General Jackson met Mr. Cartright on the street face to face that morning and, reaching out his hand, 196 said: “Mr. Cartright, you are a man after my own heart. I am very much surprised at Mr. Mac (the local pastor) to think he would suppose that I would be offended at you. No, sir, I told him that I highly approved of your independence; that a minister of Jesus Christ ought to love everybody and fear no mortal man. I told him that if I had a few thousand such fearless, independent officers as you were, and a well-drilled army, I could take old England.”

This episode comes down to us in Parson Cartright’s own memoirs, and it may be that it has gained something in the telling. It does not, however, appear out of character for either of them. Mr. Cartright was the kind of man who would not hesitate to say what he thought, in the pulpit or out; and Jackson was an admirer of spunk wherever he found it. The parson’s credibility, however, is somewhat damaged by another Jackson anecdote he tells.

Mr. Cartright, according to this story, had preached one day near the Hermitage and had been invited to dine with the General. As usual the Hermitage was full of company, including a young lawyer from Nashville who was enjoying the attention he was attracting by declaring himself an infidel. The parson endeavored not to be drawn into a theological discussion with the young man, but the latter was determined to have a dispute with him and said: “Mr. Cartright, do you really believe there is any such place as hell, as a place of torment?” The parson replied in the affirmative, whereupon the lawyer said: “Well I thank God I have too much good sense to believe any such thing.” Before Mr. Cartright could reply, so he relates, General Jackson interrupted to say: “Well, sir, I thank God there is such a place of torment as hell;” and when the surprised young man asked him why, he went on. “To put in it such damned rascals as you, that oppose and villify the Christian religion!” It is hard to believe that General Jackson would ever speak thus brusquely to a guest in his home; but, anyhow, it makes a good story.

Although he would not join the church while he was actively in politics, Jackson was shrewd enough to know that a man in the 197 public eye must carefully watch his personal conduct and avoid even the appearance of evil. So, despite his known fondness for the current sports of the frontier while he was a young man, after he became a statesman he was most punctilious about his conduct. In 1824, while a candidate for President, he sat down and wrote out a specific and categorical denial of various campaign charges, in the course of which he said: “It is a positive falsehood that General Jackson has been either at a cockfight or sports of a similar nature for the last thirteen years,” and then entered into a detailed disclaimer of any sympathy with or actively in the “wild” activities of the day.

He was at this time especially careful of his reputation in connection with the breeding and racing of thoroughbred horses. There was then, as now, a nice social distinction between the stock breeder and the man who operates a string of race horses on the tracks; and although Jackson in his youth was not above riding his own horse in a race in an emergency, when he became President he wanted it distinctly understood that he was primarily the owner of a stock farm and that he had no part nor parcel in their actual racing or training.

There was an amusing example of this hair-splitting distinction during his first Presidential term. His correspondence with his adopted son and with his overseer, early in 1832, indicated that the current crop of colts was very promising, and Andrew, junior, was planning to enter one of them in the sweepstakes in the East. The colts, in charge of the grooms, had actually been started on their way to the East for preliminary training when the adopted son, apparently inspired by the irrepressible young Hutchings, sent after them and had them returned to the Hermitage for training on the private track there. The old General suspected that Hutchings was also having his own colt trained there, and he wrote his son a sharp letter expressing astonishment at his “unaccountable conduct.” Hutchings and Steele (the overseer), he wrote, knew very well that he was opposed to having any horses trained on the track on his plantation. “It might have been construed 198 that I was encouraging racing,” he said virtuously, pointing out that such a criticism could not justly be made of him when he was giving the colts to his son and Hutchings “and having them sent away and run elsewhere.” So incensed did the General become at the possibility of having his position misunderstood (although, at this writing, it seems to have been equivocal to say the least of it) that he instructed his son to “Have the turf closed, plowed up, and permit not a horse to be galloped upon it.” It appears that no such drastic action was taken; but it is plain to see that Jackson had a very exalted idea of the position he held and a keen understanding of the desirability of keeping the occupant of the President’s chair entirely disassociated with the sordid business of horse racing.

This very appreciation of the political value of a reputation for piety renders all the more admirable his firm determination not to join the church during his active days in politics when it might have been suspected that he was using membership in the church for political effect. General Jackson had his faults and he had his share of the vices of the day; but he was not a hypocrite. Fundamentally he was a firm believer in the tenets of the Christian religion, but so long as he felt any question as to his ability to adhere strictly to the creed of the church without in any way drawing discredit on it or attracting suspicion to his motives, just so long did he choose to follow his religious beliefs outside the fold.

Although he had been slow about joining the church, Jackson enjoyed his association with it during his declining years and was a regular attendant at its services, joining lustily in the singing of his favorite hymns and listening attentively to the expounding of the gospel. But at last there came a day when he was no longer physically able to make even the short journey from the Hermitage to the little church down the road. The multiplied infirmities of old age at last forced him to capitulate.

It is a fact not sufficiently emphasized in most of the published biographies of Andrew Jackson that during almost his entire life he was in bad health—not merely debilitated, but actually tortured 199 with pain. His constitution, never particularly robust, was undermined by the grueling hardships of the early campaigns against the Indians from which he returned afflicted with chronic dysentery. Throughout his life he was a victim of severe, nerve-racking headaches, of which there is passing mention in many of his letters. During his last years he fell a victim of tuberculosis which, according to one of his biographers, entirely destroyed one of his lungs; and, as though that were not sufficient bodily ailments, dropsy attacked him during the last six months of his life and caused him such agony as to make his existence a burden to him. He had been dangerously wounded with pistol balls twice—in his duel with Dickinson and his brawl with the Bentons—and from the effects of these wounds he never entirely recovered. He was confined to his room in the White House during almost the whole of his last four months of his administration, and during that time he suffered a hemorrhage of the lungs so severe that attending physicians despaired of his life. He rallied all his strength and bravely rode to the inauguration with his successor, Martin Van Buren; but he returned to the Hermitage in 1837 a broken-down and seriously ill old man. At the time he frankly expressed doubt whether he would long survive; but the return home exerted a beneficial influence on his health, and he improved to such an extent that it was eight years before the end came.

During this entire eight-year span, up almost to the very moment of his death, he never relaxed his active interest and participation in public affairs. Tennessee’s gubernatorial campaign of 1838 almost immediately engaged his attention, and he worked with all that was left of his old-time energy to elect his newest political protege, James K. Polk. Following the election all the Democratic big-wigs of Tennessee, including Jackson and Felix Grundy, repaired to Tyree Springs for a vacation and celebration of Polk’s victory.

Again in 1840, despite his age and the enfeebled state of his health, he left the quiet shades of the Hermitage and went on an ill-advised stump-speaking trip through West Tennessee in support 200 of Martin Van Buren who had been re-nominated for the Presidency by the Democrats. It was a bitter blow to the old man when, in spite of his active support of his favorite, the Whigs carried Tennessee for Harrison by a majority of more than 12,000 votes; but he accepted the blow philosophically, stating that his belief in the soundness of the republic was so great that he felt that it would survive even the terrible experience of four years under Harrison’s rule.

Jackson conscientiously believed that Harrison was unfitted for the Presidency—so much so that he frankly expressed the belief that Harrison’s early death was a direct interposition of God to save the country from misrule. The Democratic defeat of 1840 only served to stimulate the old General to extra efforts to retrieve the loss in 1844. The selection of a standard bearer in this campaign was the subject of much intra-party deliberation and negotiation. General Jackson favored James K. Polk, and he was finally made the nominee. The General, although now 77 years old, buckled on his armor and actively engaged himself in the campaign for his young fellow Tennesseean. Too old and ill to take the stump again he resorted to a ceaseless campaign of letter writing, and the work he did from the Hermitage was largely instrumental in placing the relatively unknown Polk in the White House.

So elated was he at the success of his hand-picked candidate that he gave a stupendous garden party and barbecue at the Hermitage in celebration of Polk’s election; and in the afternoon he tottered out on the upstairs portico and, leaning over the railing, harangued his several hundred guests with an old-time, fiery political speech. It was a gala occasion.

He took an intense interest in the developments of Polk’s administration, particularly the annexation of Texas, and he followed this closely through correspondence with his old friend, Sam Houston, and with Andrew Jackson Donelson who was then representing the United States in the Republic of Texas. Houston visited the Hermitage during this period, and on one of these 201 visits Jackson entertained with a big dinner at which the piece de resistance was a haunch of bear meat. Some admirer of the General’s in Arkansas had sent him a live bear cub as a token of his esteem, and for a while the animal was kept on the front lawn of the Hermitage tied to one of the big holly trees. When Houston came to town Jackson decided that the bear should be a sacrifice to the distinguished visitor, and so the political leaders and neighbors were invited to come and partake of the bear-meat dinner.

These closing years of the old statesman’s life were complicated by the stream of visitors at the Hermitage—office seekers and hero worshipers. The General tried to see them all, even up to the last few weeks before his death, lying propped up on a sofa in his room, with a black boy fanning him with a bush to keep the flies away. Patiently he received them: wrote his name in autograph albums, patted the heads of small boys brought to look on his countenance, heard the pleas of those seeking his support in their efforts to get political appointments. Generally he was patient; but, on at least one occasion, he blurted out: “I am dying as fast as I can and they all know it; but they will keep swarming upon me in crowds, seeking for office—intriguing for office.”

One distinguished visitor of this period was G. P. A. Healy, the celebrated artist commissioned by Louis Phillipe to paint a portrait of Jackson to hang beside that of Washington in the king’s gallery at Paris. The story of Healy’s arrival at the Hermitage is a dramatic one. Arriving unannounced at the house, he found no one there but the desperately ill old man and the servants. Ushered into Jackson’s room, where he was sitting propped up in his big chair by the window, Healy, impressed by the fame of the distinguished citizen in whose presence he stood, fell on his knee before him and exclaimed: “I have come to paint your picture.” This obsequiousness did not suit the old democrat, and he sternly bade him to rise, saying: “Kneel to no one but your Maker!” Healy apparently did not succeed in making himself clear as to his purpose, and so he returned to Nashville where he found Andrew, junior, and his wife, explained his intentions to 202 them and returned to the Hermitage with them. Then General Jackson would not consent to sit for his picture unless young Mrs. Jackson would pose also. She consented, and so Healy fell to work. He succeeded in his race with Death, completing the portrait just ten days before the old man gave up the ghost; and the portrait made under these trying circumstances (of which a duplicate made by Healy now hangs in the Hermitage) is considered a good likeness and an excellent piece of work.

The Healy portrait, however, good as it is, can hardly be considered a better likeness than one other picture made during these last days of the General’s life—a daguerreotype made by a Nashville man, Dan Adams, who had lately become a practitioner of the newly discovered art. To gratify the ambition of Mr. Adams to hand down to posterity an actual likeness of General Jackson, the sick old man was carried in his chair out onto the back porch and there the exposure was made. It is a tradition in the family that the General was displeased with the likeness when it was shown to him, expressing his disapproval of it in characteristic language; but it is entirely likely that this is, in fact, the most faithful image of Andrew Jackson that now exists, even though the pain-wracked old man growled when they showed it to him: “Humph! Looks like a monkey!”

Not only was the master of the Hermitage persecuted by visitors during his last eight years, but during this time he was also bombarded with correspondence pouring in on him from friends and strangers, persons seeking political favors, inviting him to celebrations and barbecues, asking for autographs or locks of his hair, or merely expressing their admiration. A recent article in a New York paper reproduced a letter from one of the impressionable young ladies of 1842 who wanted a lock of the old hero’s hair, and this letter is fairly typical of those that poured in on him. After a florid and flattering introductory paragraph the young lady says:

“To behold the hoary head and time-honored frame of one who fearlessly bared his breast to the shafts of the enemy of his country, 203 both in time of peace as well as in war—to clasp his hand, to receive a blessing from his lips—would be a delight which nothing on earth could equal. But this joy I dare not hope to experience. I trust you will pardon the liberty I take in the request which I am about to make. Do not refuse to make a young heart happy. A few months ago I saw in a newspaper an account of a visit of some young people to whom you gave some locks of your hair. I read my Bible every night and morning and endeavor to follow the precepts contained in that sacred volume. It warns me of the sin and danger of envy and uncharitableness. But I confess to you that ever since reading that account I have envied those young countrymen of mine. As you are the cause of this sorrow and sadness, so does the cure rest with you. The struggle has been great ere I could summon courage to address you, but may I not supplicate for a similar favor? This gift will be more precious to me than threads of fine gold. I shall prize it through life as my choicest earthly possession, and when the hour of death comes and I must surrender my spirit into the hands of Him who gave it, I shall bequeath this lock of hair to the one whom my heart shall then prize most.”

Then, after a fulsome concluding paragraph, the young lady signs her name “with sentiments of gratitude and affection too deep for utterance.” And on the back of this gushing epistle Old Hickory has laconically endorsed: “Answered and returned a lock of my hair, this 28th of October, 1842.—A.J.”

This flowery application for a lock of the Jacksonian hair was by no means an isolated or unusual request. In fact, so insistent was the demand that the General formed the habit of carefully saving for this purpose the trimmings whenever he had his hair cut, and out of this little bag of hoarded locks came the souvenirs sent to correspondents and presented to admiring visitors.

* * * *

But, despite his wonderful vitality and determined resistance to the inroads of disease; the sands of the old man’s life were running out their allotted time. It was on a quiet Sunday in June 204 that the summons came for him. The end was not unexpected, either by him or by the household. Two Sundays before he had partaken of the Communion, and had taken that occasion to speak feelingly on the consolation of religion and to declare that he was ready to go. “Death,” he said stoutly, “has no terrors for me.” And this was doubtless no mere figure of speech after the suffering he experienced during the last four months of his life, during which time he found it impossible to lie down in bed unless lulled by opiates.

Sunday morning he was lifted from his bed and placed in his big chair by the window. The warm June sun was sifting down onto the Hermitage lawn through the sheltering cedars and hollies. The diseased-wracked old man, as he looked out on the scene he loved so well, doubtless sensed that it was close to the last time he would ever see it. Dr. Esselman when he entered the room that morning, to use his own words, “immediately perceived that the hand of death was upon him.” Andrew, junior, was notified that the end was at hand, and a messenger was sent for Major Lewis whom Jackson had expressed a wish to have by his side when death approached. A servant was dispatched post-haste to the church to recall the children of the household who were attending Sunday School. The sad news traveled quickly over the plantation and the servants gathered on the broad front porch, fearfully looking in at the windows.

The old General maintained his consciousness to the very end. When his old crony, Major Lewis, arrived he greeted him with: “Major, I am glad to see you. You like to have been too late,” and then carefully and methodically he gave him messages to some of his closest friends, like Colonel Benton and General Houston, who were unable to be at his bedside. Sadly but calmly he bade farewell to each member of the family, and mustered his failing strength to speak a kindly word of comfort to the weeping and wailing servants whose tear-stained black faces darkened the front windows. “Don’t cry,” he said gently to them, “Be good and we shall meet—” And then, with just a little gasp to mark its 205 passing, his unconquerable spirit left his frail body. His little granddaughter, Rachel, was standing at the foot of his bed, her hand on the covering, and she felt the tremor that passed over his body as he expired.

General Jackson had expressed the wish that his funeral services be simple and without pomp or ostentation; but such a funeral was hardly possible for the most distinguished private citizen of his day. The military company marched out from Nashville to attend the services, held two days later, and accompanied his body to the grave; and a great multitude of people, estimated at three thousand, gathered to pay their last tribute. The funeral was preached by Dr. Edgar, the minister who had received him into the church, the services being conducted from the front porch owing to the inability of the large crowd to get inside the house.

There was a moment of disturbance while the mourners were assembling, caused by an untimely outburst of blistering profanity from old Poll, the Hermitage parrot who had so long been a favorite pet of the General’s. The solemnity of the occasion was completely upset by the sudden torrent of objurgation from the old bird on her perch on the upper front gallery, but she was quickly banished to the servants’ quarters at the back of the house and Dr. Edgar stepped out on the stone-paved portico and began to read the burial service.

The General’s favorite hymns were sung; a prayer was said. The casket was taken from its place in the great hall and carried to the tomb awaiting him in the garden by Rachel’s side. A firing squad raised their muskets and a military salute shattered the hush of the warm summer morning. The smoke from the guns floated upward through the heavy foliage of the overhanging magnolias; the military company formed in ranks and briskly marched off; the crowd dispersed; the sorrowing family walked slowly back up the garden path to the house; a cloud of dust rose over the road as the carriages of the notable citizens of Nashville started back to town.

206

Andrew Jackson, after a tempestuous life of 77 years, was at rest by the side of her of whom he had said: “Heaven will be no heaven for me if she is not there.” No more would his vivid personality leave its impress on public affairs. No more would the parlors’ walls reëcho his shrill voice as he sang “Auld Lang Syne.” No more would a crowd of guests about the big table in the dining room listen attentively as he told of some incident of the wars. No more would the papers on his office desk rattle as he crashed down his fist and stormed “No! by the Eternal!” The spark of his existence, which made the Hermitage a beacon of democracy, was extinguished.

He has been gone now for nearly a century; his body still rests in the stone vault in the garden where loving hands placed it that hot June day in 1845. But, somehow, it is impossible to visit the Hermitage today, standing just as it was when he left it, without experiencing a mysterious feeling of his presence in the old house. Maintained though it is as a public shrine, the visitor when crossing the threshold has the sensation of entering into a living home; and it requires but little sense of the mystic to feel that he might look up and see the tall, angular form of the General come slowly down the sweeping circular stairway to greet the wayfaring guest.

Throughout the life of Andrew Jackson he was like a part of the old house which held so large a place in his heart; and today it is as though that part of him had never died. Indefinably it seems as though some elusive fragment of the spirit of Old Hickory is still there; and few of those who come there go away without experiencing that feeling of inspiration which arises from close contact with the deathless spirit of a great man.

207

APPENDIX A: CHRONOLOGY

March 15, 1767 Born, Waxhaw Settlements, North-South Carolina.
September 26, 1787 Admitted to bar in North Carolina.
Spring, 1788 Appointed public prosecutor for Mero District.
August, 1791 Married Mrs. Rachel Donelson Robards, at Natchez.
January 11, 1796 Member of first constitutional convention, Tennessee.
October 27, 1796 Left Nashville for Washington to take seat in House of Representatives—first representative from Tennessee.
November 22, 1797 Appointed Senator from Tennessee, vice William Blount.
June, 1798 Resigned from Senate.
October, 1798 Elected member of state Superior Court.
February, 1802 Elected Major General of Tennessee Militia.
July 6, 1804 Sold Hunter’s Hill home and moved to log Hermitage.
July 24, 1804 Resigned from Superior Court.
May 30, 1806 Duel with Charles Dickinson.
January 7, 1813 Left Nashville for Natchez with Tennessee militia.
April 22, 1813 Returned to Nashville from Natchez expedition.
September 4, 1813 Wounded in fight with Thomas H. and Jesse Benton.
October 11, 1813 Left Nashville with militia for Creek War.
March 27, 1814 Battle of the Horseshoe.
April 19, 1814 Appointed Brigadier General, United States Army.
April 28, 1814 Returned to Hermitage from Creek War.
May 1, 1814 Appointed Major General, United States Army.
August 10, 1814 Treaty with Creeks signed.
September 9, 1814 Left Nashville for first Florida campaign.
December 2, 1814 Arrived at New Orleans for defense of city.
December 23, 1814 First battle in defense of New Orleans.
January 1, 1815 Second battle in defense of New Orleans.
January 8, 1815 Decisive defeat of Pakenham’s army.
May 15, 1815 Arrives at Hermitage from New Orleans.
October 15, 1815 Left Nashville for Washington.
March 1, 1816 Returned to Hermitage from Washington trip.
January 22, 1818 Left Hermitage for second Florida campaign.
June 24, 1818 Returned to Hermitage from Florida war.
January 4, 1819 Left Hermitage for visit to Eastern cities.
February, 1819 Returned to Nashville from Eastern trip.
Summer, 1819 Began building of Hermitage.
March 3, 1821 Appointed governor of Florida by President Monroe.
May 31, 1821 Resigned from Army.
July 17, 1821 Took possession of Florida for United States.
October, 1821 Resigned as governor of Florida and returned to Hermitage.
July 20, 1822 Nominated for President by Tennessee legislature.
October, 1823 Elected to United States Senate.
March 4, 1824 Nominated for President by Pennsylvania convention.
November, 1824 Received plurality of votes for President: Jackson, 99; Adams, 84; Clay, 37; Crawford, 41.
February 9, 1825 Adams elected President by House of Representatives.
October, 1825 Resigned from United States Senate.
October, 1825 Again nominated for President by Tennessee legislature.
November, 1828 Elected President.
December 22, 1828 Death of Mrs. Jackson.
January 17, 1829 Left Hermitage for Inauguration.
March 4, 1829 Inaugurated President.
November 24, 1831 Andrew Jackson, jr., married.
December, 1831 Hermitage remodeled and tomb in garden built.
November, 1832 Reëlected President.
October 13, 1834 Hermitage partially destroyed by fire.
March 4, 1837 Issued farewell address, retiring from Presidency.
June 8, 1845 Died at Hermitage.
June 10, 1845 Buried at Hermitage.
209

APPENDIX B: ANDREW JACKSON’S WILL

Hermitage, June 7th, 1843

IN THE NAME OF GOD, AMEN:—I, Andrew Jackson, Sr., being of sound mind, memory and understanding, and impressed with the great uncertainty of life and the certainty of death, and being desirous to dispose of my temporal affairs so that after my death no contention may arise relative to the same; and whereas, since executing my will of the 30th of September, 1833, my estate has become greatly involved by my liabilities for the debts of my well-beloved and adopted son, Andrew Jackson, Jr., which makes it necessary to alter the same: Therefore I, Andrew Jackson, Sr., of the County of Davidson and State of Tennessee do make, ordain, publish and declare this my last will and testament, revoking all other wills by me heretofore made.

First, I bequeath my body to the dust whence it comes, and my soul to God who gave it, hoping for a happy immortality through the atoning merits of our Lord Jesus Christ, the Savior of the world. My desire is that my body be buried by the side of my dear departed wife, in the garden at the Hermitage, in the vault prepared in the garden, and all expenses paid by my executor hereafter named.

Secondly, That all my just debts be paid out of my personal and real estate by my executor; for which purpose, to meet the debt of my good friends General J. B. Blanchin & Co., of New Orleans, for the sum of six thousand dollars, with the interest accruing thereon, loaned to me to meet the debt due by A. Jackson, Jr., for the purchase of the plantation from Hiram G. Runnels, lying on the east bank of the river Mississippi, in the State of Mississippi; also, a debt due by me of ten thousand dollars, borrowed of my friends Blair and Rives, of the city of Washington and District of Columbia, with the interest accruing thereon, being applied to the payment of the lands bought of Hiram G. Runnels as aforesaid; and for the faithful payment of the aforesaid recited debts, I hereby bequeath all my real and personal estate. After these debts are fully paid,

Thirdly, I give and bequeath to my adopted son, Andrew Jackson, Jr., the tract of land whereon I now live, known as the Hermitage tract, with its butts and boundaries, with all its appendages of the three lots of land bought of Samuel Donelson, Thomas J. Donelson and Alexander Donelson, sons and heirs of Savern Donelson, deceased, all adjoining the Hermitage tract, agreeable to their butts and boundaries, with all the appurtenances thereto belonging or in any wise appertaining, with all my negroes that I may die possessed of, with the exceptions hereafter named, with all their increase after the before recited debts are fully paid, with all the household furniture, farming tools, stock of all kind, 210 both on the Hermitage tract farms, as well as those on the Mississippi plantation, to him and his heirs, forever. The true intent and meaning of this may last will and testament is, that all my estate, real, personal and mixed, is hereby bequeathed to my adopted son A. Jackson, Jr., with the exceptions hereafter named, to him and his heirs, forever.

Fourth, Whereas I have heretofore by conveyance, deposited with my beloved daughter, Sarah Jackson, wife of my adopted son, A. Jackson, Jr., given to my beloved granddaughter, Rachel Jackson, daughter of A. Jackson, Jr. and Sarah his wife, several negroes therein described, which I hereby confirm—I give and bequeath to my beloved grandson, Andrew Jackson, son of A. Jackson, Jr. and Sarah his wife, a negro boy named Ned, son of Blacksmith Aaron and Hannah his wife, to him and his heirs forever.

Fifth, I give and bequeath to my beloved little grandson, Samuel Jackson, son of A. Jackson, Jr. and his much beloved wife Sarah, one negro boy named Davy or George, son of Squire and his wife Giney, to him and his heirs forever.

Sixth, To my beloved and affectionate daughter, Sarah Jackson, wife of my adopted and well beloved son, A. Jackson, Jr., I hereby recognize by this bequest the gift I made her on her marriage, of the negro girl Gracy, which I bought for her, and gave her to my daughter Sarah as her maid and seamstress, with her increase, with my house-servant Hannah and her two daughters, namely Charlotte and Mary, to her and her heirs forever. This gift and bequest is made for my great affection to her—as a memento of her uniform attention to me and kindness on all occasions, and particularly when worn down with sickness, pain and debility. She has been more than a daughter to me, and I hope she never will be disturbed in the enjoyment of this gift and bequest by any one.

Seventh, I bequeath to my well beloved nephew, Andrew J. Donelson, son of Samuel Donelson, deceased, the elegant sword presented to me by the State of Tennessee, with this injunction, that he fail not to use it when necessary in support and protection of our glorious union, and for the protection of the constitutional rights of our beloved country, should they be assailed by foreign enemies or domestic traitors. This, from the great change in my worldly affairs of late, is, with my blessing, all I can bequeath him, doing justice to those creditors to whom I am responsible. This bequest is made as a memento of the high regard, affection and esteem I bear for him, as a high-minded, honest and honorable man.

Eighth, To my grand-nephew, Andrew Jackson Coffee, I bequeath the elegant sword presented to me by the Rifle Company of New Orleans, commanded by Captain Beal, as a memento of my regard, and to bring 211 to his recollection the gallant services of his deceased father, General John Coffee, in the late Indian and British war, under my command, and his gallant conduct in defense of New Orleans in 1814 and 1815, with this injunction: that he wield it in protection of the rights secured to the American citizens under our glorious constitution, against all invaders, whether foreign foes or intestine traitors.

I bequeath to my beloved grandson, Andrew Jackson, son of A. Jackson, Jr., and Sarah his wife, the sword presented to me by the citizens of Philadelphia, with his injunction: that he will always use it in the defense of the constitution and our glorious union, and the perpetuation of our republican system: remembering the motto—“Draw me not without occasion, nor sheath me without honor.”

The pistols of General Lafayette, which were presented by him to General George Washington, and by Colonel William Robertson presented to me, I bequeath to George Washington Lafayette, as a memento of the illustrious personages through whose hands they have passed—his father, and the father of his country.

The gold box presented to me by the corporation of the city of New York, the large silver vase presented to me by the ladies of Charleston, South Carolina, my native state, with the large picture representing the unfurling of the American banner, presented to me by the citizens of South Carolina, when it was refused to be accepted by the United States Senate, I leave in trust to my son A. Jackson, Jr. with instructions that should our happy country not be blessed with peace, an event not always to be expected, he will, at the close of the war or end of the conflict, present each of said articles of inestimable value to that patriot, residing in the city or state from which they were presented, who shall be adjudged by his countrymen or the ladies to have been the most valiant in defense of his country and our country’s rights.

The pocket spyglass which was used by General Washington during the revolutionary war, and presented to me by Mr. Custis, having been burned with my dwelling-house, the Hermitage, with many other invaluable relics, I can make no disposition of them. As a memento of my high regard for General Robert Armstrong, as a gentleman, patriot and soldier, as well as for his meritorious military services under my command during the late British and Indian war, and remembering the gallant bearing of him and his gallant little band at Enotochopco creek, when, falling desperately wounded, he called out “My brave fellows, some may fall, but save the cannon”—as a memento of all these things, I give and bequeath to him my case of pistols and sword worn by me 212 throughout my military career, well satisfied that in his hands they will never be disgraced—that they will never be used or drawn without occasion, nor sheathed but with honor.

Lastly, I leave to my beloved son all my walking-canes and other relics, to be distributed among my young relatives—namesakes—first, to my much esteemed namesake, Andrew J. Donelson, son of my esteemed nephew, A. J. Donelson, his first choice, and then to be distributed as A. Jackson, Jr., may think proper.

Lastly, I appoint my adopted son, Andrew Jackson, Jr., my whole and sole executor to this my last will and testament, and direct that no security be required of him for the faithful execution and discharge of the trusts hereby reposed in him.

In testimony whereof I have this 7th day of June, one thousand eight hundred and forty-three, hereunto set my hand, and affixed my seal, hereby revoking all wills heretofore made by me, and in the presence of

Marion Adams,
Elizabeth D. Love,
Thos. J. Donelson,
Richard Smith,
R. Armstrong,

ANDREW JACKSON (Seal)

213

APPENDIX C: HIS GOINGS AND COMINGS

Andrew Jackson, unfortunately, did not keep a journal or diary and thus leave behind him a record of his movements from day to day; but from the extensive files of his correspondence it is possible to patch together an accurate record of his goings and comings after he started living at the Hermitage.

Jackson was essentially a home-loving man; his letters are full of unmistakably sincere evidences of it. But in spite of his dislike for being away from home, he did a powerful lot of traveling from time to time. In February, 1822, Mrs. Jackson wrote: “In the thirty years of our wedded life ... he has not spent one-fourth of his days under his own roof.”

Jackson’s first notable absence from home after he moved to the Hermitage was when on that bright May day in 1806 he kissed Rachel goodbye and, together with his seconds, rode soberly off to the rendezvous across the Kentucky line where he was to meet Mr. Charles Dickinson, the gay young Nashville blade who had signed his death warrant by provoking a duel with the up-and-coming young lawyer. Dickinson was a famous crack shot, and when Jackson rode away from home that morning he had every reason to fear that he would never see the Hermitage again. But two days later his friends brought him home—alive but severely, almost fatally, wounded. Rachel fluttered over him and nursed him back to health, gladdened by his safe return though saddened by the tragic outcome of the affray.

It was not until 1813 that Jackson, now a major general of militia, left home to head the abortive expedition of the Tennessee militia and volunteers to Natchez in the early stages of the War of 1812. As a result of either a stupid blunder or a malicious conspiracy (Jackson naturally believed the latter) his troops were ordered by the Secretary of War to be discharged at Natchez—500 miles from home. But Jackson, with characteristic fire and steadfastness, defied the Secretary and insisted on marching his men back up the Natchez Trace to Tennessee so that they could be mustered out at home. It was on this painful homeward march that he shared the privations of his men with such fortitude that he gained the everlasting nickname of Old Hickory; and this was his first step up the ladder of fame. He left the Hermitage in January a commonplace backwoods militia officer; he came back in April a hero.

He was to stay at home but a few months, it developed, but during that time he managed to disable himself by getting involved in an inexcusable knock-down-and-drag-out fight with Tom and Jesse Benton from which he emerged with a nasty wound in his shoulder which was 214 exasperatingly slow about healing. He was at home in bed when the summons came in October from Governor Blount to call out the militia and march to Alabama to avenge the bloody massacre of the Fort Mimms garrison by the Creeks. His doctor at his bedside was aghast when the Governor’s message was read, and instantly volunteered the professional opinion that Jackson was not physically able to lead his men in the proposed campaign. “The devil in hell he’s not!” exclaimed the wounded General as he crawled out of bed and called for his uniform. And he did forthwith proceed with his duties as commanding officer of the militia-men, although he frequently had to be supported in his saddle during the early days of the campaign.

He was away on the enterprise against the Creeks until April, 1814, at which time he returned to the Hermitage in abominably miserable health and sadly in need of rest and recuperation. By September, however, he was up and off again on the extended campaign which began in Florida and wound up in the successful defense of New Orleans.

After his decisive defeat of Pakenham’s army in January, 1815, he returned home in May; but in October, 1815, he was off to Washington to receive the congratulations of the President and the plaudits of the people. He returned home early the next year, writing ahead to have his overseer instructed that he was on the way and “will expect that my house will be prepared in such a way as will prevent the northern blast from entering,” He was also careful to drop the reminder that “we will want something good to eat and drink on our arrival.” Soon after his return he started out for New Orleans, by way of Mobile, to attend a celebration in the Crescent City in honor of his great battle.

After this he was at home uninterruptedly for about two years—until January, 1818, when he went to Florida for his second campaign there. In June he returned home and stayed there until the following January when he and Rachel went on a trip to Washington and the Eastern cities. It was primarily a political trip, occasioned by the attacks launched by Jackson’s enemies in Congress who sought to squelch him politically by raising questions as to his conduct in Florida. But the official report of the inquiry conducted was a complete exoneration of Jackson, and he proceeded on a tour of triumph to Philadelphia, New York and Baltimore. In New York he was given the freedom of the city in a gold box, and Tammany Hall held a banquet in his honor. Rachel’s eyes nearly popped out of her head at all the honors shown her general. In February they went back home; and it was in the following summer that work was started on the new Hermitage.

215

In 1821 Jackson was appointed Governor of Florida by President Monroe and, accompanied by Rachel and little Andrew, he set out for Pensacola to take over his new office. From Nashville to Pensacola today is a comfortable day’s ride in an automobile over hard-surfaced roads; but then the trip between the two cities was by a long, round-about way. A steamboat carried the new governor and his little family to New Orleans—down the Cumberland, the Ohio and the Mississippi—from whence they proceeded coastwise to Mobile, and then on overland to the outskirts of Pensacola where Jackson took up his headquarters in a suburban villa and began his interminable palaver with the Spanish governor. When they left Nashville the Jacksons evidently had every intention of making a protracted stay in the new territory, as they made elaborate arrangements in advance. The family carriage was repaired and refurbished (to the extent of $300 worth) and this coach was taken along for the use of the governor and his lady in Pensacola. A tutor was engaged to look after the boys left at home—little Hutchings and Lincoya. But the experience of the Jacksons in Florida was far from satisfactory. Diplomacy was not the General’s long suit, and his patience was soon exhausted by the long-drawn-out exchange of notes with the slippery Spaniards. Rachel and little Andrew found the hot weather and the mosquitoes uncomfortable and annoying—so much so that the boy was sent back home at the first opportunity. Furthermore, the pious Rachel was shocked at the worldliness of the citizens of Pensacola, especially their failure to observe the Sabbath according to her Presbyterian lights. Her appeal to the General resulted in his edict announcing that “it is desired by Mrs. Jackson and ordered by General Jackson” that the Sabbath be strictly observed; but, despite this moral victory, she was never happy while there. Early in October the General and Rachel left Pensacola, never to return, and started back home. They stopped in New Orleans long enough for Rachel to buy a handsome sideboard and some other mahogany furniture for the new house (the General improving the opportunity to lay in a modest supply of wines and liquors) and in November they were back in the Hermitage again.

Now Jackson had another long visit at home, for it was not until two years later in 1823, that he was elected to the United States Senate and had to go to Washington to serve in that capacity for the second time in his life.

In going from Nashville to Washington, a trip Jackson made frequently in the course of his life, he had the choice of two modes of travel. One was by steamboat: Down the Cumberland to the Ohio, and then up that stream to Wheeling or Pittsburg and overland through 216 Cumberland, Maryland, to Washington. More favored, however, was the overland route, generally eastward from Nashville through Lebanon, Liberty, Sparta, Crossville and Kingston to Knoxville in East Tennessee, then up through Abingdon, Salem, Charlottesville and Fredericksburg in Virginia, following much the same route as the automobile highway of today.

When elected to the Senate in 1823 he set out on horseback on the overland route and pursued his equestrian course as long as the weather permitted. Then he stabled his horses at a wayside tavern and finished the journey by stage-coach. He returned to the Hermitage late in May, 1824, by the steamboat route, sending his servant, George, overland to pick up his horses and take them back home. When he returned to the next session of the Senate, after spending the summer and fall at the Hermitage, he took Mrs. Jackson with him and followed the overland route by way of Lexington, Kentucky, arriving in Washington on December 5th, 1824, “after a continuous travel of 28 days.” This was just after the November election in which he had received the plurality of the electoral votes for President and he had every expectation of remaining in Washington to be inaugurated in March. The House of Representatives, however, elected John Quincy Adams President; and in October, 1825 Jackson resigned from the Senate and returned overland to Tennessee, muttering objurgations on the fraud and corruption by which he thought he had been tricked out of the Presidency.

Following his successful Presidential campaign in 1828, which included a trip to New Orleans in January with Rachel to attend the celebration of the anniversary of the battle, he left Nashville by steamboat and proceeded to Wheeling where he was met by a handsome, brand-new coach drawn by four white horses, and in this regal equipage he made his entry into Washington.

During his eight years as President, Jackson pursued the plan of returning to the Hermitage for a summer vacation in alternate years. The summer of 1829 he spent in Washington, too busy with the duties of his new office to get away for a rest; but in 1830 he returned to the Hermitage by steamboat and spent about two months at home. He paid a visit to Tyree Springs, then a fashionable summer resort near Nashville; and also found time during the summer to arrange for a parley at Franklin, Tennessee, with the six chiefs of the Cherokee Indians, with whom he concluded a treaty for the removal of the tribe west of the Mississippi.

He left the Hermitage on September 1st in his coach, and spent 24 days on the overland trip back to Washington. In the summer of 1831 he went, in company with his old friend Judge Overton, to the Rip Raps 217 in Hampton Roads, near Norfolk. Both the old gentlemen were in bad health at the time, and they went to the rocky little island at the mouth of Chesapeake Bay for the beneficial effects of the sea bathing; but, unfortunately, there is not preserved a picture of Old Hickory in his bathing suit enjoying the Virginia surf.

His next visit home was in the summer of 1832, when the place was lightened by the presence of young Andrew and his new bride. General Jackson left Washington on July 23rd and arrived at the Hermitage on August 15th, by the overland route. In September he visited Tyree Springs; but he was back in the White House October 19th, the return trip also being made by what was then known as “the Virginia route.”

In June of 1833 Jackson took his celebrated trip to New York and New England—the famous occasion on which Harvard College conferred an LL.D. degree on the old warrior—but he was at the Rip Raps, enjoying the sea baths, in July and August.

It was not until August, in the summer of 1834, that he made his next trip to the Hermitage; and by this time he was beginning to feel the crushing weight of the Presidency on his shoulders. Writing back to a friend in Washington he announced his arrival home “worn down with ill health, bad roads and heat of weather;” but he also spoke of the pleasure he was deriving from the company of his son’s two little children—little Rachel “as sprightly as a little fairy, and as wild as a little partridge,” to whom he had brought a doll from Washington; and the infant Andrew III whom he described as “a very large, fat boy” and later referred to as “a veritable Hercules.”

One of his Washington friends wrote him during the summer expressing the hope that “in the cool and refreshing shades of your own lawns and the domestic quiet of your own hospitable mansion you will be enabled to forget, for a while at least I hope, the trouble and toil of your official station.” President Jackson doubtless did try to forget the cares of office while he was vacationing at home; but that he was not unmindful of the political possibilities of the overland journey homeward is shown in a letter he wrote back to Van Buren: “I found on my whole journey everything to cheer us; prosperity everywhere and all gratified and happy on the prospects of a circulating and stable metallic currency, and particularly the gold coin, which many had not for years seen a piece of before we presented them in payment of our bills.” And then he adds naively: “I had taken the precaution to lay in as many half eagles as paid our bills on our passage.”

The question of hard money, it will be recalled, was an acute issue in the summer of 1834; and it is not surprising that Jackson, the consummate 218 politician, had been sufficiently foresighted to provide himself with enough gold coins to use in paying his bills as he took the thousand-mile overland trip from Washington to Nashville through Virginia and Tennessee. What an unparalleled opportunity it was for the champion of hard money to demonstrate to the people that he was its very personification; and it is not hard to form a mental picture of the old General’s breezy gusto as he slapped down his ten-dollar gold pieces on the small-town tavern counters and watched the favorable reaction of the pop-eyed citizens. As a matter of fact, gold coins were very scarce at this time and in order to furnish a supply of them Jackson had started the mint to turning out half-eagles at the rate of $20,000 a day; and while he was at the Hermitage in August there was sent to him from Washington the first eagle struck from a new die that had just been made.

In September, 1834, he started on the long drive back to Washington, accompanied by Major Donelson and Mr. Randolph. Before starting out, however—for these were the days of Spartan simplicity and unashamed frankness—he took the precaution to write to Major Lewis, who was spending the summer in the White House: “Have the House in readiness to receive us; and say to the chamber maid to have all our beds clear of bed buggs.”

The summer of 1835 was spent again at the Rip Raps, going there in July and spending 41 days.

He was especially anxious to get back to the Hermitage in the summer of 1836 to see his new house, but it took him 25 days to get there via the Virginia route. He left Washington on July 10th, but seven days later had only reached Salem, Virginia, from which point he wrote his son: “I am thus far on my way to the Hermitage, but from the state of the roads there can be no calculation made when we may reach there. It took us 7 hours today to travel 10 miles, and in the streets of Salem broke a singletree and the fore akle of the carriage,” It was not until August 4th that he reached the Hermitage “exhausted with bad roads and continued rains and my horses broke down.”

This time he left the coach at the Hermitage and returned to Washington by steamboat early in September. He and Major Donelson had an engagement to meet Mr. Van Buren in Washington and make an excursion to Niagara Falls to wind up the vacation season; but on account of his wife’s illness Major Donelson did not return with the General and the trip to the Falls was abandoned.

When in March, 1837, Jackson surrendered to Martin Van Buren what he had come to regard as “a dignified office of abject slavery,” he rode on 219 the new Baltimore & Ohio Railroad from Washington to the end of the road at Ellicott’s Mills, Maryland, where he took the stagecoach to Wheeling and there embarked on the steamboat for Nashville. There was a public demonstration at Cincinnati when the boat landed there, another at Louisville and another when he reached home. But at last he was back in the quietude of the Hermitage he loved so well; and from then until his death his traveling was confined to occasional trips to Nashville, a few visits to Tyree Springs, and a brief campaign tour he took with his protege, James K. Polk, when he was a candidate for governor in 1839.

220

APPENDIX D

The regents and members of the governing boards who have had control of the Ladies Hermitage Association since its organization:

ELECTED MAY 15, 1889.
Mrs. Mary L. Baxter, Regent.
Mrs. A. S. Colyar, First Vice-Regent.
Mrs. J. M. Dickinson, Second Vice-Regent.
Mrs. Mary C. Dorris, Secretary.
Mrs. William Morrow.
Mrs. John Ruhm.
Mrs. Bettie M. Donelson.
Mrs. Duncan B. Cooper.
Mrs. Felix Demoville.
L. F. Benson, Treasurer.
ELECTED MAY 20, 1891.
Mrs. Mary L. Baxter, Regent.
Mrs. Albert S. Marks, Acting Regent.
Mrs. J. Berrien Lindsley, Sec. Vice-Regent.
Mrs. Mary C. Dorris, Secretary.
Mrs. William Morrow.
Mrs. John Ruhm.
Mrs. Bettie M. Donelson.
Mrs. John C. Gaut.
Mrs. Maggie L. Hicks.
Dr. William Morrow, Treasurer.
ELECTED JUNE 7, 1893.
Mrs. Mary L. Baxter, Regent.
Mrs. Albert S. Marks, First Vice-Regent.
Mrs. J. Berrien Lindsley, Sec. Vice-Regent.
Mrs. Mary C. Dorris, Secretary.
Mrs. John Ruhm, Auditor.
Mrs. John C. Gaut.
Mrs. Bettie M. Donelson.
Mrs. Isabel M. Clark.
Mrs. J. M. Dickinson.
Mr. Edgar Jones, Treasurer.
ELECTED OCTOBER 30, 1895.
Mrs. Mary L. Baxter, Regent.
Mrs. Albert S. Marks, Acting Regent.
Mrs. J. Berrien Lindsley, Sec. Vice-Regent.
Mrs. Mary C. Dorris, Secretary.
Mrs. John Ruhm, Auditor.
Mrs. Hugh Craighead.
Mrs. Bettie M. Donelson.
Mrs. John C. Gaut.
Mrs. Isabel Clark.
Mrs. P. H. Manlove, Treasurer.
ELECTED MAY 19, 1897.
Mrs. Mary L. Baxter, Regent.
Mrs. Albert S. Marks, Acting Regent.
Mrs. J. Berrien Lindsley, Sec. Vice-Regent.
Mrs. Mary C. Dorris, Secretary.
Mrs. R. G. Thorne.
Mrs. J. M. Dickinson.
Mrs. M. S. Cockrill.
Mrs. A. M. Shook.
Mrs. John C. Gaut.
Mrs. P. H. Manlove, Treasurer.
ELECTED MAY 17, 1899.
Mrs. J. Berrien Lindsley, Regent.
Mrs. J. M. Dickinson, First Vice-Regent.
Mrs. Eugene C. Lewis, Sec. Vice-Regent.
Mrs. Mary C. Dorris, Secretary.
Mrs. R. G. Thorne.
Mrs. M. S. Cockrill.
Mrs. John C. Gaut.
Mrs. J. C. Buntin.
Mrs. A. M. Shook, Treasurer.
ELECTED MAY 15, 1901.
Mrs. J. Berrien Lindsley, Regent.
Mrs. A. M. Shook, First Vice-Regent.
Mrs. M. S. Cockrill, Second Vice-Regent.
Mrs. Mary C. Dorris, Secretary.
Mrs. John C. Gaut.
Mrs. William J. McMurray.
Mrs. Thomas M. Steger.
Mrs. J. C. Buntin.
Mrs. J. Walter Allen, Treasurer.
ELECTED MAY 13, 1903.
Mrs. J. Berrien Lindsley, Regent.
Mrs. A. M. Shook, First Vice-Regent.
Mrs. M. S. Cockrill, Second Vice-Regent.
Mrs. Mary C. Dorris, Secretary.
Mrs. John C. Gaut.
Mrs. William J. McMurray.
Mrs. Thomas M. Steger.
Mrs. J. C. Buntin.
Mrs. J. Walter Allen, Treasurer.
Mrs. Lindsley expiring July 5, 1903, Mrs. A. M. Shook was elected Regent. Miss Louise Lindsley, a director.
ELECTED MAY 17, 1905.
Mrs. Mary C. Dorris, Regent.
Mrs. M. S. Cockrill, First Vice-Regent.
Miss Louise Lindsley, Second Vice-Regent.
Mrs. J. Walter Allen, Secretary.
Mrs. William J. McMurray.
Mrs. Thomas M. Steger.
Mrs. J. C. Buntin.
Mrs. A. M. Shook.
Mrs. P. H. Manlove, Treasurer.
221
ELECTED MAY 15, 1907.
Mrs. Mary C. Dorris, Regent.
Miss Louise G. Lindsley, First Vice-Regent.
Mrs. A. M. Shook, Second Vice-Regent.
Mrs. J. Walter Allen, Secretary.
Mrs. M. S. Cockrill.
Mrs. Thomas M. Steger.
Mrs. B. F. Wilson.
Mrs. Joseph M. Ford.
Mrs. P. H. Manlove, Treasurer.
ELECTED MAY 19, 1909.
Miss Louise Grundy Lindsley, Regent.
Mrs. Walter Allen, First Vice-Regent.
Mrs. A. M. Shook, Second Vice-Regent.
Mrs. Mary C. Dorris, Secretary.
Mrs. M. S. Cockrill.
Mrs. Cleves Symmes.
Mrs. B. F. Wilson.
Mrs. Joseph M. Ford.
Mrs. M. S. Cockrill expired 1910. Mrs. Shelby Williams elected her successor.
ELECTED MAY 17, 1911.
Miss Louise Grundy Lindsley, Regent.
Mrs. J. Walter Allen, First Vice-Regent.
Mrs. B. F. Wilson, Second Vice-Regent.
Mrs. Mary C. Dorris, Secretary.
Mrs. J. Cleves Symmes.
Mrs. John C. Brown.
Mrs. A. M. Shook.
Mrs. James H. Campbell.
Mrs. P. H. Manlove, Treasurer.
ELECTED MAY 21, 1913.
Mrs. B. F. Wilson, Regent.
Miss Louise G. Lindsley, First Vice-Regent.
Mrs. A. M. Shook, Second Vice-Regent.
Mrs. Mary C. Dorris, Secretary.
Miss Carrie Simms.
Mrs. R. A. Henry.
Mrs. Bettie M. Donelson.
Mrs. Maggie L. Hicks.
Mrs. P. H. Manlove, Treasurer.
ELECTED MAY 19, 1915.
Mrs. B. F. Wilson, Regent.
Miss Louise G. Lindsley, First Vice-Regent.
Mrs. A. M. Shook, Second Vice-Regent.
Mrs. Mary C. Dorris, Secretary.
Miss Carrie Simms.
Mrs. R. A. Henry.
Mrs. Bettie M. Donelson.
Mrs. Maggie L. Hicks.
Mrs. P. H. Manlove, Treasurer.
Mrs. Manlove expiring February 27, 1917, Mrs. Maggie L. Hicks was elected treasurer, and Mrs. Porter Phillips a director.
ELECTED MAY 16, 1917.
Mrs. Bettie M. Donelson, Regent.
Mrs. B. F. Wilson, First Vice-Regent.
Miss Louise G. Lindsley, Sec. Vice-Regent.
Mrs. Maggie L. Hicks, Treasurer.
Mrs. Mary C. Dorris, Secretary.
Mrs. A. M. Shook.
Mrs. Porter Phillips.
Mrs. R. A. Henry.
Mrs. J. Washington Moore.
ELECTED MAY 21, 1919.
Mrs. Bettie M. Donelson, Regent.
Mrs. B. F. Wilson, First Vice-Regent.
Miss Louise G. Lindsley, Sec. Vice-Regent.
Mrs. Maggie L. Hicks, Treasurer.
Mrs. Mary C. Dorris, Secretary.
Mrs. E. T. Love.
Mrs. Porter Phillips.
Mrs. Harry Evans.
Mrs. R. A. Henry.
ELECTED MAY 18, 1921.
Mrs. Harry Evans, Regent.
Mrs. Alex Caldwell, First Vice-Regent.
Mrs. James S. Frazier, Second Vice-Regent.
Mrs. Mary C. Dorris, Secretary.
Mrs. Maggie L. Hicks, Treasurer.
Miss Louise G. Lindsley.
Mrs. R. A. Henry.
Mrs. Joseph H. Thompson.
Mrs. Walter Stokes.
Mrs. Harry Evans resigned April 4th, 1922. Mrs. Henry elected Regent and Mrs. McFarland a director.
Mrs. Maggie L. Hicks resigned December, 1921. Mrs. E. A. Lindsey elected Treasurer.
Mrs. Joseph H. Thompson resigned and Mrs. Reau E. Folk elected October, 1921.
ELECTED, 1922.
Mrs. R. A. Henry, Regent.
Mrs. Alex Caldwell, First Vice-Regent.
Mrs. Jas. S. Frazer, Second Vice-Regent.
Mrs. Mary C. Dorris, Secretary.
Mrs. E. A. Lindsey, Treasurer.
Miss Louise G. Lindsley.
Mrs. Reau E. Folk.
Mrs. Walter Stokes.
Mrs. Craig McFarland.
ELECTED MAY 16, 1923.
Mrs. Walter Stokes, Regent.
Mrs. Alex Caldwell, First Vice-Regent.
Mrs. Jas. S. Frazer, Second Vice-Regent.
Mrs. Mary C. Dorris, Secretary.
Mrs. E. A. Lindsey, Treasurer.
222
Miss Louise G. Lindsley.
Mrs. Reau E. Folk.
Mrs. Craig McFarland.
Mrs. John T. Henderson.
ELECTED MAY 20, 1925.
Mrs. Walter Stokes, Regent.
Mrs. Jas. S. Frazer, First Vice-Regent.
Mrs. E. W. Graham, Second Vice-Regent.
Mrs. Reau E. Folk, Secretary.
Mrs. E. A. Lindsey, Treasurer.
Miss Louise G. Lindsley.
Mrs. Craig McFarland.
Mrs. H. L. Sperry.
Mrs. J. M. Overton.
ELECTED MAY 18, 1927.
Mrs. James S. Frazer, Regent.
Mrs. Edward A. Lindsey, First Vice-Regent.
Mrs. E. W. Graham, Sec. Vice-Regent.
Mrs. Reau E. Folk, Secretary.
Mrs. Lyon Childress, Treasurer.
Miss Louise G. Lindsley.
Mrs. H. L. Sperry.
Mrs. Jesse M. Overton.
Mrs. James E. Caldwell, Sr.
ELECTED MAY 15, 1929.
Mrs. Edward A. Lindsey, Regent.
Mrs. Reau E. Folk, First Vice-Regent.
Mrs. E. W. Graham, Sec. Vice-Regent.
Mrs. H. L. Sperry, Secretary.
Mrs. Lyon Childress, Treasurer.
Miss Louise G. Lindsley.
Mrs. Jesse M. Overton.
Mrs. James E. Caldwell.
Mrs. Edgar M. Foster.
ELECTED MAY 20, 1931.
Mrs. Edward A. Lindsey, Regent.
Mrs. Reau E. Folk, First Vice-Regent.
Mrs. E. W. Graham, Second Vice-Regent.
Mrs. Lyon Childress, Treasurer.
Mrs. Paul DeWitt, Secretary.
Miss Louise G. Lindsley.
Mrs. Jesse M. Overton.
Mrs. James E. Caldwell.
Mrs. Edgar M. Foster.
ELECTED MAY 17, 1933.
Mrs. Reau E. Folk, Regent.
Mrs. E. W. Graham, First Vice-Regent.
Mrs. Jas. E. Caldwell, Second Vice-Regent.
Mrs. Paul DeWitt, Recording Secretary.
Mrs. Walter Stokes, Corresponding Sec.
Mrs. Lyon Childress, Treasurer.
Miss Louise G. Lindsley.
Mrs. E. A. Lindsey.
Mrs. Jesse M. Overton.
Mrs. Edgar M. Foster.
Mrs. George Blackie.
ELECTED MAY, 1935.
Mrs. Reau E. Folk, Regent.
Mrs. E. W. Graham, First Vice-Regent.
Mrs. Jas. E. Caldwell, Second Vice-Regent.
Mrs. Paul DeWitt, Recording Secretary.
Mrs. Walter Stokes, Corresponding Sec.
Mrs. Lyon Childress, Treasurer.
Miss Louise G. Lindsley.
Mrs. E. A. Lindsey.
Mrs. Jesse M. Overton.
Mrs. Edgar M. Foster.
Mrs. George Blackie.
ELECTED MAY, 1937.
Mrs. Jesse M. Overton, Regent.
Mrs. E. W. Graham, First Vice-Regent.
Mrs. James E. Caldwell, Second Vice-Regent.
Mrs. Paul DeWitt, Recording Secretary.
Mrs. Walter Stokes, Corresponding Sec.
Mrs. Lyon Childress, Treasurer.
Miss Louise G. Lindsley.
Mrs. Reau E. Folk.
Mrs. Edgar M. Foster.
Mrs. George Blackie.
ELECTED MAY, 1939
Mrs. Jesse M. Overton, Regent
Mrs. E. W. Graham, First Vice-Regent
Mrs. James E. Caldwell, Second Vice-Regent
Mrs. Paul DeWitt, Recording Secretary
Mrs. Geo. Blackie, Corresponding Secretary
Mrs. Lyon Childress, Treasurer
Miss Louise G. Lindsley
Mrs. Charles Buntin
Mrs. Edgar M. Foster
Mrs. Walter Stokes
Mrs. James E. Caldwell expired 1939, and Mrs. Edgar Foster was elected her successor. Miss Martha Lindsey was elected to the Board.
ELECTED MAY, 1941
Mrs. Edward W. Graham, Regent
Mrs. Edgar M. Foster, First Vice-Regent
Mrs. George F. Blackie, Second Vice-Regent
Mrs. Lyon Childress, Treasurer
Mrs. Paul DeWitt, Recording Secretary
Miss Martha Lindsey, Cor. Secretary
Mrs. Walter Stokes
Mrs. Charles E. Buntin
Mrs. Jesse M. Overton
Miss Louise G. Lindsley
223
ELECTED MAY, 1943
Mrs. Edward W. Graham, Regent
Mrs. Edgar M. Foster, First Vice-Regent
Mrs. George F. Blackie, Second Vice-Regent
Mrs. Lyon Childress, Treasurer
Mrs. Paul DeWitt, Recording Secretary
Miss Martha Lindsey, Cor. Secretary
Mrs. Walter Stokes
Mrs. Charles E. Buntin
Miss Louise G. Lindsley
Mrs. Douglas M. Wright
Mrs. Robert F. Jackson, Sr.
ELECTED MAY, 1945
Mrs. George F. Blackie, Regent
Mrs. Edgar M. Foster, First Vice-Regent
Mrs. Robert F. Jackson, 2nd Vice-Regent
Mrs. Lyon Childress, Treasurer
Miss Martha Lindsey, Recording Secretary
Mrs. Douglas M. Wright, Cor. Secretary
Mrs. Walter Stokes
Mrs. Paul DeWitt
Mrs. Chas. E. Buntin
Mrs. E. W. Graham
Mrs. Jesse M. Overton
Miss Fermine Pride
Mrs. W. P. Cooper
Mrs. Roy Avery
ELECTED MAY, 1947
Mrs. George F. Blackie, Regent
Mrs. Edgar M. Foster, First Vice-Regent
Mrs. Robert F. Jackson, 2nd Vice-Regent
Mrs. Lyon Childress, Treasurer
Miss Martha Lindsey, Recording Secretary
Mrs. Douglas M. Wright, Cor. Secretary
Mrs. Walter Stokes
Mrs. Paul DeWitt
Mrs. Chas. E. Buntin
Mrs. E. W. Graham
Mrs. Jesse M. Overton
Miss Fermine Pride
Mrs. W. P. Cooper
Mrs. Roy Avery
ELECTED MAY, 1949
Mrs. Robert F. Jackson, Regent
Mrs. Wm. P. Cooper, First Vice Regent
Miss Fermine Pride, Second Vice Regent
Mrs. Roy Avery, Treasurer
Miss Martha Lindsey, Recording Secretary
Mrs. Douglas M. Wright, Cor. Secretary
Mrs. George F. Blackie
Mrs. Charles E. Buntin
Mrs. Lyon Childress
Mrs. Paul DeWitt
Mrs. Edgar M. Foster
Mrs. E. W. Graham
Mrs. Douglas Henry
Mrs. Gilbert S. Merritt
Mrs. Jesse M. Overton
Mrs. William H. Wemyss

BOARDS OF TRUSTEES

The first board of trustees, appointed in 1889, consisted of Adolph S. Ochs of Chattanooga; H. H. Ingersoll, Knoxville; James D. Porter, Paris; E. S. Mallory, Jackson; Gen. John C. Brown, Nashville; Gen. W. H. Jackson, Nashville; Dr. J. Berrien Lindsley, Nashville; L. F. Benson, Nashville; and W. R. French, Tullahoma.

The present board of trustees consists of E. A. Lindsey, Nashville, Chairman; William E. Beard, Nashville; Henry Barker, Bristol; Lewis R. Donelson, Memphis; C. Lawrence Winn, Nashville; Herbert Gannaway, Memphis; Stanley F. Horn, Nashville; Marvin McTyiere Cullom, Nashville; John A. Chambliss, Chattanooga.

224

INDEX

A B C D E F G H I J K L M N O P Q R S T U V W X Y Z

A
Adams, Dan, 202.
Mrs. Marion, 41, 42, 100, 101.
Additions to Hermitage (1831), 22.
Anderson, Patton, 176.
Armstrong, Robert, 27, 30, 31, 34, 35, 36, 167, 168.
B
Baker, T. L., 55.
Barksdale, Alex. (Overseer), 161.
Barnum, Phineas T., 155, 156.
Baxter, Mrs. Nathaniel, 46.
Bentham, Jeremy, 18.
Benton, Thomas H., 97, 99, 144, 204.
Bertrand, Marshall, 147.
Blount, Willie, 160.
Books in library, 65.
Boone, Daniel, 150.
Brownlow, Wm. G., 151.
Buchanan, James, 137.
Burr, Aaron, 15, 17, 139, 140, 141, 142.
C
Caffery, Donelson, 16.
Carriage House, 89, 90.
Cartright, Peter, 195, 196.
Cemetery, burials in, 84.
Childress, George C., 29.
Chronology (Appendix A), 207.
Clover Bottom, 13, 14, 140, 141.
Coffee, John, 7, 14, 22, 24, 115, 118, 119, 120, 121, 135, 141, 148, 149, 190.
Combs, Leslie, 151, 152.
Contract for rebuilding Hermitage, 31.
Conveyance of Hermitage to Ladies’ Hermitage Association, 45.
Cooper, Matthew D., 127.
Cost of rebuilding, 35, 36.
Cotton, cultivation and marketing, 18, 35, 167, 168, 170, 171, 172, 173, 174.
Cryer, Hardy M., 80.
D
Davis, Jefferson, 142, 143.
Death of General Jackson, 205.
Decatur, Stephen, 60.
Description of house, 58.
Dickinson, Charles, 14, 15, 17, 177.
Donelson, Andrew Jackson, 27, 31, 67, 72, 111, 112, 113, 114, 115, 116, 117, 118, 134, 149, 162, 173, 184, 200.
Elizabeth E. (Mrs. John), 12.
Emily (Mrs. A. J.), 60, 112, 113, 114, 134.
John, 7, 191.
Samuel, 105.
Severn, 101.
Stockley, 27, 186.
William, 27, 111, 119, 178.
William Alexander, 44.
Mrs. William Alexander, 44.
Dorris, Mrs. D. R., 44.
Douglas, Stephen A., 152.
Driveway, 53, 58, 88, 127.
E
Earl, R. E. W., 24, 25, 58, 67, 125, 126, 127.
Early Life of General Jackson, 3, 4.
Eaton, Major John M., 81, 115, 148.
Peggy (Mrs. John M.), 112, 113, 117, 148, 149, 150.
Ephriam (Truxton’s groom), 186.
Epitaph of General Jackson, 82.
of Mrs. Andrew Jackson, 81.
Estate of General Jackson, 38.
F
Fillmore, Millard, 117, 138.
Fire at Hermitage, 26-27.
First excursion to Hermitage, 49.
Flowers in garden, 75, 76, 77.
Forrest, General Nathan Bedford, 156.
Frost, William, 74.
Furniture, invoice for, 68, 69.
G
Garden, 73.
Gilbert (runaway slave), 184, 185.
Greyhound, 175.
H
Hamilton, James M., 153, 154.
Hampton, Wade, 16.
Harris, Isham G., 41, 86.
Hayes, Rutherford B., 138.
Hays, Nathaniel, 13.
225
Hays, Robert, 159.
Healy, G. P. A., 201.
Hermitage (See subjects pertaining to).
Church, 187, 188, 189, 191, 193.
Hobbs, Edward (Overseer), 166, 167, 168.
Holliday (Overseer), 169.
Holtzclaw, Burnard W., 164, 165, 181, 182, 183.
Horses, breeding of at Hermitage, 174, 175, 176, 177.
Houston, Sam, 138, 139, 200.
Hume, Dr. William, 193.
William C., 30, 31, 34.
Hunter’s Hill, 8, 9, 11, 12, 13, 17, 91, 92, 103, 108.
Hutchings, Andrew J., 67, 118, 119, 120, 121, 122.
John, 11, 14, 159.
J
Jackson, Albert Marble, 49.
Amy Rich (Mrs. Andrew, III), 43, 44.
& Hutchings, 10, 14.
General Andrew (See subjects pertaining to).
Andrew, Junior, 22, 28, 36, 37, 38, 42, 67, 94, 102, 103, 104, 105, 106, 107, 108, 109, 110.
Andrew, III, 41, 42, 43, 44, 53, 110, 187.
Rachel Donelson (Mrs. Andrew), 2, 4, 5, 13, 19, 42, 99, 131, 132, 133, 143, 158, 159.
Sarah York (Mrs. Andrew, Junior), 36, 42, 43, 60, 104, 187.
Samuel, 41.
Jackson’s Well, 7.
James, Jesse, 194.
Jennings, Dr. O., 130, 131.
John Randolph, burning of, 61, 70.
Johnson, Andrew, 40.
K
Kitchen of Hermitage, 23, 88.
L
Ladies’ Hermitage Association, 43, 46, 50, 52, 66, 75, 77, 79, 87, 93.
Lafayette, Marquis, 67, 145, 146, 147.
Lawrence, Rachel Jackson, 42, 55, 61, 81, 110.
Lee, Major Henry, 81, 129, 130, 134.
Robert E., 130.
Lewis, Major W. B., 19, 35, 37, 109, 114, 134, 178, 183, 204.
Lind, Jenny, 155.
Love, Col. Chas. J., 30, 31, 119, 163, 166, 167.
Lyncoya, 122, 123, 124, 125.
M
Michaux, Andre, 147.
Monroe, James, 17, 137.
Morrison, D., 22, 24, 81.
Mombrino, 167.
N
Nashville, 4, 6, 26, 29, 42, 44, 45, 49, 55, 61, 67, 68, 77, 81, 83, 86, 90, 103, 112, 115, 120, 124, 129, 130, 132, 133, 135, 137, 138, 139, 143, 147, 151, 153, 155.
Natchez, 5, 7, 9.
New Orleans, 9, 18, 29, 30, 60, 68, 88, 90, 92, 100, 102, 108, 159, 172, 189.
New York, 18, 90.
O
Original Hermitage, description of, 17.
Origin of name “Hermitage,” 18.
Old Hickory Powder Plant, 7.
Overton, John, 4, 14, 15, 131, 148.
Overseers, 161, 162, 163, 164, 165, 166, 167, 168, 169, 185.
P
Parton, James, 1, 19, 20, 97, 133, 150.
Person, Benjamin B. (Overseer), 162.
Philadelphia, 9, 18, 61, 68, 71, 76, 90, 104, 109, 110, 120.
Pictures of Hermitage, 24, 25, 26.
Pierce, Franklin, 137.
Plantation, operation of, 71, 158.
Polk, James K., 117, 138, 199, 200.
Poll, the Hermitage parrot, 110, 111.
Poplar Grove (Poplar Flat), 7, 158.
Purchase of Hermitage by State, 39.
of Hermitage land in 1804, 13.
226
R
Reiff & Hume, 30, 31, 35, 117.
Joseph, 20, 21, 30, 31, 34, 168.
Relics, acquisition of, 53.
Religious life of General Jackson, 100, 187, 188, 189, 190, 191, 192, 193, 194, 195, 198.
Robards, Lewis, 4, 5, 8.
Roosevelt, Franklin D., 138.
Theodore, 51, 52, 57, 138.
S
Shannon, John, 8.
Shelby, Isaac, 151.
Slaves at Hermitage, 177, 178, 179, 182, 183, 184, 185, 186.
Smith, General Daniel, 111.
Smokehouse, 89.
Son, adoption of, 101.
Springhouse, 91.
Steele, Graves W. (Overseer), 106, 162, 163, 178, 183, 197.
T
Taft, William H., 138.
Texas Regiment entertained, 157.
Toland, Henry, 29, 63, 68, 107.
Tomb in garden, 80, 83, 86, 87, 180.
Trees in garden, 74, 78, 85.
on grounds, 88.
Trist, Nicholas P., 116, 127.
Truxton, 175, 176, 177, 186.
Tulip Grove, 31, 87, 117, 139.
U
Uncle Alfred, 54, 55, 77, 84, 87, 92, 93, 94, 95, 96, 135, 138.
V
Van Buren, Martin, 115, 126, 137, 169, 199, 200.
Verrell, Major John, 175.
W
Wall paper, 50, 51, 61, 62, 63.
Walton, Ira (Overseer), 185.
Ward, Col. Edward, 11, 12, 103, 188.
Washington, D. C., 18, 19, 22, 26, 28, 50, 51, 71, 73, 76, 80, 90, 103, 104, 108, 112, 113, 114, 115, 119, 120, 135, 169, 189.
Watson, Thomas, 11, 14.
White House, 1, 19, 22, 26, 28, 68, 103, 104, 110, 113, 116, 126.
White, Maunsel, 68, 171, 172.
Wise, Henry A., 130, 132.

Front Elevation

This façade never fails to evoke praise from the best informed. Proportion, mass, real craftsmanship and feeling are assisted by ingenious solutions of practical problems involved in remodeling. The rhythm of the column spacing is unorthodox but extremely interesting and beautiful. The columns themselves are unique, being made of separate boards routed to form the fluting and with beaded, tongued and grooved joints between the fluting. Brick bases and applied cast-iron leaves on the capitals are typical examples of the highly successful ingenuity of the builders, who present a challenge to present-day architects.

Rear Elevation

“Graceful liberties with a Greek temple façade” seems sufficient to describe this simple and gracious design.

Transcriber’s Notes