Title: A History of Architecture in all Countries, Volume 1, 3rd ed.
Author: James Fergusson
Editor: Richard Phené Spiers
Release date: November 1, 2017 [eBook #55871]
Most recently updated: October 23, 2024
Language: English
Other information and formats: www.gutenberg.org/ebooks/55871
Credits: Produced by Albert László, Sonya Schermann and the Online
Distributed Proofreading Team at http://www.pgdp.net (This
file was produced from images generously made available
by The Internet Archive)
The cover image was created by the transcriber and is placed in the public domain. Scale bars marked '1 in.' have been added to illustrations for which a scale is given (e.g. 50 ft. to 1 in.) to indicate the size of the image as printed in the original book. Ditto marks have been replaced by the text they represent. Some corrections have been made to the printed text. These are listed in a second transcriber’s note at the end of the text.
ELEVATION OF FAÇADE OF COLOGNE CATHEDRAL.
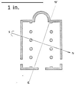
Section of the Parthenon, showing the Author’s views as to the admission of light.
A sketch of the life of the late Mr. James Fergusson, and an article by Prof. Kerr on the peculiar qualifications with which he was endowed for the position he took as an architectural historian, having appeared in the preface of the third edition of the “History of the Modern Styles of Architecture,” published in 1891, it is not necessary to do more than refer to them. A brief summary, however, of the several works he published on the History of the Architectural Styles may possibly be of some interest here as a record.
Mr. Fergusson’s first work dealing with the History of the Styles of Architecture was a large octavo volume, published in 1849, under the title of “An Historical Enquiry into the True Principles of Beauty in Art, more especially with reference to Architecture.” About one-third of the volume was devoted to an introduction, to which Mr. Fergusson attached so much importance that, in his preface he stated he considered it to be the text, and the rest of the work (viz., the description of the various styles) merely the illustration of what was there stated. The pith of this introduction was subsequently published in his later works, and a valuable chapter added to it on “Ethnography as Applied to Architecture.” The work contained only the history of the Early Styles from Egyptian to Roman, but it had been the intention of its author to treat of the Christian, Pagan, and Modern Styles of Architecture in subsequent volumes.
This intention was never carried out, but the book formed the basis of another work published in 1855, entitled, “The Handbook of Architecture,” which included the history of the Indian, Chinese, Assyrian, Egyptian, Greek, Roman, Sassanian, and Saracenic Styles, in the first volume, and of Christian Art in the second. A second edition, a reprint only of this, appeared in 1859, and shortly afterwards, in 1862, a third volume was published, dealing with the History of the Modern viStyles. On the revision and expansion of the work in 1873, this third volume became the fourth as hereinafter explained.
In 1865 and 1867 the materials of the “Handbook” were rearranged to form an historical sequence, instead of a topographical one, and a new work was published under the title of the “History of Architecture”; the first part devoted to Ancient Architecture from Egyptian to Roman; the second to Christian; and the third part to Pagan Architecture, including Saracenic, Indian, Chinese, and Mexican.
In 1874 a second edition of this work appeared (from which the whole of the Indian and Chinese sections were omitted and published separately in 1876 as a third volume, under the title of “Indian and Eastern Architecture”), and many additions were made to the Assyrian and Byzantine chapters.
In the present edition (1893), which constitutes the third edition of the “History of Architecture,” the editor has endeavoured to the best of his ability to follow the course which Mr. Fergusson himself adopted in publishing new editions, viz., to rewrite those portions which subsequent discoveries had proved to be either incorrect or doubtful. For instance, in Egyptian Architecture the accurate measurements of the pyramids made by Mr. Flinders Petrie, and his correction of Lepsius’s theories as regards the Labyrinth, have placed information at the editor’s disposal which was unknown to Mr. Fergusson. Corrections of this kind are inserted in the text. On the other hand, absolutely nothing new has appeared on Assyrian Architecture, and, therefore, Mr. Fergusson’s theories respecting the restoration of the Assyrian palaces have been retained; the tendency of the opinion of archæologists having, however, developed rather in the direction of vaulted roofs to the principal halls, footnotes have been appended giving the views of foreign archæologists on the subject, between which and Mr. Fergusson’s views the student is left to judge.
In Persian work the accuracy of Mr. Fergusson’s views respecting the arrangement of the plans of the Persian palaces, which were first promulgated in 1855, has been confirmed by later explorations at Persepolis, Susa, and Pasargadæ, and footnotes giving the records of the same are appended.
The results of recent discoveries in Greece and Italy have been recorded, sometimes in the text, sometimes in footnotes; and changes have been made in the chapter on Parthian and Sassanian Architecture, viiM. Dieulafoy’s photographs having enabled the editor to correct some of the woodcuts copied from Coste’s illustrations.
Important changes have been made in the Second Part, devoted to Christian Architecture; the Byzantine style has been placed first, not only for chronological reasons as the first perfected Christian style, but from the impossibility of otherwise following the development of the Early Christian styles in Italy during the fifth and following centuries.
The Romanesque, or Early Christian, style in Italy has been included in Book II., together with the later developments of style in that country; this has enabled the editor to bring the description of St. Mark’s, Venice, into the first chapter under Italy, to which chronologically it belongs, instead of placing it after the Pointed Italian Gothic style. The Italian Byzantine chapter has been omitted, and the two or three buildings described under it transferred to the Byzantine-Romanesque chapter. By the new arrangement it is possible now to follow almost chronologically the various phases of style in Italy.
In the Book on the Byzantine style, some of the examples in Jerusalem ascribed to Constantine have been transferred to Justinian’s time; but this has naturally followed another very important change—the description of the so-called Mosque of Omar, the Dome of the Rock, has been transferred to the Saracenic style. It is well known that Mr. Fergusson had few supporters in his theories respecting the builders of this structure, and Prof. Hayter Lewis’s work has now removed all doubt as to its having been the work of the Caliph Abd el Melik and his followers. This change has necessitated a complete revision of the description of the Holy Sepulchre, for which Prof. Willis’s and Prof. Hayter Lewis’s works have furnished the chief authorities.
Various corrections have been made in the dates ascribed to the Mosques in Cairo, and the French Expedition in Tunis has enabled the editor to add a plan and view of the great Mosque of Kerouan, the most sacred Mahomedan edifice after that of Mecca, and the one great early example of which scarcely anything was known.
About forty woodcuts have been specially prepared for this new edition, half of which are of subjects not before illustrated, the viiiremainder replacing those which were defective or absolutely incorrect. In addition to these, various alterations where required have been made to other woodcuts.
The several authorities consulted have been acknowledged in the course of the work, but the editor desires here to express his obligations to Mr. Fitzroy Doll, Mr. G. H. Birch, and Mr. Arthur Hill for advice on the German, English, and Irish sections respectively.
During the period that has elapsed since the first edition of this work was published,[1] no important work on the History of Architecture has appeared which throws any new light on either the theory or practice of the art, and, except in India, no new buildings have been discovered and no monographs published that materially add to our general stores of knowledge.
The truth of the matter appears to be that the architectural productions of all the countries mentioned in these two volumes have been examined and described to a sufficient extent for the purposes of the general historian. A great deal of course remains to be done before all the information required for the student of any particular style can be supplied, but nothing of any great importance probably remains to be discovered in the countries of the Old World, nor anything that is at all likely to alter any views or theories founded on what we at present know.
The one exception to this satisfactory state of things is our knowledge, or rather want of knowledge, regarding the history of the ancient architecture of the New World, treated of in the last few pages of this work. No important addition has lately been made to the little we knew before, and it is now to be feared that Mr. Squier’s long-expected work on the Antiquities of Peru may never see the light, at least not under the auspices of its author, and the Count de Waldeck’s work adds very little, if anything, to what we knew before. What is really wanted is that some one should make himself personally acquainted with all the various styles existing between the upper waters of the Colorado and the desert of Atacama to such an extent as to be able to establish the relative sequence of their dates xand to detect affinities where they exist, or to point out differences that escape the casual observer. Photography may in the next few years do something towards enabling stay-at-home travellers to do a good deal towards this, but photography will never do all, and local knowledge is indispensable for the exact determination of many now obscure questions. The problem is in fact identical with that presented to Indian antiquaries some thirty years ago. At that time we knew less of the history of Indian architecture than we now know of American, but at the present day the date of every building and every cave in India can be determined with almost absolute certainty to within fifty, or at the outside one hundred, years; the sequence is everywhere certain, and all can be referred to the race and religion that practised that peculiar style. In America there are the same strongly marked local peculiarities of style as in India, accompanied by equally easily detected affinities or differences, and what has been done for India could, I am convinced, easily be accomplished for America, and with even more satisfactory and more important results to the history and ethnography of that great country.
The subject is well worthy of the attention of any one who may undertake it, as it is the only means we now know of by which the ancient history of the country can be recovered from the darkness that now enshrouds it and the connexion of the Old world with the New—if any existed—can be traced, but it is practically the only chapter in the history of architecture which remains to be written.
Notwithstanding this paucity of new material, the completion of M. Place’s great work on Khorsabad, Wood’s explorations at Ephesus, Dr. Tristram’s travels in Moab, with other minor works, and new photographs of other places, have furnished some twenty or thirty woodcuts to this work, either of new examples or in substitution for less perfect illustrations. More than this, the experience gained in the interval from reading, and personal familiarity with buildings not before visited, especially in Italy, have enabled me to add considerably to the text and to correct or modify impressions based on less perfect information. These, with a careful revision of the text throughout, will, it is hoped, be found to render this edition an improvement to a considerable extent over that which preceded it.
As mentioned in the preface to the volume containing the History xiof the Modern Styles of Architecture, the scheme of the present edition is that the two volumes now published shall contain a description of all the ancient styles of architecture known to exist either in the Old or New world, except India.
In the first edition the Indian styles occupied about 300 pages, and were illustrated by 200 woodcuts. In the present one it is proposed to double the extent of the text and to add such further illustrations as may be found requisite fully to illustrate the subject. When this is done it will form a separate volume, either the third of the general History of Architecture, or a complete and independent work by itself, and sold separately. If nothing unforeseen occurs to prevent it, it is expected that the work will be published before the end of next year (1875).
The History of the Modern Styles of Architecture, published last year, will then form the fourth and concluding volume of the work, or may be considered as a complete and independent treatise, and, like the volume containing the History of Indian Architecture, will be sold separately.
As stated in the preface to the first edition, it was originally intended that chapters should be added on what were then known as Celtic or Druidical remains. When, however, the subject came to be carefully looked into for that purpose, it was found that the whole was such a confused mass of conflicting theories and dreams, that no facts or dates were so established that they could be treated as historical. The consequence was that the materials collected for the purpose were, in 1872, published in a separate volume, entitled ‘Rude Stone Monuments,’ in the form rather of an argument than of a history.
As was to be expected, a work of that nature, and which attacked the established faith in the Druids, has been exposed to a considerable amount of hostile criticism, but nothing has yet appeared that at all touches the marrow of the question, or invalidates any of the more important conclusions therein arrived at. On the other hand, everything that has since come to light has tended to confirm them in a most satisfactory manner. Colonel Brunon’s researches, for instance, at and around the Madras’en, in Algeria, have proved that the tumuli in that cemetery belong to Roman times.[2] In India sculptured and inscribed xiidolmens have been dug up and photographed, so that their age is no longer doubtful, and others, as archaic in form as any, are found belonging to reigning families of chiefs, and still used by them. Last, not least, Dr. Schliemann’s explorations at Hissarlik have deprived the prehistoric advocates of one of their most plausible arguments. At a depth of 81⁄2 metres from the surface he found the remains of a walled city, with paved streets, and rich in gold, silver, and copper, with their alloys electron and bronze, and every sign of a high civilization. Above this, through four or five metres of successive deposits, indicating probably a duration of twice as many centuries, no trace of metal was found, but, as he expresses, an “ungeheure menge,” and, in another place, a “kolossale menge,” an unlimited number of rude stone implements of every sort. Above this again, the remains of the Greek city of Ilium Novum.
If this were the case in Asia Minor in historic times, it is in vain to argue that, when the imported civilization of the Romans passed away, the Britons may not have returned to their old faith and old practices, and adhered to them till a new conquest and a new faith led to their being finally abandoned. It may, or it may not, have been so, but till some better argument than has yet been brought forward is adduced to prove that it was not so, the à priori argument of improbability will not now avail much. Whenever the facts, as stated in the ‘Rude Stone Monuments,’ are admitted, or any better set of conclusions substituted for them, their history may be added as a fifth volume to this work. Till then, people must be content with the hazy nihilism of the prehistoric myth.
Although the present work may in some respects be considered as only a new edition of the ‘Handbook of Architecture,’ still the alterations, both in substance and in form, have been so extensive as to render the adoption of a new title almost indispensable. The topographical arrangement, which was the basis of the ‘Handbook,’ has been abandoned, and a historical sequence introduced in its place. This has entirely altered the argument of the book, and, with the changes and additions which it has involved, has rendered it practically a new work; containing, it is true, all that was included in the previous publication, but with a great deal that is new and little that retains its original form.
The logical reasons for these changes will be set forth in their proper place in the body of the work; but meanwhile, as the Preface is that part of it which should properly include all personal explanations, I trust I may not be considered as laying myself open to a charge of egotism, if I avail myself of this conventional licence in explaining the steps by which this work attained its present form.
It was my good fortune to be able to devote many years of my life to the study of Architecture—as a fine art—under singularly favourable circumstances: not only was I able to extend my personal observations to the examples found in almost all the countries between China and the Atlantic shore, but I lived familiarly among a people who were still practising their traditional art on the same principles as those which guided the architects of the Middle Ages in the production of similar but scarcely more beautiful or more original works. With these antecedents, I found myself in possession of a considerable amount of information regarding buildings which had not previously been described, and—what I considered of more value—of an insight into the theory of the art, which was certainly even more novel.
Believing this knowledge and these principles to be of sufficient importance to justify me in so doing, I resolved on publishing a work xivin which they should be embodied; and, in furtherance of this idea, sixteen years ago I wrote a book entitled ‘The True Principles of Beauty in Art.’ The work was not—nor was it intended to be—popular in its form. It was an attempt of a young author to do what he thought right and best, without consulting the wishes of the public on the subject, and the first result, as might have been—and indeed was—anticipated, was that no publisher would undertake it. In consequence of this, only the first volume was published by Longmans in 1849, and that at my own expense and risk. The event proved that the booksellers were right. The book did not sell, and it became a question whether it was worth my while to waste my time and spend my money on a work which the public did not want, or whether it would not be wiser to abandon it, and wait for some more favourable opportunity. Various circumstances of no public interest induced me at the time to adopt the latter course, and I felt I could do so without any breach of faith, as the work, as then published, was complete in itself, though it had been intended to add two more volumes to the one already published.
Some years afterwards a proposal was made to me by Mr. Murray to utilise the materials collected for the more ambitious work in the more popular form of a Handbook of Architecture. The work was written in a very much more popular manner than that I had previously adopted, or than I then liked, or now think worthy of the subject; but the result proved that it was a style much better suited to the public demand, for this time the work was successful. Since its publication in 1855 a large number of copies have been sold; the work has now for some years been out of print, and a new edition is demanded. Under these circumstances the question arose, whether it would be better to republish the Handbook in its original form, with such additions and emendations as its arrangement admitted of, or whether it would not be better to revert to a form nearly approaching that adopted in the ‘True Principles,’ rather than that followed in the composition of the Handbook, as one more worthy of the subject, and better capable of developing its importance.
The immense advantages of the historical over the topographical method are too self-evident to require being pointed out, whenever the object is to give a general view of the whole of such a subject as that treated of in these volumes, or an attempt is made to trace the connexion of the various parts to one another. If the intention is only to describe particular styles or separate buildings, the topographical arrangement may be found more convenient: but where xvanything beyond this is attempted, the historical method is the only one which enables it to be done. Believing that the architectural public do now desire something more than mere dry information with regard to the age and shape of buildings, it has been determined to remodel the work and to adopt the historical arrangement.
In the present instance there does not seem to be the usual objection to such a rearrangement—that it would break the thread of continuity between the old and the new publication—inasmuch as, whichever method were adopted, the present work must practically be a new book. The mass of information obtained during the last ten years has been so great that even in the present volume a considerable portion of it had to be rewritten, and a great deal added. In the second volume the alterations will be even more extensive. The publication of the great national work on Spanish antiquities,[3] of Parcerisa’s ‘Beauties, &c., of Spain,’[4] and, above all, Mr. Street’s work,[5] have rendered Spanish architecture as intelligible as that of any other country, though ten years ago it was a mystery and a puzzle. Schulz’s[6] work has rendered the same service for Southern Italy, while the publications of De Vogüé[7] and Texier[8] will necessitate an entirely new treatment of the early history of Byzantine art. The French have been busily occupied during the last ten years in editing their national monuments; so have the Germans. So that in Europe little of importance remains to be described. In Asia, too, great progress has been made. Photography has rendered us familiar with many buildings we only knew before by description, and both the Hindu and Mahomedan remains of India are now generally accessible to the public. Colonel Yule’s[9] work on Burmah and M. Mouhot’s[10] on Siam have made us acquainted with the form of the buildings of those countries, and China too has been opened to the architectural student. When the Handbook was written there were many places and buildings regarding which no authentic information was available. That can hardly be said to be the case now as respects any really important building, and the time, therefore, seems to have xviarrived when their affiliation can be pointed out, if it ever can be, and the study of architecture may be raised from dry details of measurements to the dignity of an historical science.
In the present work it is intended that the first two volumes shall cover the same extent of ground as was comprised in the two volumes of the ‘Handbook,’ as originally published, with such enlargement as is requisite to incorporate all recent additions to our knowledge; and chapters will be added on Celtic—or, as they are vulgarly called, Druidical—remains omitted in the ‘Handbook.’ The ‘History of Modern Architecture’ will thus form the third volume of the work; and when—if ever—it comes to be reprinted, it is intended to add a Glossary of architectural terms, and other matters necessary to complete the book. When all this is done, the work will be increased from 1500 pages, which is the number comprised in the three volumes as at present published, to more than 2000 pages, and the illustrations will be augmented in at least an equal ratio.[11] Notwithstanding all this, it is too evident that even then the work can only be considered as an introduction to the subject, and it would require a work at least ten times as large to do full justice even to our present knowledge of the history of architecture. Any one at all familiar with the literature of the subject can see at once why this is so. Viollet le Duc, for instance, is now publishing a dictionary of French architecture from the eleventh to the sixteenth century. The work will consist, when complete, of ten volumes, and probably 5000 illustrations. Yet even this will by no means exhaust the history of the style in one country of Europe during the five centuries indicated. It would require at least as many volumes to illustrate, even imperfectly, the architectural history of England during the same period. Germany would fill an equal number; and the mediæval architecture of Italy and Spain could not be described in less space.
In other words, fifty volumes and 20,000 woodcuts would barely suffice to complete what must in the present work be compressed into 500 pages, with a like number of illustrations.
Under these circumstances it will be easily understood that this book is far from pretending to be a complete or exhaustive history of the art. It is neither an atlas nor a gazetteer, but simply a general map of the architectural world, and—if I may be allowed the small joke—on Mercator’s projection. It might with propriety be called an xviiabridgment, if there existed any larger history from which it could be supposed to be abridged. At one time I intended to designate it ‘An Historical Introduction to the Study of Architecture, considered as a Fine Art;’ but though such a title might describe correctly enough the general scope of the work, its length is objectionable, and, like every periphrasis, it is liable to misconstruction.
The simple title of ‘History’ has therefore been adopted, under the impression that it is entitled to such a denomination until at least some narrative more worthy of the subject takes its place. Considering the limits it thus became necessary to impose on the extent of the work, it must be obvious that the great difficulty of its composition was in the first place to compress so vast a subject into so small a compass; and next, to determine what buildings to select for illustration, and what to reject. It would have been infinitely easier to explain what was necessary to be said, had the number of woodcuts been doubled. Had the text been increased in the same ratio a great many things might have been made clear to all, which will now, I fear, demand a certain amount of previous knowledge on the part of my readers. To have done this, however, would have defeated some of the great objects of the present publication, which is intended to convey a general view of the history and philosophy of the subject, without extending the work so as to make it inconveniently large, or increasing the price so as to render it inaccessible to a large number of readers. The principle consequently that has been adopted in the selection of the illustrations is, first, that none of the really important typical specimens of the art shall be passed over without some such illustrations as shall render them intelligible; and, after this, those examples are chosen which are remarkable either for their own intrinsic merit, or for their direct bearing in elucidation of the progress or affinities of the style under discussion; all others being sternly rejected as irrelevant, notwithstanding the almost irresistible temptation at times to adorn my pages with fascinating illustrations. The reader who desires information not bearing on the general thread of the narrative must thus have recourse to monographs, or other special works, which alone can supply his wants in a satisfactory manner.
It may tend to explain some things which appear open to remark in the following pages, if I allude here to a difference of opinion which has frequently been pointed out as existing between the views I have expressed and those generally received regarding several points of ancient history or ethnology. I always have been aware that this xviiidiscrepancy exists; but it has appeared to me an almost inevitable consequence of the different modes of investigation pursued. Almost all those who have hitherto written on these subjects have derived their information from Greek and Roman written texts; but, if I am not very much mistaken, these do not suffice. The classic authors were very imperfectly informed as to the history of the nations who preceded or surrounded them; they knew very little of the archæology of their own countries, and less of their ethnography. So long, therefore, as our researches are confined to what they had written, many important problems remain unsolved, and must ever remain as unsolvable as they have hitherto proved.
My conviction is, that the lithic mode of investigation is not only capable of supplementing to a very great extent the deficiencies of the graphic method, and of yielding new and useful results, but that the information obtained by its means is much more trustworthy than anything that can be elaborated from the books of that early age. It does not therefore terrify me in the least to be told that such men as Niebuhr, Cornewall Lewis, or Grote, have arrived at conclusions different from those I have ventured to express in the following pages. Their information is derived wholly from what is written, and it does not seem ever to have occurred to them, or to any of our best scholars, that there was either history or ethnography built into the architectural remains of antiquity.
While they were looking steadily at one side of the shield, I fancy I have caught a glimpse of the other.
It has been the accident of my life—I do not claim it as a merit—that I have wandered all over the Old World. I have seen much that they never saw, and I have had access to sources of information of which they do not suspect the existence. While they were trying to reconcile what the Greek or Roman authors said about nations who never wrote books, and with regard to whom they consequently had little information, I was trying to read the history which these very people had recorded in stone, in characters as clear and far more indelible than those written in ink. If, consequently, we arrived at different conclusions, it may possibly be owing more to the sources from which the information is derived than to any difference between the individuals who announce it.
Since the invention of printing, I am quite prepared to admit that the “litera scripta” may suffice. In an age like the present, when nine-tenths of the population can read, and every man who has anything to say rushes into print, or makes a speech which is printed next xixmorning, every feeling and every information regarding a people may be dug out of its books. But it certainly was not so in the Middle Ages, nor in the early ages of Greek or Roman history. Still less was this so in Egypt, nor is it the case in India, or in many other countries; and to apply our English nineteenth century experience to all these seems to me to be a mistake. In those countries and times, men who had a hankering after immortality were forced to build their aspirations into the walls of their tombs or of their temples. Those who had poetry in their souls, in nine cases out of ten expressed it by the more familiar vehicle of sculpture or painting rather than in writing. To me it appears that to neglect these in trying to understand the manners and customs, or the history of an ancient people, is to throw away one-half, and generally the most valuable half, in some cases the whole, of the evidence bearing on the subject. So long as learned men persist in believing that all that can be known of the ancient world is to be found in their books, and resolutely ignore the evidence of architecture and of art, we have little in common. I consequently feel neither abashed nor ashamed at being told that men of the most extensive book-learning have arrived at different conclusions from myself—on the contrary, if it should happen that we agreed in some point to which their contemporary works did not extend, I should rather be inclined to suspect some mistake, and hesitate to put it down.
There is one other point in which I fancy misconception exists, of a nature that may probably be more easily removed by personal explanation than by any other means. It is very generally objected to my writings that I neither understand nor appreciate the beauties of Gothic architecture, and consequently criticise it with undue severity. I regret that such a feeling should prevail, partly because it is prejudicial to the dissemination of the views I am anxious to promulgate, but more because at a time when in this country the admiration of Gothic art is so nearly universal, it alienates from me the best class of men who love the art, and prevents their co-operating with me in the improvement of our architecture, which is the great object which we all have at heart.
If I cannot now speak of Gothic architecture with the same enthusiasm as others, this certainly was not the case in the early part of my career as a student of art. Long after I turned my attention to the subject, I knew and believed in none but the mediæval styles, and was as much astonished as the most devoted admirer of Gothic architecture could be, when any one suggested that any other forms could be compared with it. If I did not learn to understand it then, it was xxnot for want of earnest attention and study. I got so far into its spirit that I thought I saw then how better things could be done in Gothic art than had been done either in the Middle Ages or since; and I think so now. But if it is to be done, it must be by free thought, not by servile copying.
My faith in the exclusive pre-eminence of mediæval art was first shaken when I became familiar with the splendid remains of the Mogul and Pathan emperors of Agra and Delhi, and saw how many beauties of even the pointed style had been missed in Europe in the Middle Ages. My confidence was still further weakened when I saw what richness and variety the Hindu had elaborated not only without pointed arches, but indeed without any arches at all. And I was cured when, after a personal inspection of the ruins of Thebes and Athens, I perceived that at least equal beauty could be obtained by processes diametrically opposed to those employed by the mediæval architects.
After so extended a survey, it was easy to perceive that beauty in architecture did not reside in pointed or in round arches, in bracket capitals or horizontal architraves, but in thoughtful appropriateness of design and intellectual elegance of detail. I became convinced that no form is in itself better than any other, and that in all instances those are best which are most appropriate to the purposes to which they are applied.
So self-evident do these principles—which are the basis of the reasoning employed in this book—appear to me, that I feel convinced that there are very few indeed even of the most exclusive admirers of mediæval art who would not admit them, if they had gone through the same course of education as has fallen to my lot. My own conviction is, that the great difference which seems to exist between my views and those of the parties opposed to them arises almost entirely from this accident of education.
In addition to this, however, we must not overlook the fact that for three centuries all the architects in Europe concurred in believing that the whole of their art began and ended in copying classical forms and details. When a reaction came, it was not, unfortunately, in the direction of freedom; but towards a more servile imitation of another style, which—whether better or worse in itself—was not a style of our age, nor suited to our wants or feelings.
It is perhaps not to be wondered at, that after three centuries of perseverance in one particular groove, men should have ceased to have any faith in the possibility of reason or originality being employed in xxiarchitectural design. As, however, I can adduce in favour of my views 3000 years of perfect success in all countries and under all circumstances, against 300 years of absolute failure in consequence of the copying system, though under circumstances the most favourable to success in other respects, there seems at least an à priori probability that I may be right and that the copyists may be mistaken.
I may be deceiving myself, but I cannot help fancying that I perceive signs of a reaction. Some men are becoming aware of the fact that “archæology is not architecture,” and would willingly see something done more reasonable than an attempt to reproduce the Middle Ages. The misfortune is, that their enlightenment is more apt to lead to despondency than to hope. “If,” they ask, “we cannot find what we are looking for in our own national style, where are we to look for it?” The obvious answer, that it is to be found in the exercise of common sense, where all the rest of the world have found it, seems to them beside the mark. Architecture with most people is a mystery—something different from all other arts; and they do not see that it is and must be subject to the same rules as they all are, and must be practised in the same manner, if it is to be successful.
Whether the nation will or will not soon awaken to the importance of this prosaic anti-climax, one thing at least seems certain and most hopeful. Men are not satisfied with what is doing; a restless, inquiring spirit is abroad, and if people can only be induced to think seriously about it, I feel convinced that they will be as much astonished at their present admiration of Gothic town-halls and Hyde Park Albert Memorials, as we are now at the Gothic fancies of Horace Walpole and the men of his day.
Although every possible care has been taken in selecting the best authorities for the statements in the text of the work, as well as the subjects for illustration, still no one acquainted with the state of the literature of architecture will need to be told that in many branches few materials exist for a correct description of the style, and that the drawings which are available are frequently so inexact, and with scales so carelessly applied, that it is impossible at times to avoid error. The plans throughout the book are on too small a scale to render any minute errors apparent, but being drawn to a uniform scale of 100 feet to 1 inch, or 1⁄1200 of the real size, they are quite sufficient as a means of comparison, even when not mathematically correct. They suffice to enable the reader to judge of the relative size of two buildings by a mere inspection of the plans, as correctly as he could by seeing the buildings themselves, without actually measuring them in all their details.
As a general rule, the sections or elevations of buildings, throughout the book, are drawn to a scale double that of the plans, viz., 50 feet to 1 inch, or 1⁄600 of the real dimensions; but, owing to the great size of many of them, it has been found impossible to carry out this in all instances: where it has not been effected the departure from the rule is always noted, either below the woodcut or in the text.
No lineal dimensions are quoted in the text except such as it is believed can be relied upon, and in all instances these are reduced to English feet. The superficial measures also in the text, like the plans, are quite sufficient for comparison, though not to be relied upon as absolutely correct. One great source of uncertainty as regards them is the difficulty of knowing at times what should be included in the building referred to. Should, for instance, the Lady Chapel at Ely be considered an integral part of the Cathedral, or the Chapter-house at Wells? Should the sacristies attached to Continental cathedrals be considered as part of the church? or such semi-detached towers as the south-western one at Bourges? What constitutes the temple at Karnac, and how much of this belongs to the Hypostyle Hall? These and fifty other questions occur in almost every instance which may lead two persons to very different conclusions regarding the superficial dimensions of a building, even without the errors inherent in imperfect materials.
When either the drawing from which the woodcut is taken was without a scale, or the scale given could not be depended upon, “No scale” has been put under the woodcut, to warn the reader of the fact. When the woodcut was either too large for the page, or too small to be distinct if reduced to the usual scale, a scale of feet has been added under it, to show that it is an exception to the rule.
Capitals, windows, and details which are meant to illustrate forms or construction, and not particular buildings, are drawn to any scale that seemed best to express the purpose for which they are inserted; when they are remarkable for size, or as individual examples, a scale has been added; but this is the exception, not the rule.
Every pain has been taken to secure the greatest possible amount of accuracy, and in all instances the sources from which the woodcuts have been taken are indicated. Many of the illustrations are from original drawings, and of buildings never before published.
| Page | |
| Part I.—Section I. Introductory.—II. Beauty in Art.—III. Definition of Architecture.—IV. Mass.—V. Stability.—VI. Durability.—VII. Materials.—VIII. Construction.—IX. Forms.—X. Proportion.—XI. Carved Ornament.—XII. Decorative Colour.—XIII. Sculpture and Painting.—XIV. Uniformity—XV. Imitation of Nature.—XVI. Association.—XVII. New Style.—XVIII. Prospects | 3 |
| PART II.—ETHNOGRAPHY AS APPLIED TO ARCHITECTURAL ART. | |
| I. Introductory | 52 |
| II. Turanian Races—Religion, Government, Morals, Literature, Arts, and Sciences | 55 |
| III. Semitic Races—Religion, Government, Morals, Literature, Arts, and Sciences | 64 |
| IV. Celtic Races—Religion, Government Morals, Literature Arts, and Sciences | 70 |
| V. Aryan Races—Religion, Government, Morals, Literature, Arts, and Sciences | 75 |
| VI. Conclusion | 83 |
| PART I.—ANCIENT ARCHITECTURE. | |
| Introductory | 87 |
| Outline of Egyptian Chronology | 90 |
| BOOK I.—EGYPTIAN ARCHITECTURE. | |
| I. Introductory | 91 |
| II. The Pyramids and Contemporary Monuments—Tombs—Temples | 97 |
| III. First Theban Kingdom—The Labyrinth—Tombs—Shepherds | 110 |
| IV. Pharaonic Kingdom—Thebes—Rock-cut Tombs and Temples—Mammeisi—Tombs—Obelisks—Domestic Architecture | 118 |
| V. Greek and Roman Period—Decline of art—Temples at Denderah—Kalábsheh—Philæ | 139 |
| VI. Ethiopia—Kingdom of Meroë—Pyramids | 147 |
| xxivBOOK II.—ASSYRIAN ARCHITECTURE. | |
| I. Introductory | 151 |
| II. Chaldean Temples | 157 |
| III. Assyrian Palaces—Wurka—Nineveh—Nimroud—Khorsabad—Palace of Sennacherib, Koyunjik—Palace of Esarhaddon—Temples and Tombs | 168 |
| IV. Persia—Pasargadæ—Persepolis—Susa—Fire Temples—Tombs | 194 |
| V. Invention of the Arch | 214 |
| VI. Judea—Temple of Jerusalem | 219 |
| VII. Asia Minor—Historical notice—Tombs at Smyrna—Doganlu—Lycian Tombs | 229 |
| BOOK III.—GRECIAN ARCHITECTURE. | |
| I. Greece—Historical notice—Pelasgic art—Tomb of Atreus—Other remains | 240 |
| II. Hellenic Greece—History Of the Orders—Doric Temples in Greece—Doric Temples in Sicily—Ionic Temples—Corinthian Temples—Dimensions of Greek Temples—Doric order—Ionic order—Corinthian order—Caryatides—Forms of temples—Mode of lighting temples—Temple of Diana at Ephesus—Municipal architecture—Theatres—Tombs—Cyrene | 251 |
| BOOK IV.—ETRUSCAN, ROMAN, PARTHIAN AND SASSANIAN ARCHITECTURE. | |
| I. Etruria—Historical notice—Temples—Rock-cut tombs—Tombs at Castel d’Asso—Tumuli—The arch | 289 |
| II. Rome—Introduction | 302 |
| III. Roman Architecture—Origin of style—The arch—Orders: Doric, Ionic, Corinthian, Composite—Temples—The Pantheon—Roman Temple at Athens—at Baalbec | 305 |
| IV. Basilicas, Theatres and Baths—Basilicas of Trajan and Maxentius—Provincial basilicas—Theatre at Orange—Colosseum—Provincial amphitheatres—Baths of Diocletian | 327 |
| V. Triumphal Arches, Tombs, and other Buildings—Arches at Rome; in France—Arches at Trèves—Pillars of Victory—Tombs—Minerva Medica—Provincial tombs—Eastern tombs—Domestic Architecture—Spalato—Pompeii—Bridges—Aqueducts | 347 |
| VI. Parthian and Sassanian Architecture—Historical notice—Palaces of Al Hadhr and Diarbekr—Domes—Serbistan—Firouzabad—Tâk Kesra—Palaces at Mashita—Rabbath Ammon, etc. | 389 |
| xxvPART II.—CHRISTIAN ARCHITECTURE. | |
| BOOK I.—BYZANTINE ARCHITECTURE. | |
| I. Introductory | 415 |
| II. Basilicas—Churches at Bethlehem, Jerusalem, and Thessalonica—Rectangular churches in Syria and Asia Minor, with wooden roofs and with stone vaults | 419 |
| III. Circular or Domical Buildings—Circular churches with wooden roofs and with true domes in Syria and Thessalonica—Churches of SS. Sergius and Bacchus and Sta. Sophia, Constantinople—Civic Architecture—Tombs | 432 |
| IV. Neo-Byzantine Style—Sta. Irene, Constantinople—Churches at Ancyra, Trabala, and Constantinople—Churches at Thessalonica and in Greece—Domestic Architecture | 453 |
| V. Armenia—Churches at Dighour, Usunlar, Pitzounda, Bedochwinta, Mokwi, Etchmiasdin, and Kouthais—Churches at Ani and Samthawis—Details | 466 |
| VI. Rock-cut Churches—Churches at Tchekerman, Inkerman, and Sebastopol—Excavations at Kieghart and Vardzie | 481 |
| VII. Mediæval Architecture of Russia—Churches at Kief—Novogorod—Moscow—Towers | 484 |
| BOOK II.—ITALY. | |
| I. Introductory—Division and Classification of the Mediæval Styles of Architecture in Italy | 500 |
| II. Early Christian Style—Basilicas at Rome—Basilica of St. Peter—St. Paul’s—Basilicas at Ravenna—St. Mark’s, Venice—Dalmatia and Istria—Torcello | 504 |
| III. Circular Romanesque Churches—Circular Churches—Tomb of Sta. Costanza—Churches at Perugia, Nocera, Ravenna, Milan—Secular buildings | 542 |
| IV. Lombard and Round-arched Gothic—Chapel at Friuli—Churches at Piacenza, Asti, and Novara—St. Michele, Pavia—St. Ambrogio, Milan—Cathedral, Piacenza—Churches at Verona—Churches at Toscanella—Circular Churches—Towers | 558 |
| V. Byzantine-Romanesque—Cathedral of Naples—San Miniato, Florence—Cathedrals of Pisa and Zara—Cathedrals of Troja, Bari, Bittonto—San Nicole, Bari—Cloisters of St. John Lateran—Baptistery of Mont St. Angelo—San Donato, Zara—Towers—Civic Architecture | 582 |
| VI. Pointed Italian Gothic—Fresco paintings—Churches at Vercelli, Asti, Verona, and Lucca—Cathedral at Siena—Sta. Maria, Florence—Church at Chiaravalle—St. Petronio, Bologna—Cathedral at Milan—Certosa, near Pavia—Duomo at Ferrara | 607 |
| NO. | PAGE | |
| Frontispiece.—Elevation of Façade of Cologne Cathedral. | ||
| Vignette to Title-page.—Section of the Parthenon, showing the Author’s views as to the admission of light. | ||
| 1-6. | Diagrams (technical) | 8-34 |
| 7. | Section of Great Pyramid | 98 |
| 8. | Section of King’s Chamber and of Passage in Great Pyramid | 101 |
| 9, 10. | Pyramid of Sakkara | 103 |
| 11. | Doorway in Tomb at the Pyramids | 106 |
| 12. | Sarcophagus of Mycerinus | 106 |
| 13. | Plan of Temple near the Sphinx | 107 |
| 14. | Plans of houses, Kahun | 113 |
| 15. | Tomb at Beni-Hasan | 114 |
| 16. | Proto-Doric Pillar at Beni-Hasan | 115 |
| 17. | Reed Pillar from Beni-Hasan | 115 |
| 18. | Lotus Pier, Zawyet-el-Mayyitûr | 115 |
| 19. | Rameseum at Thebes | 120 |
| 20. | Central pillar, from Rameseum | 121 |
| 21. | Section of Palace of Thothmes III., Thebes | 123 |
| 22. | Plan of Hypostyle Hall at Karnac | 124 |
| 23. | Section of central portion of same | 124 |
| 24. | Caryatide Pillar, from the Great Court at Medeenet-Habû | 125 |
| 25. | South Temple of Karnac | 126 |
| 26. | Section through Hall of Columns of same | 126 |
| 27. | Pillar, from Sedinga | 127 |
| 28. | Plan of smaller Temple, Abydus | 128 |
| 29. | Plan of Temple of Abydus | 128 |
| 30. | Plan and Section of Rock-cut Temple at Abû-Simbel | 130 |
| 31. | Mammeisi at Elephantine | 132 |
| 32. | Plan and Section of Tomb of Meneptah at Thebes | 134 |
| 33. | Lateran obelisk | 135 |
| 34. | Pavilion at Medeenet-Habû | 137 |
| 35. | View of Pavilion at Medeenet-Habû | 137 |
| 36. | Elevation of an Egyptian House | 138 |
| 37. | Plan of Temple at Edfû | 140 |
| 38. | View of Temple at Edfû | 141 |
| 39. | Bas-relief at Tel el Amarna | 142 |
| 40. | Façade of Temple at Denderah | 142 |
| 41. | Pillar, from the Portico at Denderah | 143 |
| 42. | Plan of Temple at Kalábsheh | 143 |
| 43. | Section of Temple at Kalábsheh | 144 |
| 44. | View of Temple at Philæ | 145 |
| 45. | Plan of Temple at Philæ | 145 |
| 46. | Pyramids at Meroë | 148 |
| 47. | Obelisks at Axum | 150 |
| 48. | Diagram of elevation of Temple at Mugheyr | 159 |
| 49. | Plan of Temple at Mugheyr | 159 |
| 50. | Diagram elevation of Birs Nimroud | 160 |
| 51. | Diagram plan of Birs Nimroud | 160 |
| 52. | Observatory at Khorsabad | 162 |
| 53. | Plan of Observatory, Khorsabad | 162 |
| 54. | Representation of a Temple, Koyunjik | 164 |
| 55. | Elevation of a portion of the external Wall of Wuswus, at Wurka | 165 |
| 56. | Plan of portion of Wuswus | 165 |
| 57. | Elevation of Wall at Wurka | 166 |
| 58. | Plan of North-West Palace at Nimroud | 170 |
| 59. | Plan of Palace at Khorsabad | 171 |
| 60. | Terrace Wall at Khorsabad | 173 |
| 61. | Plan of the Palace at Khorsabad | 174 |
| 62. | Existing remains of Propylæa at Khorsabad | 175 |
| 63. | Enlarged plan of the three principal Rooms at Khorsabad | 176 |
| 64. | Restored section of principal Rooms at Khorsabad | 177 |
| 65. | Restoration of Northern Angle of Palace Court, Khorsabad | 178 |
| 66. | City Gateways, Khorsabad | 180 |
| 67. | City Gateway at Khorsabad | 181 |
| 68. | Interior of a Yezidi House at Bukra, in the Sinjar | 182 |
| 69. | Hall of South-West Palace, Nimroud | 184 |
| 70. | Central Palace, Koyunjik | 185 |
| 71. | Pavement Slab from the Central Palace, Koyunjik | 186 |
| 72. | Pavilion, from the Sculptures at Khorsabad | 187 |
| 73. | Assyrian Temple, North Palace, Koyunjik | 188 |
| 74. | Bas-relief, representing façade of Assyrian Palace | 188 |
| 75. | Exterior of a Palace, from a Bas-relief at Koyunjik | 189 |
| 76. | King’s Tent (Koyunjik) | 190 |
| xxvii77. | Horse tent (Nimroud) | 190 |
| 78. | Stylobate of Temple, Khorsabad | 191 |
| 79. | Section of same | 191 |
| 80. | Sacred Symbolic Tree of the Assyrians | 192 |
| 81. | Obelisk of Divanubara | 192 |
| 82. | Plan of Platform at Pasargadæ | 195 |
| 83. | Elevation of same | 195 |
| 84. | Tomb of Cyrus, Pasargadæ | 196 |
| 85. | Plan of Tomb of Cyrus | 197 |
| 86. | Section of Tomb of Cyrus | 198 |
| 87. | View from top of Great Stairs at Persepolis | 199 |
| 88. | Stairs to Palace of Xerxes | 200 |
| 89. | Propylæa at Persepolis | 202 |
| 90. | Palace of Darius | 202 |
| 91. | Façade of Palace of Darius at Persepolis | 203 |
| 92. | Tomb of Darius at Naksh-i-Rustam | 204 |
| 93. | Palace of Xerxes, Persepolis | 205 |
| 94. | Restored Plan of Great Hall of Xerxes at Persepolis | 206 |
| 95. | Pillar of Western Portico | 207 |
| 96. | Pillar of Northern Portico | 207 |
| 97. | Restored Section of Hall of Xerxes | 208 |
| 98. | Restored Elevation of Capital at Susa | 209 |
| 99. | Frieze of Archers at Susa | 210 |
| 100. | Khabah at Istakr | 212 |
| 101. | Section of Tomb near the Pyramids of Gizeh | 215 |
| 102. | Vaulted Drain beneath the South-East Palace at Nimroud | 215 |
| 103. | Arch at Dêr-el-Bahree | 216 |
| 104. | Arch of the Cloaca Maxima, Rome | 216 |
| 105. | Arches in the Pyramids at Meroë | 217 |
| 106. | Diagram plan of Solomon’s Palace | 220 |
| 107. | Diagram sections of the House of the Cedars of Lebanon | 221 |
| 108. | The Tabernacle, showing one half ground plan and one half as covered by the curtains | 222 |
| 109. | South-East View of the Tabernacle, as restored by the Author | 223 |
| 110. | Plan of Solomon’s Temple, showing the disposition of the chambers in two storeys | 224 |
| 111. | Plan of Temple at Jerusalem, as rebuilt by Herod | 225 |
| 112. | View of the Temple from the East, as it appeared at the time of the Crucifixion | 226 |
| 113. | Elevation of Tumulus at Tantalais | 230 |
| 114. | Plan and Section of Chamber in Tumulus at Tantalais | 230 |
| 115. | Section of Tomb of Alyattes | 230 |
| 116. | Rock-cut Frontispiece at Doganlu | 233 |
| 117. | Lycian Tomb | 234 |
| 118, 119, 120. | Rock-cut Lycian Tombs | 235, 236, 236 |
| 121. | Ionic Lycian Tomb | 237 |
| 122. | Elevation of the Monument and Section of the Tomb at Amrith | 239 |
| 123. | West View of the Acropolis restored | 240 |
| 124. | Section and Plan of Tomb of Atreus at Mycenæ | 243 |
| 125. | Fragment of Pillar of same | 244 |
| 126. | Gateway at Thoricus | 245 |
| 127. | Arch at Delos | 245 |
| 128. | Wall in Peloponnesus | 246 |
| 129. | Gateway at Assos | 246 |
| 130. | Doorway at Missolonghi | 247 |
| 131. | Gate of Lions, Mycenæ | 247 |
| 132. | Plan of Palace at Tiryns | 248 |
| 133. | Plan of the Acropolis at Athens | 251 |
| 134. | Temple at Ægina restored | 252 |
| 135. | Ancient Corinthian Capital | 258 |
| 136, 137, 138. | Doric Column of the Temple at Delos, the Parthenon at Athens, and the Temple at Corinth | 260 |
| 139. | The Parthenon, Athens | 262 |
| 140. | Ionic order of Erechtheium | 264 |
| 141. | Ionic order in Temple of Apollo at Bassæ | 265 |
| 142. | Section of Capital of same | 265 |
| 143. | Order of the Choragic Monument of Lysicrates, Athens | 266 |
| 144. | Order of the Tower of the Winds | 267 |
| 145. | Caryatide Figure in the British Museum | 268 |
| 146. | Caryatide Figure from the Erechtheium | 268 |
| 147. | Telamones at Agrigentum | 269 |
| 148. | Small Temple at Rhamnus | 269 |
| 149. | Plan of Temple of Apollo at Bassæ | 270 |
| 150. | Plan of Parthenon at Athens | 270 |
| 151. | Plan of the Great Temple at Selinus | 270 |
| 152. | Plan of Great Temple at Agrigentum | 271 |
| 153. | Section of the Parthenon | 273 |
| 154. | Part Section, part Elevation, of Great Temple at Agrigentum | 273 |
| 155. | Plan of Erechtheium | 274 |
| 156. | Elevation of West End of Erechtheium | 274 |
| 157. | View of Erechtheium | 275 |
| 158. | Restored plan of Erechtheium | 276 |
| 159. | Plan of the Temple of Diana at Ephesus | 277 |
| 160. | Choragic Monument of Lysicrates, Athens | 279 |
| 161. | Plan of Theatre at Dramyssus | 280 |
| xxviii162. | View of the Mausoleum at Halicarnassus, as restored by the Author | 282 |
| 163. | Plan of the Mausoleum at Halicarnassus, from a drawing by the Author | 283 |
| 164. | Lion Tomb at Cnidus | 284 |
| 165. | Rock-cut and Structural Tombs at Cyrene | 286 |
| 166. | Tombs at Cyrene | 287 |
| 167. | Plan and Elevation of an Etruscan Temple | 292 |
| 168. | Tombs at Castel d’Asso | 295 |
| 169. | Mouldings from Tombs at same | 295 |
| 170. | Plan of Regulini Galeassi Tomb | 296 |
| 171. | Sections of same | 297 |
| 172. | Section of a Tomb at Cervetri | 298 |
| 173. | View of principal Chamber in the Regulini Galeassi Tomb | 298 |
| 174. | Plan of Cocumella, Vulci | 299 |
| 175. | View of same | 299 |
| 176. | Tomb of Aruns, Albano | 300 |
| 177. | Gateway at Arpino | 301 |
| 178. | Aqueduct at Tusculum | 301 |
| 179. | Doric Order | 308 |
| 180. | Ionic Order | 309 |
| 181. | Corinthian Order | 310 |
| 182. | Composite Order | 312 |
| 183. | Corinthian Base, found in Church of St. Praxede in Rome | 312 |
| 184. | Doric Arcade | 313 |
| 185. | View in Courtyard of Palace at Spalato | 314 |
| 186. | Temple of Mars Ultor | 316 |
| 187. | Plan of Maison Carrée at Nîmes | 317 |
| 188. | Plan of Temple of Diana at Nîmes | 317 |
| 189. | View of the Interior of same | 318 |
| 190. | Plan of Pantheon at Rome | 319 |
| 191. | Half Elevation, half Section, of the Pantheon at Rome | 320 |
| 192. | Plan of Temple at Tivoli | 322 |
| 193. | Restored Elevation of Temple at Tivoli | 322 |
| 194. | Plan and elevation of Temple in Diocletian’s Palace at Spalato | 323 |
| 195. | Ruins of the Temple of Jupiter Olympius at Athens | 324 |
| 196. | Plan of same | 324 |
| 197. | Plan of Small Temple at Baalbec | 325 |
| 198. | Elevation of same | 325 |
| 199. | Plan of Trajan’s Basilica at Rome | 328 |
| 200. | Restored Section of Trajan’s Basilica | 328 |
| 201. | Plan of Basilica of Maxentius | 330 |
| 202. | Longitudinal Section of same | 330 |
| 203. | Transverse Section of same | 330 |
| 204. | Pillar of Maxentian Basilica | 331 |
| 205. | Plan of the Basilica at Trèves | 332 |
| 206. | Internal View of same | 332 |
| 207. | External View of same | 333 |
| 208. | Plan of Basilica at Pompeii | 333 |
| 209. | Plan of the Theatre at Orange | 335 |
| 210. | View of same | 336 |
| 211. | Elevation and Section of part of the Flavian Amphitheatre, at Rome | 338 |
| 212. | Quarter-plan of the Seats and quarter-plan of the Basement of the Flavian Amphitheatre | 338 |
| 213. | Elevation of Amphitheatre at Verona | 341 |
| 214. | Baths of Caracalla, as restored by A. Blouet | 344 |
| 215. | Arch of Trajan at Beneventum | 347 |
| 216. | Arch of Titus at Rome | 348 |
| 217. | Arch of Septimius Severus | 348 |
| 218. | Porte St. André at Autun | 349 |
| 219. | Plan of Porta Nigra at Trèves | 350 |
| 220. | View of same | 350 |
| 221. | Bridge at Chamas | 351 |
| 222. | Column at Cussi | 354 |
| 223. | Capital of Column at Cussi | 354 |
| 224. | Tomb of Cæcilia Metella | 355 |
| 225. | Columbarium near the Gate of St. Sebastian, Rome | 356 |
| 226. | Section of Sepulchre at San Vito | 357 |
| 227. | Section and Elevation of Tomb of Sta. Helena, Rome | 358 |
| 228. | Plan of Minerva Medica at Rome | 360 |
| 229. | Section of Minerva Medica | 360 |
| 230. | Rib of Roof of Minerva Medica | 360 |
| 231. | Tomb at St. Rémi | 361 |
| 232. | Monument at Igel, near Trèves | 362 |
| 233. | Khasné, Petra | 364 |
| 234. | Section of Tomb at Khasné | 365 |
| 235. | Corinthian Tomb, Petra | 366 |
| 236. | Rock-cut interior at Petra | 367 |
| 237. | Façade of Herod’s Tombs | 368 |
| 238. | So-called “Tomb of Zechariah” | 368 |
| 239. | The so-called Tomb of Absalom | 369 |
| 240. | Angle of Tomb of Absalom | 369 |
| 241. | Façade of the Tomb of the Judges | 370 |
| 242. | Tomb at Mylassa | 371 |
| 243. | Tomb at Dugga | 372 |
| 244. | Plan of the Kubr Roumeïa | 373 |
| 245. | View of the Madracen | 373 |
| 246. | Palace of Diocletian at Spalato | 377 |
| 247. | Golden Gateway at Spalato | 379 |
| 248. | House of Pansa at Pompeii | 381 |
| 249. | Wall Decoration at Pompeii | 383 |
| 250. | Aqueduct of Segovia | 386 |
| 251. | Aqueduct of Tarragona | 386 |
| 252. | Bridge of Trajan, Alcantara, Spain | 387 |
| 253. | Plan of Palace at Al Hadhr | 390 |
| 254. | Elevation of part of the Palace of Al Hadhr | 391 |
| xxix255. | Plan of the Mosque at Diarbekr | 392 |
| 256. | Façade of South Palace at Diarbekr | 393 |
| 257. | View in the Court showing North Palace | 394 |
| 258. | Plan of Palace at Serbistan | 396 |
| 259. | Section of Palace at Serbistan | 396 |
| 260. | Plan of Palace at Firouzabad | 397 |
| 261. | Doorway at Firouzabad | 397 |
| 262. | Part of External Wall, Firouzabad | 398 |
| 263. | Plan of Tâk Kesra at Ctesiphon | 399 |
| 264. | Elevation of Great Arch of same | 399 |
| 265. | Sketch Plan of Palace at Mashita | 400 |
| 266. | Interior of ruined Triapsal Hall of Palace of same | 402 |
| 267. | One compartment of Western Octagon Tower of the Persian Palace at Mashita | 403 |
| 268. | Part of West Wing Wall of External Façade of Palace at Mashita | 404 |
| 269. | Elevation of External Façade of the Palace at Mashita, as restored by the Author | 405 |
| 270. | Plan of Palace at Rabbath Ammon in Moab | 407 |
| 271. | Section of Palace at same | 407 |
| 272. | Arch of Chosroes at Takt-i-Bostan | 408 |
| 273. | Plan of Church of the Nativity at Bethlehem | 419 |
| 274. | Plan of Eski Djuma, Thessalonica | 420 |
| 275. | Plan of St. Demetrius, Thessalonica | 421 |
| 276. | Arches in St. Demetrius at Thessalonica, A.D. 500 to 520. | 421 |
| 277. | Pillar in Church of St. John, Constantinople | 422 |
| 278. | Plan of Church in Baquoza | 423 |
| 279. | Section of Church at Baquoza | 423 |
| 280. | Plan of Church and Part of Monastic Buildings at Kalat Sema’n | 423 |
| 281. | Plan of Church at Roueiha | 424 |
| 282. | Section of Church at Roueiha | 424 |
| 283. | Plan of Church at Qalb Louzeh | 425 |
| 284. | Apse of Church at Qalb Louzeh | 425 |
| 285. | Plan of Chapel at Babouda | 426 |
| 286. | Elevation of Chapel at Babouda | 426 |
| 287. | Façade of Church at Tourmanin | 427 |
| 288. | Plan of Church at Pergamus | 428 |
| 289. | Section of Church at Tafkha | 429 |
| 290. | Plan of Church at Tafkha | 429 |
| 291. | Section on C D of same | 429 |
| 292. | Half Front Elevation, Tafkha | 429 |
| 293. | Plan of Great Church at Hierapolis | 430 |
| 294. | Plan of Church at Hierapolis | 430 |
| 295. | Section of same. With monogram found on its walls | 431 |
| 296. | Plan of Church on Mount Gerizim | 432 |
| 297. | Plan of Cathedral at Bosra | 432 |
| 298. | Section of Double Church at Kalat Sema’n | 433 |
| 299. | Plan of Church, Kalat Sema’n | 433 |
| 300. | Diagram of Byzantine Arrangement | 434 |
| 301. | Diagram of Byzantine Pendentives | 434 |
| 302. | Interior of Tomb of Galla Placidia, Ravenna | 435 |
| 303. | Interior of Chapel in Archiepiscopal Palace, Ravenna | 435 |
| 304. | Plan of the Church of St. George at Thessalonica | 435 |
| 305. | Section of same | 436 |
| 306. | View of same | 436 |
| 307. | Plan of Kalybe at Omm-es-Zeitoun | 437 |
| 308. | View of same | 437 |
| 309. | Plan of Church at Ezra | 438 |
| 310. | Section of Church at Ezra | 438 |
| 311. | Plan of Church of SS. Sergius and Bacchus | 439 |
| 312. | Section of Church of S. Sergius | 439 |
| 313. | Capital from Church of same | 439 |
| 314. | Entablature from same | 439 |
| 315. | Plan of Sta. Sophia. Upper Storey and Ground Floor | 441 |
| 316. | Elevation of Façade of same | 442 |
| 317. | Section of Sta. Sophia from E. to W. | 443 |
| 318. | Lower Order of Sta. Sophia | 445 |
| 319. | Upper Order of Sta. Sophia | 446 |
| 320. | Elevation of House at Refadi | 448 |
| 321. | Plan of House at Moudjeleia | 448 |
| 322. | Window at Chaqqa | 448 |
| 323. | Interior of the Golden Gateway | 449 |
| 324. | Golden Gateway (West side) | 450 |
| 325. | Roof of one of the Compartments of the Gate Huldah | 450 |
| 326. | Tomb at Hass | 451 |
| 327. | Half Section, half Elevation of Dome of Sta. Irene at Constantinople | 453 |
| 328. | Church of St. Clement, Ancyra | 455 |
| 329. | Plan of St. Clement, Ancyra | 455 |
| 330. | Plan of Church at Trabala | 456 |
| 331. | Church of Moné tés Choras | 456 |
| 332. | Plan of the Theotokos | 457 |
| 333. | Elevation of Church of Theotokos | 457 |
| 334. | Apse of Church of the Apostles, Thessalonica | 458 |
| 335. | Plan of Catholicon: Dochiariu | 459 |
| 336. | Plan of Panagia Lycodemo | 460 |
| 337. | Church of Panagia Lycodemo | 460 |
| 338. | Cathedral at Athens | 461 |
| 339. | Plan of the Church at Mistra | 462 |
| 340. | Church at Mistra | 462 |
| 341. | Apse from Mistra | 463 |
| xxx342. | Palace of the Hebdomon, Constantinople | 464 |
| 343. | View of Church at Dighour | 467 |
| 344. | Plan of Church at Dighour | 468 |
| 345. | Section of Dome at Dighour | 468 |
| 346. | Plan of Church at Usunlar | 469 |
| 347. | West Elevation of same | 469 |
| 348. | Plan of Church at Pitzounda | 469 |
| 349. | Section of Church at Pitzounda | 470 |
| 350. | View of Church at Pitzounda | 470 |
| 351. | Plan of Church at Bedochwinta | 471 |
| 352. | Plan of Church at Mokwi | 471 |
| 353. | Plan of Church at Etchmiasdin | 472 |
| 354. | Plan of Church of Kouthais | 472 |
| 355. | Window at Kouthais | 472 |
| 356. | Plan of Cathedral at Ani | 473 |
| 357. | Section of Cathedral at Ani | 473 |
| 358. | Side Elevation of same | 474 |
| 359. | East Elevation of Chapel at Samthawis | 475 |
| 360. | Niche at Samthawis | 475 |
| 361. | Plan of Tomb at Ani | 475 |
| 362. | Tomb at Ani | 475 |
| 363. | Tomb at Varzahan | 476 |
| 364. | Capital at Ani | 477 |
| 365. | Capital at Gelathi | 477 |
| 366. | Window in small Church at Ish Khan, Tortoom, Armenia | 478 |
| 367. | Window in same | 478 |
| 368. | Jamb of Doorway at same | 479 |
| 369. | Cave of Inkerman | 482 |
| 370. | Rock-cut Church at Inkerman | 482 |
| 371. | View in Church Cave, near Sebastopol | 482 |
| 372. | Plan of Church of St. Basil, Kief | 486 |
| 373. | Plan of St. Irene, Kief | 486 |
| 374. | Plan of Cathedral at Kief | 486 |
| 375. | East End of the Church at Novogorod | 487 |
| 376. | Cathedral at Tchernigow | 488 |
| 377. | Village Church near Novogorod | 489 |
| 378. | Village Church near Tzarskoe Selo | 490 |
| 379. | Interior of Church at Kostroma | 491 |
| 380. | Interior of Church near Kostroma | 492 |
| 381. | Doorway of the Troitzka Monastery, near Moscow | 493 |
| 382. | Plan of the Church of the Assumption, Moscow | 493 |
| 383. | Plan of the Church of St. Basil (Vassili Blanskenoy), Moscow | 493 |
| 384. | View of the same | 494 |
| 385. | View of Church at Kurtea d’Argyisch | 495 |
| 386. | Plan of same | 495 |
| 387. | Tower of Ivan Veliki, Moscow, with the Cathedrals of the Assumption and the Archangel Gabriel | 496 |
| 388. | Tower of Boris, Kremlin, Moscow | 497 |
| 389. | Sacred Gate, Kremlin, Moscow | 498 |
| 390. | Plan of Church at Djemla | 509 |
| 391. | Plan of Church at Announa | 509 |
| 392. | Plan of Church at Ibrim in Nubia | 510 |
| 393. | Plan of Basilica at Orleansville | 510 |
| 394. | Plan of White Convent near Siout | 511 |
| 395. | Plan of the Church of San Clemente at Rome | 513 |
| 396. | Plan of the original Basilica of St. Peter at Rome | 516 |
| 397. | Basilica of St. Peter, before its destruction | 518 |
| 398. | View of the Interior of St. Paul’s at Rome, before the fire | 520 |
| 399. | Plan of Sta. Maria Maggiore | 521 |
| 400. | View of Sta. Maria Maggiore | 522 |
| 401. | Plan of Sta. Agnese | 522 |
| 402. | Section of Sta. Agnese | 522 |
| 403. | Plan of St. Lorenzo, Fuori le Mura, Rome | 523 |
| 404. | Interior view of same | 524 |
| 405. | Plan of Sta. Pudentiana | 525 |
| 406. | Section of Sta. Pudentiana | 525 |
| 407. | Capital of Sta. Pudentiana | 525 |
| 408. | Half Section, half Elevation, of the Church of San Vincenzo alle Tre Fontane, Rome | 526 |
| 409. | Plan of St. Apollinare in Classe | 528 |
| 410. | Arches in Church of St. Apollinare Nuovo | 528 |
| 411. | Part of Apse in St. Apollinare in Classe, Ravenna | 529 |
| 412. | View of Exterior of same | 529 |
| 413. | Plan of St. Mark’s, Venice | 531 |
| 414. | Capital in Apse of same | 532 |
| 415. | View of St. Mark’s, Venice | 533 |
| 416. | Section of St. Mark’s, Venice | 534 |
| 417. | Plan of St. Antonio, Padua | 536 |
| 418. | Church at Parenzo in Istria | 537 |
| 419. | Capital of Pillar at Parenzo | 538 |
| 420. | Plan of Church at Torcello | 539 |
| 421. | Apse of Basilica at Torcello | 540 |
| 422. | Plan of Baptistery of Constantine | 544 |
| 423. | Plan of Tomb of Sta. Costanza, Rome | 544 |
| 424. | Plan of San Stefano Rotondo | 545 |
| 425. | Plan of Sti. Angeli, Perugia | 545 |
| 426. | Section of Sti. Angeli, Perugia | 546 |
| 427. | Plan of Baptistery at Nocera dei Pagani | 546 |
| 428. | Section of same | 547 |
| 429. | Plan of St. Vitale, Ravenna | 548 |
| 430. | Section of St. Vitale, Ravenna | 548 |
| 431. | Capital from same | 549 |
| xxxi431a. | Capital from same | 550 |
| 432. | Plan of S. Lorenzo at Milan | 551 |
| 433. | Half-section, half-elevation of the Baptistery at Novara | 552 |
| 434. | Plan of Tomb of Galla Placidia, Ravenna | 553 |
| 435. | Capital of shafts forming peristyle round Theodoric’s Tomb, Ravenna | 554 |
| 436. | Plan of Tomb of Theodoric | 554 |
| 437. | Elevation of Tomb of Theodoric | 554 |
| 438. | Palazzo delle Torre, Turin | 556 |
| 439. | Chapel at Friuli | 559 |
| 440. | Plan of San Antonio, Piacenza | 560 |
| 440a. | Section of same | 561 |
| 441. | Plan and Section of Baptistery at Asti | 561 |
| 442. | Plan of the Cathedral at Novara | 562 |
| 443. | Elevation and Section of same | 563 |
| 444. | Section of San Michele, Pavia | 564 |
| 445. | View of the Apse of same | 565 |
| 446. | Plan of San Ambrogio, Milan | 566 |
| 447. | Atrium of San Ambrogio, Milan | 567 |
| 448. | Façade of the Cathedral at Piacenza | 568 |
| 449. | Apse of the Cathedral, Verona | 570 |
| 450. | Façade of San Zenone, Verona | 571 |
| 451. | Plan of Sta. Maria, Toscanella | 573 |
| 452. | View of the Interior of same | 573 |
| 453. | Elevation of the Exterior of same | 574 |
| 454. | Plan of the Duomo, Brescia | 575 |
| 455. | Elevation of Duomo at Brescia | 575 |
| 456. | Section of Duomo at Brescia | 576 |
| 457. | Plan of San Tomaso in Limine | 576 |
| 458. | Section of San Tomaso | 576 |
| 459. | Tower of Sta. Maria-in-Cosmedin | 578 |
| 460. | Plan of the Old and New Cathedrals at Naples | 583 |
| 461. | Plan of San Miniato, Florence | 584 |
| 462. | Section of same | 584 |
| 463. | Elevation of same | 585 |
| 464. | Transverse section of same | 586 |
| 465. | View of the Cathedral at Pisa | 587 |
| 466. | Plan of Zara Cathedral | 588 |
| 467. | View of Zara Cathedral | 589 |
| 468. | Façade of Cathedral at Troja | 591 |
| 469. | Plan of Cathedral at Bari | 591 |
| 470. | East End of Cathedral at Bari | 592 |
| 471. | Apse of San Pellino | 592 |
| 472. | Church at Caserta Vecchia | 592 |
| 473. | West Front of Bittonto Cathedral | 593 |
| 474. | West Front of the Church of San Nicolo in Bari | 594 |
| 475. | View of the Interior of San Nicolo, Bari | 595 |
| 476. | Plan of Crypt at Otranto | 596 |
| 477. | View in Crypt at Otranto | 596 |
| 478. | Window in the South side of the Cathedral Church in Matera | 597 |
| 479. | Doorway of Church of Pappacoda, Naples | 598 |
| 480. | Cloister of St. John Lateran | 599 |
| 481. | Plan of Church at Molfetta | 600 |
| 482. | Section of Church at Molfetta | 600 |
| 483. | Section of Baptistery, Mont St. Angelo | 601 |
| 484. | Plan of same | 601 |
| 485. | Tomb of Bohemund at Canosa | 601 |
| 486. | Plans of San Donato, Zara | 603 |
| 487. | Section of San Donato, Zara | 603 |
| 488. | Leaning Tower at Pisa | 604 |
| 489. | Tower of Gaeta | 604 |
| 490. | Plan of Castel del Monte | 606 |
| 491. | Part Section, part Elevation, of Castel del Monte | 606 |
| 492. | Plan of the Church at Vercelli | 610 |
| 493. | Church at Asti | 611 |
| 494. | Plan of Sta. Anastasia, Verona | 612 |
| 495. | One Bay of Sta. Anastasia, Verona | 612 |
| 496. | One Bay, externally and internally, of the Church of San Martino, Lucca | 613 |
| 497. | Plan of Cathedral at Siena | 614 |
| 498. | Façade of the Cathedral at Siena | 615 |
| 499. | Plan of the Cathedral at Florence | 617 |
| 500. | Section of Dome and part of Nave of the Cathedral at Florence | 618 |
| 501. | Part of the Flank of Cathedral at Florence | 619 |
| 502. | Dome at Chiaravalle, near Milan | 620 |
| 503. | Section of Eastern portion of Church at Chiaravalle | 621 |
| 504. | Plan of the part executed of St. Petronio, Bologna | 623 |
| 505. | Section of San Petronio, Bologna | 624 |
| 506. | Plan of the Cathedral of Milan | 625 |
| 507. | Section of Cathedral of Milan | 627 |
| 508. | View of the Interior of same | 628 |
| 509. | Plan of designed Façade of same | 629 |
| 510. | View of the Certosa, near Pavia | 630 |
| 511. | Duomo at Ferrara | 632 |
| 512. | View of St. Francesco, Brescia | 633 |
Like every other object of human inquiry, Architecture may be studied from two distinct points of view. Either it may be regarded statically, and described scientifically as a thing existing, without any reference to the manner in which it was invented; or it may be treated historically, tracing every form from its origin and noting the influence one style has had upon another in the progress of time.
The first of these methods is more technical, and demands on the part of the student very considerable previous knowledge before it can be successfully prosecuted. The other, besides being more popular and easily followed, has the advantage of separating the objects of study into natural groups, and tracing more readily their connection and relation to one another. The great superiority, however, of the historical mode of study arises from the fact that, when so treated, Architecture ceases to be a mere art, interesting only to the artist or his employer, but becomes one of the most important adjuncts of history, filling up many gaps in the written record and giving life and reality to much that without its presence could with difficulty be realised.
A still more important use of architecture, when followed as a history, is found in its ethnographic value. Every different race of men had their own peculiar forms in using the productions of this art, and their own mode of expressing their feelings or aspirations by its means. When properly studied, it consequently affords a means as important as language for discriminating between the different races of mankind—often more so, and one always more trustworthy and more easily understood.
In consequence of these advantages, the historical mode is that which will be followed in this work. But before entering upon the narrative, it will be well if a correct definition of what Architecture really is can be obtained. Without some clear views on the technical position of the art, much that follows will be unintelligible and the meaning of what is said may be mistaken.
4A great deal of the confusion of ideas existing on the subject of Architecture arises from the fact that writers have been in the habit of speaking of Painting, Sculpture, and Architecture as three similar fine arts, practised on the same principles. This error arose in the 16th century, when in a fatal hour painters and sculptors undertook also the practice of architecture, and builders ceased to be architects. This confusion of ideas has been perpetuated to the present hour, and much of the degraded position of the art at this day is owing to the mistake then made. It cannot therefore be too strongly insisted upon that there is no essential connection between painting and sculpture on the one hand and architecture on the other.
The two former rank among what are called Phonetic arts. Their business is to express by colour or form ideas that could be—generally have been—expressed by words. With the Egyptians their hieroglyphical paintings were their only means of recording their ideas. With us, such a series of pictures as Hogarth’s ‘Mariage à la Mode’ or ‘The Rake’s Progress’ are novels written with the brush; and many of our Mediæval cathedrals possess whole Bibles carved in stone. Poetry, Painting, and Sculpture are three branches of one form of art, refined from Prose, Colour, and Carving, and form a group apart, interchanging ideas and modes of expression, but always dealing with the same class of images and appealing to the same class of feelings.
Distinct and separate from these Phonetic arts is another group, generally known as the Technic arts, comprising all those which minister to the primary wants of mankind under such various heads as food, clothing, and shelter. Between these two groups is a third called the Æsthetic arts, forming, as it were, a flux between the Technic and Phonetic arts, fusing the whole into one homogeneous mass. They take their rise from the fact that to every want which the technic arts are designed to supply, Nature has attached a gratification which is capable of refining all the useful arts into fine arts. Thus the Technic art of agriculture is capable of supplying food in its simple form; but by the refinements of cookery and of wine-making, simple meats and drinks are capable of affording endless gratification to the senses. Simple clothing to keep out the cold requires little art, but embroidery, dyeing, lace-making, and fifty other arts employ the hands of millions, and the gratification afforded by their use, the thoughts of as many more. Shelter, too, is easily provided, but ornamental and ornamented shelter, or in other words architecture, is one of the most prominent of the fine arts. Music, though hardly known as a useful art, is the most typical of the Æsthetic arts, and, “married to immortal verse,” steps upwards into the region of the Phonetic arts, just as building, when used for ornament, is raised out of the domain of the Technic arts.
Like music, colour and form may be so arranged as to afford 5infinite pleasure to the senses without their having any phonetic value; but when used, as sculpture and paintings are and have been in all ages, to tell a tale or to express emotion, they rank high among the Phonetic arts; and though able to express certain impressions even more vividly than can be done by words, they cannot rise to the high intellectual position that can be attained either by Poetry or Eloquence when expressed only in that verbal language which is the highest gift of God to man.
The term Beauty in Art is little else than a synonym for Perfection, but perfection in these three classes of arts is far from being the same thing, or of anything like the same value, as an intellectual expression. The beauty of a machine, however complicated, arises mainly from its adaptability to use; while a mosaic of exquisite colours, or an elevated piece of instrumental music, raises emotions of a far higher class: and a painting or a poem may appeal to all that is great or noble in human nature.
If, for instance, we take a dozen arts at random, and divide them into twelve equal component parts, as they belong to each of the three divisions, Technic, Æsthetic, or Phonetic. If we further assign one as the relative intellectual value of the Technic element, two as that due to the Æsthetic, and three as the proportionate importance of the Phonetic, we obtain the index number in the fourth column of the table below, which is probably not far from expressing the true relative value of each. Of course there are adventitious circumstances which may raise the proportionate value of any art very considerably, and, on the other hand, neglect of cultivation may depress others below their true value; but the principles on which the table is formed are probably those by which a correct estimate may be most easily obtained.
| Technic. | Æsthetic. | Phonetic. | ||
| Heating, Ventilation, &c. | 11 | 1 | — | = 13 |
| Turnery, Joinery, &c. | 9 | 3 | — | = 15 |
| Gastronomy | 7 | 5 | — | = 17 |
| Jewellery | 7 | 4 | 1 | = 18 |
| Clothing | 5 | 6 | 1 | = 20 |
| Ceramique | 5 | 5 | 2 | = 21 |
| Gardening | 4 | 6 | 2 | = 22 |
| Architecture | 4 | 4 | 4 | = 24 |
| Music | 2 | 6 | 4 | = 26 |
| Painting and Sculpture | 3 | 3 | 6 | = 27 |
| Drama | 2 | 2 | 8 | = 30 |
| Epic | — | 2 | 10 | = 34 |
| Eloquence | — | 1 | 11 | = 35 |
The first three arts enumerated in the above table are evidently utterly incapable of Phonetic expression, and the first hardly even can 6be raised to the second class, though air combined with warmth does afford pleasure to the senses. Joinery may convey an idea of perfection from the mode in which it is designed or executed; while gastronomy, as above mentioned, does really afford important gratification to the senses, approaching nearly in importance to the plain food-supplying art of cookery. Jewellery may combine extreme mechanical beauty of execution with the most harmonious arrangement of colour, and may also be made to express a meaning, though only to a very limited extent. Clothing depends on both colour and form for its perfection more than even beauty of material, and may be made to express gaiety or sorrow, though perhaps more from association than from any inherent qualities. The arts of the potter can exhibit not only perfection in execution, but practically depend both in colour and form, especially the latter, to raise their products out of the category of mere Technic arts; while the paintings on them, which are indispensable to the highest class of ceramique, render them capable of taking their place among those objects which affect a Phonetic mode of utterance. As mentioned above, floriculture and landscape gardening may, besides their use, afford infinite pleasure to the senses and even express gaiety or gloom, and, from mere prettiness, may rise towards something like sublimity in expression.
Architecture is, however, the central art of the group, which in its highest form combines all the three classes in nearly equal proportions, but not always necessarily so. The Pyramids of Egypt, for instance, though Technically the most wonderful buildings in the world, have very little Æsthetic, and hardly more than one of Phonetic, value. The great temple at Baalbec,—and in fact all the Roman temples, may be classed as containing six parts of Technic value for mechanical excellence of size and construction, four for beauty of form and detail, but certainly not more than two parts for any expression of religion or intellect they may exhibit, making up twenty for the index of their artistic value. Cologne cathedral takes very nearly the same position in the scale, but Rheims, Bourges, and the more perfect Gothic cathedrals may be classed higher, as five Technic, three Æsthetic, and four Phonetic, making twenty-three altogether as their index; and they are only surpassed by such a building as the Parthenon at Athens, which, though not so large and imposing as some others, is, so far as we know, the most perfect building yet erected by man. It owes this perfection mainly to the equal balance of parts. There is nothing so difficult or startling in its construction as there is in most Gothic cathedrals; but what there is is mechanically perfect, both in design and execution. Its form is nearly perfect, combining stability with simplicity and at the same time avoiding monotony or any appearance of greater strength than is absolutely necessary. Its details are all as exquisite in form as the 7Temple itself, and it was at one time coloured to an extent we can hardly now realise, but which must, when complete, have made it one of the most perfect examples of Æsthetic art. The walls of the cella were almost certainly covered with Phonetic paintings similar to those in the Lesche at Delphi; and the pediment, the metopes, the friezes, were all sculptured to such an extent as to render the Phonetic expression of the building at least equal to either its Technic or its Æsthetic excellence. It is easy to conceive a building, such as a trophy or a mausoleum, in which painting and sculpture shall be relatively more important than they are in this instance, and in which consequently the index may be raised above twenty-four; but if this were so, it ought probably to be classed among works of sculpture or painting rather than as an object of architecture.
In music the Æsthetic element naturally prevails over the other two, but Technic cleverness of execution often affords to some as much pleasure as the harmony of the sounds produced; and, on the other hand, in its power of expressing joy or sorrow and of exciting varied emotions at will, it rivals frequently the more distinct and permanent power of words themselves, when unaccompanied by Æsthetic forms of art. It is of course, however, in the outpourings of his imagination or in the logical products of his reason that man rises highest, and stands most distinctly apart from the rest of created beings; and though all may not be capable of appreciating it, it is when both Technic and Æsthetic adjuncts are laid aside, and man listens only to the voice of reason, that he reaches what, as far as we can now see, is the highest form of his artistic development.
Of course there are many other forms in which this might be expressed, and many will be inclined to dispute the correctness of the figures assigned to each art. They are, in fact, only approximations, and as a first attempt can hardly be expected to meet all the conditions of the problem. The truth of the matter is, it would have been better to use algebraic symbols and to allow every one to translate them into numbers according to his own fancy, but in the present state of matters such an attempt would have savoured of affectation. The art of criticism is not sufficiently advanced for this, but if two or three would follow up what is here indicated it might be placed on a basis from which to proceed higher. Meanwhile, perhaps the annexed diagram may serve to explain the relation of the three classes of art to one another, and the way in which they overlap and mix together so as to make up a perfect art. Like the preceding table, it will require several editions, the work of several minds, before it can be perfected, but it probably is not far from representing the truth as at present known.
There is still another relation of these arts to one another which must not be overlooked before proceeding further, as a knowledge of 8it is indispensable in forming a correct judgment of their respective merits. Like the Sciences, the Technic Arts hardly depend, after the first steps have been taken, on individual prowess for their advancement. An astronomer, a chemist, or a natural historian, now starts from the highest point reached by any of his predecessors, and he has only to observe and calculate, to analyse and put together again, in order to advance our knowledge. A giant may of course make a rapid stride in advance, but a hundred dwarfs will, if they persevere steadily in the right path, not only overtake him, but probably advance far beyond anything the most gigantic intellect can accomplish in science. So it is also in the mechanical arts. The immense strides that have of late years been made in improving all the machines employed in manufactures have not been made by the greatest intellects, but by thousands of men suggesting new contrivances and acquiring skill by steady improvement in manipulation. In ship-building, for instance, one of the most complex of the useful arts, no one can tell who the men were who converted the rude galleys in which our forefathers sailed to Crecy and Agincourt into the gigantic commercial steamers and war-ships of the present day. It was the result of thousands of intellects working steadily towards a well-defined aim, and accomplishing a triumph by a process which must always be successful in the Technic arts when persevered in long enough.
Diagram No. 1.
The case is somewhat different with the Æsthetic arts. Some men are insensible to the harmony of colour and are not offended by the crudest contrasts. Others do not perceive concords in music, and the most violent discords give them no pain; others, on the contrary, are endowed with the utmost sensibility on these points, and are consequently not only able to appreciate the beauty of the arts arising out of colour or sound, but of advancing what to those who cannot understand them is an inexplicable mystery.
When from the Æsthetic Arts we turn to the Sciences and Technic 9Arts, we find, as just pointed out, that the individual becomes much less important and the process everything. Every astronomer now knows more than Newton; every chemist than John Dalton. Any ordinary mechanic can start from a higher point than was reached by a Watt or an Arkwright or a Stephenson, and can surpass them. But no man can mount on the shoulders of such men as Handel or Mozart or Beethoven, and surpass them; and the higher we ascend in the scale of arts the more important does the individual become and the less so the process. A Phidias, a Raphael, a Shakespeare, are yet unsurpassed, and possibly never may be. All men may be taught to carve, to colour, and to write mechanically, and may even be instructed to practise these processes so as to afford pleasure to themselves and others; but when from this we rise to Phonetic painting, sculpture, or poetry, and the still higher region of philosophy, the individual becomes all in all, and his special genius there stamps the true value on the production.
In this respect, again, Architecture is singularly happy as a means of study. As a Technic art it is practised in the same progressive principles as all its sister arts, irrespective of individuality. As an Æsthetic art it is hardly so individual as music, because its forms and colours are permanent and capable of being repeated with such improvements as each experiment suggests in every subsequent building; but when it attempts Phonetic forms of utterance, these are seldom so absolutely integral that they cannot be separated from the building and judged of apart. A Greek Temple or a Mediæval cathedral without painting and sculpture may be poor and inanimate, but still so beautiful in its form, so grand from its mass, and so imposing from its durability, that in its Technic-Æsthetic form alone it may command our admiration, more perhaps than any other work of human hands, except of course, as said before, the highest intellectual forms of Phonetic art. Architecture thus combines in itself the steady progressive perfectibility of a Technic art quite independent of the intellectual capabilities of the architect, combined with the Æsthetic appreciation of form and colour which is mostly universal, and can at all events be generally inculcated and learned. But its greatest glory is that it can enlist in its service the higher branches of Phonetic sculpture and painting, which can be exercised only by specially gifted individuals. It is difficult to conceive all these qualities being equally combined in the person of any one architect, and in practice it is by no means necessary for success that it should be so, though, if possible, the combination would no doubt be advantageous. In criticising, on the contrary, it is always necessary to separate and distinguish between the mechanical, the sensuous, and the intellectual part of a design. Without this an intelligent appreciation of its merits or defects can hardly be obtained.
Notwithstanding all that has been pointed out already, and the 10advantages of its central position among the sister arts, combined with its own intrinsic merits, Architecture would never have attained to the high position it now occupies had it not been fitted with an aim which raised it far above all utilitarian feelings. In all ages, though certainly not among all nations, Architecture has been employed as one of the principal forms of worship. The desire to erect a temple to their Gods worthy to be their dwelling-place has exalted even the rude arts of savages into something worthy of admiration, and when such a nation as the Egyptians were inspired with the same desire, they produced, even in the earliest ages, temples which still excite feelings of admiration and of awe. Had the practice of architecture been restricted to supplying only the ordinary wants of mortals, it never would have risen to be the noble art it now is. Neither the palaces of the greatest kings, nor the wants of the proudest municipalities, nor the emporia of the richest commerce would have supplied that lofty aim which is indispensable for any great intellectual effort. But when, freed from all trammels of use or expense, the object is to erect a casket worthy to enshrine the sacred image of a god whom men feared but adored, the aspiration elevates the work far beyond its useful purpose. It is when men seek to erect a hall in which worshippers may meet to render that homage which is their greatest privilege and their highest aspiration, when all that man can conceive that is great and beautiful is enlisted to create something worthy of the purpose, that temples have been erected which rank among the most successful works man has yet produced. Had any exigencies of use or economy controlled the design of the Parthenon, or of any of our Mediæval cathedrals, they must have taken a much lower place in the scale than they now occupy. Their architects were, however, in fact as free from any utilitarian influences as the poets who composed the ‘Iliad’ or ‘Paradise Lost.’
If what has just been said above is understood, it may be sufficient to make it possible to give a more definite answer than has usually been done to two questions to which hitherto no satisfactory reply has been accorded in modern times. “What,” it is frequently asked, “is the true definition of the word Architecture, or of the Art to which it applies?” “What are the principles which ought to guide us in designing or criticising Architectural objects?”
Fifty years ago the answers to these questions generally were, that Architecture consisted in the closest possible imitation of the forms and orders employed by the Romans; that a church was well designed exactly in the proportion in which it resembled a heathen temple; and 11that the merit of a civic building was to be measured by its imitation, more or less perfect, of some palace or amphitheatre of classic times.
In the beginning of this century these answers were somewhat modified by the publication of Stuart’s works on Athens; the word Grecian was substituted for Roman in all criticisms, and the few forms that remain to us of Grecian art were repeated ad nauseam in buildings of the most heterogeneous class and character.
At the present day churches have been entirely removed from the domain of classic art, and their merit is made to depend on their being correct reproductions of mediæval designs. Museums and town halls still generally adhere to classic forms, alternating between Greek and Roman. In some of our public buildings an attempt has recently been made to reproduce the Middle Ages, while in our palaces and clubhouses that compromise between classicality and common sense which is called Italian is generally adhered to. These, it is evident, are the mere changing fashions of art. There is nothing real or essential in this Babel of styles, and we must go deeper below the surface to enable us to obtain a true definition of the art or of its purposes. Before attempting this, however, it is essential to bear in mind that two wholly different systems of architecture have been followed at different periods in the world’s history.
The first is that which prevailed since the art first dawned, in Egypt, in Greece, in Rome, in Asia, and in all Europe, during the Middle Ages, and generally in all countries of the world down to the time of the Reformation in the 16th century, and still predominates in remote corners of the globe wherever European civilisation or its influences have not yet penetrated. The other being that which was introduced with the revival of classic literature contemporaneously with the reformation of religion, and still pervades all Europe and wherever European influence has established itself.
In the first period the art of architecture consisted in designing a building so as to be most suitable and convenient for the purposes required, in arranging the parts so as to produce the most stately and ornamental effect consistent with its uses, and in applying to it such ornament as should express and harmonise with the construction, and be appropriate to the purposes of the building; while at the same time the architects took care that the ornament should be the most elegant in itself which it was in their power to design.
Following this system, not only the Egyptian, the Greek, and the Gothic architects, but even the indolent and half-civilised inhabitants of India, the stolid Tartars of Thibet and China, and the savage Mexicans, succeeded in erecting great and beautiful buildings. No race, however rude or remote, has failed, when working on this system, to produce buildings which are admired by all who behold them, and are well worthy of the most attentive consideration. Indeed, it is 12almost impossible to indicate one single building in any part of the world, designed during the prevalence of this true form of art, which was not thought beautiful, not alone by those who erected it, but which does not remain a permanent object of admiration and of study even for strangers in all future ages.
The result of the other system is widely different from this. It has now been practised in Europe for more than three centuries, and by people who have more knowledge of architectural forms, more constructive skill, and more power of combining science and art in effecting a great object, than any people who ever existed before. Notwithstanding this, from the building of St. Peter’s at Rome to that of our own Parliament Houses, not one building has been produced that is admitted to be entirely satisfactory, or which permanently retains a hold on general admiration. Many are large and stately to an extent almost unknown before, and many are ornamented with a profuseness of which no previous examples exist; but with all this, though they conform with the passing fashions of the day, they soon become antiquated and out of date, and men wonder how such a style could ever have been thought beautiful, just as we wonder how any one could have admired the female costumes of the last century which captivated the hearts of our grandfathers.
It does not require us to go very deeply into the philosophy of the subject to find out why this should be the case; the fact simply being that no sham was ever permanently successful, either in morals or in art, and no falsehood ever remained long without being found out, or which, when detected, inevitably did not cease to please. It is literally impossible that we should reproduce either the circumstances or the feelings which gave rise to classical art and made it a reality; and though Gothic art was a thing of our country and of our own race, it belongs to a state of society so totally different from anything that now exists, that any attempt at reproduction now must at best be a masquerade, and never can be a real or earnest form of art. The designers of the Eglinton Tournament carried the system to a perfectly legitimate conclusion when they sought to reproduce the costumes and warlike exercises of our ancestors; and the pre-Raphaelite painters were equally justified in attempting to do in painting that which was done every day in architecture. Both attempts failed signally, because we had progressed in the arts of war and painting, and could easily detect the absurdity of these practices. It is in architecture alone of all the arts that the false system remains, and we do not yet perceive the impossibility of its leading to any satisfactory result.
No. 2.
Bearing all this in mind, let us try if we can come to a clearer definition of what this art really is, and in what its merits consist. Let us suppose the Diagram (Woodcut No. 2) to represent an ordinary 13house, such as is found in many of our London streets. The first division, A, is the most prosaic form of building, no more thought being bestowed on it than if it were a garden wall. The second division, B, is better; the cornices and string-course indicate the levels of the several floors into which the building is divided; the quoins of the door and windows are emphasized by the use of a better or different coloured brick, and the arched forms given to door and window on ground floor suggest increased strength. In the third division, C, this has been carried still further; the rustication of the stonework on the lower storey gives an appearance of greater solidity, and the importance given to the cornices, the addition of architrave mouldings round windows, with pediments to those of the first floor, and the decoration of the parapet carry the house out of the domain of building into that of architecture. The fourth division carries this still farther; the whole design is here divided into three stages—the ground floor being treated as a podium or base to the two floors above, the whole being crowned by an attic storey; greater importance is given to the front by the slight projection of two wings; the entrance doorway is emphasized, and by means of cornices, quoins, and pilasters, a play of light and shade is given to an elevation which virtually lies in one plane. In this instance not only is a greater amount of ornament applied, but the parts are so disposed as in themselves to produce a more agreeable effect; and although the height of the floors remains the same, and the amount of light introduced very nearly so, still the slight grouping of the parts is such as to produce a better class of architecture than could be done by the mere application of any amount of ornament. The diagram deals with one phase of the subject, “a town house,” and with the elevation only, the style being that generally known as Italian; if it is admitted that the last division is an object of architecture, which the first is not, it follows from this analysis that 14architecture commences when some embellishment is added to the building which was not strictly a structural necessity. The value of the embellishment, from an architectural point of view, depends on—the extent to which, in its application, the structural features have been recognised,—the appropriateness of the ornament,—the careful study of proportion and balance of the several parts, and,—in a certain measure, the extent to which some known precedent has been followed.
Recurring, for instance, to the Parthenon, to illustrate this principle farther. The proportions of length to breadth, and of height to both these, are instances of carefully-studied proportion and balance; and still more so is the arrangement of the porticoes and the disposition of the peristyle. If all the pillars were plain square piers, and all the mouldings square and flat, still the Parthenon could not fail, from the mere disposition of its parts, to be a pleasing and imposing building. So it is with a Gothic cathedral. The proportion of length to breadth, the projection of the transepts, the different height of the central and side aisles, the disposition and proportion of the towers, are all instances of proportion and balance, and beautiful even if without ornament. Many of the older abbeys, especially those of the Cistercians, are as devoid of ornament as a modern barn; but from the mere disposition of their parts they are always pleasing and, if large, are imposing objects of architecture. Stonehenge is an instance of ornamental construction wholly without ornament, yet it is almost as imposing an architectural object as any of the same dimensions in any part of the world. It is, however, when ornament is added to this, and when that ornament is elegant itself and appropriate to the construction and to the purposes of the building, that the temple or the cathedral ranks among the highest objects of the art and becomes one of the noblest works of man.
Even without structural decoration, a building may, by mere dint of ornament, become an architectural object, though it is far more difficult to attain good architecture by this means, and in true styles it has seldom been attempted. Still, such a building as the town hall at Louvain, which if stripped of its ornaments would be little better than a factory, by richness and appropriateness of ornament alone has become a very pleasing specimen of the art. In modern times it is too much the fashion to attempt to produce architectural effects not only without attending to ornamental construction, but often in defiance of, and in concealing that which exists. When this is done, the result must be bad art; but nevertheless it is architecture, however execrable it may be.
If these premises are correct, the art of the builder consists in merely putting materials together so as to attain the desired end in the speediest and simplest fashion. The art of the civil or military engineer consists in selecting the best and most appropriate materials 15for the object he has in view, and using these in the most scientific manner, so as to ensure an economical but satisfactory result. Where the engineer leaves off, the art of the architect begins. His object is to arrange the materials of the engineer, not so much with regard to economical as to artistic effects, and by light and shade, and outline, to produce a form that in itself shall be permanently beautiful. He then adds ornament, which by its meaning doubles the effect of the disposition he has just made, and by its elegance throws a charm over the whole composition.
Viewed in this light, it is evident that there are no objects that are usually delegated to the civil engineer which may not be brought within the province of the architect. A bridge, an aqueduct, the embankment of a lake, or the roof of a station, are all as legitimate subjects for architectural ornament as a temple or a palace. They were all so treated by the Romans and in the Middle Ages, and are so treated up to the present day in the remote parts of India, and wherever true art prevails.
It is not essential that the engineer should know anything of architecture, though it is certainly desirable he should do so; but, on the other hand, it is indispensably necessary that the architect should understand construction. Without that knowledge he cannot design; and although it has been conceived by some that it would be better to delegate the mechanical task to the engineer, and so restrict himself entirely to the artistic arrangement and ornamentation of his design, such a course would be fatal to the development of architectural style. It is true that in some of the works above stated, it is generally thought desirable to confide them to engineers; but in the few cases in which architects have been called in to co-operate with them, as in the roofs of the Great Western and Midland Railway Stations, the result has been so satisfactory as to suggest the advantage of such combination. In the Great Exhibition of 1851, the happiest feature, the semicircular roof of the transept, was suggested by the late Sir Charles Barry, and the developments of that form in the nave and transepts of the Crystal Palace constitute still the most beautiful features of that building. In works of a monumental character, such as town-halls, museums, or public galleries, which are designed to last for centuries, the strict economy of material, which is sometimes deemed necessary in engineering works, is not advisable, because mass, stability, and durability—three elements into which we enter later on—are of the very essence of their architectural character. In these and other works of a simple character, such as private houses, the calculations are not of so elaborate a nature as to be outside the architect’s knowledge; and although of late years the use of iron girders, stanchions, and columns has introduced a new factor among building materials which occasionally may call for the assistance of an expert to 16substantiate the architect’s calculations, it has hitherto been the custom to conceal these features, so that they have not entered the phase of architectural design. In course of time, when an increased knowledge of the properties of iron is acquired, we may hope to see a great development in its artistic treatment, so that it may eventually rise to the dignity and assume the character, which in the architectural styles of bygone times, all other materials have reached.
In addition, however, to the convenient arrangement and artistic treatment of a building, and its proper and sound construction, there is still a third element which requires the special endowment of an artist for its exercise. No architectural object can be considered as complete, or as having attained the highest excellence till it is endowed with a voice through the aid of phonetic sculpture and painting.
In a few words, therefore, a perfect building may be defined as one that combines:—
Besides these, however, which are the principal theoretic characteristics of architecture, there are several minor technical principles which it may be convenient to enumerate before proceeding farther.
It may also be well to give such examples as shall make what has just been indicated theoretically, clearer than can be done by the mere enunciation of abstract principles.
The first and most obvious element of architectural grandeur is size—a large edifice being always more imposing than a small one; and when the art displayed in two buildings is equal, their effect is almost in the direct ratio of their dimensions. In other words, if one temple or church is twice or three times as large as another, it is twice or three times as grand or as effective. The Temple of Theseus differs very little, except in dimensions, from the Parthenon, and, except in that respect, hardly differed at all from the Temple of Jupiter at Elis; but because of its smaller size it must rank lower than the greater examples. In our own country many of our smaller abbeys or parish 17churches display as great beauty of design or detail as our noblest cathedrals, but, from their dimensions alone, they are insignificant in comparison, and the traveller passes them by, while he stands awe-struck before the portals or under the vault of the larger edifices.
The pyramids of Egypt, the topes of the Buddhists, the mounds of the Etruscans, depend almost wholly for their effect on their dimensions. The Romans understood to perfection the value of this element, and used it in its most unsophisticated simplicity to obtain the effect they desired. In the Middle Ages the architects not only aspired to the erection of colossal edifices, but they learnt how they might greatly increase the apparent dimensions of a building by a scientific disposition of the parts and a skilful arrangement of ornament, thereby making it look very much larger than it really was. It is, in fact, the most obvious and most certain, though it must be confessed perhaps the most vulgar, means of obtaining architectural grandeur; but a true and perfect example can never be produced by dependence on this alone, and it is only when size is combined with beauty of proportion and elegance of ornament that perfection in architectural art is attained.
Next to size the most important element is stability. By this is meant, not merely the strength required to support the roof or to resist the various thrusts and pressures, but that excess of strength over mere mechanical requirement which is necessary thoroughly to satisfy the mind, and to give to the building a monumental character, with an appearance that it could resist the shocks of time or the violence of man for ages yet to come.
No people understood the value of this so well as the Egyptians. The form of the Pyramids is designed wholly with reference to stability, and even the Hypostyle Hall at Karnac excites admiration far more by its massiveness and strength, and its apparent eternity of duration, than by any other element of design. In the Hall all utilitarian exigencies and many other obvious means of effect are sacrificed to these, and with such success that after more than 3000 years’ duration still enough remains to excite the admiration which even the most unpoetical spectators cannot withhold from its beauties.
In a more refined style much of the beauty of the Parthenon arises from this cause. The area of each of the pillars in the portico of the Pantheon at Rome is under 20 feet, that of those of the Parthenon is over 33 feet, and, considering how much taller the former are than the latter, it may be said that the pillars at Athens are twice as massive as those of the Roman temple, yet the latter have sufficed not only for the mechanical, but for many points of artistic stability; but the strength and solidity of the porticos of the Parthenon, without taking 18into consideration its other points of superiority, must always render it more beautiful than the other.
The massiveness which the Normans and other early Gothic builders imparted to their edifices arose more from clumsiness and want of constructive skill than from design; but, though arising from so ignoble a cause, its effect is always grand, and the rude Norman nave often surpasses in grandeur the airy and elegant choir which was afterwards added to it. In our own country no building is more entirely satisfactory than the nave at Winchester, where the width of the pillars exceeds that of the aisles, and the whole is Norman in outline, though Gothic in detail. On the other hand no building of its dimensions and beauty of detail can well be so unsatisfactory as the choir at Beauvais. Though it has stood the test of centuries, it looks so frail, requires so many props to keep it up, and is so evidently an overstrained exercise of mechanical cleverness, that though it may excite wonder as an architectural tour de force, it never can satisfy the mind of the true artist, or please to the same extent as less ambitious examples.
Even when we descend to the lowest walks of architecture we find this principle prevailing. It would require an immense amount of design and good taste to make the thin walls and thinner roof of a brick and slated cottage look as picturesque or so well as one built of rubble-stone, or even with mud walls, and a thatched roof: the thickness and solidity of the one must always be more satisfactory than the apparent flimsiness of the other. Here, as in most cases, necessity controls the architect; but when fettered by no utilitarian exigencies, there is no safer or readier means of obtaining an effect than this, and when effect alone is sought it is almost impossible for an architect to err in giving too much solidity to his building. Size and stability are alone sufficient to produce grandeur in architectural design, and, where sublimity is aimed at, they are the two elements most essential to its production, and are indeed the two without which it cannot possibly be attained.
As the complement to stability, the length of time during which architectural objects are calculated to endure confers on them an impress of durability which can hardly be attained by any of the sister arts. Sculpture may endure as long, and some of the Egyptian examples of that art found near the Pyramids are as old as anything in that country, but it is not their age that impresses us so much as the story they have to tell. The Pyramids, on the other hand, in the majesty of their simple Technic grandeur, do challenge a quasi-eternity of duration with a distinctness that is most impressive, and 19which there, as elsewhere, is one of the most powerful elements of architectural expression.
When Horace sang—
he overlooked the fact that long before Troy was dreamt of, Egyptian kings had raised pyramids which endure to the present day, and the Pharaohs of the Eighteenth and Nineteenth dynasties had filled the valley of the Upper Nile with temples and palaces and tombs which tell us not only the names of their founders, but reveal to us their thoughts and aspirations with a distinctness that no sacred poet could as well convey. From that time onward the architects have covered the world with monuments that still remain on the spot where they were erected, and tell all, who are sufficiently instructed to read their riddles aright, what nations once occupied these spots, what degree of civilisation they had reached, and how, in erecting these monuments on which we now gaze, they had attained that quasi-immortality after which they hankered.
Sculpture and painting, when allied with architecture, may endure as long, but their aim is not to convey to the mind the impression of durability which is so strongly felt in the presence of the more massive works of architectural art. Even when ruined and in decay the buildings are almost equally impressive, while ruined sculptures or paintings are generally far from being pleasing objects, and, whatever their other merits may be, certainly miss that impression obtained from the durability of architectural objects.
Another very obvious mode of obtaining architectural effect is by the largeness or costliness of the materials employed. A terrace, or even a wall, if composed of large stones, is in itself an object of considerable grandeur, while one of the same lineal dimensions and of the same design, if composed of brick or rubble, may appear a very contemptible object.
Like all the more obvious means of architectural effect, the Egyptians seized on this and carried it to its utmost legitimate extent. All their buildings, as well as their colossi and obelisks, owe much of their grandeur to the magnitude of the materials employed in their construction. The works called Cyclopean found in Italy and Greece have no other element of grandeur than the size of the stones or rather masses of rock which the builders of that age were in the habit of using. In Jerusalem nothing was so much insisted upon by the old 20writers, or is so much admired now, as the largeness of the stones employed in the building of the Temple and its substructions.
We can well believe how much value was attached to this when we find that in the neighbouring city of Baalbec stones were used of between 60 and 70 ft. in length, weighing as much as the tubes of the Britannia Bridge, for the mere bonding course of a terrace wall. Even in a more refined style of architecture, a pillar, the shaft of which is of a single stone, or a lintel or architrave of one block, is always a grander and more beautiful object than if composed of a number of smaller parts. Among modern buildings, the poverty-stricken design of the church of St. Isaac at St. Petersburg is redeemed by the grandeur of its monolithic columns, whilst the beautiful design of the Madeleine at Paris is destroyed by the smallness of the materials in which it is expressed. It is easy to see that this arises from the same feeling to which massiveness and stability address themselves. It is the expression of giant power and the apparent eternity of duration which they convey; and in whatever form that may be presented to the human mind, it always produces a sentiment tending towards sublimity, which is the highest effect at which architecture or any other art can aim.
The Gothic architects ignored this element of grandeur altogether, and sought to replace it by the display of constructive skill in the employment of the smaller materials they used, but it is extremely questionable whether in so doing they did not miss one of the most obvious and most important principles of architectural design.
Besides these, value in the mere material is a great element in architectural effect. We all, for instance, admire an ornament of pure gold more than one that is only silver gilt, though few can detect the difference. Persons will travel hundreds of miles to see a great diamond or wonderful pearl, who would not go as many yards to see paste models of them, though if the two were laid together on the table very few indeed could distinguish the real from the counterfeit.
When we come to consider such buildings as the cathedral at Milan or the Taje Mehal at Agra, there can be no doubt but that the beauty of the material of which they are composed adds very much to the admiration they excite. In the latter case the precious stones with which the ornamental parts of the design are inlaid, convey an impression of grandeur almost as directly as their beauty of outline.
It is, generally speaking, because of its greater preciousness that we admire a marble building more than one of stone, though the colour of the latter may be really as beautiful and the material at least as durable. In the same manner a stone edifice is preferred to one of brick, and brick to wood and plaster; but even these conditions may be reversed by the mere question of value. If, for instance, a brick and a stone edifice stand close together, the design of both being equally appropriate 21to the material employed, our judgment may be reversed if the bricks are so beautifully moulded, or made of such precious clay, or so carefully laid, that the brick edifice costs twice as much as the other; in that case we should look with more respect and admiration on the artificial than on the natural material. From the same reason many elaborately carved wooden buildings, notwithstanding the smallness of their parts and their perishable nature, are more to be admired than larger and more monumental structures, and this merely in consequence of the evidence of labour and consequent cost that have been bestowed upon them.
Irrespective of these considerations, many building materials are invaluable from their own intrinsic merits. Granite is one of the best known, from its hardness and durability, marble from the exquisite polish it takes, and for its colour, which for internal decoration is a property that can hardly be over-estimated. Stone is valuable on account of the largeness of the blocks that can be obtained and because it easily receives a polish sufficient for external purposes. Bricks are excellent for their cheapness and the facility with which they can be used, and they may also be moulded into forms of great elegance, so that beauty may be easily attained; but sublimity is nearly impossible in brickwork, without at least such dimensions as have rarely been accomplished by man. The smallness of the material is such a manifest incongruity with largeness of the parts, that even the Romans, though they tried hard, could never quite overcome the difficulty.
Plaster is another artificial material. Except in monumental erections it is superior to stone for internal purposes, and always better than brick from the uniformity and smoothness of its surface, the facility with which it is moulded, and its capability of receiving painted or other decorations to any extent.
Wood should be used externally only on the smallest and least monumental class of buildings, and even internally is generally inferior to plaster. It is dark in colour, liable to warp and split, and combustible, which are all serious objections to its use, except for flooring, doors, and such purposes as it is now generally applied to.
Cast iron is another material rarely brought into use, though more precious than any of those above enumerated, and possessing more strength, though probably less durability. Where lightness combined with strength is required, it is invaluable, but though it can be moulded into any form of beauty that may be designed, it has hardly yet ever been so used as to allow of its architectural qualities being appreciated.
All these materials are nearly equally good when used honestly each for the purpose for which it is best adapted; they all become bad either when employed for a purpose for which they are not appropriate, or when one material is substituted in the place of or to imitate 22another. Grandeur and sublimity can only be reached by the more durable and more massive class of materials, but beauty and elegance are attainable in all, and the range of architectural design is so extensive that it is absurd to limit it to one class either of natural or of artificial materials, or to attempt to prescribe the use of some and to insist on that of others, for purposes to which they are manifestly inapplicable.
Construction has been shown to be the chief aim and object of the engineer; with him it is all in all, and to construct scientifically and at the same time economically is the beginning and end of his endeavours. It is far otherwise with the architect. Construction ought to be his handmaid, useful to assist him in carrying out his design, but never his mistress, controlling him in the execution of that which he would otherwise think expedient. An architect ought always to allow himself such a margin of strength that he may disregard or play with his construction, and in nine cases out of ten the money spent in obtaining this solidity will be more effective architecturally than twice the amount expended on ornament, however elegant or appropriate that may be.
So convinced were the Egyptians and Greeks of this principle, that they never used any other constructive expedient than a perpendicular wall or prop, supporting a horizontal beam; and half the satisfactory effect of their buildings arises from their adhering to this simple though expensive mode of construction. They were perfectly acquainted with the use of the arch and its properties, but they knew that its employment would introduce complexity and confusion into their designs, and therefore they wisely rejected it. Even to the present day the Hindus refuse to use the arch, though it has long been employed in their country by the Mahometans. As they quaintly express it, “An arch never sleeps;” and it is true that by its thrust and pressure it is always tending to tear a building to pieces; in spite of all counterpoises, whenever the smallest damage is done, it hastens the ruin of a building, which, if more simply constructed, might last for ages.
The Romans were the first who introduced a more complicated style. They wanted larger and more complex buildings than had been before required, and they employed brick and concrete to a great extent even in their temples and most monumental buildings. They obtained both space and variety by these means, with comparatively little trouble or expense; but we miss in all their works that repose and harmony which is the great charm that pervades the buildings of their predecessors.
23The Gothic architects went even beyond the Romans in this respect. They prided themselves on their constructive skill, and paraded it on all occasions, and often to an extent very destructive of true architectural design. The lower storey of a French cathedral is generally very satisfactory; the walls are thick and solid, and the buttresses, when not choked up with chapels, just sufficient for shadow and relief; but the architects of that country were seized with a mania for clerestories of gigantic height, which should appear internally mere walls of painted glass divided by mullions. This could only be effected either by encumbering the floor of the church with piers of inconvenient thickness or by a system of buttressing outside. The latter was the expedient adopted; but notwithstanding the ingenuity with which it was carried out, and the elegance of many of the forms and ornaments used, it was singularly destructive of true architectural effect. It not only produces confusion of outline and a total want of repose, but it is eminently suggestive of weakness, and one cannot help feeling that if one of these props were removed, the whole would tumble down like a house of cards.
This was hardly ever the case in England: the less ambitious dimensions employed in this country enabled the architects to dispense in a great measure with these adjuncts, and when flying buttresses are used, they look more as if employed to suggest the idea of perfect security than as necessary to stability. Owing to this cause the French have never been able to construct a satisfactory vault: in consequence of the weakness of their supports they were forced to stilt, twist, and dome them to a most unpleasing extent, and to attend to constructive instead of artistic necessities. With the English architects this never was the case; they were always able to design their vaults in such forms as they thought would be most beautiful artistically, and, owing to the greater solidity of their supports, to carry them out as at first designed.[12]
It was left for the Germans to carry this system to its acme of absurdity. Half the merit of the old Round arched Gothic cathedrals on the Rhine consists in their solidity and the repose they display in every part. Their walls and other essential parts are always in themselves sufficient to support the roofs and vaults, and no constructive contrivance is seen anywhere; but when the Germans adopted the pointed style, their builders—they can hardly be called architects—seemed to think that the whole art consisted in supporting the widest possible vaults on the thinnest possible pillars and in constructing the tallest windows with the most attenuated mullions. The consequence 24is, that though their constructive skill still excites the wonder of the mason or the engineer, the artist or the architect turns from the cold vaults and lean piers of their later cathedrals with a painful feeling of unsatisfied expectation, and wonders why such dimensions and such details should produce a result so utterly unsatisfactory.
So many circumstances require to be taken into consideration, that it is impossible to prescribe any general rules in such a subject as this, but the following table will explain to a certain extent the ratio of the area to the points of support in sixteen of the principal buildings of the world.[13] As far as it goes, it tends to prove that the satisfactory architectural effect of a building is nearly in the inverse ratio to the mechanical cleverness displayed in its construction.
| Area. | Solids. | Ratio in Decimals | Nearest Vulgar Fractions. | |
| Feet. | Feet. | |||
| Hypostyle Hall, Karnac | 63,070 | 18,681 | .296 | Three-tenths. |
| St. Peter’s, Rome | 227,000 | 59,308 | .261 | One-fourth. |
| Spires Cathedral | 56,737 | 12,076 | .216 | One-fifth. |
| Sta. Maria, Florence | 81,802 | 17,056 | .201 | One-fifth. |
| Bourges Cathedral | 61,590 | 11,091 | .181 | One-sixth. |
| St. Paul’s, London | 84,311 | 11,311 | .171 | One-sixth. |
| Ste. Geneviève, Paris | 60,287 | 9,269 | .154 | One-sixth. |
| Parthenon, Athens | 23,140 | 4,430 | .148 | One-seventh. |
| Chartres Cathedral | 68,261 | 8,886 | .130 | One-eighth. |
| Salisbury Cathedral | 55,853 | 7,012 | .125 | One-eighth. |
| Paris, Notre Dame | 61,108 | 7,852 | .122 | One-eighth. |
| Temple of Peace | 68,000 | 7,600 | .101 | One-ninth. |
| Milan Cathedral | 108,277 | 11,601 | .107 | One-tenth. |
| Cologne Cathedral | 91,164 | 9,554 | .104 | One-tenth. |
| York Cathedral | 72,860 | 7,376 | .101 | One-tenth. |
| St. Ouen, Rouen | 47,107 | 4,637 | .097 | One-tenth. |
At the head of the list stands the Hypostyle Hall, and next to it practically is the Parthenon, which being the only wooden-roofed building in the list, its ratio of support in proportion to the work required is nearly as great as that of the Temple at Karnac. Spires only wants better details to be one of the grandest edifices in Europe, and Bourges, Paris, Chartres, and Salisbury are among the most satisfactory Gothic cathedrals we possess. St. Ouen, notwithstanding all its beauty of detail and design, fails in this one point, and is certainly deficient 25in solidity. Cologne and Milan would both be very much improved by greater massiveness: and at York the lightness of the supports is carried so far that it never can be completed with the vaulted roof originally designed, for the nave at least.
The four great Renaissance cathedrals, at Rome, Florence, London, and Paris, enumerated in this list, have quite sufficient strength for architectural effect, but the value of this is lost from concealed construction, and because the supports are generally grouped into a few great masses, the dimensions of which cannot be estimated by the eye. A Gothic architect would have divided these masses into twice or three times the number of the piers used in these churches, and by employing ornament designed to display and accentuate the construction, would have rendered these buildings far more satisfactory than they are.
In this respect the great art of the architect consists in obtaining the greatest possible amount of unencumbered space internally, consistent in the first place with the requisite amount of permanent mechanical stability, and next with such an appearance of superfluity of strength as shall satisfy the mind that the building is perfectly secure and calculated to last for ages.
It is extremely difficult to lay down any general rules as to the forms best adapted to architectural purposes, as the value of a form in architecture depends wholly on the position in which it is placed and the use to which it is applied. There is in consequence no prescribed form, however ugly it may appear at present, that may not one day be found to be the very best for a given purpose; and, in like manner, none of those most admired which may not become absolutely offensive when used in a manner for which they are unsuited. In itself no simple form seems to have any inherent value of its own, and it is only by combination of one with another that they become effective. If, for instance, we take a series of twenty or thirty figures, placing a cube at one end as the most solid of angular and a sphere at the other as the most perfect of round shapes, it would be easy to cut off the angles of the cube in successive gradations till it became a polygon of so many sides as to be nearly curvilinear. On the other hand by modifying the sphere through all the gradations of conic sections, it might meet the other series in the centre without there being any abrupt distinction between them. Such a series might be compared to the notes of a piano. We cannot say that any one of the base or treble notes is in itself more beautiful than the others. It is only by a combination of several notes that harmony is produced, and gentle or brilliant melodies by their fading into one another, or by strongly 26marked contrasts. So it is with forms: the square and angular are expressive of strength and power; curves of softness and elegance; and beauty is produced by effective combination of the right-lined with the curvilinear. It is always thus in nature. Rocks and all the harder substances are rough and angular, and marked by strong contrasts and deep lines. Among trees, the oak is rugged, and its branches are at right angles to its stem, or to one another. The lines of the willow are rounded, and flowing. The forms of children and women are round and full, and free from violent contrasts; those of men are abrupt, hard, and angular in proportion to the vigour and strength of their frame.
In consequence of these properties, as a general rule the square or angular parts ought always to be placed below, where strength is wanted, and the rounded above. If, for instance, a tower is to be built, the lower storey should not only be square, but should be marked by buttresses, or other strong lines, and the masonry rusticated, so as to convey even a greater appearance of strength. Above this, if the square form is still retained, it may be with more elegance and less accentuation. The form may then change to an octagon, that to a polygon of sixteen sides, and then be surmounted by a circular form of any sort. These conditions are not absolute, but the reverse arrangement would be manifestly absurd. A tower with a circular base and a square upper storey is what almost no art could render tolerable, while the other pleases by its innate fitness without any extraordinary effort of design.
On the other hand, round pillars are more pleasing as supports for a square architrave, not so much from any inherent fitness for the purpose as from the effect of contrast, and flat friezes are preferable to curved ones of the late Roman styles from the same cause. The angular mouldings introduced among the circular shafts of a Gothic coupled pillar, add immensely to the brilliancy of effect. Where everything is square and rugged, as in a Druidical trilithon, the effect may be sublime, but it cannot be elegant; where everything is rounded, as in the Choragic Monument of Lysicrates, the perfection of elegance may be attained, but never sublimity. Perfection, as usual, lies between these extremes.
The properties above enumerated may be characterised as the mechanical principles of design. Size, stability, construction, material, and many such, are elements at the command of the engineer or mason, as well as of the architect, and a building remarkable for these properties only, cannot be said to rise above the lowest grade of architectural excellence. They are invaluable adjuncts in the 27hands of the true artist, but ought never to be the principal elements of design.
After these, the two most important resources at the command of the architect are Proportion and Ornament; the former enabling him to construct ornamentally, the latter to ornament his construction; both require knowledge and thought, and can only be properly applied by one thoroughly imbued with the true principles of architectural design.
As proportion, to be good, must be modified by every varying exigence of a design, it is of course impossible to lay down any general rules which shall hold good in all cases; but a few of its principles are obvious enough, and can be defined so as to enable us to judge how far they have been successfully carried out in the various buildings enumerated in the following pages.
To take first the simplest form of the proposition, let us suppose a room built, which shall be an exact cube—of say 20 feet each way—such a proportion must be bad and inartistic; and besides, the height is too great for the other dimensions, apparently because it is impossible to get far enough away to embrace the whole wall at one view, or to see the springing of the roof, without throwing the head back and looking upwards. If the height were exaggerated to thirty or forty feet, the disproportion would be so striking, that no art could render it agreeable. As a general rule, a room square in plan is never pleasing. It is always better that one side should be longer than the other, so as to give a little variety to the design. Once and a half the width has often been recommended, and with every increase of length an increase of height is not only allowable, but indispensable. Some such rule as the following seems to meet most cases:—“The height of a room ought to be equal to half its width, plus the square root of its length.” Thus a room 20 feet square ought to be between 14 and 15 feet high; if its length be increased to 40 feet, its height must be at least 161⁄2; if 100, certainly not less than 20. If we proceed further, and make the height actually exceed the width, the effect is that of making it look narrow. As a general rule, and especially in all extreme cases, by adding to one dimension, we take away in appearance from the others. Thus, if we take a room 20 feet wide and 30 or 40 feet in height, we make it narrow; if 40 wide and 20 high, we make a low room. By increasing the length, we diminish the other two dimensions.
This, however, is merely speaking of plain rooms with plain walls, and an architect may be forced to construct rooms of all sorts of unpleasing dimensions, but it is here that his art comes to his aid, and he must be very little of an artist if he cannot conceal, even when unable entirely to counteract, the defects of his dimensions. A room, for instance, that is a perfect cube of 20 feet may be made to look as low as one only 15 feet high, by using a strongly marked 28horizontal decoration, by breaking the wall into different heights, by marking strongly the horizontal proportions, and obliterating as far as possible all vertical lines. The reverse process will make a room only 10 feet high look as lofty as one of 15.
Even the same wall-paper (if of strongly marked lines) if pasted on the sides of two rooms exactly similar in dimensions, but with the lines vertical in the one case, in the other horizontal, will alter the apparent dimensions of them by several feet. If a room is too high, it is easy to correct this by carrying a bold cornice to the height required, and stopping there the vertical lines of the wall, and above this coving the roof, or using some device which shall mark a distinction from the walls, and the defect may become a beauty. In like manner, if a room is too long for its other dimensions, this is easily remedied either by breaks in the walls where these can be obtained, or by screens of columns across its width, or by only breaking the height of the roof. Anything which will divide the length into compartments will effect this. The width, if in excess, is easily remedied by dividing it, as the Gothic architects did, into aisles. Thus a room 50 feet wide and 30 high, may easily be restored to proportion by cutting off 10 or 12 feet on each side, and lowering the roofs of the side compartments, to say 20 feet. If great stability is not required, this can be done without encumbering the floor with many points of support. The greater the number used the more easily the effect is obtained, but it can be done almost without them.
Externally it is easier to remedy defects of proportion than it is internally. It is easier than on the inside to increase the apparent height by strongly marked vertical lines, or to bring it down by the employment of a horizontal decoration.
No. 3.
If the length of a building is too great, this is easily remedied by projections, or by breaking up the length into square divisions. Thus, A A is a long building, but B B is a square one, or practically (owing to the perspective) less than a square in length, in any direction at right angles to the line of vision; or, in other words, to a spectator at A’ the building would look as if shorter in the direction of B B than in that of A A, owing to the largeness and importance of the part nearest the eye. If 100 feet in length by 50 feet high is a pleasing dimension for a certain design, and it is required that the building should be 500 feet long, it is only necessary to break it into five parts, and throw three back and two forward, or the contrary, and the proportion becomes as before.
The Egyptians hardly studied the science of proportion at all; 29they gained their effects by simpler and more obvious means. The Greeks were masters in this as in everything else, but they used the resources of the art with extreme sobriety—externally at least—dreading to disturb that simplicity which is so essential to sublimity in architecture. But internally, where sublimity was not attainable with the dimensions they employed, they divided the cells of their temples into three aisles, and the height into two, by placing two ranges of columns one above the other. By these means they were enabled to use such a number of small parts as to increase the apparent size most considerably, and at the same time to give greater apparent magnitude to the statue, which was the principal object for which the temple was erected.
The Romans do not seem to have troubled themselves with the science of proportion in the designs of their buildings, though nothing can well be more exquisite than the harmony that exists between the parts in their orders, and generally in their details. During the Middle Ages, however, we find, from first to last, the most earnest attention paid to it, and half the beauty of the buildings of that age is owing to the successful results to which the architects carried their experiments in balancing the parts of their structures the one against the other, so as to produce that harmony we so much admire in them.
No. 4.
The first great invention of the Gothic architects (though of Greek origin) was that of dividing the breadth of the building internally into three aisles, and making the central one higher and wider than those on each side. By this means height and length were obtained at the expense of width: this latter, however, is never a valuable property artistically, though it may be indispensable for the utilitarian exigencies of the building. They next sought to increase still further the height of the central aisle by dividing its sides into three equal portions which by contrast added very much to the effect: but the monotony of this arrangement was soon apparent: besides, it was perceived that the side aisles were so low as not to come into direct comparison with the central nave. To remedy this they gradually increased its dimensions, and at last hit on something very like the following proportions. They made the height of the side aisle half that of the central (the width being also in the same proportion); the remaining portions they divided into three, making the triforium one-third, the clerestory two-thirds of the whole. Thus the three divisions are in the proportion of 1, 2, and 3, each giving value to the other, and the whole adding very considerably to all the apparent dimensions of 30the interior. It would have been easy to have carried the system further and, by increasing the number of the pillars longitudinally and the number of divisions vertically, to have added considerably to even this appearance of size; but it would then have been at the expense of simplicity and grandeur: and though the building might have looked larger, the beauty of the design would have been destroyed.
One of the most striking exemplifications of the perfection of the Gothic architects in this department of their art is shown in their employment of towers and spires. As a general rule, placing a tall building in juxtaposition with a low one exaggerates the height of the one and the lowness of the other; and as it was by no means the object of the architects to sacrifice their churches for their towers, it required all their art to raise noble spires without doing this. In the best designs they effected it by bold buttresses below, and the moment the tower got free of the building, by changing it to an octagon and cutting it up by pinnacles, and lastly by changing its form into that of a spire, using generally smaller parts than are found in the church. By these devices they prevented the spire from competing in any way with the church. On the contrary, a spire or group of spires gave dignity and height to the whole design, without deducting from any of its dimensions.
The city of Paris contains an instructive exemplification of these doctrines—the façade of the Cathedral of Notre Dame (exclusive of the upper storey of the towers), and the Arc de l’Etoile being two buildings of exactly the same dimensions; yet any one who is not aware of this fact would certainly estimate the dimensions of the cathedral as at least a third, if not a half, in excess of the other. It may be said that the arch gains in sublimity and grandeur what it loses in apparent dimensions by the simplicity of its parts. The façade of the cathedral, though far from one of the best in France, is by no means deficient in grandeur; and had it been as free from the trammels of utilitarianism as the arch, might easily have been made as simple and as grand, without losing its apparent size. In the other case, by employing in the arch the principles which the Gothic architects elaborated with such pains, the apparent dimensions might have been increased without detracting from its solidity, and it might thus have been rendered one of the sublimest buildings in the world.
The interior of St. Peter’s at Rome is an example of the neglect of these principles. Its great nave is divided into only four bays, and the proportions and ornaments of these, borrowed generally from external architecture, are so gigantic, that it is difficult to realise the true dimensions of the church, except by the study of the plan; and it is not too much to assert, that had a cathedral of these 31dimensions been built in the true Gothic style, during the 13th or 14th century, it would have appeared as if from one-third to one-half larger, and might have been the most sublime, whereas St. Peter’s is now only the largest temple ever erected.
It would be easy to multiply examples to show to what perfection the science of proportion was carried by the experimental processes above described during the existence of the true styles of architecture, and how satisfactory the result is, even upon those who are not aware of the cause; and, on the other hand, how miserable are the failures that result either from the ignorance or neglect of its rules. Enough, it is hoped, has been said to show that not only are the apparent proportions of a building very much under the control of an architect independent of its lineal dimensions, but also that he has it in his power so to proportion every part as to give value to all those around it, thus producing that harmony which in architecture, as well as in music or in painting, is the very essence of a true or satisfactory utterance.
Architectural ornament is of two kinds, constructive and decorative. By the former is meant all those contrivances, such as capitals, brackets, vaulting shafts, and the like, which serve to explain or give expression to the construction; by the latter, such as mouldings, frets, foliage, &c., which give grace and life either to the actual constructive forms, or to the constructive decoration.
In mere building or engineering, the construction being all in all, it is left to tell its own tale in its own prosaic nakedness; but in true architecture construction is always subordinate, and as architectural buildings ought always to possess an excess of strength it need not show itself unless desired; but even in an artistic point of view it always is expedient to express it. The vault, for instance, of a Gothic cathedral might just as easily spring from a bracket or a corbel as from a shaft, and in early experiments this was often tried; but the effect was unsatisfactory, and a vaulting shaft was carried down first to the capital of the pillar, and afterwards to the floor: by this means the eye was satisfied, the thin reed-like shafts being sufficient to explain that the vault rested on the solid ground, and an apparent propriety and stability were given to the whole. These shafts not being necessary constructively, the artist could make them of any form or size he thought most proper, and consequently, instead of one he generally used three small shafts tied together at various intervals. Afterwards merely a group of graceful mouldings was employed, which satisfied not only the exigencies of ornamental construction, but became a real and essential decorative feature of the building.
32In like manner it was good architecture to use flying buttresses, even where they were not essential to stability. They explained externally that the building was vaulted, and that its thrusts were abutted and stability secured. The mistake in their employment was where they became so essential to security, that the constructive necessities controlled the artistic propriety of the design, and the architect found himself compelled to employ either a greater number, or buttresses of greater strength than he would have desired had he been able to dispense with them.
The architecture of the Greeks was so simple, that they required few artifices to explain their construction; but in their triglyphs their mutules, the form of their cornices and other devices, they took pains to explain, not only that these parts had originally been of wood but that the temple still retained its wooden roof. Had they ever adopted a vault, they would have employed a totally different system of decoration. Having no constructive use whatever, these parts were wholly under the control of the architects, and they consequently became the beautiful things we now so much admire.
With their more complicated style the Romans introduced many new modes of constructive decoration. They were the first to employ vaulting shafts. In all the great halls of their Baths, or of their vaulted Basilicas, they applied a Corinthian pillar as a vaulting shaft to the front of the pier from which the arch appears to spring, though the latter really supported the vault. All the pillars have now been removed, but without at all interfering with the stability of the vaults; they were mere decorative features to explain the construction, but indispensable for that purpose. The Romans also suggested most of the other decorative inventions of the Middle Ages, but their architecture never reached beyond the stage of transition. It was left for the Gothic architects freely to elaborate this mode of architectural effect, and they carried it to an extent never dreamt of before; but it is to this that their buildings owe at least half the beauty they possess.
The same system of course applies to dwelling-houses, and to the meanest objects of architectural art. The string-course that marks externally the floor-line of the different storeys is as legitimate and indispensable an ornament as a vaulting shaft, and it would also be well that the windows should be grouped so as to indicate the size of the rooms, and at least a plain space left where a partition wall abuts, or better still a pilaster or buttress, or line of some sort, ought to mark externally that feature of internal construction.
The cornice is as indispensable a termination of the wall as the capital is of a pillar; and suggests not only an appropriate support for the roof, but eaves to throw the rain off the wall. The same is true with regard to pediments or caps over windows: they suggest a means 33of protecting an opening from the wet; and porches over doorways are equally obvious contrivances. Everything, in short, which is actually constructive, or which suggests what was or may be a constructive expedient, is a legitimate object of decoration, and affords the architect unlimited scope for the display of taste and skill, without going out of his way to seek it.
The difficulty in applying ornaments borrowed from other styles is, that although they all suggest construction, it is not the construction of the buildings to which they are applied. To use Pugin’s clever antithesis, “they are constructed ornament, not ornamented construction,” and as such can never satisfy the mind. However beautiful in themselves, they are out of place, there is no real or apparent use for their being there; and, in an art so essentially founded on utilitarian principles and common sense as architecture is, any offence against constructive propriety is utterly intolerable.
The other class, or decorative ornaments, are forms invented for the purpose, either mere lithic forms, or copied from the vegetable kingdom, and applied so as to give elegance or brilliancy to the constructive decoration just described.
The first and most obvious of these are mere mouldings, known to architects as Scotias, Cavettos, Ogees, Toruses, Rolls, &c.—curves which, used in various proportions either horizontally or vertically, produce when artistically combined, the most pleasing effect.
In conjunction with these, it is usual to employ a purely conventional class of ornament, such as frets, scrolls, or those known as the bead and reel, or egg and dart mouldings; or in Gothic architecture the billet or dog-tooth or all the thousand and one forms that were invented during the Middle Ages.
In certain styles of art, vegetable forms are employed even more frequently than those last described. Among these, perhaps the most beautiful and perfect ever invented was that known as the honeysuckle ornament, which the Greeks borrowed from the Assyrians, but made so peculiarly their own. It has all the conventional character of a purely lithic, with all the grace of a vegetable form; and, as used with the Ionic order, is more nearly perfect than any other known.
The Romans made a step further towards a more direct imitation of nature in their employment of the acanthus leaf. As applied to a capital, or where the constructive form of the bell beneath it is still distinctly seen, it is not only unobjectionable, but productive of the most pleasing effect. Indeed it is doubtful if anything of its class has yet been invented so entirely satisfactory as the Roman Corinthian order, as found, for instance, in the so-called Temple of Jupiter Stator at Rome. The proportions of the order have never yet been excelled, and there is just that balance between imitation of 34nature and conventionality which is indispensable. It is not so pure or perfect as a Grecian order, but as an example of rich decoration applied to an architectural order it is unsurpassed.
With their disregard of precedent and untrammelled wildness of imagination, the Gothic architects tried every form of vegetable ornament, from the purest conventionalism, where the vegetable form can hardly be recognised, to the most literal imitation of nature.
While confining himself to purely lithic forms, an architect can never sin against good taste, though he may miss many beauties; with the latter class of ornament he is always in danger of offence, and few have ever employed it without falling into mistakes. In the first place, because it is impossible to imitate perfectly foliage and flowers in stone; and secondly, because if the pliant forms of plants are made to support, or do the work of, hard stone, the incongruity is immediately apparent, and the more perfect the imitation the greater the mistake.
No. 5.
No. 6.
In the instance (Woodcut No. 5), any amount of literal imitation that the sculptor thought proper may be indulged in, because in it the stone construction is so apparent everywhere, that the vegetable form is the merest supplement conceivable; or in a hollow moulding round a doorway, a vine may be sculptured with any degree of imitation that can be employed; for as it has no more work to do than the object represented would have in the same situation, it is a mere adjunct, a statue of a plant placed in a niche, as we might use the statue of a man: but if in the woodcut (No. 6) imitations of real leaves were used to support the upper moulding, the effect would not be so satisfactory; indeed it is questionable if in both these last examples a little more conventionality would not be desirable.
In too many instances, even in the best Gothic architecture, the construction is so overlaid by imitative vegetable forms as to be concealed, and the work is apparently done by leaves or twigs, but in the earliest and purest style this is almost never the case. As a general 35rule it may be asserted that the best lithic ornaments are those which approach nearest to the grace and pliancy of plants, and that the best vegetable forms are those which most resemble the regularity and symmetry of such as are purely conventional.
Although the Greeks in one or two instances employed human figures to support entablatures or beams, the good taste of such an arrangement is more than questionable. They borrowed it, with the Ionic order, from the Assyrians, with whom the employment of caryatides and animal forms was the rule, not the exception, in contradistinction from the Egyptians, who never adopted this practice.[14] Even the Romans avoided this mistake, and the Gothic architects also as a general rule kept quite clear of it. Whenever they did employ ornamented figures for architectural purposes, they were either monsters, as in gargoyles or griffons; or sometimes, in a spirit of caricature, they used dwarfs or deformities of various sorts; but their sculpture, properly so called, was always provided with a niche or pedestal, where it might have been placed after the building was complete, or from which it might be removed without interfering with the architecture.
Colour is one of the most invaluable elements placed at the command of the architect to enable him to give grace or finish to his designs. From its nature it is of course only an accessory, or mere ornament; but there is nothing that enables him to express his meaning so cheaply and easily, and at the same time with such brilliancy and effect. For an interior it is absolutely indispensable; and no apartment can be said to be complete till it has received its finishing touches from the hand of the painter. Whether exteriors ought or ought not to be similarly treated admits of more doubt.
Internally the architect has complete command of the situation: he can suit his design to his colours, or his colours to his design. Walls, roof, floor, furniture, are all at his disposal, and he can shut out any discordant element that would interfere with the desired effect.
Externally this is seldom, if ever the case. A façade that looks brilliant and well in noonday sun may be utterly out of harmony with a cold grey sky, or with the warm glow of a setting sun full upon it: and unless all other buildings and objects are toned into accordance with it, the effect can seldom be harmonious.
There can be now no reasonable doubt that the Greeks painted their temples both internally and externally, but as a general rule 36they always placed them on heights where they could only be seen relieved against the sky; and they could depend on an atmosphere of almost uniform, unvarying brightness. Had their temples been placed in groves or valleys, they would probably have given up the attempt, and certainly never would have ventured upon it in such a climate as ours.
Except in such countries as Egypt and Greece, it must always be a mistake to apply colour by merely painting the surface of the building externally; but there are other modes of effecting this which are perfectly legitimate. Coloured ornaments may be inlaid in the stone of the wall without interfering with the construction, and so placed may be made more effective and brilliant than the same ornaments would be if carved in relief. Again, string-courses and mouldings of various coloured stones or marbles might frequently be employed with better effect than can be obtained in some situations by depth of cutting and boldness of projection. Such a mode of decoration can, however, only be partial; if the whole building is to be coloured, it must be done constructively, by using different coloured materials, or the effect will never be satisfactory.
In the Middle Ages the Italians carried this mode of decoration to a considerable extent; but in almost all instances it is so evidently a veneer overlying the construction that it fails to please; and a decoration which internally, where construction is of less importance, would excite general admiration, is without meaning on the outside of the same wall.
At the same time it is easy to conceive how polychromy might be carried out successfully, if, for instance, a building were erected, the pillars of which were of red granite or porphyry, the cornices or string-courses of dark coloured marbles, and the plain surfaces of lighter kinds, or even of stone. A design so carried out would be infinitely more effective than a similar one executed in materials of only one colour, and depending for relief only on varying shadows of daylight. There is in fact just the same difficulty in lighting monochromatic buildings as there is with sculpture. A coloured painting, on the other hand, requires merely sufficient light, and with that expresses its form and meaning far more clearly and easily than when only one colour is employed. The task, however, is difficult; so much so, indeed, that there is hardly one single instance known of a complete polychromatic design being successfully carried out anywhere, though often attempted. The other mode of merely inlaying the ornaments in colour instead of relieving them by carving as seldom fails.
Notwithstanding this, an architect should never neglect to select the colour of his materials with reference to the situation in which his building is to stand. A red brick building may look remarkably well if nestling among green trees, while the same building would be 37hideous if situated on a sandy plain, and relieved only by the warm glow of a setting sun. A building of white stone or white brick is as inappropriate among the trees, and may look bright and cheerful in the other situation.
In towns colours might be used of very great brilliancy, and if done constructively, there could be no greater improvement to our architecture; but its application is so difficult that no satisfactory result has yet been attained, and it may be questioned whether it will be ever successfully accomplished.
With regard to interiors there can be no doubt. All architects in all countries of the world resorted to this expedient to harmonise and to give brilliancy to their compositions, and have depended on it for their most important effects.
The Gothic architects carried this a step further by the introduction of painted glass, which was a mode of colouring more brilliant than had been ever before attempted. This went beyond all previous efforts, inasmuch as it coloured not only the objects themselves, but also the light in which they were seen. So enamoured were they of its beauties, that they sacrificed much of the constructive propriety of their buildings to admit of its display, and paid more attention to it than to any other part of their designs. Perhaps they carried this predilection a little beyond the limits of good taste; but colour is in itself so exquisite a thing, and so admirable a vehicle for the expression of architectural as well as of æsthetic beauty, that it is difficult to find fault even with the abuse of what is in its essence so legitimate and so beautiful.
Carved ornament and decorative colour come within the especial province of the architect. In some styles, such as the Saracenic, and in many buildings, they form the Alpha and the Omega of the decoration. But, as mentioned above, one of the great merits of architecture as an art is that it affords room for the display of the works of the sculptor and the painter, not only in such a manner as not to interfere with its own decorative construction, but so as to add meaning and value to the whole. No Greek temple and no Gothic cathedral can indeed be said to be perfect or complete without these adjuncts; and one of the principal objects of the architects in Greece or in the Middle Ages was to design places and devise means by which these could be displayed to advantage, without interfering either with the construction or constructive decoration. This was perhaps effected more successfully in the Parthenon than in any other building we are acquainted with. The pediments at either end were noble frames for the exhibition of sculpture, and the metopes were equally appropriate for the purpose; 38while the plain walls of the cella were admirably adapted for paintings below and for a sculptured frieze above.
The deeply recessed portals of our Gothic cathedrals, their galleries, their niches and pinnacles, were equally appropriate for the exuberant display of this class of sculpture in a less refined or fastidious age; while the mullion-framed windows were admirably adapted for the exhibition of a mode of coloured decoration, somewhat barbarous, it must be confessed, but wonderfully brilliant.
The system was carried further in India than in any other country except perhaps Egypt. Probably no Hindu temple was ever erected without being at least intended to be adorned with Phonetic sculpture, and many of them are covered with it from the plinth to the eaves, in strong contrast with the Mahomedan buildings that stand side by side with them, and which are wholly devoid of any attempt at this kind of decoration. The taste of these Hindu sculptures may be questionable, but such as they are they are so used as never to interfere with the architectural effect of the building on which they are employed, but always so as to aid the design irrespective of the story they have to tell. There is probably no instance in which their removal or their absence would not be felt as an injury from an architectural point of view.
It is difficult now to ascertain whether Phonetic painting was used to the same extent as sculpture in ancient times. From its nature it is infinitely more perishable, and a bucket of whitewash will in half an hour obliterate the work of years, and, strange to say, there are ages, both in the East and the west, where men’s minds are so attuned that they consider whitewash a more fitting decoration than coloured paintings of the most elaborate and artistic character. While this is so we need hardly wonder that our means of forming a distinct opinion on this subject are somewhat limited.
Be this as it may, it is still one of the special privileges of architecture that she is able to attract to herself these phonetic arts, and one of the greatest merits a building can possess is its affording appropriate places for their display without interfering in any way with the special department of the architect. But it is always necessary to distinguish carefully between what belongs to the province of each art separately. The work of the architect ought to be complete and perfect without either sculpture or painting, and must be judged as if they were absent; but he will not have been entirely successful unless he has provided the means by which the value of his design may be doubled by their introduction. It is only by the combination of the Phonetic utterance with the Technic and Æsthetic elements that a perfect work of art has been produced, and that architecture can be said to have reached the highest point of perfection to which it can aspire.
Considerable confusion has been introduced into the reasoning on the subject of architectural Uniformity from the assumption that the two great schools of art—the classical and the mediæval—adopted contrary conclusions regarding it, Formality being supposed to be the characteristic of the former, Irregularity of the latter. The Greeks, of course, when building a temple or monument, which was only one room or one object, made it exactly symmetrical in all its parts; but so did the Gothic architects when building a church or chapel or hall, or any single object: in ninety-nine instances out of a hundred, a line drawn down the centre divides it into two equal and symmetrical halves; and when an exception to this occurs, there is some obvious motive for it.
But where several buildings of different classes were to be grouped, or even two temples placed near one another, the Greeks took the utmost care to prevent their appearing parts of one design or one whole; and when, as in the instance of the Erechtheium,[15] three temples are placed together, no Gothic architect ever took such pains to secure for each its separate individuality as the Grecian architect did. What has given rise to the error is, that all the smaller objects of Grecian art have perished, leaving us only the great monuments without their adjuncts.
If we can conceive the task assigned to a Grecian architect of erecting a building like one of our collegiate institutions, he would without doubt have distinguished the chapel from the refectory, and that from the library, and he would have made them of a totally different design from the principal’s lodge, or the chambers of the fellows and students; but it is more than probable that, while carefully distinguishing each part from the other, he would have arranged them with some regard to symmetry, placing the chapel in the centre, the library and refectory as pendants to one another, though dissimilar, and the residences so as to connect and fill up the whole design. The truth seems to be that no great amount of dignity can be obtained without a certain degree of regularity; and there can be little doubt that artistically it is better that mere utilitarian convenience should give way to the exigencies of architectural design than that the latter should be constrained to yield to the mere prosaic requirements of the building. The chance-medley manner in which many such buildings were grouped together in the Middle Ages tells the story as clearly, and may be productive of great picturesqueness of effect, but not of the same nobility as might have been obtained by more regularity. The highest class of design will never be reached by these means.
40It is not difficult to discover, at least to a certain extent, that the cause of this is that no number of separate units will suffice to make one whole. A number of pebbles will not make a great stone, nor a number of rose-bushes an oak; nor will any number of dwarfs make up a giant. To obtain a great whole there must be unity, to which all the parts must contribute, or they will remain separate particles. The effect of unity is materially heightened when to it is added uniformity: the mind then instantly and easily grasps the whole, knows it to be one, and recognises the ruling idea that governed and moulded the whole together. It seems only to be by the introduction of uniformity that sufficient simplicity for greatness can be obtained, and the evidence of design made so manifest that the mind is satisfied that the building is no mere accumulation of separate objects, but the production of a master-mind.
In a palace irregularity seems unpardonable. The architect has there practically unlimited command of funds and of his arrangements, and he can easily design his suites of rooms so as to produce any amount of uniformity he may require: the different heights of the different storeys and the amount of ornament on them, with the employment of wings for offices, is sufficient to mark the various purposes of the various parts; but where the system is carried so far in great public buildings, that great halls, libraries, committee-rooms, and subordinate residences are all squeezed into one perfectly uniform design, the building loses all meaning, and fails from the opposite error.
The rule seems to be, that every building or every part of one ought most distinctly and clearly to express not only its constructive exigencies, but also the uses for which it is destined; on the other hand, that mere utility, in all instances where architectural effect is aimed at, ought to give way to artistic requirements; and that an architect is consequently justified, in so far as his means will admit, in producing that amount of uniformity and regularity which seems indispensable for anything like grandeur of effect. In villas and small buildings all we look for is picturesqueness and meaning combined with elegance; but in larger and more monumental erections we expect something more; and this can hardly be obtained without the introduction of some new element which shall tell, in the first place, that artistic excellence was the ruling idea of the design, and in the next should give it that perfect balance and symmetry which seems to be as inherent a quality of the higher works of nature as of true art.
The subject of the imitation of Nature is one intimately connected with those mooted in the preceding paragraphs, and regarding which considerable misunderstanding seems to prevail. It is generally assumed 41that in architecture we ought to copy natural objects as we see them, whereas the truth seems to be that we ought always to copy the processes, never the forms of Nature. The error apparently has arisen from confounding together the imitative arts of painting and sculpture with the constructive art of architecture. The former have no other mode of expression than by copying, more or less literally, the forms of Nature; the latter, as explained above, depends wholly on a different class of elements for its effect; but at the same time no architect can either study too intently, or copy too closely, the methods and processes by which Nature accomplishes her ends; and the most perfect building will be that in which these have been most closely and literally followed.
To take one prominent instance:—So far as we can judge, the human body is the most perfect of Nature’s works; in it the groundwork of skeleton is never seen, and though it can hardly be said to be anywhere concealed, it is only displayed at the joints or more prominent points of support, where the action of the frame would be otherwise unintelligible. The muscles are disposed not only where they are most useful, but so as to form groups gracefully rounded in outline. The softness and elegance of these are further aided by the deposition of adipose matter, and the whole is covered with a skin which with its beautiful texture conceals the more utilitarian construction of the internal parts. In the trunk of the body the viscera are disposed wholly without symmetry or reference to beauty of any sort—the heart on one side, the liver on the other, and the other parts exactly in those positions and in those forms by which they may most directly and easily perform the essential functions for which they are designed. But the whole is concealed in a perfectly symmetrical sheath of the most exquisitely beautiful outline. It may be safely asserted that a building is beautiful and perfect exactly in the ratio in which the same amount of concealment and the same amount of display of construction is preserved, where the same symmetry is shown as between the right and left sides of the human body—the same difference as between the legs and arms, where the parts are applied to different purposes, and where the same amount of ornament is added, to adorn without interfering with what is useful. In short, there is no principle involved in the structure of man which may not be taken as the most absolute standard of excellence in architecture.
It is in Nature’s highest works that we find the symmetry of proportion most prominent. When we descend to the lower types of animals we lose it to a great extent, and among trees and vegetables generally find it only in a far less degree, and sometimes miss it altogether. In the mineral kingdom among rocks and stones it is altogether absent. So universal is this principle in Nature that we may safely apply it to our criticism on art, and say 42that a building is perfect as a whole in proportion to its motived regularity, and departs from the highest type in the ratio in which symmetrical arrangement is neglected. It may, however, be incorrect to say that an oak-tree is a less perfect work of creation than a human being, but it is certain that it is lower in the scale of created beings. So it may be said that a picturesque group of Gothic buildings may be as perfect as the stately regularity of an Egyptian or classic temple; but if it is so, it is equally certain that it belongs to a lower and inferior class of design.
This analogy, however, we may leave for the present. The one point which it is indispensable to insist on here is, that man can progress or tend towards success only by following the principles and copying, so far as he can understand them, the processes which Nature employs in her works; but he can never succeed in anything by copying forms without reference to principles. If we could find Nature making trees like stones, or animals like trees, or birds like fishes, or fishes like mammalia, or using any parts taken from one kingdom for purposes belonging to another, it would then be perfectly legitimate for us to use man’s stature as the modulus for a Doric, or woman’s as that of an Ionic column—to build cathedrals like groves, and make windows like leaves, or to estimate their beauty by their resemblance to such objects; but all such comparisons proceed on an entire mistake of what imitation of Nature really means.
It is the merest and most absolute negation of reason to apply to one purpose things that were designed for another, or to imitate them when they have no appropriateness; but it is our highest privilege to understand the processes of Nature. To apply these to our own wants and purposes is the noblest use of human intellect and the perfection of human wisdom.
So instinctively, but so literally, has this correct process of imitating Nature been followed in all true styles of architecture, that we can always reason regarding them as we do with reference to natural objects. Thus, if an architect finds in any quarter of the globe a Doric or Corinthian capital with a few traces of a foundation, he can, at a glance, tell the age of the temple or building to which it belonged. He knows who the people were who erected it, to what purpose it was dedicated, and proceeds at once to restore its porticos, and without much uncertainty can reproduce the whole fabric. Or if he finds a few Gothic bases in situ, with a few mouldings or frusta of columns, by the same process he traces the age, the size, and the purposes of the building before him. A Cuvier or an Owen can restore the form and predicate the habits of an extinct animal from a few fragments of bone, or even from a print of a foot. In the same manner an architect may, from a few fragments of a building, if of a true style of architecture, restore the whole of its pristine forms, and with almost the same amount of 43certainty. This arises wholly because the architects of former days had correct ideas of what was meant by imitation of Nature. They added nothing to their buildings which was not essential; there was no detail which had not its use, and no ornament which was not an elaboration or heightening of some essential part, and hence it is that a true building is as like to a work of Nature as any production of man’s hands can be to the creations of his Maker.
There is one property inherent in the productions of architectural art, which, while it frequently lends to them half their charm, at the same time tends more than anything else to warp and distort our critical judgments regarding them. We seldom can look at a building of any age without associating with it such historical memories as may cling to its walls; and our predilections for any peculiar style of architecture are more often due to educational or devotional associations than to purely artistic judgments. A man must be singularly ignorant or strangely passionless who can stand among the fallen columns of a Grecian temple, or wander through the corridors of a Roman amphitheatre, or the aisles of a ruined Gothic abbey, and not feel his heart stirred by emotions of a totally different class from those suggested by the beauty of the mouldings or the artistic arrangement of the building he is contemplating.
The enthusiasm which burst forth in the 15th century for the classical style of art, and then proved fatal to the Gothic, was not so much an architectural as a literary movement. It arose from the re-discovery—if it may be so called—of the poems of Homer and Virgil, of the histories of Thucydides and Tacitus, of the Philosophy of Aristotle and the eloquence of Cicero. It was a vast reaction against the darkness and literary degradation of the Middle Ages, and carried the educated classes of Europe with it for the next three centuries. So long as classical literature only was taught in our schools, and classical models followed in our literature, classical architecture could alone be tolerated in our buildings, and this generally without the least reference either to its own peculiar beauties, or its appropriateness for the purposes to which it was applied.
A second reaction has now taken place against this state of affairs. The revival of the rites and ceremonies of the mediæval Church, our reverent love of our own national antiquities, and our admiration for the rude but vigorous manhood of the Middle Ages,—all have combined to repress the classical element both in our literature and our art, and to exalt in their place Gothic feelings and Gothic art, to an extent which cannot be justified on any grounds of reasonable criticism.
44Unless the art-critic can free himself from the influence of these adventitious associations, his judgments lose half their value; but, on the other hand, to the historian of art they are of the utmost importance. It is because architecture so fully and so clearly expresses the feelings of the people who practised it that it becomes frequently a better vehicle of history than the written page; and it is these very associations that give life and meaning to blocks of stone and mounds of brick, and bring so vividly before our eyes the feelings and the aspirations of the long-forgotten past.
The importance of association in giving value to the objects of architectural art can hardly be overrated either by the student or historian. What has to be guarded against is that unreasoning enthusiasm which mistakes the shadow for the reality, and would force us to admire a rude piece of clumsy barbarism erected yesterday, and to which no history consequently attaches, because something like it was done in some long past age. Its reality, its antiquity, and its weather stains may render its prototype extremely interesting, even if not beautiful; while its copy is only an antiquarian toy, as ugly as it is absurd.
There is still one other point of view from which it is necessary to look at this question of architectural design before any just conclusion can be arrived at regarding it. It is in fact necessary to answer two other questions, nearly as often asked as those proposed at the beginning of Section III. “Can any one invent a new style?”—“Can we ever again have a new and original style of architecture?” Reasoning from experience alone, it is easy to answer these questions. No individual has, so far as we know, ever invented a new style in any part of the world. No one can even be named who during the prevalence of a true style of art materially advanced its progress, or by his individual exertion did much to help it forward; and we may safely answer, that as this has never happened before, it is hardly probable that it will ever occur now.
If this one question must be answered in the negative, the other may as certainly be answered in the affirmative, inasmuch as no nation in any age or in any part of the globe has failed to invent for itself a true and appropriate style of architecture whenever it chose to set about it in the right way, and there certainly can be no great difficulty in our doing now what has been so often done before, if we only set to work in a proper spirit, and are prepared to follow the same process which others have followed to obtain this result.
What that process is, may perhaps be best explained by such an example as that of ship-building before alluded to, which, though 45totally distinct, is still so nearly allied to architecture, as to make a comparison between the two easy and intelligible.
Let us, for instance, take a series of ships, beginning with those in which William the Conqueror invaded our shores, or the fleet with which Edward III. crossed over to France. Next take the vessels which transported Henry VIII. to his meeting with Francis I., and then pass on to the time of the Spanish Armada and the sea fights of Van Tromp and De Ruyter, and on to the times of William III., and then through the familiar examples till we come to such ships as the ‘Wellington’ and ‘Marlborough’ of yesterday, and the ‘Warrior’ or ‘Minotaur’ of to-day. In all this long list of examples we have a gradual, steady, forward progress without one check or break. Each century is in advance of the one before it, and the result is as near perfection as we can well conceive.
But if we ask who effected these improvements, or who invented any part of the last-named wonderful fabrics, we must search deep indeed into the annals of the navy to find out. But no one has inquired and no one cares to know, for the simple reason that, like architecture in the Middle Ages, it is a true and living art, and the improvements were not effected by individuals, but by all classes—owners, sailors, shipwrights, and men of science, all working together through centuries, each lending the aid of his experience or of his reasoning.
If we place alongside of this series of ships a list of churches or cathedrals, commencing with Charlemagne and ending with Charles V., we find the same steady and assured progress obtained by the same identical means. In this instance, princes, priests, masons, and mathematicians, all worked steadily together for the whole period, striving to obtain a well-defined result.
In the ship the most suitable materials only are employed in every part, and neither below nor aloft is there one single timber nor spar nor one rope which is superfluous. Nor in the cathedral was any material ever used that was not believed to be the most suitable for its purpose; nor any form of construction adopted which did not seem the best to those who employed it; nor any detail added which did not appear necessary for the purpose it was designed to express? the result being, that we can look on and contemplate both with the same unmitigated satisfaction.
The one point where this comparison seems to halt is, that ship-building never became a purely fine art, which architecture really is. The difference is only one of aim, which it would be as easy to apply to the one art as it has been to the other. Had architecture never progressed beyond its one strictly legitimate object of house-building, it would never have been more near a fine art than merchant ship-building, and palaces would only have been magnified dwelling-places. Castles and men-of-war advanced both one stage further towards a fine 46art. Size and power were impressed on both, and in this respect they stand precisely equal to one another. Here ship-building halted, and has not progressed beyond, while architecture has been invested with a higher aim. In all ages men have sought to erect houses more dignified and stately than those designed for their personal use. They attempted the erection of dwelling-places for their Gods, or temples worthy of the worship of Supreme Beings; and it was only when this strictly useful art threw aside all shadow of utilitarianism, and launched boldly forth in search of the beautiful and the sublime, that it became a truly fine art, and took the elevated position which it now holds above all other useful arts. It would have been easy to supply the same motive to ship-building. If we could imagine any nation ever to construct ships of God, or to worship on the bosom of the ocean, ships might easily be made such objects of beauty that the cathedral could hardly compete with them.
It is not, however, only in architecture or in ship-building that this progress is essential, for the progress of every art and every science that is worthy of the name is owing to the same simple process of the aggregation of experiences; whether we look to metallurgy or mechanics, cotton-spinning or coining, their perfection is due to the same cause. So also the sciences—astronomy, chemistry, geology—are all cultivated by the same means. When the art or science is new, great men stand forth and make great strides; but when once it reaches maturity, and becomes the property of the nation, the individual is lost in the mass, and a thousand inferior brains follow out steadily and surely the path which the one great intellect has pointed out, but which no single mind, however great, could carry to its legitimate conclusion.
So far as any reason or experience yet known can be applied to this subject, it seems clear that no art or science ever has been or can be now advanced by going backwards, and copying earlier forms, or those applicable to other times or other circumstances; and that progress towards perfection can only be obtained by the united efforts of many steadily pursuing a well-defined object. Whenever this is done, success appears to be inevitable, or at all events every age is perfectly satisfied with its own productions. Where forward progress is the law, it is certain that the next age will surpass the present; but the living cannot conceive anything more perfect than what they are doing, or they would apply it. Everything in any true art is thoroughly up to the highest standard of its period, and instead of the dissatisfied uncertainty in which we are wandering in all matters concerning architecture, we should be exulting in our own productions, and proud in leaving to our posterity the progress we have made, feeling assured that we have paved the way for them to advance to a still higher standard of perfection.
47As soon as the public are aware of the importance of this rule, and of its applicability to architecture, a new style must be the inevitable result; and if our civilisation is what we believe it to be, that style will not only be perfectly suited to all our wants and desires, but also more beautiful and more perfect than any that has ever existed before.
If we turn from these speculations to ask what prospect there is of the public appreciating correctly this view of the matter, or setting earnestly about carrying it out, the answer can hardly be deemed satisfactory; in fact, if it were left to the public, very little progress, except from an utilitarian point of view, would probably be made.
The study of the classical languages, to which so much importance is attached in our public schools, and in our own and most foreign universities, tended at one time in another way to draw attention from the formation of a true style of architecture by fixing it exclusively on Greek and Roman models. The Renaissance in the 15th century, as pointed out above, arose much more from admiration of classic literature than from any feeling for the remains of buildings which had been neglected for centuries, and were far surpassed by those which succeeded them. The same feelings perpetuated by early association are the great cause of the hold that classic art still has on the educated classes in Europe.
On the other hand, the revival of the Gothic style fifty years ago enlisted the sympathy of the clergy, not only in England, but on the continent of Europe, when they arrived at the conclusion that the Gothic style was the one most suited for church-building purposes; and attempted to establish a point that no deviation from Gothic models should be tolerated.
Beyond these there was another class of men who had but little sympathy with Greece or Rome, and still less with mediæval monasticism or feudalism, but who in their own strong sense were inclined to take a more reasonable view of the matter, and these men have for years been erecting in London, Manchester, Leeds, and in other cities of England a series of warehouses and other buildings designed wholly with reference to their uses, and ornamented only in their construction, and which consequently are—as far as their utilitarian purposes will allow—as satisfactory as anything of former days.
In addition to these, and within the last fifteen to twenty years, a very great progress has taken place in domestic architecture, not only in London and its suburbs, but throughout England, where buildings have been erected of a new and an original type, peculiarly applicable to the requirements of English domestic life, and of great variety and picturesque design; and these remarks apply not only to 48mansions, but to the residences of a much humbler and more simple kind.
In civil engineering, the lowest and most prosaic branch of architectural art, our progress has been brilliant and rapid. Of this no better example can be given than the four great bridges erected over the Thames. The old bridges of Westminster and Blackfriars, and those of Waterloo and London, were erected at nearly equal intervals during one century, and the steady progress which they exhibit is greater than that of almost any similar branch of art during any equal period of time.
In this department our progress is so undeniable that we saw old London Bridge removed without regret, though it was a work of the same age and of the same men who built all our greatest and best cathedrals, and in its own line was quite as perfect and as beautiful as they. But it had outlived its age, and we knew we could replace it by a better—so its destruction was inevitable; and if we had made the same progress in the higher that we have in the lower branches of the building art, we should see a Gothic cathedral pulled down with the same indifference, content to know that we could easily replace it by one far nobler and more worthy of our age and intelligence. No architect during the Middle Ages ever hesitated to pull down any part of a cathedral that was old and going to decay, and to replace it with something in the style of the day, however incongruous that might be; and if we were progressing as they were, we should have as little compunction in following the same course.
In the confusion of ideas and of styles which now prevails, it is satisfactory to be able to contemplate, in the Crystal Palace at Sydenham, at least one great building carried out wholly on the principles of Gothic or of any true style of art. No material is used in it which is not the best for its purpose, no constructive expedient employed which was not absolutely essential, and it depends wholly for its effect on the arrangement of its parts and the display of its construction. So essentially is its principle the same which, as we have seen, animated Gothic architecture, that we hardly know even now how much of the design belongs to Sir Joseph Paxton, how much to the contractors, or how much to the subordinate officers employed by the Company. Here, as in a cathedral, every man was set to work in that department which it was supposed he was best qualified to superintend. There was room for every art and for every intellect, and clashing and interference were impossible. This, however, was only the second of the series. The third was entrusted to an Engineer officer, who had no architectural education, and who had never thought twice on the subject before he was set to carry out his very inchoate design for the 1862 Exhibition. He failed of course, for architecture is not a Phonetic art depending on inspiration, but a technic art based on experience. As re-erected on 49Muswell Hill the building was immensely improved, and far superior to its predecessor, but was burnt down before the public had time to realise its form. As being rebuilt, it probably will be still one step further in advance, and if the series were carried to a hundred, with more leisure and a higher aim, we might perhaps learn to despise many things we now so servilely copy, and might create a style surpassing anything that ever went before. We have certainly more wealth, more constructive skill, and more knowledge than our forefathers; and, living in the same climate and being of the same race, there seems no insuperable difficulty in our doing at least as much if not more than they accomplished.
Art, however, will not be regenerated by buildings so ephemeral as Crystal Palaces or so prosaic as Manchester warehouses, nor by anything so essentially utilitarian as the works of our engineers. The one hope is that having commenced at the bottom, the true system may extend upwards, and come at last to be applied to our palaces and even to churches, and that the whole nation may lend its aid to work out the great problem. The prospect of this being done may seem distant, but as soon as the general significance of the problem is fully appreciated by the public, the result seems inevitable; and with the means of diffusing knowledge which we now possess, we may perhaps be permitted to fancy that the dawn is at hand, and that after our long wanderings in the dark, daylight may again enlighten our path and gladden our hearts with the vision of brighter and better things in art than a false system has hitherto enabled us to attain.
These remarks might easily be extended to any desired length, and in fact this part of the work ought to be enlarged till it equalled the narrative part, if it had any pretension to be a complete treatise on the Art of Architecture. In that case, the static or descriptive part of a treatise on any art is equally important with the dynamic or narrative part. In most instances more so; but in this respect architecture is exceptional, and the narrative form is by far the more important of the two divisions into which the subject naturally divides itself.
If, for instance, any one were writing a treatise on Naval Architecture, it is more than probable that he would not allude to any vessel not afloat at the time of his writing. If he mentioned the triremes of the Romans or the galleys of the Venetians, it would be in an introductory chapter intended for the amusement, not the instruction, of his readers. In like manner, if an engineer undertakes to write on the art of bridge-building, harbour-making, or on roads or canals, he is only careful to cite the best existing examples in use, and would be considered pedantic if he wasted his time, or that of his readers, in recounting what was done in these departments by the Romans or the Chinese. If the fine art architecture was with us as well up to the 50mark of the intelligence of the day as these more utilitarian branches of the profession, the same course would be the proper one to pursue in writing with regard to it. Unfortunately, however, we have no architecture of our own, and it is impossible to make the various styles in practice either intelligible or interesting, except by tracing them back to their origin, and explaining the steps by which they reached perfection.
If architecture was practised by us on the same principles that guided either the Classic or Gothic architects in their designs, a static treatise on it would not only be the most instructive but the most pleasing form of teaching its elements. Owing, however, to the system of copying which is now the basis of all designs, this is no longer the case, and the consequently abnormal position of the art renders the study of its principles almost impossible, and memory must supply the place of pure reason for their elucidation, thus giving to the narrative branch of the subject a somewhat exaggerated importance, even when looked at from a merely technic point of view.
Besides this, however, the narrative form as applied to Architecture has advantages of its own greater than those of any other art of the same class, inasmuch as it is a great stone book in which most of the nations of the earth have recorded their annals, and written their thoughts, and even expressed their feelings in clearer and truer language than by any other form of utterance. The pyramids and temples of Egypt are a truer expression of the feelings and aspirations of their builders than we can obtain from any other source. The Parthenon at Athens brings the age of Pericles more clearly before our eyes in all its perfection of art than any written page. The Flavian Amphitheatre and the Baths of Caracalla enable us to realise imperial Rome more vividly than even the glowing pages of Tacitus. Our Mediæval cathedrals are a living record of the faith and feelings of peoples, who have left, besides these, but few materials by which one could judge of their aspirations or of their civilisation; while, if we wish to know in what India differed from Europe in those ages, and in what respect she still resembled it, it is to her contemporary temples that we must turn, and they tell us in a language not to be mistaken wherein lay the differences, and still how nearly alike the civilisations at one time were. All this, and infinitely more, we may learn from a record, which, though often ruined and nearly obliterated, never deceives. Where it first was placed, there it still remains to tell to future generations what at that spot, at some previous time, men thought and felt; what their state of civilisation enabled them to accomplish, and to what stage they had attained in their conception of a God.
Besides, however, the advantages to be obtained in an artistic point of view from treating architecture in a narrative rather than in a static form, there is, as pointed out above, still another, which, though of 51minor importance, still adds immensely to the interest of the subject. It is that, when so treated, the art affords one of the clearest and most certain tests known of the ethnographic relations of people one to another. It may, therefore, be as well, before proceeding further, to explain as briefly as is consistent with intelligibility what is meant by Architectural Ethnography.
Ethnology, though one of the youngest, is perhaps neither the least beautiful nor the least attractive of that fair sisterhood of sciences whose birth has rewarded the patient industry and inflexible love of truth which characterises the philosophy of the present day. It takes up the history of the world at the point where it is left by its elder sister Geology, and, following the same line of argument, strives to reduce to the same scientific mode of expression the apparent chaos of facts which have hitherto been looked upon as inexplicable by the general observer.
It is only within the limits of the present century that Geology was rescued from the dreams of cataclysms and convulsions which formed the staple of the science in the last century; and that step by step, by slow degrees, rocks have been classified and phenomena explained. All that picturesque wildness with which the materials seemed at first sight to be distributed over the world’s surface has been reduced to order, and they now lie arranged as clearly, and as certainly in the mind of a geologist, as if they had been squared by the tool of a mason and placed in order by the hand of a mechanic. So it is with Ethnology. Race has succeeded race;—all have been disturbed, some obliterated—many contorted—and sometimes the older, apparently, superimposed upon the newer. All at first sight is chaos and confusion, and it seems almost hopeless to attempt to unravel the mysteries of the long-forgotten past. It is true nevertheless, in Ethnology, as in the sister science, that no change on the world’s surface has taken place without leaving its mark. A race may be obliterated, or only crop up at the edge of some great basin of population; but it has left its traces either as fossil remains in the shape of buildings or works, or as impressions on language or on the arts of those who supplanted the perishing race. When these are read,—when all the phenomena are gathered together and classified, we find the same perfection of Order, the same beautiful simplicity of law pervading the same complex variety of results, which characterise all the phenomena of nature, and the knowledge of which is the highest reward of intellectual exertion.
Language has hitherto been the great implement of analysis which 53has been employed to elucidate the affiliation of races; and the present state of the science may be said to be almost entirely due to the acumen and industry of learned linguists. Physiology has lent her aid; but the objects offered for her examination are so few, especially in remote ages, and the individual differences are so small, as compared with the general resemblance, that, in the present state of that science, its aid has not been of the importance which it may fairly be expected hereafter to assume. In both sciences History plays an important part: in Geology, by furnishing analogies without which it would be hardly possible to interpret the facts; in Ethnology, by pointing out the direction in which inquiries should be made, and by guiding and controlling the conclusions which may have been arrived at. With the assistance of these sciences, Ethnologists have accomplished a great deal, and may do more; but Ethnology, based merely on Language[16] and Physiology, is like Geology based only on Mineralogy and Chemistry. Without Palæontology, that science would never have assumed the importance or reached the perfection to which it has now attained; and Ethnology will never take the place which it is really entitled to, till its results are checked, and its conclusions elucidated, by the science of Archæology.
Without the aid and vivifying influence derived from the study of fossil remains, Geology would lose half its value and more than half its interest. It may be interesting to the man of science to know what rock is superimposed upon another, and how and in what relative periods these changes occurred; but it is far more interesting to watch the dawn of life on this globe, and to trace its development into the present teeming stage of existence. So it will be when, with the aid of Archæology, Ethnologists are able to identify the various strata in which mankind have been distributed; to fix identities of race from similarities of Art; and to read the history of the past from the unconscious testimony of material remains. When properly studied and understood, there is no language so clear, or whose testimony is so undoubted, as that of those petrified thoughts and feelings which men have left engraved on the walls of their temples, or buried with them in the chambers of their tombs. Unconsciously expressed, but imperishably written, they are there to this hour. Any one who likes may read, and no one who can translate them can for one moment doubt but that they are the best, and frequently the only, records that remain of bygone races.
54It is not difficult to explain why ethnographers have not hitherto considered Archæology of that importance to their researches to which it is undoubtedly entitled. We live in an age when all Art is a chaos of copying and confusion; we are daily masquerading in the costume of every nation of the earth, ancient and modern, and are unable to realise that these dresses in which we deck ourselves were once realities. Because Architecture, since the Reformation in the sixteenth century, has in Europe been a mere hortus siccus of dried specimens of the art of all countries and of all ages, we cannot feel that, before that time, Art was earnest and progressive; and that men then did what they felt to be best and most appropriate, by the same processes by which Nature works. We do not therefore perceive that, though in an infinitely lower grade, we may reason of the works of man before a given date, with the same certainty with which we can reason of those of Nature. When this great fact is once recognised—and it is indisputable—Archæology and Palæontology take their places side by side, as the guiding and vivifying elements in the sister sciences of Ethnology and Geology; and give to each of these a value they could never otherwise attain.
As may well be expected, however, when Archæology is employed to aid in these researches, results are frequently arrived at, which at first sight are discrepant from those to which the study of language alone has hitherto led scientific men. But this is no proof either of the truth or falsehood of the conclusions arrived at, or of the value or worthlessness of the processes employed. Both are essential to the question of knowledge, and it is by a skilful balancing of both classes of evidence that truth is ultimately arrived at.
It would be out of place to attempt in an introduction like the present anything approaching to a complete investigation of this subject. Nor is it necessary. The various ethnographic relations of one style to another will be pointed out as they arise in the course of the narrative, and their influence traced to such an extent as may be necessary to render them intelligible. But for the same reasons which made it expedient to try, in the preceding pages, to define the meaning of the term architecture and to point out its position and limits, it is believed that it will add to the clearness of what follows if the typical characteristics of the principal races[17] of mankind with whom the 55narrative deals, are first defined as clearly, though as succinctly as possible.
As the object of introducing the subject here is not to write an essay on Ethnology, but to render the history of Architecture interesting and intelligible, it may be expedient to avoid all speculation as to the origin of mankind, or the mode in which the various races diverged from one another and became so markedly distinct. Stretch the history of Architecture as we will, we cannot get beyond the epoch of the Pyramid builders (3500 B.C.), and when these were erected the various races of mankind had acquired those distinctive characteristics which mark them now. Not long afterwards, when the tombs at Beni Hassan were painted (2500 B.C.), these distinctions were so marked and so well understood, that these pictures might serve for the illustration of a book on Ethnography at the present day. Nor will it be necessary in this preliminary sketch to attempt more than to point out the typical features of the four great building races of mankind. The Turanian, the Semitic, the Celtic, and the Aryan. Even with regard to these, all that will be necessary will be to point out the typical characteristics without even attempting to define too accurately their boundaries, and leaving the minuter gradations to be developed in the sequel.
The one great fact which it is essential to insist on here is, that if we do not take into account its connexion with Ethnography, the History of Architecture is a mere dry, hard recapitulation of uninteresting facts and terms; but when its relation to the world’s history is understood,—when we read in their buildings the feelings and aspirations of the people who erected them, and above all through their arts we can trace their relationship to, and their descent from one another, the study becomes one of the most interesting, as well as one of the most useful which can be presented to an inquiring mind.
The result of recent researches has enabled the ethnographer to divide and arrange prehistoric man into three great groups or periods, which in Europe at least seem to have succeeded to one another; though at what time has not yet been determined even approximately; nor is it known how long any of the three subsisted before it was superseded by the next, nor how far the one overlapped the other, or indeed, whether, as was almost certainly the case, at some time all three may not have subsisted together.
The first is called the Stone age, from the rude race who then peopled Europe having no knowledge of the use of metals. All the cutting parts of their implements were formed of flint or other hard 56stones, probably fitted with wooden or bone handles, and used as tools of these materials.
These were succeeded by a people having a knowledge of the use of copper and tin, with the possession of gold, and perhaps silver. Their principal weapons and tools were formed of a compound of the two first-named metals; and their age has consequently been called the age of Bronze.
Both these were superseded, perhaps in historic times, by a people having a knowledge of the properties and use of Iron. Hence their epoch came to be distinguished by the name of that metal.
There seems no doubt but that the people of the Stone age were generally, if not exclusively, of that great family which we now know as the Turanian.
The race who introduced bronze seem to have been the ancestors of the Celtic races who afterwards peopled so large a portion of Europe.
The Aryans were those who introduced the use of iron, and with it dominated over and expelled the older races.
If any prehistoric traces of the Semitic races are to be found, they must be looked for in Western Asia or in Africa; they certainly had no settlements in Europe.
Further researches may perhaps at some future time enable us to fix approximative dates to these various migrations. At present we know that men using flint implements lived in the valleys of the Garonne and Dordogne when the climate of the south of France was as cold as that of Lapland, or perhaps Greenland; when the reindeer was their principal domestic animal, and the larger animals of the country belonged to species many of which had ceased to inhabit those regions before the dawn of history. On the other hand, we may assert with certainty that the climate of Egypt has not varied since the age of the Pyramid builders; and there is nothing in the history of either Greece or Italy that would lead us to believe that any remarkable alteration in the climate of these countries has taken place in historic times.
These questions, however, hardly come within the scope of the present work. The men of the Stone age have left nothing which can be styled architecture, unless we include in that term the rude tumuli of earth with which they covered the remains of their dead. It is also extremely uncertain if we can identify any building of stone as belonging certainly to the age of Bronze. All the rude cromlechs, dolmens, menhirs, &c., which usher in the early dawn of civilisation in Europe, belong, it is true to the earlier races, but seem to have been erected by them at a time when the Aryan races had taught them the use of iron, and they had learnt to appreciate the value of stone as a monumental record. This, however, was at a period long subsequent to the use of iron in Egypt and the East, and long after architecture had 57attained maturity; and its history became easily and distinctly legible in the Valley of the Nile.[18]
The great feature in the history of the Turanian races is that they were the first to people the whole world beyond the limits of the original cradle of mankind. Like the primitive unstratified rocks of geologists, they form the substructure of the whole world, frequently rising into the highest and most prominent peaks, sometimes overflowing whole districts and occupying a vast portion of the world’s surface;—everywhere underlying all the others, and affording their disintegrated materials to form the more recent strata that now overlie and frequently obliterate them,—in appearance at least.
In the old world the typical Turanians were the Egyptians; in the modern the Chinese and Japanese; and to these we are perhaps justified in adding the Mexicans. If this last adscription stands good, we have at three nearly equidistant points (120 degrees apart) on the earth’s surface, and under the tropic of Cancer, the three great culminating points of this form of civilisation. The outlying strata in Asia are the Tamuls, who now occupy the whole of the south of India, and all the races now existing in the countries between India and China. The Turanians existed in the Valley of the Euphrates before the Semitic or Aryan races came there. The Tunguses in the north are Turanians, and so are the Mongols, the Turks, and all those tribes generally described as Tartars.
In Europe the oldest people of this family we are acquainted with are the Pelasgi and Etruscans, but the race also crops up in the Magyars, the Finns, the Lapps, and in odd broken fragments here and there, but everywhere overpowered by the more civilised Aryans, who succeeded and have driven them into the remotest corners of the continent.
In Africa they have been almost as completely overpowered by the Semitic race, and in America are now being everywhere as entirely overwhelmed as they were in Europe by the Aryan races, and in all probability must eventually disappear altogether.
Even if the linguist should hesitate to affirm that all their languages can be traced to a common root, or present sufficient affinities for a classification, the general features of the races enumerated above are so alike the one to the other, that, for all real ethnographic purposes, they may certainly be considered as belonging to one great group. Whether nearly obliterated, as they are in most parts of Europe, or whether they still retain their nationality, as in the eastern parts of Asia, they always appear as the earliest of races, and everywhere present peculiarities of feeling and civilisation easily 58recognised, and which distinguish them from all the other races of mankind.
If they do not all speak cognate languages, or if we cannot now trace their linguistic affinities, we must not too readily assume that therefore they are distinct the one from the other. It must be more philosophical to believe, what probably is the case, that the one instrument of analysis we have hitherto used is not sufficient for the purpose, and we ought consequently to welcome every other process which will throw further light on the subject.
It is perhaps not too much to assert that no Turanian race ever rose to the idea of a God external to the world. All their gods were men who had lived with them on the face of the earth. In the old world they were kings,—men who had acquired fame from the extent of their power, or greatness from their wisdom. The Buddhist reform taught the Turanian races that virtue, not power, was true greatness, and that the humblest as well as the highest might attain beatitude through the practice of piety.
All the Turanians have a distinct idea of rewards and punishments after death, and generally also of a preparatory purgatory by transmigration through the bodies of animals, clean or unclean according to the actions of the defunct spirit, but always ending in another world. With some races transmigration becomes nearly all in all; in others it is nearly evanescent, and Heaven and Hell take its place; but the two are essentially doctrines of this race.
From the fact of their gods having been only ordinary mortals, and all men being able to aspire to the godhead, their form of worship was essentially anthropic and ancestral; their temples were palaces, where the gods sat on thrones and received petitions and dispensed justice as in life, and where men paid that homage to the image of the dead which they would have paid to the living king. They were in fact the idolators, par excellence. Their tombs were even more sacred than their temples, and their reverence was more frequently directed to the remains of their ancestors than to the images of their gods. Hence arose that reverence for relics which formed so marked a feature in their ritual in all ages, and which still prevails among many races almost in the direct ratio in which Turanian blood can be traced in their veins.
Unable to rise above humanity in their conceptions of the deity, they worshipped all material things. Trees with them in all times were objects of veneration, and of especial worship in particular localities. The mysterious serpent was with them a god, and the bull in most Turanian countries a being to be worshipped. The sun, the 59moon, the stars, all filled niches in their Pantheon; in fact, whatever they saw they believed in, whatever they could not comprehend they worshipped. They cared not to inquire beyond the evidence of their senses, and were incapable of abstracting their conceptions. To the Turanians also is due that peculiar reverence for localities made celebrated by great historical events, or rendered sacred by being the scene of great religious events, and hence to them must be ascribed the origin of pilgrimages, and all their concomitant adjuncts and ceremonies.
It is to this race also that we owe the existence of human sacrifices. Always fatalists, always and everywhere indifferent of life, and never fearing death, these sacrifices never were to them so terrible as they appear to more highly-organised races. Thus a child, a relative, or a friend, was the most precious, and consequently the most acceptable offering a man could bring to appease the wrath or propitiate the favour of a god who had been human, and who was supposed to have retained all the feelings of humanity for ever afterwards.
It is easy to trace their Tree and Serpent worship in every corner of the old world from Anuradhapura in Ceylon, to Upsala in Sweden. Their tombs and tumuli exist everywhere. Their ancestral worship is the foundation at the present day of half the popular creeds of the world, and the planets have hardly ceased to be worshipped at the present hour. Most of the more salient peculiarities of this faith were softened down by the great Buddhist reform in the sixth century B.C., and that refinement of their rude primitive belief has been adopted by most of the Turanian people of the modern world, and is now almost exclusively the appanage of people having Turanian blood in their veins. Even, however, through the gloss of their Buddhist refinements we can still discern most of the old forms of faith, and even its most devoted votaries are yet hardly more than half converted.
The only form of government ever adopted by any people of Turanian race was that of absolute despotism,—with a tribe, a chief,—in a kingdom, a despot. In highly civilised communities, like those of Egypt and China, their despotism was tempered by bureaucratic forms, but the chief was always as absolute as a Timour or an Attila, though not always strong enough to use his power as terribly as they did. Their laws were real or traditional edicts of their kings, seldom written, and never administered according to any fixed form of procedure.
As a consequence or a cause of this, the Turanian race are absolutely casteless; no hereditary nobility, no caste of priests ever existed 60among them; between the ruler and the people there could be nothing, and every one might aspire equally to all the honours of the State, or to the highest dignity of the priesthood. “La carrière ouverte aux talens,” is essentially the motto of these races or of those allied to them, and whether it was the slave of a Pharaoh, or the pipe-bearer of a Turkish sultan, every office except the throne is and always was open to the ambitious. No republic, no limited monarchy, ever arose among them. Despotism pure and simple is all they ever knew, or are even now capable of appreciating.
Woman among the Turanian races was never regarded otherwise than as the helpmate of the poor and the plaything of the rich; born to work for the lower classes and to administer to the gratification of the higher. No equality of rights or position was ever dreamt of, and the consequence was polyandry where people were poor and women scarce, and polygamy where wealth and luxury prevailed; and with these it need hardly be added, a loss of half those feelings which ennoble man or make life valuable.
Neither loving nor beloved in the bosom of his own family,—too much of a fatalist to care for the future,—neither enjoying life nor fearing death,—the Turanian is generally free from those vices which contaminate more active minds; he remains sober, temperate, truthful, and kindly in all the relations of life. If, however, he has few vices, he has fewer virtues, and both are far more passive than active in their nature,—in fact, approach more nearly to the instincts of the lower animals than to the intellectual responsibilities of the highest class of minds.
No Turanian race ever distinguished itself in literature, properly so called. They all possessed annals, because they loved to record the names, the dates, and the descent of their ancestors; but these never rose to the dignity of history even in its simplest form. Prose they could hardly write, because none of the greater groups ever appreciated the value of an alphabet. Hieroglyphics, signs, symbols, anything sufficed for their simple intellectual wants, and they preferred trusting to memory to remember what a sign stood for, rather than exercise their intellect to compound or analyse a complex alphabetical arrangement. Their system of poetry helped them, to some extent, over the difficulty; and, with a knowledge of the metre, a few suggestive signs enabled the reader to remember at least a lyric composition. But without a complex grammar to express and an 61alphabet to record their conceptions it is hopeless to expect that either Epic or Dramatic Poetry could flourish, still less that a prose narrative of any extent could be remembered; and philosophy, beyond the use of proverbs, was out of the question.
In their most advanced stages they have, like the Chinese, invented syllabaria of hideous complexity, and have even borrowed alphabets from their more advanced neighbours. By some it is supposed that they have even invented them; but though they have thus got over the mechanical difficulties of the case, their intellectual condition remains the same, and they have never advanced beyond the merest rudiments of a literature, and have never mastered even the elements of any scientific philosophy.
If so singularly deficient in the phonetic modes of literary expression, the Turanian races made up for it to a great extent in the excellence they attained in most of the branches of æsthetic art. As architects they were unsurpassed, and in Egypt alone have left monuments which are still the world’s wonder. The Tamul race in Southern, the Moguls in Northern India, in Burmah, in China, and in Mexico, wherever these races are found, they have raised monuments of dimensions unsurpassed; and, considering the low state of civilisation in which they often existed, displaying a degree of taste and skill as remarkable as it is unexpected.
In consequence of the circumstance above mentioned of their gods having been kings, and after death still only considered as watching over and influencing the destiny of mankind, their temples were only exaggerated palaces, containing halls, and chambers, and thrones, and all the appurtenances required by the living, but on a scale befitting the celestial character now acquired. So much is this the case in Egypt that we hardly know by which name to designate them, and the same remark applies to all.
Even more sacred, however, than their temples were their tombs. Wherever a Turanian race exists or existed, there their tombs remain; and from the Pyramids of Egypt to the mausoleum of Hyder Ali, the last Tartar king in India, they form the most remarkable series of monuments the world possesses, and all were built by people of Turanian race. No Semite and no Aryan ever built a tomb that could last a century or was worthy to remain so long.
The Buddhist reform altered the funereal tumulus into a relic shrine, modifying this, as it did most of the Turanian forms of utterance, from a literal to a somewhat more spiritual form of expression, but leaving the meaning the same,—the Tope being still essentially a Tomb.
62Combined with that wonderful appreciation of form which characterises all the architectural works of the Turanians, they possessed an extraordinary passion for coloured decoration and an instinctive knowledge of the harmony of colours. They used throughout the primitive colours in all their elemental crudeness; and though always brilliant, are never vulgar, and are guiltless of any mistake in harmony. From the first dawn of painting in Egypt to the last signboard in Constantinople or Canton, it is always the same,—the same brilliancy and harmony produced by the simplest means.
In sculpture they were not so fortunate. Having no explanatory literature to which to refer, it was necessary that their statues should tell their whole tale themselves; and sculpture does not lend itself to this so readily as painting. With them it is not sufficient that a god should be colossal, he must be symbolical; he must have more arms and legs or more heads than common men; he must have wings and attributes of power, or must combine the strength of a lion or a bull with the intellect of humanity. The statue must, in short, tell the whole story itself; and where this is attempted the result can only be pleasing to the narrow faith of the unreflecting devotee. So far from being able to express more than humanity, sculpture must attempt even less if it would be successful; but this of course rendered it useless for the purposes to which the Turanians wished to apply it.
The same remarks apply to painting, properly so called. This never can attain its highest development except when it is the exponent of phonetic utterances. In Greece the painter strove only to give form and substance to the more purely intellectual creation of the poet, and could consequently dispense with all but the highest elements of his art. In Egypt the picture was all in all; it had no text to refer to, and must tell the whole tale with all its adjuncts, in simple intelligible prose, or be illegible, and the consequence is that the story is told with a clearness that charms us even now. It is however, only a story; and, like everything else Turanian, however great or wonderful, its greatness and its wonder are of a lower class and less intellectual than the utterances of the other great divisions of the human family.
We have scarcely the means of knowing whether any Turanian race ever successfully cultivated music to any extent. It is more than probable that all their families can and always could appreciate the harmony of musical intervals, and might be charmed with simple cadences; but it is nearly certain that a people who did not possess phonetic poetry could never rise to that higher class of music which is now carried to such a pitch of perfection, that harmonic combinations almost supply the place of phonetic expression and influence the feelings and passions to almost the same extent.
There is also this further peculiarity about their arts, that they 63seem always more instinctive than intellectual, and consequently are incapable of that progress which distinguishes most of the works of man. At the first dawn of art in Egypt, in the age of the Pyramid builders, all the arts were as perfect and as complete as they were when the country fell under the domination of the Romans. The earliest works in China are as perfect—in some respects more so—as those of to-day; and in Mexico, so soon as a race of red savages peopled a country so densely as to require art and to appreciate magnificence, the arts sprung up among them with as much perfection, we may fairly assume, as they would have attained had they been practised for thousands of years under the same circumstances and uninfluenced by foreigners. It is even more startling to find that the arts of the savages who inhabited the south of France, on the skirts of the glacial period, are identical with those of the Esquimaux of the present day, and even at that early time attained a degree of perfection which is startling, and could hardly be surpassed by any people in the same condition of life at the present day.
There is no reason to suppose that any people occupying so low a position in the intellectual scale could ever cultivate anything approaching to abstract science, and there is no proof of it existing. Living, however, as they did, on the verge of the tropics, in the most beautiful climates of the world, and where the sky is generally serene and unclouded, it was impossible but that they should become to some extent astronomers.
It is not known that any of them ever formed any theory to account for the phenomena they observed, but they seem to have watched the paths of the planets, to have recorded eclipses, and generally to have noted times and events with such correctness as enabled them to predict their return with very considerable precision; but here their science stopped, and it is not known that they ever attempted any other of the multifarious branches of modern knowledge.
We have only very imperfect means of knowing what their agriculture was; but it seems always to have been careful when once they passed from the shepherd state, though whether scientific or not it is not easy to say. On the point of artificial irrigation the Turanians have always been singularly expert. Wherever you follow their traces, the existence of a tunnel is almost as certain an indication of their pre-existence as that of a tomb. It is amusing, as it is instructive, to see at this hour an Arab Pacha breaking down in his attempts to restore the irrigation works of the old Pharaohs, or an 64English Engineer officer blundering in his endeavours to copy the works instinctively performed by a Mogul, or a Spaniard trying to drain the lakes of Mexico. Building and irrigation were the special instincts of this old people, and the practical intellect of the higher races seems hardly yet to have come up to the point where these arts were left by the early Turanian races, while the perfection they attained in them is the more singular from the contrast it affords to what they did, or rather, did not do, in other branches of art or science.
From the extraordinary influence the Semitic races have had in the religious development of mankind, we are apt to consider them as politically more important than they really ever were. At no period of their history do they seem to have numbered more than twenty or thirty millions of souls. The principal locality in which they developed themselves was the small tract of country between the Tigris, the Mediterranean and the Red Sea; but they also existed as a separate race in Abyssinia, and extended their colonies along the northern coast of Africa. Their intellectual development has been in all ages so superior to that of the Turanian races, that they have subdued them mentally wherever they came in contact with them; and notwithstanding their limited geographical extension, they have influenced the intellect of the Aryan tribes to a greater extent than almost any of their own congeners.
If anything were required to justify the ethnographer in treating the various families of mankind as distinct and separate varieties, it would be the study of the history of the Semitic race. What they were in the time of Abraham, that they are at the present day. A large section of them sojourned in Egypt, among people of a different race, and they came out as unmixed as oil would do that is floated on water. For the last two thousand years they have dwelt dispersed among the Gentiles, without a nationality, almost without a common language, yet they remain the same in feature, the same in intellectual development and feeling, they exhibit the same undying repugnance to all except those of their own blood, which characterised the Arab and the Jew when we first recognise their names in history. So unchangeable are they in this respect, that it seems in vain to try to calculate how long this people must have lived by themselves, separated from other races, that they should have thus acquired that distinctive fixity of character nothing can alter or obliterate, and which is perhaps even more wonderful intellectually than are the woolly hair and physical characteristics of the negro, though not so obvious to the superficial observer.
From the circumstance of our possessing a complete series of the religious literature of the Semitic race, extending over the two thousand years which elapsed between Moses and Mahomet, we are enabled to speak on this point with more precision than we can regarding the doctrines of almost any other people.
The great and distinguishing tenet of this race when pure is and always seems to have been the unity of God, and his not being born of man. Unlike the gods of the Turanians, their Deity never was man, never reigned or lived on earth, but was the Creator and Preserver of the universe, living before all time, and extending beyond all space; though it must be confessed they have not always expressed this idea with the purity and distinctness which might be desired.
It is uncertain how far they adhered to this purity of belief in Assyria, where they were more mixed up with other races than they have ever been before or since. In Syria, where they were superimposed upon and mixed with a people of Turanian origin, they occasionally worshipped stones and groves, serpents, and even bulls; but they inevitably oscillated back to the true faith and retained it to the last. In Arabia, after they became dominant, they cast off their Turanian idolatries, and rallied as one man to the watchword of their race, “There is no God but God,” expressed with a clearness that nothing can obscure, and clung to it with a tenacity that nothing could shake or change. Since then they have never represented God as man, and hardly ever looked upon Him as actuated by the feelings of humanity.
The channel of communication between God and man has always been, with all the Semitic races, by means of prophecy. Prophets are sent, or are inspired, by God, to communicate His will to man, to propound His laws, and sometimes to foretell events; but in all instances without losing their character as men, or becoming more than messengers for the special service for which they are sent.
With the Jews, but with them only, does there seem to have been a priest caste set aside for the special service of God; not selected from all the people, as would have been the case with the casteless Turanians, but deriving their sanctity from descent, as would have been the case with the Aryans; still they differed from the Aryan institution inasmuch as the Levites always retained the characteristics of a tribe, and never approached the form of an aristocracy. They may therefore be considered ethnographically as an intermediate institution, partaking of the characteristics of the other two races.
The one point in which the Semitic form of religion seems to come in contact with the Turanian is that of sacrifice—human, in early 66times perhaps, even till the time of Abraham, but afterwards only of oxen and sheep and goats in hecatombs; and this apparently not among the Arabs, but only with the Jews and the less pure Phœnicians.
From their having no human gods they avoided all the palatial temples or ceremonial forms of idolatrous worship. Strictly speaking, they have no temples. There was one holy place in the old world, the Hill of Zion at Jerusalem, and one in the new dispensation, the Kaaba at Mecca. Solomon, it is true, adorned the first to an extent but little consonant with the true feeling of his race, but the Kaaba remains in its primitive insignificance; and neither of these temples, either then or now, derive their sanctity from the buildings. They are the spots where God’s prophets stood and communicated His will to man. It is true that in after ages a Roman Tetrarch and a Turkish Sultan surrounded these two Semitic cells with courts and cloisters, which made them wonders of magnificence in the cities where they existed; but this does not affect the conclusion that no Semitic race ever erected a durable building, or even thought of possessing more than one temple at a time, or cared to emulate the splendour of the temple-palaces of the Turanians.
Although no Semitic race was ever quite republican, which is a purely Aryan characteristic, they never sank under such an unmitigated despotism as is generally found among the Turanians. When in small nuclei, their form of government is what is generally called patriarchal, the chief being neither necessarily hereditary, nor necessarily elective, but attaining his headship partly by the influence due to age and wisdom, or to virtue, partly to the merits of his connexions, and sometimes of his ancestors; but never wholly to the latter without some reference at least to the former.
In larger aggregations the difficulty of selection made the chiefship more generally hereditary; but even then the power of the King was always controlled by the authority of the written law, and never sank into the pure despotism of the Turanians. With the Jews, too, the sacred caste of the Levites always had considerable influence in checking any excesses of kingly power; but more was due in this respect to their peculiar institution of prophets, who, protected by the sacredness of their office, at all times dared to act the part of tribunes of the people, and to rebuke with authority any attempt on the part of the King to step beyond the limits of the constitution.
One of the most striking characteristics in the morals of the Semitic races is the improvement in the position of woman, and the attempt to elevate her in the scale of existence. If not absolutely monogamic, there is among the Jews, and among the Arabic races where they are pure, a strong tendency in this direction; and but for the example of those nations among whom they were placed, they might have gone further in this direction, and the dignity of mankind have been proportionately improved.
Their worst faults arise from their segregation from the rest of mankind. With them war against all but those of their own race is an obligation and a pleasure, and it is carried on with a relentless cruelty which knows no pity. To smite root and branch, to murder men, women, and children, is a duty which admits of no hesitation, and has stained the character of the Semites in all ages. Against this must be placed the fact that they are patriotic beyond all other races, and steadfast in their faith as no other people have ever been; and among themselves they have been tempered to kindness and charity by the sufferings they have had to bear because of their uncompromising hatred and repugnance to all their fellow-men.
This isolation has had the further effect of making them singularly apathetic to all that most interests the other nations of the earth. What their God has revealed to them through His prophets suffices for them. “God is great,” is a sufficient explanation with them for all the wonders of science. “God wills it,” solves all the complex problems of the moral government of the world. If not such absolute fatalists as the Turanians, they equally shrink from the responsibility of thinking for themselves, or of applying their independent reason to the great problems of human knowledge. They may escape by this from many aberrations that trouble more active minds, but their virtues at best can be but negative, and their vices unredeemed by the higher aspirations that sometimes half ennoble even crime.
In this again we have an immense advance above all the Turanian races. No Semitic people ever used a hieroglyph or mere symbol, or were content to trust to memory only. Everywhere and at all times—so far as we know—they used an alphabet of more or less complicated form. Whether they invented this mode of notation or not is still unknown, but its use by them is certain; and the consequence is that they possess, if not the oldest, at least one of the very oldest literatures of the world. History with them is no longer a mere record 68of names and titles, but a chronicle of events, and with the moral generally elicited. The story and the rhapsody take their places side by side, the preaching and the parable are used to convey their lessons to the world. If they had not the Epos and the Drama, they had lyric poetry of a beauty and a pathos which has hardly ever been surpassed.
It was this possession of an alphabet, conjoined with the sublimity of their monotheistic creed, that gave these races the only superiority to which they have attained. It is this which has enabled them to keep themselves pure and undefiled in all the catastrophes to which they have been exposed, and that still enables their literature and their creed to exert an influence over almost all the nations of the earth, even in times when the people themselves have been held in most supreme contempt.
It may have been partly in consequence of their love of phonetic literature, and partly in order to keep themselves distinct from those great builders the Turanians, that the Semitic races never erected a building worthy of the name; neither at Jerusalem, nor at Tyre or Sidon, nor at Carthage, is there any vestige of Semitic Architectural Art. Not that these have perished, but because they never existed. When Solomon proposed to build a temple at Jerusalem, though plain externally, and hardly so large as an ordinary parish church, he was forced to have recourse to some Turanian people to do it for him, and by a display of gold and silver and brass ornaments to make up for the architectural forms he knew not how to apply.
In Assyria we have palaces of dynasties more or less purely Semitic, splendid enough, but of wood and sunburnt bricks, and only preserved to our knowledge from the accident of their having been so clumsily built as to bury themselves and their wainscot slabs in their own ruins. Though half the people were probably of Turanian origin, their temples seem to have been external and unimportant till Sennacherib and others learnt the art of using stone from the Egyptians, as the Syrians did afterwards from the Romans. During the domination of the last-named people, we have the temples of Palmyra and Baalbec, of Jerusalem and Petra: everywhere an art of the utmost splendour, but with no trace of Semitic feeling or Semitic taste in any part, or in any detail.
The Jewish worship being neither ancestral, nor the bodies of their dead being held in special reverence, they had no tombs worthy of the name. They buried the bodies of their patriarchs and kings with care, and knew where they were laid; but not until after the return from the Babylonish captivity did they either worship there, or mark the 69spot with any architectural forms, though after that epoch we find abundant traces of a tendency towards that especial form of Turanian idolatry. But even then the adornment of their tombs with architectural magnificence cannot be traced back to an earlier period than the time of the Romans; and all that we find marked with splendour of this class was the work of that people, and stamped with their peculiar forms of Art.
Painting and sculpture were absolutely forbidden to the Jews because they were Turanian arts, and because their practice might lead the people to idolatry, so that these nowhere existed: though we cannot understand a people with any mixture of Turanian blood who had not an eye for colour, and a feeling for beauty of form, in detail at least. Music alone was therefore the one æsthetic art of the Semitic races, and, wedded to the lyric verse, seems to have influenced their feelings and excited their passions to an extent unknown to other nations; but to posterity it cannot supply the place of the more permanent arts, whose absence is so much felt in attempting to realise the feelings or aspirations of a people like this.[19]
As regards the useful arts, the Semites were always more pastoral than agricultural, and have not left in the countries they inhabited any traces of such hydraulic works as the earlier races executed; but in commerce they excelled all nations. The Jews—from their inland situation, cut off from all access to the sea—could not do much in foreign trade; but they always kept up their intercourse with Assyria. The Phœnicians traded backwards and forwards with every part of the Mediterranean, and first opened out a knowledge of the Atlantic; and the Arabs first commenced, and for long afterwards alone carried on, the trade with India. From the earliest dawn of history to the present hour, commerce has been the art which the Semitic nations have cultivated with the greatest assiduity, and in which they consequently have attained the greatest, and an unsurpassed success.
In Asia and in Africa at the present day, all the native trade is carried on by Arabs; and it need hardly be remarked that the monetary transactions of the rest of the world are practically managed by the descendants of those who, one thousand years before Christ, traded from Eziongeber to Ophir.
Although, as before mentioned, Astronomy was cultivated with considerable success both in Egypt and Chaldæa, among the more contemplative Turanians, nothing can be more unsatisfactory than the references to celestial events, either in the Bible or the Koran, both betraying an entire ignorance of even the elements of astronomical science; and we have no proof that the Phœnicians were at all wiser than their neighbours in this respect.
The Semitic races seem always to have been of too poetical a temperament to excel in mathematics or the mechanical sciences. If there is one branch of scientific knowledge which they may be suspected of having cultivated with success, it is the group of natural sciences. A love of nature seems always to have prevailed with them, and they may have known “the trees, from the cedar which is in Lebanon to the hyssop that springeth out of the wall, and the names of all the beasts, and the fowls, and the creeping things, and the fishes;” but beyond this we know of nothing that can be dignified by the name of science among the Semitic races. They more than made up however for their deficient knowledge of the exact sciences by the depth of their insight into the springs of human action, and the sagacity of their proverbial philosophy; and, more than even this, by that wonderful system of Theology before which all the Aryan races of the world and many of the Turanian bow at the present hour, and acknowledge it the basis of their faith and the source of all their religious aspirations.
It is extremely difficult to write anything very precise or very satisfactory regarding the Celtic races, for the simple reason that, within the limits of our historic knowledge, they never lived sufficiently long apart from other races to develop a distinct form of nationality, or to create either a literature or a polity by which they could be certainly recognised. In this respect they form the most marked contrast with the Semitic races. Instead of wrapping themselves up within the bounds of the most narrow exclusiveness, the Celt everywhere mixed freely with the people among whom he settled, and adopted their manners and customs with a carelessness that is startling; while at the same time he retained the principal characteristics of his race through every change of circumstance and clime.
Almost the only thing that can be predicated of them with certainty is, that they were either the last wave of the Turanians, or, 71if another nomenclature is preferred, the first wave of the Aryans, who, migrating westward from their parent seat in Asia, displaced the original and more purely Turanian tribes who occupied Europe before the dawn of history. But, in doing this, they seem to have mixed themselves so completely with the races they were supplanting, that it is extremely difficult to say now where one begins or where the other ends.
We find their remains in Asia Minor, whence Ethnologists fancy that they can trace a southern migration along the northern coast of Africa, across the Straits of Gibraltar, into Spain, and thence to Ireland. A more certain and more important migration, however, crossed the Bosphorus, and following the valley of the Danube, threw one branch into Italy, where they penetrated as far south as Rome; while the main body settled in and occupied Gaul and Belgium, whence they peopled Britain, and may have met the southern colonists in the Celtic Island of the west. From this they are now migrating, still following the course of the sun, to carry to the New World the same brilliant thoughtlessness which has so thoroughly leavened all those parts of the Old in which they have settled, and which so sorely puzzles the purer but more matter-of-fact Aryan tribes with which they have come in contact.
It may appear like a hard saying, but it seems nevertheless to be true, to assert that no purely Celtic race ever rose to a perfect conception of the unity of the Godhead. It may be that they only borrowed this from the Turanians who preceded them; but whether imitative or innate, their Theology admits of Kings and Queens of Heaven who were mortals on earth. They possess hosts of saints and angels, and a whole hierarchy of heavenly powers of various degrees, to whom the Celt turns with as confiding hope and as earnest prayer as ever Turanian did to the gods of his Pantheon. If he does not reverence the bodies of the departed as the Egyptian or Chinese, he at least adopts the Buddhist veneration for relics, and attaches far more importance to funereal rites than was ever done by any tribe of Aryans.
The Celt is as completely the slave of a casteless priesthood as ever Turanian Buddhist was, and loves to separate it from the rest of mankind, as representing on earth the hierarchy in heaven, to which, according to the Celtic creed, all may hope to succeed by practice of their peculiar virtues.
To this may be added, that his temples are as splendid, his ceremonials as gorgeous, and the formula as unmeaning as any that ever graced the banks of the Nile, or astonished the wanderer in the valleys of Thibet or on the shores of the Eastern Ocean.
It is still more difficult to speak of the Celtic form of government, as no kingdom of this people ever existed by itself for any length of time; and none, indeed, it may be suspected, could long hold together. It may, however, be safely asserted, that no republican forms are possible with a Celtic people, and no municipal institutions ever flourished among them. The only form, therefore, we know of as peculiarly theirs, is despotism; not necessarily personal, but rendered systematic by centralised bureaucratic organisations, and tempered by laws in those States which have reached any degree of stability or civilisation.
Nothing but a strong centralised despotism can long co-exist with a people too impatient to submit to the sacrifices and self-denial inherent in all attempts at self-government, and too excitable to be controlled, except by the will of the strongest, though it may also be the least scrupulous among them.
When in small bodies they are always governed by a chief, generally hereditary, but always absolute; who is looked up to with awe, and obeyed with a reverence that is unintelligible to the more independent races of mankind.
With such institutions, of course a real aristocracy is impossible; and the restraints of caste must always have been felt to be intolerable. “La carrière ouverte aux talens” is their boast; though not to the same extent as with the Turanians; and the selfish gratification of individual ambition is consequently always preferred with them to the more sober benefit of the general advancement of the community.
If the Celts never were either polygamic or polyandric, they certainly always retained very lax ideas with regard to the marriage-vow, and never looked on woman’s mission as anything higher than to minister to their sensual gratification. With them the woman that fulfils this quality best always commands their admiration most. Beauty can do no wrong—but without beauty woman can hardly rise above the level of the common herd.
The ruling passion in the mind of the Celt is war. Not like the exclusive, intolerant Semite, a war of extermination or of proselytism, but war from pure “gaieté de cœur” and love of glory. No Celt fears to die if his death can gain fame or add to the stock of his country’s glory; nor in a private fight does he fear death or feel the pain of a broken head, if he has had a chance of shooting through the heart or 73cracking the skull of his best friend at the same time. The Celt’s love of excitement leads him frequently into excesses, and to a disregard of truth and the virtues belonging to daily life, which are what really dignify mankind; but his love of glory and of his country often go far to redeem these deficiencies, and spread a halo over even his worst faults, which renders it frequently difficult to blame what we feel in soberness we ought to condemn.
If love and war are the parents of song, the bard and the troubadour ought to have left us a legacy of verse that would have filled the libraries of Europe; and so they probably would had not the original Celt been too illiterate to care to record the expressions of his feelings. As it is, nine-tenths of the lyric literature of Europe is of Celtic origin. The Epos and the Drama may belong to the Aryan; but in the art of wedding music to immortal verse, and pouring forth a passionate utterance in a few but beautiful words, the Celtic is only equalled by the Semitic race.
Their remaining literature is of such modern growth, and was so specially copied from what had preceded it, or so influenced by the contemporary effusions of other people, that it is impossible accurately to discriminate what is due to race and what to circumstances. All that can safely be said is, that Celtic literature is always more epigrammatic, more brilliant, and more daring than that of the sober Aryan; but its coruscations neither light to so great a depth, nor last so long as less dazzling productions might do. They may be the most brilliant, but they certainly do not belong to the highest class of literary effort; nor is their effect on the destiny of man likely to be so permanent.
The true glory of the Celt in Europe is his artistic eminence. It is perhaps not too much to assert that without his intervention we should not have possessed in modern times a church worthy of admiration, or a picture or a statue we could look at without shame.
In their arts, too,—either from their higher status, or from their admixture with Aryans,—we escape the instinctive fixity which makes the arts of the pure Turanian as unprogressive as the works of birds or of beavers. Restless intellectual progress characterises everything they perform; and had their arts not been nipped in the bud by circumstances over which they had no control, we might have seen something that would have shamed even Greece and wholly eclipsed the arts of Rome.
74They have not, it is true, that instinctive knowledge of colour which distinguishes the Turanian, nor have they been able to give to music that intellectual culture which has been elaborated by the Aryans: but in the middle path between the two they excel both. They are far better musicians than the former, and far better colourists than the last-named races; but in modern Europe Architecture is practically their own. Where their influence was strongest, there Architecture was most perfect; as they decayed, or as the Aryan influence prevailed, the art first languished, and then died.
Their quasi-Turanian theology required Temples almost as grand as those of the Copts or Tamuls; and, like them, they sought to honour those who had been mortals by splendour which mortals are assumed to be pleased with; and the pomp of their worship always surpassed that with which they honoured their Kings. Even more remarkable than this is the fact that they could and did build Tombs such as a Turanian might have envied, not for their size but for their art, and even now can adorn their cemeteries with monuments which are not ridiculous.
When a people are so mixed up with other races as the Celts are in Europe,—frequently so fused as to be undistinguishable,—it is almost impossible to speak with precision with regard either to their arts or influence. It must in consequence be safer to assert that where no Celtic blood existed there no real art is found; though it is perhaps equally true to assert that not only Architecture, but Painting and Sculpture, have been patronised, and have flourished in the exact ratio in which Celtic blood is found prevailing in any people in Europe; and has died out as Aryan influence prevails, in spite of their methodical efforts to indoctrinate themselves with what must be the spontaneous impulse of genius, if it is to be of any value.
Of their sciences we know nothing till they were so steeped in the civilisation of older races that originality was hopeless. Still, in the stages through which the intellect of Europe has yet passed, they have played their part with brilliancy. But now that knowledge is assuming a higher and more prosaic phase, it is doubtful whether the deductive brilliancy of the Celtic mind can avail anything against the inductive sobriety of the Aryan. So long as metaphysics were science, and science was theory, the peculiar form of the Celtic mind was singularly well adapted to see through sophistry and to guess the direction in which truth might lie. But now that we have only to question Nature, to classify her answers, and patiently to record results, its mission seems to have passed away. Truth in all its majesty, and 75Nature in all her greatness, must now take the place of speculation, with its cleverness, and man’s ideas of what might or should be, must be supplanted by the knowledge of God’s works as they exist and the contemplation of the eternal grandeur of the universe which we see around us.
Though these are the highest, they are at the same time the most sober functions of the human mind; and while conferring the greatest and most lasting benefit, not only on the individual who practises them, but also on the human race, they are neither calculated to gratify personal vanity, nor to reward individual ambition.
Such pursuits are not, therefore, of a nature to attract or interest the Celtic races, but must be left to those who are content to sink their personality in seeking the advantage of the common weal.
According to their own chronology, it seems to have been about the year 3101 B.C. that the Aryans crossed the Indus and settled themselves in the country between that river and the Jumna, since known among themselves as Arya Varta, or the Country of the Just, for all succeeding ages.
More than a thousand years afterwards we find them, in the age of the Ramayana, occupying all the country north of the Vindya range, and attempting the conquest of the southern country,—then, as now, occupied by Turanians,—and penetrating as far as Ceylon.
Eight hundred years later we see them in the Mahabharata, having lost much of their purity of blood, and adopting many of the customs and much of the faith of the people they were settled amongst; and three centuries before Christ we find they had so far degenerated as to accept, almost without a struggle, the religion of Buddha; which, though no doubt a reform, and an important one, on the Anthropic doctrines of the pure Turanians, was still essentially a faith of a Turanian people; congenial to them, and to them only.
Ten centuries after Christ, when the Moslems came in contact with India, the Aryan was a myth. The religion of the earlier people was everywhere supreme, and with only a nominal thread of Aryanism running through the whole, just sufficient to bear testimony to the prior existence of a purer faith, but not sufficient to leaven the mass to any appreciable extent.
The fate of the western Aryans differed essentially from that of those who wandered eastward. Theoretically we ought to assume, from their less complex language and less pure faith, that they were an earlier offshoot; but it may be that in the forests of Europe they 76lost for a while the civilised forms which the happier climate of Arya Varta enabled the others to retain; or it may be that the contact with the more nearly equal Celtic races had mixed the language and the faith of the western races, before they had the opportunity or the leisure to record the knowledge they brought with them.
Be this as it may, they first appear prominently in the western world in Greece, where, by a fortunate union with the Pelasgi, a people apparently of Turanian race, they produced a civilisation not purely Aryan, and somewhat evanescent in its character, but more brilliant, while it lasted, than anything the world had seen before, and in certain respects more beautiful than anything that has illumined it since their time.
They next sprang forth in Rome, mixed with the Turanian Etruscans and the powerful Celtic tribes of Italy; and lastly in Northern Europe, where they are now working out their destiny, but to what issue the future only can declare.
The essential difference between the eastern and western migration is this—that in India the Aryans have sunk gradually into the arms of a Turanian people till they have lost their identity, and with it all that ennobled them when they went there, or could enable them now to influence the world again.
In Europe they found the country cleared of Turanians by the earlier Celts; and mingling their blood with these more nearly allied races, they have raised themselves to a position half way between the two. Where they found the country unoccupied they have remained so pure that, as their number multiplies, they may perhaps regain something of the position they had temporarily abandoned, and something of that science which, it may be fancied, mankind only knew in their primeval seats.
What then was the creed of the primitive Aryans? So far as we can now see, it was the belief in one great ineffable God,—so great that no human intellect could measure His greatness,—so wonderful that no human language could express His qualities,—pervading everything that was made,—ruling all created things,—a spirit, around, beyond the universe, and within every individual particle of it. A creed so ethereal could not long remain the faith of the multitude, and we early find fire,—the most ethereal of the elements,—looked to as an emblem of the Deity. The heavens too received a name, and became an entity:—so did our mother earth. To these succeeded the sun, the stars, the elements,—but never among the pure Aryans as gods, or as influencing the destiny of man, but as manifestations of His power, and reverenced because they were visible manifestations of a Being too 77abstract for an ordinary mind to grasp. Below this the Aryans never seem to have sunk.
With a faith so elevated of course no temple could be wanted; no human ceremonial could be supposed capable of doing honour to a Deity so conceived; nor any sacrifice acceptable to Him to whom all things belonged. With the Aryans worship was a purely domestic institution; prayer the solitary act of each individual man, standing alone in the presence of an omniscient Deity. All that was required was that man should acknowledge the greatness of God, and his own comparative insignificance; should express his absolute trust and faith in the beneficence and justice of his God, and a hope that he might be enabled to live so pure, and so free from sin, as to deserve such happiness as this world can afford, and be enabled to do as much good to others as it is vouchsafed to man to perform.
A few insignificant formulæ served to mark the modes in which these subjects should recur. The recitation of a time-honoured hymn refreshed the attention of the worshipper, and the reading of a few sacred texts recalled the duties it was expected he should perform. With these simple ceremonies the worship of the Aryans seems to have begun and ended.
Even in later times, when their blood has become less pure, and their feelings were influenced by association with those among whom they resided, the religion of the Aryans always retained its intellectual character. No dogma was ever admitted that would not bear the test of reason, and no article of faith was ever assented to which seemed to militate against the supremacy of intellect over all feelings and passions. In all their wanderings they were always prepared to admit the immeasurable greatness of the one incorporeal Deity, and the impossibility of the human intellect approaching or forming any adequate conception of His majesty.
When they abandoned the domestic form of worship, they adopted the congregational, and then not so much with the idea that it was pleasing to God, as in order to remind each other of their duties, to regulate and govern the spiritual wants of the community, and to inculcate piety towards God and charity towards each other.
It need hardly be added that superstition is impossible with minds so constituted, and that science must always be the surest and the best ally of a religion so pure and exalted, which is based on a knowledge of God’s works, a consequent appreciation of their greatness, and an ardent aspiration towards that power and goodness which the finite intellect of man can never hope to reach.
The most marked characteristic of the Aryans is their innate passion for self-government. If not absolutely republican, the tendency of all their institutions, at all times, has been towards that form, and in almost the exact ratio to the purity of the blood do they adopt this form of autocracy. If kingly power was ever introduced among them, it was always in the form of a limited monarchy; never the uncontrolled despotism of the other races; and every conceivable check was devised to prevent encroachments of the crown, even if such were possible among a people so organised as the Aryans always have been.
With them every town was a municipality, every village a little republic, and every trade a separate self-governing guild. Many of these institutions have died out, or else fallen into neglect, in those communities where equal rights and absolute laws have rendered each individual a king in his own person, and every family a republic in itself.
The village system which the Aryans introduced into India is still the most remarkable of its institutions. These little republican organisms have survived the revolutions of fifty centuries. Neither the devastations of war nor the indolence of peace seems to have affected them. Under Brahmin, Buddhist, or Moslem, they remain the same unchanged and unchangeable institutions, and neither despotism nor anarchy has been able to alter them. They alone have saved India from sinking into a state of savage imbecility, under the various hordes of conquerors who have at times overrun her; and they, with the Vedas and the laws afterwards embodied by Menu, alone remain as records of the old Aryan possessors of the Indian peninsula.
Municipalities, which are merely an enlargement of the Indian village system, exist wherever the Romans were settled, or where the Aryan races exist in Europe; and though guilds are fast losing their significance, it was the Teutonic guilds that alone checked and ultimately supplanted the feudal despotisms of the Celts.
Caste is another institution of these races, which has always more or less influenced all their actions. Where their blood has become so impure as it is in India, caste has degenerated into an abuse; but where it is a living institution, it is perhaps as conducive to the proper regulation of society as any with which we are acquainted. The one thing over which no man can have any control is the accident of his birth; but it is an immense gain to him that he should be satisfied with the station in which he finds himself, and content to do his duty in the sphere in which he was born. Caste, properly understood, never interferes with the accumulation of wealth or power within the limits of the 79class, and only recognises the inevitable accident of birth: while the fear of losing caste is one of the most salutary checks which has been devised to restrain men from acts unworthy of their social position. It is an enormous gain to society that each man should know his station and be prepared to perform the duties belonging to it, without the restless craving of a selfish ambition that would sacrifice everything for the sake of the personal aggrandisement of the individual. It is far better to acknowledge that there is no sphere in life in which man may not become as like unto the gods as in any other sphere; and it is everywhere better to respect the public good rather than to seek to gratify personal ambition.
The populations of modern Europe have become so mixed that neither caste nor any other Aryan institution now exists in its pristine purity; but in the ratio in which a people is Aryan do they possess an aristocracy and municipal institutions; and, what is almost of more importance, in that ratio are the people prepared to respect the gradations of caste in society, and to sacrifice their individual ambition to the less brilliant task of doing all the good that is possible in the spheres in which they have been placed.
It is true, and so has been found, that an uncontrolled despotism is a sharper, a quicker, and a better tool for warlike purposes, or where national vanity is to be gratified by conquest or the display of power; but the complicated, and it may be clumsy, institutions of the Aryans, are far more lasting and more conducive to individual self-respect, and far more likely to add to the sum of human happiness, and tend more clearly to the real greatness and moral elevation of mankind, than any human institution we are yet acquainted with.
So far as our experience now goes, the division of human society into classes or castes is not only the most natural concomitant of the division of labour, but is also the most beneficent of the institutions of man; while the organisation of a nation into self-governing municipalities is not only singularly conducive to individual well-being, but renders it practically indestructible by conquest, and even imperishable through lapse of time. These two are the most essentially characteristic institutions of the Aryans.
In morals the Aryans were always monogamic, and with them alone does woman always assume a perfect equality of position: mistress of her own actions till marriage; when married, in theory at least, the equal sharer in the property and in the duties of the household. Were it possible to carry out these doctrines absolutely in practice, they would probably be more conducive to human happiness than any of 80those enumerated above; but even a tendency towards them is an enormous gain.
Their institutions for self-government, enumerated above, have probably done more to elevate the Aryan race than can well be appreciated. When every man takes, or may take, his share in governing the commonwealth—when every man must govern himself, and respect the independence of his neighbour—men cease to be tools, and become independent reasoning beings. They are taught self-respect, and with this comes love of truth—of those qualities which command the respect of their fellow-men; and they are likewise taught that control of their passions which renders them averse to war; while the more sober occupations of life prevent the necessity of their seeking, in the wildness of excitement, that relief from monotony which so frequently drives other races into those excesses the world has had so often to deplore. The existence of caste, even in its most modified form, prevents individual ambition from having that unlimited career which among other races has so often sacrificed the public weal to the ambition of an individual.
The Aryan races employed an alphabet at so early a period of their history that we cannot now tell when or how it was introduced among them; and it was, even when we first become acquainted with it, a far more perfect alphabet than that of the Semitic races, though apparently formed on its basis. Nothing in it was dependent on memory. It possessed vowels, and all that was necessary to enunciate sounds with perfect and absolute precision. In consequence of this, and of the perfect structure of their language, they were enabled to indulge in philosophical speculation, to write treatises on grammar and logic, and generally to assume a literary position which other races never attained to.
History with them was not a mere record of dates or collection of genealogical tables, but an essay on the polity of mankind, to which the narrative afforded the illustration; while their poetry had always a tendency to assume more a didactic than a lyric form. It is among the Aryans that the Epos first rose to eminence and the Drama was elevated above a mere spectacle; but even in these the highest merit sought to be attained was that they should represent vividly events which might have taken place, even if they never did happen among men; while the Celts and the Semites delight in wild imaginings which never could have existed except in the brain of the poet. When the blood of the Aryan has been mixed with that of other races, they have produced a literature eminently imaginative and poetic; but in proportion to their purity has been their tendency towards a 81more prosaic style of composition. The aim of the race has always been the attainment of practical common sense, and the possession of this quality is their pride and boast, and justly so; but it is unfortunately antagonistic to the existence of an imaginative literature, and we must look to them more for eminence in works on history and philosophy than in those which require imagination or creative power.
These remarks apply with more than double force to the Fine Arts than to verbal literature. In the first place a people possessing such a power of phonetic utterance never could look on a picture or statue as more than a mere subsidiary illustration of the written text. A painting may represent vividly one view of what took place at one moment of time, but a written narrative can deal with all the circumstances and link it to its antecedents and effects. A statue of a man cannot tell one-tenth of what a short biography will make plain: and an ideal statue or ideal painting may be a pretty Celtic plaything, but it is not what Aryans hanker after.
With Architecture the case is even worse. Convenience is the first thing which the practical common sense of the Aryan seeks, and then to gain what he desires by the readiest and the easiest means. This done, why should he do more? If, induced by a desire to emulate others, he has to make his building ornamental, he is willing to copy what experience has proved to be successful in former works, willing to spend his money and to submit to some inconvenience; but in his heart he thinks it useless, and he neither will waste his time in thinking on the subject, nor apply those energies of his mind to its elaboration, without which nothing great or good was ever done in Art.
In addition to this, the immaterial nature of their faith has always deprived the Aryan races of the principal incentive to architectural magnificence.[20] The Turanian and Celtic races always have the most implicit faith in ceremonial worship and in the necessity of architectural splendour as its indispensable accompaniment. On the other hand, the more practical Aryan can never be brought to understand that prayer is either more sincere or is more acceptable in one form of house than in any other. He does not feel that virtue can be increased or vice exterminated by the number of bricks or stones that may be heaped on one another, or the form in which they may be placed; nor will his conception of the Deity admit of supposing 82that He can be propitiated by palaces or halls erected in honour of Him, or that a building in the Middle Pointed Gothic is more acceptable than one in the Classic or any other style.
This want of faith may be reasonable, but it is fatal to poetry in Art, and, it is feared, will prevent the Aryans from attaining more excellence in Architectural Art at the present time than they have done in former ages.
It is also true that the people are singularly deficient in their appreciation of colours. Not that actual colour-blindness is more common with them than with other races, but the harmony of tints is unknown to them. Some may learn, but none feel it; it is a matter of memory and an exercise of intellect, but no more. So, too, with form. Other—even savage—races cannot go wrong in this respect. If the Aryan is successful in art, it is generally in consequence of education, not from feeling; and, like all that is not innate in man, it yields only a secondary gratification, and fails to impress his brother man, or to be a real work of Art.
From these causes the ancient Aryans never erected a single building in India when they were pure, nor in that part of India which they colonised even after their blood became mixed; and we do not now know what their style was or is, though the whole of that part of the peninsula occupied by the Turanians, or to which their influence ever extended, is, and always was, covered by buildings, vast in extent and wonderful from their elaboration. This, probably, also is the true cause of the decline of Architecture and other arts in Europe and in the rest of the modern world. Wherever the Aryans appear Art flies before them, and where their influence extends utilitarian practical common sense is assumed to be all that man should aim at. It may be so, but it is sad to think that beauty cannot be combined with sense.
Music alone, as being the most phonetic of the fine arts, has received among the Aryans a degree of culture denied to the others; but even here the tendency has been rather to develop scientific excellence than to appeal to the responsive chords of the human heart. Notwithstanding this, its power is more felt and greater excellence is attained in this science than in any other. It also has escaped the slovenly process of copying, with which the unartistic mind of the Aryans has been content to fancy it was creating Art in other branches.
If, however, these races have been so deficient in the fine arts, they have been as excellent in all the useful ones. Agriculture, manufactures, commerce, ship-building, and road-making, all that tends to accumulate wealth or to advance material prosperity, has been developed to an extent as great as it is unprecedented, and promises to produce results which as yet can only be dimly guessed at. A great, 83and, so far as we can see, an inevitable revolution, is pervading the whole world through the devotion of the Aryan races to these arts. We have no reason for supposing it will be otherwise than beneficial, however much we may feel inclined to regret that the beautiful could not be allowed to share a little of that worship so lavishly bestowed on the useful.
It follows, as a matter of course, that, with minds so constituted, the Aryans should have cultivated science with earnestness and success. The only beauty they, in fact, appreciated was the beauty of scientific truth; the only harmony they ever really felt was that of the laws of nature; and the only art they ever cared to cultivate was that which grouped these truths and their harmonies into forms which enabled them to be easily grasped and appreciated. Mathematics always had especial charms to the Aryan mind; and, more even than this, astronomy was always captivating. So, also, were the mechanical, and so, too, the natural sciences. It is to the Aryans that Induction owes its birth, and they probably alone have the patience and the sobriety to work it to its legitimate conclusions.
The true mission of the Aryan races appears to be to pervade the world with the useful and industrial arts, and so tend to reproduce that unity which has long been lost, to raise man, not by magnifying his individual cleverness, but by accumulating a knowledge of the works of God, so tending to make him a greater and wiser, and at the same time a humbler and a more religious servant of his Creator.
When Auguste Comte proposed that classification which made the fortune of his philosophy,—when he said that all mankind passed through the theological state in childhood, the metaphysical in youth, and the philosophical or positive in manhood,—and ventured to extend this discovery to nations, he had a glimpse, as others have had before him, of the beauty of the great harmony which pervades all created things. But he had not philosophy enough to see that the one great law is so vast and so remote, that no human intellect can grasp it, and that it is only the little fragments of that great scheme which are found everywhere which man is permitted to understand.
Had he known as much of ethnographical as he did of mathematical science, he would have perceived that there is no warrant for this daring generalisation; but that nations, in the states which he calls the theological, the metaphysical, and the philosophical, exist now and 84coexisted through all the ages of the world to which our historical knowledge extends.
What the Egyptians were when they first appeared on the scene they were when they perished under the Greek and Roman sway;—what the Chinese always were they now are;—the Jews and Arabs are unchanged to this day;—the Celts are as daringly speculative and as blindly superstitious now as we always found them;—and the Aryans of the Vedas or of Tacitus were very much the same sober, reasoning, unimaginative, and unartistic people as they are at this hour. Progress among men, as among the animals, seems to be achieved not so much by advances made within the limits of the group, as by the supercession of the less finely organised beings by those of a higher class;—and this, so far as our knowledge extends, is accomplished neither by successive creations, nor by the gradual development of one species out of another, but by the successive prominent appearances of previously developed, though partially dormant creations.
Ethnographers have already worked out this problem to a great extent, and arrived at a very considerable degree of certainty, through the researches of patient linguistic investigators. But language is in itself too impalpable ever to give the science that tangible, local reality which is necessary to its success; and it is here that Archæology comes so opportunely to its aid. What men dug or built remains where it was first placed, and probably retains the first impressions it received: and so fixes the era and standing of those who called it into existence; so that even those who cannot appreciate the evidence derived from grammar or from words, may generally see at a glance what the facts of the case really are.
It is even more important that such a science as Ethnology should have two or more methods of investigation at its command. Certainty can hardly ever be attained by only one process, unless checked and elucidated by others, and nothing can therefore be more fortunate than the possession of so important a sister science as that of Archæology to aid in the search after scientific truth.
If Ethnology may thus be so largely indebted to Archæology, the converse is also true; and she may pay back the debt with interest. As Archæology and Architecture have hitherto been studied, they, but more especially the latter, have been little more than a dry record of facts and measurements, interesting to the antiquary, to the professional architect, or to the tourist, who finds it necessary to get up a certain amount of knowledge on the subject; but the utmost that has hitherto been sought to be attained is a certain knowledge of the forms of the art, while the study of it, as that of one of the most important and most instructive of the sciences connected with the history of man, has been as a rule neglected.
85Without this the study of Architecture is a mere record of bricks and stones, and of the modes in which they were heaped together for man’s use. Considered in the light of an historical record, it acquires not only the dignity of a science, but especial interest as being one of those sciences which are most closely connected with man’s interests and feelings, and the one which more distinctly expresses and more clearly records what man did and felt in previous ages, than any other study we are acquainted with.
From this point of view, not only every tomb and every temple, but even the rude monoliths and mounds of savages, acquire a dignity and interest to which they have otherwise no title; and man’s works become not only man’s most imperishable record, but one of the best means we possess of studying his history, or of understanding his nature or his aspirations.
Rightly understood, Archæology is as useful as any other branch of science or of art, in enabling us to catch such glimpses as are vouchsafed to man of the great laws that govern all things; and the knowledge that this class of man’s works is guided and governed by those very laws, and not by the chance efforts of unmeaning minds, elevates the study of it to as high a position as that of any other branch of human knowledge.
So long as the geographer confines himself to mapping out the different countries of the world, or smaller portions of the earth’s surface, he finds no difficulty in making a projection which shall correctly represent the exact relative position of all the various features of the land or sea. But when he attempts to portray a continent, some distortion necessarily results; and when he undertakes a hemisphere, both distortion and exaggeration become inevitable. It has consequently been found necessary to resort to some conventional means of portraying the larger surfaces of the globe. These avowedly do not represent correctly the forms of the countries portrayed, but they enable the geographer to ascertain what their distances or relative positions are by the application of certain rules and formulæ of no great complexity.
The same thing is true of history. So long as the narrative is confined to individual countries or provinces, it may be perfectly consecutive and uninterrupted; but when two or three nations are grouped together, frequent interruptions and recapitulations become necessary; and when universal history is attempted, it seems impossible to arrange the narrative so as to prevent these from assuming very considerable importance. The utmost that can be done is to devise some scheme which shall prevent the repetition from leading to tediousness, and enable the student to follow the thread of any portion of the narrative without confusion or the assumption of any special previous knowledge on his part.
Bearing these difficulties in mind, it will probably be found convenient to divide the whole history of Architecture into four great divisions or parts.
The first, which may be called “Ancient or Heathen Art,” to comprehend all those styles which prevailed in the old world from the dawn of history in Egypt till the disruption of the Roman Empire by the removal of the capital from Rome to Constantinople in the 4th century.
88The second to be called either “Mediæval,” or more properly “Christian Art.” This again subdivides itself into three easily-understood divisions. 1. The Byzantine or Eastern Christian style; 2. The Romanesque or transitional style which prevailed between the Roman and the Gothic styles; and 3. The Gothic or western Christian style. The Byzantine style comes first because its development was so rapid that already in the 6th century it had reached its culminating period, and throughout the Middle Ages it exercised considerable influence in various parts of Italy and France; an influence the extent of which it is only possible to follow after its study. It is difficult, for instance, to understand the churches in Ravenna or St. Mark’s in Venice, or the churches at Périgueux, and in the Charente, until the churches of Sta. Sophia and of St. Sergius, Constantinople, and of St. Demetrius, Thessalonica, have been studied; and although it is advisable when describing the style to carry it through its later developments in Greece, in Russia, and in the East, these variations and developments are not of a nature to distract the reader or cause him to lose sight of the leading characteristics of the style. There is some difficulty in knowing where to draw the line between the Romanesque and the Gothic style; as generally accepted now, the term Romanesque includes all the round-arched Gothic styles, and although many of the leading principles of Gothic work are to be found entering into buildings constructed prior to the introduction of the pointed arch into transverse and diagonal ribbed arch vaulting, it was this latter which led to the great development of the Gothic style in France, England, and elsewhere in the 12th and 13th centuries.
The third great division of the subject I would suggest might conveniently be denominated “Pagan.”[21] It would comprise all those minor miscellaneous styles not included in the two previous divisions. Commencing with the Saracenic, it would include the Buddhist, Hindu, and Chinese styles, the Mexican and Peruvian, and lastly that mysterious group which for want of a better name I have elsewhere designated as “Rude Stone Monuments.”[22] No very consecutive arrangement can be formed for these styles. They generally have little connection with each other, and are so much less important than the others that their mode of treatment is of far less consequence. Nor is it necessary to attempt any exact classification of these at present, as, owing to the convenience of publication, it has been determined 89to form the Indian and allied Eastern styles into a separate volume, which will include not only the Buddhist and Hindu styles, but the Indian Saracenic, which, in a strictly logical arrangement, ought to be classified with the western style bearing the same name.
The styles of the New world, having as yet no acknowledged connection with those of the Old, may be for the present treated of anywhere.
The fourth and last great division, forming the fourth volume of the present work, is that of the “Modern or Copying Styles of Architecture,” meaning thereby those which are the products of the renaissance of the classical styles that marked the epoch of the cinquecento period. These have since that time prevailed generally in Europe to the present day, and are now making the tour of the world. Within the limits of the present century it is true that the copying of the classical styles to some extent were superseded by a more servile imitation of those of mediæval art. The forms consequently changed, but the principles remained the same.
It would of course be easy to point out minor objections to this or to any scheme, but on the whole it will be found to meet the exigencies of the case as we now know it, as well or perhaps better than any other. The greatest difficulty in carrying it out is to ascertain how far the geographical arrangement should be made to supersede the chronological and ethnographical. Whether, for instance, Italy should be considered as a whole, or if the buildings of the eastern coast should not be described as belonging to the Byzantine, and those of the western coast to the Gothic kingdom? Whether the description of the Temple at Jerusalem should stop short with the rebuilding by Zorobabel, or be continued till its final completion under Herod? If the former course is pursued, we cut in two a perfectly consecutive narrative; if the latter, we get far in advance of our chronological sequence.
In both of these instances, as in many others, it is a choice of difficulties, and where frequently the least strictly logical mode of proceeding may be found the most convenient.
After all, the real difficulty lies not so much in arranging the materials as in weighing the relative importance to be assigned to each division. In wandering over so vast a field it is difficult to prevent personal predilection from interfering with purely logical criticism. Although architecture is the most mechanical of the fine arts, and consequently the most amenable to scientific treatment, still as a fine art it must be felt to be appreciated, and when the feelings come into play the reason is sometimes in danger. Though strict impartiality has been aimed at in assigning the true limits to each of the divisions above pointed out, few probably will be of the same opinion as to the degree of success which has been achieved in the attempt.
| OLD KINGDOM OF PYRAMID BUILDERS. | |||||||
| Years. | B.C. | ||||||
| 1st | dynasty | Thinite | 252 | Accession of Menes, 1st king. | 3906 | ||
| 2nd | dynasty | Thinite | 302 | ||||
| 3rd | dynasty | Memphite | 214 | Ten dynasties of kings, reigning
sometimes contemporaneously in Upper and in Lower Egypt; at other
times both divisions were united under one king. The total duration of their reigns, as nearly as can be estimated, was 1335 years. |
|||
| 4th | dynasty | Memphite | 284 | ||||
| 5th | dynasty | Elephantine | 248 | ||||
| 6th | dynasty | Memphite | 203 | ||||
| 7th | dynasty | Memphite 70 days? | |||||
| 8th | dynasty | Memphite | 146 | ||||
| 9th | dynasty | Heracleapolite | 100 | ? | |||
| 10th | dynasty | Heracleapolite | 185 | ||||
| FIRST THEBAN KINGDOM. | |||||||
| 11th | dynasty | Thebans | 43 | Commenced | 2571 | ||
| 12th | dynasty | Thebans | 246 | over Upper, 188 over Lower Egypt. | |||
| SHEPHERD INVASION. | 2340 | ||||||
| 13th | dynasty | Diospolites | 453 | Five dynasties of Shepherd or native kings reigning or existing contemporaneously in four series in different parts of Egypt during 511 years. | |||
| 14th | dynasty | Xoite | 484 | ||||
| 15th | dynasty | Shepherds | 284 | ||||
| 16th | dynasty | Hellenes | 518 | ||||
| 17th | dynasty | Shepherds | 151 | ||||
| 435 | |||||||
| GREAT THEBAN KINGDOM. | |||||||
| 18th | dynasty | Theban | 393 | Over all Egypt | 1829 | ||
| 19th | dynasty | Theban | 194 | 1436 | |||
| Exode of Jews, 1312. | |||||||
| 20th | dynasty | Theban | 135 | 1242 | |||
| 21st | dynasty | Tanite | 130 | 1107 | |||
| 22nd | dynasty | Bubastite | 120 | 977 | |||
| Temple of Jerusalem plundered, 972. | |||||||
| 23rd | dynasty | Tanite | 89 | 857 | |||
| 24th | dynasty | Saïte | 44 | 768 | |||
| 25th | dynasty | Ethiopian | 44 | 724 | |||
| 26th | dynasty | Saïte | 155 | 680 | |||
| Persian Invasion under Cambyses | 526 | [23] | |||||
In any consecutive narrative of the architectural undertakings of mankind the description of what was done in Egypt necessarily commences the series, not only because the records of authentic history are found in the Valley of the Nile long before the traditions of other nations had assumed anything like tangible consistency, but because, from the earliest dawn down to the time when Christianity struck down the old idolatry, the inhabitants of that mysterious land were essentially and pre-eminently a building race. Were it not for this we should be left with the dry bones of the skeleton of her history, which is all that is left us of the dynasties of Manetho; or with the fables in which ignorant and credulous European travellers expressed their wonder at a civilisation they could not comprehend.
As the case now stands, the monuments of Egypt give life and reality to their whole history. It is impossible for any educated man capable of judging of the value of evidence to wander among the Pyramids and tombs of Memphis, the Temples of Thebes, or the vast structures erected by the Ptolemys or Cæsars, and not to feel that he has before him a chapter of history more authentic than we possess of any nation at all approaching it in antiquity, and a picture of men and manners more vivid and more ample than remains to us of any other people who have passed away.
As we wander among the tombs or temples of Egypt we see the very chisel-marks of the mason, and the actual colours of the painter which were ordered by a Khufu, or a Rameses, and we stand face to face with works the progress of which they watched, and which they designed in order to convey to posterity what their thoughts and feelings were, and what they desired to record for the instruction of future generations. All is there now, and all who care may learn what these old kings intended should be known by their remotest posterity.
92Immense progress has been made in unravelling the intricacies of Egyptian history since the time when Champollion, profiting by the discovery of Young, first translated the hieroglyphical inscriptions that cover the walls of Egyptian buildings. Of late years it has been too frequently assumed that his works, with those of Rosellini, of Wilkinson, and Lepsius, and the numerous other authors who have applied themselves to Egyptology, had told us all we are ever likely to know of her history. In so far as the epochs of the great Pharaonic dynasties of Thebes are concerned this may be partially true, but it is only since M. Mariette undertook the systematic exploration of the great Necropolis of Memphis that we have been enabled to realise the importance of the older dynasties, and become aware of the completeness of the records they have left behind them. Much as we have learned during the last fifty years, the recent explorations of Maspero, W. M. Flinders Petrie and others have taught us that the soil of Egypt is not half exhausted yet; and every day our knowledge is assuming a consistency and completeness as satisfactory as it is wonderful.
Although there are still minor differences of opinion with regard to the details of Egyptian chronology, still the divergences between the various systems proposed are gradually narrowing in extent. The sequence of events is certain, and accepted by all. The initial date, and the adjustments depending on it, are alone in dispute. The truth is that every subsequent step in the investigation has tended more and more to prove the correctness of the data furnished by the lists of Manetho, and the only important question is, “what is Manetho?” His work is lost. The only real extracts we have from the original are those in ‘Josephus contra Apion.’ The lists in Eusebius and Syncellus or Africanus have avowedly been adjusted to suit preconceived theories of Biblical chronology; but on the whole a great preponderance of evidence seems in favour of assuming that he really intended to fix the year 3906 as the initial year of the reign of Menes,[24] or some year within a very short distance of that date. Some years ago this would have seemed to suffice, but so many new monuments have been disinterred of late, so many new names of kings added to our lists, that the tendency is now rather to extend than to contract this limit of duration.
Be this as it may, what we really do know absolutely is that there was an old kingdom of pyramid-builders, comprising the first ten dynasties of Manetho, who reigned at Memphis. These, after a period of decadence, were superseded by kings of a different race coming from the south; and that these, after a short period of glory, were conquered by an Asiatic race of hated Shepherd kings.
93After five centuries of foreign domination, the Shepherds in their turn were driven out, and the new kingdom founded. This, after witnessing the glories of the 18th and 19th dynasties, declined during the next seven dynasties till they were struck down by the Persian Cambyses.
A third period of architectural magnificence arose with the Ptolemys, and was continued by the Cæsars on nearly the same scale of magnificence as the second kingdom; but wanting its exuberant nationality, and far below the quiet grandeur of the earlier epoch.
In counting backwards the dates of these dynasties, the first authentic synchronism we meet with is that of Shishak, the first king of the 22nd dynasty, contemporary with Rehoboam, about 970 B.C.
The next is the Exode of the Jews, which took place 1312 B.C., under the reign of Meneptah II., the fourth king of the 19th dynasty of Manetho. Many would place it earlier, but none probably would bring that event down to a more modern date.
From this date Josephus tells us that Manetho counted 518 years to the expulsion of the Shepherds, and 511 for the duration of their sojourn in Egypt,[25] we thus get back to 2340 for the first year of Salatis. There then remain only fifteen centuries and a half, in which we have to arrange the two great Theban dynasties (the 11th and 12th), which reigned for more than two centuries over the whole of Egypt; while the 12th seems to have extended some distance into the period occupied by the Shepherds. We are thus left with little more than 1300 years over which to spread the ten first dynasties, notwithstanding that some 60 or 70 of their royal sepulchral pyramids still adorn the banks of the Nile; and we have many names to which no tombs can be attached, and many pyramids may have perished during the 5000 years which have elapsed since the greater number of them were erected.
Long as these periods may to some appear, they are certainly the shortest that any one familiar with the recent progress of Egyptian research would be willing to assign to them. But in whatever light they may be viewed, they sink into utter insignificance when compared with the periods that must have elapsed before Egypt could have reached that stage of civilisation in which we find her when her existence first dawns upon us. If one point in Egyptian history is proved with more certainty than another, it is that the great Pyramids of Gizeh were erected by the kings of the 4th dynasty: and it seems impossible to find room for the now ascertained facts of Egyptian chronology, unless we place their erection between 3000 and 3500 years before the Christian era.
No one can possibly examine the interior of the Great Pyramid 94without being struck with astonishment at the wonderful mechanical skill displayed in its construction. The immense blocks of granite brought from Syene—a distance of 500 miles—polished like glass, and so fitted that the joints can hardly be detected. Nothing can be more wonderful than the extraordinary amount of knowledge displayed in the construction of the discharging chambers over the roof of the principal apartment, in the alignment of the sloping galleries, in the provision of ventilating shafts, and in all the wonderful contrivances of the structure. All these, too, are carried out with such precision, that, notwithstanding the immense superincumbent weight, no settlement in any part can be detected to the extent of an appreciable fraction of an inch. Nothing more perfect, mechanically, has ever been erected since that time; and we ask ourselves in vain, how long it must have taken before men acquired such experience and such skill, or were so perfectly organised, as to contemplate and complete such undertakings.
Around the base of the pyramid are found numerous structural tombs, whose walls bear the cartouche of the same king—Khufu—whose name was found by Colonel Howard Vyse in one of the previously unopened chambers of the Great Pyramid.[26] These are adorned with paintings so numerous and so complete, as to enable us to realise with singular completeness the state of Egyptian society at that early period.
On their walls the owner of the tomb is usually represented seated, offering first fruits on a simple table-altar to an unseen god. He is generally accompanied by his wife, and surrounded by his stewards and servants, who enumerate his wealth in horned cattle, in asses, in sheep and goats, in geese and ducks. In other pictures some are ploughing and sowing, some reaping or thrashing out the corn, while others are tending his tame monkeys or cranes, and other domesticated pets. Music and dancing add to the circle of domestic enjoyments, and fowling and fishing occupy his days of leisure. No sign of soldiers or of warlike strife appears in any of these pictures; no arms, no chariots or horses. No camels suggest foreign travel. Everything there represented speaks of peace at home and abroad,[27] of agricultural wealth and consequent content. In all these pictures the men are represented with an ethnic and artistic truth that enables us easily to recognise their race and station. The animals are not only easily distinguishable, but the characteristic peculiarities of each species are seized with a power of generalisation seldom if ever surpassed; and the hieroglyphic system which forms the legend and explains the whole, was as complete and perfect then as at any future period.
95More striking than even the paintings are the portrait-statues which have recently been discovered in the secret recesses of these tombs; nothing more wonderfully truthful and realistic has been done since that time, till the invention of photography, and even that can hardly represent a man with such unflattering truthfulness as these old coloured terra-cotta portraits of the sleek rich men of the pyramid period.
Wonderful as all this maturity of art may be when found at so early a period, the problem becomes still more perplexing when we again ask ourselves how long a people must have lived and recorded their experience before they came to realise and aspire to an eternity such as the building of these pyramids shows that they sacrificed everything to attain. One of their great aims was to preserve the body intact for 3000 years, in order that the soul might again be united with it when the day of judgment arrived. But what taught them to contemplate such periods of time with confidence, and, stranger still, how did they learn to realise so daring an aspiration?
Nor is our wonder less when we ask ourselves how it happened that such a people became so thoroughly organised at that early age as to be willing to undertake the greatest architectural works the world has since seen in honour of one man from among themselves? A king without an army, and with no claim, so far as we can see, to such an honour beyond the common consent of all, which could hardly have been obtained except by the title of long inherited services acknowledged by the community at large.
It would be difficult to find any other example which so fully illustrates the value of architecture as a mode of writing history as this. It is possible there may have been nations as old and as early civilised as the Egyptians: but they were not builders, and their memory is lost. It is to their architecture alone that we owe the preservation of what we know of this old people. And it is the knowledge so obtained that adds such interest to the study of their art.
In the present state of our knowledge it may seem an idle speculation to suggest that the Egyptian and Chinese are two fragments of one great primordial race, widely separated now by the irruption of other Turanian and Aryan races between them; but this at least is certain, that in manners and customs, in arts and polity, in religion and civilisation, these two peoples more closely resemble one another than any other two nations which have existed since, even when avowedly of similar race and living in proximity to one another.
At the earliest period at which Chinese history opens upon us, we find the same amount of civilisation maintaining itself utterly unprogressively to the present day. The same peaceful industry and agricultural wealth accompanied by the same outwardly pleasing domestic 96relations and apparent content. The same exceptional mode of writing. The same want of power to assimilate with surrounding nations. Both hating war, but reverencing their kings, and counting their chronology by dynasties exactly as the Egyptians have always done. Their religions seem wonderfully alike, and both are characterised by the same fearlessness of death, and the same calm enjoyment in the contemplation of its advent.[28]
In fact there is no peculiarity in the old kingdom of Egypt that has not its counterpart in China at the present day, though more or less modified, perhaps, by local circumstances; and there is nothing in the older system which we cannot understand by using proper illustrations, derived from what we see passing under our immediate observation in the far East. The great lesson we learn from the study of the history of China as bearing on that of Egypt is, that all idea of the impossibility of the recorded events in the latter country is taken away by reference to the other. Neither the duration of the Egyptian dynasties, nor the early perfection of her civilisation, or its strange persistency, can be objected to as improbable. What we know has happened in Asia in modern times may certainly have taken place in Africa, though at an earlier period.
Leaving these speculations to be developed more fully in the sequel, let us now turn to the pyramids—the oldest, largest, and most mysterious of all the monuments of man’s art now existing. All those in Egypt are situated on the left bank of the Nile, just beyond the cultivated ground, and on the edge of the desert, and all the principal examples within what may fairly be called the Necropolis of Memphis. Sixty or seventy of these have been discovered and explored, all which appear to be royal sepulchres. This alone, if true would suffice to justify us in assigning a duration of 1000 years at least to the dynasties of the pyramid builders, and this is about the date we acquire from other sources.
The three great pyramids of Gizeh are the most remarkable and the best known of all those of Egypt. Of these the first, erected by Cheops, or, as he is now more correctly named, Khufu, is the largest; but the next, by Chephren (Khafra), his successor, is scarcely inferior in dimensions; the third, that of Mycerinus (Menkaura), is very much smaller, but excelled the two others in this, that it had a coating of beautiful red granite from Syene, while the other two were revêted only with the beautiful limestone of the country. Part of this coating still remains near the top of the second; and Colonel Vyse[29] was fortunate enough to discover some of the coping-stones of the Great Pyramid buried in the rubbish at its base. These are sufficient to indicate the nature and extent of the whole, and to show that it was commenced from the bottom and carried upwards; not at the top, as it has sometimes been thoughtlessly asserted.[30]
No. 7. Section of Great Pyramid.
Since Colonel Vyse’s discovery, however, further casing-stones have 98been found in situ by Mr. Flinders Petrie, whose measurements, taken in 1880-82, and published in the following year,[31] are the most accurate yet made. The dimensions hitherto given have shown a difference of as much as eighteen inches in the length of the sides, which, if the pyramid had been set out on a perfectly clear level ground, would have detracted from the perfection which has been claimed for its setting out. This difference, however, it appears now, was due to the fact that the various observers had measured from angle to angle of the corner sockets, and had “assumed that the faces of the stones placed in them rose up vertically from the edge of the bottom until they reached the pavement (whatever level that might be), from which the sloping face started upwards.” This, however, was not the case; the sloping sides of the Pyramid continued down to the rock surface, and the base was eventually partially covered over by a level pavement or platform;[32] the parts covered over varying in extent according to the depth they were carried down. Mr. Petrie utilized the angle sockets for the purpose of obtaining the true diagonals of the casing, and having computed a square which passed through the points of casing found on each side, and having also its corners lying on the diagonals of the sockets, obtained the dimensions of the original base of the Great 99Pyramid casing on the artificial platform or pavement, which was as follows:—
| Sq. In. | Ft. | In. | ||
| North side | 9069·4 | or | 755 | 9·4 |
| East side | 9067·7 | or | 755 | 7·7 |
| South side | 9069·5 | or | 755 | 8·6 |
| West side | 9068·6 | or | 755 | 8·8 |
The mean being 755 ft. 8·8 in., and the extreme difference being 1·7 of an inch only.
The actual height of the Great Pyramid from level of platform was 481 ft. 4 in., and the angle of casing 51° 52ʺ.
In the Second Pyramid, the bottom corner of casing (which was in granite) had a vertical base 10 or 12 in. high, against which the pavement was laid; and the following were the dimensions obtained:—
| Sq. In. | Ft. | In. | ||
| North side | 8471·9 | or | 705 | 11·9 |
| East side | 8475·2 | or | 706 | 3·2 |
| South side | 8476·9 | or | 706 | 4·9 |
| West side | 8475·5 | or | 706 | 3·5 |
The mean being 706 ft. 2·9 in., and the extreme difference in the length of side 5 in.
The height was 472 ft., and the angle of casing 53° 10ʹ.
The Third Pyramid was never quite finished, and there is some difficulty in determining the exact level of platform. The mean length of the sides was calculated by Mr. Petrie as 346 ft. 1·6 in., its height 215 ft., and the angle of its casing 51° 10ʹ.
From this it will be seen that the area of the Great Pyramid (more than 13 acres) is more than twice the extent of that of St. Peter’s at Rome, or of any other building in the world.[33] Its height is equal to the highest spire of any cathedral in Europe; for, though it has been attempted to erect higher buildings, in no instance has this yet been successfully achieved. Even the Third Pyramid covers more ground than any Gothic cathedral, and the mass of materials it contains far surpasses that of any erection we possess in Europe.
All the pyramids (with one exception) face exactly north, and have their entrance on that side—a circumstance the more remarkable, as the later builders of Thebes appear to have had no notion of orientation, but to have placed their buildings and tombs so as to avoid regularity, and facing in every conceivable direction. Instead of the entrances to the pyramids being level, they all slope downwards—generally at angles of about 26° to the horizon—a circumstance which has led to an infinity of speculation, as to whether they were not observatories, and meant for the observation of the pole-star, &c.[34] All these theories, however, have failed, for a variety of reasons it is needless now to 100discuss; but among others it may be mentioned that the angles are not the same in any two pyramids, though erected within a few years of one another, and in the twenty which were measured by Colonel Vyse they vary from 22° 35ʹ to 34° 5ʹ. The angle of the inclination of the side of the pyramid to the horizon is more constant, varying only from 51° 10ʹ to 52° 32ʹ, and in the Gizeh pyramid it would appear that the angle of the passage was intended to have been about one-half of this.
Mr. Petrie gives a synopsis of the various theories connected with the Great Pyramid, which applies not only to the outside form but to the several chambers and passages in the interior. “There are three great lines of theory,” he says,[35] “throughout the Pyramid, each of which must stand or fall as a whole, they are scarcely contradictory, and may almost subsist together;” these are (1) the Egyptian cubit (20·62 in.) theory; (2) the π proportion or radius and circumference theory; (3) the theory of areas, squares of lengths and diagonals.
Of the two first, and applying these only to the exterior by the cubit theory, the outside form of pyramid is 280 cubits high and 440 cubits length of side, or 7 in height to 11 of width. This is confirmed by the π theory, where we get the very common proportion that the height is to the circumference as the radius is to the circumference of a circle inscribed within its base; thus taking the mean height of 481 ft. 4 in., we have 481·33 × 2 × 3·1416 = 3024, whilst the side 755·75 × 4 = 3023, so near a coincidence that it can hardly be accidental, and if it was intended, all the other external proportions follow as a matter of course.
Even if this theory should not be accepted as the true one, it has at least the merit of being nearer the truth than any other yet proposed. I confess it appears to me so likely that I would hardly care to go further, especially as all the astronomical theories have signally failed, and it seems as if it were only to some numerical fancy that we must look for a solution of the puzzle.
Be this as it may, the small residuum we get from all these pyramid discussions is, that they were built by the kings of the early dynasties of the old kingdom of Egypt as their tombs. The leading idea that governed their forms was that of durability—a quasi-eternity of duration is what they aimed at. The entrances were meant to be concealed, and the angle of the passages was the limit of rest at which heavy bodies could be moved while obtaining the necessary strength where they opened at the outside, and the necessary difficulty for protection inside, without trenching on impossibility. By concealment of the entrance, the difficulties of the passages, and the complicated but most ingenious arrangement of portcullises, these 101ancient kings hoped to be allowed to rest in undisturbed security for at least 3000 years. Perhaps they were successful, though their tombs have since been so shamefully profaned.
To the principal dimensions of the Great Pyramid given above, it may be added that the entrance is 55 ft. 8 in. above the base, on the 19th course, which is deeper than the 11 to 14 courses above and below; at present there remain 203 courses, to which must be added 12 to 14 missing. Their average height is nearly 2 ft. 6 in., but they diminish in height—generally speaking, but not uniformly—towards the top. The summit now consists of a platform 32 ft. 8 in. square; so that about 27 ft. is wanting, the present actual height being 454 ft. It contains two chambers above-ground, and one cut in the rock at a considerable depth below the foundations.
The passages and chambers are worthy of the mass; all are lined with polished granite; and the ingenuity and pains that have been taken to render them solid and secure, and to prevent their being crushed by the superincumbent mass, raise our idea of Egyptian science higher than even the bulk of the building itself could do.
Fig 2.
No. 8. Section of King’s Chamber and of Passage in Great Pyramid. Scale 50 ft. to 1 in.
Towards the exterior, where the pressure is not great, the roof is flat, though it is probable that even there the weight is throughout discharged by 2 stones, sloping up at a certain angle to where they meet, as at the entrance. Towards the centre of the pyramid, however, the passage becomes 28 feet high, the 7 upper courses of stone overhanging one another as shown in the annexed section (fig. 1), so as to reduce the bearing of the covering stone. Nowhere, however, is this ingenuity more shown than in the royal chamber, which measures 17 ft. 1 in. by 34 ft. 3 in., and 19 ft. in height. The walls are lined and the roof is formed of splendid slabs of Syenite, but above the roof 4 successive chambers, as shown in the annexed section (fig. 2), have been formed, each divided from the other by slabs of granite, polished on their lower surfaces, but left rough on the upper, and above these 102a 5th chamber is formed of 2 sloping blocks to discharge the weight of the whole. The first of these chambers has long been known; the upper four were discovered and first entered by Colonel Vyse, and it was in one of these that he discovered the name of the founder. This was not engraved as a record, but scribbled in red paint on the stones, apparently as a quarrymark, or as an address to the king, and accompanied by something like directions for their position in the building. The interest that attaches to these inscriptions consists in the certainty of their being contemporary records, in their proving that Khufu was the founder of the Great Pyramid, and consequently fixing its relative date beyond all possibility of cavil. This is the only really virgin discovery in the pyramids, as they have all been opened either in the time of the Greeks or Romans, or by the Mahometans, and an unrifled tomb of this age is still a desideratum. Until such is hit upon we must remain in ignorance of the real mode of sepulture in those days, and of the purpose of many of the arrangements in these mysterious buildings.
The portcullises which invariably close the entrances of the sepulchral chamber in the pyramids are among the most curious and ingenious of the arrangements of these buildings. Generally they consist of great cubical masses of granite, measuring 8 or 10 ft. each way, and consequently weighing 50 or 60 tons, and even more. These were fitted into chambers prepared during the construction of the building, but raised into the upper parts, and, being lowered after the body was deposited, closed the entrance so effectually that in some instances it has been found necessary either to break them in pieces, or to cut a passage round them, to gain admission to the chambers. They generally slide in grooves in the wall, to which they fit exactly, and altogether show a degree of ingenuity and forethought very remarkable, considering the early age at which they were executed.
In the Second Pyramid one chamber has been discovered partly above-ground, partly cut in the rock. In the Third the chambers are numerous, all excavated in the rock; and from the tunnels that have been driven by explorers through the superstructures of these two, it is very doubtful whether anything is to be found above-ground.[36]
All the old pyramids do not follow the simple outline of those at Gizeh. That at Dahshur, for instance, rises to half the height, with a slope of 54° to the horizon, but is finished at the angle of 45°, giving it a very exceptional appearance. The pyramids of Sakkara and Medum are of the class known as mastaba pyramids, the term mastaba (Arabic for bench) being given to the sloping-sided tombs of about 76° angle and from 10 to 20 ft. high.
No. 10. Pyramid of Sakkara. (From Colonel Vyse’s work.) Scale 100 ft to 1 in.
104The annexed plan and section of Sakkara (Woodcut Nos. 9 and 10), both to the scale of 100 ft. to 1 in., show the peculiar nature of their construction, which seems to have been cumulative; that is to say, they have been enlarged in successive periods, the original casing of the earlier portions having been traced. Mr. Petrie says: “Both of these structures have been several times finished, each time with a close-jointed polished casing of the finest white limestone, and then, after each completion, it has been again enlarged by another coat of rough masonry and another line casing outside.”
These two pyramids are the only two genuine stepped pyramids, all the others having had an uniform casing on one slope (excepting Dahshur, as above mentioned). The Pyramid of Sakkara is the only pyramid that does not face exactly north and south. It is nearly of the same general dimensions as the Third Pyramid, that of Mycerinus; but its outline, the disposition of its chambers, and the hieroglyphics found in its interior, all would seem to point it out as an imitation of the older form of mausolea by some king of a far more modern date.
Mr. Flinders Petrie’s discoveries in 1891 determined the age and the construction of the Pyramid of Medum,[37] erected by Seneferu, a king of the third dynasty, being therefore the oldest pyramid known. Its construction resembles that of the small pyramid of Rikheh and the oblong step pyramid of Sakkara, that is to say, it is a cumulative mastaba, the primal mastaba being about 150 ft. square, and from 37 to 45 ft. high. The outer coatings added were seven in number, and the original mass was carried up and heightened as the circuit was increased, and lastly an outer casing covered over all the steps which had resulted during the construction. The average length of the base was 473 ft. 6 in., the total height being 301 ft. 7 in. According to Mr. Petrie, the Pyramid of Medum, as those of Sakkara and Rikheh, were of a transitional form, in which the original mastaba had been greatly enlarged and subsequently covered over with a casing of pyramidal outline. “That type once arrived at, there was no need for subsequent kings to retain the mastaba form internally, and Khufu and his successors laid out their pyramids of full size at first and built them up at an angle of 51°, and not at 75°, that which is found in the ordinary mastabas.” Mr. Petrie also discovered the temple of the pyramid in the middle of its east side, and almost uninjured. It consisted of a passage entered at the south end of east front, then a small chamber and a courtyard adjoining the side of the pyramid, containing two steles and one altar between them.
105In the sepulchral pit of Rahotep, near the pyramid, Mr. Petrie found two arches thrown across a passage to relieve the thrust of the overlapping sides, which carries the use of that feature back to the 4th dynasty.
Around the Pyramids from Abouraash, north of Gizeh to Medum, south of Sakkara, a distance of over 15 miles, forming the Necropolis of Memphis, numberless smaller sepulchres are found, which appear to have been appropriated to private individuals, as the pyramids were—so far as we can ascertain—reserved for kings, or, at all events, for persons of royal blood. These tombs are now known under the term of mastabas, to which we have already referred. The mastaba is a rectangular building varying in size from 15 to 150 ft. in width and length, and from 10 to 80 ft. in height. Their general form is that of a truncated pyramid with an angle of 75° to the horizon, low, and looking exceedingly like a house with sloping walls, with only one door leading to the interior, though they may contain several apartments, and no attempt is made to conceal the entrance. The chambers consist (1) of reception rooms and (2) of serdabs, which are closed cells containing the terra-cotta statuettes which represent the Ka’s or doubles of the deceased. These chambers occupy a part only of the mastaba, the remainder being solid masonry or brickwork. The body seems to have been hidden from profanation by being hid in a pit sunk in the rock, the entrance to which was concealed, and could be approached only through the solid core of the mastaba.
Unlike the pyramids, the walls are covered with the paintings above alluded to, and everything in this “eternal dwelling”[38] of the dead is made to resemble the abodes of the living; as was afterwards the case with the Etruscans. It is owing to this circumstance that we are able not only to realise so perfectly the civil life of the Egyptians at this period, but to fix the dates of the whole series by identifying the names of the kings who built the pyramids with those on the walls of the tombs that surround them.[39]
Like all early architecture, that of these tombs shows evident 106symptoms of having been borrowed from a wooden original. The lintels of the doorways are generally rounded, and the walls mere square posts, grooved and jointed together, every part of it being as unlike a stone architecture as can possibly be conceived. Yet the pyramids themselves, and those tombs which are found outside them, are generally far removed from the forms employed in timber structures; and it is only when we find the Egyptians indulging in decorative art that we trace this more primitive style. There are two doorways of this class in the British Museum and many in that of Berlin. One engraved in Lepsius’s work (Woodcut No. 11) gives a fair idea of this style of decorative art, in the most elaborate form in which we now know it. It is possible that some of its forms may have been derived from brick architecture, but the lintel certainly was of wood, and so it may be suspected were the majority of its features. It certainly is a transitional form, and though we only find it in stone, none of its peculiarities were derived from lithic arts. Perhaps one of the best illustrations of the architectural forms of that day was the sarcophagus of Mycerinus, unfortunately lost on its way to England. It represented a palace, with all the peculiarities found on a larger scale in the buildings which surround the pyramid, and with that peculiar cornice and still more singular roll or ligature on the angles, most evidently a carpentry form, but which the style retained to its latest day.
11. Doorway in Tomb at the Pyramids. (From Lepsius.)
12. Sarcophagus of Mycerinus, found in Third Pyramid.
In many of these tombs square piers are found supporting the roofs 107sometimes, but rarely, with an abacus, and generally without any carved work, though it is more than probable they were originally painted with some device, upon which they depended for their ornament. In most instances they look more like fragments of a wall, of which the intervening spaces had been cut away, than pillars in the sense in which we usually understand the word; and in every case in the early ages they must be looked upon more as utilitarian expedients than as parts of an ornamental style of architecture.
Till recently no temples had been discovered which could with certainty be ascribed to the age of the pyramid builders; one, however, was excavated in 1853, from the sand close beside the great Sphinx, with which it was thought at one time to have been connected. Mr. Petrie, however, found the remains of a causeway 15 ft. wide and over a quarter of a mile long, leading to a second temple in front of the pyramid of Khafra; as also the traces of other temples in front of the Great Pyramid and of that of Menkaura. Further temples have been discovered at Abouseer, Dahshur and other pyramids, so that, as Mr. Petrie says, p. 209, “to understand the purpose of the erection of the Pyramids it should be observed that each has a temple on the eastern side of it. Of the temples of the second and third Pyramids the ruins still remain; and of the temple of the Great Pyramid the basalt pavement and numerous blocks of granite show its site.” “The worship of the deified king was carried on in the temple, looking toward the Pyramid which stood on the west of it; just as private individuals worshipped their ancestors in the family tombs” (already referred to) “looking towards the false doors[40] which are placed in the west side of the tomb, and which represent the entrances to the hidden sepulchres.”
13. Plan of Temple near the Sphinx.
The temple of the Sphinx,[41] (or, as it is now called, the granite temple,) though at present almost buried, was apparently a free-standing building, a mass of masonry, the outer surfaces of which were built in limestone, and carved with long grooves, horizontal and vertical, skilfully crossed, resembling therefore the carved fronts of many tombs 108at Sakkara and Gizeh and the sarcophagus of Mycerinus (Woodcut No. 12). The temple measured 140 ft. in each direction, and the walls were 40 ft. high. It was arranged in two storeys, the upper one being an open court. In the lower storey were: A, a hall 55 ft. long by 33 ft. wide and 18 ft. 6 in. high, with two rows of massive granite piers supporting beams of the same material to carry the stone roof: B, a second hall into which the first hall opened, and at right angles to it, measuring 81 ft. long by 22 ft. wide and 19 ft. high, with one row of granite piers down the centre; both of these being lighted by narrow slits just below the granite roof:[42] C, a side chamber with six loculi, in two levels, each 19 ft. long: D, a sloping passage lined with granite and oriental alabaster, leading to the causeway which placed it in communication with the Second Pyramid, and: E, a hall 60 ft. long by 12 ft. wide and 30 ft. high (rising therefore above the pavement of the upper court), with a large recess at each end containing a statue. These recesses were high above doors which led to smaller chambers also containing statues.
The internal walls were lined with immense blocks of granite from Syene and of alabaster beautifully polished, but with sloping joints and uneven beds, a form of masonry not unknown in that age. No sculpture or inscription of any sort is found on the walls of the temple,[43] or ornament or symbol in the sanctuary. Statues and tablets of Khafra, the builder of the Second Pyramid, were found in the well, and this, and the fact that the causeway extended to the temple in front of his pyramid, shows clearly that it belonged to his time.[44]
In the present transitional state of our knowledge of the architectural art of the pyramid builders, it is difficult to form any distinct judgment as to its merits. The early Egyptians built neither for beauty nor for use, but for eternity, and to this last they sacrificed every other feeling. In itself nothing can be less artistic than a pyramid. A tower, either round or square, or of any other form, and of the same dimensions, would have been far more imposing, and if of sufficient height—the mass being the same—might almost have attained sublimity; but a pyramid never looks so large as it is, and not till you almost touch it can you realise its vast dimensions. This is owing principally to all its parts sloping away from the eye instead of boldly challenging observation; but, on the other hand, no form is so stable, none so capable of resisting the injuries of time or force, and 109none, consequently, so well calculated to attain the object for which the pyramids were erected. As examples of technic art, they are unrivalled among the works of men, but they rank low if judged by the æsthetic rules of architectural art.
The same may be said of the tombs around them: they are low and solid, but possess neither beauty of form nor any architectural feature worthy of attention or admiration, but they have lasted nearly uninjured from the remotest antiquity, and thus have attained the object their builders had principally in view in designing them.
Their temple architecture, on the other hand, may induce us to modify considerably these opinions. The one described above—which is the only one I personally have any knowledge of—is perhaps the simplest and least adorned temple in the world. All its parts are plain—straight and square, without a single moulding of any sort, but they are perfectly proportioned to the work they have to do. They are pleasingly and effectively arranged, and they have all that lithic grandeur which is inherent in large masses of precious materials.
Such a temple as that near the Sphinx cannot compete either in richness or magnificence with the great temples of Thebes, with their sculptured capitals and storied walls, but there is a beauty of repose and an elegance of simplicity about the older example which goes far to redeem its other deficiencies, and when we have more examples before us they may rise still higher in our estimation.
Whatever opinion we may ultimately form regarding their architecture, there can be little doubt as to the rank to be assigned to their painting and sculpture. In these two arts the Egyptians early attained a mastery which they never surpassed. Judged by the rules of classic or of modern art, it appears formal and conventional to such an extent as to render it difficult for us now to appreciate its merits. But as a purely Phonetic form of art—as used merely to enunciate those ideas which we now so much more easily express by alphabetic writings—it is clear and precise beyond any picture-writings the world has since seen. Judged by its own rules, it is marvellous to what perfection the Egyptians had attained at that early period, and if we look on their minor edifices as mere vehicles for the display of this pictorial expression, we must modify to some extent the judgment we would pass on them as mere objects of architectural art.
| B.C. 2528? | |
| Sankhkara | reigned 46 years. |
| Amenemhat | reigned 38 years. |
| Osirtasen | reigned 48 years. |
| Amenemhat III. (Lampares) | reigned 8 years. |
| (Builder of Labyrinth.) | |
| His successors | reigned 42 years. |
| B.C. 2340? |
The great culminating period of the old kingdom of Egypt is that belonging to the 4th and 5th dynasties. Nine-tenths of the monuments of the pyramid-builders which have come down to our time belong to the five centuries during which these two dynasties ruled over Egypt (B.C. 3500-3000).
The 6th dynasty was of a southern and more purely African origin. On the tablets of Apap[45] (Apophis), its most famous monarch, we find the worship of Khem and other deities of the Theban period wholly unknown to the pyramid kings. The next four dynasties are of fainéant kings, of whom we know little, not “Carent quia vate sacro,” but because they were not builders, and their memory is lost. The 11th and 12th usher in a new state of affairs. The old Memphite pyramid-building kingdom had passed, with its peaceful contentment, and had given place to a warlike idolatrous race of Theban kings, far more purely African, the prototypes of the great monarchy of the 18th and 19th dynasties, and having no affinity with anything we know of as existing in Asia in those times.
Their empire lasted apparently for more than 300 years in Upper Egypt; but for the latter portion of that period they do not seem to have reigned over the whole country, having been superseded in Lower Egypt by the invasion of the hated Hyksos, or Shepherd kings, about the year 2300 B.C., and by whom they also were finally totally overthrown.
When we turn from the contemplation of the pyramids, and the monuments contemporary with them, to examine those of the 12th dynasty, we become at once aware of the change which has taken place. Instead of the pyramids, all of which are situated on the 111western side of the Nile, we have obelisks, which, without a single exception, are found on its eastern side towards the rising sun, apparently in contradistinction to the valley of the dead, which was towards the side on which he set. The earliest and one of the finest of these obelisks is that still standing at Heliopolis, inscribed with the name of Osirtasen, one of the first and greatest kings of this dynasty. It is 67 ft. 4 in. in height, without the pyramidion which crowns it, and is a splendid block of granite, weighing 217 tons. It must have required immense skill to quarry it, to transport it from Syene, and finally, after finishing it, to erect it where it now stands and has stood for 4500 years.
We find the sculptures of the same king at Wady Halfah, near the second cataract, in Nubia; and at Sarabout el Kadem, in the Sinaitic Peninsula. He also commenced the great temple of Karnac at Thebes, which in the hands of his successors became the most splendid in Egypt, and perhaps it is not too much to say the greatest architectural monument in the whole world.
As might be expected, from our knowledge of the fact that the Hyksos invasion took place so soon after his reign, none of his structural buildings now remain entire in which we might read the story of his conquests, and learn to which gods of the Pantheon he especially devoted himself. We must therefore fall back on Manetho for an account of his “conquering all Asia in the space of nine years, and Europe as far as Thrace.”[46] While there is nothing to contradict this statement, there is much that renders it extremely probable.
It is to this dynasty also that we owe the erection of the Labyrinth, one of the most remarkable, as well as one of the most mysterious monuments of Egypt. All Manetho tells us of this is, that Lampares, or Mœris, “built it as a sepulchre for himself;” and the information we derive from the Greeks on this subject is so contradictory and so full of the wonderful, that it is extremely difficult to make out either the plan or the purpose of the building. As long ago as 1843, the whole site was excavated and thoroughly explored by the officers of the Prussian expedition under Lepsius; but, like most of the information obtained by that ill-conditioned party, such data as have been given are of the most unsatisfactory and fragmentary form. The position which Lepsius claimed for the Labyrinth has been found by Mr. Petrie[47] to be incorrect; the remains supposed to be those of the walls and 112chambers are of much later date, being only the houses and tombs of the population which destroyed the great structure. The village thus created was established on the outer portion of the site when the destruction of the buildings was first commenced. Mr. Petrie calculates that the Labyrinth was symmetrical with the pyramid, and had the same axis: that it occupied a site of about 1000 feet wide by 800 ft. deep; thus covering an area sufficiently large to accommodate all the Theban temples on the east bank, and in addition one of the largest on the west bank. The essential difference between the Labyrinth and all other temples was that it consisted of a series of eighteen large peristylar courts with sanctuaries and other chambers. Of these, according to Herodotus, there were six, side by side, facing north; six others, opposite, facing south, and a wall surrounding the whole. Herodotus, however, was allowed to see portions only of the Labyrinth, probably those nearest to the entrance. Beyond this, on the north side, Mr. Petrie suggests the existence of a third series of peristylar courts (described by Strabo), with sanctuaries and other chambers, and south of these, halls of columns, and smaller halls, through which Strabo entered. In the hall of twenty-seven columns, mentioned by Strabo, Mr. Petrie places the columns in one row to form a vestibule to the entrances to the courts similar to the temple of Abydos. The whole disposition of the plan, the style of the courts and their peristyles must be conjectural, as no remains of blocks of stone or columns in sufficient preservation have been found on which to base a restoration. On some architrave blocks were found inscriptions of Amenemhat III. and Sebekneferu. The last remains were taken away within our own time by the engineers of the new railway, and apparently with the consent of the officials of the Boulak Museum, who reported that they had been quarried from the native rock.
The Hawara Pyramid, on the north of the Labyrinth, and erected by the same King Amenemhat III., has been examined by Mr. Petrie and described by him.[48] As the rock on which it was built was little more than hardened sand, a pit was excavated, into which a monolithic chamber of granite, brought from Upper Egypt, and weighing 100 tons, was lowered. The sarcophagus and two other coffins having been placed in it, the chamber was covered over with three granite beams, 4 feet thick, one of which was raised in a hollow chamber, and supported there till after the King’s death and the deposit of his body in the sarcophagus. Round the granite monolith were built walls 113which carried two courses of stone blocks, the lower horizontal, the upper courses sloping one against the other, as in the Great Pyramid. The rest of the pyramid was constructed in brick, and to prevent the brickwork settling down and splitting on the pointed roof-stones, an arch of five courses of brick, measuring 3 feet deep, was thrown across, resting on bricks laid in mud between the arch and the stonework. The brickwork above the arch was laid in sand, and the whole pyramid covered with a casing of limestone. The size of the pyramid Mr. Petrie calculates to have been about 334 ft. wide and 191 ft. high.
A second pyramid belonging to this dynasty, and erected by Osirtasen II., has also been examined and described by Mr. Petrie.[49] This pyramid (Illahun) is of peculiar construction, being partly composed of the natural rock dressed into form to a height of 40 feet, above which rose the built portion, which was different from that of any other pyramid, being built with a framing of cross walls. The walls ran right through the diagonals up to the top of the building, and had offset walls at right angles to the sides, the walls being of stone in the lower part, and brick above; the filling-in between the walls was of mud and brick, and the whole pyramid, brick, stone, and rock, was covered with a casing of limestone.
14. Plans of Houses, Kahun.
The most remarkable discovery made by Mr. Petrie in the Fayum[50] was the finding of the plan, more or less complete, of the town or 114village of Kahun, which was built for the workmen and overseers of the Illahun pyramid, and deserted shortly after its completion. The plan would seem to have been laid out from one design, and consisted: of an acropolis or raised space, where the house of the chief controller of the works was placed, and which might have been occupied by the King when he came to inspect the works: a series of large houses (Woodcut No. 14), arranged very much in the same way as those of Pompeii, and containing a great number of halls, courts, and rooms; and many streets of workmen’s dwellings of two or three rooms each. The walls were all built in crude brick, the rooms being covered over with roofs formed of beams of wood, on which poles were placed, and to these bundles of straw and reeds lashed down, the whole being covered inside and outside with mud. In those rooms, which exceeded 8 or 9 ft. in width, columns of stone or wood were employed to assist in carrying the roof; such columns being octagonal or with sixteen sides, fluted or ribbed like the reed or lotus column at Beni-Hasan. The lower portion of a fluted column in wood was found, existing still in situ on its base, which shows that description of column to have had a wooden origin.
The most interesting series of monuments of this dynasty which have come down to our time are the tombs of Beni-Hasan, in Middle Egypt. They are situated on the eastern side of the Nile, as are also those of Tel-el-Amarna, Sheykh-Said, Kôm-el-ahman, and others. The character of the sculptures which adorn their walls approaches that found in the tombs surrounding the pyramids, but the architecture differs widely. They are all cheerful-looking halls, open to the light of day, many of them with pillared porches, and all possessing pretensions to architectural ornament, either internal or external.
15. Tomb at Beni-Hasan.
One of the most interesting of the tombs has in front of it a portico-in-antis of two columns, in architecture so like the order afterwards 115employed by the Greeks, as to have been frequently described as the Proto-Doric order.[51] The same class of column is also used internally, supporting a plain architrave beam, from which spring curvilinear roofs of segmented form, which there is no doubt are imitations of constructive arch forms.

16. Proto-Doric Pillar at Beni-Hasan.

17. Reed Pillar from Beni-Hasan.
18. Lotus pier, Zawyet-el-Mayyitûr. (From Lepsius.)
There is another form of pillar used at Beni-Hasan at that early age[52] which is still further removed from stone than even the Proto-Doric. It imitates a bundle of four reeds or lotus-stalks bound together near the top, and bulging above the ligature so as to form a capital. Such a pier must evidently have been originally employed in wooden architecture only, and the roof which it supports is in this instance of light wooden construction, having the slight slope requisite in the dry climate of Egypt. In after ages this form of pillar became a great favourite with the 116Egyptian architects, and was employed in all their great monuments, but with a far more substantial lithic form than we find here, and in conjunction with the hollow—or, as we should call it, Corinthian—formed capital, of which no example is found earlier than the 18th dynasty.
These are meagre records, it must be confessed, of so great a kingdom; but when we come to consider the remoteness of the period, and that the dynasty was overthrown by the Shepherds, whose rule was of considerable duration, it is perhaps in vain to expect that much can remain to be disinterred which would enable us to realise more fully the architectural art of this age.
Till very recently our knowledge of the Shepherd kings was almost entirely derived from what was said of them by Manetho, in the extracts from his writings so fortunately preserved by Josephus, in his answer to Apion. Recent explorations have however raised a hope that even their monuments may be so far recovered as to enable us to realise to some extent at least who they were and what their aspirations.
Manetho tells us they came from the East, but fearing the then rising power of the Assyrians, they fortified Avaris as a bulwark against them, and used it during their sojourn in Egypt to keep up their communications with their original seat. Recent explorations have enabled M. Mariette to identify San, Zoan, or Tanis, a well-known site on the Bubastite branch of the Nile, with this Avaris. And already he has disinterred a sphinx and two seated statues which certainly belong to the reign of the Shepherd king Apophis.[53]
The character of these differs widely from anything hitherto found in Egypt. They present a physiognomy strongly marked with an Asiatic type—an arched nose, rude bushy hair, and great muscular development; altogether something wholly different from everything else found in Egypt either before or afterwards.
This is not much, but it is an earnest that more remains to be discovered, and adds another to the proofs that are daily accumulating, how implicitly Manetho may be relied upon when we only read him correctly, and how satisfactory it is to find that every discovery that is made confirms the conclusions we had hesitatingly been adopting.
117It appears from such fragmentary evidence as has hitherto been gleaned from the monuments, that the Shepherds’ invasion was neither sudden nor at once completely successful, if indeed it ever was so, for it is certain that Theban and Xoite dynasties co-existed with the Shepherds during the whole period of their stay, either from policy, like the protected princes under our sway in India, or because their conquest was not so complete as to enable them to suppress the national dynasties altogether.
Like the Tartars in China they seem to have governed the country by means of the original inhabitants, but for their own purposes; tolerating their religion and institutions, but ruling by the superior energy of their race the peace-loving semi-Semitic inhabitants of the Delta, till they were in their turn overthrown and expelled by the more warlike but more purely African races of the southern division of the Egyptian valley.
| XVIIIth Dynasty. | B.C. 1830 | |||
| Amenhotep I. | reigned | 25 | years. | |
| Thothmes I. | reigned | 13 | years. | |
| Amenhotep II. | reigned | 20 | years. | |
| Hatshepsu (Queen) | reigned | 21 | years. | |
| Thothmes II. | reigned | 12 | years. | |
| Thothmes III. | reigned | 26 | years. | |
| Thothmes IV. | reigned | 10 | years. | |
| Amenhotep III. | reigned | 21 | years. | |
| Interregnum of Sun-worshipping Kings. | ||||
| Horemheb (Horus) | reigned | 36 | years. | |
| XIXth Dynasty. | ||||
| Rameses I. | reigned | 12 | years. | |
| Meneptah I. | reigned | 32 | years. | |
| Rameses II. | reigned | 68 | years. | |
| Meneptah II. | reigned | 5 | years. | |
| Exode | B.C. 1312 | |||
| XXth Dynasty. | ||||
| Rhampsinitus-Rameses | reigned | 55 | years. | |
| Ramessidæ | reigned | 66 | years. | |
| Amenophis | reigned | 20 | years. | |
The five centuries[54] which elapsed between the expulsion of the Shepherds and Exode of the Jews comprise the culminating period of the greatness and greatest artistic development of the Egyptians. It is practically within this period that all the great buildings of the “Hundred pyloned city of Thebes” were erected. Memphis was adorned within its limits with buildings as magnificent as those of the southern capital, though subsequently less fortunate in escaping the hand of the spoiler; and in every city of the Delta wherever an obelisk or sculptured stone is found, there we find almost invariably the name of one of the kings of the 18th or 19th dynasties. In Arabia, too, and above the cataracts of the far-off Meroë, everywhere their works and names are found. At Arban,[55] on the Khabour, we find the name of the third Thothmes; and there seems little doubt but that the Naharaina or Mesopotamia was one of the provinces conquered by them, and that all Western Asia was more or less subject to their sway.
Whoever the conquering Thebans may have been, their buildings are sufficient to prove, as above mentioned, that they belonged to a race differing in many essential respects from that of the Memphite kingdom they had superseded.
The pyramid has disappeared as a form of royal sepulchre, to be replaced by a long gloomy corridor cut in the rock; its walls covered with wild and fetish pictures of death and judgment: a sort of magic hall, crowded with mysterious symbols the most monstrous and complicated that any system of human superstition has yet invented.
119Instead of the precise orientation and careful masonry of the old kingdom, the buildings of the new race are placed anywhere, facing in any direction, and generally affected with a symmetriphobia that it is difficult to understand. The pylons are seldom in the axis of the temples; the courts seldom square; the angles frequently not right angles, and one court succeeding another without the least reference to symmetry.
The masonry, too, is frequently of the rudest and clumsiest sort, and would long ago have perished but for its massiveness: and there is in all their works an appearance of haste and want of care that sometimes goes far to mar the value of their grandest conceptions.
In their manners, too, there seems an almost equal degree of discrepancy. War was the occupation of the kings, and foreign conquest seems to have been the passion of the people. The pylons and the walls of the temples are covered with battle-scenes, or with the enumeration of the conquests made, or the tribute brought by the subjected races. While not engaged in this, the monarch’s time seems to have been devoted to practising the rites of the most complicated and least rational form of idolatry that has yet been known to exist among any body of men in the slightest degree civilised.
If the monuments of Memphis had come down to our times as perfect as those of Thebes, some of these differences might be found less striking. On the other hand, others might be still more apparent; but judging from such data as we possess—and they are tolerably extensive and complete—we are justified in assuming a most marked distinction; and it is indispensably necessary to bear it in mind in attempting to understand the architecture of the valley of the Nile, and equally important in any attempt to trace the affinities of the Egyptian with any other races of mankind. So far as we can now see, it may be possible to trace some affinities with the pyramid builders in Assyria or in Western Asia; but if any can be dimly predicated of the southern Egyptian race, it is in India and the farther east; and the line of communication was not the Isthmus of Suez, but the Straits of Babelmandeb and the Indian Ocean.
Although, as already mentioned, numerous buildings of the great Pharaonic dynasties are to be found scattered all along the banks of the Nile, it is at Thebes only that the temples are so complete as to enable us to study them with advantage, or to arrive at a just appreciation of their greatness. That city was practically the capital of Egypt during the whole of the 18th and 19th dynasties, and has been fortunate in having had no great city built near it since it fell into 120decay; unlike Memphis in this respect, which has been used as a quarry during the last 14 or 15 centuries. It has also had the advantage of a barrier of rocky hills on its western limits, which has prevented the sand of the desert from burying its remains, as has been the case at Abydus and elsewhere.
The ruins that still remain are found scattered over an area extending about 21⁄4 miles north and south, and 31⁄2 miles east and west. The principal group is at Karnac, on the eastern bank of the Nile, consisting of one great temple 1200 feet long, and five or six smaller temples grouped unsymmetrically around it. About two miles farther south is the temple at Luxor 820 feet long, and without any dependencies.
19. Rameseum at Thebes. Scale 100 ft. to 1 in.
On the other side of the river is the great temple of Medeenet-Habû, built by the first king of the 19th dynasty, 520 feet in length; the Rameseum, 570 feet long, and the temple at Koorneh, of which only the sanctuary and the foundations of the Propyla now exist. Of the great temple of Thothmes and Amenophis very little remains above ground—it having been situated within the limits of the inundation—except the two celebrated colossi, one of which was known to the Greeks as the vocal Memnon. When complete it probably was, next after Karnac, the most extensive of 121Theban temples. There are several others, situated at the foot of the Libyan hills, which would be considered as magnificent elsewhere, but sink into insignificance when compared with those just enumerated.
20. Central Pillar, from Rameseum, Thebes.
Most of these, like our mediæval cathedrals, are the work of successive kings, who added to the works of their ancestors without much reference to congruity of plan; but one, the Rameseum, was built wholly by the great Rameses in the 15th century B.C., and though the inner sanctuary is so ruined that it can hardly be restored, still the general arrangement, as shown in the annexed woodcut, is so easily made out that it may be considered as a typical example of what an Egyptian temple of this age was intended to have been. Its façade is formed by two great pylons, or pyramidal masses of masonry, which, like the two western towers of a Gothic cathedral, are the appropriate and most imposing part of the structure externally. Between these is the entrance doorway, leading, as is almost invariably the case, into a great square courtyard, with porticoes always on two, and sometimes on three, sides. This leads to an inner court, smaller, but far more splendid than the first. On the two sides of this court, through which the central passage leads, are square piers with colossi in front, and on the right and left are double ranges of circular columns, which are continued also behind the square piers fronting the entrance. Passing through this, we come to a hypostyle hall of great beauty, formed by two ranges of larger columns in the centre, and three rows of smaller ones on each side. These hypostyle halls almost always accompany the larger Egyptian temples of the great age. They derive their name from having, over the lateral columns, what in Gothic architecture would be called a clerestory, through which the light is admitted to the central portion of the hall. Although some are more extensive than this, the arrangement of all is nearly similar. They all possess two ranges of columns in the centre, so tall as to equal the height of the side columns together with that of the attic which 122is placed on them. They are generally of different orders; the central pillars having a bell-shaped capital, the under side of which was perfectly illuminated from the mode in which the light was introduced; while in the side pillars the capital was narrower at the top than at the bottom, apparently for the sake of allowing its ornaments to be seen.
Beyond this are always several smaller apartments, in this instance supposed to be nine in number, but they are so ruined that it is difficult to be quite certain what their arrangement was. These seem to have been rather suited to the residences of the king or priests than to the purposes of a temple, as we understand the word. Indeed, Palace-Temple, or Temple-Palace, would be a more appropriate term for these buildings than to call them simply Temples. They do not seem to have been appropriated to the worship of any particular god, but rather for the great ceremonials of royalty—of kingly sacrifice to the gods for the people, and of worship of the king himself by the people, who seems to have been regarded, if not as a god, at least as the representative of the gods on earth.
Though the Rameseum is so grand from its dimensions, and so beautiful from its design, it is far surpassed in every respect by the palace-temple at Karnac, which is perhaps the noblest effort of architectural magnificence ever produced by the hand of man.
Its principal dimensions are 1200 ft. in length, by about 360 in width, and it covers therefore about 430,000 square ft., or nearly twice the area of St. Peter’s at Rome, and more than four times that of any mediæval cathedral existing. This, however, is not a fair way of estimating its dimensions, for our churches are buildings entirely under one roof; but at Karnac a considerable portion of the area was uncovered by any buildings, so that no comparison is just. The great hypostyle hall, however, is internally 330 ft. by 170, and, with its two pylons, it covers more than 85,000 square feet—nearly as large as Cologne, one of the largest of our northern cathedrals; and when we consider that this is only a part of a great whole, we may fairly assert that the entire structure is among the largest, as it undoubtedly is one of the most beautiful, buildings in the world.
The original part of this great group was, as before mentioned, the sanctuary or temple built by Osirtasen, the great monarch of the 12th dynasty, before the Shepherd invasion. It is the only thing that seems to have been allowed to stand during the five centuries of Shepherd domination, though it is by no means clear that it had not been pulled down by the Shepherds, and reinstated by the first kings of the 18th dynasty, an operation easily performed with the beautiful polished granite masonry of the sanctuary. Be this as it may, Amenhotep, the first king of the restored race, enclosed this in a temple about 120 ft. square. Thothmes I. built in front of it a splendid hall, surrounded 123by colossi, backed by piers; and Thothmes III. erected behind it a palace or temple, which is one of the most singular buildings in Egypt. The hall is 140 ft. long by 55 in width internally, the roof is supported by two rows of massive square columns, and two of circular pillars of most exceptional form, the capitals of which are reversed, and somewhat resembling the form usually found in Assyria, but nowhere else in Egypt. Like almost all Egyptian halls, it was lighted from the roof in the manner shown in the section. With all these additions, the temple was a complete whole, 540 ft. in length by 280 in width, at the time when the Sun-worshippers broke in upon the regular succession of the great 18th dynasty.
21. Section of Palace of Thothmes III., Thebes.
When the original line was resumed, Meneptah commenced the building of the great hall, which he nearly completed. Rameses, the first king of the 19th dynasty, built the small temple in front; and the so-called Bubastite kings of the 22nd dynasty added the great court in front, completing the building to the extent we now find it. We have thus, as in some of our mediæval cathedrals, in this one temple a complete history of the style during the whole of its most flourishing period; and, either for interest or for beauty, it forms such a series as no other country, and no other age, can produce. Besides those buildings mentioned above, there are other temples to the north, to the east, and more especially to the south, and pylons connecting these, and avenues of sphinxes extending for miles, and enclosing-walls, and tanks, and embankments—making up such a group as no city ever possessed before or since. St. Peter’s, with its colonnades, and the Vatican, make up an immense mass, but as insignificant in extent as in style when compared with this glory of ancient Thebes and its surrounding temples.
22. Plan of Hypostyle Hall at Karnac. Scale 100 ft. to 1 in.
23. Section of central portion of Hypostyle Hall at Karnac. Scale 50 ft. to 1 in.
The culminating point and climax of all this group of building is the hypostyle hall of Meneptah. The plan and section of its central portion on the next page, both to the usual scale, will explain its general arrangement; but no language can convey an idea of its beauty, and no artist has yet been able to reproduce its form so as to convey to 124those who have not seen it an idea of its grandeur. The mass of its central piers, illumined by a flood of light from the clerestory, and the smaller pillars of the wings gradually fading into obscurity, are so arranged and lighted as to convey an idea of infinite space; at the same time, the beauty and massiveness of the forms, and the brilliancy 125of their coloured decorations, all combine to stamp this as the greatest of man’s architectural works; but such a one as it would be impossible to reproduce, except in such a climate and in that individual style in which, and for which, it was created.
24. Caryatide Pillar, from the Great Court at Medeenet-Habû.
On the same side of the Nile, and probably at one time connected with it by an avenue of sphinxes, stands the temple of Luxor, hardly inferior in some respects to its great rival at Karnac; but either it was never finished, or, owing to its proximity to the Nile, it has been ruined, and the materials carried away. The length is about 830 ft., its breadth ranging from 100 to 200 ft. Its general arrangement comprised, first, a great court at a different angle from the rest, being turned so as to face Karnac. In front of this stand two colossi of Rameses the Great, its founder, and two obelisks were once also there, one of which is now in Paris. Behind this was once a great hypostyle hall, but only the two central ranges of columns are now standing. Still further back were smaller halls and numerous apartments, evidently meant for the king’s residence, rather than for a temple or place exclusively devoted to worship.
The palace at Luxor is further remarkable as a striking instance of how regardless the Egyptians were of regularity and symmetry in their plans. Not only is there a considerable angle in the direction of the axis of the building, but the angles of the courtyards are in scarcely any instance right angles; the pillars are variously spaced, and pains seem to have been gratuitously taken to make it as irregular as possible in nearly every respect. All the portion at the southern end was erected by Amenhotep III., the northern part completed by Rameses the Great, the same who built the Rameseum already described as situated on the other bank of the Nile.
126Besides these there stood on the western side of the Nile the Memnonium, or great temple of Amenhotep III., now almost entirely ruined. It was placed on the alluvial plain, within the limits of the inundation, which has tended on the one hand to bury it, and on the other to facilitate the removal of its materials. Nearly the only remains of it now apparent are the two great seated colossi of its founder, one of which, when broken, became in Greek, or rather Roman times, the vocal Memnon, whose plaintive wail to the rising sun, over its own and its country’s desolation, forms so prominent an incident in the Roman accounts of Thebes.[56]
25. South Temple of Karnac. Scale 100 ft. to 1 in.
26. Section through Hall of Columns, South Temple of Karnac. Scale 50 ft. to 1 in.
Not far from this stands the great temple known as that of Medeenet-Habû, built by the first king of the 19th dynasty. Its dimensions are only slightly inferior to those of the Rameseum, being 520 ft. from front to rear, and its propylon 107 ft. wide. Its two great courts are, however, inferior in size to those of that building. The inner one is adorned by a series of Caryatide figures (Woodcut No. 24), which are inferior both in conception and execution to those of the previous reigns; and indeed throughout the whole building there is an absence of style, and an exaggeration of detail, which shows only too clearly that the great age was passing away when it was erected. The roof of its hypostyle hall, and of the chambers beyond it, is occupied by an Arab village, which would require to be cleared away before it could be excavated; much as this might be desired, the details of its courts would not lead us to expect anything either very beautiful or new from its disinterment. Further down the river, as already mentioned, stood another temple, that of Koorneh, built by the same Meneptah who erected the great hall of Karnac. It is, however, only a fragment, or what may be called the residential part of a temple. The hypostyle hall never was erected, and only the foundations of two successive pylons can be traced in front 127of it. In its present condition, therefore, it is one of the least interesting of the temples of Thebes, though elsewhere it would no doubt be regarded with wonder.
Another building of this age, attached to the southern side of the great temple of Karnac, deserves especial attention as being a perfectly regular building, erected at one time, and according to the original design, and strictly a temple, without anything about it that could justify the supposition of its being a palace.
It was erected by the first king of the 19th dynasty, and consists of two pylons, approached through an avenue of sphinxes. Within this is an hypæthral court, and beyond that a small hypostyle hall, lighted from above, as shown in the section (Woodcut No. 26). Within this is the cell, surrounded by a passage, and with a smaller hall beyond, all apparently dark, or very imperfectly lighted. The gateway in front of the avenue was erected by the Ptolemys, and, like many Egyptian buildings, is placed at a different angle to the direction of the building itself. Besides its intrinsic beauty, this temple is interesting as being far more like the temples erected afterwards under the Greek and Roman domination than anything else belonging to that early age.
At Tanis, or Zoan, near the mouth of the Nile, the remains of a temple and of 13 obelisks can still be traced. At Soleb, on the borders of Nubia, a temple now stands of the Third Amenhotep, scarcely inferior in beauty or magnificence to those of the capital.
27. Pillar, from Sedinga.
At Sedinga, not far below the third cataract, are the remains of temples erected by Amenhotep III. of the 18th dynasty, which are interesting as introducing in a completed form a class of pillar that afterwards became a great favourite with Egyptian architects (Woodcut No. 27). Before this time we find these Isis heads either painted or carved on the face of square piers, but so as not to interfere with the lines of the pillars. Gradually they became more important, so as to form a double capital, as in this instance. In the Roman times, as at Denderah (Woodcut No. 41, p. 143), all the four faces of the pier were so adorned, though it must be admitted in very questionable taste.
It would be tedious to attempt to enumerate without illustrating 128all the fragments that remain of temples of this age. Some are so ruined that it is difficult to make out their plan. Others, like those of Memphis or Tanis, so entirely destroyed, that only their site, or at most only their leading dimensions, can be made out. Their loss is of course to be regretted; but those enumerated above are sufficient to enable us to judge both of the style and the magnificence of the great building epoch.
28. Smaller Temple at Abydus.
29. Plan of Temple of Abydus.
At Abydus the remains of two great temples have been found; one of Rameses II., with great court surrounded by piers with osireide figures on them; two halls of columns, a sanctuary, and other small chambers in the rear. The other, completed only and decorated with sculpture by Rameses II., the temple having been built by his father, Sethi I. This second temple differs in the arrangement of its plan from other examples (Woodcut No. 29); it was preceded by two great courts; at the further end of the second court was a peristyle with twelve piers, from which, through three doors, a hall of twenty-four columns was reached; the columns here were so arranged as to suggest seven avenues, beyond which were seven doors leading to a second hall with thirty-six columns, similarly disposed to those in the first hall. These avenues led to seven sanctuaries, the roofs of which were segmental, the arched form of vault being cut out of solid blocks of stone (Woodcut No. 29A). Beyond the sepulchral destination, which roofs 129of these sanctuaries suggest, nothing is known from inscriptions as to their precise use. Through one of the sanctuaries other halls of columns and chambers were reached which lie in the rear of the building, and on the south side, and approached from the second great hall of columns, many other halls, chambers, and staircases leading to the roof. The special interest to the Egyptologist, however, of this temple lies in the fact that it was on the walls of one of these that the so-called tablet of Abydus was discovered—now in the British Museum—which first gave a connected list of kings, the predecessors of Rameses, and sufficiently extensive to confirm the lists of Manetho in a manner satisfactory to the ordinary inquirer. A second list, far more complete, has recently been brought to light in the same locality, and contains the names of 76 kings, ancestors of Meneptah, the father of Rameses. It begins, as all lists do, with Menes; but even this list is only a selection, omitting many names found in Manetho, but inserting others which are not in his lists.[57] Before the discovery of this perfect list, the longest known were that of the chamber of the ancestors of Thothmes III., at Karnac, containing when perfect 61 names, of which, however, nearly one-third are obliterated; and that recently found at Saccara, containing 58 names originally, but of which several are now illegible.
It is the existence of these lists which gives such interest and such reality to the study of Architecture in Egypt. Fortunately there is hardly a building in that country which is not adorned with the name of the king in whose reign it was erected. In royal buildings they are found on every wall and every pillar. The older cartouches are simple and easily remembered; and when we find the buildings thus dated by the builders themselves, and their succession recorded by subsequent kings on the walls of their temples, we feel perfectly certain of our sequence, and nearly so of the actual dates of the buildings; they are, moreover, such a series as no other country in the world can match either for historic interest or Architectural magnificence.
But in Egypt Proper and in Nubia the Egyptians were in the habit of excavating monuments from the living rock, but with this curious distinction, that, with scarcely an exception, all the excavations in Egypt Proper are tombs, and no important example of a rock-cut temple has yet been discovered. In Nubia, on the other 130hand, all the excavations are temples, and no tombs of importance are to be found anywhere. This distinction may hereafter lead to important historical deductions, inasmuch as on the western side of India there are an infinite number of rock-cut temples, but no tombs of any sort. Every circumstance seems to point to the fact that, if there was any connection between Africa and India, it was with the provinces in the upper part of the Valley of the Nile, and not with Egypt Proper. This, however, is a subject that can hardly be entered on here, though it may be useful to bear in mind the analogy alluded to.
30. Plan and Section of Rock-cut Temple at Abû Simbel. Scale for plan 100 ft. to 1 in.; section 50 ft. to 1 in.
Like all rock-cut examples all over the world, these Nubian temples are copies of structural buildings only more or less modified to suit the exigencies of their situation, which did not admit of any very great development inside, as light and air could only be introduced from the one opening of the doorway.
The two principal examples of this class of monument are the two at Abû Simbel, the larger of which is the finest of its class known to exist anywhere. Its total depth from the face of the rock is 150 ft., divided into 2 large halls and 3 cells, with passages connecting them.
Externally the façade is about 100 ft. in height, and adorned by 4 of the most magnificent colossi in Egypt, each 70 ft. in height, and representing the king, Rameses II., who caused the excavation to be made. It may be because they are more perfect than any others now 131found in that country, but certainly nothing can exceed their calm majesty and beauty, or be more entirely free from the vulgarity and exaggeration which is generally a characteristic of colossal works of this sort.
The smaller temple at the same place has six standing figures of deities countersunk in the rock, and is carved with exceeding richness. It is of the same age with the large temple, but will not admit of comparison with it owing to the inferiority of the design.
Besides these, there is a very beautiful though small example at Kalabsheh (known as the Bayt el Wellee, “the house of the saint”), likewise belonging to the age of Rameses II., and remarkable for the beauty of its sculptural bas-reliefs, as well as for the bold Proto-Doric columns which adorn its vestibule. There are also smaller ones at Dêrr and Balagne, at the upper end of the valley. At Wâdy Saboua and Gerf Hussên, the cells of the temple have been excavated from the rock, but their courts and propylons are structural buildings added in front—a combination only found once in Egypt, at Thebes (Dêr-el-Bahree), and very rare anywhere else, although meeting the difficulties of the case better than any other arrangement, inasmuch as the sanctuary has thus all the imperishability and mystery of a cave, and the temple at the same time has the space and external appearance of a building standing in the open air.
This last arrangement is found also as a characteristic of the temples of Gebel Barkal, in the kingdom of Meroë, showing how far the rock-cutting practice prevailed in the Upper Valley of the Nile.
The plan on which the Temple of Dêr-el-Bahree is constructed is curious, and differs entirely from that of any other in Egypt. It is built in stages up a slope at the foot of the mountain, flights of steps leading from one court to the other. The temple was built by Queen Hatshepsu or Amen-noo-het, the sister of Thothmes II. and Thothmes III., and consisted of three courts rising in terraces one above the other; at the back of these were two ranges of porticoes, the upper one set back behind the lower and built into the vertical face of the rock with which the sanctuary and antechambers were cut. As all the temples above mentioned are contemporary with the great structures in Egypt, it seems strange that the eternity of a rock-cut example did not recommend this form of temple to the attention of the Egyptians themselves. But with the exception of Dêr-el-Bahree and a small grotto, called the Speos Artemidos, near Beni-Hasan, and two small caves at Silsilis, near the Cataract, the Egyptians seem never to have attempted it, trusting apparently to the solidity of their masonic structures for that eternity of duration they aspired to.
31. Mammeisi at Elephantine.
In addition to the temples above described, which are all more or less complex in plan, and all made up of various independent parts, there exists in Egypt a class of temples called mammeisi, dedicated to the mysterious accouchement of the mother of the gods. Small temples of this form are common to all ages, and belong as well to the 18th dynasty as to the time of the Ptolemys. One of them, built by Amenhotep III. at Elephantine, is represented in plan and elevation in the annexed cut. It is of a simple peristylar form, with columns in front and rear, the latter being now built into a wall, and seven square piers on each flank. These temples are all small, and, like the Typhonia, which somewhat resemble them, were used as detached chapels or cells, dependent on the larger temples. What renders them more than usually interesting to us is the fact that they were undoubtedly the originals of the Greek peristylar forms, that people having borrowed nearly every peculiarity of their architecture from the banks of the Nile. We possess tangible evidence of peristylar temples and Proto-Doric pillars erected in Egypt centuries before the oldest known specimen in Greece. We need therefore hardly hesitate to award the palm of invention of these things to the Egyptians, as we should probably be forced to do for most of the arts and sciences of the Greeks if we had only knowledge sufficient to enable us to trace the connecting links which once joined them together, but which are now in most instances lost, or at least difficult to find.
Of the first 10 dynasties of Egyptian kings little now remains but their tombs—the everlasting pyramids—and of the people they governed, only the structures and rock-cut excavations which they prepared for their final resting-places.
The Theban kings and their subjects erected no pyramids, and none of their tombs are structural—all are excavated from the living rock; and from Beni-Hasan to the Cataract the plain of the Nile is 133everywhere fringed with these singular monuments, which, if taken in the aggregate, perhaps required a greater amount of labour to excavate and to adorn than did even all the edifices of the plain. Certain it is that there is far more to be learnt of the arts, of the habits, and of the history of Egypt from these tombs than from all the other monuments. No tomb of any Theban king has yet been discovered anterior to the 18th dynasty; but all the tombs of that and of the subsequent dynasty have been found, or are known to exist, in the Valley of Bibán-el-Molook, on the western side of the plain of Thebes.
It appears to have been the custom with these kings, so soon as they ascended the throne, to begin preparing their final resting-place. The excavation seems to have gone on uninterruptedly year by year, the painting and adornment being finished as it progressed, till the hand of death ended the king’s reign, and simultaneously the works of his tomb. All was then left unfinished; the cartoon of the painter and the rough work of the mason and plasterer were suddenly broken off, as if the hour of the king’s demise called them, too, irrevocably from their labours.
The tomb thus became an index of the length of a king’s reign as well as of his magnificence. Of those in the Valley of the Kings the most splendid is that opened by Belzoni, and now known as that of Meneptah, the builder of the hypostyle hall at Karnac. It descends, in a sloping direction, for about 350 ft. into the mountain, the upper half of it being tolerably regular in plan and direction; but after progressing as far as the unfinished hall with two pillars, the direction changes, and the works begin again on a lower level, probably because they came in contact with some other tomb, or in consequence of meeting some flaw in the rock. It now terminates in a large and splendid chamber with a coved roof, in which stood, when opened by Belzoni, the rifled sarcophagus;[58] but a drift-way has been excavated beyond this, as if it had been intended to carry the tomb still further had the king continued to reign.
32. Plan and Section of Tomb of Meneptah at Thebes. Scale for plan 100 ft. to 1 in.; section 50 ft. to 1 in.
The tomb of Rameses Maiamoun, the first king of the 19th dynasty, is more regular, and in some respects as magnificent as this, and that of Amenhotep III. is also an excavation of great beauty, and is adorned with paintings of the very best age. Like all the tombs, however, they depend for their magnificence more on the paintings that cover the walls than on anything which can strictly be called architecture, so that they hardly come properly within the scope of the present work: the same may be said of private tombs. Except those of Beni-Hasan, already illustrated by Woodcuts Nos. 16 to 18, these tombs are all mere chambers or corridors, without architectural ornament, but 134their walls are covered with paintings and hieroglyphics of singular interest and beauty. Generally speaking, it is assumed that the entrances of these tombs were meant to be concealed and hidden from the knowledge of the people after the king’s death. It is hardly conceivable, however, that so much pains should have been taken, and so much money lavished, on what was designed never again to testify to the magnificence of its founder. It is also very unlike the sagacity of the Egyptians to attempt what was so nearly impossible; for though the entrance of a pyramid might be so built up as to be unrecognisable, a cutting in the rock can never be repaired or disguised, and can only be temporarily concealed by heaping rubbish over it. Supposing it to have been intended to conceal the entrances, such an expedient was as clumsy and unlikely to have been resorted to by so ingenious a people as it has proved futile, for all the royal tombs in the valley of Bibán-el-Molook have been opened and rifled in a 135past age, and their sites and numbers were matters of public notoriety in the times of the Greeks and Romans. Many of the private tombs have architectural façades, and certainly never were meant to be concealed, so that it is not fair to assume that hiding their tombs’ entrances was ever a peculiarity of the Thebans, though it certainly was of the earlier Memphite kings.
Another class of monuments, almost exclusively Egyptian, are the obelisks, which form such striking objects in front of almost all the old temples of the country.
Small models of obelisks are found in the tombs of the age of the pyramid builders, and represented in their hieroglyphics; but the oldest public monument of the class known to exist is that at Heliopolis, erected by Osirtasen, the great king of the 12th dynasty. It is, like all the others, a single block of beautiful red granite of Syene, cut with all the precision of the age, tapering slightly towards the summit, and of about the average proportion, being about 10 diameters in height; exclusive of the top it is 67 ft. 4 in.
The two finest known to exist are, that now in the piazza of the Lateran, originally set up by Thothmes III., 105 ft. in height, and that still existing at Karnac, attributed to Thothmes II., 107 ft. in height. Both are now ascribed to Queen Hatshepsu their sister, who is recorded to have boasted that they were quarried, transported, and set up within the short space of seven months. Those of Luxor, erected by Rameses the Great, one of which is now in Paris, are above 77 ft. in height; and there are two others in Rome, each above 80 ft.
Rome, indeed, has 12 of these monuments within her walls—a greater number than exist, erect at least, in the country whence they came; though judging from the number that are found adorning single temples, it is difficult to calculate how many must once have existed in Egypt. Their use seems to have been wholly that of monumental pillars, recording the style and title of the king who erected them, his piety, and the proof he gave of it in dedicating these monoliths to the deity whom he especially wished to honour.
33. Lateran Obelisk. Scale 50 ft. to 1 in., for comparison with scale of other buildings.
It has been already remarked that, with scarcely an exception, all the pyramids are on the west side of the Nile, all the obelisks on the 136east; with regard to the former class of monument, this probably arose from a law of their existence, the western side of the Nile being in all ages preferred for sepulture, but with regard to the latter it seems to be accidental. Memphis doubtless possessed many monuments of this class, and there is reason to believe that the western temples of Thebes were also similarly adorned. They are, however, monuments easily broken; and, from their form, so singularly useful for many building purposes, that it is not to be wondered at if many of them have disappeared during the centuries that have elapsed since the greater number of them were erected.
Except one small royal pavilion at Medeenet Habû, no structure now remains in Egypt that can fairly be classed as a specimen of the domestic architecture of the ancient Egyptians; but at the same time we possess, in paintings and sculptures, so many illustrations of their domestic habits, so many plans, elevations, and views, and even models of their dwellings of every class, that we have no difficulty in forming a correct judgment not only of the style, but of the details, of their domestic architecture.
Although their houses exhibited nothing of the solidity and monumental character which distinguished their temples and palaces, they seem in their own way to have been scarcely less beautiful. They were of course on a smaller scale, and built of more perishable materials, but they appear to have been as carefully finished, and decorated with equal taste to that displayed in the greater works. We know also, from the tombs that remain to us, that, although the government of Egypt was a despotism of the strictest class, still the wealth of the land was pretty equally diffused among all classes, and that luxury and splendour were by no means confined either to the royal family or within the precincts of the palace. There is thus every reason to believe that the cities which have passed away were worthy of the temples that adorned them, and that the streets were as splendid and as tasteful as the public buildings themselves, and displayed, though in a more ephemeral form, the same wealth and power which still astonish us in the great monuments that remain.
Mr. Maspero, in his work on Egyptian archæology, translated by Miss Amelia B. Edwards[59] devotes a chapter to the description of the existing remains of private dwellings and military architecture. The examples of the former are of comparatively small buildings, and were 137invariably built in crude or unburnt brick; in the neighbourhood of Memphis Mr. Maspero found walls still standing, from 30 to 40 ft. in height. The plans which are delineated on the walls of the tombs of the 18th dynasty enable us to judge of the extent and magnificence of the more important examples. These as a rule would seem to have features which are evidently derived from temple architecture, that is to say, the palaces are preceded by pylons and the courts enclosed and surrounded with porticoes. Of military architecture the oldest fortresses are those at Abydos, El Kab, and Semneh; at Abydos the earliest example consists of a parallelogram of crude brickwork measuring 410 ft. by 223 ft. The walls, which now stand from 24 to 36 ft. high, have lost somewhat of their original height: they are about 6 ft. thick at the top and were not built in uniform layers, but in huge vertical panels easily distinguished by the nature of the brickwork. In one division the course of the bricks is strictly horizontal, in the next it is slightly concave, and forms a very flat reversed arch, of which the extrados rests on the ground. The alternation of these two methods is regularly repeated. The object of this arrangement was possibly to resist earthquake shocks.
34. Pavilion at Medeenet Habû. Scale 100 ft. to 1 in.
35. View of Pavilion at Medeenet Habû.
No building can form a greater contrast with the temple behind it than does the little pavilion erected at Medeenet Habû by Rameses, the first king of the 19th dynasty. As will be seen by the annexed plan (Woodcut No. 34), it is singularly broken and varied in its outline, surrounding a small court in the shape of a cross. It is 3 storeys in height, and, properly speaking, consists of only 3 rooms on each floor, connected together by long winding passages. There is reason, however, to believe that this is only a fragment of the building, and foundations exist which render it probable that the whole was originally a square of the width of the front, and had other chambers, probably only in wood or brick, besides those we now find. This would hardly detract from the playful character of the design, and when coloured, as it originally was, and with its battlements or ornaments complete, it 138must have formed a composition as pleasing as it is unlike our usual conceptions of Egyptian art.
The other illustration represents in the Egyptians’ own quaint style a three-storeyed dwelling, the upper storey apparently being, like those of the Assyrians, an open gallery supported by dwarf columns. The lower windows are closed by shutters. In the centre is a staircase leading to the upper storey, and on the left hand an awning supported on wooden pillars, which seems to have been an indispensable part of all the better class of dwellings. Generally speaking, these houses are shown as situated in gardens laid out in a quaint, formal style, with pavilions, and fishponds, and all the other accompaniments of gardens in the East at the present day.
36. Elevation of a House. From an Egyptian Painting.
In all the conveniences and elegances of building they seem to have anticipated all that has been done in those countries down to the present day. Indeed, in all probability the ancient Egyptians surpassed the modern in those respects as much as they did in the more important forms of architecture.
The third stage of Egyptian art is as exceptional as the two which preceded it, and as unlike anything else which has occurred in any other lands.
From the time of the 19th dynasty, with a slight revival under the Bubastite kings of the 22nd dynasty, Egypt sank through a long period of decay, till her misfortunes were consummated by the invasion of the Persians under Cambyses, 525 B.C. From that time she served in a bondage more destructive, if not so galling, as that of the Shepherd domination, till relieved by the more enlightened policy of the Ptolemys. Under them she enjoyed as great material prosperity as under her own Pharaohs; and her architecture and her arts too revived, not, it is true, with the greatness or the purity of the great national era, but still with much richness and material splendour.
This was continued under the Roman domination, and, judging from what we find in other countries, we would naturally expect to find traces of the influence of Greek and Roman art in the buildings of this age. So little, however, is this the case, that before the discovery of the reading of the hieroglyphic signs, the learned of Europe placed the Ptolemaic and Roman temples of Denderah and Kalábsheh before those of Thebes in order of date; and could not detect a single moulding in the architectural details, nor a single feature in the sculpture and painting which adorned their walls, which gave them a hint of the truth. Even Cleopatra the beautiful is represented on these walls with distinctly Egyptian features, and in the same tight garments and conventional forms as were used in the portrait of Nophre Ari, Queen of Rameses, or in those of the wives of the possessors of tombs in the age of the pyramids, 3000 years before. Egypt in fact conquered her conquerors, and forced them to adopt her customs and her arts, and to follow in the groove she had so long marked out for herself, and followed with such strange pertinacity.
Some of the temples of this age are, as far as dimensions and 140richness of decorations are concerned, quite worthy of the great age, though their plans and arrangements differ to a considerable extent. There is no longer any hesitation as to whether they should be called temples or palaces, for they all are exclusively devoted to worship,—and to the worship of a heavenly God, not of a deified king.
What these arrangements are will be well understood from the annexed plan of that of Edfû (Woodcut No. 37), which, though not the largest, is the most complete of those remaining. It is 450 ft. in length and 155 in width, and covers upwards of 70,000 ft.; its dimensions may be said to be equal to those of the largest of our mediæval cathedrals (Cologne or Amiens, for instance). Parts only—viz., the court C, and areas M M M—of the whole structure are roofed, and therefore it can scarcely be compared with buildings entirely under one roof.
37. Plan of Temple at Edfû, Apollinopolis Magna. Scale 100 ft. to 1 in.
In front of the temple are two large and splendid pylons, with the gateway in the centre, making up a façade 225 ft. in extent. Although this example has lost its crowning cornice, its sculptures and ornaments are still very perfect, and it may altogether be considered as a fair specimen of its class, though inferior in dimensions to many of those of the Pharaonic age. Within these is a court, 140 ft. by 161, surrounded by a colonnade on three sides, and on the fourth side the porch or portico which, in Ptolemaic temples, takes the place of the great hypostyle halls of the Pharaohs. It is lighted from the front over low screens placed between each of the pillars, a peculiarity scarcely ever found in temples of earlier date, though apparently common in domestic edifices, or those formed of wood, certainly as early as the middle of the 18th dynasty, as may 141be seen from the annexed woodcut (No. 39), taken from a tomb of one of the sun-worshipping kings, who reigned between Amenhotep III. and Horus. From this we pass into an inner and smaller porch, and again through two passages to a dark and mysterious sanctuary, surrounded by darker passages and chambers, well calculated to mystify and strike with awe any worshipper or neophyte who might be admitted to their gloomy precincts.
38. View of Temple at Edfû as it was, before it was cleared out and the dwellings on the roof removed.
The celebrated temple at Denderah is similar to this, and slightly larger, but it has no fore-court, no propylons, and no enclosing outer walls. Its façade is given in the woodcut (No. 40). Its Isis-headed columns are not equal to those of Edfû in taste or grace; but it has the advantage of situation, and this temple is not encumbered either 142by sand or huts, which still disfigure so many Egyptian temples. Its effect, consequently, on travellers is always more striking.
The Roman temple at Kalábsheh (Woodcuts Nos. 42 and 43), above the Cataract, is a fair specimen of these temples on a smaller scale. The section (Woodcut No. 43) shows one of the modes by which a scanty light was introduced into the inner cells, and their gradation in height. The position, too, of its propylons is a striking instance of the irregularity which distinguishes all the later Egyptian styles from that of the rigid, proportion-loving pyramid builders of Memphis.
39. Bas-relief at Tel el Amarna.
40. Façade of Temple at Denderah. Scale 50 ft. to 1 in.
This irregularity of plan was nowhere carried to such an extent as in the Ptolemaic temple on the island of Philæ (Woodcut No. 45). Here no two buildings, scarcely any two walls, are on the same axis or parallel to one another. No Gothic architect in his wildest moments ever played so freely with his lines or dimensions, and none, it must be added, ever produced anything so beautifully picturesque as this. It contains all the play of light and shade, all the variety, of Gothic art, with the massiveness and grandeur of the Egyptian style; and as it is still tolerably entire, and retains much of its colour, there is no building out of Thebes that gives so favourable an impression of Egyptian 143art as this. It is true it is far less sublime than many, but hardly one can be quoted as more beautiful.
Notwithstanding its irregularity, this temple has the advantage of being nearly all of the same age, and erected according to one plan, while the greater buildings at Thebes are often aggregations of parts of different ages; and though each is beautiful in itself, the result is often not quite so harmonious as might be desired. In this respect the Ptolemaic temples certainly have the advantage, inasmuch as they are all of one age, and all completed according to the plan on which they were designed; a circumstance which, to some extent at least, compensates for their marked inferiority in size and style, and the littleness of all the ornaments and details as compared with those of the Pharaonic period. It must at the same time be admitted that this inferiority is more apparent in the sculpture of the Ptolemaic age than in its architecture. The general design of the buildings is frequently grand and imposing, but the details are always inferior; and the sculpture and painting, which in the great age add so much to the beauty of the whole, are in the Ptolemaic age always frittered away, ill-arranged, unmeaning, and injurious to the general effect instead of heightening and improving it.
41. Pillar, from the Porticocat Denderah.
42. Plan of Temple at Kalábsheh. Scale 100 ft. 1 in.
On the east side of the island is the very beautiful structure known as “Pharaoh’s bed” (n). It is an oblong rectangular building of late date, surrounded by an intercolumnar screen with 18 columns. It was roofed with stone slabs supported on wooden beams, the sockets to receive which still exist. There is a doorway on the west wall, and another on the east wall opening on to a stone terrace or quay. Similar structures are believed to have existed at Thebes, close to the river, and connected by causeways with the temples; they may therefore have served as halls from which the processions started after disembarking from the boats on the river.
144Strange as it may at first sight appear, we know less of the manners and customs of the Egyptian people during the Greek and Roman domination, than we do of them during the earlier dynasties. All the buildings erected after the time of Alexander which have come down to our time are essentially temples. Nothing that can be called a palace or pavilion has survived, and no tombs, except some of Roman date at Alexandria, are known to exist. We have consequently no pictures of gardens, with their villas and fish-ponds; no farms, with their cattle; no farmyards, with their geese and ducks; no ploughing or sowing; no representations of the mechanical arts; no dancing or amusements; no arms or campaigns. Nothing, in short, but worship in its most material and least intellectual form.
43. Section of Temple at Kalábsheh. 50 ft. to 1 in.
It is a curious inversion of the usually received dogmata on this subject, but as we read the history of Egypt as written on her monuments, we find her first wholly occupied with the arts of peace, agricultural and industrious, avoiding war and priestcraft, and eminently practical in all her undertakings. In the middle period we find her half political, half religious; sunk from her early happy position to a state of affairs such as existed in Europe in the Middle Ages. In her third and last stage we find her fallen under the absolute influence of the most degrading superstition. We know from her masters that she had no political freedom and no external influence at this time; but we hardly expected to find her sinking deeper and deeper into superstition, at a time when the world was advancing forward with such rapid strides in the march of civilisation, as was the case between the ages of Alexander and that of Constantine. It probably was in consequence of this retrograde course that her civilisation perished so absolutely and entirely under the influence of the rising star of Christianity; and that, long before the Arab conquest, not a trace of it was left in any form. What had stood the vicissitudes of 3000 years, and was complete and stable under Hadrian, had vanished when Constantine ascended the throne.
44. View of Temple at Philæ.
45. Plan of Temple at Philæ. Scale 100 ft. to 1 in.
If, however, their civilisation passed so suddenly away, their buildings remain to the present day; and taken altogether, we may perhaps 145safely assert that the Egyptians were the most essentially a building people of all those we are acquainted with, and the most generally successful in all they attempted in this way. The Greeks, it is true, surpassed them in refinement and beauty of detail, and in the class of sculpture with which they ornamented their buildings, while the Gothic architects far excelled them in constructive cleverness; but with these exceptions no other styles can be put in competition with them. At the same time, neither Grecian nor Gothic architects understood more perfectly all the gradations of art, and the exact character that should be given to every form and every detail. Whether it was the plain flat-sided pyramid, the crowded and massive hypostyle hall, 146the playful pavilion, or the luxurious dwelling—in all these the Egyptians understood perfectly both how to make the general design express exactly what was wanted, and to make every detail, and all the various materials, contribute to the general effect. They understood, also, better than any other nation, how to use sculpture in combination with architecture, and to make their colossi and avenues of sphinxes group themselves into parts of one great design, and at the same time to use historical paintings, fading by insensible degrees into hieroglyphics on the one hand, and into sculpture on the other—linking the whole together with the highest class of phonetic utterance. With the most brilliant colouring, they thus harmonised all these arts into one great whole, unsurpassed by anything the world has seen during the thirty centuries of struggle and aspiration that have elapsed since the brilliant days of the great kingdom of the Pharaohs.
The remains of the Serapeum and the burial-places of the sacred bulls (who, when alive, were worshipped at Memphis), were discovered by M. Mariette in 1860-61. Of the former, sufficient traces were found to show that it resembled in its arrangement the ordinary Egyptian temple, viz., with pylons, preceded by an avenue of sphinxes, and an enclosed space behind, with halls and chambers, in one of which was the opening to the inclined passage leading to the subterranean galleries. The earlier tombs of the 18th, 19th, and 20th dynasties were hewn in the rocky platform. From the 22nd to the 25th dynasty the bulls were buried in a subterranean gallery. The same system was adopted from the 26th dynasty till the time of the later Ptolemies (circa 50 B.C.), but the galleries were of greater size and magnificence, having an extent of 400 yards, and the bulls were interred in immense granite sarcophagi placed in niches, on both sides of the galleries, but never opposite to one another. The chief historical value of the discovery rests in the steles, or inscribed tablets, some 500 in number, placed there as ex-votos by pious visitors, the principal examples of which are now in the Gizeh Museum or in the Louvre.
It was long a question with the learned whether civilisation ascended or descended the Nile—whether it was a fact, as the Greeks evidently believed, that Meroë was the parent State whence the Egyptians had migrated to the north, bringing with them the religion and the arts which afterwards flourished at Thebes and Memphis—or whether these had been elaborated in the fertile plains of Egypt, and only in later times had extended to the Upper Nile.
Recent discoveries have rendered it nearly certain that the latter is the correct statement of the facts—within historic times at least—that the fertile and easily cultivated Delta was first occupied and civilised; then Thebes, and afterwards Meroë. At the same time it is by no means improbable that the Ethiopians were of the same stock as the Thebans, though differing essentially from the Memphites, and that the former may have regarded these remote kindred with respect, perhaps even with a degree of half-superstitious reverence due to their remote situation in the centre of a thinly-peopled continent, and have in consequence invented those fables which the Greeks interpreted too literally.
If any such earlier civilisation existed in these lands, its records and its monuments have perished. No building is now found in Meroë whose date extends beyond the time of the great king Tirhakah, of the 25th Egyptian dynasty, B.C. 724 to 680, unless it be those bearing the name of one king, Amoum Gori, who was connected with the intruding race of sun-worshippers, which broke in upon the continuous succession of the kings of the 18th dynasty. Their monuments were all purposely destroyed by their successors; and almost the only records we have of them are the grottoes of Tel el Amarna, covered with their sculptures, which bear, it must be confessed, considerable resemblance in style to those found in Ethiopia. Even this indication is too slight to be of much value; and we must wait for some further confirmation before founding any reasoning upon it.
The principal monuments of Tirhakah are two temples at Gibel Barkal, a singular isolated mount near the great southern bend of the 148river. One is a large first-class temple, of purely Egyptian form and design, about 500 ft. in length by 120 or 140 in width, consisting of two great courts, with their propylons, and with internal halls and sanctuaries arranged much like those of the Rameseum at Thebes (Woodcut No. 19), and so nearly also on the same scale as to make it probable that the one is a copy of the other.
The other temple placed near this, but as usual unsymmetrically, consists of an outer hall, internally about 50 ft. by 60, the roof of which is supported by four ranges of columns, all with capitals representing figures of Typhon or busts of Isis. This leads to an inner cell or sanctuary, cut in the rock.[60]
46. Pyramids at Meroë. (From Hoskins’s ‘Travels in Ethiopia.’)
Fig. 1.—Plan of Principal Group. Scale 100 ft. to 1 in.
Fig. 2.—Section and Elevation of that marked A. Scale 50 ft. to 1 in.
There are smaller remains strewed about, indicating the existence of a city on the spot, but nothing of architectural importance.
The most remarkable monuments of the Ethiopian kingdom are the pyramids, of which three great groups have been discovered and described. The principal group is at a place called Dankelah, the assumed site of the ancient Meroë, in latitude 17° north. Another is at Gibel Barkal; the third at Nourri, a few miles lower down than the last named, but probably only another necropolis of the same city.
Compared with the great Memphite examples, these pyramids are most insignificant in size—the largest at Nourri being only 110 ft. by 100; at Gibel Barkal the largest is only 88 ft. square; at Meroë none 149exceed 60 ft. each way. They differ also in form from those of Egypt, being much steeper, as their height is generally equal to the width of the base. They also all possess the roll-moulding on their angles, and all have a little porch or pronaos attached to one side, generally ornamented with sculpture, and forming either a chapel, or more probably the place where the coffin of the deceased was placed. We know from the Greeks that, so far from concealing the bodies of their dead, the Ethiopians had a manner of preserving them in some transparent substance, which rendered them permanently visible after death.[61]
To those familiar with the rigid orientation of those of Lower Egypt, perhaps the most striking peculiarity of the pyramids is the more than Theban irregularity with which they were arranged, no two being ever placed, except by accident, at the same angle to the meridian, but the whole being grouped with the most picturesque diversity, as chance appears to have dictated.
Among their constructive peculiarities it may be mentioned that they seem all to have been first built in successive terraces, each less in dimensions than that below it, something like the great pyramid at Sakkara (Woodcut No. 9), these being afterwards smoothed over by the external straight-lined coating.
Like the temples of Gibel Barkal, all these buildings appear to belong to the Tirhakah epoch of the Ethiopian kingdom. It is extremely improbable that any of them are as old as the time of Solomon, or that any are later than the age of Cambyses, every indication seeming to point to a date between these two great epochs, and to the connection of African history with that of Asia.
The ruins at Wady-el-Ooatib, a little further up the Nile than Meroë, should perhaps be also mentioned here, if only from the importance given to them by Heeren, who thought he had discovered in them the ruins of the temple of Jupiter Ammon. They are, however, all in the debased style of the worst age of Ptolemaic or Roman art in that country. They are wholly devoid of hieroglyphics, or any indication of sanctity or importance, and there can be little doubt that they are the remains of a caravansera on the great commercial route between Egypt and Axum, along which the greater part of the trade of the East arrived at Alexandria in the days of its magnificence.
Although widely differing in date from the monuments just described—except the last—this may be the place to mention a group of the most exceptional monuments of the world—the obelisks of Axum. It is said they were originally 55 in number, four of them equal to that shown in the annexed woodcut, which represents the only one now standing; but there are fragments of several of these 150lying about, and some of the smaller ones still standing, all of the same class and very similar in design to the large one. Its height, according to Lord Valentia, is 60 ft., its width at base nearly 10, and it is of one stone. The idea is evidently Egyptian, but the details are Indian. It is, in fact, an Indian nine-storeyed pagoda, translated in Egyptian in the first century of the Christian era!
47. Obelisks at Axum. (From Lord Valentia’s ‘Travels.’)
The temple most like it in India is probably that at Budh Gya. That, in its present form, is undoubtedly more modern, but probably retains many of its original features. It also resembles the tower at Chittore,[62] but towers are from their form such frail structures, that certainly nine-tenths of those that once existed have perished; and it is only because they are so frequent still in China and other Buddhist countries that we are sure that the accounts are true which represent them as once as frequent as in the country of their birth. Be this as it may, this exceptional monolith exactly represents that curious marriage of Indian with Egyptian art which we would expect to find in the spot where the two people came in contact, and enlisted architecture to symbolise their commercial union.
It is by no means impossible that the rich alluvial plain of Shinar may have been inhabited by man as early as the Valley of the Nile; but if this were so, it is certain that the early dwellers in the land have left no trace of their sojourn which has as yet rewarded the research of modern investigators. So far indeed our knowledge at present extends, we have proof of the existence of the primitive races of mankind in the valleys of France and England at a far earlier period than we trace their remains on the banks of either the Euphrates or the Nile. It is true these European vestiges of prehistoric man are not architectural, and have consequently no place here, except in so far as they free us from the trammels of a chronology now admitted to be too limited in duration, but which has hitherto prevented us from grasping, as we might have done, the significance of architectural history in its earliest dawn.
Unfortunately for our investigation of Chaldean antiquity, the works of Berosus, the only native historian we know of, have come down to us in even a more fragmentary state than the lists of Manetho, and the monuments have not yet enabled us to supply those deficiencies so completely, though there is every prospect of their eventually doing so to a considerable extent. In the meanwhile the most successful attempt to restore the text which has been made, is that of Herr Gutschmid,[63] and it is probable that the dates he assigns are very near the truth. Rejecting the 1st dynasty of 86 Chaldeans and their 34,080 years as mythical, or as merely expressing the belief of the historian that the country was inhabited 152by a Chaldean race for a long time before the Median invasion, he places that event 2458 B.C. His table of dynasties then runs thus.—
| Years. | B.C. | ||||
| II. | 8 | Medes | 224 | commencing | 2458 |
| III. | 11 | Chaldeans | 258 | 2234 | |
| IV. | 49 | Chaldeans | 458 | 1976 | |
| V. | 9 | Arabians | 245 | 1518 | |
| VI. | 45 | Assyrians | 526 | 1273 | |
| VII. | 8 | Assyrians | 122 | 747 | |
| VIII. | 6 | Chaldeans | 87 | 625 | |
| Persian conquest | 538 |
As every advance that has been made, either in deciphering the inscriptions or in exploring the ruins since this reading was proposed, have tended to confirm its correctness, it may fairly be assumed to represent very nearly the true chronology of the country from Nimrod to Cyrus. Assuming this to be so, it is interesting to observe that the conquest of Babylonia by the Medes only slightly preceded the invasion of Egypt by the Hyksos, and that the fortification of Avaris “against the Assyrians”[64] was synchronous with the rise of the great Chaldean dynasty, most probably under Nimrod, B.C. 2234. If this is so, the whole of the old civilisation of Egypt under the pyramid-building kings had passed away before the dawn of history in Babylonia. The Theban kings of the 12th dynasty had spread their conquests into Asia, and thus it seems brought back the reaction of the Scythic invasion on their own hitherto inviolate land, and by these great interminglings of the nations Asia was first raised to a sense of her greatness.
What we learn from this table seems to be that a foreign invasion of Medes—whoever they may have been—disturbed the hitherto peaceful tenor of the Chaldean kingdom some twenty-five centuries before the Christian era.
They, in their turn, were driven out to make place for the Chaldean dynasties, which we have every reason to suppose were those founded by Nimrod about the year 2235 B.C.
This kingdom seems to have lasted about seven centuries without any noticeable interruption, and then to have been overthrown by an invasion from the west about the year 1518 B.C. Can this mean the Egyptian conquest under the kings of the great 18th dynasty?
The depression of the Chaldeans enabled the Assyrians to raise their heads and found the great kingdom afterwards known as that of Nineveh, about the year 1273. For six centuries and a half they were the great people of Asia, and during the latter half of that period built all those palaces which have so recently been disinterred.
153They were struck down in their turn by the kings of Babylonia, who established the second Chaldean kingdom about the year 625, but only to give place to the Persians under Cyrus in the year 538, after little more than a century of duration.
As in the Valley of the Nile, the first kingdom was established near the mouths of the Euphrates, and flourished there for centuries before it was superseded by the kingdom of Nineveh, in the same manner as Thebes had succeeded to the earlier seat of power in the neighbourhood of Memphis.
Owing to the fortunate employment of sculptured alabaster slabs to line the walls of the palaces during the great period of Assyrian prosperity, we are enabled to restore the plan of the royal palaces of that period with perfect certainty, and in consequence of the still more fortunate introduction of stone masonry during the Persian period—after they had come into contact with the Greeks—we can understand the construction of these buildings, and restore the form of many parts which, being originally of wood, have perished. The Plains of Shinar possessed no natural building material of a durable nature, and even wood or fuel of any kind seems to have been so scarce that the architects were content too frequently to resort to the use of bricks only dried in the sun. The consequence is that the buildings of the early Chaldeans are now generally shapeless masses, the plans of which it is often extremely difficult to follow, and in no instance has any edifice been discovered so complete that we can feel quite sure we really know all about it. Fortunately, however, the temples at Wurka and Mugheyr become intelligible by comparison with the Birs Nimroud and the so-called tomb of Cyrus, and the palaces of Nineveh and Khorsabad from the corresponding ones at Susa and Persepolis. Consequently, if we attempt to study the architecture of Chaldea, of Assyria, or of Persia, as separate styles, we find them so fragmentary, owing to the imperfection of the materials in which they were carried out, that it is difficult to understand their forms. But taken as the successive developments of one great style, the whole becomes easily intelligible; and had the southern excavations been conducted with a little more care, there is perhaps no feature that would have been capable of satisfactory explanation. Even as it is, however, the explorations of the last fifteen years have enabled us to take a very comprehensive view of what the architecture of the valley of the Euphrates was during the 2000 years it remained a great independent monarchy. It is a chapter in the history of the art which is entirely new to us, and which may lead to the most important results in clearing our ideas as to the origin of styles. Unfortunately, it is only in a scientific sense that this is true. Except the buildings at Persepolis, everything is buried or heaped together in such confusion that the passing traveller sees 154nothing. It is only by study and comparison that the mind eventually realises the greatness and the beauty of the most gorgeous of Eastern monarchies, or that any one can be made to feel that he actually sees the sculptures which a Sardanapalus set up, or the tablets which a Nebuchadnezzar caused to be engraved.
Owing to the fragmentary nature of the materials, it must perhaps be admitted that the study of the ancient architecture of Central Asia is more difficult and less attractive than that of other countries and more familiar forms. On the other hand, it is an immense triumph to the philosophical student of art to have penetrated so far back towards the root of Asiatic civilisation. It is besides as great a gain to the student of history to have come actually into contact with the works of kings whose names have been familiar to him as household words, but of whose existence he had until lately no tangible proof.
In addition to this it must be admitted that the Assyrian exploration commenced in 1843 by M. Botta, at Khorsabad, and brought to a temporary close by the breaking out of the war in 1855, have added an entirely new chapter to our history of architecture; and, with the exception of that of Egypt, probably the most ancient we can ever now hope to obtain. It does not, it is true, rival that of Egypt in antiquity, as the Pyramids still maintain a pre-eminence of 1000 years beyond anything that has yet been discovered in the valley of the Euphrates, and we now know, approximately at least, what we may expect to find on the banks of that celebrated river. There is nothing certainly in India that nearly approaches these monuments in antiquity, nor in China or the rest of Asia; and in Europe, whatever may be maintained regarding primæval man, we can hardly expect to find any building of a date prior to the Trojan war. All our histories must therefore begin with Egypt and Assyria—beyond them all is speculation, and new fields of discovery can hardly be hoped for.
The Assyrian discoveries are also most important in supplying data which enable us to understand what follows, especially in the architectural history of Greece. No one now probably doubts that the Dorian Greeks borrowed the idea of their Doric order from the pillars of Beni-Hasan (Woodcuts Nos. 15 and 16) or Nubia—or rather perhaps from the rubble or brick piers of Memphis or Naucratis,[65] from which these rock-cut examples were themselves imitated. But the origin of the Ionic element was always a mystery. We knew indeed that the Greeks practised it principally in Asia Minor—hence its name; but we never knew how essentially Asiatic it was till the architecture of Nineveh was revealed to us, and till, by studying it through the medium of the buildings at Persepolis, we were made to 155feel how completely the Ionic order was a Grecian refinement on the wooden and somewhat Barbaric orders of the Euphrates valley.
It is equally, or perhaps almost more, important to know that in Chaldea we are able to trace the origin of those Buddhist styles of art which afterwards pervaded the whole of Eastern Asia, and it may be also the germs of the architecture of Southern India.[66] These affinities, however, have not yet been worked out, hardly even hinted at; but they certainly will one day become most important in tracing the origin of the religious development of the further East.
In these researches neither the literature nor the language of the country avail us much. If the affinities are ever traced, it will be through the architecture, and that alone; but there is every prospect of its proving sufficient for the purpose when properly explored.
It will hardly be necessary even to allude to the decipherment of the mysterious written characters of the Chaldeans. There is probably no one now living, who has followed up the course of the inquiry with anything like a proper degree of study, who has any doubt regarding the general correctness of the interpretation of the arrow-headed inscriptions. Singularly enough, the great difficulty is with regard to proper names, which as a rule were not spelt phonetically, but were made up of symbols. This is provoking, as these names afford the readiest means of comparing the monuments with our histories; and the uncertainty as to their pronunciation has induced many to fancy that the foundation of the whole system is unstable. But all this is becoming daily less and less important as the history itself is being made out from the monuments themselves. It may also be true that, when it is attempted to translate literally metaphysical or astrological treatises, there may still be differences of opinion as to the true meaning of a given passage; but plain historical narratives can be read with nearly as much certainty as a chapter of Herodotus or of Plutarch; and every day is adding to the facility with which they can be deciphered, and to the stock of materials and facts with which the readings may be checked or rectified.
From the materials already collected, combined with the chronology above sketched out, we are enabled to divide the architectural history of the Middle Asiatic countries during the period of their ancient greatness into three distinct and well-defined epochs.
1st. The ancient Babylonian or Chaldean period, ranging from 156B.C. 2234 to 1520, comprising the ruins at Wurka, Mugheyr, Abu Shahrein, Niffer, Kaleh Sherghat, &c. Temples, tombs, and private dwellings, all typical of a Turanian or Scythic race.
2nd. The Assyrian and second Chaldean kingdoms, founded about 1290 B.C., and extending down to the destruction of Babylon by Cyrus, 538 B.C., comprising all the buildings of Nimroud, Koyunjik, Khorsabad, and those of the second Babylon. An architecture essentially palatial, without tombs, and few temples, betokening the existence of a Semitic race.
3rd. The Persian, commencing with Cyrus, 538 B.C., and ending with Alexander, B.C. 333, comprising Pasargadæ, Susa, and Persepolis. An architecture copied from the preceding: palatial, with rock tombs and small temples. Aryan it may be, but of so strangely mixed a character that it is almost impossible to distinguish it from its sister styles. Either it seems to be that Cyrus and his descendants were of Turanian blood, governing an Aryan people, or that they were Aryan, but that there was so strong an infusion of Turanians among their subjects that they were forced to follow their fashions. Perhaps a little of both: but taking the evidence as it now stands, it seems as if the first hypothesis is that nearest the truth. These rock-cut tombs, and the splendour of their sepulchral arrangements generally, savour strongly of Scythic blood; and their gorgeous palaces, their love of art, the splendour of their state and ceremonial, all point to feelings far more prevalent among the Turanians than to anything ever found among kings or people of an Aryan race.
None of these styles, however, are perfectly pure, or distinct one from the other. The three races always inhabited the country as they do now. And as at this hour the Turkish governor issues his edicts in Turkish, Arabic, and Persian, so did Darius write the history of his reign on the rocks at Behistun in Persian, Assyrian, and the old Scythic or Median tongue. The same three races occupied the country then as they do now. But each race was supreme in the order just given, and the style of each predominated during the period of their sway, though impregnated with the feelings and peculiarities of the other two. It is this, indeed, which gives the architecture of the country in that age its peculiar value to the archæologist. The three great styles of the world are here placed in such close juxtaposition, that they can be considered as a whole, illustrating and supplementing each other, but still sufficiently distinct never to lose their most marked characteristics. The materials are still, it must be confessed, somewhat scanty to make all this clear; but every day is adding to them, and, even now, no one familiar with architectural analysis can be mistaken in recognising the leading features of the investigation.
| DATES. | ||
| Nimrod | B.C. 2234 | ? |
| Urukh. Bowariyeh, Wurka | 2093 | |
| Ilgi | 2070 | |
| Chedorlaomer | 1976 | |
| Ismi Dagon | 1850 | |
| Shamas Vul. Kaleh Sherghat | 1800 | |
| Sin Shada. Wuswus? | 1700 | |
| Sur Sin | 1660 | |
| Purna Puryas | 1600 | |
| Arab conquerors | 1500 | ?[67] |
Already the names of fifteen or sixteen kings belonging to these old dynasties have been recovered, and the remains of some ten or twelve temples have been identified as founded by them; but unfortunately none of these are in a sufficiently perfect state to afford any certainty as to their being entirely of this age, and all are in such a state of ruin that, making use of all the information we possess, we cannot yet properly restore a temple of the old Chaldean epoch.
Notwithstanding this, it is a great gain to the history of architecture to have obtained so much knowledge as we have of temples which were only known to us before from the vague descriptions of the Greeks, and which are the earliest forms of a type of temples found afterwards continually cropping up in the East.
It would be contrary to all experience to suppose that a people of Turanian origin should be without temples of some sort, but, except the description by the Greeks of the temple or tomb of Belus, we have nothing to guide us. We have now a fair idea what the general outline of their temples was, and even if we cannot trace their origin, we can at least follow their descendants. There seems now no doubt but that many, perhaps most, of the Buddhist forms of architecture in India and further eastward, were derived from the banks of the Euphrates. Many of the links are still wanting; but it is something to know that the Birs Nimroud is the type which two thousand years 158afterwards was copied at Pagahn in Burmah, and Boro Buddor in Java; and that the descent from these can easily be traced in those countries and in China to the present day.
The principal reason why it is so difficult to form a distinct idea of this old form of temple is, that the material most employed in their construction was either crude, sun-dried, or very imperfectly-burnt bricks; or when a better class of bricks was employed, as was probably the case in Babylon, they have been quarried and used in the construction of succeeding capitals. A good deal also is owing to the circumstance that those who have explored them have in many cases not been architects, or were persons not accustomed to architectural researches, and who consequently have failed to seize the peculiarities of the building they were exploring.
Under these circumstances, it is fortunate that the Persians did for these temples exactly what they accomplished for the palace forms of Assyria. They repeated in stone in Persia what had been built in the valley of the Euphrates and Tigris with wood or with crude bricks. It thus happens that the so-called tomb of Cyrus in Pasargadæ enables us to verify and to supply much that is wanting in the buildings at Babylon, and to realise much that would be otherwise indistinct in their forms.
The oldest temple we know of at present is the Bowariyeh at Wurka (Erek), erected by Urukh, at least 2000 years B.C.; but now so utterly ruined, that it is difficult to make out what it originally was like. It seems, however, to have consisted of two storeys at least: the lowest about 200 feet square, of sun-dried bricks; the upper is faced with burnt bricks, apparently of a more modern date. The height of the two storeys taken together is now about 100 feet, and it is nearly certain that a third or chamber storey existed above the parts that are now apparent.[68]
The Mugheyr Temple[69] is somewhat better preserved, but in this case it is only the lower storey that can be considered old. The cylinders found in the angles of the upper part belong to Nabonidus, the last king of the later Babylonian kingdom; and the third storey only exists in tradition. Still, from such information as we have, we gather that its plan was originally a rectangle 198 feet by 133, with nine buttresses in the longer and six in the shorter faces. The walls slope inwards in the ratio of 1 in 10. Above them was a second storey 119 feet by 75, placed as is usual nearer one end of the lower storey, so as to admit of a staircase being added at the other. It is 47 feet distant from the south-eastern end, and only 28 or 30 from 159the other; but whether the whole of this was occupied by a flight of steps or not is by no means clear. Taken altogether, the plan and probable appearance of the building when complete may have been something like that represented in Woodcuts Nos. 48 and 49, though there are too many elements of uncertainty to make it a restoration which can altogether be depended upon.
48. Diagram of Elevation of Temple at Mugheyr. 100 ft. to 1 in.
49. Plan of Temple at Mugheyr. Scale 100 ft. to 1 in.
The typical example of this class of temples is the Birs Nimroud,[70] near Babylon. It is true that as it now stands every brick bears the stamp of Nebochadnassar, by whom it was repaired, perhaps nearly rebuilt; but there is no reason for supposing that he changed the original plan, or that the sacred form of these temples had altered in the interval. It owes its more perfect preservation to the fact of the upper storey having been vitrified, after erection, by some process we do not quite understand. This now forms a mass of slag, which has to a great extent protected the lower storeys from atmospheric influences.
In so far as it has been explored, the lower storey forms a perfect square, 272 feet each way. Above this are six storeys, each 42 feet less in horizontal dimensions. These are not placed concentrically on those below them, but at a distance of only 12 feet from the south-eastern 160edge, and consequently 30 feet from the N.W., and 21 feet from the two other sides.
50. Diagram Elevation of Birs Nimroud. Scale 100 ft. to 4 in.
51. Diagram Plan of Birs Nimroud. Scale 100 ft. to 1 in.
The height of the three upper storeys seems to have been ascertained with sufficient correctness to be 15 feet each, or 45 feet together. Unfortunately no excavation was undertaken to ascertain the height of the lowest and most important storey. Sir Henry Rawlinson assumes it at 26; and I have ventured to make it 45, from the analogy of the tomb of Cyrus and the temple at Mugheyr. 161The height of the two intermediate storeys, instead of being 22 feet 6 inches, as we might expect, was 26, which seems to have resulted from some adjustment due to the chambers which ranged along their walls on two sides. The exact form and dimensions of these chambers were not ascertained, which is very much to be regretted, as they seem the counterpart of those which surrounded Solomon’s Temple and the Viharas in India, and are consequently among the most interesting peculiarities of this building.
No attempt was made to investigate the design of the upper storey, though it does not seem that it would be difficult to do so, as fragments of its vaulted roof are strewed about the base of the tower-like fragment that remains, from which a restoration might be effected by any one accustomed to such investigations.[71] What we do know is that it was the cella or sanctuary of the temple.[72] There probably also was a shrine on the third platform.
This temple, as we know from the decipherment of the cylinders which were found on its angles, was dedicated to the seven planets or heavenly spheres, and we find it consequently adorned with the colours of each. The lower, which was also richly panelled, was black, the colour of Saturn; the next, orange, the colour of Jupiter; the third, red, emblematic of Mars; the fourth, yellow, belonging to the sun; the fifth and sixth, green and blue respectively, as dedicated to Venus and Mercury; and the upper probably white, that being the colour belonging to the Moon, whose place in the Chaldean system would be uppermost.
Access to each of these storeys was obtained by stairs, probably arranged as shown in the plan; these have crumbled away or been removed, though probably traces of them might still have been found if the explorations had been more complete.
Another temple of the same class was exhumed at Khorsabad about twenty years ago by M. Place. It consisted, like the one at Borsippa, of seven storeys, but, in this instance, each was placed concentrically on the one below it: and instead of stairs on the sloping face, a ramp wound round the tower, as we are told was the case with the temple of Belus at Babylon. The four lower storeys are still perfect: each of them is richly panelled and coloured as above mentioned, and in some parts even the parapet of the ramp still remains in situ. The 162three upper storeys are gone, but may be easily restored from those below, as was done by M. Place, as shown in the annexed woodcut. According to him, it was an observatory, and had no cella on its summit. If this was the case it was a Semitic temple, and belongs to a quite different religion from that whose temples we have been describing. But unfortunately there is no direct evidence to determine whether it had such a chamber or not. My own impressions on the subject are decidedly at variance with those of M. Place, but until some bas-reliefs are discovered containing representations of these temples and of their cells, we shall probably hardly ever know exactly what the form of the crowning member really was. From the imitations in modern times we seem to see dimly that it was conical, and possibly curvilinear. The dimensions of this tower at Khorsabad were, 150 feet square at the base and 135 high from the pavement to the platform on its summit. Its base, however, was at a considerable elevation above the plain, so that when seen from below it must have been an imposing object.
52. Observatory at Khorsabad, from Places ‘Ninive et l’Assyrie.’ Scale 50 ft. to 1 in.
53. Plan of Observatory, Khorsabad. Scale 100 ft. to 1 in.
163The inscriptions at Borsippa and elsewhere mention other temples of the same class, and no doubt those of Babylon were more magnificent than any we have yet found; but they must always have been such prominent objects, and the materials of which they were composed so easily removed, that it is doubtful if anything more perfect will now be found.
The Mujelibé, described by Rich, and afterwards explored without success by Layard, is probably the base of the great temple of Belus described by the Greeks; but even its dimensions can now hardly be ascertained, so completely is it ruined. It seems, however, to be a parallelogram of about 600 feet square,[73] and rising to a height of about 140 feet; but no trace of the upper storeys exist, nor indeed anything which would enable us to speak with certainty of the form of the basement itself. If this is the height of the basement, however, analogy would lead us to infer that the six storeys rose to a height of about 450 feet; and with the ziggurah or sikra on their summit, the whole height may very well have been the stadium mentioned by Strabo.[74]
As before mentioned, p. 158, we have fortunately in the tomb of Cyrus at Pasargadæ (Woodcuts Nos. 84-86) a stone copy of these temples; in this instance, however, so small that it can hardly be considered as more than a model, but not the less instructive on that account. Like the Birs Nimroud, the pyramid consists of six storeys: the three upper of equal height, in this instance 231⁄2 inches; the next two are equal to each other, and, as in the Birs Nimroud, in the ratio of 26 to 15, or 41 inches. The basement is equal to the three upper put together, or 5 ft. 9 in., making a total of 18 ft. 4 in.[75] The height of the cella is equal to the height of the basement, but this may be owing to the small size of the whole edifice, it being necessary to provide a chamber of a given dimension for the sepulchre. In the larger temples, it may be 164surmised that the height was divided into four nearly equal parts; one being given to the basement, one to the two next storeys, one to the three upper storeys, and the fourth to the chamber on the summit.
There is one other source from which we may hope to obtain information regarding these temples, and that is, the bas-reliefs on the walls of the Assyrian palaces. They drew architecture, however, so badly, that it is necessary to be very guarded in considering such representations as more than suggestions; but the annexed woodcut (No. 54) does seem to represent a four-storeyed temple, placed on a mound, with very tolerable correctness, and if the upper storey had not been broken away the drawing might have given us a valuable hint as to the form and purposes of the cella, which was the principal object of the erection. Its colouring, too, is gone; but the certain remains of symbolical colours at Borsippa and Khorsabad confirm so completely the Greek accounts of the seven-coloured walls of Ecbatana that with the other indications of the same sort extant that branch of the inquiry may be considered as complete.
54. Representation of a Temple. (From a Bas-relief from Koyunjik.)
It is to be hoped that now that the thread is caught, it will be followed up till this form of temple is thoroughly investigated; for to the philosophical student of architectural history few recent discoveries are of more interest. There hardly seems a doubt but that many temples found further eastward are the direct lineal descendants of these Babylonian forms, though we as yet can only pick up here and there the missing links of the chain of evidence which connects the one with 165the other. We know, however, that Buddhism is essentially the religion of a Turanian people, and it has long been suspected that there was some connection between the Magi of Central Asia and the priests of that religion, and that some of its forms at least were elaborated in the valley of the Euphrates. If the architectural investigation is fully carried out, I feel convinced we shall be able to trace back to their source many things which hitherto have been unexplained mysteries, and to complete the history of this form of temple and of the religion to which it belonged, from the Bowariyeh at Wurka, built 2000 years B.C., to the Temple of Heaven erected in the city of Pekin within the limits of the present century.
55. Elevation of a portion of the external Wall of Wuswus at Wurka (From Loftus.)
56. Plan of portion of Wuswus.
The only exception to the class of temple mounds found in Chaldea is the ruin of Wuswus, at Wurka,[76] which seems to partake of the character of a palace. Whether it is or not is by no means clear, as the interior is too much ruined for its plan to be traced with certainty, and its date cannot be fixed from any internal evidence. Some of the bricks used in its construction bear the name of Sin Shada 1700 B.C., but it is suspected they may have been brought from an older edifice. The same sort of panelling was used by Sargon at Khorsabad 1000 years after the assumed date; and panelling very like it is used even in the age of the Pyramids (Woodcuts Nos. 11 and 12), 1000 years at least before that time. With more knowledge we may recognise minor features which may enable us to discriminate more exactly, but at present we only know that this class of panelling was used for the 166adornment of external walls from the earliest ages down at least to the destruction of Babylon. It was probably used with well-marked characteristics in progression of style; but these we have yet to ascertain. Externally the Wuswus is a parallelogram 256 ft. by 173. Like almost every building in the Euphrates valley in those ancient times, instead of the sides facing the cardinal points of the compass, as was the case in Egypt in the Pyramid age, the angles point towards them. In this case the entrance is in the north-east face. The centre apparently was occupied by a court; and opposite the entrance were two larger and several smaller apartments, the larger being 57 ft. by 30. The great interest of the building lies in the mode in which the external walls were ornamented (Woodcuts Nos. 56 and 57). These 167were plastered and covered by an elaborate series of reedings and square sinkings, forming a beautiful and very appropriate mode of adorning the wall of a building that had no external openings.
57. Elevation of Wall at Wurka (From the Report of the Assyrian Excavation Fund.)
This system is carried still further in a fragment of a wall in the same city, but of uncertain date. In this instance these reedings—there are no panels in the smaller fragment—and the plain surfaces are ornamented by an elaborate mosaic of small cones about 3 or 31⁄2 in. long. The butt or thicker end of these is dipped in colour, and they are then built up into patterns as shown in the woodcut No. 58. It is probable that the walls of the Wuswus were adorned with similar patterns in colours, but being executed in less durable materials, have perished. Indeed, from the accounts which we have, as well as from the remains, we are justified in asserting that this style of architecture depended for its effect on colour as much, at least, if not more, than on form. Could colour be made as permanent this might frequently be wise, but too great dependence on it has deprived us of half the knowledge we might otherwise possess of the architectural effects of other times.
| DATES. | |
| Shalmaneser I. founded Nimroud | B.C. 1290 |
| Tiglathi Nin, his son (Ninus?) | 1270 |
| Tiglath Pileser | 1150 |
| Asshur-bani-pal (north-west palace, Nimroud) | 886 |
| Shalmaneser II. (central palace, do.) | 859 |
| Shamas Iva | 822 |
| Iva Lush IV | 810 |
| Interregnum. | |
| Tiglath Pileser II. (south-eastern palace, Nimroud) | 744 |
| Shalmaneser IV | 726 |
| Sargon (palace, Khorsabad) | 721 |
| Sennacherib (palace, Koyunjik) | 704 |
| Esarhaddon (south-western palace, Nimroud) | 680 |
| Sardanapalus (central palace, Koyunjik) | 667 |
| Destruction of Nineveh | 625 |
All the knowledge which we in reality possess regarding the ancient palatial architecture of the Euphrates valley[77] is derived from the exploration of the palaces erected by the great Assyrian dynasty of Nineveh during the two centuries and a half of its greatest prosperity. Fortunately it is a period regarding the chronology of which there is no doubt, since the discovery of the Assyrian Canon by Sir Henry Rawlinson,[78] extending up to the year 900 B.C.: this, combined with Ptolemy’s Canon, fixes the date of every king’s reign with almost absolute certainty. It is also a period regarding which we feel more real interest than almost any other in the history of Asia. Almost all the kings of that dynasty carried their conquering arms into Syria, and their names are familiar to us as household words, from the record of their wars in the Bible. It is singularly interesting not only to find these records so completely confirmed, but to be able to study the 169actual works of these very kings, and to analyse their feelings and aspirations from the pictures of their actions and pursuits which they have left on the walls of their palaces.
From the accounts left us by the Greeks we are led to suppose that the palaces of Babylon were superior in beauty and magnificence to those of Nineveh; and, judging from the extent and size of the mounds still remaining there, it is quite possible that such may have been the case; but they are so completely ruined, and have been so long used as quarries, that it is impossible to restore, even in imagination, these now formless masses.
One thing seems nearly certain, which is, that no stone was used in their construction. If, consequently, their portals were adorned with winged bulls or lions, they must have been in stucco. If their walls were covered with scenes of war or the chase, as those of Nineveh, they must have been painted on plaster; so that, though their dimensions may have been most imposing and their splendour dazzling, they must have wanted the solidity and permanent character so essential to true architectural effect.
It is the employment of stone which alone has enabled us to understand the arrangements of the Assyrian palaces. Had not their portals been marked by their colossal genii, we should hardly have known where to look for them; and if the walls of their apartments had not been wainscoted with alabaster slabs, we should never have been able to trace their form with anything like certainty. Practically, all we know of Assyrian art is due to the fact of their having so suitable a material as alabaster close at hand, and to the skill with which they knew how to employ it. Had their walls only been plastered, the mounds of Khorsabad and Nimroud would have remained as mysterious now as they were before Layard and Botta revealed to us their splendours.
Notwithstanding the wonderful results that were achieved in the ten or twelve years during which the Assyrian explorations were pursued with activity, it is by no means impossible but that much more still remains to reward an energetic and skilful research in these mounds. Still, seven palaces have been more or less perfectly exhumed; four at Nimroud, two at Koyunjik, and one at Khorsabad. Among these we have the palaces of Sennacherib and Sardanapalus, of Esarhaddon, Sargon, Shalmaneser, and probably of Tiglath Pileser. Consequently the palaces of all the great kings, whose names are so familiar to us, are laid bare. Beyond these, the palace of Asshur-bani-pal worthily commences the series before the kings of Assyria came into contact with the inhabitants of Syria, and consequently before their Biblical record 170begins. It may be that other works of the same kings may be discovered, or the buildings of some less celebrated monarch, but if we do not know all that is to be known, we may rest assured that we already have acquired the greater part of the knowledge that is to be obtained from these explorations.
58. North-West Palace at. Nimroud.[79] Scale 100 ft. to 1 in.
The oldest of the buildings hitherto excavated in Assyria is the North-West Palace at Nimroud, built by Asshur-bani-pal, about the year 884 B.C. Though not the largest, it more than makes up for this deficiency by the beauty of its sculptures and the general elegance of its ornaments. As will be seen by the annexed woodcut (No. 58), the excavated portion of the palace is nearly a square, about 330 ft. each way. The principal entrance was on the north, at the head of a noble flight of steps leading from the river to the level of the terrace on which the palace stood. From this, two entrances, adorned with winged bulls, led to a great hall, 152 ft. in length by 32 in width, at the upper end of which was situated the throne, and at the lower a smaller apartment or vestibule opened on the terrace that overlooked 171the river. Within the great hall was one of smaller dimensions, opening into the central court of the palace, the entrance of which was so arranged as to ensure privacy, proving that it partook of the nature of the private apartment or hareem of the palace. To the eastward of this was a suite of apartments, three deep, decreasing in width as they receded from the light, but so arranged that the inner apartments 172must have been entirely dark had the walls been carried to the ceiling. As will, however, be presently explained in describing Khorsabad, it is more than probable that the walls extended to only half the height of the rooms, and formed terraces with dwarf pillars on their summits, between which light was introduced, and they in fact formed the upper storey of the building. To the south was a double suite, apparently the banqueting halls of the palace; and to the westward a fourth suite, more ruined, however, than the rest, owing to its being situated so near the edge of the terrace. As far as can be made out, the rooms on this face seem to have been arranged three deep: the outer opening on the terrace by three portals, the central one of which had winged bulls, but the lateral seem to have been without these ornaments; the whole façade being about 330 ft. in extent, north and south.
59. Plan of Palace at Khorsabad, showing the excavations as they were left by M. Botta. No scale.
All these apartments were lined with sculptured slabs, representing mostly either the regal state of the sovereign, his prowess in war, or amusements during peace, but many of them were wholly devoted to religious subjects. Beyond these apartments were many others, covering at least an equal extent of ground, but their walls having been only plastered and painted, the sun-burnt bricks of which they were built have crumbled again to their original mud. It is evident, however, that they were inferior to those already described, both in form and size, and applied to inferior purposes.
The mound at Nimroud was so much extended after this palace was built, and so covered by subsequent buildings, that it is now impossible to ascertain either the extent or form of this, which is the only palace of the older dynasty known. It will therefore perhaps be as well to turn at once to Khorsabad, which, being built wholly by one king, and not altered afterwards, will give a clearer idea of the position and arrangements of an Assyrian palace than we can obtain from any one on the Nimroud mound. It has besides this the advantage of being the only one so complete and so completely excavated as to enable us to form a correct idea of what an Assyrian palace really was and of all its arrangements.
The city of Khorsabad was situated about fifteen miles from Nineveh, in a northerly direction, and was nearly square in plan, measuring about an English mile each way. Nearly in the centre of the north-western wall was a gap, in which was situated the mound on which the palace stood. It seems to have been a peculiarity common to all 173Assyrian palaces to be so situated. Their builders wisely objected to being surrounded on all sides by houses and walls, and at the same time sought the protection of a walled enclosure to cover the gateways and entrances to their palaces. At Koyunjik and Nimroud the outer face of the palace was covered and protected by the river Tigris; and here the small brook Kausser flows past the fort, and, though now an insignificant stream, it is by no means improbable that it was dammed up so as to form a lake in front of the palace when inhabited. This piece of water may have been further deepened by excavating from it the earth necessary to raise the mound on which the palace stood.
60. Terrace wall at Khorsabad.
That part of the mound in this instance which projected between the walls was a square of about 650 ft. each way, raised about 30 ft. above the level of the plain, and protected on every side by a supporting wall cased with stone of very beautiful masonry (Woodcut No. 60). Behind this, and inside the city, was a somewhat lower mound, about 300 ft. in width and 1300 or 1400 ft. in length, on which were situated the great portals of the palace, together with the stables and offices, and, outside the walls of the palace properly so called, the hareem.
All the principal apartments of the palace properly so called were revêted with sculptural slabs of alabaster, generally about 9 ft. in height, like those at Nimroud; these either represent the wars or the peaceful amusements of King Sargon, commemorate his magnificence, or express his religious feelings.
The great portals that gave access to the palace of Khorsabad from the city were among the most magnificent of those yet discovered. The façade in which they stood presented a frontage of 330 ft., in which were three portals; the central one flanked by great human-headed bulls 19 ft. in height, and on each side two other bulls 15 ft. high, with a giant strangling a lion between them, as shown in the woodcut 174(No. 62), representing what still remained of them when uncovered by M. Botta, and now forming one of the principal ornaments of the British Museum. These portals were reached from the city by a flight of steps, now entirely destroyed, but which there can be little difficulty in restoring from what we find at Persepolis and elsewhere.
61. Plan of Palace at Khorsabad, as completely excavated by M. Place. The parts tinted were actually found. Those in outline are conjectural.
These portals led to the great outer court of the palace, measuring 315 ft. by 280 between the buttresses with which it was adorned all round. On the right hand were six or seven smaller courts surrounded by the stables and outhouses of the palace, which were approached by a ramp on the outside, at the head of which was a block of buildings containing the cellarage, and generally the stores of eatables. On the left hand of this court were the metal stores, each room having been 175appropriated to iron, copper, or other such materials, and behind them, outside the palace, was the hareem.[81]
In the northern angle, a rather insignificant passage formed a means of communication between this great outer court and the next, which was 360 ft. long by 200 wide, and probably open to the country, at least in front of the great portals. On the inner side of this second court a magnificent portal opened into what appears to have been the residential portion of the palace, measuring nearly 300 by 500 ft. over all.
62. Existing Remains of Propylæa at Khorsabad.
The proper entrance to this court was by the ramp before alluded to, which was indeed the only access to the palace for chariots and horsemen. From the second court, through the only vaulted passage in the palace, access was obtained to the state apartments looking over the country. The three principal of these are shown to a larger scale in the woodcut (No. 63), with their dimensions figured upon them. The next woodcut (No. 64) is a restored section of these apartments, showing what their arrangement was, and the mode in which it is conceived they were roofed, according to the information 176gathered on the spot, and what we find afterwards practised at Persepolis and elsewhere.[82]
63. Enlarged Plan of the Three Principal Rooms at Khorsabad. Scale 50 ft. to 1 in.
It will be observed that the area covered by the walls is of nearly the same extent as that of the rooms themselves, so that the galleries formed in fact an upper storey to the palace; and thus, in the heat of the day, the thickness of the walls kept the inner apartments free from heat and glare, while in the evenings and mornings the galleries 179formed airy and light apartments, affording a view over the country, and open on every side to the breezes that at times blow so refreshingly over the plains. It will also be observed that by this arrangement the direct rays of the sun could never penetrate into the halls themselves, and that rain, or even damp, could easily be excluded by means of curtains or screens.
64. Restored Section of Principal Rooms at Khorsabad. 152 ft.
65. Restoration of Northern Angle of Palace Court, Khorsabad. (From a Drawing by the Author.)
The whole of these state-rooms were revêted with sculptured alabaster slabs, as shown in the section; above which the walls were decorated with conventional designs painted on stucco, remains of which were found among the débris.
The external face of this suite, as seen from the north-eastern court, was probably something very like what is shown in the woodcut (No. 66), though there are less materials for restoring the exterior than there are for the internal parts of the palace. The arched entrance to the court, shown on the left, is certain: so also, I conceive, is the mode in which the light was introduced into the apartments. The details of the pillars are not so certain, though not admitting of much latitude of doubt.
As before mentioned, outside the palace stood the hareem, of a somewhat irregular form, but measuring 400 ft. by 280, (on left of plan, woodcut No. 61). The whole of its external walls are adorned with reeded pilasters and panels like those of the Wuswus at Wurka (Woodcut No. 61), which is not the case with any other part of the palace. It has only one small external opening from the terrace, and another, which may be called a concealed one, from the great outer court. Internally its arrangements are very remarkable. First there is an outer court into which these two entrances open, and within that two other courts, on whose side are extended what may be called three complete suites of apartments, very similar to each other in arrangement, though varied in dimensions. It looks as if each was appropriated to a queen, and that their relative magnificence accorded with the dignity of the person to whom it was assigned. But are we justified in assuming that Sargon had three queens, and only that number of legitimate wives? Assuming this, however, there is still room in this hareem for any number of concubines and their attendants.
180The central court of the hareem is one of the richest discoveries that rewarded M. Place’s industry. It was adorned with six free-standing statues—the smaller court with two—and the walls were wainscoted with enamelled tile representing the king, his vizier, lions, eagles, vines and fruits, and other objects in a bright yellow colour on a blue ground. The whole is, in fact, one of the most curious and interesting discoveries yet made in these palaces.
As it can hardly admit of a doubt that this was really the hareem of the palace, it is curious that such a building as the observatory described above (p. 162), should have been erected in its immediate proximity. Every one ascending the ramp or standing on its summit must have looked into its courts, unless they were covered with awnings or roofs in some manner we do not quite understand; and we can hardly assume that such a tower was intended as the praying place of the king and the king only. The fact is undoubted, however we may explain it.
66. City Gateways, Khorsabad. (From M. Place.)
From the above description it will be observed that in every case the principal part, the great mass, of the palace was the terrace on which it stood, which was raised by artificial means to a height of 30 ft. and more, and, as shown in the illustration (Woodcut No. 60), carefully revêted with stone. On this stood the palace, consisting principally of one great block of private apartments situated around an inner square court. From this central mass two or three suites of apartments projected as wings, so arranged as to be open to the air on three sides, and to give great variety to the outline of the palace as seen from below, and great play of light and shade in every aspect under which the building could be surveyed. So far also as we can judge, the whole arrangements were admirably adapted to the climate, and the ornaments not only elegant in themselves, but singularly expressive and appropriate to the situations in which they are found.
Another most important discovery of M. Place is that of the great 181arched gates of the city. These were apparently always constructed in pairs—one for the use of foot-passengers, the other for wheeled carriages, as shown by the marks of wheels worn into the pavement in the one case, while it is perfectly smooth in the other.
Those appropriated to carriages had plain jambs rising perpendicularly 12 or 15 ft. These supported a semicircular arch, 18 ft. in diameter, adorned on its face with an archivolt of great beauty, formed of blue enamelled bricks, with a pattern of figures and stars of a warm yellow colour, relieved upon it.
67. City Gateway at Khorsabad. (From M. Place.)
The gateways for foot-passengers were nearly of the same dimensions, about 14 or 15 ft. broad, but they were ornamented by winged bulls with human heads, between which stood giants strangling lions. In the example illustrated in the annexed woodcut (No. 67), the arch sprang directly from the backs of the bulls, and was ornamented by an archivolt similar to that over the carriage entrances, and which is perhaps as beautiful a mode of ornamenting an arch as is to be found anywhere.
Other arches have been found in these Assyrian excavations, but none of such extent as these, and none which show more completely how well the Assyrians in the time of Sargon (721 B.C.) understood 182not only the construction of the arch, but also its use as a decorative architectural feature.[83]
68. Interior of a Yezidi House at Bukra, in the Sinjar.
There must always be many points, even in royal residences, which would be more easily understood if we knew the domestic manners and usages prevalent among the common people of the same era and country. This knowledge we actually can supply in the present case, to a great extent, from modern Eastern residences. Such a mode of illustration in the West would be out of the question; but in the East, manners and customs, processes of manufacture and forms of building, have existed unchanged from the earliest times to the present day. This immutability is the greatest charm of the East, and frequently enables us to understand what in our own land would have utterly faded away and been obliterated. In the Yezidi house, for instance, borrowed from Mr. Layard’s work, we see an exact reproduction, in every essential respect, of the style of building in the days of Sennacherib. Here we have the wooden pillars with bracket capitals, supporting a mass of timber intended to be covered with a thickness 183of earth sufficient to prevent the rain or heat from penetrating to the dwelling. There is no reason to doubt that the houses of the humbler classes were in former times similar to that here represented; and this very form amplified into a palace, and the walls and pillars ornamented and carved, would exactly correspond with the principal features of the palace of the great Assyrian king.
Having said so much of Khorsabad, it will not be necessary to say much about the palace at Koyunjik, built by Sennacherib, the son of the Khorsabad king.
As the great metropolitan palace of Nineveh, it was of course of far greater extent and far more magnificent than the suburban palace of his father. The mound itself on which it stands is about 11⁄2 mile in circumference (7800 ft.); and, as the whole was raised artificially to the height of not less than 30 ft., it is in itself a work of no mean magnitude.
The principal palace stood at the south-western angle of this mound, and as far as the excavation has been carried seems to have formed a square of about 600 ft. each way—double the lineal dimensions of that at Nimroud. Its general arrangements were very similar to those at Khorsabad, but on a larger scale. It enclosed within itself two or three great internal courts, surrounded with sixty or seventy apartments, some of great extent. The principal façade, facing the east, surpassed any of those of Khorsabad, both in size and magnificence, being adorned by ten winged bulls of the largest dimensions, with a giant between each of the two principal external ones, in the manner shown in the woodcut (No. 62), besides smaller sculptures—the whole extending to a length of not less than 350 ft. The principal façade at Khorsabad, as above mentioned, extended 330 ft., but the bulls and the portals there were to those at Koyunjik in the proportion of 30 to 40, which nearly indeed expresses the relative magnificence of the two palaces. Inside the great portal at Koyunjik was a hall, 180 ft. in length by 42 in width, with a recess at each end, through which access was obtained to two courtyards, one on the right and one on the left; and beyond these to the other and apparently the more private apartments of the palace, which overlooked the country and the river Tigris, flowing to the westward of the palace—the principal entrance, as at Khorsabad, being from the city.[84]
184It is impossible, of course, to say how much further the palace extended, though it is probable that nearly all the apartments which were revêted with sculptures have been laid open; but what has been excavated occupies so small a portion of the mound that it is impossible to be unimpressed with the conviction that it forms but a very small fraction of the imperial palace of Nineveh. Judging even from what has as yet been uncovered, it is, of all the buildings of antiquity, alone surpassed in magnitude by the great palace-temple at Karnac; and when we consider the vastness of the mound on which it was raised, and the richness of the ornaments with which it was adorned, a doubt arises whether it was not as great, or at least as expensive, a work as the great palace-temples of Thebes. The latter, however, were built with far higher motives, and designed to last through ages, while the palace at Nineveh was built only to gratify the barbaric pride of a wealthy and sensual monarch, and perished with the ephemeral dynasty to which he belonged.
Another Assyrian palace, of which considerable remains still exist, is that of Esarhaddon, commonly known as the South-west Palace at Nimroud. Like the others, this too has been destroyed by fire, and the only part that remains sufficiently entire to be described is the entrance or southern hall. Its general dimensions are 165 ft. in length by 62 ft. in width, and it consequently is the largest hall yet found in Assyria. The architects, however, either from constructive necessities or for purposes of state, divided it down the centre by a wall supporting dwarf columns,[85] forming a central gallery, to which access was had by bridge galleries at both ends, a mode of arrangement capable of great variety and picturesqueness of effect, and of which there is little doubt that the builders availed themselves to the fullest extent. This led into a courtyard of considerable dimensions, surrounded by apartments, but they are all too much destroyed by fire to be intelligible.
69. Hall of South-West Palace. Scale 100 ft. to 1 in.
Another great palace, built, as appears from the inscriptions, by a son of Esarhaddon, has been discovered nearly in the centre of the mound at Koyunjik. Its terrace-wall has been explored for nearly 300 ft. in two directions from the angle near 185which the principal entrance is placed. This is on a level 20 ft. lower than the palace itself, which is reached by an inclined passage nearly 200 ft. in length, adorned with sculpture on both sides. The palace itself, as far as its exploration has been carried, appears similar in its arrangements to those already described; but the sculptures with which it is adorned are more minute and delicate, and show a more perfect imitation of nature, than the earlier examples, though inferior to them in grandeur of conception and breadth of design.
70. Central Palace, Koyunjik. Scale 100 ft. to 1 in.
The architectural details also display a degree of elegance and an amount of elaborate finish not usually found in the earlier examples, as is well illustrated by the Woodcut No. 71, representing one of the pavement slabs of the palace. It is of the same design, and similarly ornamented, but the finish is better, and the execution more elaborate, than in any of the more ancient examples we are acquainted with.
Besides these, there were on the mound at Nimroud a central palace built by Tiglath Pileser, and one at the south-eastern angle of the mound, built by a grandson of Esarhaddon; but both are too much ruined for its being feasible to trace either their form or extent. 186Around the great pyramid, at the north-west angle of the mound, were buildings more resembling temples than any others on it—all the sculptures upon them pointing apparently to devotional purposes, though in form they differed but little from the palaces. At the same time there is certainly nothing in them to indicate that the mound at the base of which they were situated was appropriated to the dead, or to funereal purposes. Between the north-west and south-west palaces there was also raised a terrace higher than the rest, on which were situated some chambers, the use of which it is not easy to determine.
71. Pavement Slab from the Central Palace, Koyunjik.
Notwithstanding the impossibility that now exists of making out all the details of the buildings situated on the great mounds of Nimroud and Koyunjik, it is evident that these great groups of buildings must have ranked among the most splendid monuments of antiquity, surrounded as they were by stone-faced terraces, and approached on every side by noble flights of stairs. When all the palaces with their towers and temples were seen gay with colour, and crowded with all the state and splendour of an Eastern monarch, they must have formed a scene of such dazzling magnificence that one can easily comprehend how the inhabitants of the little cities of Greece or Judea were betrayed into such extravagant hyperbole when speaking of the size and splendour of the great cities of Assyria.
72. Pavilion, from the Sculptures at Khorsabad.
The worst feature of all this splendour was its ephemeral character—though 187perhaps it is owing to this very fact that we now know so much about it—for, like the reed that bends to the storm and recovers its elasticity, while the oak is snapped by its violence, these relics of a past age have retained to some extent their pristine beauty. Had these buildings been constructed like those of the Egyptians, their remains would probably have been applied to other purposes long ago; but having been overwhelmed so early and forgotten, they have been preserved to our day; nor is it difficult to see how this has occurred. The pillars that supported the roof being of wood, probably of cedar, and the beams on the under side of the roof being of the same material, nothing was easier than to set fire to them. The fall of the roofs, which were probably composed, as at the present day, of five or six feet of earth, and which is requisite to keep out heat as well as wet, would alone suffice to bury the building up to the height of the sculptures. The gradual crumbling of the thick walls consequent on their unprotected exposure to the atmosphere would add three or four feet to this: so that it is hardly too much to suppose that green grass might have been growing over the buried palaces of Nineveh before two or three years had elapsed from the time of their destruction and desertion. When once this had taken place, the mounds afforded far too tempting positions not to be speedily occupied by the villages of the natives; and a few centuries of mud-hut building would complete the process of entombment so completely as to protect the hidden remains perfectly for the 188centuries during which they have lain buried. These have now been recovered to such an extent as enables us to restore their form almost as certainly as we can those of the temples of Greece or Rome, or of any of the great nations of antiquity.
73. Assyrian Temple, North Palace, Koyunjik. (From Rawlinson.)
74. Bas-relief, representing façade of Assyrian Palace. (From British Museum.)
It is by no means improbable that at some future period we may be able to restore much that is now unintelligible, from the representations of buildings on the sculptures, and to complete our account of their style of architecture from illustrations drawn by the Assyrians themselves. One or two of these have already been published. The annexed woodcut, for instance (No. 72), of a bas-relief representing a little fishing-pavilion on the water’s edge, exhibits in a rude manner all the parts of an Assyrian order with its entablature, and the capital only requires to be slightly elongated to make it similar to those found at Persepolis.
189Another from the North Palace, Koyunjik, repeats the same arrangement, with pillars which must be considered as early examples of the Corinthian order, and, if we may trust the drawing, it likewise represents an aqueduct with horizontally constructed arches of pointed form.
A third representation (No. 74) from the same palace seems intended to portray a complete palace façade, with its winged bulls in the entrance and its colossal lions on the front. Above these animals, but not apparently meant to be represented as resting on them, are pillars in antis, as in the two previous illustrations.[86] Unfortunately the cornice is broken away, and the whole is more carelessly executed than is usual in these sculptures.
75. Exterior of a Palace, from a Bas-relief at Koyunjik.
Another curious representation (Woodcut No. 75) is that of a palace of two storeys, from a bas-relief at Koyunjik, showing a range of openings under the roof in both storeys, each opening being divided into three parts by two Ionic columns between square piers, and are probably meant to represent such an arrangement as that shown in Woodcuts Nos. 72 and 73. On the right the upper storey is a correct representation of the panelled style of ornamentation above alluded to as recently discovered at Khorsabad and elsewhere, and which we 190know from recent discoveries to have been so favourite a mode of decorating walls in that age.
The most remarkable fact, however, that we gather from all these illustrations is, that the favourite arrangement was a group of pillars “distyle in antis,” as it is technically termed, viz., two circular pillars between two square piers. It is frequently found elsewhere in the façade of tombs, but here it seems to have been repeated over and over again to make up a complete design. For a temple such an arrangement would have been inadmissible: for a palace it seems singularly appropriate and elegant.
76. King’s Tent. (From Bas-relief, British Museum.)
Further comparisons will no doubt do much to complete the subject; and when the names written over these bas-reliefs are definitively deciphered, we may find that we really possess contemporary representations, if not of Jerusalem, at least of Lachish, of Susa, and other cities familiar to us both from ancient and from modern history.
77. Horse-Tent (Nimroud).
We have no representation of the dwellings of private individuals so complete as to enable us to understand them, but there are several of royal camps which are interesting. Among the most curious of these are the representations of the tents of the king and his nobles. One of these is shown in Woodcut No. 76, though how it was constructed is by no means clear. It seems to have been open in the centre to the air, but covered at either end by a sort of hood so arranged as to catch the passing breeze, and afford protection from rain at the same time. The annexed woodcut (No. 77), representing the front and one side of the royal horse-tent, gives a good idea of the luxury and elegance that was carried into the detail even of subordinate structures.
Except the Chaldean-formed temples, which have been described in the previous chapter, there are no religious edifices sufficiently complete to enable us to form a distinct idea of what the architectural arrangements of these temples were. As belonging to a Semitic people we should expect them to be few and insignificant.
So little remains of the temple at Khorsabad, that it is difficult to say what its original form may have been; the terrace, however, which supported it is interesting, as it shows almost the only instance of a perfect Assyrian moulding or cornice betraying a similarity to the forms of Egyptian architecture which we do not find elsewhere. The curve, however, is not exactly that of an Egyptian cornice, being continued beyond the vertical tangent; but this may have arisen from the terrace being only six feet in height, which placed the curve below the line of sight, and so required a different treatment from one placed so high above it as is usually the case in Egypt.
78. Elevation of Stylobate of temple.
79. Section of Stylobate of Temple.
The bas-relief on the next page is perhaps the best sculptured representation that exists of what we might fancy an Assyrian temple to have been. The emblem so enshrined is probably the Asheerah, or grove, to the worship of which the Israelites at all times showed such a tendency to relapse, and is one of the most frequent objects of adoration among the Assyrians.
As a Semitic people we should hardly expect to find any tombs among them, and indeed, unless the pyramid at the north-west angle of the Nimroud mound is the tomb of Sardanapalus, mentioned by the Greeks,[87] it is not clear that a single Assyrian sepulchre has yet been discovered. Those that crowd and choke the ruins of Wurka and Mugheyr and other cities of Babylonia are the remains of a Turanian people who always respected their dead, and paid especial attention to the preservation of their bodies. The pyramid at Nimroud seems to have been explored with sufficient care to enable us to affirm that no stairs or inclined plane led to its summit, and without these it certainly was not one of those observatory temples before alluded to. Still, it is so singular to have one monument, and one only, of its class, that it is difficult to form a satisfactory opinion on the subject.
It stands at the north-west angle of the mound, and measures 192167 ft. each way; its base, 30 ft. in height, is composed of beautiful stone masonry, ornamented by buttresses and offsets, above which the wall was continued perpendicularly in brickwork. In the centre of the building, and on the level of the base or terrace, a long vaulted gallery or tunnel was discovered, but it contained no clue to the destination of the building.
80. Sacred Symbolic Tree of the Assyrians. (From Lord Aberdeen’s Black Stone.)
81. Obelisk of Divanubara. (From Layard’s ‘Nineveh.’)
193The whole now rises to a height of about 120 ft. from the plain, and is composed of sun-dried bricks, with courses of kiln-burnt bricks between them, at certain intervals towards the summit, which render it probable that it originally was not a pyramid in the usual sense of the term, but a square tower, rising in three or four storeys, each less than the lower one, as in the traditional temple of Belus at Babylon, or like the summit of the obelisk represented in the woodcut (No. 81), which most probably is a monolithic reproduction of such a sepulchral tower as this, rather than an obelisk like those of Egypt.
Other obelisks have since been discovered, some of which look even more like miniature models of structural buildings than this one does.
Till further information is obtained, it will hardly be possible to say much that is satisfactory with regard to either the tombs, temples, or minor antiquities of the Assyrian people. Their architecture was essentially Palatial—as that of the Greeks was Templar—and to that alone our remarks might almost be confined. Fortunately, however, sculpture was another art to which they were specially addicted, and to their passion for this we owe most of our knowledge of their manners and customs. To this art also we are indebted for our ability to restore many details of their palaces and buildings, which without its aid would have been altogether unintelligible.
Judged by the same rules of criticism which we apply to Classic or Mediæval art, the architecture of the Assyrians must, it is feared, rank very low. But for gorgeous Barbaric splendour of effect it seems difficult to imagine anything that could well have been grander or more imposing than the palaces of Nineveh must have been when entire and filled with the state and magnificence of the monarchs of the Assyrian empire.
| DATES. | |
| Cyrus founds Pasargadæ | B.C. 560 |
| Cambyses’ buildings at ditto | 525 |
| Darius builds palace at Persepolis | 521 |
| Xerxes builds halls at Persepolis and Susa | 485 |
| Artaxerxes Longimanus | 465 |
| Darius Nothus | 424 |
| Artaxerxes Mnemon repairs buildings at Persepolis and Susa | 405 |
| Destruction of Persian Empire by Alexander | 331 |
There still remains a third chapter to write before the survey of the architecture of the central region of Asia is complete—before indeed a great deal which has just been assumed can become capable of proof. By a fortunate accident the Persians used stone where the Assyrians used only wood, and consequently many details of their architecture have come down to our day which would otherwise have passed away had the more perishable materials of their predecessors been made use of.
Whatever else the ancient world may owe to the learning of the Egyptians, it seems certain that they were the first to make use of stone as a constructive building material. As before mentioned, the Egyptians used a stone Proto-Doric pillar at least 1000 years before the Greeks or the Etruscans, or any other ancient people we know of, dreamt of such a thing. The Babylonians and Assyrians never seem to have used stone constructively, except as the revêtement of a terrace wall; and it was not till after the conquest of Egypt by Cambyses that we find any Asiatic nations using a pillar of stone in architecture, or doing more than building a wall, or heaping mass on mass of this material without any constructive contrivance. The Indians first learned this art from the Bactrian Greeks, and many civilised Asiatic nations still prefer wood for their palaces and temples, as the Assyrians did, and only use stone as “a heap.” It must have been difficult, however, for any intelligent people to visit the wonderful stone temples of Thebes and Memphis without being struck by their superior magnificence and durability; and we consequently find the Persians on their return, though reproducing their old forms, adopting the new material, which, fortunately for them and for our history, was found in abundance in the neighbourhood of their capitals.
Even, however, on the most cursory inspection, it is easy to see how little the arts of the Assyrians were changed by their successors. 195The winged lions and bulls that adorn the portals at Persepolis are practically identical with those of Nineveh. The representations of the king on his throne with his attendants are so similar, that but for the locality it would require considerable knowledge to discriminate between Sennacherib and Xerxes. The long procession of tribute bearers—the symbolical animals slain by the king; the whole ornamentation, in fact, is so slightly altered from what existed in Assyria, that we are startled to find how little change in these sculptures the new dynasty had introduced; and if this is the case with them, and their position and arrangement are nearly identical, we may feel very certain that the architecture was also the same.
It appears at first sight to have been otherwise; but on closer examination it appears quite certain that this even is due more to the material employed than to any alteration in form. Something may be due to the fact that the buildings we now find on the platform at Persepolis may have been dedicated to somewhat different purposes than were those of Nineveh; but even this is not quite clear. If the great square courts of the Ninevite palaces were roofed over, as Layard suggested—and as probably was the case—they would exactly represent the square halls of Persepolis. But as all the intermediate buildings of sun-dried brick have been washed off the bare rock by the winter rains of Persia, we can only speculate on what they might have been, without daring to lay too much stress on our convictions.
In their present state the remains at Pasargadæ are, perhaps, more interesting to the antiquary than to the architect, the palaces on the plain being so ruined that their architectural arrangements cannot be understood or restored.

82. Plan of Platform at Pasargadæ.

83. Elevation of Platform at Pasargadæ.
196On the side of a hill overlooking the plain is a platform of masonry (Woodcut No. 82) which originally supported either a temple or fire-altar, but this has now entirely disappeared, and the structure is only remarkable for the beauty of its masonry and the large dimensions of the stones with which it is built. These are drafted (Woodcut No. 83), not only at their joints but often on their faces, with the same flat sinking as is found in all the Jewish works at Jerusalem, and sometimes in Greek buildings of the best age. Thus an ornament of great beauty and elegance is formed out of what would otherwise be merely a plain mass of masonry.
The tomb of Cyrus has already been referred to (p. 164) as a copy in stone of one of the ziggurats or terrace-temples. But it must be borne in mind that the most celebrated example of this form is as often called the tomb, as the temple of Belus;[88] and among a Turanian people the tomb and the temple may be considered as one and the same thing. The tomb is surrounded on three sides[89] by a portico of columns standing 14 feet apart: no stone capitals have been found, but it is probable that the columns carried wooden bracket-capitals to diminish the bearing of the wooden architrave or beam which supported the roof. Beyond the portico there are the traces of a second enclosure 25 feet wide, which, from its width, was probably an open court.
84. Tomb of Cyrus. (From Texier’s ‘Arménie et la Perse.’)
On the plain are the remains of buildings, three of which were palaces, and one the ruin of a tomb. The plan of one of them, called the palace of Cyrus, has been measured and published by M. Texier, MM. Flandin & Coste, and M. Dieulafoy, and although the restoration 197given by the latter goes somewhat farther than the remains will account for, there are certain features in which they all agree, and which show that it contained at least two porches or porticoes and a great hall of columns not dissimilar from the examples found at Persepolis. The angle piers or responds of two porticoes still exist in situ; on one of them in the upper stone is cut the socket in which the architrave of the portico rested, the form of this socket having a peculiar value, as it shows more clearly than the socket in the respond of the portico of the palace of Darius, that the Persian architrave was composed of two or more beams placed one over the other, and overhanging, as in the tomb of Darius. A second pier has an inscription which enables us to ascribe its erection to Cyrus. A column, 34 feet high, of the great hall still remains, which shows that at all events in this case the central hall rose above the porticoes, deriving its light therefore through clerestory windows. No capitals have been found,[90] and it is possible therefore 198they were in wood, as we have suggested may have been the case in the portico of the tomb of Cyrus.
85. Plan of Tomb of Cyrus, Pasargadæ. (From Texier.)
86. Section of Tomb of Cyrus. (From Texier.)
To the east of this palace, and distant about 170 yards, are the remains of a second palace with a hall of columns, and measuring 124 by 49 ft., and on the west side of it is the stone jamb of a doorway similar to those at Persepolis, and carved with the well-known bas-relief of Cyrus. The third palace has been excavated by Mr. Weld Blundell, and the foundations of its walls traced, measuring 187 by 131 ft., with a hall of 24 columns.
At Nineveh, as we have seen, all the pillars, the roofs, and the constructive parts of the building, which were of wood,[91] have disappeared, and left nothing but the massive walls, which, falling and being heaped the one on the other, have buried themselves and their ornaments till the present day. At Persepolis, on the contrary, the brick walls, being thinner and exposed on the bare surface of the naked rock, have been washed away by the storms and rains of 2000 years, leaving only the skeletons of the buildings. In the rocky country of Persia, however, the architect fortunately used stone; and 199we have thus at Persepolis, if the expression may be used, all the bones of the building, but without the flesh; and at Nineveh, the flesh, but without the bones that gave it form and substance.
87. View from top of Great Stairs at Persepolis.
The general appearance of the ruins, as they at present stand, will be seen from the woodcut (No. 87).[92] The principal mass in the foreground 200on the left is the Propylæa of Xerxes, and behind that and to the right stand the pillars of the Chehil Minar, or Great Hall of Xerxes. Between these are seen in the distance the remains of the smaller halls of Darius and Xerxes.
88. Stairs to Palace of Xerxes.
The most striking features in this view are the staircases that led from the plain to the platform, and from the lower level to that on which the great hall stood. Indeed, among these ruins, nothing is 201more remarkable than these great flights of steps. The builders of those days were, so far as we know, the only people who really understood the value of this feature. The Egyptians seem wholly to have neglected it, and the Greeks to have cared little about it; but it was not so at Nineveh, where, so far as we can understand from the indistinct traces left, the stairs must have been one of the most important parts of the design. But they were so situated that they were not buried when the buildings were ruined, and consequently have been removed. At Jerusalem, too, we read that when the Queen of Sheba saw “the ascent by which Solomon went up to the house of the Lord, there was no more spirit in her.” Indeed, in all the ancient temples and palaces of this district, more attention is paid to this feature than to almost any other; and from their favourable situation on artificial terraces, the builders were enabled to apply their stairs with far more effect than any others in ancient or in modern times.
The lower or great staircase at Persepolis is plain, and without any sculpture, but is built of the most massive Cyclopean masonry, and of great width and very easy acclivity. That in front of the great hall is ornamented with sculpture, in three tiers, representing the people of the land bringing presents and the subject nations tribute, to lay at the feet of the monarch, combined with mythological representations; the whole bearing a very considerable resemblance to the sculptures on the walls of the Assyrian palaces, though the position is different. The arrangement of these stairs, too, is peculiar, none of them being at right angles to the buildings they approach, but all being double, apparently to permit of processions passing the throne, situated in the porches at their summit, without interruption, and without altering the line of march.
One of these flights, leading to the platform of Xerxes’ palace, is shown in the woodcut (No. 88). In arrangement it is like the stairs leading to the great terrace, but very much smaller, and is profusely adorned with sculpture.
The principal apartment in all the buildings situated on the platform is a central square hall, the floor of which is studded with pillars placed equidistant the one from the other. The smallest have 4 pillars, the next 16, then 36, and one has 100 pillars on its floor; but to avoid inventing new names, we may call these respectively, distyle, tetrastyle, hexastyle, and decastyle halls, from their having 2, 4, 6, or 10 pillars on each face of the phalanx, and because that is the number of the pillars in their porticoes when they have any.
The building at the head of the great stairs is a distyle hall, having 4 pillars supporting its roof. On each side of the first public entrance stands a human-headed winged bull, so nearly identical with those found in Assyrian palaces as to leave no doubt of their having the same origin. At the opposite entrance are two bulls without wings, but 202drawn with the same bold, massive proportions which distinguish all the sculptured animals in the palaces of Assyria and Persia. The other, or palace entrance, is destroyed, the foundation only remaining; but this, with the foundations of the walls, leaves no room to doubt that the annexed woodcut (No. 89) is a true representation of its ground-plan.[93] Nor can it be doubted that this is one of those buildings so frequently mentioned in the Bible as a “gate,” not the door of a city or buildings, but a gate of justice, such as that where Mordecai sat at Susa—where Abraham bought his field—where Ruth’s marriage was judged of—and, indeed, where public business was generally transacted.
89. Propylæa. Scale 100 ft. to 1 in.
There are three other distyle halls or gates on the platform: one to the westward of this, very much ruined; one in the centre of the whole group, which seems to have had external porticoes; and a third on the platform in front of the palace of Xerxes.
90. Palace of Darius. Scale 50 ft. to 1 in.
There are two tetrastyle halls, one of which, erected by Darius (woodcut No. 90), is the most interesting of the smaller buildings on the terrace. It is the only building that faces the south, and is approached by a flight of steps, represented with the whole façade of the palace as it now stands in the woodcut (No. 91). These steps led to a tetrastyle porch, two ranges in depth, which opened into the central hall with its 16 columns, around which were arranged smaller rooms or cells, either for the occupation of the king, if it was a palace, or of the priests if a temple. In the western side a staircase and doorway were added, somewhat unsymmetrically, by Artaxerxes.
203These remains would hardly suffice to enable us to restore the external appearance of the palace; but fortunately the same king who built the palace for his use on this mound, repeated it in the rock as an “eternal dwelling” for himself after death. The tomb known as that of Darius at Naksh-i-Rustam (woodcut No. 92), is an exact reproduction, not only of the architectural features of the palace, but to the same scale, and in every respect so similar, that it seems impossible to doubt but that the one was intended as a literal copy of the other. Assuming it to be so, we learn what kind of cornice rested on the double bull capitals. And what is still more interesting, we obtain a representation of a prayer platform, which we have described elsewhere as a Talar,[94] but the meaning of which we should hardly know but for this representation.
The other tetrastyle hall is similar to this, but plainer and somewhat smaller.
91. Façade of Palace of Darius at Persepolis. Scale of 20 ft. to 1 in.
Turning from these to the hexastyle halls, the smallest but most perfect (Woodcut No. 91) is that standing on the 205southern edge of the upper platform, the inscriptions on which certainly prove it to have been built by Xerxes.
92. Tomb of Darius at Naksh-i-Rustam, representing the façade of his Palace surmounted by a Talar.
The platform on which it stands is approached by two flights of steps, that on the east being the one represented in the woodcut No. 84,—there are also indications of a tetrastyle hall or gate having existed on its summit,—while that to the west is much simpler. The hall itself had a portico of 12 columns, and on each side a range of smaller apartments, the two principal of which had their roof supported by 4 pillars each.
93. Palace of Xerxes. Scale 100 ft. to 1 in.
The building is one of great beauty in itself, but its greatest value is that it enables us to understand the arrangement of the great hall of Xerxes—the Chehil Minar—the most splendid building of which any remains exist in this part of the world. From the annexed plan (Woodcut No. 94) it will be seen that the arrangement of the whole central part is identical with that of the building just described. There can be no possible doubt about this, as the bases of all the 72 columns still exist in situ, as well as the jambs of the two principal doorways, which are shaded darker in the plan. The side and rear walls only are restored from the preceding illustration. The only difference is, that instead of the two distyle halls on either side, this had hexastyle porticoes of 12 pillars each, similar to that in front; the angles between which were in all probability filled up with rooms or buildings, as suggested in the plan.[95]
94. Restored Plan of Great Hall of Xerxes at Persepolis. Scale 100 ft. to 1 in.
Two orders of pillars were employed to support the roof of this splendid building; one, represented in Woodcut No. 91, with double bull capitals, like those of the porch of Darius’s palace. They are 67 ft. 4 in. in height from the floor to the back of the bull’s neck, or 64 ft. to the under side of the beam that lay between the bulls. The other order, with the Ionic volutes (woodcut No. 96), was also that employed in the northern portico, and generally in the interior throughout this building, and is nearly identical, as far as the base and shaft are concerned, except in the height of the latter. The capital, however, differs widely, and is 16 ft. 6 in. in height, making an order altogether 9 ft. 7 in. less than that used externally, the difference being made up by brackets of wood, which supported the beams of the roof, internally at least, though externally the double bull capital probably surmounted these Ionic-like scrolls.
There is no reason to doubt that these halls also had platforms or talars like the smaller halls, which would also serve to shelter any opening in the roof, though in the present instance it seems very 207doubtful if any such openings or skylights existed or were indeed required.
Thus arranged, the section of the buildings would be as shown in the woodcut (No. 97); and presuming this structure to have been sculptured and painted as richly as others of its age and class, which it no doubt was, it must have been not only one of the largest, but one of the most splendid buildings of antiquity. In plan it was a rectangle of about 300 ft. by 350, and consequently covered 105,000 square ft.; it was thus larger than the hypostyle hall at Karnac, or any of the largest temples of Greece or Rome. It is larger, too, than any mediæval cathedral except that of Milan; and although it has neither the stone roof of a cathedral, nor the massiveness of an Egyptian building, still its size and proportions, combined with the lightness of its architecture and the beauty of its decorations, must have made it one of the most beautiful buildings ever erected. Both in design and proportion it far surpassed those of Assyria, and though possessing much of detail or ornament that was almost identical, its arrangement and proportions were so superior in every respect that no similar building in Nineveh can be compared with this, the great architectural creation of the Persian Empire.

95. Pillar of Western Portico.

96. Pillar of Northern Portico.
208There is no octastyle hall at Persepolis, and only one decastyle. In this instance the hall itself measured about 225 ft. each way, and had 100 pillars on its floor; still, it was low in proportion, devoid of lateral porticoes, and consequently by no means so magnificent a building as the great hall of Xerxes. The portico in front was two ranges in depth, and flanked by gigantic bulls; but as the whole height was barely 25 ft., it could not have been a remarkable or pleasing object. The sculptures on the jambs of the doorways are the most interesting part of this building; these represent the king on his throne, and various mythological subjects, on a more extensive scale than those similarly situated in the other buildings of the platform. Indeed, it is probable that in the other palaces these subjects were painted on the internal walls, as was done in those Assyrian halls which were not revêted with slabs. With an appropriateness that cannot be too much praised, sculpture seems always to have been used in parts of the building exposed to atmospheric injury, and, because of the exposure, to have been employed there in preference to painting.
97. Restored Section of Hall of Xerxes. Scale 100 ft. to 1 in.
Besides these buildings on the platform there are the remains of several others on the plain, and within the precincts of the town of Istakr is a building still called the Hareem of Jemsheed, and which may in reality have been the residence of the Achæmenian kings. It certainly belongs to their age, and from the irregularity of its form, and its general proportions, looks very much more like a residence, properly so called, than any of the monumental erections on the neighbouring platform of Persepolis.
Looked at from an architectural point of view the principal defect of the interior arrangement, especially of the smaller Persepolitan halls, is that their floor is unnecessarily crowded with pillars. As these had to support only a wooden roof, some might have been dispensed with, or a more artistic arrangement have been adopted. This would no doubt have been done but for the influence of the Assyrian style, in which frequent pillars were indispensable to support the heavy flat roofs, and as they were of timber a greater number were required than would have been the case if of stone. 209Those of wood also looked less cumbersome and less in the way than those made of more durable materials.
It is also a defect that the capitals of the pillars retain at Persepolis so much of the form of their wooden prototypes. In wood such capitals as those depicted (Woodcuts No. 96 or No. 98) would not be offensive. In stone they are clumsy; and the Greeks showed their usual discrimination when they cut away all the volutes but one pair and adopted a stone construction for the entablature.
Notwithstanding these defects, there is a grandeur of conception about the Persepolitan halls which entitles them to our admiration. Their greatest point of interest to the architectural student consists probably in their being examples of a transition from a wooden to a stone style of art, and in their enabling us to complete and understand that art which had been elaborated in the valley of the Euphrates during previous centuries; but which, owing to the perishable nature of the materials employed, has almost wholly passed away, without leaving sufficient traces to enable all its characteristics to be understood or restored.
The explorations of Mr. Loftus at Susa in 1850 laid bare the foundations of a palace almost identical both in plan and dimensions with the Chehil Minar at Persepolis. It was, however, much more completely ruined, the place having long been used as a quarry by the inhabitants of the neighbouring plains, so that now only the bases of the pillars remain in situ, with fragments of the shafts and capitals strewed everywhere about, but no walls or doorways, or other architectural members to enable us to supply what is wanting at Persepolis.
98. Restored Elevation of Capital at Susa. (From Loftus.)
The bases seem to be of the same form and style as those at Persepolis, but rather more richly carved. The capitals are also more elaborate, but more essentially wooden in their form, and betray their origin not only in the exuberance of their carving but also in the disproportion of the capital to the shaft. In wood so large a capital does not look disproportioned to so slender a shaft; in stone the effect is most disagreeable, and was to a certain extent remedied at Persepolis so soon as the result was perceived. Whether the Persians would ever have been able to shake off entirely the wooden original is not quite clear, but the Greeks, being bound 210by no such association, cut the knot at once, and saved them the trouble.
99. Frieze of Archers.
In 1885, M. Marcel Dieulafoy turned his attention to the excavations as left by Loftus, and conceiving the idea that the principal entrance should be sought for on the south side of the palace, he cut his trenches in a north-east direction and discovered the traces of the walls enclosing the court in front of the palace. These walls were faced with enamelled beton blocks. Portions of these enamels had disappeared, but sufficient remained, as the walls had fallen on their faces, to allow of their being placed in their relative positions. From these fragments M. Dieulafoy was able to put together a frieze of lions not dissimilar to those found in the palace of Sargon at Khorsabad, with decorative borders above and below, the whole crowned by a battlement, also in enamelled colours. The lower portion of the wall was covered with unglazed bricks of two colours, red and white, arranged in diaper patterns. Continuing the trench, M. Dieulafoy discovered the great staircase placed at the south side of the 211tumulus, a staircase of even greater dimensions than the well-known example of Persepolis. Mr. Loftus’s researches had already proved that the palace consisted of a central hall of thirty-six columns, with three porticoes of twelve columns, similar, therefore, to the great hall of Xerxes. M. Dieulafoy’s discoveries have shown that the central hall was enclosed with a wall, thus confirming the late Mr. Fergusson’s theory as to the restoration of the palace of Xerxes (see p. 206). On the east side leading to the royal entrance of the great hall, M. Dieulafoy discovered the remains of the great frieze of archers (Woodcut No. 99), now in the Louvre; these were executed in bright enamelled colours on beton bricks. The figures, which are about 5 ft. in height, are modelled in low relief, arrayed in processional order, each man grasping a lance in his hand and carrying, slung on his shoulder, a bow and quiver full of arrows. The shape of each man’s dress is the same, but the colours and patterns alternate; in one case the dress is studded with rosettes, in the other with squares containing the earliest heraldic device known, a representation of three towers on a hill.
These enamels, as also those of the lions and of fragments of the crenelated staircase, are now all in the Louvre, and retain sufficient of their pristine effect to suggest a scheme of colour and of decorative treatment of the greatest beauty.[96] The inscriptions round the bases of the pillars had already informed us that the hall was erected by Darius and Xerxes, but repaired and restored by Artaxerxes Mnemon, who added the inscriptions. This has been confirmed by another inscription under the lions on the pylons; these M. Dieulafoy attributes to Xerxes, as fragments of enamelled bricks of burnt clay, and not beton, and therefore of an earlier building, have been utilised as a filling-in. In all probability the hall of this palace is the identical hall in which the scenes described in the Book of Esther took place. The foundations of other parts of this palace might be no doubt laid bare by further excavations; but the ruin of the place has been so complete, that little of interest in an architectural point of view can be looked for. Below these Persian ruins are probably buried the remains of long-preceding dynasties, which deeper excavations would lay bare, and which would in all probability afford a rich harvest to the historical explorer.
Near the town of Istakr, and opposite the tombs of Naksh-i-Rustam, stands a small tower-like building, represented in Woodcut No. 100. The lower part is solid; the upper contains a small square apartment, roofed by two great flat slabs of stone. Access to this chamber is obtained by a doorway situated at some distance from the ground.
Both the traditions of the place and the knowledge we have of their religious practices point to this as one of the fire temples of the ancient Persians. Its roof is internally still black, probably with the smoke of ancient fires, and though simple and insignificant as an architectural monument, it is interesting as the only form of a temple apart from regal state which the ancient Persians possessed.
100. Khabah at Istakr. No scale.
Another, almost identical in form, is found at Pasargadæ,[97] and a third exists (according to Stolze) near Maubandajan, at the foot of the Kuh Pir-i-mard, eleven miles to east of Fasa. Perrot suggests it may have been the tomb of Hytaspes, father of Darius. The celebrated Kaabah at Mecca, to which all the Moslem world now bow in prayer, is probably a fourth, while the temple represented in Woodcut No. 81, from Lord Aberdeen’s Black Stone, may be a representation of such a structure as these, with its curtains and paraphernalia complete. It is too evident, however, that the Persians were not a temple-building people,[98] and the examples that have come down to our time are too few and too insignificant on which to found any theory.
Little requires to be said of the tombs of the Persians; that of Darius is represented in plan and elevation in Woodcut No. 92, and, as before remarked, it is a literal copy on the rock of the façade of his palace. Internally, three small cells contained the remains of the king, with those of the persons, probably his favourite wife or wives 213for whom he had destined that honour. Close by this, at Naksh-i-Rustam, are four others, and in the rock behind Persepolis are three more tombs of the Achæmenian kings, identical with these in all essential respects; but still with such a difference in workmanship and detail as would enable a careful architectural student easily to detect a sequence, and so affix to each, approximately at least, the name of the king whose sepulchre it is. Unfortunately, that of Darius only is inscribed; but his position in the dynasty is so well known, that, starting from that point, it would be easy to assign each of these tombs to the king who excavated it for his own resting-place.
Although these tombs of the Achæmenians are not remarkable for their magnificence, they are interesting in an architectural point of view, inasmuch as—as pointed out above—they enable us to restore their structural buildings in a manner we would hardly be able to do without their assistance. They are also interesting ethnographically as indicating that these kings of Persia were far from being the pure Aryans the language of their inscriptions would lead us to suspect they might be. There are not, so far as is yet known, any series of rock-cut sepulchres belonging to any dynasty of pure Aryan blood. Nor would any king of Semitic race attempt anything of the sort. Their evidence, therefore, as far as it goes—and it is tolerably distinct—seems to prove that the Achæmenian kings were of Turanian race. They only, and not any of their subjects in Persia, seem to have adopted this style of grandeur, which, as we shall presently see, was common in Asia Minor, and other countries subject to their sway, but who were of a different race altogether.
Before leaving this early section of architecture, it may be as well briefly to refer to the invention of the true arch, regarding which considerable misconception still exists.
It is generally supposed that the Egyptians were ignorant of the true principles of the arch, and only employed two stones meeting one another at a certain angle in the centre when they wished to cover a larger space than could conveniently be done by a single block. This, however, seems to be a mistake, as many of the tombs and chambers around the pyramids and the temples at Thebes are roofed by stone and brick arches of a semicircular form, and perfect in every respect as far as the principles of the arch are concerned.
Several of these have been drawn by Lepsius, and are engraved in his work; but, as no text accompanies them, and the drawings are not on a sufficient scale to make out the hieroglyphics, where any exist, their date cannot now be ascertained. Consequently, these examples cannot yet be used as the foundation of any argument on the subject, though the curved form of the roofs in the Third Pyramid would alone be sufficient to render it more than probable that during the period of the 4th dynasty the Egyptians were familiar with this expedient.[99]
At Beni-Hasan, during the time of the 12th dynasty, curvilinear forms reappear in the roofs (Woodcut No. 16), used in such a manner as to render it almost certain that they are copied from roofs of arcuate construction. Behind the Rameseum at Thebes there are a series of arches in brick, which seem undoubtedly to belong to the same age as the building itself; and Sir G. Wilkinson mentions a tomb at Thebes, the roof of which is vaulted with bricks, and still bears the name of Amenoph I., of the 18th dynasty.[100]
The temple at Abydus, erected by Rameses II., shows the same peculiarity as the tombs at Beni-Hasan, of a flat segmental arch thrown across between the stone architraves. In this instance it is also a copy in stone, but such as must have been originally copied from 215one of brick construction. There is also every reason to believe that the apartments of the little pavilion at Medeenet Habû (Woodcuts Nos. 32 and 33) were covered with semicircular vaults, though these have now disappeared.[101]
In Ethiopia Mr. Hoskins found stone arches vaulting the roofs of the porches to the pyramids, perfect in construction, and, what is still more singular, showing both circular and pointed forms (Woodcut No. 105). These, as before remarked, are probably of the time of Tirhakah, or at all events not earlier than the age of Solomon, nor later than that of Cambyses.
101. Section of Tomb near the Pyramids of Gizeh.
In the age of Psammeticus we have several stone arches in the neighbourhood of the pyramids; one, in a tomb at Sakkara, has been frequently drawn; but one of the most instructive is that in a tomb discovered by Colonel Campbell (Woodcut No. 101), showing a very primitive form of an arch composed of 3 stones only, and above which is another arch of regular construction of 4 courses. In his researches at Nimroud, Layard discovered vaulted drains and chambers below the north-west and south-east edifices, which were consequently as old as the 8th or 9th century before our era, and contemporary with those in the pyramids of Meroë. They were of both circular and pointed forms, and built apparently with great care and attention to the principles of the arch (Woodcut No. 102).
102. Vaulted Drain beneath the South-East Palace at Nimroud.
The great discovery of this class is that of the city gates at Khorsabad, which, as mentioned at p. 181, were spanned by arches of semicircular form, so perfect both in construction 216and in the mode in which they were ornamented, as to prove that in the time of Sargon the arch was a usual and well-understood building expedient, and one consequently which we may fairly assume to have been long in use.
103. Arch at Dêr-el-Bahree. (Lepsius.)
On the other hand, we have in the temple at Dêr-el-Bahree in Thebes, built by Thothmes III., a curious example of the retention of the old form, when at first sight it would appear as though the true arch would have been a more correct expedient. In this example, the lower arch is composed of stones bracketing forward horizontally, though the form of the arch is semicircular; and above this is a discharging arch of two stones used as in the Pyramids. The upper arch is so arranged as to relieve the crown of the lower—which is its weakest part—of all weight, and at the same time to throw the whole pressure on the outer ends of the arch stones, exactly where it is wanted. The whole thus becomes constructively perfect, though it is a more expensive way of attaining the end desired than by an arch.
The truth seems to be, the Egyptians had not at this age invented voussoirs deeper in the direction of the radii of the arch than in that of its perimeter; and the arch with them was consequently not generally an appropriate mode of roofing. It was the Romans with their tiles who first really understood the true employment of the arch.
So far as we can now understand from the discoveries that have been made, it seems that the Assyrians used the pointed arch for tunnels, aqueducts, and generally for underground work where they feared great superincumbent pressure on the apex, and the round arch above-ground where that was not to be dreaded; and in this they probably showed more science and discrimination than we do in such works.
104. Arch of the Cloaca Maxima, Rome. Scale 50 ft. to 1 in.
In Europe the oldest arch is probably that of Cloaca Maxima at Rome, constructed under the early kings. It is of stone in 3 rims, and shows as perfect a knowledge of the principle as any subsequent example. Its lasting uninjured to the present day proves how well the art was then understood, and, by inference, how long it must have been practised before reaching that degree of perfection.
From all this it becomes almost certain that the arch was used as 217early as the times of the pyramid-builders of the 4th dynasty, and was copied in the tombs of Beni-Hasan in the 12th; though it may be that the earliest existing example cannot be dated further back than the first kings of the 18th dynasty; from that time, however, there can be no doubt that it was currently used, not only in Egypt, but also in Ethiopia and Assyria.
It would, indeed, be more difficult to account for the fact of such perfect builders as the Egyptians being ignorant of the arch if such were the case; though, at the same time, it is easy to understand why they should use it so sparingly, as they did in their monumental erections.
Even in the simplest arch, that formed of only two stones, such as is frequently found in the pyramids, and over the highest chamber (Woodcut No. 8), it will be evident that any weight placed on the apex has a tendency to lower the summit, and press the lower ends of the stones outwards. Where there was the whole mass of the pyramid to abut against, this was of no consequence, but in a slighter building it would have thrust the walls apart, and brought on inevitable ruin.
The introduction of a third stone, as in the arch (Woodcut No. 101), hardly remedied this at all, the central stone acting like a wedge to thrust the two others apart; and even the introduction of 2 more stones, making 5, as in Woodcut No. 105, only distributed the pressure without remedying the defect; and without the most perfect masonry every additional joint was only an additional source of weakness.
105. Arches in the Pyramids at Meroë. (From Hoskins.)
This has been felt by the architects of all ages and in all countries: still, the advantage of being able to cover large spaces with small stones or bricks is so great, that many have been willing to run the risk; and all the ingenuity of the Gothic architects of the Middle Ages was applied to overcoming the difficulty. But even the best of their buildings are unstable from this cause, and require constant care and attention to keep them from falling.
The Indian architects have fallen into the other extreme, refusing to use the arch under any circumstances, and preferring the smallest dimensions and the most crowded interiors, to adopting what they consider so destructive an expedient. As mentioned in the Introduction (page 22), their theory is that “an arch never sleeps,” and is constantly tending to tear a building to pieces: and, where aided by earthquakes and the roots of trees, there is only too much truth in their belief.
The Egyptians seem to have followed a middle course, using arches either in tombs, where the rock formed an immovable abutment; or 218in pyramids and buildings, where the mass immensely overpowered the thrust; or underground, where the superincumbent earth prevented movement.
They seem also to have used flat segmental arches of brickwork between the rows of massive architraves which they placed on their pillars; and as all these abutted one another, like the arches of a bridge, except the external ones, which were sufficiently supported by the massive walls, the mode of construction was a sound one. This is exactly that which we have re-introduced during the last 30 years, in consequence of the application of cast-iron beams, between which flat segmental arches of brick are thrown, when we desire to introduce a more solid and fire-proof construction than is possible with wood only.
In their use of the arch, as in everything else, the building science of the Egyptians seems to have been governed by the soundest principles and the most perfect knowledge of what was judicious and expedient, and what should be avoided. Many of their smaller edifices have no doubt perished from the scarcity of wood forcing the builders to employ brick arches, but they wisely avoided the use of these in all their larger monuments—in all, in fact, which they wished should endure to the latest posterity.
| DATES. | |
| Moses | B.C. 1312 |
| Solomon | 1013 |
| Ezekiel | 573 |
| Zerubbabel | 520 |
| Herod | 20 |
| Titus | A.D. 70 |
The Jews, like the other Semitic races, were not a building people, and never aspired to monumental magnificence as a mode of perpetuating the memory of their greatness. The palace of Solomon was wholly of cedar wood, and must have perished of natural decay in a few centuries, if it escaped fire and other accidents incident to such temporary structures. Their first temple was a tent, their second depended almost entirely on its metallic ornaments for its splendour, and it was not till the Greeks and Romans taught them how to apply stone and stone carving for this purpose that we have anything that can be called architecture in the true sense of the term.
This deficiency of monuments is, however, by no means peculiar to the Jewish people. As before observed, we should know hardly anything of the architecture of Assyria but for the existence of the wainscot slabs of their palaces, though they were nearly a purely Semitic people, but their art rested on a Turanian basis. Neither Tyre nor Sidon have left us a single monument; nor Utica nor Carthage one vestige that dates anterior to the Roman period. What is found at Jerusalem, at Baalbec, at Palmyra, or Petra, even in the countries beyond the Jordan, is all Roman. What little traces of Phœnician art are picked up in the countries bordering on the Mediterranean are copies, with Egyptian or Grecian details, badly and unintelligently copied, and showing a want of appreciation of the first principles of art that is remarkable in that age. It is therefore an immense gain if by our knowledge of Assyrian art we are enabled, even in a moderate degree, to realise the form of buildings which have long ceased to exist, and are only known to us from verbal descriptions.
106. Diagram Plan of Solomon’s Palace. Scale of 100 ft. to 1 in.
The most celebrated secular building of the Jews was the palace which Solomon was occupied in building during the thirteen years 220which followed his completion of the Temple. As not one vestige of this celebrated building remains, and even its site is a matter of dispute, the annexed plan must be taken only as an attempt to apply the knowledge we have acquired in Assyria and Judea to the elucidation of the descriptions of the Bible and Josephus,[102] and as such may 221be considered of sufficient interest to deserve a place in the History of Architecture.
The principal apartment here, as in all Eastern palaces, was the great audience hall, in this instance 150 feet in length by 75 in width; the roof composed of cedar, and, like the Ninevite palaces, supported by rows of cedar pillars on the floor. According to Josephus, who, however, never saw it, and had evidently the Roman Stoa Basilica of the Temple in his eye, the section would probably have been as shown in diagram A. But the contemporary Bible narrative, which is the real authority, would almost certainly point to something more like the Diagram B in the annexed woodcut.
107. Diagram Sections of the House of the Cedars of Lebanon.
Next in importance to this was the Porch, which was the audience or reception hall, attached to the private apartments; these two being the Dewanni Aum and Dewanni Khas of Eastern palaces, at this day. The Hall of Judgment we may venture to restore with confidence, from what we find at Persepolis and Khorsabad; and the courts are arranged in the diagram as they were found in Ninevite palaces. They are proportioned, so far as we can now judge, to those parts of which the dimensions are given by the authorities, and to the best estimate we can now make of what would be most suitable to Solomon’s state, and to such a capital as Jerusalem was at that time.
From Josephus we learn that Solomon built the walls of this palace “with stones 10 cubits in length, and wainscoted them with stones that were sawed and were of great value, such as are dug out of the earth for the ornaments of temples and the adornment of palaces.”[103] These were ornamented with sculptures in three rows, but the fourth or upper row was the most remarkable, being covered with foliage in relief, of the most exquisite workmanship; above this the walls were plastered and ornamented with paintings in colour: all of which is the exact counterpart of what we find at Nineveh.
From the knowledge we now possess of Assyrian palaces it might indeed be possible to restore this building with fairly approximate 222correctness, but it would hardly be worth while to attempt this except in a work especially devoted to Jewish art. For the present it must suffice to know that the affinities of the architecture of Solomon’s age were certainly Assyrian; and from our knowledge of the one we may pretty accurately realise the form of the other.
Although not one stone remains upon another of the celebrated Temple of Jerusalem, still, the descriptions in the Bible and Josephus are so precise, that now that we are able to interpret them by the light of other buildings, its history can be written with very tolerable certainty.
The earliest temple of the Jews was the Tabernacle, the plan of which they always considered as divinely revealed to them through Moses in the desert of Sinai, and from which they consequently never departed in any subsequent erections. Its dimensions were for the cella, or Holy of Holies, 10 cubits or 15 ft. cube; for the outer temple, two such cubes or 15 ft. by 30. These were covered by the sloping roofs of the tent, which extended 5 cubits in every direction beyond the temple itself, making the whole 40 cubits or 60 ft. in length by 20 cubits or 30 ft. in width. These stood within an enclosure 100 cubits long by 50 cubits wide.[104]
108. The Tabernacle, showing one half ground plan and one half as covered by the curtains.
When Solomon (B.C. 1015) built the Temple, he did not alter the disposition in any manner, but adopted it literally, only doubling every dimension. Thus the Holy of Holies became a cube of 20 cubits; the Holy place, 20 by 40; the porch and the chambers which surrounded it 10 cubits each, making a total of 80 cubits or 120 ft. by 40 cubits or 60 ft., with a height of 30 as compared with 15, which was the height of the ridge of the Tabernacle, and it was surrounded by a court the dimensions of which were 200 cubits in length by 100 in width.
Even with these increased dimensions the Temple was a very insignificant building in size: the truth being that, like the temples of 223Semitic nations, it was more in the character of a shrine or of a treasury intended to contain certain precious works in metal.
109. South-East View of the Tabernacle, as restored by the Author.
The principal ornaments of its façade were two brazen pillars, Jachin and Boaz, which seem to have been wonders of metal work, and regarding which more has been written, and it may be added, more nonsense, than regarding almost any other known architectural objects. The truth of the matter appears to be that the translators of our Bibles in no instance were architects, and none of the architects who have attempted the restoration were learned as Hebrew scholars; and consequently the truth has fallen to the ground between the two. A brazen pillar, however, 18 cubits high and 12 cubits in circumference—6 ft. in diameter—is an absurdity that no brass-founder ever could have perpetrated. In the Hebrew, the 15th verse reads: “He cast two pillars of brass, 18 cubits was the height of the one pillar, and a line of 12 cubits encompassed the other pillar.”[105] The truth of the matter seems to be that what Solomon erected was a screen (chapiter) consisting of two parts, one 4 cubits, the other 5 cubits in height, and supported by two pillars of metal, certainly not more than 1 cubit in diameter, and standing 12 cubits apart: nor does it seem difficult to perceive what purpose this screen was designed to effect. As will be observed, in the restoration of the Tabernacle (Woodcut No. 109), the whole of the light to the interior is admitted from the front. In the Temple the only light that could penetrate to the Holy of Holies was from the front also; and though the Holy place was partially lighted from the sides, its principal source of light must have been through the 224eastern façade. In consequence of this there must have been a large opening or window in this front, and as a window was a thing that they had not yet learned to make an ornamental feature in architectural design, they took this mode of screening and partially, at least, hiding it.
It becomes almost absolutely certain that this is the true solution of the riddle, when we find that when Herod rebuilt the Temple in the first century B.C., he erected a similar screen for the same purpose in front of his Temple. Its dimensions, however, were one-third larger. It was 40 cubits high, and 20 cubits across, and it supported five beams instead of two;[106] not to display the chequer-work and pomegranates of Solomon’s screen, but to carry the Golden Vine, which was the principal ornament of the façade of the Temple in its latest form.[107]
110. Plan of Solomon’s Temple, showing the disposition of the chambers in two storeys.
Although it is easy to understand how it was quite possible in metal work to introduce all the ornaments enumerated in the Bible, and with gilding and colour to make these objects of wonder, we have no examples with which we can compare them, and any restoration must consequently be somewhat fanciful. Still, we must recollect that this was the “bronze age” of architecture. Homer tells us of the brazen house of Priam, and the brazen palace of Alcinous; the Treasuries at Mycenæ were covered internally with bronze plates; and in Etruscan tombs of this age metal was far more essentially the material of decoration than carving in stone, or any of the modes afterwards so frequently adopted. The altar of the Temple was of brass. The molten sea, supported by twelve brazen oxen; the bases, the lavers, and all the other objects in metal work, were in reality what made the Temple so celebrated; and very little was due to the mere masonry by which we should judge of a Christian church or any modern building.
No pillars are mentioned as supporting the roof, but every analogy 225derived from Persian architecture, as well as the constructive necessities of the case, would lead us to suppose they must have existed, four in the sanctuary and eight in the pronaos.
111. Plan of Temple at Jerusalem, as rebuilt by Herod. Scale 200 ft. to 1 in.
The temple which Ezekiel saw in a vision on the banks of the Chebar was identical in dimensions with that of Solomon, in so far as naos and pronaos were concerned. But a passage round the naos was introduced, giving access to the chambers, which added 10 cubits to its dimensions every way, making it 100 cubits by 60. The principal court, which contained the Altar and the Temple properly so called, had the same dimensions as in Solomon’s Temple; but he added, in imagination at least, four courts, each 100 cubits or 150 ft. square. That on the east certainly existed, and seems to have been the new court of Solomon’s Temple,[108] and is what in that of Herod became the court of the Gentiles. The north and south courts were never apparently carried out. They did not exist in Solomon’s Temple, and there is evidence to show that they were not found in Zerubbabel’s.[109] That on the north-west angle was the citadel of the Temple, where the treasures were kept, and which was afterwards replaced by the Tower Antonia.
112. View of the Temple from the East, as it appeared at the time of the Crucifixion. (From a drawing by the Author.)
When the Jews returned from the Captivity they rebuilt the Temple exactly as it had been described by Ezekiel, in so far as dimensions are concerned, except that, as just mentioned, they do not seem to have been able to accomplish the northern and southern courts.
The materials, however, were probably inferior to the original Temple; and we hear nothing of brazen pillars in the porch, nor of the splendid vessels and furniture which made the glory of Solomon’s Temple, so that the Jews were probably justified in mourning over its comparative insignificance.[110]
In the last Temple we have a perfect illustration of the mode in which the architectural enterprises of that country were carried out. The priests restored the Temple itself, not venturing to alter a single one of its sacred dimensions, only adding wings to the façade so as to make it 100 cubits wide, and it is said 100 cubits high, while the length remained 100 cubits as before.[111] At this period, however, Judea was under the sway of the Romans and under the influence of their ideas, and the outer courts were added with a magnificence of which former builders had no conception, but bore strongly the impress of the architectural magnificence of the Romans.
An area measuring 600 feet each way was enclosed by terraced walls of the utmost lithic grandeur. On these were erected porticoes unsurpassed by any we know of. One, the Stoa Basilica, had a section equal to that of our largest cathedrals, and surpassed them all in length, and within this colonnaded enclosure were ten great gateways, two of which were of surpassing magnificence: the whole making up a rich and varied pile worthy of the Roman love of architectural display, but in singular contrast with the modest aspirations of a purely Semitic people.
It is always extremely difficult to restore any building from mere verbal description, and still more so when erected by a people of whose architecture we know so little as we do of that of the Jews. Still, the woodcut on the opposite page is probably not very far from representing the Temple as it was after the last restoration by Herod, barring of course the screen bearing the Vine mentioned above, which is omitted. Without attempting to justify every detail, it seems such a mixture of Roman with Phœnician forms as might be expected and is warranted by Josephus’s description. There is no feature for which authority could not be quoted, but the difficulty is to know whether or not the example adduced is the right one, or the one which bears most directly on the subject. After all, perhaps, its principal defect is that it does not (how can a modern restoration?) do justice to the grandeur and beauty of the whole.
228As it has been necessary to anticipate the chronological sequence of events in order not to separate the temples of the Jews from one another, it may be as well before proceeding further to allude to several temples similarly situated which apparently were originally Semitic shrines but rebuilt in Roman times. That at Palmyra, for instance, is a building very closely resembling that at Jerusalem, in so far at least as the outer enclosure is concerned.[112] It consists of a cloistered enclosure of somewhat larger dimensions, measuring externally 730 ft. by 715, with a small temple of an anomalous form in the centre. It wants, however, all the inner enclosures and curious substructures of the Jewish fane; but this may have arisen from its having been rebuilt in late Roman times, and consequently shorn of these peculiarities. It is so similar, however, that it must be regarded as a cognate temple to that at Jerusalem, though re-erected by a people of another race.
A third temple, apparently very similar to these, is that of Kangovar in Persia.[113] Only a portion now remains of the great court in which it stood, and which was nearly of the same dimensions as those of Jerusalem and Palmyra, being 660 ft. by 568. In the centre are the vestiges of a small temple. At Aizaini in Asia Minor[114] is a fourth, with a similar court; but here the temple is more important, and assumes more distinctly the forms of a regular Roman peristylar temple of the usual form, though still small and insignificant for so considerable an enclosure.
The mosque of Damascus was once one of these great square temple-enclosures, with a small temple, properly so called, in the centre. It may have been as magnificent, perhaps more so, than any of these just enumerated, but it has been so altered by Christian and Moslem rebuildings, that it is almost impossible now to make out what its original form may have been.
None of these are original buildings, but still, when put together and compared the one with the other, and, above all, when examined by the light which discoveries farther east have enabled us to throw on the subject, they enable us to restore this style in something like its pristine form. At present, it is true, they are but the scattered fragments of an art of which it is feared no original specimens now remain, and which can only therefore be recovered by induction from similar cognate examples of other, though allied, styles of art.
It is now perhaps in vain to expect that any monuments of the most ancient times, of great extent or of great architectural importance, remain to be discovered in Asia Minor; still, it is a storehouse from which much information may yet be gleaned, and whence we may expect the solution of many dark historical problems, if ever they are to be solved at all.
Situated as that country is, in the very centre of the old world, surrounded on three sides by navigable seas opening all the regions of the world to her commerce, possessing splendid harbours, a rich soil, and the finest climate of the whole earth, it must not only have been inhabited at the earliest period of history, but must have risen to a pitch of civilisation at a time preceding any written histories that we possess. We may recollect that, in the time of Psammeticus, Phrygia contended with Egypt for the palm of antiquity, and from the monuments of the 18th dynasty we know what rich spoil, what beautiful vases of gold, and other tributes of a rich and luxurious people, the Pout and Roteno and other inhabitants of Asia Minor brought and laid at the feet of Thothmes and other early kings eighteen centuries at least before the Christian era.
At a later period (716 to 547 B.C.) the Lydian empire was one of the richest and most powerful in Asia; and contemporary with this and for a long period subsequent to it, the Ionian colonies of Greece surpassed the mother country in wealth and refinement, and almost rivalled her in literature and art. Few cities of the ancient world surpassed Ephesus, Sardis, or Halicarnassus in splendour; and Troy, Tarsus, and Trebisond mark three great epochs in the history of Asia Minor which are unsurpassed in interest and political importance by the retrospect of any cities of the world. Excepting, however, the remains of the Greek and Roman periods—the great temples of the first, and the great theatres of the latter period—little that is architectural remains in this once favoured land. It happens also unfortunately that there was no great capital city—no central point—where 230we can look for monuments of importance. The defect in the physical geography of the country is that it has no great river running through it—no vast central plain capable of supporting a population sufficiently great to overpower the rest and to give unity to the whole.
113. Elevation of Tumulus at Tantalais. (From Texier’s ‘Asie Mineure.’) 100 ft. to 1 in.
114. Plan and Section of Chamber in Tumulus at Tantalais.
So far as our researches yet reach, it would seem that the oldest remains still found in Asia Minor are the tumuli of Tantalais, on the northern shore of the Gulf of Smyrna. They seem as if left there most opportunely to authenticate the tradition of the Etruscans having sailed from this port for Italy. One of these is represented in Woodcuts Nos. 113 and 114. Though these tumuli are built wholly of stone, no one familiar with architectural resemblances can fail to see in them a common origin with those of Etruria. The stylobate, the sloping sides, the inner chamber, with its pointed roof, all the arrangements, indeed, are the same, and the whole character of the necropolis at Tantalais would be as appropriate at Tarquinii or Cæræ as at Smyrna.
115. Section of Tomb of Alyattes. (From Spiegelthal.) No scale.
Another tumulus of equal interest historically is that of Alyattes, near Sardis, described with such care by Herodotus,[115] and which was explored 35 years ago by Spiegelthal, the Prussian consul at Smyrna.[116] According to the measurements of Herodotus, it was either 3800 or 2314100 ft. in circumference; at present it is found to be 1180 ft. in diameter, and consequently about 3700 ft. in circumference at the top of the basement, though of course considerably more below. It is situated on the edge of a rocky ridge, which is made level on one side by a terrace-wall of large stones, 60 ft. in height; above this the mound rises to the height of 142 ft.: the total height above the plain being 228 ft. The upper part of the mound is composed of alternate layers of clay, loam, and a kind of rubble concrete. These support a mass of brickwork, surmounted by a platform of masonry; on this one of the steles described by Herodotus still lies, and one of the smaller ones was found close by.
The funereal chamber was discovered resting on the rock at about 160 ft. from the centre of the mound. Its dimensions were 11 ft. by 7 ft. 9 in., and 7 ft. high; the roof flat and composed of large stones, on which rested a layer of charcoal and ashes, 2 ft. in thickness, evidently the remains of the offerings which had been made after the chamber was closed, but before the mound had been raised over it.
There are in the same locality an immense number of tumuli of various dimensions, among which Herr Spiegelthal fancies he can discriminate three classes, belonging to three distinct ages; that of Alyattes belonging to the most modern. This is extremely probable, as at this time (B.C. 561) the fashion of erecting tumuli as monuments was dying out in this part of the world, though it continued in less civilised parts of Europe till long after the Christian era.
The tumuli that still adorn the Plain of Troy are probably contemporary with the oldest of the three groups of those around the Gygean Lake. Indeed, there does not seem much reason for doubting that they were really raised over the ashes of the heroes who took part in that memorable struggle, and whose names they still bear.
The recent explorations of these mounds do not seem to have thrown much light on the subject, but if we can trust the account Chevalier gives of his researches at the end of the last century, the case is clear enough, and there can be very little doubt but that the Dios Tepe on the Sigæan promontory is really the tomb of Achilles.[117] Intensely interesting though they are in other respects, Schliemann’s discoveries on the site of Troy have done very little to increase our 232knowledge of the architecture of the period. This may partly be owing to his ignorance of the art, and to his having no architect with him, but it does not appear that any architectural mouldings were discovered earlier than those of “Ilium Novum,” two or three centuries before Christ. The so-called Temple of Minerva was without pillars or mouldings of any sort, and the walls and gates of the old city were equally devoid of ornament. What was found seems to confirm the idea that the Trojans were a Turanian-Pelasgic people burying their dead in mounds, and revelling in barbaric splendour, but not having reached that degree of civilisation which would induce them to seek to perpetuate their forms of art in more permanent materials than earth and metals.[118]
It is not clear whether any other great groups of tumuli exist in Asia Minor, but it seems more than probable that in the earliest times the whole of this country was inhabited by a Pelasgic race, who were the first known occupants of Greece, and who built the so-called Treasuries of Mycenæ and Orchomenos, and who sent forth the Etruscans to civilise Italy. If this be so, it accounts for the absence of architectural remains, for they would have left behind them no buildings but the sepulchres of their departed great ones; and if their history is to be recovered, it must be sought for in the bowels of the earth, and not in anything existing above-ground.
Next to these in point of age and style comes a curious group of rock-cut monuments, found in the centre of the land at Doganlu. They are placed on the rocky side of a narrow valley, and are unconnected apparently with any great city or centre of population. Generally they are called tombs, but there are no chambers nor anything about them to indicate a funereal purpose, and the inscriptions which accompany them are not on the monuments themselves, nor do they refer to such a destination. Altogether they are certainly among the most mysterious remains of antiquity, and, beyond a certain similarity to the rock-cut tombs around Persepolis, present no features that afford even a remote analogy to other monuments which might guide us in our conjectures as to the purpose for which they were designed. They are of a style of art clearly indicating a wooden 233origin, and consist of a square frontispiece, either carved into certain geometric shapes, or apparently prepared for painting; at each side is a flat pilaster, and above a pediment terminating in two scrolls. Some—apparently the more modern—have pillars of a rude Doric order, and all indeed are much more singular than beautiful. When more of the same class are discovered, they may help us to some historic data: all that we can now advance is, that, judging from the inscriptions on them and the traditions in Herodotus, they would appear to belong to some race from Thessaly, or thereabouts, who at some remote period crossed the Hellespont and settled in their neighbourhood; they may be dated as far back as 1000, and most probably 700 years at least before the Christian Era.
116. Rock-cut Frontispiece at Doganlu. (From Texier’s ‘Asie Mineure.’)
There are other rock-cut sculptures farther east, at Pterium and elsewhere; but all these are figure sculptures, without architectural form or details, and therefore hardly coming within the limits of this work.
The only remaining important architectural group in Asia Minor is that of Lycia, made known in this country since the year 1838, by the investigations of Sir Charles Fellows and others. Interesting though they certainly are, they are extremely disheartening to any one looking for earlier remains in this land,—inasmuch as all of them, and more especially the older ones, indicate distinctly a wooden origin—more 234strongly perhaps than any architectural remains in the Western world. The oldest of them cannot well be carried farther back than the Persian conquest of Cyrus and Harpagus. In other words, it seems perfectly evident that up to that period the Lycians used only wood for their buildings, and that it was only at that time, and probably from the Greeks or Egyptians, that they, like the Persians themselves, first learnt to substitute for their frail and perishable structures others of a more durable material.
117. Lycian Tomb. (From British Museum.)
As already observed, the same process can be traced in Egypt in the earliest ages. In Central Asia the change was effected by the Persians. In India between the 2nd and 3rd centuries B.C. In Greece—in what was not borrowed from the Egyptians—the change took place a little earlier than in Lycia, or say in the 7th century B.C. What is important to observe here is that, wherever the process can be detected, it is in vain to look for earlier buildings. It is only in the infancy of stone architecture that men adhere to wooden forms; and as soon as habit gives them familiarity with the new material they 235abandon the incongruities of the style, and we lose all trace of the original form, which never reappears at an after age.
All the original buildings of Lycia are tombs or monumental erections of some kind, and generally may be classed under two heads, those having curvilinear and those having rectilinear roofs, of both which classes examples are found structural—or standing alone—as well as rock-cut. The woodcut (No. 117) represents a perfectly constructed tomb. It consists first of a double podium, which may have been in all cases, or at least generally, of stone. Above this is a rectangular chest or sarcophagus, certainly copied from a wooden form; all the mortises and framing, even to the pins that held them together, being literally rendered in the stonework. Above this is a curvilinear roof of pointed form, which also is in all its parts a copy of an original in wood.
The staves or bearers of the lower portion of the chest or sarcophagus would suggest that the original feature was a portable ark, the upper portion of which was framed in bamboo or some pliable wood tied together by cross timbers or purlins which are carved on the principal front. A somewhat similar scheme of construction is shown in the Chaityas of the Buddhist temples, which are supposed to have been copies of wooden structures not dissimilar to the Toda Mant huts which are built by the Hindus down to the present day.[119]
118. Rock-cut Lycian Tomb. (From Forbes and Spratt’s ‘Lycia.’)
119. Rock-cut Lycian Tomb. (From Sir Charles Fellows’s work.)
120. Rock-cut Lycian Tomb. (From Texier’s ‘Asie Mineure.’)
When these forms are repeated in the rock the stylobate is omitted, and only the upper part represented, as shown in the annexed woodcut (No. 118).
When the curvilinear roof is omitted, a flat one is substituted, 237nearly similar to those common in the country at the present day, consisting of beams of unsquared timber, laid side by side as close as they can be laid, and over this a mass of concrete or clay, sufficiently thick to prevent the rain from penetrating through. Sometimes this is surmounted by a low pediment, and sometimes the lower framing also stands out from the rock, so as to give the entrance of the tomb something of a porchlike form. Both these forms are illustrated in the two woodcuts (Nos. 119 and 120), and numerous varieties of them are shown in the works of Sir Charles Fellows and others, all containing the same elements, and betraying most distinctly the wooden origin from which they were derived.
121. Ionic Lycian Tomb. (From Texier’s ‘Asie Mineure.’)
The last form that these buildings took was in the substitution of an Ionic façade for these carpentry forms: this was not done apparently at once, for, though the Ionic form was evidently borrowed from the neighbouring Greek cities, it was only adopted by degrees, and even then betrayed more strongly the wooden forms from which its entablature was derived than is usually found in other or more purely Grecian examples. As soon as it had fairly gained a footing, the wooden style was abandoned, and a masonry one substituted in its stead. The whole change took place in this country probably within a century; but this is not a fair test of the time such a process usually takes, as here it was evidently done under foreign influence and with the spur given by the example of a stone-building people. We have no knowledge of how long it took in Egypt to effect the transformation. In India, where the form and construction of the older Buddhist temples resemble so singularly these examples in Lycia, the process can be traced through five or six centuries; and in Persia it took perhaps nearly as long to convert the wooden designs of the Assyrians into even the imperfect stone architecture of the Achæmenians. Even in their best and most perfect buildings, however, much remained to be done before the carpentry types were fairly got rid of and the style became entitled to rank among the masonic arts of the world.
238The remaining ancient buildings of Asia Minor were all built by the Greeks and Romans, each in their own style, so that their classification and description belong properly to the chapters treating of the architectural history of those nations, from which they cannot properly be separated, although it is at the same time undoubtedly true that the purely European forms of the art were considerably modified by the influence on them of local Asiatic forms and feelings. The Ionic order, for instance, which arose in the Grecian colonies on the coast, is only the native style of this country Doricised, if the expression may be used. In other words, the local method of building had become so modified and altered by the Greeks in adapting it to the Doric, which had become the typical style with them, as to cause the loss of almost all its original Asiatic forms. It thus became essentially a stone architecture with external columns, instead of a style indulging only in wooden pillars, and those used internally, as there is every reason to suppose was the earlier form of the art. The Ionic style, thus composed of two elements, took the arrangement of the temples from the Doric, and their details from the Asiatic original. The Roman temples, on the contrary, which have been erected in this part of the world, in their columns and other details exactly follow the buildings at Rome itself: while, as in the instances above quoted of Jerusalem, Palmyra, Kangovar, and others, the essential forms and arrangements are all local and Asiatic. The former are Greek temples with Asiatic details, the latter Asiatic temples with only Roman masonic forms. The Greeks, in fact, were colonists, the Romans only conquerors; and hence the striking difference in the style of Asiatic art executed under their respective influence. We shall have frequent occasion in the sequel to refer to this difference.
Though not strictly within the geographical limits of this chapter, there is a group of tombs at Amrith—the ancient Marathos, on the coast of Syria—which are too interesting to be passed over; but so exceptional in the present state of our knowledge, that it is difficult to assign them their proper place anywhere.
The principal monument, represented in woodcut No. 122, is 31 ft. 8 in. in height, composed of very large blocks of stone and situated over a sepulchral cavern. There is no inscription or indication to enable us to fix its date with certainty.[120] The details of its 239architecture might be called Assyrian; but we know of nothing in that country that at all resembles it. On the other hand there is a moulding on its base, which, if correctly drawn, would appear to be of Roman origin; and there is a look about the lions that would lead us to suspect they were carved under Greek influence—after the age of Alexander at least.
122. Elevation of the Monument and Section of the Tomb at Amrith. (From Renan.[121])
The interest consists in its being almost the only perfect survivor of a class of monuments at one time probably very common; but which we are led to believe from the style of ornamentation were generally in brick. It is also suggestive, from its close resemblance to the Buddhist topes in Afghanistan and India; the tall form of those, especially in the first-named country, and their universally domical outline, point unmistakably to some such original as this: and lastly, were I asked to point out the building in the old world which most resembled the stele which Herod erected over the Tombs of the Kings at Jerusalem, in expiation of his desecration of their sanctity,[122] this is the monument to which I should unhesitatingly refer.
Historical notice—Pelasgic art—Tomb of Atreus—Other remains—Hellenic Greece—History of the orders—Doric order—the Parthenon—Ionic order—Corinthian order—Caryatides—Forms of temples—Mode of lighting—Municipal architecture—Theatres.
| DATES. | |
| Atridæ at Mycenæ, from | B.C. 1207 to 1104 |
| Return of the Heraclidæ to Peloponnese | 1104 |
| Olympiads commence | 776 |
| Cypselidæ at Corinth—Building of temple at Corinth, from | 655 to 581 |
| Selinus founded, and first temple commenced | 626 |
| Ascendency of Ægina—Building of temple at Ægina, from | 508 to 499 |
| Battle of Marathon | 490 |
| Battle of Salamis | 480 |
| Theron at Agrigentum. Commences great temple | 480 |
| Cimon at Athens. Temple of Theseus built | 469 |
| Pericles at Athens. Parthenon finished | 438 |
| Temple of Jupiter at Olympia finished | 436 |
| Propylæa at Athens built, from | 437 to 432 |
| Selinus destroyed by Carthaginians | 410 |
| Erechtheium at Athens finished | 409 |
| Monument of Lysicrates at Athens | 335 |
| Death of Alexander the Great | 324 |
Till within a very recent period the histories of Greece and Rome have been considered as the ancient histories of the world; and even now, in our universities and public schools, it is scarcely acknowledged 241that a more ancient record has been read on the monuments of Egypt and dug out of the bowels of the earth in Assyria.
It is nevertheless true that the decipherment of the hieroglyphics on the one hand, and the reading of the arrow-headed characters on the other, have disclosed to us two forms of civilisation anterior to that which reappeared in Greece in the 8th century before Christ. Based on those that preceded it, the Hellenic form developed itself there with a degree of perfection never before seen, nor has it, in its own peculiar department, ever been since surpassed.
These discoveries have been of the utmost importance, not only in correcting our hitherto narrow views of ancient history, but in assisting to explain much that was obscure, or utterly unintelligible, in those histories with which we were more immediately familiar. We now, for the first time, comprehend whence the Greeks obtained many of their arts and much of their civilisation, and to what extent the character of these was affected by the sources from which they were derived.
Having already described the artistic forms of Egypt and Assyria, it is not difficult to discover the origin of almost every idea, and of every architectural feature, that was afterwards found in Greece. But even with this assistance we should not be able to understand the phenomena which Greek art presents to us, were it not that the monuments reveal to us the existence of two distinct and separate races existing contemporaneously in Greece. If the Greeks were as purely Aryan as their language would lead us to believe, all our ethnographic theories are at fault. But this is precisely one of those cases where archæology steps in to supplement what philology tells us and to elucidate what that science fails to reveal. That the language of the Greeks, with the smallest possible admixture from other sources, is pure Aryan, no one will dispute: but their arts, their religion, and frequently their institutions, tend to ascribe to them an altogether different origin. Fortunately the ruins at Mycenæ and Orchomenos are sufficient to afford us a key to the mystery. From them we learn that at the time of the war of Troy a people were supreme in Greece who were not Hellenes, but who were closely allied to the Etruscans and other tomb-building, art-loving races. Whether they were purely Turanian, or merely ultra-Celtic, may be questioned; but one thing seems clear, that this people were then known to the ancients under the name of Pelasgi, and it is their presence in Greece, mixed up with the more purely Dorian races, which explains what would otherwise be unintelligible in Grecian civilisation.
Except from our knowledge of the existence of a strong infusion of Turanian blood into the veins of the Grecian people, it would be impossible to understand how a people so purely Aryan in appearance came to adopt a religion so essentially Anthropic and Ancestral. 242Their belief in oracles, their worship of trees,[124] and many minor peculiarities, were altogether abhorrent to the Aryan mind.
The existence of these two antagonistic elements satisfactorily explains how it was that while art was unknown in the purely Dorian city of Sparta, it flourished so exuberantly in the quasi-Pelasgic city of Athens; why the Dorians borrowed their architectural order from Egypt, and hardly changed its form during the long period they employed it; and how it came to pass that the eastern art of the Persians was brought into Greece, and how it was there modified so essentially that we hardly recognise the original in its altered and more perfect form. It explains, too, how the different States of Greece were artistic or matter-of-fact in the exact proportion in which either of the two elements predominated in the people.
Thus the poetry of Arcadia was unknown in the neighbouring State of Sparta; but the Doric race there remained true to their institutions and spread their colonies and their power farther than any other of the little principalities of Greece. The institutions of Lycurgus could never have been maintained in Athens; but, on the other hand, the Parthenon was as impossible in the Lacedemonian State. Even in Athens art would not have been the wonder that it became without that happy admixture of the two races which then prevailed, mingling the common sense of the one with the artistic feeling of the other, which tended to produce the most brilliant intellectual development which has yet dazzled the world with its splendour.
The contemporary presence of these two races perhaps also explains how Greek civilisation, though so wonderfully brilliant, passed so quickly away. Had either race been pure, the Dorian institutions might have lasted as long as the village-systems of India or the arts of Egypt or China; but where two dissimilar races mix, the tendency is inevitably to revert to the type of one, and, though the intermixture may produce a stock more brilliant than either parent, the type is less permanent and soon passes away. So soon was it the case, in this instance, that the whole of the great history of Greece may be said to be comprehended in the period ranging between the battle of Marathon (B.C. 490) and the peace concluded with Philip of Macedon by the Athenians (B.C. 346): so that the son of a man who was born before the first event may have been a party to the second. All those wonders of patriotism, of poetry, and art, for which Greece was famous, crowded into the short space of a century and a half, is a phenomenon the like of which the world has not seen before, and is not likely to witness again.
As might be expected, from the length of time that has elapsed since the Pelasgic races ruled in Greece, and owing to the numerous changes that have taken place in that country since their day, their architectural remains are few, and comparatively insignificant. It has thus come to pass that, were it not for their tombs, their city walls, and their works of civil engineering, such as bridges and tunnels—in which they were pre-eminent—we should hardly now possess any material remains to prove their existence or mark the degree of civilisation to which they had reached.
124. Section and Plan of Tomb of Atreus at Mycenæ. Scale of plan 100 ft. to 1 in.
The most remarkable of these remains are the tombs of the kings of Mycenæ, a city which in Homeric times had a fair title to be considered the capital of Greece, or at all events to be considered one of the most important of her cities. The Dorians described these as treasuries, from the number of precious objects found in them, as in the tombs of the Etruscans, and because they looked upon such halls as far more than sufficient for the narrow dwellings of the dead. The most perfect and the largest of them now existing is known as the Treasury or Tomb of Atreus at Mycenæ, shown in plan and section in the annexed woodcut. The principal chamber is 48 ft. 6 in. in diameter, and is, or was when perfect, of the shape of a regular equilateral pointed arch, a form well adapted to the mode of construction, which is that of horizontal layers of stones, projecting the one beyond the other, till one small stone closed the whole, and made the vault complete.
As will be explained further on, this was the form of dome adopted by the Jaina architects in India. It prevailed also in Italy and Asia Minor wherever a Pelasgic race is traced, down to the time when the pointed form again came into use in the Middle Ages, though it was not then used as a horizontal, but as a radiating arch.
244On one side of this hall is a chamber cut in the rock, the true sepulchre apparently, and externally is a long passage leading to a doorway, which, judging from the fragments that remain (Woodcut No. 125), must have been of a purely Asiatic form of art, and very unlike anything found subsequent to this period in Greece.
125. Fragment of Pillar in front of Tomb of Atreus at Mycenæ.
To all appearance the dome was lined internally with plates of brass or bronze, some nails of which metals are now found there; and the holes in which the nails were inserted are still to be seen all over the place. A second tomb or treasury of smaller dimensions was discovered by Dr. Schliemann in 1878. Another of these tombs, erected by Minyas at Orchomenos, described by Pausanias as one of the wonders of Greece,[125] seems from the remains still existing to have been at least 20 ft. wider than this one, and proportionably larger in every respect. All these were covered with earth, and some are probably still hidden which a diligent search might reveal. In fact Dr. Schliemann’s discoveries in the Acropolis of Mycenæ and in the Troad prove that it is still possible to discover an unrifled tomb even in Greece.
As domes constructed on the horizontal principle, these three are the largest of which we have any knowledge, though there does not appear to be any reasonable limit to the extent to which such a form of building might be carried. When backed by earth,[126] as these were, it is evident, from the mode of construction, that they cannot be destroyed by any equable pressure exerted from the exterior.
The only danger to be feared is, what is technically called a rising of the haunches; and to avoid this it might be necessary, where large domes were attempted, to adopt a form more nearly conical than that used at Mycenæ. This might be a less pleasing architectural feature, but it is constructively a better one than the form of the radiating domes we generally employ.
245It is certainly to be regretted that more of the decorative features of this early style have not been discovered. They differ so entirely from anything else in Greece, and are so purely Asiatic in form, that it would be exceedingly interesting to be able to restore a complete decoration of any sort. In all the parts hitherto brought to light, an Ionic-like scroll is repeated in every part and over every detail, rather rudely executed, but probably originally heightened by colour. Its counterparts are found in Assyria and at Persepolis, but nowhere else in Greece.[127]
126. Gateway at Thoricus. (From Dodwell’s ‘Greece.’)
The Pelasgic races soon learnt to adopt for their doorways the more pleasing curvilinear form with which they were already familiar from their interiors. The annexed illustration (Woodcut No. 126) from a gateway at Thoricus, in Attica, serves to show its simplest and earliest form; and the illustration (Woodcut No. 129) from Assos, in Asia Minor, of a far more modern date, shows the most complicated form it took in ancient times. In this last instance it is merely a discharging arch, and so little fitted for the purpose to which it is applied, that we can only suppose that its adoption arose from a strong predilection for this shape.
Another illustration of Pelasgic masonry is found at Delos (Woodcut No. 127), consisting of a roof formed by two arch stones, at a certain angle to one another, similar to the plan adopted in Egypt, and is further interesting as being associated with capitals of pillars formed of the front part of bulls, as in Assyria, pointing again to the intimate connection that existed between Greece and Asia at this early period of the former’s history.
127. Arch at Delos. (From Stuart’s ‘Athens.’)
In all these instances it does not seem to have been so much want 246of knowledge that led these early builders to adopt the horizontal in preference to the radiating principle, as a conviction of its greater durability, as well, perhaps, as a certain predilection for an ancient mode.
In the construction of their walls they adhered, as a mere matter of taste, to forms which they must have known to be inferior to others. In the example, for instance, of a wall in the Peloponnesus (woodcut No. 128), we find the polygonal masonry of an earlier age actually placed upon as perfect a specimen built in regular courses, or what is technically called ashlar work, as any to be found in Greece; and on the other side of the gateway at Assos (Woodcut No. 129) there exists a semicircular arch, shown by the dotted lines, which is constructed horizontally, and could only have been copied from a radiating arch.
128. Wall in Peloponnesus. (From Blouet’s ‘Voyage en Grèce.’)
Their city walls are chiefly remarkable for the size of the blocks of stone used and for the beauty with which their irregular joints and courses are fitted into one another. Like most fortifications, they are generally devoid of ornament, the only architectural features being the openings. These are interesting, as showing the steps by which a peculiar form of masonry was perfected, and which, in after ages, led to important architectural results.
129. Gateway at Assos. (From Texier’s ‘Asie Mineure.’)
One of the most primitive of these buildings is a nameless ruin existing near Missolonghi (Woodcut No. 130). In it the sides of the opening are straight for the whole height, and, though making a very stable form of opening, it is one to which it is extremely difficult to fit doors, or to close by any known means. It was this difficulty that led to the next expedient adopted of inserting a lintel at a certain height, and making the jambs more perpendicular below, and more sloping above. This method is already exemplified in the tomb of Atreus 247(Woodcut No. 124), and in the Gate of the Lions at Mycenæ (Woodcut No. 131); but it is by no means clear whether the pediments were always filled up with sculpture, as in this instance, or left open. In the walls of a town they were probably always closed, but left open in a chamber. In the gate at Mycenæ the two lions stand against an altar[128] shaped like a pillar, of a form found only in Lycia, in which the round ends of the timbers of the roof are shown as if projecting into the frieze.
130. Doorway at Missolonghi. (From Dodwell.)
131. Gate of Lions, Mycenæ.
These are slight remains, it must be confessed, from which to reconstruct an art which had so much influence on the civilisation of Greece; but they are sufficient for the archæologist, as the existence of a few fossil fragments of the bones of an elephant or a tortoise suffice to prove the pre-existence of those animals wherever they have been found, and enable the palæontologist to reason upon them with almost as much certainty as if he saw them in a menagerie. Nor is it difficult to see why the remnants are so few. When Homer describes the imaginary dwelling of Alcinous—which he meant to be typical of a perfect palace in his day—he does not speak of its construction or solidity, nor tell us how symmetrically it was arranged; but he is lavish of his praise of its brazen walls, its golden doors with their silver posts and lintels—just as the writers of the Books of Kings and Chronicles praise the contemporary temple or palace of Solomon for similar metallic splendour.
The palace of Menelaus is described by the same author as full of brass and gold, silver and ivory. It was resplendent as the sun and moon, and appeared to the eye of Telemachus like the mansion of Jupiter himself.
132. Plan of Palace at Tiryns.
On the architecture of the early Greek palaces considerable light has been thrown through the researches of the late Dr. Schliemann at Tiryns, on his second visit in 1884, when he was accompanied by Dr. Dörpfield, who measured and drew out the plan which is here reproduced (Woodcut No. 132). The palace at Tiryns is assumed by Dr. Schliemann to have been destroyed by fire in the 11th century B.C. It was built in the upper citadel and faced the south. The citadel was entered through a propylæum with outer and inner portico, both in antis. A second propylæum of smaller dimensions on the south of the entrance court gave access to the chief court of the palace; this court was surrounded by porticoes on three sides, and on the fourth or south side, a vestibule consisting of a portico-in-antis leading to an ante-chamber, and the megaron or men’s hall. The ante-chamber was separated from the portico by three folding-doors, hung on solid timber framing; a single door, probably closed by a curtain only, led from the ante-chamber to the men’s hall, measuring 48 ft. by 33 ft., the roof of which was supported on four pillars or columns; a circle in the centre of these indicated probably the hearth. There are various chambers on the west side, one of which, the bath-room, measuring 13 ft. by 10 ft., had a floor consisting of a gigantic block of limestone 2 ft. thick and weighing 14 to 15 tons. On the east side of the men’s hall was a second court with vestibule or south side leading to the 249women’s hall (thalamos), 24 ft. by 17 ft., and various other rooms on the west side of it. To the south of the women’s court was a third court which may be considered to be the court of service, with a passage leading direct to the entrance propylon of the citadel.
The walls were built in rubble masonry and clay mortar (clay mixed with straw or hay); the foundations were carried from 6 ft. to 8 ft. below the ground. The walls were protected externally; first by a layer of clay of various thicknesses and then with a plaster of lime about half an inch thick. The upper portions of the walls generally consisted of sun-dried bricks, and in order to give greater strength to the walls, beams laid on thin slabs of stone (to give a horizontal bed) were built into the outer surface. Blocks of hard limestone or breccia were used for all the steps and door cills. The exposed angles of the walls and the responds or antæ[129] of the columns were built of stone in the lower part and wood above (in Troy they were always in wood with a stone base). Opinions differ as to the lighting of the halls; the smaller chambers were probably lighted through the door, as in Pompeii; but the men’s and women’s halls must either have received their light through openings at the side under the roof, or by a raised lantern over the hearth before referred to.
No temples are mentioned by Homer, nor by any early writer; but the funereal rites celebrated in honour of Patroclus, as described in the XXIII. Book of the Iliad, and the mounds still existing on the Plains of Troy, testify to the character of the people whose manners and customs he was describing, and would alone be sufficient to convince us that, except in their tombs, we should find little to commemorate their previous existence.
The subject is interesting, and deserves far more attention than has hitherto been bestowed upon it, and more space than can be devoted to it here. Not only is this art the art of people who warred before Troy, but our knowledge of it reveals to us a secret which otherwise might for ever have remained a mystery. The religion of the Homeric poems is essentially Anthropic and Ancestral—in other words, of Turanian origin, with hardly a trace of Aryan feeling running through it. When we know that the same was the case with the arts of those days, we feel that it could not well be otherwise; but what most excites our wonder is the power of the poet, whose song, describing the manners and feelings of an extinct race, was so beautiful as to cause its adoption as a gospel by a people 250of another race, tincturing their religion to the latest hour of their existence.
We have very little means of knowing how long this style of art lasted in Greece. The treasury built by Myron king of Sicyon at Olympia about 650 B.C. seems to have been of this style, in so far as we can judge of it by the description of Pausanias.[130] It consisted of two chambers, one ornamented in the Doric, one in the Ionic style, not apparently with pillars, but with that kind of decoration which appears at that period to have been recognised as peculiar to each. But the entire decorations seem to have been of brass, the weight of metal employed being recorded in an inscription on the building. The earliest example of a Doric temple that we know of—that of Corinth—would appear to belong to very nearly the same age, so that the 7th century B.C. may probably be taken as the period when the old Turanian form of Pelasgic art gave way before the sterner and more perfect creations of a purer Hellenic design. Perhaps it might be more correct to say that the Hellenic history of Greece commenced with the Olympiads (B.C. 776), but before that kingdom bloomed into perfection an older civilisation had passed away, leaving little beyond a few tombs and works of public utility as records of its prior existence. It left, however, an undying influence which can be traced through every subsequent stage of Grecian history, which gave form to that wonderful artistic development of art, the principal if not the only cause of the unrivalled degree of perfection to which it subsequently attained.
133. Plan of the Acropolis at Athens.
A. Propylæa. B. Temple of Niké Apteros. C. Parthenon. D. Erechtheium. E. Foundations of old Temple of Athena, sixth century B.C.
The culminating period of the Pelasgic civilisation of Greece was at the time of the war with Troy—the last great military event of that age, and the one which seems to have closed the long and intimate connection of the Greek Pelasgians with their cognate races in Asia.
Sixty years later the irruption of the Thessalians, and twenty years after that event the return of the Heracleidæ, closed, in a political sense, that chapter in history, and gave rise to what may be styled the Hellenic civilisation, which proved the great and true glory of Greece.
Four centuries, however, elapsed, which may appropriately be called the dark ages of Greece, before the new seed bore fruit, at least in so far as art is concerned. These ages produced, it is true, the laws of Lycurgus, a characteristic effort of a truly Aryan race, conferring as they did on the people who made them that power of self-government, and capacity for republican institutions, which gave them such stability at home and so much power abroad, but which were as inimical to the softer glories of the fine arts in Sparta as they have proved elsewhere.
When, after this long night, architectural art reappeared, it was at Corinth, under the Cypselidæ, a race of strongly-marked Asiatic tendencies; but it had in the meantime undergone so great a transformation as to well-nigh bewilder us. On its reappearance it was no longer characterised by the elegant and ornate art of Mycenæ and the cognate forms of Asiatic growth, but had assumed the rude, bold proportions of Egyptian art, and with almost more than Egyptian massiveness.
The age of the Doric temple at Corinth is not, it is true, satisfactorily determined; but the balance of evidence would lead us to believe that it belongs to the age of Cypselus, or about 650 B.C. The pillars are less than four diameters in height, and the architrave—the only part of the superstructure that now remains—is proportionately heavy. It is, indeed, one of the most massive specimens of architecture existing, more so than even the rock-cut prototype at Beni Hasan. As a work of art, it fails from excess of strength, a fault common to most of the efforts of a rude people, ignorant of the true resources of art, and striving, by the expression of physical power alone, to attain its objects.
Next in age to this is the little temple at Ægina.[131] Its date, too, is unknown, though, judging from the character of its sculpture, it probably belongs to the middle of the sixth century before Christ.
134. Temple at Ægina restored. No scale.
We know that Athens had a great temple on the Acropolis, contemporary with these, and the frusta of its columns still remain, which, after its destruction by the Persians, were built into the walls of the citadel. It is more than probable that all the principal cities of Greece had temples commensurate with their dignity before the Persian War. Many of these were destroyed during that struggle; but it also happened then, as in France and England in the 12th and 13th centuries, that the old temples were thought unworthy of the national greatness, and of that feeling of exaltation arising from the successful result of the greatest of their wars, so that almost all those which 253remained were pulled down or rebuilt. The consequence is, that nearly all the great temples now found in Greece were built in the forty or fifty years which succeeded the defeat of the Persians at Salamis and Platæa.
One of the oldest temples of this class is that best known as the Theseion or Temple of Theseus at Athens, now recognised as the Temple of Hephaistos mentioned in the “Attica” of Pausanias. By an analysis of the architectural character of the Temple Dr. Dorpfield contends that it is posterior to the Parthenon and not anterior, as is generally supposed.
Of all the great temples, the best and most celebrated is the Parthenon, the only octastyle Doric Temple in Greece, and in its own class undoubtedly the most beautiful building in the world. It is true it has neither the dimensions nor the wondrous expression of power and eternity inherent in Egyptian temples, nor has it the variety and poetry of the Gothic Cathedral; but for intellectual beauty, for perfection of proportion, for beauty of detail, and for the exquisite perception of the highest and most recondite principles of art ever applied to architecture, it stands utterly and entirely alone and unrivalled—the glory of Greece and a reproach to the rest of the world.
Next in size and in beauty to this was the great hexastyle temple of Jupiter at Olympia, finished two years later than the Parthenon. Its dimensions were nearly the same, but having only six pillars in front instead of eight, as in the Parthenon, the proportions were different, this temple being 95 ft. by 230, the Parthenon 101 ft. by 227.
The excavations at Olympia, undertaken at the cost of the German Government in 1876, not only laid bare the site of the Temple of Jupiter, of which the lower frusta of half the column, the lower portions of the walls of cella and nearly the whole of the pavement was found in situ; but led to the recovery of a great portion of the sculptures which decorated the metopes and filled the pediments, so that it is not only possible to restore the complete design of the temple itself but to obtain a distinct idea of its sculptural decoration. The foundations of other Doric temples were found; of the Temple of Hera, which seems originally to have been a wooden structure, the wood being gradually replaced by stone when from its decay it required renewal.[132] This temple was coeval if not more ancient than that of Zeus; the interior of the cella would seem to have been subdivided into bays or niches inside, similar to those of the Temple at 254Bassæ; a third hexastyle Doric temple, the Metroum, was also discovered, and many buildings dating from the Roman occupation.
To the same age belongs the exquisite little Temple of Apollo Epicurius at Bassæ (47 ft. by 125), the Temple of Minerva at Sunium, the greater temple at Rhamnus, the Propylæa at Athens, and indeed all that is greatest and most beautiful in the architecture of Greece. The temple of Ceres at Eleusis also was founded and designed at this period, but its execution belongs to a later date.
The temple at Assos, though not of any great size, is interesting on account of its having had the outer face of the architrave sculptured in relief, requiring therefore an architectural frame which was obtained by leaving a raised fillet along the bottom. The temple was hexastyle-peristyle with pronaos but no posticum. The date is assumed to be about 470 B.C., or shortly after the battle of Mycale.[133]
Owing probably to some local peculiarity, which we have not now the means of explaining, the Dorian colonies of Sicily and Magna Græcia seem to have possessed, in the days of their prosperity, a greater number of temples, and certainly retain the traces of many more, than were or are to be found in any of the great cities of the mother country. The one city of Selinus alone possesses six, in two groups,—three in the citadel and three in the city. Of these the oldest is the central one of the first-named group. Its sculptures, first discovered by Messrs. Angell and Harris, indicate an age only slightly subsequent to the foundation of the colony, B.C. 636, and therefore probably nearly contemporary with the example above mentioned at Corinth. The most modern is the great octastyle temple, which seems to have been left unfinished at the time of the destruction of the city by the Carthaginians, B.C. 410. It measured 375 ft. by 166, and was consequently very much larger than any temple of its class in Greece. The remaining four range between these dates, and therefore form a tolerably perfect chronometric series at that time when the arts of Greece itself fail us. The inferiority, however, of provincial art, as compared with that of Greece itself, prevents us from applying such a test with too much confidence to the real history of the art, though it is undoubtedly valuable as a secondary illustration.
At Agrigentum there are three Doric temples, two small hexastyles, whose age may be about 500 to 480 B.C., and one great exceptional example, differing in its arrangements from all the Grecian temples of 255the age. Its dimensions are 360 ft. long by 173 broad, and consequently very nearly the same as those of the great Temple of Selinus just alluded to. Its date is perfectly known, as it was commenced by Theron, B.C. 480, and left unfinished seventy-five years afterwards, when the city was destroyed by the Carthaginians.
At Syracuse there still exist the ruins of a very beautiful temple of this age; and at Segesta are remains of another in a much more perfect state.
Pæstum, in Magna Græcia, boasts of the most magnificent group of temples after that at Agrigentum. One is a very beautiful hexastyle, belonging probably to the middle of the fifth century B.C., built in a bold and very pure style of Doric architecture, and still retains the greater part of its internal columnar arrangement.
The other two are more modern, and are far less pure both in plan and in detail, one having nine columns at each end, the central pillars of which are meant to correspond with an internal range of pillars, supporting the ridge of the roof. The other, though of a regular form, is so modified by local peculiarities, so corrupt, in fact, as hardly to deserve being ranked with the beautiful order which it most resembles.
We have even fewer materials for the history of the Ionic order in Greece than we have for that of the Doric. The recent discoveries in Assyria have proved beyond a doubt that the Ionic was even more essentially an introduction from Asia[134] than the Doric was from Egypt: the only question is, when it was brought into Greece. My own impression is, that it existed there in one form or another from the earliest ages, but owing to its slenderer proportions, and the greater quantity of wood used in its construction, the examples may have perished, so that nothing is now known to exist which can lay claim to even so great an antiquity as the Persian War.
The oldest example, probably, was the temple on the Ilissus, now destroyed, dating from about 484 B.C.; next to this is the little gem of a temple dedicated to Niké Apteros, or the Wingless Victory, built about fifteen years later, in front of the Propylæa at Athens. The last and most perfect of all the examples of this order is the Erechtheium, 256on the Acropolis; its date is apparently about 420 B.C., the great epoch of Athenian art. Nowhere did the exquisite taste and skill of the Athenians show themselves to greater advantage than here; for though every detail of the order may be traced back to Nineveh or Persepolis, all are so purified, so imbued with purely Grecian taste and feeling, that they have become essential parts of a far more beautiful order than ever existed in the land in which they had their origin.
The largest, and perhaps the finest, of Grecian Ionic temples was that built about a century afterwards at Tegea, in Arcadia—a regular peripteral temple of considerable dimensions, but the existence of which is now known only from the description of Pausanias.[135]
As in the case, however, of the Doric order, it is not in Greece itself that we find either the greatest number of Ionic temples or those most remarkable for size, but in the colonies in Asia Minor, and more especially in Ionia, whence the order most properly takes its name.
That an Ionic order existed in Asia Minor before the Persian War is quite certain, but all examples perished in that memorable struggle; and when it subsequently reappeared, the order had lost much of its purely Asiatic character, and assumed certain forms and tendencies borrowed from the simpler and purer Doric style.
If any temple in the Asiatic Greek colonies escaped destruction in the Persian wars, it was that of Juno at Samos. It is said to have been built by Polycrates, and appears to have been of the Doric order. The ruins now found there are of the Ionic order, 346 ft. by 190 ft., and must have succeeded the first mentioned. The apparent archaisms in the form of the bases, &c., which have misled antiquarians, are merely Eastern forms retained in spite of Grecian influence.
More remarkable even than this was the celebrated Temple of Diana at Ephesus, said by Pliny to have been 425 ft. long by 220 ft. wide. Recent excavations on the site, however, carried out by Mr. T. Wood, prove that these dimensions apply only to the platform on which it stood. The temple itself, measured from the outside of the angle pillars, was only 348 ft. by 164, making the area 57,072 ft., or about the average dimensions of our mediæval cathedrals.
Besides these, there was a splendid decastyle temple, dedicated to Apollo Didymæus, at Miletus, 156 ft. wide by 295 ft. in length; an octastyle at Sardis, 261 ft. by 144 ft.; an exquisitely beautiful, though small hexastyle, at Priene, 122 ft. by 64 ft.; and another at Teos, and smaller examples elsewhere, besides many others which have no doubt perished.
German explorations in Pergamon have brought to light the remains of the Augustæum, a building consisting of two detached wings 257with columns of the Ionic order resting on a lofty podium enriched with sculpture and connected one with the other by a magnificent flight of steps, the whole block measuring 125 ft. by 114 ft.[136]
The Corinthian order is as essentially borrowed from the bell-shaped capitals of Egypt as the Doric is from their oldest pillars. Like everything they touched, the Greeks soon rendered it their own by the freedom and elegance with which they treated it. The acanthus-leaf with which they adorned it is essentially Grecian, and we must suppose that it had been used by them as an ornament, either in their metal or wood work, long before they adopted it in stone as an architectural feature.
As in everything else, however, the Greeks could not help betraying in this also the Asiatic origin of their art, and the Egyptian order with them was soon wedded to the Ionic, whose volutes became an essential though subdued part of this order. It is in fact a composite order, made up of the bell-shaped capitals of the Egyptians and the spiral of the Assyrians, and adopted by the Greeks at a time when national distinctions were rapidly disappearing, and when true and severer art was giving place to love of variety. At that time also mere ornament and carving were supplanting the purer class of forms and the higher aspirations of sculpture with which the Greeks ornamented their temples in their best days.
In Greece the order does not appear to have been introduced, or at least generally used, before the age of Alexander the Great; the oldest authentic example, and also one of the most beautiful, being the Choragic Monument of Lysicrates (B.C. 335), which, notwithstanding the smallness of its dimensions, is one of the most beautiful works of art of the merely ornamental class to be found in any part of the world. A simpler example, but by no means so beautiful, is that of the porticoes of the small octagonal building commonly called the Tower of the Winds at Athens. The largest example in Greece of the Corinthian order is the Temple of Jupiter Olympius at Athens. This, however, may almost be called a Roman building, though on Grecian soil—having been commenced in its present form under Antiochus Epiphanes, in the second century B.C. by the Roman architect Cossutius, and only finished by Hadrian, to whom probably we may ascribe the greatest part of what now remains. Its dimensions are 135 ft. by 354 ft., and from the number of its columns, their size and their beauty, it must have been when complete the most beautiful Corinthian temple of the ancient world.
135. Ancient Corinthian Capital. (From Branchidæ.)
Judging, however, from some fragments found among the Ionic temples of Asia Minor, it appears that the Corinthian order was introduced there before we find any trace of it in Greece Proper. Indeed, à priori, we might expect that its introduction into Greece was part of that reaction which the elegant and luxurious Asiatics exercised on the severer and more manly inhabitants of European Greece, and which was in fact the main cause of their subjection, first to the Macedonians, and finally beneath the iron yoke of Rome. As used by the Asiatics, it seems to have arisen from the introduction of the bell-shaped capital of the Egyptians, to which they applied the acanthus-leaf, sometimes in conjunction with the honeysuckle ornament of the time, as in Woodcut No. 135, and on other and later occasions together with the volutes of the same order, the latter combination being the one which ultimately prevailed and became the typical form of the Corinthian capital.
Although differing so essentially in plan, the general dimensions of the larger temples of the Greeks were very similar to those of the mediæval cathedrals, and although they never reached the altitude of their modern rivals, their cubic dimensions were probably in about the same ratio of proportion.
The following table gives the approximate dimensions, rejecting fractions, of the eight largest and best known examples:—
| Juno, at Samos | 346 feet long | 190 feet wide = 65,740 feet. |
| Jupiter, at Agrigentum | 360 feet long | 173 feet wide = 62,280 feet. |
| Apollo, at Branchidæ | 362 feet long | 168 feet wide = 60,816 feet. |
| Diana, at Ephesus | 348 feet long | 164 feet wide = 57,072 feet. |
| Jupiter, at Athens | 354 feet long | 135 feet wide = 47,790 feet. |
| Didymæus, at Miletus | 295 feet long | 156 feet wide = 45,020 feet. |
| Cybele, at Sardis | 261 feet long | 144 feet wide = 37,884 feet. |
| Parthenon, at Athens | 228 feet long | 101 feet wide = 23,028 feet. |
There may be some slight discrepancies in this table from the figures quoted elsewhere, and incorrectness arising from some of the temples being measured on the lowest step and others, as the Parthenon, on the highest; but it is sufficient for comparison, which is all that is attempted in its compilation.
The Doric was the order which the Greeks especially loved and cultivated so as to make it most exclusively their own; and, as used in the Parthenon, it certainly is as complete and as perfect an architectural feature as any style can boast of. When first introduced from Egypt, it, as before stated, partook of even more than Egyptian solidity, but by degrees became attenuated to the weak and lean form of the Roman order of the same name. Woodcuts No. 136, 137, 138 illustrate the three stages of progress from the oldest example at Corinth to the order as used in the time of Philip at Delos, the intermediate being the culminating point in the age of Pericles: the first is 4·47 diameters in height, the next 6·025, the last 7·015; and if the table were filled up with all the other examples, the gradual attenuation of the shaft would very nearly give the relative date of the example. This fact is in itself sufficient to refute the idea of the pillar being copied from a wooden post, as in that case it would have been slenderer at first, and would gradually have departed from the wooden form as the style advanced.[137] This is the case in all carpentry styles. With the Doric order the contrary takes place. The earlier the example the more unlike it is to any wooden original. As the masons advanced in skill and power over their stone material, it came more and more to resemble posts or pillars of wood. The fact appears to be that, either in Egypt or in early Greece, the pillar was originally a pier of brickwork, or of rubble masonry, supporting a wooden roof, of which 260the architraves, the triglyphs, and the various parts of the cornice, all bore traces down to the latest period.
Even as ordinarily represented, or as copied in this country, there is a degree of solidity combined with elegance in this order, and an exquisite proportion of the parts to one another and to the work they have to perform, that command the admiration of every person of taste; but, as used in Greece, its beauty was very much enhanced by a number of refinements whose existence was not suspected till lately, and even now cannot be detected but by the most practised eye.

136. Temple at Delos.

137. Parthenon at Athens.

138. Temple at Corinth.
The columns were at first assumed to be bounded by straight lines. It is now found that they have an entasis, or convex profile, in the Parthenon to the extent of 1⁄550 of the whole height, and are outlined by a very delicate hyperbolic curve; it is true this can hardly be detected by the eye in ordinary positions, but the want of it gives 261that rigidity and poverty to the column which is observable in modern examples.[138]
In like manner, the architrave in all temples was carried upwards so as to form a very flat arch, just sufficient to correct the optical delusion arising from the interference of the sloping lines of the pediment. This, I believe, was common to all temples, but in the Parthenon the curve was applied to the sides also, though from what motive it is not so easy to detect.
Another refinement was making all the columns slope slightly inwards, so as to give an idea of strength and support to the whole. Add to this, that all the curved lines used were either hyperbolas or parabolas. With one exception only, no circular line was employed, nor even an ellipse. Every part of the temple was also arranged with the most unbounded care and accuracy, and every detail of the masonry was carried out with a precision and beauty of execution which is almost unrivalled, and it may be added that the material of the whole was the purest and best white marble. All these delicate adjustments, this exquisite finish and attention to even the smallest details, are well bestowed on a design in itself simple, beautiful, and appropriate. They combine to render this order, as found in the best Greek temples, as nearly faultless as any work of art can possibly be, and such as we may dwell upon with the most unmixed and unvarying satisfaction.
The system of definite proportion which the Greeks employed in the design of their temples, was another cause of the effect they produce even on uneducated minds. It was not with them merely that the height was equal to the width, or the length about twice the breadth; but every part was proportioned to all those parts with which it was related, in some such ratio as 1 to 6, 2 to 7, 3 to 8, 4 to 9, or 5 to 10, &c. As the scheme advances these numbers become undesirably high. In this case they reverted to some such simple ratios as 4 to 5, 5 to 6, 6 to 7, and so on.
We do not yet quite understand the process of reasoning by which the Greeks arrived at the laws which guided their practice in this respect; but they evidently attached the utmost importance to it, and when the ratio was determined upon, they set it out with such accuracy, that even now the calculated and the measured dimensions seldom vary beyond such minute fractions as can only be expressed in hundredths of an inch.
Though the existence of such a system of ratios has long been suspected, it is only recently that any measurements of Greek temples 262have been made with sufficient accuracy to enable the matter to be properly investigated and their existence proved.[139]
The ratios are in some instances so recondite, and the correlation of the parts at first sight so apparently remote, that many would be inclined to believe they were more fanciful than real.[140] It would, however, be as reasonable in a person with no ear, or no musical education, to object to the enjoyment of a complicated concerted piece of music experienced by those differently situated, or to declare that the pain musicians feel from a false note was mere affectation. The eyes of the Greeks were as perfectly educated as our ears. They could appreciate harmonies which are lost in us, and were offended at false quantities which our duller senses fail to perceive. But in spite of ourselves, we do feel the beauty of these harmonic relations, though we hardly know why; and if educated to them, we might acquire what might almost be considered a new sense. But be this as it may, there can be no doubt but that a great deal of the beauty which all feel in contemplating the architectural productions of the Greeks, arises from causes such as these, which we are only now beginning to appreciate.
139. The Parthenon. Scale 50 ft. to 1 in.
To understand, however, the Doric order, we must not regard it as a merely masonic form. Sculpture was always used, or intended to be used, with it. The Metopes between the triglyphs, the pediments of the porticoes, and the acroteria or pedestals on the roof, are all unmeaning and useless unless filled or surmounted with sculptured figures. Sculpture is, indeed, as essential a part of this order as the acanthus-leaves and ornaments of the cornice are to the capitals and entablature of the Corinthian order; and without it, or without its place being supplied by painting, we are merely looking at the dead skeleton, the mere 263framework of the order, without the flesh and blood that gave it life and purpose.
It is when all these parts are combined together, as in the portico of the Parthenon (Woodcut No. 139), that we can understand this order in all its perfection; for though each part was beautiful in itself, their full value can be appreciated only as parts of a great whole.
Another essential part of the order, too often overlooked, is the colour, which was as integral a part of it as its form. Till very lately, it was denied that Greek temples were, or could be, painted: the unmistakable remains of colour, however, that have been discovered in almost all temples, and the greater knowledge of the value and use of it which now prevails, have altered public opinion very much on the matter, and most people now admit that some colour was used, though few are agreed as to the extent to which it was carried.
It cannot now be questioned that colour was used everywhere internally, and on every object. Externally too it is generally admitted that the sculpture was painted and relieved by strongly coloured backgrounds; the lacunaria, or recesses of the roof, were also certainly painted; and all the architectural mouldings, which at a later period were carved in relief, have been found to retain traces of their painted ornaments.
It is disputed whether the echinus or carved moulding of the capital was so ornamented. There seems little doubt but that it was; and that the walls of the cells were also coloured throughout and covered with paintings illustrative of the legends and attributes of the divinity to whom the temple was dedicated or of the purposes for which it was erected. The plane face of the architrave was probably left white, or merely ornamented with metal shields or inscriptions, and the shafts of the columns appear also to have been left plain, or merely slightly stained to tone down the crudeness of the white marble. Generally speaking, all those parts which from their form or position were in any degree protected from the rain or atmospheric influences seem to have been coloured; those particularly exposed, to have been left plain. To whatever extent, however, painting may have been carried, these coloured ornaments were as essential a part of the Doric order as the carved ornaments were of the Corinthian, and made it, when perfect, a richer and more ornamental, as it was a more solid and stable, order than the latter. The colour nowhere interfered with the beauty of its forms, but gave it that richness and amount of ornamentation which is indispensable in all except the most colossal buildings, and a most valuable adjunct even to them.
The Ionic order, as we now find it, is not without some decided advantages over the Doric. It is more complete in itself and less dependent on sculpture. Its frieze was too small for much display of human life and action, and was probably usually ornamented with lines of animals,[141] like the friezes at Persepolis. But the frieze of the little temple of Nikè Apteros is brilliantly ornamented in the same style as those of the Doric order. It also happened that those details and ornaments which were only painted in the Doric, were carved in the Ionic order, and remain therefore visible to the present day, which gives to this order a completeness in our eyes which the other cannot boast of. Add to this a certain degree of Asiatic elegance and grace, and the whole when put together makes up a singularly pleasing architectural object. But notwithstanding these advantages, the Doric order will probably always be admitted to be superior, as belonging to a higher class of art, and because all its forms and details are better and more adapted to their purpose than those of the Ionic.
140. Ionic order of Erechtheium at Athens.
The principal characteristic of the Ionic order is the Pelasgic or Asiatic spiral, here called a volute, which, notwithstanding its elegance, forms at best but an awkward capital. The Assyrian honeysuckle below this, carved as it is with the exquisite feeling and taste which a Greek alone knew how to impart to such an object, 265forms as elegant an architectural detail as is anywhere to be found; and whether used as the necking of a column, or on the crowning member of a cornice, or on other parts of the order, is everywhere the most beautiful ornament connected with it. Comparing this order with that at Persepolis (Woodcut No. 96), the only truly Asiatic prototype we have of it, we see how much the Doric feeling of the Greeks had done to sober it down, by abbreviating the capital and omitting the greater part of the base. This process was carried much farther when the order was used in conjunction with the Doric, as in the Propylæa, than when used by itself, as in the Erechtheium; still in every case all the parts found in the Asiatic style are found in the Greek. The same form and feelings pervade both; and, except in beauty of execution and detail, it is not quite clear how far even the Greek order is an improvement on the Eastern one. The Persepolitan base is certainly the more beautiful of the two; so are many parts of the capital. The perfection of the whole, however, depends on the mode in which it is employed; and it is perfectly evident that the Persian order could not be combined with the Doric, nor applied with much propriety as an external order, which was the essential use of all the Grecian forms of pillars.
141. Ionic order in Temple of Apollo at Bassæ.
142. Section of half of the Ionic Capital at Bassæ, taken through the volute.
When used between antæ or square piers, as seems usually to have been the case in Assyria, the two-fronted form of the Ionic capital was appropriate and elegant; but when it was employed, as in the Erechtheium, as an angle column, it presented a difficulty which even Grecian skill and ingenuity could not quite conquer. When the Persians wanted the capital to face four ways they turned the side outwards, as at Persepolis (Woodcut No. 96), and put the volutes in the angles—which was at best but an awkward mode of getting over the difficulty.
The instance in which these difficulties have been most successfully met is in the internal order at Bassæ. There the three sides are equal, and are equally seen—the fourth is attached to the wall—and the junction of the faces is formed with an elegance that has never been surpassed. It has not the richness of the order of the Erechtheium, but it excels it in elegance. Its widely spreading base still retains traces of the wooden origin of the order, and carries us back towards the times when a shoe was necessary to support wooden posts on the floor of an Assyrian hall.
266Notwithstanding the amount of carving which the Ionic order displays, there can be little doubt of its having been also ornamented with colour to a considerable extent, but probably in a different manner from the Doric. My own impression is, that the carved parts were gilt, or picked out with gold, relieved by coloured grounds, varied according to the situation in which they were found. The existing remains prove that colours were used in juxtaposition, to relieve and heighten the architectural effect of the carved ornaments of this order.
In the Ionic temples at Athens the same exquisite masonry was used as in the Doric; the same mathematical precision and care is bestowed on the entasis of the columns, the drawing of the volutes, and the execution of even the minutest details; and much of its beauty and effect are no doubt owing to this circumstance, which we miss so painfully in nearly all modern examples.
As before mentioned, the Corinthian order was only introduced into Greece on the decline of art, and never rose during the purely Grecian age to the dignity of a temple order. It most probably, however, was used in the more ornate specimens of domestic architecture, and in smaller works of art, long before any of those examples of it were executed which we now find in Greece.
143. Order of the Choragic Monument of Lysicrates.
The most typical specimen we now know is that of the Choragic Monument of Lysicrates (Woodcut No. 143), which, notwithstanding all its elegance of detail and execution, can hardly be pronounced to 267be perfect, the Egyptian and Asiatic features being only very indifferently united to one another. The foliaged part is rich and full, but is not carried up into the upper or Ionic portion, which is, in comparison, lean and poor; and though separately the two parts are irreproachable, it was left to the Romans so to blend the two together as to make a perfectly satisfactory whole out of them.
In this example, as now existing, the junction of the column with the capital is left a plain sinking, and so it is generally copied in modern times; but there can be little doubt that this was originally filled by a bronze wreath, which was probably gilt. Accordingly this is so represented in the woodcut as being essential to the completion of the order. The base and shaft have, like the upper part of the capital, more Ionic feeling in them than the order was afterwards allowed to retain; and altogether it is, as here practised, far more elegant, though less complete, than the Roman form which superseded it.
144. Order of the Tower of the Winds, Athens.
The other Athenian example, that of the Tower of the winds (Woodcut No. 144), is remarkable as being almost purely Egyptian in its types, with no Ionic admixture. The columns have no bases, the capitals no volutes, and the water-leaf clings as closely to the bell as it does in the Egyptian examples. The result altogether wants richness, and, though appropriate on so small a scale, would hardly be pleasing on a larger.
The great example of the Temple of Jupiter Olympius differs in no essential part from the Roman order, except that the corners of the abacus are not cut off; and that, being executed in Athens, there is a degree of taste and art displayed in its execution which we do not find in any Roman examples. Strictly speaking, however, it belongs to that school, and should be enumerated as a Roman, and not as a Grecian, example.
145. Caryatide Figure in the British Museum.
It has been already explained that the Egyptians never used caryatide figures, properly so called, to support the entablatures of their architecture, their figures being always attached to the front of the columns or piers, which were the real bearing mass. At Persepolis, and elsewhere in the East, we find figures everywhere employed supporting the throne or the platform of the palaces of the kings; not, indeed, on their heads, as the Greeks used them, but rather in their uplifted hands.
The name, however, as well as their being only used in conjunction with the Ionic order and with Ionic details, all point to an Asiatic origin for this very questionable form of art. As employed in the little Portico attached to the Erechtheium, these figures are used with so much taste, and all the ornaments are so elegant, that it is difficult to criticise or find fault; but it is nevertheless certain that it was a mistake which even the art of the Greeks could hardly conceal. To use human figures to support a cornice is unpardonable, unless it is done as a mere secondary adjunct to a building. In the Erechtheium it is a little too prominent for this, though used with as much discretion as was perhaps possible under the circumstances. Another example of the sort is shown in Woodcut No. 146, which, by employing a taller cap, avoids some of the objections to the other; but the figure itself, on the other hand, is less architectural, and so errs on the other side.
146. Caryatide Figure from the Erechtheium.
147. Telamones at Agrigentum.
Another form of this class of support is that of the Giants or Telamones, instances of which are found supporting the roof of the great Temple at Agrigentum, and in the baths of the semi-Greek city of Pompeii. As they do not actually bear the entablature, but only seem to relieve the masonry behind them, their employment is less objectionable than that of the female figures above described; but even they hardly fulfil the conditions of true art, and their place might be better filled by some more strictly architectural feature.
The arrangements of Grecian Doric temples show almost less variety than the forms of the pillars, and no materials exist for tracing their gradual development in an historical point of view. The temples at Corinth, and the oldest at Selinus, are both perfect examples of the hexastyle arrangement to which the Greeks adhered in all ages; and though there can be little doubt that the peripteral form, as well as the order itself, was borrowed from Egypt, it still was so much modified before it appeared in Greece, that it would be interesting, if it could be done, to trace the several steps by which the change was effected.
In an architectural point of view this is by no means difficult. The simplest Greek temples were mere cells, or small square apartments suited to contain an image—the front being what is technically called distyle in antis, or with two pillars between antæ, or square pilaster like piers terminating the side walls. Hence the interior enclosure of Grecian temples is called the cell or cella, however large and splendid it may be.
148. Small temple at Rhamnus.
The next change was to separate the interior into a cell and porch by a wall with a large doorway in it, as in the small temple at Rhamnus (Woodcut No. 148), where the opening however can scarcely be called a doorway, as it extends to the roof. A third change was to put a porch of 4 pillars in front of the last arrangement, or, as appears to have been more usual, to bring forward the screen to the positions of the pillars as in the last example, and to place the 4 pillars in front of 270this. None of these plans admitted of a peristyle, or pillars on the flanks. To obtain this it was necessary to increase the number of pillars of the portico to 6, or, as it is termed, to make it hexastyle, the 2 outer pillars being the first of a range of 13 or 15 columns, extended along each side of the temple. The cell in this arrangement was a complete temple in itself—distyle in antis, most frequently made so at both ends, and the whole enclosed in its envelope of columns, as in Woodcut No. 149. Sometimes the cell was tetrastyle or with four pillars in front.
149. Plan of Temple of Apollo at Bassæ. Scale 100 ft. to 1 in.
150. Plan of Parthenon at Athens. Scale 100 ft. to 1 in.
151. Plan of the great Temple at Selinus. (From Hittorff, ‘Arch. Antique en Sicile.’) Scale 100 ft. to 1 in.
In this form the Greek temple may be said to be complete, very few exceptions occurring to the rule, though the Parthenon itself is one of these few. It has an inner hexastyle portico at each end of the cell; beyond these outwardly are octastyle porticoes, with 17 columns on each flank.
The great Temple at Selinus is also octastyle, but it is neither so simple nor so beautiful in its arrangement; and, from the decline of style in the art when it was built, is altogether an inferior example; 271still, as one of the largest of Greek Doric temples, its plan is worthy of being quoted as an illustration of the varying forms of these temples.
Another great exception is the great temple at Agrigentum (Woodcuts Nos. 152 and 154), where the architect attempted an order on so gigantic a scale that he was unable to construct the pillars with their architraves standing free. The interstices of the columns are therefore built up with walls pierced with windows, and altogether the architecture is so bad, that even its colossal dimensions must have failed to render it at any time a pleasing or satisfactory work of art.
A fourth exception is the double temple at Pæstum, with 9 pillars in front, a clumsy expedient, but which arose from its having a range of columns down the centre to support the ridge of the roof by a simpler mode than the triangular truss usually employed for carrying the roof between two ranges of column.
152. Plan of Great Temple at Agrigentum. Scale 100 ft. to 1 in.
With the exception of the temple at Agrigentum, all these were peristylar, or had ranges of columns all around them, enclosing the cell as it were in a case, an arrangement so apparently devoid of purpose, that it is not at first sight easy to account for its universality. It will not suffice to say that it was adopted merely because it was beautiful, for the forms of Egyptian temples, which had no pillars externally, were as perfect, and in the hands of the Greeks would have become as beautiful, as the one they adopted. Besides, it is natural to suppose they would rather have copied the larger than the smaller temples, if no motive existed for their preference of the latter. The peristyle, too, was ill suited for an ambulatory, or place for processions to circulate round the temple; it was too narrow for this, and too high to protect the procession from the rain. Indeed, I know of no suggestion except that it may have been adopted to protect the paintings on the walls of the cells from the inclemency of the weather. It hardly admits of a doubt that the walls were painted, and that without protection of some sort this would very soon have been obliterated. It seems also very evident that the peristyle was not only practically, 272but artistically, most admirably adapted for this purpose. The paintings of the Greeks were, like those of the Egyptians, composed of numerous detached groups, connected only by the story, and it almost required the intervention of pillars, or some means of dividing into compartments the surface to be so painted, to separate these groups from one another, and to prevent the whole sequence from being seen at once; while, on the other hand, nothing can have been more beautiful than the white marble columns relieved against a richly coloured plane surface. The one appears so necessary to the other, that it seems hardly to be doubted that this was the cause, or that the effect must have been most surpassingly beautiful.
The arrangement of the interior of Grecian temples necessarily depended on the mode in which they were lighted. No one will, I believe, now contend, as was once done, that it was by lamplight alone that the beauty of their interiors could be seen; and as light certainly was not introduced through the side walls, nor could be in sufficient quantities through the doorways, it is only from the roof that it could be admitted. At the same time it could not have been by a large horizontal opening in the roof, as has been supposed, as that would have admitted the rain and snow as well as the light; and the only alternative seems to be one I suggested some years ago—of a clerestory,[142] similar internally to that found in all the great Egyptian temples,[143] but externally requiring such a change of arrangement as was necessary to adapt it to a sloping instead of a flat roof. This could have been effected by countersinking it into the roof, so as to make it in fact 3 ridges in those parts where the light was 273admitted, though the regular slope of the roof was retained between these openings, so that neither the ridge nor the continuity of the lines of the roof was interfered with. This would effect all that was required, and in the most beautiful manner; it moreover agrees with all the remains of Greek temples that now exist, as well as with all the descriptions that have been handed down to us from antiquity.
153. Section of the Parthenon. Scale 50 ft. to 1 in
154. Part Section, part Elevation, of Great Temple at Agrigentum. Scale 50 ft. to 1 in.
This arrangement will be understood from the section of the Parthenon (Woodcut No. 153), restored in accordance with the above explanation, which agrees perfectly with all that remains on the spot, as well as with all the accounts we have of that celebrated temple. The same system applies even more easily to the great hexastyle at Pæstum and to the beautiful little Temple of Apollo at Bassæ, in Phigaleia (Woodcut No. 149), and in fact to all regular Greek temples. Indeed, it seems impossible to account for the peculiarities of that temple except on some such theory as this. Any one who studies the plan (Woodcut No. 149) will see at once what pains were taken to bring the internal columns exactly into the spaces between those of the external peristyle. The effect inside is clumsy, and never would have been attempted were it not that practically their position was seen from the outside, and 274this could hardly have been so on any other hypothesis than that now proposed. An equally important point in the examination of this theory is that it applies equally to the exceptional ones. The side aisles, for instance, of the great temple at Agrigentum were, as before mentioned, lighted by side windows; the central one could only be lighted from the roof, and it is easy to see how this could be effected by introducing openings between the telamones, as shown in Woodcut No. 154.
In the great Temple of Jupiter Olympius (Woodcut No. 196), as described by Vitruvius,[144] the nave had two storeys of columns all round, and the middle was open to the sky. It is suggested, however, by Dr. Dorpfield that the temple in Vitruvius’s time was incomplete, and that subsequently when Hadrian erected the great chryselephantine statue in it the nave may have lost its hypæthral source of light. (In that case its light may have been introduced through the court or hypæthron in front of the cell, such as is shown on the plan in Woodcut No. 196.)
The Ionic temples of Asia are all too much ruined to enable us to say exactly in what manner, and to what extent, this mode of lighting was applied to them, though there seems no doubt that the method there adopted was very similar in all its main features.
155. Plan of Erechtheium. (From Stuart.) Scale 100 ft. to 1 in.
156. Elevation of West End of Erechtheium. Scale 50 ft. to 1 in.
The little Temple of Nikè Apteros and the temple on the Ilissus, were both too small to require any complicated arrangement of the sort, but the Ionic temple of Pandrosus was lighted by windows which still remain at the west end, so that it is possible the same expedient may have been adopted to at least some extent in the Asiatic examples. The latter, however, is, with one exception, the sole instance of windows in any European-Greek temple, the only other example being in the very exceptional temple at Agrigentum. It is valuable, besides, as showing how little the Greeks were bound by rules or by any fancied laws of symmetry.
As is shown in the plan, elevation, and view (Woodcuts Nos. 155, 156, 157), the Erechtheium consisted, properly speaking, of 3 temples grouped together; and it is astonishing what pains the architect 275took to prevent their being mistaken for one. The porticoes of two of them are on different levels, and the third or caryatide porch is of a different height and different style. Every one of these features is perfectly symmetrical in itself, and the group is beautifully balanced and arranged; and yet no Gothic architect in his wildest moments could have conceived anything more picturesquely irregular than the whole becomes. Indeed, there can be no greater mistake than to suppose that Greek architecture was fettered by any fixed laws of formal symmetry: each detail, every feature, every object, such as a hall or temple, which could be considered as one complete and separate whole, was perfectly symmetrical and regular; but no two buildings—no two apartments—if for different purposes, were made to look like one. On the contrary, it is quite curious to observe what pains they took to arrange their buildings so as to produce variety and contrast, instead of formality or singleness of effect. Temples, when near one another, were never placed parallel, nor were even their propylæa and adjuncts ever so arranged as to be seen together or in one line. The Egyptians, as before remarked, had the same feeling, but carried it into even the details of the same building, which the Greeks did not. In this, indeed, as in almost every other artistic mode of expression, they seem to have hit exactly the happy medium, so as to produce the greatest harmony with the greatest variety, and to satisfy the minutest scrutiny and the most refined taste, while their buildings produced an immediate and striking effect on even the most careless and casual beholders.
157. View of Erechtheium. (From Inwood.)
276Owing to the Erechtheium having been converted into a Byzantine church during the Middle Ages, almost all traces of its original internal arrangements have been obliterated, and this, with the peculiar combination of three temples in one, makes it more than usually difficult to restore. The annexed plan, however, meets all the requirements of the case in so far as they are known. To the east was a portico of 6 columns, between two of which stood an altar to Dione, mentioned in the inscription enumerating the repairs in 409 B.C.;[145] inside, according to Pausanias,[146] were three altars, the principal dedicated to Poseidon, the others to Butes and Hephaistos. From its form, it is evident the roof must have been supported by pillars, and they probably also bore a clerestory, by which, I believe, with rare exceptions, all Greek temples were lighted.
158. Restored Plan of Erechtheium. Scale 50 ft. to 1 in.
The dark parts remain; the shaded are restorations.
The Temple of Pandrosus was on a lower level, and was approached by a flight of steps, corresponding with which was a chamber, containing the well of salt water, and which apparently was the abode of the serpent-god Erechthonios, mentioned by Herodotus.[147] The central cell was lighted by the very exceptional expedient of 3 windows in the western wall, which looked directly into it. Beyond this, on the south, was the beautiful caryatide porch, where, if anywhere within the temple, grew the olive sacred to Minerva. Unfortunately, our principal guide, Pausanias, does not give us a hint where the olive-tree grew, and on the whole I am inclined to believe it was in the enclosure outside the western wall of the temple,[148] and to which a doorway leads 277directly from the Temple of Pandrosus, as well as one under the north portico, the use of which it is impossible to explain unless we assume that this enclosure was really of exceptional importance.
A history of Grecian architecture can hardly be considered as complete without some mention of the great Ephesian temple, which was one of the largest and most gorgeous of all those erected by the Greeks, and considered by them as one of the seven wonders of the world. Strange to say, till very recently even its situation was utterly unknown; and even now that it has been revealed to us by the energy and intelligence of Mr. Wood, scarcely enough remains to enable him to restore the plan with anything like certainty. This is the more remarkable, as it was found buried under 17 to 20 feet of mud, which must have been the accumulation of centuries, and might, one would have thought, have preserved considerable portions of it from the hand of the spoiler.
159. Plan of the Temple of Diana at Ephesus, embodying Mr. T. Wood’s discoveries. Scale 100 ft. to 1 in.
The annexed plan compiled from Mr. Wood’s researches embodies all the information he has been able to obtain. The dimensions of the double peristyle, and the number and position of its 96 columns, are quite certain. So are the positions of the north, south, and west walls of the cella; so that the only points of uncertainty are the positions of the four columns necessary to make up the 100 mentioned 278by Pliny,[149] and the internal arrangement of the cella itself and of the opisthodomus.
With regard to the first there seems very little latitude for choice. Two must have stood between the antæ. The position of the other two must be determined either by bringing forward the wall enclosing the stairs, so as to admit of the intercolumniation east and west being the same as that of the other columns, or of spacing them so as to divide the inner roof of the pronaos into equal squares. I have preferred the latter as that which appears to me the most probable.[150]
The west wall of the cella and the position of the statue having been found, the arrangement of the pillars surrounding this apartment does not admit of much latitude. Fragments of these pillars were found, but not in situ, showing that they were in two heights and supported a gallery. I have spaced them intermediately between the external pillars, as in the Temple of Apollo at Bassæ (Woodcut No. 149), because I do not know of any other mode by which this temple could be lighted, except by an opaion, as suggested for that temple; and if this is so they must have been so spaced. Carrying out this system it leaves an opisthodomus which is an exact square, which is so likely a form for that apartment that it affords considerable confirmation to the correctness of this restoration that it should be so. The four pillars it probably contained are so spaced as to divide it into nine equal squares.
Restored in this manner the temple appears considerably less in dimensions than might have been supposed from Pliny’s text. His measurements apply only to the lower step of the platform, which is found to be 421 ft. by 238. But the temple itself, from angle to angle of the peristyles, is only 342 ft. by 164, instead of 425 ft. by 220 of Pliny.
Assuming this restoration to be correct there can be very little doubt as to the position of the thirty-six columnæ cælatæ, of which several specimens have been recovered by Mr. Wood, and are now in the British Museum. They must have been the sixteen at either end and the four in the pronaos, shown darker in the woodcut.
From the temple standing on a platform so much larger than appears necessary, it is probable that pedestals with statues stood in front of each column, and if this were so, the sculptures, with the 279columnæ cælatæ and the noble architecture of the temple itself, must have made up a combination of technic, æsthetic, and phonetic art such as hardly existed anywhere else, and which consequently the ancients were quite justified in considering as one of the wonders of the world.
Very little now remains of all the various classes of municipal and domestic buildings which must once have covered the land of Greece, and from what we know of the exquisite feelings for art that pervaded that people, they were certainly not less beautiful, though more ephemeral, than the sacred buildings whose ruins still remain to us.
There are, however, two buildings in Athens which, though small, give us most exalted ideas of their taste in such matters. The first, already alluded to, usually known as the Tower of the Winds, is a plain octagonal building about 45 ft. in height by 24 in width, ornamented by 2 small porches of 2 pillars each, of the Corinthian order, the capitals of which are represented in Woodcut No. 141. Its roof, like the rest of the building, is of white marble, and of simple but very elegant design, and below this is a frieze of 8 large figures, symbolical of the 8 winds, from which the tower takes its name, they in fact being the principal objects and ornaments of the building, the most important use of which appears to have been to contain a clepsydra or water-clock.
160. Choragic Monument of Lysicrates. No scale.
The other building, though smaller, is still more beautiful. It is known as the Choragic Monument of Lysicrates, and consists of a square base 12 ft. high by 9 ft. wide, on which stands a circular temple adorned by 6 Corinthian columns, which, with their entablature and the roof and pedestal they support, make up 22 ft. more, so that the whole height of the monument is only 34 ft. Notwithstanding these insignificant dimensions, the beauty of its columns (Woodcut No. 143) and of their entablature—above all, the beauty of the roof and of the finial ornament, which crowns the whole and is unrivalled for elegance even in Greek 280art—make up a composition so perfect that nothing in any other style or age can be said to surpass it.[151] If this is a fair index of the art that was lavished on the smaller objects, the temples hardly give a just idea of all that have perished.
In extreme contrast with the buildings last described, which were among the smallest, came the theatres, which were the largest, of the monuments the Greeks seem ever to have attempted.
161. Plan of Theatre at Dramyssus. Scale 100 ft. to 1 in.
The annexed plan of one at Dramyssus, the ancient Dodona, will give an idea of their forms and arrangements. Its dimensions may be said to be gigantic, being 443 ft. across; but even this, though perhaps the largest in Greece, is far surpassed by many in Asia Minor. What remains of it, however, is merely the auditorium, and consists only of ranges of seats arranged in a semicircle, but without architectural ornament. In all the examples in Europe, the proscenium,[152] 281which was the only part architecturally ornamented, has perished, so that, till we can restore this with something like certainty, the theatres hardly come within the class of Architecture as a fine art.
The theatre of Dionysus at Athens, which was excavated and laid bare in 1862-63, measures only 165 ft. in its greatest width. Built on the south side of the Acropolis, the natural slope forming the rising ground was utilised for the foundations of the tiers of seats which, in some cases, and particularly at the back, were hewn in the rock; so that they were carried back 294 ft. from the centre of the orchestra. In the theatre of Epidaurus, which, according to Pausanias, was the most beautiful theatre in the world, the lines of the seats are continued on each side of the orchestra so as to form a horse-shoe on plan; the foundations of the stage, the projecting side wings with staircases on each side, and other buildings belonging to the stage are still preserved.
In Asia Minor some of the theatres have their proscenia adorned with niches and columns, and friezes of great richness; but all these belong to the Roman period, and, though probably copies of the mode in which the Greeks ornamented theirs, are so corrupt in style as to prevent their being used with safety in attempting to restore the earlier examples.
Many circumstances would indeed induce us to believe that the proscenia of the earlier theatres may have been of wood or bronze, or both combined, and heightened by painting and carving to a great degree of richness. This, though appropriate and consonant with the origin and history of the drama, would be fatal to the expectation of anything being found to illustrate its earliest forms.
Like the other Aryan races, the Greeks never were tomb-builders, and nothing of any importance of this class is found in Greece, except the tombs of the early Pelasgic races, which were either tumuli, or treasuries, as they are popularly called. There are, it is true, some headstones and small pillars of great beauty, but they are monolithic, and belong rather to the department of Sculpture than of Architecture. In Asia Minor there are some important tombs, some built and others cut in the rock. Some of the latter have been described before in 282speaking of the tombs of the Lycians. The built examples which remain almost all belong to the Roman period, though the typical and by far the most splendid example of Greek tombs was that erected by Artemisia to the memory of her husband Mausolus at Halicarnassus. We scarcely know enough of the ethnic relations of the Carians to be able to understand what induced them to adopt so exceptional a mode of doing honour to their dead. With pure Greeks it must have been impossible, but the inhabitants of these coasts were of a different race, and had a different mode of expressing their feelings.
162. View of the Mausoleum at Halicarnassus, as restored by the Author.
Till Sir Charles Newton’s visit to Halicarnassus in 1856 the very site of this seventh wonder of the world was a matter of dispute. We now know enough to be able to restore the principal parts with absolute certainty, and to ascertain its dimensions and general appearance within very insignificant limits of error.[153]
283The dimensions quoted by Pliny[154] are evidently extracted from a larger work, said to have been written by the architect who erected it, and which existed at his time. Every one of them has been confirmed in the most satisfactory manner by recent discoveries, and enable us to put the whole together without much hesitation.
163. Plan of the Mausoleum at Halicarnassus, from a Drawing by the Author. Scale 50 ft. to 1 in.
Sufficient remains of the quadriga, which crowned the monument, have been brought home to give its dimensions absolutely. All the parts of the Ionic order are complete. The steps of the pyramid have been found and portions of the three friezes, and these, with Pliny’s dimensions and description, are all that are required to assure us that its aspect must have been very similar to the form represented in Woodcut No. 162. There can be little doubt with regard to the upper storey, but in order to work out to the dimensions given by Pliny (411 ft. in circumference) and those found cut out in the rock (462 ft.), the lower storey must be spread out beyond the upper to that extent, and most probably something after the manner shown in the woodcut.
The building consisted internally of two chambers superimposed the one on the other, each 52 ft. 6 in. by 42 ft.—the lower one being the vestibule to the tomb beyond—the upper was surrounded by a peristyle of 36 columns. Externally the height was divided into three 284equal portions of 37 ft. 6 in. each (25 cubits), one of which was allotted to the base—one to the pyramid with its meta—and one to the order between them. These with 14 ft., the height of the quadriga, and the same dimension belonging to the lower entablature, made up the height of 140 Greek feet[155] given it by Pliny.
164. Lion Tomb at Cnidus. (From Newton.)
Though its height was unusually great for a Greek building, its other dimensions were small. It covered only 13,230 ft. The admiration therefore which the Greeks expressed regarding it must have arisen, first, from the unusual nature of its design and of the purpose to which it was applied, or perhaps more still from the extent and richness of its sculptured decorations, of the beauty of which we are now enabled to judge, and can fully share with them in admiring.
285Another, but very much smaller, tomb of about the same age was found by Mr. Newton at Cnidus, and known as the Lion Tomb, from the figure of that animal, now in the British Museum, which crowned its summit. Like many other tombs found in Asia and in Africa, it follows the type of the Mausoleum in its more important features. It possesses a base—a peristyle—a pyramid of steps—and, lastly, an acroterion or pedestal meant to support a quadriga or statue, or some other crowning object, which appropriately terminated the design upwards.
Several examples erected during the Roman period will be illustrated when speaking of the architecture of that people, all bearing the impress of the influence the Mausoleum had on the tomb architecture of that age; but unfortunately we cannot yet go backwards and point out the type from which the design of the Mausoleum itself was elaborated. The tombs of Babylon and Passargadæ are remote both geographically and artistically, though not without certain essential resemblances. Perhaps the missing links may some day reward the industry of some scientific explorer.
At Cyrene there is a large group of tombs of Grecian date and with Grecian details, but all cut in the rock, and consequently differing widely in their form from those just described. It is not clear whether the circumstance of this city possessing such a necropolis arose from its proximity to Egypt, and consequently from a mere desire to imitate that people, or from some ethnic peculiarity. Most probably the latter, though we know so little about them that it is difficult to speak with precision on such a subject.[156]
These tombs are chiefly interesting from many of the details of the architecture still retaining the colour with which they were originally adorned. The triglyphs of the Doric order are still painted blue,[157] as appears to have been the universal practice, and the pillars are outlined by red lines. The metopes are darker, and are adorned with painted groups of figures, the whole making up one of the most perfect examples of Grecian coloured decoration which still remain.
165. Rock-cut and structural Tombs at Cyrene. (From Hamilton’s ‘Wanderings in North Africa.’)
There is another tomb at the same place—this time structural—which is interesting not so much for any architectural beauty it possesses as from its belonging to an exceptional type. It consists now 286only of a circular basement—the upper part is gone—and is erected over an excavated rock-cut tomb. There seem to be several others of the same class in the necropolis, and they are the only examples known except those at Marathos, one of which is illustrated above (Woodcut No. 122). As before hinted, the Syrian example does not appear to be very ancient, but we want further information before speaking 287positively on this subject. No one on the spot has attempted to fix with precision the age of the Cyrenean examples; nor have they been drawn in such detail as is requisite for others to ascertain the fact. They may be as late as the time of the Romans, but can hardly be dated as prior to the age of Alexander the Great.
166. Tombs at Cyrene. (From Hamilton’s ‘North Africa.’)
We have nothing left but imperfect verbal descriptions of the domestic, and even of the palatial architecture of Greece, and, consequently, can only judge imperfectly of its forms. Unfortunately, too, Pompeii, though but half a Greek city, belongs to too late and too corrupt an age to enable us to use it even as an illustration; but we may rest assured that in this, as in everything else, the Greeks displayed the same exquisite taste which pervades not only their monumental architecture, but all their works in metal or clay, down to the meanest object, which have been preserved to our times.
It is probable that the forms of their houses were much more irregular and picturesque than we are in the habit of supposing them to have been. They seem to have taken such pains in their temples—in the Erechtheium, for instance, and at Eleusis—to make every part tell its own tale, that anything like forced regularity must have been offensive 288to them, and they would probably make every apartment exactly of the dimensions required, and group them so that no one should under any circumstances be confounded with another.
This, however, with all the details of their domestic arts, must now remain to us as mere speculation, and the architectural history of Greece must be confined to her temples and monumental erections. These suffice to explain the nature and forms of the art, and to assign to it the rank of the purest and most intellectual of all the styles which have yet been invented or practised in any part of the world.
| Migration from Asia Minor | about 12th cent. B.C. |
| Tomb of Porsenna | about B.C. 500 |
| Etruria becomes subject to Rome | about B.C. 330 |
The ethnographical history of art in Italy is in all its essential features similar to that of Greece, though arriving at widely different results from causes the influence of which it is easy to trace. Both are examples of an Aryan development based on a Turanian civilisation which it has superseded. In Greece—as already remarked—the traces of the earlier people are indistinct and difficult to seize. In Italy their features are drawn with a coarser hand, and extend down into a more essentially historic age. It thus happens that we have no doubt as to the existence of the Etruscan people—we know very nearly who they were, and cannot be mistaken as to the amount and kind of influence they exercised on the institutions and arts of the Romans.
The more striking differences appear to have arisen from the fact, that Greece had some four or five centuries of comparative repose during which to form herself and her institutions after the Pelasgic civilisation was struck down at the time of the Dorian occupation of the Peloponnesus. During that period she was undisturbed by foreign invasion, and was not tempted by successful conquests to forsake the gentler social arts for the more vulgar objects of national ambition. Rome’s history, on the other hand, from the earliest aggregation of a 290robber horde on the banks of the Tiber till she became the arbiter of the destinies of the ancient world, is little beyond the record of continuous wars. From the possession of the seven hills, Rome gradually carried her sway at the edge of the sword to the dominion of the whole of Italy and of all the then known world, destroying everything that stood in the way of her ambition, and seeking only the acquisition of wealth and power.
Greece, in the midst of her successful cultivation of the arts of commerce and of peace, stimulated by the wholesome rivalry of the different States of which she was composed, was awakened by the Persian invasion to a struggle for existence. The result was one of the most brilliant passages in the world’s history, and no nation was ever more justified in the jubilant outburst of enthusiastic patriotism that followed the repulse of the invader, than was Greece in that with which she commenced her short but brilliant career. A triumph so gained by a people so constituted led to results at which we still wonder, though they cause us no surprise. If Greece attained her manhood on the battle-fields of Marathon and Salamis, Rome equally reached the maturity of her career when she cruelly and criminally destroyed Corinth and Carthage, and the sequel was such as might be expected from such a difference of education. Rome had no time for the cultivation of the arts of peace, and as little sympathy for their gentler influences. Conquest, wealth, and consequent power, were the objects of her ambition—for these she sacrificed everything, and by their means she attained a pinnacle of greatness that no nation had reached before or has since. Her arts have all the impress of this greatness, and are characterised by the same vulgar grandeur which marks everything she did. Very different they are from the intellectual beauty found in the works of the Greeks, but in some respects they are as interesting to those who can read the character of nations in their artistic productions.
In the earlier part of her career Rome was an Etruscan city under Etruscan kings and institutions. After she had emancipated herself from their yoke, Etruria long remained her equal and her rival in political power, and her instructress in religion and the arts of peace. This continued so long, and the architectural remains of that people are so numerous, and have been so thoroughly investigated, that we have no difficulty in ascertaining the extent of influence the older nation had on the nascent empire. It is more difficult to ascertain exactly who the Etruscans themselves were, or whence they came. But on the whole there seems every reason to believe they migrated from Asia Minor some twelve or thirteen centuries before the Christian era, and fixed themselves in Italy, most probably among the Umbrians, or some people of cognate race, who had settled there before—so long before, 291perhaps, as to entitle them to be considered among the aboriginal inhabitants.
It would have been only natural that the expatriated Trojans should have sought refuge among such a kindred people, though we have nothing but the vaguest tradition to warrant a belief that this was the case. They may too from time to time have received other accessions to their strength; but they were a foreign people in a strange land, and scarcely seem ever to have become naturalised in the country of their adoption. But what stood still more in their way was the fact that they were an old Turanian people in presence of a young and ambitious community of Aryan origin, and, as has always been the case when this has happened, they were destined to disappear. Before doing so, however, they left their impress on the institutions and the arts of their conquerors to such an extent as to be still traceable in every form. It may have been that there was as much Pelasgic blood in the veins of the Greeks as there was Etruscan in those of the Romans; but the civilisation of the former had passed away before Greece had developed herself. Etruria, on the other hand, was long contemporary with Rome: in early times her equal, and sometimes her mistress, and consequently in a position to force her arts upon her to an extent that was never effected on the opposite shore of the Adriatic.
Nothing can prove more clearly the Turanian origin of the Etruscans than the fact that all we know of them is derived from their tombs. These exist in hundreds—it may almost be said in thousands—at the gates of every city; but no vestige of a temple has come down to our days. Had any Semitic blood flowed in their veins, as has been sometimes suspected, they could not have been so essentially sepulchral as they were, or so fond of contemplating death, as is proved by the fact that a purely Semitic tomb is still a desideratum among antiquaries, not one having as yet been discovered. What we should like to find in Etruria would be a square pyramidal mound with external steps leading to a cella on its summit; but no trace of any such has yet been detected. Their other temples—using the word in the sense in which we usually understand it—were, as might be expected, insignificant and ephemeral. So much so, indeed, that except from one passage in Vitruvius,[158] and our being able to detect the influence of the Etruscan style in the buildings of Imperial Rome, we should hardly be aware of their existence. The truth seems to be that the religion of the Etruscans, like that of most of their congeners, was 292essentially ancestral, and their worship took the form of respect for the remains of the dead and reverence for their memory. Tombs consequently, and not temples, were the objects on which they lavished their architectural resources. They certainly were not idolaters, in the sense in which we usually understand the term. They had no distinct or privileged priesthood, and consequently had no motive for erecting temples which by their magnificence should be pleasing to their gods or tend to the glorification of their kings or priests. Still less were they required for congregational purposes by the people at large.
The only individual temple of Etruscan origin of which we have any knowledge, is that of Capitoline Jupiter at Rome.[159] Originally small, it was repaired and rebuilt till it became under the Empire a splendid fane. But not one vestige of it now remains, nor any description from which we could restore its appearance with anything like certainty.
From the chapter of the work of Vitruvius just alluded to, we learn that the Etruscans had two classes of temples: one circular, like their structural tombs, and dedicated to one deity; the other class rectangular, but these, always possessing three cells, were devoted to the worship of three gods.
167. Plan and Elevation of an Etruscan Temple.
The general arrangement of the plan, as described by Vitruvius, was that shown on the plan above (Fig. 1), and is generally assented to by all those who have attempted the restoration. In larger temples in Roman times the number of pillars in front may have been doubled, and they would thus be arranged like those of the portico of the Pantheon, which is essentially an Etruscan arrangement. The restoration of the elevation is more difficult, and the argument too long to be entered upon here;[160] but its construction and proportions seem to have been very much like those drawn in the above diagram (Fig. 2). Of course, as wooden structures, they were richly and elaborately 293carved, and the effect heightened by colours, but it is in vain to attempt to restore them. Without a single example to guide us, and with very little collateral evidence which can at all be depended upon, it is hardly possible that any satisfactory restoration could now be made. Moreover, their importance in the history of art is so insignificant, that the labour such an attempt must involve would hardly be repaid by the result.
The original Etruscan circular temple seems to have been a mere circular cell with a porch. The Romans surrounded it with a peristyle, which probably did not exist in the original style. They magnified it afterwards into the most characteristic and splendid of all their temples, the Pantheon, whose portico is Etruscan in arrangement and design, and whose cell still more distinctly belongs to that order; nor can there be any doubt that the simpler Roman temples of circular form are derived from Etruscan originals.[161] It would therefore be of great importance if we could illustrate the later buildings from existing remains of the older: but the fact is that such deductions as we may draw from the copies are our only source of information respecting the originals.
We know little of any of the civil buildings with which the cities of Etruria were adorned, beyond the knowledge obtained from the remains of their theatres and amphitheatres. The form of the latter was essentially Etruscan, and was adopted by the Romans, with whom it became their most characteristic and grandest architectural object. Of the amphitheatres of ancient Etruria only one now remains in so perfect a state as to enable us to judge of their forms. It is that at Sutrium, which, however, being entirely cut in the rock, neither affords information as to the mode of construction nor enables us to determine its age. The general dimensions are 295 ft. in its greatest length by 265 in breadth, and it is consequently much nearer a circular form than the Romans generally adopted: but in other respects the arrangements are such as appear to have usually prevailed in after times.
Besides these, we have numerous works of utility, but these belong more strictly to engineering than to architectural science. The city walls of the Etruscans surpass those of any other ancient nation in extent and beauty of workmanship. Their drainage works and their bridges, as well as those of the kindred Pelasgians in Greece, still remain monuments of their industrial science and skill, which their successors never surpassed.
On the whole, perhaps we are justified in asserting that the Etruscans were not an architectural people, and had no temples or 294palaces worthy of attention. It at least seems certain that nothing of the sort is now to be found, even in ruins, and were it not that the study of Etruscan art is a necessary introduction to that of Roman, it would hardly be worth while trying to gather together and illustrate the few fragments and notices of it that remain.
The tombs of the Etruscans now found may be divided into two classes—first, those cut in the rock, and resembling dwelling-houses; secondly, the circular tumuli, which latter are by far the most numerous and important class.
Each of these may be again subdivided into two kinds. The rock-cut tombs include, firstly, those with only a façade on the face of the rock and a sepulchral chamber within; secondly, those cut quite out of the rock and standing free all round. To this class probably once belonged an immense number of tombs built in the ordinary way; but all these have totally disappeared, and consequently the class, as now under consideration, consists entirely of excavated examples.
The second class may be divided into those tumuli erected over chambers cut in the tufaceous rock which is found all over Etruria, and those which have chambers built above-ground.
In the present state of our knowledge it is impossible to say which of these classes is the older. We know that the Egyptians buried in caves long before the Etruscans landed in Italy, and at the same time raised pyramids over rock-cut and built chambers. We know too that Abraham was buried in the Cave of Machpelah in Syria. On the other hand, the tombs at Smyrna (Woodcut No. 113), the treasuries of Mycenæ (Woodcut No. 124), the sepulchre of Alyattes (Woodcut No. 115), and many others, are proofs of the antiquity of the tumuli, which are found all over Europe and Asia, and appear to have existed from the earliest ages.
The comparative antiquity of the different kinds of tombs being thus doubtful, it will be sufficient for the purposes of the present work to classify them architecturally. It may probably be assumed, with safety, that all the modes which have been enumerated were practised by the Etruscans at a period very slightly subsequent to their migration into Italy.
Of the first class of the rock-cut tombs—those with merely a façade externally—the most remarkable group is that at Castel d’Asso. At this place there is a perpendicular cliff with hundreds of these tombs ranged along its face, like houses in a street. A similar arrangement is found in Egypt at Benihasan, at Petra, and Cyrene, and around all the more ancient cities of Asia Minor.
295In Etruria they generally consist of one chamber lighted by the doorway only. Their internal arrangement appears to be an imitation of a dwelling chamber, with furniture, like the apartment itself, cut out of the rock. Externally they have little or no pretension to architectural decoration. It is true that some tombs are found adorned with frontispieces of a debased Doric or Ionic order; but these were executed at a much later period and under Roman domination, and cannot therefore be taken as specimens of Etruscan art, but rather of that corruption of style sure to arise from a conquered people trying to imitate the arts of their rulers.
168. Tombs at Castel d’Asso. (From the ‘Annale del Instituto.’)
The general appearance of the second class of rock-cut tombs will be understood from the woodcut (No. 168), representing two monuments at Castel d’Asso. Unfortunately neither is complete, nor is there any complete example known to exist of this class. Perhaps the apex was added structurally and that these, like all such things in Etruria, have perished. Possibly, if cut in the rock, the terminals were slender carved ornaments, and therefore liable to injury. They are usually restored by antiquaries in the shape of rectilinear pyramids, but so far as I know, there is no authority for this. On the contrary, it is more in accordance with what we know of the style and its affinities to suppose that the termination of these monuments, even if added in masonry, was curvilinear.
169. Mouldings from Tombs at Castel d’Asso.
One remarkable thing about the rock-cut tombs is the form of their mouldings, which differ from any found elsewhere in Europe. Two of these are shown in the annexed woodcut (No. 169). They are very numerous and in great variety, but do not in any instance show the slightest trace of a cornice, nor of any tendency towards one. On the contrary, in place of this, we find nothing but a reverse moulding. It is probable that similar forms may be found in Asia Minor, while something resembling them actually occurs at 296Persepolis and elsewhere. It is remarkable that this feature did not penetrate to Rome, and that no trace of its influence is found there, as might have been expected.[162]
The simplest, and therefore perhaps the earliest, monument which can be erected over the graves of the dead, by a people who reverence their departed relatives, is a mound of earth or a cairn of stones, and such seems to have been the form adopted by the Turanian or Tartar races of mankind from the earliest days to the present hour. It is scarcely necessary to remark how universal such monuments were among the ruder tribes of Northern Europe. The Etruscans improved upon this by surrounding the base with a podium, or supporting wall of masonry. This not only defined its limits and gave it dignity, but enabled entrances to be made in it, and otherwise converted it from a mere hillock into a monumental structure. It is usually supposed that this basement was an invariable part of all Etruscan tumuli, and when it is not found, it is assumed that it has been removed, or that it is buried in the rubbish of the mound. No doubt such a stone basement may easily have been removed by the peasantry, or buried, but it is by no means clear that this was invariably the case. It seems that the enclosure was frequently a circle of stones or monumental steles, in the centre of which the tumulus stood. The monuments have hitherto been so carelessly examined and restored, that it is difficult to arrive at anything like certainty with regard to the details of their structure. Nor can we draw any certain conclusion from a comparison with other tumuli of cognate races. The description by Herodotus of the tomb of Alyattes at Sardis (Woodcut No. 115), those described by Pausanias as existing in the Peloponnesus, and the appearances of those at Mycenæ and Orchomenos, might be interpreted either way; but those at Smyrna (Woodcut No. 113), and a great number at least of those in Etruria, have a structural circle of stone as a supporting base to the mound.
170. Plan of the Regulini Galeassi Tomb. Scale 100 ft. to 1 in.
These tumuli are found existing in immense numbers in every 297necropolis of the Etruscans. A large space was generally set apart for the purpose outside the walls of all their great cities. In these cemeteries the tumuli are arranged in rows, like houses in streets. Even now we can count them by hundreds, and in the neighbourhood of the largest cities—at Vulci, for instance—almost by thousands.
Most of them are now worn down by the effect of time to nearly the level of the ground, though some of the larger ones still retain an imposing appearance. Nearly all have been rifled at some early period, though the treasures still discovered almost daily in some places show how vast their extent was, and how much even now remains to be done before this vast mine of antiquity can be said to be exhausted.
One of the most remarkable among those that have been opened in modern times is at Cervetri, the ancient Cære, known as the Regulini Galeassi tomb, from the names of its discoverers.
171. Sections of the Regulini Galeassi Tomb. (From Canina’s ‘Etruria Antica.’) Scale for large section, 50 ft. to 1 in.
Like a Nubian pyramid or Buddhist tope, it consists of an inner and older tumulus, around and over which another has been added. In the outer mound are five tombs either of dependent or inferior personages. These were rifled long ago; but the outer pyramid having effectually concealed the entrance to the principal tomb, it remained untouched till very lately, when it yielded to its discoverers a richer collection of ornaments and utensils in gold and bronze than has ever been found in one place before.
The dimensions and arrangements of this tumulus will be understood from Woodcuts Nos. 170, 171, and from the two sections of the 298principal tomb which are annexed to them. These last display an irregularity of construction very unusual in such cases, for which no cause can be assigned. The usual section is perfectly regular, as in the annexed woodcut (No. 172), taken from another tomb at the same place.
These chambers, like all those of the early Etruscans, are vaulted on the horizontal principle, like the tombs at Mycenæ and Orchomenos, though none are found in Italy at all equal to those of Greece in dimensions or beauty of construction.
172. Section of a Tomb at Cervetri. No scale.
Woodcut No. 173 is a perspective view of the principal chamber in the Regulini Galeassi tomb, showing the position of the furniture found in it when first opened, consisting of biers or bedsteads, shields, arrows, and vessels of various sorts. A number of vases are hung in a curious recess in the roof, the form of which would be inexplicable but for the utensils found in it. With this clue to its meaning we can scarcely doubt that it represents a place for hanging such vessels in the houses of the living.
All the treasures found in this tomb are in the oldest style of Etruscan art, and are so similar to the bronzes and ornaments brought by Layard from Assyria as to lead to the belief that they had a common origin. The tomb, with its contents, probably dates from the 9th or 10th century before the Christian era.
The largest tomb hitherto discovered in Etruria is now known as the Cocumella, in the necropolis at Vulci. It is rather more than 240 ft. in diameter, and originally could not have been less than 115 or 120 ft. in height, though now it only rises to 50 ft.
173. View of principal Chamber in the Regulini Galeassi Tomb.
Near its centre are the remains of two solid towers, one circular, the other square, neither of them actually central, nor are they placed 299in such a way that we can understand how they can have formed a part of any symmetrical design. A plan and a view of the present appearance of this monument are given in Woodcuts 174 and 175.
174. Plan of Cocumella, Vulci. Scale 100 ft. to 1 in.
175. View of Cocumella, Vulci.
This tumulus, with its principal remaining features thus standing on one side of the centre, may possibly assist us to understand the curious description found in Pliny[163] of the tomb of Porsenna. This description is quoted from Varro, being evidently regarded by Pliny himself as not a little apocryphal. According to this account it consisted of a square basement 300 ft. each way, from which arose five pyramids, united at the summit by a bronze circle or cupola. This was again surmounted by four other pyramids, the summits of which were again united at a height of 300 ft. from the ground. From this point rose still five more pyramids, whose height Varro (from modesty, as Pliny surmises) omits to state, but which was estimated in Etruscan traditions at the same height as the rest of the monument. This last statement, which does not rest on any real authority, may well be regarded as exaggerated; but if we take the total height as about 400 ft., it is easy to understand that in the age of Pliny, when all the buildings were low, such a structure, as high as the steeple at Salisbury, would appear fabulous; but the vast piles that have been erected by tomb-building races in other parts of the earth render it by no means improbable that Varro was justified in what he asserted.[164]
300Near the gate of Albano is found a small tomb of five pyramidal pillars rising from a square base, exactly corresponding with Varro’s description of the lower part of the tomb of Porsenna. It is called by tradition the tomb of Aruns, the son of Porsenna, though the character of the mouldings with which it is adorned would lead us to assign to it a more modern date. It consists of a lofty podium, on which are placed five pyramids, a large one in the centre and four smaller ones at the angles. Its present appearance is shown in the annexed woodcut (No. 176).
Scale 50 ft. to 1 in.
Scale 100 ft. to 1 in.
176. Tomb of Aruns, Albano.
There are not in Etruria any features sufficiently marked to characterise a style of architecture, nor any pillars with their accessories which can be considered to constitute an order. It is true that in some of the rock-cut tombs square piers support the roof; and in one or two instances rounded pillars are found, but these are either without mouldings or ornamented only with Roman details, betraying the lateness of their execution. The absence of built examples of the class of tombs found in the rock prevents us from recognising any of those peculiarities of construction which sometimes are as characteristic of the style and as worthy of attention as the more purely ornamental parts.
From their city gates, their aqueducts and bridges, we know that the Etruscans used the radiating arch at an early age, with deep voussoirs and elegant mouldings, giving it that character of strength which the Romans afterwards imparted to their works of the same class. The Cloaca Maxima of Rome (Woodcut No. 104) must be considered as a work executed under Etruscan superintendence, and a very perfect specimen of the class.
At the same time the Etruscans used the pointed arch, constructed horizontally, and seem to have had the same predilection for it which characterised the cognate Pelasgian race in Greece. A gateway at Arpino (Woodcut No. 177) is almost identical with that at Thoricus (Woodcut No. 126), but larger and more elegant; and there are many specimens of the same class found in Italy. The portion of an aqueduct at Tusculum, shown in Woodcut No. 178, is a curious transition specimen, where the two stones meeting at the apex (usually called the Egyptian form, being the first step towards the true arch) are combined with a substructure of horizontal converging masonry.
In either of these instances the horizontal arch is a legitimate mode of construction, and may have been used long after the principle 301of the radiating arch was known. The great convenience of the latter, as enabling large spaces to be spanned even with brick or the smallest stones, and thus dispensing with the necessity for stones of very large dimensions, led ultimately to its universal adoption. Subsequently, when the pointed form of the radiating arch was introduced, no motive remained for the retention of the horizontal method, and it was entirely abandoned.
177. Gateway at Arpino.
178. Aqueduct at Tusculum.
We now approach the last revolution that completed and closed the great cycle of the arts and civilisation of the ancient world. We have seen Art spring Minerva-like, perfect from the head of her great parent, in Egypt. We have admired it in Assyria, rich, varied, but unstable; aiming at everything, but never attaining maturity or perfection. We have tried to trace the threads of early Pelasgic art in Asia, Greece, and Etruria, spreading their influence over the world, and laying the foundation of other arts which the Pelasgi were incapable of developing. We have seen all these elements gathered together in Greece, the essence extracted from each, and the whole forming the most perfect and beautiful combinations of intellectual power that the world has yet witnessed. We have now only to contemplate the last act in the great drama, the gorgeous but melancholy catastrophe by which all these styles of architecture were collected in wild confusion in Rome, and there perished beneath the luxury and crimes of that mighty people, who for a while made Rome the capital of Europe.
View them as we will, the arts of Rome were never an indigenous or natural production of the soil or people, but an aggregation of foreign styles in a state of transition from the old and time-honoured forms of Pagan antiquity to the new development introduced by Christianity. We cannot of course suppose that the Romans foresaw the result to which their amalgamation of previous styles was tending; still they advanced as steadily towards that result as if a prophetic spirit had guided them to a well-defined conception of what was to be. It was not however permitted to the Romans to complete this task. Long before the ancient methods and ideas had been completely moulded into the new, the power of Rome sank beneath her corruption, and a long pause took place, during which the Christian arts did not advance in Western Europe beyond the point they had reached in the age of Constantine. Indeed, in many respects, they receded from it during the dark ages. When they reappeared in the 10th and 11th centuries it was in an entirely new garb and with scarcely a trace of their origin—so distinct indeed that it appears more like a reinvention than a reproduction of 303forms long since familiar to the Roman world. Had Rome retained her power and pre-eminence a century or two longer, a style might have been elaborated as distinct from that of the ancient world, and as complete in itself, as our pointed Gothic, and perhaps more beautiful. Such was not the destiny of the world; and what we have now to do is to examine this transition style as we find it in ancient Rome, and familiarise ourselves with the forms it took during the three centuries of its existence, as without this knowledge all the arts of the Gothic era would for ever remain an inexplicable mystery. The chief value of the Roman style consists in the fact that it contains the germs of all that is found in the Middle Ages, and affords the key by which its mysteries may be unlocked, and its treasures rendered available. Had the transition been carried through in the hands of an art-loving and artistic people, the architectural beauties of Rome must have surpassed those of any other city in the world, for its buildings surpass in scale those of Egypt and in variety those of Greece, while they affect to combine the beauties of both. In constructive ingenuity they far surpass anything the world had seen up to that time, but this cannot redeem offences against good taste, nor enable any Roman productions to command our admiration as works of art, or entitle them to rank as models to be followed either literally or in spirit.
During the first two centuries and a half of her existence, Rome was virtually an Etruscan city, wholly under Etruscan influence; and during that period we read of temples and palaces being built and of works of immense magnitude being undertaken for the embellishment of the city; and we have even now more remains of kingly than we have of consular Rome.
After expelling her kings and shaking off Etruscan influence, Rome existed as a republic for five centuries, and during this long age of barbarism she did nothing to advance science or art. Literature was almost wholly unknown within her walls, and not one monument has come down to our time, even by tradition, worthy of a city of a tenth part of her power and magnitude. There is probably no instance in the history of the world of a capital city existing so long, populous and peaceful at home, prosperous and powerful abroad, and at the same time so utterly devoid of any monuments or any magnificence to dignify her existence.
When, however, Carthage was conquered and destroyed, when Greece was overrun and plundered, and Egypt, with her long-treasured art, had become a dependent province, Rome was no longer the city of the Aryan Romans, but the sole capital of the civilised world. Into her lap were poured all the artistic riches of the universe; to Rome flocked all who sought a higher distinction or a more extended field for their ambition than their own provincial capitals could then afford. She thus became the centre of all the arts and of all the science then known; 304and, so far at least as quantity is concerned, she amply redeemed her previous neglect of them. It seems an almost indisputable fact that, during the three centuries of the Empire, more and larger buildings were erected in Rome and her dependent cities than ever were erected in a like period in any part of the world.
For centuries before the establishment of the Roman Empire, progressive development and increasing population, joined to comparative peace and security, had accumulated around the shores of the Mediterranean a mass of people enjoying material prosperity greater than had ever been known before. All this culminated in the first centuries of the Christian era. The greatness of the ancient world was then full, and a more overwhelming and gorgeous spectacle than the Roman Empire then displayed never dazzled the eyes of mankind. From the banks of the Euphrates to those of the Tagus, every city vied with its neighbour in the erection of temples, baths, theatres, and edifices for public use or private luxury. In all cases these display far more evidence of wealth and power than of taste and refinement, and all exhibit traces of that haste to enjoy, which seems incompatible with the correct elaboration of anything that is to be truly great. Notwithstanding all this, there is a greatness in the mass, a grandeur in the conception, and a certain expression of power in all these Roman remains which never fail to strike the beholder with awe and force admiration from him despite his better judgment. These qualities, coupled with the associations that attach themselves to every brick and every stone, render the study of them irresistibly attractive. It was with Imperial Rome that the ancient world perished; it was in her dominions that the new and Christian world was born. All that was great in Heathendom was gathered within her walls, tied, it is true, into an inextricable knot, which was cut by the sword of those barbarians who moulded for themselves out of the fragments that polity and those arts which will next occupy our attention. To Rome all previous history tends; from Rome all modern history springs: to her, therefore, and to her arts, we inevitably turn, if not to admire, at least to learn, and if not to imitate, at any rate to wonder at and to contemplate a phase of art as unknown to previous as to subsequent history, and, if properly understood, more replete with instruction than any other form hitherto known. Though the lesson we learn from it is far oftener what to avoid than what to follow, still there is such wisdom to be gathered from it as should guide us in the onward path, which may lead us to a far higher grade than it was given to Rome herself ever to attain.
Origin of style—The arch—Orders: Doric, Ionic, Corinthian, Composite—Temples—The Pantheon—Roman temples at Athens—at Baalbec.
| DATES. | |
| Foundation of Rome | B.C. 753 |
| Tarquinius Priscus—Cloaca Maxima, foundation of Temple of Jupiter Capitolinus. | 616 |
| Temple of Jupiter Capitolinus dedicated | 507 |
| Scipio—tomb at Literium | 184 |
| Augustus—temples at Rome | 31 |
| Marcellus—theatre at Rome—died | 23 |
| Agrippa—portico of Pantheon—died | 13 |
| Nero—burning and rebuilding of Rome—died | A.D. 68 |
| Vespasian—Flavian amphitheatre built | 70 |
| Titus—arch in Forum | 79 |
| Destruction of Pompeii | 79 |
| Trajan—Ulpian Basilica and Pillar of Victory | 98 |
| Hadrian builds temple at Rome, Temple of Jupiter Olympius at Athens, &c. | 117 |
| Septimius Severus—arch at Rome | 194 |
| Caracalla—baths | 211 |
| Diocletian—palace at Spalato | 284 |
| Maxentius—Basilica at Rome | 306 |
| Constantine—transfer of Empire to Constantinople | 328 |
The earliest inhabitants of Rome were an Aryan or, as they used to be called, Indo-Germanic race, who established themselves in a country previously occupied by Pelasgians. Their principal neighbour on one side was Etruria, a Pelasgian nation. On the other hand was Magna Græcia, which had been colonised in very early ages by Hellenic settlers of kindred origin. It was therefore impossible that the architecture of the Romans should not be in fact a mixture of the styles of these two people. As a transition order, it was only a mechanical juxtaposition of both styles, the real fusion taking place many long centuries afterwards. Throughout the Roman period the two styles remain distinct, and there is no great difficulty in referring almost every feature in Roman architecture to its origin.
From the Greeks were borrowed the rectangular peristylar temple, with its columns and horizontal architraves, though they seldom if ever used it in its perfect purity, the cella of the Greek temples not being sufficiently large for their purposes. The principal Etruscan temples, as we have already shown, were square in plan, and the inner half occupied by one or more cells, to the sides and back of which the portico never extended. The Roman rectangular temple is a mixture of these two: it is generally, like the Greek examples, longer than its breadth, but the colonnade never seems to have entirely surrounded the building. Sometimes it extends to the two sides as well as the front, 306but more generally the cella occupies the whole of the inner part though frequently ornamented by a false peristyle of three-quarter columns attached to its walls.
Besides this, the Romans borrowed from the Etruscans or Greeks a circular form of temple. As applied by the Romans it was generally encircled by a peristyle of columns, though it is not clear that the Etruscans so used it; this may therefore be an improvement adopted from the Greeks on an Etruscan form. In early times these circular temples were dedicated to Vesta, Cybele, or some god or goddess either unknown or not generally worshipped by the Aryan races; but in later times this distinction was lost sight of.
A more important characteristic which the Romans borrowed from the Etruscans was the circular arch. It was known, it is true, to the Egyptians, Assyrians, and Greeks; yet none of these people, perhaps excepting the Assyrians, seem to have used it as a feature in their ornamental architecture; but the Etruscans appear to have had a peculiar predilection for it, and from them the Romans adopted it boldly, and introduced it into almost all their buildings. It was not at first used in temples of Grecian form, nor even in their peristylar circular ones. In the civil buildings of the Romans it was a universal feature, but was generally placed in juxtaposition with the Grecian orders. In the Colosseum, for instance, the whole construction is arched; but a useless network of ill-designed and ill-arranged Grecian columns, with their entablatures, is spread over the whole. This is a curious instance of the mixture of the two styles, and as such is very characteristic of Roman art; but in an artistic point of view the place of these columns would have been far better supplied by buttresses or panels, or some expedient more correctly constructive.
After having thoroughly familiarised themselves with the forms of the arch as an architectural feature, the Romans made a bold stride in advance by applying it as a vault both to the circular and rectangular forms of buildings. The most perfect examples of this are the rotunda of the Pantheon and the basilica of Maxentius, commonly called the Temple of Peace, strangely like each other in conception, though apparently so distant in date. In these buildings the Roman architects so completely emancipated themselves from the trammels of former styles as almost to entitle them to claim the invention of a new order of architecture. It would have required some more practice to invent details appropriate to the purpose; still these two buildings are to this hour unsurpassed for boldness of conception and just appreciation of the manner in which the new method ought to be applied. This is almost universally acknowledged so far as the interior of the Pantheon is concerned. In simple grandeur it is as yet unequalled; its faults being principally those of detail. It is not so easy, however, to form an opinion of the Temple of Peace in its present ruined state; 307but in so far as we can judge from what yet remains of it, in boldness and majesty of conception it must have been quite equal to the other example, though it must have required far more familiarity with the style adopted to manage its design as appropriately as the simpler dome of the Pantheon.
These two buildings may be considered as exemplifying the extent to which the Romans had progressed in the invention of a new style of architecture and the state in which they left it to their successors. It may however be worth while pointing out how, in transplanting Roman architecture to their new capital on the shores of the Bosphorus, the semi-Oriental nation seized on its own circular form, and, modifying and moulding it to its purpose, wrought out the Byzantine style; in which the dome is the great feature, almost to the total exclusion of the rectangular form with its intersecting vaults. On the other hand, the rectangular form was appropriated by the nations of the West with an equally distinct rejection of the circular and domical forms, except in those cases in which we find an Eastern people still incorporated with them. Thus in Italy both styles continued long in use, the one in baptisteries, the other in churches, but always kept distinct, as in Rome. In France they were so completely fused into each other that it requires considerable knowledge of architectural analysis to separate them again into their component parts. In England we rejected the circular form altogether, and so they did eventually in Germany, except when under French influence. Each race reclaimed its own among the spoils of Rome, and used it with the improvements it had acquired during its employment in the Imperial city.
The first thing that strikes the student in attempting to classify the numerous examples of Roman architecture is the immense variety of purposes to which it is applied, as compared with previous styles. In Egypt architecture was applied only to temples, palaces and tombs. In Greece it was almost wholly confined to temples and theatres; and in Etruria to tombs. It is in Rome that we first feel that we have not to deal with either a Theocracy or a kingdom, but with a great people, who for the first time in the world’s history rendered architecture subservient to the myriad wants of the many-headed monster. It thus happens that in the Roman cities, in addition to temples we find basilicas, theatres and amphitheatres, baths, palaces, tombs, arches of triumph and pillars of victory, gates, bridges, and aqueducts, all equally objects of architectural skill. The best of these, in fact, are those which from previous neglect in other countries are here stamped with originality. These would have been noble works indeed had it 308not been that the Romans unsuccessfully applied to them those orders and details of architecture which were intended only to be applied to temples by other nations. In the time of Constantine these orders had nearly died out, and were only subordinately used for decorative purposes. In a little while they would have died out altogether, and the Roman would have become a new and complete style; but, as before remarked, this did not take place, and the most ancient orders therefore still remain an essential part of Roman art. We find the old orders predominating in the age of Augustus, and see them gradually die out as we approach that of Constantine.
Adopting the usual classification, the first of the Roman orders is the Doric, which, like everything else in this style, takes a place about half-way between the Tuscan wooden posts and the nobly simple order of the Greeks. It no doubt was a great improvement on the former, but for monumental purposes infinitely inferior to the latter. It was, however, more manageable; and for forums or courtyards, or as a three-quarter column between arcades, it was better adapted than the severer Greek style, which, when so employed, not only loses almost all its beauty, but becomes more unmeaning than the Roman. This fact was apparently recognised; for there is not, so far as is known, a single Doric temple throughout the Roman world. It would in consequence be most unfair to institute a comparison between a mere utilitarian prop used only in civil buildings and an order which the most refined artists in the world spent all their ingenuity in rendering the most perfect, because it was devoted to the highest religious purposes.
179. Doric Order.
The addition of an independent base made the order much more generally useful, and its adoption brought it much more into harmony with the other two existing orders, which would appear to have been the principal object of its introduction. The keynote of Roman architecture was the Corinthian order; and as, from the necessities of their tall, many-storeyed buildings, the Romans were forced to use the three orders together, often one over the other, it was indispensable 309that the three should be reduced to something like harmony. This was accordingly done, but at the expense of the Doric order, which, except when thus used in combination, must be confessed to have very little claim to our admiration.
The Romans were much more unfortunate in their modifications of the Ionic order than in those which they introduced into the Doric. They never seem to have either liked or understood it, nor to have employed it except as a mezzo termine between the other two. In its own native East this order had originally only been used in porticoes between piers or antæ, where of course only one face was shown, and there were no angles to be turned. When the Greeks adopted it they used it in temples of Doric form, and in consequence were obliged to introduce a capital at each angle, with two voluted faces in juxtaposition at right angles to one another. In some instances—internally at least—as at Bassæ (Woodcut No. 142) they used a capital with four faces. The Romans, impatient of control, eagerly seized on this modification, but never quite got over the extreme difficulty of its employment. With them the angular volutes became mere horns, and even in the best examples the capital wants harmony and meaning.
180. Ionic Order.
When used as a three-quarter column these alterations were not required, and then the order resembled more its original form; but even in this state it was never equal to the Greek examples, and gradually deteriorated to the corrupt application of it in the Temple of Concord in the Forum, which is the most degenerate example of the order now to be found in Roman remains.
The fate of this order in the hands of the Romans was different from that of the other two. The Doric and Ionic orders had reached their acme of perfection in the hands of the Grecian artists, and seem to have become incapable of further improvement. The Corinthian, 310on the contrary, was a recent conception; and although nothing can surpass the elegance and grace with which the Greeks adorned it, the new capital never acquired with them that fulness and strength so requisite to render it an appropriate architectural ornament. These were added to it by the Romans, or rather perhaps by Grecian artists acting under their direction, who thus, as shown in Woodcut No. 181, produced an order which for richness combined with proportion and architectural fitness has hardly been surpassed. The base is elegant and appropriate; the shaft is of the most pleasing proportion, and the fluting gives it just the requisite degree of richness and no more; while the capital, though bordering on over-ornamentation, is so well arranged as to appear just suited to the work it has to do. The acanthus-leaves, it is true, approach the very verge of that degree of direct imitation of nature which, though allowable in architectural ornaments, is seldom advisable; they are, however, disposed so formally, and there still remains so much that is conventional in them, that, though perhaps not justly open to criticism on this account, they are nevertheless a very extreme example.
181. Corinthian Order. From the Temple of Jupiter Stator.
The entablature is not so admirable as the column. The architrave is too richly carved. It is evident, however, that this arose from the artist having copied in carving what the Greeks had only painted, and thereby produced a complexity far from pleasing.
311The frieze, as we now find it, is perfectly plain; but this undoubtedly was not the case when originally erected. It either must have been painted (in which case the whole order of course was also painted), or ornamented with scrolls or figures in bronze, which may probably have been gilt.
The cornice is perhaps open to the same criticism as the architrave, of being over-rich, though this evidently arose from the same cause, viz., reproducing in carving what was originally only painted; which to our Northern eyes at least appears more appropriate for internal than for external decoration, though, under the purer skies where it was introduced and used, this remark may be hardly applicable.
The order of the portico of the Pantheon is, according to our notions, a nobler specimen of what an external pillar should be than that of the Temple of Jupiter Stator. The shafts are of one block, unfluted; the capital plainer; and the whole entablature, though as correctly proportional, is far less ornamented and more suited to the greater simplicity of the whole.
The order of the Temple of Antoninus and Faustina is another example intermediate between these two. The columns are in this instance very similar to those of the Pantheon, and the architrave is plain. The frieze, however, is ornamented with more taste than any other in Rome, and is a very pleasing example of those conventional representations of plants and animals which are so well suited to architectural purposes—more like Nature than those of the Greeks, but still avoiding direct imitation sufficiently to escape the affectation of pretending to appear what it is not and cannot be.
The Maison Carrée at Nîmes presents an example of a frieze ornamented with exquisite taste, while at Baalbec, and in some other examples, we have them so over-ornamented that the effect is far more offensive, from utter want of repose, than the frieze in the Temple of Jupiter Stator ever could be from its baldness.
Besides these there are at least fifty varieties of Corinthian capitals to be found, either in Rome or in various parts of the Roman Empire, all executed within the three centuries during which Rome continued to be the imperial city. Some of them are remarkable for that elegant simplicity which so evidently betrays the hand of a Grecian artist, while others again show a lavish exuberance of ornament which is but too characteristic of Roman art in general. Many, however, contain the germs of something better than was accomplished in that age; and a collection of them would afford more useful suggestions for designing capitals than have yet been available to modern artists.
Among their various attempts to improve the order which has just been described, the Romans hit upon one which is extremely characteristic of their whole style of art. This is known by the distinguishing name of the Composite order, though virtually more like the typical examples of the Corinthian order than many of those classed under the latter denomination.
The greatest defect of the Corinthian capital is the weakness of the small volutes supporting the angles of the abacus. A true artist would have remedied this by adding to their strength and carrying up the fulness of the capital to the top. The Romans removed the whole of the upper part and substituted an Ionic capital instead. Their only original idea, if it may be so called, in art was that of putting two dissimilar things together to make one which should combine the beauties of both, though as a rule the one generally serves to destroy the other. In the Composite capital they never could hide the junction; and consequently, though rich, and in some respects an improvement on the order out of which it grew, this capital never came into general use, and has seldom found favour except amongst the blindest admirers of all that the Romans did.
182. Composite Order.
183. Corinthian Base, found in Church of St. Praxede in Rome.
In the latter days of the Empire the Romans attempted another innovation which promised far better success, and with very little more elaboration would have been a great gain to the principles of architectural design. This was the introduction of the Persian or Assyrian base, 313modified to suit the details of the Corinthian or Composite orders. If they had always used this instead of the square pedestals on which they mounted their columns, and had attenuated the pillars slightly when used with arcades, they would have avoided many of the errors they fell into. This application, however, came too late to be generally used; and the forms already introduced continued to prevail. At the same time it is evident that a Persepolitan base for an Ionic and even for a Corinthian column would be amongst the greatest improvements that could now be introduced, especially for internal architecture.
The true Roman order, however, was not any of these columnar ordinances we have been enumerating, but an arrangement of two pillars placed at a distance from one another nearly equal to their own height, and having a very long entablature, which in consequence required to be supported in the centre by an arch springing from piers. This, as will be seen from the annexed woodcut, was in fact merely a screen of Grecian architecture placed in front of a construction of Etruscan design. Though not without a certain richness of effect, still, as used by the Romans, these two systems remain too distinctly dissimilar for the result to be pleasing, and their use necessitated certain supplemental arrangements by no means agreeable. In the first place, the columns had to be mounted on pedestals, or otherwise an entablature proportional to their size would have been too heavy and too important for a thing so useless and so avowedly a mere ornament. A projecting keystone was also introduced into the arch. This was unobjectionable in itself, but when projecting so far as to do the duty of an intermediate capital, it overpowered the arch without being equal to the work required of it.
184. Doric Arcade.
The Romans used these arcades with all the 3 orders, frequently one over the other, and tried various expedients to harmonise the construction with the ornamentation, but without much effect. They seem always to have felt the discordance as a blemish, and at last got rid of it, but whether they did so in the best way is not quite clear. The most obvious mode of effecting this would no doubt have been by omitting the pillars altogether, bending the architrave, as is usually done, round the arch, and then inserting the frieze and cornices into 314the wall, using them as a string-course. A slight degree of practice would soon have enabled them—by panelling the pier, cutting off its angles, or some such expedient—to have obtained the degree of lightness or of ornament they required, and so really to have invented a new order.
This, however, was not the course that the Romans pursued. What they did was to remove the pier altogether, and to substitute for it the pillar taken down from its pedestal. This of course was not effected at once, but was the result of many trials and expedients. One of the earliest of these is observed in the Ionic Temple of Concord before alluded to, in which a concealed arch is thrown from the head of each pillar, but above the entablature, so as to take the whole weight of the superstructure from off the cornice between the pillars. When once this was done it was perceived that so deep an entablature was no longer required, and that it might be either wholly omitted, as was sometimes done in the centre intercolumniation, or very much reduced. There is an old temple at Talavera in Spain, which is a good example of the former expedient; and the Roman gateway at Damascus is a remarkable instance of the latter. There the architrave, frieze and cornice are carried across in the form of an arch from pier to pier, thus constituting a new feature in architectural design.
185. View in Courtyard of Palace at Spalato
In Diocletian’s reign we find all these changes already introduced into domestic architecture, as shown in Woodcut No. 185, representing the great court of his palace at Spalato, where, at one end, the 315entablature is bent into the form of an arch over the central intercolumniation, while on each side of the court the arches spring directly from the capitals of the columns.
Had the Romans at this period been more desirous to improve their external architecture, there is little doubt that they would have adopted the expedient of omitting the entire entablature: but at this time almost all their efforts were devoted to internal improvement, and not unfrequently at the expense of the exterior. Indeed the whole history of Roman art, from the time of Augustus to that of Constantine, is a transition from the external architecture of the Greeks to the internal embellishment of the Christians. At first we see the cells of the temple gradually enlarged at the expense of the peristyle, and finally, in some instances, entirely overpowering them. Their basilicas and halls become more important than their porticoes, and the exterior is in almost every instance sacrificed to internal arrangements. For an interior, an arch resting on a circular column is obviously far more appropriate than one resting on a pier. Externally, on the contrary, the square pier is most suitable, because a pillar cannot support a wall of sufficient thickness. This defect was not remedied until the Gothic architects devised the plan of coupling two or more pillars together; but this point had not been reached at the time when with the fall of Rome all progress in art was effectually checked for a time.
There is perhaps nothing that strikes the inquirer into the architectural history of Rome more than the extreme insignificance of her temples, as compared with the other buildings of the imperial city and with some contemporary temples found in the provinces. The only temple which remains at all worthy of such a capital is the Pantheon. All others are now mere fragments, from which we can with difficulty restore even the plans of the buildings, far less judge of their effect. We have now no means of forming an opinion of the great national temple of the Capitoline Jove, no trace of it, nor any intelligible description, having been preserved to the present time. Its having been of Etruscan origin, and retaining its original form to the latest day, would lead us to suppose that the temple itself was small, and that its magnificence, if any, was confined to the enclosure and to the substructure, which may have been immense.
Of the Augustan age we have nothing but the remains of three temples, each consisting of only three columns; and the excavations that have been made around them have not sufficed to make even their plans tolerably clear.
The most remarkable was that of Jupiter Stator in the Forum, the 316beautiful details of which have been already alluded to and described. This temple was octastyle in front. It was raised on a stylobate 22 ft. in height, the extreme width of which was 98 ft., and this corresponds as closely as possible with 100 Roman ft. The angular columns were 85 ft. from centre to centre. The height of the pillars was 48 ft., and that of the entablature 12 ft. 6 in.[165] It is probable that the whole height to the apex of the pediment was nearly equal to the extreme width, and that it was designed to be so.
The pillars certainly extended on both flanks, and the temple is generally restored as peristylar, but apparently without any authority. From the analogy of the other temples it seems more probable that there were not more than eight or ten pillars on each side, and that the apse of the cella formed the termination opposite the portico.
The temple nearest to this in situation and style is that of Jupiter Tonans.[166] The order in this instance is of slightly inferior dimensions to that of the temple just described, and of very inferior execution. The temple, too, was very much smaller, having only six columns in front, and from its situation it could not well have had more than that number on the flanks, so that its extreme dimensions were probably about 70 ft. by 85.
The third is the Temple of Mars Ultor, of which a plan is annexed; for though now as completely decayed as the other two, in the time of Ant. Sabacco and Palladio there seem to have been sufficient remains to justify an attempt at restoration. As will be seen, it is nearly square in plan (112 ft. by 120). The cella is here a much more important part than is usual in Greek temples, and terminates in an apse, which afterwards became characteristic of all places of worship. Behind the cella, and on each side, was a lofty screen of walls and arches, part of which still remain, and form quite a new adjunct, unlike anything hitherto met with attached to any temple now known.
186. Temple of Mars Ultor. (From Cresy’s ‘Rome.’) Scale 100 ft. to 1 in.
The next class of temples, called pseudo-peripteral (or those in 317which the cella occupies the whole of the after part), are generally more modern, certainly more completely Roman, than these last. One of the best specimens at Rome is the Temple of Antoninus and Faustina, a small building measuring 72 ft. by 120. There is also a very elegant little Ionic temple of this class called that of Fortuna Virilis; while the Ionic Temple of Concord, built by Vespasian, and above alluded to, appears also to have been of this class. So was the temple in the forum at Pompeii; but the finest specimen now remaining to us is the so-called Maison Carrée at Nîmes, which is indeed one of the most elegant temples of the Roman world, owing probably a great deal of its beauty to the taste of the Grecian colonists long settled in its neighbourhood. It is hexastyle, with 11 columns in the flanks, 3 of which stand free, and belong to the portico; the remaining 8 are attached to the walls of the cella. The temple is small, only 45 ft. by 85; but such is the beauty of its proportions and the elegance of its details that it strikes every beholder with admiration.
187. Plan of Maison Carrée at Nîmes. Scale 100 ft. to 1 in.
The date of this temple has not been satisfactorily ascertained. From the nail-holes of the inscription on the frieze it has been attempted to make out the names of Caius and Lucius Cæsar, and there is nothing in the style of its architecture to contradict this hypothesis. Even if the buildings in the capital were such as to render this date ambiguous, it would scarcely be safe to apply any argument derived from them to a provincial example erected in the midst of a Grecian colony. But for their evidence we might almost be inclined to fancy its style represented the age of Trajan.
The temple of Diana in the same city is another edifice of singular beauty of detail, and interesting from the peculiarity of its plan. Exclusive of the portico it is nearly square, 70 ft. by 65, and consists of a cella which is covered with a stone ribbed vault, the thrust of which is counteracted by smaller vaults thrown across two side passages or aisles which are, however, not thrown open to the cella. The columns in the cella are detached from the wall, which is singularly interesting as the origin of much which we find afterwards in Gothic work. (A somewhat similar arrangement is found in the small temple at Baalbec (Woodcut No. 197) where, however, the peristyle occupies the position and serves the same purpose as the aisles at Nîmes, viz., to resist the thrust of the vault over the cella.)
188. Plan of Temple of Diana at Nîmes. Scale 100 ft. to 1 in.
Throughout this building the details of the architecture are unsurpassed for variety and elegance by anything found in the metropolis, and are applied here with a freedom and elegance bespeaking the presence of a Grecian mind even in this remote corner of the 318Empire. Another interesting feature is the porch. This was supported by four slender columns of singularly elegant design, but placed so widely apart that they could not have carried a stone entablature. It is difficult to guess what could have been the form of the wooden ones; but a mortice which still exists in the walls of the temple shows that it must have been eight or ten feet deep, and therefore probably of Etruscan form (Woodcut No. 167); though it may have assumed a circular arched form between the pillars.[167]
189. View of the Interior of the Temple of Diana at Nîmes. (From Laborde.)
Another peculiarity is, that the light was introduced over the portico by a great semicircular window, as is done in the Buddhist caves in India; which, so far as I know, is the most perfect mode of lighting the interior of a temple which has yet been discovered.
Not far from the Colosseum, in the direction of the Forum, are still to be seen the remains of a great double temple built by the Emperor Hadrian, and dedicated to Venus and Rome, and consisting of the ruins of its two cells, each about 70 ft. square, covered with tunnel-vaults, and placed back to back, so that their apses touch one another. These stand on a platform 480 ft. long by 330 wide; and it is generally supposed that on the edge of this once stood 56 great columns, 65 ft. in height, thus moulding the whole into one great peripteral temple. Some fragments of such pillars are said to be 319found in the neighbourhood, but not one is now erect,—not even a base is in its place,—nor can any of its columns be traced to any other buildings. This part, therefore, of the arrangement is very problematical, and I should be rather inclined to restore it, as Palladio and the older architects have done, with a corridor of ten small columns in front of each of the cells. If we could assume the plan of this temple to have been really peripteral, as supposed, it must have been a building worthy of the imperial city and of the magnificence of the emperor to whom its erection is ascribed.
More perfect and more interesting than any of these is the Pantheon, which is undoubtedly one of the finest temples of the ancient world. Externally its effect is very much destroyed by its two parts, the circular and the rectangular, being so dissimilar in style and so incongruously joined together. The portico especially, in itself the finest which Rome exhibits, is very much injured by being prefixed to a mass which overpowers it and does not harmonise with any of its lines. The pitch, too, of its pediment is perhaps somewhat too high, but, notwithstanding all this, its sixteen columns, the shaft of each composed of a single block, and the simple grandeur of the details, render it perhaps the most satisfactory example of its class.
190. Plan of Pantheon at Rome. Scale 100 ft. to 1 in.
The pillars are arranged in the Etruscan fashion, as they were originally disposed in front of three-celled temples. As they now stand, however, they are added unsymmetrically to a rotunda, and in so clumsy a fashion that the two are certainly not part of the same design and do not belong to the same age. Either it was that the portico was added to the pre-existing rotunda, or that the rotunda is long subsequent to the portico. Unfortunately the two inscriptions on the portico hardly help to a solution of the difficulty. The principal one states that it was built by M. Agrippa, but the “it” may refer to the rotunda only, and may have been put there by those who in the time of Aurelius[168] repaired the temple which had “fallen into decay from age.” This hardly could, under any circumstances, be predicated 320of the rotunda, which shows no sign of decay during the last seventeen centuries of ill-treatment and neglect, and may last for as many more without injury to its stability, but might be said of a portico which, if of wood, as Etruscan porticoes usually were, may easily in 200 years have required repairs and rebuilding. From a more careful examination on the spot, I am convinced that the portico was added at some subsequent period to the rotunda. If by Agrippa, then the dome must belong to Republican times; if by Severus it may have been, as is generally supposed, the hall of the Baths of Agrippa.[169] Altogether I know of no building whose date and arrangements are so singular and so exceptional as this. Though it is, and always must have been, 321one of the most prominent buildings in Rome, and most important from its size and design, I know of no other building in Rome whose date or original destination it is so difficult to determine.
191. Half Elevation, half Section, of the Pantheon at Rome. Scale 50 ft. to 1 in.
Internally perhaps the greatest defect of the building is a want of height in the perpendicular part, which the dome appears to overpower and crush. This mistake is aggravated by the lower part being cut up into two storeys, an attic being placed over the lower order. The former defect may have arisen from the architect wishing to keep the walls in some proportion to the portico. The latter is a peculiarity of the age in which I suppose this temple to have been remodelled, when two or more storeys seem to have become indispensable requisites of architectural design. We must ascribe also to the practice of the age the method of cutting through the entablature by the arches of the great niches, as shown in the sectional part of the last woodcut. It has already been pointed out that this was becoming a characteristic of the style at the time when the circular part of this temple was arranged as it at present appears.
Notwithstanding these defects and many others of detail that might be mentioned, there is a grandeur and a simplicity in the proportions of this great temple that render it still one of the very finest and most sublime interiors in the world, and the dimensions of its dome, 145 ft. 6 in. span by 147 in height, have not yet been surpassed by any subsequent erection. Though it is deprived of its bronze covering[170] and of the greater part of those ornaments on which it mainly depended for effect, and though these have been replaced by tawdry and incongruous modernisms, still nothing can destroy the effect of a design so vast and 322of a form so simply grand. It possesses moreover one other element of architectural sublimity in having a single window, and that placed high up in the building. I know of no other temples which possess this feature except the great rock-cut Buddhist basilicas of India. In them the light is introduced even more artistically than here; but, nevertheless, that one great eye opening upon heaven is by far the noblest conception for lighting a building to be found in Europe.
Besides this great rotunda there are two other circular temples in or near Rome. The one at Tivoli, shown in plan and elevation in the annexed woodcuts (Nos. 192 and 193), has long been known and admired; the other, near the mouth of the Cloaca Maxima, has a cell surrounded by twenty Corinthian columns of singularly slender proportions. Both these probably stand on Etruscan sites; they certainly are Etruscan in form, and are very likely sacred to Pelasgic deities, either Vesta or Cybele.
192. Plan of Temple at Tivoli. Scale 100 ft. to 1 in.
193. Restored Elevation of Temple at Tivoli. Scale 50 ft. to 1 in.
Both in dimensions and design they form a perfect contrast to the Pantheon, as might be expected from their both belonging to the Augustan age of art: consequently the cella is small, its interior is unornamented, and all the art and expense is lavished on the external features, especially on the peristyle; showing more strongly than even the rectangular temple the still remaining predominance of Grecian taste, which was gradually dying out during the whole period of the Empire.
It is to be regretted that the exact dates of both these temples are unknown, for, as that at Tivoli shows the stoutest example of a Corinthian column known and that in Rome the slenderest, it might lead to some important deductions if we could be certain which was the older of the two. It may be, however, that this difference of style has no connection with the relative age of the two buildings, but that it is merely an instance of the good taste of the age to which they belong. The Roman example, being placed in a low and flat situation, required all the height that could be given it; that at Tivoli, being placed on the edge of a rock, required as much solidity as the order would admit of to prevent its looking poor and insecure. A Gothic or a Greek architect would certainly have made this distinction.
One more step towards the modern style of round temples was taken before the fall of the Western Empire, in the temple which Diocletian built in his palace at Spalato. Internally the temple is circular, 28 ft. in diameter, and the height of the perpendicular part to the springing of the dome is about equal to its width. This is a 323much more pleasing proportion than we find in the Pantheon; perhaps the very best that has yet been employed. Externally the building is an octagon, surrounded by a low dwarf peristyle, very unlike that employed in the older examples. This angularity is certainly a great improvement, giving expression and character to the building, and affording flat faces for the entrances or porches; but the peristyle is too low, and mars the dignity of the whole.[171]
194. Plan and Elevation of Temple in Diocletian’s Palace at Spalato. Scale for Plan 100 ft. to 1 in.; for Elevation 50 ft. to 1 in.
To us its principal interest consists in its being so extremely similar to the Christian baptisteries which were erected in the following centuries, and which were copies, but very slightly altered, from buildings of this class.
Even assuming that Hadrian completed the great Temple of Venus at Rome in the manner generally supposed, it must have been very far surpassed by the great Temple of Jupiter Olympius at Athens, which, though probably not entirely erected, was certainly finished, by that Emperor. It was octastyle in front,[172] with a double range of 20 columns on each flank so that it could not well have had less than 106 columns, all about 58 ft. in height, and of the most elegant Corinthian order, presenting altogether a group of far greater magnificence than any other temple we are acquainted with of its class in the ancient world. Its lineal dimensions also, as may be seen from the plan (Woodcut No. 195), were only rivalled by the two great Sicilian temples at Selinus and Agrigentum (Woodcuts Nos. 151, 152). It was 135 ft. wide by 354 in length, or nearly the same dimensions as the great Hypostyle Hall at Karnac, from which, however, it differs most materially, that being a beautiful example of an interior, this depending for all its magnificence on the external arrangement of its columns. Mr. Penrose’s discoveries in 1884 show that there was an opisthodomus 324at the rear and a vestibule or court in front of the cella which may have been hypæthral so as to admit light into the interior. This arrangement became so common in the early Christian world that there must have been some precedent for it; which, in addition to other reasons,[173] strongly inclines me to believe that the arrangement shown in the plan is correct.
195. Ruins of the Temple of Jupiter Olympius at Athens.
196. Plan of Temple of Jupiter Olympius at Athens.
The temples of Palmyra and Kangovar have been already mentioned in speaking of that of Jerusalem, to which class they seem to belong in their general arrangements, though their details are borrowed from Roman architecture. This, however, is not the case with the temples at Baalbec, which taken together and with their accompaniments, form the most magnificent temple group now left to us of their class and age. The great temple, 325if completed (which, however, probably it never was), would have been about 160 ft. by 290, and therefore, as a Corinthian temple, only inferior to that of Jupiter Olympius at Athens. Only nine of its colossal columns are now standing, but the bases of most of the others are in situ. Scarcely less magnificent than the temple itself was the court in which it stood, above 380 ft. square, and surrounded on three sides by recessed porticoes of most exuberant richness, though in perhaps rather questionable taste. In front of this was a hexagonal court of very great beauty, with a noble portico of 12 Corinthian columns, with two square blocks of masonry at each end. The whole extent of the portico is 260 ft., and of its kind it is perhaps unrivalled, certainly among the buildings of so late a date as the period to which it belongs.
197. Plan of Small Temple at Baalbec. Scale 100 ft. to 1 in.
198. Elevation of Small Temple at Baalbec. Scale 50 ft. to 1 in.
The other, or smaller temple, stands close to the larger. Its dimensions, to the usual scale, are shown in the plan (Woodcut No. 197). It is larger than any of the Roman peripteral temples, being 117 ft. by 227 ft., or rather exceeding the dimensions of the Parthenon at Athens, and its portico is both wider and higher than that of the Pantheon at Rome. Had this portico been applied to that building, the slope of its pediment would have coincided exactly with that of the upper sloping cornice, and would have been the greatest possible improvement to that edifice. As it is, it certainly is the best proportioned and the most graceful Roman portico of the first class that remains to us in a state of sufficient completeness to allow us to judge of its effect.
The interior of the cella was richly ornamented with niches and pilasters, and covered with a ribbed and coffered vault, remarkable, 326like every part of this edifice, rather for the profusion than for the good taste of its ornaments.
One of the principal peculiarities of this group of buildings is the immense size of some of the stones used in the substructure of the great temple: three of these average about 63 ft. in length, 10 ft. 5 in. in breadth, and 13 ft. in height. A fourth, of similar dimensions, is lying in the quarry, which it is calculated must weigh alone more than 1100 tons in its rough state, or nearly as much as one of the tubes of the Britannia Bridge. It is not easy to see why such masses were employed. If they had been used as foundation stones their use would have been apparent, but they are placed over several courses of smaller stones, about half-way up the terrace wall, as mere binding stones, apparently for show. It is true that in many places in the Bible and in Josephus nothing is so much insisted upon as the immense size of the stones used in the building of the Temple and the walls of Jerusalem, the bulk of the materials used appearing to have been thought a matter of far more importance than the architecture. It probably was some such feeling as this which led to their employment here, though, had these huge stones been set upright, as the Egyptians would have placed them, we might more easily have understood why so great an expense should have been incurred on their account. As it is, there seems no reason for doubting their being of the same age as the temples they support, though their use is certainly exceptional in Roman temples of this class.
Basilicas of Trajan and Maxentius—Provincial basilicas—Theatre at Orange—Colosseum—Provincial amphitheatres—Baths of Diocletian.
We have already seen that in size and magnificence the temples of Rome were among the least remarkable of her public buildings. It may be doubted whether in any respect, in the eyes of the Romans themselves, the temples were as important and venerable as the basilicas. The people cared for government and justice more than for religion, and consequently paid more attention to the affairs of the basilicas than to those of the temples. Our means for the restoration of this class of buildings are now but small, owing to their slight construction in the first instance, and to their materials having been so suitable for the building of Christian basilicas as to have been extensively used for that purpose. It happens, however, that the remains which we do possess comprise what we know to be the ruins of the two most splendid buildings of this class in Rome, and these are sufficiently complete to enable us to restore their plans with considerable confidence. It is also fortunate that one of these, the Ulpian or Trajan’s basilica, is the typical specimen of those with wooden roofs; the other, that of Maxentius, commonly called the Temple of Peace, is the noblest of the vaulted class.
199. Plan of Trajan’s Basilica at Rome. Scale 100 ft. to 1 in.
The part shaded darker is all that is uncovered.
200. Restored Section of Trajan’s Basilica. Scale 100 ft. to 1 in.
The rectangular part of Trajan’s basilica was 180 ft. in width and a little more than twice that in length, but, neither end having yet been excavated, its exact longitudinal measurement has not been ascertained. It was divided into five aisles by four rows of columns, each about 35 ft. in height, the centre being 87 ft. wide, and the side-aisles 23 ft. 4 in. each. The centre was covered by a wooden roof of semicircular form,[174] covered apparently with bronze plates richly ornamented 329and gilt. Above the side aisles was a gallery, the roof of which was supported by an upper row of columns. From the same columns also sprang the arches of the great central aisle. The total internal height was thus probably about 120 ft., or higher than any English cathedral, though not so high as some German and French churches.
At one end was a great semicircular apse, the back part of which was raised, being approached by a semicircular range of steps. In the centre of this platform was the raised seat of the quæstor or other magistrate who presided. On each side, upon the steps, were places for the assessors or others engaged in the business being transacted. In front of the apse was placed an altar, where sacrifice was performed before commencing any important public business.[175]
Externally this basilica could not have been of much magnificence. It was entered on the side of the Forum (on the left hand of the plan and section) by one triple doorway in the centre and two single ones on either side, flanked by shallow porticoes of columns of the same height as those used internally. These supported statues, or rather, to judge from the coins representing the building, rilievos, which may have set off, but could hardly have given much dignity to, a building designed as this was. At the end opposite the apse a similar arrangement seems to have prevailed.
This mode of using columns only half the height of the edifice must have been very destructive of their effect and of the general grandeur of the structure, but it became about this time rather the rule than the exception, and was afterwards adopted for temples and every other class of buildings, so that it was decidedly an improvement when the arch took the place of the horizontal architrave and cornice; the latter always suggested a roof, and became singularly incongruous when applied as a mere ornamental adjunct at half the height of the façade. The interior of the basilica was, however, the important element to which the exterior was entirely sacrificed, a transition in architectural design which we have before alluded to, taking place much faster in basilicas, which were an entirely new form of building, than in temples, whose conformation had become sacred from the traditions of past ages.
201. Plan of Basilica of Maxentius. Scale 100 ft. to 1 in.
202. Longitudinal Section of Basilica of Maxentius. Scale 100 ft. to 1 in.
203. Transverse Section of Basilica of Maxentius. Scale 100 ft. to 1 in.
The basilica of Maxentius, which was probably not entirely finished till the reign of Constantine, was rather broader than that of Trajan, being 195 ft. between the walls, but it was 100 ft. less in length. The 331central aisle was very nearly of the same width, being 83 ft. between the walls, and 120 ft. in height. There was, however, a vast difference in the construction of the two; so much so, that we are startled to see how rapid the progress had been during the interval, of less than two centuries, that had elapsed between the construction of the two basilicas.
204. Pillar of Maxentian Basilica. (From an old print quoted by Letarouilly.)
In this building no pillars were used with the exception of eight great columns in front of the piers, employed merely as ornaments, or as vaulting shafts were in Gothic cathedrals, to support in appearance, though not in construction, the springing of the vaults.[176] The side-aisles were roofed by three great arches, each 74 ft. in span, and the centre by an immense intersecting vault in three compartments. The form of these will be understood from the annexed sections (Woodcuts Nos. 202 and 203), one taken longitudinally, the other across the building. As will be seen from them, all the thrusts are collected to a point and a buttress placed there to receive them: indeed almost all the peculiarities afterwards found in Gothic vaults are here employed on a far grander and more gigantic scale than the Gothic architects ever attempted; but at the same time it must be allowed that the latter, with smaller dimensions, often contrived by a more artistic treatment of their materials to obtain as grand an effect and far more actual beauty than ever were attained in the great transitional halls of the Romans. The largeness of the parts of the Roman buildings was indeed their principal defect, as in consequence of this they must all have appeared smaller than they really were, whereas in all Gothic 332cathedrals the repetition and smallness of the component parts has the effect of magnifying their real dimensions.
The roofs of these halls had one peculiarity which it would have been well if the mediæval architects had copied, inasmuch as they were all, or at least might have been, honestly used as roofs without any necessity for their being covered with others of wood, as all Gothic vaults unfortunately were. It is true this is perhaps one of the causes of their destruction, for, being only overlaid with cement, the rain wore away the surface, as must inevitably be the case with any composition of the sort exposed horizontally to the weather, and that being gone, the moisture soon penetrated through the crevices of the masonry, destroying the stability of the vault. Still, some of these in Rome have resisted for fifteen centuries, after the removal of any covering they ever might have had, all the accidents of climate and decay, while there is not a Gothic vault of half their dimensions that would stand for a century after the removal of its wooden protection. The construction of a vault capable of resisting the destructive effects of exposure to the atmosphere still remains a problem for modern architects to solve. Until this is accomplished we must regard roofs entirely of honest wood as preferable to the deceptive stone ceilings which were such favourites in the Middle Ages.
205. Plan of the Basilica at Trèves. Scale 100 ft. to 1 in.
206. Internal View of the Basilica at Trèves.
The provincial basilicas of the Roman Empire have nearly all perished, probably from their having been converted, first into churches, for which they were so admirably adapted, and then rebuilt to suit the exigencies and taste of subsequent ages. One example, however, still exists in Trèves of sufficient completeness to give a good idea of what such structures were. As will be seen by the annexed plan, it consists of a great hall, 85 ft. in width internally, and rather more than twice that dimension in length. The walls are about 100 ft. in height and pierced with 333two rows of windows; but whether they were originally separated by a gallery or not is now by no means clear. At one end was the apse, rather more than a semicircle of 60 ft. in diameter. The floor of the apse was raised considerably above that of the body of the building, and was no doubt adorned by a hemicycle of seats raised on steps, with a throne in the centre for the judge. The building has been used for so many purposes since the time of the Romans, and has been so much altered, that it is not easy now to speak with certainty of any of its minor arrangements. Its internal and external appearance, as it stood before the recent restoration, are well expressed in the annexed woodcuts; and though ruined, it was the most complete example of a Roman basilica to be found anywhere out of the capital. A building of this description has been found at Pompeii, which may be considered a fair example of a provincial basilica of the second class. Its plan is perfectly preserved, as shown in Woodcut No. 208. The most striking difference existing between it and those previously described is the square termination instead of the circular apse. It must, however, be observed that Pompeii was situated nearer to Magna Græcia than to Rome, and was indeed far more a Greek than a Roman city. Very slight traces of any Etruscan designs have been discovered there, and scarcely any buildings of the circular form so much in vogue in the capital. Though the ground-plan of this basilica remains perfect, the 334upper parts are entirely destroyed, and we do not even know for certain whether the central portion was roofed or not.[177]
207. External View of the Basilica at Trèves.
208. Plan of Basilica at Pompeii. Scale 100 ft. to 1 in.
There is a small square building at Otricoli, which is generally supposed to be a basilica, but its object as well as its age is so uncertain that nothing need be said of it here. In the works of Vitruvius, too, there is a description of one built by him at Fano, the restoration of which has afforded employment for the ingenuity of the admirers of that worst of architects. Even taking it as restored by those most desirous of making the best of it, it is difficult to understand how anything so bad could have been erected in such an age.
It is extremely difficult to trace the origin of these basilicas, owing principally to the loss of all the earlier examples. Their name is Greek, and they may probably be considered as derived from the Grecian Lesche, or perhaps as amplifications of the cellæ of Greek temples, appropriated to the purposes of justice rather than of religion; but till we know more of their earlier form and origin, it is useless speculating on this point. The greatest interest to us, arises rather from the use to which their plan was afterwards applied, than from the source from which they themselves sprang. All the larger Christian churches in the early times were copies, more or less exact, of the basilicas of which that of Trajan is an example. The abundance of pillars, suitable to such an erection, that were found everywhere in Rome, rendered their construction easy and cheap; and the wooden roof with which they were covered was also as simple and as inexpensive a covering as could well be designed. The very uses of the Christian basilicas at first were by no means dissimilar to those of their heathen originals, as they were in reality the assembly halls of the early Christian republic, before they became liturgical churches of the Catholic hierarchy.
The more expensive construction of the bold vaults of the Maxentian basilica went far beyond the means of the early Church, established in a declining and abandoned capital, and this form therefore remained dormant for seven or eight centuries before it was revived by the mediæval architects on an infinitely smaller scale, but adorned with a degree of appropriateness and taste to which the Romans were strangers. It was then used with a completeness and unity which entitle it to be considered as an entirely new style of architecture.
The theatre was by no means so essential a part of the economy of a Roman city as it was of a Grecian one. With the latter it was quite 335as indispensable as the temple; and in the semi-Greek city of Herculaneum there was one, and in Pompeii two, on a scale quite equal to those of Greece when compared with the importance of the town itself. In the capital there appears only to have been one, that of Marcellus,[178] built during the reign of Augustus. It it is very questionable whether what we now see—especially the outer arcades—belong to that age, or whether the theatre may not have been rebuilt and these arcades added at some later period. It is so completely built over by modern houses, and so ruined, that it is extremely difficult to arrive at any satisfactory opinion regarding it. Its dimensions were worthy of the capital, the audience part being a semicircle of 410 ft. in diameter, and the scena being of great extent in proportion to the other part, which is a characteristic of all Roman theatres, as compared with Grecian edifices of this class.
209. Plan of the Theatre at Orange. Scale 100 ft. to 1 in.
One of the most striking Roman provincial theatres is that of Orange, in the south of France. Perhaps it owes its existence, or at all events its splendour, to the substratum of Grecian colonists that preceded the Romans in that country. Its auditorium is 340 ft. in diameter, but much ruined, in consequence of the Princes of Orange having used this part as a bastion in some fortification they were constructing.
210. View of the Theatre at Orange.
The stage is very tolerably preserved. It shows well the increased extent and complication of arrangements required for the theatrical representations of the age in which it was constructed, being a considerable advance towards the more modern idea of a play, as distinguished from the stately semi-religious spectacle in which the Greeks delighted. The noblest part of the building is the great wall at the back, an immense mass of masonry 340 ft. in extent and 116 ft. in height, without a single opening above the basement, and no ornament except a range of blank arches, about midway between the basement and the top, and a few projecting corbels to receive the footings of the masts that supported the velarium. Nowhere does the architecture of the Romans shine so much as when their gigantic buildings are left to tell their own tale by the imposing grandeur of their masses. Whenever ornament is attempted, their bad taste comes out. The size of their edifices, and the solidity of their construction, were only surpassed by the Egyptians, and not always by them; and when, as here, the mass of material heaped up stands unadorned in all its native grandeur, criticism is disarmed, and the spectator stands awe-struck at its majesty, and turns away convinced that truly “there were giants in those days.” This is not, it is true, the most intellectual way of obtaining architectural effect, but it has the advantage 337of being the easiest, the most certain to secure the desired result, and at the same time the most permanent.
The deficiency of theatres erected by the Romans is far more than compensated by the number and splendour of their amphitheatres, which, with their baths, may be considered as the true types of Roman art, although it is possible that they derived this class of public buildings from the Etruscans. At Sutrium there is a very noble one cut out of the tufa rock,[179] which was no doubt used by that people for festal representations long before Rome attempted anything of the kind. It is uncertain whether gladiatorial fights or combats of wild beasts formed any part of the amusements of the arena in those days, though boxing, wrestling, and contests of that description certainly did; but whether the Etruscans actually proceeded to the shedding of blood and to slaughter is more than doubtful.
Even in the remotest parts of Britain, in Germany and Gaul, wherever we find a Roman settlement, we find the traces of their amphitheatres. Their soldiery, it seems, could not exist without the enjoyment of seeing men engaged in doubtful and mortal combats—either killing one another, or torn to pieces by wild beasts. It is not to be wondered at that a people who delighted so much in the bloody scenes of the arena should feel but very little pleasure in the mimic sorrows and tame humour of the stage. The brutal exhibition of the amphitheatre fitted them, it is true, to be a nation of conquerors, and gave them the empire of the world, but it brought with it feelings singularly inimical to all the softer arts, and was perhaps the great cause of their ultimate debasement.
211. Elevation and Section of part of the Flavian Amphitheatre at Rome. Scale 50 ft. to 1 in.
212. Quarter-plan of the Seats and quarter-plan of the Basement of the Flavian Amphitheatre. No scale.
As might be expected, the largest and most splendid of these buildings is that which adorns the capital; and of all the ruins which Rome contains, none have excited such universal admiration as the Flavian Amphitheatre. Poets, painters, rhapsodists, have exhausted all the resources of their arts in the attempt to convey to others the overpowering impression this building produces on their own minds. With the single exception, perhaps, of the Hall at Karnac, no ruin has met with such universal admiration as this. Its association with the ancient mistress of the world, its destruction, and the half-prophetic 338destiny ascribed to it, all contribute to this. In spite of our better judgment we are forced to confess that
and worthy of all or nearly all the admiration of which it has been the object. Its interior is almost wholly devoid of ornament, or anything that can be called architecture—a vast inverted pyramid. The exterior does not possess one detail which is not open to criticism, and indeed to positive blame. Notwithstanding all this, its magnitude, its 339form, and its associations, all combine to produce an effect against which the critic struggles in vain. Still, all must admit that the pillars and their entablature are useless and are added incongruously, and that the upper storey, not being arched like the lower, but solid, and with ugly pilasters, is a painful blemish. This last defect is so striking that, in spite of the somewhat dubious evidence of medals, I should feel inclined to suspect that it was a subsequent addition, and meant wholly for the purpose of supporting and working the great velarium or awning that covered the arena during the representation, which may not have been attempted when the amphitheatre was first erected.
Be this as it may, it certainly now very much mars the effect of the building. The lower storeys are of bad design, but this is worse. But notwithstanding these defects, there is no building of Rome where the principle of reduplication of parts, of which the Gothic architects afterwards made so much use, is carried to so great an extent as in this. The Colosseum is principally indebted to this feature for the effect which it produces. Had it, for instance, been designed with only one storey of the height of the four now existing, and every arch had consequently been as wide as the present four, the building would have scarcely appeared half the size it is now seen to be. For all this, however, when close under it, and comparing it with moving figures and other objects, we could scarcely eventually fail to realise its wonderful dimensions. In that case, a true sense of the vast size of the building would have had to be acquired, as is the case with the façade of St. Peter’s. Now it forces itself on the mind at the first glance. It is the repetition of arch beyond arch and storey over storey that leads the mind on, and gives to this amphitheatre its imposing grandeur, which all acknowledge, though few give themselves the trouble to inquire how this effect is produced.
Fortunately, too, though the face of the building is much cut up by the order, the entablatures are unbroken throughout, and cross the building in long vanishing lines of the most graceful curvatures. The oval, also, is certainly more favourable for effect than a circular form would be. A building of this shape may perhaps look smaller than it really is to a person standing exactly opposite either end; but in all other positions the flatter side gives a variety and an appearance of size, which the monotonous equality of a circle would never produce.
The length of the building, measured over all along its greatest diameter, is 620 ft., its breadth 513, or nearly in the ratio of 6 to 5, which may be taken as the general proportion of these buildings, the variations from it being slight, and apparently either mistakes in setting out the work in ancient times, or in measuring it in modern days, rather than an intentional deviation. The height of the three 340lower storeys, or of what I believe to have been the original building, is 120 ft.; the total height as it now stands is 157 ft. The arena itself measures 287 ft. in length by 180 in breadth. The whole area of the building has been calculated to contain 250,000 square feet, of which the arena contains 40,000; then deducting 10,000 for the external wall, 200,000 square feet will remain available for the audience. If we divide this by 5,[180] which is the number of square feet it has been found necessary to allow for each spectator in modern places of amusement, room will be afforded for 40,000 spectators; at 4 feet, which is a possible quantity, with continuous seats and the scant drapery of the Romans, the amphitheatre might contain 50,000 spectators at one time.
The area of the supports has also been calculated at about 40,000 square feet, or about one-sixth of the whole area; which for an unroofed edifice of this sort[181] is more than sufficient, though the excess accounts for the stability of the building.
Next in extent to this great metropolitan amphitheatre was that of Capua; its dimensions were 558 ft. by 460; its height externally 95 ft. It had three storeys, designed similarly to those of the Colosseum, but all of the Doric order, and used with more purity than in the Roman example.
Next in age, though not in size, is that at Nîmes, 430 ft. by 378, and 72 in height, in two storeys. Both these storeys are more profusely and more elegantly ornamented with pillars than those of either of the amphitheatres mentioned above. The entablature is however broken over each column, and pediments are introduced on each front. All these arrangements, though showing more care in design and sufficient 341elegance in detail, make this building very inferior in grandeur to the two earlier edifices, whose simplicity of outline makes up, to a great extent, for their faults of detail.
A more beautiful example than this is that at Verona. Its dimensions are 502 ft. by 401, and 98 ft. high, in three storeys beautifully proportioned. Here the order almost entirely disappears to make way for rustication, showing that it must be considerably more modern than either of the three examples above quoted, though hardly so late as the time of Maximianus, to whom it is frequently ascribed.[182] The arena of this amphitheatre is very nearly perfect, owing to the care taken of it during the Middle Ages, when it was often used for tournaments and other spectacles; but of its outer architectural enclosure only four bays remain, sufficient to enable an architect to restore the whole, but not to allow of its effect being compared with that of more entire examples.
The amphitheatre at Pola, which is of about the same age as that of Verona, and certainly belonging to the last days of the Western Empire, presents in its ruin a curious contrast to the other. That at Verona has a perfect arena and only a fragment of its exterior decoration, while the exterior of Pola is perfect, but not a trace remains of its arena, or of the seats that surrounded it. This is probably owing to their having been of wood, and consequently having either decayed or been burnt. Like that at Verona, it presents all the features of the last stage of transition; the order is still seen, or rather is everywhere suggested, but so concealed and kept subordinate that it does not at all interfere with the general effect. But for these faint traces we should possess in this amphitheatre one specimen entirely emancipated from incongruous Grecian forms, but, as before remarked, Rome perished when just on the threshold of the new style.
213. Elevation of the Amphitheatre at Verona. Scale 50 ft. to 1 in.
The dimensions of the amphitheatre at Pola are very nearly the same as of that at Nîmes, being 436 ft. by 346. It has, however, three storeys, and thus its height is considerably greater, being 97 ft. Owing to the inequality of the ground on which it is built, the 342lower storey shows the peculiarity of a sub-basement, which is very pleasingly managed, and appears to emancipate it more from conventional forms than is the case with its contemporary at Verona. The third storey, or attic, is also more pleasing than elsewhere, as it is avowedly designed for the support of the masts of the velarium. The pilasters and all Greek forms are omitted, and there is only a groove over every column of the middle storey to receive the masts. There is also a curious sort of open battlement on the top, evidently designed to facilitate the working of the awning, though in what manner is not quite clear. There is still one other peculiarity about the building, the curvature of its lines is broken by four projecting wings, intended apparently to contain staircases; in a building so light and open as this one is in its present state there can be no doubt but that the projections give expression and character to the outline, though such additions would go far to spoil any of the greater examples above quoted.
At Otricoli there is a small amphitheatre, 312 ft. by 230, in two storeys, from which the order has entirely disappeared; it is therefore possibly the most modern of its class, but the great flat pilasters that replace the pillars are ungraceful and somewhat clumsy. Perhaps its peculiarities ought rather to be looked on as provincialisms than as genuine specimens of an advanced style. Still there is a pleasing simplicity about it that on a larger scale would enable it to stand comparison with some of its greater rivals.
Besides these, which are the typical examples of the style, there are the “Castrense” at Rome, nearly circular, and possessing all the faults and none of the beauties of the Colosseum; one at Arles, very much ruined; and a great number of provincial ones, not only in Italy and Gaul, but in Germany and Britain. Almost all these were principally if not wholly excavated from the earth, the part above-ground being the mound formed by the excavation. If they ever possessed any external decoration to justify their being treated as architectural objects, it has disappeared, so that in the state at least in which we now find them they do not belong to the ornamental class of works of which we are at present treating.
Next in splendour to the amphitheatres of the Romans were their great thermal establishments: in size they were perhaps even more remarkable, and their erection must certainly have been more costly. The amphitheatre, however, has the great advantage in an architectural point of view of being one object, one hall in short, whereas the baths were composed of a great number of smaller parts, not perhaps very successfully grouped together. They were wholly built of brick covered with stucco (except perhaps the pillars), and have, 343therefore, now so completely lost their architectural features that it is with difficulty that even the most practised architect can restore them to anything like their original appearance.
In speaking of the great Thermæ of Imperial Rome, they must not be confounded with such establishments as that of Pompeii for instance. The latter was very similar to the baths now found in Cairo or Constantinople, and indeed in most Eastern cities. These are mere establishments for the convenience of bathers, consisting generally of one or two small circular or octagonal halls, covered by domes, and one or two others of an oblong shape, covered with vaults or wooden roofs, used as reception-rooms, or places of repose after the bath. These have never any external magnificence beyond an entrance-porch; and although those at Pompeii are decorated internally with taste, and are well worthy of study, their smallness of size and inferiority of design do not admit of their being placed in the same category as those of the capital, which are as characteristic of Rome as her amphitheatres, and are such as could only exist in a capital where the bulk of the people were able to live on the spoils of the conquered world rather than by the honest gains of their own industry.
Agrippa is said to have built baths immediately behind the Pantheon, and Palladio and others have attempted restorations of them, assuming that building to have been the entrance-hall. Nothing, however, can be more unlikely than that, if he had first built the rotunda as a hall of his baths, he should afterwards have added the portico, and converted it from its secular use into a temple dedicated to all the gods.
As before remarked, the two parts are certainly not of the same age. If Agrippa built the rotunda as a part of his baths, the portico was added a century and a half or two centuries afterwards, and it was then converted into a temple. If Agrippa built the portico, he added it to a building belonging to Republican times, which may always have been dedicated to sacred purposes. As the evidence at present stands, I am rather inclined to believe the first hypothesis most correctly represents the facts of the case.[183]
Nero’s baths, too, are a mere heap of shapeless ruins, and those of Vespasian, Domitian, and Trajan in like manner are too much ruined for their form, or even their dimensions, to be ascertained with anything like correctness. Those of Titus are more perfect, but the very discrepancies that exist between the different systems upon which their restoration has been attempted show that enough does not remain to enable the task to be accomplished in a satisfactory manner. They owe their interest more to the beautiful 344fresco paintings that adorn their vaults than to their architectural character. These paintings are invaluable, as being the most extensive and perfect relics of the painted decoration of the most flourishing period of the Empire, and give a higher idea of Roman art than other indications would lead us to expect.
The baths of Constantine are also nearly wholly destroyed, so that out of the great Thermæ two only, those of Diocletian and of Caracalla, now remain sufficiently perfect to enable a restoration to be made of them with anything like certainty.
214. Baths of Caracalla, as restored by A. Blouet.
The great hall belonging to the baths of Diocletian is now the Church of Sta. Maria degli Angeli, and has been considerably altered to suit the changed circumstances of its use; while the modern buildings attached to the church have so overlaid the older remains that it is not easy to follow out the complete plan. This is of less consequence, as both in dimensions and plan they are extremely similar to those of Caracalla, which seem to have been among the most magnificent, as they certainly are the best preserved, of these establishments.[184]
345The general plan of the whole enclosure of the baths of Caracalla was a square of about 1150 ft. each way, with a bold but graceful curvilinear projection on two sides, containing porticoes, gymnasia, lecture-rooms, and other halls for exercise of mind or body. In the rear were the reservoirs to contain the requisite supply of water and below them the hypocaust or furnace, by which it was warmed with a degree of scientific skill we hardly give the Romans of that age credit for. Opposite to this and facing the street was one great portico extending the whole length of the building, into which opened a range of apartments, meant apparently to be used as private baths, which extend also some way up each side. In front of the hypocaust, facing the north-east, was a semicircus or theatridium, 530 ft. long, where youths performed their exercises or contended for prizes.
These parts were, however, merely the accessories of the establishment surrounding the garden, in which the principal building was placed. This was a rectangle 730 ft. by 380, with a projection covered by a dome on the south-western side, which was 167 ft. in diameter externally, and 115 ft. internally. There were two small courts (A A) included in the block, but nearly the whole of the rest appears to have been roofed over.
The modern building which approaches nearest in extent to this is probably our Parliament Houses. These are about 830 ft. in length, with an average breadth of about 300, and, with Westminster Hall, cover as nearly as may be the same area as the central block of these baths. But there the comparison stops; there is no building of modern times on anything like the same scale arranged wholly for architectural effect as this one is, irrespective of any utilitarian purpose. On the other hand, the whole of the walls being covered with stucco, and almost all the architecture being expressed in that material, must have detracted considerably from the monumental grandeur of the effect. Judging, however, from what remains of the stucco ornament of the roof of the Maxentian basilica (Woodcut No. 202), it is wonderful to observe what effects may be obtained with even this material in the hands of a people who understand its employment. While stone and marble have perished, the stucco of these vaults still remains, and is as impressive as any other relic of ancient Rome.
In the centre was a great hall (B), almost identical in dimensions with the central aisle of the basilica of Maxentius already described, being 82 ft. wide by 170 in length, and roofed in the same manner by an intersecting vault in three compartments, springing from eight great pillars. This opened into a smaller apartment at each end, of rectangular form, and then again into two other semicircular halls forming a splendid suite 460 ft. in length. This central room is generally considered as the tepidarium, or warmed apartment, having four warm baths opening out of it. On the north-east side was the 346frigidarium, or cold water bath, a hall[185] of nearly the same dimensions as the central Hall. Between this and the circular hall (D) was the sudatorium or sweating-bath, with a hypocaust underneath, and flue-tiles lining its walls. The laconicum or caldarium (D) is an immense circular hall, 116 ft. in diameter, also heated by a hypocaust underneath, and by flue tiles in the walls. This rotunda is said to be of later date than Caracalla. There are four other rooms on this side, which seem also to have been cold baths. None of these points have, however, yet been satisfactorily settled, nor the uses of the smaller subordinate rooms; every restorer giving them names according to his own ideas. For our purpose it suffices to know that no groups of state apartments in such dimensions, and wholly devoted to purposes of display and recreation, were ever before or since grouped together under one roof. The taste of many of the decorations would no doubt be faulty, and the architecture shows those incongruities inseparable from its state of transition; but such a collection of stately halls must have made up a whole of greater splendour than we can easily realise from their bare and weather-beaten ruins, or from anything else to which we can compare them. Even allowing for their being almost wholly built of brick, and for their being disfigured by the bad taste inseparable from everything Roman, there is nothing in the world which for size and grandeur can compare with these imperial places of recreation.[186]
Arches at Rome; in France—Arch at Trèves—Columns of Victory—Tombs—Minerva Medica—Provincial tombs—Eastern tombs—Domestic architecture—Spalato—Pompeii—Bridges—Aqueducts.
Triumphal Arches were among the most peculiar of the various forms of art which the Romans borrowed from those around them, and used with that strange mixture of splendour and bad taste which characterises all their works.
215. Arch of Trajan at Beneventum. (From a plate in Gailhabaud’s ‘Architecture.’)
These were in the first instance no doubt borrowed from the Etruscans, as was also the ceremony of the triumph with which they were ultimately associated. At first they seem rather to have been used as festal entrances to the great public roads, the construction of which was considered one of the most important benefits a ruler could confer upon his country. There was one erected at Rimini in honour of an important restoration of the Flaminian way by Augustus; another at Susa in Piedmont, to commemorate a similar act of the same Emperor. Trajan built one on the pier at Ancona, when he restored that harbour, 348and another at Beneventum, when he repaired the Via Appia, represented in the preceding woodcut (No. 215). It is one of the best preserved as well as most graceful of its class in Italy. The Arch of the Sergii at Pola in Istria seems also to have been erected for a like purpose. That of Hadrian at Athens, and another built by him at Antinoë in Egypt, were monuments merely commemorative of the benefits which he had conferred on those cities by the architectural works he had erected within their walls. By far the most important application of these gateways, in Rome at least, was to commemorate a triumph which may have passed along the road over which the arch was erected, and perhaps in some instances they may have been erected beforehand, for the triumphal procession to pass through, and of which they would remain memorials.
216. Arch of Titus at Rome. Scale 50 ft. to 1 in.
The Arch of Titus at Rome is well known for the beauty of its detail, as well as from the extraordinary interest which it derives from having been erected to commemorate the conquest of Jerusalem, and consequently representing in its bassi-rilievi the spoils of the Temple. From the annexed elevation, drawn to the usual scale, it will be seen that the building is not large, and it is not so well proportioned as that at Beneventum, represented in the preceding woodcut, the attic being overpoweringly high. The absence of sculpture on each side of the arch is also a defect, for the real merit of these buildings is their being used as frameworks for the exhibition of sculptural representations of the deeds they were erected to commemorate.
In the later days of the Empire two side arches were added for foot-passengers, in addition to the carriage-way in the centre. This added much to the splendour of the edifice, and gave a greater opportunity for sculptural decoration than the single arch afforded. The Arch of Septimius Severus, represented to the same scale in Woodcut No. 217, is perhaps the best specimen of the class. That of Constantine is very similar and in most respects equal to this—a merit which it owes to most of its sculptures being borrowed from earlier monuments.
217. Arch of Septimius Severus. Scale 50 ft. to 1 in.
More splendid than either of these is the Arch at Orange. It is not known by whom it was erected, or even in what age: it is, however, certainly very late in the Roman period, and shows a strong tendency to treat the order as entirely subordinate, and to exalt the 349plain masses into that importance which characterises the late transitional period. Unfortunately its sculptures are so much destroyed by time and violence that it is not easy to speak with certainty as to their age; but more might be done than has hitherto been effected to illustrate this important monument.
At Rheims there is an arch which was probably much more magnificent than this. When in a perfect state it was 110 ft. in width, and had three openings, the central one 17 ft. wide by 40 ft. high, and those on each side 10 ft. in width, each separated by two Corinthian columns. From the style of the sculpture it certainly was of the last age of the Roman Empire, but having been built into the walls of the city, it has been so much injured that it is difficult to say what its original form may have been.
Besides these there is in France a very elegant single-arched gateway at St. Rémi, similar to and probably of the same age as that at Beneventum; another at Cavallon, and one at Carpentras, each with one arch. There is also one with two similar arches at Langres; and one, the Porta Nigra, at Besançon, which shows so complete a transition from the Roman style that it is difficult to believe that it does not belong to the Renaissance.
218. Porte St. André at Autun.[187] (From Laborde’s ‘Monumens de la France.’)
There still remains in France another class of arches, certainly not triumphal, but so similar to those just mentioned that it is difficult to separate the one from the other. The most important of these are two at Autun, called respectively the Porte Arroux and the Porte St. 350André, a view of which is given in Woodcut No. 218. Each of these has two central large archways for carriages, and one on each side for foot-passengers. Their most remarkable peculiarity is the light arcade or gallery that runs across the top of them, replacing the attic of the Roman arch, and giving a degree of lightness combined with height that those never possessed. These gates were certainly not meant for defence, and the apartment over them could scarcely be applied to utilitarian purposes; so that we may, I believe, consider it as a mere ornamental appendage, or as a balcony for display on festal occasions. It appears, however, to offer a better hint for modern arch-builders than any other example of its class.
219. Plan of Porta Nigra at Trèves. Scale 100 ft. to 1 in.
220. View of the Porta Nigra at Trèves.
Even more interesting than these gates at Autun is that called the Porta Nigra at Trèves; for though far ruder in style and coarser in detail, as might be expected from the remoteness of the province where it is found, it is far more complete. Indeed it is the only example of its class which we possess in anything like its original state. Its front consists of a double archway surmounted by an arcaded gallery, like the French examples. Within this is a rectangular court which seems never to have been roofed, and beyond this a second double archway similar to the first. At the ends of the court, projecting each way beyond the face of the gateway and the gallery surmounting it, are two wings four storeys in height, containing a series of apartments in the form of small basilicas, all similar to one another, and measuring about 55 ft. by 22. It is not easy to understand how these were approached, as there is no stair and no place for one. Of course there must have been some mode of access, and perhaps it may have been on the site of the apse, shown in the plan (Woodcut No. 219), which was added when the building was converted into a church in the Middle Ages. These apartments were probably originally used 351as courts or chambers of justice, thus realising, more nearly than any other European example I am acquainted with, the idea of a gate of justice.
Notwithstanding its defects of detail, there is a variety in the outline of this building and a boldness of profile that render it an extremely pleasing example of the style adopted; and though exhibiting many of the faults incidental to the design of the Colosseum, it possesses all that repetition of parts and Gothic feeling of design which give such value to its dimensions, though these are far from being contemptible, the building being 115 ft. wide by 95 in height to the top of the wings.
221. Bridge at Chamas. (From Laborde’s ‘Monumens de la France.’)
There probably were many similar gates of justice in the province, but all have perished, unless we except those at Autun just described. I am convinced that at that place there were originally such wings as these at Trèves, and that the small church, the apse of which is seen on the right hand (woodcut No. 220), stands upon the foundations of one of these. A slight excavation on the opposite side would settle this point at once. If it could be proved that these gateways at Autun had such lateral adjuncts, it would at once explain the use of the gallery over the arch, which otherwise looks so unmeaning, but would be intelligible as a passage connecting the two wings together.
Another form also is that of an arch at the entrance of a bridge, generally bearing an inscription commemorative of its building. Its purpose is thus closely connected with that of the arches before mentioned, which commemorate the execution of roads. Most of the great bridges of Italy and Spain were so adorned; but unfortunately they have either been used as fortifications in the Middle Ages, or removed 352in modern times to make room for the increased circulation of traffic. That built by Trajan on his noble bridge at Alcantara in Spain is well known; and there exists a double-arched bridge at Saintes, in the south of France. The most elegant and most perfect specimen, however, of this class is that of St. Chamas in Provence, represented in woodcut No. 221. It consists of two arches, one at each end of the bridge, of singular elegance of form and detail. Although it bears a still legible inscription, it is uncertain to what age it belongs, probably that of the Antonines: and I would account for the purity of its details by referring to the Greek element that pervades the south of France. Whether this is so or not, it is impossible not to admire not only the design of the whole bridge with its two arches, but the elegance with which the details have been executed.
Used in this mode as commencements of roads, or entrances to bridges, or as festal entrances to unfortified towns, there are perhaps no monuments of the second class more appropriate or more capable of architectural expression than these arches, though all of them have been more or less spoiled by an incongruous order being applied to them. Used, however, as they were in Rome, as monuments of victory, without offering even an excuse for a passage through them, the taste displayed in them is more than questionable: the manner, too, in which they were cut up by broken cornices and useless columns placed on tall pedestals, with other trivial details highly objectionable, deprive them of that largeness of design which is the only true merit and peculiar characteristic of Roman art, while that exquisite elegance with which the Greeks knew so well how to dignify even the most trivial objects was in them almost entirely lost.
Columns of Victory are a class of monuments which seem to have been used in the East in very early times, though their history it must be confessed is somewhat fragmentary and uncertain, and they seem to have been adopted by the Romans in those provinces where they had been employed by the earlier inhabitants. Whatever the original may have been, the Romans were singularly unsuccessful in their application of the form. They never, in fact, rose above the idea of taking a column of construction, magnifying it, and placing it on a pedestal, without any attempt to modify its details or hide the original utilitarian purpose for which the column was designed. When they attempted more than this, they failed entirely in elaborating any new form at all worthy of admiration. The Columna Rostrata, or that erected to celebrate naval victories, was, so far as we can judge from representations 353(for no perfect specimen exists), one of the ugliest and clumsiest forms of column it is possible to conceive.
Of those of Victory, one of the most celebrated is that erected by Diocletian at Alexandria. A somewhat similar one exists at Arsinoë, erected by Alexander Severus; and a third at Mylassa in Caria. All these are mere Corinthian columns of the usual form, and with the details of those used to support entablatures in porticoes. However beautiful these may be in their proper place, they are singularly inappropriate and ungraceful when used as minarets or single columns.
222. Column at Cussi. (From Laborde’s ‘Monumens de la France.’)
There are two in Rome not quite so bad as these, both being of the Doric order. Had the square abacus in these been cut to a round form, and ornamented with an appropriate railing, we might almost have forgotten their original, and have fancied that they really were round towers with balconies at the top. The great object of their erection was to serve as vehicles for sculpture, though, as we now see them, or as they are caricatured at Paris and elsewhere, they are little more than instances of immense labour bestowed to very little purpose. As originally used, these columns were placed in small courts surrounded by open porticoes, whence the spectator could at two or perhaps at three different levels examine the sculpture at his leisure and at a convenient distance, while the absurdity of the column supporting nothing was not apparent, from its not being seen from the outside. This arrangement is explained in woodcut No. 200, which is a section through the basilica of Trajan, showing the position of his column, not only with reference to that building, but to the surrounding colonnade. The same was almost certainly the case with the column of Marcus Aurelius, which, with slight modifications, seems to have been copied from that of Trajan; but even in the most favourable situations no monuments can be less worthy of admiration or of being copied than these.
A far better specimen of this class is that at Cussi, near Beaune, in France. It probably belongs to the time of Aurelian, but it is not 354known either by whom it was erected or what victory it was designed to celebrate; still that it is a column of victory seems undoubted; and its resemblance to columns raised with the same object in India is quite striking.
The arrangement of the base serving as a pedestal for eight statues is not only elegant but appropriate. The ornament which covers the shaft takes off from the idea of its being a mere pillar, and at the same time is so subdued as not to break the outline or interfere with constructive propriety.
223. Supposed Capital of Column at Cussi.
The capital, of the Corinthian order, is found in the neighbourhood used as the mouth of a well. In its original position it no doubt had a hole through it, which being enlarged suggested its application to its present ignoble purpose, the hole being no doubt intended either to receive or support the statue or emblem that originally crowned the monument, but of that no trace now remains.
There cannot be a more natural mode of monumental expression than that of a simple upright stone set up by the victors to commemorate their prowess and success. Accordingly steles or pillars erected for this purpose are found everywhere, and take shapes as various as the countries where they stand or the people who erected them. In Northern Europe they are known as Cath or battle-stones, and as rude unhewn monoliths are found everywhere. In India they are as elegant and as elaborately adorned as the Kutub Minar at Delhi, but nowhere was their true architectural expression so mistaken as in Rome. There, by perverting a feature designed for one purpose to a totally different use, an example of bad taste was given till then unknown, though in our days it has become not uncommon.
In that strange collection of the styles of all nations which mingled together makes up the sum of Roman art, nothing strikes the architectural student with more astonishment than the number and importance of their tombs. If the Romans are of Aryan origin, as is generally assumed, they are the only people of that race among whom tomb-building was not utterly neglected. The importance of the tombs among the Roman remains proves one of two things. Either a considerable proportion of Etruscan blood was mixed up with that of the dominant race in Rome, or that the fierce and inartistic Romans, having no art of their own, were led blindly to copy that of the people among whom they were located.
355Of the tombs of Consular Rome nothing remains except perhaps the sarcophagus of Scipio; and it is only on the eve of the Empire that we meet with the well-known one of Cæcilia Metella, the wife of Crassus, which is not only the best specimen of a Roman tomb now remaining to us, but the oldest architectural building of the imperial city of which we have an authentic date. It consists of a bold square basement about 100 ft. square, which was originally ornamented in some manner not now intelligible. From this rose a circular tower about 94 ft. in diameter, of very bold masonry, surmounted by a frieze of ox-skulls with wreaths joining them, and a well-profiled cornice: two or three courses of masonry above this seem to have belonged to the original work; and above this, almost certainly, in the original design rose a conical roof, which has perished. The tower having been used as a fortress in the Middle Ages, battlements have been added to supply the place of the roof, and it has been otherwise disfigured, so as to detract much from its beauty as now seen. Still we have no tomb of the same importance so perfect, nor one which enables us to connect the Roman tombs so nearly with the Etruscan. The only addition in this instance is that of the square basement or podium, though even this was not unknown at a much earlier period, as for instance in the tomb of Aruns (Woodcut No. 176). The exaggerated height of the circular base is also remarkable. Here it rises to be a tower instead of a mere circular base of stones for the earthen cone of the original sepulchre. The stone roof which probably surmounted the tower was a mere reproduction of the original earthen cone.
224. Tomb of Cæcilia Metella.
Next in age and importance was the tomb of Augustus in the Campus Martius. It is now so completely ruined that it is extremely difficult to make out its plan, and those who drew and restored it in former days were so careless in their measurements that even its dimensions cannot be ascertained; it appears, however, to have consisted of a circular basement about 300 ft. in diameter and about 60 ft. in height, adorned with 12 large niches. Above this rose a cone of earth as in the Etruscan tombs, not smooth like those, but divided into terraces, which were planted with trees. We also learn from Suetonius that Augustus laid out the grounds around his tomb and planted them with gardens for public use during his lifetime. More like the 356practice of a true Mogul in the East than the ruler of an Indo-Germanic people in Europe.
This tomb, however, was far surpassed, not only in solidity but in splendour, by that which Hadrian erected for himself on the banks of the Tiber, now known as the Mole of Hadrian, or more frequently the Castle of St. Angelo. The basement of this great tomb was a square, about 340 ft. each way and about 75 ft. high. Above this rose a circular tower 235 ft. in diameter and 140 in height. The whole was crowned either by a dome or by a conical roof in steps, which, with its central ornament, must have risen to a height of not less than 300 ft. The circular or tower-like part of this splendid building was ornamented with columns, but in what manner restorers have not been quite able to agree; some making two storeys, both with pillars, some, one of pillars and the upper one of pilasters. It would require more correct measurements than we have to enable us to settle this point, but it seems probable that there was only one range of columns on a circular basement of some height surmounted by an attic of at least equal dimensions. The order might have been 70 ft., the base and attic 35 ft. each.
Internally the mass was nearly solid, there being only one sepulchral apartment, as nearly as may be in the centre of the mass, approached by an inclined plane, winding round the whole building, from the entrance in the centre of the river face.
225. Columbarium near the Gate of St. Sebastian, Rome.
Besides these there was another class of tombs in Rome, called columbaria, generally oblong or square rooms below the level of the ground, the walls of which were pierced with a great number of little pigeon-holes or cells just of sufficient size to receive an urn containing the ashes of the body, which had been burnt according to the usual Roman mode of disposing of the dead. Externally of course they had no architecture, though some of the more important family sepulchres of this class were adorned internally with pilasters and painted ornaments of considerable beauty.
In the earlier ages of the Roman Empire these two forms of tombs characterised with sufficient clearness the two races, each with their distinctive customs, which made up the population of Rome. Long 357before its expiration the two were fused together so thoroughly that we lose all trace of the distinction, and a new form of tomb arose compounded of the two older, which became the typical form with the early Christians, and from them passed to the Saracens and other Eastern nations.
The new form of tomb retained externally the circular form of the Pelasgic sepulchre, though constructive necessities afterwards caused it to become polygonal. Instead however of being solid, or nearly so, the walls were only so thick as was necessary to support the dome, which became the universal form of roof of these buildings.
The sepulchres of Rome have as yet been far too carelessly examined to enable us to trace all the steps by which the transformation took place, but as a general rule it may be stated that the gradual enlargement of the central circular apartment is almost a certain test of the age of a tomb; till at last, before the age of Constantine, they became in fact representations of the Pantheon on a small scale, almost always with a crypt or circular vault below the principal apartment.
226. Section of Sepulchre at San Vito. No scale.
One of the most curious transitional specimens is that found near San Vito, represented in Woodcut No. 226. Here, as in all the earlier specimens, the principal apartment is the lower, in the square basement. The upper, which has lost its decoration, has the appearance of having been hollowed out of the frustum of a gigantic Doric column, or rather out of a solid tower like the central one of the Tomb of Aruns (Woodcut No. 176). Shortly after the age of this sepulchre the lower apartment became a mere crypt, and in such examples as those of the sepulchres of the Cornelia and Tossia families we have merely miniature Pantheons somewhat taller in proportion, and with a crypt. This is still more remarkable in a building called the Torre dei Schiavi, which has had a portico attached to one side, and in other respects looks very like a direct imitation of that celebrated temple. It seems certainly, however, to have been built for a tomb.
Another tomb, very similar to that of the Tossia family, is called that of Sta. Helena, the mother of Constantine. If it is not hers, it belongs at any rate to the last days of the Empire, and may be taken 358as a fair specimen of the tombs of that age and class. It is a vast transition from the tomb of Cæcilia Metella, though, like all the changes introduced by the Romans, it shows the never-failing tendency to transfer all architectural embellishments from the exterior to the interior of every style of building.
227. Section and Elevation of Tomb of Sta. Helena, Rome. No scale.
It consists of a basement about 100 ft. square, containing the crypt. On this stands a circular tower in two storeys. In the lower storey is a circular apartment about 66 ft. in diameter, surrounded by eight niches; in the upper the niches are external, and each is pierced with a window. The dimensions of the tomb are nearly the same as those of Cæcilia Metella, and it thus affords an excellent opportunity of comparing the two extremes of the series, and of contrasting the early Roman with the early Christian tomb.
The typical example of a sepulchre of this age is the tomb or baptistery of Sta. Costanza, the daughter of Constantine (Woodcut No. 423.) In this building the pillars that adorned the exterior of such a mausoleum, for instance, as that of Hadrian, are introduced internally. Externally the building never can have had much ornament. But the breaks between the lower aisle and the central compartment, pierced with the clerestory, must have had a very pleasing effect. In this example there is still shown a certain degree of timidity, which does not afterwards reappear. The columns are coupled and are far more numerous than they need have been, and are united by a fragment of an entablature, as if the architect had been afraid to place his vault directly on the capitals. Notwithstanding these defects, it is a pleasing and singularly instructive example of a completed transformation, and is just what we miss in those secular buildings for which the Christians had no use.
Another building, which is now known as the Lateran Baptistery (Woodcut No. 422), was also undoubtedly a place of sepulture. Its erection is generally ascribed to Constantine, and it is said was intended 359by him to be the place of his own sepulture. Whether this is correct or not, it certainly belongs to his age, and exhibits all the characteristics of the architecture of his time. Here the central apartment, never having been designed to support a dome, is of a far lighter construction, an upper order of pillars being placed on the lower, with merely a slight architrave and frieze running between the two orders, the external walls being slight in construction and octagonal in plan.[188] We must not in this place pursue any further the subject of the transition of style, as we have already trespassed within the pale of Christian architecture and passed beyond the limits of Heathen art. So gradual, however, was the change, and so long in preparation, that it is impossible to draw the line exactly where the separation actually took place between the two.
One important building remains to be mentioned before leaving this part of the subject. It commonly goes by the name of the Temple of Minerva Medica, though this is certainly a misnomer.[189] Recently it has become the fashion to assume that it was the hall of some bath; no building of that class, however, was known to exist in the neighbourhood, and it is extremely improbable that any should be found outside the Servian walls in this direction; moreover, it is wanting in all the necessary accompaniments of such an establishment.
It is here placed with the tombs, because its site is one that would justify its being so classed, and its form being just such as would be applicable to that purpose and to no other. It is not by any means certain, however, that it is a tomb, though there does not seem to be any more probable supposition. It certainly belongs to the last days of the Roman Empire, if indeed it be not a Christian building, which I am very much inclined to believe it is, for, on comparing it with the Baptistery of Constantine and the tomb of Sta. Costanza, it shows a considerable advance in construction on both these buildings, and a greater similarity to San Vitale at Ravenna, and other buildings of Justinian’s time, than to anything else now found in Rome.
As will be seen from the plan and section (Woodcuts Nos. 228 and 229), it has a dome, 80 ft. in diameter, resting on a decagon of singularly light and elegant construction. Nine of the compartments contain 360niches which give great room on the floor, as well as great variety and lightness to the general design. Above this is a clerestory of ten well-proportioned windows, which give light to the building, perhaps not in so effective a manner as the one eye of the Pantheon, though by a far more convenient arrangement, to protect from the elements a people who did not possess glass. So far as I know, all the domed buildings erected by the Romans up to the time of Constantine, and indeed long afterwards, were circular in the interior, though, like the temple built by Diocletian at Spalato, they were sometimes octagonal externally. This, however, is a Polygon both internally and on the outside, and the mode in which the dome is placed on the polygon shows the first rudiments of the pendentive system, which was afterwards carried to such perfection by the Byzantine architects, but is nowhere else to be found in Rome. It probably was for the purpose of somewhat diminishing the difficulties of this construction that the architect adopted a figure with ten instead of eight sides.
228. Plan of Minerva Medica at Rome, as restored in Isabelle’s ‘Édifices Circulaires,’ on the theory of its being a Bath. Scale 100 ft. to 1 in.
229. Section of Minerva Medica (from Isabelle.) Scale 50 ft. to 1 in.
230. Rib of the Roof of the Minerva Medica at Rome.
This, too, is, I believe, the first building in which buttresses are applied so as to give strength to the walls exactly at the point where it is most wanted. By this arrangement the architect was enabled to dispense with nearly one-half the quantity of material that 361was thought necessary when the dome of the Pantheon was constructed, and which he must have employed had he copied that building. Besides this, the dome was ribbed with tiles, as shown in Woodcut No. 230, and the space between the ribs filled in with inferior, perhaps lighter masonry, bonded together at certain heights by horizontal courses of tiles where necessary.
231. Tomb at St. Rémi. (From Laborde’s ‘Monumens de la France.’)
Besides the lightness and variety which the base of this building derives from the niches, it is 10 ft. higher than its diameter, which gives to it that proportion of height to width, the want of which is the principal defect of the Pantheon. It is not known what the side erections are which are usually shown in the ground-plans, nor even whether they are coeval with the main central edifice. I suspect they have never been very correctly laid down.
Taking it altogether, the building is certainly, both as concerns construction and proportion, by far the most scientific of all those in ancient Rome, and in these respects as far superior to the Pantheon as it is inferior to that temple in size. Indeed there are few inventions of the Middle Ages that are not attempted here or in the Temple of Peace—but more in this than in the latter; so much so, indeed, that I cannot help believing that it is much more modern than is generally supposed.
As might be expected from our knowledge of the race that inhabited the European provinces of the Roman Empire, there are very few specimens of tombs of any importance to be found in them. One very beautiful example exists at St. Rémi, represented in the annexed woodcut (No. 231). It can hardly, however, be correctly called a tomb, but is rather a cenotaph or a monument, erected as the inscription on it tells us, by Sextus and Marcus, of the family of the Julii, to their parents, whose statues appear under the dome of the upper storey. There is nothing funereal either in the inscription or the form, nor anything to lead us to suppose that the bodies of the parents repose beneath its foundation.
The lower portion of this monument is the square basement which the Romans always added to the Etruscan form of tomb. Upon this 362stands a storey pierced with an archway in each face, with a three-quarter pillar of the Corinthian order at every angle. The highest part is a circular colonnade, a miniature copy of that which we know to have once encircled Hadrian’s Mole.
The open arrangement of the arches and colonnade, while it takes off considerably from the tomb-like simplicity appropriate to such buildings, adds very much to the lightness and elegance of the whole. Altogether the building has much more of the aspiring character of Christian art than of the more solid and horizontal forms which were characteristic of the style then dying out.
Another monument of very singular and exceptional form is found at Igel, near Trèves, in Germany. It is so unlike anything found in Italy, or indeed anything of the Roman age, that were its date not perfectly known from the inscription upon it, one might rather be inclined to ascribe it to the age of Francis I. than to the latter days of the Roman Empire.
The form is graceful, though the pilasters and architectural ornaments seem somewhat misplaced. It is covered with sculptures from top to bottom. These, however, as is generally the case with Roman funereal monuments, have no reference to death, nor to the life or actions of the person to whom the monument is sacred, but are more like the scenes painted on a wall or ornamental stele anywhere. The principal object on the face represented in the woodcut is the sun, but the subjects are varied on each face, and, though much time-worn, they still give a very perfect idea of the rich ornamentation of the monuments of the last age of the Empire.
232. Monument at Igel, near Trèves. (From Schmidt’s ‘Antiquities of Trèves.’)
The Tour Magne at Nîmes is too important a monument to be passed over, though in its present ruined state it is almost more difficult to explain than any other Roman remains that have reached our times. It consists of an octagonal tower 50 ft. in diameter, and now about 120 ft. high. The basement is extended beyond this tower on every side by a series of arches supporting a terrace to which access was obtained by an external flight of steps, or rather an inclined plane. 363From the marks in the walls it seems evident that this terrace originally supported a peristyle, or, possibly, a range of chambers. Within the basement is a great chamber covered by a dome of rubble masonry, to which no access could be obtained from without, but the interior may have been reached through the eye of the dome. From the terrace an important flight of steps led upwards to—what? It is almost impossible to refrain from answering, to a cella, like those which crowned the tomb temples of Assyria. That the main object of the building was sepulchral seems hardly doubtful, but we have no other instance in Europe of a tomb with such a staircase leading to a chamber above it.
That Marseilles was a Phœnician and then a Phocian colony long before Roman times seems generally to be admitted, and that in the Temple of Diana (Woodcuts Nos. 188 and 189) and in this building there is an Etruscan or Eastern element which can hardly be mistaken, and may lead to very important ethnographical indications when more fully investigated and better understood.
This scarcity of tombs in the western part of the Roman Empire is to a great extent made up for in the East; but the history of those erected under the Roman rule in that part of the world is as yet so little known that it is not easy either to classify or to describe them; and as nearly all those which have been preserved are cut in the rock, it is sometimes difficult—as with other rock-cut objects all over the world—to understand the form of building from which they were copied.
The three principal groups of tombs of the Roman epoch are those of Petra, Cyrene, and Jerusalem. Though many other important tombs exist in those countries, they are so little known that they must be passed over for the present.
From the time when Abraham was laid in the cave of Machpelah until after the Christian era, we know that burying in the rock was not the exception but the general practice among the nations of this part of the East. So far as can be known, the example was set by Egypt, which was the parent of much of their civilisation. In Egypt the façades of their rock-cut tombs were—with the solitary exception of those of Beni Hasan[190]—ornamented so simply and unobtrusively as rather to belie than to announce their internal magnificence. All the oldest Asiatic tombs seem to have been mere holes in the rock, wholly without architectural decorations.
233. Khasné. (From Laborde’s ‘Petra and Mount Sinai.’)
We have seen, however, how the Persian kings copied their palace façades to adorn their last resting-places, and how about the same time in Lycia the tomb-builders copied, first their own wooden structures, and afterwards the architectural façades which they had learned from the Greeks how to construct. But it was not till the Roman period that this species of magnificence extended to the places enumerated above; when to such an extent did it prevail at Petra as to give 365to that now deserted valley the appearance of a petrified city of the dead.
The typical and most beautiful tomb of this place is that called the Khasné or Treasury of Pharaoh—represented in elevation and section in the annexed woodcuts, Nos. 233 and 234. As will be seen, it consists of a square basement, adorned with a portico of four very beautiful Corinthian pillars, surmounted by a pediment of low Grecian pitch. Above this are three very singular turrets, the use and application of which it is extremely difficult to understand. The central one is circular, and is of a well-understood sepulchral form, the use of which, had it been more important, or had it stood alone, would have been intelligible enough; but what are the side turrets? If one might hazard so bold a conjecture, I would suggest that the original from which this is derived was a five-turreted tomb, like that of Aruns (Woodcut No. 176), or that of Alyattes at Sardis, which in course of time became translated into so foreign a shape as this; but where are the intermediate forms? and by whom and when was this change effected? Before forming any theories on this subject, it will be well to consider whether all these buildings really are tombs. Most of them undoubtedly are so; but may not the name el Deir, or the Convent, applied by the Arabs to one of the principal rock-cut monuments of Petra, be after all the true designation? Are none of them, in short, cells for priests, like the viharas found in India? All who have hitherto visited these spots have assumed at once that everything cut in the rock must be a tomb, but I am much mistaken if this is really the case with all.
234. Section of Tomb at Khasné. (From Laborde’s ‘Mount Sinai,’ p. 175.)
To return, however, to the Khasné. Though all the forms of the architecture are Roman, the details are so elegant and generally so well designed as almost to lead to the suspicion that there must have been some Grecian influence brought to bear upon the work. The masses of rock left above the wings show how early a specimen of its class it is, and how little practice its designers 367could have had in copying in the rock the forms of their regular buildings.
235. Corinthian Tomb, Petra. (From Laborde’s ‘Sinai,’ p. 186.)
A little further within the city is found another very similar in design to this, but far inferior to it in detail and execution, and showing at least a century of degradation, though at the same time presenting an adaptation to rock-cut forms not found in the earlier examples.
A third is that above alluded to, called el Deir. This is the same in general outline as the two former—of an order neither Greek nor Roman, but with something like a Doric frieze over a very plain Corinthian capital. In other respects it presents no new feature except the apparent absence of a door, and on the whole it seems, if finished, to deserve its name less than either of the other two.
236. Rock-cut interior at Petra. (From Laborde’s ‘Sinai,’ p. 198.)
Perhaps the most singular object among these tombs, if tombs they are, is the flat façade with three storeys of pillars one over the other—slightly indicated on the left of the Corinthian tomb in Woodcut No. 235. It is like the proscenium of some of the more recent Greek theatres. If it was really the frontispiece to a tomb, it was totally unsuitable to the purpose, and is certainly one of the most complete misapplications of Greek architecture ever made.
Generally speaking, the interiors of these buildings are so plain that travellers have not cared either to draw or measure them; one, however, 368represented in the annexed woodcut (No. 236), is richly ornamented, and, as far as can be judged from what is published, is as unlike a tomb as it is like a vihara. But, as before remarked, they all require re-examination before the purpose for which they were cut can be pronounced upon with any certainty.
237. Façade of Herod’s Tombs, from a Photograph.
The next group of tombs is that at Jerusalem. These are undoubtedly all sepulchres. By far the greater number of them are wholly devoid of architectural ornament. To the north of the city is a group known as the Tombs of the Kings, with a façade of a corrupt Doric order, similar to some of the latest Etruscan tombs.[191] These are now very much ruined, but still retain sufficient traces of the original design to fix their date within or subsequently to the Herodian period without much possibility of doubt. A somewhat similar façade, but of a form more like the Greek Doric, found in the Valley of Jehoshaphat, bears the name of the Sepulchre of St. James.
238. So-called “Tomb of Zechariah.”
Close to this is a square tomb, known as that of Zechariah, cut in the rock, but standing free. Each face is adorned with Ionic pillars and square piers at the angles, the whole being crowned with a pyramidal roof. Perhaps this building should properly be called a cenotaph, as it is perfectly solid, and no cave or sepulchral vault has been found beneath it, though judging from 369analogies one might yet be found if properly looked for. A tomb with an architectural façade, similar to that of the so-called Tomb of the Judges, does exist behind it cut in rock, and is consequently of more modern construction. It may be to mark this that the architectural monolith was left.
Close to this is another identical with it in as far as the basement is concerned, and which is now popularly known as the Tomb of Absalom; but in this instance the pyramid has been replaced with a structural spire, and it is probable when this was done that the chamber which now exists in its interior was excavated.
239. The so-called Tomb of Absalom.
One of the remarkable points in these tombs is the curious jumble of the Roman orders which they present. The pillars and pilasters are Ionic, the architraves and frieze Doric, and the cornice Egyptian. The capitals and frieze are so distinctly late Roman, that we can feel no hesitation as to their date being either of the age of Herod or subsequent to that time. In an architectural point of view the cornice is too plain to be pleasing if not painted; it probably therefore was so treated.
240. Angle of Tomb of Absalom. (From De Saulcy.)
Another class of these tombs is represented by the so-called Tomb of the Judges (Woodcut No. 241). These are ornamented by a tympanum of a Greek or Roman temple filled with a scroll-work of rich but debased pattern, and is evidently derived from something similar, though Grecian in design. In age it is certainly more recent than the so-called Tomb of Zechariah, as one of precisely similar design is 370found cut into the face of the rock out of which that monument was excavated.
241. Façade of the Tomb of the Judges.
The third group is that of Cyrene, on the African coast. Notwithstanding the researches of Admiral Beechey and of M. Pacho,[192] and the still more recent explorations of Messrs. Smith and Porcher, above referred to (p. 285), they are still much less perfectly known to us than they should be. Their number is immense, and they almost all have architectural façades, generally consisting of two or more columns between pilasters, like the grottoes of Beni-Hasan, or the Tomb of St. James at Jerusalem. Many of them show powerful evidence of Greek taste, while some may be as old as the Grecian era, though the greater part are undoubtedly of Roman date, and the paintings with which many of them are still adorned are certainly Roman in design. Two of them are illustrated by Woodcuts Nos. 165 and 166: one as showing more distinct evidence of Greek taste and colour than is to be found elsewhere, though it is doubtful if it belongs to the Grecian period any more than the so-called Tomb of St. James at Jerusalem; the other, though of equally uncertain date, is interesting as being a circular monument built over a cave like that at Amrith (Woodcut No. 122), and is the only other example now known. None of them have such splendid architectural façades as the Khasné at Petra; but the number of tombs which are adorned with architectural features is greater than in that city, and, grouped as they are together in terraces on the hill-side, they constitute a necropolis which is among the most striking of the ancient world. Altogether this group, though somewhat resembling that at Castel d’Asso, is more extensive and far richer in external architecture.[193]
Time has not left us any perfect structural tombs in all these places, though there can be little doubt but they were once numerous. Almost the only tomb of this class constructed in masonry known to exist, and which in many respects is perhaps the most interesting of all, 371is found in Asia Minor, at Mylassa in Caria. In form it is something like the free-standing rock-cut examples at Jerusalem. As shown in the woodcut (No. 242), it consists of a square base, which supports twelve columns, of which the eight inner ones support a dome, the outer four merely completing the square. The dome itself is constructed in the same manner as all the Jaina domes are in India (as will be explained hereafter when describing that style), and, though ornamented with Roman details, is so unlike anything else ever built by that people, and is so completely and perfectly what we find reappearing ten centuries afterwards in the far East, that we are forced to conclude that it belongs to a style once prevalent and long fixed in these lands, though this one now stands as the sole remaining representative of its class.
242. Tomb at Mylassa. (From ‘Antiquities of Ionia,’ published by the Dilettanti Society.)
Another example, somewhat similar in style, though remotely distant in locality, is found at Dugga, near Tunis, in Africa. This, too, consists of a square base, taller than in the last example, surmounted 372by twelve Ionic columns, which are here merely used as ornaments. There were probably square pilasters at the angles, like that at Jerusalem (Woodcuts Nos. 238, 239), while the Egyptian form of the cornice is similar to that found in these examples, though with the omission of the Doric frieze.
It apparently originally terminated in a pyramid of steps like the Mausoleum at Halicarnassus, and a large number of structural tombs which copied that celebrated model. Nothing of this now remains but the four corner-stones, which were architecturally most essential to accentuate the weak lines of a sloping pyramid in such a situation. Taken altogether, perhaps no more graceful monument of its class has come down to our days than this must have been when complete.
243. Tomb of Dugga. (From a drawing by F. Catherwood.)
Besides these there are in Algeria two tombs of very great interest, both from their size and the peculiarity of their forms. The best known is that on the coast a short distance from Algiers to the westward. It is generally known as the Kubr Roumeïa, or Tomb of the Christian Virgin—a name it acquired from its having four false doors, each of a single stone divided into four panels, and the stile between them forming a cross, which has consequently been assumed to be the Christian symbol. The building itself, which is circular, and as nearly as may be 200 ft. in diameter, stands on a square platform measuring 210 ft. The perpendicular part is ornamented by 60 engaged columns of the Ionic order, and by the four false doors just mentioned; above this rose a cone—apparently in 40 steps—making the total height about 130 ft. It is, however, so ruined that it is very difficult to feel sure about its exact dimensions or form.
244. Plan of the Kubr Roumeïa. (From Berbrugger.) Scale 100 ft. to 1 in.
245. View of Madracen. (From a plate in Blakesley’s ‘Four Months in Algeria.’)
From objects and scribblings of various kinds found in the interior, 373it appears to have remained open till nearly the time of the Moslem conquest, but shortly afterwards to have been closed, and to have defied all the ingenuity of explorers till a passage was forced in 1866 by Messrs. MacCarthy and Berbrugger, acting under the orders and at the expense of the late Emperor Napoleon III.[194] The entrance was found passing under the sill of the false door on the east from a detached building standing outside the platform, and which seems 374to have been originally constructed to cover and protect the entrance. From this a winding passage, 560 ft. in length, led to the central chamber where it is assumed the royal bodies were once deposited, but when opened no trace of them remained, nor anything to indicate who they were, nor in what manner they were buried.
The other tomb, the Madracen, is very similar to this one, but smaller. Its peristyle is of a sort of Doric order, without bases, and surmounted by a quasi-Egyptian cornice, not unlike that on the Tomb of Absalom at Jerusalem (Woodcut No. 240), or that at Dugga (Woodcut No. 243). Altogether its details are more elegant, and from their general character there seems no reason for doubting that this tomb is older than the Kubr Roumeïa, though they are so similar to each other that their dates cannot be far distant.[195]
There seems almost no reason for doubting that the Kubr Roumeïa was the “Monumentum commune Regiæ gentis” mentioned by Pomponius Mela,[196] about the middle of the first century of our era, and if so, this could only apply to the dynasty that expired with Juba II., A.D. 23, and in that case the older monument most probably belonged to the previous dynasty, which ceased to reign with Bocchus III., 33 years before the birth of Christ.
One of the most interesting points connected with these Mauritanian tombs is their curious similarity to that of Hadrian at Rome. The square base, the circular colonnade, the conical roof, are all the same. At Rome they are very much drawn out, of course, but that arose from the “Mole” being situated among tall objects in a town, and more than even that, perhaps, from the tendency towards height which manifested itself so strongly in the architecture of that age.
The greatest similarity, however, exists in the interior. The long winding corridor terminating in an oblong apartment in the centre is an identical feature in both, but has not yet been traced elsewhere, though it can be hardly doubted that it must have existed in many other examples.
If we add to these the cenotaph at St. Rémi (Woodcut No. 231), we have a series of monuments of the same type extending over 400 years; and, though many more are wanted before we can fill up the gaps and complete the series, there can be little doubt that the missing links once existed which connected them together. Beyond this we may go still further back to the Etruscan tumuli and the simple mounds of earth on the Tartar steppes. At the other end of the series we are evidently approaching the verge of the towers and steeples of Christian art; and, though it may seem the wildest of 375hypotheses to assert that the design of the spire of Strasbourg grew out of the mound of Alyattes, it is nevertheless true, and it is only non-apparent because so many of the steps in the progress from the one to the other have disappeared in the convulsions of the interval.
We know, not only from the descriptions and incidental notices that have come down to us, but also from the remains found at Pompeii and elsewhere, that the private dwellings of the Romans were characterised by that magnificence and splendour which we find in all their works, accompanied, probably, with more than the usual amount of bad taste.
In Rome itself no ancient house—indeed no trace of a domestic edifice—exists except the palaces of the Cæsars on the Palatine Mount, and the house of the Vestal Virgins[197] at its foot; and these even are now a congeries of shapeless ruins, so completely destroyed as to make it difficult even for the most imaginative of restorers to make much of them. The extent of these ruins, however, coupled with the descriptions that have been preserved, suffice to convince us that, of all the palaces ever built, either in the East or the West, these were probably the most magnificent and the most gorgeously adorned. Never in the world’s history does it appear that so much wealth and power were at the command of one man as was the case with the Cæsars; and never could the world’s wealth have fallen into the hands of men more inclined to lavish it for their own personal gratification than these emperors were. They could, moreover, ransack the whole world for plunder to adorn their buildings, and could command the best artists of Greece, and of all the subject kingdoms, to assist in rendering their golden palaces the most gorgeous that the world had then seen, or is likely soon to see again. The whole area of the palace may roughly be described as a square platform measuring 1500 ft. east and west, with a mean breadth of 1300 ft. in the opposite direction. Owing, however, to its deeply indented and irregular outline, it hardly covers more ground than the Baths of Caracalla.
Recent excavations have laid bare nearly the whole of the western portion of this area, and have disclosed the plan of the building, but all has been so completely destroyed that it requires considerable skill and imagination to reinstate it in its previous form. The one part that remains tolerably perfect is the so-called house of Livia the wife of Augustus, who is said to have lived in it after the death of her husband. In dimensions and arrangement it is not unlike the best class of Pompeian houses, but its paintings and decorations are 376very superior to anything found in that city. They are, in fact, as might be expected from their age and position, the finest mural decorations that have come down to us, and as they are still wonderfully perfect, they give a very high idea of the perfection of art attained in the Augustan age, to which they certainly belong.
That part of the palace on the Palatine which most impresses the visitor is the eastern half, which looks on one hand to the Amphitheatre, on the other to the Baths of Caracalla, and overhangs the Circus Maximius. Though all their marble or painted decorations are gone, the enormous masses of masonry which here exist convey that impression of grandeur which is generally found in Roman works. It is not of Æsthetic beauty arising from ornamental or ornamented construction, but the Technic expression of power and greatness arising from mass and stability. It is the same feeling with which we contemplate the aqueducts and engineering works of this great people; and, though not of the highest class, few scenes of architectural grandeur are more impressive than the now ruined Palace of the Cæsars.
Notwithstanding all this splendour, this palace was probably as an architectural object inferior to the Thermæ. The thousand and one exigencies of private life render it impossible to impart to a residence—even to that of the world’s master—the same character of grandeur as may be given to a building wholly devoted to show and public purposes. In its glory the Palace of the Cæsars must have been the world’s wonder; but as a ruin deprived of its furniture and ephemeral splendour, it loses much that would tend to make it either pleasing or instructive. We must not look for either beauty of proportion or perfection of construction, or even for appropriateness of material, in the hastily constructed halls of men whose unbounded power was only equalled by the coarse vulgarity of their characters.
The only palace of the Roman world of which sufficient remains are still left to enable us to judge either of its extent or arrangements is that which Diocletian built for himself at Spalato, in Dalmatia, and in which he spent the remaining years of his life, after shaking off the cares of Empire. It certainly gives us a most exalted idea of what the splendour of the imperial palace at Rome must have been when we find one emperor—certainly neither the richest nor the most powerful—building, for his retirement, a villa in the country of almost exactly the same dimensions as the Escurial in Spain, and consequently surpassing in size, as it did in magnificence, most of the modern palaces of Europe.
377It is uncertain how far it resembles or was copied from that in Rome, more especially as it must be regarded as a fortified palace, which there is no reason to believe that at Rome was, while its model would seem to have been the prætorian camp rather than any habitation built within the protection of the city walls. In consequence of this its exterior is plain and solid, except on the side next the sea, where it was least liable to attack. The other three sides are only broken by the towers that flank them, and by those that defend the great gates which open in the centre of each face.
246. Palace of Diocletian at Spalato. (From Adams.)
The building is nearly a regular parallelogram, though not quite so. The south side is that facing the sea, and is 592 ft. from angle to 378angle; the one opposite being only 570 in length;[198] while the east and west sides measure each 698 ft., the whole building thus covering about 91⁄2 English acres.
The principal entrance to the palace is on the north, and is called the Golden Gate, and, as represented in the annexed woodcut (No. 247), shows all the peculiarities of Roman architecture in its last stage. The horizontal architrave still remains over the doorway, a useless ornament, under a bold discharging arch, which usurps its place and does its duty. Above this, a row of Corinthian columns, standing on brackets, once supported the archivolts of a range of niches—a piece of pleasing decoration, it must be confessed, but one in which the original purpose of the column has been entirely overlooked or forgotten.
Entering this portal, we pass along a street ornamented with arcades on either side, till exactly in the centre of the building this is crossed at right angles by another similar street, proceeding from the so-called Iron and Brazen Gates, which are similar to the Golden Gate in design, but are far less richly ornamented.
These streets divided the building into four portions: those to the north are so much ruined that it is not now easy to trace their plan, or to say to what purpose they were dedicated; but probably the one might have been the lodgings of the guests, the other the residence of the principal officers of the household.
The whole of the southern half of the building was devoted to the palace properly so called. It contained two temples, as they are now designated. That on the right is said to have been dedicated to Jupiter, though, judging from its form, it would appear to have been designed rather as the mausoleum of the founder than as a temple of that god. On the assumption that it was a temple it has been illustrated at a previous page.[199] Opposite to it is another small temple, dedicated, it is said, to Æsculapius.
Between these two is the arcade represented in Woodcut No. 185, at the upper end of which is the vestibule—circular, as all buildings dedicated to Vesta, or taking their name from that goddess, should be. This opened directly on to a magnificent suite of nine apartments, occupying the principal part of the south front of the palace. Beyond these, on the right hand, were the private apartments of the emperor, and behind them his baths. The opposite side is restored as if it exactly corresponded, but this is more than doubtful; and, indeed, there is scarcely sufficient authority for many of the details shown in the plan, though they are, probably, on the whole, sufficiently exact to convey a general idea of the arrangements of a Roman imperial palace.
247. Golden Gateway at Spalato. (From Sir Gardner Wilkinson’s ‘Dalmatia.’)
380Perhaps, however, the most splendid feature in this palace was the great southern gallery, 515 ft. in length by 24 in width, extending along the whole seaward face of the building. Besides its own intrinsic beauty as an architectural feature, it evinces an appreciation of the beauties of nature which one would hardly expect in a Roman. This great arcade is the principal feature in the whole design, and commands a view well worthy the erection of such a gallery for its complete enjoyment.
Failing to discover any example of domestic architecture in Rome, we turn to Pompeii and Herculaneum, where we find numerous and most interesting examples of houses of all classes, except, perhaps, the best; for there is nothing there to compare with the Laurentian villa of Pliny, or with some others of which descriptions have come down to us. Pompeii, moreover, was far more a Grecian than a Roman city, and its buildings ought to be considered rather as illustrative of those of Greece, or at least of Magna Græcia, than of anything found to the northward. Still these cities belonged to the Roman age, and, except in taste and in minor arrangements, we have no reason to doubt that the buildings did resemble those of Rome, at least to a sufficient extent for illustration.
With scarcely an exception, all the houses of Pompeii were of one storey only in height. It is true that in some we find staircases leading to the roof, and traces of an upper storey, but where this latter is the case the apartments would appear to have been places for washing and drying clothes, or for some such domestic purpose rather than for living or even sleeping rooms. All the principal apartments were certainly on the ground floor, and as an almost inevitable corollary from this, they all faced inwards, and were lighted from courtyards or atria, and not from the outside; for, with a people who had not glass with which to glaze their windows, it was impossible to enjoy privacy or security without at the same time excluding both light and air, otherwise than by lighting their rooms from the interior. Hence it arose that in most instances the outside of the better class of houses was given up to shops and smaller dwellings, which opened on to the street, while the residence, with the exception of the principal entrance, and sometimes one or two private doors that opened outwards, was wholly hidden from view by their entourage.
Even in the smallest class of tradesmen’s houses which opened on the street, one apartment seems always to have been left unroofed to light at least two rooms on each side of it, used as bedrooms; but as 381the roofs of all are now gone, it is not always easy to determine which were so treated.
It is certain that, in the smallest houses which can have belonged to persons at all above the class of shopkeepers, there was always a central apartment, unroofed in the centre, into which the others opened. Sometimes this was covered by two beams placed in one direction, and two crossing them at right angles, framing the roof into nine compartments, generally of unequal dimensions, the central one being open, and with a corresponding sinking in the floor to receive the rain and drainage which inevitably came through it. When this court was of any extent, four pillars were required at the intersection of the beams, or angles of the opening, to support the roof. In larger courts eight, twelve, sixteen, or more columns were so employed, often apparently more as decorative objects than as required by the constructive necessities of the case, and very frequently the numbers of these on either side of the apartment did not correspond. Frequently the angles were not right angles, and the pillars were spaced unequally with a careless disregard of symmetry that strikes us as strange, though in such cases this may have been preferable to cold and formal regularity, and even more productive of grace and beauty. Besides these courts, there generally existed in the rear of the house another bounded by a dead wall at the further extremity, and which in the smaller houses was painted, to resemble the garden which the larger mansions possessed in this direction. The apartments looking on this court were of course perfectly private, which cannot be said of any of those looking inwards on the atrium.
The house called that of Pansa at Pompeii is a good illustration of these peculiarities, and, as one of the most regular, has been frequently chosen for the purpose of illustration.
248. House of Pansa at Pompeii. (From Gell’s ‘Pompeii’) Scale 100 ft to 1 in.
In the annexed plan (Woodcut No. 248) all the parts that do not belong to the principal mansion are shaded darker except the doubtful part marked A, which may either have been a separate house, or the women’s apartments belonging to the principal one, or, what is even more probable, it may have been designed so as to be used for either 382purpose. B is certainly a separate house, and the whole of the remainder of this side, of the front, and of the third side, till we come opposite to A, was let off as shops. At C we have the kitchen and servants’ apartments, with a private entrance to the street, and an opening also to the principal peristyle of the house.
Returning to the principal entrance or front door D, you enter through a short passage into the outer court E, on each side of which are several small apartments, used either by the inferior members of the household or by guests. A wider passage than the entrance leads from this to the peristyle, or principal apartment of the house. On the left hand are several small rooms, used no doubt as sleeping apartments, which were probably closed by half-doors open above and below, so as to admit air and light, while preserving sufficient privacy, for Roman tastes at least. In front and on the right hand are two larger rooms, either of which may have been the triclinium or dining-room, the other being what we should call the drawing-room of the house. A passage between the kitchen and the central room leads to a verandah which crosses the whole length of the house, and is open to the garden beyond.
As will be observed, architectural effect has been carefully studied in this design, a vista nearly 300 ft. in length being obtained from the outer door to the garden wall, varied by a pleasing play of light and shade, and displaying a gradually increasing degree of spaciousness and architectural richness as we advance. All these points must have been productive of the most pleasing effect when complete, and of more beauty than has been attained in almost any modern dwelling of like dimensions.
Generally speaking the architectural details of the Pompeian houses are carelessly and ungracefully moulded, though it cannot be denied that sometimes a certain elegance of feeling runs through them that pleases in spite of our better judgment. It was not, however, on form that they depended for their effect; and consequently it is not by that that they must be judged. The whole architecture of the house was coloured, but even this was not considered so important as the paintings which covered the flat surfaces of the walls. Comparing the Pompeian decoration with that of the baths of Titus, and those of the House of Livia, the only specimens of the same age and class found in Rome, it must be admitted that the Pompeian examples show an equally correct taste, not only in the choice but in the application of the ornaments used, though in the execution there is generally that difference that might be expected between paintings executed for a private individual and those for the Emperor of the Roman world. Notwithstanding this, these paintings, so wonderfully preserved in this small provincial town, are even now among the best specimens we possess of mural decoration. They excel the ornamentation of the Alhambra, as being 383more varied and more intellectual. For the same reason they are superior to the works of the same class executed by the Moslems in Egypt and Persia, and they are far superior to the rude attempts of the Gothic architects in the Middle Ages; still they are probably as inferior to what the Greeks did in their best days as the pillars of the Pompeian peristyles are to the porticoes of the Parthenon. But though doubtless far inferior to their originals, those at Pompeii are direct imitations of true Greek decorative forms; and it is through them alone that we can form even the most remote idea of the exquisite beauty to which polychromatic architecture once attained, but which we can scarcely venture to hope it will ever reach again.
249. Wall Decoration at Pompeii. (From Rosengarten.)
One curious point which has hitherto been too much overlooked is, that in Pompeii there are two perfectly distinct styles of decoration. One of these is purely Etruscan, both in form and colour, and such as is only found in the tombs or on the authentic works of the Etruscans. The other is no less essentially Greek, both in design and colour: it is far more common than the Etruscan form, and is always easily to be 384distinguished from it. The last-mentioned or Greek style of decoration may be again divided into two varieties; one, the most common, consisting of ornaments directly copied from Greek models; the other with a considerable infusion of Roman forms. This Romanised variety of Greek decoration represents an attenuated and lean style of architecture, which could only have come into fashion from the continued use of iron or bronze, or other metallic substances, for pillars and other architectural members. Vitruvius reprobates it; and in a later age Cassiodorus speaks of it in a manner which shows that it was practised in his time. The general adoption of this class of ornament, both at Pompeii and in the baths of Titus, proves it to have been a very favourite style at that time. This being the case, it must have either been a representation of metallic pillars and other architectural objects then in use, or it must have been copied from painted decorations. This is a new subject, and cannot be made clear, except at considerable length and with the assistance of many drawings. It seems, however, an almost undoubted fact that the Romans did use metal as a constructive material. Were it only that columns of extreme tenuity are represented in these paintings, we might be inclined to ascribe it to mere incorrect drawing; but the whole style of ornament here shown is such as is never found in stone or brick pillars, and which is only susceptible of execution in metal. Besides this, the pillars in question are always shown in the decorations as though simply gilt or bronzed, while the representations of stone pillars are coloured. All this evidence goes to prove that a style of art once existed in which metal was generally employed in all the principal features, all material traces of which are now lost. The disappearance of all remains of such a style is easily accounted for by the perishable nature of iron from rust, and the value and consequent peculation induced by bronze and similar metals. We are, moreover, aware that much bronze has been stolen, even in recent days, from the Pantheon and other buildings which are known to have been adorned with it.
Another thing which we learn from these paintings is, that though the necessities of street architecture compelled these city mansions to take a rectilinear outline, whenever the Roman architects built in the country they indulged in a picturesque variety of outline and of form, which they carried perhaps as far as even the Gothic architects of the Middle Ages. This indeed we might have expected, from their carelessness in respect to regularity in their town-houses; but these were interiors, and were it not for the painted representations of houses, we should have no means of judging how the same architects would treat an exterior in the country. From this source, however, we learn that in the exterior arrangements, in situations where they were not cramped by confined space, their plans were totally free from all stiffness and formality. In this respect Roman 385taste coincided with that of all true architecture in all parts of the world.
Each part of the design was left to tell its own tale and to express the use to which each apartment was applied, though the whole were probably grouped together with some reference to symmetry. There is certainly nothing in these ancient examples to justify the precise regularity which the architects of the Renaissance introduced into their classical designs, in which they sought to obliterate all distinction between the component parts in a vain attempt to make one great whole out of a great number of small discordant fragments.
Perhaps the most satisfactory works of the Romans are those which we consider as belonging to civil engineering rather than to architecture. The distinction, however, was not known in those earlier days. The Romans set about works of this class with a purpose-like earnestness that always ensures success, and executed them on a scale which leaves nothing to be desired; while at the same time they entirely avoided that vulgarity which their want of refinement allowed almost inevitably to appear in more delicate or more ornate buildings. Their engineering works also were free from that degree of incompleteness which is inseparable from the state of transition in which their architecture was during the whole period of the Empire. It is owing to these causes that the substructions of the Appian way strike every beholder with admiration and astonishment; and nothing impresses the traveller more, on visiting the once imperial city, than the long lines of aqueducts that are seen everywhere stretching across the now deserted plain of the Campagna. It is true they are mere lines of brick arches, devoid of ornament and of every attempt at architecture properly so called; but they are so well adapted to the purpose for which they were designed, so grand in conception, and so perfect in execution, that, in spite of their want of architectural character, they are among the most beautiful of the remains of Roman buildings.
The aqueducts were not, however, all so devoid of architectural design as those of the Campagna. That, for instance, known as the Pont du Gard, built to convey water to the town of Nîmes in France, is one of the most striking works of antiquity. Its height above the stream is about 180 ft., divided into two tiers of larger arches surmounted by a range of smaller ones, giving the structure the same finish and effect that an entablature and cornice gives to a long range of columns. Without the introduction of one single ornament, or of any member that was not absolutely wanted, this arrangement converts 386what is a mere utilitarian work into an architectural screen of a beauty hitherto unrivalled in its class.
The aqueducts of Segovia and Tarragona in Spain, though not perhaps so grand, are quite as elegant and appropriate as this; and if they stood across a line of well wooded and watered valleys, might form as beautiful objects. Unfortunately the effect is much marred by the houses and other objects that crowd their bases. Both these rise to about 100 ft. above the level of their foundation in the centre. That of Segovia is raised on light piers, the effect of which is perhaps somewhat spoiled by numerous offsets, and the upper tier is if anything too light for the lower. These defects are avoided at Tarragona, the central arches of which are shown in Woodcut No. 251. In this example the proportion of the upper to the lower arcade is more perfect, and the whole bears a character of lightness combined with constructive solidity and elegance unrivalled, so far as I know, in any other work of its class. It wants, however, the grandeur of the Pont du Gard; for though its length is about the same, exceeding 800 ft., it has neither its height nor the impression of power given by the great arches of that building, especially when contrasted with those that are smaller.

250. Aqueduct of Segovia. Scale 50 ft. to 1 in.

251. Aqueduct of Tarragona. Scale 50 ft. to 1 in.
The Roman bridges were designed on the same grand scale as their aqueducts, though from their nature they of course could not possess the same grace and lightness. This was, however, more than compensated by their inherent solidity and by the manifestation of strength imparted by the Romans to all these structures. They seem to have been designed to last for ever; and but for the violence of man, it would be hardly possible to set limits to their durability. Many still remain in almost every corner of the Roman Empire; and wherever found are easily recognised by the unmistakable impress of Roman grandeur which is stamped upon them.
387One of the most remarkable of these is that which Trajan erected at Alcantara, in Spain, represented in the annexed woodcut. The roadway is perfectly level, as is generally the case in Roman bridges, though the mode by which this is obtained, of springing the arches from different levels, is perhaps not the most pleasing. To us at least it is unfamiliar, and has never, I think, been adopted in modern times. In such a case we should either have made the arches all equal—a mistake, considering their different heights—or have built solidly over the smaller arches to bring up the level, which would have been a far greater error in construction than the other is in taste. The bridge consists of six arches, the whole length of the roadway being 650 ft.; the two central arches are about 100 ft. span; the roadway is 140 ft. above the level of the stream which it crosses. The piers are well proportioned and graceful; and altogether the work is as fine and as tasteful an example of bridge-building as can be found anywhere, even in these days of engineering activity.
252. Bridge of Trajan, at Alcantara, in Spain.
The bridge which the same Emperor erected over the Danube was a far more difficult work in an engineering point of view; but the superstructure being of wood, resting only on stone piers, it would necessarily have possessed much less architectural beauty than this, or indeed than many others.
These examples of this class of Roman works must suffice; they are so typical of the style that it was impossible to omit them altogether, though the subject scarcely belongs in strictness to the objects of this work. The bridges and aqueducts of the Romans richly deserve the attention of the architect, not only because they are in fact the only works which the Romans, either from taste or from social position, were enabled to carry out without affectation, and with all their originality and power, but also because it was in building these works that the Romans acquired that constructive skill and largeness of proportion which enabled them to design and carry out works of such vast dimensions, to vault such spaces, and to give to their buildings 388generally that size and impress of power which form their chief and frequently their only merit. It was this too that enabled them to originate that new style of vaulted buildings which at one period of the Middle Ages promised to reach a degree of perfection to which no architecture of the world had ever attained. The Gothic style, it is true, perished at a time when it was very far from completed; but it is a point of no small interest to know where and under what circumstances it was invented. We shall subsequently have to trace how far it advanced towards that perfection at which it aimed, but to which it never reached. Strangely enough, it failed solely because of the revival and the pernicious influence of that very parent style to which it owed its birth, and the growth and maturity of which we have just been describing. It was the grandeur of the edifices reared at Rome in the first centuries of the Empire which so impressed the architects of the fifteenth and sixteenth centuries, that they abandoned their own beautiful style to imitate that of the Romans, but with an incongruity which seems inevitably to result from all imitations, as contrasted with true creations, in architectural art.
Egyptian Vase. From a painting.
Historical notice—Palaces of Al Hadhr and Diarbekr—Domes—Palaces of Serbistan—Firouzabad—Tâk Kesra—Mashita—Rabbath Ammon.
| Parthians subject to Persia | B.C. 554 |
| Seleucus Nicator | 301 |
| Arsaces | 250 |
| Mithridates | 163-140 |
| Mithridates II | 124-89 |
| Palace of Al Hadhr built (about) | A.D. 200 |
| End of Parthian Empire | 227 |
| Ardeshir, or Artaxerxes, establishes Sassanian dynasty | 226 |
| Tiridates | 286-342 |
| Serbistan (about) | 350 |
| Bahram Gaur begins to reign | 420 |
| Firouzabad (about) | 450 |
| Khosru Nushirvan begins to reign | 531 |
| Khosru Nushirvan builds palace at Ctesiphon (about) | 550 |
| Khosru Purviz Chosroes | 591 |
| Palace at Mashita | 614-627 |
| Battle of Cadesia | 636 |
There still remains one other style to be described before leaving the domain of Heathendom to venture into the wide realms of Christian and Saracenic art with which the remainder of these two volumes is mainly occupied. Unfortunately it is not one that was of great importance while it existed, and it is one of which we know very little at present. This arises partly from the fact that all the principal buildings of the Sassanian kings were situated on or near the alluvial plains of Mesopotamia and were therefore built either of sun-burnt or imperfectly baked bricks, which consequently crumbled to dust, or, where erected with more durable materials, these have been quarried by the succeeding inhabitants of these fertile regions. Partly also it arises from the Sassanians not being essentially a building race. Their religion required no temples and their customs repudiated the splendour of the sepulchre, so that their buildings were mainly palaces. One of these, that at Dustagird, is described by all contemporary historians[200] as one of the most gorgeous palaces of the East, but its glories were ephemeral: gold and silver and precious hangings rich in colour and embroidery made up a splendour in which the more stable arts of architecture had but little part, and all perished in an hour when invaded by the victorious soldiers of Heraclius, or the more destructive hosts of Arabian invaders a few years afterwards. Whatever the cause however, never was destruction more complete. Two or three ruined palaces 390still exist in Persia and Mesopotamia. A fragment known as the Tâk Kesra still remains to indicate the spot where Ctesiphon once stood, but the site of Dustagird is still a matter of dispute. So little in fact remains that we should hardly be able to form an idea of what the style really was, but for the fortunate discovery of a palace at Mashita in Moab, which seems undoubtedly to have been erected by the last great king of this dynasty, and which is yet unsurpassed for beauty of detail and richness of ornament by any building of its class and age.
As nearly as may be, one thousand years had elapsed since the completion of the palaces at Persepolis and Susa and the commencement of this building, and for the great part of that period the history of Persian or Central Asian architecture is a blank. The Seleucidæ built nothing that has come down to our times. The Parthians, too, have left us little, so that it is practically only after a hiatus of nearly six centuries, that we again begin to feel that the art had not entirely perished in the populous countries of Central Asia; but even then our history recommences so timidly and with buildings of such uncertain dates as to be very far from satisfactory.
253. Plan of Palace at Al Hadhr. (From a Sketch by Mr. Layard.) Scale 100 ft. to 1 in.
One of the oldest buildings known as belonging to the new school is the palace of Al Hadhr, situated in the plain, about thirty miles from the Tigris, nearly west from the ruins of Kaleh Shergat.
The city itself is circular in plan, nearly an English mile in diameter, and surrounded by a stone wall with towers at intervals, in the centre of which stands a walled enclosure, nearly square in plan, about 700 ft. by 800. This is again subdivided into an outer and inner court by a wall across its centre. The outer court is unencumbered by buildings, the inner nearly filled with them.[201] The principal of 391these is that represented in plan on Woodcut No. 253. It consists of three large and four smaller halls placed side by side, with various smaller apartments in the rear. All these halls are roofed by semicircular tunnel-vaults, without ribs or other ornament, and they are all entirely open in front, all the light and air being admitted from the one end.
There can be little doubt that these halls are copies, or intended to be so, of the halls of the old Assyrian palaces; but the customs and requirements of the period have led the architect on to a new class of arrangements which renders the resemblance by no means apparent at first sight.
254. Elevation of part of the Palace of Al Hadhr. Scale 50 ft. to 1 in.
The old halls had almost invariably their entrances on the longer side, which with a vault required very thick external walls as abutments. This was obviated in Al Hadhr by using the halls as abutments the one to the other like the arches of a bridge; so that, if the two external arches were firm, all the rest were safe. This was provided for by making the outer halls smaller, as shown in the elevation (Woodcut No. 254), or by strengthening the outer wall. But even then the architect seems to have shrunk from weakening the intermediate walls by making too many openings in them. Those which do exist are small and infrequent; so that there is generally only one entrance to each apartment, and that so narrow as to seem incongruous with the size of the room to which it leads.
The square apartment at the back would seem to have been a temple, as the lintel over the entrance doorway (which faces the east) is carved with the sun, the moon, and other religious emblems; and the double wall round may have contained a stair or inclined plane leading to an upper storey, or to rooms which certainly existed over the smaller halls at least.
All the details of the building are copied from the Roman—the archivolts and pilasters almost literally so, but still so rudely executed as to prove that it was not done under the direct superintendence of a Roman artist. This is even more evident with regard to the griffins and scroll-work, and the acanthus-leaves which ornament the capitals and friezes. The most peculiar ornament, however, is the range of masks carried round all the archivolts of the smaller arches. Of the nineteen voussoirs 392of the larger arches, seven of them, according to Ross and Ainsworth, had figures carved on them in relief of angels, or females, apparently in the air, and with feet crossed and robes flying loose, possibly emblematic of the seven planets. Even tradition is silent regarding the date of these remarkable ruins; the town was besieged unsuccessfully by Trajan in 116 A.D., and it is recorded to have been a walled town containing a temple of the sun noted for its rich offerings. This is probably the square building at the back of the great hall on the left of the palace, and the existence of the carved religious emblems on the lintel suggest that the palace was erected in front at a later period. Professor Rawlinson, in his notes on the great monarchies,[202] suggests about 200 A.D. as the probable date, and ascribes its erection to the monarchs of the Parthian dynasty. There is no doubt that the execution of the masonry with its fine joints is of a totally different character from that which is found in Sassanian buildings, which comes more under the head of rubble masonry, and was entirely hidden, in the interior at least, by stucco. The ornament also is of a rich character, Roman in its design, but debased Greek in its execution. Mr. Loftus, during his researches in Chaldea, discovered at Wurka (the ancient Erech in Mesopotamia), a large number of ornamental details, in stone and in plaster, of precisely the same character as those found at Al Hadhr. Among these remains he found a griffin resembling those carved on the lintel of the square temple before referred to, and quantities of Parthian coins, so that it is fair to assume that Al Hadhr belongs to that dynasty.
255. Plan of Mosque at Diarbekr.
Another building which merits more attention than has hitherto been bestowed upon it, is now used as the great mosque at Diarbekr. The ancient portions consist of the façades only of two palaces, the north and the south, which face one another at a distance of some 400 feet, and form the boundaries of the great court (Woodcut No. 255). They are apparently erected with materials taken from some more ancient building, and whilst the capitals and friezes are of debased 393Roman character, the carved shafts of the north palace (Woodcut No. 257) resemble in the plaster design ornaments found at Wurka.
As will be seen in Woodcut No. 256, which represents the façade of the South Palace, the openings of the ground storey are spanned by arches of two different forms; and those of the upper storey by lintels carried on corbels with relieving arch over; the latter a Byzantine treatment; the former of a very much later date, and probably Saracenic: above the openings and under the frieze are Cufic inscriptions. On the whole there seems little doubt that the building we now see was erected, as it now stands, at the age of the Cufic inscriptions,[203] whatever they may be, but that the remains of some more ancient edifice was most skilfully worked up in the new. Till, however, the building is carefully examined by some thoroughly competent person, this must remain doubtful. The building is rich, and so interesting that it is to be hoped that its history and peculiarities will before long be investigated.
256. Façade of South Palace at Diarbekr.
With the accession of the Sassanians, A.D. 223, Persia regained much of that power and stability to which she had been so long a stranger. The capture of the Roman Emperor Valerian by the 2nd king of the race, A.D. 260, the Conquest of Armenia and victories over Galerius by the 7th (A.D. 296), and the exploits of the 14th King, Bahram Gaur, his visit to India and his alliance with its kings, all point to extended power abroad; while the improvement in the fine arts at home indicates returning prosperity and a degree of security unknown since the fall of the Achæmenidæ.
394These kings seem to have been of native race, and claimed descent from the older dynasties: at all events they restored the ancient religion and many of the habits and customs with which we are familiar as existing before the time of Alexander the Great.
257. View in the Court of the Great Mosque at Diarbekr.
As before remarked, fire-worship does not admit of temples, and we consequently miss that class of buildings which in all ages best illustrates the beauties of architecture; and it is only in a few 395scattered remains of palaces that we are able to trace the progress of the style. Such as they are, they indicate considerable originality and power, but at the same time point to a state of society when attention to security hardly allowed the architect the free exercise of the more delicate ornaments of his art.
The Sassanians took up the style where it was left by the builders of Al Hadhr; but we only find it after a long interval of time, during which changes had taken place which altered it to a considerable extent, and made it in fact into a new and complete style.
They retained the great tunnel-like halls of Al Hadhr, but only as entrances. They cut bold arches through the dividing walls, so as to form them into lateral suites. But, above all, they learnt to place domes on the intersections of their halls, not resting on drums, but on pendentives,[204] and did not even attempt to bring down simulated lines of support to the ground. Besides all these constructive peculiarities, they lost all trace of Roman detail, and adopted a system of long reed-like pilasters, extending from the ground to the cornice, below which they were joined by small semicircular arches. They in short adopted all the peculiarities which are found in the Byzantine style as carried out at a later age in Armenia and the East. We must know more of this style, and be able to ascribe authentic dates to such examples as we are acquainted with, before we can decide whether the Sassanians borrowed the style from the Eastern Romans, or whether they themselves were in fact the inventors from whom the architects of the more western nations took the hints which they afterwards so much improved upon.
The various steps by which the Romans advanced from the construction of buildings like the Pantheon to that of the church of Sta. Sophia at Constantinople are so consecutive and so easily traced as to be intelligible in themselves without the necessity of seeking for any foreign element which may have affected them. If it really was so, and the architecture of Constantinople was not influenced from the East, we must admit that the Sassanian was an independent and simultaneous invention, possessing characteristics well worthy of study. It is quite certain too that this style had a direct influence on the Christian and Moslem styles of Asia, which exhibit many features not derivable from any of the more Western styles.
258. Plan of Palace at Serbistan. Scale 100 ft. to 1 in.
259. Section on line A B of Palace at Serbistan. (From Dieulafoy.) Scale 50 ft. to 1 in.
A few examples will render this clearer than it can be made in words. The plan and section (Woodcuts Nos. 258 and 259) of a small but interesting palace at Serbistan will explain most of the 396peculiarities of the style. The entrances, it will be observed, are deep tunnel-like arches, but the centre is covered by a dome resting on pendentives. In the palace of Firouzabad these are constructed by throwing a series of arches across the angles, one recessed behind the other, the lower ones serving as centres for those above, until a circular base for the dome has been obtained; but here in Serbistan they do not seem to have known this expedient: the lower courses run through to the angle, and the upper ones are brought forward in so irregular and unscientific a way as to suggest that for their support they placed their reliance almost entirely on the tenacious qualities of the mortar. That which, however, would have formed the outer arch of the pendentive is wrought on the stone down almost to the springing, as if the builder of Serbistan had seen regular arched pendentives of some kind, but did not know how to build them. This is the more remarkable because, as we shall see later on, they knew how to construct semi-domes over their recesses or square niches, and in regular coursed masonry; if they had applied these to the angles, they would have invented the squinch, a kind of pendentive employed in Romanesque work in the south of France. The dome is elliptical, as are also the barrel vaults over the entrances, the recesses in the central hall, and the vaults over the lateral halls. In these lateral halls piers are built within the walls, forming a series of recesses; these either have transverse arches thrown across them where the lofty doorways come, or are covered with semidomes in regular coursed masonry, the angles being filled in below them with small arches. The lower portions of the piers consist of circular columns about six feet high, behind which a passage is formed. The builders thus obtained 397the means of counteracting the thrust of the vault, without breaking the external outline by buttresses and without occupying much room on the floor, while at the same time these projections added considerably to the architectural effect of the interior. The date of the building is not correctly known, but it most probably belongs to the age of Shapour, in the middle of the fourth century.
The palace at Firouzabad is probably a century more modern, and is erected on a far more magnificent scale, being in fact the typical building of the style, so far at least as we at present know.
260. Plan of Palace at Firouzabad. (From Dieulafoy.) Scale 100 ft. to 1 in.
261. Doorway at Firouzabad. (From Flandin and Coste.)
As will be seen in the plan, the great central entrance opens laterally into two side chambers, and the inner of these into a suite of three splendid domed apartments, occupying the whole width of the building. Beyond this is an inner court, surrounded by apartments all opening upon it.
As will be perceived from Woodcut No. 261, representing one of the doorways in the domed halls, the details have nothing Roman about them, but are borrowed directly from Persepolis, with so little change that the style, so far as we can now judge, is almost an exact reproduction, except that the work is only surface ornament in plaster, and is an irregular and a degraded copy of the original stone features at Persepolis. The opening also is spanned by a circular arch under the lintel of the Persian example, the former being the real constructive feature, the latter a decorative imitation. The portion of the exterior represented in Woodcut No. 262 tells the same tale, though for its prototype we must go back still further to the ruins at Wurka—the 398building called Wuswus at that place (see p. 165) being a palace arranged very similarly to these, and adorned externally by panellings and reeded pilasters, differing from these buildings only in detail and arrangement, but in all essentials so like them as to prove that the Sassanians borrowed most of their peculiarities from earlier native examples.
The building itself is a perfectly regular parallelogram, 332 ft. by 180, without a single break, or even an opening of any sort, except the one great arch of the entrance; and externally it has no ornament but the repetition of the tall pilasters and narrow arches represented in Woodcut No. 262. Its aspect is thus simple and severe, but more like a gigantic Bastile than the palace of a gay, pavilion-loving people, like the Persians.
Internally the arrangement of the halls is simple and appropriate, and, though somewhat too formal, is dignified and capable of considerable architectural display. On the whole, however, its formality is perhaps less pleasing than the more picturesque arrangements of the palace at Serbistan last described.
262. Part of External Wall, Firouzabad. No scale.
Another century probably elapsed before Khosru (Nushirvan) commenced the most daring, though certainly not the most beautiful ever attempted by any of his race; for to him we must ascribe the well-known Tâk Kesra (Woodcuts Nos. 263, 264), the only important ruin that now marks the site of the Ctesiphon of the Greeks—the great Modain of the Arabian conquerors.
As it is, it is only a fragment of a palace, a façade similar in arrangement to that at Firouzabad, but on a much larger scale, its width being 312 ft., its height 105 to 110, and the depth of the remaining block 170 ft. In the centre is a magnificent portal, the Aiwan, or Throne room of the palace, vaulted over with an elliptical barrel vault and similar to the smaller vestibules of Serbistan and Firouzabad; the lower portion of the arch, the springing of which is about 40 ft. from the ground, is built in horizontal courses up to 63 ft. above the ground, above which comes the portion arched with regular voussoirs; by this method not only was an enormous centering saved, but the thrust of that portion built with voussoirs was brought well within the thickness of the side walls. It is probable that the front portion of the arch, about 20 ft. in depth, was built on walls erected temporarily for that purpose; the 399remainder of the vault, however, was possibly erected without centres, the bricks being placed flatwise and the rings being inclined at an angle of about 10° towards the back of the front arch. The tenacious quality of the mortar was probably sufficient to hold the bricks in their places till the arch ring was complete, so that the centering was virtually a template only, giving the correct form of the ellipse, and constructed with small timbers so as to save expense. A similar method of construction was found by Sir Henry Layard in the drain vaults at Nimroud, and it exists in the granaries built by Rameses II. in the rear of the Rameseum at Thebes. The lower or inner portion of the great arch is built in four rings of bricks or tiles laid flatwise, two of which are carried down to the springing of the whole arch: above these in the upper portion of the arch comes a ring 3 feet in height, regularly built in voussoir-shaped bricks breaking joint, on the surface of which are cut a series of seventeen foils, the whole being crowned by a slightly projecting moulding. These have nothing to do with the construction, and are simply a novel method of decoration carved after the arch was built.
263. Plan of Tâk Kesra at Ctesiphon. (From Flandin and Coste.) Scale 100 ft. to 1 in.
264. Elevation of Great Arch of Tâk Kesra at Ctesiphon. Scale 50 ft. to 1 in.
400The wall flanking the great arch on either side is decorated with buttress shafts and blind arches, which are partially constructive, and intended to support and strengthen those portions of the wall which were simply screens, or to resist the thrust of the walls of the vaulted chambers behind, consisting of one storey only. Decoratively they divide up the front and were apparently introduced in imitation of the great Roman amphitheatres. The position occupied by these semi-detached shafts on the first storey (resting on the ledge left by the greater thickness of wall of the lower storey), which are not in the axes of those below, proves that the Sassanian architect thought more of their constructive value as buttresses, than of their architectural value as superimposed features.
265. Sketch Plan of Palace at Mashita.
Though it may not perhaps be beautiful, there is certainly something grand in a great vaulted entrance, 72 ft. wide by 85 ft. in height and 115 in depth, though it makes the doorway at the inner end and all the adjoining parts look extremely small. It would have required the rest of the palace to be carried out on an unheard-of 401scale to compensate for this defect. The Saracenic architects got over the difficulty by making the great portal a semidome, and by cutting it up with ornaments and details, so that the doorway looked as large as was required for the space left for it. Here, in the parent form, all is perfectly plain in the interior, and painting alone could have been employed to relieve its nakedness, which, however, it never would have done effectually.[205]
The ornaments in these and in all the other buildings of the Sassanians having been executed in plaster, we should hardly be able to form an idea of the richness of detail they once possessed but for the fortunate discovery of a palace erected in Moab by Khosru Purviz, the last great monarch of this line.[206]
As will be seen from the woodcut (No. 265), the whole building is a square, measuring above 500 ft. each way, but only the inner portion of it, about 170 ft. square, marked E E, has been ever finished or inhabited. It was apparently originally erected as a hunting-box on the edge of the desert for the use of the Persian king, and preserves all the features we are familiar with in Sassanian palaces. It is wholly in brick, and contains in the centre a triapsal hall, once surmounted by a dome on pendentives like those at Serbistan or Firouzabad. On either side were eight vaulted halls with intermediate courts almost identical with those found at Eski Bagdad[207] or at Firouzabad. So far there is nothing either remarkable or interesting, except the peculiarity of finding a Persian building in such a situation, and in the fact that the capitals of the pillars are of that full-curved shape which are first found in the works of Justinian, which so far helps to fix the date of the building.
It seems, however, that at a time when Chosroes possessed all Asia and part of Africa, from the Indus to the Nile, and maintained a camp for ten years on the shores of the Bosphorus, in sight of Constantinople, that this modest abode no longer sufficed for the greatest monarch of the day. He consequently determined to add to it the enclosure above described, and to ornament it with a portal which should exceed in richness anything of the sort to be found in Syria. Unfortunately 402for the history of art, this design was never carried out. When the walls were raised to the height of about twenty feet, the workmen were called off, most probably in consequence of the result of the battle of Nineveh in 627; and the stones remain half hewn, the ornament unfinished, and the whole exactly as if left in a panic, never to be resumed.
266. Interior of ruined triapsal Hall of Palace.
The length of the façade—marked A A in plan, Woodcut No. 265—between the plain towers, which are the same all round, is about 170 ft.,[208] the centre of which was occupied by a square-headed portal flanked by two octagonal towers. Each face of these towers was ornamented by an equilateral triangular pediment, filled with the richest sculpture. In that shown in Woodcut No. 267, two large animals are represented facing one another on the opposite sides of a vase, on which are two doves, and out of which springs a vine which spreads over the whole surface of the triangle, interspersed with birds and bunches of grapes. In another panel one of the lions is represented with wings, evidently the last lineal descendant of those found at Nineveh and Persepolis, and in all are curious hexagonal rosettes, carved with a richness far exceeding anything found in Gothic architecture, but which are found repeated with very little variation in the Jaina temples of western India.
267. One Compartment of Western Octagon Tower of the Persian Palace at Mashita.
The wing walls of the façade are almost more beautiful than the central part itself. As on the towers, the ornamentation consists of a series of triangles filled with incised decorations and with rosettes in their centres; while, as will be observed in Woodcut No. 265, the decoration in each panel is varied, and all are unfinished. The cornice 404only exists at one angle, and the mortice stones never were inserted that were meant to keep it in its place. Enough however remains to enable us to see that, as a surface decoration, it is nearly unrivalled in beauty and appropriateness. As an external form I know nothing like it. It is only matched by that between the arches of the interior of Sta. Sophia at Constantinople, which is so near it in age that they may be considered as belonging to the same school of art.
268. Part of West Wing Wall of External Façade of Palace at Mashita. (From a Photograph.)
269. Elevation of External Façade of the Mashita, as restored by the Author.
Notwithstanding the incomplete state in which this façade was left, there does not seem much difficulty in restoring it within very narrow limits of certainty. The elevation cannot have differed greatly from 406that shown in Woodcut No. 269, on the preceding page. In the first place there must have been a great arch over the entrance doorway—this is de rigueur in Sassanian art, and this must have been stilted or horse-shoed, as without that it could not be made to fit on to the cornice in the towers, and all the arches in the interior take, as I am informed, that shape. Besides this there is at Takt-i-Gero[209] a Sassanian arch of nearly the same age and equally classical in design, which is, like this one, horse-shoed to the extent of one-tenth of its diameter; and at Urgub, in Asia Minor, all the rock-cut excavations which are of this or an earlier age have this peculiarity in a marked degree.[210]
Above this, the third storey, is a repetition of the lowest, on half its scale—as in the Tâk Kesra,—but with this difference, that here the angular form admits of its being carried constructively over the great arch, so that it becomes a facsimile of an apse at Murano near Venice,[211] which is adorned with the spoils of some desecrated building of the same age, probably of Antioch or some city of Syria destroyed by the Saracens. Above this the elevation is more open to conjecture, but it is evident that the whole façade could not have been less than 90 ft. in height, from the fact that the mouldings at the base (Woodcut No. 265) are the mouldings of a Corinthian column of that height, and no architect with a knowledge of the style would have used such mouldings four and a half feet in height, unless he intended his building to be of a height equal at least to that proportion. The domes are those of Serbistan or of Amrith (Woodcut No. 122); but such domes are frequent in Syria before this age, and became more so afterwards.
The great defect of the palace at Mashita as an illustration of Sassanian art arises from the fact that, as a matter of course, Chosroes did not bring with him architects or sculptors to erect this building. He employed the artists of Antioch or Damascus, or those of Syria, as he found them. He traced the form and design of what he wanted, and left them to execute it, and they introduced the vine—which had been the principal “motif” in such designs from the time of Herod till the Moslem invasion—and other details of the Byzantine art with which Justinian had made them familiar from his buildings at Jerusalem, Antioch, and elsewhere. Exactly the same thing happened in India six centuries later. When the Moslems conquered that country in the beginning of the thirteenth century they built mosques at Delhi and Ajmere which are still among the most beautiful to be found anywhere. The design and outline are purely Saracenic, but every detail is Hindu, 407but, just as in this case, more exquisite than anything the Moslems ever did afterwards in that country.
Though it thus stands almost alone, the discovery of this palace fills a gap in our history such as no other building occupies up to the present time. And when more, and more correct, details have been procured, it will be well worthy of a monograph, which can hardly be attempted now from the scanty materials available. Its greatest interest, however, lies in the fact that all the Persian and Indian mosques were derived from buildings of this class. The African mosques were enlargements of the atria of Christian basilicas, and this form is never found there, but it is the key to all that was afterwards erected to the eastward.
270. Plan, Rabbath Ammon.
The palace of Rabbath Ammon (Woodcuts Nos. 270, 271), also in Moab, consists of a central court open to the sky, and four recesses or transepts, one on each face; two of these are covered with elliptical barrel vaults, and two with semidomes carried on pendentives. The decoration of this palace is similar to that found at Mashita, but not so rich in design or so good in its execution.
271. Section through Palace of Rabbath Ammon.
The remains of two other palaces have been found in Persia, one at Imumzade, which consists of a dome on pendentives, and a second, called the Tag Eiran, made known to us by M. Dieulafoy, and published in his work on the ancient art of Persia.[212] The latter is probably a late example, for it shows a considerable advance in construction, and is lighted by clerestory windows between the brick 408transverse arches which span the hall. The plan consisted of a central hall, covered over by a dome carried on pendentives, and two wings; of the original building, only one of these wings remains, and two sides of the central hall, in both cases up to the springing of the real arch, the lower courses being horizontal as in the arch at Ctesiphon.
272. Arch of Chosroes at Takt-i-Bostan. (From Flandin and Coste.)
In the dearth of Sassanian buildings there is one other monument that it is worth while quoting before closing this chapter. It is an archway or grotto, which the same Chosroes cut in the rock at Takt-i-Bostan, near Kermanshah (Woodcut No. 272). Though so far removed from Byzantine influence it is nearly as classical as the palace at Mashita. The flying figures over the arch are evident copies of those adorning the triumphal arches of the Romans, the mouldings are equally classical, and though the costumes of the principal personages, and of those engaged in the hunting scenes on either hand, partake more of Assyria than of Rome, the whole betrays the influence of his early education and the diffusion of Western arts at that time more than any other monument we know of. 409The statue of Chosroes on his favourite black steed “Shubz diz,” is original and interesting, and, with many of the details of this monument, it has been introduced into the restoration of Mashita.
This, it must be confessed, is but a meagre account of the architecture of a great people. Perhaps it may be that the materials do not exist for making it more complete; but what is more likely is that they have not yet been looked for, but will be found when attention is fairly directed to the subject. In the meanwhile what has been said regarding it will be much clearer and better understood when we come to speak of the Byzantine style, which overlapped the Sassanian, and was to some extent contemporary with it.
If a line were drawn north and south from Memel on the shores of the Baltic to Spalato on the Adriatic, it would divide Europe into nearly equal halves. All that part lying to the west of the line would be found to be inhabited by nations of Celtic or Teutonic races, and all those to the eastward of it by nations of Sclavonic origin, if—as we must do—we exclude from present consideration those fragments of the effete Turanian races which still linger to the westward, as well as the intrusive hordes of the same family which temporarily occupy some fair portions to the eastward of the line so drawn.
This line is not of course quite straight, for it follows the boundary between Germany on the one hand, and Russia and Poland on the other as far as Cracow, while it crosses Hungary by the line of the Raab and separates Dalmatia from Turkey. Though Sclavonic influences may be detected to the westward of the boundary, they are faint and underlie the Teutonic element; but to the eastward, the little province of Siebenburgen, in the north-east corner of Hungary, forms the only little oasis of Gothic art in the desert of Panslavic indifference to architectural expression. Originally it was a Roman, afterwards a German, colony, and maintained its Gothic style throughout the Middle Ages.[213]
From Spalato the line crosses the Adriatic to Fermo, and then following very closely the 43rd parallel of latitude, divides Italy into two nearly equal halves. Barbarian tribes settled to a certain extent to the northward of this boundary and influenced the style of architecture in some degree; while to the southward of it, their presence 411can with difficulty be detected, except in a few exceptional cases, and for a very limited time.
Architecturally all the styles of art practised during the Middle Ages to the westward and northward of this boundary may be correctly and graphically described as the Gothic style, using this term in a broad sense. All those to the eastward may with equal propriety be designated as the Byzantine style of art.
Anterior, however, to the former there existed a transitional style known as Romanesque, but which was virtually at first nothing more than debased Roman. It was, in fact, a modification of the classical Roman form which was introduced between the reigns of Constantine and Justinian, and was avowedly an attempt to adapt classical forms to Christian purposes. At first the materials of ancient buildings sufficed for its wants, and if after the 4th century the style did not lapse into absolute barbarism it was due to the influence which the Proto-Byzantine style began to exert and to the magnificent works erected by Greek artists at Parenzo and Grado in Dalmatia, at Ravenna, Milan, and even in Rome herself. To the eastward of the line of demarcation the transition was perfected under the reign of Justinian (A.D. 527 to 564), when it became properly entitled to the name of Byzantine. To the westward, in Italy and the south of France, this first phase of the Romanesque continued to be practised till the 6th or 7th centuries; but about that time occurs an hiatus in the architectural history of Western Europe, owing to the troubles which arose on the dissolution of the Roman Empire and the irruption of the Barbarian hordes. When the art again reappeared, it was strongly tinctured by Barbarian influences, and might with propriety be designated the Gothic style, the essential characteristic being that it is the architecture of a people differing from the Romans or Italians in blood, and, it need hardly be added, differing from them in a like ratio in their architectural conceptions.
The term “Gothic,” however, is so generally adopted throughout Europe to designate the style in which the intersecting vault with pointed arches is the main characteristic, that to depart from it, even when subdivided into round arched and pointed arched Gothic, would only lead to confusion. It would therefore seem better to retain the nomenclature usually employed in modern architectural works, and to class all the phases of the transitional style between the Roman and the Gothic periods under the broad title of Romanesque. This would include what we have termed Early Christian——Lombardi——Rhenish——those phases of the style which in Italy and France are influenced by Byzantine detail——the pure Romanesque or Romance of the south of France——the Norman style in Italy, Sicily, and the North of France, and——Saxon and Norman in our own country. The attempt to restrict the term Romanesque within 412the confines of the 6th and 7th centuries, which was formerly attempted, has proved to be illusory, as it has never been recognised by any student of architecture. At the same time it is not necessary to insist on the term when describing its various phases, and when they are better known under other terms. It is, however, of importance, when writing a general history of all styles, to keep strictly to some definite system, and not to adopt the nomenclature which has in some cases been given by persons writing monographs of the style of their own particular country. The Germans, for instance, are inclined to call the architecture of such cathedrals as Spires, Worms, etc., by the absurd name of Byzantine, though no features in them have ever been borrowed from the Eastern capital, nor do they resemble the buildings of that part of Europe.
The title Gothic, which was originally invented as a term of reproach, and which was applied to the imaginary work of the western Barbarians who at one time overthrew the western Empire and settled within its limits, has no architectural or ethnological value, it being impossible to point out any features, much less buildings, which the Goths introduced, and which are not to be more correctly attributed to Roman or Byzantine artists. If we except the tomb of Theodoric, all the works in Ravenna are scarcely to be distinguished from the basilicas of the Eastern Empire, and only embody such modifications as the material of the country and a certain influence of debased Roman architecture in Italy would naturally exert. The churches and thermæ which Theodoric is said to have restored in Rome have no characteristics which are not found in other buildings of the same class before his reign, and even in Spain and the south of France, which was occupied more or less continuously by the Visigoths for more than two centuries, there are no features which they could claim to have invented.
The term Gothic, therefore, is misplaced, but inasmuch as the Goths never invented any style, there is not likely, if this fact is recognised, to be any confusion in its adoption.
The chief difficulty which presents itself in any attempt to classify the work of the Romanesque and the Gothic styles is that of drawing a line of demarcation between the two. It is not sufficient to take the pointed arch, for in France a pointed arched barrel vault preceded the round arched vault; and in the East, as we know, the pointed arch made its appearance at a much earlier period: that characteristic, therefore, must not be too rigidly insisted upon.
Beyond this general classification, the use of local names, when available, will always be found most convenient. First, the country, or architectural province, in which an example is found should be ascertained, so that its locality may be marked, and if possible with the addition of a dynastic or regal name to point out its epoch. When 413the outline is sufficiently marked, it may be convenient, as the French do, to speak of the style of the 13th century[214] as applied to their own country. The terms they use always seem to be better than 1st, or 2nd, Middle Pointed, or even “Geometric,” “Decorated,” or “Perpendicular,” or such general names as neither tell the country nor the age, nor even accurately describe the style, though when they have become general it may seem pedantic to refuse to use them. The system of using local, combined, and dynastic names has been followed in describing all the styles hitherto enumerated in this volume, and will be followed in speaking of those which remain to be described; and as it is generally found to be so convenient, whenever it is possible it will be adhered to.
In order to carry out these principles, the division proposed for this part of the subject is—
1st. To begin the history of Christian Art by tracing up the successive developments of the earliest perfected style, the Byzantine, in the countries lying to the eastward of the boundary line already defined. Owing to the greater uniformity of race, the thread of the narrative is far more easily followed to the eastward than we shall find to the westward of the line. The Byzantine empire remained one and undivided during the Middle Ages; and from that we pass by an easy gradation to Russia, where the style continued to be practised till Peter the Great superseded it by introducing the styles of Western Europe.
2nd. To treat of the early Christian style as it prevailed in Italy, down to the age of Charlemagne, so long, in fact, as it remained a debased Roman style influenced only by its connection with the Eastern Empire. Continuing our description of the various phases of the style as practised in Italy and in Istria and Dalmatia (the two countries with which she was so intimately connected) down to the revival of classic architecture: subdividing it into those sections which are suggested by the predominant influence of Lombardic, Byzantine, or Gothic art, and keeping as far as possible to a chronological sequence.
3rd. To take up the Romanesque style in France, and to follow it through its various phases whilst it was being gradually absorbed in the predominant impetus given to its successor, the Gothic style, by the adoption of the pointed arch in intersecting vaulting during the 12th century, and then its subsequent development in succeeding centuries, till it perished under Francis I.
If this arrangement is not quite logical, it is certainly convenient, 414as it enables us to grasp the complete history of the style in the country where most of the more important features were invented and perfected. Having once mastered the history of Gothic art in the country of its birth, the sequence in which the other branches of the style are followed become comparatively unimportant. The difficulty of arranging them does not lie so much in the sequence as in the determination of what divisions shall be considered as separate architectural provinces. In a handbook, subdivision could hardly be carried too far; in a history, a wider view ought to be taken. On the whole, perhaps, the following will best meet the true exigencies of the case:—
4th. Belgium and Holland should be taken up after France as a separate province during the Middle Ages, while at the same time forming an intermediate link between that country and Germany.
5th. Though not without important ethnographical distinctions, it will be convenient to treat all the German-speaking countries from the Alps to the Baltic as one province. If Germany were taken up before France, such a mode of treatment would be inadmissible; but following the history of the art in that country, it may be done without either confusion or needless repetition.
6th. Scandinavia follows naturally as a subordinate, and, unfortunately, not very important, architectural subdivision.
7th. From this we pass by an easy gradation to the British Islands, which in themselves contain three tolerably well-defined varieties of style, popularly known as the Saxon, the Norman, or round-arched, and the Gothic, or pointed-arched style of Architecture.
8th. Spain might have been made to follow France, as most of its architectural peculiarities were borrowed from that country; but some too own a German origin, while on the whole the new lessons to be learned from a study of her art are so few, that it is comparatively unimportant in what sequence the country is taken, and therefore it has been found more convenient to place her last.
| DATES. | |
| Constantine founds Constantinople | A.D. 324 |
| First Council of Nice | 325 |
| Julian the Apostate | 361 |
| Theodosius the Great | 379 |
| Theodosius II. | 408 |
| Marcian | 450 |
| Fall of Western Empire | 476 |
| Justinian I. | 527 |
| Justin II. | 565 |
| Heraclius | 610 |
| The Hejira | 622 |
The term Byzantine has of late years been so loosely and incorrectly used—especially by French writers on architecture—that it is now extremely difficult to restrict it to the only style to which it really belongs. Wherever a certain amount of coloured decoration is employed, or a peculiar form of carving found, the name Byzantine is applied to churches on the Rhine or in France; although no similar ornaments are found in the Eastern Empire, and though no connection can be traced between the builders of the Western churches and the architects of Byzantium, or the countries subject to her sway.
Strictly speaking, the term ought only to be applied to the style of architecture which arose in Byzantium and the East after Constantine transferred the government of the Roman Empire to that city. It is especially the style of the Greek Church as contradistinguished from that of the Roman Church, and ought never to be employed for anything beyond its limits. The only obstacle to confining it to this definition occurs between the ages of Constantine and Justinian. Up to the reign of the last-named monarch the separation between the two churches was not complete or clearly defined, and the architecture was of course likewise in a state of transition, sometimes inclining to one style, sometimes to the other. After Justinian’s time, the line may be clearly and sharply drawn, and it would 416therefore be extremely convenient if the term “Greek architecture” could be used for the style of the Greek Church from that time to the present day.
If that term be inadmissible, the term “Sclavonic” might be applied, though only in the sense in which the Gothic style could be designated as Teutonic. Both, however, imply ethnographic distinctions which it would not be easy to sustain. The term “Gothic” happily avoids these, and so would “Greek,” but for the danger of its being confounded with “Grecian,” which is the proper name for the classical style of the ancient Greeks. If the employment of either of these terms is deemed inadvisable, it will be necessary to divide the style into Old and New Byzantine—the first comprehending the three centuries of transition that elapsed from Constantine to the Persian war of Heraclius and the rise of the Mahomedan power, which entirely changed the face of the Eastern Empire,—the second, or Neo-Byzantine, including all those forms which were practised in the East from the reappearance of the style, in or after the 8th century, till it was superseded by the Renaissance.
Thus divided, the true or old Byzantine style might be regarded as the counterpart of the early Romanesque or debased Roman style, except that, owing to the rapid development in the East, the former culminated in the erection of Sta. Sophia (A.D. 532-558); the Eastern Empire thus forming a style of its own of singular beauty and perfection, which it left to its Sclavonic successors to use or abuse as their means or tastes dictated. The Western Empire, on the contrary, was in a state of decay ending in a débâcle, from which the Romanesque style only partially emerged during the reign of Charlemagne and his successors with a new revival in the 11th century.
Though the styles of the East and the West became afterwards so distinctly separate, we must not lose sight of the fact, that during the age of transition (324-622) no clear line of demarcation can be traced. Constantinople, Rome, and Ravenna were only principal cities of one empire, throughout the whole of which the people were striving simultaneously to convert a Pagan into a Christian style, and working from the same basis with the same materials.[215] Prior to the age of Constantine one style pervaded the whole empire. The buildings at Palmyra, Jerash, or Baalbec, are barely distinguishable from those of the capital, and the problem of how the Pagan style could be best converted to Christian uses was the same 417for all. The consequence is, that if we were at present writing a history which stopped with the beginning of the 7th century, the only philosophical mode of treating the question would be to consider the style as one and indivisible for that period; but as the separation was throughout steadily, though almost imperceptibly, making its way, and gradually became fixed and permanent, it will be found more convenient to assume the separation from the beginning. This method will no doubt lead to some repetition, but that is a small inconvenience compared with the amount of clearness obtained. At the same time, if any one were writing a history of Byzantine architecture only, it would be necessary to include Ravenna, and probably Venice and some other towns in Italy and Sicily, in the Eastern division. On the other hand, in a history devoted exclusively to the Romanesque styles, it would be impossible to omit the churches at Jerusalem, Bethlehem, or Thessalonica, and elsewhere in the East. Under these circumstances, it is necessary to draw an arbitrary line somewhere; and for this purpose the western limits of the Turkish Empire and of Russia will answer every practical purpose. Eastward of this line every country in which the Christian religion at any time prevailed may be considered as belonging to the Byzantine province.
During the first three centuries of the style (324-622) it will be convenient to consider the whole Christian East as one architectural province. When our knowledge is more complete, it may be possible to separate it into several, but at present we are only beginning to see the steps by which the style grew up, and are still very far from the knowledge requisite for such limitations, even if it should hereafter be discovered that a sufficient number exist. All the great churches with which Constantine and his immediate successors adorned their new capital have perished. Like the churches at Jerusalem and Bethlehem, they were probably constructed with wooden roofs and even wooden architraves, and thus soon became a prey to the flames in that most combustible of capitals. Christian architecture has been entirely swept off the face of the earth at Antioch, and very few and imperfect vestiges are found of the seven churches of Asia Minor. Still, the recent researches of De Vogüé in Northern Syria,[216] and of Texier in Thessalonica[217] show how much unexpected wealth still remains to be explored, and in a few years more this chapter of our history may assume a shape as much more complete than what is now written, as it excels what we were compelled to be content with when the Handbook was published, 1855.
Since therefore, under present circumstances, no ethnographic 418treatment of the subject seems feasible, the clearest mode of presenting it will probably be to adopt one purely technical.
For this purpose it will be found convenient, first, to separate the Neo-Byzantine style from the older division, which, in order not to multiply terms, may be styled the Byzantine par excellence; the first chapter extending from Constantine, 324, to the Hejira, 622; and the second from that time to the end of the Middle Ages.
In reference to the ecclesiastical architecture of the first division, it is proposed to treat—
First, of churches of the basilican or rectangular forms, subdividing them into those having wooden, and those having stone roofs.
Secondly, to describe circular churches in the same manner, subdividing them similarly into those with wooden roofs, and those with stone roofs or true domes.
This subdivision will not be necessary in speaking of the Neo-Byzantine churches, since they all have stone roofs and true domes.
With regard to civil or domestic architecture very little can at present be said, as so little is known regarding it, but we may hope that, a few years hence, materials will exist for an interesting chapter on even this branch of the subject.
Churches at Bethlehem, Jerusalem, and Thessalonica—Rectangular Churches in Syria and Asia Minor, with wooden roofs and stone vaults.
Basilicas may be subdivided into two classes—that in which the nave is divided from the side-aisles by pillars, carrying either entablatures or arches, as the most purely Romanesque—and that which has piers supporting arches only, and is transitional between the first style and the more original forms which were elaborated out of it.
273. Church of the Nativity at Bethlehem. (From Bernardino Amico.) Scale 100 ft. to 1 inch.
Of the former class one of the most authentic and perfect is that erected at Bethlehem by Helena, the mother of Constantine, in front of the cave of the Nativity. The nave seems to be a nearly unaltered example of this age, with the advantage over the contemporary churches at Rome, that all its pillars and their capitals were made for the places they occupy, whereby the whole possesses a completeness and justness of proportion not found in the metropolis. Its dimensions, though sufficient for effect, are not large, being internally 103 ft. across, by 215 ft. east and west. The choir with its three apses does not seem to be part of the original arrangement, but to have been added by Justinian when he renovated—Eutychius says rebuilt—the church. My impression is that a detached circular 420building, external to the basilica, originally contained the entrance to the cave. The frescoes were added apparently in the 11th or 12th century.[218]
One of the principal points of interest connected with this church is, that it enables us to realise the description Eusebius gives us of the basilica which Constantine erected at Jerusalem in honour of the Resurrection. Like this church it was five-aisled, but had galleries; the apse also was on a larger scale than could well have been possible in the Bethlehem church, and adorned with twelve pillars, symbolical of the Apostles.
Of this building nothing now remains, and the only portion which could be claimed as part of Constantine’s work is the western wall of the Rotunda, which to a height of 15 to 20 ft. was cut out of the solid rock in order to isolate the Holy Sepulchre in the centre. The so-called tombs of Absalom and Zachariah in the valley of Jehoshaphat were detached in a similar way from the rock behind them.[219]
274. Eski Djuma, Thessalonica. (From Texier and Pullan.) Scale 100 ft. to 1 in.
As before mentioned, it is to Constantinople, or Alexandria, or Antioch, that we should naturally look to supply us with examples of the style of the early transition, but as these fail, it is to Thessalonica alone—in so far as we now know—that we can turn. In that city there are two ancient examples. One, now known as the Eski Djuma or old mosque (Woodcut No. 274), may belong to the 5th century, though there are no very exact data by which to fix its age. It consists of a nave, measuring, exclusive of narthex and bema, 93 ft. across by 120 ft.—very much the proportion of the Bethlehem church, but having only three aisles, the centre one 48 ft. in width. The other church, that of St. Demetrius, is larger, but less simple. It is five-aisled, has two internal transepts, and various adjuncts. Altogether it seems a considerable advance towards the more complicated form of a Christian church. Both these churches have capacious galleries, 421running above the side aisles, and probably devoted to the accommodation of the women. The date of St. Demetrius is most probably among the first years of the sixth century.[220] The general ordinance of the columns will be understood from the woodcut (No. 276). Generally they are placed on elevated square or octagonal bases, or pedestals, as in the tepidaria of the Thermæ in Rome, and all have a block (known as the dosseret), placed above the capital, which is supposed to represent the entablature of the Roman example, but is probably an original feature inserted over the capital to support the springing of the arch. In this form it is found very generally in the 5th and 6th centuries, after which it fell into disuse, an increased depth being given to the abacus of the capital to take its place.
275. St. Demetrius, Thessalonica. (From Texier and Pullan.) Scale 100 ft. to 1 inch.
276. Arches in St. Demetrius at Thessalonica, A.D. 500 to 520.
So far as we now know, there is only one church of this class at Constantinople—that known as St. John Studius,—a three-aisled basilica, 125 ft. long by 85 in width externally. Its date appears to be tolerably well ascertained as A.D. 463, and from this circumstance, as well as its being in the metropolis, it shows less deviation from the classical type than the provincial examples just quoted. The lower range of columns supporting the gallery still retain the classical outline and support a horizontal entablature (Woodcut No. 277); the 422upper supporting arches have very little resemblance to the classical type, and are wanting in the architrave block or dosseret, which in fact never seems to have been admired in the capital.
The country where—so far at least as we at present know—the Byzantine Basilica was principally developed was Northern Syria. Already in De Vogüé’s work on Central Syria some dozen churches are indicated having the aisles divided from the naves by pillars supporting arches. One of these only—that at Soueideh—has five aisles, all the rest three. Almost all have plain semicircular apses, sometimes only seen internally, like those mentioned further on (page 510), but sometimes also projecting, as was afterwards universally the fashion. Two at least have square terminations (Kefr Kileh and Behioh), but this seems exceptional. Most of them are almost the size of our ordinary parish churches—100 ft. by 60 or thereabouts—and all belong to the three centuries—the 4th, 5th, and 6th—of which this chapter especially treats.
277. Pillar in Church of St. John, Constantinople.
The church at Baquoza may serve as a type of the class both in plan and section (Woodcuts Nos. 278, 279). Its dimensions externally are 60 ft. by 105; and besides the narthex—not shown in the section—it has four lateral porches. It has also two square chapels or vestries at the end of the aisles—an arrangement almost universal in these churches.
The most remarkable of the group, however, is that of St. Simeon Stylites, at Kalat Sema’n, about 20 miles east of Antioch. Its dimensions are very considerable, being 330 ft. long, north and south, and as nearly as may be, 300 ft. east and west, across what may be called the transepts. The centre is occupied by a great octagon, 93 ft. across, on a rock in the centre of which the pillar of that eccentric saint 423originally stood. This apparently was never roofed over, but stood always exposed to the air of heaven.[221]
278. Plan of Church in Baquoza. Scale 100 ft. to 1 in.
280. Plan of Church and Part of Monastic Buildings at Kalat Sema’n. (From De Vogüé.) Scale 100 ft. to 1 in.
The greater part of the conventual buildings belonging to this church still remain in a state of completeness,—a fact which will be startling to those who are not aware how many of the great religious 424establishments of Syria still stand entire, wanting only the roofs, which were apparently the only parts constructed of wood.
The whole of the buildings at Kalat Sema’n seem to have been completed within the limits of the 5th century, and not to have been touched or altered since they were deserted, apparently in consequence of the Mahomedan irruption in the 7th century. The most curious point is that such a building should have remained so long in such a situation, unknown to the Western world; for the notices hitherto published have been meagre and unsatisfactory in the extreme, and De Vogüé is only able to state that it was visited and described by the historian Evagrius in the year 560 A.D.
281. Plan of Church at Roueiha. Scale 100 ft. to 1 in.
282. Section of Church at Roueiha. (From De Vogüé.) Scale 50 ft. to 1 in.
In the same province we find also the earliest examples of the use of pier arches in a church to separate the nave from the aisles. These seem to have been currently used in Northern Syria in the 6th century, though not found in the West—at least not used in the same manner—for several centuries later. Generally three such arches only were employed in the length of the nave, and they consequently left the floor so open and free, that it is very questionable if in churches of limited dimensions the introduction of a much larger number by the Gothic architects was an improvement. Taking it altogether, it is probable that such a church as that at Roueiha (Woodcut No. 282) would, if literally reproduced, make a better and cheaper church for an English parish than the Mediæval models we are so fond of copying. A considerable amount of perspective effect is obtained by throwing two transverse arches across the nave, dividing it into three compartments, each including four windows in the clerestory; and the whole design is simple and solid in a degree seldom surpassed in buildings of its class. Its dimensions are 63 ft. by 150 over all externally.
425In many of these churches the transverse arches of the nave are omitted; and when, as at Qalb Louzeh (Woodcut No. 284), the clerestory is accentuated by roofing shafts, the same effect of perspective is obtained by other means, and perhaps as successfully. It is very interesting, however, to find that as early as the 6th century the architects were thoughtfully feeling their way towards those very principles of design which many centuries afterwards enabled the Gothic architects to produce their most successful effects. The introduction of four windows over each great arch, and of a rooting-shaft between each to support the beams of the roof, was a happy thought, and it is wonderful it was so completely lost sight of afterwards.
283. Plan of Church at Qalb Louzeh. Scale 100 ft. to 1 in.
284. Apse of Church at Qalb Louzeh. (From De Vogüé.)
It is probable that the apse (Woodcut No. 284) was originally adorned with paintings or mosaics, or at least that it was intended it 426should be so ornamented; but even as it is, it is so well proportioned to the size of the church, and to its position, and so appropriately ornamented, that it is better than most of those found in Roman basilicas; and, for a small church, is a more dignified receptacle for the altar than either the French chevet or the English chancel.
Did our limits admit of it, it would be not only pleasant but instructive to dwell longer on this subject; for few parts of our inquiry can be more interesting than to find that, as early as the 6th century, the Roman basilica had been converted into a Christian church, complete in all its details, and—internally at least—in a style of architecture as consistent and almost as far removed from its classical prototype as the Mediæval Gothic itself.
285. Chapel at Babouda. Scale 50 ft. to 1 in.
Externally, too, the style was becoming independent of classical models, though hardly in the same degree. The porches of the churches were generally formed in two storeys, the lower having a large central arch of admission, the upper consisting of a colonnade which partially hid, while it supported, an open screen of windows that admitted a flood of light into the nave just in the position where it was most effective. Without glass or mullions such a range of windows must have appeared weak, and would have admitted rain; but when sheltered by a screen of pillars, it was both convenient and artistic.
286. Elevation of Chapel at Babouda. (From De Vogüé.)
This mode of lighting is better illustrated at Babouda, where it is employed in its simplest form. No light is admitted to the chapel except through one great semicircular window over the entrance, and this is protected externally by a screen of columns. This mode of introducing light, as we shall afterwards see, was common in India at this age, and earlier, all the Chaitya caves being lighted in the same manner; and for artistic effect it is equal, if not superior, to any other which has yet been invented. The light is high, and behind the worshipper, and thrown direct on the altar, or principal part of the church. In very large buildings it could hardly be applied, but for smaller ones it is singularly effective.
The external effect of these buildings though not so original as 427the interior, is still very far removed from the classical type, and presents a variety of outline and detail very different from the simplicity of a Pagan temple. One of the most complete is that at Tourmanin (Woodcut No. 287), though that at Qalb Louzeh is nearly as perfect, but simpler in detail. For a church of the 6th century it is wonderful how many elements of later buildings it suggests; even the western towers seem to be indicated, and, except the four columns of the gallery, there is very little to recall the style out of which it arose.
287. Façade of Church at Tourmanin. (From De Vogüé.)
There are considerable remains of a wooden-roofed basilica at Pergamus, which may be even older than those just described; but having been built in brick, and only faced with stone—the whole of which is gone—it is difficult to feel sure of the character of its details and mouldings. It had galleries on either side of the nave, but how these were supported or framed is not clear. It may have been by wooden posts or marble pillars, and these would have either decayed or been removed. The two square calcidica or vestries, which in the Syrian churches terminate the side-aisles, are here placed externally like transepts, and beyond them are two circular buildings with domical roofs and square apses. What their use was is, however, doubtful. In fact, we know so little of the architecture of that age in Asia Minor that this building stands quite exceptionally; and very little use can be made of it, either as throwing light on other buildings, or as receiving illustration from their peculiarities. But seeing how 428much has been effected in this direction of late, we may fully hope that this state of isolation will not long remain.
288. Church at Pergamus. (From a Plan by Ed. Falkener, Esq.) Scale 100 ft. to 1 in.
One other church of the 4th century is known to exist—at Nisibin. It is a triple church, the central compartment being the tomb of the founder, the first Armenian bishop of the place. Though much ruined, it still retains the mouldings of its doorways and windows as perfect as when erected, the whole being of fine hard stone. These are identical in style with the buildings of Diocletian at Spalato; and as their date is well known, they will, when published, form a valuable contribution to the information we now possess regarding the architecture of this period.
All the buildings above described—with the exception of the chapel at Babouda—have wooden roofs, as was the case generally with the basilicas and the temples of the classical age. The Romans, however, had built temples with aisles and vaulted them as early as the age of Augustus, as at Nîmes, for instance (Woodcut No. 189), and they had roofed their largest basilicas and baths with intersecting vaults. We should not therefore feel surprised if the Christians sometimes attempted the same thing in their rectangular churches, more especially as the dome was always a favourite mode of roofing circular buildings; and the problem which the Byzantine architects of the day set themselves to solve was—as we shall presently see—how to fit a circular dome of masonry to a rectangular building.
One of the earliest examples of a stone-roofed church is that at 429Tafkha in the Hauran. It is probably of the age of Constantine, though as likely to be before his time as after it. Its date, however, is not of very great importance, as its existence does not prove that the form was adopted from choice by the Christians: the truth being that, in the country where it is found, wood was never used as a building material. All the buildings, both domestic and public, are composed wholly of stone—the only available material for the purpose which the country afforded. In consequence of this, when that tide of commercial prosperity which rose under the Roman rule flowed across the country from the Euphrates valley to the Mediterranean, the inhabitants had recourse to a new mode of construction, which was practically a new style of architecture. This consisted in the employment of arches instead of beams. These were placed so near one another that flat stones could be laid side by side from arch to arch. Over these a layer of concrete was spread, and a roof was thus formed so indestructible that whole towns remain perfect to the present day, as originally constructed in the first centuries of the Christian era.[222]
289. Section on A B, Tafkha. (From De Vogüé.) Scale 50 ft. to 1 in.
290. Plan, Tafkha. Scale 100 ft. to 1 in.
291. Section on C D, Tafkha.
292. Half Front Elevation, Tafkha. Scale 50 ft. to 1 in.
One example must suffice to explain this curious mode of construction. The church at Tafkha is 50 ft. square, exclusive of the apse. It is spanned by four arches, 7 ft. 6 in. apart. On each side are galleries of flat slabs resting on brackets, as shown in Woodcuts 430Nos. 289, 291, which again are supported by smaller transverse arches. At one side is a tower, but this is roofed wholly by bracketing, as if the architect feared the thrust of the arch even at that height.
The defect of this arrangement as an architectural expedient is the extreme frequency of the piers, 8 or 10 ft. being the greatest distance practicable; but as a mechanical expedient it is singularly ingenious. More internal space is obtained with a less expenditure of material and danger from thrust than from any mode of construction—wholly of stone—that we are acquainted with; and with a little practice it might no doubt be much improved upon. The Indian architects, as we shall presently see, attempted the same thing, but set about it in a diametrically opposite way. They absolutely refused to employ the arch under any circumstances, but bracketed forward till the space to be covered was so limited that a single stone would reach across. By this means they were enabled to roof spaces 20 or 25 ft. span without arches, which is about the interval covered with their aid at Tafkha.[223]
293. Great Church at Hierapolis. Scale 100 ft. to 1 in. (E. Falkener del.)
294. Church at Hierapolis. Scale 100 ft. to 1 in. (E. F. del.)
Another circumstance which renders these Hauran examples interesting to the architectural student is that they contain no trace or reminiscence of wooden construction or adornment, so apparent in almost every other style. In Lycia it is absurdly so. In Egypt, in Greece, in India, in Persia—everywhere, in fact—we can trace back the principal form of decoration to a wooden original; here alone all is lithic, and it is probably the only example of the sort that the whole history of architecture affords.
If there are any churches in the Byzantine province of the age of which we are treating, whose naves are roofed by intersecting vaults, they have not yet been described in any accessible work; but great 431tunnel-vaults have been introduced into several with effect. One such is found at Hierapolis, on the borders of Phrygia (Woodcut No. 293). It is divided by a bold range of piers into three aisles, the centre one having a clear width of 45 ft. 6 in. The internal dimensions of the church are 177 ft. by 115. There are three great piers in the length, which carry bold transverse ribs so as to break the monotony of the vault, and have between them secondary arches, to carry the galleries.
295. Section of Church at Hierapolis. Scale 50 ft. to 1 in. With monogram found on its walls. (From a Drawing by E. Falkener.)
There is another church at the same place, the roof of which is of a somewhat more complicated form. The internal length, 140 ft., is divided into three by transverse arches; but its great peculiarity is that the vault is cut into by semi-circular lunettes above the screen side-walls, and through these the light is introduced. This arrangement will be understood from the section (Woodcut No. 295). Taken altogether, there is probably no other church of its age and class in which the vault is so pleasingly and artistically arranged, and in which the mode of introducing the light is so judicious and effective.
The age of these two last churches is not very well ascertained. They probably belong to the 5th, and are certainly not later than the 6th, century; but, before we can speak with certainty on the subject, more examples must be brought to light and examined. From our present knowledge it can hardly be doubted that a sufficient number do exist to complete the chapter; and it is to be hoped they will be published, since a history of vaults in the East, independent of domes, is still a desideratum.
Circular Churches with wooden roofs and with true domes in Syria and Thessalonica—Churches of St. Sergius and Bacchus and Sta. Sophia, Constantinople—Domestic Architecture—Tombs.
At the time of the erection of the churches described in the last chapter, a circular domical style was being simultaneously elaborated in the East, which not only gave a different character to the whole style, but eventually entirely superseded the western basilican form, and became an original and truly Byzantine art.
Constantine is said to have erected a church at Antioch which, from the description given by Eusebius, was octagonal in plan.
On Mount Gerizim, on or near the site of the Samaritan temple, Justinian built an octagonal church showing in its multifold chapels a considerable advance towards Christian arrangements; it has, however been so completely destroyed that only its foundation can now be traced, from which the plan (Woodcut No. 296) was measured and worked out by Sir Charles Wilson.
296. Church on Mount Gerizim.
297. Cathedral at Bosra. Scale 100 ft. to 1 in.
At Bosra in the Hauran there is a church of perfectly well-ascertained date—A.D. 512—which, when more completely illustrated, will throw considerable light on the steps by which a Pagan temple was transformed into a Christian church. It is a building externally square, but internally circular (Woodcut No. 297). The central 433space is 91 ft. in diameter, and was evidently covered with a wooden roof, according to M. de Vogüé, supported on eight piers. The interest of the plan consists in its showing the progress made in adapting this form to Christian purposes, and it is to be hoped that further investigation may enable us to supply all the steps by which the transformation took place. De Vogüé is of opinion that there was a central dome carried on piers and columns similar to the church of SS. Sergius and Bacchus in Constantinople, with aisles round and gallery over them, the latter covered with a timber roof, the holes in which the rafters were fixed being still visible. Owing to want of lateral support the dome fell down, and at a later period a small basilica church was erected within the enclosure in front of the apse; the proximity of the piers of this church suggests that it was covered with stone slabs according to the custom of the country. The inscription over the principal entrance door states that the church was dedicated to SS. Sergius and Bacchus, and was completed in the 400th year of Bosra (511-512 A.D.). Another example exists at Kalat Sema’n, in Northern Syria, and presents a combination of an octagonal with a rectangular church very common in Armenia and Georgia. As is generally the case there, they are very small in dimensions, the whole group only measuring 120 ft. by 73. Their actual destination is not known, but M. de Vogüé suggests that the triapsal arrangement in the octagonal building points to its having been erected as a baptistery. This group is situated about 200 yards from the main buildings illustrated in Woodcut (No. 280).
298. Section of Double Church at Kalat Sema’n. (From De Vogüé.) Scale 50 ft. to 1 in.
299. Plan, Kalat Sema’n. Scale 100 ft. to 1 in.
Whether the dome of the Pantheon at Rome (p. 320) was erected in the time of the Antonines, or before the time of Augustus, as was formerly supposed, it is evident that the Romans had conquered the difficulties of domic construction long before the transference of the seat of power to Byzantium; the Pantheon being, up to this hour, the largest (single) dome ever constructed by the hand of man. Simple and grand as it undoubtedly is, it had several glaring defects 434in its design which the Byzantines set themselves to remedy. The first was that twice the necessary amount of materials was consumed in its construction. The second, that the mode of lighting by a hole in the roof, which also admitted the rain and the snow, was most objectionable before the invention of glass. The third, that a simply circular plan is always unmeaning and inconvenient. A fourth, that a circular building can hardly, by any contrivance, be made to fit on to any other buildings or apartments.
In the Minerva Medica (Woodcut No. 229) great efforts were made, but not quite successfully, to remedy these defects. The building would not fit on to any others, and, though an improvement on the design of the Pantheon, was still far from perfect.

300. Diagram of Byzantine Arrangement.

301. Diagram of Byzantine Pendentives.
The first step the Byzantines made was to carry the dome on arches resting on eight piers enclosing an octagon A (Woodcut No. 300); this enabled them to obtain increased space, to provide nave, choir, and transepts, and by throwing out niches on the diagonal lines, virtually to obtain a square hall in the centre. The difference between the octagon and circle is so slight, that by corbelling out above the extrados of the arches, a circular base for the dome was easily obtained B. The next step was to carry the dome on arches resting on four piers, and their triumph was complete when by the introduction of pendentives—represented by the shaded parts at D (Woodcut No. 301), they were enabled to place the circular dome on a square compartment. The pendentives and dome thus projected formed part of a sphere, the radius of which was the half-diagonal of the square compartment. Constructively it would probably have been easier to roof the space by an intersecting vault; and even if of 100 or 150 ft. span it would without difficulty have been effected. The difference between the intersecting vault and the dome (as shown in Woodcuts 302 and 303; the former the tomb of Galla Placidia, built 450 A.D., the latter the chapel of St. Peter Crysologus attached to the archiepiscopal palace of about the same date, and both in Ravenna) is perhaps the most striking contrast the history of architecture affords between mechanical and ornamental construction. Both are capable of being ornamented to the same extent and in the same manner; but the 435difference of form rendered the dome a beautiful object in itself wholly irrespective of ornament, whereas the same cannot always be said of the intersecting barrel vault. Altogether, the effect would have been architecturally so infinitely inferior, that we cannot but feel grateful to the Byzantines that they persevered, in spite of all mechanical temptations, till they reached the wonderful perfection of the dome of Sta. Sophia.
302. Tomb of Galla Placidia, Ravenna. (For plan see Woodcut No. 434.)
303. Chapel in Archiepiscopal Palace, Ravenna.
Among the earliest domical churches found in the East is that of St. George at Thessalonica. It is also, perhaps, the finest example of its class belonging strictly to that group which has been designated above as the Eastern Romanesque.
304. Plan of St. George at Thessalonica. Scale 100 ft. to 1 in.
As will be seen from the plan it is a circular apartment, 79 ft. in diameter, surrounded by walls 20 ft. in thickness, into which are cut seven great niches; two apparently serving as entrances, opposite one of which is a bema or presbytery of considerable importance and purely Christian form. The dome is hemispherical, pierced at its base by eight semi-circular lunettes, and externally covered and concealed by a wooden roof. This form of roof is first found in the West at Nocera dei Pagani (p. 547), but the dome there is only half the diameter of this one, and of a very different form and construction. The dome 436of St. George’s retains its internal decorations, which are among the earliest as well as the most interesting Christian mosaics in existence.[224] 437The architecture presented in them bears about the same relation to that in the Pompeiian frescoes which the Jacobæan does to classical architecture, and, mixed with Christian symbols and representations of Christian saints, makes up a most interesting example of early Christian decoration.
305. Section of Church of St. George at Thessalonica. (From Texier and Pullan.) Scale 50 ft. to 1 in.
306. View of Church of St. George at Thessalonica. (From Texier and Pullan.)
No inscriptions or historical indications exist from which the date of the church can be fixed. We are safe, however, in asserting that it was erected by Christians, for Christian purposes, subsequently to the age of Constantine. If we assume the year 400 as an approximate date we shall probably not err to any great extent, though the real date may be somewhat later.
307. Plan of Kalybe at Omm-es-Zeitoun (Syria). No Scale.
How early a true Byzantine form of arrangement may have been introduced we have no means of knowing; but as early as the year 285—according to De Vogüé—we have a Kalybe[225] at Omm-es-Zeitoun, which contains all the elements of the new style. It is square in plan, with a circular dome in its centre for a roof. The wing walls which extend the façade are curious, but not singular. One other example, at least, is found in the Hauran, at Chaqqa, and there may be many more.
308. View of Kalybe at Omm-es-Zeitoun. (From De Vogüé.)
Still, in the Hauran they never seem quite to have fallen into the true Byzantine system of construction, but preferred one less mechanically difficult, even at the expense of crowding the floor with piers. In the church at Ezra, for instance, the internal octagon is reduced to a figure of sixteen sides before it is attempted to put a dome upon 438it, and all thought of beauty of form, either internally or externally, is abandoned in order to obtain mechanical stability—although the dome is only 30 ft. in diameter.
As the date of this church is perfectly ascertained (510) it forms a curious landmark in the style just anterior to the great efforts Justinian was about to make, and which forced it so suddenly into its greatest, though a short-lived, degree of perfection.
309. Plan of Church at Ezra. Scale 100 ft. to 1 in.
310. Section of Church at Ezra. Scale 50 ft. to 1 in.
As before mentioned, all the churches of the capital which were erected before the age of Justinian, have perished, with the one exception of that of St. John Studius mentioned above (page 421). This may in part be owing to the hurried manner in which they were constructed, and the great quantity of wood consequently employed, which might have risked their destruction anywhere. It is, however, a curious, but architecturally an important, fact that Byzantium possessed every conceivable title to be chosen as the capital of the Empire, except the possession of a good building-stone, or even apparently any suitable material for making good bricks. Wood seems in all times to have been the material most readily obtained and most extensively used for building purposes, and hence the continual recurrence of fires, from before the time of Justinian down to the present day. That monarch was the first who fairly met the difficulty; the two churches erected during his reign, which now exist, are constructed wholly without wood or combustible materials of any sort—and hence their preservation.
The earliest of these two, popularly known as the “Kutchuk Agia Sophia,” or lesser Sta. Sophia, was originally a double church, or more properly speaking two churches placed side by side, precisely in the same manner as the two at Kalat Sema’n (Woodcut No. 298). The basilica was dedicated to the Apostles Peter and Paul; the domical church, appropriately, to the Martyrs Sergius and Bacchus. The former has entirely disappeared, from which I would infer that it 439was constructed with pillars and a wooden roof.[226] The latter remains very nearly intact. The frescoes and mosaics have, indeed, disappeared from the body of the church, hidden, it is to be hoped, under the mass of whitewash which covers its walls—in the narthex they can still be distinguished.
311. Church of SS. Sergius and Bacchus.
312. Section of Church of SS. Sergius and Bacchus. Scale 50 ft. to 1 in.
313. Capital from Church of SS. Sergius and Bacchus. (From Lenoir.)
314. Entablature from Church of SS. Sergius and Bacchus. (From Lenoir.)
The existing church is nearly square in plan, being 109 ft. by 92 over all, exclusive of the apse, and covering only about 10,000 sq. ft. It has consequently no pretensions to magnificence on the score of dimensions, but is singularly elegant in design and proportion. Internally, the arrangement of the piers of the dome, of the galleries, and of the pillars which support them, are almost identical with those of St. Vitale at Ravenna, but the proportions of the Eastern example are better, being 66 ft. in height by 52 in diameter, while the other, with the same diameter, is nearly 20 ft. higher, and consequently too tall to be pleasing.
The details of this church are generally well designed for the purposes to which they are applied. There is a certain reminiscence of classical feeling in the mouldings and foliage—in the latter, however, very faint. The architrave block (No. 313) here seems almost to have superseded the capital, and what was once a classical entablature has retained very little of its pristine form (No. 314), and indeed 440was used constructively only, for the support of a gallery, or some such mechanical requirement. The arch had entirely superseded it as an ornamental feature long before the age of Justinian.
Although the building just described, and others that might be quoted, probably contain the germs of all that is found in Sta. Sophia, they are on so small a scale that it is startling to find Justinian attempting an edifice so grand, and so daring in construction, without more experience than he appears to have obtained. Indeed so exceptional does this great structure appear, with our present knowledge, that we might almost feel inclined at first sight to look upon it as the immediate creation of the individual genius of its architect, Anthemius of Thralles; but there can be little doubt that if a greater number of contemporary examples existed we should be able to trace back every feature of the design to its origin. The scale, however, on which it was carried out was certainly original, and required great boldness on the part of the architect to venture upon such a piece of magnificence. At all events, the celebrated boast of its founder on contemplating his finished work was more than justified. When Justinian exclaimed, “I have surpassed thee, O Solomon,” he took an exaggerated view of the work of his predecessor, and did not realize the extent to which his building excelled the Jewish temple. The latter was only equal to a small church with a wooden roof supported by wooden posts, and covering some 7200 sq. ft. Sta. Sophia covers ten times that area, is built of durable materials throughout, and far more artistically ornamented than the temple of the Jews ever could have been. But Justinian did more than accomplish this easy victory. Neither the Pantheon nor any of the vaulted halls at Rome equal the nave of Sta. Sophia in extent, or in cleverness of construction, or in beauty of design. Nor was there anything erected during the ten centuries which elapsed from the transference of the capital to Byzantium till the building of the great mediæval cathedrals which can be compared with it. Indeed it remains even now an open question whether a Christian church exists anywhere, of any age, whose interior is so beautiful as that of this marvellous creation of old Byzantine art.
The original church of Sta. Sophia which had been erected by Constantine was, it seems, burnt to the ground in the fifth year of Justinian, A.D. 532, when he determined to re-erect it on the same spot with more magnificence and with less combustible materials. So rapidly were the works pushed forward, that in six years it was ready for dedication, A.D. 537. Twenty years afterwards a portion of the dome fell down in consequence of an earthquake; but this damage 441was repaired, and the church re-dedicated, A.D. 563, in the form, probably very nearly, in which we now find it.
315. Plan of Sta. Sophia. Upper Storey and Ground Floor. Scale 100 ft. to 1 in.
In plan it closely approaches an exact square, being 235 ft. north and south by 250 east and west, exclusive of the narthex and apse. The narthex itself is a splendid hall, 205 ft. in length internally, by 26 ft. wide, and two storeys in height. Beyond this there is an exo-narthex which runs round the whole of the outer court, but this hardly seems to be part of the original design. Altogether, the building, without this or any adjuncts which may be after-thoughts, covers about 70,000 sq. ft., or nearly the average area of a mediæval cathedral of the first class.
316. Elevation Façade of Sta. Sophia at Constantinople. (From Salzenberg.) Scale 100 ft. to 1 in.
Externally the building (Woodcut No. 316) possesses little architectural beauty beyond what is due to its mass and the varied outline arising from the mechanical contrivances necessary to resist the thrust of its internal construction. It may be that, like the early Christian basilicas at Rome, it was purposely left plain to distinguish it from the external adornment of Heathen temples, or it may have been intended to revêt it with marble, and add the external ornament afterwards. Before we became acquainted with the ornamental exteriors of Syrian churches, the former theory would seem the more plausible, though it can hardly now be sustained; and when we consider that the second dedication only took place the year before Justinian’s death, and how soon troublous times followed, we may fairly assume that what we now see is only an incomplete design. Whatever may be the case with the exterior, all the internal arrangements are complete, and perfect both from a mechanical and an artistic point of view. In such a design as this, the first requirement was to obtain four perfectly stable arches on which the dome might rest. The great difficulty was with the two arches running transversely north and south. These are as nearly as may be 100 ft. span and 120 high to the crown, and 10 ft. on the face. Each of them has a mass of masonry behind it for an abutment, 75 ft. long by 25 ft. wide, only partially pierced by arches on the ground and gallery floor; and as the mass might have been carried to any height, it ought, if properly constructed, to have sufficed for an arch very much wider and more heavily weighted than that which it supports. Yet the southern wall is considerably bulged, and the whole of that side thrown out of the perpendicular. This probably was the effect of the earthquake which caused the fall of the dome in 559, since no further settlement seems to have taken place. The longitudinal arches presented no difficulty. The distance between the solid parts of the piers was 75 ft., and this was filled up with a screen wall 444supporting the inner side of the arch; so, unless that was crushed, the whole was perfectly stable. Pendentives between these four arches ought not to have presented any difficulties. It would, however, have been better, from an architectural point of view, if they had been carried further up and forward, so as to hang a weight inside the dome to counteract the outward thrust, as was afterwards so successfully practised at Beejapore.[227] As it is, the dome rests rather on the outer edge of the system, without sufficient space for abutment. In itself the dome is very little lower than a hemisphere, being 107 ft. across by 46 ft. in height. Externally, it would have been better if higher; for internal effect this is sufficient. Its base is pierced by forty small windows, so small and so low as not to interfere in any way with the apparent construction, but affording an ample supply of light—in that climate at least—to render every part of the dome bright and cheerful.
317. Section of Sta. Sophia from E. to W. Scale 100 ft. to 1 in.
Beyond the great dome, east and west, are two semi-domes of a diameter equal to that of the great dome, and these are again cut into by two smaller domes, so that the building, instead of being a Greek cross, as usually asserted, is only 100 ft. across in the centre and 125 wide beyond the central space each way. There is a little awkwardness in the way in which the smaller semi-domes cut into the larger, and the three windows of the latter are unconnected with any other part of the design, which is unpleasing, but might easily be remedied in a second attempt. These very irregularities, however, give a variety and appropriateness to the design which has probably never been surpassed. A single dome of the area of the central and two semi-domes would not have appeared nearly so large, and would have overpowered everything else in the building. As it is, the eye wanders upwards from the large arcades of the ground floor to the smaller arches of the galleries, and thence to the smaller semi-domes. These lead the eye on to the larger, and the whole culminates in the great central roof. Nothing, probably, so artistic has been done on the same scale before or since. In these arrangements Sta. Sophia seems to stand alone.
If, however, the proportions of this church are admirable, the details are equally so. All the pillars are of porphyry, verd antique, or marbles of the most precious kinds. The capitals are among the most admirable specimens of the style. It will be remembered that the governing line of a classical Corinthian capital is a hollow curve, to which acanthus-leaves or other projecting ornaments were applied. When the columns were close together, and had only a beam to support, this form of capital was sufficient; but when employed to carry the constructive arches of the fabric its weakness became instantly apparent. Long before Justinian’s time, the tendency became apparent 445to reverse the curve and to incise the ornament. In Sta. Sophia the transition is complete; the capitals are as full as elegance would allow, and all the surfaces are flat, with ornaments relieved by incision. In the lower tier of arches (Woodcut No. 318) this is boldly and beautifully done, the marble being left to tell its own story. In the upper tier, further removed from the eye, the interstices are filled in with black marble so as to ensure the desired effect.
318. Lower Order of Sta. Sophia. (From Salzenberg.)
All the flat surfaces are covered with a mosaic of marble slabs of the most varied patterns and beautiful colours; the domes, roofs, and curved surfaces, with a gold-grounded mosaic relieved by figures or architectural devices. Though much of the mosaic is now concealed, enough is left to enable the effect of the whole to be judged of, and it certainly is wonderfully grand and pleasing. The one thing wanting is painted glass, like that which adorns the Dome of the Rock at Jerusalem, to render this building as solemnly impressive as it is overpoweringly beautiful.
Sta. Sophia is so essentially different from the greater number of churches, that it is extremely difficult to institute a comparison between them. With regard to external effect, Gothic cathedrals 446generally excel it; but whether by accident or by the inherent necessity of the style is by no means so clear. In so far as the interior is concerned, no Gothic architect ever rose to the conception of a hall 100 ft. wide, 250 ft. in length, and 180 ft. high, and none ever disposed each part more artistically to obtain the effect he desired to produce. Where the Byzantine style might profit from the experience subsequently gained by Gothic architects is in the use of mouldings. The one defect in the decoration of Sta. Sophia is that it depends too much on colour. It would have been better if the pier-arches, the window-frames, and the string-courses generally had been more strongly accentuated by moulding and panellings, but this is a slight defect among so many beauties.
319. Upper Order of Sta. Sophia. (From Salzenberg.)
A comparison with the great Renaissance cathedrals is more easy, but results even more favourably to the Byzantine example. Two of these have domes which are considerably larger—St. Peter’s at Rome and Sta. Maria at Florence being each 126 ft.; St. Paul’s, London (108), is within a foot of the same diameter, all the rest are smaller.[228] This, however, is of less consequence than the fact that they are all adjuncts to the design of the church. None of them are integral or supported by the rest of the design, and all tend to dwarf the buildings they are attached to rather than to heighten the general effect. With scarcely an exception also all the Renaissance cathedrals employ internally great sprawling pillars and pilasters, designed for external use by the Romans, which not only diminish the apparent size of the building but produce an effect of unreality and sham utterly fatal to true art.
In fact, turn it as we will, and compare it as we may with any other buildings of its class, the verdict seems inevitable that Sta. Sophia—internally at least, for we may omit the consideration of the exterior, as unfinished—is the most perfect and most beautiful church which has yet been erected by any Christian people. When its furniture was complete the verdict would probably have been still more strongly in its favour; but so few of the buildings described in 447these pages retain these adjuncts in anything like completeness that they must be withdrawn from both sides and our remarks be confined to the architecture, and that only.
The church of Sta. Sophia at Thessalonica, according to Greek tradition, was built by Justinian in the latter part of his reign.[229] It is a church of considerable dimensions, measuring 140 ft. east and west by 118 ft. in width, with a dome 33 ft. in diameter. It possesses also an upper gallery, and its arrangements generally are well considered and artistic. There does not seem to be any documentary evidence of its age, but judging from the details published in Texier, the date ascribed to it seems probable. This has been further established lately from an inscription found in the apse, which as well as the dome still retain their ancient mosaics; the inscription is incomplete, but Messrs. Duchesne and Bayet, in an appendix to their work on Mount Athos, ascribe it to the second half of the 6th century. The church possesses one special characteristic: above the pendentives is a low drum, circular internally,[230] in which windows are pierced, but which, externally, is carried up square: by this means the angle piers are well weighted and are thus enabled to resist more effectually the thrust of the arches carrying the pendentives. The two side walls also, which in Sta. Sophia at Constantinople were built almost flush with the inner arch, leaving outside a widely-projecting arch thrown across between the buttresses to carry the buttresses of the dome, are here placed flush with the outside of the arch, thus giving increased space to the interior.
The publication of the Count De Vogüé’s book has enabled us to realise the civil and domestic architecture of Syria in the 5th and 6th centuries with a completeness that, a very short time ago, would have been thought impossible. Owing to the fact that every part of the buildings in the Hauran was in stone, and that they were suddenly deserted on the Mahomedan conquest, never, apparently, to be re-occupied, many of the houses remain perfectly entire to the present day, and in Northern Syria only the roofs are gone.
Generally they seem to have been two storeys in height, adorned with verandahs supported by stone columns, the upper having a solid screen-fence of stone about 3 ft. 6 in. high, intended apparently as 448much to secure privacy to the sleeping apartments of the house as protection against falling out. In some instances the lower storey is twice the height of the upper, and contained the state apartments of the house. In others, as in that at Refadi (Woodcut No. 320), it seems to have been intended for the offices. In the plan of a house at Moudjeleia (Woodcut No. 321) the principal block of the house is in two storeys, with portico on ground floor and verandah over. The buildings at the back with their courtyard were probably offices, and those in front by the side of the main entrance warehouses or stores.
320. Elevation of House at Refadi. (From De Vogüé.) Scale 20 ft. to 1 in.
In some instances one is startled to find details which we are accustomed to associate with much more modern dates; as, for instance, this window (Woodcut No. 322) from the palace at Chaqqa, which there seems no reason whatever for doubting belongs to the 3rd century—anterior to the time of Constantine! It looks more like the vagary of a French architect of the age of Francis I.
321. Plan of house at Moudjeleia.
322. Window at Chaqqa. (From De Vogüé.)
The building known as the Golden Gateway at Jerusalem and attributed to Justinian, bears in its details many striking resemblances to those of the 5th and 6th centuries in Central Syria, illustrated in De Vogüé’s book. It is situated on the east side of the Haram enclosure, and consists of a vestibule divided by columns into two 449aisles of three bays each vaulted with a cupola[231] carried on arches, between which and the capitals of the columns is found the Byzantine dosseret already referred to. Within the eastern doorways (said to have been blocked up by Omar) are two huge monoliths 14 ft. 6 in. and 11 ft. respectively, the doorposts of an earlier gateway. Externally, on the entrance fronts (east and west), the entablature of the pilasters is carried round the circular-headed doorways which they flank; the earliest instance of this development is found in the Palace of Diocletian at Spalato, and there is a second example in the Roman gateway to the Mosque of Damascus, which probably suggested the idea to the Byzantine builders; the sharp stiff foliage of Greek type 450with which the ornament is carved on the Golden Gate agrees in style and character with that in the church of St. Demetrius at Thessalonica dating from the commencement of the 6th century.
323. Interior of the Golden Gateway. (From a Drawing by Catherwood. Originally published in Fisher’s ‘Oriental Album.’)
Of similar style and character are the arch-moulds of the double gate on the south wall of the Haram, and the cupolas of the interior vestibule, the columns carrying them however being probably of earlier date and possibly part of the substructure of Herod’s temple. The surface decoration of these cupolas is similar to that found in Central Syria.
324. Golden Gateway (west side). (From a Photograph.)
The sepulchral remains of Syria, both structural and rock-cut, seem nearly as numerous as the dwellings of the living, and are full of interest, not only from their frequently bearing dates, but from their presenting new types of tombs, or old types in such new forms as scarcely to be recognizable.
325. Roof of one of the Compartments of the Gate Huldah. (From De Vogüé.)
The oldest example, that of Hamrath in Souideh, dates from the 1st century B.C., and consists of a tomb 28 ft. square decorated with semi-detached Doric columns; the roof is gone, but it was probably covered with one of pyramidal form like the tomb of Zechariah (Woodcut No. 238).
451The tomb of Diogenes at Hass (Woodcut No. 326), also square, consisted of two storeys, with a portico on the ground storey on one side, and a peristyle on all four sides of the upper storey, above which rose the central walls carrying a pyramidal roof, not stepped, as in the Mausoleum at Halicarnassus, but with projecting bosses on each stone. The same class of roof is found on other tombs, being adopted probably as the simplest method of covering over the tomb; these tombs date from the 4th and 5th centuries, and in all cases the sepulchral chambers within them are vaulted with large slabs of stone carried on stone ribs.
326. Tomb at Hass
Besides these, there is another class of tomb apparently very numerous, in which the sepulchral chamber is below the ground, with vaulted entrance rising to form a podium on which columns either two or four in number are erected;[232] in the latter case the columns bearing an entablature with small pyramidal roof; in the former a fragment of architrave only, the two columns being sometimes tied together one-third of the way down by a stone band with dentils carved on it: these tombs are, many of them, dated, and belong to the 2nd and 3rd centuries.
452With our present limits it is only possible to characterize generally the main features of the Byzantine style, and to indicate the sources from which further information may be obtained. In the present instance it is satisfactory to find that ample materials now exist for filling up a framework which a few years ago was almost entirely a blank. Any one who will master the works of De Vogüé, or Texier, or Salzenberg, and other minor publications, may easily acquire a fair knowledge of the older Byzantine style of architecture. Once it is grasped it will probably be acknowledged that there are few more interesting chapters than that which explains how a perfect Christian Church like that of Sta. Sophia was elaborated out of the classical edifices of ancient Rome. It will also probably be found that there are few more instructive lessons to be learnt from the study of architectural history than the tracing of the various contrivances which were so earnestly employed, during the first two centuries of Christian supremacy, in attaining this result.
Sta. Irene, Constantinople—Churches at Ancyra, Trabala, and Constantinople—Churches at Thessalonica and in Greece—Domestic Architecture.
Santa Sophia at Constantinople was not only the grandest and most perfect creation of the old school of Byzantine art, but it was also the last. It seems as if the creative power of the Empire had exhausted itself in that great effort, and for long after it the history is a blank. We always knew that the two centuries which elapsed between the ages of Constantine and Justinian were ages of great architectural activity. We knew that hundreds, it may be thousands, of churches were erected during that period. With the two subsequent centuries, however, the case seems widely different. Shortly after Justinian’s death, the troubles of the Empire, the Persian wars of Heraclius, and, more than either, the rise of the Mahomedan power in the East, and of the Roman pontificate under Gregory the Great in the West—all tended so to disturb and depress the Byzantine kingdom as to leave little leisure and less means for the exercise of architectural magnificence. It is therefore hardly probable that we shall ever be in a position to illustrate the 7th and 8th centuries as we now know we can the 5th and 6th. Still, building must have gone on, because when we again meet the style, it is changed. One of the very earliest churches of the new school is that of Sta. Irene at Constantinople, rebuilt as we now find it by Leo the Isaurian (A.D. 718-740). It differs in several essential particulars from the old style, and contains the germ of much that we find frequently repeated. The change is not so great as might have taken place in two centuries of building activity, but it is considerable. In this church we find, apparently for the first 454time in a complete form, the new mode of introducing the light to the dome through a perpendicular drum, which afterwards became so universal that it serves to fix the age of a building in the East with almost as much certainty as the presence of a pointed arch does that of a building in the West. As this invention is so important, it may be well to recapitulate the steps by which it was arrived at.
327. Half Section, half Elevation, of Dome of Sta. Irene at Constantinople.
The oldest mode of lighting a dome is practised in the Pantheon (Woodcut No. 191), by simply leaving out the central portion. Artistically and mechanically nothing could be better, but before the invention of glass it was intolerably inconvenient whenever much rain or snow fell. A change therefore was necessary, and it is found in the tomb or temple of Marcellus, built during the reign of Constantine on the Via Prenestina at Rome. It consists simply of boring four circular holes through the dome a little above its springing. The next step is seen at Thessalonica in the church of St. George (Woodcut No. 305). There eight semi-circular lunettes are pierced in the dome, at its springing, and answer the purpose very perfectly. The system culminated in Sta. Sophia, where forty windows introduce a flood of light without its ever falling on the eyes of the spectator. After this it seems to have been considered desirable not to break the hemisphere of the dome, but to place the windows in a perpendicular circular rim of masonry—called the drum—and to introduce the light always through that. Externally there can be no doubt but that this was an improvement; it gave height and dignity to the dome in small churches, where, without this elevation, the feature would have been lost. Internally, however, the advantage is problematical: the separation of the dome from its pendentives destroyed the continuity of the roof, and introduced the stilted effect so objectionable in Renaissance domes. In the Neo-Byzantine churches the dome became practically a skylight on the roof, the drum increasing in height and the dome diminishing in dignity as the style progressed. As all the churches are small, the feature is unobjectionable; but in larger edifices it would have been found difficult to construct it, and the artistic result would hardly have been pleasing, even had this difficulty been got over. Be this as it may, its value as a chronometric landmark is undoubted.
As a rule it may generally be asserted that, in all Christian domes erected during the old Byzantine period, the light is introduced by openings in the dome itself.[233] After that time, the light is as generally 455admitted through windows in the drum, the dome itself being cut into only in the rarest possible instances.
328. St Clement, Ancyra. (From a Drawing by Ed. Falkener.)
329. Church of St. Clement, Ancyra. Scale 100 ft. to 1 in.
If these views are correct, the church of St. Clement at Ancyra is a transitional specimen subsequent to Sta. Sophia, because the dome is raised timidly (Woodcut No. 328) on a low drum pierced with four small windows; but it is anterior to Sta. Irene, because the dome is still pierced with twelve larger windows, after the manner of Sta. Sophia and the older churches. All the details of its architecture, in so far as they can be made out, bear out this description. They are further removed from the classical type than the churches of Justinian, and the whole plan (Woodcut No. 329) is more that which the Greek church afterwards took than any of the early churches show. Its greatest defect—though the one most generally inherent in the style—is in its dimensions. It is only 64 ft. long, over all externally, by 58 ft. wide. Yet this is a fair average size of a Greek church of that age.
Another church, very similar, is found at Myra, dedicated to St. Nicholas. It exceeds that of St. Clement in size, and has a double narthex considerably larger in proportion, but so ruined that it is difficult to make out its plan, or to ascertain whether it is a part of the original structure, or a subsequent addition. The cupola is raised on a drum, and altogether the church has the appearance of being much more modern than that at Ancyra.
A third church of the same class, and better preserved, is found at Trabala in Lycia. It is of the same type as St. Clement, and similar in its arrangements to Sta. Sophia, except in the omission of the semi-domes, which seem never to have been adopted in the provinces,[234] and indeed may be said to be peculiar to the metropolitan church. Notwithstanding the beauty of that feature, it appears to have remained dormant till revived by the Turks in Constantinople, and there alone.
In this example there are two detached octagonal buildings, either 456tombs or sacristies; a form which, except in large detached buildings, does not seem to have been so common as the circular, till after the time of Justinian.
330. Church at Trabala. Scale 100 ft. to 1 in.
Returning to the capital, we find one other remarkable peculiarity of the Neo-Byzantine style in the attempt to allow the external surface of an ordinary tunnel-vault to retain its form without any ridge whatever. It can hardly be doubted that this is artistically a mistake. With domes it was early felt to be so, and consequently we always find a flower or pinnacle in iron, or some such ornament, marking the centre. In this the Saracenic architects were especially successful—all their domes possess a central ornament sufficient to relieve them, and generally of the most beautiful proportions. With the extrados of a circular vault, however, it is even worse than with a dome. A roof is felt to be a contrivance to keep off the rain. It may be more or less sloping, according to the materials of which it is constructed; but to make one part of each ridge sloping, and the central portion flat, is a discord that offends the eye, besides looking weak and unmeaning. A pointed arch would avoid the evil, but a reverse or ogee curve is perhaps the most pleasing. In the Neo-Byzantine age, however, between the 8th and the 12th centuries, the eye seems to have got accustomed to it. It is common in the East, especially at Constantinople and at Venice. In St. Mark’s and elsewhere it became so familiar a form that it was copied and continued by the Renaissance architects even to the end of the 16th century.
331. Church of Moné tés Choras. (From Lenoir.) No scale.
One of the best illustrations of these peculiarities is the church of Moné tés Choras at Constantinople, now converted into a mosque and called Kahriyeh Djamisi. The older part of it seems to belong to the 11th century, the side-aisles to the 12th, and though small, it illustrates the style perfectly. The porch consists of five arches covered with an intersecting vault, visible both externally and internally. The last two bays are covered with cupolas which still retain their mosaics internally, and those of singular beauty and brilliancy, though, owing to the constructive 457defects of the intermediate parts, the wet has leaked through, and the mosaics have mostly peeled off. Externally the front is ornamented with courses of stones alternating with two or three layers of tiles, and even in its ruined state is effective and picturesque. Its principal interest is that it shows what was the matrix[235] of the contemporary church of St. Mark at Venice. Subsequent additions have much modified the external appearance of St. Mark, but there can be very little doubt that originally it was intended to be very like the façade shown in Woodcut No. 331.
Not far from Moné tés Choras there are two other churches of the same class and of about the same age. One, the Pantokrator, has been added to at various times so as to cover a large space of ground, but it consists consequently of small and ill-assorted parts. It retains, however, a good deal of its marble pavements and other features of interest. The other, known as the Fethîyeh Djamisi, is smaller and more complete, and possesses some mosaics of considerable beauty.
332. Plan of the Theotokos. Scale 100 ft. to 1 in.
333. Elevation of Church of the Theotokos. (From Lenoir, ‘Architecture Monastique.’) Enlarged scale.
The best example of its class, however, in Constantinople is that known as the Theotokos. Like those just mentioned it is very small, 458the church itself being only 37 ft. by 45, and, though its double narthex and lateral adjuncts add considerably to its dimensions, it is still only a very small church. Some parts of it are as old as the 9th or 10th century, but the façade represented in Woodcut No. 333 is certainly not older than the 12th century. Taking it altogether, it is perhaps the most complete and elegant church of its class now known to exist in or near the capital, and many of its details are of great beauty and perfection.
It seems scarcely possible to suppose that the meagre half-dozen of small churches just enumerated are all that were erected in the capital between the death of Justinian and the fall of the city. Yet there is no evidence that the Turks destroyed any. Why should they? They converted them into mosques, finding them especially convenient for that purpose, and they have maintained them with singularly little alteration to the present day.
This deficiency of examples in the capital is to some extent supplied by those which are found existing at Thessalonica. Three churches belonging to this age are illustrated in Texier and Pullan’s work.
334. Apse of Church of the Apostles, Thessalonica. (From Texier and Pullan.)
The first of these is the church of Kazandjita Djami, dedicated to the Mother of God, a small church measuring only 53 ft. by 37, exclusive of the apse. Its date is perfectly ascertained—viz., 1028.
459Next to these comes the church of Elias, A.D. 1054, and very similar to it in style is that of the Apostles (Woodcut No. 334), which we may consequently date with safety in the 11th century, from this juxtaposition alone, though there are several other examples which enable us to treat it as a characteristic type of the age. It is a pleasing and picturesque specimen of Byzantine brickwork. Like all the churches of the time, it is small, 63 ft. by 59 externally. In plan it very much resembles the Theotokos at Constantinople, but in elevation is taller and thinner; though whether this arises from any local peculiarity, or from some difference of age, is not clear. I suspect the former. The earthquakes of the capital may have induced a less ambitious form, as far as height is concerned, than was adopted in the provinces.
335. Catholicon Dochiariu.
There can be little doubt but that, if a systematic search were made among the churches of Greece, many would be brought to light which would be most useful in completing our knowledge of the Neo-Byzantine style.[236] At Mount Athos there exists from twenty to thirty monasteries, each with its Catholicon or principal church and other chapels. Many of these are of ancient date, ranging between the 10th and 16th centuries, and although some of them may have been restored, in some cases rebuilt in later times, they have not yet been examined or illustrated by any competent architect. Brockhaus in his work[237] gives the plan of three churches, one of which, the Catholicon (dated 1043) of the Dochiariu Monastery (Woodcut No. 335), is further illustrated by a bird’s-eye view taken from a photograph. The domes and drums over the narthex and two eastern chapels would seem to be later additions, made either in consequence of the proximity of the buildings of the monastery which obscured the light obtainable from windows, or to show better the wall frescoes, which in the case of the narthex, where no windows ever existed, must have been quite dark at first. The oldest church (963 A.D.) apparently is that of the Protaton at Caryas, which consists of a short nave, a transept, and a long choir, and is wanting in that one feature which is supposed to be characteristic of a Byzantine church, viz., a dome; the whole building is covered like a basilica with a flat wooden roof, beneath which are 460clerestory windows. Photogravures or woodcuts are given of the churches of Chilandari (1197 A.D.), Xeropotamu (1028-34 A.D.), the Laura (963 A.D., but rebuilt under Turkish rule), and woodcuts from photographs in an interesting description of the Monasteries by Mr. A. Riley,[238] give a good general idea of the work to be found in Athos, from which it would seem that the chief interest centres in the sumptuous carvings of the icon and stalls,[239] and in the frescoes with which most of the interiors of the churches are painted.
336. Plan of Panagia Lycodemo. Scale 100 ft. to 1 in.
337. Church of Panagia Lycodemo. (From A. Lenoir.) Enlarged scale.
For Greece proper we are dependent almost wholly on Couchaud[240] and Blouet.[241] So far as the illustrations go they suggest that there are no churches of such dimensions as would ensure dignity, nor are any so beautiful in outline or detail as to make us regret much that we do not know more about them. Still they are sufficiently original to be worthy of study, and when properly known may help to join together some of the scattered links of the chain 461which once connected the architecture of the West and East, but which is at present so difficult to follow out.
In Athens there are several churches of considerable interest, and not without architectural pretension. They are all small, however. The largest is that known as Panagia Lycodemo, or the church of St. Nicodemus, and is only 62 ft. long by 45 ft. wide over all. It seems also to be the oldest, since its dome is partially pierced with windows inside, though outside there is a distinctly marked drum (Woodcut No. 337). Notwithstanding the smallness of its dimensions, considerable effect is obtained internally by the judicious arrangement of the parts and the harmony of proportion which reigns throughout. The exterior is also pleasing, though the loss of the cornice gives an unfinished look to the whole, and there is a want of sufficient connection between the dome and the walls of the building to make them part of one composition.
338. Cathedral at Athens. (From Gailhabaud.)
A more beautiful and more interesting example is the church known as the Catholicon or Cathedral at Athens (Woodcut No. 338). It is a cathedral, however, only in a Greek sense, certainly not as understood in the Latin Church, for its dimensions are only 40 ft. by 25 over all externally. It is almost impossible to judge of its age from its details, since they are partly borrowed from older classical buildings, or imitations of classical forms, so fashioned as to harmonize with parts which are old. But the tallness of its dome, the form of its windows, 462and the internal arrangements, all point to a very modern date for its erection—as probably the 13th century as the 11th or 12th.
The church of the Virgin at Mistra in the Peloponnesus was built in the 13th century on a hillside overlooking the plain of Sparta, and partly with materials taken from the remains of the ancient city; but though it belongs possibly to the same age as the Catholicon at Athens, it differs considerably from it in style, and bears much more resemblance to the churches of Apulia and Sicily than either of those described above.
339. Plan of Church at Mistra. Scale 100 ft. to 1 in.
340. Church at Mistra. (From Couchaud, ‘Églises Byzantines en Grèce.’) Enlarged scale.
Where arcades are used externally in these Greek churches, they are generally supported by pillars of somewhat classical look (often old classic columns and capitals were used up), crowned by capitals of the square foliaged form, employed to support arches in the early styles all over Europe; and the windows, when divided, take merely the form of diminutive arcades. The Byzantines never attained to tracery; all their early windows are single round-headed openings. These were afterwards grouped together in threes and fives; and, as in the Gothic style, when they could be put under one discharging arch, the piers 463were attenuated till they became almost mullions, but always supporting constructive arches, without any tendency to run into interlacing forms like the Gothic. The universal employment of mural painting in Byzantine churches, and the consequent exclusion of painted glass, rendered the use of the large windows which the Gothic architects employed quite inadmissible; and in such a climate very much smaller openings sufficed to admit all the light that was required. Tracery would thus, in fact, have been an absurdity, and the windows were often filled in with transparent marble slabs pierced with holes, which were either glazed or occasionally even left open. The Byzantine architects sought to ornament their windows externally by the employment of tiles or colours disposed in various patterns, and often produced a very pleasing effect, as may be seen from the woodcut (No. 337) illustrating the apse of the Panagia Lycodemo at Athens, in the Hebdomon Palace (Woodcut No. 342), and other specimens already quoted.
341. Apse from Mistra. (From Couchaud.)
Occasionally we find in these churches projecting porches or balconies, and machicolations, which give great relief to the general flatness of the walls. These features are all marked with that elegance peculiar to the East, and more especially to a people claiming descent from the ancient Greeks, and possibly having some of their blood in their veins. Sometimes, too, even a subordinate apse is supported on a bracket-like balcony, so as to form a very pleasing object, as in the accompanying specimen from Mistra.
On the whole the Neo-Byzantine style may be said to be characterised by considerable elegance, with occasional combinations of a superior order; but after the time of Justinian the country was too deficient in unity or science to attempt anything great or good, and too poor to aspire to grandeur, so that it has no claim to rank among the great styles of the earth.[242] The old Byzantine style was elevated to a first-class position through the buildings of Justinian; but from his time the history of the art is a history of decline, like that of the Eastern Empire itself and of Greece, down to the final extinction both of the Empire and the style, under the successive 464conquests by the Venetians and the Turks. The only special claim which the Neo-Byzantine style makes upon our sympathies or attention is that of being the direct descendant of Greek and Roman art. As such, it forms a connecting link between the past and present which must not be overlooked, while in itself it has sufficient merit to reward the student who shall apply himself to its elucidation.
342. Palace of the Hebdomon, Constantinople.
It is more than probable that very considerable remains of the civil or domestic architecture of the Neo-Byzantine period may still be recovered. Most of their palaces or public buildings have continued to be occupied by their successors, but the habits of Turkish life are singularly opposed to the prying of the archæologist. Almost the only building which has been brought to light and illustrated is the palace of the Hebdomon at Blachernæ in Constantinople, built by 465Constantine Porphyrogenitus (913-949). All that remains of it, however, is a block of buildings 80 ft. by 40 in plan, forming one end of a courtyard; those at the other end, which were more extensive, being too much ruined to be restored. The parts that remain probably belong to the 9th century, and consist of two halls, one over the other, the lower supported by pillars carrying vaults, the upper free. The façade towards the court (Woodcut 342) is of considerable elegance, being adorned by a mosaic of bricks of various colours disposed in graceful patterns, and forming an architectural decoration which, if not of the highest class, is very appropriate for domestic architecture.
One great cause of the deficiency of examples may be the combustibility of the capital. They may have been destroyed in the various fires, and outside Constantinople the number of large cities and their wealth and importance was gradually decreasing till the capital itself sunk into the power of the Turks in the year 1453.
Churches at Dighour, Usunlar, Pitzounda, Bedochwinta, Mokwi, Etchmiasdin, and Kouthais—Churches at Ani and Samthawis—Details.
| Dates. | |
| Tiridates converted to Christianity by Gregory II. | A.D. 276 |
| St. Gregory confirmed as Pontiff by Pope Sylvester | 319 |
| Christianity proscribed and persecuted by the Persians | 428-632 |
| Fall of Sassanide dynasty. | 632 |
| Establishment of Bagratide dynasty under Ashdod | 859 |
| Greatest prosperity under Apas | 928 |
| Ashdod III. | 951 |
| Sempad II. | 977-989 |
| Alp Arslan takes Ani | 1064 |
| Gajih, last of the dynasty, slain | 1079 |
| Gengis Khan | 1222 |
The architectural province of Armenia forms an almost exact pendant to that of Greece in the history of Byzantine architecture. Both were early converted to Christianity, and Greece remained Christian without any interruption from that time to this. Yet all her earlier churches have perished, we hardly know why, and left us nothing but an essentially Mediæval style. Nearly the same thing happened in Armenia, but there the loss is only too easily accounted for. The Persian persecution in the 5th and 6th centuries must have been severe and lasting, and the great bouleversement of the Mahomedan irruption in the 7th century would easily account for the disappearance of all the earlier monuments. When, in more tranquil times—in the 8th and 9th centuries—the Christians were permitted to rebuild their churches, we find them all of the same small type as those of Greece, with tall domes, painted with frescoes internally, and depending for external effect far more on minute elaboration of details than on any grandeur of design or proportion.
Although the troubles and persecutions from the 5th to the 8th century may have caused the destruction of the greater part of the monuments, it by no means follows that all have perished. On the contrary, we know of the church above alluded to (p. 428) as still existing at Nisibin and belonging to the 4th century, and there can be little doubt that many others exist in various corners of the land; 467but they have hardly yet been looked for, at least not by anyone competent to discriminate between what was really old and what may have belonged to some subsequent rebuilding or repair.
343. View of Church at Dighour. (From Texier.)
Till this more careful examination of the province shall have been accomplished, our history of the style cannot be carried back beyond the Hejira. Even then very great difficulty exists in arranging the materials, and in assigning correct dates to the various examples. In the works of Texier,[243] Dubois,[244] Brosset,[245] and Grimm[246] some forty or fifty churches are described and figured in more or less detail, but in most cases the dates assigned to them are derived from written testimony only, the authors not having sufficient knowledge of the style to be 468able to check the very fallacious evidence of the litera scripta. In consequence of this, the dates usually given are those of the building of the first church on the spot, whereas, in a country so troubled by persecution as Armenia, the original church may have been rebuilt several times, and what we now see is often very modern indeed.
344. Plan of Church at Dighour. (From Texier.) Scale 50 ft. to 1 in.
Among the churches now existing in Armenia, the oldest seems to be that in the village of Dighour near Ani. There are neither traditions nor inscriptions to assist in fixing its date; but, from the simplicity of its form and its quasi-classical details, it is evidently older than any other known examples, and with the aid of the information conveyed in De Vogüé’s recent publications we can have little hesitation in assigning it to the 7th century.[247] The church is not large, being only 95 ft. long by 82 wide over all. Internally its design is characterised by extreme solidity and simplicity, and all the details are singularly classical in outline. The dome is an ellipse, timidly constructed, with far more than the requisite amount of abutment. One of its most marked peculiarities is the existence of two external niches placed in projecting wings and which were no doubt intended to receive altars. Its flanks are ornamented by three-quarter columns of debased classical design. These support an architrave which is bent over the heads of the windows as in the churches of Northern Syria erected during the 6th century.
345. Section of Dome at Dighour.
Its western and lateral doorways are ornamented by horse-shoe arches, which are worth remarking here, as it is a feature which the Saracenic architects used so currently and employed for almost every class of opening. The oldest example of this form known is in the doorway of the building called Takt-i-Gero on Mount Zagros.[248] In this little shrine, all the other details are so purely and essentially classic that the building must be dated before or about the time of Constantine. The horse-shoe arch again occurs in the church at 469Dana on the Euphrates in 540.[249] At Dighour we find it used, not in construction but as an ornamental feature. The stilting of the arch was evidently one of those experiments which the architects of that time were making in order to free themselves from the trammels of the Roman semi-circular arch. The Saracens carried it much further and used it with marked success, but this is probably the last occasion in which it was employed by a Christian architect as a decorative expedient.
The six buttresses, with their offsets, which adorn the façade, are another curious feature in the archæology of this church. If they are integral parts of the original design, which there seems no reason to doubt, they anticipate by several centuries the appearance of this form in Western Europe.
346. Plan of Church at Usunlar. (From Grimm.) Scale 50 ft. to 1 in.
347. West Elevation of Church at Usunlar. (From Grimm.) Scale 50 ft. to 1 in.
348. Plan of Church at Pitzounda. Scale 100 ft. to 1 in.
One of the oldest and least altered of the Armenian churches seems to be that of Usunlar, said to have been erected by the Catholicos Jean IV. between the years 718 and 726. In plan it looks like a peristylar temple, but the verandahs which surround it are only low arcades, and have very little affinity with classical forms. These are carried round the front, but there pierced only by the doorway. The elevation, as here exhibited, is simple, but sufficiently expresses the internal arrangements, and, with an octagonal dome, forms, when seen in perspective, a pleasing object from every point of view. Both plan and design are, however, exceptional in the province. A far more usual arrangement is that found at Pitzounda in Abkassia, which may be considered as the typical form of an Armenian church. It is said to have been erected by the Emperor Justinian, and there is nothing in the style or ornamentation of the lower part that seems to gainsay its being his. But the plan is so like many that belong to a much later age, 470that we must hesitate before we can feel sure that it has not been rebuilt at some more modern date. Its cupola certainly belongs to a period long after the erection of Sta. Irene at Constantinople (Woodcut No. 327), when the dome pierced with tall windows had become the fashionable form of dome in the Byzantine school. Its interior, also, is unusually tall, and the pointed arches under the dome look like integral parts of the design, and when so employed belong certainly to a much more modern date. On the whole, therefore, it seems that this church, as we now see it, may have been rebuilt in the 9th or 10th century.
349. Section of Church at Pitzounda. (From Dubois.) No scale.
350. View of Church at Pitzounda. (From Dubois.)
Whatever its date, it is a pleasing example of the style. Externally it is devoid of ornament except what is obtained by the insertion of 471tiles between the courses of the stone, and a similar relief to the windows; but even this little introduction of colour gives it a gay and cheerful appearance, more than could easily be obtained by mouldings or carving in stone.
The upper galleries of the nave and the chapels of the choir are also well expressed in the external design, and altogether, for a small church—which it is (only 137 ft. by 75)—it is as pleasing a composition as could easily be found.
The idea that the date of this church is considerably more modern than Dubois and others are inclined to assign to it, is confirmed by a comparison of its plan with that at Bedochwinta, which Brosset determines from inscriptions to belong to the date 1556-1575; and the knowledge lately acquired tends strongly to the conviction that this plan of church belongs to a later period in the Middle Ages, though it is difficult to determine when it was introduced, and it may be only a continuation of a much earlier form.
351. Church at Bedochwinta. (From Brosset.) Scale 100 ft. to 1 in.
One other church of this part of the world seems to claim especial mention, that of Mokwi, built in the 10th century, and painted as we learn from inscriptions, between 1080 and 1125. It is a large and handsome church, but its principal interest lies in the fact that in dimensions and arrangement it is almost identical with the contemporaneous church of Sta. Sophia at Novogorod, showing a connection between the two countries which will be more particularly pointed out hereafter. It is now very much ruined, and covered with a veil of creepers which prevents its outward form from being easily distinguished.
352. Plan of Church at Mokwi. Scale 100 feet to 1 in.[250]
As will be perceived, its plan is only an extension of the two last mentioned, having five aisles instead of three; but it is smaller in scale and more timid in execution. The church which it most resembles is that at Trabala in Syria (Woodcut No. 330), which is certainly of an earlier date than any we are acquainted with further east. Practically the same plan occurs at Athens (Woodcut No. 338), and at Mistra (Woodcut No. 339), but these seem on a smaller scale than at Mokwi, so that it may be considered as the typical form of a Neo-Byzantine church for four or five centuries, and it would consequently 472be unsafe to attempt to fix a date from its peculiarities.
353. Plan of Church at Etchmiasdin. (From Brosset.) Scale 100 ft. to 1 in.
354. Church of Kouthais. (From Dubois.) Scale 100 ft. to 1 in.
Interesting as these may be in an historical point of view, the most important ecclesiastical establishment in this part of the world is that of Etchmiasdin. Here are four churches built on the spots from which, according to tradition, rose the two arches or rainbows, crossing one another at right angles, on which our Saviour is said to have sat when he appeared to St. Gregory. They consequently ought to be at the four angles of a square, or rectangle of some sort, but this is far from being the case. The principal of these churches is that whose plan is represented in Woodcut No. 353. It stands in the centre of a large square, surrounded by ecclesiastical buildings, and is on the whole rather an imposing edifice. Its porch is modern; so also, comparatively speaking, is its dome; but the plan, if not the greater part of the substructure, is ancient, and exhibits the plainness and simplicity characteristic of its age. The other three churches lay claim to as remote a date of foundation as this, but all have been so altered in modern times that they have now no title to antiquity.
355. Window at Kouthais. (From Dubois.)
The idea that the churches at Pitzounda and Bedochwinta must be comparatively modern is confirmed by comparing their plan with that of Kouthais, a church which there seems no reasonable ground for doubting 473was founded in 1007, and erected, pretty much as we now find it, in the early part of the 11th century. It has neither coupled piers nor pointed arches, but is adorned externally with reed-like pilasters and elaborate frets, such as were certainly employed at Ani in the course of the 11th century. The annexed elevation (Woodcut No. 355) of one of its windows exhibits the Armenian style of decoration of this age, but is such as certainly was not employed before this time, though with various modifications it became typical of the style at its period of greatest development.
356. Plan of Cathedral at Ani. (From Texier.) Scale 100 ft. to 1 in.
357. Section of Cathedral at Ani. Scale 50 ft. to 1 in.
Even Etchmiasdin, however, sinks into insignificance, in an architectural point of view, when compared with Ani, which was the capital of Armenia during its period of greatest unity and elevation, and was adorned by the Bagratide dynasty with a series of buildings which still strike the traveller with admiration, at least for the beauty of their details; for, like all churches in this part of the world, they are very small. If, however, the cathedral at Ani is interesting to the architect from its style, it is still more so to the archæologist from its date, since there seems no reason to doubt that it was built in the year 1010, as recorded in an inscription on its walls. This, perhaps, might be put on one side as a mistake, if it were not that there are two beautiful inscriptions on the façade, one of which is dated 1049, the other 1059. To this we must add our knowledge that the city was sacked by Alp Arslan in 1064, and that the dynasty which alone could erect such a monument was extinguished in 1080. With all this evidence, it is startling to find a church not only with pointed arches but with coupled piers and all the characteristics of a complete pointed-arch style, such as might be found in Italy or Sicily not earlier than the 13th century. This peculiarity is, 474however, confined to the constructive parts of the interior. The plan is that of Pitzounda or Bedochwinta, modified only by the superior constructive arrangement which the pointed arch enabled the architects to introduce; and externally the only pointed arch anywhere to be detected, is in the transept, where the arch of the vault is simulated to pass through to the exterior.
358. Side Elevation of Cathedral at Ani. Enlarged scale.
In the plan and elevation of the building will be observed a peculiarity which was afterwards almost universal in the style. It is the angular recess which marks the form of the apses outside without breaking the main lines of the building. In the lateral elevation of this cathedral (Woodcut No. 358) they are introduced on each side of the portal where the construction did not require them, in order to match those at the east end. But in the Cathedral at Samthawis (Woodcut No. 359) they are seen in their proper places on each side of the central apse. Though this church was erected between the years 1050-1079, we find these niches adorned with a foliation (Woodcut No. 360) very like what we are accustomed to consider the invention of the 14th century in Europe, though even more elegant than anything of its class used by the Gothic architects.
475At Sandjerli, not far from Ani, is another church, which from inscriptions translated by M. Brosset, and from sections given by him, appears to belong to the same date (1033-1044), and to possess coupled columns and pointed arches like those of the cathedral of Ani, which indeed it resembles in many points, and which renders the date above given highly probable.
359. East Elevation of Chapel at Samthawis. (From Grimm.)
360. Niche at Samthawis. (From Grimm.)
361. Plan of Tomb at Ani. (From Texier.) 362. Tomb at Ani. (From Texier.)
The plans above quoted may probably be taken as those most typical of the style, but in no part of the world are the arrangements 476of churches so various. All being small, there were no constructive difficulties to be encountered, and as no congregation was to be accommodated, the architects apparently considered themselves at liberty to follow their fancies in any manner that occurred to them. The consequence is that the plans of Armenian churches defy classification; some are square, or rectangles of every conceivable proportion of length to breadth, some octagons or hexagons, and some of the most indescribable irregularity. Frequently two, three, or four are grouped and joined together. In some instances the sacred number of seven are coupled together in one design, though more generally each little church is an independent erection; but they are all so small that their plans are of comparatively little importance. No grandeur of effect or poetry of perspective can be obtained without considerable dimensions, and these are not to be found in Armenia.
363. Tomb at Varzahan. (From Layard’s ‘Nineveh and Babylon.’)
There are also some examples of circular churches, but these are far from being numerous. Generally speaking they are tombs, or connected with sepulchral rites, and are indeed mere amplifications of the usual tombs of the natives of the country, which are generally 477little models of the domes of Armenian churches placed on the ground, though perhaps it would be more correct to say that the domes were copied from the tombs than the reverse.
The most elegant of all those hitherto made known is one found at Ani, illustrated in Woodcuts Nos. 361, 362. Notwithstanding the smallness of its dimensions, it is one of the most elegant sepulchral chapels known.
Another on a larger scale (Woodcut No. 363) is borrowed from Mr. Layard’s book. This tomb shows all the peculiarities of the Armenian style of the 11th or 12th century. Though so much larger, it is by no means so beautiful as the last mentioned tomb at Ani. In its ornamentation a further refinement is introduced, inasmuch as the reed-like columns are tied together by true love-knots instead of capitals—a freak not uncommon either in Europe at the same age, or in the East at the present day, but by no means to be recommended as an architectural expedient.
364. Capital at Ani. (From Grimm.)
365. Capital at Gelathi. (From Grimm.)
With scarcely an exception, all the buildings in the Armenian provinces are so small that they would hardly deserve a place in a history of architecture were it not for the ingenuity of their plans and the elegance of their details. The beauty of the latter is so remarkable that, in order to convey a correct notion of the style, it would be necessary to illustrate them to an extent incompatible with the scope of this work. In them too will be found much that has hitherto been ascribed to other sources. The annexed capital (Woodcut No. 364), for instance, would generally be put down as Saracenic of the best age, but it belongs, with a great deal more quite as elegant, to one of the churches at Ani; and the capital from Gelathi (Woodcut No. 365) would not excite attention if found in Ireland. The interlacing scrolls 478which occupy its head are one of the most usual as well as one of the most elegant modes of decoration employed in the province, and are applied with a variety and complexity nowhere else found in stone, though they may be equalled in some works illustrated by the pen.
479Besides, however, its beauty in an artistic point of view, this basket pattern, as it is sometimes called, is still more so as an Ethnographic indication which, when properly investigated, may lead to the most important conclusions. The three following woodcuts, Nos. 366, 367, and 368, taken from churches at a now deserted village called Ish Khan, will serve to explain its more usual forms; but it occurs almost everywhere in the Armenian architectural province, and with as infinite a variety of details as are to be found with its employment in Irish manuscripts.
366. Window in small Church at Ish Khan, Tortoom. (From a Photograph.)
367. Window in Ish Khan Church, Tortoom. (From a Photograph.)
368. Jamb of doorway at Ish Khan Church, Armenia. (From a Photograph.)
Out of Armenia it occurs in the church at Kurtea el Argyisch in Wallachia (Woodcut No. 385), and is found in Hungary and Styria, and no antiquary will probably fail to recognise it as the most usual and beautiful pattern on Irish crosses and Scotch sculptured stones. On the other hand it occurs frequently in the monolithic deepdans or lamp-posts and in the temples on the Canarese or West Coast of India, and in all these instances with so little change of form that it is almost impossible that these examples should be independent inventions. Still the gaps in the sequence are so great that it is very difficult to see how they could emanate from one centre. Few, however, who know anything of the early architecture of Ireland can fancy that it did come from Rome across Great Britain, but that it must have had its origin further east, among some people using groups of churches and small cells, instead of congregational basilicas. So far, too, as we can yet see, it is to the East we must look for the original design of the mysterious round towers which form so characteristic a feature of Irish architecture, and were afterwards so conspicuous as minars in the East, and nowhere more so than in Armenia. Recent researches, too, are making it more and more clear that Nestorian churches did exist all down the West Coast of India from a very early period, so that it would not be impossible that from Persia and Armenia they introduced the favourite style of ornament.
All this may seem idle speculation, and it may turn out that the 480similarities are accidental, but at present it certainly does not look as if they were, and if they do emanate from a common centre, tracing them back to their original may lead to such curious ethnological and historical conclusions that it is at all events worth while pointing them out in order that others may pursue the investigation to its legitimate conclusion.
Taken altogether, Armenian architecture is far more remarkable for elegance than for grandeur, and possesses none of that greatness of conception or beauty of outline essential to an important architectural style. It is still worthy of more attention than it has hitherto received, even for its own sake. Its great title to interest will always be its ethnological value, being the direct descendant of the Sassanian style, and the immediate parent of that of Russia. At the same time, standing on the eastern confines of the Byzantine Empire, it received thence that impress of Christian art which distinguished it from the former, and which it transmitted to the latter. It thus forms one of those important links in the chain of architectural history which when lost render the study of the subject so dark and perplexed, but when appreciated add so immensely to its philosophical interest.
Churches at Tchekerman, Inkerman, and Sebastopol—Excavations at Kieghart and Vardzie.
Intermediate between the Armenian province which has just been described and the Russian, which comes next in the series, lies a territory of more than usual interest to the archæologist, though hardly demanding more than a passing notice in a work devoted to architecture. In the neighbourhood of Kertch, which was originally colonised by a people of Grecian or Pelasgic origin, are found numerous tumuli and sepulchres belonging generally to the best age of Greek art, but which, barring some slight local peculiarities, would hardly seem out of place in the cemeteries of Etruria or Crete.
At a later age it was from the shores of the Palus Mœotis and the Caucasus that tradition makes Woden migrate to Scandinavia, bearing with him that form of Buddhism[251] which down to the 11th century remained the religion of the North—while, as if to mark the presence of some strange people in the land, we find everywhere rock-cut excavations of a character, to say the least of it, very unusual in the West.
These have not yet been examined with the care necessary to enable us to speak very positively regarding them;[252] but, from what we do know, it seems that they were not in any instance tombs, like those in Italy and many of those in Africa or Syria. Nor can we positively assert that any of them were viharas or monasteries[253] like most of those in India. Generally they seem to have been ordinary 482dwellings, but in some instances appropriated by the Christians and formed into churches.
369. Cave of Inkerman. (From Dubois de Montpereux.)
One, apparently, of the oldest is a rectangular excavation at Tchekerman in the Crimea. It is 37 ft. in length by 21 in width, with hardly any decoration on its walls, but having in the centre a choir with four pillars on each face, which there seems no doubt was originally devoted to Christian purposes. The cross on the low screen that separates it from the nave is too deeply cut and too evidently integral to have been added. But for this it would seem to have been intended for a Buddhist vihara.
370. Rock-cut Church at Inkerman. (From Dubois de Montpereux.)
Under the fortress at Inkerman—facing the position held by our army—there is an excavation undoubtedly of Christian origin. It is a small church with side-aisles, apse, and all the necessary accompaniments. Beyond this is a square excavation apparently intended as a refectory, and other apartments devoted to the use of a monastic establishment. These again are so like what we find among the Buddhist excavations in India as to be quite startling. The one point in which this church differs from a Buddhist chaitya is that the aisle does not run round behind the altar. This is universally the case in Buddhist, but only exceptionally so in Christian, churches.
371. View in Church Cave, near Sebastopol.
483Close to Sebastopol is another small church cave with its accompanying monastery. This one is said to be comparatively modern, and if its paintings are parts of the original design it may be so, but no certain data are given for fixing the age of the last two examples. That under the fortress (Woodcut No. 371) seems, however, to be of considerable antiquity.
There is one which in plan is very like those just described at Vardzie, said to belong to the 12th century, and another, almost absolutely identical with a Buddhist vihara, at Kieghart in Armenia, which has a date upon it, A.D. 1288.
On the banks of the Kour, however, at Ouplous-Tsikhe and Vardzie, are some excavations which are either temples or monasteries, and which range from the Christian era downwards. These are generally assumed to be residences—one is called the palace of Queen Thamar—and they were evidently intended for some stately purpose. Yet they were not temples in any sense in which that term would be employed by the Greek or Roman world. Whatever their destination, these rock-cut examples make, when taken altogether, as curious a group of monuments as are to be found in this corner of Asia, and which may lead afterwards to curious archæological inferences. At present we are hardly in a position to speculate on the subject, and merely point to it here as one well meriting further investigation.
| DATES. | |
| Rurik the Varangian at Novogorod | A.D. 850 |
| Olga baptized at Constantinople | 955 |
| St. Vladimir the Great | 981-1015 |
| Yaroslaf died | 1054 |
| Sack of Kief | 1168 |
| Tartar invasion under Gengis Khan | 1224 |
| Tartar wars and domination till | 1480 |
| Ivan III. | 1462-1505 |
| Basil III. | 1505-1533 |
| Ivan IV., or the Terrible | 1533-1584 |
| Boris | 1598-1605 |
| Peter the Great | 1689-1725 |
The long series of the architectural styles of the Christian world which has been described in the preceding pages terminates most appropriately with the description of the art of a people who had less knowledge of architecture and less appreciation of its beauties than any other with which we are acquainted. During the Middle Ages the Russians did not erect one single building which is worthy of admiration, either from its dimensions, its design, or the elegance of its details; nor did they invent one single architectural feature which can be called their own. It is true the Tartars brought with them their bulbous form of dome, and the Russians adopted it, and adhere to it to the present day, unconscious that it is the symbol of their subjection to a race they affect to despise; but excepting as regards this one feature, their architecture is only a bad and debased copy of the style of the Byzantine Empire. There is nothing, in fact, in the architecture of the country to lead us to doubt that the mass of the population of Russia was always of purely Aryan stock, speaking a language more nearly allied to the Sanskrit than any of the other Mediæval tongues of Europe, and that whatever amount of Tartar blood may have been imported, it was not sufficient to cure the inartistic tendencies of the race. So much is this felt to be the case, that the Russians themselves hardly lay claim to the design of a single building in their country from the earliest times to the present day. They admit that all the churches at Kief, their earliest capital, were erected by Greek architects; those of Moscow by Italians or 485Germans; while those of St. Petersburg, we know, were, with hardly a single exception, erected by Italian, German, or French architects. These last have perpetrated caricatures of revived Roman architecture worse than are to be found anywhere else. Bad as are some of the imitations of Roman art found in western Europe, they are all the work of native artists; are, partially at least, adapted to the climate, and common-sense peeps through their worst absurdities; but in Russia only second-class foreigners have been employed, and the result is a style that out-herods Herod in absurdity and bad taste. Architecture has languished not only in Russia, but wherever the Sclavonic race predominates. In Poland, Hungary, Moldavia, Wallachia, &c., although some of these countries have at times been rich and prosperous, there is not a single original structure worthy to be placed in comparison with even the second-class contemporary buildings of the Celtic or Teutonic races.
Besides the ethnographic inaptitude of the nation, however, there are other causes which would lead us to anticipate, à priori, that nothing either great or beautiful was likely to exist in the Mediæval architecture of Russia. In the first place, from the conversion of Olga (964) to the accession of Peter the Great (1689), with whom the national style expired, the country hardly emerged from barbarism. Torn by internal troubles, or devastated by incursions of the Tartars, the Russians never enjoyed the repose necessary for the development of art, and the country was too thinly peopled to admit of that concentration of men necessary for the carrying out of any great architectural undertaking.
Another cause of bad architecture is found in the material used, which is almost universally brick covered with plaster; and it is well known that the tendency of plaster architecture is constantly to extravagance in detail and bad taste in every form. It is also extremely perishable,—a fact which opens the way to repairs and alterations in defiance of congruity and taste, and to the utter annihilation of everything like archæological value in the building.
When the material was not brick it was wood, like most of the houses in Russia of the present day; and the destroying hand of time, aided no doubt by fire and the Tartar invasions, have swept away many buildings which would serve to fill up gaps, now, it is feared, irremediable in the history of the art.
Notwithstanding all this, the history of architecture in Russia need not be considered as entirely a blank, or as wholly devoid of interest. Locally we can follow the history of the style from the south to the north. Springing originally from two roots—one at Constantinople, the other in Armenia—it gradually extended itself northward. It first established itself at Cherson, then at Kief, and after these at Vladimir and Moscow, whence it spread to the great commercial city 486of Novogorod. At all these places it maintained itself till supplanted by the rise of St. Petersburg.
372. Church of St. Basil, Kief. Scale 100 ft. to 1 in.
Though the Princess Olga was baptised in 955, the general profession of Christianity in Russia did not take place till the reign of Vladimir (981-1015). He built the wooden cathedral at Cherson, which has perished. At Kief the same monarch built the church of Dessiatinnaya, the remains of which existed till within the last few years, when they were removed to give place to a modern reproduction. He also built that of St. Basil in the same city, which, notwithstanding modern improvements, still retains its ancient plan, and is nearly identical in arrangement and form with the Catholicon at Athens (Woodcut No. 338). The plan (Woodcut No. 372) gives a fair idea of the usual dimensions of the older churches of Russia. The parts shaded lighter are subsequent additions.
373. St. Irene, Kief.
A greater builder than Vladimir was Prince Yaroslaf (1019-1054). He founded the church of St. Irene at Kief (Woodcut No. 373), the ruins of which still exist. It is a good specimen of the smaller class of churches of that date.
His great works were the cathedrals of Kief and Novogorod, both dedicated to Sta. Sophia, and with the church at Mokwi quoted above (Woodcut No. 352) forming the most interesting group of Russian churches of that age. All three belong to the 11th century, and are so extremely similar in plan, that, deducting the subsequent additions from the two Russian examples, they may almost be said to be identical. They also show so intimate a connection between the places on the great commercial road from the Caucasus to the Baltic, that they point out at once the line along which we must look for the origin of the style.
374. Plan of Cathedral at Kief. Scale 100 ft. to 1 in.
Of the three, that at Kief[254] (Woodcut No. 374) is the largest; but it is nearly certain that the two outer aisles are subsequent additions, and that the original church was confined to the remaining seven aisles. 487As it now stands its dimensions are 185 ft. from north to south, and 136 from east to west. It consequently covers only about 25,000 ft., or not half the usual dimensions of a Western cathedral of the same class. As will be perceived, its plan is like that of the churches of Asia Minor, so far as the central aisles are concerned. In lateral extension it resembles a mosque, a form elsewhere very unusual in Christian churches, but which here may be a Tartar peculiarity. At all events it is generally found in Russian churches, which never adopt the long basilican form of the West. If their length in an eastern and western direction ever exceeds the breadth, it is only by taking in the narthex with the body of the church.
375. East End of the Church at Novogorod. (From a Drawing by A. Durand.)
Internally this church retains many of its original arrangements, and many decorations which, if not original, are at least restorations or copies of those which previously occupied their places. Externally 488it has been so repaired and rebuilt that it is difficult to detect what belongs to the original work.
In this respect the church of Novogorod has been more fortunate. Owing to the early decline of the town it has not been much modernised. The interior retains many of its primitive features. Among other furniture is a pair of bronze doors of Italian workmanship of the 12th century closely resembling those of San Zenone at Verona. The part of the exterior that retains most of its early features is the eastern end, represented in the Woodcut No. 375. It retains the long reed-like shafts which the Armenians borrowed from the Sassanians, and which penetrated even to this remote corner. Whether the two lower circular apses shown in the view are old is by no means clear: but it is probable that they are at least built on ancient foundations. The domes on the roof, and indeed all the upper part of the building, belong to a more modern date than the substructure.
The cathedral of Tchernigow, near Kief, founded 1024, retains perhaps more of its original appearance externally than any other church of its age. Like almost all Russian churches it is square in plan, with a dome in the centre surrounded by four smaller cupolas placed diagonally at the corners. To the eastward are three apses, and the narthex is flanked by two round towers, the upper parts of which, with the roofs, have been modernised, but the whole of the walls remain as originally erected, especially the end of the transept, which precisely resembles what we find in Greek Churches of the period.
376. Cathedral at Tchernigow. (From Blasius, ‘Reise in Russland.’)
To the same age belong the convent of the Volkof (1100) and of Yourief at Novogorod, the church of the Ascension, and several others at Kief. All these are so modernised as, except in their plans, to show but slight traces of their origin.
Another of the great buildings of the age was the cathedral of Vladimir (1046). It is said to have been built, like the rest, by Greek artists. The richness and beauty of this building have been celebrated by early travellers, but it has been entirely passed over 489by more modern writers. From this it is perhaps to be inferred that its ancient form is completely disguised in modern alterations.
The ascendency of Kief was of short duration. Early in the 13th century the city suffered greatly from civil wars, fires, and devastations of every description, which humbled her pride, and inflicted ruin upon her from which she never wholly recovered.
Vladimir was after this the residence of the grand dukes, and in the beginning of the 14th century Moscow became the capital, which it continued to be till the seat of empire was transferred by Peter the Great to St. Petersburg. During these three centuries Moscow was no doubt adorned with many important buildings, since almost every church traces its foundation back to the 14th century; but as fires and Tartar invasions have frequently swept over the city since then, few retain any of the features of their original foundation, and it may therefore perhaps be well to see what can be gleaned in the provinces before describing the buildings of the capital.
377. Village Church near Novogorod. (From a Drawing by A. Durand.)
As far as can be gathered from the sketch-books of travellers or their somewhat meagre notes, there are few towns of Russia of any importance during the Middle Ages which do not possess churches said to have been founded in the first centuries after its conversion to Christianity; though whether the existing buildings are the originals, or how far they may have been altered and modernised, will not be 490known till some archæologist visits the country, directing his attention to this particular inquiry. Although the Russians probably built as great a number of churches as any nation of Christendom, yet like the Greek churches they were all undoubtedly small. Kief is said, even in the age of Yaroslaf, to have contained 400 churches; Vladimir nearly as many. Moscow, in the year 1600, had 400 (thirty-seven of which were in the Kremlin), and now possesses many more.
Many of the village churches still retain their ancient features; the example here given of one near Novogorod belongs probably to the 12th century, and is not later than the 13th. It retains its shafted apse, its bulb-shaped Tartar dome, and, as is always the case in Russia, a square detached belfry—though in this instance apparently more modern than the edifice itself. Woodcut No. 378 is the type of a great number of the old village churches, which, like the houses of the peasants, are of wood, generally of logs laid one on the other, with their round ends intersecting at the angles, like the log-huts of America at the present day. As architectural objects they are of course insignificant, but still they are characteristic and picturesque.
378. Village Church near Tzarskoe Selo. (From Durand.)
Internally all the arrangements of the stone churches are such as are appropriate for pictorial rather than for sculptural decoration. The pillars are generally large cylinders covered with portraits of saints, and the capitals are plain, cushion-like rolls with painted ornaments. The vaults are not relieved by ribs, or by any projections that could interfere with the coloured decorations. In the wooden churches the construction is plainly shown, and of course is far lighter. In them also colour almost wholly supersedes carving. The peculiarities of these two styles are well illustrated in the two Woodcuts, Nos. 379 and 380, from churches near Kostroma in Eastern Russia. Both belong to the Middle Ages, and both are favourable specimens of their 491respective classes. In these examples, as indeed in every Greek church, the principal object of ecclesiastical furniture is the iconostasis or image-bearer, corresponding to the rood-screen that separates the choir from the nave in Latin churches. The rood-screen, however, never assumed in the West the importance which the iconostasis always possessed in the East. There it separates and hides from the church the sanctuary and the altar, from which the laity are wholly excluded. Within it the elements are consecrated, in the presence of the priests alone, and are then brought forward to be displayed to the public. On this screen, as performing so important a part, the Greek architects and artists have lavished the greatest amount of care and design, and in every Greek church, from St. Mark’s at Venice to the extreme confines of Russia, it is the object that first attracts attention on entering. It is, in fact, so important that it must be regarded rather as an object of architecture than of church furniture.
379. Interior of Church at Kostroma. (From Durand.)
The architectural details of these Russian churches must be pronounced to be bad; for, even making every allowance for difference of taste, there is neither beauty of form nor constructive elegance in any part. The most characteristic and pleasing features are the five domes that generally ornament the roofs, and which, when they rise from the extrados, or uncovered outside of the vaults, certainly look well. Too frequently, however, the vault is covered by a wooden roof, through which the domes then peer in a manner by no means to be admired. The details of the lower part are generally bad. The view (Woodcut No. 381) of a doorway of the Troitska monastery, near Moscow, is sufficiently characteristic. Its most remarkable feature is 492the baluster-like pillars, of which the Russians seem so fond. These support an arch with a pendant in the middle—a sort of architectural tour de force which the Russian architects practised everywhere and in every age, but which is far from being beautiful in itself, or from possessing any architectural propriety. The great roll over the door is also unpleasant. Indeed, as a general rule, wherever in Russian architecture the details are original, they must be condemned as ugly.
At Moscow we find much that is at all events curious. It first became a city of importance about the year 1304, and retained its prosperity throughout that century. During that time it was adorned by many sumptuous edifices. In the beginning of the 15th century it was taken and destroyed by the Tartars, and it was not till the reign of Ivan III. (1462-1505) that the city and empire recovered the disasters of that period. It is extremely doubtful if any edifice now found in Moscow can date before the time of this monarch.
380. Interior of Church near Kostroma. (From Durand.)
In the year 1479 this king dedicated the new church of the Assumption of the Virgin, said to have been built by Aristotile Fioravanti, of Bologna, in Italy, who was brought to Russia expressly for the purpose. The plan of it (Woodcut No. 382) gives a good idea of the arrangement of a Russian church of this age. Small as are its dimensions—only 74 ft. by 56 over all externally, which would be a very small parish church anywhere else—the two other cathedrals of Moscow, that of the Archangel Michael and the Annunciation, are even smaller still in plan. Like true Byzantine churches, they would all be exact squares, but that the narthex being taken into the church gives it a somewhat oblong form. In the Church of the Assumption there is, as 493is almost universally the case, one large dome over the centre of the square, and four smaller ones in the four angles.[255] The great iconostasis runs, as at Sta. Sophia at Kief, quite across the church; but the two lateral chapels have smaller screens inside which hide their altars, so that the part between the two becomes a sort of private chapel. This seems to be the plan of the greater number of the Russian churches of this age.
381. Doorway of the Troitzka Monastery, near Moscow.
382. Plan of the Church of the Assumption, Moscow.
383. Plan of the Church of St. Basil, Moscow.
384. View of the Church of Vassili Blanskenoy, Moscow.
But there is one church in Moscow, that of Vassili (St. Basil) Blajenny, which is certainly the most remarkable, as it is the most characteristic, of all the churches of Russia. It was built by Ivan the Terrible (1534-1584), and its architect was a foreigner, generally supposed to have come from the West, inasmuch as this monarch sent an embassy to Germany under one Schlit, to procure artists, of whom he is said to have collected 150 for his service. If, however, German workmen erected this building, it certainly was from Tartar designs. Nothing 494like it exists to the westward. It more resembles some Eastern pagoda of modern date than any European structure, and in fact must be considered as almost a pure Tartar building. Still, though strangely altered by time, most of its forms can be traced back to the Byzantine style, as certainly as the details of the cathedral of Cologne to the Romanesque. The central spire, for instance, is the form into which the Russians had during five centuries been gradually changing the straight-lined dome of the Armenians. The eight others are the Byzantine domes converted by degrees into the bulb-like forms which the Tartars practised at Agra and Delhi, as well as throughout Russia. The arrangement of these domes will be understood by the 495plan (Woodcut No. 383), which shows it to consist of one central octagon surrounded by eight smaller ones, raised on a platform ascended by two flights of stairs. Beneath the platform is a crypt. For the general appearance the reader must be referred to Woodcut No. 384, for words would fail to convey any idea of so bizarre and complicated a building. At the same time it must be imagined as painted with the most brilliant colours; its domes gilt, and relieved by blue, green, and red, and altogether a combination of as much barbarity as it is possible to bring together in so small a space. To crown the whole, according to the legend, Ivan ordered the eyes of the architect to be put out, lest he should ever surpass his own handiwork; and we may feel grateful that nothing so barbarous was afterwards attempted in Europe.
385. View of Church at Kurtea d’Argyisch. (From ‘Jahrbuch der Central Com.’)
386. Plan of Church at Kurtea d’Argyisch. Scale 50 ft. to 1 in.
387. Tower of Ivan Veliki, Moscow, with the Cathedrals of the Assumption and the Archangel Gabriel.
Though not strictly speaking in Russia itself, there is at Kurtea d’Argyisch, in Wallachia, 90 miles north-west 496from Bucharest, a church which is so remarkable, so typical of the style, that it cannot be passed over. It was erected in the first years of the 16th century (1517-1526) by a Prince Nyagon, and is, so far as is at present known, the most elaborate example of the style. All its ornamental details are identical with those found at Ani and other places in Armenia, but are used here in greater profusion and with better judgment than are to be found in any single example in that country. In outline it is not so wild as the Vassili Blanskenoy, but the interior is wholly sacrificed to the external effect, and no other example can well be quoted on which ornamental construction is carried to so great an extent, and generally speaking in such good taste. The twisted cupolas that flank the entrances might as well have been omitted, but the two central domes and the way the semi-domes are attached to them are quite unexceptionable, and altogether, 497with larger dimensions, and if a little more spread out, it would be difficult to find a more elegant exterior anywhere. As it is only 90 ft. long by 50 wide it is too small for architectural effect, but barring this it is the most elegant example of the Armeno-Russian or Neo-Byzantine architecture which is known to exist anywhere, and one of the most suggestive, if the Russians knew how to use it.[256]
388. Tower of Boris, Kremlin, Moscow.
Next in importance to the churches themselves are the belfries which always accompany them. The Russians seem never to have adopted separate baptisteries, nor did they affect any sepulchral magnificence in their tombs. From the time of Herodotus the Scythians were great casters of metal, and famous for their bells. The specimens of casting of this sort in Russia reduce all the great bells of Western Europe to comparative insignificance. It of course became necessary to provide places in which to hang these bells: and as nothing, either in Byzantine or Armenian architecture, afforded a hint for amalgamating the belfry with the church, they went to work in their own way, and constructed the towers wholly independent of the churches. Of all those in Russia, that of Ivan Veliki, erected by the Czar Boris, about the year 1600, is the finest. It is surmounted by a cross 18 ft. high, making a total height of 269 ft. from the ground to the top of the cross. It cannot 498be said to have any great beauty, either of form or detail: but it rises boldly from the ground, and towers over all the other buildings of the Kremlin. With this tower for its principal object, the whole mass of building is at least picturesque, if not architecturally beautiful. In the Woodcut (No. 388) the belfry is shown as it stood before it was blown up by the French. It has since been rebuilt, and with the cathedrals on either hand, makes up the best group in the Kremlin.
Besides the belfries, the walls of the Kremlin are adorned with towers, meant not merely for military defence, but as architectural ornaments, and reminding us somewhat of those described by Josephus as erected by Herod on the walls of Jerusalem. One of these towers (Woodcut No. 389), built by the same Czar Boris who erected that last described, is a good specimen of its class. It is one of the principal of those which give the walls of the Kremlin their peculiar and striking character.
389. Sacred Gate, Kremlin, Moscow.
These towers, however, are not peculiar to the Kremlin of Moscow. Every city in Russia had its Kremlin, as every one in Spain had its Alcazar, and all were adorned with walls deeply machicolated, and interspersed with towers. Within were enclosed five-domed churches and belfries, just as at Moscow, though on a scale proportionate to the importance of the city. It would be easy to select numerous illustrations of this. They are, however, all very much like one another, nor have they sufficient beauty to require us to dwell long on them. Their gateways, however, are frequently important. Every city had its porta sacra, deriving its importance either from some memorable event or from miracles said to 499have been wrought there, and being the triumphal gateways through which all processions pass on state occasions.
The best known of these is that of Moscow, beneath whose sacred arch even the Emperor himself must uncover his head as he passes through; and which, from its sanctity as well as its architectural character, forms an important feature among the antiquities of Russia.
So numerous are the churches, and, generally speaking, the fragments of antiquity in this country, that it would be easy to multiply examples to almost any extent. Those quoted in the preceding pages are, architecturally, the finest as well as the most interesting from an antiquarian point of view, of those which have yet been visited and drawn; and there is no reason to believe that others either more magnificent or more beautiful still remain undescribed.
This being the case, it is safe to assert that Russia contains nothing that can at all compare with the cathedrals, or even the parish churches, of Western Europe, either in dimensions or in beauty of detail. Every chapter in the history of architecture must contain something to interest the student: but there is none less worthy of attention than that which describes the architecture of Russia, especially when we take into account the extent of territory occupied by its people, and the enormous amount of time and wealth which has been lavished on the multitude of insignificant buildings to be found in every corner of the empire.
Division and Classification of the Romanesque and Gothic Styles of Architecture in Italy.
If a historian were to propose to himself the task of writing a tolerably consecutive narrative of the events which occurred in Italy during the Middle Ages, he would probably find such difficulties in his way as would induce him to abandon the attempt. Venice and Genoa were as distinct states as Spain and Portugal. Florence, the most essentially Italian of the republics, requires a different treatment from the half German Milan. Even such neighbouring cities as Mantua and Verona were separate and independent states during the most important part of their existence. Rome was, during the whole of the Middle Ages, more European than Italian, and must have a narrative of her own; Southern Italy was a foreign country to the states of the North; and Sicily has an independent history.
The same difficulties, though not perhaps to the same degree, beset the historian of art, and, if it were proposed to describe in detail all the varying forms of Italian art during the Middle Ages, it would be necessary to map out Italy into provinces, and to treat each almost as a separate kingdom by itself. In this, as in almost every instance, however, the architecture forms a better guide-line through the tangled mazes of the labyrinth than the written record of political events, and those who can read her language have before them a more trustworthy and vivid picture of the past than can be obtained by any other means.
The great charm of the history of Mediæval art in England is its unity. It affords the picture of a people working out a style from chaos to completeness, with only slight assistance from those in 501foreign countries engaged in the same task. In France we have two elements, the old Southern Romanesque long struggling with the Northern Celtic, and unity only obtained by the suppression of the former, wherever they came in contact. In Italy we have four elements,—the Roman, the Byzantine, the Lombardic, and the Gothic,—sometimes existing nearly pure, at others mixed, in the most varying proportions, the one with the other.
In the North the Lombardic element prevailed; based on the one hand on the traditions of Imperial Rome, and in consequence influenced in its art by classical forms; and, on the other, inspired in all its details by a vast accumulation of Byzantine work. In the 5th and 6th centuries this work (chiefly confined to columns, screens, and altar pieces) was executed by Greek artists sent on from Constantinople. The 7th century seems to have been quite barren so far as architecture was concerned; but in the 8th century, owing either to the Saracen invasion or to the emigration caused by the persecution of the Iconoclasts in 788, the Byzantine influence became again predominant, but no longer with that same purity of design as we find in the earlier work of the 5th and 6th centuries.
In the South, the Byzantine forms prevailed, partly because the art was there based on the traditions of Magna Grecia, and more, perhaps, from the intimate connection that existed between Apulia and the Peloponnesus during the Middle Ages.
Between the two stood Rome, less changed than either North or South—the three terms, Roman, Romano-Byzantine, and Renaissance comprise all the variation she submitted to. In vain the Gothic styles besieged her on the north and the Byzantine on the south. Their waves spent themselves on her rock without producing much impression, while her influence extended more or less over the whole peninsula. It was distinctly felt at Florence and at Pisa on the north and west, though these conquests were nearly balanced by the Byzantine influence which is so distinctly felt at Venice or Padua on the east coast.
The great difficulty in the attempt to reconcile these architectural varieties with the local and ethnographical peculiarities of the people—a difficulty which at first sight appears all but insuperable—is, that sometimes all three styles are found side by side in the same city. This, however, constitutes, in reality, the intrinsic merit of architecture as a guide in these difficulties. What neither the language of the people nor their histories tell us, their arts proclaim in a manner not to be mistaken. Just in that ratio in which the Roman, Byzantine, or Lombardic style prevails in their churches, to that extent did either of these elements exist in the blood of the people. Once thoroughly master the peculiarities of their art, and we can with certainty pronounce when any particular race rose to power, how long its 502prevalence lasted, and when it was obliterated or fused with some other form.
There is no great difficulty in distinguishing between the Byzantine and the other two styles, so far as the form of dome is concerned. The latter is almost always rounded externally, the former almost always straight-lined. Again: the Byzantine architects never used intersecting vaults for their naves. If forced to use a pointed arch, they did so unwillingly, and it never fitted kindly to their favourite circular forms; the style of their ornamentation was throughout peculiar, and differed in many essential respects from the other two styles.
It is less easy always to discriminate between the Gothic and Lombardic in Italy. We frequently find churches of the two styles built side by side in the same age, both using round arches, and with details not differing essentially from one another. There is one test, however, which is probably in all cases sufficient. Every Gothic church had, or was intended to have, a vault over its central aisle. No early Christian church ever attempted it. The importance of the distinction is apparent throughout. The Gothic churches have clustered piers, tall vaulting-shafts, external and internal buttresses, and are prepared throughout for this necessity of Gothic art. The early Christian churches, on the contrary, have only a range of columns, generally of a pseudo-Corinthian order, between the central and side aisles; internally no vaulting-shafts, and externally only pilasters. Had these architects been competent, as the English were, to invent an ornamental wooden roof, they would perhaps have acted wisely; but though they made several attempts, especially at Verona, they failed signally to devise any mode either of hiding the mere mechanical structure of their roofs or of rendering them ornamental.
Vaulting was, in fact, the real formative idea of the Gothic style, and it continued to be its most marked characteristic during the continuance of the style, not only in Italy, but throughout all Europe.
As it is impossible to treat of these various styles in one sequence, various modes of precedence might be adopted, for each of which good reasons could be given; but the following will probably be found most consonant with the arrangement elsewhere adopted in this work:—
First, to treat of the early Christian style as it prevailed in Italy down to the age of Charlemagne, and to trace out its history down to the 11th century, in order to include all that work executed by Greek artists or copied from it by Lombardic artists; a phase which might appropriately be termed the Byzantine-Lombardic style.
Secondly, to follow the history of the formation of the round-arched style in Lombardy and North Italy, which constitutes the real Lombardic style.
503Thirdly, to take up the Byzantine-Romanesque style as it was practised in the centre and South of Italy; because it follows chronologically more closely the art of the North of Italy.
Fourthly, to follow the changes which the influence of the Gothic style exercised in the 13th and 14th centuries in Italy.
Sicily will demand a chapter to herself; not only because a fourth element is introduced there in the Saracenic—which influenced her style almost as much as it did that of the South of Spain—but because such pointed Gothic as she possesses was not German, like that of Northern Italy, but derived far more directly from France, under either the Norman or Angiovine dynasties. Gothic architecture in Palestine also requires a chapter, and is best described here owing to its close resemblance to the style in the South of Italy.
Basilicas at Rome—St. Peter’s—St. Paul’s—Ravenna—St. Mark’s, Venice—Dalmatia and Istria—Torcello.
| DATES. | |
| Honorius | A.D. 395 |
| Valentinian | 425-435 |
| Theodoric, King of the Ostrogoths | 493-525 |
| Justinian | 527 |
| Alboin Longimanus, King of Lombardy | 568 |
| Gregory I. | 590 |
| Charlemagne | 768 |
| Conrad I. | 911 |
| Henry the Fowler | 918 |
| Otho the Great | 936 |
| Otho II. | 973 |
| Otho III. | 983 |
| Henry II. | 1002 |
| Conrad II. | 1024 |
| Henry III. | 1039 |
| Henry IV. | 1056 |
| Henry V. | 1106 |
| Lothaire II. | 1125 |
| Conrad III. | 1138 |
| Frederick Barbarossa | 1152 |
| Henry VI. | 1190 |
| Frederick II. | 1212 |
| Conradin | 1250 |
Like the study of all modern history, that of Christian architecture commences with Rome; and not, as is sometimes supposed, where the history of Rome leaves off, but far back in the Empire, if not, indeed, almost in the Republic.
As has already been pointed out, the whole history of the art in Imperial Rome is that of a style in course of transition, beginning with a purely Pagan or Grecian style in the age of Augustus, and passing into one almost wholly Christian in the age of Constantine.
At the first epoch of the Empire the temple architecture of Rome consisted in an external arrangement of columns, without arches or vaults, and was wholly unsuited for the purposes of Christian worship. Towards the end of the period it had become an internal architecture, making use of arches and vaults almost entirely to the exclusion of the columnar orders, except as ornaments, and became so perfectly adapted to Christian requirements, that little or no essential change in it has taken place from that time to the present day. A basilica of the form adopted in the first century after Constantine is as suited now as it was then to the forms and ceremonies of the Christian ritual.
505The fact seems to be, that during the first three centuries after the Christian era an immense change was silently but certainly working its way in men’s minds. The old religion was effete: the best men, the most intellectual spirits of the age, had no faith in it; and the new religion with all its important consequences was gradually supplying its place in the minds of men long before it was generally accepted.
There is thus no real distinction between the Emilian or Ulpian basilicas and those which Constantine erected for the use of the early Christian republic. Nor is it possible, in such a series as the Pantheon, the Temple of Minerva Medica, and the Church of San Vitale at Ravenna, to point out what part really belongs to Pagan and what to Christian art.
It is true that Constantine fixed the epoch of completed transition, and gave it form and substance; but long before his time Paganism was impossible and a reform inevitable. The feeling of the world had changed—its form of utterance followed as a matter of course.
Viewed in this light, it is impossible to separate the early history of Christian art from that of Imperial Rome. The sequence is so immediate and the change so gradual, that a knowledge of the first is absolutely indispensable to a right understanding of the second.
One of the most remarkable facts connected with the early history of the Christian religion is, that neither its Founder nor any of His more immediate successors left any specific directions either as to the liturgical forms of worship to be observed by His followers, nor laid down any rules to be observed in the government of the newly established Church. Under these circumstances it was left almost wholly to those to whose care the infant congregation was entrusted to frame such regulations for its guidance as the exigencies of the occasion might dictate, and gradually to appoint such forms of worship as might seem most suitable to express the purity of the new faith, but at the same time with a dignity befitting its high mission.
In Judea these ceremonies, as might naturally be expected, were strongly tinctured with the forms of the Mosaic dispensation; but it appears to have been in Africa, and more especially in the pomp-loving and ceremonious Egypt, that fixed liturgies and rites first became an integral part of the Christian religion. In those countries far from the central seat of government, more liberty of conscience seems to have been attained at an early period than would have been tolerated in the capital. Before the time of Constantine they possessed not only churches, but a regularly established hierarchy and a form of worship similar to what afterwards obtained throughout the whole Christian world. The form of the government of the Church, however, was long unsettled. At first it seems merely to have been that the most respected individuals of each isolated congregation were selected to 506form a council to advise and direct their fellow-Christians, to receive and dispense their alms, and, under the simple but revered title of Presbyters, to act as fathers rather than as governors to the scattered communities by which they were elected. The idea, however, of such a council naturally includes that of a president to guide their deliberations and give unity and force to their decisions; and such we soon find springing up under the title of Bishops, or Presbyter Bishops, as they were first called. During the course of the second century the latter institution seems gradually to have gained strength at the expense of the power of the Presbyters, whose delegate the Bishop was assumed to be. In that capacity the Bishops not only took upon themselves the general direction of the affairs of the Church, but formed themselves into separate councils and synods, meeting in the provincial capitals of the provinces where they were located. These meetings took place under the presidency of the Bishop of the city in which they met, who thus assumed to be the chief or metropolitan. These formed a new presbytery above the older institution, which was thus gradually superseded—to be again surpassed by the great councils which, after the age of Constantine, formed the supreme governing body of the Church; performing the functions of the earlier provincial synods with more extended authority, though with less unanimity and regularity than had characterised the earlier institution.
It was thus that during the first three centuries of its existence the Christian community was formed into a vast federal republic, governed by its own laws, administered by its own officers, acknowledging no community with the heathen and no authority in the constituted secular powers of the State. But at the same time the hierarchy admitted a participation of rights to the general body of the faithful, from whom they were chosen, and whose delegation was still admitted to be their title to office.
When, in the time of Constantine, this persecuted and scattered Church emerged from the Catacombs to bask in the sunshine of Imperial favour, there were no buildings in Rome, the plan of which was more suited to their purposes than that of the basilicas of the ancient city. Though designed and erected for the transaction of the affairs of the heathen Empire, they happened to be, in consequence of their disposition and immense size, eminently suited for the convenience of the Christian Church, which then aspired to supersede its fallen rival and replace it by a younger and better institution.[257]
507In the basilica the whole congregation of the faithful could meet and take part in the transaction of the business going on. The bishop naturally took the place previously occupied by the prætor or quæstor, the presbyters those of the assessors. The altar in front of the apse, where the pious heathen poured out libations at the commencement and conclusion of all important business, served equally for the celebration of Christian rites, and with the fewest possible changes, either in the form of the ceremonies or in the nature of the business transacted therein, the basilica of the heathen became the ecclesia or place of assembly of the early Christian community.
In addition, however, to the rectangular basilica, which was essentially the place of meeting for the transaction of the business of the Church, the Christian community early adopted a circular-formed edifice as a ceremonial or sacramental adjunct to the basilica. These were copied from the Roman tombs above described, and were in fact frequently built for the sepulchres of distinguished persons; but they were also used at a very early date as baptisteries, as well as for the performance of funereal rites. It does not appear that baptism, the marriage rites, or indeed any of the sacraments, were performed in 508the earliest ages in the basilica, though in after ages a font was introduced even into cathedrals. The rectangular church became ultimately the only form used. In the earlier ages, however, a complete ecclesiastical establishment consisted of a basilica, and a baptistery, independent of one another and seldom ranged symmetrically, though the tendency seems to have been to place the round church opposite the western or principal entrance of the basilica.
Though this was the case in the capital and other great cities, it was otherwise before the time of Constantine in the provinces. There the Christian communities existed as members of a religious sect long before they aspired to political power or dreamt of superseding the secular form of government by combination among themselves. In the remote parts of the Empire, in the earliest ages, they consequently built for themselves churches which were temples, or, in other words, houses of prayer, designed for and devoted wholly to the celebration of religious rites, as in the Pagan temples, and without any reference to the government of the community or the transaction of the business of the assembly. If any such existed in Italy or any other part of Europe, they either perished in the various persecutions to which the Christians were exposed when located near the seat of government, or they became hallowed by the memories of the times of martyrdom, and were rebuilt in happier days with greater magnificence, so that little or no trace of the original buildings now remains. So long, therefore, as our researches were confined to European examples, the history of Christian architecture began with Constantine; but recent researches in Africa have shown that, when properly explored, we shall certainly be able to carry the history of the early Christian style in that country back to a date at least a century before his time. In Syria and Asia Minor so many early examples have come to light that it seems probable that we may, before long, carry the history of Byzantine art back to a date nearly approaching that of the destruction of Jerusalem by Titus. It is, however, only so recently that the attention of ecclesiologists has been directed to the early examples of Christian architecture, that it is not yet possible to grasp completely the whole bearing of the subject; but enough is known to show how much the progress of research may modify the views hitherto entertained on the subject. Meanwhile too much attention can hardly be bestowed upon it, as it is by means of these early specimens of architectural art that we shall probably be best able to recover the primitive forms of the Christian liturgical observance.
One of the most ancient as well as interesting of the African churches which has yet been brought to light is that at Djemla. It is a simple rectangle, internally 92 ft. by 52, divided longitudinally with three aisles, the centre one of which terminates in a square cella or choir, which seems to have been enclosed up to the roof; but the 509building is so ruined that this cannot be known for a certainty. Though so exceptional, it is not difficult to see whence the form was derived. If we take such a plan, for instance, as that of the Maison Carré at Nîmes (Woodcut No. 187), and build a wall round and put a roof over it, so as to make a building which was originally appropriated to external worship suitable for internal religious purposes, we should have exactly such a result as this. The cella must be diminished in extent, the pillars more widely spaced, and the front row converted into a wall in which the entrances would be usually placed. In this instance the one entrance, for some local reason, is lateral. The whole floor of the church is covered with a mosaic so purely classical in style of execution as to leave no doubt as to its early date.
390. Plan of Church at Djemla. Scale 50 ft. to 1 in.
391. Plan of Church at Announa. Scale 50 ft. to 1 in.
A more common form is shown in the annexed woodcut, representing a small church at Announa, likewise in Algeria, about 45 ft. square, divided into three aisles and with a projecting apse. If we turn to the plan of the Temple of Mars Ultor (Woodcut No. 186), we see at once whence this form was derived. It only requires the lateral columns to be brought slightly forward to effect the requisite change. When the building was to be used by a congregation, and not merely for display, the pillars would require to be more widely spaced.
A third form, from Ibrim in Nubia, shows the peculiarity of the apse being internal, which became very fashionable in the Eastern, though not so much so in the Western, churches, but still sufficiently so to make its introduction at this early age worthy of notice. The building is small, being only 57 ft. in length externally, but is remarkable for being built with something of the solidity of the Egyptian edifices among which it stands.
The next example which it may be necessary to quote to make this early form intelligible, is that of the church of St. Reparatus, near Orleansville—the ancient Castellum Tingitanum. According to an 510inscription still existing, it was erected A.D. 252,[258] but the second apse seems to have been added at a later date, to contain the grave of the saint. As it now stands, it is a double-apsed basilica 80 ft. long by 52 broad, divided into five aisles, and exhibiting on a miniature scale all the peculiarities of plan which we have hitherto fancied were not adopted until some centuries later. In this instance both the apses are internal, so that the side-aisles are longer than the centre one, no portion of them appearing to have been cut off for chalcidica or vestries, as was very generally the case in this age.
Another example, very much like this in arrangement, but on a larger scale, is found at Ermet, the ancient Hermonthis in Egypt. It measures over all 150 ft. by 90, and, if the plan in the great French work[259] is to be depended upon, is one of the most complete examples of its class. It has four ranges of columns, taken apparently from more ancient examples, and two apses with all the usual appurtenances.
392. Plan of Church at Ibrim in Nubia. No scale.
393. Plan of Basilica at Orleansville. Scale 50 ft. to 1 in.
Another two-aisled and single apse church, measuring 100 ft. by 65, called Dyer Abou Taneh, is represented in the same work;[260] but perhaps the most interesting of these churches is that known as the White Convent, situated on the edge of the Libyan Desert, above Siout. Externally it measures 215 ft. by 122, and is enclosed in a solid wall, surmounted by an Egyptian cornice, so that it looks much more like an ancient temple than a Christian church. Originally it had six doors, but all are now walled up, except one in the centre of the southern face; and above, a series of small openings, like loopholes, admitted light to apartments which apparently occupied the upper storey of lateral corridors. Light to the church was, of course, 511admitted through the clerestory, which could easily be done; and altogether as a fortified and mysterious abode, and place of worship of ascetics, it would be difficult to find a more appropriate example.
The age of this church is not very well ascertained; popularly it is, like so many others, ascribed to Sta. Helena, and the double aisles and triapsal arrangements are so like her church at Bethlehem, that there is no à priori improbability in the assumption. The plan, however, is more complicated and complete, and its external form bespeaks of troublous times, so that altogether it is probably a century or two (the monks say 140 years) more modern. Like other churches of its class, ancient materials have been so used up with those prepared at the time, that it is extremely difficult to ascertain the dates of such buildings. If, however, any one with sufficient knowledge would make a special study of these Egyptian churches, he would add one of the most interesting chapters to our history of early Christian Architecture, and explain many ritual arrangements whose origin is now involved in mystery; but for this we must wait. The materials are not at present available, all travellers in Egypt being so attracted by the surpassing interest of the Pagan remains of that country, as hardly to find time for a glance at the Christian antiquities.[261]
394. White Convent near Siout. (From a Plan by the Hon. Sir Arthur Gordon.) Scale 100 ft. to 1 in.
It was probably in a great measure owing to the influence of these provincial examples that the arrangements of the metropolitan 512basilicas were not long allowed to retain the form above described, though more was probably due to the change which was gradually taking place in the constitution of the governing body of the Church. The early arrangements of the Christian basilica, as copied from the secular forms of the Pagan places of assembly, soon became unsuited to the more exclusively religious purposes to which they were to be appropriated. The now dominant hierarchy of Rome soon began to repudiate the republicanism of the early days of the Church, and to adopt from the East the convenient doctrine of the absolute separation of the congregation into clergy and laity. To accommodate the basilica to this new state of things, first the apse was railed off and appropriated wholly to the use of the clergy: then the whole of the dais, or raised part in front of the apse on which the altar stood, was separated by pillars, called cancelli, and in like manner given up wholly to the clergy, and was not allowed to be profaned by the presence of the unordained multitude.
The last great change was the introduction of a choir, or enclosed space in the centre of the nave, attached to the bema or presbytery, as the raised space came to be called. Round three sides of this choir the faithful were allowed to congregate to hear the Gospels or Epistles read from the two pulpits or ambones, which were built into its enclosure, one on either side; or to hear the services which were read or sung by the inferior order of clergy who occupied its precincts.
The enclosure of the choir was kept low, so as not to hide the view of the raised presbytery, or to prevent the congregation from witnessing the more sacred mysteries of the faith which were there performed by the higher order of clergy.
Another important modification, though it entailed no architectural change, was the introduction of the bodies of the saints in whose honour the building was erected into the basilica itself, and depositing them in a confessional or crypt below the high altar.
There is every reason to believe that a separate circular building, or proper tomb, was originally erected over the grave or place of martyrdom, and the basilica was sanctified merely by its propinquity to the sacred spot. Afterwards the practice of depositing the relics of the saint beneath the floor became universally the rule. At about the same time the baptistery was also absorbed into the basilica; and instead of standing opposite the western entrance, a font placed within the western doors supplied its place. This last change was made earlier at Rome than elsewhere. It is not known at what exact period the alteration was introduced, but it is probable that the whole was completed before the age of Gregory the Great.
It was thus that in the course of a few centuries the basilicas aggregated within themselves all the offices of the Roman Church, and 513became the only acknowledged ecclesiastical buildings—either as places for the assembly of the clergy for the administration of the sacraments and the performance of divine worship, or for the congregation of the faithful.
None of the basilican churches, either of Rome or the provinces, possess these arrangements exactly as they were originally established in the fourth or fifth century. The church of San Clemente, however, retains them so nearly in their primitive form that a short description of it may tend to make what follows more easily intelligible. This basilica seems to have been erected in the fourth or fifth century over what was supposed to be the house in which the saint of that name resided. Recently a subterranean church or crypt has been discovered, which must of course be more ancient than the present remains.[262] Above this subterranean church stands the edifice shown in the accompanying plan (Woodcut No. 395), nearly one-third less in size, being only 65 ft. wide internally, against 93 of the original church, though both were about the same length.
395. Plan of the Church of San Clemente at Rome. (From Gutensohn and Knapp.[263]) Scale 100 ft. to 1 in
It is one of the few that still possesses an atrium or courtyard in front of the principal entrance, though there can be but little doubt that this was considered at that early age a most important, if not indeed an indispensable, attribute to the church itself. As a feature it may have been derived from the East, where we know it was most common, and where it afterwards became, with only the slightest possible modifications, the mosque of the Moslems. It would seem even more probable, however, that it is only a repetition of the forum, which was always 514attached to the Pagan basilica, and through which it was always entered; and for a sepulchral church at least nothing could be more appropriate, as the original application of the word forum seems to have been to the open area that existed in front of tombs as well as of other important buildings.[264]
In the centre of this atrium there generally stood a fountain or tank of water, not only as an emblem of purity, but that those who came to the church might wash their hands before entering the holy place—a custom which seems to have given rise to the practice of dipping the fingers in the holy water of the piscina, now universal in all Catholic countries.
The colonnade next the church was frequently the only representative of the atrium, and then—perhaps indeed always—was called the narthex, or place for penitents or persons who had not yet acquired the right of entering the church itself.
From this narthex three doorways generally opened into the church, corresponding with the three aisles; and if the building possessed a font, it ought to have been placed in one of the chapels on either the right or left hand of the principal entrance.
The choir, with its two pulpits, is shown in the plan—that on the left-hand side being the pulpit of the Epistle, that on the right of the Gospel. The railing of the bema or presbytery is also marked, so is the position of the altar with its canopy supported on four pillars, and behind that the throne of the bishop, with the seats of the inferior clergy surrounding the apse on either side.
Besides the church of San Clemente there are at least thirty other basilican churches in Rome, extending in date from the 4th to the 14th century. Their names and dates, as far as they have been ascertained, are set forth in the accompanying list, which, though not altogether complete, is still the best we possess, and is sufficient for our present purpose.[265]
| 515 | |||
| BASILICAS OF ROME. | |||
| W. | St. Peter’s | Constantine (5 aisled) | 330 |
| W. | St. John Lateran | Ditto | 330 |
| W. | St. Lorenzo (west end lower storey) | Ditto | 335 |
| N.W. | S. Pudentiana | Ditto | 335 |
| E. | St. Paul’s | Theodosius and Honorius (5 aisled) | 380 |
| N.W. | S. Maria Maggiore | Pope Sixtus III. | 432 |
| St. Lorenzo (nave) | Ditto | 432-40 | |
| E. | St. Peter ad Vincula | Eudoxia (Greek Doric columns) | 442 |
| N.W.W. | St. John and St. Paul | Leo I. | 450 |
| N.W.W. | Quattro Coronati | Ditto | 450 |
| N.W. | St. Martin di Monti | 500 | |
| W. | S. Agnes | 500-514 | |
| N.E. | S. Sabina | 525 | |
| St. Lorenzo (galleries to west end) | Pope Pelagius | 580 | |
| W. | S. Balbina | Gregory the Great (no side-aisles) | 600 |
| St. Vincent alle tre fontane | Honorius I. | 626 | |
| N.W.N. | St. Giorgio in Velabro | Leo II. | 682 |
| N.W.W. | St. Crisogonus | Gregory III. | 731 |
| St. John in porta latina | Adrian I. | 772 | |
| S.E.E. | S. Maria in Cosmedin | Ditto | 782 |
| S.W.W. | SS. Nereus and Achilles | Leo III. | 800 |
| N.W.N. | St. Praxede | Paschal I. | 817 |
| N.W. | S. Cecilia | Ditto | 821 |
| W. | S. Maria in Domenica | Ditto | 823 |
| N.W.N. | St. Mark’s | 833 | |
| St. John Lateran | Rebuilt by Sergius III. | 910 | |
| N.W.W. | St. Clement | Paschal II. | 1100-14 |
| St. Barthelemy in Isola | Ditto | 1113 | |
| W. | S. Maria in Trastevere | Innocent II. | 1139 |
| St. Lorenzo (the two churches thrown into one) | Honorius III. | 1216 | |
| S. Maria sopra Minerva | 1370 | ||
| (?) | S. Maria in Ara Cœli | Gothic | 14th cent. |
| St. Agostino | Renaissance | 1483 | |
Three of these, St. Peter’s, St. Paul’s, and the Lateran church, have five aisles, all the rest three, with only one insignificant exception, Sta. Balbina, which has no side-aisles. Two, St. Agnes and the old part of St. Lorenzo, have their side-aisles in two storeys, all the rest are only one storey in height, and the side-aisles generally are half the width of the central aisle or nave. Some of the more modern churches have the side-aisles vaulted, but of those in the list all except the two last have flat wooden ceilings over the central compartment, and generally speaking the plain ornamental construction of the roof is exposed. It can scarcely be doubted that originally they were ceiled in some more ornamental manner, as the art of ornamenting this new style of open construction seems to have been introduced at a later date.
396. Plan of the original Basilica of St. Peter at Rome. (From Gutensohn and Knapp.) Scale 100 ft. to 1 in.
517Of the two last named, the Sta. Maria sopra Minerva might perhaps be more properly classed among the buildings belonging to the Italian Gothic style; but as it is the only one in Rome that has any claim to such a distinction, it is hardly worth while making it an exception to the rest. The San Agostino might also be called a Renaissance specimen. It certainly is a transitional specimen between the pillared and pilastered styles, which were then struggling for mastery. It may either be regarded as the last of the old race or the first of the new style, which was so soon destined to revolutionise the architectural world.
Of the other examples the oldest was the finest. This great basilica was erected in the reign of Constantine, close to the circus of Nero, where tradition affirmed that St. Peter had suffered martyrdom. It unfortunately was entirely swept away to make room for the greatest of Christian temples, which now occupies its site; but previous to its destruction careful measurements and drawings were made of every part, from which it is easy to understand all its arrangements—easier perhaps than if it had remained to the present day, and four centuries more of reform and improvements had assisted in altering and disfiguring its venerable frame.
As will be seen in the plan (Woodcut No. 396), drawn to the usual scale, it possessed a noble atrium or forecourt, 212 ft. by 235, in front of which were some bold masses of building, which, during the Middle Ages, were surmounted by two belfry-towers. The church itself was 212 ft. in width by 380 in length, covering, without its adjuncts, an area of above 80,000 English feet, which, though less than half the size of the present cathedral, is as large as that covered by any mediæval cathedral except those of Milan and Seville. The central aisle was about 80 ft. across (about twice the average width of a Gothic nave), and nearly the same as that of the basilica of Maxentius and the principal halls of the greater thermæ. For some reason or other this dimension seems to have been a modulus very generally adopted. The bema or sanctuary, answering to the Gothic transept, extended beyond the walls of the church either way, which was unusual in early Christian buildings. The object here seems to have been to connect it with the tombs on its north side. The arrangement of the sanctuary was also peculiar, having been adorned with twelve pillars supporting a gallery. These, when symbolism became the fashion, were said to represent the twelve apostles. This certainly was not their original intent, as at first only six were put up—the others added afterwards. The sanctuary and choir were here singularly small and contracted, as if arranged before the clergy became so 518numerous as they afterwards were, and before the laity were excluded from this part of the church.
The general internal appearance of the building will be understood from the following woodcut (No. 397), which presents at one view all the peculiarities of the basilican buildings. The pillars separating the central from the side aisles appear to have been of uniform dimensions, and to have supported a horizontal entablature, above which rose a double range of panels, each containing a picture—these panels thus taking the place of what was the triforium in Gothic churches. Over these was the clerestory, and again an ornamental belt gave sufficient elevation for the roof, which in this instance showed the naked construction. On the whole perhaps the ratio of height to width is unexceptionable, but the height over the pillars is so great that they are made to look utterly insignificant, which indeed is the great defect in the architectural design of these buildings, and, though seldom so offensive as here, is apparent in all. The ranges of columns dividing the side-aisles were joined by arches, which is a more common as well as a better arrangement, as it not only adds to the height of the pillars, but gives them an apparent power of bearing the superstructure. At some period during the Middle Ages the outer aisles were vaulted, and Gothic windows introduced into them. This change seems to have necessitated the closing of the intermediate range of clerestory windows, which probably was by no means conducive to the general architectural effect of the building.
397. View of the old Basilica of St. Peter, before its destruction in the 15th century. From Fontana.
519Externally this basilica, like all those of its age, must have been singularly deficient in beauty or in architectural design. The sides were of plain unplastered brick, the windows were plain arch-headed openings. The front alone was ornamented, and this only with two ranges of windows somewhat larger than those at the sides, three in each tier, into which tracery was inserted at some later period, and between and above these, various figures and emblems were painted in fresco on stucco laid on the brickwork. The whole was surmounted by that singular coved cornice which seems to have been universal in Roman basilicas, though not found anywhere else that I am aware of.
The two most interesting adjuncts to this cathedral were the two tombs standing to the northward. According to the mediæval tradition the one was the tomb of Honorius and his wives, the other the church of St. Andrew. Their position, however, carefully centred on the spina of the circus of Nero, where the great apostle suffered martyrdom, seems to point to a holier and more important origin. My own conviction is that they were erected to mark the places where the apostle and his companions suffered. It is besides extremely improbable that after the erection of the basilica an emperor should choose the centre of a circus for the burying-place of himself and his family, or that he should be permitted to choose so hallowed a spot. They are of exactly the usual tomb-form of the age of Constantine, and of the largest size, being each 100 ft. in diameter.
The first was destroyed by Michael Angelo, as it stood on the site required for his northern tribune, the second by Pius VI., in 1776, to make way for the present sacristy, and Rome thus lost, through pure carelessness, the two oldest and most sacred edifices of the Christian period which she possessed.
The most eastern had been so altered and overlaid, having been long used as a sacristy,[266] that it might have been difficult to restore it; but its position and its antiquity certainly entitled it to a better fate.
The church of San Paolo fuori le Mura was almost an exact counterpart of St. Peter’s both in design and dimensions. The only important variations were that the transept was made of the same width as the central nave, or about 80 ft., and that the pillars separating the nave from the side-aisles were joined by arches instead of by a horizontal architrave. Both these were undoubted improvements, the first giving space and dignity to the bema, the latter not only 520adding height to the order, but giving it, together with lightness, that apparent strength requisite to support the high wall placed over the pillars.
398. View of the Interior of St. Paul’s, at Rome, before the fire.
The order too was finer and more important than at St. Peter’s, twenty-four of the pillars being taken from some temple or building (it is generally said the mausoleum of Hadrian) of the best age of Rome, though the remaining sixteen were unfortunately only very bad copies of them. These pillars are 33 ft. in height, or one-third of the whole height of the building to the roof. In St. Peter’s they were only a fourth, and if they had been spaced a little farther apart, and the arch made more important, the most glaring defect of these buildings would in a great measure have been avoided.
Long before its destruction by fire in 1822 this church had been so altered as to lose many of its most striking peculiarities. The bema or presbytery was divided into two by a longitudinal wall. The greater number of its clerestory windows were built up, its atrium gone, and decay and whitewash had done much to efface its beauty, which nevertheless seems to have struck all travellers with admiration, as combining in itself the last reminiscence of Pagan Rome with the earliest forms of the Christian world. It certainly was the most interesting, if not quite the most beautiful, of the Christian buildings, of that city.[267]
521The third five-aisled basilica, that of St. John Lateran, differs in no essential respect from those just described except in dimensions; it covers about 60,000 ft., and consequently is inferior in this respect to the other two. It has been so completely altered in modern times that its primitive arrangements can now hardly be discerned, nor can their effect be judged of, even assuming that they were peculiar to it, which, however, is by no means certain.
Like the other two, it appears to have been originally erected by Constantine, who seems especially to have affected this five-aisled form. The churches which he erected at Jerusalem and Bethlehem both have this number of aisles. From the similarity which exists in the design of all these churches we might easily restore this building, if it were worth while. Its dimensions can easily be traced, but beyond this nothing remains of the original erection.
Of those with three aisles by far the finest and most beautiful is that of S. Maria Maggiore, which, notwithstanding the comparative smallness of its dimensions, is now perhaps the best specimen of its class remaining. Internally its dimensions are 100 ft. in width by 250 to the front of the apse; the whole area being about 32,000 ft.: so that it is little more than half the size of the Lateran church, and between one-third and one-fourth of that of the other two five-aisled churches.
399. Plan of S. Maria Maggiore. Scale 100 ft. to 1 in.
Notwithstanding this, there is great beauty in its internal colonnade, all the pillars of which are of one design, and bear a most pleasing proportion to the superstructure. The clerestory too is ornamented with pilasters and panels, making it a part of the general design; and with the roof, which is panelled with constructive propriety and simplicity combined with sufficient richness, serves to make up a whole which gives a far better and more complete idea of what a basilica either was originally, or at least might have been, than any other church at Rome. It is true that both the pilasters of the clerestory and the roof are modern, and in modern times the colonnade has been broken through in two places; but these defects must be overlooked in judging of the whole.
Another defect is that the side-aisles have been vaulted in modern times, and in such a manner as to destroy the harmony that should exist between the different parts of the building. In striving to avoid the defect of making the superstructure too high in proportion to the columns, the architect has made the central roof too low either for the 522width or length of the main aisle. Still the building, as a whole, is—or rather was before the completion of the rebuilding of St. Paul’s—the very best of the older wooden-roofed churches of Christendom, and the best model from which to study the merits and defects of this style of architecture.
400. View of S. Maria Maggiore. (From Gutensohn and Knapp.)
401. Plan of S. Agnes. Scale 100 ft. to 1 in.
402. Section of S. Agnes. (From Gutensohn and Knapp.) Scale 50 ft. to 1 in.
Another mode of getting over the great defect of high walls over the pillars was adopted, as in St. Lorenzo and Sta. Agnese, of using a 523gallery corresponding with the triforium of Gothic churches. In St. Lorenzo, where this feature first occurs, it would seem to have been derived from the Eastern Empire, where the custom of providing galleries for women had long been established; this is rendered probable by the fact that the sculpture of the capitals carrying the arches of the triforium is of pure Byzantine character, and by the adoption of what is virtually a dosseret,[268] or projecting impost above the capital to carry the arches, which at their springing are considerably wider and deeper than the abacus of the capital. According to M. Cattaneo[269] the earliest part of this church is the Eastern end, built by Constantine (see plan, Woodcut No. 403), which first consisted of nave, aisles, and a Western apse. In the Pontificate of Sixtus III. (432-440) an immense basilica was added on the Western side with an Eastern apse built back to back with the original apse; and later on, in 578-590, galleries were added to the Western church by Pope Pelagius II. over the side aisles. In 1226-1227, when Honorius III. restored the whole building, he removed the two apses, continued the new arcade up to the early Western wall, and raised the choir of the early church to its present elevation (Woodcut No. 404). Both in St. Lorenzo and St. Agnes the galleries may have been suggested if not required by the peculiarity of the ground, which was higher on one side than on the other; but whether this was the true cause of its adoption or not, the effect was most satisfactory, and had it been persevered in so as to bring the upper colonnade more into harmony of proportion with the other, it would have been attended with the happiest results on the style. Whether it was, however, that the Romans felt the want of the broad plain space for their paintings, or that they could not bring the upper arches into proportion with the classical pillars which they made use of, the system was abandoned almost as soon as adopted, and never came into general use.
403. Plan of St. Lorenzo.
It should be observed that this arrangement contained the germs of much that was afterwards reproduced in Gothic churches. The upper gallery, after many modifications, at last settled into a triforium, and the pierced stone slabs in the windows became tracery—but before 524these were reached a vaulted roof was introduced, and with it all the features of the style were to a great extent modified.
404. Interior of the Basilica of St. Lorenzo (fuori le Mura).
The church known as that of Sta. Pudentiana is one of the very oldest and consequently one of the most interesting of those in Rome. It stands on substructions of ancient Roman date, which probably formed part of the Thermæ of Novatus or the house of the Senator Pudens, who is mentioned by St. Paul at the end of his Second Epistle to Timothy, and with whom he is traditionally said to have resided during his sojourn in Rome. The vaults beneath the church certainly formed part of a Roman mansion, so apparently do those buildings, shown on the plan, and placed behind and on one side of the sanctuary; but whether these were used for Christian purposes before the erection of the church in the fourth century is by no means certain. In plan the church remains in all probability very much as originally designed, its most striking peculiarity being the segmental 525form of the apse, which may possibly have arisen from some peculiar arrangement of the original building. It was not, however, found to be pleasing in an architectural point of view, and was not consequently again employed.
405. Plan of Sta. Pudentiana. Scale 100 ft. to 1 in.
406. Section of Sta. Pudentiana. (From Hubsch.[270]) Scale 50 ft. to 1 in.
The annexed section probably represents very nearly the original form of the nave, though it has been so encrusted with modern accretions as to render it difficult to ascertain what the first form really was. The shafts of the pillars may have been borrowed from some older edifice, but the capitals were clearly designed to support arches, and must therefore be early Christian (fourth century?), and are among the most elegant and appropriate specimens of the class now extant.
407. Capital of Sta. Pudentiana. (From Hubsch.)
In some instances, as in San Clemente, above alluded to, in San Pietro in Vincula, and Sta. Maria in Cosmedin, the colonnade is divided into spaces of three or four intercolumniations by piers of solid masonry, which give great apparent solidity and strength to the building, but at the expense of breaking it up into compartments more than is agreeable, and these destroy that beauty of perspective so pleasing in a continuous colonnade. This defect seems to have been felt in the Santa Praxede, where three of these piers are introduced in the length of the nave,[271] and support each a bold arch thrown across the central aisle. The effect of this might have been most happy, as at San Miniato, near Florence; 526but it has been so clumsily managed in the Roman example, as to be most destructive of all beauty of proportion.
408. Half Section, half Elevation, of the Church of San Vincenzo alle Tre Fontane. (From Gutensohn and Knapp.) Scale 50 ft. to 1 in.
Some of the principal beauties as well as some of the most remarkable defects of these basilican churches arise from the employment of columns torn from ancient temples: where this has been done, the beauty of the marble, and the exquisite sculpture of the capitals and friezes, give a richness and elegance to the whole that go far to redeem or to hide the rudeness of the building in which they are encased. But, on the other hand, the discrepancy between the pillars—Doric, Ionic, and Corinthian columns being sometimes used side by side—destroys all uniformity, and the fragmentary character of the entablatures they support is still more prejudicial to the continuity of the perspective, which should be the greatest charm of these churches. By degrees, the fertile quarries of ancient Rome seem to have become entirely exhausted; and as the example of St. Paul’s proves, the Romans in the fourth century were incapable of manufacturing even a bad imitation, and were at last forced to adopt some new plan of supporting their arcades. The church of SS. Nereo ed Achilleo is, perhaps, the most elegant example of this class, the piers being light octagons; but the most characteristic, as well as the most original, is the San Vincenzo alle Tre Fontane, shown in section and elevation in Woodcut No. 408. It so far deviates from the usual basilican arrangements as to suggest a later date. It has the same defect as all the rest—its pier arches being too low, and for which there is no excuse here—but both internally and externally it shows a uniformity of design and a desire to make every part ornamental that produces a very pleasing effect, notwithstanding that the whole is merely of brick, and that ornament is so sparingly applied as barely to prevent the building sinking into the class of mere utilitarian erections.
Among the most pleasing architectural features, if they may be so called, of these churches, are the mosaic pavements that adorn the greater number. These were always original, being designed for the buildings in which they are used, and following the arrangement of the architecture surrounding them. The patterns too are always 527elegant, and appropriate to the purpose; and as the colours are in like manner generally harmoniously blended, they form not only a most appropriate but most beautiful basement to the architecture.
A still more important feature was the great mosaic picture that always adorned the semi-dome of the apse, representing most generally the Saviour seated in glory surrounded by saints, or else some scene from the life of the holy personage to whom the church was dedicated.
These mosaics were generally continued down to nearly the level of the altar, and along the whole of the inner wall of the sanctuary in which the apse was situated, and as far as the triumphal arch which separated the nave from the sanctuary, at which point the mosaic blended with the frescoes that adorned the upper walls of the central nave above the arcades. All this made up an extent of polychromatic decoration which in those dark ages, when few could read, the designers of these buildings seem to have considered as virtually of more importance than the architectural work to which it was attached. Any attempt to judge of the one without taking into consideration the other, would be forming an opinion on hearing but half the evidence; but taken in conjunction, the paintings go far to explain, and also to redeem, many points in which the architecture is most open to criticism.
During the whole period of the development of early Christian architecture in Rome, the city of Ravenna, owing to her close connection with the Eastern empire, almost rivalled in importance the old capital of the world, and her churches were consequently hardly less important either in number or in richness than those we have just been describing. It is true she had none so large as the great metropolitan basilicas of St. Peter and St. Paul. The one five-aisled church she possessed—the cathedral—has been entirely destroyed, to make way for a very contemptible modern erection. From the plans, however, which we possess of it, it seems to have differed very considerably from the Roman examples, most especially in having no trace of a transept, the building being a perfectly regular parallelogram, half as long again as its breadth, and with merely one great apse added at the end of the central nave. Its loss is the more to be regretted, as it was, besides being the largest, the oldest church in the city, having been erected about the year 400, by Archbishop Ursus. The baptistery that belonged to it has been fortunately preserved, and will be described hereafter.
Besides a considerable number of other churches which have either been lost or destroyed by repair, Ravenna still possesses two first-class 528three-aisled basilicas—the San Apollinare Nuovo,[272] originally an Arian church, built by Theodoric, king of the Goths (A.D. 493-525); and the S. Apollinare in Classe, at the Port of Ravenna, situated about three miles from the city, commenced A.D. 538, and dedicated 549 A.D. Of the two, the first-named is by far the more considerable, being 315 ft. long by 115 in width externally, while the other only measures 216 ft. in length by 104. As will be seen by the plan, S. Apollinare in Classe is a perfectly regular basilica with twelve pillars on each side of the nave, which is 50 ft. in width. The apse is raised to allow of a crypt underneath, and externally it is polygonal, like the Byzantine apse.
409. Plan of St. Apollinare in Classe. Scale 100 ft. to 1 in.
410. Arches in Church of San Apollinare Nuovo. (From Quast.[273])
The great merit of these two basilicas, as compared with those of Rome, arises from the circumstance of Ravenna having possessed no ruined temples whose spoils could be used in the construction of new buildings. On the other hand the Goths had no architectural forms of their own; the architects and workmen therefore who were brought over from Constantinople reproduced the style with which they were best acquainted in the East, with such alterations in plan as the liturgies of the church required, such modifications in construction as the materials of the country necessitated, and such ideas in architectural design as were suggested by the examples in Rome with which Theodoric was well acquainted, having not only restored some of the churches there, but insisted that the primitive style should be adhered to. The simple basilican form of church with nave, and aisles without galleries over, and a single apse, was based on numerous examples 530existing in Rome, to which source may be ascribed the external blind arcades of the aisle and nave walls.[274] From Woodcut 410, representing the arches of the nave of St. Apollinare Nuovo, it will be seen that an elegance of proportion is revealed and a beauty of design shown in the details of the capitals[275] and the dosserets which surmount them, which are quite foreign to any Roman examples. The great triforium frieze above the arches, and the wall space above them between the clerestory windows, covered with mosaics, executed 570 A.D. by Greek artists from Constantinople, suggest a completeness of design which had not been reached in Rome. All this is still more apparent in Woodcut No. 411, taken from the arcade where the nave joins the apse in St. Apollinare in Classe, which shows a further advance in the working out of a new style, based partially on Roman work, but carried out by Byzantine artists.
411. Part of Apse in S. Apollinare in Classe, Ravenna. (From Quast.)
412. S. Apollinare in Classe, Ravenna. (From Quast.)
Externally these buildings appear to have remained to the present hour almost wholly without architectural embellishment. It was considered sufficient for ornamental purposes to make the brick arches necessary for the construction slightly more prominent and important than was actually required. As if impelled by some feeling of antagonism to the practice of the heathens, the early Christians seem to have tried to make the external appearance of their buildings as unlike those of their predecessors as was possible. Whether this was the cause or not, it is certain that nothing can well be less ornamental than these exteriors; and even the narthex,[276] which in the Apollinare in Classe afforded an excellent opportunity for embellishment, could not be less ornamental if it were the entrance to a barn instead of to a church of such richness and beauty as this in all its internal arrangements.
The restoration of portions of the Cathedral of St. Mark during the past twenty years, and the careful examination of various documents in the archives of that city have led to the discovery that the work attributed to Doge Pietro Orseolo, 976-78, consisted mainly in the re-construction of the basilican church erected by the Doge Jean Participazio in 829-32, and burnt in 976. The acquisition of the relics of St. Mark the Evangelist, brought from Alexandria in 828 (when the Mohametans 531pulled down the church of St. Mark in that town), determined Jean’s brother Justinian to build a church which should be worthy of their reception. He died, however, before the work was commenced, but left a large sum of money for the purpose. This church was built on the old site situated between the Ducal Palace and the church of St. Theodore, which, up to that time, had served as the Ducal chapel. The width of the church would seem to have been the same as that of the present nave and aisles. Its west end formed part of the existing wall behind the present vestibule, but some difference of opinion seems to exist as to its eastern end, and whether it coincided with the actual apses. Though nominally built in 976-78 the decoration of Orseolo’s church was probably carried on in succeeding years, and much of the sculptural work in the present building dates from the first half of the 11th century. In 1063, under the Doge Domenico Contarini, the church of St. Theodore, according to M. Cattaneo,[277] was pulled down and some of its materials used in the new cathedral. Portions also of the Ducal Palace were destroyed to give increased space on the south side for the Transept, the portion known as the Treasury only being preserved.[278] The record of the new church states that it was built similar in its artistic construction to that at Constantinople erected in honour of the twelve apostles.[279] The arrangement and the design of the church thus extended were probably due to a Greek architect, though much of the 532work, according to M. Cattaneo, was afterwards carried out by a Lombard sculptor, Mazulo, who designed the atrium and tower of the abbey of Pomposa (about 30 miles from Venice), where the carving is of the same character or style as that in St. Mark’s. Internally the church measures 200 ft. east and west, and 164 ft. across the transepts; externally these dimensions are increased to 260 × 215, and the whole area to about 46,000 square ft., so that although of respectable dimensions it is by no means a large church. The central and western dome are 42 ft. in diameter, the other three 33 ft. only. They are carried on spherical pendentives resting on circular barrel vaults about 15 ft. wide; a crypt 86 ft. × 74 ft. extends under the eastern dome and apses, the vault being supported by fifty-six monolithic columns 5 ft. 6 in. high: the whole height from floor to the crown of the arch being under 9 ft. The construction of this crypt probably followed the erection of the church, which was not consecrated till 1111, when Ordelapo Faliero was Doge. Externally this apse is polygonal, as in Byzantine churches, the upper storey being set back to allow of a passage round. The narthex or vestibule in front of the church, which extends also on north and south of the nave aisles up to the transepts, and the rooms over the north narthex and over part of the baptistery, must have followed the erection of the church; in fact, the principal front could not have been completed without them.
413. Plan of St. Mark’s, Venice.
414. Capital in Apse, St. Mark’s, Venice.
415. View of St. Mark’s, Venice. (From Rosengarten.)
416. Section of St. Mark’s, Venice. (From ‘Chiesi Principali di Europa.’)
Externally the original construction was in brick, with blind arcades, niches, and a simple brick cornice such as is found in Lombardic 534work. It was not till the commencement of the 13th century that the decoration of the front and sides with marble was undertaken; the arches were encased with marble slabs carried on ranges of columns, those of the narthex being placed one above the other. The shafts, capitals and bases were brought from other buildings, having been imported from Altinum, Aquileia, Heraclea, Ravenna, and from other places in Dalmatia, Syria, and the East. It is possible that the porches of the churches of St. Gilles and of St. Trophime at Arles may have suggested this method of decoration, of which no prototype exists in the East. The capitals are of all periods, from the 4th to the 11th centuries, the entablature blocks and the stylobates being specially worked for the building. The rose window of the south transept and others of similar style were inserted about the commencement of the 14th century, the baptistery and the chapel of St. Isidore[280] being encased with marbles in the middle of the same century, and the decoration of the upper part of the arches of the west, towards the end of the 14th century. As will be seen by the north and south fronts section (Woodcut No. 416) the original brick domes were surmounted by timber domes covered with lead, and of considerable height. These 535were probably added in the middle of the 13th century.[281] The rood loft dates from the end of the same century. The earlier mosaics in the domes date from the 12th century, and the marble casing of the lower portion of the walls and the richly decorated pavement from the 12th and 13th centuries. The work of decoration was carried on through succeeding centuries with occasional restorations, so that the church itself constitutes a museum with almost every phase of work in mosaic from the 12th to the 18th centuries.
Though from a strictly architectural point of view the disposition of the design is not equal to those of some of our northern cathedrals (except perhaps for the greater beauty of Byzantine domical construction), it is impossible to find fault with plain surfaces when they are covered with such exquisite gold mosaics as those of St. Mark’s, or with the want of accentuation in the lines of the roof, when every part of it is more richly adorned in this manner than any other church of the Western world. Then too the rood screens, the pulpit, the pala d’oro and the whole furniture of the choir are so rich, so venerable, and on the whole so beautiful, and seen in so exquisitely subdued a light, that it is impossible to deny that it is perhaps the most impressive interior in Western Europe. St. Front at Périgueux, with almost identical dimensions and design (Woodcut No. 562), is cold, scattered, and unmeaning, because but a structural skeleton of St. Mark’s without its adornments. The interior of a 13th-century Gothic church is beautiful, even when whitewashed; but these early attempts had not yet reached that balance between construction and ornament, which is necessary to real architectural effect.
The same is true of the exterior; if stripped of its ornament and erected in plain stone it would hardly be tolerable, and the mixture of florid 14th-century foliage and bad Italian Gothic details with the older work, would be all but unendurable. But marble, mosaic, sculpture, and the all-hallowing touch of age and association, disarm the critic, and force him to worship when his reason tells him he ought to blame.
Much as St. Mark’s must have been admired in the days of its freshness, the Gothic feeling seems to have been so strong in Northern Italy in the 11th and 12th centuries as to prevent its being used as a model. The one prominent exception is San Antonio, Padua (1237-1307), which is evidently a copy of St. Mark’s, but with so much Gothic design mixed up with it as to spoil both. Length was sought to be obtained by using seven domes instead of five, and running an aisle round the apse. The side-aisles were covered with intersecting 536vaults, and pointed arches were occasionally introduced when circular would have harmonised better with the general design.
417. Plan of St. Antonio, Padua. (From Wiebeking.) Scale 100 ft. to 1 in.
Externally the enveloping porch was omitted—not even the Pisan modification of it introduced, though it might have been employed with the happiest effect. The consequence of all this jumble is, that San Antonio is externally one of the most unsatisfactory churches in Europe, though possessing a quaint Oriental look from the grouping of its dome with the minaret-like spires which adorn it. The inside is not so bad, though a roof of only five bays over a quasi-Gothic church, 200 ft. in length, distorts the proportion, and with the ill-understood details of the whole, spoils what narrowly escaped being one of the most successful interiors of that part of Italy.
Both Dalmatia and Istria formed part of the Gothic kingdom of Theodoric: we find therefore the same Byzantine influence exerted as in Ravenna; an influence which increased when the first-named country was retaken by Justinian in 535, and the second in 539 A.D.
At Parenzo in Istria there is a basilica, built in the year 543 A.D. by the Bishop Euphrasius, and consequently contemporary with the examples at Ravenna already described. This church still retains its atrium, baptistery, and other accompaniments, which those at Ravenna have lost. It consists of a basilica in three aisles, with an apse at the end of each, and an atrium in front, beyond which is situated the baptistery; and in front of this again a tower, though this latter feature seems to be of more modern date. On one side at the east end is a chapel or crypt; this, Mr. Jackson[282] suggests, may have been “the 537martyrium or confessio of the basilica where the remains of the saintly patrons of the church were preserved and venerated.” “According to strict rule,” Mr. Jackson observes, “the confessio should be in a crypt under the choir as at Aquileja and Zara, but Parenzo lies so low that excavation would be difficult, and here as in other cases the martyrium may have been placed in an adjoining building.”[283]
Internally the church is 121 ft. in length by 32 in width, and possesses all the usual arrangements of a church of that date. The columns are borrowed from some earlier edifice, but the capitals are all original, and were carved for the church. They are all of pure Byzantine type, and are surmounted by that essentially Byzantine feature the dosseret. The central apse, though circular inside, is polygonal outside, which is another characteristic of Byzantine work. Like Torcello it has still preserved its semicircle of marble seats for the clergy, with the episcopal throne in the middle. Externally the façade retains portions of the ancient mosaics with which it was decorated, and although internally the nave has lost its early decorations, the lofty dado of the apse inlaid with slabs of porphyry and serpentine interspersed with mosaics of opaque glass, onyx and mother-of-pearl, bears witness to its original splendour, the cypher of Euphrasius denoting its execution to be coeval with the building of the church, and therefore some centuries earlier than the mosaics of the baldachino, which are dated 1277.
418. Church at Parenzo in Istria. (From Jackson.) Scale 100 ft. to 1 in.
We are indebted also to Mr. Jackson for the description of two churches at Grado: the Duomo and St. Maria delle Grazie; the former a fine basilican church with nave and aisles and a deep central apse, circular inside and polygonal externally.[284] The twenty columns of the nave are all taken from earlier edifices, 538and of the capitals which surmount them five are Roman and twelve of pure Byzantine workmanship, based on the Roman composite capital, but treated in a quite original way. The capitals are not surmounted by the dosseret, but in the other church of St. Maria delle Grazie some have the dosseret and others are without it, though all of the same period. The chief glory of the church, however, lies in its magnificent marble pavement (measured and illustrated in Mr. Jackson’s work), the greater portion of which is still preserved. The church of St. Maria delle Grazie is a small basilican church of six bays with fragments of similar pavement to those in the Duomo. The apse here is masked on the exterior by two sacristies on each side which entirely enclose it; similar examples are found in De Vogüé’s work of “Central Syria” (Woodcuts Nos. 278, 281, and 299).
419. Capital of Column at Parenzo.
The churches of Parenzo and Grado appear to be the only examples remaining of early Romano-Byzantine work on this side of the Adriatic. St. Maria de Canneto at Pola, consecrated in 546 A.D., was destroyed in the 14th and 15th centuries and its materials carried off to Venice for the adornment of the churches there. As edifices of the age of Justinian, and as showing the relative position of the various parts that made up an ecclesiastical establishment in those early times, the churches of Parenzo and Grado are singularly deserving of the attention of those to whom the history of art is a matter of interest.
The church at Torcello, in the Venetian Lagune, is the last example it will be necessary to quote in order to make the arrangements of the early basilicas intelligible. It was originally erected in the seventh century; of this church, according to M. Cattaneo, the only portion remaining, if we except a fragment of the ancient baptistery, is the central apse. In 864, the church would seem to have been reconstructed, and to this period belong the two side apses, the apsidal crypt with new windows pierced through the old wall and the external walls: it is possible that the original nave of the seventh century was retained till 1008, when it was rebuilt by the Doge Pietro Orseolo, on the occasion of his son being raised to the Bishopric of Torcello. Thirteen of the capitals of the nave date from this period, one may be earlier, and five belong to the second half of the 12th century. The whole width of the church is 71 ft. internally by 125 in length. A 539screen of six pillars divides the nave from the sanctuary. Perhaps, however, the most interesting part of this church is the interior of its apse, which still retains the bishop’s throne, surrounded by six ranges of seats for his presbytery, arranged like those of an ancient theatre. It presents one of the most extensive and best preserved examples of the fittings of the apse, and gives a better idea of the mode in which the apses of churches were originally arranged than anything that is to be found in any other church, either of its age or of an earlier period.[285]
Like Sta. Pudentiana (Woodcut No. 404), this church possesses a small side chapel, a vestry or sanctuary, on the Gospel side of the altar, and the remains of the ancient baptistery may still be traced in front of the west door. This was a square block, externally, measuring 37 ft. each way; internally an octagon, with the angles cut into hemispherical niches. A portion of its eastern side only remains, and this is now hidden behind the modern baptistery, in which, under a board in the pavement, can be seen the foundations of the second baptistery of the 12th century. In the rear of the church stood the campanile, and across a narrow passage the conventual buildings; in front of which now stands the beautiful little church of Sta. Fosca, the whole making up a group of nearly unrivalled interest considering its small dimensions.
420. Plan of Church at Torcello. Scale 100 ft. to 1 in. (From Cattaneo.)
Other examples might be quoted differing in some slight respect from those just given, but the above are probably sufficient to explain the general arrangements of the early basilican churches and the style of their architecture, so long as this worked on the old tradition of the Romano-Byzantine style; in other words, so long as it continued in Italy to be a distinction from the Roman style without any foreign admixture beyond that introduced direct from Byzantium. It might be instructive to speculate on what the style might have become if left alone to develope itself on its native soil, but it would be extremely difficult to make the subject clear without a much larger amount of illustration than is admissible, and which in such a history as this would be out of place. Simultaneously with the elaboration of the rectangular form of church by the Italians, the Byzantines were occupied with the same task; but, being freer from the trammels of 540tradition and less influenced by examples, they early arrived at forms much more divergent from those of the classical period than those of Italy, and their style, reacting on the Italian, produced that very beautiful combination of which Pisa Cathedral is a type, and St. Mark’s at Venice an extreme example. This style generally pervaded the whole south of Italy, with the exception of Rome; and, from the elements of which it was composed, may fairly be designated Byzantine Italian.
421. Apse of Basilica at Torcello.
While this was going on in the south, the Longobards, and other Barbarians who invaded the north of Italy, seized on this type and worked it out in their own fashion. They, however, conceived the desire to give a more permanent character to their churches by covering them over with stone vaulted roofs, which led to most important modifications of the style. It may probably be correct to assert that no Romano-Byzantine or early Romanesque church has, or ever had, a vaulted nave. On the other hand, there is hardly a Barbarian church which the builders did not aspire to vault, though they were frequently unable to accomplish it. It was this vaulting mania which led to the invention of compound piers, pointed arches, buttresses, pinnacles, and all the numerous peculiarities of the Gothic 541style; and which, reacting on northern Italy, produced the Ghibelline or Italian-Gothic style.
No exact boundary can be drawn between these two: modifications of style varied, as Byzantine or Gothic influences ebbed or flowed, during the Middle Ages. Venice and Pisa, and all Calabria, were generally influenced by their intercourse with the East, while the whole of the north of Italy and away from the coast as far down as Sienna and Orvieto the strong hand of the Teuton made itself felt.
Yet Italy cannot be said to have been successful in either style. Her superior civilisation enabled her to introduce and use an elegance of detail unknown north of the Alps; but she did not work out the basilican type for herself: she left it to others to do that for her, and consequently never perfectly understood what she undertook, or why it was done. The result is that, though great elegance is found in parts, Italy can hardly produce a single church which is satisfactory as a design; or which would be intelligible without first explaining the basework of those true styles from which its principal features have been borrowed.
Circular Churches—Tomb of Sta. Costanza—Churches at Perugia, Nocera, Ravenna, Milan—Secular Buildings.
In addition to the Pagan basilicas and temples, from which the arrangements of so many of the Christian edifices were obtained, the tombs of the Romans formed a third type, from which the forms of a very important class of churches were derived.
The form which these buildings retained, so long as they remained mere sepulchres appropriated to Pagan uses, has been already described (pp. 342 to 346). That of Cæcilia Metella and those of Augustus and Hadrian were what would now be called “chambered tumuli;” originally the sepulchral chamber was infinitesimally small as compared with the mass, but we find these being gradually enlarged till we approach the age of Constantine, when, as in the tombs of the Tossia Family, that called the Tomb of Helena (Woodcut No. 227) and many others of the same age, they became miniature Pantheons. The central apartment was all in all; the exterior was not thought of. Still they were appropriated to sepulchral rites, and these only, so long as they belonged to Pagan Rome. The case was different when they were erected by the Christians. No association could be more appropriate than that of these sepulchral edifices, to a religion nursed in persecution, and the apostles of which had sealed their faith with their blood as martyrs; and when the Sacrament for the dying and the burial service were employed, it was in these circular churches that it was performed. But besides the viaticum for the departing Christian, the Church provided the admission sacrament of baptism for those who were entering into communion, and this was, in early days at least, always performed in a building separate from the basilica. It would depend on whether marriage was then considered as a sacrament or a civil contract, whether it was celebrated in the basilica or the church; but it seems certain that the one was used almost exclusively as the business place of the community, the other as the sacramental temple of the sect. This appears always to have been the case, at least when 543the two forms existed together, as they almost always did in the great ecclesiastical establishments of Italy. When the church was copied from a temple, as in the African examples above described, it is probable it may have served both purposes. But too little is known of the architecture of this early age, and its liturgies, to speak positively on the subject.
The uses and derivation of these three forms of churches are so distinct that it would be extremely convenient if we could appropriate names to distinguish them. The first retains most appropriately the name of basilica, and with sufficient limitation to make it generally applicable. The word ecclesia, or église, would equally suffice for the second but that it is not English, and has been so indiscriminately applied that it could not now be used in a restricted sense. The word kirk, or as we soften it into church, would be appropriate to the third,[286] but again it has been so employed as to be inapplicable. We therefore content ourselves with employing the words Basilica, Church, and Round Church, to designate the three, employing some expletive when any confusion is likely to arise between the first two of the series.
The most interesting feature of the early Romanesque circular buildings is that they show the same transitional progress from an external to an internal columnar style of architecture which marked the change from the Pagan to the Christian form of sacred edifice. It is perhaps not too much to assert that no ancient classic building of circular form has any pillars used constructively in its interior.[287] Even the Pantheon, though 143 ft. 6 in. in diameter, derives no assistance from the pillars that surround it internally—they are mere decorative features. The same is true of the last Pagan example we are acquainted with—the temple or tomb which Diocletian erected in his palace at Spalato (Woodcut No. 194). The pillars do fill up the angles there, but the building would be stable without them. The Byzantine architects also generally declined to avail themselves of pillars to support their domes, but the Romanesque architects used them almost as universally as in their basilicas.
Another very striking peculiarity is the entire abandonment of all external decoration. Roman circular temples had peristyles, like 544those at Tivoli (Woodcut No. 193) and that of Vesta in Rome. Even the Pantheon is as remarkable for its portico as its dome, so is that known as the Torre dei Schiavi,[288] but it is only in the very earliest of the Christian edifices that we find a trace of the portico, and even in them hardly any attempt at external decoration. The temples of the Christians were no longer shrines to contain statues and to which worship might be addressed by people outside, but had become halls to contain the worshippers themselves while engaged in acts of devotion.
The tomb of the Empress Helena (Woodcut No. 227) is one of the earliest examples of its class. It has no pillars internally, it is true, but it likewise has none on the exterior—the transition was not then complete. The same is the case with the two tombs on the Spina of the Circus of Nero (Woodcut No. 396). They too were astylar, and their external appearance was utterly neglected.
422. Baptistery of Constantine. (From Isabelle.) Scale 100 ft. to 1 in.
When from these we turn to the Tomb or Baptistery of Constantine, built some time afterwards (Woodcut No. 422), we find the roof supported by a screen of eight columns, two storeys in height, and through all its alterations can detect the effort to make the interior ornamental. It has, however, a portico, but this again is practically an interior, both ends being closed with apsidal terminations, so that it really forms a second apartment, rather than a portico. In both these respects it is in advance of the building next to it in age that we know of—the Octagon at Spalato—which it otherwise very much resembles. The eight internal pillars instead of being mere ornaments have become essential parts of the construction, and the external peristyle has disappeared, leaving only the fragment of a porch.
423. Plan of the Tomb of Sta. Costanza, Rome. (From Isabelle, ‘Édifices Circulaires.’) Scale 100 ft. to 1 in.
The tomb which the same Emperor erected to contain the remains of his daughter Constantia, is another example of the same transitional style. The interior in this instance is vaulted, but so timidly that twenty-four pillars are employed to sustain a weight for which half that number would have been amply sufficient. In the square niche opposite the entrance stood the sarcophagus of the princess, now in the Vatican. The roof of the aisle is adorned with paintings of the vintage and scenes of rural life, which, like all those on the tombs of Pagan Rome, have no reference to the sepulchral 545uses to which the building was dedicated. The whole internal diameter of the tomb is 73 ft., that of the dome 35.
In front of the building is a small crypto-porticus similar in arrangement to that of her father’s tomb, and beyond this is an oblong space with circular ends, and surrounded on all sides by arcades; its dimensions were 535 ft. by 130, and, though so ruined as hardly to allow of its arrangements being restored, it is interesting as being perhaps the only instance of the “forum,” which it is probable was left before all tombs in those times, and traces of which may perhaps be found elsewhere, though as yet they have not been looked for.
424. Plan of San Stefano Rotondo. (From Gutensohn and Knapp.) Scale 100 ft. to 1 in.
The only other important circular building within the walls of Rome of this early age is that known as S. Stefano Rotondo. Though there is nothing to fix its date with any precision, it is almost certain that it belongs to the fifth century of the Christian era.[289] It is 210 ft. in diameter, and its roof was supported by two ranges of columns, circularly disposed in its interior; and on the first or inner range rested a horizontal architrave like that of St. Peter’s. In the outer one the pillars support arches like those of St. Paul’s.[290] All the pillars are taken from older buildings. The outer aisle was divided into eight compartments; but in what manner, and for what purpose, it is not now easy to ascertain, owing to the ruined state of the building, and to its having been so much and so frequently altered since it was first erected. Nor can it be determined exactly how it was roofed; though it is probable that its arrangements were identical with those of the great five-aisled basilicas, which it closely resembles, except in its circular shape.
425. Plan of Sti. Angeli, Perugia. (From Isabelle.) Scale 100 ft. to 1 in.
This is more clear in another church of the same age, that of Sti. Angeli, at Perugia, which is very similar in its disposition. Of this building a section is here shown, as given by M. Isabelle—perhaps 546not quite to be depended upon in every respect, but still affording a very fair representation of what the arrangements of the circular wooden roofed churches were. Its dimensions are much less than those of San Stefano, being only 115 ft. in diameter; but it is more regular, the greater part of its materials being apparently original, and made for the place they occupy. In the church of San Stefano, the tomb-shaped circular form was probably used as symbolical of his martyrdom. That at Perugia was most likely originally a baptistery, or it may also have been dedicated to some martyr; but in the heart of Etruria this form may have been adopted for other reasons, the force of which we are hardly able at the present day to appreciate, though in all cases locality is one of the strongest influencing powers in so far as architectural forms are concerned.
426. Section of Sti. Angeli, Perugia. (From Isabelle, ‘Édifices Circulaires.’) No scale.
427. Plan of Baptistery at Nocera dei Pagani. Double the usual scale, or 50 ft. to 1 in.
At Nocera dei Pagani, on the road between Naples and Salerno, there is an extremely beautiful circular church, built undoubtedly for the purpose of a baptistery, and very similar in plan and general arrangement to the tomb of Constantia, now known as the Baptistery of Sta. Agnese, though somewhat larger being 80 ft. in diameter. Its principal merit is the form of its dome, which is not only correct in a scientific point of view, but singularly graceful internally. Externally this building for the first time introduces us to a peculiarity which had as much influence on the western styles as any of those pointed out above. 547As before observed (p. 540), the early Romanesque architects never attempted to vault their rectangular buildings, but they did frequently construct domes over their circular edifices. But here again they did not make the outside of the dome the outline of their buildings, as the Romans had always done before the time of Constantine, and as the Byzantines and Saracens invariably did afterwards; but they employed their vault only as a ceiling internally, and covered it, as in this instance, with a false wooden roof externally. It may be difficult to determine how far this was a judicious innovation; but this at least is certain, that it had as much influence on the development of the Gothic style as the vaulting mania itself. In the 10th and 11th centuries many attempts were made to construct true roofs of stone, but unsuccessfully; and from various causes, which will be pointed out hereafter, the idea was abandoned, and the architects were forced to content themselves with a stone ceiling, covered by a wooden roof, though this became one of the radical defects of the style, and one of the principal causes of the decay and destruction of so many beautiful buildings.
428. Section of Baptistery at Nocera dei Pagani. (From Isabelle, ‘Édifices Circulaires.’) No scale.
Ravenna possesses several circular buildings, almost as interesting as those of the capital; the first being the baptistery of St. John belonging to the original basilica, and consequently one of the oldest Christian buildings of the place. Externally it is a plain octagonal building, 40 ft. in diameter. Internally it still retains its mosaic and other internal features added in the 5th century, which are 548singularly elegant and pleasing. Its design is somewhat like that of the temple at Spalato, but with arcades substituted everywhere for horizontal architraves; the century that elapsed between these two epochs having sufficed to complete the transition between the two styles.
429. Plan of St. Vitale, Ravenna. (From Isabelle.) Scale 100 ft. to 1 in.
Far more interesting than this is the great church of St. Vitale, the most complicated, and at the same time, perhaps, the most beautiful, of the circular churches of that age. In design it is nearly identical with the church of St. Sergius at Constantinople (see Woodcut No. 311), from which it was undoubtedly copied, and probably by Greek artists from that town. It was built in the reign of Justinian by St. Ecclesius, archbishop of the see, and was consecrated in 547, eight years after the taking of Ravenna by Justinian’s generals. The principal difference of the plan lies in its being enclosed within an octagon instead of a square, as in St. Sergius, probably to mask the irregularity of the main entrance from a street which did not run in the direction of any of the cardinal points. The recesses are loftier in proportion than those of St. Sergius, and in the lower storey arcades take the place of beams. The aisles being covered with timber roofs, it was necessary to raise the walls of the octagon higher than those of St. Sergius, and small arches take the place of the usual pendentives: the springing of the dome, which is 50 ft. in diameter, is on the level of the sill of the windows the arches of which therefore form penetrations into the dome.
430. Section of St. Vitale, Ravenna. (From Isabelle.) Scale 50 ft. to 1 in.
The church is built in bricks with thick mortar joints, the dome 549being constructed in an ingenious manner with hollow pots fitted the end of one into the mouth of the other; the lightness of this vault has enabled the builders to dispense with the immense arches and buttresses found in St. Sergius and in Sta. Sophia. Similar construction with pots had been employed in the East for domes and roofs,[291] and they form as permanent a method as stone itself, in addition to the stability, facility of construction, and lightness which such an expedient affords.
431. Capital in St. Vitale, Ravenna.
Internally a good deal has been done in modern times to destroy the simplicity of the original effect of the building; but still there is a pleasing result produced by alternating the piers with circular columns, and a lightness and elegance about the whole design that render it unrivalled in the western world among churches of its class. This seems to have been admitted by its contemporaries as much as it is 550in modern times. Charlemagne at all events copied it for his own tomb at Aix-la-Chapelle, and the architects of many other circular buildings of that age appear to have derived their inspiration from this one.
431a. Capital in St. Vitale, Ravenna.
The church of San Lorenzo at Milan, had it not been so much altered in modern times, would take precedence of San Vitale in almost every respect. The date of its erection is not known, though it certainly must be as early as, if not earlier than, the time of Justinian. Down to the 8th century it was the cathedral of the city. It was burnt to the ground in 1071, and restored in 1119; the dome then erected fell in 1571, on which it underwent its last transformation from the hands of Martino Bassi and Pellegrini, who so disfigured its ancient details as to lead many modern inquirers to doubt whether it was really so old as it was said to be.
Its plan, however, seems to have remained unchanged, and shows a further progress towards what afterwards became the Byzantine style than is to be found either in St. Sergius or in San Vitale. It is in fact the earliest attempt to amalgamate the circular church with one of a square shape; and except that the four lateral colonnades are flat segments of circles, and that there is a little clumsiness in the angles 551(due possibly to the additions made in 1119 and 1571, when the plan of the dome was changed to an octagon, the original dome being probably circular, and carried on four spherical pendentives), it is one of the most successful designs handed down from that early age.
The dome as it now stands is octagonal, which the first dome certainly could not have been. Its diameter is 70 ft., nearly equal to that of the Minerva Medica, and the whole diameter of the building is internally 142 ft.
432. Plan of S. Lorenzo at Milan. (From Quast, ‘Altchristlichen,’ &c.) Scale 100 ft. to 1 in.
In front of the church, in the street, is a handsome colonnade of pillars, borrowed from some ancient temple—it is said from one dedicated to Hercules; this leads to a square atrium, now wholly deprived of its lateral arcades; and this again to a façade, which has been strangely altered in modern times. Opposite this, to the eastward of the church, is an octagonal building, apparently intended as a tomb-house; and on the north side a similar one, though smaller. On the south is the baptistery, about 45 ft. in diameter, approached by a vestibule in the same manner as that of Constantine at Rome, and as in the tomb of his daughter Constantia: all these, however, have been so painfully altered, that little remains besides the bare plan of the building; still there is enough to show that this is one of the oldest and most interesting of the Christian churches of Italy.
552The building now known as the baptistery at Florence is an octagon, 108 ft. in diameter externally. Like the last-mentioned church, it was originally the cathedral of the city, and was erected to serve as such apparently in the time of Theodelinda, queen of the Lombards. If this was so, it certainly had not originally its present form, and most probably those columns which now stand ranged round the walls at that time stood in the centre, as in the Roman examples. If the original roof was of wood, it was probably in two storeys, like that of the baptistery of Constantine, or it may have been a dome of more solid materials, like that of the Sta. Costanza.
At the same time when the new cathedral was built, the older edifice appears to have been remodelled both internally and externally by Arnolpho da Lapo, and both its form and decoration so completely changed, that it must now be considered rather as a building of the 13th century than of the 6th, in which it seems originally to have been erected.[292]
433. Half Section, half Elevation, of the Baptistery at Novara. (From Osten.) No scale.
The baptistery of Novara, which may date from the time of Charlemagne, is interesting in that it contains the germ of those external galleries under the roof which form not only one of the most common but also one of the most beautiful features of the later Lombard and Rhenish churches. From the elevation (Woodcut No. 433) it will easily be seen what was the motive and use of this arrangement, the first trace of which dates perhaps as far back as the baptistery of Nocera (Woodcut No. 428); for wherever a wooden roof was placed over a circular vault, it is evident that the external walls must be carried up higher than the springing of the arch. But it was by no means necessary that this additional wall should be so solid as that below it, and it was necessary to introduce light and air into the space between the stone and the wooden roofs. Add to this the incongruity of effect in 553placing a light tiled wooden roof on a massive solid wall, and it will be evident that not only did the exigencies of the building, but the true principles of taste, demand that this part should be made as light as possible. Such openings as those found in the baptistery at Novara suggested an expedient which provided for these objects. This was afterwards carried to a much greater extent. At first, however, it seems only to have been used under the roofs of the domes with which the Italians almost universally crowned the intervention of naves and transepts, and round the semidomes of the apses; but so enamoured did they afterwards become of this feature, that it is frequently carried along the sides of the churches under the roof of the nave and of the aisles, and also—where it is of more questionable taste—under the sloping naves of the roof of the principal façade.
There is nothing in the Lombardian and Rhenish styles so common or so beautiful as these galleries, the arcades of which have all the shadow given by a cornice without its inconvenient projection, while the little shafts with their elegant capitals and light archivolts have a sparkle and brilliancy which no cornice ever possessed. Indeed so beautiful are they, that we are not surprised to find them universally adopted; and their discontinuance on the introduction of the pointed style was one of the greatest losses sustained by architectural art in those days. It is true they would have been quite incompatible with the thin walls and light piers of pointed architecture, but it may be safely asserted that no feature which these new styles introduced was equally beautiful with those galleries which they superseded.
434. Tomb of Galla Placidia, Ravenna. (From Quast.) No scale.
There can be little doubt that many other similar buildings belonging to this age still exist in various parts of Italy; for it is more than probable that, at a time when the city was not of sufficient importance, or the congregation so numerous as to require the more extended accommodation of the basilica, almost all the earlier churches were circular. They either, however, have perished from lapse of time, or have been so altered as to be nearly unrecognisable. We here, in consequence, come again to a break in the chain of our sequence; and when we again meet with any circular buildings in Italy, their features are so distinctly Gothic or Byzantine, that they must be classed with one or other of these modifications. The true Romano-Byzantine style had nearly come to an end when Alboin the Lombard had made himself master of the greater part of Italy about the year 575.
Before leaving this branch of the subject there are two small buildings at Ravenna which it is impossible to pass over, though 554their direct bearing on the history of this subject is not so apparent as it is in the case of other buildings just described. The first and earliest is the tomb of Galla Placidia (Woodcut No. 302), now known as the church of SS. Nazario and Celso, and must have been erected before the year 450. It is singular among all the tombs of that age from the abandonment in it of the circular for a cruciform plan. Such forms, it is true, are common in the chambers of tumuli and also among the catacombs, while the church which Constantine built in Constantinople and dedicated to the Apostles, meaning it however as a sepulchral church, was something also on this plan. Notwithstanding, however, these examples, this must be considered as an exceptional form, though its diminutiveness (it being only 35 ft. by 30 internally) might perhaps account for any caprice. Its great interest to us consists in its retaining not only its primitive architectural form (which is that of a dome carried on pendentives, and one of the few instances in which both dome and pendentives form part of one sphere), but its polychromatic decorations nearly in their original state of completeness (Woodcut 302). The three arms of the cross forming the receptacles for the three sarcophagi is certainly a pleasing arrangement, but is only practicable on a small scale.
435. Capital of Pillars forming peristyle round Theodoric’s Tomb. (From Hubsch.)
436. Plan of Tomb of Theodoric. Scale 50 ft. to 1 in.
437. Elevation of Tomb of Theodoric, Ravenna. (From Isabelle, ‘Édifices Circulaires.’)
Far more interesting than this—architecturally at least—is the tomb of Theodoric, the Gothic king, now known as Santa Maria Rotunda. The lower storey is a decagon externally, enclosing a cruciform crypt. It is 45 ft. in diameter, each face being ornamented by a deep niche. These support a flat terrace, on which originally stood a range of small pillars supporting arches which surrounded the upper storey. These have all been removed, though their form can be restored from fragments found, and as shown in Woodcut No. 435. On the face of the tomb itself are the sinkings for the architraves and vaults 555which they supported. The most singular part of the building is the roof, which is formed of one great slab hollowed out into the form of a flat dome—internally 30 ft. and externally 35 ft. in diameter—and which certainly forms one of the most unique and appropriate coverings for a tomb perhaps anywhere to be found. Near the edge are a series of projecting bosses, which evidently were originally used as handles, by means of which the immense mass was raised to its present position. In the centre of the dome is a small square pedestal, on which, it is said, once stood the urn which contained the ashes of its founder.
The model of this building seems probably to have been the Mole of Hadrian, which Theodoric saw, and must have admired, during his celebrated visit to Rome. The polygonal arrangements of the exterior, and the substitution of arcades for horizontal architraves, were only such changes as the lapse of time had rendered indispensable. But the building of the ancient world which it most resembles is the Tour Magne at Nîmes. In both cases we have the polygonal basement containing a great chamber, and above this externally the narrow ledge, approached by flying flights of steps. We cannot now tell what crowned the French example, though the fact of an urn crowning the tomb at Ravenna points to an identical origin, but we must obtain a greater number of examples before we can draw any positive conclusions as to the origin of such forms. Meanwhile, however, whether we consider the appropriateness of the forms, the solidity of its construction, or the simplicity of its ornaments and details, this tomb at Ravenna is not surpassed by any building of its class and age.
Though the investigation of the early history of these circular forms of churches is not so important as that of the rectangular basilicas, it is extremely interesting from the influence they had on the subsequent development of the style. In Italy it is probable that one-half of the early churches were circular in plan; and one such is still generally retained attached to each cathedral as a baptistery. Except for this purpose, however, the form has generally been superseded: the rectangular being much easier to construct, more capable of extension, and altogether more appropriate to the ritual of the Christian community. In France the circular form was early absorbed into the basilica, forming the Chevet or apse. In Germany its fate was much the same as in Italy, but its supersession was earlier and more complete. In England some half-dozen examples are known to exist, and in Spain they have yet to be discovered.
Had the Gothic architects applied themselves to the extension and elaboration of the circular form with the same zeal and skill as was displayed in that task by their Byzantine brethren, they might probably have produced something far more beautiful than 556even the best of our mediæval cathedrals; but when the Barbarians began to build, they found the square form with its straight lines simpler and easier to construct. It thus happened that, long before they became as civilised and expert as the Easterns were when they commenced the task, the Westerns had worked the rectangular form into one of considerable beauty, and had adapted it to their ritual, and their ritual to it. It thus became the sacred and appropriate form, and the circular or domical forms were consequently never allowed a fair trial in Western Europe.
Very few remains of secular buildings in the early Christian style are now to be found in Italy. The palace of Theodoric at Ravenna, though sadly mutilated, is perhaps the best and most perfect. In all its details it shows a close resemblance to that of Diocletian at Spalato, but more especially so to the Porta Aurea and the most richly and least classically decorated parts of that edifice, but much intermixed with mouldings and details which would seem to belong to a later style.
Another building, though perhaps of earlier date, is that which is now called the Palazzo delle Torre at Turin, and which still retains the architectural ordinance of the exterior of a Roman amphitheatre, but so modified by common sense that the pilasters are frankly accepted as purely decorative features, having only a slight projection. A similar style of work is found at Bordeaux in what is known as the “Palais Gallien,” but which in reality is a fragment of an amphitheatre built by the Emperor Gallienus (260-268 A.D.). The example at Turin is built with brick of large dimensions 15 in. by 11 in., which, coupled with its character and style, has led M. Cattaneo to ascribe it to the 3rd or 4th century of our era; the paucity of contemporary examples, however, renders it extremely difficult to trace the exact history of the style at this age.
438. Palazzo delle Torre, Turin. (From Osten’s ‘Bauwerke in der Lombardei.’)
In so progressive an art as architecture it is always very difficult, sometimes impossible, to fix the exact date when one style ends and 557another begins. In an art so pre-eminently ecclesiastical as architecture was in those days, it will probably be safer to look in the annals of the Church rather than in those of the State for a date when the debased-Roman expired, giving birth, phœnix-like, to the Romanesque. Viewed from this point there can be little doubt but that the reign of Gregory the Great (A.D. 590 to 603) must be regarded as that in which the Latin language and the Roman style of architecture both ceased to be generally or even commonly employed.
After this date we wander on through five centuries of tentative efforts to form a new style, and in the age of another Gregory—the VII.—we find at last the Romanesque style emancipated from former traditions, and marching steadily forward with a well-defined aim. What had been commenced under the gentle influence of a Theodelinda at Florence in the year 600, was completed in the year 1077 under the firmer guidance of a Matilda at Canossa.
Chapel at Friuli—Churches at Piacenza and Novara—St. Michele, Pavia—St. Ambrogio, Milan—Cathedral, Piacenza—Churches at Verona—Churches at Toscanella—Circular Churches—Towers.
When, in the early centuries of the Christian era, the great mass of Gothic barbarism moved up the Valley of the Danube towards the west, one great division followed that river to its source, and thence penetrated into and settled in the Valley of the Rhine. Though sufficiently numerous to be able almost wholly to obliterate all traces of former civilisation, they had virtually no style of their own, and it seems probable that the edifices left by the Romans sufficed for the early wants of the people.
The other great division of the horde turned to the Sömmering Alps and, penetrating into Italy by way of Udine and Conegliano, settled in the Valley of the Po. They may have been as numerous as the others; but Italy in those days was far more densely peopled than Germany, and the inhabitants were consequently able to resist obliteration far more successfully than on the north of the Alps, and even where the new element prevailed most strongly its influence was far less felt than in the more sparsely-peopled Rhenish provinces. This was generally more apparent along the coast than in the interior. Venice did not exist, and Ravenna, though overwhelmed, became the great centre of Romano-Byzantine art. Pisa and Lucca resisted throughout. Florence was divided. The Barbarian influence was strongly felt at Siena, more feebly at Orvieto; but there it was stopped by the influence of Rome, which throughout the Middle Ages remained nearly uncontaminated.
Notwithstanding the almost insuperable barrier of the Alps which stretched between them and the different influences to which they were subjected, the connection between the northern and southern hordes remained intimate during the whole of the Middle Ages. Milan was as much German as Italian; and, indeed, except from a slightly superior degree of elegance in the southern examples, it is sometimes extremely difficult to distinguish between the designs of 559Lombard and of Rhenish churches. As the Middle Ages wore on, however, the breach between the two styles widened; and there is no difficulty, in the later pointed schools, in seeing how Italy was gradually working itself free from German influence, till at last they became distinct and antagonistic nationalities, practising two styles of art, which had very little in common the one with the other.
Whoever the Barbarians were who in the 5th and 6th centuries swarmed into Italy—Austro-Goths, Visi-Goths, or Lombards—they certainly did not belong to any of the great building races of the world. Few people ever had better opportunities than they of employing their easily-acquired plunder in architectural magnificence, if they had any taste that way; but, though we hear everywhere of the foundation of churches and the endowment of ecclesiastical establishments during the Carlovingian period, not one important edifice of that age has come down to our time. The monumental history of the early Romanesque style is as essentially a blank in Italy as it is in Saxon England. One or two circular buildings remain tolerably entire; some small chapels let us into the secrets of the style, but not one important edifice of any sort attests the splendour of the Lombard kingdom of Northern Italy. Aryans they must have been, and it was not till the beginning of the 11th century, when their blood was thoroughly mixed with that of the indigenous inhabitants and a complete fusion of races had taken place, that we find buildings of a monumental character erected, which have come down to the present day.
439. Chapel at Friuli. (From Gailhabaud.)
Among the smaller monuments of the age none has been preserved more complete and less altered than the little chapel at Friuli; which, though extremely small (only 18 ft. by 30 inside the walls), is interesting, as retaining all its decorations almost exactly as they were left by Gertrude, duchess of Friuli, who erected it in the 8th century. It shows considerable elegance in its details, and the sculpture is far 560better than it afterwards became, though perhaps its most remarkable peculiarity is the intersecting vault that covers it—pulchre testudinatum, as the old chronicle terms it. This is one proof among many, how early that feature was introduced which afterwards became the formative principle of the whole Gothic style, and was as essentially its characteristic as the pillars and entablatures of the five orders were the characteristics of the classical styles of Greece and Rome. As before remarked, it is this necessity for a stone roof that was the problem to be solved by the architects, and to accomplish which the style took almost all those forms which are so much admired in it.
From this example of the Carlovingian era we are obliged to pass to the 11th and 12th centuries, the first great building age of the Lombards. It is true that there is scarcely a single important church in Pavia, in Verona, or indeed in any of the cities of Lombardy, the original foundation of which cannot be traced back to a much earlier period. Before the canons of architectural criticism were properly understood, antiquaries were inclined to believe that in the buildings now existing they saw the identical edifices erected during the period of the Lombard sway. Either, however, in consequence of the rude construction of the earlier buildings, or because they were too small or too poor for the increased population and wealth of the cities at a later period, every one of the original churches has disappeared and been replaced by a larger and better-constructed edifice, adorned with all the improvements which the experience of centuries had introduced into the construction of religious edifices.
Judging from the rudeness of the earliest churches which we know to have been erected in the 11th century, it is evident that the progress made, up to that period, was by no means equal to what was accomplished during the next two centuries.
This will appear from the plan and section of St. Antonio at Piacenza (Woodcuts Nos. 440 and 440a), built in the first years of the 11th century, and dedicated in 1014 by Bishop Siegfried.
440a. Section of Church of San Antonio at Piacenza. (From Osten.)
441. Plan and section of Baptistry at Asti. (From Osten.) Scale 50 ft. to 1 in.
Its arrangement is somewhat peculiar; the transepts are near the 561west end, and the octagonal tower rising from the intersection is supported on eight pillars, the square being completed by four polygonal piers. The principal point, however, to observe is, how completely the style has emancipated itself from all Roman tradition. A new style has grown up as essentially different from the early Christian as the style of Cologne or of York Cathedral. The architect is once more at liberty to work out his own designs without reference to anything beyond the exigencies of the edifices themselves. The plan, indeed, is still a reminiscence of the Basilica; but so are all the plans of Mediæval cathedrals, and we may trace back the forms of the pillars, the piers, and the arches they support, to the preceding style. All these were derived from Roman art, but the originals are forgotten, and the new style is wholly independent of the old one. The whole of the church too is roofed with intersecting vaults, which have become an integral part of the design, giving it an essentially different character. On the outside buttresses are introduced—timidly, it is 562true, but so frequently, as to make it evident that already there existed no insuperable objection to increase either their number or depth, as soon as additional abutment was required for wider arches.
The windows, as in all Italian churches, are small, for the Italians never patronised the art of painting on glass, always preferring frescoes or paintings on opaque grounds. In their bright climate, very small openings alone were requisite to admit a sufficiency of light without disturbing that shadowy effect which is so favourable to architectural grandeur.
Being a parochial church, this building had no baptistery attached to it; but there is one at Asti (Woodcut No. 441) so similar in style and age, that its plan and section, if examined with those of San Antonio, will give a very complete idea of Lombard architecture in the beginning of the 11th century, when it had completely shaken off the Roman influence, but had not yet begun to combine the newly-invented forms with that grace and beauty which mark its more finished examples. One peculiarity of this building is the gloom that reigns within, there being absolutely no windows in the dome, and those in the aisles are so small, that even in Italy the interior must always have been in comparative darkness.
442. Plan of the Cathedral at Novara. Scale 100 ft. to 1 in.
The cathedral of Novara, which in its present state is one of the most important buildings of the 11th century in the North of Italy, shows the style still further advanced. The coupling and grouping of piers are here fully understood, and the divisions of the chapels which form the outer aisle are, in fact, concealed buttresses. The Italians were never able to divest themselves of their partiality for flat walls, and never liked the bold external projections so universally admired on the other side of the Alps. They therefore gladly had recourse to this expedient to conceal them; and when this was not available they used metallic ties to resist the thrust of the arches—an expedient which is found even in this example. As will be seen from the annexed plan, the atrium connecting the basilica with the baptistery is retained, which seems to have been an arrangement almost universal in those early times. The half section, half elevation of the front (Woodcut No. 443) shows very distinctly how far the invention of the new style had then gone; for except some Corinthian pillars, borrowed from an 563older edifice, no trace of debased-Roman architecture is to be found in it. The design of the façade explains what it was that suggested to the Pisan architects the form to which they adapted their Romanesque details. In both styles the arcade was the original model of the whole system of ornamentation. In this case it is used first as a discharging arch, then as a mere repetition of a useful member, and lastly without pillars, as a mere ornamental string-course, which afterwards became the most favourite ornament, not only in Italy, but throughout all Germany.
443. Elevation and Section of the Façade of the Cathedral at Novara. (From Osten.)
Interesting as such an example is to the architectural antiquary who is tracing back and trying to understand the forms of a new style, it would be difficult to conceive anything much uglier and less artistic than such a façade as this of Novara or that of San Antonio, last quoted. Their sole merit is their history and their expression of rude energy, so characteristic of the people who erected them.
444. Section of San Michele, Pavia. (From Agincourt.) No scale.
The church of San Michele at Pavia, which took its present form either at the end of the 11th or beginning of the 12th century, is one of the most interesting of this age, and presents in itself all the characteristics of a perfect round-arched Gothic church. Indeed there is hardly any feature worth mentioning which was invented after this date except the pointed arch—a very doubtful improvement—and window tracery, which the Italians never cordially adopted or understood. 564The section (Woodcut No. 444) shows the general arrangement of San Michele in its present state. The researches of M. de Dartein,[295] however, have shown that, when first built, the nave was covered over with two square quadripartite vaults, as might in fact have been divined from the difference in size[296] of the centre and two other piers. The existing oblong vaulted compartments date from the 15th century, when secondary shafts were carried up above the ground storey shafts of piers 1 and 3. The section, however, shows that well-marked vaulting shafts spring from floor to roof, that the pier arches in the wall are probably distinct and well understood, and that the angles of these piers are softened and ornamented by shafts and other subordinate members. Altogether, it is evident that that subdivision of labour (if the expression may be used) which was so characteristic of the true Gothic style had here been perfectly understood, every part having its own function and telling its own story. To complete the style only required a little experience to decide on the best and most agreeable proportions in size and solidity. In a century from the date of this church the required progress had been made; a century later it had been carried too far, and the artistic value of the style was lost in mere masonic excellence. San Michele and the other churches of its age fail principally from over-heaviness of parts and a certain clumsiness of construction, which, though not without its value as an expression of power, wants the refinement necessary for a true work of art. Externally, one of the most pleasing features of this church is the apse with its circular gallery. In Italian churches the gallery is usually a simple range of similar arcades; here, however, it is broken 565into three great divisions by coupled shafts springing from the ground, and these again subdivided by single shafts running in like manner through the whole height of the apse. The gallery thus not only becomes a part of the whole design, instead of looking like a possible afterthought, but an agreeable variety is also given, which adds not a little to the pleasing effect of the building.
445. View of the Apse of San Michele, Pavia. (From Du Somerard, ‘Les Arts au Moyen-Age.’)
There are at least two other churches in Pavia, which, though altered in many parts, retain their apsidal arrangements tolerably perfect. One of these, that of San Teodoro (1150), may be somewhat later than the San Michele, and has its gallery divided into triplets of arcades by bold flat buttresses springing from the ground. In the other, San Pietro in Cielo d’Oro, dating from 1132, the arcade is omitted round the apse, though introduced in the central dome. It has besides two subordinate apses of graceful design, but inferior to the other examples.
Though Milan must have been rich in churches of this age, the only one now remaining tolerably entire is San Ambrogio, which is so interesting as almost to make amends for its singularity. Historical 566evidence shows that a church existed here from a very early age. It was rebuilt in the 9th century by Bishop Angelbert, aided by the munificence of Louis the Pious, and an atrium was added by Bishop Anspertus; but except the apse and “the canons’” tower, nothing remains of even that church, all the rest having been rebuilt in the 11th or 12th century. During the late restoration the bases of some of the columns of the 9th-century church were discovered, and one of them is now visible in the pulpit enclosure.
The disposition of the building will be understood from the annexed plan, which shows both the atrium and the church. The former is virtually the nave; in other words, had the church been erected on the colder and stormier side of the Alps, a clerestory would have been added to the atrium, and it would have been roofed over; and then the plan would have been nearly identical with that of a Northern cathedral.
446. Plan of San Ambrogio, Milan. (From Ferrario.) Scale 100 ft. to 1 in.
The third (sexpartite) bay was revaulted in the 14th century with two oblong quadripartite vaults, but these are now replaced by sexpartite vaulting. The dome is probably an addition of the end of the 12th century, and it is raised over what would otherwise have been the fourth bay of the church. As it is, the atrium (Woodcut No. 446) is a highly pleasing adjunct to the façade, removing the church back from the noisy world outside, and by its quiet seclusion tending to produce that devotional feeling so suitable to the entrance of a place of worship. The façade of the building itself, though, like the atrium, only in brick, is one of the best designs of its age; the upper loggia, or open gallery, of five bold but unequal arches, producing more shadow than the façade at Pisa, without the multitude of small parts there crowded together, and with far more architectural propriety and grace. As seen from the atrium, with its two towers, one on either flank, it forms a composition scarcely surpassed by any other in this style.
As now restored, the simplicity and line effect of the vaulted interior is remarkable, and it is also a museum of ecclesiological 567antiquities of the best class. The silver altar of Angilbertus (A.D. 835) is unrivalled either for richness or beauty of design by anything of the kind known to exist elsewhere, and the baldacchino that surmounts it is also of singular beauty: so are some of its old tombs, of the earliest Christian workmanship. Its mosaics, its pulpit, and the bronze doors, not to mention the brazen serpent—said to be the very one erected by Moses in the wilderness—and innumerable other relics, make this church one of the most interesting of Italy, if not indeed of all Europe.
447. Atrium of San Ambrogio, Milan. (From Ferrario.[297])
Generally speaking, the most beautiful part of a Lombard church is its eastern end. The apse with its gallery, the transepts, and above all the dome that almost invariably surmounts their intersection with the choir, constitute a group which always has a pleasing effect, and is very often highly artistic and beautiful. The sides of the nave, too, are often well designed and appropriate; but, with scarcely a single exception, the west end, or entrance front, is comparatively mean. The building seems to be cut off at a certain length without 568any appropriate finish, or anything to balance the bold projections towards the east. The French cathedrals, on the contrary, while they entirely escape this defect by means of their bold western towers, are generally deficient in the eastern parts, and almost always lack the central dome or tower. The English Gothic architects alone understood the proper combination of the three parts. The Italians, when they introduced a tower, almost always used it as a detached object, and not as a part of the design of the church. In consequence of this the façades of their churches are frequently the least happy parts of the composition, notwithstanding the pains and amount of ornament lavished upon them.
448. Façade of the Cathedral at Piacenza. (From Chapuy, ‘Moyen-Âge Monumental.’)
The elevation of the cathedral at Piacenza is a fair illustration of the general mode of treating the western front of the building, not 569only in the 11th and 12th centuries, but afterwards, when a church had a façade at all—for the Italians seem to have been seldom able to satisfy themselves with this part of their designs, and a great many of their most important churches have, in consequence, not even now been completed in this respect.
Instead of recessing their doors, as was the practice on this side of the Alps, the Italians added projecting porches, often of considerable depth, and supported by two or more slight columns, generally resting on the backs of symbolical animals. No part of these porches, as an architectural arrangement, can be deemed worthy of any commendation; for, in the first place, a column planted on an animal’s back is an anomaly and an absurdity, and the extreme tenuity of the pillars, as compared with the mass they support, is so glaring that even its universality fails in reconciling the eye to the disproportion. In the present instance the porch is two storeys in height, the upper being a niche for sculpture. Its almost exact resemblance to the entrance porch below is therefore a defect. Above there is generally a gallery, sometimes only in the centre; sometimes, as in this instance, at the sides, though often carried quite across; and in the centre above this there is almost invariably a circular window, the tracery of which is frequently not only elaborately but beautifully ornamented with foliage and various sculptural devices.
Above this there is generally one of those open galleries mentioned before, following the slope of the roof, though frequently, as in this instance, this is replaced by a mere belt of semicircular arches, suggesting an arcade, but in reality only an ornament.
Almost every important city in Lombardy shows local peculiarities in its style, arising from some distinction of race or tradition. The greater number of these must necessarily be passed over in a work like the present, but some are so marked as to demand particular mention. Among these that of Verona seems the most marked and interesting. This Roman city became the favourite capital of Theodoric the Goth—Dietrich of Berne, as the old Germans called him—and was by him adorned with many noble buildings which have either perished or been overlooked. There is a passage in the writings of his friend Cassiodorus which has hitherto been a stumbling-block to commentators, but seems to find an explanation in the buildings here, and to point to the origin of a mode of decoration worth remarking upon. In talking of the architecture of his day he speaks of “the reed-like tenuity of the columns making it appear as if lofty masses of building were supported on upright spears, which 570in regard to substance look like hollow tubes.”[298] It might be supposed that this referred exclusively to the metal architecture of the use of which we find traces in the paintings at Pompeii and elsewhere.[299] But the context hardly bears this out, and he is probably alluding to a stone or marble architecture, which in the decline of true art had aspired to a certain extent to imitate the lightness which the metallic form had rendered a favourite.
To return to Verona:—The apse of the cathedral seems to have belonged to an older edifice than that to which it is now attached, as was often the case, that being the most solid as well as the most sacred part of the building. As seen in the woodcut (No. 449) it is ornamented with pilasters, classical in design, but more attenuated than any found elsewhere; so that I cannot but believe that this is either one of the identical buildings to which Cassiodorus refers, or at least an early copy from one of them.
449. Apse of the Cathedral, Verona. (From Hope’s ‘History of Architecture.’)
At a far later age, in the 12th century, the beautiful church of San Zenone shows traces of the same style of decoration (Woodcut No. 450), pilasters being used here almost as slight as those at the cathedral, but so elegant and so gracefully applied as to form one of the most beautiful decorations of the style. Once introduced, it was of course repeated in other buildings, though seldom carried to so great an extent or employed so gracefully as in this instance. Indeed, whether taken internally or externally, San Zenone may be regarded as one of the most pleasing and perfect examples of the style to be found in the North of Italy.
The cathedral at Modena is another good example, though not possessing any features of much novelty or deserving special mention. That of Parma is also important, though hardly so pleasing. Indeed, scarcely any city in the Valley of the Po is without some more or less-perfect churches of this date, none showing any important peculiarities 571that have not been exemplified above, unless perhaps it is the apse of the church of San Donato on the Murano near Venice, which is decorated with a richness of marble decoration to which the purer Gothic style never attained, and which entitles this church to rank rather with the Byzantine than with the Lombard buildings of which we are treating, or a style so curiously exceptional as to make it one of the most interesting churches, historically, to be found in the North of Italy.
450. Façade of San Zenone, Verona. (From Chapuy.)
Recent discoveries in Syria[300] have proved almost beyond a doubt that the carved slabs with which it is adorned externally were borrowed from some desecrated building on the coast of Syria—destroyed 572probably by the Moslems—and brought to Venice, probably at the time when the church acquired the remains of San Donato, in the beginning of the 12th century. Whether brought then or at an earlier period, they belong to the age of Justinian, certainly came from the East, and, mixed up with Italian details of the period, make up an exterior as picturesque as it is interesting to the student of the history of art in those days.
It is extremely difficult to draw a line between the pointed and round-arched Gothic styles in Italy. The former was so evidently a foreign importation, so unwillingly received and so little understood, that it made its way but slowly. Even, for instance, in the church at Vercelli, which is usually quoted as the earliest example of the pointed style in Italy (built 1219-1222), there is not a pointed arch nor a trace of one on the exterior. All the windows and openings are round-headed, and, except the pier-arches and vaults, nothing pointed appears anywhere. Even at a later date than this the round arch, especially as a decorative form, is frequently placed above the pointed one, and always used in preference to it. Instead, therefore, of attempting to draw a line where none exists in reality, it will be better now to pass on from this part of the subject, and to take up the older style at a point from which we can best trace the formation of the new. The latter does not essentially differ from the former, except in the introduction of the French form of the pointed arch and its accompaniments. It remains only to say a few words on the peculiarities which the round form of churches took in the hands of the early Lombard architects, as well as on the campanile, which forms so striking a feature in the cities of Northern Italy.
On the boundary-line which separates the Guelfic from the Ghibelline influence, there exist at Toscanella, near Viterbo, two churches of great beauty of detail; but which, as might almost be predicated from their situation, defy any attempt at classification. They are not Gothic, for they have no vaults, nor does their style suggest any vaulting contrivances. They are scarcely debased Roman, for the tracery of their circular windows, their many-shafted doors, and generally their details are such as to indicate a Northern rather than a Roman affinity; and the Byzantine sculpture which is found in the pulpit was probably taken from an earlier church—though an Italian Byzantine influence can be traced in much of its decoration. Under these circumstances, it is better to treat them as exceptional, than to attempt to give them a name which might mislead without conveying any correct information.
573The elder of these two churches, Sta. Maria, was erected in the beginning of the 13th century (1206?), but is so unlike most buildings of that age, that it is usually ascribed to the 6th or 7th. On a close examination, however, all its details are found to be full of advanced Romanesque forms. The pillars are rude Corinthian, with a Lombardic abacus. They are widely spaced, having no vault to support; and the mouldings of the arches are what we should call “Transitional Early English.”
451. Plan of Sta. Maria, Toscanella. (From Gailhabaud.) Scale 100 ft. to 1 in.
Externally the façade is too plain to be quite pleasing, but this arises from its depending originally on painting for its decoration—some traces of which still remain, but the greater part has perished. Its three doorways are richly and beautifully ornamented with shafts and sculptured foliage, quite equal in detail to anything of the class to be found in Italy, and its great circular window would not be thought out of place at Chartres or Lincoln.
452. View of the Interior of Sta. Maria, Toscanella. (From Gailhabaud.)
574The church of St. Pietro is probably a century later than that of Sta. Maria, and its façade is richer and more elegant—a difference arising more from those details being in this instance carved which in the earlier church were painted. The design, however, deserves attention for its historical, perhaps, even more than its artistic claims; for it was this class of façade that Palladio and the architects of the cinque-cento period seized upon, and, applying pilasters and pediments of classical type, converted it into the fashionable churches which are to be found in every part of Europe.[301]
453. Elevation of the Exterior of Sta. Maria, Toscanella. (From Gailhabaud.) No scale.
The difficulty which the Italians never entirely conquered, was how to amalgamate the sloping lines of the roofs of the aisles with the horizontal lines of the rest of the façade. The gallery over the central doorway enabled them very nearly to accomplish it in these Toscanella churches, and if the same string-courses had been carried all across, the whole might have been harmonised; but it was just missed, and, what is strange, more so in the second than in the first example.
In the earliest times of Christian architecture, as we have already seen, the circular form of church was nearly as frequent as that derived from the Roman basilica. In process of time the latter was found to be much better adapted to the extended requirements of 575Christianity. Hence in the 11th and 12th centuries, when so many of the early churches were rebuilt and enlarged, most of the old circular buildings disappeared. Enough, however, remain to enable us to trace, though imperfectly, what their arrangements were.
Among those which have been illustrated, perhaps the most interesting is that known as the church of San Stefano at Bologna, or rather the circular centre of that congeries of seven churches usually known by that name.
It is one of those numerous churches of which it is impossible to predicate whether it was originally a baptismal or a sepulchral edifice. In old times it bore both names, and may have had both destinations, but latterly, at all events, the question has been settled by the compromise usually adopted in such cases, of dedicating it to the first martyr, to whom a sepulchral form of building is especially appropriate.
454. Plan of the Duomo, Brescia. (From Hübsch.) Scale 100 ft. to 1 in.
455. Elevation of Duomo at Brescia. (From Hübsch.) Scale 50 ft. to 1 in.
Notwithstanding a considerable amount of ancient remains mixed up in the details, no part of the present church seems older than the Carlovingian era; while, on the other hand, its extreme irregularity and clumsiness of construction point to a period before the 11th century. Its general form is that of an extremely irregular octagon, about 60 ft. in diameter, in the centre of which stands a circlet of columns, some coupled, some single, supporting a semicircular dome. The circumscribing aisle is covered with the usual intersecting ribbed vault of the 10th century, but the whole is so rude as scarcely to deserve mention except for its antiquity.
The Duomo Vecchio of Brescia is ascribed to the 8th or 9th century, but this date according to Cattaneo[302] can only be ascribed to 576an earlier basilica church, the crypt of which still exists on the east side of the Duomo. As will be seen from the plan, it is a large church, 125 ft. across over all, and is covered by a dome 65 ft. in diameter internally supported by eight piers of plain design. The mode in which light is introduced into the central compartment illustrates the various tentative expedients by which the architects in that age attempted to accomplish their object. First, there is a range of small windows in the dome below the springing of the dome. In the dome itself there are four circular sides, and, as if the architect felt that he was doing something unusual and inartistic, he managed externally to confuse these with the rudiments of the roof gallery.
456. Section of Duomo at Brescia. (From Hübsch.) Scale 50 ft. to 1 in.
457. San Tomaso in Limine. Scale 100 ft. to 1 in.
458. San Tomaso. (From Isabelle, ‘Édifices Circulaires.’) Scale 50 ft. to 1 in.
It is not clear whether originally it had or was intended to have an apse between its two round towers—where the foundations of some buildings can still be traced; but these may be the remains of the early church referred to.
Turning from these, we find the round-arched Gothic style completely developed in the church of San Tomaso in Limine, near Bergamo. From the annexed plan it will be seen that the circular 577part is the nave or entrance, as in Germany and England, in contradistinction to the French mode of arrangement, where the circular part is always the sanctum, the rectangular the nave or less holy place.
The general plan of this example is circular. It is not more than 30 ft. across internally. In the centre stand eight pillars, supporting a vaulted gallery, which forms a triforium or upper storey, and, with the dome and its little cupola, raise the whole height to about 50 ft. A small choir with a semicircular niche projects eastward.
The dimensions of the building are so small that it hardly deserves notice, except as a perfect example of the style of the 11th or 12th century in Lombardy, and for a certain propriety and elegance of design, in which it is not surpassed, internally at least, by any building of its age. It is to be regretted that the idea was never carried out (at any rate no example remains) on such a scale as to enable us to judge of the effect of such a domical arrangement as is here attempted. The great defect of all one-storeyed domes is their lowness, both internally and more especially externally. This method of building a dome in two storeys would seem calculated to obviate the objection; but though common in small sepulchral chambers, it has never been tried on a scale sufficiently large to enable us to judge of its real effect. After this period the circular shape was so completely superseded by the rectangular, that no further improvement took place in it.
There is perhaps no question of early Christian archæology involved in so much obscurity as that of the introduction and early use of towers. The great monumental pillars of the Romans—as, for instance, those of Trajan and Antoninus—were practically towers; and latterly their tombs began to assume an aspiring character like that at St. Remi (Woodcut No. 231), or those at Palmyra and elsewhere in the East, which show a marked tendency in that direction. But none of these can be looked upon as an undoubted prototype of the towers attached to the churches of the Christians.
At Ravenna, as early as the age of Justinian, we find a circular tower attached to St. Apollinare in Classe (Woodcut No. 412), and in the other churches of that place they seem even then to have been considered necessary adjuncts.[303] At the same time it is by no means clear that they were erected as bell-towers; indeed the evidence is tolerably clear that bells were not used in Christian churches till the time of Pope Adrian I., some two centuries later. What, then, were 578they? There is, I think, no trace of their being sepulchral monuments, or that they were designed or used as tombs; and unless they were, like the sthambas of the Buddhists, pillars of victory, or towers erected to mark sacred or remarkable spots, it is difficult to say what they were, or where we are to look for an analogy.
Be this as it may, the oldest circular towers with which we are acquainted are those of Ravenna; while the last of the series is the famous leaning one at Pisa, commenced in the year 1174. The gradations between these two extremes must have been the same that marked the changes in the architecture of the churches to which they are attached; but the links are more completely wanting in the case of the towers than in that of the churches.[304]
459. Tower of Sta. Maria in Cosmedin. (From Gutensohn and Knapp.)
The tower of St. Apollinare in Classe, above referred to, the most perfect of those of Ravenna, is a simple brick tower (see Woodcut No. 412), nine storeys in height, the lower windows being narrow single openings; above there are two, and the three upper storeys are adorned with four windows of three lights each.
In Rome, as far as we know, the first tower attached to a church was that said to have been built by Pope Adrian I. in front of the atrium of St. Peter’s; but there are no examples now existing in Rome which can be said to be earlier than the 11th century, and that date applies only to the lower portion of them. In the 12th and 13th centuries they became common, and we find them attached to the churches of S. Lorenzo without the walls, S. Croce in Gerusalemme, SS. Giovanni e Paolo, S. Giorgio in Velabro (13th century), and others. All these are square in plan and extremely similar in design, no improvement and scarcely any change having taken place between the first and the last, as if the form were an old and established one when we find it first adopted. That attached to Sta. Maria in Cosmedin (Woodcut No. 459) is perhaps one of the best and most complete. Its dimensions are small, its breadth being little more than 15 ft., and its 579height only 110; but notwithstanding this there is great dignity in the design, and, in a city where buildings are not generally tall, its height is sufficient to give it prominence without overpowering other objects,—a characteristic which renders these Roman towers not only beautiful structures in themselves, but appropriate ornaments to the buildings to which they are attached.
The chief interest of these towers is derived from the numerous progeny to which they gave birth: for though there is scarcely an instance of a square Romanesque tower beyond the walls of Rome during the period in which this style flourished, the form was seized upon with avidity by the Gothic architects in all the countries of Europe; and whether as a detached campanile (as in Italy), or as an integral part of the building (as we soon find it employed on this side of the Alps), it forms the most prominent, and perhaps also the most beautiful, feature in the aspiring architecture of the Middle Ages.
There is certainly no architectural feature which the Gothic architects can so justly call their own as the towers and spires which in the Middle Ages were so favourite, so indispensable a part of their churches and other edifices, becoming in fact as necessary parts of the external design as the vaults were of the internal decoration of the building.
It is true, as before remarked, that we neither know where they were first invented, nor even where they were first applied to Christian churches—those of Rome and Ravenna being evidently not the earliest examples; nor have they any features which betray their origin—at least none have yet been pointed out, though it is not impossible that a closer examination would bring some such to light. They certainly are as little classical, in form or details, as anything that can well be conceived; and belong to an undefined Romanesque style.
Those of which we have already spoken are all church-towers—campaniles or bell-towers attached to churches. But this exclusive distinction by no means applies to the Gothic towers. The tower of St. Mark at Venice, for instance, and the Toraccio at Cremona, are evidently civic monuments, like the belfries of the Low Countries—symbols of communal power wholly distinct from the church, their proximity to which seems only to arise from the fact of all the principal buildings being grouped together. This is certainly the case with a large class of very ugly buildings in Italy, such as those attached to the town-halls of Florence and Siena, or the famous Asinelli and Garisenda towers at Bologna. They are merely tall square brick towers, with a machicolated balcony at the top, but possessing no more architectural design than the chimney of a cotton factory. Originally, when lower, they may have been towers of defence, but afterwards became mere symbols of power.
580A third class, and by far the most numerous, of these buildings are undoubtedly ecclesiastical erections; they are either actually attached to the churches, or so placed with regard to them as to leave no doubt on the matter. There is not, however, I believe, in all Italy a single example of a tower or towers forming, as on this side of the Alps, an integral part of the design.
Sometimes they stand detached, but more generally are connected with some angle of the building, the favourite position being the western angle of the southern transept. Occasionally we find one tower placed at the angle of the façade, but this is seldom the case when the tower and the church are of the same age. It is so in the cathedral at Lucca, and San Ambrogio at Milan; in the latter of which a second tower has been added more recently to balance the older one. It does also happen as in the instance of Novara, before quoted (Woodcut No. 443), that two towers are actually parts of the original design; this, however, is certainly the exception, not the rule.
In design the Italian campaniles differ very considerably from those on this side of the Alps. They never have projecting buttresses, nor assume that pyramidal form which is so essential and so beautiful a feature in the Northern examples. In plan the campanile is always square, and carried up without break or offset to two-thirds at least of its intended height. This, which is virtually the whole design (for the spire seems an idea borrowed from the North), is generally solid to a considerable height, or with only such openings as serve to admit light to the stairs or inclined planes. Above the solid part one round-headed window is introduced in each face, and in the next storey two; in the one above this three, then four, and lastly five, the lights being merely separated by slight shafts, so that the upper storey is virtually an open loggia (see Woodcut No. 498). There is no doubt great beauty and propriety of design in this arrangement; in point of taste it is unobjectionable, but it wants the vigour and variety of the Northern tower.
So far as we can judge from drawings and such ancient examples as remain, the original termination was a simple cone in the centre, with a smaller one at each of the angles.
At Verona an octagonal lantern is added, and at Modena and Cremona the octagon is crowned by a lofty spire, but these hardly come within the limits of the epoch of which we are now treating. So greatly did the Italians prefer the round arch, that even in their imitation of the Northern styles they used the pointed shape only when compelled—a circumstance which makes it extremely difficult, particularly in the towers, to draw the line between the two styles; for though pointed arches were no doubt introduced in the 13th and 14th centuries, the circular-headed shape continued 581to be employed from the age of the Romanesque to that of the Renaissance.
One of the oldest and certainly the most celebrated of the Gothic towers of Italy, is that of St. Mark’s at Venice, commenced in the year 902; it took the infant republic three centuries to raise it 180 ft., to the point at which the square basement terminates. On this there must originally have been an open loggia of some sort, no doubt with a conical roof. The present superstructure was added in the 16th century; but though the loggia is a very pleasing feature, it is overpowered by the solid mass that it surmounts, and by the extremely ugly square extinguisher that crowns the whole. Its locality and its associations have earned for it a great deal of undue laudation, but in point of design no campanile in Italy deserves it less. The base is a mere unornamented mass of brickwork, slightly fluted, and pierced unsymmetrically with small windows to light the inclined plane within. Its size, its height, and its apparent solidity are its only merits. These are no doubt important elements in that low class of architectural excellence of which the Egyptian pyramids are the type; but even in these elements this edifice must confess itself a pigmy, and inferior to even a second-class pyramid on the banks of the Nile, while it has none of the beauty of design and detail displayed by the Giralda of Seville, or even by other Italian towers in its own neighbourhood.
The campanile at Piacenza (Woodcut No. 448) is, perhaps, more like the original of St. Mark’s than any other, and certainly displays as little beauty as any building of this sort can possess.
That of San Zenone at Verona is far more pleasing. It is, indeed, as beautiful both in proportion and details as any of its age, while it exemplifies at once the beauties and the defects of the style. Among the first is an elegant simplicity that always is pleasing, but this is accompanied by a leanness and poverty of effect, when compared with Northern examples, which must rank in the latter category.
Mr. Jackson, in his work on Dalmatia and Istria, gives illustrations of several towers in those countries which, in beauty of design, excel many of the Italian examples. The Romanesque style would seem to have had a much longer duration on the east side of the Adriatic than in Italy. Thus the tower of Spalato, a lofty campanile of six storeys in height, commenced in the beginning of the 13th century and not terminated till 1416 (except the upper octagon and spire), is virtually in the same pure Romanesque style throughout. Mr. Jackson notes also the continued influence of Roman work of the 3rd century, by which it is surrounded, and that fragments of ancient material, columns and capitals, have been used up in its construction. The campaniles of Zara and in the island of Arbe are both fine examples of Romanesque design.
Cathedrals of Naples—San Miniato, Florence—Cathedrals of Pisa and Zara—Cathedrals of Troja, Bari, and Bittonto—San Nicolo, Bari—Cloisters of St. John Lateran—Baptistery of Mont St. Angelo—San Donato, Zara—Churches in South Italy—Circular Buildings—Towers—Civil Architecture.
| DATES. | |
| The Normans enter Italy | A.D. 1018 |
| The Normans conquer Apulia from the Greeks | 1043 |
| The Normans attack the Saracens in Sicily | 1061 |
| Conquest of Sicily completed by Roger de Hauteville | 1090 |
| Roger II. | 1101 |
| William I., surnamed the Wicked | 1153 |
| William II., surnamed the Good | 1166 |
| Tancred | 1189 |
| Frederic Hohenstaufen of Germany | 1197 |
| Conrad | 1250 |
| Conradin | 1254 |
| Charles I., first Angiovine King of Naples | 1266 |
| René, last Angiovine King of Naples | 1435 |
It would be easier to define the limits and character of the styles of Italian Mediæval Architecture in the centre and south of Italy by a negative than a positive title. To call them the “non-Gothic” styles would describe them correctly, but would hardly suffice to convey a distinct idea of their peculiarities. Romanesque, or even Italian Romanesque, would not be sufficient, because that term fails to take cognizance of the foreign element found in them. That element is the Byzantine, derived partly from the continued relations which such cities as Venice or Pisa maintained during the Middle Ages with the Levant, and partly from the intercourse which the inhabitants of Magna Gracia kept up across the Adriatic with the people on its eastern shores. To such a mixture of styles the term Byzantine-Romanesque would be quite appropriate; and although there are in Apulia churches, such as Molfetta and St. Angelo, which look more like Levantine designs than anything to be found in other parts of Europe (except perhaps such buildings as St. Front, Périgueux, and one or two exceptional buildings in the South of France), and in a very detailed description of Italian styles it might be expedient to attempt a further subdivision with other specific terms, for the present it will probably suffice to describe the various non-Gothic styles of the centre 583and southern half of Italy in local sections without attempting any very minute classification of their variations. As the Italians had no great national style of their own, and both in the North and South were principally working under foreign influences, it is in vain to look for any thread that will conduct the student straight through the labyrinth of their styles. Italian unity is the aspiration of the present century; during the Middle Ages it did not exist either in politics or art.
460. The Old and New Cathedrals at Naples. (From Schultz.) Scale 100 ft. to 1 in.
Although Naples is in the very centre of its province, where we naturally first look for examples of the style, there are few cities in Italy which contain so little to interest the architect or the antiquary. Still she does possess one group of churches, which, by their juxtaposition, at least serve to illustrate the progress of the style during the Middle Ages. The earliest of these, Sta. Restituta—shaded dark in the plan (Woodcut No. 460)—may be as old as the 4th or 5th century, and retains its original plan and arrangement, though much disfigured in details. The baptistery, a little behind the apse on its left, is certainly of the date indicated, and retains its mosaics, which seem to be of the same age.
584In the year 1299 Charles II. of Anjou commenced the new cathedral at right angles with the old, his French prejudices being apparently shocked at the incorrect orientation of the older church. It is a spacious building, 300 ft. long, arranged, as Italian churches usually were at that age, with a wooden roof over the nave and intersecting vaults over the side-aisles. Opposite the entrance of the old cathedral is a domical chapel of Renaissance design, so that the group contains an illustration of each of the three ages of Italian art.
461. Plan of San Miniato.
462. Section of San Miniato, near Florence. (From drawing by R. W. Schultz.) Scale 50 ft. to 1 in.
463. Elevation of San Miniato. (From drawing by R. W. Schultz.)
The church of San Miniato (Woodcuts Nos. 461-463), on a hill overlooking Florence, is one of the earliest (1013), as well as one of the most perfect, of the Byzantine-Romanesque style. Internally it is only 165 ft. in length by 70 in width, divided longitudinally into aisles, and transversely into three nearly square compartments by clustered piers supporting two great arches which run up to the roof. The whole of the eastern compartment is occupied by a crypt or under-church open to the nave, above which are the choir and apse, approached by flights of steps in the aisles. The entire arrangement, together with the division of the nave into three 585compartments, is most satisfactory, and the proportions of the whole are very appropriate. The pillars themselves are so nearly classical in design that they almost seem to have been taken from some ancient building, and the architraves and stringcourses are all well designed and fitted to the places they occupy. The principal ornament of the interior is an inlaid pattern of simple design, sufficient to relieve the monotony of the interior, but without producing any confusion. The exterior depends principally, like the interior, for its effect on coloured panelling, but has a range of blind arches running round the sides and across the front. The façade, however, is very badly designed: either it was one of the earliest examples, and the architects had not learned how to combine the sloping roofs of the aisles with the upper part of the façades, or it has been altered in more modern times; but for this slight defect it would be difficult to find a church in Italy 586containing more of classic elegance, with perfect appropriateness for the purposes of Christian worship.
464. Transverse Section of San Miniato. (From R. W. Schultz.)
There must have been several, probably many, buildings in the same style erected in Tuscany during the first half of the 11th century. Otherwise it is almost impossible to understand how so complete a design as that of Pisa Cathedral could have been executed. It was commenced apparently in 1006, but it was not till 1063, after the plundering of Palermo, according to Reber,[305] that the means were provided for the extraordinary richness of the design, the magnificence of which had at that time no parallel among the ecclesiastical edifices of Italy; the work was suspended in 1095, and could only be resumed by means of pecuniary aid given to the undertaking by the Byzantine emperor. After the consecration of the cathedral in 1103, the interior decorations were carried on until the 15th century. Internally its design is evidently based on that of the basilicas of Rome and Ravenna, except that instead of the range at the latter place of figures in mosaic, it has a splendid triforium gallery and in plan strongly 588marked projecting transepts. Its great merit, however, as a design arises from the fact that the builders had learned to proportion the parts to one another so as to get greater magnificence with very much smaller dimensions. The size, for instance, of the nave of San Paolo fuori le Mure at Rome is 290 ft. by 215; these dimensions are nearly double those at Pisa, where they are 173 ft. by 106. Yet, in consequence of the greater relative height of the nave and the better spacing of the pillars and proportion of the parts, the interior of Pisa is more pleasing and more impressive than the Roman church. Its effect, too, is immensely increased by the truly Mediæval projection of the transepts. In no church in Italy is there such poetry of perspective as in looking anglewise across the intersection, and seldom anywhere a more satisfactory interior than that of this church.
465. View of the Cathedral at Pisa. (From Chapuy’s ‘Moyen-Age Monumental.’)
The exterior, too, is almost equally pleasing. The side-aisles are adorned with a range of blind arches running all round, adorned with parti-coloured marble, inlaid either in courses or in patterns. Above this is a gallery, representing the triforium, carried all round, and in the façades formed into an open gallery; a second open gallery represents the sloping roof of the aisles, a third the clerestory, a fourth the slopes of the great roof. The difficulty here, as in almost all Italian designs, is caused by the sloping roofs; but, with this exception, the whole makes up a rich and varied composition without any glaring false construction, and expresses with sufficient clearness the arrangements of the interior. The dome is of later design, and, being oval in plan, cannot be said to be pleasing in outline.
466. Plan of Zara Cathedral. Scale 100 ft. to 1 in.
The Italians were evidently delighted with their new style. It was repeated with very little variation at Lucca, in the church of San Michele (1188), only that the arcades stood free on the sides as well as on the front. The façade of San Martino, in the same city, is in the same style; so is that of the cathedral at Pistoja, and so is Sta. Maria at Arezzo. The arrangement was probably suggested by the porticoes of Pagan temples; and were it not for the awkwardness caused by the sloping line of the roofs, it might be characterised as one of the most successful inventions of the age.
In some instances, as in the façade of the Cathedral at Zara in Dalmatia (Woodcut No. 467), which according to Mr. Jackson[306] was not begun before the 13th century, the consecration taking place in 1285, the difficulties of the design of the façade are to a great 589extent conquered by reducing the arcades to mere decorative panelling, and more than this by separating the design of the centre from that of the aisles by a bold square pilaster. This is exactly the feature we miss at Pisa and Lucca, where the want of it imparts a considerable degree of weakness to the whole design.
467. View of Zara Cathedral. (From Sir Gardner Wilkinson’s ‘Dalmatia and Montenegro.’)
The plan of the Zara Cathedral (Woodcut No. 466) is that usually adopted in churches of this class; but it possesses a lady chapel and 590baptistery, placed laterally in a somewhat unusual manner. Its dimensions are small, being only 170 ft. by 65 externally.
The east end of this church, its doorways and windows, show, as might be expected from its locality, a greater tendency towards Romanesque art than can be found on the western shores of the Peninsula, but in internal arrangements it belongs wholly to the Italian style.
The cathedral at Trau, also in Dalmatia, illustrated in Mr. Jackson’s work, is a fine example, which is not only built in one consistent style throughout, but possesses the still rarer advantage of being completed outside as well as inside, “instead,” as Mr. Jackson observes, “of presenting, like so many Italian churches, a rough face of unfinished brickwork or masonry awaiting in vain the splendid veneer of marble or sculpture that never comes.” The main part of the church was built in the first half of the 13th century. The floor is of the basilica type, with nave (five bays, vaulted) and aisles, centre and side apses, and a magnificent narthex, the full width of nave and aisles, with a sumptuous portal of pure Romanesque design (1240), which is perhaps finer than any example in Italy, and is only rivalled in its decorative sculpture by those of the French portals. Mr. Jackson is of opinion that Dalmatian art took a great departure under Hungarian rule, and followed more in the direction of the purer Romanesque style than in that of the Byzantine. The artists were foreigners, invited not only from Germany but also from France. Villars d’Honecourt recounts his having been sent for, and “French influence,” Mr. Jackson states, “may be detected in some other churches in Hungary.” The portal of the church at Jak, in Hungary, illustrated in Mr. Jackson’s work, is French in character, with a profusion of orders carved with the zigzag fret and dentil very similar to the later Norman work, and includes capitals “à crochet” such as belong to French 12th-century work. The series of trefoil-headed niches, with figures in them which rise above the doorway, are French in character, and remind one of the façade of St. Père-sous-Vezelay. At Cattaro, in Dalmatia, and at Veglia, in one of the islands of the Quarnero, are other examples of fine Romanesque work of the 12th century.
Further south on the mainland of Italy, at Troja, we find a singularly elegant cathedral church (1093-1115?) in the same style (Woodcut No. 468). Its flanks and apse are perhaps even more elegant than anything in the neighbourhood of Pisa. So is the lower part of its façade, which is adorned with a richness and elegance of foliage characteristic of the province where it is found; and the cornice that crowns the lower storey is perhaps unmatched by any similar example to be found in Italy, either for beauty of sculptural decoration or for appropriateness of profile. The upper part of the façade differs, however, considerably from that of the examples just quoted. A great 591rose-window, of elegant but ill-understood tracery, takes the place of the arcades, and, with the sculptured arch over it, completes all that remains of the original design. The plain pieces of walling that support the central window are parts of a modern repair.
468. Façade of Cathedral at Troja. (From Schultz.[307]) No scale.
469. Cathedral at Bari. Scale 100 ft. to 1 in.
As a general rule, all the churches in the South of Italy are small. This one at Troja is arranged in plan like that at Pisa, with bold projecting transepts, but its length is only 167 ft., and the width of its nave 50, while in the Northern cathedral these dimensions are nearly double—310 ft. by 106—and the area four times as great. This is true of all, however elegant they may be—they are parish churches in dimensions as compared with their Northern rivals.
470. East End of Cathedral at Bari. (From Schultz.) Scale 50 ft. to 1 in.
471. Apse of San Pellino. (From Schultz.) Scale 50 ft. to 1 in.
472. Church at Caserta Vecchia. (From Schultz.) Scale 50 ft. to 1 in.
Many also, as the cathedral at Bari (Woodcut No. 469), have their apses internal, which detracts very much from the meaning of the design, and does away with the apsidal terminations, which are perhaps the most beautiful features in the external design of Italian churches; while they lack the great traceried windows which go so far to replace the absence of the apse in English design. The annexed elevation of the east end at Bari (Woodcut No. 470) gives a fair idea of the general arrangement of that part in the churches in Apulia. It is novel, and the two tall towers with a central dome combine with elegant details to make up a whole which it is impossible not to admire 593though it will not bear comparison with the more artistic arrangements of Northern architects.
Where the apse[308] is allowed to be seen externally, it is sometimes, as at San Pellino (Woodcut No. 471), an object of great beauty and originality, but such examples are rare in the province, and the designs suffer in proportion.
473. West Front of Bittonto Cathedral. (From a Sketch by A. J. R. Gawen, Esq.)
In the richer churches, as at Pisa, a blind arcade is carried round the flanks, sometimes with an open gallery under the eaves, as in German churches, but this was far from being universally the case; on the contrary, it would be difficult, as a typical example of the style, 594to select one more characteristic than the flank of the church of Caserta Vecchia (1100-1153) (Woodcut No. 472). The windows are small but numerous, and mark the number of bays in the interior. The transept is slightly projected, and ornamented with an arcade at the top, and above this rises a dome such as is found only in Calabria or Sicily. The tower was added afterwards, and, though unsymmetrical, assists in relieving a design which would otherwise run the risk of being monotonous.
474. West Front of the Church of San Nicolo in Bari. (From a Sketch by A. J. R. Gawen, Esq.)
It was, however, on their entrance façades that the architects of Southern Italy lavished their utmost care. The central doorways are usually covered with rich hoods, supported by pillars resting on monsters somewhat like those found in the North of Italy. Above 595this is either a gallery or one or two windows, and the whole generally terminates in a circular rose-window filled with tracery. As exemplified in the front of Bittonto Cathedral (Woodcut No. 473), such a composition is not deficient in richness, though hardly pleasing as an architectural composition.
The same arrangement, on about the same scale, occurs at Bari, Altamura, and Ruvo; and on a somewhat smaller scale in the churches of Galatina, Brindisi, and Barletta. The great and peculiar beauty of the cathedral at Bittonto is its south front, one angle of which is shown in the woodcut; but which becomes richer towards the east, where it is adorned with a portal of great magnificence and beauty. The richness of its open gallery (under what was the roof of the side-aisles) is unsurpassed in Apulia, and probably by anything of the same kind in Italy.
475. View of the Interior of San Nicolo, Bari. (From Schultz.)
The façade of San Nicolo at Bari (1197) is something like the last mentioned, except that handsome Corinthian columns have been 596borrowed from some older building, and add to the richness of the design, though they hardly can be said to belong to the composition. Internally this church seems to have displayed some such arrangement as that of San Miniato (Woodcuts No. 463, 464). Instead, however, of improving upon it, as might be expected from the time that had elapsed since the previous one was erected, the Southern architect hardly knew the meaning of what he was attempting. He grouped together the three pillars next to the entrance, and threw arches across the nave from them, but these arches neither support the roof nor aid the construction in any other way. They do add to the perspective effect of the interior, but it is only by a theatrical contrivance very rare in the Middle Ages, and by no means to be admired when found.
476. Plan of Crypt at Otranto. Scale 100 ft. to 1 in.
477. View in Crypt at Otranto. (From Schultz.)
Most of these Apulian churches possess crypts almost as important as that of San Miniato, some more so; and the numerous pillars in some of these give rise to effects of perspective only to be found elsewhere in such buildings as the Mosque at Cordova, or the cisterns at Constantinople. As in the annexed example, from the cathedral at Otranto, it is wonderful what space and what variety may be attained with small dimensions by the employment of numerous points of support. This was the secret of most of the best effects produced by the Northern architects; but the Italians never understood it, or practised it, except in crypts. Perhaps it may have been that they thought it necessary to sacrifice architectural effect to the exigencies of public worship. Whether this were the cause or not, the result, as 597already pointed out, was fatal to the architectural effect of many of their designs, especially in the Northern province.
In Southern Italy this is seldom the case, but the difference arose from the fact that the naves of the churches had never vaulted roofs, and were consequently separated from the aisles by single pillars instead of composite piers. This took away all temptation to display mechanical dexterity, and left the architect free to produce the best artistic effect he was able to design with the materials at his command.
478. Window in the South Side of the Cathedral Church at Matera. (From a Sketch by Mr. Gawen.)
No one who takes the pains to familiarise himself with the architecture of these Southern Italian churches, can well fail to be impressed with their beauty. That beauty will be found, however, to arise not so much from the dimensions or arrangement of their plans, or the form of their outline, as from the grace and elegance of their details. Every feature displays the feeling of an elegant and refined people, who demanded decoration as a necessity, though they were incapable of rising to any great architectural conception. They excelled as ornamentists, though at best only indifferent architects.
It is impossible to render this evident in such a work as the present; but besides the examples already given, a window (Woodcut No. 478) from the cathedral church at Matera (1270) will explain 598how unlike the style of decoration is to anything with which we are familiar in the North, and at the same time how much picturesque effect may be produced by a repetition of similar details. The church itself has this peculiarity, that its west front is plain and unimportant, and that all the decoration is lavished on the south side, which faces the piazza. There are two entrances on this face, that towards the east being, as usual, the richer. Above these is a range of richly-ornamented windows, one of which—a little out of the centre—is far more splendid than the rest (Woodcut No. 478). From this it is said that letters and rescripts from the Greek patriarch at Constantinople used to be read, and it is perhaps as elaborate a specimen of the mode of decoration used in these churches as can be found in the province.
479. Doorway of Church of Pappacoda, Naples. (From Schultz.)
The same exuberance of decoration continued to be employed down to the latest period of the art, and after Northern forms had been introduced by the Angiovine dynasty at Naples. The doorway from the church at Pappacoda (Woodcut No. 479) is a type of many to be found in that city and elsewhere in the architectural province. True, it is overdone to such an extent that much of the labour bestowed upon it must be considered as thrown away; but if a love of art induced people to labour so lovingly in it, it is hard to refuse them the admiration which their enthusiasm deserves.
Another class of ornamental detail in which this province is 599especially rich is that of bronze doors, of which some six or seven examples still remain. Of these perhaps the finest are those of the cathedral at Trani. They were made in 1160, and for beauty of design, and for the exuberance and elegance of their ornaments, are unsurpassed by anything of the kind in Italy, or probably in the world. Another pair of doors of almost equal beauty, made in 1119, belongs to the cathedral at Troja (Woodcut No. 468), and a third, which is still in a very perfect state, constructed at Constantinople, in the year 1076, for the church of Mont San Angelo; and is consequently contemporary with the doors of Sta. Sophia, Novogorod, and San Zenone, Verona, and so similar in design as to form an interesting series for comparison.
Other churches in the same style as those mentioned above are found at Canosa, Giovenazzo, Molo, Ostuni, Manduria, and other places in the province. Those of Brindisi, from which we should expect most, have been too much modernised to be of value as examples; but there is in the town a small circular church of great beauty, built apparently by the Knights Templars, and afterwards possessed by the Knights of St. John. It is now in ruins, but many of the frescoes which once adorned its walls still remain, as well as the marble pillars that supported its roof. Being at some distance from the harbour, the Knights of St. John built another small church near the port, which still remains nearly unaltered.
480. Cloisters of St. John Lateran. (From Rosengarten.)
Although throughout the Middle Ages Rome went on building large churches, it was in the debased-Roman style already referred to, fitting together Roman pillars with classical details of more or less purity, but hardly, except in their cloisters, deserving the name of a style.
Perhaps the most original, as it certainly is one of the most beautiful, things the Romans did, is the cloister of St. John Lateran. There the little arcades, supported by twisted columns, and adorned with mosaics, are as graceful and pleasing as anything of that class found elsewhere; and as they are encased in a framework of sufficient strength to take off all appearance of mechanical weakness, their unconstructive forms are not unpleasing. The entablature, which is the ruling feature in the design, retains the classical arrangement in 600almost every detail, and in such purity as could only be found in Rome in the 13th century, when this cloister appears to have been erected; but the style never extended beyond the limits of that city, and thus has little bearing on the thread of our narrative.
The cloister of the Benedictine monastery adjoining the basilica of St. Paul’s outside the walls, is another example of the same kind in which the columns present almost every variety of form; spiral, twisted, fluted, and sometimes two or three of these combined, many of them, as well as the entablature, being covered with mosaics.
As already remarked, the architects of the southern half of the Italian peninsula were generally content to adopt the Romanesque plan of covering their naves with a wooden roof—for when an intersecting vault is found it is clearly a French or German interpolation—but they often employed one dome, generally over the altar, and used it as an ornament both external and internal. The two illustrations already given of the domes at Bari (Woodcut No. 470) and Caserta Vecchia (Woodcut No. 472) show the form these usually took in the province. They belong to a type not unusual in the East, but unknown to the Gothic architects of Europe.
481. Plan of Church at Molfetta. Scale 100 ft. to 1 in.
482. Section of Church at Molfetta. (From Schultz.) Scale 50 ft. to 1 in.
When called upon to roof their churches with stone, they almost invariably adopted the domical in preference to the vaulted form, as at Molfetta (1162), where they make a pleasing form of roof, not unlike that of Loches Cathedral (Woodcut No. 585). The great defect of domes when thus employed is their height, which generally throws the whole of the building out of proportion; and unless light is introduced through openings in the drum, or in the dome itself, they are dark and gloomy. This is certainly the case at Molfetta, but 601otherwise the church seems well designed and of pleasing proportions. To be successful, domes should be low and flat internally; and any height required externally must be given by a false dome, as at St. Mark’s, or as done by the Renaissance architects generally.
483. Baptistery, Mont St. Angelo Scale 50 ft. to 1 in.
484. Plan of Baptistery, Mont St. Angelo. Scale 50 ft. to 1 in.
This was not so much felt when the building was square, and covered by only one dome, like the baptistery or tomb of Mont St. Angelo, where effect of space on the floor was not aimed at so much as a combination of external dignity with limited dimensions in plan, and was attained by the arrangement adopted. As will be observed, the pointed arch, as in the tower at Gaeta (Woodcut No. 489), is used in the basement, but above this round arches with balusters for pillars, such as we should call Saxon, though their age here may be the 12th century.
485. Tomb of Bohemund at Canosa. (From Schultz.)
Among the little bits of Orientalism that crop up here and there all over the province, one of the most pleasing is the little tomb of Bohemund at Canosa (1111). It is charming to find in Italy an Eastern Kibleh with its dome, erected to contain the remains of a Christian king. Though elegant, however, the dome is not fitted to the square, as it would have been in more experienced hands, and the whole design is somewhat badly put together. Its bronze doors are among its chiefest ornaments, and are elegant, though inferior to numerous examples of the same class in the churches of the province.
Many other examples of Byzantine domical forms might be quoted as existing in Southern Italy. It is not, however, so much in the forms as in the details that the Eastern influence is felt, and that no less in the churches which retain the basilican form of Ravenna than in those which assume the domical form of Constantinople.
The buildings of the Southern Province cannot certainly compete with those of the Northern either in size or in daring mechanical 602construction, but in detail they are frequently more beautiful, while their forms are more national and less constrained. Their great interest, however, in the eyes of the student, consists in their forming a link between the Eastern and Western worlds, and thus joining together two styles which we have hitherto been too much in the habit of considering as possessing no point of contact.
One of the best known, as well as one of the largest examples of this class of buildings in Italy, is the baptistery at Pisa (seen partially on the left side of Woodcut No. 465). Internally it is, as nearly as may be, 100 ft. in diameter, and the walls are about 8 ft. 6 in. in thickness. The dome itself, however, is only 60 ft. in diameter, and is supported on four piers and eight pillars. These serve to separate the central space from the aisle which runs round it, and which is two storeys in height, but singularly ill-proportioned and clumsy in detail. The worst part of the design, however, is the dome, if dome it can be called. Internally it is conical in form, and thrust through an external hemispherical dome in a manner more clumsy and unpleasing than any other example of its class. Externally, these defects are to some extent atoned for by considerable richness and beauty of detail. It had originally only one range of blind arcades, with three-quarter columns, surmounted by an open arcade; an arrangement exactly similar to that of the two lower storeys of the cathedral and the leaning tower (Woodcut No. 488). A considerable amount of pointed Gothic decoration was afterwards added, which, though somewhat incongruous, is elegant in itself, and hides to some extent the original defects of the design. But the outline of the building and its whole arrangements are so radically bad, that no amount of ornament can ever redeem them.
Taken altogether, the Pisan baptistery is so very peculiar, that it would be interesting if its design could be traced back to some undoubted original. That this is possible will hardly be doubted by any one at all familiar with the subject; meanwhile, the building most like it that has been illustrated is the little church of San Donato, at Zara. The church was probably built according to Mr. Jackson by Bishop Donatus III. at the beginning of the 9th century, with materials taken from ancient buildings, some of them of the best period of Roman architecture. The two monolithic columns in front of the triple sanctuary, and which are 30 ft. in height, bear testimony to the size and importance of the temple they originally adorned, and the great thickness of the walls and the size of the piers suggest a wealth of material at the disposal of the builders. The rectangular 603building on the south side Mr. Jackson considers to be coeval with the church; and the chamber over it, which was on the same level and originally opened on to the gallery round the aisles, formed a second church intended for the use of the catechumens. The church is so built round that it is impossible to say what its external appearance may have been. Both from its resemblance to the Pisan baptistery and its own merits, it is an interesting addition to our knowledge of those circular churches which were such favourites with all the Christian architects in the Carlovingian period. The resemblance in this instance is the more remarkable, because the façade of the cathedral at Zara (Woodcut No. 467) is in the Pisan style, only slightly modified by local peculiarities. From what we already know, it seems undoubted that there was a close connection—architecturally, at least—between Pisa and Zara. If this were fully investigated, it would probably throw considerable light on the origin of the Pisan style, which has hitherto seemed so exceptional in Italy, and also explain how the Byzantine element came to be so strongly developed in what at first sight appears to be a Romanesque style of art.
486. Ground and Upper Storey of San Donato, Zara. (From Jackson.) Scale 100 ft. to 1 in.
487. Section San Donato, Zara. Scale 50 ft. to 1 in.
The typical example of a tower in the Italian style is the celebrated leaning tower at Pisa, partly seen in Woodcut No. 465. It is, indeed, so far as we at present know, the only one which carries out that arrangement of numerous tiers of superimposed arcades which is so characteristic of the style. The lower storey is well designed as a solid basement for the superincumbent mass; its walls are 13 ft. in thickness, and it is adorned with 15 three-quarter columns: its height being 35 ft. The six storeys above this average 20 ft. in height, and are each adorned with an open arcade. The whole is crowned by a smaller circular tower, 27 ft. in height, in which the bells are hung. The entire height is thus 182 ft.; the mean diameter of the main 604portion, 52. There is no doubt that it was originally intended to stand perpendicular, though the contrary has been asserted; but before the commencement of the fifth storey the foundations had given way, and the attempts to readjust the work are plainly traceable in the upper storeys, though without success. It leans 11 ft. 2 in. out of the perpendicular,[309] which, though not sufficient to endanger its stability, is enough to render it very unsightly. Even without this defect, however, its design can hardly be commended; an arrangement of six equal arcades, with horizontal entablatures, is not an expedient mode of adorning a building, where elevation is the element of success. The introduction of strongly-marked vertical lines, or some variation in the design of the arcades, would have greatly improved the design: and so the Italians seem to have thought, for it was never repeated, and the Pisan tower remains a solitary example of its class.
488. Leaning Tower at Pisa. (From Taylor and Cresy.) Scale 50 ft. to 1 in.
489. Tower of Gaeta. (From Schultz.) No Scale.
605Nothing at all resembling it occurs in the southern parts of the province, though it must be admitted that they contain very few really important towers of any sort.
Perhaps the earthquakes to which a great portion of the country is liable may have deterred the architects from indulging in structures of great altitude; but it must be added that the idea of belfry or tower did not enter into their municipal arrangements, and their towns are not consequently illustrated by such towers as those of Venice, Cremona, or Verona in the north. Of those which do exist that of Gaeta is perhaps as picturesque as any. It was erected 1276-1290, and is both characteristic of the style and elegant in outline. As will be observed, the lower storey has pointed arches, while those above are all round; an arrangement which, though to our eyes it may appear archæologically wrong, is certainly constructively right, and the effect is very pleasing, from the height and dignity given to the entrance.
The two towers of the cathedral at Bari (Woodcut No. 470) are not so happy in design as this. They are too tall for their other dimensions, and want accentuation throughout; while the change from the lower to the upper storey is abrupt and ill-contrived. The tower at Caserta Vecchia (Woodcut No. 472) is low and squat in its proportions, and unfortunately too typical of the towers in this land of earthquakes.
As a rule, it may be asserted that the southern province of Italy is singularly deficient in examples of civil or domestic architecture. Great monastic establishments existed there during the Middle Ages which must have possessed buildings befitting their magnificence; but these have either perished and been rebuilt, or have been so restored that their original forms can hardly be recognised. There are, indeed, cloisters at Amalfi and Sorrento; much more remarkable, however, for the beauty of their situation than for their architecture, which is extremely rude and clumsy. There are no chapter-houses: no halls or conventual buildings of any sort. In this respect, the province forms a remarkable contrast with Spain in the same age; though it must be confessed that the North of Italy is also very deficient in conventual buildings of the Middle Ages, the most magnificent and beautiful belonging more to the Renaissance than to the Mediæval period.
At Ravello there is the Casa Ruffolo, a picturesque palace of the 13th century, still nearly entire: a strange mixture of Gothic and Saracenic taste, but so exceptional, that it would not be fair to quote it as a type of any style. It seems to owe its peculiarities more to 606the taste of some individual patron or architect rather than to any national taste or form of design.
490. Plan of Castel del Monte. (From Schultz.) Scale 100 ft. to 1 in.
There are, however, several Hohenstauffen castles of tolerable preservation, more or less typical of the domestic arts of the day in which they were erected. One of the best preserved of these is that of Castel del Monte, erected by Frederick II., 1240-44. It is an octagon in plan, with octagonal turrets at each angle. It measures 167 ft. across its extreme breadth, and surrounds a courtyard 57 ft. in diameter. Both storeys are vaulted, and all the details throughout are good and pleasing. The whole is an admixture of Italian taste, superimposed on a German design; but it will be observed how little removed the architectural details of the entrance are, even at that early age, from the style of the Renaissance. This is, indeed, the great characteristic of the architectural objects in Southern Italy. Though they adopted Christian forms, they never abandoned the classical feeling in details; and it is this which mainly renders them worthy of study. Whether considered in regard to dimensions, outline, or constructive peculiarities, their churches will not bear a moment’s comparison with those of the North; but in elegance of detail they often surpass purely Gothic buildings to such a degree as to become to some extent as worthy of study as their more ambitious rivals.
491. Part Section, part Elevation, of Castel del Monte. (From Schultz.) Scale 50 ft. to 1 in.
Fresco paintings—Churches at Vercelli, Asti, Verona, and Lucca—Cathedral at Siena—Sta. Maria, Florence—Church at Chiaravalle—St. Petronio, Bologna—Cathedral at Milan—Certosa, near Pavia—Duomo at Ferrara.
| DATES. | |
| Bologna independent | A.D. 1112 |
| Countess Matilda at Florence | 1115 |
| Obizzo d’Este at Ferrara | 1184 |
| Enrico Dandolo takes Constantinople | 1203 |
| War between Genoa and Venice | 1205 |
| Azzo d’Este at Ferrara | 1208 |
| Martino della Scala at Verona | 1259 |
| Martino delle Torre at Milan | 1260 |
| Visconti Lord of Milan | 1277 |
| Taddeo de Pepoli at Bologna | 1334 |
| Conspiracy of Marino Faliero | 1355 |
| Gian Galeazzo Visconti, Duke of Milan | 1395 |
| Verona ceded to Venice | 1409 |
| Cosmo de’ Medici | 1434 |
Before the commencement of the 13th century, the Italians had acquired such mastery over the details of their round-arched style, and had worked it into such originality and completeness, that it is surprising that they should so easily have abandoned it for that form of Pointed Gothic which they afterwards adopted. It is true the Italians never rose to the conception of such buildings as the great Rhenish cathedrals, like those of Spires and Worms, or the old churches at Cologne; nor did they perhaps even rival the quasi-classical grace and elegance of the Provençal churches; but at Verona, Modena, and indeed throughout the North of Italy, they had elaborated a complete round-arched style, all the details of which were not only appropriate and elegant, but seemed capable of indefinite development in the direction in which they were proceeding. They had also before their eyes the Romanesque style of Pisa and Lucca with all its elegance, and the example of Rome, where the architects steadily refused to acknowledge the pointed arch during the whole of the Mediæval period. Yet in the beginning of the 13th century—say 1220, when the cathedrals of Amiens, Salisbury, and Toledo were designed—Italy too was smitten with admiration for the pointed arch, and set to work to adapt it to her tastes and uses.
It would be difficult to account for this, were we not aware how 608deeply the feelings that gave rise to the Ghibelline faction were rooted in the Italian soil. In all the cities, except Rome, the cause of the Ghibellines was throughout the Middle Ages identified with that of freedom and local independence, in opposition to that of the Guelfs, which symbolised the supremacy of the Pope and the clerical party. Knowing how strenuously this was resisted, we naturally expect to find it expressed in the architecture of the country. Two, indeed, of the great churches of Italy, Assisi (1228) and Milan (1385), were erected by Germans in the German style of the day; but these are exceptional. The form which the pointed-arched style took on its introduction, was that of adaptation to the Italian style, in a manner which the Italians thought more consonant with beauty and convenience than that adopted north of the Alps. In this they were certainly mistaken. The elegance of the details employed by a refined and cultivated people, and based on classical traditions, goes far to redeem, in most instances, the defects of their designs; but they never grasped the true principles of Gothic art, and the fatal facility of the pointed arch led them more astray after mechanical clevernesses than even the Germans. Still, it is an original style, and, however imperfect, is well worthy of study.
Before proceeding to describe the style more in detail, it may be well to point out one of the principal causes which led to the more marked features of difference between the Gothic architecture of Italy and that of Germany and France. This was the distaste of the Italians for the employment of painted glass, or at least their want of appreciation of its beauties when combined with architecture.
It will be explained in a future chapter how all-important painted glass was to the elaboration of the Gothic style. But for its introduction, the architecture of France would bear no resemblance to what it was, and is. In Italy, indeed, the people loved polychromy, but always of the opaque class. They delighted to cover the walls of their churches with frescoes and mosaics, to enrich their floors with the most gorgeous pavements, and to scatter golden stars over the blue ground of their vaults; but rarely, if ever, did they fill, or design to fill, their windows with painted glass. Perhaps the glare of an Italian sun may have tended to render its brilliancy intolerable; but more probably the absence of stained glass is owing to its incompatibility with fresco-painting, the effect of which would be entirely destroyed by the superior brightness of the transparent material. The Italians were not prepared to relinquish the old and favourite mode of decoration in which they so excelled. This adherence to the ancient method of ornamentation enabled them, in the 15th and 16th centuries, to surpass all the world in the art of painting, but it was fatal to the proper appreciation of the pointed style, and to its successful introduction into the land.
609The first effect of this tendency was that the windows in Italian churches were small, and generally devoid of tracery, with all its beautiful accompaniments. The walls, too, being consequently solid, were sufficient, by their own weight, to abut the thrust of the arches: so that neither projecting or flying buttresses nor pinnacles were needed. The buildings were thus deprived externally of all the aspiring vertical lines so characteristic of true Gothic. The architects, to relieve the monotony arising from the want of these features, were forced to recur to the horizontal cornices of the classical times, and to cover their walls with a series of panelling which, however beautiful in itself, is mere ornament—both unmeaning and inconsistent.
Internally, too, having no clerestory to make room for, and no constructive necessities to meet, they jumped to the conclusion that the best design is that which covers the greatest space with the least expenditure of materials, and the least encumbrance of the floor. With builders this is a golden rule, but with architects it is about the worst that can possibly be adopted. The Germans were not free from this fault, but the Italians carried it still further. If on four or five piers they could support the vault of a whole nave, they never dreamed of introducing more. A French architect, though superior in constructive skill, would probably have introduced eight or ten in the same space. An Italian aimed at carrying the vaults of the side-aisles to the same height as that of the nave, if he could. A Northern architect knew how to keep the two in their due proportion, whereby he obtained greater height and greater width in the same bulk, and an appearance of height and width greater still, by the contrast between the parts, at the same time that he gave his building a character of strength and stability perhaps even more valuable than that of size.
In the same manner the Northern architects, while they grouped their shafts together, kept them so distinct as to allow every one to bear its proportional part of the load, and perform its allotted task. The Italians never comprehended this principle, but merely stuck pilasters back to back, in imitation of the true architects, producing an unmeaning and ugly pier. The same incongruities occur in every part and every detail. It is a style copied without understanding, and executed without feeling. The elegance of the sculptured foliage and other details sometimes goes far to redeem these faults; for the Italians, though bad architects, were always beautiful carvers, and, as a Southern people, were free from the vulgarities sometimes apparent farther north, and never fell into the wild barbarisms which too often disfigure even the best buildings on this side of the Alps. Besides, when painting is joined to sculpture in churches, the architecture may come to occupy a subordinate position, and thus escape the censure it deserves. Unfortunately there are only two examples of any 610importance in this style that retain all their painted decorations—St. Francis at Assisi, and the Certosa near Pavia. From this circumstance they are perhaps the most admired in Italy. In others the spaces left for colour are still plain and blank. We see the work of the architect unaided by the painting which was intended to set it off, and we cannot but condemn it as displaying at once bad taste and ignorance of the true Gothic feeling.
One of the earliest, or perhaps the very first Italian edifice into which the pointed arch was introduced, is the fine church of St. Andrea at Vercelli, commenced in the year 1219 by the Cardinal Guala Bicchieri, and finished in three years. This prelate, having been long legate in England, brought back with him an English architect called, it is said, Brigwithe, and entrusted him with the erection of this church in his native place.
492. Plan of the Church at Vercelli. (From Osten’s ‘Baukunst in Lombardei.’) Scale 100 ft. to 1 in.
In plan, it is certainly very like an English church, terminating squarely towards the east, and with side chapels to the transepts, arranged very much as we find them at Buildwas, Kirkstall, and other churches of this class and size, only that here they are polygonal, which was hardly ever the case in England. But with the plan all influences of the English architect seem to have ceased, and the structure is in purely Italian style. Externally the pointed arch nowhere appears, all the doors and windows being circular-headed; while internally it is confined to the pier-arches of the nave and the vaulting of the roof. The façade is flanked at its angles by two tall, slender, square towers; and the intersection of the nave and transept is covered by one of those elegant octagonal domes which the Italians knew so well how to use, and which is in fact the only original feature in their designs. The external form of this church is interesting, as displaying the germs of much that two centuries afterwards was so greatly expanded by a German architect in the design of Milan cathedral.
A few years later, in 1229, a church was commenced at Asti, the tower of which was finished in 1266. This allowed time for a more complete development of the pointed style, which here prevails not only internally, but externally. Tall pointed windows appear in the flanks, and even the doorways assume that form, in their canopies, if not in their openings. The porch (Woodcut No. 493) is a later 611addition, and a characteristic specimen of the style during the 14th century. This church is also one of the earliest examples in which those elegant terra-cotta cornices of small intersecting arches seem to have been brought to perfection.
493. Church at Asti. (From Chapuy, ‘Moyen-Âge Monumental.’)
The most remarkable church of this age is that of St. Francis at Assisi, commenced in 1228, and finished, in all essentials at least, in 1253. It is said to have been built by a German named Jacob, or Jacopo. Certainly no French or English architect would have designed a double church of this class, though, on the other hand, no Italian could have drawn details so purely Northern as those of the upper church. In the lower church there are hardly any mouldings to mark the style, but its character is certainly rather German than Italian. 612This church depends for its magnificence and character much more on painting than on architecture. In the first place it is small, the upper church being only 225 ft. long, by 36 in. width; and though the lower one has side-aisles which extend the width to 100 ft., yet the upper church is only 60 ft. in height, and the lower about 30, so that it is far too small for much architectural magnificence. None of its details are equal to those of contemporary churches on this side of the Alps. The whole church is covered with fresco paintings in great variety and of the most beautiful character, which justly render it one of the most celebrated and admired of all Italy. On this side of the Alps without its frescoes, it would hardly attract any attention. It is invaluable as an example of the extent to which the polychromatic decoration may be profitably carried, and of the true mode of doing it; and also as an illustration of the extent to which the Italians allowed a foreign style and mode of ornamentation to be introduced into their country.
494. Plan of Sta. Anastasia, Verona. Scale 100 ft. to 1 in.
495. One Bay of Sta. Anastasia, Verona.
One of the purest and most perfect types of an Italian Gothic church is that of Sta. Anastasia at Verona, commenced apparently in 1260. It is not large, being only 285 ft. in length externally; but its arrangements are very complete, and very perfect if looked at from an Italian 613point of view. The square of the vault of the nave is the modulus, instead of that of the aisles, as in true Gothic churches: owing to which the pier-arches are further apart than a true artist would have placed them; there are also no buttresses externally, but only pilasters. The consequence of this is, that the arches have to be tied in with iron rods at the springing, which internally adds very much to the appearance of weakness, caused in the first instance by the wide spacing and general tenuity. These bad effects are aggravated by the absence of a string-course at the springing of the vault; and by the substitution of a circular hole for the triforium, and a hexafoiled opening of very insignificant dimensions for the glorious clerestory windows of Northern churches. Altogether, though we cannot help being pleased with the spaciousness and general elegance of design, it is impossible not to feel how very inferior it is to that of churches on this side the Alps.
496. One Bay, externally and internally, of the Church of San Martino, Lucca.
The church of San Martino at Lucca, built about a century after Sta. Anastasia (middle of 14th century), presents a strikingly happy compromise between the two styles. The pier-arches are still too wide—23 ft. in the clear; but the defect is remedied to some extent 614by the employment of circular instead of pointed arches, and the triforium is all that can be desired; the clerestory, however, is as insignificant as it must be where the sun is so brilliant and painted glass inadmissible. It would be easy to point out other defects; but, taking it altogether, there are few more elegant churches than this, and hardly one in Italy that so perfectly meets all the exigencies for which it was designed.
497. Plan of the Cathedral at Siena. (From the ‘Églises principales d’Europe.’) Scale 100 ft. to 1 in.
The cathedrals of Siena and Orvieto (the former commenced in 1243, the latter in 1290) are perhaps, taken altogether, the most successful specimens of Italian pointed Gothic. They are those at least in which the system is carried to the greatest extent without either foreign aid or the application of distinctly foreign details. These two buildings, moreover, both retain their façades as completed by their first architects, while the three great churches of this style—the cathedrals of Florence, Bologna, and Milan—were in this respect left unfinished, with many others of the smaller churches of Italy. The church at Siena illustrates forcibly the tendency of the Italian architects to adhere to the domical forms of the old Etruscans, which the Romans amplified to such an extent, and the Byzantines made peculiarly their own. I cannot but repeat my regret that the Italians alone, of all the Western Mediæval builders, showed any predilection for this form of roof. On this side of the Alps it could have been made the most beautiful of architectural forms. In Italy there is no instance of more than moderate success—nothing, indeed, to encourage imitation. Even the example now before us is no exception to these remarks, though one of the boldest efforts of Italian architects. In plan it ought to have been an octagon, but that apparently would have made it too large for their skill to execute, so they met the difficulty by adopting a hexagon, which, though producing a certain variety of perspective, fits awkwardly with the lines of columns, and twists the vaults to an unpleasant extent. Still, a dome of moderate height, and 58 ft. in diameter, covering the centre of the church, and with sufficient space around to give it dignity, is a noble and pleasing feature, the merit of which it is impossible to deny. Combined with 615the rich colouring and gorgeous furniture of the church, it makes up a whole of great beauty. The circular pier-arches, however, and the black and white stripes by which the exterior is marked, detract considerably from the effect of the whole—at least in the eyes of strangers, though the Italians still consider it a beauty. The façade of this cathedral is represented in Woodcut No. 498. It consists of three great portals, the arches of which are equal in size, though the centre doorway is larger than those at the sides. Above is the invariable circular window of the Italian architects, and the whole is crowned by steep triangular gables. Beneath the cathedral, or rather 616under the choir, is the ancient baptistery, now the church of St. John the Baptist; its front is in a much purer style of Gothic than the cathedral.[310]
498. Façade of the Cathedral at Siena.
The carved architectural ornaments of the façade are rich and elaborate in the extreme, though figured sculpture is used to a much less extent than in Northern portals of the same age. It is also observable that the strong horizontal lines do not harmonise with the aspiring character of pointed architecture.
The cathedral of Orvieto is smaller and simpler, and less rich in its decorations, than that at Siena, with the exception of its façade, which is adorned with sculpture and painting. Indeed the three-gabled front may be considered the typical one for churches of this class. The façades intended to have been applied to the churches at Florence, Bologna, Milan, and elsewhere, were no doubt very similar to that represented in Woodcut No. 498. As a frontispiece, if elaborately sculptured and painted, it is not without considerable appropriateness and even beauty; but, as an architectural object, it is infinitely inferior to the double-towered façades of the Northern cathedrals, or even to those with only one great tower in the centre. It has besides the defect of not expressing what is behind it; the central gable being always higher than the roof, and the two others merely ornamental appendages. Indeed, like the Italian Gothic buildings generally, it depended on painting, sculpture, and carving for its effect, far more than on architectural design properly so called.
Among the greatest and most complete examples of Italian Gothic is the church of Sta. Maria dei Fiori, the cathedral of Florence, one of the largest and finest churches produced in the Middle Ages—as far as mere grandeur of conception goes, perhaps the very best, though considerably marred in execution from defects of style, which are too apparent in every part.
499. Plan of Cathedral at Florence. (From Isabelle, ‘Édifices Circulaires.’) Scale 100 ft. to 1 in.
The building of the church was commenced in the year 1294 or 1298 (it is not quite clear which), from the designs and under the superintendence of Arnolfo di Lapo, for unfortunately in this style we know the names of all the architects, and all the churches show traces of the caprice and of the misdirected efforts of individuals, instead of the combined national movement which produced such splendid results in France and England. It is not known how far Arnolfo had carried the building when he died, in 1310, but probably up to the springing of the vaults. After this the works proceeded more leisurely, but the nave and smaller domes of the choir were no 617doubt completed as we now find them in the first twenty years of the 14th century. The great octagon remained unfinished, and, if covered in at all, it was only by a wooden roof of domical outline externally, which seems to be that represented in the fresco in the convent of San Marco, till Brunelleschi commenced the present dome in 1420, and completed it in all essential parts before his death, which happened in 1444. The building may therefore be considered as essentially contemporary with the cathedral of Cologne, which it very nearly equals in size (its area being 84,802 ft., while that of Cologne is estimated at 91,000), and, as far as mere conception of plan goes, there can be little doubt but that the Florentine cathedral far surpasses 618its German rival. Nothing indeed can be finer than its general ground-plan. A vast nave leads to an enormous dome, extending into the triapsal arrangement so common in the early churches of Cologne, and which was repeated in the last and greatest effort of the Middle Ages, or rather the first of the new school—the great church of St. Peter at Rome. In the Florentine church all these parts are better subordinated and proportioned than in any other example, and the mode in which the effect increases and the whole expands as we approach from the entrance to the sanctum is unrivalled. All this, alas! is utterly thrown away in the execution. Like all inexperienced architects, Arnolfo seems to have thought that largeness of parts would add to the greatness of the whole, and thus used only four great arches in the whole length of his nave, giving the central aisle a width of 55 ft. clear. The whole width is within 10 ft. of that of Cologne, and the height about the same; and yet, in appearance, the height is about half, and the breadth less than half, owing to the better proportion of the parts and to the superior appropriateness in the details on the part of the German cathedral. At Florence the details 619are positively ugly. The windows of the side-aisles are small and misplaced, those of the clerestory mere circular holes. The proportion of the aisles one to another is bad, the vaults ill-formed, and altogether a colder and less effective design was not produced in the Middle Ages. The triapsal choir is not so objectionable as the nave, but there are large plain spaces that now look cold and flat; the windows are too few and small, and there is a gloom about the whole which is very unsatisfactory. It is nearly certain that the original intention was to paint the walls, and not to colour the windows, so that these defects are hardly chargeable to the original design, and would not be apparent now were it not that in a moment of mistaken enthusiasm the Florentines were seized with a desire to imitate the true style of Gothic art, and rival Northern cathedrals in the glory of their painted glass. This, in a church whose windows were designed only of such dimensions as were sufficient to admit the requisite quantity of white light, was fatal. Notwithstanding the beauty of the glass itself, which seems to have been executed at Lubeck, 1434, from Italian designs, it is so completely out of place that it only produces irritation instead of admiration, and has certainly utterly destroyed the effect and meaning of the interior it was intended to adorn.
500. Section of Dome and part of Nave of the Cathedral at Florence. Scale 100 ft. to 1 in.
501. Part of the Flank of Cathedral at Florence.
502. Dome at Chiaravalle, near Milan. (From a drawing by Ed. Falkener, Esq.)
Externally the façade was never finished,[311] and we can only fancy what was intended from the analogy of Siena and Orvieto. The flanks of the nave are without buttresses or pinnacles, and, with only a few insignificant windows, would be painfully flat except for a veneer of coloured marbles disposed in 620panels over the whole surface. For an interior or a pavement such a mode of decoration is admissible; but it is so unconstructive, so evidently a mere decoration, that it gives a weakness to the whole, and most unsatisfactory appearance to so large a building. This is much less apparent at the east end, where the outline is so broken, and the main lines of the construction so plainly marked, that the mere filling in is comparatively unimportant. This is the most meritorious part of the church, and, so far as it was carried up according to the original design, is extremely beautiful. Even the plainness and flatness of the nave serve as a foil to set off the varying outline of the choir. Above the line of the cornice of the side-aisles there is nothing that can be said to belong to the original design except the first division of the drum of the dome, which follows the lines of the clerestory. It has long been a question what Arnolfo originally intended, and especially how he meant to cover the great octagonal space in the centre. All knowledge of his intentions seems to have been lost within a century after his death: at least, in the accounts of the proceedings of the commission which resulted in the adoption of Brunelleschi’s design for the dome, no reference is made to any original design as then existing, and no one appears to have known how Arnolfo intended to finish his work. Judging from the structure as far as he carried it, and with the knowledge we now possess of the Italian architecture of that age, we can easily conjecture what his design for its completion may have been. Internally, it 621probably consisted of a dome something like the present, but flatter, springing from the cornice, 40 ft. lower than the present one, and pierced with large openings on each of its eight faces.
503. Section of Eastern portion of Church at Chiaravalle. (From Gruner’s ‘Terra Cotta Architecture in Italy.’) Scale 50 ft. to 1 in.
Externally, two courses were open to him. The first and most obvious was to hide the dome entirely under a wooden roof, as is done in St. George’s, Thessalonica (Woodcut No. 305), or in the baptistery in front of the cathedral, and is done in half the baptisteries in Italy—as at Parma, for instance (Woodcut No. 514). Had he done this, the span of the dome might have been very much larger, without involving any constructive difficulties, and the three towers over the choir and transepts might have sufficed to relieve its external appearance sufficiently for architectural effect. On the whole, however, I am rather inclined to believe that something more ambitious than this was originally proposed, and that the design was more like that of Chiaravalle near Milan, built in 1221, and one of the most complete and perfect of this class of dome now existing in Italy. Its external 622appearance may be judged of from Woodcut 502, and its constructive details from the section, Woodcut No. 503.
If the basement is sufficiently solid—and that at Florence is more than sufficient for any superstructure of the sort—it is evident the architect can dispose of such masses of masonry, that he can counteract any thrust or tendency to spread that can exist in any dome of this sort; and instead of being only 136 ft. across, 150 or 160 might easily have been attempted. Instead of 375 ft., which is the height of the present dome from the floor to the top of the cross externally, it might even with the present diameter have been carried up to at least 500 ft., or as high as the church was long,—70 to 100 ft. above the height of St. Peter’s at Rome.
Had this been done, the three smaller semi-domes must have been intended to be crowned with miniature octagonal spires of the same class with the great dome, and between these the vast substructures show that it was intended to carry up four great spires, probably to a height of 400 ft.
Had all this been done (and something very like it seems certainly to have been intended), neither Cologne Cathedral, nor any church in Europe, ancient or modern, would have been comparable to this great and glorious apse. As it is, the plain, heavy, simple outlined dome of Brunelleschi acts like an extinguisher, crushing all the lower part of the composition, and both internally and externally destroying all harmony between the parts. It has deprived us of the only chance that ever existed of witnessing the effect of a great Gothic dome; not indeed such a dome as might with the same dimensions have been executed on this side of the Alps, but still in the spirit, and with much of the poetry, which gives such value to the conceptions of the builders in those days.
But for this change of plan, the ambition of the Florentines might have been in some measure satisfied, whose instructions to the architect were, that their cathedral “should surpass everything that human industry or human power had conceived of great and beautiful.”
About a century later (1390), the Bolognese determined on the erection of a monster cathedral, which, in so far as size went, would have been more than double that at Florence. According to the plans that have come down to us, it was to have been about 800 ft. long and 525 wide across the transepts; at the intersection was to have been a dome 130 ft. in diameter, or only 6 ft. less than that at Florence; and the width of both nave and transepts was to have been 183 ft.: so that the whole would have covered about 212,000 ft., or nearly the same area as St. Peter’s at Rome, and three times that of any French cathedral! Of this vast design, only about one-third (Woodcut No. 504), 74,000 sq. ft., was ever carried out; but that fragment is quite sufficient to enable us to judge of the merits or defects of this 623style in its state of greatest perfection. The only other building in the same style on a sufficient scale to admit of comparison with this is the nave of the cathedral at Florence just described, but that is nearly as may be only half of its dimensions, or 36,000 ft. as compared with 72,000. The chapels, too, at Bologna add practically a fifth aisle, giving great variety and richness to the perspective. The varied heights and proportions of the central and side aisles are singularly pleasing, and there being six arches at Bologna instead of only four as at Florence, and twelve side chapels where none exist in the other example, go far to redeem the lean mechanical look which is the great defect of this style. The great advantage San Petronio has over the Florentine church is in the size and number of its windows, and these not being filled with stained glass the whole church has a bright and pleasing effect that contrasts most favourably with the gloom of its great rival. Notwithstanding this, the nave of San Petronio cannot be considered as a successful work of art. In the first place it is too mechanically perfect. The area of the points of support as compared with the voids is, as far as can be made out from such plans as exist, about one-twelfth, which would be a merit in a railway station, but something more is wanted in a monumental building. In the next there is a singular deficiency of either constructive or constructed ornament. On this side of the Alps an architect with vaulting shafts, string-courses, galleries, and fifty other expedients, would have relieved the bareness of the walls. At Bologna it probably was intended they should be painted, and this never having been executed may account for most of its apparent defects.
504. Plan of the part executed of St. Petronio, Bologna. (from Wiebeking.) Scale 100 ft. to 1 in.
In Gothic architecture one of two systems seems indispensable: either painted glass with strongly-marked carved mouldings over the 624whole of the interior, or white glass with flat surfaces suitable for opaque paintings. Few cathedrals are complete in both respects at the present day, but in their imperfect state the Northern system has an immense advantage over the Southern. The architecture of our cathedrals is complete and beautiful even in ruins. An Italian church without its coloured decoration is only a framed canvas without harmony or meaning. Were San Petronio as complete in its coloured decoration as the Certosa at Pavia or Monreale at Palermo, it might stand a fair competition with the best interiors on this side of the Alps. As it is, it is only a splendid example of ornamental but unornamented construction, and, as was attempted to be explained in the Introduction, both elements are wanted for success in architectural design.
505. Section of San Petronio, Bologna. (From Wiebeking.) Scale 50 ft. to 1 in.
The exterior of the church is in too unfinished a state to enable us to judge of what its effect might have been if completed, but many of its details, especially of the façade, are of very great beauty, in many respects superior to what is to be found on this side of the Alps. Its central dome, however, never could have been a feature worthy of so vast a church. In diameter it is equal, or nearly so, to that of Florence, but the points of support are so small, and so far apart, that it must have been mainly if not wholly of wood. No such 625towering structure as Arnolfo’s vast substructures show that he intended, could have stood on the slim supports of the Bolognese church.[312]
506. Plan of the Cathedral of Milan. (From ‘Chiesi Principali d’Europa.’) Scale 100 ft. to 1 in.
The cathedral of Milan—at once the most remarkable and one of the largest and richest of all the churches erected in the Middle Ages—was commenced in the year 1385, by order of Gian Galeazzo, first Duke of Milan, and consecrated in 1418, at which date all the essential 626parts seem to have been completed, though the central spire was not finished till about the year 1440, by Brunelleschi.
The design is said to have been furnished by a German architect, Heinrich Arlez von Gemunden, or as the Italians call him, “da Gamondia,”—a statement which is corroborated by the fact that the details and many of the forms are essentially Northern; but it is equally certain that he was not allowed to control the whole, for all the great features of the church are as thoroughly Italian as the details are German: it is therefore by no means improbable that Marco da Campione, as the Italians assert, or some other native artist, was joined with him or placed over him.
In size it is, except Seville, the largest of all Mediæval cathedrals, covering 107,782 ft. In material it is the richest, being built wholly of white marble, which is scarcely the case with any other church, large or small; and in decoration it is the most gorgeous—the whole of the exterior is covered with tracery, and the amount of carving and statuary lavished on its pinnacles and spires is unrivalled in any other building of Europe. It is also built wholly (with the exception of the façade) according to one design. Yet, with all these advantages, the appearance of this wonderful building is not satisfactory to any one who is familiar with the great edifices on this side of the Alps. Cologne is certainly more beautiful; Rheims, Chartres, Amiens, and Bourges leave a far more satisfactory impression on the mind; and even the much smaller church of St. Ouen will convey far more pleasure to the true artist than this gorgeous temple.
The cause of all this it is easy to understand, since all or nearly all its defects arise from the introduction of Italian features into a Gothic building; or rather, perhaps, it should be said, from a German architect being allowed to ornament an Italian cathedral. Taking the contemporary cathedral of St. Petronio at Bologna as our standard of comparison, it will be seen that the sections (Woodcuts Nos. 505, 507) are almost identical both in dimensions and in form, except that at Milan the external range is a real aisle instead of a series of side chapels; but, at the same time, it will be perceived that the German system prevailed in doubling the number of the piers between the nave and side-aisles. So far, therefore, the German architect saved the church. The two small clerestories, however, still remain; and although the design avoids the mullionless little circles of Bologna, there is only space for small openings, which more resemble the windows of an attic than of a clerestory. The greater quantity of light being thus introduced by the tall windows of the outer aisle, the appearance is that of a building lighted from below, which is fatal to architectural effect.
The model still preserved on the spot shows that the German architect designed great portals at each end of the transepts. This, 627however, was overruled in favour of two small polygonal apses. Instead of the great octagonal dome which an Italian would have placed upon the intersection of the whole width of the nave and transepts, German influence has confined it to the central aisle, which is perhaps more to be regretted than any other mistake in the building. The choir is neither a French chevet nor a German or Italian apse, but a compromise between the two, a French circlet of columns enclosed in a German polygonal termination. This part of the building, with its simple forms and three glorious windows, is perhaps an improvement on either of the models of which it is compounded.
507. Section of the Cathedral of Milan.[313] (From Wiebeking.) Scale 50 ft. to 1 in.
This is the nearest approach to the French chevet arrangement to be found in all Italy. It is extremely rare in that country to find an aisle running round the choir, and opening into it, or with the circlet of apsidal chapels which is so universal in France. The Italian church is not, in fact, derived from a combination of a circular Eastern church 628with a Western rectangular nave, but is a direct copy from the old Roman basilica.
508. View of the Interior of Milan Cathedral. (From Rosengarten.)
The details of the interior of Milan cathedral are almost wholly German (Woodcut No. 508). The great capitals of the pillars, with their niches and statues, are the only compromise between the ordinary German form and the great deep ugly capitals—fragments, in fact, of classical entablatures—which disfigure the cathedrals of Florence and Bologna, and so many other Italian churches. Had the ornamentation of these been carried up to the springing of the vault, they would have been unexceptionable; as it is, with all their richness, their effect is unmeaning.
629Externally, the appearance is in outline not unlike that of Sta. Maria dei Fiori; the apse is rich, varied, and picturesque, and the central dome (excepting the details) similar, though on a smaller scale, to what I believe to have been the original design of the Florentine church. The nave is nearly as flat as at Florence, the clerestory not being visible; but the forest of pinnacles and flying buttresses and the richness of the ornamentation go far to hide that defect. The façade was left unfinished, as was so often the case with the great churches of Italy. Pellegrini was afterwards employed to finish it, and a model of his design is still preserved. It is fortunate that his plan was not carried out. The façade was finished, as we now see it, from the designs of Amati, by order of Napoleon. It is commonplace, as might be expected from its age, but inoffensive. The doorways are part of Pellegrini’s design, and the Mediæval forms being placed over those of the cinque-cento, produce a strangely incongruous effect. For the west front several original designs are still preserved. One of these, with two small square towers at the angles, as at Vercelli and elsewhere, was no doubt the Italian design. The German one (Woodcut No. 509) is preserved by Bassi:[314] had this been executed, the façade would have been about one-third (viz. 100 ft.) wider than that of Cologne. Had the height of the towers been in the same proportion, they would have been the tallest in the world. In that case the effect here, as at Cologne, would have been to shorten and overpower the rest of the building to a painful extent. A design midway between the two, with spires rising to the same height as the central one, or about 360 ft., would perhaps have the happiest effect. At any rate, the want of some such features is greatly felt in the building as it stands.
509. Design for Façade of Milan Cathedral. (From Bassi.)
The Certosa, near Pavia, was commenced about the same date (1396) as the cathedral at Milan. It is seldom that we find two buildings in the Middle Ages so close to one another in date and locality, and yet so dissimilar. There is no instance of such an occurrence on this side of the Alps, till modern times; and it shows that in those days the Italians were nearly as devoid of any distinct principles of architecture as we have since become.
510. View of the Certosa, near Pavia. (From a Photograph.)
The great difference between Pavia and Milan is that the former shows no trace of foreign influence. It is as purely Italian as St. Petronio, and by no means so complete or consistent in design. Nothing, in fact, can be more painful than the disproportion of the parts, the 631bad drawing of the details, the malformation of the vaults, and the meanness of the windows; though all these defects are completely hidden by the most gorgeous colouring, and by furniture of such richness as to be almost unrivalled. So attractive are these two features to the majority of spectators, and so easily understood, that nine visitors out of ten are delighted with the Certosa, and entirely forget its miserable architecture in the richness and brilliancy of its decorations.
Externally the architecture is better than in the interior. From its proximity to Pavia, it retains its beautiful old galleries under the roof. Its circular apses, with their galleries, give to this church, for the age to which it belongs, a peculiar character, harmonising well with the circular-headed form, which nearly all the windows and openings present. Even in the interior there are far more circular than pointed arches.
The most beautiful and wonderful part of the building is the façade. This was begun in 1473, and is one of the best specimens in Italy of the Renaissance style. It would hardly, therefore, be appropriate to mention it here, were it not that the dome over the intersection of the nave and transepts is of the same age and style, but reproduces so exactly (except in details) what we fancy the Mediæval Italian Gothic dome to have been, that it may be considered as a feature of the earlier ages. Referring to Woodcut No. 502, it will be seen how like it is to that of Chiaravalle in outline. It is less tall, however, and, if translated into the details of the great church at Florence, would fit perfectly on the basement there prepared for such a feature.
Like many other churches in Northern Italy, the principal parts of the Certosa are built in brick, and the ornamental details executed in terra-cotta. Some of the latter, especially in the cloisters, are as beautiful as any executed in stone in any part of Italy during the Middle Ages; and their perfect preservation shows how suitable is the material for such purposes. It may not be appropriate for large details or monumental purposes, but for the minor parts and smaller details, when used as the Italians in the Middle Ages used it, terra-cotta is as legitimate as any material anywhere used for building purposes; and in situations like the alluvial plains of the Po, where stone is with difficulty obtainable, its employment was not only judicious but most fortunate in its results.
It would be a tedious and unprofitable task to attempt to particularise all the churches which were erected in this style in Italy, as hardly one of them possesses a single title to admiration beyond the very vulgar one of size. To this Santa Croce, at Florence, adds its association with the great men who lie buried beneath it, and Sta. Maria Novella can plead the circumstance—exceptional in that city—of 632possessing a façade;[315] but neither of these has anything to redeem its innate ugliness in the eyes of an architect.
There are two great churches of this period at Venice, the San Giovanni e Paolo (1246-1420) and the Frari (1250); they are large and richly ornamented fabrics, but are both entirely destitute of architectural merit.
511. Duomo at Ferrara. (From Hope’s ‘Architecture.’) Scale 50 ft. to 1 in.
A much more beautiful building is the cathedral at Como, the details of which are so elegant and so unobtrusively used as in great measure to make up for the bad arrangement and awkward form of the whole. In design it is, however, inferior to that of the Duomo at Ferrara (Woodcut No. 511). The latter does not display the richness of the façades of Siena or Orvieto, nor the elegance of that last named; but among the few Italian façades which exist, it stands pre-eminent for sober propriety of design and the good proportions of all its parts. The repose caused by the solidity of the lower portions, and the gradual increase of ornament and lightness as we ascend, all combine to render it harmonious and pleasing. It is true it wants the aspiring character and bold relief of Northern façades; but these do not belong to the style, and it must suffice if we meet in this style with a moderate amount of variety, undisturbed by any very prominent instances of bad taste.
The true type of an Italian façade is well illustrated in the view of St. Francesco at Brescia (Woodcut No. 512), which may be considered the germ of all that followed. Whether the church had three aisles or five, the true Italian façade in the age of pointed architecture was always a modification or extension of this idea, though introduced with more or less Gothic feeling according to the circumstances of its erection.
633At Florence there is a house or warehouse, converted into a church,—Or (horreum) San Michele, which has attracted a good deal of attention, but more on account of its curious ornaments than for beauty of design—which latter it does not, and indeed can hardly be expected to, possess. The little chapel of Sta. Maria della Spina at Pisa owes its celebrity to the richness of its niches and canopies, and to the sculpture which they contain. In this the Italians were always at home, and probably always surpassed the Northern nations. It was far otherwise with architecture, properly so called. This, in the age of the pointed style, was in Italy so cold and unmeaning, that we do not wonder at the readiness with which the Italians returned to the classical models. They are to be forgiven in this, but we cannot so easily forgive our forefathers, who abandoned a style far more beautiful than that of Italy to copy one which they had themselves infinitely surpassed; and this only because the Italians, unable either to comSprehend or imitate the true principles of pointed art, were forced to abandon its practice. Unfortunately for us, they had in this respect in that age sufficient influence to set the fashion to all Europe.
512. View of St. Francesco, Brescia. (From Street’s ‘Brick and Marble in the Middle Ages.’)
Of late work in Dalmatia the most remarkable is the Cathedral of Sebenico (described in Mr. Jackson’s work), built entirely in stone 634and marble, and without any brick or timber in its construction. It is a cruciform building, covered over by a waggon-vault of stone, visible both inside and outside. It was commenced from the design of Messer Ambrosia, a Venetian architect, in 1435, to whom may be attributed the nave and aisles up to the string-course above nave arches. The work was continued after 1441 by another architect, Messer Giorgio, also from Venice, who died in 1475, leaving the building still incomplete. The style of the work is late Venetian Gothic, influenced in its later portions by the Renaissance revival. The cloisters of the Badia at Curzola, and of the Dominican and Franciscan convents at Ragusa, are also beautiful specimens of late Italian Gothic.
1. The first volume was published in 1865; the second in 1867.
2. ‘Mémoire sur les Fouilles exécutés au Madras’en,’ Constantine, 1873.
3. ‘Monumentos Arquitectonicos de España.’ Folio. Madrid, 1860, et seqq.
4. Parcerisa, ‘Recuerdos y Bellezas de España.’ Folio. Madrid.
5. ‘Gothic Architecture in Spain,’ by G. E. Street. Murray. 1865.
6. ‘Denkmäler der Kunst des Mittelalters in Unter Italien,’ by H. W. Schulz. Dresden, 1860. Quarto. Atlas, folio.
7. ‘Syrie Centrale,’ by Count M. De Vogüé. Paris.
8. ‘Byzantine Architecture,’ by Chev. Texier. London, 1864.
9. ‘Mission to the Court of Ava in 1855,’ by Colonel Yule. 4to. London, 1858.
10. ‘Travels in Siam and Cambodia,’ by Henri Mouhot. London: John Murray. 1864.
11. The number of illustrations in the chapters of the Handbook comprised in this first volume of the History was 441. They now stand at 536 (1874); and in the second volume the ratio of increase will probably be even greater.
12. It may be suggested that the glory of a French clerestory filled with stained glass made up for all these defects, and it may be true that it did so; but in that case the architecture was sacrificed to the sister art of painting, and is not the less bad in itself because it enabled that art to display its charms with so much brilliancy.
13. The numbers in the table must be taken only as approximative, except 2, 4, 6, and 7, which are borrowed from Gwilt’s ‘Public Buildings of London.’
14. The Isis-headed or Typhonian capitals cannot be quoted as an exception to this rule: they are affixes, and never appear to be doing the work of the pillar.
15. See woodcuts further on.
16. Max Müller, who is the facile princeps of the linguistic school in this country—in an inaugural lecture which he delivered when, it was understood, he was appointed to a chair in the Strasburg University—gave up all that has hitherto been contended for by his followers. He admitted that language, though an invaluable aid, did not suffice for the purposes of the investigation, and that the results obtained by its means were not always to be depended upon.
17. The term “Persistent Varieties” has recently been introduced, instead of “race,” in ethnological nomenclature, and, if scientific accuracy is aimed at, is no doubt an improvement. It is an advantage to have a term which does not even in appearance prejudge any of the questions between the monogenists and polygenists, and leaves undecided all the questions how the variations of mankind arose. But it sounds pedantic; and “race” may be understood as meaning the same thing.
18. The whole of this subject has been carefully gone into by the Author in a work entitled ‘Rude Stone Monuments’ published in 1872, to which the reader is referred.
19. All round the shores of the Mediterranean are found the traces of an art which has hitherto been a stumbling-block to antiquarians. Egyptian cartouches and ornaments in Assyria, which are not Egyptian; sarcophagi at Tyre, of Egyptian form, but with Phœnician inscriptions, and made for Tyrian kings; Greek ornaments in Syria, which are not Greek; Roman frescoes or ornaments, and architectural details at Carthage, and all over Northern Africa, which however are not Roman. In short, a copying art something like our own, imitating everything, understanding nothing. I am indebted to my friend Mr. Franks for the suggestion that all this art may be Phœnician, in other words, Semitic, and I believe he is right.
20. Had there been no Pelasgi in Greece, there probably would have been no Architecture of the Grecian period.
21. The derivation of the two words Heathen and Pagan seems to indicate the relative importance of these two terms very much in the degree it is here wished to express. Heathen is generally understood to be derived from ἔθνος, a nation or people; and Pagan from Pagus, Pagani, a village, or villagers. Both are used here not as terms of reproach, but as indicative of their being non-Christian, which is what it is wished to express, and was the original intention of the term.
22. ‘Rude Stone Monuments,’ 1 vol. 8vo. Murray, 1872.
23. The above scheme of Egyptian Chronology was published by me in the ‘True Principles of Beauty in Art,’ in 1849; and the data on which it was based were detailed in the Appendix to that work. As there seems to be nothing in the subsequent researches or discoveries which at all invalidates the reasoning on which the table was founded, it is here reproduced in an abridged form as originally set forth.
24. Syncellus, Chron. p. 98, ed. Dindorff, Bonn, 1829.
25. ‘Josephus contra Apion,’ i. 14, 16 and 26.
26. Vyse, ‘Operations on the Pyramids at Gizeh in 1837,’ vol. i. p. 297, et seq.
27. At Wady Meghara, in the Sinaitic peninsula, a king of the 4th dynasty is represented as slaying an Asiatic enemy. It is the only sign of strife which has yet been discovered belonging to this ancient kingdom. Lepsius, Abt. ii. pl. 39.
28. By a singular coincidence, China has been suffering from a Hyksos domination of Tartar conquerors, precisely as Egypt did after the period of the Pyramid builders, and, strange to say, for about the same period—five centuries. Had the Taepings been successful, we should have witnessed in China the exact counterpart of what took place in Egypt when the 1st native kings of the 18th dynasty expelled the hated race.
29. Col. H. Vyse, ‘Operations carried on the Pyramids of Gizeh in 1837.’ Lond. 1840-43.
30. This will be best understood by looking at the section (Woodcut 7), in which it will be seen that the so-called coping or casing-stones were not simply triangular blocks, filling up the angles formed by the receding steps, and which might have been easily displaced, but stones from 7 to 10 feet in depth, which could not have been supported unless the work had been commenced at the bottom. On the other hand, it is difficult to understand how the casing-stones for the upper portion could have been raised up the sloping portion completed. It is probable, therefore, that the casing was commenced at the angles and was carried up in vertical planes, thus leaving a causeway of steps in the middle of each face, which diminished in width as the work proceeded; this causeway, a few feet wide only, on each face being then encased from the top downwards after the apex blocks had been laid.—Ed.
31. ‘The Pyramids and Temples of Gizeh by W. M. Flinders Petrie. Lond. 1883.
32. On the north side the paving is carried under the lowest course.
33. Except the spires of Cologne Cathedral.
34. They are situated in latitude 30° N.
35. ‘Pyramids and Temples of Gizeh,’ p. 199.
36. Mr. Petrie says, p. 117: “All the chambers of this pyramid are entirely hewn in the rock.”
37. ‘Medum,’ by M. Flinders Petrie. D. Nutt, London, 1892.
38. Diodorus, i. 51.
39. M. Mariette’s discoveries in these tombs were only in progress at the time of his death: but his manuscript notes and drawings of the hieroglyphics and figures have since been published in facsimile under the title of ‘Les Mastabas de l’Ancienne Empire’ Paris 1889. They are, however, incomplete; some of the plates referred to could not be found, and M. Maspero, who edited the work, has unfortunately given no preface of his own, which might have rendered them more intelligible. At present no sufficient data exist to enable others to realise and verify the extraordinary revelation it presents to us. It is 2000 years older, and infinitely more varied and vivid, than the Assyrian pictures which recently excited so much interest.
40. The false door is a niche in the side of the mastaba, the back of which is carved in imitation of a wooden door.
41. Lucian, ‘De Syria Dea,’ ed. Reetzin, tom. iii. p. 451, alludes to the fact of the old temples of the Egyptians having no images.
42. The roof slabs are gone, but the lower portions of the slits are still uninjured.
43. The plan and particulars relating to this temple are taken from Mr. W. M. Petrie’s work before referred to.
44. The tablet discovered at Gizeh, in which Khufu, the builder of the Great Pyramid, is recorded to have made some repairs to the Sphinx, is stated by Mr. Petrie to be a forgery of the 20th dynasty, and his reasons are given in section 118 of his work.
45. Lepsius, ‘Denkmaler,’ Abt. ii. pls. 115, 116.
46. Syncellus, p. 69; Euseb. Chron. p. 98.
47. ‘Hawara, Biahmun, and Arsinoe’ by W. M. Flinders Petrie, 1889.
48. ‘Kahun, Garob, and Hawara,’ by W. M. Flinders Petrie, 1890.
49. ‘Illahun, Kahun, and Gurob,’ by W. M. Flinders Petrie, 1891.
50. Ibid.
51. The researches of Mr. Petrie at Kahun have shown that originally this form of column was in wood, which would account for the base on which, in Egyptian work, it is always placed.
52. In a tomb of the 4th dynasty found at Sakkara is a wall decoration in which the lotus column is used in a frieze, examples of it being carved in low relief to separate the figures in a procession (see plate 10, ‘Voyage dans la Haute Égypte,’ by F. A. F. Mariette. Cairo, 1878). The polygonal or Proto-Doric column has also been found as a hieroglyph in an inscription of the 4th dynasty. This carries back the date of the two columns to a period some twelve centuries prior to the example at Beni-Hasan.
53. ‘Revue Archæologique,’ vol. iii., 1861, p. 97, and v., 1862, p. 297.
54. 518 years: ‘Josephus contra Apion.,’ I. 26.
55. Layard, ‘Nineveh and Babylon,’ 281.
56. Tacitus, Ann. II. 60.
57. ‘Revue Archéologique,’ vol. x. 1864, p. 170, and vol. xiii. 1866, p. 73.
58. Now in Sir John Soane’s Museum, in Lincoln’s-Inn-Fields.
59. ‘Egyptian Archæology,’ by G. Maspero, translated from the French by Amelia B. Edwards. London, 1887.
60. The information regarding these temples is principally derived from Hoskins’s ‘Travels in Ethiopia,’ which is the best and most accurate work yet published on the subject.
61. Herodotus. iii. 24. Diodorus, ii. 15.
62. Woodcuts 982 and 1091 in the first edition of this History.
63. Published in the ‘Rheinischer Museum’ vol. viii. p. 252, et seq.
64. ‘Josephus contra Apion,’ i. 14.
65. If the Greeks traded to Naucratis as early as the 1st Olympiad.
66. When the ‘Handbook of Architecture’ was published in 1855, there existed no data from which these affinities could be traced. It is to the explorations of Sir Henry Rawlinson and Messrs. Taylor and Loftus that we owe what we now know on the subject; but even that is only an instalment.
67. The chronology here given is based on the various papers communicated by Sir Henry Rawlinson to the ‘Journal of the Royal Asiatic Society,’ vol. x. et seq., and to the ‘Athenæum’ journal. The whole has been abstracted and condensed in his brother’s ‘Five Great Monarchies of the Ancient world;’ from which work the tables here given are taken in an abridged form.
68. Loftus, ‘Chaldæa and Babylonia,’ p. 167.
69. Journal R. A. S., vol. xv. p. 260, et seq.
70. Journal R. A. S., vol. xviii. p. i, et seq., Sir H. Rawlinson’s paper, from which all the information here given regarding the Birs is obtained.
71. Flandin and Coste, ‘Voyage en Perse,’ vol. iv. pl. 221.
72. I have ventured to restore the roof of the cella with a sikra (ziggur or ziggurah, according to Rawlinson’s ‘Five Ancient Monarchies,’ vol. I, p. 395, et passim), from finding similar roofs at Susa, Bagdad, Keffeli, &c. They are certainly indigenous, and borrowed from some older type, whether exactly what is represented here is not clear, it must be confessed. It is offered as a suggestion, the reason for which will be given when we come to speak of Buddhist or Saracenic architecture.
73. Rich gives its dimensions: On the north, 600 feet; south, 657; east, 546; and west, 408. But it is so ruinous that only an average guess can be made at its original dimensions. [Mr. George Smith, in the ‘Athenæum’ of February 1876, wrote a letter giving an account of a tablet of the Temple of Belus at Babylon he had deciphered, which constitutes the only description found giving the dimensions thereof. The bottom stage was 300 feet square and 110 feet high, the second, with raking sides, 260 feet square and 60 feet high, the third 200 feet square and 20 feet high, the fourth, fifth, and sixth each 20 feet high and 170, 140, and 110 feet respectively. The top stage, which was the sanctuary, was 80 × 70 feet and 50 feet high, the whole height being thus 300 feet, the same as the width of the base. Mr. W. R. Lethaby, in his work on ‘Architecture, Mysticism, and Myth,’ gives as a frontispiece a restoration according to these dimensions, the appearance of which is more impressive and probably approaches more closely to the actual proportions of a ziggurat than any previously published, excepting that at Khorsabad, with which in general proportion it coincides.—Ed.]
74. Strabo, xvi. p. 738.
75. There is a slight discrepancy in the measures owing to the absence of fractions in the calculation.
76. Loftus, ‘Chaldæa and Babylonia,’ p. 188.
77. This chapter and that next following may be regarded as, in all essential respects an abridgment or condensation of the information contained in a work published by the author in 1851, entitled, ‘The Palaces of Nineveh and Persepolis Restored,’ the only real difference being that the more perfect decipherment of the inscriptions since that work was published has caused some of the palaces and buildings to be ascribed to different kings and dynasties from those to whom they were then assigned, and proved their dates to be more modern than was suspected, for the oldest at least. The order of their succession, however, remains the same, and so consequently do all the architectural inferences drawn from it. Those readers who may desire further information on the subject are referred to the work alluded to.
78. Published in 1862, in the ‘Athenæum’ journal, No. 1812.
79. This plan, with all the particulars here mentioned, are taken from Layard’s work, which is the only authority on the subject, so that it is not necessary to refer to him on every point. The plan is reduced to the usual scale of 100 ft. to 1 inch, for easy comparison with the dimensions of all the other edifices quoted throughout this work.
80. The whole of the information regarding Khorsabad is taken from M. Botta’s great work on the subject, and its continuation, ‘Ninive et l’Assyrie,’ by M. Victor Place.
81. These particulars are all borrowed from M. Place’s great work, ‘Ninive et l’Assyrie,’ folio. Paris, 1865.
82. Space will not admit of my entering into all the reasons for this restoration here. If any one wishes for further information on the subject, I must refer him to my ‘Palaces of Nineveh and Persepolis Restored,’ published in 1851. Nothing has occurred during the twenty-three years that have elapsed since that work was published that has at all shaken my views of the correctness of the data on which these restorations were based. On the contrary, every subsequent research has served only more and more to convince me of their general correctness, and I cannot now suggest any improvement even in details. [It should be noted that the author’s theory as to the covering over of the Assyrian halls with a flat roof carried on columns has never been accepted by foreign archæologists, and no trace has ever been found of the foundations which would be required to carry such columns. M. Place, who conducted the excavations at Khorsabad, and Messrs. Perrot & Chipiez, who, among others, have devoted much time and research to the subject, are of opinion that the halls were vaulted. It would be difficult now to determine the possibility of building vaults of thirty feet span in crude or unburnt brick, because we have no means of testing the resistance to crushing which such bricks might afford. The brick voussoirs found by M. Place in the arches of the town gates had been prepared in special moulds, and so completely dried that liquid clay had been used to cement them together. In some of the large halls, far away from the walls, and in some cases in the centre of the rooms, huge blocks of hard clay were found with their lower surface curved and covered with a layer of stucco; these masses were sometimes many metres long, one to two metres wide, nearly a metre thick. According to M. Place they formed part of a barrel vault covering the halls, and their size would account for the immense thickness of the walls constructed to carry them and resist their thrust, as well as for the peculiar shape of the halls; that is, their length as compared with their breadth. The sculptured slabs would seem to have been carved to be seen by a high side-light, which suggests openings of some kind, just above the springing of the vault, and above the flat roof of the smaller halls round.—Ed.]
83. These gateways are extremely interesting to the Biblical student, inasmuch as they are the only examples which enable us to understand the gateways of the Temple at Jerusalem as described by Ezekiel. Their dimensions are nearly the same, but the arrangement of the side chambers and of gates generally are almost identical. These gates had been built 100 years at least before Ezekiel wrote.
84. Layard’s excavations here furnish us with what has not been found or has been overlooked elsewhere, e.g., a ramp or winding staircase leading to the upper storey (‘Nineveh and Babylon,’ 461). As explained above, I believe the tops of the walls, which are equal to the floor space below, formed such a storey. This ramp at Koyunjik would just suffice to lead to them, and goes far to prove the theory. If it was similarly situated at Khorsabad it would be in the part fallen away.
85. [This assumption is speculative, no trace of such dwarf columns having been found; to raise a solid wall thirteen feet thick to carry a gallery seems unlikely.—Ed.]
86. This façade, as I read it, is identical with the one I erected at the Crystal Palace as a representation of an Assyrian façade, long before this slab was exhumed.
87. See Rawlinson, ‘Ancient Monarchies,’ vol. i. p. 398.
88. It is called tomb by Strabo, lib. xvi., and Diodorus, xvii. 112, 3; temple, Herodotus, i. 181, Arrian, vii. 17, 2, Pliny, vi. 26.
89. Texier shows columns on the fourth side.
90. Mr. Weld Blundell in 1892 found a column with fluted base and Doric capital, but it did not apparently belong to the palace.
91. [It follows from what has already been pointed out in a note respecting the roofs of the Assyrian palaces; if, as is contended by French archæologists, the great halls were vaulted, Mr. Fergusson’s theory respecting the origin of the Persian columns partly falls to the ground; in that case it would seem more probable that the Persians owed their columnar architecture to prototypes of wooden posts, covered with metal plates, such as are described as existing in the Median palaces of Ecbatana, where Cyrus, the first Persian monarch, passed so many years of his life.—Ed.]
92. The woodcuts in this chapter, except the restorations, are taken from Flandin and Coste’s ‘Voyage en Perse,’ except where the contrary is mentioned.
93. It is curious that neither Ker Porter, nor Texier, nor Flandin and Coste, though measuring this building on the spot, could make out its plan. Yet nothing can well be more certain, once it is pointed out.
94. ‘Palaces of Nineveh and Persepolis Restored,’ p. 126.
[The prayer platform or talar represented on the tomb of Darius is extremely unlike any constructional feature such as an upper storey, and may have been placed there only to give dignity and importance to the figure of the king: the hall of the Palace of Darius could easily have been lighted by clerestory windows over the roofs of the smaller chambers on each side.—Ed.]
95. It is very strange that this similarity, like the plan of the square halls, should hitherto have escaped observation. Had any one looked at the matter as a whole we should have been spared some restorations which are too absurd even to merit exposure.
[The restorations referred to are those in which the columns of the Great Hall and of the porticoes are shown as isolated features standing on the platforms. The authors of these designs would appear to have been misled by Messrs. Flandin and Coste’s plan, in which the drains are shown as if they ran under the line of the wall proposed by Mr. Fergusson, the enclosing wall of the Great Hall. Mr. Weld Blundell’s researches (1891), however, have shown that the main drain really lies under the hall, and between the enclosure wall and the first row of columns, and that the vertical rain-water shafts which were built into the wall communicated direct with this main drain. These shafts, cut in stone, in some cases rise above the level of the platform, which show that they were not intended to carry off the surface water from the platform. Mr. Weld Blundell discovered also the traces of the foundation of walls at the angles where shown by Mr. Fergusson. It would seem that in course of time the platforms have become coated with so hard and uniform a covering as to suggest its being the natural surface; when once broken through, however, the evidences of foundations of various walls are abundant.—Ed.]
96. M. Dieulafoy’s work on the Acropolis of Susa has just (1893) appeared, but, so far as the palace is concerned, his discoveries do not add much to our knowledge. He appears to have arrived at the conclusion that the great hall (which in plan resembles that of the palace of Xerxes—Woodcut 94) was not enclosed on the south side, but was left open to the court in the same way as the great reception halls of the later Parthian and Sassanian kings at Al Hadhr, Firouzabad, and Ctesiphon.
97. It is now generally considered that these two buildings were tombs; the projecting bosses, as shown on woodcut, are in reality sinkings, and were probably decorative only.—Ed.
98. M. Dieulafoy claims to have traced the plan of a temple at Susa which consisted of a sanctuary the roof of which was supported by four columns, with a portico-in-antis in front, and a large open court, measuring about 50 ft. by 40 ft., in the middle of which was placed the fire-altar. The whole building was enclosed with a corridor or passage, with entrances so arranged that no one could see inside the temple from without.—Ed.
99. Mr. Flinders Petrie’s latest excavations at Medum have resulted in the discovery of small brick arches over a passage in the sepulchral pit of Rahotep of the 4th dynasty.
100. Wilkinson’s ‘Egypt and Thebes,’ pp. 81 and 126.
101. ‘Manners and Customs of the Egyptians,’ vol. iii. p. 263.
102. 1 Kings vii. 1-12. Josephus, B. J. viii. 5.
103. Josephus, Ant. viii. 5. § 2.
104. The details of this restoration are given in the ‘Dictionary of the Bible,’ sub voce ‘Temple,’ and repeated in my work entitled ‘The Holy Sepulchre and the Temple at Jerusalem.’ Murray, 1865.
105. ‘Speaker’s Commentary on the Bible,’ vol. ii. p. 520; note on verse 15, chap. vii. 1 Kings.
106. For a restoration of this screen see ‘Tree and Serpent Worship,’ Appendix i., p. 270.
107. Since the article on the Temple in Smith’s ‘Dictionary of the Bible’ was written, from which most of the woodcuts in this chapter are taken, I have had occasion to go over the subject more than once, and from recent explorations and recently discovered analogies have, I believe, been able to settle, within very narrow limits of doubt, all the outstanding questions with reference to this celebrated building. I have in consequence written and published a monograph of the Temple, but have deemed it more expedient to leave the illustrations here as they are.
108. 2 Chronicles xx. 5.
109. Hecateus of Abdera, in ‘Müller’s Fragments,’ ii. 394.
110. Josephus, Ant. xi. 4, § 2.
111. Josephus, B. J. v. 5, § 4.
112. Dawkins and Wood, ‘The Ruins of Palmyra,’ Lond. 1753.
113. Texier, ‘Arménie et la Perse,’ vol. i. pl. 62 and 68.
114. Texier, ‘Asie Mineure,’ pl. 10 to 21.
115. Herodotus, i. 93.
116. Lydischen Königsgräber, I. F. M. Olfers, Berlin, 1859.
117. “Toward the centre of the monument two large stones were found leaning at an angle the one against the other, and forming a sort of tent, like in Woodcut 124, under which was presently discovered a small statue of Minerva seated on a chariot with four horses, and an urn of metal filled with ashes, charcoal, and burnt bones. This urn, which is now in the possession of the Comte de Choiseul, is enriched in sculpture with a vine branch, from which is suspended bunches of grapes done with exquisite art.”—‘Description of the Plain of Troy,’ translated by Dalzel, Edin. 1791, p. 149.
If this is so, this is no doubt the vessel mentioned, ‘Iliad,’ xvi. 221, xxiii. 92; ‘Od.,’ xxiv. 71, and elsewhere. But where is it now? and why has not the fact of its existence been more insisted upon?
118. One of the most interesting facts brought to light in Dr. Schliemann’s excavations is that between the age of the “Ilium Vetus” of Homer, rich in metals and in arts, and the “Ilium Novum” of Strabo, a people ignorant of use of the metals, and using only bone and stone implements, inhabited the mound at Hissarlik which covered both these cities. This discovery is sufficient to upset the once fashionable Danish theory of the three ages—Stone, Bronze, and Iron—but, unfortunately, adds nothing to our knowledge of architecture. These people, whoever they were, built nothing, and must consequently be content to remain in the “longa nocte” of those who neglect the Master Art.
119. Fergusson’s ‘History of Indian and Eastern Architecture.’ John Murray, London 1876, page 108 et seq.
120. This tomb is considered by M. Renan (Mission de Phœnicie, Paris 1864) to be of Phœnician origin, who remarks generally on their work: “Phœnician tombs are generally excavated in the solid rock; their architecture is the carved rock without columns; they obtained all they could out of the solid rock, leaving it as they found it, with more or less attempt to make it graceful; the fact that it was worked before being transported suggests that as it left the quarry so it remained, no sound of hammer or saw being heard during its erection.” There is another tomb at Marathos also attributed to the Phœnicians, which is partly cut out of the rock and partially built in large blocks of masonry.
121. In reality the monument stands exactly over the centre of the rock-cut sepulchre. The section-line must, therefore, be understood to be carried back about 10 feet from the face of the monument.
122. Josephus, Ant. xvi. 7, § 1.
123. Beule’s excavations have proved that the outer gate of the Acropolis was in front, not at the side, as here shown. ‘Acropole d’Athènes.’ Paris, vol. i. pl. i. and ii.
124. For details of this see Bötticher, ‘Baumkultus der Hellenen.’ Berlin, 1856.
125. Pausanias, ix. 38.
126. It appears that on the back of the stones laid in horizontal courses were others of great size piled on the top.
127. The same scroll exists at New Grange in Ireland, in the Island of Gozo near Malta, and generally wherever chambered tumuli are found.
128. A cast of these is to be found in the South Kensington Museum.
129. These antæ (parastades) or responds were destined in the first case to protect the angles of the wall, and in the second case to support the beams carried by them and the columns between, the sun-dried brick wall being not to be relied on; in the later Greek temples the walls were built in stone and marble, and the parastades became therefore no longer constructional necessities, being retained only as decorative features, of which so many others are found in the style.
130. Pausanias, vi. 19.
131. The dimensions are 94 feet by 45, covering consequently only 4230 feet.
132. This refers only to the columns and antæ; the lower portion of the walls, 3 feet 6 inches high, were in stone; above this clay bricks were employed in building the walls, and it was to the disintegration of these that we owe the preservation of the Hermes of Praxiteles, which was found embedded in a thick layer of clay. At first it was thought that this clay had been washed down from the neighbouring slopes of the hill of Kronos.
133. M. J. Thacher Clarke, who directed the American expedition in 1881, is now occupied with a monograph on the subject, and a report by him was published in 1882. Boston and London. J. Trübner.
134. A proto-Ionic capital of early date was found in 1882 on the summit of Mount Chigri, in the Troad, by Mr. J. Thacher Clarke, and is described in the American Journal of Archæology, Baltimore. 1886. Another example ascribed to Phœnician artists was found at Trapeza in Cyprus, and is now in the Louvre; both are of the same type as that which is represented in the ivory carvings from the north-western palace of Nimroud, now in the British Museum, so that the Asiatic origin of the order is thus confirmed.
135. Pausanias, viii. 45.
136. Bohn.
137. [The earliest example in stone at Benihasan is of less diameter than the columns at Kalabscheh, so that it is difficult to draw this distinction; we have already shown also (p. 115 note) that wooden shafts of the twelfth dynasty have been found at Kahun, and this and the existence of the base proves their wooden origin. If therefore the Greek Doric column was derived originally from Egypt, as Mr. Fergusson believed, then its earlier wooden parentage must be accepted. Further evidence on this subject however has been afforded by the discoveries at Olympia, and the references in consequence made to Greek authors; all these show without doubt that the columns of the temple of Hera were originally in wood, and were gradually replaced by stone. The theory that the pillars in Egypt or early Greece were built in brickwork or rubble masonry is not borne out by the discoveries at Tiryns, for the walls of the palace there, in rubble and clay mortar, were of such weak construction that posts of timber were required to carry the epistyle or beam, either isolated as columns or built up against the wall as antæ.
Mr. Fergusson’s theory that a pillar, originally copied from the wooden post, is slenderer at first, and gradually departs from the wood form as the style advances, is borne out by the evidence of the Egypt lotus column; this, as found in the rock-cut tombs of Benihasan, is of very small diameter, and quite unequal to carry the weight of any stone superstructure; whereas afterwards in the temples at Thebes it assumes a proportion nearer that of the earliest Greek Doric example at Corinth.—Ed.]
138. These facts have all been fully elucidated by Mr. Penrose in his beautiful work containing the results of his researches on the Parthenon and other temples of Greece, published by the Dilettanti Society.
139. For measurements we depend on Penrose, ‘Principles of Athenian Architecture,’ &c., fol.; and Cockerell, ‘The Temples of Egina and Bassæ,’ Lond. 1860. The details of the system were first publicly announced by Watkiss Lloyd, in a paper read to the Institute of British Architects in 1859; afterwards in an appendix to Mr. Cockerell’s work, and in several minor publications.
140. The pyramid-building kings of Lower Egypt seem to have had some distinct ideas of a system of definite proportions in architectural building, and to have put it into practice in the pyramid, and possibly elsewhere, but it has not yet been sought for in the other buildings of that age.
At times I cannot help suspecting more affinity to have existed between the inhabitants of Lower Egypt and those of Greece than is at first sight apparent.
141. It was called Zoophorus (life or figure bearer).
142. [The reasons which induced the late Mr. Fergusson to suggest an “opaion,” or clerestory, were fully set forth in the ‘True Principles of Beauty in Art,’ in 1849. A paper on the same subject was communicated by him to the Royal Institute of British Architects in 1861, and published in their “Transactions” for that year. Since his death, however, Mr. Penrose’s discovery that the Temple of Jupiter Olympius at Athens was really octastyle has thrown a new light on the question of hypæthral temples; and, as Dr. Dorpfield remarks in his essay on the “Hypæthral Temple” (communicated to the R. I. B. A. on Dec. 19): “The words of Vitruvius have now received quite another interpretation, through the excavation of the Olympieion at Athens, to that which they have had up to the present. The most important proof of the hypæthral lighting of the temples of antiquity has now turned into a proof against the same;” and he concludes his arguments by stating: “After it has been shown by the excavations that the Olympieion at Athens is the sole example of a great hypæthral temple mentioned by Vitruvius, we can answer this much-vexed question of the lighting of the temples of antiquity in this way—that a few great dipteral hypæthral temples existed, but that the Greek and Roman temples had as a rule no light from above, and were only lighted from the door.”—Ed.]
144. Vitruvius, lib. i. ch. 1.
145. Boeckh, Corpus Inscript. Græc. No. 109.
146. Attica, xxvi.
147. Historia, viii, 41.
148. Among the many attempts made to restore the interior of this temple, the last and most elaborate is that by the late E. Beulé, ‘Acropole d’Athènes,’ 1854, vol. ii. pl. ii.; but it is also one of the worst. Indeed it is quite painful to see how the author twists his authorities to meet a preconceived theory. Without going into it, there is one objection which seems fatal to the whole.
Like most antiquaries when in difficulties for lighting Greek temples, he takes off the roof and makes the Temple of Pandrosus an open courtyard, in which he plants the olive. This is so opposed to the whole spirit of Greek art as to be inadmissible on general grounds, but in this instance it introduces the further absurdity that the Greeks opened three windows in the west wall of the temple to light this courtyard which was already open to the sky! The mode of lighting a temple by vertical windows is so exceptional that it would not have been introduced here had any other means existed of lighting the interior, and consequently the combination shown by M. Beulé seems simply impossible.
149. “Universo Templo longitudo est ccccxxv. pedum, latitudo ccxx. Columnæ centum viginti septem a singulis regibus factæ, lx. pedum altitudine: ex iis xxxvi. cælatæ, una a Scopa.”—H. N. xxxvi. 14.
150. [Mr. Wood places two in the pronaos and two in the posticum, thus reducing the depth of the opisthodomus; beyond the pronaos he places a vestibule and omits the staircases as shown on plan 159. In 1883, Mr. Fergusson returned to the subject again, and published in the Transactions of the Institute (session 1882-83) a revised plan, to which we refer our readers.—Ed.]
151. The finial ornament is triangular in plan, and there are three scrolls on the roof with mortices in them, showing that something must have stood on them to support the projecting angles. Dolphins and various other objects have been suggested. My own conviction is that they were winged genii, most probably in bronze, and gilt like the neckings of the capitals.
152. [Dr. Dorpfield is of opinion that in the Greek theatres of the best period there was no proscenium, or raised stage, and that the actors played their parts in the orchestra on the same level as the chorus. Professor Middleton also points out that in the earliest Greek theatres built in the 5th and 4th centuries B.C. the orchestra was a complete circle, the space being gradually diminished by the bringing forward of the stage.—Ed.]
153. It will not be necessary to enter here into all the details of this restoration. They will be found in a separate work published by me on the subject, to which the reader is referred. [The student should also refer to the restoration suggested by M. Pullan in the work published by him and Sir Charles Newton (‘Discoveries at Halicarnassus, 1862’). In the arrangement and design of the podium it accords better with other examples of Greek tombs than Mr. Fergusson’s. The three columns as shown at the angle of Mr. Fergusson’s peristyle would be quite repugnant to any student of Greek architecture.—Ed.]
154. Hist. Nat. xxxvi. 5.
155. The figures given in the text are all Greek feet: the difference between them and English feet, being only 11⁄4 per cent., is hardly perceptible in these dimensions, without descending to minute fractions, and disturbing the comparison with Pliny’s text.
156. The circumstance of Asoka, the Buddhist king of India B.C. 250, having formed an alliance with Megas of Cyrene for the succour of his co-religionists in the dominions of the latter, points to such a conclusion even if nothing else did.—‘Journal Asiatic Society of Bengal,’ vii. p. 261; J. R. A. S. xii. p. 223 et seq.
157. Beechy’s ‘Journey to Cyrene,’ p. 444; see also Smith and Porcher, pl. 37.
158. Vitruvius, iv. 7.
159. Dionysius, iv. 61.
160. For more detail, see ‘The True Principles of Beauty in Art,’ p. 446 et. seq.
161. The Etruscan and Roman origin of the circular temple is now known to be erroneous, as remains of large circular temples have been discovered at Epidaurus and Olympia.
162. Even in more modern times I know of no building showing a trace of these forms except the tomb of Theodoric at Ravenna. This, however, is Etruscan both in form and detail, as will be seen farther on.
163. Plin. ‘Hist.’ xxxvi. 13.
164. A diagram is given in ‘The True Principles of Beauty in Art’ p. 459, which shows at least that there is no difficulty in designing a monument in perfect accordance with the text. Whether the latter is to be depended upon or not is another matter.
165. These dimensions, with all those that follow, unless otherwise specified, are taken from Taylor and Cresy’s ‘Architectural Antiquities of Rome,’ London, 1821. They seem more to be depended upon than any others I am acquainted with.
166. These two temples, like almost all the others of Rome, have recently been renamed by the Roman or rather German antiquaries. The Jupiter Tonans is now the Temple of Saturn, and the Jupiter Stator is decreed to have been the Temple of Castor and Pollux. The names by which they are currently known has been adhered to, as the architecture is of more importance here than the archæology.
167. Laborde, ‘Monumens de la France,’ vol. i. pls. xxix. xxx. p. 68.
168. IMP. CÆS. M. AVRELIVS ANTONINVS PIVS FELIX AVG. TRIB. POTEST V. COS. PROCOS. PANTHEVM VETVSTATE CORRVPTVM CVM OMNI CVLTV RESTITVERVNT. Isabelle, ‘Édifices Circulaires,’ p. 37, pl. xii.
169. When the first edition of this work was written I believed the rotunda to have been added to the portico by Severus; and if this were so it would get over many of the difficulties arising from its size and the character of its brickwork. My personal examination, however, has forced me very unwillingly to give up this hypothesis. It certainly is, however, very astonishing that such a vault should have been attempted at so early an age.
[There seems to be some probability that Mr. Fergusson’s first belief was correct, and that the Rotunda was built by Hadrian, bricks with the stamp of his period having been found in the casing and in the bond courses in the solid concrete both of the drum and in the dome. The discovery is due to M. Chedanne, one of the “Grand Prix” students in the Villa Medici, who had selected the subject for his “Envoi de Rome,” and was allowed to superintend certain repairs and restorations which were required in the Pantheon. It would seem that the portico erected by Agrippa preceded a temple with cella of the ordinary form, the pavement of which has been found nearly seven feet below the floor of the present church. From this it follows that when the Rotunda was erected in the first half of the second century, the portico, which is undoubtedly of Agrippa’s time, must have been taken down and rebuilt on to it, and this explains Mr. Fergusson’s reasons for insisting that the portico was built on to the Rotunda. The theory as to the Pantheon forming part of Agrippa’s bath is thus disposed of. Independently of that, however, Prof. Middleton has pointed out that the discoveries made in 1882, by the removal of the block of houses at the back, showed that there was no connection whatever between the two buildings. Traces exist of the original marble lining, and of cornices which were continued round the dome, showing that originally the complete circuit was exposed to view. “Moreover,” Prof. Middleton states, “if further proof were wanting to contradict the theory that the Pantheon was over the Calidarum or Laconicum of the bath, this is supplied by the fact that there is no trace of any hypocaust under the floor, but merely an ancient drain to carry away the rain-water that fell through the opening in the dome. The Pantheon, too, is on the north side of the Thermæ—a very improbable position for the Laconicum, or hot room, which was usually placed on the sunny side of the buildings.”—Ed.]
170. The bronze plates which were removed by Pope Urban VIII. in 1626 to make cannon, and also for the great Baldachino in St. Peter’s, were taken from the portico; the coffers of the interior of the dome were decorated, according to Prof. Middleton, with mouldings in stucco painted and gilt.
171. This building is commonly called a temple, though it is not known to what deity it was dedicated. My own impression is that it was a tomb, or at least a funereal monument of some sort.
172. Owing to a misreading of Vitruvius’s statement respecting the temple it had always been classed as decastyle. See Mr. Penrose’s researches published in the ‘Transactions of the Royal Institute of British Architects,’ vol. iv. New Series. 1888.
173. See ‘The True Principles of Beauty in Art,’ where the reasons for this arrangement will be found stated at length. [See note on page 272.—Ed.]
174. Canina, in his restoration, shows a flat roof with coffers, so there is probably no exact authority for its form, though it seems to be generally agreed that the centre was not hypæthral.
175. This basilica is generally represented as having an apse at either end; but there is no authority whatever for this, and general analogy would lead us rather to infer that it was not the case. Prof. Middleton, however, is of opinion that an apse existed at both ends, and shows the same in his restoration of the plan of Trajan’s form.—‘The Remains of Ancient Rome,’ by J. H. Middleton, Fig. 52, vol. ii.
176. One of the pillars of this basilica remained in situ till the year 1614, when it was removed by Carlo Maderno, by order of Paul V., and re-erected in the piazza of St. M. Maggiore, where it now stands as a monumental column, supporting a statue of the Virgin. The column, with its base and capital, is as nearly as may be 60 ft. in height; the whole monument, as it now stands, 140 ft.
177. As it was sunk slightly below the pavement of the peristyle, and drains leading from it were traced by Mr. Ashpitel, it was probably hypæthral.
178. The theatres of Curio and Scaurus were in timber, except the proscenium of the latter, which was partly decorated with marble and mosaics. The Theatre of Pompey, B.C. 54, was in stone, and parts of it still exist (Prof. Middleton). The Theatre of Marcellus was begun by Julius Cæsar, but not completed till 13 B.C., when it was opened by Augustus. It was subsequently restored after a fire by Vespasian, but the purity and simplicity of the architecture, and the refinement of the details, in comparison with those of the Colosseum, 70-80 A.D., are in favour of the earlier date assigned to it. Prof. Middleton quotes another theatre, that of Cornelius Balbus (13 B.C.), built to the north-west of the Theatre of Marcellus.
179. According to Prof. Middleton the Amphitheatre of Sutrium is of Roman origin, and but little earlier than the Colosseum at Rome. “There is really no evidence,” he says (p. 76), “that amphitheatres were built by the Etruscans; and there can be little doubt that they were purely Roman inventions.”
180. At the Crystal Palace it has always been found necessary to allow 6 sq. ft. to each person.
181. Considerable difference of opinion seems to exist as to the extent of the velaria which sheltered the arena; this was supported by masts fixed outside the upper part of the walls, resting on brackets, 14 ft. below the cornice, which was cut away to allow the mast to fit close against the wall. M. Gérôme suggests, in his well-known picture of the Roman gladiators, that the velaria extended over a portion of the arena only. Prof. Middleton states, “The awning did not, as has been sometimes supposed, cover the whole amphitheatre, a thing which would have been practically impossible, owing to the enormous strain of so long a bearing, far beyond what any ropes could bear. It simply sloped down over the spectators in the cavea, leaving the whole central arena uncovered.” In case of rain, however, this might have been inconvenient, and it would not have protected the spectators from the sun, supposing that the performances lasted the whole day. Besides, there is no reason why the masts should have been carried so high above the wall, as shown in the restoration in Prof. Middleton’s book, p. 70. Mr. Alma Tadema is of opinion that the velarium extended over the whole arena, and was suspended on a principle similar to that of a suspension bridge, the ridge, or highest portion lying between the foci of the ellipse. This accounts in a much more satisfactory way for the height of the masts, and would afford facilities for the draining off of the rain on to the top of the gallery round.
182. Maffei, ‘Verona Illustrata,’ vol. vii. p. 84 et seq.
184. These baths have been carefully measured by M. Blouet, who has also published a restoration of them. This is, on the whole, certainly the best account we have of any of these establishments.
185. According to Prof. Middleton this magnificent hall appears to have been what Spartianus calls the cella soliaris, the ceiling of which he says was formed of interlaced bars of gilt bronze. When the excavations in this hall were being made, many tons of fragments of iron girders were found. These were (according to Prof. Aitchison) compound girders, formed of two T bars riveted together, and then cased in bronze. A sort of lattice-work ceiling had been formed with these bronze-cased girders, the panels being probably filled in with concrete made of light pumice-stone, worked with fine stucco reliefs, painted and gilt. Prof. Middleton is of opinion that the central part over the swimming-bath was left open for the admission of light. In the upper part of the walls deep sinkings to receive the ends of the great girders which supported the ceiling are clearly visible.
186. St. George’s Hall at Liverpool is the most exact copy in modern times of a part of these baths. The Hall itself is a reproduction both in scale and design of the central hall of Caracalla’s baths, but improved in detail and design, having five bays instead of only three. With the two courts at each end, it makes up a suite of apartments very similar to those found in the Roman examples. The whole building, however, is less than one-fourth of the size of the central mass of a Roman bath, and therefore gives but little idea of the magnificence of the whole.
187. The left-hand wing of this arch has since been restored by M. Viollet-le-Duc, and the right-hand wing cleared of the square building in front of it.
189. Professor Middleton states: “This building appears to be a nymphæum, or a part of some baths of about the time of Gallienus (263-268 A.D.).” It was known in the Middle Ages as the “Terme de Gallucio.” The site of the real Temple of Minerva Medica was discovered in 1887 (according to the same authority) between the new Via Macchiavelli and the Via Buonarroti, about 7 ft. below the present ground-level.
191. M. de Saulcy has recently attempted to prove that these tombs are those of the kings of Judah from David downwards. Their architecture is undoubtedly as late as the Christian era, and the cover of the sarcophagus which is now in the Louvre under the title of that of David is probably of the same date as these tombs, or if anything more modern.
192. ‘Voyage dans la Marmarique, la Cyrénaique, &c.’ Didot, Paris, 1827-29.
193. Though the dates of all these tombs at Cyrene are so uncertain, there seems little doubt that if any one thoroughly versed in the style were to visit the place, he could fix the age of all of them with approximate correctness. The one difficulty is, that a chronometric scale taken from the buildings at Rome, or even in Syria, will not suffice. Local peculiarities must be taken into account and allowed for, and this requires both time and judgment.
194. ‘Le Tombeau de la Chrétienne,’ par A. Berbrugger, Alger. 1867, from which the above particulars are taken.
195. It is understood that it too has been explored, but no account of the result has yet reached this country, and such rumours as have reached are too vague to be quoted. Even its dimensions are not known.
196. ‘De Situ Orbis,’ I. vi. p. 38. edit. Leyden, 1748.
197. For plan of same, see Prof. Middleton’s ‘Ancient Rome,’ 1891.
198. By an oversight this difference is not expressed in the woodcut.
200. These are well epitomised by Gibbon, Book xlvi. vol. v. p. 528.
201. Journal of the Royal Geographical Society, ix. pl. 9. p. 476.
202. The sixth great Oriental monarchy; or the geography, history and antiquities of Parthia, &c., 1873.
203. These inscriptions were all copied by Consul Taylor, and brought home to this country. I never could learn, however, that they were translated. I feel certain they were never published, and cannot find out what has become of them.
204. These are expedients for filling up the corners of square lower storeys on which it is intended to place a circular superstructure. They somewhat resemble very large brackets or great coves placed in an angle. Examples of them are shown on page 434 when speaking of Byzantine architecture, and others will be found in the chapter on Mahomedan Architecture in India, in vol. iii.
205. These three buildings probably date as near as may be one century from each other, thus—
| Serbistan | A.D. 350 |
| Firouzabad | 450 |
| Ctesiphon | 550 |
| To which we may now add | |
| Mashita | 620 |
A bare skeleton, which it will require much time and labour to clothe with flesh and restore to life.
206. ‘The Land of Moab,’ by H. B. Tristram, M. A., &c. Murray, 1873. As all the information respecting the palace is contained in that book, pp. 195 to 215, all the illustrations here used are taken from it, it will not be necessary to refer to it again. For further information on the subject the reader is referred to that work.
207. Rich, ‘Residence in Koordistan,’ ii. 251 et seq.
208. The plan made by Dr. Tristram’s party, which is all we yet have, was only a hurried sketch, and cannot be depended upon for minute details.
209. Flandin and Coste, vol. iv. pls. 214, 215.
210. Texier and Pullan. ‘Byzantine Architecture.’ 4to. 1864. Pl. iv. p. 40 et seq.
211. Ruskin, ‘Stones of Venice,’ vol. ii. pls. 3, 4, and 5.
212. ‘L’art Antique de la Perse,’ by Marcel Dieulafoy. Paris.
213. In the Museum at Pesth are a number of objects of Egyptian art, said to have been found in this quarter. Is it too much to assume the pre-existence of a Phœnician or Egyptian colony here before the Roman times?
214. As a matter of fact, 12th century would be more exact; nearly all the chief problems of pointed arch construction in intersecting vaulting having been worked out before the close of that century.
215. [The domical construction of the vaults of the two great cisterns erected by Constantine, the Binbirderek, or thousand-and-one columns, and the Yeri Batan Seraï, both in Constantinople, suggests that there already existed in the East a method of vaulting entirely different from that which obtained in Rome, and which may have been a traditional method handed down even from Assyrian times.—Ed.]
216. ‘Syrie Centrale: Architecture civile et religieuse du Ier au VIIme Siècle. Par le Comte Melchior de Vogüé.’
217. ‘Byzantine Architecture,’ by Texier and Pullan. Folio, London, 1864.
218. De Vogüé, ‘Églises de la Terre Sainte,’ p. 101.
219. For a careful analytical description of the church, see Professor Willis, ‘Architectural History of the Holy Sepulchre,’ London, 1849.
220. The particulars for these churches are taken from Texier and Pullan’s splendid work on Byzantine architecture published by Day, 1864.
221. Another very small church, that of Moudjeleia, though under 50 ft. square, seems to have adopted the same hypæthral arrangement.
222. A great deal of very irrelevant matter has been written about these “giant cities of Bashan,” as if their age were a matter of doubt. There is nothing in the Hauran which can by any possibility date before the time of Roman supremacy in the country. The very earliest now existing are probably subsequent to the destruction of Jerusalem by Titus.
223. The constructive dimensions of the porch at Chillambaram (p. 353. History of Indian and Eastern Architecture, 1876.) are very similar to those of this church: both have flat stone roofs, but in the Indian, though a much more modern example, there is no arch.
224. These are all given in colours in Texier and Pullan’s beautiful work on Byzantine architecture, from which all the particulars regarding this church are taken.
225. A wayside retreat or shelter.
226. A restoration of the church from Procopius’s description, ‘De Ædificiis,’ lib. i. ch. iv., will be found in Hübsch, ‘Altchristliche Baukunst,’ pls. xxxii. and xxxiii.
227. See vol. iii., in chapter on Indian Saracenic Architecture.
228. The Renaissance dome which fits best to the church on which it is placed is that of Sta. Maria at Florence; but, strange to say, it is neither the one originally designed for the place, nor probably at all like it. All the others were erected as designed by the architects who built the churches, and none fit so well.
229. [The apses on each side of central apse are said to be additions to the original structure. The triple apses in Greek churches are found, according to Dr. Freshfield (‘Archæologia,’ vol. 44), only in churches erected subsequent to Justin II. In St. Simeon Stylites and St. Sergius at Bosra the side apses have been added afterwards.—Ed.]
230. Strictly speaking, circular with flattened sides, for the pendentive has a longer radius than half the diagonal of the square.
231. The two eastern cupolas have been raised in Arab times, and a cylindrical drum inserted with windows pierced in them to give more light to the interior.
232. There are numerous examples of this class of structure in North Syria, but whether they are memorials or tombs is not known. See ‘Reisen Kleinasien und Nord Syria’ by Karl Humann and Otto Puchstein.
233. [This rule cannot be made a hard and fast one. Procopius states that in the central dome of the Church of the Apostles, Constantinople, “the circular building standing above the arches is pierced with windows, and the spherical dome which over-arches it seems to be suspended in the air.” In the church of St. Sergius at Constantinople the walls of the octagon, which are pierced with windows, are carried up to the vault, and in the church of Sta. Sophia at Thessalonica the windows are pierced in an upright dome cylindrical internally. In all these cases, however, there is a marked distinction between these examples and those of the lofty cylindrical drums which were employed in the Neo-Byzantine churches. Mr. Fergusson’s rule, therefore, with these exceptions, may be taken as absolute.—Ed.]
234. They are found in the Mustaphapacha mosque at Constantinople dating from 430 A.D., but rebuilt in the 13th century.
235. [It is now considered that the Church of the Holy Apostles was the original model. This church, rebuilt by Justinian, was pulled down in 1464 A.D. by Mohammad II. to furnish a site for his mosque.—Ed.]
236. [This work has lately been undertaken by Messrs. Barnsley and Schultz, who are preparing their drawings for publication, and hope to follow up the task with a survey of the more important churches in Mount Athos.—Ed.]
237. ‘Die Kunst in den Athos Kirchen,’ Leipzig, 1890.
238. ‘Athos; or, the Mountain of the Monks,’ by Athelstan Riley, M.A., 1887.
239. See the photogravure of the interior of the Catholicon at Dochiariu.
240. ‘Églises Byzantines en Grèce.’
241. ‘Expédition scientifique de la Morée.’
242. There would seem however to have been a revival in the 11th century, possibly a reflex of that which was taking place in West Europe. And it was during this period that the churches of St. Luke in Phoeis, the church at Daphné and the churches of St. Nicodemus and St. Theodore in Athens were erected.
243. C. Texier, ‘Arménie et la Perse.’ 2 vols. folio. Paris.
244. Dubois de Montpereux, ‘Voyage autour du Caucase.’ 6 vols. 8vo. Paris, 1839, 1841.
245. Brosset, ‘Voyage Archéologique dans la Georgie et l’Arménie.’ St. Pétersbourg, 1849.
246. D. Grimm, ‘Monuments d’Architecture en Georgie et Arménie.’ St. Pétersbourg, 1864.
247. Texier gives three dates to this church. In the ‘Byzantine Architecture,’ p. 174, it is said to be of the 7th, and at p. 4, of the 9th century. In the ‘L’Arménie et la Perse,’ at p. 120, the date is given as 1243. My conviction is that the first is correct.
248. Flandin and Coste, ‘Voyage en Perse,’ pls. 214, 215.
249. Texier and Pullan, ‘Byzantine Architecture,’ pp. lix., lx.
250. I am a little doubtful regarding the scales of these two buildings. They are correctly reduced from M. Brosset’s plates. But are these to be depended upon?
251. Even if it should be asserted that this is no proof that the inhabitants of these countries were Buddhists in those days, it seems tolerably certain that they were tree-worshippers, which is very nearly the same thing. Procopius tells us that “even in his day these barbarians worshipped forests and groves, and in their barbarous simplicity placed the trees among their gods.” (‘De Bello Gotico,’ Bonn, 1833, ii. 471.)
252. The principal part of the information regarding these excavations is to be found in the work of Dubois de Montpereux, passim.
253. [See paper by Mr. Wm. Simpson in R. I. B. A. Transactions, vol. vii., 1891.—Ed.]
254. All the plans and information regarding the churches at Kief are obtained from a Russian work devoted to the subject, procured for me on the spot by Mr. Vignoles, C.E.
255. The first bay, as shown on plan (Woodcut No. 382), is the narthex; the five domes come beyond it.
256. The particulars and illustrations of this church are taken from a paper by Heinrich Keissenberger, in the ‘Jahrbuch der K. K. Commission für Enthaltung der Baudenkmale,’ 1860. A model of it, full size, was exhibited at the Paris Exhibition of 1867.
257. [It has been assumed that the Roman basilicas were taken possession of by the early Christians for their own religious services, but as Mr. G. G. Scott points out in his ‘Essay on the History of English Church Architecture,’ “there is no well-authenticated instance of the conversion of any Pagan basilica into a Christian church, whilst there are abundant examples of Pagan temples converted into Christian sanctuaries” (see Texier and Pullan’s ‘Byzantine Architecture,’ pp. 75, 103). Indeed, it is, as Mr. Scott observes, “on the face of it improbable, if we reflect that the conversion of the government to Christianity had no tendency to render the existing basilicas less necessary for legal business, after the peace of the church, than they had been before that event. Christianity, unfortunately, could not abolish the litigious instincts of our nature, and after fifteen centuries of the gospel the legal profession still flourishes.” The buildings which were rendered useless by the official recognition of the new faith were not the basilicas but the temples, the fact being that the class of building known as a basilica (a term never used by either the writers or architects of Byzantine times), with its wide central nave and aisles with galleries over them lighted by clerestory or side windows, and covered with a timber roof, constituted the simplest and most economical building of large size which could be constructed to hold a vast assembly of worshippers; especially as the only features which can be looked upon as having any architectural pretensions, viz., the columns and their capitals, could be taken wholesale from temples and other Roman buildings. The semicircular apse, which alone in the Roman basilica served as a court of law, became the tribune for the bishop and presbyters.
Mr. Scott is even inclined to assign an earlier and more independent origin for the basilican form. According to his theory the germ of the Christian basilica was a simple oblong aisleless room divided by a cross arch, beyond which lay an altar detached from the wall. This germ was developed by the addition of side aisles, and sometimes an aisle returned across the entrance, and over these upper aisles were next constructed and transepts added, together with the oratories or chapels in various parts of the building. Mr. Butler, in his work on ‘The Ancient Coptic Churches of Egypt,’ accepts this theory, as the churches of Egypt are rich in evidence that favours it. At the same time, the first great basilica erected by Constantine, viz., the Vatican (St. Peter’s), and the Lateran, (St. John Lateran), are of too great importance to warrant the suggestion that their origin should be sought for in the very small though possibly earlier examples in Egypt or the East.—Ed.]
258. This probably refers to its foundation, for M. Cattaneo, in his work ‘L’architecture en Italie, 1890,’ judging by its ornamental detail, places the church in the second half of the seventh century.
259. ‘Antiquités,’ vol. i. pl. 97.
260. Eodem, vol. iv. pl. 67.
261. Mr. Alfred J. Butler’s work, already referred to, has thrown considerable light on the subject, though, as he was unable to visit any of the Coptic churches up the Nile, we are still left in doubt as to the age of the convent near Siout and other buildings. From comparison of the plans and descriptions given in Denon, Curzon and Pococke of these buildings, with those in Cairo and Old Cairo, Mr. Butler ascribes them to the fourth century, that which in fact is claimed for them as having been founded by Sta. Helena. On this subject he says, p. 365: “Were there no more of evidence besides to determine the truth of this tradition, the plan of the Haikal (the central of the three chapels in a Coptic church) would decide it beyond question. The persistence with which certain churches are ascribed to Sta. Helena by a people utterly ignorant of history and architecture is in itself remarkable, and it is still more remarkable to find that these churches are always marked by a particular form of Haikal. Indeed, so regular is the coincidence, that a deep apsidal haikal with recesses all round it and columns close against the wall may be almost infallibly dated from the age of Sta. Helena.”
262. The older church has been so altered and ruined by the subsequent rebuildings that it is extremely difficult to make out its history. It seems, however, to have been built originally above the site of an old Mithraic temple, which has recently been cleared out, and probably before the time of Gregory the Great. It was apparently rebuilt, or nearly so, by Adrian I., 772, and burnt by Robert Guiscard, 1084. The upper church seems to have been erected by Paschal, 1099-1118. The question is, to what age do the frescoes found on the walls of the older church belong? Some of the heads and single figures may, I fancy, be anterior even to the time of Adrian; but the bulk of the paintings seem certainly to have been added between his age and 1084, and nearer the latter than the former date. If it had not been entirely ruined in 1084 Paschal would not have so completely obliterated it a century afterwards. A considerable quantity of the materials of the old church were used in the new, which tends further to confuse the chronology.
263. Gutensohn and Knapp, ‘Die Basiliken des Christlichen Roms.’
264. Cicero de Legg., ii. 24; Festus, s. v.; Smith’s ‘Dictionary of Classical Antiquities.’
265. The dates here given generally refer to the building now existing or known, and not always to the original foundation.
[Mr. G. G. Scott, in his work before referred to (p. 506), after giving a full quotation from Eusebius of Constantine’s basilica at Jerusalem, in which he points out that the orientation of primitive times is the reverse of that which has become general in later times, continues his enquiry into the evidence afforded by the numerous early basilicas in Rome itself. Of about fifty churches of early date, in forty of them the sanctuary is placed at the western end, and of the remaining ten (one of which is the great church of St. Paolo fuori le Mura), there are only seven which appear to have retained their original form, and which have an eastward sanctuary.
The exact orientation of the sanctuary in each case has been added to the list.—Ed.]
266. ‘Il Vaticano discritto da Pistolesi,’ vol. ii. pls. xxiv. xxv.
267. The new church which superseded this one is described in the History of the Modern Styles of Architecture, vol. i., page 111, woodcut 45.
268. It should be observed that the dosseret is first found in Italy in the Church of St. Stefano Rotondo, built 468-482, and is there of similar design to examples in Thessalonica.
269. ‘L’architecture en Italie du vie au xie siècle.’ Venice, 1891.
270. ‘Altchristlichen Kirchen nach Baudenkmalen und alteren Beschreibungen,’ von D. Hubsch. Carlsruhe, 1862.
271. These piers were built in the 12th century, taking the place of the columns of the original Basilican church of the 9th century, and the arches date from the same period (Cattaneo).
272. It is now called S. Martino in Cielo d’Oro, from its having been decided in the twelfth century that the other church in Classe possessed the true body of the saint to which both churches were dedicated.
273. A. F. von Quast, ‘Die Altchristlichen Bauwerke von Ravenna.’
274. The basilica Pudenziana at Rome has similar arcades externally.
275. The twenty-four marble columns are said to have been brought over from Constantinople, but they were probably obtained from Greek quarries.
276. [The narthex as shown in Woodcut No. 409 is of much later date than the church, and has been partially rebuilt on two or three occasions. It is now (1892) being taken down, and the removal of the central portion has uncovered the triple window which originally lighted the nave.—Ed.]
277. “La basilica di San Marco in Venezia,” by Cattaneo, continued by Boito. Venezia, 1890.
278. Probably owing to its having been utilized to receive the relics of St. Mark, which were temporarily hidden there.
279. This church, built by Justinian, no longer exists, having been pulled down in 1464 by Mohammed II. to make way for his mosque. From the description of it, however, given by Procopius, the plan was similar to that adopted in St. Mark, being that of a Greek Cross with central and four other domes. Procopius speaks of the church being surrounded within by columns placed both above and below, probably referring to galleries similar to those in St. Sophia of Constantinople. In St. Mark’s the columns exist in one storey only, and the main wall is carried up at the back of the aisles to give increased size inside.
280. Originally, according to M. Cattaneo, his was the vestibule to the atrium from the south, but it is now blocked up by an altar.
281. [They are shown in the mosaic of the doorway of St. Alipe, executed at the end of the 13th century, as also the filling in of the great west window.—Ed.]
282. ‘Dalmatia, the Quarnero and Istria,’ by T. G. Jackson, M.A. Oxford, 1887.
283. In support of this statement he points out that twice during Christian times it had been found necessary to raise the floor of the church. The nave floor, which in 1857 was two steps below that of the aisles, was raised in 1881 to the same level; but two feet nine inches below the nave floor before it was raised there existed, according to Prof. Eitelberger, another mosaic pavement, which must have been the floor of the first basilica erected, and which was pulled down by Bishop Euphrasius in 543. This lower pavement extended also under the three chapels of the confessio, which suggests that these are part of the first basilica.
284. The same polygonal form is found in the apses of St. Agatha, St. Apollinare in Classe, St. Apollinare in Nuovo, St. Spirito, and St. Vitale, all in Ravenna, and St. Fosca, Torcello.
285. The apses of two churches, of the 4th and 6th century respectively, in the island of Paros, are similarly fitted with marble seats: in the 6th century church there are eight rows, so that the apse looks like a small amphitheatre.
286. That is on the supposition that the word kirk is derived from the Latin word “circus,” “circular,” as the French term it, “cirque.” My own conviction is that this is certainly the case. The word is only used by the Barbarians as applied to a form of buildings they derived from the Romans. Why the Germans should employ κυρίου οἶκος, when neither the Greeks nor the Latins used that name, is a mystery which those who insist on these very improbable names have as yet failed to explain.
287. The Tholos at Epidaurus seems to be an exception to this rule.
288. Isabelle, ‘Édifices Circulaires,’ plates 26 and 27.
289. M. Cattaneo states that it was built by Pope St. Simplice, 468-482.
290. Above the capitals are impost blocks or dosserets, the earliest known examples of that feature in Italy.
291. [The Vaults over the outer aisle of St. Stefano Rotondo were built with hollow pots, the remains of which can still be traced in the outer walls of the 2nd aisle.
Prof. Middleton points out also the existence of rings of earthen pots in the vault of the tomb of Sta. Helena (Woodcut No. 227), and also in the vaults of the Circus of Maxentius, on the Via Appia.—Ed.]
292. In this building they now show a sarcophagus of ancient date, said to be that of Galla Placidia, daughter of Theodosius. She, however, was certainly buried at Ravenna; but it may be of her time, and in these ages it is impossible to distinguish between baptisteries and tombs.
293. Frederick Von Osten, ‘Bauwerke in der Lombardei.’ Darmstadt, 1852.
294. By an oversight of the engraver, the vault of the nave, which ought to be made hexapartite, is drawn as quadripartite. [The nave was so completely restored in the 14th century as to render doubtful the original existence of a vault.—Ed.]
295. Étude de l’Architecture Lombarde,’ par F. de Dartein. Paris, 1878.
296. These are incorrectly shown on woodcut. The central pier is nearly 4 feet wide and carried a transverse rib of the same size and of two orders.
297. Ferrario, ‘Monumenti Sacri e Profani dell’ I. R. Basilica di S. Ambrogio,’ Milan, 1824.
298. “Quid dicamus columnarum junceam proceritatem? Moles illas sublimissimas quasi quibusdam erectis hastilibus contineri substantiæ qualitate concavis canalibus excavatas vel magis ipsas æstimes esse transfusas. Ceris judices factum quod metallis durissimis videas expolitum. Marmorum juncturas venas dicas esse genitales, ubi dum falluntur oculi laus probatur crevisse miraculis.” In the above, metallum does not seem to mean metal as we now use the word, but any hard substance dug out of the ground. (Cassiodorus, Variorum, lib. vii. ch. 15.)
299. See vol. i. p. 372.
300. ‘The Land of Moab,’ by Dr. Tristram (Murray, 1873), pp. 376 et seqq. [The small triangular marble panels referred to in Murano are of a very elementary character in their carving, and have scarcely the importance attached to them by Mr. Fergusson. Besides, the same wall decoration in brickwork is found in the apse of St. Fosca, Torcello (c. 1008), where, however, the triangular recesses are simply covered with stucco and painted; being closer to the eye in Murano, they filled the spaces with incised marble slabs: in other words, it seems more probable that the slabs were made for the triangular panels than the converse, which is suggested by Mr. Fergusson.—Ed.]
301. The typical example of this class is the San Giorgio at Venice, though it is not by any means the one most like St. Pietro; many attempts were made before it became so essentially classical as this (see Woodcut No. 39, Vol. I. in the ‘History of Modern Architecture’).
302. From the boldness of the construction, M. Cattaneo is induced to place the erection of the building at the end of the 11th or beginning of the 12th century.
303. The four square towers of San Lorenzo, Milan, and the circular campanile by the side of the cathedral of Ravenna, are the earliest examples known, the latter dating from the commencement of the 5th century.
304. [The tower of St. Satiro at Milan (879 A.D.), is considered by Cattaneo to be the most ancient campanile known in which the wall surface is broken up with flat pilasters or vertical bands in relief, and divided into storeys by horizontal string courses, with ranges of small blind arches below, carried on corbels, and may be regarded as the prototype of the most characteristic Lombard towers.—Ed.]
305. ‘History of Medieval Art,’ by Dr. F. M. Reber, translated by J. T. Clarke. New York, 1887.
306. ‘Dalmatia, the Quarnero and Istria,’ by T. G. Jackson, A.R.A. Oxford, 1887.
307. Schultz, ‘Denkmäler der Kunst der Mittelalters in Unter-Italien.’ Folio, 1860.
308. The polygonal form given to the apse externally shows the direct influence of Byzantine art.
309. The cornice projects 1 ft. 10 in., and consequently overhangs the base by 13 ft.
310. The present cathedral is only a portion, viz. the transept of a much vaster edifice which was never completed; but the beautiful unfinished south front and portions of the gigantic nave and aisles still exist on the western side of the present cathedral, and the drawings of it are preserved in the archives of the Duomo.
311. [Since this was written the façade has been completed to harmonize with the rest, but not in accordance with the original design, if we may judge by the painting in Sta. Maria Novella, which shows side gablets similar to those of the cathedral of Siena.—Ed.]
312. If we may trust Wiebeking, the first two bays of the nave from the front were vaulted in 1588, but the work was suspended till 1647, and completed only in 1659. Yet no difference can be perceived in the details of the design.
313. The plan and section being taken from two different writers, there is a slight discrepancy between the scales. I believe the plan to be the more correct of the two, though I have no means of being quite certain on the point.
314. ‘Dispareri d’Architettura.’
315. Within the last few years a façade has been added to Sta. Croce, but about which the less said the better. It is wretched in design.
This book often uses inconsistent spelling, particularly with respect to accents. These were left as printed unless the author showed a clear preference for one form.
Some presumed printer’s errors have been corrected, including normalizing punctuation. Page number references in the Table of Contents were corrected where errors were found. Further corrections are listed below with the original text (top) and the corrected text (bottom).