The Project Gutenberg eBook of Two Centuries of Shipbuilding by the Scotts at Greenock

This eBook is for the use of anyone anywhere in the United States and most other parts of the world at no cost and with almost no restrictions whatsoever. You may copy it, give it away or re-use it under the terms of the Project Gutenberg License included with this eBook or online at www.gutenberg.org. If you are not located in the United States, you will have to check the laws of the country where you are located before using this eBook.

Title: Two Centuries of Shipbuilding by the Scotts at Greenock

Author: Scotts' Shipbuilding & Engineering Co. Ltd.


Release date: May 6, 2017 [eBook #54667]
Most recently updated: October 23, 2024

Language: English

Other information and formats: www.gutenberg.org/ebooks/54667

Credits: Produced by Chris Curnow, Ralph and the Online Distributed
Proofreading Team at http://www.pgdp.net (This file was
produced from images generously made available by The
Internet Archive)

*** START OF THE PROJECT GUTENBERG EBOOK TWO CENTURIES OF SHIPBUILDING BY THE SCOTTS AT GREENOCK ***

Transcriber's Note:

Apparent typographical errors have been corrected.

Archaic and inconsistent spelling and hyphenation have been preserved.

The cover image was modified by the transcriber and placed in the public domain.

flag

TWO CENTURIES

OF

SHIPBUILDING


H. M. S. Argyll.

Larger image


TWO CENTURIES OF

SHIPBUILDING

BY THE

SCOTTS AT GREENOCK.

[Partly Reprinted from "Engineering."]

"Take it all in all, a ship of the line is the most honourable thing that man, as a gregarious animal, has ever produced.... Into that he has put as much of his human patience, common sense, forethought, experimental philosophy, self-control, habits of order and obedience, thoroughly wrought hand-work, defiance of brute elements, careless courage, careful patriotism, and calm expectation of the judgment of God, as can well be put into a space of 300 feet long by 80 feet broad."—Ruskin.

LONDON:

OFFICES OF "ENGINEERING," 35 AND 36, BEDFORD STREET, W.C.


1906.


Contents.

PAGE
PERSONALIA xi
THE ERA OF THE SAILING SHIP 1
THE DEVELOPMENT OF THE STEAMSHIP 15
Table I. Epoch-Marking Steamers built by the Scotts, 1819 to 1841 31
Table II. Progress in the Economy of the Marine Engine, 1872 to 1901 41
A CENTURY'S WORK FOR THE NAVY 43
Table III. Progressive Types of Warship Machinery, and their Economy, 1840 to 1905 53
Table IV. Particulars of the Successive Large Naval Guns, 1800 to 1905 56
Table V. Size and Fighting Qualities of British Battleships of Different Periods, 1861 to 1905 59
YACHTING AND YACHTS 63
Table VI. General Particulars of Principal Steam Yachts Built by Scotts' Company 69
THE TWENTIETH CENTURY 73
Numbers of British and Foreign, and of Oversea and Channel, Steamers, of over 16 knots speed 75
Table VII. Records of Coal Consumption of Steamship "Narragansett" 79
EFFICIENCY: DESIGN: ADMINISTRATION 88
THE SHIPBUILDING YARD 94
THE ENGINE AND BOILER WORKS 106

List of Illustrations.

PAGE
H.M.S. "Argyll" (Plate I.) Frontispiece
PERSONALIA.
Portraits of William Scott (born 1722, died 1769); John Scott (born 1752, died 1837); William Scott, his Brother (born 1765); and Charles Cuningham Scott (born 1794, died 1875) (Plate II.)
Adjoining page 1
John Scott, C.B. (born 1830, died 1903); Robert Sinclair Scott (born 1843, died 1905); Charles Cuningham Scott (the present Chairman); Robert Lyons Scott (Plate III.)
Adjoining page 1
THE ERA OF THE SAILING SHIP. (Pages 1 to 14.)
The Beginnings (Plate IV.) Facing page 2
Greenock and Scotts' Yard in the Eighteenth Century (Plate V.) Facing page 4
A West Indiaman 7
A Typical East Indiaman 9
The "Lord of the Isles" (Plate VI.) Facing page 10
The "Archibald Russell" (Plate VII.) "      " 12
THE DEVELOPMENT OF THE STEAMSHIP. (Pages 15 to 42.)
Early Steamboats at Greenock, 1820 (Plate VIII.) Facing page 16
The "City of Glasgow" (Plate IX.) "      " 20
A Side-Lever Engine of 1831 23
An Engine of 1832 25
Scotts' First P. and O. Liner, the "Tagus" (Plate X.) Facing page 26
Type of Side-Lever Engine of 1840 29
Double-Geared Engine for Early Atlantic Liner 32
A Pioneer in Water-Tube Boilers (The Rowan Boiler) 35
High-Pressure Machinery in the "Thetis" (Plate XI.) Facing page 36
The Machinery of the "Achilles" 38
General Arrangement of the Machinery of the "Achilles" (Plate XII.) Facing page 38
The "Achilles" of 1865, off Gravesend (Plate XIII.) "      " 40
[viii]
A CENTURY'S WORK FOR THE NAVY. (Pages 43 to 62.)
Model of H.M.S. "Prince of Wales," 1803 (Plate XIV.) Facing page 43
The Launch of the First Clyde-Built Steam Frigate "Greenock," 1849 (Plate XV.) Facing page 44
Machinery in H.M.SS. "Hecla," and "Hecate" 1839 (Plate XVI.) Facing page 46
Machinery of H.M.S. "Greenock," 1848 48
Machinery of H.M.S. "Canopus," 1900 49
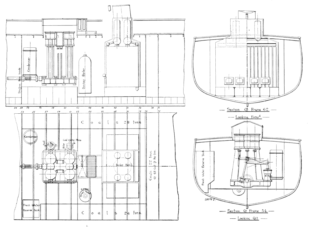
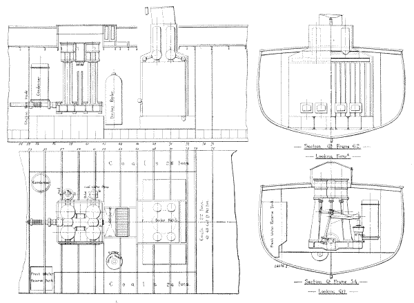
H.M.S. "Thrush," 1889 (Plate XVII.) Facing page 50
Engines of H.M.S. "Thrush," 1889 (Plate XVIII.) 52
H.M. Battleship "Prince of Wales" (Plate XIX.) 58
Propelling Engines of H.M.S. "Argyll" (Plate XX.) 60
YACHTING AND YACHTS. (Pages 63 to 72.)
The "Erin," Owned by Sir Thomas Lipton, Bart. (Plate XXI.) Facing page 63
The "Clarence," an Early Racing Cutter (Plate XXII.) "      " 64
The "Greta" of 1876; the "Greta" of 1895 (Plate XXIII.) Facing page 66
The "Margarita"; the "Tuscarora" (Plate XXIV.) 68
The Saloons of the "Beryl," Owned by Lord Inverclyde (Plate XXV.) Facing page 70
Typical Yacht Engines (Plate XXVI.) "      " 72
THE TWENTIETH CENTURY. (Pages 73 to 87.)
Dining-Saloon in a Mail Steamer; Drawing-Room in the Steam Yacht "Foros" (Plate XXVII.) Facing page 73
The Donaldson Liner "Cassandra" (Plate XXVIII.) "      " 74
The Holt Liner "Achilles" of 1900 (Plate XXIX.) "      " 76
The Largest Oil-Carrying Steamer afloat—the "Narragansett" (Plate XXX.) Facing page 78
The Launch of a China Steamer (Plate XXXI.) "      " 80
The China Navigation Company's T.SS. "Fengtien" (Plate XXXII.) Adjoining page 81
The British India Company's SS. "Bharata" (Plate XXXIII.) Facing page 82
One of Twenty Thames Steamers Engined by the Scotts (Plate XXXIV.) Facing page 84
Engines and Boilers for Twenty London County Council Steamers (Plate XXXV.) Adjoining page 85
Typical Propelling Machinery (Plate XXXVI.) Facing page 86
[ix]
EFFICIENCY: DESIGN: ADMINISTRATION. (Pages 88 to 93.)
Shipbuilding (Plate XXXVII.) Facing page 88
The Launch of H.M.S. "Argyll" (Plate XXXVIII.) "      " 90
Engine Construction (Plate XXXIX.) "      " 92
THE SHIPBUILDING YARD. (Pages 94 to 105.)
The Moulding Loft (Plate XL.) Facing page 94
Beam Shearing Machine; Bevelling Machine; Hydraulic Joggling Machine (Plate XLI.) Adjoining page 95
In one of the Platers' Sheds (Plate XLII.) Facing   "     96
Punching and Shearing (Plate XLIII.) "      " 98
The Fitting-out Dock (Plate XLIV.) "      " 100
The Graving Dock (Plate XLV.) Adjoining   "     101
The Saw Mill (Plate XLVI.) Facing   "     102
Two Views in the Joiners' Shops (Plate XLVII.) Adjoining   "     103
Electric Generators in the Power Station; Hydraulic Pumps and Air-Compressors in the Power Station (Plate XLVIII.) Facing page 104
THE ENGINE AND BOILER WORKS. (Pages 106 to 116.)
View in Main Machine Shop (Plate XLIX.) Facing page 106
Vertical Planing Machine; Multiple Spindle Drilling Machine (Plate L.) Facing page 108
Surfacing and Boring Lathe (Plate LI.) Adjoining   "     109
Brass-Finishing Shop (Plate LII.) Facing   "     110
Tool, Gauge, Template and Jig Department (Plate LIII.) "      " 112
In the Boiler Shop (Plate LIV.) "      " 114
Hydraulic Plate-Bending Machine 114

[xi]

Personalia.

John Scott (I) founded the firm in 1711, and engaged in the building of herring busses and small craft. There is, unfortunately, no engraving of him extant, so that our series of portraits on Plates II. and III. adjoining page 1, is to this extent incomplete.

William Scott, his son, born 1722, died 1769, succeeded him, and, with his brother, extended the business alike as regards the extent of the works, and the types of vessels built. His first square-rigged ship—of 1765—was the first vessel built on the Clyde for owners out of Scotland.

John Scott (II), born 1752, died 1837, son of William, greatly developed the works and built the dry dock and basin now included, with the original Yard, in the establishment of Messrs. Caird and Co., Limited. Under his régime many ocean-going sailing ships were constructed, ship-work for the Navy was undertaken, the manufacture of steam machinery commenced in 1825, and Admiralty orders undertaken for engines for dockyard—as well as Greenock-built frigates. He built the Custom House Quay in 1791, bought Halkshill, the family seat, in 1815, was a partner in the Greenock Bank, and otherwise promoted the industries of the town.

His brother, William Scott (II), born 1756, migrated to Barnstaple, where he carried on an extensive shipbuilding industry, obtaining engines for the most of his steamships from the Greenock Works.

Charles Cuningham Scott, born 1794, died 1875, son of John Scott (II), along with his elder brother, John[xii] Scott (III), born 1785, died 1874, carried on the business as "John Scott and Sons," developing still further the progressive policy of his father, who had been responsible for the works for about half a century. The Cartsdyke Yard was commenced in 1850 by Charles Cuningham Scott, and his son John, under the style of "Scott and Co.," and this firm is the one which has maintained the continuity of the Scotts' association with shipbuilding.

John Scott (IV), born 1830, died 1903,[1] and Robert Sinclair Scott, born 1843, died 1905, sons of Charles Cuningham Scott, were responsible for the progress for nearly forty years, and the former was created a Companion of the Bath (C.B.) in 1887. During their régime the firm took a large part in the introduction of the steamship for over-sea voyages; in the development of high steam pressures and of the multiple-expansion engine, which greatly improved the economy of the steam engine; and in naval work, with its incidental advancement. They completely reconstructed the Cartsdyke Works, and greatly improved what is now known as the Cartsburn Dockyard, modernising the equipment. The co-partnery was, for family reasons, registered in 1900 under the Limited Liability Company Law.

Charles Cuningham Scott, son of John Scott, C.B., is now the head of the concern and Chairman of the Company (Scotts' Shipbuilding and Engineering Company, Limited), and with him on the directorate are his brother Robert Lyons Scott, C. Mumme, and James Brown.


William Scott (1722-1769) John Scott (1752-1837)
William Scott (born 1756) Charles C. Scott (1794-1875)

Larger image


John Scott (1830-1903) P. Sinclair Scott (1843-1905)
C. C. Scott R. L. Scott

Larger image


[1]

The Era of the Sailing Ship.

THE maintenance of an industry for two hundred years by one family, in the direct line of succession and in one locality, is almost unique in the history of western manufactures. Such a record proves that the successive generations have displayed diligence, prudence, and enterprise; otherwise it would not have been possible for them to have held continuously a foremost place in the face of incessant competition consequent upon the general advance in science, the introduction of superior constructional materials, and the invention of new machinery. It indicates also the maintenance of a high standard of workmanship as well as integrity and business capacity; because time is the most important factor in proving efficiency and in establishing credit for durability of work, without which no reputation can be retained for such a long period.

The Scotts began the building of ships in Greenock in 1711. To-day, their descendants of the sixth generation worthily maintain the high traditions which have accumulated during the intervening two hundred years. It is impossible to form an adequate conception of the service rendered by this one firm to the science of marine construction[2] and to Britain, the leading maritime nation of the world. We should require to review in detail the successive steps: firstly, in the perfection of the sailing ship, from the sloops and brigantines of the eighteenth century, to such beautiful clippers as Scotts' Lord of the Isles, which in 1856 made the record voyage from China, and did much to wrest from the Americans the "blue ribbon" of the ocean; and, secondly, in the development of the steamship from its inception early in the nineteenth century to the leviathans of to-day. In successive epochs in the history of naval architecture the Scotts have played a creditable part, and to some of the more important improvements initiated or advanced by the firm reference will be made in our brief survey of the work done during the past two centuries. Unfortunately, some years ago, most of the old-time records were destroyed by a fire at the shipyard, so that our review of the early work is largely from contemporary publications, and is unavoidably incomplete.

Plate IV.

From an Engraving by E. W. Cooke, R.A.

THE BEGINNINGS.

Larger image

The beginnings were small, for Scotland had not yet attained to industrial importance, and had little oversea commerce. The first trans-Atlantic voyage made by a Clyde ship was in 1686, when a Greenock-built vessel was employed on a special mission to carry twenty-two persons transported to Carolina for attending conventicles and "being disaffected to Government."[2] American ships were most numerous on the western seas, and the East India Company had a monopoly of the eastern seas, so far as Britain was concerned, and preferred to build their ships in India, although many were constructed on the south coast of England. This monopoly checked progress. There was little or no incentive to improvement in merchant ships, and the naval authorities were too busy fighting Continental nations to risk extensive experimental work. We have it [3] on the authority of Sir Nathaniel Barnaby, K.C.B.,[3] that neither Government nor private builders made much progress in improving methods of construction. The first letters patent granted for improvements relating to ships bear the date January 17th, 1618, but the result of a thorough investigation of all patents between 1618 and 1810 discloses no improvement worth recording, except in the manufacture of sheathing and the construction of pumps.

The Scotts, like a few other shipbuilders on the Clyde, were concerned for the greater part of the eighteenth century in the building of fishing and coasting boats. There belonged to Greenock, in 1728, as many as nine hundred of such fishing boats, locally built, each carrying from twenty to twenty-four nets and manned by a crew of four men. For many years the business of the firm consisted almost entirely in the building of herring busses and small craft employed in the fishing trade, the first establishment being at the mouth of the West Burn, on land leased from the Shaw family. The shipbuilding industry was carried on intermittently, and the Scotts were the first to give it stability and continuity. In 1752, the Greenland whale fisheries were engaged in, and this led to a development in the size of craft. The first square-rigged vessel built in the port was a brig, named Greenock, constructed in 1760, for the West Indian trade. In 1765, William Scott, who had succeeded the original founder—his father, John Scott—built a large square-rigged ship for some merchants of the town of Hull, the timber for which came from the Ducal woods at Hamilton. This ship is notable as being probably the first ship built on the Clyde for owners out of Scotland.[4] To take a fairly representative year (1776), eighteen vessels, ranging up to 77 tons, and of a total of 1073 tons burden, were constructed in Greenock, and of the number six [4] were built by the Scotts.[5] Although the work could be more cheaply done on the Clyde than at London or Bristol, there was for a long time a strong prejudice against English owners ordering vessels from the north, and against Scotch vessels taking any part in the oversea trade.

The Jacobite risings had also affected the industry, but the War of Independence in America had far-reaching beneficial results. It is true that prior to this the rich fields of the English colonial possessions, as well as the English markets, had been opened to the commerce of Scotland, and that the merchants of Glasgow had developed extensive commercial operations with the West Indies and British North America; but, although there was thus a considerable oversea trade between the Clyde and the Western hemisphere, all the large vessels trading to the Clyde were built in America.[6] The shipbuilding industry in the States was thus a very extensive one; and, in 1769, there were launched, in the North American Colonies, three hundred and eighty-nine vessels of 20,000 tons burden, which was far in excess of the annual British output.[7] This was largely owing to the limitless supply of timber in America, and to the import duties on constructional material imposed in this country to suit the English growers of oak, the price of which advanced in the eighteenth century from £2 15s. to £7 7s. per load.[8]

The Brunswick, of 600 tons, carpenters' measurement, to carry 1000 tons real burden, built by the Scotts in 1791 for the Nova Scotia trade; and the Caledonia, of 650 tons, built by the Scotts in 1794, for the carriage of timber for the Navy yards—each the largest ship in Scotland of its respective year—signalised the beginning of a period of [5] greater activity, especially in respect of large ocean ships. Some years before—1767—the Scotts had feued ground for a building yard on the shore east of the West Burn. They added a graving dock of considerable size, and the inaugural proceedings included a dinner held on the floor of the dock.

Plate V.

From an Old Engraving.

GREENOCK AND SCOTTS' YARD IN THE EIGHTEENTH CENTURY.

Larger image

Other developments contributed to the prosperity of the port of Greenock, the chief of the establishment being John Scott of the third generation, who was born in 1752, and died in 1837. His brother, William Scott, also the second of that name, migrated to Bristol, where he carried on an extensive trade as a shipbuilder. The latter was the father of James M. Scott, who is still remembered by some old inhabitants as the founder, about 1847, of penny banks in Greenock and of the Artisans' Club. John Scott, after his brother's departure, carried on the business under the name of John Scott and Sons, and did great service not only for the town, but also for the advancement of the business. In three successive years, 1787, 1788, and 1789, he bought three large plots from the ninth Lord Cathcart, for the extension of the works.[9] These then extended almost from the West Quay to the West Burn. He also, in 1791, constructed the old steamboat or custom-house quay,[10] and played a large part in developing the banking facilities of the town. He bought, in 1815, Halkshill, near Largs, which has continued the residence of the family. In view of the association of the firm with the town, it may be worth interpolating here a statement of the growth of the population of Greenock, with the sources from which the figures have been taken.

Year. Population. Source.
1700 1,328 Campbell's History, page 23.
1801 17,458 Weir's History, page 120.
1901 68,142 Census Returns, vol. i., page 212.

[6]

Shipbuilding work, however, was still in craft which to-day would be considered insignificant. The increase of the mercantile fleet of England throughout the eighteenth century was only fivefold in respect of numbers, and sixfold in tonnage; the average size shows an augmentation from 80 tons to only 100 tons, and there was no improvement in labour-economising appliances for the working of the ship, as the ratio of men to tonnage was at the beginning of the century practically one to every 10 tons, and at the close one to 13 tons.[11]

In the nineteenth century, the tonnage increased eightfold, but in view of the adoption of steam the actual carrying capacity was augmented nearly thirtyfold; the average size of ship increased to 760 tons. Practically, every ship in the eighteenth century carried guns, the average being two per vessel. It was not until 1853 that there was omitted from the mail contracts the clause which provided that each mail vessel must be built to carry guns of the largest calibre in use.

A WEST INDIAMAN. (See page 12.)

Larger image

The nineteenth century brought every incentive to the development of shipbuilding. Nelson taught the lesson, never to be forgotten, that sea-power is essential to the commercial expansion—even to the existence—of our island kingdom, with its corollary, that the merchant fleet is as necessary to this mastery of the sea as fighting squadrons. The sea became our home; there arose a renewed love [7] [8] of exploration, and an ambition for colonisation. Success brought the chastening influence of responsibility, with a higher appreciation of the advantage of a conciliatory policy towards foreign nations. Contemporaneously with the growth of this conception of empire there arose a war of retaliation in shipping with the newly-formed United States of America, which continued for half a century. Although not without its regrettable incidents, it stimulated a rivalry in the shipping and shipbuilding industries which was ultimately as beneficial as it had been pronounced. The monopoly of the East India Company in the Eastern shipping trade terminated, so far as India was concerned, in 1814, and as regards China in 1834. This removed an influence which had hitherto retarded enterprise in naval construction—especially on the Clyde—due to the Company's preference for building their ships in India, and in the south of England ports. Private owners, too, entered more vigorously into competition with American clippers which had first commenced trade with China in 1788.

With the widening of the maritime interests and the intensification of competition there was awakened a general desire to increase the strength of ships. In this respect, as in others, there had been little advance either in the Navy or in the mercantile marine. It was exceptional for a ship of the eighteenth century to continue in service for more than twelve or fifteen years. This was due partly to defective constructional details, and partly to the ineffective methods of preserving timber.

A TYPICAL EAST INDIAMAN. (See page 12.)

Larger image

Ships were then built up[12] of a series of transverse ribs, connected together by the outside planking and by the ceiling. There was no filling between the ribs. The ship's structure thus suffered severely from hogging and sagging stresses. The French tried to improve this by introducing oblique iron riders across the ceiling, or by [9] [10] laying the ceiling and the outside planking diagonally, while in other instances the whole was strengthened with vertical or diagonal riders; but none of these systems gave complete satisfaction. The Sepping system was introduced about 1810, and was early adopted by the Scotts. The bottom of the ship was formed into a solid mass of timber. The beams were connected with the side of the ship by thick longitudinal timbers below the knees, and by other stiffening members. A trussed frame was laid on the inside of the transverse frame in the hold of the ship, and the decks were laid diagonally. These members bound the ship in all directions, so as to resist the stresses due to the ship working in a seaway.

The method of preserving the timber adopted at the beginning of the eighteenth century was to char the inner surface of the log, while the outer surface was kept wet; but this was superseded early in the century by the stoving system, which consisted in placing timber in wet sand, and subjecting it to the action of heat, for such time as was necessary to extract the residue of the sap and bring the timber to a condition of suppleness. This process continued until 1736, after which the timber itself was steamed. Copper sheathing was first employed on warships in 1761; prior to this lead had been used, but only occasionally.

American shipbuilders held an important position, even in the British trade, for some time after the Declaration of Independence; but there was then developed a pronounced spirit of emulation amongst the British firms, which had a marked effect on competition in western seas. At the beginning of the nineteenth century much of the oversea work done by the Scotts was for the West Indian trade. The vessels were not often of more than 600 tons, but the firm continued steadily to develop their business.

Plate VI.

THE "LORD OF THE ISLES."

(See page 13.)

Larger image

Between 1773 and 1829, the period of expansion under the second John Scott, to which we have already referred, [11] the output was 16,800 tons.[13] This output included a succession of fine ships for the West India trade, to the order of some of the old Glasgow companies, amongst the number being Stirling, Gordon and Company; J. Campbell and Company; James Young and Company; and Muir and Fairlie. We may mention as typical ships, the Grenada, of 650 tons burden, and the John Campbell, of 446 tons, built in 1806, the first ships launched on the Clyde with all rigging in position.

Thus early, too, the Scotts had entered upon the construction of that long series of yachts, sailing and steam, which has brought them considerable repute, and even more pleasure, since they were in successive generations noted yachtsmen. In 1803 they launched the 45-1/2-ton cutter for Colonel Campbell, of the Yorkshire Militia, which was pronounced one of the completest of the kind ever built in Scotland up to that time. It may be incidentally mentioned, that the Scotts also showed thus early their practical sympathy with the auxiliary forces of the Crown by being at the head of the volunteer Sea Fencibles formed on the Clyde in the stormy years of the Napoleonic wars.

As soon as the monopoly of the East India Company was removed in 1814, private shipowners entered the lists, and the Scotts were early occupied in the construction of Indo-China clippers. In 1818 they built the Christian, and in 1820 the Bellfield, the latter, of 478 tons register, for the London and Calcutta trade. She was one of the first of a long series. The Kirkman Finlay, of 430 tons, built in 1834, suggests the name of a firm long and honourably associated with the development of trade in our great Eastern dependency. The effect of competition was a reduction in the average rate of freight per ton from India to Britain from £32 10s. about 1773 to £10 in 1830.

The East India Company about the year 1813 paid [12] £40 per ton for their ships, as against about £25 per ton by other traders; the latter sum was about the same as that paid in America. The East Indiaman had a crew in the ratio of one to 10 or 12 tons, while one to 25 tons sufficed for the West Indiaman. The speed of the western ship was greater, largely by reason of the difference in proportions and lines. The clipper built on the Clyde and in America had a length equal to five or six times the beam, against four times the beam in the case of the East India Company's ships. In the design of these clippers the Scotts took an important part. Charles Cuningham Scott was then at the head of the concern. An ingenious method of making model experiments in the graving dock at the works was evolved in the 'forties, whereby the firm were able to arrive at the most satisfactory form of hull to give the minimum of resistance, and at the same time a large capacity for cargo per registered ton. In this latter respect they were more successful than the designers of the East Indiamen, notwithstanding the bluff form of the latter.

As rapidity in answering the helm was a most important element in tacking, and therefore in speed, the firm about this time prepared full-rigged models, about 5 ft. long, for experimental trials as to the ship's form and rudder, on Loch Thom, on the hill above Greenock, in an exposed place where the conditions of wind were analogous to those at sea. The results proved satisfactory. In fact, in these years, when the Minerva, Acbar, and other noted clippers were built, the care used in design and construction was almost as great as that now devoted in the case of racing yachts.

Plate VII.

THE "ARCHIBALD RUSSELL."

(See page 14.)

Larger image

The Scotts, in the first half of the nineteenth century, continued to produce a long series of successful sailing ships, while at the same time taking a creditable part in the evolution of the steamship. Steam, however, was not possible in long-distance voyages until pressures had [13] been increased, and coal consumption reduced to moderate limits; and thus it came that, although the steam engine was used in the early years of the nineteenth century in river, and later in coasting, craft, the sailing ship continued supreme almost until the middle of the century. We do not propose, however, to refer to all of the later sailing ships built by the Scotts, but it may be interesting to give some details of the construction.

American rock elm was largely used. The frames were in three sections with scarfed joints, bolted together, the scantlings being reduced towards the top, so as to lower the centre of gravity. Inside the frames there were at various heights longitudinal timbers, to add to the fore-and-aft strength. The top sides were of greenheart, the beams of oak or greenheart, with wrought-iron knees; the height between the beams was made to admit of two hogsheads of sugar being placed in the hold. There were side-stringers, sometimes 10 in. thick, between the floor and the beams, which were half-checked into the stringers. On the top of the beams there were deck-stringers. There was a most effective transverse and longitudinal binding, brass bolts being extended right through the knee, stringer, frame, and skin of the ship. The decks were of yellow or Dantzig white pine. An 800 or 1000-ton West Indiaman occupied about nine months in construction. The last wooden ship built in Greenock was the Canadian, completed by the Scotts in 1859.[14]

The highest conception of the iron sailing ship, as built by the firm, was probably embodied in the Lord of the Isles, completed in 1856. She had a length between perpendiculars of 185 ft., a breadth of 29 ft.—the proportion being thus 6.4 of length to 1 of beam—with a depth of hold of 18 ft. Her registered tonnage was 691 tons, and her builders' measurement 770 tons. Although a fine-ended [14] ship she carried a large cargo on board, and made her first trip to Sydney in seventy days, which had not then been surpassed.[15] She made the passage from Shanghai to London in eighty-seven days, with 1030 tons of tea on board. In one trip she averaged 320 nautical miles for five consecutive days. When engaged in the celebrated race for the delivery of the season's teas from Foo-chow-foo to London, in 1856, the Lord of the Isles beat two of the fastest American clippers, of almost twice her tonnage. She "delivered her cargo without one spot of damage, and thus British ships regained their ascendency in the trade which their American rivals had far too long monopolised."[16] From that time the British sailing ships gradually gained a complete superiority over the American vessels, and carried all before them, until they in turn were supplanted by the British steamship. From time to time an occasional sailing ship was constructed of steel; the latest, the Archibald Russell, is illustrated. Built for Messrs. John Hardie and Company, this vessel has a length, between perpendiculars, of 278 ft., a beam of 43 ft., and a depth, moulded, of 26 ft., and carries 3930 tons of deadweight cargo on a draught of 21 ft. 7-1/2 in. But less than 1 per cent. of ships now constructed depend upon the unbought but uncertain winds, and then only for special trades. On regular routes the steamer is now almost paramount, and it was, therefore, appropriate in the highest degree that the first vessels to steam regularly to China, viâ the Cape, should, like the Lord of the Isles, be built by the Scotts; but that belongs to another story.


[15]

The Development of the Steamship.

A CLOSE association existed between the Scotts and the family of James Watt, the inventor of the steam engine: the founder of the Scotts' shipbuilding firm and the father of Watt were identified with several schemes for the improvement of Greenock; and the signature of John Scott, of the third generation, whose portrait is the second reproduced on Plate II., is taken from a document in connection with some intromissions of town's funds, to which also is adhibited the signature of Watt's father.

It is not surprising, therefore, that the Scotts were early close students of Watt's inventive work, and among the first to enter upon the building of steamships; while at the same time, as we have shown in the preceding pages, building many of the fine sailing ships which established British shipping supremacy in the early half of the nineteenth century, and raised Greenock by 1829 to a port having trade with every part of the world.

Miller and Taylor commenced their experiments at Dalswinton in 1788, with a steam engine driving paddle-wheels in boats[17]. Symington's steam tug, Charlotte Dundas, [16] by its success in 1802 on the Forth and Clyde Canal[18], removed any remaining doubt; but it was not until 1812 that Henry Bell, with his Comet, proved the commercial utility of the steam system, although without profit to the promoter.[19] The building of steamships, evolved by experiments by various workers in Britain—and in America also—was readily adopted on the Clyde. Within four years of the completion of the Comet, it was not unusual for five hundred or six hundred passengers to enjoy in the course of one day water excursions on the river.[20] The fares were practically five times those prevailing to-day. Among the earliest of the Clyde steamers were the Active, of 59 tons, and Despatch, of 58 tons, built by the Scotts. In calculating the tonnage in those early days, an average allowance of one-third was deducted for the machinery. In 1816 the firm built the Shannon, of a length between perpendiculars of 77 ft. 7 in., of a beam of 15 ft. 3 in., and of a depth moulded of 9 ft. 1 in. She had fore-and-aft cabins. Her engines were of 14 horse-power nominal. She plied on the Shannon between Limerick and Kilrush. By 1818—six years after the completion of the Comet—thirty-two steamers were running on the Clyde, and some of these were sent ultimately for traffic on the coast and on other rivers.[21] The largest of these was of 112 tons, with engines of 40 nominal horse-power.

The Scotts had built many sailing craft for the Clyde and Belfast trade, for the Glasgow and Liverpool service, and for the Liverpool and Drogheda, and other coasting routes; and it was natural when steam was introduced that the same firm should supply the side-paddle boats.

Plate VIII.

From an Old Engraving.

EARLY STEAMBOATS AT GREENOCK.

Larger image

[17]

In three successive years—from 1819 to 1821—the largest steamer in the kingdom came from Scotts' Works. The record was marked in 1819 by the Waterloo, of over 200 tons, with engines of 60 nominal horse-power; in 1820, by the Superb of 240 tons register, with engines of 72 nominal horse-power, which cost about £37 per ton, and steamed 9 miles per hour, using 1670 lb. of Scotch coal per hour; and in 1821, by the Majestic, of 345 tons register, with engines of 100 horse-power, which cost over £40 per ton, and steamed 10 miles per hour for a consumption of 2240 lb. of Scotch coal. Although the modern steamer is fifty times the size of these pioneers, with a cost per ton of less than one-fourth, and a fuel consumption per unit of work done of not more than a seventh, the records of these and other early ships are worthy of full reference.

The advantage of steam navigation for channel service was at once recognised. A Parliamentary return issued in 1815 showed that for the space of nine days in the previous year only one mail packet could sail between Holyhead and Dublin owing to adverse winds, and even then the average passage was twenty-four hours. Lord Kelvin, in his memorable Address as Chancellor of the University of Glasgow, in 1905, recalled the fact that early in the century his father often took three or four days to cross from Belfast to Greenock in a smack, as she was frequently becalmed. With favourable winds, rapid passages were made, a revenue cutter occasionally doing the Belfast and Greenock run in ten hours.

The Greenock and Belfast route was among the first around the coast to come under the influence of the mechanical system of propulsion. The Rob Roy, which was the outcome, so far as form of hull was concerned, of probably the first model experiments ever made—undertaken by David Napier in the Canal at Camlachie[22]—was [18] in 1818 the pioneer in the Glasgow and Belfast steam service, and later in the Dover and Calais steam service.

There followed in 1819 three notable vessels from Scotts' Works: the Waterloo,[23] the Robert Bruce, and the Sir William Wallace. The particulars and performances of these vessels, taken from contemporary records, principally the "Greenock Advertiser," which faithfully reported each incident in the development of the steamship, are especially interesting as illustrative of early work.

The Waterloo, which, as we have already said, was the largest steamer of her year (1819), had a beam equal to one-fifth of her length, the measurement between perpendiculars being 98 ft. 8 in. In addition to a large number of passengers, she carried under ordinary conditions a cargo of 100 tons, on a draught of 8 ft. 6 in. against 7 ft. 3 in. without cargo. Three months were required, between the launch of the ship and her trials, for the fitting on board of engines each of 30 nominal horse-power, which gave her a speed of between 8 and 9 miles per hour. Sails, however, were still carried to assist in driving the ship, and this vessel was of schooner rig. She inaugurated the steam service between Belfast and Liverpool.

The Robert Bruce was the first steamer to trade between the Clyde and Liverpool.[24] She was followed by [19] the Sir William Wallace. Both were built by the Scotts, and had engines of 60 nominal horse-power. They began service in the summer of 1819; and the record of the maiden voyage of the former, in August, 1819, showed that two and a-half hours were occupied in the run from Glasgow to Greenock, about 22 miles; and within 26 hours thereafter the vessel took on her pilot at the north-west lightship outside the Mersey Bar. The return voyage was equally satisfactory. To quote again from contemporary records, "the passengers, both out and home, were so highly gratified with the performance of this vessel and their treatment on board that they unanimously expressed their entire satisfaction with Captain Paterson's exertions to render them comfortable and happy, their conviction of the seaworthiness of the vessel, and their admiration of the powers of the engines, capable of propelling so large a body at the rate of 7 knots per hour, in the face of a strong north-northwest wind and high sea for at least two-thirds of the way from Liverpool, her rate thither being nearly 9 knots."[25]

In 1820, the Superb, of 240 tons and 72 horse-power, followed the Sir William Wallace, and marked a still further improvement. She had a copper boiler, and in the three cabins sleeping accommodation was provided for sixty-two passengers. She was "the finest, largest, and most powerful steam vessel in Great Britain.[26] The average duration of the passage from the Clyde to Liverpool did not exceed 30 hours."

The Majestic, also for the Clyde and Liverpool service, was built in 1821, and was 134 ft. 11 in. long between perpendiculars, 22 ft. 8 in. beam, and 14 ft. 5 in. depth, moulded. Her draught, 10 ft. 6 in. forward and 12 ft. aft, was too great for the upper reaches of the Clyde, and passengers were brought from Glasgow to Greenock in a [20] tender. In her four cabins there was greatly-increased accommodation for the passengers. She was probably the first steamer with a sleeping apartment exclusively for ladies. The copper boiler worked at a pressure of 4 lb. per square inch, and the engines ran at 56 revolutions. The fares[27] to Liverpool in those days were £2 15s., as compared with 11s. to-day; of course, very much better accommodation is now provided.

The City of Glasgow was built in 1822 for the Liverpool service. This vessel, which cost £15,000, had a speed of over 10 knots, and was reputed the fastest afloat. Her length was 110 ft. 4 in., beam 22 ft. 4 in., and depth, moulded, 13 ft. She was arranged like the Majestic, and the two were long the most important vessels in the Clyde and Liverpool trade. She was subsequently bought by McIver, and inaugurated the competition with the Burns line, commenced in 1829.[28] The McIver and Burns lines were subsequently combined.

The Scotts rendered similar service in the development of the mail route between Holyhead and Dublin. The first vessel built by them for this service was the Ivanhoe, constructed in 1820. The steam service had been opened between these two ports in 1819 by the Talbot, the first steamer fitted with feathering floats.[29] The Ivanhoe,[30] a larger steamer than the Talbot, was of 170 tons burden, her length between perpendiculars being 97 ft. 4 in., beam 19 ft., and depth, moulded, 14 ft. 6 in. She had various improvements in her machinery, which was of 60 nominal horse-power. She left Scotts' yard in May, 1820, and made the voyage to Howth (200 miles), in 26-1/2 hours.

Plate IX.

From "The Life of Robert Napier."

THE "CITY OF GLASGOW."

Larger image

[21]

Thus the Scotts continued to improve on each successive ship, and to widen the area of their influence. The Clyde continued to largely monopolise the industry of steam shipbuilding, and it was not until the summer of 1822 that a steamer—not built in Scotland—appeared on the Clyde. This was the Saint George, from Liverpool, and the City of Glasgow, already referred to, her competitor in the Liverpool trade, raced her and greatly excelled.

One of the first steamers to trade in the Mediterranean was the Superb, sent thither in 1824, and the Trinacria, also built by the Scotts, followed in 1825. These ran between Naples and Palermo. The last-named vessel was 135 ft. long over-all, and 113 ft. 6 in. between perpendiculars, 39 ft. 6 in. broad over the paddle-box, and 21 ft. 10 in. net beam, 14 ft. deep (moulded), and of 300 tons burden. The vessel was especially well-equipped, and cost £15,000. The engines, the first manufactured by the Scotts at their Greenock foundry, were of 80 nominal horse-power, and the boilers, which were of copper, weighed 40 tons. The speed was 10 miles per hour. Later this steamer became the Hylton Joliffe, and was employed by the General Steam Navigation Company on their London and Hamburg service.

As to the yard in which these several vessels were built, suggestion is afforded of the state of efficiency by the following quotation from a history published in 1829.[31] "The building yard of Messrs. Scott and Sons is allowed to be the most complete in Britain, excepting those which belong to the Crown. It has a fine extent of front from the West Quay to the termination of the West Burn, and has a large dry dock, which was altered lately to the plan of the new dock. All the stores and lofts are entirely walled in, and, independently of the building premises, they have an extensive manufactory of chain cables."

[22]

The majority of the engines for these early steamers of the Scotts were constructed by Napier or Cook, and were of the side-lever or beam type. In 1825, however, John Scott, who had done so much for the progress of the firm, decided to commence building machinery, and acquired for £5000 the works which have since been developed into the well-known Greenock Foundry. This establishment was begun, although on a very small scale, about 1790,[32] and in its equipment, which was considered thoroughly efficient, there was included a large cupola. Some idea is given of the extent of the establishment by reference to Weir's "History of Greenock" (1829), page 94, where it is stated that in the few years that had elapsed since the taking over of the works by the Scotts "they have manufactured some splendid engines, and—what is more to be looked for than the appearance—they have wrought well. They have in hand the largest engine ever made, which is of a size of 200 horse-power, and is intended for a vessel building at Bristol. The number of men employed amount to about two hundred and twenty, while the weekly distribution of wages is £180." As a contrast, it may be said here that there are now four thousand men in the works, earning per week over £5500 in wages, and that the Scotts are engaged on the largest set of engines yet constructed by them—for H.M.S. Defence. They are of 27,000 indicated horse-power, to give the immense armoured cruiser named, of 14,600 tons displacement, a speed of 23 knots.

Since 1825, the Scotts have continued to do very satisfactory engine work, much of it of an original character, not only for vessels built for themselves, but for ships constructed on the Thames and other English rivers, and also for the series of warships built for the British Navy at their works, and for others constructed at the Royal Dockyards. This naval engine work began with H.M. ships [23] Hecla and Hecate, engined in 1838-9, and the first warships built in the dockyards to be sent to Scottish works to receive machinery.[33] And here it may be noted, too, that the first warship built by the Scotts was the Prince of Wales, in 1803, and also that the firm had the credit of building the first steam frigate constructed at Clyde works for the British Navy, H.M.S. Greenock, launched [24] in 1839. They also built the first compound engines fitted to a French warship. With these naval ships and engines we deal in our next Chapter, and may therefore continue our narrative regarding merchant steamers.

A SIDE-LEVER ENGINE OF 1831.

Larger image

We reproduce on the preceding page a drawing illustrating an early type of engine built by the firm. This is an engine constructed in 1831. The steam cylinder is 52-1/4 in. in diameter, and the crank-shaft is actuated, through connecting-rods, from the ends of the levers operated by the piston-rod, while the air-pump is placed at the opposite ends of the levers.

A different type of engine, constructed in the following year (1832), is illustrated on the facing page. In this case the cylinder operates the opposite end of the levers to that connected with the crank-shaft. In both engines the lever-gudgeon passes through the jet-condenser.

The records we have given are historically interesting, because they tell of the beginnings of a great epoch in British shipping. We do not propose to follow in such detail subsequent steamships, built for other services, between London and Aberdeen, the Clyde and Dublin, etc. The City of Aberdeen, built in 1835 for the first-named, marked noteworthy progress. She measured 187 ft. over the figure-head, and was of 1800 tons, including the space for the machinery. Her poop was 60 ft. long and 45 ft. broad. According to contemporary testimony, she was, in her day, the strongest steamer built, having solid frames from gunwale to gunwale. She had additional bracing with African oak stringers; oak and iron trussings alternately bolted to the stringers formed a complete system of diagonal fastenings and bindings from stem to stern. The whole of the cabins, saloons and state rooms, were on one deck, and there was the important innovation of hot and cold baths. The speed was 12 miles per hour.[34]

[25]

The Jupiter, of 439 tons and 210 horse-power, built in 1836 for the Clyde and Dublin trade, cost £20,000, and established a record in speed, making the voyage in sixteen hours six minutes, at the rate of 13 miles per hour; formerly the voyage took twenty-four hours.

AN ENGINE OF 1832.

Larger image

In the late 'thirties and the early 'forties there was a great development in oversea trading steamers, the Clyde taking, then as now, the foremost place. Several epoch-marking voyages had been made with the steam engine used intermittently. The Savannah had thus crossed the Atlantic from the United States in 1819, and the Royal William from Quebec in 1833.

The barque Falcon,[35] 84 ft. in length, and of 175 tons, [26] had, on the voyage to India in 1835 utilised engines which, however, were removed on her arrival in our Eastern dependency. Later in the same year the Enterprise, of 470 tons and 120 horse-power, also rounded the Cape of Good Hope to India. In all these cases, however, sails were utilised whenever possible, and there was still great hesitancy in accepting the steam engine even as an alternative on occasions to the use of the "unbought wind." The advantage, however, of a rate of speed which, while low, would be constant, soon asserted itself, and there followed within a few years regular mail steamship services on the North and South Atlantic Oceans, in the Mediterranean Sea, in the Indian Ocean, and the China Seas. In the beginning and development of these services the Scotts took a prominent part.

One of the first notable steamship lines to be organised for oversea service was that which ultimately became the Peninsular and Oriental Company. It had its origin[36] in steamship service from Falmouth to Oporto, Lisbon, Cadiz, and Gibraltar. Four steamers were built in 1836-37: the Tagus, Don Juan, Braganza, and Iberia. The first-named was built by the Scotts, and the third was engined by them. These ultimately carried the mails as far as Alexandria, whence they were conveyed overland to Suez, and from thence by the East India Company's vessels to Bombay. This service developed into the Peninsular and Oriental service, when, in 1840, the Company took over the mail service on the Indian Ocean; in 1847 they extended their operations to China. The overland service continued until the Suez Canal was opened in 1869, and many of the vessels for the Mediterranean service, as well as for the eastern route, were built by the Scotts.

Plate X.

SCOTTS' FIRST P. AND O. LINER, THE "TAGUS."

Larger image

[27]

The Tagus,[37] which was thus amongst the first of the P. and O. steamers, was built in 1837. She had a length of 182.1 ft., a beam of 26 ft., and a depth of 17 ft. 4 in., the burden tonnage being 709 tons. When carrying 265 tons of coal in her bunkers and 300 tons of cargo, the draught was 14 ft. 6 in. The side-lever engines which were fitted to her had a cylinder 62 in. in diameter, with a 5-ft. 9-in. stroke, developed 286 horse-power, and operated paddle-wheels 23 ft. 6 in. in diameter. Two of the other early steamers, the Jupiter and the Montrose, were also constructed by the Scotts.

The conveyance of cargo and passengers across the Isthmus of Suez not only involved inconvenience and expense, but was a cause of great delay. There was still, however, a strong prejudice against steamships being utilised for long sea voyages, partly because of vested interests in sailing ships. Sir John Ross, C.B., who, in 1818 and in 1829 to 1833, made Arctic explorations, was one of the strongest advocates for a service to India by way of the Cape of Good Hope; and, in order to establish the feasibility of the undertaking, made experiments with the City of Glasgow, built by the Scotts in 1821. This vessel, of 283 tons, had in the interval been fitted with new boilers, with special safety appliances, and they worked at 4-lb. pressure; they gave the high evaporation in those days of 9 lb. of water per pound of coal.[38]

This vessel made the trip from London Bridge to the lightship off Spithead (246 miles) in thirty-one hours five minutes, on a consumption of 6 lb. of fuel per indicated horse-power per hour. These facts were utilised by Sir John Ross in his advocacy of the route, and a new company was formed, under his chairmanship, in 1837.

The first vessel of the fleet, named the India, was [28] built and engined by the Scotts, and was a few years later transferred to the Peninsular and Oriental Company. The India, launched in 1839, was the largest steamer built on the Clyde up to that date, being 206 ft. 6 in. long, 30 ft. 9 in. beam, or 48 ft. wide over the paddle-boxes. The gross tonnage was 1206 tons. Accommodation was provided for eighty cabin passengers, and provision made for 400 tons of cargo. A feature of her construction was the provision of two strong bulkheads of iron across the engine-room, in order to avoid accidental outbreak of fire, and also to prevent water from a leak in one part spreading to another.[39] This was probably the beginning—nearly seventy years ago—of the system of division by watertight bulkheads, now universal. Its compulsory adoption was advocated by the Institution of Naval Architects in 1866, and enforced by Lloyds in 1882, and by the Board of Trade in 1890. The machinery was of 320 horse-power, and had surface-condensers. The India was launched on the anniversary of the birth of James Watt, and a salute of twenty-one guns was fired as the vessel left the ways.

Five other steamers were built for the service, and the voyage took from fifty-five to sixty days, as compared with the one hundred and thirteen days occupied by the Enterprise. A monthly service was thus rendered possible. At the same time the Scotts built steam vessels for the coasting trade of India and of South Africa.

The type of machinery in use at this period is illustrated on the opposite page. This particular engine was constructed in 1838. The piston was connected to one end of the side-levers, while the crank was operated from the other. The paddle-wheel of this engine was 25 ft. 0-1/2 in. in diameter, with seventeen floats. For about thirty years this was the standard type of marine engine for paddle steamers.

The Gothic architectural design for the main framing[29] was gradually abandoned for something less ornamental and perhaps more mechanical.

TYPE OF SIDE-LEVER ENGINE OF 1840.

Larger image

The Royal West India Mail Company's Service, still one of the best known of British lines, was commenced in 1841. Some of the steamers were purchased, but amongst those built originally for the service was the Dee by the Scotts. She was 213 ft. 9 in. long, 30 ft. 4 in. beam, and 30 ft. in depth, the burden tonnage being 1848 tons. On a draught of 17 ft. 6 in. she carried 700 tons of cargo; and, as with most of the oversea liners of the period, the average speed was only about 8 knots. The voyage of 13,650 miles occupied then one hundred and nine days, including stoppages; and the consumption of fuel was 25-1/2 tons per day. The engines, which had cylinders[30] 73 in. in diameter with a stroke of 7 ft., were of 450 horse-power, driving side paddle-wheels 28 ft. 6 in. in diameter.[40]

In the thirty years from the first commercial British steamer, the Comet, there had not been much advance in the steam engine, excepting in size, power, and, perhaps, reliability. Wood had continued to be the constructive material for all but the smallest ships. The size of vessels had grown steadily to the 1848 tons of the West Indian mail liner, which started regular steamship service almost contemporaneously with the inauguration of the Atlantic mail line by the Cunard Company in 1840. Speeds on service, even on the shortest routes, were seldom over 13 knots, and on the long routes under 8 knots. But this was in excess of the average attained by all but exceptionally fast clippers. The Table on the opposite page shows the progress made in thirty years.

Table I.—Epoch-Marking Steamers Built By The Scotts, 1819 To 1841.

Year. Name. Tonnage. Horse-power.[A] Speed
(Miles per Hour).
Remarks.
1819 Waterloo 200 60 9 Largest steamer of 1819.
1820 Superb 240 72 9 Largest steamer of 1820.
1821 Majestic 345 100 10 Largest steamer of 1821.
1835 City of Aberdeen ... 200 12 Strongest steamer of 1835.
1836 Jupiter 439 210 13 Record speed
1837 Tagus 709 286 10 Largest constructed on Clyde, 1837, and an early P. and O. liner.
1839 India 1206 320 10 First steamer to India viâ the Cape and the first Indian liner.
1841 Dee 1848 450 10 First Royal West India Mail liner.

We enter now upon the period when iron took the place of timber as a constructional material. It was first used in part in the construction, on the banks of the Monkland Canal as far back as 1818, of a canal barge named the Vulcan, a vessel which continued at work for over sixty years.[41] But the first vessel built entirely of iron was a small craft constructed in 1821 in England. It was not, however, until 1832 that the first sea-going vessel was built of this metal. Progress in the adoption of iron was slow, largely because timber had proved so serviceable, and, with lessened restriction upon its importation, had become much cheaper. It was not until the higher strength and greater ductility of steel were demonstrated in the 'eighties that timber was finally superseded. The last wooden ship built by the Scotts was completed in 1859.

The firm built several of the early Atlantic liners, [31] and we reproduce on page 32, as a further step in the development of the steam engine, a drawing showing the double-gear engines constructed early in the 'fifties for an iron screw steamer of 1190 tons, built for the Glasgow and New York service. This engine was pronounced at the time "the most compact specimen of its type then in existence,"[42] for although the power developed was 250 horse-power, and the ship was 260 ft. in length, only 12 ft. 6 in. of the fore-and-aft length was taken up by the machinery. "Every weight was well balanced, the working parts were clear and open, and the combined whole was stable, firm, [32] and well bound together." The cylinders were 52 in. in diameter, were arranged diagonally, and worked at right angles to each other, with a stroke of 3 ft. 9 in. The piston-rods projected through the lower covers, to allow of long return connecting-rods. Each cylinder had two piston-rods, for greater steadiness, their outer ends in each case being keyed into a crosshead, fitted at each end with slide-blocks, working in a pair of inclined open guide-frames, bolted to the bottom cylinder cover, and supported beneath by projecting bracket-pieces, recessed and bolted down upon pedestal pieces on the engine sole-plate. From each end of this crosshead, immediately outside the guide-frame, a plain straight connecting-rod of round section passed up to actuate the main first-motion shaft. The upper ends of the connecting-rods were jointed to side-studs, or crank-pins, fixed in two opposite arms of a pair of large spur-wheels, which gave motion to the screw-shaft by means of a pair of corresponding spur-pinions, fixed on the shaft.

DOUBLE-GEARED ENGINE FOR EARLY ATLANTIC LINER.

Larger image

[33]

The main spur-wheels were 11 ft. 5-1/2 in. in diameter, and the pinions on the screw-shaft 4 ft. 6 in.; so that the screw propeller made 2-1/2 revolutions to each rotation of the engine. The arrangement ensured that each piston was directly coupled to both of the large wheels, and the increased length of the crossheads, which the plan involved, was counterbalanced by the effect of the double piston-rods, for by this division of the pressure the cross-strain leverage was proportionately diminished.

The use of steam expansively in multiple-cylinder engines was, however, the most important factor in the development of the steamship during the latter half of the nineteenth century.[43] With low steam pressures and simple engines the coal consumption, even for moderate-sized ships, was a serious item in a long sea voyage; and, early in the 'fifties, engineers, recognising the economy which would result from a successful compounding of steam, tackled the problems of steam-generation plant to enable the necessary high initial pressure to be developed with safety. John Elder had fitted several ships, but was, for a long time, content with an initial pressure of from 50 lb. to 60 lb. per square inch.

The late John Scott, C.B., was so convinced of the economy of steam at higher pressures in the compound system that he decided to build, largely at his own expense, a vessel which would enable him to put the system to a thorough test. This steamer, constructed of iron in 1858, was the Thetis, which was, undoubtedly, an epoch-marking ship, as her machinery was operated at an initial pressure of 115 lb. to the square inch—exceptionally high for those days.

[34]

For the first time, surface condensers were used in association with the compound marine engine. There were, as shown on Plate XI., facing page 36, six cylinders, arranged in two groups, each with one high- and two low-pressure cylinders. The three pistons of each group worked one crosshead, connecting-rod, and crank. Each group had two slide-valves, one for the high-pressure and one for the low-pressure cylinders, and both were attached to one valve spindle and one reversing link.[44] The engines worked up to 51 revolutions per minute—equal to a piston speed of 255 ft. per minute—and the maximum indicated horse-power was 256. The engines were tried by the late Professor Macquorn Rankine, F.R.S., who certified that the coal consumption on trial was 1.018 lb. per indicated horse-power per hour: an extraordinary result, even in the light of modern improvements.[45]

A large part of this efficiency was due to the boilers, which were of the Rowan water-tube type, and are illustrated on the opposite page. They had square vertical water-tubes, and through each of these there passed four hot-gas tubes. They evaporated 11 lb. of water per pound of coal, which was 30 per cent. higher than was attained with the best marine boilers of those days. The coal consumption at sea was about 1.86 lb. per indicated horse-power per hour.

Unfortunately, there soon developed small holes in the boiler-tubes, owing to erosion of the external surface, probably the consequence of the chemical action set up by the steam for cleaning the tubes mixing with the soot and other deposit.[46] Although for this reason this early water-tube boiler did not succeed, there is no doubt that the performances [35]
[36]
suggested improvements which have since brought complete success to this system of boiler. At the same time, the efficiency of high steam pressures was completely established and resulted in very considerable progress in the size and power of steamships.

A PIONEER IN WATER-TUBE BOILERS.

Larger image

Another innovation which suggested future developments was the fitting at the base of the funnel in the Thetis of a series of water-tubes for the purpose of utilising the waste heat from the boilers to evaporate water for subsequent condensation to make up the boiler feed. The time was not ripe for such a utilisation of the waste gases—the heat was insufficient to generate the required steam—but now various schemes are applied for absorbing the waste heat in the uptake to heat air for furnace draught and to superheat steam.

A number of water-tube boilers were made, and a set was fitted into a corvette built for the French Navy. This vessel, completed in the early 'sixties, was the first ship in the French fleet to be driven by compound engines, and will fall to be described with other vessels in our next Chapter, dealing with the work of a century for the Navy.

Perhaps the most significant indication of the success of the Scott compound engine is found in the results of its application to the early Holt steamers. Alfred Holt commenced trading with the West Indies in 1855, while his brother, George Holt, became associated with Lamport in the River Plate trade in 1865. Both lines continue among the most successful in British shipping.

The Holt steam line to China was commenced in 1865, and was the only one viâ the Cape of Good Hope which proved at once successful. Built and engined by the Scotts, the early Holt liners, starting from Liverpool, never stopped till they reached Mauritius, a distance of 8500 miles, being under steam the whole way, a [37] feat until then considered impossible.[47] Thence the vessels proceeded to Penang, Singapore, Hong Kong, and Shanghai. Unaided by any Government grants, they performed this long voyage with great regularity.

Plate XI.

HIGH-PRESSURE MACHINERY IN THE "THETIS."

Larger image

The three vessels which inaugurated the very successful Holt line were named Agamemnon, Ajax, and Achilles, and were built of iron by the Scotts in 1865-6. They were each 309 ft. in length between perpendiculars, 38 ft. 6 in. beam, and 29 ft. 8 in. in depth, with a gross tonnage of 2347 tons—dimensions which were then deemed too great for the China trade, but which experience soon proved to be most satisfactory. Sails were fitted to the vessels, as shown in the engraving on the Plate facing page 40.

Alfred Holt was the first to apply the compound engine to long voyages, and his vessels were the earliest of the type built for the merchant service by the Scotts. It is true the Pacific Company had compound engines fitted to one or two ships prior to this, but these were only used in the coasting trade. The engines of these Holt liners are therefore of historical interest, and general drawings are reproduced on the next page and on Plate XII. A feature in these liners was that the propeller was abaft the rudder, which worked in an aperture in the deadwood corresponding to that for the propeller in single-screw modern ships.

A detailed description from the specification of the machinery may be reproduced, as it indicates the practice of the Scotts for a considerable time. Indeed, this type of compound engine, with slight modifications, was the standard engine for Holt liners until the advent of the triple-expansion engine. The details follow:—

The cylinders were: high-pressure, 30 in. in diameter; low-pressure, 62 in. in diameter, with 4 ft. 4 in. stroke, arranged vertically in tandem fashion, with the low-pressure cylinder on the top. There were two connecting-rods, but a common crosshead for the tandem cylinders, and a common crankpin.

[38]

The crankshaft was 13-1/2 in. in diameter, with a bearing 30 in. long at the aft end of the bedplate, which took the propeller thrust. The propeller was three-bladed, 17 ft. in diameter, with 26 ft. 6 in. pitch; with 46 revolutions per minute the piston speed was 400 ft. per minute. To ensure smooth working with the single crank, a heavy flywheel was fitted, and the pump levers carried a massive weight to help to balance the weight of pistons and rods.

THE MACHINERY OF THE "ACHILLES."

Larger image

The condenser had 420 tubes 1-1/2 in. in diameter, giving a cooling surface of 1375 square feet. The tubes were arranged in three nests, the water circulating through the top one first and the bottom one last. The circulating pump, instead of forcing water through the tubes, as was usual in such case, sucked from the condenser and discharged directly overboard. There were: one air pump, 24 in. in diameter; one circulating pump, 24 in. in diameter; two feed pumps, 4-3/4 in. in diameter; and one bilge pump 7 in. in diameter: all the pumps were single-acting, with 17 in. stroke. The diameters of the principal pipes were: main steam, 7-1/2 in.; to low-pressure cylinder, 12 in.; circulating inlet, 10 in.; discharge, 12 in.; air-pump discharge, 10 in.; main feed, 3-3/4 in.; and waste steam, two at 6 in. in diameter.

The two boilers were double-ended, of the locomotive type, with wet-bottomed furnaces. The centre was cylindrical, but the ends were rectangular with semi-cylindrical tops, the total weight, without water, being 78 tons. Each boiler had a long receiver passing through the uptake to dry the steam. On the receiver was a deadweight safety-valve 6-1/4 in. in diameter, to suit a working pressure of 60 lb. per square inch. The grate surface was 112 square feet, and the total heating surface 4506 square feet, there being 328 iron tubes 4 in. in diameter.

Plate XII.

GENERAL ARRANGEMENT OF THE MACHINERY OF THE "ACHILLES."

Larger image

[39]

The three pioneer ships of the Holt line—the Agamemnon, Ajax, and Achilles—proved most economical. The Achilles came home from China in fifty-seven days eighteen hours, net steaming time, or, including the stoppages at ports, sixty-one days three hours. She travelled during this period a distance of 12,352 miles, on a consumption of coal which did not exceed 20 tons per day for all purposes,[48] equal to 2-1/4 lb. per unit of power per hour, which for those early days, with comparatively low steam pressures, must be regarded as a highly satisfactory result.

The non-stop voyage between Liverpool and Mauritius was made as early as 1866 in thirty-seven days, equal to 10 knots, with a number of passengers and a fair cargo. The higher economy established for the compound engine on long voyages resulted in the ultimate supersession of the sailing ship.[49] Thus the Scotts, while still enjoying the credit of the splendid performance of the Lord of the Isles in the early 'sixties, produced at their foundry the Holt compound engine, which sounded the death-knell of the clipper. The compound system had at once an influence on the size of ships. Up till 1862 no ship of over 4000 tons had been constructed, with the exception of the Great Eastern; by 1870 there were fifteen; by 1880, thirty-seven.[50]

The Scotts, aided by Holt, continued their research towards higher economy, and a large fleet of steamers was built, with engines having flywheels which, it was found by experience, considerably improved the economy up to a certain stage, although with increased pressure the proportion of saving was not commensurate with the weight of the wheel, and the three-cylinder three-crank engine was ultimately adopted.

[40]

The Scotts throughout the century continued to have a close association with the China trade, constructing a long series of successful steamers for the Holt company and for other lines, with services from Britain to the Far East, and carried out very extensive work in the building up of the coasting trade of Asia and Oceania. For the Holt line alone there have been constructed by the Scotts forty-eight steamers, aggregating 148,353 tons; while the propelling machinery of these represents 19,500 nominal horse-power. For the India and China services there have, in the past fifty years, been completed over one hundred and thirty steamers.

The China Navigation Company, Limited, was formed in 1873 by Messrs. John Swire and Sons, of London, for trading in China, and the first steamers built for them by the Scotts were two vessels of 1200 tons gross, completed in 1876.

Since then the Scotts' yard has practically never been without a vessel for one or other branch of the Eastern trade, and particularly for the China Navigation Company, which runs steamers from China as far south as Australia, as far west as the Straits, and as far north as Vladivostock and the Amur river. They also have ships trading up the Yangtsze Kiang to Ichang, 1000 miles from the sea, where the rapids prevent navigation farther into the interior. For this service the twin-screw steamer was adopted in 1878, much earlier than in many other trades, largely owing to the strong advocacy of the late John Scott, C.B. Up to that time most of the Yangtsze steamers were propelled by paddle-wheels driven by walking-beam engines. The first of the twin-screw steamers was built in 1878—a vessel of 3051 tons gross—and there has been constructed since then a long succession of very serviceable steamers. For this line alone, sixty-four vessels have been constructed by the Scotts, the aggregate tonnage being 115,600 tons, [41] while the nominal horse-power of the propelling machinery fitted to these vessels is 15,000 horse-power.

Plate XIII.

THE "ACHILLES" OF 1865 OFF GRAVESEND.

Larger image

But having in our brief historical sketch come to times within the recollection of the reader, it may be more satisfactory to depart from the purely chronological review of the company's operations, and to offer rather an analysis of the progress made, deferring a description of typical modern steamers for a separate Chapter.

The direct-acting vertical engine, with inverted cylinders, almost as we know it to-day, and as illustrated in connection with the work of the twentieth century, was introduced in the late 'fifties. The compound engine, introduced in 1854, was developed into the triple-expansion system in 1882, and later into the quadruple-expansion type; but this latter has not been much adopted, only some 3 per cent. of the vessels registered at Lloyds being so fitted. This is in a large measure due to the satisfactory economy attained with triple-expansion engines. As to the progress made, Table II., giving average results at different periods, is instructive.[51]

Table II.—Progress in the Economy of the Marine Engine, 1872 to 1901.

1872. 1881. 1890. 1901.
Boiler pressure in pounds per square inch 52.4 77.4 158.5 197
Coal consumption in pounds per indicated horse-power per hour 2.11 1.83 1.52 1.48
Consumption on prolonged sea voyages in pounds per indicated horse-power per hour - - - 2 1.75 1.55
Piston speed in feet per minute 376 467 529 654

The advance of the century may be popularly expressed by stating that, whereas in the first coasting steamships built by the Scotts the fuel consumed in carrying 1 ton of cargo for 100 miles was 224 lb., the expenditure to-day [42] is from 4 lb. to 5 lb. The economy of the steam engine has accounted, as is shown in the Table, for a considerable part of this improvement. But, at the same time, the growth in the size of ships has enabled the normal speed of 10 knots to be realised, with an addition to engine power of much less ratio than the increase in the capacity of the steamer. As to speed, recent progress has been most marked in the Navy, and it is therefore fitting that here we should direct our attention to Naval work.


Plate XIV.

MODEL OF H.M.S. "PRINCE OF WALES," 1803.

Larger image

[43]


A Century's Work for the Navy.

THE work for the Navy by the Scotts began with the building, in 1803, of a sloop-of-war named The Prince of Wales; a photograph from the model of this vessel is reproduced on Plate XIV. Since the construction of this ship the firm have carried out several important Admiralty contracts, including the first machinery manufactured in Scotland for a dockyard-built ship, the first steam frigate built in the North, and several later ships, with their engines; the most recent order being for the machinery of the armoured cruiser Defence, of 14,600 tons displacement, and 27,000 indicated horse-power, to give a speed of 23 knots.

The progress demonstrated by a contrast between the small sloop-of-war and this latest powerfully-armed and well-protected high-speed cruiser, is a record of research and invention, not only on the part of the naval architect, but also of the chemist, the metallurgist, and the engineer; the triumph is greater than that reviewed in the case of the Merchant Marine. Great speed has been achieved, notwithstanding that the problems to be solved in its attainment have been intensified by the limitations in the size of the ship in order to minimise the target presented to the[44] enemy's fire, and by the necessity of providing for heavy armour, armament, and ammunition in the displacement weight.

When a comparison is made of the Navy ships at the beginning of the nineteenth century with those of a hundred years earlier, it is found that little progress had been made, either in design or in gun-power. The largest vessel in 1700 was of 1809 tons burden, with a hundred guns. A century later, the size had increased only to 2600 tons, with a hundred and twenty guns.[52] But even this was an exceptionally large vessel. The British ships were, as a rule, smaller, and perhaps slower, than the French ships; but then—as now and always—skill in strategy, courage in combat, and devotion to duty were the most powerful factors in action. No fault in these respects could be found with the work of our Navy in the various engagements which terminated in the epoch-marking victory in Trafalgar Bay.

The peace following the Napoleonic wars was not conducive to advancement, as there was little incentive to pursue the sciences which contributed to the development of destructive weapons. Steam as a motive power and iron as a constructive material were not so readily adopted in the Navy ship as in the Merchant Marine. Progress in the utilisation of iron was not continuous. The first application of steam was belated, and its popularity was not unalloyed.

Plate XV.

From an Old Engraving.

THE LAUNCH OF THE FIRST CLYDE-BUILT STEAM FRIGATE "GREENOCK," 1849.

Larger image

The Admiralty ordered their first ship of iron in 1839—a small, non-fighting boat for the Dover station—and there followed other vessels for the exploration of the River Niger. But the first iron fighting ship was not built until 1843. In 1848-9 the Scotts constructed the iron steam frigate Greenock, the largest iron warship of her day, and the first steam frigate built on [45] the Clyde. The over-all length of this vessel was 213 ft., the beam 37 ft. 4 in., and the depth of hold 23 ft. She was of 1413 tons burden, and carried ten 32-pounder smooth-bore muzzle-loading guns. The illustration on Plate XV. is a reproduction from an old engraving of the launch of the vessel. It is a noteworthy feature that the figure-head was a bust of John Scott, the second of that name. This compliment by the Naval authorities of the time was well merited, as he did much not only for the advance of naval architecture, but also for the development of Greenock.

As a writer of the day put it, this vessel was the experimentum crucis of the principle of constructing fighting ships of iron.[53] By 1850 there were six large iron vessels, ranging downwards from the 1980 tons of the eighteen-gun ship Simoon, with eleven smaller vessels; but they were all condemned, because it was found by experiment[54] that the 32-pounder gun at short range could perforate the side of the iron ship, and that the projectile carried its "cloud of langrage" with great velocity into the interior of the ship, so that men could not stand against it. Tests were also made with sixteen wrought-iron plates superposed, to give a total thickness of 6 in., but these also were perforated by the 32-pounder projectiles at 400 yards range; so that the adoption of iron on the main structure of the ship was practically delayed until armour-plates were first rolled in 1859.

The obstacle to the adoption of steam was the unsuitability of paddle-wheel machinery for fighting ships. The wheel was exposed to gun-fire, and the whole of the machinery could not be located below the water line. Moreover, the side wheel limited the number of guns which could be utilised for broadside fire. The first steam craft ordered by the Admiralty was a small vessel of 210 tons [46] and 80 nominal horse-power, built in London in 1820.[55] Several other non-fighting steamships followed. By 1837, the largest steam vessel in the fleet was a sloop of 1111 tons and 320 horse-power.[56] In 1839 five steam vessels were built, and two of them—the Hecate and Hecla—were engined by the Scotts. These wooden steamers were the first Naval vessels sent to Scotland to have their machinery fitted on board. They were of 817 tons and 250 horse-power. The paddle-wheels had a diameter of 25 ft. 1/2 in., and there were seventeen floats. The main engines, illustrated on page 29, represent the type adopted, not only in the Naval, but in the Merchant service of this time. The steam pressure was then about 3 lb. per square inch.

On Plate XVI. we illustrate the general arrangement of the machinery in the Hecate and Hecla. There were four boilers of the rectangular type, each with two wet-bottomed furnaces at one end and large return flues at the other end. The uptakes passed up inside the boilers through the steam space, uniting in one funnel.

Smith's screw-propeller was tried experimentally in 1837, and Ericsson's about the same time. The comparative trials of the Archimedes fitted with Smith's screw against existing paddle-steamers did much to prove the efficiency of the new system.[57] The screw-ship excelled the performance of paddle-steamers on the service, and the screw-propeller was adopted by the Admiralty in 1845; twin-screws followed twenty-five years later.

Plate XVI.

MACHINERY OF H.M.SS. "HECLA" AND "HECATE," 1839.

Larger image

The Greenock, built in 1848, was the first war vessel by the Scotts fitted with the screw-propeller. We have already referred to her construction in iron, and to her launch. She had a displacement of 1835 tons, and her engines were of [47] 719 indicated horse-power. The speed realised on the trial was 9.6 knots. The Greenock's machinery, which is illustrated on the next page, is specially interesting, as it represents one of the earliest attempts to drive the screw-propeller by gearing. Two horizontal cylinders were fitted, each 71 in. in diameter, with a stroke of piston of 4 ft. The gearing consisted of four sets of massive spur-wheels and pinions, in the ratio of 2.35 to 1, so that 42 revolutions per minute of the engines give 98.7 revolutions to the propeller-shaft. The propeller was 14 ft. in diameter, and was so fitted that it could be detached and raised to the deck. There were four rectangular brass-tube boilers, each with four wet-bottomed furnaces, and all the internal uptakes united in one funnel, which was telescopic, so that when it was lowered and the propeller raised out of the water, the vessel had the appearance, as well as the facility, of a sailing frigate.

As will be seen from the drawings, both the engines and boilers were arranged very low in the hull, to be safe from the enemy's fire. The engine and boiler compartment occupied 72 ft. of the length of the ship—about one-third of the total length—and the seating for the machinery was specially constructed, with a very close pitch of frames which were only 1 ft. apart. For comparison with the drawings of the machinery in the Greenock, we give on page 49 a similar drawing of the machinery of the Canopus, of 12,956 tons displacement, seven times that of the Greenock. To double the speed, the power of machinery had to be multiplied twenty times, and yet the space occupied is only about trebled.

[48]

MACHINERY OF H.M.S. "GREENOCK," 1848.

Larger image

[49]

MACHINERY OF H.M.S. "CANOPUS," 1900.

Larger image

In 1850 the largest of the steam vessels in the Navy[58] had a displacement of 3090 tons, but the most noted was the Dauntless, of 2350 tons displacement, with engines of [50] 1347 indicated horse-power to give a speed of 10 knots. It is true that there were three smaller vessels of greater speed, one of 196 tons steaming 11.9 knots; but this was the highest rate reached in the Navy service. By this time some of the fast mail steamers made 13-1/2 knots. These latter were suited for war service, but we have already dealt with them.

Following the adoption of the screw-propeller in warships came the abandonment of gearing for the engines. For many years various forms of horizontal engine were used; first with return-connecting rods, and subsequently with direct-acting rods. Steam pressures steadily increased, largely owing to stronger materials being available. It was, however, not until the 'seventies that the cylindrical boiler, the compound engine, and the surface condenser admitted of an increase to 60 lb. per square inch[59]—several years after these improvements had been introduced in the Merchant Marine.

The Scotts had worked steadily at the solution of the problem from their trials with the Thetis in 1858 (see page 34 ante). In 1860 the late John Scott, C.B., laid before the Admiralty a system of water-tube boilers and compound engines, but objection was raised to the system. The French Naval authorities, with whom the Scotts then had close business connection, took up the scheme, largely because of the favour with which it was viewed by M. Dupuy de Lôme, the head of the Department. The first ship fitted was a corvette of 650 tons displacement; the boilers worked at a pressure of 140 lb., while the initial pressure at the compound three-cylinder engines was 120 lb. These were the first engines of the compound type in the French Navy.

Plate XVII.

From a Photograph by Symonds and Co., Portsmouth.

H.M.S. "THRUSH," 1889.

Larger image

The Scotts were at the time building engines for four corvettes under construction at the Woolwich and Deptford[51] yards for the British Navy; and the Admiralty agreed to have fitted in one of them water-tube boilers and engines similar to those built for the French boats. The boilers may be said to have belonged to the same general type as the Thornycroft and Normand water-tube steam generators. It was subsequently found impossible, however, to ensure that the top of the boilers should be at least 1 ft. under the load-line—a condition then enforced in steam vessels for the Navy—and the adoption of the water-tube boiler was deferred, the ordinary machinery of the period being fitted to work at 25-lb. pressure instead of 120-lb.[60]

This was unfortunate, as it removed the incentive to continued research needed to make the water-tube boiler a really satisfactory steam generator. The Scotts, however, continued to work for the successful application of high pressures, and it was this that brought them into contact with the late Mr. Samson Fox, with whom they were closely identified for many years in connection with the development of the corrugated flue and the cylindrical steam boiler.

Opinion being adverse to the water-tube boiler, notwithstanding its acceptance by many foreign Navies, there was a strong agitation fostered by engineers to induce the societies for the registry of shipping, and also the Board of Trade, to increase the ratio of the working to the test, pressure in boilers. The British Admiralty allowed the boiler to be worked up to within 90 lb. of the test pressure, whereas in the Merchant Service the working pressure was limited to one-half of the test pressure. In 1888 the Scotts, being convinced that the Admiralty system afforded quite a satisfactory factor of safety, undertook the experiment of submitting a warship boiler, then being built by them to Admiralty specification, to the highest possible pressure, even up to bursting-point. The boiler ultimately [52] leaked to such an extent, after the pressure had been maintained for a long period at 620 lb. per square inch, that it was not considered necessary to proceed further. The stresses at this stage worked out to 48,130 lb. per square inch; and the result proved that there was some justification for a reduction in the minimum scantlings of the shells of marine boilers to, at least, the scale adopted by the Admiralty.[61]

These suggestive experiments were carried out in connection with the boilers constructed in 1888-9 for two war vessels built by the Scotts. These vessels were the Sparrow and the Thrush. At the same time, the Scotts engined two other vessels of the same type, constructed at the Royal Dockyards. A view is given on Plate XVII. of the Thrush, which was commanded by H.R.H. the Prince of Wales on the North American and West Indian stations in 1891. She was a vessel of composite build, of 805 tons displacement, with machinery of 1200 horse-power, to give a speed of 13 knots; but, as is shown by the illustration, she was fitted as a three-masted schooner, and utilised her sails when the wind was favourable. In this respect, she marks the transition stage between the days of the sailing craft and the modern ship, depending entirely on steam for propulsion. Indication is afforded of the progress towards this transformation by Table III. on the opposite page, which shows the improvement in economy in the machinery of warships at various stages in their development.

Plate XVIII.

ENGINES OF H.M.S. "THRUSH," 1889.

Larger image

The figures in the Table are average results rather than highest attainments during the periods. For 1890-95 we have taken the Barfleur, the engines of which were constructed by the Scotts in 1894; whilst the particulars for 1895-1900 refer to the Canopus, engined by them in

[53]

[54]

1900. In 1902 they also supplied the machinery for the battleship Prince of Wales, and commenced the construction of the armoured cruiser Argyll. But before referring in detail to these latter ships, we may briefly review the advances in applied mechanics, metallurgy and chemistry, which have contributed largely to the perfection of these modern fighting ships in respect of offensive and defensive qualities.

TABLE III.

PROGRESSIVE TYPES OF WARSHIP MACHINERY, AND THEIR ECONOMY, 1840 to 1905.

1840 to 1855. 1855 to 1875. 1875 to 1890. 1890 to 1895.[A] 1895 to 1900.[B] 1900 to 1905.[C]
Type of boiler ... ... Rectangular Rectangular Single-ended cylindrical Single-ended cylindrical Belleville water-tube Water-tube
Steam pressure per square inch 3 lb. to 4 lb 25 lb. 90 lb. 155 lb. 300 lb. 300 lb.
Coal consumption per indicated horse-power per hour 7 lb. 4 lb. to 5 lb. 2-1/2 lb. 2 lb. 1.8 lb. 1.8 lb.
Type of engine ... ... Geared screw Simple horizontal surface condensing Three-cylinder compound Three-cylinder triple-expansion Three-cylinder triple-expansion Four-cylinder triple-expansion
Piston speed in feet per minute 220 500 to 600 750 840 918 1000
Weight of machinery per indicated horse-power 10 cwt. 3 cwt. to 5 cwt. 3 cwt. 2-3/4 cwt. 2 cwt. 1.6 cwt.
Speed of ship ... ... 8 to 9 knots 14 knots 16 knots 18 knots 18.25 knots 23 knots

The gun most in favour at the close of the eighteenth, and at the opening of the nineteenth, centuries was the cast-iron, smooth-bored, muzzle-loader: first the 32-pounder and later the 68-pounder. Carronades were used for "smashing" rather than for penetrating the skin or structure of ships. Although the 68-pounders were improved by a lining of wrought iron being inserted in the bore, whereby the energy at 1000-yards range was increased from 290 to 600 foot-tons, little progress was made until after the Crimean War, when chemists undertook the investigation of the action of explosives and metallurgists sought to produce stronger metals.

The general idea as regards the powder used as a propellant was that the ignition was instantaneous, and that the more violent the explosion the greater would be the velocity of the projectile. Under such conditions short weapons naturally found favour; and indeed, with a light, spherical, ill-fitting projectile, there was very little advantage to be gained by lengthening the bore. But with the introduction of rifled cannon, much heavier and better-fitting shot became possible, and a rapid-burning powder gave rise to dangerous pressures in the gun. It was then realised that it was not an explosion that was wanted, but a continuous pressure acting on the base of a shot for a relatively considerable period. This needed a slow-burning explosive, and led to the manufacture of powder as pebbles or prisms; the enlargement in the late 'seventies[55] of the chamber of the gun, and the provision of air spaces for the expansion of the powder, greatly added to the velocity with which the shot left the gun, and therefore augmented its carrying power.[62]

Gun-makers had meanwhile improved the strength of the weapon by a recognition of the fact that wrought iron was twice as strong in the direction of the fibre as across it; and thus in the 'sixties they began to coil the central tube, surrounding it by hoops, welded or shrunk on. The full advantages of fibre were thus secured for resisting circumferential strain. The bore was rifled to give the shot that rotatory motion which prevents irregularity in flight and conduces to accuracy of fire at long range. The smooth-bore gun was effective up to only 1000 yards range, as compared with the 6000 yards and 7000 yards for the modern weapon. Breechloading was first introduced into the Navy in the 'sixties, but discarded because the details for closing the breech end proved unsatisfactory. Finally, it was reintroduced in 1878, a satisfactory mechanism having been devised.

These various improvements gradually increased the power of the gun. The length and weight had enormously grown, as is shown by the particulars of successive large Naval guns, shown in Table IV. on the next page; but the increase in energy up till the 'eighties was not commensurate with the augmentation of the weights of the projectile and charge.

The advance from the 38-ton gun of 1870 to the 110-1/2-ton gun in 1887 involved the multiplying by five of the charge of powder, which quadrupled the energy of the gun, but the carrying power of the shot was still deficient. The velocity had increased in twenty years from 1600 to 2000 ft. per second, slower-burning powder having been introduced.

[56]

Table IV.

Particulars of the Successive Large Naval Guns, 1800 to 1905.

Year. Type. Weight. Length. Calibre. Weight of Projectile. Weight of Charge. Muzzle Energy. Penetration of
Wrought Iron at 1000 Yards Range.
tons cwt. in. in. lb. lb. ft.-tns. in.
1800 Cast-iron
smooth-bore
2 12 114 6.4 32 10 400
1842 Ditto 4 15 ... 8.12 68 16 700
1865 Woolwich
wrought-iron
4 10 ... 7 115 22 1400 7
1870 Built-up
muzzle-loader
38 0 200 12.50 810 200 13,900 17
1880 Ditto 80 0 321 16 1700 450 27,960 22-1/2
1887 Built-up
breech-loader
110 10 524 16.25 1800 960 54,390 32
1895 Wire-wound
breech-loader
46 0 445.5 12 850 ... 33,940 34.6
1900 Ditto 51 0 496.5 12 850 210 36,290 35.4
1905 Ditto 58 0 540 12 850 ... 49,560 42

Attention was further directed to the improvement of explosives; and ultimately, instead of gunpowder having a potential energy of 480 foot-tons per pound, modified gun-cotton was introduced, with an energy of 716 foot-tons per pound, and still later there were evolved explosive compounds of which the potential energy per unit of weight was fourfold greater than in the case of gunpowder, namely, 1139 foot-tons per pound. Finally, the explosive has taken the form of cordite, which ensures slow burning, great expansion, and, consequently, augmented propelling power behind the projectile, without material addition to the maximum strain upon the weapon. But in any case the constructional strength of the modern gun is enormously superior to the earlier built-up weapons, as around the[57] inner tubes there is coiled something like 120 miles of wire, which itself has a breaking-strain of between 90 and 110 tons per square inch, and is put on under a tension of from 54 tons per square inch on the inner wires to 32 tons per square inch on the outer wires,[63] so that the ultimate resistance to strain consequent upon the firing of the gun is enormously increased. Velocities of 2600 ft. per second are thus realised, and even more is quite feasible, so that penetration of wrought iron at 1000 yards range has now been increased to 42 in.

If we compare the 12-in. gun to-day with the weapon of the same calibre of twenty years ago, when there was no widened chamber for the explosive, when prismatic powder of low expansive power was used, it is found, as shown in the Table opposite, that the penetration at 1000 yards has been doubled, and the possible effective range multiplied fivefold. There has also been an enormous gain in quicker fire by improved breech mechanism and efficient hydraulic and electric mountings, whereby the gun and all its loading, elevating, and training machinery is rotated.

The metallurgist has also been successfully occupied, and it is probable that the armour plate of to-day is still invulnerable. The earlier wrought-iron plates were increased from 4-1/2 in. in thickness on the Warrior of 1861, to the 24 in. on the Inflexible of 1881; the area protected being almost proportionately reduced. The artillerist with improved projectiles ultimately defeated this heavy cleading on the ships; but compound armour, first made in 1879, enabled the maximum thickness on the broadside to be reduced to 18 in., permitting a greater area to be covered for the same weight. At first the 80-ton gun failed in its attack, but heavier weapons, with improved projectiles, prevailed. The next step was the introduction of all-steel armour in 1890. Two years later there was introduced [58] the super-carburising and subsequent chilling of the face of plates made of an alloy of nickel steel. In 1897 the process of hardening was still further developed, and now the 9-in. plate on the modern battleship is equal in resistance to a 26-in. wrought-iron plate of the 'sixties, or a 20-in. compound-plate of the 'eighties, or a 13-in. plate of the early-hardened type. For the present, therefore, the armour seems to have secured the victory, as at 5000 yards range 9-in. armour can scarcely be defeated by even the 12-in. gun.

With the increased resistance of armour and the consequent reduction in its thickness, the naval designer can spread his protecting plates over a much wider area, so that the whole broadside of ships like the Prince of Wales, or the cruisers Argyll and Defence, is clad with armour of satisfactory resisting power. At the same time the gun-power and speed of ships have been greatly increased without making the displacement inordinately high. On the opposite page a Table gives the main features of representative ships at different epochs, which will show this at a glance.

The growth in the size of battleships has been steady, with the exception of the class represented by the Barfleur and Canopus, both of which were engined by the Scotts. These vessels are embodiments of a desire to check the advance in the size and cost of the battleship. The deficiency in the number and calibre of their guns was partly compensated by the introduction, for the first time in battleships, of quick-firing weapons of large calibre. The Barfleur had four 12 in. breechloaders and ten 4.7 in. quick-firers; while the Canopus had four 10 in. breechloaders and ten 6 in. quick-firers. But opinion has again strongly grown in favour of having in each British ship the best that can be achieved; and thus the Prince of Wales has a displacement greater than any previous ship, while in the King Edward and the Lord Nelson classes there has been a further growth in every element of power. The probabilities, too, [60] are that we have not yet by any means seen the end of this advance.

Plate XIX.

From a Photograph by West and Son, Southsea.

HIS MAJESTY'S BATTLESHIP "PRINCE OF WALES," 1902.

Larger image

TABLE V.

SIZE AND FIGHTING QUALITIES OF BRITISH BATTLESHIPS OF DIFFERENT PERIODS.

Name. Date of Completion. Displacement. Side Armour. Speed. Total Weight of Shot in One Round. Collective Energy at Muzzle of One Round.
tons in. knots lb. foot-tons
Warrior 1861 9,210 4-1/2-in. wrought iron 14-1/2 3800 61,476
Hercules 1868 8,680 9-in. to 6-in. wrought iron 14 5400 70,200
Alexandra 1877 9,490 12-in. to 6-in. wrought iron 15 5426 71,400
Inflexible 1881 11,880 24-in. to 16-in. wrought iron 13 6936 123,120
Benbow 1888 10,600 18-in. compound 16.75 4600 135,560
Royal Sovereign 1892 14,150 18-in. and 5-in. compound 17.5 5800 159,610
Barfleur 1894 10,500 12-in. compound 18.5 2450 67,670
Canopus 1900 12,950 6-in. hardened steel 18.25 4600 178,720
Prince of Wales 1902 15,000 9-in. super-hardened steel 18.25 4600 194,400
King Edward VII. 1904 16,350 9-in. super-hardened steel 18.50 5920 270,040
Lord Nelson 1905 16,500 10-in. super-hardened steel 18.50 7960 413,900

As to the machinery made by the Scotts for these battleships, the Barfleur had three-cylinder, triple-expansion twin-screw engines, to run at 108 revolutions, and to develop 13,000 indicated horse-power. On her trials the power was 13,163 indicated horse-power. There are eight single-ended, return-tube, cylindrical boilers, working at 155 lb. pressure. Other details are given in the Table on page 53.

The engines of the Canopus are illustrated on page 49 by a drawing taken from a Paper read at the Institution of Civil Engineers, by Sir John Durston and Admiral H. J. Oram.[64] This was the first type of British battleship fitted with water-tube boilers. She was followed soon after by the Prince of Wales.[65]

The Argyll, which was built and engined by the Scotts, and the Defence, which is being built in one of the Royal Dockyards, and is having its machinery constructed by the Scotts, signalise progress in cruiser design. The hardening of armour, increasing its resistance, permits of a reduction in weight for a given measure of protection, so that it has been possible to effectively defend the modern cruiser, while at the same time giving an enormously increased gun-power and a speed far in excess of that possible ten years ago. The Argyll is a vessel of 10,850 tons displacement, being 450 ft. long, 68 ft. 6 in. beam, and having a draught of 25 ft.; while the Defence is a vessel of 14,600 tons displacement, having a length of 490 ft., a beam of 74 ft. 6 in., and a draught of 26 ft. In both ships the greater part of the broadside, from 5 ft. below the water-line to the upper deck, is armoured, and a very large proportion of the area thus clad has 6-in. hardened plates.

Plate XX.

PROPELLING ENGINES OF H.M.S. "ARGYLL."

Larger image

[61]

In the late 'nineties it was assumed that quick-firing artillery was best suited to the work of a cruiser, and thus the 6-in. gun was exclusively adopted. But since then Naval strategists have developed their ideas as to the function of armoured cruisers, and now anticipate their use in the line of battle; so that not only has the defensive quality been improved, but the offensive power has been materially increased. In the Defence, and the other ships of the class, the 6-in. gun has been entirely discarded in favour of an installation of 9.2-in. and 7.5-in. weapons. Owing to the perfection of the hydraulic and electric mountings, little has been forfeited in respect of rapidity of fire, while much has been gained in the striking energy at a given range of each projectile. Thus, while the 6-in. gun five years ago had an energy equal to penetrating 6 in. of wrought iron at 3000 yards' range, the 7.5-in. weapon now may perforate 6-3/4 in., and the 9.2-in. gun 9 in. of the hardest armour at corresponding range. The total weight of projectiles fired from the present-day cruiser in a minute is double, and the muzzle energy quadruple, the results attained by the cruisers designed at the close of the nineteenth century.[66]

The modern cruisers steam at 23 knots, the power of the machinery in the Argyll being 21,000 indicated horse-power, and in the Defence 27,000 indicated horse-power. The machinery of the Argyll, which is typical, consists of four sets of triple-expansion engines, arranged in separate watertight compartments. The diameters of the cylinders are: high-pressure, 41-1/2 in.; intermediate-pressure, 65-1/2 in.; and the two low-pressure, each 73-1/2 in., all having a stroke of 42 in. At full power, developed with 138 revolutions, the piston speed is 966 ft. per minute. The cylinders are fitted with liners, and are steam-jacketed; forged steel is used for the liners of the high- and intermediate-pressure [62] cylinders, and cast-iron for those of the low-pressure cylinders. The cylinder covers and pistons are of cast steel, the latter being of conical form. The high- and intermediate-pressure cylinders have piston valves, and the low-pressure cylinders flat valves. The cylinders are supported at the front by eight forged-steel columns, and at the rear by four cast-iron columns formed with guide-faces, and one forged steel column. The crankshaft is in four pieces, the high- and intermediate-pressure parts being interchangeable with each other, and the two low-pressure parts with one another. The shafts are hollow, and three-bladed propellers of manganese bronze are fitted to each. The condensers are entirely separate, and independent air pumps are fitted.

The Argyll had a combination of six cylindrical and sixteen water-tube boilers, but in the later ships, including the Defence, the boilers are entirely of the water-tube type. The working pressure of the boiler is 275 lb., reduced at the engines to 250 lb. The trials of the Argyll were carried through most satisfactorily,[67] and the vessel, under the new Admiralty conditions, was completed for commission by the builders. The fact that this armoured cruiser was so completed at the builder's yard is of itself evidence of the capacity and efficiency of the plant.


Plate XXI.

THE "ERIN," OWNED BY SIR THOMAS LIPTON, BART.

(See page 70.)

Larger image


[63]

Yachting and Yachts.

YACHT designers and builders, when votaries of the sport, produce much better results, and in this truism we have some explanation of the success of the Scotts in the long series of yachts built during the past century. There are a few misty memories and time-worn traditions to the effect that yachting of a kind was indulged in on the Clyde in the closing years of the eighteenth century; but there are no authentic records antecedent to the nineteenth century. From 1803 onwards the Scotts have been closely identified with the pastime, and with the production in the early years of sailing yachts; and, later, of steam craft.

The first notable Clyde racing yacht, of which there is any record, was launched by the Scotts in 1803, as already referred to on page 11 ante. She was a 45-1/2-ton cutter for Colonel Campbell, an Argyllshire soldier, and the launching ceremony, the honours of which were done by Lady Charlotte Campbell, was attended with military honours. For the twenty years immediately following the launch of this cutter, yachting made most pleasing progress, and in 1824 the Royal Northern Yacht Club was formed for the better organisation and encouragement[64] of the pastime. The club had its origin in the North of Ireland, and had jurisdiction over that district, as well as over the West of Scotland up till 1838, when the Irish section was disbanded. The Royal Northern gave regattas throughout the season, at almost every suitable port, from Helensburgh on the Clyde to Oban. Amongst the leaders of the Clyde Division was John Scott, the second of the name, and a large number of the racing craft owned by the members were built by him. Indeed, one of the most experienced writers on Yachting in Scotland, Mr. J. D. Bell, says that "among the old yachting families of the West of Scotland, the Scotts and the Steeles filled the foremost place."

Among the best remembered of the yachts built by John Scott were the cutters Hawk and Hope, constructed for himself, and the Clarence, built for his son-in-law, the late Robert Sinclair. The Hawk was a boat of about 30 tons, the Hope was rather smaller, and was used for cruising rather than for racing; and the Clarence was about 18 tons.

The Hawk was a successful racer, and secured many cherished prizes, but the Clarence was her superior, and was the first of a long line of prize-winners which have brought renown to the Clyde. Indeed, in all she won over thirty challenge trophies, and in her best season never suffered defeat. Robert Sinclair, the owner, was himself a keen and accomplished yachtsman.

Plate XXII.

From a painting at Halkshill.

THE "CLARENCE": AN EARLY RACING CUTTER.

Larger image

In the races held in 1833-34—most prominent years—John Scott, with the Hawk, won the Anglesey Cup at Dublin, and the Oban and Helensburgh Cups; while Robert Sinclair, with the Clarence, won the Ladies' Cup at Oban, the Kintyre Cup at Campbeltown, the Dublin, Adelaide, and Booth Cups at Dublin, the Stewart Cup at Greenock, the Largs Cup and the Dunoon Cup. These two yachts were indeed close rivals, [65] although the principal honours rested with the Clarence. On one occasion, however, the Hawk unexpectedly defeated the Clarence in an important race at Dublin, and the owners were anxious to have the cup in Greenock as soon as possible for a special reason. Recognising that the Clarence was really the faster boat, they handed over the trophy to her crew to take to the Clyde port; but the luck which enabled the Hawk to win the cup stood by her on the passage home, and she made the port a considerable time before her rival.

The Clarence became a pilot boat, and was unfortunately run down off Garroch Head, while the Hawk was transferred to the fishing trade. In later years John Scott, C.B., had the laudable desire to secure as a relic the vessel his grandfather had owned, but the negotiations failed; and the boat is probably still at work among the islands of Scotland.

The Royal Northern Club's fleet in the 'thirties numbered about fifty, but there were no steam vessels on the list until 1855. Among the principal boats in the club were the Duke of Portland's ketch, the Clown, of 156 tons; the Duke of Buccleuch's cutter, the Flower of Yarrow, of 145 tons; Mr. John Scott's cutter, the Lufra, of 81 tons; Mr. Robert Meiklem's schooner, Crusader, of 126 tons; and Mr. Lewis Upton's cutter, Briton, of 91 tons. The membership was about one hundred and fifty, the aggregate tonnage of the fleet about 2000 tons, and its cost, at a fairly generous estimate, about £20,000.

What a contrast is suggested by a review of the fleet of yachts owned to-day by Clyde yachtsmen! There are now eight clubs in the Firth recognised by the Yacht Racing Association, and one of the largest of these—the Royal Clyde—alone has over a thousand members, with a fleet of over three hundred and seventy yachts, of a collective tonnage of 26,000 tons, and of a first cost of a million sterling. The club-house at Hunter's Quay, which cost[66] about £20,000, is representative of the best of its kind. Many of the yachts—sailing and steam—are of considerable size, and have international repute for their excellence, either as racers, or as comfortable seaworthy cruisers.

The origin of the Royal Clyde Club in itself affords interesting suggestion of the development of the pastime on the Clyde. Owing to a rule enforced by the Royal Northern Club during the earlier period of its existence, boats smaller than 8 tons could not be enrolled; many enthusiastic owners of small craft were thus debarred from membership, and in 1856 they decided to form a new club. This, first named the Clyde Model Yacht Club, became, a year later, the Clyde Yacht Club; and, having grown immensely in influence, obtained, in 1872, Queen Victoria's sanction to the appellation of "Royal." To-day the Royal Clyde Yacht Club is one of the most important in the Kingdom.

John Scott (1752-1837) was long a prominent member of the Royal Northern Club. His son, Charles Cuningham Scott, was an original member, but did not take the same active part in the pastime, the claims of a quickly-developing industry being probably the reason. But the records of the family were again revived by his sons—John Scott, C.B., Robert Sinclair Scott, and Colin William Scott. They displayed a preference for steam craft, although the first-named owned several cutters, beginning with the Zingara; later several beautiful yachts, each successive ship being named the Greta, were built for him. The first of these, of 1876, and the last, of 1895, are illustrated on the Plate facing this page. He was elected Commodore of the Royal Clyde Club in 1895 in acknowledgment of his services to the club and to yachting generally, and he occupied the post until his death in 1904.

Plate XXIII.

THE "GRETA," OF 1876.

Larger image

THE "GRETA," OF 1895.

Larger image

These were exciting times in Clyde yachting. It was then that Lord Dunraven and Sir Thomas Lipton made [67] their gallant but unsuccessful efforts to recover the America cup with Clyde-built boats, while the performances of the Britannia, owned by the then Prince of Wales, now His Majesty the King, and of the Meteor, belonging to the German Emperor, gave a distinction to the sport which it had never enjoyed before.

The Mudhook Yacht Club was formed in 1873 by a few skilled yacht designers and yachtsmen, and included Robert Sinclair Scott, Colin William Scott, and James Reid. The membership was limited to forty, and the aim of the founders was to "encourage amateur yacht sailing." There were many inspirations connected with the founding of the club; there is a tradition that when a "Mudhooker" was being initiated, he was usually confronted with a coil of rope, a small marlinspike, a chart and dividers, a forecastle bucket and other implements; and, before the hand of fellowship was extended to him, he was exercised, with more or less of solemnity, as to their uses. From the foundation of the Club until his death in 1905, Robert Sinclair Scott was Admiral of the Club. For twenty-nine years from the same period his brother, Colin William Scott, acted as Honorary Secretary, and his great services were recognised on the club attaining its majority in 1894, by the presentation by the members of a set of old candelabra and fruit dishes. The present Honorary Secretary is R. L. Scott, son of John Scott, C.B.

Although, as we have said, the Scotts never owned racing yachts, they have built for themselves and for others a long succession of beautiful steam yachts, as recorded in the Table on page 69. In all, seven yachts have been built in succession for the Scotts themselves. Each was named the Greta, after a small stream which runs through the Halkshill Estate, excepting the last, which was called the Grianaig, the Gaelic for Greenock.

The last Greta is exactly double the length of the first,[68] while the yacht tonnage is practically eightfold. The successive steps are marked. The Greta of 1876 was 76 ft. long, and of 53 tons, and she was at once purchased by a Kilmarnock lady, Miss Finnie. The vessel built for John Scott, C.B., in the following year was slightly larger, and she also was coveted and secured. In 1878 a still larger ship was built, and for many years this craft continued in the possession of its original owner, but in 1892 was displaced by a vessel of greater size, of 135 ft. 6 in. in length, and of 230 tons yacht displacement. Other vessels followed at periods of three years, and the Greta of 1898 was 154 ft. long, and of 393 tons.

Many other notable vessels were constructed in the same period for other owners; and while it is not possible to refer to all of them, mention may be made of the Tuscarora, built in 1897, for William Clark, Esq., of Paisley. This vessel, which is illustrated on Plate XXIV., is 170 ft. long, and of 775 tons. She had a bridge and promenade deck 104 ft. long; and there were ten state-rooms and large saloons for the owner and his guests. Built for oversea cruising, she had a very complete installation of refrigerating machinery. The triple-expansion engines with which she was fitted developed 1030 horse-power when running at 150 revolutions, equal to a piston speed of 675 ft. per minute. Steam was supplied by a single-ended boiler.

A much larger vessel—indeed, the largest of the type constructed by the firm—was the Margarita, constructed for A. J. Drexel, Esq., of Philadelphia, to the designs of the late Mr. G. L. Watson, who did so much for the advance of the science of naval architecture as applied to sailing and steam yachts. This vessel is of 272 ft. in length, with a displacement of 2522 tons. For the owner and his guests there are thirteen large state-rooms, and the general saloons include dining, drawing, and smoking [70] rooms, a boudoir, and a children's nursery. The yacht is equipped with all the accessories of the modern liner, including refrigerating appliances. It is propelled at a speed of over 17 knots by twin-screws, operated by two independent sets of triple-expansion, four-cylinder engines, balanced to obviate vibration.

Plate XXIV.

THE "MARGARITA."

Larger image

THE "TUSCARORA."

Larger image

TABLE VI.—GENERAL PARTICULARS OF PRINCIPAL STEAM YACHTS BUILT BY SCOTTS' SHIPBUILDING AND ENGINEERING COMPANY, LIMITED, GREENOCK.

Name. Date of Construction. Length. Breadth. Depth. Displacement in Tons. Speed. Type of Engines. Indicated Horse-power. Boiler Pressure. Owner.
ft. in. ft. in. ft. in. knots. lb.
Greta 1876 76 0 12 0 9 3 53 7.5 Compound 58 74 John Scott, Esq., C.B.
Greta 1877 84 0 12 6 9 6 73 8.25 " 76 78 John Scott, Esq., C.B.
Greta 1878 90 0 14 0 9 6 86 9.33 Compound tandem 105 78 John Scott, Esq., C.B.
Ulva 1879 162 0 21 0 15 6 350 11.08 " 277 70 F. A. Hankey, Esq.
Griffin 1879 120 0 16 6 11 0 152 9.8 " 130 78 C. E. Dashwood, Esq.
Eagle 1879 84 0 12 6 9 6 77 7.7 Compound 74 75 Count Stackleberg, St. Petersburg.
Retriever 1884 123 0 17 0 12 0 144 11 " 215 90 O. Randall, Esq.
Alca 1887 80 6 14 0 10 0 93 10 Triple-expansion 110 160 Colonel Malcolm, Poltalloch.
Santanna 1887 180 0 24 0 15 6 495 13.6 " 780 150 M. Louis Prat, Marseilles.
Foros 1891 236 0 30 6 20 6 1170 12.5 " 960 160 M. Kousenzoff, Moscow.
Greta 1892 135 6 18 6 12 0 230 11 " 280 160 John Scott, Esq., C.B.
Kittiwake 1893 113 0 21 0 13 6 210 9.55 " 185 160 Lord Carnegie.
Lutra 1894 117 0 18 0 12 0 200 10.75 " 250 160 Colonel Malcolm.
Greta 1895 145 0 22 0 13 5 338 11 " 340 170 John Scott, Esq., C.B.
Erin 1896 252 0 31 6 20 6 1330 15.6 Triple-expansion, 4 cyl. 2500 180 Sir Thomas Lipton, Bart.
Tuscarora 1897 170 0 26 6 15 7 775 12.5 " 1030 170 Wm. Clark, Esq., Paisley.
Greta 1898 154 0 22 9 13 6 393 12.25 " 480 170 John Scott, Esq., C.B.
Lutra 1899 140 0 21 0 13 0 348 11.65 " 480 170 Lord Malcolm of Poltalloch.
Margarita 1900 272 0 36 6 28 0 2522 17.1 {Twin-screw, triple expansion, four cylinders in each engine} 5200 200 A. J. Drexel, Esq., Philadelphia, U.S.A.
Waihi 1900 82 0 14 6 10 0 102 10.3 Triple-expansion 130 170 J. Bulloch, Esq.
Saevuna 1901 76 4 14 6 9 3 95 8.4 Compound 75 130 Maurice Bernard Byles, Esq.
Grianaig 1904 160 0 23 9 14 0 435 12.6 Triple-expansion 740 190 R. Sinclair Scott, Esq.
Beryl 1904 160 0 25 0 14 6 500 13.3 " 910 200 Baron Inverclyde.

The Erin, now owned by Sir Thomas Lipton, Bart., was designed and built in 1896 for a Sicilian nobleman and was purchased later by the popular baronet and sporting yachtsman. One of the largest vessels of her time, she was 250 ft. long, and of 1330 tons displacement. The four-cylinder, carefully-balanced engines, of 2500 horse-power, gave her a sea speed of 15-1/2 knots. A view of this well-known yacht is given on Plate XXI., facing page 63.

Much might be written about the decoration of these yachts; but it may suffice to give illustrations of the dining- and drawing-rooms in the steam yacht Beryl, owned by the Right Hon. Baron Inverclyde. The saloons are in the Old-English style, and are treated with decorative freedom, but with strict simplicity. The walls in both cases are framed in solid figured white Austrian wainscot oak, highly finished and polished. The drawing-room has silk tapestry panels, relieved with chaste carving on the window canopies, dado rail and mantelpiece, and divided with bevelled and carved pilasters, with carved Corinthian capitals. In the dining-room, on the other hand, there is no tapestry, the whole being of oak, suitably carved. In the ports there are large plate-glass windows, fitted with Greenwood springs. In each room there is a large cupola skylight, which, with its rich stained glass, gives a fine decorative effect. The drawing-room cupola is fitted with a brass mushroom ventilator. The ceiling in each case is of yellow pine, moulded, ribbed, and beamed in the Tudor style, and painted flat white, picked out with gold.

Plate XXV.

THE DRAWING ROOM.

Larger image

THE DINING SALOON.

Larger image

THE STEAM YACHT "BERYL," OWNED BY LORD INVERCLYDE.

The drawing-room has a slow-combustion grate having [71] brass mounts, with richly-carved oak mantelpiece, marble jambs, tiled hearth, and fire-brasses and fender. The dining-room has a steam radiator enclosed in a cabinet with Numidian marble top and brass-grilled front.

The Beryl is a vessel of 160 ft. in length, with a displacement of 500 tons at slightly less than 12-ft. draught. She steams at 13.3 knots with the engines indicating 910 horse-power, steam being supplied from a large single-ended boiler with three furnaces.

As typical of the engines adopted in the yachts built by the Scotts, we give an illustration on Plate XXVI., facing page 72, of the engines of the Grianaig. In the thirty years that have elapsed since the first Greta was built, the ratio of horse-power to tonnage has increased from 1 to 1 to 2 to 1, the steam pressure from 74 lb. to 200 lb.; and the piston speed from about 300 ft. to 675 ft. per minute. The aim has been to ensure reliability by a steady- and easy-running engine.

An effective appearance has always been aimed at, and the result has invariably been a highly-finish design. Yachts' engines are invariably balanced, whether so specified or not, as the gain in comfort to all on board, owing to the absence of vibration, is so marked as to more than compensate for the extra cost involved. Forced lubrication has also been applied, although the engines may be of the ordinary open type: the main bearings, crank-pins, cross-heads, eccentrics, valve gear, pump gear, etc., are all included in the system, which has given every satisfaction.

The Grianaig's engines developed on trial 740 indicated horse-power at 148 revolutions per minute, with a boiler pressure of 190 lb. per square foot, and a condenser vacuum of 26.5 in. Some of the details, being typical of the practice of the firm in respect of yacht machinery, are quoted from the specification on the next page.

[72]

The arrangement of cylinders is as follows: H.P. 14 in. in diameter, I.P. 22 in. in diameter, L.P. 35 in. in diameter, Stroke 24 in. The piston and connecting-rods are of steel; the guide-shoes for the crossheads are of cast iron, the ahead face having white metal, and the astern face being left plain. The back columns are of the usual cast-iron box type, the front columns, being steel, are turned. The high-pressure cylinder has a piston valve, and the intermediate- and low-pressure cylinders flat slide-valves. None of the cylinders is provided with liners. A single-stroke reversing engine is situated at the back of the main engine, but is operated from the starting platform. The condenser is of the surface type with a circular cast-iron shell; the total cooling surface is 1300 square feet.

Steam is supplied to the main engine by one single-ended cylindrical boiler 13 ft. 9 in. in diameter by 10 ft. long, working at a pressure of 190 lb. per square inch. There are three furnaces, the mean internal diameter being 3 ft. 5-3/4 in. and the length 6 ft. 10 in. The grates are 6 ft. long, giving an aggregate area of 61.5 square feet. The boiler tubes are 3-1/4 in. in diameter and 6 ft. 10-3/4 in. long, the total heating surface being 1899 square feet.

Plate XXVI.

ENGINES OF THE YACHT "GRIANAIG."

Larger image


Plate XXVII.

DINING SALOON IN A MAIL STEAMER.

(See page 81.)

Larger image

DRAWING ROOM IN THE STEAM YACHT "FOROS."

(See page 81.)

Larger image

[73]


The Twentieth Century.

PROPHECY has its allurements even in the domain of applied mechanics; and having reviewed progress during the past two centuries in naval architecture, as embodied in sailing ships, merchant steamers, warships, and yachts, there is a temptation to speculate on the prospects of the future. The possibilities of the steam turbine, for manufacturing which the Scotts are laying down a special plant; the potentialities of the producer-gas engine as applied to the propulsion of ships; and even the solution of the problems which stand in the way of the application of the universally-desired oil turbine, are all topics which would prove interesting, even although no conclusion could be arrived at. It is enough, however, to say here, that each is having careful consideration by the firm.

The historian is not, however, concerned with the future, and the only justification for the title given above is the intention here to briefly review the state of marine construction, as represented at the beginning of this new century by typical vessels built or being built by the Scotts. It is difficult, where so many ships of distinctive design and equipment have been constructed, to select a[74] few representative types. Amongst the countries which have had new ships in recent years are France, Russia, Italy, Denmark, Holland, Portugal, Greece, India, the Straits Settlements, China, Australia, New Zealand, Brazil and other South American Republics, and the United States of America. This list of foreign cliéntele, however, is being diminished, owing to the influence of subsidies paid by foreign Governments to shipowners or shipbuilders.

Taking account only of large vessels built during the past fifty years, there are one hundred and five of Scotts' steamers now trading in China seas, twenty-six in the Indian Ocean, ten on the North Atlantic, nine in the South African seas, thirty in South American waters, eighteen in the Colonial service, and ninety-seven on the European coast; while in home waters there are many more.

One of the gratifying features in connection with the commercial relationship of the Scotts, too, is the continuance of confidence over a long period of years of several of our large steamship companies. This is, perhaps, the best indication of the satisfactory character of the work done. The Holt Line have had built for them within forty years, by the Scotts, forty-eight vessels of 148,353 tons. The China Navigation Company have had a greater number of ships, namely, sixty-four, but as the size is smaller the total tonnage is less, namely, 115,600 tons. An important Continental firm has had twenty-one vessels; while for a Portuguese Company five large vessels were built, and for the French Trans-Atlantic Company eleven fast liners. Other cases might be mentioned, but these suffice.

Plate XXVIII.

THE DONALDSON LINER, "CASSANDRA."

Larger image

As regards fast steamers, the recent warships built and described in a previous chapter may be accepted as typical in so far as the problems of marine engineering are concerned. In each of these cases the design of the machinery has been prepared by the firm, and the difficulties were more complicated than in the case of merchant [75] work. Moreover, it must be remembered, that the maritime predominance of Britain is due as much to that enormous fleet of moderate-speed intermediate and cargo ships, which maintain exceptionally long voyages with regularity and economy, as to the fast ships engaged on comparatively short routes. Of the nine thousand odd British ships included in Lloyds' Register, less than 2-1/2 per cent. have a speed of over 16 knots: a fact which in itself proves that economy, rather than speed, is the primary consideration.[68]

The new Donaldson liner, now being constructed by the firm, may be accepted as representative of one of the most useful types of steamer in the British fleet. An illustration of this vessel is given on Plate XXVIII., facing page 74. While primarily intended for the Atlantic passenger trade, she is of such moderate dimensions as to suit almost any service, having a length of 455 ft. between perpendiculars, a breadth of 53 ft., and a depth, moulded, of 32 ft.; the draught will not be more than 26 ft. with a displacement of 13,500 tons. While designed to carry 8000 tons of deadweight cargo in the four holds, the vessel has accommodation for a large number of passengers, who are afforded more room than on the larger and faster liners, with the same luxury and comfort. This latter fact accounts in large measure for the growing preference of a great [76] proportion of the travelling public for the intermediate ship.

The machinery has been designed with the view of attaining the highest economy. For driving the twin screws there are two separate three-cylinder triple-expansion engines, which are to indicate together 5500 horse-power when running at the moderate piston speed of 680 ft. per minute. The cylinders are respectively 26 in., 42 in., and 70 in. in diameter, the stroke being 48 in. There is a very complete installation of auxiliary machinery. In all, there are fifty-seven steam cylinders in the ship, each having its special function.

Steam for all of these is supplied at a pressure of 180 lb. per square inch, by two double-ended boilers 20 ft. long, and two single-ended boilers 11 ft. 6 in. long, the diameter in all cases being 15 ft. 9 in. The total heating surface is about 15,000 square feet, and the grate area 435 square feet. In the design and construction of the engines and boilers every consideration has been given to strength in order to ensure reliability.

In dealing with the development of the steamship we had occasion to refer to the Holt liners, which inaugurated the first regular steamship service to the Far East, viâ the Cape of Good Hope. That was in 1865, and since then a long series of most successful steamships has been constructed by the Scotts for the China trade of the Ocean Steamship Company. As representative of the modern ship for this service we take four vessels just completed, three of them taking the names of the pioneer ships of the line—the Achilles, Agamemnon, and Ajax, while the fourth is named Deucalion; one of these is illustrated on Plate XXIX., facing this page.

Plate XXIX.

THE HOLT LINER "ACHILLES," OF 1900.

Larger image

Throughout the forty years that have elapsed since the first vessels were built, each successive steamer of the forty-eight built by the Scotts has marked an increase in [77] size, and an improvement in economy. In the former respect the advance is not perhaps so striking as in some other trades; but it must always be remembered that a ship which is to steam for 12,000 or 13,000 miles without many opportunities of coaling cannot be of high speed; otherwise the bunker capacity would be so great as to seriously reduce the available cargo space; while the running expenses would be so heavy as to materially decrease the utility of the vessel as an aid to the development of commerce. There is ever the happy mean, which has here been realised with characteristic prudence and enterprise.

The forty years' progress in the case of the Holt liners has brought about an increase of 50 per cent. in the dimensions of the ship, the later Scotts' vessels being 441 ft. between perpendiculars, 52 ft. 6 in. in breadth, and 35 ft. in depth moulded, with a gross register of 7043 tons. In respect of deadweight capacity, however, there has been considerable development, due to the adoption of mild steel having permitted a reduction in the weight of boilers and engines, and in the scantlings of the hull. The new vessels, with a draught of 26 ft. 6 in., carry 8750 tons of deadweight cargo—two and a-half times the weight carried by the earliest Holt liners.

In forty years the steam pressure in the Holt liners has increased from 60 lb. to 180 lb.; and the piston speed from 400 ft. to 720 ft. per minute. The heating surface in the boilers has decreased from 6 square feet to 3 square feet per unit of power; and the condenser surface from 1.83 square feet to 1.3 square feet per unit of power. On the other hand, each square foot of grate gives now 14 horse-power, as compared with 6.6 horse-power formerly.

As a result of increased steam pressures and greater efficiency of propulsion, it may be taken that, notwithstanding the increase in dimensions and capacity of the[78] ship, and the consequent advance in engine power, the coal required for a voyage half way round the world has been reduced to one half that of 1865.

Another notable feature in the economy of the ship is that twenty-five derricks have been fitted for dealing rapidly with the cargo, and one of these has a lifting capacity of 35 tons, to take such heavy units of cargo as locomotive boilers and tenders. In addition, there are eighteen steam winches. The reduction in the time spent in port, because of the facilities thus provided, is another element in the economy of the modern ship.

The largest oil steamer yet constructed, the Narragansett, was completed by the Scotts in 1903. This vessel, built for the Anglo-American Oil Company, carries in her sixteen separate compartments, 10,500 tons of oil, at a speed of 11 knots, for a fuel consumption of 4.9 lb. of coal per 100 tons of cargo per mile. This result is deduced from steaming, in ordinary service, over nearly 24,000 miles, and is consequently as reliable as it is interesting.

The Narragansett, which is illustrated on Plate XXX., facing this page, has a length between perpendiculars of 512 ft. and overall of 531 ft.; the beam is 63 ft. 3 in., and the depth, moulded, 42 ft. The deadweight carrying capacity on a draught of 27 ft. is 12,000 tons. The engines are of the triple-expansion type. Interest in the machinery is associated principally with that fitted for the pumping of the oil cargo. There are two pump-rooms, one located conveniently for the oil in the eight compartments forward of the machinery space; the other in a corresponding situation for the same number of tanks abaft the propelling engines. The 10,500 tons of cargo can be loaded or discharged in less than twelve hours. While primarily for the Atlantic trade, the vessel was designed to undertake, if required, the much longer voyage of the Eastern service.

Plate XXX.

THE LARGEST OIL-CARRYING STEAMER AFLOAT, THE "NARRAGANSETT."

Larger image

[79]

Because of the uniformly good results with ordinary coal, we give the details as received from the superintending engineer of the owners:—

Table VII.—Records of Coal Consumption of Steamship "Narragansett."

Voyage No. Coal, Indicated Horse-Power per Hour. Total Coal on Voyage. Coal for Boilers only. Sea Miles on Voyage. Cargo Carried. Average Speed. Horse-Power On Voyage.
lb. tons tons miles tons knots I.H.P.
15 1.60 918 822 3,447 10,298 10.85 3,713
1.58 3,900
16 1.59 923 834 3,403 10,289 10.80 3,951
1.64 3,775
1.63 3,668
17 1.50 924 836 3,469 10,499 10.40 3,949
1.53 3,796
18 1.50 847 775 3,441 10,563 11.10 3,937
1.50 3,720
19 1.44 837 760 3,423 10,570 10.85 3,909
1.43 3,813
20 1.50 780 707 3,312 10,641 11.50 4,107
1.32 3,817
21 1.56 846 766 3,330 10,651 10.60 3,909
1.44 3,870
1.46 3,746
Totals 6075 5500 23,825 73,511
Averages 1.51 868 786 3,404 10,501 10.87 3,848

The China Navigation Company of London, for whom the Scotts began building in 1875, have had in the thirty years sixty-four vessels, which have been an important factor not only in the development of trade in China, but also in the advancement of British interests in the Far East.

In an earlier Chapter we referred to the extent of the service conducted by these vessels, and also to the Company's continuous progressive spirit, which, for instance, induced them, on the suggestion of the Scotts, to adopt twin-screws. The launch of one of these ships is illustrated[80] on Plate XXXI., facing this page, while the next Plate, XXXII., illustrates the Fengtien, which was built in 1905 in an exceptionally short period of time. The contract was made in the closing week of 1904, the first keel-plate was laid on the 15th January, 1905, the vessel was launched on the 20th April, and arrived in Shanghai on the 14th July—less than twenty-six weeks from the date when the building was commenced. This performance indicates not only the satisfactory character of the organisation, but also of the equipment of the shipyard and marine engineering works.

The Fengtien has a length between perpendiculars of 267 ft., a beam of 40 ft., and a depth, moulded, of 18 ft., with a deck-house having accommodation for thirty-three European first-class passengers; while on the top of this house there is, as shown in the engraving, a promenade for passengers. The accommodation provided for first-class passengers is exceptionally satisfactory, both in respect of state-rooms and of public saloons. Fifty-six first-class Chinese passengers are also carried, as well as seventy steerage native passengers. In addition to this considerable source of revenue, the ship carries 1720 tons of deadweight cargo on a draught of 14 ft.

The Fengtien on her trial, when developing 2146 horse-power, attained a speed of 13-1/4 knots, which was considered highly satisfactory, in view of the unusual dimensions. The engines are of the triple-expansion, three-cylinder type, fitted with every accessory which experience has shown to ensure regularity of working, with the minimum of expense in respect of upkeep and working cost. Steam at 190-lb. pressure is supplied by two boilers, 15 ft. in diameter and 11 ft. 6 in. long, having 5184 square feet of heating surface, and 121 square feet of grate area.

Plate XXXI.

THE LAUNCH OF A CHINA STEAMER.

Larger image

Plate XXXII.

THE CHINA NAVIGATION COMPANY'S T.-SS. "FENGTIEN."

Larger image

We have referred generally to the passenger accommodation in the ships built by the firm, and it may be [81] interesting to refer here to the character of the work done and illustrated on Plate XXVII., facing page 73. The first view shows the dining-room of one of four Portuguese steamers. This room is designed in the Jacobean style. The walls are framed and panelled in solid walnut, and all the mouldings, cornices, architraves, pilasters, columns, pediments, and also the furniture, are beautifully carved. The floor is laid in mosaic tiles, in geometrical patterns, with Brussels carpet runners in the passage-ways. The ceiling is of yellow pine, moulded, ribbed, and broken up with carved panels, painted a flat white and relieved with gold. The dome skylight is in teak, with richly-carved beams and mouldings; and glazed with embossed plate glass, while the side windows are fitted with jalousie blinds, stout double-line teak shutters, and glass bull's-eyes in brass frames. The upholstery is in crimson Utrecht velvet, and seating accommodation is provided for sixty-eight saloon passengers.

The other view on Plate XXVII. illustrates the drawing-room of the steam yacht Foros, built for M. Kousenzoff, of Moscow. It is in the Elizabethan style. The walls are framed in solid East Indian satinwood, highly finished and French polished, with figured silk tapestry panels of a shade that harmonises and blends with the wood-work. Neat and delicate carving in low relief is introduced where most effective. The ceiling, of yellow pine, has square panels of Tynecastle tapestry, relieved with rich carving in cornices and beams. The room is lighted and ventilated by eight large round lights in the ship's side, each enclosed in a recess with a sliding screen of beautifully-stained and leaded glass. The large circular skylight in the centre of the room, finished to suit the ceiling, has large opening sashes, glazed with stained glass. The floor is laid with oak parquetry, with a Parisian mat in the centre. The room is heated by a slow-combustion grate with rich brass[82] mounts, tiled hearth, fire-brasses and fender. The mantelpiece and overmantel, in satinwood, is a beautiful piece of work—carved and relieved with colonnades and pilasters. This room is fitted with a complete installation of electric bells and lights, with two graceful electric candelabra, one on each side of the fireplace. The stained glazing is illumined at nights by electric lights on the outside. The drawing-room is completely and artistically furnished with high mirrors, fitments, writing-tables, card and occasional tables, and with a variety of beautifully upholstered chairs and sofas. All the metal-work is of ormolu.

The British India Steam Navigation Company is another of the old clients of the Scotts. This Company, originally formed in 1856, under the title of the Calcutta and Burmah Steam Navigation Company, which was changed in 1862 to the title now known in all maritime countries, had its first steamship built by the Scotts, and it is therefore interesting to illustrate the one recently built at the same Works—the Bharata. This vessel is of the intermediate type, carrying a large number of British and native passengers, and nearly 4000 tons of cargo. The length between perpendiculars is 373 ft., the beam 45 ft., and the depth, moulded, 29 ft. 6 in. The cargo carried on a draught of 24 ft. is 3940 tons, and this is handled by eight hydraulic cranes, some of them of high power. The passenger accommodation, in the centre part of the ship, includes state rooms and saloons for forty-two first-class and thirty-six second-class European travellers, while in the 'tween decks a large number of native passengers are accommodated.

The machinery of the Bharata gives a speed of 16 knots, when the displacement is 5560 tons. The engines are of the triple-expansion type, and develop 6000 indicated horse-power. Five single-ended boilers supply steam at 180 lb. pressure. This vessel in service [83] carries her cargo of about 4000 tons and her passengers at a speed of 16 knots, for a consumption of ordinary coal of about 50 tons per day.

Plate XXXIII.

THE BRITISH INDIA COMPANY'S STEAMSHIP "BHARATA."

Larger image

In our historical Chapters it has been clearly shown that the Scotts took a prominent part in the evolution of Channel steamers, and reference may be made to the latest vessels of this class now being built at the Company's works—two steamers for the old and successful firm of G. and J. Burns, Limited. These vessels, the dimensions of which are:—Length 233 ft., breadth 33 ft., depth 24 ft., are to have a speed of 13 knots. They are to be employed on the service between Glasgow and Manchester, and are fitted for steerage passengers, and also for conveying cattle, horses and sheep. The machinery consists of three-cylinder triple-expansion engines of 1750 indicated horse-power, having cylinders 23 in., 36 in., and 58 in. in diameter respectively, with a stroke of 42 in. The boilers, of which there are two in each ship, are 14 ft. in diameter and 12 ft. 6 in. in length, with a heating surface of 4000 square feet, and a grate area of 120 square feet. They work under natural draught at a pressure of 175 lb. per square inch.

We might continue almost indefinitely describing different types of ships, but will content ourselves with a reference to the fleet of Thames passenger steamers built in 1905 for the London County Council. Of the thirty vessels constructed for the Council, twenty had their boilers and engines from the Scotts' Works. Ten of the steamers, in which this machinery was fitted, were built on the Clyde by Messrs. Napier and Miller; six at Southampton, by Messrs. John I. Thornycroft and Company; and four at Greenwich, by Messrs. G. Rennie and Company. These vessels are 130 ft. long, and of very light draught—2 ft. 10 in. when loaded. An idea of their proportions is given by the engraving on Plate XXXIV.,[84] facing this page, showing one of the Clyde-built vessels ready to steam from Greenock to London.

The engines for all of these vessels are of the compound, diagonal, surface-condensing type, the two cylinders being 16 in. and 31 in. in diameter, with a stroke of 3 ft.

One set of engines is illustrated on Plate XXXV., adjoining page 85. They have forged steel guide columns, to bind the cylinders to the three entablature frames. The crank-shaft is a solid steel forging, 6-5/8 in. in diameter, coupled to the steel paddle-shafts by flexible couplings. The surface-condenser, cylindrical in form and constructed of light brass sheets, is placed below the guide bars close to the cylinders. The water-ends are of cast brass, arranged for double circulation of the water. The air-pump, of the trunk type, is driven by bell-crank levers off the low-pressure connecting-rod. Two independent feed-pumps are driven off the same crosshead.

The auxiliary machinery includes a circulating pump with auxiliary air-pump attached, a direct-acting feed and bilge pump, a fan and engine for the forced draught, and an electric engine and dynamo.

Each steamer has one cylindrical steam boiler, 9 ft. in diameter by 9 ft. 3 in. long. The working steam pressure is 110 lb. The boilers are also illustrated on Plate XXXV. The twenty sets of engines and boilers were completed in a remarkably short space of time.

These steamers were designed for a service speed of 12 statute miles per hour, and a trial speed of 13 miles per hour, or 11.285 knots. The best trial performances were attained by the FitzAilwin and the Turner, both built on the Clyde; they attained a speed of 14.1 miles per hour, or 12-1/4 knots, with the engines making 69.8 revolutions per minute, and indicating 360 horse-power. This is nearly 1 sea mile per hour more than was required by the contract.

Plate XXXIV.

ONE OF TWENTY THAMES STEAMERS ENGINED BY THE SCOTTS.

Larger image

Plate XXXV.

ENGINES OF LONDON COUNTY COUNCIL STEAMERS.

Larger image

BOILERS FOR LONDON COUNTY COUNCIL STEAMERS.

Larger image

[85]

We illustrate on Plate XXXVI., facing page 86, a typical set of triple-expansion engines. The practice in respect of the design of engines and boilers is necessarily very varied. From the designs for a small steam launch to those for a first-class cruiser or battleship there is a wide range, and all classes of work, with not a few of special interest, come between those extremes. In connection with the three-crank triple-expansion engine, now generally adopted for merchant work, an arrangement well favoured for sizes up to about 1000 indicated horse-power is that in which the high-pressure cylinder is in the centre with a piston valve, the intermediate-pressure cylinder being forward, and the low-pressure cylinder aft, each with a slide valve at the extreme ends. This has been found to give a handy arrangement of gear, and to be easily accessible. With twin-screw engines of this power it is customary, and has been found very convenient, to lead all the hand-gear for both engines to a pedestal placed midway between the engines and ahead of the forward cylinders.

A description of the types of engines built by the Scotts for the China Navigation Company during the past thirty years would be practically a history of the progress of marine engineering during that period. The customary sequence of cylinders has in the main been adhered to in the design of these engines—viz., high-pressure cylinder forward and low-pressure cylinder aft in the case of compound engines: the intermediate-pressure cylinder, in the case of triple-expansion machinery, is placed between the high- and low-pressure cylinders. Indeed, this latter is the arrangement invariably adopted by the firm in the design of all large-size ordinary cargo steamer engines. The valve gear is forward of its cylinder in each case. This has also been the design adopted in the case of recent high-class passenger and mail steamers with[86] three cylinders, and in the case also of steamers for special trades. Twin-screw engines present little deviation from the above, and such as there is mainly affects pipe connections.

All engines of whatever type up to about 1000 indicated horse-power are usually arranged with forged columns in front. The condenser is ordinarily designed to form part of the engine structure, having the columns cast on, and supporting the cylinders; but not infrequently it is entirely separate from the main engines, and is carried either on the back of the columns, or fitted in the wing of the ship.

Of engines for the Navy nothing need be said beyond stating that they form quite a class by themselves, and all present the special features of design so characteristic of Admiralty work referred to in an earlier Chapter. The latest types of large-size engines for the Admiralty are being fitted with a system of forced lubrication to main bearings and crank-pins.

The Scotts' practice with respect to paddle engines has been no less varied than that in the case of screw machinery, ranging as it does from the ponderous side-lever engine of past years to the stern-wheel engine of the shallow-draught steamers of the present day. Oscillating and diagonal engines, both compound and triple-expansion, are also within the experience of the Company, the three-stage expansion being the type now usually adopted.

With respect to auxiliary machinery, the Scotts invariably fit a separate centrifugal pump for circulating the water through the condenser for all classes of engines, excepting only those for the ordinary tramp steamer. The air, bilge, and sanitary pumps are usually worked from the main engine by levers. The feed pumps are generally independent. Frequently, especially in yachts, all the pumps are entirely independent of the main engines. The [87] Scotts in some cases make all auxiliary machinery for their own engines: such as centrifugal pumps, fans, feed-heaters, auxiliary condensers, duplex feed and ballast pumps, etc.

Plate XXXVI.

Larger image

TYPICAL PROPELLING ENGINES.

Larger image

Many varieties and types of boilers have been made. The old practice of having two or three rings in the length of the shell in ordinary cylindrical boilers has long since given place to one plate in the length. The boiler ends are seldom made in more than two plates; up to diameters of 11 ft. only one plate is used. The number of riveted seams is thereby reduced to a minimum, and the liability of the boiler to leak is minimised. The Scotts also have a system of forced draught for supplying either cold or heated air to the furnaces, which is fitted largely to their ships, and gives every satisfaction. Large installations of Belleville and Yarrow water-tube boilers for working under forced draught have also been made and fitted in H.M. ships, but they need no description here. A large installation for burning oil fuel has recently been completed and applied by the firm to the Babcock and Wilcox water-tube, and the cylindrical, boilers of H.M.S. Argyll.


[88]

Efficiency: Design: Administration.

HAVING reviewed the history of the firm, and dealt briefly with the results obtained by some of the modern steamers constructed by them, we propose now to describe the Works in order to indicate the measures adopted to secure efficiency in design and construction of all types of ships and machinery. Organisation and administration are as important factors towards this end as the mechanical methods and appliances adopted, and it may be well, therefore, to deal first with these.

The firm have been responsible for the design of almost every merchant ship constructed by them. Success has been rendered more certain by the possession of carefully-collated records, the product of an organised system of working up all data, of tackling new problems, of making calculations regarding any scientific question, and of studying contemporaneous work as described in the technical press and in papers read at technical institutions. This continuous investigation produces a wealth of suggestion, which enables the chiefs of the respective departments to determine how far practice may be improved; and thus there is steady progress not only in design but in constructional methods. A well-selected technical library, from which the staff can borrow books, also contributes to the same end.

Plate XXXVII.

SHIPBUILDING.

(See page 100.)

Larger image

[89]

Admiralty and merchant work is initiated in separate drawing-offices. The "Printed Instructions to Draughtsmen" throws light on the general principles which influence design, and one or two quotations may be made:—"Every machine or structure is designed with a certain object in view; therefore, in designing, keep that object always to the front. Go straight to the point, and let the object be attained in as simple a manner as possible. Avoid all curves and indirect lines, except those conceived to give uniform strength or stiffness, or required for some definite purpose. There should be a reason for the contour and shape of every detail. It should be remembered that designs made in this way, requiring least material for the work to be done, usually look best. Besides keeping the object clearly to the front, it is necessary in designing to remember that certain facilities must be attended to for moulding, machining, and erecting. It is also necessary to keep in view the circumstances in which the structure or machine is to be used. Every little detail should be definitely attended to on the drawings, and not left to the judgment of the men in the shops; remember that it is usually the unexpected which happens, and that even the want of a split pin may cause a breakdown. In making drawings or sketches for ordering material or for the shops, assume that those who have to interpret the instructions have no knowledge of, or information concerning, the work in question, except what is contained in the drawing or order you are making out. This will ensure that all information issuing from the drawing-office is complete, and that no work is done in the shops without drawing-office instructions."

The draughtsman, in designing work, must so arrange details as to fully utilise, as far as is compatible with progress, the special machine tools available, the system of gauges, templates, and jigs extensively applied in the[90] shops, and existing patterns. Bonuses are paid for improvements in design whereby economy may be effected in machine operations, etc.

There is a large estimating department, where records of costs, rates, wages, etc., are of the most complete description. The card system adopted is admirably suited for enabling references to be made at any time as to the cost of units in any contract. Here also it is possible, by the simple process of comparison, to effectually check the economy of design and manufacture, without which a high premium is placed against efficiency.

The staff in these departments is largely recruited from the shops, and thus there is an incentive to the willing apprentice to excel. The great majority of the vacancies in the technical staff are filled by apprentices who have spent three and a-half years in the shops, and who are chosen as a result of examination and of a satisfactory record in the shops. Financial facilities are afforded to boys and to progressive workmen to attend special classes, not only in Greenock but in Glasgow. Competitions are instituted at intervals to encourage expertness in some branch of work—for instance, in the use of the slide-rule, etc. Thus in many ways the growth of an active esprit de corps is encouraged, apart altogether from the influence which the historical and present-day success of the firm engenders.

The same broad policy is pursued in the shops. Payment by merit to the tradesman is adopted as far as possible. In the engine works the bonus system—first adopted in 1902—is extensively applied. The arrangement is satisfactory from the point of view of tradesman, employer, and client.

Plate XXXVIII.

THE LAUNCH OF H.M.S. "ARGYLL."

(See page 101.)

Larger image

Long experience has enabled the firm to set equitable standard times for many operations, and there was from the beginning the guarantee that this standard would not [91] be altered unless entirely new machines were introduced to greatly influence the rate of production. Now if a workman requires the full time, or more than the time set as a standard for a job, he is still paid his full-time wage as under the old conditions: but should he complete the work in less than the standard time, his rate of wage per hour is increased in direct proportion to the saving in time; the shorter the time taken, the greater the rate of bonus. The bonuses earned range as a rule from 20 to 30 per cent. over the time-rate wage. To quote actual cases, a workman who saves 26 hours on a job for which the standard time is 134 hours, increases his wage for the fortnight by 14s., while the money saved to the employer is only 2s. 9d. He who saves 30 per cent. on the time adds 21s. to his fortnight's wage.

Such reduction in the time taken is not attained at the expense of efficiency; the premium job is carefully inspected, and unless it is of the highest standard the bonus is forfeited; so that the workman is continuously careful to avoid any risk which will result in the loss of the reward for his extra work. The reduction in time taken is, in a large measure, due to the exercise of foresight and ingenuity on the part of the workman. He is ever on the alert to ensure that he will not be kept waiting for material to enable work to progress. The machine-man makes certain that before one unit is out of his machine the casting, forging, or bar for the next is alongside. This is further facilitated by a man in each shop whose only duty is to see that there is a supply of work for every tool. Encouragement is always accorded to those who suggest modifications to increase the output from any machine. Again, in the erecting of engines, considerable economy has been attained, owing to similar foresight being exercised to ensure that each unit is machined before it is wanted by the erector.

[92]

To the employer also there is gain in the increased production, from a given number of machines and men, for a constant establishment expenditure—rent, rates, taxes, etc. While the wage paid to the men is increased, there is a reduction in the cost of production, which of itself encourages capital expenditure on improved methods and appliances. Concurrently with the adoption of the bonus system there has been a great increase in the cutting speed of tools, which has also augmented the rate of production. This "speeding-up" is partly due to the fitting of new machines, to the substitution of forged steel machine-cut gear for cast spur-wheels, to the strengthening of lathe headstocks, to wider belts, to the application of reversible motors to some machines, and to quicker return speeds.

Some indication may be given of the increased economy resulting from the bonus system and from the "speeding-up" of tools, as compared with the former system, with slower speeds and piece-work rates. A typical job, which had formerly occupied eighty hours, was, after experience, given a standard time of sixty hours. When first carried out under the bonus system the time actually taken was forty-five hours, the labour cost being reduced from £2 13s. 4d. at piece-work rate to £1 17s. 6d. under the bonus system, while the wage of the worker was increased by 2d. per hour. Subsequently, a repeat of this job was machined by the same man, who, having confidence that the time allowed would not be reduced, finished the work in thirty-nine hours, saving twenty-one hours on the standard time, reducing the cost to £1 15s. 0d., and increasing his rate of pay by 2.8d. per hour. Other comparisons might be given to show the advantage over the piece-work. In successive fortnights after the introduction of the system, the percentage of time saved on the time taken on piece-work in one department steadily advanced from [93] 16 per cent. to 47 per cent., and ultimately the pay of the men per hour was increased 75 per cent., while the saving to the employer was 50 per cent.

Plate XXXIX.

ENGINE CONSTRUCTION.

(See page 108.)

Larger image

The client profits, as the contract price is reduced without any diminution in the satisfactory character of the work done; indeed it is probable that this is improved because of the special inspection to ascertain if the bonus has been conscientiously earned. A lower contract price, therefore, is possible; and this places the firm, both directly and indirectly, in a better position in competition in shipbuilding. There is more work obtainable, more constant employment for the workmen, with the additional inducement of higher wages to capable and diligent men.


[94]

The Shipbuilding Yard.

Covering an area of 40 acres, the Works have ten berths for the construction of ships of all sizes, with departments for producing all the accessories and machinery—engine and boiler works, steam-turbine factory, foundries, brass, copper, and sheet-iron shops, saw-mill and extensive wood-working department—and these give employment to four thousand workmen. The equipment has been greatly extended and modernised during the past few years. The building of the China Steam Navigation Company's steamer Fengtien in nineteen weeks, from the laying of the keel to the trials, is one of several instances of rapid construction which might be enumerated.

The plans of ships prepared in the designing department and drawing offices, to which reference has been made in the previous Chapter, are passed to the moulding loft, where the work of construction is commenced. This loft is situated in a substantial four-storey building, accommodating practically all the wood-finishing departments. Each floor has an area of 12,500 square feet; the ground and first floors are given up to the joiners and cabinet-makers, with their numerous machine tools, while the top floor is at present utilised for storing completed joiner work, etc. The moulding loft [95] monopolises the third floor, and as the length is 240 ft. and the width 52 ft., there is ample space, as is shown on the engraving in Plate XL., facing page 94, for laying down full size deck-plating, stringers, margin plates, deck girders, etc., so that moulds or templates may be prepared for the iron workers. Armour-plates for warship belts, barbettes, and casemates are similarly prepared in template, to assist the makers to form them to the required curvature and size.

Plate XL.

THE MOULDING LOFT.

Larger image

Plate XLI.

BEAM SHEARING MACHINE.

Larger image

BEVELLING MACHINE.

Larger image

HYDRAULIC JOGGLING MACHINE.

Larger image

The ironworkers' department is extensive and important. When the material is delivered into the yard, it is discharged from the railway wagons by a 5-ton electric overhead travelling high-speed crane, which stacks the plates and bars in such a way that any piece can be readily removed by the same crane for conveyance to the furnaces.

There are six furnaces suitable for heating shell plates of the largest size, and angles and bars for frames, etc., up to 60 ft. in length. Adjacent to the furnaces are the screeve boards and the frame-bending blocks. The channel, bulb angle, or Z bars, used so extensively now for framing in large ships, are bevelled as they pass from the furnace to the bending blocks. This is done in a special machine made by Messrs. Davis and Primrose, Leith, and illustrated on Plate XLI., adjoining this page. The bars, as delivered from the rolling mills, have flanges at an angle of 90 deg., which is not suitable for taking the skin plating of ships. One angle has therefore to be altered, so that while the inner flange may lie at right angles to the keel-plate, that to the outside will fit closely to the shell plating throughout the entire length of the frame from keel to shear stroke, which may be 50 ft. or 60 ft.

As the bar passes through the machine, the web is carried on an ordinary flat roller, while bevelling rolls, set to the desired angle, work on each side of one of the flanges to give it the desired set. There are several of these machines in use, and they run on rails laid across the front of the furnace, so that the angles, Z sections, or channels[96] may be bevelled while passing out of the furnace on to the bending blocks. The manipulation of the plates from the furnace is by means of steam and electric winches.

Formerly, the turning of the frames to the required curvature against the pins on the bending blocks was carried out by hand. To suit the heavier scantlings of the larger ships of the present day, a portable hydraulic machine is now utilised. It is fixed at its base by pins, which fit into the ordinary holes in the blocks, and hydraulic pressure is supplied through a flexible pipe to work the ram-head against the angles, forcing them to take the desired form. The machine is a great labour economiser, as it ensures work on the heaviest of bulb angles being carried out in the minimum of time, and therefore at top heat.

The bars are usually cut to length by a guillotine, but it was considered that this tended to twist the metal, and perhaps unduly fatigue it; and as a consequence the firm have fitted John's shearing and notching machine, as constructed by Messrs. Henry Pels and Co., of Berlin. This new machine is illustrated on Plate XLI., adjoining page 95. The tool is shown in the act of cutting through a channel section. The cutting tool is seen immediately in front of the operator, and is actuated by gearing accommodated within the standards of the machine. When the cutting tool is brought down on the angle or beam to be sheared, and the shaft at the rear started, the rotation of an eccentric actuated by the shaft causes the point of the tool to slide idly a short distance to-and-fro on the bar. The hand lever on the right hand side of the machine is depressed, forcing the tool downwards, and the continued rotation of the eccentric causes the tool to pierce through the bar with a downward and inward motion. Where there is a deep web with flanges, the beam is reversed on the anvil, to enable the other flange to be cut. The cutting of any bar in this machine is a matter of only a few seconds.

Plate XLII.

IN ONE OF THE PLATERS' SHEDS.

Larger image

[97]

Of the platers' shed, where the plates, angles, bulbs, bars, etc., are machined, two views are given on Plates XLII. and XLIII., facing pages 96 and 98 respectively. It may be said generally that the machines are designed to deal with plates up to 50 ft. in length, and with angles up to 60 ft. in length, and of corresponding sections. It follows that the straightening and bending rolls, edge-planers, and punching and shearing machines, are of great power. It is scarcely necessary to make detailed references to all of the tools for these and other purposes.

All the tools are electrically driven. The plate-flattening rolls, which have 15 and 20 horse-power reversible motors, take plates 8 ft. wide, and the rolls are from 21-1/2 in. to 19 in. in diameter. The bending rolls are driven by a 20 horse-power motor. The plate-edge planers, shown to the left in the view, Plate XLII., facing page 96, are operated by 16 horse-power motors, and the plate is held on the table by means of hydraulic rams as well as screw-jacks. For drilling and countersinking plates there are several modern tools, each actuated by an independent electric motor. One of these is a three-standard drill, to deal with plates of the largest size. The spindles have a rise and fall of 10 in., and are fitted with self-acting, as well as hand, feed, and with the usual rack arrangement for the traverse of the head. Several radial countersinking machines, with 11-ft. jibs and spindles 2-1/2 in. in diameter, are driven by 10 horse-power motors. There are many heavy punching and shearing machines, nearly all of them having 42-in. gaps, so that they can punch holes at any part of the widest plates. As a rule, they are arranged to punch 1-1/2-in. holes through 1-1/2-in. plates at the rate of thirty holes per minute. The shears are of corresponding power.

For dealing with angles and bars there are several interesting tools, in addition to shears and punches. Some of the shears cut 8-in. by 4-in. angles, and are driven by[98] 10 horse-power motors. There are channel-angle shearing machines, taking work 16 in. by 6 in., and operated by hydraulic pressure. These machines are made with revolving gear to suit almost any angle of flange.

There is also an hydraulic stamping press for bending angles and tees to form knee-bars and other stiffening pieces, the cylinders being 14 in. in diameter, working at a pressure of 800 lb. per square inch, with a stroke of 18 in. The machine, which has been constructed by Sir William Arrol and Company, Limited, consists of an hydraulic cylinder mounted horizontally on a massive table. On the ram-head there are former blocks, while on the table in front there are corresponding dies. The bar is placed on the table between the blocks and dies, and as these are forced together by hydraulic pressure, the bar between them is squeezed into the exact shape required. Not only is the operation expeditiously executed, but there is no uncertainty. The whole of the metal within the bar is retained inside the knee, which becomes thicker and broader, materially adding to its strength. As the moulds or dies can be made to suit any form, the machine can be utilised in the preparation of various details of structures, provided they are designed with a view to their production by aid of dies. The great economy resulting from the use of special machines is only realised when the designing staff remember that they must be kept employed.

A specially powerful tool is provided for bending channel irons and beams, and for drilling horizontal holes in them. Hydraulic manhole-punching and flanging machines are employed, each having a ram of 27 in. in diameter, and capable of punching a hole 42 in. by 16 in. through a plate 3/4 in. thick. There are provided dies for forming flanges 4 ft. 6 in. deep in the widest of plates.

Plate XLIII.

PUNCHING AND SHEARING.

Larger image

The modern practice of joggling and of scarfing the laps and edges of plates is applied in many instances, and [99] special hydraulic tools are provided to carry out this work. The firm were also early in adopting the practice of joggling frames, deck beams, etc. The frames and beams are joggled when cold, to suit each alternate inner strake of plating, in a special design of hydraulic press, of which there are several in the works. This tool, illustrated on Plate XLI., adjoining page 95, carries dies on the ram-head and on the anvil, to form between them the obverse and reverse sides of the dent or joggle desired. Movable centre-pieces on the ram-head and anvil are traversed in all directions by screw thread to suit the position and width of the joggled part, and a gauge shows variations of 0.1 in. in the position of the joggled part of the frame. A 2 ft. length of angle can be joggled at each stroke. The machines are by Messrs. Hugh Smith and Co., Limited, Glasgow.

The same machine joggles the lap or edge of a shell, inner bottom, or deckplate in a similar way. The whole length of the frame or plate can thus be worked in a very short time. A powerful jib crane, of 16 ft. radius, assists materially in the rapidity of the work turned out by these tools. The only slips required are at the ends of the vessel, where the bevel of the frames precludes the use of joggling. A special electrically-driven hammer is used for forming these taper slips.

The angles, etc., to form the frames are assembled at the head of the building-berth, and when lying on skids are riveted to form the double bottom, frames and margin plates. Hydraulic riveters are used wherever possible. There are about a score of these at work in the shipbuilding yard, with cylinders from 8 in. to 10-1/2 in. in diameter, a stroke of 7-1/2 in., and a gap of 55 in., so that heavy work can be done. Some of them are specially designed for keel work, for closing rivets in beams, and for difficult parts.

The frames thus riveted are conveyed down the berth[100] by a simple and ingenious cableway, known in the Works as the "switchback," from its resemblance to the well-known amusement railway. A derrick-post stands at the head of the berth adjacent to the skids on which the frames are riveted. The cable stretches from a small derrick at the foot of the shipbuilding berth over a pulley at the top of the large derrick-post, and thence, through a similar block at its base, to an electric winch. The frame or unit of the ship's structure is suspended on a running block on the cable, which is then made taut, partly by the working of the winch and partly by the large derrick post being inclined backwards. The running block with its load travels down the taut cable by gravity, under the guidance of the squad of fitters. The gradient of the cableway is only sufficient to enable the load to move slowly to its position in the shipbuilding berth.

The double-bottom frames and margin plates are united with the keel-plate, and subsequently there are successively worked into the structure the tank top plates, side frames, the skin plates, beams, bulk-heads, and other units, portable hydraulic punches and riveters being largely used. Pneumatic tools are also extensively employed for boring, drilling, riveting, chipping, caulking, etc. There are from 130 to 140 of these tools in use on vessels in course of construction.

There are ten building berths ranging in length up to 700 ft.; but slight alterations would enable the firm to build vessels of still greater size. Several of these are shown on the engraving on Plate XXXVII., facing page 88. The launching ground is probably the finest in the river, the channel being here of great depth and very wide, as is shown on the engraving opposite. Indeed, ordinary merchant vessels with full lines are launched without any check chains; the fine-ended ships—mail steamers and cruisers—are, as a precautionary measure, checked by drags in the [101] usual way. The engraving on Plate XXXVIII., facing page 90, shows the launch of H.M.S. Argyll.

Plate XLIV.

THE FITTING-OUT DOCK.

Larger image

Plate XLV.

THE GRAVING DOCK.

Larger image

The ships launched are completed in the fitting-out dock, constructed about two years ago, and illustrated on Plate XLIV. The engraving shows H.M.S. Argyll under the big jib-crane. This dock has a length of 560 ft. and a width of 172 ft., and opens directly into the channel of the Clyde. The depth of water is never less than 28 ft., so that warships are afloat at all states of the tide. A prominent feature in the view is the crane, which was supplied by Messrs. George Russell and Co., Limited, of Motherwell, and lifts 120 tons at a radius of 70 ft. It is carried on concrete foundations and piers, which rise 20 ft. above the level of the quay. In addition to the pier for carrying the mast of the crane, there are similar supports for each of the back legs through which the crane is anchored.

One advantage of the derrick type is that the crane may be placed close to the edge of the quay; in this case the centre is only 7 ft. from the front of the wharf, so that the full load of 120 tons can be dealt with at an effective outreach of 63 ft. from the quay. The maximum radius of the heavy purchase with a load of over 60 tons is 90 ft., and of the light purchase gear, with a load of 10 tons, 98 ft. The minimum radius of the crane is 25 ft. There are four sets of gear: for lifting heavy loads, for raising light weights, for derricking the jib, and for slewing; a separate controller of the enclosed tramway type is provided for each. The main hoisting and derricking motors are of 50 horse-power, and the others of 35 horse-power. The speed of hoisting 120 tons is 5 ft. per minute, while a 10-ton load is raised at the rate of 40 ft. per minute. Automatic brakes are fitted for the slewing motion, and powerful hand-brakes for the hoisting and derricking gears. All motions are controlled by one[102] man in the steelhouse fixed to the mast of the crane 56 ft. above the quay level.

There is on the opposite wharf of the dock a 20-ton travelling electric crane, and throughout the Works there are many portable and hydraulic cranes, in addition to the hydraulic and other cranes commanding the machine tools.

Reference may here be made to the Company's graving dock, illustrated on Plate XLV., adjoining page 101. The length is 360 ft., and it is largely used for docking ships for repair, as well as for cleaning ships preparatory to trial. Our view shows a torpedo-boat destroyer in the dock. The pumps for the emptying of the dock are electrically driven.

We may return now to our narrative of the construction of a ship, and deal with the supplementary departments, including those of joiners, smiths, plumbers, sheet-iron, and other workers.

Wood-work forms a large and important item in most of Scotts' ships, as many of them are for passenger service. We illustrate on Plate XLVI. one of the saw-mills. It is self-contained, having its own power plant, including a compound engine, having cylinders 15-1/4 in. and 27-1/2 in. in diameter by 44-in. stroke. There are four vertical saw frames, the largest having a 36-in. frame, six rollers, and two bogies to take in the heaviest logs. In addition, there are circular saws, ranging up to 6 ft. in diameter, a swing cross-cut saw, special planing, moulding, and turning machines to do heavy work, and saw-sharpeners, grindstones, punching machines and anvils to carry out all repairs and fettling of the blades, etc. There are also large steam-heated drying stoves, and a timber-drying yard of about three acres in extent. The overhead travelling cranes range up to 5 tons capacity, and the rails on which they run are extended on columns across the yard. The saw-mill is the largest and best-equipped in the district, and does the sawing and planing of timber for three of the largest [103] shipbuilding yards, as well as the general work for two other firms.

Plate XLVI.

THE SAW MILL.

Larger image

Plate XLVII.

Larger image

Larger image

TWO VIEWS IN THE JOINER SHOPS.

The joiners' and cabinet-makers' shop, as we have already indicated, occupies two floors of a building 240 ft. long and 52 ft. wide; while the fourth floor is utilised for the French polishing work, as well as for storing the completed wood-work until the vessel is ready to receive it. Provision is also made in the same building for the model-making department, in which replicas of nearly all ships are produced, and, being works of art, because of their completeness, accuracy, and beauty, have earned high awards at many Exhibitions.

In the joiners' shops, illustrated by two engravings on Plate XLVII., adjoining this page, there is a complete equipment of wood-working machines for sawing, turning, planing, moulding, sand-papering, mortising, boring, tenoning, dovetailing, dowelling and joining. These are electrically driven, and are grouped at three places in the length of the shop on each floor, with benches around them, so that the joiners do not require to carry their jobs any distance in order to have them machined. There is also in use in connection with the department a portable electric circular saw, which is specially useful for carpenters and joiners, etc., on board the ship in the dock. An electric deck-planer, of the lawnmower form, has proved serviceable in reducing enormously the most laborious task experienced by carpenters and joiners.

There are two large smithies convenient to the shipbuilding berths, and in both cases the finishing department adjoins. In one case there are fifty-four fires and eight hammers; in the other, forty fires, with five hammers, ranging up to 15 cwt. The fires are operated by mechanical blowers, and the smoke and waste gases are carried off by overhead ventilating pipes. Extensive work is carried out by the smiths. Die-stamping is largely adopted in connection[104] with the making of eye-plates, cleats, stanchions, clips, etc. In each finishing shop there are band saws, radial and other drills, screwing machines, and grindstones. Smiths' stores are arranged above the finishing shops.

The plumbers' shop is fitted with a special machine for bending pipes when cold, as well as screwing and tapping machines, drills, saws, grinders, and fires.

The sheet-iron department is equally well equipped, having straightening rolls, shearing, punching, chipping, drilling, and other tools, with various hammers; and here work is done in connection with ventilating and other light ironwork.

In view of the warship contracts undertaken, the mechanics' shop, for work peculiar to the ship as distinct from the propeller machinery, etc., is extensive. The four lathes here range up to 27 ft. in length over all, with a 14-in. headstock and a 22-ft. bed. There is a useful shaping machine, a fair-sized planer, and several drills, all adequate for the work required, which is remarkable more, perhaps, for its great variety than for size.

All the machinery in the yard, and in several departments in the engine and boiler works, is run from one central station, of which two views are given on Plate XLVIII., opposite. The electric generators occupy one side of the power station, and the air compressors and hydraulic pumps the other. Steam at 200 lb. pressure is supplied by one marine cylindrical, and four Babcock and Wilcox water-tube, boilers, with superheater, coal conveyors, and mechanical stokers.

Plate XLVIII.

ELECTRIC GENERATORS IN THE POWER STATION.

Larger image

HYDRAULIC PUMPS AND AIR COMPRESSORS IN THE POWER STATION.

Larger image

There are three electric generating sets, with a total capacity of 1200 kilowatts, the voltage being 240. They are illustrated on Plate XLVIII., facing this page. The engines are of the high-speed, enclosed, forced lubrication, condensing type. The current is distributed from a switchboard in the power station by overhead mains, with three-way [105] distributing panels in the various departments. The motors, of which there are about 130 in the shipbuilding department alone, are of the two- and four-pole type, partly or entirely enclosed, and mostly of 10 to 20 electric horse-power. Arc lamps are used for lighting, but the shops and offices are also illumined by 16 and 32 candle-power incandescent lamps. Plugs are arranged at various points throughout the yard for portable lights, and for connecting mains for lighting the various ships while being completed in the docks.

Hydraulic power at 800 lb. pressure is generated by two high-pressure pumps, with steam cylinders 15 in. in diameter, and rams 4 in. in diameter. There are separate accumulators for each. The pressure pipes are led underground throughout the Works to the various hydraulic tools already referred to.

There are two air compressors for supplying power for the pneumatic tools. The combined capacity is 1800 cubic feet of free air per minute. Each has two steam cylinders 6 in. in diameter, working respectively high- and low-pressure air cylinders 15-1/4 in. and 21-1/4 in. in diameter, the stroke being 18 in. The hydraulic pumps and the air compressors are illustrated on Plate XLVIII., facing page 104.

As we have already stated, part of the power generated in this station is utilised at the engine works, to which we may now turn our attention.


[106]

The Engine and Boiler Works.

RAPIDITY of construction has been characteristic of the engine and boiler works of the Scotts to at least as great an extent as in the shipbuilding yard. Several instances might be noted, beginning with six blockade-runners, built in a very short period, in 1864, and fitted with engines to give a speed of 12 knots at sea and 13-1/2 knots on trial. A recent and striking instance is the construction of boilers and engines for twenty of the passenger steamers built for traffic on the Thames, to the order of the London County Council, and described on pages 83 and 84, ante. The contract for this work was signed towards the end of November, 1904, and work was commenced about the beginning of December. The various parts of the engines were being machined and finished during the month of January and the beginning of February, 1905; and all of the twenty sets of engines and boilers were completed by the end of May. Another noteworthy case is the construction of the machinery for the steamship Fengtien, described on page 80, ante. Work was commenced on the machinery in the middle of January, and finished about the end of April. The machinery was fitted in the ship and ready for the trials on the 29th May. The total [107] time taken from the beginning of work was well under five months.[69]

Plate XLIX.

VIEW IN MAIN MACHINE SHOP.

Larger image

The pattern shop, where all work originates, is fitted with the usual pattern-making machinery, including a core-making machine.

The iron foundry, which was begun in 1790,[70] and around which the large engineering establishment has since been raised step by step, continues to do sound work. There are four cupolas, of a combined capacity of about 20 tons, and cylinders up to 120 in. in diameter are cast. These facts suggest the satisfactory character of the equipment.

The brass foundry is an equally important department, where first-class work is done. There are fifty-two crucible pots in use, varying in size up to 150 lb., and of a collective capacity of about 2 tons; also an air furnace capable of producing at one heat 12 tons of metal, for such heavy castings as are required for preparing shaft liners, large sea chests for naval ships, etc. The strength of Admiralty gun metal made in this foundry is up to 18 tons per square inch, with 30 per cent. of elongation in a 2-in. length. The foundry is served by an electrically-operated jib crane.

In the forge and smiths' shops a large amount of detail work is done, in units ranging up to 3 tons in weight. The hammers vary up to 15 cwt. power. A considerable amount of die-stamping is done in connection with auxiliary engine forgings, etc. All paddle-wheels are made in this department. The blast for the fires is got from an electrically-driven fan.

The machine shop, which was one of the first constructed with a completely glazed roof, occupies a site on a steep slope, one side being formed by a heavy retaining wall, as [108] shown in the engraving on Plate XLIX., facing page 106. At the level of the top of the wall, which is 25 ft. high, there is the light machine shop, while at the end of the bay and over the annexe situated to the left of the engraving, is the brass-finishing shop. There is a 2-ton hoist between the erecting-shop floor and the galleries, so that no inconvenience, so far as transport is concerned, is involved by this arrangement.

Originally a stream ran down the hill and over the site on which the Works are located, and its waters have for many years been utilised as a source of power. A special 24-in. inward-flow turbine works in the conduit which conveys the water across the site, and this turbine develops continuously 80 horse-power. This serves to drive some of the machines in the boiler works. The turbine runs in parallel with a compound vertical engine, which drives the shafts actuating the groups of small machines in the engine shop. Many of the larger tools, however, are electrically-driven by separate motors, the current being transmitted from the central station already described.

The engravings on Plates XXXIX. and XLIX., facing pages 92 and 106 respectively, illustrate the main machine shop, which has a width of 60 ft., and, with the adjoining bay, accommodates some of the finest marine engineering tools made. Perhaps the best indication of their efficiency is the fact that three weeks suffice for the machining of the parts of a complete set of engines to develop 2000 horse-power. The shops are traversed by five overhead electric cranes, ranging up to 40 tons lifting capacity.

Plate L.

VERTICAL PLANING MACHINE.

Larger image

MULTIPLE SPINDLE DRILLING MACHINE.

Larger image

Plate LI.

SURFACE AND BORING LATHE.

Larger image

The leading dimensions and the principal work done by the more important tools afford an idea of the extent of the equipment. There are several planing and slotting machines, one of which is shown in the engraving on Plate L., facing this page. There are two combined machines, to plane 21 ft. and to slot 18 ft., used in [109] connection with the condensers, cylinders, large bearing frames and sole-plates of engines, while two other smaller tools are devoted to finishing the castings for bed-plates and columns. For machining eccentric-rod ends, etc., there is a 24-in. slotter with a circular table. There are two high-speed planers with two tool-boxes on the cross-slide, which take in pieces 10 ft. by 5 ft. by 5 ft., and one to take work 12 ft. by 3 ft. by 3 ft.

In the driving of some of the heavier tools very good results have been attained by the application of a reversible motor, which in one case has dispensed with four belts, a pair of bevel wheels, and two countershafts, reducing enormously the frictional waste, and enabling higher speeds and quicker return strokes to be attained.[71]

For drilling work there are several large tools. Recently there has just been fitted a multiple machine which, while primarily intended for drilling the tube-holes in drums and water-pockets of Yarrow water-tube boilers, is also utilised in connection with ordinary machine work. This tool, of which an engraving is given on Plate L., facing page 108, was manufactured by Messrs. Campbells and Hunter, Limited, Leeds. It has a massive cross-slide carrying four saddles, movable by a powerful screw, driven by spur-gearing and friction-clutch, controlled from one of the saddles. The steel spindles are balanced, and have a special self-acting, variable, rack-feed motion, as well as a quick vertical motion by hand for rapidly adjusting the drill through the jig. Each spindle can be operated independently. The table has a sliding motion, directed by two straight screws coupled to the cross shaft and vertical shaft, and is carried by a straight bed with three bearing surfaces. This machine, which weighs 20 tons, is driven by a 30 brake-horse-power electric motor.

There are two vertical boring mills used for cylinder [110] work, one being capable of boring up to 120 in. in diameter, and the other to 94 in. in diameter. A combined boring and facing machine, with a table 4 ft. square, is usefully employed on propeller bosses, valve-chests, small cylinders, and built-up bed-plates, machine bearings, etc.

The installation of high-speed lathes is specially noteworthy. In one, the face-plate can take in 12 ft. in diameter, and, as the length of bed is 30 ft., it is useful for large surfacing work, as well as for turning crankshafts of the larger sizes. There are two 12-in. double-geared lathes for surfacing and screw cutting. These are self-acting, and the lengths of bed are 19 ft. and 12 ft. respectively. For turning piston and connecting rods, two screw-cutting lathes of 16-1/4-in. centres are in use, the length of the bed being 22-1/2 ft. These have each a triple-gear headstock, and a chuck 48 in. in diameter; with rack motion and slide-rest feeds. A 20-in. centre lathe, with a bed 28 ft. 6 in. long, is fitted with two saddles and four slide-rests for shaft liners, etc. Amongst others, there is a 27-in. centre lathe for shafting, the bed being 36 ft. long.

One of the lathes is illustrated on Plate LI., adjoining page 109. This is a 48-in. surfacing and boring lathe, by Messrs. John Lang and Sons, Limited, Johnstone. The two new features introduced are the variable speed drive and automatic speed-changing mechanism. The headstocks can be used for single or triple gear, and are so arranged that, even when running at the greatest speed, there is a reduction by gearing. With this arrangement the lathes have greater power when turning small diameters than when the belt is used driving direct to the main spindle. The spindles, which are hollow, with hexagonal turrets, are of crucible cast steel, and run in gun-metal bearings. By means of the speed-changing mechanism, the cutting speed of the tool is kept practically constant when surfacing. This means that any surface can be finished off in about one-half of the time taken [111] by a lathe having the ordinary step-cone drive, where the workman will not change the position of the belt while surfacing. The self-acting feed-motions are positive.

Plate LII.

BRASS FINISHING SHOP.

Larger image

Milling is adopted in many instances in preference to planing or slotting, and this is especially so in connection with valve quadrants, columns, faces, etc. For the first-named there is a large vertical miller, and for the latter a horizontal tool with a vertical milling apparatus. For grinding bolts, etc., a machine having a separate head for grinding taps is used, the emery wheel being 18 in. in diameter and 1-1/2 in. broad.

A shop, now in course of construction, is to be specially laid out for the manufacture of turbine machinery of the greatest power. It is to be 285 ft. long, with a span of 60 ft. Heavy lifts will be taken by a 100-ton overhead crane, and ordinary work will be handled by a 40-ton electric crane. The heavy machine tools, while specially chosen for turbine work, are also adaptable for use in the manufacture of the heaviest reciprocating machinery. The principal tools are large lathes suitable for turbine rotors and crank-shafts; vertical boring machines which may be utilised for work on cylinders as well as on turbine casings; and a heavy planer, 10 ft. by 10 ft. by 25 ft. stroke. The necessary small machine tools for turbine work will be put down in this department, whence also some of the large tools will be removed from the existing shops, so that it will be fully equipped for the purpose intended.

The brass-finishing shop, which is illustrated on Plate LII., facing page 110, serves both for ship and engine work. It has only recently been laid out anew. The machines, according to the latest practice, are arranged down each side of the shop, and the benches occupy the centre. Each alternate bench is utilised for the material to be operated upon, so that the working bench is not littered in a confused way, as is too often the case. There[112] are representative types of the best makes of automatic tools, turret lathes, brass-finishers' lathes, and grinding machines with specially large discs.

A considerable amount of work is done to limit gauge in all the shops which we have described. This practice has been considerably developed recently, and a specially equipped department has been organised, where gauges, templates, and cutting tools are made. This department is illustrated on Plate LIII., facing this page. A word may first be said as to the significance of this new department. Where three or four ships have engines of the same type, a set of jigs and templates for the most important parts are at once made, so that a unit from an engine in one ship may be fitted to an engine in another. This simplifies the ordering of new parts, and greatly reduces the number of spare items which have to be kept in store by the owners, in order that repairs or refits may be effected at short notice.

For some time the Scotts have adopted this system, so that it was a simple matter to enforce it in connection with the machinery of the twenty Thames Steamers, and in recent naval work, where the practice is being applied in an extended form. In the recent Admiralty work every part of an engine is made interchangeable and identical with the corresponding parts of other engines for the same type of ship, although built in different parts of the country; and this fact alone will indicate the extent and intricacy as well as the care and degree of accuracy necessary. This standardisation to ensure interchangeability has reached its highest exemplification in the case of the machinery for the armoured cruiser Defence, of 27,000 indicated horse-power, to be completed in twenty-one months from the placing of the order by the Admiralty.

Plate LIII.

TOOL, GAUGE, TEMPLATE, AND JIG DEPARTMENT.

Larger image

Then, as regards the tool-making and fettling—the other branch of work carried out in the tool room—it has been recognised that, to make the cutting tools efficient, it [113] is necessary to utilise the most suitable steel for the tools working on various metals and alloys; and the selection of the tool steel for each metal has been systematised by the careful collation of data of actual work. In the manufacture of the tools special appliances are used and will be referred to presently. The workmen are encouraged to use only tools in sound condition. Each machine-man in the shops has ten checks, and may borrow from the store a corresponding number of tools, but these must be returned as soon as possible for overhaul and re-grinding. The bonus system further induces the men to ensure that their tools are in good condition.

The tool department is separate from the main structure, and in it all jigs, templates, and gauges, as well as tools, are constructed. Standard gauges, as well as limit gauges, are used, and both are marked in metrical and English dimensions. The tool room is not only carefully maintained at a regular temperature, in order to prevent the templates and jigs from varying in the course of their manufacture, but the appliances adopted have been selected so as to get the most precise results. In connection with the manufacture of large boiler taps, drill gauges, milling cutters, etc., a specially designed gas furnace has been built, with a number of compartments which can be used separately or collectively, according to the size of the tool being made. The toolsmith's forge is on the down-draught principle, so that, in addition to carrying off all smoke and dust, it tends to keep the atmosphere pure.

Amongst the principal machines used in this tool-manufacturing department is an 8-in. Whitworth self-acting, sliding-surfacing, and screw-cutting lathe, with a backing-off and taper-turning attachment. The milling, drilling, and grinding machines are all by the best makers. A 10-ft. machine is used for making the comparative measurements from existing standards. This machine, also[114] of Whitworth make, has a measuring screw in a fast headstock with a large dividing wheel, one division of the latter representing 0.0001-in. in the end movement of the spindle. All transverse and tensile testing of bars is done in this department.

A check system is used in connection with the distribution of templates, tools, drawings, etc., and a separate store in the centre of the works is arranged for this purpose.

HYDRAULIC PLATE-BENDING MACHINE.

Larger image

As to the boiler works, the fact that in 1905 the production was practically one boiler per week is, of itself, testimony to the nature of the plant adopted. The main boiler shop, together with its yard, has an area of 7000 square yards, and a height of 45 ft. to the crane rail, and is served by five overhead electric cranes, ranging in lifting power up to 100 tons, with numerous jib and other cranes associated with the various machine tools.

Plate LIV.

IN THE BOILER SHOP.

Larger image

The machine tools fitted in the boiler works are all of a very powerful character; but only a few of these [115] need here be referred to. There is a 13-ft. gap hydraulic plate-bending machine, which is entirely automatic in its action, and can be set to any radius to bend plates up to 2 in. thick when cold. The flanging for the front and back plates of boilers is done in an hydraulic machine, exerting a pressure of over 160 tons. This machine has four rams, two of which act downwards, one upwards, and the other horizontally. It is served by a special hydraulic jib-crane, capable of lifting the heaviest plates. There are also plate-edge planers and triple boring mills of corresponding power, while the vertical rolls take in plates up to 10-ft. wide.

For the riveting of the boilers there is a 13-ft. gap hydraulic riveting machine, capable of exerting a load on each rivet of 200 tons. The weight of this riveting machine alone is about 60 tons, and it is served by an independent hydraulic jib-crane. All the valves in connection with the crane and riveter are led to a common platform, so that one man is able to manipulate the whole of the work.

There is also a large installation of special plant for the manufacture of water-tube boilers, but it is scarcely necessary to describe this in detail.

A large part of the boiler work, especially for warships, is galvanised, and a special department has been organised for this purpose. The tubes, in the first place, are thoroughly cleaned, then placed in a zinc bath, and coated by electrolysis to the desired extent; the object being to expose defects, as well as to protect the tubes from corrosion during manufacture. The amount of work done is, perhaps, the best indication of the equipment of this department, as well as of the water-tube department; and this will be realised when it is stated that over 24,000 tubes are required for the boilers of one cruiser, and that six months suffices for their construction.

[116]

It would be possible to give other indications of the splendid equipment of the Works, but enough has been said to show that there is directed towards the realisation of the best work in all departments—firstly, the advantages of accumulated experience, carefully collated throughout two hundred years; secondly, the benefits which the psychologists claim for hereditary influence—applicable here not only through the proprietors, but also through many of the workmen; and, thirdly, a sound progressive spirit, which recognises the necessity for continual improvement in administration and design, and in machine tools and methods of manufacture.


PRINTED AT THE BEDFORD PRESS, 20 AND 21, BEDFORDBURY, STRAND, LONDON, W.C.

FOOTNOTES:

[1] This date is incorrectly given as 1904 at the end of the third paragraph on page 66.

[2] Campbell's "Historical Sketches of the Town and Harbour of Greenock," vol. i., page 18.

[3] Sir Nathaniel Barnaby's "Naval Development in the Century," page 23.

[4] Brown's "Early Annals of Greenock," page 136

[5] Williamson's "Memorials of James Watt," 1856.

[6] "The Gazetteer of Scotland," 1842, vol. i., page 709.

[7] "Journals of the House of Commons," 1792, page 357.

[8] Holmes' "Ancient and Modern Ships," page 152.

[9] Williamson's "Old Greenock," page 148.

[10] Campbell's "Historical Sketches of the Town and Harbour of Greenock," page 68.

[11] The following figures are taken for 1701 from "Chambers' Estimates," pages 68, 69, and 90; for 1793 from Lindsay's "History of Merchant Shipping"; for 1803 from "Porter's Progress of the Nation," page 626; and for 1901 from the "Statistical Abstract for the United Kingdom."

1701. 1793. 1803. 1901.
Number of ships 3,281 16,079 20,893 20,258
Tonnage 261,222 1,540,145 2,167,863 15,357,052
Seamen 27,196 118,286 247,973

The Scottish fleet, which is not included for 1701 and 1793, was much smaller, alike in the size of units and aggregate tonnage.

[12] Holmes's "Ancient and Modern Ships," page 130.

[13] Weir's "History of Greenock."

[14] Brown's "Early Annals of Greenock," page 138.

[15] Murray's "Shipbuilding in Iron and Wood," page 60.

[16] Lindsay's "Merchant Shipping," vol. iii, page 294.

[17] Woodcroft's "Steam Navigation," page 20, etc.

[18] Woodcroft's "Steam Navigation," page 54.

[19] Deas' "Treatise on the Improvements and Progress of Trade on the River Clyde" (1873), page 24.

[20] Muirhead's "Life of Watt," pages 428 and 429.

[21] Williamson's "Clyde Passenger Steamers," pages 348 to 351.

[22] James Napier's "Life of Robert Napier," page 21.

[23] This was the second of the name—a favourite one after the Duke of Wellington's great victory, and gave rise to the following poetic effusion:—

And now amid the reign of peace,

Art's guiding stream we ply;

That makes our wheels, like whirling reels,

O'er yielding water fly.

As our heroes drove their foes that strove

Against the bonnets blue;

On every side the waves divide

Before the Waterloo.

—Millar's "Clyde from Source to Sea," page 179.

[24] Millar in "Lecture on Naval Architecture and Marine Engineering at Glasgow Exhibition, 1880-81," page 138.

[25] "Greenock Advertiser," August 6th, 1819.

[26] "Steamboat Companion" for 1820.

[27] Millar, "On the Rise and Progress of Steam Navigation." Lectures at the Glasgow Exhibition (1880-81), page 138.

[28] Hodder's "Life of Sir George Burns, Bart.," page 161.

[29] Williamson's "Clyde Passenger Steamers," page 32.

[30] Lindsay's "History of Merchant Shipping," vol. iii., pages 78 to 80.

[31] Weir's "History of Greenock," page 89.

[32] Williamson's "Memorials of James Watt" (1856) page 228.

[33] "Greenock Advertiser," July 5th, 1839.

[34] "Greenock Advertiser," February 5th and May 25th, 1835.

[35] Fincham's "History of Naval Architecture," page 294.

[36] Sir Thomas Sutherland, in the "Pocket Book of the P. and O. Company" (1890), page 15.

[37] Fincham's "History of Naval Architecture," page 235.

[38] Sir John Ross's "Steam Communication to India by the Cape of Good Hope" (1838), page 31.

[39] "Greenock Advertiser," January 22nd, 1839.

[40] Fincham's "History of Naval Architecture," pages 320 and 321.

[41] Lindsay's "Merchant Shipping," vol. iv., page 86.

[A] It is difficult to determine in all cases the basis on which horse-power was computed. The figures given represent nominal horse-power, and in Sennett and Oram's "Marine Steam Engine" (page 3), the indicated horse-power is, for this early period, recorded as 1.8 times the nominal horse-power.

[42] "Practical Mechanic's Journal," vol. i., 1853.

[43] The number of steam vessels belonging to the United Kingdom in 1849 was only 1142, of 158,729 tons; Sweden, which was second among the nations of the world, had only about one-tenth of this tonnage.—Porter's "Progress of the Nation," page 626.

[44] Holmes' "Marine Engineering," page 74.

[45] Rankine's "Steam Engine," page 502.

[46] "Transactions of the Institution of Naval Architects," vol. xxviii., page 141; and vol. xxx., page 278.

[47] Lindsay's "Merchant Shipping," vol. iv., page 434.

[48] "Proceedings of the Institution of Naval Architects," vol. xi., page 152.

[49] Lindsay's "Merchant Shipping," vol. iv., page 435.

[50] Pollock's "Modern Shipbuilding, and the Men Engaged in it," page 199.

[51] "Proceedings of the Institution of Mechanical Engineers" (1901), page 608.

[52] Charnock's "History of Marine Architecture," vol. iii., page 245.

[53] The "Greenock Telegraph," May 4th, 1849.

[54] Sir Nathaniel Barnaby's "Naval Development of the Century," page 140.

[55] Sennett and Oram's "Marine Steam Engine," page 3.

[56] Fincham's "History of Marine Construction," page 332.

[57] Ibid., page 344.

[58] Sir Nathaniel Barnaby's "Naval Development of the Nineteenth Century," page 113.

[59] Sennett and Oram's "Marine Steam Engine," page 10.

[60] "Proceedings of the Institution of Naval Architects," vol. xxx., page 278.

[61] "Proceedings of the Institution of Naval Architects," vol. xxx., page 287.

[A] Battleship, Barfleur.

[B] Battleship, Canopus.

[C] Armoured Cruiser.

[62] "Encyclopædia Britannica" (1898 edition), vol. xi., page 288.

[63] "Engineering," vol. lxxix., page 577, May 5th, 1905.

[64] See "Proceedings of the Institution of Civil Engineers" (1899), vol. cxxxviii., part 3.

[65] "The Engineer," vol. xcviii., page 15.

[66] "Engineering," vol. lxxx., page 415.

[67] "Engineering," vol. lxxx., page 420.

[68] From Lloyds' Register we classify, according to speed, the numbers of British and Foreign, and of Oversea and Channel, Steamers, of over 16 knots.

Speed. British. Foreign. Oversea. Channel.
Over 20 knots 42 26 17 51
19 to 20 knots 23 11 7 27
18   " 19   " 38 14 15 37
17   " 18   " 53 49 67 35
16   " 17   " 70 56 77 49
226 156 183 199

[69] For further references to the rate of construction, see Engineering, vol. lx., page 813, where it is noted that ten vessels, aggregating 26,000 tons, were built for the China Navigation Company in nine months.

[70] See page 22, ante.

[71] See Engineering, vol. lxxx., page 418.