The Project Gutenberg eBook of Cyclopedia of Commerce, Accountancy, Business Administration, v. 01 (of 10)

This eBook is for the use of anyone anywhere in the United States and most other parts of the world at no cost and with almost no restrictions whatsoever. You may copy it, give it away or re-use it under the terms of the Project Gutenberg License included with this eBook or online at www.gutenberg.org. If you are not located in the United States, you will have to check the laws of the country where you are located before using this eBook.

Title: Cyclopedia of Commerce, Accountancy, Business Administration, v. 01 (of 10)

Author: American School of Correspondence


Release date: July 26, 2014 [eBook #46424]
Most recently updated: October 24, 2024

Language: English

Other information and formats: www.gutenberg.org/ebooks/46424

Credits: Produced by Giovanni Fini, Juliet Sutherland and the Online
Distributed Proofreading Team at http://www.pgdp.net

*** START OF THE PROJECT GUTENBERG EBOOK CYCLOPEDIA OF COMMERCE, ACCOUNTANCY, BUSINESS ADMINISTRATION, V. 01 (OF 10) ***

[i]

Cyclopedia

of

Commerce, Accountancy,
Business Administration

Volume 1

A General Reference Work on

ACCOUNTING, AUDITING, BOOKKEEPING, COMMERCIAL LAW, BUSINESS
MANAGEMENT, ADMINISTRATIVE AND INDUSTRIAL ORGANIZATION,
BANKING, ADVERTISING, SELLING, OFFICE AND FACTORY
RECORDS, COST KEEPING, SYSTEMATIZING, ETC.

Prepared by a Corps of

AUDITORS, ACCOUNTANTS, ATTORNEYS, AND SPECIALISTS IN BUSINESS METHODS AND MANAGEMENT

Illustrated with Over Two Thousand Engravings

TEN VOLUMES

CHICAGO
AMERICAN TECHNICAL SOCIETY
1910

[ii]

Copyright, 1909

BY

AMERICAN SCHOOL OF CORRESPONDENCE

Copyright, 1909

BY

AMERICAN TECHNICAL SOCIETY


Entered at Stationers' Hall, London
All Rights Reserved

MAILING DEPARTMENT IN THE NEW YORK OFFICES OF THE WESTERN ELECTRIC COMPANY


[iii]

Authors and Collaborators


JAMES BRAY GRIFFITH, Managing Editor.

Head, Dept. of Commerce, Accountancy, and Business Administration, American School of Correspondence.

ROBERT H. MONTGOMERY

Of the Firm of Lybrand, Ross Bros. & Montgomery, Certified Public Accountants.

Editor of the American Edition of Dicksee's Auditing.

Formerly Lecturer on Auditing at the Evening School of Accounts and Finance of the University of Pennsylvania, and the School of Commerce, Accounts, and Finance of the New York University.

ARTHUR LOWES DICKINSON, F. C. A., C. P. A.

Of the Firms of Jones, Caesar, Dickinson, Wilmot & Company, Certified Public Accountants, and Price, Waterhouse & Company, Chartered Accountants.

WILLIAM M. LYBRAND, C. P. A.

Of the Firm of Lybrand, Ross Bros. & Montgomery, Certified Public Accountants.

F. H. MACPHERSON, C. A., C. P. A.

Of the Firm of F. H. Macpherson & Co., Certified Public Accountants.

CHAS. A. SWEETLAND

Consulting Public Accountant.

Author of "Loose-Leaf Bookkeeping," and "Anti-Confusion Business Methods."

E. C. LANDIS

Of the System Department, Burroughs Adding Machine Company.

HARRIS C. TROW, S. B.

Editor-in-Chief, Textbook Department, American School of Correspondence.

CECIL B. SMEETON, F. I. A.

Public Accountant and Auditor.

President, Incorporated Accountants' Society of Illinois.

[iv]Fellow, Institute of Accounts, New York.

JOHN A. CHAMBERLAIN, A. B., LL. B.

Of the Cleveland Bar.

Lecturer on Suretyship, Western Reserve Law School.

Author of "Principles of Business Law."

HUGH WRIGHT

Auditor, Westlake Construction Company.

GLENN M. HOBBS, Ph. D.

Secretary, American School of Correspondence.

JESSIE M. SHEPHERD, A. B.

Associate Editor, Textbook Department, American School of Correspondence.

GEORGE C. RUSSELL

Systematizer.

Formerly Manager, System Department, Elliott-Fisher Company.

OSCAR E. PERRIGO, M. E.

Specialist in Industrial Organization.

Author of "Machine-Shop Economics and Systems," etc.

DARWIN S. HATCH, B. S.

Assistant Editor, Textbook Department, American School of Correspondence.

CHAS. E. HATHAWAY

Cost Expert.

Chief Accountant, Fore River Shipbuilding Co.

CHAS. WILBUR LEIGH, B. S.

Associate Professor of Mathematics, Armour Institute of Technology.

L. W. LEWIS

Advertising Manager, The McCaskey Register Co.

MARTIN W. RUSSELL

[v]Registrar and Treasurer, American School of Correspondence.

HALBERT P. GILLETTE, C. E.

Managing Editor, Engineering-Contracting.

Author of "Handbook of Cost Data for Contractors and Engineers."

R. T. MILLER, JR., A. M., LL. B.

President, American School of Correspondence.

WILLIAM SCHUTTE

Manager of Advertising, National Cash Register Co.

E. ST. ELMO LEWIS

Advertising Manager, Burroughs Adding Machine Company.

Author of "The Credit Man and His Work" and "Financial Advertising."

RICHARD T. DANA

Consulting Engineer.

Chief Engineer, Construction Service Co.

P. H. BOGARDUS

Publicity Manager, American School of Correspondence.

WILLIAM G. NICHOLS

General Manufacturing Agent for the China Mfg. Co., The Webster Mfg. Co., and the Pembroke Mills.

Author of "Cost Finding" and "Cotton Mills."

C. H. HUNTER

Advertising Manager, Elliott-Fisher Co.

FRANK C. MORSE

Filing Expert.

Secretary, Browne-Morse Co.

H. E. K'BERG

Expert on Loose-Leaf Systems.

Formerly Manager, Business Systems Department, Burroughs Adding Machine Co.

EDWARD B. WAITE

Head, Instruction Department, American School of Correspondence.


[vi]

Authorities Consulted

The editors have freely consulted the standard technical and business literature of America and Europe in the preparation of these volumes. They desire to express their indebtedness, particularly, to the following eminent authorities, whose well-known treatises should be in the library of everyone interested in modern business methods.

Grateful acknowledgment is made also of the valuable service rendered by the many manufacturers and specialists in office and factory methods, whose coöperation has made it possible to include in these volumes suitable illustrations of the latest equipment for office use; as well as those financial, mercantile, and manufacturing concerns who have supplied illustrations of offices, factories, shops, and buildings, typical of the commercial and industrial life of America.


JOSEPH HARDCASTLE, C. P. A.

Formerly Professor of Principles and Practice of Accounts, School of Commerce, Accounts, and Finance, New York University.

Author of "Accounts of Executors and Testamentary Trustees."

HORACE LUCIAN ARNOLD

Specialist in Factory Organization and Accounting.

Author of "The Complete Cost Keeper," and "Factory Manager and Accountant."

JOHN F. J. MULHALL, P. A.

Specialist in Corporation Accounts.

Author of "Quasi Public Corporation Accounting and Management."

SHERWIN CODY

Advertising and Sales Specialist.

Author of "How to Do Business by Letter," and "Art of Writing and Speaking the English Language."

FREDERICK TIPSON, C. P. A.

Author of "Theory of Accounts."

CHARLES BUXTON GOING

Managing Editor of The Engineering Magazine.

Associate in Mechanical Engineering, Columbia University.

Corresponding Member, Canadian Mining Institute.

F. E. WEBNER

Public Accountant.

Specialist in Factory Accounting.

[vii]Contributor to The Engineering Press.

AMOS K. FISKE

Associate Editor of the New York Journal of Commerce.

Author of "The Modern Bank."

JOSEPH FRENCH JOHNSON

Dean of the New York University School of Commerce, Accounts, and Finance.

Editor, The Journal of Accountancy.

Author of "Money, Exchange, and Banking."

M. U. OVERLAND

Of the New York Bar.

Author of "Classified Corporation Laws of All the States."

THOMAS CONYNGTON

Of the New York Bar.

Author of "Corporate Management," "Corporate Organization," "The Modern Corporation," and "Partnership Relations."

THEOPHILUS PARSONS, LL. D.

Author of "The Laws of Business."

E. ST. ELMO LEWIS

Advertising Manager, Burroughs Adding Machine Company.

Formerly Manager of Publicity, National Cash Register Co.

Author of "The Credit Man and His Work," and "Financial Advertising."

T. E. YOUNG, B. A., F. R. A. S.

Ex-President of the Institute of Actuaries.

Member of the Actuary Society of America.

Author of "Insurance."

LAWRENCE R. DICKSEE, F. C. A.

Professor of Accounting at the University of Birmingham.

Author of "Advanced Accounting," "Auditing," "Bookkeeping for Company Secretary," etc.

FRANCIS W. PIXLEY

Author of "Auditors, Their Duties and Responsibilities," and "Accountancy."

CHARLES U. CARPENTER

General Manager, The Herring-Hall-Marvin Safe Co.

Formerly General Manager, National Cash Register Co.

[viii]Author of "Profit Making Management."

C. E. KNOEPPEL

Specialist in Cost Analysis and Factory Betterment.

Author of "Systematic Foundry Operation and Foundry Costing," "Maximum Production through Organization and Supervision," and other papers.

HARRINGTON EMERSON, M. A.

Consulting Engineer.

Director of Organization and Betterment Work on the Santa Fe System.

Originator of the Emerson Efficiency System.

Author of "Efficiency as a Basis for Operation and Wages."

ELMER H. BEACH

Specialist in Accounting Methods.

Editor, Beach's Magazine of Business.

Founder of The Bookkeeper.

Editor of The American Business and Accounting Encyclopedia.

J. J. RAHILL, C. P. A.

Member, California Society of Public Accountants.

Author of "Corporation Accounting and Corporation Law."

FRANK BROOKER, C. P. A.

Ex-New York State Examiner of Certified Public Accountants.

Ex-President, American Association of Public Accountants.

Author of "American Accountants' Manual."

CLINTON E. WOODS, M. E.

Specialist in Industrial Organization.

Formerly Comptroller, Sears, Roebuck & Co.

Author of "Organizing a Factory," and "Woods' Reports."

CHARLES E. SPRAGUE, C. P. A.

President of the Union Dime Savings Bank, New York.

Author of "The Accountancy of Investment," "Extended Bond Tables," and "Problems and Studies in the Accountancy of Investment."

CHARLES WALDO HASKINS, C. P. A., L. H. M.

Author of "Business Education and Accountancy."

JOHN J. CRAWFORD

Author of "Bank Directors, Their Powers, Duties, and Liabilities."

DR. F. A. CLEVELAND

Of the Wharton School of Finance, University of Pennsylvania.

Author of "Funds and Their Uses."


THE ADVERTISING DEPARTMENT WHERE ARE ORIGINATED THE PUBLICITY CAMPAIGNS OF THE SHERWIN-WILLIAMS CO., CLEVELAND, OHIO


[8]

Foreword

With the unprecedented increase in our commercial activities has come a demand for better business methods. Methods which were adequate for the business of a less active commercial era, have given way to systems and labor-saving ideas in keeping with the financial and industrial progress of the world.

Out of this progress has risen a new literature—the literature of business. But with the rapid advancement in the science of business, its literature can scarcely be said to have kept pace, at least, not to the same extent as in other sciences and professions. Much excellent material dealing with special phases of business activity has been prepared, but this is so scattered that the student desiring to acquire a comprehensive business library has found himself confronted by serious difficulties. He has been obliged, to a great extent, to make his selections blindly, resulting in many duplications of material without securing needed information on important phases of the subject.

In the belief that a demand exists for a library which shall embrace the best practice in all branches of business—from buying to selling, from simple bookkeeping to the administration of the financial affairs of a great corporation—these volumes have been prepared. Prepared primarily for[9] use as instruction books for the American School of Correspondence, the material from which the Cyclopedia has been compiled embraces the latest ideas with explanations of the most approved methods of modern business.

Editors and writers have been selected because of their familiarity with, and experience in handling various subjects pertaining to Commerce, Accountancy, and Business Administration. Writers with practical business experience have received preference over those with theoretical training; practicability has been considered of greater importance than literary excellence.

In addition to covering the entire general field of business, this Cyclopedia contains much specialized information not heretofore published in any form. This specialization is particularly apparent in those sections which treat of accounting and methods of management for Department Stores, Contractors, Publishers and Printers, Insurance, and Real Estate. The value of this information will be recognized by every student of business.

The principal value which is claimed for this Cyclopedia is as a reference work, but, comprising as it does the material used by the School in its correspondence courses, it is offered with the confident expectation that it will prove of great value to the trained man who desires to become conversant with phases of business practice with which he is unfamiliar, and to those holding advanced clerical and managerial positions.

In conclusion, grateful acknowledgment is made to authors and collaborators, to whose hearty coöperation the excellence of this work is due.


[10]

Table of Contents


(For professional standing of authors, see list of Authors and Collaborators at front of volume.)

VOLUME I

Administrative and Industrial Organization By James B. Griffith Page 11
The Business Engineer—Preliminary Investigation—Charting the Organization—Organization of Business—Organization of Mercantile Business—Universal Application of Organization Principles—Departmental Authorities—The General Manager—Comptroller—Sales Division—Superintendent—Purchasing Agent—Employment Department—Charting Salary and Wage Distribution—Expense Distribution Chart—Arrangement of Plant—Factory Plans—Office Plans—The Committee System—The Suggestion Plan—Order Blanks
Advertising and Sales Organization By James B. Griffith Page 61
Systems and Records—Designs and Cuts—Cut Indexes and Tracers—Records of Printing—Periodical, Street Car, and Outdoor Advertising—Rate Cards—Advertising Contracts—Checking Returns—The Sales Department—Branches—The Mail-Order Branch—Follow-up Systems—Personal Salesmanship Division—Routing Salesmen—Sales Records
The Credit Organization By James B. Griffith Page 127
The Credit Man—Information Required—Financial Statements—Analysis of Statements—Sources of Information—Local Correspondents—Credit Agencies—Recording Credit Information—Collections—Monthly Statements—Installment Collections—Collections by Attorneys
The Shipping Department By James B. Griffith Page 183
The Shipping Clerk—Class Rates—Commodity Rates—Freight Tariffs—Condensed Rate File—Routing Shipments—Filling Orders—Checking Shipments—Export Shipping—Freight Claims—Express Shipments—Retail Delivery System
Correspondence and Filing By James B. Griffith Page 231
Opening and Distributing Mail—Correspondence Short Cuts—Talking Machines for Dictation—Copying Correspondence—Stenographic Division—Records of Work—Filing Division—Filing Systems—Methods of Indexing—Guiding, Transferring, and Sorting—Selecting Filing Equipment—Styles of Construction
Business Statistics By James B. Griffith Page 287
Sales Costs—Records of Shipments—Returned Goods—Salesmen's Records—Expense Distribution—Department Sales—Trading Statements—Profit Figuring—Administrative Costs—Profit and Loss Statements—Mailing-Room Machinery
 
Review Questions   Page 333
 
Index   Page 347

AN EXECUTIVE OFFICE AT THE PLANT OF CORBIN CABINET LOCK COMPANY, NEW BRITAIN, CONN.


[11]

ADMINISTRATIVE AND INDUSTRIAL ORGANIZATION

1. With little fear of contradiction, it may be stated that every commercial enterprise is conducted with the one purpose in view of making money for its owners. Naturally, the owners desire the largest possible returns from their investment of money or time, or both. Every person connected with the enterprise, in any capacity whatsoever, is indirectly working for the same purpose—to make as much money as possible for the owners of the business.

The largest possible volume of profitable business must be transacted; the business must be conducted with economy; the returns from each dollar expended must be as large as possible. This very condition is one of the beneficial results of modern business methods. The demand for a greater volume, lower cost of production, and more economical methods, has brought with it an incentive to greater effort on the part of the individual, with corresponding rewards.

That the efforts of the individual may be productive of best results, he must have the coöperation of other individuals engaged in the same enterprise. The enterprise must be properly organized.

Realizing the absolute necessity of harmoniously working organizations, keen students of business affairs have given much study to the question of how to organize a business. They have studied the plans of operation of the most successful enterprises, for the purpose of discovering those factors which have contributed most largely to their success. They have investigated and improved old plans and methods and invented new methods.

2. The Business Engineer. The investigations of these men have brought into being a new profession—that of the business organizer or business engineer—a profession that has quickly gained recognition. Business men, especially those at the head of large enterprises have not been slow to avail themselves of the services of men who have mastered the science of business organization.

For the same reason that he has long employed an architect to plan his building the modern business man calls in a business engineer[12] or systematizer, to perfect his business organization. As in every other profession, some incompetent men are found posing as business engineers, but an increasing number of trained men are entering the field. It is the work of these men that is placing the profession on a high plane.

The successful business engineer must have the ability to quickly grasp the plan of operation of any business with which his work may bring him in contact; he must be able to analyze conditions and to determine the factors which make for the success or failure of a business. His work is to organize and systematize every step of the work in every department.

3. The Preliminary Investigation. The first step in the organization or systematizing of a business is to determine its natural divisions. What is the nature of the business, and what are its distinguishing characteristics? Be it a manufacturing, jobbing, wholesale, retail, or professional concern, there is some one head on whom rests the final responsibility for the success or failure of the business. He must be surrounded with subordinates, each having certain duties to perform, who will be responsible for the performance of those duties, thereby coöperating to carry out the purposes of the enterprise.

The highest type of organization is found among the great industrial enterprises. These enterprises with their many activities most readily lend themselves to the application of scientific principles of organization. Here, organization can be carried to its final conclusion; in a smaller enterprise the same principles apply, but modification of details is necessary.

If we study the organization of a large enterprise, regarding it as a type, we can more readily grasp the requirements of a smaller business. But it must be remembered that in any event, the individual business must be studied and the organization made to fit the business. A tailor does not cut all coats from the same pattern.

In certain respects a great industrial organization may be likened to the army. At the head of the army is the commanding general, on whom rests the responsibility for the success of any campaign. He is surrounded by his staff, with whom he consults on questions of importance. When any important move is decided upon, the members of the staff—themselves in command of divisions of the army—issue[13] orders to their subordinate officers. They, in turn, pass the orders along, and at a predetermined moment, an entire army is set in motion.

Another important feature of the army organization which should be applied to the organization of a business is the disregard of the individual. Military authorities long since discovered that a high standard of efficiency could be maintained only through the organization of the army along certain lines. The question was not one of creating offices the duties of which would conform to the capabilities of certain men; the offices were first created, and then competent men were selected to fill them.

4. Individuals Disregarded. In creating responsibilities in a business organization, the individual should be disregarded, just as he is in the army. Unfortunately, the importance of this question is not always recognized. Too frequently the best interests of the organization as a whole are subserved to the interests of individuals. Business enterprises are organized and offices divided among the principal owners without seriously considering their respective abilities. This is wrong in principle, and works to the detriment of the business. It is one of the important problems to be solved in organization. Jones, who is a natural born financier, prefers to manage the selling end of the business, while Brown, a salesman of ability, is made treasurer. Neither is in the right place; change them about, and an efficient team would result.

Before we can perfect an organization, we must know what the business is. We must ascertain for what it is organized; what class of business is carried on; manufacturing, mining, jobbing, wholesale, retail, or a combination of two or more classes; whether conducted entirely in one plant or through branches; the method of marketing the goods; by traveling salesmen, agencies, or mail; the facilities for obtaining supplies, raw materials, or manufactured goods. When we understand the nature of the business, we are in a position to work out an impersonal, systematic organization.

Referring again to the necessity of a disregard of individuals in perfecting an organization, it is not the province of the business engineer to determine the qualifications of the men. He must be governed solely by the requirements of the business. When his work is completed, it is for the management to decide who is best fitted to assume[14] the duties and carry out the purposes of the departments and positions created.

We refer, for convenience, to the business engineer or systematizer; the principle is the same whether the one doing the work is acting in a professional capacity, perfecting the organization of his employer's business, or even solving the problems of his own establishment.

OBJECTS AND CHARACTERISTICS OF ORGANIZATION

5. To reduce the subject to concrete form, the objects of business organization may be defined as follows:

(A) To unite the individuals who are to conduct an enterprise into a body which will work systematically to a common end.
(B) To bring together or group the component parts of the body with respect to their specific relations and duties.
(C) To elect officers and appoint committees and authorities with clearly defined duties and responsibilities.

These definitions all lead to a common center, that is, coöperation. Without co-operation the success of any organization is very questionable, if not impossible. With it—a body of men all working together for a common end—almost any apparent obstacle will be surmounted. No matter how large an organization may be, how many or wide its ramifications, if the spirit of co-operation prevails, it will move as one irresistible body.

And, regardless of the size or nature of a business enterprise, the organization, as here used, resolves itself into certain easily distinguished components, as follows:

First: The owners, represented in a corporation by the stockholders or investing public; in a partnership, by the partners; in an individual business, by the proprietor.

Second: The executive or managerial division.

Third: The commercial or active business division.

Fourth: The manufacturing or productive division.

These components lend themselves naturally to certain specific subdivisions; natural groups are formed to insure efficient management; certain authorities are delegated to effect economical operation.

The stockholders (owners) first elect from among their number, a board of directors. This is the initial step toward perfecting a business organization. The directors represent the stockholders,[15] and the interest of the stockholder, as such, becomes that of an investor only. His interest in the operation of the business is to be looked after by the directors, whom he, or a majority, has elected.

From this board of directors is built the framework of the executive or managerial division. The first act of the directors is to meet and elect the usual executive officers: President, Vice-President, Secretary, and Treasurer. In modern organizations, it is customary to also elect or appoint an executive committee or board of managers.

This committee consists of three or more members, usually selected from the officers, to which may be added one or more directors who are not officers.

To this committee, the board of directors delegates its authority in the actual conduct of the business. This plan of electing an executive committee is particularly desirable when the board is a large one, as it concentrates authority and results in more prompt action on matters demanding immediate attention. A large body is unwieldy, a quorum cannot always be brought together on short notice, but a working majority of a small committee can be convened promptly.

The executive committee takes charge of both the commercial and manufacturing divisions. To still further concentrate authority, it is customary to appoint a General Manager who has direct supervision over the immediate operation of both commercial and manufacturing divisions. He is appointed sometimes by the executive committee, but more often by the board of directors.

The general manager, while occupying a position of chief acting executive, acts with the executive committee and is directly responsible to the board of directors.

The commercial division of a business naturally subdivides into two sections: Accounting, and Advertising and Sales. The first thought of the student might be that accounting is given a position of too great importance, but in the sense here used it means the records of the business of every nature, the accounts, the gathering and recording of statistics and information of every character.

The manufacturing division divides into Purchasing and Stores, and Production. In a measure, the purchasing of goods is a function of the commercial division, but the purchasing of raw material and supplies is properly under the supervision of the manufacturing division.

[16]

CHARTING THE ORGANIZATION

6. What may be termed the anatomy of an industrial body, is most graphically shown by means of charts. Free use of charts will be made throughout these papers. With properly designed charts the logical divisions of authority or expense can be clearly shown.

Fig. 1 furnishes a graphic illustration of the principal components of the organization under discussion. In the first group we find the owners (stockholders) whose line of communication with the business is through the board of directors. Subordinate to the board of directors are its own executive officers, the executive committee, and general manager.

The connecting lines show the executive committee to be in direct communication with the board of directors, while the general manager is in direct communication with both the executive committee and the board of directors.

Under the general manager are the commercial and manufacturing divisions, over both of which he has direct supervision.

7. Working Authorities in Large Enterprises. The next logical step in the development of our organization is a study of the working authorities and responsibilities of the different officers and their assistants. We have seen that the administrative authority is for practical purposes centered in the general manager. It is not to be supposed, however, that in a large industrial organization he will personally supervise all of the details of operation of the commercial and manufacturing divisions. His time must not be taken up with details which can be as well handled by subordinates. He should be free to devote his time to questions of policy, the providing of finances, the consideration of new fields of endeavor, and the making of the more important contracts. His immediate assistants will be a Comptroller and a Superintendent.

The comptroller fills a position identical with that of a business manager or an assistant manager. His duties are mainly in connection with the commercial division. It is his business to devise systems of accounts and systems for recording the activities of every department, and have reports compiled, in proper form for presentation to the general manager. His is a statistical department, filling a place between the general manager and the subordinate departments, and, while not closing the avenues of communication between these departments and the general manager, it is here that reports and records of results are concentrated.

[17]

Fig. 1. Chart of a Corporate Manufacturing Enterprise

[18]

The superintendent is in immediate charge of manufacturing operations and is responsible for the custody of all property used in manufacturing. His position does not close the avenue of communication between factory departments and the general manager.

Fig. 2 illustrates the subdivisions of the commercial and manufacturing branches. This chart does not go back of the administrative section of the organization, as the stockholders have no direct connection with the actual operation of the business.

We find the subdivisions of the commercial branch in charge of the following: Chief Accountant, with direct supervision over all bookkeeping and accounting records; Chief Stenographer, in charge of all stenographic and circularizing work; Advertising and Sales Managers, in charge of publicity and selling campaigns; Credit man, in charge of credits and collections.

The manufacturing department includes the Purchasing Agent, who purchases all manufacturing stores, materials, and supplies; Chief Stores clerk, in charge of the storage of all materials and supplies; Chief Engineer, who designs new products, new machinery for the manufacture of that product, and conducts all experimental work; Chief Draftsman, who superintends the work of the drafting rooms; Assistant Superintendent, in charge of maintenance of power and heating plants, internal transportation facilities, machinery and buildings; Foremen, in charge of shops employed in production work.

As shown by the lines of communication, represented by the heavy lines, the authorities of the comptroller and superintendent extend to every phase of the work of the commercial and manufacturing branches. The comptroller is in communication with the manufacturing branch since the making of schedules, time keeping, and the assembling of cost statistics are all centered in his office. He does not, however, assume any of the duties of the superintendent, and while their work is closely related, the two officers conduct their departments without conflict of authorities. It must be remembered that they are equally responsible to the general manager, which of itself requires cordial coöperation.

[19]

Fig. 2. A Chart of Working Authorities in a Manufacturing Business

[20]

8. Organization Applied to Small Business. We have referred only to large manufacturing enterprises divided into many departments, necessitating a division of executive duties among a large number of minor executives. While, in the organization of a smaller enterprise, not all of these department heads will be required, the principles of organization, so far as division of authority is concerned, remain the same.

In the small corporation, we find the same board of directors elected by the stockholders. This board may be small, consisting of no more than five, or even three members, but the same executive officers are elected. One man may hold more than one office, as secretary and treasurer, or vice-president and treasurer, yet each office is filled. If the board is small the executive committee may be omitted, in which case the board itself performs the duties of the executive committee. There is the same general manager; at least the duties exist even though there be no such office in name. The president may act as the executive head, and be recognized as the actual manager of the business, but in so doing he is acting in an entirely different capacity than that pertaining to the office of president.

Extending the illustration to a small manufacturing enterprise, the general manager may assume all of the duties of the comptroller in the operation of the commercial branch; he may be his own sales manager or credit man; or in the manufacturing branch, he may act as superintendent.

The treasurer of the corporation may be the accountant and also act as credit man. The advertising and sales managers may be one, or the superintendent may be the purchasing agent as well.

The point intended to be emphasized is that there are certain duties to be performed, certain responsibilities to be met, certain authorities to be assumed even though it be but a one-man business. And in this is illustrated the importance of creating any business organization without regard to individuals.

9. Organization of Mercantile Business. Leaving for a time the organization of a manufacturing enterprise, we will consider the application of the principles of organization to a trading business. In such a business, the administrative section remains the same: stockholders, directors, officers, executive committee, general manager. At this point the business naturally divides into the departments of buying and selling.

[21]

Fig. 3. A Chart of a Corporate Trading Enterprise

[22]

The buying department is subdivided into purchasing, stock, and shipping. The subdivisions of the sales department are sales and accounting. Our chart of the organization shown in Fig. 3, follows the same lines as Fig. 1, the only change being in the main divisions.

Advancing the next step we find the executive officers in charge of the several divisions of the work, corresponding very closely to those shown in Fig. 2. The buying department is in charge of the Purchasing Agent, Chief Stock Clerk, and Shipping Clerk, or Traffic Manager, as he is sometimes known.

The selling department is in charge of the Chief Accountant, Advertising Manager, Sales Manager, and Credit Man. This is shown clearly in the chart, Fig. 4.

Lest an erroneous impression be gained, it may be well to state at this point that the advertising and sales managers must work in perfect harmony. Indeed, advertising is one branch of the sales department and the success of one is so closely interwoven with the other that no important step should be taken by either independently.

In many large concerns, the sales manager is the real advertising manager, even though another may supervise the actual routine of preparing advertising matter. A competent advertising man makes a successful sales manager, and every sales manager should have advertising training, for the purpose of advertising is to create a demand and assist in making sales.

Referring again to Fig. 4, it is seen that both buying and selling departments are under the control of the general manager, from whom direct lines of communication lead to every division of these departments. Direct communication is also maintained between the two departments. The accounting division keeps the accounts of the buying department; the sales division must be in communication with the purchasing and stock division in respect to maintaining the stock to be sold, and with the shipping division in respect to the filling of orders.

10. Universal Application of Organization Principles. When we go into all of the ramifications of business we find many establishments where minor variations of our plan of organization appear necessary, but in the final analysis, the fundamentals prove to be the same.

[23]

Fig. 4. Chart of Working Authorities in a Trading Business

[24]

Reduced to its simplest form, we will suppose the business under consideration to be a small retail establishment conducted by two partners. No thought has been given to the principles of organization, yet they are applied in that little store just as surely as in the immense manufacturing plant.

Ask any commercial salesman calling on the firm who is the man to see regarding the introduction of a new line of goods, and he will probably answer, "Mr. Jones is the man to see; he does the buying." With no thought of organization, the owners of this little business realize that it is best for one man to do the buying. Perhaps the other may inspect samples, his opinion may be asked, he may even place an occasional order, but it is not the rule of the establishment. By placing the buying in the hands of one partner, confusion is avoided. He can keep in closer touch with prices, and the results are far more satisfactory.

Advancing to the larger retail business of the department store, whether the general store of the small town or the big store of the city, we find a different problem. Here the buying is further specialized, for one man buys for one, or at most three or four departments. The same men act as sales managers and buyers in the departments for which they are responsible. The manager of a department in a big store is selected as much for his ability as a buyer as for his salesmanship. But we do not get away from fundamental principles, for in buying and selling the manager is performing two entirely separate and distinct functions.

No matter what the business, we find the same two fundamental functions, that is, buying and selling. As illustrations of the application of this principle to different businesses we give the following:

Publishers of newspapers and other periodicals buy editorial work, manuscript, engraving, paper, printing; sell subscriptions, advertising space.

Publishers of books buy editorial work, manuscript, engraving, paper, printing; sell books.

Railroad companies buy equipment, rails, lumber, coal, supplies, labor; sell freight and passenger transportation.

Schools and colleges buy textbooks, supplies, services of instructors; sell instruction.

Professional men buy their instruction, books, instruments, office furnishings, clerical assistance; sell their services.

In every undertaking, revenues are produced through salesmanship. Every business and every profession has something to sell,[25] and its financial success depends largely upon the quality of salesmanship employed. Whether it be a professional man with nothing but his services to sell and no other means of advertising than through work well done, or a gigantic commercial organization with its extensive advertising campaign and many salesmen, a selling organization exists in some form. And before anything can be sold it must be procured, or bought.

On this question of the universal application of the principles of organization, we quote from a valuable contribution in The Engineering Magazine, by C. E. Knoeppel:

"While business as it is now conducted is not as simple as it was in the barter days, it must not be inferred that this segregation of authority is synonymous with complexity, for its very purpose has been to simplify, and that is what it has accomplished. It is only where this segregation has been the result of lack of thought and proper attention, or other like causes, that we find a complex and unsatisfactory condition of affairs. In fact, there is all about us sufficient evidence that many commercial enterprises are being conducted along lines that, as far as evolutional development is concerned, are several stages behind the times.

"Let us suppose a case, which will apply in a greater or less degree to the majority. In the earlier development, we will say that the founder of the business was able, on account of its small size, to make what sketches he needed, solicit orders, see that they were filled, perhaps take a hand at the making if occasion required, see to the shipments, and attend to the collections and the keeping of his few accounts. He finds that the business grows, and eventually places a man in charge of certain branches while he looks after others. The accounts eventually require more attention than he can give them so he engages a bookkeeper in order that he may be relieved of the work. He finds that the quantity of materials received and shipped amount to enough to warrant a receiving clerk as well as a shipping clerk, and, to handle this material from its inception to shipment he conceives the idea of placing a man in charge as stock clerk. He then adds a purchasing agent, in order that he may be relieved of the detail and that purchases may be made most economically; a man is placed in charge of the orders; foremen are placed in charge of certain men in the shops; the details connected with making plans, drawings, estimates, etc., are taken over by a practical man; his manager is given a man to look after the shops or engineering branch; while the commercial branch with its many details is placed in the hands of another. As the evolution continues, the selling branch is assumed by one man; cost details are looked after by another; a chief inspector is added in order that all work may be shipped according to specifications; the engineer, who before had been a sort of jack of all trades, is placed in charge of certain work, while an electrician is engaged to look after this particular work; and so this segregation continues as the development continues.

"Perhaps it is not to be wondered at that the founder, in looking backward, is inclined to pat himself on the back when, in a reminiscent mood, he[26] considers what he terms 'remarkable development.' He considers that he has been wonderfully successful in building up a business which at the beginning was so small as to admit of his supervising every detail, while today he employs a dozen men to do the work he once did. There is no getting away from the fact that it is this same feeling of self-satisfaction that is responsible for a large number of faulty organizations, for if we should tell this manufacturer that his business is far from being as successful as it is possible for it to be ... he would vigorously resent any such accusation; but the fact remains that it is not the success it should be, for the very reason that the development has been allowed practically to take care of itself. New men were added, new offices created, only when absolutely necessary, each newcomer being given a general idea of what was expected of him, and not knowing, not thinking, or perhaps not having the time to give more than passing attention to the matter, the proprietor did not consider the fact that his business was a unit, with each worker a part, having a distinct relation with every other worker. Hence, as the efficiency of any organization is directly in proportion to the care with which these relations are considered and treated, his organization naturally fails to attain that degree of efficiency obtainable, and for this condition he, and he only is responsible."

11. Departmental Authorities. The next logical step in the development of our organization is an analysis of the departmental organizations. We have seen how the operations of the business are divided among several divisions or departments. The reason for such divisions is apparent. In a large business no one man can personally supervise all of its activities. Each division is engaged in certain activities that demand the immediate supervision of specialists. One man is a specialist in advertising, another in sales plans, others in purchasing, specific manufacturing operations, or the design and maintenance of appliances intended to improve the product or to reduce costs.

To reach the highest state of efficiency in every department of the business, these specialists must be employed, which is another reason for organizing a business along the line of its activities, and without respect to individuals.

Before we can decide what manner of man should be placed at the head of this or that department, we must study the duties of the position, the responsibilities involved, the authorities to be assumed. To present this problem in graphic form, the chart (Fig. 5) is designed. While the arrangement is not inconsistent with Fig. 2, this chart of the same class of organization is laid out along the lines of authority. It shows both the authority of the department head and the necessary activities of his division.

[27]

We have selected the organization of a large industrial establishment for the very reason that many divisions and departments are necessary. The smaller organization will have a less number of divisions, but it is much easier to condense than to expand a given plan. Any man who understands the requirements of a large organization can readily adapt those ideas to a smaller establishment. He can apply the plan so far as it can be used to advantage. Some variations of the application of the plan will be pointed out in our departmental analysis.

Fig. 5. A Chart Which Shows the Duties, Responsibilities and Authorities to be Assumed by Each Department Head

It is perhaps unnecessary to say that while the authorities of some of the department heads have been referred to in preceding[28] pages, this analysis is intended to exhibit these authorities in greater detail.

12. General Manager. As a rule the general manager has general supervision over the commercial and manufacturing branches. In conjunction with the president and executive committee, he formulates all policies to be followed in purchasing, manufacturing, sales, and advertising, establishing credits, and accounting methods. He is responsible to the executive committee and board of directors for procuring materials, their manufacture and sale, and the maintenance of buildings and machinery.

It is his duty to keep in touch with the operations of every department and to post himself on the general efficiency of all classes of workmen. Through reports he will keep informed in regard to the results of the operations of every department.

While in direct communication with all department and division heads, he will have for his immediate assistants, a comptroller and a superintendent. It is from the comptroller that he will receive statistics and reports of the activities of the business in all its branches, while to the superintendent he delegates his authority in the actual operation of the manufacturing branch.

13. Comptroller. "A controller or manager" is a standard definition of the term comptroller. In the organization under consideration, he is a controller of the business by virtue of the fact that he is responsible for the accounting and recording of all activities of the business.

He occupies the position of auditor and is the real systematizer of the business. He creates all systems of commercial accounting, cost accounting, departmental records, time keeping, and pay rolls, reports of superintendent, perpetual inventory, sales statistics, and, in fact, all records of the business. He prepares all balance sheets, comparative statements, trading, manufacturing, and profit and loss statements, and reports to the general manager or executive committee, or both, on the condition of finances, materials, and finished goods.

Since the formation of important policies may hinge on the reports and statistics of his department, he occupies an office next in importance to the general manager. The training and experience gained in his office place him in direct line for promotion to the office of general manager.

[29]

His authority is absolute over the accounting and stenographic departments, while his authority extends to other departments only in respect to their record systems. In the accounting department, his direct assistant is the chief accountant; and in the stenographic, the chief stenographer.

In a smaller organization the comptroller may not require the services of a chief accountant, in which case he performs the duties of the position. Or the treasurer may occupy the office of comptroller.

Chief Accountant. The chief accountant is in immediate charge of the commercial and factory accounting. His assistants are cashier, bookkeepers, factory accountant, cost clerks, time clerks.

This department accounts for the receipt and disbursement of all moneys and properties, figures costs and pay rolls, and prepares statistics necessary for the use of the comptroller in making up his reports and statements.

It is evident from this that the comptroller is in a sense the custodian of all property belonging to the business, since he must, through his accounting department, account for its receipt and disbursement. This explains why the comptroller prescribes all systems for the care and recording of stores, supplies, and finished product.

Chief Stenographer. The chief stenographer is at the head of the correspondence department, with authority over all stenographers, typists, filing and mailing clerks.

Stenographers are supplied to all divisions by this department. This plan of having all stenographers in one department subject to the call of those having need of their services is now adopted by most large concerns, except in a few cases where stenographers act as private secretaries to the officers. The plan is an economical one, for only the number actually required to handle the work of the establishment need be employed. Under the old plan of employing one or more stenographers in each department, it is common to find them idle in one department while in another the work is behind. Another strong point in favor of the more modern plan is that each stenographer becomes familiar with the dictation of all departments, and no stenographer has an opportunity to become familiar with the secrets of the business.

In the stenographic department, the work of addressing and mailing form letters, catalogues, and circulars is done.

[30]

All correspondence is filed by this department.

Records of office supplies, stationery and printed matter are maintained in this department.

The chief stenographer has charge of and accounts for all postage, but secures postage by requisition from the cashier or accountant.

14. Sales Division. By far the most important division of the entire commercial branch is the sales division. This division is responsible for finding a market for the output of the business.

It must create a demand for the product through advertising, open new fields, study the demands of the trade and the products of competitors, ascertain as far as may be the possibilities of marketing new products, and, above all, sell goods at a profit.

The selling division of some of the largest industrial establishments is in sole charge of a general sales manager, who has authority over the advertising as well as selling. In our chart we have divided responsibility for the conduct of this division between sales and advertising managers, placing the advertising manager on an equality with, rather than subordinate to, the sales manager. This combination will produce the most satisfactory results for most enterprises.

Advertising Manager. The advertising manager has charge of the preparation of all advertising literature, catalogues, copy and designs for all periodical advertising and usually the placing of all contracts for printing and engraving.

He has authority over all artists and copy writers employed regularly and for special work.

With the sales manager and general manager, he makes up appropriations for periodical advertising and places contracts when these appropriations have been approved.

He confers with the sales manager on all questions pertaining to his work, no printed matter for the use of the selling division being ordered until approved by the sales manager. Thus, coöperation of the sort that makes for success is assured.

Sales Manager. The sales manager has authority over the sale of goods and filling of orders, and his department is divided into selling and filling. The selling department is further subdivided into salesmen and mail orders.

One subdivision represents that portion of the sales made by personal salesmen. The active work is carried on by salesmen who call on the trade under the orders of the sales manager.

[31]

The sales manager hires all salesmen, prescribes their territories and routes, and supervises their expense accounts.

He compiles reports and statistics of their work for presentation to the comptroller or general manager, and keeps the records prescribed for this department.

The mail order division is engaged in the sale of goods by the use of letters, circulars, and catalogues. Lists of customers and prospective customers are maintained, and sales follow-up systems are operated under the immediate supervision of this division.

In the filling department, the chief order clerk is in charge of entering sales orders, making shipping orders and manufacturing orders. He maintains a record of sales and manufacturing orders so that he can keep informed on manufacturing or stock requirements. All invoicing of shipments is done in this department.

The shipping clerk maintains records of rates of transportation by rail, water, or truck, and keeps posted on routes and facilities. He supervises the packing of all goods, and secures proper receipts from transportation lines.

Credit Man. The position of the credit man is an important one in any establishment.

He collects and records information about the financial responsibility and credit standing of customers. When necessary, he makes special investigations, and on the basis of his information extends or limits credit. Every order from a new customer must be approved by the credit man before it can be accepted.

When accounts have been opened, it is the duty of the credit man to collect them when due, or, if not paid promptly, to use every means to secure a settlement. His work brings him in contact with both the sales and accounting departments.

The credit man is assisted by such clerks and collectors as may be necessary for the conduct of his department.

15. Superintendent. The superintendent is given general supervision over the manufacturing branch of the business. His authority extends directly to the engineering and drafting departments, the work of the assistant superintendent, foreman of tool room, and shop foremen. His relations with the purchasing department are advisory rather than managerial.

His immediate assistants are the chief engineer, assistant superintendent, and shop foremen.

[32]

It is his duty to execute orders for the manufacture of goods, operate the plant in the most economical manner, study and introduce processes and methods that tend to reduce manufacturing costs, and keep informed generally on the efficiency of men, machinery, appliances, and materials in all manufacturing departments.

With the assistance of the purchasing agent he provides all materials and supplies required in the manufacture of goods or for the operation of the plant.

Chief Engineer. The chief engineer designs all special machinery and appliances to be manufactured for use in the plant, designs and plans all new products for which there appears to be a demand, and personally supervises the experimental department. The installation of new equipment is also done under his supervision.

His authority extends to the drafting department which is in charge of a chief draftsman. This department draws all designs, plans of new machinery or product, and all plans not classed as architectural.

In a plant where many special tools are made, the chief engineer also has authority over the tool room.

Assistant Superintendent. The assistant superintendent is responsible for the maintenance in efficient condition of all power, pumping, heating, and lighting plants, internal transportation facilities, and the repair of buildings and equipment.

Except in the larger plants, he has authority over the tool room which is placed in charge of a tool room foreman. This department is responsible for the custody of all tools, repairs to tools, and their manufacture. Tools are issued only on requisition and perpetual inventories are maintained according to systems prescribed.

In some very large industrial plants, like a steel plant, there are several assistant superintendents, each having specific duties. There may be a superintendent of power, superintendent of transportation, superintendent of machinery, superintendent of buildings, superintendent of stores, etc. In a small plant, the superintendent will personally perform the duties here assigned to the assistant superintendent.

Shop Foremen. As the name indicates, the shop foremen are in charge of the various shops or manufacturing departments. It is the duty of the shop foreman to lay out the work called for by the[33] orders of the superintendent, and to assign the work to his men. He will make provision for the prompt execution of orders by making requisition for the number of men that can be profitably employed in his department. It is his duty to keep all of his men supplied with work.

16. Purchasing Agent. The purchasing agent has charge of the purchase of all materials for the manufacturing branch, and in some cases for the commercial branch. In a purely trading concern, his duties would be in connection with the commercial or selling branch, but in a large industrial enterprise, the purchase of office supplies, advertising literature, etc., is usually under the supervision of the comptroller, chief accountant or advertising manager.

He procures catalogues, price lists, names of manufacturers and dealers, and keeps generally informed as to sources of supply. He obtains samples which are submitted to tests by the engineering department or otherwise.

With the superintendent and general manager, he makes schedules of materials, secures bids, and places orders. Records of orders and all information needed in his office are kept according to the systems prescribed by the comptroller.

He has full authority over the store rooms, in which he is assisted by the chief stores clerk. This department receives all goods, checks receipts with orders or invoices, stores the goods, delivers them on properly executed requisitions, and maintains perpetual inventory records as prescribed.

EMPLOYMENT DEPARTMENT

17. A department, or rather a sub-department, not shown on the chart but found in some establishments, is the employment department. This department is very properly in immediate charge of the superintendent, and, in the average manufacturing plant, he will hire all men. In a plant employing a great number of men, it is impossible for the superintendent to personally take charge of this work, and an employment agent is placed in charge.

The employment agent keeps records of all employes and applicants and hires all men needed by the different foremen.

GENERAL MODIFICATIONS

18. The organization that we have described is a representative illustration of the application of the principles to a large enterprise,[34] necessitating a considerable number of subdivisions. But even here the charts show only what may be termed the principal divisions; the charts might be extended in greater detail. The explanation might include the exact duties of every employe in each department, but, as our purpose is to present general principles in sufficient detail to serve as a guide, explanations of these minute details have been omitted.

There are, however, modifications to be found in certain cases which may be made clear by further suggestions. We have referred to the comptroller, and while in many concerns no such office is recognized, at least by that title, some man in every business of any magnitude fills an analogous position.

Most frequently it is the auditor, or if the office of auditor has not been created, it may be the treasurer. Again, the duties or a greater part of them, may fall on the office manager or the chief accountant. Even in a small partnership where one of the partners is the bookkeeper, the duties exist, and are performed by that partner who keeps the accounts. It must be remembered that the comptroller's office is primarily statistical. It matters not whether the statistical operations involve the keeping of a simple set of books or require large commercial and factory accounting forces with a third division to compile statistics from their records, every business demands certain statistical work. Neither is it important whether the man in charge of this work be called comptroller, auditor, accountant or office manager, but we have used the title of comptroller as more exactly descriptive of the functions of the office when carried to its legitimate conclusion in a large business.

While, in most manufacturing industries, the superintendent and purchasing agent have full authority in the making of purchases for the manufacturing branch, it has been found advisable in some cases to give the comptroller authority over the purchasing department. A reason for this is the importance of reducing the investment in raw material, supplies, etc., to the lowest point consistent with the actual requirements of the business. Much needless capital is tied up in raw material, when it might be at least earning bank interest. His chief concern being to provide a liberal supply of raw materials, the superintendent is very liable to overstep the bounds in the direction of too liberal purchases.

[35]

A still different condition is found in a large merchandising establishment. Here practically every department manager is his own buyer and while he must be regarded as the best judge of what to buy, it becomes necessary to supervise his purchases in respect to quantities. The comptroller should, therefore, have authority over the amounts invested by the several buyers. This is usually controlled by giving the buyer a stated appropriation at the beginning of each season, the amount being determined by a study of present conditions and records of past performance. The making of an appropriation does not operate against special appropriations to be used in taking advantage of specially advantageous market conditions, or to increase stocks of fast selling lines.

DUTIES CLEARLY DEFINED

19. One of the first requirements in the development of a successful organization is that the duties of every employe be clearly defined, and that each employe be fully informed as to his duties. Nothing tends to produce greater friction than an overlapping of duties and authorities.

In a manufacturing plant, when a foreman is placed in charge of a shop he should be instructed as to his authority, responsibilities, and exact duties. When these authorities have once been established, no other man of equal or lower grade in the organization should be permitted to interfere in any way, nor should the foreman be permitted to overstep his authority.

Those occupying positions to which greater authorities are attached should also be careful to not presume upon their authority by attempting to direct work properly under control of the foreman. The superintendent or manager who, in passing through a plant, discovers a workman in the act of violating an established rule, or doing something dangerous to the lives of himself and fellow employes, or performing work in the wrong way, is justified in at once bringing the matter to the notice of that workman; but he should report the occurrence to the foreman at the first opportunity.

On the contrary, if the manager or superintendent wishes to make a change in policy involving a departure from the established customs of the shop, or if he requires the services of a workman even temporarily in another department, he should first take up the matter with the shop foreman.

[36]

The same policy in general should be observed throughout the organization. The person placed at the head of a department or division of the work should have full authority and be held responsible for the work of all employes in that department. Complaints of inefficiency of an individual employe should be made to the department head. If the purchasing agent, for instance, finds the work of a certain stenographer unsatisfactory, his complaint should be made to the chief stenographer.

20. Duties of Individual Workmen. The duties of the individual workman in the shop should be as clearly defined as are those of his foreman. It is the duty of the foreman to lay out the work and to keep the workman regularly employed on the work assigned to him.

In the operation of the manufacturing branch, the most important consideration is economy of production. When a workman is kept at one task he becomes a specialist, increases his production, and reduces costs.

21. Duties of Office Employes. Each clerk in the office should have his work clearly defined. If specialization is profitable in the shop, it is equally so in the office. Every man who has been responsible for the management of an office will agree with us that in no other branch of business is there a greater tendency to allow work to get behind.

Lack of system is mainly responsible for this state of affairs. While his duties may be more or less clearly defined, the work of the average office clerk does not follow any well defined plan. He does the thing that seems most important, leaving the less important tasks until he "has time." Instead of surveying the field and laying out a logical, systematic plan, the average office employe goes about his work in a haphazard sort of way following the line of least resistance.

The work in every office is largely routine, but the faithful performance of routine tasks is a necessary accompaniment to those larger tasks, which in themselves, appear of greater importance. Routine tasks are drudgery—something that every man seeks to escape. In freeing himself from a state of drudgery, the department head should be careful lest he place his subordinates in the same dreaded rut. An office clerk should be given an opportunity to learn all of the routine of the division in which he is employed. He will become a more valuable employe; while adding variety, the performance of more than one task is training him for a more advanced position.

[37]

Fig. 6. A Working Chart for the Guidance of the Employes in One Department

[38]

To properly systematize the routine, the department head should first study his department to find out what the routine tasks really are—what work must be done each day or each week. He should then list these tasks and assign them to certain clerks to be performed at certain stated times.

This can be best presented by means of a chart as shown in Fig. 6. This chart covers the work of a typical general accounting department. At the top, the general or routine tasks are listed, grouped under proper divisions. From each task listed a line is extended to the time when it is to be performed: daily, the day of the week, day of the month, or the month. The letters at the end of the lines indicate by whom the tasks are to be performed, C representing clerks, B, bookkeepers, and A, cashier.

Taking the collection division as an illustration, we will suppose that it is Monday, the 2nd of the month. The chart shows that on Monday notices of notes and accounts due are to be mailed. On the second day of the month, past due accounts must be taken up and disposed of. In addition are the daily tasks as indicated by the lines extending to the daily line.

When a task is to be performed two or three times in a month, the line is broken and the letter inserted at each break. Even the time of drawing off a balance sheet, once every three months, is indicated. A similar chart should be made to show the routine duties of each department.

Such charts, supplying, as they do, complete working schedules for the routine of each department, soon reduce the time taken by routine tasks, which is of no little importance in the conduct of a well regulated department. They fill a place in office routine analogous to that of the working plan in the shop. The same idea can be carried out, and will prove equally valuable, even in an office where the bookkeeper does all of the work.

CHARTING SALARY AND WAGE DISTRIBUTION

22. We have seen how authorities, responsibilities and even routine duties are most graphically represented by means of charts—the working plans of the recording divisions of the business. For[39] purposes of record, the distribution of the expenditures for salaries and wages of those who make up our organization is of equal importance to the definition of the authorities and duties.

If the accounts are to be of value they must be correct, and they cannot be correct unless every item is charged to the proper account. The value of correct accounts is recognized. They do more than show what we have received or the expenditures for a specific purpose during a stated period; they show when and why an expense is increased or decreased. With such information to point the way to economies in the future, instead of records that show us merely the amount of an expense already incurred, accounting takes its rightful place as one of the most important functions of a business enterprise.

Probably more businesses have failed owing to the lack of proper accounting methods than from any one other cause. Many a business has been rejuvenated—turned from failure to success—by the introduction of a system of accounts that truthfully portrays its activities. Few business failures are the result of a failure to buy goods at right prices, or to establish selling prices that show a profit. The more usual cause is found in leaks in the expense account. Any method that locates the leaks places us in position to stop them.

The chief value of accounting records lies in the opportunity afforded for comparison. The fact that a certain expense amounted to $900.00 last month furnishes no information of special value; but when compared with the amount expended for the same purpose two, three and four months ago (if these expenses are analyzed and compared with production or sales or whatever factor would affect the amount) the figures assume an important significance. But if expenditures are erroneously applied, if an amount has crept into an expense account that does not belong there, the comparison had better not have been made. Thus is seen the necessity of an absolutely accurate distribution.

Here the chart—the working plan—is again applied to excellent advantage. The chart, Fig. 7, applied to salary and wage distribution, shows to which of the two principal divisions each item should be charged. This is the important question—to properly apply expenses to the commercial and manufacturing branches. Subdivisions of such a chart segregating expenses of each division are easily made.

[40]

The application of the items from which lines lead only to the commercial or manufacturing branch is readily understood. Between the two are several items from which lines lead to both branches, indicating that the expense is to be divided. This division should be given close study. Care must be used that too large a part of any item is not applied to either branch. The salary of the general manager, and usually the comptroller, will be equally divided. The duties of the chief accountant, chief stenographer and stenographers being chiefly in connection with the commercial branch, only a small portion of their salaries is charged to manufacturing. Shipping clerk and packers' salaries are charged to either one or the other branch, depending upon the nature of the enterprise. In a manufacturing enterprise where all goods are delivered to stock rooms ready for shipment, packing and shipping is a sales expense and is charged to the commercial branch; in a plant building heavy machinery that must be shipped from the assembling floor, this expense is usually charged to manufacturing.

EXPENSE DISTRIBUTION CHART

23. To present a graphic record of expense distribution, the chart, Fig. 8, is used. This chart separates commercial and manufacturing expense, showing amounts, while Fig. 7 shows to which branch each item belongs.

This chart subdivides commercial expense into executive, accounting, office, sales, and credits and collections, showing totals for each and for the entire commercial branch. Manufacturing expense is subdivided into executive, accounting, purchasing, engineering, and shops and equipment.

A comparison of these statements from month to month will show just what every item is and indicate the slightest increase in any class of expense. Similar charts can be readily prepared for any business, segregating expenditures of each branch, division, or department.

The distribution will naturally vary in different businesses and, before this chart can be prepared, the exact distribution must be determined. In this chart, packing and shipping is included as a commercial expense, while, as stated previously, in some businesses it would be a manufacturing expense. All such questions must be decided before the chart is prepared.

[41]

Fig. 7. This Shows How Salaries and Wages are Apportioned to the Two Principal Divisions of a Business

[42]

Fig. 8. This Chart of Expense Distribution Shows the Amount of Executive and Administrative Salaries, and Expense of Every Class, and Their Correct Apportionment

[43]
[44]

EFFECT OF PHYSICAL ARRANGEMENT

24. However efficient the personal organization, satisfactory results can be obtained only under proper environment. It is not merely a question of pleasant surroundings for employes, but a financial proposition; not a reform or a fad, but a money-making plan that governs the engineer in laying out a plant.

This is not to be a discussion of welfare work, about which much has been published. Our purpose is to point out the business economy of a proper physical arrangement of office, store or factory as against the wasteful methods of a systemless grouping of men and machinery.

The question of physical environment is a practical one that has been solved by many enterprising concerns, and the subject is deserving of careful study by the student of business organization. While some hard-headed business men may regard the question of minor importance, it is significant that the largest and most successful enterprises, financially, are those in which employes have been supplied with the most comforts, surrounded with approved safeguards, and aided in their work by the latest appliances of proved worth.

There is an old axiom to the effect that even a good workman cannot be expected to do good work with poor tools. It is equally true that he cannot be expected to do good work in either unsanitary or inconveniently arranged shops and offices.

25. Factory Plans. The planning of a manufacturing plant is a question for the engineer, rather than the accountant or business organizer, but a few general remarks on the subject will not be out of place in this paper.

It may be stated as a fundamental principle that the factory should be planned to facilitate the movement of raw material from one department to another. In the ideal factory, storage for raw material will be provided where it can be economically received and easily procured when needed in the factory. It should, if possible, be close to the department in which the material is subjected to the first operation.

The shops themselves should be arranged to facilitate the movement of partly completed parts from one department or shop to another. To illustrate, a foundry should be so located that castings can be taken direct to the machine shop, or smith shop, not through another shop or in a round-about way.

[45]

Likewise, the machine shop, if the process be continuous, should be located next to the assembling department. Or, if a "parts" storeroom is maintained, it should be located between the machine shop and assembling department. Storage for completed goods should be adjacent to the assembling department, and convenient to the shipping room or platform.

The chart, Fig. 9, shows a typical layout of a manufacturing plant operating both a foundry and wood shop. Naturally the foundry and wood shop are as widely separated as possible. Storage of foundry materials is provided for just outside of the foundry, while lumber is convenient to the wood shop.

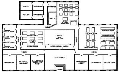
The arrows indicate the movement of raw materials through the shops to the finished goods storeroom, and from thence to the shipping platform. If these lines are traced it will be seen that at no point is the material twice moved over the same ground. Each move takes it to the next operation and one step nearer completion. Where materials and parts enter a shop at two or more points, the lines are merged, showing that these materials leave that shop as one piece, part, or finished article. A feature underlying the whole plan is economy in the movement of work in process. All work moves through a shop, not back and forth in the shop.

The ideal conditions do not always exist, neither can they be brought about in every case. Many plants, built in the past, have been planned without due regard for these matters; their importance was not appreciated and the buildings are so located that it is impossible to secure entirely satisfactory results. However, if present conditions are studied carefully, many improvements can be brought about at slight expense. While, as we have intimated, this is a problem for engineers, a number of cases might be cited where the accountant, called in to systematize the accounting methods of a manufacturing business, has suggested physical changes in the shops that have resulted in marked reductions in costs.

26. Planning the Office. The average office is arranged in a very haphazard way. Departments are located with little regard for their departmental relations; desks are placed where they fit best rather than according to any preconceived plan.

[46]

Fig. 9. Layout of a Typical Manufacturing Plant

[47]

Logical arrangement of the office has as great an influence on the economical conduct of the work as does the physical arrangement of the shop. The most important requisite in the layout of an office is good light. While ideal conditions are impossible to attain in some buildings used for offices, much can be accomplished by placing the desks to take full advantage of the light that is available.

The writer once visited an office in which sixty or more people were employed in one big room. Most of the light came from the rear and practically all of the desks faced the light, which is recognized as most injurious to eyesight. The manager of the office was asked why the desks were not placed in proper position, and he replied that they were placed so that the employes would sit with their backs to the entrance, and not have their attention detracted from the work by visitors. He considered this an important move, but overlooked the more vital fact that his employes were not only ruining their eyesight but were actually doing less work than would have been done under more favorable conditions.

A change was consented to. As many of the desks as possible were so placed that the worker would receive the light from the left; some received it from the right and a few from the back. Three months later this manager readily admitted that his employes were turning out at least one-third more work, and their general health was greatly improved.

The location of the departments and the private offices should be carefully considered. Departments in which the work is of a nature requiring frequent inter-communication should be located as closely together as possible. For instance, the sales department should not be placed between the order and accounting departments, but the order department should be close to the accounting department, with which it is in constant communication.

The workers in a department should be placed to facilitate the movement of their work from one desk to another. Heads of departments or chief clerks should be within easy reach of all employes in the department, and accessible to the executive.

Offices of executives should be located with reference to their duties. The sales manager and purchasing agent should be accessible to the public. The general manager should be within easy reach of other officers but not necessarily accessible to the public.

The importance of conveniently arranged offices is receiving much serious thought, and many of the larger industrial enterprises[48] are erecting ideal administration buildings. In all specially planned buildings, the tendency is toward large rooms, rather than smaller rooms separating the departments. A large room insures better light and air, and space can be utilized to much better advantage.

Fig. 10 is a sketch of the first floor plan of the administration building of one of the large industrial enterprises. This is, in many respects, an ideal arrangement.

A noticeable feature is the location of the filing department in the center of the main room. Here it is easily reached by all departments.

At either side of the filing department are the sales and accounting departments. In the sales department several sales managers' desks will be noted, with desks for their assistants across a narrow aisle. It happens that, in this particular business, sales are divided into departments corresponding with the classes of goods manufactured, with a sales manager for each department.

The accounting, order, and credit departments are conveniently arranged, and the auditor is located where he can overlook the entire office. Executive offices, across the front of the building, are accessible to the public and those in the general offices.

27. Store Plans. The subject of store plans is one of utmost importance to the merchant. His success is influenced to a great extent by the first impression received by the prospective customer. If that impression is favorable, if he is greeted by an orderly, well arranged store, if his comfort and convenience have been considered, the customer will return and give to the store at least a part of his patronage.

The old-fashioned general store, in which all sorts of merchandise was sold, offered little to commend in respect to orderly arrangement. As a rule, the goods were jumbled together in a confused mass with no thought of segregating them in departments. Yet this country store, found in every hamlet, was the forerunner of the department store of today.

[49]

Fig. 10. Floor Plan of a Modern Administrative Building

[50]

The advent of the department store was a case of adapting the merchandising methods of the country village to the needs of the city. A miscellaneous stock of merchandise, greater in size but similar in character to the country store stock, was gathered in one big store and subdivided into departments. To compete with one-line stores, stocks must be equal in volume, which meant that the department store must carry as large a stock of clothing or of shoes as the exclusive clothing and shoe stores. The stocks must be as complete and as well displayed; each department must be a fully stocked store, prepared to meet the usual demands of a store of that character.

The department store of today is a model of systematic arrangement. Not only are the goods grouped in departments, but the departments are logically grouped and located to suit the convenience of the customers. If one wishes to buy house furnishings, hardware, or dishes, he will probably find them in adjoining departments.

But the departmental idea is by no means confined to the recognized department store; it is a feature of every well regulated store dealing in exclusive lines. Stocks of shoes, hardware, clothing, and furnishings are all divided and the classes segregated by departments.

The departments themselves are subdivided. Goods are classified, and each class placed in special compartments. Goods most frequently called for are near at hand on shelves where they can be easily reached. Top shelves, space under counters, and other inaccessible corners are reserved for goods called for less frequently.

THE COMMITTEE SYSTEM

28. We have already referred to the necessity of coöperation in every successful organization. We do not wish to be understood as advancing this idea of coöperation for the benefit only of executive officers and heads of departments. It must extend farther than this—it must penetrate to every nook and corner of the shop.

We must have the coöperation of every workman, no matter how obscure his position, and to secure this coöperation it is necessary to instill in him an interest in the welfare of the business as a whole. Treat him as a mere cog in the wheel and he will very likely be content to do as little work as possible and still draw his pay, with no thought of bettering conditions in his department. But show him that you recognize his ability—that you know that he knows how his work should be done—and he will readily lend his coöperation. The problem of securing this coöperation has been given much study, and those who have met with the greatest success have done so by showing the workman that his advice and suggestions are appreciated.

[51]

No matter how willing you may be to receive them, the workman naturally hesitates to make suggestions personally. But give him an opportunity to discuss a point with others of his kind and it is surprising how many practical ideas will be brought out. Experience has shown that this spirit of working for the good of the business can best be maintained through the formation of standing committees. Such committees bring out the best ideas of the men composing them, and invariably work for the good of the business.

29. General Factory Committee. In the manufacturing branch of a business, the first committee to be formed is the general factory committee. This committee is usually composed of the superintendent, who acts as chairman, the chief engineer or designer, the tool room foreman, or the special designer of tools, the head of the cost department, and two or three foremen of the most important departments.

The work of this and all other committees must necessarily be adapted to the requirements of the business, but, as a general proposition, the matters to come before the committee may be stated as follows:

1. Reports and discussions of the standardization of the product.
2. Reports of progress on new designs or the redesigning of old product which has been authorized at previous meetings.
3. Discussion of economies in general operating methods, economies in cost of production, and all questions of a similar nature.
4. A report on routine work in the factory—whether stock or special contracts—condition of orders, and condition of stock to fill future orders.
5. The question of promotions. If all promotions in the shop are brought before this committee for approval, it will do away with the charge of favoritism of foremen in advancing relatives or personal friends without regard to their qualifications. A foreman who is obliged to recommend promotions to this committee, will be very careful that the promotion is deserved.

30. Departmental Factory Committees. Many factories manufacture more than one line of goods. In such factories it is advisable to have committees to discuss progress in each specific line. Members of the factory committee should act as chairmen of these departmental committees. The committees will be composed of the foremen interested, the tool room foreman, and the head of the cost department.

The work of the committee, so far as relates to a particular[52] department, will be very similar to that of the general factory committee. The discussion will cover:

1. Standardization of product and suggestions for new designs.
2. Progress on improvements already started.
3. Economies in operating expense and cost of production.
4. Reports on routine work.

31. Job Bosses. Carrying the committee plan a step farther, it is well to hold occasional meetings of the job bosses. The foreman of each shop will act as chairman and discuss matters pertaining to work in his own shop with the job bosses under him.

In most factories it is also advisable to hold, at least once a month, a general foremen's meeting. This should be a meeting of all foremen, with the superintendent, for the discussion of problems of a general nature and problems relating to specific shops.

32. Sales Committee. In the commercial branch, perhaps the most important committee is the sales committee. This committee should consist of the general manager, who acts as chairman, the sales manager, advertising manager, chief engineer, and superintendent. At times it may be advisable to call in the head of the cost department and the tool room foreman.

At the meetings of this committee the following subjects will come up for discussion:

1. General sales report, showing progress of the business as a whole.
2. Territorial sales reports, showing sales in each territory. Both of these reports should exhibit comparisons between the current and preceding periods.
3. Reports of sales classified according to the nature of the product, or specific lines of goods. This is in some respects the most important of the reports, since it shows which are the fast and which the slow moving lines.
4. Suggestions for and a discussion of proposed improvements in the present products.
5. Discussion of proposed new product.
6. Standardization.

In the discussion of the three last named subjects the engineer and superintendent are especially interested, and it is here that the presence of the cost clerk or the tool-room foreman will be required. A salesman naturally assumes the attitude of considering his customers' desires of the greatest importance. Naturally he wants the factory to manufacture the goods that he can sell. But a discussion of difficulties to be surmounted, increased costs, and like questions[53] will go far toward bringing him into line and convincing him that the interests of the house lie in his pushing standard goods.

33. Advertising Committee. A committee which is to a certain extent a subdivision of the sales committee is the advertising committee. The general manager should act as chairman, and will have with him on the committee the comptroller, advertising manager, and sales manager.

The work of this committee will be confined to a discussion of:

1. Results of past advertising, including periodical, street car, bill-board, and all other forms.
2. Appropriations for current advertising.

These advertising reports are very important, for, after sufficient time to establish an equitable cost basis has elapsed, all future advertising should be based on the cost of actual sales, giving due consideration of course to the season of the year, general tendency of the times, and other factors which might temporarily have a disturbing influence.

34. Organization Committee. Another committee of importance, which, for convenience, we will call the organization committee, is one which discusses all questions pertaining to accounting and record systems. This committee will be headed by the comptroller and will include the sales manager, advertising manager, credit man, purchasing agent, and superintendent. Sometimes it will be advisable to call into the meetings the chief accountant, cost clerk, stores clerk, and even shop foremen.

As indicated above, the chief work of this committee will be a discussion of systems. While the comptroller prescribes all systems of record, reports, statistics, and accounts, he should make no radical changes without discussing the proposed change with those whose work will be directly affected.

Many systems, good in theory and which with coöperation would work out in actual practice, have failed because they were forced on the business. A systematizer may install a good system and get it into operation, but unless he has secured the coöperation of those upon whom its operation will devolve, he will very likely find that after he leaves there is a gradual disintegration until conditions are worse than before the change was attempted.

It is seldom that a foreman or a clerk will resent a change if he is[54] made to feel that he is, in part at least, responsible for the change. When new systems are introduced in the shop, the foremen are quite likely to look upon them as a means of checking up their departments—a sort of police supervision. The writer has had considerable experience in the introduction of systems into factories, and has invariably found that the coöperation of the shop foreman could be secured by asking for his advice. Before prescribing a form or a system of records for a department, he has made it a point to discuss the difficulties with the foreman, always leading the foreman to put forward what seemed to him the greatest difficulties, and then when these have been apparently solved, to ask the foreman if he does not think such and such a plan would work. When dealing with particularly obstinate foremen he has even gone so far as to suggest a plan which is plainly impracticable, for the very purpose of leading the foreman to suggest a practical solution. Needless to say, in such cases the foreman gives the plan his hearty support, because he has been made to feel that the importance of his suggestions has been recognized.

Committee Meetings. The frequency of meeting of the committees herein suggested must be decided by each manufacturer. No hard-and-fast rules can be laid down, but generally these suggestions will apply:

General factory committee, weekly.
Departmental factory committees, once in two weeks.
Job bosses and general foremen's meetings, monthly.
Sales committee, weekly.
Advertising committee, monthly.
Organization committee, monthly.

Committee Secretaries. At each committee meeting, a stenographer should be present to act as secretary. When no record is kept, discussions are quite likely to be rambling rather than confined to a specific subject. Then, too, matters which were discussed at the last meeting have grown hazy, and if a man who is responsible for putting into operation a given suggestion has failed in his duty, there is always the chance that no one will think of it at the next meeting unless he brings it up. If, however, an exact record is kept of these discussions and full reports are delivered to every member of the committee before the next meeting, a foreman, or other member, will be very careful about making statements or promises unless he knows that they can be fulfilled.

[55]

Where possible, it is best to have the same stenographer act as secretary to all committees, as he will become familiar with their work and can handle it much more expeditiously.

THE SUGGESTION PLAN

35. In many factories, and even in mercantile establishments, a modification of the committee idea has been successfully introduced in the form of what is known as the suggestion plan. This plan consists in asking for suggestions from all workmen, these suggestions to pertain to manner of handling their own work, improvements for the benefit of the business as a whole, safety appliances, sanitary conditions, and anything that may be of benefit to the business.

While between foremen and heads of departments the committee plan undoubtedly works to the best advantage, we advocate the suggestion plan for the rank and file of workmen. Even when called into a committee meeting, the workman sometimes hesitates to express his opinions, when if he were permitted to give them in some other manner he would make many valuable suggestions. The plan is to place at convenient points boxes with slots cut in the top in which the suggestions can be placed. Workmen are invited to write out their suggestions and place them in these boxes. They may either sign them or give their clock numbers. The latter plan is sometimes advisable, as it does not reveal the identity of the men making suggestions. All suggestions are taken up in committee meeting by the committee directly interested, and a small prize is given for those suggestions that are put into use. Even so large a department store as Marshall Field & Co. has found it extremely profitable to offer $1.00 for each suggestion offered by an employe that is finally adopted.

Another method is to use autographic registers like the one illustrated in Fig., 11 on which three copies are made. The original is sent to the office, the duplicate is retained by the workman, while the triplicate remains on a roll in the machine. This is removed at the time of the committee meeting, and any suggestions adopted are posted on a bulletin board. The workman need not even sign his number, but can present the duplicate as proof that the suggestion was made by him.

The introduction of any or all of these committee and suggestion[56] plans requires careful study, but when once put into operation they will prove both successful and of inestimable value to the business.

ORAL ORDERS CAUSE CONFUSION

36. Probably no more prolific source of confusion and misunderstanding of instructions is to be found than in the habit of giving oral orders. "I understood you to say" or "I thought you meant" are familiar excuses offered for a failure to follow what the one giving them considered clear and explicit instructions.

Fig. 11. Autographic Register
Made by United
Autographic Register Co.

The absolute necessity of clearly defined authorities that every man connected with an organization may know from whom he is to receive orders, is well recognized. When we get above the one-man business, employes are not left in doubt as to the source of their orders. Why then should there be left the slightest chance of misunderstanding as to the nature of their orders?

When we issue orders that are to be executed by someone outside of our own organization, we are careful that they are in writing. If an order for goods is placed by telephone or telegraph it is confirmed in writing, not alone for the legal protection afforded by a valid contract, but that there may be no confusion or misunderstanding. When we receive an order we prefer to have it in writing for the same reasons.

The success of any undertaking is largely dependent on the proper execution of orders. Surely, orders to be executed within the organization are of equal importance to those that will be executed by an outsider, and at least the same care should be exercised in issuing them. The logical conclusion then is that they should be given in writing. True, oral instructions are sometimes necessary, but all orders and instructions of importance should be in writing.

There are many classes of internal orders, depending on the nature of the business. Among them is a class of inter-departmental communications[57] more in the nature of correspondence than direct orders. In the harmonious operation of an organization, many requests are made between departments; general orders affecting all departments are given by the manager; bulletins are issued by a department manager to all employes under him—all of these should be in writing.

As an illustration, take a special order from a customer. A salesman reports that an order can be secured for certain goods provided some slight change is made in the design. The sales manager will communicate with the superintendent about the cost of making the changes. The question then goes to the general manager for a final decision. Imagine the chances for argument if these negotiations are carried on orally, but if in writing, what each man said is on record and entirely clear.

Fig. 12. Blank Used for Interdepartment Correspondence

No elaborate form is needed for these communications, but it is best to use a form differing from that used in the regular correspondence. A simple form is shown in Fig. 12. The form should always show from what department it comes, and, to avoid confusion, it is an excellent plan to use a distinctive color for each department.

Each department should keep a file of these house communications, including carbon copies of those issued by them. It is frequently[58] necessary to follow up their requests to secure reasonably prompt action.

To insure the follow-up, each department should be provided with a follow-up file or tickler, a file having thirty-one numbered compartments to represent the days of the month. This same file can be used for all sorts of memoranda of matters requiring attention on a future date.

ADVANTAGES OF UNIFORM BLANKS

37. One of the little points in the routine workings of a business office that is not always given proper consideration is the establishment of a uniform system of blanks. The blanks used for a given purpose in one department will be of a certain size and color, while those used for the same purpose in another department will be radically different in both size and color. Or blanks of entirely different classes will be identical in size and color. The result is a miscellaneous collection of blanks in all sorts of shapes and sizes.

Uniformity in blanks at once establishes a means of identification, avoids confusion, saves filing space and limits mistakes.

Though we may have given the subject little thought, we have long been accustomed to uniformity in certain blanks and business papers. If we have been receiving freight over several railroads the freight bills of each have been readily distinguished by size, color and style of printing. Correspondence from our customers is recognized by the style of the stationery, and orders are distinguished from other communications of the same concern.

Aside from the question of convenience, there is a certain advertising value in stationery and blanks with distinctive features. At a glance we recognize in the morning mail the communications from certain of our correspondents. We feel sure this envelope contains a remittance, that one a welcome order, another an invoice of goods for which we have been waiting; each is recognized by a certain style of the envelope. At no additional expense we can make our own stationery distinctive. Letter heads, order blanks, statements, invoices, remittance blanks will be recognized not by one but by all of our regular correspondents. They will soon learn to associate our name with certain styles of stationery.

THE LARKIN ADMINISTRATION BUILDING
One of the Finest Office Buildings in America Devoted to One Industry. The Larkin Co., Buffalo, N. Y.

[59]

Distinctive stationery does not necessarily mean expensive stationery. Our advice is, buy the best quality that you feel you can afford; above all, make it distinctive, make it represent you. Adopt a color, or style of type, or shade of ink that will make your stationery stand out from the mass coming to the desk of every business man.

The problem of filing space is a serious one in most offices, already overcrowded. Filing devices are made in certain sizes that have become standard. The more closely blanks to be filed conform to these sizes, the less space will be required. While we cannot regulate the sizes of the stationery of our correspondents, we can regulate the size of our blanks that will eventually find their way into our own files.

[60]

SALES ROOM IN THE NEW YORK OFFICE OF THE WESTERN ELECTRIC COMPANY


[61]

ADVERTISING AND SALES ORGANIZATION

INTRODUCTION

The purpose of this book is to teach neither the art of advertising nor the science of salesmanship, but rather to set forth some of the principles that must be applied in the organization of the advertising and sales department; in particular, to discuss the machinery of the department—its record-keeping systems.

Opinions differ as to the proper place in a business organization of advertising and sales—whether they should be handled by, and considered as, two separate and distinct departmental organizations, or one. Both plans have their champions.

Whether we call it an advertising or a sales department, the results sought—the reasons for the existence of the department—are the same. To sell goods is the aim of the organization, be its head an advertising manager or a sales manager.

Advertising has been defined to be printed salesmanship; yet there is a well-defined dividing line between the work of the advertising man and the salesman. The advertising man seeks to impress the name of the house and the name and quality of its product, on the public mind; to create interest; to arouse curiosity; to stimulate desire; to attract people to the store—in a mercantile business. The salesman seeks to turn that interest, curiosity, desire, into action—the action of purchase.

The advertising man introduces the possible customer; the salesman makes the sale. But in some businesses, the advertising man goes one step farther and actually makes the sale—as in advertising intended to secure direct orders, by mail. Also, the salesman, when the customer has been introduced, makes use of other forms of advertising, to further stimulate desire and assist in making the sale.

No matter at what angle the subject is viewed, it is seen that the advertising man and the salesman are very dependent on each other. We prefer, therefore, to consider the sales and advertising departments[62] as of equal importance; both subordinate parts of the sales division but working in perfect harmony.

The salesman knows his goods, their strong and weak points, the classes of people to whom they will appeal. He should know, also, all about his competitor's goods, and in what respects they are excelled by his own. In short, he is the one who can give the best selling points to the advertising man.

The advertising man is expected to be a master of expression. The unpolished selling points of the salesman are worked over by the advertising man into clear, pointed, convincing English—printed salesmanship. His experience tells him how best to reach a given class; what methods of advertising are best suited for a particular class of goods.

When a selling campaign is contemplated, the plans should be worked out by the salesman and the advertising man. The two must work together and neither should undertake a new campaign, without first consulting the other.

The claim is sometimes made that the function of advertising is fulfilled when the inquiry has been received; that it is then a question of salesmanship—but where does advertising end and salesmanship begin? If sales are made by mail, the salesman supplements his salesmanship with catalogs, booklets, circulars, letters—all as surely advertising as salesmanship; in the store, he displays his goods attractively, which is a most effective form of advertising. And so, in the battle for business, victories are won by supplementing advertising with salesmanship, and salesmanship with advertising—combining the two for results.

Occasionally, a man is found who combines the creative ability of the advertising man with the executive ability of the sales manager. When such a man is found, it is safe to place him in charge of the sales division, giving him full control of both advertising and sales. He probably will require the services of a man to attend to the details of the advertising department, but such an arrangement makes the sales manager alone responsible.

Most large enterprises, however, require the services of one man to handle the advertising. For this reason the head of this department is referred to as the advertising manager, and the department as an advertising department.

[63]

SYSTEMS AND RECORDS

In addition to the technical knowledge of the printing art—type, engraving, and paper—and of advertising media, which the successful advertising manager requires, he should have the faculty of applying common-sense system in the handling of his work. An elaborate system, which oversteps legitimate bounds and enters the realm of red tape, is to be deplored, but the advertising man must have a system of records which will show at all times what he is doing, what results he is getting, exactly where he stands.

Any discussion of systems must be more or less theoretical, even when written by an experienced advertising man. The system that works perfectly in one office may fit in no other, therefore the systems described in this book are to be taken as examples of what other advertising men have adopted. From them the student will be able to devise a practical system for a particular enterprise. At the start, the system probably will be too complicated; experience alone will tell the advertising manager where to eliminate, where to simplify, where to add to make it fit.

Advertising Information. The advertising manager collects a vast amount of information for future use. Every time he picks up a newspaper or magazine his eye scans the pages for ideas, while mingling with the crowds or walking alone, he notes what would be to the unobserving but trifling incidents, all of which can be worked into copy. If he is systematic he clips and makes memoranda of all this information, preserving it for use when needed.

How to preserve it in such shape that it can be located quickly is something of a problem. Probably the oldest methods of preserving clippings and memoranda is to use a scrapbook, and paste in all clippings. The scrapbook, however, is never satisfactory for this purpose; it is not a flexible system.

Clippings should be so filed that any single clipping can be removed without disturbing the others. The vertical file is largely used as a receptacle for clippings, but is not entirely satisfactory unless envelopes take the place of folders. With folders, clippings are liable to be lost through the open ends.

An old and satisfactory method is to file clippings in envelopes. Unless the clippings are of large size—like entire pages from trade[64] papers—it is not necessary to use envelopes of a size to fit a vertical file, A size that will fit one of the smaller files—about 7"×9"—will be found more satisfactory.

The most satisfactory method of indexing is by subject. An envelope is used for each subject about which clippings are to be made, all clippings and memoranda being filed in the proper subject envelope. The envelopes are indexed alphabetically, according to subjects, and a list of contents should be recorded on the outside of each envelope. A form of record is shown in Fig. 1, while Fig. 2 shows the manner of filing and indexing.

Fig. 1. Special Box Envelope for Clippings and Advertising Copy

Clippings are made use of by the advertising man chiefly in the preparation of copy, and are much more convenient to handle if filed in envelopes than when pasted in scrapbooks. Instead of an unwieldy book to handle, an envelope is taken from the file and the desired clipping selected.

Sometimes the work of the advertising man is of a nature which requires the preservation of catalogs, booklets, and all sorts of printed[65] matter issued by competitors. When the accumulation of such matter is sufficient, it is best to install a complete catalog filing system, such as is used in the purchasing department.

Designs and Cuts. A class of valuable property which accumulates rapidly in an advertising department, consists of advertising designs and cuts. This property is not given the care deserved when its value is considered.

Fig. 2. File Drawer Showing How Clippings are Filed by Subject

Artists are paid for designs but too often after the engravings are made, they are stored in drawers, on shelves, or in any convenient place to get them out of the way. Little attempt is made to so file and index them that each can be quickly located.

An old design may be available for use at any time—an engraving of different size than the original, may be needed, or a slight alteration may produce a complete change in the design at much less cost than making a new one. Engravings are expensive and accumulate with amazing rapidity. Suppose a retailer does daily advertising[66] and uses a new cut each day; at the end of one year he owns three hundred and sixty-five original engravings, and probably an equal number of electrotypes. Any of these may be available for use another time, either in newspapers, catalogs, or circulars.

The national advertiser, using magazines and trade papers, may accumulate a less number of engravings than the retailer, but owing to the class of engraving required and the number of duplicates needed, his investment is even greater.

Fig. 3. Box File for Drawings
and Photographs

The natural supposition would be that advertisers would give this property proper care, filing under correct classifications, indexed for ready reference. But experience proves the contrary. Every printing and publishing office that has been running five years has an accumulation of cuts belonging to advertisers, which represent an investment of thousands of dollars.

Occasionally an advertiser is found who knows exactly where each cut has been sent and calls for it when needed, but a big majority of these cuts are never called for and finally are sold by the printer for what they will bring, as old metal.

Now the property used by the advertising department should receive the same care as any other; a dollar invested in designs and engravings should be regarded as a dollar's worth. And if common sense be applied in devising a system, they can be cared for with as little trouble as any other property carried in stock.

A very satisfactory method of filing designs is to use a file constructed on the principle of the vertical file. Stock sizes of files are too small. Designs cannot be folded and the file should be large enough to take in the largest designs used. An elaborate file is not[67] necessary; a box constructed along the lines of the one shown in Fig. 3, will answer the purpose. The chief requirements are to have the designs filed in one place, where they can be found, and to keep them clean. Any carpenter can build such a file, while any cabinet man will construct one of more elaborate design to match the furniture of the office.

Designs may be filed alphabetically by subjects, or numbered and filed numerically. As a rule, the alphabetical method will be found more satisfactory.

Engravings are best filed in a cut cabinet of the usual style. This is a cabinet of shallow drawers, just deep enough to hold type-high cuts. All engravings should be numbered and electrotypes stamped with the same numbers as the originals. The cuts can then be filed by numbers, and each drawer labeled to show the numbers of the cuts it contains.

Fig. 4. Loose-leaf Scrap Book Sheet for Preserving Proofs of Engravings

Cuts should be numbered consecutively, and when an engraving is made in a new size it will take the next number, regardless of the fact that an engraving of the same design has already been made. For instance, if five sizes of engravings are made from one design, there will be five cut numbers. When the cut is numbered, it is a good plan to stamp the number on the back of the design; then[68] reference to the design will show how many times it has been engraved and the numbers of the cuts.

Proofs of all engravings should be kept. These may be pasted in scrapbooks, but the books should be loose leaf. This makes it possible to eliminate all dead matter; when designs are of no further use, the sheets containing the proofs can be destroyed.

A sheet may contain proofs of one or of several cuts, depending on the size, but all proofs should be arranged in numerical sequence. The sheet should also show the cut number, the subject, and the date of ordering electrotypes, as shown in Fig. 4. Since the space required for proofs cannot be told in advance, it is more practical to substitute a rubber stamp impression for printing. By using a small stamp, this information can be stamped opposite each proof.

Fig. 5. Index Card for a Record of Designs and Engravings

Cut Indexes and Tracers. To complete the filing system for cuts and designs, an index is needed. Fig. 5 shows a convenient form of index and record card. This card is headed with the name or subject of the design, and is indexed under this subject. The data relative to the design includes the class—as photograph, wash drawing, or line drawing—the name of the artist, the size of the design, and the date made. Below this is a complete record of all[69] original engravings and electrotypes made from the design, including their numbers.

On the back of the card is a record of the publications, catalogs, or circulars in which the design is used, with dates, as shown in Fig. 6.

If the name of the artist who made a certain design, or the names of publications in which it has been used, is wanted, reference to this card gives the desired information. This one card provides all information that is likely to be needed in reference to both designs and engravings.

Fig. 6. Reverse of Index Card Showing Where Engravings are Used

The methods described provide for a complete record of designs and engravings, except in respect to cuts which have been sent out. A record of the cuts that are out, and where each has been sent, is of the utmost importance.

When a cut is sent out—to the printer, the publisher, or a customer—a receipt should be obtained. This may be on a post card printed as shown in Fig. 7. At the same time a record to be used as a tracer should be made. This should be on a form similar to the one shown in Fig. 8. These forms may be filed in a tickler under the date on which the cut should be returned, or alphabetically; but in either case a desk file should be used so that they can be referred[70] to very readily. This file should be looked through frequently for it is very necessary to follow-up the cuts closely. If the cut is not expected to be returned, it is of course unnecessary to make this tracer record.

Fig. 7. Postal Card Receipt for Cuts

Fig. 8. Tracer Card
for Drawings and Cuts

Copy Proofs. A complete file of proofs of all copy is a necessity in every advertising department. If requested to do so, any publisher will furnish several proofs of the ad, and at least three proofs should be kept on file. Every piece of copy and every circular or other printed matter should bear an identifying mark of some kind. This usually is a number.

These numbers should[71] be registered consecutively either in a book or on cards, and opposite each number should be the title of the copy, booklet, or catalog. It is well to run different series of numbers for advertising copy and other literature. Numbers 1 to 5,000 might be used for copy, and 5,001 to 10,000 for printed matter. The same scheme can be used to good advantage for office blanks of all kinds, giving each a form number but using a third series of numbers.

Proofs of ads and copies of all printed matter and blanks should be filed alphabetically by subject or title. For proofs, the envelope scheme, as described for clippings, can be used. Envelopes of this size—7"×9"—will also accommodate copies of most circulars, blanks, and booklets, but if the sizes average larger a vertical file drawer, with large envelopes, can be used. The vertical file will also accommodate catalogs. These files being permanent, the expense of elaborate cabinets can be dispensed with by substituting the cheaper transfer files supplied by all manufacturers of such equipment.

Each time a piece of advertising copy is re-set in a different size, it should be given a new number. New numbers should also be given each circular, booklet, or blank when it is re-printed, provided there is the slightest change in the copy.

On each envelope, the copy number should be entered, and if the copy takes several numbers, all should be entered. Copy bearing the title "Your Chance" may be set in three sizes—full page, No. 640; half page, No. 641; and quarter page, No. 645; all proofs will be filed in one envelope and the three numbers will be entered on the outside.

The register of numbers and the file of proofs provide for the identification of any copy; if the title of any piece of copy is wanted, the number being known, reference to the register gives it; or if the title is known, reference to the file gives the number.

PRINTING ORDERS AND TRACERS

Great care is necessary in issuing and following up orders for printing; every detail must be watched closely if satisfactory results are to be secured. In the majority of offices the advertising manager, or a man under him, attends to all details of ordering printing. Large[72] concerns find that it pays to employ an experienced man for this work alone. To a concern whose printing bills amount to several hundred dollars a month, a man who will give close attention to every detail of the work, from seeing that he gets the stock specified to checking bills for overcharges, can make his services worth a good salary.

In printing, as in everything else, the personality of the house should stand out—a typographical style should be established. This is accomplished much more quickly if every detail of the printing is in the hands of one man.

There are concerns in which publicity and sales work must be subdivided to such an extent that the sales manager has all printed matter prepared under his direct supervision; while the advertising manager is responsible for the preparation and placing of the copy. In one such concern, which has come under the writer's observation, copy for printing is turned over to a man entirely outside of the sales division. The theory is that the outside man will watch the interest of the house, in the matter of price, more closely than the man who prepares, and perhaps is to use, the copy.

This theory may have some foundation in certain quarters; probably there are some otherwise competent advertising men who are occasionally outwitted by the printer; but it is also true that the buyer of printing, who places his orders on the basis of price alone, frequently loses more in quality than he saves in cost. The man who is to use a booklet or folder is really the best judge of its worth—what he can afford to pay for the kind of work he wants; he knows best its possible value as a revenue producer. He should be competent to supervise the placing of the orders, but without exception all printing orders should be placed by the same man.

No matter by whom placed, the printing order should specify every detail; or if it is not on the order blank, there should be a specification sheet. The specifications would be something like those shown in the order form, Fig. 9.

This order should be made in triplicate. The original and duplicate will go to the printer, the duplicate to be signed and returned as an acknowledgment of the order, while the triplicate is filed in a tickler under the date when the acknowledgment should be received—usually the following day.

[73]

Fig. 9. Triplicate Form of Order for Printing

[74]

When the duplicate comes back from the printer it is placed in the tickler, under the date when proofs may be expected. At the same time the triplicate is removed from the tickler and placed in a loose-leaf binder, all copies being filed in numerical sequence. It will be noted that, at the bottom of the triplicate, the department or account to be charged is entered, this record being made when the order is placed.

When proofs are returned, the duplicate is moved ahead to the promised date of delivery. In this way the follow-up for orders is made practically automatic, all orders filed under any date being removed for attention on that day.

Little difficulty is experienced in getting printers to put the order number on the invoice, when requested to do so. The return of two or three invoices to a printer who neglects this will have the desired effect. With the numbers on the invoices it is a very simple matter to find the copy of the order, which will show just what was ordered and for what department.

Records of Printing. A record of all printed matter received and its disposition is quite as important as for any other class of property. Unless properly stored and correctly recorded, there is likely to be a great waste of stock. Many large concerns lose much more through waste in this direction than the salary of a competent stock clerk. Not all concerns will require a stock clerk for this purpose alone, but in every office the stock of printed matter should be placed in charge of one person—a clerk, perhaps, who has other duties. That person should be made responsible for the stock, just as the stores clerk is made responsible for the property in the factory storeroom.

When printing is received, it should be first checked against the order copy on file, and then put in the storeroom, or sent to the department where it is to be used if not to go into stock. In the storage of printing, a very necessary requirement is that it be kept clean, otherwise, in the case of matter carried in stock for a long period, there may be as much as a ten per cent loss through spoilage.

It is best to have all printing put up in packages of specified sizes, depending on the quantities used. The printer will usually make the size of his packages fit the needs of the customer, if requested to do so. On the outside of each package, the name and quantity of the contents should be recorded. When possible a sample should be attached.

OFFICES OF THE ADVERTISING DEPARTMENT, BURROUGHS ADDING MACHINE COMPANY, DETROIT, MICH.

[75]

Fig. 10. Perpetual Stock Record for Printing, Showing its Disposition

[76]

An extensive advertiser will require a good-sized room for the storage of printing, while for some concerns a small cabinet will answer the purpose. In storing, the packages should be arranged according to name, maintaining the alphabetical order so far as possible. A numerical arrangement, by form numbers, is sometimes recommended, but any filing scheme which makes it necessary to refer to a supplementary index to find a number before the article itself can be located is not favored.

A low stock limit should be set for every piece of printing that is used regularly and likely to be re-ordered. One of the most simple methods of handling this is to make one package of the quantity set, so arranging the stock that it will be the last package reached. On the outside a label is pasted—or a rubber stamp can be used—printed as follows:

This package must not be opened without first notifying the office. Failure to observe this rule will be considered sufficient cause for instant dismissal.

After the storage plan has been arranged then comes the question of stock records. A simple record which will show quantities received, issued, and on hand is needed. The form shown in Fig. 10 is used by a manufacturer who supplies dealers, who are his customers, with catalogs, booklets, and other forms of printing. The same form is adapted for use by a concern selling through branches or agencies, while for another business, the form would be modified, eliminating records of shipments.

This form is printed on a sheet punched for a loose-leaf binder. A sheet is used for each catalog, folder, booklet, circular, mailing card, or other piece of printing, the name being written at the top of the sheet. The sheets are filed in alphabetical order, indexed with suitably tabbed index sheets.

When printing is received and the order checked, the name and description is entered at the head of one of these sheets—except in the case of a re-order, when a sheet will be found in the binder. The date, quantity, from whom received, and the cost are next recorded in the proper columns. If it is a new piece of printed matter,[77] the quantity received is also entered in the on hand column; if a reprint, the quantity is added to the stock on hand and the total extended.

For printing that is to be sent to a dealer, an order is entered on the form shown in Fig. 11. This gives detailed instructions for shipping, with the quantity and description of the matter to be sent. The order is made in duplicate. The original goes to the shipping clerk, while the duplicate, on a blank sheet, is kept in the office as a follow-up on the shipping clerk.

Fig. 11. Shipping Order for Printing to be Sent to a Dealer

As shipments are made, the shipping clerk enters in the columns provided for that purpose, the quantity sent and the date. When the entire order is filled, it is returned to the office. Every day the duplicates are examined and inquiry is made of the shipping clerk regarding any orders for which the originals have not been returned. When the original is received, the duplicate is destroyed.

Shipments are next entered on the stock sheets, while the original orders are filed in a binder, alphabetically by dealers names. Reference to this file shows exactly what advertising matter has been sent each dealer.

[78]

PERIODICAL ADVERTISING

When the question of periodical advertising is taken up, the most important of all publicity fields is entered. From the country weekly, through the entire list of city dailies, scientific and literary weeklies and monthlies, popular magazines, class magazines, and trade papers for every vocation, religious papers, and reviews, periodicals can be selected which will reach any class or cover any territory. With the thousands of publications to select from, the advertising manager needs to know which ones will best reach the people he wants to reach; what papers have the largest circulations; which are most popular among a given class or in a certain territory. He must be posted on rates and discounts, that he may cover his territory economically. And added to this, he must have a perfect checking system, that he may know to a certainty what returns each and every publication is bringing him. Such a system may show him, for example, that the magazine with a circulation of a million and an advertising rate of $5.00 a line, brings orders at a less cost than another in which he is paying but $2.00 a line—or vice versâ. Perhaps the cost in both is within the amount he is prepared to pay, but he must know what it costs, that he may know where to increase and where to curtail the appropriations.

Rate Cards. Supposing the business to have been just started, or one that has done no advertising—and this is the most satisfactory premise from which to work, in laying out a general system for the department—among the first duties of the advertising manager will be to secure information about mediums, and the chief source of information will be the publications themselves, as they will respond promptly to requests for rate cards.

If the advertising manager gets rate cards from a hundred publications, he will find probably forty or fifty different shapes, sizes, and styles. Several spasmodic attempts have been made to induce publishers to adopt a uniform size for rate cards, with but little success. In the effort to produce something striking, the convenience of the advertiser is very likely to be overlooked. One publisher will use a 3"×5" card—the most convenient size; another, in order to better display the artistic ideas of his own copy department, uses a card[79] 6"×9"; a book of rules is issued by another; the result is a miscellaneous collection that does not fit any size of file made.

To insure uniformity in their files, advertising agencies have been obliged to design rate sheets or cards which they send to the publisher to be filled in. Some large advertisers now follow the same plan, requesting publishers to enter rates on special forms.

But whether or not he uses a special form, every advertiser should have his own file of rate cards—even if the information is written on a blank card. The special information needed is shown in Fig. 12. This can be on a card, or if preferred, a sheet to be filed in a loose-lea binder can be used. The cards or sheets should be indexed alphabetically, under the names of the publications.

Fig. 12. Index Card for a Record of Advertising Rates

If full and satisfactory information is not obtained from the publishers, it is well to supplement it with information from an advertising agency. The successful agency, through observation on behalf of a number of clients, usually has more dependable information about a given publication than can be obtained by any one advertiser.

All sources of information should be made use of; if the article advertised is sold to the trade, much valuable information can be secured from local dealers. In planning a daily paper campaign for a certain commodity, a letter was sent to each dealer contiguous[80] to each city asking what morning and evening papers had the largest sale in his town; at what hour each was received; and the general trend of local political sentiment. This brought a gratifying response, and helped in the selection of papers which covered, not only the cities, but the small towns. Another advertiser secured some very satisfactory reports from his traveling salesmen, relative to the value of local papers in which he contemplated advertising.

Advertising Contracts. Contracts for advertising are usually made once a year, in advance. Most publishers of magazines and newspapers grant certain space discounts, based on the space used within one year, and in many cases, to secure these discounts, contracts must be made in advance. Some trade paper publishers allow space discounts, others maintain flat rates, all of which must be considered in making contracts.

Practically all magazines, most newspapers, and some trade papers, allow special discounts or commissions to advertising agencies—though in the case of newspapers, in many cities, this discount applies only to foreign advertising, or that originating outside of the city of publication.

An increasing number of advertisers are placing contracts for space through the agencies, and relying largely on the advice of the agency in the selection of mediums. Since the business of the largest and most successful advertisers is placed through the agencies, it would seem to be a safe rule to follow. But because an agency handles the orders, the shrewd advertising manager will not relax in his watchfulness of his employer's interests. He will maintain just as complete a rate file, and watch the bills as closely as though dealing direct with publishers.

The experienced advertiser plans his campaigns well in advance, making annual appropriations for all advertising. This enables the advertising manager to select mediums, determine the amount to be used in each class, and prepare suitable copy for the different publications.

This question of the preparation of copy for series of ads applies especially to national campaigns and local advertising of a general publicity nature. The advertising manager of a department store is obliged to prepare newspaper copy daily, and at best can plan his copy not more than two or three days in advance. In a national[81] campaign in which advertising is for direct returns, copy must be tried out and its character changed frequently. This does not mean that, in any case, the same copy should be run indefinitely; it should be changed in practically every issue. While following the general style adopted for the house, there should be something new in every issue—something that will attract and cause the reader to look for the ad each month.

Fig. 13. Schedule of Monthly Insertions in Periodicals

When the amount of the appropriation has been decided, a schedule of the mediums to be used should be made. This schedule should include the space to be used in each publication. Indeed, the schedule of mediums and space that it is desired to use, often determines the appropriation. For a general publicity campaign, this schedule can be made absolute, but when the advertising is for direct returns, it should be elastic. Mediums which do not pay after a fair trial, should be dropped, and there should be room in the schedule for mediums not at first included. Changed conditions may make it advisable to add a medium which previously has been unprofitable.

[82]

Fig. 14. Order Blank Used for Ordering Insertions of Advertising Copy

[83]

The advertiser who advertises for direct inquiries or orders, usually finds it necessary to revise his schedule monthly, basing each schedule on previous results. That he may act intelligently, he must have an exact record of past results. A convenient form for the monthly schedule is shown in Fig. 13, which is printed on a sheet punched for filing in a loose-leaf binder.

Previous results from each publication on each class of goods is shown in respect to inquires, amount of sales, and cost of the advertising. In the three columns at the right of the space for each ad, cost of each, and total cost are shown.

Separate sheets are used for popular magazines, trade papers, and newspapers. When copy has been sent, the sheets are placed in a loose-leaf binder, the full schedule for each month being in one place where it can be readily referred to.

Orders for Insertion. When an agency is employed, the agency usually sends copy and orders for insertion to the publisher; though some advertisers prefer to send copy direct, leaving the agency to send orders for insertion. It usually happens, too, that some orders are sent direct instead of through the agency. One large advertiser follows the practice of sending orders direct to those publishers who do not allow agency commissions, all others going through the agency.

If orders are to be sent direct, a special advertising order blank should be provided. This order should specify to the last detail the conditions of the order. A blank, which is self-explanatory, is shown in Fig. 14. The order is made in duplicate and the copy is filed under the name of the publication.

Checking Returns. A necessity to the advertising department is an efficient system of checking and recording returns from advertising. Without a checking system on which he can depend, the advertising manager is spending his employer's money blindly—he does not know what he is getting for it.

The first requirement in devising a system is a method of keying ads, that inquiries or orders may be identified and credited to the proper mediums. Keying systems there are without number—to describe all of them would require a book the size of this one—but those most commonly used are adaptations in one form or another, of the idea of changing the address.

[84]

Fig. 15. Card Used for a Record of Inquiries from a Given Publication

[85]

One of the oldest methods is to use a department number or letter in the address, changing the number in each publication in which the ad appears—the address in one would be Dept. A; in another, Dept. B. This method is used successfully by some advertisers, but it has its objections. Most people realize that no concern is so large that an inquiry will not reach the proper department. If, for example, an inquiry in response to a beef extract ad, addressed to Swift & Co., failed to reach the beef extract department, it would indicate a very lax system of handling correspondence.

Changing street numbers, room numbers, or postoffice box numbers, is another common method of keying. This can be operated successfully by notifying the local postal authorities that all mail is to be delivered at one number, regardless of the address.

An adaptation of the number key, which can be used to advantage for a small number of publications, is a combination of numbers representing publications and dates. First, the publications are numbered, these numbers being used as the first part of the address. To the publication number is added the number of the month or week of publication. To illustrate:

Suppose that the Technical World is No. 5 on the list and the ad is run in October. The key number would be 510—5 standing for the publication and 10 for the month. All replies with that address would be credited to the Technical World for October.

In using this system it is necessary to use some figure—usually 0—for a repeater to avoid confusion; No. 112 might mean publication No. 1, month No. 12, or publication No. 11, month No. 2. By adding a naught after the publication No., confusion is avoided—1102 would mean No. 11, 2nd month, 10012 would indicate No. 10, 12th month. The system can be further varied by using N., S., E., and W., or by substituting Ave. for St. or vice versâ.

When readers are requested to ask for catalogs or other printed matter, the numbers by which these are known to the reader can be used for the key—as bulletin A, bulletin B, etc.

For either direct inquiries or orders one of the most popular and satisfactory keying systems is to use a coupon, indicating the publication and month in the coupon—T W 11 printed in small type in the coupon would mean Technical World for November.

[86]

Fig. 16. Reverse of Checking Card Used for a Record of Sales

[87]

A coupon to be filled in offers the reader a convenient means of answering the ad, and this has a tendency to induce a larger number of replies. Few people will fail to use the coupon or the address given. A certain very large advertiser, who uses the coupon, states that less than one per cent of his replies are without means of identification; either the coupon is used or the name of the magazine is mentioned.

To make their checking systems as nearly perfect as possible, some advertisers write to all readers who fail to use the key, requesting them to state where the ad was seen. Some enclose a postal for the reply, others enclose a printed slip, on which the magazines used are listed, to be checked and returned.

A reasonable expense is justified to find out where replies do come from, for it is as much to the advertiser's interest to continue the use of all profitable mediums as to drop the unprofitable ones. Many of the most successful advertisers, however, consider it safe to distribute unidentified replies pro rata, basing the distribution on the number of keyed replies—that is, if 30 per cent of all keyed replies can be traced to the Technical World, that magazine will be credited with 30 per cent of all unidentified replies.

When the mail is opened all replies should be sorted by key numbers, inquiries and orders separated. Then the total number of inquiries, and number and amount of orders from each publication should be ascertained and credited.

For recording credits a form, similar to the one shown in Fig. 15, should be used. This may be on a card or in loose leaf. A card is used for each ad, in each publication—that is, if there are seven insertions in the Technical World in one year, seven record cards will be used—one for each insertion. These cards or sheets are to be filed under the names of the publications.

On the back of the card the form shown in Fig. 16, is printed. This provides for a daily record of sales resulting from the inquiries recorded on the face, or from the ad if it calls for direct orders. These forms supply all necessary data for a complete statistical record for each publication. Too much time would be required to look through all of these cards every time information is desired about a given publication; a more condensed record of total results should be provided.

[88]

Fig. 17. Combined Record of Insertions, Costs, and Sales

[89]

All of the information of practical value can be combined with a record of insertions on the form shown in Fig. 17, using a sheet for each publication. The record includes the date of order, space, subject, copy No., cut No., dates of insertion, checking, and proofreading, the date and amount of bill, and the number, amount, and average cost of sales. The record of sales should be entered monthly from the detail record.

Fig. 18. Daily Record of Sales of Advertised Goods in a Retail Store

These sheets are filed in a loose-leaf binder, indexed alphabetically under the names of the publications. One sheet will accommodate the full yearly schedule for a monthly or weekly publication.

Retail Advertising Returns. To check returns from retail advertising is quite a different problem from checking returns from keyed ads in monthly magazines. There are no keys, and no mail inquiries to be traced. But a record of general results is very desirable,[90] and it is possible to obtain records which will, at least, indicate the increase in sales due to advertising.

Results of retail advertising must be measured by comparison; if a department store advertises handkerchiefs as a leader for Tuesday, all handkerchief sales for that day would not be due to the advertising, but it is legitimate to credit advertising with any increase over normal sales. If correct sales records are kept, it will be possible to tell the exact amount of handkerchief sales for that and every other day in the year.

Fig. 19. Detailed Record of the Shipment of Street Car Cards

A close check on returns can also be obtained by requiring each sales person to put a distinguishing mark of some kind on sales for advertised articles. Proofs of the day's ads, showing the articles advertised in the department, should be mounted on cards and hung in each department, that the sales person may know when advertised goods are sold. If made large enough, the card can be ruled for a tally of sales, and each sale of advertised goods tallied.

A CORNER IN THE SALES ROOM AT THE CLINTON ST., CHICAGO, PLANT OF THE WESTERN ELECTRIC COMPANY

[91]

There should be an office record showing the results of advertising for each department. In comparing these records sales alone cannot be used, for the weather, and unusual events calculated to increase the crowds in town, must be considered. To-day's sales of an advertised article, with unfavorable weather conditions, probably will not equal the sales of the same article one year ago, which was circus day. If daily records, similar to that provided in the form shown in Fig. 18, are kept, they will soon become very valuable to the advertising department of any retail store.

Fig. 20. Record of Street Car Contract and Net Costs

STREET CAR ADVERTISING

Street car advertising is of a general publicity nature. It is intended, not to secure direct orders, but to influence sales by keeping the name of a commodity before the public. It is local in its effects, influencing sales only in the cities in which the cards are used.

Street car advertising is now controlled by a small number of agencies, who own the space in the cars in the different cities throughout the country. Through one of these agencies, contracts can be made for space in street cars in any city in the country.

[92]

The rate for street car advertising is based primarily on population, the circulation consisting of the number of passengers carried. When the advertiser buys space, he pays for having his card appear in a specified number of cars, for a stated period. As a rule, the rate is for monthly periods, with special discounts on yearly contracts, and cards are changed each month. On certain contracts the agency will include extra service, without additional cost, by running cards in a number of extra cars, which are put on during the rush hours.

If desired, the agency will design the copy and print the cards, making an additional charge for the service. Many street car advertisers prefer, however, to furnish their own cards. This is probably the better plan for advertisers who maintain efficient copy departments.

Although this book is not intended to teach the technical details of the art of preparing copy, it may not be out of place to suggest that copy for street car cards is in a class by itself. Experienced advertisers have found that to use wordy arguments on a street car card is a mistake. The card must catch the eye, for it is expected to arrest the attention but a moment at best. A picture that tells the story at a glance, large type, and plenty of color seem to meet with most favor.

The special records required for street car advertising are simple, consisting of records of contracts. A form for such a record is shown in Fig. 19. This can be on a card or loose leaf. The form is headed with the name of the city and instructions for shipping. Below the heading, is a monthly record of the copy No., subject of the ad, size of cards, and other necessary data including the gross and net cost. On the reverse, Fig. 20, is a detailed record of the contract, and a record of total costs. These sheets are filed in a binder or in a card tray, indexed by cities.

OUTDOOR ADVERTISING

Outdoor advertising is the term used to describe all such forms of publicity as bill boards, signs, painted or printed posters, etc. This is strictly general publicity advertising.

Like street car advertising, outdoor advertising is thoroughly organized, and the sale of space is practically controlled by a few[93] companies. Local bill posters, who control the boards, or stands, as they are technically known, have their own national organization which standardizes the practices of the business, regulates rates, and insures the advertiser against paying for service that he does not receive.

Rates for this class of advertising are based on population and the relative desirability of the location. In a city of 500,000 population, a stand which 150,000 people pass daily is worth more than one in another section of the city, which is seen but by 50,000 people.

The advertiser pays for his space on the basis of the number of stands used, size of posters or signs, relative number of down town or preferred position stands, and length of service. Rates are figured for periods of one week, two weeks, one month, and longer.

The records of outdoor advertising are very similar to those of street car advertising. By changing the column headings of Fig. 19 from cars to stands, the form shown answers every requirement.

No outdoor or street car advertising campaign of national scope should be undertaken until provision has been made to take care of the business. The trade must be covered first; when the ad appears on the boards the goods must be on the dealers' shelves.

Indeed, this is a most important factor in any publicity campaign intended to create a demand for goods sold through the retailer. Every possible preparation must be made in advance to secure a wide distribution so that the consumer attracted by the ad will find it easy to buy the goods. Making known the name of an article in a locality where it is not carried in stock, or without telling the consumer where it can be bought, can result in little advantage to the manufacturer.

WHERE ADVERTISING AND SALESMANSHIP MEET

A very effective method of producing sales—most largely used in campaigns intended to secure direct orders, by mail—is the use of circulars, booklets, and form letters. This literature is advertising, but to use it to secure the best results requires the application of a certain amount of salesmanship. The advertising man may prepare an attractive piece of printed matter, well-written and containing convincing arguments, but unless judiciously used, the time and study put into its preparation is wasted.

[94]

A large quantity of such literature, distributed indiscriminately, would probably bring some business, but the best results are obtainable only when its use is concentrated; when it is confined to a particular class and followed up in a systematic manner. Knowing his goods and the class of people who use them, the salesman is naturally the best judge of where and when to use those forms of advertising which he turns into salesmanship by mail. The discussion of systems of record and methods of use of this form of literature is taken up under the head of the sales department.

SALES DEPARTMENT

The sales department proper is in charge of a sales manager, who has immediate authority over his subordinates and is responsible for the results secured by his department. No position in the business organization carries with it greater responsibilities, for on the sales manager rests the burden of marketing the goods at a profit.

Without entering into a discussion of the science of salesmanship, the writer takes the liberty of suggesting some necessary qualifications of a sales manager.

He must be thoroughly imbued with the importance of his work and have an abiding faith in his ability to get the very best results out of his department. He must be enthusiastic and capable of imparting his enthusiasm to others.

He must know the goods, be they pianos or investment bonds. He must believe in his goods and his house. Unless he feels that his house is the best on earth and offers goods second to none, he cannot produce the full measure of results of which he is capable.

He must know the goods of his competitor and what methods his competitors are using. He must be willing to abandon his own pet schemes when they fail to produce, or to adopt a new plan, even though originated by another.

He must be a close student of human nature with the capacity for judging men. He must be a salesman in every sense else he is in no position to judge the qualifications of those in his employ.

[95]

On the other hand, the sales manager should be given full control of his department, until he proves to be incompetent. While other members of the organization will be consulted before a new campaign is launched, when the plans have been approved he should be permitted to try them out without interference. Assuming that he is a competent man in the first place, he will be the first to detect the weak points and set about to find a way to strengthen them.

Many a sales manager has had his usefulness impaired by the interference of others before he has had an opportunity to give a selling plan a fair trial. Selling campaigns have been discontinued before the turning point was reached, because someone higher in authority lacked faith; when they would have proved successful, if carried out as originally planned.

This is not an argument for a stubborn adherence to plans, regardless of consequence—any sales committee is liable to make errors—but before the campaign is launched the extent to which it shall be tried out should be decided. If the sales manager is given an appropriation of $500.00, or $5,000.00, for a trial, he can work intelligently, but if told to go ahead, and then ordered to stop before his campaign is well under way, he should not be charged with a failure.

Another thing that the sales manager should control is the question of salaries paid to the salesmen. We maintain that the amount of salary paid to a salesman is of no moment provided he is a profitable man. A $10,000.00 man who sells goods at a cost of 10% is more profitable than the $5,000.00 man who sells at 10%, or even 9%, because of the greater volumes of his business. The management should gauge the sales department by net costs, not by the amount of individual salaries.

BRANCHES OF SALES DEPARTMENT

The sales department is logically divided into two branches—mail order and personal salesmanship. The mail order branch is that part of the organization which has to do with the promotion of sales by mail. The personal salesmanship branch is the division which makes sales by personal contact with the customer.

The work of the mail order branch is conducted by correspondents—letter[96] salesmen—assisted by clerks to look after the routine of the department.

The personal salesmanship branch is conducted, primarily, by salesmen who visit the customers and personally sell goods. In many lines, the personal salesmanship branch is supplemented by agencies, who come in direct contact with the customer.

There are businesses in which the dealers, who carry the goods in stock, are assisted by both the mail order and personal salesmanship branches in making the sale to the customer. An example is the piano business in which inquiries are referred to dealers, the dealer and prospective customer followed up by mail, and the traveling salesman sent to assist the dealer to close the sale.

THE MAIL ORDER BRANCH

When the mail order branch is spoken of it does not refer necessarily to an exclusive mail order business, but the term is used to identify the department in any concern which uses the mails to promote sales. While there are many exclusive mail order houses, employing no personal salesmen, there are practically no exclusively personal salesmanship houses. There may be no effort to secure direct orders in this manner, but the mails are used to influence sales. Extensive circularizing campaigns are conducted for the purpose of making known to the consumer the merits of certain commodities, which are sold only through dealers. In the sense here used, such campaigns are within the province of the mail order branch.

Form Letters. An important factor in the conduct of the mail order branch, is the use of form letters. In a campaign intended to secure direct orders, the form letter takes the place of the personal salesman.

The form letter presupposes a uniformity of conditions. It is written to appeal to certain desires of the recipient; its arguments are based on the supposition that the same desire exists in the minds of all to whom it is sent, and that the same arguments will cause its readers, as a class, to yield to those desires.

The result of a form letter campaign depends on the extent to which the letter fulfills its mission in adapting itself to the conditions of the class to which it is sent—its adaptability to the mentality and[97] environment of its readers. The same argument will not appeal to the mechanic, farmer, merchant, and banker.

The failure of most form letter campaigns can be traced to one of two causes—failure to adapt the letter to existing conditions, or lack of judgment in selecting a list for a trial. The goods offered may be used by plumbers and lawyers, but the same letter should not be expected to pull with both classes. Like the selling talk of the personal salesman, the letter should be changed for each class.

Other conditions, also, must be studied. Iowa may have harvested a bumper crop, while Kansas suffers from a drought; mills in the Pittsburg district may be running overtime, while Buffalo is in the midst of local labor disturbances. All of these local conditions influence the results of the letter campaign.

As to lists used for trials, the more usual mistake is in the use of too small a list. Some sales managers, who have mailing lists of from 25,000 to 100,000 names, profess to try out a letter with a list of 300 to 500 names. A list of this size is not sufficient to give an actual test of the pulling power of any letter. Some of the most successful letter salesmen give it from their experience that the very smallest list from which a safe test can be made is 1,000 names.

Keying Form Letters. It is just as necessary to key form letters as to key magazine ads. The key makes it possible to trace results. The question of keying is most important when a series of letters is used—which is true in most campaigns—for it then becomes necessary to check the returns from each letter in the series. When one letter only is sent to a given list, the replies received from that list can be safely credited to the letter.

There are several methods of keying form letters, among which are the following: the reader may be requested to address his reply to a certain department; he may be offered a sample or some novelty; or the letter may be written in the first person singular so that replies will naturally be addressed to the writer.

The writer confesses to a preference for the last named method. The average mail order buyer likes to feel that he is receiving personal attention—that there is someone in the house to whom he can write, instead of addressing the house. A personal touch can be put into the letter signed by an individual that is impossible in a letter signed in the name of the house.

[98]

Fig. 21. Detailed Record of Form Letters Mailed

[99]

There are those who contend that only the name of the house should be used, that the name of an individual should never be signed to a letter, and who have printed on their letter heads the phrase: "Address all communications to the company, not to individuals."

While it is perfectly proper to use every legitimate means to keep the name of the house before the public, there is a good deal of senseless fear that the prestige of the house will be usurped by the individual. In some quarters this fear has resulted in the adoption of ridiculously extreme rules and regulations. One incident in the personal experience of the writer will serve to illustrate the point. Having occasion to request a favor from a certain manufacturer—a favor which would be granted, if at all, by the advertising manager—and knowing the advertising manager personally, he addressed the request to him, using his title in connection with the name of the firm. Somewhat surprising was the following letter, received a few days later:

Dear Sir:

We have your favor of the 12th, addressed to our Mr.————, and your request will receive the attention of the proper individual.

Our method of handling correspondence is such that, to insure proper attention, all communications should be addressed to the company. We request that you observe this rule in the future.

Yours truly,

No more reason for the fear that the house will be injured by the personality of one of its correspondents can be seen, than that the personality of the salesman will have greater weight with customers than the reputation of the house. If the personality of an employe—be he a personal salesman or a correspondent—is worth anything in a business way, the benefit accrues to the house that employs him.

There is one other objection to the use of the name of the writer of the letter, and it comes from the United States Statute making it a criminal offense to open mail addressed to another. But this objection can be easily overcome; any employe whose name is used will sign an order authorizing the opening of letters addressed in his name, unless marked personal.

[100]

Fig. 22. Record of Sales Resulting from Form Letters

[101]

Form Letter Records. A copy of each form letter written should be kept permanently. The copies should be filed in a manner that will make it easy to refer to them. For this purpose an arch file or binder is most satisfactory. The letters themselves may be punched for the file, or the loose-leaf scrapbook idea can be adopted, pasting several letters on one leaf.

Each letter should be given a number for the purpose of identification, whether or not it appears on the letter itself. The copies should be arranged in the file in numerical order, but where there are several departments or divisions using form letters, they should be divided by departmental indexes.

It is also well to keep a second copy of the letter with a sample of the enclosures, as the enclosures may have an important bearing on the results. These copies may be preserved in the manner suggested for filing copies of ads and printed matter.

When a form letter is written, a record form, as shown in Fig. 21, should be started. This may be on a card or loose leaf; the latter is preferred on account of the larger space for the record. The heading shows the No. of the letter, the subject, name of the writer, its No. in the series to which it belongs—first, second, or third—the enclosures, and the names of any special lists used. The body of the form provides for a record of letters mailed during the year, with a monthly record of total costs.

The sheets are arranged in the order of letter Nos., in a card file or a loose-leaf binder.

The reverse of this record form is ruled, as shown in Fig. 22, to provide a record of sales resulting from the use of the letter. Sales can be entered daily or weekly, but the daily record is recommended.

The methods of obtaining the details for these records is described later.

Follow-up Systems. A necessary and very important factor in the success of a business transacted through the mails, is the follow-up system. And in a business in which sales are made by personal salesmen, the follow-up is used for certain purposes, and is as important as though used to secure orders.

To follow-up is to keep after, to keep in touch with, and to keep a certain subject before certain individuals. Whether used to secure[102] orders or make collections, the idea of the follow-up is the same, though it is better known as a system for promoting sales.

The follow-up arises from the same necessity that compels the personal salesman to call on a prospective customer more than once—often many times—before the first order is secured, and continue to call to hold his trade. The follow-up simply makes use of letters and other literature to take the place of the personal salesman.

Mechanically, the follow-up system is a system or method that insures the sending of the right literature at the right time. Letters—both form and special—catalogs, booklets, folders, circulars, and mailing cards are all used in the process of following up the prospective purchaser; the automatic method of showing when each piece of literature in the series should be sent, is the follow-up system itself.

Fig. 23. Vertical File Drawer Equipped as a Tickler

Tickler Method. The simplest method of handling the follow-up system is to use a tickler in which to file memoranda or correspondence by dates. A tickler consists of a file equipped with a set of indexes numbered from 1 to 31 to represent the days of the month,[103] and 12 indexes printed with the name of the month. The monthly indexes are arranged in order, and the daily indexes are placed in front of the monthly indexes in numerical sequence. The file may be a vertical correspondence file, a card tray, or a flat desk file.

In using the tickler for a correspondence follow-up, letters are filed back of the index representing the day on which the subject is to receive attention. Each day the letters filed behind that day's index are removed, and after receiving attention, are filed ahead to the next follow-up date.

If it is desired to have a letter come up for attention in another than the current month, the day of the month is noted on the letter, and it is placed back of the monthly index. On the first of the month, the index for the previous month is placed at the back of the file, which brings the current month's index to the front. All papers that have been filed back of the monthly index are then distributed by dates. A correspondence file drawer, equipped as a tickler, is shown in Fig. 23.

For a small amount of correspondence, the use of the tickler is very satisfactory, and it is also used to excellent advantage for keeping track of the many matters that require attention at a future date. A tickler should be included in the equipment of every office, no matter what the line of business.

Card Follow-up. For most extensive follow-up systems, the card index is used, for the reason that a card is easy to handle, occupies but little space, and can be adapted to any classification desired. A card is used for each prospective customer, or name on the list to be followed up, and should bear the name and address and a brief history of the efforts made to secure an order, or accomplish the object of the follow-up.

In operating a follow-up system—especially if the object is to sell goods—the correspondent should have before him a history of the efforts previously made to secure an order. He should know what letters and other literature have been mailed just as the personal salesman knows what arguments he has used. When form letters have been used it is not necessary to have copies of the letters in each case, but they should be identified by their numbers, or otherwise. Records of these letters, by date and number, can be made on a card, so that the card itself will give the correspondent a complete history[104] of the case. The correspondence—letters from the prospective customer and copies of special letters to him—can then be filed in the regular way, and is accessible at all times.

The oldest method of operating the card follow-up is to use the tickler index in a card file. The follow-up is operated in exactly the same manner as described for the correspondence file tickler, except that the cards are filed ahead instead of the original correspondence.

Fig. 24. Card Used for Follow-up

A typical follow-up card is shown in Fig. 24. At the head of the card is the name and address of the prospective customer, followed by the credit rating, the business, and the source from which the name was obtained—whether from advertising, a special list, or from a traveling salesman. The body of the card is ruled for a record of letters mailed, form and special letters separated. When a letter is sent the No. and date—if a form letter—is entered, and in the file column is noted the number of days the card is to be filed ahead—as 10 days or 30 days. If at the time specified, the next form letter in the series is to be sent, provided no response has been received, the No. should be noted on the next blank line in the No. column, so that the letter can be sent by a clerk, without consulting the salesman.

When the cards come from the file, those on which no form letter is indicated for the next follow-up should be referred to the correspondent.[105] If he considers a special letter advisable, he should have all previous correspondence attached to the card, that he may know just what has been done to land the customer.

Cross-Indexing the Chronological File. One of the disadvantages of the tickler or chronological index, described above, for a follow-up is the difficulty of locating a card, when the date under which it is filed is unknown. A letter may be written on June 10, and the card filed ahead to June 25; on June 16 a reply may be received which makes it necessary to find the follow-up card, but to do this it is necessary to look through all of the cards filed between June 16 and June 25. If the card is not found, the chances are that on the 25th a regular follow-up form letter, which will make the system appear ridiculous, will be sent.

Fig. 25. Follow-up Card with Alphabetical Tab

To so file the cards that any one can be found by name, without interference with the automatic features of the follow-up system, is an important consideration. This can be accomplished by the use of a card like the one shown in Fig. 25. It will be noted that this card bears a small tab or projection, on which is printed the letter B. These tabs are cut 1/20 of the width of the card and are in twenty positions across the card. This allows for twenty subdivisions of the alphabet, the A tab being in the first position, B in the second, etc.

[106]

In filling in a card, one bearing the letter corresponding with the first letter in the name of the correspondent is selected—a B card for Brown, an S card for Smith. Now since B is always printed on a tab in the second position, and this tab is always the same distance from the end of the card, when the cards are filed, all B tabs will be in a straight line from front to back of the drawer.

No matter under what date it is filed, if Brown's card is wanted it will be found by looking through the row of B tabs in the second position from the left. Regardless of the number, all tabs printed with the same letter are found in one row, making it possible to file cards by date and cross-index by name.

Fig. 26. Follow-up Card with Movable Tab to Show Dates

Cross-Indexing the Alphabetical File. An improvement over the cross-index of the tickler, described above, is the method of cross-indexing an alphabetical file in a manner to insure a follow-up on a specified date. A card without tabs, as shown in Fig. 26, is used. Across the top of the card is printed a series of numbers representing the days of the month. This may include all of the numbers, from 1 to 31, or the month may be divided into five day periods.

In connection with this card a metal tab, which can be attached at will, is used. One of these tabs is placed over the number which represents the date on which it is to be followed up. The card is then filed, indexed by name.

THE SALES DEPARTMENT IN THE NEW YORK OFFICES OF J. WALTER THOMPSON COMPANY

[107]

The numbers being printed in the same position on every card, all tabs placed over the same number will be in a direct line in the file. The cards to be removed for the follow-up on a certain date are those bearing tabs over the number representing that date. On June 20, for illustration, all cards with tabs over No. 20 are taken from the file. When letters have been written, the tabs are moved to the next follow-up date, and the cards returned to the file.

Fig. 27. Card for Combined Daily and Monthly Follow-up

This method of cross-indexing with movable tabs permits of the filing of the cards in any manner desired, with the knowledge that the follow-up date will be surely indicated. The tab method is also used for a combination of daily and monthly index. On the card shown in Fig. 27, the names of the month are printed under the date. For a follow-up in a later month a colored tab is used to represent the monthly index, while a black tab represents the day of the month. To illustrate, we will suppose that the card is placed in the file on Oct. 5 and the next follow-up date is Nov. 10; a black tab is placed over No. 10, and a red tab over No. 2. The card will not be disturbed on Oct. 10, as the red tab indicates that it is to be removed in a later month, but on Nov. 1, the red tab is removed from the card, and the black tab will bring it to notice on Nov. 10.

Lists of Customers. Every concern whether it secures business through the mails, by means of personal salesmen, or both, should[108] have a list of its customers properly classified and arranged for easy reference. This should be something more than a list of names and addresses; certain essential facts about each customer—such as his business, the name of the buyer, the credit rating, and amount of purchases—should be recorded.

All of this information can be placed at the head of the ledger sheet, but it never should be necessary for another department to consult the records of the accounting department for information needed daily. The information given by the customers' list is of most value to the sales department and should be kept in that department.

Fig. 28. Monthly Record of Purchases of a Customer

For customers' lists, cards are most largely used, and are most satisfactory. Cards are readily classified, new names can be added at will, and old names are removed without disturbing the balance of the list or the general arrangement of the cards.

The follow-up card can be used as a customer's card, but should be moved from the follow-up to a separate file; or a new card can be made when a prospect becomes a customer.

On the back of the customer's card a form similar to Fig. 28 should be printed. This is intended for a record of the purchases of the customer and provides for a monthly record, covering a period of five years. The amount of purchases is entered monthly from the[109] ledger. In a business in which the purchases of each customer are infrequent, each order should be entered with the date, in place of the monthly summary.

Classification of List. The value of a list of customers is greatly enhanced by a careful classification of the names. Lists of those engaged in the different trades and professions can be bought, but no list is so valuable as one made up of the names of those who have answered your advertisements, or with whom you have done business.

Fig. 29. Card File for a Classified Customers' List

Most houses sell goods to those in different trades or occupations. A manufacturer may sell different lines, or the same line, to jobbers, retailers, and consumers; a mail order concern may sell to farmers, mechanics, and small retailers; a retailer may sell to men and women. To sell each different line to a different class of people, requires different arguments—a new line of selling talk must be used in each case. While the personal salesman has an opportunity to size up his prospect, and make his argument fit the individual, the letter salesman must fit his argument to a class. To drive home the right argument, he must be sure of the class to which his prospect belongs. He cannot hope to form the personal acquaintance of his prospects, but must rely on a proper classification.

The classes into which a list of customers and prospects should be divided depends on the nature of the business and the class of goods[110] sold. It might be manufacturers in different lines, the different professions, retailers in several lines, or all of these combined into one list.

With a card list, any classification is easily provided. If the number of classes is small—not exceeding seven or eight—the classes can be indicated by the color of the card, a white card being used for one class, blue for another, etc.

For a more extensive classification, cards with numbered tabs, as in Fig. 29, are used. It will be noted that there are twelve of these tabs, and that they are numbered from left to right. In the follow-up systems, from which this illustration is taken, each number represents a certain line of business.

Suppose that No. 1 represents manufacturers; if all manufacturers on the list are to be circularized, only those names recorded on cards with the No. 1 tab are addressed. Now if the business is one dealing in specialties, it may be that the specialty to be sold will depend on the position held by the prospect—a sales manager will be more interested in a book on sales methods than in one on factory methods. To further classify the list, colors are used.

In the system referred to, eight colors are used. Seven of these represent occupations of prospective customers, while the eighth is used for customers. A manager or executive officer is represented by a blue card, a sales manager by a white card, etc. When a prospect becomes a customer, the card is removed from the follow-up file, the amount of the sale is entered on the back, and it is placed in another file reserved for customers. At the same time a red card is placed in the follow-up file for use in further circularizing. The tab on the customer's card shows his business, but the occupation is not so important since he is already acquainted with the house and its goods. A more familiar tone can be adopted in letters to a customer, than to a prospect.

A complete classification, such as provided in this system, is of immense value to a letter salesman. Suppose he wishes to address all executives—the blue card is used; if he wants to reach customers who are manufacturers, red cards with No. 1 tabs are the ones used. He can make his letter fit a particular class and be sure of the class.

Classification of Sales. There are certain lines of business in which a second order for the same article is seldom received from any[111] customer. An example is the music business. The chances of selling a customer a second piano are remote, but the fact that he has purchased a piano is a sure indication that he will be interested in certain classes of music. Book publishing is another example. A man who buys a book on advertising, or commercial law, or auditing is quite likely to be a buyer of other books on the same or kindred subjects.

Fig. 30. Card for a Classified Record of Purchases

In a business conducted through the mail, a classified sales list that shows at a glance what classes of goods have been sold to each customer furnishes an excellent guide for further circularizing. On such records it is not necessary to show the amounts of purchases—the class is the important item.

Fig. 30 shows a card used for a record of this kind. The goods are divided into four classes, indicated by the letters at the head of the columns. When the first sale is made, the name and address are entered on one of these cards, and the date indicated in the proper column. A movable tab is placed on the upper edge of the card, over the letter that indicates the class, and the card is filed. As subsequent purchases are made the dates are entered, and if the purchase includes another class of goods, another tab is placed on the card. In time, one card may bear four tabs, indicating that the customer has bought goods in all four classes.

[112]

When new goods are received, they can be brought to the notice of those customers whose purchases indicate that they are most likely to be interested, without disturbing the other cards.

Indexing Customers' Cards. The best manner of indexing customers' and prospects' cards depends on the size of the list. A list of a few hundred names is best indexed alphabetically. A large list should be indexed geographically—according to location.

The geographical index consists of index cards printed with the names of the states, and sets of indexes bearing the names of the cities and towns in the different states. The state indexes are arranged in alphabetical order, and back of these the town indexes are filed alphabetically. The cards are filed back of the town indexes, these also being arranged alphabetically. When the number of names in a city is large, the cards are further subdivided by alphabetical indexes. In states where the list is small, an alphabetical index can be substituted for the town index, the letters representing towns; names of customers in Alton would be filed back of the A index, those in Springfield, back of the S index.

An advantage of the geographical index is that a definite territory can be covered by the letter salesman, or the personal salesman can go over the list and find out the condition of the trade in his own territory.

PERSONAL SALESMANSHIP DIVISION

Though the volume of business secured through the medium of the mails is increasing at a rapid rate, the bulk of the business of the country is done by personal salesmen.

Leaving out of the discussion the question of retail salesmanship, the personal salesmanship plan—the employment of traveling salesmen—is the least expensive method of selling goods at wholesale. To sell certain low-priced specialties to consumers, the mail order plan is sometimes best, for the reason that it is necessary to reach a large number of possible buyers to find a few actual buyers. This can be done at less expense by letters than by traveling salesmen.

More is being learned about how to use the mails to promote business—how to make the follow-up system an assistant to the salesmen. The manufacturer whose goods are sold to the trade, by salesmen, is learning how to build up his own business by assisting[113] the dealer to sell his goods. He advertises to interest the consumer, he follows up the consumer and the dealer, and in the end assists his own salesman to sell more goods.

Much good literature has been written on the subject of salesmanship, plenty of advice about being systematic in his work has been given the traveling man, but very little has been written on the subject of making sales records and reports of assistance to both the house and the salesman. Some suggestions on this phase of the question are made in this discussion.

Routing Salesmen. How to route his salesmen to the best advantage is one of the important problems of the sales manager. He must first decide how often the territory should be covered, then the extent of the territory he will attempt to work, and the number of men required. When this has been done, the territory of each man must be laid out, and a route which will enable him to cover the territory with the smallest mileage, must be selected. The territory should not be larger than a man can cover in a specified time, but large enough to require all of his time.

Map and Tack System. To know just where each man is at all times—to be able to locate Smith or Brown instantly, every day—is very necessary. Perhaps the best method of doing this is by the use of what is known as the map and tack system.

State maps, printed in colors, are fastened in the bottoms of shallow drawers, a drawer for each state. Sharp pointed tacks, with heads covered with silk in a great variety of colors, are used for various classifications, and colored silk cords are used to indicate routes and territory boundaries.

To each salesman is assigned a specific color, by which he is always known. Tacks with heads of the proper colors are placed in the map at the towns on his territory. A cord is then strung from tack to tack in the order in which he will cover the territory. When the salesman leaves a town the cord is removed from that tack, coiled up, and placed over the tack at the next town. The tack at the end of the cord always shows the present location of the salesman. Fig. 31 illustrates a map with cords—represented by the heavy lines—indicating salesmen's routes.

[114]

Fig. 31. Map Showing Operation of Map and Tack System Courtesy Browne-Morse Company

[115]

Other tacks, with heads of a different color or coiled wire heads for holding labels, are used to indicate special facts—as, competition strong, customer ready to buy, claim to be adjusted, or collections to be made. These are placed at the side of the salesman's tacks and are a reminder to write to him, about the special matter, at that town. If an inquiry is received or a good prospect developed, in some small town not regularly visited by any salesman, a special tack is placed in the map at that point. A cord of special color is then strung from this tack to the nearest stopping point on any salesman's route. This is a reminder to write the salesman instructing him to make a special trip to this point outside of his regular territory.

Fig. 32. Traveler's Route Card

Route Cards. It is not always advisable to attempt to lay out the entire route of a salesman in advance, neither is it always possible for him to make the towns in the time calculated. It is wise, therefore, to require the salesman to keep the house constantly advised about his stopping places. When the route is a long one, a route card, as shown in Fig. 32, should be mailed to the house weekly. The card should be 3×5 inches in size, to fit the standard size card drawer. Route cards of all salesmen, whether there are five or fifty, can then be kept in a card tray in the manager's desk.

Reports of Calls. The successful sales manager of the modern type is learning to get more and more business from his territory; he is not satisfied to show a large volume of business in a large territory, unless he feels that he has secured all of the business possible[116] from every town. If Baker sells two dealers in Peoria, well and good; but why did he fail to sell the other five dealers in the same line? And it is not in a fault-finding spirit that he asks why; if he knew why, perhaps he and the salesman could together work out a plan that would solve the difficulty and secure from one to five new customers.

Fig. 33. Salesman's Report of Calls in Each Town

The salesman knows better than anyone else why he has failed to sell certain dealers; he is the man who becomes familiar with the actual conditions in each town—what competitors' goods are most popular, reasons for local business depression such as crop failures or labor disturbances, and any causes for dissatisfaction with the goods or business methods of his own house. Possibly the sales manager is not in a position to change conditions, but certainly, he cannot solve the difficulties unless he knows what they are. The salesman should, therefore, assume that there is at least a chance that he will receive assistance by keeping the house posted on every detail that might affect his trade.

The only way in which practical results can be secured is for the salesman to make a report on every call made, in every town on[117] his route. A form of report card is shown in Fig. 33. This is intended for a brief report of calls in one town. Space is provided for reports of seven calls, but if there is a larger number of dealers, more than one card is used. On the back of the card, a full line is allowed to each dealer for remarks.

The salesman is instructed to mail one of these cards, in an envelope specially provided for the purpose, from each town on his route. When received, the sales manager examines them, makes his notations, and files them according to salesmen's routes. When the salesman is next in the house the sales manager goes over the cards with him, and they discuss each case individually.

Forms of report cards differ, naturally, according to the business. In some lines more specific information is needed in each case to enable the sales manager to judge intelligently the chances for future business. Fig. 34 represents a card used in one business for a specific report on each call made. The form shown in Fig. 35 provides for a brief report including suggestions regarding the date of the next call.

Follow-up of Dealers and Salesmen. In the modern advertising campaigns of manufacturers in many lines, an effort is made to secure inquiries from consumers, though the goods are sold through dealers only. The inquiry is usually secured by a promise of a free sample, a handsome catalog, or other piece of printed matter.

These inquiries should always be referred to the nearest dealer, and in answering the inquiry, the name and address of the dealer should be given. In addition to the inquiries received from advertising, manufacturers in certain lines invite dealers to send them the names of good prospects. One of the large paint manufacturers asks the dealer to send two lists—one of people who are talking of painting their buildings, one of people whose buildings need painting. The manufacturer of a widely advertised washing machine asks for the names of all possible buyers to whom the dealer has talked washing machines, without making a sale.

The object of all this is to enable the manufacturer to assist the dealer to sell more goods of his manufacture. Sometimes the margin of profit to the manufacturer is such that he can afford to maintain an extensive follow-up on the names, and even send one of his salesmen to assist the dealer to close the sale.

[118]

Fig. 34. Specific Report on Individual Calls

Fig. 35. Salesman's Report of Call and Follow-up

The manufacturers of one of the popular pianos has secured excellent results from the operation of such a system. In this system, the card shown in Fig. 36 is used to follow-up both the inquirer and the dealer. It will be noted that columns are provided for a record of the postage on every letter or piece of printed matter mailed.[119] The prospect receives a letter once a month, while once in two months a letter is written to the dealer asking for a report.

With the first letter to the prospect, a postal card acknowledgment form is enclosed. On the postal, space is provided for names, which the prospect is asked to fill in with names of friends who might be interested in pianos. By this simple expedient, an original inquiry is often added to with a half-dozen new names.

Fig. 36. Card Used for Follow-up of Dealer and Inquirer

With the first letter to the prospect, there is also enclosed a formal letter of introduction to the dealer. This letter, which is addressed to the dealer, reads as follows:

The bearer of this letter wishes to inspect our pianos. We shall esteem it a favor if you will kindly explain the merits of these instruments and give—— ——an opportunity to thoroughly examine them.

Respectfully,


At the time of referring the inquiry to the dealer, the blank shown in Fig. 37 is filled in and mailed to the salesman in whose territory[120] the dealer is located. The lower half of the blank is for the salesman's report to the house.

Fig. 37. Notice of Inquiry Sent to Salesman, with Blank for His Report

Salesman's Expense Accounts. Detailed expense accounts should be mailed to the house weekly. A conveniently arranged form, with columns, for regular expense items such as hotel, R. R. fare, livery, etc., will greatly assist the salesman in making up his accounts. Such a form is shown in Fig. 38. This is a card 3"×5" in size, punched to fit a small ring binder small enough to be carried in the pocket. Both sides of the card are used, providing for a record of expenses covering a period of one week.

SALES RECORDS

Regardless of the nature of the business, whether sales are made through the mail, by traveling salesmen, or resident agents, summaries[121] of sales from day to day, supply much valuable information to the sales manager. Sales summaries which show the amount of sales each day and month, are the working charts of the sales manager.

It should be remembered that these statistics are chiefly valuable for comparative purposes, but to insure comparisons of value, the statistics must be compiled in proper form. It should be possible to compare, not alone total sales, but the sales of each man in different periods, the sales of one man with those of another, the sales in different territories, the sales of different departments, the sales by mail with those of personal salesmen.

Fig. 38. Traveler's Weekly Statement of Expenses

Daily Sales Records. The daily record of sales should show the sales of each department, the source of the sales, and the proportion of cash and credit sales. These should also be divided as to wholesale and retail.

A convenient form is shown in Fig. 39. This is a sheet punched for a loose-leaf book, and there should be as many copies as there are men in the organization who are directly interested. Besides the sales manager, the general manager, the advertising manager, and the comptroller are all directly interested. By using carbon paper as many copies as needed can be made at one writing.

[122]

Fig. 39. Daily Tabulation of Sales by Departments

Fig. 40. Monthly Recapitulation of Daily Sales Reports


EXECUTIVE BUILDING OF THE LEWIS PUBLISHING CO., UNIVERSITY CITY, ST. LOUIS, MO.

[123]

Monthly Sales Records. Fig. 40 represents a sales sheet arranged for a monthly summary, the statistics being obtained from the daily records. The monthly summary follows the same lines as the daily record, except that sales are not divided by departments.

Where the business is divided into several departments one of these monthly summary sheets can be used for each department.

Fig. 41. Daily and Monthly Record
of a Salesman

These daily and monthly summaries provide for a comparison of wholesale with retail, mail order with personal salesmen, and departments. If there is a gain in one department and a loss in another, or a fluctuation in total sales, these summaries point out the source, showing where greater efforts are needed and where praise is deserved.

Salesmen's Records. While the sale summaries described afford many valuable comparisons, they do not provide a classification that will indicate the value of each salesman. There should be a record showing the volume of business of each man. The form shown in Fig. 41 shows a card used for a daily and monthly record of one salesman. The form might be elaborated to show cost of goods, salary, expenses, gross and net profits; but the tabulating of this information is more properly the work of the statistical department.

These cards should be filed alphabetically by name of the salesman, and divided according to states. They will then show the sales of each man and in each territory.

[124]

For a business in which goods are sold by resident agents, a card similar to the one shown in Fig. 42 should be used. The upper half of the card provides for the recording of certain essential information, while the lower half is used to record sales.

Fig. 42. Record of Sales by an Agent or Dealer

[125]
[126]


THE CREDIT DEPARTMENT OF THE FIRST NATIONAL BANK, CHICAGO, ILL.


[127]

THE CREDIT ORGANIZATION

THE CREDIT MAN

Acknowledged specialists may be employed in every branch of an enterprise, the shrewdest brains may be engaged in buying, producing, and selling, but the final conservator of the business is the credit man; others may be profit makers, but he is the profit saver in every commercial organization.

He is on guard constantly—always on the lookout for the slightest sign of danger, ever ready to take prompt and vigorous action to avert disaster to his house or to lend a helping hand to a customer. His duties make him the most misunderstood man in the entire organization.

He is thorough, methodical, painstaking, a keen student of human nature, possessing faith in the inherent honesty of his fellow men. The insistent search for facts that he demands, may cause him to be regarded as an inquisitive busybody by the very customer whom he desires most to help; as a carping critic, by the salesman of his own house.

Through it all he remains faithful to his trust, watchful of the interests of his house, and has the satisfaction of knowing that in spite of his mistakes but a remarkably small part of his credits prove bad—that where his conservatism has lost hundreds in trade, it has prevented the loss of thousands.

On no man in the organization is there such tremendous pressure brought to bear to secure favors; on no man do the consequences of his own mistakes come back so surely. The credit man must be firm, and, while availing himself of every reliable source of information, he must stick to his decisions, for he is expected to collect from those to whom he has extended credit. Every other man has a loop-hole through which he may escape criticism; if a customer is lost because goods are unsatisfactory, it may be "up to" the salesman, the shipping clerk, the superintendent, a foreman, or even an obscure[128] mechanic. The credit man has no one on whom he can place the blame; if a customer fails to pay, no reason short of an earthquake will relieve the credit man of the responsibility.

So much for the credit man. Now for a discussion of the work he is expected to do, the machinery of his office, and his methods of operation—for the writer disclaims any intention of attempting to teach the student how to become a credit man.

INFORMATION REQUIRED

The most important function of the credit man is the determining of the credit risk—the amount of credit that can safely be extended to each individual. When he consents to the delivery of goods to be paid for at a future date, he is loaning his firm's money.

Before credit is granted extreme care must be exercised in determining the ability of the purchaser to pay, or that he will be able to pay when the bill is due. After necessary precautions against assuming too great a risk have been taken, a further insurance against loss is included in the amount added to cost—a certain per cent of the profit is expected to offset the risk.

In determining the credit risk, different classes of information are necessary in different lines of business. While certain specific information about individual applicants for credit is necessary, the subject may be divided into two general classes—wholesale and retail. Under the head of wholesale, is included information about all business concerns, whether a single proprietor, a partnership, or a corporation. In a general way also, the same information is required in respect to these concerns by the banker, the manufacturer, the jobber, and the wholesaler. Under the head of retail, is included the transactions of a retailer with his customers, who may be regarded as individuals.

Leading authorities on the subject of credit place the factors which determine the credit risk in two classes—the man and the business. Under the first heading is considered the business morals of the debtor and his ability in, and familiarity with the business in which he is engaged. The second heading—the business—is considered from the financial standpoint, divided as to its assets and liabilities, and the profits or losses made in its operation.

But as to the relative importance of the two principal factors—the man and the business—authorities differ. In his valuable contribution[129] to the literature of credits, Mr. E. St. Elmo Lewis takes the stand that the man—his character—should be considered secondary. To quote from Mr. Lewis' book:

If goods are the basis of all credit, character of the owner is and should be an after consideration. The very first question any credit man should ask, is, can he pay?

The question of a man's ability to pay is becoming of greater ease of solution.

The question of the intention or inclination to pay must always be shrouded in the nebulæ of psychological theory.

What is the applicant worth? is the crucial test. Then we shall test him by another. What sort of a man is he?

Do we buy a law suit when we sell him goods?

How much must we add for moral insurance against loss?

Character is of vital importance in small concerns; of vital importance in concerns doing a large business on small capital, and it becomes of less importance as we progress into the field of corporations.

In direct contrast to this contention are the views of Mr. Ernest Reckitt, as expressed in an address delivered before an organization of bank clerks. After naming the factors to be considered by the banker before extending credit, he said:

You will note that in enumerating these factors I place first, and purposely so, "The Man Himself," and I believe I am correct in stating that bankers are now placing more stress upon this point than ever before. The man of good character and intelligence, who is full of energy and perseverance, will not find it difficult to obtain a reasonable line of credit with his bankers, while the man who is deficient in those qualities, whatever his reputed wealth may be, will be looked upon with suspicion. It therefore behooves you to become students of human character as well as students of banking, if you are to fill the highest positions within your reach.

These comments may be out of the range proposed by this paper, but I feel I cannot leave this topic without giving you an illustration of the point I wish to emphasize, namely: That it is the character of the man, or men, in a business, which must be first considered before the banker makes a loan. Some time ago, in a certain city, there was a large corporation reputed to be very wealthy, whose balance-sheets were beautiful to behold. Their business being large, they were borrowers of some of the largest banking institutions of their city. Apparently without any warning the corporation was declared bankrupt and went into the hands of a receiver. Later, investigation showed that the balance-sheet was misleading; some people might have called it a worse name, for the assets had been overstated and the liabilities understated. I happened to be in that city at the time of this failure, and, meeting a director of one of the banks with whom I was well acquainted, I inquired if his bank had been caught. "No," said he, "they did try and open an account with us some time ago with the object of becoming borrowers, but we turned them down." I asked him what reasons he and his colleagues on the directorate[130] had for such action at a time when this corporation was supposed to be so prosperous. "Well," said my friend, "some time ago it came to my knowledge that this corporation paid no water tax and that its personal property tax was a mere bagatelle to what it should have been, and I figured out that the officers of a corporation that would be guilty of petty bribery would not be good customers for our bank."

So it will be seen that a knowledge of the business morals of the men in your community and a high ideal, on your part, of what constitutes good business morals is a most essential quality in the make-up of a banker, and that it was these factors that enabled the bank of which my friend was a director to escape what otherwise would have been a bad debt.

Financial Statements. Without attempting to decide the relative importance of the two principal factors, it can safely be stated that one of the first steps to be taken by the credit man is to secure a financial statement from the applicant. And the character of the statement may serve as a guide in determining the character of the man with whom he has to deal.

Most business men are willing to comply with any reasonable request relative to their financial standing, when applying for credit. Until recently, the average man had objected to giving out such statements, except to his bankers, but with the more universal demands for such statements has come a change, and now a statement of some sort is almost always obtainable.

The form of statements used by banks differ somewhat from that used by manufacturers and jobbers, and, while it differs slightly as between banks, and also as to whether the borrower is an individual, a partnership, or a corporation, in general the statement required follows the lines of the form shown in Fig. 1. This statement is signed, in the name of the firm by a member, in the case of a partnership; and in the name of the company by one of its officers, in the case of a corporation. A statement in the same form gives all of the information of a financial nature required by the manufacturer or merchant.

Analysis of the Statement. Of equal importance with the statement is the ability to read it—to correctly interpret its real meaning. This calls for a careful analysis of the several items of which it is composed. To make a correct analysis means that the credit man must have a general knowledge of the business in which the one asking for credit is engaged. The banker must know, for example, whether the season is one in which more capital is likely[131] to be needed in the trade of the borrower, or one in which he should be liquidating his indebtedness.

Fig. 1. Customer's Financial Statement

So important is this phase of the question that some of the larger banks have adopted the plan of assigning requests for loans in different businesses to different officers. One man will investigate real estate securities, one, applications from board of trade houses, another handles applications from packing houses, others look after[132] the steel, building, jobbing, and manufacturing enterprises. Each man is a specialist, making a special study of conditions in the business to which he is assigned.

In making an analysis of a statement, each item must be taken up separately and considered with respect to its relationship to other items, and its bearing on the statement as a whole.

Cash on Hand. The cash on hand should be consistent with the needs of the business, and, if listed separately, the cash in office should never be a large sum. There is seldom any good reason why cash should not be deposited daily. The banker will find it necessary to carefully scrutinize the amount in bank, particularly if the borrower claims to deposit in no other bank.

Merchandise. This item is always a somewhat uncertain quantity; often an estimate pure and simple, and the debtor is unlikely to make his estimate too low. In the absence of provable figures, it is necessary for the credit man to apply his knowledge of the business. Is the stock larger than should be required? Is it too low to enable the debtor to keep pace with his competitors? Or, if a manufacturing business, how much is raw material and how much finished goods?

One of the important factors in making an analysis of this item is a knowledge of the accounting methods of the debtor. Does he keep stock records, or if not, is his stock well cared for and stored in a manner to permit of a reasonably accurate estimate? On the latter point, reports of the observation of salesmen, referred to later on, have an important bearing.

Bills Receivable. On the statement form shown, this item is divided as to notes, secured and unsecured, not due and past due. To state that the amount of bills receivable is so much is one thing, to state the amount not due, is quite another. Any considerable amount of unsecured and past due paper indicates lax methods in the debtor's own credit department.

Accounts Receivable. This item is divided as to accounts less than 60 days past due and accounts more than 60 days past due. These items require the same close scrutiny as bills receivable.

The two items—bills and accounts receivable—should bear a reasonably constant ratio to the amount of sales. Any unusual increase in the percentage of book debts to sales calls for careful[133] scrutiny, and leads to one of three conclusions: that trade conditions are bad, that the credit department has been lax, or that the amount is overstated.

The first of these conclusions is supported or rejected by the credit man's knowledge of financial conditions in general, and of conditions in the particular trade of the debtor. During a financial panic, or in a season following crop failures, it is to be expected that book debts will be greater in amount than in ordinary times. In the event of the third conclusion, it is time for a careful investigation. As a rule, the investigation will be productive of best results if an examination of the books by a public accountant is included.

Due from Stockholders. This is an item which must be carefully studied. Who are the stockholders or partners who own the firm, and for what? What is their financial responsibility?

Sometimes, stockholders whose entire fortunes are invested in a corporation are found to be debtors to the same corporation for borrowed money.

Due for Merchandise. This item is divided as to accounts not due and past due. It should be carefully compared with the same item in statements furnished in the past. An increase may or may not be due to natural causes such as the requirements of the trade during a particular season.

Due for Borrowed Money. Any increase in this item should be offset by an increase in assets, or a decrease in other liabilities.

Liability as Surety. This is an item of more importance than is generally accorded to it. True, the liability is a contingent one, but many a man has been forced into bankruptcy by the failure of another, for whom he had become endorser.

Another item which should in the opinion of the writer appear among the liabilities, is discounted paper. When a man discounts the paper of a customer, received in the course of business, he assumes a liability for the amount, if not paid at maturity. True, the liability is contingent, but a liability nevertheless. The extent of the liability depends on the prosperity of his own customers and the care which he has exercised in accepting their paper.

Information for Retailers. The information available for the retailer is of a very different class. Here, the factor, the man himself, plays a more important part. The retailer is obliged to depend more[134] largely on his personal knowledge and the general reputation of his customer.

The city retailer, for instance, needs to know where the man works, his salary, his reputation for paying others—his landlord, grocer, and butcher—and something about his personal habits and general reputation.

How long has he been in his present position?
Does he make frequent changes?
Does he own a home?
What rent does he pay?
Any other wage earner in the family?

These are some of the questions, the answers to which will assist in determining the credit risk.

The country retailer needs other information about his customers. As a rule, he can answer all of the questions asked by the city retailer in respect to his own customers. He is more intimately acquainted with his customers; he has a better opportunity to learn their characteristics and habits, than the city retailer. The country retailer has another advantage, in that a closer bond of friendship exists between him and his neighbor merchants. The interests of city merchants are no less common, but distances separating them make an interchange of views more difficult.

About his country customers—the farmers—the retailer requires still different information. Besides full information about the real estate owned, and mortgages given, he needs to know something about the man himself.

Does he market his crops early, or is he a speculator—always holding for possible higher prices?
Is the farm well kept up?
Are the implements properly housed, or left outside at the mercy of the elements?
Does he keep his live stock in good condition, and how much does he feed for market?
Is he thrifty or shiftless?

Only by personal contact can these things be learned. The country merchant who keeps in closest touch with his farmer customers—sympathizing with them in their misfortunes and rejoicing in their prosperity—is usually the most successful. As one country[135] merchant puts it, he must act as a general advisor, and help them bear their very aches and pains.

SOURCES OF INFORMATION

The usual sources of credit information are the mercantile agencies, reports from local correspondents, reports from traveling salesmen, and merchants' associations or credit reporting agencies.

Mercantile Agencies. Of these sources, perhaps the best known and most widely used by manufacturers and jobbers, is the mercantile agency. The mercantile agency is the outgrowth of a necessity. About the year 1840, a few New York merchants formed an association for the interchange of credit information. Later, this became a business conducted by individuals who charged a small fee for written reports.

The business has grown to such proportions that a single agency requires about 200 offices, located in the principal cities throughout the world. In the territory of each office, which is presided over by a manager, correspondents are employed, and at certain seasons country reporters traverse every district, gathering data to be forwarded to the branch offices. Every court house in the United States has its paid correspondent, who promptly reports any action—as the filing of suits, recording of mortgages, or entering of judgments—that might affect the credit risk of any business man in the country.

Some idea of the magnitude of the business, and the task of gathering statistics, can be gained when it is considered that the books of a single agency contain the names and ratings of about 1,500,000 persons. About each of these individuals, the latest data collected by the reporters is on file in the various branch offices.

Delays in securing information is one of the most common complaints against the agency service, but the service is probably as prompt as can be expected. Suppose a request for a special report is received this morning. First, the information on file is copied, and proofread to guard against errors. This is sent to the subscriber, but if it is not of a recent date he is advised that further information will be forwarded. Or, there may be no data on file, in which event a reporter is assigned to the case. He may be obliged to make several calls before finding his man, and when found, the man may be reluctant[136] about giving information. If real estate is listed, the real estate man must look up the title and mortgage records. Thus, two or three days may elapse before it is possible to furnish the report.

Some complaint is heard that reports furnished by the agencies are not sufficiently specific—which is probably true in many cases—but it is often quite difficult to obtain information on which positive statements can be based. On the whole, the service of the agencies is of very great value to the subscriber. As to its defects, the best way to overcome them is for the wholesaler to establish a credit organization of his own, to supplement the service of the agency.

Local Correspondents. If the matter is properly handled, much valuable information can be secured from local correspondents. The banker, or a local attorney, is in a position to make confidential reports on local merchants. In fact, the agencies secure much of their information from this very source.

But, in establishing local correspondents, the exercise of good judgment is necessary. The local attorney should not be expected to furnish information without pay, or to go into details that would not be asked of an agency charging $100.00 a year for the service.

An attorney has favored us with a blank sent out by one wholesale house, on which he is asked to make a complete report. Among other information requested, the blank calls for the value of merchandise, realty, cash, total worth, liabilities, and numerous references to his character, habits, etc. Following this statement is the question, "if not paid, can you collect?"

Here is a very complete statement, to compile which would require several hours' research, but without a single suggestion that the attorney will receive pay. And then he is asked if he can collect, after the house has exhausted all usual methods.

A certain other concern, when opening new territory, writes to a local attorney telling him they are entering the field; that they will require information from time to time, for which they expect to pay a reasonable fee; and ask if he is in a position to represent them in this capacity. At the same time the attorney is told that he will receive for collection any accounts on which such action may be necessary.

When a special report is desired, the blank shown in Fig. 2 is sent. The local correspondent is expected to give as full information as possible, for which he is paid promptly.

[137]

In this way, excellent results are secured. There is some question about the advisability of leaving the amount of the fee to the correspondent. A better plan is to have the fee to be paid for all ordinary reports decided in advance, extra compensation to be allowed in special cases. The average country attorney will furnish an intelligent report for two dollars—a low price for reliable information.

Fig. 2. Local Correspondents' Report Blank

Traveling Salesmen. Certain information about the business and general reputation of a customer can best be obtained through the salesmen of the house. They are the men who come in direct contact with the customers, acquiring an intimate knowledge of each.

The average salesman objects to making out lengthy reports, but if approached in the right spirit, will give the credit man the benefit of his observations. The salesman's judgment is scarcely to be relied upon in the matter of the financial standing of a customer—his anxiety to sell goods makes him too optimistic—but he is probably the best judge of the character and business ability of a man on whom he is calling regularly.

[138]

Frequently a spirit of antagonism to the credit department exists among the salesmen. This condition indicates a decided lack of that coöperation so necessary to the success of any business. The credit man who possesses tact can overcome this antagonism, if he will but drop his cold-blooded attitude and meet the salesmen on a friendly basis. If he will cultivate their friendship, the salesmen will respond with information of great value to him.

Naturally the information secured from a salesman differs from that received from other sources. About the class of information that can be expected is provided in the blank shown in Fig. 3. This can be printed on a standard size card.

Fig. 3. Salesman's Customer's Report Blank

Retail Credit Reporting Agencies. In many cities, merchants have formed associations for the exchange of ledger experiences. Some of these associations have been very successful, but the chief difficulty has been in sustaining interest and in securing the necessary information. This lack of interest seems to be general in mutual associations—every man seems afraid that he will give more than he receives.

ADMINISTRATION BUILDING AT THE PLANT OF STUDEBAKER BROS. MANUFACTURING CO., SOUTH BEND, IND.

[139]

Out of the merchants' association has grown the retail credit reporting agency—the exchange of information being conducted as a private enterprise. The expression, exchange of information, is used advisedly, for the service of these agencies consists mostly of reports giving the experiences of other merchants. To quote from the prospectus of one of these concerns:

Our company does for the retailer what Bradstreet and Dun do for the wholesale dealer. We arrive at the result, however, in a different way. We give accurate information as to how people pay their bills, regardless of their financial standing.

This information we get from merchants and professional men by means of a thorough canvass of our entire territory. We visit all people doing business, whether our subscribers or not, and in this way secure the names of all consumers in business or private life.

We are thus able to tell the grocer how Mr. B. pays his butcher, his tailor, his hatter, his doctor, and every other trade or profession he deals with, and each of these in turn is furnished with the same kind of information from the grocer; thus we establish the exact credit standing of Mr. B. with the entire trade of the city.

Acting upon information thus furnished, every merchant or professional man in the city knows from the most reliable and trustworthy source to whom he can safely give credit and whom he should refuse.

For example, we here give a specimen rating with an explanation of the same.

"John Doe, carpenter, 187 Broad St., 5G 2F."

This rating indicates that five different merchants have found by experience that John Doe is a prompt paying credit customer, and two other merchants have found him somewhat slow, but regard him reliable and trustworthy.

Next example:

"John A. Doe, lawyer, 210 North Second St., 4D 3B."

This rating indicates that four different merchants have found him too slow in paying to be a desirable credit customer, and three other merchants have found him bad pay and unworthy of credit confidence.

Other sources of information, which come under the head of exchanges of ledger experiences, are the credit men's associations. These associations, through clearing houses, exchange information about their customers, thus supplying the wholesaler with the same class of information as described above for retailers.

One credit man relates the following incident, illustrating the value of the association clearing house. On one of the reports furnished by the clearing house, he noticed that another merchant had refused credit to one of his own customers. Investigation developed the fact that this particular customer's locality had suffered severely[140] from the destruction of crops by a cyclone. Now it happened that this credit man's house was about to fill a large order from this very customer. The shipment was held up, and the credit man promptly wrote to the merchant expressing regret that his community had suffered so severely, and asking if his house could be of any assistance to him. In closing the letter, the suggestion was made that since collections were likely to be slow with the merchant, they would allow him to cut down his order.

The letter had the desired effect. Instead of turning him down the merchant was made to feel that he had friends in that house, and it is probable that he continued to be one of their valued customers.

RECORDING CREDIT INFORMATION

Scattered information is of little value. A credit man may avail himself of all sources of credit information, but unless he has it filed and recorded where he can put his hand on it, he will find it of little assistance in determining credit risks. He cannot "keep it in his head" and get the best results.

There are credit men who profess to rely largely on intuition, but the hard-headed man—the one who makes the fewest mistakes—relies on his facts and figures. He uses judgment, but first wants the facts marshaled in logical order.

Filing. The method of filing best adapted to the needs of a given concern depends on the size of the business, number of customers, method of collecting information, and the quantity of data kept on file. In a small business, depending almost entirely on the ratings of the mercantile agencies, with an occasional special report, no special filing system is necessary. The few reports received can be filed with the regular correspondence. But in a well-organized credit department, handling credit information about a large number of customers, the question of filing is of importance.

In the first place, all reports should be kept in one place; special agency reports, reports of traveling salesmen, local correspondents, and the credit clearing house, with financial statements furnished by the customer, should be filed together. This means that they should be separated from the general correspondence; if filed with the correspondence, they are sure to become scattered when the files are transferred.

[141]

Without question, the most satisfactory method of filing is to use the vertical file, with a folder for each customer. For the average business, an alphabetical index is most satisfactory, but for a very large business, with customers throughout the country, it is best to subdivide the file by states and towns, arranging the folders of customers in each town alphabetically.

Credit reports are not, as a rule, of sufficient bulk to require the large files and folders used for correspondence. A file of the same style, to accommodate folders about 7×9 inches in size, is more compact, and has been found very satisfactory for this purpose.

Fig. 4. Front of Credit Information Folder

A plain folder, such as is used for correspondence, will answer the purpose, or a special form may be substituted. An excellent example of the special folder is shown in Fig. 4.The special feature of this folder is that on the flap which folds over the front provision is made for a transcript of credit information. The back of this folder is printed as shown in Fig. 5. This form is used for a record of purchases, and covers a period of seven years.

Card Transcripts. For convenience, it is best to make a brief transcript of the credit information. This transcript should embody[142] the essential facts which naturally influence the credit risk, and should be in such form that it can be referred to very readily.

As explained above, this transcript can be made on the credit information folder, but the more usual plan is to use a card. For each customer a card such as shown in Fig. 6. is used. The special feature of this card is that both the capital and credit ratings are listed. Such a card saves the time that would be required to refer to the agency books, and affords a comparison of the ratings given by the agencies on different dates. Both the book ratings and special reports are entered on this card.

Fig. 5. Back of Credit Information Folder

A card which provides for reports, other than those furnished by the agencies, is shown in Fig. 7. A line for the folder number will be noted at the top, a numerical system of filing the folders being used. Although the numerical system is frequently found, it has no practical advantages, and the alphabetical system is to be preferred.

[143]

The form shown in Fig. 8 provides for more general information about the business—such information as would be gathered from the reports of salesmen and local correspondents. It will be noted, also, that the financial information refers more especially to the firm members. This card is used to supplement the books of the agencies.

Fig. 6. Credit Agency Report Card

Fig. 7. General Credit Report Card

The card shown in Fig. 9 gives a complete history of reports asked and received, and of credits granted. This form is used in a[144] business in which the purchases of a customer are infrequent, and involve considerable sums. The credit risk is considered each time an order is received.

The card shown in Fig. 10 is used by a retailer. As is usual in retail credits, the information provided for in this form refers to past experiences and the general reputation of the customer.

Fig. 8. General Credit Information Card

Like the folders used for filing credit statements and reports, credit cards should be indexed alphabetically, subdivided by states and towns when necessary. Filed in this manner, each card is accessible, and can be referred to quickly. An advantage of cards for this and many other purposes is that obsolete matter is quickly eliminated, and new names are added at will without disturbing the general arrangement of the records.

BRANCH HOUSE CREDITS

Many businesses are conducted through branch houses, each in charge of a local manager. Customers are supplied by the branches,[145] and it is customary to have each branch house collect its own accounts. Weekly reports of the business transacted, including sales, collections, and stock on hand, are made by each branch to the home office. Duplicate accounts, made up from these reports, enable the home office to keep in as close touch with each account as though collections were made direct.

Fig. 9. Card Record of Reports Received and Credit Granted

Fig. 10. Credit Card for Retailer's Use

Large concerns, operating many branches, have found by experience that it is best to pass on all local applications for credit at[146] the home office. This work is handled by a division of the credit organization, known as the branch house credit department.

The forms shown and the system described herein were designed for the use of an oil company, and are very similar to those used by the large packing companies. When a dealer wishes to secure credit at a branch, the form shown in Fig. 11 is filled out in duplicate and signed by the local manager. The original is forwarded to the home office, while the duplicate is filed in the branch office, under the name of the applicant. Folders are used for this purpose.

Fig. 11. Branch Office Credit Application

Only the lower half of this form is filled in at the branch office. The rating, credit limit, and terms are entered when a reply is received from the home office.

When the application is received at the home office, the files are consulted for any information that may have been received previously, reports are asked from the agencies, and the decision made. The decision is made known to the branch house on the form shown in Fig. 12.

[147]

This form is made in duplicate, both the original and copy being forwarded to the branch. The original is placed in the branch house files, together with the application for credit. Both the cashier and the manager of the branch sign the duplicate, as an acknowledgment that they understand the terms, and it is then forwarded to the home office.

Fig. 12. Branch Office Credit Notice

In the home office, the original application and the statement of terms granted, signed by the branch manager, are filed together. A folder is used for each customer, filed alphabetically with subdivisons for states and towns. Every subsequent report and memorandum of credit information is filed in this folder.

When the report from a branch house shows an account to be past due, an inquiry blank, as shown in Fig. 13, is sent to the branch. This is in duplicate, the copy being retained at the branch house, and the original forwarded to the home office. In both offices, this report is eventually filed in the folder with other credit information.

[148]

A noticeable feature of this system is that all blanks are made in duplicate. This insures duplicate credit files in the home office and branches. It is, of course, necessary for each office to forward to the other any special data that may be received, from whatever source.

COLLECTIONS

The duties of the credit man are not ended when he has passed on the credit of a prospective customer; a very important duty follows, and that is to collect the accounts that he has placed on the books. He may assign the handling of collections to another, but the collection desk should be under the supervision of the credit man.

Fig. 13. Branch Office Credit Inquiry Blank

The handling of collections furnishes one of the most severe tests of the ability of the credit man; it calls for the exercise of a certain tact, not absolutely essential in any other work in business life. The successful collector must, first of all, be a good judge of character;[149] he must be able to read character, and govern himself by what he learns of his customer's peculiarities. He must be a diplomat, with the happy faculty of smoothing out the rough spots, and satisfying the chronic kicker. While using judgment in granting special favors to the slow-pay customer, he must be able to differentiate between the temporarily embarrassed but able and honest debtor, and him who continually makes use of a hard-luck story to arouse sympathy and gain time; he must know when to be gently firm, and when to take vigorous action to save his house from loss.

One of the essential accomplishments of a good collector is the ability to write diplomatic letters. Collection correspondence is in a class by itself. The most valuable correspondent is said to be he who can write letters that sell goods. We have no fault to find with this statement, but prefer the way Mr. Cody puts it—"the ability to write letters that make people do things." The collection correspondent must be able to write letters that make people do things.

In a wholesale or manufacturing business, or any business that is not strictly local, practically all of the collections are made by mail, hence the subject of collection correspondence becomes of extreme importance. The extent to which letters are used is naturally governed by the ideas of the collector; by some they are used freely, by others as special appeals or duns only. One very successful credit man, who has handled the collections in one of the largest mercantile establishments in the country, gives it as his opinion that a letter should be sent with every request for payment—even with the monthly statement.

Except in unusual cases, specially dictated letters are not necessary; filled-in form letters answer every purpose—indeed it is claimed by many that carefully prepared form letters, designed to meet certain definite conditions, are superior to letters dictated in the ordinary rush of business. Forms can be prepared for different classes of customers, and to meet any of the contingencies likely to arise in the ordinary business. Form letters used for collection purposes should be exceptionally well printed, and great care must be used to secure ribbons that are an exact match for the body of the letter. There is nothing more calculated to make an unfavorable impression than a letter in which the date, name, and address fail by several shades to match the body.

[150]

The exact form of the letters must be varied to suit the particular business in which they are to be used; they will differ in manufacturing, wholesale, and retail lines, in a mail-order business, or for installment accounts. In a manufacturing business, for instance, a letter something like the following might be sent with the monthly statement.

Dear sir:

In accordance with our usual custom, we enclose a statement of your account as it appears on our books at this date. Will you kindly compare this with your records, and advise us of any discrepancies.

That we might be in a position to fill your orders promptly, we have kept our factory running on full time during the past few months, which has involved quite a heavy investment in material. We will, therefore, appreciate a check from you covering the amount shown to be due.

We will also appreciate a liberal order, which we can fill at once, as our stocks are unusually complete just now.

Very truly yours,

Such a letter leaves a very much better taste than please remit stamped on the statement, and yet it plainly asks for a remittance. There is something about the letter that savors of the personal appeal, and gives the debtor the feeling that a special accommodation is being asked, which he should make an effort to grant.

If the first letter fails to bring a response, it should be followed up. The second letter, following the first in about 10 days, might be as follows:

Dear sir:

A few days ago we sent you a statement of your account, showing a balance of $——, of which $—— is past due.

Not having heard from you, we assume that the account is correct, and that it will be satisfactory to you to have us draw on you on the 15th.

In the meantime we will be very pleased to fill your order for any of our goods that you may need.

Very truly yours,

A letter of this kind rarely fails to bring a goodly percentage of remittances. The mere suggestion of a draft often has the desired effect. The average merchant dislikes to have a draft presented; he feels that it has a tendency to injure his credit with the very man whom he may be obliged to ask for an accommodation—his banker.[151] The polite request for an order acts as a sugar coating which covers the suggestion of a dun, and leaves the recipient in a pleasant frame of mind.

The second paragraph of the above letter does not contain a positive statement that a draft will be made, nevertheless, such a course is hinted at, and, unless a communication of some kind is received, the draft should invariably be made on the date specified. The customer should be taught that the collector means just what he says; any other course indicates a lack of sincerity, and gives the customer the feeling that these notices are not to be regarded seriously.

On the other hand, it is possible to go to the opposite extreme in the use of drafts. The writer has in mind a business man who had a habit of sending statements of all accounts the first of the month, without a letter, and following these with drafts about a week later. Many times these drafts were made before it was possible for a remittance in response to the statement to reach him, which caused hard feelings, and the loss of many customers. It is the custom of many firms to pay all bills on a certain day of the month—a fact which the observant collector quickly notes, and governs himself accordingly in the matter of sending drafts.

When a draft is returned, a letter should be written immediately; and in this letter a little sharper tone is justifiable. The following is a good sample of a letter to be used at this point:

Dear sir:

We are disappointed to find that you have allowed our draft to be returned unpaid, as we had counted on this amount to help in meeting our current obligations. While the amount of your indebtedness is not large, the aggregate of the many small accounts makes up the large amount outstanding on our books, and to not receive the amount when due, causes us considerable embarrassment.

As you know, our terms are strictly 30 days net. We must insist on receiving prompt payment when bills are due; our prices are figured on this basis, and our arrangements for meeting supply bills and pay-rolls are dependent on the prompt payment of bills by our customers.

Your total indebtedness to us is $——, of which $—— is several days past due. We would appreciate a remittance of the entire amount, but must insist on the immediate payment of the amount past due. Failing to receive either a remittance or your note, by the 23rd, we will again draw on you, and shall expect you to pay the draft when presented.

[152]

By the way, our Mr. Jackson reports that he has failed to secure an order from you on his last two trips. Now if you have any cause for dissatisfaction, we would like to have you tell us, as we are more than anxious to please you, and would certainly appreciate your future orders.

Very truly yours,

One point in this letter, to which special attention is called, is the absence of the word dishonor. Technically, when a draft is not paid it is dishonored, but the word has an ugly sound; the word unpaid is less harsh, yet conveys the desired meaning. While it is sometimes necessary to be quite emphatic, nothing is gained by adopting a tone calculated to arouse the antagonism of the debtor. The time-honored axiom that "More flies can be caught with sugar than with vinegar," is given a special force when considered in connection with collection letters.

Naturally, these letters must be varied to suit the business, the season, and general trade conditions. They are not submitted as models, to be used under all circumstances, but to impart an idea—the idea of tone, the sugar coating which is so essential in keeping the recipient in the right frame of mind. Politely request, ask plainly for what you want, firmly demand, but never threaten until you are prepared to carry out your threat. This is a safe rule to follow in handling collections.

COLLECTION SYSTEMS

In the successful handling of collections, a requisite is promptness. There must be a system that will insure bringing collections to notice at the right time. Without attempting to lay down specific systems for individual concerns, detailed descriptions of systems that have been found satisfactory in different businesses are given herein.

Duplicate Invoices. The tendency at the present time is to regard each invoice as a separate account, and to regard each as due at the end of the time specified—thirty, sixty, or ninety days. An exception is found in the accounts of city customers. A wholesale merchant may have customers in his own city who buy in small quantities, placing orders nearly every day. The usual rule is to regard these as monthly accounts, the account for one month being due the 15th of the following month. For out-of-town customers, however, the first plan is found more satisfactory.

[153]

A certain large manufacturer, whose business is world wide, treats each invoice as a separate account, and handles the collections in a very simple manner. All invoices are made in duplicate, the original going to the customer. From the duplicate, all entries are made on the books. If special terms are granted, these terms are stamped on the back of the duplicate invoice.

Fig. 14. Collection Card for Each Invoice]

When it has served the purpose in the accounting department, the duplicate invoice is returned to the collection desk. Here it is filed under the date on which it is due.

The file is a simple arrangement of pigeon holes. A case containing sixty pigeon holes, large enough to hold invoices laid flat, is used. These pigeon holes are divided into two sets of thirty each, one above the other, and each set is numbered from 1 to 30. This number provides for filing ahead sixty days, which is the longest credit term allowed.

In operating the filing system, the two sets of pigeon holes represent alternate months. During January, bills due in March are[154] filed in the upper pigeon holes; in February, bills due in April are filed in the lower case. Each day the bills due are removed from the file for attention, leaving the pigeon hole empty for filing bills due sixty days ahead. On March 10th, for instance, bills are removed from the No. 10 pigeon hole of the upper case; the current day's bills, due May 10th, are then filed in the same pigeon hole.

Fig. 15. Card Tickler for Collections

When bills come out for attention, they are referred to the accounting department to find if they have been paid. For those not paid, statements are prepared and returned with the bills to the collection desks. The usual letters are written, and all past due bills are held in a desk tickler, that they may be followed up from day to day by the collection clerk.

This system can be operated with the regular tickler file, but for a large number of bills the pigeon holes are more convenient. A modification is necessary, also, when the bill and charge system is used. In that case, an extra copy of the invoice should be made for the use of the collection clerk.

IN THE GENERAL OFFICES OF CORBIN CABINET LOCK COMPANY, NEW BRITAIN, CONN.

[155]

Card Tickler. A very convenient method, where it is not deemed advisable to use duplicate invoices, is to fill in a collection card for each invoice.

A card, printed similarly to the form shown in Fig. 14, is filed under the date on which the account is due. Each day, all cards filed under that date are removed for attention. The first step is to compare the cards with the ledger accounts. If the account has been paid, the card is destroyed; if not, a statement is sent and the card filed ahead to the next follow-up date. All letters written and all steps taken are noted on the card, so that in the end it presents a complete history of the efforts made to collect the account.

Fig. 16. Collection Card for Alphabetical Cross-Indexing

A slightly different form of card, which is used in the same manner, is shown in Fig. 15.

Cross-Indexing. The same objection exists in regard to the use of the tickler card for collections as for other follow-up purposes, which is the difficulty of finding the cards. Every time a card is removed from the file it is necessary to compare it with the ledger to find if the account has been paid.

To overcome the difficulty, a card with an alphabetical tab is used to good advantage. Such a card is shown in Fig. 16. It will be noted that this card bears a tab printed with the letter G. A card[156] with this tab is used for every name that commences with G, and as all G tabs are in the same position on the card, they will be in direct line from front to back of the file.

The cards are filed by dates, but each day all remittances are sent to the collection desk, that the cards representing accounts that have been paid may be removed. All cards may be found by name, by referring to the lettered tabs, thus Brown's card will be found in the row of B tabs.

Fig. 17. Collection Card for Cross-Indexing by Date

Another method of cross-indexing the collection file is to have the numbers from 1 to 31, representing the days of the month, printed across the top of the card, as shown in Fig. 17. To indicate the due date a metal tab is placed over the proper number, a red tab being used for succeeding months and a black tab for the current month.

The cards are filed alphabetically by name, or subdivided by states and towns, so that any desired card can be found instantly. Each day all cards having tabs over that date are removed for attention.[157] On the first of the month those bearing red tabs are referred to, and if due in the current month, black tabs are substituted.

Monthly Statements. In some houses, it is the practice to follow up collections on the basis of the monthly statement, instead of treating each invoice independently. When this is done the collection record must include a synopsis of the entire account. The card shown in Fig. 18 is used for following collections on such accounts. This form shows the date and amount of statements, with interest added, date and amount of drafts, and dates and amounts of payments. Other columns are provided for a record of letters, promises, extensions, etc.

Fig. 18. Collection Card Showing Synopsis of Entire Account

This card is handled in exactly the same manner as it would be if used for a single invoice. While the card shown is used in a tickler, it would be improved by the addition of the numbers across the top, which would permit of alphabetical indexing.

[158]

Local Collections. Collections from local customers are usually made by collectors. In handling such collections, a system that will enable the office to keep track of the work of each collector is necessary.

Fig. 19. Triplicate Statement
for Collectors

One large mercantile concern has solved the problem by using the following system. This concern has a large number of customers who make frequent purchases. For convenience, the city is divided into four sections, one for each week in the month. Each section is divided into five parts, representing the days of the week from Monday to Friday, inclusive. One collector covers the entire city, calling on each customer once a month.

Arrangements are made with the customers in each section to pay their bills at a certain time each month—the bills of all customers in the first section are collectible during the first week in the month. Each customer knows, also, on what day of the week he is to expect the collector.

Statements are made Saturday morning for all accounts to be collected the following week. These statements are made in triplicate,[159] as shown in Fig. 19. Two copies are given to the collector, who arranges them in a file according to his daily routes. One copy is kept in the office, filed by routes.

When the collector makes his call, he receipts one copy of the statement and delivers it to the customer. The second copy is kept by the collector and turned in with the collection. If the customer is not found, or if he fails to pay, both copies of the statement must be turned in by the collector.

Each morning the collector makes his report for the previous day. The cashier compares the collector's report with his copies of the statements, and, as the collector must turn in both of his copies when no payment has been made, a safe check is had on the collector. To make the check more positive, it is the custom of the cashier to mail a copy of the statement to those customers who have made no payments, or partial payments, requesting them to compare with their records and advise if any discrepancies are found. This makes it impossible for the collector to hold out collections without detection.

Collecting from the Ledger. In many houses having no organized credit department, the collections are handled by the bookkeeper. When this work is added to his many other duties, the bookkeeper is obliged to devise some scheme that will eliminate detail—he has no time to make additional records. His method is to follow up collections direct from the ledger.

But there must be some method of bringing the accounts to notice when they require attention—an automatic system. The most simple scheme is shown in Fig. 20. Across the end of the ledger sheet—which is loose-leaf—- numbers representing the days of the month are printed, and metal markers, or tabs, are attached over the due dates.

To represent different stages in the collection of the accounts, different colors are used. When a charge is posted to the ledger sheet, a black tab is placed over the date on which the bill falls due. When payments are posted the tabs are removed, provided the account is paid in full; otherwise it is moved forward to the next due date. After the day's remittances are posted, all sheets with black tabs over the current date are referred to, and statements made. At the same time, white tabs are substituted for the black.

[160]

Fig. 20. Loose-Leaf Ledger Cross-Indexed for Due Dates

[161]

Fig. 21. Quadruplicate Draft Form which Includes Letters of Advice to Bank and Drawee

[162]

The next step is to make drafts for all accounts on which white tabs have appeared ten days, that is, on the 10th drafts are made for all accounts with white tabs over the 30th. Blue tabs are then substituted for white. If the draft is returned, a red tab is substituted. The red tabs indicate accounts past due, which are subject to such action as may be considered advisable. This ledger sheet, with the adjustable tabs, insures attention to collections, regardless of the method of filing.

Handling Drafts. When drafts are used extensively, considerable detail is involved in handling the records. Any method that will reduce this detail means a material reduction in the expense of conducting the work of the collection desk.

The usual method is to write the draft and register it in a draft record book. Then the necessary record is made on the collection card. A draft register is used that there may be a record showing the aggregate of drafts outstanding, and the number and amount in the hands of each bank—where drafts are sent direct, instead of through a local bank. The next step is to write a letter of advice to the bank. This method necessitates writing the names of the bank, the drawee, and the amount of the draft three times—on the draft, letter of advice, and draft register.

By the use of properly designed forms, this duplication can be avoided. Fig. 21 shows a set of forms designed for the purpose. A is the original draft, B is the letter of advice to the bank, C is a letter of advice to the drawee, and D is the office record. The draft, A, is attached to the letter of advice, B, and is detached by the bank. The four forms are so printed that the date, name of the bank, amount, and name and address of the drawee register perfectly. The blanks are properly spaced for use in a typewriter, and all copies are made with one writing.

Copies A and B are mailed to the bank, and C to the drawee. From copy D the record is made on the collection card, after which it is filed in a card tray, under the name of the bank. This keeps copies of all drafts sent to each bank together, and the total of all drafts outstanding is quickly obtained on an adding machine. When payments are made, or drafts are returned, these copies are removed from the files. Frequent reference to the file insures the necessary follow-up on banks that are slow in reporting.

Installment Collections. Probably the most difficult class of[163] accounts to handle from a collection standpoint is installment accounts. Payments are quite irregular, both as to time and amount, and frequent changes of address make it difficult to keep track of debtors.

Fig. 22. Contract for
Installment Sales

The collector of installment accounts must have the faculty of meeting and satisfying all sorts of people. He is obliged to listen to hard-luck tales without number, and while sympathizing with the customers, must be patiently persistent. If unable to collect the dollar due, he will accept a half-dollar to keep the account active. So long as he collects something, each time a payment is due, he is in a position to make the debtor feel the importance of the contract, but let one or two collection days go by without a payment, and the debtor has the upper hand. He then feels that he can stand-off the collector whenever he happens to have other uses for his money, a condition which becomes increasingly frequent.

[164]

An installment dealer will nurse an account to the limit, rather than take back the goods he has sold. Once he has collected the cost of the article, he will accept payments of almost any amount, but it will not do to let the debtor know how lenient he is prepared to be; at least a semblance of enforcing the contract must be kept up.

Fig. 23. Installment Contract Register]

The most familiar branch of the installment business is the sale of house furnishings and pianos. The sale of house furnishings on the installment plan is rapidly increasing, and probably more pianos are sold on this than any other plan. Furniture dealers who formerly sold only for cash or on approved credits, are finding profitable business among the better class of installment buyers.

Installment sales are made on contracts, or leases, which provide that title to the goods shall be held by the seller until all payments have been made, and that the right of possession shall be forfeited by the buyer if he fails to make any payment when due. When the contract is folded, the outside shows a form printed as in Fig. 22. This particular form is used by a musical instrument house.

[165]

At the head of the form is shown the contract number, amount, date of contract and collection date, name and address of the buyer, and the name, number, and make of instrument. Below is space for a record of payments, divided as to principal and interest, with the names of the collectors. When a sale is made, a contract is made in duplicate, the original remaining in possession of the seller and the duplicate being given to the purchaser.

Fig. 24. Ledger for Installment Accounts

Installment Register. All contracts are registered in numerical order, in an installment register ruled as shown in Fig. 23. One line is used for each contract, the particulars recorded being the date and number of the contract, name and address of the buyer, and the amounts to be credited to the different sales accounts. It is not necessary to list the articles sold, as a complete list will be found in the contract.

The footings of the money columns are carried forward to the end of the month, when the totals are credited to the sales accounts[166] in the general ledger. The footing of the total column, which is the total of all installment sales, is posted to the debit of an installment contract account in the general ledger. This is a controlling account of the installment ledger accounts.

Installment Ledger. Installment accounts necessitate a form of ledger differing from that used for ordinary accounts. The special requirement in such a ledger is space for recording a large number of payments. Fig. 24 shows a form of loose-leaf ledger sheet designed for installment accounts.

Fig. 25. Special Cash Receipt Book for Installment Collections

One of these ledger sheets is used for each installment contract. The particulars of the contract are recorded at the head of the ledger sheet, above the name and address. The particulars recorded are the number of the contract, the amount and date, amount of payments, collection day, and whether payments are to be made weekly or monthly. The body of the form is ruled for a record of payments and balances.

[167]

The ledger sheets are arranged in alphabetical order, about five-hundred sheets in each binder. Each alphabetical section is separately indexed to afford quick reference to all accounts. If the contract number only is known, reference is had to the installment register, where all contracts are recorded in numerical order.

Cash Receipts. For installment collections, it is well to provide a special cash receipt book. Such a form is shown in Fig. 25. This form is used exclusively for installment receipts, and payments are posted direct to the installment ledger. The total cash for the day is entered as one item in the general cash book.

Statement of Installment Ledger. From an accounting standpoint, installment accounts present certain difficulties not experienced in the handling of other classes of accounts receivable. There is always a question as to the real value of the accounts outstanding, a doubt as to the advisability of including the total balances in a statement of assets. A live account—one on which payments are being made regularly—is legitimately considered as good an asset as any other account receivable, but the value of the delinquent account—when payments are past due—is questionable, and if included in a balance sheet, the nature of the asset should be clearly stated.

That the actual condition of these accounts may be shown on the general ledger, it is the better practice to carry two accounts, representing live and delinquent accounts. Installment sales should be charged to an Installment Accounts Receivable account, and payments credited to the same account, which then becomes a general ledger controlling account of the live accounts in the installment ledger. Another account should be opened in the general ledger under some such caption as Installment Accounts Delinquent. When accounts become delinquent, they should be transferred by journal entry to this account. The journal entry would be:

Installment Accounts Delinquent

Installment Accounts Receivable

This transfer may be made daily, weekly, or monthly, but the period between transfers should never be longer than one month. Delinquent accounts may be indicated in the installment ledger by placing a metal tab of some distinctive color on the ledger sheet or card, or they may be segregated by transferring them to a special delinquent binder or file.

[168]

Fig. 26. Daily Report of Installment Accounts for the Credit Man

[169]

When a payment is received on a delinquent account, that account immediately becomes live, and the amount should be transferred by journal entry to Installment Accounts Receivable. The journal entry would be:

Installment Accounts Receivable

Installment Accounts Delinquent

Each day, the amount of accounts revived—delinquent accounts on which payments have been received—should be ascertained. If it is desired to save the labor of making journal entries daily, a memorandum of these amounts may be kept and a journal entry made at the end of the month.

When a delinquent account reaches the condition where it is considered worthless, the amount should be charged to profit and loss, by the journal entry:

Profit and Loss

Installment Accounts Delinquent

This should be done whenever the credit man carefully examines all delinquent accounts, which should be not less frequently than once a month. When payments are received on these accounts, they should be treated as revived accounts, with proper credit to profit and loss, if revived during the current fiscal period; but if, in the meantime, the books have been closed, they should be treated as new accounts.

It is quite necessary for the credit man to know every day how the installment accounts are running. That he may do this, a daily report, as shown in Fig. 26, should be made by the installment collection clerk. The report form should be in loose-leaf, and if the installment sales are divided by departments, the necessary number of columns to accommodate the departmental records may be provided.

The report is headed with the amounts of accounts outstanding, divided as to live and delinquent. New accounts opened and delinquents revived are added in the live column, and delinquents revived are deducted from the delinquent column. Cash collections, discounts and allowances, and delinquents today are deducted separately from the live accounts, and delinquents today added to the delinquent column. Then the delinquents charged to profit and loss are deducted from the delinquent column. The balances represent the net amount of outstanding accounts, and must agree with the two controlling accounts, Installment Accounts Receivable and Installment Accounts Delinquent.

[170]

Fig. 27. Front and Back of Collector's Card


A CORNER IN THE STENOGRAPHIC DEPARTMENT
Weis Manufacturing Co., Monroe, Mich.

[171]

Such a report enables the manager or credit man to keep in touch with the actual condition of installment accounts. As a rule, three copies should be made, one for the manager, one for the credit man, and one to be kept on file by the collection clerk.

Filing Contracts. Some houses follow the practice of allowing the collector to carry the original contracts, and in such cases the contracts are filed according to the dates on which payments are due. It is claimed that it is necessary for the collector to have the contract, as the customer is quite liable to lose the duplicate and may ask for particulars about the items purchased.

This plan is not advocated on account of the liability of loss of contracts. If it is desirable for the collector to carry the contract, a third copy should be made for that purpose. Original contracts should be kept in a fire-proof safe, and should be filed in numerical order. The most convenient file is a document file, in which contracts can be filed folded.

Collector's Card. The most convenient method of handling collections is to supply the collector with cards as shown in Fig. 27. On the face of this card is a record of particulars, similar to that shown on the outside of the contract, while the reverse is ruled for a record of payments.

Since all contracts call for payments on certain days of the week or month, it is very necessary that the collection cards be brought to notice on the collection days. A simple method of providing for this is to use a card file equipped with a set of thirty-one numbered guides to represent the days of the month, or a set of guides printed with the days of the week. The cards are filed back of the guides which represent the collection days.

It is customary to divide the city into sections, assigning a collector to each section, the number depending on the size of the city and the number of accounts. It is necessary to use as many files as there are collectors, with an office file added for those who prefer to pay at the office.

Every morning each collector is given the cards on his route, on which payments are due. On his return, he turns in all cards to[172] the cashier with the amount collected. If a back call is necessary, the card is filed ahead a day or two.

The cards in the office file are placed on the cashier's desk each morning and payments are recorded as made. Those on which no payments are recorded are kept on the desk, and after a reasonable time are given to a collector to follow up.

When payments have been recorded in the cash book, all cards are again placed in the files under the next collection dates. They are then ready for the collectors.

Fig. 28. Receipt for Installment Collections

Collector's Receipt. Some method is, of course, necessary for checking up the collectors, and to insure the turning in of all money collected. A very satisfactory plan has been devised by the cashier of a western music house, in the form of a duplicate receipt as shown in Fig. 28. These receipts are bound in book form and numbered in duplicate, the original being perforated.

The receipt is especially convenient for the customer, as it shows exactly how the payment is to be credited. For the same reason, it is equally convenient for the cashier. All of the numbered receipts must be accounted for; if one is spoiled, it must be turned in, which provides an effective check on the collector.

Mail-Order Installment Collections. An increasing volume of installment business is now done by mail. An established principle[173] of the mail-order business is that customers must be given an opportunity to inspect the goods before they can be expected to make a binding contract for their purchases. Beginners in the mail-order field are quite likely to look on this as an impractical plan, fearing the loss of goods, but experience soon teaches them that it is the only plan on which the business can be successfully conducted.

When experienced mail-order men, with the courage to try out a new idea, experimented on the plan of allowing customers to return goods, they found that the more liberal the offer, the more business they did. This led to the giving of an absolute guaranty, offering to ship goods on approval with the privilege of return for any reason within certain time limits.

As the fear of loss of goods became less pronounced, it was argued that more liberal terms of payment could be granted with safety—if goods could be sold successfully on the installment plan to local customers, why not by mail? A trial proved the plan to be practical, and now many articles are sold by mail on the installment or easy payment plan. Goods are even shipped without an advance payment, either the goods or the first payment to be returned within a certain time limit.

In selling goods by mail on the installment plan, it is necessary to secure a binding order, in which the customer agrees to return the goods within a certain number of days, or make the payments as specified, with an agreement that title to the goods shall be held by the seller until all payments have been made according to contract. The contract must also give the seller the right to recall the goods whenever the customer shall fail to make a single payment as agreed.

The success of the mail-order installment business depends largely on the manner in which collections are handled. Not having the advantage of personal contact with the customer, the collector is obliged to depend on the knowledge of the man which he gains from references and the correspondence of the customer. But the shrewd collector soon learns to read his man from the general tone of the correspondence, and sometimes from the absence of communications from the debtor. When he has learned the character of the man, he can handle each account independently; until then, he is obliged to follow the same line of action in all cases, depending on the law of averages to prove the correctness of his theories.

[174]

Fig. 29. Loose-Leaf Ledger for Mail-Order Collections

Too great emphasis cannot be placed on the importance of studying the character of the man. It is only by paying special attention to this point that the collector can learn to treat each account individually. In the first place, the class of goods sold largely governs the class of customers from a credit standpoint. The men who buy sets of business books are, as a rule, safe credit risks. Their training and environment have a tendency to teach them the importance of fulfilling an obligation; appreciating the necessity of maintaining their credit standing, they will make every effort to carry out the terms of the contract, or give a valid reason for asking an extension of time. Illustrating the opposite extreme is the class who will sign a contract for the purchase of a cheap musical instrument, at a high price, to gratify a desire to outdo a neighbor, without regard to their ability to make the payments as agreed. Such people trust to luck, and expect to pay in promises if they do not happen to have the money. For this reason, the percentage of profit that must be added to cover[175] the cost of collection increases, as the quality of the goods and the standard of the credit risk decrease.

The Account. Accounts with mail-order installment buyers are handled in a similar manner to those of local buyers. All contracts should be numbered as received, and registered in numerical sequence. The form of register already shown answers the purpose very nicely.

Fig. 30. Mail-Order Collection Card

After registering, the particulars of the contract should be entered in the ledger. A form of ledger sheet used by a publishing house is shown in Fig. 29. This is loose-leaf, and does not differ in form from the ordinary balance ledger, except in the particulars given at the head of the sheet. Here is shown the name and both residence and business address of the customer, number of contract, monthly payment and due date, references, source of order, price and name of books, and date of shipment. These sheets are filed in post binders, five-hundred sheets to the binder, and indexed alphabetically.

The next step is to enter the contract on a collection card. A satisfactory form is shown in Fig. 30. This is a card 4×6 inches in size, and is practically a duplicate of the ledger sheet. The card is filed in a chronological file under the due date—that is, if payments are due on the 24th of the month the card is filed under that date. Except when removed from the file for the use of the collector, or to[176] enter payments, the card is always filed under the same date. If it becomes necessary to have an account brought to notice on other than the regular collection dates, a memo is made on a separate card and filed in a special tickler.

Should it become necessary to refer to a card on other than the regular collection dates, reference to the ledger—indexed alphabetically—gives the due date, by which it is quickly located. Sometimes, however, it is desirable to refer to all contracts in a given territory. To make this possible, a card file with indexes printed with the names of states and cities is provided. For each contract a plain 3-×5-inch index card is used, the name, address, and contract number only, being entered. This provides a complete set of indexes—alphabetical in the ledger; numerical in the register; by due dates in the collection file; geographical in the card file.

When a payment is received, it is entered in the cash book and posted to both the ledger and the collection card. Every card must be located at the time payments are entered in the ledger, or the customer will very likely receive notices after he has made the payment.

The Collection Follow-Up. The promptness of the follow-up on this class of collections is of the greatest importance—the debtor should not be given the excuse that he failed to receive a notice. Though not provided for in the contract, the debtor expects a notice of every payment due.

When the goods are shipped, a formal notice of shipment should be mailed, and if the first payment has not been made, it should be requested. In ten days, or after the approval time limit has expired, a second notice should be mailed, provided no payment has been received. This can be a formal notice, and should assume that the goods are entirely satisfactory, and at the same time calling attention to the fact that the first payment is past due. If this does not bring a remittance within ten days, it is well to send a draft notice. This notice should go into the conditions of the contract in some detail, and, without assuming a threatening attitude, it should assume that if payment is not received within five days it is the desire of the debtor that a draft be made. Either the notice or the draft will usually bring the first payment, or the return of the goods.

Fig. 31. Attorney's
Collection Register

Each month, a formal statement showing the exact condition of the account should be mailed a few days before the due date. It is[177] well, on this statement, to make an offer of a discount for cash to pay the account in full. A discount of 5% on an account that has several months to run will often be accepted, and is profitable to both parties. This statement should be followed in ten days by a second notice, also of a formal nature.

All notices up to this point may be printed, but further requests should be in the form of letters. Except when it has been found that an account should be handled in a special manner, form letters will be found most satisfactory. The letters should start out mild in tone increasing in insistence as the series is extended.

When persuasion fails, the debtor should be notified that the account is being placed in the hands of an attorney, or a collection agency. But before suit is actually started, it is well to investigate the probability of collecting a judgment. If a man is judgment proof, it is much better to take the necessary steps to secure the return of the goods. This is usually accomplished by requesting the express company to call on the debtor for the package.

[178]

Every debtor has his vulnerable point; if that point is reached, the money can be collected. The most successful collector is the one who finds that point in the largest number of cases.

Collections by Attorneys. The handling of collections constitutes an important part of the practice of many attorneys. It would naturally be supposed that attorneys handling collections for their clients would have an efficient system of records, but unfortunately this is not the rule. Except in offices handling a large number of claims the methods are very lax—there is an entire absence of a system that will reveal the exact status of every claim. And yet to install a system that will give just the information desired is very simple, and the operation requires less labor than to handle the claims in a haphazard way.

Fig. 32. Attorney's Collection Card

When a claim is received by an attorney, it should be given a number, and registered in numerical order. The register should be a book—either loose-leaf or bound—with headings for the date received, names of debtor and creditor, amount of claim, amount collected, fees, amount remitted, and date remitted or returned, as shown in Fig. 31. This is not intended as a complete history of the claim, but merely as a permanent record.

The papers in each claim should be placed in a folder. The old method was to use a manila jacket or document envelope, to be[179] filed in a document file. The objectionable feature of this method is that the papers must be unfolded for reference. A better plan is to use a correspondence folder, such as is used in the vertical file, in which the papers can be kept flat.

Whatever style of folder is used, all papers should be fastened—either pasted, or by means of a paper fastener. On the outside of the folder should be written the names of debtor and creditor, and the number of the claim. The balance of the space on the folder can be used for recording special information about the claim from time to time. These claim folders should be filed numerically, according to claim numbers.

Fig. 33. Back of Attorney's Collection Card

For a convenient record for daily reference, giving a brief history of the claim, a card is found very satisfactory. The folders are somewhat bulky and inconvenient for quick reference, and, except in special cases, it is not necessary to refer to all of the papers. Brief notes, which can be made on a card, will answer every purpose.

A convenient record form is shown in Fig. 32, which is printed on a card 4×6 inches in size. This gives the particulars of the receipt of the claim, the amount, date, and number, with a record of collections, fees, and remittances. A card is made for each claim, and filed alphabetically under the name of the debtor. The reverse[180] of the card is printed as shown in Fig. 33. This shows the different steps taken to enforce collection.

The card file provides an index to all debtors against whom claims are on file, while both the register and the file of folders provide numerical indexes. But it is the creditor who is the client of the attorney, and it is very necessary that he be in a position to refer to or report on all claims received from any client. This necessitates another index to creditors, which is provided for in the card form shown in Fig. 34.

Fig. 34. Index to Creditors for Attorney

The card is headed with the name and address of the creditor, below which is a list of all claims filed by him. When a claim is returned—paid or unpaid—the date is entered on this card, so that the record shows only unpaid claims. These cards are filed alphabetically, under the names of the creditors.

A follow-up of the claims is provided by a plain index card on which is written the name of the debtor and number of the claim. This card is filed in a tickler, under the date on which it is desired to follow up the claim. This serves as a memorandum only, all records being made on the claim card or the folder.

[181]
[182]

A SCENE IN ONE OF CHICAGO'S BUSY FREIGHT YARDS, SHOWING AN OUTBOUND FREIGHT HOUSE


[183]

THE SHIPPING DEPARTMENT

INTRODUCTION

The average manager of a business has but a rudimentary knowledge of traffic affairs as they relate to the shipment of his goods. He does not know that he is receiving the lowest rates to which he is entitled, or that the most favorable classification is applied to his shipments.

A large percentage—probably a majority—of the concerns which do any considerable amount of shipping, or receive a large quantity of freight, lose annually in overcharges, due to improper classifications, defective packing, and a general lack of knowledge of the subject, a much larger sum than would be required to pay the salary of a competent traffic manager. There are so many intricate details to be considered in the shipping problem, that the subject requires special study, and shippers whose volume of business is even moderate find it profitable to employ a traffic manager.

Not every shipper is doing a business of sufficient volume to warrant the employment of a man to devote his entire time to this question, but, in the organization of every business doing even a small amount of shipping, there should be one man who will make a study of traffic matters. He need not have an intimate knowledge of the entire subject of traffic affairs, but he should be posted on all questions that have a bearing on the shipment of the goods of his house. When no regular traffic manager is employed, the duties of the position fall on the shipping clerk; he is the logical man to make a study of the subject.

Considered from the standpoint of his knowledge of shipping requirements, classifications, manner of packing, and the application of special rates, a man who has had experience in the freight department of a railroad makes the most successful traffic manager. Such a man may not be fitted to organize and handle the work of[184] the shipping department but, in a concern large enough to require the services of a traffic manager, there will be work enough to warrant the employment of an assistant to look after this branch of the work.

THE SHIPPING CLERK

In this discussion of the organization of the shipping department, the shipping clerk will be considered as assuming the duties of traffic manager, as well as those that usually pertain to his position. He will be at the head and have full charge of the department, keeping such records as may be called for by the business.

It is the duty of the shipping clerk to see that all goods are shipped promptly, packed and described to secure the most favorable rates, and properly routed. He must have a checking system that will enable him to locate errors and to know that all goods called for by an order have been shipped. He will be assisted by such packers, checkers, and porters as may be required to handle the work.

The packers will receive the goods called for by an order from the stock men, and will pack them properly. They will check all goods packed against the order. In this, they will be assisted by checkers, who check the goods received on the shipping floor and again when they are packed. Discrepancies must be reported at once and adjusted immediately.

In some concerns, the shipping clerk is also the stock clerk, in which case he has charge of the actual filling of the orders. He is assisted by stock men, who select the goods and assemble the orders under his direction.

Like the head of any other department, the shipping clerk should have full control of his department. No other person in the organization should be permitted to make shipments. Concerns have been found in which it was the custom for different employes to ship small articles without the knowledge of the shipping clerk. Invariably, this leads to mistakes and results in blame being wrongfully placed on the shoulders of the shipping clerk. And even greater damage is done in the disruption of the organization.

Information Required. The shipping clerk should be fully informed on all traffic questions that affect the shipment of the[185] goods of his house. Of first importance is a knowledge of classifications, that he may know that his shipments are placed in the lowest classification to which they are entitled. Copies of the classifications can be obtained from any local freight office.

In this country there are three principal classifications, these being the official, governing the eastern territory; western, governing western territory; southern, governing southern territory. There are also a few special classifications governing classifications in certain states. While some attempt at uniform classification has been made, the several classifications show many variations, the same article taking different classifications in different territories.

When classifications are received, they must be carefully studied by the shipping clerk that he may really understand to what classifications his goods are entitled. It might be supposed that a certain article or class of goods would always take the same classification, but this is not the case; other questions than the name have a bearing on the question.

The manner of packing goods very often determines the classification. Certain articles are placed in a lower classification if boxed than they would be if crated. This is specially true of goods that are liable to damage in transit. Many shippers make a practice of crating goods because it can be done more cheaply than boxing, without realizing that the difference in packing cost is more than offset by the increase in the freight rate.

The classification is also sometimes determined by the manner in which the goods are described. It is necessary, therefore, to study the classifications with reference to the description that will insure the most favorable rate. However, false descriptions made for the purpose of securing a lower classification must be avoided, as the Interstate Commerce Act provides a heavy penalty for such falsification. But there may be several different descriptions which legitimately apply to a given article, each placing it in a different class. A case in point: The western classification made no provision for filing cabinets in carload lots, with the result that a carload shipment, described as filing cabinets, took the rate provided for less than carload lots. But the same classification gave a lower classification, consequently a lower rate, on office furniture in carload lots.[186] Filing cabinets being office furniture, it was entirely legitimate to describe such shipments as office furniture.

Another illustration of the effect of description on the classification is found in shipments of carriages. The classification, and consequent rate, on this commodity is based on the space that it will require, rather than on the rate. If shipped knocked down and properly crated, with the dimensions stated on the shipping bill, a carriage takes a lower classification than if shipped assembled, or if the dimensions of the crate are omitted.

These illustrations are sufficient to show the importance of a thorough knowledge of the provisions of the different classifications. The shipping clerk who would give the best service to his house should make a study of this subject, even if he is obliged to take the classifications home and study them at night. Every shipper should see that his shipping clerk is supplied with copies of classifications governing the territory in which he is doing business, and give him an opportunity to learn their provisions in respect to the commodities which he ships.

Class Rates. A class rate, as the name implies, is one based on the classification. All commodities are divided into classes, six in number, and all commodities of the same class—with certain exceptions, explained later—take the same rate. Schedules of rates between given points, based on the class, are prepared by the classification committees, but before being put into effect, they must, in case they apply between points in different states, be submitted to the Interstate Commerce Commission for approval. While not a rate-making body, the commission is a rate-governing body, constituting, in a certain sense, a board of arbitration between shippers and transportation companies.

The rates being based on the classes—the higher the class, the higher the rate. To determine the rate, it is first necessary to find the classification; reference to the rate schedule will show the rate for each class.

Commodity Rates. A commodity rate is one applying to a special commodity, between definitely stated points. Commodity rates are established by the railroads to meet some special condition, and with these the classification committees have nothing to do.

A commodity rate does not apply to articles not named in the[187] tariff even though they are of a similar nature, nor do they apply between points not specified in the special tariff. A commodity rate is, in effect, a special rate; it offers special inducements for the shipment of certain commodities, but is not intended to favor any one shipper. The commodity rate is for the benefit of all shippers of the commodity named.

The volume of traffic is the chief factor in establishing rates, either regular or special. It is an especially important factor in establishing a commodity rate. In a given community, some one commodity may be produced in large quantities. Perhaps it is a raw material which must be transported to certain manufacturing centers. To encourage the development of the industry, thereby creating a large volume of traffic, the railroads leading from the point where the traffic originates establish a commodity rate to other points, where the raw material can be used to advantage by the manufacturer. Or, perhaps, important manufacturers are located on other roads, in which case connecting lines join with the originating road and issue what is known as a joint tariff. This enables the producer to deliver his raw material to the manufacturer on favorable terms, when to pay class rates might compel him to abandon the enterprise, with a consequent loss of traffic to the railroads. This discriminates against no one, since every shipper of the particular commodity between the points named is entitled to the special commodity rate.

Frequently, however, a commodity rate exists between certain points which might, under certain conditions, be taken advantage of by a shipper located at a point outside of those named in the commodity tariff. For illustration, a manufacturer in Peoria, Illinois, is shipping a commodity on which a special rate is granted between Chicago and Milwaukee, but takes a class rate from the point of shipment. He makes a shipment to Milwaukee and pays the through class rate provided from the point of shipment, when by proper billing he would have paid the class rate to Chicago, and secured the benefit of the commodity rate from that point to Milwaukee. A lack of knowledge of commodity rates in effect in the manufacturer's territory has resulted in an unnecessary expense—a loss of money.

The claim might be made that the billing clerk at the local freight office should have given the shipper the benefit of the lowest[188] rate. But he will fall back on the classification and be prepared to show that he has given the only rate quoted on shipments from Peoria to Milwaukee, which is the class rate. It is no part of his duties to keep posted on commodity rates granted by another road, while it is distinctly to the interest of the manufacturer to know of the existence of all such rates applying to his product.

Freight Tariffs. The Interstate Commerce Act provides that two copies of every freight tariff issued by the railroads shall be placed on file at each freight office, for the inspection of the public. Since the rates must be made public, the railroads do not object to supplying shippers with copies of the tariffs applying to their product. Through the local freight agent, copies of all tariffs applying from the point of shipment can be obtained.

It has been shown that, in the case of commodity rates, copies of tariffs from the point of shipment are not always sufficient. It is necessary to obtain, from connecting lines reaching the territory in which the trade of the house lies, copies of all special tariffs applying to the commodities shipped. The freight departments of all railroads, through their solicitors, make a practice of supplying copies of all regular and special tariffs to all large shippers on their lines, and to shippers on connecting lines who are in a position to divert traffic to them. Any shipper who has been overlooked, should write to the freight departments of all lines in his territory asking to be placed on the mailing list to receive copies of all tariffs affecting his product. By doing this, he will secure copies of all such tariffs as soon as issued.

The subject of commodity rates is one of the most vexing with which the shipping clerk has to deal, as it is also one of the most important. To compile a complete file of special tariffs, involves close study and much labor. But when once done, it can be kept up-to-date with little difficulty, and the saving resulting will far outweigh the cost.

Filing Tariffs. The manner in which freight tariffs coming into the office are filed is important, for unless properly filed and indexed they are likely to be of little value. The filing system must provide for quickly locating any tariff, and for locating all tariffs that may have a bearing on a particular case.

In the average shipping clerk's office, it is not uncommon to[189] find the tariffs dumped into a drawer, without regard to their order, or hung on a hook on the wall. When a rate is wanted, it is necessary to search through the tariffs until one giving the rate is found. The chances are that the first rate found will be used, regardless of the fact that another tariff shows a special and lower rate.

Fig. 1. Vertical File of Indexed Folders for Railroad Tariffs

A very satisfactory file for freight tariffs is the vertical file, and one drawer will hold all of the tariffs required by the average shipper. If a two-drawer cabinet is provided, the shipping clerk will usually find other uses for the extra drawer.

Each railroad whose tariffs are on file should be assigned a folder, and the folders should be filed alphabetically under the names of the railroads, as shown in Fig. 1. All tariffs from one railroad should be filed in the folder assigned to that road, and arranged according to their numbers. All railroads number their tariffs and, in correspondence, refer to them by number. Reference to the tariffs will be facilitated, therefore, if those of each railroad are kept in numerical sequence.

Loose-leaf binders are sometimes used for filing tariffs, but not all tariffs are in proper shape for punching to fit the binder. Another[190] disadvantage in using a loose-leaf binder is that freight tariffs are not uniform in size, resulting in an awkward, unwieldy book. For these reasons, the vertical file is found more satisfactory.

The Index. Since the tariff folders are filed in alphabetical sequence, no index is required to locate the tariffs of a given road, but a cross-index to locate all tariffs that apply to a given point, is a necessity. This index should be in card form, a card being used for each town to which the house ships, or is likely to ship, its products.

Fig. 2. Cross-Index to Tariff File

A very satisfactory form of card for this cross-index is shown in Fig. 2, which also shows the manner of filing. At the head of the card is the name of the town, and the name of the railroad on which it is located. Below the heading, the first column shows the names of all railroads issuing tariffs to the town in question, whether or not the town is located on the road. Following this are columns for the number of the tariff and for either commodity or class rates. These cards are filed in the same manner as the tariff folders—alphabetically by names of the railroads. A guide card is provided for each road and all cards representing towns on that road are filed in alphabetical order behind the guide card.

[191]

Fig. 3. Card for Class Rates

Suppose a rate is wanted from a point on the Delaware, Lackawana & Western, to a point on the Burlington. Reference to the Burlington tariffs does not give the rate, for the reason that the Burlington does not issue tariffs from points on the D. L. & W., but reference to the card shows that four roads issue tariffs from Buffalo to Burlington points, one of them being a commodity tariff. Reference to the commodity tariff shows that the special rate applies from a point in Ohio to Chicago, a connecting point with the Burlington. By proper routing, this special rate can be taken advantage of, class rates applying the balance of the distance. Without the index, it would be necessary to look through several folders, with the possibility that the special tariff might be overlooked.

Condensed Rate File. A condensed rate file covering a definite territory will prove a convenience to most shippers. The trade of most houses is confined to a certain definite and rather limited territory. A manufacturer may make an occasional shipment to a point outside of his regular territory, but, as a rule, his shipments will be confined within certain limits. This is even more true of the jobber and the wholesaler.

If a special rate file, covering the particular territory in which the shipper's trade lies, is prepared, it will be found convenient for reference, and will save consulting the tariff files whenever a rate is[192] wanted. Such a file can be arranged on cards, or in a small loose-leaf book. One card or sheet should be used for each town, the name of the town being written at the head of the card.

Fig. 4. Card Index for Classifications

The card should show the rates for all classes from the shipping point to the destination, as well as the route. It may be necessary to record rates from more than one shipping point. A manufacturer may have two or more shipping points, and it is important to know from which points he can secure the most favorable rates. It is also advisable to include the shipping points of the chief competitors, that they may be given due consideration in meeting competition.

Fig. 3 shows the form of card for this rate file. The cards should be filed alphabetically, and it is well to include cards for some of the principal towns outside of, but convenient to, the regular territory. The rates for the different classes, rather than on specific articles, are given for the reason that the classification is more likely to change than the rate. If the rate on a certain article is given, and the classification of that article is given, should the classification of that article be changed, it would be necessary to rewrite the entire index. It is much less difficult to change the record of the classification of one article than to revise all of the rates.

Classification Index. For convenient reference, the shipping clerk should prepare an index showing the classification of all articles[193] that he is obliged to ship. This classification index should be on cards or in loose leaf, whichever is used for the rate file. One sheet is used for each article, the name of the article being written at the top.

Fig. 5. Card for Commodity Rates

The record should show how the article is packed, the class, and the classification in which it is found. As has been stated, more than one class may apply to a given article, depending on the manner of packing; an article may take the first-class rate if boxed, or double first-class if crated. In such cases, both classes with the manner of packing should be shown.

These classification sheets should be filed alphabetically in the file used for the rate cards, and they should be printed on stock of a different color. Most shippers will need but a few of these sheets as the number of articles shipped by one house is small, as a rule. If a large number of articles is shipped, the classification index is of even greater importance. A suitable form for this index is shown in Fig. 4.

Commodity=Rate File. When any part of the goods shipped are subject to commodity rates, a file of commodity rates is fully as important as class rates. A commodity-rate file is arranged on similar lines to the file of class rates. A card or sheet is used for each town to which commodity rates apply, and the cards are filed alphabetically by names of towns. These cards can be filed with the class rates, but a distinctive color should be used.

[194]

The record should give the names of the articles taking commodity rates, manner of packing, the point from which the rate applies, the rate, the number of the tariff, and the name of the issuing railroad. On the line below the name of the town appears the caption, see also. This is for the name of some other point to which a commodity rate applies. Boone, Iowa, for instance, may not be a commodity point, though a special rate from Chicago to Clinton is in effect. The Boone card would refer to Clinton, and the card for that town would show the rate. Fig. 5 shows a form for commodity rates.

To compile such a record of rates as has been described, requires an initial expenditure of much labor, but is a profitable investment. When once compiled, changes can be recorded with little trouble. These files will always be valuable for reference, not alone to the shipping clerk but to the sales manager and the purchasing agent as well.

A comprehensive knowledge of classifications and rates will prove valuable not only to the shipper, but to the receiver of freight. It will save any merchant many dollars in freight charges on goods purchased f. o. b. point of shipment. The shipper may not pack his goods in a manner to secure the lowest rate, or he may not give the proper description in the shipping bill. If his attention is called to the matter by a customer, he probably will make the necessary changes in his methods.

Even the proprietor of a small retail business will find a study of this subject a paying investment. The writer has knowledge of a case in which the owner of a general store saved some $165.00 in one year by carefully checking every freight bill received, making claims for overcharges, and watching the packing and routing of his goods. Surely that amount would be worth saving, even to a house transacting a much larger volume of business.

Routing Shipments. One of the most important duties of the shipping clerk is the proper routing of his shipments. Like classifications and rates, the subject requires careful study. In too many cases this subject receives little attention, but by exercising care in routing shipments, the shipping clerk can be of material assistance to the sales department, and, incidentally, to the customers of his house.

Routing frequently affects the rate. It might appear logical to suppose that the rate between two given points would be the same,[195] regardless of the route; but this is not the case. Of two routes to a given point, one may be longer than the other. If shipping and destination points happen to be in different states, the provision of the Interstate Commerce Act which forbids a higher rate for a short haul than for a long haul comes into play. Similar provisions applying to local shipments, are found in the laws of certain states. In Iowa, for instance, such a provision covers the transportation of passengers as well as freight. One railroad is not permitted to meet the competition of another having a shorter route between two points, but must base its rate on the mileage. All of which goes to show the necessity of considering the length of the haul in routing shipments.

The above conditions apply especially to shipments taking class rates, but when goods which take commodity rates are to be shipped, the question of routing is of even greater importance. It has been shown that a commodity rate may be in effect between two points on one road, or two or more roads may have issued a joint tariff which can be taken advantage of. The question of commodity rates, therefore, has a most important bearing on the routing of shipments.

Another factor that has a bearing on the routing is basing points, which necessitates a knowledge of the points on which rates are based. In the territories governed by the different classifications, certain common points are used for basing rates. On shipments from the central states to southern territory, rates are based on Ohio River points, while, to western territory, they are, in many cases, based on Missouri River points. Class rates from Chicago to all Missouri River points are, as a rule, the same over all roads, but, to points beyond the Missouri River, rates may vary from the different basing points; that is, the rate from Omaha to a western point may be less than from Kansas City, though the rate to these basing points is the same.

The alert shipping clerk will learn the basing points in the territory to which he is shipping goods—which he can do by consulting local freight officials—and will then secure tariffs from these basing points to the towns he wishes to reach. This information he will incorporate in his rate files.

Not least of the factors which should be considered in routing shipments, is the accommodation of the customer. It is frequently the case, that of two roads entering a town, the freight house of one[196] is more conveniently located for the shipper. Rates being equal, shipments should be routed over the road from which the customer's cartage charges are the lowest. Or the customer may have a sidetrack to his warehouse from one road, which makes no switching charge, while on every car shipped over another road a switching charge must be paid. This charge may offset an advantage in rates. It always pays to accommodate the customer. When the wishes of the customer are known, they should be granted, within reasonable limits, even though it involves extra expense.

FILLING ORDERS

In all large concerns the filling of orders—that is, the assembling of the goods—is done by the stock department. The subject is here discussed in connection with the shipping department for the reason that in many houses all orders are assembled under the direction of the shipping clerk; in others he is also the stock keeper or stores clerk.

This discussion refers more especially to the filling of orders in a jobbing house, or a manufacturing business which carries goods in stock. It does not refer to those manufacturing enterprises whose orders are for goods to be manufactured.

As a rule, all orders of a jobbing house should be filled the day they are received. If they cannot be filled complete, they should be filled as nearly as possible, and missing articles handled as explained later under the subject of Back Orders.

There is a great chance for time saving in most houses in filling orders. In many houses, too little consideration is given to the handling of goods in a manner that will save time in assembling orders. Lack of a logically planned system is responsible for much of the confused and confusing rush in the average shipping room, about the time that orders should be delivered to the transportation companies.

Here is a case in point which came under the observation of the writer. A certain jobbing house, handling drugs and druggists' sundries, occupied a five-story building. On each floor there was a stock room in charge of a stock man, who, with the aid of such helpers as he needed, kept the stock in proper shape, and assembled the goods required from his floor to fill orders.

In the drug business, the average order received from a retailer calls for a large number of articles—it is made up of small items.[197] This is especially true of orders brought in by the traveling salesmen. As a consequence, the larger part of the orders received by this house called for goods from practically every floor.

The custom was to send orders first to the floor farthest from the shipping room—that is, to the fifth floor. The stock man assembled the goods required from his floor, placed them in a basket with the order, and sent them down to the fourth floor. Each order went from floor to floor and finally reached the shipping room—perhaps being held an hour on one floor for a single article because of other orders ahead.

A result of this method was that, in the morning, the stock men on the upper floors were rushed, while those on the lower floors had no orders to fill, except those calling for goods from one floor only. In the afternoon, the conditions were reversed. Then the men on the upper floors had nothing to do but put their stocks in shape; those on the lower floors were busy filling orders. These conditions were not particularly objectionable so far as the stock men were concerned, as they were profitably employed, when not filling orders, in caring for their stocks; but in the shipping room great confusion resulted. Goods required to fill the day's orders did not begin to come into the shipping room until late in the day, and then they came with a rush. Hurried packing resulted in mistakes, caused disputes, and lost good customers.

To overcome the difficulty, a new plan which worked admirably was perfected. A chart was prepared, along the lines of the one shown in Fig. 6. On this chart, a section was set aside for each floor, and in the first column the classes of goods stored on each floor were listed. In the next two columns a few of the articles in each class—enough to serve as a guide—were listed, and the last column showed the floor B, meaning the basement. On this chart, the location of any class of goods could be seen at a glance, and in case of doubt about the class to which an article belonged, reference to the catalogue issued by the firm gave the desired information.

A copy of the chart was given to the order clerk, who entered all orders on a billing typewriter. In entering the order all articles were grouped by floors, starting at the fifth floor. Below the list of articles from each floor a space was left, the first entry for the next floor being on the second line below.

[198]

Fig. 6. Floor Chart for the Classification of Stock

[199]

Two copies of the order were provided for the use of the shipping clerk. When the orders reached his desk, he cut one copy into parts, as represented by the floors from which goods were to come. After entering the order number on the margin of each, he sent these sections to the stock men. Each man assembled the goods required from his floor and sent them, with his section of the order blank, directly to the shipping room. Here they were checked against the shipping clerk's copy of the order, and, as soon as all sections had been filled, the order was ready for packing. This resulted in distributing the work more evenly, and kept the goods coming regularly to the shipping room.

Another method of accomplishing the same result is to make as many copies of the order as there are floors, the complete order being sent to each stock man, who fills only his part. An advantage of dividing the order sheet, as explained, is that the stock men have no knowledge of the names of customers. This prevents a stock man from taking a list of the firm's customers to another house—an occurrence which is not entirely unknown.

Back Orders. Most concerns find it impossible to fill all orders completely; there are occasional shortages in every house. In such cases, it is the usual custom to fill all orders as nearly as possible, and forward the items that are short as soon as they are in stock, or with a later shipment.

The possibility of these items being overlooked must be provided against, and this is done by entering all items that are short on a new order. This is known as a back order. The back order should be made in duplicate and should be printed on stock of some distinctive color that will not be confused with the regular order blanks. For convenience in filing, it should also be made the same size as the regular orders.

If the number of back orders is very large, a separate series of order numbers is used, but most concerns do not have a sufficient number of such orders to make this necessary. The more usual custom is to give the back order the same number as the original of which it is a part.

Of the two copies of the back order, one goes to the shipping clerk, while the other is kept in the office. The office copy is used to follow up the shipment of the order. It is necessary for the[200] shipping clerk to know immediately when goods required to fill back orders are received. When a separate receiving clerk is employed, the back order is sometimes made in triplicate, one copy for the receiving clerk, who notifies the shipping clerk when the goods arrive.

Fig. 7. Back-Order Blank

When a back order is filled, the shipping clerk returns his copy to the office. Invoices are made in duplicate, one copy being filed as a sales sheet. The two copies of the order are filed with the corresponding copies of the original order. A most satisfactory plan is to file one copy numerically and one alphabetically, making a cross-index. A simple form of back-order blank is shown in Fig. 7.

CHECKING SHIPMENTS

One of the vitally important problems in connection with shipping is the proper checking of items in each shipment. To receive complaints of shortages is very annoying to the shipper—especially so[201] when he is not in position to prove that the items claimed to be short were shipped—but, rather than take the chance of losing a customer, he usually pockets the loss.

Fig. 8. Order Blank with Column for Shipper's Check

Shipments should be checked at every stage in the process of filing the order, by everyone who handles the goods. The stock man should check his part of the order as he assembles the goods, and again before he forwards them to the shipping room, or the next floor. When received in the shipping room, the goods should be checked against the shipping clerk's order, and again just before they are packed.

It should be a positive rule that all goods shall be checked when they are placed in the cases. The items should be called off by the packer as he handles them, and checked on the order by a checker. This is a safer plan than calling off the items from the order, as it insures a positive check on the items actually packed—not what should have been packed. All order blanks should be[202] provided with a separate column in which to check the items actually shipped, and quantities should be entered in this column even if the order is shipped in full. The checking column on the order blank is shown in Fig. 8. If the system of entering orders includes a copy to be used as an invoice, the items are entered in this column after the shipping order is returned to the office.

The initials or numbers of both packer and checker should appear on the shipping order. It is also a good plan to place in each case a packer's slip, shown in Fig. 9, giving the number or initials of the packer and instructing the customer to return the slip with any claim for shortage or damaged goods. In some houses, it is the custom to make the packer's slip a duplicate of the order, listing all items packed, in which case, it makes a convenient receiving slip for the customer.

Fig. 9. Packer's Slip

While not offering positive insurance against mistakes, a thorough checking system will reduce errors in packing to a minimum, and will most certainly pay for the labor involved. In large houses shipping a large number of packages over several different railroads, a further complication arises through the liability of deliveries being made to the wrong freight house. Where several hundred shipments per day are made, it is not uncommon for a teamster to leave a package at the wrong road, finding himself short on his deliveries at another road; or the mistake may be made in loading the drays.

One well-known mail-order house has overcome the difficulty in a simple manner. This house is shipping several hundred packages a day by freight, over eight railroads. The basis of their shipping system is a color scheme, each railroad being designated by a different color—that is, the New York Central is represented by green, the Erie by blue, etc.

A FORTY-FIVE FOOT CABIN LAUNCH ON CAR
Showing Method of Loading Boats for Shipment at the Shipbuilding Plant of the Gas Engine & Power Co. and Charles L. Seabury & Co., Consolidated

[203]

The shipping floor is divided into sections, one for each railroad, and one for each express company. The low partitions that separate the sections are painted in the colors representing the railroads, and over each is a sign bearing the name of the road, also printed in the corresponding color. All packages are taken directly from the packing room to the sections of the shipping floor representing the roads over which they are to be shipped.

Fig. 10. Routing Package Labels

In all blanks used in shipping, the same color scheme is carried out. This includes shipping orders, packing orders, invoices, shipping receipts, and labels. All orders are properly routed before they are distributed to the billing machine operators for entry. Each operator enters orders for certain railroads—from one to three, depending on the distribution of the trade—and is supplied with blanks of proper color for those roads only. Every order is then entered on blanks of the color representing the railroad over which the shipment is routed.

In Fig. 10 is shown a label which represents this color scheme. Across the end of the label is a solid block of color, with the name of the road in an open letter. All printing on the label is also of the same color. If the order is properly routed and entered, there is very little chance for shipments to go astray. On every blank and on the package itself, the color of the road is a prominent feature, and since all blanks are written at the same time, they must correspond. Should a package be placed in the wrong section, it is practically certain that the error will be discovered when the goods are loaded on the dray.

[204]

EXPORT SHIPPING

Export shipping is a subject about which the average American house knows but little, and herein appears to lie the cause of the loss of much foreign trade. This is especially true of trade with other than English-speaking countries. But the real fault lies farther back than in the shipping department.

The trouble starts in the sales department. Export business is undertaken without special preparation, and an attempt is made to apply the methods used in handling domestic trade. Special instructions in regard to packing, for instance, are ignored because the American thinks he knows more than his customer in a foreign land.

Before export business is even attempted, the sales department should become thoroughly familiar with conditions in the country with which it wishes to do business. Some man in the department should study the customs regulations, the descriptions necessary, the kind of packing needed, and the size of package best adapted to the country. Above all, he must study the desires of the trade, and conform to them, if he expects to make and hold customers.

Special importance is attached to the question of packing and describing the goods. No matter how unreasonable the request of the customer or the foreign salesman may seem, it should be complied with, for it is made for some good reason. A request of a merchant in Omaha, ordering dry goods from Chicago, that goods ordinarily packed in a large case be packed in small oblong boxes, might very properly be ignored; but not so if the customer is located in a South American republic. There, if the goods are to go to the interior, they must be transported over the mountains on the backs of pack mules.

Besides making the packages of suitable size, goods for export must be packed to withstand hard usage, and must be well protected against the elements. Goods must be fully and accurately described in order that they may pass the custom house. The dimensions of each package must be shown on the shipping bills, for freight rates are based on the space occupied in the hold of the ship, rather than on weight.

In a recent address on trade conditions in the Latin-American countries, Wm. Harley Porter, Deputy Captain of the Port of Cienfuegos, during the occupation of Cuba by the United States government,[205] made some very pertinent suggestions on these questions, some of which are published by permission—as follows:

To secure South American trade, we must first train salesmen. They must make an exhaustive study of the different South American tariffs and at least know Spanish. They must be willing to accept instructions as to shipping, and be powerful enough to insist that they be carried out literally. And it would be a good thing for them to take a kindergarten course in carpentry and blacksmithing, so that they would not continue the stupid, expensive blunders of American houses in the packing of goods.

I don't know how to drive that last statement home hard enough. Our consuls plead with our exporters, and our Government distributes volumes freely on the subject, yet there is no apparent improvement.

I confess that until I had some first-hand experience, I supposed that the packing evil was a convenient sort of filler, with which Consuls padded their reports for want of better material.

In order to fit out the custom house of Cienfuegos, Cuba, with new office furniture, we placed an order amounting to nearly one thousand dollars with a Chicago house that brazenly advertised that it made a specialty of export business. Their booklet was encouraging, and the prices really low. So we ordered roll-top and flat-top desks, cashier's desks, office chairs, tables and card cabinets, and then worried, for fear that the goods would not arrive before the end of the fiscal year, then rapidly approaching, in which event, our furniture appropriation would revert to the island treasury.

Six weeks from the day the order reached Chicago, the goods left New York—time enough to have had them come from Hawaii. With the goods came a single invoice. The vouchers in triplicate, which must be filled properly before the account can be paid by a governmental department, had been thrown aside as of no use. To protect the exporter, a voucher was drawn, for the ship reached port on June 30, the last day of the fiscal year. Several dollars were wasted in cable messages to expedite the return of new invoices, and the goods were unpacked.

Not one piece of furniture, save a few chairs, was found whole. No American, in the States, would have accepted the goods. We had paid for them. A letter of remonstrance brought back a churlish answer, written in a cocky American spirit of superiority, to the effect that possibly some one outside could tell that house something about packing their own goods, but they would be greatly surprised to meet such a person.

The trouble lay in the thinness of the packing cases. Goods are loaded into a ship by casting a rope sling about their middle, by which they are hoisted up and let down, often with a run, into the hold. Our desks, without sufficient outer protection and not being built on the principle of a truss bridge, naturally collapsed. The cases were none too good for a railway journey, and were certain to be damaged at any Central or South American port because, in nearly every case, unloading is done from the ship to a lighter, and from the lighter, by main strength and awkwardness, to a wharf.

[206]

I cannot recall one instance in which American houses carried out instructions literally. I believe that there is a great future for an American exporter who will let the man on the ground do his own thinking, and take it for granted that he knows what he wants and how he wants it. The exasperation of a man who is weeks or months away from the markets, and who finds that substitution has been practiced, or his goods so packed that destruction was plainly invited, cannot be adequately described by a man on my income.

We bought a typewriter in New York, one time, for two reasons: We could get the liberal discount, allowed the government if we bought direct from the maker, and we could evade a 25% duty if we received it through our custom house and not through another. Also there was a line of steamers from New York to our wharf.

Some five weeks after placing the order, we were notified by an express company in Havana that it had accepted for our account a typewriter, and that when the duty, plus accrued express and forwarding charges, amounting to $45.O3, were paid, it would be dispatched in our direction.

We were out $40.03 because some fool shipping clerk had insisted on trying to do our heavy thinking. We had given him the name of the steamer by which the machine was to be shipped, but he had discovered, in some way, that steamships will not make a bill for less than a metric ton. That, he doubtless learned, would cost us $5.00. The package only weighed about 30 lbs., so he started it off by express. His brain did not carry far enough for him to learn that only one American express company crossed the Florida Strait and naturally chance took it to another company. Two changes were made in express companies before the box reached the coast and the package sauntered about in our beautiful Southland for more than a month before it landed in Havana.

Had any Spanish merchant been subjected to the invariable annoyance which fell to our lot when we endeavored to patronize American houses, he would have given up in despair and remembered the adage of the burnt child, forever.

And, unfortunately, the carelessness of American shippers often costs the foreign merchants good, hard dollars. Tariffs in Latin-American republics are fearfully and wonderfully made, and there is nothing that a pin-headed government employe enjoys more than inflicting a fine for a slip in complying with a little red tape.

Here is a case in point. A large house in Mexico City bought a carload of chairs over here, and with the order sent the shipping forms prescribed by the Mexican government. A very explicit letter was sent also, saying that consular invoices would be provided by their custom house broker in Laredo, who would receive the goods at the border, but that the shipping forms must be filled out, each package numbered with a serial number on the forms. Full description involved, of course, a statement as to the kind of wood used, so that the duty might be easily adjusted.

The goods, however, were simply consigned as so many bundles of chairs, weight so much. The shipping lists were ignored. The innocent[207] receiver of those goods was fined both because they had not been properly described and because the weight was grossly understated. It cost the Mexican house $800 and when the American was asked to settle the charges caused by carelessness, or pig-headedness, he merely answered that he was not going to settle any bills with the Mexican government.

The Mexican firm settled—it had to—and posted every importer in the republic in the matter, so that not only will that American house not sell any more chairs in Mexico, but Americans generally have been given another black eye.

There is a good reason for careful custom regulations, and the exporter should know that they are partly for his protection. For instance, they usually require that a certain number, generally ten per cent, of all packages shall be opened and compared with the shipping list. If these packages, chosen at random, are correct, the consignment is delivered. But if any variation is found, fraud is assumed, and every package is thoroughly examined, usually with more or less damage.

It is customary for English and German firms, in the packing of small articles, to use different colored pasteboard boxes, which are often decorated with pictures indicating the contents. For instance, in a large packing case containing a stock of gentlemen's furnishings, all collars will be in boxes of one color, socks in another, cravats in another, etc. The large case is lined with tin, by the way, and after packing, the tin joints are soldered around the top. Here is the English system: First, the small boxes, individualized as much as possible; then heavy wrapping paper, then a tin lining inside of an outer wooden casing, the latter being well made and reinforced with iron straps. Last of all, directions and addresses are stenciled in large, clear block letters. The Germans often use oiled paper between the tin and the inner packages, so that even if the tin is punctured, the oiled paper will resist the sea air, which invariably injures delicate fabrics.

The American idea seems to be to put as much as possible in a large, thin box or a poorly bound bale. The European, whose agents study conditions on the ground, knows that much interior transportation in Latin America is packed by pack mule, and therefore uses medium-sized oblong boxes, two of which make a good load.

I cannot emphasize too strongly the necessity for careful description of goods to pass them through a custom house with the least inconvenience. Mixed consignments must pay the highest duty assessed against anything found in a lump or poorly described quantity. If you deal in bolts, for instance, you may not merely say 1,000, 3×2×⅜ bolts, but you should say whether they are cotton, linen, or woolen. They have to know, before they can assess duty.

Instead of a ringing peroration about American pluck, progressiveness, and other non-essentials, let me give you some shipping rules, if you are going to have a try for South American trade.

Secure shipping list forms beforehand and find out if consular invoices are needed.

Pack your goods in small packages, for you will pay freight on metric tons and they are based on cubic measure and not on weight.

[208]

Pack well, for tons of stuff will probably lie on your cases.

Give each package a serial number and describe it by that number, on the shipping forms.

If your goods can be damaged by sea water, use tin-lined cases.

Your invoices should show not only number, measurement, and exact contents of each package, but their gross, tare, and net weight, for in many cases the container must pay the same duty as the contents.

Be sure that your forwarding agent is reliable, for the law allows him many charging privileges if you are careless in providing for contingencies.

Contract, if you can, for through transportation and get from the transportation companies the requisite export manifests to accompany shipment.

Make triplicate invoices, one to accompany the goods and two to be mailed to the consignee. One of these will be turned over to the custom officials, so in case the invoice sent with the goods fails to come through, and that often happens, the triplicate can be accepted. Without an invoice your goods cannot leave the ship, and I know of cases where cargoes have been held awaiting invoices for eight weeks.

And, in conclusion, remember that sentiment is not the foundation for foreign trade. If we sell abroad we must do so on merit and by foreign systems—not our own.

FREIGHT CLAIMS

Freight claims are an ever present source of annoyance. Every shipper, and practically every receiver, of freight finds it necessary to make claims against the railroads for freight overcharges, shortages, and damages to goods in transit. Some houses find occasion to make but one or two claims a year; others constantly have several claims on file, aggregating a large number each year, but no matter what the number, they must be given proper attention.

Handling freight claims is not one of the usual duties of the shipping clerk, nevertheless, it is a proper topic for discussion in connection with the subject of shipping. The traffic manager, when one is employed, handles the freight claims; otherwise the details are handled by some other minor official—as the cashier or the purchasing agent.

The adjustment of claims involves, usually, a large volume of correspondence, and requires a man of tact. He must possess patience and persistence to a marked degree. Diplomacy of a high order is necessary in his correspondence, and promptness is an important factor. Threats have little effect, other than to delay adjustment of the claim.

[209]

Before a claim is presented, all information pertaining to the case in possession of the claimant must be assembled, and all facts should be incorporated in the papers filed. A bill should be made against the railroad for the amount of the claim, and to this should be attached the freight receipt or other voucher. These papers should be accompanied by a letter giving a plain statement of the basis of the claim; if for an overcharge, the number of the tariff and the classification on which it is based should be cited. The claim papers should be as complete as it is possible to make them, presenting all facts having a possible bearing, otherwise they will be returned by the claim agent of the railroad for further information. Some of the questions asked by the claim agent may seem trivial to the claimant, but the answers are necessary to him in completing the files of his office. When claim papers are returned through the local freight office, the information asked should be given and the papers returned at once.

Claimants become very impatient over delays in the adjustment of their claims, forgetting that where they handle perhaps a dozen claims a year, the railroad claim agent must handle thousands, involving amounts ranging from a few cents to many hundreds of dollars. They also overlook the fact that a shipment has passed over several roads, and that before the claim can be adjusted, it must be ascertained on what road the damage was sustained. The different roads involved must adjust the claim between themselves, before they can tell where the money with which to pay it is coming from. The papers must pass through the hands of agents at all junction and transfer points, and the claim departments of all roads involved, before the claimant can expect a reply.

On the other hand, it is not good business to rely solely on the railroad. Claim papers sometimes repose indefinitely in the desk of some local freight agent, until brought to light by a persistent follow-up; occasionally the papers are lost. A follow-up of freight claims is, therefore, a necessity. The shipper who is most persistent in following up his claims, is usually the beneficiary of the most prompt service.

Railroads number all claims as received, and invariably refer to them by number. It is an excellent plan, therefore, for the shipper to adopt a numerical system for the purpose of identification. It is[210] quite important that all correspondence relating to a claim be kept together, and this is best done by using a folder for each claim. The number of claims is so small that it is not necessary to use an entire drawer for claims; they can be accommodated in the front of a drawer used for regular correspondence.

Fig. 11. Folder for Freight Claims

The outside of the folder should provide for the name and address of the consignor or consignee, as the case may be, name of the railroad on which claim is made, the shipper's claim number, and the railroad's claim number, as shown in Fig. 11. In this folder, copies of the bill and of all letters to the railroad company should be filed. The folders are filed numerically, in the order of the shipper's claim numbers.

To follow up the claim, and to provide an index to the file of claim folders, a card, similar in form to the one shown in Fig. 12, should be used. This card provides for a complete history of the claim. At the head of the card is shown the name of the consignor[211] or the consignee, shipping point, shipper's and railroad's claim numbers, dates of shipment, receipt, and filing of claim, the railroad on which claim is made, and the name of the claim agent. This is followed by a brief statement of the nature and amount of the claim. The two bottom lines provide for a record of the payment or rejection of the claim. All of the information most likely to be needed is found by turning to this card, without the necessity of consulting the correspondence in the claim files.

Fig. 12. Card for Follow-Up of Claims

The manner of filing the card depends somewhat on circumstances. The usual plan is to file alphabetically, under the name of the consignor, first grouping by railroads. If goods are received and shipped over but one road, all of the cards would be filed in one index. But if more than one road is used, an index card would be used for each road, and the cards arranged alphabetically back of the index cards of the roads involved. This arrangement brings the cards of all claims against one road together, which is a logical plan, since it is the railroad with whom the claimant is dealing.

Across the top of the card is a series of numbers, from 1 to 31. These represent the days of the month, and are used in connection with the follow-up of the claim. Metal tabs are placed over the dates[212] on which it is desired to have the claim brought to notice—that is, if the claim is to be followed up on the 20th, a tab is placed over the number 20. On that day all cards with tabs over this number are removed from the file, and, after the claims have received proper attention, the tabs are moved forward to the next follow-up date, and the cards returned to the file.

Fig. 13. Record of Correspondence on Back of Follow-Up Card

A record of all correspondence in connection with the claim is made on the back of the card, which is ruled and printed for the purpose, as shown in Fig. 13. This constitutes a tracer which shows, without reference to the files, just what correspondence has been required in the adjustment of the claim.

When the number of claims on file is large, there should be another record which will show the amount of claims outstanding against each railroad. Of course, the card file gives this information, but some of the cards are very likely to be out of the file, so that the amount obtained by a recap of the cards at any time may not represent the correct total.

An account with each railroad can be kept on a card, as shown in Fig. 14. This card should be filed with the claim cards, immediately behind the guide card of the road. In effect, it is a ledger account, representing a contingent asset.

[213]

From an accounting standpoint, the proper method is to charge all claims to a claim account, crediting whatever account may be affected, at the same time charging the railroad on the card referred to above. If an overcharge has been paid on a shipment received, the entry would be:

Claim Account $_____
In Freight $_____

Fig. 14. Claim Account Card

When a claim is disposed of—paid or rejected—claim account receives credit, while the debit is to cash, or the account originally affected. Using the above illustration, if the claim is paid in full the entry is:

Cash $_____
Claim Account $_____

If the claim is rejected:

In Freight $_____
Claim Account $_____

[214]

Fig. 15. Register of Sales

[215]

Thus the claim account is a controlling account, the balance representing the total claims outstanding, and agreeing with the totals of the claims against the different roads as shown by the cards. Claim account represents a questionable asset, and should be so treated in the balance sheet, a liberal discount being made in the value represented by the account.

EXPRESS SHIPMENTS

Many business houses are selling classes of goods which are most successfully shipped by express. This is especially true of those houses that transact the larger part of their business by mail. The question of shipping by express is, in itself, quite simple, but there are numerous details connected with the handling of such orders which require close attention. While these details vary in different businesses, as a typical illustration the business of selling books by mail has been selected.

When an order is received, the first step is to check the source—whether from circularizing, a re-order, or periodical advertising, and if the latter, the name of the publication. This information should be entered on the original order.

Cash and charge orders should then be separated, and on the charge orders the next step is to investigate the credit and check the address, especially when no advance payment is made. The address is checked against any list that may have been used, or against city directories, when such are available. If the list used has proved reliable, it usually is safe to pass the order from one whose name appears therein. Or the occupation given in the directory may warrant the acceptance of the risk. If he is a customer, his manner of paying in the past is the best guide.

Should all of these sources of information fail, and if the customer gives no references, it is well to secure a report from some commercial or collection agency. It may be necessary to follow up the agency, but if a reliable agency, like Martindale, is unable to obtain information, it is best to refuse the order except on a cash basis.

The order having been accepted, it should be entered in an order register, giving the name of the purchaser, the address in detail, description of the article ordered, source of the order, and[216] the price. A sheet, as shown in Fig. 15, should be used for each day's sales. The sheets should be in duplicate, as a copy is needed by the statistical department, from which to tabulate the sales from different sources.

The next step is to open an account on a ledger card, as shown in Fig. 16. At the same time a collection card should be made. Both of these cards should be filled in from the original order—not from the register. If the number is large, the accounts should be numbered, the number being entered on both the ledger and collection cards. From the ledger cards, the numbers are entered on the register. Two indexes are made—one alphabetical and one geographical—on plain index cards, only the name and address, name of publication ordered, and the account number being shown. One of these cards is filed alphabetically and the other geographically, while the ledger cards are filed numerically.

Fig. 16. Ledger Card

[217]

Each day, before the cards are filed, the amount of the new accounts should be obtained on an adding machine, and checked against the total of the order register sheet. This will guard against errors in transcribing, for it is improbable that the same error will be made in entering the order on the register and on the card.

Fig. 17. Shipping Order and Label Made at One Writing

The statistical department will obtain a record of total sales from the duplicate register sheet, and, for this reason, the amount should be checked against the original sheet. Since these sheets are footed by different people, this comparison affords a reasonable proof of accuracy, and also insures the use of the same totals by the statistical and order departments.

[218]

The order is now properly recorded and is ready for shipping. But before a shipping order can be made, it must be routed. This is done by consulting a postal and express shipping guide, in which will be found the name of every postoffice in the country, the names of the express companies reaching that point, or, if not an express office, the name of the nearest office. The name of the express company is entered on the order, which is then turned over to the billing clerk.

Fig. 18. Prepaid Shipping Sheet

The making of a shipping order, Fig. 17, is the next step. At the head of, and attached to, the order is a label as shown in the illustration. This shows the name and address, and the name of the express company, which information is duplicated on the order blank by means of carbon paper. The body of the order gives full particulars of the articles to be shipped, names of the order clerk, checker, and entry clerk, together with the date. All orders should next be entered on the shipping sheets, which are supplied by the express companies. A prepaid sheet is shown in Fig. 18. This is made in duplicate, one copy, signed by a representative of the express company, remaining with the shipper. The copy for the express company serves as a voucher for the collection of the charges.

A MODERN FACTORY DINING ROOM.
One of the Developments of Modern Business. Studebaker Bros. Mfg. Co., South Bend, Ind.

[219]

The express shipping sheet and the orders, with labels attached, should be sent to the packing and shipping room, where the goods are packed and shipped. The order should then be returned to the office, and filed with the customer's orders in the correspondence files. This should be a formal acknowledgment, giving full information as to when and how shipped.

It will be seen from the above that orders of this class necessitate a number of details, each of which forms an important link in the complete chain.

RETAIL DELIVERY SYSTEM

Not the least important problem in shipping is that of the retail store. While this problem is of special importance in a large city, it is one which must be met by the retailer in every community. Under present conditions, the retailer is obliged to deliver a large per cent of the goods that he sells, and the tendency is for this percentage to increase rather than decrease.

The shipping or delivery department is the busiest in the entire establishment; the details are so many that only with the most perfect system can the work be handled. The delivery system of one of the big stores is a revelation to most men; and when our purchase, which is but one of thousands made in an hour, is delivered at our door, five or ten miles away, two to five hours later, we marvel at the perfect working of an apparently complex machine. And yet, when we study it, we discover that the controlling factor of this vast system is its simplicity. Less confusion is found, and fewer mistakes are made, in the delivery department of the largest stores in the world than by the delivery boy of your corner grocer; and simple system—method—at every step from the sale to the final delivery is responsible.

While not really complicated, the system of a big store is built to care for many more details than are met with in the smaller store. Since a vast majority of retail establishments are in the latter class, this discussion is confined to the needs of a store of average size.

Average size is a relative term. A store of average size in one[220] community would be considered as a big store in another. In a large city, leading stores dealing in exclusive lines—such as clothing, shoes, or cloaks and suits—answer the description, and it is the needs of such a store that are discussed herein. A system adapted to the needs of a store of this class, can easily be expanded for a department store or modified for a smaller establishment.

Delivery Tag. A delivery system starts, not in the shipping room, but when the sale is made. The very first requisite is a correct address, and the securing of the address rests with the sales person. Unless every necessary precaution to insure accuracy at this point is taken, the further provisions of the system are without avail.

Fig. 19. Label with Colored Border to Indicate Routing

The first step, then, is for the sales person to write the label or tag that is to be attached to the package. It should not be left for another to write the final delivery ticket; this should invariably be done by the sales person, who then becomes responsible for the address. In some small stores, the duplicate sales ticket is made to do service as a delivery ticket, but it is much the safer plan to use a separate tag or label for this purpose. The address on the duplicate[221] sales ticket is quite likely to be illegible, and to provide for all details needed for delivery necessitates a larger ticket than otherwise would be used.

One of the most practical schemes ever devised is to indicate the section of the city by the color, size, or shape of the delivery ticket. The city is first divided into sections, the commonly known sectional divisions being used—as North side, South side, etc. When the sale is made, the customer is asked in what section of the city he resides, and then an appropriate label is selected. All labels are the same in form, but printed a special color for each section. The label shown in Fig. 19 is distinguished by a solid border and bar of color, printed on white paper, all type being printed in black.

Every necessary detail should be provided for on the label. The one illustrated shows the date, the name and address, near what street, the flat number, the name of the salesman, initials of the inspector, and amount (if any) of the C. O. D. The caption, near what street, is of special importance in a large city for it assists greatly in routing deliveries. An address may be given as 437 E. 72nd St., but if it is known that this is near Baker Ave., it is much more quickly located by the driver.

This label is written by the sales person and sent with the goods to the packers. Here, it is pasted on the package—unless it is a C. O. D. package, in which case it is first initialed by an inspector. The same is true of charge sales.

Routing Deliveries. The delivery system proper begins with the routing of the deliveries, which is the first thing done after the goods reach the shipping room. Bins should be provided for the different sections of the city and if the business warrants, these sectional bins should be subdivided, the subdivisions representing routes. Separate bins should be provided for C. O. D. deliveries, and it is well to have a bin for special deliveries, such as those to suburban points, which usually are forwarded by express.

When the packages reach the shipping room, they are sorted into these bins. As an aid to sorting, the colored labels described prove their value. Since the color represents the section, packages can be sorted as rapidly as they can be handled. After they are sorted according to sections, the packages are again sorted into routes.

[222]

In certain lines, such as groceries, the average delivery is made up of several packages, all of which are put into a basket. Here, the bins must be differently arranged, being but divisions of the floor space. But the scheme of using colored labels or shipping tags could be used to advantage, especially in a downtown store delivering to all parts of the city. For a grocery with a trade confined to its immediate neighborhood, the sectional divisions are not needed, but the goods should be sorted by routes.

Fig. 20. Regular Delivery Sheet

The Delivery Sheet. After routing, the next step is to record the deliveries. In all modern stores, deliveries to each section of the city are made at stated hours. As a rule, the deliveries are entered on the sheets just prior to the hour for the delivery.

Fig. 20 shows the form of the regular delivery sheet, which is used for cash and charge sales. This sheet shows the date, the name and address, number of packages, and sale number. The column at the extreme right is for the signature of the customer as a[223] receipt for the goods. Whether or not it is either necessary or wise to attempt to secure the signature of the customer, is a disputed question, and probably depends on the class of goods delivered and the extent of the business. A jeweler who delivers a valuable piece of jewelry would be justified in demanding a receipt, but this would be unnecessary for a grocer. The shipping clerk in one department store gives it as his opinion that the signature is not necessary, and, for proof, points to a record of but two inexpensive packages lost in a year.

Fig. 21. Delivery Boy's Call Tag

At the bottom of the delivery sheet, calls are listed. This refers to calls by the driver, where no deliveries are to be made. In a clothing or department store, it frequently is necessary to call for goods that have been delivered on approval, or on which alterations are to be made.

The delivery sheets are put up in book form in duplicate. The original is perforated so that it can be detached, while the duplicate remains in the book. A book is used for each wagon, and each driver signs for his deliveries in the space provided for that purpose at the head of the sheet. The driver then takes the delivery sheet, placing it in a spring-back binder, and turns it in on his return. It is well to keep these sheets on file in the shipping room for at least a month—when it is safe to destroy them.

When a call is to be made, a special tag is given to the driver to be attached to the package. This tag, which is shown in Fig. 21, gives the address, and any special instructions that may be necessary.

[224]

When the call is for a garment to be altered, the person taking he call usually ascertains what is to be done, and writes the instructions on the back of the tag. In case no instructions are given in advance, they are usually given when the call is made—in which case they are written on the tag by the driver. When the package reaches the shipping room, reference to the tag shows what is wanted, and the package can be forwarded, at once, to the proper department. Carrying out the color scheme, the call tag should be of a special color to distinguish it from the delivery tag.

C. O. D. Deliveries. Of special importance are C. O. D. deliveries. There must be a positive record which will make it possible to check every item at every stage, including all items collected.

Fig. 22. Collect on Delivery Tag

The handling of a C. O. D. item begins with the sale, when the sales person, in addition to noting on the sales slip that the item is C. O. D., makes out a tag, as shown in Fig. 22. This tag, which should be of a special color, is made with a perforated stub, and on the stub the information on the tag itself is duplicated. The sales person fills in, on both the tag and the stub, the name and address of the customer, the amount to be collected, his own initials, the number of the department, and the date.

The goods and the duplicate sales ticket go to the packing room, while the original sales ticket and the tag go to the office, where they are taken charge of by the C. O. D. clerk. This clerk registers the sale on a C. O. D. register, stamps the number on the tag and stub,[225] and returns them to the packing room. The tag is then attached, and the package sent to the shipping room, while the duplicate sales ticket goes to the auditor's office.

In a store where the packages are wrapped in the department making the sale, the routine is changed to the extent of sending the package direct to the shipping room, with a plain address label. The package is held in the shipping room until the tag, sent direct from the office, is received.

Fig. 23. Special C. O. D. Delivery Book

After they are sorted by routes in the shipping room, all C. O. D. items are entered in special delivery books, as in Fig. 23. This book is made in the same style, as the regular delivery book, with perforated sheets, but should be made of paper of a different color. The form differs but slightly from that of the regular book, the only difference being the addition of columns for the C. O. D. number and the amount to be collected.

When a driver makes a C. O. D. delivery, he gives the customer a receipt on the tag, Fig. 22, but retains the stub. On returning[226] from a delivery, he turns in the stub with the money, and the payments are checked on the duplicate of his delivery sheet. If a package is not delivered, it must be turned in with the complete tag attached. All returned C. O. D. packages are checked on the delivery sheets and entered on the sheets for the next delivery. This system insures a positive check on the driver, for he must turn in either the package, or the stub and the money.

Fig. 24. Office Record of C. O. D. Items

The office record of C. O. D. items is in the form of a register, as shown in Fig. 24. This register is provided with the same columns as the C. O. D. delivery sheet, with columns added for the route number and the driver's number, these columns being used only in the shipping room. All items are registered in numerical order, a new series of numbers, starting with No. 1, being used each month. The book is made with duplicate sheets, the original perforated. Once a day, or as fast as the pages are filled, the originals are sent to the shipping room.

[227]

The original sales ticket is placed in an envelope, stamped with the C. O. D. number and filed numerically by the C. O. D. clerk, who also keeps the register. In the system described, the tag receipt takes the place of the sales ticket; but in many stores it is considered best to send the sales ticket with the package.

Fig. 25. Notice of Attempt
to Deliver

When the shipping clerk receives the record sheet from the office, he checks the items against his delivery books and enters the route number and driver's number. As described, each driver's stubs and returned packages are first checked against his delivery sheet; all stubs are then checked against the record sheet, which makes a double check in the shipping room. If a package is refused it is returned either to the department or the general stockroom, and a receipt obtained on the back of the tag. The shipping clerk then returns the record sheet to the office, with the money collected and the tags representing refused packages.

Sales tickets and cash are turned over to the cashier, while tags and sales slips of refused packages are sent to the auditor. The auditor can check both the cash collected on C. O. D.'s and returns against the duplicate sales tickets in his possession.

Undelivered Goods. One of the annoyances met with in the delivery department of a large store is the difficulty in making deliveries because people are not at home. Unsuccessful calls are common, and while it is quite the general custom to leave packages with a neighbor, it is not always possible to do this, which means that the package must be returned to the store. And it frequently happens that this brings forth a vigorous complaint from the customer, who is positive that the delivery could have been made.

One merchant has found a simple solution of this difficulty, which could be adopted with profit by all merchants in large cities. Drivers are supplied with slips printed as shown in Fig. 25. When no one is found at home, one of these slips is filled out and left in the[228] mail box. It shows the date, time of day, name of driver, and name of person with whom the package has been left. The use of this slip eliminates complaints and proves a great convenience to the customer.

Fig. 26. Post-Card Notice of Attempted Delivery

When undelivered packages are returned to the store, and nothing is heard from the customer within 48 hours, a postal card notice, Fig. 26, is mailed to the customer. Frequently, failure to deliver is due to the wrong address, but even if the correct address is not found in the directories, the postal authorities usually succeed in locating the customer.

Fig. 27. Special Delivery Tag

[229]

Special Deliveries. Every store, especially in large cities, finds it necessary to make special deliveries. The customer from out of town, or about to leave town, wants a package delivered before a certain hour; the delivery may be to a depot, hotel, office, or even a residence. These are the deliveries which cannot wait for the regular trip of the wagon, but are sent by a boy. The important thing, so far as the delivery department is concerned, is to get them out on time.

Fig. 28. Special Delivery Tag
for Department Store

Fig. 27 shows a tag for special deliveries, used by a clothing house. The tag shows the name and address of the customer, with full particulars of the time and place of delivery. At the end is a perforated stub on which the delivery instructions are repeated. When the tag is attached to the package by the sales person, the stub is torn off and sent directly to the shipping room. The shipping clerk is then on the lookout for the package, and is expected to follow up the proper department, which in this business usually is the tailor shop.

Another form of special delivery tag used by a department store is shown in Fig. 28. This tag gives more detailed information about each step taken, showing the names of all persons handling the package, and the time at which it is handled by each.

When the delivery system of a retail store is studied, it is found to be made up of simple methods, which are assembled to make a complete machine, A noticeable feature of the entire system is that the apparently insignificant details—the little things—are its most important parts; which is true of all systems.

[230]

A MODEL FILING DEPARTMENT IN THE WHOLESALE HOUSE OF BUTLER BROS., ST. LOUIS, MO.


[231]

CORRESPONDENCE AND FILING

INTRODUCTION

This book deals with a subject of growing importance in every office—that of handling correspondence and filing all papers and documents which form a part of the records of every business. While making no attempt to teach letter writing, suggestions are made which, it is hoped, will prove of assistance to those whose duty it is to handle correspondence. Among those whom it is hoped a study of this book will benefit, are the incoming-mail clerk, the correspondent, the stenographer, the private secretary, the file clerk, and, in fact, every person who has anything to do with handling and preserving business or professional correspondence.

Present-day conditions tend to increase the volume of correspondence in every office, and any improvement that will reduce labor or contribute to more prompt service is welcomed. Every concern, except possibly the small establishment doing a strictly neighborhood business, uses the mails more and more in the transaction of its business; we buy, sell, pay bills, collect money, make contracts, and execute all sorts of transactions by mail—all of which necessitates writing letters. Not only is it necessary to answer letters promptly, but the increasing accumulation of correspondence must be preserved and filed in a manner that will permit of easy reference; all of which emphasizes the necessity of systematic methods in the conduct of this very important department.

In the belief that more representative illustrations will result, and that they can readily be adapted to the needs of a small establishment, the suggestions herein are applied to a business in which the correspondence is large in volume.

OPENING AND DISTRIBUTING MAIL

Opening Mail. Incoming mail should invariably be delivered to one desk in charge of a clerk, usually known as the incoming-mail clerk. When a business has reached a position where a large correspondence[232] is handled, it is poor business policy for an executive to assume the task of opening the mail. The natural conclusion, when a house has a large correspondence, is that its business is correspondingly large, and the executive who is fitted for his position can devote his energies to larger tasks with better results. He should be free to look after the big things—to plan greater results for his business or his department.

The argument has been advanced that it might be dangerous to trust a clerk with such business secrets as are found in the correspondence, but in the handling of business transactions practically every one of these "secrets" come to the knowledge of several clerks. Surely, if employes can be trusted with the cash and to keep the accounts—if stenographers can be trusted to take letters of the most confidential nature—a clerk can be trusted to open and distribute the mail.

Sorting Mail. Sorting the mail is the first duty of the incoming-mail clerk. This sorting is important in that all personal mail may be taken out before it is opened. A general rule among all large houses is to instruct all employes to have personal mail sent to their private or home addresses, but in spite of all precautions an occasional personal communication will come to the business address. An acquaintance may know that Smith works for Jones & Co. and, having forgotten his personal address, sends his letter in care of the house.

If Smith happens to be an unimportant employe, there will be no question about the communication being personal; but if he is a department head, there may be reasons for doubt. Large business organizations are divided into departments, each in charge of a manager. The correspondence of each department is signed by the head, over his official title. A reply may be addressed in the name of the house, to Smith, Sales Manager, or to Smith, without the title. The letter addressed to Smith, Sales Manager, belongs to the house, but if his title is omitted, it belongs to Smith, and to open it without permission is a violation of the law. When the departmental correspondence is heavy, a considerable number of letters addressed to the manager, but without his title, may be received, and it is the custom in many houses to secure written permission from department heads to open all such letters. This protects[233] the clerk in case a personal letter is opened by mistake, and insures prompt attention to correspondence received during the absence of the department manager.

Distributing Incoming Mail. After the mail is opened, it should be carefully distributed. While it is not necessary to read every letter, the incoming-mail clerk should read as much of each letter as may be necessary to determine to what department it should go. Frequently, a letter addressed to one department refers to matters requiring the attention of another—a letter ordering goods may be addressed to the advertising manager, or a remittance to the sales department; or a letter may require the attention of more than one department.

In a large organization it is a very good plan to designate the departments and executives by numbers, that is, the president might be No. 1, the general manager, No. 2, the sales manager, No. 3, etc. When a letter requires the attention of two or more departments, these numbers should be placed on the letter in the order of their importance. On a letter containing a remittance and asking for a quotation, the sales manager's number would follow that of the cashier. Such letters are sent to the department whose number appears first, and the numbers indicate to the correspondent that the letter is to be referred to another department.

For distributing the mail, the clerk should be supplied with baskets labeled with the names or numbers of the departments. Mail can then be distributed quickly to the proper departments. If the number of baskets exceeds six, a rack should be provided for them at the side of the desk.

In some offices, the incoming-mail clerk makes a record of all orders received, before sending them to the sales or order department; in most concerns, however, this is done in the statistical department, after the orders have been passed upon. If the business is strictly cash and not too large, the statistical work can be done by the mail clerk.

Fig. 1 shows a tally sheet which is made up by the mail clerk for a small mail-order house. The sales of this house are divided by departments, each department representing a few specialties. While the business is essentially mail-order, a few agents are employed. On this sheet, columns are provided for a record of the articles sold by each department, the number and amount of cash and credit sales as a result of advertising, sales by salesmen divided in the same manner, total cash and credit sales, and the grand total. The cross-footings show the total sales of each article, while the column footings show the total sales, divided between advertising and salesmen, and whether cash or credit.

[234]

Fig. 1. Tally Sheet of Sales for Small Mail-Order House

AN EXTENSIVE EQUIPMENT OF CARD FILES IN THE OFFICE OF A LARGE CORPORATION. MANUFACTURED BY YAWMAN & ERBE MFG. CO., ROCHESTER, N.Y.

[235]

When the mail is sorted, all orders are placed together, and these are then sorted into the classes shown by the tally sheet. To prevent holding order, a memorandum tally should be made of each lot of mail handled, and the totals for the day entered on the sheet.

The tally sheet should be loose-leaf and made in manifold. A sufficient number of copies should be made to supply all department heads who have a direct interest in the volume of the day's business. Usually, copies will be required by the executives and the sales manager.

Departmental Distribution. The sorting and distribution of the mail, after it reaches the department for which it is intended, is also of considerable importance. And, in this sorting, the department manager's stenographer can render valuable assistance. For the same reason that the head of the house is relieved of details, the head of a department should strive to rid himself of tasks which can be as well performed by a subordinate.

Whether the mail is sorted by the correspondent or his stenographer, it should be gone through before an attempt is made to answer it. Letters that can be answered at once should be placed by themselves; those necessitating further information should be handled specially; if a letter requires the attention of another department, it should be answered immediately and passed on.

Under this plan, the mail is prepared for answer before a stenographer is called to take dictation, which saves time. The correspondent who does not plan his work calls a stenographer and starts dictating, taking the first letter that comes to hand. When a letter about which further information is needed is found, he sends to the files for correspondence, wasting both his own and his stenographer's time while waiting for the information.

Before any letters are answered, the necessary notations should be made on all letters requiring information, and the letters sent to the proper departments. The very first letters answered should[236] be those that must be referred to another department. These should be not only dictated first, but transcribed and forwarded to the next department before further dictation is given.

These methods will go far toward solving the problem of the prompt handling of correspondence. Most large houses receive complaints of delay in answering letters, and when these complaints are investigated the causes of delay are found to be divided between a lack of method in handling correspondence and ignorance or carelessness on the part of the complainant. In any well-managed concern everything possible will be done to overcome the first-named defect, even to the extent of providing a system which will, at least partially, overcome the defects due to the latter cause.

As to the complaints due to ignorance or carelessness, it is found that at least 75% of all complaints received come within this classification. In many cases complaints come from persons whose correspondence is limited to a half-dozen letters, or less, a day. They fail to appreciate the difficulties of the correspondent whose dictation averages a hundred letters a day; being unaccustomed to the departmental plan of organization, they do not realize that each subject about which they write must be referred to one certain department. And so, a single letter contains an order, a remittance, and a request for some special information, and, because he does not receive a reply covering all subjects referred to in his letter by return mail, the customer complains of delay. It is entirely legitimate to politely request a customer to use a separate sheet for each subject—as orders, remittances, complaints, etc.—but since not all will comply, some such method as has been described is needed to insure against unreasonable delay in handling letters that require the attention of several departments.

In another class is the letter which, for some reason, cannot be answered at once. An example is the letter to a manufacturer, asking for a price on a special machine. Before a price can be named, the engineering department must make a careful estimate of the cost, and it may be necessary to secure quotations on some special material needed. This means an unavoidable delay, but the prospective customer should not be left in a state of expectancy—the letter should be acknowledged immediately, and the cause of the delay explained. The customer then feels that he is receiving attention,[237] while if no reply is made until full information can be given, a competitor more courteous may secure the order.

Interdepartment Correspondence. Of considerable importance in every large organization is the interdepartment correspondence—the notes from one department head to another. Every department head finds it necessary at times to request information from other departments. Even with an intercommunicating telephone system, with which every large office and plant should be equipped, many of these requests are of a nature that, to guard against misunderstandings, demand written communications.

Usually, these communications call for prompt replies; a letter from a customer may be held or some important action delayed until the information is received. A good rule for the correspondent is to give attention to these notes as soon as received, and answer them at the earliest possible moment. The stenographer should, as a rule, write these notes first, or if written in the order in which they are dictated, should place them on the correspondent's desk immediately. Of course, judgment must be exercised, for some of these notes do not require immediate attention and should be held until more important correspondence is disposed of.

There are also many notes giving instructions, either from a department head to his subordinates, or from the executive heads to the heads of departments. Except on general orders, affecting all employes, the names of all department heads to whom the order applies, should appear at the head of such notes. The manager may wish to call attention to some act, common to all department heads, without making it a personal matter with any one of them, so writes the same note to all. For example:

July 15, 1909.

Mr. Blake,
Mr. Watson,
Mr. Kimball,
Mr. Cobb,
Mr. Royce,

Gentlemen;

During the past few days some of you have been a little careless about getting to the office on time. If you arrive 5 or 10 minutes late, it will have a very unfortunate effect on the discipline of your department, and I trust that each of you will strive to overcome the habit of arriving late—a habit which, I am sure, is entirely due to carelessness on your part.

Yours truly,

General Manager.

[238]

In the above example, five copies of the note are required, and four of these can be carbon copies. When Mr. Blake or Mr. Watson receives the note, he knows that it is not addressed to him alone, but that each of the others has received a copy. Without detracting from, but rather adding to, its effectiveness, this note leaves a much more pleasant impression than a personal note to each man. No one man feels that he has been singled out for criticism.

CORRESPONDENCE SHORT CUTS

Dictating by Number. One of the greatest time savers in handling correspondence is dictation by numbers. The plan is to indicate each letter by a number, instead, of requiring the stenographer to take down the name and address.

Probably 90 per cent of the letters dictated are replies to other letters. When the correspondent has his mail ready for dictation, he should write, or stamp with a numbering stamp, No. 1 on the first letter answered. To the stenographer he will say "No. 1," and, instead of the name and address, this number is entered in the stenographer's notebook. The original letter, from which the address is obtained, is turned over to the stenographer. A new series of numbers, beginning with No. 1, should be used each day, to run consecutively during the day.

Careful tests, made in different offices, show that in taking ordinary business correspondence dictation, the stenographer wastes about 20 per cent of the time writing the name and address. By the use of the numbering plan, practically all of this time is saved.

Form Paragraphs. A large per cent of the correspondence of the average business is a repetition of the things that have been said before. Day after day the same questions are asked and answered, the same complaints are received, the same arguments, formal acknowledgments, and requests form a large part of the dictation. Over and over the same paragraphs are used to say the same things, a repetition and waste of time for both correspondent and stenographer, which can be done away with by the use of form paragraphs.

For illustration, the acknowledgment of remittances is entirely formal, rarely necessitating a special letter. Many times, however, the letter of remittance asks for special information, which can be given in the same letter with the acknowledgment. If one or more[239] form acknowledgment paragraphs are prepared to meet different conditions, one of these can be used, saving the time required for dictation.

Form paragraphs are especially applicable in answering complaints and in sales letters. Complaints can usually be divided into a few classes, and one paragraph will answer all complaints of the same kind. In sales letters, form paragraphs will answer all requests for certain information about the product, the terms of sale, the guaranty, etc.

Not only do form paragraphs save much time in dictation, but they result in stronger letters. It is the experience of every correspondent that he can write better letters one day than another. The best form paragraphs are found in the letters written on the correspondent's good days.

Form paragraphs should be arranged for ready reference. A very satisfactory method is to write them on sheets punched for filing in a binder. The paragraphs should be numbered consecutively, and indexed by subject. Copies should be supplied to all correspondents and stenographers who have occasion to use them.

Frequently a large part of the day's correspondence can be handled with form paragraphs, and through constant use the stenographer will become so familiar with them that he will be in a position to answer many letters without dictation. The really efficient stenographer—one of the kind who expects to advance to the position of private secretary—will make a careful study of form paragraphs, fitting himself to handle the minor correspondence, thereby saving the more valuable time of the correspondent.

Talking Machines for Dictation. Every year sees an increase in the use of the talking machine for dictation. These machines have now been brought to a state of perfection which makes their use feasible, and in many large offices they are used to the almost complete exclusion of shorthand writers.

An outfit for correspondence work consists, usually, of two machines—one for recording and one for reproducing dictation. The correspondent dictates his letters to the recording machine and passes the cylinders on which the record has been made to the stenographer, who transcribes on the typewriter direct from the reproducing machine. In small offices, one machine is made to[240] answer every purpose, as it can be changed instantly from a recorder to a producer.

After the dictation on a cylinder has been transcribed it is shaved, and is then ready for a new record. This permits of the use of the cylinders until they are worn thin, and reduces the expense to a minimum.

Fig. 2. The Dictaphone
Columbia Phonograph Co.

The principal advantages claimed for this machine are that it saves all of the time of the stenographer usually required for taking dictation; the correspondent can dictate at any time without waiting for a stenographer; the work is more evenly distributed, and consequently finished earlier in the day. In the opinion of the writer, the chief advantage lies in having the machine at hand ready for dictation day or night.

While in some offices the shorthand writer has been almost entirely supplanted, the machine is more likely to be used as an auxiliary. It can never supply the brains of the human machine, and is not likely to lessen the demand for competent stenographers. Fig. 2 is an illustration of one of the well-known makes of correspondence machines.

Correspondence Requisitions. A considerable per cent of the letters to be answered in a business office are of such a nature that former correspondence must be referred to before an intelligent reply can be given. The unsatisfactory character of the replies to many letters can be traced to the fact that the correspondent did not take the trouble to first find out what had been written before.

To insure against the loss of correspondence, it should be most carefully filed, and every letter should be accounted for. Also, if a correspondent wants certain correspondence from the files he should state explicitly what correspondence or information he desires. This not only insures his getting the information needed to formulate an intelligent reply, but protects the file clerk.

The systematic method is to have a correspondence requisition, similar to the one shown in Fig. 3. On this requisition is noted[241] just what is wanted—invoice, order, or letter—with room for special instructions. One of these requisitions should be sent to the files whenever any papers are wanted, and nothing should be delivered without such a requisition. By placing this requisition in the files, in place of the papers removed, the file clerk can always trace missing correspondence.

Fig. 3. Requisition for Correspondence

Complaints and Changes of Address. In some lines of business, complaints and notices of change of addresses are quite numerous. An example is the business of publishing a weekly or monthly periodical. Many complaints are received from subscribers who claim that they do not receive the publication regularly. The great majority of these complaints can be traced to carelessness on the part of the subscriber in failing to notify of change of address.

In some businesses, the handling of complaints requires the services of a correspondent, and a clerk to trace the complaint and gather the information necessary before an adjustment can be made. In a smaller business, the work of looking up the information usually falls on the stenographer. But no matter who gathers the information, the correspondent never should attempt to answer or adjust a complaint until he has made a thorough investigation. Not until he understands all of the causes leading up to the complaint, can he correctly judge of its merits.

[242]

The policy of having all complaints handled by one man is in keeping with approved business practice. A man who makes a study of the subject soon learns to handle complaints to the ultimate satisfaction of all concerned. Being independent of the selfish interests of a particular department, he is much more likely to serve the best interests of the house than any other man in the organization. The sales manager, for instance, is not the best man to adjust complaints of customers; he is likely to be more liberal than is warranted, because of his fear of losing trade.

When a complaint has been investigated, everything possible should be done to remove the cause, and to guard against a similar complaint in the future. The seemingly little precautions count for much. In the matter of changes of address, for instance, it is a small matter for the one who makes the change to see that it is made not only on the ledger but on the sales list, the collection card, and in every place where the address is permanently recorded. Failure to make the change in one place may lead to endless confusion.

Stenographer's Reference Index. Here is a suggestion for the special benefit of the stenographer. Keep in your desk a reference index of names, addresses, and telephone numbers. There are certain persons and firms to whom your employer frequently writes letters. These are not in reply to letters, but are written in the usual course of business. The names of these persons should be on your index so that when you are told to write to Mr. Hunter or Mr. Roberts you will not be obliged to ask the address.

Probably your employer will not ask you to keep such an index, but surely will appreciate your knowing the addresses. When he finds that you always know the telephone numbers of the printer, the bank, and other local houses with whom he does business regularly, as well as the addresses of prominent out-of-town correspondents, he will at least not place it to your discredit.

But do not keep the addresses on sheets of paper that surely will soon become confusing on account of changes and additions which make an alphabetical arrangement impossible. Ask for a small card tray, holding 3"×5" cards, that will go in the drawer of your desk, a set of alphabetical indexes, and a supply of blank cards. Such an outfit can be bought at any first-class stationer's for a dollar or two. When you want to preserve an address, write it on a card,[243] and file it alphabetically. If your employer will not supply the outfit, cut slips of paper and indexes to fit one of the small compartments in the desk drawer. Have the index, even if you must devise your own method of keeping it; you will at least have the satisfaction of saving many minutes of your time. And in the formation of a systematic habit you will be adding to your equipment.

Making Corrections. All stenographers make mistakes, and no correspondent is entirely free from faulty dictation, which necessitates corrections in letters after they are written. But the time of the stenographer and, incidentally, expense to the house, can be saved if the correspondent will exercise reasonable care in indicating the corrections to be made.

Do not deface the letter so that neat corrections will be impossible, unless the mistake is so serious as to necessitate rewriting the entire letter. When the wrong word has been used, draw a light pencil line under it and write the correct word on the margin or the end of the letter; if the word is misspelled, underline it and write the correct spelling at the end of the line. This takes even less time than to deface the letter, and leaves it in such shape that corrections can be made quickly and neatly.

To the stenographer it is well to say, "If you find it impossible to make a neat correction, rewrite the letter." Nothing gives a more unfavorable impression of a house than an untidy letter, and your employer is more willing to overlook an occasional mistake than a letter filled with visible erasures.

COPYING CORRESPONDENCE

Copies of outgoing correspondence are a part of the system of every business office. There was a time when copies of important letters were made by hand, and then came the copying press and tissue impression book with many cloths, wringers, pans of water, and other paraphernalia for moistening the sheets of the book. The copying press is an awkward machine, difficult to operate, and altogether unsatisfactory, but, until a better method was offered, it answered the purpose.

One of the greatest defects in the copying-book method is the impossibility of making uniformly clear copies; some will be clear while others are blurred, and the important letter is usually the one[244] that is illegible. The difficulty in securing clear copies is due to the impossibility of securing uniform pressure. While the copying press is still found in a few small offices, it is practically obsolete, and not used in offices where modern efficient methods receive consideration.

Carbon Copies. A simple method of obtaining copies of outgoing letters, invoices, orders, etc., is to make duplicates by means of carbon paper. In its adaptability and far-reaching effect, the sheet of carbon paper has proved to be one of the greatest of all aids to modern business methods. Used in connection with a typewriter of modern construction, the carbon sheet has revolutionized manifolding processes, making possible as many duplicate copies of any paper as are required in ordinary business.

The carbon method of obtaining copies of letters has the merit of economy in time. When the letter is written, the copy is made; if extra copies, up to a half-dozen, are wanted, all are made at one writing. If the last letter is being written when it is time for the mail to leave the office, it need not be held to make a copy.

The carbon method is not expensive. Good carbon paper costs 2 cents or less a sheet, and for 1,000 copies only about 30 sheets are required. A satisfactory quality of plain paper for copies can be bought for $1.00 or less a thousand. These prices are naturally subject to slight fluctuations, depending on the quantities purchased and the locality.

A defect in the carbon method is found in the manner of making corrections. It is not uncommon for a man to make a slight correction, or add a note, in his own handwriting; such corrections and additions cannot appear on the carbon copy. When corrections are made on the typewriter, it is very difficult to obtain a clear copy of the correction on the second, or carbon, sheet—the correction on the copy is very likely to be blurred. If the correction is written directly on the copy, without using carbon paper, the essential feature of the copy is destroyed; it is no longer a facsimile, and its value as evidence is very materially lessened.

Mechanical Copiers. There are now on the market several mechanical copiers, without the many disadvantages of the copying press, or the defects of the carbon method. One of the most satisfactory and best known is the roller copier. The fundamental principle of the roller copier is that of the clothes wringer; the original[245] letter, with a wet tissue sheet placed against the written side, is passed between rubber rollers, to which just the right amount of pressure is applied.

Working from the clothes-wringer idea as a basis, the inventor of the roller copier set about to remedy the defects of the copying press. It was found that clear copies could be obtained only under certain conditions; the pressure must be absolutely uniform, and the tissue sheet must be moistened evenly.

Fig. 4. Mechanism of the Yawman & Erbe Roller Copier

As to the pressure, it was found that too much or too little resulted in unsatisfactory copies—some faint, others blurred—the very defect that had made the use of the copying press objectionable. This was overcome by using an adjusting screw by which the exact pressure required could be obtained. But, if the pressure were left on all of the time, the rubber rollers would soon be flat. So, an adjustment lever was added, by which the pressure could be thrown on before copying, and thrown off when the machine is not in use.

To adjust a single sheet of tissue paper so that it would lie smooth on the letter, was out of the question. This difficulty was overcome by copying on a continuous roll, and the problem of moistening was solved by passing the paper through water, insuring equal moisture over the entire surface.

[246]

The mechanism of the roller copier is shown in Fig. 4. The paper from the roll is passed under the dampening roll in the water tank, then between the large roller and the wringing roller, over the same large roller and between it and the copying roller, thence out over the flanged roller and down to the winding reel. The pressure on the wringing and copying roller is adjusted by the adjusting screws A and B, and the adjustment lever throws the pressure on or off. The letter to be copied is laid face down on the feeding shelf, the edge is placed under the copying roller, pressure thrown on, and a turn of the crank carries the letter through into a receiving basket, leaving a perfect copy. If additional copies are wanted—any number up to a half-dozen—the operation is repeated for each copy.

Fig. 5. General View
of the Yawman & Erbe
Roller Copier

The paper on which the copies have been made passes to a winding reel under the copier, as shown in Fig. 5. This is a large rectangular reel on which the paper is stretched tightly, so that it will be smooth when dry. The open construction of the reel affords free circulation of air, drying the copies very quickly. After the day's copying is done, the action of the machine is reversed by the turn of a thumbscrew, the paper is broken above the last copy, that on the reel is brought back over the copier, and the letters cut apart with the cutting knife at the end of the feeding shelf. The separate copies are then ready for filing with the original letters, keeping letters and replies together.

Among the advantages claimed for the machine are certainty of legible copies, copies of all corrections, and economy of operation. The copies are made after the letter has been written and corrected; consequently it must be a facsimile. If a note is written at the bottom or on the margin, it is shown in the copy.

Copying is the last operation before mailing. Frequently a[247] man finds, after the letter is written, that he needs additional copies. With the carbon system it is necessary to rewrite the letter; with the copier, the copies can be obtained any time before the letter is mailed.

The copier is economical in operation. The best quality of paper costs 50 cents a roll, and a little more than one roll, or about 60 cents' worth of paper is required for 1,000 copies; and there is no carbon paper to buy. The office boy can operate the copier, and it takes but a few minutes to copy the day's mail of the average concern. If desired, the machine can be obtained with an electric motor attached, but this power is really unnecessary unless the correspondence averages 300 or more letters a day.

STENOGRAPHIC DIVISION

As has been stated elsewhere in this series of books, the modern plan for a large organization is to have an independent stenographic division or department. Instead of each department head and correspondent having one or more stenographers in his office, to handle his work only, this plan contemplates placing all stenographers and typists in one room, in charge of a chief stenographer. Except where an executive officer has a stenographer who acts as his private secretary, this plan is now carried out in the most highly organized of our larger enterprises.

The stenographers are subject to the call of any correspondent, the chief stenographer supplying the one who is first available. The plan is sometimes modified to the extent of holding a stenographer for the work of a certain correspondent during stated hours; the stenographer being, at other times, available for any other correspondent.

The plan has proved to be economical and beneficial in many other ways. It is economical, as it reduces the number of stenographers actually needed to handle the work. Under the old plan, some of the stenographers are idle a part of the time, or obliged to do copy work to keep busy. For example, in a certain house, two departments were located in adjoining rooms. The department heads each had more work than one stenographer could do, but not sufficient to keep two busy all the time; it was necessary for each to employ two stenographers—four in all—and let them fill in a part of their time addressing envelopes, and similar work. The plan of having a common stenographic force was tried, and three[248] stenographers handled the work of both departments, with some time to spare for the work of other departments—a clear saving of 25%.

The stenographer is benefited by becoming familiar with the correspondence of all departments. While not learning all of the secrets of one department, the stenographer obtains a much better insight into the business as a whole—far more valuable as a business training than a more intimate knowledge of a single department.

Every correspondent is benefited by having several stenographers who are familiar with his work. If a certain stenographer leaves, is ill, or takes a vacation, he is not placed under the handicap of having his work stand still until he can break in a substitute. The new stenographer can be given some dictation in each department while becoming familiar with the work.

The work is more evenly distributed, with the result that the mail is out on time and no stenographer is obliged to work after hours. When all work together under one chief, the efficiency of the stenographic force, individually and collectively, is materially increased.

Not the least of the many advantages of this plan is the one of having all typewriters in one place, confining the noise. Employes in other departments of the office are greatly benefited by working in comparative quiet. Especially advantageous is the absence of the noise of the typewriter in private offices.

When the stenographic division is installed, it is necessary to provide a system of call bells, with a push button at the desk of each correspondent. Each correspondent is assigned a signal by which he may summon a stenographer. The chief assigns a stenographer to answer each call, or in the absence of the chief, the one whose turn it is answers the call.

Records of Work. An independent stenographic division necessitates a careful record of work performed. These records are required in order that the expense may be distributed and the wages of the stenographers charged to the proper departments. A distribution of office expense is just as necessary as a distribution of factory charges. The records should show exactly what it costs to conduct the purchasing, sales, or credit departments. If a man divides his time between two or more departments, his salary should be charged accordingly. In like manner, the wages of a stenographer should be distributed.

[249]

Fig. 6. Stenographer's Weekly Record of Work, Distributed by Departments

[250]

Elaborate or complicated records are not required; a record of the time worked for each department is sufficient, though usually the number of letters written is included. First, is the record of work done by each individual. This should be a record covering a week's work, and may be kept on a card. Fig. 6 shows a form designed for such a record. This is on a 5"×8" card, one of which is given to each stenographer, who keeps the record from day to day.

This form provides for a record of the work of the stenographer each day in the week. The columns from left to right are headed with the names of the departments, but instead of having these printed in, it is best to leave the spaces blank and write the names. The daily record shows the hours worked and number of letters written, both morning and afternoon, for each department. Space is also provided for a record of miscellaneous or special work, which should be explained briefly. The total number of hours shown by this record should, of course, agree with the time for which the stenographer is paid.

These cards should be turned in to the chief stenographer, who will file them under the name or the number of the stenographer, keeping all records of each employe together. If preferred, daily reports can be used, though the weekly report will prove satisfactory in almost every case.

On receipt of the individual reports, the chief stenographer should make up a weekly report of the work of the entire division. The object of the report is primarily to show the amount to be charged to each department for stenographic work, but may also show the cost of each stenographer.

The form shown in Fig. 7 provides for a complete report. The work of each stenographer for each day of the week is distributed among the several departments, showing the number of hours worked, the number of letters written, and the cost. A record for five departments with six stenographers is provided for in the form shown. The footings of the columns show the total cost to the departments and the total column at the right, which is an extension of daily costs, shows the total cost for each stenographer. The footing of the total column, and the cross-footing of the departmental columns, must agree and exactly equal the amount of the pay-roll of the stenographic division.

THE "IN-MAIL" DEPARTMENT WHERE 10,000 LETTERS ARE RECEIVED DAILY AND SORTED FOR DISTRIBUTION AND ATTENTION
The Larkin Co., Buffalo, N. Y.

[251]

Fig. 7. Departmental Distribution of Work of Stenographic Division

[252]

One valuable comparison shown by this report is the cost to handle the work of one department or correspondent, when different stenographers are used. The comparison must be based on the letters of one correspondent, because, while they are not likely to vary materially, there is a marked difference in the length of the letters written by different correspondents; also, the dictation of some correspondents is much more easy to take than others.

The form shown should be loose-leaf, and made in duplicate. One copy goes to the comptroller and one is kept by the chief stenographer. The size can be increased to accommodate a large number of departments or stenographers, but rather than use a sheet that is bulky, it is better to use more than one sheet. To provide for a monthly distribution of costs, these reports should be closed on the last day of the month, regardless of the day of the week.

Hints for Stenographers. Telegrams. When a telegram is sent, it is safe to assume that its object is to secure quick action; otherwise a letter would serve the purpose. Telegrams should, therefore, be transcribed and dispatched immediately, regardless of any other work that may be on the machine.

It has become the usual custom of business to confirm telegrams by mail. The more usual custom is to write a letter, in which the telegram is quoted, but the matter can be handled with less labor by the use of triplicate telegraph blanks. The original is the regulation blank supplied by the telegraph companies; the duplicate is on a sheet of the same size as the telegraph blank, but printed as shown in Fig. 8; the triplicate is a blank sheet of paper. The duplicate is mailed to the correspondent, while the triplicate is filed with his correspondence. Unless some special explanation is demanded, it is unnecessary to write a letter.

Don'ts. Don't keep your employer waiting while you hunt for, or sharpen, a pencil. Always keep a supply of at least a half-dozen well-sharpened pencils on hand. Keep them in a handy place and take them with you when your employer calls you to his desk to take dictation. Remember that his time is more valuable than your own.

Don't be afraid of working a few minutes overtime, when requested to do so. Only an unreasonable employer will ask you to work after[253] hours, excepting when it is really necessary. But occasionally something will come up at the last moment, making it necessary to write and mail a letter that night. Remember that what seems to you a trivial matter, may be of the utmost importance to your employer.

Don't overlook the important letters. If you handle a heavy correspondence there will be many days when you will find it impossible to transcribe all of the dictation you have taken, but some of the letters will be important while others can be held over without loss. Write the important letters first; if you are not sure which they are, ask your employer. He will appreciate your interest.

Fig. 8. Confirmation of Telegram

Don't overlook the necessity of learning something about the business in which you are employed. Every business has its own nomenclature—technical terms peculiar to the business, with which you may be unfamiliar. When you accept a new position, read the catalogs, circulars, and other literature of the house; this is the easiest way to familiarize yourself with the technical terms. You will find your position improved if you can correctly transcribe the terms peculiar to the business.

Don't waste envelopes and postage. Your employer may write a half-dozen letters to one firm the same day. This frequently happens in writing to branch offices and agencies. See to it that all letters to the same address are enclosed in one envelope. The saving in postage will be very considerable.

Don't underestimate the opportunities afforded by your position. There really is no position offering better chances for advancement[254] than that of the willing and competent stenographer. There are many incompetents, and for such salaries are small; but there are plenty of positions at good salaries open to the really competent. A stenographer handles many confidential matters, learns the business secrets of his employer, and has every opportunity to learn the business. The stenographer who takes advantage of the opportunities to learn becomes a private secretary, and rapidly advances to even more important positions.

Don't betray secrets. This is the most important don't of all. Remember that your employer dictates many confidential letters, imparting business and private secrets. Do not, under any circumstances, impart these confidential matters to others, and never talk about the business to those outside the office.

FILING DIVISION

Only a small per cent of the records of a business are found in the books of account; the larger part are in the form of business papers of various kinds. And, since the records in the books are, in the main, based on the records found in these papers, the papers themselves are not less valuable than the books. Letters, orders, invoices, receipts, vouchers, contracts, specifications, and estimates form the basis of the larger part of the business transactions of all houses, giving authority for transactions and offering proof that the transactions have been completed. The proper preservation of these papers is, therefore, a necessity, and, since they form so important a part of the records, they must be accessible.

The filing division is, therefore, one of the most necessary in the office of any enterprise, and should receive the careful attention that its importance deserves. Whether the equipment of the filing division consists of a single file or many large cabinets, it should be located where it will be accessible to all departments. It should be given as nearly a central location as the general plan of the office will permit. In a very large enterprise a separate room may be required, while in a small business the files may be arranged along the wall or around a corner. But whatever its location, aisles leading to the filing division should be left open, that it may be reached conveniently from any part of the office. Since good light is not so essential as for some other divisions, it is sometimes advisable to[255] locate the filing division where the light is not sufficient for another division—as the bookkeeping division. At the same time, there must be sufficient light to enable the file clerk to do the work properly.

As a general rule, all filing should be in one place, although under certain conditions, which are referred to later, special departmental filing is justified. It should be possible to obtain from the general files all papers that have a bearing on a particular transaction, or all of the correspondence of a given concern. More or less confusion results when certain of the papers are missing. For example, if a part of the correspondence about an order is filed in the sales department, the papers in the general file may not give a complete history of the case, and the order may be accepted or rejected under a wrong impression because the most important letter is missing.

When independent filing systems are maintained by the different departments, it is sometimes difficult to determine just where certain papers will be found. To say the least, it is quite difficult to collect all of the papers referring to one subject, when the filing is handled in this manner.

Experience has demonstrated that a central filing division is really more convenient for the department manager, than to maintain his own filing system. If the system has been properly installed, he can obtain correspondence or other papers from the general files about as quickly as from his own files, with the added advantage of obtaining all of the correspondence with a particular person. If another department has been in correspondence with the same person, he has their letters as well as his own. When the credit man, for example, reviews the correspondence of a customer from whom he is trying to collect an account, he will not be ignorant of the existence of a letter from the sales manager in which special terms were offered to secure the order.

The File Clerk. The filing division should be in charge of a file clerk and the clerk should have full control of the work of the division. In a large business, a chief file clerk and several assistants will be required, while in a small business it is customary for the stenographer to do the filing. No matter what the extent of the filing, the principle is the same; if but two persons are employed and one is expected to do the filing, the other should neither file nor remove papers from the file. When a letter is wanted, the file clerk should be asked for it.

[256]

The essential qualifications of a file clerk may be summed up as follows:

A good memory;
The habit of accuracy;
The ability to read confusing chirography;
The ability to spell correctly;
Speed.

To these might be added the possession of a liberal amount of common sense, the faculty of absorbing information, and ability to correlate facts according to their importance.

A good memory is very necessary, for the papers that have been filed must be found when wanted. Letters signed by an individual may be filed with the correspondence of his firm. When the manager calls for "that letter from Whitcomb," it is embarrassing to ask him with what firm Mr. Whitcomb is connected; still more so to keep the manager waiting while an index is consulted.

A comprehensive index is necessary, of course, and the efficient file clerk will be fortified against all possible contingencies with proper indexes, but a memory which will permit of ignoring indexes, except in special cases, is a valuable asset. It may be stated as a rule that it should not be necessary to refer to special indexes to locate the letters of a regular correspondent.

Accuracy is another very necessary qualification. Accuracy is a habit—the habit of first finding the right way to do a thing, and then doing it that way every time. The habit of doing a thing the same way every time is very important in filing. If the rule is to file all correspondence in the name of the firm from whom it is received, no matter by whom signed, it is very essential that all letters from the firm be filed in exactly the same way—not a part of them in the name of the individual.

Accuracy is necessary also in placing letters in the files. Letters that belong in the Be division of the index must be filed there—not in the Ba division; letters intended for folder No. 19 are to all intents lost, if placed in No. 91.

To be able to read confusing chirography is a talent that is much appreciated in more than one line of endeavor; it is especially valuable to the file clerk. The signatures of many men are notoriously difficult[257] to read, and large numbers of such signatures come to the filing division of every concern having an extensive correspondence.

Spelling might seem to be an accomplishment not absolutely essential to the equipment of a file clerk, but the ability to spell correctly is very helpful. It is a great help in indexing. Especially when a finely subdivided index is used, correct spelling is necessary to determine the division under which a paper should be filed.

Speed is an absolute requirement. When the manager wants a letter, he wants it at once. When the day's mail reaches the filing division, it must be filed as quickly as possible. Some one may call for a letter within an hour after it reaches the files, and to find it in the unfiled correspondence means inevitable delay. Nowhere is prompt service more thoroughly appreciated than in the filing division.

The importance of securing a file clerk with proper qualifications is apparently overlooked in many offices. A girl is placed in charge because she will work for a small salary, resulting—unless she is qualified—in very poor service. An incompetent file clerk can, in a short time, get the files in a demoralized condition almost impossible to straighten out. The necessity of proper filing makes the position one of real importance. On the other hand, the possibilities of the position are seldom appreciated by the clerk. This is due, perhaps, to the policy of making the position one of the lowest in the office from the salary standpoint; but the greatest possibilities of the position lie outside of the salary question.

The position of file clerk is a sure stepping stone to something better—a more responsible and better paid position. No clerk in the office has a better opportunity to obtain a general knowledge of the business. From the stenographer who files the manager's personal correspondence, to the clerk in charge of an extensive filing division, each is intrusted with important papers revealing the very secrets of the business. The position is a confidential one, and the clerk who can absorb the information that must inevitably come to his notice, and keep the information to himself, is surely preparing to fill a higher position; he has a golden opportunity to demonstrate his absolute trustworthiness.

FILING SYSTEMS

Fig. 9. Flat Letter File.
Browne-Morse Co.

The evolution of methods of filing is itself an interesting study. From the days when the merchant preserved his bills and important[258] letters by hanging them on a sharp-pointed hook, to the present with filing cabinets of pleasing design and careful construction, in sizes to hold papers of all shapes and kinds, there has been constant progress. The advance of business methods, bringing with it an ever-increasing volume of papers to be preserved, has resulted in a demand for more simple methods—more scientific systems of filing. Those confronted with a practical solution of the problem, and those attempting to supply the demand, have devoted much time to a study of the subject. This has brought into being the filing expert who makes a study of the filing problems of concerns in all lines of business. The manufacturer has kept pace with the development, and now is prepared to furnish the right device for filing any document from a small card to the largest drawing or map.

In this discussion of filing systems, it is not necessary to consider the obsolete methods, even though they have at some time been considered standard. The purpose of this discussion will be better served by a study of the more modern systems.

Flat Files. One of the filing systems still found in some offices is the flat, or box file. This file is made in the form of a box, with a hinged cover, as shown in Fig. 9. This box is of the right size to hold letters without folding, and is equipped with an A to Z index. Letters and other papers are filed between the index sheets in the order of their receipt. Sometimes an attempt is made to keep all of the correspondence of one person together but, since the letters are simply laid in the file, with no means of separating those of the several correspondents filed in one subdivision, it is very difficult to maintain this arrangement.

Cabinets are also made with box drawers of wood, the number[259] of drawers in a cabinet ranging from two to sixty. This permits of the use of a more finely subdivided index, and better classification of the contents. Each box in the cabinet is equipped with a spring compressor which holds the contents in place. To file or remove papers it is necessary to release this compressor. The index is removable, and when the drawer is full, the index and contents are placed in one of the box files referred to, which then becomes a transfer case. A new index is placed in the file, which is then ready for current correspondence.

This style of cabinet was for long the best to be had, but when used for filing an extensive correspondence, its defects became apparent. Among the disadvantages of its use, one of the chief is the uneven filling up of the separate divisions. Where the alphabet is divided among several drawers, one may fill up in two months, while another is but half full at the end of a year. This means that the transferring must be done whenever a single drawer is filled, instead of transferring the contents of the entire file at one time, adding to the difficulty of locating correspondence at a given date.

Other disadvantages are that correspondence is mixed together, making it difficult to locate all of the correspondence of one person; to remove a letter, the drawer must be taken from the file, and a search made through all of the letters in a given subdivision of the alphabet. Frequent transfers are necessary, resulting in an accumulation of transfer files which occupy valuable space in the office.

Vertical Filing. The vertical system of filing takes its name from the fact that papers are filed vertically, on edge, instead of being laid flat in a drawer. Vertical filing is the result of a gradual evolution of filing methods.

Those who recognized the defects of the old systems, set about to correct them. In the search for a remedy, all systems in use—for whatever purpose—were carefully investigated, among others the so-called railroad system. For years, railroads had been keeping all correspondence relating to one subject together, attaching the letters to a strong backing sheet. The sheet, with the letters attached, was folded twice, making a package about 3½"×9" in size, which package was known as a file. These files were numbered, and kept in numerical sequence in pigeon holes, or in boxes similar to the present-day document files. When the document boxes were used,[260] which was the case in the larger offices, the packages or files were placed on end—filed vertically. This undoubtedly was the forerunner of the present-day vertical file.

The plan of keeping together all correspondence about a given subject naturally appealed to the investigator as being practicable for use in a commercial house. Not a few houses adopted the system in its entirety, which included an alphabetically indexed book in which a brief synopsis of the correspondence was written. The book was also used for a cross-index to the names of individual correspondents. It was really a system of recording the principal contents of letters, with references to the files where all of the correspondence could be found.

Fig. 10. The Principle of Vertical Filing.
Browne-Morse Co.

While the idea of keeping all of the correspondence on one subject, or with one individual, together, was excellent, this system was not well adapted to commercial use. Writing the contents of letters in a book was entirely impractical, and too much time was required to open the files and refer to the contents. But, said someone, why not adopt the numerical idea, and substitute a numerical for the alphabetical index in the box file; instead of index sheets printed with the letters, why not have them numbered from 1 up? Then a number could be assigned to each correspondent and all of his letters could be filed under the index sheet bearing the corresponding number. An index book could be used for the names and references to the numbers.

Next came the card-index man with a proposition to use his cards for an index to the files. Not long ago the writer inspected a filing system consisting of a number of box files indexed numerically, arranged on a shelf. A card index supplied the cross-references.[261] In this particular case the system was designed by a card-index manufacturer to create a market for card files.

But the use of card indexes furnished the final solution of the filing problem. If small cards could be filed on edge, why not letters? With a larger drawer, with index guides to fit, the card index idea could be adapted to the filing of correspondence. Indeed, a flat file drawer, standing on edge, as shown in Fig. 10, illustrates the principle of vertical filing.

Fig. 11. Folder for Vertical Filing
Browne-Morse Co.

To preserve the idea of keeping all correspondence of one individual or firm together, folders are used. A folder, as shown in Fig. 11, consists of a piece of heavy manila paper folded, with one edge higher than the other, forming a pocket 9¾"×11⅞" in size. The higher or projecting edge of the folder is used for writing the name of the correspondent or other reference; or the folder may be made with a projecting tab for the purpose.

One of these folders is used for each correspondent. Suppose, for example, that correspondence develops with Scott & Blake. The name of the concern is written on the projection of a folder, and all letters from, with copies of all letters written to, Scott & Blake are placed in this folder in the order of their date—the last letter in front. The folder provides a complete history of the correspondence with the concern.

Fig. 12. Guides for Vertical Filing.
Browne-Morse Co.

The folders are filed on edge between guides or index cards having projections on which the indexes are written or printed. The indexes are fastened in a vertical file drawer, yet are removable. On the bottom of the guide, Fig. 12, is a square-cut projection, punched with a round hole. This projection drops into an opening in the bottom of the drawer, and engages a countersunk rod which[262] is passed through the hole. The rod holds the guide firmly in place, but since the rod is removable, the guide can be taken out when it is desired to do so. The folders are not fastened in any way, and any folder can be removed without disturbing the others, as shown in Fig. 13.

Fig. 13. Vertical File Drawer
Showing Folders and Guides
Browne-Morse Co.

Methods of Indexing. There are four principal methods of indexing the vertical file; namely, the numerical, alphabetical, geographical, and subject. These four methods, with their resulting combinations, provide for the proper indexing of any class of papers.

Numerical Indexing. Numerical indexing was the method first used with the vertical file, and still is extensively used. With the numerical system of indexing, the folders are numbered consecutively in the upper right-hand corner. The folders are filed in numerical sequence between guides, numbered usually by 10's, as shown in Fig. 14.

[263]

Each correspondent is known by a number, and all of his correspondence—both original letters and copies of replies—is filed in a folder bearing his number. To locate his folder, a cross-index is necessary, as it is not possible to remember the numbers of all correspondents. The index is provided by a card on which is written the name, the folder number or file number, and any other memoranda that may be desired. The card is filed in a card drawer behind the proper alphabetical index guide, where it can be found very quickly.

Fig. 14. Numerical Indexing
Browne-Morse Co.

Suppose, for example, that correspondence develops with B. J. Anderson. We will file his letter or a copy of our reply in the next unused numbered folder—which happens to be No. 545—and this will be Mr. Anderson's number as long as we have any dealings with him. Before placing the folder in the proper place in the file—following folder No. 544, back of guide 540—we will write Mr. Anderson's name near the upper edge, and at the same time we will fill out an index card as shown in Fig. 15. This card will be filed in its proper place in the card index drawer, and whenever we wish to refer to this correspondence we will turn to the card, which shows that it will be found in folder No. 545.

When a letter refers to more than one person or subject, it is filed under the most important. For example, when correspondence develops with a firm, it should always be filed under the firm name, even though the letters are signed by individuals. We will suppose that one of our correspondents is the Norton Machine Co., and that folder No. 610 is assigned. Later, a letter signed by T. J. Watson, Secretary, is received. Since the letter refers to the business of the Norton Machine Co., it will be filed in their folder, and we will fill out a cross-index card for T. J. Watson, Secretary, referring to the[264] company's folder, as shown in Fig. 16. This will be filed with the other cards in the alphabetical card index, and will enable us to locate the correspondence of T. J. Watson, even if we do not remember the name of the company.

Fig. 15. Index Card for Numerical Filing

Alphabetical Indexing. The alphabetical is the simplest method of indexing. The guide or index cards are printed with the letters of the alphabet, providing an alphabetical index between which the folders are filed. Sets of alphabetical guides with any number of subdivisions up to 4000 are to be had.

Fig. 16. Indexing Firm Correspondence for Numerical Filing

[265]

With the alphabetical system a folder is assigned to each regular correspondent, as with the numerical system, but instead of a number, only the name is written on the folder, or on the tab projection. The folder is filed back of the proper alphabetical guide, as in Fig. 17, and is used exclusively for that one correspondent.

Fig. 17. File with 50
Alphabetical Subdivisions
Browne-Morse Co.

It is the experience of every business house that a small correspondence is received from a large number of persons. Perhaps but one or two letters will be received, the person never developing into a regular correspondent. This correspondence is treated as miscellaneous. For miscellaneous correspondence a separate folder, on which the index letters are written or printed, is used for each alphabetical subdivision. This may be placed either behind or in front of the name folders, as in Fig. 18.

The miscellaneous folder should not be allowed to become too full. When a sufficient number of letters are accumulated with a firm or individual, or whenever the nature of the correspondence indicates that it is likely to become permanent, it should be transferred to a separate folder.

Geographical Indexing. When for any reason it is desirable to have correspondence arranged according to territory, the geographical system of indexing is used to excellent advantage. The plan is exactly like alphabetical indexing, with the exception that the files are divided according to territory. First, the files are divided by states by means of state guides—indexes printed with the names of the states. A very large concern may require guides for all states, while a smaller business will use only three or four such divisions.[266] Or a concern doing business in a half-dozen states may find it advisable to arrange the correspondence from but two of them territorially, indexing the balance alphabetically. The correspondence from a single state may require two or more drawers; or one drawer may accommodate that from several states.

Fig. 18. Tab Folders.
Miscellaneous Folders in front.
Library Bureau

To subdivide the states, guide cards printed with the names of the towns are used. These are arranged alphabetically between the state guides. Correspondence folders are filed back of the town guides in alphabetical sequence. If there is a large number of correspondents in one town, the folders are subdivided with a set of alphabetical guides. The geographical method of indexing is shown in Fig. 19.

Fig. 19. Geographical-Alphabetical
Filing with Guides for
States and Towns.
Library Bureau

When the correspondence in a state is scattered, with but few correspondents in each town, a set of alphabetical guides can be substituted for the town guides. In New York state, for instance, the letter A would represent Albion, Attica, and other towns the names of which begin with that letter. If there is a large town—as Albany—in which there are a number of correspondents, a town guide should be inserted in its proper place in the alphabetical index. Then, if the correspondence from Albany is sufficient, it can be subdivided with alphabetical guides, but these should be of a different color than those representing the towns. The geographical index can be expanded to any limit by inserting additional town and alphabetical guides, wherever and whenever needed.

[267]

ONE OF THE STENOGRAPHERS' ROOMS AT THE PLANT OF THE POSTUM CEREAL COMPANY, LTD., BATTLE CREEK, MICH.

Fig. 20. Subject Indexing
and Cross-Reference Notice
Memoranda on Index Cards
Library Bureau

Subject Index. The subject index is used whenever the subject of the correspondence is more important than the name of the writer. Subject indexing may be used in connection with the regular correspondence.

When it is desired to file by subjects indexed numerically, a numbered folder is headed with the name of the subject, and all correspondence pertaining to the subject is filed in that folder. An index card is then filled in with the name of the subject and the number of the folder, and filed alphabetically. Additional cross-index cards are headed with the names of correspondents, and refer to the subject and folder number. Several subject index cards are shown in Fig. 20.

Subject filing can be adapted to the alphabetical index by inserting folders or guides headed with the names of subjects, as shown[268] in Fig. 21. These folders are used for correspondence pertaining to a given subject, and cross-index cards are made for the names of individuals.

Selecting the Index. The selection of the index for correspondence files is important, and must be governed by the nature of the business, and the correspondence to be filed. Subject indexing is the least used of any of the methods described. Railroads, and a few large corporations determine as far as possible a number of subject headings under which all correspondence shall be filed, individuals being known only in the miscellaneous correspondence; but these are exceptions, and this method of filing is not adapted to the needs of the average business concern.

Fig. 21. Subject and
Alphabetical Folder Browne-Morse Co.

Geographical indexing is quite largely used by jobbers, and is a very practicable method for a concern whose correspondence is confined within a definite territory. It is also used to advantage in connection with other methods of indexing. For example, a concern in Chicago, with a large number of customers in Illinois, Iowa, and Wisconsin, might use a geographical index for those states, while filing all other correspondence alphabetically.

This leaves alphabetical and numerical indexing from which to make a selection. A thorough investigation, which has included consultations with many leading filing experts, and examinations of the systems used by more than a hundred representative houses, from the small retail store to the largest corporations, leads to the conclusion that, except in special cases, the alphabetical index is best. It is best because simplest; and to do a thing in the most simple way is one of the cardinal principles of business system.

[269]

Alphabetical indexing adapts itself to every possible requirement. Suppose, for example, that the correspondence of the Norton Machine Company is filed alphabetically, and that you want to refer to the correspondence of T. J. Watson, who is secretary of the company. A cross-index card is headed with the name of the company. This would be exactly like the cross-index shown in Fig. 16, except that the number would be omitted.

There may be times when you will wish to keep together all correspondence pertaining to a given subject—as a contract in which you are interested. A folder can be made for this contract, headed with the subject name, and filed in its proper place in the alphabetical index. Cross-reference cards can be made, headed with the names of individuals, and referring to the subject. Perhaps, when the contract is completed, there will be no further reason for keeping the correspondence together, and it can then be distributed according to the regular alphabetical arrangement.

Should you wish to adapt the geographical idea to any part of the correspondence, the alphabetical index lends itself to the change without disturbing the general arrangement of the files. It can be expanded to any size; any class of correspondence can be segregated; and with properly subdivided indexes, papers can be quickly located.

Probably the two most important advantages of the alphabetical over the numerical system of indexing are its economy of operation and safety. As to the first named advantage, there is a saving at the start in the outfit required. Only the letter file and alphabetical index are needed—there is no investment in a card-index outfit, unless it be a very small one for cross-references. But the greatest saving is in the time required for its operation.

Without considering the operations involved in filing letters, compare the two methods when a letter is wanted from the files. Suppose that the file clerk has received a requisition for the correspondence of the Norton Machine Company. With the numerical index, the following steps are taken:

(1) Open card index drawer;
(2) Refer to cards filed back of the N guide, and find index card showing that folder No. 610 holds the correspondence;
(3) Close card index drawer;[270]
(4) Open vertical file drawer;
(5) Refer to folders back of the 600 index, find No. 610,remove folder;
(6) Close vertical file drawer.

When the alphabetical index is used, only the following steps are necessary:

(1) Open vertical file drawer;
(2) Refer direct to folder of Norton Machine Company, back of the N guide, and remove correspondence;
(3) Close file drawer.

Fig. 22. Alphabetical vs. Numerical Filing

This is merely an application of the principle that a straight line is the shortest distance between two points, as illustrated in Fig. 22.

Alphabetical indexing is the safer for the reason that there is less liability of filing a letter in the wrong place. With the numerical system, the filing of letters in the wrong folder is not uncommon, and when this is done the letters are practically lost.

The usual routine in numerical filing is first to place the folder numbers on the letters, and then file according to these numbers[271] without reference to the name. Naturally, the file clerk commits to memory the numbers of a large part of the active correspondents, and places them on the letters without referring to the card index. Memory is ever fickle, and if the wrong number is placed on the letter, it is probable that it will be filed accordingly.

In the use of figures, the most common of all errors is transposition, and this is a constant source of danger in filing. Suppose, for example, that in placing the number on a letter from the Norton Machine Company, a transposition is made and the number reads 160 instead of 610. The letter is filed in folder No. 160, just four hundred and fifty folders out of the way. The letter is practically lost, for there is no way to locate it except to look through all of the folders until it is found.

With the alphabetical index there is some danger of filing a letter in the wrong place, but it is materially lessened by the fact that the name must be kept in mind. If the letter is incorrectly filed, it probably will be placed in a folder close to the right one. Almost without exception, it will be found within two or three folders of its proper place; there is scarcely a possibility that a letter from Norton will be filed in White's folder.

MISCELLANEOUS FILING

Salesmen's Correspondence. The correspondence from salesmen and branch houses is, as a rule, more bulky than that from even the largest customers. A sub-divison should be provided that will make it possible to locate quickly a letter of any date, without looking through a great mass of correspondence. The most simple way to accomplish this is to divide the correspondence of each salesman or branch by months. A folder should be used each month.

Sufficient space should be provided in the general files to hold salesmen's correspondence for an entire year. If subdivided by months, old correspondence can be located much more quickly than if scattered through several transfer files.

One way to reduce the bulk of this correspondence in the salesmen's folders is to require each salesman to use a separate sheet for each subject about which he writes. Nine out of every ten letters from a salesman refer specifically to transactions with certain customers, and are chiefly important in connection with the correspondence[272] of those customers. Such letters should be filed in the customers' folders, where they will be found when it is wished to investigate transactions with a customer.

The correspondence of some very large customers is also quite bulky. This, also, can be subdivided by the use of a new folder each month. A similar plan is used to advantage in connection with subject filing, a separate folder, filed back of the subject guide, being used for each correspondent.

Correspondence of Temporary Value. Every large enterprise receives a considerable amount of correspondence which has no permanent value. Inquiries for catalogs in response to advertising are of no value unless further correspondence is developed. It is advisable to set aside sufficient space in the files, and file such correspondence alphabetically, in miscellaneous folders. Later, when further correspondence develops, separate folders can be made and transferred to the regular files. After a reasonable time—when the follow-up is abandoned—the inquiries can be destroyed, saving space in the permanent files.

Orders. The manner of filing orders depends on the business and the method of handling. It will depend on whether the greater part of the orders are received direct from customers on their own blanks, on blanks supplied by the house, or from salesmen on the blanks of the house.

When orders are received direct from customers, whether in the form of letters or on the customers' blanks, it is customary to copy them on the house order blanks, from which orders are filled and billed. The most practical disposition of customers' original orders is to file them with their correspondence, instead of providing a special file for them. There are certain exceptions, as subscriptions received by a magazine and which, for certain reasons, should be kept by themselves; but that outlined can be regarded as a general rule. One reason for filing orders with the correspondence is that, in case of dispute, it will very likely be necessary to refer to past correspondence.

The manner of filing the house blanks depends on the number of copies made. Some houses make but two copies of the order—one to be sent to the customer as an acknowledgment, and one from which the order is filled. This leaves but one copy for the office, and this should be filed numerically, which also brings it in the order[273] of the date. If the order copy is also used as a posting medium, it should be filed in a loose-leaf binder; otherwise a vertical file drawer can be used.

Another very satisfactory method is to enter the order in triplicate—one copy as an acknowledgment, an office copy, and a shipping copy—leaving two copies for the files. One copy should be filed numerically, the other alphabetically. This provides a cross-index without the necessity of writing a card index, showing how easy it is to provide valuable records by using ordinary care. A complete order record is provided by making one extra copy, which is done with no additional labor.

Orders received from salesmen on the house blanks are sometimes used as a posting medium, in which case they are filed in a binder, by date. Another method is to make the invoice in duplicate, and use one copy as a posting medium. In such case, the copy of the order can be filed alphabetically, bringing all orders from each customer together.

Fig. 23. Special Invoice
Folder—Open Browne-Morse Co.

Invoices. The method of filing invoices depends on whether or not a complete voucher system is used. When no voucher system is used, all invoices should be filed alphabetically in a vertical file. A folder should be used for each firm or person from whom goods are purchased, so that all of their invoices can be kept together. Invoices should be filed in the folder in the order of their dates, the last one in front.

With the voucher system, invoices are sometimes attached to the voucher, in which case they are filed according to the voucher number and a separate card index is kept for alphabetical reference. The more modern plan, however, is to file the voucher numerically, retaining the alphabetical index for invoices.

Invoices can be filed in the same file with the correspondence, or in a special file. When the former method is adopted a folder of[274] a special color should be used. There would then be two folders for a firm, one for invoices and one for correspondence. Special folders with double folds are largely used for filing invoices, as shown in Fig. 23.

Fig. 24. Document File.
Browne-Morse Co.

Documents and Legal Papers. For filing documents and legal papers, there are two standard methods. The older of the two is to fold the papers and file them on end in a document drawer, like the one shown in Fig. 24. The drawer is equipped with a compressor or following block for keeping the papers in an upright position, and either alphabetical or numerical indexes. These drawers can be obtained singly or in cabinets containing any number.

The more modern method is to file documents and legal papers in a vertical file, using document envelopes, as shown in Fig. 25. These envelopes are of the right size to hold legal papers flat, insuring convenient reference, which is a decided improvement over the older method of folding the papers. Any of the several methods of indexing can be used, depending on the requirements of the business.

Fig. 25. Document File Envelopes
Browne-Morse Co.

As a filing system for the lawyer's office, this method is unsurpassed. Every record of the office is kept in one complete filing system, yet each case is separate and distinct. Every paper and all correspondence relating to a given case is filed, unfolded, in one of the document envelopes—or a folder can be used—bringing all papers on the same subject together.

If indexed alphabetically, the papers are filed according to the name of the client. When the numerical index is adopted, an alphabetical index card with cross-references, including the docket index, is used. The folders may be numbered by case or office numbers.[275] Copies of opinions can be filed in the same manner, making every opinion available whether given yesterday or ten years ago. The usual confusion in the lawyer's office, incident to the search for papers scattered through several files, is entirely done away with.

Clippings. The vertical system is the most practicable for filing clippings, but, since they are liable to be lost through the open ends of the ordinary correspondence folder, it is best to use either the envelope or the invoice folder—preferably the former. Indexing for clippings should be by subject, and if a file is used exclusively for clippings, it may be either numerical or alphabetical. As a rule, the latter is most satisfactory, though the former is used quite extensively.

Fig. 26. Drawing or Map File
C. J. Lundstrom Co.

An envelope should be used for each subject. On the front of the envelope the name of the subject and a list of the contents is written. All clippings relating to that subject are filed in the envelope, which is placed back of the proper alphabetical guide. Cross-references, when needed, are provided by a card index.

Drawings and Maps. A large concern, especially a manufacturing enterprise, has a large number of drawings, blue prints, maps, and photographs to file. One method is to file them in large folders, laid flat in a flat drawer, using a card index for cross-reference.

A more convenient method is to file them vertically. The ordinary vertical file drawer is too small for large drawings, but in Fig. 26 is shown a special file which will accommodate drawings measuring 24"×36". The drawings are filed in heavy folders, made to fit the drawer. This drawer is hinged at its lower front edge, permitting it to be opened by simply tilting the drawer forward, an operation which is accomplished with very little exertion. The drawer is held[276] in open position by an automatic catch which is quickly released when it is desired to close the drawer. Each drawer is provided with an adjustable follower which moves back as the space fills up. When open the drawer exposes its entire contents, any of which may be picked out instantly and again filed with the utmost convenience and dispatch. When a large tracing is to be filed, it is desirable to first pull out the folder to which it belongs and, after having placed the tracing therein, to slip the folder back in its place. This prevents any accidental creasing of the drawing.

Either an alphabetical or numerical index can be used, depending on the class of drawings to be filed. In a machine shop, where all machines and parts are known by number, the numerical index is best. In a publishing house, where it is desired to keep all drawings used for each book, they should be filed alphabetically by subject.

Credit Reports. Vertical filing is best for credit reports, as it brings together all credit information about a customer. Unlike correspondence, it is customary to fasten credit reports in the folder by using a drop of paste at the top of each report. A folder is used for each customer, and all reports are attached in the order of their date.

The index may be numerical, alphabetical, or geographical. When the numerical system is used, a card index furnishes the cross-reference. The card contains the name and the number of the folder, with a brief history of the customer's dealings with the house.

FILING HELPS

Guiding. The importance of guiding should not be overlooked, for guides are the great essential of a successful filing system. They must be simple and correct. They must be inserted at sufficient intervals to guide eye and hand instantly to the desired folder. A vertical file drawer holds about 5000 letters, and, assuming that the average is 10 letters to a folder, this would mean 500 folders. A general rule is to use 50 guides to a drawer, or one guide for every ten folders.

The estimate of the number of guides required should be liberal. If there are 500 regular correspondents, it is better to equip the files with a 60 subdivision alphabetical index than to confine it to a 50 subdivision index.

[277]

Guides must stand hard usage and remain legible; therefore the best quality should be used. All manufacturers of filing equipment now supply guides of heavy pressboard with metal tips. The metal tip guide is entirely rigid and supports the papers or folders in the file, keeping them rigid and in alignment. An important feature is that the index heading (name, letter, or number) can be changed at any time by merely inserting a new slip in the metal tip. Metal tip guides cost more than the old-style manila guide stock, but in the end are more economical. The money paid for a filing outfit should be regarded as a permanent investment; if the expense is to be cut down, let it be in the purchase of supplies used for transfer, rather than in the regular files which are used every day.

Transferring. Correspondence which is out of date should be removed from the current file and filed in transfer files or boxes, indexed as in the regular files. Transfers should not be made too frequently. It is often advisable to use cabinets large enough to hold the correspondence for two years, one part being used for current correspondence, the other for correspondence one year back. At the end of the year, all of the correspondence is removed from the older file, which becomes the current file during the succeeding year.

Fig. 27. Sorting Tray

Sorting. The work of the file clerk is facilitated and greater accuracy insured by the use of a sorting tray, as shown in Fig. 27. This consists of a wooden tray, equipped with alphabetical or numerical guides according to the system used. For the alphabetical system a set of A to Z guides—one for each letter of the alphabet—is used.

Before attempting to file, the clerk sorts the day's correspondence in this tray. All correspondence belonging in one division of the alphabet is thus brought together, and can be quickly filed.

[278]

SELECTING FILING EQUIPMENT

Fig. 28. Showing Manner of Joining
Upright Sections.
Browne-Morse Co.

The selection of filing equipment has been greatly simplified by the manufacturers, who have studied the filing problem with the view to supplying the demand for equipment to accommodate every business paper. As new problems have presented themselves, new equipment has been designed. The needs of the smallest office, as well as those of the largest corporation, have been studied and met. Heavy cabinets of solid construction have given way to cabinets built in sections, any one of which can be carried by the office boy. The man who has but a half-dozen letters a day to file finds a section exactly suited to his requirements; as his business grows, he adds other sections; the cabinet grows with the business, making one complete system, no matter how small or how large.

The most universally used of all filing devices is the vertical file. As has been explained in the preceding pages, it adapts itself to almost all of the papers found in a business office. Vertical files are made with drawers in three standard sizes: letter size, for ordinary correspondence, or papers up to 9½"×11" in size; legal or cap size, for legal blanks, reports, and other large papers up to 10"×15" in size; invoice size, for invoices, orders, credit reports, and all papers not larger than 5¼"×8". Papers 8"×10" can be filed in the invoice size by folding once.

Styles of Construction. Two standard styles of construction are used for vertical files, horizontal sections and upright sections or units. The horizontal section is made one vertical file drawer high and either two or three drawers wide. Upright units are one[279] drawer wide, four drawers high for letter and cap sizes, and five drawers high for the invoice size.

The upright unit is the newer and preferred style of construction; it is more substantial, and for either large or small filing systems occupies less floor space. Upright units are put together as shown in Fig. 28. Each section is built with skeleton ends, and at each end of the cabinet—whether one or a dozen sections—end panels are used, making one complete cabinet. The sections are locked together, and can be separated at will. Fig. 29 shows three upright sections, in the three standard sizes, joined together to make a complete cabinet. This gives some indication of the possibilities offered by this style of construction in building a cabinet to meet every requirement.

Fig. 29. Three Upright Sections
in Standard Sizes
Browne-Morse Co.

Upright units are also made with combinations of drawers for different purposes. For a small business, an assortment of files for different purposes is frequently desirable. An entire section filled with files of one kind may not be needed, but a combination section offers a solution. The combination illustrated in Fig. 30 contains one cupboard, six shallow storage blanks, two double card-index drawers, and three document files. A vertical file drawer can be substituted for the cupboard unit.

If vouchers, or other folded documents are to be filed, the document drawers shown in the combination unit can be used, or provision can be made for filing these papers in the vertical file. The vertical file drawer is divided lengthwise by partitions into compartments of the same width as the document file. Each compartment is equipped with a follower block and countersunk rod for holding guides.

[280]

Fig. 30. Combination Cabinet
Browne-Morse Co.

Where a large number of folded documents are to be filed, as in the office of a corporation using a voucher system, this file is much more convenient than the old style. An old-style document file has a limited filing capacity, and must be taken from the cabinet for consultation. A vertical file drawer, legal size, provides three compartments, each 24" in length. This gives an actual filing capacity of six feet in a single drawer. An upright section, equipped for document filing, is shown in Fig. 31. If an entire section is not needed for this purpose, one drawer can be equipped for document filing, and the others used for correspondence.

Fig. 31. Upright Cabinet
for Documents
Library Bureau

A style of construction designed to combine the expansion idea with variety is known as the inter-inter cabinet. This cabinet consists primarily of an outer cabinet or shell of standard height, depth, and width. This shell is divided into compartments of standard height into which the filing devices are fitted. The various filing devices are arranged in skeleton units of standard[281] dimensions, made interchangeable so that any desired combination can be produced. Fig. 32 shows an outside cabinet, card index, and vertical file units, which fit the openings in the cabinet.

OUTSIDE CABINET

Fig. 32. Inter-Inter Construction
Macey Co.

This construction enables the user to make a combination of small units of various kinds to suit present requirements, all housed in a single case in a compact form. Provision for future expansion is unnecessary, since an additional outside cabinet can be added at any time, and the units rearranged at will to conform with changes in the system.

An inter-inter cabinet shown in Fig. 33 suggests the variety of devices that can be accommodated in a single shell. This cabinet contains vertical file, card index, legal blank drawers, and document files.

The need has been felt for a small filing cabinet, or stack of sections, that would be complete and give the proper variety. The professional man, the department manager, and the executive have need for a small cabinet for personal correspondence, reports, statistics, records of matters requiring personal attention, blanks and forms, private papers, and all matters of a confidential nature. This need seems to have been met satisfactorily by the small sections known to the trade as sectionets.

[282]

Fig. 33. Inter-Inter Cabinet
The Macey Co.

These are complete sections, the largest size being that of the vertical file drawer, which can be stacked one on top of the other or side by side. Any of the standard filing devices can be made up into these sections. A small section for 4"×6" cards is shown in Fig. 34. A single section, with top and base, makes a complete cabinet, which can be added to as needed. Fig. 35 shows a small stack of sections consisting of vertical file, 5"×8" card index, and 3"×5" card-index drawers, and one document file, on a leg base.

Transfer Files. Files for the storage of transferred correspondence can be of cheaper construction than the regular filing cabinets, as they are less frequently referred to and not subject to the same hard usage. They should, however, be of reasonably substantial construction; it is usual to keep business correspondence at least two years, and it may be necessary to refer to it many times after it is transferred. Then, too, if substantial transfer files are provided, they can be used again and again; sufficient transfer files to hold two years' correspondence will last indefinitely.

Fig. 34. Card Sectionet
Shaw-Walker Co.]

At first, manufacturers of vertical filing equipment supplied nothing more substantial than boxes made of binder's board. Boxes the size of a vertical file drawer were used. These were usually stored on shelves, and to refer to the contents it was necessary to take down the box and remove the cover. To keep pace with improvements in filing cabinets, new styles of transfer files have been perfected. One of the most satisfactory of the more modern styles is the drawer transfer file, which is practically a single drawer section. It is made of light wood with a drawer as shown in Fig. 36. These files can be stacked, one on top of another, and locked together, making a solid filing cabinet. The drawers hold the contents of a vertical file drawer, but are not equipped with follower blocks, and are not recommended for current filing. These transfer files cost more than the old style, but when durability and accessibility are considered, they probably are more economical in the long run.

DICTATING TO THE BUSINESS PHONOGRAPH, MANUFACTURED BY THE NATIONAL PHONOGRAPH COMPANY, ORANGE, N.J.

[283]

Fig. 35. A Stack of Sectionets
Shaw-Walker Co.

Metal Files. Metal furniture is rapidly gaining in popularity for office use. All sorts of office furniture is now made of sheet steel—desks, tables, chairs, counters, and filing devices for all purposes. Metal cabinets are made in upright sections and equipped with the same filing devices found in wooden cabinets. Fig. 37 shows a row of metal sections, combining a variety of filing devices. At either end are roller book shelves and a cupboard, while in the center are six styles of files.

Fig. 36. Transfer Drawer.
Browne-Morse Co.

[284]

Fig. 37. A Row of Metal Files. The Berger Co.

[285]

The most apparent advantage of metal files is the safety afforded, as it has been amply demonstrated that they will go through a very severe fire without damage to contents. Few offices have sufficient vault space for the papers that must be kept. Metal files not only take care of the valuable papers, but by keeping all papers away from combustible material, act as a fire preventive.

Another reason for the increasing popularity of metal files is the scarcity of suitable timber and its advancing cost. The supply of oak and mahogany is decreasing so rapidly that the necessity for a substitute seems inevitable in the near future. For office furniture steel seems to offer the most practical substitute.

[286]

BURROUGHS ADDING MACHINES IN THE OFFICE OF THE FAIR, DEPARTMENT STORE, CHICAGO, ILL.


[287]

BUSINESS STATISTICS

STATISTICAL DEPARTMENT

One of the chief functions of the comptroller's office is to gather statistics which tell what is being done in every branch, department, and division of the business. The purpose of these statistics is to show the results of these activities—the gross volume of transactions, the cost, and the result in net profits. When assembled in the form of intelligent reports, these statistics present an understandable history of the business.

The statistical department may be considered as the cost department of the commercial branch. Manufacturers recognize the necessity for comprehensive statistics in the manufacturing branch; they realize that they must know what their goods cost to manufacture; but in comparatively few enterprises is the importance of commercial costs recognized.

In the factory, costs are figured down to the most minute detail; what it costs to perform each operation on every part of the completed whole is known; the efficiency of every man—what he costs in wages, in power, and general expense, and the cost of every bit of material he uses—all of this is told by the cost accounting system. What it costs to sell the goods is usually a matter of guess work.

To know what it costs to run a business—to know commercial costs—is just as important as to know manufacturing costs. Both are necessities if the business is to attain its greatest possibilities.

What are the actual profits of this or that department?

How much net profit is there in handling this commodity?

Does it cost more to send a salesman to that little town, ten miles off the main line, to take Jones' order than the profits on his business?

Is there as much profit in working this territory as some other?

Measured by the standard of net profits—not volume of sales—is Brown a profitable salesman? Compared with White, what is his efficiency?

[288]

These are some of the questions to be answered before it can be claimed that the statistical department has reached its highest state of efficiency. The success of modern merchandising is measured, not by the volume of business transacted, but by profits. In days gone by, the merchant liked to be able to say that he sold more goods last year than any of his competitors; today he is better pleased if he has made the most money. A net profit of 10% on a business of $500,000.00, is more attractive than a million-dollar business without profit.

Commercial costs may be divided into two classes—sales costs and administrative costs. Of the two, sales costs are the more important; if sales costs are not kept down, there will be nothing left from which to pay administrative costs.

Sales Costs. In the broadest interpretation, sales costs include every expense properly chargeable to the sale of goods. For statistical purposes it may very properly be divided into direct and indirect, or general selling expense. Direct sales expense is made up of salaries and traveling expenses of salesmen—items which can be definitely determined and charged against definite sales. Indirect sales expense is made up of advertising, salaries of the sales manager and his office assistants, expense of entering orders and billing, packing and shipping expense, and all similar items properly chargeable to the expense of marketing the goods—items which, while chargeable to sales, cannot be applied directly to individual sales, nor to specific territories.

Figuring sales costs is a specific function of the statistical department which is sometimes referred to as profit figuring—an appropriate term, since the principal object of gathering sales statistics is to determine profits. As a preliminary to figuring profits, it is necessary to have an accurate record of the cost of the goods sold. In a manufacturing enterprise, it is expected that this information will be supplied by the cost department; in a trading business, the statistical department must make the calculations.

The first step is to obtain a record of all goods received. This can be done most easily by obtaining duplicate invoices, which will be supplied by those from whom goods are purchased, if insisted upon. To the invoice must be added the freight and cartage—items which must be supplied by the accounting department. This gives[289] the total cost, laid down, and should be divided to show costs per unit—as yards, dozen, pounds, barrels, or tons. On a mixed shipment it is not difficult to apportion the freight to the different commodities. Every freight bill shows the rate at which the shipment is billed, and the total can be apportioned by weight on the same basis.

To insure a permanent record of cost prices, it is best to register each shipment received, with its cost. This register should be divided according to commodities, providing a separate record of each one. A loose-leaf book is best for the purpose.

A suitable form is shown in Fig. 1. This sheet is headed with the name of the article or commodity, and each sheet is used for a record of receipts of a single article. The record includes date of invoice, date received, from whom, lot number, quantity, price, amount of invoice, freight and cartage, total cost, and cost per unit. Each lot of goods received is given a lot number, these numbers being consecutive for each commodity.

The sheet serves the double purpose of a record of receipts and a price list. Both the quantity and total columns are footed, the footings being carried forward to the end of the month. All sheets are filed alphabetically by commodities, subdivided by departments, the current sheets always being on top.

Records of Shipments. Before sales costs and profits can be figured, the statistical department must be supplied with records of shipments. This may be accomplished by providing an extra copy of the invoice, which is easily done with modern billing systems. To save transcribing, the copy for the statistical department should be wider than the original invoice. The extra width allows for the addition of special columns needed in figuring profits on the shipment, as shown in Fig. 2. This form has added columns for total cost, gross profits, sales expense, net profits, and per cent of net profits.

When these invoice copies are received in the statistical department, the price lists, Fig. 1, are referred to for cost prices. Here the use of the lot number assumes importance, as prices are obtained for the specific lot numbers shown on the invoice, resulting in actual rather than estimated profit figures.

After serving their purposes in the tabulation of other data, explained later, the invoice copies are filed alphabetically, keeping all invoices to the same customer together. Either a vertical file or a post binder may be used for this purpose.

[290]

Fig. 1. Register of Merchandise Received

[291]

Returned Goods. Another very important record in profit figuring is that of returned goods. Profits may be figured on the invoices, but if accurate profits on the business of a customer or a salesman are to be recorded, returned goods must be considered.

Fig. 2. Copy of Invoice for Statistical Department

When goods are returned, it means a loss of anticipated profits, and should be considered in the same light as an actual loss. In a well-managed business, returned goods are kept down to a minimum; if they increase above normal, an investigation into causes is in order. Repeated returns of the same merchandise indicate a defect in the merchandise itself; if those from the territory of one salesman are frequent, an inquiry into the salesman's methods is necessary—he may have the fault of loading his customers too heavily, or of adding to their orders—all of which are added reasons why a record of returns should be kept.

[292]

A blank for a monthly record is shown in Fig. 3. This record shows the name of the department from which the goods were sold, the commodity, name of customer, price at which sold, the cost—including selling cost—the loss, and the name of the salesman. From this sheet, all data necessary for complete records can be tabulated.

Fig. 3. Report of Returned Goods

Salesmen's Records. One of the special benefits—perhaps the chief benefit—of a profit-figuring department is a record of the work of each salesman. Not merely the volume of his sales, but the profits on those sales, measure his worth to the house.

The salesman whose sales are largest in quantity, or even in dollars and cents, is not necessarily the best salesman. One man may sell a thousand dollars' worth of sugar, while another sells two hundred dollars' worth of tea and makes more money for the house; one strives for volume—making price concessions to secure a big order—while the other is content with smaller sales at a good profit.

[293]

In the final analysis, profits determine the efficiency of the salesman. His salary may be large or small; his expense high or low; but he is not efficient unless his business shows a net profit.

To tabulate the sales of each salesman, so that a complete record of his work may be seen at a glance, is then, of the utmost importance. The first step should be to make a record of what he sells—how much calico and how much silk. On a loose-leaf sheet, ruled as shown in Fig. 4, a record of a salesman's sales of a single commodity may be kept; from these sheets, a record of his total sales can be tabulated.

The head of this sheet shows the name of the commodity, the name of the salesman, and the month covered by the record. A detailed record is kept of each day's sales, showing quantity, cost, sales, gross profits, and per cent of gross profit. At the end of the month returns are deducted—the information being obtained from the returned goods report, Fig. 3, leaving the net record. This sheet, which is loose-leaf, is filed alphabetically by salesman's name, the sheets for each man being in alphabetical order by commodities.

A record of the salesman's total business is made on the loose-leaf form shown in Fig. 5. This record is made up from the totals of the commodity records, Fig. 4, and the form has the same columns, with an additional column, headed % of total. In this column is entered the per cent which the total sales of each commodity bears to the salesman's total sales. The profits on the salesman's business usually increase in direct ratio to the increase in the per cent of sales of the higher-priced specialties.

This total record is, of course, made up at the end of the month, only the monthly totals being shown. A recapitulation is made at the bottom of the sheet. In the right-hand, or credit, column the gross profit is brought down; in the left-hand column, sales expense is entered, the several items being separated. First, the salary of the salesman and the amount of his traveling expenses are entered and footed, the total being the direct sales expense. Following this is entered the general sales expense that should be charged against the business of the salesman, this item being supplied by the accounting department. The total sales expense is then extended in the credit column and deducted from gross profits, leaving net profits—the real measure of the salesman's value.

[294]

Fig. 4. Record of Salesman's Sales Arranged by Commodities

[295]

These sheets should be filed in the same binder with the salesman's commodity sales records. A separate index may be used, or they may be filed on top of the commodity sheets, bringing the entire month's record together. To make identification easy, they should be of a different color from the commodity sheets.

Sales records such as these give a complete history of the business of each salesman; they tell the whole story in language most easily understood by the manager. The longer they are kept, the more valuable the history becomes.

Mail Orders. In a business in which occasional mail orders are received, sales of this character may be grouped under some such caption as home office, and treated in the statistical records in the same manner as the sales of one salesman. Where an extensive mail-order department is maintained, it may be advisable to keep records of the business of each mail-order salesman.

Expense Distribution. General sales expense must be distributed, on some equitable basis, over the total sales. There are two logical factors on which this distribution may be made, total sales and cost of goods sold. The latter seems to be the most equitable. If based on total sales, the distribution may actually penalize the salesman who is really the most profitable. For example, one salesman may sell for $2000.00 goods which cost $1500.00, while another will obtain $2200.00 for the same goods; if the expense is distributed on the basis of total sales, a larger amount is charged against the business of the latter salesman when the increase is all profit. On the basis of cost, the same amount would be charged against the business of both salesmen.

When the total sales expense and total cost of goods sold is ascertained, the former is divided by the latter amount to obtain the correct percentage. This is then added to the cost of sales of each salesman.

While, as a rule, general sales expense should be charged against the cost of all goods sold, there are certain exceptions when a part of this expense should be charged against specific sales. For example, a manufacturer may make a special appropriation for advertising his product in a certain state, using local papers, street cars, and bill boards. In that case the advertising is very properly chargeable against the business from that state; though it might be advisable to distribute the amount over several months.

[296]

Fig. 5. Record of a Salesman's Total Sales

[297]

A mail-order department involves certain expenses, none of which are chargeable against the business produced by the salesmen. Included in this special expense are such items as postage, stationery, printing, and stenographers' salaries. This expense should be charged against the business of the department and, if records of the work of each salesman are kept, it must be prorated on the basis of cost of goods sold by each.

Total Commodity Sales. A record of the total sales of each commodity is necessary in order that the profit in handling the commodity may be determined. Sometimes it is found that a commodity which is apparently being sold at a profit is actually sold at a loss, when the actual selling costs are determined. Or, one salesman may sell the commodity at a loss, while others sell it at a profit.

The form shown in Fig. 6 is used for a summary of the sales of one commodity. At the end of the month one of these sheets is headed with the name of each commodity and the totals entered from the salesman's commodity records, Fig. 4. Opposite the name of each salesman is entered the quantity and amount of his sales, following which is an important column headed % of whole. In this column is entered the percentage which the sales of the one salesman bear to the total sales of the commodity. If Bacon sells 40% of all the tea sold by the house, it is shown by this report; if he sells 50% of the sugar, it is shown just as plainly. Not only how much of a given commodity is sold, but who sold it, is recorded on this monthly summary.

In the columns following total sales, the total cost and gross profits are entered. From the gross profit is deducted the sales expense—this being calculated on the percentage shown for total sales expense in the recap at the bottom of the salesman's sheet, Fig. 5, leaving the net profit. In the last column, the per cent of net profit is entered. The footing at the bottom of the sheet shows total amounts and the percentages of sales expense, and net profits are calculated on the basis of these totals; this gives the average expense and profit on the total volume of sales.

Department Sales. Next in importance to a knowledge of profits on a single commodity is a knowledge of the results produced by a department. This necessitates a record of departmental sales. Sales and profits measure the efficiency of a department, just as they do of a salesman.

[298]

Fig. 6. Record of Total Sales of One Commodity


RAILWAY EXCHANGE BUILDING, CHICAGO, ILL.
An Excellent Example of the Modern Type of Office Buildings

[299]

The necessity for departmental records depends on the business. A manufacturer who produces but two or three articles needs only records of sales of commodities; a wholesaler requires records of sales of classes of goods. In a wholesale business, departmental divisions are distinct; each department is in charge of a head, and the record of the department is his record.

In a comparison of departmental profits, the percentage of net profits should not be followed blindly. Certain departments are not money makers. To a certain extent it is possible to discontinue unprofitable lines, or even departments, but in some businesses it is necessary to maintain departments which are not profitable. In the dry goods business—either wholesale or retail—the margin of gross profit in notions is so small that it is doubtful if, when all legitimate expense is deducted, a net profit is realized. The salesman for a wholesale house whose sales of notions is largest, has made the poorest record; the manager who has kept the sales of the notion department at the lowest price—at the same time keeping his stock down—may be the most efficient.

For a record of departmental sales the form shown in Fig. 7 may be used. The data for this report is secured from the commodity records, Fig. 6. For each commodity, the quantity and total amount of sales are entered. Following this is a per cent column in which is entered the ratio which the sale of each commodity bears to the total sales of the department. The columns which follow are the same as on the commodity sales records. A loose-leaf form should be used, and this may be filed with the commodity records—the departmental record on top, with the commodity records arranged alphabetically underneath.

The forms described provide detailed records of the business of each salesman and each department (classified by commodities), records of goods received, and of returned goods. From these records, complete trading statements can be made for each department, or for the entire business.

Trading Statements. Reports in the form of trading statements made from these records give the manager the facts in which he is specially interested; they show him the profits of the business and the sources of the profits.

[300]

Fig. 7. Record of Sales of a Department Divided as to Commodities

[301]

A monthly trading statement should be made for each department, in order that the total operations may be seen at a glance. All of the essential facts are shown on the department report, Fig. 7, but a properly constructed trading statement affords an opportunity for valuable comparisons. While the fact that a department has made a net profit of $7864.20 this month is interesting, these figures take on added interest when compared with last month's profits.

A form for a monthly departmental trading summary is shown in Fig. 8. In this form, the trading statement for the current month is entered in the two columns headed trading. First, the total amount of sales is entered in the credit column; then the value of stock on hand at the beginning of the month is entered on the next line, in the debit column. When the profit-figuring department is organized, it is necessary to have an accurate inventory in each department that this trading statement may be started correctly. If started on a correct basis, the record becomes perpetual. To the amount on hand is added the value of goods received, as shown by the merchandise received reports, Fig. 1. From the total, the value of the inventory at the end of the month is deducted, the remainder being known as the turnover—the cost or inventory value of goods sold. To find the value of the inventory an actual count of the goods on hand is unnecessary. The value may be found by deducting from the total the value, at cost, of goods sold, which is the footing of the total cost column, Fig. 7. This inventory is, of course, the amount shown as on hand at the beginning of the next month.

The difference between the turnover and sales is the gross profit—being the amount necessary to balance the debit and credit columns. The gross profit is brought down and entered in the credit column. Sales expense is entered in the debit column, the difference between this amount and gross profits being net trading profit, for the current month.

The three columns at the right are for comparative figures. In the column headed to date is entered the total sales, turnover, gross profits, expense, and net profits from the beginning of the current fiscal year to date; in the two columns next following, the same facts are entered for last month and last year.

[302]

Fig. 8. A Form for a Monthly Trading Summary

[303]

As a rule, these monthly trading statements for each department give the manager just the information he wants; but, when there are a large number of departments, it is sometimes advisable to tabulate these statements, giving one complete record. A form for such a report is shown in Fig. 9. No detailed explanation of this report is necessary, the columns being arranged for the same information as given on the department statement. The only exception is the inventory column, which is intended for the current inventory only. In the three comparative columns at the right, net profits only are entered. This statement gives a history of sales in a nut shell.

Customers' Profit Records. To know the value of each customer, as measured by the profits on his business, is as important as a knowledge of the value of each salesman. It is for the purpose of obtaining this information that columns for calculating net profits are added to the statistical department's copy of the invoice, Fig. 2.

Detailed records of purchases of each customer, divided by commodities, are unnecessary, but there should be a summary showing total purchases and profits. Detailed information about individual shipments and separate commodities can be obtained from the invoice copies.

Fig. 10 shows a form for a customer's record on a 4-in. X 6-in. card. This form provides for monthly records only. At the end of the month the total purchases and total profits are obtained from the invoice copies, and the amounts entered on the card. The card is ruled for a two-years' record.

These cards should be filed geographically, the name of the town heading the card. If there are several customers in a town, their cards should be arranged in alphabetical order. State boundaries need not be followed; it is usually better to file the cards according to salesmen's territories. This makes a combined customers' and territorial file, and if a record of the business in a town or state is wanted, it can be obtained from the cards. If desired, a new card can be inserted for a total record of each town or group of towns.

Value of Profit Figuring. The value of the records described can scarcely be overestimated. To know the profit-making ability of each department and each salesman; to read at a glance the value of every town and every customer; to know the cost value of goods sold and the exact condition of the stock at the end of every month, these are the facts which enable a manager to size up his business.

[304]

Fig. 9. Departmental Comparative Trading Statement

[305]

The man who lacks these facts—who is obliged to wait for them until the end of the year, and then get only a part of them, does not have a grasp of his business, and cannot expect to bring it to the highest possible state of efficiency. That more managers have not insisted on having these facts before them is doubtless due to one or both of two causes: failure to appreciate their value; and the belief that dependable statistics of this sort were unobtainable without too great an expenditure of labor. Neither is borne out; all the evidence is to the contrary.

Fig. 10. Record of Purchases and Profits of a Customer

As to their value, little need be said. The fact that the most extensive enterprises find it profitable to compile statistics setting forth the most minute operations in every department is sufficient evidence of the value of corresponding statistics to the smaller merchant or manufacturer. If a great railway system finds it not only profitable but necessary to compile statistics showing the cost of repairs per ton-mile for every engine in its service, arranged for a comparison of the efficiency of individual locomotives, surely the merchant will find it profitable to analyze his profits. An analysis of the profits and losses of a wholesale grocer, showing how much he has made on tea; how much he has lost on sugar; what profit has been produced by a certain salesman; the profit value of a customer, is of as great value to him as a knowledge of the cost of repairs on an individual car to the officials of a railway.

[306]

To the man who has made no attempt to secure them, the compilation of these statistics may seem an endless task, not justified by their value. Actually, the magnitude of the task is, to a great extent, governed by desire; a man is quite likely to obtain what he really wants, and as his desires increase the difficulties decrease.

When it comes to the actual work of preparing these statistics, the difficulties are found to be really minor ones. The main thing is to do the work every day; to record the transactions of a single day does not involve an undue amount of labor, but if allowed to get behind, the task assumes appalling proportions.

Modern billing systems make it possible to tabulate certain of these statistics when the bills are made. The adding machine is also of inestimable value in statistical work; computations which would involve a whole day of hand-and-brain work are made in an hour on a modern adding or calculating machine.

In deciding what statistics should be compiled, the nature and needs of the business must be considered. It is usually unnecessary to use as the unit a single brand of a given commodity. A wholesale grocer, for instance, would not find it necessary to make separate records of each brand, or even each article, in canned goods. They would be divided into classes—as vegetables, fruits, and meats, and each class would be treated in the records as a single commodity. When taking on an entirely new line, he might wish to compile separate statistics for a time, but when the fact that the line is a profitable one has been established, the special statistics would be unnecessary.

Again, one house will find it advisable to go into certain details not considered necessary in another establishment. For example, one house has, as a result of the facts revealed by their statistical department, established a system of bonuses to their salesmen based on the profit percentages of their business. This necessitates a record different from any of those that have been shown. This concern has grouped the goods in each department according to percentages of gross profits—as 5%, 10%, 20%, 25%, etc. Each salesman is given a monthly quota—based on salary, territory, and previous sales—which he is expected to reach. This quota specifies not only the amount of sales but the percentage of profit; each $100.00 of sales is expected to include not more than a certain amount of 5% goods, nor less than a given amount of 25% goods, the exact ratio[307] of each being given. If a salesman exactly equals his quota, maintaining the percentage prescribed, he is given a small bonus; if he exceeds his quota and maintains the prescribed percentages, or increases the percentage of sales of the more profitable goods, his bonus is increased in proportion to the increased profits—the greater the percentage of profits, the more rapid the increase in the bonus. On the other hand, if his sales of goods sold at a small profit increase, he is penalized by being denied a bonus, no matter what the volume of his sales.

Fig. 11. Salesman's Comparative Sales Statement

This bonus system, which is an adaptation of the bonus wage system used in factories, has the effect of increasing the sale of the most profitable goods. When a customer places an order for goods in which there is little profit, the salesman—who cannot refuse the order—is given an incentive to push the sale of more profitable goods; he must do so as a matter of self-protection.

To determine the bonuses, statistical statements differing from those already shown are necessary. These statements must divide[308] sales according to percentage groups, rather than by commodities, as shown in Fig. 11. The data for this statement is taken from the commodity sales statement, Fig. 4, and with an adding machine can be tabulated very quickly.

Another house, which does an exclusive mail-order business, keeps accurate records of the sales resulting from circular letters, charging the cost of the letters, including postage, to those sales. Records are also kept of the sales of each correspondent. When an order is received, the correspondence record is examined and, if the order is in response to a dictated letter, the correspondent receives credit. Each correspondent is required to keep a record of the number of dictated and form letters that he uses, the cost of which is charged against his sales. At the end of the month results are tabulated showing the percentage of orders secured from circular letters and from dictated letters; the amount of business from each letter of each correspondent; and the percentage of cost to the cost of goods sold.

These and many other statistics can be tabulated, and for each a special form is needed. The classes of information to be presented in statistical form depend on the business. When it has been determined what information will be of greatest value, forms should be prepared which will make it possible to tabulate the desired facts with the least labor.

ADMINISTRATIVE COSTS

Commercial costs which are not chargeable to sales are classed as administrative, and may be divided into executive, accounting, office expense, credits, and collections.

In a strictly trading business, purchasing is an added division, while in a manufacturing enterprise it is usual to consider this a manufacturing expense.

Executive expense is made up of the salaries of the general manager and comptroller, salaries of clerks and stenographers, and a proper portion of miscellaneous expense. In a manufacturing business, a part of the executive salaries is charged to manufacturing.

Accounting expense includes the salaries of chief accountant and cashier, clerks and stenographers, blank books and supplies, and miscellaneous expense.

[309]

Office expense is charged with the salary of the chief stenographer, and the expense of mailing and filing, including salaries of clerks.

Credits and collection expense include the salaries of the credit man and his clerks, the cost of mercantile agency service and reports, and the cost of collections, including postage.

Purchasing expense, which, as stated, sometimes is a commercial expense, includes the salaries of purchasing agent, receiving clerk, stores clerk and their assistants, and the entire expense of the storeroom.

In a strictly trading business, such items as power, heat and light, insurance and taxes—usually a manufacturing expense—become administrative expense. These, and all similar items, are grouped under the head of miscellaneous, to be distributed over all divisions of commercial costs.

In the main, the different divisions of administrative costs are easily assembled. In each division there is the salary of the department head, the total of which is charged to the division, and a correct apportionment of salaries which must be divided among two or more divisions. For illustration, the salaries of stenographers are distributed as has already been explained. By far the larger part of this expense is charged to the advertising and sales departments, but from the weekly reports of this division, the amount to be charged to the executive, accounting, credit and collection, and purchasing divisions may be obtained.

Mailing Costs. In the division of office expense one item which must be distributed, at least between sales and administrative, is mailing expense. Mailing expense is made up of labor and postage, the latter being most important.

All enterprises of magnitude maintain a separate mailing department in charge of one person, frequently the chief stenographer. The very fact that postage is the big item of expense in the mailing room, makes a very complete system of records absolutely essential.

The work of the mailing room consists of folding circulars and letters, enclosing catalogs, circulars, and letters in envelopes, addressing, filling in dates and addresses on printed form letters, and stamping. Sometimes addressing and filling in is done in the stenography division, but the more usual plan is to consider this a part of the mailing expense.

[310]

Fig. 12. A Report of Labor in the Mailing Room

[311]

Of first importance is a record of work done, which is best secured by means of a daily report of the work of each clerk. All work should be assigned by the head of the department, and the clerk required to keep an accurate record of both time and production. This question of assigning the work is especially important in the mailing room, as one department may flood the room with work which, if done, would make it impossible to handle the work of other departments for several days. The head of the department must decide which is the most important work. Sometimes it is necessary to make out, in advance, a weekly schedule of circularizing to be done, and compel all departments to be governed by the schedule. As an alternative, some of the larger enterprises maintain a separate mailing room, in charge of the advertising department, exclusively for circularizing work.

A suitable form for the employe's daily report is shown in Fig. 12. This report is divided for a record of the different classes of work performed. All work is recorded by number, that is, if the work is folding circular No. 518, that number is placed in the first column opposite folding. The center column is for the name of the department; as a rule, the form number indicates the name of the department, but sometimes the same form is used by several departments. In the columns next following, the clerk enters the number of pieces handled and the time taken. The extension columns, showing rate and amount, are filled in by the head of the department.

From these reports, the pay-roll is made up. All of this work can be handled on a piece-rate basis, and most large concerns find this the most economical basis. The rate must necessarily be varied to suit local conditions, and should be high enough that by doing a full day's work a clerk will earn something more than the standard day wage. For example, a girl will address from 1000 to 1500 envelopes, or fill in addresses on the same number of form letters, in a day of eight hours, the average being—say 1200. In different cities the accepted wage standard for the class of help required in this work varies from $5.00 to $7.00 a week. Where the $5.00 rate prevails, a piece rate of 90 cents a thousand is equitable; a girl who maintains an average of 1200 a day for five and one-half days (the usual time required in an office) will earn $5.94 with a chance to earn still more if she can increase her speed. The extra ninety-four cents is an inducement[312] to at least equal the average; without it, she would probably drop to 1000 or less. While her wage has been increased, the cost has been lowered.

Daily Mail Report. That the information may be in convenient form for statistical purposes and for making final reports, there should be a daily mail report. This report should be a complete record of everything mailed, showing the number of pieces and the rate of postage for each. A form for such a report is shown in Fig. 13. This report is divided for a record of regular mail-letters, circulars, and catalogs—and merchandise. The latter is not required in all cases, but is very important for a concern doing a mail-order business in small articles which can be sent by mail.

Fig. 13. Form for a Daily Mail Report

Fig. 14. Stamp Identification

This report shows the description, number of pieces, and postage rate. In the description column the name of the department should be written first, followed by a description of the mail originating in that department. The daily report should be made up by the stamp[313] clerk, without reference to the individual employes' reports, as it is intended as a check against the latter. A memorandum of the number of pieces reported for the different operations by the employes should be kept, and at the end of the week compared with the quantities shown by the daily mail reports. For some of the operations, the quantities reported by employes may be the larger, certain work being completed on matter which has not been mailed. To reconcile this difference, the work itself should be on hand in the mailing room.

Fig. 15. Voucher for Postage

Postage Record. The most important of all records in the mailing room is the postage record. Postage should be placed in charge of the stamp clerk, who should be made responsible for its accounting. The mail clerk is, in fact, a cashier, having the custody of the equivalent of cash in the form of postage stamps. Unless a very strict record is kept, there are abundant opportunities for thievery of stamps and, because they are almost as easily disposed of as cash, the temptation is strong. So great have the losses been from this source, that the government now permits business houses to identify its own stamps by means of perforations. There is now on the market a machine which perforates the initials or trade mark of a firm. The machine is very rapid in operation and stamps can be perforated in sheets very quickly. An enlarged reproduction of a stamp perforation is shown in Fig. 14.

[314]

Fig. 16. A Weekly Report of Postage Used


ROTUNDA IN THE ROOKERY BUILDING, CHICAGO, ILL.
This is One of the Largest Office Buildings in the City

ROTUNDA IN THE RAILWAY EXCHANGE BUILDING, CHICAGO, ILL.
An Exterior View of this Building is Shown Elsewhere in this Volume

[315]

The first step in providing for a complete postage record is to make a voucher for postage required. The cashier should require a voucher before supplying stamps or the money with which to buy them. A special voucher form showing the postage on hand, and the number of stamps of each denomination required, is shown in Fig. 15. This should be made in duplicate; the original goes to the cashier and the duplicate is retained by the stamp clerk.

Weekly Report. From the daily mail reports, a weekly postage report should be made. This report should show the total amount of postage used, distributed by departments. A form for such a report is shown in Fig. 16. In the first column the names of the departments are written, and in the daily columns the amounts used are recorded. The amount expended for registry and special delivery is entered at the bottom of the sheet, and below this is a recapitulation showing the balance of postage on hand. This report, which is made by the head of the mailing room, should be in duplicate—one copy for the accounting department, and one to be retained by the stamp clerk.

Weekly Mailing Report. The final report of the mailing room is a weekly report which shows exactly what work has been done for each department. The information required to make up this report is obtained from the employes' daily reports, and the daily mail reports. The postage is taken from the daily mail reports and checked with the weekly postage report to guard against any inaccuracy. A comprehensive form of report is shown in Fig. 17. This report is made to the statistical department.

Stationery and Supplies. Attention has already been called to the necessity for the proper care of stationery and office supplies. The losses due to careless handling of supplies are more serious than is usually appreciated. Probably the best way to reduce this expense is to require signed requisitions for all supplies drawn, and to charge all supplies to the different departments. All departments should be required to present requisitions once a day only, and then only during certain hours. In very few offices is a stock clerk required for office supplies alone; if the supplies are kept in the regular storeroom, or if one of the office clerks has charge of the supply cabinet, this plan will save time, as an hour a day is sufficient to handle the work in almost any office.

[316]

Fig. 17. Weekly Report of Mailing Department

[317]

After posting the supplies records, the clerk in charge should make a report to the statistical department of supplies drawn. This may be a weekly report, as shown in Fig. 18. A second copy should be made for the accounting department.

Fig. 18. Summary of Supplies Drawn

This report shows the value of supplies drawn each day by each department. The amounts can be entered daily from the requisitions, the totals being entered at the end of the week.

Summary of Administrative Expense. The reports and records described place the statistical department in a position to make complete summaries of administrative expense. The salaries of department and division heads, clerks, and stenographers employed in each department are obtained from the accounting department; mailing expense is obtained from the weekly report of the mailing clerk; cost of supplies drawn is shown by the supplies clerk's report; the amount of expense items not otherwise accounted for is supplied by the accounting department. The last item named—representing overhead expense—can be distributed to the departments on the basis of the ratio of the known expense of each department—that is, if the known expense, including salaries, mailing, and supplies, in one department is 20% of the known expense of all departments, it may be charged with 20% of the overhead.

[318]

Fig. 19. Form for a Distribution of Administrative Expense

[319]

Fig. 19 shows a form for a summary of all administrative expense, the different classes of expense being divided for each department. Totals of expense of each class, totals for each department, and the grand total are shown. Totals of the different classes and the grand total must agree with the records of the accounting department. At the bottom of the administrative expense summary the per cent of total administrative expense to sales and turnover—or cost of goods sold—should be shown.

Profit and Loss Statements. The profits shown by the comparative trading statement, Fig. 9, are trading profits only—not net profits, as administrative expense and profits from other sources than sales are not included. A statement should be prepared, therefore, which will show net profits. This can be combined with the trading statement, but the better plan is to prepare a separate statement. It is usually advisable to supply copies of the trading statement to the heads of all departments of the sales division that each may see what progress he is making, and compare it with that of other departments. It is not advisable, however, to let the department heads know the exact net profits; this information is for the general manager and directors.

Fig. 20 shows a form of monthly profit and loss statement, divided by departments. The totals for the fiscal year to the first of the current month are brought forward at the head of the sheet; then the figures for the current month are entered. Sales, sales expense, and sales profits are taken from the trading statement; administrative expense is shown by the summary, Fig. 19. Administrative expense is charged to the different departments on the basis of the turnover—that is, if the total administrative expense is 10% of the total turnover, each department will be charged an amount equal to 10% of its turnover.

[320]

Fig. 20. Condensed Profit and Loss Statement by Departments

[321]

There are certain profits which arise from other sources than the sale of goods in which the concern is trading. Among other sources are interest and premiums and profits on the sale of bonds and stocks. All such items should be listed separately each month that the amount of unusual profits may be known. This statement presents a history of the progress of the business reduced to its final analysis—that of actual net profits.

MAILING-ROOM MACHINERY

Mechanical devices and machines are used for many purposes in an office, and both the variety of uses and types of machines are steadily increasing. Inventors and manufacturers of office appliances are working constantly to perfect devices which will save time, insure accuracy, and reduce costs. Among the important devices are several designed to reduce labor and insure increased speed in the mailing room.

Addressing Machines. One of the most efficient labor-saving devices is the addressing machine, which is used for addressing envelopes, cards, and other matter, to a large list of names. These machines are especially well adapted for the names to which communications are addressed at regular intervals. Brokers and commission men use them for addressing daily market letters to permanent lists of correspondents; business houses in all lines find them convenient for monthly statements, using the machine both for addressing the envelopes and filling in the names on the statements. An office boy can fill in addresses on statements for all accounts in the sales ledger, and address the envelopes, saving about one-half the time of the bookkeeper.

In the advertising and sales department, the addressing machine is used to excellent advantage for addressing follow-up letters, booklets, circulars, and catalogs. Its use makes it easy to send advertising literature to all customers at frequent intervals. The machine is not recommended for a prospective customer's follow-up list, unless a large number of follow-ups are to be sent; but when a man becomes a customer, it may be safely assumed that the name is permanent.

Of the machines now on the market, one of the best known is the addressograph. This machine is made with both card addresses[322] and chain addresses. The card machine, which is shown in Fig. 21, is the most practical for the uses to which the machine is put in the average office. With this machine, metal frames the size of an index card are used. These frames are made in two styles, one of which has a metal printing plate, while with the other, the name and address are set in rubber type. With the first style, the printing plate is made by stamping the letters on a sheet of metal. This makes a permanent address, which cannot be changed without making a new plate.

Fig. 21. The Addressograph Addressing Machine
Addressograph Co.

Fig. 22 shows the rubber type frame. The name and address are set up in the type frame, and can be changed at will. Type[323] taken from old addresses can be used over and over again. When an address is set, a proof is printed on a card, which is placed in the upper half of the frame. This card is large enough for notations, and can be arranged for recording any information desired.

The metal frames are provided with tabs printed with letters, names of towns, numbers, or other special information, and are filed in card drawers, as shown in Fig. 23. They may be filed in any of the usual ways adapted for card systems; a customers' list may be filed according to states and towns, and the names in a certain town addressed without disturbing the balance of the list.

Fig. 22. Metal Frames for Rubber Type
The Addressograph Co.

To operate the machine, the address plates are first transferred to the magazine on top of the machine. The contents of a drawer can be transferred without handling. The plates are automatically fed to the printing point of the machine, from which they are returned to the drawer, which is placed under the machine, in the exact order in which they were filed. When the address frame reaches the printing point, the address is plainly visible on the card, so that any name can be skipped.

With an addressograph it is claimed that 3000 addresses an hour can easily be made. This takes the place of several girls, and reduces the cost to a minimum.

[324]

Fig. 23. Addressing Card File. Addressograph Co.

Folding Machines. One of the most practical labor-saving devices for the mailing room is the folding machine. Direct advertising, by means of circular or form letters, and printed circulars, is becoming more and more popular. Where such communications were formerly mailed in hundreds, they are now mailed in thousands; it is not uncommon for a concern using this form of advertising to mail a million circulars or letters on one proposition in a single season.

Fig. 24. Folding Machine Operated
by Electric Motor.
A. B. Dick Co.

To fold these letters and circulars in the ordinary way is an expensive task. Not only is the labor cost involved, but the question of space, which in many offices is of even greater importance. While a plant occupying buildings[325] owned by the company may be in a position to provide plenty of space for offices, the great majority of businesses are conducted in cramped office quarters; the modern office building with its high rents tends to reduce office space to a minimum. As a result, many a business, lacking room in which to work a large force of folders, has been obliged to hire its extensive circularizing done outside of the office.

These difficulties have to a great extent been overcome by the folding machine. For many years printers have made use of machines for folding, but it was not until a comparatively recent date that a machine adapted to office use was perfected. Now there are several practical machines on the market.

One of these machines will fold from 4000 to 7000 letters or circulars an hour, depending on the size and weight of the paper, and the number of folds. This is equal to eight persons folding by hand, and the machine and operator occupy no more space than one hand folder.

The best machines are so made that they can be operated by hand or electric power. Wherever electric lights are available, the power machine can be used. Including the cost of power, the maximum cost of folding with one of the machines is from 3 cents to 5 cents a thousand. One of the well-known types, with motor attached, is shown in Fig. 24.

Mailing Machines. To a concern mailing large quantities of circular matter, an envelope sealer or mailing machine is indispensable. Envelope sealers which worked in a more or less satisfactory manner have been on the market for several years. These machines have been improved, and their best features combined with new ideas, until now machines are to be had which work perfectly.

Several of the machines seal envelopes only; one both seals the envelopes and attaches the stamp. The combination sealing and stamping machine seals, stamps, and counts envelopes at an average rate of 8000 an hour, doing the work of from eight to ten clerks.

When sealed by the machine, the flaps of the envelopes are folded tightly and securely sealed. The moistening device is so constructed that the amount of moisture passing under each flap is regulated to a nicety, preventing envelopes sticking together on account of too much water being applied. Coincident with the sealing of an envelope, the stamp is applied. Every envelope passing through the[326] machine is stamped; as a result, none are returned from the postoffice for lack of postage.

Fig. 25. The Mailometer
Mailing Machine
Mailometer Co.

A special counting device automatically counts the stamps as applied, the counter being in full view of the operator. This means an absolute check on the postage account. The stamps are locked in a glass case and, by moving a lever, the stamp mechanism can be thrown out of operation. It can only be made to apply stamps again by unlocking the case, which places the stamps absolutely under the control of one person.

After being sealed and counted, the envelopes pass to a stacker, all facing one way so that they can be tied in bundles for sending to the postoffice. This is a point worthy of consideration where dispatch in getting mail out is of importance. Envelopes of any size up to twelve inches are handled, and by throwing off the sealing device, mailing cards can be stamped.

The machine referred to is shown in Fig. 25. In operation, the mail is gathered and placed on the rack shown at the top of the machine, with the flap of each envelope overlapping the one next to it. The operator, taking a bunch of about twenty-five envelopes from the rack, holds them lightly against the feed rolls at the left of the machine. The automatic feed separates the envelopes, permitting only one at a time to pass its flap over a metal disc which revolves in water. As the envelope is advanced, the stamps are fed forward, cut off, moistened, and rolled upon the passing envelope. The stamps used in the machine are put up in continuous-ribbon form, wound on a reel, there being 3000 stamps on a reel. Until the government supplies stamps in this form, they are being supplied by the manufacturers, who have arranged with the government to make them to their order.

[327]

Letter-Printing Machines. The present extensive use of circular or form letters is made possible by the use of letter-printing machines. To write all of the letters on a typewriter is out of the question, owing to the cost. Consequently, concerns doing any considerable circularizing have resorted to imitation typewritten letters.

Fig. 26. The Multigraph Cylinder Printing Machine
American Multigraph Sales Co.

For many purposes letters bring better results than printed circulars, but without the personal touch—unless the recipient is made to feel that the letter was written to him—a letter loses its force. This fact makes the ordinary printed letter ineffective. An imitation typewritten letter makes the personal appeal possible; if it is printed from typewriter type in a color that matches the ribbon of the machine, the name and address can we filled in, and it will look like a typewritten letter.

Many printers have learned to produce satisfactory letters of this character and, within the last few years, several printing machines, designed for office use, have been put on the market. These machines are adaptations of the printing-press idea. Letters are set up as they would be for a printing press, typewriter type being used;[328] but instead of printing from ink applied directly to the type, the letters are printed through a large typewriter ribbon. Ribbons of the same kind are used on the typewriter for filling in names and addresses, which insures a perfect match. One of these machines will print from 1000 to 2500 letters an hour.

Fig. 27. Multi-Copy Typewriter. Multi-Copy Typewriter Co.

There are two distinct types of machines, the cylinder machine and the flat-bed machine. A well-known machine of the cylinder type is shown in Fig. 26. The machine has two cylinders, one for type storage and one for printing. The type is held in slots in which[329] it moves freely. To set up a letter on the printing cylinder, the storage cylinder is revolved until the pointer at the top of the machine reaches the desired letter, when a slight pressure of the finger on the small lever in the center moves the type into the slot on the printing cylinder. This is continued until the line is set, when the printing cylinder is moved into position for the next line. To distribute the type to the storage cylinder, this operation is reversed.

After the letter is set, a ribbon is drawn around the printing cylinder, and the machine is ready to print. The paper is fed, printing side up, underneath the cylinder. A turn of the crank draws the paper through, prints it, and discharges it at the back of the machine. Special power attachments can be put on which operate both the machine itself and an automatic feed, which greatly increases the speed.

Fig. 28. The Writerpress
Printing Machine.
The Writerpress Co.

Machines of the flat-bed type are shown in Figs. 27 and 28. With these machines the type is kept in cases, the compartments of which are arranged in the same order as the keys on a typewriter. The type is set up and locked in a chase, just as it is by a printer, and the chase placed on the flat bed of the machine.

The ribbon is stretched tightly over the type, the printing being done by moving an impression roller over the ribbon. Paper is fed, one sheet at a time, against the paper guide, and the roller, passing over, produces the desired printing impression. When the roller is returned, the sheet is automatically ejected and counted. The pressure and shade of the printing are regulated by the adjustment of impression screws.

An advantage claimed for this type of machine is that electrotypes and zinc etchings can be used, or regular printers' job type can be substituted for printing small circulars and office forms. If a letter or form is used frequently, it can be electrotyped and held permanently, releasing the type.

[330]
[331]

A WELL-ARRANGED OFFICE OF A BANKING HOUSE
Peabody, Houghteling & Co., Chicago, Ill.


[332]
[333]

REVIEW QUESTIONS.


PRACTICAL TEST QUESTIONS.

In the foregoing sections of this Cyclopedia numerous illustrative examples are worked out in detail in order to show the application of the various methods and principles. Accompanying these are examples for practice which will aid the reader in fixing the principles in mind.

In the following pages are given a large number of test questions and problems which afford a valuable means of testing the reader's knowledge of the subjects treated. They will be found excellent practice for those preparing for Civil Service Examinations. In some cases numerical answers are given as a further aid in this work.


[334]
[335]

REVIEW QUESTIONS

ON THE SUBJECT OF

ADMINISTRATIVE AND INDUSTRIAL ORGANIZATION


1. If called on to perfect the organization of a business enterprise, what would be your first steps in making your investigation?

2. In creating responsibilities, how would you regard the individuals conducting the enterprise?

3. Explain, in your own terms, the objects of organization. What are the principal components of a business organization?

4. What is the function of the executive committee? Over what divisions does the general manager have authority, and to whom is he responsible?

5. Into what sections do the commercial and manufacturing divisions divide?

6. Make a chart of an industrial organization, showing the principal components and their relationship, one to the other.

7. Who are the immediate assistants of the general manager? Explain the nature and responsibilities of their positions.

8. Make and explain a chart showing the subdivisions of the commercial and manufacturing divisions over which the two assistants of the general manager have authority.

9. Explain how these principles of organization are applied to the small corporation.

10. In a corporation organized to conduct a trading business, how does the organization differ from that of a manufacturing enterprise?

11. What are the specific duties of the comptroller? Over what departments does he have absolute authority, and who are his immediate assistants, in charge of those departments?

[336]

12. What are the functions of the sales division? Who are the department heads in control of the sales division, and what are their specific duties?

13. To what departments does the authority of the superintendent extend?

14. Who are the immediate assistants of the superintendent, and what are their duties?

15. Describe, briefly, the duties of the purchasing agent.

16. What general rules should be made in respect to a definition of duties and authorities?

17. Illustrate by means of a chart, with necessary explanations, the proper distribution of salaries and wages in a manufacturing enterprise.

18. Prepare an expense distribution chart, showing amounts for a business selected by yourself.

19. Illustrate the location of the departments in a manufacturing enterprise with which you are familiar, and suggest how the plan might be improved.

20. What general plan should be followed in arranging an office. Illustrate a model office plan for a business of your own selection.

21. What is meant by the committee system?

22. Name the usual committees which consider questions affecting the operation of the manufacturing division. How are these committees made up, and what questions do each consider?

23. What committees consider questions affecting the commercial division? What questions are considered by these committees?

24. Explain the suggestion plan and its operation.

25. Suppose the sales manager wishes to send out a sample which must be made in the factory. How should he proceed to secure the sample?


[337]

REVIEW QUESTIONS

ON THE SUBJECT OF

ADVERTISING AND SALES ORGANIZATION


1. Describe and illustrate a practical system for the preservation of advertising information in the form of clippings and memoranda.

2. Describe and illustrate a complete system for filing and keeping a record of drawing and engravings.

3. Discuss the advisability of having all printing ordered by one man, or allowing each department head to place his own orders.

4. Explain how you would provide for proper records of printing, from the time the order is placed to the issue from stock. Illustrate the necessary forms.

5. If you were placing advertising in 100 periodicals, how would you keep a record of their advertising rates?

6. An advertiser in a large city uses 32 magazines of national circulation. How would you suggest keying his ads to identify the inquiries?

7. What form of record would you keep of the inquiries received from a given publication?

8. How would you suggest obtaining a record of results of retail advertising? Name some of the factors which might influence the sale of an advertised article on a certain day?

9. What special conditions, in your opinion, should exist before a manufacturer of a food product starts an outdoor advertising campaign in Cleveland, Ohio?

10. Name at least three necessary qualifications of a successful sales manager.

[338]

11. What is meant by the mail order branch of the sales department? How are sales made by the mail order branch?

12. What, in your opinion, is the most satisfactory method of keying form letters?

13. Illustrate the necessary forms for records of form letters, including records of results.

14. State your understanding of the follow-up system, and the manner of its use.

15. Explain four methods of bringing a name to notice at a given date, illustrating the forms you would use in each case.

16. What objects are attained by maintaining a customers' list separate from the ledger and the follow-up list?

17. Name two or more reasons for classifying a mailing list. Name some of the usual classifications.

18. Explain how a card list can be made to automatically indicate the business and the position or occupation of each man.

19. Explain how a customers' list can be made to show the class of purchases of each customer.

20. Explain the map and tack system of routing salesmen, and name some of the advantages of its use.

21. What benefit does the salesman derive from reports of his calls which he makes to the house?

22. Illustrate a suitable form for a salesman's report of calls, and explain how it is to be used.

23. Explain and illustrate a system for following up dealers on inquiries referred to them.

24. Suggest a form for a salesman's expense account.

25. Illustrate suitable forms for daily and monthly sales reports.


[339]

REVIEW QUESTIONS

ON THE SUBJECT OF

THE CREDIT ORGANIZATION


1. In respect to the general classes of information required by the credit man, how would you divide the subject?

2. Name the two factors which govern the credit risk, and state in what respects these factors are of importance.

3. Analyze at least three of the items which make up the statement shown in Fig. 1.

4. Discuss the character of the information about his customers required by the city and country retailer.

5. What are the principal sources of credit information?

6. How would you suggest obtaining information through local sources? Show form of report you would expect from a local correspondent.

7. To what extent can the salesman be expected to supply credit information about his customers? What form of report would you expect him to submit?

8. What do you consider the best method of filing credit information in a wholesale house having two thousand customers in six states?

9. Illustrate a suitable card form for a transcript of credit information for the above-mentioned wholesale house.

10. Describe a system of handling credits for a corporation whose goods are sold through branch houses, illustrating the necessary forms.

11. Describe a system for following up collections by means of duplicate invoices.

[340]

12. Explain how a card collection system can be arranged to indicate the names, the cards being filed according to due dates. If filed by name, how can the due dates be shown?

13. Illustrate a form of collection card suitable for a business of your own choosing.

14. Describe a system for handling the local collections of a wholesale house, illustrating the necessary forms.

15. How can collections be followed up directly from the ledger accounts?

16. Describe a system for keeping the accounts and handling the collections in a house selling furniture on the installment plan, illustrating all necessary forms.

17. Discuss the special factors to be considered in handling installment collections by mail.

18. What general ledger controlling accounts of the installment ledger are necessary? Explain the sources of entry to these accounts.

19. Describe a collection system to be used by an attorney, illustrating the necessary forms.


[341]

REVIEW QUESTIONS

ON THE SUBJECT OF

THE SHIPPING DEPARTMENT


1. Discuss, in a general way, the duties and responsibilities of the shipping clerk.

2. What is your understanding of the term classifications, as applied to shipping?

3. Explain how the manner of packing and the description given affect the classification of an article.

4. What is your understanding of class rates?

5. What are commodity rates, and what factors usually govern the establishment of a commodity rate?

6. By whom are rates prepared, and by what body must they be approved before they become effective?

7. Explain how the routing of a shipment may be influenced by the existence of a commodity rate.

8. If called upon to organize a shipping department for a manufacturing concern in Dayton, Ohio, whose product is shipped to all parts of the United States, what steps would you take to secure freight tariffs?

9. Outline a system for filing these tariffs.

10. What index would be required?

11. If shipments were confined to cities of 10,000 population, or over, in two states, how would you arrange a rate file covering these towns only?

12. How would you keep a record of the classifications of the goods shipped by your house?

13. Describe the method you would use for recording commodity rates applying to your product.

[342]

14. What is your understanding of the term basing point, and why is a knowledge of basing points necessary to the successful shipping clerk?

15. Discuss the proper method of filling orders to insure promptness.

16. How should shortages be taken care of?

17. Discuss the question of checking shipments, including a method that will insure against errors in delivery.

18. Describe a system for handling freight claims, illustrating the forms you would use.

19. How should claims be handled from an accounting standpoint?

20. Describe the necessary routine in entering and filling orders in a mail-order house shipping all goods by express.

21. Describe a simple system of handling deliveries in a city retail store.

22. Suggest a method that will insure against goods being sent to the wrong section of the city.

23. How would you handle a delivery when the driver fails to find the customer at home?

24. What special precautions are necessary in handling C.O.D. deliveries?

25. If a customer asks to have goods delivered to him at a railway station before train time, what special provision should be made to insure delivery?


[343]

REVIEW QUESTIONS

ON THE SUBJECT OF

CORRESPONDENCE AND FILING


1. What are the usual duties of the incoming mail clerk?

2. Make such suggestions as you deem advisable relative to the handling of correspondence after it reaches the department for which it is intended.

3. Suggest a method of handling interdepartment correspondence to insure promptness.

4. Discuss short cut methods which will aid in the handling of correspondence.

5. What method of obtaining copies of correspondence would you recommend for a house having an average of 300 letters a day? Give reasons for your recommendations.

6. Discuss the advantages of having all stenographers in a large house in one department, in charge of a chief stenographer.

7. Describe and illustrate the forms for the necessary records of the stenographic department.

8. Discuss the advantages or disadvantages of a central filing division over departmental filing.

9. What are the duties of a file clerk? Name the essential qualifications of a file clerk.

10. State your understanding of vertical filing.

11. What, in your opinion, are the special advantages of vertical filing over other methods?

12. Describe and show the necessary index cards for numerical, alphabetical, geographical, and subject indexing.

13. Suggest conditions which would make each of these methods advisable.

[344]

14. Which method do you consider best for the average office?

15. What special suggestions can you make relative to filing correspondence of salesmen, branch offices, and customers from whom a large number of communications are received?

16. Discuss the filing of orders and invoices.

17. How would you file documents? Credit reports?

18. To provide suitable indexing, how many guides should be used for a file containing 1500 folders?

19. What provision should be made for transferring correspondence?

20. What are the special advantages of sectional filing cabinets?


[345]

REVIEW QUESTIONS

ON THE SUBJECT OF

BUSINESS STATISTICS


1. What are the functions of the statistical department?

2. Into what two classes are commercial costs divided?

3. How are sales costs classified? To what class does the railroad fare paid by a traveling salesman belong?

4. How can a record of goods received be obtained by the statistical department?

5. How should this information be recorded?

6. What special purpose does this record of purchase serve?

7. What is the first record required in figuring profits on sales? How is it obtained?

8. Why is a record of goods returned by customers needed by the statistical department?

9. How would you provide for a record of a salesman's sales of a single commodity? Illustrate.

10. Illustrate and explain the form you would use for a record of a salesman's total business.

11. In tabulating sales, how would you treat the sales of the mail-order department?

12. Discuss the proper method of distributing general sales expense.

13. What facts are shown by a record of the total sales of a single commodity? Illustrate the form you would use to bring out these facts.

14. Why are properly classified departmental sales records of importance?

15. Discuss the subject of trading statements and illustrate a form for such a statement.

[346]

16. Why is a record showing the profits on the business of a customer, of value? Illustrate a form for a condensed record.

17. What classes of expense are included in the term administrative?

18. Illustrate and explain a suitable form for a daily record of the work of a clerk in the mailing room.

19. What is the purpose of a daily mail report? Illustrate the form you would use.

20. Explain, and show necessary forms for a system designed to maintain an accurate check on the postage account.

21. Illustrate and explain a form for a weekly postage report.

22. In preparing a summary of administrative expense, distributed by departments, on what basis would you distribute the item of insurance on office furniture and fixtures?

23. Prepare a profit and loss statement (using your own figures) showing profits earned by each of four departments.

24. On what basis have you distributed administrative expense in the above statement?


[347]

INDEX

[348]
[349]

INDEX


A

Addressing machines, 321

Addressograph, 323

Administrative and industrial organization, 11-59

chart of organization, 16

charting salary and wage distribution, 38

committee system, 50

departmental, 26

duties defined

of individual workmen, 36

of office employes, 36

employment department, 33

expense distribution chart, 40

oral orders cause confusion, 56

physical arrangement, 44

sales division, 30

suggestion plan, 55

uniform blanks, 58

Advertising committee, 53

Advertising contracts, 80

Advertising periodical, 78

Advertising and sales organization, 61-124

advertising information, 63

copy proofs, 70

cut indexes and tracers, 68

designs and cuts, 65

outdoor advertising, 92

periodical advertising, 78

checking returns, 83

contracts for, 80

orders for insertion, 83

rate cards, 78

printing orders and tracer, 71

sales department, 94

branches of, 95

mail order 96

[350]

personal salesmanship division, 112

Advertising and sales organization

sales records, 120

street car advertising, 91

systems and records, 63

Advertising and salesmanship, 93

B

Back orders, 199

Branch house credits, 144

Business organizer, 11

Business statistics, 287-329

administrative costs, 308

commercial costs, 308

daily mail report, 312

postage record, 313

stationery and supplies, 315

weekly mailing report, 315

weekly postage report, 315

statistical department, 287

customer's profit records, 303

department sales, 297

expense distribution, 295

mail orders, 295

records of shipments, 289

returned goods, 291

sales costs, 288

salesmen's records, 292

total commodity sales, 297

trading statements, 299

value of profit figuring, 303

C

C.O.D. deliveries, 224

Chart of expense distribution, 40

Chart of salary and wage distribution, 38

Charting the organization, 16

Checking shipments, 200

Chief accountant, 29

Chief engineer, 32

Chief stenographer, 29

Class rates, 186

Collections, 148

Collection systems, 152

Committee system

advertising committee, 53

departmental factory committees, 51

general factory committees, 51

[351]

job bosses, 52

organization committee, 53

sales committee, 52

Commodity rates, 186

Comptroller, 28

Correspondence copying, 243

carbon copies, 244

mechanical copiers, 244

Correspondence and filing, 231-285

copying correspondence, 243

correspondence short cuts, 238

filing division, 254

filing equipment, 278

filing helps, 276

filing systems, 257

mail, 231

miscellaneous filing, 271

stenographic division, 247

Correspondence short cuts, 238

complaints and changes of address, 241

dictating by number, 238

form paragraphs, 238

making corrections, 243

requisitions, 240

stenographer's reference index, 242

talking machines for dictation, 239

Credit man, 31, 127

Credit organization, 127-180

branch house credits, 144

collection systems, 152

card tickler, 155

cash receipts, 167

collecting from the ledger, 159

collector's card, 171

collector's receipt, 172

cross-indexing, 155

duplicate invoices, 152

filing contracts, 171

handling drafts, 162

installment collections, 162

installment ledger, 166

installment register, 165

local collections, 158

monthly statements, 157

collections, 148

credit man, 127

financial statements, 130

[352]

information required, 128

information for retailers, 133

mail-order installment collections, 172

account, 175

follow-up, 176

by attorneys, 178

recording credit information, 140

card transcripts, 141

filing, 140

sources of information, 135

local correspondents, 136

mercantile agencies, 135

retail credit reporting agencies, 138

traveling salesmen, 137

Credit organization, recording, 140

D

Departmental organization, 26

E

Expense distribution chart, 40

Export shipping, 204

Express shipments, 215

F

File clerk, 255

Filing, miscellaneous, 271

clippings, 275

correspondence of temporary value, 272

credit reports, 276

documents and legal papers, 274

drawings and maps, 275

invoices, 273

orders, 272

salesmen's correspondence, 271

Filing equipment, 278

metal, files 283

transfer files, 282

Filing helps, 276

guiding, 276

sorting, 277

transferring, 277

Filing systems, 257

flat files, 258

indexing methods, 262

alphabetical, 264

geographical, 265

numerical, 262

[353]

subject, 267

vertical files, 259

Filling orders, 196

Financial statements, 130

Folding machines, 324

Form letter records, 101

Forms

alphabetical vs. numerical filing, 270

alphabetical subdivisions, 265

attorney's collection card, 178

attorney's collection register, 177

back order blank, 200

blank used for interdepartment correspondence, 57

border on label to indicate routing, 220

box envelope for clippings, 64

box file, 66

branch office

credit application, 146

credit inquiry blank, 148

credit notice, 147

card for a classified record of purchases, 111

card for combined daily and monthly follow-up, 107

card for commodity rates, 193

card for follow-up, 104

card for follow-up claims, 211

card for follow-up of dealer and inquirer, 119

card for publication inquiries, 84

card file for a classified customer's list, 109

card file for railroad tariffs, 189

card index for classification, 192

card record of reports received and credit granted, 145

card tickler for collections, 154

cash receipt book for installment collections, 166

chart of

apportionment of salaries and wages, 41

corporate manufacturing enterprise, 17

corporate trading enterprise, 21

departmental authorities, 27

expense distribution, 42

working authorities in a manufacturing business, 19

working authorities in a trading business, 23

checking card used for record of sales, 86

claim account card, 213

collection card for

alphabetical cross-indexing, 155

cross-indexing by date, 156

each invoice, 153

[354]

synopsis of entire account, 157

collector's card, 170

combination cabinet, 280

condensed profit-and-loss statement by departments, 320

condensed rate card, 191

confirmation of telegram, 253

contract for installment sales, 163

copy of invoice for statistical department, 291

credit agency report card, 143

credit card for retailer's use, 145

credit information folder, 141

cross-index to tariff file, 190

customer's financial statement, 131

daily mail report, 312

daily and monthly record of salesmen, 123

daily report of installment accounts for collector, 168

daily tabulation of sales by departments, 122

delivery boy's call tag, 223

delivery sheet, 222

delivery tag, 224

departmental comparative trading statement, 304

departmental distribution of work of stenographic division, 251

detailed record of form letters mailed, 98

distribution of administrative expense, 318

document file, 274

document file envelopes, 274

drawing file, 275

file drawer, 65

floor chart for filling orders, 198

floor plan of a modern administrative building, 49

folder for freight claims, 210

follow-up card with alphabetical tab, 105

follow-up card with movable tab to show dates, 106

general credit information card, 144

general credit report card, 143

geographic alphabetic filing, 266

index to creditors for attorney, 180

index card for

numerical filing, 264

record of advertising rates, 79

record of designs and engravings, 68

indexing firm correspondence for numerical filing, 264

installment contract register, 164

layout of a typical manufacturing plant, 46

ledger card, 216

ledger for installment accounts,165

local correspondent's report blank, 137

[355]

loose-leaf ledger cross-indexed for due dates, 160

loose-leaf ledger for mail-order collections, 174

loose-leaf scrap book sheet for engravings, 67

mail-order collection card, 175

monthly recapitulation of daily sales reports, 122

monthly record of purchases of customer, 108

monthly trading summary, 302

notice of attempt to deliver, 227

notice of inquiry sent to salesman with blank for his report, 120

office record of C.O.D. items, 226

order blank, 201

for insertions of advertising copy, 82

packer's slip, 202

perpetual stock for printing, 75

post-card notice of attempted delivery, 228

post-card receipt for cuts, 70

prepaid shipping sheet, 218

quadruplicate draft form, 161

receipt for installment collections, 172

record of

correspondence on back of follow-up card, 212

costs and sales, 88

purchases and profits of customer, 305

sales advertisement, 89

sales by an agent or dealer, 124

sales of a department divided as to commodities, 300

sales resulting from form letters, 100

salesman's sales arranged by commodities, 294

salesman's total sales, 296

shipment of street car cards, 90

street car contract and net cost, 91

total sales of one commodity, 298

register of merchandise received, 290

register of sales, 214

report of labor in the mailing room, 310

report of returned goods, 292

requisition for correspondence, 241

routing package labels, 203

salesman's comparative sales statement, 307

salesman's customer's report blank, 138

salesman's report of call and follow-up, 118

salesman's report of calls in each town, 116

schedule of monthly insertions in periodicals, 81

shipping order and label made at one writing, 217

shipping order for printing, 77

sorting tray, 277

special C.O.D. delivery book, 225

[356]

special delivery tag, 228

special delivery tag for department store, 229

special invoice folder, 273

specific report on industrial calls, 118

stenographer's weekly record of work distributed by departments, 249

subject and alphabetical folder, 268

subject indexing and cross-reference, 267

summary of supplies drawn, 317

tab folders, 266

tally of sales for small mail-order house, 234

tracer card for drawings and cuts, 70

traveler's route card, 115

traveler's weekly statement of expenses, 121

triplicate form for printing, 73

triplicate statement for collection, 158

vertical file drawer equipped as a tickler, 102

voucher for postage, 313

weekly report of mailing department, 316

weekly report of postage used, 314

working chart for employes, 37

Freight claims, 208

Freight tariffs, 188

filing, 188

indexing, 190

G

General manager, 28

I

Installment collections, 162

J

Job bosses, 52

K

Keying form letters, 97

M

Mail

departmental distribution, 235

distributing incoming mail, 233

interdepartment correspondence, 237

opening mail, 231

sorting mail, 232

Mail orders, 96

classification of sales, 110

[357]

cross-indexing alphabetical file, 106

cross-indexing chronological file, 105

follow-up systems, 101

card follow-up, 103

tickler method, 102

form letters, 96

lists of customers, 107

Mail-order installment collections, 172

Mailing-room machinery, 321

addressing machines, 321

folding machines, 324

letter-printing machines, 327

mailing machines, 325

Mercantile agencies, 135

Mercantile business, organization of, 20

O

Organization

administrative and industrial, 11-59

advertising and sales, 61

applied to small business, 20

characteristics of, 14

of mercantile business, 20

objects of, 14

Organization committee, 53

Organization principles, universal application of, 22

Outdoor advertising, 92

P

Periodical advertising, 78

Personal salesmanship, 112

expense accounts, 120

follow-up of dealers and salesmen, 117

reports of calls, 115

routing salesmen, 114

Purchasing agent, 33

R

Rate cards, 78

Retail advertising returns, 89

Retail credit reporting agencies, 138

Retail delivery system, 219

C.O.D. deliveries, 224

delivery sheet, 222

delivery tag, 220

routing deliveries, 221

special deliveries, 229

[358]

undelivered goods, 227

Routing salesmen, 114

Routing shipments, 194

S

Salary and wage distribution, chart of, 38

Sales committee, 52

Sales manager, 30

Sales records, 120

daily, 121

monthly, 123

salesmen's, 123

Shipping clerk, 184

class rates, 186

classification index, 192

commodity rate file, 193

commodity rates, 186

condensed rate file, 191

freight tariffs, 188

information required, 184

routing shipments, 194

Shipping department, 183-229

back orders, 199

checking shipments, 200

export shipping, 204

express shipments, 215

filling orders, 196

freight claims, 208

retail delivery system, 219

shipping clerk, 184

Special deliveries, 229

Statements

accounts receivable, 132

bills receivable, 132

cash on hand, 132

due for borrowed money, 133

due for merchandise, 133

due from stockholders, 133

liability as surety, 133

merchandise, 132

Stenographers, 247

"don'ts", 252

hints for, 252

records of work, 248

Street car advertising, 91

Superintendent, 31

T

Transfer files, 282

TRANSCRIBER'S NOTES

—Obvious print and punctuation errors were corrected.

—The transcriber of this project created the book cover image using the title page of the original book. The image is placed in the public domain.