The Project Gutenberg eBook of The Fairfax County Courthouse

This eBook is for the use of anyone anywhere in the United States and most other parts of the world at no cost and with almost no restrictions whatsoever. You may copy it, give it away or re-use it under the terms of the Project Gutenberg License included with this eBook or online at www.gutenberg.org. If you are not located in the United States, you will have to check the laws of the country where you are located before using this eBook.

Title: The Fairfax County Courthouse

Author: Ross De Witt Netherton

Ruby Waldeck


Release date: May 10, 2009 [eBook #28750]

Language: English

Other information and formats: www.gutenberg.org/ebooks/28750

Credits: Produced by Mark C. Orton, Chris Logan and the Online
Distributed Proofreading Team at http://www.pgdp.net

*** START OF THE PROJECT GUTENBERG EBOOK THE FAIRFAX COUNTY COURTHOUSE ***

The old courthouse about 1920. Copy courtesy Lee Hubbard. Front cover—The old courthouse about 1920. Copy courtesy Lee Hubbard.
County of Fairfax, Virginia

The Fairfax County Courthouse

BY
ROSS D. NETHERTON
AND
RUBY WALDECK

Published by the Fairfax County Office of Comprehensive Planning
under the direction of the County Board of Supervisors
in cooperation with the Fairfax County History Commission

July 1977

[Pg ii]

The following history publications are available from:

Fairfax County Administrative Services
Fairfax Building
10555 Main Street
Fairfax, Va. 22030
703-691-2781

Library of Congress Catalog Card Number 77-84441

[Pg iii]

TABLE OF CONTENTS

ILLUSTRATIONS  
ACKNOWLEDGMENTS  
FOREWORD  
INTRODUCTION 1
I. FAIRFAX COUNTY'S EARLY COURTHOUSES: 1742–1800 3
II. THE PROVIDENCE COURTHOUSE AND ITS RELATED BUILDINGS: 1800–1860 12
III. THE COUNTY COURT AND ITS OFFICERS 18
IV. THE WAR YEARS: 1861–1865 33
V. THE YEARS OF REBUILDING: 1865–1903 42
VI. THE TWENTIETH CENTURY COURTHOUSE 50
VII. THE ARCHITECTURE OF THE COURTHOUSE AND ITS RELATED BUILDINGS 58
  1. The Courthouse Complex 58
  2. The Courthouse 73
  3. Restoration of the Original Wing of the Courthouse, 1967 87
APPENDIXES  
  A. County Court Clerks: 1742–1976 107
  B. Justices and Judges: 1742–1976 108
  C. Portraits in the Old Courthouse—Biographies 117
  D. Clerk's Office Specifications, Alexandria Gazette, July 15, 1853 121
  E. Schedule of Reconstruction of the Courthouse, 1967 123
LIST OF SOURCES 127

[Pg iv]

ILLUSTRATIONS

Front Cover—Courthouse about 1920  
Back Cover—Court papers, 1976  
Five Colonial Justices of the Fairfax County Court: George Washington; George Mason; Thomas, sixth Lord Fairfax; George William Fairfax; and Bryan, eighth Lord Fairfax 2
Cartograph of Alexandria Courthouse Square 6
Surveys of courthouse lot, 1798–1924 15
Civil War view, 1862 32
Hopkins' map of Fairfax Court House, 1879 44
Marr monument's dedication, 1904 49
The Tavern, c. 1932 51
1907 courthouse picture 51
Two aerials of the courthouse and county center complex, 1970s 55
Clerk's Office, 1907 61
County Jail, 1886 63
Police Department, c. 1947 63
Naval Cannon 67
Marr Monument 67
War Memorial plaques 68
Central staircase mural 69
18th century English town and market halls 76
Two-story windows, c. 1966; double row windows, 1967 80
Courtroom remodeled in 1920 82
Central entrance, 1954 addition 83
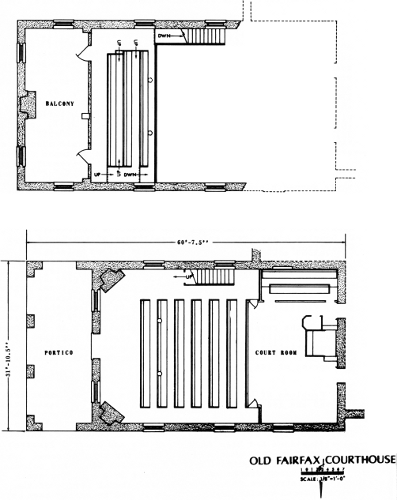
Floor plans 88
Three views of the gutted courthouse, 1966 90
Two interiors of the courthouse restoration, c. 1968 92

[Pg v]

ACKNOWLEDGMENTS

This monograph is one of a series of research reports on the historical and architectural landmarks of Fairfax County, Virginia. It has been prepared under the supervision of the Fairfax County Office of Comprehensive Planning, in cooperation with the Fairfax County History Commission, pursuant to a resolution of the Board of County Supervisors calling for a survey of the County's historic sites and buildings.

The authors of this report wish to acknowledge with thanks the assistance of Lindsey Carne, Mrs. J. H. Elliott, Lee Hubbard, Mrs. Jean Johnson Rust, and Mrs. Barry Sullivan, who provided information and graphics for this publication. Also valuable were the comments of the Honorable James Keith, Circuit Court Judge; Mrs. Edith M. Sprouse; John K. Gott; Mrs. Catharine Ratiner; and Mayo S. Stuntz, all of whom reviewed the manuscript with care prior to its final revisions.

Special thanks are tendered to the Honorable Thomas P. Chapman, Jr. and the Honorable W. Franklin Gooding, former Clerks of the Courts of Fairfax County; the Honorable James Hoofnagle, present Clerk of the Courts; and to Walter M. Macomber, architect of the 1967 reconstruction of the original wing of the courthouse, who granted extensive interviews which filled many of the gaps created by lack of documentary sources.

Throughout the entire research and writing of this report, the authors received valuable guidance and comments from the members of the Fairfax County History Commission and assistance from the staffs of the Fairfax County Public Library and the Virginia State Library.

Finally, the authors acknowledge with thanks the help of Jay Linard, Mrs. Verna McFeaters, Ms. Virginia Inge, Ms. Irene Rouse, Ms. Annette Thomas, and Ms. Robin Pedlar in manuscript preparation.

Ross Netherton
Ruby Waldeck

[Pg vi]

[Pg vii]

FOREWORD

The Fairfax County Courthouse is an important addition to the historical record of Fairfax County, Virginia. It brings together in one volume a history of the Fairfax County Courthouses and a manual of the organization and operation of governmental affairs centered within them over the years. A particular insight with regard to the early years of the county is evident.

Dr. Netherton and Mrs. Waldeck describe the consequential role the courthouse enjoyed as a social center as they examine the governmental role which made it the centerpiece of Fairfax County. The reader will note that the early Fairfax County officials gained an understanding of the importance of democratic government in our nation through their participation in county government while the people they served developed a sense of community through their interaction at the courthouse. The present courthouse stands as a monument to the governmental and social prosperity Fairfax County has enjoyed.

This text documents the story of the building which has stood at the center of almost two centuries of political life in Fairfax County. The extensive footnotes will prove an invaluable aid to scholars exploring the history of the county. History students in our county's schools will find The Fairfax County Courthouse an important addition to their reading lists. We are all indebted to Ross Netherton and Ruby Waldeck for their contribution in casting such a revealing light upon the roots of Fairfax County, her people and government.

James E. Hoofnagle
Clerk of the Fairfax County Court

[Pg 1]

INTRODUCTION

Each generation of Americans has acknowledged its debt to Virginia's leaders whose skill in politics was demonstrated so well in a half-century that saw independence achieved and a new republic established. They were products of a system of government which itself had been perfected over more than 150 years before the colonies declared their independence. To these men—George Washington, George Mason, Thomas Jefferson, Patrick Henry, John Marshall, George Wythe, James Madison, and the Carters—the County court was an academy for education in the art of government. Important as it was to sit in the House of Burgesses at Williamsburg, the lessons of politics and public administration were learned best in the work of carrying on the government of a county. Virginia counties were unique in colonial history, for the considerable degree of autonomy enjoyed by the County courts gave them both a taste of responsibility for a wide range of public affairs and a measure of insulation from the changes of political fortune which determined events in Williamsburg, and later Richmond.

In Virginia, the county courthouse was the focal point of public affairs. Usually built in a central location, with more regard for accessibility from all corners of the county than for proximity to established centers of commerce, the courthouse came to be a unique complex of buildings related to the work of the court. In time, most of these clusters of buildings grew into towns or cities, but throughout the eighteenth and nineteenth centuries many places shown on Virginia maps as "Court House" consisted literally of a county courthouse and its related structures standing alone beside a crossroads.

On court days, however, the scene changed. The monthly sessions of the court, conducted in colonial times by the "Gentleman Justices", provided opportunities to transact all manner of public business—from issuing licenses and collecting taxes to hearing litigation and holding elections. They also were social events and market days; there people came to meet their friends, hear the news, see who came circuit-riding with the justices, sell their produce, and buy what they needed.

In the two centuries since independence, profound changes have occurred in all phases of life that were centered in the courthouse. In Fairfax County, the pace and extent of[Pg 2] these changes have been extensive. Architectural historians who note uniqueness in the fact that Virginia courthouses developed as a complex of related buildings may see ominous symbolism in the fact that today one of the structures in the cluster around Fairfax County's courthouse is a modern fifteen-story county office building. Yet, at the same time this office building was being planned, workmen were rehabilitating the original section of the courthouse to represent its presumed appearance in an earlier time, thus providing a reminder of the historic role of county government in Virginia.

Five Colonial Justices of the Fairfax County Court
 
George Mason. George Mason. George Washington. George Washington.
 
Bryan, later eighth Lord Fairfax. Bryan, later eighth Lord Fairfax. Thomas, sixth Lord Fairfax. Thomas, sixth Lord Fairfax. George William Fairfax. George William Fairfax.

[Pg 3]

CHAPTER I

FAIRFAX COUNTY'S EARLY COURTHOUSES, 1742–1800

Once the survival of the colony of Jamestown seemed assured, provision for the efficient and orderly conduct of public affairs received attention. The Jamestown colonist and his backers in the Virginia Company of London were familiar with county government structure in England, and from early colonial times the county was the basic unit of local government in Virginia.

In the concept of county government, the role of the county court was central. As early as 1618, Governor Sir George Yeardley established the prototype of the County Court in his order stating that "A County Court be held in convenient places, to sit monthly, and to hear civil and criminal cases."[1] The magistrates or justices who comprised the court were, as might be expected, the owners of the large plantations and estates in the vicinity, and all were used to administering the affairs of the people and lands under their control. Accordingly, administrative duties as well as judicial duties were given to the court, and the justices' responsibilities included such matters as the issuance of marriage licenses, the planning of roads, and assessment of taxes.[2]

Colonial Virginia statutes specified that each county should "cause to be built a courthouse of brick, stone or timber; one common gaol, well-secured with iron bars, bolts and locks, one pillory, whipping post and stocks."[3] In addition, the law authorized construction of a ducking stool, if deemed necessary, and required establishment of a 10-acre tract in which those imprisoned for minor crimes might, on good behavior, walk for exercise. In addition, buildings were customarily provided to house the office of the Clerk of the Court, and to accommodate the justices of the assize and their entourage of lawyers and others who accompanied them as they rode circuit among the counties of the colony. In England, the "assizes" were sessions of the justices' courts which met, generally twice a year in each shire, for trial of questions of fact in both civil and criminal cases. The county courts in colonial Virginia continued to be called assizes for much of the 18th Century.

When events moved toward the partition of Prince[Pg 4] William County to create the County of Fairfax, the Journal of the Governor in Council in Williamsburg recorded the following entry:

Saturday, June ye 19th, 1742

. . . .

ORDERED that the Court-house for Fairfax County be appointed at a place call'd Spring Fields scituated between the New Church and Ox Road in the Branches of Difficult Run, Hunting Creek and Accotinck.[4]

Whether this was the first seat of the Fairfax County Court is not positively known. It is possible that the first sessions of the court may have been held at Colchester. Although no records of the transactions at these sessions have been found, an early history of the County cites entries in an early deed book which order the removal of the County Court's records from Colchester to a new courthouse more centrally located in the county.[5]

Be this as it may, the plan to establish a courthouse which was formalized by the Governor in Council apparently was deliberately designed to accommodate the increasing settlement of areas inland from the river plantations—an interest which the Proprietor, Thomas sixth Lord Fairfax, shared.

"Spring Fields", the site of the court house, was part of a tract of 1,429 acres owned in 1740 by John Colvill, and conveyed by him in that year to William Fairfax.[6] In this tract were numerous springs forming the sources of Difficult Run, Accotinck Creek, Wolf Trap Run, Scott's Run and Pimmit Run. It was high ground, comprising part of the plateau area of the northern part of the County, and the site selected for the courthouse had a commanding view for many miles around.

The location specified in the Council Order was on the New Church Road (later known variously as the Eastern Ridge Road, the Alexandria-Leesburg Road, or the Middle Turnpike) running from the Falls Church to Vestal's Gap in the Blue Ridge Mountains, at a point where this road intersected the Ox Road, running north and west from the mouth of the Occoquan River. A map of 1748 also shows roads running from the courthouse west in the direction of Aldie, and southwest toward Newgate (now called Centreville).[7] The site was roughly equidistant for persons coming from Alexandria,[Pg 5] Newgate, and the Goose Creek settlements, but somewhat farther for those from Colchester.

The land on which courthouse was built was conveyed to the County by deed from William Fairfax, dated September 24, 1745,[8] and described six acres "where the court house of the said county is to be built and erected," to be held by the County "during the time the said Court shall be located there but no longer." According to a survey made in March 1742, the site was a rectangle, 40 poles long by 24 poles wide, described in metes and bounds starting from a post on the west side of "Court House Spring Branch".[9] No other landmarks or monuments capable of surviving to modern times were mentioned in the deed, and today the site of the Springfield Courthouse can be determined as approximately one-quarter mile south and west of Tyson's Corner.

Having in mind the statutory requirements, it is presumed that the complex of buildings at Springfield consisted of a courthouse, a jail with related structures, a clerk's office, and one or more "necessary houses" (outhouses), all conveniently located with respect to each other and the roads. County records show surveys for two ordinaries (inns) located on or adjacent to the courthouse tract. One of these, surveyed in 1746, was a two-acre parcel containing John West's ordinary and related buildings, and the other, also surveyed in 1746, was for one acre within the courthouse tract on which John Colvill was allowed to build an ordinary.

No contemporary descriptions of the courthouse have survived, but it is likely that the buildings were of log construction, on stone foundations, with brick chimneys. A 16-foot-square addition to the courthouse was ordered in 1749, with the specification that it have a brick chimney.[10] An item from the Court Order Book, dated December 23, 1750, states:

On motion of the clerk of the court that papers lying on the table are frequently mixed and confused, and many times thrown down by persons crowding in and throwing their hats and gloves on the said table, the ill consequences thereof being considered, it is ordered that Charles Broadwater, Gent. agree with some workman to erect a bar around the said clerk's table for the[Pg 6]
[Pg 7]
better security of the books and papers.[11]

Cartograph of the Market Square and Fairfax County Courthouse in Alexandria, as they might have appeared in the eighteenth century. Drawn by Worth Bailey, 1949. Cartograph of the Market Square and Fairfax County Courthouse in Alexandria, as they might have appeared in the eighteenth century. Drawn by Worth Bailey, 1949.
VIEW LARGER IMAGE

In 1750, Fairfax County's western border closely approached the edge of English settlement in Virginia. Settlements in the western part of the County were growing far less rapidly than in the centers of population in the eastern part. Alexandria, established as a town in 1749, showed signs of becoming a major seaport, and its merchants complained that travel to the courthouse at Springfield was burdensome, and that service of process and execution of writs was well-nigh impossible.[12] They actively campaigned for moving the courthouse to Alexandria, and overcame the opposition of the "up-country" residents by offering to provide a suitable lot and build a new courthouse in Alexandria.

Alexandria prevailed in 1752, and the records of the colonial Governor in Council showed the following entries:

March 23, 1752. A petition subscribed by many of the principal inhabitants of Fairfax County for removing the court house and prison of that county to the town of Alexandria, which they propose to build by subscription, was this day read, ORDERED that the justices of the said county be acquainted therewith and required to signify their objection against such removal, if they have any, by the 25th of next month, on which day the Board will resume the consideration thereof.

And:

April 25, 1752. Upon the petition of many of the inhabitants of Fairfax County for removing the court house and prison of the said county by subscription to the town of Alexandria, the Board being satisfy'd that it is generally desired by the people, and on notice given, no objection being made to it, ORDERED that the court house and prison be removed accordingly to the town of Alexandria.[13]

By May 1752, the County Court's Minute Book carried the final record of business transacted at the Spring Fields Courthouse.

In Alexandria, the townspeople set aside two lots in the block of the original town survey bounded by Fairfax[Pg 8] Street, Cameron Street and King Street.[14] By ordinance, all buildings in the town had to face the street and have chimneys of brick or stone, rather than wood, to prevent fires.[15] The building erected as the new courthouse faced Fairfax Street, between Cameron and King Streets. A prison was built behind the courthouse building in the dedicated lots. The gallows, however, are said to have remained at Spring Fields for some time.[16]

Neither the architect nor the builder of the courthouse at Alexandria are known, although there is evidence that John Carlyle helped with the building of both the courthouse and market square.[17]

In the last half of the eighteenth century, Alexandria prospered as the principal seaport of the Northern Neck. Its wharves and warehouses were busy, and its politics were enlivened by the presence of some of the colonies' most distinguished residents and visitors. As tobacco gave way to diversified farming, wheat and flour comprised two of Alexandria's major commodities of trade, and enforcement of the flour inspection and marking laws became an important governmental function. Criminal justice was dispensed publicly in the courthouse and jail yard, furnishing moral lessons for both the culprits and observing crowds. It was in this jail, too, that tradition has it Jeremiah Moore, a dynamic Baptist minister of colonial Virginia, delivered a sermon to crowds outside his cell window while he was confined for preaching without a license.[18]

The court records for the years 1752 to 1798 show the names of many Virginians who were leaders in the War of Independence and the subsequent establishment of the new state government. Independence did not significantly affect the judicial system, however, and, except for their new allegiance, state and local officials conducted public business much as they had in the 1760's.

During the years of war, however, the courthouse suffered substantially because of lack of maintenance. After the war, repairs frequently were postponed due to arguments over whether the state or locality should raise the money for them. Thus, the court records of the post-war period show frequent references to the need for repairs on the courthouse and jail,[19] most, apparently, without success.

There were more serious questions being raised about[Pg 9] the future of the courthouse in Alexandria's market square. Alexandria no longer was central to the County's most important interests. Its port was losing trade to rivals, principally Baltimore, and the voice of the growing numbers of settlers in the western part of the county complained that Alexandria merchants gained at the expense of others by having the court meet in their town. George Mason of Gunston Hall felt that Alexandria politicians were building up too strong a hold on the machinery of County government, and sought the aid of members of the General Assembly to arrange for changing the location of the courthouse.[20] Finally, in 1798, the Virginia General Assembly directed that Fairfax County's Court House be relocated to a site closer to the center of the County.[21]

The search for a suitable site had gone on for almost ten years previously and might not have been concluded even then if its urgency had not been sharpened by the passage of Congressional legislation leading to creation of the District of Columbia, and the threat that Alexandria would fall within the boundaries of the new Federal capital. Since by law the County Court could not meet outside the boundaries of the County, no further delay could be permitted. Land was acquired, a new courthouse was built, and the County Court moved into its new quarters early in 1800.[22]

[Pg 10]

NOTES FOR CHAPTER I

[1] Albert O. Porter, County Government in Virginia, (New York: Columbia University Press, 1947), p. 13.

[2] A Hornbook of Virginia History, (Richmond: Virginia State Library, 1965), p. 64.

[3] Virginia, Laws, 1748, c. 7, revising earlier statutes on courts enacted in 1662 and 1679.

[4] Wilmer Hall (Ed.), Executive Journals of the Council of Colonial Virginia, (Richmond: Virginia State Library, 1945), V. 93.

[5] Industrial and Historical Sketch of Fairfax County, (Fairfax: County Board of County Supervisors, 1907), p. 45.

[6] Northern Neck Grants Book, Liber E, p. 182. William Fairfax was a cousin of the Proprietor, and acted as his agent.

[7] The so-called Truro Parish Partition Map, purporting to lay out boundaries for a division of Truro Parish to create a new parish for the western settlements. See Virginia Magazine of History and Biography, XXXVI, 180.

[8] Fairfax County Deed Book, Liber A, No. 2, p. 494.

[9] Fairfax County Deed Book, Liber A, Pt. 1, p. 52, Survey, March 17, 1742.

[10] E. Sprouse (ed), Fairfax County Abstracts: Court Order Books, 1749–1792, citing Order Book, 1749–54, December 26, 1749, p. 49.

[11] Ibid., p. 131. Charles Broadwater was one of the justices.

[12] There was some reason to support this, apparently, for in 1748 the General Assembly reduced the number of court meetings to four per year for these reasons. See Virginia, Laws, 1742, c. 32; Laws, 1748, c. 59; Laws, 1752, c. 7.

[13] Virginia Gazette, reprinted in William & Mary Quarterly, XII, 215.

[14] [Pg 11]Cited in Mary G. Powell, The History of Old Alexandria, Virginia from July 13, 1749 to May 24, 1861, (Richmond: William Byrd Press, 1928), p. 35.

[15] Ibid., p. 22.

[16] Jeanne Rust, History of the Town of Fairfax, (Washington: Moore & Moore, 1960), p. 30.

[17] Gay M. Moore, Seaport on the Potomac, (Richmond: Garrett & Massie, 1949), p. 12.

[18] William C. Moore, "Jeremiah Moore: 1746–1815," William & Mary Quarterly, 2d ser., XIII, 18, 21. Tradition also holds that Jeremiah Moore was defended by Patrick Henry, but this has not been verified.

[19] Robert Anderson, "The Administration of Justice in the Counties of Fairfax, and Alexandria and the City of Alexandria", Arlington Historical Magazine, II, No. 1 (October 1961), 19–21.

[20] "Letters of George Mason to Zachariah Johnston", Tyler's Quarterly Review, V (January 1924), 189.

[21] Virginia, Laws, 1797–98, c. 37; Shepherd, Statutes at Large, II, 107.

[22] During the 1780's the court was compelled to leave the original courthouse building for temporary quarters. Harrison, Landmarks, p. 343, states that during this period the County Court met in the Alexandria Town House, located next door, which also housed the Hustings Court. He also states that the Clerk of the County Court set up his offices in a nearby school building. The Alexandria Gazette, November 13, 1878, reported the demolition of an old house on the south side of Duke Street, east of St. Asaph's Street, which it stated had served as the office of the Clerk of Alexandria's Hustings Court and the Fairfax County Court commencing in the spring of 1793.

[Pg 12]

CHAPTER II

THE PROVIDENCE COURTHOUSE AND ITS RELATED BUILDINGS: 1800–1860

Location and Construction

The resolution of the General Assembly ordering relocation of the courthouse was not specific as to the site on which it would be built. Accordingly, in May 1790, the court appointed a commission to inspect a site near Ravensworth, within a mile of the crossroads at Price's Ordinary, and to negotiate for purchase of a two-acre parcel.[23] The commissioners' report was not favorable to the site, however, and negotiations for other land continued until, in May 1798, a group of commissioners was appointed to inspect a site at Earp's Corner (between a road which later became the Little River Turnpike and the Ox Road), owned by Richard Ratcliffe.[24] The commissioners reported favorably, and Ratcliffe was persuaded to sell four acres to the County for one dollar. A sale was made, and the deed recorded on June 27, 1799.[25]

Work had begun on the new courthouse some six months earlier, as indicated by the following notice appearing in the Columbia Mirror and Alexandria Advertiser:

The Fairfax Court House Commissioners have fixed on Thursday the 28th instant for letting out the erection of the necessary Public Buildings to the lowest bidder. As they have adopted the plan of Mr. Wren, those workmen who mean to attend may have sight of the plan.

Charles Little
David Stuart
William Payne
James Wren
Charles Minor[26]

The successful bidders at this event were John Bogue, a carpenter and builder newly arrived in the United States, and his partner, Mungo Dykes. They completed the construction of the courthouse late in 1799, and on January 27, 1800, the Commissioners reported to the County Court that they had received the "necessary buildings for the holding of the Court", and found them "executed agreeably to the contract".[27]

[Pg 13]Within the four-acre courthouse tract, a half-acre was laid off to provide space to build an office for the Clerk of the Court.[28] This original tract did not provide enough ground for the jail yard and other grounds comprising the courthouse compound.[29] Accordingly, in March 1800 the Court ordered William Payne to prepare a new survey of the compound, enlarged to accommodate all of the facilities required by the law. The area of this new survey was ten acres, capable of accommodating courthouse, jail, clerk's office, gallows and pillory, a stable, a storehouse and possibly an ordinary.[30]

The equipping of the courthouse and transfer of the court's records were accomplished by March 1800, so that the Columbia Mirror and Alexandria Advertiser was able to carry a notice its March 29th edition that

The County Court of Fairfax is adjourned from the town of Alexandria to the New Court House, in the Center of the County, where suitors and others who have business are hereby notified to attend on the 3d Monday in April next.

Thus, the first recorded meeting of the court in the new courthouse was on April 21, 1800.[31] Meanwhile, in Alexandria, the Mayor and Council adopted a resolution giving to Peter Wagener the title to the bricks of the old courthouse on Alexandria's market square as indemnity for pulling it down.[32]

Fairfax Courthouse and the Town of Providence

The central location of the new courthouse and the improvement of its accessibility through the construction of several turnpike roads commencing in the early 1800's, led naturally to the growth of a community around the courthouse. In the vicinity of the crossroads a few buildings antedated the courthouse. Earp's store, probably built in the late 1700's, was one such building, as were dwelling houses reputedly built by the Moss family and Thomas Love.[33]

Development of more nearby land was not long delayed. In 1805 the General Assembly authorized establishment of a new town at Earp's store, to be named Providence.[34] The future growth of the town was forecast in a plat laying off a rectangular parcel of land adjacent to the Little River Turnpike into nineteen lots for building.[35]

[Pg 14]Settlement during the next few decades was relatively slow. Rizen Willcoxen built a brick tavern across the turnpike from the courthouse.[36] A variety of "mechanics" and merchants opened their workshops and stores to serve the local residents and travellers on the turnpike, and, on the north side of the turnpike, a store was established by a man named Gerard Boiling.[37] Also, a school for girls occupied land across the turnpike from the present Truro Episcopal Church, and, east of the courthouse crossroads, a Frenchman named D'Astre built a distillery and winery and developed a vineyard.[38]

Martin's 1835 Gazetteer of Virginia and the District of Columbia described Fairfax Court House Post Office as follows: "In addition to the ordinary county buildings, some 50 dwelling houses (for the most part frame buildings), 3 mercantile stores, 4 taverns, and one school."[39] The "mechanics" located in the town included boot and shoe makers, saddlers, blacksmiths and tailors. The town's population totalled 200, of which four attorneys and two physicians comprised the professions. Somewhat later, the town's industry was augmented by establishment of the Cooper Carriage Works on the turnpike west of the courthouse.[40]

This growth of services around the seat of the county government was an added inducement for the County's residents to gather in town when court was in session, to trade, transact their business at the courthouse, and exchange the news of the day. By the 1830's the schedule of court days had expanded to include sessions of the County Court (3d Monday each month), the Quarter Sessions (in March, June, August and November), and the Circuit Superior Court (25th of May and October).[41]

At these times the court would sit for several days—as long as necessary—to complete the County's business. A quorum of the total panel of appointed justices was necessary to conduct the court, but this number generally was small enough so that no hardship was suffered by those who had to leave their private concerns. In every third month, the meetings of the court would also be the occasion for convening the successor to the colonial courts of the Quarter Sessions, at which criminal charges not involving capital punishment were tried.

Throughout the first half of the nineteenth century, the sessions of the County Court continued to be the chief feature of life in the town of Providence, or Fairfax Court House, as it frequently was called. When the court was not in session, the regular passage of carriages, wagons, and herds along the Little River Turnpike was the main form of contact which residents had with areas outside the locality. This situation[Pg 15] continued even after the coming of the railroads, for when the Orange & Alexandria Railroad was chartered in 1848, its route was laid out several miles south of Providence. Thus, the nearest rail stations for the courthouse community were at Fairfax Station, on the Orange & Alexandria Railroad, and at Manassas, where the Manassas Gap Railroad left the Orange & Alexandria and ran to Harrisonburg.[42]

Four acres of Richard Ratcliffe's land near Caleb Earp's Store laid off for the courthouse and other public buildings. Record of Surveys, Section 2, p. 79, 1798. Four acres of Richard Ratcliffe's land near Caleb Earp's Store laid off for the courthouse and other public buildings. Record of Surveys, Section 2, p. 79, 1798.
VIEW LARGER IMAGE
Ten acres of land surrounding the courthouse laid off for the prison bounds. Record of Surveys, Section 2, p. 93, 1800. Ten acres of land surrounding the courthouse laid off for the prison bounds. Record of Surveys, Section 2, p. 93, 1800.
VIEW LARGER IMAGE
Ten acres of land surrounding the courthouse intended for the prison bounds. Fairfax County Deed Book V-2, p. 208, 1824. Ten acres of land surrounding the courthouse intended for the prison bounds. Fairfax County Deed Book V-2, p. 208, 1824.
VIEW LARGER IMAGE
One-half acre, part of the four-acre courthouse lot, laid off for the Clerk of the County and his successors. Record of Surveys, Section 2, p. 115, 1799. One-half acre, part of the four-acre courthouse lot, laid off for the Clerk of the County and his successors. Record of Surveys, Section 2, p. 115, 1799.
VIEW LARGER IMAGE

[Pg 16]

NOTES FOR CHAPTER II

[23] Fairfax County Court Order Book, 1789–1791, p. 93.

[24] Ibid., pp. 189–191.

[25] Fairfax County Deed Book B-2, pp. 373–377.

[26] Columbia Mirror & Alexandria Advertiser, June 19, 1798. John Bogue had arrived in the United States with his family in 1795. On June 20, 1795, the Alexandria Gazette published his signed statement thanking the captain of the ship "Two Sisters" for a good voyage. In the August 1, 1795 issue of the Gazette, he advertised as a joiner and cabinet maker on Princess Street near Hepburn's Wharf, "hoping to succeed as his abilities shall preserve him deserving."

[27] Fairfax County Deed Book, B-2, p. 503.

[28] Fairfax County Record of Surveys, 1742–1850, p. 115.

[29] Fairfax County Deed Book, B-2, p. 503.

[30] Interview with former Clerk of Courts, Thomas Chapman of Fairfax, Virginia, February 13, 1970.

[31] One of the items to come before the court at this session involved winding up the county's contract with John Bogue and Mungo Dykes. The Court's Clerk, Robert Moss, was summoned to appear and show cause why he had not paid the contractors in conformance with the commissioners' report accepting the buildings. Moss produced a receipt for this payment, signed by Mr. Bogue's agent, who apparently had not passed it along to his principal. Fairfax County Court Order Book, 1799–1800, p. 509.

[32] Powell, Old Alexandria, p. 38.

[33] Elizabeth Burke, "Our Heritage: A History of Fairfax County", Yearbook of the Historical Society of Fairfax County, 1956–7, 5:4.

[34] Ibid., 32.

[35] [Pg 17]Fairfax County Deed Book, M-2, p. 56.

[36] Rust, Town of Fairfax, p. 3.

[37] Gerard Bolling was the father-in-law of Richard Ratcliffe who had provided the four-acre tract on which the courthouse had been built. Rust, Fairfax, p. 31.

[38] Ibid.

[39] Joseph Martin, Gazetteer of Virginia and the District of Columbia, (Charlottesville, 1835), p. 168. The name "Providence" apparently was less favored than the traditional Virginia style of referring to the seat of county government.

[40] Rust, Fairfax, p. 37.

[41] Martin, Gazetteer, pp. 168–169.

[42] Marshall Andrews, "A History of Railroads in Fairfax County", Yearbook of the Historical Society of Fairfax County, III (1954), 30–31.

[Pg 18]

CHAPTER III

THE COUNTY COURT AND ITS OFFICERS

The functions and officers of the colonial court

In colonial Virginia local government was centered in the County Court. Its origins as a political and social institution have been attributed to various prototypes in Tudor and earlier English history. By the time Fairfax County was established in 1742, this institution and its functions in colonial Virginia had been clearly formulated and accepted.[43]

The County Court evolved from the colony's original court established at Jamestown and consisting of the Governor and Council sitting as a judicial tribunal. In 1618, the Governor ordered courts to be held monthly at convenient places throughout the colony to save litigants the expense of traveling to Jamestown. Steadily the numbers of these courts increased and their jurisdiction expanded until, by the end of the seventeenth century, these local courts could hear all cases except those for which capital punishment was provided. In effect, their jurisdiction combined the contemporary English government's King's Bench, Common Pleas, Chancery, Exchequer, Admiralty, and Ecclesiastical courts.

During this period the local courts acquired numerous non-judicial responsibilities connected with the transaction of public and private affairs. Because of both tradition and convenience, the County Court was the logical agency to set tax rates, oversee the survey of roads and construction of bridges, approve inventories and appraisals of estates, record the conveyance of land, and the like. Therefore, the court's work reflected a mixture of judicial and administrative functions, and the officers of the court became the chief magistrates of the Crown and of their communities. Once this pattern of authority and organization was developed, it continued with very few basic changes throughout the eighteenth and most of the nineteenth centuries.

Highest in the hierarchy of the officers of the county and the court were the justices. Originally designated as "commissioners", and, by the 1850's referred to as "magistrates", their full title was "Justice of the Peace" after their English counterparts of this period.[44] Popular usage in Virginia, however, fostered the custom of speaking of the members of the[Pg 19] court as "Gentleman Justices". They were both the products and caretakers of a system that placed control of public affairs in the hands of an aristocratic class, and at any time in the County's history up to mid-nineteenth century a list of the County's justices was certain to include the best leadership the County had.

Appointments were for life, and lacked any provision for compensation. Service on the court was, therefore, considered an honorable obligation of those whose position and means permitted them to perform it. That this was considered a serious and active responsibility was indicated by the fact that justices could be fined for non-attendance at court.[45] Through the colonial period and well after the War of Independence the justices of the county court were appointed by the governor, and, although episodes during this period indicated the recurrence of friction between the governor and General Assembly over the power to make these appointments, neither the local court nor the Assembly was able to assert permanently its claim to participate in the appointment process.[46] The number of justices of the county court varied considerably in different counties and times. By law the number was set at eight members; yet in 1769 Fairfax County had 17 justices, and appeared to be typical of other counties in the region.[47]

Appointments to the county court in some instances seemed almost hereditary, for when a justice of one of the prominent local families died or retired to attend to other interests it frequently occurred that his place was taken by a younger relative. Historian Charles Sydnor has noted that during the twenty years prior to the War of Independence three-fourths of the 1600 justices of the peace appointed in Virginia came from three hundred to four hundred families.[48]

Directly or indirectly, the justices of the county court influenced the selection of all other county officers. The clerk of the court was elected outright, but others—including the sheriff, coroner, inspectors and commissioners for special duties, and militia officers below the rank of brigadier—were commissioned by the governor from lists submitted by the justices.

The office of clerk of the county court presumably dates from the origin of the court itself, for references to clerk's fees are found in the law as early as 1621,[49] and authority for appointment by the governor is noted in 1642.[50] From the tables of fees authorized by law, one may see that the clerk performed a wide range of functions growing out of the work of the court.[Pg 20] These included issuing orders for all stages of court proceedings, taking depositions and inventories, recording documents, and administering or probating estates of all kinds. In addition, the county's records of births, deaths and marriages were maintained from reports made to the clerk. In time, some of the tasks of issuing certificates—such as marriage licenses—which started as duties of the court were turned over to the clerk to perform.[51]

Frequently the clerk could and did exercise great influence with the justices in the handling of legal matters. As the members of the court were laymen, it often occurred that the clerk was the only person who was learned in the law, and his advice must have been a determining factor in many situations. His tenure in office also strengthened his position of influence, for it was customary to retain clerks in office for long periods of time, during which they had daily contact with the workings of the law and events in the county. Unlike the justices, who came from all parts of the county and seldom were present except on court days, the clerk was much more available at the courthouse, and so generally was the first to hear news from the colonial capital or the outside world. As a result, the clerks of the court were consulted on a variety of matters whenever a justice was not available.

Fees charged for performing the various services connected with the work of the court made up the income of the clerk, and occasionally the same person might hold the positions of clerk and surveyor, notary, or special commissioner. Under certain circumstances, clerks also could practice law, and all of these sources combined to produce an income which was for the times comfortable.

In the eighteenth century, two significant changes in the law prescribing the clerk's office occurred—it was made a salaried position, and the county court was given full authority to appoint the clerk—but in other respects the office was changed very little either by the passage of time or the transformation from colony to commonwealth.

Ranking roughly equal to the clerk in importance to the operations of county government was the sheriff. The office of sheriff appeared when counties began to be established in the 1630's; and until after the War of Independence, sheriffs were appointed by the governor on recommendation of the county court. Almost from the beginning, too, it appears to have been customary to appoint deputies or "under-sheriffs". So it is not surprising to find that after 1661 it was customary for the[Pg 21] office of the sheriff to rotate annually among the members of the court who, in turn, appointed their deputies directly. But in the eighteenth century this system proved too disruptive, and deputies were retained throughout several terms of sheriff's appointments.[52]

From the beginning the sheriff and his deputies were compensated by fees which they collected for a wide variety of duties. These ranged from tasks connected with execution of the court's orders in criminal cases, to enforcement of the law and administration of the jail. In addition, the sheriff was due a fee from a master whose runaway servant or employee he apprehended and returned, or for collecting private debts or administering corporal punishment to servants for their owners.[53]

Sheriffs also collected the levies which financed county government. However, being subject to the pressures of their own circumstances, there often was a tendency to give first priority to activities which brought in their own fees. This led the General Assembly to require that sheriffs collect public levies before they take any fees for themselves, and to prescribe a number of other rules for improvement of the conduct of their offices.[55]

The role of the sheriff in the tax collection process always was a difficult one. The procedure for financing the county, initially, was for the justices simply to compile lists of their expenses and the freeholders of the county, compute how much was needed from each freeholder to cover the cost of government, and direct the sheriff to collect it. When the sheriff made his return to the court he was entitled to deduct a percentage as his commission.[56] However, revenue was often not collected, either because the job was farmed out to others who defaulted, or the county was too poor, or its residents were scattered and could not be found.[57] These problems ultimately led the General Assembly to establish other officers whose exclusive duties were the levying and collecting of revenue, but throughout the seventeenth and eighteenth centuries the sheriff performed a central role in the revenue process.

The sheriff was also the custodian of the county jail and its prisoners. He had the authority to decide on and collect bail, and he was liable for a fine if a prisoner escaped. He appears generally to have taken his responsibility for the county jail lightly, for there is evidence of widespread[Pg 22] contracting for others to provide the guard for the jail and the food for the prisoners. Other officials who were part of the colonial county government performed specialized functions, but unlike the clerk and sheriff, took no part in the general administration of county business.

The office of county surveyor was created early in the seventeenth century to meet the obvious need for accurate measurement and recording of land. Initially, the surveyor was appointed by the county court, and sometimes treated as an additional duty of the clerk or sheriff. However, by the end of the eighteenth century a significant change had occurred in the legislation which called for appointment by the governor after a candidate had been examined and approved by the faculty of the College of William & Mary. By 1783, therefore, the surveyor became the first county official to be required to show professional competence as a condition of appointment.[58]

The office of constable appeared in 1645, and may be described as similar to that of sheriff, except that it served the court of a single justice.[59] Constables were appointed by the justices of the county court and served in precincts delineated by the justices.

The function of coroner in colonial Virginia was similar in all essential respects to that in England at that time, that is, to represent the Crown by investigating the circumstances of unexplained deaths. Originally, this function was performed by the justices, acting without fee. However, by the 1670's, coroners were being appointed by the governor, and authorized to collect fees for their services from the estate of the deceased or, lacking that, from the county. In the absence of the sheriff, the coroner could be designated by the court to perform the duties of the sheriff's office.[60]

Roughly a century after the appearance of the coroner, the next significant addition to the machinery of county government came with the creation of the commissioners of the tax. Forced by the increased military expenses of the 1760's and 1770's[61] to find new sources of revenue, Virginia created an official to take over the specialized function of assessment of property for tax purposes. He was elected by the freeholders of the county. In office, his task became one of laying off the county into districts, assessing property, and notifying the owner of the tax due.

[Pg 23]The commissioners of the tax were created in 1777, and lasted until 1782 when a new official, the commissioner of the revenue was established.[62] The new commissioner took responsibility for making assessments of taxable property under a simplified procedure, and the office has remained as a unique feature of Virginia's local government to the present time.

Court Days

As the institution of the county court grew during the seventeenth and eighteenth centuries and became the hub of county government, the monthly sessions of the court furnished an opportunity for general gatherings of the county's residents and visitors to transact both public and personal business. A scene that must have been typical of almost any Virginia county in the early nineteenth century has been described by historian John Wayland as follows:

Court day once a month was looked upon as a great event; everyone that could leave home was at hand. It was a day of great interest; farmers coming in with their produce, such as butter and eggs, and other articles which they exchanged for groceries and dry goods. The streets around the courthouse were thronged with all sorts of men; others, on horseback, riding up and down trying to sell their horses. Men in home made clothes, old rusty hats that had seen several generations, coarse shoes and no stockings, some without coat or vest, with only shirt and pants....

This was a day to settle old grudges. When a man got too much whiskey he was very quarrelsome and wanted to fight.... It was, also, a great day for the gingerbread and molasses beer. The cake sellers had [tables] in front of the courthouse, spread with white cloths, with cakes piled high upon them and with kegs of beer nearby. I have seen the jurymen let down hats from the windows above, get them filled with gingerbread and a jug of beer sent up by rope. About four or five o'clock the crowd began to start for home.[63]

For anyone who had business with the court, whether he or she came as a petitioner or a penitent, the justices, clerk, sheriff, and other officials represented the presence of power and authority as colonial Virginia knew it. But it was a presence in which men stood on little ceremony or formality with each other. Except in unusual circumstances all were likely to be laymen, for in colonial Virginia there was little[Pg 24] formal education in the professions and, at most, one might have attended lectures at the College of William & Mary or a school in England. If the gentlemen justices were widely read in history, philosophy, government and literature—as well they might be—these advantages of their means and leisure did not destroy their appreciation for the issues they were asked to decide. For in their own right they were planters who had to face and deal with these issues in their own lives. Accordingly, their decisions, as reflected in the minutes of their sessions, were based on this realism which comes from personal experience.

Yet it remained true that the gentlemen justices of the county court were, for most practical purposes, beyond any control of the community they governed. Any complaint about the manner in which the justices conducted their business could only be directed to the governor.[64] Should the court cease to function for long periods of time because of quarreling among the justices, or should the occurrence of an emergency require replacement of justices, the freeholders of the county had no method of dealing with their problem except through the pressure of public opinion.[65]

Even with the best of good will among the members of the court, they could not escape the usual difficulties of handling legal matters before a bench of lay judges, who not only lacked professional training, but were handicapped by the scarcity and cost of law books.[66] Decisions which seemed wrong could, from earliest colonial times, be appealed to the governor and General Court. Later the establishment of District Courts, and their successors the Circuit Courts, provided an intermediate tribunal for determining matters which turned on points of law. But the business of the gentlemen justices on court days was a mix of legal and administrative matters, and in the latter area of activity there was no appeal.

Election Days

Among the non-judicial activities carried on at the courthouse, none was as colorful and few were more important than elections of members of the House of Burgesses. Elections were ordered by writs issued by the governor, and in each county they were conducted by the sheriff. Unless reasons of the greatest gravity prevented it, the polling place was the county courthouse.[67]

Voting, or "taking the poll" as it was called, was conducted in the court chambers, or, in warm weather, in the courthouse yard, with the sheriff presiding at a long table. On[Pg 25] either side of the sheriff were justices of the court, and at the ends of the table were the candidates and their tally clerks.

The sheriff opened the election by reading the governor's writ and proclaiming the polls open. If there was no contest or a clearly one-sided election, the sheriff might take the vote "on view"—that is, by a show of hands of those assembled at the courthouse. Generally, however, a poll of the individual voters was taken. As the polling went on, each freeholder came before the sheriff when his name was called and was asked by the sheriff how he voted. As he answered, the tally clerk for the candidate receiving the vote enrolled it and the candidate, in his turn, generally acknowledged the vote with a bow and expression of appreciation. At the close of the polling a comparison of the tally sheets showed the winner.

This method of voting enhanced the excitement of a close election, and, since elections frequently were held on court days when many people came to the courthouse on other business, activity outside the courthouse sometimes was spirited. Wagers were offered and taken, arguments broke out and fights sometimes followed.[68]

Those attending the elections usually were in good spirits, for they were aided by the custom of the candidates to provide cider, rum punch, ginger cakes, and, generally, a barbecued bullock or pigs for picnic-style refreshment of the voters waiting at the courthouse.[69] The candidates and their friends also kept open house for voters traveling to the courthouse on election day, offering bed and breakfast to as many as came. On election night, the winning candidates customarily provided supper and a ball for their friends and other celebrants.[70] The law was explicit that no one should directly or indirectly give "money, meat, drink, present, gift, reward or entertainment ... in order to be elected, or for being elected to serve in the General Assembly",[71] but the practice of treating the voters on election day was deeply rooted in Virginia's political tradition. Thus the law was interpreted as only prohibiting one offering refreshment "in order to get elected"—something extremely difficult to prove—but not preventing one from treating his friends. So, while occasionally voices were heard to condemn candidates for "swilling the planters with bumbo",[72] or bemoan the "corrupting influence of spiritous liquors, and other treats ... inconsistent with the purity of moral and republican principles", the complainants almost always turned out to be candidates who themselves had recently been rejected at the polls.[73]

[Pg 26]

The Transition From Colony to Commonwealth

The War of Independence caused little change in Virginia's system of county government. The county court system was carried over into the state constitution of 1776 with only the oath of office changed to call for support and defense of the constitution and government of the Commonwealth of Virginia.[74] The General Assembly became the successor to most of the functions of the colonial House of Burgesses and Governor in Council, but significantly the principle of the separation of powers established for the commonwealth was not extended to the counties. Thus, the mix of powers, privileges and duties which comprised the authority of the gentlemen justices in colonial times was continued, as was the custom of appointment for life.

How little the transition from colony to commonwealth changed the justices' own view of their position was illustrated in 1785 when the new governor issued new commissions reappointing the justices of Fairfax County's court. The justices refused to accept the new commissions, and pointed out to the governor in a long letter that this duplication of oaths would set a bad precedent and risk giving the executive undue powers over the court. Far from being an artificial objection, the letter noted, this latter point was extremely touchy for the justices' standing in a great many matters was based on seniority, and both the prestige and chances for financial rewards that went with the office depended on this standing.[75]

The most noteworthy changes in the organization of local functions came as a result of the disestablishment of the Church of England. That portion of all local officials' oaths which called for supporting and defending the church was dropped, but, more important, abolition of the parish vestry made it necessary to lodge its non-religious functions elsewhere. In 1780, therefore, the General Assembly created county boards of Overseers of the Poor.[76] Most other welfare activities were added to the responsibilities of the county court.[77]

While the basic philosophy of Virginians regarding their local government did not change as a result of independence, certain new governmental institutions were created because colonial ways were not efficient enough to meet the demands placed on them by social and economic growth. Although the general jurisdiction of the county court was continued, in 1788 a new court, called the district court, was established to relieve the pressure of judicial business.[78] These district courts were the direct antecedents of the present circuit courts of the counties which were created by the General Assembly in 1818.[79]

[Pg 27]If the district court did not displace the county court immediately, it forecast its eventual decline as a judicial tribunal. The new court introduced the beginnings of professionalism on the bench, and offered the prospect of full-time attention to the administration of justice by trained judges. Establishment of the office of the Commonwealth Attorney in 1788 added to this trend toward professionalism.[80]

Most of the administrative duties of the county court in colonial times remained after independence. Consequently, the records of the county court continued to show actions connected with the licensing of inns, ordinaries, mills, ferries, peddlers, and other similar activities, along with attention to the survey and maintenance of roads, bridges, and fords.[81] Regulatory powers over the practices of tradesmen and artisans was broad, and used by the county court to set rates which could be charged and to prescribe trade practices which affected the quality of the products involved.

In this area of activity, the county court was performing what Virginians generally regarded as matters of purely local concern. Except in connection with the production of tobacco and milling and shipping of grain, economic activities seldom affected anyone beyond the county neighborhood.[82] Therefore, the county court was deemed to be the best body to understand and accommodate the interests involved. This attitude began to change only as the improvement of transportation facilities increased travel and commerce in the period from 1830 to 1860.

[Pg 28]

NOTES FOR CHAPTER III

[43] See generally, Martha Hiden, How Justice Grew: Virginia Counties: An Abstract of Their Formation, (Williamsburg: Virginia 350th Anniversary Celebration, 1957). Also, because time-honored tradition as well as law influenced the organization of Virginia counties, the description of English local government in J. B. Black, The Reign of Elizabeth, 1558–1603, (Oxford: Oxford University, 1936), pp. 174–177, applies to Virginia's county government in the colonial and early federal periods.

[44] The first statute on this subject, in 1628, used the term "commissioners" (I Hening, Statutes, 133). In 1662, this term was replaced by "justices". P. A. Bruce, Institutional History of Virginia in the Seventeenth Century, (New York: Putnam, 1910), I, 488. However, Porter, County Government, p. 170, states that "justice of the peace" was the full title during most of the seventeenth and eighteenth centuries.

[45] Porter, County Government, p. 168.

[46] In 1657, for example, the House of Burgesses enacted legislation requiring that appointments be recommended by the county court and approved by the Assembly. (I Hening, Statutes, 402, 480) But this requirement appears to have been repealed after the restoration of Charles II.

[47] Porter, County Government, p. 49, cites the Calendar of State Papers, I, 261, listing the numbers of justices in nearby counties as follows: Fauquier, 18; Prince William, 18; Loudoun, 17.

[48] Charles Sydnor, American Revolutionaries In The Making, (New York: Collier, 1962), p. 64.

[49] Hening, Statutes, I, 117.

[50] Hening, Statutes, I, 305.

[51] Hening, Statutes, II, 28, 280.

[52] Porter, County Government, p. 42.

[53] [Pg 29]Ibid., pp. 27–28.

[54] Hening, Statutes, I, 330, 484.

[55] These rules included prohibitions against extortion of excessive fees, acting as lawyers in their own courts, falsifying revenue returns, multiple job-holding and the like. See Hening, Statutes, I, 265, 297, 330, 333, 465, 523; II, 163, 291. Porter, County Government, 68, comments that "the office of sheriff, judging from the number of acts which the assembly found it necessary to pass, was the problem child of ... [the 18th century], not only in regard to the duties of the office, but also in the method of appointment."

[56] Shepherd, Laws of Virginia, I, 367.

[57] Calendar of State Papers, IV, 416.

[58] Hening, Statutes, XI, 352.

[59] Hening, Statutes, IV, 350.

[60] Hening, Statutes, II, 419; IV, 350.

[61] Hening, Statutes, IX, 351.

[62] Hening, Statutes, XII, 243.

[63] John Wayland, History of Rockingham County, Virginia, (Dayton, Virginia: Ruebush-Elkins, 1912), pp. 424–425.

[64] Porter, County Government, p. 109, citing Calendar of State Papers, IV, 170.

[65] Sydnor, American Revolutionaries, pp. 77–78.

[66] As a result law books were the property of the court rather than the individual justices, and on the death or resignation of a justice his law books were surrendered to the court and divided among the remaining members of the court. Hening, Statutes, IV, 437.

[67] In unusual circumstances, such as an outbreak of smallpox, the sheriff might chose an alternate site. H. R. McIlwaine (ed), Journals of the House of Burgesses, 1742–49, (Richmond, 1909), p. 292.

[68] [Pg 30]Douglas S. Freeman, George Washington: A Biography: Young Washington, (New York: Scribner, 1948), II, 146, notes that Washington became involved in an election-day brawl at the election of members of the House of Burgesses in December 1755. The contest between John West, George William Fairfax, and William Ellzey was very close, and Washington (supporting Fairfax) met William Payne (who opposed Fairfax). Angry words led to blows, and Payne knocked Washington down with a stick. There was talk of a duel, but the next day Washington apologized for what he had said, and friendly relations were restored.

[69] Sydnor, American Revolutionaries, p. 53.

[70] Nicholas Cresswell, The Journals of Nicholas Cresswell, 1774–1777, (Pt. Washington, N. Y.: Kennikat Press, 1968), pp. 27–28.

[71] Hening, Statutes, III, 243.

[72] "Bumbo" was an eighteenth century slang term for rum. Sydnor, American Revolutionaries, p. 53.

[73] William C. Rives, History of the Life and Times of James Madison, (Boston: Little, Brown, 1873), I, 180–81.

[74] Porter, County Government, p. 107.

[75] Calendar of State Papers, IV, 337.

[76] Hening, Statutes, X, 198; XI, 432; XII, 273, 573; Shepherd, Laws, I, 114.

[77] Hening, Statutes, X, 385 (orphans); XII, 199 (mental health).

[78] The district court's jurisdiction included civil cases of a value of £30 or 2,000 lbs of tobacco, all criminal cases, and appeals from the county court in criminal cases. Hening, Statutes, XII, 730 et seq.

[79] Virginia, Code of 1819, I, 226.

[80] Hening, Statutes, XIII, 758.

[81] Hening, Statutes, XII, 174.

[82] [Pg 31]In the late eighteenth century, Virginia millers and warehousemen were major sources of grain and flour for New England, the West Indies and Mediterranean. The House of Burgesses, and later the General Assembly, enacted comprehensive laws regulating the quality, grading and marking of these products. See, Lloyd Payne, The Miller in Eighteenth Century Virginia, (Williamsburg: Colonial Williamsburg, 1963) and Charles Kuhlman, The Development of the Flour-Milling Industry in the United States, (Boston: Houghton Mifflin, 1929), pp. 27–33, 47–54.

[Pg 32]

Fairfax County Courthouse, June 1863. Photo by T. H. O'Sullivan. Copy from the Library of Congress. Fairfax County Courthouse, June 1863. Photo by T. H. O'Sullivan. Copy from the Library of Congress.

[Pg 33]

CHAPTER IV

THE WAR YEARS: 1861–1865

As events in the winter of 1860 and the spring of 1861 carried the nation into the crisis of civil war, Fairfax County aligned itself with Richmond rather than Washington. Thus, at the State's convention on secession in May 1861, the Fairfax County delegation voted to ratify the secession ordinance.[83] The consequences of this action were prompt in coming and far-reaching in their effects, for with the commencement of military operations in Northern Virginia it became impossible to carry on the normal processes of county government.

Fairfax Court House (the Town of Providence) was outside the ring of fortifications which were built on the Virginia side of the Potomac to protect the National Capital. Inside this line, stretching in a great arc from Alexandria, through the vicinity of The Falls Church, to Chain Bridge, Union Army commanders exercised military authority and administered justice through provost courts.[84] Outside this area the authority of the General Assembly of Virginia nominally remained in effect, and the justices of the courts and the sheriffs of the county continued to hold their positions under the laws of the seceded state.

Serious difficulties in the transaction of public business soon appeared throughout Fairfax County, where patrolling and skirmishing outside the ring of permanent fortified positions were daily occurrences. This was recognized in an ordinance adopted by the Secession Convention providing that when the court of any county failed to meet for the transaction of business or the public was prevented from attending the court "by reason of the public enemy", the court of the adjoining county where such obstructions did not exist had jurisdiction of all matters referrable to the court or the clerk of the court where normal business had ceased.[85]

As Virginia armed, troops of the Confederacy placed themselves in positions to repel invaders, and in May 1861, a company of the Warrenton Rifles established a camp at Fairfax Court House. On the morning of June 1, 1861, a body of Union cavalry rode through the town, and in the confused exchange of fire which followed, a Captain of the Rifles, John Quincy Marr, became the first officer casualty of the war.[86]

[Pg 34]A month later, the tide of Union forces under McDowell swept past the courthouse on the way to its rendezvous at Bull Run, and back again to the safety of the fortified positions along the Potomac. In the wake of their victory at Bull Run, troops of the Confederacy established an outpost at Fairfax Court House to watch for signs that the Union Army might resume the offensive by moving against the Confederate earthworks near Centreville.

This outpost did not see any fighting for the time being, but it provided the site for what later was regarded as one of the decisive moments of the war. In September 1861, General Beauregard had established his headquarters at Fairfax Court House, and urgently pressed the newly-formed government of Confederate President Jefferson Davis for reinforcements with which to sweep into Pennsylvania and Maryland and, hopefully, to carry the Federal capital itself. A meeting was arranged at Beauregard's headquarters in which Davis, Generals Beauregard and J. J. Johnston, and certain of their trusted staff officers considered this plan. Their decision was to adopt a defensive posture and protect the borders of Virginia rather than take the offensive and invade the North. As events turned out, this decision had consequences of the greatest effect, for it was not until Lee marched out of the Valley on the road to Gettysburg in 1863 that there was another opportunity for the Confederacy to carry the war to the soil of the northern states.[87]

In the spring of 1862, the Confederate army retired from Fairfax Court House, and soon after that its line of fortifications at Centreville—the most extensive system of field fortifications in military history up to that time—was abandoned. As the Union armies took the initiative in their repeated efforts to reach Richmond, the crossroads at Fairfax Court House had key importance in the communication and supply systems of these forces.

From 1862 to the end of the war, Union troops remained in control of the crossroads and the courthouse. Contemporary photographs of the building show it being used as a lookout point and station for patrols. Other descriptions indicate that the courthouse was loopholed,[88] the furnishings were removed, and the interior generally was gutted so that only the walls and roof remained.[89] For all practical purposes, the courthouse and its related buildings were, in the years 1863 and 1864, a military outpost and minor headquarters in the Union army's system to protect its supply and communications lines from the irregular troops who kept hostilities constantly smoldering in Northern Virginia. Throughout the western part of Fairfax County, and in Loudoun, Fauquier and Prince[Pg 35] William Counties, lived many who gave the appearance of innocent farmers during the daylight hours, but who changed into Confederate uniforms at night and on weekends to ride against isolated outposts or supply points of the Union army or destroy vulnerable bridges and communications centers.

The operations of these guerilla bands kept thousands of Union troops pinned down on rear area security guard duty, and preoccupied the forces assigned to Fairfax Court House. The difficulty of their task under the circumstances that prevailed in Northern Virginia was dramatized in the famous Confederate raid on Fairfax Court House by men under the command of Col. John S. Mosby when, on the night of March 8, 1863, the Confederate commander with about 30 men captured and carried off 33 prisoners, including Union Brigadier General Edwin H. Stoughton, and a large number of horses and quantity of supplies. Throughout 1863, 1864 and the spring of 1865 hardly a night went by without some cries of alarm and shots being fired because of the activities of the Confederate irregulars. Yet they took a substantial toll from the wealth and welfare of the very people they claimed to represent, for the Union troops soon learned more efficiency in their rear area operations, and increased the restrictions on movement of civilian traffic. The transaction of personal business in normal ways became virtually impossible. The historian, Bruce Catton, has assessed the activities of the guerilla bands as follows:

The quality of these bands varied greatly. At the top was John S. Mosby's courageous soldiers led by a minor genius, highly effective in partisan warfare. Most of the groups, however, were about one degree better than plain outlaws, living for loot and excitement, doing no actual fighting if they could help it, and offering a secure refuge to any number of Confederate deserters and draft evaders.... The worst damage which this system did to the Confederacy, however, was that it put Yankee soldiers in a mood to be vengeful.[90]

During the years when normal business at the courthouse was suspended and the county officials who held authority from the General Assembly were dispersed, some of the county's records were removed from the courthouse for safekeeping, and some were not.[91] In either case they were subject to the risks of loss and damage. Some were carried off and in later years have been brought to light as the descendents of Union and Confederate soldiers have found them in places where they had been put for safekeeping.

[Pg 36]The jail building ceased to be used for its original purpose, and, during the latter months of the war, the jail of Alexandria County (now Arlington County) was utilized for Fairfax County's prisoners.[92]

The effort to provide a legitimate successor to the secession government in Richmond started in the Wheeling Conventions of May and June 1861, from which came the Unionist government of Francis H. Pierpont.[93] The admission of West Virginia to the Union in December 1862[94] left Governor Pierpont in control of only those parts of Northern Virginia, the Shenandoah Valley, and Chesapeake Bay that were occupied by Federal troops. Within this area, the Pierpont administration collected taxes and attempted to supply the essential services of civilian government. Closer touch with these problems was possible after June 1863, when Governor Pierpont moved his government to Alexandria.

On January 19, 1863, a new County Court for Fairfax County was convened pursuant to a proclamation by Governor Pierpont which directed that the place for the court's sessions should be changed from Fairfax Court House to the Village of West End[95] near Alexandria. Here, in January 1863, the Court met in a structure known as Bruin's Building. The minutes of this and other sessions which followed recite many of the same problems and disputes that always had occupied the time of county courts—dockets of minor criminal and civil cases, petitions to higher levels of government, determination of minor civil disputes, issuances of permits and licenses, and appointment of public officials.[96]

Certain items in the minutes of this January 19, 1863 meeting documented the strains created by the wartime conditions: a petition to the Secretary of War prayed that the "Bruin Building" in the Village of West End be placed at the court's disposal; the Deputy Commissioner of Revenue was directed to discharge the duties of the Commissioner until the latter, currently a prisoner in Richmond, could return to his duties; payments were approved for wagonowners who had hauled books, papers and records to the courthouse from various points in Fairfax and nearby counties. One item of particular interest stated:

The fact having been brought to the notice of the Court that degradations were being committed upon the Mt. Vernon Estate, the Court, under the Chancery powers vested therein, appointed Jonathan Roberts, the present Sheriff, Curator, to take charge of all[Pg 37] property in Fairfax County, Va. belonging to the heirs of John A. Washington, dec.[97]

After the cessation of fighting in April 1865, Governor Pierpont moved his government from Alexandria to Richmond. However, without the presidential support which Lincoln had provided during his lifetime, the Pierpont administration found it increasingly difficult to carry on effective government as the years immediately after the war saw numerous plans for reconstruction competing for favor. The situation was further complicated by the fact that in February 1864 the Pierpont administration had sponsored a constitutional convention which had adopted a new constitution for Virginia, and that this constitution had nominally gone into effect in Alexandria and Fairfax counties.[98] A complex legal problem regarding the succession of governmental authority thus was added to the formidable task of reconstructing Fairfax County's economy and physical facilities.

This task was made difficult because many of the records of the County had been scattered or destroyed during the fighting. Records were searched out and retrieved whenever their places of safekeeping were known, a process requiring years of effort. Some record books were never found. The accounts of how the wills of George and Martha Washington were recovered are frequently cited to illustrate the difficulties of reassembling Fairfax County's records.

When, in the fall of 1861, Beauregard's Confederate troops withdrew from Fairfax County, the will of George Washington was secretly removed from the courthouse by the court clerk, Alfred Moss, and taken to Richmond. Here it was placed for safekeeping with the Secretary of the Commonwealth of Virginia. Following the cessation of hostilities, it was returned to Fairfax County.[99]

Martha Washington's will was not removed from the courthouse to Richmond, but remained there during the time Union troops occupied the building as a patrol point. As might be expected, cabinets were broken open and papers scattered. One day, late in 1862, a troop of soldiers from New England was in the building and engaged in shoveling out the debris from the floor. A Union lieutenant named Thompson grew curious about these papers and interrupted the work long enough to examine some of them. He picked up the will of Martha Washington and, recognizing it, took it with him. Following the war, the will next was heard of in 1903 in England where a descendant of[Pg 38] Lt. Thompson sold it to J. P. Morgan. The sale was reported to the Commonwealth Attorney of Fairfax County who wrote Mr. Morgan seeking the return of the will, but no answer was ever received. After Mr. Morgan's death, the County sought to obtain the will from his son. Negotiations were unsuccessful until court action was begun by the County. Finally, one day before the matter was to be argued before the United States Supreme Court, the will was returned.[100]

[Pg 39]

NOTES FOR CHAPTER IV

[83] Thomas Chapman, Jr., "The Secession Election in Fairfax County, May 23, 1861", Yearbook of the Historical Society of Fairfax County, IV (1955) 50.

[84] Robert Anderson, "The Administration of Justice in the Counties of Fairfax, Alexandria (Arlington) and the City of Alexandria (Part II)", The Arlington Historical Magazine, II (October 1962) 10–11.

[85] Ordinance 67, passed by the Virginia Convention, 26 June, 1861, cited by Anderson, "Administration of Justice", p. 10.

[86] Governor William Smith, "The Skirmish at Fairfax Court House", The Fairfax County Centennial Commission, (Vienna, Virginia: 1961) p. 4. Because of the confusion in the Confederate ranks, no officer took charge, and so Governor Smith ordered the Confederate troops to return the fire of the Federal soldiers.

[87] The Fairfax Court House meeting, which took place in Gen. Beauregard's headquarters near the courthouse, has been the subject of controversy in the memoirs of those involved. See, for example, Jefferson Davis, The Rise and Fall of the Confederate Government, (New York: Yoseloff, 1958), I, 368, 448–452, 464; Alfred Roman, Military Operations of Gen. Beauregard, (New York: Harper & Bros., 1884), I, 137–139.

[88] Washington Post, April 10, 1921.

[89] Alexandria Gazette and Fairfax News, October 17, 1862.

[90] Bruce Catton, A Stillness at Appomatox, (New York: Cardinal Giant Edition, Pocket Books, Inc., 1958), pp. 318–319.

[91] Two items from the Alexandria Gazette in July 1862 illustrate the problems regarding these records. The edition of July 12, 1862 printed a letter to the newspaper stating that records of Fairfax County had lately been found in Warrenton, having been removed there, it was supposed, by lawyers. The new[Pg 40] sheriff of the County took possession of these records. The edition of July 23, 1862 reported that the new County Court of Fairfax held its July term in the Clerk's office, the courthouse not being in condition for that purpose, and that one of the court's actions was to order that application be made for a new seal, the old one not being found.

[92] Fairfax County Court Minute Book, 1863–1867, p. 130. This order was entered November 25, 1864, and was rescinded by a subsequent order entered November 22, 1865. Minute Book, 1863–1867, p. 289.

[93] The Unionists in northern and western Virginia met twice in conventions held at Wheeling. In May 1861 a convention of some 400 so-called delegates from the counties in these regions met to consider their stake in the State's constitutional crisis, but took no action since Virginia had not yet ratified the secession ordinance. A second convention at Wheeling was held in June 1861, and organized a Unionist government for the State which claimed the authority of the General Assembly (which it asserted had forfeited its authority by rebellion) and other constitutional officials. Francis H. Pierpont served as governor of this Unionist government of Virginia.

[94] The Congressional approval of West Virginia's admission occurred in December 1862, but it was not until June 1863 that President Lincoln proclaimed the admission of the new State and approval of its constitution.

[95] Fairfax County Court Minute Book, 1863–1867, p. 2.

[96] Ibid. Minutes of a meeting of the court on January 19, 1863.

[97] Ibid. The practical effect of this order has been questioned, however, since Mt. Vernon was sold out of the Washington family in 1859 to the Mt. Vernon Ladies' Association of the Union, and the Washingtons had, by 1863, moved to Fauquier County, leaving neither relatives or property in Fairfax County. Interview with Judge James Keith, April 1972.

[98] As described in William Hemphill, Marvin Schlegel and Sadie Engelberg, Cavalier Commonwealth: History and Government of Virginia, (New York: McGraw-Hill, 1957), 339–340, this[Pg 41] constitution contained various new provisions, such as the abolition of slavery and denial of suffrage to all men who held office under a Confederate government.

[99] Eugene E. Prussing, The Estate of George Washington, Deceased, (Boston: Little, Brown, and Co., 1927) pp. 39–40. "Martha Washington's Will and the Story of its Loss and Recovery by Fairfax County," Yearbook of the Historical Society of Fairfax County, Virginia, II (1952–53) 40–62.

[100] "Martha Washington's Will," p. 61.

[Pg 42]

CHAPTER V

THE YEARS OF REBUILDING: 1865–1903

With the end of the war the formidable tasks of rebuilding both state and local governments were begun. President Abraham Lincoln's view of reconstruction had been that the government which took Virginia out of the Union should be the one to bring her back into the Union,[101] and President Andrew Johnson generally sought to follow this principle. Others, mainly the Radical Republican leaders, argued that Virginia had forfeited her sovereignty by rebellion, and so could not return to the Union except on new terms.[102] In this respect, President Johnson found that the presence of Governor Pierpont in Richmond—purporting to govern under the constitution which his government had drafted and ratified in Alexandria in 1864—was a complicating factor. Not only was the legitimacy of this constitution questioned, but all evidence pointed to the conclusion that the state's leaders who had served the Confederacy could not and would not accept it.

An unsuccessful attempt to improve the constitution was made in the summer of 1865, and thereafter a series of confusing elections and administrations followed as the Radical Republican leaders in Congress overrode President Johnson's reconstruction program.[103] In March 1867, the territory of nine former Confederate states was divided into five military districts, in which army commanders were authorized to oversee the civil administrations of the states. In Virginia's military district, the army commander, General John Schofield, interfered very little with the administration of Francis Pierpont, who served as Provisional Governor. Pierpont provided a measure of needed stability compared to what had preceded it, and as a result slow but steady progress was made toward reconstituting some of the essential elements of local government in the state.[104]

The prospect of restoration of full political power to the states appeared briefly in March 1867 when Congress provided that the Confederate states would be readmitted to the Union and their delegations would be seated in Congress when they adopted constitutions which conformed to the Constitution of the United States with the new Fourteenth Amendment. A convention, dominated largely by Republican reconstructionists, met in December 1867 and brought forth the so-called "Underwood Constitution," named for Judge John Underwood who presided at the convention.

[Pg 43]The proposed new constitution contained the main features which were needed to secure reinstatement of Virginia's sovereignty. In addition, however, it contained a controversial provision which, in effect, disenfranchised thousands who had served the Confederacy. Thus, the choice offered in the impending ratification referendum was difficult for most Virginians. So controversial was this matter that the army commander was moved to intervene and postpone the referendum indefinitely.[105] Stalemate followed during 1868 and 1869. Francis Pierpont was replaced in the office of Provisional Governor by Henry Horatio Wells, a New Yorker who was favored by the Radical Republicans. Progress toward reconstitution of local government lost momentum as state leadership lapsed.

Intervention by President Grant finally brought action on the Underwood Constitution by proposing that Virginians vote on the controversial disenfranchisement clauses separate from the main features of the document. In July 1869, the vote was taken, with the expected result that the "test oath" provision was defeated while the constitution was approved. In the General Assembly elected under this constitution, the Conservative Party enjoyed a working majority over the Republicans, who had been badly split by the referendum controversy. Henry Wells resigned, and was replaced by Gilbert Walker, who served first by appointment of the army commander and later by virtue of election to a constitutional four-year term. In January 1870, legislators from Virginia resumed their seats in the Congress, and the last Federal occupation troops left the State.

The Underwood Constitution introduced major changes into the structure of local government.[106] It adopted the Northern system of dividing counties into townships,[107] with a justice of the peace exercising his authority only within his township. Other elective offices introduced at this time were county supervisors, a county clerk, collector, assessor, overseer of the poor, and overseer of roads. All these officials—some serving the township and others the county—were salaried, and greatly increased the size of the governmental apparatus formerly centered in the county court. The Board of county supervisors was the general governing body of the county, comprised of members elected from each township.

Although this expansion of the structure of county government came in response to recognition that problems of the 1870's could not be solved with government geared to the 1770's, the impact of these problems plus Virginians' conservative political tradition led to dissatisfaction with the township system from its inception. As soon as the original force of the reconstruction movement was spent, therefore, this system was modified to[Pg 44]
[Pg 45]
bring it more into line with Virginia's historic governmental institutions. In 1875 and 1884 the number of separate elective offices was decreased, the independent powers of the townships were reduced, and the townships were converted into "magisterial districts."[108] Gradually the power to appoint all county officers except those with constitutional status was given to the board of county supervisors and the county's Circuit Court judge.

Map of Fairfax Court House from G. M. Hopkins, Atlas of Fifteen Miles Around Washington, 1879. Map of Fairfax Court House from G. M. Hopkins, Atlas of Fifteen Miles Around Washington, 1879.
VIEW LARGER IMAGE

The last quarter of the nineteenth century saw the appearance and disappearance of a number of public offices now only dimly remembered. For example, the county office of commissioner of roads dated from 1831, but the constitution of 1869 created township overseers of roads who, with the commissioner of roads, formed the county road board. When the townships were abolished, the duties of these boards were transferred to the commissioner of roads and road surveyor. By 1900 this highly decentralized system had resulted in enactment of several hundred local road laws by the states and led to a confused situation that was not cured until the state highway system and highway department were established in 1919.[109]

From the time of the disestablishment of the Church of England, care of the County's poor and orphans had been the responsibility of the County's overseer of the poor. Public health measures to suppress smallpox also were carried on by this officer. The constitution of 1869 created a superintendent of the poor for each county, elected by popular vote, and the overseers of the poor became township officers. With the abolition of the townships, the superintendent of the poor also disappeared and the overseers became officers of the magisterial districts.[110]

In the early days of the nineteenth century, the justices of the County Court had been responsible for the County's militia. This system was changed in 1833 when the militia were reorganized to form divisions, brigades and regiments on a state-wide basis. Officers were appointed by the governor on recommendation of the county court. This system continued until the Civil War, and when the militia was established after the war it was managed entirely from the state level.[111]

In the changes that followed the shift of governing power to the board of county supervisors, one of the chief losers was the county sheriff. He ceased to have any control of elections or revenue matters, and his other powers and prerogatives connected with administrative functions of county government were lost to others. He became exclusively a peace officer and[Pg 46] custodian of the county jail, and these are the duties of his office today.

As the nineteenth century ended, Virginia moved toward another constitutional convention—its fifth since 1776—with the hope of modernizing the machinery of government. As matters turned out, however, the resulting constitution of 1902 was not a forward-looking document, and its chief results were to formalize changes which had already occurred in practice. Thus, much debate was spent on how voting qualifications should be regulated, and whether the old county court should be abolished or not. Fairfax County's representatives in the convention voted for retaining the county court, arguing that the monthly sessions had significant social values—an "heirloom of great psychological importance." Ultimately, however, the vote went against retention of the county court and it was abolished. Its judicial functions were assigned to the circuit court, and its legislative and administrative functions were performed by the board of supervisors.[112]

The disappearance of this political institution which had been the focal point of Virginia's local government for almost 300 years, marked the end of an era which reflected the tradition that public affairs were best managed by the county's gentlemen freeholders. But it did not immediately usher in as its successor an era of professionalism and responsiveness to the wishes of the public. Progress in these latter respects was postponed by slowness in widening the suffrage and the opportunity to hold public office. In this respect the Constitution of 1902 perpetuated the restrictive system which had prevailed since 1875 by retaining the capitation tax and the requirements of literacy and/or the ability to explain any part of the constitution.

The beginning of the twentieth century also marked the end of the rebuilding years which had followed the Civil War. The simple struggle for subsistence, which had been the foremost theme when scarcities existed in all types of goods and the sources of capital were meager, no longer was the overriding consideration. A measure of normalcy had, by 1902, returned to life in Northern Virginia. And if the pace of this style of life was not as vigorous or spectacular as in some other areas of the nation at that time, it offered, at least, the substantial attractions of a comfortable and secure rural setting with ready access to the centers of commerce and culture in nearby Washington, Alexandria, and Georgetown.

[Pg 47]

NOTES FOR CHAPTER V

[101] Hemphill, et al., Cavalier Commonwealth, p. 346.

[102] Samuel E. Morison and Henry S. Commager, The Growth of the American Republic, (New York: Oxford, 1937), II, 37–41.

[103] Porter, County Government, p. 241.

[104] Walter L. Fleming, The Sequel of Appomatox, (New Haven: Yale University, 1921), pp. 146–147.

[105] Explaining his action to General Grant, then supreme commander of all the military districts, General Schofield stated that the members of the Underwood Convention "could only hope to obtain office by disqualifying everybody in the State who is capable of discharging official duties, and all else to them was of comparatively slight importance. Even the question of whether their constitution will be ratified or rejected they treat with indifference. Congress, they say, will make it all right anyway." Hemphill, et al., Cavalier Commonwealth, p. 352.

[106] See Porter, County Government, pp. 243–246, 258–259, 293.

[107] The introduction of the township was probably due to the fact that a number of New Yorkers participated in the convention. Townships had never been part of the tradition of Virginia's local government.

[108] Virginia, Laws of 1874–75, c. 270.

[109] Porter, County Government, pp. 249, 271; Code of Virginia (1950 Edn.) Title 33, c. 1.

[110] Porter, County Government, pp. 258–59, 289.

[111] Ibid., p. 177.

[112] [Pg 48]Ralph McDanel, The Virginia Constitutional Convention of 1891–92, (Baltimore: Johns Hopkins University Press, 1928), p. 103, reports that R. Walton Moore was one of Fairfax County's delegation to the convention, and that he argued strongly for the social values of retaining the court. The motion to retain the monthly county court was defeated, however, by a vote of 41 to 19.

[Pg 49]

The dedication of the Marr Monument in 1904. Copy by Lee Hubbard. The dedication of the Marr Monument in 1904. Copy by Lee Hubbard.

[Pg 50]

CHAPTER VI

THE TWENTIETH CENTURY COURTHOUSE

The twentieth century brought Fairfax County more than a new constitutional framework; it brought a new outlook and spirit. Something of this spirit was reflected in the following quotation from a short history and prospectus of the County published by the County Board of Supervisors in 1907:

Verily, Fairfax County, old in its history, and hoary in its traditions, is throbbing with a new life and enterprise. Only yesterday were her advantages and possibilities appreciated; yet, today she is attracting settlers from all parts of the Union, and even from foreign countries. Certainly no other section extends a more cordial welcome and more attractive inducements to the investor and home-seeker.[113]

If this statement seemed perhaps a bit too eager, it was at least hopeful and optimistic in contrast to the spirit that had prevailed during the long years of reconstruction. It expressed a feeling of confidence that came from having weathered the depression which followed the Panic of 1893 better than many parts of the country.[114]

"The Tavern," across Little River Turnpike from the courthouse. Photo by Helen Hill Miller, 1932. "The Tavern," across Little River Turnpike from the courthouse. Photo by Helen Hill Miller, 1932.
The courthouse about 1907. The courthouse about 1907.

One reason for this was Fairfax County's expanding contacts with the city of Washington, chiefly by having become a supplier of its dairy and truck garden produce, and by becoming the residential area for increasing numbers of employees of the Federal governmental establishment. These elements of the economy of Northern Virginia offered more resistance to the depression of the 1890's than was possible in the areas of south and central Virginia which depended on cotton and tobacco.

In turn, it was the development of rapid railroad service, both steam and electric, that made both of these developments possible at this time. The critical importance of this transportation was recognized by the County Supervisors' publication:

The eastern part of the county is in the immediate vicinity of the cities of Washington and Alexandria; while all sections of it are within a few hours' drive of these cities. In addition to the accessibility of these cities by roadways, three steam and[Pg 51]
[Pg 52]
three electric railways connect the county with Washington. The greatest trunk lines north and south traverse Fairfax County. Through trains on the Pennsylvania, Southern, Chesapeake and Ohio, Norfolk and Western, Seaboard Air Line, and the Atlantic Coast Line, are hourly passing through this county, affording convenient and direct connection with all parts of the country. Every section of the county is within easy reach of some one of these roads; and with their double track facilities, and consequent excellent local accommodations, great activity in suburban home building is observed on every hand. Especially is this true along the lines of the electric railways, where numerous villages are springing into existence.

The proximity and accessibility to Washington, the most magnificent city in the world, together with the splendid natural advantages of Fairfax, must inevitably make the county rich, populous and great.[115]

The heydays of the steam and electric railroads in Northern Virginia were followed in the 1920's by improvement and expansion of the road system.[116] As the number of automobiles increased—and their prevalence was forecast by designation of present Lee Highway as the initial segment of the first transcontinental highway running westward from the zero milestone on the ellipse in Washington—the paving of roads became a major concern of local communities. Both free public highways and toll turnpikes built by subscription and bond issues were undertaken in Fairfax County. Even after the County elected to turn over its roadbuilding to the state under the Byrd Road Act in 1932, the County's leaders continued to have a deep interest in the increased population growth that roads and railroads made possible.

Increased population brought increased needs for various new public services. Shortly after the first State Board of Health was established in Virginia in 1900, the counties of the State established local boards. The Chairman of the Board of County Supervisors automatically became Chairman of the Health Board in this early experiment in public health services.[117] The machinery for raising revenue was made more efficient by redrawing the division of labor between the commissioner of revenue and the county treasurer.

Most far-reaching in the long run, however, was the[Pg 53] enactment in 1920 of state legislation giving counties the option of adopting various managerial forms of government if they so desired. Fairfax County exercised this option in 1951 by adopting the County Executive form of government.[118]

Under this form of county government, the Board of Supervisors remained the sole legislative authority of the County, but the executive functions were placed under the supervision of a new officer, the county executive. The county executive, as well as all boards and commissions responsible for special services and administrative functions, were appointed by the Board of Supervisors, and served either for specified terms or at the pleasure of the Board. The Supervisors continued to be elected by the County's voters, each from one of the magisterial districts. This method of election was adopted deliberately as a means of maintaining a balance of political representation of the western and southern parts of the County, which still were rural in their economic and social orientation, and the north, east and central areas of the County, which had been intensively developed as part of the suburbs of Washington and Alexandria.

The involvement of the public in county government was seen in many forms. Service on county boards and commissions was one. Also, as newcomers poured into the county seeking homes, the neighborhoods and communities formed civic organizations or citizens associations to provide means for group action on problems of common concern. Parallel to these groups, others, such as Parent-Teachers Associations, formed to deal with school-related problems which were both inside and outside the scope of governmental services in the field of education.

These forms of citizen involvement in public affairs—prompted partly by the sheer size of the new demands for service and partly because the newcomers to Fairfax County came from areas where wide participation in local government was taken for granted—had a profound effect on the County's historic outlook on public affairs. No longer was it accepted that certain families or individuals held among themselves the privileges, powers and obligations of governing. This tradition, symbolized by the gentlemen justices of colonial times and the nineteenth century, was replaced by a new system where political leadership was established through service in the community and verified by the ability to win in competition at the polls.

The new dimensions of government's role necessitated finding more space for the county's offices. The clerk's office,[Pg 54] which historically had been the focal point for the County's continuing administrative functions, ceased to be able to contain all the County's offices as early as the 1920's. An additional building was authorized, but delays in financing and construction postponed its completion until 1934.[119] However, by 1940 this building was so crowded that both its attic and basement had been converted to office space, and many County agencies were using additional rented space in non-County buildings.

Plans were developed in the early-1940's for a major addition to the courthouse building. Delays were encountered, first because of the shortages of materials and manpower during the years of World War II, and then because of problems of funding this work amid other urgent demands for tax revenue. Ultimately, both shortages were relieved, and work was begun on the central block and south wing of the courthouse as they appear today.[120] The jail section and wing containing the clerk's records of land transactions and court proceedings were added to the building in 1956.[121]

As the County's need for space to house its governmental offices continued to grow through the 1960's, some consideration was given to moving the courthouse to a new location.[122] The transformation of Fairfax from a town into a city in 1961 added a complicating factor to this issue for it meant that technically the County had no control over the land on which its seat of government stood. The City of Fairfax, however, was anxious to keep the center of County government in its existing location, and offered to condemn sufficient land for the County's building needs.[123]

The seat of county government remained at Fairfax, but the courthouse square no longer sufficed to contain the complex of buildings involved. By 1969 construction had been completed on a County Governmental Center, later named the Massey Building, to honor Carlton Massey, the first County Executive, who served from 1952 to 1971. A separate building was erected nearby for the County Police Department, and plans were made for other buildings in the future.[124]

Rear view of the Fairfax County courthouse complex. Photo by the Office of Public Affairs, about 1972. Rear view of the Fairfax County courthouse complex. Photo by the Office of Public Affairs, about 1972.
View of the Fairfax County Courthouse, the Massey Building, and downtown Fairfax. Photo by Bernie Boston, 1976. View of the Fairfax County Courthouse, the Massey Building, and downtown Fairfax. Photo by Bernie Boston, 1976.

Overshadowing the old courthouse tract, the new center of government nevertheless preserves the evidence of the past by[Pg 55] continuing use of the original (north) section of the courthouse building and its 1953 addition, all in an architectural style reminiscent of the colonial period in Virginia. The presence of the past combine with a sense of the present and the future to make the Fairfax County Courthouse both a symbol and a functioning seat of a county government which in the year 1976 had been in existence for more than two centuries.

[Pg 56]

NOTES FOR CHAPTER VI

[113] Fairfax County Board of Supervisors, Industrial and Historical Sketch of Fairfax County, Virginia, (Fairfax: County Board of Supervisors, 1907), p. 5.

[114] Allen W. Moger, "The Rebuilding of the Old Dominion," (Unpublished doctoral dissertation, Columbia University, 1940), pp. 95–96.

[115] Fairfax County Board of Supervisors, Industrial and Historical Sketch, pp. 5–6.

[116] The campaign to improve Virginia's roads had been waged since the 1890's. See, for example, the rhetoric and argument in favor of road improvements set forth in the Programme of the Virginia Good Roads Convention, (Roanoke: Stone Printing, Co., 1894) held in Richmond in October 1894. As to the effects of the rise of automotive travel, see Fairfax County Chamber of Commerce, Historic, Progressive Fairfax County in Old Virginia, (Alexandria: Newell-Cole, 1928), pp. 20–21, containing a road map of the county's hard-surfaced roads and unimproved roads in 1928.

[117] Porter, County Government, p. 291.

[118] Fairfax County Board of Supervisors, Annual Report, 1969, p. 6.

[119] Fairfax County Board of Supervisors, Minute Book, v. 5, 318, William Deming was the architect of this project. As with previous expansions of the clerk's office, the old building was torn down and the bricks re-used in the new building.

[120] Fairfax County Board of Supervisors, Minute Book, v. 5, 318; v. 9 (1939–40), 501; v. 10 (1941–42), 175; v. 12 (1949–50), 4; v. 18 (1950–51), 497; v. 20 (1953), 519.

[121] Fairfax County Board of Supervisors, Minute Book, v. 30 (1960), pp. 418–23.

[122] [Pg 57]Fairfax County Board of Supervisors, Minute Book, v. 32, 264–65 notes that Reston offered 50 acres for the use of the courthouse, and Tyson's Corner and the intersection of Routes 495 and 50 also were considered. See also, Ibid., v. 39 (1964), 117.

[123] Fairfax County Deed Book, B-2, pp. 373–376; 503–504. The courthouse commissioners were Charles Little, David Stuart, William Payne, James Wren, and George Minor.

[124] Fairfax County Board of Supervisors, Minute Book, v. 36, 313; v. 39, 544. On April 7, 1965 the Board of Supervisors voted to construct a new office building and authorize a referendum for a $5,500,000 bond issue for this project. The bonds were approved by the voters, and the building was built on a 35-acre tract belonging to Mary Ambler, which was condemned by the city and then purchased by the county from the condemnor. The architect for the project was William Vosbeck, and the contractor was the Blake Construction Company, Fairfax County Board of Supervisors, Annual Report, 1968, p. 4.

[Pg 58]

CHAPTER VII

THE ARCHITECTURE OF THE COURTHOUSE AND ITS RELATED BUILDINGS

1. THE COURTHOUSE COMPLEX

Among the courthouses built in England's North American colonies, those of Virginia developed characteristics which expressed peculiarly well the prevailing patterns of landholding and manner of conducting local government. Unlike New England, where each small community had its frame meeting house, containing within its walls "all the ideals, political, moral, intellectual and religious of the people who attended,"[125] the seats of county government in colonial Virginia were centrally located in rural settings. A few county courthouses grew into regional centers of commerce, industry and finance; but most remained independent and apart from any surrounding community, and some may still be seen today standing "as solitary sentinels, symbolic of government."[126]

It was also characteristic of Virginia that these courthouses were not single buildings, but were complexes of several structures. The typical courthouse compound was enclosed by a brick wall, inside which were a courthouse, a jail, a clerk's office, and, sometimes, a row or cluster of offices for lawyers. Invariably, also, an inn or ordinary occupied a site within the compound or immediately adjacent to it. This style of courthouse may be found through Virginia, dating from earliest colonial times; and, although many fine courthouses are found in the early architecture of Delaware, Maryland, Pennsylvania and North Carolina, none of these areas developed the design concept of a courthouse compound.

This design concept was used in the courthouses of Fairfax County at Springfield (1742–1752) and Alexandria (1752–1800); and it was followed in the county's third courthouse which was completed in 1800. The courthouse tract was situated near the geographical center of the County, at the intersection of the Little River Turnpike and the old Colchester Road. The tract consisted of four acres, acquired by a deed from Richard Ratcliffe and his wife Serian. Specified in the deed were structures including a courthouse, clerk's office and gaol, "... and every other building and Machine necessary ..."—the latter presumably referring to gallows, pillory, stocks, and the like. The May 1798 Fairfax County Court Order Book did specify that the courthouse should be forty-by-thirty feet with a twelve-foot portico, the gaol forty-by-twenty, the clerk's office twenty-by-eighteen and covered with slate or tile, a gaoler's house twenty-four-by-eighteen feet, and that stocks, pillory and whipping post also be provided by letting the entire [Pg 59]"... building of the same to the lowest bidder."[127]

In accordance with statutory requirements, space was delineated for the prison bounds. This was done in March 1800, and the area was described in a survey and report of the commissioners, as follows:[128]

In obedience to the order of the worshipful Court of this County, hereunto annexed, we the subscribers in company with Col. William Payne, the Surveyor of this County, proceeded this thirteenth day of March Eighteen Hundred, to lay off ten acres of ground for the prison rules of this County, and have ascertained and bounded the same by the following meets and boundaries, ... including the said four acres, the Court house, Gaol, Clerk's office, the brick Tavern, Kitchen, Stables and store house, and beg leave to report the same with the plat thereof hereunto also annexed.—Given unto our hands and seals:

Thomas Gunnell (Seal)
N. Fitzhugh (Seal)
T. Ellzey (Seal)

Whether all of the buildings mentioned in this report actually existed at that time may be questioned, since the survey plat shows only the courthouse, clerk's office and jail. As to these three, the plat showed the courthouse situated as at present, with the clerk's office almost directly south a distance of about 300 feet, and the jail about the same distance south, but in back and west of the clerk's office. The plat does not show roads or other features of the platted parcel, but the known position of the courthouse in relation to the turnpike supports the suggestion that the brick tavern referred to was located on the north side of the turnpike, the building later known variously as the Willcoxen Tavern, the Union Tavern and the Fairfax Tavern. The other buildings referred to in the report apparently left no traces, for except through an occasional glimpse of them in old photographs of the courthouse, they are not noted in the records of the court.

These buildings formed a cluster which, if it was not all neatly enclosed within the courthouse fence, at least was immediately adjacent to and integrated with the activities centered in the court. In the first three decades of the nine[Pg 60]teenth century, the town of Providence grew up around the courthouse, and by 1835 some 50 dwellings and 200 residents were listed.[129] But the town never eclipsed the courthouse; and, from its commanding position on the gentle hill at the crossroads, the courthouse itself continues to serve as a focal point and symbol of government.

The Clerk's Office. An office for the Clerk of the County Court was mentioned in the survey of the courthouse lot made in March 1800, and was shown on a location south of the courthouse about 200 feet and east of the jail about sixty feet. According to the survey the office was a relatively small building, one or one-and-one-half stories high, with a chimney at the south end and a door opening on the east side. This office was the depository of all important public records in the county, and therefore was a focal point for much of the activity that occurred at the courthouse throughout the year. A news report in the Alexandria Daily Advertiser of February 10, 1806 called for bids for an addition to the clerk's office and repairs on the "public building," all of which should be in accordance with a plan lodged with Col. James Wren, and constructed of brick "covered with slate."[130]

During the next forty years, the functions of the clerk grew in both size and importance as he was called upon to serve both the County court and the circuit court. The need for repairs combined with the need for more space required increasing attention to the old building, until, in 1853, it was determined that a new office building for the clerk must be built. Newman Burke, George W. Hunter, Jr. and Alfred Moss were appointed commissioners to oversee the demolition of the old office building and the construction of a new one.

Fortunately, the commissioners' notice to builders, inviting bids on these jobs, was published in the Alexandria Gazette and Virginia Advertiser of July 15, 1853, and provides a detailed description of the materials and construction to be used. It included the instruction that such of the old materials as could be used in the rebuilding should be so used.

Like the courthouse building, the clerk's office suffered damage and deterioration during the war years of 1861–65. When the courthouse compound became a headquarters for Union army patrols, and civilian government either ceased or moved to a temporary seat elsewhere, care and custody of the clerk's office[Pg 61] could not be guaranteed. Many of the record books and files were taken to places of safekeeping in private homes. However, many could not be moved in time to prevent them from being scattered, taken, lost or destroyed as soldiers occupied the office building. When the war ended, the task of re-equipping the office and restoring it to usefulness was a major one.

The clerk's office about 1907. The clerk's office about 1907.

In 1875, the clerk's office burned and subsequently, a new office building was added to the courthouse complex. It was a two-story brick building, larger than the old clerk's office and located beyond it to the south of the courthouse. It was probably completed by 1881, at which time the board of supervisors was appropriating funds for new furnishings. The architecture of this newest office presented a mixture of three styles. In overall appearance, its square shape, hipped roof and functional design were reminiscent of the eighteenth century buildings of James Wren. The late nineteenth century's preference for exterior decoration was illustrated by a dentiled cornice, a belt of corbelling three courses wide in the brickwork below the cornice, and brick pilasters on each side of the main doorway, topped by scrolls and brackets supporting the pediment. In the center of the building on the second floor, a Palladian-style window was installed, providing a contrast to the design of the other windows. Two courses of corbelling also appeared on the two chimneys located at the back and in the center section of the building. Notwithstanding these exterior decorations, the general design of the office represented a recognition of the needs of office workers[Pg 62] and the response of late nineteenth century architects to provide light, air, and functional efficiency in the arrangement of space for offices. Telephone service and electric lights were installed in the clerk's office in 1902.[131]

After 1932, the old clerk's office was demolished. A new office building was erected south of the courthouse in 1934, with labor and materials provided by Federal and Virginia relief funds. This building was demolished when the extensive addition was made to the courthouse, 1951–1954. A new wing was put on the back of the courthouse in 1956 to accommodate the rapidly increasing quantities of archives generated by the business of courts and the clerk's office in a county whose population was growing at an unprecedented rate.[132]

The Jail. As shown in the survey of the courthouse tract, made in March 1800 by the County Surveyor, William Payne, the jail was located on the southwestern corner of the original four-acre tract. No contemporary descriptions or records of the jail have survived, but the survey sketch shows a two-story building with chimneys at each end. Presumably the construction material for the jail was brick, since the other principal buildings in the Fairfax courthouse compound were made of this material.

With regard to the interior arrangement and description of major features, conjecture is also necessary. But, again presumptions may be made that its facilities were the same as others of the time—for example, that the bars used on doors and windows were the flat type (rather than round or other shapes), which were laid across each other to form a lattice and riveted together where they overlapped. Also, in accordance with contemporary custom, it may be presumed that the jailor and his family made their home in the same building with the prisoners, and so attended to their meals and other needs.

Exactly when and how the first jail was constructed at the courthouse site is not entirely clear. Payne's survey in 1800 showed a jail building on the site. Yet only nine years later the Alexandria Daily Advertiser, April 8, 1809, carried an invitation for bids to build a jail at Fairfax Court House. Moreover, although the records of the county court for the next fifty years contain references to repairs and construction work for the jail, they customarily fail to include descriptions of work to be done. Accordingly, little can be gleaned from these sources to aid the architectural history of the courthouse complex.

[Pg 63]

The jail, built about 1886. Photo taken in 1972. The jail, built about 1886. Photo taken in 1972.
Police Department, about 1947. Photo courtesy the Fairfax County Historical Society. Police Department, about 1947. Photo courtesy the Fairfax County Historical Society.

[Pg 64]Along with the other public buildings at the courthouse compound, the jail suffered during the years of war from 1861 to 1865. When civil government ceased to function at the courthouse, competing groups that claimed civil authority in Fairfax County used jail facilities in neighboring Alexandria and Leesburg when the need arose. During the latter years of the war, when Union troops occupied the courthouse, the jail offered its facilities as a storehouse as well as a place of detention for military prisoners. But the Army of the Potomac had little time or incentive to keep the jail in good repair, and so, like the courthouse, it suffered extensively from the war.

During the 1870's, repairs and construction of additions to the original building restored the jail to service. The 1879 G. M. Hopkins Atlas showing the courthouse complex depicts the jail as being larger than the courthouse in size. In 1884, fire destroyed this building, and arrangements had to be made to use the Alexandria city jail until a proper new jail could be constructed for the county.[133]

The new jail was located directly behind (west of) the courthouse, facing onto the Little River Turnpike. Its materials and construction indicate that the original portion was added to on two later occasions. When finally completed, the jail was a two-story T-shaped brick building, with a one-story wooden porch across the full length of the front. In the original section (facing onto the turnpike) the windows have plain wooden pediments. The cornice and chimney tops are corbelled, and there are iron cresting and finials on the ridge of the hipped roof. In the second section, which forms part of the stem of the "T," there are segmental arches over the windows and an ornamental cornice consisting of a course of bricks laid vertically. In the third section, which completes the stem of the "T," the brickwork is laid in Flemish bond (matching the courthouse brickwork in contrast to the common bond of the rest of the jail), and the windows are topped with flat arches. The second and third parts of the building are covered with a gable roof.[134]

In this new jail building, the jailor had living quarters in the front portion, and until 1948 these were used as his residence. The building itself ceased to be used for detention of prisoners shortly after that time, for when the addition to the courthouse was completed in 1956, jail facilities were incorporated into this addition. Since 1956, the old jail building has been used for offices of various county agencies, including the juvenile court and probation office, civil defense office, fire board, police dispatcher, and recreation department.[135]

[Pg 65]Associated Buildings and Structures. Certain structures were associated with the courthouse because they were required by statute, and others had their origin in custom and convenience. In 1792, when the legislature of the new state government revised the law relating to organization of the local courts, it reenacted most of the features of the system which had been followed in colonial times. By law all counties had to build and maintain a courthouse, jail, pillory, whipping post, and stocks. This law also required that there be two acres of land around the buildings of the courthouse, and that prison bounds of ten acres should be provided for the "health and exercise of prisoners."[136] A report of a survey of the courthouse tract in March 1800 shows metes and bounds for a four-acre tract within a larger ten-acre area, and states that this land was for the purpose of erecting a courthouse, jail, clerk's office, kitchen, stable, and storehouse plus providing an area to serve as the prison bounds. Additionally, a well was dug a short distance south of the courthouse. Altogether, these comprised the complex of structures associated with the court in the first half of the nineteenth century.

The Tavern. The brick tavern was a substantial building, built on the north side of the Little River Turnpike directly across from the courthouse complex. No detailed description of this building as it appeared in 1800 has been found. It was, at least in later years, a multi-story building which rivalled the courthouse in size, and expanded as the patronage of the circuit-riding judges and their entourages of attorneys and others combined with the regular passage of travellers on the Little River Turnpike to create a prosperous business climate.

After the Civil War, the brick tavern was purchased by Col. H. B. Taylor, who operated it during the 1870's and 1880's. Because of its favorable location near the courthouse, the tavern continued to be frequented by those who had business with the court, and lawyers maintained their offices there. An advertisement in the Fairfax Herald of April 8, 1887 refers to the building as the Union Hotel, and describes it as a three-story brick building with annex, containing about twenty-five rooms, with stable and outbuildings, a two-acre garden and a fine well—"a desirable residence for summer boarders." Later in 1887 the name was changed from Union Hotel to Fairfax Hotel and its management was taken over by James W. Burke.[137]

[Pg 66]The hotel continued to be operated until 1932 when it was demolished to clear the site for subsequent construction of a building for the National Bank of Fairfax. The bricks, mantels and doors from the hotel were re-used in construction of the home of Helen Hill and Francis Pickens Miller, called "Pickens Hill." It is located on Chain Bridge Road north of Fairfax, and in recent years has become a major building of the Flint Hill private school complex.

The Well. At the time of construction of the courthouse, a well was dug on the south side of the building. Over the years, pictures show a variety of overhead coverings to shelter the well and its users. The well was a large one, appearing to be four or five feet in diameter at the top, and was surrounded by a raised platform. Standing on this platform, one drew water from the well by a windlass operated by a hand-crank. Later the box on which the windlass was mounted was fitted with a hand pump, and a trough for filling buckets or other containers was placed at the side of the well. This well served the courthouse into the twentieth century, but was closed and capped when the town of Fairfax installed underground water mains. The gazebo-like well structure was moved to Sully.

"Public Comfort Station." Many references to the early privies in use on the courthouse grounds appear in both the court order books and the board of supervisors minute books. As recently as 1931, outside toilets were still in use. In October of that year, "the County Engineer was instructed to make necessary repairs to the public comfort station on the Court House lawn."[138]

MEMORIALS

Memorials of the Wars. On the lawn in front of the old courthouse stand two monuments to the honored dead of four wars. The John Quincy Marr monument was erected on June 1, 1904, by the Marr Camp, Confederate Veterans, commemorating the first Confederate officer killed in the Civil War. The second monument was erected under the auspices of the Fairfax County Chapter of the Daughters of the American Revolution. On a bronze plaque on one side are listed those Fairfax Countians who gave their lives in World War I and on the other, a plaque listing those who gave their lives in World War II and the Korean conflict.

[Pg 67]

Naval cannon in front of the courthouse. Naval cannon in front of the courthouse.
The Marr Monument commemorating the first Confederate officer killed in the Civil War, June 1861. Photo from the National Archives. The Marr Monument commemorating the first Confederate officer killed in the Civil War, June 1861. Photo from the National Archives.
VIEW LARGER IMAGE

Two naval cannons stand on either side of the Marr monument, pointed toward the National Bank of Fairfax, formerly the site of the brick tavern. Facing the bank, the cannon on the left is inscribed with an anchor and the following lettering: 12 PDR Boat Howitzer 1856 J.A.D. U.S.N.Y. Washington 757 LBS. 58 PRE No. 45. The cannon on the right has inscriptions which are very worn and indistinct. There is an engraved anchor, but except for a letter here-and-there, the inscription is unreadable.

[Pg 68]

World War I Memorial Plaque. World War I Memorial Plaque.
VIEW LARGER IMAGE
World War II and Korean Conflict Memorial Plaque. World War II and Korean Conflict Memorial Plaque.
VIEW LARGER IMAGE

[Pg 69]Plaques and Portraits. Mounted in the inside north entrance hall beside the oldest portion of the courthouse are three plaques. One is a tablet with 160 names of Civil War veterans of Marr Camp, Confederate States of America. The second is a memorial to George Auld (1832–1919), born in Scotland, who "was for many years Chairman of the Board of Supervisors of Fairfax County, Virginia...." The third is a plaque commemorating the building of the first addition to the courthouse, A.D. 1929, W. I. Deming, Architect, and C. H. Brooks, Builder. In the central entrance hall, there is a bronze plaque commemorating the large addition to the courthouse completed in 1954, Robert A. Willgoos and Dwight G. Chase, Architects, and Eugene Simpson and Bro., Contractor. A large mural, painted by Esther L. Stewart in 1954, is hung above the landing of the grand central staircase. It depicts Fairfax County scenes, buildings, and portraits of Lord Fairfax, George Washington, and George Mason.

Mural at the Central Staircase, Fairfax County Courthouse. Painted in 1954 by Esther L. Stewart. Mural at the Central Staircase, Fairfax County Courthouse. Painted in 1954 by Esther L. Stewart.
VIEW LARGER IMAGE

[Pg 70]On the brick floor of the arcaded porch of the first (1800) section of the courthouse, is a National Register plaque (1974 listing) placed by the Fairfax County History Commission in 1976. In the hall inside hangs a plaque from the Virginia Historic Landmarks Commission commemorating the building's placement on the State Register in 1973.

Hanging on the walls of this oldest court chamber are oil portraits of county notables. (See Appendix for biographical listing.)

On the courthouse lawn, a dogwood tree was planted in 1954 dedicated to the firemen of Fairfax County. A small bronze plaque with a poem and the dedication was set in a cement post under the tree, by the Firemen's Auxiliary.

In the wake of its many unresolved historical mysteries, the restored courthouse remains a functional courtroom, as required by the terms authorizing the work. Yet it cannot claim to represent any particular period of Fairfax County's history with full historical or architectural integrity. As now redesigned and rebuilt, the courthouse presents an outward appearance presumably similar to its original form. The interior achieves the pleasant appearance and atmosphere of a working courtroom of the past.

[Pg 71]

NOTES FOR CHAPTER VII

[125] Catherine Fennelly, The New England Village Scene: 1800, (Sturbridge: Old Sturbridge Village, 1955), p. 9.

[126] Sidney Hyman, "Empire of Liberty" in With Heritage So Rich, (New York: Random House, 1966), pp. 5–6.

[127] Fairfax County Deed Book, B-2, pp. 373–377; 503–504.

[128] Fairfax County, Record of Surveys, 1742–1856, p. 93.

[129] Joseph Martin, Gazetteer of Virginia and the District of Columbia, (Charlottesville: Martin, 1835), p. 168.

[130] Fairfax County, Record of Surveys, Section II, p. 93, March 13, 1800.

[131] Fairfax County Board of Supervisors Minute Book, #1, pp. 89, 91, 196, 206 (1871–1881).

[132] Interview with Thomas Chapman, Jr., former Clerk of the Circuit Court; Fairfax County Board of Supervisors Minute Book #6, pp. 580–582, August 20, 1934; architectural drawings, 1951–1956, Facilities Management Office.

[133] Fairfax County Court Minute Book, 1882–1885, April Court, 1884, "The County Jail having been destroyed by fire ...," the county court ordered that Alexandria city jail be used until a proper jail could be erected in the county.

[134] Fairfax County Court Minute Book, June Court, 1891.

[135] Interview with Thomas P. Chapman, Jr.

[136] [Pg 72]Hening, Statutes, October 1792, XIII, 453–455.

[137] Fairfax Herald, May 13, 1887, notes that Mr. T. R. Sangster has removed his law office to the Fairfax Hotel; The Union Hotel and Fairfax Hotel sometimes have been assumed to be separate buildings. However, identical advertisements of this hotel appeared in the Fairfax Herald on April 8, 1887 and May 6, 1887, the former calling it the Union Hotel, and the latter calling it the Fairfax Hotel. The April 29, 1887 Fairfax Herald reports the rental of the Union Hotel by Burke. By tradition, the hotel building across from the courthouse has been known as the Willcoxen Tavern or just simply "The Tavern."

[138] Fairfax County Board of Supervisors Minute Book, #6 p. 139, October 2, 1931.

[Pg 73]

2. THE COURTHOUSE

The Courthouse Plan and Its Architect. The design of the Fairfax County Courthouse followed the Virginia tradition that the seats of civil government should be designed with dignity as well as adequacy for their function.[139] Consequently, the courthouse building, which in other respects was a plain rectangular two-story brick structure, departed from strict utilitarian design with its open arcade on the ground floor front, and its cupola in the center of the roof, serving as a base for the flag pole and housing the bell which was used to announce the convening of court.

The advantages of the two-story building for innovations in design and decoration were even more evident with respect to the interior. Entered through the front door which opened into the arcade, the courtroom gave the same impression of vaulted space that is associated with the nave of a church.[140] The space over the arcade on the second floor was enclosed, and presumably used as the jury room. This room was entered from a balcony located across the front of the building (the back of the court chamber) and along each side of the building. At the front of the chamber (as it appeared in the late nineteenth century) was a raised bench, and directly to the left of the judge's seat was a doorway leading into a pair of rooms used by the Court.

No descriptions of the interior of the courtroom as it appeared in the early part of the nineteenth century have been found; but it is probably that the business of the court was transacted, as it had been since early colonial times, at a large table, centered in the main chamber of the courthouse and spacious enough to seat the justices of the County Court and the sheriff, if the business of the day concerned him. One or more separate tables customarily were provided for the clerk of the court and those of his staff who attended the court session. It was also customary to separate the portion of the courtroom occupied by the Court from that occupied by the public, and this was accomplished by installation of a wooden railing or partition. Fireplaces heated the courtroom chamber and a second-floor fireplace heated the jury room above the open arcade. Details of the plastering and woodwork, the lighting fixtures and other hardware are not known, yet it seems certain they must have been of good taste and design, for their selection was in accordance with a plan prepared by James Wren, the designer of The Falls Church, Christ Church in Alexandria, and probably Pohick Church.

[Pg 74]Although James Wren's name appears frequently in the public records of Fairfax County during the eighteenth century, his principal legacy was the architecture he designed and helped to build. In the 1760's references to him are found throughout the Vestry Books of Truro Parish and Fairfax Parish.[141] In 1763 he prepared the plans for construction of The Falls Church, which formed the nucleus of the village which grew up around it. In 1767 he designed the plans for Christ Church in Alexandria. Wren and William Weit were each paid forty shillings in 1769 for plans furnished to the vestry, for Pohick Church.[142] He had, through design of these and other structures, earned a reputation as the foremost builder and designer of buildings in his locality[143]—a reputation attested to by numerous contracts, recorded in the Fairfax County Court Order Books, under which young men were apprenticed to him to learn the "trade sciences or occupation of a Carpenter and Joiner."

According to Melvin Lee Steadman's genealogy of the Wren family,[144] James Wren was born in King George County about 1728, the son of John Wren and Ann Turner Wren. He learned his trade of carpentry and joining there, and about 1755 he moved to Truro Parish, Fairfax County. The first reference to James Wren in the land records of Fairfax County is found in a deed dated June 15, 1756 in which one James Scott conveyed to Wren a tract of 200 acres on which Wren was then living. Ultimately, Wren built a home, now called "Long View," adjacent to the present city of Falls Church, and assembled a substantial plantation, known as "Winter Hill," now within Falls Church City. He also operated, at Winter Hill, "Colo. Wren's Tavern."

James Wren served as a justice of the County Court. He was a trustee of the Town of Turberville which in 1798 was laid off on land near the Little Falls of the Potomac but never fulfilled the hopes of its promoters. Following his military service in the Revolutionary War he held various offices in the County government, including that of sheriff and commissioner of the tax. He acquired extensive landholdings in Fairfax and Loudoun Counties. James Wren was married three times; first, in 1753, to Catherine Brent of Overwharton Parish (Aquia Church); next, about 1771–74 to Valinda Wade, and last, to Sarah Jones of Alexandria in 1804. He died in 1815 and was buried at Long View.[145]

The architecture which James Wren created for the courthouse—as well as his churches and the numerous private buildings he designed and built under contract or for his friends—reflect the general level to which that art had advanced in[Pg 75] colonial Virginia. The styles were adapted from prototypes in England.[146] Innovations which were made in adapting these styles to American use were, in most instances, attributable to the differences in building materials and the types of skilled labor which were available to the American builder.

The Origin of the Courthouse Design. The architectural design which James Wren selected for the Fairfax County Courthouse utilized several features which already were familiar hallmarks of public buildings in colonial Virginia, and in particular the colonial capitol at Williamsburg—probably the most impressive public building in Virginia at that time. The use of brick as building material, the use of two stories, topped by a cupola, and, most strikingly, the use of arches, all combined to suggest the influence of this capitol building on the courthouse design.[147] The courthouse was far from being a copy of the capitol and Wren added to these familiar features several new ones that made the courthouse an architectural innovation in its own right. When it was completed in 1800, the Fairfax County Courthouse was the first example of a new design which architectural historians have called "the town hall style,"[148] and have traced to English town halls of the late seventeenth and eighteenth centuries. Like the Fairfax County Courthouse, these town halls were two-story brick or stone buildings which presented to their front a gable-end, ground-floor arcade (or piazza) covering the main opening onto the street, an entrance set into the end wall, and, frequently, a cupola. The town halls of Blandford in Dorset (1734), and Amersham in Buckinghamshire (1682) illustrate these features with variations of details.

No documentary evidence has been found to show how James Wren evolved his design for the Fairfax County Courthouse; but it seems probable that he knew of this style that was enjoying current popularity in England, and that John Bogue, the "undertaker" who built the courthouse, was familiar with the methods of constructing such buildings, for Bogue had just come to America from England in 1795.

While the similarity of geometric and structural exterior design strongly suggests that the Fairfax County Courthouse had its architectural ancestry in the English town halls of that period, the analogy is weaker when functions are compared. The courthouse for Fairfax County was designed and used entirely as the seat of local government. The commercial activity that was attracted to the courthouse site on "court days" enjoyed no special privileges or facilities in the building. In contrast, town halls in eighteenth century England often[Pg 76]
[Pg 77]
served the dual purpose of providing a facility for transaction of public business and carrying on the commerce of the community. The style of the English town halls provided space in the open arcade of the ground floor to house a farmers' and tradesmen's market, and space in the second floor chamber for the town council to meet and do its work.[149]

The origin of this type of building is not entirely clear. It is difficult to imagine it growing naturally in the political and social climate of the villages which grew up clustered around England's medieval castles and monasteries. At the time when town-and-market halls were common in the central squares of free towns in Italy, Germany and the Low Countries, they were absent in England. Their appearance in England dates from the seventeenth century when town government developed its own identity, and when British political and cultural alliances with the Dutch were established.[150]

Imported to Virginia as a form of courthouse building, this town hall style became a popular prototype for buildings erected in several counties during the first three decades of the nineteenth century. After being introduced in Fairfax County in 1800, this style appears in the Nelson County Courthouse built in 1807, the Caroline County Courthouse built in 1808, the Sussex County Courthouse built 1825–28, and the Madison County Courthouse built 1829–30. Variations in the layout of the interior appeared in the use of the space over the arcade; sometimes it was used for the jury room, and at other times it was used to accommodate a balcony for spectators.[151] After 1824, however, a new style of courthouse building may be seen in the public buildings of Virginia counties. Based on the neo-classical lines of the State Capitol, designed by Thomas Jefferson, there came into being a series of courthouses which were suggestive, if not actual, representations of the seat of state government.[152]

The Courthouse. In its exterior appearance the Fairfax County Courthouse underwent little change during the first century of its service. Indeed, looking at the courthouse square in 1900, it might have seemed that the courthouse was the only building that had not been rebuilt, relocated or significantly expanded. The effects of passing time were more evident in the evolution of the layout and furnishings of the court.

Throughout the first half of the nineteenth century the interior of the courthouse probably remained similar to the[Pg 78] layout described in colonial times. Generally the focal point of the court chamber was a long table at which the County Court was seated, flanked by smaller tables where the court's clerks did their work. Customarily, also, a railing across the room separated this space from visitors whose business or curiosity led them to crowd in upon the court and its staff. As long as the gentlemen justices of the court were in reality, as well as name, the governing authority of the County, this arrangement of the courthouse chamber was the most sensible that could be suggested.

As the purely judicial duties were isolated and assigned to the professional judges of the District Court it became customary to renovate the court rooms to install the features which have become associated with litigation—the raised bench of the judge, the jury box, the witness stand, and counsels' tables.

These changing ideas of what a court chamber should look like became established during the first half of the nineteenth century, and were reflected in the courthouses built in Virginia during that period. Therefore, when the Fairfax County Courthouse was restored to service after the Civil War, its interior design resembled that which was customary for judicial chambers.[153]

That the task of renovation and restoration was extensive is indicated by a report in the Alexandria Gazette of October 17, 1862 stating that "The interior of the courthouse of Fairfax County has been entirely destroyed. Nothing remains of the building but the walls and the roof." Moreover, the work of renovation had to be carried out under the double difficulty of shortages of funds and labor that was skilled in cabinetmaking and metalworking. In the end, the restoration of the courthouse was a gradual process in which first one and then another improvement was added. No grand design seems to have been followed or a complete record of accomplishments maintained. Hence, evidence of the courthouse furnishings is seen in such separate notations in the Court Minute Books as follow:

October Court, 1866.

Ordered that the Com. of Public Buildings be instructed to purchase enough green-baise to cover the table in the bar And have it covered before the Circuit Court commenses.[154]

[Pg 79]December 11, 1876.

Ordered that the Com'r of Public Buildings have the sawdust removed from the floor of the Courtroom, and have said floor covered with a substantial cocoa matting at the expense of the Court.[155]

December Court, 1882.

... Some person or persons have entered the Court House Building in the night, without authority and have damaged Said building and have greatly annoyed the citizens living nearby by violently ringing the bell. It is therefore ordered by the Court, that such trespass ... will be punished to the full extent of the law.[156]

The bell referred to by the Court was a standard feature of many Virginia courthouses, and was rung to announce the convening of court sessions. In the Fairfax County Courthouse, the bell was hung in a cupola on the roof, and rung with a bell-pull passing through the building's attic to the balcony level of the courtroom.[157]

A major change in the appearance of the courtroom occurred with the installation of wooden benches in the public section of the chamber. Tradition holds that the benches had been pews at one time in Jerusalem Baptist Church located on the Ox Road between Fairfax and Fairfax Station. This church had been built on the site of the old colonial "Payne's Church."

Illustrating the period when gaslights replaced candles, an elaborate brass chandelier fitted for gas illumination has been found in the courthouse attic. It is possibly the fixture which the sheriff was directed at the February 1890 court to purchase, for a price not to exceed $25.00. In about 1902, electric lights were installed.[158]

During the restoration of the courthouse following the Civil War one major alteration of the exterior appearance of the courthouse occurred when the brickwork between the windows on the first and second floors was removed to change the windows into single two-story-long vertical openings. The courthouse windows remained this way until 1968 when renovation of the original section of the courthouse was carried out, and double rows were reestablished as they appeared in photographs taken during the Civil War.

[Pg 80]

The old courthouse, 1800, prior to restoration in 1967. The old courthouse, 1800, prior to restoration in 1967.
The old courthouse after restoration in 1967. The old courthouse after restoration in 1967.

[Pg 81]Reportedly, another major refurbishment of the courtroom occurred about 1920. In keeping with the style of that time, the emphasis was on panelling with dark, polished woods, and moderately ornamental carving which achieved an appearance of massiveness and dignity. The judge's bench was located at the west end of the courtroom on a raised platform and behind a heavy wooden balustrade. Against the west wall of the room and behind the judge's bench, wooden panelling covered the space from the southwest corner of the room to a doorway beside the bench which led into smaller chambers in the rear. This panelling was topped with a swan's neck pediment behind the judge's chair. At floor level, beside the judge's bench and behind the balustrade, were the witness stand and clerk's desk.

The jury box was located along the south wall of the room and faced an enclosure where tables for counsel and reporters were placed. These, in turn, were separated from the public seats by a carved wooden balustrade. Seating for the public on the ground floor was provided in two sections of wooden benches—the former church pews referred to earlier—separated by a center aisle. At the rear of this section was another balustrade setting it apart from the open space inside the door to the entrance arcade. The two fireplaces in the corners of the east end of the room were bricked-in and covered with plaster.

On the south wall, a stairway provided access to the balcony over the open portion of the room adjacent to the outer entrance. From the rear of the balcony were doorways into a jury room and small office which occupied the second-floor space over the entrance arcade. Three rows of benches, each raised one step above the one in front, provided additional seating space for visitors in the balcony. The ceiling of the courtroom was sheet metal (tin) with a pattern of ridges arranged in rectangular shapes. Central heating was provided by hot water radiators.

In 1929, an addition was constructed on the south side at the rear of the original courthouse, making an L-shaped building. In this process the clerk's office which was built in 1876 was torn down. Harmony of scale, materials and style were maintained between the old and new sections.[159]

The old court room prior to restoration. Photo by Lee Hubbard, 1966. The old court room prior to restoration. Photo by Lee Hubbard, 1966.

Twenty years later, in 1951–56, the courthouse again was expanded by addition of a center block, and another wing identical with the original and first addition segments. At the rear (west side) of these new portions, two wings were added to house, respectively, the records of the clerk's office and[Pg 82]
[Pg 83]
a new, larger jail. With the completion of this construction, the old courtroom in the original wing of the building ceased to be used regularly for judicial business. Two large courtrooms and several smaller chambers in the center block of the building provided facilities for hearing cases. The new and larger building also provided space for the offices of the County's elected officials and most of the major boards, commissions and administrative departments which comprised the county's government in the 1950's.[160]

In both exterior and interior appearance, the courthouse additions of 1931 and 1954 were designed to harmonize with the original style James Wren established in 1800. The use of brick, gable-end roof lines, proportioning of the scale of various segments of the building, compatible fenestration and colonial period styles in hardware and painting all contributed to this result. Most influential of all in maintaining this architectural integrity, perhaps, was the use of archways and open arcades at the entrances to the center block and two wings. These open arcades, with their simple, undecorated keystone arches are the distinguishing features of the Fairfax County Courthouse in the 1970's as they were in 1800.

The central entrance to the 1954 addition to the courthouse. The central entrance to the 1954 addition to the courthouse.

[Pg 84]

NOTES—2. THE COURT HOUSE

[139] William O'Neal, Architecture in Virginia, (New York: Walker, 1968), p. 17, remarks that "Traditionally, in Virginia buildings housing civil government have been developed beyond the utilitarian. This tradition, of course, has given us not only a remarkable group of eighteenth and nineteenth century courthouses, but, just yesterday, the very beautiful City Hall complex of Norfolk by Vincent King."

[140] University of Virginia Newsletter, (Charlottesville: Institute of Government, University of Virginia), XLIII, No. 11, (July 15, 1967).

[141] A summary of these references is contained in Melvin Steadman, Falls Church by Fence and Fireside, (Falls Church, Va.: Falls Church Public Library, 1964), pp. 463–520.

[142] O'Neal, Virginia Architecture, pp. 127, 133, 143, Minutes of the Vestry, Truro Parish, Virginia, 1732–1785, (Lorton, Va.: Pohick Church, 1974), p. 114.

[143] Steadman, Falls Church, p. 471.

[144] The genealogy and a summary history of the Wren family, both in England and America, is in Steadman, Falls Church, pp. 463–520.

[145] Janice Artemel, "James Wren, Gentleman Joiner," (unpublished manuscript, Falls Church, Va., 1976).

[146] According to Sir Banister Fletcher, A History of Architecture, Rev. ed., (New York: Scribners, 1963), p. 1126, "In general, the architecture of a particular area mirrored that of the homeland of the colonizers or settlers of that area, with modifications occasioned by climate, the types of building material obtainable, and the quality of labour available. Thus, in seventeenth century New England building followed the pattern of English weather-boarded heavy timber-frame prototypes, while in eighteenth century Virginia we find a 'Georgian' architecture often almost indistinguishable from that of eighteenth century England."

[147] [Pg 85]Carl Feiss, "Court Houses of Virginia," lecture delivered at the meeting of the Latrobe (Washington) Chapter, Society of Architectural Historians, held at the Arts Club of Washington, November 8, 1968.

[148] Marcus Whiffen, "The Early Courthouses of Virginia," Journal of the Society of Architectural Historians, XVIII, No. 1 (March 1959), pp. 2, 5–6.

[149] Thus the term "market hall" is sometimes also used to designate these buildings. At times, the market activities may even overshadow the building's associations with government, as in the case of Blandford, Dorset, where a sign on the building identifies it as the Corn Exchange, without mention of the Council's chamber.

[150] Sir Kenneth Clark, in his book, Civilisation. (New York: Harper & Row, 1969), pp. 194–220, describes the impact of Dutch accomplishments in the arts, and the impact of their influence on such Englishmen as Christopher Wren.

The adoption of the Dutch style of market hall in England may well have been a gradual one, utilizing the already familiar design of the house of a typical town tradesman, which presented to the street a series of arched openings where work was done and wares were displayed during the day. At night these arches were shuttered, and the tradesman had his living quarters on the second floor over his shop. Sir Banister Fletcher, A History of Architecture, (New York: Scribners, 1961), p. 463.

[151] Whiffen, "Early Courthouses," p. 6.

[152] William O'Neal, Architecture in Virginia, (New York: Walker, 1968), pp. 22–25.

[153] Whiffen, "Early Courthouses," p. 3.

[154] Fairfax County Court Minute Book, 1863–1867, p. 484.

[155] Fairfax County Court Minute Book, 1875–1879, p. 162.

[156] Fairfax County Court Minute Book, 1882–1885, p. 34.

[157] [Pg 86]Examination of the courthouse attic in July 1967 revealed a bell, complete with mounting and wheel, with the following inscription: "TW & RC SMITH ALEXANDRIA 1844." It has not been determined when this bell was installed in or removed from the cupola. It was rehung in the cupola and rung again in 1976.

[158] Examination of the courthouse attic in July 1967 revealed a brass chandelier with six arms, approximately 24 inches long, fixed to a central hub. Burners at the end of each arm were fitted to hold glass globes or lamp chimneys. Fairfax County Court Minute Book, 1888–1892, p. 216. The end of the gaslight era occurred shortly after 1900, when, according to Thomas Chapman, former Clerk of Circuit Court, electric lights were installed in the clerk's office in 1902 and shortly thereafter in the courtroom.

[159] Interview with Thomas Chapman, former Clerk of Circuit Court.

[160] Fairfax County Board of Supervisors Minute Books, No. 17, p. 4, November 21, 1949; No. 18, pp. 2–9, November 15, 1950, pp. 296–298, May 22, 1951.

[Pg 87]

3. RESTORATION OF THE ORIGINAL WING OF THE COURTHOUSE, 1967

Origin of the Restoration Project. After the second addition to the courthouse was completed in 1954, the old courtroom in the original wing of the building ceased to be the focal point of the court's activity. Similarly, it ceased to receive the attention needed to deal with the natural deterioration produced by use and the passage of time. By the early 1960's these effects were evidenced by leaking roofs, unreliable plumbing in the heating system, cracked and crumbling plaster, loosened floors and hardware, and the like. In order to retain its usefulness, the original wing of the courthouse needed substantial renovation.

At this time, an interest in the old courtroom was expressed by the Fairfax County Bar Association and the county's newly formed Historical Landmarks Preservation Commission which together proposed that the work of renovation be done in such a way as to restore the original appearance of the courtroom. The Bar Association formed a Special Committee for Restoration of the Old Court Room under the chairmanship of C. Douglas Adams, Jr., and the assistance of the Board of Supervisors was sought.[161]

In December 1964, the Board appropriated funds for developing a restoration plan. Walter Macomber, a local restoration architect who had done similar work on a number of early Virginia landmarks, was retained to prepare the necessary plans. In March 1966, the Bar Association's Committee reported the completion of this preliminary work to the Board, and successfully secured the latter's approval together with an appropriation of $90,000 for actual construction work. This work was commenced without further delay and was completed in the spring of 1967.[162]

Problems of the Restoration. While the work undertaken in 1965 and 1966 was at the time referred to as a restoration, it was in fact impossible under the circumstances to reproduce with complete accuracy the appearance of the courthouse in 1800. No descriptions of the courtroom or other records of building specifications had been found; nor was any special research in eighteenth century sources undertaken for this purpose. As a result, the work produced a courtroom with idealized colonial-period interior design and furnishings in a building shell with reconstructed floor plan and structural design of the early Federal-period (during which it had initially been built). Numerous difficult problems were faced in this reconstruction,[Pg 88]
[Pg 89]
and, for the most part, they were resolved in ways that served primarily to create a room with the atmosphere of Virginia's colonial period, and secondarily to build an authentic replica of the Fairfax courthouse as of any particular historical date.

FLOOR PLANS. FLOOR PLANS.
VIEW LARGER IMAGE

An initial problem connected with the exterior alterations was that of securing bricks and mortar to match those of the original courthouse. Bricks secured from a manufacturer of specialty bricks turned out to be a close match for the originals which were thought to have been fired from clay dug in Fairfax County.[164] Specially mixed mortar made from sand, lime and white cement also closely simulated the color and texture of the older mortar. Bricks were laid in Flemish bond which matched the courthouse and part of the old jail building.

Using these new materials, broken and crumbling bricks were replaced throughout the building, and the three long windows on both the north and south sides of the courthouse were altered to form two rows of smaller windows, with the space between the first and second-floor rows filled with new brickwork. This change in the fenestration restored the building to its appearance as shown in Civil War photographs of the courthouse. Shutters similar to those shown in the same pictures were added to the windows on both floors.

On the roof, some repairs were needed to restore the slate shingles. In the cupola, wooden louvres were repaired, the cupola was painted, and a weathervane restored to the top. An existing galvanized sheet metal roof was allowed to remain unchanged.

For the inside of the building there were no photographs or drawings of the earlier periods, and reconstruction was influenced largely by physical evidence disclosed as the interior was systematically dismantled down to the building's outer shell. When woodwork, hardware, plaster and flooring were removed, it was found that much of the framing timber was infested by termites, and had to be replaced. In this process numerous signs of earlier workmanship were revealed.

Beneath the existing tin-plate ceiling was a plastered ceiling and remnants of a painted frieze of red, yellow, blue and green. Behind this ceiling were laths laid over hand-hewn oak rafters. A few of the original hand-split laths and hand-made nails remained in this ceiling. In its reconstruction, the ceiling was furred and replastered without any[Pg 90]
[Pg 91]
decoration. No lathwork was found on the side walls, and in the reconstruction fresh plaster was applied directly to the bricks.[165]

Interior of the gutted courthouse during restoration in 1966. Photo by Lee Hubbard. Interior of the gutted courthouse during restoration in 1966. Photo by Lee Hubbard.
Interior of the gutted courthouse during restoration in 1966. Photo by Lee Hubbard. Interior of the gutted courthouse during restoration in 1966. Photo by Lee Hubbard.

The flooring which was removed from the central section of the courtroom sloped from the back (east end) of the room toward the judge's bench (at the west end). Beneath this floor was an older floor of brick. It was not determined whether this brick work had been the original floor of the courtroom or whether another wooden floor had overlaid it prior to the one just removed. In its reconstruction, however, the architect specified that a flat floor of polished pine should be laid over the bricks.[166]

In one part of the main floor the older brick work was allowed to remain exposed. This was in the vicinity of the fireplaces in the two corners of the open area at the rear (east end) of the courtroom. These two fireplaces were reopened and restored and their brickwork was extended to form spacious hearthstones.

The corner fireplaces showed signs of a three-stage evolution. They were originally used as open fireplaces. Holes in the brickwork above them suggested, however, that at some later time the open fireplaces were replaced by wood-burning or coal-burning stoves standing on the brick hearths with their stovepipes fitted into the chimneys. Finally, when the stoves were replaced by central heating and hot water radiators, the entire fireplace wall was sealed with brick and plastered over. In their restoration the corner fireplaces were reopened and refurbished as they were thought to have appeared in their original condition.

As the side walls were cleared of plaster, they showed signs of staircases from the ground level to the balcony along the north as well as the south side of the courtroom. Thus when the stairs along the south wall were replaced, a similar set of stairs was built and installed on the north side of the courtroom. No dates for the original installation or removal of these staircases were determined, and it was presumed that the dual staircases were part of the original design of the courthouse.

A more difficult puzzle was presented by a series of holes in the outer wall aligned at the level of the balcony and about the size used for beams. Speculation by the[Pg 92]
[Pg 93]
architect suggested that these holes might have been intended for use in extending the balcony along three sides of the courtroom instead of merely along the back end, or in covering the entire room and creating a full second story for the courthouse. No determination of their use was made, and they were disregarded in the reconstruction of the courtroom.

Interior of restored courtroom facing the judges' bench. Photo by Charles Baptie, 1971. Interior of restored courtroom facing the judges' bench. Photo by Charles Baptie, 1971.
Interior of restored courtroom facing balcony. Photo by Lee Hubbard, 1969. Interior of restored courtroom facing balcony. Photo by Lee Hubbard, 1969.

Still another mystery which was not solved in the restoration concerned the two chimneys located in the corners at the west end of the old courtroom. No fireplaces or hearthstones were found in the courtroom floor, and when the interior was dismantled it was discovered that the chimneys rested on beams above the courtroom ceiling. These chimneys were not utilized in reconstructing the courtroom, and the only suggestion offered was that they probably had been connected by long pipes to stoves in the room below.[167]

Two doors in the west wall of the courtroom on either side of the judge's bench presented a further problem since they were not part of the original 1800 building, but had been part of the addition built in 1929. One of these doors led into a set of judge's chambers and the other (in one corner) opened into a corridor leading to the main portion of the addition running south from the old courthouse. In the restoration these doors were retained, but fitted inconspicuously into the panelling behind the judge's bench. Above the doors, the architect restored two windows which he felt had been part of the original building.[168]

Restoration of the judge's bench brought still more difficulties to maintaining the original design of the courtroom. As plaster was removed from the wall behind the judge's bench, the bricks showed marks of an arch. The judge's bench which ultimately was constructed and installed at the west end of the courtroom was, like the other woodwork, created by the architect "according to patterns used in colonial times."[169]

Other details of the interior were handled the same way. Hardware used by the architect was all new, but used old designs. Since the original colors used in the interior were not determined, the architect used white and gray shades of paint similar to those in colonial buildings. From the ceiling in the center of the courtroom were hung chandeliers found in the courthouse attic. While not of "colonial" design, they were used because they were considered appropriate due to former association with the courthouse. And, as noted earlier,[Pg 94] the pews which possibly had been obtained from the Jerusalem Baptist Church were retained in the restored courtroom.[170]

General Setting and Building Site. The original Fairfax County courthouse today comprises the north end section of the courthouse building. Together with its immediately adjacent grounds, the present courthouse complex occupies almost the entire four-acre tract which was the original site. This tract still forms a square near the center of the City of Fairfax, at the intersections of two main roads, Routes 236 (Little River Turnpike) and 123 (Chain Bridge Road). The general setting is gently rolling terrain, and the courthouse site is on a slightly higher elevation than the surrounding area, with stone retaining walls on the two sides facing the turnpike and road. On the west side of the courthouse building is a parking lot occupying approximately two acres. The twelve-story county office building (Massey Building) completed in 1969 is located approximately 200 yards south and west of the courthouse.

The Exterior

Overall Dimensions. The restored, original courthouse building is a plain rectangle, 61 feet long by 32 feet wide. It is oriented with the long sides facing north and south, with the main entrance at the east end of the building. A portico extends across the entire east end of the building, covering an area 12 by 32 feet. The height of the building at the gable ends is 32 feet; and the height of the eaves from the ground is 21 feet.

Foundations. As originally built, the courthouse rested on brick foundation walls, anchored at the corners in brick piers, with a crawl space of approximately 11/2 to 2 feet in height beneath all but the front (east) quarter of the floor space. Additional brick bases, approximately 18 inches square and resting on the ground, were located in the crawl space beneath the two columns supporting the courthouse balcony. In the late nineteenth century, a partial basement was dug beneath the central section of the courtroom.[171]

As reconstructed, the exterior foundation walls were pointed up and repaired, and were strengthened by the addition of several new footings. Across the back (west end) of the building, the crawl space was deepened to a uniform 3 feet, and four 12 × 12 inch brick piers were placed on concrete[Pg 95] footings. In the center section of the courthouse, the basement walls were extended 1 foot to carry the joists of the new floor, the outside entrance was closed up, and a new staircase for the interior entrance was built at the south end of the basement. Next to the basement toward the front (east end) of the building, another crawl space (measuring 81/2 × 251/2 feet) was deepened to a uniform 3 feet, and a new wall was built on the east side, extending the full width of the building. This new wall was 8 inches thick, and constructed of cinder block and brick, anchored with 16 × 16 × 12 inch concrete footings. Beneath both crawl spaces and the basement a 3-inch thick concrete slab was laid. The crawl space did not extend to the front exterior wall of the building. A space of 13 × 30 feet across the front of the building, consisting of the area beneath the open entrance foyer of the courtroom, originally had been covered only by a layer of bricks resting on the bare ground. As reconstructed, this brick was taken up and re-laid on a 4-inch thick slab of concrete which had been poured on a base of 4 inches of crushed stone covered by polyethylene film.

Walls. The exterior walls of the courthouse are constructed of red brick, with new bricks specially selected during the 1967 restoration to match the remaining original materials, and laid in Flemish bond, 11/2 feet thick. Across the front of the building, the portico is entered through a series of arches supporting the second-floor front section of the building. The three arches across the front of the building are 7 feet wide and 11 feet high at the center of the arch. The arches at the north and south ends of the portico are 61/2 feet wide by 11 feet high. The brick columns supporting the arches are 11/2 feet square. The arches and columns are plain except for white marble keystones and white marble slabs, 6 inches thick, placed at the foot of each arch and serving as bases for the columns.

Chimneys. All five of the chimneys which the courthouse had in the early nineteenth century were retained in the reconstruction. The two chimneys on each of the north and south sides stand at points which correspond to the four corners of the courtroom, and rise 111/2 feet above the roofline at the eaves. In the center of the table end at the front of the building, the fifth chimney stands, extending 5 feet above the ridge of the roof. All five chimneys are corbelled with two courses of brick at the top, and with a single course of brick 11/2 feet below the chimney top. All of the chimneys measure 2 feet by 1 foot 9 inches.

[Pg 96]Doors and Windows. In the 1967 reconstruction of the courthouse, the fenestration was changed to resemble the appearance of the building in about 1861. Accordingly the three tall (141/2 foot) existing windows on the north and south sides of the building were converted into two sets of smaller windows, one above the other, and regularly spaced along the sides of the courtroom. In the upper row, a fourth window was located over the arch in the portico, and serves the rooms in the second-floor chamber at the front of the building. The chamber also has two windows on the front of the building.

The upper row windows are of a double-hung sash design, with 12 over 8 panes (9 inches × 103/4 inches) set in wooden frames and sills. Overall dimensions of these windows are 4 × 51/2 feet. The three windows on the lower level are slightly larger—4 feet × 6 feet 9 inches, and have 12 over 12 panes. Both rows of windows are shuttered; those of the upper row are louvred, and those in the lower row have solid panels.[172]

On the ground level at the front of the building, the main doorway of the courthouse is located in the center of the wall, and flanked by one window on each side. The door is panelled, and 81/2 × 41/2 feet in size.

In the reconstruction, new window sashes and a new door were installed, but the existing jambs were used wherever possible. All shutters, glazing materials and hardware used in the reconstruction were new.

Roof. The original roof of the courthouse was covered with slate shingles, and the reconstruction of the building merely applied repairs to these shingles as needed. Little of the slate which remained in 1967 was thought to have dated from the original construction, however, because of the extensive repairs and renovations carried out after the Civil War.

Cupola. The cupola, located at the ridge of the roof, 91/2 feet from the gable end at the front, was part of the original design of the courthouse and houses a bell once used to announce the convening of the court sessions. The cupola was constructed of white pine, and consists of a square box in which is mounted an octagonal compartment with louvred sides. Topping the panelled portion of the cupola is an onion-shaped dome, culminating in a ball which, according to photographs over the years, served as a base for a weathervane or flagpole. In reconstruction, a weathervane found in[Pg 97] the courthouse attic was installed on the cupola's top. The roofing of the cupola dome is sheet metal.

Ornamentation. The overall appearance of the courthouse is plain, and, with the possible exception of the cupola, there is only one feature which shows the intention to combine ornamentation with functionalism in the architectural design. This feature is a round "fan window" framed by a circle of bricks in the center of the gable end of the building's front wall. The lower half of this window consists of four pie-shaped wooden panels. The upper half of the window consists of louvres.

The Interior

Foyer. The double doors in the center of the portico at the east end of the courthouse open inward into a foyer at the rear of the courtroom. This area is 29 feet long, the full width of the building. The width of the area varies, however, because of the fireplaces across each of the front corners and the curving rear edge of the central (or spectator) portion of the courtroom. At its narrowest point in front of the double doors the foyer is 10 feet 4 inches wide, and at its widest points on either end of the room, it is 12 feet wide. The foyer space is entirely open, with flooring composed of bricks (8 × 31/2 inches) varying in color from deep red to charcoal gray. These bricks are laid with three-quarter inch seams and white mortar.

The fireplaces in the corners at each end of the foyer have square (2 foot-8 inch) openings, with brick lining and a 5 inch facing surrounding the opening and painted flat black. The fireplaces are entirely framed with plain architraves and friezes, and are topped with simple mantels. Each fireplace measures 3 feet 11 inches wide by 4 feet 3 inches high.

Along the walls of the foyer, panelled wainscotting, painted white, is installed. Because of the unevenness of the floor, the height of this wainscotting varies from 4 feet 2 inches to 4 feet 3 inches. Its panels are of varying width, from 3 to 6 inches, and are beaded. At the base of the wainscotting is a 5-inch baseboard.

Above the wainscotting, the walls and ceiling are finished in plain plaster with walls painted mauve and the ceiling[Pg 98] white. Lighting needs are minimal because of four outside windows located in the foyer, and because of light received from the central section of the courtroom. On each side of the double door and at each end of the foyer lanterns are mounted on the wall. These fixtures are of the type commonly used as carriage gate or guardhouse lanterns, and are 9 × 61/2 × 5 inches, with glass panels on three sides set in dark metal frames. The tops are of curved metal designed to shield the lanterns from the wind. Inside the lanterns, light comes from a single candle-shaped light bulb, set inside a small hurricane lamp chimney.

The hardware on the double door consists of a box lock with the brass knob polished and the lock-box and keeper painted flat black. At the top and bottom of the door black metal shot bolts of designs commonly found in eighteenth century buildings are installed.

Central Section. Space for the seating of spectators is provided in the central section of the courtroom. The floor level of this section is raised 73/4 inches above the floor of the foyer, and free-standing wainscotting of the same style and height as are around the foyer walls separate the foyer from the central section. The floor of this section is constructed of 51/4 inch dark-stained pine boards.

Entry into this section is along two aisles at the sides, running between the spectator seats in the center of the room and the balcony staircases set against the walls on the north and south sides of the room. Spectator seating is provided in five rows of benches of pine, with natural finish on the seats and back rests, white painted sides and bases, and natural cherry moldings along the top of the back rests and arms. Along the base at the front of each bench, is a 6 inch strip painted black. The back of the back rest is painted white down to a point 6 inches above the floor, where a foot rest of dark-stained pine is installed, and below this the base is painted black.

The five rows of benches in the center section are curved, generally following the arc of the edge of the raised flooring, and measure 17 feet 9 inches from end to end. Each bench seats about twelve people.

The walls of the center section are painted mauve, and the ceiling is white. There are no lighting fixtures in this section of the courtroom. At the rear of the central section,[Pg 99] two lightly stained solid oak pillars support the balcony.

Staircases. Staircases to the balcony are located along the north and south walls of the central section. The initial plans for reconstruction of the courtroom in 1967 called for only one staircase, on the south wall. The decision to add a staircase on the north side came during the reconstruction when evidence of an earlier staircase on that side was revealed as the plaster was removed. From this it was conjectured that the courthouse of the early nineteenth century had had two staircases, but that one had been abandoned in reconstructing the building after the Civil War.

The present stairways each have 18 steps with 8 inch risers and treads 2 feet 11 inches wide by 10 inches deep. They form a single flight, open style stairs, with no brackets and plain balusters, 1 inch square, painted white and supporting a cherry handrail. Newel posts at the top and foot of the stairway have turned shafts with cube bases and capitals. A flat sphere of solid wood tops the capital of the newel post.

Beneath the staircase on the north side of the building is a closet, and on the south side is a stairway leading into the basement. The doors to this closet and stairway are made of vertical beaded boards similar to the wainscotting, each equipped with two "H" hinges of black metal having a pebble finish and black metal box locks with small polished brass doorknobs.

Balcony. The courtroom balcony contains three rows of wooden benches similar to those on the ground floor, except that they are straight instead of curved. The rows are arranged so the two rear benches are on daises raised 9 inches above the one in front. Solid-panelled free-standing wainscotting is set along the back of the rearmost bench. The first two rows of benches are 17 feet 73/4 inches long, while the rear bench is 22 feet long, allowing space at each end for the steps of the raised dais.

In front of these benches, across the full width of the balcony between the two staircases, is a railing of plain white spokes (matching the balusters of the staircase) and a plain cherry handrail 2 feet 11 inches in height.

The ceiling of the balcony is painted flat white and the walls are mauve. White beaded board wainscotting standing[Pg 100] 3 inches high is around the sides and rear wall of the balcony similar to that on the ground level. Three recessed lights provide light for the balcony.

Jury Room. At the rear of the balcony an aisle 3 feet wide runs the full width of the building, allowing passage behind the rows of balcony benches and access to the jury room through doors near each end of the aisle. The jury room uses the space above the first-floor portico, an area 12 × 19 feet. The doors to the room are 2 feet 10 inches by 6 feet 10 inches, with 4 panels. Doors and frames are painted white, with brass doorknobs and modern locks set in the doors. The wall between the jury room and balcony is a new stud partition which is finished with white plaster, as is the ceiling. Lighting is provided by 3 recessed lights set in the ceiling and equally spaced. The walls of the room have a 3-inch baseboard, but no wainscotting.

Centered in the exterior (east) wall of the room is a fireplace, reopened in the 1967 reconstruction. This fireplace measures 4 feet 61/2 inches by 4 feet 73/4 inches, and is framed with a plain white architrave and mantel. A hearth of brick extends 18 inches out from the fireplace. Opposite the fireplace is a 12 by 18 inch plastered masonry pier extended up from the exterior wall at the rear of the portico on the first floor below. In the ceiling next to the pier is located a 30 by 36 inch opening into the attic, with a ladder built into the partition wall immediately below.

Bench, Bar and Jury Box. Across the front of the courtroom is a railing separating the judges bench, jury box, and space for counsel tables from the central section of the courtroom. This railing, similar to those of the staircases and balcony, stands 2 feet 81/2 inches high. Gates 3 feet wide and mounted on double spring hinges are placed in the railing at the head of each side aisle in the central section. Each gate has an S-curve wooden support built into it for added support.

The enclosure formed by the railing or bar is raised 71/2 inches above the floor level of the central section, and is floored with yellow pine, tongue-and-groove, 3-inch wide flooring. In the center of this enclosure, against the west wall of the courtroom is the judge's bench, flanked on its right by the witness stand. The bench itself is relatively small, measuring 6 feet 5 inches across and 4 feet 7 inches from back to front. Three steps on each side permit access[Pg 101] from both directions, and have balustrades on the front side similar to the railings and other balustrades in the courtroom.

On the wall behind the judge's bench, there are two, high 12-over-8 pane windows, backed by closed, full-louvred shutters. Behind the shutters is the solid plaster wall of the present courthouse's main corridor. Between and below these windows is a wooden raised-panel screen serving as a back for the judge's bench. Two 6-panelled sections at each end of this screen are flanked by fluted pilasters with modified capitals supporting a plain entablature. Between these sections are 3 panels, the two on either end being composed of 3 tiers of panels edged with fluted pilasters. The center element of this panel consists of two large raised rectangular panels topped by a semi-circular louvred wooden fan design, then a round keystone arch, the whole portion of the composition topped by a high monumental pediment. At its center point, the height of this composition is 8 feet 6 inches.

This ornamental panelling also covers the space where doorways previously had been cut for passage between the courtroom and other portions of the courthouse as they were built from 1930 onward. Prior to the 1967 reconstruction, a doorway in the west wall was located on the judge's left side as he sat on the bench. As presently reconstructed, this doorway has been closed and covered by panelling, but a new door was cut through on the judge's right-hand side, and the inside of the door is constructed and fitted so as to serve as the end piece of the ornamental woodwork behind the judge's bench.

The jury box is in the southwest corner of the courtroom. Across the front of the box is a panelled solid railing, standing 2 feet 8 inches from the floor of the west end of the courtroom. The jury box contains 2 rows of benches, each raised an 8-inch step above the one in front. The front row is 9 feet 3 inches long, with aisles 18 inches wide at each end allowing passage from the second row to the front, and openings in the railing. Not having this function of access, the back row of the jury benches is 14 feet 1 inch in length. Benches in the jury box are designed and constructed similar to those of the balcony.

The witness box is located between the judge's bench and the jury box. This box is constructed of solid wooden screen, painted white and topped with a cherry handrail. The screen forming the back of the box is plain; the screen at the front is in the shape of half of an octagon, and the face of each[Pg 102] element contains a single recessed panel similar to those on the front of the judge's bench. The side of the witness box facing the jury is open to allow entry into the box, and the side next to the judge's bench is formed by the side of that fixture. The flooring of the box is made of 3-inch wide, yellow pine boards, finished naturally, and the flooring is raised one step (71/2 inches) from the courtroom floor. The dimensions of the box are 2 feet 10 inches across and 3 feet 8 inches from back to front.

Illumination of the area of the bench and jury box is provided by a variety of fixtures. On the wall at the rear of the jury box two carriage gate or guardhouse lanterns are attached. Opposite these, on the wall at the north side of the room, two other, similar lanterns are located. In the ceiling above the area enclosed by the bar, 10 recessed lights are installed in two rows of 4 lights across the front and rear sections, and a pair are located equidistant between these rows. Hanging from the ceiling over the central area are chandeliers which were found in the attic of the courthouse during the 1967 reconstruction, and refurbished and wired for electric lights. The lighting fixtures consist of six 24-inch arms, made of hollow brass tubing, extending out from a central hub. The hub, in the shape of a cup and decorated with a series of radial ridges, is on the lower end of a 38-inch hollow brass shaft, equipped at the top with a hook for suspension from the ceiling. As installed in the courthouse, each chandelier hangs from a fixture in the ceiling by a metal chain approximately 5 feet long. At the end of each arm of the chandelier are plain disc-shaped bases (3 inches in diameter) which holds one candle-shaped electric socket and a glass hurricane lamp chimney.

Basement. A small basement measuring 11 feet in width lies across the center section of the courthouse. An interior entrance to this basement is provided by a staircase located at its south end. This stairway, 3 feet 6 inches wide with 73/4 inch risers, has 10 steps, and is not panelled or painted. At the present time, the basement is used to house heating and air conditioning equipment.

Small windows are located at both the north and south ends of the basement. Approximately square, these windows measure 2 feet 2 inches by 2 feet 9 inches, with 3-over-2 panes (6 by 12 inches). Both have sills composed of a single slab of stone 2 inches thick. Both also are below ground level, and open into brick-lined spaces for light and air dug out by the wall's foundations. The space for the window on the north side of the building measures 4 feet[Pg 103] 1 inch by 3 feet 3 inches. On the south side of the building, however, the dug-out space measures 7 feet 8 inches by 2 feet 9 inches and suggests that this was, at an earlier date, the point where an outside entrance to the basement was located. This is corroborated by markings on the inside of the basement wall which show that a doorway in the north end of the basement has been bricked up, and also that a second window similar to the existing one has been closed up with bricks, leaving the sill slab in place. From the basement, galvanized steel ducts covered with insulating material are run through the crawl spaces beneath the courtroom floor to outlets and intakes for circulation of air. These openings are located in the sills of the recessed windows of the courtroom and in the bases of the benches for spectators and jurors, and are covered with steel grilles painted to blend with the fixtures in which they are set.

[Pg 104]

3. RESTORATION OF THE ORIGINAL WING OF THE COURTHOUSE, 1967

[161] Other members of the Special Committee were Edward D. Gasson, James Keith, John T. Hazel, Jr.; W. Franklin Gooding, Assistant Clerk of the Courts; Senior Circuit Judge Paul E. Brown; and Bayard Evans, Chairman of the Fairfax Historical Landmarks Preservation Commission.

[162] The cost of restoration was originally estimated at $74,488, exclusive of architect's fee, which was to be 12 per cent of the total cost. Ultimately, the cost of the work was slightly in excess of $84,500, including the architect's fee, according to the architect's records; Fairfax County Board of Supervisors Minute Book #45, pp. 192, 301, 406; Cost Sheet, Walter M. Macomber.

[163] The building contractor for this work was E. L. Daniels.

[164] Interview with Thomas Chapman, former Clerk of the Circuit Court.

[165] The frieze was disregarded because it was not considered part of the original courtroom interior, and no drawings, photographs or descriptions of it were preserved.

[166] The sloping floor which was replaced was not dated, but probably was installed when the courthouse was renovated following the Civil War.

[167] On this matter the following statement in the Northern Virginia Sun, January 8, 1966, 1, is of interest: "Anyone familiar with the old courthouse will have noticed that it has five chimneys. The two closest to the bench are resting on wood above the ceiling, Macomber discovered. This, he said 'confused' him. He thinks that they probably were connected by long pipes to stoves in the courtroom. Yet he is not sure. It appears to Macomber that they were added at some later time, but he will not know until he examines them more closely during the restoration. If ... [there] are post-1800 andirons [in these fireplaces], out they will go in the restoration."

In an interview on March 2, 1970, however, Macomber stated he felt that these chimneys had been connected to stoves after the fireplaces which they served were blocked up.

[168] [Pg 105]The architect expressed the opinion that the addition to the west end of the courthouse dated from about 1900; Northern Virginia Sun, January 8, 1966, 1. However, no documentary evidence from the county records supports this date; Fairfax County Free Press, August 25, 1966.

[169] Transcript of interview with Walter Macomber, March 2, 1970. As to the arch marks, Mr. Macomber said: "On the front wall I found a semi-circle deeply incised in the brick wall. I concluded there had been an original arched design there and I reproduced such an arch as it might have looked based on my studies of colonial architecture."

[170] Transcript of interview with Walter Macomber, March 2, 1970, contains the following:

Question: Do you know what the original color of the room was?

Macomber: No. But since most of the buildings of that period were either white or light gray, I used these colors.

Question: Was any of the original ironwork left?

Macomber: No. The ones installed are new but made from old designs used in the colonial period.

Question: Where did the old chandeliers you installed in the ceiling come from?

Macomber: They were discovered in storage. They are not colonial, but since they were probably used at some time I thought it appropriate to use them.

Question: Where did you get your ideas for the woodwork?

Macomber: I created it according to patterns used in colonial times. The benches were brought in after the Civil War and had come from the Payne [Jerusalem] Baptist Church. I thought it appropriate to use them.

[171] [Pg 106]Fairfax County Free Press, August 25, 1966; The basement measured 11 × 251/2 feet and was located across the midsection of the building. At the north end of the basement a stairway led to an outside entrance, and at the south end another stairway provided interior access. The basement was lined with 8-inch thick brick walls, and was divided into two rooms of approximately equal size connected by a doorway 21/2 feet wide.

[172] Prior to the reconstruction of the courthouse in 1967, the shutters at the windows on the first floor of the front of the building were louvred in the top half and solid panel in the lower half. In the reconstruction, these shutters were replaced using shutters with solid panels.

[Pg 107]

APPENDIX A

FAIRFAX COUNTY CLERKS OF THE COURT
1742–1976

Sources: Frederick Johnston, Memorials of Old Virginia Clerks; Fairfax County Court Order Books.

Catesby Cocke 1742–46
John Graham 1746–52
Peter Wagener 1752–72
Peter Wagener, Jr. 1772–98
George Deneale 1798–1801
William Moss 1801–33
F. D. Richardson, pro tem 1833–35
Thomas Moss 1835–39
Alfred Moss, pro tem Oct.-Nov., 1839
S. M. Ball 1839–52
Alfred Moss 1852–61
Henry T. Brooks (military) 1861–65
W. B. Gooding (military) 1865–66
William M. Fitzhugh (military) 1866–67
F. D. Richardson, pro tem 1866–69
D. F. Dulany (military) 1869–70
F. D. Richardson 1870–80
F. W. Richardson, pro tem 1880–81
F. W. Richardson 1881–87
W. E. Graham 1887–1903
F. W. Richardson 1904–35
John M. Whalen 1936–45
Thomas P. Chapman, Jr. 1945–67
W. Franklin Gooding 1967–75
James E. Hoofnagle 1976–

[Pg 108]

APPENDIX B

JUSTICES AND JUDGES OF THE FAIRFAX COUNTY, CIRCUIT AND DISTRICT COURTS
1742–1976

Lists Compiled By E. Sprouse, P. Howe, V. Peters, A. Lewis, and N. Netherton.

(Because of missing books and records, this listing is incomplete.)

First Commission for Fairfax County, 1742

(1742–1748 Fairfax County Court Order Books are missing.)

1749

1750

1752

1753

1754

1755

1757

1758

1759

1762

1764

1767

1768

1770

(1774–1782 Fairfax County Court Order Books are missing.)

1783

1784

1785

1786

1787

1788

(1793–1796 Fairfax County Court Order Books are missing.)

1797

1798

1801

1802

1803

1804

1807

1808

Acting in 1816–17

1819–1826

Acting in 1824

1831–1838

Acting between 1825–42

1839–52

1852–55

1858–60

1863–1867

1866

1867

1868

1869

1870

1870–1874

1874–1885

1886–1899

1897–1903

Virginia Circuit Court Judges

John M. Tyler, 1852–1860
No record of a court held, 1861–1863
Edward K. Snead, 1864–1865
Henry W. Thomas, 1866–1868
W. Willoughby, June 1869
Lysander Hill, November 1869
James Keith, 1870–1894
C. E. Nicol, 1895–1907
Louis C. Barely, 1907
J. B. T. Thornton, 1908–1918
Samuel G. Brent, 1918–1928
Howard W. Smith, 1928–1930
Walter T. McCarthy, 1931–1944
Paul E. Brown, 1944–1966
Arthur W. Sinclair, 1950–1977
Harry L. Carrico, 1956–1961
Calvin Van Dyck, 1961–1967
Albert V. Bryan, Jr., 1962–1971
Barnard F. Jennings, 1964–
James Keith, 1966–
William G. Plummer, 1967–
Lewis D. Morris, 1968–
Percy Thornton, Jr., 1968–1977
Burch Millsap, 1968–
James C. Cacheris, 1971–
[Pg 116]Thomas J. Middleton, 1975–
Richard J. Jamborsky, 1976–

County General District Court

Robert Fitzgerald, 1951–1955
John Corboy, 1954–1955
John A. Rothrock, Jr., 1955–
J. Mason Grove, 1955–
Martin E. Morris, 1965–
Donald C. Crounse, 1966–1974
Robert M. Hurst, 1972–
Lewis Hall Griffith, 1974–
G. William Hammer, 1976–

Juvenile Court Judges

Frank L. Deierhoi, 1965–
Richard J. Jamborsky, 1968–1976
Philip N. Brophy, 1973–
Arnold B. Kassabian, 1976–
Raymond O. Kellam, 1976–1977

[Pg 117]

APPENDIX C

PORTRAITS IN THE OLD COURTHOUSE

James Roberdeau Allison, (1864–1927), was born in Orange County, Virginia, grew up in Centreville and taught school in Fairfax and Loudoun counties. He served the county as deputy treasurer, deputy sheriff and then was elected sheriff in 1904. Consistently re-elected, he was sheriff until his death.

Paul E. Brown, (1904–1968), was born in Oklahoma, and moved to Fairfax County with his family in 1919. He served as commonwealth attorney for three terms and was appointed judge of the Fairfax County Circuit Court in 1944. He served as senior court judge from 1951 until his death.

Daniel McCarty Chichester, (1834–1897), was born in Fairfax County, served in the Confederate army and later taught school in Maryland and Tennessee. He practiced law and was for a short time superintendent of schools and a delegate to the state legislature. He was elected judge of Fairfax and Alexandria (Arlington) counties in 1886 and served until his death.

Bryan Fairfax, (1737–1802), was born in Westmoreland County, Virginia and grew up at Belvoir, in Fairfax County. He was a justice of the Fairfax County court and was ordained as an Episcopal minister, serving as rector of Fairfax Parish 1790–1792. He held the title of eighth Lord Fairfax, Baron of Cameron, from 1800 until his death.

Thomas, sixth Lord Fairfax, Baron of Cameron, (1693–1781) was born at Leeds Castle in Kent, England and immigrated to Fairfax County in 1747. In 1749, he was commissioned a justice of the peace in each county within the entire Northern Neck, of which he was proprietor. He was a trustee of the town of Alexandria and in 1754 became commandant of the frontier militia. He lived at Belvoir until 1761, when he moved to "Greenway Court," his estate in the Shenandoah Valley where he spent the remainder of his life.

[Pg 118]C. Vernon Ford, (1871–1922), was born in the town of Fairfax, and practiced law with his cousin, Joseph E. Willard. Ford was appointed commonwealth's attorney for Fairfax County in 1879 and, later elected, served in this capacity until his death.

William Edwin Graham, (1850–1916), was born in Fairfax County. He succeeded his father as clerk of the circuit court in 1887, serving until 1904, at which time he became deputy clerk under F. W. Richardson, serving in this position until his death.

George Johnston, (1700–1766), was a son of Dr. James Johnston, who settled in Maryland in the seventeenth century. He was a trustee of Alexandria and practiced law there and in Winchester. He represented Fairfax County in the House of Burgesses from 1758 until his death and was the author of certain resolutions presented by Patrick Henry in 1765, in opposition to the Stamp Act.

Walter Jones, (1776–1861), was born in Northumberland County, Virginia and practiced law in Fairfax and Loudoun counties. Appointed U. S. attorney for the District of Columbia, 1804–1821, he practiced law before the U. S. Supreme Court and in Virginia and Maryland. He was one of the founders of the American Colonization Society. At the time of his death, he was Major-General of the militia of the District of Columbia.

William Henry Fitzhugh Lee, (1837–1891), was born at "Arlington." He rose to the rank of Major-General of cavalry in the Confederate army. After the Civil War, he was elected a state senator and then a congressman. He died at "Ravensworth" in Fairfax County while serving his second term in congress.

George Mason, (1725–1792), the fourth of that name in the Virginia colony was born on Dogue's Neck, now Mason Neck, then in Stafford County, but now in Fairfax County. He was a justice of the county for most of his adult life, and a trustee of the town of Alexandria. He built his home, "Gunston Hall" in 1758. In 1774, he was the principal author of the Fairfax Resolves, and in 1776, the principal writer of the Virginia constitution and declaration of rights. The[Pg 119] first ten amendments of the constitution were added, in part, because of his insistence on the necessity for a federal bill of rights.

Robert Walton Moore, (1859–1941), was born in the town of Fairfax, and practiced law in the county. He served as a state senator and as a congressman. In 1933 he was appointed an assistant secretary of state, and in 1937, he became counselor of the Department of State. Throughout his adult life he was a member of numerous boards and commissions including the boards of visitors of the University of Virginia and the College of William and Mary.

Ferdinand Dawson Richardson, (—— –1880), entered the clerk's office in 1826 under William Moss, clerk, and served as an assistant clerk or deputy clerk until 1870, when he was appointed clerk of the court, which position he held until his death.

Frederick Wilmer Richardson, (1853–1936), was born in Fairfax, and was the son of F. D. Richardson. He was deputy clerk under his father for nine years, succeeding him in 1880. Elected to the new position of clerk of the Circuit Court in 1881, he served in that capacity until 1887, and again from 1904 to 1935.

Henry Wirt Thomas, (1812–1890), was born in Loudoun County, Virginia. He served as commonwealth's attorney in Fairfax and was elected to the state legislature for a number of terms between 1841 and 1875. Following the Civil War, he was appointed judge of the Ninth Circuit Court of Virginia and later appointed lieutenant governor to fill out an unexpired term.

John Webb Tyler, (1795–1862), served Fairfax County as a judge in the circuit court of Virginia from 1850–1861. The circuit included Fairfax, Prince William, Loudoun and Fauquier counties and the quarterly courts were held at the county seats, including Fairfax Court House.

[Pg 120]George Washington, (1732–1799), was born in Westmoreland County, Virginia, and moved to "Mount Vernon" in Fairfax County when he was sixteen. He became a surveyor, was elected a burgess, and appointed a justice of the Fairfax County court. During the American Revolution, he was appointed commander-in-chief of the armed forces of the united colonies. He was elected the first president of the United States of America under the new constitution in 1789, and again in 1793.

Joseph Edward Willard, (1865–1924), was born in Washington, D. C. He practiced law, and was lieutenant governor of Virginia, 1902–1906. President Woodrow Wilson appointed him minister to Spain in 1913; later he was elevated to ambassador to Spain. He owned the Willard Hotel in Washington, but lived part of his life in the town of Fairfax, at "Layton Hall."

[Pg 121]

APPENDIX D

CLERK'S OFFICE

Excerpt from the Alexandria Gazette and Virginia Advertiser July 15, 1853.

NOTICE TO BUILDERS—Sealed proposals will be received by the undersigned, Commissioners, until Saturday, the 16th day of July next, at 12 o'clock M, for taking down the present Clerk's office of the Circuit Court of Fairfax County, and rebuilding it on the same ground, with the materials and of the size and description, following, to wit: The foundation wall to be 2 feet below the surface, and 15 inches thick, of good stone, laid in mortar—the walls above the ground to be laid on the stone foundation, of brick, fourteen inches thick, and laid in good mortar,—the building to be 36 feet long by 24 feet wide including the walls, two stories high, and of the height of the present building, with a passage of entry 12 feet wide, adjoining the County Court office; the passage wall also resting on a stone foundation and running from bottom to top—doors at each end of the entry, and one door to each of the rooms—each room to have four windows, twenty lights and 8 × 10 glass. The outer doors and window frames to be of cast iron, with stone sills, and the doors and window shutters to be covered with sheet iron, so as to be fire proof. The joists to be 2 × 10 inches, 16 inches apart on the lowest floor, resting upon a girder 6 × 12 inches; on the upper, without a girder, but properly braced, and the flooring of the rooms to be of the best North Carolina boards, planed, tongued and grooved, and one and a quarter inches thick. The entry floor of best flagging brick, and the stairway of stone. The roofing to be of slate, of good quality, and the rafters to be substantially framed, and suitable for slate roof. To each of the rooms there is to be a fireplace. The woodwork is to be of the best material and workmanship, and corresponding with the other work. The house is to be guttered, and the iron, wood, and guttering to have two coats of paint on it. Each door to be provided with suitable locks, the house walls plastered, and the whole completed on or before the last day of January 1854, at which time the work if approved by the Commissioners, and also by the Court, will be paid for. The proposals will state what the entire work will be done for, including the furnishing of all materials and labor, and, also, including the taking down of the old building and the use of such of the old materials as can be used for rebuilding; also for what the work will be done without regard to the old building, either in taking down or the[Pg 122] use of old materials. Notice to the successful bidder will be given within five days after opening the bids, and bond with security required from the person to whom the contract may be awarded, but the Commissioners reserve the right to reject all. For further information, apply to either of the undersigned at Fairfax Court House.

NEWMAN BURKE )
GEO. W. HUNTER, JR. ) Comm'rs
ALFRED MOSS )

[Pg 123]

APPENDIX E

COURTHOUSE RESTORATION

SCHEDULE OF WORK TO BE PERFORMED
IN THE RECONSTRUCTION OF THE
FAIRFAX COUNTY COURTHOUSE, 1967

The following list comprises the schedule of work to be performed in the reconstruction of the Fairfax County Courthouse as set forth in the drawings prepared by Walter M. Macomber, architect for the project, in December 1965:

DEMOLITION—Remove main floor, subfloor and joists, taking care to leave two columns supporting balcony, and beams beneath floor untouched. Remove all material in such a manner as to be re-usable if suitable.

Remove all woodwork within building: wainscot, railings, bench, window & door casing, etc. Remove all frame partitions.

Remove cantilevered forward section of balcony back to existing beam, including stair.

Remove existing segmental-top two-storey windows at sides of building. Remove sash only from existing small windows, unless jambs are rotted or otherwise found unsuitable for re-use.

Carefully remove all finished flooring in balcony and porch chamber, taking care not to damage subfloor.

All heating pipes shall be removed and temporarily capped off below the first floor. All electrical wiring shall be removed and recapped below the first floor level except such as shall be needed for power tools, etc.

Contractor shall carefully remove all existing monuments and plaques within building, securely store them, and reset them upon completion at direction of architect.

MATERIALS—All new joists and studs shall be of construction grade fir, free of all parasites & decay, having a moisture content no greater than 18%.

All new subfloor to be 5/8" plyscord.

Apply sisalcraft paper between subfloor and finished floor.

[Pg 124]All flooring shall be 25/32" × 51/2" tongue and groove clear southern long leaf yellow pine, with relieved back & face edges slightly eased. The use of resawn used mill framing obtained from demolition companies is recommended in order to obtain straight grain. Architect must be submitted samples of flooring for his approval before use. No pieces shorter than eight feet will be used, except where necessary at juncture of floor & wall. All stair treads shall be of 1' 8" thick clear yellow pine, bull-nosed.

All interior woodwork to be of clear western white pine, S 4 S, of thickness as shown on plans.

Wainscot shall be of 3/4' thick by 35/8", 51/2" & 71/2" clear white pine, tongue & grooved, with a 1/4" bead on one face edge.

Doors, windows (sash & jamb) & balusters will be of clear western white pine. Front door jamb shall be of 15/8 th. clear yellow pine. Interior jambs of 11/8" th. Cl. yellow pine.

Pew material to be of 11/8" clear yellow pine, S 4 S.

Rails to be birch for staining.

Moisture content for all to be no greater than 12%.

FOUNDATION WORK—Point up all existing foundations, piers, footings, etc. in basement and crawl space.

Replace all supporting beams rotted or otherwise unsuitable for re-use.

Excavate existing crawl space to a minimum of three feet below joists, and cover with 21/2–3" thick broom finished concrete slab, on 4 mil polyethylene film.

Move existing basement stair to location on plan, and floor-over opening thus made to top of stairs.

MASONRY—Carefully remove several sample face bricks from existing sidewalls, clean all but weather-face, and submit to Locher Brick Co., Glasgow, Va. for duplication.

Remove segmental arches above two storey window openings, and extend window openings to same height as those of porch chamber windows. Using existing downstairs window sills, brick-in two rough openings required by new windows. Set steel lintels as called for on plan, and brick between vertical window openings. Take care that the new brickwork appears continuous with existing masonry & is properly toothed & bonded. Architect shall approve colour of mortar and duplicated brick before setting in place.

[Pg 125]Repoint or rebuild existing chimneys & fireplaces. Build new hearths of duplicated brick for downstairs fireplaces.

Repoint all existing brickwork, interior & exterior, as may be requisite.

WEATHERSTRIPPING—All double-hung windows shall be weatherstripped with "Chamberlain" No. 100-A Zinc Heavy-Duty, full-sash units, with protection at head, meeting rail & sill.

Front entrance door shall have spring bronze weatherstripping all around, except at sill which is to receive "Chamberlain" No. 869-A narrow brass threshhold with No. 826 bronze door hook.

INSULATION—Entire building to be covered with 4" thick batts of rock-wool or fibre-glass, combination aluminum foil insulation, applied immediately over lath between ceiling joists.

PAINTING & DECORATING—All woodwork, interior or exterior, shall be back primed with white lead before erection.

All exterior woodwork to receive two coats of white lead in oil. Remove loose or heavy accumulations of paint from existing woodwork before painting.

All interior woodwork to receive one coat of primer, one coat half primer & half enamel & finish coat of semi-gloss enamel.

Plaster surfaces, when thoroughly dry, shall be washed with zinc sulphate neutralizer. First paint coat shall be wall size and primer. Second coat two parts flat wall paint & one part size. Finish with egg-shell wall paint. Plaster cornice to receive first coat of size, second coat half size & half enamel. Finish coat semi-gloss enamel. Architect shall select all colours.

FLOOR FINISHING—Floors shall be lightly sanded to remove stains and imperfections & to reasonably level. Floors shall be stained, filled, shellaced and waxed. Colour of stain shall be selected by architect.

LATHING & PLASTERING—All interior surfaces of exterior masonry walls shall receive 3/8" gypsum lath securely nailed to 1" × 2" wood furring strips anchored to masonry. Coat masonry before furring with "Thoroseal" from Standard Dry Wall Products Co., New Eagle, Penna.

Entire ceiling to be lathed with high-rib metal lath securely nailed directly to ceiling joists. Stud partitions to receive 3/8" gypsum lath. Ceiling of porch to receive high-rib metal lath applied over existing wood ceiling. All inside corners to receive expanded metal cornerite. Outside corners to receive metal corner bead. Apply strips of metal lath 6" wide over openings in stud partitions.

[Pg 126]All plaster cornices shall be run in place and formed over heavy gauge metal lath, with moulding plaster. All surfaces to be plastered minimum 3/4" thick (including lath) in two coats; Brown & finish white. White coat to have smooth float sand finish.

GLAZING—All windows to be glazed with 9" × 103/4" welded glass edge or metal edged insulating glass one-half inch thick composed of two sheets of 1/8" double strength "A" window glass with one-quarter inch air space between. All glass to be set in frames with glaziers points. Back-bed w/thin coating of elastic glazing compound and putty-in smoothly.

SCREENING—All louvres in cupola to be back screened with fine mesh, copper screen wire.

FINISHED HARDWARE—All hinges, locks, latches, shutter hardware, etc. shall be selected by the architect. Allow $400.00 for finished hardware.

[Pg 127]

LIST OF SOURCES

BOOKS

Black, J. B. The Reign of Elizabeth, 1558–1603. Oxford: Oxford University, 1936.

Bruce, P. A. Institutional History of Virginia in the Seventeenth Century. New York: Putnam, 1910.

Catton, Bruce. A Stillness at Appomatox. New York: Cardinal Giant Edition, Pocket Books, Inc., 1958.

Clark, Sir Kenneth. Civilisation. New York: Harper & Row, 1969.

Cresswell, Nicholas. The Journals of Nicholas Cresswell, 1774–1777. Pt. Washington, N. Y.: Kennikat Press, 1968.

Davis, Jefferson. The Rise and Fall of the Confederate Government. New York: Yoseloff, 1958.

Fairfax County Board of Supervisors. Industrial and Historical Sketch of Fairfax County, Virginia. Fairfax: County Board of Supervisors, 1907.

Fairfax County Chamber of Commerce. Historic, Progressive Fairfax County in Old Virginia. Alexandria: Newell-Cole. 1928.

Fennelly, Catherine. The New England Village Scene: 1800. Sturbridge: Old Sturbridge Village, 1955.

Fleming, Walter L. The Sequel of Appomatox. New Haven: Yale University, 1921.

Fletcher, Sir Banister. A History of Architecture. New York: Scribners, 1961.

Freeman, Douglas S. George Washington: A Biography: Young Washington. New York: Scribner, 1948.

Hall, Wilmer, ed. Executive Journals of the Council of Colonial Virginia. Richmond: Virginia State Library, 1945.

Harrison, Fairfax. Landmarks of Old Prince William. Richmond: Old Dominion Press, 1924. Reprint Berryville, Va.: Chesapeake Book Co., 1964.

Hiden, Martha. How Justice Grew: Virginia Counties: An Abstract of Their Formation. Williamsburg: Virginia 350th Anniversary Celebration, 1957.

A Hornbook of Virginia History. Richmond: Virginia State Library. [1965].

Kuhlman, Charles. The Development of the Flour-Milling Industry in the United States. Boston: Houghton Mifflin, 1929.

Martin, Joseph. Gazetteer of Virginia and the District of Columbia. Charlottesville, 1835.

McDanel, Ralph. The Virginia Constitutional Convention of 1891–92. Baltimore: Johns Hopkins University Press, 1928.

McIlwaine, H. R., ed. Journals of the House of Burgesses, 1742–49. Richmond, 1909.

Minutes of the Vestry, Truro Parish, Virginia, 1732–1785. Lorton, Va.: Pohick Church, 1974.

Moore, Gay M. Seaport on the Potomac. Richmond: Garrett & Massie, 1949.

[Pg 128]Morison, Samuel E. and Commager, Henry S. The Growth of the American Republic. New York: Oxford, 1937.

O'Neal, William. Architecture in Virginia. New York: Walker, 1968.

Payne, Lloyd. The Miller in Eighteenth Century Virginia. Williamsburg: Colonial Williamsburg, 1963.

Porter, Albert O. County Government in Virginia. New York: Columbia University Press, 1947.

Powell, Mary G. The History of Old Alexandria, Virginia from July 13, 1749 to May 24, 1861. Richmond: William Byrd Press, 1928.

Programme of the Virginia Good Roads Convention. Roanoke: Stone Printing Co. [1894].

Prussing, Eugene E. The Estate of George Washington, Deceased. Boston: Little, Brown, and Co., 1927.

Rives, William C. History of the Life and Times of James Madison. Boston: Little, Brown, 1873.

Roman, Alfred. Military Operations of Gen. Beauregard. New York: Harper & Bros., 1884.

Rust, Jeanne. History of the Town of Fairfax. Washington: Moore & Moore, 1960.

Steadman, Melvin. Falls Church by Fence and Fireside. Falls Church, Va.: Falls Church Public Library, 1964.

Sydnor, Charles. American Revolutionaries in the Making. New York: Collier, 1962.

Wayland, John. History of Rockingham County, Virginia. Dayton, Va.: Ruebush-Elkins, 1912.

ARTICLES

Anderson, Robert. "The Administration of Justice in the Counties of Fairfax, and Alexandria and the City of Alexandria." Arlington Historical Magazine, II (1961): 1.

Andrews, Marshall. "A History of Railroads in Fairfax County." Yearbook of the Historical Society of Fairfax County," III (1954): 30–31.

Burke, Elizabeth. "Our Heritage: A History of Fairfax County." Yearbook of the Historical Society of Fairfax County. 1956–7.

Chapman, Thomas, Jr. "The Secession Election in Fairfax County, May 23, 1861." Yearbook of the Historical Society of Fairfax County, IV (1955): 50.

Hyman, Sidney. "Empire of Liberty." With Heritage So Rich. New York: Random House, 1966.

"Letters of George Mason to Zachariah Johnston." Tyler's Quarterly Review, V. (January 1924.)

"Martha Washington's Will and the Story of its Loss and Recovery by Fairfax County." Yearbook of the Historical Society of Fairfax County, Virginia, II (1952–53): 40–62.

Moore, William C. "Jeremiah Moore: 1746–1815." William and Mary Quarterly, 2d ser. XIII, 18, 21.

Smith, Governor William. "The Skirmish at Fairfax Court House." The Fairfax County Centennial Commission. Vienna, Virginia: 1961.

[Pg 129]University of Virginia Newsletter. Charlottesville: Institute of Government, University of Virginia. XLIII (July 15, 1967): 1.

Whiffen, Marcus. "The Early Courthouses of Virginia." Journal of the Society of Architectural Historians. XVIII (March 1959): 1.

PUBLIC RECORDS

Fairfax County Board of Supervisors Annual Report, 1969.

Fairfax County Board of Supervisors Minute Books

Fairfax County Court Minute Books

Fairfax County Deed Books

Fairfax County Record of Surveys, 1742–1850.

Northern Neck Grant Books

Virginia Laws

INTERVIEWS AND UNPUBLISHED WORKS

Architectural drawings, 1951–1956, Facilities Management Office, County of Fairfax.

Artemel, Janice, "James Wren, Gentleman Joiner," (unpublished manuscript) Falls Church, Va., 1976.

Chapman, Thomas. Fairfax County, Virginia. Interview, 13 February 1970.

Feiss, Carl. "Court Houses of Virginia," lecture. Latrobe (Washington) Chapter, Society of Architectural Historians, 8 November 1968.

Macomber, Walter. Fairfax, Virginia. Interview, 2 March 1970.

Moger, Allen W. "The Rebuilding of the Old Dominion," (unpublished doctoral dissertation) Columbia University, 1940.

Sprouse, Edith M., ed. Fairfax County Abstracts: Court Order Books 1749–1792.

NEWSPAPERS

Alexandria Gazette

Columbia Mirror & Alexandria Advertiser

Fairfax County Free Press

Fairfax Herald

Fairfax News

Northern Virginia Sun

Virginia Gazette

Washington Post

BOARD OF SUPERVISORS

HISTORY COMMISSION

ARCHITECTURAL REVIEW BOARD

OFFICE OF COMPREHENSIVE PLANNING

Back cover photo, court papers by Bernie Boston, 1976. Back cover photo, court papers by Bernie Boston, 1976.

TRANSCRIBER'S NOTE.

Copyright material in the original (the image on p. 76) has been omitted from this ebook.

No anchors for footnotes 54 and 163 are present in the text.

Discrepancies have been preserved between titles in the List Of Illustrations and the illustrations themselves.