The Project Gutenberg eBook of Transactions of the American Society of Civil Engineers, Vol. LXX, Dec. 1910

This eBook is for the use of anyone anywhere in the United States and most other parts of the world at no cost and with almost no restrictions whatsoever. You may copy it, give it away or re-use it under the terms of the Project Gutenberg License included with this eBook or online at www.gutenberg.org. If you are not located in the United States, you will have to check the laws of the country where you are located before using this eBook.

Title: Transactions of the American Society of Civil Engineers, Vol. LXX, Dec. 1910

Author: A. Kempkey


Release date: July 3, 2006 [eBook #18748]

Language: English

Other information and formats: www.gutenberg.org/ebooks/18748

Credits: Produced by Juliet Sutherland, Sigal Alon and the Online
Distributed Proofreading Team at http://www.pgdp.net

*** START OF THE PROJECT GUTENBERG EBOOK TRANSACTIONS OF THE AMERICAN SOCIETY OF CIVIL ENGINEERS, VOL. LXX, DEC. 1910 ***

[334]

AMERICAN SOCIETY OF CIVIL ENGINEERS

INSTITUTED 1852


TRANSACTIONS


Paper No. 1174

A CONCRETE WATER TOWER.[A]

By A. Kempkey, Jr., Jun. Am. Soc. C. E.[B]


With Discussion by Messrs. Maurice C. Couchot, L. J. Mensch, A. H. Markwart, and A. Kempkey, Jr.


The City of Victoria is situated on the southern end of Vancouver Island, in the Province of British Columbia, Canada, and is the capital of the Province.

In common with all cities of the extreme West, its growth has been very rapid within the last few years. The population of the city proper, together with that of the municipality of Oak Bay, immediately adjacent, is now about 35,000.

The Victoria water-works are owned by the city and operated under the direction of a Water Commissioner appointed by the City Council. By special agreement, water is supplied to Oak Bay in bulk, this municipality having its own distributing system.

The rapid increase in population, together with the fact that in recent years very little had been done toward increasing the water supply, resulted in the necessity for remodeling the entire system, and there are very few cities where this would involve as many complex problems or a greater variety of work.

Water is drawn from Elk Lake, situated about five miles north of the city; thence it flows by gravity to the pumping station about four miles distant, and from there is pumped directly to the consumers.

[335] The remodeling of the system, as recently completed, provided for:

1.—Increasing the capacity of Elk Lake by a system of levees.

2.—Increasing the capacity of the main to the pumping station by replacing about two miles of the old 16-in., wrought-iron, riveted pipe with 24-in. riveted steel pipe.

3.—Increasing the capacity of the pumping station by the installation of a 4,500,000-gal. pumping engine of the close-connected, cross-compound, Corliss, crank-and-fly-wheel type.

4.—The construction of a 20,000,000-gal. concrete-lined distributing reservoir in the city.

5.—The entire remodeling of the distributing system, necessitating the laying of about 1/2 mile each of 18-in. and 27-in. pipe, and about 1 mile of 24-in. riveted steel pipe; also about 3,000 tons of cast-iron pipe, varying in size from 4 to 12 in.

6.—The provision for a high-level service by means of an elevated tank of approximately 100,000 gal. capacity, water being supplied to the tank by two electrically-driven triplex pumps, each having a capacity of 100,000 gal. per 24 hours, against a dynamic head of 150 ft., and arranged to start and stop automatically with a variation of 3 ft. in the elevation of the water in the tank. These pumps are located about one mile from the tower, and are controlled by a float-operated auto-start, in the base of the tower.

A description of the elevated tank, which is novel in design, with the reasons for adopting the type of structure used, the method of construction, and the detailed cost, form the basis of this paper.

The tower is on the top of the highest hill in the city, in the heart of the most exclusive residential district, beautiful homes clustering about its base. The necessity for architectural treatment of the structure is thus seen to be of prime importance. In fact, the opposition of the local residents to the ordinary type of elevated tank, that is, latticed columns supporting a tank with a hemispherical bottom and a conical roof, rendered its use impossible, although tenders were invited on such a structure.

It is believed that under the conditions of location, three types of structure should be considered: First, an all-steel structure, the ornamentation being produced by casing in with brick or concrete; second, a brick-and-steel, or a concrete-and-steel, structure, such as the one actually erected; third, a typical reinforced concrete structure.

[336] Considering only that portion below the tank, the amount of material required to case in a structure of the first type would be substantially the same as that used to support the tank in a structure of the second type. Consequently, the steel substructure, for all practical purposes, would represent a dead loss, and, therefore, the economy of this type is open to serious question.

A tender was received for a reinforced concrete structure identical in outward appearance with the one built, but, owing to the natural conservatism of the local residents regarding this type of construction, it was not acceptable.

The tower, as built, consists of a hollow cylinder of plain concrete, 109 ft. high, and having an inside diameter of 22 ft. The walls are 10 in. thick for the first 70 ft. and 6 in. thick for the remaining 39 ft., and are ornamented with six pilasters (70 ft. high, 3 ft. wide, and 7 in. thick), a 4-ft. belt, then twelve pilasters (12 ft. high, 18 in. wide, and 7 in. thick), a cornice, and a parapet wall.

A steel tank of the ordinary type is embedded in the upper 40 ft. of this cylinder. To form the bottom of this tank, a plain concrete dome is thrown across the cylinder at a point about 70 ft. from the base, the thrust of this dome being taken up by two steel rings, 1/2 in. by 14 in. and 3/8 in. by 18 in., bedded into the walls of the tower, the latter ring being riveted to the lower course of the tank.

The tank is covered with a roof of reinforced concrete, 4 in. thick, conical in shape, and reinforced with 1/2-in. twisted steel bars. The design of the structure is clearly shown in Fig. 1.

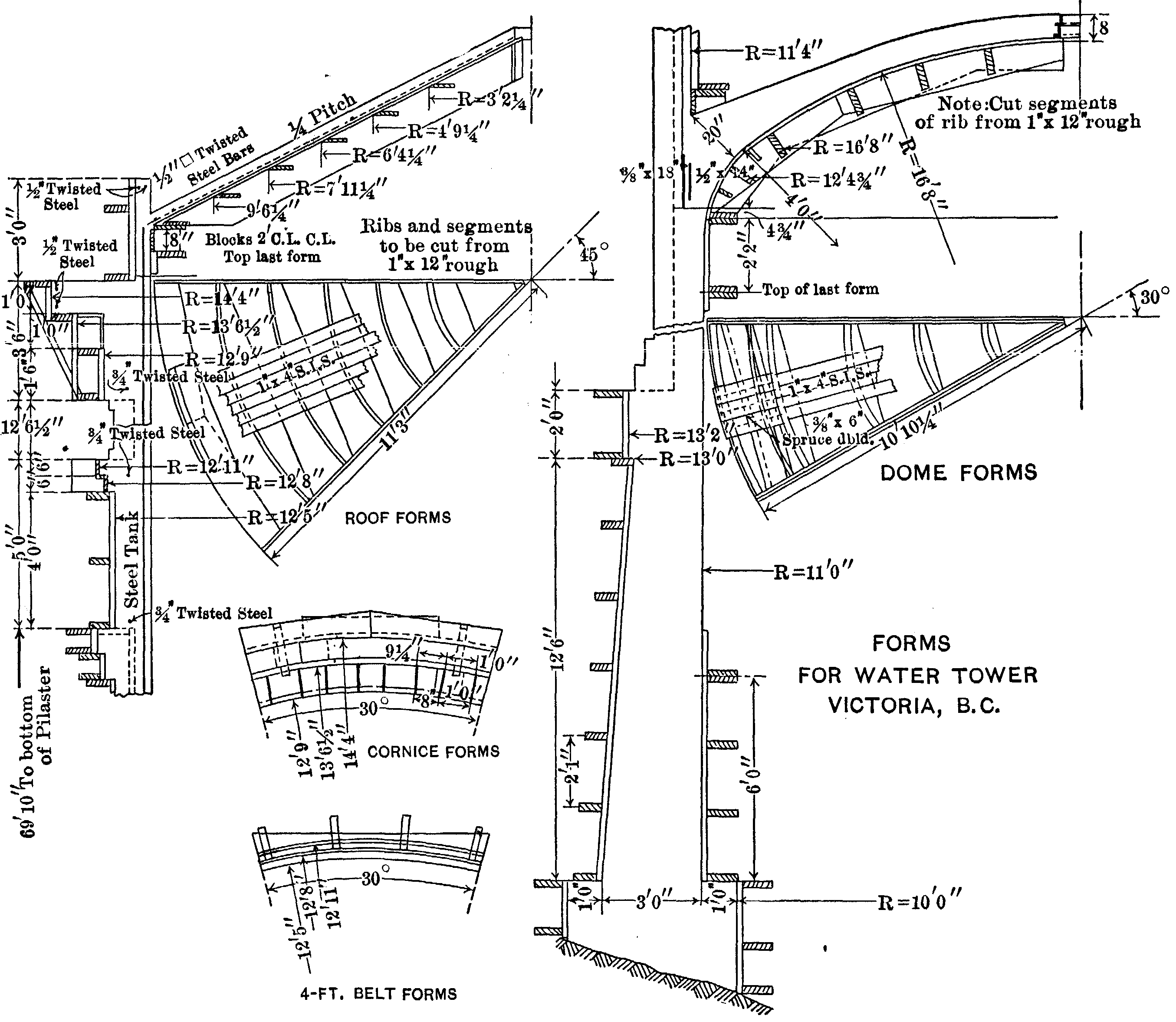
The tower is built on out-cropping, solid rock. This rock was roughly stepped, and a concrete sub-base built. This sub-base consists of a hollow ring, with an inside diameter of 20 ft., the walls being 5 ft. thick. It is about 2 ft. high on one side and 7 ft. high on the other, and forms a level base on which the tower is built. The forms for this sub-base consist of vertical lagging and circumferential ribs. The lagging is of double-dressed, 2 by 3-in. segments, and the ribs are of 2 by 12-in. segments, 6 ft. long, lapping past one another and securely spiked together to form complete or partial circles. These ribs are 2 ft. from center to center.

Fig. 1.—(Full page image) WATER TOWER VICTORIA, B.C. WATER-WORKS Fig. 1.—(Full page image)
WATER TOWER VICTORIA, B.C. WATER-WORKS

Similar construction was used to form the taper base of the tower proper, except, of course, that the radii of the segments forming the successive ribs decreased with the height of the rib. Tapered lagging[338] was used, being made by double dressing 2 by 6-in. pieces to 1-3/4 by 5-13/16 in., and ripping on a diagonal, thus making two staves, 3 in. wide at one end and 2-3/4 in. wide at the other. This tapered lagging was used again on the 4-ft. belt and cornice forms, the taper being turned alternately up and down.

Fig. 2.—FORMS FOR WATER TOWER VICTORIA, B.C. Fig. 2.—FORMS FOR WATER TOWER VICTORIA, B.C.

The interior diameter being uniform up to the bottom of the dome, collapsible forms were used from the beginning. These forms were constructed in six large sections, 6 ft. high, with one small key section with wedge piece to facilitate stripping, as shown in Fig. 2. There were three tiers of these, bolted end to end horizontally and to each other vertically.

Above the taper base and except in the 4-ft. belt and cornice, collapsible forms were used on the outside also. There were six sections extending from column to column and six column sections, all[339] bolted together circumferentially and constructed as shown in Fig. 2. Three tiers of these were also bolted together both vertically and horizontally.

Having filled the top tier, the mode of operation was as follows:

All horizontal bolts in the lower inside and outside forms were removed, as was also the small key section on the inside; this left each section suspended to the corresponding one immediately above it by the vertical bolts before mentioned. It is thus seen that in each case the center tier performed the double duty of holding the upper tier, which was full of green concrete, and the sections of the lower tier, until they were hoisted up and again placed in position to be filled.

These lower forms were then hoisted by hand—four-part tackles being used—and placed in position on the top forms, their bottom edges being carefully set flush with the top edge of the form already in position, and then bolted to it. On the outside, the column forms, and on the inside, the wedge and key sections were set last. A 3-lb. plumb-bob on a fine line was suspended from the inner scaffold and carefully centered over a point set in the rock at the base. This line was in the exact center of the tower, and the tops of all the forms, after each shift, were carefully set from it by measurement, thus keeping the structure plumb.

The first 23 in. of the barrel of the tower was moulded with special outside forms, constructed so as to form the bases of the large pilasters. After eleven applications of the 6-ft. forms, these 23-in. sections were reversed to form the capitals, thus making these pilasters, 69 ft. 10 in. over all.

The forms of the 4-ft. belt and beading were made in twelve sections of simple segments and vertical lagging, as shown in Fig. 2.

Two sets of the outside forms were split longitudinally, as shown in Fig. 2, and used to form the small pilasters. The first set was put in place, filled, and the concrete allowed to harden. The bolts were loosened and the forms raised 5-1/2 in. vertically, again bolted up, and the second set was placed in position, bringing the top of the second set up to the bottom of the cornice. The bases and capitals of the small pilasters were moulded on afterward.

The cornice forms are clearly shown in Fig. 2. The small boxes separating the dentils are made of light stuff, and tacked into the[340] cornice forms so that, in stripping, they would remain in place and could be taken out separately, in order to prevent breaking off the corners of the dentils. A number of outside and inside sections were sawed in half horizontally in order to provide forms for the parapet wall.

The inside diameter of the tank is 8 in. greater than the inside diameter of the base. Two sets of inside forms were split longitudinally and opened out, as shown in Fig. 2, and another small section was added to complete the circle. The remaining set was left in place to support the dome forms.

The dome forms were made in twelve sections, bolted together to facilitate stripping. All ribs and segments were cut to size on the ground, put together in place, and then covered with lagging and two-ply tar paper. The lagging on the lower sharp curve was formed of a double thickness of 3/8-in. spruce, the remainder being 1 by 4-in. pine, sized to a uniform thickness of 7/8 in. Fig. 3 shows the construction of these forms and the method of putting on the lagging.

The roof forms were made in eight sections and bolted together to facilitate stripping. All ribs and segments were cut to size on the ground, put together in place, and covered with 1 by 4-in. lagging, dressed to a uniform thickness of 7/8 in., and two-ply tar paper. Fig. 3 shows the construction of these forms. The segments being put in horizontally instead of square with the lagging, gave circles instead of parabolas, making them much easier to lay out, and giving a form which was amply stiff.

The question of using an inside scaffold only was carefully considered, but owing to the considerable amount of ornamentation on the outside, necessitating a large number of individual forms, it was not thought that any economy would result.

Fig. 4 and Figs. 1 and 2, Plate XXIII, show clearly the construction of the scaffolding.

Plate XXIII, Fig. 1.—Scaffolding for Water Tower. Plate XXIII, Fig. 1.—Scaffolding for Water Tower.
Plate XXIII, Fig. 2.—Completed Water Tower. Plate XXIII, Fig. 2.—Completed Water Tower.

All concrete was mixed wet, in a motor-driven, Smith mixer, and handled off the outside scaffold, being sent up in wheel-barrows on the ordinary contractor's hoist and placed in the forms through an iron chute having a hopper mouth. This chute was built in three sections bolted together, either one, two, or three sections being used, depending on the distance of the forms below the deck. When the top of the forms reached the elevation of any deck, the concrete was put[341] in through the chute from the deck above. The chute was light and easily shifted by the wheel-barrow men, assisted by the man placing the concrete, during the interval between successive wheel-barrows.

Fig. 3.—FORMS FOR WATER TOWER VICTORIA, B.C. Fig. 3.—FORMS FOR WATER TOWER VICTORIA, B.C.

The concrete, except that for the roof and parapet, was composed of sand and broken rock, the run of the crusher being used. That for the roof and parapet was composed of sand and gravel. The only reason for using gravel for the concrete of the roof was the ease with which it could be obtained in small quantities, the supply of broken rock having been used up, and this being the last concrete work to be done.

The concrete used was as follows: 1:3:6 for the sub-base and taper base; 1:3:5 for the barrel of the tower and tank casing; and 1:2:4 for the dome and roof. The dome was put in at one time, there being no joint, the same being true of the roof. Vancouver Portland cement,[342] manufactured on the island about 15 miles from the city, was used throughout the work.

Before filling, the inside of the tank was given a plaster coat, consisting of 1 part cement to 1-3/4 parts of fine sand. This proved to be insufficient to prevent leakage, the water seeping through the dome and appearing on the outside of the structure along the line of the bottom of the rings. Three more coats were then applied over the entire tank, and two additional ones over the dome and about 8 ft. up on the sides, and, except for one or two small spots which show just a sign of moisture, the tank is perfectly tight.

The barrel of the tower was carried up to a height of 66 ft. A special set of inside forms, about 2 ft. high, extending to the springing line of the dome, was then put in, and the dome forms were set up on it. The idea was that this 2-ft. form could be knocked out piece by piece and the weight of the dome form taken on wedges to the last 6-ft. form, these wedges being gradually slackened down in order to allow the dome form to settle clear of the dome. As a matter of fact, this was done, but the dome forms, being very tight, did not settle, and had to be pried off a section at a time. A similar method was used for slacking down the roof forms, with similar results.

After the dome forms had been put in, the concrete was carried up approximately to the elevation of the bottom of the rings. Small neat cement pads were then put in and accurately leveled, and on these the steel rings were placed, and the steel tank was erected.

In order to insure a perfectly round tank, each course was erected against wooden templates accurately centered and fastened to the inside scaffold. The tank is the ordinary type of light steel, the lower course being 3/16-in., the next, No. 8 B. w. gauge, the next, No. 10 B. w. gauge, and the remaining four, No. 12 B. w. gauge.

Work on the foundation was started on August 15th, 1908, and the tower was not completed until April 1st, 1909. Much time was lost waiting for the delivery of the steel, and also owing to a period of very cold weather which caused entire cessation of work for about one month.

The tower as completed presents a striking appearance. In order to obliterate rings due to the successive application of the forms and to cover the efflorescence so common to concrete structures, the outside was given two coats of neat cement wash applied with ordinary calcimining[344] brushes, and, up to the present time, this seems to have been very effective in accomplishing the desired result.

Fig. 4.—(Full page image) SCAFFOLD FOR WATER TOWER Fig. 4.—(Full page image)
SCAFFOLD FOR WATER TOWER

Irregularities due to forms are unnoticeable at a distance of 200 or 300 ft., and the grouting gave a very uniform color.

The application of two coats of cement wash cost, for labor, $97.68, and for material, $15.18, or $1.32 per 100 sq. ft., labor being at the rate of $2.25 per 8 hours and cement costing $2.53 per bbl. delivered on the work.

The tower was designed by Arthur L. Adams, M. Am. Soc. C. E., under whose direction the plans for all the work of remodeling the water-works system were prepared and executed. The forms, scaffolding, etc., were designed by the writer, who was also in immediate charge of the erection.

Tenders received for the construction of the tower covered an extremely wide range, and indicated at once the utter lack of knowledge on the part of the bidders of the cost of a structure of this kind. Inasmuch as none of them had had previous experience in this class of construction, the engineer deemed it the part of wisdom and economy to retain the construction under his immediate supervision, and, therefore, the work was done by days' labor.

Table 1 gives the cost of the structure. The total herein given will not coincide with the total cost as shown by the city's books, for the reason that various items not properly chargeable to the structure itself have been omitted, the principal ones of which are the cost of the site, the laying of about 600 ft. of sewer pipe to connect with the overflow, and considerable expense incident to the construction of a wagon road to the tower.

The rates of wages paid, all being on a basis of an 8-hour day, were as follows:

Common labor $2.25 and $2.50
Carpenter 4.00
Carpenter's helper 2.75
Boiler-maker 3.50
Holders on 2.50
Boiler-maker foreman 5.00
Plasterers 6.00
Plasterers' helpers 3.00

[345] The cost of material was as follows:

Cement, per barrel $2.53
Sand, per yard 1.47
Rock, per yard 0.80
Lumber, per 1,000 ft. b. m. 14.00 and 16.00

All these prices are for material delivered on the work.

An examination of the cost data, as given, will show that for the most part the unit costs are very high. This is due chiefly to the continued interruption of the work, during its later stages, owing to bad weather, particularly in the case of the erection of the steel tank. The material cost in this case was also exceedingly high.

In the case of the concreting, inability to purchase a hoist and motor and the high cost of renting the same, together with the delays mentioned, added greatly to the unit cost.

When it is considered that the cost of plastering covers that of four coats over the entire inside of the tank and three more over about one-third of it, it does not appear so high, especially in view of the high rate of wages paid.

The cost per yard for concrete alone was $25.126, and this is probably about 25% in excess of the cost of the same class of work executed under more favorable conditions as to location, weather conditions, etc.[346]

TABLE 1.—Cost of High-Level Tower, Victoria Water-Works. (412 cu. yd.)

  Total Cost. Unit Cost.
Rate per hour. Amount. Complete. Labor. Material.
Preliminary Work:          
Labor, Carpenter $0.50 $11.00      
Labor 0.344 64.94      
   " 0.281 249.67 $325.61 $0.790  
Material   133.62 133.62   $0.324
Forms:          
Buildings, shifting and stripping:          
Labor, Carpenter 0.50 1,832.99      
Labor 0.344 80.85      
   " 0.281 563.84 2,477.68 6.014  
Material:          
Lumber   583.49      
Hardware   325.51      
Miscellaneous   13.90 922.90   2.240
Scaffold:          
Erecting and tearing down:          
Labor, Carpenter 0.50 693.00      
Labor 0.344 350.59      
   " 0.281 117.27 1,160.86 2.818  
Material:          
Lumber   487.77      
Hardware   202.79 690.56   1.676
Concreting:          
Labor 0.50 142.00      
   " 0.344 11.00      
   " 0.281 947.81 1,100.81 2.672  
Material:          
Rock   317.30      
Sand   385.72      
Cement   1,581.97      
Motor and Hoist:          
Rental   406.56      
Power   83.53 2,735.08   6.638
Plastering (3,000 sq. ft.):          
Labor, Plasterers 0.75 116.50      
Labor 0.46-7/8 15.00      
   " 0.37-1/2 198.52      
   " 0.281 105.66 435.68 14.52 per sq. ft.  
Material:          
Sand   8.64      
Cement   66.10      
Alum and Potash   16.00 90.74 3.25 per sq. ft.  
Cement Wash (8,560 sq. ft.):          
Labor 0.48-3/4 50.00      
   " 0.281 47.68 97.68 1.14 per 100 sq ft.  
Material:          
Cement   15.18 15.18 0.18   "     "   "   "  
Windows, doors, and scuttle:          
Labor 0.50 49.00 49.00    
Material:          
1 door, 7 windows, etc.   47.26 47.26    
Equipment:          
40% of $461.46   184.58 184.58 0.448  
Superintendence     1,241.45 1.506 [347] 
Steel Tank:          
Labor, Carpenter $0.50 $124.24      
Helper 0.344 2.75      
Boiler-makers   382.57      
Holders on   147.33      
Labor   40.61      
Foreman 0.625 186.25 $883.75 $0.0441 per lb.  
Material:          
Tank, rivets, etc. (20,000 lb.)     1,740.69   $0.0875
Iron-work:          
Spiral stairway, inlet, and overflow pipes, ventilator, reinforcing steel, etc.:          
Labor, Machinists 0.50 89.50      
Helper 0.344 240.16      
Labor 0.281 100.79 430.45    
Material   1,814.71 1,814.71    
Total     $16,578.29    

[348]


DISCUSSION

Maurice C. Couchot, M. Am. Soc. C. E. (by letter).—It appears to the writer that in the design of this structure two features are open to criticism. The first is that such a high structure was built of plain concrete without any reinforcement. Even if the computation of stresses did not show the necessity for steel reinforcement, some should have been embedded in the work. As a matter of fact, the writer believes that, with the present knowledge of the benefit of reinforced concrete, a structure such as this should not be built without it. This applies mainly to the tower below the tank.

The second feature, which is still more important, refers to the insertion of a shell of smooth steel plate to take the stresses due to the hydrostatic pressure, and also to insure against leakage in the walls of the tank. The 6-in. shell of plain concrete outside the steel shell, and the 3-in. shell inside, do not work together, and are practically of no value as walls, but are simply outside and inside linings. Although the designer provided lugs to insure the adhesion of the concrete to the plate, such precaution, in the writer's opinion, will not prevent the separation of the concrete from the smooth steel plate, and, at some future time, the water will reach and corrode the steel. It would have been better to have reinforced the wall of the tank with rods, as is generally done. The full thickness would have been available, and less plastering would have been required. Furthermore, the adhesion of concrete to a smooth steel plate is of doubtful value, for, in reinforced concrete, it is not the adhesion which does the work, but the gripping of the steel by the concrete in the process of setting.

L. J. Mensch, M. Am. Soc. C. E. (by letter).—This water-tower is probably the sightliest structure of its kind in North America; still, it does not look like a water-tower, and, from an architectural point of view, the crown portion is faulty, because it makes the tank appear to be much less in depth than it really is.

The cost of this structure far exceeds that of similar tanks in the United States. The stand-pipe at Attleboro, 50 ft. in diameter and 100 ft. high, cost about $25,000. Several years ago the writer proposed to build an elevated tank, 60 ft. in diameter and 40 ft. deep, the bottom of which was to be 50 ft. above the ground, for $21,000.

Among other elevated tanks known to the writer is one having a capacity of 100,000 gal., the bottom being 60 ft. above the ground.[C] The total quantities of material required for this tank are given as 4,480 cu. ft. of concrete, 23,200 lb. of reinforcing steel, and 27,600 ft., b. m., of form lumber and staging. Calculating at the abnormally[349] high unit prices of 40 cents per cu. ft. for concrete, 4 cents per lb. for steel, and $50 per 1,000 ft., b. m., for lumber, the cost of the concrete would be $1,792, the steel, $928, and the form lumber and staging, $1,380. Adding to this the cost of a spiral staircase, at the high figure of $7 per linear foot in height, the total cost of this structure would be $4,598. The factor of safety used in this structure was four, but some engineers who are not familiar with concrete construction may require a higher factor. By doubling the quantities of concrete and steel, which would mean a tensile stress in the steel of only 8,000 lb. per sq. in., and a compressive stress in the concrete of only 225 lb. per sq. in., the cost of the tank would be only $7,318, as compared with the $16,578 mentioned in the paper. This enormous discrepancy between a good design and an amateur design, and between day-labor work and contract work should be a lesson which consulting engineers and managers of large corporations, who prefer their own designs and day-labor work, should take to heart.

A. H. Markwart, Assoc. M. Am. Soc. C. E. (by letter).—It is the writer's opinion that the steel tank enclosed within the concrete of the upper cylinder, to take up the hoop tension and presumably to provide a water-tight tower, will not fulfill this latter requirement. If a plastered surface on the dome-shaped bottom provided the necessary imperviousness, it would seem that plastered walls would have proved satisfactory.

Apparently, the sheet-metal tank is intended to exclude the possibility of exterior leakage, but it occurs to the writer that it will fail to be efficient in this particular, because, under pressure, the water will force itself under the steel tank and the dome thrust rings and out to the exterior of the tower just below the tank, thus showing that insurance against leakage is actually provided by the plastered interior surfaces and not by the sheet-metal tank, and, for this reason, ordinary deformed rod reinforcement, in the writer's opinion, would have proved cheaper and better, and more in line with other parts of the reinforcement.

Mr. Kempkey states:

"Before filling, the inside of the tank was given a plaster coat, consisting of 1 part cement to 1-3/4 parts of fine sand. This proved to be insufficient to prevent leakage, the water seeping through the dome and appearing on the outside of the structure along the line of the bottom of the rings. Three more coats were then applied over the entire tank, and two additional ones over the dome and about 8 ft. up on the sides, and, except for one or two small spots which show just a sign of moisture, the tank is perfectly tight."

This substantiates the writer's contention that water-tightness was actually obtained by a liberal use of cement plaster, which would also have been true had the reinforcement been rods.[350]

As a further comment, it might be stated that a water-tight concrete for the tank could have been obtained by adding from 8 to 10% of hydrated lime to the 1:2:4 mixture. This seems advisable in all cases where a water-tight concrete is necessary. The interior plastering could then have been done as a further precaution.

A. Kempkey, Jr., Jun. Am. Soc. C. E. (by letter).—Mr. Couchot's statement, that the 3-in. inside and outside sheets forming the tank casing do not act together, is quite true, and it was not expected that they would, other than to protect the steel and form an ornamental covering for it.

There is certainly adhesion between concrete and steel, even though the steel be in the form of a thin shell, and in a structure of this kind where the steel is designed, with a low unit stress, to take all the strain, and where the load is at all times quiescent, it is difficult to see how this bond can be destroyed; the writer feels no concern on this score.

Mr. Markwart's statement, that the steel tank enclosed within the concrete of the upper cylinder, presumably to provide a water-tight tower, will not fulfill this latter requirement, is not true, as shown by the statement in the paper that the only leakage which occurred was that which passed under the tank, the entire remaining portion being absolutely tight. The amount of leakage, while insignificant, was, until remedied, sufficient to spot the outside of the tower, making it unsightly; and this, in the writer's opinion, is just what would have happened had the tank been constructed in the ordinary manner, with deformed bars, except that it would have extended over more or less of the entire surface, instead of being localized, as was actually the case, and would have required more instead of less plastering. It is also doubtful whether the addition of hydrated lime would have produced a tight tank, in the sense that this structure was required to be tight.

In the paper the writer endeavored to bring out the fact that this is one of the few instances where the æsthetic design of a structure of this sort is of prime importance, and cost a secondary consideration. There is, therefore, no use in comparing its cost with that of a structure in no way its equal in this respect and the use of which would not have been permitted any more than the use of the ordinary type of steel structure, even though the estimated cost were 75% less.

Mr. Mensch has been pleased to term this design amateurish, presumably because of the conservative character of the stresses used and because of its cost; at the same time, he sets up the design to which he makes reference as a good one simply because of its cheapness. He will find the "enormous discrepancy," to which he calls attention, accounted for by the fact that the "good design" would not have been tolerated because of its appearance and because of the fact that[351] the excessively high unit stresses, of which Mr. Mensch is an exponent, did not commend themselves either to the designer, in common with most engineers, or to Victorian taste; while the design used has proven eminently satisfactory to a more than usually conservative and discriminating community.

Mr. Mensch's statement of unit costs, even though applied to a much plainer structure, is not calculated to inspire confidence in the soundness of his deductions in any one familiar with Victoria conditions.

FOOTNOTES:

[A] Presented at the meeting of March 16th, 1910.

[B] Now Assoc. M. Am. Soc. C. E.

[C] "The Reinforced Concrete Pocket Book," p. 124.