The Project Gutenberg eBook of Transactions of the American Society of Civil Engineers, Vol. LXVIII, Sept. 1910

This eBook is for the use of anyone anywhere in the United States and most other parts of the world at no cost and with almost no restrictions whatsoever. You may copy it, give it away or re-use it under the terms of the Project Gutenberg License included with this eBook or online at www.gutenberg.org. If you are not located in the United States, you will have to check the laws of the country where you are located before using this eBook.

Title: Transactions of the American Society of Civil Engineers, Vol. LXVIII, Sept. 1910

Author: E. B. Temple


Release date: March 18, 2006 [eBook #18012]

Language: English

Other information and formats: www.gutenberg.org/ebooks/18012

Credits: Produced by Juliet Sutherland, Sigal Alon and the Online
Distributed Proofreading Team at http://www.pgdp.net

*** START OF THE PROJECT GUTENBERG EBOOK TRANSACTIONS OF THE AMERICAN SOCIETY OF CIVIL ENGINEERS, VOL. LXVIII, SEPT. 1910 ***

[75]

AMERICAN SOCIETY OF CIVIL ENGINEERS

INSTITUTED 1852


TRANSACTIONS


Paper No. 1153


THE NEW YORK TUNNEL EXTENSION OF THE PENNSYLVANIA RAILROAD.

MEADOWS DIVISION AND HARRISON TRANSFER YARD.[A]

By E. B. Temple, M. Am. Soc. C. E.


The New York Tunnel Extension of the Pennsylvania Railroad diverges from the New York Division in the Town of Harrison, N. J., and, ascending on a 0.5% grade, crosses over the tracks of the New York Division and the main line of the Delaware, Lackawanna and Western Railroad. Thence it continues, with light undulating grades, across the Hackensack Meadows to a point just east of the Northern Railroad of New Jersey and the New York, Susquehanna and Western Railroad, where it descends to the tunnels under Bergen Hill and the North River. (Plate XVI.)

PLATE XVI.—Plan and Profile of the Pennsylvania Tunnel & Terminal R. R., from Harrison, N. J., to the Hudson River PLATE XVI.—Plan and Profile of the Pennsylvania Tunnel & Terminal R. R., from Harrison, N. J., to the Hudson River

That portion of the line lying west of the portals of the Bergen Hill Tunnels has been divided into two sections: First, the most westerly, known as the Harrison Transfer Station and Yard (Plate XVII), which is located on the southern side of the New York Division, Pennsylvania Railroad, and extends from the connection with the New York Division tracks at grade up to the point of crossing the same, where the Pennsylvania Tunnel and Terminal Railroad has its beginning; second, the Meadows Division of the Pennsylvania Tunnel and Terminal Railroad, which is a double-track railroad, 5.08 miles long, extending from a point just west of the bridge over the New York Division to a point 300 ft. west of the western portals of the Bergen Hill Tunnels.

[76]Harrison Transfer Station and Yard.—The necessities for the Harrison improvements are two-fold: First, as a place to change motive power from steam to electric, and vice versa; second, as a transfer for passengers from trains destined to the new Station at Seventh Avenue and 33d Street, New York City, to steam or rapid transit trains destined to the present Jersey City Station, or to the lower part of New York City via the Hudson and Manhattan Tunnels, and vice versa.

All steam trains from Philadelphia, the South, and the West, from New Jersey seashore resorts, and local trains on the New York Division bound for the new Pennsylvania Station, will change their motive power from steam to electric engines at the Harrison Transfer Station. Likewise, all trains from the Tunnel Line will change from electric to steam motive power there, and passengers coming from Jersey City and the southern section of New York City can take through trains at the Harrison Transfer platforms. It is estimated that the time required to make this change of motive power, or to transfer passengers, will not exceed 3-1/2 min.

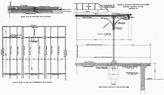
The plan at Harrison provides at present for two platforms, each 1,100 ft. long and 28 ft. wide, and having ample shelters and waiting rooms, connected by a 12-ft. tunnel under the tracks, provision being made for two additional platforms when necessity requires their construction. The platforms are supported on walls of reinforced concrete, with an overhang to provide a refuge for employees from passing trains. The concrete walls are supported on wooden piles, prevented from spreading by 7/8-in. tie-rods at 10-ft. intervals, and embedded in concrete under the paving of the platform. As the elevation of the top of the platform is +21.83, and the top of the piles is +14.54 above mean tide, the piles will, of course, decay; but, as the embankment has been completed for some time and is well packed and settled, the concrete being deposited directly on the embankment, very little trouble from settlement is anticipated when the piles decay. The surface of the platforms, with the exception of the edges, is to be of brick, on a concrete base; and, if settlement occurs, the bricks can be taken up and re-surfaced. The tops of the platforms are 3 ft. 10 in. above the top of the rail and on a level with the floors of the cars, so that passengers may enter or leave trains without using steps, as all cars which will enter the Pennsylvania Station, New York City, are to be [77]provided with vestibules having trap-doors in the floor to give access to either high or low platforms. Details of the platforms are shown on Plates XVIII and XIX.

As planned at present, there will be four main running tracks, one adjacent to each side of the two platforms, providing standing room for four of the longest trains, two in each direction, or double the number of trains of ordinary length, so that passengers having to transfer from a train destined to the Pennsylvania Station at 33d Street to a train destined for the Jersey City Station or the Hudson and Manhattan Tunnels will merely cross the platform. Between the two interior main tracks are two shifting tracks, so that between the platforms there will be two passenger tracks on which trains will stop to change motive power and transfer passengers, and two shifting tracks for rapid despatching of the empty engines and motors, each of the four tracks being 15 ft. from center to center to allow for uncoupling and inspection of cars.

An efficient system of connections and cross-overs is provided for all tracks, and there is ample storage capacity for 10 steam engines at the western end of the platforms and 20 electric motors at the eastern end, both of which are conveniently located for quick movement, with provision for additional storage tracks, if required. Steam engines, upon being disconnected, can be quickly sent to the main engine storage yard, and by the use of a loop track no turntable is required. The main engine storage yard is located south of the running tracks adjoining the bulkhead along the Passaic River, where provision is made for the storage of 20 engines. There are two 50,000-gal. water tanks, an ash-pit, inspection-pit, work-pit, sand-hopper, and the necessary buildings. Water is brought from the city water main in the Meadows Yard, on the New York Division, about 8,200 ft. eastward from the center of this yard.

It was at first planned to locate a power-house and car and engine repair shops in the yard, but as the ultimate extent of the electrification of the New York Division cannot now be determined, the facilities in the large power-house in Long Island City, and in the shop and round-house in the Meadows Yard of the New York Division, were increased to provide for the power and repairs necessary for the next few years. In order to reach the Meadows shops and round-house without interfering with the present passenger and freight tracks, it was necessary to build track connections with the Meadows Yard. Twelve [78] stalls of the existing round-house were extended to accommodate the motive power; a large transfer table and pit were increased in size, and an additional ash-pit and engine storage tracks were constructed.

Any extensive repairs to the electric engines will be made for the present in the Jamaica Shops, Long Island; and the large shops at Trenton, on the New York Division, as well as the Meadows Shops, will be available for repairs to the steam locomotives. There is ample room at Harrison, and plans have been prepared providing for storage and light repair of cars, locomotives, electric motors, and rapid transit trains, if the future demands require such construction at this place.

The rapid transit line will extend from Park Place, Newark, to Harrison, and thence over the present line of the Pennsylvania Railroad, which will be electrified, to a junction with the Hudson and Manhattan Railroad Company's tunnel tracks at Prior Street, Jersey City. It will be constructed and owned by the Pennsylvania Railroad Company. A joint and frequent through service will be conducted by both companies between Park Place, Newark, and the terminal of the Hudson and Manhattan Railroad, in New York City, by the use of multiple-unit trains similar to those now being operated in the Hudson and Manhattan tunnels. These trains will pick up and discharge Pennsylvania Railroad passengers at the Harrison Transfer Station, so that all passengers bound for lower New York City, who desire to use the tunnel service, will make the change at Harrison instead of at Jersey City as at present. Provision is made for two additional platforms, each 1,100 ft. long, to accommodate the rapid transit trains when the present platforms prove inadequate. The existing passenger tracks between the Harrison Transfer Yard and Summit Avenue, Jersey City, where a new local passenger station will be constructed, will be used jointly by steam and electric trains.

The embankment for the Harrison Yard was made, under contract dated July 21st, 1906, with Henry Steers, Incorporated, of New York City, of cellar earth from New York City, and with rock and earth excavated from the Pennsylvania Station and cross-town tunnels. It was necessary to construct 1,000 ft. of stone and crib bulkhead along the bank of the Passaic River. The plan of the yard was prepared by a committee of operating, electrical, and engineering officers, consisting of Mr. F. L. Sheppard, General Superintendent, New Jersey Division, Pennsylvania Railroad Company; George Gibbs, M. Am.[79] Soc. C. E., Chief Engineer, Electric Traction and Terminal Station Construction, Pennsylvania Tunnel and Terminal Railroad Company; Mr. J. A. McCrea, General Superintendent, Long Island Railroad Company; Mr. C. S. Krick, Superintendent, Pennsylvania Tunnel and Terminal Railroad Company; Mr. A. M. Parker, then Principal Assistant Engineer, New Jersey Division, Pennsylvania Railroad Company, now Superintendent, Hudson Division; and approved by Mr. A. C. Shand, Chief Engineer, Pennsylvania Railroad Company, and Chief Engineer, Meadows Division, Pennsylvania Tunnel and Terminal Railroad Company.

PLATE XVII.—Plan of Harrison Yard PLATE XVII.—Plan of Harrison Yard

Meadows Division, Pennsylvania Tunnel and Terminal Railroad.—The two main tracks ascending through the Harrison Yard continue on an embankment to a point 500 ft. west of the west abutment of the bridge over the New York Division tracks, which is the point of beginning of the Pennsylvania Tunnel and Terminal Railroad. From this point the line extends in a general northeasterly direction, crossing the Hackensack River, skirting the base of Snake Hill, and thence to the approach cut to Bergen Hill Tunnels. The embankment varies in height from 25 to 30 ft. above the surface of the meadows.

In this Division the following bridges were necessary:

Pennsylvania Railroad, New York Division, Passenger and Newark Freight Tracks;

Delaware, Lackawanna and Western Railroad, Morris and Essex Division;

Newark and Jersey City Turnpike;

Public Service Corporation Right of Way;

Erie Railroad, Newark and Paterson Branch;

Belleville Road, and Jersey City Water Company's Pipe Line;

Greenwood Lake Railroad (Erie Railroad), Arlington Branch;

Hackensack River;

Greenwood Lake Railroad (Erie Railroad), Reconstructed Line;

Delaware, Lackawanna and Western Railroad, Boonton Branch;

Erie Railroad, Passenger Tracks;

Bridge of 11 spans over proposed yard tracks, Erie Railroad;

County Road;

Secaucus Road;

New York, Susquehanna and Western Railroad;

Northern Railroad of New Jersey.

[80]

The alignment for this distance consists of 3.57 miles of tangent and three curves, two of which are 0° 30' each, one of the latter being at the western end of the Division, and the other adjoining Snake Hill; the third is a regular curve of 1° 54' on the east-bound track, and a compound curve with a maximum of 2° on the west-bound track, the variation being due to the track spacing of 37 ft. from center to center in the Bergen Hill Tunnels, while on the Meadows Division it is 13 ft. from center to center.

The profile was adopted to give 18 ft. of clearance from the under side of the bridges to the top of the rail of the Erie Railroad branches, 21 ft. to the top of the rail of its main line, 19 ft. to the top of the rail of the Delaware, Lackawanna and Western Railroad, and a clearance of 24 ft. above high water in the Hackensack River. With the exception of that portion of the line adjoining the Bergen Hill Tunnels, where it was necessary to continue the 1.3% grade up to the bridge over the Northern Railroad of New Jersey, and the east-bound ascending grade of 0.5% from the Harrison platforms to the bridge over the New York Division tracks, the grades do not exceed 0.3 per cent.

When the construction of the embankment was commenced, it was expected that there would be considerable trouble by settlement due to the displacement of the soft material underlying the surface of the meadows to a depth of from 10 to 15 ft.; but, with the exception of the trouble the contractors had in maintaining their temporary trestles, the embankment as completed has settled very little. The section east of the Hackensack River was made, in great part, of rock excavated from a borrow-pit in the Town of Secaucus, north of the eastern end of the Division. The embankment was built under two contracts, one for the work east of the crossing of the Boonton Branch of the Delaware, Lackawanna and Western Railroad, under contract dated January 15th, 1907, with H. S. Kerbaugh, Incorporated, the material being taken from the borrow-pit in narrow-gauge cars and dumped from a strong pile trestle along the total length of the section, the same being completed in 19 months; the other for the embankment west of the Boonton Branch, Delaware, Lackawanna and Western Railroad, under contract dated April 10th, 1906, with Henry Steers, Incorporated, of New York City, the material, consisting partly of cellar earth, and partly of rock and earth excavated from other sections[81] of the Pennsylvania Tunnel and Terminal Railroad, being brought on scows up the Hackensack and Passaic Rivers from New York City. The material was handled expeditiously from the scows by orange-peel buckets operated from the shore, deposited in standard-gauge dump-cars, and transported by locomotives at one time used on the elevated railroads in New York City. No excavation whatever was required on the Meadows Division or in the Harrison Yard.

PLATE XVIII.—Details of Shelters and Platforms, Harrison Transfer Station. PLATE XVIII.—Details of Shelters and Platforms, Harrison Transfer Station.
PLATE XIX.—Details of Shelters and Platforms, Harrison Transfer Station. PLATE XIX.—Details of Shelters and Platforms, Harrison Transfer Station.

The substructures for all the bridges, except the Hackensack River Draw-bridge, are of concrete, without reinforcement, heavy enough to withstand the ordinary earth pressure for the exposed height. With the exception of three bridges, foundations were built on clay and sand; these three, on account of excessive depth of soft material, were built on piles. In some cases loose stone was deposited back of the foundations for a width of 10 or 12 ft. after the mud had been removed. This precaution has prevented trouble due to the thrust of the high embankments on the saturated material. Masonry for all these bridges was constructed under contract dated August 21st, 1905, with McMullen and McDermott, of New York City. The superstructure consisted principally of half-through girders, floor of I-beams, filled solid with concrete, on top of which were placed five layers of Hydrex felt, and water-proofing compound, protected by a layer of sand and grouted brick from the stone ballast.

The bridges over the New York Division passenger and Newark freight tracks of the Pennsylvania Railroad, and the main-line tracks of the Delaware, Lackawanna and Western Railroad, at the west end of the Meadows Division, are separated by 300 ft. of embankment. The skew angle is 9°, the total length of each bridge being about 450 ft. The floors consist of I-beams embedded in concrete.

The Hackensack River Draw-bridge consists of six spans of deck plate girders, each 110 ft. long, and a draw-span 300 ft. long, operated by two 70-h.p. electric motors. The masonry was constructed under contract dated August 25th, 1905, with the Drake and Stratton Company, of Philadelphia; and the steelwork was furnished and erected by the Pennsylvania Steel Company, of Steelton, Pa. An important and interesting feature of the draw-bridge is the lift rail, and new rail-locking device. Mitered rails are used, with sufficient opening between the ends to prevent binding at times of expansion. It was deemed advisable that the mitered joint should occur on the abutment,[82] or fixed span, instead of at the opening at the end of the draw. The lift rail, therefore, was a necessity; and the design, as shown on Plate XX, was perfected. It consists of lift-rails, 8 ft. 4 in. long, moving vertically 8 in. at the free end, reinforced on both sides by sliding steel castings, which are lifted with the rail; when the latter is dropped in place, the wedges on the castings engage at the abutment and heel joints and at one intermediate point in dove-tailed wedge seats, insuring tight contact with the rail, and absolute fastening to the deck of the bridge. The objection to the ordinary lift-rail, which in lowering must make its own joint by seating in tight boxes, has been that any slight deviation from a true line would prevent the rail from seating itself properly. This objection has been entirely overcome in this design, by allowing liberal clearance on all seats, and securing rigidity by the sliding bars and wedges which are connected with the inter-locking system, so that it is impossible for a clear signal to be given unless the lift-rails and wedges are in their proper positions. This device has been operated successfully on the New York and Long Branch Railroad bridge over Raritan Bay for the last 18 months.

Each of the two main tracks on the Meadows Division, and all the main tracks in the Harrison Transfer Yard, are of standard construction, with Pennsylvania Section, 1909, 100-lb., open-hearth steel rails, and stone ballast. Every fifth tie is made 9 ft. 5 in. long, to carry the third rail for the electric current, and all joints of the running rails are bonded for the same purpose. Track-laying on the Meadows, and in Harrison Transfer Yard, has been done under contract dated April 26th, 1909, with Henry Steers, Incorporated, of New York City.

Samuel Rea, M. Am. Soc. C. E., Second Vice-President, Pennsylvania Railroad Company, is the executive officer under whose direction the work has been carried on. Mr. William H. Brown, Chief Engineer, Pennsylvania Railroad Company, and Chief Engineer of the Meadows Division, also a Member of the Board of Consulting Engineers for the tunnel extension, until his retirement by age limit on February 28th, 1906, located and started the construction of the line from Harrison to the western portals of the Bergen Hill Tunnels, which latter point was the westernmost limit of authority of the Board of Consulting Engineers. Mr. A. C. Shand succeeded Mr. Brown as Chief Engineer of the Pennsylvania Railroad Company, and as Chief[83] Engineer of the Meadows Division, with the writer, who was Assistant Chief Engineer of the Pennsylvania Railroad Company, and had been closely associated with Mr. Brown at the time of the location of the line and its earlier period of construction. H. E. Leonard, M. Am. Soc. C. E., Engineer of Bridges and Buildings, Pennsylvania Railroad Company, designed the Hackensack River Bridge, the superstructures of the other bridges, and the rail-locking device on the Hackensack River Draw-bridge. The surveys and construction of the Meadows Division and of the Harrison Transfer Yard have been in charge of Mr. William C. Bowles, Engineer of Construction.

PLATE XX, Fig. 1.—Lift Rail and Locking Device, Draw Partly Open. PLATE XX, Fig. 1.—Lift Rail and Locking Device, Draw Partly Open.
PLATE XX, Fig. 2.—Lift Rail and Locking Device, Draw Closed. PLATE XX, Fig. 2.—Lift Rail and Locking Device, Draw Closed.

FOOTNOTES:

[A] Presented at the meeting of June 1st, 1910.