The Project Gutenberg eBook of Transactions of the American Society of Civil Engineers, vol. LXX, Dec. 1910

This eBook is for the use of anyone anywhere in the United States and most other parts of the world at no cost and with almost no restrictions whatsoever. You may copy it, give it away or re-use it under the terms of the Project Gutenberg License included with this eBook or online at www.gutenberg.org. If you are not located in the United States, you will have to check the laws of the country where you are located before using this eBook.

Title: Transactions of the American Society of Civil Engineers, vol. LXX, Dec. 1910

Author: Eugene Klapp


Release date: February 16, 2006 [eBook #17777]

Language: English

Other information and formats: www.gutenberg.org/ebooks/17777

Credits: Produced by Juliet Sutherland, Sigal Alon and the Online
Distributed Proofreading Team at http://www.pgdp.net

*** START OF THE PROJECT GUTENBERG EBOOK TRANSACTIONS OF THE AMERICAN SOCIETY OF CIVIL ENGINEERS, VOL. LXX, DEC. 1910 ***

[448]

AMERICAN SOCIETY OF CIVIL ENGINEERS

INSTITUTED 1852


TRANSACTIONS


Paper No. 1176


REINFORCED CONCRETE PIER CONSTRUCTION.

By Eugene Klapp, M. Am. Soc. C.E.


With Discussion by Messrs. William Arthur Payne, and Eugene Klapp.


A private yacht pier, built near Glen Cove, Long Island, has brought out a few points which may be of interest. It is an example of a small engineering structure, which, though of no great moment in itself, illustrates the adoption of means to an end that may be capable of very great extension.

The problem, as submitted to the writer, was to construct a yacht landing at East Island, on the exposed south shore of Long Island Sound, in connection with the construction at that point of an elaborate country residence. The slope of the beach at this point is very gradual, and it was specified that there should be a depth of at least 4 ft. of water at low tide. Soundings indicated that this necessitated a pier 300 ft. long. It was further specified that the pier should be to some extent in keeping with the scale of the place being created there, and that a wooden pile structure would not be acceptable. Besides these esthetic conditions, wooden piles were rejected because the teredo, in this part of the Sound, is very active. At the same time, the owner did not care to incur the expense of a masonry pier of the size involved. Also, it was desired to unload on the pier all material for the house and grounds during construction, and coal and other supplies thereafter, thus necessitating a pier wide enough to allow access for a cart and horse and to provide room for turning at the pier head.

Plate XXX.—Yacht Pier Near Glen Cove, N. Y. Plate XXX.—Yacht Pier Near Glen Cove, N. Y.

[449]

Comparative designs and estimates were prepared for (a) a pier of ordinary construction, but with creosoted piles; (b) a concrete pier on concrete piles; and (c) for a series of concrete piers with wooden bridge connections. The latter plan was very much the best in appearance, and the calculated cost was less than that of the pier of concrete piles, and only slightly more than that of creosoted piles, the latter being only of a temporary nature in any case, as it has been found that the protection afforded by creosote against the teredo is not permanent.

At this point on the Sound the mean range of the tide is about 8 ft., and it was determined that at least 5 ft. above mean high water would be required to make the underside of the dock safe from wave action. There is a northeast exposure, with a long reach across the Sound, and the seas at times become quite heavy. These considerations, together with 4 ft. of water at low tide and from 2 to 3 ft. of toe-hold in the beach, required the outer caissons to be at least 20 ft. high.

To construct such piers in the ordinary manner behind coffer-dams, and in such an exposed location, was to involve expenditure far beyond that which the owner cared to incur. The writer's attention had shortly before been called to the successful use of reinforced concrete caissons on the Great Lakes for breakwater construction, by Major W.V. Judson, M. Am. Soc. C.E., and under patents held by that officer. It seemed that here was a solution of the problem. These caissons are constructed on the shore, preferably immediately adjoining the work. After thorough inspection and seasoning, they are usually launched in a manner somewhat similar to a boat, are towed into position, sunk in place, and then filled with rip-rap.

In this case what was needed was a structure that could be constructed safely and cheaply in the air, could then be allowed to harden thoroughly, and could finally be placed in accurate position. The weights to be supported were not great, the beach was good gravel and sand, fairly level, and, under favorable circumstances of good weather, the placing of the caissons promised to be a simple matter. Therefore, detailed plans were prepared for this structure.

An effort was made to preserve some element of the yachting idea in the design, and bow-string trusses, being merely enlarged gang planks, were used to connect the caissons.

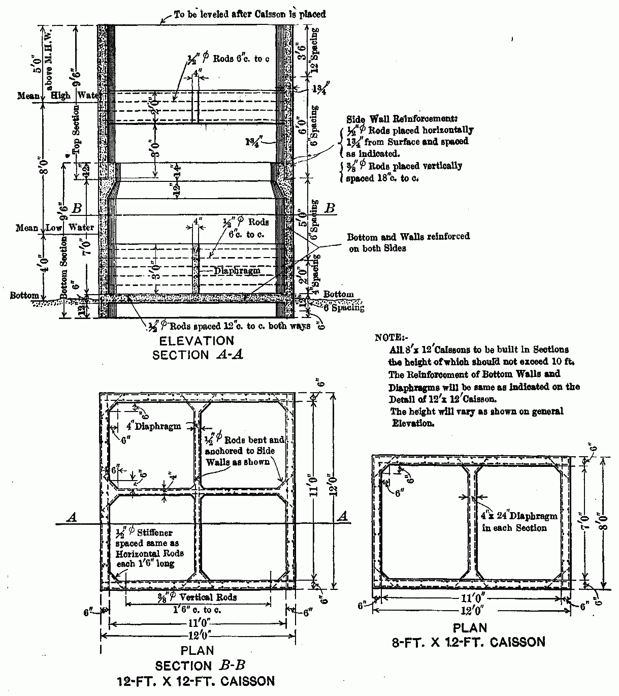
The pier was originally laid out as a letter "L," with a main leg[450] of 300 ft. and a short leg of 36 ft. The pier head consisted of eight caissons in close contact, and was intended to form a breakwater, in the angle of which, and protected from the wave action, was to be moored the float and boat landing. After the first bids were received, the owner wished to reduce the cost, and every other caisson in the pier head was omitted, so that, as built, the pier contains eight caissons and five 53-ft. trusses. The caissons supporting the trusses are 8 ft. wide and 12 ft. long, and those in the pier head are 12 by 12 ft. On account of the shoal water and the great height of the outer caissons in comparison with their cross-section, it seemed advisable to mould them in two sections. The reinforcement in the side walls consisted of round 1/2-in. rods horizontally, and 3/8-in. rods vertically, spaced as shown on Fig. 1, together with cross-diaphragms as indicated.

The caissons were reinforced for exterior pressures, which were to be expected during the launching and towing into position, and also for interior pressures, which were to be expected at low tide, when the water pressure would be nothing, but the filling of the caissons would be effective. The corners were reinforced and enlarged. In order to secure a proper bedding into the sand foundation, a 12-in. lip was allowed to project all around the caisson below the bottom. In the bottom there was cast a 3-in. hole, and this was closed by a plug while the lower section was being towed into place.

The question of the effect of sea water on the concrete was given much thought. The writer is unable to find any authoritative opinions on this subject which are not directly controverted by equally authoritative opinions of a diametrically opposite nature. He thinks it is a question that this Society might well undertake to investigate promptly and thoroughly. There can be no question that there are many distressing instances of failures due to the action of sea water and frost on concrete, and that many able and experienced engineers in charge of the engineering departments of the great transportation companies have simply crossed concrete off their list of available materials when it comes to marine construction. It is a subject too large in itself to be discussed as subsidiary to a minor structure like the one herein described, and though many have rejected concrete under these conditions, other engineers equally conservative are using it freely and without fear.[451]

The writer consulted with his partner and others at some length, and, considering all the advantages to accrue by the use of these concrete caissons, decided to do so after taking all known precautions.

Fig. 1. Fig. 1.

These precautions consisted in:

First, the use of cement in which the chemical constituents were limited as follows:

It was specified that the cement should not contain more than 1.75% of anhydrous sulphuric acid (SO3) nor more than 3% of magnesia (MgO); also that no addition greater than 3% should have been made to the ingredients making up the cement subsequent to calcination.[452]

Secondly, to secure by careful inspection the most completely homogeneous mixture possible, with especial care in the density of the outer skin of the caissons.

Thirdly, a prolonged seasoning process before the new concrete should be immersed in the sea water.

In addition to these well-known precautions, it was decided to try the addition to the cement of a chemical element that should make with the free lime in the cement a more stable and indissoluble chemical combination than is offered by the ordinary form of Portland cement. This was furnished by the patent compound known as "Toxement," which is claimed by the inventor to be a resinate of calcium and silicate of alumina, which generates a resinate of lime and a silicate of alumina in crystalline form. It is further claimed that each of these materials is insoluble in sodium chloride and sodium sulphate, 3% solution. It was used in all the caissons, excepting Nos. 1 and 2, in the proportions of 2 lb. of Toxement to each 100 lb. of cement. The first two caissons were not thus treated, and will be held under close observation and comparison with the others, which were treated with this compound.

The mixture used was one of cement (Pennsylvania brand), two of sand, and four of gravel. The sand and gravel were from the nearby Cow Bay supply, and screened and washed. None of the gravel was larger than 1/2 in., grading down from that to very coarse sand. The sand was also run-of-bank, and very well graded.

The caissons, after being placed, were filled with sand and gravel from the adjoining beach up to about mean high-water mark, and the edges outside all around were protected from tidal and wave scour by rip-rap of "one man" stone.

The trusses were constructed on a radius of 34 ft., with 8 by 8-in. chords, 6 by 6-in. posts, and 1-in. rods. The loading was figured as a loaded coal cart plus 100 lb. per ft. All lumber was clear yellow pine, except the floor, which was clear white oak. The pipe rail and all bolts below the roadway level, and thus subject to frequent wettings by salt water, were of galvanized iron. The trusses were set 9 ft. 9 in. apart on centers, giving a clear opening of 8 ft. between the wheel guards under the hand-rails. The fender piles were creosoted. The float was 18 ft. long and 12 ft. wide.

A contract was let to the Snare and Triest Company, and work[453] was commenced early in August, 1909. The first caisson was poured early in September, and the last about the beginning of October.

The caissons were all cast standing on parallel skids at about mean high water. It was first intended to construct a small marine railroad and launch the caissons in that manner, rolling them along the skids to the head of the marine railway. This plan was abandoned, however, and by sending in at high tide a powerful derrick scow, many of the caissons were lifted bodily from their position and set down in the water, towed to place and sunk in position, while the others, mostly the upper sections, were lifted to the deck of the scow and placed directly from there in their final position. There was not much difficulty in getting them to settle down to a proper bearing. Provision had been made for jetting, if necessary, but it was not used. In setting Caisson No. 2 a nest of boulders was encountered, and a diver was employed to clear away and level up the foundation. The spacing was accomplished by a float consisting of two 12 by 12-in. timbers, latticed apart, and of just sufficient length to cover the clear distance between the caissons. The first caissons being properly set inshore, the float was sent out, guyed back to the shore, and brought up against the outer edge of the set caisson. The next caisson was then towed out, set against the floating spacer, and sunk in position. There was some little trouble in plumbing the caissons, but, by excavating with an orange-peel bucket close to the high side and depositing the material against the low side, they were all readily brought to a sufficiently vertical and level position to be unnoticed by sighting along the edge from the shore.

The trusses were all constructed in the contractor's yard at Bridgeport, and were towed across the Sound on a scow. They were set up and braced temporarily by the derrick boat, and then the floor and deck were constructed in place.

On December 26th, 1909, a storm of unusual violence—unequaled in fact for many years—swept over the Sound from the northeast; the waves beat over the pier and broke loose some floor planks which had been only tacked in position, but otherwise did no damage, and did not shift the caissons in the least. The same storm partly destroyed a pier of substantial construction less than a mile from the one in question.

Unfortunately, the work was let so late in the summer, and the[454] restrictions as to seasoning the concrete were enforced so rigidly, that the work of setting the caissons could not be commenced until November 11th, thus the entire construction was forced into the very bad weather of the late fall and early winter. As this involved very rough water and much snow and wind, the work was greatly delayed, and was not completed until the middle of January. The cost of the entire dock was about $14,000.

The writer believes that the cost was much less than for masonry piers by any other method of construction, under the existing circumstances of wind, tide, and exposure.

It would seem that for many highway bridges of short span, causeways, and similar structures, the use of similar caissons would prove economical and permanent, and that they might be used very largely to the exclusion of cribwork, which, after a decade or so, becomes a source of constant maintenance charges, besides never presenting an attractive appearance. Finally, in bridges requiring the most rigid foundations, these caissons might readily be used as substitutes for open wooden caissons, sunk on a prepared foundation of whatever nature, and still be capable of incorporation into the finished structure.


[455]

DISCUSSION

William Arthur Payne, M. Am. Soc. C. E. (by letter).—On the arrival of the first barge load of brick, to be used in building a residence on the estate to which this pier belongs, a severe northwest wind blew for two days, after the boat was moored alongside, directly against the head of the pier and the side of the boat. The effect on the pier was to crush the fender piles and cause a settlement of one of the caissons at the pier head on the west end. The caisson was knocked slightly out of alignment, and a settlement toward the west was observable.

The writer believes that this was caused by the pounding of the brick barge on the sand bottom on which the caissons rest, during half tide, the boat being raised from the bottom on a roller, and striking when the roller had passed. In order to protect the pier and avoid the bumping of barges against it, three groups of piles were driven about 8 ft. beyond the end, a secondary platform was built between these and the stringer of the pier, and arranged so that it would slide on the stringer in case of movement of the piles. This secondary platform is particularly advantageous in the handling of material, as the height of the dock was found to be excessive for passing up brick and cement. For handling material after it is deposited on the dock, an industrial railroad has been built. At the shore end of this railroad, brick and cement are dumped into wagons, in which they are carried up the hill to the house.

Eugene Klapp, M. Am. Soc. C. E. (by letter).—The injury done to the piers, as reported by Mr. Payne, is not to be wondered at. The pier was primarily built for a yacht landing, and, on account of the shoal water conditions, excepting at extreme high tide, it was mostly to be used by tenders and launches from larger yachts. It was thought that at high water the large steam yachts might be able to come alongside.

Provision was not made for tying up to the dock a heavily loaded brick scow and allowing it to remain there through rough weather.

The building of the secondary fender piles, during the temporary use of the dock for unloading building material, will doubtless prevent further damage.